//
|
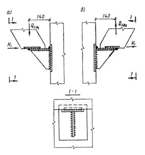
|
МОСКВА СТРОЙИЗДАТ 1979
В Руководстве даны рекомендации по расчету и конструированию каркасов зданий с безбалочными перекрытиями. Предназначено для инженерно технических работников проектных организаций, научных работников и студентов строительных вузов.
Настоящее Руководство содержит рекомендации по области применения конструкций с безбалочными перекрытиями в производственных зданиях, типам и параметрам конструкций, а также основные положения по расчету и конструированию; в Руководстве особое внимание уделено сборным конструкциям как наиболее распространенным в строительстве. При составлении Руководства учтен опыт проектирования и строительства производственных зданий, а также результаты экспериментальных исследований безбалочных конструкций. Руководство не распространяется на конструкции зданий, возводимых на просадочных грунтах и горных выработках, в районах с сейсмичностью свыше 6 баллов и в районах Крайнего Севера, а также на конструкции зданий, возводимых методом подъема перекрытий. Руководство разработано Центральной лабораторией теории железобетона НИИЖБа (доктора техн. наук, проф. А. А. Гвоздев и С. М. Крылов, канд. техн. наук Л. Н. Зайцев) и отделом железобетонных конструкций ЦНИИПромздаиий (кандидаты техн. наук М. Г. Костюковский и А. Н. Королев, инж. Т. В. Мурашова) при участии лаборатории железобетонных конструкций Уральского Промстройниипроекта (кандидаты техн. наук А. Я. Эпп, В. В. Чижевский). Замечания просьба направлять по адресу: 109389, Москва, Ж-389, 2-я Институтская ул., д. 6, НИИЖБ и 127238, Москва, И-238, Дмитровское шоссе, д. 46, ЦНИИПромзданий. 1. ОБЩИЕ ПОЛОЖЕНИЯ1.1. Настоящее Руководство распространяется на проектирование каркасов зданий с безбалочными конструкциями в виде плоских железобетонных перекрытий, образованных гладкими плитами, которые жестко сопрягаются с поддерживающими их колоннами посредством местных утолщений - капителей. Рассматриваются конструкции зданий с
квадратной и прямоугольной сетками колони при отношении большего пролета к
меньшему до 3/2 1.2. Целесообразность применения безбалочных конструкций в каждом конкретном случае устанавливается на основании технико-экономического анализа с учетом условий эксплуатации конструкций, а в зданиях с сетками колонн более 6´6 м и с учетом повышения эффективности использования производственных площадей. Применение безбалочных конструкций по п. 1.1. целесообразно: при строительстве зданий, в которых по условиям размещаемых производств, эксплуатационным и другим требованиям необходимы гладкие потолки и беспустотные перекрытия, например в производственных зданиях мясокомбинатов, молокозаводов, рыбоперерабатывающих заводов, и холодильниках и т. п.; в многоэтажных зданиях с сеткой колонн 6´6 м и большими (³ 1000 кгс/м2) временными нагрузками на перекрытиях. Безбалочные конструкции предпочтительны также в зданиях с агрессивными средами. 1.3. Рекомендуется применять, преимущественно типовые или одобренные Госстроем СССР для применения в строительстве сборные безбалочные конструкции заводского изготовления. При соответствующем обосновании могут применяться монолитные безбалочные конструкции. 1.4. По наружному контуру безбалочные перекрытия могут: свободно выступать за крайний ряд колонн в виде консолей; иметь сопряжения с колоннами крайнего ряда при помощи полукапителей; сопрягаться с окаймляющей балкой, поддерживаемой крайним рядом колонн; опираться на стены. 1.5. Назначение капителей: обеспечить необходимую жесткость, сопряжений перекрытий с колоннами в системе каркаса здания; увеличить прочность плиты перекрытия на излом; обеспечить плиту от продавливания в месте ее опирания на колонны; увеличить жесткость перекрытия. Рекомендуется применять, преимущественно капитель типа 1 (рис. 1). Могут также применяться капители типов 2 и 3 (рис. 2 и 3), а также другие типы капителей, если это технически и экономически целесообразно. При применении квадратных или прямоугольных в плане капителей указанных типов рекомендуется принимать: для капители типа 1
для капители типа 2 величину отношений для капители типа 3 отношения Очертания капителей сборных конструкций допускается принимать близко описанными у очертаний рекомендуемых капителей. Размеры капителей всех типов в каждом конкретном случае следует назначать на основании расчетов. 1.6. Плиты перекрытий рекомендуется проектировать единой толщины в пределах температурного блока каркаса здания. Толщину плит из тяжелого бетона с обычным армированием рекомендуется принимать не менее 1/35 большего пролета но осям колонн для перекрытий с капителями типа 2 и не менее 1/40 большего пролета для перекрытий с капителями типа 1 и 3.
1.7. Колонны, поддерживающие безбалочные перекрытия, следует предусматривать, как правило, сплошного квадратного сечения. Могут также применяться колонны прямоугольного и круглого сечений, а при специальном обосновании - и кольцевого сечения (например изготавливаемые методом центрифугирования).
Рис. 4. Схемы разрезки безбалочных перекрытий на сборные элементы: 1 - колонны; 2 - капители; 3 и 3¢ - межколонные (надколонные) плиты; 4 - пролетные плиты 1.8. Сборные безбалочные конструкции образуются из плит, капителей и колонн. Плиты подразделяются на межколонные (надколонные) и пролетные. Межколонные плиты опираются па капители и поддерживают пролетные плиты. Примеры рекомендуемых схем разрезки перекрытий на сборные элементы приведены на рис. 4. Межколонные и пролетные плиты следует предусматривать, как правило, единой толщины. Может допускаться разная толщина межколонных и пролетных плит с превышением большей толщины над меньшей на 2 - 4 см. Габаритные размеры сборных элементов должны отвечать условиям заводского изготовления на серийном оборудовании и транспортировки элементов. В связи с этим меньший размер элементов в плане следует принимать не более 3 м. В отдельных случаях при соответствующем обосновании эти размеры могут быть увеличены, но не более чем на 100 мм. Кроме того, ширину основных элементов перекрытий рекомендуется назначать, как правило, не менее 2400 мм. Доборные элементы могут быть меньшей ширины. Высота капители принимается не более 600 мм. Колонны рекомендуются многоэтажной разрезки, т. е. длиной на несколько этажей. 1.9. При проектировании сборных железобетонных безбалочных конструкций рекомендуется предусматривать возможность монтажа каркаса здания на несколько этажей без замоноличивания сопряжений. 1.10. При устройстве в перекрытиях отверстий или проемов для пропуска инженерных коммуникаций, шахт лифтов, лестничных клеток и т.п. их следует размещать в пределах плитной части перекрытия. Устройство отверстий в пределах капителей, как правило, не рекомендуется. При необходимости в пределах капители допускается устраивать отверстия диаметром не более 200 мм. Между капителями, в надколонной полосе монолитного безбалочного перекрытия отверстия рекомендуется размещать так, чтобы они занимали не более 0,5 ширины этой полосы, т. е. не более 0,5 ширины капители. В сборных безбалочных перекрытиях целесообразно предусматривать специальные плиты с отверстиями, а в местах образования проемов плиты не устанавливать. В перекрытиях, в зонах, примыкающих к проемам, могут использоваться доборные плиты и капители, а в случае крайней необходимости и полукапители. В отдельных случаях при образовании отверстий допускается устраивать монолитные участки перекрытии. Наличие отверстий и проемов в перекрытиях должно учитываться расчетом. 2. ОСНОВНЫЕ РАСЧЕТНЫЕ ПОЛОЖЕНИЯ2.1. Расчет безбалочных конструкций должен производиться в соответствии с требованиями действующих СНиП, Инструкций Указаний, Руководств и с учетом рекомендаций, изложенных в настоящем Руководстве. 2.2. Конструкция рассматривается как система рам с жесткими узлами, расположенных в двух взаимно перпендикулярных направлениях. В монолитной конструкции каждая рама образуется колоннами и полосой перекрытия, равной по ширине расстоянию между серединами двух пролетов, прилегающих к соответствующему ряду колонн. В сборной конструкции рамы образуются колоннами, капителями и межколонными плитами. При обеспечении сопряжениями совместной работы межколонных и пролетных плит, т. е. когда обеспечивается равенство деформаций элементов вдоль сопряжения, пролетные плиты могут частично учитываться в работе ригелей рам каркаса. При этом в работе ригеля учитываются участки пролетных плит шириной 0,5а - 0,50ар (рис. 11) и не превышающей двух толщин пролетных плит. 2.3. Безбалочную конструкцию рекомендуется рассчитывать на нагрузки, равномерно распределенные по всему перекрытию или его части. Нагрузки, действующие на перекрытия, могут быть приближенно приведены к эквивалентным равномерно распределенным нагрузкам по изгибающим моментам, поперечным силам или деформациям в зависимости от предельных состояний, по которым производится расчет. При расчете отдельных частей конструкции (например, на продавливание и т. п.) необходимо учитывать действительный характер нагрузки. Поскольку каркас состоит из продольных и поперечных рам, вертикальные нагрузки на ригели принимаются по закону равнобедренного треугольника с максимальной ординатой в середине пролета (квадратная сетка колонн каркаса), или трапеции и треугольника (прямоугольная сетка колонн каркаса). При определении усилий, действующих на элементы перекрытия, учитываются невыгоднейшие комбинации загружения рам. При определении усилий, действующих на колонны каркаса, также учитываются невыгоднейшие комбинации загружения рам, но при отсутствии временной нагрузки или сплошном загружении временной нагрузкой перекрытия и пределах квадрата (прямоугольника), ограниченного линиями сетки колонн каркаса (рис. 5). При (определении усилий, действующих в конструкции, кроме вертикальных нагрузок учитываются и горизонтальные нагрузки. 2.4. Сборная конструкция рассчитывается на восприятия полной нагрузки и эксплуатационной стадии при сваренных закладных деталях в сопряжениях элементов и достижении проектной прочности бетоном замоноличивания. Расчет на нагрузки, действующие в процессе монтажа конструкций, производится при сопряжениях элементов, выполненных только на сварке, без замоноличивания. При этом устанавливается число этажей, при котором допускается возведение каркаса с незамоноличенными сопряжениями элементов. 2.5. Перераспределение усилий в рамах при статическом расчете каркаса выполняется в соответствии с «Руководством по расчету статически неопределимых железобетонных конструкций» (НИИЖБ, Москва, Стройиздат, 1975 г.). Статический расчет рам производится с учетом переменных жесткостей по длине элементов. Кроме того, при расчете сборных конструкций на монтажные нагрузки жесткость ригелей на ширине незамоноличенного сопряжения межколонной плиты с капителью и в зонах, непосредственно примыкающих к этому сопряжению с двух сторон (ширина и плане каждой зоны задается равной толщине плиты), принимается только по стальным накладкам (стержням) и сварным швам; жесткость незамоноличенного сопряжения капители с колонной принимается по ослабленному отверстием сечению капители плюс жесткость, создаваемая сварными швами в этом сечении. Данные рекомендации следует уточнять в зависимости от конкретно принятых сопряжений. 2.6. Прогибы перекрытий с плоским потолком не должны превышать величин, указанных в п. 2 табл. 2 СНиП II-21-75. В монолитной конструкции за пролет l принимается расстояние между осями колонн; максимальный прогиб панели принимается равным разности перемещений в ее центре и центре надколонной полосы. D сборной конструкции за пролет l принимается: для ригелей рам - расстояние между осями колонy; для квадратных в плане пролетных плит - размер диагонали плиты; для прямоугольных в плане пролетных плит с отношением сторон более 1,5 : 1 - размер большей стороны плиты.
Рис. 5. Возможные схемы загружения перекрытий а и б - сборных; в и г - монолитных 2.7. Горизонтальные смещения каркаса здания в продольном и поперечном направлениях в уровне покрытия не должны превышать:
2.8. Предельно допустимая ширина раскрытия трещин в железобетонных безбалочных конструкциях, эксплуатируемых в условиях неагрессивной среды, принимается по главе СНиП II-21-75. 2.9. При проектировании безбалочных конструкций, предназначенных для эксплуатации в агрессивных средах, необходимо учитывать требования СНиП II-28-73. 2.10. Температурно-усадочные швы рекомендуется устраивать путем расположения в месте шва двойных колонн. Расстояние между швами, измеряемое между осями колонн крайних рядов температурного блока каркаса здания, т. е. без учета выступающих консолей перекрытий, следует назначать в соответствии с требованиями действующих СНиП и Руководства на проектирование бетонных и железобетонных конструкций. 2.11. Конструкции рассчитываются на прочность, деформативность и раскрытие трещин при действии статических нагрузок. Динамические расчеты и расчет на выносливость, когда они необходимы, выполняются согласно специальным указаниям. Расчет конструкций по прочности2.12. Прочность (несущая способность) элементов каркаса определяется на основе расчета рам с учетом перераспределения усилий. Кроме того, расчет прочности плит и капителей должен предусматривать: расчет на продавливание; расчет на излом полосы панелей вдоль или поперек перекрытия (рис. 6), где панель - участок перекрытия, ограниченный линиями сетки колонн каркаса; расчет на одновременный излом смежных панелей разных рядов (рис. 7). Расчет на излом отдельной панели не требуется. Расчет на излом отдельной поперечной или продольной полосы панелей перекрытия является во всех случаях обязательным и выполняется в соответствии с указаниями «Руководства по расчету статически неопределимых железобетонных конструкций». Расчет прочности сборного безбалочного перекрытия в целом на полосовое разрушение обусловливается возможностью одновременного разрушения межколонных (надколонных) и пролетных плит. При этом расчете рекомендации п. 4.11 указанного выше Руководства в части коэффициентов распределения арматуры допускается не учитывать. При расчете перекрытия на одновременный излом смежных панелей разных рядов рекомендуется учитывать влияние распора, создаваемого колоннами (см. п. 4.10 указанного Руководства). Влияние распора допускается учитывать путем уменьшения сечения рабочей арматуры против величин, полученных из расчета без распора, на 10 %, если между рассчитываемой панелью и краем перекрытия имеются два ряда колонн или более; на 5 % - если между рассчитываемой панелью и краем перекрытия имеется один ряд колонн. Для консольных свесов плит, а также для панелей, свободно опертых на стены, влияние распора не учитывается. 2.13. В сборном перекрытии пролетные плиты рассматриваются как опертые на деформируемый контур, которым являются межколонные плиты. Работая в системе безбалочного перекрытия, пролетные плиты находятся в весьма сложном напряженном состоянии (они испытывают влияние распора, частичного закрепления на контуре, деформативности контура и т. д.). Для упрощения расчета по прочности рабочую арматуру пролетной плиты допускается принимать из расчета ее как опертой на жесткий контур в соответствие с «Руководством по расчету статически неопределимых железобетонных конструкций», но без учета закрепления на контуре и без учета сил распора. Площадь сечения рабочей арматуры в каждом направлении рекомендуется принимать не менее 0,2 % от площади расчетного сечения бетона.
2.14. Если расчет на излом сборного перекрытия при капителях и межколонных плитах, заармированных как элементы ригелей рам, и пролетных плитах с арматурой согласно п. 2.13 настоящего Руководства требует увеличения сечения рабочей арматуры, то это требование рекомендуется выполнять за счет увеличения рабочей арматуры в пролетных плитах. 2.15. Расчет перекрытия на продавливание производится в сечениях, где очертания капителей образуют входящие углы, где изменяется толщина плиты, в местах приложения значительных грузов, распределенных на небольшой площади, а также в других местах, где это окажется необходимым для принятого конструктивного решения. Предполагается, что продавливание происходит по боковой поверхности пирамиды или конуса, боковые грани или образующая которых наклонены под углом 45° к горизонтали. Прочность перекрытия на продавливание в сечениях без поперечной арматуры рекомендуется проверять по формуле где Р - расчетная продавливающая сила, определяемая при коэффициенте перегрузки n > 1; h0 - рабочая высота сечения;
Rр - расчетное сопротивление бетона растяжению; k - коэффициент, принимаемый равным:
bср - среднее арифметическое между величинами периметров верхнего и нижнего оснований пирамиды, образующейся при продавливании в пределах рабочей высоты сечения h0. При расчете на продавливание капителей или полукапителей, а также плиты по периметру капителей или полукапителей, величина силы Р принимается равной сумме сил, передающихся через перекрытие на поддерживающую капитель колонну, за вычетом нагрузок, приложенных к верхнему основанию пирамиды продавливания (считая до плоскости расположения верхней арматуры). При установке в пределах пирамиды продавливания поперечной арматуры расчет производится из условия
где Fхп - площадь поперечной арматуры, пересекающей боковые грани пирамиды продавливания и надежно заанкеренной в бетоне
Кроме того, поперечное армирование независимо от результатов расчета должно удовлетворять конструктивным требованиям п. 3.9 настоящего Руководства. Помимо расчета на продавливание следует производить расчет на действие поперечных сил в соответствии с действующими СНиП. 2.16. Колонны квадратного и прямоугольного сечения рассчитываются на внецентренное и косое внецентренное сжатие. Несущая способность колонны принимается по меньшему значению. Расчетную длину колонн l0 многоэтажных зданий при числе пролетов не менее двух допускается принимать:
где Н - высота этажа, В сборных конструкциях с расчетными замоноличенными сопряжениями элементов расчетную длину колонн первого этажа, надежно заделанных (защемленных) в фундаментах, можно принимать равной 0,8 Н.
Рис. 8. Рабочая высота вертикальных (нормальных) сечений канители при действии изгибающего момента М 2.17. При расчете элементов сборных конструкций на нагрузки, действующие в стадии эксплуатации, а также в процессе монтажа каркаса здания, следует учитывать условия их работы, связанные с конкретно принятыми сопряжениями элементов. 2.18. Рабочая высота нормальных (вертикальных) сечений капители сборного перекрытия при расчете на действие изгибающих моментов принимается по рис. 8. Стенки стакана капители рассматриваются как плиты, защемленные по трем сторонам и не опертые по четвертой (низ стакана). Расчет конструкций по деформациям2.19. Деформации (прогибы) элементов безбалочных конструкций вычисляются по усилиям из статического расчета каркаса на расчетные нагрузки, определяемые при коэффициенте перегрузки, равном единице. Стадия работы конструкции, по которой должна производиться проверка прогиба перекрытия, устанавливается расчетом на образование трещин. Если перекрытие запроектировано в соответствии с настоящим Руководством и «Руководством по расчету статически неопределимых железобетонных конструкций», опасным в отношении образования первых трещин будет являться, как правило, нормальное к плоскости перекрытия сечение капители под углом 45° к линии (разбивочной оси) колонн каркаса. При этом величина изгибающего момента, воспринимаемого сечением при образовании трещин в квадратной в плане капители ломаного очертания (см. п. 1.5 и рис. 1), может быть найдена, учитывая форму сечения, образованную двумя трапециями, по формуле где Момент образования трещин может быть определен также методами теории упругости и выражен через нагрузку в виде где с1 - множитель, получаемый из расчета перекрытия в упругой стадии его работы. Из формул (4)
и (5) определяется нагрузка
Для безбалочных перекрытий с квадратными капителями ломаного очертания при квадратной сетке колонн каркаса нагрузка рТ, выражается формулой где l - пролет перекрытия по осям колонн; с - расстояние от оси колонны до перелома очертания капители (рис. 1). Если расчетная нагрузка при коэффициенте перегрузки, равном 1, менее величины рТ, проверка прогибов производится при условии отсутствия трещин в перекрытии. При необходимости расчета по образованию трещин в растянутой зоне бетона плоской, сплошного сечения плиты безбалочного перекрытия следует пользоваться формулой где 2.20. Прогибы перекрытий, не имеющих трещин в растянутой зоне бетона, могут вычисляться методами теории упругости.
Рис. 9. График прогибов перекрытия: 1 - опытная кривая; 2 - теоретическая прямая; 3 - точка, соответствующая образованию первых трещин; 4 - точка, соответствующая началу текучести арматуры по всем линиям излома. Для монолитных перекрытий с квадратными капителями ломаного очертания при квадратной сетке колонн каркаса, спроектированных в соответствии с настоящим Руководством и «Руководством по расчету статически неопределимых железобетонных конструкций» величину прогиба центра панели1 при отсутствии трещин в конструкции рекомендуется определять по формуле где kп - коэффициент, учитывающий влияние кратковременной ползучести бетона, принимаемый для тяжелого бетона и бетона на пористых заполнителях при плотном мелком заполнителе - 0,85; С - коэффициент, учитывающий влияние длительной ползучести бетона, принимаемый для тяжелого бетона и бетона на пористых заполнителях при плотном мелком заполнителе при влажности воздуха окружающей среды: выше 40 % - 2; 40 % и ниже - 3. При кратковременном действии нагрузки С = 1. _______ 1 Панель - участок перекрытия, ограниченный линиями сетки колонн каркаса. Для случая, когда в перекрытии образуются первые трещины, прогиб центра панели определяется по формуле 2.21. Для безбалочных перекрытий, имеющих трещины, максимальный прогиб рекомендуется определять приближенно по линейной интерполяции между прогибом, отвечающим образованию первых трещин, и прогибом в момент, непосредственно предшествующий исчерпанию несущей способности перекрытия, по формуле где рТ < р < рп; и рт - прогиб и нагрузка при образовании первых трещин (рис. 9); fп и рп - прогиб и нагрузка, соответствующие предельному состоянию по прочности при характеристиках материалов RaII, RпрII; р - действующая расчетная равномерно распределенная нагрузка при коэффициенте перегрузки, равном единице. Значения величин рТ и fТ для монолитных безбалочных перекрытий по п. 2.20 определяются формулами (7) и (10). Прогиб fТ определяется в предположении излома по схеме рис. 10. При одновременном изломе смежных панелей разных рядов принимается, что в пролете средних панелей образуются взаимно перпендикулярные и параллельные рядам (разбивочным осям) колонн каркаса линейные пластические шарниры с раскрытием трещин внизу. Каждая панель разделяется этими пластическими шарнирами на четыре звена, вращающиеся вокруг опорных линейных пластических шарниров, оси которых расположены в зоне капителей, как правило, ниже плиты, под углом к рядам колонн. При этом трещины по линиям опорных пластических шарниров раскрываются вверху, а по линиям - разбивочным осям колонн, развиваясь сверху вниз, трещины прорезают всю толщину плиты.
Рис. 10.
Схема излома панели при одновременном О - опорные пластические шарниры; П - пролетные пластические шарниры Для монолитных безбалочных перекрытий с квадратными капителями ломаного очертания и при квадратной сетке колонн каркаса прогиб fп в центре панели выражается формулой
где l1 - пролет плиты в чистоте между капителями; l - пролет перекрытия по осям колонн; с - не
имеет то же значение, что и в формуле (7);
где n - коэффициент, характеризующий упругопластическое состояние бетона сжатой зоны, принимаемый для тяжелого бетона и бетона на пористых заполнителях при плотном мелком заполнителе:
В формуле (13) xт - относительная высота сжатой зоны бетона, определяемая как для плиты прямоугольного сечения без предварительного напряжения в стадии, непосредственно предшествующей исчерпанию несущей способности по формуле
Несущая способность квадратной панели монолитного безбалочного перекрытия, одинаково армированной в обоих направлениях, при одновременном изломе смежных панелей разных рядов (см. рис. 10) выражается формулой
где Мп - предельный момент на единицу длины пролетного пластического шарнира; Моп - предельный момент на единицу длины опорного пластического шарнира; l - то же значение, что и в формуле (12);
При определении плеча zк следует учитывать, что сжатая зона бетона в опорном пластическом шарнире может оказаться целиком вне плиты (в капители безбалочного перекрытия). 2.22. Деформации сборных безбалочных перекрытий определяются в соответствии с принятой расчетной схемой конструкции (п.п. 2.2 и 2.13) и с учетом рекомендаций п.п. 2.3 - 2.5; 2.19; 2.23 и 2.24. 2.23.
Прогибы ригелей рам сборной конструкции рекомендуется вычислять, пользуясь
методами строительной механики по значениям кривизны 2.24. Прогиб пролетных плит, имеющих трещины, рекомендуется определять по формуле (11). При определении fт и рТ пролетная плита рассматривается как опертая на деформируемый контур, которым являются межколонные плиты и который деформируется как от нагрузки, действующей на пролетную плиту, так и от нагрузки, находящейся непосредственно на нем. При деформации межколонных плит от нагрузки, находящейся только на них, они не могут служить опорным контуром для пролетной плиты. Когда прогибы краев пролетной плиты, работающей как опертой по углам, достигнут прогибов межколонных плит, последние начнут включаться в работу в качестве податливого опорного контура для пролетной плиты. Нагрузка (интенсивность нагрузки), отвечающая образованию в пролетной плите первых трещин, выражается в виде
где q1 - нагрузка, при которой пролетная плита работает как опертая по углам; q2 - нагрузка, при которой пролетная плита работает как опертая на податливый контур. Для определения величины q1 вычисляется прогиб середины межколонной плиты относительно плоскости, проходящей через углы пролетной плиты. При этом межколонная плита рассматривается в системе рамы и нагружена только нагрузкой q, находящейся непосредственно на ней При прогибе межколонной плиты, равном Для квадратной в плане пролетной плиты формула (18) имеет вид где a - длина стороны плиты; hп - толщина пролетной плиты. Выражение (19) получено при коэффициенте Пуассона, равном 0,2. Из равенства прогибов по выражениям (17) и (18) определяется нагрузка q1 как часть полной равномерно распределенной нагрузки q = рТ
где k < 1;
Изгибающий момент на единицу ширины сечения в центре пролетной плиты, отвечающий образованию первых трещин в растянутой зоне бетона, определяется методами теории упругости и может быть выражен через нагрузку в виде где с1 и с2 - множители, получаемые из расчета плиты на упругой стадии ее работы. При вычислении с1 плита рассматривается как опертая по углам, а с2 - как опертая на податливый контур. На основании формул (8) и (22) находится нагрузка рТ
Прогибы плиты fт к моменту трещинообразования определяются как сумма прогибов, получаемых из расчета пролетной плиты в упругой стадии работы, опертой по углам и на податливый контур. При этом используются формулы теории упругости. где а, hп, С и kп - имеют те же значения, что и в формулах (19) и (9); с3 и с4 - коэффициенты, получаемые из расчета плиты, соответственно опертой по углам и на податливый контур. Если принятые сопряжения обеспечивают практически одинаковые кривизны вдоль краев межколонных и пролетной плит, то при определении fт и рТ расчетный пролет последней допускается уменьшать, используя для этого нулевые точки межколонных плит, получаемые из расчета рам как упругих систем, без перераспределения усилий (рис. 11). После этого пролетная плита рассматривается, как свободно опертая с пролетом ар.
Рис. 11. Расчетная схема пролетной плиты 1 - деформируемый контур; 2 - линии нулевых изгибающих моментов; 3 - сопряжения, обеспечивающие одинаковые кривизны вдоль краев межколонных и пролетной плит; а - длина стороны пролетной плиты; ар - расчетный пролет пролетной плиты. Нагрузка рп, соответствующая предельному состоянию по прочности, определяется из расчета перекрытия на полосовое разрушение (см. рис. 6) при характеристиках бетона и арматуры соответственно RпрII и RаII. Для безбалочных перекрытий с квадратными капителями ломаного очертания (см. рис. 1) при квадратной сетке колонн каркаса, т. е. для конструкций, симметричных относительно середины рассматриваемой полосы излома, нагрузка рп выражается в виде
где l -
то же значение, что и в формуле (12); с
- см. формулу (7) и рис. 1.
Fп - площадь сечения нижней арматуры в пролетном пластическом шарнире на длине l; Fк - площадь сечения верхней арматуры в опорном пластическом шарнире на длине l; zn и zк - плечи внутренней пары сил соответственно в пролетном и опорном пластических шарнирах. При вычислении zк следует учитывать, что сжатая зона, соответствующая верхней арматуре в опорном пластическом шарнире, может размещаться либо частью, либо полностью в капителях (рис. 12).
Рис. 12.
Положение сжатой зоны в опорных пластических шарнирах а - в плите и капителях; б - в капителях Величина fп определяетcя при полосовом разрушении перекрытия, как максимальный прогиб от нагрузки рп середины полосы излома относительно плоскости, проходящей через углы пролетной плиты. С некоторым допущением принимается, что кривизна в изломе перекрытия одинакова по длине пластического шарнира. Прогиб fп
вычисляется, пользуясь методами строительной механики, по значениям кривизны 2.25. При расчете пролетной плиты, работающей без трещин, т. е. при q < рТ можно пользоваться формулами (22) и (24), подставляя в них, вместо рТ, соответствующие значения q. Расчет конструкций по раскрытию трещин2.26. Ширина раскрытия трещин элементов безбалочных конструкций вычисляется по усилиям, получаемым из статического расчета каркаса на расчетные нагрузки при коэффициенте перегрузки, равном единице. Проверка ширины раскрытия трещин производится в соответствии с указаниями действующих строительных норм и правил на проектирование железобетонных конструкций. При этом для плит, работающих в двух направлениях, напряжение в растянутой арматуре рекомендуется определять по формуле где
Величины рТ, р и рп в формуле (26) имеют те же значения, что и в формуле (11). Типы и расчет сопряжений сборных конструкций2.27. При сопряжении железобетонных элементов сборных безбалочных конструкций усилия от одного элемента к другому рекомендуется передавать через стыкуемую рабочую арматуру, стальные закладные детали и накладки, заполненные бетоном швы, бетонные шпонки. 2.28. Усилия, возникающие в незамоноличенных сопряжениях в стадии монтажа конструкции (см. п. 2.4), рекомендуется воспринимать стальными соединительными элементами (деталями) и сварными швами. 2.29. Сопряжения сборных безбалочных конструкций могут выполняться двух типов. В сопряжениях первого типа для восприятия перерезывающих сил используются шпонки, образуемые бетоном замоноличивания (рис. 13 и 14). Сопряжения второго типа характерны устройством консолей или полок в качестве опор для примыкающих элементов (рис. 15). Возможна также смешанная конструкция сопряжения, содержащая элементы обоих этих типов. Рекомендуется преимущественно применять сопряжения первого типа, позволяющие использовать бесконсольные колонны длиной на несколько этажей и сравнительно просто образовывать гладкие потолки.
Рис 13. Сборная безбалочная конструкция со шпоночными сопряжениями элементов (авторское свидетельство № 212499) 1 - колонны; 2 - капители; 3 - надколонные (межколонные) плиты; 4 - пролетные плиты
Рис 14. Узел сопряжений конструкции (авторское свидетельство № 212499) 2.30. Сопряжение капители с колонной проектируется жестким, способным воспринять изгибающие моменты, поперечные силы и силы сдвига. Расчетные схемы такого сопряжения приведены на рис. 16 - 18. При расчете следует учитывать, что изгибающие моменты, действующие в сопряжении, вызывают усилия, обжимающие бетон замоноличивания. Благоприятное влияние на работу бетона замоноличивания оказывает также капитель, создающая эффект обоймы.
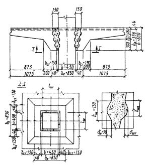
Рис. 15. Узел сопряжений безбалочной конструкции серии 1.420-4
Рис. 16. Расчетная схема незамоноличенного М и Q - внешние силы, действующие
на сопряжение; Р, N и QМ -силы,
Рис. 17. Расчетная схема замоноличенного сопряжения капители с колонной при симметричном загружении N
+ N¢ =
Рис. 18. Расчетная схема замоноличенного сопряжения капители с колонной при несимметричном загружении М и Q - внешние силы, действующие на сопряжение; Р, N и Qм - силы, возникающие в сопряжении при действии изгибающего момента М; а - эпюра напряжений в шпонках сопряжения при действии поперечной силы Q; б - то же, при действии М; в - суммарная эпюра напряжений в шпонках сопряжения 2.31. Расчет незамоноличенного сопряжения капители с колонной производится на усилия, определяемые из статического расчета рам каркаса на нагрузки, действующие при монтаже конструкций. Воздействие изгибающего момента на сопряжение рекомендуется учитывать парой сил Р с плечом z (см. рис. 16).
Сила Р раскладывается на горизонтальную N и вертикальную Qм составляющие. Усилие N воспринимается арматурными вставками, приваренными к закладным деталям капители, и через сварные швы передается на закладные детали колонны. Такое же усилие передается на монтажные столики или консоли колонны, к которым через закладные детали приваривается капитель. На монтажный столик или консоль колонны действует вертикальная сила, равная
где Q - поперечная сила, действующая в сопряжении. Кроме этого, при расчете монтажного столика или консоли колонны следует учитывать местный изгибающий момент, создаваемый силой Qсд. При расчете арматурных вставок и монтажных столиков на воздействие усилия N величину этого усилия следует умножать на коэффициент условия работы тN=1,2, если это приводит к увеличению расчетного усилия. 2.32. Расчет замоноличенного сопряжения капители с колонной производится на эксплуатационные нагрузки. Усилия, действующие в сопряжении, определяются из статического расчета рам каркаса: а) при действии в узле усилий, не вызывающих поворота узла (см. рис. 17). Сдвигающие силы принимаются равномерно распределенными по периметру сопряжения и равными поперечным силам. Если сопряжение капители с колонной решается с помощью бетонных шпонок (см. рис. 17), то при указанном силовом воздействии расчет его производится из условия где Qсд - сдвигающая сила, передающаяся через шпонки; Rр - расчетное сопротивление бетона растяжению для бетонных конструкций; lш - длина шпонки: hш - высота шпонки; nш - число шпонок, вводимое в расчет; при расчете на перерезывающее усилие nш должно быть не более трех; шпонки, расположенные в растянутой зоне в крайней трети высоты рассчитываемого сечения, не учитываются; mоб - коэффициент условий работы, учитывающий влияние обоймы - капители, равный 1,15; N - сила, перпендикулярная плоскости шва, обжимающая бетон замоноличивания. По изгибающему моменту в данном сечении устанавливается высота сжатой зоны бетона; по площади части сжатой зоны, которая располагается в пределах ширины колонны, определяется сила N, обжимающая бетон замоноличивания сопряжения. При разных марках бетона сборного элемента и замоноличивания сопряжения рассматривается приведенное сечение конструкции. Величина 0,7N, вводимая в расчет, должна удовлетворять условию
Глубину шпонки рекомендуется определять по формуле где Qсд, N, lш, nш и mоб - имеют те же значения, что и в формуле (30); Rпр - расчетное сопротивление бетона сжатию (призменная прочность) для бетонных конструкций. По условиям (30) и (31) следует проверять как шпонки, образованные бетоном замоноличивания сопряжения, так и шпонки сборного элемента. б) при действии в узле усилий, вызывающих поворот узла (см. рис. 18), сдвигающие силы складываются из поперечных сил и сил от действия изгибающего момента. Воздействие на сопряжение изгибающего момента, вызывающего поворот узла, рекомендуется учитывать, парой сил Р с плечом z (см. рис. 18). Сила Р раскладывается на горизонтальную N и вертикальную Qм составляющие. Усилие N, обжимая бетон замоноличивания сопряжения, передается на колонну. По наиболее
нагруженной грани сопряжения действует вертикальная сдвигающая сила При решении сопряжения капители с колонной с помощью бетонных шпонок (см. рис. 18) расчет его производится из условия или
где
По изгибающему моменту, действующему по оси узла, устанавливается высота х сжатой зоны по грани сопряжения: ширина сжатой зоны принимается равной ширине колонны. Величины z, N и х определяются методом последовательных приближений (см. пример расчета). Величина 0,7N вводимая в расчет, не
должна превышать Глубина шпонки определяется по формуле
где Qсд, N, lш,
Рис. 19. Внешние силы, действующие на узел сопряжения капители При действии на сопряжение нагрузок по рис. 19 формулы (32) и (36) для наиболее напряженной грани сопряжения принимают вид где N1 - сжимающая сила, перпендикулярная плоскости шва, определяемая по изгибающему моменту М1 (см. рис. 19) в соответствии с расчетной схемой по рис. 17 и указаниями раздела «а» настоящего пункта; N2 - сжимающая сила, перпендикулярная плоскости шва, определяемая по изгибающему моменту, равному М2 (см. рис. 19), в соответствии с расчетной схемой по рис. 18. Остальные величины, входящие в формулы (37) и (38), имеют те же значения, что и в формулах (32) и (36). Величина Условиям (32) и (36) или (37) и (38) должны удовлетворять как шпонки, образованные бетоном замоноличивания сопряжения, так и шпонки сборного элемента. Усилия, возникающие в сопряжении, должны учитываться при расчете сопрягаемых элементов конструкции. Расчет консолей колонны в сопряжении по рис. 15 рекомендуется производить без учета работы шпонок. 2.33. Сопряжение пролетной плиты с межколонными плитами для конструкций по рис. 13 - 15 рекомендуется рассчитывать только на перерезывающие силы. Сопряжение межколонной плиты с капителью, выполняемое по второму типу (см. п. 2.29) в конструкции по рис. 15, рассчитывается на поперечную силу и изгибающий момент. При этом поперечная сила передается на полки капители, а усилия от изгибающего момента воспринимаются бетоном замоноличивания и закладными деталями. Расчет сопряжения межколонной плиты с капителью конструкции по рис. 13 и 14 рекомендуется производить из условия, что поперечная сила через выступы надколонной плиты передается на закладные детали капители, а усилия от изгибающего момента воспринимаются закладными деталями или накладками и бетоном замоноличивания. Необходимо рассчитывать также зоны сборных элементов, примыкающих к сопряжениям, с учетом характера работы принятых сопряжений. 2.34. Стыки колонн рекомендуется применять жесткие. Расчет таких стыков производится на внецентренное и косое внецентренное сжатие с учетом поперечных сил. 3. РЕКОМЕНДАЦИИ ПО КОНСТРУИРОВАНИЮ3.1. Для железобетонных безбалочных конструкций рекомендуется применять преимущественно тяжелый бетон проектной марки по прочности на сжатие (кубиковая прочность) не ниже М 200, а для сильно нагруженных колонн - не ниже М 300. При соответствующем технико-экономическом обосновании может применяться бетон на пористых заполнителях с плотным мелким заполнителем. В зависимости от конкретных условий эксплуатации конструкции назначаются проектные марки бетона по прочности на растяжение, по морозостойкости и по водонепроницаемости. Рекомендации настоящего пункта относятся и к бетону замоноличивания сопряжений сборной конструкции. 3.2. В качестве ненапрягаемой рабочей арматуры следует преимущественно применять горячекатаную арматурную сталь класса А-III и обыкновенную арматурную проволоку диаметром 3 - 5 мм класса Вр-I и класса В-I (в сварных сетках и каркасах). Марка арматурной стали назначается в зависимости от конкретных условий эксплуатации конструкции. В элементах перекрытии рекомендуется применять рабочую арматуру диаметром не более 20 мм; арматура больших диаметров допускается при специальном обосновании. Для монтажных (подъемных) петель сборных элементов должна применяться только горячекатаная арматурная сталь класса А-I марок ВСт3сп2 и ВСт3пс2, а также класса А-II марки 10ГТ. Если монтаж конструкций возможен при температуре минус 40 °С и ниже, то применение для монтажных петель стали марки ВСт3пс2 не допускается. 3.3. Сталь для закладных деталей и соединительных накладок следует назначать в соответствии с требованиями действующих СНиП и ГОСТов в зависимости от конкретных условий эксплуатации конструкции. У закладных деталей, работающих на нагрузки, действующие при монтаже конструкции, для восприятия сдвигающих сил допускается предусматривать упорные пластины, размеры которых устанавливаются расчетом. 3.4. Все закладные детали и соединительные элементы сопряжений сборных безбалочных конструкций следует защищать слоем бетона замоноличивания сопряжений. 3.5. Для рабочей арматуры толщина защитного слоя бетона должна составлять, как правило, не менее диаметра стержня и не менее: 10 мм - в плитах толщиной до 100 мм включительно, 15 мм - в плитах толщиной более 100 мм и 20 мм - в колоннах. В сборных элементах перекрытий из тяжелого бетона марки М 250 и выше при наличии сверху слоя монолитного бетона или стяжки допускается толщину защитного слоя бетона для верхней рабочей арматуры назначать равной: при диаметре
арматуры » » » 20
мм <
Для сборных элементов перекрытий при отмеченных выше условиях допускается толщину защитного слоя бетона для верхней распределительной и конструктивной арматуры принимать равной 5 мм при толщине элемента до 250 мм включительно и 10 мм - при большей толщине. В конструкциях зданий с агрессивными средами толщины защитных слоев бетона должны удовлетворять требованиям соответствующих нормативных документов по защите строительных конструкций от коррозии. При назначении толщины защитного слоя бетона должны учитываться противопожарные требования соответствующих СНиП. 3.6. Ширина швов (зазоров) между элементами сборных перекрытий назначается из условия обеспечения качественного заполнения их бетоном с уплотнением вибраторами. Она должна составлять понизу не менее 20 мм при элементах высотой до 250 мм и не менее 30 мм при элементах большей высоты. При этом ширину швов поверху при элементах высотой от 100 до 250 мм рекомендуется принимать не менее 50 мм и при элементах высотой до 600 мм - не менее 100 мм. 3.7. В железобетонных конструкциях с безбалочными перекрытиями расстояния между арматурными стержнями принимаются в соответствии с требованиями действующих СНиП. В сопряжениях сборных элементов перекрытий стыкуемые стержни допускается группировать на отдельных участках сопряжения (см. рис. 14 и 15). 3.8. При шпоночном сопряжении межколонной плиты с капителью и пролетной плиты с межколонной сборные элементы в месте передачи перерезывающих сил рекомендуется армировать (рис. 20). 3.9. Поперечная арматура, устанавливаемая в капителях или плитах в зоне продавливания, должна иметь надежную анкеровку. Расстояние между поперечными стержнями принимается не более 1/3h и не более 200 мм, где h - высота рассматриваемого сечения капители или плиты. Ширина зоны постановки поперечной арматуры должна быть не менее 1,5h. 3.10. Во избежание местных концентраций напряжений в местах резкого изменения сечения конструкции (изделия), например во внутренних углах, рекомендуется предусматривать фаски или закругления по возможности небольшого размера, чтобы не требовалось устройство местного армирования.
Рис. 20. Соединение сборных элементов при помощи бетонных шпонок lан - длина зоны анкеровки арматуры, принимаемая по СНиП
Рис. 21. Примеры конструирования плит перекрытий в местах отверстий а - при одиночных отверстиях с размерами до 700 мм; б и в - при ослаблении плиты отверстиями на 50 % и более или при сосредоточенных силах, приложенных к краям плиты у отверстия 3.11. Горизонтальная арматура стенок стакана капители должна быть непрерывной, замкнутой по внутреннему и наружному периметрам стакана; вертикальную арматуру этих стенок следует надежно анкерить в плите капители и нижней части стакана. 3.12. С целью уменьшения раскрытия трещин на контакте монолитного бетона со сборным в верхней зоне сопряжения капители с колонной у грани колонны рекомендуется устанавливать армируемые стержни (рис. 15). 3.13. Одиночные отверстия с максимальным размером до 700 мм устраиваются в перекрытии без местного утолщения плиты (рис. 21, а). Ослабление плиты отверстием следует компенсировать дополнительно укладываемой вдоль краев отверстия арматурой. Если к краю плиты, примыкающему к отверстию, приложены сосредоточенные силы, а также в случаях, когда сборная плита существенно ослаблена отверстиями (на 50 % и более), рекомендуется усиливать плиты вдоль краев отверстий жесткой арматурой (см. рис. 21 б) или предусматривать утолщение плит, или окаймлять отверстия ребрами (см. рис. 21 в). Жесткость окаймляющих ребер должна быть не менее жесткости сечения участка плиты, занятого отверстием. Утолщение (усиление) части пяты, примыкающей к отверстию, рекомендуется выполнять из условия равенства жесткостей сечения, ослабленного отверстием, и без учета ослабления. При прямоугольных отверстиях по углам этих отверстий в плите следует укладывать по 2 - 4 арматурных стержня диаметром 10 - 14 мм, располагая их в плане под углом 45° к сторонам отверстия. Несущая способность плит с отверстиями определяется расчетом. 4. КОНТРОЛЬ КАЧЕСТВА ИЗГОТОВЛЕНИЯ
| ||||||||||||||||||||||||||||||||||||||||||||||||||||||||||||||||||||||||||||||||||||||||||||||||
|
р1 = 1487,1 кгс/м |
|
|
р2 = 326,4 кгс/м |
![]()
= 1278,1
кгс/м - эквивалентная равномерно распределенная нагрузка.

Рис. 27. Сборное безбалочное перекрытие
а - фрагмент плана перекрытия и схема приложения нагрузки к краю межколонной плиты:
1 - колонна; 2 -
капитель; 3 - межколонная плита; 4 - пролетная плита; 5 -
линии нулевых изгибающих
моментов;
- нагрузка с пролетной плиты; 6 -
расчетная схема межколонной плиты (см. таблицу В.Л. Шадурского)
Определяем изгибающие моменты, действующие в защемлении плиты, используя «Таблицы для расчета упругих прямоугольных плит» (В.Л. Шадурский, Москва, Стройиздат, 1976 г.).
Из табл. 51:
кгс,
![]()
Момент, действующий на 1 см длины защемления,
М = К m.
Момент, действующий в центре защемления плиты (точка «4», см. рис. 27 б)
кгс×см/см.
Момент, действующий в точке «1» (см. рис. 27 б),
кгс×см/см.
В соответствии с «Руководством по проектированию бетонных и железобетонных конструкций из тяжелого бетона (без предварительного напряжения)» определяем площадь сечения верхней арматуры, расположенной перпендикулярно оси «х» (см. рис. 27 б):
а) расчетный изгибающий момент на 1 м длины средней части защемления плиты принимаем равным
кгс×см;
bср = 100 см, h = 16 см, h0 = 12,7 см

Так как
= 0,0264 <
= 0,418, сжатой
арматуры по расчету не требуется.
Из табл. 18
указанного Руководства при
= 0,0264 находим
= 0,987.
см2.
Принимаем 6Æ6АIII (
= 1,698 см2)
б) расчетный изгибающий момент на 1 м длины крайних участков защемления плиты
кгс×см,
bкр = 100 см, h = 16 см, h0 = 12,7 см,
![]()
= 0,0215 <
= 0,418, сжатой
арматуры по расчету не требуется.
При
= 0,0215 находим
= 0,989.
см2.
Принимаем 4Æ6АIII (
= 1,132 см2)
Требуемая площадь сечения верхней арматуры в плите
см2.
Принято 14Æ6АIII (
= 3,963 см2)
или
0,104 %.
Согласно п.
1.18 указанного «Руководства», для железобетонных слабоармированных элементов
при выполнении условия
площадь сечения
растянутой арматуры должна быть увеличена по сравнению с требуемой из расчета
по прочности не менее чем на 15 %.
Если
<
0,01, то момент трещинообразования допускается определять как для бетонного
сечения без учета влияния усадки бетона.
Здесь
кгс×см;
кгс×см.
Так как
= 4,74 тс×м
>
Мпр = 1,665 тс×м, увеличиваем площадь сечения растянутой арматуры
на 15 %.
см2.
Окончательно
принимаем 16Æ6АIII (
= 4,53 см2) (рис.
28).

Рис. 28. Верхняя растянутая арматура в сечении по оси х межколонной плиты
3. Расчет межколонной плиты на действие поперечной силы.
Проверяем прочность сечений межколонной плиты, наклонных к продольной оси элемента.
Рассмотрим опорное сечение плиты: b = 298 см; h = 16 см; h0 = 13,7 см; расчетная поперечная сила Q = 23,5 тc.
Расчет производим в соответствии со СНиП II-21-75, п.п. 3.30, 3.31, 3.36 и 5.26.
![]()
0,35×0,85×175×298×13,7×= 213000 кгс > Q = 23500 кгс, т. е. данное требование выполняется.
Расчет на действие поперечной силы можно не производить, если соблюдается условие
![]()
0,75×0,85×12×298×13,7 = 31200 кгс > Q = 23500 кгс, т. е. условие соблюдается, поперечная арматура не требуется.
Для изгибаемых элементов без поперечной арматуры должно соблюдаться еще одно условие:
![]()
где
- коэффициент, для
сплошных плоских плит - 1,5; с - длина проекции наклонного сечения на
продольную ось элемента, принимаемая не более 2h0.
При данных
значениях
и с это
условие превращается в предыдущее условие.
III. Пролетная плита
В соответствии с п. 2.13 настоящего «Руководства» и п. 2.6 «Руководства по расчету статически неопределимых железобетонных конструкций» определяем несущую способность пролетной плиты.
Размеры пролетной плиты в плане 300´300 см, h = 16 см, расчетный пролет плиты l = 300 см, расчетная равномерно распределенная нагрузка на плите при коэффициенте перегрузки п > 1 составляет q = 3140 кгс/м2.
Расчет квадратной плиты без учета закрепления ее на контуре (опорные моменты равны нулю) и без учета сил распора производим из условия
![]()
где р -
несущая способность плиты при действии равномерно распределенной нагрузки;
- предельный
изгибающий момент на ширину плиты.
Данное условие справедливо при одинаковых предельных моментах и обоих направлениях.
Задаемся
армированием плиты и принимаем 16Æ8АIII
(
= 8,05 см2) в каждом направлении. При этом h0х = 16,1 см;
h0у =
13,3 см,
см,

кгс×см.
кгс/см2
= 3260 кгс/м2 > q
= 3140 кгс/м2.
При принятом сечении арматуры
или 0,2
%.
Для
железобетонных слабоармированных элементов, если выполняется условие
, площадь сечения растянутой арматуры должна быть увеличена
по сравнению с требуемой из расчета по прочности не менее чем на 15 % (СНиП II-21-75, п. 1.20).
кгс×см.
Так как
тс×м
>
тс×м,
увеличиваем площадь сечения растянутой арматуры на 15 %.
Из расчета по прочности требуется
см2.
Тогда
см2.
Принимаем 18Æ8АIII (
= 9,05 см2).
IV. Расчет перекрытия на полосовое разрушение
Расчет производим в соответствии с п. 4.9 «Руководства по расчету статически неопределимых железобетонных конструкций».
Требуемая прочность перекрытия должна обеспечиваться при любом расположении линейных пластических шарниров на рассчитываемой полосе.

Рис. 29. Схема полосового излома перекрытия (в сечении I-I и II-II - заштрихованы сжатые зоны бетона)
Определяем предельную расчетную нагрузку при изломе средней полосы перекрытия в предположении, что в рассматриваемой полосе образуются линейные пластические шарниры, параллельные оси этой полосы: один линейный пластический шарнир в пролете с раскрытием трещин снизу и по одному линейному пластическому шарниру у опор с раскрытием трещин сверху. Схему полосового излома перекрытия принимаем по рис. 29.
Для конструкции, симметричной относительно середины рассматриваемой полосы, должно выполняться условие
![]()
или
![]()
где q - заданная расчетная равномерно распределенная нагрузка на перекрытии, р - предельная расчетная равномерно распределенная нагрузка при принятом армировании элементов конструкции; lx = 600 см - размер напели в направлении, перпендикулярном оси рассматриваемой полосы; 1у = 600 см - размер панели в направлении вдоль полосы; сх = 61,5 см - расстояние от крайнего пластического шарнира до ближайшего к нему ряда колонн; Fк - площадь сечения верхней арматуры в каждом крайнем пластическом шарнире; Fн - площадь сечения нижней арматуры в среднем пластическом шарнире (в пролете); zк и zп - плечи внутренних пар соответственно в крайнем и среднем пластических шарнирах.
см2,
где
см2 -
верхняя рабочая арматура в капители (см. рис.
23);
= 4,53 см2
- верхняя рабочая арматура в межколонной плите (см. рис. 28).
Определяем высоту сжатой зоны бетона в крайнем пластическом шарнире из формулы
![]()
где b1 и b2 - по рис. 29.
Выражаем величину b1 через х:
b1 = 14,58 х+ b2 = 14,58 х + 123,
тогда ![]()
или х2 + 16,9х - 140 = 0,
х = 6,08 см. Следовательно, сжатая зона бетона в крайнем пластическом шарнире целиком размещается в капителях.
b1 = 14,58 6,08 +123 = 211,6 см.
Рабочую высоту сечения в крайнем пластическом шарнире принимаем h0 = 25,6 см.
Находим плечо внутренней пары
см
Для сечения с одиночной арматурой должно соблюдаться условие
![]()
Здесь
< ![]()
т. е. данное условие соблюдается.
см2,
где
= 9,05 см2 - нижняя рабочая арматура в пролетной
плите;
= 30,54 см2
- нижняя рабочая арматура в межколонной плите.
Определяем
высоту сжатой зоны бетона в среднем пластическом шарнире из условия
:
см.
Принимаем рабочую высоту сечения в среднем пластическом шарнире h0 = 13,5 см, тогда плечо внутренней пары
см.
кгс/см2
=
= 2990 кгс/м2 < q
= 3140 кгс/м2,
т.е. условие указанного выше «Руководства ...» не выполняется.
В соответствии
с рекомендацией п. 2.14 увеличиваем сечение
арматуры пролетной плиты и принимаем 20Æ10АIII (
см2) в каждом направлении.
см2;
![]()
см,
см;
кгс/см2
=
= 3150 кгс/м2 > q
= 3140 кгс/м2,
следовательно, при данном армировании элементов и принятой схеме полосового излома прочность перекрытия обеспечена.
V. Колонна
Усилия, действующие на колонну, определяются из расчета рам каркаса.
Для данного примера установим возможные расчетные сочетания усилий на среднюю колонну первого этажа каркаса пятиэтажного здания при действии на каркас вертикальных нагрузок, учитываемых с коэффициентами перегрузки n > 1.
Рассмотрим различные схемы загружения каркаса.
1. Полосовое загружение всех перекрытий временной длительной нагрузкой (рис. 30 а):
Рис. 30. Схемы загружения каркаса
а - полосовое загружение всех перекрытий временной длительной нагрузкой; б - полосовое загружение перекрытия первого этажа и сплошное загружение перекрытий всех верхних этажей временной длительной нагрузкой; в - загружение перекрытий временной длительной нагрузкой; г - загружение перекрытия первого этажа и сплошное загружение перекрытий всех верхних этажей временной длительной нагрузкой; д - сплошное загружение всех перекрытий временной длительной нагрузкой; qвр - временная нагрузка; qсн - снеговая нагрузка
а) расчетные изгибающие моменты в плоскостях «x» и «у»
![]()
![]()
где
и
- изгибающие моменты
от собственного веса конструкции перекрытия, пола, перегородок,
полученные из расчета рам каркаса, расположенных в плоскостях «х» и «у»;
и
- изгибающие моменты
от временной нагрузки из расчета рам, расположенных в плоскостях «х» и «у»;
б) расчетная продольная сила
![]()
где
- продольная сила от
собственною веса конструкции перекрытия, пола, перегородок;
- продольная сила от
собственного веса конструкции покрытия, кровли (утеплитель, ковер и т. д.);
- продольная сила от
собственного веса колонн вышележащих этажей;
- продольная сила от
временной нагрузки;
- продольная сила от
снеговой нагрузки.
2. Полосовое загружение перекрытия первого этажа и сплошное загружение перекрытий всех верхних этажей временной длительной нагрузкой (см. рис. 30 б):
а) расчетные изгибающие моменты в плоскостях «х» и «у»
![]()
![]()
где
и
- изгибающие моменты
от временной нагрузки;
б) расчетная продольная сила
![]()
где
- продольная сила от
временной нагрузки.
3. Загружение перекрытий временной длительной нагрузкой по рис. 30 в:
а) расчетные изгибающие моменты в плоскостях «х» и «у»
![]()
![]()
где
и
- изгибающие моменты
от временной нагрузки;
б) Расчетная продольная сила
![]()
где
- продольная сила от
временной нагрузки.
4. Загружение перекрытия первого этажа по рис. 30 г и сплошное загружение перекрытий всех верхних этажей временной длительной нагрузкой:
а) расчетные изгибающие моменты в плоскостях «х» и «у»
![]()
![]()
где
и
- изгибающие моменты
от временной нагрузки;
б) расчетная продольная сила
![]()
где
- продольная сила от
временной нагрузки.
5. Сплошное загружение всех перекрытий временной длительной нагрузкой (см. рис. 30 д):
а) расчетные изгибающие моменты в плоскостях «х» и «у»;
![]()
![]()
где
и
- изгибающие моменты
от временной нагрузки;
б) расчетная продольная сила
![]()
где
- продольная сила от
временной нагрузки.
Прочность сечения колонны должна быть обеспечена при всех возможных сочетаниях усилий.
Расчет колонны но прочности производится в полном соответствии со СНиП II-21-75, «Руководством по проектированию бетонных и железобетонных конструкций из тяжелого бетона (без предварительного напряжения)», с учетом указаний п. 2.16 настоящего Руководства и в настоящем примере не приводится.
Расчет сборных элементов по
деформациям
(предельные состояния второй группы)
1. Пролетная плита
Расчет производится в соответствии с п. 2.24 настоящего Руководства.
Прогиб пролетной плиты определяется по формуле (11).
![]()
Расчетная, равномерно распределенная нагрузка на перекрытии при коэффициенте перегрузки n = 1 составляет р = 2650 кгс/м2.
сторона пролетной плиты а = 300 см, h = 16 см, h0х = 14 см, h0у = 13 см;
= 15,70 см2
(20Æ10АIII) в каждом направлении.
1. Определяем
нагрузку
и прогиб
, отвечающие образованию в пролетной плите первых трещин
,
где
- нагрузка, при
которой пролетная плита работает как опертая по углам;
- нагрузка, при
которой пролетная плита работает
как опертая на податливый контур.
Чтобы найти
величину
, вычисляем прогиб середины межколонной плиты относительно
плоскости, проходящей через углы пролетной плиты.
Распределение изгибающих моментов по межколонной плите принимаем из статического расчета рам (см. рис. 22).
Линии нулевых изгибающих моментов при работе конструкции в упругой стадии находятся на расстояниях 22 и 30 см от опор межколонной плиты, т. е. в среднем на расстоянии 26 см » 0,09а.
Учитывая, что шпоночные сопряжения обеспечивают одинаковые кривизны вдоль краев межколонных и пролетной плит, согласно рекомендациям п. 2.24 настоящего Руководства принимаем расчетный пролет пролетной плиты
![]()
В нашем случае пролет и ширина межколонной плиты l = b = a.
Тогда ширина деформируемого контура, образованного межколонными плитами, будет
![]()
Расчетная схема пролетной плиты представлена на рис. 11.
С помощью формул строительной механики определяем прогиб середины межколонной плиты относительно плоскости, проходящей через углы пролетной плиты с ар = 0,91а, при условной ширине межколонной плиты, равной bк = 0,54а, от нагрузки q, находящейся непосредственно на деформируемом контуре. При этом расчетную схему межколонной плиты принимаем по рис. 31.

Рис. 31. Расчетная схема межколонной плиты

где
- коэффициент,
учитывающий влияние кратковременной ползучести бетона по главе СНиП II-21-75;
![]()
![]()
![]()
![]()
![]()
Подставив
значения
,
,
,
и I в выражение прогиба
, получаем:
![]()
По формулам теории упругости определим прогибы и изгибающие моменты пролетной плиты. Для этого воспользуемся табл. 340 справочника «Пластины, диски, балки-стенки» (Д. В. Вайнберг, Е. Д. Вайнберг, Госстройиздат УССР, Киев, 1959 г.).
Максимальный
прогиб края пролетной плиты от нагрузки q1, при параметре относительной жесткости
межколонной и пролетной плит
= 0 и коэффициенте
Пуассона
= 0,2:
![]()
Из условия f1 = f2 находим нагрузку q1,
q1 = 0,615q.
Тогда ![]()
Таким образом, при сплошном загружении перекрытия нагрузкой q пролетная плита до нагрузки, равной 0,6151q, будет работать как опертая по углам, а при нагрузке, большей, чем 0,6151q - как опертая на податливый контур.
Прогиб центра
пролетной плиты от нагрузки 0,615q при
= 0 и
= 0,2
![]()
где
кгс/см2
(бетон М 400).
Прогиб центра
пролетной плиты от нагрузки q2
= 0,385q при
= 0,2 и

где
- модуль упругости
бетона межколонной плиты, равен
пролетной плиты; I - момент инерции
сечения межколонной плиты шириной 0,54а.

Прогиб центра пролетной плиты при загружении перекрытия нагрузкой q:
![]()
Изгибающий момент на единицу ширины сечения в центре пролетной плиты от нагрузки q1 = 0,615q при g = 0 и m = 0,2:
![]()
Изгибающий момент на единицу ширины сечения в центре пролетной плиты от нагрузки q2 = 0,385q при g = 0,57 и m = 0,2:
![]()
Изгибающий момент в центре пролетной плиты от нагрузки q:
![]()
По формуле (8) настоящего Руководства определяем изгибающий момент на единицу ширины сечения пролетной плиты при образовании трещин
кгс×см/см.
Из условия Мт1 = Мц находим нагрузку q = рТ1. отвечающую началу трещинообразования в пролетной плите
кгс/см2.
Максимальный изгибающий момент в пролете межколонной плиты (рис. 31) шириной 0,5а:
![]()
Нагрузка р2 состоит из нагрузки, находящейся непосредственно на межколонной плите, и нагрузки с пролетной плиты, распределенной по закону треугольника с ординатой вершины, равной 0,385q.
Нагрузку, распределенную по закону треугольника, приведем к равномерно распределенной, эквивалентной по пролетному моменту.
![]()
где
- коэффициент
приведения.
Таким образом,
![]()
тогда ![]()
Но
кгс×см.
Из этого условия определяем нагрузку q = рт2 отвечающую началу трещинообразования в межколонной плите
кгс/см2.
Можно предположить, что при нагрузке рт2 и принятом сопряжении пролетной плиты с межколонными плитами трещины должны появиться и на краю пролетной плиты. Между тем пролетная плита помогает межколонной плите при работе последней в системе рамы, и, следовательно, момент трещинообразования в межколонной плите наступит при несколько большей интенсивности равномерно распределенной нагрузки.
Принимаем значение нагрузки, при которой в пролетной плите образуются первые трещины, как среднее между рТ1 и рТ2
кгс/см2.
Тогда прогиб центра пролетной плиты при начале трещинообразования будет:
от кратковременного действия нагрузки
см,
от длительного действия нагрузки
см,
где С = 2 - коэффициент, учитывающий влияние длительной ползучести бетона на деформации элемента без трещин (см. СНиП II-21-75, табл. 35).
2. Определяем нагрузку рц и прогиб fп пролетной плиты при полосовом разрушении перекрытия, принимая расчетные сопротивления бетона и арматуры как для предельного состояния второй группы.
Из расчета по прочности в среднем пластическом шарнире на длину lу = 600 см (см. рис. 29) площадь сечения арматуры принята
см2
при h0
= 13,5 см.
Высоту сжатой зоны находим из условия
см.
Тогда zп = 13,5 - 0,5×1,37 = 12,82 см.
В крайнем пластическом шарнире Fк = 44,75 см2 при h0 = 25,6 см.
Находим высоту сжатой зоны в этом шарнире
![]()
где
и
- по рис. 29; ![]()
![]()
или х2 + 16,9х - 109 = 0
х = 5 см
= 14,58 ×
5 + 123 = 195,9 см.
Плечо внутренней пары в крайнем пластическом шарнире:
см.
Предельная равномерно распределенная нагрузка рп
кгс/см2,
где lх, lу и сх - по рис. 29.
Предельный изгибающий момент в крайнем пластическом шарнире на 1 см
кгс×см/см.
Находим положение линии нулевых изгибающих моментов из условия
![]()
где lп = lх - 2сх = 477 см; х0 - расстояние от крайнего пластического шарнира до линии нулевых моментов
![]()
Решение квадратного уравнения дает значение
х0 = 94 см.
Ширина межколонной полосы, заключенной между нулевыми линиями, равна
см.
Учитывая, что
почти равна пролету
пролетной плиты «а», прогиб середины пролетной плиты относительно ее
краев при нагрузке рп можно определить по формуле
![]()
где В - жесткость сечения плиты шириной 1 см в среднем пластическом шарнире, определяемая с использованием положений п. 4.27, СНиП II-21-75.

Для нашего случая yа = 1, yб = 0,9, b = 1 см, h0 = 13,5 см,
cм2/см,
[см.
формулу (14) настоящего Руководства].
тогда ![]()
см;
n = 0,15 - коэффициент, характеризующий упругопластическое состояние бетона сжатой зоны при длительном действии нагрузки (табл. 36, СНиП II-21-75).
кгс×см2;
см.
Определяем прогиб центра пролетной плиты при длительном действии нагрузки р = 0,265 кгс/см2 относительно горизонтальной плоскости, проходящей через углы этой плиты
см.
Относительный прогиб (относительно диагонали пролетной плиты)
<
(См. СНиП II-21-75, табл.2).
Следовательно прогиб центра пролетной плиты удовлетворяет требованиям норм.
II. Межколонная плита и капитель
Межколонная плита и капители образуют ригель рамы каркаса, расчет которого по деформациям производится в полном соответствии со СНиП II-21-75 и Руководством по проектированию бетонных и железобетонных конструкций из тяжелого бетона (без предварительного напряжения).
Расчет сборных элементов по
раскрытию трещин
(предельное состояние второй группы)
Пролетная плита
Расчет производим в соответствии с п. 4.14 СНиП II-21-75 и п. 2.26 настоящего Руководства.
Ширина раскрытия трещин aт определяется по формуле
, мм,
где k = 1 - коэффициент для изгибаемых элементов; сд = 1,5 - коэффициент при длительном действии постоянных и длительных нагрузок для конструкции из тяжелого бетона естественной влажности; h = 1 - коэффициент при стержневой арматуре периодического профиля; d = 10 мм - диаметр стержней арматуры;
![]()
sа - напряжение в арматуре, определяемое по формуле (26) настоящего Руководства
![]()
где
- напряжение в
арматуре, в момент образования трещин
![]()
см2/см.
кгс×см/см.
В соответствии с п. 4.28 СНиП II-21-75
![]()
![]()

Тогда
кгс/см2;
кгс/см2;
= 0,295 мм <
0,3 мм (см. СНиП II-21-75,
табл. 1а).
Ширина раскрытия трещин в пролетной плите удовлетворяет требованиям норм при эксплуатации конструкции в условиях неагрессивной среды.
Расчет сопряжения капители с колонной
1. Сопряжение не замоноличено
Расчет производим в соответствии с п.п. 2.28, 2.30 и 2.31 настоящего Руководства.
Усилия на узел сопряжения, определенные из статического расчета рам каркаса на нагрузки, действующие при монтаже конструкции:
расчетные изгибающие моменты, действующие по оси узла сопряжения
тс×м,
тс×м,
тс×м
расчетные поперечные силы, действующие по оси узла сопряжения
тс,
тс,
тс.
Принимаем расчетную схему по рис. 16.
Расстояния между точками закрепления капители:
по горизонтали z1 = 73,5 см
по вертикали z2 = 58 см.
Изгибающие моменты, воздействующие на сопряжение,
тс×м,
![]()
Поперечная сила по каждой грани сопряжения:
тс;
см;
тс.
Раскладываем силу Р на составляющие:
горизонтальную
тс;
вертикальную
тс.
Одна арматурная вставка воспринимает усилие:
тс;
см2
(1Æ16АIII, Fa = 2,011 см2).
На наиболее нагруженный монтажный столик действуют силы:
вертикальная Qсд1 = Q + QМ = 5,74 + 12,43 = 18,17 тс и
горизонтальная N1 = 4,91
, тc
(см. п. 2.31).
На менее нагруженный монтажный столик действуют силы:
вертикальная Qсд2 = Q - QМ = 5,74 - 12,43 = -6,69 тс и
горизонтальная N1 = 4,91
, тc
(см. п. 2.31).
Расчетные схемы монтажных столиков даны на рис. 32.
Расчет монтажных столиков, закладных деталей и сварных швов производится в полном соответствии со СНиП II-В.3-72, СНиП II-21-75, «Руководством по проектированию бетонных и железобетонных конструкций из тяжелого бетона (без предварительного напряжения)» с учетом рекомендаций п. 3.3 настоящего Руководства.

Рис. 32. Расчетная схема монтажных столиков
II. Сопряжение замоноличено
Расчет производим в соответствии с п.п. 2.27 и 2.32 настоящего Руководства.
Конструктивное решение сопряжения дано на рис. 33:
|
h = 60 см |
- высота капители; |
|
h0 = 55,6 см |
- рабочая высота сечения капители, расположенного у грани колонны; |
|
bк = 83 см |
- ширина стакана капители понизу; |
|
bст = 15 см |
- толщина стакана капители понизу; |
|
b = 45 см |
- сторона квадратного сечения колонны; |
|
hш = 13 см |
- высота шпонки; |
|
Lш = 45 см |
- длина шпонки по одной грани; |
|
l¢ш = 1,5b |
= 67,5 см |
|
dш = 3 см |
- глубина шпонки. |
В узле действуют усилия (см. рис. 19):
тс×м,
тс×м,
тс×м,
тс×м
тс,
тс,
тс.
В значениях поперечных сил не учтен собственный вес конструкции перекрытия, который воспринят стальными монтажными столиками, приваренными к колонне
тс.

Рис. 33. Сопряжение капители с колонной
Определим высоту сжатой зоны бетона в сечении у грани колонны при действии изгибающего момента М1 = 13,2 тс×м. С некоторым приближением и учитывая небольшую высоту сжатой зоны бетона, принимаем, что низ стакана капители имеет постоянную ширину по высоте.
Приводим сечение низа стенок стакана капители к бетону замоноличивания
см,
где
= Rпр.сТms1
= 175 × 0,85 = 149 кгс/см2;
= Rпр.з × ms1ms5
= 135×0,85×0,9
= 103 кгс/см2; ms1 и ms5
- по табл. 15 СНиП II-21-75.
Ширина приведенного сечения будет
см;
![]()
1320000 = 103 × 96,4 х1 (55,6 – 0,5 х1)
или х12 - 111 х1 +266 = 0;
см.
Определим высоту сжатой зоны сопряжении при действии изгибающего момента М2 = 32 тс×м, вызывающего поворот узла.
(см. рис. 18).
В первом приближении для предварительного
определения высоты сжатой зоны бетона х2 принимаем ![]()
тогда ![]()
![]()
или ![]()
см.
см;
см.
см.
тс.
тс.
При данном
значении
снова определяем
высоту сжатой зоны бетона ![]()
см.
Тогда
=60 - 2,5 - 7,6= 49,9
см;
см;
тс;
тс.
Определяем
соответствующую вновь
найденному значению ![]()
см.
Высота сжатой зоны бетона при действии (М1 + М2) будет
см.
Таким образом, расстояние z2 между центрами тяжести сжатых зон бетона при действии изгибающего монета М2 равно
см;
см;
тс.
Раскладываем силу Р на составляющие:
горизонтальную
тс,
вертикальную
тс.
Находим сдвигающую силу Qсд, действующую по наиболее нагруженной грани сопряжения
тс.
По наиболее нагруженной грани сопряжения действует и сжимающая сила, перпендикулярная плоскости шва.
кгс = 46,9 тс.
Для наиболее напряженной грани сопряжения должно соблюдаться условие (37) настоящего Руководства
![]()
где
кгс/см2;
![]()
![]()
Величина
, вводимая в расчет, не должна превышать,
, т. е. ![]()
В нашем случае
0,7×46,9
>
0,5×44,6,
поэтому принимаем
=
=22,3 тс.
В предельном состоянии в верхней зоне наиболее нагруженной грани сопряжения могут существенно раскрыться трещины на контакте монолитного бетона со сборным, что затруднит передачу усилий на верхнюю шпонку и тем самым ослабит ее работу.
В связи с этим верхнюю шпонку в работе по данной грани сопряжения не учитываем.
Число шпонок, вводимое в расчет, принимаем nш = 3 – 1 = 2 шт.
кгс =
= 27,8 тс >
тс.
По формуле (38) настоящего Руководства определяем необходимую глубину шпонки
см.
Предусмотренная в сопряжении глубина шпонки отвечает данному условию.
При заданном силовом воздействии на сопряжение капители с колонной прочность шпонок, образованных бетоном замоноличивания, по наиболее нагруженной грани сопряжения обеспечена.
Аналогично проверяется прочность бетонных шпонок сборных элементов.
На усилия, найденные при расчете сопряжения, рассчитываются стенки стакана капители.
СОДЕРЖАНИЕ
2. Основные расчетные положения
Расчет конструкции по прочности
Расчет конструкций по деформациям
Расчет конструкций по раскрытию трещин
Типы и расчет сопряжений сборных конструкций
3. Рекомендации по конструированию
ПРИЛОЖЕНИЕ. Пример расчета сборного железобетонного безбалочного перекрытия
|
|
|
|