|
| |
ТИПОВЫЕ ТЕХНОЛОГИЧЕСКИЕ КАРТЫ
НА ПРОИЗВОДСТВО ОТДЕЛЬНЫХ ВИДОВ РАБОТ
РАЗДЕЛ 01
ТИПОВАЯ ТЕХНОЛОГИЧЕСКАЯ КАРТА
НА ЗЕМЛЯНЫЕ И БУРОВЗРЫВНЫЕ РАБОТЫ
1.01.01.68
КОМПЛЕКСНО-МЕХАНИЗИРОВАННЫЙ
ПРОЦЕСС
ВЕРТИКАЛЬНОЙ ПЛАНИРОВКИ СТРОИТЕЛЬНОЙ ПЛОЩАДКИ
ОБЪЕМОМ ОТ 50 ДО 100 тыс. м3 В ГРУНТАХ II
ГРУППЫ
МОСКВА - 1989
|
РАЗРАБОТАНА
ВНИПИИСТРОМСЫРЬЕ
Главный инженер института Р.А. Родин
Главный инженер проекта В.Н. Буман
|
ОДОБРЕНА
Отделом
организации и технологии строительного производства Госстроя СССР
Письмо
от 14.09.1988 г. № 23-532
Введена в действие с
01.01.1989 г.
|
1.1. Типовая
технологическая карта может быть рекомендована при вертикальной планировке строительной
площадки с объемом работ от 50 до 100 тыс. м3 в случае сооружения
объектов промышленного, жилищно-гражданского и мелиоративного строительства.
1.2. Типовую
технологическую карту можно использовать для грунтов I - III групп.
1.3. В данной технологической
карте приведен пример вертикальной планировки строительной площадки с
параметрами:
длина - 320 м; ширина - 140 м;
максимальная глубина выемки - 1,95 м;
максимальная высота насыпи - 1,85 м.
Объем срезки грунта растительного слоя - 11200 м3.
Объем насыпи - 70732 м3, объем выемки - 44343 м3.
Объем недостающего грунта - 26389 м3.
1.4. Строительство
осуществляется в средней зоне СССР при положительных температурах воздуха.
1.5. При привязке
технологической карты к конкретному объекту и условиям строительства необходимо
скорректировать объемы работ, группы грунтов, график производства работ и
калькуляцию затрат труда, средства механизации с учетом наличия парка
землеройных механизмов.
2.1. Настоящий
комплексно-механизированный технологический процесс состоит из
подготовительных, основных и отделочных операций.
2.2. К подготовительным
операциям относятся:
геодезическая разбивка контуров планировки и нулевой линии с
установкой разбивочных знаков и реперов;
осуществление мероприятий по ограждению планируемой
территории от поступления поверхностных вод;
устройство освещения площадки;
устройство временных подъездных землевозных автодорог.
2.3. К основным операциям
относятся:
срезка грунта растительного слоя с площади планировочной
выемки и насыпи;
устройство землевозных автодорог;
разработка грунта планировочной выемки;
разработка грунта в резерве (карьера);
отсыпка грунта планировочной насыпи.
2.4. К отделочным
операциям относится планировка площади и откосов выемки, откосов и верха
насыпи.
2.5. Состав вариантов
комплексов машин, применяемых для основных и отделочных операций.
Таблица 1
|
Технологическая операция
|
Варианты комплексов машин
|
|
1
|
2
|
3
|
4
(аналог)
|
|
Срезка
грунта растительного слоя
|
Бульдозер
ДЗ-16А.
Экскаватор
ЭО-4121Б прямая лопата.
Автомобиль-самосвал
КамАЗ-5511.
Автогрейдер
ДЗ-31-1
|
Бульдозер
ДЗ-42.
Экскаватор
ЭО-4121Б прямая лопата.
Автомобиль-самосвал
КамАЗ-5511.
Автогрейдер
ДЗ-31-1
|
Бульдозер
ДЗ-35Б.
Экскаватор
ЭО-4121Б прямая лопата.
Автомобиль-самосвал
КамАЗ-5511.
Автогрейдер
ДЗ-31-1
|
Бульдозер
ДЗ-27А.
Экскаватор
ЭО-4111Б прямая лопата.
Автомобиль-самосвал
КамАЗ-5511.
Автогрейдер
ДЗ-31-1
|
|
Устройство
землевозных автодорог
|
Бульдозер
ДЗ-110А.
Каток
ДУ-47Б
|
Бульдозер
ДЗ-42.
Каток
ДУ-47Б
|
Бульдозер
ДЗ-35Б.
Каток
ДУ-47Б
|
Бульдозер
ДЗ-27А.
Каток
ДУ-47Б
|
|
Разработка
грунта планировочной выемки
|
Бульдозер
ДЗ-110А.
Экскаватор
ЭО-4121Б прямая лопата.
Автомобиль-самосвал
КамАЗ-5511.
Автогрейдер
ДЗ-31-1
|
Бульдозер
ДЗ-42.
Экскаватор
ЭО-4121Б прямая лопата.
Автомобиль-самосвал
КамАЗ-5511.
Автогрейдер
ДЗ-31-1
|
Бульдозер
ДЗ-35Б.
Экскаватор
ЭО-4121Б прямая лопата.
Автомобиль-самосвал
КамАЗ-5511.
Автогрейдер
ДЗ-31-1
|
Бульдозер
ДЗ-27А.
Экскаватор
ЭО-4111В прямая лопата.
Автомобиль-самосвал
КамАЗ-5511.
Автогрейдер
ДЗ-31-1
|
|
Разработка
грунта в резерве (карьере)
|
Экскаватор
ЭО-4121Б прямая лопата.
Автомобиль-самосвал
КамАЗ-5511.
Автогрейдер
ДЗ-31-1
|
Экскаватор
ЭО-4121Б прямая лопата.
Автомобиль-самосвал
КамАЗ-5511.
Автогрейдер
ДЗ-31-1
|
Экскаватор
ЭО-4121Б прямая лопата.
Автомобиль-самосвал
КамАЗ-5511.
Автогрейдер
ДЗ-31-1
|
Экскаватор
ЭО-4111В прямая лопата.
Автомобиль-самосвал
КамАЗ-5511.
Автогрейдер
ДЗ-31-1
|
|
Отсыпка
грунта планировочной насыпи
|
Бульдозер
ДЗ-110А.
Каток
ДУ-16В.
Поливочная
машина ПМ-130Б
|
Бульдозер
ДЗ-42.
Каток
ДУ-16В.
Поливочная
машина ПМ-130Б
|
Бульдозер
ДЗ-35Б.
Каток
ДУ-16В.
Поливочная
машина ПМ-130Б
|
Бульдозер
ДЗ-27А.
Каток
ДУ-16В.
Поливочная
машина ПМ-130Б
|
|
Планировочные
работы
|
Автогрейдер
ДЗ-31-1
|
Автогрейдер
ДЗ-31-1
|
Автогрейдер
ДЗ-31-1
|
Автогрейдер
ДЗ-31-1
|
Ведущими машинами в
комплексе машин являются:
в варианте 1 - бульдозер - ДЗ-110А;
в варианте 2 - бульдозер - ДЗ-42;
в варианте 3 - бульдозер - ДЗ-35Б;
в варианте 4 - бульдозер - ДЗ-27А.
2.6. Технология
производства работ для варианта 1.
До начала выполнения работ по устройству планировочной
насыпи и выемки производится срезка грунта растительного слоя.
Грунт растительного слоя разрабатывается бульдозером ДЗ-110А
по траншейной схеме и окучивается.
Разработка грунта в траншеях производится слоями по 0,10 -
0,15 м по всей длине траншеи на полную глубину срезки. А затем снимаются
разделительные стенки (перемычки) грунта шириной 0,5 м между смежными
траншеями. Разрабатываемый грунт растительного слоя укладывается во временные
отвалы с заложением откосов 1:3, а затем подрабатывается бульдозером до
заложения 1:1,75. Грунт временных отвалов разрабатывается экскаватором ЭО-4121Б,
оснащенным прямой лопатой, грузится на автомобили-самосвалы КамАЗ-5511 и
транспортируется в отвал.
Для движения автомобилей-самосвалов при разработке грунта
растительного слоя предусматривается устройство временных землевозных автодорог
из доменного шлака (или другого местного строительного материала) толщиной 0,30
м. Подвезенный автомобилями-самосвалами шлак разравнивают бульдозером ДЗ-110А и
уплотняют моторным катком ДУ-47Б.
Для устройства планировочной насыпи используют грунт,
разрабатываемый в планировочной выемке и резерве (карьере). Глубина
планировочной выемки составляет в основном не более 1,00 м. При такой малой
глубине разработка грунта экскаватором технологически трудно выполнима и
непроизводительна. Поэтому разработка грунта осуществляется бульдозером
ДЗ-110А. Часть грунта планировочной выемки перемещается бульдозером
непосредственно в планировочную насыпь (при дальности перемещения до 100 м),
другая часть окучивается во временные отвалы. Грунт временных отвалов
разрабатывается экскаватором ЭО-4121Б, грузится на автомобили-самосвалы
КамАЗ-5511 и транспортируется в насыпь. Для движения автомобилей-самосвалов
предусмотрены землевозные дороги из шлака. Разработка грунта бульдозером
производится по ярусно-траншейной схеме с промежуточным накоплением грунта.
Всю
выемку делят по глубине на несколько ярусов, каждый из которых, в свою очередь,
подразделяется на три слоя по 0,10 - 0,15 м. Грунт в каждом ярусе
разрабатывается траншеями шириной по 3,20 м, а разделительные стенки
(перемычки) грунта шириной 0,50 м между траншеями снимаются бульдозером после
выемки грунта по всей глубине яруса. Разработку грунта выемки каждого слоя
следует начинать от нулевой линии работ.
Вся
планировочная насыпь разбивается по площади на две захватки. На одной захватке
отсыпка насыпи производится бульдозером, на другой захватке насыпь отсыпается
из грунта, подвозимого автомобилями-самосвалами при разработке грунта
экскаватором планировочной выемки и резерва (карьера).
Грунт
в резерве (карьере) разрабатывается экскаватором ЭО-4121Б, грузится на
автомобили-самосвалы КамАЗ-5511 и транспортируется к месту укладки.
Каждая
захватка разбивается на две равновеликие по площади карты, где в
технологической последовательности чередуются операции: отсыпка и разравнивание
грунта с увлажнением и уплотнением.
Перемещаемый
в насыпь бульдозером или подвезенный автомобилями-самосвалами грунт
разравнивается бульдозером ДЗ-110А. Движение бульдозера осуществляется
круговыми проходками от краев насыпи к ее середине. Проходы бульдозера
выполняются с перекрытием предыдущей проходки на 0,30 м. Грунт разравнивают
слоем 0,35 м. Перед укаткой каждого слоя грунта производится увлажнение его
(при необходимости) поливочной машиной ПМ-130Б. Полив выполняется в зависимости
от требующегося увлажнения в несколько приемов. Каждая последующая проходка
поливочной машины производится после впитывания грунтом воды от полива
предыдущей проходки.
Уплотнение
грунта должно выполняться при оптимальном содержании влаги в грунте. Укатка
грунта осуществляется от краев карты к ее середине полуприцепным пневмокатком
ДУ-16В. Движение катка производится с перекрытием следа предыдущего прохода на
0,30 м. Первая проходка катка выполняется на расстоянии 2,80 м от бровки
насыпи, а затем прикатывается край насыпи. После прикатки края насыпи укатку
продолжают круговыми проходами катка в направлении от краев насыпи к ее
середине.
Величина
оптимальной влажности грунта, требующееся количество воды для увлажнения,
необходимое количество проходов катка по одному следу и толщина укатываемого
слоя уточняются на месте работ пробной укаткой.
В
процессе производства работ по каждому слою грунта производится контроль его
уплотнения взятием проб полевой грунтовой лабораторией.
Планировка
выемки и насыпи производится автогрейдером ДЗ-31-1.
Землевозные
дороги, по которым транспортируется грунт автомобилями-самосвалами, должны
постоянно поддерживаться в исправном состоянии автогрейдером ДЗ-31-1.
2.7. Разработка грунта выемки и отсыпка
насыпи выполняется (при работе в одну смену) для варианта 1 следующим составом:
машинисты
бульдозера 6 разряда -
2;
машинисты экскаватора 6 разряда - 2;
машинист катка 6 разряда -
1;
машинист катка 5 разряда -
1;
машинист автогрейдера 6 разряда - 1;
машинист поливочной машины 4 разряда - 1;
водители автомобилей-самосвалов III класса - 8,
2.8. Контроль качества выполняемых работ.
Таблица 2
|
Наименование операций, подлежащих контролю
|
Контроль качества выполнения операций
|
|
Производителем работ
|
Мастером
|
Состав
|
Способы, инструмент
|
Время
|
Привлекаемые службы
|
|
Разбивка осей
и контуров площадки, нулевой линии
|
Устройство
временных землевозных автодорог
|
Точность
выноса
|
Теодолит,
стальная рулетка
|
До начала
разработки и отсыпки грунта
|
Геодезическая
|
|
|
Разработка планировочной выемки
|
Геометрические
размеры в плане, высотные отметки, крутизна откосов
|
Нивелир,
стальная рулетка, уклономер, откосник
|
В процессе
разработки выемки
|
Геодезическая
|
|
|
Разработка грунта в резерве (карьере)
|
Крутизна
откосов, геотехнические свойства грунта
|
Визуально, откосник,
плотномер, влагомер
|
В процессе
разработки резерва
|
Геодезическая
|
|
|
Отсыпка
планировочной насыпи
|
Толщина слоя
отсыпки, геотехнические свойства грунта, геометрические размеры в плане,
высотные отметки, крутизна откосов
|
Нивелир, стальная
рулетка, уклономер, откосник, плотномер, влагомер
|
В процессе
отсыпки насыпи
|
Геодезическая
|
|
|
Планировочные
работы
|
Соблюдение
проектных отметок, геометрические размеры в плане, крутизна откосов
|
Нивелир,
стальная рулетка, уклономер, откосник
|
После отсыпки
насыпи и разработки планировочной выемки
|
Геодезическая
|
В соответствии с принятыми вариантами комплексов машин
(табл. 1)
и на основании калькуляции затрат труда в табл. 3 приведены сравнительные
технико-экономические показатели эффективности вариантов.
Таблица 3
|
Наименование показателей
|
Варианты
комплексов механизации работ
|
|
1
|
2
|
3
|
4 (аналог)
|
|
Объем работ, м3
|
83099
|
83099
|
83099
|
83099
|
|
Общая трудоемкость, чел.-дн.
|
671,61
|
949,42
|
666,63
|
756,42
|
|
То же, на 1000 м3 грунта, чел.-ч
|
66,27
|
93,69
|
65,78
|
74,64
|
|
Затраты машинного времени на весь объем работ,
мат.-смен
|
671,61
|
978,83
|
666,63
|
765,73
|
|
Продолжительность процесса при двухсменной
работе, день
|
46,3
|
49,7
|
46,0
|
47,6
|
|
Выработка на 1 маш.-ч, м3
|
15,09
|
10,67
|
15,20
|
13,40
|
|
Стоимость затрат труда на весь объем работ,
руб.-коп.
|
4942-44
|
6909-39
|
4737-60
|
5783-57
|
|
То же, на 1000 м3 грунта, руб.
|
59,48
|
83,15
|
57,01
|
69,60
|
|
Приведенные затраты на весь объем работ, руб.
|
41716
|
45871
|
43959
|
50773
|
|
То же, на 1000 м3 грунта, руб.
|
502
|
552
|
529
|
611
|
|
Эффективность в сравнении с аналогом на 1000 м3
грунта, руб.
|
+109
|
+59
|
+82
|
-
|
|
Прямые затраты на 1000 м3 грунта,
руб.
|
470
|
527
|
494
|
573
|
4.1. Потребность в машинах, оборудовании,
инструментах, инвентаре и приспособлениях.
Таблица 4
|
Наименование машин, оборудования,
инструментов и приспособлений
|
Тип
|
Марка, ГОСТ
|
Количество машин для вариантов механизации,
кг
|
Техническая характеристика
|
|
1
|
2
|
3
|
4
|
|
Бульдозер с
неповоротным отвалом, управление гидравлическое
|
На тракторе
класса 10 т
|
ДЗ-110А
|
2
|
-
|
-
|
-
|
Трактор
Т-130.1.Г-1, длина отвала 3220 мм
|
|
Бульдозер с неповоротным
отвалом, управление гидравлическое
|
На тракторе
класса 1,4 - 4т
|
ДЗ-42
|
-
|
6
|
-
|
-
|
Трактор ДТ-75,
длина отвала 2520 мм
|
|
Бульдозер с
неповоротным отвалом, управление гидравлическое
|
На тракторе
класса 15 - 25 т
|
ДЗ-35Б
|
-
|
-
|
2
|
-
|
Трактор
Т-180СК, длина отвала 3640 мм
|
|
Бульдозер с
неповоротным отвалом, управление гидравлическое
|
На тракторе
класса 10 т
|
ДЗ-27А
|
-
|
-
|
-
|
2
|
Трактор
Т-130.1.Г-1, длина отвала 3200 мм
|
|
Экскаватор
универсальный
|
Одноковшовый, с
гидравлическим приводом на гусеничном ходу
|
ЭО-4121Б
22894-77
|
2
|
2
|
2
|
-
|
Оборудован
прямой лопатой. Ковш - 1,0 м3
|
|
Экскаватор
|
Одноковшовый,
с пневматическим управлением
|
ЭО-4111В
|
-
|
-
|
-
|
4
|
Оборудован
прямой лопатой. Ковш - 0,65 м3
|
|
Автогрейдер
|
Среднего типа,
самоходный
|
ДЗ-31-1
9420-79
|
1
|
1
|
1
|
1
|
Мощность
двигателя 96 кВт, длина отвала 3700 мм
|
|
Каток
|
Пневмоколесный
полуприцепной
|
ДУ-16В
|
1
|
1
|
1
|
1
|
Тягач
МоАЗ-546А, масса 25,9 т, ширина уплотняемой полосы 2620 мм
|
|
Каток
|
Вибрационный
самоходный двухвальцовый с гладкими вальцами
|
ДУ-47Б
|
1
|
1
|
1
|
1
|
Мощность
двигателя 37 кВт, масса 6 - 8 т, ширина уплотняемой полосы 1200 мм
|
|
Поливочная
машина на шасси ЗИЛ-130
|
|
ПМ-130Б
|
1
|
1
|
1
|
1
|
Вместимость цистерны
6000 л
|
|
Автомобиль-самосвал
|
|
КамАЗ-5511
|
8
|
8
|
8
|
8
|
Грузоподъемность
10 т
|
|
Теодолит
|
|
Т-15
10529-86
|
1
|
1
|
1
|
1
|
|
|
Нивелир
|
|
Н-10
10528-76
|
1
|
1
|
1
|
1
|
|
|
Рейка
нивелирная
|
|
РН-10
11158-83
|
2
|
2
|
2
|
2
|
|
|
Вешка
геодезическая
|
Стандартная
|
|
3
|
3
|
3
|
3
|
|
|
Рулетка
измерительная металлическая
|
Стандартная
|
РС-20
7502-80
|
1
|
1
|
1
|
1
|
|
|
Рейка
трехметровая
|
|
|
1
|
1
|
1
|
1
|
|
|
Плотномер
|
|
ПГМ-1
|
1
|
1
|
1
|
1
|
|
|
Влагомер
|
|
НВУ-1
26375-84
|
1
|
1
|
1
|
1
|
|
4.2. Потребность в эксплуатационных материалах приведена в табл.
5.
Таблица 5
|
Наименование эксплуатационных
материалов
|
Норма на час
работы машины, кг
|
Количество на принятый объем работ по
вариантам, кг
|
|
1
|
2
|
3
|
4
|
|
Бульдозер
ДЗ-110А
|
|
|
|
|
|
|
Дизельное
топливо
|
7,70
|
10925,1
|
-
|
-
|
-
|
|
Бензин
|
0,23
|
326,3
|
-
|
-
|
-
|
|
Моторное масло
|
0,37
|
524,9
|
-
|
-
|
-
|
|
Трансмиссионное масло
|
0,10
|
141,9
|
-
|
-
|
-
|
|
Консистентная смазка
|
0,08
|
113,5
|
-
|
-
|
-
|
|
Бульдозер
ДЗ-42
|
|
|
|
|
|
|
Дизельное
топливо
|
3,30
|
-
|
12199,7
|
-
|
-
|
|
Бензин
|
0,10
|
-
|
369,9
|
-
|
-
|
|
Моторное
масло
|
0,16
|
-
|
591,8
|
-
|
-
|
|
Трансмиссионное масло
|
0,04
|
-
|
147,9
|
-
|
-
|
|
Консистентная
смазка
|
0,03
|
-
|
110,9
|
-
|
-
|
|
Бульдозер
ДЗ-35Б
|
|
|
|
|
|
|
Дизельное
топливо
|
6,90
|
-
|
-
|
8845,7
|
-
|
|
Бензин
|
0,21
|
-
|
-
|
269,2
|
-
|
|
Моторное
масло
|
0,33
|
-
|
-
|
423,1
|
-
|
|
Трансмиссионное масло
|
0,09
|
-
|
-
|
115,4
|
-
|
|
Консистентная
смазка
|
0,08
|
-
|
-
|
102,6
|
-
|
|
Бульдозер
ДЗ-27А
|
|
|
|
|
|
|
Дизельное
топливо
|
7,70
|
-
|
-
|
-
|
11545,1
|
|
Бензин
|
0,23
|
-
|
-
|
-
|
344,9
|
|
Моторное
масло
|
0,37
|
-
|
-
|
-
|
554,8
|
|
Трансмиссионное
масло
|
0,10
|
-
|
-
|
-
|
149,9
|
|
Консистентная
смазка
|
0,08
|
-
|
-
|
-
|
119,9
|
|
Экскаватор
ЭО-4121Б
|
|
|
|
|
|
|
Дизельное
топливо
|
5,5
|
3688,3
|
3688,3
|
2294,2
|
-
|
|
Бензин
|
0,16
|
107,3
|
107,3
|
66,7
|
-
|
|
Моторное масло
|
0,27
|
181,1
|
181,1
|
112,6
|
-
|
|
Трансмиссионное масло
|
0,03
|
20,1
|
20,1
|
12,5
|
-
|
|
Консистентная смазка
|
0,16
|
107,3
|
107,3
|
66,7
|
-
|
|
Экскаватор ЭО-4111В
|
|
|
|
|
|
|
Дизельное топливо
|
5,7
|
-
|
-
|
-
|
7422,8
|
|
Бензин
|
0,17
|
-
|
-
|
-
|
221,4
|
|
Моторное масло
|
0,28
|
-
|
-
|
-
|
364,6
|
|
Трансмиссионное масло
|
0,03
|
-
|
-
|
-
|
39,1
|
|
Консистентная смазка
|
0,17
|
-
|
-
|
-
|
221,4
|
|
Автогрейдер
ДЗ-31-1
|
|
|
|
|
|
|
Дизельное топливо
|
5,20
|
2046,7
|
2046,7
|
2046,7
|
2046,7
|
|
Бензин
|
0,16
|
62,98
|
62,98
|
62,98
|
62,98
|
|
Моторное масло
|
0,26
|
98,4
|
98,4
|
98,4
|
98,4
|
|
Трансмиссионное масло
|
0,07
|
27,6
|
27,6
|
27,6
|
27,6
|
|
Консистентная смазка
|
0,06
|
23,6
|
23,6
|
23,6
|
23,6
|
|
Каток ДУ-16В
|
|
|
|
|
|
|
Дизельное топливо
|
10,10
|
3071,8
|
3071,8
|
3071,8
|
3071,8
|
|
Бензин
|
0,30
|
91,2
|
91,2
|
91,2
|
91,2
|
|
Моторное масло
|
0,48
|
146,0
|
146,0
|
146,0
|
146,0
|
|
Трансмиссионное масло
|
0,13
|
39,5
|
39,5
|
39,5
|
39,5
|
|
Консистентная смазка
|
0,11
|
33,5
|
33,5
|
33,5
|
33,5
|
|
Каток ДУ-47Б
|
|
|
|
|
|
|
Дизельное топливо
|
3,20
|
8,1
|
8,1
|
8,1
|
8,1
|
|
Бензин
|
0,10
|
0,3
|
0,3
|
0,3
|
0,3
|
|
Моторное масло
|
0,18
|
0,5
|
0,5
|
0,5
|
0,5
|
|
Трансмиссионное масло
|
0,05
|
0,13
|
0,13
|
0,13
|
0,13
|
|
Консистентная смазка
|
0,04
|
0,10
|
0,10
|
0,10
|
0,10
|
|
Поливочная
машина ПМ-130Б
|
|
|
|
|
|
|
Бензин
|
4,90
|
752,2
|
752,2
|
752,2
|
752,2
|
|
Автомобильное
масло
|
0,11
|
16,9
|
16,9
|
16,9
|
16,9
|
|
Автомобиль-самосвал
КамАЗ-5511
|
|
|
|
|
|
|
Дизельное
топливо
|
5,40
|
12671,6
|
12671,6
|
12671,6
|
12671,6
|
|
Дизельное
масло
|
0,25
|
586,6
|
586,6
|
586,6
|
586,6
|
|
Трансмиссионное
масло
|
0,04
|
93,9
|
93,9
|
93,9
|
93,9
|
|
Консистентная
смазка
|
0,02
|
46,9
|
46,9
|
46,9
|
46,9
|
При
выполнении работ по вертикальной планировке строительной площадки необходимо
руководствоваться требованиями СНиП-III-4-80 «Техника
безопасности в строительстве».

Таблица
объемов работ
|
Наименование работ
|
Количество
|
|
Снятие
растительного слоя, м3
|
11200
|
|
Объем
насыпи, м3
|
70732
|
|
Объем
выемки, м3
|
44345
|
|
Недостаток
грунта, м3
|
26387
|
|
Планировка
площадки, м2
|
44800
|
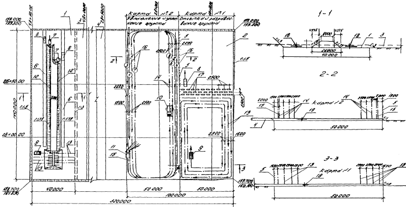
Примечание. Черные отметки земли даны с
учетом срезки растительного слоя грунта.

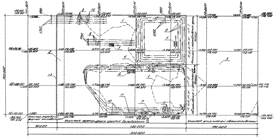
1 - временный отвал грунта растительного
слоя;
2 - землевозная автодорога из шлака толщиной
0,30 м;
3 -
первоначальный отвал грунта с заложением откосов 1:3;
4 - отвал
грунта, подработанный бульдозером до заложения откосов 1:1,75;
5 - ось
рабочего хода бульдозера ДЗ-110А при разработке грунта растительного слоя;
6 - ось холостого
хода бульдозера;
7 -
экскаватор ЭО-4121Б с оборудованием прямая лопата;
8 -
автомобиль-самосвал КамАЗ-5511;
9 - ось
проходки экскаватора;
10 -
очередность проходок экскаватора

1 - линия нулевых работ; 8 - оси проходок бульдозера при перемещении грунта из выемки в
насыпь;
2 -
выемка; 9
- оси проходок бульдозера при разравнивании грунта в насыпи;
3 -
насыпь; 10 - оси проходок катка;
4 -
граница карт отсыпки насыпи; 11 - ось движения поливочной машины;
5 -
бульдозер ДЗ-110А; 12
- очередность проходок бульдозера;
6 -
каток ДУ-16В; 13
- очередность проходок катка
7 -
поливочная машина ПМ-130Б;

1 -
выемка; 11 - поливочная
машина ПМ-130Б;
2 -
насыпь; 12 - ось
проходки экскаватора;
3 -
ранее выполненный участок выемки; 13
- ось проходки бульдозера;
4 -
ранее выполненный участок насыпи; 14
- ось проходки катка;
5 - граница
карт отсыпки; 15 - ось проходки поливочной машины;
6 -
землевозная автодорога; 16
- очередность проходок катка;
7 -
экскаватор ЭО-4121А, оборудованный прямой лопатой; 17 - временные отвалы грунта, выгруженного из
автомобилей-самосвалов;
8 -
автомобиль-самосвал КамАЗ-5511; 18
- слои разработки выемки 0,30 м;
9 -
бульдозер ДЗ-110А; 19
- слои отсыпки насыпи 0,35 - 0,40 м
10 -
каток ДУ-16В;

Примечание. Здесь и далее пунктирная линия
указывает на неполное использование механизмов в течение смены.
ГРАФИК ПРОИЗВОДСТВА РАБОТ. ВАРИАНТ 1
(продолжение)

ГРАФИК ПРОИЗВОДСТВА РАБОТ. ВАРИАНТ 1
(продолжение)

|
Наименование работ
|
Обоснование (ЕНиР и др.)
|
Единица измерения
|
Объем работ
|
Норма времени на единицу измерения,
чел.-ч
маш.-ч
|
Затраты труда на весь объем работ,
чел.-день
маш.-смен
|
Время пребывания машины на объекте, маш.-смен
|
Расценка на единицу измерения, руб.-коп.
|
Стоимость затрат на весь объем работ,
руб.-коп.
|
Стоимость затрат с учетом пребывания машины
на объекте, руб.-коп.
|
|
Разработка бульдозером грунта I группы с перемещением на расстояние 30
м (растительный грунт)
|
ЕНиР §Е2-1-22, т-2, п. 5а, г
|
100
м3
|
112,00
|
0,95
0,95
|
12,98
12,98
|
12,98
|
1-00,7
|
112-78
|
112-78
|
|
Разравнивание бульдозером грунта III группы (шлак) толщиной слоя 0,30 м при
устройстве покрытия землевозных дорог
|
ЕНиР §Е2-1-28, № 3в
|
100
м3
|
8,20
|
0,77
0,77
|
0,77
0,77
|
0,77
|
0-81,6
|
6-69
|
6-69
|
|
Уплотнение грунта III группы самоходным виброкатком ДУ-47Б
при 5-и проходах по одному следу
|
ЕНиР §Е17-7-27
|
100
м3
|
8,20
|
0,31
0,31
|
0,31
0,31
|
0,31
|
0-28,2
|
2-31
|
2-31
|
|
Разработка грунта I группы экскаватором ЭО-4121Б, оборудованным
прямой лопатой, с погрузкой на автомобили-самосвалы
|
Т. 79, в. 10
|
100
м3
|
112,00
|
0,86
0,86
|
11,75
11,75
|
11,75
|
0-91,2
|
102-14
|
102-14
|
|
Транспортирование грунта
автомобилями-самосвалами КамАЗ-5511 на расстояние 2 км
|
ЕНВ*
|
100
т
|
134,40
|
2,73
2,73
|
44,75
44,75
|
47,20
|
1-94
|
260-74
|
276-61
|
|
Разработка бульдозером грунта II группы с перемещением на расстояние до
100 м из выемки в насыпь
|
ЕНиР §Е2-1-22 т-2, № 6б, д
|
100
м3
|
232,20
|
3,38
3,38
|
95,71
95,71
|
95,71
|
3-58,5
|
832-44
|
832-44
|
|
То же, грунта III группы
|
ЕНиР §Е2-1-22, т-2, № 5в, е
|
100
м3
|
8,20
|
3,62
3,62
|
3,62
3,62
|
3,62
|
3-83,7
|
31-46
|
31-46
|
|
Разработка бульдозером грунта II группы с перемещением на расстояние 30
м и окучиванием
|
ЕНиР §Е2-1-22, т-2, № 5б, д
|
100
м3
|
211,25
|
1,07
1,07
|
27,57
27,57
|
27,57
|
1-13,5
|
239-77
|
239-77
|
|
Разработка грунта II группы экскаватором ЭО-4121Б,
оборудованным прямой лопатой, с погрузкой на автомобили-самосвалы
|
Т. 79, в. 10
|
100
м3
|
211,25
|
1,20
1,20
|
30,91
30,91
|
30,91
|
1-27,2
|
268-71
|
268-71
|
|
Разработка
грунта II группы в карьере экскаватором ЭО-4121Б,
оборудованным прямой лопатой, с погрузкой на автомобили-самосвалы
|
Т. 79**, в. 10
|
100
м3
|
267,34
|
1,20
1,20
|
39,12
39,12
|
39,12
|
0-94,8
|
253-44
|
253-44
|
|
Транспортирование
грунта автомобилями-самосвалами на расстояние 1 км
|
ЕНВ*
|
100 т
|
369,69
|
1,90
1,90
|
85,66
85,66
|
92,40
|
1-50
|
554-54
|
598-20
|
|
То же, на
расстояние 2 км
|
ЕНВ*
|
100 т
|
467,84
|
2,73
2,73
|
155,76
155,76
|
156,80
|
1-94
|
907-61
|
914-35
|
|
Разравнивание
бульдозером грунта II группы в насыпи толщиной слоя до 0,60 м
|
ЕНиР §Е2-1-28
|
100
м3
|
707,3
|
0,32
0,32
|
27,60
27,60
|
35,00
|
0-33,9
|
239-78
|
304-10
|
|
Увлажнение грунта
поливочной машиной ПМ-130Б
|
ЕНиР §Е17-2;
ЕНВ*
|
100
м3
|
70,73
|
2,17
2,17
|
18,72
18,72
|
35,00
|
1-64
|
116-00
|
216-12
|
|
Уплотнение
грунта насыпи полуприцепным пневмокатком ДУ-16В слоем 0,35 м при 8-и проходах
по одному следу
|
ЕНиР §Е2-1-29,
т-4, № 2б, 4б
|
100
м3
|
707,32
|
0,43
0,43
|
37,09
37,09
|
37,09
|
0-45,4
|
321-12
|
321-12
|
|
Ремонт и
содержание дорог автогрейдером ДЗ-31-1 при транспортировании грунта
|
ЕНиР
§Е17-20-15
|
1 км
|
348,90
|
1,10
1,10
|
46,80
46,80
|
46,80
|
1-17
|
408-21
|
408-21
|
|
Работа
бульдозера ДЗ-110А на отвале в грунте I группы
|
ЕНиР
§Е2-1-22, № 5а
|
100
м3
|
112,00
|
0,35
0,35
|
4,78
4,78
|
4,78
|
0-37,1
|
41-55
|
41-55
|
|
Планировка
насыпи и выемки автогрейдером ДЗ-31-1
|
ЕНиР
§Е2-1-37, т-2, № 1д
|
1000 м2
|
44,80
|
0,22
0,22
|
1,20
1,20
|
1,20
|
0-23,3
|
10-44
|
10-44
|
|
ИТОГО:
|
|
|
|
|
645,10
645,10
|
671,61
|
|
4709-73
|
4942-44
|
|
|
|
|
|
|
|
|
|
|
|
ЕНВ* - Здесь и далее «Единые нормы времени
на перевозку грузов автомобильным транспортом и сдельные расценки для оплаты
труда водителей».
Т. 79** - Здесь и далее сборник «Типовые
расценки и нормы ...» Минтрансстроя СССР «Земляные работы».

ГРАФИК ПРОИЗВОДСТВА РАБОТ. ВАРИАНТ 2
(продолжение)

ГРАФИК ПРОИЗВОДСТВА РАБОТ. ВАРИАНТ 2
(продолжение)

|
Наименование работ
|
Обоснование (ЕНиР и др.)
|
Единица измерения
|
Объем работ
|
Норма времени на единицу измерения,
чел.-ч
маш.-ч
|
Затраты труда на весь объем работ,
чел.-день
маш.-смен
|
Время пребывания машины на объекте, маш.-смен
|
Расценка на единицу измерения, руб.-коп.
|
Стоимость затрат на весь объем работ, руб.-коп.
|
Стоимость затрат с учетом пребывания машины
на объекте, руб.-коп.
|
|
Разработка
бульдозером грунта I группы с
перемещением на расстояние 30 м (растительный грунт)
|
ЕНиР §Е2-1-22,
№ 1а, г
|
100 м3
|
112,00
|
2,68
2,68
|
36,60
36,60
|
36,60
|
2-43,9
|
273-17
|
273-17
|
|
Разравнивание
бульдозером грунта III группы (шлак)
толщиной слоя 0,30 м при устройстве покрытия землевозных дорог
|
ЕНиР §Е2-1-22,
№ 1в, е
|
100 м3
|
8,20
|
3,26
3,26
|
3,26
3,26
|
3,26
|
2-96,4
|
24-30
|
24-30
|
|
Уплотнение
грунта III группы самоходным виброкатком ДУ-47Б
при 5-и проходах по одному следу
|
ЕНиР §Е17-7-27
|
100 м3
|
8,20
|
0,31
0,31
|
0,31
0,31
|
0,31
|
0-28,2
|
2-31
|
2-31
|
|
Разработка
грунта I группы экскаватором ЭО-4121Б, оборудованным
прямой лопатой, с погрузкой на автомобили-самосвалы
|
Т. 79, в. 10
|
100 м3
|
112,00
|
0,86
0,86
|
11,75
11,75
|
11,75
|
0-67,9
|
76-05
|
76-05
|
|
Транспортирование
грунта автомобилями-самосвалами КамАЗ-5511 на расстояние 2 км
|
ЕНВ*
|
100 т
|
134,40
|
2,73
2,73
|
44,75
44,75
|
47,20
|
1-94
|
260-74
|
276-61
|
|
Разработка
бульдозером грунта II группы с
перемещением на расстояние до 100 м из выемки в насыпь
|
ЕНиР
§Е2-1-22, № 1б, д
|
100 м3
|
232,20
|
9,56
9,56
|
270,71
270,71
|
270,71
|
8-69,5
|
2018-98
|
2018-98
|
|
То же, грунта III группы
|
ЕНиР
§Е2-1-22, № 1в, е
|
100 м3
|
8,20
|
10,12
10,12
|
10,12
10,12
|
10,12
|
9-20,8
|
75-51
|
75-51
|
|
Разработка
бульдозером грунта II группы с
перемещением на расстояние 30 м и окучиванием
|
ЕНиР §Е2-1-22,
№ 1б, д
|
100 м3
|
211,25
|
2,98
2,98
|
76,77
76,77
|
76,77
|
2-71
|
572-49
|
572-49
|
|
Разработка
грунта II группы экскаватором ЭО-4121Б,
оборудованным прямой лопатой, с погрузкой на автомобили-самоовалы
|
Т. 79**, в.
10
|
100 м3
|
211,25
|
1,20
1,20
|
30,91
30,91
|
30,91
|
0-94,8
|
200-27
|
200-27
|
|
То же, в
карьере
|
Т. 79**, в.
10
|
100 м3
|
267,34
|
1,20
1,20
|
39,12
39,12
|
39,12
|
0-94,8
|
253-44
|
253-44
|
|
Транспортирование
грунта автомобилями-самосвалами на расстояние 1 км
|
ЕНВ*
|
100 т
|
369,69
|
1,90
1,90
|
85,66
85,66
|
92,40
|
1-50
|
554-54
|
598-20
|
|
То же, на 2 км
|
ЕНВ*
|
100 т
|
467,84
|
2,73
2,73
|
155,76
155,76
|
156,80
|
1-94
|
907-61
|
914-35
|
|
Разравнивание
бульдозером грунта II группы в
насыпи толщиной слоя 0,30 м
|
ЕНиР
§Е2-1-28, № 1д
|
100 м3
|
707,32
|
0,47
0,47
|
40,54
40,54
|
70,0
|
0-49,8
|
352-24
|
572-07
|
|
Увлажнение
грунта поливочной машиной ПМ-130Б
|
ЕНиР §Е17-2;
ЕНВ*
|
100 м3
|
70,73
|
2,17
2,17
|
18,72
18,72
|
35,00
|
1-64
|
116-00
|
216-12
|
|
Уплотнение
грунта насыпи полуприцепным пневмокатком ДУ-16В слоем 0,35 м при 8-и проходах
по одному следу
|
ЕНиР
§Е2-1-29, т-4, № 2б, 4б
|
100 м3
|
707,32
|
0,43
0,43
|
37,09
37,09
|
37,09
|
0-45,4
|
321-12
|
321-12
|
|
Ремонт и содержание
дорог автогрейдером ДЗ-31-1 при транспортировании грунта
|
ЕНиР
§Е17-20-15
|
1 км
|
348,90
|
1,10
1,10
|
46,80
46,80
|
46,80
|
1-17
|
408-21
|
408-21
|
|
Работа
бульдозера на отвале в грунте I группы
|
ЕНиР
§Е2-1-22, № 1а
|
100 м3
|
112,00
|
0,94
0,94
|
12,84
12,84
|
12,84
|
0-85,5
|
95-76
|
95-76
|
|
Планировка
насыпи и выемки автогрейдером ДЗ-31-1
|
ЕНиР
§Е2-1-37, т-2, № 1д
|
1000 м2
|
44,80
|
0,22
0,22
|
1,20
1,20
|
1,20
|
0-23,3
|
10-43
|
10-43
|
|
ИТОГО:
|
|
|
|
|
922,91
922,91
|
978,88
|
|
6523-17
|
6909-39
|

ГРАФИК ПРОИЗВОДСТВА РАБОТ. ВАРИАНТ 3
(продолжение)

ГРАФИК ПРОИЗВОДСТВА РАБОТ. ВАРИАНТ 3
(продолжение)

|
Наименование работ
|
Обоснование (ЕНиР и др.)
|
Единица измерения
|
Объем работ
|
Норма времени на единицу измерения,
чел.-ч
маш.-ч
|
Затраты труда на весь объем работ,
чел.-день
маш.-смен
|
Время пребывания машины на объекте, маш.-смен
|
Расценка на единицу измерения, руб.-коп.
|
Стоимость затрат на весь объем работ,
руб.-коп.
|
Стоимость затрат с учетом пребывания машины
на объекте, руб.-коп.
|
|
Разработка бульдозером грунта I группы с перемещением на расстояние 30
м (растительный грунт)
|
ЕНиР §Е2-1-22, № 6а, г
|
100
м3
|
112,00
|
0,90
0,90
|
12,29
12,29
|
12,29
|
0-95,3
|
106-74
|
106-74
|
|
Разравнивание бульдозером грунта III группы (шлак) толщиной слоя 0,30 м при
устройстве покрытия землевозных дорог
|
ЕНиР §Е2-1-28, № 6в
|
100
м3
|
8,20
|
0,64
0,64
|
0,64
0,64
|
0,64
|
0-67,8
|
5-56
|
5-56
|
|
Уплотнение грунта III группы самоходным виброкатком ДУ-47Б
при 5-и проходах по одному следу
|
ЕНиР §Е17-7-27
|
100
м3
|
8,20
|
0,31
0,31
|
0,31
0,31
|
0,31
|
0-28,2
|
2-31
|
2-31
|
|
Разработка грунта I группы экскаватором ЭО-4121Б,
оборудованным прямой лопатой, с погрузкой на автомобили-самосвалы
|
Т. 79,** в. 10
|
100
м3
|
112,00
|
0,86
0,86
|
11,75
11,75
|
11,75
|
0-67,9
|
76-05
|
76-05
|
|
Транспортирование грунта
автомобилями-самосвалами КамАЗ-5511 на расстояние 2 км
|
ЕНВ*
|
100
т
|
134,40
|
2,73
2,73
|
44,75
44,75
|
47,2
|
1-94
|
260-74
|
276-61
|
|
Разработка бульдозером грунта II группы с перемещением на расстояние до
100 м из выемки в насыпь
|
ЕНиР §Е2-1-22, № 6б, д
|
100
м3
|
232,20
|
3,08
3,08
|
87,22
87,22
|
87,22
|
3-26,5
|
758-13
|
758-13
|
|
То же, грунта III группы
|
ЕНиР §Е2-1-22, № 6в, е
|
100
м3
|
8,20
|
3,28
3,28
|
3,28
3,28
|
3,28
|
3-47,5
|
28-50
|
28-50
|
|
Разработка бульдозером грунта II группы с перемещением на расстояние 30
м и окучиванием
|
ЕНиР §Е2-1-22, № 6б, д
|
100
м3
|
211,25
|
0,98
0,98
|
25,25
25,25
|
25,25
|
1-03,9
|
219-49
|
219-49
|
|
Разработка грунта II группы экскаватором ЭО-4121Б,
оборудованным прямой лопатой, с погрузкой на автомобили-самосвалы
|
Т. 79**, в. 10
|
100
м3
|
211,25
|
1,20
1,20
|
30,91
30,91
|
30,91
|
0-94,8
|
200-27
|
200-27
|
|
Разработка грунта II группы экскаватором ЭО-4121, оборудованным
прямой лопатой, с погрузкой на автомобили-самосвалы
|
Т. 79**, в. 10
|
100
м3
|
267,34
|
1,20
1,20
|
39,12
39,12
|
39,12
|
0-94,8
|
253-44
|
253-44
|
|
Транспортирование грунта
автомобилями-самосвалами КамАЗ-5511 на расстояние 1 км
|
ЕНВ*
|
100 т
|
369,69
|
1,90
1,90
|
85,66
85,66
|
92,40
|
1-50
|
554-54
|
598-20
|
|
То же, на 2 км
|
ЕНВ*
|
100
т
|
467,84
|
2,73
2,73
|
155,76
155,76
|
156,80
|
1-94
|
907-61
|
914-35
|
|
Разравнивание бульдозером грунта II группы в насыпи толщиной слоя до 0,60
м
|
ЕНиР §Е2-1-28, № 6б, д
|
100
м3
|
707,32
|
0,27
0,27
|
23,29
23,29
|
35,00
|
0-28,6
|
202-29
|
304-07
|
|
Увлажнение грунта поливочной машиной
ПМ-130Б
|
ЕНиР §Е17-2;
ЕНВ*
|
100
м3
|
70,73
|
2,17
2,17
|
18,72
18,72
|
35,00
|
1-64
|
116-00
|
216-12
|
|
Уплотнение грунта насыпи полуприцепным
пневмокатком ДУ-16В слоем 0,35 м при 8-и проходах по одному следу
|
ЕНиР §Е2-1-29, т-4, № 2б, 4б
|
100
м3
|
707,32
|
0,43
0,43
|
37,09
37,09
|
37,09
|
0-45,4
|
321-12
|
321-12
|
|
Ремонт и содержание дорог автогрейдером
ДЗ-31-1 при транспортировании грунта
|
ЕНиР §Е17-20-15
|
1 км
|
348,90
|
1,10
1,10
|
46,80
46,80
|
46,80
|
1-17
|
408-23
|
408-23
|
|
Работа бульдозера на отвале в грунте I группы
|
ЕНиР §Е2-1-22, № 6а
|
100
м3
|
112,00
|
0,32
0,32
|
4,37
4,37
|
4,37
|
0-33,9
|
37-97
|
37-97
|
|
Планировка насыпи и выемки
автогрейдером ДЗ-31-1
|
ЕНиР §Е2-1-37, т-2, № 1д
|
1000
м2
|
44,80
|
0,22
0,22
|
1,20
1,20
|
1,20
|
0-23,3
|
10-44
|
10-44
|
|
ИТОГО:
|
|
|
|
|
628,41
628,41
|
666,63
|
|
4469-43
|
4737-60
|

ГРАФИК ПРОИЗВОДСТВА РАБОТ. ВАРИАНТ 4
(продолжение)

ГРАФИК ПРОИЗВОДСТВА РАБОТ. ВАРИАНТ 4
(продолжение)

|
Наименование работ
|
Обоснование (ЕНиР и др.)
|
Единица измерения
|
Объем работ
|
Норма времени на единицу измерения,
чел.-ч
маш.-ч
|
Затраты труда на весь объем работ,
чел.-день
маш.-смен
|
Время пребывания машины на объекте, маш.-смен
|
Расценка на единицу измерения, руб.-коп.
|
Стоимость затрат на весь объем работ,
руб.-коп.
|
Стоимость затрат с учетом пребывания машины
на объекте, руб.-коп.
|
|
Разработка бульдозером грунта I группы с перемещением на расстояние 30
м (растительный грунт)
|
ЕНиР §Е2-1-22, № 5а, г
|
100 м3
|
112,00
|
0,95
0,95
|
12,98
12,98
|
12,98
|
1-00,7
|
112-78
|
112-78
|
|
Разравнивание бульдозером грунта III группы (шлак) толщиной слоя 0,30 м при
устройстве покрытия землевозных дорог
|
ЕНиР §Е2-1-28, № 2в
|
100 м3
|
8,20
|
1,10
1,10
|
1,10
1,10
|
1,10
|
1-17
|
9-59
|
9-59
|
|
Уплотнение грунта III группы самоходным виброкатком при 5-и
проходах по одному следу
|
ЕНиР §Е17-7-27
|
100 м3
|
8,20
|
0,31
0,31
|
0,31
0,31
|
0,31
|
0-28,2
|
2-31
|
2-31
|
|
Разработка грунта I группы экскаватором ЭО-4111В,
оборудованным прямой лопатой, с погрузкой на автомобили-самосвалы
|
ЕНиР §Е2-1-8, т-4, № 2а
|
100 м3
|
112,00
|
1,80
1,80
|
24,58
24,58
|
24,58
|
1-91
|
213-92
|
213-92
|
|
Транспортирование грунта
автомобилями-самосвалами КамАЗ-5511 на расстояние 2 км
|
ЕНВ*
|
100
т
|
134,40
|
2,73
2,73
|
44,75
44,75
|
48,80
|
1-94
|
260-74
|
286-98
|
|
Разработка бульдозером грунта II группы с перемещением на расстояние до
100 м из выемки в насыпь
|
ЕНиР §Е2-1-22, т-2, № 5б, д
|
100 м3
|
232,20
|
3,38
3,38
|
95,71
95,71
|
95,71
|
3-58,5
|
832-44
|
832-44
|
|
То же, грунта III группы
|
ЕНиР §Е2-1-22, т-2, № 5в, е
|
100 м3
|
8,20
|
3,62
3,62
|
3,62
3,62
|
3,62
|
3-83,7
|
31-46
|
31-46
|
|
Разработка грунта II группы бульдозером ДЗ-27А с
перемещением на расстояние 30 м и окучиванием
|
ЕНиР §Е2-1-22, т-2, № 5б, д
|
100 м3
|
211,25
|
1,07
1,07
|
27,57
27,57
|
27,57
|
1-13,5
|
239-77
|
239-77
|
|
Разработка грунта II группы экскаватором ЭО-4111В,
оборудованным прямой лопатой, с погрузкой на автомобили-самосвалы
|
ЕНиР §Е2-1-8, т-4, № 2б
|
100 м3
|
211,25
|
2,30
2,30
|
59,25
59,25
|
59,25
|
2-44
|
515-45
|
515-45
|
|
Разработка грунта II группы экскаватором ЭО-41118, с погрузкой
на автомобили-самосвалы
|
ЕНиР §Е2-1-8, т-4, № 2б
|
100 м3
|
267,34
|
2,30
2,30
|
74,98
74,98
|
74,98
|
2-44
|
652-06
|
652-06
|
|
Транспортирование грунта
автомобилями-самосвалами на расстояние 1 км
|
ЕНВ*
|
100
т
|
369,69
|
1,90
1,90
|
85,66
85,66
|
88,80
|
1-50
|
554-54
|
574-88
|
|
То же, на 2 км
|
ЕНВ*
|
100
т
|
467,84
|
2,73
2,73
|
155,76
155,76
|
155,76
|
1-94
|
907,61
|
907,61
|
|
Разравнивание бульдозером грунта II группы в насыпи толщиной слоя до 0,60
м
|
ЕНиР §Е2-1-28, № 2д
|
100 м3
|
707,32
|
0,43
0,43
|
37,09
37,09
|
37,09
|
0-45,6
|
322-54
|
322-54
|
|
Увлажнение грунта поливочной машиной
ПМ-130Б
|
ЕНиР §Е17-2,
ЕНВ*
|
100 м3
|
70,73
|
2,17
2,17
|
18,72
18,72
|
37,00
|
1-64
|
116-00
|
228-42
|
|
Уплотнение грунта насыпи полуприцепным пневмокатком
ДУ-16В слоем 0,35 м при 8-и проходах по одному следу
|
ЕНиР §Е2-1-29, т-4, № 2б, 4б
|
100 м3
|
707,32
|
0,43
0,43
|
37,09
37,09
|
46,40
|
0-45,4
|
321-12
|
402-04
|
|
Ремонт и содержание дорог автогрейдером
ДЗ-31-1 при транспортировании грунта
|
ЕНиР §Е17-20-15
|
1 км
|
341,40
|
1,10
1,10
|
45,80
45,80
|
45,80
|
1-17
|
399-44
|
399-44
|
|
Работа бульдозера ДЗ-27А на отвале в
грунте I
группы
|
ЕНиР §Е2-1-22, № 5а
|
100 м3
|
112,00
|
0,35
0,35
|
4,78
4,78
|
4,78
|
0-37,1
|
41-44
|
41-44
|
|
Планировка насыпи и выемки
автогрейдером ДЗ-31-1
|
ЕНиР §Е2-1-37, т-2, № 1д
|
1000
м2
|
44,80
|
0,22
0,22
|
1,20
1,20
|
1,20
|
0-23,3
|
10-44
|
10-44
|
|
ИТОГО:
|
|
|
|
|
730,95
730-95
|
765,73
|
|
5543-65
|
5783-57
|
| |
|