//
|
|
РОССИЙСКОЕ АКЦИОНЕРНОЕ ОБЩЕСТВО ЭНЕРГЕТИКИ И ЭЛЕКТРИФИКАЦИИ "ЕЭС РОССИИ" ДЕПАРТАМЕНТ СТРАТЕГИИ РАЗВИТИЯ И НАУЧНО-ТЕХНИЧЕСКОЙ ПОЛИТИКИ РУКОВОДЯЩИЕ УКАЗАНИЯ ПО ПРОЕКТИРОВАНИЮ ТЕРМОДИСТИЛЛЯЦИОННЫХ И ВЫПАРНЫХ УСТАНОВОК ПО ПЕРЕРАБОТКЕ СТОЧНЫХ ВОД ТЭС И ГРЭС РД 153-34.1-42.102-98 ОРГРЭС Москва 2000 Содержание
Вводится в действие с 01.12.99 1. ВВЕДЕНИЕНастоящие Руководящие указания распространяются на установки обработки исходных и сточных вод на ТЭС и ГРЭС методами термического обессоливания - испарения и выпаривания и устанавливают общие требования к их проектированию. Термины и определения приняты по ОСТ 34-70-734-85 [10], классификация - по ОСТ 34-70-689-84 [9]. В Руководящих указаниях не рассматриваются: деаэраторы и деаэрационные установки, которые проектируются в соответствии с РТМ 108.030.21-78 [15]; испарительные установки, комплектуемые в соответствии с ГОСТ 10731-85 [6] и проектируемые в соответствии с [18]; установки нейтрализации и предварительной обработки воды, проектируемые в соответствии с [16]. Объектом рассмотрения Руководящих указаний являются следующие установки и оборудование: дистилляционно-опреснительные установки по ГОСТ 26646-90 [7], разрабатываемые специализированными организациями по индивидуальным проектам и поставляемые в комплекте; испарители мгновенного вскипания, разрабатываемые специализированными организациями по индивидуальным проектам и поставляемые в комплекте; вакуум-выпарные кристаллизационные
установки (ВВКУ) с оборудованием для сгущения, кондиционирования, обезвожива установки обезвоживания, сушки и термической прокалки шлама осветлителей, разрабатываемые специализированными организациями по индивидуальным проектам. Изучение и совершенствование технологии испарения и выпаривания сточных вод электростанций, разработка оборудования для переработки сточных вод разного качества и количества еще не закончены. В настоящее время имеется длительный опыт работы только по дистилляционно-опреснительным установкам (ДОУ) и вакуум-выпарной кристаллизации солей на ВВКУ. Однако признано необходимым уже на данном этапе выпустить Руководящие указания, поскольку отсутствие такого документа затрудняет проектным, наладочным и эксплуатационным организациям принимать целесообразные решения по сбору, переработке и утилизации сточных вод. Настоящие Руководящие указания предназначены для проектных, наладочных, научно-исследовательских институтов и эксплуатационных предприятий для использования при проектировании, наладке и эксплуатации вновь строящихся, расширяемых и реконструируемых электрических станций. 2. НАЗНАЧЕНИЕ ТЕРМИЧЕСКОЙ ОБРАБОТКИ СТОЧНЫХ ВОД2.1. В соответствии с [16] термическая переработка исходной воды с помощью энергетических испарителей для получения подпиточной воды применяется при содержании в ней анионов сильных кислот более 5 мг-экв/л. При содержании в исходной воде специфических органических веществ, которые не удаляются в должной мере при коагуляции и известковании, допускается применение испарителей и при меньшем содержании анионов сильных кислот, но это требует специального технико-экономического обоснования. Такой подход правомерен при условии обработки исходной воды. Если же речь идет об обработке сточных вод, то альтернативы термическому способу переработки вод нет. 2.2. Назначением термической обработки сточных вод является прекращение их сброса в водоемы с одновременным получением дистиллята, пригодного после дополнительной очистки для питания паровых котлов, а также технических продуктов сульфата и хлорида натрия, пригодных для применения как в энергетике, так и в других отраслях промышленности (бумажной, стекольной и т.д.) Необходимость в каждом из этапов переработки стоков определяется индивидуально. 2.3. Сточные воды, определенным образом классифицированные и собранные в баках-усреднителях, проходят обработку в осветлителях, осветляются в механических фильтрах, подкисляются, деаэрируются и поступают на термическую обработку. Шлам после осветлителей обезвоживается, фильтруется, а затем направляется или на захоронение, или в сушильные печи для получения строительной извести. Необходимость в проведении отдельных из перечисленных операций в каждом конкретном случае определяется индивидуально. 2.4. Получение дистиллята производится в термодистилляционных установках частичного концентрирования ДОУ или испарителях мгновенного вскипания - ИМВ (кратность упаривания 20 - 25 раз, может быть и ниже из-за "барьера растворимости"). Кратность концентрирования определяется последующим использованием концентрата - или для питания ВВКУ, или для сброса (с разбавлением) в водоисточники. 2.5. Выпаривание производится в ВВКУ, предназначенных для предельного или безостаточного упаривания концентрата после ДОУ или любых других концентрированных, определенным образом обработанных стоков для получения из них солей сульфата и хлорида натрия или последующего захоронения упаренного концентрата. 3. ОБЩИЕ ТРЕБОВАНИЯ К ПРОЕКТИРОВАНИЮ УСТАНОВОК3.1. Установки по переработке сточных вод включены в технологический цикл работы ТЭС и ГРЭС и располагаются, как правило, в отдельно стоящем здании. В качестве греющего пара должен подаваться пар из общестанционных коллекторов, в качестве охлаждающей воды в теплообменниках и конденсаторах - вода из системы технического водоснабжения, сетевая вода, конденсат. Нужно стремиться к потреблению такого количества пара в установках, чтобы количество охлаждающей воды не превышало количества исходной воды, подаваемой на водоподготовительную установку (ВПУ) в летнем и зимнем режиме. При использовании дополнительной охлаждающей воды должна быть оценена надежность теплосъема с точки зрения суточных и сезонных колебаний расхода и температуры охлаждающей воды. 3.2. Для обеспечения непрерывной работы оборудования предусматривается автоматическое управление технологическими процессами. Количество регулируемых параметров должно быть минимальным, что достигается применением гидравлических затворов на линиях перетока жидких сред из ступени в ступень при низких давлении и вакууме. Расчет гидравлических затворов (высоты и сечения) должен производиться с учетом самовскипания перетекающей через них среды. На установках должно предусматриваться дистанционное управление механизмами, регулирующими и запорными органами. Объем непрерывного автоматического контроля с регистрацией важнейших параметров теплового и водно-химических режимов должен обеспечивать надежную оценку технико-экономических показателей работы установок. 3.3. Комплектующее оборудование должно выбираться по каталогам, номенклатурным справочникам или по проектам, выполненным специализированными организациями. При выборе деаэраторов для накипеобразующих растворов необходимо избегать применения аппаратов и схем с самовскипанием воды, так как возможно интенсивное зарастание водораспределительных отверстий накипью в зонах самовскипания. В установках, как правило, могут быть использованы энергетические насосы. Насосы, работающие в тракте с агрессивными средами, должны иметь коррозионно-стойкое исполнение. Для поддержания вакуума могут применяться пароэжекторные, водоструйные и механические вакуум-насосы. 3.4. Правильный выбор конструкционных материалов для основного и вспомогательного оборудования определяет долговечность установок по переработке сточных вод, которая должна быть не менее 15 - 20 лет при сроке окупаемости капитальных затрат не более чем через 5 лет. Именно такой срок службы может оправдать технико-экономическую целесообразность строительства подобных установок по переработке сточных вод. При выборе конструкционных материалов наряду с их стойкостью необходимо учитывать стоимость. 3.5. Для предотвращения коррозионных повреждений и уменьшения выноса с дистиллятом и конденсатом греющего пара продуктов коррозии необходимо предусматривать на установках средства дегазации - деаэрационные установки и при необходимости узлы ввода реагентов для химического связывания остаточных газов (кислорода и углекислоты). 3.6. Для обеспечения минимального количества отложений на поверхности нагрева теплообменного оборудования необходимо предусматривать специальные мероприятия. 3.7. Для водной и химической очисток поверхности нагрева теплообменного оборудования установок от накипи и других отложений, в том числе и от продуктов коррозии, должны предусматриваться сооружения, оборудование и коммуникации для приема, хранения, приготовления, дозирования и прокачки моющих и пассивирующих растворов, а также нейтрализации и утилизации сточных вод. 3.8. Установки должны быть приспособлены для проведения гидравлических опрессовок с возможностью последующего полного опорожнения оборудования и трубопроводов. Строительные конструкции должны быть рассчитаны на дополнительные нагрузки, возникающие при проведении гидравлических опрессовок. 3.9. Необходимо предусматривать проведение консервации оборудования установок, выводимых в резерв. Консервация проектируется в соответствии с [17].
| |||||||||||||||||||||||||||||||||||||||||||||||||||||||||||||||||||||||||||||||||||||||||||||||||||||||||||||||||||||||||||||||||||||||||||||||||||||||||||||||||||||||||||||||||||||||||||||||||||||||||||||||||||||||||||||||||||||||||||||||||||||||||
|
Компонент |
Массовая доля, % |
|
СаО |
54-63, |
|
|
(из них 35-42 активной) |
|
МдО |
16-21 |
|
Fe2O3 |
15-18 |
Таблица 1
Известь строительная по ГОСТ 9179-77 [3]
|
Показатель |
Норма для извести, % |
|||||||
|
негашеной |
гидратной |
|||||||
|
кальциевой |
магнезиальной и доломитовой |
|||||||
|
Сорт |
||||||||
|
I |
II |
III |
I |
II |
III |
I |
II |
|
|
1. Активные СаО + МдО, не менее: |
|
|
|
|
|
|
|
|
|
без добавок |
90 |
80 |
70 |
85 |
75 |
65 |
50 |
60 |
|
с добавками |
65 |
55 |
- |
60 |
50 |
- |
67 |
40 |
|
2. Активная МgО, не более |
5 |
5 |
5 |
20(40) |
20(40) |
20(40) |
- |
- |
|
3. СО2, не более: |
|
|
|
|
|
|
|
|
|
без добавок |
3 |
5 |
7 |
5 |
4 |
11 |
3 |
5 |
|
с добавками |
4 |
6 |
- |
6 |
9 |
- |
2 |
4 |
|
4. Непогасившиеся зерна, не более |
7 |
11 |
14 |
10 |
15 |
20 |
- |
- |
4.5.13. При определении производительности установки на стадии начального концентрирования и количества устанавливаемого испарительного и вспомогательного оборудования следует руководствоваться следующими правилами:
конечная производительность установки должна складываться из среднеарифметической производительности основного испарительного оборудования, снижающейся из-за накипи до 20%, и необходимости вывода оборудования на регулярные химические промывки;
для обеспечения непрерывности процесса необходимо устанавливать как минимум две независимо работающие цепочки. Количество цепочек определяется технико-экономическим расчетом;
необходимо при проектировании предусматривать возможность работы цепочек при пониженных нагрузках;
из-за слабой нормативной базы по проектированию подобных установок проектным организациям следует привлекать разработчиков этого оборудования к работе по проектированию уже на стадии ТЭО.
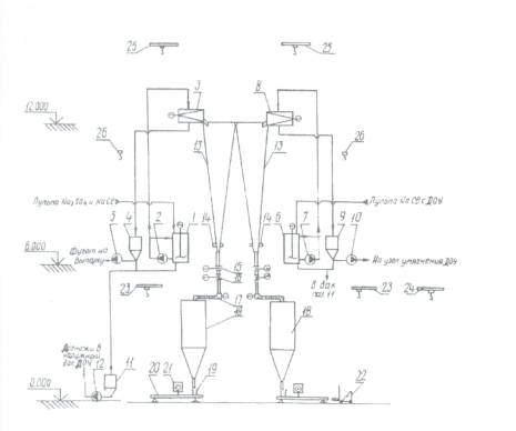
4.5.14. Воды второй группы - "мягкие" : содержат в основном соли хлорида и сульфата натрия. Для этих вод рекомендуется технологическая схема рис. 8. Все продувочные воды собираются и усредняются в баках-усреднителях. Баки должны быть рассчитаны на 8-24-часовой запас воды. Из баков вода через вакуумный деаэратор подается в ВВКУ. Вопрос подкисления воды перед ВВКУ решается индивидуально, в зависимости от качества концентрата. Выпавшие на ВВКУ кристаллы солей через классификатор и промежуточный бак поступают на фильтрацию и обезвоживание в центрифугу. После центрифуги соли направляются в бункер, а из него автотранспортом потребителю. В случае получения двух солей - сульфата и хлорида натрия - технологическая цепочка начиная с ВВКУ повторяется. Технологическое оборудование, применяемое на установке, аналогично оборудованию для вод первой группы.
4.5.15. Воды третьей группы - "жесткие", их можно модифицировать, если для приготовления соли и регенерации натрий-катионитных фильтров использовать "вторичный" конденсат ВВКУ. В этом случае регенерационные воды будут характеризоваться пониженной щелочностью, отсутствием сульфатов, что сделает их более "безопасными" с точки зрения накипеобразования при термической обработке. Для вод этой группы рекомендуется технологическая схема рис. 9, практически аналогичная схеме для вод первой группы. Различия могут быть в способе обработки воды в осветлителе и отсутствии узла нейтрализации. При наличии технологической схемы по переработке вод первой группы вода после бака осветленной воды схемы для вод третьей группы направляется на механические фильтры схемы первой группы, далее обе группы обрабатываются совместно.

Рис. 8. Принципиальная схема установки по переработке стоков второй группы:
1 - бак-усреднитель; 2 - перекачивающие насосы; 3 - деаэратор; 4 - бак-аккумулятор; 5 - выпарная установка; 6 - классификатор; 7 и 11 - приемные баки; 8 - центрифуга; о, 9 - приемный бункер; 10 - транспортер; 12 - автопогрузчик

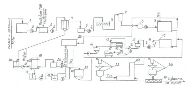
Рис. 9. Принципиальная схема установки по обработке вод третьей группы:
1 - бак-усреднитель; 2 - перекачивающие насосы; 3 - регулятор температуры; 4 - осветлитель; 5 - бак осветленной воды; 6 - механический фильтр; 7 - деаэратор; 8 - бак-аккумулятор; 9 - ДОУ или ИМВ; 10 - выпарная установка; 11 - классификатор; 12 - приемный бак; 13 - центрифуга; 14 - бак фугата; 15 - приемный бункер; 16 - транспортер; 17 - автопогрузчик; 18 - бак-мешалка; 19 - фильтр-сгуститель; 20 - бак воды; 21 - распылительная сушилка; 22 - установка газоочистки; 23 - пневмотранспортный реактор; 24 - шнековый разгрузчик; 25 - конденсатоочистка
4.6.1. Технологическая схема обезвоживания и складирования одинакова как для сульфата, так и для хлорида натрия (рис. 10). Сгущенная пульпа сульфата натрия после ВВКУ поступает в приемный бак установки выделения сухих солей, снабженный механическим перемешивающим устройством. Для предотвращения выпадения кристаллов соли в осадок производится непрерывное перемешивание пульпы с одновременной рециркуляцией перекачивающим насосом. Из бака-мешалки пульпа насосом подается на центрифуги типа ФГП для выделения кристаллов сульфата натрия и отгонки фугата. Фугат из центрифуги сливается в промежуточную емкость, откуда насосами возвращается на доупаривание для выделения хлорида натрия. Кристаллический сульфат натрия влажностью 2 - 6% из центрифуги ссыпается в бункер для хранения и последующей расфасовки соли.
Аналогичным образом сгущенная пульпа хлорида натрия после ВВКУ поступает на свой узел обезвоживания и ссыпается в свой бункер.
В схеме выделения сухих солей установлено серийно выпускаемое оборудование.
Выгрузка соли из бункера для последующей расфасовки и затаривания также аналогична для обеих солей. Бункеры хранения соли выполнены из металла и обиты изнутри досками во избежание налипания соли на металл и образования коррозии. Хранение соли в бункерах более 4-6 дн может привести к слипанию кристаллов соли, что создает затруднение в процессе выгрузки, поэтому выгрузка соли должна производиться ежесуточно. Рекомендуется периодическое встряхивание бункеров вибраторами, прикрепленными к стенке бункера.
Предусматриваются полуавтоматические
выгрузка, расфасовка и затаривание соли. Мешок устанавливается на транспортер и
прикрепляется к выходному патрубку весового дозатора; открывается дисковый
затвор, установленный на нижнем патрубке бункера. С открытием затвора
включается шлюзовый питатель весового дозатора и сам дозатор. Соль поступает в
ковш весового дозатора, который при достижении

Рис. 10. Принципиальная суузла выделения сухих солей:
1 - бак-мешалка V =
мешок. Транспортером мешок подвозится к мешкозашивочной машине, которая производит упаковку мешка. Упакованный мешок с помощью автопогрузчика отвозится к месту своего складирования. Во избежание комкования не рекомендуется длительное складирование мешков. Транспортировка мешков с солью потребителям возможна автомобильным и железнодорожным транспортом.
4.6.2. Качество сульфата натрия, полученного на установке, должно соответствовать требованиям табл. 2.
Таблица 2
Требования к химическому составу сульфата натрия по ГОСТ 6318-77 [2]
|
Компонент |
Содержание компонентов, % |
||
|
Сорт |
|||
|
I |
II |
III |
|
|
1. Сульфат натрия, не менее |
97,5 |
95,0 |
91,0 |
|
2. Нерастворимый в воде осадок, не более |
1.5 |
3,0 |
5,0 |
|
3. Хлориды в пересчете на NaCI, не более |
1,0 |
1,5 |
2,5 |
|
4. Сульфат кальция, не более |
0,5 |
1,0 |
1,5 |
|
5. Железо (Fe), не более |
0,01 |
0,03 |
0,05 |
|
6. Влага, не более |
3,0 |
5,0 |
7,0 |
4.6.3 Качество технического хлористого натрия, полученного на установке, должно соответствовать требованиям табл. 3.
Таблица 3
Требования к натрию хлористому технически очищенному по ТУ 113-13-37-88 [11]
|
Показатель |
Норма |
||
|
ВидА |
Вид Б |
||
|
213218 2000 06 |
21 5218 2200 00 |
||
|
1. Внешний вид |
Сероватый с включением кристаллов темно-серой и красноватой окраски |
||
|
2. Массовая доля хлористого натрия, % |
98+1 |
||
|
3. Массовая доля нерастворимых в воде веществ, %, не более |
0,7 |
||
|
4. Массовая доля воды, %, не более |
1,0 |
||
|
5. Массовая доля ионов кальция Са2 плюс, %, не более В пересчете на CaSO4, %, не более |
0,5 |
||
|
1,7 |
|||
|
6. Массовая доля ионов магния Mg2 плюс, %, не более В пересчете на MgCl2, %, не более |
0,05 |
||
|
0,2 |
|||
|
7. Массовая доля ионов калия K плюс, %, в пределах В пересчете на KCl, %, в пределах |
0,2-0,4 |
||
|
0,4-1,0 |
|||
|
8. Гранулометрический состав (массовая доля фракций) меньше Остаток на сите с отверстием не более |
5 |
5 |
|
|
10 |
10 |
||
|
Примечания: 1. Нормы даны в пересчете на сухое вещество. 2, Массовую долю хлористого натрия, нерастворимого в воде остатка сульфата кальция, хлористого магния и хлористого калия изготовитель определяет периодически не реже одного раза в семь дней. |
|||
Установки ДОУ, ИМВ и ВВКУ комплектуются вспомогательным оборудованием: вакуумными деаэраторами, декарбонизаторами, теплообменниками, насосами и прочим оборудованием по чертежам и спецификациям НИИХИММАШ (г. Екатеринбург) и УралВТИ (г. Челябинск).
4.7.1. Выбор теплообменников, применяемых для
подогрева сточных вод, поступающих на предочистку и выпаривание, для
конденсации пара промперегрева и выпара деаэраторов производится по [22].
4.7.2. В качестве расширителей (самоиспарителей), применяемых для стабилизации температуры концентрированных вод, дистиллята и конденсата греющего пара, возвращаемого на основное производство, и обеспечения надежной работы конденсатных насосов, применяются сепараторы непрерывной продувки.
4.7.3. Выбор пароэжекторных установок, применяемых для поддержания вакуума в вакуумной системе выпарной установки, производится по [23]. Возможно применение водоэжекторных установок.
4.7.4. Насосы, работающие с агрессивными средами, должны заказываться в коррозионно-стойком исполнении. Выбор насосов производится по номенклатурным справочникам на серийно выпускаемое насосное оборудование заводов-изготовителей.
4.7.5. Баки-мешалки и газоочистное оборудование выбираются по каталогам заводов-изготовителей.
4.7.6. Баковое оборудование изготавливается по чертежам проектной организации.
4.8.1. Для обеспечения надежной работы схем, связанных с переработкой стоков, необходимо компоновать их в цепочки (блоки с замкнутым циклом производства, за исключением узла предварительной обработки воды, который может быть общим).
4.8.2. Расположение основного и вспомогательного технологического оборудования должно быть компактным и должно позволять производить гидравлическую опрессовку этого оборудования.
4.8.3. Требования к компактности расположения оборудования особенно актуальны для ВВКУ и узла выделения солей. Длина соединительных трубопроводов в ВВКУ должна быть наименьшей, что наряду с сокращением потерь тепла уменьшает вероятность забивания трубопроводов твердой фазой.
4.8.4. Трубопроводы концентрированных растворов, содержащих твердую фазу, должны быть снабжены быстросъемными соединениями для удобной и быстрой их очистки в случае закупоривания твердыми кристаллами.
4.8.5. Дренажные трубопроводы не должны иметь изгибов в вертикальной плоскости, чтобы избежать гидравлических ударов. Минимально допустимым для суспензии наклоном трубопроводов является наклон 30° к горизонту. Все изгибы трубопроводов должны иметь большие радиусы закругления.
4.8.6. Арматура на концентрированных растворах и суспензиях не должна иметь карманов, в которых могут задерживаться частицы или скапливаться неочищенный раствор. Рекомендуется арматура типа кранов и прямоточных вентилей.
4.8.7. При компоновке установок следует обеспечивать в проектных решениях полную дренируемость оборудования и трубопроводов при работе, пуске, остановах, испытаниях всех видов по всем средам: воздуху, раствору, конденсату, дистилляту.
Правильный выбор конструкционных материалов для основного и вспомогательного оборудования определяет долговечность установок по переработке сточных вод, которая должна быть не менее 15-20 лет. Именно такой срок службы может оправдать целесообразность строительства подобных установок.
4.9.1. Абсолютным материалом с точки зрения коррозии является титан. Из него рекомендуется выполнять выпарные аппараты на стадии предельного выпаривания. Следующими по стойкости являются коррозионно-стойкие стали 08X12Н6Т и нержавеющая сталь 12Х18Н10Т, из которых рекомендуется выполнять ДОУ и ИMB, устанавливаемые на стадии начального концентрирования.
4.9.2. Теплообменные трубки в теплообменниках и подогревателях рекомендуется выполнять из латуни ЛАМШ 77, бронзы БР А5, мельхиора МНЖМу 30 и сплава ВТ 1.
4.9.3. Вспомогательное
оборудование (баки, расширители, мешалки, а также трубопроводы, контактирующие
с агрессив
ной средой) должно иметь антикоррозионную защиту.
Особенно это относится к оборудованию и трубопроводам, работающим в схеме
подкисления и декарбонизации воды, а также участвующим в кислотной промывке.
4.9.4. Внутренние устройства деаэраторов, устанавливаемых для удаления агрессивных газов, рекомендуется выполнять из нержавеющей стали 12Х18Н10Т.
4.9.5. Применение "черных" сталей для изготовления основного и вспомогательного оборудования должно обеспечивать их долговечность на уровне рекомендуемых сталей (15 - 20 лет) и быть увязано с качеством среды, в которой они будут работать.
Предотвращение накипеобразования в теплообменных аппаратах термодистилляционных установок является приоритетной задачей. От того, насколько успешно решается эта задача, зависит производительность установки и ее технико-экономические показатели. Предлагается минимизировать интенсивность накипеобразования следующими средствами:
4.10.1. Основным средством является обеспечение надежной и бесперебойной работы установки предварительной обработки воды: при нормальной работе она обеспечивает жесткость менее 1 мг-экв/л и щелочность в пределах 1,5 - 2,0 мг-экв/л. Рекомендуется также температуру работы первых аппаратов ДОУ и ИМВ устанавливать не выше 100°С.
4.10.2. Для снижения карбонатной щелочности предусматривается схема подкисления обработанных на предочистке стоков перед поступлением на термодистилляционную установку. Показатель рН подкисленной воды должен быть на уровне 4,5 - 5,5 (перед деаэратором).
4.10.3. Рекомендуется использовать способ рециркуляции затравочных кристаллов карбоната кальция и гидроокиси магния в тракте упариваемого раствора, для чего предусматривается специальная установка.
4.10.4. Рекомендуется использовать положительный опыт предотвращения накипеобразования с помощью антинакипинов, в частности ПАФ-13А по ТУ 25-47118-76 [12], ОЭДФК по ТУ 5-09-713-80 [13], ИОМС по ТУ 5-05-211-1153-88 [14].
4.11.1. Перед пуском в эксплуатацию установка должна пройти предпусковую химическую очистку, для которой в зависимости от технологии рекомендуется использовать следующие химические растворы:
водный раствор едкого натра по ГОСТ 2263-79 [4] концентрацией 1 - 2% или водный раствор кальцинированной соды по ГОСТ 5100-85 [5] концентрацией 1 - 2%;
раствор соляной кислоты по ГОСТ 857-95 [8] концентрацией 1 - 3% или раствор серной кислоты по ГОСТ 2184-77 [1] концентрацией 1 - 2%.
При эксплуатационной очистке оборудования установки от накипи, состоящей из карбоната и сульфата кальция, гидроокиси магния, в качестве моющих реагентов рекомендуется использовать один из следующих растворов:
соляную кислоту концентрацией 1 - 5%;
серную кислоту концентрацией 0,5 - 2,0%;
сульфаминовую кислоту концентрацией до 5%.
4.11.2.
Рекомендуется следующая типовая схема
кислотной промывки. Устанавливаются два бака вместимостью по 100 -
4.11.3. Для приема, хранения и приготовления рабочих растворов кислоты и щелочи проектируется склад кислоты и щелочи или предусматривается использование существующего склада. При снижении производительности установки из-за наличия отложений более чем на 10% нормативного значения в период между стационарными очистками рекомендуется химическая очистка "на ходу", т.е. в процессе работы установки. Очистка оборудования "на ходу" производится путем введения серной или соляной кислоты в испарители или регенерационные подогреватели при температуре подкисленного раствора не более 100°С и значения рН от 3,0 до 4,5.
4.11.4. В качестве дополнения к химической очистке возможно применение гидродинамической очистки накипных отложений в теплообменных трубках, для чего предусматривается специальная гидроустановка.
4.12.1. Установки по термической обработке сточных вод являются малоинерционными системами и не требуют больших объемов автоматизации. Обязательному автоматическому регулированию, обеспечивающему надежность работы установок, подлежат следующие параметры:
давление или температура кипения в первой ступени испарения;
уровень дистиллята в сборнике дистиллята;
уровень воды в деаэраторе;
концентрация раствора на выходе из установки, а для установки с параллельным питанием - в каждой ступени испарения;
pH питательной воды, если его коррекция предусмотрена системой ограничения отложений накипи на поверхности теплообмена оборудования установки.
4.12.2. Контролю и измерению подлежат следующие параметры:
- расход всех входящих и выходящих материальных потоков - греющего пара, воды для охлаждения, питательной воды, конденсата и дистиллята;
температура:
- кипения раствора во всех ступенях испарения;
- всех материальных потоков на входе и выходе из установки;
- питательной воды на входе в систему ее подогрева и на выходе из нее;
давление:
- среды на линии нагнетания насосов;
- в паровом пространстве первой и последней ступени установки;
- парогазовой смеси на входе в систему создания и поддержания вакуумметрического давления;
- греющего пара перед узлом регулирования;
- пара в греющей камере головного подогревателя для ИМВ;
- воды для охлаждения и питательной воды на входе в установку.
Периодичность контроля водно-химического режима установки устанавливается в соответствии с документацией завода-изготовителя и ГОСТ 26646-90 [7].
4.12.3. Рекомендуется следующая сигнализация:
- повышение и понижение давления исходного греющего пара;
- уменьшение расхода исходной питательной воды;
- падение разрежения в конденсаторах;
- повышение солесодержания конденсата от потребителя.
На пульт управления насосами выводятся сигналы "Работает", "Не работает" наиболее ответственных насосов по давлению в напорных трубопроводах.
4.12.4 Объем оснащения узла нейтрализации и предварительной обработки воды контрольно-измерительными приборами и устройствами автоматизации осуществляется в соответствии с нормами проектирования и сложившейся практикой в энергетике.
По другим узлам при разработке контрольно-измерительных приборов следует привлекать разработчиков и изготовителей соответствующего оборудования.
Данные рекомендации относятся к эксплуатационному объему контроля и автоматизации установок. Допускается проектирование дополнительного экспериментального контроля на пуск и наладку установок, объем и содержание которого необходимо согласовать с разработчиками и изготовителями оборудования.
4.12.5 Для размещения управляющих систем контрольно-измерительных приборов установки должны оснащаться щитом управления в изолированном остекленном боксе, оборудованном системой кондиционирования воздуха.
5.1. Термодистилляционные и выпарные установки могут переработать любые стоки до жидкой суспензии или кристаллических солей. Жидкая суспензия "хоронится" на щламоотвале, а кристаллические соли в виде сульфата или хлорида натрия используются на собственные нужды или отправляются внешнему потребителю. Степень переработки стоков определяется технико-экономической целесообразностью. Выбирается вариант, при котором затраты на эксплуатацию установки не превышают суммы штрафов за выбросы, которые платила бы электрическая станция при отсутствии такой установки.
При наличии установки предварительной обработки воды дополнительно появляется продувочный шлам осветлителей, который также или "хоронится" на шламоотвале, или перерабатывается на строительную известь. Варианты захоронения или переработки определяются технико-экономическим расчетом.
Таким образом, наличие термодистилляционных и выпарных установок позволяет полностью переработать стоки электрических станций и прекратить их сбросы в водоемы.
Одновременно от работы термодистилляционных и выпарных установок возникает свой "собственный" экологический вред, который должен быть минимизирован.
5.2. Предварительная очистка воды продуцирует шлам, который должен быть утилизирован или захоронен.
При переработке шлама на техническую известь возникает возможность запыления воздуха мелкими частицами пыли и извести вследствие неудовлетворительной работы газоочистного оборудования.
Для захоронения шлама на шламоотвале требуется несколько гектаров земли, которая впоследствии практически не поддается рекультивации.
5.3. После выпарной установки продуцируется солевой концентрат или сухие соли. Солевой концентрат "хоронится" на нефильтруемом шламоотвале.
При получении сухих солей сульфата или хлорида натрия также возникает возможность запыления воздуха мелкими частицами солевой пыли, возникающей при сушке соли и последующей очистке газовоздушной среды после барабана-сушила.
5.4. Необходимость проведения регулярных химических промывок выпарных камер и теплообменников термодистилляционных и выпарных установок приводит к появлению кислых и щелочных сточных вод, загрязненных окислами железа и шламом. Эти воды отправляются в узел нейтрализации для повторного использования.
1. ГОСТ 2184-77. Кислота серная техническая. Технические условия.
2. ГОСТ 6318-77. Натрий сернокислый технический. Технические условия.
3. ГОСТ 9179-77. Известь строительная. Технические условия.
4. ГОСТ 2263-79. Натр едкий технический. Технические условия.
5. ГОСТ 5100-85. Сода кальцинированная техническая. Технические условия.
6. ГОСТ 10731-85. Испарители поверхностного типа для паротурбинных электростанций. Общие технические условия.
7. ГОСТ 26646-90. Установки дистилляционные опреснительные стационарные. Общие технические требования и приемка.
8. ГОСТ 857-95. Кислота соляная синтетическая техническая. Технические условия.
9. ОСТ 34-70-689-84. Термическая обработка исходных и сточных вод на тепловых электростанциях. Классификация.
10. ОСТ 34-70-734-85. Испарительные и выпарные установки. Термины и определения.
11. ТУ 113-13-37-88. Требования к химическому составу хлористого натрия.
12. ТУ 25-47118-76. Ингибитор соли отложений ПАФ-13А.
13. ТУ 5-09-713-80. Ингибитор соли отложений ОЭДФК.
14. ТУ 5-05-211-1153-88. Ингибитор соли отложений ИОМС.
15. РТМ 108.030.21-78. Деаэраторы и деаэраторные установки. Условия проектирования.
16. Нормы технологического проектирования тепловых электрических станций и тепловых сетей. М.: 1982.
19. Методические указания по эксплуатации испарительных установок поверхностного типа тепловых электростанций: МУ 34-70-107-85.- М.: СПО Союзтехэнерго, 1986.
20. Заключение по обслуживанию работы испарителей для подготовки воды прямоточных и барабанных котлов электростанций.- Екатеринбург: Уралтехэнерго, 1984.
21. Фильтры для жидкостей: Каталог.- М.: ЦИНТИ-химнефтемаш, 1974.
22. Теплообменное оборудование: Каталог 8-78.- М.: НИИинформэнергомаш, 1978.
23. Пароэжекторные вакуум-насосы: Альбом,- М.: Гипронефтемаш, 1970.
24. Разработка ТЭР технологии совместного осаждения солей кальция и магния с последующей их переработкой в техническую известь. - Екатеринбург: УНИХИМ, ХЦ "Экология", 1990.
25. Аннотация на ТЭР строительства установки подготовки обессоленной воды методом термодистилляции Новочебоксарской ТЭЦ-3. - Екатеринбург: ХЦ "Экология", 1991.
26. Обследование работы выпарных батарей № 1, 2
Тобольской ТЭЦ: Отчет. - Екатеринбург: Уралтехэнерго, 1994.
27. Установка выпарная. Обследование работы выпарной установки цеха электролитической медной фольги комбината "Уралэлектромедь": Отчет.- Екатеринбург, Уралтехэнерго, 1993.
28. Обследование выпарной установки для получения поваренной соли на Мозырьском солекомбинате: Отчет. - Екатеринбург: НИИХИММАШ, 1993.
29. Обследование комплекса по переработке минерализованных сточных вод Ферганской ТЭЦ на дистиллят и солепродукты: Отчет. - Екатеринбург: ХЦ "Экология", 1994.
30. Седлов А.С. и др. Термическая водоподготовка и переработка сточных вод для производства с высокими экологическими показателями,- Промышленная энергетика, 1993, № 7.
31. Ищенко В.В., Измайлов М.И. и др. Аппарат для низкотемпературной термохимической очистки минерализованных сточных вод. - Промышленная энергетика, 1990, №7.
|
|
|
|