//
ТехЛит.ру
- крупнейшая бесплатная электронная интернет библиотека для "технически умных" людей.
WWW.TEHLIT.RU - ТЕХНИЧЕСКАЯ ЛИТЕРАТУРА

:: Алготрейдинг::


АЛГОТРЕЙДИНГ
шаг за шагом
с нуля по урокам!

Торговые роботы на PYTHON, BackTrader,
Pandas, Pine Script для TradingView. Связка с брокерами, телеграм и легкими приложениями.


ГОСТ 21.508-93

 

МЕЖГОСУДАРСТВЕННЫЙ СТАНДАРТ

СИСТЕМА ПРОЕКТНОЙ ДОКУМЕНТАЦИИ ДЛЯ СТРОИТЕЛЬСТВА

ПРАВИЛА ВЫПОЛНЕНИЯ РАБОЧЕЙ
ДОКУМЕНТАЦИИ ГЕНЕРАЛЬНЫХ ПЛАНОВ
ПРЕДПРИЯТИЙ, СООРУЖЕНИЙ И
ЖИЛИЩНО-ГРАЖДАНСКИХ
ОБЪЕКТОВ

 

 

МЕЖГОСУДАРСТВЕННАЯ НАУЧНО-ТЕХНИЧЕСКАЯ КОМИССИЯ ПО СТАНДАРТИЗАЦИИ И ТЕХНИЧЕСКОМУ НОРМИРОВАНИЮ В СТРОИТЕЛЬСТВЕ

 

 

Предисловие

1 РАЗРАБОТАН Проектным институтом № 2 (ПИ-2), Центральным научно-исследовательским и проектно-экспериментальным институтом по методологии, организации, экономике и автоматизации проектирования (ЦНИИпроект), проектным институтом Промстройпроект, Центральным научно-исследовательским и проектным институтом по градостроительству (ЦНИИПградостроительства)

ВНЕСЕН Госстроем России

2 ПРИНЯТ Межгосударственной научно-технической комиссией по стандартизации и техническому нормированию в строительстве 10 ноября 1993 г.

За принятие стандарта проголосовали:

Наименование государства

Наименование органа государственного управления строительством

Азербайджанская Республика

Госстрой Азербайджанской Республики

Республика Армения

Госупрархитектура Республики Армения

Республика Беларусь

Госстрой Республики Беларусь

Республика Казахстан

Минстрой Республики Казахстан

Кыргызская Республика

Госстрой Кыргызской Республики

Российская Федерация

Госстрой России

Республика Таджикистан

Госстрой Республики Таджикистан

Украина

Минстройархитектуры Украины

3 ВЗАМЕН ГОСТ 21.508-85

 

Содержание

1 Область применения

2 Нормативные ссылки

3 Общие положения

4 Общие данные по рабочим чертежам

5 Разбивочный план

6 План организации рельефа

7 План земляных масс

8 Свободный план инженерных сетей

9 План благоустройства территории

10 Эскизные чертежи общих видов нетиповых изделий

Приложение А

Пример оформления ведомости разработок чертежа

Приложение Б

Пример оформления ведомости разработок сводного плана инженерных сетей

Приложение В

Пример оформления экспликации зданий и сооружений

Приложение Г

Пример оформления ведомости жилых и общественных зданий и сооружений

Приложение Д

Пример оформления ведомости водоотводных сооружений

Приложение Е

Пример оформления разбивочного плана

Приложение Ж

Пример оформления плана организации рельефа в проектных горизонталях

Приложение И

Пример оформления плана организации рельефа в проектных отметках

Приложение К

Пример оформления плана земляных масс

Приложение Л

Пример оформления ведомости объемов земляных масс

Приложение М

Пример оформления сводного плана инженерных сетей

Приложение Н

Пример оформления ведомости малых архитектурных форм и переносных изделий

Приложение П

Пример оформления ведомости элементов озеленения

Приложение Р

Пример оформления ведомости тротуаров, дорожек, площадок и дорог, подъездов и проездов

Приложение С

Пример оформления сечений тротуаров, дорожек и площадок

Приложение Т

Пример оформления плана озеленения

Приложение У

Пример оформления плана расположения малых архитектурных форм и переносных изделий

Приложение Ф

Пример оформления плана проездов, тротуаров, дорожек, площадок

 

 

МЕЖГОСУДАРСТВЕННЫЙ СТАНДАРТ

Система проектной документации для строительства

ПРАВИЛА ВЫПОЛНЕНИЯ РАБОЧЕЙ ДОКУМЕНТАЦИИ ГЕНЕРАЛЬНЫХ ПЛАНОВ ПРЕДПРИЯТИЙ, СООРУЖЕНИЙ
И ЖИЛИЩНО-ГРАЖДАНСКИХ ОБЪЕКТОВ

System of building design documents.
Rules of fulfilment of working documentation of general
layouts of enterprises, buildings and civil housing objects

Дата введения 1994-09-01

1 ОБЛАСТЬ ПРИМЕНЕНИЯ

Настоящий стандарт устанавливает состав и правила оформления рабочей документации генеральных планов предприятий, сооружений и жилищно-гражданских объектов* различного назначения (далее - генеральные планы).

_____________

* В качестве жилищно-гражданских объектов здесь и далее рассматривают микрорайоны, кварталы, группы жилых домов и общественных зданий.

2 НОРМАТИВНЫЕ ССЫЛКИ

В настоящем стандарте использованы ссылки на следующие стандарты:

ГОСТ 2.303-68 ЕСКД. Линии

ГОСТ 21.101 -93 СПДС. Основные требования к рабочей документации

ГОСТ 21.109-80 СПДС. Ведомости потребности в материалах

ГОСТ 21.111-84 СПДС. Ведомости объемов строительных и монтажных работ

ГОСТ 21.204-93 СПДС. Условные графические обозначения и изображения элементов генеральных планов и сооружений транспорта

ГОСТ 21.510-83 СПДС. Правила выполнения рабочих чертежей железнодорожных путей

ГОСТ 21.511-83 СПДС. Правила выполнения рабочих чертежей автомобильных дорог

3 ОБЩИЕ ПОЛОЖЕНИЯ

3.1 Рабочую документацию генеральных планов выполняют в соответствии с требованиями настоящего стандарта, ГОСТ 21.101 и других взаимосвязанных стандартов системы проектной документации для строительства (СПДС).

3.2 В состав рабочей документации генерального плана включают:

- рабочие чертежи генерального плана (основной комплект рабочих чертежей марки ГП. При объединении в одном основном комплекте рабочих чертежей генерального плана и сооружений транспорта основному комплекту рабочих чертежей присваивают марку ГТ);

- эскизные чертежи общих видов нетиповых изделий, конструкций, устройств и малых архитектурных форм (далее - эскизные чертежи общих видов нетиповых изделий);

- ведомость потребности в материалах - по ГОСТ 21.109*;

- ведомость объемов строительных и монтажных работ - по ГОСТ 21.111*.

_____________

* Выполняют при наличии указаний в договоре на выполнение проектных работ.

3.3 В состав основного комплекта рабочих чертежей генерального плана включают:

- общие данные по рабочим чертежам;

- разбивочный план;

- план организации рельефа;

- план земляных масс;

- сводный план инженерных сетей;

- план благоустройства территории;

- выносные элементы (фрагменты, узлы) по ГОСТ 21.101**.

_____________

** Выполняют при большой насыщенности изображений.

3.4 Рабочие чертежи основного комплекта выполняют на инженерно-топографическом плане (кроме чертежа плана земляных масс).

Допускается разбивочный план, сводный план инженерно сетей и план благоустройства территории выполнять без нанесения горизонталей рельефа местности.

3.5 Контуры проектируемых зданий и сооружений наносят на план по архитектурно-строительным рабочим чертежам, принимая координационные оси зданий и сооружений совмещенными с внутренними гранями стен.

Когда расстояние от наружной грани стены здания, сооружения до координационной оси в масштабе изображения превосходит толщину линии контура, последнюю относят от координационной оси на соответствующее расстояние (L) в соответствии с рисунком 1.

3.6 Планы рабочих чертежей располагают длинной стороной условной границы территории вдоль длинной стороны листа, при этом северная часть территории должна находиться вверху. Допускается отклонение ориентации на север в пределах 90° влево или вправо. Планы, расположенные на разных листах, выполняют с одинаковой ориентацией.

3.7 При малой насыщенности изображений допускается совмещать несколько различных планов в один с присвоением ему соответствующего наименования.

Пример - «Разбивочный план и план организации рельефа», «План организации рельефа и земляных масс».

3.8 При большой насыщенности изображений плана благоустройства территории допускается выполнять несколько планов по видам работ с присвоением каждому плану соответствующего наименования.

Пример - «План озеленения», «План расположения малых архитектурных форм», «План проездов, тротуаров, дорожек и площадок».

3.9 Допускается делить план на несколько участков, размещая их на отдельных листах. В этом случае на каждом листе, где показан участок плана, приводят схему целого плана с разбивкой его на участки, указывают номера листов, на которых они размещены, и штриховкой обозначают участок, показанный на данном листе.

3.10 Рабочие чертежи генеральных планов допускается выпускать поэтапно - разработками по мере выполнения соответствующих рабочих чертежей зданий, сооружений проектируемого предприятия или жилищно-гражданского объекта.

В этом случае каждую разработку оформляют по состоянию на определенную дату с соответствующими дополнениями рабочих чертежей. Очередную разработку не рассматривают и не оформляют как внесение изменений.

Разработкам присваивают порядковые номера.

3.11 При очередной разработке основную надпись дополняют слева графами 10-13 по ГОСТ 21.101 в соответствии с рисунком 2.

Над основной надписью помещают ведомость разработок чертежа: для разбивочного плана, планов организации рельефа, земляных масс и благоустройства территории - по форме 1, для сводного плана инженерных сетей - по форме 2.

Примеры оформления ведомостей разработок приведены в приложениях А и Б.

3.12 Изображения на чертежах генерального плана выполняют линиями по ГОСТ 2.303:

- сплошными толстыми основными - контуры проектируемых зданий и сооружений (кроме зданий и сооружений на плане земляных масс), «красную» линию, проектные горизонтали с отметками, кратными 0,50 и 1,00 м;

- штриховой тонкой - линии «нулевых» работ и перелома проектного рельефа;

- штрихпунктирной очень толстой с двумя точками - условную границу территории проектируемого предприятия, здания, сооружения;

- сплошной тонкой - проектируемые здания, сооружения на плане земляных масс и все остальные элементы генерального плана.

3.13 Планы рабочих чертежей выполняют в масштабах 1:500 или 1:1000, фрагменты планов - в масштабе 1:200, узлы - в масштабе 1:20.

Допускается планы выполнять в масштабе 1:2000, узлы - в масштабе 1:10.

Масштаб изображения указывают в основной надписи после наименования изображения.

Если на листе помещено несколько изображений, выполненных в разных масштабах, то масштабы указывают на поле чертежа под наименованием каждого изображения.

3.14 Система высотных отметок, принимаемая в рабочих чертежах генеральных планов, должна соответствовать системе высотных отметок, принятой на инженерно-топографическом плане.

3.15 Размеры, координаты и высотные отметки указывают в метрах с точностью до двух знаков после запятой.

3.16 Величину углов указывают в градусах с точностью до одной минуты, а при необходимости - до одной секунды.

3.17 Величину уклонов указывают в промилле без обозначения единицы измерения. Крутизну откосов указывают в виде соотношения единицы высоты откоса к горизонтальному положению.

3.18 Основные условные графические обозначения и изображения элементов генерального плана и сооружений транспорта принимают по ГОСТ 21.204.

Малые архитектурные формы (например, беседки, навесы, фонтаны, скульптуры, перголы и т.д.) и другие конструкции, изделия, устройства (например, скамьи, урны и т. д.) выполняют упрощенно в масштабе чертежа или условными графическими обозначениями.

3.19 При выполнении рабочих чертежей генерального плана порядковые номера зданий и сооружений (в т. ч. ограждений, подпорных стенок, эстакад, галерей, тоннелей) принимают, как правило, по генеральному плану, разработанному на предыдущих стадиях проектирования.

Водоотводным сооружениям (канавам, лоткам, трубам) присваивают самостоятельные порядковые номера.

При объединении в одном основном комплекте чертежей генерального плана и сооружений транспорта железнодорожным путям и автомобильным дорогам присваивают самостоятельные порядковые номера.

Допускается не присваивать порядковые номера автомобильным дорогам и водоотводным сооружениям. В этом случае на плане указывают их координаты.

3.20 На планах (кроме плана земляных масс) приводят экспликацию зданий и сооружений по форме 3 (для генеральных планов предприятий производственного назначения) или ведомость жилых и общественных зданий и сооружений по форме 4 (для генеральных планов жилищно-гражданских объектов). Допускается экспликацию или ведомость зданий и сооружений приводить на листе общих данных по рабочим чертежам.

3.21 В графах экспликации зданий и сооружений указывают:

- в графе «Номер на плане» - номер здания, сооружения;

- в графе «Наименование» - наименование здания, сооружения;

- в графе «Координаты квадрата сетки» - координаты нижнего левого угла квадрата строительной геодезической сетки, в пределах которого на изображении здания и сооружения нанесен его номер (при необходимости).

Пример оформления экспликации зданий и сооружений приведен в приложении В.

3.22 В графах ведомости жилых и общественных зданий и сооружений указывают:

- в графе «Номер на плане» - номер здания, сооружения;

- в графе «Наименование и обозначение» - наименование здания, сооружения с указанием обозначения индивидуального или типового проекта, проекта по каталогу;

- в остальных графах - данные в соответствии с их наименованиями.

Пример оформления ведомости жилых и общественных зданий и сооружений приведен в приложении Г.

4 ОБЩИЕ ДАННЫЕ ПО РАБОЧИМ ЧЕРТЕЖАМ

Общие данные по рабочим чертежам выполняют по ГОСТ 21.101 с учетом следующих изменений и дополнений:

- ведомость спецификаций не выполняют;

- в общих указаниях, в дополнение к сведениям, предусмотренным ГОСТ 21.101, приводят обозначения и наименования документов, являющихся основанием для разработки рабочих чертежей генерального плана (например, материалов инженерно-геодезических и инженерно-геологических изысканий), принятую систему координат и высотных отметок.

5 РАЗБИВОЧНЫЙ ПЛАН

5.1 На разбивочном плане (плане расположения зданий и сооружений) наносят и указывают:

а) строительную геодезическую сетку или заменяющий ее разбивочный базис, а для жилищно-гражданских объектов, кроме того, городскую геодезическую сетку, которая должна перекрывать весь план;

б) «красную» линию, отделяющую территорию магистрали, улицы, проезда и площади от территории, предназначенной под застройку;

в) ограждения с воротами и калитками или условную границу территории. Если ограждение совпадает с «красной» линией или с условной границей территории, то наносят только ограждение с соответствующим пояснением на чертеже;

г) скважины и шурфы инженерно-геологических изысканий, не указанные на инженерно-топографическом плане;

д) здания и сооружения, в т. ч. коммуникационные (эстакады, тоннели);

е) площадки производственные и складские;

ж) автомобильные дороги и площадки с дорожным покрытием;

и) железнодорожные пути;

к) элементы благоустройства (тротуары, площадки спортивные и для отдыха);

л) элементы и сооружения планировочного рельефа (откосы, подпорные стенки, пандусы);

м) водоотводные сооружения;

н) указатель направления на север стрелкой с буквой «С» у острия (в левом верхнем углу листа).

5.2 Разбивочный план выполняют с координатной или размерной привязкой.

5.3 Строительную геодезическую сетку наносят на весь разбивочный план в виде квадратов со сторонами 10 см.

Начало координат принимают в нижнем левом углу листа.

Оси строительной геодезической сетки обозначают арабскими цифрами, соответствующими числу сотен метров от начала координат, и прописными буквами русского алфавита.

Примеры

1 (начало координат); 1А; 2А; 3А - горизонтальные оси;

2 0Б (начало координат); 1Б; 2Б; - вертикальные оси.

На чертежах, выполняемых в масштабе 1:500, оси строительной геодезической сетки обозначают в соответствии с приведенными примерами.

Примеры

1 0А (начало координат); 0А+50; 1А; 1А+50; 2А; 2А+50 - горизонтальные оси;

2 0Б (начало координат); 0Б+50; 1Б; 1Б+50; 2Б; 2Б+50 - вертикальные оси.

Допускается, при необходимости, применение отрицательных значении осей строительной геодезической сетки.

Примеры

1 0А (начало координат); 0А-50; -1А; -1А-50; -2А; -2А-50 - горизонтальные оси;

2 0Б (начало координат); 0Б-50; -1Б, -1Б-50; -2Б; -2Б-50 - вертикальные оси.

Допускается при расширении, реконструкции и техническом перевооружении действующих предприятий сохранять ранее принятые обозначения осей строительной геодезической сетки.

5.4 Размерную привязку осуществляют от разбивочного базиса.

Разбивочным базисом может быть любая прямая линия, проходящая через две закрепленные на местности точки, которые обозначают прописными буквами русского алфавита.

Пример - А; Б.

5.5 Здания и сооружения на плане наносят в масштабе чертежа с указанием проемов ворот и дверей, крайних осей и, при необходимости, координат осей ворот или привязки ворот к координационным осям здания.

5.6 Внутри контура здания (сооружения) указывают:

а) номер здания, сооружения в нижнем правом углу;

б) абсолютную отметку, соответствующую условной нулевой отметке, принятой в строительных рабочих чертежах здания, сооружения, которую помещают на полке линии-выноски и обозначают знаком  (для жилищно-гражданских объектов - при необходимости).

5.7 На контуре здания, сооружения указывают:

а) координаты точек пересечения координационных осей здания, сооружения в двух его противоположных углах, а при сложной конфигурации здания, сооружения или расположении его не параллельно осям строительной геодезической сетки - во всех углах, для центрических сооружений - координаты центра и одной характерной точки, а также диаметр, для линейных сооружений - координату оси или координаты начала и конца отдельных участков;

б) размерную привязку координационных осей здания, сооружения к разбивочному базису и размеры здания, сооружения между осями при отсутствии строительной геодезической сетки;

в) обозначение координационных осей здания, сооружения в координируемых точках.

5.8 Вокруг контура здания, сооружения показывают отмостку и въездные пандусы, наружные лестницы и площадки у входов.

5.9 На разбивочном плане в части автомобильных дорог наносят и указывают:

а) переезды через железнодорожные пути;

б) транспортные развязки;

в) координаты или привязки осей автомобильных дорог и, при необходимости, их номера;

г) ширину автомобильных дорог;

д) радиусы кривых по кромке проезжей части автомобильных дорог в местах их взаимного пересечения и примыкания;

е) откосы насыпей и выемок (при необходимости).

5.10 При отсутствии основного комплекта рабочих чертежей автомобильных дорог (марки АД) разбивочный план выполняют с учетом требований ГОСТ 21.511.

5.11 На разбивочном плане в части железнодорожных путей наносят и указывают:

а) номера путей;

б) стрелочные переводы;

в) упоры;

г) откосы насыпей и выемок (при необходимости).

5.12 При отсутствии основного комплекта рабочих чертежей железнодорожных путей (марки ПЖ) разбивочный план выполняют с учетом требований ГОСТ 21.510. При этом отметки дна и величину уклонов водоотводных сооружений и уклоноуказатели не указывают.

5.13 На разбивочном плане приводят ведомость водоотводных сооружений по форме 5.

Пример оформления ведомости водоотводных сооружений приведен в приложении Д.

5.14 Пример оформления разбивочного плана производственного предприятия с координатной привязкой приведен в приложении Е.

6 ПЛАН ОРГАНИЗАЦИИ РЕЛЬЕФА

6.1 План организации рельефа выполняют на основе разбивочного плана без указания и нанесения координационных осей зданий и сооружений, координат, размеров и размерных привязок.

6.2 На плане организации рельефа наносят и указывают:

а) абсолютные отметки внутри контура зданий и сооружений, в соответствии с 5.6 (перечисление б);

б) проектные отметки и уклоноуказатели по «красным» линиям;

в) проектные горизонтали или проектные отметки опорных точек планировки с указанием направления уклона проектного рельефа;

г) отметки низа и верха откосов, лестниц, подпорных стенок, пандусов;

д) отметки дна в местах переломов продольного профиля, направление и величину уклонов водоотводных сооружений;

е) дождеприемные решетки в пониженных точках проектного рельефа с отметками верха решеток;

ж) проектные отметки планировки и фактические отметки рельефа местности по внешнему контуру отмостки в углах зданий и сооружений или, при отсутствии отмостки, указанные отметки в местах пересечения наружных граней стен с рельефом в углах зданий и сооружений - в виде дроби с проектной отметкой в числителе и фактической - в знаменателе;

и) проектные отметки планировки и фактические отметки рельефа местности (при необходимости) по верху площадок различного назначения в местах пересечения их краев с рельефом по углам и в характерных точках;

к) линии перелома проектного рельефа - при выполнении плана в проектных отметках опорных точек планировки;

л) направление уклона проектного рельефа бергштрихами - при выполнении плана в проектных горизонталях и стрелками - при выполнении плана в проектных отметках.

6.3 На плане организации рельефа, в части автомобильных дорог, наносят и указывают:

а) проектные горизонтали - при выполнении плана в проектных горизонталях;

б) контуры поперечного профиля автомобильных дорог - при выполнении плана в проектных отметках;

в) точки перелома продольного профиля с проектными отметками;

г) уклоноуказатели по оси проезжей части автомобильных дорог;

д) водоотводные сооружения - кюветы, лотки с отметками дна в местах переломов продольного профиля и величиной уклонов дна сооружений;

е) дождеприемные решетки в пониженных точках продольного профиля с отметками верха решеток.

6.4 На плане организации рельефа, в части железнодорожных путей, наносят и указывают:

а) уклоноуказатели;

б) отметки дна водоотводных сооружений в местах переломов продольного профиля и величину уклонов дна сооружений.

6.5 План организации рельефа следует, как правило, выполнять в проектных горизонталях.

6.6 При выполнении плана организации рельефа в проектных горизонталях, их проводят с сечением рельефа через 0,10 или 0,20 м по всей планируемой территории (земляной поверхности, автомобильным дорогам, площадкам). Допускается на участках с однообразным уклоном рельефа наносить проектные горизонтали с сечением рельефа через 0,50 м.

Отметки проектных горизонталей надписывают со стороны повышения рельефа. Отметки проектных горизонталей, кратные 1,00 м, указывают полностью, промежуточные - приводят в виде целого числа, соответствующего двум знакам после запятой.

6.7 При выполнении плана организации рельефа в проектных отметках опорных точек планировки в качестве опорных точек, как правило, принимают:

а) углы зданий, сооружений и площадок;

б) повышенные и пониженные точки проектного рельефа;

в) пересечение осей автомобильных дорог;

г) точки перелома продольного профиля автомобильных дорог и железнодорожных путей.

6.8 На плане организации рельефа указывают проектные отметки входа и выхода по дну труб и междушпальных лотков, а также отметки переломных точек по дну водоотводных канав и лотков. На полке линии-выноски водоотводных канав и лотков приводят их сокращенное наименование.

Примеры

1 Д.л. - дно лотка;

2 Д.к. - дно канавы.

6.9 Примеры оформления планов организации рельефа в проектных горизонталях и проектных отметках опорных точек планировки приведены соответственно в приложениях Ж и И.

7 ПЛАН ЗЕМЛЯНЫХ МАСС

7.1 Подсчет объемов земляных масс выполняют, как правило, методом квадратов.

Допускается выполнять план земляных масс с использованием других методов. Содержание и форму плана определяют методом подсчета объемов земляных масс и условиями производства работ.

7.2 На плане земляных масс наносят и указывают:

а) строительную геодезическую сетку или заменяющий ее разбивочный базис;

б) сетку квадратов для подсчета объема земляных масс с проектными, фактическими и рабочими отметками в углах квадратов, линию «нулевых» работ с выделением площади выемок штриховкой под углом 45° к основанию сетки и указанием объема земляных масс в пределах каждого квадрата или иной фигуры образуемой контуром планировки;

в) здания и сооружения;

г) ограждение или условную границу территории;

д) откосы, подпорные стенки.

7.3 Сетку квадратов, как правило, вписывают в строительную геодезическую сетку, принимая сторону квадрата равной 20 м. Допускается привязка сетки квадратов к «красной» линии или к разбивочному базису, а также применение сетки квадратов со сторонами, равными 10, 25, 40 или 50 м, в зависимости от характера рельефа и обеспечения требуемой точности подсчета объема земляных масс.

Допускается, в зависимости от конфигурации планируемой территории, для подсчета объема земляных масс применять фигуры, отличные от квадрата. В этих случаях размеры фигур указывают на чертеже.

7.4 Под каждой колонкой квадратов плана земляных масс приводят таблицу по форме 6, в соответствующих графах которой указывают суммарные объемы насыпи и выемки по колонке квадратов, а в строках суммарных объемов справа - общие объемы насыпи и выемки по всей планируемой территории.

7.5. В случае залегания в пределах планируемой территории грунтов, подлежащих удалению (плодородный почвенный слой, торф, грунт, непригодный в качестве основания зданий, сооружений), до разработки плана земляных масс для всей территории выполняют план удаления грунтов в пределах контура залегания грунтов, подлежащих удалению, оформляя его аналогично плану земляных масс.

На плане удаления грунтов за проектные отметки принимают отметки низа подлежащего снятию грунта, которые при последующем выполнении плана земляных масс рассматривают как фактические отметки.

При наличии на территории строительства разнородных грунтов допускается выполнять планы для каждого вида грунта, присваивая чертежу соответствующее наименование.

Примеры

1 «План земляных масс. Снятие строительного мусора»;

2 «План земляных масс. Разработка скальных грунтов».

В случае залегания грунтов, подлежащих удалению, слоем одной мощности, план удаления грунтов может не выполняться. При этом за фактические отметки для плана земляных масс принимают отметки низа подлежащих удалению грунтов, а вычисленный объем удаляемых грунтов вносят в соответствующие строки и графы ведомости по форме 7.

7.6 На плане земляных масс приводят:

а) ведомость объемов земляных масс по форме 7;

б) текстовые указания о необходимости корректировки рабочих отметок в местах устройства газонов, корыта под одежду дорог, площадок и верхнего строения железнодорожных путей.

7.7 Примеры оформления плана земляных масс и ведомости объемов земляных масс приведены соответственно в приложениях К и Л. Примеры разработаны для случая выполнения вертикальной планировки до начала возведения зданий и сооружений.

8 СВОДНЫЙ ПЛАН ИНЖЕНЕРНЫХ СЕТЕЙ

8.1 Сводный план инженерных сетей выполняют на основе разбивочного плана, но без абсолютных отметок зданий, сооружений, привязки ворот и обозначения координационных осей зданий, сооружений.

При необходимости на плане наносят внешние контуры подошвы фундаментов проектируемых и существующих зданий, сооружений.

На изображениях автомобильных дорог и железнодорожных путей указывают только координаты или привязки их осей.

Инженерные сети выполняют условными графическими обозначениями по ГОСТ 21.204.

8.2 На сводным плане инженерных сетей наносят и указывают:

а) коммуникационные сооружения для прокладки сетей;

б) подземные, наземные и надземные сети;

в) дождеприемные решетки, опоры и стойки коммуникационных сооружений.

8.3 Инженерные сети наносят по рабочим чертежам соответствующих основных комплектов с координатной или линейной привязкой оси сети на каждом характерном участке, с изображением компенсаторов, ниш, колодцев, камер и с указанием их обозначений.

8.4 Пример оформления сводного плана инженерных сетей приведен в приложении М.

9 ПЛАН БЛАГОУСТРОЙСТВА ТЕРРИТОРИИ

9.1 План благоустройства территории выполняют на основе разбивочного плана без указания координационных осей, координат и размерных привязок, абсолютных отметок зданий, сооружений.

На изображениях автомобильных дорог и железнодорожных путей, при необходимости, указывают только координаты или привязки их осей.

9.2 На плане благоустройства территории наносят и указывают:

а) тротуары, дорожки и их ширину;

б) площадки различного назначения и их размеры;

в) малые архитектурные формы и переносные изделия площадок для отдыха;

г) деревья, кустарники, цветники, газоны.

9.3 Элементы благоустройства привязывают к наружным граням стен зданий, (сооружений, «красным» линиям, автомобильным дорогам или железнодорожным путям.

Для рядовой посадки деревьев и кустарников приводят размерную привязку ряда.

9.4 При сложной конфигурации дорожек, при расположении деревьев и кустарников свободными группами допускается взамен размерной привязки наносить на участках их расположения вспомогательную сетку квадратов со сторонами, равными 5-10 м, с привязкой ее к строительной геодезической сетке, разбивочному базису, зданиям, сооружениям, автомобильным дорогам и железнодорожным путям.

9.5 Элементам благоустройства присваивают позиционные обозначения. Позиционные обозначения малых архитектурных форм и переносных изделий указывают на линии-выноске в кружках диаметром 6 мм. Обозначение элементов озеленения указывают на линии-выноске в кружках диаметром 8-12 мм в виде дроби: в числителе - позиционное обозначение породы или вида насаждения, в знаменателе - их количество или площадь (для цветников).

9.6 На плане благоустройства территории приводят:

а) ведомость малых архитектурных форм и переносных изделии по форме 8, пример оформления которой приведен в приложении Н;

б) ведомость элементов озеленения по форме 9, пример оформления которой приведен в приложении П;

в) ведомость тротуаров, дорожек и площадок по форме 10, пример оформления которой приведен в приложении Р; (рисунок Р.1);

г) разрезы, сечения и узлы тротуаров, дорожек и площадок. Пример оформления сечений тротуаров, дорожек и площадок приведен в приложении С;

д) ведомость автомобильных дорог, подъездов и проездов по ГОСТ 21.511 (форма 1) - для жилищно-гражданских объектов, пример оформления которой приведен в приложении Р (рисунок Р.2);

е) соответствующие текстовые указания, например по условиям посадки деревьев и кустарников, устройству цветников и газонов и т. п.

9.7 Допускается ведомости, указанные в 9.6, помещать на листе общих данных.

9.8 Примеры оформления плана благоустройства, выполненного по видам работ, приведены: в приложении Т - «План озеленения»; в приложении У - «План расположения малых архитектурных форм и переносных изделий»; в приложении Ф - «План проездов, тротуаров, дорожек, площадок».

10 ЭСКИЗНЫЕ ЧЕРТЕЖИ ОБЩИХ ВИДОВ НЕТИПОВЫХ ИЗДЕЛИЙ

10.1 Эскизный чертеж определяет конструкцию нетипового изделия, содержит упрощенное изображение, основные параметры и технические требования к изделию в объеме исходных данных (задания), необходимых для разработки конструкторской документации.

10.2 Эскизные чертежи разрабатывают на изделия (конструкции, устройства) при отсутствии их серийного производства, типовых чертежей (документации массового применения), стандартов или других документов на эти изделия.

10.3 На каждое нетиповое изделие выполняют отдельный эскизный чертеж. Исключение составляет группа изделий, обладающих общими конструктивными признаками, на которые допускается выполнять групповой эскизный чертеж.

10.4 Эскизному чертежу присваивают самостоятельное обозначение, состоящее из обозначения основного комплекта рабочих чертежей по ГОСТ 21.101, через точку шифра Н и порядкового номера эскизного чертежа.

Пример - 2345-11-ГП.Н1; - 2345-11-ГП.Н2.

 

Примечание - L - расстояние от внутренней
грани контура здания, сооружения до координационной оси.

Рисунок 1

 

Дополнительные графы,
наносимые при выпуске
последующих разработок

Основная надпись чертежа и
дополнительные графы по
ГОСТ 21. 101, наносимые
при выпуске разработки 1

Рисунок 2

Форма 1

Ведомость разработок чертежа

Форма 2

Ведомость разработок сводного плана инженерных сетей

Форма 3

Экспликация зданий и сооружений

Форма 4

Ведомость жилых и общественных зданий и сооружений

Форма 5

Ведомость водоотводных сооружений

Форма 6

К плану земляных масс

l - ширина граф; n - их количество

Примечание - ширина граф и их количество должны соответствовать сетке квадратов плана земляных масс.

 

Форма 7

Ведомость объемов земляных масс

Примечания

1 Содержание боковика и число строк уточняют по проектным данным.

2 Вторая строка головки таблицы предусмотрена для наименования территории, по которой приводят данные.

Пример - «Предзаводская территория», «Жилая застройка». Число выделяемых частей территории уточняют по проектным данным.

Форма 8

Ведомость малых архитектурных форм и переносных изделий

Форма 9

Ведомость элементов озеленения

Форма 10

Ведомость тротуаров, дорожек и площадок

Приложение А

(справочное)

Пример оформления ведомости разработок чертежа

Номер разработки

Номер здания, сооружения или граница участка

1

1, 2, 5, 6, 7, 23, 24, 26

2

3, 4, 8, 9, 10, 11, 12, 27, 28, 29, 30

 

 

 

 

 

Приложение Б

(справочное)

Пример оформления ведомости разработок
сводного плана инженерных сетей

Обозначение сети

Координата сети или номер колодца

Обозначение документа

оси

начала

конца

Разработка 1

В1

1А + 02,00

0Б + 04,50

2Б + 20,00

3170 - 0 - НВК (1)

К1

1А + 40,00

0Б + 04,50

2Б + 32,00

3170 - 0 - НВК (1)

 

 

 

 

 

 

 

 

 

 

 

 

 

 

 

 

 

 

 

 

 

Разработка 2

В1

2Б + 20,00

0А + 12,00

1А + 02,00

3170 - 0 - НВК (1)

К1

2Б + 32,00

0А + 12,00

1А + 40,00

3170 - 0 - НВК (1)

Примечание - Пример оформления ведомости приведен для координатной привязки сетей.

 

Приложение В

(справочное)

Пример оформления экспликации зданий и сооружений

Номер
на плане

Наименование

Координаты квадрата сетки

1

Вспомогательный корпус

5А; 1Б

2

Производственный корпус

2А; 3Б

3

Резервуар для воды

16А; 7Б

4

Столовая

12А; 4Б

 

 

 

 

 

 

 

Приложение Г

(справочное)

Пример оформления ведомости жилых и общественных зданий и сооружений

Номер на плане

Наименование и обозначение

Этажность

Количество

Площадь, м2

Строительный объем, м3

зданий

квартир

застройки

общая нормируемая

здания

всего

здания

всего

здания

всего

здания

всего

Жилые здания

1

Крупнопанельный

 

 

 

 

 

 

 

 

 

 

 

3-секц. жилой дом

 

 

 

 

 

 

 

 

 

 

 

(5КБС-7-2С; 5КБС-5Л-1С)

5

1

60

60

957,36

957,36

3593,35

3593,35

15546,7

15546,7

2, 3

Крупнопанельный

 

 

 

 

 

 

 

 

 

 

 

4-секц. жилой дом

 

 

 

 

 

 

 

 

 

 

 

проездом (КБС-7-4С)

9

2

140

280

1242,68

2485,36

8270,8

16541,6

36220,7

72441,4

 

 

 

 

 

 

 

 

 

 

 

 

 

 

 

 

 

 

 

 

 

 

 

 

 

 

 

 

 

 

 

 

 

 

 

 

 

 

 

 

 

 

 

 

 

 

 

 

 

8

Крупнопанельный

 

 

 

 

 

 

 

 

 

 

 

5-секц. жилой дом

 

 

 

 

 

 

 

 

 

 

 

(5КБС-7-2С; 5КБС-5Л-1С)

5 - 9

1

116

116

1268,0

1268,0

7085,5

7085,5

30906,1

30906,1

 

Итого

 

10

 

876

 

8755,6

 

53351,2

 

235246,8

Общественные здания и сооружения

9

Детские ясли-сад

 

 

 

 

 

 

 

 

 

 

 

на 190 мест, на 8

 

 

 

 

 

 

 

 

 

 

 

групп, кирпичный

 

 

 

 

 

 

 

 

 

 

 

(214-1-270, 83)

 

1

 

 

983,7

983,7

1799,5

1799,5

6659,6

6659,6

10

Крытый бассейн

 

 

 

 

 

 

 

 

 

 

 

для детских яслей-

 

 

 

 

 

 

 

 

 

 

 

сада, кирпичный

 

 

 

 

 

 

 

 

 

 

 

(294-3-15)

 

1

 

 

154,3

154,3

110,8

110,8

608,0

608,0

 

 

 

 

 

 

 

 

 

 

 

 

 

 

 

 

 

 

 

 

 

 

 

 

 

 

 

 

 

 

 

 

 

 

 

 

 

 

 

 

 

 

 

 

 

 

 

 

 

12

Магазин «Овощи -

 

 

 

 

 

 

 

 

 

 

 

фрукты»,

 

 

 

 

 

 

 

 

 

 

 

кирпичный

 

 

 

 

 

 

 

 

 

 

 

(274-13-105,84)

 

1

 

 

1000,2

1000,2

880,2

880,2

3237,9

3237,9

 

Итого

 

 

 

 

3183,2

3183,2

 

4705,5

 

18180,5

 

Приложение Д

(справочное)

Пример оформления ведомости водоотводных сооружений

Вид сооружения

Координата оси или номер сооружения

Координата (пикетаж)

Длина, м

Тип укрепления или конструкция

Примечание

начала

конца

Лоток

0А + 98,00

0Б + 17,00

1Б + 90,00

173,00

ж.б.

3.501-68

Канава

0Б + 07,00

0А + 80,00

3А + 75,00

295,00

 

 

Труба

1

3А + 75,00

3А + 87,45

12,45

ж.б.

3.501.1-144

Труба

2

4А + 12,00

4А + 18,38

6,38

ж.б.

501-6

 

 

 

 

 

 

 

 

 

 

 

 

 

 

 

Приложение Е

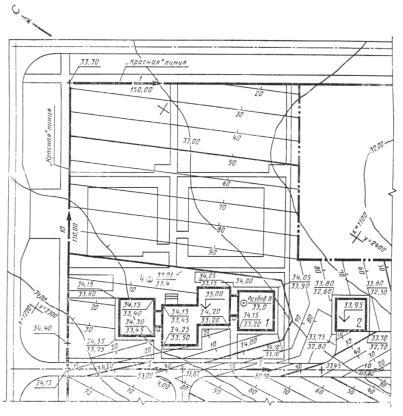
(справочное)

Пример оформления разбивочного плана

 

Приложение Ж

(справочное)

Пример оформления плана организации рельефа
в проектных горизонтах

 

Приложение И

(справочное)

Пример оформления плана организации рельефа
в проектных отметках

 

Приложение К

(справочное)

Пример оформления плана земляных масс

Итого, м3

Насыпь

+ 4650

+ 3645

+ 2840

+3790

+5870

+ 7120

 

 

 

всего, м3

+ 32475

Выемка

- 180

- 455

- 620

- 140

- 520

- 1210

 

 

 

- 17630

 

Приложение Л

(справочное)

Пример оформления ведомости объемов земляных масс

Наименование грунта

Количество, м3

Примечание

Заводская территория

Предзаводская территория

Насыпь
(+)

Выемка
(
)

Насыпь
(+)

Выемка
(
)

1. Грунт планировки территории

150000

96480*

61240

56660

ГП (6)

2. Вытесненный грунт,

 

74120

 

10600

 

в т. ч. при устройстве:

 

 

 

 

 

а) подземных частей зданий

 

 

 

 

 

(сооружений)

 

(25000)

 

 

КЖ (2, 4)

б) автодорожных покрытий

 

(46000)

 

(10420)

АД (2)

в) ж. д. путей

 

(1500)

 

 

ПЖ (2)

г) подземных сетей

 

(300)

 

(40)

НВК (1, 2)

д) водоотводных сооружений

 

(460)

 

 

ГП (3)

е) плодородной почвы на

 

 

 

 

 

участках озеленения

 

(860)

 

(140)

ГП (4)

3. Грунт для устройства высоких

 

 

 

 

 

полов зданий и обвалований

 

 

 

 

 

соору жений

6900

 

 

 

АР (7)

4. Поправка на уплотнение

15690

 

6120

 

Инж.-геол. изыск.

Всего пригодного грунта

172520

170600

67360

67260

 

5. Недостаток пригодного грунта

 

1990**

 

100**

 

6. Грунт непригодный для

 

 

 

 

 

устройства насыпи оснований

 

 

 

 

 

зданий, сооружений и

 

 

 

 

 

подлежащий удалению с

 

 

 

 

 

территории (торф)

47300***

47300

7140***

7140

ГП (5)

7. Плодородный грунт, всего,

 

44500

 

7340

ГП (4)

в т. ч.:

 

 

 

 

 

а) используемый для озеленения

 

 

 

 

 

территории

860

 

140

 

 

б) избыток плодородного грунта

 

 

 

 

 

(рекультивация земель)

43640

 

7200

 

 

8. Итого перерабатываемого

 

 

 

 

 

грунта

264390

264390

81840

81840

 

_____________

* С учетом предварительной срезки плодородного грунта.

** В карьере.

*** В отвале.

 

Приложение М

(справочное)

Пример оформления сводного плана инженерных сетей

 

Приложение Н

(справочное)

Пример оформления ведомости малых архитектурных форм
и переносных изделий

Поз.

Обозначение

Наименование

Кол.

Примечание

 

 

Беседка

 

 

1

320 - 60

Тип 1

1

 

2

320 - 60

Тип 2

3

 

3

320 - 18

Бум «Крокодил», тип 1

2

 

4

320 - 18

Качели

3

 

 

 

 

 

 

 

 

 

 

 

 

 

 

 

 

 

 

 

 

 

 

15

320 - 60

Скамья без спинки, тип 2

6

Переносная

16

320 - 10

Урна для мусора, тип 3

12

Переносная

 

 

 

 

 

 

 

 

 

 

 

Приложение П

(справочное)

Пример оформления ведомости элементов озеленения

Поз.

Наименование породы или вида насаждения

Возраст, лет

Кол.

Примечание

1

Лиственница сибирская

8

20

С комом 0,8´0,8´0,6 м

2

Береза бородавчатая

5

35

Саженец

3

Боярышник обыкновенный

5

140

Саженец

4

Кизильник блестящий

5

560

Саженец

5

Цветник

 

20

Из многолетников, м2

6

Газон партерный

 

1240

м2

 

 

 

 

 

 

 

 

 

 

 

Приложение Р

(справочное)

Пример оформления ведомости тротуаров,
дорожек и площадок

Поз.

Наименование

Тип

Площадь покрытия, м2

Примечание

1

Тротуар

1

480

 

2

Тротуар с бордюром из бортового

 

 

 

 

камня БР.100.20.8, l = 634,0 м

2

230

 

3

Площадка

2

80

 

4

 

4

120

 

5

Садовая дорожка

4

230

 

 

 

 

 

 

 

 

 

 

 

 

Рисунок Р.1

 

Пример оформления ведомости дорог, подъездов и проездов

Наименование

Координаты

Длина, м

Ширина, м

Тип дорожной одежды

Тип поперечного профиля

начала

конца

Проезд 1

1А+51,52; 3Б+21,35

1А+51,62; 5Б+43,25

221,90

5,50

1

2

Проезд 2

2А+10,30; 2Б+30,51

3А+60,00; 4Б+80,23

298,05

3,50

2

3

Подъезд

 

 

 

 

 

 

4Б+50,10

1А+ 1,62; 4Б+50,10

1А+90,90; 4Б+50,10

39,28

4,50

2

2

 

 

 

 

 

 

 

 

 

 

 

 

 

 

 

Рисунок Р.2

 

Приложение С

(справочное)

ПРИМЕР ОФОРМЛЕНИЯ СЕЧЕНИЙ ТРОТУАРОВ, ДОРОЖЕК И ПЛОЩАДОК

Тротуар (тип 1)

 

Тротуар (тип 2)

 

Дорожка, площадка (тип...)

 

Приложение Т

(справочное)

Пример оформления плана озеленения

 

Приложение У

(справочное)

Пример оформления плана расположения малых архитектурных форм и переносных изделий

 

Приложение Ф

(справочное)

Пример оформления плана проездов, тротуаров, дорожек, площадок

 

Ключевые слова: генеральный план, разбивочный план, рельеф, земляные массы, инженерные сети, благоустройство территории

 

 




Яндекс цитирования



   Copyright © 2007-2026,  www.tehlit.ru.

[ ѓосты, стандарты, нормативы, инструкции, правила, строительные нормы ]