//
ТехЛит.ру
- крупнейшая бесплатная электронная интернет библиотека для "технически умных" людей.
WWW.TEHLIT.RU - ТЕХНИЧЕСКАЯ ЛИТЕРАТУРА

:: Алготрейдинг::


АЛГОТРЕЙДИНГ
шаг за шагом
с нуля по урокам!

Торговые роботы на PYTHON, BackTrader,
Pandas, Pine Script для TradingView. Связка с брокерами, телеграм и легкими приложениями.


СОВЕТ ЭКОНОМИЧЕСКОЙ ВЗАИМОПОМОЩИ

СТАНДАРТ СЭВ

СТ СЭВ 4409-83

ЕДИНАЯ СИСТЕМА ПРОЕКТНО-КОНСТРУКТОРСКОЙ

ДОКУМЕНТАЦИИ СЭВ

ЧЕРТЕЖИ СТРОИТЕЛЬНЫЕ

ПРАВИЛА ВЫПОЛНЕНИЯ ЧЕРТЕЖЕЙ

ДЕРЕВЯННЫХ КОНСТРУКЦИЙ

 

Постановлением Государственного комитета ССОР по делам строитель­ства от 12 декабря 1984 г. № 207 стандарт Совета Экономической Взаимопомощи СТ СЭВ 4409-83 «Единая система проектно-конструк­торской документации СЭВ. Чертежи строительные. Правила выпол­нения чертежей деревянных конструкций»

введен в действие непосредственно в качестве государственного стандарта СССР

в народном хозяйстве СССР

с 01.01.86

в договорно-правовых отношениях по сотрудничеству

с 01.01.86

 

СОВЕТ

ЭКОНОМИЧЕСКОЙ

ВЗАИМОПОМОЩИ

СТАНДАРТ СЭВ

СТ СЭВ 4409-83

 

Единая система

проектно-конструкторской

документации СЭВ

ЧЕРТЕЖИ СТРОИТЕЛЬНЫЕ

Правила выполнения

чертежей

деревянных конструкций

 

 

Группа Т52

 

 

Настоящий стандарт СЭВ устанавливает правила выполнения рабочих чертежей деревянных строительных конструкций зданий и сооружений всех видов.

1. ОБЩИЕ ПОЛОЖЕНИЯ

1.1. Чертежи деревянных конструкций необходимо выполнять с соблюдением общих требований стандартов  СЭВ ЕСКД, в том числе СТ СЭВ 3335-81.

1.2. В состав чертежей деревянных конструкции, как правило, включают:

1) чертежи элементов деревянных конструкции, предназначен­ные для их изготовления в заводских условиях или на строительной площадке;

2) чертежи деревянных конструкций, предназначенные для производ­ства строительно-монтажных работ.

2. ЧЕРТЕЖИ ЭЛЕМЕНТОВ ДЕРЕВЯННЫХ КОНСТРУКЦИЙ

2.1. Чертежи выполняют, как правило, в следующих масшта­бах:

- сборочные (обзорные) чертежи - 1:10; 1:20; 1:50;

- чертежи выносных элементов и деталей - 1:1; 1:2; 1:5; 1:10; 1:20.

2.2. Правила выполнений  линий на чертежах - по СТ СЭВ 1178-78. При этом выполняют сплошной прямой:

толстой линией - видимые контуры на видах и разрезах;

очень толстой линией - клееные соединения и арматуру в кон­струкциях.

 

Утвержден Постоянной Комиссией по сотрудничеству

в области стандартизации

Дрезден, декабрь 1983 г.

 

2.3. Условное графическое обозначение дерева в сечении сле­дует изображать в соответствии с СТ СЭВ 860-78. При необхо­димости изображения других древесных материалов допускается пользоваться дополнительными графическими условными обозна­чениями.

2.4. Изображения соединений и крепежных деталей следует выполнять в соответствии с СТ СЭВ 138-81 и СТ СЭВ 1978-79. Дополнительные упрощенные и условные изображения в соедине­ниях приведены в таблице.

 

Наименование

соединения

Изображение

Упрощенное

Условное

На шпонках

На скобах

 

На коннекторах

 

2.5. Допускается элементы деревянных конструкций на сбо­рочных чертежах изображать упрощенно или схематически, до­полняя их выносными элементами в более крупном масштабе с необходимой степенью детализации.

2.6. На чертежах элементов приводят размеры и другие необ­ходимые данные по изготовлению и контролю.

2.7. На чертежах при необходимости приводят указания по антисептированию, био- и огнезащите.

Примеры выполнения чертежей элементов деревянных конст­рукций приведены в Информационном приложении 1.

3. ЧЕРТЕЖИ ДЕРЕВЯННЫХ КОНСТРУКЦИЙ

3.1. Чертежи выполняют, как правило, в следующих масшта­бах:

- чертежи схем расположения элементов - 1:50; 1:100; 1:200;

- фрагменты - 1:50; 1:100;

- выносные элементы - 1:2; 1:5; 1:10; 1:20.

3.2. На схемах расположения элементы деревянных конструк­ций изображают схематически - одной линией или контуром.

3.3. При выполнении схем расположения элементы конструк­ций изображают одной линией по оси элемента, в местах монтаж­ных соединений допускается линию прерывать. Элементы, кото­рые не могут быть изображены одной линией (столбы и прогоны в сечении и др.), выполняют контуром или условными  знаками (¨, 1, +, O).

3.4. При выполнении элементов конструкций на схемах распо­ложения контурами все элементы изображают по их внешним гра­ням.

3.5. При изображении элементов конструкций на схемах рас­положения применяют следующие типы линии:

для элементов, выполняемых в одну линию, - сплошную очень толстую линию;

для элементов, выполняемых контуром или условными графи­ческими знаками, - сплошную толстую линию.

3.6. При изображении элементов конструкций на схемах распо­ложения контуром применяют следующие типы линий:

- на видах - тонкую сплошную линию;

- в сечении - толстую сплошную линию.

3.7. Пример выполнения схемы расположения элементов дере­вянной конструкции приведен в Информационном приложении 2.

3.8. Пример чертежа анкеровки деревянных конструкций при­веден в Информационном приложении 3.

ИНФОРМАЦИОННОЙ ПРИЛОЖЕНИЕ 1

ПРИМЕРЫ ВЫПОЛНЕНИЯ ЧЕРТЕЖЕЙ ЭЛЕМЕНТОВ ДЕРЕВЯННЫХ КОНСТРУКЦИЙ

Деревянная составная балка на шпонках

 

 

Черт. 1

Узлы деревянных конструкций

 

 

 

а - клееное узловое соединение (1 - продольный эле­мент верхнего пояса,

2 и 3 - раскосы, 4 -соединитель­ный элемент с фасонкой);

б - гвоздевое узловое соединение (1 и 2 - раскосы, 3 - продольный

элемент нижнего пояса)

Черт. 2

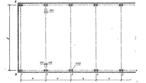
ИНФОРМАЦИОННОЕ ПРИЛОЖЕНИЕ 2

ПРИМЕР ВЫПОЛНЕНИЯ СХЕМЫ РАСПОЛОЖЕНИЯ ЭЛЕМЕНТОВ ДЕРЕВЯННОЙ КОНСТРУКЦИИ

 

 

Черт. 3

ИНФОРМАЦИОННОЕ ПРИЛОЖЕНИЕ 3

ПРИМЕР ЧЕРТЕЖА АНКЕРОВКИ ДЕРЕВЯННОЙ КОНСТРУКЦИИ

А, В-обозначение рядов анкерованных стоек;

1, 2, -обозначение расположения главных несущих конструкций

Черт. 4

ИНФОРМАЦИОННЫЕ ДАННЫЕ

1.   Автор  - делегация ЧССР в Постоянной Комиссии    по сотрудничеству
в области стандартизации.

2.   Тема - 01.634.33-^80.

3.   Стандарт СЭВ утвержден на 54-м заседании ПКС.

4.      Сроки начала применения стандарта СЭВ:

 

 

Страны — члены СЭВ

Сроки   начала   применения   стандарта   СЭВ

d договорно-правовых отно­шениях по экономическому и научно-техническому сотрудничеству

в народном хозяйстве

НРБ

Январь 1987 г.

Январь 1987 г.

ВНР

Январь 1986 г.    

Январь 1986 г.

СРВ

 

 

ГДР

Январь 1986 г.

Январь 1986 г.

Республика Куба

 

 

МНР

 

 

ПНР

Июль 1986 г.

Июль 1986 г.

СРР

-

-

СССР

Январь 1986 г.

Январь 1986 г.

ЧССР

Январь 1987 г.

Январь 1987 г.

5. Срок проверки - 1990 г.

 

СОДЕРЖАНИЕ

 

 

 




Яндекс цитирования



   Copyright © 2007-2026,  www.tehlit.ru.

[ ѓосты, стандарты, нормативы, инструкции, правила, строительные нормы ]