//
ТехЛит.ру
- крупнейшая бесплатная электронная интернет библиотека для "технически умных" людей.
WWW.TEHLIT.RU - ТЕХНИЧЕСКАЯ ЛИТЕРАТУРА

:: Алготрейдинг::


АЛГОТРЕЙДИНГ
шаг за шагом
с нуля по урокам!

Торговые роботы на PYTHON, BackTrader,
Pandas, Pine Script для TradingView. Связка с брокерами, телеграм и легкими приложениями.


ГОСУДАРСТВЕННЫЙ СТАНДАРТ СОЮЗА ССР

ПЛИТЫ ЖЕЛЕЗОБЕТОННЫЕ ПРЕДВАРИТЕЛЬНО НАПРЯЖЕННЫЕ ДЛЯ ОБЛИЦОВКИ ОРОСИТЕЛЬНЫХ КАНАЛОВ МЕЛИОРАТИВНЫХ СИСТЕМ

ТЕХНИЧЕСКИЕ УСЛОВИЯ

ГОСТ 22930-87

 

ГОСУДАРСТВЕННЫЙ СТРОИТЕЛЬНЫЙ КОМИТЕТ СССР
Москва

 

1. ОСНОВНЫЕ ПАРАМЕТРЫ И РАЗМЕРЫ

1.1. Форма и размеры плит, а также их показатели материалоемкости должны соответствовать указанным на черт. 1. и в табл. 1.

1 - монтажная петля; 2 - монтажная петля (только для плит при b=750 и 1000 мм)

Черт. 1

Таблица 1

Марка плиты

Основные размеры плиты, мм

Расход материалов

Масса плиты (справочная), т

l

b

a1

a2

Бетон, м3

Сталь, кг

ПКН60.20

6000

2000

1250

1350

0,72

29,7

1,80

ПКН60.15

6000

1500

1250

1350

0,54

20,6

1,35

 

ПКН60.10

6000

1000

1250

1350

0,36

12,5

0,90

 

ПКН60.8

6000

750

1250

1350

0,27

9,4

0,67

 

ПКН50.20

5000

2000

1100

1200

0,60

24,4

1,50

 

ПКН40.20

4000

2000

830

930

0,48

18,5

1,20

 

1.2. Плиты допускается изготовлять с технологическими уклонами их торцов, а плиты марок ПКН60.8 и ПКН60.10 - без технологического уклона одной из продольных граней.

1.3. В плитах предусмотрены выпуски напрягаемой арматуры для создания монолитных швов между плитами облицовки оросительных каналов. Длина выпусков арматуры устанавливается проектной документацией на конкретное сооружение и должна быть не менее 25 мм и не более 70 мм.

1.4. Конструкции плит, а также арматурных изделий к ним приведены в обязательном приложении.

1.5. Плиты обозначают марками в соответствии с требованиями ГОСТ 23009-78. Марка плиты содержит обозначение наименования конструкции (ПКН - плита крепления с напрягаемой арматурой), длину и ширину плиты в дециметрах (значения которых округляют до целого числа).

Пример условного обозначения (марки) плиты длиной 6000 мм, шириной 2000 мм:

ПКН60.20

2. ТЕХНИЧЕСКИЕ ТРЕБОВАНИЯ

2.1. Плиты следует изготовлять в соответствии с требованиями настоящего стандарта и технологической документации, утвержденной в установленном порядке.

2.2. Плиты должны удовлетворять требованиям по прочности и трещиностойкости и выдерживать при испытании контрольные нагрузки.

2.3. Плиты должны удовлетворять требованиям ГОСТ 13015.0-83:

по показателям фактической прочности бетона (в проектном возрасте, передаточной и отпускной);

по морозостойкости бетона;

к маркам сталей для монтажных петель;

по отклонению толщины защитного слоя бетона до арматуры;

по применению форм для изготовления плит.

2.4. Плиты следует изготовлять из тяжелого бетона средней плотности более 2200 до 2500 кг/м3 включ. и класса по прочности на сжатие В22,5. Бетон, материалы для его приготовления и бетонные смеси должны удовлетворять требованиям ГОСТ 26633-85.

2.5. Коэффициент вариации прочности бетона в партии для плит высшей категории качества не должен быть более 9 %.

2.6. Передачу усилий обжатия на бетон (отпуск натяжения арматуры) следует производить после достижения бетоном требуемой передаточной прочности.

Значение нормируемой передаточной прочности бетона плит должно быть 19,6 МПа (200 кгс/см2).

2.7. Значение нормируемой отпускной прочности бетона плит принимают равным 70 % класса бетона по прочности на сжатие. При поставке плит в холодный период года значение нормируемой отпускной прочности бетона может быть повышено, но не более 80 % класса бетона по прочности на сжатие. Значение нормируемой отпускной прочности бетона должно соответствовать указанному в проектной документации на конкретное сооружение и в заказе на изготовление плит согласно требованиям ГОСТ 13015.0-83.

2.8. Водонепроницаемость бетона плит должна соответствовать марке по водонепроницаемости W6.

2.9. Водопоглощение бетона плит не должно быть более 5 % по массе.

2.10. Для приготовления бетона следует применять портландцемент по ГОСТ 10178--85.

2.11. Для армирования плит следует применять арматурную сталь следующих видов и классов:

в качестве напрягаемой арматуры - высокопрочную арматурную проволоку класса Вр-II по ГОСТ 7348-81;

в качестве ненапрягаемой арматуры - обыкновенную арматурную проволоку класса Вр-1 по ГОСТ 6727-80 и стержневую горячекатаную арматурную сталь класса A-I по ГОСТ 5781-82 (только для монтажных петель поз. 6-10 и стержня поз. 16, указанных в обязательном приложении).

2.12. Форма и размеры арматурных изделий и их положение в плитах должны соответствовать указанным в обязательном приложении.

2.13. Натяжение напрягаемой арматуры следует производить механическим или электротермическим способом на упоры.

2.14. Напряжение в напрягаемой арматуре, контролируемое по окончании натяжения её на упоры, должно быть 804,1 МПа (8200 кгс/см2).

Значения действительных отклонений напряжений в напрягаемой арматуре не должны превышать при натяжении:

механическим способом +10, -5 %:

электротермическим способом ±88,3 МПа (±900 кгс/см2).

2.15. Температура нагрева напрягаемой арматуры при электротермическом способе натяжения не должна превышать 400 °С.

2.16. Значения действительных отклонений геометрических параметров плит не должны превышать предельных, указанных в табл. 2.

Таблица 2

мм

Наименование отклонения геометрического параметра

Наименование геометрического параметра

Пред. откл.

Отклонение от линейного размера

Длина плиты:

 

4000

±20

5000 и 6000

±25

Ширина плиты:

 

750 и 1000

±10

1500

±12

2000

±15

Толщина плиты

+5, -3

Размер, определяющий положение монтажных петель:

 

по длине плиты

20

по ширине плиты

10

по толщине плиты

3

Отклонение от прямолинейности

Прямолинейность профиля поверхности боковых граней плиты в любом сечении на всей длине:

 

4000

12

5000 и 6000

15

Отклонение от равенства диагоналей

Разность длин диагоналей лицевой поверхности плиты длиной:

 

4000

16

5000 и 6000

20

2.17. Значения действительных отклонений толщины защитного слоя бетона до арматуры плит высшей категории качества не должны превышать, мм:

+3, -2 - при толщине защитного слоя бетона до поверхности арматурного стержня св. 14 до 19 мм включ.;

+5, -3 - то же, св. 19 мм.

2.18. Устанавливают следующие категории бетонных поверхностей плит:

А6 - лицевой (поверхности, прилегающей к оснастке при изготовлении плит), неотделываемой;

А7 - нелицевой, невидимой в условиях эксплуатации.

Требования к качеству поверхностей и внешнему виду плит (в том числе требования к ширине усадочных и других технологических трещин) - по ГОСТ 13015.0-83.

2.19. Длина катета скола в углах плит не должна быть более 100мм.

2.20. На нелицевой поверхности плит, изготовляемых пакетным способом, допускаются впадины (седиментационные углубления) глубиной до 4 мм и шириной до 600 мм. Длина впадин не ограничивается.

3. ПРАВИЛА ПРИЕМКИ

3.1. Правила приемки плит - по ГОСТ 13015.1-81 и настоящему стандарту. Число плит в партии должно быть не более 300.

3.2. Испытания плит нагружением для определения их прочности и трещиностонкости проводят перед началом массового изготовления плит, и в дальнейшем - при изменении технологии их изготовления, вида и качества применяемых материалов.

3.3. Плиты принимают:

по результатам периодических испытаний - по показателям морозостойкости, водонепроницаемости и водопоглощения бетона плит;

по результатам приемо-сдаточных испытаний - по показателям прочности бетона (классу по прочности на сжатие, передаточной и отпускной прочности), соответствия арматурных изделии обязательному приложению, прочности сварных соединений, точности геометрических параметров, толщины защитного слоя бетона до арматуры, ширины раскрытия технологических трещин, категории бетонной поверхности.

3.4. Приемку плит по показателям точности геометрических параметров, толщины защитного слоя бетона до арматуры, категории бетонной поверхности и ширины раскрытия технологических трещин следует осуществлять по результатам одноступенчатого выборочного контроля.

4. МЕТОДЫ КОНТРОЛЯ

4.1. Испытание плит нагружением для определения их прочности и трещиностойкости следует проводить по достижении бетоном прочности на сжатие в проектном возрасте.

Контроль прочности и трещиностойкости плит следует осуществлять по ГОСТ 8829-85. Схема опирания и загружения плиты при испытании ее нагружением приведена на черт. 2.

Схема опирания плиты

Расположение нагрузки на плите в плане

1 - теоретическая схема нагрузки; 2 - нагрузка; 3 - подвижная опора; 4 - неподвижная опора

Черт. 2

Все опоры, установленные в местах крепления монтажных петель, должны быть шаровыми, чтобы обеспечивать поворот в двух плоскостях и перемещение в плоскости плиты. Одна шаровая опора должна быть неподвижной, а также должно быть предусмотрено устройство, препятствующее вращению плиты в горизонтальной плоскости вокруг неподвижной опоры.

Контрольная нагрузка при испытании плит на прочность и трещиностойкость равна 1,62 кПа (165 кгс/м2); нагрузка при определении ширины раскрытия трещин плит равна 85% контрольной.

Контрольная ширина раскрытия трещин при испытании плит по трещиностойкости не должна превышать 0,2 мм.

4.2. Прочность бетона плит следует определять по ГОСТ 10180-78 на серии образцов, изготовленных из бетонной смеси рабочего состава и хранившихся в условиях, установленных ГОСТ 18105-86.

При испытании плит неразрушающими методами фактическую передаточную и отпускную прочность бетона на сжатие следует определять ультразвуковым методом по ГОСТ 17624-78 или приборами механического действия по ГОСТ 22690.0-77 - ГОСТ 22690.4-77, а также другими методами, предусмотренными стандартами на методы испытания бетона.

4.3. Морозостойкость бетона следует определять по ГОСТ 10060-87 на серии образцов, изготовленных из бетонной смеси рабочего состава.

4.4. Водонепроницаемость бетона следует определять по ГОСТ 12730.0-78 и ГОСТ 12730.5- 84 на серии образцов, изготовленных из бетонной смеси рабочего состава.

4.5. Водопоглощение бетона следует определять по ГОСТ 12730.0-78 и ГОСТ 12730.3-78 на серии образцов, изготовленных из бетонной смеси рабочего состава.

4.6. Контроль и испытание сварных арматурных изделий следует проводить по ГОСТ 10922- 75.

4.7. Измерение напряжений в напрягаемой арматуре, контролируемых по окончании натяжения, следует проводить по ГОСТ 22362-77.

4.8. Методы контроля и испытаний исходных сырьевых материалов, применяемых для изготовления плит, должны соответствовать установленным стандартами или техническими условиями на эти материалы.

4.9. Размеры, отклонения от прямолинейности и равенства диагоналей поверхностей, толщину защитного слоя бетона до арматуры, качество бетонных поверхностей и внешний вид плит следует проверять методами, установленными ГОСТ 13015-75.

5. МАРКИРОВКА, ТРАНСПОРТИРОВАНИЕ И ХРАНЕНИЕ

5.1. Маркировка плит - по ГОСТ 13015.2-81. Маркировочные надписи и знаки следует наносить на боковой или торцевой поверхности плиты на расстоянии 100-500 мм от ее угла.

5.2. Допускается съем плиты из металлоформы за две монтажные петли, а также одновременный съем одной траверсой двух плит.

5.3. Требования к документу о качестве плит, поставляемых потребителю, - по ГОСТ 13015.3-81. Дополнительно в документе о качестве должны быть приведены марки бетона по морозостойкости и водонепроницаемости.

5.4. Плиты следует транспортировать и хранить в соответствии с требованиями ГОСТ 13015.4-84 и настоящего стандарта.

5.4.1. Плиты при транспортировании и хранении следует устанавливать в вертикальном положении (или с отклонением от вертикали до 8°) на боковые грани в специальных пирамидах. Установку плит производят без прокладок между ними поочередно с двух сторон пирамиды, не допуская разницы более двух плит на сторону. Плиты устанавливают на инвентарные подкладки толщиной, превышающей высоту монтажных петель не менее чем на 20 мм.

Допускается транспортировать и хранить плиты уложенными в горизонтальном положении и штабели на подкладки толщиной не менее 25 мм и без прокладок между плитами. Число плит в штабеле не должно быть более 10; при транспортировании железнодорожным транспортом число плит в штабеле не должно быть более 20. Транспортировать плиты в горизонтальном положении допускается только при жесткости транспортного средства, достаточной для предотвращения возникновения изгибающих моментов в плитах как в продольном, так и в поперечном направлениях.

5.4.2. Подкладки под плитами в пирамидах или штабелях следует укладывать на расстоянии 1100-1400 мм от торцов плит.

5.4.3. После загрузки транспортных средств плиты должны быть зафиксированы гибкими стропами. Во избежании порчи плит в местах перегибов строп следует применять прокладки из дерева или других материалов, обеспечивающих сохранность конструкций.

ПРИЛОЖЕНИЕ

Обязательное

КОНСТРУКЦИЯ ПЛИТ И АРМАТУРНЫХ ИЗДЕЛИЙ К НИМ

1. Положение стержней напрягаемой арматуры и арматурных каркасов должно соответствовать указанному на черт. 1-3.

Спецификация и выборка напрягаемой арматуры на одну плиту приведены в табл. 1. Спецификация арматурных каркасов на одну плиту приведена в табл. 3.

2. Форма и размеры арматурных каркасов должны соответствовать указанным на черт. 4-7 и в табл. 3, 4. Спецификация и выборка стали на один арматурный каркас приведены в табл.5.

3. Выборка стали на одну плиту приведена в табл. 6.

АРМИРОВАНИЕ ПЛИТ

Продольные разрезы плит

ПКН60.15

ПКН60.10; ПКН60.8

ПКН50.20

ПКН40.20

Черт. 1

Примечание. Сечение 1-1 см. на черт. 2.


Технологические операции армирования выполняют, в следующей последовательности: симметрично укладывают нижний ряд струн (поз 1; 2; 3), на них каркасы; по уложенным каркасам укладывают верхний ряд струн (поз. 1; 2; 3)

Черт. 2

РАСПОЛОЖЕНИЕ КАРКАСОВ

Черт. 3


Таблица 1

Спецификация и выборка напрягаемой арматуры на одну плиту

Марка плиты

Позиция

Диаметр, мм

Длина, мм

Количество

Mасca, кг

одной позиции

всего

ПКН60.20

1

5ВрII

6140

13

0,95

12,35

ПКН60.15

9

8,55

ПКН60.10

7

6,65

ПКН60.8

5

4,75

ПКН 50.20

2

5140

13

0,79

10,27

ПКН40.20

3

4140

13

0,64

8,32

Примечание. Длина напрягаемой арматуры в спецификации указана теоретическая. Действительная длина принимается в зависимости от способа натяжения и конструкции захватных приспособлений.

Таблица 2

Спецификация арматурных каркасов на одну плиту

Марка плиты

Арматурный каркас

Марка плиты

Арматурный каркас

Марка

Количество

Марка

Количество

ПКН60.20

КР1

9

ПКН60.8

КР5

8

КР6

4

КР10

2

КР11

4

КР11

3

ПКН60.15

КР2

9

ПКН50.20

КР1

8

КР8

4

КР7

4

КР11

4

КР11

4

ПКН60.10

КР4

8

ПКН40.20

кр3

4

КР9

2

КР7

4

КР11

2

КР11

4

Черт. 4

Таблица 3

Марка каркаса

Позиция

Размеры, мм

n

l1

a

КР1

4

1950

55

4

КР2

6

1450

35

3

КР3

7

1960

56

4

КР4

9

950

15

2

КР5

10

700

120

1

 

Черт. 5

Черт. 6

Таблица 4

Марка каркаса

Позиция

Размеры, мм

l2

a1

a2

КР6

//

1400

370

20

КР7

12

1400

370

20

КР8

13

1000

320

20

КР9

14

950

400

40

КР10

15

700

300

10

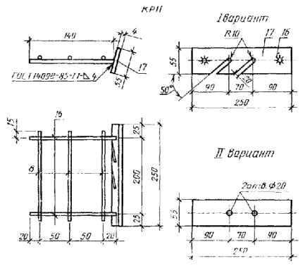
Допускается изменение ширины полосы (поз. 17) толщиной 5 мм и изменение её ширины в пределах ±5 мм.

Черт. 7

Таблица 5

Спецификация и выборка стали на один арматурный каркас

Марка каркаса

Позиция

Эскиз

Диаметр или сечение, мм

Длина, мм

Количество

Масса одной позиции, кг

Выборка стали

Диаметр или сечение, мм

Общая

длина, м

Масса

изделия, кг

КР1

4

¾¾¾¾¾¾¾

¾¾¾¾¾¾¾

5ВрI

1950

2

0,28

5ВрI

5,00

0,72

5

5ВрI

220

5

0,03

КР2

6

¾¾¾¾¾¾¾

¾¾¾¾¾¾¾

5ВрI

1450

2

0,21

5ВрI

3,78

0,55

5

5ВрI

220

4

0,03

КРЗ

7

¾¾¾¾¾¾¾

¾¾¾¾¾¾¾

4ВрI

1950

2

0,18

4ВрI

6,00

0,46

8

4ВрI

220

5

0,02

КР4

9

¾¾¾¾¾¾¾

¾¾¾¾¾¾¾

4ВрI

950

2

0,09

4ВрI

2,56

0,24

8

4ВрI

220

3

0,02

КР5

10

¾¾¾¾¾¾¾

¾¾¾¾¾¾¾

4ВрI

700

2

0,06

4ВрI

1,84

0,17

8

4ВрI

220

2

0,02

КР6

11

12AI

2270

1

2,02

12AI

2,27

2,04

8

4ВрI

220

1

0,02

4ВрI

0,22

КР7

12

10AI

2270

1

1,40

10А1

2,27

1,42

8

4ВрI

220

1

0,02

4Вр1

0,22

КР8

13

10AI

1750

1

1,08

10AI

1,75

1,10

8

4ВрI

220

1

0,02

4ВрI

0,22

КР9

14

10AI

2010

1

1,24

10AI

2,01

1,28

8

4ВрI

220

2

0,02

4ВрI

0,44

КР10

15

10AI

1510

1

0,93

10AI

1,51

0,97

8

4ВрI

220

2

0,02

4ВрI

0,44

КР11

13

¾¾¾¾¾¾¾

¾¾¾¾¾¾¾

Полоса

10AI

140

2

0,09

10AI

0,28

0,67

8

4Вр1

220

3

0,02

4ВрI

0,66

17

4 ´55

250

1

0,43

4´55

0,25

Таблица 6

Выборка стали на одну плиту, кг

Марка плиты

Арматурная сталь класса

по ГОСТ 103-76

Всего

Вр-II

Bp-I

А-I

Итого

Марка ВСт3кп2 по ГОСТ 380-71

по ГОСТ 7348-81

по ГОСТ 6727-80

по ГОСТ 5781-82

Диаметр 5 мм

Итого

Диаметр, мм

Итого

Диаметр, мм

Итого

4

5

10

12

4´55

Итого

ПКН60.20

12,35

12,35

0,32

6,48

6,80

0,72

8,08

8,80

27,95

1,72

1,72

29,7

ПКН60.15

8,55

8,55

0,32

4,95

5,27

5,04

-

5,04

18,86

1,72

1,72

20,6

ПКН60.10

6,66

6,65

2,12

-

2,12

2,84

-

2,84

11,61

0,86

0,86

12,5

ПКН60.8

4,75

4,75

1,56

-

1,56

2,22

-

2,22

8,53

0,86

0,86

9,4

ПКН50.20

10,27

10,27

0,32

5,76

6,08

6,32

-

6,32

22,67

1,72

1,72

24,4

ПКН40.20

8,32

8,32

2,16

 

2,16

6,32

 

6,32

16,80

1,72

1,72

18,5

ИНФОРМАЦИОННЫЕ ДАННЫЕ

1. РАЗРАБОТАН И ВНЕСЕН Министерством мелиорации и водного хозяйства СССР

ИСПОЛНИТЕЛИ

Б. О. Кац (руководитель темы); В. И. Бурлаков; В. В. Гончаров, канд. техн. наук; Д. П. Колесников, канд. техн. наук;

Г. М. Реминец, канд. техн. наук; А. И. Старченко; В. И. Деньщиков

2. УТВЕРЖДЕН И ВВЕДЕН В ДЕЙСТВИЕ Постановлением Государственного строительного комитета СССР от 25.12.86 № 65

3. ВЗАМЕН ГОСТ 22930-78

4. ССЫЛОЧНЫЕ НОРМАТИВНО-ТЕХНИЧЕСКИЕ ДОКУМЕНТЫ

Обозначение НТД, на который дана ссылка

Номер пункта, подпункта, приложения

ГОСТ 103-76

Приложение

ГОСТ 380-71

Приложение

ГОСТ 5781-82

2.11; приложение

ГОСТ 6727-80

2.11; приложение

ГОСТ 7348-81

2.11; приложение

ГОСТ 8829-85

4.1

ГОСТ 10060-87

4.3

ГОСТ 10178-85

2.10

ГОСТ 10180-78

4.2

ГОСТ 10922-75

4.6

ГОСТ 12730.0-78

4.4; 4.5

ГОСТ 12730.3-78

4.5

ГОСТ 12730.5-84

4.4

ГОСТ 13015-75

4.9

ГОСТ 13015.0-83

2.3; 2.7; 2.18

ГОСТ 13015.1-81

3.1

ГОСТ 13015.2-81

5.1

ГОСТ 13015.3-81

5.3

ГОСТ 13015.4-84

5.4

ГОСТ 14098-85

Приложение

ГОСТ 17624-78

4.2

ГОСТ 18105-86

4.2

ГОСТ 22362-77

4.7

ГОСТ 22690.0-77

4.2

ГОСТ 22690.1-77

4.2

ГОСТ 22690.2-77

4.2

ГОСТ 22690.3-77

4.2

ГОСТ 22690.4-77

4.2

ГОСТ 23009-77

1.5

ГОСТ 26633-85

2.4

СОДЕРЖАНИЕ

 




Яндекс цитирования



   Copyright © 2007-2026,  www.tehlit.ru.

[ ѓосты, стандарты, нормативы, инструкции, правила, строительные нормы ]