//
ТехЛит.ру
- крупнейшая бесплатная электронная интернет библиотека для "технически умных" людей.
WWW.TEHLIT.RU - ТЕХНИЧЕСКАЯ ЛИТЕРАТУРА

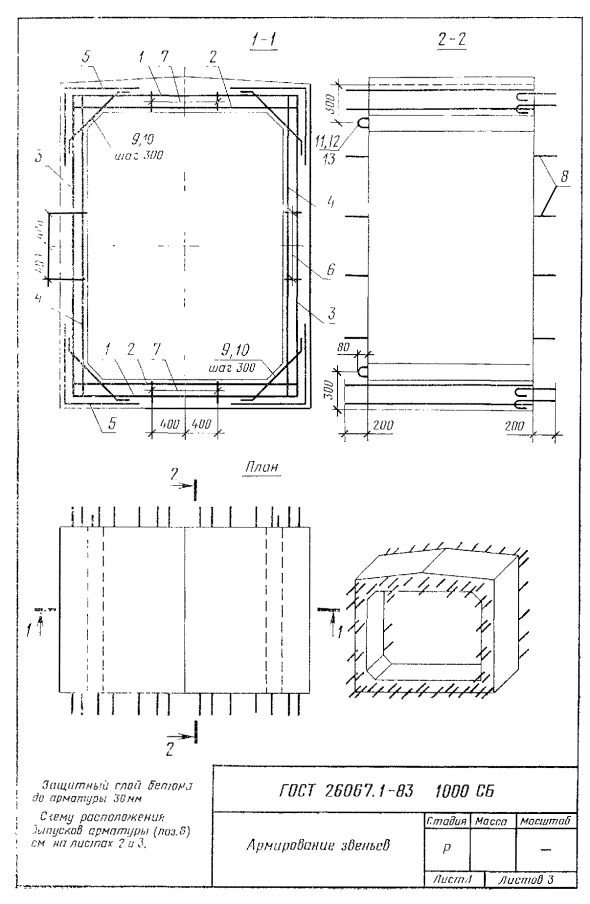
:: Алготрейдинг::


АЛГОТРЕЙДИНГ
шаг за шагом
с нуля по урокам!

Торговые роботы на PYTHON, BackTrader,
Pandas, Pine Script для TradingView. Связка с брокерами, телеграм и легкими приложениями.


ГОСУДАРСТВЕННЫЙ СТАНДАРТ СОЮЗА ССР

ЗВЕНЬЯ ЖЕЛЕЗОБЕТОННЫЕ
БЕЗНАПОРНЫХ ТРУБ
ПРЯМОУГОЛЬНОГО СЕЧЕНИЯ
ДЛЯ ГИДРОТЕХНИЧЕСКИХ
СООРУЖЕНИЙ

ГОСТ 26067.1-83

ГосударственнЫЙ комитет СССР
по делам строительства

Москва

РАЗРАБОТАНЫ

Министерством мелиорации и водного хозяйства СССР

Министерством мелиорации и водного хозяйства Украинской ССР

Министерством промышленности строительных материалов СССР

Научно-исследовательским институтом бетона и железобетона (ниижб) Госстроя СССР

ИСПОЛНИТЕЛИ

С. Н. Путилова (руководитель темы); Е. Ф. Кульженко; Г. М. Реминец, канд. техн. наук; А. С. Герус; В. И. Мелихов, канд. техн. наук; К. А. Маврин, канд. техн. наук; А. Г. Грайфер, канд. техн. наук; А. Л. Ционский, канд. техн. наук; В. С. Широков, канд. техн. наук; А. Е. Шмурнов; В. И. Деньщиков

ВНЕСЕНЫ Министерством мелиорации и водного хозяйства СССР

Зам. министра Б. Г. Штепа

УТВЕРЖДЕНЫ И ВВЕДЕНЫ В ДЕЙСТВИЕ Постановлением Государственного комитета СССР по делам строительства от 8 декабря 1983 г. № 317

ГОСУДАРСТВЕННЫЙ СТАНДАРТ СОЮЗА ССР

ЗВЕНЬЯ ЖЕЛЕЗОБЕТОННЫЕ БЕЗНАПОРНЫХ ТРУБ ПРЯМОУГОЛЬНОГО СЕЧЕНИЯ ДЛЯ ГИДРОТЕХНИЧЕСКИХ СООРУЖЕНИЙ

Конструкция и размеры

Reinforced concrete sections of nonpressure rectangular cross-section pipes for
hydraulic structures. Structure and dimensions

ГОСТ
26067.1-83

Постановлением Государственного комитета СССР по делам строительства от 8 декабря 1983 г. № 317 срок введения установлен

с 01.01.85

Несоблюдение стандарта преследуется по закону

1. Настоящий стандарт распространяется на железобетонные звенья безнапорных труб прямоугольного сечения, предназначенные для прокладки трубопроводов гидротехнических сооружений, и устанавливает конструкцию звеньев и арматурных изделий к ним.

2. Звенья должны удовлетворять всем требованиям ГОСТ 26067.0-83 и требованиям, изложенным в соответствующих пунктах настоящего стандарта.

3. Технические показатели звеньев приведены в таблице.

Марка звена

Класс бетона по прочности на сжатие

Марка бетона по водонепроницаемости

Расход материалов

Бетон, м3

Сталь, кг

ЗТП15.20-1

В225

W6

1,93

111,3

ЗТП15.20-2

1,93

126,5

ЗТП20.20.1

1,66

103,3

ЗТП20.20-2

1,66

135,1

ЗТП20.20-3

2,36

174,4

ЗТП25.20-1

2,29

148,3

ЗТП25.20-2

2,29

194,1

4. Армирование звеньев должно соответствовать указанному на листах 1-3 сборочного черт. 1000 СБ ГОСТ 26067.1-83.

5. Спецификация арматурных изделий на одно звено приведена на листах 1-3 черт. 1000; выборка стали - на листе 1 черт. 0000 ВС ГОСТ 26067.1-83.

6. Форма и размеры арматурных изделий должны; соответствовать указанным на черт. 1100 СБ, 1110 СБ, 1120 СБ, 1130 СБ, 1140 СБ, 1150 СБ, 1160 СБ, 1170 СБ ГОСТ 26067.1-83.

7. Спецификация арматурных изделий сеток приведена на черт. 1100, 1110, 1120 и 1130 ГОСТ 26067.1-83, каркасов - на черт. 1140 ГОСТ 26067.1-83.

8. Изготовление каркасов и сеток следует производить контактной точечной сваркой в соответствии с требованиями ГОСТ 10922-75 и СН 093-78.

9. Деталь стыка между звеньями трубы и расход стали на один стык приведены в рекомендуемом приложении.















ПРИЛОЖЕНИЕ

Рекомендуемое

Деталь стыка между звеньями трубы

Ведомость расхода стали на один стык между звеньями

Поз.

Кол., шт.

Эскиз

Обозначение

Длина одной позиции, мм

Масса стали на один стык, кг

Примечание

1

4

¾

6AI

ГОСТ 5781-82

1700

1700

2200

2200

2300

2800

2800

1,5

1,5

1,95

1,95

3,6

2,5

2,5

 

2

4

¾

8AIII

ГОСТ 5781-82

1700

 

 

 

 

 

 

2,7

 

 

 

 

 

 

 

 

 

 

10AIII

ГОСТ 5781-82

 

1700

 

 

 

 

 

 

4,2

 

 

 

 

 

 

 

 

 

14AIII

ГОСТ 5781-82

 

 

2200

 

2800

 

 

 

 

106,0

 

14,5

13,5

 

 

 

 

 

16AIII

ГОСТ 5781-82

 

 

--

2200

2300

 

 

 

 

 

13,9

 

 

 

 

 

 

 

18AIII

ГОСТ 5781-82

 

 

 

--

 

2500

2800

 

 

 

 

 

 

22,4

 

3

4

¾

6AIII

ГОСТ 5781-82

2300

2300

2400

 

2600

 

2500

2,0

2,0

2,13

 

 

2,25

2,20

 

 

 

 

8AI

ГОСТ 5781-82

 

 

 

2400

 

 

 

 

 

 

2,13

4,10

 

 

 

4

4

¾

6AI

ГОСТ 5781-82

 

 

2400

 

 

2500

2500

 

 

2,13

 

 

2,25

2,20

 

 

 

 

8AI

ГОСТ 5781-82

2300

2300

 

2400

2600

 

 

3,0

3,6

 

2,13

 

 

 

 

 

 

 

10AIII

ГОСТ 5781-82

 

 

 

 

 

 

 

 

 

 

 

3,46

 

 

 

 

 

 

Вязальная

 

 

 

 

 

 

 

 

 

 

 

 

 

 

 

 

 

 

проволока

 

 

 

 

 

 

 

0,50

0,60

0,80

1,00

1,40

1,00

1,50

 

 

Марка

ЗТП 15.20-1

ЗТП 15.20-2

ЗТП 20.20-1

ЗТП 20.20-2

ЗТП 20.20-3

ЗТП 25.20-1

ЗТП 25.20-2

ЗТП 15.20-1

ЗТП 15.20-2

ЗТП 20.20-1

ЗТП 20.20-2

ЗТП 20.20-3

ЗТП 25.20-1

ЗТП 25.20-2

 

 




Яндекс цитирования



   Copyright © 2007-2026,  www.tehlit.ru.

[ ѓосты, стандарты, нормативы, инструкции, правила, строительные нормы ]