//
ТехЛит.ру
- крупнейшая бесплатная электронная интернет библиотека для "технически умных" людей.
WWW.TEHLIT.RU - ТЕХНИЧЕСКАЯ ЛИТЕРАТУРА

:: Алготрейдинг::


АЛГОТРЕЙДИНГ
шаг за шагом
с нуля по урокам!

Торговые роботы на PYTHON, BackTrader,
Pandas, Pine Script для TradingView. Связка с брокерами, телеграм и легкими приложениями.


ТИПОВЫЕ ТЕХНОЛОГИЧЕСКИЕ КАРТЫ
НА ПРОИЗВОДСТВО ОТДЕЛЬНЫХ ВИДОВ РАБОТ

РАЗДЕЛ 01

ТИПОВАЯ
ТЕХНОЛОГИЧЕСКАЯ КАРТА

НА ЗЕМЛЯНЫЕ РАБОТЫ

1.01.01.76

КОМПЛЕКСНО-МЕХАНИЗИРОВАННЫЙ
ТЕХНОЛОГИЧЕСКИЙ ПРОЦЕСС
УСТРОЙСТВА ЗЕМЛЯНОГО ПОЛОТНА АВТОДОРОГ
В ГРУНТАХ
Iм - IIIм ГРУПП СО СКАЛЬНЫМИ
ВКЛЮЧЕНИЯМИ В ЗИМНИХ УСЛОВИЯХ.
ВЫСОТА НАСЫПИ ДО 3 м.

РАЗРАБОТАНА

Институтом «Красноярский ПромстройНИИпроект» Минуралсибстроя СССР

Главный инженер института       Б.П. Запятой

Начальник отдела                         Л.Ф. Галимова

Главный инженер проекта          Е.В. Каминов

СОГЛАСОВАНО

Отделом механизации и технологии строительства Госстроя СССР

Письмо от 14.12.1988 г. № 23-712.

Срок ввода 1 февраля 1989 г.

МОСКВА 1989

1. ОБЛАСТЬ ПРИМЕНЕНИЯ

1.1. Типовая технологическая карта (ТТК) разработана для применения при проектировании организации и производства земляных работ в зимних условиях в районах, относящихся к пятой температурной зоне, в грунтах IIIм группы со скальными включениями.

ТТК комплексно-механизированного технологического процесса устройства земляного полотна автомобильных дорог разработана для насыпи высотой до 3,0 м.

1.2. В качестве грунтов дорожной насыпи приняты тяжелые суглинки с примесью щебня до 40 %. Глубина сезонного промерзания грунта в конце второй трети зимнего периода составляет 1,0 м. Грунтовые воды встречаются на отметке ниже 5,0 м.

1.3. Производство работ предусмотрено в три смены, исходя из условия предохранения грунта от смерзания во время перерывов между сменами.

1.4. В составе ТТК приведены три варианта комплексно-механизированного технологического процесса разработки грунта, транспортирования и возведения насыпи до проектной отметки. В вариантах комплексов механизмов сравниваются ведущие машины. Машины, занятые на подготовительных работах, приняты общими для всех вариантов.

1.5. Привязка ТТК к конкретным объектам и условиям производства работ заключается в уточнении объемов работ, калькуляций затрат труда, машинного времени и заработной платы, графиков производства работ и технико-экономические показатели на измеритель конечной продукции.

2. ОРГАНИЗАЦИЯ И ТЕХНОЛОГИЯ ВЫПОЛНЕНИЯ РАБОТ

2.1. Работам по устройству земляного полотна предшествуют подготовительные мероприятия. До наступления постоянных отрицательных температур выполняют работы по геодезической разбивке и закреплению карьера (резервов) и трассы автодороги, срезке растительного слоя грунта, рыхлению грунта на глубину до 0,3 м и боронованию.

Подготовительные работы, которые ведутся непосредственно перед разработкой грунта в карьере или боковых резервах и на трассе автодороги, выполняют в зимний период. Они состоят из наталкивания снега и устройства снегозадерживающих валов, расчистки захватки от снега, разбивки элементов карьера и трассы, устройства землевозных дорог и ухода за ними.

2.2. Комплексно-механизированных технологический процесс предусматривает предварительное рыхление грунта тракторным рыхлителем. Разработку и транспортирование грунта осуществляют скреперами. Как вариант рассмотрена разработка грунта в карьере экскаватором с транспортированием в насыпь автомобилями-самосвалами.

2.3. На участке производства работ организуются склады ГСМ, инвентаря и запасных частей, вагончик производителя работ, помещение для отдыха рабочих, приема пищи и обогрева. Участок должен быть обеспечен медицинской аптечкой, питьевой и хозяйственной водой. В темное время суток участки производства работ должны освещаться прожекторами, установленными на инвентарные передвижные мачты или вышки.

2.4. Схемы производства работ по разработке грунта, транспортированию и укладке в насыпь земляного полотна автодороги приведены на листах 3 и 4.

2.5. Растительный грунт снимают со всей площади, отведенной под карьер и трассу автодороги, в летний период. Лишний грунт, не используемый для укрепления откосов, употребляют для повышения продуктивности сельскохозяйственных полей. Границы в плане, толщина снимаемого слоя, места и дальность транспортирования плодородного грунта определяются по проектам.

2.6. К мероприятиям по предохранению грунта от промерзания относятся работы по рыхлению грунта на глубину 0,35 м тракторным рыхлителем и разравнивание разрыхленного грунта тракторной бороной на глубину до 0,15 м. Перечисленные работы необходимо выполнить до наступления заморозков, но после окончания осеннего дождливого периода.

В зимний период должно быть выполнено снегозадержание в виде наталкивания снега бульдозером на утепляемую площадь и устройства снегозадерживающих валов.

2.7. Разработку грунта в строительном карьере необходимо начинать с расчистки площадей от снега на величину захватки, определяемой в зависимости от температуры наружного воздуха, но не более 50 м, после чего приступают к рыхлению грунта тракторным рыхлителем на глубину до 0,35 м за один проход. Разрыхленный грунт разрабатывают самоходным скрепером и транспортируют во временный отвал на расстояние до 3000 м. Немерзлый грунт транспортируется самоходными скреперами в насыпь на расстояние до 300 м.

На прямолинейном участке карьера скрепер срезает слой грунта толщиной до 0,3 м и подает этот грунт для устройства насыпи дорожного полотна толщиной до 0,5 м.

Для увеличения производительности скрепера рекомендуется включать в комплекс по разработке грунта трактор-толкач.

2.8. Разрыхлять грунт в зимнее время необходимо перед каждым нарезанием грунта не раньше чем за время указанное в табл. 1.

2.9. Разравнивание и уплотнение грунта в насыпи дорожного полотна следует начинать не позже чем через 2 часа после его выгрузки из ковша скрепера или кузова автомобиля-самосвала.


СХЕМЫ ПРОИЗВОДСТВА РАБОТ

РАЗРАБОТКА ГРУНТА В КАРЬЕРЕ СКРЕПЕРАМИ

РАЗРАБОТКА ГРУНТА В КАРЬЕРЕ ЭКСКАВАТОРАМИ И УКЛАДКА В НАСЫПЬ


Таблица 1

Температура, °С

-5

-10

-20

-30

Время, мин

90

60

40

20

2.10. Разравнивать грунт в насыпи следует послойно бульдозером. Толщина слоев грунта должна быть не менее 0,5 м.

2.11. Послойное уплотнение грунта производят трамбовочной машиной с подающими плитами на базе гусеничного трактора с тяговым усилием 10 т или прицепным виброкатком к трактору с тяговым усилием 3 т. Отсылку и уплотнение слоев грунта выполняют от края насыпи к ее середине.

2.12. Для планировки откосов земляного полотна необходимо выравнивать грунт в основании откоса. Планировку основания откоса производят тем же механизмом, что и планировку верха дорожного полотна.

2.13. Планировку земляного полотна выполняют с помощью откосника, устанавливаемого на автогрейдере или бульдозере, в два приема. Сначала осуществляется проход поверху в двух направлениях, затем понизу - после перестановки откосника в соответствующее положение.

2.14. ТТК комплексно-механизированного технологического процесса предусматривает применение одного из трех вариантов комплексов машин.

Варианты рекомендуемых машин для устройства земляного полотна автодороги приведены в табл. 2.

2.15. Первый вариант предусматривает разработку грунта в карьере размерами в плане 251,0×202,4 м, при глубине разработки до 4,0 м. Карьер расположен на расстоянии 3000 м от дорожной насыпи.

Плодородный слой грунта со всей площади насыпи и карьера должен быть срезан в летнее время бульдозером и перемещен в отвал. Грунт из отвала используют для укрепления откосов дорожного полотна и восстановления растительного слоя карьера.

После окончания периода дождей и до установления постоянных отрицательных температур необходимо выполнить рыхление площади насыпи и карьера тракторным рыхлителем на глубину до 0,35 м с одновременным разравниванием разрыхленного грунта тракторной бороной на глубину до 0,15 м.

С наступлением постоянных отрицательных температур и установлением снежного покрова необходимо приступить к снегозадержанию: надвижке снега с соседних участков, устройству снежных валов, перпендикулярных преобладающему направлению ветра.

Для перемещения снега, устройства снежных валов, устройства землевозных дорог, ухода за ними, расчистки снега на захватке используется бульдозер ДЗ-109 на базе гусеничного трактора Т-130М.Г-1.

Рыхление промерзшего слоя грунта на глубину до 0,3 м выполняют рыхлителем ДН-26с за один проход.

Послойную разработку грунта, разрыхленного тракторным рыхлителем, проводят самоходными скреперами слоями толщиной до 0,3 м, отсыпку грунта - слоями толщиной до 0,5 м. Разрыхленный мерзлый грунт подают самоходными скреперами на расстояние до 300 м во временный отвал. Разрыхленный мерзлый грунт транспортируют самоходными скреперами на расстояние до 3000 м в насыпь дорожного полотна.

Для увеличения производительности работы скреперов рекомендуется включать в комплекс по разработке грунта трактор-толкач.

Разравнивание грунта слоями по 0,5 м производят бульдозером ДЗ-109.

Грунт уплотняют послойно грунтоуплотняющей машиной ДУ-12А. Планировочные работы верха земляного полотна и основания насыпи выполняют бульдозером ДЗ-109.

Планировку откосов насыпи автодороги производить бульдозером ДЗ-109 оборудованным откосником.

2.16. По второму варианту учитывается применение средств механизации в соответствии с номенклатурным каталогом строительных, дорожных и коммунальных машин и оборудования.

В отличие от первого варианта разработка и транспортирование мерзлого грунта для устройства насыпи и подачи во временный отвал осуществляется самоходными скреперами ДЗ-13А с ковшом вместимостью 15 м3. В качестве толкача принят трактор ДЗ-121.

Уплотняют грунт трамбовочной машиной ДУ-12Б. Планировочные работы выполняют автогрейдером ДЗ-140.

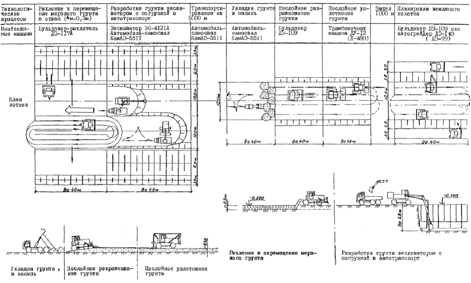
2.17. По третьему варианту для подготовительных работ, рыхления и перемещения мерзлого грунта во временный отвал предусмотрено применение бульдозера-рыхлителя ДЗ-117А. Разработка немерзлого грунта осуществляется гидравлическим экскаватором ЭО-4121А, транспортирование в насыпь - автомобилями-самосвалами КамАЗ-5511 грузоподъемностью 10 т. Для уплотнения грунта используется прицепной виброкаток Д-480 к гусеничному трактору ДТ-75. Планировочные работы выполняют автогрейдером ДЗ-99.

2.18. На каждый вариант механизированного комплекса составлена калькуляция затрат труда, машинного времени и заработной платы. Калькуляции приведены в табл. 4, 5, 6.

Разработка немерзлого грунта в зимнее время принята без учета коэффициентов на работу при отрицательных температурах. При привязке карты к местным условиям необходимо применять усредненные коэффициенты в зависимости от месяца и температурной зоны, приведенные в ЕНиР (общая часть, приложение 3).

2.19. Графики производства работ составлены на конечный измеритель 1000 м3 грунта, уложенного в насыпь. Графики приведены в табл. 7, 8, 9.

2.20. Потребность в машинах рассчитана по «Методическим рекомендациям по построению комплексно-механизированных процессов производства земляных работ» ЦНИИОМТП Госстроя СССР, Москва. 1982.

Таблица 2

Технологическая операция

Количество средств механизации по вариантам

I

II

III

Срезка, перемещение растительного грунта.

Рыхление грунта

Бульдозер-рыхлитель ДЗ-117А в составе бульдозера ДЗ-109 и рыхлителя ДП-26с на базе гусеничного трактора Т-130М.Г-1

1 компл.

1 компл.

1 компл.

Перемещение снега, устройство землевозных дорог, расчистка площадей от снега

Бульдозер ДЗ-109

Бульдозер ДЗ-118

Бульдозер ДЗ-109

1 компл.

Рыхление грунта

Рыхлитель ДП-26с

Рыхлитель ДП-98ХЛ

Рыхлитель ДП-26с

1 компл.

1 компл.

Перемещение разрыхленного грунта

-

-

1 компл.

Разработка грунта

Самоходный скрепер ДЗ-11п с ковшом вместимостью 8,0 м3

Самоходный скрепер ДЗ-13А с ковшом вместимостью 15,0 м3

Экскаватор ЭО-4121А с ковшом вместимостью 0,65 м3

2 компл.

Транспортирование грунта

 

 

Автомобиль-самосвал КамАЗ-5511 грузоподъемностью 10 т

12 компл.

6 компл.

5 компл.

Работа трактора-толкача

Трактор-толкач Д3-120

Трактор-толкач ДЗ-121

-

2 компл.

1 компл.

Разравнивание грунта в насыпи

Бульдозер на базе гусеничного трактора Т-130М.Г-1

1 компл.

1 компл.

1 компл.

Уплотнение грунта в насыпи

Трамбовочная машина

Прицепной виброкаток Д-480 к гусеничному трактору ДТ-75

ДУ-12А

ДУ-126

на базе гусеничного трактора

Т-130М. Г-1

Т-100М

1 компл.

2 компл.

1 компл.

Уход за дорогами, планировка верха и основания насыпи.

Планировка откосов насыпи

Бульдозер ДЗ-109

Авто грейдер ДЗ-140

Авто грейдер ДЗ-99

1 компл.

1 компл.

1 компл.

3. ТРЕБОВАНИЯ К КАЧЕСТВУ И ПРИЕМКЕ РАБОТ

3.1. Технический контроль качества возведенных насыпей осуществляется в процессе производства работ и заключается в систематическом наблюдении за соответствием выполняемых работ проекту, соблюдений указаний СНиП 3.02.01-87 «Земляные сооружения основания и фундаменты» и указаний проекта производства земляных работ.

3.2. В процессе производства работ повседневно контролируют: качество уложенного грунта; правильность расположения отдельных слоев; степень уплотнения грунта; геометрические размеры земляного полотна в плане (в продольном и поперечном профилях); условия обеспечения водоотвода; величину заложения откосов.

3.3. Продольный профиль земляного полотна проверяют измерением отдельных углов поворота и прямых между ними, а также контрольной разбивкой кривых, нивелированием на всех пикетах и переломах проектных уклонов. При этом проверяют отметки оси дороги, обеих бровок, дна боковых канав. Ширину земляного полотна, крутизну откосов и размеры канав проверяют не менее чем в трех местах на каждом километре дороги, а также в местах, вызывающих сомнение при осмотре.

3.4. В зимнее время должен быть обеспечен повседневный контроль за качеством уплотнения, влажностью и составом грунта.

3.5. Технические критерии и средства контроля операций и процессов приводятся в табл. 3.

Таблица 3

Наименование процессов, подлежащих контролю

Предмет контроля

Инструмент и способ

Периодичность

Ответственный за контроль

Технические критерии. Оценки качества

Подготовительные работы летнего периода

Срезка растительного слоя

Визуальный

В процессе работ

Прораб

Толщина слоя до 0,25 м

Геодезическая разбивка трассы

Теодолит, лента стальная

До начала рыхления

Прораб, геодезист

Отклонение отметок оси и бровки полотна ± 0,05

Подготовительные работы зимнего периода

Снегозадержание и очистка от снега

Визуальный

В процессе работ

Прораб

 

 

Разбивка трассы на захватки

Лента стальная, колья

До расчистки снега

Мастер

Соответствие ППР

Основные работы

Горизонтальность слоев сыпки, заложение откосов (увеличение)

Нивелир, лента стальная, шаблон

В процессе производства работ

Мастер, геодезист

Отклонение на 10 %

 

Характеристики грунта

Лабораторный анализ

Не позже 1,5 ч после разработки

Мастер, лаборант

Соответствие проекту

 

Геометрические размеры, отметки насыпи, уклоны откосов

Теодолит, нивелир, лента стальная, шаблон

После окончания работ

Прораб, представитель заказчика

Отклонение не более ± 5 см

 

Поперечные размеры и глубина боковых канав

Нивелир, лента стальная

Через 50 м и в местах выпусков

Мастер, геодезист

Отклонение не более ± 5 см


4. КАЛЬКУЛЯЦИИ ЗАТРАТ ТРУДА, МАШИННОГО ВРЕМЕНИ, ЗАРАБОТНОЙ ПЛАТЫ

4.1. РАБОТЫ ЛЕТНЕГО ПЕРИОДА

Таблица 4

Наименование процесса

Единица измерения

Объем работ

Обоснование (ЕНиР и др. нормы)

Норма времени

Расценка, руб.-коп.

Затраты труда

Заработная плата, руб.-коп.

Время пребывания машины на объекте, маш.-ч

Заработная плата машиниста с учетом пребывания машины на объекте, руб.-коп.

рабочих, чел.-ч

машиниста, чел.-ч (маш.-ч)

рабочих

машиниста

рабочих, чел.-ч

машиниста, чел.-ч (маш.-ч)

рабочих

машиниста

Срезка растительного слоя бульдозерами

1000 м2

134,9

§ Е2-1-5, № 3а

-

0,66 (0,66)

-

0-70

-

89,03 (89,03)

-

94-43

84,98

94-43

Перемещение грунта на расстояние до 70 м

100 м3

404,48

§ Е2-1-22, т. 2, № 5б + № 5д, пр. 3

-

2,03 (2,03)

-

2-15,5

-

821,09 (821,09)

-

871-65

784,40

871-65

Рыхление немерзлого грунта бульдозерами-рыхлителями

100 м3

151,12

§ Е2-1-1, т. 2, № 2а

-

0,15 (0,15)

-

0-15,9

 

22,67 (22,67)

-

24-03

21,62

24-03

Итого:

 

 

 

 

 

 

 

 

932,79 (932,79)

 

990-11

891,00

990-11

На конечный измеритель

1000 м3

1,0

-

-

-

-

-

-

6,28 (6.28)

-

6-67

6-00

6-67

4.2. РАБОТЫ ЗИМНЕГО ПЕРИОДА

ВАРИАНТ 1

Таблица 5

Наименование процесса

Единица измерения

Объем работ

Обоснование (ЕНиР и др. нормы)

Норма времени

Расценка, руб.-коп.

Затраты труда

Заработная плата, руб.-коп.

Время пребывания машины на объекте, маш.-ч

Заработная плата машиниста с учетом пребывания машины на объекте, руб.-коп.

рабочих, чел.-ч

машиниста, чел.-ч (маш.-ч)

рабочих

машиниста

рабочих, чел.-ч

машиниста, чел.-ч (маш.-ч)

рабочих

машиниста

Перемещение снега бульдозером на расстояние до 70 м

100 м3

152,48

§ Е2-1-22, т. 2, № 5б + 5дх6, пр. 3

-

2,03 (2,03)

-

2-15

-

309,53 (309,53)

-

327-83

308,06

327-83

Расчистка площадей от снега с перемещением на расстояние до 70 м

100 м3

506,14

§ Е2-1-22, т. 2, № 3б + № 5дх6, пр. 3

-

2,03 (2,03)

-

2-15

-

1027,46 (1027,46)

-

1088-20

1022,59

1088-20

Устройство землевозных дорог бульдозером

1000 м2

21,00

§ Е2-1-35, № 4б, к = 2,0

-

0,28 (0,28)

-

0-29,6

-

5,88 (5,88)

-

5-22

6,85

6-22

Рыхление мерзлого грунта на глубину до 1,0 м за два прохода

100 м3

506,01

§ Е2-1-2, т. 2, № 1в

-

1,5 (1,5)

-

1-59

-

759,02 (759,02)

-

804-56

1143,45

1212-05

Разработка разрыхленного грунта самоходными скреперами с транспортировкой на 300 м

100 м3

506,01

§ Е2-1-21, Б, т. 3, № 1б

-

2,9 (2,9)

-

3-51

-

1467,43 (1467,43)

-

1776-10

1455,30

1776-10

Работа трактора-толкача

100 м3

506,01

§ Е2-1-21, Б, пр. 2

-

1,45 (1,45)

-

1-53,7

-

733,71 (733,71)

-

777-74

727,65

777-74

Рыхление немерзлого грунта на глубину до 0,45 м

100 м3

1485,00

§ Е2-1-1, т. 2, № 2а

-

0,15 (0,15)

-

0-15,9

-

222,75 (222,75)

-

236-12

564,30

598-17

Разработка грунта самоходными скреперами с транспортировкой на расстояние до 3000 м

100 м3

1485,00

§ Е2-1-21, Б, т. 3, № 1б + № 4бх27

-

13,43 (13,43)

-

16-25,4

-

19943,55 (19943,55)

-

24137-19

27027,0

32710-12

Работа трактора-толкача

100 м3

1485,00

§ Е2-1-21, Б, пр. 2

-

2,24 (2,24)

-

2-37,3

-

3326,40 (3326,40)

-

3523-91

4009,50

4247-57

Разравнивание грунта в насыпи бульдозером

100 м3

1485,00

§ Е2-1-28, № 3е

-

0,43 (0,43)

-

0-45,6

-

638,55 (638,55)

-

677-16

2376,00

2519-66

Уплотнение грунта в насыпи трамбовочной машиной

100 м3

1485,00

§ Е2-1-33, № 1б

-

1,2 (1,2)

-

1-09

-

1782,0 (1782,0)

-

1618-65

1782,0

1618-65

Планировка верха и основания насыпи бульдозером

1000 м2

36,00

§ Е2-1-36, № 4б, к = 2

-

0,48 (0,48)

-

0-50,8

-

17,28 (17,28)

-

18-29

17,28

18-29

Планировка откосов насыпи бульдозером с откосниками

1000 м2

32,46

§ Е2-1-40, № 7а

-

0,60 (0,60)

-

0-63,6

-

19,48 (19,48)

-

20-64

19,48

20-64

Уход за землевозными дорогами

1000 м2

21,00

§ Е2-1-36, № 4б, к = 2

-

0,48 (0,48)

-

0-50,8

-

10,08 (10,08)

-

10-67

10,08

10-67

Итого:

 

 

 

 

 

 

 

 

30263,12 (30263,12)

 

35023,28

40468,54

46931-91

На конечный измеритель

1000 м3

1,0

 

 

 

 

 

 

203,79 (203,79)

 

235-85

272,52

316-04

ВАРИАНТ II

Таблица 6

Наименование процесса

Единица измерения

Объем работ

Обоснование (ЕНиР и др. нормы)

Норма времени

Расценка, руб.-коп.

Затраты труда

Заработная плата, руб.-коп.

Время пребывания машины на объекте, маш.-ч

Заработная плата машиниста с учетом пребывания машины на объекте, руб.-коп.

рабочих, чел.-ч

машиниста, чел.-ч (маш.-ч)

рабочих

машиниста

рабочих, чел.-ч

машиниста, чел.-ч (маш.-ч)

рабочих

машиниста

Перемещение снега бульдозером на расстояние до 70 м

100 м3

152,48

§ Е2-1-22, т. 2, № 9в + № 9ех6, пр. 3

-

1,35 (1,35)

-

1-63,4

-

205,85 (205,05)

-

249-15

205,5

249-15

Расчистка площадей от снега с перемещением на расстояние до 70 м

100 м3

506,14

§ Е2-1-22, т. 2, № 9е + № 9ех6, пр. 3

-

1,35 (1,35)

-

1-63,4

-

683,29 (683,29)

-

827-03

682,14

827,03

Устройство землевозных дорог бульдозером

100 м3

21,00

§ Е2-1-35, № 7б, к = 2

-

0,16 (0,16)

-

0-19,4

-

3,36 (3,36)

-

4-07

3,35

4-07

Рыхление мерзлого грунта на глубину до 1,0 м

100 м3

506,01

§ Е2-1-2, т. 2, № 3в

-

1,1 (1,1)

-

1-33

-

556,61 (556,61)

-

672-99

556,61

672-99

Разработка грунта скреперами с отвозкой на 300 м

100 м3

506,01

§ Е2-1-21, Б, т. 3, № 1в

-

1,4 (1,4)

-

1-69

-

708,41 (708,41)

-

855-16

594,00

855-16

Работа трактора-толкача

100 м3

506,01

&Е2-1-21, Б, пр. 2

-

0,7 (0,7)

-

0-74,2

-

354,21 (354,21)

-

375-46

297,00

375-46

Рыхление немерзлого грунта на глубину до 0,45 м

100 м3

1485,00

§ Е2-1-1, т. 2, № 2а

-

0,15 (0,15)

-

0-15,9

-

222,75 (222,75)

-

236,12

222,75

236,12

Разработка грунта сереперами с отвозкой на 300 м

100 м3

1485,00

§ Е2-1-21, Б, т. 3, № 1в + № 4в

-

5,72 (5,72)

-

6-92,8

-

8494,20 (8494,20)

-

10288-08

9652,50

11690-99

Работа трактора-толкача

100 м3

1435,00

§ Е2-1-21, Б, пр. 2

-

0,95 (0,95)

-

1-01

-

1410,75 (1410,75)

-

1499-85

1410,75

1499-85

Разравнивание грунта в насыпи бульдозером

100 м3

1485,00

§ Е2-1-28, № 3е

-

0,43 (0,43)

-

0-45,6

-

638,55 (638,55)

-

677-16

1707,75

1811-01

Уплотнение грунта в насыпи трамбовочной машиной

100 м3

1485,00

§ Е2-1-33, № 1а

-

1,7 (1,7)

-

1-59

-

2524,50 (2524,50)

-

2361-15

3415,50

3194-50

Планировка верха и основания насыпи автогрейдером

1000 м2

36,00

§ Е2-1-37, т. 2, № 1в, к = 2

-

0,4 (0,4)

-

0-42,4

-

14,4 (14,4)

-

15-26

14,4

15-26

Планировка откосов насыпи автогрейдером

1000 м2

32,46

§ Е2-1-39, № 12в

-

0,19 (0,19)

-

0-20,1

-

6,17 (6,17)

-

6-52

6,17

6-52

Уход за землевозными дорогами

1000 м2

21,00

§ Е2-1-37, т. 2, № 1в, к = 2

-

0,4 (0,4)

-

0-42,4

-

8,4 (8,4)

-

8-91

8,4

8-91

Итого:

 

 

 

 

 

 

 

 

15831,45 (15831,45)

 

18061-65

18776,82

21447-02

На конечный измеритель

1000 м3

1,00

 

 

 

 

 

 

106,61

 

121-63

126,44

144-42

ВАРИАНТ III

Таблица 7

Наименование процесса

Единица измерения

Объем работ

Обоснование (ЕНиР и др. нормы)

Норма времени

Расценка, руб.-коп.

Затраты труда

Заработная плата, руб.-коп.

Время пребывания машины на объекте, маш.-ч

Заработная плата машиниста с учетом пребывания машины на объекте, руб.-коп.

рабочих, чел.-ч

машиниста, чел.-ч (маш.-ч)

рабочих

машиниста

рабочих, чел.-ч

машиниста, чел.-ч (маш.-ч)

рабочих

машиниста

Перемещение снега бульдозером на расстояние до 70 м

100 м3

152,48

§ Е2-1-22, т. 2, № 5б + № 5д, пр. 3

-

2,03 (2,03)

-

2-15

-

309,53 (309,53)

-

327-83

308,06

327-83

Расчистка площадей от снега с перемещением на расстояние 70 м

100 м3

506,14

§ Е2-1-22, т. 2, № 5б + № 5дх6, пр. 3

-

2,03 (2,03)

-

2-15

-

1027,46 (1027,46)

-

1088-20

1022,59

1088-20

Устройство землевозных дорог бульдозером

1000 м2

21,00

§ Е2-1-35, № 4б, к = 2

-

0,28 (0,28)

-

0-29,6

-

5,88 (5,88)

-

6-22

5,85

6-22

Рыхление мерзлого грунта на глубину до 1,0 м за два прохода

100 м3

506,01

§ Е2-1-2, т. 2, № 1в

-

1,50 (1,50)

-

1-59

-

759,02 (759,02)

-

804,56

1143,45

1212-05

Разработка грунта бульдозером и перемещение на расстояние до 300 м

100 м3

506,01

§ Е2-1-22, т. 2, № 5в + № 5ех6, пр. 3

-

9,03 (9,03)

-

9-56,8

-

4569,27 (4569,27)

-

4841-50

8167,50

8654-10

Разработка немерзлого грунта экскаватором прямая лопата с ковшом вместимостью 0,65 м3 с погрузкой в автотранспорт

100 м3

1465,00

§ Е2-1-2, II т. 7, № 4в

-

3,2 (3,2)

-

3-39

-

4752,00 (4752,00)

-

5034-15

6237,00

6807-29

Транспортирование грунта автомобилями-самосвалами грузоподъемностью 10 т на расстояние до 3000 м

т·км

1042470,00

ЕН, разд. II № 153/6-142 от 13.03.87

-

0,0072

-

0-00,57

-

7505,78

-

5942-08

9541,02

7553-31

Погрузка и разгрузка автомобилей-самосвалов

т

347490,00

ЕН, разд. I № 153/6-142 от 13.03.87

-

0,0137

-

0-01,08

-

4760,61

-

3752-89

6051,48

4770-51

Разравнивание грунта в насыпи бульдозером

100 м3

1485,00

§ Е2-1-28, № 3е

-

0,43 (0,43)

-

0-45,6

-

638,55 (638,55)

-

677,16

3118,50

3307-06

Уплотнение грунта в насыпи виброкатком

100 м3

1485,00

§ Е2-1-32, № 1в, к = 6,0

-

0,54 (0,54)

-

0-49,2

-

801,90 (801,90)

-

730-62

3118,50

2841-30

Планировка верха и основания насыпи автогрейдером

1000 м2

38,00

§ Е2-1-37, т. 2, № 2в, к = 2

-

0,54 (0,54)

-

0-57,2

-

19,44 (19,44)

-

20-59

19,44

20-59

Планировка откосов насыпи автогрейдером

1000 м2

32,46

§ Е2-1-39, № 12в

-

0,19 (0,19)

-

0-20,1

-

6,17 (6,17)

-

6-52

6,17

6-52

Уход за землевозными дорогами

1000 м2

21,00

§ Е2-1-37, т. 2, № 2в, к = 2

-

0,54 (0,54)

-

0-57,2

-

11,34 (11,34)

-

12-01

11,34

12-01

Итого:

 

 

 

 

 

 

 

 

25166,95 (25166,95)

 

23244-33

38750,90

36406-99

На конечный измеритель

1000 м3

1,00

 

 

 

 

 

 

169,47 (169,47)

 

156-53

260,95

245-16

ГРАФИКИ ПРОИЗВОДСТВА РАБОТ НА 1000 М3

ВАРИАНТ 1

Таблица 8

ВАРИАНТ II

Таблица 9

ВАРИАНТ III

Таблица 10


6. МАТЕРИАЛЬНО-ТЕХНИЧЕСКИЕ РЕСУРСЫ

6.1. Потребность в инструменте и приспособлениях, используемых при разработке в карьере и отсыпке в насыпь дорожного полотна 1000 м3 грунта, приведена в табл. 11.

Таблица 11

Наименование

Марка, техническая характеристика, ГОСТ, № чертежа

Количество по вариантам

Назначение

I

II

III

Теодолит

ТТ-4, ГОСТ 10529-86

1

1

1

Геодезические работы

Нивелир

НА-1, ГОСТ 10528-76

1

1

1

То же

Рейка нивелирная

РН-10, ГОСТ 11158-83

1

1

1

-"-

Стержень стальной

Ст.3, 10 мм

10

10

10

-"-

Лента стальная (рулетка)

РС-20, ГОСТ 7502-80

1

1

1

-"-

Лампа прожекторная

ПЗС-45, мощностью 1500 Вт

10

10

10

Освещение территории производства работ

Вышка прожекторная

Индивидуальное изготовление, высота 1,5 м

5

5

5

То же

6.2. Потребность в эксплуатационных материалах рассчитана с учетом усредненных норм расхода топлива и смазочных материалов, действующих в системе Минтрансстроя СССР, и СНиП IV-3-84 «Правила определения сметной стоимости эксплуатации строительных машин».

Результаты расчета потребности в эксплуатационных материалах приведены в табл. 12.

Таблица 12

Наименование

Наименование механизмов

Исходные данные

требуемое количество эксплуатационных материалов по вариантам, кг

Единица измерения

Объем работ по вариантам, маш.-ч

Норма расхода на единицу измерения

1

2

3

1

2

3

Дизельное топливо

Бульдозер ДЗ-109

кг/ч

31,17

5,85

90,85

10,9

390,71

73,32

1138,79

Бульдозер ДЗ-118

кг/ч

-

17,50

-

19,6

-

394,45

-

Рыхлитель ДП-26с

кг/ч

11,65

0,15

5,15

11,3

151,39

1,96

66,93

РыхлительДП-9ВХЛ

кг/ч

-

5,25

-

11,3

-

68,22

-

Самоходный скрепер ДЗ-11п

кг/ч

95,80

-

-

10,5

1156,78

-

-

Самоходный скрепер ДЗ-13А

кг/ч

-

69,0

-

24,8

-

1967,88

-

Трактор-толкач ДЗ-120

кг/ч

15,90

-

-

-

8,4

153,59

-

Трактор-толкач ДЗ-121

кг/ч

-

11,5

-

11,3

-

149,44

-

Экскаватор 90-4121А

кг/ч

-

-

42,0

6,18

-

-

298,49

Автомобиль-самосвал КамАЗ 5511

л/100 км

-

-

11,7

34,0

-

-

457,47

Трамбовочная машина ДУ-12А

кг/ч

12,0

-

-

4,1

56,58

-

-

Виброкаток Д-480 к трактору ДТ-75

кг/ч

-

23,0

-

4,1

-

108,44

-

Автогрейдер ДЗ-140

кг/ч

-

0,2

-

9,0

-

2,07

-

Авто грейдер ДЗ-99

кг/ч

-

-

0,25

6,7

-

-

1,93

 

 

 

 

 

 

 

1909,05

2765,78

2062,63

Моторное масло

-

%

-

-

-

5,0

95,45

138,29

103,13

Трансмиссионное масло

-

%

-

-

-

1,0

19,09

27,66

20,63

Пластичные смазки

-

%

-

-

-

1,5

28,64

41,49

30,97

Бензин

-

%

-

-

-

4,5

85,91

124,46

93,82

6.3. Требуемое количество эксплуатационных материалов рассчитано с учетом работы механизмов в северных районах.

6.4. Чтобы уменьшить потребление сырьевых ресурсов предложено обеспечить сбор отработанных нефтепродуктов (ГОСТ 21046-86).

7. ТЕХНИКА БЕЗОПАСНОСТИ

7.1. При производстве земляных работ по разработке грунта, а также транспортировке и укладке грунта в насыпь дорожного полотна необходимо руководствоваться указаниями глав СНиП III-4-80 «Техника безопасности в строительстве», ГОСТ 12.3.033-84 «Строительство. Электробезопасность», ГОСТ 12.1.004-85 «Пожарная безопасность. Общие требования».

7.2. Эксплуатация строительных машин, включая техническое обслуживание, должна осуществляться в соответствии с требованиями 2-й и 3-й глав СНиП III-4-80 по организации строительной площадки и эксплуатации строительных машин, а также инструкций заводов-изготовителей.

7.3. Машинисты скрепера, бульдозерного комплекса, экскаватора, шоферы автомобилей-самосвалов должны пройти обучение и иметь соответствующие права на управление машинами.

7.4. Машинист строительной машины со сменным навесным оборудованием должен быть ознакомлен с правилами эксплуатации навесного оборудования и инструкциями по эксплуатации машины с соответствующим оборудованием.

7.5. Машины должны иметь звуковую сигнализацию. Все рабочие, связанные с эксплуатацией машин, должны знать значение сигналов.

7.6. При разработке, транспортировании, разгрузке, планировке и уплотнении грунта двумя и более самоходными или прицепными машинами (скреперы, грейдеры, бульдозеры и др.), идущими друг за другом, необходимо соблюдать расстояние между ними не менее 10 м.

7.7. Запрещается обслуживающему персоналу оставлять без присмотра машину с работающим двигателем.

7.8. Запрещается производить ремонт машин при работающем двигателе. Для ремонта отвала (смена ножей) бульдозер необходимо установить на горизонтальной площадке, поставить на стояночный тормоз, отвал опустить на прочную опору (козелок, шпальная клетка) во избежание самопроизвольного опускания.

Не разрешается находиться людям и вести какие-либо работы в радиусе действия экскаватора.

7.10. Запрещается пребывание посторонних лиц на территории производства земляных работ. Рабочая зона должна быть обозначена предусмотрительными знаками, хорошо видимыми как днем, так и ночью.

7.11. Запрещается перевозить людей в ковше скрепера, а также садиться на скрепер или становиться на его раму во время движения.

7.12. Приближение скреперных агрегатов к откосу свежеотсыпанной насыпи на расстояние менее 1 м от бровки насыпи до ближайшего к ней колеса или гусеницы недопустимо.

7.13. Поперечный уклон местности, по которой движется скрепер, не должен превышать в зимнее время 3 %.

7.14. Погрузка грунта в автомобили-самосвалы при помощи экскаватора должна производиться со стороны заднего или бокового борта автомобиля.

7.15. Топливо-смазочные материалы разрешается хранить только в металлической, герметически закрывающейся таре. Склад топливо-смазочных материалов следует устраивать только под навесом или в помещениях, обеспеченных вентиляцией.

7.16. Заправлять механизмы топливом разрешается только при выключенном двигателе.

7.17. При работе механизмов с гидравлическим приводом необходимо во время проведения ежемесячного технического обслуживания дополнительно проверять состояние шлангов. Шланги с подрезами, местными разрушениями и расслоениями должны быть заменены.

7.18. При работе и передвижении машин в ночное время место работы и путь следования должны быть освещены.

7.19. При запуске двигателя, обслуживании и ремонте машин запрещается подогревать двигатель открытым огнем. Каждая машина должна иметь огнетушитель.

8. ТЕХНИКО-ЭКОНОМИЧЕСКИЕ ПОКАЗАТЕЛИ НА 1000 М3 ГРУНТА

Таблица 13

Наименование показателей

Единица измерения

Количество по вариантам

1

2

3

Затраты машинного времени

маш.-ч

278,52

132,44

266,95

в том числе в зимний период

маш.-ч

272,52

126,44

272,95

Заработная плата

руб.-коп.

322-71

151-09

251-83

в том числе в зимний период

руб.-коп.

316-04

144-42

245-16

Продолжительность работ зимнего периода

смена

3,79

3,09

3,56

Выработка на одного рабочего в смену

м3

29,36

63,27

29,31

Затраты на механизацию

руб.

805,85

1166,04

2577,85

в том числе в зимний период

руб.

779,99

1139,52

2551,33

в том числе на транспортирование грунта автомобилями-самосвалами

руб.

-

-

1965,60

Прямые затраты

руб.

1128,56

1317,13

2829,68

в том числе в зимний период

руб.

1096,03

1283,94

2796,49

Приведенные затраты

руб.

1160,81

1696,21

2798,62

в том числе в зимний период

руб.

1126,73

1662,13

2764,55

Эффективность комплексно-механизированного технологического процесса

руб.

-

+ 535,40

+ 1637,81

Примечания: 1. Показатели рассчитаны на законченный результат комплексно-механизированного технологического процесса - 1000 м3 грунта, уложенного в насыпь автомобильного полотна.

2. Показатель экономии обозначен знаком (-), перерасхода - (+).

СОДЕРЖАНИЕ

 




Яндекс цитирования



   Copyright © 2007-2026,  www.tehlit.ru.

[ ѓосты, стандарты, нормативы, инструкции, правила, строительные нормы ]