//
|
|
ОРДЕНА ЛЕНИНА ГЛАВМОССТРОЙ ПРИ МОСГОРИСПОЛКОМЕ МОСОРГСТРОЙ ТЕХНОЛОГИЧЕСКАЯ
КАРТА Арх. № 8886 МОСКВА - 1983 Технологическая карта разработана проектно-технологическим отделом треста Мосоргстрой (А.Н. Абрамович, А.П. Смирнов), согласована с Управлением подготовки производства Главмосстроя, НИИМосстроем. Технологическая карта рекомендована к внедрению в строительном производстве. 1. Область применения1.1. Технологическая карта составлена на производство работ по устройству подземных сетей закрытым способом на строительных объектах Главмосстроя. 1.2. Технологическая карта предназначена для составления проектов производства работ (ППР) и с целью ознакомления (обучения) рабочих и инженерно-технических работников с правилами производства работ. 1.3. При привязке технологической карты к конкретному объекту и условиям строительной площадки уточняются схемы производства работ, объемы работ, калькуляция затрат труда, средства механизации. 2. Технология строительного процесса2.1. При строительстве подземных сетей закрытым способом необходимо строго руководствоваться СНиП III-8-76 «Земляные сооружения», «Указаниями на строительство подземных сетей закрытым способом» ВСН-88-74, «Указаниями по производству геодезическо-маркшейдерских работ при строительстве подземных коммуникаций закрытыми способами» - ВСН 123-75, «Правилами производства работ по прокладке и переустройству подземных сооружений в г. Москве» от 8.08.75 № 2031 и другими специальными документами. 2.2. Работы закрытым способом по прокладке подземных коммуникаций выполняются в тех случаях, когда трассы прокладываемых трубопроводов (электрокабели, кабели связи и др.): пересекают железные и автомобильные дороги, трамвайные пути, здания и сооружения; проходят по проездам с усовершенствованным дорожным покрытием; при устройстве вводов в здания и др. 2.3. Прокладка подземных коммуникаций закрытым способом осуществляется специализированной организацией методом продавливания и прокола труб в грунте. 2.4. Работы по продавливанию и проколу должны выполняться в строгом соответствии с ППР. 2.5. В зоне, до начала работ по продавливанию и проколу труб в грунте, должны быть выполнены все коммуникации открытым способом. 2.6. По каждому виду работ, при бестраншейной проходке, должен вестись журнал работ (приложение 1). 2.7. В отдельных случаях для предотвращения значительного возрастания усилий при проколе или продавливании труб рекомендуется работы вести в 3 смены. 2.8. Установка труб и установок для продавливания и прокола должна выполняться точно по проектным данным как в плане, так и в профиле с постоянным контролем за их положением, что позволяет обеспечивать перемещение трубы с минимальным отклонением. Отклонение стальных футляров для самотечных трубопроводов не должно превышать от длины проходки: в профиле - 0,6 %; в плане - 1,0 %. Отклонение стальных футляров для напорных трубопроводов и прочих коммуникаций не должно превышать от длины проходки: в профиле - 1,0 %; в плане - 1,5 %. 2.9. Геодезический контроль производится при каждой установке трубы. Положение первой трубы должно проверяться геодезистом через каждые 1,5 м. Определение положения футляра, в промежутках между геодезическими замерами, производится мастером (бригадиром) через каждые 2 м проходки. 2.10. Для обеспечения контроля продавливаемых труб рекомендуется использовать уклономеры с копироустройством УКУ-1 (треста ГПР Главмосинжстроя) и уклономеры с циферблатным устройством УЦ-1 (ВНИМИ г. Ленинград). 2.11. В проложенных футлярах из стальных труб прокладываются одиночные и совмещенные инженерные сети в соответствии с проектом. 2.12. Порядок размещения коммуникаций в проложенных футлярах труб должен строго соответствовать рабочим чертежам. 2.13. Для выполнения монтажа и демонтажа проходческих машин (установок), опускания труб и транспортировки грунта из котлована на поверхность рекомендуется использовать автомобильные и пневмоколесные краны соответствующей грузоподъемности, а также краны СПК-1000, СПК-2000-2 (технические характеристики приведены в приложении 2) и др. При выполнении работ машины и установки должны строго соответствовать ППР. 2.14. Проколы и продавливание труб в грунте производятся в следующей технологической последовательности: выполняются геодезические разбивочные работы; отрываются «рабочий» и приемный котлованы; монтируются установки и оборудование для прокола или продавливания, включая устройство креплений стен котлованов и упорной стенки; осуществляется прокол или продавливание труб в грунте; демонтируются установки и оборудование после выполнения работ по проколу (продавливанию) труб в грунте; прокладываются коммуникации; по окончании всех работ и получения разрешения на обратную засыпку производят засыпку «рабочего» и приемного котлованов. Примечание. Рекомендуемые формулы для расчета усилий, необходимых для прокола (продавливания) грунта трубами, приведены в приложении 4. 2.15. Образование в грунте скважин 2.15.1. Для образования в грунте скважин (горизонтальных или наклонных) используются пневмопробойники ИП-4601, ИП-4603, ИП-4605А и гидравлический пресс БГ-3, технические характеристики которых приведены в приложении 3. 2.15.2. С помощью пневмопробойников скважины диаметром до 250 мм могут быть образованы в песчаных, супесчаных, суглинистых и глинистых грунтах естественной влажности или слабовлажных, не содержащих включений в виде валунов, камней и др. 2.15.3. Длину проходки пневмопробойником с одной стоянки рекомендуется применять не более 25 метров. 2.15.4. Не рекомендуется пробивать скважины на глубине менее 0,8 м, так как возможен выход пневмопробойника на поверхность. 2.15.5. Котлованы для запуска пневмопробойника и его приема должны иметь размеры по низу: длину - 2,5 м, ширину - 1,5 м. Примечания: 1. Пневмопробойник может быть запущен и из траншеи. 2. Схемы котлованов при работе с пневмопробойниками приведены на листах 1, 2. 2.15.6. Котлованы с вертикальными стенками должны закрепляться инвентарным креплением. 2.15.7. Запуск пневмопробойника по заданному направлению рекомендуется производить со стартовой площадки (конструкции НИИМосстроя). Площадка может быть установлена на дне котлована (траншеи) или в проеме стены подвала для запуска из подвального помещения. Закрепляется стартовая площадка на грунте стальными стержнями. При расположении ее в проеме подвального помещения - винтовым упором, 2.15.8. Для контроля положения пневмопробойника в плане и профиле во время его движения к подающему воздух шлангу в непосредственной близости от пневмопробойника прикрепляется источник света (электролампочка 6 - 12 В). Наблюдают за источником света с помощью зеркала. 2.15.9. При образовании скважины вблизи действующих подземных коммуникаций расстояние между ними принимается равным 3 - 4 радиусам деформации грунта. 2.15.10. Параллельная проходка скважин должна выполняться после того, как будет заполнена предыдущая скважина. 2.15.11. Заполнение скважин трубами или электрокабелями производится лебедками, а при небольшом их весе (пластмассовые трубы) - вручную. Учитывая искривления скважины, в головной части трубы для снижения сил трения следует устанавливать наконечник обтекаемой формы. 2.15.12. Гидравлический пресс БГ-3 применяется для образования скважин во влажных грунтах, он также может быть применен и в грунтах естественной влажности при отсутствии пневмопробойника. 2.15.13. Образование скважин с помощью гидравлического пресса БГ-3 диаметром более 90 мм за один проход затруднительно. После прокола скважины диаметром 90 мм следует поставить расширитель необходимого размера, который перемещается «на себя», т.е. из приемного котлована в «рабочий» котлован. 2.15.14. Гидравлический пресс БГ-3 устанавливается в котлован размерами: на основании - 2,2 м по продольной оси и 1,6 м по поперечной оси; глубиной 0,5 м глубже оси прокладки. Положение пресса проверяется уровнем и отвесом. 2.15.15. Контроль за перемещением головной части штанги пресса и протаскивание коммуникаций в скважины ведутся аналогично работам, приведенных в п. 2.15.8 - 2.15.11. Схемы котлованов при работе с гидравлическим прессом БГ-3 приведены на листе 3. 2.16. Прокол грунта стальными трубами 2.16.1. Прокол грунта стальными трубами осуществляется гидродомкратами и высоконапорными насосами. Техническая характеристика продольной установки приведена в приложении 3. 2.16.2. Прокольные установки выполняют прокол грунта I - IV категории независимо от его влажности. Установкой Главмосстроя производится прокол грунта трубами диаметром 200 - 400 мм на длину до 45 м, как футляров, так и «рабочих» труб. «Рабочие» трубы должны иметь устойчивую специальную изоляцию (полиэтиленовую, цементно-песчаную, эпоксипековую и др.). 2.16.3. Труба, прокалывающая грунт, оснащается наконечником специальной конструкции. Применение наконечника обеспечивает снижение сил трения до 40 % и сохранение трубой проектного положения. 2.16.4. Не рекомендуется прокалывать грунт трубами на глубине менее 1,2 - 1,5 м при пересечении проездов с усовершенствованным дорожным покрытием, т.к. возможно нарушение дорожных одежд. При пересечении трамвайных и железнодорожных путей необходимо обеспечить надзор службы пути. 2.16.5. Котлован для продольной установки Главмосстроя должен иметь размеры по низу: длину - 7,0 м, ширину - 1,8 м при длине прокалывающей грунт трубы - 3 м и длину - 8,5 м при длине трубы - 8 м. Дно котлована должно быть спланировано и располагаться ниже оси трубы на 0,35 м. Схема котлована при проколе приведена на листе 4, 5. 2.16.6. Грунтовая стенка котлована в месте прокалывания трубы при однородных грунтах должна быть строго вертикальна. В случае неоднородных грунтов необходимо разработать буром отверстие для захода в него лидирующего устройства. 2.16.7. Положение установки при ее монтаже, а также первой трубы, прокалывающей грунт, проверяется геодезистом, а в дальнейшем мастером или бригадиром. 2.16.8. При проколе грунта трубами должно соблюдаться расстояние, обеспечивающее сохранность близлежащих подземных коммуникаций. 2.16.9. При стыковании прокалываемых стальных труб необходимо обеспечить проверку их соосности и высококачественную сварку. 2.16.10. Приемный котлован для выхода прокалывающей грунт трубы должен иметь размеры: длину - 2,5 м, ширину - 1,0 м. При этом необходимо учитывать размеры колодца (камеры), который должен монтироваться в этом котловане. 2.17. Прокладка стальных труб способом продавливания 2.17.1. Прокладка стальных труб способом продавливания производится специальной установкой Главмосстроя и др. 2.17.2. Универсальная механизированная установка Главмосстроя предназначена для прокладки стальных труб диаметром 900 мм способом продавливания как футляров, так и «рабочих» труб с соответствующей антикоррозийной изоляцией. Техническая характеристика установки приведена в приложении 4. 2.17.3. Установкой обеспечивается прокладка труб в гидрогеологических условиях г. Москвы и области. При водонасыщенных грунтах искусственное водопонижение необходимо рассмотреть отдельно. 2.17.4. Минимальная глубина проходки принимается - 2,0 м до лотка трубы, максимальная - ограничивается устойчивостью креплений из стальных труб, балок и др. 2.17.5. Дно котлована, предназначенного для монтажа установки, должно быть спланировано в соответствии с уклоном, придаваемым трубе. Глубина котлована должна быть ниже проектной отметки оси трубы на 630 мм плюс толщина деревянного основания (шпал или брусов). 2.17.6. Для проверки положения продавливания трубы и состояния забоя бригадиром звена периодически производиться его смотр. При этом первоначально проверяется степень загазованности трубы. 2.17.7. Для транспортировки грунта на поверхность рекомендуется применять кран СПК-2000-2 (см. приложение 2). 2.17.8. Для прокладки труб Ø 1200 - 1400 мм способом продавливания в грунтах 1 - 3 кат. рекомендуется использовать установку ЦНИИПодземмаша ПУ-2. 2.17.9. В отдельных случаях для прокладки труб способом продавливания могут быть применены установки, оборудованные гидравлическими домкратами и насосами высокого давления с ручной разработкой грунта. 2.17.10. Передача усилий от домкратов к трубе осуществляется с помощью нажимных патрубков, соединенных в раму, длина которых кратна длине хода штока домкрата (при длине трубы 6,0 м и длине хода штока домкрата 1,10 м длина нажимных патрубков составляет 1,0 и 2,0 м). 2.17.11. Для снижения сопротивления грунта резанью и силам трения, возникающим на контакте трубы и грунта, на головной конец навариваются стальные кольца общей толщиной до 30 мм и шириной 150 - 400 мм. 2.17.12. Для обеспечения параллельного положения осей домкратов следует применять специальные рамы (см. лист 6). 2.17.13. При продавливании или проколе с помощью гидродомкратов для обеспечения передвижения трубы по заданному направлению в рабочем котловане, устанавливается направляющее устройство в виде швеллеров или уголков, укладываемых по шпалам строго по отметкам и с учетом продольной оси прокладки. 2.17.14. Разработка и транспортировка грунта из труб осуществляется с помощью тележек, самопогружающихся патрубка или совка и опорного кольца. 2.17.15. Наращивание труб при проколе и продавливании выполняется на сварке. Спускание труб в котлован производится краном (см. лист 6, 7). 2.17.16. Работы выполняются в следующей последовательности: продавливается (прокалывается) в грунт 1-е звено трубы; разрабатывается и транспортируется грунт из трубы; наращивается звено трубы для последующего продавливания (прокола); продавливается (прокалывается) в грунт 2-е звено трубы. Далее работы выполняются в той же последовательности. 2.17.17. После устройства футляра из труб в грунте в нем прокладываются коммуникации в соответствии с проектом. Работы по прокладке выполняются в следующей технологической последовательности: отрываются траншеи к «рабочему» и приемному котлованам; устанавливается лебедка для протаскивания труб в футляре; опускаются трубы в траншею; сваривается плеть труб на длину футляра (или отдельными звеньями); привариваются скользящие опоры; устраивается и восстанавливается изоляция труб в местах сварки; протаскивается труба в футляре с помощью лебедки; заделываются концы футляра; после сдачи работ по прокладке и опрессовке труб производится обратная засыпка траншей. Схема организации работ приведена на листе 8. 2.18. Работы по проколам и продавливанию рекомендуется выполнять составами звена указанных в технических характеристиках установок для прокола и продавливания (приложение 3, 4) и в графике производства работ (приложение 5). 2.19. Калькуляция трудовых затрат приведена в приложении 6. 2.20. Операционный контроль качества работ по строительству подземных сетей закрытым способом выполняется в соответствии с требованиями СНиП III-1-76 «Организация строительного производства»; инструкция СН 47-74; указаниями ВСН 88-74, ВСН 123-75. Схема операционного контроля приведена в приложении 7. 2.21. При производстве работ следует строго соблюдать требования СНиП III-4-80 «Техника безопасности в строительстве», «Инструкции по технике безопасности для рабочих, выполняющих работы «нулевого» цикла», «Правилами производства работ по прокладке и переустройству подземных сооружений в г. Москве» от 8.03.1975 г. за № 2031 и системы стандартов безопасности труда. 3. Технико-экономические показатели (на 1 футляр длиной - 40 пог. м)Затраты труда - 53,78 чел.-дн. Стоимость затрат труда - 269,13 руб. Затраты труда на 1 м трубы - 1,344 чел.-дн. Стоимость затрат труда на 1 м трубы - 6,73 руб. 4. Материально-технические ресурсыПотребность в основных материалах и изделиях (на 1 футляр длиной 40 пог. м)
Примечание. Объемы труб приняты с учетом их выхода в «рабочий» и «приемный» котлованы. Потребность в основных машинах, оборудовании, приспособлениях (приборах)
Примечание. Приборы для маркшейдерских (геодезических) работ приведены в Указаниях ВСН-123-75. Приложение 1
Таблица
Порядок заполнения таблицы журнала работ по бестраншейной проходке 1. Журнал является отчетной исполнительной документацией и заполняется ежесменно по окончании продавливания и выдачи грунта (бригадиром или звеньевым). 2. Запись в журнале заверяется мастером. Не реже одного раза в три дня проверяется начальником участка, о чем последний расписывается. 3. В графе 5 записывается диаметр фактически продавливаемой трубы; в случае изменения проектного диаметра в графе 16 делается запись о причинах изменения и с кем согласовано. 4. Проталкивание трубы без манометра запрещается. Давление, показываемое манометром, записывается при каждом передвижении трубы (графа 7). 5. В графе 8 пикет проталкивания исчисляется от передней стенки котлована проталкивания вдоль по трассе. 6. Для заполнения граф 9 - 10 отсчеты делаются от проектных положений вертикальной и горизонтальной осей, заданных маркшейдером. 7. В графе 11 записывается толщина предохранительной грунтовой «пробки» в ножевой части проталкиваемой трубы. 8. Отметки об испытании гидросистемы делаются в графе 14.
Приложение 2Технические характеристики стреловых поворотных крановКран СПК-1000 1. Грузоподъемность, кг - 1000 2. Вылет стрелы, м - 3,5 3. Высота подъема крана от уровня колес, м - 4,3 4. Максимальный ход крюка, м - 25 5. Скорость подъема и опускание груза, м/мин - 12,5 6. Угол поворота стрелы, град. - 360 7. Общая масса крана с противовесом, кг - 3300 Кран СПК-2000-2 1. Грузоподъемность, кг - 2000 2. Вылет стрелы, м - 7,8 3. Высота подъема крюка от подошвы крана, м - 4,0 4. Скорость подъема и опускания груза, м/мин - 20 5. Скорость поворота, об/мин - 0,7 6. Масса крана без противовеса транспортного устройства, кг - 4800 Приложение 3Технические характеристики пневмопробойников гидравлического пресса и установки для проколаПневмопробойник ИП-4601 1. Диаметр пробиваемых скважин, мм: а) без расширителя - 135 б) с расширителями - 200; 250 2. Длина пневмопробойника, мм - 1587 3. Масса (без шланга), кг - 80 4. Вид подаваемой энергии - сжатый воздух 5. Номинальное давление сжатого воздуха, атм - 6 6. Расход воздуха, м3/мин - 3 7. Скорость пробивания скважин, м/час: а) в грунтах 1 категории - 30 - 60 б) в грунтах 2 категории - 15 - 30 в) в грунтах 3 категории - 8 - 15 8. Длина пробиваемой скважины, м - до 50 Пневмопробойник ИП-4603 (реверсивный) 1. Диаметр пробиваемых скважин, мм а) без расширителя - 130 б) с расширителями - 200; 300 2. Длина пневмопробойника, мм - 1550 3. Масса (без шлангов), кг - 80 4. Вид подаваемой энергии - сжатый воздух 5. Номинальное давление сжатого воздуха, атм - 8 6. Расход воздуха, м3/мин - 3,5 7. Скорость пробивания скважин, м/час: а) в грунтах 1 категории - 40 - 60 б) в грунтах 2 категории - 20 - 40 в) в грунтах 3 категории - 10 - 20 8. Длина пробиваемой скважины, мм - до 50 Пневмопробойник ИП-4605 (реверсивный) 1. Диаметр пробиваемых скважин, мм: а) без расширителя - 95 б) с расширителем - 180 2. Скорость пробивания скважин в зависимости от свойств грунта, м/час - 1 - 50 3. Давление сжатого воздуха, атм - 0,8 4. Расход сжатого воздуха, м3/мин - 4,0 5. Габаритные размеры (без расширителя и шлангов), мм: длина - 1500 диаметр - 95 6. Масса (без расширителя и шлангов), кг - 55 Пресс гидравлический БГ-3 1. Рабочая площадь поперечного сечения 2 цилиндров, см2 - 100 2. Рабочий ход цилиндра, мм - 500 3. Скорость перемещения цилиндров, м/мин - 1,2 4. Время, в течение которого совершается один рабочий ход цилиндров, мин - 0,42 5. Усилие, развиваемое прессом, т - 3,0 8. Длина проходки, м - до 30 7. Скорость проходки, м/смену - 15 - 30 Техническая характеристика установки Главмосстроя для прокола 1. Диаметр прокладываемых труб (Дусл.), мм - 200 - 400 2. Длина прокола грунта, м - 20 - 45 3. Средняя скорость прокола грунта, м/смену - 25 4. Упорная стенка - инвентарная металлическая - в комплекте 5. Наибольшая масса элемента установки (рама), т - 2,0 6. Габариты установки, мм: длина - 8800 ширина - 1600 высота - 2200 7. Суммарная масса установки, т - 4,8 8. Обслуживающее звено, чел. -2 Приложение 4Техническая характеристика установки Главмосстроя для прокладки труб Ø 900 мм способом продавливания
Приложение 5ГРАФИК ПРОИЗВОДСТВА РАБОТ | ||||||||||||||||||||||||||||||||||||||||||||||||||||||||||||||||||||||||||||||||||||||||||||||||||||||||||||||||||||||||||||||||||||||||||||||||||||||||||||||||||||||||||||||||||||||||||||||||||||||||||||||||||||||||||||||||||||||||||||||||||||||||||||||||||||||||||||||||||||||||||||
|
Наименование работ |
Един. измер. |
Объем работ |
Трудоемкость |
Расценка на един. измер., руб.-коп. |
Стоимость затрат труда на полный объем работ, руб.-коп. |
||
|
на един. измер., чел.-ч. |
на полный объем, чел.-дн. |
||||||
|
§ 10-7.А, т. 1, п. а |
Устройство упорной стенки |
шт. |
1 |
7,4 |
0,92 |
4-64 |
4-64 |
|
§ 10-7.Б, т. 12, п. 2а |
Монтаж оборудования в котловане с выгрузкой его со средств перемещения при помощи крана |
1 устан. |
1 |
21,0 |
2,62 |
13-79 |
13-79 |
|
§ 10-7.В, т. 3, п. 8а |
Продавливание стальных труб гидродомкратом с разработкой грунта Ø 900 мм в грунте 2 группы |
1 м.п.р. |
40 |
8,3 |
41,5 |
5-21 |
208-40 |
|
§ 10-7.Б, т. 2, п. 4а |
Демонтаж оборудования с погрузкой на средства перемещения при помощи крана |
1 устан. |
1 |
13,0 |
1,62 |
8-54 |
8-64 |
|
§ 10-8А.Б.В т. 1, п. а т. 2, п. 5 т. 3, п. 5 |
Укладка стальных труб Ø 600 мм в футляр Ø 900 мм с установкой скользящих опор на трубах, заделкой концов футляра |
1 м.п.р. |
42 |
1,24 |
6,51 |
0-735 |
30-87 |
|
|
Протаскивание труб в футляре с помощью лебедки |
1 футляр |
1 |
4,9 |
0,61 |
2-89 |
2-80 |
|
|
Итого: |
|
|
|
53,78 15,21 |
|
269-13 |
|
Контроль качества выполнения операции |
||||
|
производителем работ (мастером) |
состав |
способы |
время |
привлекаемые службы |
|
Устройство опорной стенки |
Качество материала, надежность крепления, геометрические размеры |
Визуально, нивелиром, стальным метром |
В процессе и по окончании работ |
|
|
Монтаж оборудования в котловане с выгрузкой его со средств перемещения при помощи крана |
Соответствие оборудования техническим характеристикам, паспортам и ППР, надежность установки, точное соблюдение геометрических размеров установки; соосность оборудования продавливаемой трубе |
Нивелиром, теодолитом, стальным метром, спец. уровнями, визуально |
В процессе работ |
о.г.м. Геодезическая |
|
Продавливание стальных труб гидродомкратами с разработкой грунта |
Качество труб, надежность соединения при наращивании труб, точное соблюдение горизонтальной и вертикальной оси продавливаемой трубы в грунте, скорость погружения в грунт |
Геодез. спец. приборы, стальным метром, визуально |
-«- |
О.Г.М. Геодезическая Строительная лаборатория |
|
Демонтаж оборудования с погрузкой на средства перемещения при помощи крана |
Подготовка к подъему оборудования, надежность строповки, сохранность оборудования при подъеме и погрузке |
Визуально |
-«- |
О.Г.М. |
|
Укладка стальных труб в футляре с установкой скользящих опор на трубах, заделкой концов футляров с использованием лебедки для протаскивания труб |
Сохранность гидроизоляции труб, надежность установки скользящих опор, правильность строповки и транспортировки трубы в футляре, качество заделки концов футляра |
Визуально |
В процессе и по окончании работ |
о.г.м. Строительная лаборатория |

Условные обозначения:
1 - котлован для приемки пневмопробойников;
2 - пробиваемая скважина;
3 - полотно железной дороги;
4 - котлован для запуска пневмопробойников;
5 - пневмопробойник со стартовой площадкой;
6 - компрессорная установка;
7 - а/дорога;
8 - крепление откосов
Примечания:
1. Глубина котлована определяется проектом.
2. Расстояние от откоса до котлованов определяется проектом.
3. Рытье котлованов с вертикальными стенками без креплений допускается в соответствии с п. 9.9. «Земляные работы» СНиП III-4-80. В остальных случаях необходимо применять инвентарные крепления. Для листов 1, 2, 3, 5, 6, 8, 9.
4. Временные ограждения места работ выполнять согласно ППР.
Читать совместно с листом 1
Условные обозначения:
1 - приемный котлован; 2 - автомобильная дорога; 3 - котлован для установки пресса; 4 - передвижная эл. станция; 5 - упорная плита с распорками; 6 - гидравлический пресс БГ-3; 7 - пробиваемая скважина
Примечания.
1. Глубина котлована определяется проектом.
2. Расстояние от дороги до котлованов определяется проектом.

Условные обозначения:
1 - приемный котлован; 2 - автомобильная дорога; 3 - зеленые насаждения; 4 - трамвайные пути; 5 - тротуар; 6 - котлован для прокольной установки; 7 - передвижная эл. станция; 8 - инвентарная упорная плита; 9 - прокольная установка Главмосстроя; 10 - прокольная труба; 11 - крепление откоса; 12 -трасса для прокола
Примечание: длина котлована lк равна 9,5 м при длине трубы lтр равной 6 м;
« lк равна 7,0 м при длине трубы lтр равной 3 м.

Примечания.
1. Глубина котлована определяется проектом.
2. Расстояние от дорог до котлованов определяется проектом.
Читать совместно с листом 4
Общий вид установки ГМС для продавливания труб в грунте

Схема работ при продавливании грунта

Гидродомкраты на раме (трест ГПР)

Нажимной патрубок (трест ГПР)

Схема установки ГМС для продавливания труб в грунте и расположение ее в котловане
Примечание: длина котлована lк равна 10,5 м при длине трубы lтр равной 9 м;
длина котлована lк равна 7,5 м при длине трубы lтр равной 6 м.
1 - стенка упорная; 2 - лебедка; 3 - крепление откосов; 4 - ножевая секция; 5 - трос втаскивания; 6 - трос вытаскивания; 7 - трос отрезки; 8 - основание; 9 - упорные кулачки; 10 - полуавтомат защелки; 11 - стакан; 12 - стопоры тележки; 13 - тележка; 14 - труба длиной 6,0 м; 15 - трубы упорные; 16 - траверса; 17 - домкрат; 18 - насосная станция; 19 - башмак

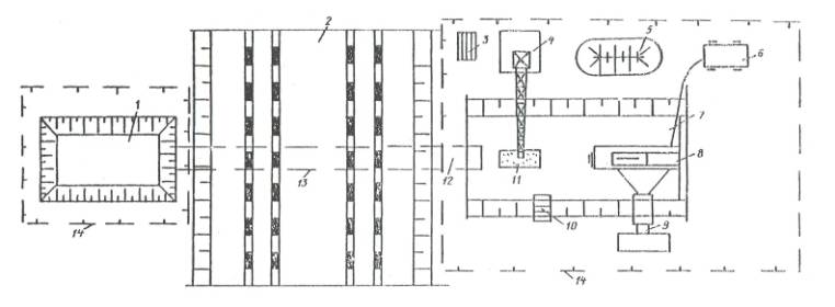
Условные обозначения:
1 - приемный котлован при выходе труб из грунта;
2 - полотно железной дороги;
3 - складирование звеньев труб для наращивания трубы;
4 - монтажный кран;
5 - складирование грунта, извлеченного из труб;
6 - передвижная эл. станция;
7 - рабочий котлован;
8 - установка для прокола (продавливания);
9 - насосная станция;
10 - лестница для спуска рабочих в котлован;
11 - тележка для транспортировки грунта;
12 - звено трубы в грунте;
13 - план трассы прокола (продавливания);
14 - временное ограждение
Условные обозначения:
1 - ручная лебедка;
2 - траншея;
3 - приемный котлован;
4 - временное ограждение (Н = 110 см)
5 - ж/дорожное полотно;
6 - «Рабочий котлован»;
7 - передвижная э/станция;
8 - сварочный аппарат;
9 - прокладываемые трубы;
10 - складирование труб;
11 - монтажный кран;
12 - трос;
13 - лестница для спуска рабочих в котлован;
14 - складирование материалов для заделки концов футляра;
15 - труба (футляр) в грунте
Примечания.
1. Технологическая последовательность работ приведена в п. 2.17.16.
2. При работе в ночное время стройплощадка должна быть освещена, включая сигнальное освещение.
|
|
|
|