//
ТехЛит.ру
- крупнейшая бесплатная электронная интернет библиотека для "технически умных" людей.
WWW.TEHLIT.RU - ТЕХНИЧЕСКАЯ ЛИТЕРАТУРА

:: Алготрейдинг::


АЛГОТРЕЙДИНГ
шаг за шагом
с нуля по урокам!

Торговые роботы на PYTHON, BackTrader,
Pandas, Pine Script для TradingView. Связка с брокерами, телеграм и легкими приложениями.


ОРДЕНА ЛЕНИНА ГЛАВМОССТРОЙ при МОсгориСПОЛКОМЕ

моСОРГСТРОЙ

Технологическая карта
НА УСТРОЙСТВО ТЕПЛОВЫХ СЕТЕЙ (ВНУТРИКВАРТАЛЬНЫХ)
ИЗ КОЛЛЕКТОРОВ ТИПА «ВК» И «рК»
И ИЗ ТРУБ С БиТУМОПЕРЛИТНОЙ ИЗОЛЯЦИЕЙ
ОТКРЫТЫМ СПОСОБОМ

Арх. № 7869

МОСКВА - 1983

Технологическая карта разработана проектно-технологическим отделом треста Мосоргстрой (А.Н. Абрамович, А.П. Смирнов), согласована с Управлением подготовки производства Главмосстроя.

Технологическая карта рекомендована к внедрению в строительном производстве.

Замечания и предложения по настоящей карте направлять по адресу: 113095, Б. Полянка, Д. 51 а, трест Мосоргстрой.

СОДЕРЖАНИЕ

1. Общая часть. 2

2. Подготовительные работы.. 2

3. Организация производства работ. 3

4. Производство земляных работ. 3

5. Технология производства работ на устройство коллекторов и прокладки битумоперлитовых труб бесканальным способом.. 5

6. Обратная засыпка. 10

7. Приемка, сдача и контроль за качеством работ. 11

(тпквк-73; всн-16-76) 11

8. Организация труда. 11

9. Рекомендуемый способ загрузки коллекторов трубами. 12

10. Техника безопасности. 12

11. Перечень рекомендуемых механизмов и тары.. 13

Приложение 1. Акт на разбивку трассы внутриквартального коллектора (теплотрассы) 14

Приложение 2. Акт приемки в эксплуатацию внутриквартального коллектора (теплотрассы) 15

Лист 1. Схема производства земляных работ (погрузка грунта в автотранспорт) 16

Лист 2. Схема производства земляных работ (разработка грунта в траншее в отвал) 17

Лист 3. Схема производства земляных работ (разработка грунта в траншее с креплениями в автотранспорт) 18

Лист 4. Схема производства земляных работ (разработка грунта в траншее с креплениями в отвал) 19

Лист 5. Схема организации рабочего места при прокладке коллекторов. 20

Лист 6. Схема организации рабочего места при прокладке коллекторов. 21

Лист 7. Схема организации рабочего места при прокладке битумоперлитных трубопроводов. 22

Лист 8. Схема организации рабочего места при прокладке битумоперлитных трубопроводов. 23

Лист 9. Технологическая схема организации работ в траншее с ветикальными стенками. 23

Лист 10. Технические данные - пневмоколесного крана К-631. 24

Лист 11. Технические данные - гусеничного крана рдк-25. 26

Лист 12. Бесканальная прокладка теплосети из труб с битумоперлитной изоляцией. 26

Лист 13. Устройство скользящей опоры теплопровода с битумоперлитной изоляцией. 27

Лист 14. Конструкция приямка (для удобства ведения сварочных и изолировочных работ на стыках труб) 28

Лист 15. Транспортировка (загрузка) труб в коллектор на катках ручной лебедкой (рекомендуемая) 29

Лист 16. График производства работ при прокладке коллектора. 31

Лист 17. График производства работ при прокладке битумоперлитных трубопроводов открытым способом.. 31

1. ОБЩАЯ ЧАСТЬ

1.1. Настоящая «Технологическая карта» распространяется на производство строительно-монтажных и изолировочных работ при прокладке внутриквартальных тепловых сетей с устройством проходного канала из сборных железобетонных коллекторов и бесканальным способом из труб с индустриальной битумоперлитной изоляцией.

1.2. Улучшая технологию строительно-монтажных работ по устройству тепловых сетей в проходных коллекторах и бесканальным способом, трест Мосоргсгрой разработал прогрессивную технологию монтажа объемных секций коллекторов типа «ВК» и «РК», укладки трубопроводов с битумоперлитной изоляцией, загрузки коллекторов трубопроводами и др. и устройства изолировочных работ.

1.3. Данная технология позволяет повышать производительность труда, улучшать использование механизмов, совершенствовать работы по загрузке коллекторов трубопроводами, обеспечивать безопасность ведения работ и их качество, сокращать сроки монтажа.

1.4. Технологическая карта разработана с целью ознакомления рабочих и инженерно-технических работников с прогрессивной технологией и организацией труда, улучшения взаимодействия членов монтажной бригады (звена), технологической последовательности ведения работ и комплектования бригады (звена) по численности и квалификации.

2. ПОДГОТОВИТЕЛЬНЫЕ РАБОТЫ

2.1. Организационно-техническую подготовку к строительству внутриквартальных коллекторов и укладке труб открытым способом необходимо осуществлять в соответствии с требованиями СНиП III-1-76 «Организация строительного производства».

2.2. Строительная организация, получив от заказчика утвержденную проектно-сметную документацию, производит обследование трассы для прокладки внутриквартального коллектора и разрабатывает проект производства работ (ППР).

2.3. Высотной основой при строительстве коллекторов должна служить городская нивелирная сеть (марки, стенные и грунтовые реперы). Временные реперы, устанавливаемые вдоль трассы, должны привязываться нивелирными ходами к постоянным реперам.

2.4. Разбивка трассы и ее приемка строительной организацией от проектной организации или Мосгоргеотреста оформляется актом (приложение 1) с приложением ведомостей реперов и привязок. Если разбивка трассы осуществляется непосредственно строительной организацией, в оформлении акта участвуют: исполнитель, выполняющий разбивку, производитель строительных работ и представитель проектной организации.

2.5. До начала производства земляных работ по строительству внутриквартальных теплосетей должны быть выполнены все подготовительные работы, обеспечивающие нормальное развитие строительства, в том числе:

осуществлена планировка территории, обеспечивающая организацию отвода временных поверхностных вод, расчистка полосы вдоль трассы со сносом строений, вырубкой (пересадкой) зеленых насаждений, корчевкой пней и др., и приняты меры по сохранности существующих подземных коммуникаций;

переложены существующие подземные коммуникации;

построены водостоки для обеспечения водоотвода из траншей, а также для присоединения дренажных устройств и водовыпусков из коллектора.

ПРИМЕЧАНИЕ. Прокладку и перекладку подземных коммуникаций осуществлять только по проектам, согласованным с отделом подземных сооружений ГлавАПУ.

3. ОРГАНИЗАЦИЯ ПРОИЗВОДСТВА РАБОТ

А. При монтаже внутриквартальных коллекторов

3.1. Отрывается траншея под коллектор и сопутствующий дренаж. Производятся работы по устройству сопутствующего дренажа с присоединением его к действующему водостоку.

ПРИМЕЧАНИЕ. При устройстве дренажей необходимо руководствоваться «Временными указаниями по устройству дренажей в г. Москве» (НМ-15-69), «Указаниями на устройство дренажа из керамзитостеклянных и керамзитобетонных трубофильтров» (ВСН-40-69) и технологической картой на устройство дренажей, разработанной трестом Мосоргстрой (1980 г.).

3.2. Устраивается основание внутриквартального коллектора.

3.3. Монтируются сборные железобетонные секции коллектора при помощи крана.

3.4. Осуществляется по ходу монтажа объемных секций коллектора их начинка трубопроводами (см. лист 15).

3.5. По ходу монтажа секций заделываются стыки между секциями.

3.6. Гидроизоляционные работы выполняются гудронаторами (при соответствующих объемах) и при малом объеме работ - вручную с подготовкой битума на стройплощадке.

3.7. Выполненные работы предъявляются к сдаче, после чего производится обратная засыпка траншеи грунтом с использованием механизмов.

Б. При прокладке труб бесканальным способом

3.8. Отрывается траншея под теплосеть и сопутствующий дренаж.

3.9. Производится устройство сопутствующего дренажа.

3.10. Устраивается песчаная постель для теплопроводов толщиной 10 - 15 см (ВСН-16-76).

3.11. Раскладываются трубопроводы.

3.12. Производят монтаж трубопровода, включая сварку и изоляцию стыков.

3.13. Производится засыпка песка при помощи автокрана с грейфером или специальным автопогрузчиком с обязательной послойной трамбовкой пневмо- или электротрамбователем.

3.14. Устраиваются неподвижные и скользящие опоры.

3.15. Выполняется пористый слой вокруг теплопроводов из песка.

3.16. Производится обратная засыпка траншеи грунтом.

4. ПРОИЗВОДСТВО ЗЕМЛЯНЫХ РАБОТ

А. Траншей для прокладки коллекторов

4.1. Разработка траншей для внутриквартальных коллекторов производится в соответствии с требованиями главы СНиП III-8-76 «Земляные сооружения. Правила производства и приемки работ».

4.2. Котлованы и траншеи должны быть защищены от попадания в них поверхностных вод.

4.3. Разрытие траншей должно выполняться в общем потоке с прочими работами по строительству коллекторов. Разрыв по времени между рытьем траншей и опусканием в них секций коллектора должен быть минимальным.

4.4. Разработка грунта траншеи выполняется экскаватором «обратная лопата» с емкостью ковша 0,65 - 1,0 м3 (или другими механизмами в соответствии с ППР) до проектной отметки, с последующей зачисткой и выравниванием дна траншеи вручную.

4.5. Разрабатываемый грунт погружается в автотранспорт, отвозится или его выбрасывают в отвал только по одну сторону траншеи.

4.6. Крутизна откосов траншей, разрабатываемых на глубину до 5 м, принимается согласно СНиП III-4-80 (табл. 4).

4.7. Наименьшая ширина траншеи по дну для укладки коллекторов назначается по СНиП III-8-76.

4.8. Нахождение рабочих в зоне работы экскаватора запрещается.

4.9. Допустимые недоборы грунта должны соответствовать СНиП III-8-76 (табл. 2).

Б. Траншей при бесканальной прокладке труб

4.10. Рытье траншеи должно выполняться строго по проекту без перекопа грунта и нарушения его естественной структуры. В случае перекопа грунта подсыпку и выравнивание дна траншеи следует производить песком с обязательным уплотнением его до коэффициента 0,98.

Таблица 2

Грунты

Наибольшая крутизна откосов при глубине выемки в м, до

1,5

3

5

угол между направлением откоса и горизонталью, град

отношение высоты откоса и его заложения

угол между направлением откоса и горизонталью, град

отношение высоты откоса к его заложению

угол между направлением откоса и горизонталью, град

отношение высоты откоса к его заложению

Насыпные

56

1:0,67

45

1:1

38

1:1,25

Песчаные и гравийные влажные (ненасыщенные)

63

1:0,5

45

1:1

45

1:1

Глинистые:

 

 

 

 

 

 

супесь

76

1:0,25

56

1:0,67

50

1:0,85

суглинок

90

1:0

63

1:0,5

53

1:0,75

глина

90

1:0

76

1:0,25

63

1:0,5

лессы и лессовидные сухие

90

1:0

63

1:0,5

63

1:0,5

Моренные песчаные, супесчаные

76

1:0,25

60

1:0,57

53

1:0,75

Суглинистые

78

1:0,2

63

1:0,5

57

1:0,65

ПРИМЕЧАНИЯ: 1. При напластовании различных видов грунта крутизну откоса для всех видов пластов надлежит назначать по более слабому виду грунта.

2. К насыпным грунтам относятся грунты, пролежавшие в отвалах менее 6 месяцев и не подвергшиеся искусственному уплотнению (проездом, укаткой и т.п.).

Таблица 2

Рабочее оборудование экскаватора

Допустимые недоборы грунта в основании, см, при работе одноковшовым экскаватором с емкостью ковша, м3

0,25 - 0,4

0,5 - 0,65

0,8 - 1,25

1,5 - 2,5

3 - 5

Лопата

 

 

 

 

 

прямая

5

10

10

15

20

обратная

10

15

20

-

-

драглайн

15

20

25

30

30

В. Траншеи с вертикальными стенками (с креплениями)

4.11. Разработка грунта в траншеи производится экскаватором «обратная лопата» в отвал или с погрузкой в автотранспорт в два этапа:

1-й этап - разработка грунта на половину глубины траншеи экскаватором «обратная лопата»;

2-й этап - разработка грунта до проектных отметок экскаватором, оборудованным грейферным ковшом (см. листы 3, 4).

4.12. Экскавация грунта на первом этапе производится последовательно слоями высотой 1,0 м.

4.13. Грунт от разработки траншеи укладывать в отвал на расстояние не менее 1 м от края крепления траншеи.

4.14. В случае стесненных условий производства работ с одной стороны грунт от разработки траншеи переместить бульдозером за пределы складирования материалов и временных дорог или производить непосредственно при экскавации грунта погрузку его на транспортные средства с доставкой в места временного складирования.

4.15. Последовательно, через каждый метр по глубине, считая от поверхности разрабатываемой траншеи, производить вручную доработку грунта у стенок крепления с подкидкой грунта к ковшу экскаватора и установку забирки.

В этот период работа экскаватором запрещена.

4.16. При установке забирки доски должны выступать над бровкой не менее чем на 15 см.

4.17. По окончании разработки грунта на захватке на половину глубины траншеи производить остановку поясов и распорок.

4.18. Далее экскаватор переходит на следующую захватку, и работы выполняются в той же последовательности.

4.19. Экскавация грунта на втором этапе производится грейферным ковшом последовательно слоями высотой 0,5 м.

4.20. Грунт от разработки укладывать в отвал или грузить в транспортные средства (см. п. 4.13 и 4.14).

4.21. последовательно, через каждые 0,5 глубины разрабатываемой траншеи, производить вручную доборку у стенок крепления с подкидкой грунта к ковшу экскаватора и установку забирки.

4.22. После окончания разработки грунта экскаватором (недобор составляет не менее 15 см) произвести вручную добор грунта до проектных отметок и планировку основания по рейке с подкидкой грунта к ковшу экскаватора.

4.23. Затем экскаватор переходит на следующую захватку и работы повторяются в той же последовательности.

4.24. Объемы разработки грунта в плотном теле на 1 пог. м траншеи с вертикальными станками приведены в табл. 3.

4.25. Крутизна откосов насыпи (отвалов) временных земляных сооружений отражена в табл. 4. Коэффициент разрыхления в % для неуплотненных грунтов приведен в табл. 5.

ПРИМЕЧАНИЕ. Производство земляных работ в зимних условиях производить в соответствии со СНиП III-8-76.

5. ТЕХНОЛОГИЯ ПРОИЗВОДСТВА РАБОТ НА УСТРОЙСТВО КОЛЛЕКТОРОВ И ПРОКЛАДКИ БИТУМОПЕРЛИТОВЫХ ТРУБ БЕСКАНАЛЬНЫМ СПОСОБОМ

А. На устройство коллектора

5.1. Одновременно с земляными работами для прокладки коллекторов должны производиться работы по строительству сопутствующих дренажей с присоединением их к действующим водостокам.

5.2. В целях предупреждения просадок отдельных секций коллектора, основание под ними выполняется особо тщательно, в строгом соответствии с проектом.

Таблица 4

Крутизна откосов насыпи (отвалов) временных земляных сооружений

Наименование грунтов, из которых возводится насыпь

Допустимая высота насыпи, м, до

Крутизна откосов насыпи

Гравилистые и крупнопесчаные

12

1:1,25

Глинистые, суглинистые и песчаные естественной влажности

8

1:1,25

Камень

мелкий

6

1:0,75

крупный (постелистый)

5

1:0,5

Лесс

3

1:1,5

Таблица 5

Коэффициент разрыхления в % для неуплотненных грунтов

Наименование грунта

Коэффициент разрыхления, %

Глина

28 - 32

Песок

10 - 15

Суглинок

18 - 24

Супесь

12 - 17


Таблица 3

Объемы разработки грунта в плотном теле на 1 пог. м траншеи с вертикальными стенками

п/п

Глубина траншеи, м

Ширина траншеи, м

3,0

4,0

5,0

6,0

7,0

объем грунта, м3

в т.ч. ручная доработка, м3

объем грунта, м3

в т.ч. ручная доработка, м3

объем грунта, м3

в т.ч. ручная доработка, м3

объем грунта, м3

в т.ч. ручная доработка, м3

объем грунта, м3

в т.ч. ручная доработка, м3

балки

дно траншеи

балки

дно траншеи

балки

дно траншеи

балки

дно траншеи

балки

дно траншеи

1

3,0

9,0

0,6

0,42

12,0

0,6

0,57

15,0

0,6

0,72

18,0

0,6

0,87

21,0

0,6

1,02

2

3,5

10,5

0,7

0,42

14,0

0,7

0,57

17,5

0,7

0,72

21,0

0,7

0,87

24,5

0,7

1,02

3

4,0

12,0

0,8

0,42

16,0

0,8

0,57

20,0

0,8

0,72

24,0

0,8

0,87

28,0

0,8

1,02

4

4,5

13,5

0,9

0,42

18,0

0,9

0,57

22,5

0,9

0,72

27,0

0,9

0,87

31,5

0,9

1,02

5

5,0

15,0

1,0

0,42

20,0

1,0

0,57

25,0

1,0

0,72

30,0

1,0

0,87

35,0

1,0

1,02

6

5,5

16,5

1,1

0,42

22,0

1,1

0,57

27,5

1,1

0,72

33,0

1,1

0,87

38,5

1,1

1,02

7

6,0

18,0

1,2

0,42

24,0

1,2

0,57

30,0

1,2

0,72

36,0

1,2

0,87

42,0

1,2

1,02

8

6,5

19,5

1,3

0,42

26,0

1,3

0,57

32,5

1,3

0,72

39,0

1,3

0,87

45,5

1,3

1,02

9

7,0

21,0

1,4

0,42

28,0

1,4

0,57

35,0

1,4

0,72

42,0

1,4

0,87

49,0

1,4

-"-

10

7,5

22,5

1,5

0,42

30,0

1,5

-"-

37,5

1,5

-"-

45,0

1,5

-"-

52,5

1,5

-"-

11

8,0

24,0

1,6

-"-

32,0

1,6

-"-

40,0

1,6

-"-

48,0

1,6

-"-

56,0

1,6

-"-


Таблица 6

Наименьшее допустимое расстояние по горизонтали от подошвы откоса выемки до ближайших опор машин

Глубина выемки

Грунт (ненасыпной)

песчаный и гравийный

супесчаный

суглинистый

глинистый

лессовый сухой

расстояние по горизонтали от подошвы откоса до ближайшей опоры в м

1

 

1,5

1,25

1,0

1,0

1,0

2

3,0

2,4

2,0

1,5

2,0

3

4,0

3,6

3,25

1,75

2,5

4

5,0

4,4

4,0

3,0

3,0

5

6,0

5,3

4,75

3,5

3,5

5.3. В случае наличия на спланированном дне траншеи разжиженного грунта, остатков древесины и других органических включений, они должны быть выбраны до уровня твердого основания и заменены песком, который тщательно уплотняется пневмотрамбователем. На выполненные работы составляется акт с участием представителей заказчика и автора проекта.

5.4. В зимних условиях не допускается установка основания секций коллектора на промерзшее основание. Если основание проморожено, то перед установкой секций коллектора оно должно быть отогрето электропрогревом, газоотогревом и др.

5.5. По окончании устройства основания производится монтаж внутриквартальных коллекторов из объемных секций типа «ВК» и «РК» при строгом соблюдении проектных уклонов и отметок при помощи кранов согласно проекту производства работ.

5.6. По ходу монтажа секций заделываются стыки между секциями, и осуществляется загрузка коллектора трубопроводами.

5.7. Секции устанавливаются в траншеи на железобетонные подкладки, поверх которых укладывается слой цементного раствора толщиной 1 см, со строгой фиксацией оси коллектора.

5.8. Поперечные швы между секциями заделываются герметизирующей прокладкой из гернита диаметром 40 мм на клее КН-2, обжимаемом путем стягивания секций при помощи инвентарных болтов или струбцин. Зазор между секциями после их стяжки зачеканивается расширяющимся цементом и не должен превышать 10 мм (по обмеру снаружи). Во избежание разрыва предыдущего заделанного межсекционного стыка, на нем следует оставлять два затянутых болта или струбцины, которые могут быть сняты только после заделки последующего межсекционного стыка.

5.9. После герметизации стыков производится снаружи и изнутри расшивка швов между секциями цементным раствором марки «50» и сварка соединительных закладных деталей смежных секций.

5.10. Предназначенные для монтажа коллектора секции должны быть без дефектов и отвечать техническим требованиям на их изготовление.

5.11. Одновременно с монтажом коллектора из пониженных его точек устраиваются водовыпуски в водостоки в строгом соответствии с проектом.

5.12. По окончании монтажа и заделки стыков между секциями производятся работы по защите строительных конструкций коллектора от коррозии, и выполняется гидроизоляция.

5.13. Секции и другие сборные элементы, предназначенные для сооружения внутриквартальных коллекторов, должны иметь гидроизоляцию от коррозии, выполненную в заводских условиях и строгом соответствии с техническими требованиями.

5.14. При монтаже коллекторов для защиты от коррозии покрываются противокоррозийным лаком поверхности металлических элементов, устанавливаемых при монтаже, а также места повреждений противокоррозийного покрытия при производстве сварочных работ и по другим причинам.

5.15. Межсекционные швы коллектора оклеиваются снаружи двойным слоем изола на битумной мастике, а гидроизоляция перекрытия коллектора защищается слоем цементного раствора 2 - 4 см (по проекту).

5.16. Секции, имеющие повреждения, а также не отвечающие техническим требованиям на их изготовление, устанавливать категорически запрещается.

5.17. По окончании работ устройства дренажа и монтажа коллектора производится сдача его под обратную засыпку траншеи.

Б. На бесканальную прокладку трубопроводов

5.18. Бесканальная прокладка тепловых сетей с битумоперлитной изоляцией непосредственно в грунте обеспечивает расчетную долговечность теплопроводов и необходимую защиту их от коррозии при качественном выполнении монтажных и изолировочных работ.

5.19. После производства земляных работ бесканальная прокладка тепловых сетей с битумоперлитной изоляцией сводится к следующим операциям:

устройство сопутствующего, дренажа;

устройство песчаной постели для теплопроводов толщиной 10 - 15 см;

раскладка и монтаж труб;

сварка и изоляция стыков;

отсыпка песка с трамбовкой пазух;

устройство опор неподвижных и скользящих;

устройство пористого слоя вокруг теплопровода из песка.

5.20. Укладку труб следует начинать после проверки соответствия отметок дна траншеи проекту, подготовки песчаной подушки и песка для подбивки труб.

5.21. Спуск изолированных труб в траншею должен производиться автокраном с помощью «полотенец» или других захватных приспособлений, обеспечивающих сохранность изоляционного покрытия.

Запрещается строповка труб тросом за изолированные участки. Освобождение труб от захватных приспособлений следует производить после закрепления труб подбивкой песком.

5.22. Устройство пористого слоя в глинистых и водо-насыщенных грунтах начинают с устройства песчаной постели толщиной 10 - 15 см. После укладки труб и изоляции стыков производится дополнительная подсыпка песка сначала на высоту изолированной трубы с тщательной подбивкой пазух, а затем на 10 - 15 см выше верха изоляции.

Тщательная подбивка пазух необходима для обеспечения устойчивой опоры изолированной трубы и исключения просадки теплопроводов во время эксплуатации.

5.23. Сварку труб следует начинать после опускания их в траншею и закрепления труб подбивкой песком в проектном положении.

5.24. Изоляцию сварных стыков можно производить после проверки качества сварки в соответствии с действующими нормами (контроль - 5 % стыков - физическими методами и опрессовка теплопровода).

5.25. Для удобства ведения сварочных изоляционных работ в месте устройства стыка устраивается приямок длиной 1 м и глубиной 0,5 м на всю ширину траншеи (см. лист 14).

5.26. Изоляция сварных стыков должна выполняться с помощью битумоперлитных скорлуп; покровный слой из двух слоев изола или бризола накаливается на горячем битуме БН-IV или изольной мастике. Разрешается заделка сварных стыков путем заливки битума в асбестоцементные или металлические футляры, которые одеваются на сварной стык. Футляр должен находить на заводскую битумоперлитную изоляцию на 10 - 15 см. Зазор между ними и изоляцией предварительно законопачивается смоляной прядью.

5.27. Неподвижные опоры теплопроводов при бесканальной прокладке должны выполняться из щитовых опор полной заводской готовности или путем бетонирования изолированных элементов опор, поставляемых в комплекте с трубами.

Конструкция щитовой опоры определяется проектом в зависимости от заглубления трубопровода и усилий, воспринимаемых опорами.

5.28. Не допускается укладка трубопроводов «змейкой» в вертикальной и горизонтальной плоскости.

5.29. Рекомендуется производить сварку в плети на бровке или в траншее с целью достижения хорошего качества работ и сокращения сроков монтажа.

5.30. В насыпных, торфяных или других слабых грунтах с несущей способностью меньше 0,5 кг/см2 песчаная постель должна укладываться на слой трамбованной щебенки, гравия или тощего бетона толщиной не менее 10 см. Тип основания под песчаную постель устанавливается проектом в зависимости от характера грунта и уточняется после разрытия траншеи.

5.31. До укладки труб в траншею должны быть устранены все местные повреждения битумоперлитной изоляции. Трещины шириной до 5 мм необходимо залить горячим битумом; отколы и др. повреждения изоляции должны быть расчищены от металлической трубы и это место изолировано с помощью битумоперлитных скорлуп.

В. На траншеи с вертикальными стенками (с креплениями)

5.32. Перед опусканием в траншею секции коллектора (или трубы с битумопер-литной изоляцией) должны быть тщательно освидетельствованы с целью выявления возможных повреждений. Затем коллектор (трубы) стропуют и опускают на заранее подготовленное основание.

5.33. Секцию (трубу) освобождают от захватных приспособлений после выверки уклона, прямолинейности. Трубопроводы предварительно подбивают песком.

5.34. Укладку коллекторов и труб осуществлять снизу вверх. Опускание производить плавно без рывков.

5.35. Строповку надо производить так, чтобы подача коллектора (трубы) к месту установки производилась в положении, максимально приближенном к проектному.

5.36. При монтаже не разрешается касание (удары) монтируемых конструкций к конструкциям креплений.

6. ОБРАТНАЯ ЗАСЫПКА

А. Траншей коллекторов

6.1. Засыпка траншей производится с соблюдением «Технических правил возведения насыпей и траншей в г. Москве», утвержденных решением Мосгорисполкома 2-ХП.58 г. № 70/50.

6.2. Засыпка грунтом, завезенным из резерва, пазух траншей производится бульдозером одновременно с 2-х сторон коллекторов, слоями толщиной 0,15 - 0,25 м до полной высоты коллектора с обязательным уплотнением каждого слоя механическими трамбовками. В зимних условиях засыпка должна производиться талым грунтом. Односторонняя засыпка траншей запрещается.

6.3. На существующих или устраиваемых проездах с усовершенствованным покрытием засыпка траншей производится песчаным грунтом с уплотнением. Коэффициент уплотнения должен быть не менее 0,98.

6.4. Земляные работы должны выполняться с соблюдением правил по технике безопасности в соответствии с разделом 9 главы СНиП III-4-80.

Б. Траншей при бесканальной прокладке

6.5. После получения разрешения на обратную засыпку траншеи производится засыпка грунтом при помощи бульдозеров. В зимнее время траншею засыпают только талым грунтом.

6.6. Засыпка производится послойно до 0,5 м с обязательным уплотнением грунта.

6.7. После засыпки траншеи во всех случаях должна быть выполнена местная планировка земли над теплотрассой, обеспечивающая отвод поверхностных вод.

6.8. При засыпке траншеи грунтом с помощью бульдозера должны быть приняты меры против повреждения изоляции и смещения трубопроводов.

6.9. Засыпка траншеи разжиженным грунтом не разрешается.

7. ПРИЕМКА, СДАЧА И КОНТРОЛЬ ЗА КАЧЕСТВОМ РАБОТ

(ТПКВК-73; ВСН-16-76)

А. Коллектора

7.1. После окончания строительства внутриквартальные коллекторы, независимо от ведомственной принадлежности зданий, которые они обслуживают, в постоянную эксплуатацию принимаются приемной комиссией, назначенной Главмосжилуправлением.

7.2. Приемке коллекторов в постоянную эксплуатацию должна предшествовать проверка планового и высотного положения коллектора в соответствии с утвержденным проектом и приемка строительных конструкций коллектора и др. рабочими комиссиями, назначаемыми заказчиком в 5-дневный срок после получения письменного уведомления генерального подрядчика о готовности объекта к приемке.

Б. Теплосети при бесканальной прокладке

7.3. Приемка и сдача работ по строительству трубопроводов с битумоперлитной изоляцией производится в соответствии с указаниями СНиП III-1-76; СНиП III-2-75; СНиП III-3-76.

7.4. При приемке в эксплуатацию тепловых сетей с битумоперлитной изолинией следует особое внимание обращать на качество выполненного основания, заделку мест стыковых соединений, входов трубопроводов в камеры и мертвых опор.

7.5. В промежуточных актах на скрытые работы и в исполнительных чертежах следует указывать:

конструкцию и диаметр сопутствующего дренажа;

высоту песчаной постели пористого слоя и результаты проверки плотности подбивки труб песком;

результаты осмотра состояния тепловой изоляции теплопроводов перед засыпкой.

ПРИМЕЧАНИЕ. Акт приемки внутриквартального коллектора (теплотрассы) приведен в приложении 2.

8. ОРГАНИЗАЦИЯ ТРУДА

А. При устройстве коллектора

8.1. Организацию рабочего места трубоукладчиков (монтажников) следует осуществлять со схемой, приведенной на листах 5, 6.

8.2. В монтажной зоне должна быть разнесена и разложена монтажная оснастка, установлены ящики с раствором, песком, подготовлены необходимые приспособления и инструменты.

8.3. Монтаж коллекторов выполняется звеном трубоукладчиков (монтажников) из 5-ти человек следующей квалификации:

5-й разряд                             - 1 человек

4-й разряд                             - 1 человек

3-й разряд                             - 2 человека

2-й разряд                             - 1 человек

Параллельно с этим звеном при необходимости работает электросварщик 5-го (4-го) разряда.

8.4. Устройство дренажа выполняют звеном в количестве 5 человек (см. «Технологическую карту на устройство дренажа», 1980 г.).

8.5. Гидроизоляционные работы выполняются звеном из 3 человек:

4-й разряд                             - 1 человек

3-й разряд                             - 1 человек

2-й разряд                             - 1 человек

8.6. Песчаное основание выполняется трубоукладчиками:

3-й разряд                             - 2 человека

2-й разряд                             - 2 человека

Б. При устройстве теплосети из битумоперлитных труб

8.7. Монтаж трубопроводов выполняется звеном трубоукладчиков следующего состава:

6-й разряд                             - 1 человек

4-й разряд                             - 1 человек

3-й разряд                             - 3 человека

Параллельно с этим звеном работают электросварщики:

5-й разряд                             - 1 человек

4-й разряд                             - 2 человека

8.8. Подготовку песчаного основания, обсыпку труб песком, устройство пористого слоя из песка: выполняет звено трубоукладчиков из 4 человек:

3-й разряд                             - 2 человека

2-й разряд                             - 2 человека

8.9. Изоляция стыков производится изолировщиками:

4-й разряд                             - 1 человек

3-й разряд                             - 2 человека

8.10. Сопутствующий дренаж выполняется звеном из 5 человек (см. пункт 8.4).

ПРИМЕЧАНИЯ: 1. Перечисленные звенья разделов 8А и 8Б входят в состав специализированных бригад по монтажу коллекторов и прокладке битумоперлитных трубопроводов открытым способом.

2. Организацию рабочего места необходимо осуществлять со схемой, приведенной на листах 7, 8, 9.

9. РЕКОМЕНДУЕМЫЙ СПОСОБ ЗАгрузки КОЛЛЕКТОРОВ ТРУБАМИ

9.1. При загрузке труб в коллекторы необходимо использовать ручную лебедку и работы производить в следующей последовательности:

устанавливается ручная лебедка внутри коллектора;

закрепляется лебедка за стенки коллектора;

укладываются деревянные или металлические катки;

при помощи крана укладываются трубы на катки;

стропуются трубы тросом от лебедки на «удав»;

при помощи лебедки трубы передвигаются по каткам в коллектор;

расстроповываются трубы;

укладываются трубы на полки коллектора;

демонстрируется лебедка;

убираются катки.

Схему монтажа см. лист 15.

ПРИМЕЧАние. В траншеи по грунту катки следует укладывать на деревянные брусья или малых диаметров.

10. ТЕХНИКА БЕЗОПАСНОСТИ

10.1. При производстве работ необходимо соблюдать правила техники безопасности согласно СНиП III-4-80 «Правила устройства и безопасной эксплуатации трубопроводов пара и горячей воды» и руководствоваться проектом производства работ на работы, указанные в технологической карте.

10.2. К производству работ по монтажу коллекторов и трубопроводов, предусмотренных данной картой, допускаются рабочие, аттестованные в соответствии с п. 308 «Правил устройства и безопасности эксплуатации грузоподъемных кранов».

10.3. Работы должны производиться под руководством инженерно-технических работников, хорошо владеющих спецификой выполнения данных работ. На них должна возлагаться ответственность за безопасную организацию производства работ, исправное состояние механизмов и монтажной оснастки.

10.4. Запрещается допускать к работе по изоляции стыков и варке битума рабочих, не обученных правилам работ с горячими битумными материалами.

10.5. Рабочие-изолировщики должны иметь соответствующую спецодежду, обеспечивающую безопасное ведение работ с горячим битумом, и предохранительные очки.

10.6. Варка битума и его транспортировка должна производиться в специальных котлах и ведрах, исключающих возможность попадания влаги.

10.7. Для выполнения погрузочно-разгрузочных и монтажных работ с изолированными трубами применяются «полотенца» или специальная оснастка, которые должны изготовляться централизованно и подвергаться необходимым испытаниям с отметкой об этом в паспорте.

10.8. При работе с битумом и другими горючими и легковоспламеняющимися материалами необходимо руководствоваться «Инструкцией о мерах пожарной безопасности при производстве строительных работ» ГУПОМВД СССР

10.9. Хранение битума, керосина и др. в пределах противопожарных разрывов запрещается.

10.10. Горючие и легковоспламеняющиеся жидкости (керосин, бензин и др.) следует хранить в закрытой таре заглубленными в землю или в помещениях с несгораемыми конструкциями, с соблюдением специальных правил пожарной безопасности.

10.11. Варку и хранение горячего битума и битумных мастик следует производить в специальном термосе конструкции СКВ «Мосстрой» (проект № 21-69 или № 3818-69).

10.12. Спуск рабочих в траншею осуществляется по стремянке шириной не менее 0,6 М с перилами или приставной лестницей.

10.13. При работе в траншеях с вертикальными стенками запрещается нахождение людей в траншее, а также между траншеей и коллектором (трубопроводом) во время их опускания в траншею.

10.14. Общая длина (высота) приставной лестницы (подмостей) должна обеспечивать рабочему возможность производить работу, стоя на ступени, находящейся на расстоянии не менее 1 м от верхнего конца лестницы; при этом рабочий должен закрепляться карабином предохранительного пояса к надежным элементам конструкции.

10.15. Раздвижные лестницы-стремянки должны иметь устройство, исключающее их самопроизвольное раздвижение. При установке приставных лестниц в местах движения транспорта или людей эти места должны ограждаться или охраняться.

10.16. Подъем грузов массой, близкой к максимальной грузоподъемности крана при максимальном вылете стрелы, должен производиться в 2 приема. Сначала деталь поднимают на высоту 20 - 30 см (в таком положении проверяют подвеску, устойчивость крана и надежность действия тормозов), затем - на необходимую высоту.

11. ПЕРЕЧЕНЬ РЕКОМЕНДУЕМЫХ МЕХАНИЗМОВ И ТАРЫ

11.1. Механизмы:

1). Экскаватор «обратная лопата» с емкостью ковша 0,65 - 1 м3                 - 1 шт.

2). Экскаватор оборудованный грейферным ковшом (для траншеи

с вертикальными стенками)                                                                             - 1 -"-

3). Бульдозер С-100 (Т-180)                                                                              - 2 -"-

4). Гусеничные краны РДК для коллекторов типа «ВК» и К-631

для коллекторов типа «РК»                                                                              - 1 -"-

5). Пневмоколесный кран КС-5363 для трубопроводов с

битумоперлитной изоляцией                                                                           - 1 -"-

6). Автопогрузчик с ковшом (при работе с приобъектного склада)

для загрузки и подвозки песка, щебня и др.                                                   - 1 -"-

7). Гудронатор                                                                                                    - 1 -"-

11.2. Тара:

1). Бункер-контейнер емкостью 1 м3           1045.36 СКБ «Мосстрой»         - 4 шт.

2). Ящик-контейнер для раствора

металлический 0,28 м3                                  3182, трест Мосоргстрой         - 4 -"-

3). Ящик-контейнер для раствора

деревянный                                                     1643М, трест Мосоргстрой      - 4 -"-

4). Ящик-контейнер для хранения

инструментов                                                 1639М, трест Мосоргстрой      - 1 -"-

5). Термос для варки битума                        № 21-69 и № 3818-69,              - 2 -"-

                                                                         СКБ «Мосстрой»

6). Ведра для разноски битума                                                                         - 4 -"-

7). Цистерна (емкость) для хранения                                                              - 1 -"-

горячих материалов

8). Монтажки, ломы, лопаты и др.

9). Электротрамбовки и пневмотрамбовки                                                    - 2 -"-

11.3. Грузозахватные устройства:

1). Строп 4-ветвевой, 18 тн                           3311, трест Мосоргстрой         - 1 -"-

2). Строп 4-ветвевой, 10 тн                           910МА, трест Мосоргстрой     - 1 -"-

3). Ручная лебедка                                          Т-69                                            - 1 -"-

11.4. Данный перечень подлежит корректировке при разработке проекта производства работ.

Приложение 1

АКТ
на разбивку трассы внутриквартального коллектора
(теплотрассы)

г. Москва                                                                                            «___» _______ 19 ____ г.

Объект ____________________________________________________________________

(наименование, адрес)

Мы, нижеподписавшиеся, представитель заказчика _______________________________

___________________________________________________________________________

(наименование организации, должность)

___________________________________________________________________________,

(фамилия, имя, отчество)

представитель проектной организации __________________________________________

___________________________________________________________________________,

(наименование, должность; фамилия, имя, отчество)

представитель строительно-монтажной организации ______________________________

___________________________________________________________________________,

(наименование организации, должность фамилия, имя, отчество)

составили настоящий акт в том, что заказчик ____________________________________

сдал, а подрядчик _________________________________ принял разбивку трассы внутриквартального коллектора (т. трассы) до корпуса № _______________ от корпуса

№ _______________ в соответствии с проектом № _______________________________

___________________________________________________________________________

(наименование организации)

Разбивка трассы выполнена в соответствии с требованиями СНиП ______ с установкой реперов, привязок, согласно прилагаемой ведомости и схеме.

При разбивке были сделаны следующие отклонения от проекта ____________________

___________________________________________________________________________

Заключение: ________________________________________________________________

___________________________________________________________________________

Представитель заказчика:

Представитель подрядчика:

Представитель проектной организации:

Приложение 2

АКТ
приемки в эксплуатацию внутриквартального коллектора
(теплотрассы)

в квартале ___________________

г. Москва                                                                                                   «__» _____ 19 ___ г.

Комиссия, назначенная ________________________________ в составе представителей:

1. Главмосжилуправления (председатель)

2. Заказчика

3. Генерального подрядчика

4. Строительно-монтажной организации

5 Проектной организации

6. УМГО Госгортехнадзора

7. Эксплуатационной конторы треста Мосгаз

8. Районной конторы треста Мосводопровод

9. Района теплосети Мосэнерго или треста Теплоэнергия

10. Других заинтересованных организаций

произвела приемку коллектора в квартале _______________________________________

на участке _______________ длиной ______________________, выполненного по заказу

___________________ по проекту № ____________________, разработанному ________

Комиссии предъявлена следующая техническая документация:

1. Утвержденный проект и смета.

2. Генеральный план строительства.

3. Список организаций, принимавших участие в производстве отдельных видов работ с указанием фамилий ответственных лиц за каждый вид работ.

4. Исполнительные чертежи.

5. Акты на скрытые работы.

6. Акты рабочих комиссий по приемке строительных конструкций коллектора и смонтированных в нем трубопроводов водопровода, горячего водоснабжения, теплоснабжения и др., а также силовых и слаботочных кабелей.

7. Акты испытания систем вентиляции, освещения, водоудаления и сигнализации загазованности.

8. Журналы работ.

9. Акт разбивки осей коллектора.

10. Данные о геологии и гидрогеологии строительной площадки.

Комиссия, рассмотрев техническую документацию, произвела осмотр коллектора в натуре и установила, что коллектор выполнен в соответствии с проектом ____________

с соблюдением технических правил и норм _________________ и имеет следующие недоделки __________________________________________________________________

___________________________________________________________________________

Заключение комиссии: _______________________________________________________

___________________________________________________________________________

Председатель комиссии:

Члены комиссии:

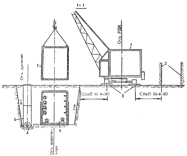
Лист 1

СХЕМА ПРОИЗВОДСТВА ЗЕМЛЯНЫХ РАБОТ
(ПОГРУЗКА ГРУНТА В АВТОТРАНСПОРТ)

ПРИМЕЧАНИЕ.

Разработка грунта производится экскаватором «обратная лопата» с емкостью ковша 0,65 - 1,0 м3 с погрузкой грунта в автотранспорт.

Лист 2

СХЕМА ПРОИЗВОДСТВА ЗЕМЛЯНЫХ РАБОТ
(РАЗРАБОТКА ГРУНТА В ТРАНШЕе В ОТВАЛ)

ПРИМЕЧАНИЕ.

Разработка грунта производится экскаватором «обратная лопата» с емкостью ковша 0,65 - 1,0 м3 в отвал только по одну сторону.

Лист 3

СХЕМА ПРОиЗВодСТВА ЗЕМЛЯНых РАБОТ
(РАЗРАбоТКА ГРУНТА В Траншее С КРЕПЛЕНИЯМИ В АВТОТРАНСПОРТ)

Условные обозначения:

1 - металлические сваи (балки); 2 - пояс из 1 балок; 3 - забирка из досок; 4 - распорка

Лист 4

СХЕМА ПРОИЗВОДСТВА ЗЕМЛЯНЫХ РАБОТ
(РАЗРАБОТКА ГРУНТА В ТРАНШЕЕ С КРЕПЛЕНИЯМИ в ОТВАЛ)

Условные обозначения:

1 - металлические сваи; 2 - пояс из 1 балок; 3 - забирка из досок; 4 - распорка

Лист 5

СХЕМА ОРГАНИЗАЦИИ РАБОЧЕГО МЕСТА ПРИ ПРОКЛАДКЕ КОЛЛЕКТОРОВ

Условные обозначения:

1 - сцепка коллектора; 2 - ящики для раствора; 3 - бункера-контейнеры для щебня (песка); 4 - гусеничный кран; 5 - временная дорога из плит ПД; 6 - ящик для инструмента; 7 - дренажные колодцы; 8 - трубы дренажа; 9 - лестница; 10 - дренаж; 11 - трубы коллектора

СОСТАВ РАБОТ

1. Открытие траншеи.

2. Подготовка основания для дренажа и коллектора.

3. Установка дренажных колодцев.

4. Монтаж коллекторов с заделкой стыков и начинкой коллекторов трубопроводами и др.

5. Гидроизоляция коллекторов (стыки).

6. Прокладка труб дренажа с обсыпкой.

7. Присыпка грунтом дренажа.

8. Обратная засыпка.

ПРИМЕЧАНИЕ.

По ходу монтажа ранее уложенные дорожные плиты перекладываются для последующего устройства дороги.

Лист 6

СХЕМА ОРГАНИЗАЦИИ РАБОЧЕГО мЕСТА ПРИ ПрОКЛАДкЕ КОЛЛЕКТОРОВ

Условные обозначения:

1 - гусеничный кран; 2 - зона складирования; 3 - дорожные плиты; 4 - смонтированный коллектор; 5 - дренаж; 6 - дренажный колодец; 7 - монтируемая секция коллектора

Читать совместно с листом 5


Лист 7

СХЕМА ОРГАНИЗАЦИИ РАБОЧЕго МЕСТА ПРИ ПРОКЛАДКЕ БИТуМОПЕРЛИТНых ТРУБОПРОВОДОВ

Условные обозначения:

1 - кран; 2 - смонтированные битумоперлитные трубопроводы; 3 - битумный термос (котел); 4 - складирование трубопроводов; 5 - склад щебня; 6 - склад песка; 7 - складирование битумоперлитной скорлупы; 8 - бункера (контейнеры); 9 - складирование дренажных колодцев; 10 - ящик с инструментами; 11 - приставная лестница (стремянка)


Лист 8

СХЕМА ОРГАНИЗАЦИИ РАБОЧЕго МЕСТА ПРИ ПРОКЛАДКЕ БИТумоперлитных ТРУБОПРОВОДОВ

СТЫК ТРУБ С БИТумоперлитной

ИЗОЛЯЦИЕЙ

Условные обозначения:

1 - монтажный кран; 2 - зона складирования; 3 - песок; 4 - смонтированные трубопроводы; 5 - песчаное основание под трубопроводы; 6 - дренаж; 7 - дренажный колодец; 8 - монтируемая труба; 9 - «полотенце» для опускания труб в траншею; 10 - грунт обратной засыпки

 

Условные обозначения:

1 - смоляная прядь; 2 - отверстие для заливки битума; 3 - контрольное отверстие; 4 - битумоперлитная изоляция; 5 - песчаная постель; 6 - приямок (см. лист 14); 7 - асбестоцементная муфта; 8 - битум БН-IV; 9 - стальная труба

Читать совместно с листом 7

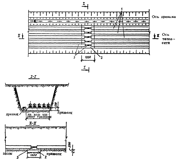
Лист 9

ТЕХНОЛОГИЧЕСКАЯ СХЕМА ОРГАНИЗАЦИИ РАБОТ В ТРАНШЕЕ С ВЕТИКАЛЬНЫМИ СТЕНКАМИ

Условные обозначения:

1 - забирка из досок; 2 - металлические сваи; 3 - пояс из 1 балок; 4 - распорка; 5 - ограждение h = 1000 мм

СОСТАВ РабОТ

1. Подготовка материалов.

2. Строповка коллекторов (труб) для опускания в траншею.

3. Опускание коллекторов (труб) в траншею с распорными креплениями - перекрепление распорок.

4. Укладка коллекторов (труб) на готовое основание.

5. Освобождение коллекторов (труб) от захватных приспособлений.

ПРиМЕЧАНИЕ. При необходимости из железобетонных плит типа ПД (см. лист 5).

Лист 10

ТЕХНИЧЕСКИЕ ДАННЫЕ - ПНЕВМОКОЛЕСНОГО КРАНА К-631

1,2 - без опор

2,3 - на опорах

С гуськом 10 м: 4,5 - без опор

5,6 - на опорах

С гуськом 15 м: 7,8 - на опорах

7,8 - без опор

Все гуськи - управляемые

Лист 11

ТЕХНИЧЕСКИЕ ДАННЫЕ - ГУСЕНИЧНОГО КРАНА РДК-25

1, 2 - основной подъем

3, 4 - вспомогательный подъем

Лист 12

БЕСКАНАЛЬНАЯ ПРОКЛАДКА ТЕПЛОСЕТИ ИЗ ТРУБ С БИТУМОПЕРЛИТНОЙ ИЗОЛЯЦИЕЙ

Последовательность технических операций при выполнения работ:

а) Подготовка песчаной постели 10 - 15 см

б) Отсыпка песка с трамбовкой пазух

в) Устройство пористого слоя

г) Засыпка траншеи

д) Устройство пористого слоя и дренажа при 5-трубной прокладке

Условные обозначения:

1 - сопутствующий дренаж; 2 - трубопроводы; 3 - местный грунт; 4 - песчаная подготовка; 5 - отсыпка песком; 6 - пористый слой

Лист 13

УСТРОЙСТВО СКОЛЬЗЯЩЕЙ ОПОРЫ ТЕПЛОПРОВОДА С БИТУМОПЕРЛИТНОЙ ИЗОЛЯЦИЕЙ

Условные обозначения:

1 - битумоперлитная изоляция; 2 - стальной опорный цилиндр; 3 - металлическая скоба; 4 - бетонный опорный камень; 5 - песчаная панель; 6 - днище канала; 7 - стальная труба; 8 - цементно-песчаный раствор

Лист 14

КОНСТРУКЦИЯ ПРИЯМКА
(ДЛЯ УДОБСТВА ВЕДЕНИЯ СВАРОЧНЫХ И ИЗОЛИРОВОЧНЫХ РАБОТ НА СТЫКАХ ТРУБ)

Условные обозначения:

1 - трубопроводы; 2 - приямок; 3 - стыки труб

Лист 15

ТРАНСПОРТИРОВКА (ЗАГРУЗКА) ТРУБ В КОЛЛЕКТОР НА КАТКАХ РУЧНОЙ ЛЕБЕДКОЙ
(РЕКОМЕНДУЕМАЯ)

Условные обозначения:

1 - сцепки коллектора; 2 - ручная лебедка; 3 - трос лебедки; 4 - катки; 5 - доски, подкладываемые под катки по грунту; 6 - трубопроводы; 7 - кольцевой трос

СОСТАВ РАБОТ

1. Подготовка основания.

2. Монтаж сцепок коллектора на длину труб.

3. Установка лебедки.

4. Укладываются катки.

5. Подается пакет труб краном, и укладываются на катки.

6. Строповка пакета труб кольцевым тросом.

7. При помощи лебедки трубы по каткам закатываются в коллектор.

8. Убираются катки и лебедка.





Яндекс цитирования



   Copyright © 2007-2026,  www.tehlit.ru.

[ ѓосты, стандарты, нормативы, инструкции, правила, строительные нормы ]