//
ТехЛит.ру
- крупнейшая бесплатная электронная интернет библиотека для "технически умных" людей.
WWW.TEHLIT.RU - ТЕХНИЧЕСКАЯ ЛИТЕРАТУРА

:: Алготрейдинг::


АЛГОТРЕЙДИНГ
шаг за шагом
с нуля по урокам!

Торговые роботы на PYTHON, BackTrader,
Pandas, Pine Script для TradingView. Связка с брокерами, телеграм и легкими приложениями.


Открытое акционерное общество

Проектно-конструкторский и технологический институт промышленного строительства

ОАО ПКТИпромстрой

УТВЕРЖДАЮ

Генеральный директор, к.т.н.

_______________С.Ю. Едличка

«___»_________________2000 г.

ТЕХНОЛОГИЧЕСКАЯ КАРТА
УСТРОЙСТВО МОНОЛИТНЫХ
БЕТОННЫХ ПОЛОВ
МЕТОДОМ ВАКУУМИРОВАНИЯ

7356 ТК

Главный инженер

_________________А.В. Колобов

Начальник отдела

_________________Б.И. Бычковский

2000

Аннотация

Карта содержит решения по организации и технологии устройства монолитных бетонных полов методом вакуумирования при возведении зданий и сооружений производственного и гражданского назначения.

В карте приведены:

- область применения;

- технология процесса устройства полов методом вакуумирования с учетом изучения и анализа передового опыта у нас в стране и за рубежом;

- организация рабочего места;

- приемы труда;

- требования к качеству и приемке работ;

- требования техники безопасности и охраны труда, экологической и пожарной безопасности;

- потребность в материально-технических ресурсах;

- технико-экономические показатели.

Технологическая карта предназначена для инженерно-технических работников строительных и проектных организаций, производителей работ, мастеров и бригадиров, связанных с производством и контролем качества работ.

Технологическую карту разработали сотрудники лаборатории совершенствования организации и технологии строительства (отдел 41) ОАО ПКТИпромстрой:

Савина О.А., Покровская Е.В. - разработка и компьютерная обработка;

Бычковский Б.И. - корректура и нормоконтроль;

К.т.н. Шахпаронов В.В. - научно-методическое руководство;

К.т.н. Едличка С.Ю. - общее руководство.

СОДЕРЖАНИЕ

1 Область применения

1.1 Технологическая карта распространяется на производство работ по устройству монолитных бетонных полов с армированием или без него с использованием аппаратуры вакуумного обезвоживания бетона при возведении зданий и сооружений производственного и гражданского назначения.

Вакуумирование бетона - прогрессивный метод, повышающий производительность труда, прочность, износостойкость и качество поверхности полов.

Полы, изготовленные по этому методу, отвечают современным требованиям качества строительной продукции - плотные, способные воспринимать значительные механические воздействия, бесшовные, беспыльные.

1.2 В карте применен комплект оборудования, разработанный шведской фирмой ТRЕМIХ. Возможно применение вакуумного комплекса СО-177 ОАО ВНИИСМИ.

С помощью этого оборудования возможна укладка бетона толщиной до 200 мм.

1.3 Для устройства бетонных полов с покрытиями повышенной прочности применяют бетон класса В15 и В22,5.

1.4 Сущность метода вакуумирования заключается в удалении из бетона излишков воды затворения (до 30 %) для обеспечения более быстрого уплотнения и набора прочности бетона. Это позволяет использовать более пластичные, удобоукладываемые бетоны с осадкой конуса 8 - 10 см.

1.5 Вакуумирование бетона дает возможность наносить слой специального покрытия на свежеуложенный бетон. Снижение деформаций усадки при устройстве вакуумированного бетона позволяет создавать участки пола площадью до 250 - 300 м2 без деформационных швов.

1.6 Для повышения водостойкости пола его покрывают эмульсионными полимерными составами, снижающими трещинообразование и воздействие химически активных веществ. Такие полы могут быть использованы на предприятиях пищевой и химической промышленности.

1.7 Бетонный слой, после вакуумирования, в сочетании с покрытиями повышенной твердости обеспечивает высокую степень прочности пола в раннем возрасте, что позволяет монтировать тяжелое производственное оборудование по ходу строительных работ (рисунок 1).

Рисунок 1 - График нарастания прочности бетона во времени:

А - при вакуумной обработке; В - при естественном твердении; С - процентное увеличение прочности бетона после вакуумной обработки.

График построен с учетом нарастания прочности бетона В 22,5 (номинальное сопротивление сжатию 300 кг/см2) следующего состава:

- портландцемент                                                                  - 302 кг/м3;

- мелкий заполнитель                                                           - 626 кг/м3;

- гравий фракции 8 - 16 мм                                                  - 382 кг/м3;

- гравий фракции 16 - 32 мм                                                - 885 кг/м3;

- водоцементное отношение                                                - 0,6;

- осадка конуса                                                                      - 9 см.

1.8 Привязка технологической карты к конкретным объектам и условиям производства работ состоит в уточнении объемов работ, данных потребности в трудовых и материально-технических ресурсах и корректировке графика производства работ.

2 Организация и технология строительного процесса.

2.1 Работы по устройству полов осуществляются в соответствии со СНиП 3.03.01-87 «Несущие и ограждающие конструкции» и СНиП 3.04.01-87 «Изоляционные и отделочные покрытия».

2.2 Перед началом работы необходимо подготовить фронт работ, доставить оборудование в места, указанные в проекте производства работ, технологической карте или схеме, убедиться в исправности оборудования, подвести электроэнергию и воду, а также подготовить основание под полы, очистить поверхность перекрытия от строительного мусора, произвести разметку на захватки, дать отметки горизонта для направляющих реек.

2.3 Процесс устройства монолитных бетонных полов методом вакуумирования состоит из следующих основных операций:

- подготовка основания для бетонирования и установка направляющих;

- подача и распределение бетонной смеси;

- уплотнение бетонной смеси с помощью вибрирующей балки (поверхностных вибраторов);

- вакуумная обработка бетонной поверхности;

- затирка поверхности бетона заглаживающей машиной (бетоноотделочная машина);

- шлифовка поверхности бетона заглаживающей машиной (бетоноотделочная машина).


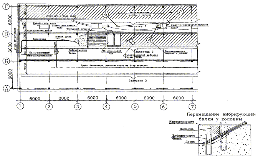
Рисунок 2 - Технологическая схема устройства монолитных бетонных полов методом вакуумирования


2.4 Разметка основания, подготовленного для устройства бетонных полов и установка опалубки или направляющих осуществляется в зависимости от размеров пола в помещении и длины вибрирующей балки.

2.5 Рациональные размеры одной захватки и разметки мест установки направляющих указываются в проекте производства работ применительно к конкретному строительному объекту. Технологическая схема устройства монолитных бетонных полов методом вакуумирования представлена на рисунке 2.

2.6 Длина захватки должна обеспечивать непрерывность работы бригады в течение смены, а ширина должна быть максимально возможной, но не более шести метров. Бетонирование захваток производится через одну в последовательности их нумерации.

Это позволяет соблюдать порядок и последовательность операций, экономить время, количество направляющих.

2.7 Следует обращать особое внимание на установку направляющих в плане и по высоте, используя при этом геодезические инструменты. Состыкованные направляющие не должны смещаться от давления бетонной массы при прохождении вибрирующей балки, а также не должны иметь прогиба.

2.8 Необходимое условие бесперебойной и качественной работы всей бригады - это строгое соблюдение графика поставки бетона. Транспортировка бетона осуществляется автобетоносмесителями и другими средствами, а подача бетонной смеси к месту укладки может осуществляться различными способами, в том числе автобетононасосами, кранами, транспортерами и т.д. (рисунок 3).

Рисунок 3 - Схема подачи бетона с помощью башенного крана и автобетононасоса

2.9 Перевозку бетонной смеси внутри закрытых помещений при отсутствии трубопроводного транспорта осуществляют тележками на пневмоходу конструкции СКБ Мосстрой, а разравнивание смеси производят лопатами.

2.10 Выравнивание поверхности бетонной смеси и уплотнение производят с помощью вибрирующей балки, которая обеспечивает качественное уплотнение смеси на глубину не более 200 мм, согласно рисунку 4.

Рисунок 4 - Технологическая последовательность операций по устройству полов методом вакуумирования

2.11 Вакуумная обработка поверхности бетона производится с помощью отсасывающего мата, который соединяется шлангом с вакуумным агрегатом, отсасывающим воду из толщи бетона (до 30 %). При вакуумной обработке поверхность бетона обязательно должна быть ровной.

2.12 Количество отобранной воды и прочность бетонной смеси после вакуумирования, которая должна составлять 2 - 3 кгс/см2, позволяют визуально определить окончание вакуумной обработки.

2.13 После окончания вакуумирования отсасывающий мат необходимо тщательно промыть водой.

2.14 Отвакуумированная поверхность бетонного покрытия позволяет немедленно выполнить затирку и шлифовку (чистовое заглаживание).

2.15 Надежность работы комплекта оборудования для устройства бетонных полов обеспечивается своевременным проведением профилактического технического обслуживания.

2.16 В зависимости от конструкции и толщины бетонного слоя пола, устанавливают определенный вид опалубки и поддерживающих опор (рисунок 5). Опалубку или направляющие устанавливают точно по отметкам в плане и по высоте, тщательно подгоняя стыки. Крепление опалубки или направляющих осуществляют анкерами, тяжами или другими упорными устройствами и приспособлениями.

Рисунок 5 - Варианты установки опалубки и поддерживающих опор

2.17 Бетонная смесь в подготовленную карту подается автобетононасосом по трубопроводу или тележками. Грубое разравнивание осуществляется лопатами или гребками, распределяя бетонную смесь равномерно по ширине бетонируемой полосы. В случае прекращения подачи бетонной смеси, устанавливают ограничительную доску поперек бетонируемой полосы для образования рабочего шва. Если толщина укладываемого слоя бетонной смеси более 20 см, производится ее уплотнение глубинными вибраторами с одновременным распределением бетонной смеси.

2.18 Работы с вибрирующей балкой (поверхностным вибратором) осуществляются в следующем порядке: после распределения бетонной смеси в пролете карты или полосы производят быстрый проход вибрирующей балкой (поверхностным вибратором). После первого прохода большая часть поверхности бетонной смеси выравнивается, но в некоторых местах остаются воронки, незаполненные бетонной смесью. В воронки укладываются дополнительные порции смеси, и делается второй проход. При втором проходе вибрирующая балка (поверхностный вибратор) перемещается медленно, на одной скорости и без остановок.

2.19 Точное выравнивание бетонной поверхности выполняют три человека. Двое рабочих тянут за фалы вибрирующую балку (поверхностный вибратор), прикладывая необходимое усилие для обеспечения скорости передвижения 0,5 - 1 м/мин., третий рабочий наблюдает за движением вибробалки и с помощью гребка формует валик избыточной бетонной смеси высотой 1 - 2 см перед вибрирующей балкой.

2.20 Валики избыточной бетонной смеси необходимы для создания ровной поверхности и для передачи вибрации, вызывающей уплотнение уложенной бетонной смеси.

2.21 Высоту валика следует постоянно поддерживать в заданных пределах. Увеличение высоты валиков значительно затрудняет перемещение вибрирующей балки, а отсутствие валиков снижает эффект вибрирования, образуя воронки на бетонной поверхности и вызывая появление усадочных трещин.

2.22 Если первая рейка вибробалки при ее перемещении уже прошла над углублением в бетонной смеси, необходимо сразу же перед второй рейкой положить добавочную порцию бетонной смеси для выравнивания поверхности.

2.23 При перемещении вибрирующей балки по направляющим необходимо избегать подъема переднего края балки. Для этого уменьшают угол наклона фалов к горизонтальной плоскости пола, используя их на всю длину.

2.24 В местах, где работа с вибрирующей балкой затруднена (колонны, стояки, выгородки), бетонную смесь уплотняют с помощью виброплощадки с последующим выравниванием поверхности вручную.

2.25 Работы по вакуумированию осуществляют в следующем порядке:

- укладывают на провибрированную и выровненную поверхность бетона фильтрующие полотна и накрывают их всасывающим матом (оборудование фирмы «ТRЕМIХ»);

- соединяют всасывающий шланг вакуумного агрегата со шлангом отсасывающего короба мата и проверяют работоспособность системы. Необходимо плотное прилегание краев отсасывающего мата к поверхности свежеуложенного бетона.

2.26 Показания манометра вакуумного агрегата должны быть не более 0,75 кгс/см2.

2.27 После достижения соответствующего вакуума время отсасывания воды определяется из расчета 1 минута на 1 см толщины плиты.

2.28 При обезвоживании только верхнего слоя плиты-пола вакуумирование продолжается не более 10 минут.

2.29 Воду сливают, по мере заполнения бака, в канализационный стояк, место расположения которого предусматривается ППР. В процессе вакуумирования опорожнять бак не рекомендуется.

2.30 Выравнивающим вибратором (оборудование фирмы «ТRЕМIХ») устраняют метки от поперечных линий, возникающих при временных остановках поверхностного вибратора, выравнивают впадины и выпуклости, с добавлением при необходимости дополнительного материала, подготавливая поверхность таким образом к затирке.

2.31 Рабочий, находясь за пределами бетонируемой полосы или карты, располагает заглаживающую (бетоноотделочную) машину в середине ее и включает двигатель. Затем, двигаясь от середины полосы к краю короткими продольными проходами, он затирает поверхность бетона.

2.32 Затирка и шлифовка могут осуществляться одновременно на одной захватке.

2.33 Работы по шлифовке поверхности поручают опытному и квалифицированному оператору.

2.34 После окончания технологического цикла по устройству бетонного пола за одну смену комплект оборудования очищают от бетона и промывают водой.

2.35 Схема организации рабочего места на одной захватке шириной 4,0 м показана на рисунке 3.

Рисунок 6 - Схема организации рабочего места

1 - направляющие; 2 - шланг бетононасоса; 3 - вибробалка; 4 - всасывающий мат; 5 - вакуумный насос; 6 - заглаживающая (бетоноотделочная) машина с планирующим диском; 7 - заглаживающая (бетоноотделочная) машина с ножами; Б1, Б2, Б3, Б4, Б5, Б6, Б7 - бетонщики.

2.36 Приемы организации труда по этапам должны предусматривать выполнение производственных операций в технологической последовательности, приведенной ниже:

1. Разметка и установка направляющих реек.

Бетонщики (Б1; Б2; Б3) с помощью рулетки и мелового шнура отмечают места расположения направляющих с таким расчетом, чтобы ширина бетонируемой полосы соответствовала длине вибробалки.

Затем бетонщик (Б3) наполняет раствором ведро и, двигаясь вдоль разметки, раскладывает порции раствора через 1,5 м в местах установки направляющих реек.

Бетонщики (Б1 и Б2) устанавливают на маяки направляющие рейки.

При установке направляющих, входящих в комплект оборудования фирмы ТRЕМIХ, рабочие ставят специальные опоры, в которых закрепляют направляющие рейки на заданной отметке.

Бетонщик (Б1) ставит нивелирную рейку на направляющую, а бетонщик (Б2) по команде геодезиста легкими ударами осаживает направляющую рейку до проектной отметки.

2. Подача и распределение бетонной смеси

Бетонщик (Б1), придерживая и перемещая шланг с помощью специальной скобы, подает бетонную смесь в карту и, постепенно отступая назад, распределяет бетон по всей ширине бетонируемой полосы.

Бетонщики (Б2 и Б3) разравнивают бетон лопатой вровень с верхом направляющих реек.

3. Вибрирование и выравнивание бетонной смеси вибрирующей балкой

Уложив бетонную смесь на участке равном или большем размеру отсасывающего мата, бетонщик (Б1) подает сигнал машинисту бетононасоса о прекращении подачи бетона, а сам переходит к вибрирующей балке.

Бетонщики (Б2 и Б3) по направляющим перемещают за фалы вибрирующую балку, а бетонщик (Б1) формует лопатой валик избыточного бетона высотой 1 - 2 см перед вибрирующей балкой.

В труднодоступных местах (колонны, стояки, выгородки) бетонщик (Б1) уплотняет бетонную смесь площадочным вибратором, затем поверхность бетона выравнивается гладилкой.

4. Вакуумирование бетона

Бетонщик (Б4) подготавливает к работе вакуумный агрегат, проверяет шланги, соединительные муфты и по мере необходимости передвигает его.

Бетонщики (Б1 и Б4) переносят фильтрующие прокладки и укладывают их на влажный бетон, только что подвергшийся вибрированию.

Затем бетонщики (Б1 и Б4) переносят всасывающий мат, укладывают на среднюю фильтрующую прокладку и раскатывают его вправо и влево от центра так, чтобы перекрыть края фильтрующих прокладок приблизительно на 15 см. Бетонщики (Б1 и Б4) приглаживают края мата руками.

Бетонщик (Б4) соединяет всасывающий шланг вакуумного агрегата со шлангом отсасывающего короба мата и проверяет работоспособность системы (включает электродвигатель вакуумного агрегата). Бетонщик (Б1) возвращается к работе по разравниванию бетонной смеси.

5. Выравнивание бетонной поверхности

Бетонщик (Б5) с помощью выравнивающего вибратора выравнивает поверхность бетона, устраняя метки от поперечных линий, возникающих при временных остановках вибрирующей балки, выравнивает небольшие впадины и выпуклости.

6. Затирка бетонной поверхности

Бетонщик (Б5) устанавливает заглаживающую (бетоноотделочную) машину с планирующим диском в середине бетонируемой полосы и включает двигатель.

Бетонщик (Б5), двигаясь от середины полосы к краю, продольными проходами затирает поверхность бетона.

7. Шлифовка поверхности бетона

Бетонщики (Б6 и Б7) устанавливают заглаживающие (бетоноотделочные) машины с ножами на середину подготовленной к шлифованию бетонной полосы. Затем включают двигатель и, постепенно перемещаясь в противоположные стороны, осуществляют шлифовку поверхности бетона.

8. Очистка фильтрующего полотна

Бетонщик (Б4), находясь у емкости с водой, щеткой очищает фильтрующее полотно и смывает водой остатки бетона.

9. Промывка отсасывающего мата

Бетонщики (Б2 и Б3) расстилают отсасывающий мат в специально отведенном месте, а бетонщик (Б4) включает очиститель высокого давления и струей воды промывает отсасывающий мат.

3 Требования к качеству и приемке работ

3.1 Контроль качества работ по устройству полов осуществляется прорабом или мастером с привлечением специальной строительной лаборатории.

3.2 Производственный контроль качества работ должен включать входной контроль рабочей документации, материалов и оборудования, операционный контроль строительных процессов и приемочный контроль выполнения работы.

3.3 При входном контроле рабочей документации проводится проверка ее комплектности и достаточности в ней технической информации. При входном контроле материалов проверяется соответствие их стандартам, наличие сертификатов соответствия, гигиенических и пожарных документов, паспортов и других сопроводительных документов.

3.4 Строительные материалы, используемые при устройстве полов, должны соответствовать следующим требованиям:

- состав бетонной смеси, подобранный в соответствии с требованиями ГОСТ 7473-94 должен быть согласован с заводом-изготовителем по проектной марке бетона, удобоукладываемости, наибольшей крупности заполнителя, водонепроницаемости, специальным добавкам для получения бетона с заданными свойствами;

- портландцемент следует использовать с нормальными сроками схватывания, отвечающий требованиям ГОСТ 10178-85. Минимальный расход цемента М 400 должен составлять не менее 300 кг/м3 для класса бетона не менее В 15;

- песок для бетонных смесей, используемый в качестве мелкого заполнителя, должен содержать до 3 - 7 % пылевидных частиц крупностью менее 0,14 мм и 15 - 20 % мелких частиц крупностью менее 0,31 мм. Песок должен соответствовать требованиям ГОСТ 8736-93;

- для ориентировочных подсчетов долю песка следует принимать равной 32 - 45 % при использовании гравия и 40 - 60 % при использовании щебня (по весу от их общего количества). В 1 м3 бетонной смеси, предназначенной для устройства полов методом вакуумирования, должно быть на 150 - 200 кг песка больше, чем в обычной;

- содержание легких, менее 0,06 мм, пылевидных (илистых, глинистых и других) частиц не должно превышать 3 % в природном песке и 5 % в дробленом. В противном случае верхний слой уплотненной бетонной смеси может привести к непроникновению вакуума по толщине бетона;

- в качестве крупного заполнителя следует применять щебень или гравий, отвечающий требованиям ГОСТ 8267-93. Максимальный размер крупного заполнителя не должен превышать 15 мм и 0,6 толщины покрытия для слоя бетона толщиной 20 - 50 мм и 20 мм для слоя бетона толщиной до 200 мм;

- удобоукладываемость бетонной смеси следует определять по ГОСТ 10181-2000. Подвижность бетонной смеси должна быть 8 - 10 см, а водоцементное отношение - 0,6;

- необходимая консистенция бетонной смеси обеспечивается правильным соотношением между ее растворной частью и расходом крупного заполнителя. При использовании крупного заполнителя фракции 5 - 20 мм объем растворной части на 1 м3 бетонной смеси должен быть не менее 550 - 650 л;

- ориентировочные составы бетонных смесей, предназначенных для устройства полов методом вакуумирования, приведены в таблице 1.

(Измененная редакция, Изм. № 1).

Таблица 1 - Ориентировочные составы бетонных смесей для полов

Наименование составляющих

Ед. изм.

Расход на 1 м3

Бетон класса

В 15

В 20

В 22,5

Цемент М 400

кг

300

333

355

Песок

кг

655

643

620

Щебень крупностью до 20 мм

кг

1270

1265

1260

Вода

л

200

200

200

3.5 Операционный контроль осуществляется в ходе выполнения технологических операций для обеспечения своевременного выявления дефектов и принятия мер по их устранению и предупреждению. Основным документом при операционном контроле является СНиП 3.03.01-87 «Несущие и ограждающие конструкции» и СНиП 3.04.01-87 «Изоляционные и отделочные покрытия». Результаты операционного контроля фиксируются в журнале бетонных работ. Перечень технологических процессов, подлежащих контролю, приведен в таблице 2.

Таблица 2 - Перечень технологических процессов, подлежащих контролю

№ п/п

Наименование технологических процессов, подлежащих контролю

Предмет контроля

Способ контроля

Время проведения контроля

Ответственные за контроль

Технические характеристики оценки качества

1

2

3

4

5

6

7

1

Подготовка основания

Очистка поверхности от брызг раствора, масляных и жировых пятен

Визуально

До начала бетонирования

Мастер, прораб

 

Ровность поверхности, уклон

2-х метровая рейка, уровень

То же

То же

2

Приготовление бетонной смеси

Соответствие материалов паспортам

Визуально

- -

- -

 

Подвижность смеси

Стандартный конус

- -

- -

8 - 12 см

3

Разбивка полос бетонирования

Правильность разбивки полос

Метр, стальная рулетка, шаблон

- -

- -

 

Надежность закрепления опалубки (направляющих)

Визуально

- -

- -

Соответствие отметки верха опалубки проектной отметке пола

Нивелир

- -

Мастер, прораб, геодезист

4

Укладка бетонной смеси

Наличие поверхностных дефектов

Визуально

- -

Мастер, прораб

Не допускаются

Соответствие толщины уложенного покрытия проектной

Стальной метр, щуп

В период бетонирования

Мастер, прораб

£ 10 % от заданной толщины

Ровность поверхности, горизонтальность, уклон

2-х метровая рейка, уровень

То же

То же

Просветы между полом и рейкой не должны превышать 2 мм, горизонтальность £ 0,2 %

5

Обработка поверхности пола

Наличие поверхностных дефектов

Визуально

После окончания бетонирования

Мастер, прораб

Не допускается

Своевременность затирки

То же

То же

То же

Соблюдение температурного и влажностного режима при твердении

Визуально, термометр

То же

То же

Общий вид покрытия

Визуально

То же

То же

Соответствие отметки пола проектной

Нивелир

То же

Мастер, прораб, геодезист

3.6 Прочность бетона, должна быть равна требуемой прочности с допускаемым отклонением не более минус 10 % для 20 % испытываемых серий.

3.7 При приемочном контроле производится проверка качества выполненных работ с составлением акта приемки. Приемка работ заключается в проверке соблюдения примененных материалов требованиям проекта, проверке соблюдения заданных толщин, отметок, горизонтальности, ровности, прочности и влажности.

3.8 Контроль и оценку прочности бетона с учетом его однородности следует проводить по ГОСТ 18105-86.

3.9 Эксплуатация пола может быть разрешена после приобретения полом прочности, предусмотренной проектом.

3.10 Горизонтальность поверхности пола проверяют контрольной рейкой с уровнем. Отклонение поверхности пола от горизонтальной плоскости должно быть не более 0,2 % от соответствующего размера помещения. При ширине или длине помещения 25 м и более эти отклонения не должны превышать 40 мм.

3.11 Ровность поверхности пола следует проверять двухметровой рейкой, передвигаемой во всех направлениях. Просветы между поверхностью пола и рейкой не должны превышать 2 мм.

3.12 Трещины, выбоины и открытые швы в полах, а также зазоры между полом и стенами (перегородками), не предусмотренные проектом, не допускаются. Отклонения толщины пола от проектной допускаются только в отдельных местах. Они не должны превышать 10 % от заданной толщины.

4 Требования техники безопасности и охраны труда, экологической и пожарной безопасности.

4.1 Устройство полов методом вакуумирования должно осуществляться в соответствии со СНиП III-4-80 «Техника безопасности в строительстве» и СНиП 12-03-2001 «Безопасность труда в строительстве. Часть-1. Общие требования», «Правилами эксплуатации электроустановок потребителей» и «Межотраслевыми правилами по охране труда (правила безопасности) при эксплуатации электроустановок» ПОТ РМ-016-2001 РД 153-34.0-03.150-00, утвержденные Главгосэнергонадзором России, 1992 и 1994 гг.

(Измененная редакция, Изм. № 1, 2).

4.2 К управлению механизмами, машинами и оборудованием для устройства бетонных полов допускаются лица не моложе 19 лет, обученные правилам технической эксплуатации и техники безопасности при работе с комплектом, сдавшие соответствующие экзамены и имеющие удостоверение на право производства работ и обслуживания механизмов комплекта.

Перед началом работы на новом объекте лица, обслуживающие механизмы комплекта, должны пройти инструктаж на месте работ с росписью в специальном журнале.

4.3 Расстановка механизмов комплекта на месте производства работ производится под руководством ответственного лица (бригадира) согласно технологическим требованиям.

4.4 Зона работ в радиусе не менее 10 м от расположения механизмов комплекта подлежит ограждению.

4.5 При разгрузке бетонной смеси из автосамосвала запрещается:

- находиться во время выгрузки под поднятым кузовом;

- очищать поднятые кузова самосвалов скребками или лопатами с удлиненной рукояткой, стоя на земле; ударять по днищу кузова снизу.

4.6 Запрещается производить устранение каких-либо неисправностей в работающих механизмах до отключения от источника электропитания и полной их остановки.

4.7 При возникновении аварийных ситуаций необходимо немедленно остановить механизмы, отключить их от источника электропитания и вызвать дежурного специалиста (механика, электрика) для устранения причин аварии.

4.8 Запрещается работа механизмов со снятым ограждением ременных передач.

4.9 Перестановка механизмов на следующую позицию и перекладка кабельных трасс должны производиться после отключения защитноотключающего устройства, а перемещение последнего - после его отключения на распределительном устройстве.

4.10 Защитно-распределительный пункт (ЗРП) в процессе работы следует располагать вертикально.

4.11 Запрещается сочленять и расчленять штепсельные соединения под напряжением.

4.12 В случае автоматического срабатывания защитно-отключающего устройства необходимо немедленно прекратить работу и вызвать дежурного электрика для выяснения причин и ликвидации неисправностей. Возобновлять работу разрешается только после устранения обнаруженной неисправности.

4.13 При перерывах в работе механизмы комплекта следует отключать от ЗРП, а по окончании смены - от распределительного устройства объекта.

Для длительного хранения кабели и ЗРП следует помещать в специальное помещение.

4.14 Ремонт и наладку электроаппаратуры комплекта может производить только электрик не ниже III квалификационной группы, имеющей четкое представление о назначении и устройстве каждого элемента электрической схемы комплекта.

4.15 При работе с механизмами комплекта необходимо:

- постоянно следить за исправностью цепей заземления, вращающихся механизмов, чистотой, смазкой оборудования и проводить профилактический осмотр состояния крепежа, ременных передач и т.п.

- не допускать, чтобы рабочие органы механизмов приближались к питающим силовым кабелям ближе одного метра. Питающие кабели в рабочей зоне должны находиться в подвешенном состоянии на расстоянии 1 м от поверхности (на козелках или подставках);

- не допускать попадания влаги на токоведущие элементы.

ЗАПРЕЩАЕТСЯ:

- подключать механизмы неинвентарными кабелями;

- оставлять без надзора оборудование, подключенное к сети;

- работать без индивидуальных защитных средств, диэлектрических подставок, диэлектрической обуви (резиновые сапоги по ТУ 38-106097-76 и диэлектрические перчатки по ТУ 38-105977-76);

- обмывать ЗРП, пусковые и коммутационные аппараты и элементы штепсельных соединений водой;

- передвигать и перетаскивать агрегаты комплекта за инвентарные кабели.

5 Потребность в материально-технических ресурсах

5.1 Потребность в машинах, оборудовании и механизмах для устройства полов методом вакуумирования определяется с учетом выполняемых работ и технических характеристик в соответствии с таблицей 3.

Таблица 3 - Ведомость потребности машин, механизмов и оборудования

п/п

Наименование

Тип, марка

Техническая характеристика

Назначение

Кол. на 1 звено

1

2

3

4

5

6

1

Автобетононасос

STETTER

Номинальная производительность, м2/час

Подача бетонной смеси

1

 

 

TOMSON

60

 

 

 

ВИБАУ

95

 

 

 

СБ-12Б

65

 

 

 

СБ-12А

30

 

2

Автобетоносмеситель

С-1036Б

Емкость смесительного барабана, м3

Подача бетонной смеси

По расчету

 

 

СБ-92

2,6

 

 

 

Wait

4

 

3

Подъемный кран

В соответствии с ППР

По ППР

Подача бетонной смеси

1

4

Поверхностный вибратор

ИВ-91

Габаритные размеры, мм 1100´600´300

Масса, кг                            60

Напряжение, В                   36

Частота тока, Гц                50

Мощность, кВт                 0,6

Уплотнение и выравнивание бетона в труднодоступных местах

1

5

Поверхностный вибратор (вибробалка)

SМ 40

Мощность, Вт                   300

Напряжение, В                                            220/380 3-х фазный ток

Частота тока, Гц                50

Длина, мм                           4200

Ширина, мм                       300

Масса, кг                            41

Для уплотнения и выравнивания бетонной смеси

1

Фирмы ТRЕМIХ

6

Вакуумный насос

Р 400 iЕ Фирмы ТRЕМIХ

Габаритные размеры, мм 1200´800´650 Производительность, л/мин                                              1850

Мощность, кВт                 4 3-х фазный ток

Частота тока, Гц                50

Напряжение, В                                            220/380

Для откачки воды из толщи бетона

1

7

Глубинный вибратор:

 

3-х фазный ток

Частота тока, Гц                50

Мощность, кВт                 1,5

Для уплотнения бетона толщиной слоя более 200 мм

1

Головка

 

Диаметр, мм                      38

Длина, мм                           460

Масса, кг                            2,6

Гибкий привод

 

Диаметр, мм                      32

Длина, мм                           5000

Масса, кг                            12

Соединительная муфта

 

Длина, мм                           486

Приводная установка

 

Габаритные размеры, мм 370´270´200

8

Отсасывающий мат

RМ 60 фирма ТRЕМIХ

Габаритные размеры, мм 6000´4000

Масса, кг                            31

Для удаления воды из бетона

2

9

Бетоноотделочная машина

G740Е

Габаритные размеры, мм 3000´770´600

Масса, кг                            50

Мощность, кВт                 1,1 3-х фазный ток

Частота тока, Гц              50 Напряжение, В                                            220/380

Радиус действия, м           3

Для затирки и шлифовки поверхности бетона

2

10

Бетоноотделочная машина

G1000Е

Габаритные размеры, мм 3500´1000´600

Радиус действия, м           3,5

Масса, кг                            61

Мощность, кВт                 1,1 3-х фазный ток

Частота тока, Гц                50

Напряжение, В                                            220/380

Для полировки поверхности бетона

1

11

Выравнивающий вибратор

 

Габаритные размеры, мм 3200´1000´500

Масса, кг                            21

Длина рейки, м                  3,2

Для выравнивания поверхности

1

12

Очиститель высокого давления

НР-10

Габаритные размеры, мм 500´500´300

Масса, кг                            21

Мощность, кВт 1,45 3-х фазный ток

Частота, Гц                        50

Напряжение, В                   220

Для промывки водой всасывающего мата

1

5.2 Потребность в технологической оснастке, инструменте, инвентаре и приспособлениях приведена в таблице 4.

Таблица 4 - Ведомость технологической оснастки, инструмента, инвентаря и приспособлений

№ п/п

Наименование

Тип, марка

Техническая характеристика

Назначение

Кол. на 1 звено

1

2

3

4

5

6

1

Контейнер-бункер

ТУ МГИ

Габаритные размеры, мм 312´1308´1000

Масса, кг                           490

Емкость, м3                       1

Подача бетонной смеси

3

2 РСФСР 35-68

2

Тележка на пневмоходу

ТУ 400-2-СКБ- 13-73

Габаритные размеры, мм 1250´710´950

Масса, кг                           57 Грузоподъемность, кг    200

Емкость кузова, л            120

Подача бетонной смеси к месту укладки

3

№ 4243/П

СКВ Мосстрой Главмосстроя

3

Направляющая

Фирма ТRЕМIХ или ГОСТ 3262-75*

Габаритные размеры, мм 100´50´6000

Масса, кг                           36

Для поддерживания поверхностного вибратора на заданном уровне

4

4

Опора для направляющей

- « -

Высота, мм                       350

Диаметр, мм                     35

Масса, кг                           1,4

Для крепления направляющей

12

5

Шланги:

- « -

Длина, мм                          16600

Диаметр, мм                     25

Масса, кг                           15

Для поступления воды в бак вакуумного насоса

2

Приемочный рукав

Выпускной шланг

Длина, мм                          5000

Диаметр, мм                     32

Для отвода воды из бака вакуумного насоса

1

6

Фильтрующее полотно

- « -

Габаритные размеры, мм 1200´3800

Масса, кг                           2,7

Для фильтрации удаляемой из бетона воды

5

7

Промывочный бак

DRK

Габаритные размеры, мм 2000´600´500

Масса, кг                           30

Емкость, л                         600

Для промывки фильтрующего полотна

1

8

Аутригер И2 к поверхностному вибратору

SМ 40

Габаритные размеры, мм 400´300´50

Масса, кг                           21

Регулируется размер по высоте от низа поверхностного вибратора в пределах от 125 мм до 250 мм

Для опирания поверхностного вибратора на направляющие

2

9

Выравнивающий диск к бетоноотделочной машине G 740Е

Фирма ТRЕМIХ

Диаметр, мм                     765

Масса, кг                           10

Для затирки поверхности бетона

2

10.

Выравнивающий диск к бетоноотделочной машине G-1000Е

Фирма ТRЕМIХ

Диаметр, мм 1000

Масса, кг                           12

Для затирки поверхности бетона

1

11

Ножи к бетоноотделочной машине G 740Е

Фирма ТRЕМIХ

 

Для заглаживания поверхности пола

4

12

Ножи к бетоноотделочной машине G-1000Е

Фирма ТRЕМIХ

 

Для заглаживания поверхности пола

4

13

Молоток плотничный

тип МПЛ

Габаритные размеры, мм 300´132´30

Масса, кг                           0,8

Забивка гвоздей

2

ГОСТ 11042-90

14

Кувалда кузнечная продольная остроносая

ГОСТ 11402-75*

Габаритные размеры, мм 500´57´167

Масса, кг                           3

Обивка шлака и окалины, при забивке костылей и дюбелей

1

15

Ножовка по дереву широкая

ТУ 14-1-302-72

Габаритные размеры, мм 450´115´50

Масса, кг                           0,5

- « -

1

16

Нивелир НТ со штативом и рейкой

ГОСТ 10528-90* ГОСТ 11897-94*

-

Контроль установки направляющих реек по высоте

1

17

Лопата подборочная

ЛП-2

Габаритные размеры, мм 1550´240

Масса, кг                           2,2

Укладка и разравнивание бетонной смеси

3

18

Гладилка ленточная

ГЛ

Габаритные размеры, мм 300´100´71

Масса, кг                           0,45

Заглаживание поверхности бетона

2

19

Гребок для бетонных работ

ТУ 22-4945-81

Габаритные размеры, мм 2000´200´150

Масса, кг                           2

Разравнивание бетонной смеси

2

20

Топор плотничный

А-2

Габаритные размеры, мм 592´100´150

Масса, кг                           1,7

Подгонка и крепление щитов опалубки

2

ГОСТ 18578-89

21

Канат капроновый

Р 50534-93

Длина, мм                          5000

Перемещение вибробалки

1

22

Щетка обойная

Т-06

Масса, кг                           0,19

Очистка отсасывающего мата

2

23

Уровень строительный

УС2-300

Габаритные размеры, мм 300´22´40

Масса, кг                           0,22

Контроль установки направляющих реек в горизонтальной плоскости

1

ГОСТ 9416-83

24

Рулетка металлическая

Р3-30

Ø 100´20

Масса, кг                           0,35

Для линейных измерений при установке направляющих реек

1

ГОСТ 7502-98

25

Каска строительная

ГОСТ 12.4.087-84

 

Защита головы от удара

1

26

Перчатки диэлектрические

ТУ 38-105977-76

 

Защита от поражения электрическим током

5 пар

27

Сапоги резиновые

ГОСТ 13385-78*

 

Для защиты от поражения электрическим током

 

(Измененная редакция, Изм. № 1).

6 Технико-экономические показатели

6.1 Работы по устройству полов выполняет бригада в составе 5 человек:

бетонщик 5 разряда - 1

бетонщик 4 разряда - 3

бетонщик 3 разряда - 3

6.2 Нормы времени по всем операциям приняты в соответствии с нормами, разработанными НИС по общестроительным работам промышленного строительства 5-2-78 и хронометражными наблюдениями на строительстве завода «Твердых сплавов».

6.3 Установка направляющих, разметка основания, установка маяков производится в день, предшествующий укладке бетона.

6.4 Календарный график производства работ, составленный на устройство 180 м2 полов, приведен в таблице 5.

6.5 Технико-экономические показатели по устройству полов методом вакуумирования:

- производительность 1 человека в час, в м2                           - 22,5

- трудозатраты на 1 м2 пола, чел.-час                                       - 0,26


Таблица 5 - График производства работ на устройство полов толщиной 200 мм из бетона В 15


Перечень нормативно-технической литературы.

1. СНиП 3.01.01-85* «Организация строительного производства».

2. СНиП 3.03.01-87 «Несущие и ограждающие конструкции».

3. СНиП 12-03-2001 «Безопасность труда в строительстве. Часть 1. Общие требования».

(Измененная редакция, Изм. № 1).

4. СНиП III-4-80* «Техника безопасности в строительстве».

5. СНиП 3.04.01-87 «Изоляционные и отделочные покрытия».

6. «Правила эксплуатации электроустановок потребителей», Главгосэнергонадзор России, 1992 г.

7. «Межотраслевые правила по охране труда (правила безопасности) при эксплуатации электроустановок»

ПОТ РМ-016-2001

РД 153-34.0-03.150-00

(Измененная редакция, Изм. № 1).

8. ГОСТ 7473-94 «Смеси бетонные. Технические условия».

9. ГОСТ 8267-93 «Щебень и гравий из плотных горных пород для строительных работ. Технические условия».

10. ГОСТ 8736-93 «Песок для строительных работ. Технические условия».

11. ГОСТ 10178-85 «Портландцемент и шлакопортландцемент. Технические условия».

12. ГОСТ 10181-2000 «Смеси бетонные. Методы определения удобоукладываемости».

(Измененная редакция, Изм. № 1).

13. ГОСТ 18105-86* «Бетоны. Правила контроля прочности».




Яндекс цитирования



   Copyright © 2007-2026,  www.tehlit.ru.

[ ѓосты, стандарты, нормативы, инструкции, правила, строительные нормы ]