//
ТехЛит.ру
- крупнейшая бесплатная электронная интернет библиотека для "технически умных" людей.
WWW.TEHLIT.RU - ТЕХНИЧЕСКАЯ ЛИТЕРАТУРА

:: Алготрейдинг::


АЛГОТРЕЙДИНГ
шаг за шагом
с нуля по урокам!

Торговые роботы на PYTHON, BackTrader,
Pandas, Pine Script для TradingView. Связка с брокерами, телеграм и легкими приложениями.


открытое акционерное общество

Проектно-конструкторский и технологический институт промышленного строительства

ОАО ПКТИпромстрой

УТВЕРЖДАЮ

Генеральный директор, к.т.н.

____________ С.Ю. Едличка

«___» _____________ 2001 г.

ТЕХНОЛОГИЧЕСКАЯ КАРТА
на устройство подвесных потолков
из плит типа
«Акмигран»

8-01-ТК

Главный инженер

__________ А.В. Колобов

Зам. генерального директора, к.т.н.

__________ В.В. Шахпаронов

Начальник отдела

__________ Б.И. Бычковский

2001

Технологическая карта на устройство подвесных потолков из плит типа «Акмигран» предназначена для производителей работ, мастеров и бригадиров, работников служб комплектации и технического надзора, а также инженерно-технических работников строительных и проектных организаций.

При разработке «Технологической карты на устройство подвесных потолков из плит типа «Акмигран» учтен опыт ряда строительных организаций Московского региона.

В работе рассмотрены декоративные подвесные потолки на металлическом каркасе с лицевыми элементами типа «Акмигран».

Работа выполнена сотрудниками ОАО ПКТИпромстрой в составе:

Стронгин И.Я. - ответственный исполнитель;

Воинова Е.А., Савина О. - компьютерная обработка и графика;

Ярымов Ю. - технологическое сопровождение разработки;

Бычковский Б. - техническое руководство, корректура и нормоконтроль;

Шахпаронов В.В., к.н. - научно-методическое руководство и редактирование;

Едличка С., к.т.н., заслуженный строитель РФ - общее руководство разработкой технологических карт.

Авторы будут признательны за предложения и возможные замечания по составу и содержанию настоящей работы.

Контактный телефон: (095) 214-36-49. Факс - (095) 214-95-53

E-mail: pkti@rinet/ru

www/rinet/ru/-pkti

СОДЕРЖАНИЕ

1 Область применения

1.1 Областью применения подвесных потолков типа «Акмигран» являются здания различного назначения: административные, культурно-бытовые, общеобразовательные, производственные с относительной влажностью в помещениях 60 - 70 % и температурой от 5 °С до 30 °С.

Они используются как декоративные, так и в виде акустических элементов помещений, ограждающих надпотолочное пространство, в котором размещаются различные инженерные сети и коммуникации для кондиционирования воздуха, электроосветительных и слаботочных устройств и др., и повышающих комфортность помещений.

1.2 В настоящей технологической карте рассмотрены вопросы устройства декоративных подвесных потолков на металлическом каркасе с лицевыми элементами из плит «Акмигран»

1.3 Декоративные плиты подвесного потолка «Акмигран» с отделанной лицевой поверхностью изготавливают из минеральной гранулированной ваты, крахмального связующего с гидрофобизирующими, антисептическими и другими добавками. Габаритные размеры плит подвесного потолка, мм: длина - 300, ширина - 300 либо 250, толщина - 18. Масса каждой плиты - 0,7 кг. Масса одного квадратного метра подвесного потолка из плит «Акмигран» без учета выпусков составляет 10,3 кг.

1.4 Конструкция подвесного потолка, состоящего из «черного» и «чистого» каркаса с лицевыми элементами из плит типа «Акмигран», показана на рисунке 1. Расстояние от горизонтальных стержней стального каркаса до уровня «чистого» потолка в зависимости от конструктивного решения составляет 160 - 320 мм или 80 - 150 мм.

«Черный» каркас выполняется из вертикальных выпусков из перекрытия и горизонтальных стальных стержней или элементов уголкового профиля из стали ВСт3, приваренных между собой. Выпуска, укладываемые при монтаже плит перекрытий, выполнены из круглой арматурной стали. Длина выпусков зависит от высоты надпотолочного пространства.

«Чистый» каркас состоит из подвесок с крепежными деталями и направляющих алюминиевых профилей, в которые вставляются и передвигаются до проектного положения плиты подвесного потолка.

1 - железобетонная плита перекрытия; 2 - выпуск арматуры из перекрытия; 3 - горизонтальный стержень стального каркаса; 4 - соединительная накладка; 5 - направляющая; 6 - наездник; 7 - подвеска; 8 - скоба подвески; 9 - шпонка; 10 - болтовое соединение; 11 - плита «Акмигран»; 12 - гребенка.

Рисунок 1 - Конструктивная схема подвесного потолка с лицевыми элементами из плит «Акмигран»

Конструкция подвесных потолков из плит «Акмигран» разработана институтом «Моспроект-2».

1.5 Крепление направляющей из алюминиевого профиля к горизонтальным стержням «черного» каркаса производится при помощи подвески, изготовленной из оцинкованной тонколистовой стали по ГОСТ 14918-80*.

1.6 Акустические плиты «Акмигран» между собой соединяются в процессе монтажа при помощи фибровых шпонок. Опирание плит по контуру помещения производят на металлическую погонажную деталь (уголок).

1.7 Небольшие массы и размеры конструктивных элементов подвесных потолков, позволяют осуществлять монтажные работы вручную.

1.8 Конструктивное решение подвесного потолка позволяет вести монтаж плит снизу и снимать отдельные элементы на любом участке потолка при ремонте проводок, установке и замене светильников.

2 Технология и организация выполнения работ

2.1 Подготовительные работы

2.1.1 До начала монтажа подвесного потолка должны быть закончены отделочные работы, связанные с мокрыми процессами (штукатурные, устройство цементных стяжек и др.) с составлением, при необходимости, актов на скрытые работы.

2.1.2 Перед монтажом подвесного потолка выполняются следующие работы:

- ремонт железобетонных плит перекрытия (при необходимости);

- нанесение на металлические балки огнезащитной штукатурки;

- покрытие суриком за два раза всех металлических неоцинкованных деталей;

- разметка помещения и вынесение отметок подвесного потолка;

- закрепление осей помещения и линий подвесок каркаса подвесного потолка;

- разметка мест установки светильников и др.;

- сортировка плит подвесного потолка;

- сверление и прирезка отверстий в плитах подвесного потолка.

2.1.3 Помещения перед монтажом подвесного потолка очищаются от строительного мусора. При размещении под перекрытием систем отопления, водопровода и канализации трубопроводы до монтажа подвесного потолка должны быть спрессованы.

2.1.4 Перед монтажом плит подвесного потолка температурные и влажностные условия в помещении должны соответствовать эксплуатационным. В зимний период помещения, где ведется монтаж подвесных потолков, должны обязательно отапливаться. Температура воздуха должна быть не ниже +10 °С, а относительная влажность не выше 70 %.

При другом температурно-влажностном режиме плиты «Акмигран» теряют свои физические характеристики и применению не подлежат.

Примечание: В увлажненных помещениях плиты «Акмигран» разбухают и выпучиваются. В пересушенных помещениях - ссыхаются и коробятся.

2.1.5 Железобетонные конструкции перекрытий и элементы каркасов, которые просматриваются через вентиляционные потолочные решетки и другие отверстия в подвесных потолках, заранее окрашиваются в цвета, согласованные с авторским надзором.

2.1.6 Готовность помещений к монтажу конструкций подвесного потолка определяется комиссией, назначенной руководством управления, с составлением акта готовности.

2.1.7 Для каждой работы подбирается требуемое оборудование, инструмент, приспособления, инвентарь, оснастка и др. в соответствии с рекомендациями, изложенными в таблице 1.

Таблица 1 - Способы выполнения и требуемые инструмент, приспособления, инвентарь и оснастка для выполнения подготовительных работ

Наименование работ и способы их выполнения

Наименование оборудования, инструмента, приспособлений, инвентаря, оснастки и др.

Разметка осей помещения

Теодолит

Вынесение отметок и разметка линий «чистого» потолка, а также низа несущих профилей на стены и колонны

Нивелир, водяной уровень, разметочный шнур, мел или краска

Разметка взаимно перпендикулярных осевых линий на стенах, углах, колоннах, выступающих частях помещений (работу производят сразу во всех помещениях)

Теодолит - при большой площади помещения. Деревянные угольники и капроновые нити - при малой площади помещения

Закрепление осей помещения и линий подвесок каркаса подвесного потолка

Проволока или капроновая нить (натяжение по размотке)

Разметка мест установки светильников, анемостатов и т.д., выявление размеров фризовых плит

Проволока или капроновая нить (те же, что и для закрепления осей помещения и линий подвесок каркаса подвесного потолка)

Сортировка плит по размеру, цвету, внешнему виду лицевой поверхности.

Верстак, шаблон, образцы плит разных цветов и разной фактуры

Сверление и прорезка предусмотренных проектом отверстий в плитах подвесного потолка для установки осветительной арматуры и вентиляционных решеток

Электродрель, пила

2.2 Технология производства работ

2.2.1 Монтаж подвесных потолков включает следующие работы:

- устройство несущего каркаса;

- установка подвесок и направляющих;

- установка алюминиевого уголка на стенах помещения;

- крепление подвесок;

- крепление подвесок;

- устройство лицевой поверхности подвесного потолка.

Таблица 2 - Способы выполнения и требуемое оборудование, инструмент, приспособления, инвентарь и оснастка для монтажа подвесных потолков

Наименование работ и способы их выполнения

Наименование оборудования, инструмента, приспособлений, инвентаря, оснастки и др.

1

2

1 Устройство несущего каркаса

Приварка к выпускам арматуры горизонтальных стержней несущего каркаса и его выверка

Электросварочный аппарат, водяной уровень

Окраска суриком элементов несущего каркаса

Малярные кисти, сурик

Разметка горизонтальных стержней для установки подвесок

Водяной уровень, малярные кисти, мел

2 Установка подвесок и направляющих

Установка подвесок

 

Установка направляющих

 

Резка направляющих (производится при необходимости наращивания)

Ножницы

Наращивание направляющих при помощи стыковых накладок (производить при недостаточной длине направляющих)

Плоскогубцы

Насадка наездников на верхнюю полку алюминиевых направляющих

 

Завод нижних концов подвесок под наездник

 

Выверка направляющих

Водяной уровень, мел

Окончательное закрепление подвесок на направляющих

Плоскогубцы

3 Установка алюминиевого уголка на стенах помещения

Разметка отверстий в стенах для деревянных пробок

Водяной уровень, рулетка, мел, краска

Сверление отверстий в стенах для деревянных пробок

Электродрель, перфоратор

Установка деревянных пробок в стене

Алебастровый раствор, молоток

Сверление алюминиевого уголка (отверстия под гвозди)

Электродрель

Установка алюминиевого уголка СПА 2062 к стене для опирания фризовых плит

Молоток, гвозди, уровень

4 Крепление подвесок

Крепление подвесок* к стальному каркасу (к горизонтальному арматурному стержню)

Плоскогубцы

Крепление двух подвесок** (к горизонтальному арматурному стержню и к направляющей)

Плоскогубцы, гаечные ключи

5 Устройство лицевой поверхности подвесного потолка

Укладка рядовых плит (их заводят пазами направляющих, начиная с конца профиля). Вставленные плиты передвигают поочередно по направляющим, заполняя ряд между профилями

Водяной уровень

Установка шпонок в паз перпендикулярно направляющим каждой плиты

Киянка

Сплачивание плит подвесного потолка

Киянка

Разметка и резка фризовых плит под размер

Метр, угольник, мел, пила

Укладка фризовых плит (одна сторона укладывается на направляющую, а обрезанная сторона на уголок)

Водяной уровень

Примечания.

* При расстоянии 80 - 150 мм от уровня «чистого» потолка до горизонтальных стержней используется одна деталь - подвеска. Подвеска загибается.

** При расстоянии 160 - 300 мм используются две детали - подвеска и скоба подвески, крепящиеся между собой при помощи болтового соединения. Скоба подвески загибается.

2.2.3 Схема крепления алюминиевых направляющих к горизонтальным стрежням каркаса приведена на рисунке 2.

На рисунке 3 показаны детали подвесного потолка с размерами.

2.2.4 Последовательность монтажа элементов подвесного потолка в ячейках здания размерами в плане 6´6 м, графически показанная на рисунке 4, включает следующие операции:

- проверку расположения выпусков из перекрытия в первой ячейке;

- приварку во второй ячейке здания размерами 6´6 м горизонтальных стержней и их окраска, а также окраску выпусков из перекрытия суриком за два раза;

- установку в третьей ячейке здания алюминиевых направляющих на подвесках;

- установку в четвертой ячейке помещения алюминиевого уголка на стенах (при необходимости);

- крепление подвесок (окончательное) к стальному каркасу в пятой ячейке;

- устройство лицевой поверхности подвесного потолка в шестой ячейке.

2.2.5 При устройстве подвесного потолка в первую очередь укладываются рядовые плиты, а во вторую - фризовые плиты. Каждая фибровая шпонка, служащая для уплотнения поперечных швов рядовых плит «Акмигран», должна опираться обоими концами на полки пазов двух смежных рядовых плит.

а) при помощи одной подвески; б) при помощи подвески и скобы подвески;

1 - горизонтальный стержень стального каркаса; 2 - подвеска; 3 - скоба подвески; 4 - болтовое соединение; 5 - наездник; 6 - алюминиевая направляющая.

Рисунок 2 - Схемы крепления алюминиевых направляющих при устройстве подвесных потолков

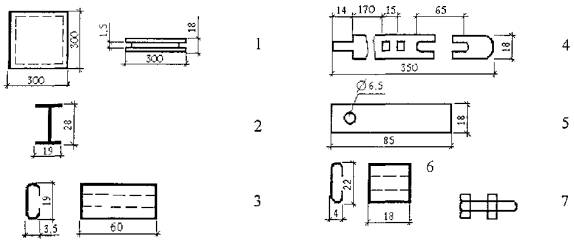
1 - плита подвесного потолка «Акмигран»; 2 - алюминиевая направляющая; 3 - соединительная накладка; 4 - подвеска; 5 - скоба подвески; 6 - наездник (соединительная скоба); 7 - болт с гайкой.

Рисунок 3 - Детали подвесного потолка

I - схема расположения выпусков арматуры из перекрытия; II - приварка горизонтальных стержней и окраска их, а также выпусков; III - установка алюминиевых направляющих на подвесках (через 300 мм); iv - установка алюминиевого уголка на стенах (при необходимости); V - крепление подвесок (окончательное) к стальному каркасу; VI - устройство лицевой поверхности подвесного потолка.

Рисунок 4 - Схема последовательности монтажа элементов подвесного потолка из плит типа «Акмигран» в ячейках здания размерами в плане 6´6 м

2.2.6 При нестандартных размерах крайних фризовых плит необходимо произвести их обрезку без повреждения кромок и лицевой поверхности.

2.2.7 В качестве рабочего места для монтажников и облицовщиков при устройстве подвесных потолков используются, в основном, инвентарные подмости, леса или вышки согласно принятым решениям ППР.

2.2.8 Работы по монтажу подвесных потолков на металлическом каркасе с лицевыми плитами «Акмигран» осуществляются поэтажно или посекционно захватками, определяемыми проектом производства работ.

2.3 Транспортирование и складирование изделий и материалов

2.3.1 Все элементы подвесных потолков должны поставляться на строительство комплектно, в упаковке, исключающей возможность их деформации и повреждения окраски.

2.3.2 Транспортирование плит производится автотранспортом с предохранением их от увлажнения и механических повреждений.

2.3.3 Алюминиевые направляющие длиной 6 м транспортируются в пакетах, которые стягивают металлическими лентами для предохранения от деформаций, или в специальных контейнерах.

2.3.4 Плиты подвесного потолка «Акмигран» должны храниться в закрытых отапливаемых помещениях при относительной влажности воздуха не более 70 % на стеллажах стопками в ящиках высотой не более 1,5 м с прокладками из эластичных материалов.

2.3.5 Расстояние зоны складирования элементов подвесного потолка до наиболее удаленного места производства работ по устройству потолка рационально назначить не более 20 м. Запас материалов должен полностью обеспечивать участок захватки.

3 Требования к качеству и приемке работ

3.1 Контроль качества устройства подвесных потолков осуществляется специалистами или специальными службами, входящими в состав строительных организаций или привлекаемыми со стороны, и оснащенными техническими средствами, обеспечивающими необходимую достоверность и полноту контроля.

3.2 Качество работ при устройстве подвесных потолков обеспечивается производственным контролем, который включает входной контроль рабочей документации, конструкций, изделий и материалов, операционный контроль отдельных строительных процессов и производственных операций и приемочный контроль устройства подвесных потолков.

3.3 Производственный контроль технологических операций устройства подвесных потолков выполняется с целью обеспечения нормативного уровня качества подвесных потолков и повышения их надежности.

3.4 При входном контроле рабочей документации должна производиться проверка ее комплектности и достаточности содержащейся в ней технической информации для устройства подвесных потолков.

При входном контроле поставляемых элементов подвесного потолка, материалов и изделий, используемых при устройстве подвесных потолков, внешним осмотром определяется соответствие требованиям стандартов и других нормативных документов и рабочей документации, а также наличие и содержание паспортов, сертификатов и других сопроводительных документов.

3.5 Внешний вид плит «Акмигран» должен соответствовать эталонам, утвержденным в установленном порядке. Величина и количество допускаемых дефектов внешнего вида плит приведены в таблице 3.

Таблица 3 - Допускаемые дефекты внешнего вида плит подвесного потолка

№ п/п

Дефекты плит

Норма дефектов

1

Околы лицевой стороны углов, ребер

Не допускаются

2

Трещины

Допускаются фактурные трещины шириной 5 мм, глубиной 4 мм

3

Жировые пятна

Не допускаются

3.6 Плиты должны иметь правильную прямоугольную форму и ровную лицевую поверхность. Лицевая поверхность плит «Акмигран» должна быть пористой, равномерно окрашенной, матовой. Торцевые и тыльные стороны плит во избежание выкрашивания должны быть окрашены.

Размеры плит проверяются по шаблону. Допускаемые отклонения от размеров плит подвесного потолка приведены в таблице 4.

Таблица 4 - Величина допускаемых отклонений плит подвесного потолка

Наименование размера

Величина допускаемых отклонений, мм

Длина

±0,4

Ширина

±0,4

Толщина

±0,3

Разность длин диагоналей

0,6

Отклонение лицевой поверхности от плоскости

0,5

3.7 По физико-механическим показателям плиты должны соответствовать требованиям, приведенным в таблице 5.

Таблица 5 - Физико-механические показатели плит подвесного потолка

Наименование показателей

Величина показателей

1 Влажность плит не более, % по массе

1,5

2 Объемная масса кг/м3, не более

350 - 450

3 Предел прочности при изгибе кгс/см2, не менее

9 - 13

3.8 Алюминиевые направляющие поставляются на стройку длиной 6 м. Они не должны иметь искривлений более 0,5 мм на 1 м и скрутку более 1° на 1 м.

Подвески направляющих, соединительные накладки, наездники, гребенки должны изготавливаться из оцинкованной тонколистовой стали по ГОСТ 14918-80*.

3.9 Операционный контроль правильности разметки взаимно перпендикулярных осевых линий помещений, разметки на перекрытиях мест установки выпусков арматуры, вынесения отметок и разметки линий «чистого» потолка, разметки мест установки светильников, анемостатов и др. следует проводить в процессе производства работ и обеспечивать своевременное выявление дефектов и принятие мер по их устранению и предупреждению. При операционном контроле проверяется соблюдение технологии выполнения всех процессов и операций по устройству подвесных потолков, а также соответствие выполняемых работ рабочим чертежам, строительным нормам, правилам и стандартам, технологическим картам. Результат операционного контроля должен фиксироваться в журнале работ.

3.10 Скрытые работы подлежат освидетельствованию с составлением акта по форме, приведенной в приложении 6* СНиП 3.01.01-85*.

3.11 При приемочном контроле проверяется качество устройства подвесных потолков.

3.12 Контроль качества работ по устройству подвесных потолков должен производиться на всех этапах их изготовления, а также по окончании устройства подвесных потолков.

Контроль осуществляется производителем работ, представителями авторского надзора проектной организации и технического надзора заказчика.

Контрольные операции, проводимые при устройстве подвесных потолков, приведены в таблице 6.

3.14 Горизонтальность лицевой поверхности смонтированного подвесного потолка проверяется двухметровой контрольной рейкой. Допускается отклонение не более 2 мм на длину контрольной рейки.

Искривление швов между плитами допускается не более 1 мм на 1 м. Перепад высот между двумя смежными плитами допускается не более 0,5 мм, а на один метр не более 1 мм.

Потолок должен быть однотонным. На поверхности плит потолка не должно быть пятен, расслоений, околов кромок, разнотонности, а также зазоров в местах сопряжений плит с колоннами, светильниками, вентиляционными решетками и т.п.


Таблица 6 - Перечень технологических процессов, подлежащих обязательному контролю при устройстве подвесных потолков

Технологический процесс

Ответственный за выполнение работ

Вид контроля

Содержание контроля

Метод и средства контроля

Время контроля

Контролирующее лицо

Документация

Составитель документа

1 Подготовительные работы

Вынесение отметок и разметка линий «чистого» потолка

Мастер

Операционный

Проверка соответствия отметок проекту

Нивелир, водяной уровень

До завершения подготовительных работ

Мастер

Акт приемки отметок и разметок линий «чистого» потолка

Мастер

Закрепление осей помещения и линий подвесок каркаса и подвесного потолка

Мастер

Операционный

Проверка закрепления и натяжения проволоки или капронового шнура

Визуально

До завершения подготовительных работ

Мастер

Акт приемки закрепления осей помещения и линий подвесок

Мастер

Сортировка плит по размеру

Бригадир

Входной

Проверка размеров плит

Шаблон, верстак

До завершения подготовительных работ

Бригадир

Акт на приемку плит по размеру, цвету, внешнему виду лицевой поверхности

Бригадир

Сортировка плит по цвету, внешнему виду лицевой поверхности

Бригадир

Входной

Внешний осмотр плит

Визуально по сравнению с образцами плит разных цветов и фактуры

До завершения подготовительных работ

Бригадир

Бригадир

Сверление и прорезка отверстий в плитах

Бригадир

Операционный

Контроль места расположения отверстий и их размеров

Метр, линейка

До завершения подготовительных работ

Бригадир

Бригадир

2 Устройство несущего каркаса подвесного потолка

Приварка к выпускам арматуры горизонтальных стержней несущего каркаса и его выверка

Бригадир

Операционный

Контроль качества сварки и горизонтальности стержней несущего каркаса

Нивелир, водяной уровень

В процессе работ

Бригадир

Журнал производства работ

Бригадир

Окраска суриком элементов несущего каркаса

Бригадир

Операционный

Контроль качества окраски

Визуально

В процессе работы

Бригадир

Журнал производства работ

Бригадир

Разметка горизонтальных стержней для установки подвесок

Бригадир

Операционный

Контроль правильности разметки

Визуально и водяной уровень

В процессе работы

Бригадир

Журнал производства работ

Бригадир

3 Установка подвесок и направляющих

Установка подвесок

Бригадир

Операционный

Контроль правильности установки подвесок

Визуально

В процессе работы

Бригадир

Журнал производства работ

Бригадир

Установка алюминиевых направляющих

Бригадир

Операционный

Контроль правильности установки алюминиевых направляющих

Визуально

В процессе работы

Бригадир

Журнал производства работ

Бригадир

Выверка алюминиевых направляющих

Мастер

Операционный

Контроль горизонтальности положения алюминиевых направляющих. Фиксация расстояний между алюминиевыми направляющими

Водяной уровень.

Установка гребенок через 1,5 м по длине направляющих

В процессе работы

Мастер

Журнал производства работ

Мастер

4 Установка алюминиевого уголка на стенах помещения

Крепление металлического уголка СПА-2062 к стене для опирания фризовых плит

Мастер

Операционный

Контроль правильности крепления уголка

Водяной уровень

В процессе работы

Мастер

Журнал производства работ

Мастер

5 Крепление подвесок

Крепление подвесок

Бригадир

Операционный

Контроль крепления подвесок

Визуально

В процессе работы

Бригадир

Журнал производства работ

Бригадир

6 Устройство лицевой поверхности подвесного потолка

Укладка рядовых и фризовых плит

Начальник участка, мастер

Приемочный

Контроль качества готового подвесного потолка (горизонтальность лицевой поверхности подвесного потолка, смещение плит подвесного потолка по вертикали и в ряду, искривление швов между плитами, перепад высот между смежными плитами, тональность плит).

Визуально, водяной уровень, линейка

После завершения устройства подвесного потолка в помещении

Мастер

Акт приемки готового подвесного потолка

Начальник участка, мастер, представители заказчика и проектной организации


4 Требования техники безопасности и охраны труда, экологической и пожарной безопасности

4.1 Монтаж подвесных потолков следует выполнять с соблюдением требований охраны труда и техники безопасности в соответствии со СНиП 12-03-01, СНиП III-4-80* и специальных указаний организаций, требования которых не должны противоречить нормативным документам.

4.2 Монтаж подвесных потолков приходится выполнять в помещениях внутри зданий в ограниченном пространстве - в стесненных условиях как по высоте, так и по габаритным размерам помещений в плане. Это требует особого внимания всех участников строительных работ.

4.3 Работы по монтажу подвесных потолков необходимо выполнять под руководством начальника участка, прораба, мастера, назначенных приказом. На них возлагается ответственность за выполнение мероприятий по технике безопасности и промсанитарии, охране труда, экологической и пожарной безопасности.

4.4 Персонал должен быть обучен безопасности труда в соответствии с ГОСТ 12.0.004-90.

4.5 При подготовке и производстве работ по монтажу подвесных потолков необходимо выполнять требования электробезопасности в соответствии со СНиП 12-03-01, требования выполнения электросварочных работ (сварку) в соответствии с ГОСТ 12.3.003-86*. Электрододержатели, применяемые при ручной дуговой электросварке металлическими электродами, должны соответствовать требованиям ГОСТ 14651-78*Е.

Пожарная безопасность на участках работ и рабочих местах должна обеспечиваться в соответствии с требованиями ГОСТ 12.1.004-91* и ППБ 01-93*.

4.6 Ручная дуговая электросварка металлическими электродами должна производиться с применением двух проводов, один из которых следует присоединить к электрододержателю, а другой (обратный) - к свариваемой детали (основанию), при этом зажим вторичной обмотки сварочного трансформатора, к которому присоединен обратный провод, должен быть заземлен (занулен).

4.7 К обслуживанию электросварочных установок допускаются специалисты, имеющие соответствующее удостоверение и не ниже II группы по электробезопасности.

4.8 Монтаж подвесных потолков осуществляется с лесов, подмостей, вышек. Средства подмащивания должны соответствовать требованиям СНиП 12-03-01, ГОСТ 24259-80 и ГОСТ 24258-88. Средства подмащивания должны иметь ровные рабочие настилы с зазором между досками не более 5 мм, а при расположении настила на высоте 3 м и более - ограждения и бортовые элементы.

4.9 Леса и подмости высотой до 4 м допускаются к эксплуатации только после их приемки производителем работ или мастером и регистрации в журнале работ, а выше 4 м - после приемки комиссией, назначенной руководителем строительно-монтажной организации, и оформления актом.

В местах подъема людей на леса и подмости должны быть плакаты с указанием величины и схемы размещения нагрузок.

Леса в процессе эксплуатации должны осматриваться прорабом или мастером не реже чем через каждые 10 дней.

Подъем рабочих на подмости допускается только по приставным лестницам. Приставные лестницы должны быть оборудованы нескользящими опорами и ставиться в рабочее положение под углом 70 - 75° к горизонтальной поверхности.

4.10 Включать в электросеть и отключать от нее электросварочные установки должны только электромонтеры.

4.11 Монтажные работы выполняют с применением ручного и механизированного инструмента. Ручной инструмент должен быть прочным, надежным и удобным, использовать инструмент нужно только по назначению.

4.12 Обрезку лицевых плит в пределах территории строительной площадки следует производить в специально отведенных местах, имеющих вытяжную вентиляцию, доступ к которым лицам, не участвующим в работе, запрещен. Обрезку лицевых плит необходимо производить в рукавицах и очках с небьющимися стеклами. При резке плит «Акмигран» следует пользоваться перчатками, очками, респираторами.

При попадании волокна минеральной ваты на открытые поверхности тела необходимо осторожно удалить его, не втирая в кожу.

Выводы электропроводов должны быть надежно изолированы при монтаже светильников в подвесных потолках во избежания поражения электротоком рабочих, занятых устройством подвесных потолков.

4.13 Экологическая безопасность выполнения работ по монтажу подвесных потолков должна быть обеспечена за счет контроля предельно допустимых концентраций веществ в воздухе рабочей зоны, а также уровня шума и вибрации на рабочих местах в соответствии в ГОСТ 12.1.003-83*, ГОСТ 12.1.005-88 и ГОСТ 12.1.012-90.

Контроль за соответствием гигиенических нормативов условий труда следует осуществлять при проведении аттестации рабочих мест по условиям труда в соответствии с Положением о порядке аттестации рабочих мест по условиям труда в строительстве и жилищно-коммунальном хозяйстве СП 12-133-2000.

4.14 При устройстве подвесных потолков должны быть соблюдены требования по предотвращению запыленности и загазованности воздуха, не следует накапливать много строительных отходов и мусора. Их не допускается при уборке сбрасывать с этажей зданий и сооружений без применения закрытых лотков и бункеров-накопителей.

5 Потребность в материально-технических ресурсах

5.1 Мелкоразмерные элементы «Акмигран» имеют небольшую массу, поэтому при устройстве подвесного потолка требуется небольшое количество относительно несложных машин. Ведомость потребных машин и механизмов приведена в таблице 7.

5.2 Потребные технологическая оснастка, инструмент, инвентарь и приспособления приведены в таблице 8.

Таблица 7 - Ведомость машин, механизмов и инструмента

№ п/п

Наименование машин, механизмов и инструмента

Тип, марка, ГОСТ

Техническая характеристика

Назначение

Количество на звено, бригаду, шт.

1

2

3

4

5

6

1

Трансформатор сварочный общепромышленного назначения

СТ-500 ГОСТ 95-77Е

Напряжение питания, В

380

Предназначен для питания сварочной дуги при сварке арматуры

1

Пределы регулирования сварочного тока, А

100 - 500

Мощность, кВт

50

Сварочный ток, А

100 - 500

Диаметр электрода, мм

3 - 8

Продолжительность включения, %

35

Размеры, мм:

 

длина

560

ширина

570

высота

700

Масса, кг

155

2

Машина ручная сверлильная электрическая

иэ-1202А

Максимальный диаметр сверла, мм

10

Предназначена для сверления отверстий в алюминиевых уголках, на которые опираются фризовые плиты

1

Частота вращения шпинделя под нагрузкой, с-1

15,7; 33,3

Электродвигатель - одно-фазовый, коллекторный

 

Мощность, Вт

420

Напряжение, В

220

Класс защиты

II

Габаритные размеры, мм:

 

длина

274

ширина

70

высота

157

Масса, кг

1,8

3

Перфоратор ручной электрический

ИЭ-4716

Диаметр бурения, мм

6 ... 22

Предназначен для бурения отверстий

1

Диаметр сверления, мм

до 9

Потребляемая мощность, Вт

430

Скорость бурения бетона прочностью 20 МПа буром 12 мм, мм/мин, не менее

145

Статическая сила нажатия, Н

40 - 50

Частота тока, Гц

50

Напряжение, В

220

Электродвигатель - коллекторный, однофазный

 

Габаритные размеры, мм:

 

длина

410

ширина

70

высота

185

Масса (без боковой рукоятки, съемного рабочего инструмента и токопроводящего кабеля), кг, не более

3,1

4

Пила ручная электрическая дисковая

ИЭ-5107А

Диаметр пильного диска, мм

200

Предназначена для распиловки древесины вдоль и поперек волокон для обрезки фризовых плит

1

Максимальная глубина пропила под углом 90°, мм

65

Частота вращения пилы, с-1

49

Угол наклона

45° ... 90°

Электродвигатель - однофазный, коллекторный

 

Мощность, Вт

1150

Напряжение, В

220

Частота тока, Гц

50

Класс защиты

II

Габаритные размеры, мм:

 

длина

360

ширина

310

высота

240

Масса, кг

6,3

5

Лобзик ручной электрический

иэ-5202Э

Наибольшая толщина распиливаемой древесины, мм:

60

Предназначен для прямой и фасонной резки древесины, древесностружечных плит, алюминия, листовой стали и других материалов

1

Число двойных ходов пильного полотна на холостом ходу, с-1

13 ... 45

Ход пильного полотна, мм:

26

Угол наклона пилки

0° ... 4

Электродвигатель - однофазный, коллекторный

 

Мощность, Вт

450

Напряжение, В

220

Частота тока, Гц

50

Класс защиты

II

Габаритные размеры, мм:

 

длина

230

ширина

72

высота

215

Масса, кг

2,25

Таблица 8 - Ведомость потребности в технологической оснастке, инструменте, инвентаре приспособлениях.

№ п/п

Наименование

Тип, марка, ГОСТ

Техническая характеристика

Назначение

Количество на звено, бригаду, шт.

1

2

3

4

5

6

1

Теодолит (с комплектом принадлежностей)

Т2 ГОСТ 10529-96

 

 

Предназначен для измерения горизонтальных и вертикальных углов (зенитных расстояний)

1

2

Нивелир (с комплектом принадлежностей)

Н-5КЛ ГОСТ 10528-90*

 

 

Предназначен для определения превышений методом геометрического нивелирования по вертикальным рейкам

1

3

Уровень гибкий водяной

 

Длина гибкого шланга, м

10

Предназначен для проверки горизонтальности направляющих и др. элементов

1

Масса, кг

1,6

4

Отвес стальной строительный

ОТ-200 ГОСТ 7948-80

Габаритные размеры, мм:

 

Предназначен для определения вертикальности строительных конструкций

1

высота

144

диаметр

18

Масса, кг

0,2

5

Рулетка

РС-10 ГОСТ 7502-98

Длина ленты, м

10

Предназначена для выполнения замеров при разметке положения конструкций

1

Ширина ленты, мм

10

Масса, кг

0,23

6

Метр складной металлический

 

Габаритные размеры в сложенном состоянии, мм

 

Предназначен для линейных измерений (для разметки плиток)

2

длина

100

ширина

10

толщина

1,4

Масса, кг

0,05

7

Линейка стальная

 

Длина, мм

400

Предназначена для линейных измерений (для разметки плиток)

 

8

Угольник металлический

 

Длина сторон, мм

500 и 240

Предназначен для разбивки осей

2

Масса, кг

0,48

9

Циркуль разметочный

 

Габаритные размеры, мм:

 

Предназначен для разметочных работ

1

длина

350

ширина

250

Масса, кг

0,48

10

Шнур разметочный в корпусе

ГОСТ 29231-91

Длина шнура, м

20

Предназначен для разметки прямых линий

1

11

Капроновая нить

 

 

 

Предназначена для разбивки осей

50 м

12

Проволока

 

 

 

Предназначена для разбивки осей

50 м

13

Гребенка

 

Длина, мм

2000

Предназначена для фиксации расстояния между направляющими

4

14

Рейка деревянная

 

Длина, мм

2000 - 2500

Предназначена для контроля уровня алюминиевых направляющих

1

15

Рейка контрольная

 

Габаритные размеры, мм:

 

Предназначена для проверки нижней плоскости плит подвесного потолка

1

длина

2000

ширина

30

толщина

80

Масса, кг

1,9

16

Рейка раздвижная

 

Высота замера, мм

2900

Предназначена для замера расстояния между полом и подвесным потолком

1

Масса, кг

2,1

17

Шаблон (для сортировки плит подвесного потолка)

 

 

 

Предназначен для проверки прямоугольности плит подвесного потолка

1

18

Ножницы

Тип 1 ГОСТ 7210-75*Е

Длина, мм

320

Предназначены для резки алюминиевых направляющих

2

Ширина, не менее, мм

13

Высота, мм

15

19

Плоскогубцы комбинированные

ГОСТ 7236-93

Длина, мм

180

Предназначены для крепления скоб-подвесок

2

20

Ключ гаечный торцовый

 

Размеры под шестигранник, мм:

 

Предназначен для соединения болтами подвески со скобой-подвеской

1

болта

 

гайки

 

21

Молоток плотницкий

МПА ГОСТ 11042-90

Габаритные размеры, мм:

 

Предназначен для монтажа каркасов

2

длина

300

ширина

12

высота

50

Масса, кг

0,8

22

Киянка прямоугольная

 

Габаритные размеры, мм:

 

Предназначена для сплачивания плит подвесного потолка

2

длина

350

ширина

60

высота

140

Масса, кг

0,05

23

Рамка ножовочная с полотном

Тип 2 ГОСТ 17270-71*Е

Габаритные размеры, мм:

 

Предназначена для резки алюминиевых направляющих

2

длина

440

ширина

32

высота

100

Масса, кг

0,8

24

Зубило слесарное

ГОСТ 7211-86*Е

Габаритные размеры, мм:

 

Предназначено для зачистки сварных швов

4

длина

250

ширина

30

высота

18

Масса, кг

0,63

25

Щетка стальная прямоугольная

ТУ 494-01-104-76

Габаритные размеры, мм:

 

Предназначены для зачистки сварных швов

2

длина

310

ширина

90

высота

56

Масса, кг

0,26

26

Кисть малярная

КФ-2 ГОСТ 10597-87*

Габаритные размеры, мм:

 

Предназначена для нанесения краски

2

длина

180

ширина

9

высота

25

27

Тележка ручная

 

Грузоподъемность, кг

250

Предназначена для транспортирования плит подвесного потолка на этаже

2

Масса, кг

78

28

Универсальные сборно-разборные подмости

 

Габаритные размеры, мм:

 

Предназначены для устройства рабочего места при устройстве подвесных потолков

2

длина

3100

ширина

1560

высота

 

29

Столик-подмости

251-00-00 УМОР Главмосстрой

 

 

Предназначен для использования в качестве рабочего места монтажника на высоте, установки ящика с плитами подвесного потолка

2

30

Верстак

 

Габаритные размеры, мм:

 

Предназначен для сортировки плит подвесного потолка

2

длина

1600

ширина

800

высота

700

31

Ящик

 

Вместимость плит подвесного потолка, шт.

30

Предназначен для укладки обрезанных плит подвесного потолка

15

5.2.1 Потребность в необходимых материалах и изделиях на 100 м2 подвесного потолка приведена в таблице 9.

Таблица 9 - Ведомость потребности в материалах и изделиях

№ п/п

Наименование материала

Ед. измерения

Количество

Техническая характеристика

Примечание

1

Направляющая

м

333

АД 31 Т1

Нормаль СПА-2020

2

Соединительная накладка

шт.

110

Сталь оцинкованная

ГОСТ 14918-80*

3

Подвеска

шт.

280

То же

То же

4

Скоба подвески

шт.

280

- « -

- « -

5

Скоба подвески

шт.

280

- « -

- « -

6

Гребенка

м

62

- « -

- « -

7

Наездник

шт.

280

- « -

- « -

8

Шпонка фибровая

шт.

1110

 

ГОСТ 14613-83*Е

9

Плита подвесного потолка «Акмигран»

шт.

1110

 

 

10

Горизонтальный стержень стального каркаса (арматурная сталь)

м

83

Æ 18 А 1

ГОСТ 2590-88*

11

Уголок алюминиевый

м

20

50´50

 

12

Болт с гайкой и пружинной шайбой

шт.

280

М6´20

ГОСТ 7798-70*

13

Краска (сурик железный)

кг

 

 

ГОСТ 8135-74

Примечание - Болты М6´20 с гайкой и пружинной шайбой используются при расстоянии от горизонтальных стрежней стального каркаса до уровня «чистого» потолка в 160 - 320 мм

6 Технико-экономические показатели

6.1 Затраты труда по отдельным операциям приняты в соответствии с данными, приведенными в «Карте трудовых процессов строительного производства на устройство подвесных потолков из плиток «Акмигран», разработанной ВНИПИ труда в строительстве Госстроя СССР, а также в «Операционно-технологической карте на устройство подвесных потолков с лицевыми элементами из плит «Акмигран», АГШ и гипсовыми декоративными литыми плитами ГР», разработанной ПКТИпромстрой и представленные в таблице 10.

Таблица 10 - Затраты труда по отдельным операциям на монтаж 10 м2 подвесных потолков из плит «Акмигран»

п/п

Наименование операции

Содержание операции

Продолжительность операции, мин.

Затраты труда, чел.-мин.

1

2

3

4

5

1 Сортировка плит подвесного потолка

1

Сортировка, проверка формы и размеров плит

Сортировка плит по цвету, проверка размеров и формы плит по шаблону

52

52

2

Обрезка плит

Укладка плит с разной длиной сторон на верстак, разметка по размерам и обрезка ножовкой

20

20

3

Укладка отобранных плит в ящики

Отобранные и обрезанные плиты укладываются в ящики (по 30 штук)

20

20

 

 

Итого на 10 м2 подвесного потолка

 

92

2 Разбивка осей направляющих профилей (2 рабочих)

4

Определение исходных точек и забивка штырей

Определение исходных точек производится с использованием двух угольников

7,5

15

5

Натягивание капроновой нити

По забитым штырям натягивают капроновую нить, которая служит основной осью

2

4

 

 

Итого на 10 м2 подвесного потолка

 

19

3 Подготовка деталей рабочего каркаса

6

Насадка «наездников»

На верхнюю полку алюминиевых направляющих производят насадку необходимого количества «наездников»

6

6

7

Крепление скоб-подвесок

Сгибание скобы-подвески под прямым углом, заводка конца скобы под наездник и загибание его плоскогубцами

33

33

 

 

Итого на 10 м2 подвесного потолка

 

39

4 Установка подвесок на несущий каркас (2 рабочих)

8

Навеска подвесок на стальной каркас

Навеска подвесок на продольные стержни несущего каркаса; загибание язычка под углом 90° при помощи плоскогубцев; огибание подвески вокруг стержня каркаса

7,5

15

9

Закрепление подвесок

Отогнутый язычок подвески вставляют в гнездо и загибают его книзу

14

28

 

 

Итого на 10 м2 подвесного потолка

 

43

5 Установка и предварительное закрепление направляющих (2 рабочих)

10

Обрезка направляющих

Разметка направляющих по длине и разрезка их ножовкой (на столике-подмостях)

2,5

5

11

Подвешивание направляющих

По осям и отметкам, вынесенным на стены, устанавливают и закрепляют на подвесках в проектном положении один направляющих профиль. Для этого соединяют болтами подвески со скобами-подвесками.

Все последующие направляющие профили устанавливают, соблюдая уровень с помощью рейки и фиксируя расстояние между направляющими с помощью гребенки (рабочее место столик-подмости)

63

126

12

Стыковка направляющих по длине

Стыковка алюминиевых направляющих по длине при помощи соединительных накладок

3

6

 

 

Итого на 10 м2 подвесного потолка

 

137

6 Выверка и окончательное закрепление алюминиевых направляющих (2 рабочих)

13

Выверка вертикальных отметок алюминиевых направляющих

Выверку соответствия вертикальных отметок алюминиевых направляющих проектным, вынесенным на стены, производят при помощи водяного уровня. Выверку начинают от крайней алюминиевой направляющей.

6

12

14

Выверка расстояний между алюминиевыми направляющими

Расстояния между алюминиевыми направляющими фиксируют с помощью гребенок, которые устанавливают через каждый метр по длине алюминиевых направляющих

4

8

15

Окончательное закрепление алюминиевых направляющих

Выверенные алюминиевые направляющие окончательно закрепляют, затягивая болтовые соединения торцовыми ключами

6

12

 

 

Итого на 10 м2 подвесного потолка

 

32

7 Укладка рядовых плит подвесного потолка (2 рабочих)

16

Укладка плит подвесного потолка между алюминиевыми направляющими

Плиты подвесного потолка заводят пазами между нижними полками алюминиевых направляющих

4,5

9

17

Установка шпонок

В пазах каждой плиты подвесного потолка устанавливают по две фибровые шпонки

3

6

18

Сплачивание плит подвесного потолка

Вставленные в пазы плит подвесного потолка шпонки подбивают киянками. Надвигают очередную плиту подвесного потолка к ранее уложенным. Сплачивают плиты подвесного потолка ударами киянки по бобышке.

3

6

19

Расчистка швов между плитами подвесного потолка

Расчищают швы между плитами подвесного потолка, где это необходимо

3

6

 

 

Итого на 10 м2 подвесного потолка

 

27

8 Укладка фризовых плит подвесного потолка (2 рабочих)

20

Установка алюминиевых уголков на стене (выполняют 2 рабочих), в т.ч.:

 

12

24

 

- разметка на стене линии низа подвесного потолка

На стене отбивают шнуром линии на уровне низа подвесного потолка.

1,5

3

 

- пробивка отверстий в стене

Шлямбуром пробивают отверстия в стене под деревянные пробки.

5

10

 

- установка в отверстия деревянных пробок

Подготавливают пробки и гипсовый раствор. Деревянные пробки забивают в отверстия, заполненные гипсовым раствором

1

2

 

- сверление отверстий в вертикальной полке алюминиевых уголков

Измерение расстояний между деревянными пробками и перенос этих размеров на алюминиевый уголок. В намеченных местах сверлят отверстия для гвоздей.

1,5

3

 

- установка и прибивка алюминиевых уголков гвоздями

Совмещение отверстий алюминиевых уголков с деревянными пробками в стенах. Прибивка алюминиевых уголков гвоздями к деревянным пробкам.

3

6

21

Определение величины и размера фризовых плит подвесного потолка (выполняет один рабочий)

Замер расстояния между алюминиевым уголком и алюминиевой направляющей. Перенос этих размеров на плиты подвесного потолка, маркировка их по порядку

20

20

22

Обрезка фризовых плит подвесного потолка по размерам (выполняет один рабочий)

Обрезка плит подвесного потолка соответственно сделанным замерам

20

20

23

Укладка фризовых плит подвесного потолка (выполняют 2 рабочих)

Укладка обрезанных плит подвесного потолка между крайней алюминиевой направляющей и алюминиевым уголком на стене. Установка шпонки и сплачивание плитки.

135

270

 

 

Итого на 10 м2 подвесного потолка

 

334

Всего на 10 м2 подвесного потолка:

 

рядовых плит подвесного потолка

389

фризовых плит подвесного потолка

696

6.2 Затраты труда на приварку горизонтальных стержней стального каркаса к выпускам арматуры приняты по данным «Операционно-технологической карты на устройство подвесных потолков с лицевыми элементами из плит типа «Акмигран», АГШ и гипсовыми декоративными литыми плитами ГР» в количестве двух минут на один сварной шов.

6.3 График производства работ на устройство подвесных потолков из плит «Акмигран» в трех ячейках здания размером 6´6 м общей площадью в 108 м2 представлен в таблице 11. Там же приведены принятые составы звеньев для выполнения работ по устройству подвесных потолков.

6.4 Технико-экономические показатели на устройство подвесного потолка приведены в таблице 12, как на 108 м2, так и на 100 м2.

6.5 Продолжительность устройства подвесного потолка в трех ячейках здания общей площадью 108 м2 составляет 35,68 часов или 4,46 смены.


Таблица 11 - График производства работ на устройство подвесных потолков из плит типа «Акмигран».

Измеритель продукции - 108 м2 подвесного потолка.

Продолжительность выполнения работ в трех ячейках здания общей площадью 108 м2 составляет 35,68 ч.


Таблица 12 - Технико-экономические показатели устройства подвесных потолков из плит «Акмигран» в трех ячейках зданий размерами 6´6 м общей площадью 108 м2

№ п/п

Наименование операции

Ед. измерения

Затраты

на 108 м2

на 100 м2

1

Затраты труда на подготовительные работы

чел.-ч

3,42

3,17

2

Затраты труда на устройство стального каркаса

чел.-ч

2,3

2,13

3

Затраты труда на установку алюминиевого уголка на стены помещения

чел.-ч

0,72

0,66

4

Разметка горизонтальных стержней стального каркаса. Установка подвесок.

чел.-ч

21,7

20,09

5

Монтаж алюминиевых направляющих и их выверка. Насадка «наездников»

чел.-ч

37,4

34,63

6

Сортировка плит подвесного потолка. Обрезка фризовых плит подвесного потолка.

чел.-ч

16,92

15,67

7

Укладка плит подвесного потолка в проектное положение:

чел.-ч

 

 

 

- рядовых

 

4,62

4,28

 

- фризовых

 

2,43

2,25

 

Всего

чел.-ч

89,51

82,88

7 Использованная научно-техническая литература

1 ВНИПИ труда в строительстве Госстроя СССР. Карты трудовых процессов строительного производства. Отделочные работы (выпуск 1). Шпатлевка стен. Устройство потолков. М., Стройиздат, 1982 г.

2 Всесоюзный научно-исследовательский и проектно-конструкторский институт механизированного и ручного инструмента, вибраторов и строительно-отделочных машин «ВНИИСМИ». Механизированный инструмент, отделочные машины и вибраторы. Каталог-справочник, Москва, «Машиностроение», 1993 г.

3 Мосстройкомитет, ПСО Моспромстрой, ПКТИпромстрой. Операционно-технологическая карта на устройство подвесных потолков с лицевыми элементами из плит типа «Акмигран» и гипсовыми декоративными плитами ГР. Москва, 1990 г.

4 Межотраслевые правила по охране труда (правила безопасности) при эксплуатации электроустановок, М., 2001 г.

5 ГОСТ 12.0.004-90 ССБТ. Организация обучения безопасности труда. Общие положения.

6 ГОСТ 12.1.003-83* Шум. Общие требования безопасности.

7 ГОСТ 12.1.004-91* ССБТ. Пожарная безопасность. Общие требования.

8 ГОСТ 12.1.005-88* ССБТ. Общие санитарно-гигиенические требования к воздуху рабочей зоны.

9 ГОСТ 12.1.012-90 ССБТ. Вибрационная безопасность. Общие требования.

10 ГОСТ 12.3.003-86* ССБТ. Работы электросварочные. Требования безопасности.

11 ГОСТ 95-77Е* Трансформаторы однофазные однопостовые для ручной дуговой сварки. Общие технические условия.

12 ГОСТ 2590-88* Прокат стальной горячекатаный круглый.

13 ГОСТ 10528-90* Нивелиры. Общие технические условия.

14 ГОСТ 10529-96 Теодолиты. Общие технические условия.

15 ГОСТ 10597-87* Кисти и щетки малярные. Технические условия.

16 ГОСТ 11042-90 Молотки стальные строительные. Технические условия.

17 ГОСТ 14613-83*Е Фибра. Технические условия.

18 ГОСТ 14651-78*Е Электрододержатели для ручной дуговой сварки. Технические условия.

19 ГОСТ 14918-80* Сталь тонколистовая оцинкованная с непрерывных линий. Технические условия.

20 ГОСТ 17270-71*Е Рамки ножовочные ручные. Технические условия.

21 ГОСТ 24258-88 Средства подмащивания. Общие технические условия.

22 ГОСТ 24259-80 Оснастка монтажная для временного закрепления и выверки конструкций зданий. Классификация и общие технические требования.

23 СНиП 3.01.01-85* Организация строительного производства.

24 СНиП III-4-80* Техника безопасности в строительстве.

25 СНиП 12-03-99 Безопасность труда в строительстве. Часть 1. Общие требования.

26 ППБ 01-93* Правила пожарной безопасности в Российской Федерации.

27 СП 12-133-2000 Безопасность труда в строительстве. Положение о порядке аттестации рабочих мест по условиям труда в строительстве и жилищно-коммунальном хозяйстве.

Технологическая карта не заменяет ППР. (см. СНиП 3.01.01-85*)




Яндекс цитирования



   Copyright © 2007-2026,  www.tehlit.ru.

[ ѓосты, стандарты, нормативы, инструкции, правила, строительные нормы ]