//
|
|
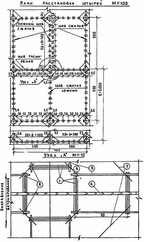
МИНИСТЕРСТВО ГРАЖДАНСКОЙ АВИАЦИИ ГОСУДАРСТВЕННЫЙ ПРОЕКТНО-ИЗЫСКАТЕЛЬСКИЙ ЛЕНИНГРАДСКИЙ ФИЛИАЛ РУКОВОДСТВО Ленинград 1987 г. В Руководстве содержатся основные требования к конструкции стыкового соединения плит жестких аэродромных покрытий изогнутыми штырями, а также требования и правила производства работ при строительстве покрытий с такими соединениями. В Руководстве приводятся также необходимые обобщенные данные о трудоемкости и расходе материалов при различных типах стыковых соединений и методика оценки технико-экономической эффективности использования изогнутых штырей в соединениях плит аэродромных покрытий. Руководство разработало на основе обобщения научных экспериментальных работ и производственного опыта применения этого типа стыковых соединений на объектах гражданской авиации в период 1974 - 1986 гг. с учетом требований действующих нормативных документов. Руководство предназначено для использования инженерно-техническими работниками при проектировании и строительстве цементобетонных аэродромных и дорожных покрытий. Руководство разработано сотрудниками Ленфилиала ГПИ и НИИ ГА Ленаэропроект ВТОРУШИНЫМ В.Н., ГАГАРИНЫМ Б.П., ПОПОВЫМ В.П., САВЕНКОМ Б.М., ШУМИЛОВОЙ Г.Д. и утверждено МГА 30.03.1987 года. СОДЕРЖАНИЕ 1. ОБЩИЕ ПОЛОЖЕНИЯ1.1. Настоящее «Руководство по технологии устройства соединений аэродромных плит изогнутыми штырями» выпускается в развитие проекта «Пособия по проектированию гражданских аэродромов (к СНиП 2.05.08-85), часть IV. Аэродромные одежды. 1.2. Стыковое соединение плит изогнутыми штырями рекомендуется для применения при строительстве цементобетонных, армобетонных и железобетонных покрытий аэродромов во всех климатических зонах. 1.3. Данный тип стыковых соединений может использоваться в поперечных и продольных швах при устройстве покрытий как комплектом машин с рельс-формами, так и при опытном строительстве машинами со скользящей опалубкой. В последнем случае необходимо изготовление специальной металлической опалубки, описание конструкции которой дается в настоящем Руководстве. Наличие опалубки исключает оплывание продольных кромок покрытия, повышает его качество. 1.4. Применение стыковых соединений с изогнутыми штырями позволяет снизить толщину бетонных покрытий и повысить их долговечность. Указанные достоинства данного типа стыковых соединений позволяют компенсировать затраты на дополнительные технологические операции, связанные с их применением. 1.5. Назначение данного типа стыкового соединения должно осуществляться на основе технике - экономического анализа вариантов покрытий с различными стыковыми соединениями. 1.6. В процессе строительства покрытий со стыковыми соединениями плит изогнутыми штырями необходимо строго соблюдать требования СНиП 3.06.06-86 «Аэродромы. Правила производства и приемки работ». 2. КОНСТРУКЦИЯ СТЫКОВОГО СОЕДИНЕНИЯ2.1. Сущность конструкции стыкового соединения плит изогнутыми штырями состоит в обеспечении работы на растяжение штыревых элементов, непосредственно передающих нагрузку с одной плиты на другую. 2.2. Стыковое соединение выполняется в виде пространственного каркаса, состоящего из изогнутых штырей 1, стоек 2, горизонтальных стержней 3, составной дощатой прокладки 4 (рис. 1). 2.3. Изогнутые штыри и стержни краевого усиления плит является основными элементами стыкового соединения. Место перекрещивания изогнутых штырей должны совпадать с деформационными швами жесткого покрытия. При переходе подвижной нагрузки с одной плиты на другую штыри поочередно подвергаются растяжению, причем передача усилия с металла на бетон по всей длине криволинейной части штыря в пределах 1/4 окружности, что предохраняет бетон от смятия в зоне контакта со штырем. Благодаря этому повышается степень передачи с плиты на плиту вертикальной нагрузки, уменьшаются деформации покрытий и оснований в зоне швов и увеличиваются сроки службы краевых участков плит. Прямолинейные части штырей жестко заделываются в бетоне. 2.4. Стойки предназначены для попарного соединения изогнутых штырей и установки каркасов на основание или нижний слой покрытия. 2.5. Монтажные стержни предназначены для соединения пар изогнутых штырей в каркасы и усиления краев плит. 2.6. Дощатые прокладки (разделительные) могут выполнять роль опалубки в продольных швах, а также могут при необходимости использоваться как упругие элементы в деформационных швах. 2.7. Схема устройства стыковых соединений плит изогнутыми штырями в продольных швах при бетонировании покрытий комплектом ДС-110 приведена на рис. 2, при рельсовом комплекте - на рис. 4, 5. Каркас краевого усиления и стыкового соединения плит изогнутыми штырями (авт. св. № 450865) 1 - изогнутые штыри; 2 - стойки; 3 - усилительная арматура; 4 - дощатая прокладка; t - шаг штырей Рис. 1. Схема устройства стыковых соединений плит изогнутыми штырями в продольных швах при бетонировании комплектом машин ДС-110 (авт. св. № 450865) 1 - скользящая опалубка; 2 - изогнутые штыри; 3 - металлическая опалубка; 4 - установочная накладка; 5 - бетонная плита; 6 - клин. Рис. 2 2.8. Элементы стыкового соединения изготавливаются из горячекатанной стали марки А-1 по ГОСТ 5781-82. Размеры элементов приведены в табл. 1. 2.9. Расположение каркасов в плане для бетонных, армобетонных и железобетонных покрытий принимается в соответствии с рис. П.1.1 - П.1.4 (Приложение 1). 3. ИЗГОТОВЛЕНИЕ КАРКАСОВ СТЫКОВЫХ СОЕДИНЕНИЙ3.1. Изготовление каркасов стыковых соединений включает следующие операции: - рубка заготовок; - гибка штырей на гибочном станке (рис. П.2.1, Приложение 2); - сваривание изогнутых штырей со стойками в плоские пары с применением шаблон-кондуктора (рис. П.2.2, Приложение 2); - сваривание пар изогнутых штырей с усилительными стержнями в каркас с применением пространственного шаблона (рис. П.2.3, Приложение 2). 3.2. Изготовление дощатых прокладок (опалубки) включает (рис. 3) следующие операции: - заготовку досок толщиной 20 - 30 мм, шириной 12 - 20 см, длиной равной размерам плит в плане; - выпиливание прорезей в нижней части прокладки. 3.3. Заключительной операцией является установка в каркас нижней и верхней частей прокладки и скрепление их гвоздями. Между верхней и нижней частями прокладки оставляется зазор 1 - 2 см для прочного скрепления прокладки с каркасом. 3.4. Общая высота прокладки, установленной на каркасе поперечного шва, должна быть ниже поверхности бетонируемого покрытия на 3 ÷ 4 см. Этим достигается свободное прохождение рабочих органов машин (вибробруса, виброрейки) над прокладкой без её повреждения. Таблица 1 ПАРАМЕТРЫ ШТЫРЕВЫХ СОЕДИНЕНИЙ
ПРИМЕЧАНИЯ: 1. Расстояние между парами изогнутых штырей (шаг штырей) - 0,5 м. 2. Длина усилительных стержней указана для плит размером 3,5×5,0 м (Нп = 16 ÷ 28 см) и 7,0×7,5 м (Нп = 30 ÷ 40 см). 4. КОНСТРУКЦИЯ МЕТАЛЛИЧЕСКОЙ СЪЕМНОЙ ОПАЛУБКИ4.1. Металлическая съемная опалубка (или дощатая) применяется для устройства соединений плит изогнутыми штырями в продольных технологических швах при бетонировании покрытий машинами типов ДС-110 (автогрейд), Д-376 (рельсовые) или вручную с использованием средств малой механизации. 4.2. Конструкция металлической опалубки (рис. П.3.1, Приложение 3) включает металлический лист 1 с вырезами 2 для размещения изогнутых штырей, имеющий в верхней часта ребро горизонтальной жесткости 4 и боковые скобы 5, служащие для размещения клиньев 6 под изогнутыми штырями. Металлическая опалубка членится на секции длиной, обеспечивающей удобства ручной переноски. Концы секций опалубки стыкуются и соединяются при помощи торцевых накладок 9 и скоб 7, приваренных к металлическому листу 1 путем закладки металлических стержней 10 между накладками 9 и двумя скобами 7 соединяемых секций. 4.3. Съемная металлическая опалубка изготовляется в количестве, достаточном для двухдневного бетонирования. 5. УСТАНОВКА КАРКАСОВ НА ОСНОВАНИЕ5.1. Каркасы с дощатой прокладкой доставляются к месту бетонирования в собранном виде. Установка металлической опалубки (в случае применения комплекта машин со скользящей опалубкой) производится на каркасы после их установки на подготовленное основание. 5.2. Разметка створов швов для установки каркасов в поперечных швах производится путем установки вешек с обоих сторон ряда бетонирования. 5.3. Разметка для установки каркасов в продольных швах производится в зависимости от типа применяемых бетоноукладочных машин: - для машин с рельс-формами - относительно рельс-форм или кромки ранее забетонированного ряда; - для машин со скользящей опалубкой - относительно копирной струны. Точки перекрещивания изогнутых штырей должны совпадать со створами швов. 5.4. Продольные и поперечные каркасы свариваются по углам плит монтажными стержнями (рис. П.1.1 - П.1.3, Приложение 1). 5.5. Металлическая опалубка перед бетонированием устанавливается на каркас таким образом, чтобы ребро жесткости находилось сбоку от бетонируемого ряда, а места перекрещивания изогнутых штырей разместились в вырезах. Опалубка крепится клиньями на каркасе путем установки клиньев снизу под местами перекрещивания штырей (сбоку вертикального листа, входящим.) в две скобы 5 вырезов 2. Клинья забиваются до обеспечения устойчивого положения листа на каркасе. 5.6. Установка и закрепление съемной металлической опалубки (или дощатых прокладок) на каркасах продольных (технологических) швов производится в одном уровне с бетонируемой поверхностью, а дощатых прокладок на поперечных швах расширения - на 3 - 4 см ниже бетонируемой поверхности. 5.7. Установка армосеток (при армобетонных покрытиях) производится путем укладки их на каркасы стыковых соединений (рис. П.1.2, Приложение 1) и соединение сваркой. 5.8. Установка армокаркасов (при железобетонных покрытиях) производится путем укладки их на основание согласно проекту и соединение с каркасами стыковых соединений монтажными стержнями (рис. П.1.3, Приложение 1). 5.9. В продольных птах каркасы устанавливаются вдоль рельс-форм без крепления к основанию, при этом металлическая опалубка или дощатые прокладки служат опалубкой, а рельс-формы могут быть сняты сразу же после окончания бетонирования ряда. Высота прокладок может быть равна толщине покрытия. 5.10. Ширина установки рельс-форм в маячных рядах должна быть больше ширины бетонируемого ряда на 0,4 м (на ширину каркаса), а в смежных рядах - на 0,2 м, т.е. на половину ширины каркаса, что достигается за счет перестановку опорных катков в пределах, предусмотренных конструкцией машин на рельсовом ходу. В случае применения бетоноукладочного комплекта со скользящей опалубкой уменьшение ширины маячных рядов на 0,2 ÷ 0,4 м компенсируется при бетонировании смежных рядов со снятой скользящей опалубкой. Общая ширина покрытия ВПП сохраняется. 5.11. Примеры установки каркасов при устройстве покрытия комплектом машин с рельс-формами даны на рис. 4, 5, а для ДС-110 - рис. 2. 6. УКЛАДКА БЕТОНА6.1. При бетонировании покрытий надлежит учитывать следующее: - выгружать бетонную смесь в приемное устройство необходимо сбоку от бетонируемого ряда; - распределять бетонную смесь распределителем Д-375 в первую очередь необходимо над каркасом поперечного шва с последующим заполнением остального пространства в бетонируемой плите; - бетонирование покрытия машинами ДС-110 следует выполнять по обычной технологии с опусканием глубинных вибраторов на глубину 5 ÷ 10 см от поверхности покрытия. Схема установки рельс-форм на маячной полосе бетонирования Размеры даны в мм Рис 4. Схема установки рельс-форм на последующих полосах бетонирования Размеры даны в мм Рис. 5 Эластичная подвеска глубинных вибраторов у машин ДС-110 (автогрейд) обеспечивает возможность плавного перехода через поперечные каркасы глубинных вибраторов без их поднятия. Металлическая опалубка смазывается отработанным маслом. 6.2. Уход за свежеуложенным бетоном осуществляется в соответствии с СНиП 3.06.06-86. 6.3. Снятие рельс-форм, копирных струн при наличии продольной металлической опалубки целесообразно производить сразу после окончания бетонирования с одновременным удалением завалившейся цементобетонной смеси из выступающих частей каркасов, с очисткой каркасов на всю высоту до основания. 6.4. Снятие металлической опалубки в продольных и поперечных швах возможно производить после схватывания бетона, примерно через 6 - 7 часов после укладки. 6.5. Снятые рельс-формы и металлическая опалубка должны быть немедленно очищены от налипшего бетона, смазаны и перевезены на следующий участок бетонирования. 6.6. Нарезку швов в затвердевшем бетоне необходимо производить по разметке шнурами, натягиваемыми в створах между закрепленными вешками. Сроки нарезки швов и устройства гидроизоляции производят в строгом соответствии с СНиП 3.06.06-86. 7. ТЕХНИКО-ЭКОНОМИЧЕСКАЯ ЭФФЕКТИВНОСТЬ ИСПОЛЬЗОВАНИЯ СОЕДИНЕНИЙ ПЛИТ ИЗОГНУТЫМИ ШТЫРЯМИ В ЖЕСТКИХ ПОКРЫТИЯХ АЭРОДРОМОВ7.1. Использование соединений плит изогнутыми штырями в жестких покрытиях в сравнении с соединениями плит прямыми штырями или с покрытиями без стыковых соединений позволяет получить следующие преимущества: - снижается материалоемкость покрытий (удельный расход бетона и арматурной стали) за счет уменьшения толщины покрытия, обусловленного улучшением передачи нагрузки с плиты на плиту, что характеризуется минимальным значением коэффициента передачи нагрузки Кпер = 1,0), вводимым в расчет прочности покрытия. Расходы основных материалов для однослойных цементобетонных и армобетонных покрытий с различными типами стыковых соединений и без них даны в таблице 2; - повышается долговечность покрытий в зоне стыкового соединения, что увеличивает межремонтный срок и снижает затраты на текущий и капитальный ремонт; - повышается качество покрытий при укладке бетона бетоноукладочными комплектами со скользящими рельс-формами за счет предотвращения оплывания кромок. 7.2. Наряду с вышеперечисленными преимуществами применение стыкового соединения плит изогнутыми штырями сопряжено с дополнительными трудозатратами, увеличивающими делю ручного труда на операциях, связанных с монтажом арматурных каркасов, установкой и снятием инвентарной металлической опалубки в продольных швах. Ориентировочные трудозатраты на подготовку 100 погонных метров покрытия для бетонирования одного ряда приведены в табл. 3. Эти трудозатраты следует учитывать при оценке технико-экономической целесообразности применения стыковых соединений плит изогнутыми штырями. В таблице отдельно показаны трудозатраты непосредственно на стройплощадке при бетонировании и при заблаговременной заготовке конструкций на полигоне, например, в зимний период. Таблица 2 РАСХОДЫ ОСНОВНЫХ МАТЕРИАЛОВ В ЖЕСТКИХ ПОКРЫТИЯХ
Таблица 3 Ориентировочные трудозатраты (ручного труда) на 100 п. м бетонируемого ряда покрытия
Примечание: * Изготовление инвентарной металлической опалубки следует выполнять отдельно в заводских условиях, в связи с чем трудозатраты на эту операцию в настоящей таблице не предусмотрены. ** Изготовление элементов из двутавров мерной длины следует выполнять в заводских условиях. 7.3. Расчет экономической эффективности применения соединений плит изогнутыми штырями производится путем сопоставления приведенных затрат по сооружению цементобетонного покрытия с базовым и новым вариантом стыкового соединения плит согласно СН 509-78 и Приказа МГА № 18 от 03.02.78 г. За базовый вариант принимается цементобетонное покрытие без стыковых соединений плит с традиционными стыковыми соединениями типа шпунта и прямых штырей в соответствии с Пособием к СНиП 2.05.08-85, часть IV. Аэродромные одежды. Аэропроект, 1986 г. За предлагаемый (новый) вариант принимается цементобетонное покрытие с соединением плит изогнутыми штырями в поперечных и продольных швах и усилением краев по контуру. 7.4. Экономический эффект достигается снижением материалоемкости за счет уменьшения толщины покрытия и расхода металла, а также за счет увеличения срока службы покрытия до капитального ремонта. В соответствии с разделом 2.2 отчета по НИР 1.02.03.25 коэффициент увеличения срока службы покрытия с соединением плит изогнутыми штырями по сравнению с прямыми штырями принижается равным 1,4, по сравнению со шпунтовым соединением - 1,7, а по сравнению со свободными краями (без соединений) - 2,0. 7.5. Годовой экономический эффект (Эг) от использования соединения плит изогнутыми штырями определяется по формуле:
где С1 и С2 - удельная себестоимость цементобетонного покрытия соответственно по базовому и новому варианту, руб/м2; К1 и К2 - удельные капитальные вложения на строительство покрытия соответственно по базовому и новому варианту, руб/м2; Ен - отраслевой нормативный коэффициент эффективности капитальных вложений;
Р1 и Р2 - доли отчислений от балансовой стоимости на полное восстановление цементобетонного покрытия по базовому и новому варианту, принимаемые по табл. 4 в зависимости от срока службы покрытия;
А - годовой объем внедрения в расчетном году, м2. Таблица 4 Коэффициент реновации новой техники Р
Пример расчета экономической эффективности применения соединений плит изогнутыми штырями при строительстве цементобетонных покрытий на одном из аэродромов Крайнего Севера дан в Приложении 4. ПРИЛОЖЕНИЕ 1СХЕМЫ РАСПОЛОЖЕНИЯ СТЫКОВЫХ СОЕДИНЕНИЙ В ПЛАНЕ ДЛЯ РАЗЛИЧНЫХ ТИПОВ ПОКРЫТИЙПлан цементобетонного покрытия со стыковым соединением плит изогнутыми штырями (для плит 5,0×3,5 м) Размеры даны в см Рис. П.1.1 Рис. П.1.2 План армобетонного покрытия со стыковым соединением плит изогнутыми штырями 1 - плита; 2 - изогнутые соединительные штыри; 3 - монтажные стержни (усилительная краевая арматура; 4 - шов сжатия; 5 - шов расширения; 6 - армосетка; 7 - каркасы соединения и усиления краев плит; 8 - монтажные стержни Рис. П.1.3 План монолитного железобетонного покрытия со стыковым соединением плит изогнутыми штырями 1, 2 - каркасы поперечных и продольных швов; 3 - швы сжатия; 4 - шов расширения; 5 - каркасы плит; 6 - монтажные стержни. Рис. П.1.4 Конструкция
швов со стыковым соединением плит изогнутыми штырями Размеры даны в см Рис. П.1.5. ПРИЛОЖЕНИЕ 2СХЕМЫ ПРИСПОСОБЛЕНИЙ ДЛЯ ИЗГОТОВЛЕНИЯ КАРКАСОВ СТЫКОВЫХ СОЕДИНЕНИЙ ПЛИТ ИЗОГНУТЫМИ ШТЫРЯМИСхема гибочного станка для изготовления изогнутых соединительных штырей 1 - станина; 2 - поворотный рычаг; 3 - упоры фасонные (сменные); 4 - пневмоцилиндры; 5 - заготовка изогнутого штыря; 6 - изогнутый соединительный штырь; 7 - пневмоклапан. Рис. П.2.1. Шаблон-кондуктор для сваривания изогнутых соединительных штырей в пары 1 - основание; 2 - установочные (базовые) шпильки; 3 - подкладки; 4 - упоры; 5 - штыри; 6 - стойки. Размеры даны в мм Рис. П.2.2 Шаблон-кондуктор (пространственный) для сборки-сваривания каркасов стыковых соединений плит изогнутыми штырями (по авторскому свидетельству № 450865) 1. Швеллер № 18 - 20; 2. Уголок (установочный) 50×50 ÷ 10×10; 3. Пластины (установочные); 4. Упоры; 5. Стержень (поддерживающий); 6. Кронштейн; 7. Ножки; 8. Фундамент (бетонный). Размеры даны в мм Рис. П.2.3. ПРИЛОЖЕНИЕ 3СХЕМА СЪЕМНОЙ МЕТАЛЛИЧЕСКОЙ ОПАЛУБКИ
Н - высота металлической опалубки (Н = Н покрытия) L - длина секции опалубки (2990 - 2985 ÷ 5990 - 5985) S шаг установки изогнутых штырей (500 ± 1) h - высота выреза h’ - ширина выреза (40 - 50) 1. Металлический лист; 2. Вырезы; 3. Установочные накладки; 4. Ребра горизонтальной жесткости; 5. Боковые скобы вырезов; 6. Клинья; 7. Скобы торцевые; 8. Подкладка; 9. Накладки торцевые; 10. Закладные стержни (металлические). Приложение 4ПРИМЕР РАСЧЕТА
| ||||||||||||||||||||||||||||||||||||||||||||||||||||||||||||||||||||||||||||||||||||||||||||||||||||||||||||||||||||||||||||||||||||||||||||||||||||||||||||||||||||||||||||||||||||||||||||||||||||||||||||||||||||||||||||||||||||||||||||||||||||||||||||||||||||||||||||||||||||||||||||||||||||||||||||||||||||||||||||||||||||||||||||||||||||||||||||||||||||||||||||||||||||||||||||||||||||||||||||||||||||||||||||||||||||||||||||||||||||||||||||||||||||||||||||||||||||||||||||||||||||||||||||||||||||||||||||||||||||||||||||||||||||||||||||||||||||||||||||||||||||||||||||||||||||||||||||||||||||||||||||||||||||||||||||||||||||||||||||||||||||||||||||||||||||||||||||||||||||||||||||||||||||||||||||||||||||||||||||||||||||||||||||||||||||||||||||||||||||||||||||||||||||||||||||||||||||||||||||||||||||||||||||||||||||||||||||||||||||||||||||||||||||||||||||||||||||||||||||||||||||||||||||
|
Обозначения |
Един. изм. |
Варианты |
Обоснование |
||
|
базовые |
новый |
||||
|
1 |
2 |
3 |
4 |
5 |
6 |
|
Объем внедрения |
А2 |
1000 м2 |
|
20 |
По проекту арх. № 18105/1 |
|
Показатели на 1000 м2 покрытия: |
|
|
|
|
Р. ч. инв. № 151663 в |
|
- Расход бетона |
|
м3 |
275 |
255 |
арх. № 18105/1 тб. 2 «Руковод.» |
|
- Расход металла |
|
т |
13,1 |
5,1 |
Р. ч. инв. № 174619 |
|
Стоимость строительно-монтажных работ по устройству покрытия |
С |
т. руб. |
100,6 |
84,2 |
смета прилож. тб... |
|
Годовые затраты в сфере эксплуатации покрытия: |
И |
т. руб. |
3,52 |
2,30 |
Нормы амортиз. отчислений по аэродром. ГА Положение о порядке планир., начисления и использов. амортизац. отчислений экономия, М. 1974 г. |
|
- для базового: И1 = С1 (0,015 + 0,02) 106,6 (0,035) = 3,52 р. |
|
|
|
- |
|
|
- для нового: И2 = С2 (0,015 : 2 + 0,02) = 84,2 × 0,0275 |
|
|
|
|
|
|
Сроки службы покрытия до калит. ремонта |
Тс |
годы |
12 |
24 |
Положение о ППР: Рук-во арх. № 14403-А Ленаэропроект |
|
Доли отчислении от балансовой стоимости покрытий на |
Р |
|
0,0468 |
0,0103 |
Прилож. 2 СН 509-78 |
|
Нормативный коэффиц. экономической эффективности |
Ен |
|
0,15 |
0,15 |
Приказ МГА № 18 |
2. Экономический эффект от внедрения разработки составит:

3. расчет премирования участников внедрения (использования) разработки
В соответствии с п. 14 Постановления ВСНХ СССР по Новой технике № 81 от 25.08.1964 г. общая сумма премирования составляет 7,0 % от полученного экономического эффекта
940 × 0,07 = 65,8 тыс. рублей
Премии работников Разработчика составляют 20 % от общей суммы премирования
65,8 × 0,20 = 13,16 тыс. рублей
Премии работников Получателя составляют 50 % от общей суммы премирования
65,8 × 0,50 = 32,90 тыс. рублей
СМЕТА
на устройство цементобетонных покрытий МС и перрона (без учета дополнительных и
вспомогательных работ)
Обоснование: чертежи инв. №№ 151663, 151654, 151655, 174619, арх. № 18105/1
Сметная стоимость 1000 м2 покрытия: базовый вариант ....; новый вариант ...
Составлена в ценах 1984 г. по привязанным ЕРЕР для объекта .... и ЕРКС зона 1с - 2е
Показатели стоимости на 1000 м2
Таблица
|
№№ пп |
Обоснование |
Наименование работ или затрат |
Един. изм. |
Кол-во един. |
Сметная стоимость |
||
|
един. (руб.) |
Общая (руб.) |
||||||
|
Базовый |
Новый |
||||||
|
1 |
2 |
3 |
4 |
5 |
6 |
7 |
8 |
|
1 |
Е 31-94 ССЦ 44 Калькуляция |
Устройство армированных цементобетонных покрытий машинами бетоноукладочного комплекта на рельс-формах, толщ. 20 см без нарезки и заливки швов в свежеуложенном бетоне |
1000 м2 |
10 |
4156,81 |
41568,1 |
41568,1 |
|
2 |
Е 31-96 ССЦ 44 Калькуляция |
Добавить до толщины 27 см |
1000 м2 |
1 |
- |
14988,2 |
10706,0 |
|
То же, до толщины 25 см (14988, 2:7) × 5 - 10706,0 руб. |
1000 м2 |
1 |
- |
|
|
||
|
3 |
Е 31-116 |
Укладка в цементобетонное покрытие армокаркасов |
т/1000 м2 |
13,1 5,1 |
17,21 17,21 |
225,5 - |
- 87,8 |
|
4 |
ССЦ, 42р ЧП2 |
Стоимость арматурных каркасов |
- |
13,1 5,1 |
801,33 801,33 |
10497,4 |
- 4086,3 |
|
|
|
Итого: |
|
|
|
67279,2 |
56448,2 |
|
|
|
Накладные расходы - 25 % |
|
|
|
16820 |
14112 |
|
|
|
Итого: |
|
|
|
84099 |
70570 |
|
|
|
Плановые накопления - 8 % |
|
|
|
6728 |
5646 |
|
|
|
Итого: |
|
|
|
90827 |
76216 |
|
|
IV-9-82 п. 30-а |
Временные здания и сооружения - 4,6 % |
|
|
|
4178 |
3506 |
|
|
|
Итого: |
|
|
|
95005 |
79722 |
|
|
НДЗ-84 УП-зона К-0,9 |
Удорожание работ в зимнее время - 4,32 % |
|
|
|
4104 |
3189 |
|
|
|
Итого: |
|
|
|
99109 |
82911 |
|
|
|
Непредвиденные работы и затраты - 1,5 % |
|
|
|
1487 |
1244 |
|
|
|
ВСЕГО: |
|
|
|
100596 |
84155 |
|
|
|
|