//
|
|
КОНТЕЙНЕРЫ ГРУЗОВЫЕ Кодирование, идентификация и маркировка ISO 6346:1995 Freight containers-Coding,
Предисловие Цели и принципы стандартизации в Российской Федерации установлены Федеральным законом от 27 декабря 2002 г. № 184-ФЗ «О техническом регулировании», а правила применения национальных стандартов Российской Федерации - ГОСТ Р 1.0-2004 «Стандартизация в Российской Федерации. Основные положения» Сведения о стандарте 1 ПОДГОТОВЛЕН Рабочей группой, состоящей из представителей предприятий: Закрытого акционерного общества «Центральный научно-исследовательский и проектно-конструкторский институт морского флота» (ЗАО «ЦНИИМФ»), Закрытого акционерного общества «Промтрансниипроект» (ЗАО «Промтрансниипроект»), Федерального государственного унитарного предприятия Российский морской регистр судоходства (ФГУП Российский морской регистр судоходства) на основе собственного аутентичного перевода стандарта, указанного в пункте 4 2 ВНЕСЕН Техническим комитетом по стандартизации ТК 246 «Контейнеры» 3 УТВЕРЖДЕН И ВВЕДЕН В ДЕЙСТВИЕ Приказом Федерального агентства по техническому регулированию и метрологии от 29 декабря 2005 г. № 469-ст 4 Настоящий стандарт является модифицированным по отношению к международному стандарту ИСО 6346:1995 «Контейнеры грузовые. Кодирование, идентификация и маркировка» (ISO 6346:1995 «Freight containers - Coding, identification and marking») путем изменения отдельных фраз (слов, значений, показателей), которые выделены в тексте курсивом 5 ВВЕДЕН ВПЕРВЫЕ Информация об изменениях к настоящему стандарту публикуется в ежегодно издаваемом информационном указателе «Национальные стандарты», а текст изменений и поправок - в ежемесячно издаваемых информационных указателях «Национальные стандарты». В случае пересмотра (замены) или отмены настоящего стандарта соответствующее уведомление будет опубликовано в ежемесячно издаваемом информационном указателе «Национальные стандарты». Соответствующая информация, уведомление и тексты размещаются также в информационной системе общего пользования- на официальном сайте Федерального агентства по техническому регулированию и метрологии в сети Интернет Содержание
Дата введения - 2006-07-01 1 Область применения1.1 Настоящий стандарт распространяется на систему идентификации и обеспечения информации о грузовых контейнерах с помощью кодов и маркировки. Система идентификации предназначена для общего использования, например для работы с документацией, осуществления контроля (в т.ч. в автоматизированных системах обработки данных) и непосредственно маркировки контейнеров. Стандарт содержит методы представления данных системы идентификации и других данных (включая эксплуатационные) на контейнерах при помощи установленных знаков маркировки. 1.2 Настоящий стандарт устанавливает: a) систему идентификации, в том числе систему проверки точности ее применения, включающую: - основную маркировку контейнера, представляющую систему идентификации визуального восприятия; - оборудование, применяемое при автоматизированной системе идентификации и электронном методе обмена данными (при наличии); b) систему кодирования данных о типе и размере контейнера с помощью соответствующих знаков; c) эксплуатационную маркировку - основную и дополнительную; d) систему изображения знаков на контейнере. 1.3 Термины «основной» и «дополнительный» используют для дифференциации условий маркировки ИСО, которые наносят на все контейнеры. Включение дополнительной маркировки, содержащей дополнительные сведения, в настоящий стандарт способствует ее единообразному использованию. 1.4 Настоящий стандарт применяют ко всем грузовым контейнерам по [1], ГОСТ Р 51876-2002, ГОСТ Р 50697-94, ГОСТ Р 52076-2003, [2], [3], [4] и к другим типам контейнеров, не включенным в указанные стандарты, а также к соответствующему перегрузочному контейнерному оборудованию. Примечание - Допускается использовать контейнеры, маркированные в соответствии с предыдущим изданием ИСО 6346, а также ГОСТ 25290-82 и ГОСТ 25588-83, до их полного физического износа. Настоящее примечание не распространяется на контейнеры, изготовленные после вступления в силу настоящего стандарта. 1.5 Настоящий стандарт не распространяется на временную эксплуатационную маркировку, т.е. маркировку, которая должна наноситься в соответствии с межправительственными соглашениями, национальным законодательством или решениями других, кроме ИСО, неправительственных организаций. Примечание - Настоящий стандарт не включает требования к маркировке: - Международной Конвенции по безопасным контейнерам (ООН/ИМО, 1992) (International Convention for Safe Containers (UN/IMO, 1992)); - Таможенной Конвенции по контейнерам 1956 г. и 1972 г. (Customs Convention on Containers 1956 and 1972); - Таможенной Конвенции о международной перевозке грузов с применением книжки международной дорожной перевозки (МДП, TIR Carnets) 1959 г. и 1975 г. (Customs Convention on International Movement of Goods under Cover of TIR Carnets (TIR Convention) 1959 and 1975); - Общих положений по техническому наблюдению за контейнерами. Правил изготовления контейнеров. Правил допущения контейнеров к перевозке грузов под таможенными печатями и пломбами. Руководства по техническому наблюдению за контейнерами, ФГУП Российский морской регистр судоходства, 1972 г. Настоящий стандарт не распространяется на знаки безопасности транспортируемых грузов, наносимые на контейнеры-цистерны (ИСО 1496-3). 2 Нормативные ссылкиВ настоящем стандарте использованы нормативные ссылки на следующие стандарты: ГОСТ Р 50697-94 Контейнеры грузовые серии 1. Технические требования и методы испытаний. Часть 2. Контейнеры изотермические (ИСО 1496-2-88, MOD) ГОСТ Р 51876-2002 Контейнеры грузовые серии 1. Технические требования и методы испытаний. Часть 1. Контейнеры общего назначения (ИСО 1496-1 - 90, MOD) ГОСТ Р 52076-2003 Контейнеры грузовые серии 1. Технические требования и методы испытаний. Часть 3. Контейнеры-цистерны для жидкостей, газов и сыпучих грузов под давлением (ИСО 1496-3-95, MOD) Примечание - При пользовании настоящим стандартом целесообразно проверить действие ссылочных стандартов в информационной системе общего пользования - на официальном сайте Федерального агентства по техническому регулированию и метрологии в сети Интернет или по ежегодно издаваемому информационному указателю «Национальные стандарты», который опубликован по состоянию на 1 января текущего года, и по соответствующим ежемесячно издаваемым информационным указателям, опубликованным в текущем году. Если ссылочный документ заменен (изменен), то при пользовании настоящим стандартом следует руководствоваться замененным (измененным) документом. Если ссылочный документ отменен без замены, то положение, в котором дана ссылка на него, применяется в части, не затрагивающей эту ссылку. 3 Термины, определения и обозначения системы идентификации и ее опознавательных знаков3.1 система идентификации (identification system): Система, состоящая из следующих основных элементов: - кода владельца - три буквы; - идентификатора категории оборудования - одна буква; - серийного номера - шесть арабских цифр; - контрольного числа - одна арабская цифра. 3.1.1 код владельца (owner code): Код, состоит из трех прописных букв латинского алфавита. Он является уникальным и регистрируется в Международном бюро по контейнерам (BIC). Регистрация проводится непосредственно в Международном бюро по контейнерам по адресу: Bureau International des Conteneurs 167, rue de Courcelles 75017 Paris, France либо национальными регистрационными организациями - филиалами Международного бюро по контейнерам в соответствии с приложением G, либо в России - Российским морским регистром судоходства (BIC NRO) по адресу: 191186, Россия, Санкт-Петербург, Дворцовая набережная, 8 телефон (812) 380-19-52, факс (812) 314-10-87, 380-19-51. 3.1.2 идентификатор категории оборудования (equipment category identifier): Код, состоящий из одной прописной буквы латинского алфавита: U-для всех грузовых контейнеров; J - для съемного оборудования, относящегося к грузовым контейнерам; Z - для трейлеров и шасси. 3.1.3 серийный номер (serial number): Номер контейнера, состоящий из шести арабских цифр. Если количество цифр серийного номера не равно шести, то перед этими цифрами вместо недостающих цифр ставят нули так, чтобы общее количество цифр серийного номера было равно шести. (Например, если используются цифры 1234, то серийный номер должен быть 001234). 3.1.4. контрольное число (check digit): Число, являющееся средством контроля достоверности кода владельца и серийного номера (см. приложение А). Контрольное число имеет отношение только к коду владельца, идентификатору категории оборудования и серийному номеру контейнера. 3.2 идентификационные знаки (identification marks): Маркировка в соответствии с системой идентификации по 3.1, включающая код владельца, идентификатор категории оборудования, серийный номер и контрольное число, основная для грузовых контейнеров и дополнительная для оборудования согласно 3.1.2. Характеристики знаков маркировки (размер, форма, расположение и т. д.) должны соответствовать требованиям раздела 6. 4 Коды размера и типа контейнера и их опознавательные знаки4.1 НазначениеТип и габаритные размеры контейнера должны быть обозначены при помощи кодов, наносимых на контейнер. На грузовых контейнерах, соответствующих требованиям ГОСТ Р 51876-2002, ГОСТ Р 50697-94, ГОСТ Р 52076-2003, [2], [3] в части грузоподъемности и прочности при штабелировании, должны быть нанесены коды размера и типа в соответствии с 4.2.1 и 4.2.2. 4.2 Коды размера и типаТребования, приведенные в 4.2.1 и 4.2.2, являются основными при маркировке контейнеров, соответствующих требованиям стандартов, приведенных в разделе 2. Коды размера и типа, указываемые на контейнере, наносят совместно, т.е. они не подлежат дроблению на составляющие части. Коды размера и типа проставляют на контейнере в соответствии с разделом 6. 4.2.1 Код размера - два буквенно-цифровых символа. Размер контейнера (т. е. внешние габариты) обозначают двумя символами: -первый - цифровой или буквенный символ, обозначает длину; -второй - цифровой или буквенный символ, обозначает ширину и высоту. Оба символа определяют в соответствии с приложением D. 4.2.2 Код типа - два символа. Тип и основные характеристики контейнера обозначают следующими двумя символами: - первый - буквенный символ, обозначает тип контейнера; - второй - цифровой символ, обозначает основные характеристики данного типа контейнера. Данные символы определяют в соответствии с приложением Е. Примечание - В случае, когда обозначение основных характеристик является дополнительным (при передаче (обмене) кодов размера и типа контейнера), можно использовать обозначение «группового кода типа» в соответствии с приложением Е. 5 Эксплуатационные знаки маркировкиЗнаки маркировки, о которых идет речь в настоящем разделе, не соответствуют какому-либо определенному коду, который можно использовать при передаче данных или для каких-либо других целей. Они предназначены исключительно для маркировки грузовых контейнеров с целью сообщения определенной информации или визуального предупреждения. 5.1 Основные эксплуатационные знаки маркировки5.1.1 Максимальная масса брутто и масса тары Максимальную массу брутто и массу тары указывают на контейнере следующим образом:
В целях безопасности контейнеры определенного типа испытывают по ГОСТ Р 51876-2002 (или ГОСТ Р 50697-94, или ГОСТ Р 52076-2003, [2], [3]) и указывают максимальную массу брутто, использованную при испытаниях. Максимальная масса брутто, указанная на контейнере, должна быть идентична максимальной массе брутто, указанной на табличке Международной конвенции по безопасным контейнерам (КВК), ООН/ИМО (International Convention for Safe Containers (CSC), UN/IMO). Масса выражается в килограммах (kg) и фунтах (lb)1). 1) 1 кг = 2,204 фунта 5.1.2 Символ обозначения контейнера, используемого для транспортирования воздушным и наземным видами транспорта Подробное описание символа - по приложению В. 5.1.3 Предупреждающий знак опасности поражения электрическим током Предупреждающий знак должен быть изображен на всех контейнерах, оборудованных лестницами. Подробное описание символа - по приложению С. 5.1.4 Знак высоты контейнера высотой более 2,6 м (8 футов 6 дюймов) Контейнеры высотой более 2,6 м (8 футов 6 дюймов) маркируют следующим образом: а) знак высоты наносят на обеих сторонах контейнера в соответствии с приложением F; b) чередующиеся черные и желтые полосы длиной не менее 800 мм (12 дюймов) должны быть расположены на верхних элементах каждой торцевой рамы и боковых стенок, примыкающих к угловому фитингу (рисунок 5). На контейнере могут быть расположены и другие дополнительные знаки, например зеркальное изображение знака, приведенного в приложении F, может быть расположено в любом удобном месте, например на передней стенке. 5.2 Дополнительная эксплуатационная маркировка. Обозначение массы неттоВ дополнение к максимальной массе брутто и массе тары допускается указывать максимальную массу нетто или максимальную полезную нагрузку. Она наносится на контейнер в соответствии с 5.1.1 и располагается, как показано ниже:
Надписи на английском языке допускается дополнять переводом на русский язык:
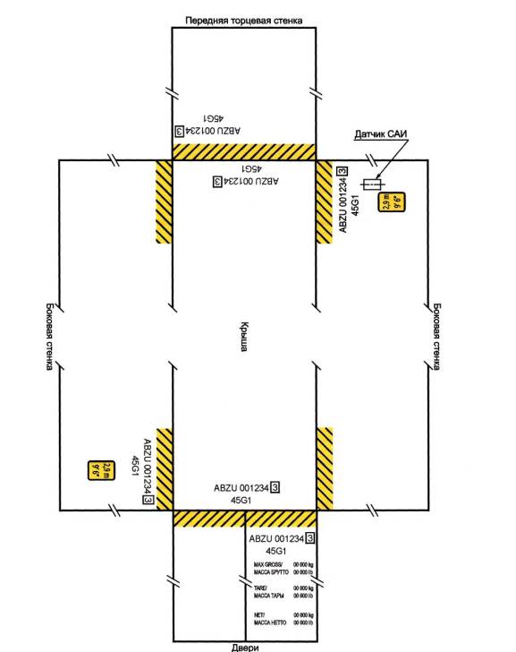
6 Воспроизведение знаков маркировки6.1 Размер и цвет знаковБуквы и цифры кода владельца, идентификатора категории оборудования, серийного номера и контрольного числа должны быть высотой не менее 100 мм (4 дюйма). Буквы и цифры для максимальной массы брутто (MAX GROSS) и тары (TARE) должны быть высотой не менее 50 мм (2 дюйма). Все символы должны быть соразмерной ширины и толщины и должны быть долговечными и контрастными по отношению к цвету самого контейнера. 6.2 Расположение знаковТребования настоящего подраздела относятся к контейнерам общего назначения. Для контейнеров других типов их необходимо максимально соблюдать. 6.2.1 Размещение и расположение знаков 6.2.1.1 Основные идентификационные знаки Код владельца, идентификатор категории оборудования, серийный номер и контрольное число на контейнерах желательно размещать на одной горизонтальной линии (рисунок 1). В случае особой конструкции контейнера их размещение может быть вертикальным (рисунок 2). Коды размера и типа контейнера наносят одной горизонтальной строкой ниже (рисунок 1) или одной вертикальной строкой рядом (рисунки 2 и 3) с выше указанными кодами. Если на специализированных контейнерах и контейнерах специального назначения невозможно полностью осуществить горизонтальное или вертикальное размещение, то основные идентификационные знаки размещают горизонтальными и вертикальными группами (рисунки 3 и 4). На специализированных контейнерах и контейнерах специального назначения, когда невозможно выполнить полностью горизонтальное или вертикальное размещение, а основные идентификационные знаки размещены по горизонтали, коды размера и типа необходимо размещать подданными основными знаками (рисунок 4). Коды размера и типа следует наносить как единое целое в соответствии с 4.2. Код владельца и идентификатор категории оборудования объединяют и размещают отдельно от серийного номера, разделяя их одним буквенным интервалом. Серийный номер и контрольное число должны быть отделены друг от друга не менее чем одним буквенным интервалом, а контрольное число должно быть заключено в рамку. Примеры расположения знаков маркировкиНа рисунках 1-4 приведены примеры расположения знаков маркировки на контейнере общего назначения, имеющем по ГОСТ Р 51876-2002, естественную вентиляцию в верхней части грузового отсека, длиной 6058 мм, шириной 2438 мм и высотой 2591 мм, с зарегистрированным кодом конкретного владельца ABZ, идентификатором категории оборудования U и серийным номером 001234. Рисунок 1-Предпочтительное горизонтальное размещение основных идентификационных знаков Рисунок 2 – Предпочтительное вертикальное размещение основных идентификационных знаков Рисунок 3 – Предпочтительное вертикальное (в несколько столбцов) размещение основных идентификационных знаков Рисунок 4 - Предпочтительное горизонтальное размещение основных идентификационных знаков - вариант расположения с горизонтальной группировкой 6.2.1.2 Основные эксплуатационные знаки Размещение максимальной массы брутто и массы тары должно соответствовать 5.1.1. Размещение символа обозначения контейнера, используемого для транспортирования воздушным и наземным видами транспорта, должно соответствовать приложению В. Размещение предупреждающего знака опасности поражения электрическим током должно соответствовать приложению С. Размещение знака высоты контейнера высотой более 2,6 м, должно соответствовать приложению F. 6.2.1.3 Дополнительная эксплуатационная маркировка (обозначение массы нетто) Размещение знаков массы нетто должно соответствовать 5.1.1. 6.2.2 Расположение знаков 6.2.2.1 Основные идентификационные знаки Обязательные знаки по 3.1 и 4.2 (код владельца, идентификатор категории оборудования, серийный номер, контрольное число, коды размера и типа) должны быть расположены на контейнере максимально точно по схеме, приведенной на рисунке 5. 6.2.2.2 Эксплуатационные знаки Основные эксплуатационные знаки по 5.1.1 (максимальной массы и массы тары) должны располагаться на контейнере максимально точно по схеме, приведенной на рисунке 5. Расположение символа обозначения контейнера, используемого для транспортирования воздушным и наземным видами транспорта, должно соответствовать приложению В. Расположение предупреждающего знака опасности поражения электрическим током должно соответствовать приложению С. Расположение знака высоты контейнера высотой более 2,6 м должно соответствовать приложению F. Дополнительная эксплуатационная маркировка по 5.2, т. е. максимальная масса нетто, должна быть расположена на контейнере максимально точно по схеме, приведенной на рисунке 5. 6.2.2.3 Другие знаки Любые другие знаки должны быть нанесены на контейнер таким образом, чтобы они не мешали расположению основных знаков по настоящему стандарту. Датчик системы автоматической идентификации оборудования (САИ) должен быть расположен на контейнере в соответствии с [5]. Примечания Длина черных и желтых полос рядом с угловыми фитингами может быть уменьшена до 300 мм (12 дюймов). Обозначения размера и типа контейнера на крыше и на передней сплошной стенке являются дополнительными. Прикрепление датчика системы автоматической идентификации оборудования (САИ) является дополнительным. Маркировка «NET/МАССА НЕТТО» является дополнительной. Рисунок 5 - Расположение основных и дополнительных знаков на контейнере Приложение А
| ||||||||||||||||||||||||||||||||||||||||||||||||||||||||||||||||||||||||||||||||||||||||||||||||||||||||||||||||||||||||||||||||||||||||||||||||||||||||||||||||||||||||||||||||||||||||||||||||||||||||||||||||||||||||||||||||||||||||||||||||||||||||||||||||||||||||||||||||||||||||||||||||||||||||||||||||||||||||||||||||||||||||||||||||||||||||||||||||||||||||||||||||||||||||||||||||||||||||||||||||||||||||||||||||||||||||||||||||||||||||||||||||||||||||||||||||||||||||||||||||||||||||||||||||||||||||||||||||||||||||||||||||||||||||||||||||||||||||||||||||||||||||||||||||||||||||||||||||||||||||||||||||||||||||||||||||||||||||||||||||||||||||||||||||||||||||||||||||||||||||||||||||||||||||||||||||||||||||||||||||||||||||||||||||||||||||
|
Код |
владельца/Идентификатор категории оборудования |
Серийный номер |
||
|
Буква |
Цифровое эквивалентное значение |
Буква |
Цифровое эквивалентное значение |
Цифровое и эквивалентное значение1) |
|
А |
10 |
N |
25 |
0 |
|
В |
12 |
О |
26 |
1 |
|
С |
13 |
Р |
27 |
2 |
|
D |
14 |
Q |
28 |
3 |
|
Е |
15 |
R |
29 |
4 |
|
F |
16 |
S |
30 |
5 |
|
G |
17 |
Т |
31 |
6 |
|
Н |
18 |
и |
32 |
7 |
|
I |
19 |
V |
34 |
8 |
|
J |
20 |
W |
35 |
9 |
|
К |
21 |
X |
36 |
|
|
L |
23 |
Y |
37 |
|
|
М |
24 |
Z |
38 |
|
|
1) Серийный номер и его эквивалентное значение идентичны. Примечание - Эквивалентные значения 11, 22 и 33 опускаются, так как они кратны модулю (А.З). |
||||
А.2 Весовой коэффициент
Каждое цифровое эквивалентное значение, определяемое согласно пункту А.1, должно быть последовательно умножено на весовой коэффициент в диапазоне от 20 до 29. Весовой коэффициент 20 относится к первой букве кода владельца и затем последовательно возрастает на степень от 20 до 29 для последней цифры серийного номера.
А.3 Модуль
Сумма произведений, полученных согласно пункту А.2, должна быть разделена на модуль 11.
А.4 Значение контрольного числа
В таблице А.2 представлены значения контрольного числа, соответствующие значению остатка от деления, выполненного по А.3.
Таблица А.2 - Значения контрольного числа
|
Остаток |
Контрольное число |
|
10 |
0 |
|
9 |
9 |
|
8 |
8 |
|
7 |
7 |
|
6 |
6 |
|
5 |
5 |
|
4 |
4 |
|
3 |
3 |
|
2 |
2 |
|
1 |
1 |
|
0 |
0 |
|
Примечание - Для устранения появления дубликата в виде значения 0, получаемого как от остатка 10, так и от остатка 0, не рекомендуется использовать серийные номера с остатком 10. |
|
А.5 Пример расчета контрольного числа
Стадия расчета
|
I |
Код владельца |
Серийный номер |
|||||||
|
Z |
Е |
Р |
и |
0 |
0 |
3 |
7 |
2 |
5 |
|
II |
Эквивалентное значение |
||||||||
|
38 |
15 |
27 |
32 |
0 |
0 |
3 |
7 |
2 |
5 |
|
III |
Весовой коэффициент |
||||||||
|
1 |
2 |
4 |
8 |
16 |
32 |
64 |
128 |
256 |
512 |
|
IV |
Результат перемножения столбцов в линиях II и III |
||||||||
|
38 |
30 |
108 |
256 |
0 |
0 |
192 |
896 |
512 |
2560 |
Сумма результатов в линии IV = 4592.
Сумма, деленная на модуль 11 (одиннадцать), = ![]()
Итак, остаток равен 5 и при помощи таблицы А.2 находим, что в данном случае контрольное число равно 5.
Для обозначения контейнера, используемого для транспортирования воздушным и наземным видами транспорта, имеющего ограничения по высоте штабелирования, следует применять символ, изображенный на рисунке В.1.
Символ должен быть расположен в верхних левых углах торцевых стенок и примыкающих к ним углах крыши, а также в верхних левых углах боковых стенок контейнера по [4].
Размеры рисунка самолета в символе должны быть высотой не менее 130 мм (5 дюймов) и длиной не менее 360 мм (14 дюймов), а символа штабелирования - высотой не менее 280 мм (11 дюймов) и шириной не менее 260 мм (10 дюймов). Рекомендуется выдерживать пропорции. Прописные буквы должны быть высотой не менее 80 мм (3 дюйма).
Цвет символа должен быть черным. Если цвет самого контейнера черный, то символ на нем ясно не различим, поэтому необходимо использовать в качестве фона панель соответствующего цвета, предпочтительно белого.

На контейнеры, оборудованные боковыми лестницами, должен быть нанесен знак опасности поражения электрическим током - символ черного цвета на желтом фоне, окруженном черным бордюром, изображенный на рисунке С.1.

Рисунок С.1
Высота символа (молнии) должна быть не менее 175 мм (6,875 дюйма).
Размеры предупреждающего знака, измеренные между наружными сторонами черного бордюра, должны быть не менее 230 мм (9 дюймов).
Знак следует располагать рядом с лестницей.
Для обозначения кода размера контейнера используют два буквенно-цифровых символа:
Первый, обозначающий длину контейнера, определяют в соответствии с таблицей D.1.
Второй, обозначающий ширину и высоту контейнера, определяют в соответствии с таблицей D.2.
Таблица D.1-Первый символ кода размера
|
Длина контейнера |
Символ кода |
||
|
миллиметры |
футы |
дюймы |
|
|
2 991 |
10 |
|
1 |
|
6 058 |
20 |
|
2 |
|
9 125 |
30 |
|
3 |
|
12 192 |
40 |
|
4 |
|
Резервный |
5 |
||
|
Резервный |
6 |
||
|
Резервный |
7 |
||
|
Резервный |
8 |
||
|
Резервный |
9 |
||
|
7 150 |
|
|
А |
|
7 315 |
24 |
|
В |
|
7 430 |
24 |
6 |
С |
|
7 450 |
- |
|
D |
|
7 820 |
- |
|
Е |
|
8 100 |
- |
|
F |
|
12 500 |
41 |
|
G |
|
13 106 |
43 |
|
Н |
|
13 600 |
- |
|
К |
|
13 716 |
45 |
|
L |
|
14 630 |
48 |
|
М |
|
14 935 |
49 |
|
N |
|
16 154 |
- |
|
Р |
|
Резервный |
R |
||
Таблица D.2- Второй символ кода размера
|
Высота контейнера |
Символ кода |
||||
|
Ширина контейнера, мм |
|||||
|
миллиметры |
футы |
дюймы |
2438 |
> 2438 |
>2500 |
|
2 438 |
8 |
|
0 |
|
|
|
2 591 |
8 |
6 |
2 |
С |
L |
|
2 743 |
9 |
|
4 |
D |
М |
|
2 895 |
9 |
6 |
5 |
Е |
N |
|
> 2 895 |
>9 |
6 |
6 |
F |
Р |
|
1 295 |
4 |
3 |
8 |
|
|
|
≤1 219 |
≤4 |
|
9 |
|
|
Е.1 В таблице Е.1 приведены коды для определения типа контейнера и основные характеристики типа, используемые для выбора средств перегрузки и крепления или обмена эксплуатационными данными.
Подробная таблица кода типа не является исчерпывающим перечнем всех возможных характеристик какого-либо типа контейнера. Для некоторых типов не указаны индивидуальные категории, и чтобы прийти в этом вопросе к единому мнению, необходимо их тщательное изучение.
Е.2 Для случаев существования взаимоисключающих резервных номеров кодов или когда желательно иметь кодовый номер для контейнеров с важными характеристиками, не упомянутыми в таблице Е.1, рекомендуется использовать наибольший резервный номер в соответствующем блоке, оставляя другие кодовые номера на рассмотрение подкомитетов ИСО/ТК 104.
Е.3 В случаях, когда другие характеристики данного типа контейнера не известны или не выяснены полностью, тип контейнера в соответствии с таблицей Е.1 характеризуется его групповым кодом.
Таблица Е.1
|
Код |
Тип контейнера |
Групповой код типа |
Основные характеристики |
Подробный код типа |
|
G |
Контейнер общего назначения без вентиляции |
GP |
Один торец или оба торца открыт(ы) |
GO |
|
Естественная вентиляция верхней части грузового отсека |
G1 |
|||
|
Один торец (или оба торца) открыты), также открыты одна (или обе) боковые стороны |
G2 |
|||
|
Один торец (или оба торца) открыты), также одна (или обе) боковые стороны открыты не полностью |
G3 |
|||
|
Резервный |
G4 |
|||
|
» |
G5 |
|||
|
» |
G6 |
|||
|
» |
G7 |
|||
|
» |
G8 |
|||
|
» |
G9 |
|||
|
V |
Контейнер общего назначения с вентиляцией |
VN |
Немеханическая система с вентиляционными отверстиями в нижней и верхней частях грузового пространства |
V0 |
|
Резервный |
V1 |
|||
|
Механическая система вентиляции расположена внутри контейнера |
V2 |
|||
|
Резервный |
V3 |
|||
|
Механическая система вентиляции расположена снаружи контейнера |
V4 |
|||
|
Резервный |
V5 |
|||
|
» |
V6 |
|||
|
» |
V7 |
|||
|
» |
V8 |
|||
|
» |
V9 |
|
Код |
Тип контейнера |
Групповой код типа |
Основные характеристики |
Подробный код типа |
|
В |
Контейнер для перевозки сухих сыпучих грузов: |
BU |
Закрытый |
ВО |
|
Воздухонепроницаемый |
В1 |
|||
|
ящичного типа без давления |
Резервный |
В2 |
||
|
под давлением |
BK |
Горизонтальная разгрузка, испытательное давление - 1,5 бар |
ВЗ |
|
|
Горизонтальная разгрузка, испытательное давление - 2,65 бар |
В4 |
|||
|
Разгрузка опрокидыванием, испытательное давление - 1,5 бар |
В5 |
|||
|
Разгрузка опрокидыванием, испытательное давление - 2,65 бар |
В6 |
|||
|
Резервный |
В7 |
|||
|
» |
В8 |
|||
|
» |
В9 |
|||
|
S |
Контейнер специального назначения |
SN |
Контейнер для транспортирования скота |
S0 |
|
Контейнер для транспортирования автомобилей |
S1 |
|||
|
Контейнер для транспортирования свежей рыбы |
S2 |
|||
|
Резервный |
S3 |
|||
|
» |
S4 |
|||
|
» |
S5 |
|||
|
» |
S6 |
|||
|
» |
S7 |
|||
|
» |
S8 |
|||
|
» |
S9 |
|||
|
R |
Термический контейнер: охлаждаемый |
RE |
С машинным охлаждением |
R0 |
|
охлаждаемый и обогреваемый |
RT |
С машинным охлаждением и отоплением |
R1 |
|
|
охлаждаемый и обогреваемый собственной установкой |
RS |
С машинным охлаждением |
R2 |
|
|
С машинным охлаждением и отоплением |
R3 |
|||
|
Резервный |
R4 |
|||
|
» |
R5 |
|||
|
|
» |
R6 |
||
|
» |
R7 |
|||
|
|
» |
R8 |
||
|
» |
R9 |
|||
|
Н |
Термический контейнер: охлаждаемый и (или) нагреваемый, со съемным оборудованием |
HR |
Охлаждаемый и (или) нагреваемый, со съемным внешним оборудованием, коэффициент теплопередачи - К = 0,4 W/(m2K) |
НО |
|
Охлаждаемый и (или) нагреваемый, со съемным внутренним оборудованием |
Н1 |
|||
|
Охлаждаемый и (или) нагреваемый, со съемным внешним оборудованием, коэффициент теплопередачи - К = 0,7 W/(m2K) |
Н2 |
|||
|
Резервный |
НЗ |
|||
|
» |
Н4 |
Продолжение таблицы Е.1
|
Код |
Тип контейнера |
Групповой код типа |
Основные характеристики |
Подробный код типа |
|
Н |
Термический контейнер: термоизолированный |
HI |
Термоизолированный, коэффициент теплопередачи - K=0AW/(m2K) |
Н5 |
|
Термоизолированный, коэффициент теплопередачи - K=0JW/(m2K) |
Н6 |
|||
|
Резервный |
Н7 |
|||
|
» |
Н8 |
|||
|
» |
Н9 |
|||
|
U |
Контейнер с открытым верхом |
UT |
Один торец (или оба торца) открыт(ы) |
U0 |
|
Один торец (или оба торца) открыты), на торцевых рамах имеются съемные верхние элементы |
U1 |
|||
|
Один торец (или оба торца) открыты), также открыты одна (или обе) боковые стенки |
U2 |
|||
|
Один торец (или оба торца) открыты), также открыты одна (или обе) боковые стенки, на торцевых рамах имеются съемные верхние элементы |
U3 |
|||
|
Один торец (или оба торца) открыт(ы), не полностью открыта одна боковая сторона и полностью открыта другая сторона |
U4 |
|||
|
Полностью закрепленные боковые стенки и торцы (без дверей) |
U5 |
|||
|
Резервный |
U6 |
|||
|
» |
U7 |
|||
|
» |
U8 |
|||
|
» |
U9 |
|||
|
Р |
Контейнер-платформа: |
|
|
|
|
контейнер на базе платформы с неполной верхней рамой |
PL |
Платформа-контейнер |
Р0 |
|
|
контейнер с жестко закрепленными торцами и стойками |
PF |
С полными жестко закрепленными торцами |
Р1 |
|
|
Жестко закрепленные стойки, отдельно стоящие стойки или стойки с подвижным верхним элементом |
Р2 |
|||
|
контейнер складной |
PC |
Складная конструкция Складные стойки, свободно стоящие стойки или съемный верхний элемент |
РЗ |
|
|
контейнер на базе платформы с полной верхней рамой |
PS |
Открытый верх, открытые торцы |
Р5 |
|
|
Резервный |
Р6 |
|||
|
» |
Р7 |
|||
|
» |
Р8 |
|||
|
» |
Р9 |
Окончание таблицы Е.1
|
Код |
Тип контейнера |
Групповой код типа |
Основные характеристики |
Подробный код типа |
|
Т |
Контейнер-цистерна: |
|
|
|
|
для неопасных (невоспламеняющихся) жидкостей |
TN |
Минимальное давление - 45 кПа1) |
Т0 |
|
|
Минимальное давление - 150 кПа |
Т1 |
|||
|
Минимальное давление - 265 кПа |
Т2 |
|||
|
для опасных (воспламеняющихся) жидкостей |
TD |
Минимальное давление - 150 кПа |
Т3 |
|
|
Минимальное давление - 265 кПа |
Т4 |
|||
|
Минимальное давление - 400 кПа |
Т5 |
|||
|
Минимальное давление - 600 кПа |
Т6 |
|||
|
для газов |
TG |
Минимальное давление - 910 кПа |
Т7 |
|
|
Минимальное давление - 2200 кПа |
Т8 |
|||
|
Минимальное давление (уточняется) |
Т9 |
|||
|
А |
Авиационно-наземный контейнер |
AS |
|
А0 |
|
1) 100 кПа = 1 бар = 105Па. |
||||
Знаки высоты контейнера высотой более 2,6 м (8 футов 6 дюймов) содержат группы черных цифр на желтом фоне, обведенные черной рамкой (рисунок F.1).
Верхняя группа цифр означает высоту контейнера в метрах с точностью до одной десятой, значение которых должно быть не меньше фактической высоты.
Нижняя группа цифр означает высоту в футах с точностью до 1/4 фута, значение которых должно быть не меньше фактической высоты. Вместо буквенного обозначения футов и дюймов используют символы их обозначения « ' » и « " ».
Размер знака, измеренный между наружными сторонами черной рамки, должен быть не менее 155×115 мм (6×4,5 дюйма), размер цифр должен быть удобным для прочтения.
Знак располагают на каждом контейнере в двух местах: около правого края каждой стороны на расстоянии не более 1,2 м (4 фута) от крыши контейнера и в пределах 0,6 м (2 фута) от правого края ниже идентификационного номера контейнера.

Рисунок F.1
Международное бюро по контейнерам (BIC) - международный орган для регистрации грузовых контейнеров.
Адрес: Bureau International des Conteneurs 167, rue de Courcelles 75017 Paris, France
BIC назначает Национальные регистрационные организации после консультаций, проведенных с соответствующим органом страны - участника ИСО.
Национальные органы стран - участников ИСО дают рекомендации лицам, подающим заявление о регистрации объекта в BIC с употреблением кодов "U", "J" и "Z".
Владельцы контейнеров, а также контейнерного оборудования, не входящих в стандарты ИСО и не участвующих в международных перевозках, должны пройти регистрацию в BIC. Если владельцы подобного оборудования принимают решение о регистрации объекта с помощью других национальных учреждений, то в этом случае таким владельцам не рекомендуется регистрировать объекты кодами, состоящими из четырех букв, последними из которых являются "U", "J" или "Z".
В то время как регистрацию проводит BIC, ответственность за присваивание кодов владельцев, в соответствии с настоящим стандартом, возлагается на ИСО ТК 104.
Для того чтобы облегчить выполнение этой обязанности, BIC должен составлять ежегодный письменный отчет для ИСО ТК 104 с подробным описанием кодов всех существующих владельцев, последними буквами которых являются "U", "J" или "Z".
Для этой цели BIC осуществляет выпуск и распространение ежегодного перечня контейнерных кодов BIC - Официальный регистрационный перечень буквенных кодов ИСО, принятых во всех странах мира для идентификации владельцев контейнеров.
Перечень национальных организаций по регистрации контейнеров, действующий на момент публикации настоящего стандарта, приводится в таблице G.1.
Таблица G.1 - Национальные регистрационные организации
|
Organization |
Address |
Country |
|
South African Bureau of Standards (SABS) |
1 Dr Lategan Road, Groenkloof, Private Bag X191, Pretoria 0001 |
Южная Африка |
|
Studiengesellschaft fur den Kombi-nierten Verkehr (SGKV) |
Borsenplatz 1, 60313 Frankfurt |
Германия |
|
INTRACON CEDEX |
Atlasvej 3, 8270 Hoejbjerg |
Дания |
|
Asociacion Espanola de Normalization у Certification (AENOR) |
Fernandez de la Hoz 52,28010 Madrid |
Испания |
|
Association francaise de normalisation (AFNOR) |
Tour Europe, 92049 Paris La Defense Cedex |
Франция |
|
Lloyd's Register Industrial Services |
Lloyd's Register House, 29 Wellesley Road, Croydon CRO 2AJ |
Великобритания |
|
Container Affairs Bureau Ltd. |
9/F, Unit B, 77-81 Container Port Road, Kwai Chung N. T, Hong Kong |
Гонконг |
|
Institute for Industrial Research and Standards Division |
Ballymun Road, Dublin 9 |
Ирландия |
|
Standards Institution of Israel (SII) |
42 Chaim Levanon Street, Tel Aviv 69977 |
Израиль |
Окончание таблицы G.1
|
Organization |
Address |
Country |
|
Centro Italiano Studi Containers (CISCO) |
Via Garibaldi 4, Genoa 16124 |
Италия |
|
Arrow Technical Services |
1-B Quaker Ridge Road, Suite 123, New Rochelle, NY 10804-2807, USA |
Мексика |
|
Japan Container Association |
Room 501, Yaesu-Mitsui Bldg., 2-7-2 Yaesu, Chuo-Ku, Tokyo |
Япония |
|
Scheepvaart Vereniging Noord |
Havengebouw, de Ruytershade 7, 1013 AA Amsterdam |
Нидерланды |
|
Arrow Technical Services |
1-B Quaker Ridge Road, Suite 123, New Rochelle, NY 10804-2807 |
США |
|
Jugoslovenska Zajednica za Paletj-zaeiju |
Kralja Milutina 13, Belgrade |
Югославия |
|
[1] ИСО 668:1995 |
Контейнеры грузовые серии 1. Классификация, размеры и масса |
|
[2] ИСО 1496-4:1991 |
Контейнеры грузовые серии 1. Технические требования и методы испытаний. Часть 4. Контейнеры для сыпучих грузов без давления |
|
Контейнеры грузовые серии 1. Технические требования и методы испытаний. Часть 5. Платформы и контейнеры-платформы |
|
|
[4] ИСО 8323:1985 |
Контейнеры грузовые. Авиационные/наземные (интермодальные) контейнеры общего назначения. Технические требования и методы испытаний |
|
Контейнеры грузовые. Автоматическая идентификация |
Ключевые слова: контейнеры грузовые, кодирование, идентификация, маркировка, идентификатор категории оборудования, идентификационные знаки, код владельца, контрольное число, серийный номер, система идентификации
|
|
|
|