//
|
|
МИНИСТЕРСТВО ПУТЕЙ СООБЩЕНИЯ СССР ГЛАВНОЕ УПРАВЛЕНИЕ КАПИТАЛЬНОГО СТРОИТЕЛЬСТВА КАРТЫ ОРГАНИЗАЦИИ ТРУДОВЫХ ПРОЦЕССОВ ПРИ ПРОИЗВОДСТВЕ ШТУКАТУРНЫХ И МАЛЯРНЫХ РАБОТ НА СТРОИТЕЛЬСТВЕ ЖИЛЫХ ДОМОВ, ГРАЖДАНСКИХ И СЛУЖЕБНО-ТЕХНИЧЕСКИХ ЗДАНИЙ Москва "ТРАНСПОРТ" 1973
СОДЕРЖАНИЕ Карты трудовых процессов разработаны производственным отделом нормативно-исследовательского бюро ГУКС МПС на основании материалов нормативно-исследовательских станций. При накоплении данных о применении новых приемов труда, инструмента и др. будут издаваться соответствующие дополнения. Карты организации трудовых процессов при производстве штукатурных и малярных работ на строительстве жилых домов, гражданских и служебно-технических зданий. Часть I
| ||||||||||||||||||||||||||||||||||||||||||||||||||||||||||||||||||||||||||||||||||||||||||||||||||||||||||||||||||||||||||||||||||||||||||||||||||||||||||||||||||||||||||||||||||||||||||||||||||||||||||||||||||||||||||||||||||||||||||||||||||||||||||||||||||||||||||||||||||||||||||||||||||||||||||||||||||||||||||||||||||||||||||||||||||||||||||||||||||||||||||||||||||||||||||||||||||||||||||||||||||||||||||||||||||||||||||||||||||||||||||||||||||||||||||||||||||||||||||||||||||||||||||||||||||||||||||||||||||||||||||||||||||||||||||||||||||||||||||||||||||||||||||||||||||||||||||||||||||||||||||||||||||||||||||||||||||||||||||||||||||||||||||||||||||||||||||||||||||||||||||||||||||||||||||||||||||||||||||||||||||||||||||||||||||||||||||||||||||||||||||||||||||||||||||||||||||||||||||||||||||||||||||||||||||||||||||||||||||||||||||||||||||||||||||||||||||||||||||||||||||||||||||||||||||||||||||||||||||||||||||||||||||||||||||||||||||||||||||||||||||||||||||||||||||||||||||||||||||||||
|
Показатели |
Дом |
|
|
70-кв. |
100-кв. |
|
|
Продолжительность выполнения работ в днях: |
|
|
|
по технологической карте |
47,5 |
65,6 |
|
по картам организации трудовых процессов |
40,9 |
58,6 |
|
Сокращение трудовых затрат в чел.-днях. |
132,4 |
191,4 |
|
Повышение производительности труда, заложенное в картах (9-13), в % (в том числе по процессам см. табл. 2). |
22,5 |
22,4 |
По виду отделки поверхностей в картах предусмотрена улучшенная, мокрая штукатурка.
Улучшенная штукатурка выполняется путем нанесения одного слоя обрызга, одного слоя грунта и накрывочного слоя. Общая толщина штукатурного намета не должна превышать для улучшенной штукатурки 15 мм. Нанесение каждого последующего слоя штукатурного намета допускается только после схватывания предыдущего слоя.
Технология производства штукатурных работ. Картами предусмотрено выполнение следующих операций:
оштукатуривание кирпичных стен бескомпрессорной форсункой с затиркой поверхности;
выравнивание заподлицо с поверхностью швов между плитами перекрытий (потолки) с прорезкой рустов;
беспесчаная накрывка гипсобетонных крупнопанельных перегородок;
оштукатуривание оконных и дверных откосов.
При механизированном нанесении обрызга и грунта устанавливается следующий порядок производства работ.
Штукатурка кирпичных стен. Нанесение штукатурного раствора на кирпичные стены производится после провешивания поверхностей, при помощи бескомпрессорной форсунки (сопла).
При улучшенной штукатурке раствор наносится тремя слоями: слой обрызга до 5 мм; слой грунта 5 - 7 мм; накрывочный слой до 2 мм.
Нанесение слоев обрызга и грунта производится с пола. После схватывания грунта приступают к нанесению накрывочного (отделочного) слоя из раствора, процеженного через сито с ячейками 1´1 мм. Нанесение накрывочного слоя вручную следует производить со сплошных подмостей, а в помещениях менее 5 м2 с переносных инвентарных столиков. Затирку накрывочного слоя рекомендуется выполнять затирочными машинками после неполного его затвердения.
Обработку швов между железобетонными плитами на потолке производят в процессе оштукатуривания кирпичных стен со сплошных подмостей путем заполнения швов цементным раствором на всю их длину с выравниванием и затиркой поверхностей, а затем нарезкой рустов между плитами.
Обработка гипсовых перегородок сводится к нанесению беспесчаного накрывочного слоя на поверхность вручную полутерками с последующей перетиркой войлочными терками или затирочными машинками.
Отделка оконных и дверных откосов. К отделке откосов приступают после оштукатуривания кирпичных стен. Перед оштукатуриванием откосов на стены по отвесу навешивают отфугованные рейки (правила) в соответствии с заданным углом рассвета. Оштукатуривание откосов производится вручную, с инвентарных подмостей. Нанесенный раствор разравнивают малкой, которая плотно прижимается одним концом к коробке, другим к рейке. По грунту наносят накрывочнын слой, затираемый теркой. После затирки откосов снимают рейки и отделывают усенки или фаски.
Приготовление и подача известкового раствора на строительную площадку предусмотрена с централизованного растворного узла. На стройплощадке известковый раствор дополнительно перерабатывается в растворомешалке емкостью 80 л, пропускается через вибросито и при помощи растворонасоса подается к рабочему месту.
Условия производства штукатурных работ. К выполнению штукатурных работ следует приступать после создания условий, исключающих повреждение оштукатуренных поверхностей и обеспечивающих безопасное производство работ в соответствии с указаниями СНиП III-B.13-62 и СНиП III-А.11-62.
По ходу монтажа здания разрешается начинать производство штукатурных работ с нижних этажей при условии, если над отделываемыми помещениями имеется не менее трех смонтированных железобетонных перекрытий.
Рекомендуемые решения по организации труда. Производственные процессы при выполнении штукатурных работ, как правило, состоят из нескольких рабочих операций, не одинаковых по сложности и времени выполнения. Вместе с тем отдельные операции тесно взаимосвязаны между собой в пределах одного и того же производственного процесса, что вызывает необходимость в применении поточно-звеньевого способа производства штукатурных работ.
Картами рекомендуется комплексная бригада, состоящая из одного звена по переработке, подаче на рабочее место и механизированному нанесению раствора и однотипных звеньев (четырех для 70-кв. и шести - для 100-кв. домов) по окончательной обработке поверхностей.
Указанный состав бригады подобран для выполнения штукатурных работ в кирпичных жилых зданиях с крупнопанельными перегородками (высота помещения 2,5 м).
Основные указания по технике безопасности. Внутренние штукатурные работы должны выполняться с инвентарных подмостей и инвентарных передвижных столиков. Настилы на подмостях должны иметь ровную поверхность с зазорами между досками не более 10 мм. Запрещается выполнять работы со случайных средств подмащивания. Подмости и столики необходимо устанавливать на очищенную (от мусора) поверхность железобетонных перекрытий.
Нагрузка на настилы подмостей не должна превышать 150 кг/м2, поэтому нельзя складировать на них материалы в количестве, превышающем требуемый запас. Запрещается скопление людей в одном месте более чем это необходимо для производства работ.
Временная переносная электропроводка для внутренних штукатурных работ должна иметь напряжение не более 36 в, а в сырых местах - не более 12 в.
При оштукатуривании внутренних оконных откосов проемы должны быть ограждены на все время производства работ во избежание падения работающего.
Ежедневно перед началом смены необходимо проверять исправность растворонасоса и сигнализации. Удалять пробки, образовавшиеся в растворонасосе и шлангах, разрешается только после снятия давления в системе.
Запрещается изгибать шланги, по которым транспортируется раствор. Соединение шлангов по длине должно производиться с помощью специальных муфт и хомутов.
Применение проволочных скруток не допускается. При работе с растворонасосом штукатуры должны быть снабжены защитными очками.
Во время оштукатуривания при помощи растворонасоса форсунку следует держать под углом 60 - 90° к оштукатуриваемой поверхности на расстоянии 0,7 - 1,5 м от нее.
Машины и. механизмы разрешается подключать к электросети только при помощи рубильника.
Штукатур-сопловщик должен иметь связь с рабочим местом машиниста при помощи звуковой или световой сигнализации.
Сравнительная таблица выработки рабочих
|
Процессы |
повышение производительности труда в % |
Выработка на 1 чел.-день в м2 |
Организация труда |
||||
|
70-кв. дом |
100-кв. дом |
по технологическим картам |
по картам трудовых процессов |
||||
|
По технологическим картам * |
По картам трудовых процессов |
По технологическим картам * |
По картам трудовых процессов |
||||
|
Механизированное нанесение раствора |
23,0 |
39,3 |
51,1 |
37,9 |
49,3 |
Применение компрессорной форсунки. Состав звена 5 чел. |
Применение бескомпрессорной форсунки. Состав звена 4 чел. |
|
Нанесение накрывочного слоя и отделка поверхности. |
25,9 |
26,6 |
36,0 |
25,3 |
34,1 |
Процеживание раствора для накрывочного слоя и затирка поверхностей вручную |
Процеживание раствора через сито с помощью форсунки и затирка поверхности затирочной машинкой |
|
Беспесчаная накрывка гипсобетонных крупнопанельных перегородок |
23,6 |
43,11 |
56,46 |
42,1 |
55,13 |
Применение при затирке деревянной теркой |
Применение при затирке стальных гладилок |
|
Отделка оконных и дверных откосов |
16,7 |
4,66 |
4,66 |
5,59 |
5,59 |
Применение направляющих реек, угольника |
Применение дуговых рейкодержателей, малок, угольника с передвижной планкой для определения угла «рассвета» |
|
Расшивка швов на потолках в местах соединения железобетонных плит и перекрытий |
16,6 м |
41 м |
49,2 м |
41 м |
49,2 м |
Обычная |
Предварительное нанесение меток для отбивки линий в местах расшивки руста |
* Технологические карты приведены в проекте производства работ по строительству 70-кв. дома серии 1-447С, разработанного Нормативно-исследовательским бюро и разосланного дорстройтрестам в 1968 г.
Таблица 3
Квалификационный состав бригады
|
№ звеньев |
Выполняемые процессы |
Состав звена |
Количество человек |
Условнее обозначение |
Ответственный за выполнение |
|
|
профессия |
разряд |
|||||
|
|
70-квартирный дом |
|
|
|
|
|
|
1 |
Механизированное нанесение обрьгзга и грунта на кирпичные стены и шлакобетонные перегородки |
Штукатур-сопловщик, машинист |
|
1 |
Ш-1 |
Бригадир |
|
4 |
1 |
|
||||
|
3 |
|
Ш-2 |
||||
|
|
Процеживание раствора через сито с помощью форсунки для затирочного слоя. Приготовление и подача штукатурного раствора |
Штукатур, транспортный рабочий |
2 |
1 |
Ш-3 |
|
|
1 |
1 |
Ш-4 |
||||
|
2-5 |
Выполнение всех работ согласно технологической карте за исключением механизированного нанесения обрызга и грунта на оштукатуриваемые поверхности |
Штукатур |
4 |
1 |
Ш-5 |
Звеньевой |
|
» |
3 |
1 |
Ш-6 |
|||
|
» |
4 |
1 |
Ш-7 |
|||
|
» |
2 |
1 |
Ш-8 |
|||
|
|
Дополнительно для 100-квартирного дома |
|
|
|
|
|
|
6-7 |
|
Штукатур |
4 |
1 |
Ш-5 |
Звеньевой |
|
» |
3 |
1 |
Ш-6 |
|||
|
» |
4 |
1 |
Ш-7 |
|||
|
» |
2 |
1 |
Ш-8 |
|||
Таблица 4
Перечень оборудования, инструментов, приспособлений и инвентаря для выполнения внутренних штукатурных работ
Бригада штукатуров в составе: для 70-кв. дома 20 чел.; для 100-кв. дома 28 человек
|
Наименование (тип, основной размер или параметр) |
№ ГОСТа, марка или № чертежа, организация-калькодержатель |
Количество в шт. |
Назначение |
|
Оборудование |
|
|
|
|
Штукатурная станция |
С-660 или С-966 и др. |
1(1) |
Переработка, транспортирование и нанесение раствора |
|
Механизированный инструмент |
|
|
|
|
Электромолоток или пневмомолоток |
И-33 (РБ-45) |
1(1) |
Очистка поверхности |
|
Затирочные машинки |
- |
4(6) |
Затирка накрывочного слоя |
|
Ручной инструмент |
|
|
|
|
Сокол дюралюминиевый |
Черт. 13100000 ВНИИСМО Минстройдормаша |
4(6) |
Нанесение раствора на поверхность и разравнивание |
|
Правило с металлической оковкой |
Трест «Мосоргстрой» Главмосстроя |
4(6) |
Разравнивание грунтовочного слоя |
|
Полутерок большой (длиной 1,2 м, шириной 0,11 м) |
То же |
4(6) |
Разравнивание грунтовочного слоя |
|
Полутерок деревянный |
Оргстрой Минстроя Эстонской ССР |
4(6) |
Разравнивание грунтовочного слоя |
|
Терка деревянная |
НИИОП Госстроя УССР |
4(6) |
Разравнивание слоев грунта накрывочного слоя |
|
Терка войлочная (поролоновая) |
Трест «Мосоргстрой» Главмосстроя |
4(6) |
Затирка накрывочного слоя |
|
Гладилка стальная малая ГШ-1 и большая ГШ-2 |
ГОСТ 10403-63 |
4(6) |
Разравнивание и заглаживание накрывочного слоя |
|
Кельма штукатурная КШ |
ГОСТ 9533-66 |
4(6) |
Набрасывание раствора |
|
Лопата стальная растворная типа ЛР |
ГОСТ 3620-63 |
5(7) |
Перелопачивание и подача раствора |
|
Молоток стальной строительный штукатурный типа МШТ |
ГОСТ 11042-64 |
4(6) |
При производстве штукатурных работ |
|
Скарпель |
Черт. № 191200000 ВИИИСМО Минстройдормаша |
4(6) |
- |
|
Молоток двусторонний с двойным заострением |
НИИСП Госстроя УССР |
2(3) |
- |
|
Скребок металлический |
«Гипрооргсельстрой» Минсельстроя СССР |
2(3) |
Очистка поверхностей |
|
Отрезовка типа ОШ-1 |
ГОСТ 9533-60 |
4(6) |
Разделка узлов |
|
Ручные стальные щетки |
«Гипрооргсельстрой» Минсельстроя СССР |
2(3) |
Очистка поверхностей |
|
Полутерок малый, длиной 0,35 м, шириной 0,05 м |
«Оргстрой» Минстроя Эстонской ССР |
4(6) |
Разравнивание штукатурного намета |
|
Ковш штукатурный |
ГОСТ 7945-63 |
2(3) |
Нанесение раствора |
|
Кисть-макловица типа КМА-2 |
ГОСТ 10597-65 |
8(12) |
Обрызгивание штукатурного слоя водой во время затирки, промывка загрязненных поверхностей, мытье инструмента |
|
Нож штукатурный |
«Гипрооргсельстрой» Минсельстроя СССР |
4(6) |
Разные работы |
|
Ножницы ручные |
ГОСТ 7210-54 |
4(6) |
Резка металлической сетки |
|
Лузговое правило (рис. 1) |
- |
4(6) |
Отделка лузг начисто |
|
Усеночное правило (рис. 2) |
- |
4(6) |
Отделка усенков начисто |
|
Рустовка потолочная (рис. 3) |
- |
4(6) |
Прорезка рустов |
|
Рустотерка (рис. 4, 5) |
- |
4(6) |
Заглаживание потолочных рустов |

Контрольно-измерительный инструмент
|
Отвес типа 0-400; 0-600 |
ГОСТ 7948-63 |
4(6) |
Проверка вертикальности элементов конструкций |
|
Уровень строительный УС1-300 |
ГОСТ 9016-67 |
4(6) |
Проверка положения горизонтальных элементов |
|
Стандартный конус |
ГОСТ 5802-66 |
1 |
Определение подвижности раствора |
|
Рейка с отвесом |
ГОСТ 9016-67 |
4(6) |
Контроль качества штукатурки |
|
Угольник деревянный |
«Гипрооргсельстрой» Минсельстроя СОСР |
4(6) |
Разделка углов |
|
Металлический угольник с передвижной планкой |
Трест «Мосоргстрой» Главмосстроя |
4(6) |
Разметка откосов |
|
Метр складной деревянный |
- |
4(6) |
Промеры |
|
Рулетка измерительная |
ГОСТ 75012-55 |
4(6) |
» |
|
Приспособления |
|
|
|
|
Форсунки |
Трест «Оргтехстрой» или Главхарьковстрой |
4(4) |
Нанесение раствора в больших помещениях |
|
|
|||
|
Форсунки |
УПП Главмосстроя |
4(4) |
То же в малых |
|
Производственный инвентарь |
|
|
|
|
Штукатурный ящик |
«Гипросельстрой» Минсельстроя СССР |
16(24) |
Хранение раствора на рабочем месте |
|
Ведра |
МРТУ Минторг СССР |
16 (24) |
Хранение воды |
|
Сита с ячейками 1´1 мм |
- |
4(6) |
Процеживание раствора для накрывочного слоя |
|
Инвентарные переносные столики (рис. 6) |
- |
8(12) |
Подмащивание в помещениях с площадью пола менее 5 м2 |
|
Инвентарные стойки с прогонами |
- |
30 (45) |
Устройство сплошных подмостей |
|
Инвентарные щиты для подмостей (рис. 7) |
- |
90 (135) м2 |
То же |
|
|
|
Примечания 1. В скобках указано потребное количество инструмента, инвентаря и др., для бригады, работающей на строительстве 100-кв. дома. 2. Для 100-кв. дома принята бригада в количестве 28 чел., а для 70-кв. дома - 20 чел . |
|
Рис. 6 для помещений высотой 2500 мм высота столика 700 мм; для помещений высотой 3200 мм - 1400 мм |
Рис. 7 Примечание. Облегченные щиты настила должны изготовляться из материалов хвойных пород 2 сорта. Применять некачественные доски, с признаками гнили, косослоем и большой сучковатостью не разрешается. Щиты разрешается применять только при устройстве подмостей для внутренних штукатурных и малярных работ. Применение щитов для других работ запрещается |
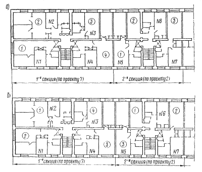
Организация труда в бригаде. Штукатурные работы выполняются поточно-звеньевым методом с применением комплексной механизации. При рекомендуемом методе организации фронт работ бригады состоит из одной секции пятиэтажного дома с площадью отделываемой поверхности до 4000 м2 с одновременным выполнением штукатурных работ на захватке (один-два этажа) площадью 800 - 1500 м2. Рекомендуются бригады для 70-кв. дома из 20 чел. (5 звеньев), для 100-кв. дома - из 28 чел. (7 звеньев).
Звено 1 (4 человека, включая моториста) является ведущим в бригаде, оно занимается механизированным нанесением обрызга и грунта и вторичной переработкой раствора с подачей его к рабочему месту.
Другие звенья - 2, 3, 4 и 5 для 70-кв. дома и 2, 3, 4, 5, 6 и 7 для 100-кв. дома (по 4 человека в каждом) - распределяются по делянкам (квартирам) по всей захватке (этажу).
Каждое звено выполняет все работы в оштукатуриваемой квартире, кроме механизированного нанесения раствора.
Звенья перемещаются с квартиры одной захватки в квартиру следующей захватки в соответствии с графиком и планом очередности перехода звеньев по квартирам, что обеспечивает ритмичную работу.
По окончании оштукатуривания последнего этажа одно звено переходит к обработке лестничной клетки (работу ведут сверху вниз), а остальные звенья производят обмазку плинтусов и наличников (табл. 5).
Организация труда в звеньях 2 - 7 (кроме механизированного нанесения обрызга и грунта (рис. 8). Звено, состоящее из четырех человек, занимает одну квартиру (делянку) и выполняет в ней все производственные процессы и рабочие операции, за исключением механизированного нанесения обрызга и грунта, которые выполняются штукатуром-сопловщиком из звена 1.
Каждое звено выполняет работы в следующем порядке:
разравнивание грунта и черновая обработка лузг и усенков;
установка сплошных подмостей;
нанесение и затирка накрывочного слоя с отделкой лузг и усенков;
разделка швов на потолках с прорезкой рустов;
обработка откосов;
беспесчаная накрывка гипсобетонных перегородок.
Подготовительный этап включает работы по подготовке к оштукатуриванию: заделку отверстий, срубку выступающих частей, подноску элементов подмостей, тары, подачу гипса и цемента.

Рис. 8. Схема распределения звеньев на захватке 5-го этажа 70-кв. дома (секция № 6 1-3-3-4)
Примечание. На 100-кв. доме звенья 6 и 7 занимают квартиры на 4-м этаже согласно очередности
Основной этап работы звена представляет собой цикличный процесс, состоящий из следующих операций, выполняемых в определенной последовательности:
а) как только штукатур-сопловщик Ш-1 начал наносить слой грунта на поверхность, штукатур Ш-5 приступает к разравниванию его и черновой обработке лузг и усенков двухметровым полутерком, частично подбирает раствор с пола кельмой, используя его для выравнивания поверхностей;
б) вслед за штукатуром Ш-5 штукатур Ш-6 выравнивает поверхность деревянным окованным правилом, а штукатур Ш-8 полностью подбирает с пола оставшийся раствор в тару и помогает сопловщику перетаскивать шланги;
в) после окончания нанесения обрызга и грунта по кирпичным стенам и его выравнивания звено приступает к установке сплошных подмостей согласно прилагаемой схеме, указанной на рис. 9;
г) после установки подмостей штукатур Ш-6 наносит накрывочный слой, штукатур Ш-7 производит отделку поверхностей затирочной машинкой, штукатур Ш-5 отделывает лузги и усенки;

Рис. 9. Схема организации рабочего места звена в квартире № 1 100-кв. дома:
1 - ящик для гипса; 2 - ящик для цемента; 3 - ящик для раствора; 4 - щиты пастила; 5 - столики; 6 - инвентарные стойки с прогонами; 7 - стремянка
д) с установленных подмостей штукатуры Ш-6 и Ш-7 производят обработку швов на потолках с прорезкой рустов, штукатур Ш-5 производит отделку откосов, а затем беспесчаную накрывку гипсобетонных перегородок, штукатур Ш-8 выполняет вспомогательные работы при отделке откосов и приготавливает гипсовую заводку;
е) после выполнения указанных работ звено разбирает и переносит подмости в другую квартиру (делянку) и заканчивает работы на нижней части стен и перегородок.
Заключительный этап включает работы по уборке мусора и переходу на другую делянку.
Примечание. Для обеспечения ритмичности в работе всех звеньев в помощь звену, которое работает в большей (по площади) квартире, периодически подключается штукатур-сопловщик Ш-1 и штукатур Ш-3 из первого звена.
Организация труда в звене по вторичной переработке раствора и механизированному нанесению его на стены (рис. 10, 11).
Подготовительный этап. Штукатур Ш-3 совместно с транспортным рабочим Ш-4 производят приемку раствора с автосамосвала в приемный бункер с очисткой кузова вручную.

Рис. 10. Схема устройства штукатурного агрегата:
1 - приемный бункер; 2 - растворомешалка; 3 - бункер растворонасоса с вибратором; 4 - растворонасос; 5 - растворопровод; 6 - рабочий настил; 7 - пульт управления и сигнализации

Рис. 11. Схема передвижения сопловщика на захватке (1-й этаж 70-кв. дома);
кв. 1, кв. 2 и т.д. показывают порядок перехода сопловщика;
1, 2… - порядок перехода сопловщика по комнатам в квартире
(№№ квартир соответствуют проектным)
Основной этап работы звена 1 представляет собой цикличный процесс, состоящий из следующих операций:
а) машинист Ш-2 включает растворомешалку и подает в нее из шланга небольшое количество воды; Ш-3 и Ш-4 загружают раствор в растворомешалку;
б) после тщательного перемешивания раствора машинист выливает его через вибросито в бункер растворонасоса. Штукатур Ш-3 при помощи кельмы периодически очищает сито от отходов;
в) по сигналу штукатура-сопловщика Ш-1 машинист включает растворонасос и подает раствор к рабочему месту;
г) штукатур-сопловщик бескомпрессорной форсункой наносит раствор на поверхность стен. По мере перемещения его по фронту работы штукатур Ш-8 из основного звена помогает ему перетаскивать шланги.
Заключительный этап. Закончив нанесение обрызга и грунта на захватке, штукатур-сопловщик подносит форсунку к установленному над металлическим ящиком ситу с ячейками 1×1 мм, процеживает раствор для накрывочного слоя. После того, как нужное количество раствора процежено, штукатур-сопловщик дает сигнал мотористу выключить растворонасос и переходит на следующую захватку.
Очередность перехода звеньев по квартирам в секциях 70-кв. дома
(см. рис. 8)
|
№ секций проекту |
Этаж |
№ квартир (число комнат в квартире) |
трудоемкость в чел.-ч. По ЕНиР |
№ звеньев |
№ секций проекту |
Этаж |
№ квартир (число комнат в квартире) |
Трудоемкость в чел.-ч. по ЕНиР |
№ звеньев |
|
6 |
5 |
1(3) |
111,16 |
2 |
6 |
1 |
1(3) |
111,47 |
5 |
|
4(4) |
129,43 |
3 |
4(4) |
113,72 |
4 |
||||
|
3(1) |
76,32 |
4 |
3(1) |
80,94 |
2 |
||||
|
2(3) |
112,75 |
5 |
2(3) |
130,36 |
3 |
||||
|
6 |
4 |
1(3) |
111,16 |
4 |
6 |
5-1 |
Лестничная клетка |
81,07 |
3 |
|
4(4) |
129,43 |
2 |
|||||||
|
3(1) |
76,32 |
5 |
|||||||
|
2(3) |
112,75 |
3 |
1 |
5 |
5(2) |
99,15 |
5 |
||
|
6 |
3 |
1(3) |
111,16 |
4 |
7(2) |
109,88 |
4 |
||
|
4(4) |
129,43 |
3 |
6(2) |
105,46 |
2 |
||||
|
3(1) |
76,32 |
4 |
1 |
4 |
5(2) |
99,15 |
5 |
||
|
2(3) |
112,75 |
5 |
7(2) |
109,88 |
2 |
||||
|
6 |
2 |
1(3) |
111,16 |
4 |
6(2) |
105,46 |
4 |
||
|
4(4) |
129,43 |
3 |
1 |
3 |
5(2) |
99,15 |
3 |
||
|
3(1) |
76,32 |
5 |
7(2) |
109,88 |
5 |
||||
|
2(3) |
112,75 |
5 |
6(2) |
105,46 |
4 |
||||
|
1 |
2 |
5(2) |
99,15 |
2 |
7 |
5 |
11(3) |
112,75 |
5 |
|
7(2) |
109,88 |
3 |
14(1) |
76,32 |
2 |
||||
|
6(2) |
105,46 |
5 |
13(4) |
129,43 |
4 |
||||
|
1 |
1 |
5(2) |
100,15 |
2 |
12(3) |
111,16 |
5 |
||
|
7(2) |
110,29 |
4 |
7 |
4 |
11(3) |
112,75 |
2 |
||
|
6(2) |
106,2 |
3 |
14(1) |
76,32 |
4 |
||||
|
13(4) |
129,43 |
3 |
|||||||
|
1 |
5-1 |
Лестничная клетка |
81,07 |
5 |
12(3) |
111,16 |
5 |
||
|
7 |
3 |
11(3) |
112,75 |
2 |
|||||
|
14(1) |
76,32 |
4 |
|||||||
|
2 |
5 |
8(2) |
105,46 |
2 |
13(4) |
129,43 |
3 |
||
|
10(2) |
109,88 |
4 |
12(3) |
111,16 |
5 |
||||
|
9(2) |
99,15 |
3 |
7 |
2. |
11(3) |
112,75 |
4 |
||
|
2 |
4 |
8(2) |
105,46 |
5 |
14(1) |
76,32 |
2 |
||
|
10(2) |
109,88 |
2 |
13(4) |
129,43 |
2 |
||||
|
9(2) |
99,15 |
4 |
12(3) |
111,16 |
3 |
||||
|
2 |
3 |
8(2) |
105,46 |
3 |
7 |
1 |
11(3) |
113,72 |
5 |
|
10(2) |
109,88 |
5 |
14(1) |
80,94 |
4 |
||||
|
9(2) |
99,15 |
2 |
13(4) |
130,36 |
4 |
||||
|
2 |
2 |
8(2) |
105,46 |
4 |
12(3) |
111,47 |
3 |
||
|
10(2) |
109,88 |
3 |
7 |
5-1 |
Лестничная клетка |
81,07 |
2 |
||
|
9(2) |
99,15 |
5 |
|
|
Итого |
7793,74 |
|
||
|
2 |
1 |
8(2) |
106,2 |
2 |
|||||
|
10(2) |
100,15 |
4 |
|||||||
|
9(2) |
110,29 |
3 |
|||||||
|
2 |
5-1 |
Лестничная клетка |
81,07 |
3 |
Примечания. 1. Штукатур-сопловщик производит механизированное нанесение грунта согласно указанной очередности.
2. В трудоемкость по квартирам включена работа первого звена:
3. Очередность оштукатуривания квартир на этажах одна и та же, меняются только звенья по квартирам согласно плану очередности, связанному с ранним окончанием работ звеном на предыдущем этаже.
4. Номера квартир указаны согласно технологической карте в составе проекта производства работ выпуска 1968 г. НИБ ГУКСа МПС.

Рис. 12. График работы бригады штукатуров на 70-кв.доме
Таблица 6
Очередность перехода звеньев по квартирам в секциях 100-кв. дома
(см. рис. 13, табл. 6)
|
№ секции по проекту |
Этаж |
№ квартир (число комнат в квартире) |
Трудоемкость в чел.-ч. по ЕНиР |
№ звеньев |
№ секции по проекту |
Этаж |
№ квартир (число комнат в квартире) |
Трудоемкость в чел.-ч. по ЕНиР |
№ звеньев |
|
|
8 |
5 |
1(2) |
131,42 |
2 |
1 |
2 |
5(2) |
138,31 |
3 |
|
|
2(2) |
131,42 |
3 |
6(2) |
149,06 |
4 |
|
||||
|
3(2) |
120,61 |
4 |
7(2) |
150,6 |
7 |
|
||||
|
4(3) |
159,9 |
5 |
1 |
1 |
5(2) |
137,9 |
2 |
|
||
|
8 |
4 |
1(2) |
131,42 |
6 |
6(2) |
148,8 |
6 |
|
||
|
2(2) |
131,42 |
7 |
7(2) |
150,17 |
5 |
|
||||
|
3(2) |
120,61 |
4 |
1. |
5-1 |
Лестничная клетка |
94,31 |
5 |
|
||
|
4(3) |
159,9 |
2 |
|
|||||||
|
8 |
3 |
1(2) |
131,42 |
3 |
|
|||||
|
2(2) |
131,42 |
6 |
|
|||||||
|
3(2) |
120,61 |
7 |
2 |
5 |
8(2) |
150,6 |
3 |
|
||
|
4(3) |
159,9 |
5 |
9(2) |
149,06 |
4 |
|
||||
|
8 |
2 |
1(2) |
131,42 |
4 |
10(2) |
138,81 |
7 |
|
||
|
2(2) |
131,42 |
7 |
2 |
4 |
8(2) |
150,6 |
2 |
|
||
|
3(2) |
120.61 |
о |
9(2) |
149,06 |
6 |
|
||||
|
4(3) |
159,9 |
6 |
10(2) |
138,31 |
3 |
|
||||
|
8 |
1 |
1(2) |
131,29 |
2 |
2 |
3 |
8(2) |
150,6 |
4 |
|
|
2(2) |
131,29 |
5 |
9(2) |
149,06 |
7 |
|
||||
|
3(2) |
120,36 |
4 |
10(2) |
138,31 |
5 |
|
||||
|
4(3) |
159,91 |
3 |
2 |
2 |
8(2) |
150,6 |
2 |
|
||
|
8 |
5-1 |
Лестничная клетка |
94,31 |
3 |
9(2) |
149,06 |
6 |
|
||
|
10(2) |
138,81 |
3 |
|
|||||||
|
2 |
1 |
8(2) |
150,17 |
4 |
|
|||||
|
1 |
5 |
5(2) |
138,31 |
7 |
9(2) |
148,8 |
7 |
|
||
|
6(2) |
149,06 |
2 |
10(2) |
137,96 |
5 |
|
||||
|
7(2) |
150,6 |
6 |
2 |
5-1 |
Лестничная клетка |
94,31 |
7 |
|
||
|
1 |
4 |
5(2) |
138,31 |
5 |
|
|||||
|
6(2) |
149,06 |
4 |
|
|||||||
|
7(2) |
150,6 |
7 |
||||||||
|
3 |
5 |
11(2) |
138,31 |
2 |
|
|||||
|
1 |
3 |
5(2) |
138,31 |
2 |
12(1) |
98,7 |
6 |
|
||
|
6(2) |
149,06 |
6 |
13(3) |
171,83 |
3 |
|
||||
|
7(2) |
150,6 |
5 |
|
|||||||
|
3 |
4 |
11(2) |
138,31 |
4 |
4 |
1 |
14(3) |
171,65 |
7 |
|
|
12(1) |
98,7 |
5 |
15(1) |
98,51 |
2 |
|
||||
|
13(3) |
171,83 |
6 |
16(2) |
137,96 |
6 |
|
||||
|
3 |
3 |
11(2) |
138,31 |
2 |
4 |
5-1 |
Лестничная клетка |
94,31 |
6 |
|
|
12(1) |
98,7 |
7 |
|
|||||||
|
13(3) |
171,83 |
5 |
|
|||||||
|
3 |
2 |
11(2) |
138,31 |
3 |
9 |
5 |
17(3) |
159,9 |
3 |
|
|
12(1) |
98,7 |
4 |
18(1) |
98,7 |
5 |
|
||||
|
13(3) |
171,83 |
2 |
19(3) |
149,25 |
4 |
|
||||
|
20(2) |
131,42 |
2 |
|
|||||||
|
3 |
1 |
11(2) |
137,96 |
6 |
9 |
4 |
17(3) |
159,9 |
7 |
|
|
12(1) |
98,51 |
7 |
18(1) |
98,7 |
5 |
|
||||
|
13(3) |
171,65 |
4 |
19(3) |
149,25 |
3 |
|
||||
|
3 |
5-1 |
Лестничная клетка |
94,31 |
4 |
20(2) |
131,42 |
2 |
|
||
|
9 |
3 |
17(3) |
159,9 |
4 |
|
|||||
|
18(1) |
98,7 |
5 |
|
|||||||
|
4 |
5 |
14(3) |
171,83 |
3 |
19(3) |
149,25 |
5 |
|
||
|
15(1) |
98,70 |
5 |
20(2) |
131,42 |
7 |
|
||||
|
16(2) |
138,31 |
7 |
9 |
2 |
17(3) |
159,9 |
4 |
|
||
|
4 |
4 |
14(3) |
171,83 |
6 |
18(1) |
98,7 |
6 |
|
||
|
15(1) |
98,70 |
2 |
19(3) |
149,25 |
5 |
|
||||
|
16(2) |
138,31 |
5 |
20(2) |
131,42 |
7 |
|
||||
|
4 |
3 |
14(3) |
171,83 |
3 |
9 |
1 |
17(3) |
159,91 |
3 |
|
|
15(1) |
98,70 |
7 |
18(1) |
98,51 |
5 |
|
||||
|
16(2) |
138,31 |
2 |
19(3) |
149,0 |
6 |
|
||||
|
4 |
2 |
14(3) |
171,83 |
4 |
20(2) |
131,29 |
3 |
|
||
|
15(1) |
98,7 |
6 |
9 |
5-1 |
Лестничная клетка |
94,31 |
2 |
|
||
|
16(2) |
138,31 |
5 |
|
Примечания. 1. Штукатур-сопловщик производит механизированное нанесение грунта согласно указанной очередности.
2. В трудоемкость по квартирам включена работа первого звена.
3. В трудоемкость по квартирам не включен раздел из калькуляции технологической карты «Разные работы на весь дом» - 165,5 чел.-ч.
4. Очередность оштукатуривания квартир на этажах по секциям одинакова, меняются только звенья по квартирам согласно плану очередности, связанному с ранним окончанием работ звеном на предыдущем этаже.
5. Номера квартир указаны согласно технологической карте в составе проекта производства работ выпуска 1967г. НИБ ГУКС МПС.

Эффективность применения карты (табл. 7)-повышение производительности труда на 23 %.
Таблица 7
|
Показатели |
Измеритель |
Дом |
|
|
70-кв. |
100-кв. |
||
|
Объем работ |
м3 |
5208 |
7314 |
|
Трудовые затраты по ЕНиР. |
чел.-дни |
132,4 |
192,8 |
|
Трудовые затраты по карте |
» |
101,9 |
148,3 |
|
Экономия трудозатрат по карте |
» |
30,5 |
44,5 |
|
Трудовые затраты на обработку 100 м2 поверхности по ЕНиР |
чел.-ч. |
20,85 |
21,62 |
|
Трудовые затраты на обработку 100 м2 поверхности по карте |
» |
16,04 |
16,63 |
|
Выработка на 1 чел.-день по ЕНиР |
м2 |
39,3 |
37,9 |
|
Выработка на 1 чел.-день по карте |
» |
51,1 |
49,3 |
Подготовка процесса и условия работы. К выполнению штукатурных работ следует приступать после создания условий, исключающих повреждение оштукатуренных поверхностей и обеспечивающих безопасное производство работ. Штукатурные работы начинать с верхних этажей при наличии кровли.
По ходу монтажа здания в многоэтажных домах разрешается производство штукатурных работ начинать с нижних этажей при условии, если над отделываемыми помещениями имеется не менее трех смонтированных железобетонных перекрытий.
Технология и организация процесса (табл. 8). Нанесение штукатурного раствора на оштукатуриваемые поверхности после провешивания их производится при помощи бескомпрессорных форсунок. Нанесение слоев обрызга и грунта выполняется с пола.
Таблица 8
Приемы труда
|
Наименование операций, исполнители, инструменты, инвентарь, приспособления |
Описание приемов труда |
Иллюстрации приемов труда |
|
Механизированное нанесение обрызга и грунта (рис. 14) Штукатур-сопловщик Ш-1 - 4 разр. Штукатур Ш-8 - 2 разр. Бескомпрессорная форсунка |
Штукатур-сопловщик Ш-1 держит правой рукой, форсунку у места присоединения материального шланга, а левой поддерживает шланг с низу. Движением форсунки сверху вниз параллельными полосами покрывает раствором всю поверхность. Штукатур Ш-8 подбирает раствор с пола и помогает перетаскивать шланги |
Рис. 14 |
|
Выравнивание слоя грунта (рис. 15) Штукатур Ш-5 - 4 разр. Штукатур Ш-6 - в разр. Двухметровый полутерок, кельма и окованное правило |
Штукатур Ш-5, держа двумя руками двухметровый полутерок, разравнивает им слой грунта зигзагообразными движениями снизу вверх; переднюю кромку полутерка штукатур приподнимает во избежание срезывания раствора. Вслед за штукатуром Ш-5 штукатур Ш-6 окованным правилом выравнивает поверхность, срезая излишний намет |
Рис. 15 |
|
Черновая обработка лузг (рис. 16) ШтукатурШ-5 - 4 разр. Полутерок двухметровый |
Штукатур Ш-5, взявшись за ручку полутерка и приставив его к углу, движением вверх-вниз обрабатывает лузгу |
Рис. 16 |
Штукатур-сопловщик Ш-1 наносит обрызг и грунт на делянке; штукатур Ш-5 вслед за сопловщиком разравнивает грунт двухметровым полутерком и частично подбирает раствор с пола кельмой, используя его для выравнивания поверхностей; штукатур Ш-6 вслед за штукатуром Ш-5 выравнивает поверхность деревянным окованным правилом; штукатур Ш-8 полностью подбирает с пола оставшийся раствор в тару и помогает штукатуру-сопловщику Ш-1 перетаскивать шланги.
Слой обрызга толщиной не более 5 мм должен сплошь покрывать оштукатуриваемую поверхность.
Форсунку следует держать под углом 60 - 90° к оштукатуриваемой поверхности на расстоянии 0,7 - 1,5 м от нее.
Эффективность применения карты (табл. 9) - повышение производительности труда на 25,9 %.
Таблица 9
|
Показатели |
Измеритель |
Дом |
|
|
70-кв. |
100-кв. |
||
|
Объем работ |
м2 |
5208 |
7414 |
|
Трудовые затраты по ЕНиР |
чел.-дни |
195,5 |
289,3 |
|
Трудовые затраты по карте |
» |
144,8 |
214,3 |
|
Экономия трудозатрат по карте |
» |
50,7 |
75,0 |
|
Трудовые затраты на обработку 100 м2 поверхности по ЕНиР |
чел.-ч. |
30,8 |
32,4 |
|
Трудовые затраты на обработку 100 м2 поверхности по карте |
» |
22,8 |
24,0 |
|
Выработка на 1 чел.-день по ЕНиР |
.м2 |
26,6 |
25,3 |
|
Выработка на 1 чел.-день по карте |
» |
36,0 |
34,1 |
Подготовка, процесса и условия работы. Нанесение накрывочиого слоя на втором ярусе и отделка поверхностей затирочными машинками производится со сплошных подмостей, а в помещениях менее 5 м2 - с переносных инвентарных столиков.
Настилы, укладываемые на столики, должны иметь ровную поверхность с зазорами между досками не более 10 мм. Производить работы со случайных средств подмащивания запрещается.
Стойки необходимо устанавливать на очищенную от мусора поверхность железобетонных перекрытий. Нагрузка на настилы не должна превышать 150 кг/м2, в связи с чем нельзя складывать на них материалы в количестве, превышающем требуемый запас.
При механизированной отделке накрывочного слоя с помощью электрической затирочной машинки на рабочем месте устанавливаются преобразователь переменного тока (И-7.5) с рубильником и на лестничной клетке вышележащего этажа - бак для воды (емкостью около 20 л), с которым тонким резиновым шлангом соединяют затирочную машинку.
Штукатур-сопловщик, закончив нанесение обрызга и грунта на захватке, подносит форсунку к установленному над металлическим ящиком ситу и процеживает раствор для накрывочного слоя.
После того как нужное количество раствора процежено, штукатур-сопловщик дает сигнал мотористу выключить растворонасос и переходит на следующую захватку.
Технология и организация процесса (табл. 10). Накрывочный слой наносит штукатур Ш-6 по выровненному грунту (после схватывания штукатурных слоев) ручным способом.
При ручном способе накрывочный состав набирают штукатурной лопаткой, наносят на стену тонким слоем и разравнивают полутерком.
Отделку производит штукатур Ш-7 электрической или пневматической машинкой через 30 - 40 мин после нанесения накрывочного слоя. Штукатур перемещает машинку по накрывочному слою сверху вниз; накрывочный слой периодически обрызгивают водой.
Одновременно с затиркой накрывочного слоя штукатур Ш-6 производит разделку углов. Эта операция выполняется при помощи угловых полутерков - лузговых (для внутренних углов) или усеночных (для наружных углов).
Таблица 10
Приемы труда
|
Наименование операций, исполнители, инструменты, инвентарь, приспособления |
Описание приемов труда |
Иллюстрации приемов труда |
|
|
Процеживание раствора для накрывочного слоя (рис. 17) Штукатур-сопловщик Ш-1 - 4 разр. Форсунка |
Штукатур-сопловщик Ш-1 подносит форсунку к ситу, установленному над металлическим ящиком, и процеживает раствор для накрывочного слоя |
Рис. 17 1 - ящик для процеженного раствора; 2 – ящик для отходов; 3 - сопло; 4 - сито с ячейками 1´1 мм; 5 - подпорки |
|
|
Накладывание раствора на полутерок (рис. 18) Штукатур Ш-6-3 разр. Кельма, полутерок длиной 80 см |
Штукатур Ш-6 в левой руке держит полутерок, а в правой - кельму, накладывая ей на полутерок (грядкою) раствор |
Рис. 18 |
|
|
Нанесение и разравнивание накрывочного слоя (рис. 19) Штукатур Ш-6-3 разр. Полутерок длиной 80 см |
Приставляя полутерок с раствором под углом к поверхности, штукатур Ш-6 зигзагообразными движениями снизу вверх наносит и разравнивает раствор на поверхности |
Рис. 19 |
|
|
Затирка накрывочного слоя вручную в помещениях с площадью пола до 5 м2 (рис. 20) |
Штукатур Ш-7вправую руку берет терку, а в левую - маховую кисть и круговыми движениями производит затирку накрывочного слоя, при необходимости смачивая поверхность водой при помощи кисти |
Рис. 20 |
|
|
Штукатур Ш-7-4 разр. |
|||
|
Деревянная терка, кисть, ведро с водой |
|||
|
Затирка поверхности, с помощью затирочных машинок (рис. 21) |
Штукатур Ш-7 держит двумя руками затирочную машинку и затирает накрывочный слой |
||
|
Штукатур Ш-7-4 разр. |
Поверхности стен обрабатываются сверху вниз. Машинку по мере надобности перемещают в любом направлении; накрывочный слой периодически обрызгивают водой |
Рис. 21 |
|
|
Затирочная машинка |
|||
|
Отделка лузг (рис. 22) Штукатур Ш-5-4 разр. Правило лузговое |
Штукатур Ш-5 берет лузговое правило в обе руки и приставляет его к лузге с нанесенным накрывочным слоем так, чтобы оно одним концом касалось пола и его полотна прилегали к плоскостям, образующим лузгу, затем движением правила вверх-вниз производит затирку поверхности, придавая ей прямолинейность и вертикальность |
|
|
|
Отделка усенков (рис. 23) Штукатур Ш-5-4 разр. Правило усеночное |
Отделка усенков производится аналогично отделке лузг |
Рис. 22 |
Рис. 23 |
Эффективность применения карты (табл. 11) - повышение производительности труда на 16,6 %
Таблица 11
|
Показатели |
Измеритель |
Дом |
|
|
|
|
70-кв. |
100-кв. |
|
Объем работ |
пог. м |
3255 |
4524 |
|
Трудовые затраты по ЕНиР. |
чел.-дни |
73,4 |
110,3 |
|
Трудовые затраты по карте |
» |
66,2 |
92,0 |
|
Экономия трудозатрат по карте |
» |
13,2 |
18,3 |
|
Трудовые затраты на обработку 100 м2 поверхности по ЕНиР |
чл.-ч. |
20,0 |
20,0 |
|
Трудовые затраты на обработку 100 м2 поверхности по карте |
» |
16,7 |
16,7 |
|
Выработка на 1 чел.-день по ЕНиР |
пог. м |
41 |
41 |
|
Выработка на 1 чел.-день по карте |
» |
49,2 |
49,2 |
Подготовка процесса. Отделку швов на потолках в местах соединения железобетонных плит перекрытий производить с установленных подмостей для оштукатуривания верхних частей кирпичных стен.
Прорезку рустов на потолках производить после перетирки потолков, если в этом есть необходимость.
Технология и организация процесса (табл. 12), До начала работы пазы в стыке плит тщательно очищают от пыли, обильно смачивают водой и заполняют цементным раствором на всю их длину.
Затем раствор выравнивают полутерком заподлицо с поверхностью потолка и затирают поролоновой теркой.
Для ускорения схватывания раствора в него добавляют до 5 % гипса (в виде жидкой гипсовой заводки) и тщательно перемешивают.
Пазы между плитами заполняют сразу в нескольких помещениях с таким расчетом, чтобы раствор к моменту прорезки рустов успел несколько затвердеть.
Прорезка рустов потолка производится при помощи рустовки с применением направляющей рейки. В процессе прорезки раствора рустовка слегка прижимается к направляющей рейке и лишний раствор выпадает.
Таблица 12
Приемы труда
|
Наименование операций, исполнители, инструменты, инвентарь, приспособления |
Описание приемов труда |
Иллюстрации приемов труда |
|
Отбивка линий для прорезки потолочного руста (рис. 24) Штукатур Ш-6-3 разр. Штукатур Ш-7-4разр. |
Штукатуры Ш-6 и. Ш-7 натягивают шнур, отбеленный мелом, и прикладывают его к намеченным ранее меткам в местах расшивки руста Затем штукатур Ш-7 правой рукой оттягивает шнур от потолка и, опустив его, отбивает риску по длине руста |
Рис. 24. |
|
Прорезка потолочного руста (рис. 25). Штукатур Ш-6-3разр. Штукатур Ш-7-4разр. Рейка-рустовка Заглаживание руста (рис. 26) |
Штукатуры Ш-6 и Ш-7,. придерживая за оба конца рейку, прикладывают ее к отбитой риске, после чего штукатур Ш-7 правой рукой прорезает руст |
Рис 25 |
|
Штукатур Ш-7-4 разр. Гладилка-рустотерка, кисть, ведро |
Движением рустотерки по выемке руста штукатур Ш-7 заглаживает руст и подчищает заусенцы, периодически смачивая поверхность водой при помощи кисти |
Рис. 26 |
Эффективность применения карты - повышение производительности труда на 23,6 % (табл. 13).
Таблица 13
|
Показатели |
Измеритель |
Дом |
|
|
70-кв. |
100-кв. |
||
|
Объем работ |
м2 |
4720,1 |
5987,0 |
|
Трудовые затраты по ЕНиР |
чел.-дни |
109,5 |
142,2 |
|
Трудовые затраты по карте |
» |
83,6 |
108,6 |
|
Экономия трудозатрат по карте |
» |
25,9 |
33,6 |
|
Трудовые затраты на обработку 100 м2 поверхности по ЕШР |
чел.-ч. |
19,02 |
19,48 |
|
То же по карте |
» |
14,52 |
14,87 |
|
Выработка на 1 чел.-день по ЕНиР |
м2 |
43,11 |
42,1 |
|
Выработка на 1чел.-день по ЕНиР |
» |
56,46 |
55,13 |
Подготовка процесса. Беспесчаная накрывка гипсобетонных крупнопанельных перегородок производится после оштукатуривания кирпичных стен, отделки потолков и откосов.
Беспесчаная накрывка верхней части перегородок, производится с инвентарных подмостей. Обрабатываемая поверхность должна быть тщательно обметена жесткой щеткой или кистью.
До нанесения грунта поверхности смачивают водой.
Технология и организация процесса (табл. 14). Раствор приготавливается штукатурами на рабочем месте из просеянного через сито (с размером ячеек 1´1 мм) гипса и процеженного известкового теста. Состав раствора 1:4 (известь, гипс). Составляющие вводятся в водно-клеевой раствор 1:200 (клей, вода).
Таблица 14
Приемы труда
|
Наименование операций, исполнители, инструменты, инвентарь, приспособления |
Описание приемов труда |
Иллюстрации приемов труда |
|
|
Приготовление гипсового раствора (заводки) (рис. 27) Штукатур Ш-8-2 разр. Кельма, ящик, ведро, сито |
Штукатур Ш-8 вводит небольшими долями в водно-клеевой раствор просеянный гипс и процеженное известковое тесто до рабочей густоты |
Рис. 27 |
|
|
Накладывание раствора на полотно гладилки (рис. 28) Штукатур Ш-5-4разр. Гладилка, кельма Нанесение, гипсового раствора на гипсобетонную перегородку(рис. 29) Штукатур Ш-5 - 4 разр. Стальная гладилка |
Штукатур Ш-5 берет гладилку в правую руку, левой рукой набирает кельмой из ящика гипсовый раствор и накладывает его на полотно гладилки Приставляя гладилку с раствором нижней гранью к поверхности, штукатур Ш-5 движением снизу вверх наносит раствор тонким слоем |
Рис. 28 |
|
|
Затирка гипсобетонной поверхности (рис. 30) Штукатур Ш-5-4 разр. Стальная гладилка Кисть, ведро |
В правой руке штукатур Ш-5 держит стальную гладилку, а в левой - кисть. Смочив кистью обрабатываемую поверхность, штукатур затирает ее сначала круговыми, а затем параллельными движениями гладилки сверху вниз |
|
|
|
Рис. 29 |
Рис. 30 |
||
Раствор приготовляют небольшими порциями, так как он быстро схватывается.
Приготовленный раствор штукатур Ш-5 кельмой накладывает грядкой на полотно гладилки, а затем наносит его на перегородки снизу вверх. Наносить и разравнивать раствор следует как можно чаще. Вслед за нанесением раствора производят его заглаживание-затирку.
Штукатур Ш-8 приготовляет гипсовую заводку.
Эффективность применения карты - повышение производительности труда на 16,7 % (табл. 15).
Таблица 15
|
Показатели |
Измеритель |
Дом |
|
|
70-кв. |
100-кв. |
||
|
Объем работ |
м3 |
334,4 |
562,5 |
|
Трудовые затраты по ЕНиР. |
чел.-дни |
71,8 |
120,7 |
|
Трудовые затраты по карте. |
» |
59,8 |
100,7 |
|
Экономия трудозатрат по карте |
» |
12,0 |
20,0 |
|
Трудовые затраты на обработку 100 м2 поверхности по ЕНиР |
чел.-ч. |
176,0 |
176,0 |
|
Трудовые затраты на обработку 100 м2 поверхности по карте |
» |
146,6 |
146,6 |
|
Выработка на 1 чел.-день по ЕНиР |
м2 |
4,66 |
4,66 |
|
Выработка на 1 чел.-день по карте |
» |
5,59 |
5,59 |
Подготовка процесса и условия работы. До начала оштукатуривания откосов необходимо проверить при помощи уровня и отвеса правильность установки оконных и дверных коробок и тщательность их проконопатки. В зазоры шириной более 30 мм забивают рейки, обмотанные паклей. Зазоры шириной менее 30 мм конопатят паклей, смоченной гипсовым раствором. Щель заполняют паклей при помощи деревянной конопатки.
При неправильной установке коробок и плохой конопатке оштукатуривание откосов не допускается.
К отделке оконных и дверных откосов приступают после оштукатуривания кирпичных стен. Работа производится с инвентарных подмостей, устанавливаемых штукатурами.
Запрещается подмащиваться на приборах отопления и оштукатуривать откосы в неогражденных проемах окон и балконных дверей.
Технология и организация процесса (табл. 16). Верхние откосы оконных и дверных проемов должны быть горизонтальными и находиться на одном уровне. Боковые откосы должны иметь одинаковые углы рассвета.
Чтобы получить оконные откосы одинаковой ширины, по краям проема устанавливают направляющие рейки. Установку реек производят по правилу с отвесом. Для их крепления целесообразно применять инвентарные рейкодержатели.
Размер откосов от коробок к поверхностям стен («угол рассвета») определяют при помощи угольника с передвижной планкой. Угольник короткой стороной прижимают к внутренней грани коробки, движок угольника торцом опирают на внутреннюю грань стены. Отсчет по длинной его стороне показывает ширину откоса. Отметку, которая служит направляющей для стороны угла откоса, наносят на подоконник карандашом, приложенным к торцовой стороне движка.
Раствор набрасывают на откосы лопаткой с сокола, а при широких откосах - ковшом. При нанесении толстого намета на откосы следует в швы кладки и коробки набить гвозди и оплести их проволокой. Нанесенный под проволочное плетение раствор рекомендуется уплотнить кирпичным щебнем.
Раствор разравнивают при помощи деревянных малок, вырезанных из досок по форме откоса. Малку перемещают по откосу так, чтобы конец с вырезом передвигался по коробке, другой - по маячной рейке.
Накрывка и разравнивание выполняется обычным способом. Затирку накрывочного слоя производят при помощи поролоновых терок. После затирки откосов рейки снимают, исправляют и отделывают «усенки» или «фаски».
Оштукатуривание внутренних откосов производится тем же раствором, что и внутренних поверхностей степ.
Таблица 16
Приемы работ
|
Наименование операций, исполнители, инструменты, инвентарь, приспособления |
Описание приемов труда |
Иллюстрации приемов труда |
|
Разметка откосов угольником с передвижной планкой (рис. 31) Штукатур Ш-5-4разр. Угольник с передвижной планкой |
Штукатур Ш-5 прижимает угольник короткой стороной к внутренней грани коробки; движок угольника торцом упирает во внутреннюю грань стены. Отсчет на длинной его стороне показывает ширину откоса |
Рис. 31 |
|
Разравнивание грунта откосов (рис. 32) Штукатур Ш-5-4 разр. Малка Затирка откосов (рис. 33) Штукатур Ш-5-4 разр. Терка поролоновая (деревянная), кисть, ведро |
ШтукатурШ-5руками прижимает малку одним концом к рейке, другим к оконной коробке и движениями снизу вверх разравнивает нанесенный слой грунта Штукатур Ш-5.берет в правую руку терку, в левую кисть и, периодически смачивая поверхность водой, круговыми движениями терки (сверху вниз) затирает поверхность откоса |
Рис. 32 |
|
|
|
Рис. 33 |
Технология производства работ. В качестве примера приведена технология производства малярных работ на строительстве 70-квартирного дома серии 1-447С. Отделка дома предусматривается по секциям и этажам поточно-расчлененным методом. При этом отдельные виды работ закрепляются за специализированными звеньями, состав которых определяется в зависимости от трудоемкости работ.
Комплекс операций, входящих в состав малярных работ при внутренней отделке здания, предусмотрено выполнять в три потока специализированными звеньями:
звено первого потока осуществляет подготовку, шпаклевку и огрунтовку под клеевую и масляную окраску всех поверхностей, за исключением дощатых полов;
звено второго потока производит масляную и клеевую окраску этих поверхностей;
звено третьего потока выполняет подготовку и окраску дощатых полов.
Перечень операций, выполняемых звеньями по потокам, приведен в картах.
К малярным работам можно приступать лишь после окончания всех общестроительных работ, за исключением: настилки паркета, наклейки линолеума, устройства ксилолитовых полов и ошнуровки открытой электропроводки. Внутренние системы водопровода, канализации, центрального отопления и газоснабжения должны быть закончены и опробованы в действии.
Малярные работы начинает звено первого потока в первой секции дома; заканчивает эти работы за 9,5 дня и переходит во вторую секцию.
В секциях дома работы ведутся звеньями потоков с интервалами в 6 - 7 дней. Так, в первой секции звено второго потока начинает работу через 6 дней после начала первого потока; звено третьего потока через 7 дней после начала звена второго потока. Когда звено второго потока переходит во вторую секцию, звено первого потока переходит в третью секцию и т.д.
Таблица 17
Технико-экономические показатели
|
Наименование показателей |
Единица измерения |
Величина показателей |
|
|
по технологической карте и ЕНиР |
по картам трудовых процессов |
||
|
Общий объем малярных работ |
м2 |
26647,4 |
26647,4 |
|
Трудоемкость малярных работ на дом (объект) |
чел.-дни |
1016,7 |
897,4 |
|
Выработка на одного рабочего за смену |
м2 |
26,22 |
29,69 |
|
Трудоемкость на 1 м2 поверхности |
чел.-дни |
0,038 |
0,034 |
|
Стоимость трудозатрат на дом (объект) |
руб. |
3633-12 |
3262-59 |
|
Продолжительность работ |
дни |
50 |
45 |
|
Эффективность применения карт - повышение производительности труда |
% |
- |
11,73 |
Примечания. 1. Величины показателей по технологической карте взяты из проекта производства работ на строительство 70-квартирного дома серии 1-447С, разработанного Нормативно-исследовательским бюро и разосланного дорстройтрестам в 1968 г.
2. В карты трудовых процессов не включена работа но отделке потолков. На этот процесс по мере накоплении передового опыта будет дополнительно разработана карга.
Малярные работы ведутся по захваткам. Захваткой принято считать секцию на высоту этажа.
Последовательность отделки квартиры следующая: 1) жилые комнаты; 2) кухня; 3) санузел; 4) коридор. В последнюю очередь отделывают лестничную клетку.
43
Таблица 18
Сводная ведомость объемов работ, трудовых затрат и стоимости малярных работ
|
№ пп |
Наименование работ |
Этаж |
Объем работ (м2 окрашенной поверхности) |
Всего на дом |
|||||||||
|
секции |
по технологической карте |
по картам трудовых процессов |
|||||||||||
|
1 |
2 |
3 |
4 |
Лест-ничные клетки (1-5) |
Объем работ, м2 |
Норма времени, чел-ч |
Стоимость, руб., коп. |
Объем работ, м2 |
Норма времени, чел-ч |
Стоимость руб., коп |
|||
|
|
Улучшенная клеевая окраска: |
|
|
|
|
|
|
|
|
|
|
|
|
|
1 |
потолков |
1-5 |
1019,8 |
682,2 |
682,2 |
1019,8 |
71,8 |
3691,2 |
325,82 |
139-00 |
3691,2 |
325,82 |
139-02 |
|
2 |
стен и откосов |
- |
- |
- |
- |
- |
47,43 |
189,72 |
17,08 |
7-52 |
189,72 |
15,43 |
6-63 |
|
3 |
то же |
1 |
529,64 |
356,54 |
356,54 |
529,64 |
- |
1772,36 |
164,30 |
72-31 |
1772,36 |
148,52 |
63-83 |
|
4 |
" |
2-5 |
2125,56 |
1429,04 |
1429,04 |
2125,56 |
- |
7109,20 |
658,96 |
290-05 |
7109,20 |
595,68 |
256-01 |
|
|
Улучшенная масляная окраска: |
|
|
|
|
|
|
|
|
|
|
|
|
|
5 |
стен санузлов, кухонь |
1-5 |
561,05 |
444,45 |
445,45 |
561,05 |
23,1 |
2103,40 |
828,44 |
360-73 |
2103,40 |
661,57 |
290-56 |
|
6 |
полов |
1-5 |
928,95 |
637,15 |
637,15 |
928,95 |
- |
3132,20 |
1689,0 |
752-83 |
3132,20 |
1598,39 |
709-85 |
|
7 |
фрамуг |
1-5 |
26,25 |
22! 50 |
22,50 |
26,26 |
- |
97,50 |
114,40 |
50-70 |
97,50 |
114,40 |
50-70 |
|
8 |
подоконных досок |
|
8,6 |
5,56 |
5,56 |
8,6 |
- |
28,32 |
36,70 |
16-23 |
28,32 |
36,70 |
16-23 |
|
9 |
то же |
33,76 |
21,76 |
21,76 |
33,76 |
- |
111,04 |
146,68 |
65-12 |
111,04 |
146,48 |
65-12 |
|
|
10 |
оконных заполнений |
|
95,63 |
62,49 |
62,49 |
95,63 |
- |
316,24 |
105,02 |
50-74 |
316,24 |
105,02 |
50-74 |
|
11 |
то же |
361,88 |
234,48 |
234,48 |
361,88 |
25,48 |
1294,64 |
435,44 |
209-56 |
1294,64 |
435,44 |
209,56 |
|
|
12 |
дверных заполнений |
|
- |
- |
- |
- |
10,23 |
40,92 |
39,00 |
17-16 |
40,92 |
39,00 |
17-60 |
|
13 |
То же |
723,4 |
515,75 |
515,75 |
723,4 |
- |
2478,30 |
1855,80 |
826-90 |
2478,30 |
1443,86 |
626,85 |
|
|
14 |
балконных заполнений |
2-5 |
134,4 |
100,8 |
100,8 |
134,4 |
- |
470,40 |
113,12 |
54-32 |
470,40 |
113,12 |
54-32 |
|
15 |
трубопроводов, ванн и моек |
1-5 |
301,56 |
197,54 |
197,54 |
301,56 |
12,60 |
1048,60 |
489,62 |
199-88 |
1048,60 |
288,41 |
118-60 |
|
16 |
Окраска лаком внутренней поверхности шкафов, полок |
1-5 |
434,2 |
302,05 |
302,05 |
434,20 |
7,42 |
1502,18 |
237,60 |
115-38 |
1502,18 |
237,60 |
115-08 |
|
17 |
Улучшенная окраска шкафов, столов, моек, лестничных решеток |
1-5 |
323,15 |
257,10 |
257,10 |
323,15 |
21,84 |
1247,86 |
1080,64 |
467-22 |
1247,86 |
1053,27 |
444-66 |
|
|
Итого на дом |
1-5 |
7607,73 |
5269,41 |
5269,41 |
7607,73 |
219,81 |
26633,42 |
8337,54 |
3695-64 |
26633,42 |
7358,71 |
3235-36 |
Таблица 19
Распределение трудовых затрат по квалификациям, чел-ч
|
Наименование профессии |
Разряд |
Улучшенная клеевая окраска |
Улучшенная масляная окраска |
дверей, шкафов, столов моек, полок и металлических решеток |
Окраска лаком внутренней поверхности и шкафов и поручней |
Всего чел-ч |
Состав бригады |
||||||||
|
потолков |
Стен и откосов |
стен |
полов |
Фрамуг и оконных заполнителей |
Дверных и балконных заполнителей |
Санитарно-технического оборудования |
по потокам |
Количество человек в бригаде |
|||||||
|
1 поток |
2 поток |
3 поток |
|||||||||||||
|
Маляр |
5 |
- |
- |
61,3 |
248,28 |
70,55 |
211,42 |
- |
105,9 |
|
697,45 |
- |
2 |
1 |
3 |
|
» |
4 |
84,71 |
306,52 |
89,73 |
168,35 |
400,05 |
62,24 |
- |
219,97 |
237,6 |
1569,17 |
2 |
3 |
1 |
6 |
|
» |
3 |
- |
- |
143,57 |
550,07 |
291,83 |
977,61 |
144,20 |
492,16 |
- |
2599,44 |
7 |
- |
2 |
9 |
|
» |
2 |
241.11 |
453,11 |
366,97 |
631,69 |
75,61 |
344,71 |
144,21 |
235,24 |
- |
2492,65 |
7 |
- |
2 |
9 |
|
Всего |
|
325,82 |
759,63 |
661,57 |
1598,39 |
838,04 |
1595,98 |
288,41 |
1053,27 |
237,6 |
7358,71 |
16 |
5 |
6 |
27 |
Таблица 20
Потребность в материалах, кг
|
Наименование материалов |
1 или 4 секция |
2 или 3 секция |
Одна лестничная клетки |
Всего на дом |
|
Пемза |
35,01 |
24,92 |
0,95 |
123,06 |
|
Ветошь |
27,15 |
19,34 |
0,64 |
95,54 |
|
Клей малярный |
41,90 |
28,38 |
0,63 |
143,08 |
|
Мыло хозяйственное |
26,66 |
18,10 |
0,83 |
92,80 |
|
Купорос медный |
20,09 |
14,16 |
0,71 |
71,34 |
|
Мел молотый |
1688,06 |
1176,61 |
45,82 |
5912,62 |
|
Олифа |
703,65 |
504,60 |
17,73 |
2487,42 |
|
Краска сухая (пигмент) |
62,48 |
41,96 |
2,03 |
217,0 |
|
Краска тертая. |
125,02 |
87,51 |
1,76 |
432,1 |
|
Сиккатив |
24,18 |
17,27 |
0,45 |
84,7 |
|
Белила цинковые |
350,65 |
251,28 |
16,02 |
1267,91 |
|
Охра тертая |
41,80 |
30,92 |
1,18 |
150,16 |
|
Скипидар |
35,93 |
32,78 |
0,83 |
140,74 |
|
Лак |
26,92 |
18,73 |
0,46 |
93,14 |
Примечания. 1. Затраты труда по видам окраски указаны в чел-ч.
2. Среднерасчетная продолжительность рабочей смены принимается - 8,2.
3. Общая продолжительность работ - 4.5 дней.

Рис 34. График работы бригады по отделке 70-кв. дома
Таким образом, в течение 22,5 дня малярные работы заканчиваются в первой секции и в течение 45 дней завершается комплекс малярных работ по всему дому.
Очередность производства работ звеньями по квартирам приведена на рис. 34. Картами предусмотрено производство работ новыми приспособлениями и усовершенствованным инструментом на операциях: шпаклевка, сглаживание и шлифовка прошпаклеванных поверхностей; масляная окраска радиаторов, труб отопления, канализации и газопровода.
Влажность и температура воздуха влияют на качество малярных работ. Внутри помещений малярные работы необходимо производить при постоянной положительной температуре, при этом у наиболее охлажденных наружных стен температура воздуха на высоте 0,5 м от пола должна быть не ниже +8°С и относительная его влажность не выше 70 %.
Малярные составы нужно изготовлять и хранить в отапливаемом помещении. Температура составов в момент применения должна быть не ниже +10°С.
К началу малярных работ поверхности должны быть сухими, штукатурка по всей толщине созревшей, так как процесс созревания сопровождается образованием свободной воды, выделяемой на поверхности штукатурки.
Сырые участки обрабатываемых поверхностей необходимо сушить специальными приспособлениями в комбинации с вентиляционными установками.
Наиболее рационально производить малярные работы при постоянно действующем отоплении и после окраски поверхностей водными составами, в помещениях поддерживать положительную температуру (16 - 18°С) в течение 3 - 4 суток.
Для окраски оконных переплетов в зимнее время следует снимать их с петель (попеременно то зимние, то летние), просушивать и лишь затем окрашивать, так как зимой на навешенных переплетах образуются влага и наледь, мешающие окраске.
Перед окраской оштукатуренные поверхности должны иметь влажность не более 8 %, а деревянные - не более 12 %.
Основные указания по технике безопасности. При пневматической окраске поверхностей необходимо работать в респираторе и защитных очках.
Пневматические окрасочные аппараты и шланги до начала работы нужно проверить и испытать давлением, в 1,5 раза превышающим рабочее, о чем составляется акт или делается запись в журнале работ.
Воздушные компрессоры должны быть оборудованы манометрами, предохранительными клапанами, маслоотделителями и воздушными фильтрами на всасывающих патрубках. Манометр и предохранительные клапаны опломбируются. На шкалу манометра наносят красную отметку, указывающую предельное для данного компрессора давление. Манометр следует проверять не реже одного раза в год. Передвижные компрессоры на время работы следует устанавливать на ровных площадках, колеса их закрепить, а двигатели и рамы заземлить.
Во избежание ожогов рук известковыми растворами окраску производить в резиновых перчатках, а при отсутствии последних руки смазывать вазелином или пастой XИОТ (Харьковский институт охраны труда).
Запрещается крепить шланги пневмоинструмента проволочными скрутками. Присоединение и разъединение шлангов допускается после прекращения подачи воздуха и снятия давления в системе.
При окраске пистолетами-распылителями, сопровождающейся туманообразованием, или применении быстросохнущих лакокрасочных материалов, содержащих летучие растворители, рабочие должны работать в респираторах и защитных очках с плотно прилегающей оправой.
Запрещается снимать пломбы с предохранительных клапанов и манометров-краскопультов. При наличии в швах и стенках резервуара краскопульта дефектов (вмятин и т.п.) работать им не разрешается.
Колерные приобъектные мастерские должны оборудоваться приточно-вытяжной вентиляцией, обеспечивающей четырехкратный обмен воздуха в течение каждого часа.
Малярные работы с применением составов, выделяющих вредные для здоровья людей пары, следует производить при открытых окнах или при наличии вентиляции, обеспечивающей не менее двукратного обмена воздуха в час. Если используются нитрокраски, должно быть обеспечено непрерывное сквозное проветривание.
В зоне применения нитрокрасок и других составов, образующих опасные летучие пары, запрещается курить и выполнять работы, связанные с использованием огня.
При окраске внутренних поверхностей неводными составами необходимо обеспечивать искусственную или естественную вентиляцию помещений, но без сквозняков.
Работать растворами соляной кислоты и составами, в которых содержится каустическая сода, необходимо в комбинезоне, резиновых сапогах, рукавицах и в защитных очках.
В помещениях, где производится окраска водными составами, электропроводку на время малярных работ необходимо обесточить.
После окончания работы с нитро- и перхлорвиниловыми красками руки следует протереть тряпкой, смоченной растворителем, а затем вымыть их теплой водой с мылом. Особенно строго это правило нужно выполнять перед приемом пищи.
Спецодежду и индивидуальные защитные средства работающим выдают в строгом соответствии с «Типовыми отраслевыми нормами бесплатной выдачи спецодежды, спецобуви и предохранительных приспособлений».
Эффективность применения карт - повышение производительности труда на 14,60 % (табл. 21).

Рис. 35. Посекционная схема выполнения работ в первом потоке:
а - подготовка под клеевую и масляную окраску стен и перегородок: б - подготовка столярных изделии под масляную окраску; 1, 2 - последовательность работ на этаже по квартирам: № 1, № 7 - номера квартир
Таблица 21
Перечень операций и методы их выполнения
|
Наименование операций |
Объем, м2 |
По технологической карте и ЕНиР |
Методы выполнения |
||||
|
по существующей технологии |
по карте трудовых процессов |
по предлагаемой технологии |
|||||
|
Норма времени |
Норма времени |
||||||
|
на единицу объема, чел.-ч. руб., коп. |
на весь объем чел.-ч. руб., коп. |
на единицу объема, чел.-ч. руб., коп. |
на весь объем, чел.-дни руб., коп. |
||||
|
Сглаживание торцом дерева и расшивка трещин стен под клеевую и масляную окраску в помещении площадью |
|
|
|
|
|
|
|
|
более 5 м2 |
8755,2 |
|
|
С использованием деревянной гладилки Маляр 2 разр.-3 чел. |
|
|
С использованием приспособления инструктора Зарубина, трест «Оргтехстрой», г. Ярославль Маляр 2 разр.-3 чел. |
|
менее 5 м2 |
2419,5 |
||||||
|
2. Проолифка стен под масляную окраску валиком в помещении площадью: |
|
|
|
|
|
|
|
|
более 5 м2 |
963,1 |
|
|
С использованием ручного валика Маляр 2 разр.-1 чел. |
|
|
С использованием пистолета-распылителя Маляр 4 разр.- 1 чел. |
|
менее 5 м2 |
1140,0 |
||||||
|
Сплошная шпаклевка поверхности стен (панелей под масляную окраску) в помещении площадью: |
|
|
|
|
|
|
|
|
более 5 м2 |
963,1 |
|
|
Вручную Маляр 3 разр.-1 чел. |
|
|
С применением рационального инструмента (кружки Ерошина) Маляр 3 разр.- 1 чел. Маляр 2 разр.-2 чел. |
|
менее 5 м2 |
1140,0 |
||||||
|
Шлифовка прошпаклеванных поверхностей стен в помещении площадью: |
|
|
|
|
|
|
|
|
более 5 м2 |
963,1 |
|
|
Вручную Маляр 2 разр.-1 чел. |
|
|
С использованием приспособления инструктора Зарубина Маляр 2 разр.-1 чел. |
|
менее 5 м2 |
1140,1 |
||||||
|
Итого |
17484,1 |
|
|
|
|
|
|
Эффективность применения карты (табл. 22, 23, 24). Сокращение трудозатрат при сглаживании и расшивке трещин достигается в результате применения рационального инструмента инструктора Зарубина.
Таблица 22
Показатели производительности труда
|
Наименование показателя |
По технологической карте и ЕНиР |
По карте трудовых процессов |
Примечание |
|
Средняя выработка на1 чел.-день в м2 |
470 |
600 |
Выработка и затраты труда приняты на основании опыта работы инструкторов треста «Оргтехстрой» Главверхневолжскстроя |
|
Затраты труда в чел-ч на 1 м2 |
0,017 |
0,0616 |
Таблица 23
Исполнители, инструмент, инвентарь, приспособления
Состав исполнит.: маляр 2 разр. - 1 чел.(M1)
» 2 разр. - 1 чел. (М2)
» 2 разр. - 4 чел. (М3)
|
Наименование |
ГОСТ, чертеж, марка |
Количество, шт. |
Назначение |
|
Приспособление инструктора Зарубина |
Чертеж прилагается |
1 |
Сглаживание поверхностей |
|
Инвентарный малярный столик |
Каталог-справочник ручного инструмента, г. Москва, Главмосстрой, 1961 г. |
1 |
Подмазывание |
|
Металлический шпатель |
10778-61 |
1 |
Расшивка трещин |
Таблица 24
Потребность в материалах на 100 м2 поверхности
|
Наименование |
Количество, кг |
Примечание |
|
Для клеевой окраски |
|
Производственные нормы расхода строительных материалов, табл. 211, Госстрой СССР |
|
Клен мездровый |
0,03 |
|
|
Мыло хозяйственное |
0,02 |
|
|
Купорос медный |
0,02 |
|
|
Мел молотый |
1,50 |
|
|
Для масляной окраски |
|
|
|
Клей мездровый |
0,2 |
Там же, табл. 197 |
|
Олифа |
0,70 |
|
|
Сиккатив |
0,02 |
|
|
Мыло хозяйственное |
0,02 |
Подготовка процесса и условия работы. Сглаживание поверхности и расшивка трещин в отделываемых помещениях производится после окончания всех общестроительных и специальных работ.
Перед началом работы необходимо проверить наличие и исправность инструмента и инвентаря.
Технология и организация процесса (табл. 25). Маляры M1 и М2 специальным приспособлением, передвигая его вверх и вниз параллельными полосами, производят сглаживание поверхностей до полного устранения шероховатости и очистку от брызг раствора. Маляр М3 острым углом металлического шпателя производит расшивку трещин на глубину 2 мм с уширением верхнего слоя под углом 45°. Следы сухого раствора, образовавшиеся при расшивке трещин, М3 снимает шпателем, направляя его сверху вниз.
Таблица 25
Приемы труда
|
Наименование операций, исполнители, инструменты, инвентарь, приспособления |
Описание приемов труда |
Иллюстрации приемов труда |
|
Сглаживание поверхности стен (рис. 36) Маляры (M1, М2) - 2 разр.; приспособление инструктора Зарубина |
Маляры, держа приспособление для сглаживания за черенок, параллельными движениями вверх - вниз производят сглаживание поверхностей до полного устранения шероховатости и очистки отдельных брызг раствора |
Рис.36 |
|
Расшивка трещин Маляр (М3) - 2 разр. Металлический шпатель |
Маляр, держа в правой руке металлический шпатель, производит расшивку трещин острым углом на глубину 2 мм с уширением шва в верхней части слоя под углом 45°, а следы сухого раствора, образовавшиеся при расшивке трещин, снимает шпателем, направляя его сверху вниз |
Эффективность применения карты (табл. 26, 27, 28). Сокращение трудозатрат при сплошной шпаклевке поверхности стен достигается в результате применения рационального инструмента (кружки Ерошина) и лучшей организации труда.
Таблица 26
Показатели производительности труда
|
Наименование показателя |
По технологической карте и ЕНиР |
По карте трудовых процессов |
Примечание |
|
Средняя выработка на 1 чел.-день в м2 |
66,6 |
74 |
Выработка и затраты труда приняты на основании опыта работы инструкторов треста «Оргтехстрой», г. Ярославль |
|
Затраты труда на 1 мг в чел.-ч. |
0,12 |
0,108 |
Таблица 27
Исполнители, инструмент, инвентарь, приспособления
Состав исполнителей: маляр 3 разр.- 1 чел. (M1), маляр 2 разр.-1 чел. (М2), маляр 2 разр. - 1 чел. (М3).
|
Наименование |
ГОСТ, чертеж, марка |
Количество, шт. |
Назначение |
|
Кружка Ерошкина |
Чертежи прилагаются |
1 |
Для нанесения шпаклевки на поверхность |
|
Деревянный шпатель № 1 - 8 |
Трест Мосоргстрой |
2 |
Разравнивание шпаклевочного слоя поверхности |
|
Ведро |
- |
1 |
Хранение готового шпаклевочного состава |
|
Ведро |
- |
1 |
Хранение шпаклевки; подлежащей переработке |
|
Металлический шпатель |
10778-64 |
2 |
Нанесение, разравнивание и сглаживание шпаклевки |
|
Инвентарный малярный столик |
Каталог-справочник ручного инструмента, г. Москва, Главмосстрой, 1961 г. |
9 |
Подмащивание |
|
Компрессор |
0-38 |
1 |
Для подачи сжатого воздуха на этажи |
|
Пневмостояк |
Альбом чертежей «Киеворгсельстроя» |
1 |
То же |
Таблица 28
Потребность в материалах на 100 м2 поверхности
|
Наименование |
(Количество, кг |
Примечание |
|
Олифа |
5,7 8,7 |
В числителе даны нормы расхода материалов для шпаклевки на натуральной олифе, в знаменателе - на олифе «оксоль» |
|
Мел молотый |
25,4 25,8 |
|
|
Мыло хозяйственное |
0,12 0,2 |
(Производственные нормы расхода строительных материалов, табл. 216, Госстрой СССР) |
|
Клей мездровый |
0,12 0,2 |
|
|
Сиккатив |
0,6 0,3 |
|
|
Скипидар |
_-_ 1,2 |
Подготовка процесса и условия работы. Нанесение и разравнивание шпаклевочного состава производится после окончания работ по сглаживанию поверхностей, расшивки трещин, промазки и шлифовки подмазанных мест, а также после полного высыхания огрунтовочного слоя.
Шпаклевочный состав применяется консистенции по стандартному конусу - 11 - 13 см.
Перед началом работы необходимо проверить наличие и исправность инструмента, инвентаря и приспособлений.
Технология и организация процесса (табл. 29). Приступая к шпаклевке поверхностей стен (панелей), M1 подготавливает кружку Ерошина к работе: проверяет ее исправность, подсоединяет воздушный шланг к пневмостояку, подготавливает шпаклевочный состав (набирает в ведро и подносит к месту работы) и заливает его в кружку.
М2 и М3 подготавливают к работе шпатели и устанавливают подмости.
Таблица 29
Приемы труда
|
Наименование операций, исполнители, инструменты, инвентарь, приспособления |
Описание приемов труда |
Иллюстрации приемов труда |
|
Механизированное нанесение шпаклевочного состава на поверхности стен (рис, 37) M1 -3 разр. Кружка Ерошина-1 шт. Ведро-1 шт. Инвентарный малярный столик - 1 комплект Разравнивание нанесенного шпаклевочного слоя (рис. 38) М2 - 2 разр. М3 - 2 разр. Шпатель деревянный или пластмассовый-2 шт. Ведро - 1 шт. |
М1 подготавливает кружку-форсунку к работе, подсоединяет воздушный шланг к пневмостояку, заливает необходимое количество шпаклевочного состава в кружку и наносит шпаклевочный состав на поверхность стены, делая кругообразные движения рукой с кружкой. Размер факела регулируется поворотом сопла |
Рис. 37 |
|
М2, М3 разравнивают шпателем нанесенный шпаклевочный слой, при этом одной рукой шпатель держат за ручку, четырьмя пальцами другой руки слегка прижимают рабочую часть шпателя к обрабатываемой поверхности. Разравнивание производится параллельными движениями шпателя, направленными вверх - вниз. Излишки шпаклевочного состава снимаются в ведро и подлежат переработке. |
Рис. 38 |
M1 наносит шпаклевочный состав на поверхность стены; вслед за ним М2 и М3 разравнивают нанесенный слой, снимая излишки шпателем в ведро.
По мере расходования шпаклевочного состава М1 периодически заливает его в кружку, закрывая при этом отверстие.
После выполнения работ на первой захватке (захваткой считается поверхность стен, обрабатываемая в данном помещении с подмостей) М1 отключает подачу воздуха в кружку и подносит шпаклевочный состав для работы на второй захватке.
М2 и М3 разбирают подмости и переставляют их в другое помещение, после чего М1, М2 и М3 производят шпаклевку поверхности стен непосредственно с пола.
По окончании работы маляры приводят в порядок свои рабочие места и моют инструмент.
Эффективность применения карты (табл. 30, 31). Сокращаются трудовые затраты в результате применения рационального инструмента Зарубина и лучшей организации труда.
Таблица 30
Показатели производительности труда
|
Наименование показателей |
По технологической карте и ЕНиР |
По карте трудовых процессов |
Примечание |
|
Средняя выработка на 1чел.-день в м2 |
210,5 |
250 |
Выработка и затраты труда приняты на основании опыта работы инструкторов треста «Оргтехстрой», г. Ярославль |
|
Затраты труда на 1 м2 в чел.-ч |
0,038 |
0,032 |
Таблица 31
Исполнители, инструмент, инвентарь, приспособления
Состав исполнителен: маляр 2 разр. - 1 чел.
|
Наименование |
ГОСТ, чертеж, марка |
Количество, шт. |
Назначение |
|
Приспособление инструктора Зарубина |
См. рис. 39. а |
1 |
Для шлифовки прошпаклеванной поверхности стен |
|
Металлический шпатель |
10078-64 |
1 |
Для очистки поверхности |
|
Инвентарный малярный столик |
- |
1 |
Подмащивание |
Подготовка процесса и условия работы. Шлифовка прошпаклеванной поверхности степ производится после полного высыхания шпаклевочного слоя. Перед началом работы необходимо проверить наличие и исправность инструмента, инвентаря и приспособлений.
Технология и организация процесса (табл. 32). Маляр подготавливает к работе инструмент, нарезает наждачную бумагу полосками (по размеру рабочей поверхности приспособления) и приступает к шлифовке прошпаклеванной поверхности стен, стоя на полу. За одну смену маляр производит шлифовку на площади 250 м2.
Для шлифовки шпатлевочного слоя также могут применяться легкие ручные электрические и пневматические шлифовальные инструменты с вращающимися дисками, на которых закрепляется абразивная шкурка или пемза. На корпусе инструмента устанавливается резиновый защитный кожух, плотно прилегающий к шлифуемой поверхности и ограждающий рабочих от пыли.
Таблица 32
Приемы труда
|
Наименование операций, исполнители, инструмент, инвентарь, приспособления |
Описание приемов труда |
Иллюстрации приемов труда |
|
Шлифовка прошпаклеванных поверхностей стен {рис. 39) Маляр - 2 разр. Приспособление инструктора Зарубина - 1 шт. Металлический шпатель - 1 шт. |
Маляр, держа руками приспособление за черенок, параллельными движениями вверх - вниз (с легким нажимом) шлифует прошпаклеванные стены до получения гладкой поверхности |
|
|
|
||
|
Рис. 39. Шлифовка прошпаклеванных стен: а - приспособление инструктора Зарубина, б- шлифовка приспособлением |
(рис. 40 и табл. 33)
Эффективность применения карт - повышение производительности труда на 78,53 %.

Рис. 40. Посекционная схема выполнения работ во втором потоке:
а - клеевая и масляная окраска стен и перегородок; б - масляная окраска столярных изделий и сантехники, 1, 2. - последовательность работ на этаже - по квартирам; № 1 - № 7 - номера квартир
При выполнении малярных работ необходимо проверять их соответствие требованиям проекта, правилам производства работ и допускаемым нормам, а так же образцам красок и принятым рисункам. Окрашенные поверхности должны быть однотонными, тщательно растушеванными или поторцованными. Не допускается появление пятен, полос, потеков, брызг, отмеливания и местных потравлений, выделяющихся на общем фоне.
Перечень операций и методы их выполнения
|
Наименование операции |
Объем, м2 |
По технологической карте и ЕНиР |
Методы выполнение |
||||
|
Норма времени |
по существующей |
по карте трудовых процессов |
по предлагаемой технологии |
||||
|
на единицу объема, чел.-ч. |
на весь объем, чел.-дни |
Норма времени |
|||||
|
руб., коп. |
руб., коп. |
на единицу объема, чел.-ч. |
на весь объем, чел.-ч. |
||||
|
руб., коп |
руб., коп |
||||||
|
1. Нанесение побелочного клеевого состава на стены в помещении площадью: |
|
|
|
|
|
|
|
|
более 5 м2 |
7792,08 |
|
15,32 61-45 |
С использованием пистолета-распылителя Маляр 4 разр.-1 чел |
|
6,59 26-17 |
Нанесение побелочного состава электрокраскопультом Маляр 4 разр.- 1 чел. |
|
менее 5 м2 |
1279,2 |
||||||
|
2. Нанесение масляного окрасочного состава на стены в помещении: |
|
|
|
. |
|
|
|
|
более 5 м2 |
963,1 |
|
14,75 59-24 |
Окраска валиком Маляр 4 разр.-1 чел |
|
4,74 17,96 |
Окраска пневмоваликом конструкции Григорьева Маляр 4 разр.-1 чел. |
|
Менее 5 м2 |
1140,8 |
||||||
|
3. Улучшенная окраска за 2 раза, пог. м: |
|
|
|
. |
|
|
|
|
газовых труб диаметром от 15 до 50 мм |
2113,4 |
0,10 0-0413 |
|
Окраска кистью Маляр 3 разр.-1 чел. |
0,028 0-012 |
|
С использованием приспособления для окраски труб Маляр 3 разр.- 1 чел. |
|
чугунных труб диаметром от 50 до 150 мм |
378 |
0,15 0-0613 |
|||||
|
4 Улучшенная окраска дверей и встроенной мебели |
2303,5 |
0,21 0-102 |
60,52 241-08 |
Окраска кистью Маляр 4 разр.-1 чел. |
0,028 0-012 |
6,62 26-47 |
С использованием пистолета-распылителя Маляр 4 разр.- 1 чел. |
|
Итого |
16029,58 |
|
123,28 472-95 |
|
|
26,46 26-47 |
|
Эффективность применения карты (табл. 34, 35, 36). Сокращение трудозатрат при механизированном нанесении клеевого состава достигается в результате применения рационального инструмента и лучшей организации труда.
Таблица 34
Показатели производительности труда
|
Наименование показателей |
По технологической карте и ЕНиР |
По карте трудовых процессов |
Примечание |
|
Средняя выработка на 1чел.-день в м2 |
593 |
1379 |
Выработка и затраты труда приняты на основании опыта инструкторов треста «Оргтехстроя», г. Рязань |
|
Затраты труда на 1 м2 в чел.-ч. |
0,0135 |
0,0058 |
Таблица 35
Исполнители, инструмент, инвентарь, приспособления
Состав исполнителей: маляр 4 разр. - 1 чел.
|
Наименование |
ГОСТ, чертеж, марка |
Количество, шт. |
Назначение |
|
Электрокраскопульт (в комплекте) |
С-574 |
1 |
Для нанесения окрасочного состава |
|
Сменные емкости |
- |
2 |
Для окрасочного состава |
Таблица 36
Потребность в материалах на 100 м2 поверхности
|
Наименование |
Количество, кг |
Примечание |
|
Мел молотый |
15,8 |
Производственные нормы расхода строительных материалов, табл. 200, Госстрой СССР, 1964 г. |
|
Клей мездровый |
0,5 |
|
|
Краска сухая (пигмент) |
1,6 |
Подготовка процесса и условия работы. Нанесение побелочного состава на стены производит маляр 4 разр. электрокраскопультом. До начала работы электрокраскопультом проверяют надежность крепления шлангов и изоляцию проводов, в том числе заземление.
Включив электродвигатель в электросеть, проверяют его работу, а также работу всего краскопульта на холостом ходу (фильтр всасывающего шланга при этом извлечен из окрасочного состава). Предохранительный клапан должен быть отрегулирован на 7 ат. Убедившись в исправности механизма, маляр опускает фильтр в окрасочный состав и начинает работу (табл. 37). После окончания работы краскопульт и шланг освобождают от окрасочного состава и промывают его в течение 5 - 10 мин прокачиванием чистой воды, а затем доступные места протирают чистой ветошью.
Таблица 37
Приемы труда
|
Наименование операции, исполнители, инструмент, инвентарь, приспособления |
Описание приемов труда |
Иллюстрации приемов труда |
|
Нанесение окрасочного состава на поверхность стен (рис. 41, 42) Маляр-4 разр. |
Проверив краскопульт, маляр приступает к окраске стен. Удочку следует держать так, чтобы рычаг крана находился в правой руке, левой поддерживать ее в рабочем положении. Правой рукой нажимает на рычаг крана и направляет струю окрасочного состава под прямым углом к плоскости стены. |
Рис. 41 |
|
Электрокраскопульт Удочка-распылитель Емкость Шланг для подачи раствора |
При работе маляр удерживает сопло удочки на расстоянии 75 - 100 см от окрашиваемой поверхности и перемещает его плавными кругообразными движениями |
Рис. 42 1 - направление окраски; 2 - удочка-распылитель; 3 - шланг для подачи воздуха; 4 - емкость; 5 - электрокраскопульт; 6 - шланг для подачи окрасочного состава |
Эффективность применения карты (табл. 38, 39, 40). Сокращение трудовых затрат и снижение утомляемости рабочих достигается в результате применения при окраске стен пневмовалика конструкции Григорьева.
Таблица 38
Показатели производительности труда
|
Наименование показателя |
По технологической карте и ЕНиР |
По карте трудовых процессов |
Примечание |
|
Средняя выработка на 1 чел.-день в м2 |
153,8 |
480 |
Выработка и затраты труда приняты на основании опыта инструкторов треста «Оргтехстрой», г. Рязань |
|
Затраты труда на 1 м2 в чел.-ч. |
0,052 |
0,0170 |
Таблица 39
Исполнители, инструмент, инвентарь, приспособления
Состав исполнителей: маляр 4 разр. - 1 чел.
|
Наименование |
ГОСТ, чертеж, марка |
Количество, шт. |
Назначение |
|
Пневмовалик конструкции Григорьева |
- |
1 |
Нанесение окрасочного состава |
|
Красконагнетательный бачок |
С-383 или С-411 |
1 |
То же |
|
Шланг резиновый Ø 12 мм |
- |
пог. м 14 |
Для подачи колера и сжатого воздуха |
|
Сменное ведро |
- |
1 |
К красконагнетательному бачку |
|
Кисть круглая - ручник |
- |
1 |
Для окраски непрокрашенных пневмоваликом мест |
Таблица 40
Потребность в материалах на 100 м2 поверхности
|
Наименование |
Количество, кг |
Примечание |
|
Олифа |
2,4 |
Производственные нормы расхода строительных материалов, табл. 219, Госстрой СССР, 1964 г. |
|
Белила цинковые тертые |
7,3 |
|
|
Пигмент тертый |
1,1 |
|
|
Ветошь |
0,1 |
Подготовка процесса и условия работы. Перед работой маляр проверяет исправность бачка и присоединяет материальный шланг одним концом к выводной трубке пневмовалика, вторым - к штуцеру пробочного крана красконагнетательного бачка, через который из бачка подается малярный состав. Шланг, подводящий сжатый воздух от ресивера к красконагнетательному бачку, присоединяется одним концом к редуктору бачка, вторым - к одному из кранов компрессора.
Все соединения материального и воздушного шлангов затягиваются стяжными хомутами для исключения утечки.
После постановки в бачок сменного ведра с малярным составом крышка бачка плотно закрывается и закрепляется и маляр начинает окраску стен (табл. 41).
Таблица 41
Приемы труда
|
Наименование операций, исполнители, инструмент, инвентарь, приспособления |
Описание приемов труда |
Иллюстрации приемов труда |
|
|
Нанесение малярного окрасочного состава на поверхность стены (рис. 43, и 44) Маляр - 4 разр. |
Маляр становится на расстоянии 0,45-0,5 м от стены, правой рукой держит пневмовалик за верхнюю рукоятку, придерживая указательным пальцем кран для подачи колера, левой рукой поддерживает пневмовалик за нижнюю рукоятку |
Рис. 43 |
|
|
Пневмовалик конструкции Григорьева Красконагнетательный бачок Шланги резиновые Ø 12 мм Сменное ведро Кисть круглая - ручник |
После этого маляр при открытом кране горизонтальными движениями валика наносит колер на стену направлении слева направо. Затем краном перекрывает поступление колера в валик и вертикальными движениями производит растушевку окрашенной поверхности |
||
|
Рис. 44 1 - направление окраски; 2 - пневмовалик; 3 - шланг для подачи окрасочного состава |
Эффективность применения карты (табл. 42 - 44). Сокращение трудовых затрат, повышение качества, окраски и снижение утомляемости рабочих достигается в результате применения рационального инструмента.
Таблица 42
Показатели производительности труда
|
Наименование показателя |
По технологической карте и ЕНиР |
По карте трудовых процессов |
Примечание |
|
Выработка на 1 чел.-день в пог. м газовых труб |
82 |
292,7 |
Выработка и затраты труда приняты на основании опыта работы треста «Оргтехстрой», г. Рязань |
|
То же чугунных труб |
58,2 |
292,7 |
|
|
Затраты труда на 1 пог. м газовых труб в чел.-ч |
0,10 |
0,028 |
|
|
То же чугунных труб |
0,15 |
0,028 |
Таблица 43
Исполнители, инструмент, инвентарь, приспособления
Состав исполнителей: маляр 3 разр. - 1 чел.
|
Наименование |
ГОСТ, чертеж, марка |
Количество |
Назначение |
|
Приспособление для окраски труб |
519М, Мосоргстрой * |
1 компл. |
Для окраски труб отопления и газопровода |
|
Инвентарный столик |
Каталог-справочник ручного инструмента, г. Москва, Главмосстрой, 1961 г. |
1 шт. |
Для окраски труб на высоте выше 1,8 м |
|
Ведро |
- |
1 шт. |
Для готовых масляных составов |
|
Кисть-ручник |
10597-67 |
1 шт. |
Для нанесения краски на приспособление |
* Чертежи приспособлений для окраски труб разосланы Дорстройтрестам в 1963 г.
Таблица 44.
Потребность в материалах на 100 м2 окрашиваемой поверхности труб
|
Наименование |
Количество, кг |
Примечания |
|
Пигмент тертый |
2,6 2,4 |
1. (Производственные нормы расхода строительных материалов, табл. 220, Госстрой СССР 1964 г. |
|
Олифа-оксоль |
11,1 8,4 |
|
|
Белила цинковые |
13,6 13,6 |
2. В числителе даны нормы расхода материалов с проолифкой, в знаменателе без проолифки |
|
Ветошь |
0,3 0,2 |
Подготовка процесса и условия работы. Перед окраской трубы отопления и газопровода должны быть очищены от пыли, наплывов раствора и огрунтованы.
Проверить наличие инструментов и приспособлений, а также подготовить окрасочный состав нужной консистенции.
Технология и организация процесса (табл. 45). Маляр перед началом работы подготавливает приспособление-инструмент (рис. 45) и окрасочный состав (набирает его в ведро и подносит к месту работы) и начинает окраску труб, предварительно протерев их ветошью. На высоту 1,8 м окраска труб выполняется с пола при помощи приспособления; при высоте более 1,8 м - с инвентарного столика, который по мере выполнения работ передвигается маляром.
При окраске труб в трудно доступных местах (например, поверхностей стояков отопления, водопровода и канализации, примыкающих к стенам) пользуются приспособлением (рис. 46), представляющим собой плавно изогнутое стальное полотнище, наглухо закрепленное на деревянной рукоятке. Внутренняя поверхность полотнища оклеена цигейковой шкуркой.
В процессе работы маляр удаляет с пола ветошью капли и брызги краски.
Приемы труда
Таблица 45
|
Наименование операций, исполнители, инструмент, приспособления |
Описание приемов труда |
Иллюстрации приемов труда |
|
Нанесение окрасочного состава на поверхность труб |
Маляр, взяв приспособление одной рукой, второй выдвигает штоком цигейку, чтобы набрать на нее окрасочный состав, не запачкав при этом приспособления. После набора окрасочного состава цигейка возвращается в первоначальное положение. Маляр прикладывает приспособление к окрашиваемой трубе, чтобы последняя оказалась внутри скобы, и движениями вверх - вниз (влево - вправо) производит окраску. По мере расхода окрасочного состава операции по набору краски повторяются |
Рис. 45 1 - рукоять, 2 - труба, 3 - неподвижная труба, 4 - подвижная обойма, 5 - зажимной винт |
|
Маляр 3 разр. |
||
|
Приспособление для окраски труб |
||
|
Приспособление для окраски тыльной стороны трубы (рис. 46) |
Последовательность окраски труб приспособлением: на шкурку кистью наносится слой краски, после чего полотнище шкурки заводится между стеной и тыльной стороной стояка. Прижимая полотнище к трубе, движением снизу - вверх маляр производит окраску |
Рис. 46 |
|
Кисть-ручник |
||
|
Ведро |
Эффективность применения карты (табл. 46 - 48). Сокращение трудозатрат достигается в результате применения рационального инструмента и лучшей организации труда.
Таблица 46
Показатели производительности труда
|
Наименование показателей |
По технологической карте и ЕНиР |
По карте трудовых процессов |
Примечания |
|
Средняя выработка на 1 чел.-день в м2 |
38 |
348 |
Выработка и затраты труда приняты на основании опыта работы инструкторов треста «Оргтехстрой», г. Рязань |
|
Затраты труда на 1 м2 в чел.-ч. |
0,21 |
0,023 |
Таблица 47
Исполнители, инструмент, инвентарь, приспособления
Состав исполнителей: маляр 4 разр. - 1 чел.
|
Наименование |
ГОСТ, чертеж, марка |
Количество, шт. |
Назначение |
|
Пистолет-распылитель |
С-512 |
1 |
Нанесение окрасочного состава |
|
Красконагнетательный бачок |
С-363 или С-411 |
1 |
Нанесение окрасочного состава |
|
Шланги резиновые Ø 12 мм |
- |
пог. м 14 |
Для подачи воздуха |
|
Сменное ведро |
- |
1 |
К красконагнетательному бачку |
|
Ограничительный щит |
- |
1 |
Защита окрашенных поверхностей |
Таблица 48
Потребность в материалах на 100 м2 поверхности
|
Наименование |
Количество при окраске за 2 раза, кг |
Примечание |
|
Олифа |
3,8 |
Производственные нормы расхода строительных материалов, табл. 219, Госстрой СССР |
|
Белила цинковые тертые |
16 |
|
|
Ветошь |
0,2 |
Подготовка процесса и условия работы. Деревянные двери пригоняют по месту, зачищают шкуркой, устанавливают приборы, которые перед началом окраски обертывают бумагой.
Влажность древесины окрашиваемых изделий должна быть не более 12 %.
Перед началом работы маляр опробует пистолет-распылитель на листе фанеры или плотном картоне при работающем компрессоре. Для регулирования снимает насадку и, направив пистолет-распылитель в запасное ведро, нажимает курок.
Состав должен иметь такой напор, чтобы при выходе из сопла он распылялся и окрашивал поверхность в виде круга.
Установив величину напора, маляр закрепляет насадку, находя правильное соотношение между давлением для распыления и нагнетания, и начинает окраску (табл. 49).
Приемы труда
Таблица 49
|
Наименование операции, исполнители, инструмент, инвентарь, приспособления |
Описание приемов труда |
Иллюстрации |
|
Окраска дверей и встроенной мебели пистолетом-распылителем С-512(рис. 47) Маляр-4 разр. Красконагнетательный бачок С-383 или C-411 Банки для колера Шланг для подачи воздуха |
Маляр держит пистолет в правой руке. Левой удерживает ограничительный щиток на расстоянии 25 - 30 см от окрашиваемой поверхности, нажимает курок и перемешает пистолет сверху вниз (окраска вертикальными полосами). Каждая из последующих полос должна перекрывать предыдущую на 3 - 4 см. Пистолет должен всегда строго перпендикулярен к окрашиваемой поверхности |
Рис. 47 |
Эффективность применения карты повышение производительности труда на 34,60 % (рис. 48, табл. 50).

Рис. 48. Посекционная схема выполнения работ в третьем потоке;
I - IV - очередность отделки квартир; 1, 2 - последовательность подготовки и масляной окраски полов
Таблица 50
Перечень операций и методы их выполнения
|
Наименование операции |
Объем работ, м2 |
По технологической карте и ЕНиР |
По существующей технологии |
По карте трудовых процессов |
По предлагаемой технологии |
||
|
Норма |
времени |
Норма |
времени |
||||
|
на единицу объема, чел.-ч руб., коп. |
на весь объем, чел.-дни руб., коп. |
на единицу объема, чел.-ч руб., коп. |
на весь объем, чел.-дни руб., коп. |
||||
|
Нанесение окрасочного состава на деревянные полы за 2 раза в помещении с площадью пола: |
|
|
|
|
|
|
При помощи пневмовалика конструкции Григорьева, трест «Оргтехстрой», г. Рязань Маляр 4 разр. - 1 чел. |
|
более 5 м2 |
2904,8 |
0,081 0-0395 |
28,69 114-74 |
Кистью |
0,053 0-026 |
18,77 75-52 |
|
|
менее 5 м2 |
227,4 |
0,097 0-0474 |
2,69 10-78 |
Маляр 4 разр. - 1 чел. |
0,0636 0-0310 |
1,76 7-05 |
|
|
Итого |
3132,2 |
- |
31,38 125-52 |
- |
- |
20,53 82-57 |
|
Эффективность применения карты (табл. 51 - 53). Сокращение трудозатрат и снижение расхода красящих материалов достигается применением рационального инструмента и лучшей организации труда.
Таблица 51
Показатели производительности труда
|
Наименование показателей |
По технологической карте и ЕНиР |
По карте трудовых процессов |
Примечание |
|
Средняя выработка на 1чел.-день в м2 |
98,5 |
150,0 |
Выработка и затраты труда приняты на основании опыта работы инструкторов треста «Оргтехстрой», г. Рязань |
|
Затраты труда на 1 м2 в чел.-ч |
0,081 |
0,053 |
Таблица 52
Исполнители, инструмент, инвентарь, приспособления
Состав исполнителей: маляр 4 разр. - 1 чел.
|
Наименование |
ГОСТ, чертеж, марка |
Количество, шт. |
Назначение |
|
Пневмовалик конструкции Григорьева |
- |
1 |
Нанесение окрасочного состава |
|
Красконагнетательный бачок |
- |
1 |
Нанесение окрасочного состава |
|
Шланги резиновые Ø 12 мм |
- |
пог. м 14 |
Для подачи колера и сжатого воздуха |
|
Ведро |
- |
1 |
К красконагнетательному бачку |
Таблица 53
Потребность в материалах на 100 м2 поверхности
|
Наименование |
Количество, кг |
Примечание |
|
Разбеленный колер |
|
Производственные нормы расхода строительных материалов, табл. 219, Госстрой СССР |
|
Олифа |
5,8 |
|
|
Белила цинковые тертые |
2,0 |
|
|
Пигмент тертый |
9,0 |
|
|
Ветошь |
0,2 |
Подготовка
процесса и условия работы. Деревянные доски должны быть хорошо сплочены,
прибиты к лагам и шляпки гвоздей утоплены в дерево на 2 -
Технология и организация процесса (табл. 54). Перед началом работы маляр подготавливает инструмент и окрасочный состав. Присоединяет материальный шланг одним концом к выводной трубке пневмовалика, другим - к штуцеру пробочного крана. Присоединяет шланг, подводящий сжатый воздух от ресивера к красконагнетательному бачку, одним концом к редуктору бачка, вторым - к одному из кранов компрессора. Применяемые шланги должны быть проверены и испытаны под давлением, превышающим рабочее в 1,5 раза. Результаты испытаний оформлены актом.
Все соединения материального и воздушного шлангов крепко затягивает стяжными хомутами, чтобы не было утечки. Перед заполнением бачка составом маляр убеждается в его исправности, вставив в него сменное ведро с составом, и плотно закрепляет крышку. При составлении красок не разрешается применять бензол и этилированный бензин.
Таблица 54
Приемы труда
|
Наименование операции, исполнители, инструмент, инвентарь, приспособления |
Описание приемов труда |
Иллюстрации приемов труда |
|
Нанесение окрасочного состава на поверхность пола (рис. 49 и 50) Маляр 4 разр. - 1 чел. Пневмовалик конструкции Григорьева Красконагнетательный бачок Шланги резиновые Ø Сменное ведро |
Маляр правой рукой держит пневмовалик за верхнюю рукоятку, придерживая указательным пальцем кран для подачи колера. Левой рукой поддерживает пневмовалик за нижнюю рукоятку |
Рис. 49 |
|
Двигаясь слева направо при открытом кране для поступления колера к
валику, маляр наносит колер на поверхность окрашиваемой полосы, затем
перекрывает поступление колера в валик и производит растушевку. Окраска пола
ведется равными по ширине полосами с перекрытием их на 30- |
Рис. 50 1 - пневмовалик; 2 - направление окраски; 3 - шланг для подачи окрасочного состава; 4 - нагнетательный бачок С-383 или C-411; 5 - шланг для подачи воздуха |
|
|
|
|