|
| |
МИНИСТЕРСТВО КОММУНАЛЬНОГО ХОЗЯЙСТВА
РСФСР
ЛЕНИНГРАДСКИЙ
НАУЧНО-ИССЛЕДОВАТЕЛЬСКИЙ ИНСТИТУТ АКАДЕМИИ КОММУНАЛЬНОГО ХОЗЯЙСТВА ИМ.
К.Д. ПАНФИЛОВА
ТЕХНОЛОГИЧЕСКАЯ КАРТА №3
ГЕРМЕТИЗАЦИЯ СТЫКОВ НАРУЖНЫХ СТЕНОВЫХ ПАНЕЛЕЙ, ВЫПОЛНЯЕМАЯ ПРИ РЕМОНТЕ
КРУПНОПАНЕЛЬНЫХ ЖИЛЫХ ДОМОВ СЕРИИ 1-464.
Утверждена приказом
МКХ РСФСР № 113
от 1 апреля 1970г.
Ленинград
1969 г.
СОДЕРЖАНИЕ
Настоящая технологическая карта разработана на
герметизацию тиоколовыми герметиками вертикальных и горизонтальных стыков
наружных стеновых панелей крупнопанельных жилых домов серии 1-454, находящихся
в эксплуатации.
Типовая технологическая карта составлена на герметизацию
стыков одного 100-квартирного жилого дома, при этом за единицу измерения в
калькуляции принято 100 п.м стыков.
2.1. Работы по герметизации стыков панелей наружных стен
крупнопанельных жилых домов повышенной этажности серии 1-464 следует выполнять
с двухместной люльки, навешиваемой на консольные балки, укрепляемые на
плоскостных крышах, в отдельных случаях могут применяться вышки Ш20В-18. или
др.
2.2. Тиоколовые герметики для герметизации следует применять
при температуре не ниже +5°С.
2.3. Запрещается проводить герметизацию во время дождя и
мокрого снега.
2.4. Перед началом
герметизации стыка (рис. 1) следует расчистить вручную с помощью скарпеля и
молотка или механизированным путём с помощью электропневмомолотков. Удалить
специальным крючком оставшиеся в швах куски раствора и материалы проконопатки,
если они находятся в неудовлетворительном (необжатом) состоянии и очистить
металлической щёткой, а затем кистью герметизируемую поверхность стыка от
кусочков раствора, грязи, пыли.

Рис. 1. Герметизация стыков панелей наружных стен домов серии
1-464А
2.5. Поверхности, подготовленные под герметизацию
поверхности стыков не должны
иметь следов видимой влаги, в противном случае их необходимо просушить.
Средствами сушки могут быть аппараты типа «Фен», газовые
горелки инфракрасного излучения конструкции ЛКХ, электрические рефлекторы и
сжатый воздух с подачей от компрессора.
2.6. В качестве основания под тиоколовые герметики, при
ширине стыков более 5 мм, должны использоваться пористые резиновые прокладки
(ПРП) типа поризола или гернита. Последние заводятся в расчищенный стык, в
обжатом на 30-50 % oт
первоначальной толщины состоянии, путем закатывания его специальным
приспособлением или ручными деревянными черенками. Перед введением поризола
кромки стыка предварительно промазывают мастикой «изол», а перед заведением
гернита - клеем КН-2.
При герметизации стыков значительной ширины ПРП могут
вводиться в стык в сплетённом из нескольких жгутов виде для обеспечения
требуемой степени обжатия. Используемые при герметизации ПРП должны быть
сухими, чистыми и не иметь повреждений.
При ширине стыков до 6 мм вместо ПРП в стыки заводится
просмоленная пакля.
2.7. Приготовление тиоколовых герметиков вследствие быстрого
их загустевания должно осуществляться в помещении при плюсовой температуре в
количествах, необходимых для работы одного человека в продолжение 1,5-2 часов.
2.8. Герметики должны пригтавливаться в чистой посуде (
металлическом ящике, ведре и т.п.), чистым инструментом, с перемешиванием
состава электромешалкой или вручную металлическими или резиновыми шпателями при
небольших количествах герметика.
2.9. Компоненты тиоколовых герметиков подбираются по таблице
1.
Таблица 1
Компоненты
тиоколовых герметиков (в весовых
частях)
|
Компоненты
|
Марки
герметиков
|
|
У-30М
|
УТ-32
|
ГС-1
|
КБ-1
|
ТМ-1
|
КБ-0,5
|
ТБ-0,5
|
ТМ-0,5
|
|
Герметизирующая паста У-30
|
100
|
|
|
|
|
|
|
|
|
Герметизирующая паста УТ-32
|
|
100
|
|
|
|
|
|
|
|
Герметизирующая паста Г-1
|
|
|
100
|
|
|
|
|
|
|
Герметизирующая паста K-1
|
|
|
|
100
|
|
|
|
|
|
Герметизирующая паста Т-1
|
|
|
|
|
100
|
1
|
|
|
|
Герметизирующая паста
К-0,5
|
|
|
|
|
1
|
100
|
|
|
|
Герметизирующая паста
Т-0,5
|
|
|
|
|
1
|
|
100
|
100
|
|
Отверждающая паста № 9
Отверждающая паста Б-1
|
4-8
|
6-8
|
14
|
12
|
1
|
12
|
11
|
|
|
Отверждающая паста № 30
|
|
|
|
|
12-23
|
|
|
12-23
|
|
Ускоритель вулканизации
дифенилгуанидин (ДФГ)
|
0,05-0,2
|
0,1-0,2
|
|
|
!
|
|
|
|
|
Растворитель (ацетон или
этилацетат)
|
8-10
|
8-10
|
|
|
|
|
|
|
Гарантийный срок хранения: паст У-30, Г-1, № 9 и Б-1 - 6 месяцев,
паста УТ-32 и ускорителя ДФГ. - соответственно 3 и 12 месяцев
2.10. Компоненты тиоколовых герметиков У-30М и УТ-32
отвешиваются в соответствии с табл. 1.
Отверждающие пасты №9 растворяется в ацетоне или этилацетате
до исчезновения комочков. Полученная смесь смешивается с ускорителем
вулканизации ДФГ. Затем вся полученная смесь припостоянном перемешивании вводится
в герметизирующую пасту У-30 или УТ-32. перемешивание при этом продолжается 10
мин.
Контроль степени перемешивания осуществляется каждый раз
после приготовления очередной порции герметика (примерно 400-500 г на каждого
работающего) путём нанесения небольшого количества его на стекло, на котором
при этом не должны обнаруживаться комочки.. При наличии последних перемешивание
продолжается.
2.11. Компоненты остальных тиоколовых герметиков также
выбираются по табл. 1. Вулканизирующие пасты в тщательно перемешанном виде
вводятся в герметизирующие пасты. После соединения компонентов герметика вся
масса перемешивается в течение 10 мин., как описано выше, до полного
исчезновения комочков при пробах на стекле.
2.12. Компоненты тиоколовых герметиков должны храниться на
складе при плюсовой температуре в герметично закрытой таре.
Условия хранения не должны допускать изменения заданных
физико-химических свойств герметиков, приведённых в табл. 2.
Таблица 2.
|
Наиме-
нование герметика
|
Цвет
|
Жизнеспособность*
|
Свойства герметиков
|
Наиме-
нование ТУ
|
|
прочность, кг/см2
|
Деформа-
тивность. не менее, %
|
относительное удлинение, %
|
остаточное удлинение, %
|
|
У-30М
|
|
0,8
|
25
|
|
150
|
10
|
ТУ 38-3 №339-68
|
|
УТ-32
|
|
1
|
7
|
|
180
|
20
|
|
ГС-1
|
черный
|
1
|
35
|
|
140
|
15
|
|
КБ-1
|
черный
|
1-6
|
5,0
|
100
|
-
|
-
|
|
ТМ-1
|
черный
|
1-6
|
3,0
|
100
|
-
|
-
|
|
КБ-0,5
|
черный
|
1-6
|
3,0
|
|
-
|
-
|
|
ТБ-0,5
|
светло-жёлтый
|
1-6
|
3,0
|
180
|
-
|
-
|
|
ТМ-0,5
|
светло-жёлтый
|
1-6
|
3,0
|
180
|
-
|
-
|
Нанесение герметиков
2.13. Герметик следует наносить на поверхность стыка только
после выполнения всех необходимых подготовительных операций: расчистки и сушки стыка, проконопачивания
его смоляной прядью или заделки пористыми резиновыми прокладками, очистки
поверхности стыка от пыли, грязи, промазкой поверхностей, соприкасающихся с
поризолом, мастикой «изол», а с гернитом - клеем КН-2.
2.14. Герметик следует
наносить шприцем конструкции НИИ ОМТП с последующим разравниванием шпателем.
2.15. Толщина
плёнки должна быть в пределах 2-2,5 мм. На прилегающих к стыку поверхностях
стен не должно быть следов герметика.
2.16. На
вертикальный стык герметик наносить, начиная от карниза здания или вверх
парапета без разрыва плёнки движением шпателя сверху вниз. Если используется
герметик У-30М последний следует наносить по слою клея 88Н, которым
предварительно покрываются кромки или фаски панелей за 10 минут до герметизации.
2.17. Работы по
герметизации стыков фиксируются в специальном журнале, ведение которого
является обязательным для исполнителя.
Форма журнала
приводится ниже.
Журнал производства работ
по герметизации стыков панелей наружных стен
|
Дата про
ведения работ
по герме
тизации
|
Адрес объекта
|
Атмо
сферные условия во время
работы по герме
тизации (темпе
ратура, влаж
ность)
|
Место
положение обра
ботанных стыков (ориентация, верти
кальный, горизон
тальный, на какой высоте)
|
Сведения о подготовке герме
тизируемых поверхностей
|
Резуль
таты физико-хими
ческих испы
таний герме
тиков
|
Приме
няемые инстру
менты и приспо
собления
|
Состав бригады
и квали
фикация
|
Запись
технического
надзора
о приёмке
|
Приме
чание
|
|
Подго
товительных работ
|
Работ
по герме
тизации
|
|
|
|
|
|
|
|
|
|
|
|
|
Контроль качества
2.18. Контроль качества
герметизации должен осуществляться в процессе работ и заключается в проверке:
тщательности очистки стыкуемых поверхностей панелей от
цементного раствора, грязи и пыли;
состояния поверхности перед нанесением герметика;
точности дозировки компонентов;
качества перемешивания компонентов;
чистоты посуды и инструментов;
толщины и конфигурации плёнки нанесённого герметика;
соответствия физико-механических свойств герметиков
приведённым в таблице 2 (испытания проводятся по ГОСТ 279-64 на стадии
производства работ по герметизации. А также по истечении указанных в таблице 1
сроков хранения компонентов герметиков);
степени обжатия ПРП или пакли;
отсутствия следов герметика на поверхности стен;
воздухопроницаемости стыков через 5-7 дней после завершения
работ по герметизации в соответствии с «Указаниями по проверке
воздухопроницаемости стыков наружных стен крупнопанельных зданий в Ленинграде»,
ЛНИИ АКХ, 1967 (V-105-67).
Контроль качества перемешивания компонентов осуществляется
после приготовления небольшого количества на стекле; на последнем не должны
обнаруживаться комочки, при наличии таковых перемешивание продолжается.
Техника безопасности
2.19. Стальные канаты и вся подвесная система люлек до пуска
в эксплуатацию на каждом объекте ремонта должны быть проверены и испытаны на
двойную статическую нагрузку в течение 10 мин. и на динамическую нагрузку путем
равномерного подъема, опускания и остановки люльки с грузом, превышающим
рабочий гpуз на 10 %.
2.20. Применяемые для подвески люлек инвентарные консольные
балки, их крепления и противовесы должны быть выполнены в полном соответствии
со специально разработанным и утвержденным типовым проектом, а эксплуатация их
и способы перемещения - специальными инструкциями. Опирать консольные балки и
стальные канаты на венчающие карнизы зданий или балконные плиты не разрешается.
Привязи и оттяжки консольных балок должны укрепляться к
надежный конструкциям зданий.
2.21. Стальные канаты люлек необходимо предохранять от
перетирания и соприкосновения с выступами стен, кровли и т.п. путём устройства
специальных подкладок.
2.22. Диаметры стальных канатов, поддерживающих люльки,
должны быть определены счетом с запасом прочности не менее шестикратного.
2.23. Проходы под люльками должны быть закрыты или защищены
навесами.
2.24. Лебедки, служащие для поднятия и опускания люлек,
должны соответствовать расчетным нагрузкам и оборудоваться двойными тормозными устройствами .
Лебедки, служащие для подъема и опускания люльки и устанавливаемые
на земле, следует загрузить балластом (весом не менее двойного веса люльки с полной расчетной
нагрузкой.
Балласт; во избежание смещения, прочно закрепляют
на рамке лебедки. Запрещается доступ к лебедкам посторонних лиц.
2.25. Не допускается применение пеньковых канатов для
подвески люлек.
2.26. Перегрузка люлек сверх установленной предельной
нагрузки не допускается.
2.27. Запрещается подъем и спуск людей на люльках без помощи
лебедок.
Люльки, с которых работа не производится, должны быть
спущены на землю.
2.28. Все рабочие в люльке, а также рабочие,
занимающиеся перестановкой консолей и привязкой люлек на крыше, должны быть
снабжены предохранительными поясами и привязываться веревками к надежным частям
здания.
2.29. При работе с тиоколовыми герметиками запрещается
пользоваться открытым огнём, т.к. растворители огне- и взрывоопасны.
2.30. Работа с молотком С-549 разрешается при напряжении до
220 вольт, но с обязательным применением диэлектрических перчаток, галош и
ковриков. Корпус молотка С-549 должен быть заземлен. Рабочий должен иметь
защитные очки и респиратор.
2.31. Рабочий, занятый приготовлением тиоколовых герметиков.
должен быть в резиновых перчатках.
2.32. К работе у компрессора допускаются лица, прошедшее
специальное обучение и инструктаж по технике безопасности и оказанию первой
помощи.
2.33 Перед началом работ рабочие проходят инструктаж по
технике безопасности на рабочем месте с занесением инструктажа в специальный
журнал.
2.34. После окончания работ необходимо отключение
электроинструментов и электролебёдки от энергосети с запиранием главного
рубильника на замок.
Работы по герметизации стыков панелей наружных стен,
крупнопанельных жилых домов серии ОД, при необходимости сплошной герметизации
вертикальных и горизонтальных стыков предусмотрено выполнить двумя звеньями
рабочих, состоящими из трех человек каждое (один штукатур IV разряда, один - III разряда и один
- II разряда, или
рабочими других специальностей, подготовленными дня герметизации стыков).
Работа в звене распределяется следующим образом.
Двое рабочих работают с люльки и выполняют все операции по
герметизации стыков. Третий рабочий приготавливает герметик, обслуживает
лебедку (если люлька не самоподъемная), помогает при перенавесках люльки с
передвижением ее по земле. В оставшееся время выполняет все операции по
герметизации горизонтальных и вертикальных стыков первого этажа непосредственно
с земли.
Перечень всех работ, подлежащих выполнению при герметизации,
трудовые затраты по их производству и
стоимость этих работ приведены в калькуляции трудовых затрат (табл.
3).
Калькуляция дает возможность определить трудовые и стоимость
их при различных способах выполнения ремонта (например, при ручной или
механизированной расчистки стыков, и т.д.).
Разбивка фронта работ по герметизации стыков на захватки
приведена на рис. 2, последовательность работ - на рис. 3.
При выполнении работ двумя звеньями продолжительность их
определяется примерно в 13 смен .
Калькуляция трудовых затрат
|
№
п.п.
|
Основание
к принятым нормам
|
Наименование
работ
|
Ед.
измер.
|
Объём
работ
|
Норма
времени на единицу измерения в чел.-ч
|
Затраты
труда на весь объём работ в чел.-ч.
|
Расценка
на единицу измерения в руб.коп.
|
Стоимость
затрат на весь объём работ в руб.коп.
|
|
1
|
ЕНиР
1969
г.,
1-11,
п.2 в, д
|
I. Подготовительные работы
Погрузка
в автомашину люлек, материалов и инструментов при доставке их на объект и
разгрузка
|
т
|
2,0
|
1.14
|
2-28
|
0-50
|
1-00
|
|
2
|
ЕНиР
1969
г.,
1-14,
п.2
|
Подъём вручную (по блоку) на крышу дома на высоту до 15 м консольных
балок и др. элементов для навески люлек
|
т
|
0.6
|
5.14
|
3.08
|
2-25
|
1-36
|
|
3
|
ЕНиР
1969
г.,
20-1-174,
п.4. 7
|
Установка
блока на временной консоли с последующей разборкой
|
шт.
|
1
|
1.75
|
1.75
|
0-98
|
0-98
|
|
4
|
ЕНиР
1969
г.,
1-14,
п.2
|
Опускание
с крыши дома вручную (по блоку) с высоты до 15 м разобранных элементов
крепления люлек после окончания работ на доме
|
т
|
0,6
|
4.24
|
2.54
|
1-65
|
1-11
|
|
|
|
Итого
|
|
|
|
9,65
|
|
4-45
|
|
|
|
II. Герметизация стыков (при работе с навесных двухместных люлек)
|
|
|
|
|
|
|
|
5
|
Примен.
ЕНиР
1969
г.,
11-4б,
п. 2а
|
Приготвление
мастики с тщательным перемешиванием электромешалкой.
Замесы делаются порциями на 2 часа непрерывной работы одним рабочим
(из расчёта приготовления 14 кг герметика на 100 п.м. стыка)
|
100 п.м. стыков
|
1
|
0,26
|
0,26
|
0-13
|
0-13
|
|
6
|
Примен.
ЕНиР
1969
г.,
20-1-140,
т.1.
п.1
в,
4-1-22,
п.5,
К = 0,5
|
Расчистка стыков от цементно-песчаного раствора на ширину 20 мм, на
глубину до 40 мм, с помощью электропневмомолотка, с последующим удалением
материала проконопачивания спец. крючками
|
100 п.м. стыков
|
1
|
19,1
|
19,1
|
10,84
|
10,84
|
|
7
|
ЕНиР
1969
г.,
20-1-140,
т.2.
п.1
в,
4-1-22,
п.5,
К = 0,5
|
То
же вручную
|
100
п.м. стыков
|
1
|
35,1
|
35,1
|
17-74
|
17-74
|
|
8
|
ЕНиР
1969
г.,
20-1-171,
п.5
|
Очистка
стыков от следов раствора, грязи и пыли металлической и кистью вручную
|
»
|
1
|
2,5
|
2,5
|
1-10
|
1-10
|
|
9
|
Норма
времени принята на основании наблюдения за работой тариф 2 разр.
|
Просушка поверхности стыков (25 % стыков объекта) подогретым воздухом
при ширине поверхности до 4 см
|
»
|
0,25
|
0,675
|
1.168
|
0-33
|
0-08
|
|
10
|
Применительно
к ЕНиР
1969
г.,
4-1-22,
п.1
|
Проконопачивание 15 % всех стыков жгутом из смоляной пакли (с
приготовлением жгута) при ширине стыка до 4 мм
|
100
п.м. стыков
|
0,15
|
13,0
|
1,95
|
8-13
|
1-22
|
|
11
|
Применительно
ЕНиР
1969
г.,
11-35,
п.1а,
К = 1, 20 в в.ч. п. 3
|
Проконопачивание 65 % всех стыков пористыми резиновыми прокладками
(ПРП) в виде пороизола. И т.п. при ширине стыка более 6 мм с предварительной
промазкой мастикой «изол»
|
100
п.м. стыков
|
0,85
|
10,2
|
8,67
|
5-24
|
4-47
|
|
12
|
ЕНиР
1969
г.,
11-65,
т.2,
п. 2в. К = 1,2 в в.ч. п. 3
|
Промазка кистью клеем 88Н кромок и фасок панелей в случае
герметизации стыка мастикой У-30М при ширине поверхности стыка 4 мм.
|
»
|
1
|
0,72
|
0,72
|
0-41
|
0-41
|
|
13
|
ЕНиР
1969
г.,
4-1-20.
п.2. 3
|
Нанесение тиоколовой мастики толщиной 2-2,5 мм на поверхность стыка
(шприцем) при ширине стыка 2о мм с последующим разравниванием шпателем
|
»
|
1
|
12,75
|
12,75
|
7-53
|
7-53
|
|
14
|
ЕНиР
1969
г.,
8-32,
п. 10, 1-14, п. 11
|
Перемещение по крыше здания консольных балок для навески люлек с
креплением их в соответствии с проектом и перемещение по земле люлек.
Лебёдок, и др. оснастки после окончания работ на захватке вдоль фасада здания
на расстояние до 5.5 м с укреплением блоков
|
»
|
1
|
5,00
|
5,00
|
2-93
|
2-93
|
|
15
|
Норма
времени принята на основании наблюдения за работой тариф 2 разр.
|
Работы
по обслуживанию механизмов на земле и подноска материалов к рабочему месту
|
»
|
1
|
11,0
|
11,0
|
0-555
|
6-11
|
|
|
Затраты труда и стоимость рабочей
силы на выполнение укрупнённых операций.
|
|
|
а)
|
подготовительные
операции (п.п. 1-4)
|
|
|
|
9-658
|
|
4-45
|
|
|
б)
|
герметизация стыков герметиком У-30М механизированной
расчисткой стыков от цементно-песчаного раствора (п. 5, 6, 8-15)
|
|
|
|
62-12
|
|
34-82
|
|
|
в)
|
то
же, с ручной расчисткой (п. 5, 7-15)
|
|
|
|
78-12
|
|
41-72
|
|
|
г)
|
то же, с механизированной расчисткой стыков без подготовки клеем 88Н
(п. 5, 6, 8-11, 13-15)
|
|
|
|
61-40
|
|
34-41
|
|
|
д)
|
то же, с ручной расчисткой (п. 5, 7-11, 13-15,)
|
|
|
|
77-40
|
|
41-31
|
|
|
е)
|
то же, с механизированной расчисткой стыков без просушки их (п. 5, 6,
8-11, 13-15)
|
|
|
|
61-23
|
|
34-33
|
4.1. Материалы на 100 п.м. стыков
|
№ п.п.
|
Наименование
|
Марка
|
Единица измерения
|
Количество
|
Основания к принятым
нормам
|
|
1
|
Герметик тиоколовый,
в том числе:
Паста герметизирующая
Г-1
Паста отверждающая Б-1
|
ГС.-1
|
кг
|
14,0
|
Сборник ЕР на
ремонтно-строительные, работы, вып. 2, Москва, 1957 г. Жилуправление,
институт «Мосжилпроект».
|
|
2
|
Герметик тиоколовый,
|
У-30М
|
кг
|
14,0
|
Сборник ЕР на ремонтно-строительные,
работы, вып. 2, Москва, 1967 г.
Временные указания по
замоноличиванию, герметизации и утеплению стыков в крупнопанельных зданиях,
Москва, 1963 г.
|
|
в том числе:
Паста герметизирующая № 9
|
|
|
12.163
|
|
Паста отверждающая № 9
|
|
|
0,730
|
|
Ускоритель вулканизации
дифенилгуанидин
|
|
|
0,012
|
|
Растворитель (ацетон или
этилацетат)
|
|
|
1,095
|
|
3
|
Герметик тиоколовый,
|
УТ-32
|
кг
|
14,0
|
Сборник ЕР на
ремонтно-строительные, работы, вып. 2, Москва, 1967 г.
Временные указания по
замоноличиванию, герметизации и утеплению стыков в крупнопанельных зданиях,
Москва, 1963 г.
|
|
в том числе:
Паста герметизирующая
№ 9
|
|
|
12.163
|
|
Паста отверждающая № 9
|
|
|
0,730
|
|
Ускоритель вулканизации дифенилгуанидин
|
|
|
0,012
|
|
Растворитель (ацетон или
этилацетат)
|
|
|
1,095
|
|
4
|
Пакля смоляная (на 15 %
стыков при расходе 0,14 кг/п.м
|
|
кг
|
21,0
|
Сборник ЕР на
ремонтно-строительные, работы, вып. 2, Москва, 1967 г.
|
|
5
|
Прокладки порисгые
резиновые (ПРИ), гернит 85 % стыков при расходе 0,68 кг на п.м.
|
П
|
кг
|
57,8
|
Временные указания по
замоноличиванию, герметизации и утеплению стыков в крупнопанельных зданиях.
Москва, 1963.
|
|
6
|
Клей
|
88-Н
|
кг
|
1,0
|
Установлено опытным
путем.
|
|
7
|
Клей-мастика
|
КН-2
|
кг
|
3,0
|
Временные
указания по замоноличиванию, герметизации и утеплению стыков в
крупнопанельных зданиях, Москва, 1957г.
|
|
8
|
Мастика «Изол»
|
|
кг
|
7,0
|
4.2. Машины, инструмент, в т.ч. механизированный, и приспособления (на одно
звено работающих)
|
№ п.п.
|
Наименование
|
Тип
|
Марка
|
Кол-во
|
Техническая характеристика и ГОСТ
|
|
1
|
Люлька
двухместная
|
|
|
1
|
см.
таблицу 4
|
|
2
|
Электропневмомолоток
|
|
|
2
|
см.
таблицу 4
|
|
3
|
Шпатели
1)
стальной
2)
деревянный с резиновым наконечником
|
ШСД 100
|
|
2
1
|
ГОСТ 10778-64.
трест Мосгорстрой Главмосстроя при Мосгорисполкоме
|
|
4
|
Скарпели
для расчистки швов шириной менее 6 мм
|
Стр. 20-6
|
|
3
|
НИИ
синтетических и сверхтвёрдых материалов и инструмента Госплана УССР
|
|
5
|
Молоток-кулачок
|
МКУ
|
|
3
|
ГОСТ
11042-64
|
|
6
|
Киянка
для конопатки стыков
|
|
|
|
120´60´140, длина рукоят. 400. Александровский.
Инструктивно-технологические карты по монтажу крупнопанельных и крупноблочных
зданий. «Высшая школа», 1965 г.
|
|
7.
|
Чеканка
для конопатки стыков
|
|
|
3
|
НИИ
СП Госстроя УССР
|
|
8
|
Электромешалка
для перемешивания пасты
|
|
|
1
|
Производительность
30 кг/ч. мощн. Двигателя 0,4 квт (см. табл. 4)
|
|
9.
|
Ящик
металлический для приготовления мастики
|
|
|
1
|
300×500
мм
|
|
10
|
Компрессор
передвижной
|
|
0-39
|
1
|
Производительность
0,25 м3/мин., Р = 7 атм. N = 2,8
квт
|
|
11
|
Щётка
стальная прямоугольная
|
|
|
3
|
Гипрооргсельстрой
Минстроя СССР
|
|
12
|
Приспособление
для закатывания жгута из пороизола
|
|
|
3
|
см.
таблицу 4
|
|
13
|
Шприц
конструкции НИОМТП
|
|
|
1
|
Ёмкость
цилиндра 0.8 л, ход поршня 280 мм, диаметр поршня - 60 мм, вес (без мастики)
- 1,6 кг
|
|
14
|
Установки
для сушки поверхности стыков
|
|
|
1
|
см.
таблицу 4
|
4.3. Основные средства механизации, рекомендуемые для применения при
ремонте крупнопанельных жилых домов
|
Наименование и краткое описание
|
Техническая характеристика
|
Иллюстрации
|
|
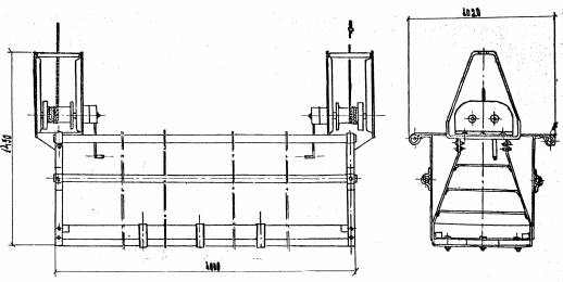
Самоподъёмная люлька конструкции Мосжилуправления
Люлька
подвешивается на двух металлических канатах.
Подъём
и опускание производится двумя ручными лебёдками.
Каркас
люльки изготовлен из полосовой стали, настил деревянный, ограждение
трубчатое.
Лебёдки
имеют зубчатые передачи и безопасные рукоятки с храповыми собачками.
Для
облегчения перемещения вдоль фасадов зданий люльки оборудуются роликами или
колёсами диаметром 100-150 мм.
|
Грузоподъёмность
- 250 кг
Высота
подъёма - 30 м
Скорость
подъёма - 1,5-2 м/мин.
Усилие
на рукоятке лебёдки - 7 кг
Вес
люльки - 250 кг
Габаритные
размеры:
длина
- 4000 мм
ширина
- 1020 мм
высота
- 1450 мм
Рабочее звено - 2 чел.
|
См. рис. 1
|
|
Люлька конструкции треста «Фасадремстрой-1» УКР
Ленгорисполкома
Люлька состоит из трёх основных частей:
1) неподвижная часть;
2) подвижная часть;
3) две балки консольные складные.
Неподвижная часть люльки состоит из рамы, на которой
установлен привод в виде электродвигателя, редуктора и трёх барабанов на
одной оси для наматывания тросов. Два барабана служат для подъёма и опускания
люльки, а один для страховочного троса.
Рама. в свою очередь. установлена на тележку
компрессора ЗИФ-55, прицепа к автомашине или др.
Подвижная часть представляет собой собственно
люльку, изготовленную из сортового алюминия с двумя коромыслами.
Две консольные балки состоят из двух частей каждая,
которые позволяют складывать и устанавливать их под разными углами на 15 и
30°, в зависимости от конструкции крыши.
Пусковая аппаратура, кроме кнопки управления,
устанавливается на неподвижной части люльки.
Кнопка управления и конечные выключатели
устанавливаются на подвижной части люльки.
Люлька снабжена автоматическим отключением привода
при перегрузке, а также если она зацепляется о какое-нибудь препятствие при
подъёме или опускании.
Люлька
снабжена ловителями на случай обрыва основного каната.
Люлька
перевозится на собственных колёсах.
Дополнительный груз на нижней части люльки - 300 кг.
|
Грузоподъёмность
- 250 кг
Высота
подъёма - 30 м
Скорость
подъёма (опускания) средняя - 0,1 м/сек.
Длина
подвесной части люльки - 5 м
Вес
тележки с лебёдкой - 1450 кг
Вес
люльки - 280 кг
|
См.
рис.
2
|
|
Самоподъёмная передвижная подвесная люлька СЛ-120
Люлька состоит из собственно люльки и подъёмного
механизма, который в свою очередь, состоит из 4-х колёсной каретки,
электролебёдки подъёма, двух лонжеронов и механизма ручного привода,
обеспечивающего возможность подъёма и опускания люльки при отсутствии
электроэнергии.
Для обеспечения безопасности работ и ограничения
высоты подъёма люльки на одном лонжероне установлен конечный выключатель, а
на другом - предохранительное устройство, которое разрывает цепь в случае
отказа конечного выключателя или пригорания контактов электромагнитного
пускателя.
От подъёмного механизма к самой люльке подводится кабель
с кнопочной станцией для дистанционного управления подъёмом и опусканием
непосредственно с люльки.
Перемещение каретки. а вместе с ней и люльки, в
горизонтальном направлении производится по направляющим, которые
устанавливаются на крыше.
|
Максимальная
полезная нагрузка - 120 кг;
Максимальная
канатоёмкость барабана - 45 м;
Скорость
подъёма люльки электролебёдкой - 10 м/мин.
Скорость
подъёма люльки вручную - до 1.2 м/мин.
Мощность
электродвигателя АОН 2-31-1 - 1.5 квт
Габаритные
люльки:
длина
- 2,6 м;
ширина
- 0,6 м;
высота
- 1,15 м
Вес
люльки - 75 кг
Вес
каретки с механизмом подъёма - 295 кг.
|
См.
рис.
3
|
|
Люлька двухместная ЛЭ-30-250 конструкции СКБ
«Мосстрой»
Люлька снабжена ловителями на случай обрыва
грузового каната или превышения скорости опускания. Управляют работой лебёдок
с пульта управления, установленного на настиле люльки.
В комплект люльки входят два подвесных блока с
карабинами крепления к консолям, два предохранительных каната с пригрузами,
два грузовых каната и две ручки для ручного привода лебедок на случай
прекращения подачи электроэнергии.
Электролебёдки, два ловителя и электрооборудование
установлены на каркасе люльки.
Металлоконструкция люльки сварная из уголков и труб.
|
Максимальная
высота подъёма - 30 м;
Допускаемая
рабочая нагрузка - 250 кг;
Скорость
подъёма или опускания - 8 м/мин ;
Количество
лебёдок на люльке 2 шт. ;
Марка
лебёдки - ЛТ-250;
Тяговое
усилие одной лебёдки - 250 кг;
Мощность
электродвигателя лебёдки - 0.6 квт;
Канатоёмкость
барабана при навивке в 2 слоя -67 м;
Габаритные
размеры:
длина
- 5000 мм;
ширина
- 850 мм;
высота
- 1700 мм;
Вес
(подвесной) - 500 кг
|
См.
рис.
4
|
|
Люлька самоподъёмная двухместная конструкции ДСК-2
Главленинградстроя
Люлька предназначена для производства ремонтных
работ на фасаде крупнопанельных жилых домов двумя человеками.
Электродвигатель и двухбарабанная лебёдка
смонтированы под настилом люльки.
Передвижение люльки по земле осуществляется с
помощью 4 колес.
Металлоконструкция люльки сварная из уголков и труб.
|
Грузоподъёмность
- 250 кг
Высота
подъёма - 30 м
Скорость
подъёма 6,3-8 м/мин ;
Лебёдка
двухбарабанная:
диаметр
барабана - 159 мм;
длина
барабана - 200 мм;
Диаметр
грузового каната - 7,5 мм;
Количество
грузовых канатов - 2;
Канатоeмкость барабана при навивке в 4 слоя -62 м;
Род
тока : переменный, трехфазный.
Напряжение
- 220/380 в.
Мощность
Эл. Двигателя - 1.1 квт.
Габаритные
размеры:
длина
- 3396 мм;
ширина
- 967 мм;
высота
- 390 мм.
Вес
- 390 кг.
|
См.
рис.
5
|
|
Ловитель для страховки рабочих при падении подвесных
люлек
Предложение Г.с. Петрова и А.Б. Гуслякова
Приспособление
состоит из следующих деталей: страховочного троса (1) диаметром 8 мм и
длиной, зависящей от высоты здания и расстояния до места крепления к
конструкциям;
корпуса-обоймы
(2) из листовой стали толщиной 8 мм с пружиной (3) из стальной проволоки
диаметром 2,5 мм,
рукояти-рычага
(4) с отверстием (5) диаметром 16 мм для карабина монтажного пояса на одном
конце и эксцентриковым кулачком (6), имеющим притупленную насечку на рабочей
плоскости - на другом.
Ловитель
устанавливается на тросе и фиксируется под тяжестью рукояти и прижимной
пружины эксцентриковым выступом к тыльной поверхности корпуса.
При
рывке рукояти вниз трос у корпуса изгибается под углом 90° и зажимается
эксцентриком тем сильнее, чем сильнее рывок или давление ручки вниз.
|
|
См.
рис.
6
|
|
Ловитель для закрепления на страховочном тросе
работающих с подвесных люлек
Предложение Е.А. Сиренича
Рядом
с люлькой натягивается стальной страховочный трос (1) диаметром 9 мм. На один
конец троса, надёжно закрепленный вверху на здании, надеваются ловители (2)
по количеству рабочих, второй конец закрепляется внизу на якорь.
Зацепившись
карабином (3) предохранительного пояса за рычаг (4) ловителя, работающий
может свободно передвигаться на рабочем месте. При этом ловитель перемещается
за ним по тросу.
В
случае падения рычаг под действием веса упавшего прижимает трос к стенкам
корпуса ловителя, падение прекращается и рабочий подхватывается страховочным
тросом.
|
|
См.
рис.
7
|
|
Консоль к люлькам для домов серии «ОД» и ЛГ-502.
Конструкция ДСК-2 Главленинградстроя
Консоль
предназначена для навешивания одноместных и двухместных (рис. 1, 2) люлек для
производства ремонтных работ по фасадам домов серии «ОД» и ЛГ-502.
При
навешивании одноместной люльки используется один комплект консоли, а при
навешивании двухместной люльки - соответственно. Два комплекта.
Люльки
навешиваются на консоль (поз. 1).
Вспомогательный
страховочный кронштейн (поз. 2) служит в качестве страхующего устройства. Для
этого канат с карабином. Закреплённый на барабане лебёдки страхующего
кронштейна. заводится за распорку страхующего кронштейна, а затем за распорку
подвески и конец с карабином закрепляется на распорке страхующего кронштейна.
Второй
канна, закреплённый за распорки кронштейна, пропускается через распорки и ось
блока на ловитель люльки.
|
Грузоподъёмность
- 350 кг
Вес
консоли - 70,3 кг, в том числе:
консоль
- 30,3 кг;
кронштейн
страхующий - 40 кг
|
См.
рис.
8
|
|
Консоль конструкция А.И. Кодкина (Москва) для
подвески люлек
Консоли могут применяться для подвески люлек на
зданиях со скатными, а также с плоскими крышами.
Консоли предназначены для подвески любых люлек, как
самоподъёмных (т.е. с лебёдками, установленными непосредственно на люльке),
так и люлек с лебёдками, установленными на земле.
Консоль выполнена в виде двух А-образных трубчатых
металлоконструкций, сидящих на одной оси, которая продета через проушины
основания, включающего в себя деревянный брус, который удерживается винтовыми
прижимами.
Консоли легко разбираются,
Вес отдельного узла не превышает 15 кг.
|
Каждая
консоль рассчитана на нагрузку - 800 кг (от веса люльки и находящихся в ней
людей и материалов).
Вес
каждой консоли - 67 кг.
|
См.
рис.
9
|
|
Телескопическая вышка ВИ-23 на автомобиле ЗИЛ-157 с высотой
подъёма 23 м
Телескопическая
вышка ВИ-23 предназначена для подъёма двух рабочих с инструментом на высоту
до 23 м при выполнении строительно-монтажных или ремонтных работ.
Привод
от двигателя осуществляется через раздаточную коробку автомобиля, коробку
отбора мощности. Карданный вал и раздаточную коробку передач.
Телескопическая
часть устанавливается из 5 раздвигающихся стальных труб. На конце последней
трубы укреплена монтажная площадка - корзина. Все трубы раздвигаются
одновременно и с одинаковой скоростью.
Вышка
оборудована устройством для автоматического выключения коробки отбора
мощности при подъёме площадки на полную высоту. Управление вышкой
осуществляется из кабины автомобиля.
|
Наибольшая
высота подъёма (с учётом роста рабочего) - 23 м
Грузоподъёмность
корзины- 200 кг
Скорость
подъёма вышки при 1300 оборотах двигателя - 7,5 м/мин.
Скорость
опускания - 8 м/мин.
Скорость
передвижения вышки - до 40 км/час.
Наибольший
вес груза, перевозимого в кузове - 500 кг.
Грузовая
лебёдка:
грузоподъёмность
- 200 кг;
высота
подъёма груза - 23 м.
Максимально
допустимая при работе скорость ветра - 10 м/сек.
Габаритные
размеры:
длина
- 8,35 м;
ширина
- 2.35 м;
высота
- 3,72 м.
Габаритные
размеры в рабочем положении:
длина
- 7,16 м;
ширина
с выдвинутыми опорными домкратами - 3.2 м;
высота
до пола площадки:
максимальная
- 21,65 м
минимальная
- 6,34 м;
Вес
вышки:
С
автомобилем - 8950 кг;
Без
автомобиля - 8000 кг
|
См.
рис.
10
|
|
Телескопическая вышка на автомобиле ГАЗ-51 с высотой
подъёма 15,3 м
Вышка
предназначена для подъёма двух рабочих с инструментом монтажных или ремонтных
работах на высоте.
Основными
узлами вышки являются:
коробка
отбора мощности;
редуктор
с барабанами;
телескопическая
часть;
рычаги
управления.
Телескопическая
часть состоит из раздвигающихся стальных труб и монтажной площадки - корзины,
укреплённой на конце последней трубы. Все трубы раздвигаются одновременно и с
одинаковой скоростью.
Подъём
вышки производится с помощью редуктора. Редуктор - самотормозящий, и
предохраняет вышку от произвольного опускания.
Вышка
снабжена пневматическим тормозом, что предохраняет площадку от падения в
случае обрыва каната.
Управление
вышкой осуществляется из кабины автомобиля.
|
Наибольшая
высота подъёма (до пола площадки) - 15,3 м
Грузоподъёмность
корзины- 150 кг
Наибольший
вес груза, перевозимого в кузове - 500 кг
Максимально
допустимая при работе скорость ветра - 10 м/сек.
Габаритные
размеры в транспортном положении:
длина
- 6,11 м;
ширина
- 2.2 м;
высота
- 3,48 м.
Габаритные
размеры в рабочем положении:
длина
- 5,87 м;
высота
(исходная) - 4,56 м.
высота
(максим.)- 15,3 м.
Вес
вышки:
с
автомобилем - 4470 кг;
без
автомобиля - 1950 кг
|
См.
рис.
11
|
|
Шарнирная двухсекционная вышка Ш2СВ-18 конструкции
ЛНИИ АКХ
Шарнирная
двухсекционная вышка Ш2СВ-18 предназначена для профилактического осмотра и
ремонта фасадов зданий и др. работ на высоте до 18 м.
Вышка
установлена на самоходном прицепе. Который может передвигаться на участке со
скоростью 1 км/час.
Механизмы
подъёма выполнены в виде винтовых домкратов с индивидуальным приводом от
электродвигателя.
При
стационарной стоянке вышки можно осуществлять работы в радиусе до 16 м.
Возможность
управления из люльки позволяет обходить выступающие части фасадов зданий,
балконы, провода.
Конструкция
вышки обеспечивает безопасную работу на высоте.
|
Тип
вышки - шарнирная, двухсекционная.
Высота
люльки до пола (максим.)- 16,2 м.
Максимальный
вылет опор - 9 м.
Грузоподъёмность
- 150 кг
Время
перевода в рабочее положение - 15 мин.
Габаритные
размеры:
длина
- 9,5 м;
ширина
- 2.8 м;
высота
- 3,3 м.
Рабочий
вес - 7 т
|
См.
рис.
12
|
|
Молоток - зубило
Предназначен
для отбивки плотной ржавчины, прочно сцеплённой ржавчины и старой краски в
углах и труднодоступных местах, а также для зачистки кромок и сварных швов.
Может
быть использован при слесарно-сборочных. Монтажных и ремонтных работах.
Примечание:
1.
Изготовители: заводы судостроения (изготавливается для предприятий
судостроительной промышленности)
2.
Конструкция разработана Центральным научно-исследовательским институтом
технологии судостроения.
3.
Данные взяты из каталога-справочника «Механизированный инструмент и
отделочные машины», изд. «Машиностроение», М., 1967, с. 315.
|
Число
ударов - 1500 уд./мин.
Рабочее
давление 6 атм.;
Расход
воздуха - 0.15 м3/мин.
Диаметр
воздухоподводящего шланга в свету - 9 мм.
Длина
молотка - 140 мм
Вес
молотка - 1.5 кг.
|
См.
рис. 13
|
|
Молоток С-549
Предназначен
для отбивки мелких борозд и гнёзд в кирпичной кладке и бетоне при
электромонтажных работах, а также для насечки бетонных и кирпичных
поверхностей при отделочных работах. Молоток может быть применён для
художественной обработки камня (мрамор, известняк).
Молоток
имеет компрессионно-вакуумный ударный механизм с автоматическим переходом на холостой
ход.
Молоток
комплектуется штепсельным соединением И-145 к сменным рабочим инструментам
(пика, зубило, бучирда).
Примечание:
2. Данные взяты из каталога-справочника «Механизированный
инструмент и отделочные машины». Изд. «Машиностроение», М , 1967, с. 99.
|
Энергия
удара бойка - 0,2 кгм
Число
ударов - 1600 уд./мин.
Режим
работы - длительный
Электродвигатель
коллекторный, номинальная мощность - 120 вт
Род
тока - переменный, однофазный
Напряжение
- 220 в
Частота
тока - 50 гц
Габаритные
размеры:
длина
- 348 мм;
ширина
- 76 мм;
высота
- 190 мм.
Вес
молотка (без кабеля и рабочего инструмента) - 3.5 кг
|
См.
рис. 14
|
|
Молоток МЭС
Предназначен
для зачистки сварных швов от шлака, застывших капель и брызг металла, а также
для лёгкой клёпки, рубки и чеканки.
Молоток
может быть использован на строительных объектах.
Малый
вес и малые размеры молотка позволяют применять его для работы в
труднодоступных местах.
Примечание:
1.
Изготовители: заводы судостроения (изготавливается для предприятий
судостроительной промышленности)
2.
Конструкция разработана Центральным научно-исследовательским институтом
технологии судостроения.
3.
Данные взяты из каталога-справочника «Механизированный инструмент и
отделочные машины», изд. «Машиностроение», М., 1967, с. 315.
|
Энергия
удара бойка - 0,15-0,2 кгм
Число
ударов - 2800-3000 уд./мин
Давление
воздуха в сети - 6 атм.
Наибольший
расход воздуха - 0.3 м3/мин.
Диаметр
воздухоподводящего шланга в свету - 9 мм.
Габаритные
размеры:
длина
- 250 мм;
ширина
- 48 мм;
высота
- 51 мм.
Вес
молотка - 1.0 кг
|
См.
рис. 15
|
|
Приспособление для закатывания жгутов из поризола
или гернита в стык вручную
|
Длина
- 650 мм
Вес
- 1,4 кг
|
См.
рис.
16
|
|
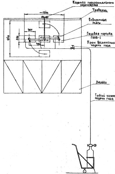
Установка для сушки поверхности стыков
Состоит
из 3 газовых горелок ветроустойчивых, инфракрасного излучения (ГИИВ-1).
Горелки
смонтированы на несущей раме и связаны шлангом с баллоном сжиженного газа
(пропан-бутан) ёмкостью 25-27 л. бытового назначения.
Баллон
снабжён редуктором РД или РДК. Установка снабжена специальным устройством для
подвешивания на люльке и ориентирования по стыку.
|
Горелка
работает при скорости ветра до 5 м/сек.
Теплоотдача
- 4500 ккал/час.
Время
разогрева - 45-55 сек.
Длина
одновременного обогрева поверхности до 1,2 м.
Расстояние
экрана до объекта разогрева - 0,18-0,25 м.
|
См.
рис.
17
|

Рис. 1. Люлька самоподъёмная конструкции
Мосжилуправления

Рис. 2. Люлька конструкции треста «Фасадремстрой-1» УКР
Ленгорисполкома.
1 - люлька; 2- балка консольная; 3 - лебёдка

Рис. 3. Самоподъёмная передвижная подвесная
люлька СЛ-120 конструкции Минского ДСК
1 - 4-х колёсная каретка; 2 - механизм ручного привода; 3 -
электродвигатель; 4 - редуктор; 5 - барабаны для навивки тросов
| |
|