//
|
|
ОРДЕНА ЛЕНИНА ГЛАВМОССТРОЙ ПРИ МОСГОРИСПОЛКОМЕ МОСОРГСТРОЙ ТЕХНОЛОГИЧЕСКИЕ СХЕМЫ НА ПОГРУЗОЧНО-РАЗГРУЗОЧНЫЕ ОПЕРАЦИИ, СКЛАДИРОВАНИЕ И МОНТАЖ СБОРНЫХ ЖЕЛЕЗОБЕТОННЫХ ОГРАД МОСКВА-1983 УТВЕРЖДАЮ: Зам. начальника Технического управления Главмосстроя _____________ H.А.Войтович «______»____________1982 г Заместитель управляющего трестом Мосоргстрой/Ю.И. Шемонаев/ Начальник отдела № 5 /A.H. Абрамович/ Главный инженер проекта отдела № 5 /В.Г. Поляков/ СОГЛАСОВАНО: Заместитель начальника УМГО Заместитель начальника Госгортехнадзора. СССР Технического управления _______________Г.З. Шубочкин ___________М.В. Стелин «______»______________1982 г. «_____»_________1982 г. СОДЕРЖАНИЕ 1. ОБЩИЕ ПОЛОЖЕНИЯ1.1. Технологические схемы на погрузочно-разгрузочные операции, складирование и монтаж сборных железобетонных оград всех типов при помощи стреловых самоходных кранов разработаны для обеспечения правильного использования и безопасной работы крана при выполнении всех операций. 1.2. Разгрузка, складирование и монтаж элементов сборных железобетонных оград должны производиться в строгом соответствии с требованиями Строительных Норм и Правил (СНиП III-4-80), "Правил устройства и безопасной эксплуатации грузоподъёмных кранов" и Информационных писем Госгортехнадзора СССР. № 06-27/171 от 11.10.76 г.; № 3/4- от 11.11.76 г.; № 06-27/65 от 18.04.77 г. 1.3. Завоз сборных железобетонных оград на территорию строящегося объекта допускается только, на подготовленную площадку под складирование. 1.4. Для производства монтажных, погрузочно-разгрузочных работ стреловые самоходные краны должны устанавливаться с таким расчетом, чтобы расстояние от строений, штабелей грузов и других предметов до поворотной части крана в любом ее положений было бы не менее 1 м. Автомобильные ж пневмоколёсные краны должны быть установлены на выносные опоры. 1.5. Схемы строповок даны для разгрузки и монтажа элементов железобетонных оград. 1.6. В случае необходимости, погрузочно-разгрузочные работы и работу по монтажу элементов, не указанные в схемах строповок, следует производить по указанию и с обязательным присутствием инженерно-технического работника, аттестованного по статье 300 "Правил устройства и безопасной эксплуатация грузоподъемных кранов". 1.7. При необходимости установки крана вблизи ЛЭП следует строго соблюдать, порядок, установленный статьей 344 "Правил устройства и безопасной эксплуатации грузоподъёмных кранов". Установка и работа стрелового крана на расстоянии ближе 30 м от крайнего провода линии электропередачи или воздушной электрической сети напряжением более 36 В может производиться только по наряду-допуску, определяющему безопасные условия такой работы. Наряд-допуск должен подписываться руководителем (начальником, главным инженером) предприятия или организации, производящей работы, или другим руководящим лицом по их указанию и направляется владельцу крана - Управлению механизации (УМ) - вместе с заявкой на кран. Наряд-допуск выдается крановщику с. одновременным проведением инструктажа главным инженером УМ или другим лицом, назначенным приказом по Управлению, механизации, вместе с выдачей путевого листа. При производстве работ в охранной зоне ЛЭП или в пределах, установленных правилами охраны высоковольтных электрических сетей разрывов, наряд-допуск может быть выдан только при наличии разрешения организации эксплуатирующей линию электропередачи. Установка и работа крана в этих случаях должна производиться под непосредственным руководством лица, ответственного за безопасное производство работ по перемещению грузов кранами и за выполнение указаний в наряде допуске. 1.8. При отсутствии ограждения строительной площадки забором, по контуру опасной зоны устанавливаются стойки инвентарных ограждений (Мосоргстрой, проект № 7453А), Пролеты между стойками - 5м. Пролеты загораживаются в один ряд хлопчатобумажной веревкой диаметром не менее 12 мм с красными флажками по середине пролета. 1.9. У входов в опасную зону устанавливаются предупреждающие знаки - “Осторожно! Работает кран” - по ГОСТ 12.4.026-76. 1.10. При работе в стесненных условиях, требующих ограничении действия крана, необходимо выставлять предупреждающие и запрещающее знаки безопасности но ГОСТ 12.4.026-76. 2. УКАЗАНИЯ ПО ПРОИЗВОДСТВУ РАБОТ2.1. Для подъезда автомобильных кранов и автомобилей к месту работ должны устраиваться временные дороги и площадки для стоянки кранов. Основания дорог и площадок должны выдерживать нагрузки, создаваемые автомобильными кранами и автомобилями. 2.2. Монтажные и погрузочно-разгрузочные работы выполняются при помощи, автомобильных кранов КС-3562А; KС-3571; СМК-10; КС-2561Д; К-64; АК-75 с основными стрелами, а также другими кранами с аналогичными характеристиками. 2.3. Ответственный по статье 300 прораб проводит инструктаж на рабочем месте, с крановщиками и стропальщиками, знакомит их с технологической схемой и выдает крановщику и стропальщикам схемы строповок с указанием массы грузов. 2.4. Ответственный по статье 300 Правил ПТТН прораб разрешает работу крана и делает запись в журнале грузоподъемного крана: "Установка крана на указанном месте в соответствии с технологической схемой проверил. Выполнение работ разрешаю". 2.5. На схемах № 1, 2, 3, 4, 5 показана установка кранов для производства монтажа и разгрузки деталей железобетонных оград. В зависимости от условий строительной площадки автомобили, подвозящие детали, могут устанавливаться сбоку крана при обязательном условий сохранения вылетов крюка крана, указанных на схемах. 2.6. Краны, направляемые на работу должны быть оснащены 4-х ветвевым стропом и двумя кольцевыми стропами (УСК 2) соответствующей грузоподъемности. Привязка типовых технологических схем к конкретному объекту производится в соответствии с его ситуационным планом и согласовывается с УМ (владельцем кранов). ЗНАКИ БЕ3ОПАСНОСТИ ПО ГОСТ 12.4.026-76ЗНАКИ ПРЕДУПРЕЖДАЮЩИЕ
ОСТОРОЖНО РАБОТАЕТ КРАН. Устанавливаются по контуру опасной Зоны, возникающей при работе крана. 3НАКИ 3АПРЕЩАЮЩИЕ
ПРОНОС ГРУЗА ЗАПРЕЩЕН
ВХОД (ПРОХОД) ВОСПРЕЩЕН
Размер А - 710 мм Знаки изготавливаются из листовой стали толщиной от 0,5 до 1,5 мм, а также из жесткого оргалита толщиной 3-4 мм с покраской со всех сторон масляной краской. Знаки должны быть следующими: равносторонний треугольник со скругленными углами желтого цвета, обращенный вершиной вверх, с каймой черного цвета шириной 0,05 м стороны и символическим изображением черного цвета. Размер А - 560 мм Знаки изготавливаются из листовой стали толщиной от 0,5 до 1,5 мм, а также из жесткого оргалита толщиной 3-4 мм с покраской со всех сторон масляной краской. Знаки должны быть следующими: круг красного цвета с белым полем внутри, белой по контуру знака каймой и символическим изображением черного цвета на внутреннем белом поле, перечеркнутым наклонной полосой красного цвета (угол наклона 45 слева сверху направо вниз). Ширина кольца красного цвета должна быть 0,09-0,1 внешнего диаметра, ширина белой каймы по контуру знака - 0,02 внешнего диаметра.
Кран К-64, Кран КС-2561Д, стрела 7,35 м стрела 8 м
Кран АК-75, стрела 7,5 м
ГРУЗОВЫЕ ХАРАКТЕРИСТИКИ РЕКОМЕНДУЕМЫХ КРАНОВКран КС-3562А, стрела 10 м Кран СМК-Ю, стрела 10 м
УСТАНОВКА КРАНОВ НА ВЫНОСНЫЕ ОПОРЫ ОБЯЗАТЕЛЬНА. Грузовые характеристики даны для работы кранов на опорах. ОПРЕДЕЛЕНИЕ ГРАНИЦЫ ОПАСНЫХ ЗОН ДЛЯ НАХОЖДЕНИЯ ЛЮДЕЙРазмер до границы опасной зоны следует принимать в зависимости от высоты подъема груза (h).
При высоте возможного подъема предмета до 20 м промежуточные значения опасной зоны можно определить по формуле: L = 0,3h + 1 м При определении высоты подъема груза (h) следует принимать максимальную паспортную высоту подъема крюка крана на наибольшем рабочем вылете (зона обслуживания краном), с учетом длины строп и габарита поднимаемого груза. ОБЩИЕ ВИДЫ
| ||||||||||||||||||||||||||||||||||||||||||||||||||||||||||||||||||||||||||||||||||||||||||||||||||||||||||||||||||||||||||||||||||||||||||||||||||||||||||||||||||||||||||||||||||||||||||||||||
|
№ п/п |
Марка изделия |
Условное изображение |
Высота (h), мм |
Масса изделия с учетом плюсового допуска, T |
Область применения |
|
|
1 |
Панели |
ПО-1 |
|
1700 |
0,575 |
Решётчатая ограда высотой 1,2 м для учебных заведений и скверов |
|
2 |
Панели |
ПО-2 |
|
3000 |
1,63 |
Сплошная ограда высотой 2,4 м для режимных предприятий, и объектов |
|
3 |
ПО-3 |
3000 |
1,59 |
|||
|
4 |
ПО-4 |
3000 |
1,59 |
|||
|
5 |
ПО-11 |
3000 |
1,92 |
|||
|
6 |
ПО-12 |
3000 |
1,87 |
|||
|
7 |
ПО-13 |
3000 |
1,96 |
|||
|
8 |
ПО-14 |
2750 |
1,75 |
Сплошная ограда высотой 2,0 м для промышленных предприятий и лечебных учреждений |
||
|
9 |
ПО-15 |
2750 |
1,71 |
|||
|
10 |
ПО-16 |
2750 |
1,79 |
|||
|
11 |
Фундаменты |
ФО-1 |
|
550 |
0,8 |
Для панелей ПО - 1 |
|
12 |
ФО-2 |
550 |
0,72 |
Для панелей ПО-2 ÷ ПО-4; ПО-11 ÷ ПО-16 |
||
РАЗГРУЗКА С АВТОМОБИЛЕЙ И СКЛАДИРОВАНИЕ НА СКЛАДЕ ПАНЕЛЕЙ ПО-13
СХЕМА №1
(Складирование элементов ограды см. схему №2 на стр. 38)

1. Траспортирование панелей ограды производятся, в горизонтальном положении на грузовых автомобилях марки МАЗ-500, МАЗ-20011 в количестве не более 4-х штук.
2. Транспортирование фундаментов - на бортовых автомобилях любых марок.
СКЛАДИРОВАНИЕ ЭЛЕМЕНТОВ ОГРАДЫ
СХЕМА №2

Фундаментные башмаки Ф0-1,Ф0-2 Плиты Ф1224-35 для якорей
(в штабель укладывают не более 6 шт.) (в штабель укладывают не более 6 шт.)

Складирование производится на спланированной площадке.
РАЗГРУЗКА И МОНТАЖ ПАНЕЛЕЙ ПО-13 (масса 1,96 т)
СХЕМА №3

РАЗГРУЗКА И МОНТАЖ ПАНЕЛЕЙ ЖЕЛЕЗОБЕТОННЫХ ОГРАД ТИПА ПО-13
СХЕМА № 4

МОНТАЖ ПАНЕЛИ ПО-13 (масса 1,96 т) НА СТРОИТЕЛЬНОМ ОБЪЕКТЕ
СХЕМА №5

1. Якоря (Ф1224-35) завозятся на строительный объект и складируются вдоль траншеи в соответствии с разметкой мест установки панелей.
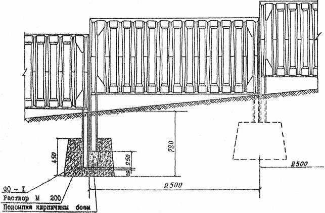
2. Струбцина со штангой-подкосом крепится на панели ограды до подъёма ее краном. После установки панели в стакан башмака и временного крепления ее металлическими клиньями второй конец штанги закрепляется за монтажные петли фундаментной плиты Ф1224-З5. Расстроповку панели производить только после ее выверки.
3. Замоноличивание стоек панелей в стакане фундамента производится раствором Марки - 200.
4. Извлечение металлических клиньев и снятие подкосов временного раскрепления производится после достижения раствором замоноличивания 70 % проектной прочности.
5. При монтаже панелей сборной железобетонной ограды монтажники должны пользоваться лестницей-площадкой высотой 1,5 м, конструкции треста Мосоргстрой, чертеж №1999СМ.
НОМЕНКЛАТУРА ИЗДЕЛИЙ ЖЕЛЕЗОБЕТОННЫХ ОГРАД, СОБИРАЕМЫХ ИЗ ОТДЕЛЬНЫХ ЭЛЕМЕНТОВ.
|
№ п/п |
Марка изделия |
Условное изображение |
Высота (h), мм |
Длина (l), мм |
Масса изделия, т |
Область применения |
|
|
1. |
ПАНЕЛИ |
П-1 |
|
500 |
2730 |
0,163 |
Для промышленных предприятий и лечебных учреждений |
|
2. |
П-2 |
1400 |
2730 |
0,403 |
|||
|
3. |
РП-1 |
500 |
2440 |
0,146 |
Для детских садов с панелью РП-3 |
||
|
4. |
ПАНЕЛИ |
РП-1 |
|
500 |
2730 |
0,120 |
Для лечебных учреждений |
|
5. |
РП-2 |
1400 |
2730 |
0,278 |
|||
|
6. |
РП-3 |
1000 |
2440 |
0,187 |
Для учебных заведений, скверов и детских садов с панелью П-3 |
||
|
7. |
СТОЛБЫ |
ЖС-1; ЖСУ-1 |
Поперечные размеры: ЖС-1 - 200 × 210 ЖС-2; ЖС-3; ЖС-4 - 120 × 160 |
|
3500 |
0,305 |
В зависимости от применяемых панелей |
|
8. |
ЖС-2; ЖСУ-2 |
|
2800 |
0,108 |
|||
|
9. |
ЖС-3; ЖСУ-3 |
|
1850 |
0,055 |
|||
|
10. |
ЖС-4; ЖСУ-4 |
|
2350 |
0,091 |
|||
|
11. |
ФУНДАМЕНТ |
Ф-1 |
|
350 |
500 |
0,139 |
На все типы оград |
РАЗГРУЗКА И МОНТАЖ ПАНЕЛЕЙ СБОРНЫХ ЖЕЛЕЗОБЕТОННЫХ ОГРАД, ВЫПУСКАЕМЫХ ЗАВОДОМ «СТРОЙДЕТАЛЬ» ГЛАВМОССТРОЯ



РАЗГРУЗКА И МОНТАЖ ПАНЕЛЕЙ СБОРНЫХ ЖЕЛЕЗОБЕТОННЫХ ОГРАД, ВЫПУСКАЕМЫХ ЗАВОДОМ «СТРОЙДЕТАЛЬ» ГЛАВМОССТРОЯ

|
|
|
|