//
|
|
Р О С С Т Р О Й (ОАО ЦНС) ИНФОРМАЦИОННЫЙ ЦЕНТР ПО НОРМИРОВАНИЮ И СТАНДАРТИЗАЦИИ В СТРОИТЕЛЬСТВЕ
НОРМАТИВНО-ТЕХНИЧЕСКАЯ БАЗА СТРОИТЕЛЬСТВА
НОВЫЕ СТРОИТЕЛЬНЫЕ НОРМЫ И СТАНДАРТЫ
Нормативные документы Системы нормативных документов в строительстве
Приказ Федерального агентства по строительству и ЖКХ от 26.02.2006 г. № 39«О Своде правил по проектированию и монтажу водопроводных и канализационных сетей с применением высокопрочных труб из чугуна с шаровидным графитом»
На основании акта сдачи-приемки работ от 30 ноября 2005 г. N 2 по контракту от 01.06.2004 N 16-06-02/04 приказываю: 1. Одобрить Свод правил по проектированию и монтажу водопроводных и канализационных сетей с применением высокопрочных труб из чугуна с шаровидным графитом. 2. Рекомендовать к применению данный Свод правил, присвоив номер СП 40-109-2006. 3. Контроль за исполнением настоящего приказа возложить на заместителя руководителя Росстроя В.И. Когана.
Руководитель С.И. Круглик
Национальные и межгосударственные стандарты
Инструктивно-распорядительные и методические
документы в области строительства
| ||||||||||||||||||||||||||||||||||||||||||||||||||||||||||||||||||||||||||||||||||||||||||||||||||||||||||||||||||||||||||||||||||||||||||||||||||||||||||||||||||||||||||||||||||||||||||||||||||||||||||||||||||||||||||||||||||||||||||||||||||||||||||||||||||||||||||||||||||||||||||||||||||||||||||||||||||||||||||||||||||||||||||||||||||||||||||||||||||||||||||||||||||||||||||||||||||||||||||||||||||||||||||||||||||||||||||||||||||||||||||||||||||||||||||||||||||||||||||||||||||||||||||||||||||||||||||||||||||||||||||||||||||||||||||||||||||||||||||||||||||||||||||||||||||||||||||||||||||||||||||||||||||||||||||||||||||||||||||||||||||||||||||||||||||||||||||||||||||||||||||||||||||||||||||||||||||||||||||||||||||||||||||||||||||||||||||||||||||||||||||||||||||||||||||||||||||||||||||||||||||||||||||||||||||||||||||||||||||||||||||||||||||||||||||||||||||||||||||||||||||||||||||||||||||||||||||||||||||||||||||||||||||||||||||||||||||||||||||||||||||||||||||||||||||||||||||||||||||||||
|
Название документа |
Дата утверждения |
Примечание |
||
|
1. |
«Инструкция о порядке заполнения формы градостроительного плана земельного участка» |
13.04.2006 Приказ Минрегиона России № 40 |
Текст Инструкции приводится ниже. |
|
|
2. |
«Об отмене постановления Государственного комитета Российской Федерации по строительству и жилищно-коммунальному комплексу от 2 сентября 2002 г. № 115 «О введении в действие межгосударственного стандарта «Швы монтажные узлов примыкания оконных блоков к стеновым проемам. Общие технические условия» |
30.05.2006 Приказ Минрегиона России № 64 |
Текст приказа приводится ниже. |
|
|
3. |
«О средней рыночной стоимости 1 квадратного метра общей площади жилья по субъектам Российской Федерации на IV квартал 2006 года» |
28.09.2006 Приказ Минрегиона России № 108 |
Текст приказа приводится ниже. |
|
Настоящая Инструкция разработана в соответствии со статьей 44 Градостроительного кодекса Российской Федерации и Постановлением Правительства Российской Федерации от 29 декабря 2005 г. № 840 «О форме градостроительного плана земельного участка» и определяет порядок заполнения формы градостроительного плана земельного участка.
Форма градостроительного плана земельного участка заполняется в трех экземплярах. После утверждения первый и второй экземпляры на бумажном носителе передаются заявителю. Третий экземпляр на бумажном и электронном носителях передается в орган, уполномоченный на регистрацию градостроительного плана земельного участка.
Копия утвержденного градостроительного плана земельного участка после его регистрации передается в орган, уполномоченный на ведение информационной системы обеспечения градостроительной деятельности муниципального образования.
I. Порядок формирования номера градостроительного плана земельного участка
Номер градостроительного плана земельного участка присваивается после утверждения градостроительного плана земельного участка.
Номер градостроительного плана земельного участка присваивается органом, уполномоченным на регистрацию утвержденных градостроительных планов земельных участков.
Номер градостроительного плана земельного участка имеет следующую структуру А-Б, где:
А - регистрационный номер, присвоенный муниципальному образованию, согласно Инструкции о ведении государственного реестра муниципальных образований Российской Федерации, утвержденной Приказом Министерства юстиции Российской Федерации от 19 августа 2005 года № 136.
Государственный регистрационный номер муниципального образования вносится в первые десять ячеек номера градостроительного плана земельного участка.
Б - порядковый номер утвержденного градостроительного плана земельного участка муниципального образования, присвоенный органом, уполномоченным на регистрацию утвержденных градостроительных планов земельных участков.
Составные части номера отделяются друг от друга знаком «-». Цифровые индексы обозначаются арабскими цифрами.
В строке «Градостроительный план земельного участка подготовлен на основании» указывается:
- в случае, когда основанием для подготовки документации по планировке территории, в составе которой подготавливается градостроительный план земельного участка, является решение уполномоченного федерального органа исполнительной власти, указывается наименование федерального органа исполнительной власти, издавшего акт, наименование вида акта и его название, дата подписания (утверждения) акта и его номер, наименование должности и фамилия лица, подписавшего акт;
- в случае, когда основанием для подготовки документации по планировке территории, в составе которой подготавливается градостроительный план земельного участка, является решение органа исполнительной власти субъекта Российской Федерации, указывается наименование органа исполнительной власти субъекта Российской Федерации, издавшего акт, наименование вида акта и его название, дата подписания (утверждения) акта и его номер, наименование должности и фамилия лица, подписавшего акт;
- в случае, когда основанием для подготовки документации по планировке территории, в составе которой подготавливается градостроительный план земельного участка, является решение органа местного самоуправления, указывается наименование органа местного самоуправления, издавшего акт, наименование вида акта и его название, дата подписания (утверждения) акта и его номер, наименование должности и фамилия лица, подписавшего акт;
- в случае, когда основанием для выдачи градостроительного плана земельного участка является обращение физического лица, указываются фамилия, имя, отчество физического лица, дата регистрации обращения о выдачи градостроительного плана земельного участка;
- в случае, когда основанием для выдачи градостроительного плана земельного участка является обращение юридического лица, указываются реквизиты юридического лица, организационно-правовая форма, наименование юридического лица и дата регистрации его обращения о выдаче градостроительного плана земельного участка.
В строке «Местонахождение земельного участка» указываются наименования:
- субъекта Российской Федерации;
- муниципального района;
- поселения.
Или указываются наименования:
- субъекта Российской Федерации;
- городского округа.
В строке «Кадастровый номер земельного участка» указываются:
- кадастровый номер земельного участка при его наличии, дата постановки земельного участка на государственный кадастровый учет.
При отсутствии кадастрового номера земельного участка в строке пишется «Кадастровый номер отсутствует».
В строке «План подготовлен» указываются:
- фамилия, имя, отчество, должность уполномоченного лица на подготовку градостроительного плана земельного участка, орган или организация, подготовивший (ая) градостроительный план земельного участка.
Лицо, уполномоченное на подготовку градостроительного плана земельного участка, ставит свою подпись, дает ее расшифровку. Подпись подтверждается печатью соответствующего(ей) органа или организации.
В строке «Представлен» указывается:
- наименование уполномоченного федерального органа исполнительной власти Российской Федерации в случае, когда документы по планировке территории, в составе которых подготовлен градостроительный план земельного участка, утверждаются Правительством Российской Федерации; дата представления документов по планировке территории;
- наименование органа исполнительной власти субъекта Российской Федерации в случае, когда документы по планировке территории, в составе которых подготовлен градостроительный план земельного участка, утверждаются высшим органом исполнительной власти субъекта Российской Федерации; дата представления документов по планировке территории;
- наименование органа местного самоуправления, в случае, когда документы по планировке территории, в составе которых подготовлен градостроительный план земельного участка, утверждаются главой местной администрации; дата представления документов по планировке территории.
В строке «Утвержден» указываются:
- в случае, когда документы по планировке территории, в составе которых подготовлен градостроительный план земельного участка, утверждены Правительством Российской Федерации, указывается наименование вида акта и его название, дата подписания (утверждения) акта и его номер, наименование должности и фамилия лица, подписавшего акт;
- в случае, когда документы по планировке территории, в составе которых подготовлен градостроительный план земельного участка, утверждены высшим исполнительным органом государственной власти субъекта Российской Федерации, указывается наименование вида акта и его название, дата подписания (утверждения) акта и его номер, наименование должности и фамилия лица, подписавшего акт;
- в случае, когда документы по планировке территории, в составе которых подготовлен градостроительный план земельного участка, утверждены главой местной администрации, указывается наименование вида акта и его название, дата подписания (утверждения) акта и его номер, наименование должности и фамилия лица, подписавшего акт.
II. Порядок заполнения раздела 1.
Чертеж градостроительного плана земельного участка
Чертеж градостроительного плана земельного участка выполняется на топографической основе вручную или в электронном виде. Масштаб выбирается разработчиком чертежа для отображения, поставленных при подготовке градостроительного плана планировочных задач и требований.
В правом нижнем углу подготовленного чертежа оформляется угловой штамп организации с подписями разработчиков.
В строке «Масштаб» указывается масштаб, в котором выполнен градостроительный план земельного участка.
В строке «Площадь земельного участка» указывается площадь земельного участка в гектарах.
Условные обозначения к чертежу градостроительного плана земельного участка:
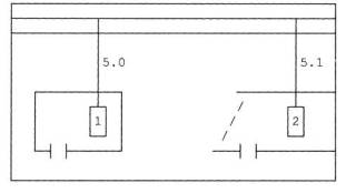
1) граница земельного участка наносится сплошной линией толщиной 0,7 мм. Точки поворота границ земельного участка обозначаются точкой диаметром 2 мм. Координаты точек поворотных углов земельного участка показываются в виде выноски, номер поворотной точки обозначается арабскими цифрами высотой 5 мм (рис. 1).

Рис.1.
2) границы зон действия публичных сервитутов наносятся сплошной линией толщиной 0,5 мм, получаемая зона заштриховывается линиями толщиной 0,3 мм, через 4 мм, под углом 45° (рис. 2);

Рис.2.
3) минимальные отступы от границ земельного участка в целях определения мест допустимого размещения зданий, строений, сооружений, за пределами которых запрещено строительство зданий, строений, сооружений, выполняются в виде сплошной линии толщиной 1,2 мм. Линии отступа графически привязываются к реперам или капитальным зданиям, имеющимся на топосъемке. Расстояние указывается в метрах, например, 1,3; 5,2; 7,2 (рис. 3);

Рис.3.
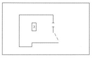
4) номера объектов капитального строительства (зданий, строений, сооружений), расположенных на земельном участке, указываются в окружностях диаметром 6 мм, которые наносятся в контурах зданий (рис. 4);

Рис.4.
5) границы зон планируемого размещения объектов капитального строительства для государственных или муниципальных нужд наносятся сплошной линией толщиной 0,3 мм, площадь зоны заштриховывается чередующимися штрих-пунктирными и сплошными линиями толщиной 0,3 мм каждая через 6 мм между ними под углом 45°. Номер зоны наносится внутри окружности диаметром 6 мм (рис. 5);

Рис.5.
6) места допустимого размещения зданий, строений, сооружений указываются в виде участков, заштрихованных сплошными линиями толщиной 0,3 мм, через 4 мм перпендикулярно друг к другу (рис. 6).

Рис.6.
7) На чертеже градостроительного плана земельного участка приводится экспликация объектов капитального строительства, зон планируемого размещения объектов капитального строительства и места допустимого размещения зданий, строений, сооружений. Нумерация объектов - сквозная.
В строке «Чертеж градостроительного плана земельного участка разработан на топографической основе, выполненной» указываются:
- дата выполнения и наименование организации, выполнившей топографическую съемку.
В строке «Чертеж градостроительного плана земельного участка разработан» указываются:
- дата разработки чертежа градостроительного плана земельного участка, наименование организации, выполнившей чертеж градостроительного плана земельного участка.
III. Порядок заполнения раздела 2.
Информация о градостроительном регламенте земельного участка
Информация о градостроительном регламенте земельного участка заполняется, если в отношении земельного участка установлен градостроительный регламент или на земельный участок распространяется действие градостроительного регламента.
В строке «Градостроительный регламент земельного участка установлен в составе правил землепользования и застройки, утвержденных представительным органом местного самоуправления» указываются:
- наименование представительного органа местного самоуправления, утвердившего правила землепользования и застройки, вид и наименование нормативного правового акта об утверждении правил землепользования и застройки, дата и номер его утверждения.
В строке «основные виды»:
- указываются основные виды разрешенного использования земельного участка в соответствии с правилами землепользования и застройки.
В строке «условно-разрешенные виды»:
- указываются условно-разрешенные виды использования земельного участка в соответствии с правилами землепользования и застройки.
В строке «вспомогательные виды»:
- указываются вспомогательные виды разрешенного использования земельного участка в соответствии с правилами землепользования и застройки.
В случае, если в отношении земельного участка не установлен градостроительный регламент или на земельный участок не распространяется действие градостроительного регламента, в строке «Градостроительный регламент земельного участка установлен в составе правил землепользования и застройки, утвержденных представительным органом местного самоуправления» вносится запись: «Градостроительный регламент не установлен», а в строках «основные виды», «условно-разрешенные виды», «вспомогательные виды» вносится запись: «Градостроительным регламентом не установлены».
В случае, если на земельный участок не распространяется действие градостроительного регламента или для земельного участка не устанавливается градостроительный регламент, информация о разрешенном использовании земельного участка, требованиях к назначению, параметрам и размещению объектов капитального строительства, заполняется в соответствии с нормативными правовыми актами, принимаемыми уполномоченным федеральным органом исполнительной власти, уполномоченными органами исполнительной власти субъектов Российской Федерации или уполномоченными органами местного самоуправления в соответствии с федеральными законами. При этом указывается наименование органа (органов), издавшего акт, наименование вида акта и его название, дата подписания (утверждения) акта и его номер, наименование должности и фамилия лица, подписавшего акт.
В случае, если на земельный участок распространяется действие градостроительного регламента или для земельного участка устанавливается градостроительный регламент, в строках и графах раздела 3, предназначенных для заполнения, вписываются слова: «Заполнение не требуется».
В строке «основные виды разрешенного использования»:
- указываются основные виды разрешенного использования земельного участка.
В строке «условно-разрешенные виды использования»:
- указываются условно-разрешенные виды использования земельного участка.
В строке «вспомогательные виды разрешенного использования» указываются:
- вспомогательные виды разрешенного использования земельного участка.
В строке «Требования к назначению, параметрам и размещению объекта капитального строительства на указанном земельном участке. Назначение объекта капитального строительства» указываются:
- номер объекта капитального строительства согласно чертежу градостроительного плана, назначение объекта капитального строительства.
В строке «Предельные (минимальные и (или) максимальные) размеры земельных участков объектов капитального строительства, в том числе площадь» указывается информация соответственно графам таблицы.
В графе «Номер участка согласно чертежу градостроительного плана» указывается:
- номер участка согласно чертежу градостроительного плана.
В графе «Размер (м) максимальный» указывается:
- максимальный размер земельного участка в метрах.
В графе «Размер (м) минимальный» указывается:
- минимальный размер земельного участка в метрах.
В графе «Площадь (га)» указывается:
- площадь земельного участка в гектарах.
В строке «Предельное количество этажей» указывается:
- предельное количество этажей зданий.
В строке «предельная высота зданий, строений, сооружений» указывается:
- максимальная высота здания, сооружения, строения в метрах.
В строке «Максимальный процент застройки в границах земельного участка» указывается:
- отношение суммарной площади застройки зданий, строений, сооружений к площади земельного участка (в процентах).
Строка «Иные показатели» заполняется при наличии дополнительной информации о разрешенном использовании земельного участка, требованиях к назначению, параметрам и размещению объекта капитального строительства.
В строке «Объекты капитального строительства» указываются:
- номер объекта капитального строительства согласно чертежу градостроительного плана земельного участка и назначение объекта капитального строительства.
В строке «инвентаризационный или кадастровый номер» указывается:
- инвентаризационный или кадастровый номер объекта капитального строительства, дата его регистрации.
В строке «технический паспорт объекта подготовлен» указывается:
- дата подготовки технического паспорта объекта капитального строительства, наименование организации (органа) государственного технического учета и (или) технической инвентаризации объектов капитального строительства, подготовившего технический паспорт.
Строка «Объекты, включенные в единый государственный реестр объектов культурного наследия (памятников истории и культуры) народов Российской Федерации» заполняется, если на территории, для которой ведется подготовка градостроительного плана земельного участка, находятся объекты, занесенные в единый государственный реестр объектов культурного наследия (памятников истории и культуры) народов Российской Федерации. При этом указываются:
- номер объекта культурного наследия согласно чертежу градостроительного плана земельного участка;
- историческое назначение объекта культурного наследия и его фактическое использование;
- наименование органа государственной власти, принявшего решение о включении выявленного объекта культурного наследия в единый государственный реестр, наименование нормативного правового акта, дата и номер его принятия.
В строке «регистрационный номер в реестре» указываются:
- регистрационный номер и дата постановки на учет в единый государственный реестр объектов культурного наследия (памятников истории и культуры) народов Российской Федерации.
В случае отсутствия объектов культурного наследия (памятников истории и культуры) народов Российской Федерации в соответствующие строки вписываются слова: «Не имеется».
В строке «Объект капитального строительства» указываются:
- номер объекта капитального строительства согласно чертежу градостроительного плана земельного участка и назначение объекта капитального строительства.
В строке «Технические условия подключения объекта к сетям инженерно-технического обеспечения» указывается:
- тип инженерно-технического обеспечения.
В строке «выданы» указываются:
- дата, наименование органа (организации), выдавшего(ей) технические условия, номер согласно чертежу градостроительного плана земельного участка и назначение объекта капитального строительства.
Указывается возможность или невозможность разделения земельного участка (ненужное зачеркнуть).
Указывается наименование органа (органов), издавшего акт, наименование вида акта и его название, дата подписания (утверждения) и номер акта, определяющего возможность или невозможность разделения земельного участка.
В связи с отказом Министерства юстиции Российской Федерации в государственной регистрации Постановления Государственного комитета Российской Федерации по строительству и жилищно-коммунальному комплексу от 2 сентября 2002 г. № 115 «О введении в действие межгосударственного стандарта «Швы монтажные узлов примыкания оконных блоков к стеновым проемам. Общие технические условия» (письмо от 23.12.2005 № 01/10052-ЕЗ), а также согласно пункту 15 Правил подготовки нормативных правовых актов федеральных органов исполнительной власти и их государственной регистрации, утвержденных Постановлением Правительства Российской Федерации от 13.08.1997 № 1009, приказываю:
Отменить Постановление Государственного комитета Российской Федерации по строительству и жилищно-коммунальному комплексу от 2 сентября 2002 г. № 115 «О введении в действие межгосударственного стандарта «Швы монтажные узлов примыкания оконных блоков к стеновым проемам. Общие технические условия».
Министр В.А. Яковлев
В соответствии с пунктом 3 постановления Правительства Российской Федерации от 21 марта 2006 года № 153 «О некоторых вопросах реализации подпрограммы «Выполнение государственных обязательств по обеспечению жильем категорий граждан, установленных федеральным законодательством» федеральной целевой программы «Жилище» на 2002 - 2010 годы (Собрание законодательства Российской Федерации, 2006, № 13, ст. 1405), приказываю:
Утвердить среднюю рыночную стоимость 1 квадратного метра общей площади жилья (в рублях) по субъектам Российской Федерации, подлежащую применению федеральными органами исполнительной власти, органами исполнительной власти субъектов Российской Федерации для расчета размеров субсидий, выделяемых в соответствии с планами на IV квартал 2006 года, для всех категорий граждан, которым указанные субсидии предоставляются за счет средств федерального бюджета на приобретение жилых помещений, в размерах согласно приложению.
Министр В.А. Яковлев
Приложение
к приказу Министерства регионального развития РФ
от 28 сентября 2006 г. № 108
Размеры средней рыночной стоимости 1 кв. метра общей площади жилья (в рублях) по субъектам Российской Федерации на IV квартал 2006 г. для расчета размера субсидий на приобретение жилых помещений всеми категориями граждан, которым указанные субсидии предоставляются за счет средств федерального бюджета
|
Северный район |
|
|
Республика Карелия |
14550 |
|
Республика Коми |
18450 |
|
Архангельская область |
17850 |
|
Ненецкий автономный округ |
23450 |
|
Вологодская область |
15150 |
|
Мурманская область |
16000 |
|
Северо-Западный район |
|
|
Ленинградская область |
14500 |
|
Новгородская область |
12850 |
|
Псковская область |
12700 |
|
Центральный район |
|
|
Брянская область |
12000 |
|
Владимирская область |
16500 |
|
Ивановская область |
11550 |
|
Калужская область |
15200 |
|
Костромская область |
13050 |
|
Московская область |
21700 |
|
Орловская область |
11950 |
|
Рязанская область |
14000 |
|
Смоленская область |
12950 |
|
Тверская область |
16150 |
|
Тульская область |
13450 |
|
Ярославская область |
16650 |
|
Волго-Вятский район |
|
|
Республика Марий Эл |
13350 |
|
Республика Мордовия |
13300 |
|
Чувашская Республика - Чувашия |
14550 |
|
Кировская область |
15350 |
|
Нижегородская область |
16050 |
|
Центрально-Черноземный район |
|
|
Белгородская область |
13500 |
|
Воронежская область |
12850 |
|
Курская область |
10850 |
|
Липецкая область |
13100 |
|
Тамбовская область |
12250 |
|
Поволжский район |
|
|
Республика Калмыкия |
10350 |
|
Республика Татарстан (Татарстан) |
13400 |
|
Астраханская область |
11600 |
|
Волгоградская область |
14300 |
|
Пензенская область |
12800 |
|
Самарская область |
16350 |
|
Саратовская область |
12500 |
|
Ульяновская область |
10600 |
|
Северо-Кавказский район |
|
|
Республика Адыгея (Адыгея) |
12700 |
|
Республика Дагестан |
10250 |
|
Республика Ингушетия |
9400 |
|
Чеченская Республика |
12150 |
|
Кабардино-Балкарская Республика |
10300 |
|
Карачаево-Черкесская Республика |
9800 |
|
Республика Северная Осетия - Алания |
9900 |
|
Краснодарский край |
15250 |
|
Ставропольский край |
12700 |
|
Ростовская область |
14650 |
|
Уральский район |
|
|
Республика Башкортостан |
18050 |
|
Удмуртская Республика |
13650 |
|
Курганская область |
11900 |
|
Оренбургская область |
12900 |
|
Пермский край |
16500 |
|
Свердловская область |
19150 |
|
Челябинская область |
17100 |
|
Западно-Сибирский район |
|
|
Республика Алтай |
13800 |
|
Алтайский край |
13600 |
|
Кемеровская область |
16900 |
|
Новосибирская область |
18250 |
|
Омская область |
14150 |
|
Томская область |
16150 |
|
Тюменская область |
18750 |
|
Ханты-Мансийский автономный округ - Югра |
17900 |
|
Ямало-Ненецкий автономный округ |
15600 |
|
Восточно-Сибирский район |
|
|
Республика Бурятия |
12900 |
|
Республика Тыва |
9800 |
|
Республика Хакасия |
14150 |
|
Красноярский край |
17900 |
|
Таймырский (Долгано-Ненецкий) автономный округ |
9000 |
|
Эвенкийский автономный округ |
9000 |
|
Иркутская область |
16950 |
|
Усть-Ордынский Бурятский автономный округ |
9100 |
|
Читинская область |
13750 |
|
Агинский Бурятский автономный округ |
10340 |
|
Дальневосточный район |
|
|
Республика Саха (Якутия) |
18800 |
|
Еврейская автономная область |
12160 |
|
Чукотский автономный округ |
24700 |
|
Приморский край |
16500 |
|
Хабаровский край |
21600 |
|
Амурская область |
16500 |
|
Камчатская область |
16700 |
|
Корякский автономный округ |
22700 |
|
Магаданская область |
10100 |
|
Сахалинская область |
18500 |
|
Калининградский район |
|
|
Калининградская область |
13550 |
|
г. Москва |
39650 |
|
г. Санкт-Петербург |
21500 |
|
Название документа |
Дата утверждения |
Примечание |
||
|
1. |
«О реализации постановления Правительства РФ от 28 апреля 2006 г. № 249 «О дополнительных мерах по обеспечению жильем военнослужащих Вооруженных сил Российской Федерации» |
26.05.2006 Приказ Росстроя № 122 |
Приложение № 1 – Перечень объектов по дополнительному обеспечению жильем военнослужащих Вооруженных сил Российской Федерации в 2006-2007 гг. Приложение № 2 – Перечень функций государственного заказчика по строительству и приобретению жилых домов (квартир), передаваемых ФГУ «Объединенная дирекция». |
|
|
2. |
«О мониторинге и предоставлении информации о ходе реформирования и модернизации жилищно-коммунального комплекса в субъектах Российской Федерации» |
08.06.2006 Приказ Росстроя № 134 |
Приложение – Перечень показателей для осуществления мониторинга. |
|
|
3. |
«О выпуске и выдаче государственных жилищных сертификатов» |
27.06.2006 Приказы Росстроя № 158, 159, 160, 161, 162 |
|
|
|
4. |
«Об организации отбора субъектов Российской Федерации, муниципальных образований и проектов на предоставление государственной поддержки для обеспечения земельных участков инженерной инфраструктурой и модернизации коммунальной инфраструктуры в целях жилищного строительства» |
29.06.2006 Приказ Росстроя № 167 |
Приложение – Положение о порядке проведения отбора субъектов Российской Федерации, муниципальных образований и проектов на предоставление государственной поддержки для обеспечения земельных участков инженерной инфраструктурой и модернизации коммунальной инфраструктуры в целях жилищного строительства. |
|
|
5. |
«Об организации отбора субъектов Российской Федерации, муниципальных образований и проектов на предоставление государственной поддержки для обеспечения земельных участков инженерной инфраструктурой и модернизации коммунальной инфраструктуры в целях жилищного строительства» |
27.07.2006 Приказ Росстроя № 187/01 |
Управлению развития рынка доступного жилья направить в субъекты РФ извещение о проведении второго отбора в соответствии с Положением; обеспечить прием, регистрацию и хранение заявок.
|
|
|
6. |
«О внесении изменений в приказ Росстроя от 13.02.2006 № 29 «О подготовке и реализации федеральной целевой программы «Жилище» и входящих в ее состав подпрограмм, а также мероприятий в рамках Национального проекта «Доступное и комфортное жилье – гражданам России» |
10.07.2006 Приказ Росстроя № 174 |
Вносятся изменения в приложение № 2 к приказу. |
|
|
7. |
«Об организации конкурсного отбора субъектов РФ для участия в 2007 г. в реализации подпрограммы «Обеспечение жильем молодых семей» Федеральной целевой программы «Жилище» на 2002–2010 гг.» |
30.06.2006 Приказ Росстроя № 168 |
Приложение 1 – Положение о проведении конкурсного отбора субъектов РФ для участия в 2007 г. в подпрограмме «Обеспечение жильем молодых семей» Федеральной целевой программы «Жилище» на 2002 – 2010 годы. |
|
|
8. |
«О подведении итогов первого отбора субъектов Российской Федерации, муниципальных образований и проектов на предоставление государственной гарантии Российской Федерации для обеспечения земельных участков инженерной инфраструктурой и модернизации коммунальной инфраструктуры в целях жилищного строительства» |
03.07.2006 Приказ Росстроя № 169 |
Приложение – Перечень проектов на предоставление государственной гарантии Российской Федерации за счет средств федерального бюджета 2006 года. |
|
|
9. |
«О выходе из печати Сборника изменений и дополнений к государственным элементным сметным нормам ГЭСН-2001 на строительные и специальные строительные работы (Выпуск 2, часть 2)» |
20.06.2006 Письмо Росстроя № ВК-2382/02 |
Текст письма приводится ниже. |
|
|
10. |
«О разработке Сборника «Изменения и дополнения к федеральным единичным расценкам на строительные работы. Выпуск 1» |
22.06.2006 Письмо Росстроя № ВК-2398/02 |
Текст письма приводится ниже. |
|
|
11. |
«О разработке Сборника «Изменения и дополнения к Федеральным единичным расценкам на монтаж оборудования. Выпуск 1» |
27.06.2006 Письмо Росстроя № СК-2467/02 |
Текст письма приводится ниже. |
|
|
12. |
«О мерах по завершению перехода на новую сметно-нормативную базу ценообразования в строительстве» |
29.08.2006 Письмо Росстроя № СК-3646/02 |
Текст письма приводится ниже. |
|
|
13. |
«Об издании Сборника средних сметных цен на материалы, изделия и конструкции, применяемые в строительстве в Московском регионе, в текущем уровне цен (июнь 2006 года)» |
30.06.2006 Письмо Росстроя № СК-2484/02 |
В сборнике приведены отпускные и сметные цены на основные строительные ресурсы, используемые в Москве и Московской области, общим количеством более 50 тыс. наименований. |
|
|
14. |
«Об издании Сборника средних сметных цен на материалы, изделия и конструкции, применяемые в строительстве в Московском регионе, в текущем уровне цен (июль 2006 года)» |
31.07.2006 Письмо Росстроя № СК-3257/02 |
В сборнике приведены отпускные и сметные цены на основные строительные ресурсы, используемые в Москве и Московской области, общим количеством более 50 тыс. наименований. |
|
|
15. |
«Об издании информационно-справочных материалов в сфере ценообразования и сметного нормирования» |
10.07.2006 Письмо Росстроя № СК-2841/02 |
Росстрой сообщает об издании межрегиональных сборников индексов пересчета сметной стоимости строительно-монтажных работ за II кв. 2006 г по субъектам РФ и по федеральным округам в разрезе субъектов РФ. |
|
|
16. |
«Об издании информационно-справочных материалов в сфере ценообразования и сметного нормирования» |
31.07.2006 Письмо Росстроя № СК-3256/02 |
Росстрой сообщает об издании сборников укрупненных показателей стоимости строительства по субъектам РФ в разрезе федеральных округов за I и II кв. 2006 г . |
|
|
17. |
«Об индексации стоимости строительно-монтажных работ, выполняемых в г. Москве, с привлечением средств федерального бюджета» |
30.06.2006 Письмо Росстроя № СК-2485/02 |
Росстрой сообщает об издании сборников индексов пересчета сметной стоимости строительно-монтажных работ, выполняемых с привлечением средств федерального бюджета в г. Москве, по состоянию на июнь 2006 г. |
|
|
18. |
«Об индексации стоимости строительно-монтажных работ, выполняемых в г. Москве, с привлечением средств федерального бюджета» |
31.07.2006 Письмо Росстроя № СК-3255/02 |
Росстрой сообщает об издании сборников индексов пересчета сметной стоимости строительно-монтажных работ, выполняемых с привлечением средств федерального бюджета в г. Москве, по состоянию на июль 2006 г. |
|
|
19. |
«Об индексации стоимости строительно-монтажных работ, выполняемых в г. Москве, с привлечением средств федерального бюджета» |
05.09.2006 Письмо Росстроя № СК-3739/02 |
Росстрой сообщает об издании сборников индексов пересчета сметной стоимости строительно-монтажных работ, выполняемых с привлечением средств федерального бюджета в г. Москве, по состоянию на август 2006 г. |
|
|
20. |
«Об определении стоимости инженерных изысканий для строительства» |
10.07.2006 Письмо Росстроя № СК-2832/02 |
Текст письма приводится ниже. |
|
|
21. |
«Об издании следующих информационно-справочных сборников в сфере ценообразования и сметного нормирования» |
31.07.2006 Письмо Росстроя № СК-3256/02 |
Текст письма приводится ниже. |
|
|
22. |
«Об индексации стоимости строительно-монтажных работ, выполняемых в г. Москве, с привлечением средств федерального бюджета» |
05.09.2006 Письмо Росстроя № СК-3739/02 |
Росстрой сообщает об издании сборников индексов пересчета сметной стоимости строительно-монтажных работ, выполняемых с привлечением средств федерального бюджета в г. Москве, по состоянию на август 2006 г. |
|
|
23. |
«О ценах на проектные и изыскательские работы для строительства на IV квартал 2006 года» |
09.10.2006 Письмо Росстроя № СК-4250/02 |
Текст письма приводится ниже. |
|
|
24. |
«Об индексах изменения сметной стоимости на IV квартал 2006 года» |
12.10.2006 Письмо Росстроя № СК-4312/02 |
Текст письма приводится ниже. |
|
Росстрой по просьбе предприятий строительного комплекса в дополнение к письму от 29.03.2006 № СК-1082/02 уведомляет, что в соответствии с планом подготовки и публикации нормативно-методической и информационно-справочной документации по вопросам ценообразования и сметного нормирования вышел из печати Сборник изменений и дополнений к государственным элементным сметным нормам ГЭСН-2001 на строительные и специальные строительные работы (Выпуск 2, часть 2), содержащий элементные сметные нормы на восстановление подводной и надводной частей опор мостов методом инъектирования, а также на работы по сооружению фундаментов с применением буровой установки «JUNTTAN PM26 LC».
Сборник соответствующих изменений и дополнений к федеральным единичным расценкам ФЕР-2001 будет выпущен во втором квартале т.г.
Федеральное агентство по строительству и жилищно-коммунальному хозяйству информирует о том, что во исполнение постановления Госстроя России от 8 апреля 2002 г. № 16 «О мерах по завершению перехода на новую сметно-нормативную базу ценообразования в строительстве» ФГУ «Федеральный центр ценообразования в строительстве и промышленности строительных материалов» разработало сборник «Изменения и дополнения к федеральным единичным расценкам на строительные работы. Выпуск 1».
Указанный сборник разработан в рамках реализации Росстроем государственной политики и оказания государственных услуг в сфере строительства и рекомендуется для определения стоимости работ по объектам, финансируемых с привлечением средств федерального бюджета и других источников финансирования.
Федеральное агентство по строительству и жилищно-коммунальному хозяйству информирует о том, что исполнение постановления Госстроя России от 8 апреля 2002 г. № 16 «О мерах по завершению перехода на новую сметно-нормативную базу ценообразования в строительстве» ФГУ «Федеральный центр ценообразования в строительстве и промышленности строительных материалов» разработало сборник «Изменения и дополнения к Федеральным единичным расценкам на монтаж оборудования. Выпуск 1».
Указанный сборник разработан в рамках реализации Росстроем государственной политики и оказания государственных услуг в сфере строительства и рекомендуется для определения стоимости работ по объектам, финансируемых с привлечением средств федерального бюджета и других источников финансирования.
Федеральное агентство по строительству и жилищно-коммунальному хозяйству информирует о том, что во исполнение постановления Госстроя России от 8 апреля 2002 г. № 16 «О мерах по завершению перехода на новую сметно-нормативную базу ценообразования в строительстве» ФГУ «Федеральный центр ценообразования в строительстве и промышленности строительных материалов» разработан сборник федеральных единичных расценок на монтаж оборудования № 13 «Оборудование атомных электрических станций» книга 1.
Указанный сборник разработан в рамках реализации Госстроем государственной политики и оказания государственных услуг в сфере строительства и рекомендуется для определения стоимости работ по объектам, финансируемым с привлечением средств федерального бюджета и других источников финансирования.
С.И. Круглик
В связи с обращениями изыскательских организаций по вопросу определения стоимости зондировочных работ на глубинах более 20 метров, расценки на которые отсутствуют в действующем Справочнике базовых цен на инженерно-геологические и инженерно-экологические изыскания для строительства (изд. 1999 г.), Федеральное агентство по строительству и жилищно-коммунальному хозяйству считает возможным дополнить таблицу 45 указанного Справочника примечанием следующего содержания:
«При выполнении статического зондирования грунтов непрерывным вдавливанием на глубинах более 20 м к цене § 5 применяются следующие коэффициенты:
1,35 - при глубине зондирования от 20 до 25 м
2,0 - при глубине зондирования от 25 до 30 м
2,5 - при глубине зондирования от 30 до 35 м
3,0 - при глубине зондирования от 35 до 40 м
4,0 - при глубине зондирования свыше 40 м»
С.И. Круглик
Федеральное агентство по строительству и жилищно-коммунальному хозяйству сообщает об издании следующих информационно-справочных сборников в сфере ценообразования и сметного нормирования:
«Сборник укрупненных показателей стоимости строительства по субъектам Российской Федерации в разрезе федеральных округов за I квартал 2006 г.»;
«Сборник укрупненных показателей стоимости строительства по субъектам Российской Федерации в разрезе федеральных округов за II квартал 2006 г.».
Указанные сборники разработаны ФГУ «Федеральный центр ценообразования в строительстве и промышленности строительных материалов» по объектам-представите-лям, запроектированным и построенным в различных регионах Российской Федерации. Сборники рекомендуются для определения стоимости строительства объектов на ранних стадиях инвестиционного процесса для всех субъектов Российской Федерации, кроме районов Крайнего Севера и местностей, приравненных к районам Крайнего Севера, финансируемых с привлечением средств федерального бюджета, а также иных источников финансирования.
С.И. Круглик
Федеральное агентство по строительству и жилищно-коммунальному хозяйству на основании данных, представленных ОАО «ЦЕНТРИНВЕСТпроект» и «ПНИИИС», сообщает для применения на IV квартал 2006 года рекомендуемые индексы изменения стоимости:
а) проектных работ для строительства в размере:
2,16 к уровню базовых цен по состоянию на 1 января 2001 года;
16,67 к уровню базовых цен по состоянию на 1 января 1995 года, определяемых с учетом положений, изложенных в письме Госстроя России от 13 января 1998 года № 9-1-1/6;
б) изыскательских работ для строительства в размере:
2,24 к базовым ценам, рассчитываемым по справочникам базовых цен на инженерные изыскания, по состоянию на 1 января 2001 года;
25,51 к базовым ценам, рассчитываемым по справочникам базовых цен на инженерные изыскания и Сборнику цен на изыскательские работы для капитального строительства с учетом Временных рекомендаций по уточнению базовых цен, определяемых по Сборнику цен на изыскательские работы для капитального строительства, рекомендованных к применению письмом Минстроя России от 17 декабря 1992 года № БФ-1060/9, по состоянию на 1 января 1991 года.
С.И. Круглик
Федеральное агентство по строительству и жилищно-коммунальному хозяйству на основании данных, представленных ФГУ «ФЦЦС», сообщает индексы изменения сметной стоимости в целом по строительно-монтажным работам (СМР) и по статьям затрат на IV квартал 2006 года в разрезе субъектов Российской Федерации для объектов, финансирование строительства которых осуществляется с привлечением средств федерального бюджета.
Указанные индексы разработаны на основании отчетных данных региональных органов по ценообразованию в строительстве за III квартал 2006 года с учетом прогнозируемой инфляции на IV квартал 2006 г., учитывают полный комплекс строительно-монтажных работ и предназначены для укрупненных расчетов стоимости строительства базисно-индексным методом, подготовки тендерной документации и общеэкономических расчетов в инвестиционной сфере.
Индексы на СМР определены с учетом накладных расходов и сметной прибыли. Накладные расходы приняты с понижающим коэффициентом 0,94, учитывающим снижение с 1 января 2005 года ставки единого социального налога. К накладным расходам в базисном уровне цен указанный коэффициент не применяется.
При применении индексов по статьям затрат накладные расходы и сметная прибыль определяются от фонда оплаты труда рабочих-строителей и механизаторов в текущем уровне цен.
При взаиморасчетах за выполненные работы рекомендуется использовать дифференцированные индексы по видам работ, разрабатываемые региональными органами по ценообразованию в строительстве и утверждаемые администрациями субъектов Российской Федерации.
Для объектов, финансируемых с привлечением средств федерального бюджета, на стадии разработки рабочей документации использование дифференцированных индексов по видам работ, разрабатываемых региональными органами по ценообразованию в строительстве, возможно после их согласования с Росстроем в установленном порядке.
С.И. Круглик
Приложение
Индексы изменения сметной стоимости (без НДС) на IV квартал 2006 года к уровню баз 1991 и 2001 годов по субъектам Российской Федерации
|
Название субъекта |
Индекс на СМР к 1991 г. без НДС |
Индекс на СМР к ТЕР-2001 без НДС |
В том числе |
Индекс на СМР к ФЕР-2001 без НДС |
В том числе |
||||
|
Материалы |
Оплата труда |
Экспл. маш. и мех. |
Материалы |
Оплата труда |
Экспл. маш. и мех. |
||||
|
Республика Карелия (1 зона) |
47,47 |
3,60 |
3,35 |
4,69 |
3,30 |
4,50 |
4,25 |
5,58 |
4,26 |
|
Республика Коми (1 зона) |
38,89 |
3,72 |
3,14 |
6,33 |
3,49 |
4,60 |
4,06 |
6,78 |
4,08 |
|
Архангельская область (1 зона) |
53,34 |
3,47 |
2,65 |
7,00 |
4,09 |
5,40 |
4,39 |
9,24 |
4,86 |
|
Вологодская область (3 зона) |
36,24 |
4,09 |
3,67 |
6,03 |
3,13 |
4,42 |
3,99 |
6,29 |
3,65 |
|
Мурманская область |
50,16 |
3,95 |
3,46 |
5,35 |
4,93 |
6,57 |
5,58 |
10,48 |
5,60 |
|
Ленинградская область (1 зона) |
45,67 |
3,20 |
3,17 |
3,27 |
3,75 |
4,05 |
3,51 |
6,21 |
3,59 |
|
г. Санкт-Петербург ** |
49,62 |
3,81 |
|
|
|
4,48 |
3,76 |
7,16 |
4,26 |
|
Новгородская область |
45,93 |
3,75 |
3,73 |
3,81 |
4,20 |
4,38 |
4,01 |
5,77 |
4,53 |
|
Псковская область (1 зона) |
46,20 |
4,54 |
4,05 |
6,65 |
4,16 |
4,19 |
3,77 |
5,68 |
4,46 |
|
Калининградская область |
46,32 |
3,36 |
2,81 |
6,24 |
2,80 |
4,54 |
4,08 |
6,63 |
3,32 |
|
Брянская область |
41,19 |
4,37 |
3,78 |
7,23 |
3,42 |
3,64 |
3,27 |
5,24 |
2,91 |
|
Владимирская область |
46,10 |
3,98 |
3,42 |
6,01 |
3,96 |
3,97 |
3,40 |
6,01 |
4,30 |
|
Ивановская область |
37,36 |
3,58 |
3,11 |
5,90 |
3,07 |
3,43 |
3,09 |
4,75 |
3,24 |
|
Калужская область |
38,41 |
3,68 |
3,10 |
5,73 |
4,16 |
3,55 |
3,02 |
5,37 |
4,02 |
|
Костромская область |
37,63 |
3,71 |
3,11 |
6,15 |
3,91 |
3,66 |
3,17 |
5,38 |
3,93 |
|
г. Москва * |
50,54 |
|
|
|
|
4,41 |
3,40 |
8,03 |
4,59 |
|
Московская область |
49,54 |
4,33 |
3,52 |
7,17 |
4,66 |
4,34 |
3,53 |
7,17 |
4,71 |
|
Орловская область |
35,58 |
3,38 |
2,86 |
5,35 |
3,09 |
3,40 |
2,88 |
5,40 |
3,11 |
|
Рязанская область (2 зона) |
42,59 |
3,71 |
3,21 |
5,64 |
3,58 |
3,80 |
3,33 |
5,64 |
3,55 |
|
Смоленская область |
39,28 |
4,48 |
4,10 |
6,33 |
3,80 |
4,05 |
3,79 |
5,14 |
3,78 |
|
Тверская область |
44,84 |
3,89 |
3,45 |
5,91 |
3,50 |
4,18 |
3,84 |
5,71 |
3,38 |
|
Тульская область (1 зона) |
38,27 |
4,15 |
3,82 |
5,24 |
5,14 |
4,14 |
3,91 |
4,91 |
4,61 |
|
Ярославская область |
38,53 |
3,29 |
2,66 |
5,79 |
3,06 |
3,42 |
2,79 |
5,79 |
3,06 |
|
Республика Марий Эл |
34,75 |
3,39 |
2,76 |
6,47 |
2,92 |
3,56 |
3,08 |
5,46 |
3,09 |
|
Республика Мордовия |
34,31 |
3,78 |
3,48 |
5,80 |
1,98 |
3,82 |
3,44 |
5,43 |
3,27 |
|
Чувашская Республика (1 зона) ** |
33,38 |
3,60 |
3,05 |
5,73 |
3,53 |
3,53 |
3,02 |
5,36 |
3,74 |
|
Кировская область (1 зона) |
44,99 |
3,90 |
3,53 |
5,34 |
3,44 |
4,12 |
3,64 |
6,10 |
3,58 |
|
Нижегородская область |
38,17 |
3,84 |
3,28 |
5,79 |
3,87 |
3,89 |
3,25 |
6,07 |
4,45 |
|
Нижегородская область (г. Саров) |
42,67 |
3,78 |
3,50 |
4,78 |
3,49 |
4,00 |
3,60 |
5,65 |
3,56 |
|
Белгородская область |
38,46 |
3,44 |
3,16 |
4,76 |
2,69 |
3,26 |
2,95 |
4,46 |
3,17 |
|
Воронежская область |
41,99 |
4,53 |
4,00 |
6,25 |
4,47 |
3,98 |
3,34 |
6,24 |
4,20 |
|
Курская область |
42,54 |
3,96 |
3,60 |
5,57 |
3,23 |
3,70 |
3,32 |
5,12 |
3,72 |
|
Липецкая область |
42,21 |
4,55 |
3,48 |
10,28 |
3,84 |
3,89 |
3,21 |
6,45 |
3,61 |
|
Тамбовская область (1 зона) |
44,41 |
3,56 |
3,09 |
5,64 |
3,71 |
3,46 |
3,14 |
4,62 |
3,58 |
|
Республика Калмыкия |
47,46 |
3,78 |
3,19 |
6,85 |
3,57 |
3,84 |
3,49 |
5,31 |
3,40 |
|
Республика Татарстан |
36,12 |
3,53 |
2,91 |
6,27 |
2,65 |
3,59 |
3,00 |
5,88 |
3,24 |
|
Астраханская область |
35,90 |
3,31 |
2,99 |
4,97 |
2,83 |
3,74 |
3,57 |
4,57 |
3,24 |
|
Волгоградская область |
40,30 |
3,69 |
3,19 |
5,51 |
3,82 |
3,61 |
3,13 |
5,43 |
3,53 |
|
Пензенская область (1 зона) |
34,81 |
3,25 |
2,90 |
4,94 |
2,82 |
3,70 |
3,46 |
4,81 |
3,03 |
|
Самарская область |
37,78 |
3,68 |
3,60 |
4,10 |
3,20 |
3,70 |
3,23 |
5,34 |
4,06 |
|
Саратовская область (1 зона) |
37,87 |
3,53 |
3,25 |
4,77 |
2,99 |
3,51 |
3,17 |
4,78 |
3,61 |
|
Ульяновская область |
38,60 |
3,53 |
3,31 |
4,60 |
2,76 |
3,45 |
3,16 |
4,59 |
3,36 |
|
Республика Адыгея |
39,34 |
3,99 |
3,47 |
6,15 |
3,54 |
3,76 |
3,30 |
5,60 |
3,41 |
|
Республика Дагестан (1 зона) |
39,38 |
4,49 |
3,04 |
5,74 |
3,00 |
4,21 |
3,88 |
5,74 |
3,39 |
|
Кабардино-Балкарская Республика (1 зона) |
35,71 |
3,29 |
2,96 |
4,57 |
3,15 |
3,60 |
3,25 |
5,18 |
2,72 |
|
Карачаево-Черкесская Республика |
43,16 |
4,25 |
3,92 |
5,54 |
4,09 |
3,75 |
3,40 |
5,05 |
3,83 |
|
Республика Северная Осетия - Алания |
39,85 |
3,47 |
3,31 |
4,19 |
3,23 |
3,80 |
3,56 |
4,81 |
3,57 |
|
Чеченская Республика |
49,58 |
4,28 |
3,60 |
6,50 |
2,85 |
4,67 |
3,57 |
8,98 |
3,50 |
|
Республика Ингушетия |
41,23 |
3,72 |
3,23 |
5,71 |
3,35 |
3,65 |
3,20 |
5,37 |
3,48 |
|
Краснодарский край |
39,41 |
4,07 |
3,32 |
7,00 |
3,82 |
3,84 |
3,15 |
6,38 |
3,69 |
|
Ставропольский край |
34,93 |
4,21 |
3,50 |
7,05 |
4,77 |
3,74 |
3,22 |
5,51 |
4,22 |
|
Ростовская область |
37,20 |
4,21 |
3,97 |
5,34 |
3,56 |
4,14 |
3,88 |
5,34 |
3,49 |
|
Республика Башкортостан |
33,38 |
3,35 |
3,12 |
4,28 |
2,86 |
3,79 |
3,38 |
5,41 |
3,56 |
|
Удмуртская Республика |
39,14 |
3,84 |
3,38 |
5,69 |
3,27 |
4,07 |
3,59 |
6,11 |
3,21 |
|
Курганская область |
40,60 |
3,37 |
2,95 |
5,33 |
2,76 |
3,81 |
3,40 |
5,33 |
3,80 |
|
Оренбургская область |
|
3,30 |
3,04 |
4,46 |
3,03 |
3,68 |
3,45 |
4,63 |
3,53 |
|
Пермская область |
30,76 |
3,10 |
2,93 |
3,81 |
2,48 |
3,66 |
3,25 |
5,41 |
2,86 |
|
Свердловская область (г. Екатеринбург) |
31,70 |
3,30 |
3,09 |
4,15 |
2,45 |
3,76 |
3,25 |
5,86 |
3,05 |
|
Челябинская область |
37,35 |
3,43 |
3,26 |
4,07 |
3,19 |
3,67 |
3,28 |
5,15 |
3,60 |
|
Алтайский край (1 зона) |
38,78 |
3,67 |
3,16 |
6,19 |
2,69 |
4,03 |
3,63 |
5,93 |
2,61 |
|
Республика Алтай (1 зона) |
40,32 |
3,83 |
3,21 |
6,43 |
2,90 |
4,56 |
3,91 |
7,50 |
2,75 |
|
Кемеровская область (3 зона) |
43,49 |
3,14 |
2,73 |
4,86 |
2,86 |
4,03 |
3,54 |
5,84 |
4,02 |
|
Новосибирская область (4 зона) |
35,27 |
3,80 |
3,44 |
5,31 |
3,38 |
4,51 |
4,11 |
6,27 |
3,36 |
|
Омская область |
40,56 |
3,06 |
2,43 |
6,98 |
3,16 |
3,83 |
3,43 |
5,51 |
3,32 |
|
Томская область |
51,05 |
3,93 |
3,39 |
5,58 |
3,94 |
4,72 |
3,88 |
7,86 |
4,49 |
|
Тюменская область (1 зона) |
47,33 |
3,66 |
2,96 |
6,15 |
3,53 |
3,88 |
3,12 |
6,73 |
3,71 |
|
Ханты-Мансийский автономный округ – Югра |
37,36 |
2,62 |
2,25 |
3,48 |
2,54 |
5,51 |
4,04 |
10,94 |
4,94 |
|
Ямало-Ненецкий автономный округ (2 зона) |
36,74 |
3,01 |
3,05 |
3,04 |
2,68 |
4,28 |
4,21 |
5,04 |
2,87 |
|
Республика Бурятия |
45,38 |
3,76 |
3,40 |
4,94 |
3,64 |
4,49 |
3,86 |
6,89 |
4,19 |
|
Республика Тыва |
34,04 |
3,32 |
3,21 |
3,74 |
3,18 |
4,40 |
4,00 |
5,98 |
4,16 |
|
Республика Хакасия |
40,40 |
3,35 |
2,93 |
4,96 |
3,39 |
4,50 |
4,02 |
6,46 |
3,92 |
|
Красноярский край (1 зона) |
44,58 |
2,89 |
2,54 |
3,94 |
2,82 |
4,30 |
3,52 |
7,25 |
4,01 |
|
Иркутская область |
47,28 |
3,81 |
3,28 |
5,61 |
4,64 |
4,80 |
4,18 |
6,98 |
5,28 |
|
Читинская область (1 зона) |
42,97 |
3,71 |
3,01 |
7,09 |
3,52 |
4,19 |
3,62 |
6,37 |
3,92 |
|
Республика Саха (Якутия) (1 зона) |
35,08 |
3,25 |
3,19 |
3,64 |
2,35 |
6,59 |
5,56 |
11,03 |
4,22 |
|
Чукотский автономный округ ** |
43,57 |
2,83 |
2,20 |
6,83 |
4,06 |
11,57 |
10,32 |
17,59 |
6,97 |
|
Приморский край |
47,56 |
4,71 |
3,78 |
8,40 |
2,96 |
5,45 |
4,34 |
10,20 |
3,05 |
|
Хабаровский край (1 зона) |
38,68 |
3,48 |
2,92 |
6,01 |
2,26 |
4,86 |
4,19 |
7,97 |
2,79 |
|
Амурская область |
42,01 |
3,69 |
3,17 |
6,05 |
2,74 |
4,40 |
3,85 |
6,81 |
3,12 |
|
Камчатская область (1 зона) |
49,79 |
3,06 |
2,55 |
5,00 |
2,62 |
8,11 |
6,79 |
13,71 |
5,53 |
|
Корякский автономный округ |
|
2,48 |
2,14 |
4,50 |
2,69 |
9,88 |
9,60 |
12,35 |
5,68 |
|
Магаданская область |
41,75 |
3,35 |
3,07 |
4,74 |
2,75 |
8,00 |
7,69 |
10,30 |
4,54 |
|
Еврейский автономный округ |
|
3,16 |
2,77 |
4,98 |
2,86 |
4,67 |
4,28 |
6,51 |
3,53 |
|
Сахалинская область (2 зона) |
49,90 |
3,31 |
3,49 |
3,11 |
3,01 |
8,98 |
7,71 |
14,82 |
4,96 |
* данные не представлены, рассчитано ФГУ «ФЦЦС».
** данные могут быть уточнены.
*** данные не представлены, использованы индексы согласно письму Росстроя от 10.07.2006 № СК-2842/02 с учетом прогнозируемой инфляции на IV кв. 2006 г.
Примечания:
1. Для учета повышенной нормы накладных расходов к индексам изменения стоимости СМР следует применять следующие коэффициенты:
- для районов Крайнего Севера - 1,02 (к индексам к ФЕР), 1,005 (к индексам к ТЕР);
- для местностей, приравненных к районам Крайнего Севера - 1,01 (к индексам к ФЕР), 1,003 (к индексам к ТЕР).
При использовании индексов по статьям затрат и к базе 1991 года данные коэффициенты не применяются.
2. При расчете текущей стоимости строительства приведенные индексы следует применять к сметной стоимости СМР в базисном уровне, определенной без учета НДС. Начисление НДС производится на итог сводного сметного расчета.
3. Для определения стоимости ремонтно-строительных работ следует использовать индексы по статьям затрат.
|
Название документа |
Дата утверждения |
Примечание |
||
|
1. |
«Об утверждении Правил установления и определения нормативов потребления коммунальных услуг» |
23.05.2006 Постановление Правительства РФ № 306 |
Приложение – Правила установления и определения нормативов потребления коммунальных услуг. |
|
|
2. |
«О порядке предоставления коммунальных услуг гражданам» |
23.05.2006 Постановление Правительства РФ № 307 |
Приложение – Правила предоставления коммунальных услуг гражданам. |
|
|
3. |
«О порядке предоставления государственных гарантий Российской Федерации по заимствованиям, осуществляемым для обеспечения земельных участков инженерной инфраструктурой и модернизации коммунальной инфраструктуры в целях жилищного строительства» |
03.06.2006 Постановление Правительства РФ № 351 |
Приложение – Правила предоставления государственных гарантий Российской Федерации по заимствованиям, осуществляемым для обеспечения земельных участков инженерной инфраструктурой и модернизации коммунальной инфраструктуры в целях жилищного строительства. |
|
|
4. |
«Об утверждении правил определения границ зон охраняемых объектов и согласования градостроительных регламентов для таких зон» |
20.06.2006 Постановление Правительства РФ № 384 |
Тексты постановления и Правил приводятся ниже. |
|
|
5. |
Федеральный закон «О внесении изменений в Федеральный закон «Об участии в долевом строительстве многоквартирных домов и иных объектов недвижимости и о внесении изменений в некоторые законодательные акты Российской Федерации» и о внесении изменений в отдельные законодательные акты Российской Федерации» |
18.07.2006 Президент РФ № 111-ФЗ |
Настоящий закон вступает в силу со дня его официального опубликования, за исключением пункта 17 статьи 1. Пункт 17 статьи 1 вступает в силу с 01.01.2007 г. |
|
|
6. |
«О внесении изменений в федеральную целевую программу «Жилище» на 2002 – 2010 годы» |
11.09.2006 Постановление Правительства РФ № 557 |
Приложение – Изменения, которые вносятся в федеральную целевую программу «Жилище» на 2002 – 2010 годы, утвержденную постановлением Правительства РФ от 17.09.2001 г. № 675. |
|
|
7. |
«О первоочередных мерах по обеспечению безопасности дорожного движения» |
22.09.2006 Указ Президента РФ № 1042 |
Правительству Российской Федерации совместно с органами исполнительной власти субъектов Российской Федерации принять неотложные меры по повышению безопасности дорожного движения, сокращению количества граждан, пострадавших в дорожно-транспортных происшествиях, и снижению тяжести их последствий. |
|
|
8. |
«О перечне федеральных государственных учреждений, находящихся в ведении Росстроя» |
03.04.2006 (с изм. 07.09.2006) Распоряжение Правительства РФ № 457-р |
Приложение – Перечень федеральных государственных учреждений, находящихся в ведении Росстроя. |
|
Во исполнение статьи 1 Федерального закона «О государственной охране» Правительство Российской Федерации постановляет:
1. Утвердить прилагаемые Правила определения границ зон охраняемых объектов и согласования градостроительных регламентов для таких зон.
2. Признать утратившим силу постановление Правительства Российской Федерации от 7 декабря 2004 г. № 741 «О границах объектов градостроительной деятельности особого регулирования федерального значения, устанавливаемых вокруг объектов, относящихся к федеральной собственности и находящихся в ведении Управления делами Президента Российской Федерации и (или) Федеральной службы охраны Российской Федерации» (Собрание законодательства Российской Федерации, 2004, № 51, ст. 5175).
Председатель Правительства
Российской Федерации М. Фрадков
ПРАВИЛА
определения границ зон охраняемых объектов и согласования градостроительных
регламентов для таких зон
1. Настоящие Правила устанавливают порядок определения границ зон охраняемых объектов как одного из видов зон с особыми условиями использования территорий и согласования градостроительных регламентов для таких зон. Целями установления зон охраняемых объектов являются обеспечение безопасности объектов государственной охраны и защита охраняемых объектов.
2. Размер зоны охраняемых объектов и ее границы определяются с учетом размера земельного участка, на котором расположены охраняемые объекты, застройки земельного участка и застройки вокруг него, рельефа местности, а также иных условий, обеспечивающих безопасность объектов государственной охраны и охраняемых объектов. Расстояние от границ земельного участка, на котором расположены охраняемые объекты, до границ указанной зоны не должно превышать 1 километр.
3. В целях определения границ зоны охраняемых объектов Федеральное агентство кадастра объектов недвижимости по представлению Федеральной службы охраны Российской Федерации обеспечивает в соответствии с законодательством Российской Федерации проведение территориального землеустройства и государственного кадастрового учета земельного участка с расположенными на нем охраняемыми объектами.
4. После завершения процедуры государственного кадастрового учета земельного участка, на котором расположены охраняемые объекты, Федеральная служба охраны Российской Федерации с участием Федерального агентства кадастра объектов недвижимости наносит границу зоны охраняемых объектов на выкопировку из дежурной кадастровой карты, после чего подготавливает с учетом положений части 6 статьи 30 Градостроительного кодекса Российской Федерации предложения об установлении особых условий использования территории указанной зоны. Выкопировка, а также предложения об установлении особых условий использования территории зоны охраняемых объектов направляются в органы местного самоуправления муниципального образования, на территории которого расположены эти объекты.
5. В случае если ко дню поступления в орган местного самоуправления соответствующего муниципального образования документов, предусмотренных пунктом 4 настоящих Правил, правила землепользования и застройки этого муниципального образования не были утверждены, орган местного самоуправления в порядке и в сроки, установленные Градостроительным кодексом Российской Федерации в части разработки и утверждения правил землепользования и застройки, разрабатывает проект градостроительного регламента для зоны охраняемых объектов и проект карты этой зоны и направляет их в Федеральную службу охраны Российской Федерации на согласование.
6. В случае если правила землепользования и застройки соответствующего муниципального образования были утверждены до поступления документов, указанных в пункте 4 настоящих Правил, эти правила подлежат изменению в порядке, установленном Градостроительным кодексом Российской Федерации.
7. Федеральная служба охраны Российской Федерации рассматривает проекты градостроительного регламента для зоны охраняемых объектов и карты этой зоны в течение месяца с даты их поступления и направляет заключение по ним в орган местного самоуправления соответствующего муниципального образования. Отрицательное заключение должно быть мотивировано.
При непоступлении заключения Федеральной службы охраны Российской Федерации в указанный срок проекты градостроительного регламента для зоны охраняемых объектов и карты этой зоны считаются согласованными.
8. Вынесение проектов градостроительного регламента для зоны охраняемых объектов и карты этой зоны на публичные слушания допускается при наличии положительного заключения Федеральной службы охраны Российской Федерации либо неполучении заключения в срок, установленный пунктом 7 настоящих Правил.
9. Публичные слушания по проектам градостроительного регламента для зоны охраняемых объектов и карты этой зоны, а также утверждение этих документов осуществляются в порядке, установленном статьями 31 и 32 Градостроительного кодекса Российской Федерации в отношении подготовки правил землепользования и застройки.
|
Название документа |
Дата утверждения |
Примечание |
||
|
Инструктивно-распорядительные и методические документы |
|
|||
|
1. |
«Об утверждении Рекомендаций по проведению энергетических обследований (энергоаудита)» |
04.07.2006 Приказ Министерства промышленности и энергетики РФ № 141 |
Приложение – Рекомендации по проведению энергетических обследований (энергоаудита). Рекомендации определяют процедуру проведения энергоаудита потребителей топливно-энергетичес-ких ресурсов во всех сферах экономики РФ. |
|
|
Инструктивно-распорядительные и методические документы |
|
|||
|
2. |
«Об утверждении формы декларации об объекте недвижимого имущества» |
15.08.2006 Приказ Минэкономразвития России № 232 |
Приложение – форма Декларации об объекте недвижимого имущества. |
|
|
3. |
«Об утверждении формы технического паспорта объекта индивидуального жилищного строительства и порядка его оформления организацией (органом) по учету объектов недвижимого имущества» |
17.08.2006 Приказ Минэкономразвития России № 244 |
Во исполнение подп. б) п.5 ст.3 Федерального закона от 30 июня 2006 г. № 93-ФЗ «О внесении изменений в некоторые законодательные акты РФ по вопросу оформления в упрощенном порядке прав граждан на отдельные объекты недвижимого имущества». |
|
|
Инструктивно-распорядительные и методические документы |
|
|||
|
4. |
ГН 2.1.6.1985-06 «Предельно допустимые концентрации (ПДК) загрязняющих веществ в атмосферном воздухе населенных мест» (дополнение № 3 к ГН 2.1.6.1338-03 «Предельно допустимые концентрации (ПДК) загрязняющих веществ в атмосферном воздухе населенных мест» |
19.07.2006 Постановление Главного государственного санитарного врача РФ № 15 |
Введены в действие с 15.08.2006 г. |
|
|
5. |
ГН 2.1.6.1986-06 «Ориентировочные безопасные уровни воздействия (ОБУВ) загрязняющих веществ в атмосферном воздухе населенных мест» (дополнение № 3 к ГН 2.1.6.1339-03 «Ориентировочные безопасные уровни воздействия (ОБУВ) загрязняющих веществ в атмосферном воздухе населенных мест» |
19.07.2006 Постановление Главного государственного санитарного врача РФ № 16 |
Введены в действие с 15.08.2006 г. |
|
|
6. |
ГН 2.1.5.2122-06 «Предельно допустимые концентрации (ПДК) 2-хлорвинилдихлорарсина (люизита) в воде водных объектов хозяйственно-питьевого и культурно-бытового водопользования районов размещения объектов хранения и уничтожения химического оружия» |
14.08.2006 Постановление Главного государственного санитарного врача РФ № 22 |
Вводятся в действие с 01.11.2006 г. |
|
|
7. |
ГН 2.2.5.2101-06 «Ориентировочные безопасные уровни воздействия (ОБУВ) вредных веществ в воздухе рабочей зоны» (дополнение № 2 к ГН 2.2.5.1314-03 «Ориентировочные безопасные уровни воздействия (ОБУВ) вредных веществ в воздухе рабочей зоны» |
22.08.2006 Постановление Главного государственного санитарного врача РФ № 23 |
Вводятся в действие с 01.11.2006 г. |
|
|
Инструктивно-распорядительные, методические и нормативные документы |
|
|||
|
8. |
«Об утверждении Перечня нормативных правовых актов и методических рекомендаций Федеральной службы по экологическому, технологическому и атомному надзору по вопросам осуществления государственного строительного надзора и строительного контроля» |
05.04.2006 Приказ Ростехнадзора № 310 |
Утвердить прилагаемый Перечень, обеспечить разработку и согласование нормативных правовых актов и методических рекомендаций Федеральной службы по экологическому, технологическому и атомному надзору. |
|
|
9. |
НП-036-05 Федеральные нормы и правила в области использования атомной энергии «Правила устройства и эксплуатации систем вентиляции, важных для безопасности, атомных станций» |
07.11.2005 Постановление Ростехнадзора № 6 |
Введены в действие с 1 мая 2006 г. |
|
|
10. |
НП-069-06 Федеральные нормы и правила в области использования атомной энергии «Приповерхностное захоронение радиоактивных отходов» |
28.04.2006 Постановление Ростехнадзора № 1 |
Вводятся в действие с 1 ноября 2006 г. |
|
|
Инструктивно-распорядительные документы |
|
|||
|
11. |
«О состоянии водоснабжения и водоотведения населенных мест» |
10.04.2006 Письмо Роспотребнадзора № 0100/4037-06-32 |
Приложение – Информационно-методическое письмо «Оценка состояния водоснабжения и водоотведения» |
|
|
12. |
«О мерах, направленных на повышение эффективности работы, связанной с защитой прав потребителей в сфере долевого строительства жилья» |
03.08.2006 Приказ Роспотребнадзора № 228 |
Приложение – Деятельность Территориального управления Роспотребнадзора по контролю за соблюдением законодательства о защите прав потребителей в сфере долевого строительства жилья. |
|
|
Инструктивно-распорядительные документы |
|
|||
|
13. |
«Об определении сметной стоимости работ, направленных на сохранение объектов культурного наследия и расчете начальных цен государственных контрактов до момента введения в действие новой сметно-нормативной базы «Государственные элементные сметные нормы на ремонтно-реставрационные работы» |
08.06.2006 Письмо Министерства культуры и массовых коммуникаций РФ № 27-03-85/04-ДА |
Текст письма приводится ниже. |
|
|
Методические документы |
|
|||
|
14. |
«Рекомендации по реконструкции свиноводческих комплексов и ферм» |
10.11.2005 Согласовано Департаментом научно-технической политики и образования Минсельхоза России |
Разработаны в соответствии с государственным контрактом № ГК-683/26п-8/А на выполнение работ по типовому проектированию для мелиорации земель сельскохозяйственного назначения и агропромышленного комплекса на 2005 г. |
|
В целях определения сметной стоимости работ, направленных на сохранение недвижимых памятников истории и культуры (объектов культурного наследия) и расчета начальных цен государственных контрактов, до момента введения в действие новой сметно-нормативной базы «Государственные элементные сметные нормы на ремонтно-реставрационные работы» (ГЭСНрр-2001), Министерство культуры и массовых коммуникаций Российской Федерации рекомендует к применению:
1. При проведении работ на объектах культурного наследия:
1.1. «Территориальные единичные расценки на ремонтно-реставрационные работы по объектам культурного наследия (памятникам истории и культуры)» (ТЕРрр-2001) с использованием индексов пересчета в текущие цены (индексов изменения сметной стоимости работ) согласно данным региональных органов по ценообразованию и сметному нормированию.
1.2. «Федеральные сметные нормы на ремонтно-реставрационные работы по объектам культурного наследия (памятникам истории и культуры)» (ФСН-2001) с использованием региональных тарифных ставок фонда оплаты труда и текущих цен на материалы согласно региональным каталогам текущих цен.
К указанной сметно-нормативной базе 2001 года применять: накладные расходы согласно МДС 81-33.2004 «Методические указания по определению величины накладных расходов»; сметную прибыль согласно МДС 81-25.2001 «Методические указания по определению величины сметной прибыли», с учетом письма Федерального агентства по строительству и жилищно-коммунальному хозяйству от 31.01.2005 № ЮТ-260/06. Лимитированные затраты применять согласно Методическим указаниям, разработанные Росстроем (Госстроем) России.
1.3. «Территориальные единичные расценки на ремонтно-реставрационные работы по объектам культурного наследия (памятникам истории и культуры) Санкт-Петербурга» (ТЕРрр-2001СПб) для объектов культурного наследия, расположенных на территории г. Санкт-Петербурга. Нормы сметной прибыли, накладных расходов и лимитированных затрат применять согласно разработанным и утвержденным для г. Санкт-Петербурга.
1.4. «Сборник сметных норм и единичных расценок на реставрационно-восстановительные работы по памятникам истории и культуры» (ССН-84) и дополнения и изменения к ССН-84 (ДИЗ) с использованием индексов пересчета в текущие цены (индексов изменения сметной стоимости работ) согласно данным региональных органов по ценообразованию и сметному нормированию или с применением региональных реставрационных инфляционных индексов, согласованных с Минкультуры России.
1.5. «Сборник укрупненных показателей сметной стоимости ремонтно-восстановительных работ по памятникам истории и культуры» (СУПСС-87) с использованием индексов пересчета в текущие цены (индексов изменения сметной стоимости работ) согласно данным региональных органов по ценообразованию и сметному нормированию или с применением региональных реставрационных инфляционных индексов, согласованных с Минкультуры России.
1.6. Иные сопутствующие общестроительные, ремонтные и специализированные работы, не учтенные сборниками ФСН-2001, ТЕР-2001, ТЕРрр-2001 СПб и ССН-84 расценивать по сборникам ГЭСН-2001, ТЕР и ФЕР 2001 с использованием соответствующих коэффициентов пересчета к ним.
2. При разработке научно-исследовательской и проектной документации:
2.1. «Методические рекомендации по определению стоимость научно-проектных работ для реставрации недвижимых памятников истории и культуры» (РНиП 4.05.01-93) с дополнениями.
2.2. «Сборник цен на научно-проектные работы по памятникам истории и культуры» (СЦНПР-91).
Пересчет в текущие цены по вышеназванным сборникам (п. 2.1, 2.2) выполнять в соответствии с письмом Министерства культуры и массовых коммуникаций Российской Федерации от 15.03.2006 г. № 11-01-35/04-ДА.
Д.М. Амунц
|
Название документа |
Дата утверждения |
Примечание |
||
|
Нормативные правовые и методические документы |
|
|||
|
1. |
«О предельной стоимости 1 кв. м общей площади жилых домов по сериям на 2006-2007 гг.» |
17.04.2006 Письмо Москомэкспертизы № МКЭ-3/664 |
Текст письма приводится ниже. |
|
|
2. |
«Об утверждении положения о комитете государственного строительного надзора города Москвы» |
02.05.2006 Постановление Правительства Москвы № 311-ПП |
Тексты постановления и Положения приводятся ниже. |
|
|
3. |
«Об организации работ по наведению порядка на территории города при проведении земляных и строительных работ» |
16.05.2006 Постановление Правительства Москвы № 322-ПП |
Текст постановления приводится ниже. |
|
|
4. |
«О порядке определения стоимости проектирования пешеходных мостов» |
21.06.2006 Письмо Москомэкспертизы № МГЭ-28-1176/6-(0)-1 |
Текст письма приводится ниже. |
|
|
5. |
«Об утверждении Положений о городском реестре недвижимого культурного наследия и об историко-культурном опорном плане города Москвы» |
18.07.2006 Постановление Правительства Москвы № 510-ПП |
Приложение 1 – Положение о Городском реестре недвижимого культурного наследия; Приложение 2 – Положение об Историко-культурном опорном плане города Москвы. |
|
|
6. |
«О мерах по обеспечению надежности зданий гражданского назначения с большепролетными конструкциями» |
25.07.2006 Постановление Правительства Москвы № 567-ПП |
Текст постановления приводится ниже. |
|
|
7. |
«Об организации обращения с опасными отходами в городе Москве» |
16.08.2006 Распоряжение Правительства Москвы № 1611-РП |
Приложение – Регламент организации работы по обращению с опасными отходами (исключая радиоактивные) в городе Москве. |
|
|
8. |
«О реализации пилотного проекта по отработке механизмов эффективного управления многоквартирными домами в городе Москве» |
17.08.2006 Распоряжение Правительства Москвы № 1619-РП |
В целях своевременного выполнения требований постановления Правительства Москвы от 17.01.2006 № 9-ПП «Об организации управления многоквартирными домами в городе Москве». |
|
|
9. |
«О внесении дополнений в МГСН 1.01-99 «Нормы и правила проектирования планировки и застройки г. Москвы» |
22.08.2006 Постановление Правительства Москвы № 593-ПП |
Тексты постановления и дополнений приводятся ниже См. таблицу: Изменения и поправки к действующим строительным нормам и стандартам. |
|
|
10. |
«О внесении изменений в постановление Правительства Москвы от 7 декабря 2004 г. № 857-ПП» |
22.08.2006 Постановление Правительства Москвы № 596-ПП |
Текст постановления приводится ниже. |
|
|
11. |
«Об утверждении Положения о Государственной инспекции по контролю за использованием объектов недвижимости города Москвы» |
22.08.2006 Постановление Правительства Москвы № 602-ПП |
Приложение – Положение о Государственной инспекции по контролю за использованием объектов недвижимости города Москвы. |
|
|
12. |
«О внесении изменений и дополнений в распоряжение Правительства Москвы от 15 марта 2006 г. № 408-РП» |
28.08.2006 Распоряжение Правительства Москвы № 1684-РП |
Внести изменения и дополнения в распоряжение Правительства Москвы от 15.03.2006 г. № 408-РП «О дальнейшем развитии общегородской системы информационного обеспечения участников дорожного движения». |
|
|
13. |
«Об утверждении Положения о Департаменте экономической политики и развития города Москвы» |
29.08.2006 Постановление Правительства Москвы № 640-ПП |
Приложение – Положение о Департаменте экономической политики и развития города Москвы. |
|
|
14. |
«О ходе реализации городской комплексной инвестиционной программы «Новое кольцо Москвы» и задачах на 2006-2007 гг.» |
29.08.2006 Постановление Правительства Москвы № 645-ПП |
Приложение – График подготовки предпроектной документации и проведения инвестиционных торгов по объектам программы. |
|
|
15. |
«О мерах по развитию городской инфраструктуры технического сервиса автомототранспортных средств и самоходной техники» |
05.09.2006 Постановление Правительства Москвы № 671-ПП |
Приложение 3 – Перечень земельных участков под строительство объектов технического сервиса автомототранспортных средств. |
|
|
16. |
«О внесении изменений и дополнений в отдельные правовые акты Правительства Москвы» |
12.09.2006 Постановление Правительства Москвы № 687-ПП |
Текст постановления приводится ниже. |
|
|
17. |
«О проекте закона города Москвы «О землепользовании и застройке в городе Москве» |
12.09.2006 Постановление Правительства Москвы № 691-ПП |
Приложение – «Закон города Москвы о землепользовании и застройке в городе Москве» - проект. |
|
|
18. |
«О создании Комитета по контролю и регулированию инвестиционных программ города Москвы» |
19.09.2006 Постановление Правительства Москвы № 700-ПП |
В целях совершенствования структуры органов исполнительной власти г. Москвы, упорядочения и повышения эффективности вложения инвестиций при осуществлении градостроительной деятельности. |
|
|
19. |
«Об обеспечении безопасных условий эксплуатации технических устройств (лифтов)» |
22.05.2006 Приказ Департамента здравоохранения г. Москвы № 214 |
Приложение – Справка по результатам комплексного обследования организаций Департамента здравоохранения города Москвы в первом квартале 2006 года инспекторами отдела по надзору за лифтами и эскалаторами Управления по технологическому и экологическому надзору Ростехнадзора по городу Москве. |
|
|
Территориальные правовые и методические документы |
|
|||
|
20. |
«Постановление Правительства Санкт-Петербурга от 26 октября 2004 г. № 1747 «О службе государственного строительного надзора и экспертизы Санкт-Петербурга» в ред. Постановления Правительства Санкт-Петербурга от 23.05.2006 № 612» |
23.05.2006 Постановление Правительства Санкт-Петербурга № 612 |
Приложение – Положение о службе государственного строительного надзора и экспертизы Санкт-Петербурга (в ред. Постановления Правительства СПб от 23.05.2006 № 612). |
|
|
21. |
«О выдаче разрешения на ввод объекта в эксплуатацию» |
08.06.2006 Распоряжение Службы государственного строительного надзора и экспертизы Санкт-Петербурга № 58-р |
Приложение – Регламент рассмотрения, оформления и выдачи разрешения на ввод объекта в эксплуатацию. Тексты распоряжения и Регламента приводятся ниже. |
|
|
22. |
«О выдаче разрешения на строительство и разрешения на подготовку земельного участка для строительства и объекта капитального строительства для реконструкции и капитального ремонта» |
09.06.2006 Распоряжение Службы государственного строительного надзора и экспертизы Санкт-Петербурга № 59-р |
Приложение – Регламент рассмотрения, оформления и выдачи разрешений. Тексты распоряжения и Регламента приводятся ниже. |
|
|
23. |
«О порядке принятия решений о продлении сроков строительства (реконструкции) объекта недвижимости, о признании утратившими силу правовых актов исполнительного органа государственной власти Санкт-Петербурга о предоставлении объекта недвижимости для строительства и реконструкции» |
16.06.2006 Распоряжение Комитета по строительству Санкт-Петербурга № 143 |
Приложение – Регламент принятия решений о продлении сроков строительства (реконструкции) объектов недвижимости, о признании утратившими силу правовых актов исполнительного органа государственной власти Санкт-Петербурга о предоставлении объекта недвижимости для строительства и реконструкции |
|
|
24. |
«О разработке документации для проведения торгов по предоставлению объектов недвижимости, находящихся в собственности Санкт-Петербурга, для строительства и реконструкции» |
04.07.2006 Постановление Правительства Санкт-Петербурга № 841 |
Во исполнение Закона Санкт-Петербурга от 26.05.2004 № 282-43 «О порядке предоставления объектов недвижимости, находящихся в собственности Санкт-Петербурга, для строительства и реконструкции». |
|
|
25. |
«О выдаче разрешений на установку рекламных конструкций в Санкт-Петербурге» |
25.07.2006 Постановление Правительства Санкт-Петербурга № 904 |
|
|
Комитетом города Москвы по государственной экспертизе проектов и ценообразования в строительстве на основе данных о фактической стоимости строительства жилых домов, представленных ОАО «Москапстрой», проведен анализ стоимости общей площади жилых монолитных домов и типовых жилых домов по сериям. На основе полученных аналитических материалов рассчитана прогнозная стоимость 1 кв. м общей площади на 2006-2007 годы.
В целях экономии денежных средств бюджета города Москвы прошу согласовать предельную стоимость 1 кв. м. общей площади жилых домов по сериям на 2006-2007 гг.
Председатель А.Л. Воронин
Приложение
ПРЕДЕЛЬНАЯ
СТОИМОСТЬ
строительства 1кв. м общей площади жилых домов по сериям для городского заказа
2006 г.
|
Серии домов |
Затраты генподрядчика на 1 кв. м |
Полная стоимость строительства 1
кв. м |
|
И-155 |
16,98 |
20,38 |
|
ПЗМ |
17,40 |
20,88 |
|
П44Т |
17,28 |
20,74 |
|
П46м |
16,34 |
19,61 |
|
КОПЭ |
17,36 |
20,83 |
|
ГМС-2001 |
19,23 |
23,08 |
|
ИНД., монолитные |
16,00 |
19,20 |
ПРЕДЕЛЬНАЯ
СТОИМОСТЬ
строительства 1кв. м обшей площади жилых домов по сериям для городского заказа
2007 г.
|
Серии домов |
Затраты генподрядчика на 1 кв. м |
Полная стоимость строительства 1
кв. м |
|
И-155 |
18,68 |
22,41 |
|
ПЗМ |
19,14 |
22,97 |
|
П44Т |
19,01 |
22,81 |
|
П46м |
17,97 |
21,57 |
|
КОПЭ |
19,10 |
22,92 |
|
ГМС-2001 |
19,23 |
23,08 |
|
ИНД., монолитные |
16,00 |
19,20 |
В целях реализации положений Градостроительного кодекса Российской Федерации и в соответствии с постановлением Правительства Москвы от 28 декабря 2005 г. N 1064-ПП «О Комитете государственного строительного надзора города Москвы» Правительство Москвы постановляет:
1. Утвердить Положение о Комитете государственного строительного надзора города Москвы согласно приложению.
2. Комитету государственного строительного надзора города Москвы представить в установленном порядке в регистрирующий орган документы, необходимые для государственной регистрации Комитета государственного строительного надзора города Москвы.
3. Установить, что Комитет государственного строительного надзора города Москвы является:
3.1. Правопреемником по всем правам и обязанностям Государственного учреждения Инспекции Государственного архитектурно-строительного надзора г. Москвы.
3.2. Органом исполнительной власти города Москвы, уполномоченным на выдачу разрешений на строительство после внесения изменений в законы города Москвы, регламентирующие порядок выдачи разрешений на строительство.
4. Разрешить председателю Комитета государственного строительного надзора города Москвы иметь семь заместителей, в т.ч. двух первых.
5. Признать утратившими силу:
- распоряжение Мэра Москвы от 31 марта 1993 г. N 197-РМ «Об Инспекции Государственного архитектурно-строительного надзора г. Москвы»;
- распоряжение Мэра Москвы от 3 февраля 1998 г. N 100-РМ «О Положении об Инспекции Государственного архитектурно-строительного надзора г. Москвы»;
- распоряжение Мэра Москвы от 22 марта 2001 г. N 247-РМ «Об Инспекции государственного архитектурно-строительного надзора г. Москвы».
6. Комитету государственного строительного надзора города Москвы в связи с принятием настоящего постановления подготовить и представить в установленном порядке изменения в нормативные правовые акты города Москвы, регламентирующие порядок выдачи разрешений на строительство и устанавливающие порядок выдачи разрешений на ввод объектов в эксплуатацию.
7. Контроль за выполнением настоящего постановления возложить на первого заместителя Мэра Москвы в Правительстве Москвы Ресина В.И.
Мэр Москвы Ю.М. Лужков
Приложение
ПОЛОЖЕНИЕ
о комитете государственного строительного надзора города Москвы
1.1. Комитет государственного строительного надзора города Москвы (далее - Комитет) является органом исполнительной власти города Москвы, уполномоченным на осуществление государственного строительного надзора и на выдачу разрешений на строительство в городе Москве, выполняет в пределах своих полномочий функции государственного управления и регулирования в области строительства с целью обеспечения качества строительной продукции в городе Москве.
1.2. Комитет в своей деятельности руководствуется Конституцией Российской Федерации, Градостроительным кодексом Российской Федерации, законами и иными нормативными правовыми актами Российской Федерации, Уставом города Москвы, законами и иными нормативными правовыми актами города Москвы, а также настоящим Положением.
1.3. Сокращенное наименование Комитета государственного строительного надзора города Москвы - Мосгосстройнадзор.
1.4. Комитет является юридическим лицом, имеет смету расходов, самостоятельный баланс, на котором отражается имущество Комитета, состоящее из закрепленных за ним на праве оперативного управления имущества (включая объекты интеллектуальной собственности), финансовых ресурсов.
1.5. Комитет имеет бланки, печать с изображением герба города Москвы и своим наименованием, соответствующие печати и штампы, счета, открываемые и используемые в соответствии с законодательством Российской Федерации и города Москвы в органах казначейства, кредитных организациях.
1.6. Комитет имеет геральдический знак и флаг, утверждаемые распорядительным документом Правительства Москвы в установленном порядке.
1.7. В ведомственном подчинении Комитета могут находиться государственные унитарные предприятия, государственные учреждения, казенные предприятия города Москвы, осуществляющие свою деятельность в области строительства, для реализации задач Комитета.
1.8. Финансирование расходов на содержание Комитета осуществляется за счет средств, предусмотренных в бюджете города Москвы на функционирование исполнительных органов государственной власти.
1.9. Комитет имеет право представлять в арбитражных судах, судах общей юрисдикции и иных судебных и правоохранительных органах, созданных в соответствии с федеральным законодательством, интересы города Москвы и Комитета.
1.10. Местонахождение Комитета: 121059, Москва, ул. Брянская, д. 9, стр. 1.
Задачами Комитета являются:
2.1. Осуществление государственного строительного надзора и выдача разрешений на строительство и на ввод объектов в эксплуатацию в городе Москве при строительстве, реконструкции, капитальном ремонте объектов капитального строительства в соответствии с Градостроительным кодексом Российской Федерации, порядком, установленным Правительством Российской Федерации, иными нормативными правовыми актами Российской Федерации и города Москвы.
2.2. Обеспечение участниками строительства (юридическими и физическими лицами) соответствия возводимых зданий, строений, сооружений, применяемых в капитальном строительстве материалов, изделий и конструкций требованиям проектной документации и технических регламентов.
2.3. Реализация совместно с органами исполнительной власти города Москвы мероприятий в части обеспечения качества строительства, реконструкции, капитального ремонта объектов капитального строительства.
Для решения возложенных на него задач Комитет выполняет следующие функции:
3.1. Осуществляет выдачу разрешений на строительство и ввод объектов в эксплуатацию в соответствии с действующим законодательством.
3.2. Проводит проверки соответствия выполняемых работ в процессе строительства, реконструкции, капитального ремонта объектов производственного и непроизводственного назначения, инженерной и транспортной инфраструктуры, в т.ч. некапитальных, требованиям технических регламентов, проектной документации, строительных норм и правил, государственных стандартов и иных нормативных правовых актов.
3.3. Осуществляет проведение итоговой проверки для оценки выполненных работ и принятия решения об оформлении заключения о соответствии построенного, реконструированного, отремонтированного объекта требованиям технических регламентов и проектной документации.
3.4. Регистрирует извещения, общие и специальные журналы, в которых ведется учет выполненных работ, направленные застройщиком (заказчиком) в Комитет, о начале строительства, реконструкции, капитального ремонта объекта капитального строительства и (или) о начале работ по соответствующему этапу строительства.
3.5. Осуществляет учет извещений, поступивших в Комитет от лица, осуществляющего строительство, о случаях возникновения аварийных ситуаций на объекте капитального строительства.
3.6. Проверяет достаточность объема направленной в Комитет застройщиком или заказчиком (одновременно с извещением о начале работ) проектной документации для осуществления строительства, реконструкции, капитального ремонта или этапов строительства, реконструкции, капитального ремонта.
3.7. Осуществляет регистрацию должностных лиц, ответственных за производство строительно-монтажных работ, ведение строительного контроля подрядной организацией, технического надзора заказчиком и авторского надзора проектной организацией в соответствии с приказом по организации и представленными сведениями о квалификации.
3.8. Осуществляет контроль за соблюдением сроков строительства в соответствии с разрешением на строительство.
3.9. Проводит при необходимости экспертную оценку, обследования, лабораторные и иные испытания выполняемых работ и применяемых строительных материалов, изделий и конструкций.
3.10. Проводит в рамках государственного строительного надзора проверки соответствия применяемых строительных материалов, изделий и конструкций требованиям технических регламентов, строительных норм и правил, государственных и национальных стандартов и иных нормативных правовых актов.
3.11. Осуществляет надзор за надлежащим проведением строительного контроля лицами, осуществляющими строительство.
3.12. Осуществляет административное производство по делам об административных правонарушениях в области строительства.
3.13. Осуществляет контроль за устранением выявленных в процессе государственного строительного надзора нарушений.
3.14. Производит оформление и выдачу в установленном порядке заключений о соответствии построенного, реконструированного, отремонтированного объекта капитального строительства требованиям технических регламентов и проектной документации строительных норм и правил, государственных и национальных стандартов и иных нормативных правовых актов.
3.15. Ведет контроль за соблюдением установленного порядка работы технических комиссий, расследующих причины аварий зданий и сооружений.
3.16. Поддерживает и модернизирует в установленном порядке автоматизированный банк данных по объектам, подлежащим государственному строительному надзору.
3.17. Взаимодействует с научно-исследовательскими, проектными, общественными и другими организациями с целью обеспечения качества строительной продукции.
3.18. Осуществляет контроль за состоянием строительных площадок и культурой строительного производства.
3.19. Осуществляет в установленном порядке обработку и анализ информации о своей деятельности и составление отчетности.
3.20. Принимает участие в разработке и согласовании проектов нормативных правовых актов города Москвы в области строительства.
3.21. Осуществляет иные функции в соответствии с федеральными нормативными правовыми актами и нормативными правовыми актами города Москвы.
4.1. Для выполнения возложенных на него функций Комитет имеет право:
4.1.1. Вносить в установленном порядке на рассмотрение органов государственной власти города Москвы и их должностных лиц предложения по совершенствованию законодательства и иные предложения по вопросам, входящим в компетенцию Комитета, включая проекты законодательных и иных нормативных правовых актов города Москвы.
4.1.2. Создавать в установленном порядке при Комитете комиссии, советы и иные рабочие органы по вопросам, отнесенным к компетенции комитета.
4.1.3. Запрашивать и получать в установленном порядке от органов исполнительной власти города Москвы, органов местного самоуправления внутригородских муниципальных образований в городе Москве и организаций, независимо от их организационно-правовой формы, сведения, материалы и документы, необходимые для реализации возложенных на Комитет задач и функций.
4.1.4. Осуществлять в режиме «одного окна» прием заявлений от физических и юридических лиц, подготовку и выдачу конечных документов Комитета: разрешения на строительство, разрешения на ввод объекта в эксплуатацию.
4.1.5. Проводить проверки соответствия конструктивных разделов рабочей проектной документации утвержденному проекту, градостроительному плану земельного участка и разрешению на строительство.
4.1.6. Выдавать заключения о соответствии, если при строительстве, реконструкции, капитальном ремонте объекта капитального строительства не были допущены нарушения соответствия выполняемых работ требованиям технических регламентов (норм и правил), иных нормативных правовых актов и проектной документации либо такие нарушения были устранены до даты выдачи заключения о соответствии.
4.1.7. Контролировать сроки строительства в соответствии с разрешением на строительство.
4.1.8. Осуществлять пропаганду качества и безопасности в строительной отрасли, обеспечивать в установленном порядке выпуск соответствующих изданий и агитационно-пропагандистских материалов.
4.1.9. Заключать договоры в пределах своей компетенции с юридическими и физическими лицами в целях выполнения возложенных на Комитет задач.
4.1.10. Привлекать в установленном порядке, в случае необходимости, для проведения экспертизы и обследований ведущие проектные, научно-исследовательские институты и другие организации, а также отдельных высококвалифицированных специалистов.
4.1.11. Проводить семинары и конференции по вопросам, связанным с безопасностью и качеством строительства.
4.1.12. Вносить предложения о создании, реорганизации, ликвидации государственных унитарных предприятий и учреждений, казенных предприятий города Москвы, находящихся в ведении Комитета.
4.1.13. Вносить в проектные организации предложения по повышению качества проектной документации.
4.1.14. Вести в установленном порядке реестр лабораторных центров для оценки выполняемых в строительстве работ.
4.1.15. Временно приостанавливать или досрочно прекращать действие разрешения на строительство в случаях, предусмотренных нормативно-правовыми актами города Москвы.
4.1.16. Требовать от лица, осуществляющего строительство, приведения проектной документации в соответствие с требованиями технических регламентов (обязательных норм и правил) в случае обнаружения противоречий между требованиями технических регламентов (обязательных норм и правил) и проектной документации на строительство, реконструкцию, капитальных ремонт объекта капитального строительства.
4.1.17. Обращаться в лицензирующие органы с представлением о приостановлении или аннулировании лицензий организаций, допускающих грубые или систематические нарушения требований технических регламентов, проектной документации или нормативных правовых актов в области строительства.
4.1.18. Выступать истцом в судах по вопросам, отнесенным к его компетенции, в т.ч. по объектам самовольного строительства.
4.1.19. Вносить предложения Мэру Москвы о привлечении руководителей территориальных органов исполнительной власти к ответственности за ненадлежащее исполнение ими обязанностей по пресечению самовольного строительства.
4.1.20. Пользоваться в установленном порядке городскими справочными и информационными системами (базами данных) для решения задач, возложенных на Комитет.
4.1.21. Осуществлять иные полномочия, предоставляемые Комитету Правительством Москвы и Мэром Москвы для выполнения возложенных на него функций.
4.2. Должностные лица Комитета, на которых возложены функции по осуществлению государственного строительного надзора, имеют право:
4.2.1. Посещать беспрепятственно во время исполнения служебных обязанностей подконтрольные объекты, по своему усмотрению выбирая время, формы и методы проверок.
4.2.2. Составлять и выдавать лицам, осуществляющим строительство, акты и предписания об устранении выявленных нарушений.
4.2.3. Возбуждать и вести административное производство в соответствии с административным законодательством.
4.2.4. Осуществлять временный запрет деятельности в порядке и случаях, предусмотренных законодательством Российской Федерации.
4.2.5. Требовать представления результатов выполненных работ, исполнительной документации, общего и (или) специального журналов, зарегистрированных Комитетом, в которых ведется учет выполнения работ, актов освидетельствования работ, конструкций, участков, сетей инженерно-технического обеспечения, образцов (проб) применяемых строительных материалов, а также проведения обследований, испытаний, экспертиз выполненных работ и применяемых строительных материалов.
4.2.6. Вносить записи о результатах проведения проверок в общий и (или) специальный журналы, зарегистрированные Комитетом, в которых ведется учет выполнения работ.
4.2.7. Требовать от лиц, осуществляющих строительство, изготовителя строительных конструкций и изделий выборочного вскрытия отдельных конструктивных элементов зданий и сооружений, проведения дополнительных лабораторных и других испытаний, съемок, замеров.
4.3. Должностные лица Комитета, на которых возложены функции по осуществлению государственного строительного надзора, имеют право на ношение специальной форменной одежды.
5. Организация деятельности и руководство Комитетом
5.1. Комитет возглавляет председатель Комитета, назначаемый и освобождаемый от должности Правительством Москвы.
5.2. Заместители председателя Комитета назначаются на должность и освобождаются от должности Правительством Москвы по представлению председателя Комитета.
5.3. Председатель Комитета:
- руководит деятельностью Комитета на основе единоначалия, организует его работу, несет персональную ответственность за выполнение Комитетом возложенных на него задач;
- участвует в заседаниях Правительства Москвы, совещаниях Мэра Москвы и иных органов исполнительной власти города Москвы и их должностных лиц по вопросам деятельности Комитета;
- представляет Комитет в федеральных органах государственной власти и органах государственной власти субъектов Российской Федерации, органах местного самоуправления, в организациях любой организационно-правовой формы, а также международных организациях;
- организует взаимодействие по вопросам компетенции Комитета с федеральными органами исполнительной власти, органами исполнительной власти города Москвы, органами местного самоуправления, предприятиями и общественными организациями;
- представляет в установленном порядке на рассмотрение органов исполнительной власти города Москвы проекты правовых актов, предложения по совершенствованию законодательства города Москвы, иные предложения по вопросам деятельности Комитета;
- действует без доверенности от имени Комитета, заключает договоры, выдает доверенности сотрудникам Комитета на представление интересов Комитета;
- издает в пределах своей компетенции и в соответствии с нормативными правовыми актами Российской Федерации и города Москвы приказы и распоряжения;
- распределяет обязанности между заместителями, руководителями структурных подразделений Комитета;
- утверждает структуру и штатное расписание Комитета в пределах фонда оплаты труда и предельной численности работников Комитета, установленных Правительством Москвы, а также смету расходов на его содержание в пределах выделенных из бюджета города Москвы ассигнований на функционирование исполнительных органов государственной власти в установленном порядке;
- в установленном порядке назначает на должность и освобождает от должности работников Комитета, заключает и расторгает служебные контракты, трудовые и гражданско-правовые договоры;
- решает в соответствии с законодательством Российской Федерации о государственной гражданской службе вопросы, связанные с прохождением государственной гражданской службы в Комитете, в т.ч. формирования кадрового резерва, подбора, расстановки, переподготовки и повышения квалификации кадров, проведения в установленном порядке аттестаций, квалификационных экзаменов, присвоения классных чинов, установления надбавок к должностным окладам;
- утверждает правила внутреннего трудового распорядка, положения о структурных подразделениях, должностные регламенты и инструкции работников Комитета и иные внутренние локальные нормативные акты;
- организует мероприятия по соблюдению государственной и служебной тайны работниками Комитета и подведомственных организаций;
- представляет в установленном порядке особо отличившихся работников Комитета и подведомственных организаций к награждению государственными наградами Российской Федерации, наградами города Москвы, применяет иные меры поощрения;
- обеспечивает контроль за соблюдением работниками Комитета трудовой и служебной дисциплины, налагает дисциплинарные взыскания;
- согласовывает в установленном порядке учредительные документы находящихся в ведении Комитета государственных унитарных предприятий, государственных учреждений, казенных предприятий города Москвы; назначает по поручению Правительства Москвы на должность и освобождает от занимаемой должности их руководителей, заключает, изменяет и расторгает с ними трудовые договоры;
- несет ответственность за организацию бухгалтерского учета и статистической отчетности в Комитете в соответствии с законодательством Российской Федерации;
- распоряжается финансовыми средствами и управляет имуществом Комитета;
- открывает и закрывает в органах казначейства лицевые счета, совершает по ним операции, подписывает финансовые документы;
- предъявляет от имени Комитета претензии и иски к юридическим и физическим лицам;
- утверждает в установленном порядке знаки различия и форменную одежду;
- осуществляет иные полномочия в соответствии с правовыми актами Российской Федерации и города Москвы.
5.4. Сотрудники Комитета являются государственными гражданскими служащими города Москвы (далее - гражданские служащие), на них распространяется законодательство о государственной гражданской службе и трудовое законодательство Российской Федерации с особенностями, предусмотренными законодательством о государственной гражданской службе.
5.5. В штатное расписание Комитета могут включаться должности, не относящиеся к должностям государственной гражданской службы. Для выполнения определенных функций могут быть заключены трудовые договоры с иными работниками, не являющимися гражданскими служащими, а также привлечены специалисты на основании гражданско-правовых договоров.
5.6. Для рассмотрения основных вопросов деятельности Комитета, подведомственных ему организаций в Комитете образуется коллегия в составе председателя Комитета (председатель коллегии) и заместителей председателя, входящих в нее по должности, а также руководителей структурных подразделений Комитета, ведущих ученых и специалистов в области строительства.
Персональный состав коллегии утверждается Правительством Москвы по представлению председателя Комитета.
Решения Коллегии имеют рекомендательный характер, оформляются протоколами.
5.7. Комитет создает и поддерживает официальный интернет-сайт Комитета.
6. Контроль за деятельностью Комитета
6.1. Контроль и координацию деятельности Комитета осуществляет Мэр Москвы.
6.2. Комитет представляет бухгалтерскую и статистическую отчетность в порядке и сроки, установленные законодательством Российской Федерации. Ревизию деятельности Комитета осуществляют уполномоченные Правительством Москвы органы, а также организации, которым это право предоставлено в соответствии с законодательством Российской Федерации.
7. Внесение изменений и дополнений в Положение, реорганизация и ликвидация Комитета
7.1. Изменения и дополнения в настоящее Положение вносятся постановлением Правительства Москвы.
7.2. Реорганизация и ликвидация Комитета осуществляются в установленном законодательством Российской Федерации порядке на основании правового акта Правительства Москвы.
7.3. В случае ликвидации Комитета его документы передаются в Главное архивное управление города Москвы.
В целях повышения уровня культуры производства и недопущения выноса грунта и грязи на территорию города при проведении земляных и строительных работ, а также аварийно-восстановительных и ремонтных работ на подземных инженерных коммуникациях Правительство Москвы постановляет:
1. Установить, что:
1.1. При разработке проектов организации строительства (ПОС), стройгенпланов на подготовительный и основной периоды строительства, в т.ч. по объектам прокладки, реконструкции и капитального ремонта инженерных коммуникаций, следует определять необходимость установки пунктов мойки колес и их количество с учетом вида проводимых работ, их объема и условий строительной площадки, а также разрабатывать конкретные мероприятия по обеспечению чистоты прилегающей к строительным площадкам территории.
1.2. При разработке проектов производства работ (ППР), в т.ч. по объектам прокладки, реконструкции и капитального ремонта инженерных коммуникаций, следует разрабатывать конкретные мероприятия для исключения загрязнения городских территорий, включая устройство моечных постов и подъездных дорог с твердым покрытием.
1.3. Ордера на производство работ оформляются в два этапа:
- I этап - ордер на производство работ подготовительного периода оформляется при условии представления ППР, в котором в т.ч. отражены мероприятия по обустройству строительной площадки, включая установку пунктов мойки колес, предотвращению загрязнения городской территории;
- II этап - ордер на производство земляных и строительных работ оформляется после полного завершения и комиссионной приемки работ подготовительного периода.
2. Департаменту жилищно-коммунального хозяйства и благоустройства города Москвы, Департаменту топливно-энергетического хозяйства города Москвы, Департаменту транспорта и связи города Москвы при участии подведомственных организаций:
2.1. В трехмесячный срок разработать:
- регламенты проведения аварийно-восстановитель-ных и ремонтных работ на подземных коммуникациях, предусматривающие необходимые мероприятия по недопущению загрязнения городских территорий (мобильные моечные посты, компрессоры, настилы, щиты, полиэтиленовые пленки, щетки и т.п.) в зависимости от видов, условий и сроков проведения работ;
- типовые проекты производства работ (включая технологические карты) по объектам аварийного и текущего ремонта инженерных коммуникаций с учетом использования средств мойки (очистки) колес автотранспорта и согласовать их с заинтересованными организациями.
2.2. Обеспечить действенный контроль за ходом выполнения аварийно-восстановительных и ремонтных работ на коммуникациях.
3. Департаменту науки и промышленной политики города Москвы обеспечить разработку и производство в 2006 году сертифицированных компактных мобильных пунктов мойки колес автотранспорта, других средств для различных условий производства работ, включая аварийно-восстановительные и ремонтные работы на коммуникациях.
4. Департаменту градостроительной политики, развития и реконструкции города Москвы:
4.1. В трехмесячный срок подготовить предложения, направленные на повышение качества разработки проектов производства работ на подготовительный период строительства, возведение зданий, сооружений или их частей, прокладку и реконструкцию инженерных сетей и коммуникаций.
4.2. Обеспечить координацию проводимых работ по обеспечению эффективной работы пунктов мойки колес на строительных объектах города и выполнению мероприятий по недопущению выноса грунта и грязи на городскую территорию.
5. Просить Управление государственной инспекции безопасности дорожного движения Главного управления внутренних дел города Москвы:
5.1. Не проводить экспертизу проектов организации движения в составе ПОС без разработанных мероприятий по недопущению загрязнения городской территории.
5.2. При выявлении случаев загрязнения проезжей части применять все предусмотренные действующим законодательством меры административного воздействия.
6. При выявлении фактов выноса грунта и грязи колесами автотранспорта со строительных площадок на территорию города, отсутствия или нахождения в нерабочем состоянии пункта мойки колес:
6.1. Объединению административно-технических инспекций города Москвы приостанавливать действие ордеров на производство работ до устранения нарушений.
6.2. Объединению административно-технических инспекций города Москвы, Комитету государственного строительного надзора города Москвы:
- направлять представления в лицензирующий орган о приостановке действия лицензии подрядных организаций;
- направлять информацию об имеющихся нарушениях в Департамент природопользования и охраны окружающей среды города Москвы для принятия мер в соответствии с действующим законодательством;
- информировать государственных заказчиков, а также Управление Правительства Москвы по экономической безопасности города Москвы и ГУП «Центр информационно-аналитических технологий» об организациях-правонарушителях для принятия мер и учета в Реестре деловой репутации партнеров Правительства Москвы.
7. Комитету города Москвы по организации и проведению конкурсов и аукционов, городским государственным заказчикам учитывать информацию Реестра деловой репутации партнеров Правительства Москвы при проведении конкретных конкурсов на выполнение подрядных работ в городе Москве.
8. Объединению административно-технических инспекций города Москвы до 1 июля 2006 г. в установленном порядке подготовить проект правового акта Правительства Москвы о внесении изменений и дополнений в постановление Правительства Москвы от 7 декабря 2004 г. N 857-ПП «Об утверждении Правил подготовки и производства земляных работ, обустройства и содержания строительных площадок в городе Москве» в соответствии с положениями настоящего постановления.
9. Контроль за выполнением настоящего постановления возложить на первых заместителей Мэра Москвы в Правительстве Москвы Ресина В.И. и Аксенова П.Н.
Мэр Москвы Ю.М. Лужков
В связи с поступающими запросами разъясняется.
В соответствии с п. 2.21 «Сборника базовых цен на проектные работы для строительства в г. Москве на основе натуральных показателей» при определении базовых цен на проектные работы по объектам, не вошедшим в номенклатуру «Сборника» допускается применение «Методики определения базовой цены проектных работ от стоимости строительства» (Приложение 3), а также «Справочника базовых цен на проектные работы для строительства. Искусственные сооружения» (Госстрой России).
Учитывая, что в соответствии со статьей 709 Гражданского Кодекса РФ цена на работы и способы ее определения устанавливаются договором подряда, вопрос определения стоимости выше указанных работ может быть решен путем переговоров между заказчиком и проектной организацией.
Председатель А.Л. Воронин
В целях обеспечения надежности зданий гражданского назначения с большепролетными конструкциями, находящихся в собственности города Москвы, осуществления в городе системы организационных, экономических, технических и иных мер по их безопасной эксплуатации Правительство Москвы постановляет:
1. Принять предложение Комплекса городского хозяйства Москвы о возложении на Государственную жилищную инспекцию города Москвы (Мосжилинспекцию) функций уполномоченного органа по контролю за выполнением требований организации технической эксплуатации, ремонта и мониторинга зданий гражданского назначения с большепролетными конструкциями, находящихся в собственности города Москвы (далее - здания с большепролетными конструкциями) и связанных с обеспечением их надежности.
2. Мосжилинспекции обеспечить:
- принятие решения о проведении мониторинга эксплуатируемых зданий с большепролетными конструкциями по представлению Экспертной комиссии по оценке надежности конструктивных решений и проверке технического состояния строительных конструкций большепролетных, высотных и других уникальных зданий и сооружений, возведенных и проектируемых в городе Москве, созданной распоряжением Правительства Москвы от 2 марта 2004 г. № 320-РП «О создании Экспертной комиссии по оценке надежности конструктивных решений и проверке технического состояния строительных конструкций большепролетных, высотных и других уникальных зданий и сооружений, возведенных и проектируемых в городе Москве»;
- осуществление контроля за соблюдением порядка проведения организационных мероприятий, обеспечивающих безопасную эксплуатацию зданий с большепролетными конструкциями;
- ведение городского банка данных о техническом состоянии зданий и о мониторинге зданий с большепролетными конструкциями.
3. Департаменту градостроительной политики, развития и реконструкции города Москвы как государственному заказчику:
- в III квартале 2006 г. сформировать и представить на утверждение первого заместителя Мэра Москвы в Правительстве Москвы, возглавляющего Комплекс архитектуры, строительства, развития и реконструкции города Москвы, адресный перечень зданий с большепролетными конструкциями, строящихся в городе Москве, для проведения их проверки в режиме мониторинга, а также дальнейшего контроля за их техническим состоянием;
- обеспечить в IV квартале 2006 г. разработку Среднесрочной городской целевой программы работ по реализации системы безопасной эксплуатации зданий с большепролетными конструкциями, предусмотрев в ней организационно-правовые, нормативно-методические, информационные, аппаратурно-технические аспекты, а также вопросы организации планового мониторинга.
4. Установить, что:
- в перечень объектов, подлежащих мониторингу и контролю (п. 2), входят здания следующего назначения: школы, кинотеатры и концертные залы, театры и театральные студии, цирки, крытые торговые и спортивные комплексы, бассейны, катки и другие подобные сооружения, включая их варианты, встроенно-пристроенные к жилым домам;
- научно-исследовательские, конструкторские и проектные организации определяются Мосжилинспекцией в качестве специализированных организаций по формированию нормативно-инструментальной базы, программы и проведению мониторинга на конкурсной основе в установленном порядке.
Возложить функции государственного заказчика работ по проведению мониторинга эксплуатируемых зданий с большепролетными конструкциями на Мосжилинспекцию.
5. Москомархитектуре при согласовании проектов технически сложных и уникальных объектов, в том числе зданий с большепролетными конструкциями, предусматривать мероприятия по предупреждению чрезвычайных ситуаций природного и техногенного характера.
6. Мосжилинспекции, Отделу законопроектных работ Правительства Москвы Центра законотворчества Москвы до 1 октября 2006 г. подготовить проект закона города Москвы о внесении изменений в Закон города Москвы от 3 июля 2002 г. № 38 «О государственном контроле за учетом и использованием объектов нежилого фонда города Москвы», предусматривающий порядок проведения мониторинга зданий с большепролетными конструкциями и ответственность за нарушение такого порядка, и представить его Мэру Москвы для внесения на рассмотрение Московской городской Думы в установленном порядке.
7. Внести изменения в постановление Правительства Москвы от 6 мая 1997 г. № 321 «Об уточнении нормативных документов и полномочий Мосжилинспекции» (в редакции постановлений Правительства Москвы от 18 декабря 2001 г. № 1144-ПП, от 19 августа 2003 г. № 692-ПП, от 8 февраля 2005 г. № 73-ПП, от 15 ноября 2005 г. № 883-ПП), дополнив приложение 1 к постановлению пунктом 2.2.17 в следующей редакции:
«2.2.17. Является уполномоченным Правительством Москвы органом по контролю за выполнением требований организации технической эксплуатации, ремонта и мониторинга зданий гражданского назначения с большепролетными конструкциями, находящихся в собственности города Москвы, и связанных с обеспечением их надежности, осуществляющим:
- принятие решения о проведении мониторинга эксплуатируемых зданий с большепролетными конструкциями;
- контроль за соблюдением порядка проведения организационных мероприятий, обеспечивающих безопасную эксплуатацию зданий с большепролетными конструкциями;
- ведение городского банка данных о техническом состоянии зданий и о мониторинге зданий с большепролетными конструкциями.».
8. В связи с расширением функций Мосжилинспекции:
8.1. Ввести дополнительно в штатный состав в III квартале 2006 г. должность первого заместителя начальника Мосжилинспекции с месячным должностным окладом 13270 руб.
8.2. Увеличить предельную численность Мосжилинспекции на 163 единицы поэтапно:
- в III квартале 2006 г. - на 20 единиц с месячным фондом оплаты труда по должностным окладам 145650 руб. и 7428150 руб. в расчете на год;
- в IV квартале 2006 г. - на 41 единицу с месячным фондом оплаты труда по должностным окладам 241970 руб. и 12340470 руб. в расчете на год;
- в I квартале 2007 г. - на 102 единицы с месячным фондом оплаты труда по должностным окладам 536100 руб. и 27341100 руб. в расчете на год.
9. Выделить Мосжилинспекции в 2006 году средства в размере 39080581 руб., в том числе на оплату труда с начислениями - 8580581 руб., на материальные затраты - 30500000 руб., включающие затраты на разработку нормативно-методического обеспечения для выполнения дополнительных функций.
10. Увеличить Мосжилинспекции в 2006 году лимит служебного транспорта на одну единицу с двухсменным режимом работы и на 10 единиц технологического транспорта с полуторасменным режимом работы.
11. Департаменту финансов города Москвы:
11.1. Профинансировать расходы, указанные в пунктах 3, 8, 9, 10 настоящего постановления, за счет и в пределах средств, предусмотренных в бюджете города Москвы на 2006 год на государственное управление.
11.2. Внести в установленном порядке изменения в ведомственную структуру расходов бюджета города Москвы на 2006 год с последующим внесением соответствующих изменений в Закон города Москвы от 9 ноября 2005 г. № 56 «О бюджете города Москвы на 2006 год».
11.3. Предусмотреть в проекте бюджета города Москвы на 2007 год и последующие годы расходы на содержание дополнительной предельной численности Мосжилинспекции.
11.4. Обеспечивать финансирование мероприятий по мониторингу зданий с большепролетными конструкциями, по разработке эксплуатационных нормативов и регламентов и других расходов, предусмотрев затраты в смете расходов Мосжилинспекции.
12. Мосжилинспекции для выполнения возложенных дополнительных функций создать в 2006 году специальные подразделения в административных округах города Москвы, разработать необходимую нормативную базу, укомплектовать специалистами и создать условия для эффективной работы.
13. Мосжилинспекции представить в установленном порядке в Управление информатизации города Москвы заявку на разработку программного обеспечения по контролю за осуществлением мониторинга технического состояния зданий с большепролетными конструкциями и созданию банка данных по его результатам для включения в план мероприятий Городской целевой программы «Электронная Москва».
14. Департаменту экономической политики и развития города Москвы по предложению государственного заказчика - Департамента градостроительной политики, развития и реконструкции города Москвы предусматривать начиная с 2006 года в адресных инвестиционных программах города Москвы лимиты капитальных вложений на финансирование работ (п. 3) за счет и в пределах средств, предусматриваемых государственному заказчику на соответствующий период.
15. Контроль за выполнением настоящего постановления возложить на первых заместителей Мэра Москвы в Правительстве Москвы Аксенова П.Н. и Ресина В.И.
Мэр Москвы Ю.М. Лужков
Во исполнение постановления Правительства Москвы от 16 мая 2006 г. № 322-ПП «Об организации работ по наведению порядка на территории города при проведении земляных и строительных работ», в целях повышения уровня культуры производства и недопущения выноса грунта и грязи на территорию города при проведении земляных и строительных работ Правительство Москвы постановляет:
1. Внести в постановление Правительства Москвы от 7 декабря 2004 г. № 857-ПП «Об утверждении Правил подготовки и производства земляных работ, обустройства и содержания строительных площадок в городе Москве» (в редакции постановлений Правительства Москвы от 12 апреля 2005 г. № 215-ПП, от 14 июня 2005 г. № 418-ПП, от 11 октября 2005 г. № 780-ПП, от 6 декабря 2005 г. № 980-ПП, от 17 января 2006 г. № 19-ПП, от 21 марта 2006 г. № 199-ПП) следующие изменения:
1.1. Пункт 2.1.31 приложения изложить в следующей редакции:
«2.1.31. При разработке проектов организации строительства (ПОС), стройгенпланов на подготовительный и основной периоды строительства, в т.ч. по объектам прокладки, реконструкции и капитального ремонта инженерных коммуникаций, следует определять необходимость установки пунктов мойки колес и их количество с учетом вида проводимых работ, их объема и условий строительной площадки, а также разрабатывать конкретные мероприятия по обеспечению чистоты прилегающей к строительным площадкам территории.».
1.2. Пункты 2.1.32, 2.1.34 приложения признать утратившими силу.
1.3. Пункт 2.5.15 приложения дополнить:
1.3.1. Дефисом 7 следующего содержания:
«- Высоковольтными кабельными сетями - филиалом ОАО «Московская областная электросетевая компания.».
1.3.2. Абзацем следующего содержания:
«При производстве работ в охранной зоне кабельных линий 110, 220 и 500 кВ в зоне одного метра от крайних кабелей и двухметровой зоне от кабеля связи наличие уведомлений от Высоковольтных кабельных сетей - филиала ОАО «Московская областная электросетевая компания» при оформлении ордера обязательно.».
1.4. Пункт 2.6.9 приложения дополнить абзацем следующего содержания:
«При разработке проектов производства работ (ППР), в т.ч. по объектам прокладки, реконструкции и капитального ремонта инженерных коммуникаций, в обязательном порядке разрабатываются конкретные мероприятия для исключения загрязнения городских территорий, включая устройство моечных постов и подъездных дорог с твердым покрытием.».
1.5. Пункт 4.9 приложения дополнить абзацем следующего содержания:
«Ордера на производство работ оформляются в два этапа:
- I этап - ордер на производство работ подготовительного периода оформляется при условии представления ППР, в котором в т.ч. отражены мероприятия по обустройству строительной площадки, включая установку пунктов мойки колес, предотвращению загрязнения городской территории;
- II этап - ордер на производство земляных и строительных работ оформляется после полного завершения и комиссионной приемки работ подготовительного периода.».
1.6. Дополнить приложение пунктом 8.2.6 следующего содержания:
«8.2.6. Планово-предупредительный и текущий ремонт подземных инженерных коммуникаций выполняется в соответствии с регламентами и типовыми проектами производства работ (включая технологические карты), предусматривающими необходимые мероприятия по недопущению загрязнения городских территорий (мобильные моечные посты, компрессоры, настилы, щиты, полиэтиленовые пленки, щетки и т.п.) в зависимости от видов, условий и сроков проведения работ.
Регламенты и типовые проекты производства работ утверждаются Департаментом жилищно-коммунального хозяйства и благоустройства города Москвы, Департаментом топливно-энергетического хозяйства города Москвы, Департаментом транспорта и связи города Москвы (по принадлежности коммуникаций).».
1.7. Пункт 12.4 приложения дополнить абзацем следующего содержания:
«Аварийно-восстановительные работы на подземных коммуникациях выполняются в соответствии с регламентами и типовыми проектами производства работ (включая технологические карты), предусматривающими необходимые мероприятия по недопущению загрязнения городских территорий (мобильные моечные посты, компрессоры, настилы, щиты, полиэтиленовые пленки, щетки и т.п.) в зависимости от видов, условий и сроков проведения работ.».
2. Контроль за выполнением настоящего постановления возложить на первого заместителя Мэра Москвы в Правительстве Москвы Ресина В.И.
Мэр Москвы Ю.М. Лужков
На основании статьи 55 Градостроительного кодекса Российской Федерации, постановления Правительства Российской Федерации от 24.11.2005 № 698 «О форме разрешения на строительство и форме разрешения на ввод объекта в эксплуатацию», постановлений Правительства Санкт-Петербурга от 26.10.2004 № 1747 «О Службе государственного строительного надзора и экспертизы Санкт-Петербурга» и от 23.05.2006 № 612 «О внесении изменений в постановление Правительства Санкт-Петербурга от 26.10.2004 № 1747»:
1. Утвердить Регламент рассмотрения, оформления и выдачи разрешения на ввод объекта в эксплуатацию.
2. Утвердить прилагаемые формы*:
2.1. Заявления о выдаче разрешения на ввод объекта в эксплуатацию (приложение 1).
2.2. Акта приемки объекта капитального строительства (реконструкции, капитального ремонта) (приложение 2).
2.3. Справки о соответствии построенного (реконструированного, отремонтированного) объекта капитального строительства требованиям технических регламентов и иным нормативным правовым актам (приложение 3).
2.4. Справки о соответствии параметров построенного, реконструированного, отремонтированного объекта капитального строительства проектной документации (приложение 4).
2.5. Заключения органа государственного строительного надзора в случае, если предусмотрено осуществление государственного строительного надзора (приложение 5).
3. Заключение органа Государственного пожарного надзора (по форме Управления государственного пожарного надзора ГУ МЧС России по Санкт-Петербургу) (приложение 6).
4. Настоящее распоряжение действует с момента его подписания и до утверждения в установленном порядке Правительством РФ Инструкции по заполнению формы разрешения на ввод объекта в эксплуатацию.
5. Контроль за выполнением распоряжения оставляю за собой.
Начальник Службы
государственного строительного надзора
и экспертизы Санкт-Петербурга А.И. Орт
_____________________________
* Приложения 1-7 не публикуются
УТВЕРЖДЕН
распоряжением Службы государственного строительного
надзора и экспертизы Санкт-Петербурга
от 08.06.2006 г. № 58-р
РЕГЛАМЕНТ
рассмотрения, оформления и выдачи разрешения на ввод объекта в эксплуатацию
1. Общие положения
Разрешение на ввод объекта в эксплуатацию (далее - Разрешение) - документ, удостоверяющий выполнение строительства, реконструкции, капитального ремонта объекта в полном объеме в соответствии с разрешением на строительство, соответствие построенного, реконструированного, отремонтированного объекта градостроительному плану земельного участка и проектной документации.
Разрешение является основанием для постановки на государственный учет построенного объекта, внесения изменений в документы государственного учета реконструированного объекта.
В Разрешении содержатся сведения об объекте, необходимые для постановки построенного объекта на государственный учет или внесения изменений в документы государственного учета реконструированного объекта.
Организация рассмотрения представленных заявителем документов, осмотр объекта, вводимого в эксплуатацию, оформление и выдача Разрешения осуществляется Службой государственного строительного надзора и экспертизы Санкт-Петербурга в соответствии с Градостроительным кодексом Российской Федерации и постановлением Правительства Санкт-Петербурга от 23.05.2006 № 612.
В течение 10 рабочих дней со дня поступления заявления на выдачу Разрешения Служба государственного строительного надзора и экспертизы Санкт-Петербурга осуществляет проверку наличия и правильности оформления представленных документов, осмотр объекта и принятие решения о выдаче заявителю Разрешения или о мотивированном отказе в выдаче такого Разрешения.
Разрешение оформляется в количестве трех экземпляров по форме, утвержденной постановлением Правительства Российской Федерации от 24.11.2005 № 698 «О форме разрешения на строительство и форме разрешения на ввод объекта в эксплуатацию» (приложение 7).
2. Порядок приема и рассмотрения заявлений
Прием заявлений (документов) на выдачу Разрешения осуществляется еженедельно по приемным дням.
Специалисты Службы государственного строительного надзора и экспертизы Санкт-Петербурга:
- проверяют наличие, состав (комплектность) представляемых заявителем документов. В случае некомплектности представляемых заявителем документов, заявление не принимается;
- регистрируют принятые материалы с указанием даты и времени приема заявления в электронной базе и журнале регистрации обращений заявителей;
- осуществляют экспертную оценку правильности оформления представленных документов;
- осуществляют осмотр объекта;
- осуществляют оформление, подготовку и выдачу заявителям конечных документов.
Заявитель (застройщик):
представляет в Службу государственного строительного надзора и экспертизы Санкт-Петербурга:
- заявление на выдачу Разрешения по установленной форме (приложение 2);
- документы и материалы, необходимые для подготовки и выдачи требуемого документа, согласно перечню.
Обеспечивает доступ на объект, вводимый в эксплуатацию, представителям Службы государственного строительного надзора и экспертизы Санкт-Петербурга.
Получает в Службе государственного строительного надзора и экспертизы Санкт-Петербурга в установленном порядке Разрешение или же мотивированный отказ в выдаче такого Разрешения.
3. Порядок выдачи документов
По истечении 10 дней со дня приема заявления заявителю выдаются два экземпляра оригинала Разрешения или письменный мотивированный отказ в выдаче Разрешения (под роспись в графе журнала регистрации с указанием даты и времени получения и соответствующей отметкой в электронной базе).
Заверенные копии Разрешения направляются Службой государственного строительного надзора и экспертизы Санкт-Петербурга в трехдневный срок в Комитет по строительству.
Для получения Разрешения или письменного мотивированного отказа в выдаче Разрешения заявитель обязан представить в Службу государственного строительного надзора и экспертизы Санкт-Петербурга документ, удостоверяющий личность, третье лицо - нотариально заверенную доверенность от заявителя и документ, удостоверяющий личность.
Разрешения или мотивированные отказы в выдаче Разрешений должны быть получены в Службе государственного строительного надзора и экспертизы Санкт-Петербурга в течение 1 месяца, после чего они сдаются в архив.
Один экземпляр Разрешения, полный комплект документов, на основании которых выдается Разрешение, находится на ответственном хранении в Службе государственного строительного надзора и экспертизы Санкт-Петербурга.
4. Основания для отказа в выдаче разрешения на ввод объекта в эксплуатацию
Основаниями для принятия решения об отказе в выдаче Разрешения являются:
- отсутствие или неправильное оформление представленных документов;
- несоответствие вводимого объекта требованиям градостроительного плана земельного участка;
- несоответствие вводимого объекта требованиям, установленным в разрешении на строительство;
- несоответствие параметров построенного, реконструированного, отремонтированного объекта проектной документации;
- невыполнения заявителем требований, предусмотренных частью 18 статьи 51 Градостроительного кодекса Российской Федерации по передаче в Службу государственного строительного надзора и экспертизы Санкт-Петербурга сведений о площади, о высоте и об этажности планируемого объекта капитального строительства, о сетях инженерно-технического обеспечения, одного экземпляра копии результатов инженерных изысканий и по одному экземпляру копий разделов проектной документации, предусмотренных пунктами 2, 8, 9, 10 части 12 статьи 48 Градостроительного кодекса;
- непредставление в Службу государственного строительного надзора и экспертизы Санкт-Петербурга копии в бумажном и электронном виде схемы, отображающей расположение построенного, реконструированного, отремонтированного объекта капитального строительства, расположение сетей инженерно-технического обеспечения в границах земельного участка и планировочную организацию земельного участка, для размещения такой копии в информационной системе обеспечения градостроительной деятельности;
- необеспечение заявителем доступа на объект представителям Службы государственного строительного надзора и экспертизы Санкт-Петербурга.
5. Ответственность за подготовку и выдачу документов
За несвоевременную подготовку и выдачу Службой государственного строительного надзора и экспертизы Санкт-Петербурга разрешений или мотивированных отказов в выдаче разрешений предусматривается ответственность в соответствии с действующим законодательством.
6. Перечень документов к заявлению о выдаче разрешения на ввод объекта в эксплуатацию
1. Правоустанавливающие документы на земельный участок.
2. Градостроительный план земельного участка.
3. Разрешение на строительство.
4. Акт приемки объекта капитального строительства (в случае осуществления строительства, реконструкции, капитального ремонта на основании договоров) (приложение 2).
5. Документ, подтверждающий соответствие построенного (реконструированного, отремонтированного) объекта капитального строительства требованиям технических регламентов и иным нормативным правовым актам (приложение 3).
6. Документ, подтверждающий соответствие параметров построенного, реконструированного, отремонтированного объекта капитального строительства проектной документации (приложение 4).
7. Справки, подтверждающие соответствие построенного, реконструированного, отремонтированного объекта капитального строительства техническим условиям и подписанные представителями организаций, осуществляющих эксплуатацию сетей инженерно-технического обеспечения (при их наличии).
8. Заключение органа государственного строительного надзора (приложение 5) и органа государственного пожарного надзора (по форме, установленной Главным управлением Министерства Российской Федерации по делам гражданской обороны, чрезвычайным ситуациям и ликвидации последствий стихийных бедствий по Санкт-Петербургу) о соответствии построенного, реконструированного, отремонтированного объекта капитального строительства требованиям технических регламентов и проектной документации.
9. Схема в бумажном и электронном виде, отображающая расположение построенного, реконструированного, отремонтированного объекта капитального строительства, расположение сетей инженерно-технического обеспечения в границах земельного участка и планировочную организацию участка, выполненная организацией, имеющей право на выполнение геодезических работ, подписанная лицом, осуществляющим строительство (лицом, осуществляющим строительство, и застройщиком или заказчиком в случае осуществления строительства, реконструкции, капитального ремонта на основании договоров).
На основании статей 51, 52 Градостроительного кодекса Российской Федерации, постановления Правительства Российской Федерации от 24.11.2005 № 698 «О форме разрешения на строительство и форме разрешения на ввод объекта в эксплуатацию», постановлений правительства Санкт-Петербурга от 26.10.2004 № 1747 «О службе государственного строительного надзора и экспертизы Санкт-Петербурга» и от 23.05.2006 № 612 «О внесении изменений в постановление правительства Санкт-Петербурга от 26.10.2004 № «1747»
1. Утвердить*:
1.1. Регламент рассмотрения, оформления и выдачи разрешений (приложение 1).
1.2. Перечень документов к заявлению о выдаче разрешения на подготовку земельного участка для строительства и объекта капитального строительства для реконструкции или капитального ремонта (приложение 2).
1.3. Перечень документов к заявлению о выдаче разрешения на строительство (приложение 3).
1.4. Форму заявления о выдаче разрешения на подготовку земельного участка для строительства и объекта капитального строительства для реконструкции или капитального ремонта (приложение 4).
1.5. Форму заявления о выдаче разрешения на строительство (приложение 5).
1.6. Форму разрешения на подготовку земельного участка для строительства и объекта капитального строительства для реконструкции или капитального ремонта (приложение 6).
2. Настоящее распоряжение вводится в действие с момента подписания и действует до утверждения в установленном порядке Правительством РФ Инструкции по заполнению формы разрешения на строительство.
3. Контроль за выполнением распоряжения оставляю за собой.
Начальник Службы
государственного строительного
надзора и экспертизы Санкт-Петербурга А.И. Орт
____________________________
* Приложения 2-7 не публикуются
приложение 1
РЕГЛАМЕНТ
рассмотрения, оформления и выдачи разрешений
1. Общие положения
Разрешение на строительство - документ, подтверждающий соответствие проектной документации требованиям градостроительного плана земельного участка и дающий застройщику право осуществлять строительство, реконструкцию объектов капитального строительства, а также их капитальный ремонт.
Выдача разрешения на строительство не требуется в случаях, установленных п. 17 ст. 51 Градостроительного кодекса Российской Федерации.
Разрешение на подготовку земельного участка для строительства и объекта капитального строительства для реконструкции или капитального ремонта - документ, дающий право застройщику или заказчику на проведение работ подготовительного периода в соответствии с требованиями п. 4 ст. 52 Градостроительного кодекса Российской Федерации.
Организация рассмотрения, оформления и выдачи разрешения на строительство и разрешения на подготовку земельного участка для строительства и объекта капитального строительства для реконструкции или капитального ремонта осуществляется Службой государственного строительного надзора и экспертизы Санкт-Петербурга (далее - Служба) в соответствии со ст. 51 Градостроительного кодекса Российской Федерации и настоящим Регламентом. Служба на основании п. 12 ст. 51 Градостроительного кодекса Российской Федерации может выдавать разрешение на отдельные этапы строительства, реконструкции.
Разрешения оформляются в количестве двух экземпляров по утвержденным формам (приложения 6, 7). Разрешение на строительство выдается на срок, предусмотренный проектом организации строительства. Разрешение на подготовку земельного участка для строительства и объекта капитального строительства для реконструкции или капитального ремонта выдается на срок, установленный проектом производства работ подготовительного периода. Срок действия разрешений при переходе права на земельный участок и объекты капитального строительства сохраняется.
Разрешение на строительство в соответствии со ст. 51 Градостроительного кодекса Российской Федерации может быть продлено по заявлению застройщика, поданному не менее чем за 60 дней до истечения срока действия такого разрешения. В продлении срока действия разрешения на строительство должно быть отказано в случае, если строительство, реконструкция, капитальный ремонт объекта капитального строительства не начаты до истечения срока подачи такого заявления.
2. Порядок приема и рассмотрения заявлений
Прием заявлений на выдачу разрешений или продление срока действия разрешений осуществляется еженедельно по приемным дням. Застройщик представляет в Службу:
A) Для получения разрешения на подготовку земельного участка .для строительства и объекта капитального строительства для реконструкции или капитального ремонта:
- заявление по утвержденной форме (приложение 4);
- документы и материалы по утвержденному перечню (приложение 2);
Б) Для получения разрешения на строительство:
- заявление по утвержденной форме (приложение 5);
- документы и материалы по утвержденному перечню (приложение 3);
В) Для продления срока действия разрешения:
- заявление по утвержденной форме (приложение 6);
- действующее разрешение.
Служба в течение десяти дней со дня получения заявления от застройщика:
- проводит проверку наличия документов, прилагаемых к заявлению;
- проводит проверку их соответствия проектной документации требованиям градостроительного плана земельного участка (кадастрового плана земельного участка и архитектурно-планировочного задания), «красным линиям».
3. Порядок выдачи разрешения
По истечении 10 рабочих дней со дня приема заявления застройщику выдается один экземпляр разрешения или письменный мотивированный отказ в выдаче разрешения (под роспись в графе журнала регистрации с указанием даты и времени получения и соответствующей отметкой в электронной базе).
Для получения разрешения или письменного мотивированного отказа в выдаче разрешения застройщик обязан предоставить в Службу документ, удостоверяющий личность, третье лицо - нотариально заверенную доверенность от застройщика и документ, удостоверяющий личность.
Разрешение или мотивированный отказ в выдаче разрешения должны быть получены в Службе в течение 1 месяца, после чего они сдаются в архив.
Один экземпляр разрешения и полный комплект документов, на основании которых выдается разрешение, находятся на ответственном хранении в Службе.
Служба в случае если выдано разрешение на строительство объектов капитального строительства, указанных в п. 3 ст. 54 Градостроительного кодекса РФ, в течение трех дней со дня его выдачи направляет копию в Федеральную службу по экологическому, технологическому и атомному надзору или Министерство обороны РФ по принадлежности объектов.
Застройщик в течение десяти дней со дня получения разрешения на строительство обязан безвозмездно передать в Службу сведения о площади, о высоте и об этажности планируемого объекта капитального строительства, о сетях инженерно-технического обеспечении, один экземпляр копии результатов инженерных изысканий и по одному экземпляру копий разделов проектной документации, предусмотренных пунктами 2, 8, 9, 10 части 12 статьи 48 Градостроительного кодекса РФ.
4. Основания для отказа в выдаче разрешения
Основаниями для принятия решения об отказе в выдаче разрешений являются:
- отсутствие или неправильное оформление документов, указанных в части 2 настоящего Регламента;
- несоответствие проектной документации требованиям градостроительного плана земельного участка (кадастрового плана земельного участка и архитектурно-планировочного задания).
5. Ответственность за подготовку и выдачу разрешения
За несвоевременную подготовку и выдачу Службой разрешения или мотивированного отказа в выдаче разрешения предусматривается ответственность в соответствии с действующим законодательством.
|
Номер и название документа |
Дата утверждения |
Дата введения в действие |
Примечание |
|
|
|
1. |
СТО НП «АВОК» 4.2.2-2006 «Радиаторы и конвекторы отопительные. Общие технические условия» |
26.07.2006 Приказ Президента НП «АВОК» |
26.07.2006 |
Взамен стандарта АВОК-6-2005 «Приборы отопительные. Часть 1. Общие технические условия». |
|
|
2. |
СТО 11233753-001-2006 Стандарт организации «Системы автоматизации. Монтаж и наладка» |
05.06.2006 Ассоциация «Монтажавтоматика» |
01.08.2006 |
Введен впервые.
|
|
|
3. |
СТО Газпром 14-2005 «Типовая инструкция по безопасному проведению огневых работ на газовых объектах ОАО «Газпром» |
27.09.2005 Распоряжение ОАО «Газпром» № 243 |
01.11.2005 |
Взамен «Типовой инструкции по безопасному ведению огневых работ на газовых объектах Мингазпрома СССР». |
|
|
4. |
СТО 36554501-005-2006 Стандарт ФГУП «НИЦ» «Строительство» «Применение арматуры класса А500СП в железобетонных конструкциях» |
06.07 2006 Приказ ФГУП «НИЦ «Строительство» № 97 |
06.07.2006 |
Стандарт распространяется на проектирование и технологию производства арматурных работ для железобетонных строительных конструкций без преднапряжения, предназначенных для эксплуатации в климатических условиях РФ в средах с неагрессивной и слабоагрессивной степенью воздействия при статическом приложении нагрузки. |
|
|
5. |
СТО МАДИ 02066517.1-2006 Стандарт организации «Дороги автомобильные общего пользования. Диагностика. Определение продольного микропрофиля дорожной поверхности и международного показателя ровности IRI. Общие требования и порядок проведения» |
14.08.2006 Приказ Ректора МАДИ (ГТУ) № 348 о.в. |
15.08.2006 |
Введен впервые. Разработан и внесен ТК 418 (Техническим комитетом по стандартизации «Дорожное хозяйство»). |
|
|
6. |
СТО БР ИББС-1.0-2006 Стандарт Банка России «Обеспечение информационной безопасности организаций банковской системы Российской Федерации. Общие положения» |
26.01.2006 Распоряжение Банка России № Р-27 |
26.01.2006 |
Взамен СТО БР ИББС-1.0-2004. |
|
|
7. |
СО 34.35.302-2006 «Инструкция по организации и производству работ в устройствах релейной защиты и электроавтоматики электростанций и подстанций» |
28.03.2006 ОАО «Инженерный центр ЕЭС» |
01.04.2006 |
Разработано Филиалом ОАО «Инженерный центр ЕЭС» - «Фирма ОРГРЭС». |
|
|
8. |
СО 34.04.623-2006 «Должностная инструкция начальника газовой службы тепловых электростанций и котельных» |
25.01.2006 Филиал ОАО «Инженерный центр ЕЭС» - «Фирма ОРГРЭС» |
25.01.2006 |
Разработано Филиалом ОАО «Инженерный центр ЕЭС» - «Фирма ОРГРЭС». |
|
|
9. |
СО 34.04.624-2006 «Должностная инструкция мастера газовой службы тепловых электростанций и котельных» |
25.01.2006 Филиал ОАО «Инженерный центр ЕЭС» - «Фирма ОРГРЭС» |
25.01.2006 |
Разработано Филиалом ОАО «Инженерный центр ЕЭС» - «Фирма ОРГРЭС». |
|
|
10. |
СО 34.04.625-2006 «Должностная инструкция лица, ответственного за безопасную эксплуатацию газового хозяйства тепловых электростанций и котельных» |
25.01.2006 Филиал ОАО «Инженерный центр ЕЭС» - «Фирма ОРГРЭС» |
25.01.2006 |
Разработано Филиалом ОАО «Инженерный центр ЕЭС» - «Фирма ОРГРЭС». |
|
|
11. |
СО 34.04.626-2006 «Должностная инструкция слесаря-ремонтника 4-6-го разряда газовой службы тепловых электростанций и котельных» |
25.01.2006 Филиал ОАО «Инженерный центр ЕЭС» - «Фирма ОРГРЭС» |
25.01.2006 |
Разработано Филиалом ОАО «Инженерный центр ЕЭС» - «Фирма ОРГРЭС». |
|
|
Номер и название документа |
Организация-разработчик |
Примечание |
||
|
1. |
ТК-23 «Типовая технологическая карта на монтаж вентилируемого фасада с облицовкой композитными панелями» |
ЦНИИОМТП 2006 г. |
ТК разработана на монтаж вентилируемого фасада на примере конструктивной системы FS-300. |
|
|
2. |
ТК-24 «Типовая технологическая карта на устройство (ремонт) кровли с механическим креплением рулонного материала к основанию полимерными деталями» |
ЦНИИОМТП 2006 г. |
Рекомендована область применения, разработаны организация и технология производства работ, требования к качеству работ, технике безопасности и охране труда. |
|
|
3. |
ТК-25 «Типовая технологическая карта на разборку крупнопанельного жилого здания» |
ЦНИИОМТП 2006 г. |
В ТК описаны конструкции разбираемого здания, указана область применения, изложены основные положения организации работ и технологические процессы, требования к качеству и приемке работ, технике безопасности и охране труда. |
|
|
Название документа |
Дата утверждения |
Примечание |
||
|
Изменения |
|
|||
|
1. |
Дополнения в МГСН 1.01-99 «Нормы и правила проектирования планировки и застройки г. Москвы» о нормативных расчетных показателях по проектированию размещения объектов общественного питания» |
22.08.2006 Постановление Правительства Москвы № 593-ПП |
Дополнение вводится в действие с момента опубликования. Тексты постановления и дополнения приводятся ниже. |
|
|
2. |
Изменение № 1 ГОСТ Р 51330.0-99 (МЭК 60079-0-98) Электрооборудование взрывозащищенное. Часть 0. Общие требования» |
24.05.2006 Постановление Ростехрегулирования № 102-ст |
Дата введения 01.01.2007 г.
ИУС № 8/2006. |
|
|
Поправки |
|
|||
|
3. |
Поправка к ГОСТ Р ИСО 7168-1-2005 «Качество воздуха. Представление данных. Часть 1. Развернутый формат представления данных» |
|
ИУС № 8/2006. |
|
|
4. |
Поправка к ГОСТ Р 51901.5-2005 (МЭК 60300-3-1:2003) «Менеджмент риска. Руководство по применению методов анализа надежности» |
|
ИУС № 8/2006. |
|
На основании статьи 7 Градостроительного кодекса Российской Федерации, в соответствии с Законом города Москвы от 3 октября 2001 г. N 64 «О градостроительных нормативах и правилах города Москвы» и во исполнение постановления Правительства Москвы от 20 апреля 2004 г. N 245-ПП «О Городской целевой программе развития потребительского рынка и услуг города Москвы на 2004-2006 годы» Правительство Москвы постановляет:
1. Внести дополнения в МГСН 1.01-99 «Нормы и правила проектирования планировки и застройки г. Москвы» утвержденные постановлением Правительства Москвы от 25 января 2000 г. N 49 «Об утверждении Норм и правил проектирования планировки и застройки Москвы МГСН 1.01-99» (в редакции постановлений Правительства Москвы от 26 декабря 2000 г. N 1033, от 25 июня 2002 г. N 473-ПП, от 19 августа 2003 г. N 693-ПП, от 6 сентября 2005 г. N 684-ПП, от 4 октября 2005 г. N 769-ПП, от 11 октября 2005 г. N 773-ПП, от 25 июля 2006 г. N 558-ПП), о нормативных расчетных показателях по проектированию размещения объектов общественного питания в редакции согласно приложению к настоящему постановлению.
2. Ввести в действие дополнения в МГСН 1.01-99 «Нормы и правила проектирования планировки и застройки г. Москвы» (п. 1) с момента опубликования настоящего постановления.
3. Москомархитектуре довести до сведения проектных организаций дополнения, внесенные в МГСН 1.01-99 «Нормы и правила проектирования планировки и застройки г. Москвы» настоящим постановлением.
4. Префектурам административных округов города Москвы, Департаменту потребительского рынка и услуг города Москвы руководствоваться нормативными расчетными показателями по проектированию размещения объектов общественного питания (п. 1) при планировании развития сети объектов по районам города Москвы.
5. Контроль за выполнением настоящего постановления возложить на первого заместителя Мэра Москвы в Правительстве Москвы Ресина В.И.
Мэр Москвы Ю.М. Лужков
Приложение
к постановлению Правительства Москвы
от 22 августа 2006 г. № 593-ПП
Дополнения в МГСН 1.01-99
«Нормы и правила проектирования планировки и застройки г. Москвы» о нормативных расчетных показателях по проектированию размещения объектов общественного питания»
Дополнить приложение 5 к МГСН 1.01-99 разделом «Объекты общественного питания» и таблицами 6 и 7 следующего содержания:
Объекты общественного питания
1. При проектировании общедоступной сети объектов общественного питания для районов города Москвы рекомендуется применять дифференцированные расчетные показатели обеспеченности по типам размещения районов и степени концентрации дневного населения на территории города в соответствии с таблицами 4 и 6 приложения 5.
2. При определении существующего уровня развития общедоступной сети объектов общественного питания по районам города учитываются объекты (столовые, кафе, рестораны, бары, закусочные), расположенные на жилых территориях, на территориях предприятий и учреждений, на территориях системы общегородского центра, обслуживающие постоянное и временное население города.
3. Рекомендуемые дифференцированные расчетные показатели обеспеченности населения объектами общественного питания по административным округам города Москвы приведены в таблице 7 приложения 5.
4. Потребность в общедоступной сети может быть увеличена при отсутствии объектов общественного питания в учреждениях и предприятиях района из расчета пропускной способности 4 посетителя в час на 1 посадочное место.
5. В сети объектов общественного питания предусматриваются предприятия самообслуживания (быстрое питание) с пропускной способностью не менее 20 посетителей в смену на 1 посадочное место.
Дифференцированные расчетные показатели обеспеченности населения объектами общественного питания общедоступной сети по типам размещения районов на территории города Москвы (рекомендуемые)
|
Тип размещения района (степень концентрации дневного населения) |
Характеристика размещения района |
Обеспеченность пос. мест на 1000 жителей |
|
|
Всего |
в том числе быстрое питание |
||
|
1 тип (низкая) |
В периферийной части территории города, отдаленной от транспортно-пересадочных узлов |
17 |
6 |
|
2 тип (средняя) |
В срединной и частично в периферийной части территории города, примыкающей к основным магистралям и транспортно-пересадочным узлам |
73 |
20 |
|
3 тип (высокая) |
В центральной части территории города |
240 |
168 |
|
|
В среднем по городу |
60 |
24 |
Дифференциальные расчетные показатели обеспеченности населения объектами общественного питания по административным округам города Москвы (рекомендуемые)
|
Административный округ |
Обеспеченность (пос. мест на 1000 жителей) |
|
|
Всего |
в том числе быстрое питание |
|
|
Центральный |
240 |
168 |
|
Северо-Восточный |
33 |
10 |
|
Восточный |
43 |
12 |
|
Юго-Восточный |
48 |
14 |
|
Южный |
54 |
15 |
|
Юго-Западный |
60 |
17 |
|
Западный |
57 |
16 |
|
Северо-Западный |
30 |
9 |
|
Северный |
47 |
14 |
|
Зеленоградский |
17 |
9 |
|
В среднем по городу |
60 |
24 |
|
№ п/п |
Наименование проекта национального стандарта, код ОКС |
Разработчик |
Адрес, контактный телефон, факс |
|
1. |
«Государственный рубрикатор научно-технической информации. Структура, правила использования и ведения» |
Всероссийский институт научной и технической информации Российской академии наук (ВИНИТИ РАН) |
125190 Москва, ул. Усиевича, 20 тел. (495) 155-42-52, факс: (495) 943-00-60; E-mail: typo@viniti.ru |
|
2. |
«Трубопроводы из пластмасс. Пластмассовые элементы трубопровода. Определение размеров» |
ТК 241, ОАО «МИПП-НПО «Пластик», ПК-1 НТЦ «Пластик» |
119530 Москва, ул. Генерала Дорохова, 14 тел. (495) 443-86-36, доб 110, факс: 443-86-36, E-mail: gvosdev@polyplastic.ru |
|
3. |
«Шпунт трубчатый сварной. Технические условия» |
ОАО «Научно-исследовательский институт транспортного строительства» (ОАО ЦНИИС) |
129329 Москва, ул. Кольская, 1 тел.: (495) 189-72-73, факс: (495) 189-72-53; E-mail: standart2005@mail.ru |
|
4. |
«Лифты пассажирские. Требования вандалозащищенности» |
ЗАО АК «Лифт» |
105203 Москва, ул.12-я Парковая, 5 ЗАО АК «Лифт» Тел. (495) 461-11-11, факс: (495) 463-97-63. E-mail: aklift@aklift.ru |
|
5. |
«Лифты. Методология оценки и повышения безопасности существующих лифтов» |
ЗАО АК «Лифт» |
105203 Москва, ул.12-я Парковая, 5 ЗАО АК «Лифт» Тел. (495) 461-11-11, факс: (495) 463-97-63. E-mail: aklift@aklift.ru |
|
6. |
«Лифты. Двери шахт лифтов. Методы испытаний на огнестойкость» |
ЗАО АК «Лифт» |
105203 Москва, ул.12-я Парковая, 5 ЗАО АК «Лифт» Тел. (495) 461-11-11, факс: (495) 463-97-63. E-mail: aklift@aklift.ru |
|
№ п/п |
Наименование проекта национального стандарта, код ОКС |
Разработчик |
Адрес, контактный телефон, факс |
|
1. |
«Общие требования к компетентности испытательных и калибровочных лабораторий» |
Ассоциация аналитических центров «Аналитика» |
119049 Москва, Ленинский просп., 1, корп. 1, оф. 1320. Тел./факс: (495) 959-93-43 Ерошина Ольга Александровна. E-mail: eroshina@analitica.org.ru |
|
2. |
«Технические средства организации дорожного движения. Изделия для разметки дорожной. Микростеклошарики. Методы контроля» |
Московский автомобильно-дорожный институт (Государственный технический университет) |
125319 Москва, Ленинградский проспект, 64, МАДИ (ГТУ) Тел./факс: (495) 155-08-32; E-mail: svnmdk@dsm.madi.ru |
|
3. |
«Технические средства организации дорожного движения. Изделия для разметки дорожной. Микростеклошарики. Технические требования» |
Московский автомобильно-дорожный институт (Государственный технический университет) |
125319 Москва, Ленинградский проспект, 64, МАДИ (ГТУ) Тел./факс: (495) 155-08-32; E-mail: svnmdk@dsm.madi.ru |
|
4. |
«Автомобильные дороги и улицы. Освещение искусственное. Методы контроля» |
Московский автомобильно-дорожный институт (Государственный технический университет) |
125319 Москва, Ленинградский проспект, 64, МАДИ (ГТУ) Тел./факс: (495) 155-08-32; E-mail: svnmdk@dsm.madi.ru |
|
5. |
«Автомобильные дороги и улицы. Освещение искусственное. Технические требования» |
Московский автомобильно-дорожный институт (Государственный технический университет) |
125319 Москва, Ленинградский проспект, 64, МАДИ (ГТУ) Тел./факс: (495) 155-08-32; E-mail: svnmdk@dsm.madi.ru |
|
6. |
«Технические средства организации дорожного движения. Разметка дорожная. Методы контроля» |
Московский автомобильно-дорожный институт (Государственный технический университет) |
125319 Москва, Ленинградский проспект, 64, МАДИ (ГТУ) Тел./факс: (495) 155-08-32; E-mail: svnmdk@dsm.madi.ru |
|
7. |
«Технические средства организации дорожного движения. Изделия для разметки дорожной. Штучные формы. Методы контроля» |
Московский автомобильно-дорожный институт (Государственный технический университет) |
125319 Москва, Ленинградский проспект, 64, МАДИ (ГТУ) Тел./факс: (495) 155-08-32; E-mail: svnmdk@dsm.madi.ru |
|
8. |
«Технические средства организации дорожного движения. Изделия для разметки дорожной. Штучные формы. Технические требования» |
Московский автомобильно-дорожный институт (Государственный технический университет) |
125319 Москва, Ленинградский проспект, 64, МАДИ (ГТУ) Тел./факс: (495) 155-08-32; E-mail: svnmdk@dsm.madi.ru |
Уведомление
о разработке проекта технического регламента
1. Разработчик Федеральное государственное унитарное предприятие «Всероссийский научно-исследовательский институт железнодорожного транспорта» Министерства путей сообщения Российской Федерации (ФГУП ВНИИЖТ МПС России)
(наименование организации с указанием организационно-правовой формы или Ф.И.О. физического лица)
2. Объект технического регулирования с указанием кодов ОКС Железнодорожный транспорт. Код ОКС: 45.020; 03.220.30
(в отношении какой продукции, процессов производства, эксплуатации, хранения, перевозки, реализации и утилизации будут разрабатываться требования)
3. Наименование проекта технического регламента Федеральный закон – специальный технический регламент «О безопасности железнодорожного транспорта и связанной с ним инфраструктуры» (Шифр РТР-032)
4. Обоснование необходимости разработки проекта технического регламента Принятие Федерального закона от 27 декабря 2002 г. № 184-ФЗ «О техническом регулировании», Федерального закона «О железнодорожном транспорте в Российской Федерации» от 10 января 2003 г. № 17-ФЗ, предстоящее вступление Российской Федерации во Всемирную торговую организацию (ВТО) и связанная с этим необходимость гармонизации национального технического законодательства с международными требует пересмотра подходов к осуществлению технического регулирования в отношении объектов железнодорожного транспорта и связанной с ним инфраструктуры с тем, чтобы обеспечить безопасность жизни и здоровья граждан, имущества физических и юридических лиц, государственного и муниципального имущества, обеспечить охрану окружающей среды, жизни и здоровья растений и животных.
Распоряжением Правительства Российской Федерации от 8 ноября 2005 г. № 1889-р разработка проекта специального технического регламента (Федерального закона) «О безопасности железнодорожного транспорта и связанной с ним инфраструктуры» включена в Программу разработки технических регламентов на 2004–2009 гг.
5. Требования, отличающиеся от положений соответствующих международных стандартов или обязательных требований, действующих в Российской Федерации на момент разработки проекта технического регламента Требований, отличающихся от положений соответствующих международных стандартов или обязательных требований, действующих в Российской Федерации на момент разработки проекта специального технического регламента, нет
6. Срок публичного обсуждения проекта технического регламента два месяца с даты опубликования уведомления
(месяцев)
7. Прием замечаний по проекту осуществляется по адресу 129851 Москва, 3-я Мытищинская ул., д. 10. Тел.: (495) 687-6555, факс: (495) 687-6456, 262-0070
(почтовый адрес, телефон, адрес электронной почты)
8. Копию проекта технического регламента
можно получить
129851 Москва, 3-я Мытищинская ул.,
д.10. Тел.: (495) 687-6555, факс: (495) 687-6456, 262-0070. E-mail: bdssa@vniizht.ru,
standart@vniizht.ru
(почтовый адрес, телефон, адрес электронной почты)
Руководитель организации __________Ю.М. Черкашин
(подпись, инициалы, фамилия)
«9» июня 2006 г.
Уведомление
о разработке проекта технического регламента
1. Разработчик Открытое акционерное общество «Научно-исследовательский и проектно-конструкторский институт асбестовой промышленности» (ОАО «НИИпроектасбест»)
(наименование организации с указанием организационно-правовой формы или Ф.И.О. физического лица)
2. Объект технического регулирования с указанием кодов ОКС Хризотил, хризотилсодержащие материалы и изделия и все виды деятельности, связанные с их производством и применением.
Коды ОКС: 59.060.30; 73.080; 85.060; 91.100.40
(в отношении какой продукции, процессов производства, эксплуатации, хранения, перевозки, реализации и утилизации будут разрабатываться требования)
3. Наименование проекта технического регламента Специальный технический регламент «О безопасности хризотила, хризотилсодержащих материалов и изделий, процессов их производства, эксплуатации, хранения, транспортирования, реализации и утилизации»
4. Обоснование необходимости разработки проекта технического регламента Целью данного технического регламента является разработка и осуществление комплекса мер, направленных на обеспечение безопасного обращения с хризотилом и хризотилсодержащими материалами и изделиями, охрану здоровья людей и окружающей среды в процессе их производства, эксплуатации, хранения, транспортирования, реализации и утилизации, а также предупреждения действий, вводящих в заблуждение приобретателей
5. Требования, отличающиеся от положений соответствующих международных стандартов или обязательных требований, действующих в Российской Федерации на момент разработки проекта технического регламента Требований, отличающихся от положений соответствующих международных стандартов или обязательных требований, действующих в Российской Федерации на момент разработки проекта технического регламента, нет
6. Срок публичного обсуждения проекта технического регламента два месяца с даты опубликования уведомления
(месяцев)
7. Прием замечаний по проекту осуществляется по адресу 624266 Свердловская обл., г. Асбест, ул. Промышленная, д. 7, ОАО «НИИпроектасбест». Тел.: (34365) 4-45-43, 4-45-12, факс: (34365) 6-40-63. E-mail: cia@isp.uralasbest.ru, nii@uraltc.ru
(почтовый адрес, телефон, адрес электронной почты)
8. Копию проекта технического регламента можно получить 624266 Свердловская обл., г. Асбест, ул. Промышленная, д. 7, ОАО «НИИпроектасбест». Тел.: (34365) 4-45-43, 4-45-12, факс: (34365) 6-40-63. E-mail: cia@isp.uralasbest.ru, nii@uraltc.ru
(почтовый адрес, телефон, адрес электронной почты)
Руководитель организации __________В.В. Иванов
(подпись, инициалы, фамилия)
«26» июня 2006 г.
Уведомление
о разработке проекта технического регламента
1. Разработчик Международная Ассоциация «Системсервис», Всемирная академия комплексной безопасности, ФГУП ВНИИНМАШ
(наименование организации с указанием организационно-правовой формы или Ф.И.О. физического лица)
2. Объект технического регулирования с указанием кодов ОКС Организационно-технические системы комплексного обеспечения безопасности объектов хозяйствования гражданского назначения любой категории значимости и формы собственности, построенные на основе реализации технологических процессов с использованием технической продукции со следующими кодами ОКС:
01.110, 01.140.30, 03.080, 03.100, 03.120, 13.020, 13.110, 13.120, 13.200, 13.220, 13.230, 13.310, 13.320, 13.340, 21.020, 23.020.99, 25.040, 29.020, 29.100, 29.220, 29.240, 31.220, 33.020, 33.040, 33.060, 33.080, 33.160, 33.200, 35.080, 35.110, 35.240, 55.220, 91.090, 91.120, 91.140, 91.160, 97.120
(в отношении какой продукции, процессов производства, эксплуатации, хранения, перевозки, реализации и утилизации будут разрабатываться требования)
3. Наименование проекта технического регламента «Комплексное обеспечение безопасности объектов хозяйствования гражданского назначения»
4. Обоснование необходимости разработки проекта технического регламента Постоянно происходящие и часто повторяющиеся трагические события в России и за рубежом, связанные с возникновением катастрофических чрезвычайных ситуаций на объектах различного функционально-хозяйственного назначения и значимости, влекущие за собой большой материальный ущерб, многочисленные человеческие жертвы и вызывающие широкий общественный резонанс, безусловно и жестко подтверждают актуальность повсеместно предпринимаемых сегодня в мире активных усилий по обеспечению безопасности объектов по всему спектру угроз различной природы: антропогенных, техногенных, природно-климатических, поскольку эти проявления наносят ущерб государственной политике, прямо или косвенно оказывают негативное влияние на общую социальную обстановку на территориях, сказываются на стабильности общества в целом. Одной из острых проблем в связи с этим, требующей постоянного внимания и привлечения немалых интеллектуальных и материальных ресурсов, является непрерывное совершенствование нормативно-правовой и нормативно-технической базы, позволяющих своевременно создавать адекватные возможности для деятельности специалистов, профессионально занимающихся решением вопросов обеспечения безопасности во всех ее многочисленных аспектах, т.е. в комплексе.
Своевременное реформирование отечественной нормативной базы под условия рыночной экономики и с учетом требований Всемирной торговой организации (ВТО), на вступление в которую обоснованно претендует Российская Федерация, предполагает создание своевременного технического законодательства во всех областях хозяйственной деятельности субъектов рынка.
Настоящий проект специального технического регламента разрабатывается в соответствии с Законом РФ от 27.12.2002 № 184-ФЗ «О техническом регулировании» (ст. 1, 3, 6, 7).
Данный технический регламент позволит решить ряд конкретных задач:
- Законодательно систематизировать и закрепить действующие сегодня разноплановые требования по комплексному обеспечению безопасности объектов с соблюдением жестко регламентированных обязательств субъектов хозяйствования по созданию комфортности среды обитания внутри и вне объектов.
- Предусмотреть обязательства субъектов хозяйствования по обеспечению функционирования систем безопасности объектов.
- Сформулировать гарантии по сохранению функционального состояния объекта хозяйствования при возникновении какой-либо чрезвычайной ситуации, а также по безопасности физических лиц на объекте при возникновении какой-либо чрезвычайной ситуации.
- Определить обстоятельства, условия и возможности применения на объектах с целью комплексного обеспечения безопасности, целевых технических средств: видеонаблюдения, ограничения доступа, поиска и досмотра, охранно-пожарной, тревожно-вызывной и аварийной сигнализации, пожаротушения, инженерно-технической защиты, транспорта, связи и оповещения, индивидуальной защиты и эвакуации.
- Сформулировать конкретные требования по эффективной эксплуатации технических средств комплексного обеспечения безопасности объекта.
- Урегулировать нормативный порядок и правила обучения и инструктажа персонала на объекте.
- Урегулировать нормативный порядок взаимодействия субъектов хозяйствования на объекте с органами власти и контролирующими органами по вопросам комплексного обеспечения безопасности
5. Требования, отличающиеся от положений соответствующих международных стандартов или обязательных требований, действующих в Российской Федерации на момент разработки проекта технического регламента В настоящее время в Российской Федерации действуют следующие государственные стандарты в области деятельности, близкой к области действия разрабатываемого проекта специального технического регламента: ГОСТ Р 50775-95 «Системы тревожной сигнализации. Часть 1. Общие требования. Раздел 1. Общие положения», являющийся аутентичным стандарту МЭК 839-1-1-88 (прямое применение с сохранением номера и названия)) и ГОСТ Р 50776-95 «Системы тревожной сигнализации. Часть 1. Общие требования. Раздел 4. Руководство по проектированию, монтажу и техническому обслуживанию», являющийся аутентичным стандарту МЭК 839-1-4-89 (прямое применение с сохранением номера и названия).
Данные стандарты, в соответствии с областью применения, устанавливают общие требования к созданию и по эксплуатации однофункциональных сложных систем сигнализации, показатели для оценки функционирования таких систем.
В отличие о данных стандартов настоящий проект технического регламента в соответствии со своим статусом и назначением законодательно формулирует конкретные требования, регламентирует условия и правила оценки создаваемых и эксплуатируемых многофункциональных систем с позиции процессного комплексного подхода к обеспечению безопасности различных объектов хозяйствования
6. Срок публичного обсуждения проекта технического регламента четыре месяца с даты опубликования уведомления
(месяцев)
7. Прием замечаний по проекту осуществляется по адресу 119602 Москва, ул. Академика Анохина, д. 30, корп. 20, оф. 128. Тел/факс: (495) 437-9149, 430-2771. E-mail:info@vankb.ru, info@systemservice.ru. Тел/факс: (495) 203-8954, 203-9014, 203-9870. E-mail: info@uksb.ru
(почтовый адрес, телефон, адрес электронной почты)
8. Копию проекта технического регламента можно получить 119602 Москва, ул. Академика Анохина, д. 30, корп. 20, оф. 128. Тел/факс: (495) 437-9149, 430-2771. E-mail:info@vankb.ru, info@systemservice.ru.
(почтовый адрес, телефон, адрес электронной почты)
Руководитель организации _________М.М. Любимов
(подпись, инициалы, фамилия)
«11» июля 2006 г.
Уведомление
о завершении публичного обсуждения проекта технического регламента
1. Разработчик Некоммерческая организация «Российская ассоциация водоснабжения и водоотведения»
(наименование организации с указанием организационно-правовой формы или Ф.И.О. физического лица)
2. Объект технического регулирования с указанием кодов ОКС Удаление и очистка сточных вод населенных мест. Коды ОКС: 13.060.30; 13.030.20; 13.030.99; 13.020.99; 13.020.40
(в отношении какой продукции, процессов производства, эксплуатации, хранения, перевозки, реализации и утилизации будут разрабатываться требования)
3. Наименование проекта технического регламента «Коммунальное водоотведение»
4. Требования, отличающиеся от положений соответствующих международных стандартов или обязательных требований, действующих в Российской Федерации на момент разработки проекта технического регламента: Проект технического регламента не содержит принципиальных отличий от обязательных требований, действующих на территории Российской Федерации, и международных стандартов
5. Проект технического регламента и перечень полученных в письменной форме замечаний можно получить: 119048 Москва, Комсомольский просп., д. 42, стр. 2. Тел.: (495) 245-6085, факс: (495) 245-6083. E-mail: info@raww.ru
(почтовый адрес, телефон, адрес электронной почты)
Руководитель _______________Н.Н. Жуков
(подпись, инициалы, фамилия)
«15» мая 2006 г.
Уведомление
о завершении публичного обсуждения проекта технического регламента
1. Разработчик Ассоциация по безопасности машин и оборудования «ТЕСТ-СДМ», ЗАО «ВНИИСТРОЙДОРМАШ»
(наименование организации с указанием организационно-правовой формы или Ф.И.О. физического лица)
2. Объект технического регулирования с указанием кодов ОКС Строительные, дорожные и коммунальные машины, коды: 01.040.13, 01.040.43, 01.040.53, 13.020.01, 13.020.40, 13.020.99, 13.030.99, 13.040.40, 13.040.50, 13.040.99, 13.100, 13.110, 13.200, 13.220.01, 13.240, 13.260, 13.320, 17.140.20, 21.020, 23.100, 25.140, 29.130, 43.160, 53.020 (исключая 53.020.20, 53.040, 53.060, 53.100, 53.120, 73.120, 91.160.10, 91.220, 93.080.10
(в отношении какой продукции, процессов производства, эксплуатации, хранения, перевозки, реализации и утилизации будут разрабатываться требования)
3. Наименование проекта технического регламента Специальный технический регламент «О безопасности строительных, дорожных и коммунальных машин»
4. Требования, отличающиеся от положений соответствующих международных стандартов или обязательных требований, действующих в Российской Федерации на момент разработки проекта технического регламента: Отличающихся требований нет
5. Проект технического регламента и перечень полученных в письменной форме замечаний можно получить: 125424 Москва, Волоколамское ш., д. 73, Ассоциация «ТЕСТ-СДМ».Тел /факс.: (495) 490-3879, E-mail: testsdm@testsdm.ru. С проектом технического регламента можно ознакомиться на сайте www.testsdm.ru.
(почтовый адрес, телефон, адрес электронной почты)
Руководитель _______________ М.В. Топольский
(подпись, инициалы, фамилия)
_________________ А.В. Телушкин
(подпись, инициалы, фамилия)
«25» мая 2006 г.
Уведомление
о завершении публичного обсуждения проекта технического регламента
1. Разработчик Государственное научное учреждение «Всероссийский научно-исследовательский институт электрификации сельского хозяйства (ГНУ ВИЭСХ)»
(наименование организации с указанием организационно-правовой формы или Ф.И.О. физического лица)
2. Объект технического регулирования с указанием кодов ОКС Электроустановки животноводческих помещений. Код ОКС 27.010; 29.020
(в отношении какой продукции, процессов производства, эксплуатации, хранения, перевозки, реализации и утилизации будут разрабатываться требования)
3. Наименование проекта технического регламента «Защита сельскохозяйственных животных от поражения электрическим током на электромеханизированных фермах»
4. Требования, отличающиеся от положений соответствующих международных стандартов или обязательных требований, действующих в Российской Федерации на момент разработки проекта технического регламента: Проект технического регламента не содержит требований, отличающихся от положений соответствующих международных стандартов и обязательных требований, действующих в Российской Федерации на момент разработки проекта технического регламента
5. Проект технического регламента и перечень полученных в письменной форме замечаний можно получить: 109456 Москва, 1-й Вешняковский пр., д. 2, Тел.: (495) 171-1920, факс: (495) 170-5101. E-mail: viesh@dol.ru
(почтовый адрес, телефон, адрес электронной почты)
Руководитель ____________________ Д.С. Стребков
(подпись, инициалы, фамилия)
«31» мая 2006 г.
Уведомление
о завершении публичного обсуждения проекта технического регламента
1. Разработчик Общество с ограниченной ответственностью «Национальный институт промышленного развития»
(наименование организации с указанием организационно-правовой формы или Ф.И.О. физического лица)
2. Объект технического регулирования с указанием кодов ОКС
(в отношении какой продукции, процессов производства, эксплуатации, хранения, перевозки, реализации и утилизации будут разрабатываться требования)
|
Объект регулирования |
Код ОКС |
|
Общие требования к безопасности электроустановок |
27.010 |
|
Защита при прямом и косвенном прикосновении к токоведущим частям |
29.020 |
|
Требования к устройствам заземления |
29.240.99 |
|
Требования к изоляции |
29.240.10 |
|
Безопасность переносных электроприемников и передвижных электроустановок |
29.260.01 |
|
Безопасность генераторов и синхронных компенсаторов |
29.160.40 |
|
Безопасность двигателей |
29.160.30 |
|
Требования к безопасности электрического освещения |
91.160.01 |
3. Наименование проекта технического регламента Специальный технический регламент «О безопасности электроустановок»
4. Требования, отличающиеся от положений соответствующих международных стандартов или обязательных требований, действующих в Российской Федерации на момент разработки проекта технического регламента: Требований, отличающихся от положений международных стандартов в сфере данного технического регламента или обязательных требований, действующих в Российской Федерации на момент разработки проекта технического регламента, не содержится
5. Проект технического регламента и перечень полученных в письменной форме замечаний можно получить: 125040 Москва, ул. Скаковая, д. 17, оф. 2814. Тел /факс.: (495) 945-2818,
E-mail: ooo-nipr@yandex.ru
(почтовый адрес, телефон, адрес электронной почты)
Руководитель ________________Т.В. Гехт
(подпись, инициалы, фамилия)
«31» мая 2006 г.
Уведомление
о завершении публичного обсуждения проекта технического регламента
1. Разработчик Общероссийская общественная организация «Академия проблем безопасности, обороны и правопорядка»
(наименование организации с указанием организационно-правовой формы или Ф.И.О. физического лица)
2. Объект технического регулирования с указанием кодов ОКС Рекламные конструкции. Код ОКС: 03.080.20
(в отношении какой продукции, процессов производства, эксплуатации, хранения, перевозки, реализации и утилизации будут разрабатываться требования)
3. Наименование проекта технического регламента «Общий технический регламент. Требования безопасности рекламных конструкций и их территориального размещения»
4. Требования, отличающиеся от положений соответствующих международных стандартов или обязательных требований, действующих в Российской Федерации на момент разработки проекта технического регламента: Нет
5. Проект технического регламента и перечень полученных в письменной форме замечаний можно получить: 101000 Москва, Уланский пер., д. 14А. Тел.: (495) 207-4063. Контактное лицо – Искакова Светлана.. E-mail: mail@znaki.org
(почтовый адрес, телефон, адрес электронной почты)
Руководитель _________________И.Б. Иванцов
(подпись, инициалы, фамилия)
«18» июля 2006 г.
Уведомление
о завершении публичного обсуждения проекта технического регламента
1. Разработчик Федеральное государственное унитарное предприятие «Всероссийский научно-исследовательский институт железнодорожного транспорта» Министерства путей сообщения Российской Федерации (ФГУП ВНИИЖТ МПС России)
(наименование организации с указанием организационно-правовой формы или Ф.И.О. физического лица)
2. Объект технического регулирования с указанием кодов ОКС Железнодорожный транспорт. Код ОКС: 45.020; 03.220.
(в отношении какой продукции, процессов производства, эксплуатации, хранения, перевозки, реализации и утилизации будут разрабатываться требования)
3. Наименование проекта технического регламента Федеральный закон – специальный технический регламент «О безопасности железнодорожного транспорта» (Первоначальное название: «О безопасности железнодорожного транспорта и связанной с ним инфраструктуры»). (Шифр РТР-032)
4. Требования, отличающиеся от положений соответствующих международных стандартов или обязательных требований, действующих в Российской Федерации на момент разработки проекта технического регламента: Требований, отличающихся от положений соответствующих международных стандартов или обязательных требований, действующих в Российской Федерации на момент разработки проекта специального технического регламента, нет
5. Проект технического регламента и перечень полученных в письменной форме замечаний можно получить: 129851 Москва, 3-я Мытищинская ул., д. 10. Тел.: (495) 542-6337, 542-64-31, факс: (495) 687-6456, 262-0070. E-mail: bdssa@vniizht.ru, standart@vniizht.ru
(почтовый адрес, телефон, адрес электронной почты)
Руководитель ________________Ю.М. Черкашин
(подпись, инициалы, фамилия)
«11» августа 2006 г.
С О Д Е Р Ж А Н И Е
© ОАО «ЦНС», 2006
|
ИНФОРМАЦИОННЫЙ БЮЛЛЕТЕНЬ "Н О Р М И Р О В А Н И Е, С Т А Н Д А Р Т И З А Ц И Я И С Е Р Т И Ф И К А Ц И Я
РЕДАКЦИОННЫЙ КОЛЛЕКТИВ: Иванов В.И., Фомичева Т.С., оформление обложки – Пескова Н.Г. Периодичность - шесть номеров в год Издатель – ОАО «ЦНС» Адрес редакции: 125057, Москва, Ленинградский проспект, д.63, а/я 63 Тел./факс: (095) 157-22-33; 157-11-42 E-mail: snip01@mail.ru Web-сайт: www.gpcns.ru Свидетельство о регистрации СМ № 018402 от 06.01.1999 г. выдано Госкомитетом РФ по печати ПОДПИСНОЙ ИНДЕКС в каталоге «Роспечать» (каталог «Газеты и журналы». Раздел «Строительство») 79262 Стоимость подписки – 960 рублей |
|
|
|
|