|
| |
ТИПОВЫЕ ТЕХНОЛОГИЧЕСКИЕ КАРТЫ
НА ПРОИЗВОДСТВО ОТДЕЛЬНЫХ ВИДОВ РАБОТ
ТИПОВАЯ ТЕХНОЛОГИЧЕСКАЯ КАРТА

НА БЕТОННЫЕ И ЖЕЛЕЗОБЕТОННЫЕ РАБОТЫ (МОНОЛИТНЫЙ
ЖЕЛЕЗОБЕТОН)

ВОЗВЕДЕНИЕ ОДНОЭТАЖНОГО ОДНОКВАРТИРНОГО
3 - КОМНАТНОГО ЖИЛОГО ДОМА (СТЕНЫ - КЕРАМЗИТОБЕТОННЫЕ МОНОЛИТНЫЕ)
СОДЕРЖАНИЕ
|
РАЗРАБОТАНА
|
СОГЛАСОВАНО
|
|
Центральным научно-исследовательским и
проектно-экспериментальным институтом организации, механизации и технической
помощи строительству (ЦНИИОМТП)
|
|
Управлением механизации и технологии строительства
Госстроя СССР
|
|
Зам. директора института, д. т. н.
|
В.Д. ТОПЧИЙ
|
Письмо от 18.12.1990 г. № 12-356
|
|
Начальник отдела экспериментального проектирования
|
Ю.А. ЯРЫМОВ
|
Введена в действие 1.03.1991 г.
|
|
/Зав. Сектором
|
Л.А. ЗУЕВА
|
ЦНИИОМТП Госстроя СССР
|
MOCKBA - 1991
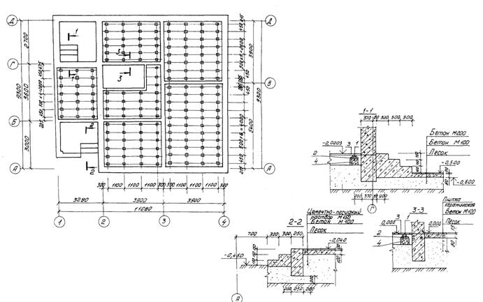
Типовая технологическая
карта составлена на возведение одноэтажного жилого дома сельского типа из
монолитного керамзитобетона. Работы выполняются в летний период.
В качестве аналога принят
одноэтажный одноквартирный трехкомнатный жилой дом размерами в плане 11,08´9,3
(по осям), разработанный МосгипроНИИсельстроем. Здание имеет следующие
конструктивные решения:
фундаменты - монолитные
из железобетона;
стены наружные - из
монолитного керамзитобетона толщиной 450 мм;
стены внутренние - из
монолитного керамзитобетона толщиной 160, 250, 380, 450 мм;
вентканал - из бетона
толщиной 300 мм;
перекрытия - сборные
железобетонные панели толщиной 220 мм;
кровля - стропильная с
покрытием асбестоцементным и волнистыми листами;
перегородки - монолитные
из керамзитобетона толщиной 80 мм;
полы - из досок,
керамической плитки, бетонные;
окна - с раздельными
переплетами с последующей окраской масляной краской;
двери - щитовые с
последующей окраской масляной краской;
внутренняя отделка -
известковая окраска потолков, клеевая и эмульсионная окраска стен, масляная
окраска окон и дверей, оклейка стен обоями, облицовка стен керамической
плиткой;
наружная отделка -
штукатурка цоколя;
веранда - из монолитного
керамзитобетона.
Площадь дома, м2:
Общая 74,0
Жилая 43,8.
Объем здания, м3 308,90.
Общая сметная стоимость,
тыс. руб. 14,11.
В состав работ,
рассматриваемых картой, входят:
разработка котлована;
устройство фундаментов;
обратная засыпка пазух
фундаментов;
возведение монолитных
керамзитобетонных стен;
монтаж плит перекрытия;
устройство кровли;
устройство полов;
отделочные работы.
План и разрез здания даны
на листе 13.
Фасады здания
представлены на листе
14.
До начала строительства
необходимо:
очистить площадку
строительства от пней и кустарников;
выполнить планировку
площадки;
произвести разбивку осей
дома;
установить временное
ограждение;
закончить строительство
временной дороги.
На площадке строительства
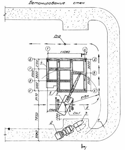
предусмотрено установить контору прораба и туалет на одно очко.
Стройгенплан представлен
на листе 15;
на листе 16
- экспликация временных зданий и количество материалов, необходимых для
устройства временной дороги и ограждений.
Временная дорога
предусмотрена из щебеночно-гравийной смеси по песчаной подготовке. Ширина
дороги - 3,5 м. Радиусы закругления дороги должны быть не менее 12 м. У въезда
на строительную площадку должны устанавливаться щиты со схемой движения
автотранспорта по строительной площадке с обозначением дорожного знака,
ограничивающего его скорость.
На площадках для
складирования строительных материалов и конструкций следует вывешивать схемы
строповки, складирования и таблицы с указанием масс грузов, перемещаемых
подъемно-транспортным оборудованием. Площадки для складирования, а также места
обработки лесоматериалов, хранения и применения легковоспламеняющихся и горючих
жидкостей, смол должны быть снабжены противопожарным инвентарем, ящиками с
песком, гидрантами.
Места для курения должны
быть оборудованы средствами пожаротушения.
Земляные работы. Производство земляных работ разрешается только
после выполнения геодезических разбивочных работ.
Разработку грунта
предусмотрено производить бульдозером Д3-42 (лист 17),
Срезанный плодородный
слой грунта укладывается во временный отвал с целью использования его в
дальнейшем. Остальной грунт складируется на бровке котлована, а затем с помощью
экскаватора ЭО-3322Д, оборудованного обратной лопатой и ковшом вместимостью 0,5
м3, погружается в автосамосвалы ЗИЛ-ММЗ-555 и вывозится за пределы
строительной площадки.
Производительность
экскаватора ЭО-3322Д при разработке разрыхленного грунта II группы:
Пэкс.ч = 35,7 м3/ч.
Количество ковшей с
грунтом (п), требующихся для
заполнения одного автосамосвала, определяется по формуле:
,
где Q -
грузоподъемность автосамосвала (5,25 т);
γ - плотность грунта (1,75 т/м3);
l - геометрическая вместимость ковша (0,5 м3);
КH - коэффициент наполнения ковша
разрыхленным грунтом (0,9).
Принимаем 6 ковшей.
Вместимость автосамосвала
(q) определяется по формуле
q = n∙KH∙l = 6∙0,9∙0,5 = 2,7 м3.
Время нагрузки
автосамосвала (tH) определяется по
формуле:

где Пэкс.ч - эксплуатационная производительность экскаватора
(35,7 м3/ч).
Продолжительность
транспортирования (tn) грунта определяется
по формуле:

где L -
дальность транспортирования (условно принимаем 3 км);
V - средняя
скорость движения автосамосвала (20 км/ч).
Время разгрузки tp и время маневров tM
автосамосвала принимаем по 1 мин.
Время одного цикла
автосамосвала (T) определяется по формуле:
T = tH + tn
+ tM + tP = 4,5 + 18 + 1 + 1 = 24,5 мин.
Количество автосамосвалов
(N) определяется по формуле

Принимаем 5
автосамосвалов.
Автосамосвалы
устанавливают за пределами хвостовой части кузова экскаватора с расчетом, чтобы
угол поворота платформы экcкаватора
при погрузке грунта был наименьшим.
Обратную засыпку пазух
фундаментов предусмотрено выполнять песком с помощью экскаватора ЭО-3322Д и
бульдозера Д3-42 (лист
18).
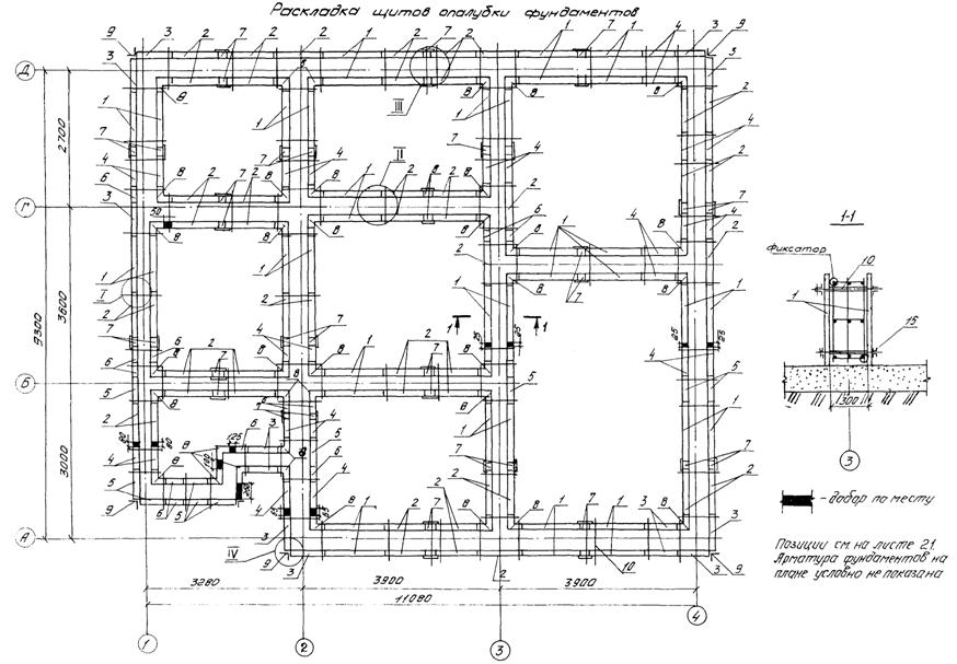
Опалубочные работы. Монтаж опалубки можно выполнять только после
проверки ее комплектности и очистки поверхности от мусора.
В типовой технологической
карте предусмотрено применение крупнощитовой опалубки конструкции ЦНИИОМТП (РЧ
625А-2.00.000).
Крупнощитовая опалубка
состоит из крупноразмерных щитов, конструктивно связанных с поддерживающими
элементами, элементов соединения и крепления. Щиты оборудуются подмостями для
бетонирования, регулировочными и установочными домкратами. Размеры щитов
опалубки обеспечивают опалубливание монолитных конструкций с модулем, равным
300 мм.
Для обеспечения
бетонирования немодульных конструкций предусмотрен щит-компенсатор.
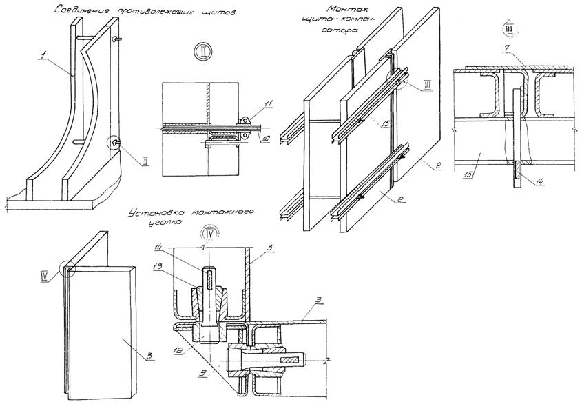
Конструкция щитов
опалубки предусматривает возможность их установки в вертикальном и
горизонтальном положении.
В каркасы щита соосно с
отверстиями в палубе для пропуска стяжек вварены металлические втулки. Отверстия
в палубе для пропуска стяжек выполнены с постоянной привязкой для всех щитов.
В ребрах каркаса щитов
сделаны круглые отверстия для навески кронштейнов, лестниц и для установки
балок и подкосов.
На основных элементах
опалубки должны быть нанесены несмываемой краской маркировочные отметки:
товарный знак
предприятия-изготовителя;
марка элемента;
дата изготовления;
штамп ОТК;
масса элемента.
В технологической карте
рассмотрены варианты монтажа опалубки отдельными щитами (листы 19 - 21, 29 - 35) и
укрупненными панелями (листы 36 - 49) при массовой застройке домов.
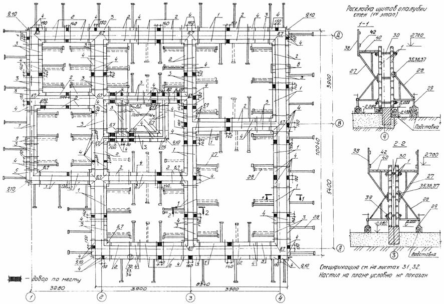
Опалубка выставляется в
три этапа:
I этап - опалубка стен до отм. 2,700;
II этап - после монтажа перекрытий
монтируется опалубка стен до отм. 3,600;
III этап - опалубка фронтонов.
Монтаж и демонтаж
опалубки следует проводить с помощью крана.
Смонтированная опалубка
принимается по акту мастером или прорабом. При приемке проверяют:
правильность установки
опалубки, а также поддерживающих элементов;
геометрические размеры;
смещение осей опалубки от
проектного положения;
вертикальность опалубки;
плотность стыков и
сопряжений.
Правильность положения
вертикальных плоскостей выверяют отвесом. Отклонения в размерах и положении
элементов опалубки не должны превышать допусков, указанных в табл. 3 главы СНиП 3.03.01-87
"Несущие и ограждающие строительные конструкции".
Арматурные работы. До начала установки арматуры необходимо:
подготовить нужный
инструмент; очистить арматуру от ржавчины.
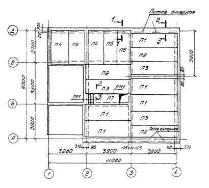
Армирование фундаментов
предусмотрено плоскими каркасами (листы 22 - 24).
Армирование стен и
вентканала (листы 50,
51)
предусмотрено плоскими каркасами и арматурными сетками. Над проемами
устанавливаются пространственные каркасы. Фронтоны армируются сетками (лист
50).
Каркасы и сетки
устанавливают вручную и крепят к опалубке струбцинами.
До монтажа каркасов и
сеток на них устанавливают фиксаторы с шагом от 1,0 до 1,2 м для образования
защитного слоя между арматурой и опалубкой.
Приемку смонтированной
арматуры осуществляют до укладки бетона и оформляют актом освидетельствования
скрытых работ. С этой целью производят наружный осмотр и инструментальную
проверку размеров конструкций по чертежам. В акте приемки смонтированных
конструкций должны быть указаны номера рабочих чертежей, отступления от них,
даны оценка качества смонтированной арматуры и разрешение на бетонирование.
Бетонные работы. До начала бетонирования необходимо:
проверить правильность
установки и надежное закрепление опалубки и поддерживающих ее конструкций;
очистить опалубку от
мусора и налипшего бетона;
проверить и принять по
акту все конструкции и их элементы, закрываемые в процессе бетонирования;
подготовить необходимое
оборудование, инвентарь и приспособления.
За состоянием
установленной опалубки следует вести постоянное наблюдение в процессе
бетонирования. В случае непредвиденных деформаций отдельных элементов опалубки
или недопустимого раскрытия щелей необходимо устанавливать дополнительные
крепления и исправлять деформированные места.
Демонтаж
опалубки разрешается производить только после достижения бетоном требуемой
прочности, согласно СНиП
3.03.01-87 и с разрешения производителя работ.
Отрыв опалубки от бетона
должен производиться с помощью домкратов. В процессе отрыва бетонная
поверхность не должна повреждаться. Использование кранов для отрыва опалубочных
щитов запрещено.
После снятия опалубки необходимо:
произвести осмотр
элементов опалубки;
очистить от налипшего
бетона все элементы опалубки;
произвести смазку на
поверхности палуб, проверить и нанести смазку на винтовые соединения;
произвести сортировку
элементов опалубки по маркам.
Данные расхода смазки
приведены в табл. 1.
Таблица 1
|
Вид опалубки
|
Расход смазки, кг
|
|
на м2 формующей опалубки
|
на 1 м3 монолитного железобетона
|
|
Стальная
|
0.20 - 0.35*
0,45 - 0,55
|
2,0 - 3.5
4,5 - 5,5
|
* В числителе - расход при нанесении
пневмораспылителем, в знаменателе - при нанесении вручную кистью или валиком.
Транспортирование
бетонной смеси предусмотрено автобетоносмесителями.
Бетонную смесь подают к
месту укладки краном в поворотных бункерах вместимостью 1,0 м3 (листы 25, 52).
Бетонную смесь следует
укладывать слоями толщиной от 30 до 40 см. Уплотнение бетонной смеси выполняют
глубинными вибраторами. В углах и у стен опалубки бетонную смесь следует
дополнительно уплотнять штыкованием ручными шуровками.
После каждой разгрузки
бункер должен быть очищен от остатков бетонной смеси. Периодически, не реже
двух раз в смену, и при перерывах в работе более чем на один час бункер должен
быть очищен и промыт вне места укладки бетонной смеси.
Работы по возведению стен
выполняются в такой последовательности (листы 26 - 28);
устанавливается опалубка
до отм. 2,700;
после установки арматуры
и бетонирования стен до отм. 2,350
внутренняя опалубка стен
топочной демонтируется;
монтируются плиты
перекрытия над топочной;
на плиты перекрытия
устанавливается внутренняя опалубка
стен топочной до отм. 2,700;
стены бетонируются до
отм. 2,700;
опалубка внутренних стен
и внутренняя опалубка наружных стен демонтируется;
монтируются плиты
перекрытия на отм. 2,700;
устанавливается
арматурный каркас вентканала;
монтируется опалубка
вентканала;
бетонируется вентканал;
демонтируется опалубка
вентканала;
устанавливается опалубка II яруса, включающего опалубку
стен до отм. 3,600 и
фронтона над верандой и топочной;
бетонируются стены до
отм. 3,600 и фронтон над верандой и топочной;
устанавливается опалубка
фронтонов над жилым помещением;
устанавливаются
арматурные сетки фронтонов;
фронтоны бетонируются;
выполняется демонтаж
опалубки.
При выдерживании бетона в
начальный период его твердения необходимо поддерживать благоприятный
температурно-влажностный режим и предохранять от механических повреждений.
Контроль за качеством смеси производится строительной лабораторией в
соответствии с ГОСТ 10180-78*.
Все данные по контролю
качества бетонной смеси заносятся в журнал производства работ. Особое внимание
необходимо уделять контролю за виброуплотнением бетонной смеси. Контроль за
процессом вибрирования ведется визуально по степени осадки смеси, прекращению
выхода из нее пузырьков воздуха и появлению цементного молока.
Монтаж сборных железобетонных конструкций. Монтаж сборных железобетонных
конструкций (листы
53, 54)
выполняется после распалубки стен и набора бетоном необходимой прочности,
устанавливаемой строительной лабораторией.
Первая плита при укладке
принимается с передвижных площадок, последующие укладываются со смонтированной
части перекрытия. Выверку плиты по горизонтали осуществляют уровнем.
Незначительные отклонения устраняют, рихтуя плиту ломами.
Устройство кровли. Кровля предусмотрена из асбестоцементных
волнистых листов обычного профиля по деревянной обрешетке (листы 55, 56).
Листы следует укладывать
в направлении, противоположном направлению господствующих ветров.
Листы укладывают с
перекрытием одного листа другим на одну волну (125 мм), а в продольном
направлении - с перекрытием нижеуложенного ряда вышеуложенным на 140 мм.
Листы укладывают только
со срезкой углов стыкуемых листов. Величина срезанного угла определяется
величиной нахлестки, т.е. на короткой стороне листа откладывается величина
поперечной нахлестки, равная (125 ÷ 10) мм, на продольной стороне -
величина продольной нахлестки, равная (140 ÷ 10) мм. Для обрезки углов
применяют ножовку с мягкими зубьями. Откалывание и откусывание углов листов
кусачками не разрешается.
До начала работ проверяют
готовность несущих конструкций крыши и оформляют акт приемки.
Перед началом работ по
укладке листов необходимо произвести разметку расположения кровельных листов на
скате крыши.
Укладку листов производят
с переставных рабочих ходов, которые укладывают по длине ската и закрепляют за
коньковый прогон.
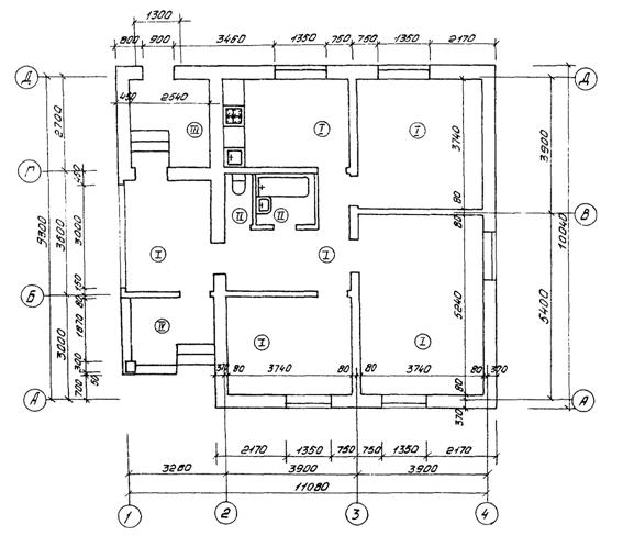
Полы. В типовой технологической карте предусмотрены следующие типы
полов:
жилые комнаты, кухня,
прихожая, веранда - дощатые по лагам;
ванная, уборная - из
керамической плитки на цементно-песчаной прослойке по бетонному подстилающему
слою толщиной 80 мм;
топочная - бетонные из
бетона М200 толщиной 20 мм по бетонному подстилающему слою из бетона М100
толщиной 80 мм;
крыльцо -
цементно-песчаное покрытие толщиной 20 мм по бетонному подстилающему слою из
бетона М100 толщиной 80 мм;
План и конструкция полов
даны на листах 57, 58.
Устройство подстилающего слоя. Устройство подстилающего слоя
предусмотрено выполнять под полы из керамической плитки, бетонное покрытие и
цементно-песчаное покрытие.
Подстилающий слой следует
выполнять из бетона по уплотненному грунту.
Укладку бетонной смеси
начинают от стены, противоположной входу в помещение.
До начала работ на стены
наносят отметки подстилающего слоя и устанавливают маяки, которые фиксируют
толщину подстилающего слоя.
Бетонную смесь доставляют
к месту укладки в тележках на пневмоходу, выгружают на подготовленное основание
и разравнивают лопатами, а затем правилом и уплотняют поверхностным вибратором
ИВ-91. Затем поверхность заглаживается прорезиненной лентой и металлической
гладилкой. Выступившее цементное молоко удаляется скребком с резиновой
прокладкой. Поверхность уложенной смеси должна быть выше маяков на 5 - 7 мм.
Ровность покрытия
проверяется контрольной рейкой-шаблоном с уровнем.
Для нормального твердения
свежеуложенного бетона через сутки бетонное покрытие укрывают рогожами или
матами и в продолжение 7 - 10 сут. поливают водой не реже одного раза в сутки.
При температуре воздуха в
помещении выше плюс 15°С поливку водой в первые 3 - 4 дня необходимо выполнять
не реже двух раз в сутки.
Бетонное покрытие (лист 59). Бетонное покрытие предусмотрено выполнять
из бетона М200.
Толщина бетонного
покрытия - 20 мм.
Работы выполняются
аналогично устройству бетонного подстилающего слоя.
Бетонное покрытие пола
должно быть ровным. Сцепление покрытия с подстилающим слоем определяют простукиванием
всей площади. На участках, где изменение звука при простукивании указывает на
отсутствие сцепления, пол необходимо переложить. Трещины, выбоины и открытые
швы в элементах пола, а также щели между покрытием и плинтусами не допускаются.
Цементно-песчаное покрытие. Работы по устройству цементно-песчаного
покрытия аналогичны работам по устройству бетонного покрытия. Раствор,
доставленный к рабочему месту с помощью тележек, выгружается на основание,
разравнивается и уплотняется площадочным вибратором.
Толщина выровненного слоя
с учетом последующего уплотнения должна быть такой, чтобы этот слой был на 2 -
3 мм выше верха маяков. После уплотнения раствора и схватывания его до
состояния, когда на поверхности при хождении остаются лишь небольшие следы,
производят затирку покрытия машиной СО-89А.
Раствор цементнопесчаного
покрытия должен твердеть во влажных условиях в течение 7 - 10 сут.
Полы из керамических плиток (лист 59). Полы из керамических плиток
предусмотрено выполнять по соединительной прослойке из цементнопесчаного
раствора. Основанием под полы является бетонный подстилающий слой из бетона
М100 толщиной 80 мм, уложенный на уплотненный грунт.
До начала работ по
устройству покрытия пола подготавливают основание, проверяя горизонтальность
его и правильность уклона. Проверяют также углы помещения, чтобы в случае
выявления их неравенства заранее предусмотреть правильное расположение неполных
по размерам плиток в местах примыкания к стенам. Правильность формы и размеров
сторон помещения проверяют шнуром, который натягивают по диагонали помещения.
Перед укладкой
керамические плитки подбирают по цвету и замачивают. Основание до укладки
раствора для соединительной прослойки обильно смачивают водой, так чтобы к
моменту укладки раствора оно было влажным, но без видимых скоплений воды.
Раствор для
соединительной прослойки к рабочему месту доставляется тележками на пневмоходу.
Устройство пола начинают
с укладки маячного ряда. Остальные плитки укладывают с помощью индивидуального
шаблона, выполненного из алюминиевых полосок. Расстояние между полосками с
учетом наибольших допустимых отклонений в размерах метлахской плитки размером
100´100
мм во избежание заклинивания плиток между полосками, принято 104 мм, а между
осями полосок - 107 мм. Каждая из полосок имеет с обеих сторон выпуски длиной
15 мм, которые нужны для правильной укладки плиток шов в шов с ранее уложенными
плитками пола. После укладки плиток шаблоны снимают и при необходимости
протирают ветошью.
Плитки выравнивают по
уровню осаживанием их легкими ударами ручкой молотка или ударами молотка по
деревянному бруску, положенному на поверхность плиток. Правильность укладки
плиток систематически проверяют во всех направлениях уровнем и правилом.
Через двое суток после
укладки плиток незаполненные швы между плитками обязательно заполняют жидким
цементным тестом или цементнопесчаным раствором состава по массе 1:1 (цемент :
мелкий песок). Излишки цементного теста или раствора удаляют до начала
схватывания. Покрытие засыпают слоем мокрых опилок или накрывают мокрыми
ткаными матами, которые в течение 7 - 10 сут. должны поддерживаться во влажном
состоянии. Интенсивность увлажнения устанавливают в зависимости от местных
условий, но во всех случаях даже частичное высыхание покрытия в этот период не
допускается. После удаления опилок устраивают плинтусы из цементнопесчаного
раствора.
Дощатые полы (лист 59). Работы по устройству дощатых полов
выполняют в такой последовательности:
на утрамбованный грунт
устанавливают бетонные столбики;
укладывают лаги;
выполняют настилку
дощатого покрытия полов, включая укладку,
пригонку и сплачивание
досок, а также острожку полов.
До начала раскладки лаг
необходимо вынести отметки чистого пола на стены. Выноска отметок производится
с помощью нивелира или водяного уровня. Полученные отметки на стенах соединяют
отбивкой сплошных линий с помощью набеленного шнура.
Для лаг применяют
нестроганые доски 2 и 3 сортов из здоровой древесины хвойных и лиственных
пород, за исключением липы и тополя. Доски должны иметь тупой обзол без коры.
Влажность лаг не должна превышать 19 %. Лаги антисептируют.
Укладывают лаги таким
образом, чтобы уложенные по ним доски были ориентированы по направлению света в
жилых помещениях, а в коридорах - по направлению движения людей.
Длина стыкуемых лаг
должна быть не менее 2 м. Короткие лаги стыкуются между собой торцами впритык
со смещением стыков смежных лаг не менее чем на 0,5 м.
Сначала укладывают
маячные лаги и выверяют по уровню их горизонтальность, затем остальные лаги по
всему основанию. Поверхность этих лаг также выверяют по уровню и при помощи
контрольной рейки длиной 2,0 м, прикладывая рейку с уровнем вдоль и поперек
направления лаг. Рейка должна касаться (без зазоров) всех лаг. Между лагами и
стенами оставляют зазор шириной от 20 до 30 мм.
После укладки и выверки
всех лаг в помещении приступают к настилке досок. Работы по настилке дощатых
полов производят с отставанием в одну смену от укладки лаг. Доски
предварительно примеряют по площади помещения и обрезают. Тщательно высушенные
доски (влажность до 8 %)
укладывают без применения сжимов.
Первую доску укладывают
пазом к стене и прибивают ее к лагам гвоздями длиной от 60 до 70 мм, забивая их
наклонно, с втапливанием шляпок добойником. Каждую следующую доску придвигают к
ранее уложенной, ударом молотка (через прокладку) насаживают пазом на гребень
первой доски и прибивают гвоздем к каждой лаге. Торцы досок плотно подгоняют,
располагая стык на лаге. Последние две-три доски сплачивают с помощью клина,
забиваемого между доской и стеной, которую защищает фанерная прокладка.
При использовании сжимов
сплачивание досок производится не менее чем двумя сжимами, а при длине досок
более 4-х - тремя. Крайние сжимы размещают над вторыми от стен лагами, средний
сжим - посередине. Сжимы снимают после прибивки к лагам всех досок или
замыкающей доски около сжима. Доски последних двух рядов сплачивают при помощи
клина.
Неровности дощатых полов
устраняют острожной, которую предусмотрено выполнять строгальной машиной
СО-97А. После такой обработки пол должен быть ровным, с плотными стыками, без
зыбкости при ходьбе по нему.
Штукатурные работы. В проекте предусмотрено оштукатуривание
фасадов, а также оконных и дверных откосов (лист 61).
Штукатурные работы
начинают с подготовки поверхности. Поверхность осматривают, удаляют
слабодержащиеся места, очищают от пыли и грязи, провешивают, устанавливают
маяки для подготовительного слоя, состоящего из обрызга и грунта.
За час до нанесения подготовительного
слоя поверхности смачивают водой так, чтобы она впиталась. Сначала наносят
обрызг, на него - слой раствора грунтового слоя до уровня маяков. Грунтовый
слой выравнивают и нацарапывают клеточки с помощью отрезовки, гвоздя, гребенки
в виде граблей или цикли.
Если маяки изготовлены из
того же раствора, что и грунт, их оставляют в грунте и насекают. Маяки из гипса
вырубают, основание под ними очищают. Вырубленное место оштукатуривают тем же
раствором, которым выполняется подготовительный слой.
Состав грунта подбирают к
составу накрывки. Его прочность должна быть немного выше прочности накрывки.
Подготовительные слои выдерживают в течение 7 - 12 сут во влажном состоянии,
поливая их водой по 3 - 4 раза в день. Толщина подготовительного слоя должна быть
от 15 до 20 мм. Толщина накрывки - от 5 до 20 мм. Раствор наносят с помощью
штукатурного агрегата.
Отделку оконных и дверных
откосов начинают с оконопачивания зазоров между коробками и бетонной стеной и
подготовки поверхностей откосов под оштукатуривание. Для оконопачивания зазоров
применяют паклю или войлок, антисептированные 3 %-ным раствором фтористого
натрия, или очесы. Откосы оштукатуривают определенным скосом от коробок к
поверхностям стен, в результате чего получается так называемый "рассвет"
оконных откосов. Размер скоса на всех откосах (верхних и боковых) внутри здания
должен быть одинаковым.
Работы начинают с
навешивания правил по верхнему и боковым откосам проема. Правила навешивают
так, чтобы в откосах был угол "рассвета". Угол "рассвета"
отмеряют угольником с планкой.
Раствор разравнивают
малкой, которая изготовляется из теса. Одна сторона малки имеет вырез, которым
она движется по правилу. Вырез делают для того, чтобы малка снимала раствор не
на уровне поставленной коробки, а с некоторым отступом.
Раствор наносят в обычной
последовательности: сначала обрызг, затем несколько слоев грунта (откосы имеют
толстые наметы), по грунту - накрывку и затирку.
Малярные работы. До начала малярных работ должны быть окончены все
строительные, монтажные и отделочные (штукатурные и облицовочные) работы, при
выполнении которых возможно повреждение малярной отделки:
остеклены окна;
полностью закончена и
опробована система отопления здания;
заделаны раствором места
соединения панелей перекрытия;
оштукатурены отверстия в
местах прохождения стояков, трубопроводов и других разводок;
законопачены и заделаны
раствором оконные и дверные блоки;
выполнены стяжки и
выравнивающие слои под полы;
выполнены все кровельные
и гидроизоляционные работы;
просушены все сырые
помещения и отдельные места конструкций.
Известковая окраска. В проекте предусмотрена улучшенная известковая
окраска потолков. Известковая окраска наносится в такой последовательности:
грунтование очищенной
поверхности;
частичное подмазывание;
шлифование подмазанных
мест;
первое грунтование;
частичное подмазывание;
шлифование подмазанных
мест;
второе грунтование и
окрашивание.
Первое грунтование
выполняют валиками, а при чистой обеспыленной поверхности - при помощи
краскопульта.
Углубления, сколы,
выбоины и трещины на поверхности выправляют подмазкой шпатлевочной пастой.
После высыхания подмазанных мест их шлифуют абразивной шкуркой, закрепленной в
деревянной колодке с войлочной и пенополиуретановой прокладками.
Нанесение окрасочного
состава предусмотрено ручным краскопультом. Работу ведут звеном из двух
рабочих: один производит окраску, второй подносит окрашивающий состав и
нагнетает его в баллон.
Перерывы при окраске
внутренних помещений допускаются только после окраски всего помещения.
Схема окраски потолков
дана на листе 60.
Клеевая окраска. Клеевая окраска стен предусмотрена на веранде, в
топочной, ванной и уборной. Клеевая окраска выполняется аналогично известковой.
Окрасочные составы,
приготовленные на клее, наносят дважды кистями, валиками, малярными удочками
или краскопультами. При работе удочкой выдерживают правильное расстояние между
форсункой и окрашиваемой поверхностью. При чрезмерном удалении форсунки от
поверхности образуются подтеки краски, при чрезмерном приближении получается
отскок краски и резко возрастает ее расход.
Масляная окраска. В проекте предусмотрена улучшенная масляная
окраска оконных и дверных проемов и дощатых полов.
Улучшенная масляная
окраска предусматривает выполнение следующих технологических операций:
вырезка сучков и засмолов
с расшивкой щелей;
проолифливание;
частичная подмазка с
проолифливанием подмазанных мест;
шлифование подмазанных
мест;
первое сплошное
шпатлевание;
шлифование;
огрунтовка;
флейцевание;
шлифование;
первое окрашивание;
флейцевание;
шлифование;
второе окрашивание;
флейцевание.
Для первого грунтования
применяют специальные грунтовочные составы или олифу "оксоль". В
олифу добавляют небольшое количество пигмента (от 5 до 10 %) под цвет масляного
колера, чтобы в процессе проолифки были лучше заметны пропуски на поверхности и
их сразу можно было ликвидировать.
Частичным подмазыванием
выправляют дефекты поверхностей, плотно заполняя шпатлевочной массой все
углубления, выбоины, трещины. Шлифуют подмазанные места шлифовальной шкуркой. Отшлифованные
места покрывают грунтовочным составом. При шлифовании просохшего грунтовочного
слоя снимают верхнюю пленку с его поверхности, что способствует прочному
сцеплению последующего красочного слоя и грунтовочного. Для шлифования
используют мелкозернистую абразивную бумагу.
Окраску полов
предусмотрено выполнять валиком, элементы оконных и дверных блоков - кистями.
Как правило, флейцуют окраску, выполненную только кистями, по свеженанесенному
слою, разравнивая штриховые следы кисти. Поверхности, окрашенные валиками,
краскопультами и краскораспылителями, не требуют флейцевания.
Поверхности первой
окраски шлифуют мелкозернистой шлифовальной бумагой для обеспечения нормального
объединения двух красочных слоев в один слой.
Второй окрасочный слой
наносят через 1 - 2 сут., которые требуются для полного высыхания первого слоя.
Деревянные полы перед
окраской очищают стальной щеткой, сметают пыль волосяной щеткой и отсасывают
пылесосом. Гвозди в полах заглубляют на 4 - 5 мм с помощью добойника.
Загрязненные полы промывают и до окраски просушивают.
Окраска водоэмульсионными составами. Водоэмульсионные составы
применяют для окраски стен в кухне.
Водоэмульсионные краски
перед употреблением тщательно перемешивают до получения однородного состава и
исчезновения осадка.
Краску наносят на чистую,
сухую, хорошо подготовленную поверхность, которую подготавливают так же, как и
под масляную окраску.
Окраска предусмотрена с
помощью ручного краскопульта. При окраске соблюдают следующие правила:
поверхность окрашивают
только горизонтальными и вертикальными полосами, не допускаются волнообразные,
петлеобразные и колебательные движения;
форсунку держат на
расстоянии 25 - 30 см от окрашиваемой поверхности и строго перпендикулярно к
ней;
места, где соединяются
колеры разных цветов, окрашивают с применением отводной линейки, которую
прикладывают ребром, вплотную к поверхности с некоторым наклоном от себя.
Оклейка обоями. Перед оклеиванием поверхности очищают от набелов и
других загрязнений. Шероховатые поверхности тщательно сглаживают торцом дерева
или лещадью. Отдельные пятна и брызги водно-мелового колера зачищают шарнирной
теркой на удлиненной ручке, которую оборачивают полосой мелкой наждачной бумаги
длиной до 1,5 м. По мере истирания шкурки использованные участки обрывают.
Затем поверхность
промазывают клейстером с помощью мехового или поролонового валика и через
один-два дня оклеивают газетами или другой бумажной макулатурой.
Поверхность бетонных стен
должна иметь влажность не более 4 %. Оклеивание
стен начинают от угла наружной стены комнаты и продолжают от окна к двери.
Верхние кромки обоев располагают по периметру комнаты строго на одном уровне от
потолка. Для этого с помощью шнура отбивают верхнюю границу наклейки полотнищ.
Перед наклеиванием от верхнего угла наружной стены отмечают расстояние, равное
ширине полотна, и по нанесенной метке опускают отвес, по которому внизу наносят
вторую метку.
По границе этих меток
наклеивают первое полотнище, остальные наклеивают, ориентируясь на кромку
первого полотнища. При этом следят за точной пригонкой кромок, чтобы не
допустить просветов между полотнищами, а также искажения и смещения рисунка.
Оклеенные поверхности до
полной просушки предохраняют от воздействия солнечных лучей и сквозняков.
На оклеенных обоями
поверхностях не должно быть пятен, пузырей, пропусков, доклеек, перекосов и
отслоений. Все полотнища должны иметь одинаковый цвет и оттенок. Пригонка
рисунка на стыках должна быть точной.
Для наклеивания обоев
применяют клейстеры мучные или на основе синтетического клея КМЦ. Расход клея
на 1 м2 оклеиваемой
поверхности - от 15 до 20 г.
При использовании мучного
клейстера следует делать обводку вдоль линии верха обоев, у проемов, в углах и
по периметру плинтусов эмульсией, олифой или жидкой масляной краской в виде
полосы шириной от 10 до 15 см.
Схема производства работ
дана на листе 61.
Облицовка стен. До начала работ производят подготовку поверхности
стен. Устраняют неровности поверхности и отклонения от вертикали более 15 мм
цементно-песчаным раствором без заглаживания и затирки. На бетонных
поверхностях делают насечки. Жировые пятна удаляют, промывая загрязненную
поверхность 2 - 3 %-ным раствором соляной кислоты или 5 %-ным раствором
кальцинированной соды.
Облицовку начинают с
провешивания и укладки маячных плиток. Для этого несколько выше верхней кромки
будущей облицовки в двух концах стены забивают стальные штыри. От них опускают
вертикальные шнуры, концы которых прикрепляют к штырям, забитым в стене у пола.
Затем в нижней части стены выносят отметку первого ряда плиток и на этом уровне
при помощи штырей натягивают шнур. Первый ряд плиток устанавливают на
деревянные рейки. После установки первого ряда горизонтальный шнур снимают. Для
укладки второго ряда устанавливают крайние плитки и проверяют их вертикальность
по верхнему маяку и нижнему ряду.
По установленным крайним
плиткам натягивают причальный шнур.
Перед нанесением
цементного раствора тыльная поверхность плитки должна быть увлажнена. Раствор
наносят на тыльную сторону плитки в виде усеченной пирамиды, оставляя по краям
плитки полосы без раствора шириной около 5 мм. Облицовываемую поверхность
смачивают водой непосредственно перед укладкой плиток.
Плитку с раствором
подносят к месту укладки и прикладывают к подготовленной облицовываемой
поверхности. Плитку ориентируют по уложенным ранее рядам и причальному шнуру,
осаживая ее до плоскости облицовки.
При этом раствор должен
заполнить все пространство между плиткой и поверхностью стены. Выступивший
раствор срезают. Толщина слоя раствора под плитками должна быть от 7 до 15 мм.
Ширина шва не должна быть более 3 мм.
Шов между плитками
заданной ширины получают установкой в него инвентарных скоб из стальной
проволоки диаметром, равным толщине шва. Концы скоб запиливают на конус.
В процессе облицовки швы
между плитками остаются незаполненными. Окончательно швы заполняют
цементнопесчаным раствором состава 1:1 или 1:2 после твердения раствора. Швы
заполняют при помощи деревянной терки, подбитой губчатой резиной, выступающей
за края терки. Затем на заполненные раствором швы тонким слоем наносят меловое
молоко. После высыхания мел с плиток удаляют сначала влажной, а потом сухой
ветошью.
Схема выполнения работ
дана на листе 61.

Лист 16
Потребность в материалах на устройство временной дороги и ограждения
|
Наименование
|
Количество
|
|
Устройство подстилающего слоя из песка δ
= 150 мм, м3
|
71
|
|
Устройство гравийно-щебеночного покрытия δ
- 150 мм, м3
|
71
|
|
Ограждение панельно-стоечное на базе
системы "Нева", м
|
170
|
Экспликация временных зданий
|
Номер поз.
|
Наименование
|
Количество, шт.
|
Шифр здания
|
площадь, м2
|
|
I
|
Контора прораба на 5 рабочих мест
|
1
|
На базе системы
"Нева"
|
24,16
|
|
II
|
Туалет на одно очко
|
1
|
|
1,13
|

Лист 17

Лист
18

Лист 19

Лист 20
|
Соединение прилежащих
счетов
|
Номер поз.
|
Наименование
|
марка
|
Количество, шт.
|
Площадь, м2
|
Масса, кг
|
|

|
единицы
|
всего
|
единица
|
всего
|
|
1
|
Щит
|
ЩМ
0,7´12
|
38
|
0,912
|
34,66
|
65,11
|
2474,18
|
|
2
|
Щит
|
ЩМ
0,70´0,9
|
47
|
0,682
|
32,05
|
48,83
|
2295,01
|
|
3
|
Щит
|
ЩМ
0,7´0,7
|
11
|
0,532
|
5,85
|
37,98
|
417,78
|
|
4
|
Щит
|
ЩМ
0,7´0,6
|
24
|
0,456
|
10,94
|
32,55
|
781,20
|
|
5
|
Щит
|
ЩМ
0,7´0,55
|
10
|
0,418
|
4,18
|
29,84
|
298,40
|
|
6
|
Щит
|
ЩМ
0,7´0,3
|
12
|
0,228
|
2,74
|
16,28
|
195,36
|
|
7
|
Щит-компенсатор
|
ЩМ
0,7´0,3
|
38
|
0,210
|
7,98
|
9,42
|
357,96
|
|
8
|
Щит
угловой
|
ЩМ
0,7´0,13
|
36
|
0,456
|
16,42
|
32,35
|
1171,80
|
|
9
|
Уголок
монтажный
|
УМ 0,7´0,13
|
5
|
-
|
-
|
2,05
|
10,25
|
|
10
|
Стяжка
|
Ø 20 мм
|
116 м
|
-
|
-
|
2,47
|
286,52
|
|
11
|
Гайка
|
-
|
336
|
-
|
-
|
0,08
|
26,83
|
|
12
|
Стержень
|
-
|
319
|
-
|
-
|
0,63
|
200,97
|
|
13
|
Втулка
|
-
|
319
|
-
|
-
|
0,20
|
63,80
|
|
14
|
Клин
|
-
|
319
|
-
|
-
|
0,16
|
51,04
|
|
15
|
Балка
|
-
|
396 м
|
-
|
-
|
9,24
|
3659,04
|
|
|
Дo5op
|
-
|
0,02
|
-
|
0,69
|
600,0
|
|
|
|
|
|
|
|
|
|
|
|
|
Итого
|
|
|
|
115,51
|
|
12302,19
|
|
|
|
|
|
|
|
|
|
Лист
21
Армирование фундаментов плоскими каркасами/

Лист 22
Спецификация арматурных каркасов
|

|
Номера поз.
|
Наименование
|
Количество, шт.
|
Массa, кг
|
|
единицы
|
общая
|
|
|
Каркас К1
|
|
|
7,ff8
|
|
|
Детали
|
|
|
|
|
1
|
Ø 10AII l = 3440
|
2
|
2,100
|
4,20
|
|
2
|
Ø 8AIII l =
3440
|
1
|
1,370
|
1,37
|
|
3
|
Ø 6AI l = 680
|
14
|
0,151
|
2,11
|
|
|
Каркас К 1-1
|
|
|
7,99
|
|
|
Детали
|
|
|
|
|
1
|
Ø 10AII l =
3440
|
2
|
2,10
|
4,20
|
|
2
|
Ø 8AIII l =
3440
|
1
|
1,37
|
1,37
|
|
3
|
Ø 6AI l = 680
|
16
|
0,151
|
2,42
|
|
|
Каркас К2
|
|
|
9,99
|
|
|
Детали
|
|
|
|
|
3
|
Ø 6AI l = 680
|
18
|
0,151
|
3,73
|
|
4
|
Ø 10AIII l =
4440
|
2
|
2,75
|
5,50
|
|
5
|
Ø 8AIII l = 4440
|
1
|
1,77
|
1,77
|
|
|
Каркас К 2-1
|
|
|
10,44
|
|
|
Метали
|
|
|
|
|
3
|
Ø 6AI l = 680
|
21
|
0,151
|
3,17
|
|
4
|
Ø 10AIII l =
4440
|
2
|
2,75
|
5,50
|
|
5
|
Ø 8AIII l = 4440
|
1
|
1,77
|
1,77
|
|
|
Каркас К-3
|
|
|
4,97
|
|
|
Детали
|
|
|
|
|
3
|
Ø 6AI l = 680
|
8
|
0,151
|
1,21
|
|
6
|
Ø 10AIII l =
2400
|
2
|
1,40
|
2,80
|
|
7
|
Ø 8AIII l = 2400
|
1
|
0,96
|
0,96
|
|
|
Каркаск-4
|
|
|
4,55
|
|
|
Детали
|
|
|
|
|
3
|
Ø 6AI l = 680
|
10
|
0,151
|
1,51
|
|
8
|
Ø 10AIII l =
1860
|
2
|
1,151
|
2,30
|
|
9
|
Ø 8AIII l = 1860
|
1
|
0,744
|
0,74
|
|
|
Каркас К-4-1
|
|
|
3,93
|
|
|
Детали
|
|
|
|
|
3
|
Ø 6AI l = 680
|
7
|
0,151
|
1,06
|
|
10
|
Ø 10AIII l =
1760
|
3
|
1,085
|
2,17
|
|
11
|
Ø 8AIII l = 1760
|
1
|
0,695
|
0,70
|
|
|
Каркас К-5
|
|
|
1,84
|
|
|
Детали
|
|
|
|
|
12
|
Ø 10AIII l =
860
|
2
|
0,530
|
1,06
|
|
13
|
Ø 8AIII l = 860
|
1
|
0,339
|
0,34
|
|
14
|
Ø 6AI l = 660
|
3
|
0,146
|
0,44
|
|
Лист 23
|
|
Организация рабочего
места арматурщиков
|
Спецификация элементов
арматуры
|
|

|
Номер поз.
|
Наименование
|
Количество, шт.
|
Масса, кг
|
|
единицы
|
общая
|
|
|
Каркасы
|
|
|
|
|
1
|
К-1
|
21
|
7,68
|
161,28
|
|
2
|
K1-1
|
8
|
7,99
|
63,92
|
|
3
|
К-2
|
20
|
9;-9
|
199,80
|
|
4
|
К2-1
|
12
|
10,44
|
125,28
|
|
5
|
К3
|
2
|
4,97
|
9,94
|
|
6
|
К4
|
2
|
4,55
|
9,10
|
|
7
|
К5
|
2
|
1,84
|
3,68
|
|
8
|
К4-1
|
2
|
3,93
|
7,86
|
|
|
Отдельные операции
|
|
|
9
|
Ø 6AI l = 380
|
378
|
0,08
|
30,24
|
|
10
|
Ø 6AI l = 280
|
144
|
0,06
|
8,64
|
|
11
|
Ø 10AIII l = 1800
|
7
|
1,11
|
7,77
|
|
12
|
Ø 6AI l = 230
|
141
|
0,05
|
7,05
|
|
|
Итого
|
|
|
634,56
|
|
|
|
|
|
|
А1…А2 - рабочие места арматурщиков
Лист 24

1 - кpaн пневмоколесный КС-4321А
(длина стрелы 15 м); 2 - Автобетоносмеситель СБ-92А; 3 - бункер поворотный
БП-10; 4 - уложенный бетон; 5 - щиты опалубки; 6 - армированный участок стены;
7 - направление движения крана; 8 - временная дорога
Ст.1…Ст.2 -
стоянки крана
Лист
25
Последовательность выполнения работ по возведению стен и перекрытию
дома

Лист 26

Лист 27

Лист
28

Лист 29

Лист 30
Спецификация элементов опалубки стек (I и П этапы)
|
Номер поз.
|
Наименование
|
Марка
|
Единица измерения
|
Количество
|
Площадь, м2
|
Масса, кг
|
|
единицы
|
всего
|
единицы
|
всего
|
|
I
|
Щит линейный
|
ЩМ 2,7´1,2
|
шт.
|
22
|
3,312
|
72,86
|
203,0
|
4466,0
|
|
2
|
То же
|
ЩМ 2,7×0,9
|
шт.
|
40
|
2,484
|
99,36
|
162,7
|
6508,0
|
|
3
|
"
|
ЩМ 2,7×0,6
|
шт.
|
38
|
1,656
|
62,93
|
121,3
|
4609,4
|
|
4
|
"
|
ЩМ 2,7×0,3
|
шт.
|
91
|
0,828
|
75,35
|
78,6
|
7152,6
|
|
5
|
"
|
ЩМ 2,7×0,46
|
шт.
|
2
|
1,27
|
2,54
|
92,8
|
185,6
|
|
6
|
Щит угловой
|
ЩУ 2,4×0,3
|
шт.
|
38
|
1,440
|
54,72
|
87,0
|
3306,0
|
|
7
|
То же
|
ЩУ 0,36×0,3
|
шт.
|
38
|
0,216
|
8,21
|
18,8
|
714,4
|
|
8
|
Щит-компенсатор
|
ЩК 2,7×0,3
|
шт.
|
4
|
0,828
|
3,31
|
38,1
|
152,4
|
|
9
|
Уголок монтажный
|
УМ 2,4×0,13
|
шт.
|
6
|
-
|
-
|
19,0
|
114,0
|
|
10
|
То же
|
УМ 1,2×0,13
|
шт.
|
6
|
-
|
-
|
9,6
|
57,6
|
|
11
|
Щит линейный
|
ЩМ 0,9×1,2
|
шт.
|
7
|
1,152
|
8,06
|
70,6
|
494,2
|
|
12
|
То же
|
ЩМ 0,9×0,9
|
шт.
|
9
|
0,864
|
7,78
|
56,6
|
509,4
|
|
13
|
"
|
ЩМ 0,9×0,6
|
шт.
|
9
|
0,576
|
5,18
|
42,2
|
379,8
|
|
14
|
"
|
ЩМ 0,9×0,3
|
шт.
|
33
|
0,288
|
9,50
|
27,3
|
9 00,9
|
|
15
|
Щит угловой
|
ЩУ 0,9x0,3
|
шт.
|
3
|
0,576
|
1,73
|
54,6
|
163,8
|
|
16
|
Щит-компенсатор
|
ЩК0,9×0,3
|
шт.
|
1
|
0,288
|
0,29
|
13,3
|
13,3
|
|
17
|
Щит линейный
|
ЩМ 0,7×1,2
|
шт.
|
7
|
0,912
|
6,38
|
65,1
|
455,7
|
|
18
|
То же
|
ЩМ 0,7×0,9
|
шт.
|
9
|
0,682
|
6,14
|
48,8
|
439,2
|
|
19
|
"
|
ЩМ 0,7×0,6
|
шт.
|
8
|
0,456
|
3,65
|
32,6
|
260,8
|
|
20
|
"
|
ЩМ 0,7×0,3
|
шт.
|
23
|
0,228
|
5,24
|
16,3
|
374,9
|
|
21
|
Шит угловой
|
ЩУ 0,7×0,3
|
шт.
|
4
|
0,456
|
1,82
|
32,6
|
130,4
|
|
22
|
Щит-компенсатор
|
ЩК 0,7×0,3
|
шт.
|
1
|
0,21
|
0,21
|
9,4
|
9,4
|
|
23
|
Щит линейный
|
ЩМ 0,9×0,45
|
шт.
|
1
|
0,405
|
0,41
|
29,8
|
29,8
|
|
24
|
То же
|
ЩМ 0,7×0,16
|
шт.
|
5
|
0,112
|
0,56
|
6,34
|
31,7
|
|
25
|
Добор
|
-
|
м3
|
1,354
|
-
|
46,2
|
600
|
812,4
|
|
26
|
Щит доборный
|
ЩД 2,7×0,38
|
шт.
|
2
|
1,05
|
2,1
|
76,72
|
153,4
|
|
27
|
Кронштейн
|
-
|
шт.
|
54
|
-
|
-
|
16
|
864,0
|
|
28
|
Подкос
|
-
|
шт.
|
90
|
-
|
-
|
17
|
1530,0
|
|
29
|
Домкрат
|
-
|
шт.
|
90
|
-
|
-
|
3,4
|
306,0
|
|
30
|
Стяжка
|
-
|
м
|
347
|
-
|
-
|
2,47
|
857,09
|
|
31
|
Гайка
|
-
|
шт.
|
392
|
-
|
-
|
0,08
|
31,36
|
|
32
|
Стержень
|
-
|
шт.
|
947
|
-
|
-
|
0,63
|
596,6
|
|
33
|
Втулка
|
-
|
шт.
|
947
|
-
|
-
|
0,2
|
189,4
|
|
34
|
Клин
|
-
|
шт.
|
947
|
-
|
-
|
0,16
|
151,5
|
|
35
|
Болт
|
M16×50.58.096
ГОСТ
7798-70*
|
шт.
|
288
|
-
|
-
|
0,11
|
31,7
|
|
36
|
Гайка
|
M16×5.096 ГОСТ
5915-70*
|
шт.
|
288
|
-
|
-
|
0,03
|
8,6
|
|
37
|
Шайба
|
16.01.096 ГОСТ
11371-78*
|
шт.
|
288
|
-
|
-
|
0,01
|
2,88
|
|
38
|
Стойка
|
-
|
шт.
|
54
|
-
|
-
|
5,7
|
307,8
|
|
39
|
Балка
|
-
|
м
|
396,04
|
-
|
-
|
9,24
|
3659,4
|
|
40
|
Щиты настила
|
-
|
м3
|
3,73
|
-
|
-
|
600
|
2238,0
|
|
41
|
Доска сеч. 190×32 мм
|
-
|
м3
|
0,16
|
-
|
-
|
600
|
96,0
|
|
42
|
Доска бортовая
|
-
|
м3
|
0,92
|
-
|
-
|
600
|
552,0
|
|
|
Итого
|
|
|
|
|
484,53
|
|
43847,43
|
Примечание: Проемообразователи в
спецификации не учтены; см. на листах 37, 38.
|
Опалубка фронтона ПФ-1
|
Спецификация укрупненных опалубочных панелей фронтона
|
|

|
Номера поз.
|
наименование
|
Марка
|
Количество, шт.
|
Площадь, м2
|
Масса, кг
|
|
единицы
|
всего
|
единицы
|
всего
|
|
|
Панель ПФ-1
|
|
|
|
|
|
|
|
1
|
Щит линейный
|
ЩМ2,57×1,5
|
2
|
1,78
|
3,66
|
111,68
|
223,36
|
|
2
|
Щит линейный
|
ЩМ1,2×2,16
|
2
|
2,75
|
5,50
|
172,54
|
345,08
|
|
3
|
Щит линейный
|
ЩM1,2×2.53
|
1
|
2,81
|
2,61
|
176,31
|
176,31
|
|
4
|
Стержень
|
-
|
10
|
-
|
-
|
0,63
|
£,30
|
|
5
|
Втулка
|
-
|
10
|
-
|
-
|
0,20
|
2,00
|
|
б
|
Клин
|
-
|
10
|
-
|
-
|
0,16
|
1,60
|
|
7
|
Балка
|
-
|
-
|
-
|
-
|
|
248,35
|
|
|
Итого
|
|
|
|
11,87
|
|
1003,0
|
|
|
Панель ПФ-2
|
0,19×2,91×0,43
|
1
|
0,9
|
0,9
|
$6,76
|
65,76
|
|

|
Спецификация элементов опалубки (III этап)
|
|
Номера поз.
|
Наименование
|
Марка
|
Количество, шт.
|
Масса, кг
|
|
единицы
|
всего
|
|
|
Панель
|
ПФ-1
|
4
|
1003,0
|
4012,06
|
|
|
Панель
|
ПФ-2
|
4
|
65,76
|
86З, 04
|
|
8
|
Щит торцевой
|
ЩТО 163×0,4£
|
8
|
45,80
|
366,40
|
|
9
|
Стяжка
|
-
|
35,8 м
|
2,47
|
68,40
|
|
10
|
Гайка
|
-
|
68
|
0,08
|
5,44
|
|
4
|
Стержень
|
-
|
76
|
0,53
|
47,68
|
|
5
|
Втулка
|
-
|
76
|
0,20
|
15,20
|
|
6
|
Клин
|
-
|
73
|
0,16
|
12,15
|
|
|
Итого
|
|
|
|
4810,52
|
Лист 33
|
Опалубка дымо- и
вентканалов
|
Спецификация элементов опалубки
|
|

|
Номер поз.
|
Наименование
|
Марка
|
Количество, шт.
|
Площадь, м2
|
Масса, кг
|
|
|
|
|
|
единицы
|
всего
|
единицы
|
вceгo
|
|
1
|
Щит линейный
|
ЩМ 2,34×1,27
|
2
|
2,97
|
5,94
|
186,3
|
372,6
|
|
2
|
Щит торцевой
|
ЩТО 2,34×0,3
|
2
|
0,70
|
1,40
|
66,0
|
132,0
|
|
3
|
Стяжка
|
-
|
6 м
|
-
|
-
|
2,47
|
14,92
|
|
 
|
4
|
Гайка
|
-
|
12
|
-
|
-
|
0,08
|
0,96
|
|
5
|
Подкос
|
-
|
4
|
-
|
-
|
17,0
|
68,0
|
|
Б
|
Домкрат
|
-
|
4
|
-
|
-
|
3,4
|
13,6
|
|
|
Итого
|
-
|
-
|
-
|
7,34
|
-
|
601,98
|
|
|
|
|
|
|
|
|
|
Лист 34
|
Спецификация элементов арматуры
|
|
Спецификация элементов опалубки
|
|
Номер поз.
|
Наименование
|
количество, шт.
|
Масса, кг
|
|
Номер,
поз.
|
Наименование
|
Марка
|
Количество, шт.
|
Площадь, m2
|
Масса, кг
|
|
единицы
|
Всего
|
единицы
|
Всего
|
единицы
|
Всего
|
|
1
|
Каркас плоский К-1
|
2
|
11,24
|
22,48
|
7
|
Щит линейный
|
ЩМ
2,7×0,3
|
4
|
0,83
|
3,32
|
78,6
|
314,4
|
|
2
|
Отделочные стержни Ø 5 Вр I l = 280
|
10
|
0,06
|
0,60
|
8
|
Уголок монтажный
|
УМ
2,4×0,13
|
4
|
-
|
-
|
19,0
|
76,0
|
|
3
|
Стержень Ø AI l = 240
|
2
|
0,15
|
0,30
|
9
|
Уголок монтажный
|
УМ
0,35×0,13
|
4
|
-
|
-
|
3,6
|
14,4
|
|
4
|
Уголок L
50×5 l
=380
|
|
|
4,52
|
10
|
Стяжка
|
Ø
20 мм
|
6
м
|
-
|
-
|
2,47
|
14,82
|
|
5
|
Пластина- 300 × 300 × 8
|
1
|
5,64
|
5,54
|
11
|
Гайка
|
-
|
12
|
-
|
-
|
0,08
|
0,96
|
|
б
|
Труба Ø25 l = 300
|
2
|
0,28
|
0,56
|
12
|
Стержень
|
-
|
24
|
-
|
-
|
0,63
|
15,12
|
|
Итого
|
|
34,10
|
13
|
Втулка
|
-
|
24
|
-
|
-
|
0,20
|
4,8
|
|
14
|
Клин
|
-
|
24
|
-
|
-
|
0,16
|
3,64
|
|
|
Итого
|
|
|
|
3,32
|
|
444,34
|
Лист 35
Раскладка укрупненных панелей

|
- добор по месту
|
Спецификацию см. на листах 37, 38
Настил на плане условно не показан
|
Лист 36
Спецификация опалубки стен (I и II этапы)
|
Номер поз.
|
Наименование
|
Марка
|
Единица измерения
|
Количество
|
Масса, кг
|
|
единицы.
|
всего
|
|
1
|
Панель наружная
|
ПН-1
|
шт.
|
1
|
785,18
|
785,18
|
|
2
|
То же
|
ПН-2
|
-"-
|
1
|
859,68
|
859,68
|
|
3
|
-"-
|
ПН-3
|
-"-
|
1
|
849,66
|
849,66
|
|
4
|
-"-
|
ПН-4
|
-"-
|
2
|
771,18
|
1542,36
|
|
5
|
-"-
|
ПН-5
|
-"-
|
2
|
991,51
|
1983,02
|
|
6
|
-"-
|
ПН-6
|
-"-
|
1
|
1589,69
|
1589,69
|
|
7
|
-"-
|
ПН-7
|
-"-
|
2
|
742,0
|
1484,0
|
|
8
|
-"-
|
ПН-8
|
-"-
|
1
|
690,63
|
690,63
|
|
9
|
Панель внутренняя
|
ПВ-1
|
-"-
|
4
|
810,28
|
3241,12
|
|
10
|
То же
|
ПВ-2
|
-"-
|
3
|
678,91
|
2036,73
|
|
11
|
-"-
|
ПВ-3
|
-"-
|
1
|
740,84
|
740,84
|
|
12
|
-"-
|
ПВ-4
|
-"-
|
2
|
684,58
|
1369,16
|
|
13
|
-"-
|
ПВ-5
|
-"-
|
4
|
809,18
|
3236,72
|
|
14
|
-"-
|
ПВ-6
|
-"-
|
1
|
917,68
|
917,68
|
|
15
|
-"-
|
ПВ-7
|
-"-
|
1
|
826,38
|
826,38
|
|
16
|
-"-
|
ПВ-8
|
-"-
|
2
|
1225,9
|
2451,8
|
|
17
|
-"-
|
ПВ-9
|
-"-
|
2
|
490,54
|
981,08
|
|
18
|
-"-
|
ПВ-10
|
-"-
|
1
|
638,74
|
638,74
|
|
19
|
-"-
|
ПВ-11
|
-"-
|
1
|
728,61
|
728,61
|
|
20
|
-"-
|
ПВ-12
|
-"-
|
1
|
498,47
|
498,47
|
|
21
|
-"-
|
ПВ-13
|
-"-
|
1
|
538,77
|
538,77
|
|
22
|
-"-
|
ПВ-14
|
-"-
|
1
|
382,13
|
382,13
|
|
23
|
-"-
|
ПВ-15
|
-"-
|
1
|
807,41
|
807,41
|
|
24
|
-"-
|
ПВ-16
|
-"-
|
7
|
336,59
|
2356,13
|
|
25
|
-"-
|
ПВ-17
|
-"-
|
1
|
805,51
|
805,51
|
|
26
|
-"-
|
ПВ-18
|
-"-
|
1
|
451,71
|
451,71
|
|
27
|
Панель наружная
|
ПН-9
|
шт.
|
2
|
302,88
|
605,76
|
|
28
|
То же
|
ПН-10
|
-"-
|
2
|
373,91
|
747,82
|
|
29
|
-"-
|
ПН-11
|
-"-
|
1
|
587,75
|
587,75
|
|
30
|
-"-
|
ПН-12
|
-"-
|
2
|
261,9
|
523,8
|
|
31
|
-"-
|
ПН-13
|
-"-
|
1
|
325,53
|
325,53
|
|
32
|
-"-
|
ПН-14
|
-"-
|
1
|
282,72
|
282,72
|
|
33
|
Панель внутренняя
|
ПВ-19
|
-"-
|
2
|
334,22
|
668,44
|
|
34
|
То же
|
ПВ-20
|
-"-
|
2
|
334,32
|
668,64
|
|
35
|
-"-
|
ПВ-21
|
-"-
|
1
|
247,29
|
247,29
|
|
36
|
-"-
|
ПВ-22
|
-"-
|
2
|
166,91
|
333,82
|
|
37
|
-"-
|
ПВ-23
|
-"-
|
1
|
183,59
|
183,59
|
|
38
|
-"-
|
ПВ-24
|
-"-
|
1
|
232,84
|
232,84
|
|
39
|
-"-
|
ПВ-25
|
-"-
|
1
|
161,41
|
167,41
|
|
40
|
Щит линейный
|
ЩМ 2,7´0,3
|
-"-
|
3
|
78,6
|
235,8
|
|
41
|
То же
|
ЩМ 2,4´0,3
|
-"-
|
3
|
87,0
|
261,0
|
|
42
|
Щит линейный
|
ЩМ 0,36´0,3
|
-"-
|
3
|
18,8
|
56,4
|
|
43
|
То же
|
ЩМ 0,9´0,45
|
-"-
|
1
|
29,8
|
29,8
|
|
44
|
-"-
|
ЩМ 0,7´0,16
|
-"-
|
5
|
6,34
|
31,7
|
|
45
|
Щит линейный
|
ЩМ 0,9´0,6
|
-"-
|
1
|
42,2
|
42,2
|
|
46
|
Проемообразователь
|
ПР-1
|
-"-
|
5
|
192,0
|
960,0
|
|
47
|
То же
|
ПР-2
|
-"-
|
3
|
171,0
|
513,0
|
|
48
|
-"-
|
ПР-3
|
-"-
|
1
|
101,0
|
101,0
|
|
49
|
-"-
|
ПР-4
|
-"-
|
5
|
59,0
|
295,0
|
|
50
|
-"-
|
ПР-5
|
-"-
|
2
|
25,30
|
50,60
|
|
51
|
-"-
|
ПР-6
|
-"-
|
1
|
50,67
|
50,67
|
|
52
|
Доска сеч. 190×32 мм
|
-
|
м3
|
0,16
|
600,0
|
96,0
|
|
53
|
Добор
|
-
|
м3
|
0,044
|
600,0
|
26,4
|
|
54
|
Щит доборный
|
ЩД 2,7´0,38
|
шт.
|
2
|
76,72
|
153,44
|
|
55
|
Щит линейный
|
ЩМ 0,7´0,3
|
-"-
|
1
|
16,3
|
16,3
|
|
56
|
То же
|
ЩМ 0,9´0,3
|
-"-
|
2
|
27,3
|
54,6
|
|
57
|
Щит угловой
|
ЩУ 0,9´0,3
|
-"-
|
1
|
54,6
|
54,6
|
|
58
|
Уголок монтажный
|
УМ 2,4´0,13
|
-"-
|
1
|
19,0
|
19,0
|
|
59
|
То же
|
УМ 1,2´0,13
|
-"-
|
1
|
9,6
|
9,6
|
|
|
Стержень
|
-
|
-"-
|
410
|
0,63
|
258,3
|
|
|
Втулка
|
-
|
-"-
|
410
|
0,2
|
82,0
|
|
|
Клин
|
-
|
-"-
|
410
|
0,16
|
65,6
|
|
|
Стяжка
|
Ø 20 мм
|
м
|
347
|
2,47
|
857,09
|
|
|
Гайка
|
-
|
шт.
|
392
|
0,08
|
31,36
|
|
|
Щиты настила
|
-
|
м3
|
3,73
|
600,0
|
2238,0
|
|
|
Доска бортовая
|
-
|
м3
|
0,92
|
600,0
|
552,0
|
|
|
Стойка
|
-
|
шт.
|
54
|
5,7
|
307,8
|
|
|
Итого
|
|
|
|
|
45817,88
|
Спецификация укрупненных
опалубочных панелей
|
Номер поз.
|
Наименование
|
Марка
|
Единица измерения
|
Количество
|
Масса, кг
|
|
единицы
|
всего
|
|
1
|
Панель наружная
|
ПН-1
|
|
|
|
785,18
|
|
Щит линейный
|
ЩМ 02,7´1,2
|
шт.
|
1
|
203,0
|
203,0
|
|
То же
|
ЩМ 2,7´0,6
|
-"-
|
1
|
121,3
|
121,3
|
|
-"-
|
ЩМ 2,7´0,46
|
-"-
|
1
|
92,8
|
92,8
|
|
-"-
|
ЩМ 2,7´0,3
|
-"-
|
2
|
78,6
|
157,2
|
|
Щит-компенсатор
|
ЩК 2,7´0,3
|
-"-
|
1
|
38,1
|
38,1
|
|
Уголок монтажный
|
УМ 2,4´0,13
|
-"-
|
1
|
19,0
|
19,0
|
|
То же
|
УМ 1,2´0,13
|
-"-
|
1
|
9,6
|
9,6
|
|
Подкос
|
-
|
-"-
|
3
|
17,0
|
51,0
|
|
Домкрат
|
-
|
-"-
|
3
|
3,4
|
10,2
|
|
Болт
|
М 16´5058.096 ГОСТ
7798-70*
|
-"-
|
6
|
0,11
|
0,66
|
|
Гайка
|
M 16´5.096 ГОСТ
5915-70*
|
-"-
|
6
|
0,03
|
0,18
|
|
Шайба
|
16.01.096 ГОСТ
11371-78*
|
-"-
|
6
|
0,01
|
0,06
|
|
Стержень
|
-
|
-"-
|
9
|
0,63
|
5,67
|
|
Втулка
|
-
|
-"-
|
9
|
0,20
|
1,80
|
|
Клин
|
-
|
-"-
|
9
|
0,16
|
1,44
|
|
Балка
|
-
|
м
|
6,62
|
9,24
|
61,17
|
|
Добор
|
-
|
м3
|
0,02
|
600,0
|
12,0
|
|
2
|
Панель наружная
|
ПН-2
|
|
|
|
859,68
|
|
Щит линейный
|
ЩМ 2,7´0,6
|
шт.
|
3
|
121,3
|
363,9
|
|
То же
|
ЩМ 2,7´0,3
|
-"-
|
4
|
78,6
|
314,4
|
|
(Уголок монтажный
|
УМ 2,4´0,13
|
-"-
|
1
|
19,0
|
19,0
|
|
То же
|
УМ 1,2´0,13
|
-"-
|
1
|
9,6
|
9,6
|
|
Подкос
|
-
|
шт.
|
3
|
17,0
|
51,0
|
|
Домкрат
|
-
|
-"-
|
3
|
3,4
|
10,2
|
|
Болт
|
М16´5058.096 ГОСТ
7798-70*
|
-"-
|
6
|
0,11
|
0,66
|
|
Гайка
|
М16´5.096 ГОСТ 5915-70*
|
-"-
|
6
|
0,03
|
0,18
|
|
Шайба
|
16.01.096 ГОСТ
11371-78*
|
-"-
|
6
|
0,01
|
0,06
|
|
Стержень
|
-
|
-"-
|
12
|
0,63
|
7,56
|
|
Втулка
|
-
|
-"-
|
12
|
0,20
|
2,40
|
|
Клин
|
-
|
-"-
|
12
|
0,16
|
1,92
|
|
Балка
|
-
|
м
|
6,58
|
9,24
|
60,80
|
|
Добор
|
-
|
м3
|
0,03
|
600,0
|
18,00
|
|
3
|
Панель наружная
|
ПН-3
|
|
|
|
849,66
|
|
Щит линейный
|
ЩМ 2,7´0,9
|
шт.
|
2
|
162,7
|
325,4
|
|
То же
|
ЩМ 2,7´0,6
|
-"-
|
1
|
121,3
|
121,3
|
|
-"-
|
ЩМ 2,7´0,3
|
-"-
|
3
|
78,6
|
235,8
|
|
Подкос
|
-
|
-"-
|
3
|
17,0
|
51,0
|
|
Домкрат
|
-
|
-"-
|
3
|
3,4
|
10,2
|
|
Болт
|
М16´50.58.096 ГОСТ
7798-70*
|
-"-
|
6
|
0,11
|
0,66
|
|
Гайка
|
М16´5.096 ГОСТ
5915-70*
|
-"-
|
6
|
0,03
|
0,18
|
|
Шайба
|
16.01.096 ГОСТ
11371-78*
|
-"-
|
6
|
0,01
|
0,06
|
|
Стержень
|
-
|
-"-
|
6
|
0,63
|
3,78
|
|
Втулка
|
-
|
-"-
|
6
|
0,20
|
1,20
|
|
Клин
|
-
|
-"-
|
6
|
0,16
|
0,96
|
|
Балка
|
-
|
м
|
7,48
|
9,24
|
69,12
|
|
Добор
|
-
|
м3
|
0,05
|
600,0
|
30,00
|
|
4
|
Панель наружная
|
ПН-4
|
|
|
|
771,18
|
|
Щит линейный
|
ЩМ 2,7´0,9
|
шт.
|
3
|
162,7
|
488,1
|
|
То же
|
ЩМ 2,7´0,3
|
-"-
|
2
|
78,6
|
157,2
|
|
Подкос
|
-
|
-"-
|
2
|
17,0
|
34,0
|
|
Домкрат
|
-
|
-"-
|
2
|
3,4
|
6,8
|
|
Болт
|
М16´50.58.096 ГОСТ
7798-90*
|
-"-
|
4
|
0,11
|
0,44
|
|
Гайка
|
М16´5.096 ГОСТ
5915-70*
|
-"-
|
4
|
0,03
|
0,12
|
|
Шайба
|
16.01.096 ГОСТ
11371-78*
|
-"-
|
4
|
0,01
|
0,04
|
|
Стержень
|
-
|
-"-
|
9
|
0,63
|
5,67
|
|
Втулка
|
-
|
-"-
|
9
|
0,20
|
1,8
|
|
Клин
|
-
|
-"-
|
9
|
0,16
|
1,44
|
|
Валка
|
-
|
м
|
6,88
|
9,24
|
63,57
|
|
Добор
|
-
|
м3
|
0,02
|
600,0
|
12,00
|
|
5
|
Панель наружная
|
ПН-5
|
|
|
|
991,51
|
|
Щит линейный
|
ЩМ 2,7´1,2
|
шт.
|
1
|
203,0
|
203,0
|
|
То же
|
ЩМ 2,7´0,9
|
-"-
|
1
|
162,7
|
162,7
|
|
-"-
|
ЩМ 2,7´0,6
|
-"-
|
1
|
121,3
|
121,3
|
|
-"-
|
ЩМ 2,7´0,3
|
-"-
|
4
|
78,6
|
314,4
|
|
Подкос
|
-
|
-"-
|
4
|
17,0
|
68,0
|
|
Домкрат
|
-
|
-"-
|
4
|
3,4
|
13,6
|
|
Болт
|
М16´50.58.096 ГОСТ
7798-70*
|
-"-
|
8
|
0,11
|
0,88
|
|
Гайка
|
М16´5.096 ГОСТ
5915-70*
|
шт.
|
8
|
0,03
|
0,24
|
|
Шайба
|
16.01.096 ГОСТ
11371-78*
|
-"-
|
8
|
0,01
|
0,08
|
|
Стержень
|
-
|
-"-
|
12
|
0,63
|
7,56
|
|
Втулка
|
-
|
-"-
|
12
|
0,20
|
2,40
|
|
Клин
|
-
|
-"-
|
12
|
0,16
|
1,92
|
|
Балка
|
-
|
м
|
8,38
|
9,24
|
77,43
|
|
Добор
|
-
|
м3
|
0,03
|
600,0
|
18,00
|
|
6
|
Панель наружная
|
ПН-6
|
|
|
|
1589,69
|
|
Щит линейный
|
ЩМ 2,7´1,2
|
шт.
|
2
|
203,0
|
406,0
|
|
То же
|
ШМ 2,7´0,9
|
-"-
|
1
|
162,7
|
162,7
|
|
-"-
|
ЩМ 2,7´0,6
|
-"-
|
1
|
121,3
|
121,3
|
|
-"-
|
ШМ 2,7´0,3
|
-"-
|
7
|
78,6
|
550,2
|
|
Щи г-компенсатор
|
ЩК 2,7´0,3
|
-"-
|
1
|
38,1
|
38,1
|
|
Уголок монтажный
|
УМ 2,4´0,13
|
-"-
|
1
|
19,0
|
19,0
|
|
То же
|
УМ 1,20,13
|
-"-
|
1
|
9,6
|
9,6
|
|
Подкос
|
-
|
-"-
|
5
|
17,0
|
85,0
|
|
Домкрат
|
-
|
-"-
|
5
|
3,4
|
17,0
|
|
Болт
|
M16´50.58.096 ГОСТ
7798-70*
|
-"-
|
10
|
0,11
|
1,1
|
|
Гайка
|
М16´5.096 ГОСТ
5915-70*
|
-"-
|
10
|
0,03
|
0,30
|
|
Шайба
|
16.01.096 ГОСТ
11371-78*
|
-"-
|
10
|
0,01
|
0,1
|
|
Стержень
|
-
|
-"-
|
18
|
0,63
|
11,34
|
|
Втулка
|
-
|
-"-
|
18
|
0,20
|
3,6
|
|
Клин
|
-
|
-"-
|
18
|
0,16
|
2,88
|
|
Балка
|
-
|
м
|
12,28
|
9,24
|
113,47
|
|
Добор
|
-
|
м
|
0,08
|
600,0
|
48,00
|
|
7
|
Панель наружная
|
ПН-7
|
|
|
|
742,00
|
|
Щит линейный
|
ЩМ 2,7´1,2
|
шт.
|
1
|
203,0
|
203,0
|
|
То же
|
ЩМ 2,7´0,6
|
-"-
|
1
|
121,3
|
121,3
|
|
-"-
|
ЩМ 2,7´0,3
|
-"-
|
3
|
78,6
|
235,80
|
|
Уголок монтажный
|
УМ 2,4´0,13
|
-"-
|
1
|
19,0
|
19,0
|
|
То же
|
УМ 1,2´0,13
|
-"-
|
1
|
9,6
|
9,6
|
|
Подкос
|
-
|
-"-
|
3
|
17,0
|
51,0
|
|
Домкрат
|
-
|
-"-
|
3
|
3,4
|
10,20
|
|
Болт
|
M16´50.58.096 ГОСТ
7798-70*
|
-"-
|
6
|
0,11
|
0,66
|
|
Гайка
|
М16´5.096„ ГОСТ
5915-70*
|
-"-
|
6
|
0,03
|
0,18
|
|
Шайба
|
16.01.096 ГОСТ
11371-78*
|
-"-
|
6
|
0,01
|
0,06
|
|
Стержень
|
-
|
-"-
|
6
|
0,63
|
3,78
|
|
Втулка
|
-
|
-"-
|
6
|
0,20
|
1,20
|
|
Клин
|
-
|
-"-
|
6
|
0,16
|
0,96
|
|
Балка
|
-
|
м
|
5,98
|
9,24
|
55,26
|
|
Добор
|
-
|
м3
|
0,05
|
600,0
|
30,0
|
|
8
|
Панель наружная
|
ПН-8
|
|
|
|
690,63
|
|
Щит линейный
|
ЩМ 2,7´0,9
|
шт.
|
1
|
162,7
|
162,7
|
|
То же
|
ЩМ 2,7´1,2
|
-"-
|
1
|
203,0
|
203,0
|
|
-"-
|
ЩМ 2,7´0,46
|
-"-
|
1
|
92,8
|
92,8
|
|
Щит угловой
|
ЩУ 2,4´0,3
|
-"-
|
1
|
87,0
|
87,0
|
|
То же
|
ЩУ 0,36´0,3
|
-"-
|
1
|
18,8
|
18,8
|
|
Подкос
|
-
|
-"-
|
3
|
17,0
|
51,0
|
|
Домкрат
|
-
|
-"-
|
3
|
3,4
|
10,2
|
|
Болт
|
М16´50.58.096 ГОСТ
7798-70*
|
шт.
|
6
|
0,11
|
0,66
|
|
Гайка
|
М16´5.096„ ГОСТ
5915-70*
|
-"-
|
6
|
0,03
|
0,18
|
|
Шайба
|
16.01.096 ГОСТ
11371-78
|
-"-
|
6
|
0,01
|
0,06
|
|
Стержень
|
-
|
-"-
|
3
|
0,63
|
1,89
|
|
Втулка
|
-
|
-"-
|
3
|
0,20
|
0,60
|
|
Клин
|
-
|
-"-
|
3
|
0,16
|
0,48
|
|
Балка
|
-
|
м
|
5,98
|
9,24
|
55,26
|
|
Добор
|
-
|
м3
|
0,01
|
600,0
|
6,0
|
|
9
|
Панель внутренняя
|
ПВ-1
|
|
|
|
810,28
|
|
Щит линейный
|
ЩМ 2,7´0,9
|
шт.
|
3
|
162,7
|
488,1
|
|
То же
|
ЩМ 2,7´0,3
|
-"-
|
1
|
78,6
|
78,6
|
|
Щит угловой
|
ЩМ 2,4´0,3
|
-"-
|
1
|
87,0
|
87,0
|
|
То же
|
ЩУ 0,36´0,3
|
-"-
|
1
|
18,8
|
18,8
|
|
Подкос
|
-
|
-"-
|
1
|
17,0
|
17,0
|
|
Домкрат
|
-
|
-"-
|
1
|
3,4
|
3,4
|
|
Кронштейн
|
-
|
-"-
|
2
|
16,0
|
32,0
|
|
Болт
|
M16´50.58.096 ГОСТ
7798-70*
|
-"-
|
6
|
0,11
|
0,66
|
|
Гайка
|
М16´5.096 ГОСТ
5915-70*
|
-"-
|
6
|
0,03
|
0,18
|
|
Шайба
|
16.01.096 ГОСТ
11371-78*
|
-"-
|
6
|
0,01
|
0,06
|
|
Стержень
|
-
|
-"-
|
9
|
0,63
|
5,67
|
|
Втулка
|
-
|
-"-
|
9
|
0,20
|
1,80
|
|
Клин
|
-
|
-"-
|
9
|
0,16
|
1,44
|
|
Балка
|
-
|
м
|
6,88
|
9,24
|
63,57
|
|
Добор
|
-
|
м3
|
0,02
|
600,0
|
12,00
|
|
10
|
Панель внутренняя
|
ПВ-2
|
|
|
|
678,91
|
|
Щит линейный
|
ЩМ 2,7´0,6
|
шт.
|
2
|
121,3
|
242,60
|
|
То же
|
ЩМ 2,7´0,3
|
-"-
|
2
|
78,6
|
157,20
|
|
Щит угловой
|
ЩУ 2,4´0,3
|
-"-
|
1
|
87,0
|
87,0
|
|
То же
|
ЩУ 0,36´0,3
|
-"-
|
1
|
18,8
|
18,8
|
|
Подкос
|
-
|
-"-
|
3
|
17,0
|
51,0
|
|
Домкрат
|
-
|
-"-
|
3
|
3,4
|
10,2
|
|
Кронштейн
|
-
|
-"-
|
3
|
16,0
|
48,0
|
|
Болт
|
M16´50.58.096 ГОСТ
7798-70*
|
-"-
|
12
|
0,11
|
1,32
|
|
Гайка
|
М16´5.096„ ГОСТ
5915-70*
|
-"-
|
12
|
0,03
|
0,36
|
|
Шайба
|
16.01.096 ГОСТ
11371-78*
|
-"-
|
12
|
0,01
|
0,12
|
|
Стержень
|
-
|
-"-
|
9
|
0,63
|
5,67
|
|
Втулка
|
-
|
-"-
|
9
|
0,20
|
1,80
|
|
Клин
|
-
|
-"-
|
9
|
0,16
|
1,44
|
|
Балка
|
-
|
м
|
4,48
|
9,24
|
41,40
|
|
Добор
|
-
|
м3
|
0,02
|
600,0
|
12,00
|
|
11
|
Панель внутренняя
|
ПВ-3
|
|
|
|
740,84
|
|
Щит линейный
|
ЩМ 2,7´1,2
|
шт.
|
1
|
203,0
|
203,0
|
|
То же
|
ЩМ 2,7´0,3
|
-"-
|
4
|
78,6
|
314,4
|
|
Щит угловой
|
ЩУ 2,4´0,3
|
-"-
|
1
|
87,0
|
87,0
|
|
То же
|
ЩУ 0,36´0,3
|
-"-
|
1
|
18,8
|
18,8
|
|
Подкос
|
-
|
-"-
|
1
|
17,0
|
17,0
|
|
Домкрат
|
-
|
-"-
|
1
|
3,4
|
3,4
|
|
Болт
|
M16´50.58.096 ГОСТ
7798-70*
|
шт.
|
2
|
0,11
|
0,22
|
|
Гайка
|
М16´5.096 ГОСТ
5915-70*
|
-"-
|
2
|
0,03
|
0,06
|
|
Шайба
|
16.01.096 ГОСТ
11371-78*
|
-"-
|
2
|
0,01
|
0,02
|
|
Стержень
|
-
|
-"-
|
9
|
0,63
|
5,67
|
|
Втулка
|
-
|
-"-
|
9
|
0,20
|
1,80
|
|
Клин
|
-
|
-"-
|
9
|
0,16
|
1,44
|
|
Балка
|
-
|
м
|
6,28
|
9,24
|
58,03
|
|
Добор
|
-
|
м3
|
0,05
|
600,0
|
30,0
|
|
12
|
Панель внутренняя
|
ПВ-4
|
|
|
|
684,58
|
|
Щит линейный
|
ЩМ 2,7´1,2
|
шт.
|
1
|
203,0
|
203,0
|
|
То же
|
ЩМ 2,7´0,6
|
-"-
|
1
|
121,3
|
121,3
|
|
-"-
|
ЩМ 2,7´0,3
|
-"-
|
1
|
78,6
|
78,6
|
|
Щит угловой
|
ЩУ 2,4´0,3
|
-"-
|
1
|
87,0
|
87,0
|
|
То же
|
ЩУ 0,36´0,3
|
-"-
|
1
|
18,8
|
18,8
|
|
Подкос
|
-
|
-"-
|
3
|
17,0
|
51,0
|
|
Домкрат
|
-
|
-"-
|
3
|
3,4
|
10,2
|
|
Кронштейн
|
-
|
-"-
|
3
|
16,0
|
48,0
|
|
Болт
|
M16´50.58.096 ГОСТ
7798-70*
|
-"-
|
12
|
0,11
|
1,32
|
|
Шайба
|
16.01.096 ГОСТ
11371-78*
|
-"-
|
12
|
0,03
|
0,36
|
|
Гайка
|
M16´5.096 ГОСТ
5915-70*
|
-"-
|
12
|
0,01
|
0,12
|
|
Стержень
|
-
|
-"-
|
6
|
0,63
|
3,78
|
|
Втулка
|
-
|
-"-
|
6
|
0,20
|
1,20
|
|
Клин
|
-
|
-"-
|
6
|
0,16
|
0,96
|
|
Балка
|
-
|
м
|
5,08
|
9,24
|
46,94
|
|
Добор
|
-
|
м3
|
0,02
|
600,0
|
12,00
|
|
13
|
Панель внутренняя
|
ПВ-5
|
|
|
|
809,18
|
|
Щит линейный
|
ЩМ 2,7´1,2
|
шт.
|
1
|
203,0
|
203,0
|
|
То же
|
ЩМ 2, ´70,9
|
-"-
|
1
|
162,7
|
162,7
|
|
-"-
|
ЩМ 2,7´0,6
|
-"-
|
1
|
121,3
|
121,3
|
|
-"-
|
ЩМ 2,7´0,3
|
-"-
|
1
|
78,6
|
78,6
|
|
Щит угловой
|
ЩМ 2,4´0,3
|
-"-
|
1
|
87,0
|
87,0
|
|
То же
|
ЩУ 0,36´0,3
|
-"-
|
1
|
18,8
|
18,8
|
|
Подкос
|
-
|
-"-
|
1
|
17,0
|
17,0
|
|
Домкрат
|
-
|
-"-
|
1
|
3,4
|
3,4
|
|
Кронштейн
|
-
|
-"-
|
2
|
16,0
|
32,0
|
|
Болт
|
M16´50.58.096 ГОСТ
7798-70*
|
-"-
|
6
|
0,11
|
0,66
|
|
Шайба
|
16.01.096 ГОСТ
11371-78*
|
-"-
|
6
|
0,03
|
0,18
|
|
Гайка
|
М16´5.096 ГОСТ
5915-70*
|
-"-
|
6
|
0,01
|
0,06
|
|
Стержень
|
-
|
-"-
|
9
|
0,63
|
5,67
|
|
Втулка
|
-
|
-"-
|
9
|
0,20
|
1,80
|
|
Клин
|
-
|
-"-
|
9
|
0,16
|
1,44
|
|
Балка
|
-
|
м
|
6,88
|
9,24
|
63,57
|
|
Добор
|
-
|
м3
|
0,02
|
600,0
|
12,00
|
|
14
|
Панель внутренняя
|
ПВ-6
|
|
|
|
917,68
|
|
Щит линейный
|
ЩМ 2,7´0,9
|
шт.
|
1
|
162,7
|
162,7
|
|
То же
|
ЩМ 2,7´0,6
|
-"-
|
1
|
121,3
|
121,3
|
|
-"-
|
ЩМ 2,7´0,3
|
-"-
|
4
|
78,6
|
314,4
|
|
Щит угловой
|
ЩУ 2,4´0,3
|
-"-
|
1
|
87,0
|
87,0
|
|
То же
|
ЩУ 0,36´0,3
|
-"-
|
1
|
18,8
|
18,8
|
|
Подкос
|
-
|
шт.
|
3
|
17,0
|
51,0
|
|
Домкрат
|
-
|
-"-
|
3
|
3,4
|
10,2
|
|
Кронштейн
|
-
|
-"-
|
3
|
16,0
|
48,0
|
|
Болт
|
M16´50.58.096 ГОСТ
7798-70*
|
-"-
|
12
|
0,11
|
1,32
|
|
Гайка
|
М165´.096 ГОСТ
5915-70*
|
-"-
|
12
|
0,03
|
0,36
|
|
Шайба
|
16.01.096 ГОСТ
11371-78*
|
-"-
|
12
|
0,01
|
0,12
|
|
Стержень
|
-
|
-"-
|
9
|
0,63
|
5,67
|
|
Втулка
|
-
|
-"-
|
9
|
0,20
|
1,80
|
|
Клин
|
-
|
-"-
|
9
|
0,16
|
1,44
|
|
Балка
|
-
|
м
|
6,88
|
9,24
|
63,57
|
|
Добор
|
-
|
м3
|
0,05
|
600,0
|
30,00
|
|
15
|
Панель внутренняя
|
ПВ-7
|
|
|
|
826,38
|
|
Щит линейный
|
ЩМ 2,7´1,2
|
шт.
|
1
|
203,0
|
203,0
|
|
То же
|
ЩМ 2,7´0,9
|
-"-
|
1
|
162,7
|
162,7
|
|
-"-
|
ЩМ 2,7´0,6
|
-"-
|
1
|
121,3
|
121,3
|
|
Щит-компенсатор
|
ЩК 2,7´0,3
|
-"-
|
1
|
38,1
|
38,1
|
|
Щит угловой
|
ЩУ 2,4´0,3
|
-"-
|
1
|
87,0
|
87,0
|
|
То же
|
ЩУ 0,36´0,3
|
-"-
|
1
|
18,8
|
18,8
|
|
Подкос
|
-
|
-"-
|
3
|
17,0
|
51,0
|
|
Домкрат
|
-
|
-"-
|
3
|
3,4
|
10,2
|
|
Кронштейн
|
-
|
-"-
|
3
|
16,0
|
48,0
|
|
Болт
|
M16´50.58.096 ГОСТ
7798-79*
|
-"-
|
12
|
0,11
|
1,32
|
|
Гайка
|
М16´5.096 ГОСТ
5915-70*
|
-"-
|
12
|
0,03
|
0,36
|
|
Шайба
|
16.01.096 ГОСТ
11371-78*
|
шт.
|
12
|
0,01
|
0,12
|
|
Стержень
|
-
|
-"-
|
9
|
0,63
|
5,67
|
|
Втулка
|
-
|
-"-
|
9
|
0,20
|
1,80
|
|
Клин
|
-
|
-"-
|
9
|
0,16
|
1,44
|
|
Балка
|
-
|
м
|
6,88
|
9,24
|
63,57
|
|
Добор
|
-
|
м3
|
0,02
|
600,0
|
12,00
|
|
16
|
Панель внутренняя
|
ПВ-8
|
|
|
|
1225,9
|
|
Щит линейный
|
ЩМ 2,7´1,2
|
шт.
|
2
|
203,0
|
406,0
|
|
То же
|
ЩМ 2,7´0,6
|
-"-
|
1
|
121,3
|
121,3
|
|
-"-
|
ЩМ 2,7´0,3
|
-"-
|
4
|
78,6
|
314,4
|
|
Щит угловой
|
ЩУ 2,4´0,3
|
-"-
|
1
|
87,0
|
87,0
|
|
То же
|
ЩУ 0,36´0,3
|
-"-
|
1
|
18,8
|
18,8
|
|
Подкос
|
-
|
-"-
|
4
|
17,0
|
68,0
|
|
Домкрат
|
-
|
-"-
|
4
|
3,4
|
13,6
|
|
Кронштейн
|
-
|
-"-
|
4
|
16,0
|
64,0
|
|
Болт
|
M16´50.58.096 ГОСТ
7798-70*
|
-"-
|
16
|
0,11
|
1,76
|
|
Гайка
|
М16´5.096 ГОСТ
5915-70*
|
-"-
|
16
|
0,03
|
0,48
|
|
Шайба
|
16.01.096 ГОСТ
11371-78*
|
-"-
|
16
|
0,01
|
0,16
|
|
Стержень
|
-
|
-"-
|
12
|
0,63
|
7,56
|
|
Втулка
|
-
|
-"-
|
12
|
0,20
|
2,4
|
|
Клин
|
-
|
-"-
|
12
|
0,16
|
1,92
|
|
Балка
|
-
|
м
|
9,58
|
9,24
|
88,52
|
|
Добор
|
-
|
м3
|
0,05
|
600,0
|
30,00
|
|
17
|
Панель внутренняя
|
ПВ-9
|
|
|
|
490,54
|
|
Щит линейный
|
ЩМ 2,7´0,9
|
шт.
|
2
|
162,7
|
325,4
|
|
Щит угловой
|
ЩУ 2,4´0,8
|
-"-
|
1
|
87,0
|
87,0
|
|
То же
|
ЩУ 0,36´0,3
|
-"-
|
1
|
1.8,8
|
18,8
|
|
Стержень
|
-
|
-"-
|
6
|
0,63
|
3,78
|
|
Втулка
|
-
|
-"-
|
5
|
0,20
|
1,20
|
|
Клин
|
-
|
-"-
|
6
|
0,16
|
0,96
|
|
Балка
|
-
|
м
|
4,48
|
9,24
|
41,40
|
|
Добор
|
-
|
м3
|
0,02
|
600,0
|
12,0
|
|
18
|
Панель внутренняя
|
ПВ-10
|
|
|
|
638,74
|
|
Щит линейный
|
ЩМ 2,7´0,9
|
шт.
|
1
|
162,7
|
162,7
|
|
То же
|
ЩМ 2,7´0,6
|
-"-
|
1
|
121,3
|
121,3
|
|
-"-
|
ЩМ 2,7´0,3
|
-"-
|
1
|
78,6
|
78,6
|
|
Щит угловой
|
ЩУ 2,7´0,3
|
-"-
|
1
|
87,0
|
87,0
|
|
То же
|
ЩУ 0,36´0,3
|
-"-
|
1
|
18,8
|
18,8
|
|
Подкос
|
-
|
-"-
|
3
|
17,0
|
51,0
|
|
Домкрат
|
-
|
-"-
|
3
|
3,4
|
10,2
|
|
Кронштейн
|
-
|
-"-
|
3
|
16,0
|
48,0
|
|
Болт
|
M16´50.58.096 ГОСТ
7798-70*
|
-"-
|
12
|
0,11
|
1,32
|
|
Гайка
|
М16´5.096„ ГОСТ
5915-70*
|
-"-
|
12
|
0,03
|
0,36
|
|
Шайба
|
16.01.096 ГОСТ
11371-78*
|
-"-
|
12
|
0,01
|
0,12
|
|
Втулка
|
-
|
-"-
|
6
|
0,20
|
1,20
|
|
Стержень
|
-
|
-"-
|
6
|
0,63
|
3,78
|
|
Клин
|
-
|
-"-
|
6
|
0,16
|
0,96
|
|
Балка
|
-
|
м
|
4,48
|
9,24
|
41,40
|
|
Добор
|
-
|
м3
|
0,02
|
600,0
|
12,0
|
|
19
|
Панель внутренняя
|
ПB-11
|
|
|
|
728,61
|
|
Щит линейный
|
ЩМ 2,7´1,2
|
шт.
|
1
|
203,0
|
203,0
|
|
То же
|
ЩМ 2,7´0,6
|
-"-
|
1
|
121,3
|
121,3
|
|
-"-
|
ЩМ 2,7´0,3
|
-"-
|
1
|
78,6
|
78,6
|
|
Щит-компенсатор
|
ЩК 2,7´0,3
|
-"-
|
1
|
38,1
|
38,1
|
|
Щит угловой
|
ЩУ 2,4´0,3
|
-"-
|
1
|
87,0
|
87,0
|
|
То же
|
ЩУ 0,36´0,3
|
-"-
|
1
|
18,8
|
18,8
|
|
Подкос
|
-
|
-"-
|
3
|
17,0
|
51,0
|
|
Домкрат
|
-
|
-"-
|
3
|
3,4
|
10,2
|
|
Кронштейн
|
-
|
-"-
|
3
|
16,0
|
48,0
|
|
Болт
|
M16´50.58.096 ГОСТ
7798-70*
|
-"-
|
12
|
0,11
|
1,32
|
|
Гайка
|
М16´5.096 ГОСТ
5915-70*
|
-"-
|
12
|
0,03
|
0,36
|
|
Шайба
|
16.01.096 ГОСТ
11371-78*
|
-"-
|
12
|
0,01
|
0,12
|
|
Стержень
|
-
|
-"-
|
9
|
0,63
|
5,67
|
|
Втулка
|
-
|
-"-
|
9
|
0,20
|
1,80
|
|
Клин
|
-
|
-"-
|
9
|
0,16
|
1,44
|
|
Балка
|
-
|
м
|
5,4
|
9,24
|
49,90
|
|
Добор
|
-
|
м3
|
0,02
|
600,0
|
12,0
|
|
20
|
Панель внутренняя
|
ПВ-12
|
|
|
|
498,47
|
|
Щит линейный
|
ЩМ 2,7´0,9
|
шт.
|
2
|
162,7
|
325,4
|
|
Щит угловой
|
ЩУ 2,4´0,3
|
-"-
|
1
|
87,0
|
87,0
|
|
То же
|
ЩУ 0,36´0,3
|
-"-
|
1
|
18,8
|
18,8
|
|
Стержень
|
-
|
шт.
|
3
|
0,63
|
1,89
|
|
Втулка
|
-
|
-"-
|
3
|
0,20
|
0,60
|
|
Клин
|
-
|
-"-
|
3
|
0,16
|
0,48
|
|
Балка
|
-
|
м
|
5,66
|
9,24
|
52,30
|
|
Добор
|
-
|
м3
|
0,02
|
600,0
|
12,00
|
|
21
|
Панель внутренняя
|
ПВ-13
|
|
|
|
538,77
|
|
Щит линейный
|
ЩМ 2,7×1,2
|
шт.
|
1
|
203,0
|
203,0
|
|
То же
|
ЩМ 2,7×0,9
|
-"-
|
1
|
162,7
|
162,7
|
|
Щит угловой
|
ЩМ 2,4×0,3
|
-"-
|
1
|
87,0
|
87,0
|
|
То же
|
ЩУ 0,36×0,3
|
-"-
|
1
|
18,8
|
18,8
|
|
Стержень
|
-
|
-"-
|
3
|
0,63
|
1,89
|
|
Втулка
|
-
|
-"-
|
3
|
0,20
|
0,60
|
|
Клин
|
-
|
-"-
|
3
|
0,16
|
0,48
|
|
Балка
|
-
|
м
|
5,66
|
9,24
|
52,30
|
|
Добор
|
-
|
м3
|
0,02
|
600,0
|
12,0
|
|
22
|
Панель внутренняя
|
ПВ-14
|
|
|
|
382,13
|
|
Щит линейный
|
ЩМ 2,7´0,9
|
шт.
|
1
|
162,70
|
162,70
|
|
То же
|
ЩМ 2,7´0,3
|
-"-
|
1
|
78,60
|
78,60
|
|
Щит угловой
|
ЩУ 2,4´0,3
|
-"-
|
1
|
87,0
|
87,0
|
|
То же
|
ЩУ 0,36´0,3
|
-"-
|
1
|
18,80
|
18,80
|
|
Стержень
|
-
|
-"-
|
3
|
0,63
|
1,89
|
|
Втулка
|
-
|
-"-
|
3
|
0,20
|
0,60
|
|
Клин
|
-
|
-"-
|
3
|
0,16
|
0,48
|
|
Балка
|
-
|
м
|
2,82
|
9,24
|
26,06
|
|
Добор
|
-
|
м
|
0,01
|
600,0.
|
6,00
|
|
23
|
Панель внутренняя
|
ПВ-15
|
|
|
|
807,41
|
|
Щит линейный
|
ЩМ 2,7´0,9
|
шт.
|
1
|
162,7
|
162,7
|
|
То же
|
ЩМ 2,7´0,6
|
-"-
|
1
|
121,3
|
121,3
|
|
-"-
|
ЩМ 2,7´0,3
|
-"-
|
3
|
78,60
|
235,8
|
|
Щит угловой
|
ЩУ 2,4´0,3
|
-"-
|
1
|
87,0
|
87,0
|
|
То же
|
ЩУ 0,36´0,3
|
-"-
|
1
|
18,8
|
18,8
|
|
Подкос
|
-
|
-"-
|
3
|
17,0
|
51,0
|
|
Домкрат
|
-
|
-"-
|
3
|
3,4
|
10,2
|
|
Кронштейн
|
-
|
-"-
|
3
|
16,0
|
48,0
|
|
Болт
|
M16´50.58.096 ГОСТ
7798-70*
|
-"-
|
12
|
0,11
|
1,32
|
|
Гайка
|
М16´5.096 ГОСТ
5915-70*
|
-"-
|
12
|
0,03
|
0,36
|
|
Шайба
|
16.01.096 ГОСТ
11371-78*
|
-"-
|
12
|
0,01
|
0,12
|
|
Стержень
|
-
|
-"-
|
9
|
0,63
|
5,67
|
|
Втулка
|
-
|
-"-
|
9
|
0,20
|
1,80
|
|
Клин
|
-
|
-"-
|
9
|
0,16
|
1,44
|
|
Балка
|
-
|
м
|
5,4
|
9,24
|
49,90
|
|
Добор
|
-
|
м3
|
0,02
|
600,0
|
12,0
|
|
24
|
Панель внутренняя
|
ПВ-16
|
|
|
|
336,59
|
|
Щит линейный
|
ЩМ 2,7×0,6
|
-"-
|
1
|
121,3
|
121,3
|
|
То же
|
ЩМ 2,7×0,3
|
-"-
|
1
|
78,6
|
78,6
|
|
Щит угловой
|
ЩУ 2,4×0,3
|
-"-
|
1
|
87,0
|
87,0
|
|
То же
|
ЩУ 0,36×0,3
|
-"-
|
1
|
18,8
|
18,8
|
|
Стержень
|
-
|
-"-
|
6
|
0,63
|
3,78
|
|
Втулка
|
-
|
-"-
|
6
|
0,20
|
1,20
|
|
Клин
|
-
|
-"-
|
6
|
0,16
|
0,96
|
|
Балка
|
-
|
м
|
2,7
|
9,24
|
24,95
|
|
25
|
Панель внутренняя
|
ПВ-17
|
|
|
|
805,51
|
|
Щит линейный
|
ЩМ 2,7´0,6
|
шт.
|
1
|
121,3
|
121,3
|
|
То же
|
ЩМ.2,7´0,3
|
-"-
|
6
|
78,6
|
471,6
|
|
Щит угловой
|
ЩМ 2,4´0,3
|
-"-
|
1
|
87,0
|
87,0
|
|
То же
|
ЩУ 0,36´0,3
|
-"-
|
1
|
18,8
|
18,8
|
|
Стержень
|
-
|
-"-
|
9
|
0,63
|
5,67
|
|
Втулка
|
-
|
-"-
|
9
|
0,20
|
1,80
|
|
Клин
|
-
|
-"-
|
9
|
0,16
|
1,44
|
|
Балка
|
-
|
м
|
5,4
|
9,24
|
49,90
|
|
Добор
|
-
|
м3
|
0,08
|
600,0
|
48,00
|
|
26
|
Панель внутренняя
|
ПВ-18
|
|
|
|
451,71
|
|
Щит линейный
|
ЩМ 2,7´0,6
|
шт.
|
1
|
121,3
|
121,3
|
|
То же
|
ЩМ 2,7´0,3
|
-"-
|
3
|
78,6
|
235,8
|
|
Стержень
|
-
|
-"-
|
6
|
0,63
|
3,78
|
|
Втулка
|
-
|
-"-
|
6
|
0,20
|
1,20
|
|
Клин
|
-
|
-"-
|
6
|
0,16
|
0,96
|
|
Балка
|
-
|
м
|
5,7
|
9,24
|
52,67
|
|
Добор
|
-
|
м3
|
0,06
|
600,0
|
36,00
|
|
27
|
Панель наружная
|
ПН-9
|
|
|
|
302,88
|
|
Щит линейный
|
ЩМ 0,9´0,9
|
шт.
|
3
|
56,6
|
169,80
|
|
То же
|
ЩМ 0,9´0,3
|
-"-
|
2
|
27,3
|
54,6
|
|
Стержень
|
-
|
-"-
|
9
|
0,63
|
5,67
|
|
Втулка
|
-
|
-"-
|
9
|
0,20
|
1,8
|
|
Клин
|
-
|
-"-
|
9
|
0,16
|
1,44
|
|
Балка
|
-
|
м
|
6,88
|
9,24
|
63,57
|
|
Добор
|
-
|
м3
|
0,01
|
600,0
|
6,00
|
|
28
|
Панель наружная
|
ПН-10
|
|
|
|
373,91
|
|
Щит линейный
|
ЩМ 0,9×1,2
|
шт.
|
1
|
70,6
|
70,6
|
|
То же
|
ЩМ 0,9×0,9
|
-"-
|
1
|
56,6
|
56,6
|
|
-"-
|
ЩМ 0,9×0,6
|
-"-
|
1
|
42,2
|
42,2
|
|
-"-
|
ЩМ 0,9×0,3
|
-"-
|
4
|
27,3
|
109,2
|
|
Стержень
|
-
|
-"-
|
12
|
0,63
|
7,56
|
|
Втулка
|
-
|
-"-
|
12
|
0,20
|
2,40
|
|
Клин
|
-
|
-"-
|
12
|
0,16
|
1,92
|
|
Балка
|
-
|
м
|
8,38
|
9,24
|
77,43
|
|
Добор
|
-
|
м3
|
0,01
|
600,0
|
6,00
|
|
29
|
Панель наружная
|
ПН-11
|
|
|
|
587,75
|
|
Щит линейный
|
ЩМ 0,91,2
|
шт.
|
2
|
70,6
|
141,2
|
|
То же
|
ЩМ 0,90,9
|
-"-
|
1
|
55,6
|
56,6
|
|
-"-
|
ЩМ 0,9´0,6
|
-"-
|
1
|
42,2
|
42,2
|
|
-"-
|
ЩМ 0,9´0,3
|
-"-
|
7
|
27,3
|
191,1
|
|
Щит-компенсатор
|
ЩК-0,9´0,3
|
-"-
|
1
|
13,3
|
13,3
|
|
Стержень
|
-
|
-"-
|
12
|
0,63
|
7,56
|
|
Втулка
|
-
|
-"-
|
12
|
0,20
|
2,4
|
|
Клин
|
-
|
-"-
|
12
|
0,16
|
1,92
|
|
Балка
|
-
|
м
|
12,28
|
9,24
|
113,47
|
|
Добор
|
-
|
м3
|
0,03
|
600,0
|
18,00
|
|
30
|
Панель наружная
|
ПH-12
|
|
|
|
261,1
|
|
Щит линейный
|
ЩМ 0,9´1,2
|
шт.
|
1
|
70,6
|
70,6
|
|
Щит линейный
|
ЩМ 0,9´0,6
|
шт.
|
I
|
42,2
|
42,2
|
|
То же
|
ЩМ 0,9´0,3
|
-"-
|
3
|
27,3
|
81,9
|
|
Стержень
|
-
|
-"-
|
6
|
0,63
|
3,78.
|
|
Втулка
|
-
|
-"-
|
6
|
0,20
|
1,20
|
|
Клин
|
-
|
-"-
|
6
|
0,16
|
0,96
|
|
Балка
|
-
|
м
|
5,98
|
9,24
|
55,26
|
|
Добор
|
-
|
м3
|
0,01
|
600,0
|
6,00
|
|
31
|
Панель наружная
|
ПН-13
|
|
|
|
325,53
|
|
Щит линейный
|
ЩМ 0,9´1,2
|
шт0
|
1
|
70,6
|
70,6
|
|
То же
|
ЩМ 0,9´0,6
|
-"-
|
1
|
42,2
|
42,2
|
|
-"-
|
ЩМ 0,9´0,3
|
-"-
|
3
|
27,3
|
81,9
|
|
Щит угловой
|
ЩУ 0,9´0,3
|
-"-
|
1
|
54,6
|
54,6
|
|
Стержень
|
-
|
-"-
|
12
|
0,63
|
7,56
|
|
Втулка
|
-
|
-"-
|
12
|
0,20
|
2,40
|
|
Клин
|
-
|
-"-
|
12
|
0,16
|
1,92
|
|
Балка
|
-
|
м
|
6,64
|
9,24
|
61,35
|
|
Добор
|
-
|
м
|
0,005
|
600,0
|
3,0
|
|
32
|
Панель наружная
|
ПН-14
|
|
|
|
282,72
|
|
Щит линейный
|
ЩМ 0,9´0,6
|
шт.
|
2
|
42,2
|
84,4
|
|
То же
|
ЩМ 0,9´0,3
|
-"-
|
3
|
27,3
|
81,9
|
|
Щит угловой
|
ЩУ 0,9´0,3
|
-"-
|
1
|
54,6
|
54,6
|
|
Стержень
|
-
|
-"-
|
12
|
0,63
|
7,56
|
|
Втулка
|
-
|
-"-
|
12
|
0,20
|
2,4
|
|
Клин
|
-
|
-"-
|
12
|
0,16
|
1,92
|
|
Балка
|
-
|
м
|
5,08
|
9,24
|
46,94
|
|
Добор
|
-
|
м3
|
0,005
|
600,0
|
3,00
|
|
33
|
Панель внутренняя
|
ПВ-19
|
|
|
|
334,22
|
|
Щит линейный
|
ЩМ 0,7´0,9
|
шт.
|
3
|
48,8
|
146,4
|
|
То же
|
ЩМ 0,7´0,3
|
-"-
|
2
|
16,3
|
32,6
|
|
Щит угловой
|
ЩУ 0,7´0,3
|
-"-
|
1
|
32,6
|
32,6
|
|
Подкос
|
-
|
-"-
|
2
|
17,0
|
34,0
|
|
Домкрат
|
-
|
-"-
|
2
|
3,4
|
6,8
|
|
Болт
|
M16´50.58.096 ГОСТ
7798-70*
|
-"-
|
4
|
0,11
|
0,44
|
|
Гайка
|
М16´5.096 ГОСТ
5915-70*
|
-"-
|
4
|
0,03
|
0,12
|
|
Шайба
|
16.01.096 ГОСТ
11371-78*
|
-"-
|
4
|
0,01
|
0,04
|
|
Стержень
|
-
|
-"-
|
12
|
0,63
|
7,56
|
|
Втулка
|
-
|
-"-
|
12
|
0,20
|
2,4
|
|
Клин
|
-
|
-"-
|
12
|
0,16
|
1,92
|
|
Балка
|
-
|
м
|
7,18
|
9,24
|
66,34
|
|
Добор
|
-
|
м3
|
0,005
|
600,0
|
3,0
|
|
34
|
Панель внутренняя
|
ПВ-20
|
|
|
|
334,32
|
|
Щит линейный
|
ЩМ 0,7´1,2
|
шт.
|
1
|
65,1
|
65,1
|
|
То же
|
ЩМ 0,7´0,9
|
-"-
|
1
|
48,8
|
48,8
|
|
|
ЩМ 0,7´0,6
|
-"-
|
1
|
32,6
|
32,6
|
|
|
ЩМ 0,7´0,3
|
-"-
|
2
|
16,3
|
32,6
|
|
Щит угловой
|
ЩУ 0,7´0,3
|
-"-
|
1
|
32,6
|
32,6
|
|
Подкос
|
-
|
-"-
|
2
|
17,0
|
34,0
|
|
Домкрат
|
-
|
-"-
|
2
|
3,4
|
6,8
|
|
Болт
|
M16´50.58.096 ГОСТ
7798-70*
|
-"-
|
4
|
0,11
|
0,44
|
|
Гайка
|
М16´5.096 ГОСТ
5915-70*
|
-"-
|
4
|
0,03
|
0,12
|
|
Шайба
|
16.01.096 ГОСТ
11371-78
|
-"-
|
4
|
0,01
|
0,04
|
|
Стержень
|
-
|
шт.
|
12
|
0,63
|
7,56
|
|
Втулка
|
-
|
-"-
|
12
|
0,20
|
2,4
|
|
Клин
|
-
|
-"-
|
12
|
0,16
|
1,92
|
|
Балка
|
-
|
м
|
7,18
|
9,24
|
66,34
|
|
Добор
|
-
|
м3
|
0,005
|
600,0
|
3,0
|
|
35
|
Панель внутренняя
|
ПВ-21
|
|
|
|
247,29
|
|
Щит линейный
|
ЩМ 0,7´1,2
|
шт.
|
1
|
65,1
|
65,1
|
|
То же
|
ЩМ 0,7´0,9
|
-"-
|
1
|
48,8
|
48,8
|
|
-"-
|
ЩМ 0,7´0,6
|
-"-
|
1
|
32,6
|
32,6
|
|
-"-
|
ЩМ 0,7´0,3
|
-"-
|
1
|
16,3
|
16,3
|
|
Щит-компенсатор
|
ЩК 0,7´0,3
|
-"-
|
1
|
9,4
|
9,4
|
|
Стержень
|
-
|
-"-
|
3
|
0,63
|
1,89
|
|
Втулка
|
-
|
-"-
|
3
|
0,20.
|
0,60
|
|
Клин
|
-
|
-"-
|
3
|
0,16
|
0,48
|
|
Балка
|
-
|
м
|
7,48
|
9,24
|
69,12
|
|
Добор
|
-
|
м3
|
0,005
|
600,0
|
3,0
|
|
36
|
Панель внутренняя
|
ПВ-22
|
|
|
|
166,91
|
|
Щит линейный
|
ЩМ 0,7´1,2
|
шт.
|
1
|
65,1
|
65,1
|
|
То же
|
ЩМ 0,7´0,6
|
-"-
|
1
|
32,6
|
32,6
|
|
-"-
|
ЩМ 0,7´0,3
|
-"-
|
1
|
16,3
|
16,3
|
|
Стержень
|
-
|
-"-
|
3
|
0,63
|
1,89
|
|
Втулка
|
-
|
-"-
|
3
|
0,20
|
0,60
|
|
Клин
|
-
|
-"-
|
3
|
0,16
|
0,48
|
|
Балка
|
-
|
м
|
5,06
|
9,24
|
46,94
|
|
Добор
|
-
|
м3
|
0,005
|
600,0
|
3,0
|
|
37
|
Панель внутренняя
|
ПВ-23
|
|
|
|
183,59
|
|
Щит линейный
|
ЩМ 0,7´1,2
|
шт.
|
1
|
65,1
|
65,1
|
|
То же
|
ЩМ 0,7´0,3
|
-"-
|
4
|
16,3
|
65,2
|
|
Стержень
|
-
|
-"-
|
6
|
0,63
|
3,78
|
|
Втулка
|
-
|
-"-
|
6
|
0,20
|
1,20
|
|
Клин
|
-
|
-"-
|
6
|
0,16
|
0,96
|
|
Балка
|
-
|
м
|
4,8
|
9,24
|
44,35
|
|
Добор
|
-
|
м3
|
0,005
|
600,0
|
3,0
|
|
38
|
Панель внутренняя
|
ПВ-24
|
|
|
|
232,84
|
|
Щит линейный
|
ЩМ 0,7´1,2
|
шт.
|
1
|
65,1
|
65,1
|
|
То же
|
ЩМ 0,7´0,6
|
-"-
|
1
|
32,6
|
32,6
|
|
-"-
|
ЩМ 0,7´0,3
|
-"-
|
4
|
16,3
|
65,2
|
|
Стержень
|
-
|
-"-
|
9
|
0,63
|
5,67
|
|
Втулка
|
-
|
-"-
|
9
|
0,20
|
1,80
|
|
Клин
|
-
|
-"-
|
9
|
0,16
|
1,44
|
|
Балка
|
-
|
м
|
6,28
|
9,24
|
58,03
|
|
Добор
|
-
|
м3
|
0,005
|
600,0
|
3,0
|
|
39
|
Панель внутренняя
|
ПВ-25
|
-"-
|
|
|
167,41
|
|
Щит линейный
|
ЩМ 0,7´0,6
|
-"-
|
2
|
32,6
|
65,2
|
|
То же
|
ЩМ 0,7´0,3
|
-"-
|
3
|
16,3
|
48,9
|
|
Стержень
|
-
|
-"-
|
9
|
0,63
|
5,67
|
|
Втулка
|
-
|
-"-
|
9
|
0,20
|
1,80
|
|
Клин
|
-
|
-"-
|
9
|
0,16
|
1,44
|
|
Балка
|
-
|
м
|
4,48
|
9,24
|
41,40
|
|
Добор
|
-
|
м3
|
0,005
|
600,0
|
3,0
|
|
|
|
|
|
|
|
|
|
Армирование стен и перемычек
|
Спецификация
элементов арматуры
|
|

|
Номер поз.
|
Наименование
|
Единица измерения
|
Количество
|
Масса, кг
|
|
единицы
|
общая
|
|
1
|
Каркасы пространственные КП-1
|
шт.
|
5
|
7,6
|
38,0
|
|
2
|
КП-2
|
шт.
|
3
|
5,7
|
17,1
|
|
3
|
КП-3
|
а/т.
|
1
|
16,0
|
16,0
|
|
4
|
КП-4
|
шт.
|
1
|
9,0
|
9,0
|
|
5
|
Каркасы плоские К-1
|
шт.
|
4
|
2,9
|
11,6
|
|
6
|
Сетка арматурная 200/200/5/5
|
м2
|
56
|
1,7
|
95,2
|
|
7
|
Сетка арматурная 100/100/5/5
|
-"-
|
12
|
3,34
|
40,08
|
|
8
|
Петля
|
шт.
|
4
|
.0,74
|
2,96
|
|
9
|
Закладная деталь
|
шт.
|
4
|
5,0
|
20,0
|
|
10
|
Уголок L 63×6
|
м
|
8,3
|
5,72
|
47,48
|
|
|
Итого
|
|
|
|
297,42
|
Лист 50
Спецификация арматурных элементов
|
Армирование дымо-
вентканалов
|
Номер поз.
|
Наименование
|
Количество, шт.
|
Масса; кг
|
|

|
|
|
|
единицы
|
общая
|
|
1
|
Каркас К-1
L
50×5, l = 2660
|
4
|
10,02
|
40,08
|
|
2
|
L
50×5, l = 940
|
6
|
2,64
|
15,84
|
|
3
|
L
50×5, l = 290
|
6
|
1,093
|
6,56
|
|
4
|
-80×6, l
= 120
|
4
|
0,45
|
1,80
|
|
|
итого
|
|
|
64,28
|
|
|
|
|
|
|
Для образования каналов предусмотрены
асбестоцементные трубы, которые устанавливаются в процессе бетонирования и
остаются в теле бетона.
Лист 51
|

|

|
|
1 - кран пневмоколесный КС-4361 А;
2 - автобетоносмеситель СБ-92 А;
3- бункер поворотный БЛ-1,0;
4 - щиты опалубки;
5 - забетонированная стена;
6 - направление движения крана;
7 - временная дорога
Ст1…Ст2 - стоянки крана
|
Лист 52
|

|
Спецификация сборных элементов перекрытий
|
|
Марка
|
Наименование
|
Количество
|
Масса; кг
|
|
единицы
|
о5щая
|
|
Плиты перекрытий
|
|
П1
|
ПК 42.15-ВТ
|
5
|
1970
|
9850
|
|
П2
|
ПК 42.12-ВТ
|
3
|
1430
|
4290
|
|
П3
|
ПК 42.10-ВТ
|
3
|
1055
|
3165
|
|
П4
|
ПК 30.15-ВТ
|
2
|
1425
|
2850
|
|
П5
|
ПК 30.12-ВТ
|
1
|
1088
|
1088
|
|
П6
|
ПК 30.10-ВТ
|
2
|
882
|
1764
|
|
П7
|
ПТП 12.5.11.9
|
1
|
198
|
198
|
|
Пepeмычки
|
|
ПР1
|
1ПР1-10.12.14
|
3
|
50
|
150
|
|
|
|
|
|
|
|
РМ1
|
Металлическая рама
|
1
|
343,13
|
343,13
|
|
|
|
|
|
|
Лист
53
Монтаж плит перекрытия

1 - кран пневмоколесный КС-4361 А; 2 - плита перекрытия;
3 - щит опалубки; 4 - площадка
складирования плит перекрытия;
5 - строп четырехветвевой;
6 - направление движения крана, 7 - площадка передвижения;
(1). (17) - последовательность монтажа плит перекрытия; Ст. № 1…Ст. № 2
- стоянки крана
Лист 54
Организация работ при устройстве кровли из асбестоцементных листов
|

|

|
|

|
1 -
стропильные ноги; 2 - обрешетка; 3 - асбестоцементные листы; 4 - шнур; 5 -
рабочие ходы; 6 - направление укладки листов; 7 - щит из трех досок; 8 - опорные поперечины; 9 - ходовые
бруски; 10 - лист угловой; 11 - листы фронтонные и конькового ряда; 12 -
листы фронтонные и карнизного ряда; 13 - листы рядового покрытия;
(К1) (К2) - рабочие места кровельщиков;
(Т1) - рабочее место такелажника
|
Лист 55
Устройство кровли из асбестоцементных листов

Лист 56
Спецификация элементов кровли
|
Номер поз.
|
Наименование
|
Ед. изм
|
Количество
|
Объем. м3
|
|
1
|
Стропильная нога l - 4750
|
шт.
|
32
|
1,11
|
|
2
|
Стропильная нога l - 4750
|
шт.
|
9
|
0,27
|
|
3
|
Прогон 100×100
|
см
|
91
|
0,09
|
|
4
|
Стойки 100×100 l = 2850
|
шт.
|
9
|
0,29
|
|
5
|
Подкосы 100×100 l = 2500
|
шт.
|
18
|
0,25
|
|
6
|
Мауэрлат 100×50R
|
м
|
19,5
|
0,16
|
|
7
|
Кобылки 44×94 l = 1300
|
шт.
|
9
|
0,05
|
|
8
|
Накладки 50×75 l = 400
|
шт.
|
36
|
0,05
|
|
9
|
-"- 50×150 l
= 500
|
шт.
|
18
|
0,07
|
|
10
|
-"- 50×100 l
= 400
|
шт.
|
32
|
0,06
|
|
11
|
Подкладки 50×150 l = 250
|
шт.
|
9
|
0,02
|
|
12
|
Обрешетка 50×50
|
м
|
360
|
0,90
|
|
13
|
Коньковый брус 50×150
|
м
|
10
|
0,08
|
|
14
|
Подшивка 25×150
|
м2
|
29
|
0,725
|
|
15
|
Лобовая доска 25×150
|
м
|
67,0
|
0,25
|
|
16
|
Прогон 100×100
|
м
|
6,3
|
0,02
|
|
План полов
|
Экспликация полов
|
|

|
Наименование помещений
по проекту
|
Тип пола по проекту
|
Элементы пола, их толщина, мм
|
Площадь пола, м2
|
|
Жилые комнаты, кухня, прихожая, веранда
|
I
|
Покрытие - доски шпунтованные - 28
деревянные прокладки - 25
два слоя толя -
Бетонные столбики 175
утрамбованный грунт -
|
71,2
|
|
ванная, уборная
|
II
|
Покрытие - керамическая плитка по ГОСТ 6787-80-13
бетон - М100 - 80
утрамбованный грунт -
|
3,0
|
|
топочная
|
III
|
Покрытие - бетон М200 - 20
М100 - 80
Утрамбованный грунт -
|
5,6
|
|
крыльцо
|
IV
|
Цементнопесчаный раствор М150 - 20
бетон М100 - 100
Утрамбованный грунт -
|
3,8
|
|
|
|
|
|
Лист 57
|
Полы дощатые
|
Спецификация элементов
деревянных полов
|
|

|
Номер поз.
|
Наименование
|
Единица измерения
|
Количество
|
|
1
|
Лаги 100×50 (R)
|
м2
|
14,8
|
|
2
|
Прокладка 150×25 (h), l = 150
|
шт.
|
163
|
|
3
|
Шпунтованные доски δ =
28
|
м2
|
71,2
|
|
4
|
Бетонные столбики и входы
|
м3
|
2,31
|
|
|
|
|
|
Лист 58
Организация работ при устройства полов
|

|

|

|
|
1 - маяки из бетона, 2 - вибратор
поверхностный электрический UB-91А; 3 - пол бетонный; 4
- направление уплотнения; 5 - лопата ; 6 - тележка вместимостью 0,12 м3;
(B1) (В2) - рабочие места бетонщиков
|
7 - маячный
ряд из керамической плитки; 8 - клеточный шаблон, 3 - контейнер для плиток;
10 - ведро, 11 - уложенное покрытие попа
(О1), (О2) - рабочие
места облицовщиков
|
12 - столбики
из бетона, 13 - фризовые
доски; 14 - лаги, 15 - настланные доски покрытия; 16 - доски, разложенные для
укладки; 17 - ящики с
инструментом, (П1) (П2) - рабочие места плотников
|
Лист 59
|
Отделка
помещений
|
Расположение
форсунки относительно окрашиваемой поверхности
|
Нанесение известковой краски
|
|

|

|

|
|
1 - краскопульт ручного действия СО-20В; 2 -
ведро; 3 - малярная удочка
|
Ведомость отделки помещений
|
Номера поз.
|
Наименование помещения
|
Потолок
|
Стены или перегородки
|
Низ стен или
перегородок
|
Примечание
|
|
Площадь
м2
|
вид отделки
|
Площадь
м2
|
вид отделки
|
Площадь
м2
|
вид отделки
|
Высота, м
|
|
I
|
Общая комната
|
19,1
|
Окраска известковой краской
|
41,2
|
Оклейка обоями
|
-
|
-
|
-
|
Отделка на всю высоту
|
|
II
|
Спальные комнаты
|
24,0
|
То же
|
63,6
|
То же
|
-
|
-
|
-
|
То же
|
|
III
|
Прихожая
|
6,7
|
"
|
16,8
|
"
|
-
|
-
|
-
|
"
|
|
IV
|
Кухня
|
9,2
|
"
|
27,0
|
Окраска эмульсионной краской ПВА
|
2,5
|
Глазуровонная плитка
|
1,0
|
Облицовка рабочего фронта за оборудованием
|
|
V
|
Ванная
|
2,2
|
"
|
11,1
|
Клеевая покраска
|
1,0
|
То же
|
1,0
|
То же
|
|
VI
|
Уборная
|
1,0
|
"
|
11,0
|
То же
|
-
|
-
|
-
|
Отделка на всю высоту
|
|
VII
|
Веранда
|
8,4
|
"
|
18,6
|
"
|
-
|
-
|
-
|
То же
|
|
VIII
|
Топочная
|
5,3
|
"
|
23,9
|
"
|
-
|
-
|
|
"
|
|
IX
|
Коридор
|
1,8
|
"
|
9,33
|
Оклейка обоями
|
-
|
-
|
-
|
"
|
Лист 60

1 - стальные штыри, 2 -
шнур, натянутый по отвесу, 3 - рейка, 4 - маячные
плитки, 5 - причальный шнур, 6
- стремянка, 7 - столик-подмости, 8 - столик обойщика, 9 - ведро с
клейстером, 10 - место складирования
обоев, 11 - направление работ,
12 - правила, 13 - малка, 14 - вырез, 15 - коробка, 16 - конопатка
Лист 61
Операционный контроль
качества должен осуществляться в ходе выполнения строительных процессов и
обеспечивать своевременное выявление дефектов и принятие мер по их устранению и
предупреждению.
При операционном контроле
следует проверять соблюдение технологии выполнения строительно-монтажных
процессов; соответствие выполняемых работ рабочим чертежам, строительным
нормам, правилам и стандартам. Результаты операционного контроля должны
фиксироваться в журнале работ.
Основные положения
операционного контроля качества работ приведены в табл. 2.
Таблица 2
Операционный контроль качества
работ
|
Наименование процессов, подлежащих контролю
|
Предмет контроля
|
Инструмент и способ контроля
|
Периодичность контроля
|
Ответственный за контроль
|
Технические критерии оценки качества
|
|
Разработка грунта
|
Отклонение отметок дна котлована от проектных
|
Нивелир, измерительная линейка
|
После выполнения работ
|
Мастер
|
Допускаемое отклонение - не более 5 см
|
|
Монтаж опалубки
|
Точность установки опалубки:
|
|
|
|
|
|
для конструкций, готовых под окраску без шпатлевки
|
линейка измерительная
|
В процессе работ
|
-"-
|
Перепад поверхностей, в том числе стыковых, не более 2 мм
|
|
для конструкций, готовых под оклейку обоями
|
То же
|
То же
|
-"-
|
То же, не более 1 мм
|
|
Прогиб вертикальных поверхностей собранной опалубки
|
Нивелир, линейка измерительная, отвес
|
-"-
|
-"-
|
Допускаемый прогиб не более 1/400 пролета
|
|
Монтаж арматуры
|
Отклонения в расстоянии между отдельными установленными рабочими
стержнями
|
Линейка измерительная
|
-"-
|
-"-
|
Допускаемое отклонение ± 20 мм
|
|
Укладка бетонной смеси
|
Отклонение от проектной толщины защитного слоя бетона
|
То же
|
-"-
|
-"-
|
Соответствие требованиям СНиП 3.03.01-87
|
|
Толщина укладываемых слоев
|
-"-
|
-"-
|
-"-
|
Допускаемая толщина укладываемых слоев при уплотнении ручными
глубинными вибраторами не должна превышать Г/25 длины рабочей части вибратора
|
|
Распалубливание конструкций
|
Проверка соблюдения сроков распалубливания
|
Испытания по ГОСТ
10180-78* ГОСТ
18105-86*
|
По окончании бетонных работ
|
Производитель работ, строительная лаборатория
|
Соответствие требованиям СНиП 3.03.01-87
|
|
Приемка бетонных конструкций
|
Отклонение линий плоскостей пересечения от вертикали для стен
|
Линейка измерительная
|
По окончании работ
|
Производитель работ
|
Допускаемое отклонение -10 мм
|
|
Местные неровности поверхности бетона
|
Двухметровая рейка
|
То же
|
То же
|
Допускаемые неровности - 5 мм
|
|
Размер поперечного сечения
|
линейка измерительная
|
-"-
|
-"-
|
Допускаемые отклонения: плюс 6 мм; минус 3 мм
|
|
Отметки поверхностей, служащих опорами для сборных железобетонных
элементов
|
Нивелир
|
-"-
|
-"-
|
Допускаемое отклонение - 5 мм
|
|
Монтаж плит перекрытия
|
Разность отметок лицевых поверхностей двух смежных непреднапряженных
панелей (плит) перекрытий в шве
|
Линейка измерительная
|
В процессе работ
|
Мастер
|
Допускаемое отклонение - не более 8 мм при длине плит до 4 м
|
|
Монтаж плит перекрытия
|
Глубина опирания на опорные конструкции
|
Линейка измерительная
|
В процессе работ
|
Мастер
|
Соответствие проекту
|
|
Устройство кровли из асбестоцементных листов
|
Расстояние между элементами обрешетки
|
То же
|
То же
|
-"-
|
То же
|
|
Отсутствие видимых просветов в покрытии при осмотре кровли из
чердачных помещений
|
Визуально
|
-"-
|
-"-
|
-
|
|
Отсутствие отколов и трещин
|
То же
|
-"-
|
-"-
|
-
|
|
Прочное соединение водосточных труб между собой
|
-"-
|
-"-
|
-"-
|
-
|
|
Подготовка поверхностей под окраску
|
Наличие местных неровностей
|
Линейка измерительная Визуально
|
-"-
|
-"-
|
Допускаемые неровности - не более 2 на площади 4 м2 при
глубине до I мм
|
|
Отклонение оконных и дверных откосов от вертикали и горизонтали для
улучшенной штукатурки
|
То же
|
-"-
|
-"-
|
Допускаемые отклонения - не более 2 мм на 1 м2 и не более
5 мм на весь элемент
|
|
Отклонение ширины откоса от проектной при улучшенной штукатурке
|
-"-
|
-"-
|
-"-
|
Допускаемое отклонение - не более 3 мм
|
|
Облицовка стен
|
Отклонение расположения швов от вертикали и горизонтали
|
-"-
|
-"-
|
-"-
|
Допускаемое отклонение - не более 1,5 мм на 1 м2 длины
|
|
Неровности поверхности
|
Контрольная двухметровая рейка, измерительная линейка Не менее 5
измерений на 70-100 м2 поверхности
|
-"-
|
-"-
|
Допускаемое отклонение - не более 2 мм
|
|
Отклонение ширины шва
|
Линейка измерительная
|
-"-
|
-"-
|
Допускаемое отклонение - 0,5 мм
|
|
Отклонение плоскости всего поля отделки по диагонали, вертикали и
горизонтали от проектной
|
То же
|
-"-
|
-"-
|
Допускаемые отклонения - не более 1,5 мм на 1 м2 и не
более 7 мм на всю поверхность
|
|
Отделка поверхностей
|
Толщина шпатлевочного слоя
|
Измерительная линейка. Не менее 6 измерений, на 50-70 м2
поверхности покрытия
|
-"-
|
-"-
|
Допускаемое отклонение - не более 1,5 мм
|
|
Отделка поверхностей
|
Толщина окрасочного покрытия
|
Измерительная линейка.
Не менее 5 измерений, на 50-70 м2 поверхности покрытия
|
В процессе работ
|
Мастер
|
Толщина окрасочного покрытия - не менее 25 мкм.
Допускаемое отклонение - не более 1,5 мм
|
|
Качество покрытия водными составами
|
Визуально
|
То же
|
Производитель работ
|
Поверхность должна быть однотонная, без полос, пятен, подтеков,
брызг. Местные исправления, выделяющиеся на общем фоне, не должны быть
заметны на расстоянии 3 м от поверхности
|
|
Качество покрытия масляными составами
|
То же
|
-"-
|
То же
|
Поверхности должны иметь однотонную глянцевую или матовую
поверхность. Не допускаются просвечивание нижележащих слоев краски,
отслоения, пятна, морщины, подтеки, видимые крупинки, следы кисти и валика,
неровности, отпечатки высохшей краски на приложенном тампоне
|
|
Оклейка обоями
|
-"-
|
-"-
|
-"-
|
Кромки нахлесток полотнищ должны быть обращены к световым проемам.
Полотнища должны быть одинакового цвета и оттенка с точной пригонкой рисунка
на стыках.
Отступления кромок должны быть не более 0,5 мм.
Не допускаются воздушные пузыри, пятна, пропуски, доклейки и
отслоения
|
|
Остекление оконных и дверных проемов
|
-"-
|
-"-
|
-"-
|
Стекло должно перекрывать фальцы переплетов не более чем на 3/4 ширины
|
|
Устройство полов
|
Отклонение поверхности покрытия от плоскости
|
Двухметровая контрольная рейка. Не менее 9 измерений на каждые 50-70
м2 поверхности покрытия или в одном помещении меньшей площади
|
В процессе работ
|
Производитель работ
|
Допускаемые отклонения: 2 мм - для полов из досок; 4 мм - для
цементно-бетонных и керамических полов
|
|
Отклонение от заданного уклона покрытия
|
То же
|
То же
|
То же
|
Допускаемое отклонение - 0,2 % соответствующего размера помещения, но
не более 50 мм
|
|
Отклонение по толщине покрытия
|
То -же, не менее 5 измерений
|
-"-
|
-"-
|
Допускаемое отклонение - не более 10 % от проектной толщины
покрытия
|
|
Зазор между досками
|
То же
|
-"-
|
-"-
|
Не более 1 мм
|
|
Штукатурные работы
|
Отклонение от вертикали для улучшенной штукатурки
|
-"-
|
-"-
|
-"-
|
Допускаемые отклонения - не более 2 мм на 1 м и не более 10 мм на всю
высоту помещения
|
Таблица 3
Калькуляция затрат труда,
машинного времени, заработной платы приведена в табл. 3.
|
Наименование процесса
|
Номер фасета для пересчета показателей
|
Единица измерения
|
Объем работ
|
Обоснование (ЕНиР и др. нормы)
|
Норма времени
|
Расценка р.-к.
|
Затраты труда
|
Заработная плата, р.-к.
|
Время пребывания машины на объекте, маш. -смен
|
Заработная плата машиниста с учетом пребывание
машины на объекте, р.-к.
|
|
|
|
|
|
|
рабочих, чел.-ч
|
машиниста, чел.-ч (маш.-ч
|
рабочих
|
Маши-ниста
|
рабочих, чел.-дн.
|
Маши-ниста, чел.-дн. (маш.-смен
|
рабочих
|
Маши-ниста
|
|
|
|
Подготовка площадки строительства
|
|
|
|
|
|
|
Устройство
временной дороги
|
|
|
|
ЕНиР,
1979,
|
|
|
|
|
|
|
|
|
|
|
|
Подготовка
из песка
|
|
100 м2
|
4,7
|
табл.
2,п. 6
|
-
|
0,12
(0,12)
|
-
|
0-12,7
|
-
|
0,07
(0,07)
|
-
|
0-60
|
0,07
|
0-60
|
|
Покрытие
из гравийно-щебеночной смеси
|
|
100 м2
|
4,7
|
То
же, п.12
|
|
0,23
(0,23)
|
|
0-24,4
|
|
0,13
(0,13)
|
|
1-15
|
0,13
|
1-15
|
|
Устройство
временного забора
|
|
м2
|
323
|
ЕНиР,
1988, §Е6-31, п. 1
|
0,28
|
-
|
0-18,9
|
-
|
11,0
|
-
|
61-05
|
-
|
-
|
-
|
|
Установка
временных зданий
|
|
I здание
|
2
|
ЕНиР,
1988, §Е6-41, (применительно)
|
8,0
|
4,0 (4,0)
|
5-96
|
3-64
|
1,95
|
0,97
(0,97)
|
11-92
|
7-28
|
0,97
|
7-28
|
|
Итого
|
|
12,95
|
1,17
(1,17)
|
72,97
|
9,03
|
1,17
|
9,03
|
|
А. Подземная часть
|
|
Земляные работы
|
|
Планировка
поверхности бульдозером (грунт II группы)
|
01
|
1000 м2
|
0,391
|
ЕНиР,
1988, № 2-1-35, п. 1а
|
-
|
0,41
(0141)
|
-
|
0-37,3
|
-
|
0,02
(002)
|
-
|
0-15
|
0,02
|
0-15
|
|
Срезка
растительного грунта бульдозером с перемещением грунта в отвал
|
02
|
1000 м2
|
0,13
|
ЕНиР,
1988 § Е2-1-5, п. 1б
|
-
|
1,8
(1,8)
|
-
|
I-9I
|
-
|
0,03
(0,03)
|
-
|
0-25
|
0,03
|
0-25
|
|
Разработка
грунта бульдозером с перемещением в отвал
|
03
|
100 м3
|
0,72
|
ЕНиР,
1988, § Е2-1-22, табл. 2, п. 1б
|
-
|
1,1
(1,1)
|
-
|
1-00
|
-
|
0,10
(0,10)
|
-
|
0-72
|
0,10
|
0-72
|
|
Погрузка
грунта из отвала в автосамосвалы экскаватором с ковшом вместимостью 0,5 м
|
04
|
100 м3
|
0,72
|
ЕНиР,
1988, § Е2-1-11, табл. 7, п. 3а
|
-
|
2,8
(2,8)
|
-
|
2-97
|
-
|
0,25
(0,25)
|
|
2-14
|
0,25
|
2-14
|
|
Транспортирование
грунта из отвала автосамосвалами на расстояние до 3 км
|
-
|
100 м3
|
0,72
|
-
|
-
|
14,24
(14,24)
|
-
|
10-68
|
-
|
1,25 (1,25)
|
-
|
7-68
|
1,25
|
7-68
|
|
Устройство
подстилающего слоя из песка с разравниванием бульдозером
|
-
|
100 м3
|
0,28
|
ЕНиР,
1988, § Е2-1-22, табл. 2 п. 1а, К=0,85 (примечание)
|
-
|
0,80
(0,80)
|
-
|
0-72,7
|
-
|
0,03 (0,03)
|
-
|
0-20
|
0,03
|
0-20
|
|
Обратная
засыпка пазух фундаментов песком с применением бульдозера
|
-
|
100 м3
|
0,09
|
ЕНиР,
1988, § E2-1-34, п. 1а
|
-
|
0,66
(0,66)
|
-
|
0-60,1
|
-
|
0,01. (0,01)
|
-
|
0-05
|
0,01
|
0-05
|
|
То
же, с применением экскаватора
|
05
|
100 м3
|
0,34
|
ЕНиР,
1988, § Е2-1-11, табл. 7, п. 3ж
|
-
|
2,2
(2,2)
|
-
|
2-33
|
-
|
0,09 (0,09)
|
-
|
0-79
|
0,09
|
0-79
|
|
Поливка
песка водой
|
-
|
100 м2
|
2,37
|
ЕНиР,
1987, § Е4-1-54, п.9, (применительно)
|
0,14
|
-
|
0-09
|
-
|
0,04
|
-
|
0-21
|
-
|
-
|
-
|
|
Разравнивание
песка обратной засыпки вручную
|
|
м3
|
43
|
ЕНиР,
1988, § 2-1-57, табл. 1, п. 1а
|
0,07
|
-
|
0-04,1
|
|
0,37
|
-
|
1-76 1-97
|
-
|
-
|
-
|
|
Итого:
|
|
|
|
|
|
|
|
|
0,41
|
1,78
(1,78)
|
1-97
|
11-98
|
1,78
|
11-98
|
|
Устройство фундаментов
|
|
Установка
плоских каркасов массой до 20 кг
|
06
|
шт.
|
69
|
ЕНиР
1987, § Е4-1-44, табл. 2, п.а
|
0,17
|
-
|
0-11,2
|
-
|
1,43
|
-
|
7-73
|
-
|
-
|
-
|
|
Установка
отдельных стержней диаметром: до 6 мм
|
|
т
|
0,046
|
ЕНиР,
1987, § Е4-1-46, п. 3а
|
28,0
|
-
|
21-70
|
.-
|
0,16
|
-
|
1-00
|
-
|
-
|
-
|
|
до
12 мм
|
07
|
т
|
0,008
|
То
же, п. 3в
|
18,5
|
-
|
14-34
|
-
|
0,02
|
-
|
0-11
|
-
|
-
|
-
|
|
Установка
опалубки фундаментов
|
08
|
м2
|
115,51
|
ЕНиР,
1987, § Е4-1-37, табл. 2, п.1
|
0,39
|
-
|
0-29,1
|
-
|
5,49
|
-
|
33-61
|
-
|
-
|
-
|
|
Подача
элементов опалубки к месту установки
|
09
|
100 т
|
0,12
|
ЕНиР,
1987, § Е1-6, табл. 2, п.17, а, б
|
23,0
|
11,5
(11,5)
|
14-72
|
12-19
|
0,34
|
0,17 (0,17)
|
1-77
|
1-46
|
0,17
|
1-46
|
|
Прием
бетонной смеси из автобетоносмесителей
|
-
|
м3
|
18,02
|
ЕНиР,
1987, § Е4-1-48, табл. 3 (применительно)
|
0,11
|
-
|
0-07
|
-
|
0,24
|
-
|
1-26
|
-
|
-
|
-
|
|
Подача
бетонной смеси к месту укладки
|
10
|
м3
|
18,02
|
ЕНиР,
1987, § Е1-6, п.15, 16 (по экстраполяции)
|
0,19
|
0,095 (0,095)
|
0-12,3
|
0-10,1
|
0,42
|
0,21 (0,21)
|
2-22
|
1-82
|
3,83
|
28-58
|
|
Укладка
бетонной смеси в ленточные фундаменты шириной до 600 мм
|
11
|
м3
|
18,02
|
ЕНиР,
1987, § Е4-1-49, табл. 2, п.I
|
0,3
|
-
|
0-21,5
|
-
|
0,66
|
-
|
3-87
|
-
|
-
|
-
|
|
Демонтаж
опалубки фундаментов
|
12
|
м2
|
115,51
|
ЕНиР,
1987, § Е4-1-37, табл. 2, п.2
|
0,21
|
-
|
0-14,1
|
-
|
2,96
|
-
|
16-29
|
-
|
-
|
-
|
|
Горизонтальная
гидроизоляция гидроизолом в два слоя
|
13
|
100 м2
|
0,19
|
ЕНиР,
1988, §Е3-2, табл. 1, п. 2
|
8,3
|
-
|
5-81
|
-
|
0,19
|
-
|
1-10
|
-
|
-
|
-
|
|
Боковая
обмазочная гидроизоляция фундаментов битумом:
|
|
|
|
|
|
|
|
|
|
|
|
|
|
|
|
I слой
|
14
|
100 м2
|
0,44
|
ЕНиР,
1988, § Е11-37, п. 3а
|
1,6
|
-
|
1-14
|
-
|
0,09
|
-
|
0-50
|
-
|
-
|
-
|
|
II слой
|
-
|
100 м2
|
0,44
|
То
же, К=0,85 (примечание)
|
1,36
|
-
|
0-96,9
|
-
|
0,07
|
-
|
0-43
|
-
|
-
|
-
|
|
Итого
|
|
|
|
|
|
|
|
|
12,07
|
0,38
(0,38)
|
69-89
|
3-28
|
4,0
|
30-04
|
|
Всего
по подземной части
|
|
|
|
|
|
|
|
|
12,48
|
2,16
(2,16)
|
71-86
|
15-26
|
5,78
|
42-02
|
|
Б. Надземная часть
|
|
Стены наружные и внутренние
|
|
Установка опалубки стен
при площади панелей, м2, до:
|
|
|
|
|
|
|
|
|
|
|
|
|
|
|
|
10
|
-
|
м2
|
494,00
|
ЕНиР,
1987, § Е4-1-37, табл. 4, п. 1а
|
0,28
|
0,09
(0,09)
|
0-20,4
|
0-09,5
|
16,87
|
5,42
(5,42)
|
100-77
|
46-93
|
5,42
|
46-93
|
|
20
|
-
|
м2
|
47,48
|
То
же, п. 2а
|
0,24
|
0,08
(0,08)
|
0-17,5
|
0-08,5
|
1,39
|
0,46
(0,46)
|
8-31
|
4-04
|
0,46
|
4-04
|
|
Установка
проемообразователей
|
-
|
шт.
|
17
|
Местная
норма НИС треста Мослифтмонтаж
|
0,30
|
0,26
(0,26)
|
0-22,4
|
0-23,7
|
0,62
|
0,54
(0,54)
|
3-81
|
4-03
|
0,54
|
4-03
|
|
Установка
рабочего настила
|
-
|
м2
|
128,7
|
ЕНиР,
1987, § Е6-52, п.3 (применительно)
|
0,06
|
-
|
0-04
|
-
|
0,94
|
-
|
5-15
|
-
|
-
|
"
|
|
Подача
элементов опалубки к месту установки
|
09.
|
100 т
|
0,51
|
ЕНиР,
1987, § Е1-6, табл. 2, п. 17а, б
|
23,0
|
11,5
(11,5)
|
14-72
|
12-19
|
1,43
|
0,72
(0,72)
|
7-51
|
6-22
|
0,72
|
6-22
|
|
Установка
арматурных каркасов и сеток стен и колонн
|
Об
|
шт.
|
3 6
|
ЕНиР,
1987, § E4-1-44, табл. 2, п. а
|
0,17
|
-
|
0-11,2
|
-
|
0,75
|
-
|
4-03
|
-
|
-
|
-
|
|
Установка
опалубки колонны крыльца
|
15
|
м2
|
3,32
|
ЕНиР,
1987, § Е4-1-37, табл. 6, п. 1а
|
0,19
|
0,06
(0,06)
|
0-13,9
|
0-06,4
|
0,08
|
0,02
(0,02)
|
0-46
|
0-21
|
0,02
|
0-21
|
|
Прием
бетонной смеси из автобетоносмесителей
|
|
м3
|
74,56
|
ЕНиР,
1987, § E4-1-48, табл. 3 (применительно)
|
0,11
|
-
|
0-07
|
-
|
1,00
|
-
|
5-22
|
-
|
-
|
|
|
Подача
бетонной смеси к месту укладки
|
10
|
м3
|
74,56
|
ЕНиР,
1987, § Е1-6, п.п. 15, 16 (по экстраполяции)
|
0,19
|
0,095
(0,095)
|
0-12,6
|
0-10,1
|
1,73
|
0,85
(0,86)
|
9-39
|
7-53
|
0,86
|
7-53
|
|
Укладка
бетонной смеси в стены толщиной, мм:
|
|
|
|
ЕНиР,
1987, § Е4-1-49, табл. 3, п. 1г
|
|
|
|
|
|
|
|
|
|
|
|
До
300
|
16
|
м3
|
9,55
|
1,2
|
-
|
0-85,8
|
-
|
1,40
|
-
|
8-19
|
-
|
-
|
|
|
свыше
300
|
-
|
м3
|
63,13
|
То
же, п. 1д
|
0,79
|
-
|
0-56,5
|
-
|
6,08
|
-
|
35-66
|
-
|
-
|
-
|
|
То
же, в перегородки
|
-
|
м3
|
0,97
|
ЕНиР,
1987, § Е4-1-49, табл. 3, п; 1а
|
3,5
|
-
|
2-50
|
-
|
0,41
|
-
|
2-43
|
-
|
-
|
-
|
|
Укладка
бетонной смеси в колонну
|
17
|
м3
|
0,09
|
ЕНиР,
1987, § Е4-1-49, табл. 2, п. 3
|
2,2
|
-
|
1-57
|
-
|
0,02
|
-
|
0-14
|
-
|
-
|
-
|
|
Установка
опалубки вентблоков.
|
15
|
м2
|
7,34
|
ЕНиР,
1987, § E4-1-37, табл. 6, п. 2а (применительно)
|
0,12.
|
0,04
(0,04)
|
0-08,8
|
0-04,2
|
0,11
|
0,04
(0,04)
|
0-65
|
0-31
|
0,04
|
0-31
|
|
Установка
металлического каркаса вентблока
|
-
|
шт.
|
_1_
0,06
|
ЕНиР,
1987, § Е5-1-8, п. а, б (применительно)
|
_3_
0,54
|
0,6
(0,6)
0,11
(0,11)
|
2-55
0-45,9
|
0-63,6
0-11,7
|
0,37
0,004
|
0,07
(0,07)
0,001 (0,001)
|
2-55
0-03
|
0-64
0-01
|
0,071
|
0-65
|
|
Укладка
бетонной смеси в вентблок вручную
|
18
|
м3
|
0,82
|
ЕНиР,
1988, § Е4-1-53, п. 2а
|
1,5
|
-
|
1-07
|
-
|
0,15
|
-
|
0-88
|
-
|
-
|
-
|
|
Снятие
рабочего настила
|
-
|
м2
|
128,7
|
ЕНиР,
1987, § Е6-52, п.3, К=0,5 (применительно)
|
0,03
|
|
0-02
|
|
0,47
|
|
2-57
|
|
|
|
|
Демонтаж
проемообразователей
|
-
|
шт.
|
17
|
Местная
норма НИС треста Мослифтмонтаж
|
0,236
|
0,186 (0,186)
|
0-17,6
|
0-16,9
|
0,49
|
0,39
(0,39)
|
2-99
|
2-87
|
0,39
|
2-87
|
|
Демонтаж
опалубки стен при площади щитов, м2, до:
|
|
|
|
ЕНиР,
1987, § E4-1-37, табл. 4, п. 16
|
|
|
|
|
|
|
|
|
|
|
|
10
|
-
|
м2
|
494,00
|
0,11
|
0,04
(0,04)
|
0-07,3
|
0-04,2
|
6,63
|
2,41
(2,41)
|
36-06
|
20-75
|
2,41
|
20-75
|
|
20
|
-
|
м2
|
47,48
|
То
же, п. 2б
|
0,14
|
0,05
(0,05)
|
0-09,2
|
0-05,3
|
0,81
|
0,29
(0,29)
|
4-37
|
2-52
|
2,549
|
19-02
|
|
Демонтаж
опалубки колонн
|
19
|
м2
|
3,32
|
ЕНиР,
1987, § E4-1-37, табл. 6, п.16
|
0,14
|
0,05
(0,05)
|
0-09,2
|
0-05,3
|
0,06
|
0,02
(0,02)
|
0-31
|
0-18
|
0,02
|
0-18
|
|
Распалубка
вентблока
|
19
|
м2
|
7,34
|
ЕНиР,
1987, § Е4-1-37, табл. 6, п.26 (применительно)
|
0,09
|
0,03
(0,03)
|
0-05,9
|
0-03,2
|
0,08
|
0,03
(0,03)
|
0-43
|
0-23
|
0,03
|
0-23
|
|
Улучшенная
штукатурка вентблока по сетке:
установка сетки
|
-
|
м2
|
5,0
|
ЕНиР,
1989, § Е8-1-1, табл. 3, п.5 (применительно)
|
0,28
|
-
|
0-19,6
|
-
|
0,17
|
-
|
0-98
|
-
|
-
|
-
|
|
Нанесение
штукатурного раствора вручную
|
20
|
100 м2
|
0,05
|
ЕНиР,
1989, § Е8-1-2, табл. 2, п. 2, 4, 6, 8
|
183,0
|
-
|
147-32
|
-
|
1,12
|
-
|
7-37
|
-
|
-
|
-
|
|
Изоляция„стен
теплоизоляционной ватой
|
-
|
м2
|
4,2
|
ЕНиР,
1988, § E11-41, п.1
|
0,48
|
-
|
0-34,1
|
-
|
0,25
|
-
|
1-43
|
-
|
-
|
-
|
|
Установка
зонта над вентблоком из листовой стали
|
-
|
шт.
|
1
|
ЕНиР,
1987, § Е7-8, п. 4, 5
|
1,41
|
-
|
0-98,7
|
-
|
0,17
|
-
|
0-99
|
-
|
-
|
-
|
|
Итого:
|
|
|
|
|
|
|
|
|
43,604
|
11,271 (11,271)
|
252-68
|
96-47
|
13,53
|
112-97
|
|
Устройство перекрытия
|
|
.Монтаж
плит перекрытия площадью до 5 м2
|
-
|
шт.
|
8
|
ЕНиР,
1987, § 4-1-7, п .8а, б
|
0,64
|
0,16
(0,16)
|
0-45,3
|
0-17
|
0,62
|
0,16
(0,16)
|
3-62
|
1-36
|
0,16
|
1-36
|
|
То
же, площадью до 10 м2
|
21
|
шт.
|
9
|
То
же, п. 9 а, б
|
0,84
|
0,21
(0,21)
|
0-59,4
|
0-22,3
|
0,92
|
0,23
(0,23)
|
5-35
|
2-01
|
0,43
|
3-21
|
|
Укладка
перемычек массой
|
-
|
шт.
|
3
|
ЕНиР,
1987, § Е4-1-6, табл. 2, п. 1в, г (применительно]
|
0,85
|
0,17
(0,17)
|
0-63,6
|
0-18
|
0,31
|
0,06
(0,06)
|
I-9I
|
0-54
|
0,06
|
0-54
|
|
Монтаж
металлической рамы
|
-
|
т
|
0,34
|
ЕНиР,
1987, § Е5-1-10, табл. 1, п.3 а, в (применительно)
|
5,0
|
1,7
|
3-65
|
1-80
|
0,21
|
0,07
(0,07)
|
1-24,
|
0-61
|
0,07
|
0-61
|
|
Заливка
швов перекрытия
|
-
|
100 м
|
1,09
|
ЕНиР,
1987, § Е4-1-26, п. 3б
|
6,4
|
-
|
4-77
|
-
|
0,85
|
-
|
5-20
|
-
|
-
|
-
|
|
Итого:
|
|
|
|
|
|
|
|
2,91
|
0,52
(0,52)
|
17-32
|
4-52
|
0,72
|
5-72
|
|
Устройство кровли
|
|
Устройство
прокладки из одного слоя пергамина
|
-
|
100 м2
|
0,97
|
ЕНиР,
1987, § Е7-13, п.1
|
6,7
|
-
|
4-49
|
|
0,79
|
-
|
4-36
|
-
|
-
|
-
|
|
Теплоизоляция
кровли минераловатными плитами
|
-
|
100 м2
|
0,97
|
ЕНиР,
1987, § Е7-14, п.10
|
10
|
-
|
6-70
|
-
|
1,18
|
-
|
6-50
|
-
|
-
|
-
|
|
Устройство
крыши из отдельных элементов
|
22
|
100 м2
|
1,35
|
ЕНиР,
1988, § Е6-9, табл. 2, п. 1а
|
29,2
|
-
|
19-62
|
-
|
4,81
|
-
|
26-49
|
-
|
-
|
-
|
|
Укладка
асбестоцементных листов
|
-
|
м2
|
135
|
ЕНиР,
1987, § Е7-5, п. 1г
|
0,2
|
-
|
0-13,4
|
-
|
3,29
|
-
|
18-09
|
-
|
-
|
-
|
|
Подшивка
досками карнизных свесов и установка лобовых досок
|
-
|
м2
|
15,0
|
ЕНиР,
1988, § Е6-25, табл. 2, п.5 (применительно)
|
0,67
|
-
|
0-47,9
|
-
|
1,23
|
-
|
7-19
|
-
|
-
|
-
|
|
Огнезащита
деревянных конструкций
|
-
|
100 м2
|
1,24
|
ЕНиР,
1988, § Е6-32, табл. 2, п.1
|
1,9
|
-
|
1-17
|
-
|
0,29
|
-
|
1-45
|
-
|
-
|
-
|
|
Устройство
сплошного дощатого настила по утеплителю
|
-
|
100 м2
|
0,80
|
ЕНиР,
1987, § Е19-3, п. 1а К=0,7 (применительно,
|
28,35
|
|
20-27
|
|
2,77
|
|
16-22
|
-
|
-
|
-
|
|
Устройство
дощатого перекрытия на веранде
|
-
|
м2
|
21
|
ЕНиР,
1988, § Е6-3, пп. 1,15
|
0,63
|
-
|
0-43,4
|
-
|
1,61
|
-
|
9-11
|
-
|
-
|
-
|
|
Подача
асбестоцементных листов вручную
|
-
|
т
|
1,5
|
ЕНиР,
1987 § Е1-19, п.6 (применительно)
|
3,18
|
-
|
2-03
|
-
|
0,58
|
-
|
3-05
|
-
|
-
|
-
|
|
Итого:
|
|
|
|
|
|
|
|
|
16,55
|
|
92-46
|
|
|
|
|
Проемы
|
|
Заполнение
дверных проемов
|
23
|
100 м2
|
0,18
|
ЕНиР,
1988, § Е6-13, табл. 1, п. 3а, б
|
18
|
9,0
(9,0)
|
12-87
|
8-19
|
0,40
|
0,20
(0,20)
|
2-32
|
1-47
|
0,2
|
1-47
|
|
Заполнение
оконных проемов площадью до 20 м2
|
23
|
100 м2
|
0,12
|
То
же
|
18
|
9,0
(9,0)
|
12-87
|
8-19
|
0,26
|
0,13
(0,13)
|
1-54
|
0-98
|
0,13
|
0-98
|
|
То
же, площадью более 4 м
|
-
|
100 м2
|
0,05
|
ЕНиР,
1988, § Е6-13, табл. 1, п. 7а, б
|
11,4
|
5,7
(5,7)
|
8-15
|
5-19
|
0,07
|
0,03
(0,03)
|
0-41
|
0-26
|
0,03
|
0-26
|
|
Установка
подоконных досок
|
24
|
м
|
7,0
|
ЕНиР,
1988, § Е6-13, табл. 3, п.1
|
0,14
|
-
|
0-10
|
-
|
0,12
|
-
|
0-70
|
-
|
-
|
-
|
|
Остекление
оконных проемов
|
25
|
100 м2
|
0,29
|
ЕНиР,
1989, § E8-1-33, табл. 3, п. 1г
|
21,5
|
-
|
15-05
|
-
|
0,76
|
-
|
4-36
|
-
|
-
|
-
|
|
Итого:
|
|
|
|
|
|
|
|
1,61
|
0,36
(0,36)
|
9-33
|
2-71
|
0,36
|
2-71
|
Итого:
|
|
Устройство полов
|
|
Устройство
бетонных столбиков
|
|
м3
|
1,44
|
ЕНиР,
1987, § Е4-1-53, п.16 (применительно)
|
2,2
|
-
|
1-57
|
-
|
0,39
|
-
|
2-26
|
-
|
-
|
-
|
|
Укладка
лаг по бетонным столбикам
|
-
|
м2
|
71
|
ЕНиР,
1987, § Е19-1, п. 1в
|
0,28
|
-
|
0,20
|
-
|
2,42
|
-
|
14-20
|
-
|
-
|
-
|
|
Устройство
дощатых покрытий пола
|
26
|
100 м2
|
0,71
|
ЕНиР,
1987, § Е19-3, п. 1а
|
40,5
|
-
|
28-96
|
-
|
3,51
|
-
|
20-56
|
-
|
-
|
-
|
|
Перепиливание
досок
|
-
|
100 м2 пола
|
0,71
|
То
же, п.2
|
8,2
|
-
|
5-25
|
-
|
0,71
|
-
|
3-73
|
-
|
-
|
-
|
|
Острожка
дощатых полов
|
-
|
100 м2
|
0,71
|
ЕНиР,
1987, § Е19-5
|
4,6
|
-
|
3-63
|
-
|
0,40
|
-
|
2-58
|
-
|
-
|
-
|
|
Устройство
подстилающего слоя из бетона
|
-
|
100 м2
|
0,13
|
ЕНиР,
1987, § Е19-38, п. 1а
|
7,5
|
-
|
5-03
|
-
|
0,12
|
-
|
0-65
|
-
|
-
|
-
|
|
Устройство
бетонных полов
|
-
|
100 м2
|
0,06
|
ЕНиР,
1987, § Е19-31, табл. 1, п. I
|
9,6
|
-
|
6-86
|
-
|
0,07
|
-
|
0-41
|
-
|
-
|
-
|
|
Покрытие
пола керамической плиткой
|
27
|
м2
|
3
|
ЕНиР,
1987, § EI9-19, табл. 1, п. 1а
|
1,2
|
-
|
0-89,4
|
-
|
0,44
|
-
|
2-68
|
-
|
-
|
-
|
|
Устройство
цементных полов
|
28
|
100 м2
|
0,04
|
ЕНиР,
1987, § Е19-32,. табл. 1, п.1
|
15
|
-
|
10-65
|
-
|
0,07
|
-
|
0-43
|
-
|
-
|
-
|
|
Итого:
|
|
|
|
|
|
|
|
|
8,13
|
-
|
47-50
|
|
|
|
|
Внутренняя отделка
|
|
Штукатурка
оконных и дверных откосов
|
29
|
100 м2
|
0,06
|
ЕНиР,
1989, 79, § Е8-1-5, табл. 2, п.56
|
79
|
-
|
56-49
|
-
|
0,58
|
-
|
3-39
|
-
|
-
|
-
|
|
Улучшенная
известковая окраска потолков: проолифливание поверхности
|
-
|
100 м2
|
0,77
|
ЕНиР,
1989, § Е8-1-15, табл. 4, п. 8г
|
3,1
|
-
|
2-45
|
-
|
0,29
|
-
|
1-89
|
-
|
-
|
i
|
|
заполнение
трещин и раковин
|
-
|
-"-
|
0,77
|
п.
б, г
|
0,39
|
-
|
0-25
|
-
|
0,04
|
-
|
0-19
|
-
|
-
|
-
|
|
Очистка
|
-
|
-"-
|
0,77
|
п.
7г
|
0,38
|
-
|
0-24,3
|
-
|
0,03
|
-
|
0-19
|
-
|
-
|
-
|
|
частичное
подмазывание
|
-
|
-"-
|
0,77
|
п.
11г
|
2,9
|
-
|
1-86
|
-
|
0,27
|
-
|
1-43
|
-
|
-
|
-
|
|
шлифование
подмазанных мест
|
-
|
-"-
|
0,77
|
п.
12г
|
0,88
|
-
|
0-61,6
|
-
|
0,08
|
-
|
0-47
|
-
|
-
|
-
|
|
первое
грунтование
|
-
|
-"-
|
0,77
|
п.
21г
|
0,93
|
-
|
0-65,1
|
-
|
0,09
|
-
|
0-50
|
-
|
-
|
-
|
|
частичное
подмазывание
|
-
|
-"-
|
0,77
|
п.
11г
|
2,9
|
-
|
1-86
|
-
|
0,27
|
-
|
1-43
|
-
|
-
|
-
|
|
шлифование
подмазанных мест
|
-
|
-"-
|
0,77
|
п.
12г
|
0,88
|
-
|
0-61,6
|
-
|
0,08
|
-
|
0-47
|
-
|
-
|
-
|
|
второе
грунтование
|
-
|
-"-
|
0,77
|
табл.
6, п. 4г
|
2,1
|
-
|
1-47
|
-
|
0,20
|
-
|
I-I3
|
-
|
-
|
-
|
|
Окрашивание
|
-
|
-"-
|
0,77
|
п.
11г
|
1,2
|
-
|
0-94,8
|
-
|
0,11
|
-
|
0-73
|
-
|
-
|
-
|
|
Улучшенная
клеевая окраска стен:
|
|
|
|
ЕНиР,
1989, § Е8-1-15,
|
|
|
|
|
|
|
|
|
|
|
|
проолифливание
поверхностей
|
-
|
100 м2
|
0,65
|
табл.
4, п.8б
|
2,5
|
-
|
1-98
|
-
|
0,20
|
-
|
1-29
|
-
|
-
|
-
|
|
заполнение
трещин и раковин
|
-
|
100 м2
|
0,65
|
п.
6б
|
0,32
|
-
|
0-20,5
|
-
|
0,03
|
-
|
0-13
|
-
|
-
|
-
|
|
очистка
|
-
|
-"-
|
0,65
|
п.
8б
|
0,31
|
-
|
0-19,8
|
-
|
0,02
|
-
|
0-13
|
-
|
-
|
-
|
|
частичное
подмазывание
|
-
|
-"-
|
0,65
|
п.
11б
|
2,4
|
-
|
1-54
|
-
|
0,19
|
-
|
1-00
|
-
|
-
|
-
|
|
шлифование
подмазанных мест
|
-
|
-"-
|
0,65
|
п.
12б
|
0,72
|
-
|
0-50,4
|
-
|
0,06
|
-
|
0-33
|
-
|
-
|
-
|
|
первое
грунтование
|
-
|
-"-
|
0,65
|
п.
24б
|
1,1
|
-
|
0-77
|
-
|
0,09
|
-
|
0-50
|
-
|
-
|
-
|
|
частичное
подмазывание
|
-
|
-"-
|
0,65
|
п.
11б
|
2,4
|
-
|
1-54
|
-
|
0,19
|
-
|
1-00
|
-
|
-
|
-
|
|
шлифование
подмазанных мест
|
-
|
-"-
|
0,65
|
п.
12б
|
0,72
|
-
|
0-50,4
|
-
|
0,06
|
-
|
0-33
|
-
|
-
|
-
|
|
второе
грунтование
|
-
|
-"-
|
0,65
|
Табл.
6, п. 5б
|
2,5
|
-
|
1-75
|
-
|
0,20
|
-
|
1-14
|
-
|
-
|
-
|
|
окрашивание
|
-
|
-"-
|
0,65
|
п.
15б
|
1,5
|
-
|
1-19
|
-
|
0,12
|
-
|
0-77
|
-
|
-
|
-
|
|
Улучшенная
окраска водоэмульсионными составами:
|
|
-"-
|
|
ЕНиР, 1988, § E8-1-I5
|
|
|
|
|
|
|
|
|
|
|
|
проолифливание
поверхности
|
-
|
100 м2
|
0,27
|
табл.
4, п. 8б
|
2,5
|
-
|
1-98
|
-
|
0,08
|
-
|
0-53
|
-
|
-
|
-
|
|
заполнение
трещин и раковин
|
-
|
-"-
|
0,27
|
п.
6б
|
0,32
|
-
|
0-20,5
|
-
|
0,01
|
-
|
0-06
|
-
|
-
|
-
|
|
очистка
|
-
|
-"-
|
0,27
|
п.
7б
|
0,31
|
-
|
0-19,8
|
-
|
0,01
|
-
|
0-05
|
-
|
-
|
-
|
|
частичное
подмазывание
|
-
|
-"-
|
0,27
|
п.
11б
|
2,4
|
-
|
1-54
|
-
|
0,08
|
-
|
0-42
|
-
|
-
|
-
|
|
шлифование
подмазанных мест
|
|
100 м2
|
0,27
|
п.
12б
|
0,72
|
-
|
0-50,4
|
-
|
0,02
|
-
|
0-14
|
-
|
-
|
-
|
|
первое
грунтование
|
-
|
-"-
|
0,27
|
п.
32б
|
3,4
|
-
|
2-38
|
-
|
0,11
|
-
|
0-64
|
-
|
-
|
-
|
|
частичное
подмазывание
|
-
|
-"-
|
0,27
|
п.
11б
|
2,4
|
-
|
1-54
|
-
|
0,08
|
-
|
0-42
|
-
|
-
|
-
|
|
шлифование
подмазанных мест
|
-
|
-"-
|
0,27
|
п.
12б
|
0,72
|
-
|
0-50,4
|
-
|
0,02
|
-
|
0-14
|
-
|
-
|
-
|
|
второе
грунтование
|
-
|
-"-
|
0,27
|
табл.
6, п. 9б
|
7,6
|
-
|
5-32
|
-
|
0,25
|
-
|
1-44
|
-
|
.-
|
-
|
|
окрашивание
|
-
|
-"-
|
0,27
|
п.
29б
|
4,5
|
-
|
3-56
|
-
|
0,15
|
-
|
0-96
|
-
|
-
|
-
|
|
Оклейка
стен простыми обоями:
|
|
-"-
|
|
ЕНиР,
1989, § Е8-1-28,
|
|
|
|
|
|
|
|
|
|
|
|
очистка
поверхности
|
-
|
100 м2
|
1,31
|
табл.
3, п. 1а
|
0,74
|
-
|
0-47,4
|
-
|
0,12
|
-
|
0-62
|
-
|
-
|
-
|
|
грунтование
поверхности
|
-
|
-"-
|
1,31
|
п.
2а
|
3,3
|
-
|
2-31
|
-
|
0,53
|
-
|
3-03
|
-
|
-
|
-
|
|
заполнение
трещин и раковин
|
-
|
-"-
|
1,31
|
п.
3а
|
1,9
|
-
|
1-22
|
|
0,30
|
-
|
1-60
|
-
|
-
|
-
|
|
очистка
поверхности
|
-
|
-"-
|
1,31
|
п.
4а
|
0,31
|
-
|
0-19,8
|
-
|
0,05
|
-
|
0-26
|
-
|
-
|
-
|
|
очистка
верха стен от следов окрасочного состава
|
-
|
-"-
|
1,31
|
п.
5а
|
0,56
|
-
|
0-35,8
|
-
|
0,09
|
-
|
0-47
|
-
|
-
|
-
|
|
нанесение
линии верха оклеивания стен обоями
|
-
|
-"-
|
1,31
|
п.
8а
|
0,95
|
-
|
0-75,1
|
-
|
0,15
|
-
|
0-98
|
-
|
-
|
-
|
|
нанесение
клеевого состава на поверхности стен
|
-
|
-"-
|
1,31
|
п.
9а
|
1,4
|
-
|
0-98
|
-
|
0,22
|
-
|
1-28
|
-
|
-
|
-
|
|
нанесение
клеевого состава на бумагу и оклеивание ею поверхности
|
-
|
-"-
|
1,31
|
п.
10а
|
4,4
|
-
|
3-08
|
-
|
0,70
|
-
|
4-03
|
-
|
-
|
-
|
|
Нанесение
клеевого состава на полотнища
|
-
|
100 м2
|
1,31
|
п.
14а
|
1,5
|
-
|
1-05
|
-
|
0,24
|
-
|
1-38
|
-
|
-
|
-
|
|
оклеивание
внахлестку
|
-
|
-"-
|
1,31
|
п.
16а
|
8,6
|
-
|
6-79
|
-
|
1,37
|
-
|
8-89
|
-
|
-
|
-
|
|
Улучшенная
масляная окраска оконных заполнений:
|
|
-"-
|
|
ЕНиР,
1989, § Е8-1-15
|
|
|
|
|
|
|
|
|
|
|
|
вырезка
сучков и засмолов с расшивкой щелей
|
-
|
100 м2
|
0,81
|
п.
5д
|
10,5
|
-
|
7-35
|
-
|
1,04
|
-
|
5-95
|
-
|
-
|
|
|
проолифливание
|
--
|
-"-
|
0,81
|
п.
10д
|
6,4
|
-
|
4-10
|
-
|
0,63
|
-
|
3-32
|
-
|
-
|
-
|
|
частичное
подмазывание
|
-
|
-"-
|
0,81
|
п.
11д
|
3,8
|
-
|
2-43
|
-
|
0,38
|
-
|
1-97
|
-
|
-
|
-
|
|
шлифование
подмазанных мест
|
-
|
-"-
|
0,81
|
п.
12д
|
1,5
|
-
|
1-05
|
-
|
0,15
|
-
|
0-85
|
-
|
-
|
-
|
|
первое
сплошное шпатлевание
|
-
|
-"-
|
0,81
|
табл.
6, п. 1д
|
31,5
|
-
|
22-05
|
-
|
3,11
|
-
|
17-86
|
-
|
-
|
-
|
|
шлифование
|
-
|
-"-
|
0,81
|
п.
2д
|
7,7
|
-
|
5-39
|
-
|
0,76
|
-
|
4-37
|
-
|
-
|
-
|
|
грунтование
|
-
|
-"-
|
0,81
|
п.
6д
|
11,0
|
-
|
7-70
|
-
|
1,09
|
-
|
6-24
|
-
|
-
|
-
|
|
флейцевание
|
-
|
-"-
|
0,81
|
п.
34д
|
4,3
|
-
|
3-91
|
-
|
0,42
|
-
|
3-17
|
-
|
-
|
-
|
|
шлифование
|
-
|
-"-
|
0,81
|
п.
2д
|
7,7
|
-
|
5-39
|
-
|
0,76
|
-
|
4-37
|
-
|
-
|
-
|
|
первое
окрашивание
|
-
|
-"-
|
0,81
|
п.
23д
|
17,0
|
-
|
13-43
|
-
|
1,68
|
-
|
10-88
|
-
|
-
|
-
|
|
флейцевание
|
-
|
-"-
|
0,81
|
п.
34д
|
4,3
|
-
|
3-91
|
-
|
0,42
|
-
|
3-17
|
-
|
-
|
-
|
|
шлифование.
|
-
|
-"-
|
0,81
|
п.
2д
|
7,7
|
-
|
5-39
|
-
|
0,76
|
-
|
4-37
|
-
|
-
|
-
|
|
второе
окрашивание
|
-
|
-"-
|
0,81
|
п.
24д
|
11,5
|
-
|
9-09
|
-
|
1,14
|
-
|
7-36
|
-
|
-
|
-
|
|
флейцевание
|
|
-"-
|
0,81
|
п.
34д
|
4,3
|
-
|
3-91
|
-
|
0,42
|
-
|
3-17
|
-
|
-
|
-
|
|
Улучшенная
масляная окраска полов:
|
|
|
|
ЕНиР,
1989, § Е8-1-15
|
|
|
|
|
|
|
|
|
|
|
|
вырезка
сучков и засмолов с расшивкой щелей
|
-
|
100 м2
|
0,78
|
табл.
4, п. 5ж
|
10,5
|
-
|
7-35
|
-
|
1,0
|
-
|
5-73
|
-
|
-
|
-
|
|
проолифливание
|
-
|
-"-
|
0,78
|
п.
10ж
|
2,5
|
-
|
1-60
|
-
|
0,24
|
-
|
1-25
|
-
|
-
|
-
|
|
частичное
подмазывание
|
-
|
-"-
|
0,78
|
п.
11ж
|
1,7
|
-
|
1-09
|
-
|
0,16
|
-
|
0-85
|
-
|
-
|
-
|
|
проолифливание
подмазанных мест
|
-
|
-"-
|
0,78
|
п.
13ж
|
0,5
|
-
|
0-32
|
-
|
0,05
|
-
|
0-25
|
-
|
-
|
-
|
|
шлифование
подмазанных мест
|
-
|
-"-
|
0,78
|
п.
12ж
|
0,72
|
-
|
0-50,4
|
-
|
0,07
|
-
|
0-39
|
-
|
-
|
-
|
|
первое
сплошное шпатлевание
|
-
|
-"-
|
0,78
|
табл.
6, п. 1ж
|
7,8
|
-
|
5-46
|
-
|
0,74
|
-
|
4-26
|
-
|
-
|
-
|
|
шлифование
|
-
|
-"-
|
0,78
|
п.
2ж
|
3,6
|
-
|
2-52
|
-
|
0,34
|
-
|
1-97
|
-
|
-
|
-
|
|
грунтование
|
-
|
-"-
|
0,78
|
п.
6ж
|
2,7
|
-
|
1-89
|
-
|
0,26
|
-
|
1-47
|
-
|
-
|
-
|
|
шлифование
|
-
|
-"-
|
0,78
|
п.
2ж
|
3,6
|
-
|
2-52
|
-
|
0,34
|
-
|
1-97
|
-
|
-
|
-
|
|
первое
окрашивание
|
-
|
-"-
|
0,78
|
п.
21ж
|
3,4
|
-
|
2-69
|
-
|
0,32
|
-
|
2-10
|
-
|
-
|
-
|
|
шлифование
|
-
|
-"-
|
0,78
|
п.
2ж
|
3,6
|
-
|
2-52
|
-
|
0,34
|
-
|
1-97
|
-
|
-
|
-
|
|
второе
окрашивание
|
-
|
-"-
|
0,78
|
п.
22 ж
|
2,7
|
-
|
2-13
|
-
|
0,26
|
-
|
1-66
|
-
|
-
|
-
|
|
Облицовка
стен глазурованными плитками
|
30
|
м2
|
4,0
|
ЕНиР,
1989, § Е8-1-35, табл. 1, п. 1а
|
1,9
|
-
|
1-42
|
-
|
0,93
|
-
|
5-68
|
-
|
-
|
-
|
|
Улучшенная
масляная окраска дверей:
|
|
|
|
ЕНиР,
1989, § Е8-1-15
|
|
|
|
|
|
|
|
|
|
|
|
вырезка
сучков и засмолов с расшивкой щелей
|
-
|
100 м2
|
0,43
|
Табл.
4, п. 6е
|
10,5
|
-
|
7-35
|
-
|
0,55
|
-
|
3-16
|
-
|
-
|
-
|
|
проолифливание
|
-
|
-"-
|
0,43
|
п.
10е
|
6,4
|
-
|
4-10
|
-
|
0,34
|
-
|
1-76
|
-
|
-
|
-
|
|
частичное
подмазывание
|
-
|
-"-
|
0,43
|
п.
11е
|
3,1
|
-
|
1-98
|
-
|
0,16
|
-
|
0-85
|
-
|
-
|
-
|
|
проолифливание
подмазанных мест
|
-
|
-"-
|
0,43
|
п.
13е
|
1,3
|
-
|
0-83,2
|
-
|
0,07
|
-
|
0-36
|
-
|
-
|
-
|
|
шлифование
подмазанных мест
|
-
|
-"-
|
0,43
|
п.
12е
|
1,1
|
-
|
0-77
|
-
|
0,06
|
-
|
0-33
|
-
|
-
|
-
|
|
первое
сплошное шпатлевание
|
-
|
-"-
|
0,43
|
табл.
6, п. 1е
|
25,0
|
-
|
17-50
|
-
|
1,31
|
-
|
7-53
|
-
|
-
|
-
|
|
шлифование
|
-
|
-"-
|
0,43
|
п.
2е
|
5,4
|
-
|
3-78
|
-
|
0,28
|
-
|
1-63
|
-
|
-
|
-
|
|
грунтование
|
-
|
-"-
|
0,43
|
п.
6е
|
8,4
|
-
|
5-88
|
-
|
0,44
|
-
|
2-53
|
--
|
-
|
-
|
|
флейцевание
|
-
|
-"-
|
0,43
|
п.
34е
|
3,0
|
-
|
2-73
|
-
|
0,16
|
-
|
1-17
|
-
|
-
|
-
|
|
шлифование
|
-
|
-"-
|
0,43
|
п.
2е
|
5,4
|
-
|
3-78
|
-
|
0,28
|
-
|
1-63
|
-
|
-
|
-
|
|
первое
окрашивание
|
-
|
-"-
|
0,43
|
п.
23е
|
10,5
|
-
|
8-30
|
-
|
0,55
|
-
|
3-57
|
-
|
-
|
-
|
|
флейцевание
|
-
|
-"-
|
0,43
|
п.
34е
|
3,0
|
-
|
2-73
|
-
|
0,16
|
-
|
1-17
|
-
|
-
|
-
|
|
шлифование
|
-
|
-"-
|
0,43,
|
п.
2е
|
5,4
|
-
|
3-78
|
-
|
0,28
|
-
|
1-63
|
-
|
-
|
-
|
|
второе
окрашивание
|
-
|
-"-,
|
0,43
|
п.
24е
|
9,8
|
-
|
7-74
|
-
|
0,51
|
-
|
3-33
|
-
|
-
|
-
|
|
флейцевание
|
-
|
- -
|
0,43
|
п.
34е
|
3,0
|
-
|
2-73
|
-
|
0,16
|
-
|
1-17
|
-
|
-
|
-
|
|
итого:
|
|
|
|
|
|
|
|
|
30,90
|
|
184,20
|
|
|
|
|
Наружная отделка
|
|
Улучшенная штукатурка
фасада
|
-
|
100 м2
|
1,5
|
ЕНиР,
1989, § 38-1-2, табл. 2, пп. 1, 3, 5, 7а, табл. 5, п.а
|
31,8
|
4,8
(4,8)
|
23-91
|
3-36
|
5,82
|
0,88 (0,88)
|
35-87
|
5-04
|
3,6
|
2-52
|
|
Масляная
окраска металлических решеток ограждения крыльца
|
-
|
100 м2
|
0,01
|
ЕНиР,
1989, § Е8-1-15, табл. 12, пп. 1, 3, 4, 5, 6, 10, 11, 12, 13в
|
112
|
-
|
79-95
|
-
|
0,14
|
-
|
0-80
|
-
|
-
|
-
|
|
Итого:
|
|
|
|
|
|
|
|
|
5,96
|
0,88
(0,88)
|
36-67
|
5-04
|
3,6
|
2-52
|
|
Итого
по надземной части:
|
|
|
|
|
|
|
|
|
109,664
|
13,031 (13,031)
|
640-16
|
108-74
|
18,21
|
123-92
|
|
Всего по дому:
|
|
|
|
|
|
|
|
|
135,094
|
16,361 (16,361)
|
784-99
|
133-03
|
25,16
|
174-97
|
График производства работ представлен в табл. 4
Таблица 4

Продолжение таблицы 4

Таблица совмещения профессий
|
Профессия
|
Общее количество человек
|
В т.ч. по разрядам
|
Совмещаемая профессия
|
|
5
|
4
|
3
|
2
|
|
Бетонщики
|
4
|
-
|
2
|
-
|
2
|
Арматурщики
Слесари строительные
Изолировщики
Монтажники
Такелажники
|
|
Плотники
|
4
|
-
|
2
|
-
|
2
|
Кровельщики
Изолировщики
Стекольщики
|
|
Штукатуры
|
2
|
1
|
-
|
1
|
-
|
Облицовщики
Бетонщики
Плиточники
|
Потребность в машинах,
механизмах, инвентаре и приспособлениях приведена в табл. 5
Таблица 5.
|
Наименование
|
Марка, техническая характеристика
|
Количество, шт.
|
Назначение
|
|
Машины и механизмы
|
|
|
|
Экскаватор
|
ЭО-3322Д
Вместимость ковша 0,5 м3
|
1
|
Обратная засыпка и погрузка грунта в автосамосвалы
|
|
Бульдозер
|
ДЗ-42
Длина отвала-2,56м
|
1
|
Разработка котлована, обратная засыпка
|
|
Автосамосвал
|
ЗИЛ-ММЗ-555
|
5
|
Транспортные работы
|
|
Автобетоносмеситель
|
СБ-92А
|
2
|
Транспортирование бетона
|
|
Кран пневмоколесный
|
KC-4361A
|
1
|
Подача конструкций к месту установки, монтажные работы
|
|
Краскопульт ручной
|
СО-20В
Производительность - 205 м2/ч
|
1
|
Окраска поверхностей
|
|
Дрель, универсальная
|
ИЭ-1035
ТУ 22-176-031-87
|
1
|
Сверление отверстий
|
|
Вибратор поверхностный
|
ИЭ-91А
ТУ 22-5412-82
|
1
|
Уплотнение бетона
|
|
Вибратор глубинный
|
ИЭ-117
ТУ 22-4666-80
|
1
|
То же
|
|
Машина для строжки деревянных полов
|
СО-97А
Производительность - 40 м2/ч
|
1
|
Строжка деревянных полов
|
|
Машина для затирки цементных полов
|
СО-89А
|
1
|
Затирка цементных полов
|
|
Агрегат штукатурный
|
CО-152A
|
1
|
Штукатурка фасадов
|
|
Строительная оснастка
|
|
Тележка на пневмоколесном ходу
|
Т-200
Грузоподъемность - 200 кг; вместимость - 0,12 м3
|
1
|
Транспортирование материалов
|
|
Подкос телескопический
|
4250УД Мосоргстрой Длина 4,8 - 6,4 м
|
1
|
Временное крепление щитов опалубки
|
|
Подкос телескопический
|
РЧ 327-4.00.000
ЦНИИОМТП
Длина 2,4 - 3,8 м
|
1
|
То же
|
|
Столик складной двухвысотный
|
РЧ805-00.00 УМОР Главмосстроя
Габаритные размеры, мм: длина - 1156
ширина-656
высота-900
|
1
|
Отделочные работы
|
|
Площадка передвижная
|
Размер рабочей площадки -0,6×0,6 м, ЦНИИОМТП
|
I
|
То же
|
|
Ведро
|
ГОСТ
20558-82*Е
|
2
|
Вспомогательные работы
|
|
Рукавицы специальные
|
ГОСТ
12.4.010-75*
|
4
|
Защита рук
|
|
Каска строительная
|
ГОСТ
12.4.087-84
|
4
|
Защита головы
|
|
Очки защитные
|
ГОСТ 12.4.013-85E
|
4
|
Защита глаз от пыли и мелких твердых частиц
|
|
Перчатки резиновые
|
ТУ 38-106140-78
|
4
|
Защита рук
|
|
Перчатки резиновые для зашиты от поражения электрическим током
|
ТУ 38-105977-76
|
2
|
-
|
|
Нивелир
|
Н-10
ГОСТ 10528-76*
|
I
|
Разбивка осей, контрольно-измерительные работы
|
|
Строп четырехветвевой
|
ЧСК2-5,0
ГОСТ
25573-82*
|
I
|
Строповка элементов
|
|
Бункер поворотный
|
БП-1.Вместимость 1,0 м3
|
3
|
Подача бетона
|
|
Ящик для раствора
|
Вместимость 0,24 м3 ЦНИИОМТП
|
2
|
Подача раствора
|
|
Подмости деревянные инвентарные
|
-
|
2
|
Вспомогательные работы
|
|
Пояс монтажный
|
ГОСТ
12.4.089-86
|
4
|
Предохранение работающих от падения при работе на высоте
|
|
Контейнер для плиток
|
КП-93
|
1
|
Транспортирование и хранение керамических плиток
|
|
Шаблон клеточный
|
Индивидуального изготовления
|
1
|
Укладка керамических плиток пола
|
|
Столик-обойщика
|
То же
|
1
|
Резка обоев, нанесение клейстера
|
|
Столик-стремянка
|
РЧ 894 УМОР Главмосстроя
|
1
|
Выполнение работ на высоте
|
|
Ручной инструмент
|
|
Лом
|
ГОСТ 1405-83
|
1
|
Вспомогательные работы
|
|
Лом монтажный
|
ГОСТ 1405-83
|
1
|
Рихтовка элементов
|
|
Зубило слесарное
|
ГОСТ
7211-86*Е
|
2
|
Срезка неровностей
|
|
Кусачки торцовые
|
ГОСТ
28037-89 Е
|
2
|
Перекусывание проволоки
|
|
Кусачки боковые
|
ГОСТ
28037-89 Е
|
2
|
То же
|
|
Кувалда кузнечная продольная остроносая
|
ГОСТ
11402-75*
|
2
|
Вспомогательные работы
|
|
Кувалда кузнечная продольная тупоносая
|
ГОСТ
11401-75*
|
2
|
То же
|
|
Молоток стальной
|
ГОСТ 2310-77*Е
|
2
|
"
|
|
Молоток плотничный
|
ГОСТ 11042-83
|
2
|
Крепление гвоздями деревянных элементов
|
|
Плоскогубцы комбинированные
|
ГОСТ 5547-86*Ё
|
2
|
Вспомогательные работы
|
|
Ключи накладные
|
ТУ 34-2298-71
|
2
|
Завертывание гаек и болтов
|
|
Скарпель для каменных и бетонных работ
|
ТУ 22-5735-84
|
1
|
Пробивка отверстий
|
|
Топор плотничный
|
ГОСТ
18578-89
|
1
|
Вспомогательные работы
|
|
Гладилка ленточная
|
ГОСТ 10403-80
|
1
|
Разравнивание и заглаживание бетона и раствора
|
|
Гребок для бетонных работ
|
ТУ 22-4945-81
|
1
|
Заглаживание бетонной поверхности
|
|
Скребок металлический
|
ТУ 22-4629-80
|
1
|
Очистка опалубки и полов от бетона и раствора
|
|
Лопата растворная
|
ГОСТ 19596-87*
|
2
|
Перелопачивание и подача раствора к месту укладки
|
|
Лопата копальная
|
ГОСТ 19596-87*
|
2
|
Земляные работы
|
|
Лопата совковая
|
ГОСТ 19596-87*
|
2
|
То же
|
|
Кельма для бетонных и каменных работ
|
ГОСТ 9533-81
|
1
|
Набрасывание раствора на оштукатуриваемую поверхность
|
|
Щетка из стальной проволоки
|
ОСТ 17830-80
|
1
|
Очистка от ржавчины и грязи
|
|
Ножовка по дереву
|
ГОСТ
26215-84
|
1
|
Поперечная распиловка
|
|
Конопатка стальная
|
ТУ 22-4301-82
|
1
|
Законопачивание отверстий
|
|
Клещи строительные
|
ГОСТ
14184-83
|
1
|
Вспомогательные работы
|
|
Ножницы ручные для резки металла
|
ГОСТ 7210-75*Е
|
1
|
Резка металла
|
|
Напильник для затачивания пил
|
ГОСТ
6476-80*
|
1
|
Зачистка кромок
|
|
Рашпили разные
|
ГОСТ 6876-79*
|
1
|
То же
|
|
Чертилка
|
ГОСТ
24473-80Е
|
1
|
Нанесение рисок
|
|
Терка-зачистка
|
ТУ 22-4841-80
|
1
|
Затирка штукатурки
|
|
Шпатель с резиновым полотном
|
ГОСТ
10778-83
|
1
|
Нанесение, разравнивание и сглаживание шпатлевочного слоя
|
|
Шпатель-скребок
|
ГОСТ
10778-83
|
1
|
То же
|
|
Валик малярный
|
ГОСТ
10831-87
|
1
|
Окраска поверхности водными и безводными составами
|
|
Кисть флейцован
|
ГОСТ
10597-87
|
1
|
Флейцевание поверхностей
|
|
Кисть-ручник
|
ГОСТ
10597-87
|
1
|
Окраска масляными составами
|
|
Кисть филеночная
|
ГОСТ
10597-87
|
1
|
Нанесение разделительных линий филенок
|
|
Кисть маховая
|
ГОСТ
10597-87
|
1
|
Нанесение грунтовых и водных составов
|
|
Кисть-макловица
|
ГОСТ
10597-87
|
1
|
Окрашивание поверхностей и приклеивание обоев
|
|
Щетка-торцовка
|
ГОСТ
10597-87
|
1
|
Торцевание поверхностей
|
|
Молоток строительный стальной
|
МКУ-2
ГОСТ 11042-83
|
1
|
Вспомогательные работы
|
|
Ключи гаечные односторонние
|
ГОСТ
2841-80*Е
|
2
|
Демонтаж металлоконструкций, собранных на винтах
|
|
То же, комбинированные
|
ГОСТ 16983-80
|
2
|
То же
|
|
Кусачки для плиточных работ
|
ТУ 22-2758-82
|
2
|
Перекусывание плиток
|
|
Резец для резки керамических плиток
|
ГОСТ
19259-73*
|
1
|
Резка керамических плиток
|
|
Скоба для установки плиток
|
ТУ 22-5443-83
|
1
|
Фиксация толщины шва при облицовке стен керамическими плитками
|
|
Гладилка для плинтусов
|
ТУ 22-5370-82
|
1
|
Устройство бетонных плинтусов
|
|
Молоток для плиточных работ
|
ГОСТ 11042-83
|
1
|
Вспомогательные работы
|
|
Правило деревянное
|
ГОСТ 25782-83*
|
1
|
Разравнивание штукатурного намета
|
|
Полутерок
|
ГОСТ 25782-83*
|
1
|
То же
|
|
Расшивка для плиточных работ
|
ТУ 22-4358-79
|
1
|
Расшивка швов
|
|
Коловорот
|
ГОСТ 25602-83Е
|
1
|
Сверление отверстий
|
|
Пила поперечная двуручная по дереву
|
ГОСТ
10670-77*
|
1
|
Поперечная распиловка
|
|
Разводка для пил
|
ТУ 2-16-24-76
|
1
|
Разводка пилы
|
|
Рубанок с одиночным ножом
|
ГОСТ 14664-77
|
1
|
Острожка деревянных изделий
|
|
Рубанок-шерхебель
|
ГОСТ 14666-79*
|
1
|
То же
|
|
Стамеска плоская
|
ГОСТ 1184-80*
|
1
|
Выдалбливание отверстий в деревянных конструкциях
|
|
Сверла перовые сборные
|
ГОСТ
25526-82
|
1
|
-
|
|
Зенковки конические
|
ГОСТ
14953-80*Е
|
1
|
-
|
|
Шлямбур
|
ТУ-2-30-104-80
|
1
|
Пробивка отверстий
|
|
Брусок шлифовальный
|
ГОСТ
2456-82*
|
1
|
Точильные работы
|
|
Стеклорез алмазный
|
ГОСТ
10111-85E
|
1
|
Резка стекла
|
|
Отвертка слесарно-монтажная
|
ГОСТ 17199-88E
|
1
|
Завинчивание и вывинчивание шурупов и винтов
|
|
Отвертка для шурупов и винтов с крестообразным шлицем
|
ГОСТ
10754-80
|
1
|
То же
|
|
Линейка деревянная
|
Изготовляется на месте
|
1
|
Направление движения стеклореза
|
|
Отрезовка
|
ГОСТ 9533-81
|
1
|
Подрезка раствора
|
|
Нож для резки для отделочных работ
|
ГОСТ 18975-86
|
1
|
-
|
|
Крючок такелажный
|
-
|
1
|
Такелажные работы
|
|
Шуровка металлическая
|
-
|
1
|
Уплотнение бетонной смеси
|
|
Молоток кровельный
|
ГОСТ 11042-83
|
2
|
Прибивка асбестоцементных листов
|
|
Сжим для сплачивания дощатых полов
|
РЧ 79.27-048 Новгородский межотраслевой территориальный центр
научно-технической информации и пропаганды
|
1
|
Сплачивание деревянных полов
|
|
Щетка обойная
|
PЧ Т-06-00 треста Оргстрой
Минстроя ЭССР
|
1
|
Разглаживание полотнищ обоев при наклеивании
|
|
Средства измерения и контроля
|
|
Метр складной деревянный
|
РСТ 149-87 Латв. ССР
|
2
|
Измерение линейных величин
|
|
Метр складной металлический
|
ТУ 206 УССР 49-77 № 2
|
2
|
То же
|
|
Шнур разметочный в корпусе
|
ТУ 22-5076-81
|
2
|
Разметка осевых линий
|
|
Уровень строительный
|
ГОСТ
9416-83
|
2
|
Проверка горизонтального и вертикального расположения поверхности
|
|
Угольник металлический
|
ТУ 22-4400-79
|
2
|
Разметка и проверка прямых углов
|
|
Угольник деревянный
|
ТУ 22-3549-77
|
2
|
То же
|
|
Штангенциркуль
|
ГОСТ
166-80*
|
1
|
Измерительные работы
|
|
Отвес стальной строительный
|
ГОСТ 7948-80
|
2
|
Выверка вертикальности поверхности
|
|
Циркуль разметочный с дугой
|
ГОСТ
24472-80Е
|
1
|
Вычерчивание окружностей, различных отверстий
|
|
Линейка стальная
|
ГОСТ 427-75*
|
1
|
Измерение линейных величин
|
|
Рейка контрольная длиной 2 м
|
РЧ ТЭ-276 треста Оргстрой Минстроя ЭССР
|
1
|
Проверка ровности поверхностей
|
|
Влагомер
|
ГОСТ 26375-84*
|
1
|
Определение влажности
|
Комплект опалубки приведен в
табл. 6.
Таблица 6
|
Наименование
|
Марка
|
единица измерения
|
Количество
|
Площадь, м2
|
Масса, кг
|
|
единицы
|
всего
|
единицы
|
всего
|
|
Щит линейный
|
ЩМ 2,7´1,2
|
шт.
|
22
|
3,312
|
72,86
|
203,0
|
4466,0
|
|
То же
|
ЩМ 2,7´0,9
|
-"-
|
40
|
2,484
|
99,36
|
162,7
|
6508,0
|
|
-"-
|
ЩМ 2,7´0,6
|
-"-
|
38
|
1,656
|
62,93
|
121,3
|
4609,4
|
|
-"-
|
ЩМ 2,7´0,3
|
-"-
|
91
|
0,828
|
75,35
|
78,6
|
7152,6
|
|
-"-
|
ЩМ 2,7´0,46
|
-"-
|
2
|
1,27
|
2,54
|
92,8
|
185,6
|
|
-"-
|
ЩМ 0,9´1,2
|
-"-
|
7
|
1,152
|
8,06
|
70,6
|
494,2
|
|
-"-
|
ЩМ 0,9´0,9
|
-"-
|
9
|
0,864
|
7,78
|
56,6
|
509,4
|
|
-"-
|
ЩМ 0,9´0,6
|
-"-
|
9
|
0,576
|
5,18
|
42,2
|
379,8
|
|
-"-
|
ЩМ 0,9´0,3
|
-"-
|
33
|
0,288
|
9,50
|
27,3
|
900,9
|
|
-"-
|
ЩМ 0,7´1,2
|
-"-
|
38
|
0,912
|
34,66
|
65,1
|
2473,8
|
|
-"-
|
ЩМ 0,7´0,9
|
-"-
|
47
|
0,682
|
32,05
|
48,8
|
2293,6
|
|
-"-
|
ЩМ 0,7´0,6
|
-"-
|
24
|
0,456
|
10,94
|
32,6
|
782,40
|
|
-"-
|
ЩМ 0,7´0,7
|
-"-
|
11
|
0,532
|
5,85
|
37,98
|
417,78
|
|
-"-
|
ЩМ 0,7´0,55
|
-"-
|
10
|
0,418
|
4,18
|
29,84
|
298,40
|
|
-"-
|
ЩМ 0,7´0,3
|
-"-
|
23
|
0,238
|
5,47
|
16,3
|
374,9
|
|
-"-
|
ЩМ 2,5´71,5
|
-"-
|
8
|
1,78
|
14,24
|
111,68
|
893,44
|
|
-"-
|
ЩМ 1,2´2,16
|
-"-
|
8
|
2,75
|
22,0
|
172,54
|
1380,32
|
|
-"-
|
ЩМ 1,2´2,53
|
-"-
|
4
|
2,81
|
11,24
|
176,31
|
705,24
|
|
-"-
|
ЩМ 2,34´1,27
|
-"-
|
2
|
2,97
|
5,94
|
186,3
|
372,6
|
|
Щит угловой
|
ЩУ 2,4´0,3
|
-"-
|
38
|
1,44
|
54,72
|
87
|
3306,0
|
|
То же
|
ЩУ 0,36´0,3
|
-"-
|
38
|
0,216
|
8,21
|
18,8
|
714,4
|
|
-"-
|
ЩУ 0,7´0,3
|
-"-
|
36
|
0,456
|
16,42
|
32,55
|
1171,80
|
|
-"-
|
ЩУ 0,9´0,3
|
-"-
|
3
|
0,576
|
1,73
|
54,6
|
163,8
|
|
Уголок монтажный
|
УМ 2,4´0,13
|
шт.
|
6
|
-
|
-
|
19,0
|
114,0
|
|
То же
|
УМ 1,2´0,13
|
-"-
|
6
|
-
|
-
|
9,6
|
57,6
|
|
-"-
|
УМ 0,36´0,13
|
-"-
|
4
|
-
|
-
|
3,6
|
14,4
|
|
-"-
|
УМ 0,7´0,13
|
-"-
|
5
|
-
|
-
|
2,05
|
10,25
|
|
Щит линейный
|
ЩМ 0,9´0,45
|
-"-
|
1
|
0,405
|
0,41
|
29,8
|
29,8
|
|
То же
|
ЩМ 0,7´0,16
|
-"-
|
5
|
0,112
|
0,56
|
6,34
|
31,7
|
|
Щит торцевой
|
ЩТО 1,63´0,45
|
-"-
|
8
|
0,73
|
5,84
|
45,8
|
366,4
|
|
То же
|
ЩТО 2,3´40,3
|
-"-
|
2
|
0,7
|
1,40
|
66,0
|
132,0
|
|
Щит-компенсатор
|
ЩК 2,7´0,3
|
-"-
|
4
|
0,828
|
3,31
|
78,1
|
312,4
|
|
То же
|
ЩК 0,9´0,3
|
-"-
|
1
|
0,288
|
0,29
|
13,3
|
13,3
|
|
-"-
|
ЩК 0,7´0,3
|
-"-
|
38
|
0,21
|
7,98
|
9,42
|
357,96
|
|
Щит доборный
|
ЩД 2,7´0,38
|
-"-
|
2
|
1,05
|
2,1
|
76,72
|
153,4
|
|
Панель фронтона
|
ПФ-2
|
-"-
|
4
|
0,9
|
3,6
|
65,76
|
263,04
|
|
Кронштейн
|
-
|
-"-
|
54
|
-
|
-
|
16
|
864,0
|
|
Подкос
|
-
|
-"-
|
90
|
-
|
-
|
17
|
1530,0
|
|
Домкрат
|
-
|
-"-
|
90
|
-
|
-
|
3,4
|
306,0
|
|
Стяжка Ø 20 мм
|
-
|
м
|
374
|
-
|
-
|
2,47
|
923,78
|
|
Гайка
|
-
|
шт.
|
460
|
-
|
-
|
0,08
|
36,8
|
|
Стержень
|
-
|
-"-
|
987
|
-
|
-
|
0,63
|
621,8
|
|
Втулка
|
-
|
-"-
|
987
|
-
|
-
|
0,2
|
197,4
|
|
Клин
|
-
|
-"-
|
987
|
-
|
-
|
0,16
|
157,9
|
|
Болт
|
-
|
-"-
|
288
|
-
|
-
|
0,11
|
31,7
|
|
Гайка
|
-
|
-"-
|
288
|
-
|
-
|
0,03
|
8,6
|
|
Шайба
|
-
|
шт.
|
288
|
-
|
-
|
0,01
|
2,88
|
|
Стойка
|
-
|
-"-
|
54
|
-
|
-
|
5,7
|
307,8
|
|
Балка
|
-
|
м
|
396,04
|
-
|
-
|
9,27
|
3671,29
|
|
Доска i бортовая
|
-
|
м3
|
0,92
|
-
|
-
|
600,0
|
552,0
|
|
Щиты настила
|
-
|
-"-
|
2,02
|
-
|
-
|
600,0
|
1212,0
|
|
Доска сеч. 190×32 мм
|
-
|
-"-
|
0,16
|
-
|
-
|
600,0
|
96,0
|
|
Проемообразователь
|
ПР-1
|
шт.
|
5
|
-
|
-
|
192,0
|
960,0
|
|
То же
|
ПР-2
|
-"-
|
3
|
-
|
-
|
171,0
|
513,0
|
|
-"-
|
ПР-3
|
-"-
|
1
|
-
|
-
|
101,0
|
101,0
|
|
-"-
|
ПР-4
|
-"-
|
5
|
-
|
-
|
59,0
|
295,0
|
|
-"-
|
ПР-5
|
-"-
|
2
|
-
|
-
|
25,3
|
50,60
|
|
-"-
|
ПР-6
|
-"-
|
1
|
-
|
-
|
50,67
|
50,67
|
|
Добор
|
-
|
м3
|
1,384
|
-
|
46,2
|
600,0
|
812,4
|
|
ИТОГО:
|
|
|
|
|
342,90
|
|
55713,25
|
Потребность в материалах, полуфабрикатах и конструкциях по видам работ
приведена в табл. 7
Таблица 7
|
Наименование материала, полуфабриката,
конструкций, вид работ
|
Вариант (фасетный код)
|
Исходные данные
|
Потребное количество
|
|
Единица измерения по нормам (чертежам)
|
Объем работ в нормативных единицах
|
Принятая норма расхода материала на единицу измерения
|
|
Устройство временной дороги:
|
|
|
|
|
|
|
песок
|
-
|
мэ
|
71
|
1,1 м3
|
78,1 м3
|
|
гравийно-щебеночная смесь
|
-
|
м3
|
71
|
1,1 м3
|
78,1 м3
|
|
Устройство временного забора
|
-
|
м
|
170
|
1 M
|
170 м
|
|
Обратная засыпка пазух фундаментов песком
|
-
|
м3
|
43
|
1,1 м3
|
47,3 м3
|
|
Устройство монолитных фундаментов:
|
|
|
|
|
|
|
арматура
|
-
|
т
|
0,63
|
1 т
|
0,63 т
|
|
бетон
|
-
|
м3
|
18,02
|
1,015 м
|
18,3 м3
|
|
гидроизол
|
-
|
1 м2
|
19
|
2,2 м2
|
41,8 м2
|
|
мастика битумная
|
-
|
м2
|
107
|
0,8 кг
|
85,6 кг
|
|
Устройство стен наружных и внутренних:
|
|
|
|
|
|
|
арматура
|
-
|
т
|
0,61
|
1 т
|
0,61 т
|
|
бетон
|
-
|
м3
|
74,56
|
1,015 м3
|
75,68 м3
|
|
Штукатурка вентблока по сетке:
|
|
|
|
|
|
|
сетка проволочная
|
-
|
100 м2
|
0,05
|
108 м2
|
5,4 м2
|
|
раствор цементный
|
-
|
100 м2
|
0,05
|
2,59 м3
|
0,13 м3
|
|
сталь круглая
|
-
|
100 м2
|
0,05
|
0,36 т
|
0,02 т
|
|
проволока вязальная
|
-
|
100 м2
|
0,05
|
2 кг
|
0,1 кг
|
|
Изоляция стен:
|
|
|
|
|
|
|
плиты минераловатные
|
-
|
м2
|
19
|
0,0412 м3
|
0,78 м3
|
|
мастика битумная
|
-
|
м2
|
19
|
2,01 кг
|
38,19 кг
|
|
Установка зонта из листовой стали над вентблоком:
|
|
|
|
|
|
|
сталь тонколистовая кровельная
оцинкованная
|
-
|
шт.
|
1
|
0,02 т
|
0,02 т
|
|
гвозди строительные
|
-
|
шт.
|
1
|
0,1 кг
|
0,1 кг
|
|
Монтаж сборных железобетонных конструкций
|
-
|
1 м3
|
17,16
|
1 м3
|
17,16
|
|
Монтаж металлической рамы
|
-
|
1 т
|
0,34
|
1 т
|
0,34 т
|
|
Устройство пароизоляции из одного слоя пергамина на кровле;
|
|
|
|
|
|
|
пергамин
|
-
|
м2
|
97
|
1,1 м2
|
106,7 м2
|
|
мастика битумная
|
-
|
кг
|
97
|
1,96 кг
|
190,12 кг
|
|
Теплоизоляция кровли минераловатными плитами:
|
|
|
|
|
|
|
плиты минераловатные
|
-
|
м2
|
97
|
0,0412 м3
|
4,0 м3
|
|
мастика битумная
|
-
|
м2
|
97
|
2,0,1 кг
|
195 кг
|
|
Устройство кровли из отдельных элементов:
|
|
м2
|
|
|
|
|
пиломатериалы
|
-
|
|
135
|
См. лист 56
|
4,4 м3
|
|
Укладка асбестоцементных листов:
|
|
|
|
|
|
|
листы асбестоцементные
|
-
|
м2
|
135
|
1,25 м2
|
168,75м2
|
|
элементы крепления МШ-1
|
-
|
м2
|
135
|
0,063 кг
|
8,51 кг
|
|
коньковая деталь
|
-
|
1 м конька
|
10
|
3,33 м
|
33,3 м
|
|
элементы крепления
|
-
|
1 м конька
|
10
|
0,079 кг
|
0,79 кг
|
|
МВ-4
|
|
|
МШ-1
|
-
|
1 м конька
|
10
|
1,11 кг
|
11,1 кг
|
|
мастика герметизирующая
|
-
|
1 м конька
|
10
|
1,11 кг
|
11,1 кг
|
|
Устройство дощатого перекрытия на веранде:
|
|
|
|
|
|
|
доски
|
-
|
100 м2
|
0,21
|
2,65 м3
|
0,56 м3
|
|
гвозди
|
-
|
100 м2
|
0,21
|
6 кг
|
1,26 кг
|
|
Устройство сплошного дощатого настила по утеплителю:
|
|
|
|
|
|
|
доски
|
-
|
100 м2
|
0,8
|
2,88 м3
|
2,30 м3
|
|
гвозди
|
-
|
100 м2
|
0,8
|
12,3 кг
|
9,84 кг
|
|
Заполнение оконных проемов:
|
|
10 блоков
|
|
|
|
|
пакля
|
-
|
-"-
|
0,8
|
14,8 кг
|
11,84 кг
|
|
гипс
|
-
|
-"-
|
0,8
|
2,25 кг
|
1,8 кг
|
|
гвозди
|
-
|
-"-
|
0,8
|
0,746 кг
|
0,60 кг
|
|
мастика УМС-50
|
-
|
-"-
|
0,8
|
72,1 кг
|
57,68 кг
|
|
Заполнение дверных проемов:
|
|
10 блоков
|
|
|
|
|
гвозди
|
-
|
-"-
|
1
|
0,055 кг
|
0,05 кг
|
|
пакля
|
-
|
-"-
|
1
|
4,97 кг
|
4,97 кг
|
|
гипс
|
-
|
-"-
|
1
|
0,747 кг
|
0,747 кг
|
|
Остекление:
|
|
-"-
|
|
|
|
|
стекло оконное
|
-
|
100 м2
|
0,29
|
106 м2
|
30,74 м2
|
|
замазка меловая
|
-
|
100 м фальца
|
2,5
|
6,1 кг
|
15,26 кг
|
|
штапики деревянные
|
-
|
100 м фальца
|
2,5
|
102 м
|
255 м
|
|
гвозди
|
-
|
То же
|
2,5
|
0,0819 кг
|
0,20 кг
|
|
Устройство бетонных столбиков под дощатые полы:
|
|
|
|
|
|
|
бетон
|
-
|
м3
|
1,44
|
1,015 м3
|
1,46 м3
|
|
доски
|
-
|
м3
|
1,44
|
-
|
0,01 м3
|
|
Укладка лаг по бетонным столбикам
|
|
|
|
|
|
|
пиломатериалы
|
-
|
100 м2
|
0,71
|
-
|
0,91 м3
|
|
Устройство дощатых полов:
|
|
|
|
|
|
|
доски
|
-
|
100 м2
|
0,71
|
2,88 м3
|
2,04 м3
|
|
гвозди строительные
|
-
|
100 м2
|
0,71
|
12,7 кг
|
9,02 кг
|
|
плинтусы
|
-
|
100 м2
|
0,71
|
87,3 м
|
61,98 м
|
|
Устройство бетонного подстилающего слоя под полы
|
|
|
|
|
|
|
смесь бетонная
|
-
|
100 м2
|
0,13
|
8,16 м3
|
1,06 м3
|
|
Устройство полов из керамической плитки:
|
|
100 м2
|
|
102 м2
|
3,06 м2
|
|
плитки керамические
|
-
|
|
0,03
|
|
|
|
мастика битумная горячая
|
-
|
100 м2
|
0,03
|
133 кг
|
3,99 кг
|
|
раствор цементный
|
-
|
100 м2
|
0,03
|
1,32 м3
|
0,04 м3
|
|
песок
|
-
|
100 м2
|
0,03
|
3,12 м3
|
0,09 м3
|
|
Устройство бетонных полов:
|
|
|
|
|
|
|
смесь бетонная
|
-
|
100 м2
|
0,06
|
20,4 м3
|
1,22 м3
|
|
мастика битумная горячая
|
-
|
100 м2
|
0,06
|
133 кг
|
7,98 кг
|
|
песок
|
-
|
100 м2
|
0,06
|
3,06 м3
|
0,18 м3,
|
|
бруски строганые
|
-
|
100 м2
|
0,06
|
0,1 м3
|
0,01 м3
|
|
Устройство цементных полов;
|
|
|
|
|
|
|
раствор цементный
|
-
|
100 м2
|
0,04
|
2,04 м3
|
0,08 м3
|
|
мастика битумная горячая
|
-
|
100 м2
|
0,04
|
133 кг
|
5,32 кг
|
|
песок
|
-
|
100 м2
|
0,04
|
3,06 м3
|
0,12 м3
|
|
бруски строганые
|
-
|
100 м2
|
0,04
|
0,2 м3
|
0,01 м3
|
|
Штукатурка откосов:
|
|
100 м2
|
|
|
|
|
раствор цементный
|
-
|
|
0,06
|
0,58 м3
|
0,03 м3
|
|
Известковая окраска потолков:
|
|
|
|
|
|
|
олифа
|
-
|
100 м2
|
0,77
|
7 кг
|
5,39 кг
|
|
грунтовка известковая
|
-
|
100 м2
|
0,77
|
16,4 кг
|
12,63 кг
|
|
шпатлевка
|
-
|
100 м2
|
0,77
|
5 кг
|
3,85 кг
|
|
краска сухая (пигмент)
|
-.
|
100 м2
|
0,77
|
0,5 кг
|
0,39 кг
|
|
известь негашеная
|
-
|
100 м2
|
0,77
|
9,7 кг
|
7,47 кг
|
|
Клеевая окраска стен:
|
|
|
|
|
|
|
олифа
|
-
|
100 м2
|
0,65
|
7 кг
|
4,55 кг
|
|
грунтовка купоросная
|
-
|
100 м2
|
0,65
|
36,8 кг
|
23,92 кг
|
|
шпатлевка клеевая
|
-
|
100 м2
|
0,65
|
5 кг
|
3,25 кг
|
|
паста меловая
|
-
|
100 м2
|
0,65
|
21,8 кг
|
14,17 кг
|
|
краски сухие (пигмент)
|
-
|
100 м2
|
0,65
|
1,7 кг
|
1,11 кг
|
|
Окраска водоэмульсионными составами
|
-
|
100 м2
|
|
|
|
|
олифа
|
-
|
|
0,27
|
7,0 кг
|
1,89 кг
|
|
грунтовка поливинилацетатная
|
-
|
100 м2
|
0,27
|
28,6 кг
|
7,72 кг
|
|
шпатлевка масляно-клеевая
|
-
|
100 м2
|
0,27
|
5 кг
|
1,35 кг
|
|
краска водоэмульсионная
|
-
|
100 м2
|
0,27
|
32,9 кг
|
8,88 кг
|
|
Масляная окраска оконных заполнений:
|
|
|
|
|
|
|
олифа
|
-
|
100 м2
|
0,81
|
10,7 кг
|
8,67 кг
|
|
белила густотертые
|
-
|
100 м2
|
0,81
|
27 кг
|
21,87 кг
|
|
шпатлевка масляно-клеевая
|
-
|
100 м2
|
0,81
|
41,1 кг
|
33,29 кг
|
|
Масляная окраска полов:
|
|
100 м2
|
|
|
|
|
олифа
|
-
|
|
0,78
|
18,24 кг
|
14,23 кг
|
|
шпатлевка
|
.-
|
100 м2
|
0,78
|
56,3 кг
|
43,91 к
|
|
белила густотертые
|
-
|
100 м2
|
0,78
|
5,61 кг
|
4,38 кг
|
|
пигмент густотертый
|
-
|
100 м2
|
0,78
|
10,373 кг
|
8,09 кг
|
|
Масляная окраска дверных заполнений:
|
|
|
|
|
|
|
олифа
|
-
|
100 м2
|
0,43
|
17,3 кг
|
7,44 кг
|
|
шпатлевка масляная клеевая
|
-
|
100 м2
|
0,43
|
39,3 кг
|
16,90 кг
|
|
белила густотертые
|
-
|
100 м2
|
0,43
|
15,6 кг
|
6,71 кг
|
|
пигмент густотертый
|
-
|
100 м2
|
0,43
|
1,6 кг
|
0,69 кг
|
|
Облицовка стен глазурованными плитками:
|
|
|
|
-
|
|
|
плитка глазурованная
|
-
|
100 м2
|
0,04
|
100 м2
|
4 м2
|
|
портландцемент
|
-
|
100 м2
|
0,04
|
40 кг
|
1,6 кг
|
|
раствор цементный
|
-
|
100 м2
|
0,04
|
1,533 м2
|
0,06 кг
|
|
смесь сухая цементно-песчаная
|
-
|
100 м2
|
0,04
|
60 кг
|
2,4 кг
|
|
Штукатурка фасадов
|
|
|
|
|
|
|
раствор цементный
|
-
|
100 м2
|
1,50
|
2,0 м3
|
3,00 м3
|
|
Масляная окраска металлических решеток крыльца:
|
|
|
|
|
|
|
олифа.
|
-
|
100 м2
|
0,01
|
11,1 кг
|
0,11 кг
|
|
пигмент тертый
|
-
|
100 м2
|
0,01
|
2,6 кг
|
0,03 кг
|
|
белила густотертые
|
-
|
100 м2
|
0,01
|
13,6 кг
|
0,14 кг
|
Сводная ведомость данных
потребности в материалах, полуфабрикатах и конструкциях
|
Наименование
|
Единица измерения
|
Количество
|
|
Арматура
|
т
|
1,24
|
|
Опалубка
|
м2
|
642,90
|
|
Бетон
|
м3
|
97,72
|
|
Конструкции сборные железобетонные
|
м3
|
17,16
|
|
Песок
|
м3
|
125,79
|
|
Смесь гравийно-щебеночная
|
м3
|
78,1
|
|
Гидроизол
|
м2
|
41,8
|
|
Мастика битумная
|
т
|
0,53
|
|
Сетка проволочная
|
м2
|
5,4
|
|
Раствор цементный
|
м3
|
3,14
|
|
Сталь круглая
|
т
|
0,02
|
|
Проволока вязальная
|
кг
|
0,1
|
|
Плиты минераловатные
|
м3
|
4,78
|
|
Пиломатериалы
|
м3
|
10,24
|
|
Гвозди
|
кг
|
21,07
|
|
Плинтусы
|
м
|
62
|
|
Плитка керамическая
|
м2
|
3,1
|
|
Олифа
|
кг
|
42,28
|
|
Грунтовка
|
кг
|
44,27
|
|
Шпатлевка
|
кг
|
102,55
|
|
Краска сухая (пигмент)
|
кг
|
1,42
|
|
Известь негашеная
|
кг
|
7,47
|
|
Паста меловая
|
кг
|
14,17
|
|
Краска водоэмульсионная
|
кг
|
8,88
|
|
Белила
|
кг
|
33,10
|
|
Пигмент густотертый
|
кг
|
8,81
|
|
Плитка глазурованная
|
кг
|
4,0
|
|
Металлоконструкции
|
т
|
0,34
|
|
Сталь тонколистовая
|
т
|
0,02
|
|
Пергамин
|
м2
|
106,7
|
|
Листы асбестоцементные
|
м2
|
168,75
|
|
Деталь коньковая
|
м
|
33,3
|
|
Элементы крепления:
|
|
|
|
МШ-1
|
кг
|
19,61
|
|
МВ-4
|
кг
|
0,79
|
|
Мастика герметизирующая
|
кг
|
68,78
|
|
Смесь сухая цементно-песчаная
|
кг
|
2,4
|
|
Гипс
|
кг
|
2,55
|
|
Пакля
|
кг
|
16,81
|
|
Стекло оконное
|
м2
|
30,74
|
|
Замазка меловая
|
кг
|
15,25
|
|
Штапики деревянные
|
м
|
255
|
При производстве строительно-монтажных
работ следует соблюдать требования СНиП III-4-80* "Техника безопасности
в строительстве", "Правила устройства и безопасной эксплуатации
грузоподъемных кранов", "Требования пожарной безопасности".
Вся территория
строительной площадки должна быть ограждена временным забором и иметь временные
подъездные пути.
На территории
строительства должны быть установлены указатели проездов и проходов. На
границах опасных для движения зон следует выставлять предупредительные плакаты
с сигналами, видимыми как в дневное, так и в вечернее время.
Проходы, проезды и
погрузо-разгрузочные площадки необходимо очищать от мусора, строительных
отходов и не загромождать.
В зимнее время следует
регулярно очищать проезжую часть от снега, льда, а пешеходные дорожки, кроме
того, посыпать песком.
Установка стреловых
кранов должна проводиться так, чтобы при работе расстояние между поворотной
частью крана при любом его положении и строениями, штабелями грузов и другими
предметами было не менее 1,0 м.
Подъем сборных элементов
должен быть плавным, без рывков и толчков. При подъеме не допускается
раскачивать элементы. Конструкции, перемещаемые краном, должны удерживаться от
раскачивания оттяжками. Запрещается перенос конструкций кранами над рабочим
местом монтажника.
Грузоподъемность стропов
и траверс должна соответствовать массе элементов. Не допускается применение
неиспытанных стропов.
Строительная площадка
должна быть оборудована комплексом первичных средств пожаротушения: песком,
лопатами, баграми, огнетушителями.
Перед укладкой бетонной
смеси в конструкцию необходимо проверить надежность крепления и ограждения
опалубки
При уплотнении бетонной
смеси электровибраторами обязательно соблюдать следующие правила:
при перерывах в работе, а
также при переходах бетонщиков с одного места на другое электровибраторы
выключают;
во избежание обрыва
провода и поражения рабочих током нельзя перетаскивать вибратор за шланговый
провод и кабель;
после работы вибраторы и
шланговые провода очищают от бетонной смеси и грязи, насухо протирают, провода
складывают в бухты и сдают в кладовую;
нельзя обмывать вибраторы
водой;
через каждые 30 - 35 мин
вибратор выключают на 5 - 7 мин для охлаждения;
при появлении каких-либо
неисправностей в вибраторе работу прекращают;
бетонщики должны быть
снабжены резиновыми сапогами и перчатками.
Начинать кровельные
работы разрешается только после осмотра прорабом или мастером несущих
конструкций крыши.
Рабочие-кровельщики
должны применять предохранительные пояса, места закрепления которых указывает
мастер или прораб. Не допускается выполнение кровельных работ во время
гололеда, тумана, исключающего видимость в пределах фронта работ, грозы, ветра
скоростью 15 м/с и более.
К приготовлению малярных
составов допускаются лица не моложе 18 лет, прошедшие специальное обучение.
Рабочих, занятых приготовлением малярных составов, обеспечивают респираторами,
растворителями и теплой водой для мытья рук.
Все применяемые в
строительстве окрасочные составы, шпатлевки, грунтовки, растворители и
разбавители должны иметь в каждой партии сертификаты или паспорта с указанием
их химического состава.
Применять малярные
составы без соответствующего анализа и разрешения органов саннадзора не
разрешается.
Все внутренние малярные
работы с применением составов, выделяющих вредные для здоровья летучие пары,
необходимо выполнять при открытых окнах или наличии вентиляции, обеспечивающей
не менее чем двухкратный обмен воздуха в час. Продолжительность пребывания
людей в помещениях, свежеокрашенных масляной краской, нитрокрасками и лаками,
не должна превышать 4 ч.
В помещениях, где
выполняют окраску водными составами, электропроводка на время выполнения
малярных работ должна быть обесточена. Запрещается применять этилированный
бензин в качестве растворителя или для промывки кистей и аппаратуры.
При работе с приставных
лестниц маляр должен устанавливать и закреплять их под углом 60°, работать на
ступеньке, находящейся ниже верхнего конца лестницы не менее чем на 1 м.
Работать ручными машинками с приставных лестниц запрещается.
Нормативные затраты труда
рабочих, чел.-дн. 135,094
Нормативные затраты
машинного времени, маш.-смен 25,16
Заработная плата, р.-к.:
рабочих-монтажников 784-99
механизаторов 174-97
Продолжительность
выполнения работ, смен 36,05
Выработка одного рабочего
в смену, м2 0,55
Условные затраты на
механизацию для базового
варианта, р.-к., 1151,10
Сумма изменяемых затрат,
р.-к. 1936,09
ФАСЕТ 01
Планировка поверхности бульдозером
|
Наименование фактора
|
Обоснование
|
Код
|
Значение фактора
|
|
Марка трактора (при рабочем ходе в одном направлении):
|
ЕНиР, § Е2-1-35
|
|
|
|
Т-74; ДГ-75
|
1
|
По калькуляции
|
|
T-130
|
2
|
Н.вр. умножать на 0,488, Расц. - на 0,568
|
|
T-170
|
3
|
Н.вр. умножать на 0,439, Расц. - на 0,512
|
|
Способ работы (при марке трактора Т-74; ДГ-75):
|
То же
|
|
|
|
при рабочем ходе в одном направлении
|
4
|
По калькуляции
|
|
при рабочем ходе в двух направлениях
|
5
|
Н.вр. умножать на 0,537, Расц. - на 0,536
|
ФАСЕТ 02
Срезка растительного грунта бульдозером
|
Наименование фактора
|
Обоснование
|
Код
|
Значение фактора
|
|
Марка трактора (группа грунта -II, влажность нормальная):
|
ЕНиР, § Е2-1-5
|
|
.
|
|
T-100
|
1
|
По калькуляции
|
|
T-130
|
2
|
Н.вр. умножать на 0,778. Расц. - на 0,775
|
|
T-180
|
3
|
Н.вр. и Расц. умножать на 0,722
|
|
Влажность грунтов:
|
То же
|
|
|
|
нормальная
|
4
|
По калькуляции
|
|
переувлажненный грунт
|
5
|
Н.вр. и Расц. умножать на 1,15
|
|
Группа грунта (влажность нормальная, марка трактора - Т-74; ДТ-75):
|
-"-
|
|
-
|
|
II
|
6
|
По калькуляции
|
|
I
|
7
|
Н.вр. умножать на 0,467, Расц. - на 0,466
|
ФАСЕТ 03
Разработка грунта бульдозером
|
Наименование фактора
|
Обоснование
|
Код
|
Значение фактора
|
|
Марка трактора (группа грунта - II, влажность естественная,
угол подъема перемещения бульдозера - до 10 %):
|
ЕНиР, § Е2-1-22
|
|
|
|
|
|
|
ДТ-75, Т-74
|
1
|
По калькуляции
|
|
T-130
|
2
|
Н.вр. умножать на 0,372, Расц. - на 0,435
|
|
T-180
|
3
|
Н.вр. умножать на 0,345, Расц. - на 0,403
|
|
Группа грунта (марка трактора Т-74; ДГ-75; влажность естественная,
угол подъема - до 10 %):
|
То же
|
|
|
|
|
|
|
|
|
|
II
|
4
|
По калькуляции
|
|
I
|
5
|
Н.вр. и Расц. умножать на 0,855
|
|
III
|
6
|
Н.вр. умножать на 1,182, Расц. - на 1,18
|
|
Влажность грунтов:
|
-"-
|
|
|
|
естественная
|
7
|
По калькуляции
|
|
сыпучие и вязкие грунты
|
8
|
Н.вр. и Расц. умножать на 1,15
|
|
Угол подъема, %, до:
|
-"-
|
|
|
|
10
|
9
|
По калькуляции
|
|
20
|
10
|
Н.вр. и Расц. умножать на 1,2
|
|
свыше 20
|
11
|
Н.вр. и Расц. умножать на 1,2
|
ФАСЕТ 04
Погрузка грунта экскаватором из отвала в автосамосвалы
|
Наименование фактора
|
Обоснование
|
Код
|
Значение фактора
|
|
Вместимость ковша, м3 (экскаваторы с гидравлическим
приводом, грунт I группы):
|
ЕНиР, § Е2-1-11
|
|
|
|
0,5
|
1
|
По калькуляции
|
|
0,25
|
2
|
Н.вр. умножать на 1,607, Расц. - на 1,380
|
|
0,4
|
3
|
Н.вр. умножать на 1,143, Расц. - на 0,980
|
|
от 0,63 до 0,65
|
4
|
Н.вр. умножать на 0,75, Расц. - на 0,751
|
|
Группа грунта (экскаватор с гидравлическим приводом, вместимость
ковша 0,5 м3):
|
То же
|
|
|
|
I
|
5
|
По калькуляции-
|
|
II, 1м
|
6
|
Н.вр. умножать на 1,214, Расц. - на 1,212
|
|
III, II м
|
7
|
Н.вр. умножать на 1,5, Расц. - на 1,498
|
|
IV
|
8
|
Н.вр. умножать на 1,928, Расц. - на 1,926
|
|
V, III м
|
9
|
Н.вр. умножать на 2,536, Расц. - на 2,535
|
|
VI
|
10
|
Н.вр. умножать на 3,0, Расц. - на 2,997
|
|
Тип экскаватора (вместимость ковша -0,5 м3: группа грунта
- I):
|
-"-
|
|
-
|
|
с гидравлическим приводом
|
11
|
По калькуляции
|
|
с механическим приводом
|
12
|
Н.вр. умножать на 1,036, Расц. - на 1,034
|
ФАСЕТ 05
Обратная засыпка пазух фундаментов с помощью экскаватора
|
Наименование фактора
|
Обоснование
|
Код
|
Значение
фактора
|
|
Вместимость ковша, м3 (грунт I группы):
|
ЕНиР, § Е2-1-11
|
|
|
|
0,5
|
1
|
По калькуляции
|
|
0,25
|
2
|
Н.вр. умножать на 1,727, Расц. - на 1,485
|
|
0,4
|
3
|
Н.вр. умножать на 1,136, Расц. - на 0,979
|
|
0,63 - 0,65
|
4
|
Н.вр. умножать на 0,818, Расц. - на 0,820
|
ФАСЕТ 06
Установка арматурных сеток и каркасов
|
Наименование фактора
|
Обоснование
|
Код
|
Значение фактора
|
|
Масса арматурных сеток или каркасов, кг, до
|
ЕНиР, § Е4-1-44
|
|
|
|
20
|
1
|
По калькуляции
|
|
50
|
2
|
Н.вр. умножать на 1,412, Расц. - на 1,411
|
|
100
|
3
|
Н.вр. умножать на 2,118, Расц. - на 2,125
|
ФАСЕТ 07
Установка отдельных стержней в ленточные фундаменты
|
Наименование фактора
|
Обоснование
|
Код
|
Значение фактора
|
|
Диаметр стержней, мм, до:
|
ЕНиР, § Е4-1-46
|
|
|
|
6
|
1
|
По калькуляции
|
|
8
|
2
|
Н.вр. и Расц. умножать на 0,804
|
|
18
|
3
|
Н.вр. и Расц. умножать на 0,5
|
|
26
|
4
|
Н.вр. и Расц. умножать на 0,357
|
|
свыше 26
|
5
|
Н.вр. и Расц. умножать на 0,239
|
ФАСЕТ 08
Установка опалубки фундаментов
|
Наименование фактора
|
Обоснование
|
Код
|
Значение фактора
|
|
Тип опалубки:
|
|
|
|
|
металлическая
|
ЕНиР, § Е4-1-37
|
1
|
По калькуляции
|
|
деревометаллическая
|
ЕНиР, § Е4-1-34
|
2
|
Н.вр. умножать на 1,154, Расц. - на 1,107
|
|
деревянные при площади щитов, м2, до:
|
ЕНиР, § Е4-1-34
|
|
|
|
1
|
|
3
|
Н.вр. умножать на 1,590, Расц. - на 1,522
|
|
2
|
|
4
|
Н.вр. умножать на 1,308, Расц. - на 1,254
|
|
свыше 2
|
|
5
|
Н.вр. умножать на 1,026, Расц. - на 0,983
|
ФАСЕТ 09
Подача элементов опалубки к месту установки
|
Наименование фактора
|
Обоснование
|
Код
|
Значение фактора
|
|
Масса поднимаемого груза» т, до:
|
ЕНиР, § Е1-6
|
|
|
|
0,5
|
1
|
По калькуляции
|
|
1,0.
|
2
|
Н.вр. и Расц. умножать на 0,739
|
|
1,5
|
3
|
Н.вр. и Расц. умножать на 0,469
|
|
2,0
|
4
|
Н.вр. и Расц. умножать на 0,278
|
|
2,5
|
5
|
Н.вр. и Расц. умножать на 0,226
|
|
3,0
|
6
|
Н.вр. и Расц. умножать на 0,191
|
|
3,5
|
7
|
Н.вр. и Расц. умножать на 0,165
|
|
4,0
|
8
|
Н.вр. и Расц. умножать на 0,139
|
ФАСЕТ 10
Подача бетонной смеси к месту укладки
|
Наименование фактора
|
Обоснование
|
Код
|
Значение фактора
|
|
Емкость бункера, м3, до:
|
ЕНиР, § Е1-6
|
|
|
|
1,0
|
1
|
По калькуляции
|
|
0,45
|
2
|
Н.вр. умножать на 2,421,
Расц. Такелажника - на 2,418,
Расц. машиниста - 2,416
|
|
0,5
|
3
|
Н.вр. умножать на 2,211
Расц. такелажника - на 2,187,
Расц. машиниста - на 2,208
|
|
0,6
|
4
|
Н.вр. умножать на 1,842
Расц. такелажника - на 1,821,
Расц. машиниста - на 1,842
|
|
0,75
|
5
|
Н.вр. умножать на 1,526
Расц. такелажника - на 1,512,
Расц. машиниста - на 1,525
|
ФАСЕТ 11
Укладка бетонной смеси в ленточные фундаменты
|
Наименование фактора
|
Обоснование
|
Код
|
Значение фактора
|
|
Ширина фундаментов, мм
|
ЕНиР, § Е4-1-49
|
|
|
|
до 600
|
1
|
По калькуляции
|
|
свыше 600
|
2
|
Н.вр. умножать на 0,767,
Расц. - на 0,763
|
ФАСЕТ 12
Демонтаж опалубки фундаментов
|
Наименование фактора
|
Обоснование
|
Код
|
Значение фактора
|
|
Тип опалубки:
|
|
|
|
|
металлическая
|
ЕНиР, § Е4-1-37
|
1
|
По калькуляции
|
|
деревометаллическая
|
ЕНиР, § Е4-1-34
|
2
|
Н.вр. умножать на 1,238, Расц. - на 1,234
|
|
деревянная щитовая при площади щитов, м2:
|
То же
|
|
|
|
до 1
|
3
|
Н.вр. умножать на 0,714, Расц. - на 0,716
|
|
до 2
|
4
|
Н.вр. умножать на 0,619, Расц. - на 0,617
|
|
свыше 2
|
5
|
Н.вр. умножать на 0,476, Расц. - на 0,475
|
ФАСЕТ 13
Изоляция фундаментов
|
Наименование фактора
|
Обоснование
|
Код
|
Значение фактора.
|
|
Вид изоляции;
|
ЕНиР, § 3-2
|
|
|
|
рулонными материалами в два слоя
|
1
|
По калькуляции
|
|
то же, в один слой
|
2
|
Н.вр. и Расц. умножать на 0,843
|
|
цементным раствором
|
3
|
Н.вр. и Расц. умножать на 0,675
|
ФАСЕТ 14
Окрасочная гидроизоляция фундаментов
|
Наименование фактора
|
Обоснование
|
Код
|
Значение фактора
|
|
Вид окрашивания (механизированный):
|
ЕНиР, § Е11-37
|
|
|
|
горячим битумом или битумными мастиками
|
1
|
По калькуляции
|
|
разжиженными битумами, мастиками, эмульсиями
|
2
|
Н.вр. умножать на 0,75, Расц. - на 0,753
|
|
Способ выполнения гидроизоляции (при окрашивании битумными
мастиками):
|
То же
|
|
|
|
механизированный
|
3
|
По калькуляции
|
|
вручную
|
4
|
Н.вр. умножать на 3,75, Расц. - на 3,763
|
ФАСЕТ 15
Установка опалубки колонн
|
Наименование фактора
|
Обоснование
|
Код
|
Значение фактора
|
|
Площадь внутренней развернутой поверхности блока, соприкасающейся с
бетоном, м2, до:
|
ЕНиР, § Е4-1-37
|
|
|
|
5
|
1
|
По калькуляции
|
|
20
|
2
|
Н.вр. умножать на 0,632, Расц. - на 0,633
|
ФАСЕТ 16
Укладка бетонной смеси в стены
|
Наименование фактора
|
Обоснование
|
Код
|
Значение фактора
|
|
Толщина стен, мм, до:
|
ЕНиР, § Е4-1-49
|
|
|
|
300
|
1
|
По калькуляции
|
|
100
|
2
|
Н.вр. умножать на 2,917, Расц. - на 2,914
|
|
150
|
3
|
Н.вр. умножать на 1,91.7, Расц. - на 1,911
|
|
200
|
4
|
Н.вр. умножать на 1,333, Расц. - на 1,329
|
ФАСЕТ 17
Укладка бетонной смеси при бетонировании колонн
|
Наименование фактора
|
Обоснование
|
Код
|
Значение фактора
|
|
Колонны при наименьшей стороне поперечного сечения, мм, до:
|
ЕНиР, § Е4-1-49
|
|
|
|
300
|
1
|
По калькуляции
|
|
500
|
2
|
Н.вр. и Расц. умножать на 0,682
|
|
свыше 500
|
3
|
Н.вр. умножать на 0,5, Расц. - на 0,501
|
ФАСЕТ 18
Укладка бетонной смеси вручную
|
Наименование фактора
|
Обоснование
|
Код
|
Значение фактора
|
|
Объем конструкции, м3 (при уплотнении вибратором):
|
ЕНиР, § Е4-1-53
|
|
|
|
1,0
|
1
|
По калькуляции
|
|
2
|
2
|
Н.вр. умножать на 0,933, Расц. - на 0,935
|
|
3
|
3
|
Н.вр. умножать на 0,8, Расц, - на 0,801
|
|
5
|
4
|
Н.вр. умножать на 0,553, Расц. - на 0,554
|
|
10
|
5
|
Н.вр. умножать на 0,42, Расц. - на 0,421
|
|
Способ уплотнения (при объеме конструкции до 1,0 кг):
|
То же
|
|
|
|
вибратором
|
6
|
По калькуляции
|
|
вручную
|
7
|
Н.вр. умножать на 1,133, Расц. - на 1,140
|
ФАСЕТ 19
Демонтаж металлической опалубки колонн
|
Наименование фактора
|
Обоснование
|
Код
|
Значение фактора
|
|
Площадь внутренней развернутой поверхности блока, соприкасающейся с
бетоном, м2, до:
|
ЕНиР, § Е4-1-37
|
|
|
|
5
|
1
|
По калькуляции
|
|
20
|
2
|
Н.вр. умножать на 0,643, Расц. - на 0,641
|
ФАСЕТ 20
Улучшенное оштукатуривание поверхности
|
Наименование фактора
|
Обоснование
|
Код
|
Значение фактора
|
|
Способ выполнения работ:
|
ЕНиР, § 8-1-2
|
|
|
|
вручную
|
1
|
По калькуляции
|
|
растворонасосом
|
2
|
Н.вр. умножать на 0,398, Расц. - на 0,401
|
ФАСЕТ 21
Монтаж плит покрытия
|
Наименование фактора
|
Обоснование
|
Код
|
Значение фактора
|
|
Площадь плиты, м2, до:
|
ЕНиР, § Е4-1-7
|
|
|
|
10
|
1
|
По калькуляции
|
|
1,5
|
2
|
Н.вр. умножать на 0,381, Расц. - на 0,380
|
|
3
|
3
|
Н.вр. и Расц. умножать на
|
|
15
|
4
|
Н.вр. умножать на 1,190, Расц. - на 1,192
|
|
20
|
5
|
Н.вр. и Расц. умножать на 1,429
|
ФАСЕТ 22
Устройство крыши из отдельных элементов
|
Наименование фактора
|
Обоснование
|
Код
|
Значение фактора
|
|
Стропила:
|
ЕНиР, § Е6-9
|
|
|
|
из досок и брусков
|
1
|
По калькуляции
|
|
из бревен, брусьев, пластин
|
2
|
Н.вр. и Расц. умножать на 1,668
|
ФАСЕТ 23
Заполнение оконных и дверных проемов
|
Наименование фактора
|
Обоснование
|
Код
|
Значение фактора
|
|
Площадь блока, м, до:
|
ЕНиР, § 6-13
|
|
|
|
2
|
1
|
По калькуляции
|
|
1
|
2
|
Н.вр. умножать на 2,833, Расц. - на 2,834
|
|
1,5
|
3
|
Н.вр. и Расц. умножать на 1,167
|
|
2,5
|
4
|
Н.вр. и Расц. умножать на 0,889
|
|
3
|
5
|
Н.вр. и Расц. умножать на 0,744
|
|
3,5
|
6
|
Н.вр. и Расц. умножать на 0,689
|
ФАСЕТ 24
Установка подоконных досок
|
Наименование фактора
|
Обоснование Код Значение фактора
|
|
Подоконные доски:
|
ЕНиР, § Е6-13
|
|
|
|
без кронштейнов
|
1
|
По калькуляции
|
|
на деревянных кронштейнах
|
2
|
Н.вр. и Расц. умножать на 1,5
|
|
на металлических кронштейнах
|
3
|
Н.вр. умножать на 2,214, Расц. - на 2,22
|
ФАСЕТ 25
Остекление оконных проемов
|
Наименование фактора
|
Обоснование
|
Код
|
Значение фактора
|
|
Площадь стекла (стекло тонкое, устанавливается на замазке), м2,
до
|
ЕНиР, § Е8-1-33
|
|
|
|
1,0
|
1
|
По калькуляции
|
|
0,5
|
2
|
Н.вр. и Расц. умножать на 1,233
|
|
0,75
|
3
|
Н.вр. и Расц. умножать на 1,093
|
|
1,5
|
4
|
Н.вр. умножать на 0,93, Расц. - на 0,89
|
|
2
|
5
|
Н.вр. умножать на 0,884, Расц. - на 0,846
|
ФАСЕТ 26
Устройство дощатых покрытий
|
Наименование фактора
|
Обоснование
|
Код
|
Значение фактора
|
|
Вид пола:
|
ЕНиР, § Е19-3
|
|
|
|
без фриза
|
1
|
По калькуляции
|
|
с фризом
|
2
|
Н.вр. и Расц. умножать на 1,481
|
|
Ширина досок, мм:
|
То же
|
|
|
|
до 100
|
3
|
По калькуляции
|
|
свыше 100
|
4
|
Н.вр. и Расц. умножать на 0,75
|
|
Толщина досок, мм:
|
-"-
|
|
|
|
29
|
5
|
По калькуляции
|
|
37
|
6
|
Н.вр. и Расц. умножать на 1,1
|
ФАСЕТ 27
Устройство полов из керамической плитки
|
Наименование фактора
|
Обоснование
|
Код
|
Значение фактора
|
|
Размеры плиток, мм, (при площади пола до 2 м2):
|
ЕНиР, § 19-19
|
|
|
|
100×100
|
1
|
По калькуляции
|
|
150×150
|
2
|
Н.вр. и Расц. умножать на 0,65
|
|
200×200
|
3
|
Н.вр. и Расц. умножать на 0,558
|
|
Площадь пола, м, (при плитках размером 100×100 мм):
|
То же
|
|
|
|
до 2
|
4
|
По калькуляции
|
|
до 10
|
5
|
Н.вр. и Расц. умножать на 0,833
|
|
свыше 10
|
6
|
Н.вр. и Расц. умножать на 0,792
|
ФАСЕТ 28
Устройство цементных полов
|
Наименование фактора
|
Обоснование
|
Код
|
Значение фактора
|
|
Толщина слоя, мм, (при площади пола до 10 м2):
|
ЕНиР, § Е19-32
|
|
|
|
20
|
1
|
По калькуляции
|
|
30-40
|
2
|
Н.вр. и Расц. умножать на 1,2
|
|
Площадь пола, м2, (при толщине слоя 20 мм):
|
То же.
|
|
|
|
до 10
|
3
|
По калькуляции
|
|
свыше 10
|
4
|
Н.вр. и Расц. умножать на 0,8
|
|
Способ нанесения раствора (площадь пола до 10 м, толщина слоя - 20
мм):
|
-"-
|
|
|
|
вручную
|
5
|
По калькуляции
|
|
Растворонасосом производительностью до 4 м3/ч
|
6
|
Н.вр. и Расц. умножать на 1,067
|
|
то же, производительностью до 6 м3/ч
|
7
|
Н.вр. и Расц. умножать на 0,867
|
ФАСЕТ 29
Штукатурка оконных и дверных откосов
|
Наименование фактора
|
Обоснование
|
Код
|
Значение фактора
|
|
Вид раствора:
|
ЕНиР, § Е8-1-5
|
|
|
|
цементный или цементно-известковый
|
1
|
По калькуляции
|
|
полимерцементный
|
2
|
Н.вр. и Расц. умножать на 1,114
|
ФАСЕТ 30
Облицовка стен
|
Наименование фактора
|
Обоснование
|
Код
|
Значение фактора
|
|
Вид раствора (плитки 100×100 мм):
|
ЕНиР, § Е8-1-35
|
|
|
|
цементно-песчаный или цементно-известково-песчаный
|
1
|
По калькуляции
|
|
полимерцементная мастика
|
2
|
Н.вр. умножать на 0,737, Расц. - на 0,732
|
|
Толщина шва (раствор цементно-песчаный, плитка 100×100 мм), мм,
от:
|
То же
|
|
|
|
1 до 2
|
3
|
По калькуляции
|
|
3 до 5
|
4
|
Н.вр. умножать на 0,842, Расц. - на 0,838
|
РУКОВОДИТЕЛЯМ СТРОИТЕЛЬНО-МОНТАЖНЫХ И
ПРОЕКТНЫХ ОРГАНИЗАЦИЙ, ОРГТЕХСТРОЕВ, ДОМОСТРОИТЕЛЬНЫХ КОМБИНАТОВ, ЗАВОДОВ
ЖЕЛЕЗОБЕТОННЫХ ИЗДЕЛИЙ И ДРУГИХ ПРЕДПРИЯТИЙ СТРОЙИНДУСТРИИ, ДИРЕКТОРАМ
СТРОИТЕЛЬНО-УЧЕБНЫХ ЗАВЕДЕНИЙ
Типовые
технологические карты (ТТК) на производство отдельных видов работ являются
неотъемлемой частью проектов производства работ, используются в качестве основы
при их разработке или входят в них как самостоятельные части.
ТТК способствуют
повышению производительности труда строителей, сокращению сроков и повышению
качества строительства.
В предлагаемую ниже
Вашему вниманию таблицу, включены все разделы и подразделы, входящие в
"Перечень типовых технологических карт на производство отдельных видов
работ", приобрести который Вы можете наложенным платежом, прислав заказ в
адрес отдела научно-технической информации ЦНИИОМТП Госстроя СССР.
В каждом разделе этого
Перечня представлено до 100 наименований ТТК. Выбрав интересующие Вас карты,
необходимо направить заказ на их приобретение в тот же адрес.
Адрес, по которому следует присылать заказы на
приобретение Перечня или отдельных ТТК: 103012, Москва, ул. Куйбышева, 3/8.
ОНТИ ЦНИИОМТП Госстроя СССР.
|
Код (по классиф. ЦНИИОМТП)
|
РАЗДЕЛЫ И ПОДРАЗДЕЛЫ ПЕРЕЧНЯ
|
|
|
Раздел 1. ЗЕМЛЯНЫЕ И
БУРОВЗРЫВНЫЕ РАБОТЫ
|
|
11000
|
Вертикальная планировка
|
|
12000
|
Разработка котлована
|
|
13000
|
Разработка траншей
|
|
14000
|
Обратная засыпка и уплотнение грунта
|
|
15000
|
Возведение дамб, плотин, насыпей
|
|
|
Раздел 2 СВАЙНЫЕ РАБОТЫ И ИСКУССТВЕННОЕ ЗАКРЕПЛЕНИЕ ГРУНТОВ
|
|
21000
|
Погружение свай
|
|
22000
|
Устройство буронабивных свай
|
|
24000
|
Закрепление грунтов
|
|
|
Раздел 3 БЕТОННЫЕ И ЖЕЛЕЗОБЕТОННЫЕ РАБОТЫ (МОНОЛИТНЫЙ ЖЕЛЕЗОБЕТОН)
|
|
31000
|
Бетонные работы
|
|
32000
|
Арматурные работы
|
|
33000
|
Опалубочные работы
|
|
|
Раздел 4 МОНТАЖ СТРОИТЕЛЬНЫХ КОНСТРУКЦИЙ
|
|
41000
|
Монтаж сборных железобетонных конструкций
|
|
42000
|
Монтаж металлических конструкций
|
|
43000
|
Монтаж деревянных, пластмассовых и других конструкций
|
|
|
Раздел 5 КАМЕННЫЕ РАБОТЫ
|
|
51000
|
Каменная и кирпичная кладка
|
|
52000
|
Кладка из бетонных и керамических камней, гипсовых плит и
стеклоблоков
|
|
|
Раздел 6. КРОВЕЛЬНЫЕ И ИЗОЛЯЦИОННЫЕ РАБОТЫ
|
|
61000
|
Подготовительные работы
|
|
62000
|
Устройство пароизоляции
|
|
63000
|
Устройство теплоизоляции
|
|
64000
|
Устройство стяжек
|
|
65000
|
Устройство гидроизоляционного слоя покрытия
|
|
66000
|
Устройство защитного слоя
|
|
67000
|
Гидроизоляция конструкций зданий и сооружений
|
|
|
Раздел 7 ОТДЕЛОЧНЫЕ РАБОТЫ
|
|
71000
|
Облицовочные работы
|
|
72000
|
Штукатурные работы
|
|
73000
|
Столярные работы
|
|
74000
|
Малярные работы
|
|
75000
|
Стекольные работы
|
|
76000
|
Обойные работы
|
|
77000
|
Устройство подвесных потолков
|
|
78000
|
Устройство полов
|
|
|
Раздел 8 СПЕЦИАЛЬНЫЕ СТРОИТЕЛЬНЫЕ РАБОТЫ
|
|
81000
|
Монтаж внутренних систем водоснабжения и канализации
|
|
82000
|
Работы по установке оборудования систем отопления
|
|
84000
|
Работы по устройству систем вентиляции
|
|
85000
|
Работы по устройству наружных сетей водоснабжения
|
|
86000
|
Работы по устройству сетей канализации
|
|
87000
|
Работы по устройству сетей теплоснабжения
|
|
810000
|
Работы по устройству автодорог
|
|
814000
|
Монтаж и демонтаж мобильных (инвентарных) зданий
|
|
815000
|
Монтаж технологического оборудования
|
| |
|