//
ТехЛит.ру
- крупнейшая бесплатная электронная интернет библиотека для "технически умных" людей.
WWW.TEHLIT.RU - ТЕХНИЧЕСКАЯ ЛИТЕРАТУРА

:: Алготрейдинг::


АЛГОТРЕЙДИНГ
шаг за шагом
с нуля по урокам!

Торговые роботы на PYTHON, BackTrader,
Pandas, Pine Script для TradingView. Связка с брокерами, телеграм и легкими приложениями.


МИНИСТЕРСТВО ЭНЕРГЕТИКИ РОССИЙСКОЙ ФЕДЕРАЦИИ

Государственное унитарное предприятие

"ИНСТИТУТ ПРОБЛЕМ ТРАНСПОРТА ЭНЕРГОРЕСУРСОВ" (ГУП "ИПТЭР")

РУКОВОДЯЩИЙ ДОКУМЕНТ

ИНСТРУКЦИЯ ПО ПРОКЛАДКЕ ТРУБОПРОВОДОВ В ОБСЫПКЕ ИЗ ГИДРОФОБИЗИРОВАННЫХ ГРУНТОВ

РД 39Р-00147105-027-02

УФА 2002

ПРЕДИСЛОВИЕ

1 РАЗРАБОТАН Самостоятельным структурным подразделением хозрасчетной научно-исследовательской лабораторией «Трубопроводсервис» и кафедрой «Сооружение и ремонт газонефтепроводов и газонефтехранилищ» Уфимского государственного нефтяного технического университета.

Творческий коллектив: Абдуллин Н.В., Веселов Д.Н., Гамбург И.Ш., Гильметдинов Р.Ф., Домрачев Е. Н., Квицинская М.С., Квятковский О.П., Коновалов Н.И., Маркухов О. В., Мустафин Ф.М. (руководитель), Рафиков С.К., Соловьев А.Б., Тарасов А.В., Фархетдинов И.Р., Харисов Р.А., Щепетов А.Е.

2 УТВЕРЖДЕН И ВВЕДЕН В ДЕЙСТВИЕ приказом по ГУП «ИПТЭР», от "18" июля 2002 г.

3 Разработчики выражают благодарность специалистам ВФ АО «ВНИИСТ», ООО «Старстрой», РЦ НТО «Башпромбезопасность», Башкирскому управлению ГОСГОРТЕХНАДЗОРа России, АК «Транснефть» «УФАГИПРОТРУБОПРОВОД», за полезные замечания и предложения к первой редакции инструкции.

4 РД согласован с ГОСГОРТЕХНАДЗОРом России (письмо от "15" сентября 2002 г., № 10-03/868).

Содержание

1 ОБЛАСТЬ ПРИМЕНЕНИЯ

2 НОРМАТИВНЫЕ ССЫЛКИ

3 ТЕРМИНЫ И ОПРЕДЕЛЕНИЯ

4 ОБЩИЕ ПОЛОЖЕНИЯ

5 ОРГАНИЗАЦИЯ И ТЕХНОЛОГИЯ СТРОИТЕЛЬНОГО ПРОЦЕССА

6 ТЕХНИКО-ЭКОНОМИЧЕСКИЕ ПОКАЗАТЕЛИ

7 МАТЕРИАЛЬНО - ТЕХНИЧЕСКИЕ РЕСУРСЫ

8 ТЕХНИКА БЕЗОПАСНОСТИ

9 ОХРАНА ОКРУЖАЮЩЕЙ СРЕДЫ

СПИСОК ИСПОЛЬЗОВАННЫХ ИСТОЧНИКОВ

Приложение А (справочное) Технические требования к вяжущему ВМТ-Л

Приложение Б (справочное) Технические требования к вяжущему ВМТ-3

Приложение В (справочное) Перечень исходных физико-механических свойств грунтов и стандартов на их определение

Приложение Г (рекомендуемое) Требования к физико-механическим свойствам и коррозионной активности гидрофобизированных грунтов

Приложение Д (справочное) Техническая характеристика одноковшового экскаватора ЭО-4121, используемого на строительстве трубопроводов в обсыпке из гидрофобизированного грунта

Приложение Е (справочное) Техническая характеристика бульдозера ДЗ-17

Приложение Ж (справочное) Техническая характеристика автобитумовоза ДС-41А с цистерной емкостью 7000 л

 

 

ИНСТРУКЦИЯ ПО ПРОКЛАДКЕ ТРУБОПРОВОДОВ В ОБСЫПКЕ ИЗ ГИДРОФОБИЗИРОВАННЫХ ГРУНТОВ

Дата введения 2002-11-01

1 ОБЛАСТЬ ПРИМЕНЕНИЯ

1.1 Настоящий руководящий документ (РД) устанавливает основы на строительство трубопроводов в обсыпке из гидрофобизированных грунтов прокладываемых подземно, полуподземно и в насыпи.

РД направлен на решение актуальной задачи научно обоснованного увеличения надежности эксплуатации и улучшения условий работы трубопровода путем защиты от коррозии, защиты изоляции от механических повреждений, увеличения срока службы изоляции и обеспечения его продольной устойчивости.

1.2 РД разработан и рекомендуется для выполнения работ по строительству трубопроводов диаметром до 1420 мм включительно с избыточным давлением до 10,0 МПа, прокладываемых подземно, полуподземно и в насыпи, в обсыпке из гидрофобизированных грунтов.

В РД отражены общие положения по прокладке трубопроводов в обсыпке из гидрофобизированных фунтов, требования безопасности и охраны окружающей среды, современные средства применяемые для гидрофобизации грунтов, а также область применения этих материалов в трубопроводном строительстве. Представлена организация и технология строительного процесса. Приведены калькуляции трудовых затрат составленные в соответствии с едиными нормами и расценками на строительные и монтажные работы. Указана потребность в машинах и механизмах, а также их техническая характеристика.

1.3 РД предназначен для специалистов, занятых в области проектирования, строительства, эксплуатации и ремонта трубопроводов

2 НОРМАТИВНЫЕ ССЫЛКИ

2.1 В настоящем документе использованы ссылки на следующие нормативно - технические документы и стандарты:

ВСН 008-88 Строительство магистральных и промысловых трубопроводов. Противокоррозионная и тепловая защита;

ВСН 009-88 Строительство магистральных и промысловых трубопроводов. ЭХЗ кожухов на переходах трубопроводов под автомобильными и железными дорогами;

ВСН 012-88 Строительство магистральных и промысловых трубопроводов. Контроль качества и приемки работ;

ВСН 179-85 Инструкция по рекультивации земель при строительстве трубопроводов;

ГОСТ Р 51164-98. Трубопроводы стальные магистральные. Общие требования к защите от коррозии;

ГОСТ 9.602-89* Сооружения подземные, Общие требования к защите от коррозии;

CH 25-74. Инструкция по применению грунтов, укрепленных вяжущими материалами для устройства оснований и покрытий автомобильных дорог и аэродромов;

СНиП III-4-80* Техника безопасности в строительстве;

СНиП 12-03-01. Безопасность труда в строительстве;

СНиП III-42-80* Магистральные трубопроводы. Правила производства и приемки работ;

СНиП 2.05.06-85* Магистральные трубопроводы.

3 ТЕРМИНЫ И ОПРЕДЕЛЕНИЯ

Трубопровод рассматривается как система последовательно соединенных элементов (труб и деталей). Разрушение одного из элементов выводит из строя весь трубопровод.

Гидрофобизированные грунты это - грунты, обработанные вяжущими продуктами и имеющие повышенную водостойкость, водонепроницаемость, низкую коррозионную активность и газопроницаемость.

Вяжущее вещество ВМТ-Л (вяжущее для магистральных трубопроводов) - относится к классу жидких битумов, состоит из остатка термического крекинга гудрона нефти с легким газойлем коксования и нефтяным битумом, выпускаемое по ТУ 0258-001-02080196-2000.

4 ОБЩИЕ ПОЛОЖЕНИЯ

4.1 Инструкция разработана на основании:

- исследования состояния изоляционных покрытий магистральных трубопроводов [1... 7];

- исследований по обсыпке изолированных трубопроводов гидрофобизированными грунтами, которые показывают увеличение срока службы изоляционных покрытий трубопроводов до 32 лет (например, битумных и полимерных ленточных) [1... 7];

- исследований коррозионной активности грунтов, обработанных вяжущими материалами, которые указывают на уменьшение коррозионной активности в 2..6 раз [1... 7].

4.2 Обсыпка из гидрофобизированных грунтов защищает изоляцию трубопровода от механических повреждений, вредного воздействия окружающей среды и замедляет процесс ее старения. На рисунках 4.1, 4.2, 4.3 представлены подземная, полуподземная и наземная схемы прокладки трубопровода в обсыпке из гидрофобизированного грунта.

Подземная схема укладки является наиболее распространенной (98% от общей протяженности) и предусматривает укладку трубопровода в грунт на глубину, превышающую диаметр труб.

Полуподземная схема укладки применяется при пересечении трубопроводом заболоченных и солончаковых участков, при наличии подстилающих скальных пород, а также при пересечениях с другими коммуникациями. Трубопровод укладывается в грунт на глубину менее диаметра с последующим обвалованием выступающей части.

Наземная схема укладки в насыпи преимущественно используется в сильно обводненных и заболоченных районах, на вечно мерзлых грунтах, при наличии скальных пород и при пересечении других коммуникаций. Необходимым условием при полуподземной и наземной прокладке является устройство водопропускных сооружений.

1 - трубопровод; 2 - слой изоляции; 3 - траншея; 4 - слой подготовки из гидрофобизированного грунта; 5 - слой обсыпки из гидрофобизированного грунта; 6 - слой минерального грунта; 7 - валик грунта

Рисунок 4.1 - Схема прокладки подземного трубопровода в обсыпке из гидрофобизированных грунтов

1 - трубопровод; 2 - слой изоляции; 3 - траншея; 4 - слой подготовки из гидрофобизированного грунта; 5 - слой обсыпки из гидрофобизированного грунта; 6 - обвалование из минерального или плодородного грунта (выполняется при необходимости)

Рисунок 4.2 - Схема прокладки полуподземного трубопровода в обсыпке из гидрофобизированных грунтов

1 - трубопровод; 2 - слой изоляции; 3 - слой подготовки из гидрофобизированного грунта; 4 - слой обсыпки из гидрофобизированного грунта; 5 - насыпь из минерального или плодородного грунта (выполняется при необходимости

Рисунок 4.3 - Схема прокладки наземного трубопровода в обсыпке из гидрофобизированных грунтов

4.3 Для осуществления технического надзора за качеством ремонта, приемки выполняемых работ и оформления документации назначается лицо из числа работников служб, несущих ответственность за безаварийную эксплуатацию трубопровода.

4.4 Инструкция по прокладке трубопроводов диаметром до 1420 мм (включительно) в обсыпке из гидрофобизированных грунтов разработана в соответствии с действующими нормативно - техническими документами [719].

4.5 Квалификация исполнителей и тарификация выполняемых ими работ приняты в соответствии с Тарифно-квалификационным справочником.

4.6 Калькуляции трудовых затрат составлены в соответствии с едиными нормами и расценками на строительные и монтажные работы.

4.7 В качестве средства для гидрофобизации грунтов применяется вяжущие для магистральных трубопроводов летней и зимней модификации ВМТ-Л и ВМТ-3, выпускаемые производственным объединением Башнефтехимзаводы.

4.8 Вяжущие ВМТ-Л и ВМТ-3 относятся к классу жидких битумов. Состав вяжущих и технические требования приведены в приложениях А и Б.

4.9 Упаковку, маркировку и хранение вяжущих выполняют по ГОСТ 2517-80. Транспортировку вяжущих производят железнодорожным и автомобильным транспортом.

Отпуск и прием вяжущих производят партиями. Партией считается любое количество вяжущего, однородного по своим качественным показателям и сопровождаемого одним документом о качестве. Качество поступающего вяжущего контролируют отбором проб в соответствии с ГОСТ 2517-80.

4 10 Приготовление гидрофобизированного грунта осуществляется перемешиванием минерального грунта с органическими вяжущими.

4 11 Гидрофобизации вяжущими ВМТ-Л и ВМТ-3 подлежат (без специальных добавок) рыхлые минеральные грунты (суглинки, супеси, пески). Жирные глины, сыпучие барханные пески, пески средней крупности и крупные могут быть гидрофобизированы только после улучшения гранулометрического состава в соответствии с указаниями СН 25-74.

4.12 Для оценки возможности приготовления гидрофобизированных грунтов определяются физико-механические свойства и коррозионная активность грунтов в соответствии с приложением В. Характеристики минеральных грунтов устанавливаются по материалам инженерно-геологических изысканий, и в случае отсутствия или недостатка их - лабораторными испытаниями образцов, отобранных в соответствии с ГОСТ 12071-72.

4.13 Требования к физико-механическим свойствам и коррозионной активности гидрофобизированных грунтов, используемых для защиты изоляционного покрытия и трубопровода от вредного действия окружающей среды разработаны с учетом опыта применения вяжущих в дорожном и трубопроводном строительстве и приведены в приложении Г.

4.14 Дозировка вяжущих ВМТ-Л и ВМТ-3 для приготовления гидрофобизированных грунтов зависит от вида, влажности и состояния грунта. Для большинства грунтов в естественном состоянии достаточной является дозировка вяжущих 10 % от веса скелета грунта.

4.15 Применение других вяжущих продуктов возможно только после проведения достаточных научно-исследовательских работ и технико-экономическом обосновании.

4 16 При разработке инструкции приняты следующие исходные положения:

• трубопровод диаметром до 1420 включительно заизолирован;

• вяжущее - ВМТ - Л (в соответствии с ТУ 0258-001-02080196-2000) доставлено к месту строительства.

4.17 В состав работы рассматриваемой инструкции при подземной и полуподземной схемах прокладки входит:

• приготовление гидрофобизированного грунта на дне траншеи в качестве подсыпки под трубопровод;

• подготовка грунтового лотка;

• поливание минерального грунта вяжущим ВМТ;

• перемешивание минерального грунта с ВМТ;

• обсыпка трубопровода гидрофобизированным грунтом;

• уплотнение гидрофобизированного грунта;

• окончательная засыпка траншеи минеральным грунтом и рекультивация.

4.18 В состав работы рассматриваемой инструкции при наземной схеме прокладки входит:

• приготовление и укладка гидрофобизированного грунта в качестве слоя подготовки под трубопровод;

• завоз гидрофобизированного грунта, приготовленного в карьере, автосамосвалами;

• формирование насыпи из гидрофобизированного грунта;

• рекультивация плодородного слоя.

4.19 Привязка инструкции к конкретным условиям строительства должна включать:

• учет сезона производства работ;

• определение производительности труда при условии изменения сменности работ:

• расчет калькуляции трудовых затрат с использованием поправочных коэффициентов для выполнения работ в усложненных условиях с применением технологии и организации, предусмотренной инструкцией на нормальные условия;

• учет объемов работ, средств механизации и расхода материалов при изменении параметров траншеи.

5 ОРГАНИЗАЦИЯ И ТЕХНОЛОГИЯ СТРОИТЕЛЬНОГО ПРОЦЕССА

5.1 До начала основных работ по прокладке трубопроводов диаметром до 1420 мм включительно в обсыпке из гидрофобизированных грунтов должны быть выполнены работы подготовительного цикла:

• получена проектная документация на применение гидрофобизированного грунта;

• укомплектованы и проинструктированы бригады;

• подготовлены к трассовым работам необходимые механизмы, оснастка, инструмент;

• проверены качество и целостность изоляционного покрытия трубопровода, при необходимости проведен ремонт изоляционного покрытия;

• получено разрешение (письменное) от заказчика на обсыпку уложенного трубопровода.

5.2 Работы по прокладке подземного и полуподземного трубопроводов диаметром до 1420 мм включительно в обсыпке из гидрофобизированных фунтов (рисунок 5.2).

5.2.1 Пропитка фунта дна траншеи вяжущим ВМТ осуществляется передвижной насосной установкой на облегченном прицепе марки ГАЗ-704 с винтовым насосом Ш 40-6 Б и приводом от двигателя УМЗТ-6, которую прицепляют к битумовозу ДС-41 А. Техническая характеристика автобитумовоза ДС-41А представлена в приложении Ж. Она принимает ВМТ от сливного патрубка битумовоза и по шлангу подает его на гребенку, установленную на конце облегченной несущей фермы. Гребенка имеет сопла специальной конструкции, обеспечивающие высокую дисперсность вяжущего и равномерное распределение по дну траншеи. Количество вяжущего 10% по массе (рисунок 5.1, 5.4). Производить приготовление вяжущефунтовой смеси необходимо с использованием минитракторов Т-0,2.03.1 «Уралец», Wirtgen W 1100 (Австрия) или с использованием самоходных рыхлителей "HONDA Т/380" мощностью 5 л. с, глубиной рыхления до 30 см, а также «Урал» и др. (рисунок 5.5).

5.2.2 Укладка заизолированного трубопровода в траншею.

5.2.3 Создание фунтового лотка в отвале минерального фунта экскаватором ЭО-4121. Техническая характеристика экскаватора ЭО - 4121 представлена в приложении Д.

5.2.4 Полив через гребенки грунтового лотка в отвале минерального грунта. Количество вяжущего 10% по массе.

5.2.5 Перемешивание минерального грунта с ВМТ экскаватором ЭО 4121.

5.2.6 Перемещение из отвала в траншею гидрофобизированного грунта бульдозером ДЗ-17. Техническая характеристика бульдозера ДЗ-17 представлена в приложении Е.

5.2.7 Уплотнение гидрофобизированного грунта ковшом экскаватора или другими специализированными механизмами.

5.2.8 Перемещение из отвала в траншею минерального грунта бульдозером ДЗ-17.

5.2.9 Рекультивация плодородного слоя.

5.3 Работы по прокладке наземного трубопровода диаметром до 1420 мм включительно в обсыпке из гидрофобизированных грунтов (рисунок 5.3).

5.3.1 Приготовление гидрофобизированного грунта слоя подготовки. Процесс производства аналогичен работам, выполняемым при подземной и полуподземной прокладке.

5.3.2 Укладка заизолированного трубопровода на слой подготовки.

5.3.3 Завоз гидрофобизированного грунта, приготовленного на карьере, к месту укладки трубопровода.

5.3.4 Формирование насыпи из гидрофобизированного грунта экскаватором ЭО 4121. При необходимости дополнительно формируется насыпь из минерального грунта.

5.3.5 Рекультивация плодородного слоя грунта.

5.4 Работа по прокладке трубопроводов диаметром до 1420 мм включительно в обсыпке из гидрофобизированных грунтов выполняется комплексной бригадой в количестве 7 человек (таблица 5.1).

5.5 Схема операционного контроля качества работ приведена в таблице 5.2

5.6 Калькуляции трудовых затрат на прокладку подземного и полуподземного трубопроводов диаметром до 1420 мм (включительно) в обсыпке из гидрофобизированных грунтов длиной 100 м приведены в таблицах 5.3, 5.4, 5.5 (в ценах 1984 года). При наземном способе прокладке трубопровода добавляются расходы на перевозку гидрофобизированного грунта из карьера к месту укладки, которые зависят от дальности перевозки и принимаются по ЕНиР 2-1-10

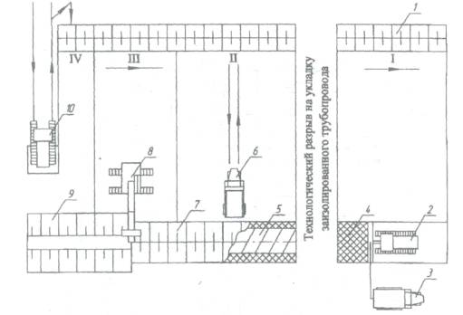
1 - передвижная насосная установка; 2 - автобитумовоз; 3 - гибкий шланг для подачи вяжущего; 4 - минитрактор; 5 - дорожная фреза; 6 - рабочие колеса дорожной фрезы; 7 - несущая консоль

Рисунок 5.1 - Схема приготовления вяжущегрунтовой смеси на дне траншеи с использованием минитрактора с дорожной фрезой

1 - рекультивируемый грунт; 2 - минеральный грунт; 3 - минитрактор с дорожной фрезой; 4 - битумовоз; 5 -траншея; 6 - экскаватор; 7 - грунтовой лоток; 8 - изолированный трубопровод; 9 - гидрофобизированный грунт; 10 -бульдозер

I - поливание дна траншеи ВМТ и приготовление вяжущегрунтовой смеси дорожной фрезой или грунтосмесительной насадкой к бульдозеру; II - подготовка грунтового лотка; III - поливание минерального грунта ВМТ; IV - перемешивание минерального грунта с ВМТ; V - перемещение гидрофобизированного грунта в траншею; VI - уплотнение гидрофобизированного грунта; VII - обратная рекультивация

Рисунок 5.2 - Технологическая схема по прокладке подземных и полуподземных трубопроводов в обсыпке из гидрофобизированных грунтов.

1 - рекультивируемый грунт; 2 - минитрактор с дорожной фрезой или бульдозер с грунтосмесительной насадкой; 3 - битумовоз; 4 - слой подготовки из гидрофобизированного грунта; 5 - изолированный трубопровод; 6 - автосамосвал; 7 - гидрофобизированный грунт; 8 - экскаватор; 9 - обвалование из гидрофобизированного грунта; 10 - бульдозер.

I - поливание грунта ВМТ и приготовление вяжущегрунтовой смеси дорожной фрезой или грунтосмесительной насадкой к бульдозеру; II - выгрузка гидрофобизированного грунта из автосамосвалов; III - засыпка трубопровода и формирование обвалования из гидрофобизированного грунта; IV - рекультивация плодородного слоя грунта.

Рисунок 5.3 - Технологическая схема по прокладке наземного трубопровода в обсыпке из гидрофобизированных грунтов с приготовлением гидрофобизированного грунта на карьере

1 - винтовой насос Ш40-6Б; 2 - линия подачи промывочной жидкости; 3 - бачок для промывочной жидкости; 4 - всасывающий трубопровод; 5 - входной соединительный фланец; 6 - обводная линия; 7 - задвижка; 8 - ограждение; 9 - нагнетательная линия; 10 - двигатель УМЗТ-6; 11 - стойка каркаса

Рисунок 5.4 - Передвижная насосная установка для перекачки ВМТ на базе облегченного прицепа ГАЗ-704

1 - передвижная насосная установка; 2 - битумовоз ДС-41А; 3 - дно траншеи; 4 - минитрактор; 5 - навесная дорожная фреза; 6 - слой гидрофобизированного грунта

Рисунок 5.5 - Схема приготовления вяжущегрунтовой смеси на дне траншеи с использованием минитрактора с дорожной фрезой

Таблица 5.1 - Количественно-квалификационный состав бригады

Наименование работ

Профессия и разряд

Экскаватор ЭО-4121 создает грунтовый лоток в отвале минерального фунта. Перемешивание минерального грунта с ВМТ экскаватором ЭО 4121.

Машинист экскаватора

6 разряд-1,

рабочий 1

1 разряд- 1.

Полив через гребенки грунтового лотка в отвале минерального грунта и дна траншеи

Водитель

2 класс - 2,

рабочий

2 разряд - 1.

Перемещение из отвала в траншею гидрофобизированного грунта бульдозером ДЗ-17

Машинист бульдозера

6 разряд - 1

Обратная рекультивация.

Машинист бульдозера

6 разряд -1

Таблица 5.2 - Контроль качества работ на прокладку подземного трубопровода диаметром до 1420 мм (включительно) в обсыпке из гидрофобизированных грунтов

Основные операции, подлежащие контролю

Состав контроля

Техническая оснащенность контроля

Вид контроля

Кто контролирует

Регистрация результатов контроля

Водоотлив из траншеи (при необходимости)

Правильность выполнения водоотлива

Визуально

Выходной постоянный, выборочный

Прораб

Общий журнал работ

Пропитка дна траншеи вяжущим

Замер глубины проникновения вяжущего

Щуп, линейка

Операционный, постоянный, сплошной

Мастер

Исполнительная схема

Приготовление вяжуще-грунтовой смеси

Дозировка вяжущего, качество перемешивания

Уровнемер, визуально

Операционный, постоянный, сплошной

Прораб, исполнители

Исполнительная схема

Очистка траншеи от снега и льда (при необходимости)

Качество очистки

Визуально

Операционный постоянный

Мастер

Общий журнал работ

Укладка трубопровода в траншею

Правильность укладки

Визуально

Операционный, постоянный, сплошной

Прораб, исполнители

Исполнительная схема

Обсыпка трубопровода гидрофобизированным грунтом

Замер толщины обсыпки гидрофобизированным грунтом

Щуп, линейка

Операционный, постоянный, сплошной

Мастер

Исполнительная схема

Засыпка траншеи минеральным грунтом и планировка валика

Равномерность планировки

Нивелир

Операционный, постоянный, сплошной

Мастер

Исполнительная схема

Приемка уложенного трубопровода

Соответствие требованиям проекта

Визуально, рулетка

Операционный, постоянный, сплошной

Прораб, технадзор

Акт приемки

Таблица 5.3 - Калькуляция трудовых затрат на прокладку подземного трубопровода диаметром до 530 мм в обсыпке из гидрофобизированных грунтов длиной 100 м

Основание 

Работа

Единица измерения

Объем работ

Норма времени на единицу измерения, чел. - ч.

Затраты труда на весь объем работ, чел.-день

Расценка на единицу измерения, руб.-коп.

Стоимость затрат труда на весь объем работ, руб.-коп.

1

2

3

4

5

6

7

8

ЕНиР-17-4 п. 2

Введение ВМТ-Л в грунт

1,5

0,48

0,72

0-31,8

0-50,9

ЕНиР-2-1-10

табл. 3 п. 5 ж

Подготовка грунтового лотка из отвала траншеи экскаватором

100 м3

0,82

3,2

2,62

2-39

3-34,6

ЕНиР 17-4 п. 2

Введение ВМТ-Л в грунтовый лоток

10,2

0,48

4,89

0-31,8

3-49,8

ЕНиР 2-1-10

табл. 3 п. 5 ж

Приготовление вяжущегрунтовой смеси экскаватором

100 м3

0,82

3,2

2,62

2,39

3 - 34,6

П-3-82,18, п.5Б

Перемещение закрепленного грунта в траншею

100 м3

0,82

0,155

0,12

0 - 14,8

0-22,7

П-3-82,18

п. 5Б

Перемещение минерального грунта в траншею

100 м3

0,72

0,155

0,11

0 -14,8

0-13,8

ЕНиР-2-1-22 табл. 4, п. 1г

Уплотнение закрепленного грунта

1000 м3

0,14

1,35

0,19

0 - 94,8

0-21,8

П-3-82-9 п. 4в

Перемещение плодородного слоя почвы и распределение его по полосе рекультивации

100 м3

4,6

0,52

2,39

0 - 49,7

2-28,6

 

ИТОГО

 

 

 

13,66

 

15-57

Таблица 5.4 - Калькуляция трудовых затрат на прокладку подземного

трубопровода диаметром до 530 - 820 мм в обсыпке из гидрофобизированных грунтов длиной 100 м

Основание

Работа

Единица измерения

Объем работ

Норма времени на единицу измерения, чел.-ч.

Затраты труда на весь объем работ, чел.-день

Расценка на единицу измерения, руб.-коп.

Стоимость затрат труда на весь объем работ, руб.-коп.

ЕНиР-17-4

п. 2

Введение ВМТ-Л в грунт

1 т

2,1

0,48

1,01

0-31,8

0-66,8

ЕНиР-2-1-10 табл. 3 п. 5 ж

Подготовка грунтового лотка из отвала траншеи экскаватором

100 м3

1,02

3,2

3,26

2-39

3-65,7

ЕНиР-17-4 п. 2

Введение ВМТ-Л в грунтовый лоток

12,6

0,48

6,05

0-31,8

4-64,3

ЕНиР-2-1-10 табл. 3 п. 5 ж

Приготовление вяжущегрунтовой смеси экскаватором

100 м3

1,02

3,2

3,26

2,39

3-65,7

П-3-82, 18, п. 5Б

Перемещение закрепленного грунта в траншею

100 м3

1,02

0,155

0,16

0-14,8

0-22,6

П-3-82, 18 п. 5Б

Перемещение минерального грунта в траншею

100 м3

1,34

0,155

0,21

0-14,8

0-19,5

ЕНиР-2-1-22 табл. 4, п. 1г

Уплотнение закрепленного грунта

1000 м3

0,22

1,35

0,29

0-94,8

0-27,5

П-3-82-9 п. 4в

 

Перемещение плодородного слоя почвы и распределение его по полосе рекультивации

100 м3

5,8

0,52

3,01

0-49,7

2-88,3

 

ИТОГО

 

 

 

17,25

 

16-20

Таблица 5.5 - Калькуляция трудовых затрат на прокладку подземного трубопровода диаметром 1020 - 1420 мм в обсыпке из гидрофобизированных грунтов длиной 100 м

Основание

Работа

Единица измерения

Объем работ

Норма времени на единицу измерения, чел.-ч.

Затраты труда на весь объем работ, чел.-день

Расценка на единицу измерения, руб.-коп.

Стоимость затрат труда на весь объем работ, руб.-коп.

ЕНиР-17-4 п. 2

Введение ВМТ-Л в грунт

3,2

0,48

1,54

0-31,8

1-01,8

ЕНиР-2-1-10 табл. 3 п. 5 ж

Подготовка грунтового лотка из отвала траншеи экскаватором

100 м3

2,21

3,2

7,07

2-39

5-28,2

ЕНиР-17-4 п. 2

Введение ВМТ-Л в грунтовый лоток

22

0,48

10,56

0-31,8

6-99,6

ЕНиР-2-1-10 табл. 3 п. 5 ж

Приготовление вяжущегрунтовой смеси экскаватором

100 м3

2,21

3,2

7,07

2,39

5-28,2

П-3-82,18, п. 5Б

Перемещение закрепленного грунта в траншею

100 м3

2,21

0,155

0,34

0-14,8

0-32,7

П-3-82,-18 п. 5Б

Перемещение минерального грунта в траншею

100 м3

2

0,155

0,31

0-14,8

0-29,6

ЕНиР-2-1-22 табл. 4, п. 1г

Уплотнение закрепленного грунта

1000 м3

0,41

1,35

0,55

0-94,8

0-38,9

П-3-82-9 п. 4в

Перемещение плодородного слоя почвы и распределение его по полосе рекультивации

100 м3

10

0,52

5,2

0-49,7

4-97

 

ИТОГО

 

 

 

32,64

 

24-56

6 ТЕХНИКО-ЭКОНОМИЧЕСКИЕ ПОКАЗАТЕЛИ

6.1 Технико-экономические показатели прокладки трубопроводов диаметром до 1420 мм (включительно) в обсыпке из гидрофобизированных грунтов приведены в таблице 6.1.

Таблица 6.1 - Технико-экономические показатели прокладки трубопровода

Показатель

Количество

Ø до 530 мм

Ø 530-820мм

Ø 1020-1420мм

Затраты машино-смен на 100 м

1,68

2,39

3,01

Затраты труда на 100 м чел.-день

13,66

17,25

32,64

Выработка на 1 рабочего, 100м3

2,74

3,68

4,67

Численность бригады

7

7

7

7 МАТЕРИАЛЬНО - ТЕХНИЧЕСКИЕ РЕСУРСЫ

7.1 Потребность в машинах и механизмах при прокладке подземного трубопровода диаметром до 1420 мм включительно в обсыпке из гидрофобизированных грунтов приведена в таблице 7.1.

Таблица 7.1-Потребность в машинах и механизмах

Наименование, марка

Завод-изготовитель

Количество

Техническая характеристика

 

Экскаватор ЭО-4121

Калининский завод

1

Объем ковша 1 м3 Масса 20,9 т

 

Бульдозер ДЗ-17

Завод дорожных машин г. Челябинск

2

База трактор Т-100М Высота отвала 1м.

Масса 14 т

 

Автобитумовоз ДС-41А

-

2

Тягач ЗИЛ-1 130В 1 Насос битумный шестеренный Производительность 500 л/мин

 

Минитрактор с дорожной фрезой

 

1

 

 

Автосамосвал

 

2-4

КАМАЗ 5455

КРАЗ 255

 

8 ТЕХНИКА БЕЗОПАСНОСТИ

8.1 При производстве работ необходимо руководствоваться требованиями техники безопасности, изложенными в следующих документах

СНиП III-42-80*. Магистральные трубопроводы. Правила производства и приемки работ;

СНиП III-4-80* "Техника безопасности в строительстве".

СНиП 12-03-01 "Безопасность труда в строительстве".

• Правила техники безопасности при строительстве магистральных стальных трубопроводов;

• Правила устройства и безопасной эксплуатации грузоподъемных кранов.

ГОСТ 12.3003-86. БТ "Работы электросварочные. Требования безопасности".

8.2 Общее руководство по обеспечению охраны труда возлагается на руководителя организации, производящей работы, или лицо, им уполномоченное.

8.3 Работники должны выполнять обязанности по охране труда в организации в объеме требований их должностных инструкций или инструкций по охране труда, которые должны быть утверждены работодателем.

8.4 Руководящие работники и специалисты организаций по списку должностей, утвержденному руководителем организации, обязаны перед допуском к работе, а в дальнейшем периодически в установленные сроки проходить проверку знания ими правил охраны и безопасности труда с учетом их должностных обязанностей и характера выполнения работ. Порядок проведения обучения и проверки знаний определяется согласно СП 12-131.

8.5 К выполнению работ при прокладке трубопроводов диаметром до 1420 мм (включительно) в обсыпке из гидрофобизированных грунтов могут быть допущены рабочие, достигшие 18 лет, прошедшие медицинское освидетельствование и инструктаж по технике безопасности и производственной санитарии. Работники, ранее не обученные безопасным методам труда по профессиям, указанным при приеме на работу, в течение месяца со дня зачисления на работу должны быть обучены согласно ГОСТ 12.0.004 в объеме инструкций по охране труда для соответствующих профессий, составленных на основе Типовых Отраслевых Инструкций по охране труда ТОИ Р 66.

8.6 До прохождения обучения работники к самостоятельной работе (без наблюдения со стороны работников-наставников, назначенных администрацией) не допускаются. После окончания обучения, а в дальнейшем ежегодно и при переходе из одной организации в другую или при нарушениях, выявленных ответственными лицами или органами надзора, следует проводить проверку знания инструкций по охране труда, утвержденных руководителем организации, в которую зачислены указанные работники. Проверка знаний должна проводиться комиссией, назначенной приказом работодателя. Результаты проверки следует оформлять записью в журнале и в удостоверении установленной формы.

8.7 Перед допуском к работе вновь привлекаемых работников необходимо провести вводный инструктаж и инструктаж на рабочем месте согласно ГОСТ 12.0.004. Повторный инструктаж по безопасности труда следует проводить для всех работников не реже одного раза в три месяца. При выполнении работ на территории другой организации инструктаж следует проводить с привлечением ответственных лиц по охране труда этой организации. Повторный инструктаж по технике безопасности следует проводить для рабочих всех квалификаций и специальностей не реже 1 раза в 3 месяца и немедленно при изменении технологии, условий или характера работ. Проведение инструктажа регистрируют в специальном журнале.

8.8 Для отдыха, обогрева и принятия пищи рабочими оборудуют бытовки (передвижные вагон - домики), где находятся аптечка с необходимым набором медикаментов, титан для питьевой воды и мытья рук перед едой.

8.9 Предельные значения температур наружного воздуха и силы ветра в данном климатическом районе, при которых следует приостановить работы на открытом воздухе и прекратить перевозку людей в неотапливаемых транспортных средствах, определяются в установленном порядке органами исполнительной власти субъектов Российской Федерации по месту производства работ.

8.10 Исследования по определению токсичности вяжущего вещества ВМТ, выполненные в лаборатории промышленной токсикологии Уфимского НИИ гигиены и профзаболеваний, показали, что вяжущее вещество ВМТ - малоопасный продукт, соответствующий классу 4 по ГОСТ 12.1.007-76, не обладает местно-раздражающим действием на кожные покровы. С позиций гигиены труда вяжущее вещество ВМТ может применяться в народном хозяйстве при соблюдении требований безопасности регламентированных ГОСТ 12.1.007-76.

8.11 Нефтепродукт для приготовления вяжущегрунтовой смеси не содержит вредных токсических веществ, влияющих на здоровье обслуживающего персонала. При работе с ВМТ-Л следует применять индивидуальные средства защиты (спецодежду, спецобувь). Хранить вяжущее ВМТ-Л необходимо в закрытых емкостях. При вскрытии тары нельзя пользоваться инструментом, дающим при ударе искру;

8.12 Машины и механизмы, занятые на засыпке трубопровода закрепленным грунтом, должны быть оборудованы огнетушителями. Категорически запрещается курить и производить действия, ведущие к появлению искр в местах приготовления и хранения вяжущегрунтовой смеси.

8.13 Присутствие посторонних лиц в зоне работы машин и механизмов не допускается. Не допускается нахождение рабочих в траншее во время укладки трубопровода, а также при приготовлении вяжущегрунтовой смеси на дне траншеи.

8.14 Работу и передвижение механизмов вблизи линий электропередачи (не менее 30 м по горизонтали) необходимо осуществлять под непосредственным руководством начальника участка. В этом случае машинисту автокрана или крана - трубоукладчика выдают наряд-допуск на особо опасные работы.

8.15 Складирование материалов, прокладка транспортных путей, установка опор воздушных линий электропередачи и связи должны производиться за пределами призмы обрушения грунта незакрепленных выемок (котлованов, траншей), а их размещение в пределах призмы обрушения грунта у выемок с креплением допускается при условии предварительной проверки устойчивости закрепленного откоса по паспорту крепления или расчетом с учетом динамической нагрузки.

Материалы (конструкции) следует размещать в соответствии с требованиями действующих норм и правил и ПОТ Р М-007 на выровненных площадках, принимая меры против самопроизвольного смещения, просадки, осыпания и раскатывания складируемых материалов.

Складские площадки должны быть защищены от поверхностных вод. Запрещается осуществлять складирование материалов, изделий на насыпных неуплотненных грунтах.

Складирование материалов, конструкций и изделий следует осуществлять согласно требованиям стандартов и технических условий на них.

8.16 При сооружении магистральных трубопроводов земляные работы должны выполнять механизированным способом. До начала проведения земляных работ следует:

- разбить трассу на местности в соответствии с рабочими чертежами;

- установить знаки, указывающие места расположения подземных коммуникаций;

- выполнять работы по устройству постоянных или временных водоотводов, предусмотренных проектом.

8.17 При выполнении земляных работ вблизи населенных пунктов должны быть установлены ограждения в соответствии с ГОСТ 12.4.059-78 и ГОСТ 23407-78 с предупредительными надписями и знаками. В ночное время места работ должны быть обозначены световыми сигналами (фонари красного цвета).

8.18 При обнаружении подземных коммуникаций, неуказанных в рабочих чертежах, земляные работы необходимо немедленно прекратить и вызвать на место представителя организации, эксплуатирующей эти коммуникации. Одно временно должны быть приняты меры для защиты обнаруженных коммуникаций от повреждений, а их расположение на местности необходимо обозначить соответствующими знаками и надписями.

8.19 Разрабатывать грунт механизмами на расстоянии ближе 2 м от подземных коммуникаций запрещается. В непосредственной близости от коммуникаций разрабатывать грунт разрешается только вручную.

8.20 Ширина траншей по дну для трубопроводов, укладываемых плетями, устанавливается в зависимости от ширины рабочего органа землеройной машины, но не менее D + 300 мм для трубопровода диаметром D до 700 мм, не менее 1,5 D для трубопровода диаметром от 700 до 1220 мм, не менее D + 600 мм для трубопровода 1220 и 1420 мм, 2 D на кривых участках трубопровода из отводов принудительного гнутья, 2,2 D при балластировке трубопровода утяжеляющими грузами (закрепление анкерами).

8.21 Работа землеройных механизмов на местности с поперечным уклоном более 8° запрещается.

8.22 При образовании «козырьков» из грунта или нахождения на откосах валунов и других предметов, которые могут обрушиться, необходимо рабочих из этих мест удалить, а опасные условия устранить.

8.23 Траншеи в местах пересечения с подземными коммуникациями следует засыпать слоями не более 0,1 м с тщательным трамбованием.

8.24 Во время перерывов в работе (независимо от причин и продолжительности их) стрела одноковшового экскаватора должна быть отведена в сторону забоя, а ковш опущен на грунт. Очищать ковш разрешается только после опускания его на землю.

8.25 Планировку валика эксплуатируемого трубопровода (в том числе и после зимней засыпки) следует выполнять по специально разработанной и согласованной с эксплуатирующей организацией технологической карте, исключающей наезд механизмов (скрепер, грейдер, планировщик и т. п.) на действующий трубопровод.

8.26 Перед укладкой трубопровода необходимо проверить состояние траншеи, убирать обвалившийся грунт следует механизированным способом. В случае крайней необходимости разрешается уборка обвалившегося грунта вручную под непосредственным руководством прораба или мастера. При этом перед спуском рабочих в траншею следует устраивать откосы.

8.27 Перед укладкой трубопровода в траншею необходимо проверить надежность стальных канатов, блоков и тормозных устройств трубоукладчиков, стальных полотенец и других приспособлений. Стальные полотенца и другие захватные приспособления должны удовлетворять следующим требованиям:

- иметь шестикратный запас прочности;

- иметь свидетельство завода-изготовителя об их испытаниях.

8.28 При опускании трубопровода необходимо:

- машинистам трубоукладчиков соблюдать согласованность в работе; в случае возникновения неисправности в каком-либо трубоукладчике трубопровод немедленно опустить на землю;

- удалить людей из зоны опускания плети, траншеи и пространства между
траншеей и трубопроводом;

- для предупреждения произвольного смещения плети в траншею; передним трубоукладчиком следует только поднимать плеть, не надвигая ее на траншею, всё работы по опусканию трубопровода должны проводиться по сигналу одного лица - бригадира;

- при наложении на трубопровод мягких полотенец машинисту трубоукладчика не натягивать грузовые канаты преждевременно и выполнять сигналы изолировщика;

- руководителю работ подавать сигнал машинистам трубоукладчиков о подъеме трубопровода только после зацепки мягкого полотенца за крюк трубоукладчика и выхода изолировщика из зоны действия подъемной стрелы;

- для освобождения мягких полотенец последнему в колонне трубоукладчику ослабить натяжение полотенца при поднятом трубопроводе, после чего изолировщику снять один конец полотенца с крюка, отойти на - безопасное расстояние и подать сигнал машинисту о подъеме крюка.

8.29 Очистка, изоляция и укладка трубопровода на продольных уклонах более 15° выполняются с соблюдением, следующих требований:

- при работе на подъем впереди трубоукладчиков должен следовать трактор-буксир, а при работе под уклон позади трубоукладчиков перемещаться бульдозер-якорь; все трубоукладчики между собой и с тракторами-тягачами или бульдозерами-якорями должны быть соединены стальным канатом;

- число тракторов-буксиров или бульдозеров-якорей и сечение канатов назначаются по расчету в зависимости от уклона местности, состояния грунтов и т.п.

- в отдельных случаях для якорения можно использовать неподвижно установленные тракторы с лебедками;

- очистную и изоляционную машины прикреплять стальным канатом к ближайшим трубоукладчикам (к переднему - при движении на подъем и к заднему - при движении под уклон).

8.30 Во время опускания плети обвалившийся грунт разрешается удалять только после того, как под плеть поперек траншеи будут подведены специальные стальные или деревянные лежки, надежно, удерживающие ее над траншеей. Сечение лежек определяется расчетом. Работы разрешается, выполнять только под непосредственным руководством прораба или мастера.

9 ОХРАНА ОКРУЖАЮЩЕЙ СРЕДЫ

9.1 При выполнении всех строительно-монтажных работ необходимо строго соблюдать требования защиты окружающей среды, сохранения ее устойчивого экологического равновесия и не нарушать условия землепользования, установленные законодательством об охране природы.

9.2 Работы, связанные с выпуском в атмосферу значительных количеств вредных паров и газов, должны выполняться по согласованию с местными органами санитарно-эпидемиологической службы и санитарными лабораториями при наличии благоприятной метеорологической обстановки.

9.3 Строительная организация, выполняющая прокладку линейной части трубопровода, несет ответственность за соблюдение проектных решений, связанных с охраной окружающей природной среды, а также за соблюдение государственного законодательства и международных соглашений по охране природы.

9.4 Ширина полосы отвода земли на время строительства магистральных трубопроводов определяется проектом в соответствии с нормами отвода земель для магистральных трубопроводов.

9.5 Производство строительно-монтажных работ, движение машин и механизмов, складирование и хранение материалов в местах, не предусмотренных проектом производства работ, запрещается.

9.6 При подземной, полуподземной и наземной (в насыпи) прокладках трубопроводов необходимо предусматривать противоэрозионные мероприятия с использованием местных материалов, а при пересечении подземными трубопроводами крутых склонов, промоин, оросительных каналов и кюветов в местах пересечений - перемычки, предотвращающие проникание в траншею воды и распространение ее вдоль трубопровода.

9.7 При прокладке трубопроводов в насыпях на пересечениях через балки, овраги и ручьи следует предусматривать устройство водопропускных сооружений (лотков, труб и т.п.) Поперечное сечение водопропускных сооружений следует определять по максимальному расходу воды повторяемостью один раз в 50 лет.

9.8 Мероприятия по предотвращению эрозии почв, оврагообразования, а также защитные противообвальные и противооползневые мероприятия должны выполняться в строгом соответствии с проектными решениями.

9.9 При выборе методов и средств механизации для производства работ следует соблюдать условия, обеспечивающие получение минимума отходов при выполнении технологических процессов (превращение древесных отходов в промышленную щепу, многократное использование воды при очистке полости и гидравлических испытаниях трубопровода и т. д.).

9.10 На основании проведенных исследований было установлено, что укрепленные вяжущим грунты не ухудшают качество поверхностных вод, с чем Уфимская территориальная гидрохимическая лаборатория в своем заключении № 214 от 23.03.87 г согласовала использование вяжущего вещества ВМТ для берегоукрепительных и других видов работ, где для укрепления грунтов применяются вяжущие ВМТ. Сотрудниками Башкирского государственного педагогического института были проведены исследования по оценке фитотоксичности (токсичности на растительные организмы) вяжущего ВМТ. В результате экспериментов было установлено, что грунты, укрепленные вяжущим веществом ВМТ, обладают определенными фитотоксическими свойствами как по отношению к высшим, так и к низшим растениям, но фитотоксический эффект резко снижается до уровня контроля при нанесении на укрепленные участки слоя грунта толщиной не менее 20 см. Следовательно, участки земель, где вяжущее ВМТ применяется для укрепления грунтов, можно использовать под сельскохозяйственное производство либо в иных целях при условии рекультивации посредством нанесения плодородного слоя грунта толщиной не менее 20 см.

9.11 Плодородный слой почвы на площади, занимаемой траншеями и котлованами, до начала основных земляных работ должен быть снят и уложен в отвалы для восстановления (рекультивации). При производстве указанных работ следует строго соблюдать требования проекта рекультивации и положения Инструкции по рекультивации земель при строительстве магистральных трубопроводов и Основных положений по восстановлению земель, нарушенных при разработке месторождений полезных ископаемых, проведении геологоразведочных, строительных и иных работ, утвержденных ГКНТ России, Госстроем России, Минсельхозом России и Гослесхозом России.

9.12 Снятие, транспортировка, хранение и обратное нанесение плодородного слоя грунта должны выполняться методами, исключающими снижение его качественных показателей, а также его потерю при перемещениях.

9.13 Использование плодородного слоя грунта для устройства подсыпок, перемычек и других временных земляных сооружений для строительных целей не допускается.

9.14 Не допускается сливать в реки, озера и другие водоемы воду, вытесненную из трубопровода, без предварительной ее очистки.

9.15 После окончания основных работ строительная организация должна восстановить водосборные канавы, дренажные системы, снегозадерживающие сооружения и дороги, расположенные в пределах полосы отвода земель или пересекающих эту полосу, а также придать местности проектный рельеф или восстановить природный.

9.16 Требования по охране окружающей среды следует включать в проект отдельным разделом, а в сметах предусматривать необходимые затраты.

9.17 Требования к гидравлическим испытаниям и рекультивации должны регламентироваться в проекте в виде самостоятельных подразделов.

СПИСОК ИСПОЛЬЗОВАННЫХ ИСТОЧНИКОВ

1 Рафиков С. К., Бабин Л. А., Мустафин Ф. М «Воздействие вяжущих для магистральных трубопроводов на полимерные изоляционные пленки. // Транспорт и подземное хранение газа. - Экспресс - информация. - М.; ВНИИ - ЭГазпром, 1988.- № 6.- с. 7 - 10.

2 Ведерникова Т. Г, Мустафин Ф. М. Использование нефтяных вяжущих веществ для ремонта изоляционных покрытий подземных трубопроводов // Молодежь - науке, производству: Тез. докл. республ. науч.- техн. конф., - Уфа: УНИ, 1967. - с. 50.

3 Мустафин Ф. М., Закиров А. А., Рафиков С. К. Лабораторное определение переходного сопротивления «труба-земля» образцов изоляционных покрытий // Творческая молодежь Башкирии - ускорение научно-технического прогресса: Тез. докл. 39-й НТК студентов, аспирантов и молодых ученых Башкирии, Уфа: УНИ, 1988. - с. 41.

4 Рафиков С. К., Быков Л. И., Мустафин Ф. М. Влияние специальных органических вяжущих на коррозионную активность грунтов // Транспорт и подземное хранение газа. - Экспресс - информация. - М.: ВНИИЭГазпром, 1988.-№7. -с. 13-16.

5 Мустафин Ф.М. Способ прокладки трубопроводов в обсыпке из гидрофобизированных грунтов // Трубопроводный транспорт нефти и газа: Материалы Всероссийской научно-технической конференции / Ред. кол.: Шаммазов A.M. и др. - Уфа: Изд-во УГНТУ, 2002 - 210 с.

6 Беськаева М.В., Фархетдинов И.Р., Мустафин Ф.М. Использование нефтегрунта для увеличения эксплуатационной надежности трубопроводов // Трубопроводный транспорт нефти и газа: Материалы Всероссийской научно-технической конференции / Ред. кол.: Шаммазов A.M. и др. - Уфа: Изд-во УГНТУ, 2002-210 с.

7 ВСН 179-85 Инструкция по рекультивации земель при строительстве трубопроводов. - М.: ВНИИСТ, 1985.

8 ВСН 008-88 Строительство магистральных и промысловых трубопроводов. Противокоррозионная и тепловая защита. - М.: Миннефтегазстрой, 1990г.

9 ВСН 009-88 Строительство магистральных и промысловых трубопроводов. ЭХЗ кожухов на переходах трубопроводов под автомобильными и железными дорогами. - М.: Миннефтегазстрой, 1990 г.

10 ВСН 012-88 Строительство магистральных и промысловых трубопроводов. Контроль качества и приемки работ. - М.: Миннефтегазстрой, 1990 г.

11 ГОСТ Р 51164-98. Трубопроводы стальные магистральные. Общие требования к защите от коррозии - М.: Изд-во стандартов. -1999.

12 ГОСТ 9.602-89* Сооружения подземные, Общие требования к защите от коррозии. - М.: Госстандарт СССР, 1989 г.

13 Справочник мастера-строителя магистральных трубопроводов. Л. А. Бабин, Л. И. Быков, В. Я. Волохов. - М.: Недра, 1984, 224 с.

14 СН 25-74. Инструкция по применению грунтов, укрепленных вяжущими материалами для устройства оснований и покрытий автомобильных дорог и аэродромов.

15 СНиП III-4-80* Техника безопасности в строительстве. - М.: Госстрой СССР, 1980 г.

16 СНиП 12-03-01. Безопасность труда в строительстве. - М.: Стройиздат, 2001.

17 СНиП III-42-80* Магистральные трубопроводы. Правила производства и приемки работ. - М.: Госстрой СССР, 1999 г.

18 СНиП 2.05.06-85* Магистральные трубопроводы. - М.: Госстрой СССР, 1999 г.

19 Правила техники безопасности при строительстве магистральных стальных трубопроводов. М., Недра, 1982,104 с.

Приложение А
(справочное)
Технические требования к вяжущему ВМТ-Л

Наименование показателя

Норма качества

Метод испытания

1. Вязкость условная при 50°С, условные градусы не ниже

10

По ГОСТ 6258-52

2. Температура застывания, °С, не выше

0

По ГОСТ 20287-74 метод Б

3. Температура вспышки в открытом тигле, °С, не ниже

75

По ГОСТ 4333-48

4. Массовая доля воды, %, не более

1

По ГОСТ 2477-65

Вяжущее ВМТ-Л готовят компаундированием 70-80 % тяжелых нефтяных остатков (гудрон, крекинг-остаток, вакуумированный крекинг-остаток) и 20...30% легкого газойля деструктивных процессов (замедленного коксования, термокрекинга).

Приложение Б
(справочное)
Технические требования к вяжущему ВМТ-3

Наименование показателя

Норма качества

Метод испытания

1. Вязкость условная при 50 °С, условные градусы не ниже

1,5-5,0

По ГОСТ 6258-52

2. Температура застывания, °С,

не выше

минус

25

По ГОСТ 20287-74

3. Температура вспышки в открытом тигле, °С, не ниже

70

По ГОСТ 4333-48

4. Массовая доля воды, %, не более

1

По ГОСТ 2477-65

Вяжущее ВМТ-3 готовят компаундированием 50-70 % тяжелых нефтяных остатков (гудрон, крекинг-остаток, вакуумированный крекинг-остаток) и 30...50% низкозастывающей фракции термического крекинга дистиллятного сырья.

Приложение В
(справочное)
Перечень исходных физико-механических свойств грунтов и стандартов на их определение

Показатель

ГОСТ или методика испытания

Основной прибор

Плотность и удельный вес в естественном состоянии

ГОСТ 5182-78

Режущие кольца, стандартная воронка

Естественная и гигроскопическая влажность

ГОСТ 5180-75

Сушильный шкаф

Гранулометрический состав

ГОСТ 12536-79

Набор сит, прибор Сабанина

Число пластичности и индекс пластичности

ГОСТ 5163-77

Конус КОН-1

Угол внутреннего трения и сцепление

ГОСТ 12248-78

Методика Гидропроекта

ГГП-30

Сжимаемость грунта

то же

K-IM, КПр-1

Величина набухания

Методика Гидропроекта

ПНГ

Время размокаемости

Тоже

ПРГ

Содержание органических остатков и гумусовых включений

То же

-

Определение рН грунта

ГОСТ 9.602-89

рН-метр

Оптимальная влажность и максимальная плотность

Методика СоюзДорНИИ

Прибор стандартного уплотнения

Коррозионная активность:

- по плотности поляризующего тока

- по потере масс стальных образцов

- по удельному электросопротивлению

 

ГОСТ 9.602-89

 

вольтамперметр

весы аналитические

резистевиметр

Приложение Г
(рекомендуемое)
Требования к физико-механическим свойствам и коррозионной активности гидрофобизированных грунтов

Показатель

Значение

Предел прочности при сжатии неводонасыщенных образцов при 20 °С, МПа, не менее

0,2

Предел прочности на растяжение при изгибе неводонасыщенных образцов при 20 °С, МПа, не менее

-

Коэффициент морозостойкости, не менее

0,6

Модуль деформации, МПа, не менее

2

Набухание, % объема, не более

8

Капиллярное водонасыщение, % объема, не более

6

Время размокаемости сут., не менее

7

Угол внутреннего трения, град., не менее

18

Сцепление, МПа, не менее

0,02

Коэффициент фильтрации, м/с, не более

10-8

Коррозионная активность:

- по плотности поляризующего тока, мА/см2 не более

- по потере масс стальных образцов, г, не белее

- по удельному электросопротивлению, Ом*м, не менее

0,2

2

20

Приложение Д
(справочное)
Техническая характеристика одноковшового экскаватора ЭО-4121, используемого на строительстве трубопроводов в обсыпке из гидрофобизированного грунта

Показатель

Значение

Вместимость основного ковша обратной лопаты, mj

1

Мощность двигателя, кВт

95,7

Скорость передвижения, км/ч

2,8

Частота вращения поворотной части, об / мин

до 6

Наибольший угол подъема, градусы

22

Радиус копания, м

9.2

Наибольшая глубина копания траншеи, м

5.8

Минимальная продолжительность цикла при угле поворота 90° с выгрузкой в отвал, с

18

Давление на грунт, кПа

63,6

Масса, т

20,9

Приложение Е
(справочное)
Техническая характеристика бульдозера ДЗ-17

Показатель

Значение

Базовый трактор

Т-100 м

Двигатель

Д-108

Мощность двигателя, кВт

79,5

Частота вращения, об/мин

1070

Отвал:

 

ширина, м

3.9

высота, м

1

глубина опускания, см

0.1

высота подъема, м

1.1

угол установки, градусы

63 и 90

Габариты, мм:

 

длина

6300

ширина

3600

высота

3400

Масса, т

14

Приложение Ж
(справочное)
Техническая характеристика автобитумовоза ДС-41А с цистерной емкостью 7000 л

Показатель

Значение

Тип

Полуприцепная цистерна

Тягач

ЗИЛ-130В 1

Полезная емкость цистерны, л

7000

Время опорожнения цистерны от битума через шибер,

мин

5

Система подогрева битума

способ подогрева

расход керосина, л/ч

подача топлива

двумя стационарными горелками через жаровые трубы до 15

пневмосистемой

Скорость нагрева битума (при начальной температуре

битума не менее 70° С), град / ч

25

Падение температуры битума, град / ч

2

Насос:

тип

производительность, л / мин

битумный шестеренный

500

База (с тягачом), мм

6540

Дорожный просвет, мм

255

Скорость передвижения, км/ч '

80

Габаритные размеры, мм:

 

длина (с тягачом)

ширина

высота

9080

2360

2550

Масса, кг:

без груза

с полным грузом

 

7515

14590

 




Яндекс цитирования