//
ТехЛит.ру
- крупнейшая бесплатная электронная интернет библиотека для "технически умных" людей.
WWW.TEHLIT.RU - ТЕХНИЧЕСКАЯ ЛИТЕРАТУРА

:: Алготрейдинг::


АЛГОТРЕЙДИНГ
шаг за шагом
с нуля по урокам!

Торговые роботы на PYTHON, BackTrader,
Pandas, Pine Script для TradingView. Связка с брокерами, телеграм и легкими приложениями.


Открытое акционерное общество

Проектно-конструкторский и технологический институт промышленного строительства

ОАО ПКТИпромстрой

 

УТВЕРЖДАЮ

Генеральный директор, к.т.н.

_____________С.Ю. Едличка

«06» 09 2006 г.

ТЕХНОЛОГИЧЕСКАЯ КАРТА
НА УСТРОЙСТВО ОПАЛУБКИ ЛЕСТНИЧНЫХ МАРШЕЙ ПРИ МОНОЛИТНОМ СТРОИТЕЛЬСТВЕ
139-06 ТК

Главный инженер

____________А.В. Колобов

Начальник лаборатории

_________Б.И. Бычковский

2006

Содержание

В технологической карте представлены схема устройства опалубки лестничных маршей, контроль качества и приемки опалубочных работ, требования безопасности и охраны труда, приведена потребность в машинах, механизмах и приспособлениях, технико-экономические показатели.

Карта предназначена для производителей работ, мастеров и бригадиров, занимающихся устройством опалубки лестничных маршей, а также работников технического надзора заказчика и инженерно-технических работников строительных организаций, связанных с производством и контролем качества опалубочных работ.

В разработке технологической карты участвовали сотрудники ОАО ПКТИпромстрой:

- Новикова Е.И. - разработка технологической карты, компьютерная обработка и графика;

- Савина О.А. - компьютерная обработка и графика;

- Черных В.В. - общее технологическое сопровождение;

- Бычковский Б.И. - разработка технологической карты, техническое руководство, корректура и нормоконтроль;

- Колобов А.В. - общее техническое руководство;

- к.т.н. Едличка С.Ю. - общее руководство разработкой технологической документации.

1 ОБЩИЕ ДАННЫЕ

1.1 Настоящая технологическая карта разработана на устройство разборно-переставной мелкощитовой опалубки, предназначенной для возведения монолитных лестничных маршей при строительстве жилых, административных и промышленных зданий и сооружений.

1.2 Лестницы подразделяются на одномаршевые прямые и многомаршевые прямые и винтовые (полностью или частично) из монолитного или сборного железобетона.

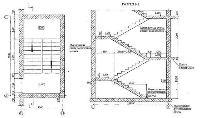
В настоящей технологической карте в качестве примера принят лестничный марш размером в плане 5,80´3,00 м из монолитного железобетона при высоте типового этажа Н = 3,2 м, конструкция которого представлена на рисунке 1.

Рисунок 1 - Конструкция лестничного марша

1.3 При привязке карты к конкретным объектам и условиям производства работ подлежат уточнению объемы работ по разногабаритным щитам, потребность в материально-технических ресурсах, калькуляция затрат труда и машинного времени и календарный план производства работ.

1.4 Форма использования технологической карты предусматривает обращение ее в сфере информационных технологий с включением в базу данных по технологии и организации строительного производства автоматизированного рабочего места технолога строительного производства (АРМ ТСП), подрядчика и заказчика.

2 ОРГАНИЗАЦИЯ И ТЕХНОЛОГИЯ СТРОИТЕЛЬНОГО ПРОЦЕССА

2.1 До начала производства работ по устройству опалубки лестничных маршей необходимо:

- выполнить бетонирование монолитного перекрытия нижележащего этажа с набором бетоном 80% прочности от проектной, выше которого будут выполняться работы по бетонированию лестничных маршей;

- забетонировать стены лестничных клеток с формированием специальных ниш для опирания промежуточных лестничных площадок посредством закладки специальных шпонок, которые при демонтаже опалубки стен удаляются;

- выставить временное инвентарное ограждение по периметру перекрытия, проемов лестничных клеток и лифтовых шахт, при этом монтажник, производящий установку временного ограждения, должен быть закреплен предохранительным поясом за страховочный канат, который закрепляется к перекрытиям в местах, указанных мастером или прорабом;

- организовать площадки складирования основных элементов опалубки перекрытия (стойки, главные и второстепенные балки, щиты фанеры);

- выполнить противопожарные мероприятия;

- выполнить мероприятия, обеспечивающие безопасность производства работ.

2.2 Поступившие на строительную площадку элементы опалубки размещают в зоне действия крана. Все элементы опалубки должны храниться под навесом в условиях, исключающих их повреждения, рассортированные по маркам и типам размеров. Балки и щиты опалубки укладывают в штабели на деревянные прокладки.

Стойки и крепежные элементы складируются в металлических ящиках.

2.3 Основными составляющими опалубки лестничного марша являются аналогичные опалубкам перекрытий элементы, представленные на рисунке 2:

- опалубка ступеней;

- стойки опалубки (инвентарные телескопические стойки);

- опорные стойки из бруса 100´100 мм;

- прогоны из бруса 150´100 мм;

- листы фанеры толщиной 18¸21 мм (либо деревянные щиты).

Рисунок 2 - Вариант установки основных элементов опалубки лестничного марша

Поддерживающая конструкция опалубки лестничного марша состоит из одного или двух рядов прогонов из брусьев сечением 150´100 мм, опирающихся на деревянные опоры (опорные стойки из бруса 100´100 мм) или стальные опоры (инвентарные телескопические стойки).

Однако наклонное положение плит лестничного марша затрудняет размещение опор на наклонной части лестницы, располагающихся вертикально в соответствии с вертикальным давлением бетона, а это, в свою очередь, затрудняет установку брусьев на оголовки опор. В связи с этим иногда предпочитают наклонное положение опор, при этом под нижней поверхностью плит лестничного марша они стоят вертикально.

Опалубка нижней стороны плит лестничного марша и площадок, а также боковин лестницы устраивается из досок или щитов. Кроме этого, может быть использована бакелизированная фанера толщиной 18-21 мм. На верхней стороне лестницы необходима опалубка для. передних сторон ступенек. Она состоит из досок, крепящихся к опалубке боковин короткими прижимными брусками.

Особое внимание следует уделять тщательному креплению стоек с прогонами и наклонных брусьев в целях обеспечения восприятия сдвигающих усилий. Опалубка ступеней показана на рисунке 3.

Рисунок 3 - Опалубка ступеней лестничного марша

Если при широких лестницах возникает опасность прогиба щитов ступенек из-за большого расстояния между конечными точками крепления, то необходимо установить посередине дополнительный брус с планками на каждой ступеньке. Схема опалубки ступеней с дополнительным бруском показана на рисунке 4.

Рисунок 4 - Опалубка ступеней лестничного марша с дополнительным бруском

Этот дополнительный элемент жесткости соединяется проволочной стяжкой с брусьями поддерживающей конструкцию. Его необходимо закрепить на нижнем конце для предотвращения сдвига вдоль лестницы. Для этого его крепят подпорками к существующим стенам. Можно также крепить к закладным, заделанным в бетон площадкам, если бетон к моменту бетонирования ступенек набрал достаточную прочность.

2.4 Фанера, применяемая в качестве палубы опалубки, должна иметь водостойкое покрытие, пропитку или другую обработку рабочих поверхностей. Торцы фанеры и древесные материалы формирующих элементов опалубки должны быть защищены от механических повреждений и проникновения влаги герметиком.

2.5 Установку элементов опалубки лестничных маршей выполнять в следующей технологической последовательности:

- выставить временное инвентарное ограждение по всему периметру перекрытия с ограждением всех монтажных проемов, а также проемов лифтовых шахт и лестничных клеток;

- установить на нижележащий лестничный марш инвентарные телескопические стойки опалубки или, там где это невозможно, стойки из бруса 100´100 мм, а по ним укладывать прогоны из бруса сечением 150´100 мм (поперек лестничного марша);

- при помощи винтовых устройств инвентарных стоек выставить прогоны по высоте, прогоны укладывать с инвентарных площадок монтажника Н = 1,5м;

- на прогоны внахлестку уложить брусья сечением 100´150(h) мм (вдоль лестничного марша). Схема расстановки опорных стоек и раскладки опорных брусьев в продольном и поперечном направлениях показана на рисунке 5;

Рисунок 5 - Схема расстановки опорных стоек и раскладки опорных брусьев в продольном и поперечном направлениях

- уложить на брусья листы фанеры (палубу) с закреплением их к поперечным балкам шурупами или гвоздями;

- выставить, где необходимо, торцевую опалубку;

- установить опалубку ступеней, закрепив ее с палубой из фанеры;

- произвести смазку палубы и торцевых поверхностей опалубки;

- сдать опалубку по акту приемки-сдачи.

Схема установки опалубки лестничного марша смотри на рисунке 2.

2.6 Плоскости опалубки до начала работ по ее установке должны быть очищены от остатков старого бетона, грязи, ржавчины, наледи и снега и смазаны антиадгезионной смазкой. Все резьбовые соединения должны быть проверены и смазаны. Установка опалубки производится по чертежам проекта производства работ. Смонтированная опалубка должна быть принята по акту.

Опалубку, установленную в проектное положение, удобнее смазывать распылительными удочками типа 6943/9Б и УС-2. Вязкие смазки наносят с помощью валиков или пистолетов.

2.7 Все элементы опалубки перекрытия (опорные стойки, балки и листы фанеры) подавать в контейнерных ящиках, имеющих монтажные петли. Все элементы укладывать в ящики по высоте менее 100-150 мм его верхнего бортового ограждения.

Схемы строповки элементов опалубки дана на рисунке 6.

Рисунок 6- Схемы строповки грузов

2.8 Демонтаж опалубки лестничного марша согласно СНиП 3.03.01-87 «Несущие и ограждающие конструкции» при пролете до 6 м разрешается производить только после достижения бетоном не менее 70% проектной прочности. Снятие опалубки следует производить после предварительного отрыва от бетона при отсутствии нагрузок на марш, превышающих допустимые.

При распалубке лестничных маршей палубу вместе с продольными и поперечными балками при помощи винтовых устройств опор отрывают от бетона и опускают. Затем извлекают опалубку ступеней, опалубку боковых поверхностей и устанавливают стойки переопирания. Стойки переопирания устанавливают в наклонном положении, при этом под нижней поверхностью лестничного марша они стоят вертикально. На опорной поверхности их снабжают подкладками и заклинивают.

Схема переопирания стоек показана на рисунке 7.

Рисунок 7 - Схема переопирания стоек

2.9 Демонтаж всех элементов опалубки выполняется вручную со складированием их на перекрытии, последующей укладкой их в металлические ящики, строповкой их краном и переносом на новый участок работ.

2.10 Все листы фанеры каждый раз после демонтажа надо очищать от налипшего цементного раствора, при необходимости смазать. Смазку следует наносить не более чем за 2 часа перед следующим бетонированием.

2.11 В качестве дополнительных средств подмащивания при демонтаже элементов опалубки необходимо использовать площадку монтажника Нр.н. = 1,50 м (проект 4624 ГП Мосоргстрой)

2.12 При разборке опалубки необходимо принимать меры против случайного падения элементов опалубки, обрушения поддерживающих лесов и конструкций.

2.13 Монтаж опалубки лестничного марша следующего участка начинать после установки стоек переопирания на предыдущем участке.

2.14 Монтаж и демонтаж основных элементов опалубки следует производить, соблюдая правила производства и приемки работ согласно СНиП 3.03.01-87 «Несущие и ограждающие конструкции».

2.15 Все поверхности опалубки, не соприкасающиеся с бетоном, должны быть окрашены красками, стойкими к окружающей среде в условиях эксплуатации. Лицевые и торцевые поверхности палубы должны быть защищены от механических повреждений и увлажнения водостойкими покрытиями.

3 ТРЕБОВАНИЯ К КАЧЕСТВУ И ПРИЕМКЕ РАБОТ

3.1 Контроль качества работ по устройству опалубки лестничных маршей при монолитном строительстве должен осуществляться специалистами (мастером и (или) прорабом) или специальными службами, входящими в состав строительных организаций или привлекаемыми со стороны, и оснащенными техническими средствами, обеспечивающими необходимую достоверность и полноту контроля.

3.2 Контроль качества работ осуществляют на всех стадиях технологической цепи, начиная от разработки проекта и кончая его реализацией на объекте на основе ППР и технологических карт. Производственный контроль качества должен включать входной контроль рабочей документации, поступающих материалов и изделий, качества поверхности основания, операционный контроль производства работ по установке опалубки лестничных маршей и оценку соответствия выполненных работ по установке опалубки лестничного марша нормативным требованиям.

3.3 При входном контроле рабочей документации проводится проверка ее комплектности и достаточности в ней технической информации. При входном контроле поступающих на объект материалов и изделий для устройства опалубки лестничных маршей проверяется соответствие их стандартам, требованиям рабочих чертежей, наличия сертификатов соответствия, гигиенических и пожарных документов, паспортов и других сопроводительных документов.

Результаты входного контроля должны регистрироваться в «Журнале входящего учета и контроля качества получаемых деталей, материалов, конструкций и оборудования».

3.4 При приемке установленной опалубки проверяется вертикальность опорных стоек и горизонтальность продольных, поперечных балок и листов фанеры, смещение осей опалубки от проектного положения, правильность установки закладных деталей и проемообразователей. Результаты проверки установленной опалубки регистрируются в «Журнале производства работ».

3.5 Точность изготовления и установки опалубки, а также допустимая прочность бетона при распалубливании должны соответствовать требованиям, приведенным в таблице 1.

Таблица 1 - Требования, предъявляемые к опалубке (СНиП 3.03.01-87)

№ п/п

Технические требования

Предельные отклонения

Контроль (метод, объем, вид регистрации)

1

2

3

4

1

Точность изготовления опалубки:

инвентарной

 

По рабочим чертежам и техническим условиям не ниже H14; h14;

 по ГОСТ 25346-89 и ГОСТ 25347-82*; для формообразующих элементов - h14

 

Технический осмотр, регистрационный

2

Уровень дефектности

Не более 1,5% при нормальном уровне контроля

 

3

Точность установки инвентарной опалубки

 по ГОСТ 25346-89 и ГОСТ 25347-82*

Измерительный, всех элементов, журнал работ

в том числе:

 

- уникальных и специальных сооружений

 Определяется проектом

 

- малооборачиваемой и (или) неинвентарной при возведении конструкций, к поверхности которых не предъявляются требования точности

По согласованию с заказчиком

может быть ниже

- для конструкций, готовых под окраску без шпатлевки

Перепады поверхностей, в том числе стыковых, не более 2 мм

- для конструкций, готовых под оклейку обоями

То же, не более 1 мм

4

Оборачиваемость опалубки

ГОСТ Р 52085-2003

Регистрационный, журнал работ

5

Прогиб собранной опалубки:

 

Контролируется при заводских испытаниях и на строительной площадке

- перекрытий

1/500 пролета

- вертикальных поверхностей

1/400 пролета

6

Минимальная прочность бетона монолитных незагруженных конструкций при распалубке поверхностей:

 

 

Измерительный по ГОСТ 10180-90; ГОСТ 18105-86*, журнал работ

- вертикальных из условия сохранения формы

0,2 - 0,3 МПа

- горизонтальных и наклонных при пролете:

 

до 6 м

70% от проектной

свыше 6 м

80% от проектной

7

Минимальная прочность бетона при распалубке загруженных конструкций, в том числе от вышележащего бетона (бетонной смеси)

Определяется ППР и согласовывается с проектной организацией

То же

8

Отклонение горизонтальных поверхностей на всю длину выверяемого участка

20 мм

Измерительный, не менее 5 измерений на каждые 50-100 м, журнал работ

3.6 Операционный контроль осуществляют непосредственно в процессе выполнения операций по устройству опалубки лестничного марша, а также сразу после завершения работ. При операционном контроле следует проверять соблюдение технологии устройства опалубки, соответствие выполняемых работ рабочим чертежам, строительным нормам, правилам и стандартам. Результаты операционного контроля должны фиксироваться в журнале работ.

3.7 При оценке соответствия необходимо производить проверку качества выполненных работ. Приемке подлежат законченные устройства элементов опалубки лестничного марша, выполненные в соответствии с проектом, а именно: опалубка лестничных площадок, ступеней, боковая опалубка, опорные стойки, крепеж. Приемка производится с составлением акта на скрытые работы до установки арматуры и укладки бетона.

3.8 Состав производственного контроля качества опалубочных работ приведен в таблице 2.

Таблица 2 - Состав производственного контроля качества

Вид контроля

Контролируемые операции

Контроль (метод, объем)

Документация

Входной

Проверить:

 

Паспорт (сертификат), общий журнал работ

- наличие документов о качестве и исправности опалубки;

Визуальный

- качество подготовки и отметки междуэтажных перекрытий;

То же

- наличие и состояние крепежных элементов, средств подмащивания

Визуальный, измерительный

Операционный

Контролировать:

 

Общий журнал работ (журнал бетонных работ)

- соблюдение порядка сборки элементов опалубки лестничного марша, установки крепежных элементов, средств подмащивания, закладных элементов;

Технический осмотр

 

- плотность сопряжения листов фанеры между собой;

Измерительный, всех элементов

- соблюдение геометрических размеров и проектных наклонов плоскостей опалубки;

То же

- надежность крепления балок и листов фанеры

Технический осмотр

Соответствия

Проверить:

 

Общий журнал работ (журнал бетонных работ) с оформлением акта на скрытые работы

- соответствие геометрических размеров опалубки проектным;

Измерительный, всех элементов

 

- положение опалубки относительно разбивочных осей в плане и по вертикалям, в т.ч. обозначение проектных отметок верха бетонируемых плит лестницы;

Измерительный

- правильность установки и надежного закрепления закладных деталей, а также всей системы в целом

Технический осмотр

3.9 Для проведения контроля качества опалубочных работ следует применять контрольно-измерительный инструмент: рулетку, отвес строительный, нивелир, теодолит, линейку металлическую, соответствующим образом аттестованные и поверенные установленным порядком.

4 ТРЕБОВАНИЯ БЕЗОПАСНОСТИ И ОХРАНЫ ТРУДА, ЭКОЛОГИЧЕСКОЙ И ПОЖАРНОЙ БЕЗОПАСНОСТИ

4.1 При производстве опалубочных работ необходимо строго соблюдать требованиям СНиП 12-03-2001 «Безопасность труда в строительстве. Часть 1. Общие положения», СНиП 12-04-2002 «Безопасность труда в строительстве. Часть 2. Строительное производство» и государственных стандартов ССБТ.

4.2 Все рабочие, выполняющие опалубочные работы, должны иметь удостоверение на право производства данного вида работ, а также пройти инструктаж по безопасности труда в соответствии с требованиями ГОСТ 12.0.004-90 «ССБТ. Организация обучения безопасности труда. Общие положения».

4.3 При монтаже опорных стоек, продольных и поперечных балок особое внимание обратить на их устойчивость и надежное закрепление их опорных вилок.

4.4 Элементы монтируемой опалубки во время перемещения должны удерживаться от раскачивания и вращения гибкими оттяжками.

4.5 Устанавливать щиты или панели опалубки следует с соблюдением следующих правил:

- устанавливаемые панели должны быть надежно скреплены;

- освобождать щит или панели опалубки от крюка крана разрешается после их надежного закрепления.

4.6 Приготовление и нанесение смазок на палубу опалубки необходимо производить с обязательным соблюдением всех условий санитарии и требований безопасности.

4.7 При установке опалубки в несколько ярусов каждый последующий ярус следует устанавливать только после закрепления нижнего яруса.

4.8 Ответственность за пожарную безопасность на строительной площадке, за соблюдение противопожарных требований, своевременное выполнение противопожарных мероприятий и исправное содержание средств пожаротушения, несет начальник строительного участка.

4.9 К разборке опалубки можно приступать только после достижения бетоном заданной прочности с разрешения производителя работ.

4.10 При производстве опалубочных работ запрещается:

- размещать на опалубке оборудование и материалы, не предусмотренные проектом производства работ, а также пребывание людей, непосредственно не участвующих в производстве работ, на настиле опалубки;

- работать неисправным инструментом и на неисправном оборудовании;

- ходить по смазанной поверхности форм;

- складывать на подмостях или на рабочем настиле разбираемые элементы опалубки, а также сбрасывать их;

- работать с приставных лестниц;

- загромождать проходы и доступы к противопожарному инвентарю, огнетушителям и гидрантам;

- курить в местах, специально не отведенных для курения;

- разводить огонь на опалубке или устанавливать нагревательные электроприборы, которые не предусмотрены проектом производства работ;

- скопление людей на рабочем полу опалубки;

- допуск посторонних лиц на строящийся объект;

- одновременное производство работ в двух и более ярусах по одной вертикали без защитных устройств (настилов, навесов);

- производить работы на опалубке во время грозы или при силе ветра более шести баллов.

4.11 Приказом по строительному управлению назначить ответственного из числа ИТР за охрану труда и выдачу наряд-допуска и пожарную безопасность.

4.12 Все лица, находящиеся на строительстве, обязаны носить защитные каски.

4.13 При производстве работ необходимо руководствоваться СП 12-135-2003 «Безопасность труда в строительстве. Отраслевые типовые инструкции по охране труда».

4.14 Рабочие, занятые на работах с электроинструментом, должны быть аттестованы на II группу по электробезопасности.

4.15 Строповку грузов краном производить аттестованными стропальщиками.

4.16 На всех рабочих местах должны находиться щиты со схемами строповок.

5 ПОТРЕБНОСТЬ В МАТЕРИАЛЬНО-ТЕХНИЧЕСКИХ РЕСУРСАХ

5.1 Потребность в машинах, оборудовании и механизмах для установки щитов опалубки при возведении стен здания, приведенных в таблице 3, определяется с учетом объемов выполняемых работ и технических характеристик.

Таблица 3 - Ведомость потребности в машинах, механизмах, инструментах и приспособлениях

№ п/п

Наименование

Тип, марка, ГОСТ

Техническая характеристика

Назначение

Количество на звено, шт.

1

2

3

4

5

6

1

Кран башенный

Согласно ППР

Погрузочно-разгрузочные и строительные работы

1

2

Машина ручная сверлильная электрическая

ИЭ-1035

 

Подготовительные, монтажные и демонтажные работы по установке и разборке опалубки

1

3

Машина ручная сверлильная пневматическая

ИП-1024

 

1

4

Гайковерт ручной электрический

ИЭ-3119

 

1

5

Краскораспылитель ручной пневматический

СО-44Б

 

1

6

Бак красконагнетательный

СО-12

 

1

7

Машина ручная зачистная угловая пневматическая

ИП-2104

 

1

8

Установка компрессорная передвижная для малярных работ

СО-7Б

 

1

9

Ключи гаечные с открытыми зевами, двусторонние

ГОСТ 2839-80*

 

1

10

Лом монтажный

ЛМ-24

L=1180 мм

Р=4,2 кг

2

11

Кувалда кузнечная остроносая

ГОСТ 11402-75

 

2

12

Валик малярный

ВМ ГОСТ 10831-87

 

1

13

Щетка ручная из проволоки

 

 

1

14

Зубило слесарное

ГОСТ 7211-86*

 

2

15

Молоток плотничий с круглым бойком

МПЛ ГОСТ 2310-77*

 

2

16

Временное инвентарное ограждение

Проект 2652 ПКТИпромстрой

Н=1,10м

Ограждение опасных зон на перекрытии

150 м

17

Строп кольцевой

СКК1-3,2/6000 ГОСТ 25573-82*

L=6,0 м

Q=3,2 т

Перенос пакета щитов опалубки в горизонтальном положении с помощью фиксатора БР-417.02.68-146

2

18

Строп 4-х ветвевой

4СК1-10,0/5000 ГОСТ 25573-82*

L=5,0 м

Q=10,0 т

Подъем и перемещение грузов

1

19

Лестница приставная

Р.ч. 3257.04

L=3,0 м

Установка и крепление щитов опалубки в проектное положение

2

20

Площадка монтажника

4624 Мосоргстрой

Нр.н=1,5 м

Р=28 кг

1

21

Стремянка

Пр. 0472.00

Нр.н=2,0 м

 

1

22

Ящик инструментальный 3-х секционный

Р.ч. 1.111.00

 

 

1

23

Ведро

ГОСТ 20558-82*

V=8-10л

 

3

24

Рулетка измерительная металлическая

РЗ-10 ГОСТ 7502-98

 

Для линейных измерений

1

25

Отвес стальной строительный

ОТ-400 ГОСТ 7948-80

 

 

2

26

Уровень строительный

УС4-500 ГОСТ 9416-83

 

 

1

27

Уровень гибкий водяной

ТУ 25-11-760-72

 

 

1

28

Шнур разметочный в корпусе

ТУ 22-4633-80

 

 

1

29

Шнур капроновый

ГОСТ 1765-89

 

 

5

30

Карандаш

Р-7

 

 

10

31

Рейсмус реечный

ТУ 22-3951-77

 

 

1

32

Метр складной деревянный

 

 

 

2

33

Рейка с отвесом

Р.ч. №175

 

 

3

34

Угольник металлический

ТУ 22-4400-79

500´240

 

2

35

Каска строительная

ГОСТ 12.4.087-84

 

 

5

6 ТЕХНИКО-ЭКОНОМИЧЕСКИЕ ПОКАЗАТЕЛИ

6.1 Работы по установке и демонтажу элементов опалубки лестничного марша выполняются бригадой в следующем составе из 6 человек:

машинист крана

 

5 разряда

 

- 1 человек

такелажник

 

2 разряда

 

- 1 человек

плотники (монтажники)

 

4 разряда

 

- 1 человек

 

 

3 разряда

 

- 1 человек

 

 

2 разряда

 

- 1 человек

слесарь строительный

 

4 разряда

 

- 1 человек

6.2 Затраты труда и машинного времени подсчитаны из расчета установки элементов опалубки лестничного марша на один этаж здания.

Подсчет выполнен по «Единым нормам и расценкам на строительные, монтажные и ремонтно-строительные работы», введенным в действие в 1987 г. и приведен в таблице 4.

Таблица 4 - Калькуляция затрат труда и машинного времени на устройство опалубки лестничного марша

Измеритель конечной продукции - лестничный марш

№ п/п

Обоснование (ЕНиР и др. нормы)

Наименование работ

Ед. изм.

Объем работ

Нормы времени

Затраты труда

рабочих, чел.-ч.

машинистов, чел.-ч., (работа машин, маш.-ч.)

рабочих, чел.-ч.

машинистов, чел.-ч., (работа машин, маш.-ч.)

1

Е4-1-40 №2

Разборка листов палубы и других элементов опалубки. Очистка листов палубы от бетона

1 м2

21

0,12

-

2,52

-

2

Е1-7 №28

Подача элементов опалубки башенным краном к месту их установки

100 т

0,012

13

0,16 (0,16)

4,55

0,05 (0,05)

3

Е4-1-33 Табл.1 №3

Установка опорных стоек с раскреплением их к плите перекрытия

100 м стоек

0,65

7,8

-

5,07

-

4

Е4-1-34 Табл.8 №а

Устройство опалубки из досок и листов фанеры

1 м2

21

0,3

-

6,3

-

5

Е4-1-34 Табл.8 №б

Демонтаж элементов опалубки лестничного марша

1 м2

21

0,91

-

19,11

-

6.3 Календарный план производства работ приведен в таблице 5.

Таблица 5 - Календарный план производства работ

Измеритель конечной продукции - лестничный марш

6.4 Технико-экономические показатели при устройстве опалубки лестничного марша на один этаж составят:

затраты труда, чел .-час. - 33,16

затраты машинного времени, маш.-час. - 0,05

продолжительность работ, часов - 10,7

7 ПЕРЕЧЕНЬ НОРМАТИВНО-ТЕХНИЧЕСКОЙ ЛИТЕРАТУРЫ

1 СНиП 12-01-2004 Организация строительства.

2 СНиП 3.01.03-84 Геодезические работы в строительстве.

3 СНиП 3.03.01-87 Несущие и ограждающие конструкции.

4 СНиП 12-03-2001 Безопасность труда в строительстве. Часть 1. Общие требования.

5 СНиП 12-04-2002 Безопасность труда в строительстве. Часть 2. Строительное производство.

6 ГОСТ 12.0.004-90 ССБТ. Организация обучения безопасности труда. Общие положения.

7 ГОСТ 12.3.002-75* ССБТ. Процессы производственные. Общие требования безопасности.

8 ГОСТ 12.4.010-75* ССБТ. Средства индивидуальной защиты. Рукавицы специальные. Технические условия.

9 ГОСТ 12.4.011-89 ССБТ. Средства защиты работающих. Общие требования и классификация.

10 ГОСТ Р 12.4.026-2001 ССБТ. Цвета сигнальные, знаки безопасности и разметка сигнальная. Назначение и правила применения. Общие технические требования и характеристики. Методы испытаний.

11 ГОСТ 12.4.087-84 ССБТ. Строительство. Каски строительные. Технические условия.

12 ГОСТ 5547-93 Плоскогубцы комбинированные. Технические условия.

13 ГОСТ 5781-82* Сталь горячекатаная для армирования железобетонных конструкций. Технические условия.

14 ГОСТ 7211-86* Зубила слесарные. Технические условия.

15 ГОСТ 7502-988 Рулетки измерительные металлические. Технические условия.

16 ГОСТ 7948-80 Отвесы стальные строительные. Технические условия.

17 ГОСТ 9416-83 Уровни строительные. Технические условия.

18 ГОСТ 11042-90 Молотки слесарные стальные. Технические условия.

19 ГОСТ 25573-82* Стропы грузовые канатные для строительства. Технические условия.

20 ГОСТ Р 52085-2003 Опалубка. Общие технические условия.

21 ПБ 10-382-00 Правила устройства и безопасной эксплуатации грузоподъемных кранов. Госгортехнадзор России, М., 2000.

22 ППБ 01-03 Правила пожарной безопасности в Российской Федерации. МЧС России, М., 2003.

23 ЕНиР. Единые нормы и расценки на строительные, монтажные и ремонтно-строительные работы. Сборник 4. Монтаж сборных и устройство монолитных железобетонных конструкций. Выпуск 1. Здания и промышленные сооружения.

24 СП 12-135-2003 «Безопасность труда в строительстве. Отраслевые типовые инструкции по охране труда».

25 Шмит О.Т. «Опалубки для монолитного бетона», М., Стройиздат, 1987.

26 Рекомендации по установке и безопасной эксплуатации грузоподъемных кранов, строительных подъемников, грузоподъемных кранов-манипуляторов и подъемников (вышек) при разработке проектов организации строительства и проектов производства работ. ОАО ПКТИпромстрой, М., 2004 г.




Яндекс цитирования



   Copyright © 2007-2026,  www.tehlit.ru.

[ ѓосты, стандарты, нормативы, инструкции, правила, строительные нормы ]