//
ТехЛит.ру
- крупнейшая бесплатная электронная интернет библиотека для "технически умных" людей.
WWW.TEHLIT.RU - ТЕХНИЧЕСКАЯ ЛИТЕРАТУРА

:: Алготрейдинг::


АЛГОТРЕЙДИНГ
шаг за шагом
с нуля по урокам!

Торговые роботы на PYTHON, BackTrader,
Pandas, Pine Script для TradingView. Связка с брокерами, телеграм и легкими приложениями.


госстрой cccр

центральный научно-исследовательский и проЕктно-экспериментальный
институт организации, механизации и технологической помощи строительству
(цнииомтП)

БЮРО ВНЕДРЕНИЯ

ТЕХНОЛОГИЧЕСКИЕ СХЕМЫ
МОНТАЖА
ПОКРЫТИЙ ОДНОЭТАЖНЫХ ПРОМЗДАНИЙ
С ПРЕДВАРИТЕЛЬНЫМ
УКРУПНЕНИЕМ
СВЕТОАЭРАЦИОННЫХ ФОНАРЕЙ В ОБЪЕМНЫЕ БЛОКИ.

МОСКВА 1982

Рекомендовано к изданию решением Научно-технического совета ЦНИИОМТП Госстроя СССР.

Технологические схемы монтажа покрытий одноэтажных промышленных зданий с предварительным укрупнением светоавиационных фонарей в объемные блоки. М., 1982. 68 с. (Госстрой СССР. Центр, научн.-исслед. и проектно-эксперим. институтт организации, механизации и техн. помощи стр-ву. ЦНИИОМТП. Бюро внедрения).

Приведены конструктивные решения стальных светоаэрационных фонарей, технологические схемы монтажа конструкций покрытия с рядовыми и торцевыми фонарными блоками размерами 12×6 и 12×12 м.

Даны схемы оснастки для укрупнительной сборки и монтажа конструкций покрытия со стальными светоаэрационными фонарями.

Альбом подготовлен отделом технологии и механизации возведения зданий, сооружений и монтажа конструкций ЦНИИОМТП Госстроя СССР (Гребенник Р.А., Мачабели Ш.Л., Степанов Н.В.).

Технологические схемы предназначены для организаций, составляющих проекты производства работ.

Содержание

общая часть

техника безопасности

монтаж покрытий с фонарями размерами 12×6 м

монтаж покрытий с фонарями размерами 12×12 м

технико-экономические показатели монтажа светоаэрационных фонарей объемными блоками, укрупняемыми как в зоне, так и вне зоны монтажа

конструктивные решения стальных светоаэрационных фонарей серии 1,464-13 (с двумя ярусами остекления

технологические схемы монтажа конструкций покрытия с рядовыми фонарными блоками размерами 12×6 м

технологические схемы монтажа конструкций покрытия с торцевыми фонарными блоками размерами 12×6 м*

технологические схемы монтажа конструкций покрытия с рядовыми фонарными блоками размерами 12×12 м

технологические схемы монтажа конструкций покрытия с торцевыми фонарными блоками размерами 12×12 м*

оснастка для укрупнительной сборки и монтажа конструкций покрытия со стальными светоаэрационными фонарями

рекомендуемые комплекты технологической оснастки для укрупнительной сборки и монтажа светоаэрационных фонарей для зданий, возводимых в несейсмических районах

ОБЩАЯ ЧАСТЬ

Представленные технологические схемы монтажа покрытий со стальными светоаэрационными фонарями серии 1.464-11 (с одним ярусом остекления) и 1.464-13 (с двумя ярусами остекления) применяются в одноэтажных промышленных зданиях высотой 12,6 м при шаге железобетонных стропильных ферм 6 и 12 м. Монтаж фонарей осуществляется с предварительным укрупнением в объемные блоки размерами 12×6 и 12×12 м.

Фонарь состоит из 2-х фонарных панелей, панели торца фонаря, фонарной фермы, вертикальных и горизонтальных связей. Покрытие фонарей предусмотрено из железобетонных плит размерами 3×6 и 3×12 м.

Фонарные панели располагают в плоскости остекления фонаря, длина их равна 6 м - для зданий с шагом стропильных ферм 6 м и 12 м - для зданий с шагом стропильных ферм 12 м. Конструктивные решения фонарей приведены на стр. 8-14.

Отправочные элементы панелей торца фонаря и фонарных ферм предварительно укрупняют в плоскостные блоки на специальном стенде на сборочной площадке в непосредственной близости от строящегося промышленного здания. На этом же стенде на фонарные панели навешивают переплеты.

Укрупнение всех линейных и плоскостных элементов фонаря в объемные блоки производится также на сборочной площадке. Привязка сборочной площадки выполнена условно и может быть скорректирована в конкретных условиях.

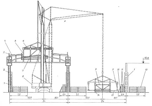
Выгрузку и складирование конструктивных элементов фонарей на сборочной площадке, а также укрупнительную сборку плоскостных элементов и объемных блоков фонарей, рекомендуется производить автомобильным краном К-162 со стрелой длиной 10 м как более мобильным и работающим без выносных опор.

Укрупнение в объемные блоки плоскостных и отдельных элементов производится на кондукторе, который установлен на специальные сани. Сани с объемными фонарными блоками при помощи трактора доставляют в зону работы монтажного крана, где блок снимают с кондуктора, поднимают и устанавливают в проектное положение.

Сани с закрепленным на них кондуктором при помощи того же трактора возвращают на сборочную площадку для укрупнительной сборки следующего объемного блока.

Объемный фонарный блок устанавливают в проектное положение в одном потоке с монтажом конструкций покрытия гусеничным краном КC-8161БC со стрелой длиной 35 м и гуськом - 24, 43 м.

При укрупнительной сборке объемного рядового фонарного блока, в отличие от торцевого блока, устанавливают только одну фонарную ферму. Свободные концы горизонтальных связей и монорельсов в процессе укрупнения удерживаются опорами кондуктора, а в процессе подъема и установки - клещевыми захватами траверсы.

ТЕХНИКА БЕЗОПАСНОСТИ

Все монтажные работы по укрупнительной сборке и установке в проектное положение объемных фонарных блоков, следует производить в соответствии с требованиями СНиП III-4-80 «Техника безопасности в строительстве», правил Госгортехнадзора и «Инструкции по технике безопасности при монтаже стальных и сборных железобетонных конструкций» Минмонтажспецстроя СССР (ВСН 61-75).

Основные требования указанных документов:

установка и крепление плоскостных и отдельных элементов фонаря в процессе укрупнительной сборки на кондукторе, а также установка и крепление фонарных блоков должны производиться монтажниками с люлек, лестниц или подмостей; во время установки фонарного блока монтажники могут находиться на ранее смонтированных плитах покрытия;

навесные лестницы, подмости, люльки и другие монтажные приспособления, необходимые для работы монтажников в процессе монтажа объемных блоков, следует устанавливать внизу до подъема монтируемых блоков;

переход монтажников по установленным конструкциям, не имеющим ограждений, запрещается;

крайние плиты покрытия и фонарей следует монтировать с заранее установленными с наружной стороны ограждениями;

работы по приему, установке и креплению фонарного блока монтажники обязаны выполнять предварительно закрепив карабины предохранительных поясов за стальной страховочный канат или монтажные петли плит покрытия;

смонтированный фонарный блок можно расстроповывать только после крепления его к опорным поверхностям согласно проекту.

МОНТАЖ ПОКРЫТИЙ С ФОНАРЯМИ РАЗМЕРАМИ 12×6 м

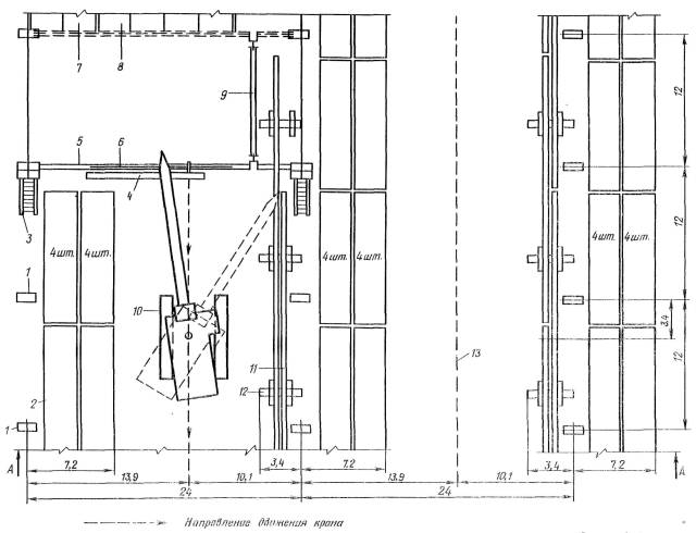
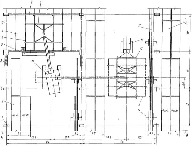
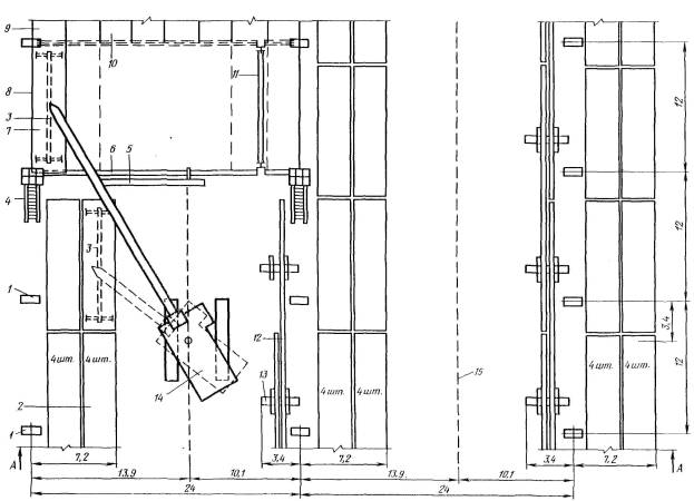
На стр. 16 представлена схема организации монтажа покрытия одноэтажного промышленного здания из предварительно укрупненных объемных блоков фонарей размерами 12×6 м.

Монтаж объемных блоков фонарей производится в одном потоке с монтажом железобетонных конструкций покрытия: сначала устанавливают стропильную ферму, затем укладывают прилегающие к фонарю платы покрытия, устанавливают фонарный блок и на него укладывают четыре плиты покрытия.

На схеме показаны места складирования стропильных ферм и плит покрытия, а также направление движения трактора с укрупненным фонарным объемным блоком. Монтаж конструкций покрытия и укрупненных блоков фонарей ведется продольным методом, при котором кран движется вдоль пролета корпуса.

Кран заходит на холостом ходу в пролет корпуса и, возвращаясь, монтирует покрытие. Фонарный объемный блок подается на санях с кондуктором в смежный пролет, где его отсоединяют от кондуктора, поднимают краном при помощи траверсы и устанавливают в проектное положение. Сани вместе с кондуктором возвращают на сборочную площадку, при этом трактор прицепляют к саням с другой стороны, чтобы в пролете их не разворачивать.

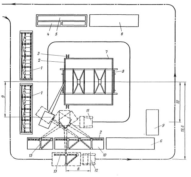
На стр. 17, 18, 19 представлена схема сборочной площадки на период предварительного завоза и складирования конструктивных элементов фонаря, укрупнительной сборки панелей и ферм, а также объемных фонарных блоков.

Во избежание пересортицы конструкций при их завозе и складировании каждой отправочной марке выделяется определенное место. Элементы фонарей укладывают на деревянные подкладки, расположенные на спланированной поверхности. Места для складирования конструкций определены с учетом минимума передвижек крана при укрупнительной сборке.

На сборочной площадке предусмотрен один стенд, установленный на спланированное естественное основание, исключающее возможности просадки в процессе работ.

Укрупнительная сборка объемного рядового блока фонаря отличается от сборки торцевого блока отсутствием торцевой панели.

На стр. 30 показана последовательность сборки торцевой панели и установка ее в объемный блок.

Краном подают на стенд две полупанели, которые выверяют и затем соединяют между собой при помощи болтов. После этого на панели закрепляют болтами стальные листы и навешивают нащельники и элементы карниза.

Полностью укрупненную торцевую панель краном с той же стоянки при помощи двухветвевого стропа снимают со стенда и устанавливают на кондуктор в фонарный блок. Панель временно крепят к кондуктору болтами.

На схеме привязка крана соответствует положению крана при установке панели в фонарный блок при максимальном вылете стрелы 10 м и массе укрупненной панели не более одной тонны. В этом случае, если масса панели превышает одну тонну, панель сначала снимают краном со стенда, после чего кран с панелью перемещается на противоположную сторону кондуктора, и панель устанавливают в фонарный блок с новой стоянки крана.

На стр. 17 дана схема установки двух фонарных панелей заводского изготовления в фонарный блок. С первой стоянки крана при помощи двухветвевого стропа панель поднимают из штабеля и устанавливают в фонарный блок. При этом ее временно крепят к кондуктору в опорных узлах четырьмя болтами, (а к торцевой панели - проектными болтами). Затем кран перемещают на вторую стоянку и устанавливают в блок вторую панель в такой же последовательности.

Укрупнение фермы производится на стенде. Краном подают сначала одну, а затем вторую полуфермы на стенд, где их выверяют и соединяют проектными болтами. Затем на ферму устанавливают временную монтажную распорку.

Полностью укрупненную фонарную ферму при помощи двухветвевого стропа краном с той же стоянки снимают со стенда и устанавливают на кондуктор в фонарный блок (стр. 18). Ферму временно крепят к кондуктору в опорных узлах четырьмя болтами, а к фонарным панелям - проектными болтами.

На стр. 31 представлена схема установки двух вертикальных связей заводского изготовления в фонарный блок. С первой стоянка крана при помощи двухветвевого стропа поднимают из штабеля связь и устанавливают ее в фонарный блок. Вертикальная связь крепится одной стороной к торцевой панели, а другой - к фонарной ферме проектными болтами. Затем поднимают краном вторую вертикальную связь, после чего кран со связью перемещают на вторую стоянку, с которой и устанавливают ее в блок.

При наличии горизонтальных связей их монтируют отдельными элементами заводского изготовления (стр. 32). С первой стоянки крана при помощи двухветвевого стропа из штабеля поднимают элемент горизонтальной связи и укладывают на вертикальные связи блока, после чего крепят его проектными болтами. С этой же стоянки монтируют другие элементы.

Проектное закрепление горизонтальных связей осуществляется монтажниками, находящимися на приставных лестницах и переходном мостике.

На стр. 33 и 34 представлены схемы монтажа торцевого фонарного блока краном КС-8161БС.

Укрупненный объемный блок фонаря устанавливают в проектное положение после укладки и приварки железобетонных плит покрытия, примыкающих к фонарю.

Поднимают и устанавливают объемный блок в проектное положение при помощи специальной траверсы.

Работы по установке блока фонаря в проектное положение выполняют с ранее уложенных плит покрытия, с люлек, которые навешиваются на стропильные фермы до их подъема или с приставных лестниц. Кроме того, для крепления карабинов предохранительных поясов в процессе работы и переходов монтажников натягивается страховочный канат диаметром 13,5 мм.

МОНТАЖ ПОКРЫТИЙ С ФОНАРЯМИ РАЗМЕРАМИ 12×12 м

На стр. 36 приведена схема организации комплексного монтажа покрытия с предварительно укрупненными фонарями размерами 12×12 м. Монтаж как торцевой, так и рядовых ячеек покрытия ведется в следующем порядке. Сначала устанавливают в проектное положение стропильную ферму, затем укладывают четыре железобетонные плиты покрытия по две с двух сторон фонаря. После этого устанавливают объемный фонарный блок и на него укладывают четыре плиты покрытия. На этом монтажники заканчивают работу в этой ячейке и переходят в смежную ячейку пролета.

Монтаж ведется продольным методом, при котором кран движется вдоль пролета корпуса. Кран заходит на холостом ходу в пролет корпуса и, возвращаясь, ведет комплексный монтаж покрытия. Фонарный блок подается на санях в зону работы монтажного крана, в смежный пролет, где его отсоединяют от кондуктора, поднимают краном при помощи траверсы и устанавливают в проектное положение.

На стр. 37 и 48 представлена схема сборочной площадки для предварительного завоза и складирования конструкций и элементов фонаря, укрупнительной сборки панелей и ферм, а также объемных фонарных блоков.

На схеме указаны направления движения транспортных средств при завозе конструкций и элементов фонаря и крана при выполнении работ как по выгрузке и складированию, так и по укрупнению панелей и ферм и установке их в фонарный блок. Условия выгрузки, складирования и укрупнительной сборки блоков 12×12 м (стр. 38, 39, 49, 50 и 51) аналогичны описанным ранее для блоков 12×6 м.

Технологическая последовательность монтажа укрупненных блоков фонарей приведена на стр. 40 - 46 и 52, 53.

ТЕХНИКО-ЭКОНОМИЧЕСКИЕ ПОКАЗАТЕЛИ МОНТАЖА СВЕТОАЭРАЦИОННЫХ ФОНАРЕЙ ОБЪЕМНЫМИ БЛОКАМИ, УКРУПНЯЕМЫМИ КАК В ЗОНЕ, ТАК И ВНЕ ЗОНЫ МОНТАЖА

Размеры фонарей (ширина × длина), м

Затраты труда, чел.-час

Время работы крана, маш. час

Годовой экономический эффект по вариантам, руб. (расчеты ЦНИИОМТП)

Варианты монтажа

Варианты монтажа

второй относительно первого

третий относительно второго

первый

второй

третий

первый

второй

третий

6×6

61,6

44,5

38,8

12,54

8,38

7,15

11200

14310

6×12

72,9

57,88

50,23

15,12

11,08

9,56

9675

10242

12×6

87,5

69,8

60,58

18,7

14,74

12,75

12100

16297

12×12

99,6

84,8

73,82

18,32

16,15

15,07

8010

13032

Примечания.

1. Годовой экономический аффект приведен из расчета монтажа 225 фонарей в год.

2. Варианты монтажа:

первый - монтаж светоаэрационных фонарей укрупненными плоскостными элементами;

второй - то же, объемными блоками, собираемыми в зоне работы монтажного крана;

третий - то же, укрупненными блоками, собираемыми на стационарной площадке и доставляемых в зону работы крана.

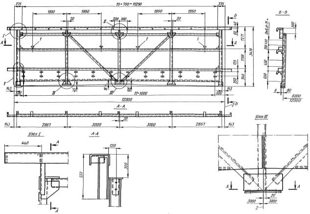
Конструктивные решения стальных светоаэрационных фонарей серии 1.464-13 (с двумя ярусами остекления)

Схема расположения фонаря и связей при шаге стропильных ферм 6 и 12 м.

1 - вертикальная связь;

2 - фонарная ферма;

3 - фонарная панель;

4 - панель торца фонаря;

5 - торец здания или ось температурного шва;

6 - горизонтальные связи;

7 - верх стропильной фермы

примечание: Среднюю стойку каждой фонарной панели приваривают к железобетонным плитам покрытия, уложенным по строительным фермам и фонарю.

Фонарная панель при шаге стропильных ферм 6 м.

1 - места подсветки переплетов;

2 - ось узла стропильной фермы;

3 - верх стропильной фермы

узел III см. стр. 10

Фонарная панель при шаге стропильных ферм 12 м.

1 - места подвески переплетов;

2 - ось узла стропильной фермы;

3 - верх стропильной фермы

Узлы I; II см. стр. 9

Фонарная ферма при шаге стропильных ферм 6 и 12 м.

1 - фонарная панель;

2 - плита покрытия 3×6 м.;

3 - плита покрытия 3×12 м.;

4 - фонарная ферма;

5 - ось узла стропильной фермы;

6 - верх стропильной фермы (уклон 1,5 %)

панель торца фонаря при шаге стропильных ферм 6 и 12 м.

1 - места подвески переплетов;

2 - ось узла стропильной фермы

узлы II; IV; V см. стр. 13

Узлы панели торца фонаря

панель торца фонаря см. стр. 12

Вертикальные связи.

1 - панель торца фонаря;

2 - вертикальная связь;

3 - фонарная ферма;

4 - стойка панели торца фонаря.

Технологические схемы монтажа конструкций покрытия с рядовыми фонарными блоками размерами 12×6 м

Схема организации монтажа покрытия с предварительным укрупнением светоаэрационных фонарей в объемные блоки

1 - колонна;

2 - предварительная раскладка стропильных ферм

3 - предварительная раскладка плит покрытия;

4 - площадка для укрупнительной сборки фонарей в блоки

5 - сани с кондуктором для транспортирования фонарных блоков.

Выгрузка и складирование конструкций фонарей и установка фонарной панели на кондуктор

1 - место складирования элементов торцевых панелей;

2 - фонарные панели;

3 - транспортное средство;

4 - место складирования вертикальных связей;

5 - траверса;

6 - сани с кондуктором для укрупнения и транспортирования фонарных блоков;

7 - приставная лестница;

8 - место складирования горизонтальных связей;

9 - прогоны;

10 - кран автомобильный К-162 со стрелой длиной 10 м;

11 - элементы фонарных ферм;

12 - стенд для укрупнительной сборки панелей и ферм

Примечание: Перед установкой фонарной панели в блок на панель навешиваются фонарные переплеты с нащельниками

Укрупнительная сборка фонарной фермы и установка ее на кондуктор

1 - место складирования вертикальных связей;

2 - сани с кондуктором для укрупнения и транспортирования фонарных блоков;

3 - прогоны;

4 - место складирования горизонтальных связей;

5 - приставная лестница;

6 - фонарная панель;

7 - элементы фонарных ферм;

8 - кран автомобильный К-162 со стрелой длиной. 10 м;

9 - стенд для укрупнительной сборки панелей и ферм;

10 - траверса;

11 - фонарная ферма;

12 - место складирования элементов торцевых панелей

Установка прогонов фонаря

I, II - стоянки крана

1 - фонарная панель;

2 - место складирования вертикальных связей;

3 - кран автомобильный К-162 со стрелой длиной 10 м;

4 - место складирования элементов горизонтальных связей;

5 - прогоны;

6 - приставная лестница;

7 - элементы фонарных ферм;

8 - фонарная ферма;

9 - стенд для укрупнительной сборки панелей и ферм;

10 - место складирования элементов торцевых панелей;

11 - сани с кондуктором для укрупнения и транспортирования фонарных блоков

Установка стропильной фермы. План

разрез А-А см. стр. 21

1 - штабель плит покрытия;

2 - ось движения трактора с блоком;

3 - смонтированное покрытие;

4 - временное ограждение;

5 - стропильная ферма;

6 - инвентарная распорка;

7 - траверса;

8 - лестница приставная секционная;

9 - площадка навесная;

10 - колонна;

11 - кассета;

12 - место складирования стропильных ферм в монтажной зоне;

13 - кран гусеничный КС-8161БС со стрелой длиной 35 м и гуськом 24, и 43 м.

Установка стропильной фермы. Разрез А-А

1 - кассета;

2 - стропильная ферма;

3 - колонна;

4 - штабель плиты покрытия;

5 - ось движения трактора с блоком;

6 - площадка навесная;

7 - траверса;

8 - инвентарная распорка;

9 - стропильная ферма;

10 - лестница приставная секционная;

11 - кран гусеничный КС-8161 БС со стрелой длиной 35 м. и гуськом 24; 43 м

12 - оттяжной канат

Установка плит покрытия, примыкающих к фонарю. План

Разрез А-А см. стр.23

1 - штабель плит покрытия;

2 - ось движения трактора с блоком;

3 - смонтированное покрытие;

4 - временное ограждение;

5 - инвентарная распорка;

6 - плита покрытия;

7 - траверса;

8 - лестница приставная секционная ЛПС;

9 - смонтированная стропильная ферма;

10 - площадка навесная;

11 - кассета;

12 - кран гусеничный КС-8161 БС со стрелой длиной 35 м и гуськом 24, 43 м;

13 - колонна;

14 - место складирования стропильных ферм

Укладка плит покрытия, примыкающих к фонарю. Разрез А-А

1 - штабель плит покрытия;

2 - ось движения трактора с блоком;

3 - смонтированное покрытие;

4 - временное ограждение;

5 - площадка навесная;

6 - смонтированная стропильная ферма;

7 - инвентарная распорка;

8 - траверса;

9 - плита покрытия;

10 - лестница приставная секционная;

11 - колонна;

12 - оттяжной канат;

13 - кран гусеничный КС - 8161 БС со стрелой длиной 35 м и гуськом 24, 43 м;

14 - стропильная ферма;

15 - кассета

Установка рядового фонарного блока. План

разрез А-А см. стр. 25

1 - колонна;

2 - штабель плит покрытия;

3 - сани с кондуктором и рядовым фонарным блоком;

4 - траверса;

5 - трактор;

6 - смонтированный торцевой фонарь;

7 - временное ограждение;

8 - смонтированное покрытие;

9 - рядовой фонарь;

10 - лестница приставная секционная;

11 - площадка навесная;

12 - кран гусеничный КС-8161 БС со стрелой длиной 35 м и гуськом 24, 43 м;

13 - кассета;

14 - место складирования стропильных ферм

Установка рядового фонарного блока. Разрез А-А

1 - колонна;

2 - штабель плит покрытия;

3 - траверса;

4 - сани с кондуктором и рядовым фонарным блоком;

5 - ось движения трактора с блоком;

6 - кассета;

7 - стропильная ферма;

8 - временное ограждение;

9 - смонтированное покрытие;

10 - рядовой фонарный блок;

11 - стропильная ферма;

12 - площадка навесная;

13 - лестница приставная секционная;

14 - кран гусеничный КC-8161 БС со стрелой длиной. 35 м и гуськом 24, 43 м

Укладка плит покрытия фонаря. План

1 - колонна;

2 - кассета;

3 - штабель плит покрытия;

4 - ось движения трактора;

5 - смонтированный торцевой фонарь;

6 - временное ограждение;

7 - траверса;

8 - вмонтированный рядовой фонарь;

9 - плита покрытия;

10 - смонтированное покрытие;

11 - лестница приставная;

12 - лестница приставная секционная;

13 - площадка навесная;

14 - кран гусеничный КС-8161 БС со стрелой длиной 35 м и гуськом 24, и 43 м;

15 - место складирования стропильных ферм

Разрез А-А см. стр. 27

Укладка плит покрытия фонаря. Разрез А-А

1 - кассета;

2 - стропильные фермы;

3 - колонна;

4 - штабель плит покрытия;

5 - ось движения трактора;

6 - временное ограждение;

7 - рядовой фонарный блок;

8 - площадка навесная;

9 - траверса с плитой покрытия;

10 - лестница приставная;

11 - смонтированное покрытие;

12 - лестница приставная секционная;

13 - оттяжной канат;

14 - кран гусеничный КС-8161 БС со стрелой длиной 35 м и гуськом 24, 43 м.

Технологические схемы монтажа конструкций покрытия с торцевыми фонарными блоками размерами 12×6 м*

______________

* В схемах приведены материалы, отражающие особенности монтажа торцевых фонарных блоков.

Выгрузка и раскладка конструктивных элементов фонарей

 - направление движения транспортных средств

 - направление движения крана

1 - элементы панелей торцевых блоков;

2 - фонарные панели;

3 - вертикальные связи;

4 - сани;

5 - кондуктор для укрупнительной сборки фонарных блоков;

6 - элементы горизонтальных связей;

7 - кран автомобильный К-162 со стрелой длиной 10 м;

8-элементы фонарных ферм;

9 - транспортное средство;

10 - стенд для укрупнительной сборки панелей и ферм

Укрупнительная сборка торцевой панели и установка ее на кондуктор

 - направление движения крана

 - направление движения транспортных средств

1 - фонарные панели;

2 - вертикальные связи;

3 - приставная лестница;

4 - строп двухветвевой;

5 - торцевая панель;

6 - кондуктор для укрупнительной сборки фонарных блоков;

7 - сани;

8 - кран автомобильный К-162 со стрелой длиной 10 м.;

9 - элементы горизонтальных связей;

10 - элементы фонарных ферм;

11 - стенд для укрупнительной сборки панелей и ферм;

12 - элементы торцевых панелей;

13 - стальной лист.

Установка вертикальных связей фонаря

 - направление движения крана

 - направление движения транспортных средств

1 - фонарная панель;

2 - вертикальная связь;

3 - кран автомобильный К-162 со стрелой длиной 10 м;

4 - торцевая панель;

5 - кондуктор для укрупнительной сборки фонарных блоков;

6 - фонарная панель;

7 - сани;

8 - фонарная ферма;

9 - приставная лестница;

10 - элементы фонарных ферм;

11 - стенд для укрупнительной сборки панелей и ферм;

12 - элементы торцевых панелей;

13 - элементы горизонтальных связей;

I; II - стоянки крана

Установка горизонтальных связей фонаря

 - направление движения крана

 - направление движения транспортных средств

I; II - стоянки крана

1 - фонарные панели;

2 - вертикальные связи;

3 - кран автомобильной К-162 со стрелой длиной 10 м;

4 - торцевая панель;

5 - фонарная панель;

6 - кондуктор для укрупнительной сборки фонарных блоков;

7 - сани;

8 - элементы горизонтальных связей;

9 - вертикальная связь;

10 - фонарная ферма;

11 - приставная лестница;

12 - элементы фонарных ферм;

13 - стенд для укрупнительной сборки панелей и ферм;

14 - элементы торцевых панелей;

15 - горизонтальная связь

Монтаж торцевого фонарного блока

1 - колонна;

2 - штабель плит покрытий;

3 - сани;

4 - кондуктор для укрупнительной сборки фонарных блоков;

5 - укрупненный блок;

6 - траверса;

7 - трактор;

8 - временное ограждение;

9 - смонтированное покрытие;

10 - навесная площадка;

11 - приставная лестница секционная;

12 - кран гусеничный КС-816 БС со стрелой длиной 35 м и гуськом 24, 43 м;

13 - стропильные фермы;

14 - кассета

Разрез А-А см. стр. 34

Монтаж торцевого фонарного блока. Разрез А-А

1 - колонна;

2 - стропильная ферма;

3 - смонтированное покрытие;

4 - укрупненный фонарный блок;

5 - траверса;

6 - навесная площадка;

7 - кран гусеничный КС-8161 БС со стрелой длиной 35м и гуськом 24, 43 м;

8 - оттяжной канат;

9 - приставная лестница секционная;

10 - трактор;

11 - кондуктор для укрупнительной сборки фонарных блоков;

12 - сани;

13 - кассета

Технологические схемы монтажа конструкций покрытия с рядовыми фонарными блоками размерами 12×12 м

Схема организации монтажа покрытия с предварительным укрупнением светоаэрационных фонарей

1 - зона складирования плит покрытия;

2 - колонна;

3 - зона складирования стропильных ферм;

5 - сани с кондуктором для укрепления и транспортирования фонарей блоками.

Выгрузка и складирование конструкций фонарей и установка фонарных панелей на кондуктор

1 - элементы фонарных ферм;

2 - фонарные панели;

3 - транспортное средство;

4 - кран автомобильный к-162 со стрелой длиной 10 м;

5 - место складирования горизонтальных связей;

6 - прогоны;

7 - место складирования вертикальных связей;

8 - траверса;

9 - сани с кондуктором для укрупнения и транспортирования фонарных блоков;

10 - место складирования элементов торцевых панелей;

11 - стенд для укрупнительной сборки панелей и ферм;

12 - приставная лестница.

Примечание: Перед установкой фонарной панели в блок на панель навешиваются фонарные переплеты с нащельниками

Укрупнительная сборка фонарной фермы и установка ее на кондуктор

 - направление движения транспортных средств

 

1 - фонарные панели;

2 - фонарная ферма;

3 - приставная лестница;

4 - место складирования горизонтальных связей;

5 - прогоны;

6 - место складирования вертикальных связей;

7 - установленная фонарная панель;

8 - сани с кондуктором для укрупнения и транспортирования фонарных блокад;

9 - место складирования элементов торцевых панелей;

10 - стенд для укрупнительной сборки панелей и ферм;

11 - кран автомобильный К-162;

12 - транспортное средство;

13 - элементы фонарных ферм

Выгрузка и складирование прогонов и установка их в фонарный блок

 - направление движения транспортных средств

 

1 - элементы фонарных ферм;

2 - фонарная панель;

3 - место складирования горизонтальных связей;

4 - прогоны;

5 - транспортное средство;

6 - место складирования вертикальных связей;

7 - кран автомобильный К-162;

8 - приставная лестница;

9 - сани с кондуктором для укрупнения и транспортирования фонарных блоков;

10 - установленная фонарная ферма;

11 - место складирования элементов торцевых панелей;

12 - стенд для укрупнительной сборки панелей ферм

Монтаж стропильной фермы. План

1 - колонна;

2 - штабель плит покрытия;

3 - лестница приставная секционная;

4 - площадка навесная;

5 - стропильная ферма;

6 - траверса;

7 - смонтированное покрытие;

8 - смонтированный торцевой фонарь;

9 - инвентарная распорка;

10 - кран гусеничный КС-8161 БС;

11 - место складирования стропильных ферм;

12 - кассета;

13 - ось движения трактора с блоком.

Разрез А-А см. стр. 41

Монтаж стропильной фермы. Разрез А-А

1 - колонна;

2 - лестница приставная секционная;

3 - площадка навесная;

4 - стропильная ферма;

5 - траверса;

6 - инвентарная распорка;

7 - оттяжной канат;

8 - кран гусеничный КС-8161 БС;

9 - штабель плит покрытия;

10 - место складирования стропильных ферм;

11 - кассета;

12 - ось движения трактора.

Монтаж плит покрытия, примыкающих к фонарю. План

1 - колонна;

2 - штабель плит покрытия;

3 - траверса;

4 - лестница приставная секционная;

5 - площадка навесная;

6 - смонтированная стропильная ферма;

7 - плита покрытия;

8 - временное ограждение;

9 - смонтированное покрытие;

10 - смонтированный торцевой фонарь;

11 - инвентарная распорка;

12 - место складирования стропильных ферм;

13 - кассета;

14 - кран гусеничный КС-8161 БС;

15 - ось движения трактора.

Разрез А-А см. стр. 43

Монтаж плит покрытия, примыкающих к фонарю. Разрез А-А

1 - колонна;

2 - оттяжной канат;

3 - лестница приставная секционная;

4 - плита покрытия;

5 - временное ограждение;

6 - траверса;

7 - смонтированная ферма;

8 - инвентарная распорка;

9 - кран гусеничный КС-8161 БС;

10 - площадка навесная;

11 - штабель плит покрытия;

12 - стропильные фермы;

13 - кассета;

14 - ось движения трактора.

Монтаж рядового фонарного блока. План

1 - колонна;

2 - штабель плит покрытия;

3 - лестница приставная секционная;

4 - смонтированное покрытие;

5 - временное ограждение;

6 - смонтированный торцевой фонарь;

7 - траверса;

8 - рядовой фонарный блок;

9 - площадка навесная,

10 - кран гусеничный КС-8161 БС;

11 - место складирования стропильных ферм;

12 - трактор;

13 - сани с кондуктором

14 - кассета.

Разрез А-А см. стр. 45

Монтаж рядового фонарного блока. Разрез А - А

1 - колонна;

2 - приставная лестница секционная с двумя площадками;

3 - временное ограждение;

4 - смонтированное покрытие;

5 - рядовой токарный блок;

6 - траверса;

7 - площадка навесная;

8 - кран гусеничный КС -8161 со стрелой длиной 35 м и гуськом 24, 43 м;

9 - инвентарная рама;

10 - кассета;

11 - стропильные фермы;

12 - штабель плит покрытия;

13 - кондуктор для укрупнительной сборки фонарей блоками;

14 - сани

Монтаж плит покрытия фонаря

1 - колонка;

2 - штабель плит покрытия;

3 - траверса;

4 - лестница приставная, секционная;

5 - приставная лестница

6 - временное ограждение;

7 - смонтированное покрытие;

8 - смонтированный торцевой фонарь;

9 - площадка навесная;

10 - гусеничный кран КС-8161 БС;

11 - место складирования стропильных ферм;

12 - кассета;

13 - ось движения трактора

Технологические схемы монтажа конструкций покрытия с торцевыми фонарными блоками размерами 12×12 м*

_____________________

* В схемах приведены материалы, отражающие особенности монтажа торцевых фонарных блоков.

Выгрузка и раскладка конструктивных элементов фонарей

1 - фонарные панели;

2 - элементы горизонтальных связей;

3 - продольные связи;

4 - панели вертикальных связей;

5 - сани;

6 - кондуктор для укрупнительной сборки фонарей блоками;

7 - элементы торцевых панелей;

8 - стенд для укрупнительной оборки панелей и ферм;

9 - транспортное средство;

10 - кран автомобильный К-162 со стрелой длиной 10 м

Укрупнительная сборка торцевой панели и установка ее на кондуктор

1 - фонарные панели;

2 - кондуктор для укрупнительной сборки фонарей в блоки;

3 - сани

4 - элементы горизонтальных связей;

5 - продольные связи;

6 - панели вертикальных связей;

7 - приставная лестница;

8 - строп двухветвевой;

9 - транспортное средство;

10 - кран автомобильный К-162 со стрелой длиной 10 м;

11 - элементы торцевых панелей;

12 - стенд для укрупнительной сборки панелей и ферм;

13 - торцевая панель;

14 - элементы фонарной фермы

I; II; III- стоянки крана

Установка вертикальных связей фонаря

1 - фонарные панели;

2 - сани;

3 - кондуктор для укрупнительной сборки фонарей в блоки;

4 - фонарная ферма;

5 - элементы горизонтальных связей;

6 - продольные связи;

7 - панели вертикальных связей;

8 - фонарная панель;

9 - приставная лестница;

10 - торцевая панель;

11 - вертикальная связь;

12 - строп двухветвевой;

13 - элементы торцевых панелей;

14 - кран автомобильный К-162 со стрелой длиной 10 м;

15 - стенд для укрупнительной сборки панелей и ферм;

16 - элементы фонарных ферм

Установка горизонтальных связей фонаря

1 - фонарные панели;

2 - приставная лестница;

3 - фонарная ферма;

4 - горизонтальная связь;

5 - кран автомобильный К-162 со стрелой длиной 10 м;

6 - элементы горизонтальных связей;

7 - продольные связи;

8 - панели вертикальных связей;

9 - фонарная панель;

10 - торцевая панель;

11 - сани;

12 - кондуктор для укрупнительной сборки фонарей в блоки;

13 - панель вертикальной связи;

14 - элементы торцевых панелей;

15 - стенд для укрупнительной сборки панелей и ферм;

16 - элементы фонарных ферм.

Монтаж торцевого фонарного блока. План

1 - колонна;

2 - штабель плит покрытия;

3 - кран гусеничный КC-8161 БC со стрелой длиной 35 м и гуськом 24, 43 м;

4 - навесная площадка;

5 - лестница - площадка;

6 - приставная лестница;

7 - укрупненный фонарный блок;

8 - траверса;

9 - смонтированное покрытие;

10 - временное ограждение;

11 - кассета;

12 - трактор;

13 - кондуктор дня укрупнительной сборки фонарей в блоки;

14 - сани;

15 - стропильные фермы

Разрезы А-А см стр. 45

Б-Б - стр. 53

Монтаж торцевого фонарного блока. Разрез б-б.

1 - сани с кондуктором для укрупнительной сборки фонарей в блоки;

2 - штабель плит покрытия;

3 - укрупненный фонарный блок;

4 - кран гусеничный КС-8161 БС со стрелой длиной 35 м и гуськом 24, 43 м;

5 - -лестница- площадка;

6 - навесная площадка;

7 - оттяжной канат;

8 - трактор;

9 - траверса;

10 - смонтированное покрытие;

11 - стропильная ферма;

12 - колонна

Оснастка для укрупнительной сборки и монтажа конструкций покрытия со стальными светоаэрационными фонарями

Универсальная траверса для монтажа стропильных, конструкций и плит покрытия

Схемы строповки укрупненного рядового блока фонаря и элементов фонаря при помощи траверс

Схемы строповки элементов фонаря при помощи траверсы

1 - монтажная распорка;

2 - канат для растроповки (привязать проволокой);

3 - торцевая панель;

4 - инвентарная прокладка;

5 - строп;

6 - фонарная панель.

Схемы строповки элементов фонаря

1 - канат для растроповки (привязать проволокой);

2 - монтажная распорка;

узлы I, II см. стр. 57

Лестницы для производства работ

масса комплекта 787 кг.

Рабочие чертежи 15058 ПР-41 разработаны ПИ промстальконструкция.

Шифр чертежей

н, мм

Масса, кг

макс.

мин.

4444.00.500

2475

2195

31

4444.00.501

3175

2895

37

4444.00.502

3675

3395

42

Рабочие чертежи 444 разработаны ПЧ ЦНИИОМТП

Лестницы предназначены для монтажа стропильных ферм, плит покрытия и светоаэрационных фонарей.

Площадка навесная для монтажа фонарей длиной 12 м.

1 - навесная площадка;

2 - стропильная ферма

грузоподъемность площадки 300 кг.

Масса 650 кг.

Рабочие чертежи 3410.50.000 разработаны ПЧ ЦНИИОМТП

Кассеты для складирования железобетонных стропильных ферм и временное ограждение плит покрытия.

монтажные приспособления, применяемые в процессе укрупнения блока фонаря.

1 - сани;

2 - торцевая панель;

3 - приставная лестница;

4 - горизонтальная связь;

5 - вертикальная связь;

6 - навесная лестница;

7 - переходной мостик;

8 - фонарная панель;

9 - прогон;

10 - фонарная ферма;

11 - кондуктор;

12 - инвентарная рама.

Сани с кондуктором для укрупнения и транспортирования фонарных блоков 12×6 м.

1 - сани;

2 - инвентарная ферма кондуктора;

3 - рама кондуктора.

Рабочие чертежи 13.00.000 разработаны лабораторией ЦНИИОМТП (г. Минск)

Примечание: При укрупнительной сборке торцевого блока фонаря инвентарная ферма снимается

Сани с кондуктором для укрупнения и транспортирования фонарных блоков 12×12 м

1 - сани;

2 - рама кондуктора;

3 - инвентарная ферма кондуктора.

Примечание: При укрупнительной сборке торцевого блока фонаря инвентарная ферма снимается.

Рабочие чертежи (13.00.000) разработаны лабораторией ЦНИИОМТП (г. Минск)

РЕКОМЕНДУЕМЫЕ КОМПЛЕКТЫ ТЕХНОЛОГИЧЕСКОЙ ОСНАСТКИ ДЛЯ УКРУПНИТЕЛЬНОЙ СБОРКИ И МОНТАЖА СВЕТОАЭРАЦИОННЫХ ФОНАРЕЙ ДЛЯ ЗДАНИЙ, ВОЗВОДИМЫХ В НЕСЕЙСМИЧЕСКИХ РАЙОНАХ

Наименование оснастки, разработчик и номера рабочих чертежей

Серия фонарей 1.464-11 с применением в покрытии

Серия фонарей 1.464-13 с применением в покрытии

овального профилированного настила

железобетонных плит

стального профилированного настила

железобетонных плит

ФС 6×6

ФС 6×12

ФС 12×6

ФС 12×12

ФБ 6×6

ФБ 6×12

ФБ 12×6

ФБ 12×12

2ФС 12×6

2ФС 12×12

2ФБ 12×6

2ФБ 12×12

1

2

3

4

5

6

7

8

9

10

11

12

13

Кондуктор для укрупнительной сборки блоков 6×6 и 6×12 м. ЦЭКБ Строймехавтоматика. Проект 1558.40.000

1

1

-

-

1

1

-

-

-

-

-

-

То же, для блоков 12×6 и 12×12 м. Проект 1558.20.000

-

-

1

1

-

-

1

1

1

1

1

1

Траверса для подъема блоков размером 6×6 и 6×12 м. ЦЭКБ Строймехавтоматика. Проект 1558.30.000

1

1

-

-

1

1

-

-

-

-

-

-

То же, для блоков 12×6 и 12×12 м. Проект 1558.10.000

-

-

1

1

-

-

1

1

1

1

1

1

Сани с кондуктором для перемещения блоков фонарей*. Отдел ЦНИИОМТП. (г. Минск). Проект 13.00.000

1

1

1

-

1

1

1

-

1

-

1

-

Площадка навесная. Проектная часть ЦНИИОМТП. Проект 3410.50.000

1

1

1

1

1

1

1

1

1

1

1

1

Лестницы приставные для укрупнения фонарей. Проектная часть ЦНИИОМТП. Проект 4444.00.500

6

6

6

6

6

6

6

6

6

6

6

6

Лестницы навесные. Проектная часть ЦНИИОМТП. Проект 4444.00.600

6

6

6

6

6

6

6

6

6

6

6

6

Кассета для складирования плоскостных элементов**. Проектная часть ЦНИИОМТП. Проект 4444.00.120

1

1

1

1

1

1

1

1

1

1

1

1

Строп четырехветвевой**. Проектная часть ЦНИИОМТП. Проект 3484.46.000

1

1

1

1

-

-

-

-

1

1

-

-

Подкосы для торцевых панелей**. Проектная часть ЦНИИОМТП. Проект 4444.00.200.01, 4444.00.200.02

2

2

2

2

2

2

2

2

2

2

2

2

Подкосы для фонарных панелей**. Проектная часть ЦНИИОМТП. Проект 4444.00.200.03, 4444.00.200.04

4

4

4

4

4

4

4

4

4

4

4

4

Траверса универсальная для монтажа ферм и плит покрытия. Проектная часть ЦНИИОМТП. Проект 105-3.00.000

1

1

1

1

1

1

1

1

1

1

1

1

Распорка инвентарная длиной 6 м для временного крепления стропильных конструкций. ПИ Промcтальконструкция. Проект 4234 Р-44

1

-

1

-

1

-

1

-

1

-

1

-

То же, длиной 12 м. Промстройпроект. Проект серия 04-00-1; альбом 4

-

1

-

1

-

1

-

1

-

1

-

1

Ограждение временное по крайним плитам покрытия. ПИ Промстальконструкция. Проект 4570 Р-2

1

1

1

1

1

1

1

1

1

1

1

1

Навесная лестница для обеспечения рабочего места при монтаже связей фонаря**. ПИ Промстальконструкция. Проект 21070 М

I

I

2

2

I

I

2

2

2

2

2

2

Шаблон инвентарный для обеспечения наклона фонарных панелей

-

-

-

-

1

1

1

1

-

-

1

1

Мост переходной для сборки связей торцевых блоков. Проектная часть ЦНИИОМТП. Проект 4444.00.700

1

1

-

-

1

1

-

-

-

-

-

-

* Применяются в случае укрупнения объемных блоков фонарей вне зоны монтажа покрытия.

** Применяются в случае монтажа конструкций фонарей отдельными элементами и плоскостными блоками.

 




Яндекс цитирования



   Copyright © 2007-2026,  www.tehlit.ru.

[ ѓосты, стандарты, нормативы, инструкции, правила, строительные нормы ]