//
ТехЛит.ру
- крупнейшая бесплатная электронная интернет библиотека для "технически умных" людей.
WWW.TEHLIT.RU - ТЕХНИЧЕСКАЯ ЛИТЕРАТУРА

:: Алготрейдинг::


АЛГОТРЕЙДИНГ
шаг за шагом
с нуля по урокам!

Торговые роботы на PYTHON, BackTrader,
Pandas, Pine Script для TradingView. Связка с брокерами, телеграм и легкими приложениями.


ПРАВИТЕЛЬСТВО МОСКВЫ МОСКОМАРХИТЕКТУРА

ПОСОБИЕ
к МГСН 4.02-94

ДОМА-ИНТЕРНАТЫ ДЛЯ ДЕТЕЙ-ИНВАЛИДОВ

1996

ПРЕДИСЛОВИЕ

1. Разработано МНИИП объектов культуры, отдыха, спорта и здравоохранения Москомархитектуры (канд. арх. Тхор Э.А., инженеры Герасина Л.А., Тихомирова И.Б.).

2. Подготовлено к изданию Архитектурно-техническим управлением Москомархитектуры (архитектор Шалов Л.А., инженер Щипанов Ю.Б.).

3. Согласовано Комитетом социальной защиты населения Москвы, Управлением архитектурного совета и согласования проектов Москомархитектуры.

4. Утверждено указанием Москомархитектуры от 04.03.96 г. № 6.

Содержание

1. ОБЩИЕ ПОЛОЖЕНИЯ

2. КОНЦЕПТУАЛЬНЫЕ ПОЛОЖЕНИЯ ПРОЕКТИРОВАНИЯ ДОМОВ-ИНТЕРНАТОВ ДЛЯ ДЕТЕЙ-ИНВАЛИДОВ

3. ОБЩИЕ ТРЕБОВАНИЯ

3.1. ФУНКЦИОНАЛЬНЫЕ ТРЕБОВАНИЯ

3.2. ЭРГОНОМЕТРИЧЕСКИЕ ТРЕБОВАНИЯ

3.3. ТРЕБОВАНИЯ К УСТРОЙСТВАМ И ПРИСПОСОБЛЕНИЯМ

4. ТРЕБОВАНИЯ К ПОМЕЩЕНИЯМ ПРОЖИВАНИЯ

5. ТРЕБОВАНИЯ К ПОМЕЩЕНИЯМ УЧЕБНО-ПРОФЕССИОНАЛЬНОЙ ПОДГОТОВКИ

6. ТРЕБОВАНИЯ К ПОМЕЩЕНИЯМ МЕДИЦИНСКОГО ОБСЛУЖИВАНИЯ

7. ТРЕБОВАНИЯ К ПОМЕЩЕНИЯМ КУЛЬТУРНО-МАССОВОГО ОБСЛУЖИВАНИЯ

Приложение ТИПЫ ОБОРУДОВАНИЯ, ПРИМЕНЯЕМОГО ДЛЯ РАЗВИТИЯ ДВИГАТЕЛЬНЫХ ФУНКЦИЙ

1. ОБЩИЕ ПОЛОЖЕНИЯ

1. Настоящее Пособие разработано в развитие и дополнение МГСН 4.02-94 "Дома-интернаты для детей-инвалидов".

2. В Пособии на основе МГСН 4.02-94 даны развернутые рекомендации по проектированию домов-интернатов для детей-инвалидов. Текст рекомендаций снабжен функциональными и планировочными схемами участков, зданий и помещений домов интернатов, а также схемами оборудования помещений и размещения приспособлений, облегчающих условия жизни инвалидов и ухода за ними.

2. КОНЦЕПТУАЛЬНЫЕ ПОЛОЖЕНИЯ ПРОЕКТИРОВАНИЯ ДОМОВ-ИНТЕРНАТОВ ДЛЯ ДЕТЕЙ-ИНВАЛИДОВ

Происходящие общественные и социальные преобразования, формирование в обществе нового отношения к инвалидам ставят новые задачи в области проектирования зданий для воспитания и лечения детей и подростков с недостатками умственного и физического развития.

Анализ существующей в нашей стране сети учебно-воспитательных учреждений для детей и подростков с недостатками умственного и физического развития показал, что эта сеть не соответствует современным требованиям к учреждениям такого типа. Сложившаяся система учреждений не учитывает разнообразия индивидуальных возможностей детей и подростков-инвалидов, она заставляет их "вписываться" в ее крайне ограниченные возможности.

Зарубежный опыт, а также практика последних лет отдельных городов России и СНГ показали, что главным результатом педагогического и оздоровительного процессов в домах-интернатах должны стать социальная и трудовая адаптация ребенка с аномальным развитием, т.е. приобретение инвалидом бытовых навыков, приспособленность к жизни, профессиональная ориентация. Это дает возможность инвалиду не быть обузой для общества в будущем.

В функционирующих в настоящее время домах-интернатах ребенок-инвалид практически лишен условий семейного содержания. Между тем, по мнению специалистов, лишь 20 % успеха является результатом усилий медицины и педагогики, остальные 80 % зависят от семьи. В силу этого одна из важнейших задач дома- интерната создать ребенку-инвалиду условия близкие к семейному содержанию.

К основным проблемам организации пребывания детей в домах-интернатах относится формирование детской группы. Пребывание больших групп детей в учреждении в течение длительного времени создает в группах детей с недостатками умственного и физического развития, наиболее уязвимых в нервно-психическом плане, много различных социологических, психологических и других проблем.

Медиками и психологами выявлено, что эффективность действия воспитательных и адаптационных процессов, происходящих в группе, выше, чем эффективность тех же процессов, осуществляемых в одиночку. При этом важно определить оптимальную численность первичной организованной детской группы, которая бы создала благоприятные условия для процессов, происходящих в учреждении. В психологии существует понятие филицитации (облегчения протекания различных групповых процессов), которое в последнее время особенно широко учитывается в терапии и педагогике и напрямую связано с количественным составом лепной группы в интернате.

На основании исследований, проведенных врачами, социологами, психологами и педагогами, а также данных натурных обследований и зарубежной практики сделан вывод, что для детей и подростков наиболее устойчивой считается семейная группа или подобная ей с нижним порогом численности в 3-4 человека и верхним - 5-8 человек.

Для групп-классов численность детей колеблется от 8 до 12 человек в зависимости от вида заболевания и возраста.

Далее такие группы могут объединяться в более крупные (секции, отделения), величина которых зависит от вида заболевания и возраста детей, а также от принципа расселения.

Существенное значение имеет учет эмоциональных и психодвигательных потребностей ребенка. Удовлетворение эмоционально-двигательной активности детей (с учетом вида заболевания) - необходимое условие эффективности обучения и воспитания и зависит от организации среды обитания в здании и на территории.

Ребенок с недостатками умственного и физического развития отличается непосредственностью ответных эмоциональных реакций и состояний. Ему свойственна эмоциональная отзывчивость на яркое, красочное; при этом его эмоциональные реакции не всегда адекватны раздражителю. Чувства и эмоции носят личностный характер; для него является типичной ситуативность возникновения эмоциональных реакций и состояний. И здесь очень важным является общение со сверстниками и детьми другого возраста, дружба, общение с воспитателем, учителем.

В группах детей с недостатками умственного и физического развития часто возникает дружба между детьми разного возраста. В этих отношениях каждый находит для себя психологическую нишу: младший, нуждающийся в защите - покровительство, а старший, как более сильный - самоутверждение.

В отношениях к учителю, воспитателю у детей, лишенных семьи, также есть своя специфика. Такие дети рассматривают педагогов как своих родителей.

В настоящий момент получают распространение дома-интернаты с посемейным проживанием детей. Группа детей разного возраста (5-9 человек), сформированная по принципу привязанности, дружбы, проживает в отдельной квартире с воспитателями - "мамами" и "тетями".

Такой принцип проживания имеет следующие преимущества:

- дети, лишенные семьи, получают подобие таковой;

- дети сохраняют родственные связи по выходе из интерната;

- дети легче адаптируются в дальнейшей жизни.

С учетом этого, спальные помещения интерната могут представлять собой отдельные квартиры на 5-9 человек для проживания семей, состоящих из детей и подростков разного возраста, включающие спальные комнаты на 2-4 человека, санитарные помещения, общую комнату, кухню, помещение для "мамы" и "тети", комнату для занятий и игр. Предусматривается, что дети частично или полностью питаются в "семье", куда пища доставляется из обшей кухни. Дети накрывают сами стол, убирают со стола, моют посуду.

В составе домов-интернатов для детей-инвалидов предусматриваются учебно-воспитательные помещения для детей школьного возраста и для дошкольников. Сюда входят кроме учебных помещений, помещения для профессиональной подготовки. Состав учеников в классе и дошкольных группах формируется по возрастному принципу, а для детей школьного возраста еще и по профессиональным склонностям.

Таким образом, учебно-образовательный процесс является частью непрерывного процесса воспитания детей и подростков с недостатками умственного и физического развития, с главным упором на их социальную адаптацию, приобретение профессиональных навыков. На учебно-образовательный процесс в учреждениях для детей-инвалидов оказывают существенное влияние изменения, которые происходят в педагогике.

Современные направления в педагогике можно сформулировать следующим образом:

- отказ от авторитарного метода преподавания, ликвидация условного барьера, по разные стороны которого находятся учитель и ученики;

- переход от игры, свободного товарищеского общения между учителем и учениками к современной работе по овладению знаниями, профессией;

- отношение к каждому ребенку или подростку, как к личности, оказание максимальной помощи в раскрытии его индивидуальных возможностей;

- стремление сделать учебно-образовательный процесс интересным, увлекательным занятием, предоставление ученику права выбора интересующих его предметов и отказ от предметов, не соответствующих его склонностям.

Входящий в состав интернатов блок помещений обслуживания должен соответствовать требованиям осуществления основных функций - оздоровительной и воспитательной.

Оздоровление ориентировано на общее физическое развитие детей, закаливание, повышение приспособляемости к различным явлениям окружающей среды. Комплексная программа оздоровления детей-инвалидов включает следующие положения:

- отказ от казарменного типа проживания;

- снятие общей зарегулированности функциональной деятельности, предоставление возможности отдельным группам малой численности и отдельным детям и подросткам проводить время в зависимости от индивидуальных потребностей;

- внедрение в быт мероприятий профилактического закаливания, привычек здорового образа жизни;

- проведение максимального числа занятий на свежем воздухе.

Состав медицинских кабинетов ориентирован на оказание детям и подросткам, как текущей медицинской помощи, так и на медицинскую реабилитацию.

В состав помещений культурно-массового обслуживания включаются: зрительный зал со сценой и кинопроекционной, фойе-выставочный зал, кружковые комнаты, спортивный зал лечебной физкультуры, бассейн и др.

В состав учреждения может быть включен отдельный блок помещений так называемой "школы матерей", рассчитанный на проживание некоторых матерей с детьми-инвалидами в течение 1-2 месяцев в данном учреждении. В этом случае матери присутствуют на всех процедурах и занятиях с детьми, обретая навыки проведения их самостоятельно, посещают специальные лекции и таким образом приобретают за это время комплекс знаний, необходимых для проведения реабилитационной работы со своими детьми по возвращению домой.

Отделение "школы матерей" включает спальные помещения на 2 место каждое со своим санитарным узлом, холл-гостиную, помещения персонала, столовую, буфетную и т.п.

В состав учреждений, возможно, включать школу подготовки кадров для работы в данной отрасли. Для этого в группе административных помещений предусматриваются один-два класса-аудитории для проведения занятий, кабинет заведующего, комната педагогов с помещением для учебных пособий.

В состав домов-интернатов включаются административно-хозяйственные помещения, кухня, буфет или столовая персонала.

Таким образом, в состав учреждений входят следующие основные помещения:

- помещения проживания детей;

- помещения обслуживания (включающие помещения культурно-массового, медицинского, административно-бытового обслуживания, помещения учебно-профессиональной подготовки и социальной адаптации, помещения, обеспечивающие питание детей и персонала);

- изолятор, приемно-карантинное отделение;

- хозяйственные помещения;

- помещения проживания персонала (при загородном размещении дома-интерната).

С учетом требований СНиП 2.08.02-89* "Общественные здания и сооружения" дома-интернаты рассчитываются на пребывание в них инвалидов-колясочников. При этом в специализированных учреждениях для инвалидов с поражением опорно-двигательного аппарата число колясочников может составлять 20-30 %. Наличие инвалидов-колясочников отражается на требованиях к проектированию как всего здания (ширины коридоров, проходов, наличие специальных лифтов), так и отдельных помещений (место для стоянки коляски, возможность ее разворота, специальные приспособления для инвалидов и т.п.).

Общий концептуальный подход к проектированию самих зданий интернатов и отдельных групп помещений ориентирован на создание детям и подросткам с недостатками умственного и физического развития комфортной среды обитания, максимально исключающей физические и нервные перегрузки. Содействие этому процессу - одно из условий организации пространства и оборудования помещений.

Большое значение имеет для детей приближение к природе, связь с ландшафтом, особенно тех помещений, где ребенок в основном проводит дневное время. Поэтому применение малоэтажной павильонной или блочной системы застройки является условием правильной функциональной организации архитектурного пространства для рассматриваемого типа учреждений.

Настоящее Пособие имеет целью показать особенности проектирования домов-интернатов для детей-инвалидов.

При этом в Пособии рассматриваются специальные вопросы, которые не нашли отражения в существующих нормативных документах:

- планировка помещений, учитывающая потребности инвалидов-колясочников;

- планировка помещений, новых для нашей практики проектирования;

- планировка помещений, учитывающая новые функциональные требования к обслуживанию инвалидов.

Помещения, не являющиеся специфическими для данного типа зданий, например, административно-бытовые помещения, производственные помещения кухни, подсобные помещения и т.п., в Пособии не рассматриваются.

3. ОБЩИЕ ТРЕБОВАНИЯ

Общие требования к проектированию домов-интернатов, учитывающих потребности детей-инвалидов, можно разделить на три основные категории:

- функциональные требования;

- эргонометрические требования;

- требования к устройствам и приспособлениям.

3.1. ФУНКЦИОНАЛЬНЫЕ ТРЕБОВАНИЯ

Основными функциональными требованиями к планировочной организации здания и к зонированию территории являются требования обособления, изоляции отдельных детских групп и удобных, коротких технологических связей между группами помещений и элементами участка.

Наиболее жесткие требования предъявляются к спальным помещениям (помещениям проживания), которые ни в коем случае не должны быть проходными.

Рассматривая вопросы функциональной взаимосвязи различных групп помещений, следует иметь в виду необходимость предусматривать так называемые "нейтральные зоны", в которых располагаются горизонтальные и вертикальные коммуникационные развязки - вестибюли, холлы, лестницы, пандусы, лифты, и через которые осуществляются связи между функциональными группами помещений дома-интерната.

На рис. 3.1. приводится принципиальная схема функциональной взаимосвязи отдельных групп помещений дома-интерната для детей-инвалидов, согласно которой все группы помещений изолированы и равноценно связаны между собой через нейтральную зону. На практике обеспечить, особенно при малоэтажной застройке, всем группам помещений необходимую изоляцию достаточно сложно. Поэтому допустимо некоторые группы помещений, исключая спальные, предусматривать проходными. Это могут быть административно-бытовые, медицинские помещения и помещения учебно-профессиональной подготовки.

На рис. 3.2. приводятся примеры некоторых возможных объемно-планировочных решений домов-интернатов для детей-инвалидов, в которых связь по первому этажу предусматривается через коридоры административно-бытовых помещений.

В рамках приведенных примеров возможно решение, когда связывающий отдельные группы коридор остается незастроенным, а административно-бытовые помещения выносятся в отдельный блок или даже в отдельный корпус. С функциональной точки зрения это решение более чистое. Но это менее рациональный прием, поскольку значительно усложняется конфигурация здания, удлиняются функциональные связи, и увеличивается стоимость строительства и эксплуатации.

РИС. 3.1. СХЕМА ФУНКЦИОНАЛЬНОЙ ВЗАИМОСВЯЗИ ОТДЕЛЬНЫХ ГРУПП ПОМЕЩЕНИЙ ДОМА-ИНТЕРНАТА ДЛЯ ДЕТЕЙ-ИНВАЛИДОВ

ЭКСПЛИКАЦИЯ ПОМЕЩЕНИЙ

1. Главный вестибюль

8. Кухня

2. Помещения проживания

9. Административно-бытовые,

3. Зрительный зал

медицинские помещения

4. Фойе

10. Помещение учебно-профессиональной

5. Бассейн

подготовки

6. Спортзал

11. Кружковые помещения

7. Столовая

 

РИС. 3.2. ПРИМЕРЫ ОБЪЕМНО-ПЛАНИРОВОЧНЫХ РЕШЕНИЙ ДОМОВ-ИНТЕРНАТОВ ДЛЯ ДЕТЕЙ-ИНВАЛИДОВ

Приведенные на рис. 3.2. схемы иллюстрируют некоторые примеры возможных объемно-планировочных решений в рамках технологических требований. Могут быть запроектированы принципиально другие решения - также без нарушений требований технологии.

Вопросы функционального зонирования территории детских учреждений также имеют свою специфику.

Согласно МГСН 4.02-94 (п. 4.2.) на территории дома-интерната для детей-инвалидов, расположенного в городской застройке, должны быть выделены следующие основные зоны:

- зона проживания с расположенными в ней игровыми площадками с теневыми навесами, аэросолярием, спортивными площадками, игровым городком;

- зона обслуживания с площадкой при кухне;

- зона изолятора с приемным и карантинным отделениями;

- хозяйственная зона;

- зона огорода, ягодника.

Зона проживания обслуживающего персонала предусматривается только в случаях, когда учреждение размещается за городом.

В МГСН 4.02-94 (табл. 3.1.) приведены нормативные требования к участкам; в табл. 4.1. этого документа - дополнительные к хозяйственным зонам.

С учетом этих требований расчетный показатель площади участков может достигать 115 м2 на одного ребенка и составлять 1,60-1,73 га для учреждений вместимостью 140-150 мест, наиболее распространенных в практике проектирования.

Наиболее важный вопрос - размещение игровых групповых площадок с теневыми навесами. Учитывая, что численность детей в группах относительно небольшая (от 8 до 12 чел.), игровые площадки в целях экономии территории целесообразно блокировать (на 2-4 группы).

Изолятор и приемно-карантинное отделение предпочтительно располагать в отдельном корпусе со своей зоной участка, обеспеченной удобным подъездом. Этот корпус должен быть, по возможности, отдален от спальных помещений и игровых площадок.

Площадка при кухне может быть совмещена с хозяйственной зоной, т.е. просто входить в ее состав.

Аэросолярии должен быть размещен в окружении зелени и ориентирован на юг или восток.

На участок предусматривают два въезда - главный и хозяйственный. При этом подъезд к приемно-карантинному отделению и изолятору может быть предусмотрен как с главного, так и с хозяйственного въезда. При приемно-карантинном отделении следует предусмотреть возможность кратковременной стоянки и разворота автомашин, в том числе и автобусов. Длительная стоянка автотранспорта предусматривается в хозяйственной зоне, в которой расположены гараж, мойка и т.п.

На рис. 3.3. приведены примеры возможных планировочных решений территории дома-интерната для детей-инвалидов.

3.2. ЭРГОНОМЕТРИЧЕСКИЕ ТРЕБОВАНИЯ

Эргонометрические требования обуславливают размеры пространства, необходимого для функционирования инвалидов, в том числе и колясочников. Сюда относятся ширина проходов, коридоров, дверных проемов, лестниц, пандусов, необходимые размеры разворотов, поворотов и т.п., которые использованы для определения основных требований к габаритам помещений. При разработке требований по этому разделу учитывались усредненные габариты самого инвалида и используемых им средств передвижения (рис. 3.4.-3.6.), а также отечественный и зарубежный опыт по проектированию отдельных элементов пространства.

Для инвалидов-колясочников, кроме обеспечения прямого прохода, необходимо предусматривать места разворота колясок на 180°. Для детей дошкольников размер поворотного круга принимается 120 см в диаметре, для детей школьного возраста - 140см (как для взрослых).

Необходимые условия для обеспечения передвижения инвалидов-колясочников следует соблюдать при проектировании поворотов коридоров, пандусов, лифтов (рис. 3.7.).

Пандус и лифт являются единственными средствами обеспечивания вертикальных связей (между этажами) для инвалидов-колясочников. Пандус имеет преимущества перед лифтом в том, что им инвалиды-колясочники могут пользоваться независимо от дежурного персонала, который обязателен при лифтах в детских учреждениях. Между тем, как показывает опыт строительства, в двухэтажных зданиях пандус стоит в 5-8 раз дороже лифта, а в трехэтажных в 7-10 раз.

В специализированных учреждениях для детей с поражением опорно-двигательного аппарата, где большое количество колясочников, пандус предусматривается обязательно. В учреждениях остальных типов устройство пандуса определяется заданием на проектирование.

ЭКСПЛИКАЦИЯ

1. Главный въезд

2. Хозяйственный въезд

3. Главный корпус

4. Игровые площадки (на 2 группы) с теневым навесом

5. Аэросолярий

6. Спортивные площадки

7. Игровой городок

8. Приемно-карантинное отделение, изолятор

9. Огород-ягодник

10. Живой уголок

11. Хозяйственная зона

12. Парники

РИС. 3.3. ПРИМЕРЫ ПЛАНИРОВОЧНЫХ РЕШЕНИЙ УЧАСТКА ДОМА-ИНТЕРНАТА НА 18 ГРУПП ДЕТЕЙ-ИНВАЛИДОВ

РИС. 3.4. НЕОБХОДИМЫЕ ГАБАРИТЫ КОММУНИКАЦИЙ, УСТРОЙСТВ И СРЕДСТВ ПЕРЕДВИЖЕНИЯ ИНВАЛИДОВ

I - самоуправляемая коляска

II - коляска, рассчитанная на сопровождение взрослого

РИС. 3.5. ГАБАРИТЫ КОЛЯСОК, ПРИМЕНЯЕМЫХ ДЛЯ ПЕРЕДВИЖЕНИЯ ДОШКОЛЬНИКОВ

РИС. 3.6. ГАБАРИТЫ КОЛЯСОК, ПРИМЕНЯЕМЫХ ДЛЯ ПЕРЕДВИЖЕНИЯ ШКОЛЬНИКОВ

РИС. 3.7. ГАБАРИТНЫЕ СХЕМЫ ПАНДУСОВ, ПОВОРОТОВ В КОРИДОРАХ, ОТКРЫВАНИЯ ДВЕРЕЙ, ЛИФТОВЫХ ПЛОЩАДОК, ЛИФТОВЫХ ДВЕРЕЙ.

3.3. ТРЕБОВАНИЯ К УСТРОЙСТВАМ И ПРИСПОСОБЛЕНИЯМ

Специальные устройства и приспособления предназначены для обеспечения инвалидам возможности передвижения в пространстве, а также пользования приборами и оборудованием. Они могут быть стационарными и нестационарными (съемные и передвижные). Из стационарных приспособлений особо важное значение имеют средства, служащие для подъема и эвакуации инвалидов, в том числе и на, случай пожара - это пандусы, микроподъемники, тобогганы (рис. 3.8 - 3.11).

Для возможности пользования санитарными приборами применяются специальные приспособления, облегчающие усилия инвалидов. Они могут быть стационарными (рис. 3.12), передвижными и съемными (рис. 3.13, 3.14).

Специальные приспособления применяются для горизонтальных и вертикальных передвижений инвалидов или с помощью персонала, или без его помощи (рис. 3.15 - 3.17). Такие устройства обычно применяются для доставки инвалида в процедурные кабинеты и последующего его погружения в ванну или помещения на кушетку.

Стационарное устройство может располагаться рядом с оборудованием, чтобы инвалид пересаживался на него из своей коляски, на которой он приехал самостоятельно.

1. Применение дополнительного пандуса

2. Устройство микролифта

РИС. 3.8. ВАРИАНТЫ УСТРОЙСТВ ДЛЯ ПОДЪЕМА ИНВАЛИДА-КОЛЯСОЧНИКА НА УРОВЕНЬ НУЛЕВОЙ ОТМЕТКИ

РИС. 3.9. ПРИМЕРЫ УСТРОЙСТВА ВХОДНЫХ ЛЕСТНИЦ И ПАНДУСОВ. РАСЧИТАННЫХ НА ИНВАЛИДОВ

I - Стационарный тобогган

II - Приставной тобогган

III - Откидной тобогган, обеспечивающий эвакуацию людей из лоджии-отстойника

РИС. 3.10. ТИПЫ ТОБОГГАНОВ, ИСПОЛЬЗУЕМЫХ ДЛЯ ЭВАКУАЦИИ НА СЛУЧАЙ ПОЖАРА

РИС. 3.11. СХЕМЫ ТОБОГГАНОВ

1-3 - Регулируемые

4-7 - Нерегулируемые

8 – Стационарное сидение с поручнями

РИС. 3.12. ТИПЫ СТАЦИОНАРНЫХ СИДЕНИЙ В ДУШЕВЫХ

 

1-6 - Для сидячих больных

7 -Для лежачих больных

РИС. 3.13. РАЗЛИЧНЫЕ ТИПЫ ПРИСПОСОБЛЕНИЙ ДЛЯ ВАНН ОБЛЕГЧАЮЩИЕ ОБСЛУЖИВАНИЕ ИНВАЛИДОВ

1 - Типы пластмассовых насадок

2 - Тележка горизонтального и вертикального

перемещения с электрическим управлением

3,4 - Типы кресел-сидений

РИС. 3.14. ПРИСПОСОБЛЕНИЯ И ОБОРУДОВАНИЕ ДЛЯ ПОЛЬЗОВАНИЯ УНИТАЗАМИ

1 - Тележка с вертикальным и горизонтальным перемещением

2 - Тележка с судном с вертикальным и горизонтальным перемещением

3 - Тележка для душа с вертикальным и горизонтальным перемещением

4, 5 - Каталки для облегчения передвижения

РИС. 3.15. ТИПЫ ОБОРУДОВАНИЯ ПРИМЕНЯЕМОГО ДЛЯ ПЕРЕМЕЩЕНИЯ ИНВАЛИДОВ

1 - Для вертикального перемещения

2 - Для горизонтального и вертикального перемещения с механическим управлением

3,4 - Для горизонтального и вертикального перемещения с электроуправлением

РИС. 3.16. ТИПЫ ОБОРУДОВАНИЯ, ПРИМЕНЯЕМОГО ДЛЯ ПЕРЕМЕЩЕНИЯ ИНВАЛИДОВ

1 - Подъемник для горизонтального перемещения стоя

2 - Подъемник для горизонтального и вертикального перемещения сидя

3 - Подъемник для горизонтального и вертикального перемещения тяжелых инвалидов

4 - Подъемник для горизонтального и вертикального перемещения лежа

РИС. 3.17. ТИПЫ ОБОРУДОВАНИЯ ПРИМЕНЯЕМОГО ДЛЯ ПЕРЕМЕЩЕНИЯ ИНВАЛИДОВ

4. ТРЕБОВАНИЯ К ПОМЕЩЕНИЯМ ПРОЖИВАНИЯ

Согласно МГСН 4.02-94 предусматривается три основных типа помещений проживания:

1 - по типу дошкольных учреждений, когда раздевальная, групповая, спальная и туалетная образуют единый блок помещений;

2 - по типу коридорной системы, когда спальные с другими помещениями жилой ячейки связаны через коридор;

3 - по квартирному типу, когда жилые помещения проектируются для группы детей, образующих "семью".

Главный принцип проектирования помещений проживания - отход от казарменной системы и максимальное приближение жилой ячейки в целом и в отдельных ее помещениях к организации пространства по семейному принципу независимо от типа помещений проживания. При этом персонал - воспитатели, няни, "мамы", "тети" - должны быть наиболее полно вовлечены во все процессы, происходящие в жилой ячейке - прием пищи, игры, отдых, учеба, развлечения.

Жилые помещения, проектируемые по принципу детского сада - наиболее традиционный тип жилья для дошкольников. До сих пор этот тип жилья проектировался без учета потребностей инвалидов-колясочников, которые требуют особых условий. В предлагаемых на рис. 4.1-4.3 планировочных схемах предусмотрены необходимые габариты проходов, возможности разворотов и др. При этом размер разворотного круга принимается для детей-дошкольников -1,2 м.

В спальных помещениях, рассчитанных на группу дошкольников, следует соблюдать необходимые санитарно-гигиенические требования - отказ от спаренных кроватей, возможность проходов и разворотов для инвалидов-колясочников (рис. 4.1).

ЭКСПЛИКАЦИЯ ОБОРУДОВАНИЯ

1. Кровать

2. Инвалидная коляска

1а. Кровать, предназначенная

3. Стул для воспитателя

для инвалида-колясочника

РИС. 4.1. ПРИМЕРЫ ПЛАНИРОВКИ СПАЛЬНЫХ КОМНАТ ДЛЯ ДОШКОЛЬНИКОВ

Групповая комната - помещение многофункционального назначения, предназначенное для приема пищи, учебы, игр. Для того чтобы помещение могло работать во всех режимах, в отечественной практике традиционно используется мебель, пригодная для всех вышеприведенных функций. Это легкие передвижные столики, служащие для приема пищи, учебных занятий, настольных игр.

Несмотря на то, что учеба занимает в течение дня всего 1-2 часа, требование к организации учебного процесса является определяющим в планировке этого помещения. Задача его рационального проектирования осложняется еще и тем, что групповая комната является связующим звеном между раздевальной, спальной, туалетной и буфетной комнатами.

На рис. 4.2, 4.3 приводятся возможные варианты планировки групповой комнаты, разработанные с учетом приведенных выше положений. При этом все двери, ведущие в групповую, сосредоточены в одной зоне, которая на время проведения учебных занятий служит местом прохода и возможного разворота инвалидов-колясочников, а на время игр служит местом для подвижных игр.

I - Расстановка оборудования для проведения учебных занятий

II- Расстановка оборудования при использовании помещения как столовой и игровой

ЭКСПЛИКАЦИЯ ОБОРУДОВАНИЯ

1. Стол ученический

7. Шкаф-стеллаж

2. Стол ученический для инвалида-колясочника

8. Телевизор

3. Стул детский

9. Живой уголок

4. Стол учителя

10. Кинопроекционный аппарат

5. Стул учителя

11. Инвалидная коляска

РИС. 4.2. ВАРИАНТ ПЛАНИРОВКИ ГРУППОВОЙ КОМНАТЫ СПАЛЬНОЙ ЯЧЕЙКИ ДЛЯ ДОШКОЛЬНИКОВ

I- Расстановка оборудования для проведения учебных занятий

II- Расстановка оборудования при использовании помещения как столовой и игровой

ЭКСПЛИКАЦИЯ ОБОРУДОВАНИЯ

1. Стол ученический

7. Шкаф-стеллаж

2. Стол ученический для инвалида-колясочника

8. Телевизор

3. Стул детский

9. Живой уголок

4. Стол учителя

10. Кинопроекционный аппарат

5. Стул учителя

11. Инвалидная коляска

6. Доска ученическая

РИС. 4.3. ВАРИАНТ ПЛАНИРОВКИ ГРУППОВОЙ КОМНАТЫ СПАЛЬНОЙ ЯЧЕЙКИ ДЛЯ ДОШКОЛЬНИКОВ

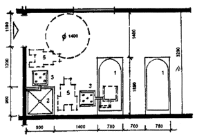
Возможность обслуживания инвалидов-колясочников предопределяет особенности организации (планировочной) санитарных узлов для дошкольников. Необходимость предусматривать проходы, развороты для колясок, возможность подхода колясочников к санитарным приборам, устройства поворотного кресла при душевой - главные условия проектирования туалетных для дошкольных групп (рис. 4.4).

ЭКСПЛИКАЦИЯ ОБОРУДОВАНИЯ

1 Унитаз детский

2. Умывальник детский

3. Душевой поддон

4. Поворотное кресло

5. Ногомойка

6. Банкетка

7. Вешалка для полотенец

8. Поручни-держатели

9. Шкаф хозяйственный

10. Инвалидная коляска

РИС. 4.4. ПЛАНИРОВОЧНЫЕ СХЕМЫ САНИТАРНЫХ УЗЛОВ ДЛЯ ДОШКОЛЬНЫХ ГРУПП

Соблюдение требований прохода и разворота инвалидных колясок необходимо также при проектировании раздевальных (рис.4.5).

I - Раздевальная на 8 мест в помещениях проживания, проектируемых по типу коридорной системы

II - Прихожая-раздевальная в помещениях проживания, проектируемых по типу семейной квартиры

III - Раздевальная на 8 мест в групповой ячейке, проектируемой по типу дошкольных учреждений

ЭКСПЛИКАЦИЯ ОБОРУДОВАНИЯ

1. Индивидуальный шкаф для одежды и обуви

6. Встроенный шкаф для одежды и обуви на семью

2. Индивидуальный шкаф для инвалида

7. Шкаф персонала

3. Сушильный шкаф

8. Открытая вешалка с крючками и полкой для

4. Инвалидная коляска

головных уборов

5. Скамья для одевания

9. Корзина для зонтов и палок

10. Зеркало

РИС. 4.5. ПРИМЕРЫ ПЛАНИРОВКИ РАЗДЕВАЛЬНЫХ С УЧЕТОМ ПОТРЕБНОСТИ ИНВАЛИДОВ-КОЛЯСОЧНИКОВ

Проектирование спальных помещений для школьников по типу коридорной системы - наиболее традиционный планировочный прием для домов-интернатов.

Новое - это сокращение вместимости спальных комнат для детей-инвалидов (2-4 места), а также возможность предусматривать санитарные узлы при каждой спальной комнате. На рис. 4.6 - 4.8 приводятся примеры проектирования спальных комнат, а на рис.4.9 - санитарных узлов при них с учетом потребностей инвалидов-колясочников. При разработке планировочных схем спальных комнат должна преследоваться цель создания уютной, семейной обстановки жилой комнаты.

ЭКСПЛИКАЦИЯ ОБОРУДОВАНИЯ

1. Кровать

2. Диван

3. Тумбочка

4. Комбинированный шкаф

5. Стол

6. Стул

7. Кресло

8. Торшер

9. Банкетка

10. Инвалидная коляска

РИС. 4.6. ПЛАНИРОВОЧНЫЕ СХЕМЫ СПАЛЬНЫХ КОМНАТ НА 2 И 3 МЕСТА

ЭКСПЛИКАЦИЯ ОБОРУДОВАНИЯ

1. Кровать для школьника

2. Кровать для дошкольника

3. Диван

4. Тумбочка

5. Стол

6. Стул

7. Кресло

8. Торшер

9. Шкаф

10. Инвалидная коляска

11. Столик для дошкольника

12. Банкетка

РИС. 4.7. ПЛАНИРОВОЧНЫЕ СХЕМЫ СПАЛЬНЫХ КОМНАТ НА 2 И 3 МЕСТА РАССЧИТАННЫЕ НА РАЗМЕЩЕНИЕ ОДНОГО ИНВАЛИДА-ДОШКОЛЬНИКА

ЭКСПЛИКАЦИЯ ОБОРУДОВАНИЯ

1. Кровать

2. Диван

3. Тумбочка

4. Комбинированный шкаф

5. Стол

6. Стул

7. Кресло

8. Торшер

9. Банкетка

10.Инвалидная коляска

РИС. 4.8. ПЛАНИРОВОЧНЫЕ СХЕМЫ СПАЛЬНЫХ КОМНАТ НА 3 И 4 МЕСТА

ЭКСПЛИКАЦИЯ ОБОРУДОВАНИЯ

1. Ванна

2. Унитаз

3. Душевой поддон

4. Умывальник

5. Инвалидная коляска

6. Поворотное кресло

I - Уборная с умывальником

II - Санитарный узел при спальной комнате, вариант с душем

III - Санитарный узел при спальной комнате, вариант с ванной

РИС. 4.9. ПЛАНИРОВОЧНЫЕ СХЕМЫ САНИТАРНЫХ УЗЛОВ

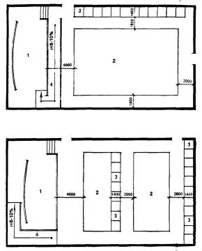
Проектирование помещений проживания для домов-интернатов по квартирному типу - новый для нашей практики прием. В зарубежной практике "семейное" проживание детей-инвалидов в домах-интернатах имеет широкое распространение (рис. 4.10). За рубежом дома-интернаты "семейного" проживания размещены практически почти всегда за городом и имеют малоэтажную застройку либо типа коттеджей, разбросанных по территории, либо со сложным, расчлененным, вписанным в ландшафт архитектурно-планировочным решением. В московских же условиях, при необычно высоком дефиците земли под застройку, требуются более компактные решения.

I - Детский поселок либенау для умственно отсталых детей и подростков близ Теттнанга

II - Детский дом для умственно отсталых детей в швабском Гмюнде

III - Детский поселок близ Клеве

IV- Детский интернат для психически и физически неполноценных детей в Нордкирхеле

ЭКСПЛИКАЦИЯ ПОМЕЩЕНИЙ

1. Спальни на 1 место

8. Кухня

2. Спальни на 2 места

9. Комната для занятий

3. Спальни на 3 места

10 .Комната персонала ("мамы" или "тети")

4. Спальни на 4 места

11. Помещение дежурной

5. Раздевальная

12. Кладовые

6. Гостиная общая комната

13. Помещение медицинского назначения

7. Столовая

14. Веранда терраса

РИС. 4.10. ПРИМЕРЫ ПЛАНИРОВОЧНЫХ РЕШЕНИЙ СЕМЕЙНЫХ ЖИЛЫХ ЯЧЕЕК В УЧРЕЖДЕНИЯХ ДЛЯ ИНВАЛИДОВ ЗА РУБЕЖОМ (ГЕРМАНИЯ)

На рис. 4.11 представлен разработанный в индустриальных конструкциях схематический вариант возможной планировки спальной секции на 2 квартиры (на 6 и 9 мест). Сложность решения заключается в том, что по принятым у нас санитарно-гигиеническим требованиям спальные помещения могут быть ориентированы преимущественно на юг, юго-восток, восток, что осложняет возможность запроектировать в едином блоке более двух квартир.

ЭКСПЛИКАЦИЯ ПОМЕЩЕНИЙ

1. Спальная комната на 3 места

2. Общая комната-столовая

3. Кухня

4. Учебная комната

5. Комната персонала

6. Передняя-раздевальная

7. Кабинет врача или медицинской сестры

8. Кладовые инвентарные

9. Лоджия-отстойник с откидным тобогганом (10)

РИС. 4.11. ВАРИАНТ ПЛАНИРОВКИ СПАЛЬНОЙ СЕКЦИИ НА 2 КВАРТИРЫ НА 6 И 9 МЕСТ

Представленная планировочная схема разработана в соответствии с требованиями МГСН 4.02-94. Вход в квартиру предусмотрен через переднюю, она же раздевальная с сушильным шкафом (рис. 4.5). Центром квартиры является общая комната-столовая с кухней, отделенной стойкой. В составе помещений, кроме спален, предусмотрены учебные (они же игровые) комнаты, комнаты персонала, санитарные узлы, инвентарные. В каждой квартире согласно противопожарным требованиям необходимо запроектировать лоджию-накопитель глубиной не менее 2-х метров, оборудованную откидным тобогганом (рис. 4.12), что позволяет не предусматривать торой лестницы на случай пожара. При отходе от индустриальной конструктивной сетки возможны другие, не такие жесткие решения, позволяющие проектировщику достаточно пластично решить архитектурно-планировочную задачу.

 

ЭКСПЛИКАЦИЯ ОБОРУДОВАНИЯ

1. Стол обеденный 160´90

2. Стол обеденный 140´90

3.Стул

4. Инвалидная коляска

5. Диван

6. Кресло

7. Журнальный столик

8. Торшер

9. Стол-стойка

10.Табурет

11. Телевизор

12. Холодильник

13. Кухонный стол

14. Подвесные шкафы

15. Электроплита

16. Мойка

17. Лоджия

18. Откидной тобогган

РИС. 4.12. ПРИМЕР ПЛАНИРОВКИ ОБЩЕЙ КОМНАТЫ-СТОЛОВОЙ И КУХНИ В ЖИЛОЙ ЯЧЕЙКЕ ДЛЯ СЕМЬИ ИЗ 9 ЧЕЛ.

На рис. 4.13 приводятся примеры возможной планировки общей комнаты-столовой и кухни, а также комнаты для игр и учебных занятий при квартирном типе проживания в домах-интернатах.

ЭКСПЛИКАЦИЯ ПОМЕЩЕНИЙ

1. Стол ученический

8. Шкаф для книг и учебных пособий

2. Стул ученический

9. Стол-стеллаж для игрушек

3. Стол ученический для инвалида-колясочника

10. Табурет

4. Инвалидная коляска

11. Стол игровой для инвалида

5. Стол учителя

12. Живой утолок

6. Стул учителя

13. Ковер для игр на полу

7 Доска

14. Столик шахматный

РИС. 4.13. ПРИМЕР ПЛАНИРОВКИ КОМНАТЫ ДЛЯ ИГР И УЧЕБНЫХ ЗАНЯТИЙ В ЖИЛОЙ ЯЧЕЙКЕ ДЛЯ СЕМЬИ ИЗ 8 ЧЕЛ

Приемы планировочных решений санузлов, так же как и при коридорной системе, приведены на рис. 4.9.

5. ТРЕБОВАНИЯ К ПОМЕЩЕНИЯМ УЧЕБНО-ПРОФЕССИОНАЛЬНОЙ ПОДГОТОВКИ

Помещения учебно-профессиональной подготовки занимают важное место в домах-интернатах, поскольку являются базой для обеспечения главной функции этих учреждений - социальной адаптации детей-инвалидов.

В домах-интернатах обычные учебные занятия происходят в классах, закрепленных за каждой группой, в привычном, психологически обжитом помещении, где у каждого ученика есть его собственное место. В таких классах по рекомендации психологов и педагогов предусматривается зона психологической разгрузки с кушеткой (за экраном), креслом, небольшой шведской стенкой, чтобы уставший от занятий ребенок мог полежать, посидеть в кресле или размяться на шведской стенке.

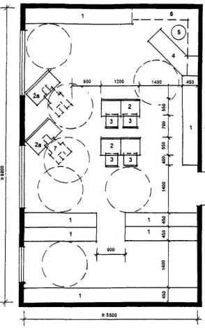
Кабинетная система предусмотрена только для специализированных занятий - уроков физики, химии, биологии, обучения компьютерной технике, машинописи. На рис. 5.1 приводится пример планировки класса на 10 чел. (в том числе 2 инвалида-колясочника) с зоной психологической разгрузки, а на рис. 5.2 - 5.5 - примеры планировки специализированных кабинетов - физики, химии, биологии с живым уголком, компьютерного класса, класса обучения машинописи.

Кабинет физики и химии может быть совмещен в одном помещении, но при этом лаборантские должны быть раздельными, и запроектированы по нормативам общеобразовательных школ.

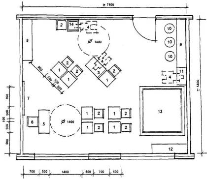
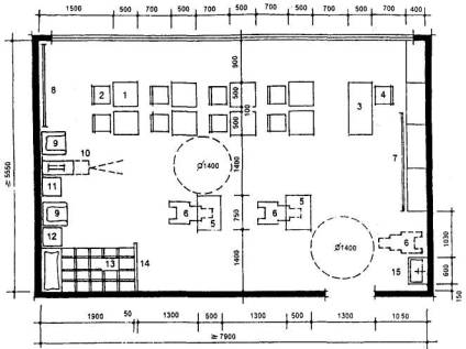
В домах-интернатах обязательно предусматривается кабинет социальной адаптации, который служит для обучения детей-инвалидов домоведению - умению подобрать продукты, изготовить из них определенные блюда, накрыть и сервировать стол, принять гостей и т.п. В этом кабинете могут проводиться дни рождения, праздники с приглашением гостей. Кабинет состоит из рабочей зоны (кухни), а также представительной зоны, где стоят столы со стульями, проводятся танцы и игры. Обе зоны разделены стойкой - рабочим столом для разделки продуктов и подготовки блюд к подаче на стол.

Предложения по расстановке оборудования в представительной зоне разработаны для двух вариантов размещения детей и их гостей - на 11 и 21 место (рис. 5.6). Комбинированная стенка рассчитана на хранение столовой посуды, белья, музыкальной техники, видеотехники, кассет, дисков и т.п.

ЭКСПЛИКАЦИЯ ОБОРУДОВАНИЯ

1. Стол ученический

2. Стул ученический

3. Стол учителя

4. Стул учителя

5. Стол ученический для инвалида-колясочника

6. Инвалидная коляска

7. Доска

8. Шведская стенка

9. Кресло

10. Кинопроекционный аппарат

11. Табурет

12. Тумбочка

13. Кушетка

14. Экран

15. Умывальник

РИС. 5.1. ПЛАНИРОВОЧНАЯ СХЕМА КЛАССА НА 10 ЧЕЛ С ЗОНОЙ ПСИХОЛОГИЧЕСКОЙ РАЗГРУЗКИ

ЭКСПЛИКАЦИЯ ОБОРУДОВАНИЯ

1. Стол ученический лабораторный

6. Бак для мусора

2. Стул ученический

7. Доска-экран

3. Стол демонстрационный

8. Распределительный щиток

4. Стул учительский

9. Шкаф-стеллаж

5. Мойка

10. Кинопроекционный аппарат

11. Инвалидная коляска

РИС. 5.2. ПЛАНИРОВОЧНАЯ СХЕМА КАБИНЕТА ФИЗИКИ, ХИМИИ НА 10 ЧЕЛОВЕК

ЭКСПЛИКАЦИЯ ОБОРУДОВАНИЯ

1. Стол ученический лабораторный

8. Шкаф стеллаж

2. Стул ученический

9. Низкий стеллаж на уровне

3. Стол демонстрационный

подоконника для размещения аквариума,

4. Стул учительский

ящиков с растениями, клеток с

5. Мойка

птицами и животными

6. Бак для мусора

10. Кинопроекционный аппарат

7. Доска-экран

11. Инвалидная коляска

РИС. 5.3. ПЛАНИРОВОЧНАЯ СХЕМА КАБИНЕТА БИОЛОГИИ НА 10 ЧЕЛОВЕК

ЭКСПЛИКАЦИЯ ОБОРУДОВАНИЯ

1. Стол ученический

7. Стол для ученического компьютера (терминала)

2. Стул ученический

8. Доска

3. Стол ученический для инвалида-

9. Полки подвесные

колясочника

10. Инвалидная коляска

4. Стол учительский

5. Стул учительский

6. Стол для сервера

(центрального процессора)

РИС. 5.4. ПЛАНИРОВОЧНАЯ СХЕМА КОМПЬЮТЕРНОГО КЛАССА НА 8 ЧЕЛОВЕК

ЭКСПЛИКАЦИЯ ОБОРУДОВАНИЯ

1 Стол учителя

2 Стул учителя

3 Стол ученический

4 Стул ученический

5 Шкаф-стеллаж

6 Умывальник

7 Доска

8 Инвалидная коляска

РИС. 5.5. ПЛАНИРОВОЧНАЯ СХЕМА КЛАССА МАШИНОПИСИ НА 8 ЧЕЛОВЕК

ЭКСПЛИКАЦИЯ ОБОРУДОВАНИЯ

1. Стол обеденный

1а. Стол резервный

2. Стул

3. Инвалидная коляска

4. Комбинированная стенка

5. Холодильник

6. Мойка

7. Плита

8. Стол-шкаф кухонный

9. Сервировочная стойка,

разделочный стол-шкаф

10. Табурет

РИС. 5.6. ПЛАНИРОВОЧНАЯ СХЕМА КАБИНЕТА СОЦИАЛЬНО-БЫТОВОЙ АДАПТАЦИИ, КОМНАТА ДЛЯ ПРИЕМА ГОСТЕЙ НА 11 И 21 ПОСАДОЧНЫХ МЕСТА

ЭКСПЛИКАЦИЯ ОБОРУДОВАНИЯ

1. Шкаф для открытого хранения книг

4. Стол для абонементного обслуживания

2. Стол для занятий

5. Табурет

2а. Стол для занятий инвалида-колясочника

6. Полки подвесные

3. Стул

7. Инвалидная коляска

РИС. 5.7. ПРИМЕР ПЛАНИРОВКИ БИБЛИОТЕКИ С ОТКРЫТЫМ ДОСТУПОМ К КНИГАМ И ЧИТАЛЬНЫМ ЗАЛОМ

ЭКСПЛИКАЦИЯ ОБОРУДОВАНИЯ

1. Шкаф-стеллаж для рисунков, моделей, реквизита

2. Мольберт

2а. Специальный мольберт для инвалида-колясочника

3. Помост для моделей и натурщиков

4. Кресло отдыха натурщиков

5. Ширма

6. Вешалка с зеркалом

7. Стол преподавателя

8. Стул

9. Выставка рисунков и картин

10. Инвалидная коляска

РИС. 5.8. ПРИМЕР ПЛАНИРОВКИ КАБИНЕТА РИСУНКА

ЭКСПЛИКАЦИЯ ОБОРУДОВАНИЯ

1. Стул

4. Пианино

2. Пюпитр

5. Табурет винтовой

2а. Специальный пюпитр

6. Шкаф музыкальных инструментов, нот и т.п.

для инвалида-колясочника

7. Инвалидная коляска

3. Помост для руководителя

РИС. 5.9. ПРИМЕР ПЛАНИРОВКИ КАБИНЕТА МУЗЫКАЛЬНЫХ ЗАНЯТИЙ

ЭКСПЛИКАЦИЯ ОБОРУДОВАНИЯ

1. Стол рабочий

5. Письменный стол мастера

2. Табурет регулируемый

6. Стул

3. Проволочно-швейный аппарат

7. Умывальник керамический

4. Стол-зонт с электроклеевой сваркой

8. Инвалидная коляска

РИС. 5.10. ПРИМЕР ПЛАНИРОВКИ КАРТОНАЖНОЙ МАСТЕРСКОЙ

ЭКСПЛИКАЦИЯ ОБОРУДОВАНИЯ

1. Верстак столярный

6. Стул

2. Табурет регулируемый

7. Дисковая электропила

3. Стол-зонт

8. Станок токарный по дереву

4. Умывальник керамический

9. Инвалидная коляска

5. Письменный стол мастера

РИС. 5.11. ПРИМЕР ПЛАНИРОВКИ СТОЛЯРНОЙ МАСТЕРСКОЙ

ЭКСПЛИКАЦИЯ ОБОРУДОВАНИЯ

1. Стол обувщика

7. Шарашечно-полировальный станок

2. Табурет регулируемый

8. Верстак слесарный с машиной

3. Машина для пристрочки подошв

для обрезки подошв

4. Машина для отделочных операций

9. Швейная машина со столом

5. Пресс для приклеивания каблуков

10. Письменный стол мастера

к женской обуви

11. Стул

6. Машина для приклеивания подошв

12. Умывальник керамический

13. Инвалидная коляска

РИС. 5.12. ПРИМЕР ПЛАНИРОВКИ ОБУВНОЙ МАСТЕРСКОЙ

ЭКСПЛИКАЦИЯ ОБОРУДОВАНИЯ

1. Стол рабочий

2. Стол ремонта телерадиоаппаратуры

3. Табурет регулируемый

4. Стол-зонт

5. Письменный стол мастера

6. Стул

7. Умывальник керамический

8. Инвалидная коляска

РИС. 5.13. ПРИМЕР ПЛАНИРОВКИ МАСТЕРСКОЙ ПО РЕМОНТУ АППАРАТУРЫ И БЫТОВОЙ ТЕХНИКИ

ЭКСПЛИКАЦИЯ ОБОРУДОВАНИЯ

1. Швейная машина

5. Гладильный стол

2. Табурет регулируемый

6. Рабочий стол

3. Стол раскроечный

7. Умывальник керамический

4. Гладильный стол

8. Письменный стол мастера

РИС. 5.14. ПРИМЕР ПЛАНИРОВКИ ШВЕЙНОЙ МАСТЕРСКОЙ

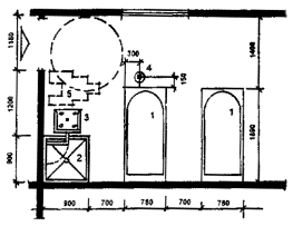
Примыкающая к кабинету социальной адаптации кладовая-инвентарная служит для хранения запасов белья и посуды, мебели и т.п.

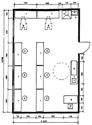
Библиотека с читальным залом и открытым доступом к книгам (рис. 5.7), а также классы рисунка и музыкальных занятий (рис. 5.8, 5.9) могут быть предусмотрены как в составе учебных помещений, так и в составе помещений культурно-массового обслуживания.

На рис. 5.10 - 5.14 приведены примеры планировок производственных мастерских для наиболее распространенных видов деятельности.

Швейная мастерская, кроме ее основной специализации, может быть использована для занятий различными видами рукоделия (вязания, вышивания, художественной аппликации).

Столярная мастерская может быть, кроме того, использована для художественной резьбы по дереву.

6. ТРЕБОВАНИЯ К ПОМЕЩЕНИЯМ МЕДИЦИНСКОГО ОБСЛУЖИВАНИЯ

Эти помещения предназначены как для текущего медицинского обслуживания, так и для медицинской реабилитации инвалидов.

Примеры планировки основных помещений медицинского обслуживания даны только в тех случаях, когда должна быть отражена специфика обслуживания инвалидов. Остальные помещения проектируются по действующим нормативам для лечебно-профилактических учреждений.

Габариты оборудования приводятся примерно, что объясняется большим разнообразием типов применяемых в практике приборов, устройств и т.п.

Разработка планировочных схем должна учитывать следующие положения:

- необходимость учета технологических требований к размещению оборудования (расстояние между приборами, между приборами и стенами и т.п.);

- учет необходимости обслуживания инвалидов-колясочников (подъезды, проезды, повороты);

- учет размещения устройств для перемещения инвалидов к приборам и оборудованию (применение поворотных и подъемных устройств для опускания инвалида в ванну, на кушетку и т.п.).

Применяемые на практике устройства для перемещения инвалидов к оборудованию приводятся на рис. 3.15 - 3.17 (разд. 3), а примеры самого оборудования на рис. 6.13 и 6.14.

При разработке планировочных схем для кабинетов, обслуживающих только дошкольников следует учитывать необходимые размеры поворотного круга для инвалидов-колясочников - 1,2 м; для кабинетов, которые предназначены для детей всех

возрастов - 1,4 м.

На рис 6.1 - 6.12 и 6.15 - 6.21 приведены примеры планировочных решений лечебно-процедурных кабинетов с учетом обслуживания инвалидов-колясочников, а также применения специального оборудования и устройств для их перемещения.

На рис 6.22 разработаны примеры планировки мельцеровских боксов на 1 и 2 места с учетом обслуживания инвалидов-колясочников и возможностью эвакуации больного на носилках.

ЭКСПЛИКАЦИЯ ОБОРУДОВАНИЯ

1. Стол врача однотумбовый

2. Кушетка смотровая

3. Инвалидная коляска

4. Шкаф врача

5. Стул

6. Умывальник керамический

7. Весы медицинские

8. Ростомер

РИС. 6.1. КАБИНЕТ ВРАЧА (ПЕДИАТРА ТЕРАПЕВТА, ПСИХОНЕВРОЛОГА)

ЭКСПЛИКАЦИЯ ОБОРУДОВАНИЯ

1. Стол врача

9. Стол палатный

2. Стул

10. Офтальмоскоп

3. Таблица

11. Табурет

4. Кушетка смотровая

12. Периметр настольный с

5. Столик инструментальный

регистрирующим устройством

6. Шкаф медицинский

13. Бачок для отходов

7. Холодильник бытовой

14. Вешалка

8. Умывальник керамический

15. Светозащитный занавес

РИС. 6.2. КАБИНЕТ КОНСУЛЬТАТИВНОГО ПРИЕМА С ТЕМНОЙ КОМНАТОЙ

ЭКСПЛИКАЦИЯ ОБОРУДОВАНИЯ

1. Стол медсестры

6. Шкаф медицинский

2. Кушетка смотровая

7. Столик инструментальный

3. Стул

8. Бачок для отходов

4. Стол палатный

9. Умывальник керамический

5. Холодильник бытовой

10. Инвалидная коляска

РИС. 6.3. ПРОЦЕДУРНАЯ

ЭКСПЛИКАЦИЯ ОБОРУДОВАНИЯ

1. Кресло стоматологическое

2. Установка стоматологическая универсальная

3. Столик стоматологический

4. Стул стоматологический

5. Стол врача

6. Шкаф медицинский одностворчатый

7. Столик инструментальный

8. Стул

9. Плевательница

10. Бачок для отходов (педальный)

11. Инвалидная коляска

РИС. 6.4. КАБИНЕТ СТОМАТОЛОГА

ЭКСПЛИКАЦИЯ ОБОРУДОВАНИЯ

1. Кресло гинекологическое

6. Стул

2. Столик инструментальный

7. Кушетка

3. Светильник однорефлекторный, передвижной

8. Умывальник керамический

4. Стул винтовой

9. Шкаф медицинский

5. Стол врача

10. Инвалидная коляска

11. Бачок для мусора

РИС. 6.5. КАБИНЕТ ГИНЕКОЛОГА, УРОЛОГА

ЭКСПЛИКАЦИЯ ОБОРУДОВАНИЯ

1. Стационарная ингаляционная установка

1а. Стационарная ингаляционная установка, рассчитанная

на пользование инвалидом-колясочником

2. Винтовой табурет

3. Умывальник

4. Экран

5. Инвалидная коляска

РИС. 6.6. ИНГАЛЯТОРИЙ НА 3 МЕСТА

ЭКСПЛИКАЦИЯ ОБОРУДОВАНИЯ

1. Кушетка смотровая

2. Стол для переносной аппаратуры

3. Стул

4. Инвалидная коляска

А - Для приема процедур лежа

Б - Для приема процедур сидя

РИС. 6.7. ФРАГМЕНТЫ РАЗМЕЩЕНИЯ ОБОРУДОВАНИЯ В КАБИНЕТАХ ЭЛЕКТРОСВЕТОЛЕЧЕНИЯ

ЭКСПЛИКАЦИЯ ОБОРУДОВАНИЯ

1. Стол палатный

6. Шкаф вытяжной

2. Стул

7. Мойка

3 Кушетка для электросветолечения

8. Умывальник керамический

4 Столик для аппаратуры

9. Машина стиральная бытовая

5. Шкаф медицинский

10. Инвалидная коляска

РИС. 6.8. КАБИНЕТ ЭЛЕКТРОСВЕТОЛЕЧЕНИЯ ДЛЯ ДОШКОЛЬНИКОВ

ЭКСПЛИКАЦИЯ ОБОРУДОВАНИЯ

1. Условная зона расстановки оборудования для механотерапии

2. Стол медицинской сестры

3. Стул

4. Шкаф для хранения салфеток, полотенец и пр.

5. Инвалидная коляска

6. Умывальник

РИС. 6.9. КАБИНЕТ МЕХАНОТЕРАПИИ

ЭКСПЛИКАЦИЯ ОБОРУДОВАНИЯ

1. Ванна керамическая ангобированная

2. Душ

3. Поворотное кресло

4. Подъемник для помещения больного в ванну

5. Инвалидная коляска

РИС. 6.10. ФРАГМЕНТЫ ВАННОГО ЗАЛА КАБИНЕТА ВОДОЛЕЧЕНИЯ

ЭКСПЛИКАЦИЯ ОБОРУДОВАНИЯ

1. Ванна

3. Трос или балка

2. Подвесное кресло

4. Инвалидная коляска

РИС. 6.11. ПЛАНИРОВОЧНЫЕ СХЕМЫ ВАННЫХ ЗАЛОВ НА 4 И 6 ВАНН

ЭКСПЛИКАЦИЯ ОБОРУДОВАНИЯ

1. Ванна подводного массажа

2. Аппарат для подводного массажа

3. Подъемник для помещения больного в ванну

4. Банкетка

5. Вешалка на 2 крючка

6. Полотенцесушитель

7. Умывальник керамический

8. Ведро педальное

РИС. 6.12. КАБИНЕТПОДВОДНОГО МАССАЖА

РИС. 6.13. ТИПЫ ОБОРУДОВАНИЯ, ПРИМЕНЯЕМОГО ДЛЯ ВОДОЛЕЧЕНИЯ ИНВАЛИДОВ

1, 1а - ванна с откидным бортом

2, 2 а - опрокидывающаяся ванна («ракушка»)

3, 3а - ванна с откидной стенкой

и возможностью въезда в нее на каталке

4 - ванна с откидной стенкой, рассчитанная на

пересадку инвалида с коляски

РИС. 6.14. ТИПЫ ОБОРУДОВАНИЯ, ПРИМЕНЯЕМОГО ДЛЯ ВОДОЛЕЧЕНИЯ ИНВАЛИДОВ

ЭКСПЛИКАЦИЯ ОБОРУДОВАНИЯ

1. Стол врача однотумбовый

2. Инвалидная коляска

3. Кушетка смотровая

4. Шкаф врача

5. Стул

6. Умывальник керамический

7. Весы медицинские

8. Ростомер

РИС. 6.15. КАБИНЕТ ВРАЧА (ТЕРАПЕВТА, ПСИХОНЕВРОЛОГА)

ЭКСПЛИКАЦИЯ ОБОРУДОВАНИЯ

1. Кушетка смотровая

2. Тумбочка прикроватная

3. Стол медсестры

4. Стул

5. Инвалидная коляска

РИС. 6.16. КАБИНЕТ ОЗОКЕРИТА, ПАРАФИНОЛЕЧЕНИЯ И ГОРЯЧЕГО УКУТЫВАНИЯ

ЭКСПЛИКАЦИЯ ОБОРУДОВАНИЯ

1. Аппарат для проведения электросна

5. Умывальник керамический

2. Шкаф медицинский

6. Стул

3. Стол

7. Инвалидная коляска

4. Кровать для сна

РИС. 6.17. КАБИНЕТ ЛЕЧЕНИЯ ЭЛЕКТРОСНОМ

ЭКСПЛИКАЦИЯ ОБОРУДОВАНИЯ

1. Стол врача

5. Умывальник керамический

2. Стул детский

6. Стол детский

3. Шкаф медицинский

7. Зеркало

4. Кушетка смотровая

8. Инвалидная коляска

9. Стул

РИС. 6.18. КАБИНЕТ ВРАЧА ЛОГОПЕДА ДЛЯ ДОШКОЛЬНИКОВ

ЭКСПЛИКАЦИЯ ОБОРУДОВАНИЯ

1. Стол врача

6. Стол палатный

2. Стул

7. Зеркало

3. Шкаф медицинский

8. Стеллаж библиотечный

4. Кушетка смотровая

9. Инвалидная коляска

5. Умывальник керамический

РИС. 6.19. КАБИНЕТ ЛОГОПЕДА ДЛЯ ШКОЛЬНИКОВ

ЭКСПЛИКАЦИЯ ОБОРУДОВАНИЯ

1. Кушетка смотровая

6. Шкаф вытяжной

2. Стол палатный

7. Холодильник

3. Стул

8. Инструментальный столик

4. Шкаф медицинский

9. Инвалидная коляска

5. Раковина керамическая

РИС. 6.20. АМИНОЗИНОВЫЙ КАБИНЕТ

ЭКСПЛИКАЦИЯ ОБОРУДОВАНИЯ

1. Пульт управления

5. Душ шарко

2. Душ циркулярный

6. Откидные поручни

3. Душ дождевой

7. Инвалидная коляска

4. Душ восходящий

РИС. 6.21. КАБИНЕТ ГИДРОПАТИИ

ЭКСПЛИКАЦИЯ ОБОРУДОВАНИЯ

1. Кровать

4. Инвалидная коляска

6. Вешалка для сменных халатов

2. Тумбочка

5. Каталка для эвакуации

7. Умывальник

3. Поворотное кресло

лежачего больного

8. Унитаз

для инвалида

9. Ванна

РИС. 6.22. ПРИМЕРЫ ПЛАНИРОВКИ МЕЛЬЦЕРОВСКИХ БОКСОВ НА 1 И НА 2 МЕСТА

7. ТРЕБОВАНИЯ К ПОМЕЩЕНИЯМ КУЛЬТУРНО-МАССОВОГО ОБСЛУЖИВАНИЯ

В состав помещений культурно-массового обслуживания домов-интернатов для детей-инвалидов, как правило, входят зрительный зал с эстрадой, фойе и вспомогательными помещениями, кружковые помещения, спортивный зал, бассейн.

Зрительный зал предусматривается с учетом расстановки мест для обычных ходячих зрителей и для инвалидов-колясочников (рис.7.1). Количество мест, которое следует предусматривать для инвалидов-колясочников, определяется заданием на проектирование.

Кружковые помещения (живописи и рисунка, музыкальных занятий) приведены в разделе 5 "Требования к помещениям учебно-профессиональной подготовки" (рис. 5.8 и 5.9).

Планировочные особенности раздевальных при спортивном зале и бассейне, учитывающие специфику функционирования инвалидов-колясочников, приведены на рис. 7.2.

На рис. 7.3, 7.4, 7.5 приведены примеры приспособлений и оборудования, применяемых для облегчения входа инвалидов в бассейн.

ЭКСПЛИКАЦИЯ

1. Сцена

2. Места для ходячих зрителей

3. Места размещения инвалидов-колясочников

4. Пандус

РИС.7.1. ВАРИАНТЫ РАЗМЕЩЕНИЯ МЕСТ В ЗРИТЕЛЬНОМ ЗАЛЕ

ЭКСПЛИКАЦИЯ ОБОРУДОВАНИЯ

1. Скамья с открытой вешалкой и

местом для обуви

2. Инвалидная коляска (индивидуальная)

2а. Инвалидная коляска (закрепленная за

бассейном)

3. Окно для наблюдений

3а. Окно для наблюдений, выдача чистых

полотенец

4. Бачок для грязного белья

5. Слив

6. Унитаз

7. Умывальник

8. Душевая кабина обычная

9. Душевая кабина с учетом возможности

пользования инвалидом-колясочником

10. Трап

11. Подвесное кресло для инвалида-колясочника

12. Трос или балка

I. Раздевальная при бассейне с санитарным узлом, душевой и комнатой хранения предметов уборки

II. Вариант планировки душевой и комнаты хранения предметов уборки в расчете на перемещение

инвалида-колясочника при помощи подвесного кресла

III. Раздевальная при спортивном зале с санитарными узлами и душевой

РИС. 7.2. ПРИМЕРЫ ВОЗМОЖНОЙ ПЛАНИРОВКИ РАЗДЕВАЛЬНЫХ И ДУШЕВЫХ ПРИ БАССЕЙНЕ И СПОРТИВНОМ ЗАЛЕ

1. СТАЦИОНАРНЫЕ ПОДЪЕМНИКИ

1а - лебедочного типа

1б - рычаговые

2. ПРИСПОСОБЛЕНИЯ ВХОДА В БАССЕЙН С ВЫСОТОЙ БОРТА НА УРОВНЕ ПОЛА

2а-с пандусом

2б - с лестницей

3. ПРИСПОСОБЛЕНИЯ ВХОДА В БАССЕЙН С ВЫСОТОЙ БОРТА НА УРОВНЕ КОЛЯСКИ

3а - без пандуса

3б - с пандусом

РИС. 7.3. ПРИМЕРЫ РАЗЛИЧНЫХ ПРИСПОСОБЛЕНИЙ ДЛЯ ВХОДА ИНВАЛИДОВ В БАССЕЙН

1. ОБЩИЙ ВИД ПЛАВАТЕЛЬНОГО БАССЕЙНА С ПОДЪЕМНЫМИ УСТРОЙСТВАМИ И ПАНДУСОМ ДЛЯ ОПУСКАНИЯ В ВОДУ

2. СХЕМА РАЗРЕЗА БОРТА БАССЕЙНА ВЫСОТОЙ НА УРОВНЕ СИДЕНИЯ КОЛЯСКИ

с сидением для пересаживания в воду

 

с пандусом для съезжания в воду

РИС. 7.4. ПРИМЕРЫ ОБОРУДОВАНИЯ ПЛАВАТЕЛЬНОГО БАССЕЙНА. РАССЧИТАННОГО НА ИНВАЛИДОВ

1 - Лежачий подъемник

2 - Сидячий подъемник

РИС. 7.5. ПРИМЕРЫ ПРИСПОСОБЛЕНИЙ ИСПОЛЬЗУЕМЫХ ДЛЯ ИНВАЛИДОВ В ПЛАВАТЕЛЬНЫХ БАССЕЙНАХ

8. ТРЕБОВАНИЯ К ПОМЕЩЕНИЯМ ПИТАНИЯ

В состав помещений питания входят обеденные залы и производственные помещения кухни.

Обеденные залы могут размещаться как в составе жилых помещений, куда пища доставляется в бачках или термосах, так и непосредственно при блоке кухонных помещений. Обеденные залы для школьников, независимо от того, где они располагаются, в составе жилых помещений (в том числе и при семейном проживании) или при кухне, проектируются с учетом обслуживания инвалидов-колясочников на основе принципов организации обеденных мест, приведенных на рис. 8.1.

Для дошкольников обеденные места располагаются на площади групповой комнаты и проектируются в соответствии с планировочными схемами, приведенными в разделе 4 "Требования к помещениям проживания" (рис.4.2, 4.3).

Производственные помещения кухни не имеют специфики проектирования в связи с обслуживанием инвалидов и поэтому формируются в соответствии с общими требованиями к проектированию производственных помещений предприятий общественного питания.

РАСЧЕТ ВМЕСТИМОСТИ СТОЛОВОЙ (БУФЕТА) ПЕРСОНАЛА

Вместимость столовой или буфета для обслуживания персонала определяется Заданием на проектирование по расчету в зависимости от конкретных условий.

Коэффициент числа обслуживающего персонала принимается К=1-1,2 по отношению к вместимости учреждения и уточняется заказчиком при выдаче Задания.

Как показала практика, 70 % персонала работает в первую смену. Из этого числа исключаются воспитатели ("мамы", "тети" при семейном проживании) и няни, питающиеся в группах (если столовая для детей располагается в составе помещений проживания) или при группах (если предусматривается общая столовая на несколько групп в составе помещений проживания или при производственных помещениях кухни). Их число составляет ориентировочно 1,5-1,7 на одну группу.

Как показала практика, только 50-60 % остального персонала первой смены пользуется столовой или буфетом.

Таким образом, число персонала, питающегося в стоповых или буфетах можно определить по формуле:

где:

 - общее число питающихся, принимаемых в расчет вместимости столовой или буфета;

 - вместимость учреждения;

 - число групп;

 - коэффициент, учитывающий общее число персонала по отношению к вместимости учреждений ( = 1,0-1,2);

 - коэффициент, определяющий работающих в первую смену ( = 0,7);

 - коэффициент, определяющий усредненное число персонала, работающего непосредственно в группах детей ( = 1,5-1,7);

 - коэффициент, учитывающий число персонала, питающегося в столовой от общего числа персонала, не питающегося в группах ( = 0,5-0,6).

В столовых и буфетах персонала применяется самообслуживание со скользящим графиком питания. Расчетное время на одну посадку принимается 25-30 мин.. т.е. примерно 2 - 2,5 посадки в час на одно место.

Обеденное время, как правило, принимается в учреждениях малой вместимости 1,5-2 часа (т.е. 3-4 посадки); в больших учреждений - 2 - 2,5 (т.е. 4-5 посадок). Разделив рассчитанное по формуле число питающихся на число посадок, получаем расчетную вместимость столовой или буфета персонала.

Удельный показатель площади обеденного зала на 1 место - 1.8 м2.

Для примера произведем расчет площади обеденного зала столовой персонала для учреждений на 120 мест, состоящего из 12 групп по 10 человек. Число питающихся ("N") определим по приведенной выше формуле, подставив необходимые показатели:

Если принять расчетное число посадок = 3, то единовременная вместимость обеденного зала составит:  мест. Тогда площадь обеденного зала составит:

 

3. В ОБЩЕМ ОБЕДЕННОМ ЗАЛЕ

ЭКСПЛИКАЦИЯ ОБОРУДОВАНИЯ

1. Стол

2. Стул

3. Инвалидная коляска

РИС. 8.1. ПРИМЕРЫ ОРГАНИЗАЦИИ ОБЕДЕННЫХ МЕСТ В СТОЛОВЫХ

Приложение

ТИПЫ ОБОРУДОВАНИЯ, ПРИМЕНЯЕМОГО ДЛЯ РАЗВИТИЯ ДВИГАТЕЛЬНЫХ ФУНКЦИЙ

Тренажер для развития мышц верхних и нижних конечностей

Тренажер для развития верхнего плечевого пояса

Тренажер для развития брюшного пресса и нижних конечностей

 

Тренажер для развития грудной мускулатуры

Тренажер для развития грудной и плечевой мускулатуры

Тренажер для развития коленного сустава

Тренажер для развития правильной осанки

Тренажер для развития мышц спины

Тренажер для развития мышц спины и верхних конечностей

Тренажер для развития мышц брюшного пресса, верхних и нижних конечностей

Тренажер для развития мышц брюшного пресса

 

1,2 - Тренажеры для комплексного развития мускулатуры

3 -Тренажер для развития верхнего плечевого пояса

Тренажеры для развития мышц:

1, 2 - верхних и нижних конечностей

3, 9 - брюшного пресса

4 - верхнего плечевого пояса

5 - нижних конечностей

6 - "Беговая дорожка"

7 - тренажер "Велосипед"

8 - спины и верхних конечностей

 




Яндекс цитирования



   Copyright © 2007-2026,  www.tehlit.ru.

[ ѓосты, стандарты, нормативы, инструкции, правила, строительные нормы ]