//
ТехЛит.ру
- крупнейшая бесплатная электронная интернет библиотека для "технически умных" людей.
WWW.TEHLIT.RU - ТЕХНИЧЕСКАЯ ЛИТЕРАТУРА

:: Алготрейдинг::


АЛГОТРЕЙДИНГ
шаг за шагом
с нуля по урокам!

Торговые роботы на PYTHON, BackTrader,
Pandas, Pine Script для TradingView. Связка с брокерами, телеграм и легкими приложениями.


ПРАВИТЕЛЬСТВО МОСКВЫ
МОСКОМАРХИТЕКТУРА

РЕКОМЕНДАЦИИ
по проектированию домов сестринского ухода

Предисловие

1. РАЗРАБОТАНЫ МНИИП объектов культуры, отдыха, спорта и здравоохранения (архитектор Ю.В. Сорокина, врачи Г.Н. Ильницкая, С.А. Полишкис).

2. ПОДГОТОВЛЕНЫ к утверждению и изданию Управлением перспективного проектирования и нормативов Москомархитектуры (архитектор Л.А. Шалов, инженер Ю.Б. Щипанов).

3. СОГЛАСОВАНЫ Комитетом здравоохранения г. Москвы, Мосгорэкспертизой, Москомархитектурой.

4. УТВЕРЖДЕНЫ и введены в действие указанием Москомархитектуры от 24.07.97 г. № 29.

СОДЕРЖАНИЕ

ВВЕДЕНИЕ

Вопросы создания сети и материально-технической базы домов сестринского ухода в г. Москве в настоящих Рекомендациях разработаны впервые. Отсутствие единой концепции организации и соответствующих нормативных документов для проектирования и строительства тормозит создание в г. Москве сети этого типа учреждений медико-социальной помощи и приводит к госпитализации и обслуживанию хронических больных пожилого и старческого возраста, нуждающихся в медицинском и социальном уходе, в отделения многопрофильных и специализированных больниц. Госпитализация этих больных в специализированные отделения значительно снижает эффективность использования дорогостоящего коечного фонда больниц, создает дефицит медицинского персонала, а также выявляет его неподготовленность к выполнению специфических медицинских и социальных функций. В результате на практике люди пожилого и старческого возраста с естественными для них хроническими болезнями, снижением трудоспособности и ограничениями привычной деятельности оказываются социально незащищенными, лишенными медико-социальной помощи.

Актуальность создания сета домов сестринского ухода в г. Москве, кроме медицинских и социальных факторов, обусловлена также специфической демографической ситуацией. Численность лиц пожилого и старческого возраста (60 лет и старше) в г. Москве за период с 1970 по 1996 г. увеличилась в 1,5 раза и составила на 1 января 1997 года 20,6 % от численности всего населения.

В последние годы (1991 - 1995 гг.) многие наболевшие проблемы организации домов сестринского ухода нашли отражение в официальных документах Минздрава РФ: утверждены Положения о Доме сестринского ухода (приказ № 19 от 01.02.91, приложение 1) и о враче-гериатре (приказ № 33 от 16.02.95, приложение 4); дом сестринского ухода включен в номенклатуру учреждений здравоохранения (приказ № 35 от 20.02.95, приложение 3). В то же время нормативные документы для проектирования и строительства домов сестринского ухода федерального и территориального уровней отсутствуют, рекомендации по использованию (приспособлению) типовых лечебных корпусов действующих больниц для их организации не разработаны.

Отечественная проектно-строительная практика до последнего времени характеризуется чрезвычайно ограниченной номенклатурой типов зданий медико-социального назначения для населения старших возрастов.

Единственно распространенным типом этих учреждений являются дома-интернаты больничного типа для престарелых. Однако практика их эксплуатации, а также анализ проектных решений и натурные обследования показали ряд присущих им существенных недостатков:

- интернаты размешаются чаще всего на окраинах города, что приводит к неоправданной сегрегации пожилых и больных людей, усложняет или прерывает связи пациентов с друзьями и родственниками, усугубляет вынужденную изоляцию пациентов, усиливающуюся их ограниченной двигательной активностью;

- интернаты переукрупнены, что приводит к недопустимо большой концентрации людей пожилого и старческого возраста в одном здании (500 - 600 человек и более);

- количество многоместных (от трех и более коек) палат преобладает над одно- и двухместными, в результате чего не в полной мере учитываются потребности пациентов, их психологическая совместимость (несовместимость), тяжесть состояния и другие факторы, определяющие оптимальную вместимость палат;

- условия пребывания больных как в палатах, так и в помещениях общего пользования не комфортны;

- количество помещений санитарно-гигиенического назначения недостаточно, их оборудование не отвечает потребностям пожилых людей;

- не предусматриваются помещения психологической и психоэмоциональной разгрузки персонала, не учитываются специфика работы и кадровые трудности учреждений подобного типа;

- недостаточно учитываются потребности больных, пользующихся креслами-колясками;

- не учитываются религиозные чувства пожилых пациентов, отсутствуют культовые помещения.

Для решения проблемы медико-социальной помощи пожилым больным в г. Москве на базе существовавших ранее отделений терапевтического профиля больниц для взрослого населения организованы отделения сестринского ухода вместимостью от 20 до 40 коек. Однако их организация осуществлена без проведения предварительной перепланировки палатных отделения в соответствии с медико-технологическими требованиями, предъявляемыми к этому типу отделений. В результате, в них значительно снижена комфортность пребывания больных, неоправданно завышено число многоместных палат (на 4 и более человек), отсутствуют условия для привлечения к уходу за пациентами родственников, добровольных помощников и др.

Необходимость разработки настоящих Рекомендаций обусловлена отсутствием нормативных документов по проектированию домов (отделений) сестринского ухода.

Настоящие Рекомендации составлены в помощь архитекторам, технологам и другим проектировщикам, а также руководителям и врачам, работающим в области проектирования и организации домов (отделений) сестринского ухода.

1. ОБЛАСТЬ ПРИМЕНЕНИЯ

1.1. Настоящие Рекомендации разработаны в дополнение к Пособию по проектированию учреждении здравоохранения (к СНиП 2.08.02-89*) и другим нормативно-методическим документам, действующим на территории г. Москвы и распространяются на проектирование вновь строящихся домов сестринского ухода и реконструкцию действующих отделений больниц под отделения сестринского ухода.

1.2. Настоящие Рекомендации содержат общие положение, требования к размещению, участку, территории, архитектурно-планировочным решениям и инженерному оборудованию домов сестринского ухода, а также положения, определяющие правила приспособления палатных отделений действующих больниц для организации отделений сестринского ухода.

1.3. В основу положений и требований настоящих Рекомендаций положены общепринятые принципы организации больничных учреждений и палатных отделений с учетом функционально-организационных и медико-технологических особенностей домов (отделений) сестринского ухода.

2. ОБЩИЕ ПОЛОЖЕНИЯ

2.1. Дом сестринского ухода - больничное учреждение, предназначенное для проведения курса поддерживающего лечения больным преимущественно пожилого и старческого возраста и одиноким, страдающим хроническими заболеваниями и нуждающимся в медицинской и социальной помощи.

2.2. Основной задачей дома сестринского ухода является обеспечение качества и доступности медико-социальной помощи лицам пожилого и старческого возраста, страдающим хроническими заболеваниями.

2.3. В соответствии с назначением дома сестринского ухода осуществляют:

- прием и размещение пациентов соответственно профилю заболевания и тяжести их состояния;

- квалифицированный медицинский уход за пациентами;

- социальное обслуживание пациентов;

- своевременное выполнение врачебных назначений и процедур;

- медицинскую реабилитацию с элементами трудотерапии;

- динамическое наблюдение за состоянием пациентов;

- своевременную диагностику осложнений или обострений хронических заболеваний;

- выписку пациентов в сроки, установленные органом здравоохранения и закрепленные в договоре (соглашении);

- оформление одиноких престарелых граждан в дома-интернаты.

2.4. Дома сестринского ухода обеспечивают:

- первую экстренную и неотложную медицинскую помощь;

- своевременный перевод больных при обострении хронических заболеваний или ухудшении их состояния в соответствующие лечебно-профилактические учреждения;

- периодические врачебные осмотры госпитализированных лип, в зависимости от состояния, но не реже одного раза в неделю;

- консультативную помощь хроническим больным по рекомендации врачей;

- психологическую помощь и адекватную симптоматическую терапию;

- питание, в том числе диетическое, в соответствии с врачебными рекомендациями.

2.5. Медицинский персонал домов сестринского ухода на договорных или иных условиях может оказывать необходимую помощь по проведению лечения больных и ухода за ними на дому.

К уходу могут привлекаться в установленном порядке члены общественных религиозных организаций, благотворительных обществ и ассоциаций и другие добровольные помощники.

2.6. Отделения сестринского ухода организуются в составе многопрофильных и специализированных больниц для взрослого населения. Задачи и функции этих отделений соответствуют задачам и функциям домов сестринского ухода.

2.7. Мощность домов и отделений сестринского ухода определяется расчетом, исходя из показателя потребности в учреждениях медико-социальной помощи и численности взрослого населения, проживающего в районе их обслуживания.

Показатель потребности в учреждениях медико-социальной помощи (домов и отделений сестринского ухода), утвержденный Комитетом здравоохранения г. Москвы на перспективу, составляет 10, 32 коек на 10 тысяч взрослого населения.

Мощность домов сестринского ухода рекомендуется в пределах от 100 до 200 коек.

Вместимость палатных отделений дома сестринского ухода и отделений сестринского ухода в составе многопрофильных и специализированных больниц для взрослого населения рекомендуется в пределах от 25 до 50 коек.

2.8. Функциональная структура дома сестринского ухода включает следующие основные группы помещений:

- вестибюльная группа помещений;

- приемное отделение;

- палатные отделения;

- специализированные и вспомогательные кабинеты и помещения;

- служебно-бытовые помещения;

- помещения выездной службы;

- помещения службы приготовления пищи;

- помещения хозяйственных служб.

Схема функциональных связей групп помещений дома сестринского ухода представлена на рис. 1.

2.9. Вестибюльная группа помещений состоит из гардероба уличной одежды посетителей и персонала, помещений для встреч посетителей с лечащими врачами и приема передач больным.

2.10. Приемное отделение включает вестибюль - ожидальную, регистратуру, смотровые, санитарные пропускники, процедурную, уборные, вспомогательные помещения.

2.11. В палатных отделениях осуществляется лечение, наблюдение и уход за больными.

Количество палатных отделений домов сестринского ухода и состав их помещений определяется заданием на проектирование в соответствии с общепринятыми принципами организации их работы с учетом медико-технологических особенностей, обусловленных функцией учреждения и характером лечебно-профилактического процесса.

Рис. 1. СХЕМА ФУНКЦИОНАЛЬНЫХ СВЯЗЕЙ ГРУПП ПОМЕЩЕНИЙ ДОМА СЕСТРИНСКОГО УХОДА

Медико-технологические особенности проектирования палатных отделений:

- для предупреждения распространения внутрибольничных инфекций с целью ограничения перетоков воздуха между палатами и коридором все палаты следует проектировать со шлюзом;

- площадь палат должна быть достаточной для регулирования их коечной вместимости в зависимости от психологической совместимости больных и пребывания в палате их родственников или добровольных помощников, привлекаемых к уходу;

- санузлы должны быть максимально приближены к палатам;

- дверные проемы и коридоры должны предусматривать возможность передвижения больных на креслах-колясках;

- палаты, санузлы и другие помещения для больных должны быть оборудованы поручнями, ручками, рычагами и иными приспособлениями разгрузочного типа;

- кабинеты массажа и лечебной физкультуры должны быть включены в структуру палатной секции в связи с широким использованием кинезотерапии в лечении и уходе за лицами пожилого и старческого возраста;

- в палатном отделении должны быть предусмотрены помещения для отдыха добровольных помощников (волонтеров), привлекаемых к уходу за больными, а также помещение для разогрева домашней пищи и помещение для богослужения;

- внутренняя отделка, интерьеры и оборудование палат, помещения для дневного пребывания больных, рекреаций и коридоров должны соответствовать условиям, максимально приближенным к домашним. При оформлении интерьеров указанных помещений следует предусматривать оригинальную (неказенную) отделку стен и потолков, различные формы предметно-изобразительного искусства (живопись, скульптура и т.д.), а также не традиционно-больничные мебель и светильники.

2.12. Специализированные и вспомогательные кабинеты и помещения используются больными всех палатных отделений и персоналом дома сестринского ухода. В их состав входят лаборатория срочных анализов, кабинет электросветолечения, кабинеты врача функциональной диагностики, психотерапевта, социального работника и кабинеты врачей-консультантов. Для домов сестринского ухода, проектируемых вне территории больниц, эта функциональная группа дополняется стерилизационной, аптечным распределительным пунктом и помещением для временного хранения трупов с холодильной установкой.

2.13. Служебно-бытовые помещения предназначены для персонала дома сестринского ухода. Состав служебно-бытовых помещений определяется заданием на проектирование и должен обеспечить работу администрации, бухгалтерии, службы медицинской статистики и медицинского архива.

2.14. Помещения выездной службы предназначены для персонала выездных бригад, оказывающих помощь по проведению лечения и ухода за больными на дому. В их состав следует включать кабинет заведующего, комнату старшей медицинской сестры с местом для хранения медикаментов, комнату выездных бригад с местом для диспетчера, комнату шоферов, уборную для персонала.

2.15. Помещения службы приготовления пищи проектируются только для домов сестринского ухода, расположенных вне территории действующих больниц на специально выделенных участках. Состав этих помещений определяется заданием на проектирование в соответствии с общепринятыми принципами организации их работы и требованиями действующих норм проектирования в зависимости от мощности дома сестринского ухода.

2.16. По заданию на проектирование в состав помещений хозяйственных служб могут включаться помещения службы эксплуатации, прачечная, дезкамерный блок, складские помещения и др.

2.17. Противопожарные требования к зданиям домов сестринского ухода следует принимать в соответствии с требованиями МГСН 4.12-97 и других нормативных документов, действующих на территории г. Москвы.

3. ТРЕБОВАНИЯ К РАЗМЕЩЕНИЮ, УЧАСТКУ И ТЕРРИТОРИИ

3.1. Дома сестринского ухода следует размещать в селитебной или зеленой зонах на земельных участках, наиболее благоприятных по санитарно-гигиеническим условиям, а также на территориях многопрофильных больниц для взрослого населения в отдельно стоящих зданиях.

3.2. Отделения сестринского ухода следует размещать в лечебных корпусах многопрофильных или специализированных больниц для взрослого населения.

3.3. Для домов сестринского ухода, размещаемых вне территории больниц, при выборе участков рекомендуется предусматривать транспортную доступность и близость к действующим больницам.

3.4. Размеры земельных участков домов сестринского ухода следует принимать из расчета не менее 60 м2 на 1 койку.

При строительстве домов сестринского ухода на территории действующих больниц, а также на вновь осваиваемых участках в районах затесненной городской застройки в соответствии с МГСН 4.12-97 допускается уменьшение удельного показателя земельного участка (м2 на 1 койку), но не более чем на 20-25 %.

3.5. Земельные участки домов сестринского ухода должны иметь ограждение высотой не менее 1,6 м.

Допускается не ограждать земельные участки домов сестринского ухода, расположенные на территории больниц.

3.6. Здания домов сестринского ухода следует размещать, как правило, не ближе 30 м от красных линий застройки и жилых зданий. При строительстве домов сестринского ухода на вновь осваиваемых участках в районах затесненной городской застройки, а также на территории действующих больниц это расстояние может быть уменьшено, вплоть до красной линии застройки.

3.7. На земельных участках домов сестринского ухода следует размещать только функционально связанные с ними здания и сооружения.

3.8. На земельных участках домов сестринского ухода следует предусматривать подъездные пути к главному входу, приемному отделению, службе приготовления пиши, помещению для временного хранения трупов и другим службам, требующим транспортного обеспечения.

3.9. Благоустройство территорий домов сестринского ухода следует осуществлять в соответствии с нормативными документами в строительстве, действующими на территории г. Москвы.

Прогулочные маршруты должны проектироваться с учетом использования кресел-колясок.

3.10. При наличии в структуре дома сестринского ухода выездной бригады, обеспечивающей проведение лечения и ухода за больными на дому, следует предусматривать гараж и летнюю стоянку автомашин.

4. ТРЕБОВАНИЯ К АРХИТЕКТУРНО-ПЛАНИРОВОЧНЫМ РЕШЕНИЯМ

4.1. Здания домов сестринского ухода следует проектировать не выше девяти этажей.

4.2. Входы в здание дома сестринского ухода, пандусы и лестницы, лифты и подъемники, вспомогательные средства и приспособления разгрузочного типа (поручни, ручки, рычаги и т.д.) следует проектировать в соответствии с требованиями ВСН-62-91*, рекомендаций и Пособий по проектированию окружающей среды для людей с физическими ограничениями.

4.3. Высоту помещений дома сестринского ухода следует принимать не менее 3 м.

4.4. Ширина коридоров приемного и палатных отделений домов сестринского ухода должна быть не менее 32 м.

4.5. Ширину дверного проема в помещениях для больных следует принимать не менее 1,1 м, в других помещениях - не менее 0,9 м.

4.6. Размеры кабин уборных для больных должны быть шириной не менее 1,65 м и глубиной не менее 1,8 м.

4.7. Внутренняя отделка помещений домов сестринского ухода должна быть выполнена из материалов, разрешенных органами и учреждениями Департамента Госсанэпиднадзора Минздрава РФ, соответствовать функциональному назначению и способствовать созданию условий, максимально приближенных к домашним.

Санитарно-гигиенические качества внутренней отделки помещений домов (отделений) сестринского ухода должны соответствовать требованиям СанПиН 5179-90.

4.8. Структура и состав помещений домов сестринского ухода определяется заданием на проектирование с учетом задач и функций этих учреждений,

Площади помещений домов сестринского ухода следует принимать в соответствии с рекомендациями настоящего раздела, МГСН 4.12-97 и Пособия по проектированию учреждений здравоохранения (к СНиП 2.08.02-89*).

Вестибюльная группа помещений

4.9. Площадь вестибюля-гардеробной для посетителей рекомендуется принимать из расчета не менее 0,5 м2 на одного посетителя. Число посетителей стационара дома сестринского ухода принимается равным 70 % от количества коек.

4.10. Площадь гардеробной уличной одежды для персонала рекомендуется принимать не менее 10 м.

4.11. Примерный состав и площади помещений вестибюльной группы дома сестринского ухода на 200 коек приведены в таблице 1.

Таблица 1

№№ п.п.

Наименование помещений

Площадь, м2 (не менее)

Количество помещений

1.

Вестибюль-гардеробная для посетителей

70

1

2.

Гардеробная уличной одежды персонала

10

1

3.

Помещение для бесед посетителей с лечащими врачами

10

1

4.

Помещение для приема передач больным

10

1

5.

Справочная

4

1

6.

Киоск

6

1

7.

Уборная для посетителей

3

2

Приемное отделение

4.12. Приемное отделение следует размещать на первом этаже здания дома сестринского ухода.

4.13. Поток поступающих больных рекомендуется разделять на два:

мужской и женский. На каждый поток следует предусматривать одну смотровую и один санпропускник.

4.14. Примерный состав и площади помещений приемного отделения приведены в таблице 2.

Таблица 2

№№ п.п.

Наименование помещений

Площадь, м2 (не менее)

Количество помещений

1.

Вестибюль - ожидальная

18

1

2.

Регистратура

8

1

3.

Кладовая для временного хранения вещей больных

8

1

4.

Смотровая с гинекологическим креслом

18

1

5.

Смотровая без гинекологического кресла

12

1

6.

Санитарный пропускник для больных:

 

 

- раздевальная

6

 

- ванная с душем и подъемником

14

2

- одевальная

6

 

7.

Процедурная

12

1

8.

Кабинет заведующего (врача) приемного отделения

10

1

9.

Комната персонала

6

1

10.

Помещение для хранения предметов уборки с поливочным краном и сушкой

4

1

11.

Уборная для больных

3

2

12.

Уборная для персонала

3

1

13.

Помещение (место) для хранения каталок и кресел - колясок

10

1

Палатное отделение

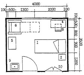
4.15. Площадь однокоечных палат (без учета площади шлюзов и санузлов) следует принимать не менее 14 м2.

Варианты расстановки мебели и оборудования в палате на 1 койку приведены на рис. 2.

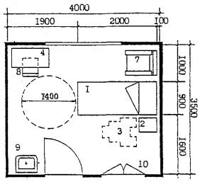
Площадь палат на 2 койки и более (без учета площади шлюзов и санузлов) следует принимать из расчета 9 м на 1 койку.

Варианты расстановки мебели и оборудования в палате на 2 - 3 койки приведены на рис. 3.

Палаты следует проектировать со шлюзом, встроенными шкафами и санитарным узлом (со входом из шлюза), состоящим из уборной, умывальника и душа.

4.16. Вместимость палат домов сестринского ухода рекомендуется не более 3-х коек.

Соотношение палат различной коечной вместимости определяется заданием на проектирование.

4.17. Посты дежурных медицинских сестер следует принимать не менее 6 м2 каждый из расчета на один пост не более 25 больных.

4.18. Площадь помещения для дневного пребывания больных следует принимать из расчета 1 м2 на 1 койку палатной секции.

4.19. В состав палатной секции должны быть включены кабинет массажа и кабинет лечебной физкультуры для индивидуальных занятий.

Палата на 1 койку с местом отдыха ночного дежурного

Палата на 1 койку для больного, использующего кресло-коляску

ЭКСПЛИКАЦИЯ

мм      мм            мм

1. Кровать функциональная                                   2000 ´ 900 ´ 1095

2. Тумбочка прикроватная                                      475 ´ 400 ´ 740

3. Инвалидное кресло-коляска                              900 ´ 750 ´ 1200

4. Стол                                                                       1000 ´ 500 ´ 740

5. Стол журнальный                                                 800 ´ 500 ´ 500

6. Кресло-кровать                                                    2000 ´ 900 ´ 1100

7. Кресло                                                                   650 ´ 780 ´ 1100

8. Стул                                                                       450 ´ 500 ´ 800

9. Умывальник                                                          600 ´ 500

10. Встроенный шкаф

Рис. 2. ВАРИАНТЫ РАССТАНОВКИ МЕБЕЛИ И ОБОРУДОВАНИЯ В ПАЛАТЕ НА 1 КОЙКУ

Палата на 3 койки

Палата на 2 койки с местом отдыха ночного дежурного

Палата на 2 копки для больных, использующих кресло-коляску

ЭКСПЛИКАЦИЯ

мм      мм      мм

1. Кровать функциональная                    2000 ´ 900 ´ 1095

2. Тумбочка прикроватная                      475 ´ 400 ´ 740

3. Инвалидное кресло-коляска              900 ´ 750 ´ 1200

4. Стол                                                        1000 ´ 800 ´ 740

5. Стол журнальный                                 800 ´ 500 ´ 500

6. Кресло-кровать                                    2000 ´ 900 ´ 1100

7. Кресло                                                   650 ´ 780 ´ 1100

8. Стул                                                        450 ´ 500 ´ 800

9. Умывальник                                          600 ´ 500

10. Встроенный шкаф

Рис. 3. ВАРИАНТЫ РАССТАНОВКИ МЕБЕЛИ И ОБОРУДОВАНИЯ В ПАЛАТАХ НА 2-3 КОЙКИ

Площадь кабинета массажа следует принимать из расчета 8 м2 на 1 кушетку, но не менее 12 м2.

Площадь кабинета лечебной физкультуры для индивидуальных занятий следует принимать не менее 12 м2.

4.20. Площадь столовой для больных следует принимать из расчета 1,2 м на одно посадочное место. Количество посадочных мест в столовой рекомендуется принимать не более 50 % количества коек в палатном отделении.

При организации питания больных в палатах допускается проектирование палатного отделения без столовой.

4.21. При проектировании палатного отделения дома сестринского ухода следует предусмотреть помещение для отдыха добровольных помощников, индивидуального разогрева домашней пищи и помещение для богослужения. Площадь указанных помещений определяется заданием на проектирование.

4.22. Примерный состав и площади помещений палатного отделения на 50 коек приведены в таблице 3.

Таблица 3

№№ п.п.

Наименование помещений

Площадь, м2 (не менее)

Количество помещений

 

А. Палатная секция на 25 коек

 

 

1.

Палата на 1 койку со шлюзом, встроенными шкафами и санитарным узлом

20

3

2.

Палата на 2 койки со шлюзом, встроенными шкафами и санитарным узлом

24

5

3.

Палата на 3 койки со шлюзом, встроенными шкафами и санитарным узлом

33

4

4.

Пост дежурной медицинской сестры

6

1

5.

Процедурная

12

1

6.

Клизменная (со шлюзом)

10

1

7.

Ванная с подъемником

14

1

8.

Помещение для дневного пребывания больных

25

1

9.

Кабинет массажа

12

1

10.

Кабинет лечебной физкультуры для индивидуальных занятий

12

1

11.

Помещение для мытья и стерилизации суден, мытья и сушки клеенок

8

1

12.

Помещение для сортировки и временного хранения грязного белья

4

1

13.

Помещение для хранения дезсредств и предметов уборки с трапом, краном и сушкой

4

1

 

Б. Помещения, общие на отделение

 

 

14.

Кабинет заведующего

12

1

15.

Кабинет врача

10

1

16.

Комната старшей медицинской сестры с местом для хранения медикаментов

12

1

17.

Комната сестры-хозяйки с помещением для временного хранения грязного белья

16

1

18.

Процедурная

18

1

19.

Помещение для хранения переносной аппаратуры

12

1

20.

Столовая

30

1

21.

Буфетная с моечной

18

1

22.

Помещение для индивидуального разогрева домашней пищи

6

1

23.

Помещение для богослужения

16

1

24.

Комната для отдыха добровольных помощников

12

1

25.

Кладовые:

 

 

- чистого белья

4

1

- хранения мягкого инвентаря

10

1

26.

Помещение (место) для хранения кресел-колясок

10

1

27.

Комната психологической и психоэмоциональной разгрузки персонала (со шлюзом)

18

1

28.

Комната персонала

10

1

29.

Душевая персонала

3

1

30.

Уборная для персонала (со шлюзом и умывальником)

1

1

31.

Уборная для посетителей (со шлюзом и умывальником)

3

1

Специализированные и вспомогательные кабинеты и помещения

4.23. Специализированные и вспомогательные кабинеты и помещения рекомендуется располагать на 1-ом этаже здания домов сестринского ухода.

4.24. Примерный состав и плошали специализированных и вспомогательных кабинетов и помещений приведены в таблице 4.

Таблица 4

№№ п.п.

Наименование помещений

Площадь, м2 (не менее)

Количество помещений

1.

Лаборатория срочных анализов

16

1

2.

Кабинет врача функциональной (ЭКГ) диагностики

12

1

3.

Кабинет психотерапевта

12

1

4.

Кабинет врача-консультанта

12

2

5.

Кабинет социального работника (юриста)

12

1

6.

Централизованная стерилизационная*:

 

 

- помещение приема и подготовки инструментов и материалов

9

1

- моечная

10

1

- стерилизационная

12

1

- помещение хранения и выдачи материалов

9

1

7.

Аптечный распределительный пункт:*

 

 

- распаковочная

8

1

- комната для хранения и выдачи лекарственных средств

12

1

- помещение для хранения наркотических средств

4

1

8.

Помещение для временного хранения трупов с холодильной установкой (с отдельным наружным выходом)*

18

1

___________

* Предусматривается для домов сестринского ухода, расположенных вне территории больниц.

Служебно-бытовые помещения

4.25. Примерный состав и площадь служебно-бытовых помещений дома сестринского ухода на 200 коек приведен в таблице 5.

Таблица 5

№№ п.п.

Наименование помещений

Площадь, м2 (не менее)

Количество помещений

1.

Кабинет главного врача (директора)

20

1

2.

Приемная

10

1

3

Кабинет заместителя главного врача (директора) по лечебной части

15

 

4.

Кабинет заместителя главного врача (директора) по административно-хозяйственной части

10

1

5.

Комната главной медицинской сестры

10

1

6.

Комната благотворительных организаций

12

1

7.

Кабинет медицинской статистики

12

1

8.

Бухгалтерия с кассой

18

1

9.

Медицинский архив

0,3 на 1 койку

10.

Помещение пожарного поста

15

1

11.

Конференц-зал

0,9 на место

12.

Комната личной гигиены с душевой кабиной

6

 

13.

Гардеробная для домашней и рабочей одежды

0,55 на 1 шкаф

14.

Уборная для персонала

3

2

Помещения выездной службы

4.26. Состав и площадь помещений выездной службы определяются заданием на проектирование.

4.27. Площадь комнаты выездных бригад с местом для диспетчера в зависимости от количества бригад рекомендуется принимать по таблице 6.

Таблица 6

Количество бригад

Площадь, м2 (не менее)

1

22

2

24

3

38

4.28. Примерный состав и площади помещений выездной службы приведены в таблице 7.

Таблица 7

№№ п.п.

Наименование помещений

Площадь, м2 (не менее)

Количество помещений

1.

Кабинет заведующего

12

1

2.

Комната старшей медицинской сестры с местом для хранения медикаментов

12

1

3.

Комната выездных бригад (3 бригады) с местом для диспетчера

38

1

4.

Комната шоферов

10

1

5.

Уборная для персонала

3

1

Помещения службы приготовления пищи

4.29. Состав и площадь помещений службы приготовления пищи зависят от мощности стационара дома сестринского ухода и определяются заданием на проектирование в соответствии с Пособием по проектированию учреждений здравоохранения (к СНиП 2.08.02-89*).

Помещения хозяйственных служб

4.30. Состав и площадь центральной бельевой, кладовых, складских помещений, прачечной, дезкамерного блока, помещений службы эксплуатации, мастерских и других помещений хозяйственного назначения следует определять заданием на проектирование по расчету, исходя из мощности дома сестринского ухода и местных условий.

Отделения сестринского ухода многопрофильной или специализированной больницы

4.31. Приспособление палатных отделений многопрофильных и специализированных больниц под отделения сестринского ухода следует проводить, исходя из местных условий с соблюдением медико-технологических принципов их планировочной организации.

4.32. Коечную вместимость отделений сестринского ухода многопрофильных и специализированных больниц следует определять исходя из площади приспосабливаемых помещений и удельного показателя рабочей площади отделения (м2 на 1 койку).

Удельный показатель рабочей площади палатного отделения сестринского ухода следует принимать в пределах 21 - 25 м2 на 1 койку в зависимости от площади приспосабливаемых помещений, но не менее 20 м2 на 1 койку.

Вариант планировочного решения отделения сестринского ухода на основе типового этажа терапевтического корпуса (типовой проект 2МГ 05-4) приведен на рис. 4.

5. ТРЕБОВАНИЯ К ИНЖЕНЕРНОМУ ОБОРУДОВАНИЮ

5.1. Отопление, вентиляция, кондиционирование воздуха, водоснабжение, канализация, газоснабжение, электротехнические устройства и искусственное освещение следует проектировать в соответствии с МГСН 4.12-97, действующими нормативными документами в строительстве и требованиями настоящего раздела.

5.2. Общее освещение помещений домов сестринского ухода, как правило, выполняется люминесцентными лампами.

Лампы накаливания следует предусматривать для местного освещения, а также для общего освещения кладовых.

5.3. В домах сестринского ухода должно быть предусмотрено централизованное снабжение медицинским кислородом с разводкой в палаты и процедурные.

5.4. В палатах у каждой кровати следует предусматривать установку электрощитка с комплектом двухполюсных и трехполосных штепсельных розеток с заземляющими контактами, двухстороннего сигнально-переговорного устройства, звуко-световой сигнализации и головного телефона радиотрансляционной сети.

5.5. В помещениях для дневного пребывания следует предусматривать установку и подключение телевизионных приемников.

5.6. Помещения и места хранения ядовитых и наркотических лекарственных средств должны быть оборудованы охранной сигнализацией.

Рис 4. ВАРИАНТ ПЛАНИРОВОЧНОГО РЕШЕНИЯ ОТДЕЛЕНИЯ СЕСТРИНСКОГО УХОДА НА ОСНОВЕ ТИПОВОГО ЭТАЖА ТЕРАПЕВТИЧЕСКОГО КОРПУСА (ТИПОВОЙ ПРОЕКТ 2МГ 05-4)

Рис. 4 Продолжение

Рис. 4 Продолжение

6. НОРМАТИВНЫЕ ССЫЛКИ

В настоящих Рекомендациях приведены ссылки на следующие документы:

6.1. СНиП 2.08.02-89* «Общественные здания и сооружения».

6.2. Пособие по проектированию учреждений здравоохранения (к СНиП 2.08.02-89*).

6.3. ВСН 62-91* «Проектирование среды жизнедеятельности с учетом потребностей инвалидов и маломобильных групп населения».

6.4. МГСН 4.12-97 «Лечебно-профилактические учреждения».

6.5. СанПиН 5179-90 «Санитарные правила устройства, оборудования и эксплуатации больниц, родильных домов и других лечебных стационаров».

6.6. Приказ МЗ РСФР № 19 от 01.02.91 г. «Об организации домов сестринского ухода, хосписов и отделений сестринского ухода многопрофильных и специализированных больниц».

6.7. Приказ МЗ и МП РФ № 33 от 16.02.95 г. «Об утверждении Положения об аттестации врачей, провизоров и других специалистов с высшим образованием в системе здравоохранения Российской Федерации», Приложение 4 «Положение о враче - гериатре».

6.8. Приказ МЗ и МП РФ № 35 от 20.02.95 г. «Об оплате труда работников здравоохранения Российской Федерации», Приложение 3 «Номенклатура учреждений здравоохранения».




Яндекс цитирования



   Copyright © 2007-2026,  www.tehlit.ru.

[ ѓосты, стандарты, нормативы, инструкции, правила, строительные нормы ]