//
ТехЛит.ру
- крупнейшая бесплатная электронная интернет библиотека для "технически умных" людей.
WWW.TEHLIT.RU - ТЕХНИЧЕСКАЯ ЛИТЕРАТУРА

:: Алготрейдинг::


АЛГОТРЕЙДИНГ
шаг за шагом
с нуля по урокам!

Торговые роботы на PYTHON, BackTrader,
Pandas, Pine Script для TradingView. Связка с брокерами, телеграм и легкими приложениями.


ПРАВИТЕЛЬСТВО МОСКВЫ
МОСКОМАРХИТЕКТУРА.

РЕКОМЕНДАЦИИ
по реконструкции и модернизации существующего фонда школьных зданий в соответствии с современными педагогическими требованиями

1997

СОДЕРЖАНИЕ

1. ОБЛАСТЬ ПРИМЕНЕНИЯ. 1

2. ОБЩИЕ ПОЛОЖЕНИЯ. 2

3. ЦЕЛЕВАЯ НОМЕНКЛАТУРА ВИДОВ И ТИПОВ ЗДАНИЙ, ПРИМЕРНЫЕ СОСТАВЫ И ПЛОЩАДИ ПОМЕЩЕНИЙ К НИМ. 3

4. СОПОСТАВЛЕНИЕ СОСТАВА И ПЛОЩАДЕЙ ПОМЕЩЕНИЙ ТИПОВЫХ ПРОЕКТОВ И ЦЕЛЕВЫХ ТИПОВ УЧЕБНЫХ ЗДАНИЙ. 4

5. ОЦЕНКА КЛАССНЫХ ПОМЕЩЕНИЙ ТИПОВЫХ ПРОЕКТОВ ПО УЧЕБНОЙ ТЕХНОЛОГИИ. 7

6. ХАРАКТЕРИСТИКА ТИПОВЫХ ПРОЕКТОВ. 12

7. СТРУКТУРНЫЙ АНАЛИЗ СОСТАВА И ПЛОЩАДЕЙ ПОМЕЩЕНИЙ ЦЕЛЕВЫХ ПРОГРАММ И ТИПОВЫХ ПРОЕКТОВ ШКОЛЬНЫХ ЗДАНИЙ. 24

8. МЕТОДИКА РАСЧЕТА ДЕФИЦИТА ПЛОЩАДЕЙ И ВОЗМОЖНОСТЕЙ ПРИСПОСОБЛЕНИЯ ТИПОВОГО ПРОЕКТА К НОВОЙ ПЕДАГОГИЧЕСКОЙ ТЕХНОЛОГИИ. 27

9. ОСНОВНЫЕ НАПРАВЛЕНИЯ ПРЕОБРАЗОВАНИЯ ТИПОВЫХ ПРОЕКТОВ ШКОЛЬНЫХ ЗДАНИЙ. 32

10. МОДЕРНИЗАЦИЯ ШКОЛЬНЫХ ЗДАНИЙ (БЕЗ ИЗМЕНЕНИЯ ПЛАНИРОВОЧНЫХ ГАБАРИТОВ). 34

11. РЕКОНСТРУКЦИЯ ШКОЛЬНЫХ ЗДАНИЙ (С ИЗМЕНЕНИЕМ ПЛАНИРОВОЧНЫХ ГАБАРИТОВ). 35

12. НОМЕНКЛАТУРА ТИПОВ УНИВЕРСАЛЬНЫХ БЛОКОВ-ПРИСТРОЕК. 36

Приложение 1. 38

примерный состав и площади помещений общеобразовательных учреждений.. 38

Приложение 2. 43

Примерный перечень учебной мебели оборудования классов-кабинетов (к рис. 1.-6). 43

Приложение 3. 43

сокращения и условные обозначения. 43

Приложение 4. 43

Структурная карта учебной группы помещений целевых типов учебных зданий при расчетной наполняемости учебной группы - 20 учащихся. 43

ПРЕДИСЛОВИЕ.

1. Разработаны Институтом общественных зданий (ИОЗ) Минстроя РФ (док. арх. Степанов В.И. - руководитель; канд. арх. Бурмистрова С.А., канд. арх. Степанов А.В., арх. Безсонова Г.А.).

2. Согласованы Московским Комитетом образования, Москомархитектурой, Мосгосэкспертизой.

3. Подготовлены к утверждению и изданию Управлением перспективного проектирования и нормативов Москомархитектуры (арх. Шалов Л.А., инж. Щипанов Ю.Б.).

4. Утверждены Указанием Москомархитектуры от 01.07. 1997г. № 24

1. ОБЛАСТЬ ПРИМЕНЕНИЯ.

Настоящие Рекомендации разработаны в соответствии с Программой по разработке Московских городских строительных норм, рекомендаций, пособий и других нормативно-методических материалов по проектированию, утвержденной Постановлением Правительства г. Москвы от 01.11.94 г. № 992.

Рекомендации разработаны как дополнение к нормативным документам в строительстве, действующим на территории г. Москвы, и распространяются на проектирование реконструкции и модернизации существующего фонда зданий общеобразовательных школ.

Рекомендации представляют собой Методическое пособие, позволяющее оценить любой проект или школьное здание с точки зрения его возможностей для организации перспективных методов обучения.

Настоящие Рекомендации содержат материалы необходимые для:

• приведения состава и площади помещений существующих зданий массовых типов школ в соответствие с новыми педагогическими требованиями, закрепленными в МГСН 4.06-96 «Общеобразовательные учреждения» (1996 г.);

• оценки возможностей приспособления их под перспективные виды учебных учреждений в соответствии с новой номенклатурой, составом и площадями помещений, согласованными Департаментом образования г. Москвы (письмо от 31.07.96г. № 2.734.8.16.).

Рекомендации подготовлены на примере 6 типовых проектов школ, получивших наиболее массовое применение в строительстве г. Москвы в период с 1960 по 1990-е гг. Вместе с тем, предложенная методика, может быть также использована для усовершенствования школьных зданий, построенных по индивидуальным и повторно применяемым проектам прошлых лет.

Основные положения методики сводятся к:

• установлению целевых типов общеобразовательных учреждений, включая состав и площади их помещений;

• оценке существующих зданий по качественной характеристике классов - кабинетов, по составу и площадям помещений относительно целевых программ;

• разработке предложений по направлениям приспособления устаревших зданий школ к новым педагогическим условиям.

2. ОБЩИЕ ПОЛОЖЕНИЯ.

2.1. В целях решения важнейшей государственной задачи по подготовке высокоразвитой и высокообразованной личности в Законе РФ «Об образовании» (1992г.) были установлены следующие социально-педагогические аспекты, влияющие на дальнейшее развитие учебно-материальной базы современной школы:

• снижена наполняемость учебного класса с 40-30 до 25 учащихся;

• обучение в школе ориентировано на индивидуальное развитие каждой личности, а не на среднего ученика, как это было ранее;

• введено дифференцированное обучение по направлениям в старшем звене школы, что предопределяет 3 ступени обучения вместо единой общеобразовательной школы;

• предусмотрены новые активные формы обучения в школе - групповые и индивидуальные;

• предложена полная компьютеризация учебного процесса.

Указанные положения Закона влекут за собой пересмотр материальной среды школы, как по принципам организации сети и типов зданий, так и по организационной и функциональной структуре учебного здания. Это получило отражение в новых Московских городских строительных нормах (МГСН 4.06-96), введенных в действие с мая 1996г. и, в общем виде, может быть сведено к следующим позициям:

• вместо единой общеобразовательной школы установлена система общеобразовательных учреждений для различных градостроительных уровней, •включающая широкую номенклатуру видов и типов учебных зданий (общеобразовательные школы, школы с профильным обучением I, II и III ступеней, гимназии, лицеи);

• предложена широкая палитра по составу и площадям основных функциональных групп помещений общеобразовательных учреждений с учетом общего и дифференцированного обучения старшего звена школы по различным направлениям профилизации;

• увеличены расчетные показатели площади: классов и учебных кабинетов (с 2 до 3 м2/уч.); библиотеки (с 60 до 200 м2); мастерских с учетом изучения различных технологий (до 9-11,5 м2/уч.); рекреационных помещений (с 1 до 2 м2/уч.); учительских - с учетом организации для каждого преподавателя индивидуального рабочего места; спортзалов - до 1,4 м2/уч.;

обеденного зала - до 1 м2/посадочное место; зрительного зала - из расчета одновременной посадки до 60% учащихся;

• в обязательный перечень включены отсутствующие ранее помещения: практикумы по естественным наукам (по два помещения 50 м2 на каждую дисциплину) и специализированные кабинеты для профильного обучения;

мелкие помещения - для тихих игр, рабочие комнаты, комнаты индивидуальных занятий, ресурсные центры - по 10-12 м2 на учебную классную группу и т.д.

В результате, удельный показатель нормируемой площади на одного учащегося увеличился, по сравнению с предыдущими нормами, в 1,5-5 раз, в зависимости от степени специализации обучения. Это обуславливает существенное отставание действующего фонда школьных зданий от новой нормативной базы и социально - педагогической ориентации общества.

2.2. В настоящее время в г Москве насчитывается более 1300 школьных зданий, построенных по проектам прошлых лет в разные периоды становления системы образования. С одной стороны, они значительно отличаются друг от друга по нормативной базе, с другой, не соответствуют новым задачам народного образования.

В этой связи следует отметить, что вместимость, указанная в паспортах типовых проектов не соответствует фактической, вследствие уменьшения нормативной наполняемости классов современных школ до 25 и даже 20 уч. (в старших классах и классах с профильным обучением). Так, анализ одного из последних типовых проектов, действующих на сегодняшний день (У-92), показал, что его вместимость, согласно МГСН 4.06-96 «Общеобразовательные учреждения» и с учетом перехода на новые методы обучения, будет не 844, а 256 уч. Это положение принципиальным образом меняет ситуацию, как по сети, так и по оценке материально-технической базы действующих зданий и типовых проектов, обуславливает необходимость их корректировки.

Для оценки возможностей приспособления существующих школьных зданий к новым условиям и преобразования их в перспективные типы и виды учебных заведений потребовалось решить ряд логических задач, поставленных в настоящей работе в следующей последовательности:

(1.) - разработать целевую программу, включающую номенклатуру видов и типов наиболее массовых общеобразовательных учреждений, составы в площади помещений к ним;

(2.) - оценить педагогические возможности классов и кабинетов в типовых проектах, установить их реальную наполняемость;

(3.) - определить дефицит помещений в типовых проектах по отношению к новым целевым программам для приспособления их к новым педагогическим условиям.

Проектирование инженерных систем и оборудования реконструируемого фонда школьных зданий следует осуществлять в соответствии с требованиями МГСН 4.06-96 и других нормативных документов в строительстве, действующих на территории г. Москвы.

3. ЦЕЛЕВАЯ НОМЕНКЛАТУРА ВИДОВ И ТИПОВ ЗДАНИЙ, ПРИМЕРНЫЕ СОСТАВЫ И ПЛОЩАДИ ПОМЕЩЕНИЙ К НИМ.

3.1. В соответствии с МГСН 4.06-96 к настоящей работе были разработаны примерные составы и площади помещений по следующим видам и типам зданий общеобразовательных учреждений (табл.3.1.).

Первая группа охватывает рекомендуемые для массового строительства общеобразовательные школы традиционного типа I - II и I - III ступеней обучения, с минимально допустимым составом помещений и учетом размещения их в жилых микрорайонах.

Вторая группа включает общеобразовательные школы с профильным обучением I-III и II-III ступеней, являющиеся новыми в системе общего образования в плане решения задачи дифференцированного обучения учащихся старших классов, начиная с 8-го. Первые из них рассчитаны на размещение в жилых микрорайонах, вторые - в качестве «кустовых» для обслуживания сети основных школ группы микрорайонов.

Третья группа включает специализированные учебные учреждения - гимназии и лицеи, дающие, как правило, общее образование с соответствующим уклоном, и размещаемые за пределами микрорайонов и жилых районов.

Полный развернутый состав и площади помещений по указанным видам и типам зданий приведен в приложении № I (согласованы Департаментом образования г. Москвы, письмо № 2.734.816. от 31.07.96г.).

3.2. Уровень нормативных требований по целевым типам УЗ выражает удельный показатель нормируемой площади (на одного учащегося), представленный в таблице 3.2. В рекомендуемых зданиях он колеблется в значительных пределах: от 11 до 39 м2/уч. При этом, чем выше степень дифференциации обучения по направлениям, тем он выше, вследствие более расширенного состава помещений: в специализированных учебных заведениях III группы - гимназиях и лицеях он самый высокий (23-39 м2/уч.), в основной общеобразовательной школе (1 группа) - самый низкий (11-17 м2/уч.).

Таблица 3.1.

Примерная номенклатура видов и типов зданий общеобразовательных учреждений для строительства в г. Москве.

Группа

 

Виды зданий 

Типы зданий: количество

учащихся: количество параллельных классов

Область применения

Жилой микрорайон

Муниципальный район

Округ города

I группа

1. Основная школа (НО)

I-II ступени

 

 

 

 

■ на 9 классов

225/1:1:0

+

 

 

 

■ на 18 классов

450/2:2:0

+

 

 

 

2. Средняя полная школа (НОС)

I, II, III ступени

 

 

 

 

■ на 11 классов

275/1:1:1

+

 

 

 

■ на 22 класса

550/2:2:2

+

 

 

 

■ на 33 класса

825/3:3:3

+

+

 

II группа

3. Средняя полная школа с профильным обучением (НОСП)

 

 

 

 

 

■ на 11 классов

275/1:1:1

+

 

 

 

■ на 22 класса

550/2:2:2

+

 

 

 

■ на 33 класса

825/3:3:3

+

+

 

 

4. Средняя школа II-III ступеней с профильным обучением (ОСП)

 

 

 

 

 

■ на 20 классов

500/0:2:4

 

+

 

 

■ на 30 классов

750/0:3:6

 

+

+

III группа

5. Гимназия в составе II-III ступеней (Г)

 

 

 

 

 

■ на 7/8 классов

140/0:1:1

160

 

+

 

 

■ на 14/16 классов

280/0:2:2

320

 

+

+

 

■ на 21/24 класса

420/0:3:3

 

+

+

 

6. Лицей в составе II-III ступеней (Л)

 

 

 

 

 

■ на 8/10 классов

160/0:2:2

200

 

+

 

 

■ на 12/15 классов

240/0:3:3

 

+

+

 

■ на 18/27 классов

360/0:0:9

540

 

 

+

Примечания: В знаменателе дано количество классов при 12 лет обучения.

Таблица 3.2

Нормируемая площадь по целевым программам.

Группа

 

Вид УЗ 

Тип УЗ (классов/

учащихся)

Суммарная площадь/удельный показатель (м2)

учебная группа помещений

Общешкольная группа помещений

итого по заданию

I

Основная школа

9/225

1913/8,5

1335/5,9

3248/14,4

 

I - П ступеней

18/450

3070/6,8

2111/4,69

5181/11,49

 

Средняя полная

11/275

2828/10,28

2018/7,34

4846/17,6

 

школа I – III ступени

22/550

4315/7,84

2906/5,28

7221/13,1

 

 

33/825

5750/6,96

3923/4,76

9673/11,7

II

Средняя полная

11/275

3447/12,5

2160/7,85

5607/20,35

 

школа с профильным

22/550

5500/10

3823/6,95

9323/16,95

 

Обучением I - III ступени

33/825

7269/8,81

4565/5,5

11834/14,34

 

Средняя школа с

20/500

5238/10,47

4754/9,5

9992/19,97

 

Профильным обучением II-III ступени

30/750

5486/8,65

6046/8,06

12532/16,71

III

Гимназия в составе

7/140

2512/17,9

2394/17,1

4906/35

 

II-III ступени

14/280

3708/13,2

2941/10,5

6649/23,7

 

 

21/420

4980/11,85

4742/11,29

9722/23,14

 

Лицей в составе II -

3/160

3830/23,9

2370/14,8

5200/38,75

 

III ступени, начиная

12/240

5288/22

3817/15,9

9105/37,9

 

с 8 кл.

18/360

6655/18,5

4660/12,9

11315/31,43

Примечание: В целях корректного сопоставления с нормируемой площадью типовых проектов все показатели нормируемой площади даны без учета площади рекреаций и бассейна (таблицы 3.2. и 3.1.).

4. СОПОСТАВЛЕНИЕ СОСТАВА И ПЛОЩАДЕЙ ПОМЕЩЕНИЙ ТИПОВЫХ ПРОЕКТОВ И ЦЕЛЕВЫХ ТИПОВ УЧЕБНЫХ ЗДАНИЙ.

4.1. Новые целевые программы являются перспективной моделью, к которой надо стремиться в условиях реконструкции и модернизации школьных зданий, построенных по проектам прошлых лет.

Между тем, прямое сопоставление состава и площади помещений реконструируемого объекта (например, общеобразовательной школы на 22 класса) с аналогом по вместимости из целевой программы (средней школой или средней полной школой с профильным обучением - на 22 класса) показывает их значительное отличие, как по нормативной базе, так и конкретно по функциональным группам помещений. Например, в действующем т.п. У-92 разница в суммарной нормируемой площади достигает: в первом случае - 2093 м2, во втором - 5291 м2, по отдельным группам помещений - соответственно 497 и 569 м2 - по начальной школе, 668 и 888 м2 - до основной школе и т.д. (более подробно см. табл. 4.1.).

Это расхождение в балансе нормируемых площадей обусловлено не только составом и площадью помещений, но и различием: в расчетном количестве классных помещений; наполняемости учебных групп; пропускной способности (реальной наполняемости) классов-кабинетов целевых типов и существующих зданий.

4.2. В частности, по МГСН 4.06-96 количество классных помещений в здании должно соответствовать количеству учебных групп (в их число не входят лаборатории, практикумы, специализированные кабинеты, мастерские, игровые помещения), в существующих зданиях и типовых проектах оно меньше. Например, в действующем типовом проекте число классов - 16 вместо требуемых - 22. Следовательно, для приведения их в соответствие необходимо: либо сократить число учебных групп до реального количества классных помещений, либо в 1,4 раза увеличить нормируемую площадь здания.

4.3. Одновременно следует привести наполняемость учебных групп (количество учащихся в классе) к общему знаменателю - 24 вместо 36 учащихся, и лишь тогда сопоставлять нормируемую площадь, а также определить реальную вместимость классов, которая и типовых проектах ниже указанной величины (см. п. 5).

Таблица 4.1

Сопоставление состава и площадей помещений типового проекта школы на 22 класса У-92 с целевой программой общеобразовательной средней полной школы и средней полной школы с профильным обучением на 22 класса.

п. п.

Наименование помещения

 

Состав и площадь

т.п. У-92 на 22 класса

средняя полная школа на 22 класса (по МГСН)

средняя полная школа с проф. обуч. на 22 класса (по МГСН)

1

2

3

4

5

 

УЧЕБНАЯ ГРУППА ПОМЕЩЕНИЙ

 

 

 

1.

Начальная школа (НШ):

 

 

 

 

■ класс - групповая

55,5´6

76´8

76´8

 

■ спальня - игровая

54,5´2

32´2

52´2

 

 

73´1

50´2

50´2

 

■ комн. тихих игр, уединения

-

-

60

 

■ комн. труда, моделирования и тех. Игрушки

75,0

108

120

 

■ методический каб - учительская

37,0

60

60

 

■ рекреация зального типа

355,1

388

388

 

Итого:

911

1408

1408

 

Дефицит т.п. по:

 

 

 

 

- суммарной площади:

 

497

569

 

- учебным помещениям:

 

464/3

636/4

2

Основная школа (КОШ):

 

 

 

 

■ класс – кабинет

55,5´4

56´2

76´10

76´10

 

■ ресурсный центр

-

-

120

 

■ рабочие комнаты для занятий по интересам

-

-

100

 

■ рекреация зального типа

258

500

500

 

Итого:

592

1260

1480

 

Дефицит т.п. по:

 

 

 

 

- суммарной площади:

 

668

888

 

- учебным помещениям:

 

426/4

646/6

3

Старшая школа (КСШ):

 

 

 

 

■ кабинеты универсального назначения

55,5´3

56´1

76´4

76´4

 

■ комнаты индивидуальных занятий

-

-

60

 

■ ресурсный центр

-

-

40

 

■ рекреация зального типа

177

200

200

 

Итого:

400

504

604

 

Дефицит т.п. по:

 

 

 

 

- суммарной площади:

 

104

204

 

- учебным помещениям:

 

31/0

181/2

4

Основная и старшая школа (СК):

 

 

 

 

Специализированные кабинеты:

 

 

 

 

■ учебные кабинеты по естественным наукам (физика, химия, биология) в составе:

 

 

 

 

■ лаборатория

74´3

76´3

76´3

 

■ практикум

36´4

50´3

50´6

 

■ лаборантская

18´1

18´3

18´3

 

Специализированные кабинеты:

 

 

 

 

■ иностранного языка

36,6´2

40´6

40´6

 

■ информатике и ВТ

56+75

90

90

 

■ технич. черчения и рисования

75

76

100

 

■ компьютерный класс

-

-

72´2

 

Итого:

575

784

1156

 

Дефицит т.п. по:

 

 

 

 

- суммарной площади:

 

209

581

 

- учебным помещениям:

 

209/4

581/9

5

Помещения изучения технологий (трудовое обучение):

 

 

 

 

■ мастерская по обработке металла и технологии

91

90

90

 

■ инструментальная

8+16+15

18

18

 

■ мастерская по обработке дерева

58,6

90

90

 

■ мастерская по обработке тканей и технологии

92

90

108

 

■ кулинария

56

50

50

 

■ домоводство с бытовой техникой

-

90

90

 

■ кабинет изучения технологий

-

90

90

 

■ универсальная мастерская по технологическим видам труда

-

-

108

 

■ автодело

-

-

108

 

■ электрорадиотехнология

-

108

108

 

■ радиоэлектроника

-

-

108

 

■ кабинет машинописи и основ делопроизводства

-

-

80

 

Итого:

337

626

1048

 

Дефицит т.п. по:

 

 

 

 

- суммарной площади:

 

289

711

 

- учебным помещениям:

 

289/3

711/7

6

Центр информации - библиотека

 

 

 

 

■ библиотека

73,4

235

235

 

■ технический центр

-

72

72

 

■ методический кабинет

-

90

90

 

Итого:

73

397

397

 

Дефицит т.п. по:

 

 

 

 

- суммарной площади/ количеству помещений:

 

324/2

324/2

7

Вестибюльная группа учебных помещений, администрация:

 

 

 

 

■ кабинет директора

31,7

25

32

 

■ кабинет заместителя директора по учебно-воспитательной работе

18

10

10

 

■ кабинет организатора внеклассной работы

11,4

12

12

 

■ кабинет заместителя директора по хозяйственной работе

11,4

10

10

 

■ канцелярия

 

 

 

 

■ кладовая уборочного

18

12

12

 

Инвентаря

4

8

8

 

■ кабинет врача

 

 

 

 

■ процедурная

16,4

21

21

 

■ кабинет зубного врача

-

16

16

 

■ санузлы учащихся

16,4

12

12

 

 

168/23+8+18+

83

83

 

■ санузлы персонала

17+34х3

 

 

 

■ вестибюль-гардероб

26/9+4+4+9

10

10

 

 

91/67+16,2+8

193

193

 

Итого:

412,5

424

431

 

Дефицит т.п. по:

 

 

 

 

- суммарной площади:

 

12

18

 

ОБЩЕШКОЛЬНАЯ ГРУППА ПОМЕЩЕНИЙ:

 

 

 

8

Группа зрительного зала:

 

 

 

 

■ зрительный зал

141,6

374

374

 

■ эстрада

-

72

180

 

■ лекционная аудитория

-

-

100

 

■ киноаппаратная

38,8/24,8+5+9

27

27

 

■ кладовая – инвентарная

17/9+8

12

36

 

■ артистические

24,6

18

30

 

■ технический центр

9

48

48

 

Итого:

232

551

795

 

Дефицит т.п. по:

 

 

 

 

- суммарной площади:

 

318

563

9

Группа свободного творчества во внеучебное время.

 

 

 

 

■ группа студий изобразительного искусства;

-

36´3

36´3

 

■ кабинет эстетики

23

-

80

 

■ хореографии и драмкружка

-

108

108

 

■ раздевальные при студии хореографии

-

40

40

 

■ музыки и пения

56

50

100

 

■ помещение для хранения музыкальных инструментов

-

-

40

 

■ студия ИЗО

-

-

144+40

 

■ кружок технического творчества

74

90

216

 

■ фото-кино студия

8,6

36

54

 

■ группа помещений юннатско-биологической деятельности

-

90

180

 

Итого:

162

522

1110

 

Дефицит т.п. по:

 

 

 

 

-суммарной площади/ количеству помещений:

 

360/5

948/9

10

Группа спортивно-оздоровительная.

 

 

 

 

■ спортзалы

421/284+137

828

936

 

■ раздевальные

78/48+36

168/21´8

168/21´8

 

■ инвентарная снарядная

16,4

32+16

32+16

 

■ помещение хранения убор. инвентаря

6+4

4

4

 

■ комната инструктора

8,3

20+10

20´2

 

Итого:

534

1078

1196

 

Дефицит т.п. по:

 

 

 

 

- суммарной площади:

 

543

662

11

Столовая:

 

 

 

 

■ обеденный зал с раздаточной и местами для преподавателей

170

297

297

 

■ кухонный блок с подсобными помещениями

183

185

185

 

Итого:

353

482

482

 

Дефицит т.п. по:

 

 

 

 

- суммарной площади:

 

128

128

12

Вестибюльная группа общественной зоны:

 

 

 

 

■ вестибюль с гардеробом

387

273

240

 

Итого по зданию:

5014

8195

10305

 

Дефицит т.п. по:

 

 

 

 

- суммарной площади:

 

2093

5291

Примечание. В строке «Дефицит т.п. по учебным помещениям» в числителе дана величина дефицита по суммарной площади учебных помещений, без учета рекреаций, в знаменателе - количество недостающих учебных помещений.

5. ОЦЕНКА КЛАССНЫХ ПОМЕЩЕНИЙ ТИПОВЫХ ПРОЕКТОВ ПО УЧЕБНОЙ ТЕХНОЛОГИИ.

5.1. Для расчета реальной вместимости существующего здания необходимо провести технологическую оценку его основных учебных помещений - классов - кабинетов по установлению в них реального числа ученических мест.

Например, в типовых проектах, отобранных для исследования, образца строительства 1960-х (МЮ, 65-426/1) и 1980-90-х гг. (У-76, У-77, У-79, У-92) классы - кабинеты имеют размеры в плане (в чистоте) соответственно:

а) 5.8´8.8, 6.2´8.4, 6.2´8.2 и б) 6.4´8.8 м.

5.2. Согласно п.9.1. - 9.3. - эргономических параметров размещения мебели и оборудования МГСН 4.06-96 классные помещения первого периода строительства размером:

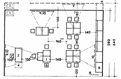
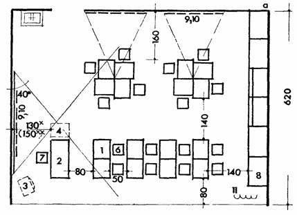
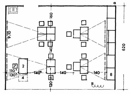
• 8.2´6.2 и 8.4´6.2 - могут быть рассчитаны не более, чем на 16-20 учащихся - при фронтальных занятиях, на 16 учащихся - при фронтально-групповых и на 12 - при групповых формах ведения уроков (рис.1, 2, 3);

• 8.8´5.8 - на 16 учащихся - при фронтальных, 16-12 уч. - при фронтально-групповых и 10 - 11 учащихся - при групповых занятиях (рис. 4, 5, 6).

Классные помещения второго периода строительства (8.8´6.4) могут быть приспособлены для занятий 20 учащихся - при фронтальной работе, на 16 уч. - при фронтально-групповой и на 15-12 учащихся - при групповой работе (рис. 4, 5, 6). Двойные значения вместимости классных помещений обусловлены двумя типоразмерами учебных столов (шириной 70 и 60 см).

5.3. За основу расчета реальной наполняемости классов принимают среднюю величину - их наполняемость при фронтально-групповых занятиях. В результате, пропускная способность (наполняемость) классных помещений всех рассматриваемых в данной работе типовых проектов составит 16 учащихся, тогда реальная вместимость действующего типового проекта (V-92) будет 16 групп ´ 16 учащихся = 256 учащихся. Количество и реальная наполняемость классных помещений по типовым проектам прошлых лет приведена в таблице 5.1.

Если за основу расчета принять возможность проведения в классных помещениях преимущественно фронтальных занятий - реальная наполняемость классов - кабинетов всех указанных типовых проектов составит 20 учащихся.

Таким образом, основным критерием оценки типового проекта выступают два показателя: реальная наполняемость классных помещений и суммарный показатель нормируемой площади здания, которые в конечном итоге предопределяют реальную вместимость и удельные показатели площади объекта (на одного учащегося).

Рис.1. Размещение мебели и оборудования (по МГСН 4.06-96) при фронтальных занятиях в классных помещениях размером 6.2´8.2 и 6.2´8.4.

а - при ширине ученического стола - 0 6 м; б - при ширине ученического стола - 0.7 м

Рис. 2. Размещение мебели и оборудования (по МГСН 4.06-96) при фронтально-групповых занятиях в классных помещениях размером 6.2х8.2 и 6.2х8.4.

а - при ширине ученического стола - 0-6 м; б - при ширине ученического стола - 0.7 м

Рис. 3. Размещение мебели и оборудования (по МГСН 4.06-96) при групповых занятиях в классных помещениях размером 6.2х8.2 и 6.2х8.4.

а - при ширине ученического стола - 0.6 м; б - при ширине ученического стола - 0.7 м.

Рис. 4. Размещение мебели и оборудования (по МГСН 4.06-96) при фронтальных занятиях в классных помещениях размером 5.8х8.8 и 6.4х8.8.

а - при ширине ученического стола - 0.6 м; б - при ширине ученического стола - 0.7 м.

Рис. 5. Размещение мебели и оборудования (по МГСН 4.06-96) при фронтально-групповых занятиях в классных помещениях размером 5.8х8.8 и 6.4х8.8.

а - при ширине ученического стола - 0.6 м; б - при ширине ученического стола - 0.7 м.

Рис.6. Размещение мебели и оборудования (по МГСН 4.06-96) при групповых занятиях в классных помещениях размером 5.8´8.8 и 6.4´8.8.

а - при ширине ученического стола - 0.6 м; б - при ширине ученического стола - 0.7 м.

Таблица 5.1.

Количество и реальная наполняемость классных помещений типовых проектов школьных зданий.

п.п

Индекс типового

проекта

Показатели помещений классов-кабинетов

габариты: в чистоте/ в осях, м

площадь (м2)

количество по школе (шт.)

наполняемость (учеников)

1.

МЮ

5,8х8,8/6,0х90 6,0х8,2/6,2х8,4

51,0

49,2

15

16

2.

65-426/1

В,2х8,4/6,4х8,6 6,2х8,2/6,4х8,4

52,08

50,08

16

16

3.

У-76

6,4х8,8/6,6х9,0

56,3

22

16

4.

У-77

3,4х8,8/6,6х9,0

56,3

16

16

5.

У-79

6,4х8,8/6,6х9,0

56,3

20

16

6.

У-92

6,4х8,8/6,6х9,0

56,3

16

16

6. ХАРАКТЕРИСТИКА ТИПОВЫХ ПРОЕКТОВ.

С учетом изложенного, рассматриваются планировочные решения и технике - экономические параметры всех отобранных для исследования типовых проектов школьных зданий, включая откорректированные по МГСН 4.06-96 показатели вместимости и площади зданий.

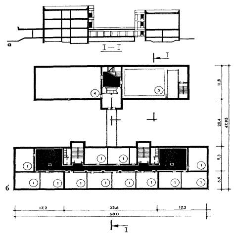
6.1. Типовой проект МЮ (вариант с пристроенным спортзалом), выпуск 1957г., разработан на основе программы 1957г. Имеет компактный 5-этажный объем «линейного типа» (рис. 7-10). Суммарная нормируемая площадь - 3159 м2, в т.ч. по учебной группе - 1930 м2, по общешкольной группе - 1229 м2. Количество классных помещений - 15.

Наименование показателей 

Основные показатели

по паспорту

в пересчете на МГСН

Наполняемость классов-кабинетов(уч.)

36

16

Вместимость здания (уч.)

880

240

Удельный показатель нормируемой площади (м2):

3,6

13,0

в т.ч. по учебной группе -

2,2

8,0

по общешкольной группе -

1,4

5,1

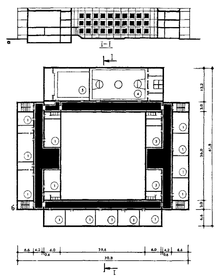
6.2. Типовой проект 65-426/1 (3-я редакция), выпуск 1973г., разработан на основе СНиП П-Л-42-67, откорректирован по СНиП - П-65-73. Состоит из двух линейных корпусов, соединенных одноэтажным переходом: 3-х этажного учебного и 2-х этажного общешкольного (рис. 11-13). Суммарная нормируемая площадь - 4089 м2, в т.ч. по учебной группе - 2042 м2, по общешкольной группе - 2047 м2. Количество классных помещений - 16.

Наименование показателей 

Основные показатели

по паспорту

в пересчете на МГСН

Наполняемость классов-кабинетов(уч.)

36

16

Вместимость здания (уч.)

1000

256

Удельный показатель нормируемой площади (м2):

4,1

16,0

в т.ч. по учебной группе -

2,0

8,0

по общешкольной группе -

2,1

8,0

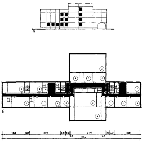
6.3. Типовой проект У-76 (вариант 2), выпуск 1985 г., разработан по программе НШ 1980-85 гг. Имеет компактный 3-х этажный объем с внутренним двором в центре (рис. 14- 16). Суммарная нормируемая площадь 7094 м2, в т.ч. по учебной группе - 3034 м2, по общешкольной - 4060 м2. Количество классных помещений - 22.

Наименование показателей 

Основные показатели

по паспорту

в пересчете на МГСН

Наполняемость классов-кабинетов (уч.)

36

16

Вместимость здания (уч.)

1176

352

Удельный показатель нормируемой площади (м2):

6,0

20,1

в т.ч. по учебной группе -

2,57

8,6

по общешкольной группе -

3,45

11,5

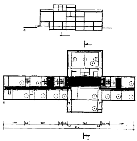
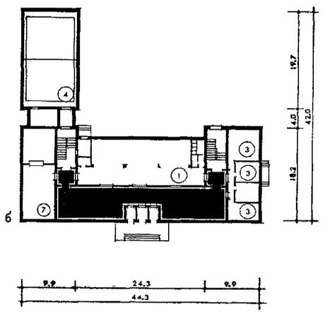
6.4. Типовой проект У- 77 (вариант 3), выпуск 1984 г., разработан по программе НШ 1980-85гг. Состоит из двух пересекающихся объемов: 4-х этажного учебного и 3-х этажного общешкольного (рис. 17-20). Суммарная нормируемая площадь - 5588 м2, в т.ч. по учебной группе - 2903м2, по общешкольной - 2685 м2. Количество классных помещений - 16.

Наименование показателей 

Основные показатели

по паспорту

в пересчете на МГСН

Наполняемость классов-кабинетов(уч.)

36

16

Вместимость здания (уч.)

844

256

Удельный показатель нормируемой площади (м2):

6,6

21,8

в т.ч. по учебной группе -

3,43

11,3

по общешкольной группе -

3,2

10,48

6.5. Типовой проект У-79 (вариант 2), выпуск 1989г., разработан в соответствии с ВСН 50-86. Состоит из двух 3-х этажных объемов, соединенных одноэтажным переходом (рис. 21-23). Суммарный показатель нормируемой площади - 5986 м2, в т.ч. по учебной группе - 2842 м2, по общешкольной - 3144 м2. Количество классных помещений - 20.

Наименование показателей 

Основные показатели

по паспорту

в пересчете на МГСН

Наполняемость классов-кабинетов (уч.)

36

16

Вместимость здания (уч.)

1266

320

Удельный показатель нормируемой площади (м2):

4,72

18,7

в т.ч. по учебной группе -

2,24

8,9

по общешкольной группе -

2,48

9,8

6.6. Типовой проект У-92 (для затесненных участков), выпуск 1994 г., разработан в соответствии со СНиП 2.08.02.-89. Имеет компактный 4-х этажный объем с зальными помещениями в центре (рис. 24-27). Суммарная нормируемая площадь - 5403 м2, в т.ч. по учебной группе - 2762 м2, по общешкольной - 2641м2. Количество классных помещений - 16.

Наименование показателей 

Основные показатели

по паспорту

в пересчете на МГСН

Наполняемость классов-кабинетов(уч.)

36

16

Вместимость здания (уч.)

844

256

Удельный показатель нормируемой площади (м2):

6,4

21,1

в т.ч. по учебной группе -

3,3

10,8

по общешкольной группе -

3,1

10,3

Рис.7. Типовой проект школы МЮ.

а - главный фасад; б - план 1 этажа: 1 - основные учебные помещения; 3 - административные; 4 - спортзал; 7 – столовая (буфет); заштрихованы рекреации.

Рис. 8. Типовой проект школы МЮ.

а - разрез по спортзалу; б - план 2 этажа: 1 - основные учебные помещения; 3 - административные; заштрихованы рекреаций.

Рис. 9. Типовой проект школы МЮ.

а - разрез по зрительному залу; б - план 3 этажа: 1 - основные учебные помещения; заштрихованы рекреации.

Рис. 10. Типовой проект школы МЮ.

а, б - планы 4 и 5 этажей: 1 - основные учебные помещения; 2 -библиотека; 3 - административные; 5 - зрительный зал; заштрихованы рекреации.

Рис. 11. Типовой проект школы 65-426/1.

а - главный фасад; б - план 1 этажа: 1 - основные учебные помещения; 2 - библиотека; 3 - административные; 7 - столовая; заштрихованы рекреации.

Рис. 12. Типовой проект школы 65-426/1.

а - разрез по залам, б - план 2 этажа: 1 - основные учебные помещения, 3 - административные; 4 - спортзал, 5 - зрительный зал; заштрихованы рекреации.

Рис. 13. Типовой проект школы 65-426/17

а - фасад со стороны залов; б - план 3 этажа: 1 - основные учебные помещения; 3 - административные; 4,5 - второй свет залов; заштрихованы рекреации.

Рис. 14. Типовой проект школы У-76.

а - главный фасад; б - план 1 этажа: 1 - основные учебные помещения; 3 - административные; 7 - столовая; заштрихованы рекреации.

Рис. 15. Типовой проект школы У-76.

а - разрез по залам; б - план 2 этажа: 1- основные учебные помещения; 3 - административные; 4 - спортзал; 5 - зрительный зал; заштрихованы рекреации.

Рис. 16. Типовой проект школы У-76.

а - разрез по учебному блоку; б - план 3 этажа: 1 - основные учебные помещения; 2 - библиотека; 3 - административные; 4 - спортзал; 4,5 - второй свет залов; заштрихованы рекреации.

Рис. 17. Типовой проект школы У-77.

а - главный фасад; б - план 1 этажа: 1 - основные учебные помещения; 3 - административные; 6 - кружковые; 7 - столовая; 8 -вестибюль с гардеробом; заштрихованы рекреации.

Рис. 18. Типовой проект школы У-77.

а - разрез по залам; б - план 2 этажа: 1 - основные учебные помещения; 3 - административные; заштрихованы рекреации.

Рис. 19. Типовой проект школы У-77.

а - боковой фасад; б - план 3 этажа: 1 - основные учебные помещения; 2 - библиотека; 3 - административные; 4,5 - второй свет залов; 6 - кружковые; заштрихованы рекреации.

Рис. 20. Типовой проект школы У-77.

а - задний фасад; б - план 4 этажа: 1 - основные учебные помещения; 6 - кружковые; заштрихованы рекреации.

Рис. 21. Типовой проект школы У-79.

а - главный фасад; б - план 1 этажа: 1 - основные учебные помещения; 3 - административные; 1 - становая; 8 - вестибюль с гардеробом; заштрихованы рекреации.

Рис. 22. Типовой проект школы У-79.

а - разрез по залам; б - план 2 этажа: 1 - основные учебные помещения; 3 - административные, 4 - спортзал; 5 - зрительный зал; 6 - кружковые; заштрихованы рекреации.

Рис. 23. Типовой проект школы У-79.

а - фасад со стороны учебного блока; б - план 3 этажа, 1 - основные учебные помещения; 2 - библиотека; 3 - административные; 4,5 -второй свет залов; заштрихованы рекреации.

Рис. 24. Типовой проект школы У-92.

а - боковой фасад; б - план 1 этажа: 1 - основные учебные помещения; 3 - административные; 7 - столовая; заштрихованы рекреации.

Рис. 25. Типовой проект школы У-92.

а - разрез по залам; б - план 2 этажа: 1 - основные учебные помещения; 3 - административные; 4 - спортзал; 5 - зрительный зал; заштрихованы рекреации.

Рис. 26. Типовой проект школы У-92.

а - разрез по учебным секциям; б - план 3 этажа: 1 - основные учебные помещения; 3 - административные; 4,5 - второй свет залов; заштрихованы рекреации.

Рис. 27. Типовой проект школы У-92.

а - главный фасад; б - план 4 этажа: I - основные учебные помещения; 2 - библиотека; 3 - административные; б - кружковые; заштрихованы рекреации.

7. СТРУКТУРНЫЙ АНАЛИЗ СОСТАВА И ПЛОЩАДЕЙ ПОМЕЩЕНИЙ ЦЕЛЕВЫХ ПРОГРАММ И ТИПОВЫХ ПРОЕКТОВ ШКОЛЬНЫХ ЗДАНИЙ.

7.1. Для решения вопроса методики, оценки материальной среды типовых проектов и возможностей приспособления их под новые типы зданий необходимо предварительно провести структурный анализ по основным группам помещений целевых программ и типовых проектов. Дело в том, что сравнение между собой только основных учебных помещений будет недостаточно, так как новые нормы содержат новые группы помещений, отсутствовавшие ранее (например, центр информации - библиотека, рабочие комнаты, ресурсные центры и др.).

7.2. Предлагается следующая схема классификации основных функциональных групп, помещений современной школы - учебной и общешкольной, которые в свою очередь подразделяются на подгруппы.

Учебная группа содержит:

• основные учебные помещения, которые, согласно целевой программе, включают классы - кабинеты, помещения для организации продленного дня, универсальные учебные помещения, помещения для труда и изучения технологий, лаборатории по естественным наукам, практикумы, специализированные кабинеты;

• вспомогательные учебные помещения - игровые, методический кабинет, ресурсный центр, рабочие комнаты для занятий по интересам комнаты индивидуальных занятий, лаборантские в инструментальные;

• помещение центра информации - библиотеки;

• прочие административные и обслуживающие помещения, в т.ч. техцентр, учительская с комнатой отдыха.

Основные учебные помещения с целью проведения структурного анализа дополнительно дифференцируются по площадям, согласно их габаритам в существующих зданиях: площадью более 70 м2, от 70 до 50 м2, мене 50 м2.

Общешкольная группа помещений содержит:

• спортивно-оздоровительную подгруппу - спортзалы и обслуживающие их помещения;

• зрительного зала - зрительный зал с эстрадой в обслуживающие помещения;

• помещения свободного творчества во внеучебное время (кружковые);

• столовую - обеденный зал с раздаточной и производственно помещения кухни;

• рекреации зального типа;

• прочие помещения - вестибюль с гардеробом. По данной схеме составляется структурная карта помещений целевых типов учебных зданий и исследуемых типовых проектов (табл. 7.1. - 7.7.)

Таблица 7.1.

Структурная карта основных функциональных групп помещений типового проекта МЮ (к рис. 7-10).

Учебная группа помещений

Общешкольная группа помещений

Наименование помещений

Состав, площадь (м2)

Всего

Наименование помещений

Состав, площадь (м2)

Основные учебные:

 

541,2/5

Спортивно-оздоровительные, в том числе зал и обслуживающие помещения

 

- более 70 м2

165х1

102х3

70,1х1

234/(9х18)+67

- 70-50 м2

50х15

52х1

63,4х2

928.6/18

Зрительного зала, в том числе зал и обслуживающие помещения

192/159+33

- менее 50 м2

30,8х3

92,4/3

Свободного творчества

0/0

Вспомогательные

30,8х1

65,6/3

Столовая

101,2/32+69

Библиотека

17,4х2

66,9

Прочие (вестибюль)

207,7

Прочие (административные)

 

235,5/12

Рекреации

495,45

Итого по группе:

 

1930,4

Итого по группе:

1229

Примечания. 1. По учебной группе: в числителе дана суммарная площадь помещений, в знаменателе - их количество.

2. По общешкольной группе: в числителе дана суммарная площадь помещений, в знаменателе - площадь залов + площадь обслуживающих помещений.

Таблица 7.2.

Структурная карта основных функциональных групп помещении типового кроена В5-426/1 (к рис. 11-13).

Учебная группа помещений

Общешкольная группа помещений

Наименование помещений

Состав, площадь (м2)

Всего

Наименование помещений

Состав, площадь (м2)

Основные учебные:

 

 

Спортивно – оздоровительные,

 

- более 70 м2

0

0

в том числе зал и обслуживающие помещения

344,2/(24х12)+78

- 70-50 м2

66х5

54х6

50х15

1400/26

Зрительного зала, в том числе зал и обслуживающие помещения

274/233+41

- менее 50 м2

48х5

240,5/5

Свободного творчества

19,4/1

Вспомогательные

50х1

16х4

113,1/5

Столовая

240/164+76

Библиотека

 

49,9

Прочие (вестибюль)

314

Прочие (административные)

 

238/15

Рекреации

856

Итого по группе:

 

2042

Итого по группе:

2047

Примечания. 1. По учебной группе: в числителе дана суммарная площадь помещений, в знаменателе - их количество.

2. По общешкольной группе: в числителе дана суммарная площадь помещений, в знаменателе - площадь залов + площадь обслуживающих помещений.

Таблица 7.3

Структурная карта основных функциональных групп помещений типового проекта У-76 (к рис. 14-16).

Учебная группа помещений

Общешкольная группа помещений

Наименование помещений

Состав, площадь (м2)

Всего

Наименование помещений

Состав, площадь (м2)

Основные учебные:

 

 

Спортивно – оздоровительные,

 

- более 70 м2

75х11

825/11

в том числе зал и обслуживающие помещения

465,3/(24х12)+75 (15х6,5)

- 70-50 м2

59х4

56х22

1468/26

Зрительного зала, в том числе зал и обслуживающие помещения

272,4/216+56

- менее 50 м2

37х2

74/2

Свободного творчества

0/0

Вспомогательные

18х5

15х3

56х1

191/9

Столовая

417/183+234

Библиотека

 

39,0

Прочие (вестибюль)

290,6

Прочие (административные)

 

407/20

Рекреации

2616

Итого по группе:

 

3034,2

Итого по группе:

4060

Примечания. 1. По учебной группе: в числителе дана суммарная площадь помещений, в знаменателе - их количество.

2. По общешкольной группе: в числителе дана суммарная площадь помещений, в знаменателе - площадь залов и площадь обслуживающих помещений.

Таблица 7.4.

Структурная карта основных функциональных групп помещении типового проекта У-77 (к рис. 17-20).

Учебная группа помещений

Общешкольная группа помещений

Наименование помещений

Состав, площадь (м2)

Всего

Наименование помещений

Состав, площадь (м2)

Основные учебные:

 

 

Спортивно – оздоровительные,

 

- более 70 м2

75х8

600,7/8

В том числе зал и обслуживающие помещения

58б,3/(24х12)+150 (18х9)

- 70-50 м2

56х22

54х1

1288,8/23

Зрительного зала, в том числе зал и обслуживающие помещения

230,2/158,3+72

- менее 50 м2

37х6

222,6/6

Свободного творчества

148,4/3

Вспомогательные

37х1

30х3

18х5

11,4х2

242,8/11

Столовая

370,2/147+223,2

Библиотека

 

56,7

Прочие (вестибюль)

389,1

Прочие (административные)

 

491,9/34

Рекреации

962,5

Итого по группе:

 

2903,6

Итого по группе:

2685

Примечания. 1. По учебной группе, в числителе дана суммарная площадь помещений, в знаменателе - их количество.

2. По общешкольной группе: в числителе дана суммарная площадь помещений, в знаменателе - площадь залов + площадь обслуживающих помещений.

Таблица 7.5.

Структурная карта основных функциональных групп помещение типового проекта У-79 (к рис. 21-23).

Учебная группа помещений

Общешкольная группа помещений

Наименование помещений

Состав, площадь (м2)

Всего

Наименование помещений

Состав, площадь (м2)

Основные учебные:

 

 

Спортивно – оздоровительные,

 

- более 70 м2

74х2

148/2

В том числе зал и обслуживающие помещения

809/(24х12)+233 (24х12)

- 70-50 м2

67х2

56х28

1707,2/30

Зрительного зала, в том числе зал и обслуживающие помещения

248/201+47

- менее 50 м2

37х6

225/6

Свободного творчества

93/2

Вспомогательные

56х1

18х3

11х2

133/6

Столовая

514/244+270

Библиотека

 

93

Прочие (вестибюль)

296

Прочие (административные)

 

536/32

Рекреации

1184

Итого по группе:

 

2842,2

Итого по группе:

3144

Примечания. 1. По учебной группе: в числителе дана суммарная площадь помещений, в знаменателе - их количество.

2. По общешкольной группе: в числителе дана суммарная площадь помещений, в знаменателе - площадь залов + площадь обслуживающих помещений.

Таблица 7.6.

Структурная карта основных функциональных групп помещении типового проекта У-92 (к рис. 24-27).

Учебная группа помещений

Общешкольная группа помещений

Наименование помещений

Состав, площадь (м2)

Всего

Наименование помещений

Состав, площадь (м2)

Основные учебные:

 

 

Спортивно – оздоровительные,

 

- более 70 м2

92х2

75х4

74х3

705,5/9

В том числе зал и обслуживающие помещения

574/(24х12)+152 (12х12)

- 70-50 м2

58х1

56х18

54х2

1170/21

Зрительного зала, в том числе зал и обслуживающие помещения

198/142+56

- менее 50 м2

37х2

73/2

Свободного творчества

165/4

Вспомогательные

37х3

73х1

18х3

16х2

 

258/10

 

Столовая

 

363/170+ 193

Библиотека

 

73

Прочие (вестибюль)

483

Прочие (административные)

 

482,5/27

Рекреации

858

Итого по группе:

 

2762

Итого по группе:

2641

Примечания. 1. По учебной группе: в числителе дана суммарная площадь помещений, в знаменателе - их количество.

2. По общешкольной группе: в числителе дана суммарная площадь помещений, в знаменателе - площадь залов + площадь обслуживающих помещений.

Таблица 7.7.

Структурная карта основных функциональных групп помещений по целевым типам здании при наполняемости учебных групп - 24 ученика (нормативной).

Наименование

показателей

 

Вид и тип здания (количество классов)

НО

НОС

НОСП

ОСП

Г

Л

9кл.

18кл.

11кл.

22кл.

33кл.

11кл.

22кл.

33кл.

20кл.

30кл.

7кл.

14кл.

21кл.

8кл.

12кл.

18кл.

Учебная группа

 

 

 

 

 

 

 

 

 

 

 

 

 

 

 

 

Основные учебные помещения:

 

 

 

 

 

 

 

 

 

 

 

 

 

 

 

 

- более 70 м2

1228

15

2020

25

1806

22

2732

34

3568

45

2186

26

3334

40

4350

53

3354

37

3990

48

1438

18

2174

27

2976

37

2384

27

3202

36

3938

45

- 70-50 м2

172

3

294

5

172

3

444

8

566

10

322

6

594

11

716

13

350

7

350

7

50

1

50

1

50

1

200

4

350

7

500

10

- менее 50 м2

80

2

160

4

268

7

240

6

360

9

160

4

240

6

360

9

240

6

360

9

320

8

400

10

480

12

348

9

536

14

724

19

Библиотека

80

100

115

235

325

115

235

325

235

325

115

235

325

235

325

440

Прочие (административные)

274

13

338

13

370

16

471

16

642

19

567

21

904

24

1229

24

884

22

1198

24

540

22

751

22

1008

22

607

19

791

19

927

17

Итого по группе:

1834

34

2912

48

2731

49

4122

65

5461

84

3350

58

5307

82

6980

100

5063

73

6223

89

2463

50

3610

61

4839

73

3774

60

5204

77

6529

92

Общешкольная группа:

 

 

 

 

 

 

 

 

 

 

 

 

 

 

 

 

- спортивно-оздоровительные

350

288

+62

738

576

+162

788

648

+140

1078

828

+250

1476

1116

+360

788

648

+140

1196

936

+260

1424

1116

+308

1186

936

+250

1434

1116

+318

784

576

+208

814

648

+166

1186

936

+250

784

576

+208

1036

828

+208

1186

936

+250

- зрительного зала

288

225

+63

437

374

+63

322

259

+63

551

446

+105

911

770

+141

464

259

+205

795

554

+241

1011

770

+241

761

520

+241

931

690

+241

519

278

+241

647

376

+271

775

474

+301

533

292

+241

589

348

+241

673

432

+241

- свободного творчества

338

8

338

8

464

10

522

9

540

9

500

9

1110

13

1110

13

1110

13

1294

14

746

11

948

12

1132

13

688

10

1070

13

1070

13

- столовой

222

370

276

482

689

276

482

689

480

648

211

353

495

223

325

459

- вестибюля.

216

386

265

466

596

229

433

620

455

652

183

277

397

198

274

390

- рекреационного центра

-

-

-

-

-

-

-

-

937

1350

-

-

904

-

607

1008

Итого по группе:

1414

2269

2115

3099

4212

2257

4016

4854

4929

6309

2443

3039

4889

2426

3901

4786

Примечания. 1. По учебной группе: в числителе дана суммарная площадь помещений, в знаменателе - их количество.

2. По общешкольной группе - в числителе дана суммарная площадь помещений, в знаменателе - площадь залов +       площадь обслуживающих помещений.

8. МЕТОДИКА РАСЧЕТА ДЕФИЦИТА ПЛОЩАДЕЙ И ВОЗМОЖНОСТЕЙ ПРИСПОСОБЛЕНИЯ ТИПОВОГО ПРОЕКТА К НОВОЙ ПЕДАГОГИЧЕСКОЙ ТЕХНОЛОГИИ.

8.1. Основные положения по выявлению дефицита площадей существующего объекта относительно нового типа учебного здания рассматриваются на примере т.п. 65-426/1.

Прежде всего, для определения состава и площади помещений нового здания по социальному заказу (месту учебного заведения в системе обслуживания населения - на жилую группу, или микрорайон, или группу микрорайонов; программе и срокам обучения; контингенту учащихся и т.д.) устанавливается целевой тип и вид нового здания (типы и виды). Это может быть школа, либо школа с профильным обучением, либо гимназия или лицей.

8.2. Выбирается программа - состав и площади помещений по данному типу (типам), в соответствии с утвержденными МГСН 4.06-96 «Общеобразовательные учреждения». На основе программы составляется структурная карта помещений по данному целевому типу (типам) зданий (табл. 7.7.).

8.3. Далее выбирается типовой проект, подлежащий корректировке (в рассматриваемом случае - 65-426/1) и по его материальной базе составляется аналогичная структурная карта (табл. 7.2.).

8.4. После этого проводится сопоставление структурных карт целевых типов зданий и типового проекта, для выявления дефицита здания по площади и составу помещений. Оно проводится раздельно по учебной и общешкольной группам помещений, и начинается с учебной.

8.5. Сопоставление может проводится по двум вариантам:

- варианту А (основному) - при необходимости сохранения первоначальной внутренней планировки существующего объекта без изменения;

- варианту Б (дополнительному) - при возможности внутренней перепланировки существующего объекта.

При первом варианте: анализируются педагогические возможности основных учебных помещений существующего здания - классов - кабинетов для установления в них реального числа ученических мест по МГСН (см. п. 5.), в рассматриваемом случае - это 16 учащихся.

8.6. На основе данного показателя пересчитывается программа-состав и площади помещений целевых типов учебных зданий на новую расчетную вместимость учебной группы - на 16 уч., и по аналогии с п. 7.2. - составляется новая откорректированная структурная карта по целевым типам зданий (табл. 8.1.).

8.7. По новой структурной карте выбирается целевой тип максимально близкий к типовому по суммарному показателю нормируемой площади учебной группы помещений. Далее проводится сопоставление их параметров по всему составу помещений данной группы. В результате - устанавливается минимальный (для данного типового проекта при его приведении к указанным целевым типам) дефицит учебных помещений - по их площади и количеству (табл. 8.2.).

При этом в типовом проекте возможно выявление как дефицита, так резерва или баланса помещений. В некоторых случаях возможно наличие дефицита и резерва одновременно: дефицита - по основным учебным помещениям, резерва - из мелких помещений учебно-вспомогательного назначения (т.п. V-77, V-79, V-92 - см. табл. 9.2.).

8.8. При необходимости приспособления типового проекта не к одному, а к нескольким целевым типам и видам учебных зданий, не обязательно каждый раз проводить развернутый анализ по всему составу их помещений, достаточно воспользоваться величиной уже установленного минимального дефицита.

Для этого, в утвержденной номенклатуре целевых типов устанавливается базовый тип - имеющий минимальный состав и площади помещений. Все остальные целевые типы приводятся к нему по двум параметрам:

а) показателю нормируемой площади учебных помещений - с помощью введения поправочного коэффициента «Хп» (который выражает пропорциональную зависимость между суммарной площадью учебных помещений любого целевого типа и базового целевого типа: Хп = суммарная площадь «п» - го типа по учебной группе помещений / суммарная площадь базового типа по учебной группе помещений);

б) по количеству помещений - с помощью коэффициента «Вп» (который показывает разницу в количестве помещений любого целевого типа и базового типа УЗ: Вп = количество помещений «п»-целевого типа - количество помещений базового типа). Базовым типом в утвержденной номенклатуре учебных зданий является основная школа на 9 классов (см. табл.8.1.). С помощью указанных коэффициентов по уже известным параметрам минимального дефицита типового проекта определяется его дефицит относительно любого целевого типа УЗ.

При этом, для определения искомого дефицита площади помещений следует воспользоваться формулой (I):

(где  - минимальный дефицит типового проекта по нормируемой площади учебных помещений; Дп+1 - дефицит типового проекта относительно «п+1»-го целевого типа по учебной группе помещений (нормируемой площади); С1 - нормируемая площадь учебной группы помещений базового целевого типа;  - поправочный коэффициент «п» - го целевого типа, которому соответствует уже установленный минимальный дефицит помещений типового проекта;  - поправочный коэффициент для «п+1» целевого типа УЗ.)

Для определения искомого дефицита по количеству помещений (как общему количеству, так и по отдельным подгруппам учебных помещений) следует воспользоваться формулой (II):

(где  - дефицит типового проекта по количеству помещений, установленный ранее относительно «п» - го целевого типа; Дп+1 - искомый дефицит типового проекта по количеству помещений, устанавливаемый относительно «п+1» целевого типа УЗ; Вп и Вп+1 - поправочные коэффициенты соответственно для «п» и «п+1»-го целевого типа УЗ).

Полученные значения дефицита заносятся в сводную таблицу (табл. 8.7.). При этом, если у показателя минимального дефицита типового проекта имеется резерв, он без изменения переносится на соответствующие показатели по остальным целевым типам и сохраняется до подсчета дефицита по зданию в целом (с учетом помещений общешкольной группы).

8.9. В случае, когда реальная наполняемость класов-кабинетов равна 20 учащимся (см.п.5.3.) - все вышеуказанные расчеты ведутся по структурной карте, приведенной в Приложении 4. При анализе учебных помещений по второму варианту: анализируются технологические и конструктивные возможности данных помещений существующего здания с точки зрения их возможной перепланировки. В этом случае все помещения дополнительно к предложенной ранее схеме (п.7.2.) классифицируются на «изменяемые» и «неизменяемые». К неизменяемым следует отнести помещения, заключенные в основных несущих конструкциях, а также специализированные лаборатории и мастерские, имеющие специальные инженерные коммуникации.

Проводится сопоставление структуры существующего объекта с наиболее близким по суммарной площади (учебной группы помещений) целевым типом при нормативной наполняемости учебной группы - 24 учащихся (табл. 7.7).

В начале, сопоставление ведется без изменения планировочных габаритов помещений существующего здания, затем - с перепланировкой «изменяемых» помещений в недостающие помещения большей площади (табл. .8.3.). В результате, устанавливается минимальный дефицит типового проекта по учебной группе помещений (их площади и количеству) при нормативной наполняемости учебных групп.

Расчет дефицита типового проекта относительно любого другого целевого типа ведется по аналогии с вариантом А по вышеприведенным (п. 8.8.) формулам с использованием соответствующих поправочных коэффициентов при нормативной наполняемости учебных групп (табл. 8.4.).

8.10. Каждый из представленных вариантов расчета дефицита имеет свои преимущества. Вариант А - ориентирован на действующие нормативные требования и предполагает корректировку зданий с минимальными на сегодняшний день затратами. Вариант Б - ориентирован на максимальную нормативную вместимость класса, которая (при пересчете на меньшую вместимость учебной группы) дает некоторый резерв, что может быть использовано для дальнейшего развития новаторских методов обучения в современной школе.

8.11. По аналогии с учебной группой анализируется общешкольная группа помещений. Анализ проводится на основе структурных карт соответствующих учебных зданий при двух вариантах расчетной наполняемости учебных групп (на 16 и 24 уч.) по следующим параметрам: площади спортивного зала (залов) и площади остальных общешкольных помещений. К остальным общешкольным относятся все помещения подгруппы за исключением спортивных залов, а также рекреаций и вестибюля. Последние не подлежат изменению в существующих зданиях в целях сохранения их первоначальной композиционной целостности.

8.12. Сопоставление указанных параметров типового проекта ведется относительно целевого типа, ранее отобранного при анализе учебной группы помещений.

В результате, устанавливается первоначальный дефицит типового проекта по общешкольным помещениям, который должен быть откорректирован:

- по спортивным залам - с учетом конкретных типоразмеров спортзалов по МГСН 4 06-96 (табл-8.5.);

- по остальным общешкольным помещениям - с учетом резерва по учебной группе, если он имелся.

В рассматриваемом т.п. 65-426 указанный резерв отсутствует при первом варианте наполняемости учебных групп (вариант А) и равен 120 - при втором варианте (вариант Б) наполняемости (см. табл. 8.7.).

Например, для приведения спортивных залов (площадью 288 м2) рассматриваемого типового проекта в соответствие с одноименными помещениями средней полной школы с профильным обучением на 22 класса, имеющим площадь 720 м2, необходимо дополнить существующее здание еще одним залом, площадь которого была бы не менее 432 м2 (720 - 288=432). Вместе с тем, среди нормативных типоразмеров наиболее близким по площади является спортзал 30´18, площадью 540 м2. Таким образом, показатель дефицита площади спортзала рассматриваемого проекта возрастает до 540м2.

По показателю остальных общешкольных помещений величина дефицита после корректировки может быть наоборот уменьшена на величину резерва по учебной группе (см. п. 8.7.).

Откорректированные значения дефицита по указанным показателям заносятся в сводную таблицу (табл. 8.7.).

8.13. При необходимости расчета дефицита общешкольных помещений здания относительно других целевых типов, можно воспользоваться приведенной ранее формулой (I) и уже установленным первоначальным дефицитом по каждому показателю общешкольной группы. Для этого, по аналогии с учебной группой, вводится два поправочных коэффициента: по спортзалам (Кп) и по остальным общешкольным помещениям (Мп) (табл. 8.6.). Полученные результаты также корректируются (п.8.12.), после чего заносятся в сводную таблицу (табл. 8.7.).

Таблица 8.1.

Структурная карта учебной группы помещений целевых типов учебных зданий при расчетной наполняемости учебной группы - 16 учащихся.

Наименование

показателей

Вид и тип УЗ (количество классов)

НО

НОС

НОСП

ОСП

Г

Л

9кл.

18кл.

11кл.

22кл.

33кл.

11кл.

22кл.

33кл.

20кл.

30кл.

7кл.

14кл.

21кл.

8кл.

12кл.

18кл.

Основные учебные помещения:

 

 

 

 

 

 

 

 

 

 

 

 

 

 

 

 

- более 70 м2

72

1

144

2

144

2

144

2

144

2

288

4

432

6

504

7

525

7

504

7

72

1

72

1

144

2

432

6

648

9

648

9

- 70-50 м2

293

5

346

6

353

6

466

8

519

9

505

9

466

8

571

10

412

7

465

8

232

4

345

6

451

7

458

8

511

9

624

11

- менее 50 м2

604

14

1124

26

984

24

1618

38

2262

53

976

23

1876

44

2472

58

1510

36

2088

49

884

22

1276

31

1716

41

1044

26

1340

33

2092

54

Вспомогательные

48

2

78

2

48

2

28

2

168

5

238

7

474

10

748

10

492

8

708

8

232

8

392

8

552

8

284

5

408

5

486

3

Библиотека

80

100

115

235

325

115

235

325

235

325

115

235

325

235

325

440

Прочие

226

11

260

11

322

14

393

14

474

14

329

14

400

14

481

14

392

14

490

16

308

14

359

14

450

14

323

14

383

14

441

14

Итого по группе:

1323

34

2052

48

1966

49

2934

65

3892

84

2451

58

3883

82

5101

100

3566

73

4580

89

1843

50

2679

61

3638

73

2776

60

3615

77

4731

92

Коэффициенты приведения:

 

 

 

 

 

 

 

 

 

 

 

 

 

 

 

 

- Хп

1,0

1,55

1,48

2,22

2,94

1,85

2,93

3,86

2,69

3,46

1,39

2,0

2,75

2,1

2,7

3,58

- Вп

0

14

15

31

50

24

48

66

39

55

16

27

39

26

43

58

Примечания. 1. В числителе дана суммарная площадь помещений, в знаменателе - их количество.

2. Коэффициенты приведения: Хп - площади и Вп - количества помещений учебной группы каждого целевого типа УЗ к базовому типу (НО-9 кл.).

Таблица 8.2.

Пример выявления дефицита по учебной группе помещений типового проекта 65-426/1 относительно целевого типа при расчетной наполняемости учебной группы - 16 учащихся.

Наименование

помещений

Состав помещений

Сопоставление:

Дефицит/

остаток-резерв

по целевому типу  НОС –11кл.

По типовому проекту

НОС-11кл.

типовой проект

Основные учебные:

- более 70м2

72´2

0

72´2 =

65´2

0

- 70-50 м2

60´5

53´1

65´5

54´6

50´16

 

60´5 =

53´1 =

50´1

 

0

 

0

- менее 50 м2

48´14

40´2

36´1

28´7

48´5

48´14 =

40´2 =

50х14

48х2

 

54´1

 

0

0

 

0

 

 

0

Вспомогательные

30´1

18´1

0

 

48х1

48´1

Библиотека

74

50

74 =

50+48´1

0

Прочие

322

301

322 =

301+48´1

0

Итого:

1966/49

2042/52

 

 

Дефицит = 0 Резерв: 48

Примечание. Суммарный показатель площади по учебной группе помещений сопоставляемых объектов приведен без учета площади рекреаций, которая остается неизменной.

Таблица 8.3.

Пример выявления минимального дефицита площади по учебной группе помещений т.п. 65-426 при нормативной наполняемости учебной группы - 24 учащихся (вариант Б).

Наименование показателей

 

Целевой тип – основная

школа 9 кл. (НО-9 кл.)

Т.п. 65-426

 

Сопоставление "неизменяемых" помещений

Корректировка "изменяемых помещений" типового проекта.

 

Дефицит/ остаток

Дефицит по Н0-9кл.

Остаток по т.п.

резерв

Основные учебные помещения.

 

 

 

 

0

= 108´1

= 90´4

= 76´10

 

 

0

1 этаж: 65+ 15=80 : 76х1

65+18=83 : 90х1

 

 

- более 70 м2

108´1

90´4

76´10

 

-

-

-

 

- 70 - 50 м2

60´1

62´1

50´1

-

-

-

55´2(3)

4´6

50´2(14)

=

= 0

=

65´(3)

65´6

50´1(14)

2 этаж: 50х2+14=114 : 90+24

2х(50х2)= 2х100 : 2х(76+24)

2х(50+48)=196 : 108+88(90)

 

- менее 50 м2

40´2

 

-

48´1(4)

= 0

48´(3)

 

Вспомогательные

30´1

18´1

 

-

0

= 30´1

= 18´1

0

3 этаж: 65 + 33 = 98 76 + 22

2´(50´2)=2´100 : 2´(76+24)

2´(50+48)=196 . 90+76+30

 

Библиотека

80

 

-

50

= 30

0

 

Прочие

226/11

-

301

= 0

0

 

Дефицит

=0

Итого:

1834

34

2042

52

 

 

Остаток: 54´6=76´3 на 1/2гр.

50´1 =в библиотеку

24´5=120

Резерв:

24´5=120

5

Примечание. В характеристике типового проекта - в скобках приведено количество учебных помещений "изменяемых" в процессе корректировки (3), перед скобками - количество "неизменяемых" помещений аналогичной площади.

Таблица 8.4.

Базовый тип и коэффициенты приведения к нему нормируемой площади по учебной группе помещений остальных целевых типов зданий при расчетной наполняемости учебной группы - 24 учащихся.

Наименование

Показателей 

Вид и тип УЗ (количество классов)

НО

НОС

НОСП

ОСП

Г

Л

9 кл.

18кл.

11кл.

22кл.

33кл.

11кл.

22кл.

33кл.

20кл.

30кл.

7 кл.

14кл.

21кл.

8кл.

12кл.

18кл.

Суммарная нормируемая площадь по учебной группе помещений (м2)

1834

2912

2731

4122

5461

3350

5307

6980

5063

6223

2463

3610

4839

3774

5204

6529

Коэффициенты приведения:

 

 

 

 

 

 

 

 

 

 

 

 

 

 

 

 

- Хп

1,0

1,6

1,48

2,25

3,0

1,8

2,9

3,8

2,76

3,4

1,3

1,97

2,6

2,06

2,8

3,56

- Вп

0

14

15

31

50

24

48

66

39

55

16

27

39

26

43

58

Примечание Коэффициенты приведения Хп - площади и Вп - количества помещений учебной группы каждого целевого типа УЗ к базовому типу (НО-9 кл.).

Таблица 8.5.

Типы недостающих спортзалов к типовым проектам школьных здании в соответствии с МГСН 4.06-96.

Т.п.

Залы по

типовым проектам

 

Номенклатура залов по целевой программе

288

24х12

380

24х15

468

24х12

12х15

540

30х18

576

24х12

24x12

648

36х18

720

30х18

12х15

828

36х18

12х15

936

36х18

24х12

1008

30х18

24х12

12х15

1116

36х18

24х12

12х15

III

IV

 

V

 

VI

 

VII

VIII

 

 

МЮ

162

9х18

126(144)

12х12

I

198(180)

12х15

II

306(360)

24х15

378(360)

24х15

414(360)

24х15

486(540)

30х18

558(540)

30х18

666(648)

36х18

774(828)

36х18 12х15

846(828)

36х18 12х15

954(936)

36х18

24х12

65-426

288

24х12

0

72(144)

12х12

180

12х15

252(288)

288

360

432(540)

540

648

720(828)

828

V-76

386

24х12

6,5х15

0

0

82(144)

154(144)

190(180)

262(288)

334(360)

442(540)

550(540)

622(648)

730(828)

V-92

432

24х12

12х12

0

0

36(0)

108(144)

144

216(180)

288

396(360)

504(540)

576(540)

684(648)

V-77

450

24х12

9х18

0

0

18(0)

90(144)

126(144)

198(180)

270(288)

378(360)

486(540)

558(540)

666(648)

V-79

576

24х12

24х12

0

0

0

0

0

72(144)

144

252(288)

360

432(540)

540

Примечания. 1 В скобках приведены площади спортзалов, соответствующие их размерам по МГСН.

2. В качестве минимального зала дополнительно к минимальному залу по МГСН 12´15= 180 (тип II) принят универсальный зал 12´12= 144 (тип I).

3. I-VIII - типы недостающих спортзалов

Таблица 8.6.

Характеристика общешкольной группы помещений целевых типов учебных зданий, коэффициенты приведения при двух вариантах наполняемости учебных групп -на 16 учащихся (вариант А), на 24 учащихся (вариант Б).

Наименование

показателей

Вид и тип УЗ (количество классов)

НО

НОС

НОСП

ОСП

Г

Л

9кл.

18кл.

11кл.

22кл.

33кл.

11кл.

22кл.

33кл.

20кл.

30кл.

7кл.

14кл.

21кл.

8кл.

12кл.

18кл.

А/ Спортзал (м2)

288

468

360

576

1008

360

720

1008

720

1008

360

576

720

576

720

720

Коэффициент приведения – Кп

1,0

1,625

1,25

2,0

3,5

1,25

2,5

3,5

2,5

3,5

1,25

2,0

2,5

2,0

2,5

2,5

Остальные общешкольные помещения (м2)

789

1028

977

1401

1919

1155

2233

2589

2819

3516

1474

1916

3003

1434

2372

2749

Коэффициент приведения – Мп

1,0

1,3

1,24

1,77

2,43

1,46

2,83

3,28

3,57

4,46

1,86

2,42

3,8

1,82

3,01

3,48

Б/ Спортзал (м2)

288

576

648

828

1116

648

936

1116

936

1116

576

648

936

576

828

936

Коэффициент приведения – Кп

1,0

2,0

2,25

2,87

3,87

2,25

3,25

3,87

3,25

3,87

2,0

2,25

3,25

2,0

2,87

3,25

Остальные общешкольные помещения (м2)

910

1307

1202

1805

2500

1380

2647

3943

2601

3191

1684

2114

3492

1652

2350

3410

Коэффициент приведения – Мп

1,0

1,44

1,32

1,98

2,75

1,52

2,91

4,33

2,86

3,51

1,85

2,32

3,83

1,81

2,58

3,75

Таблица 8.7.

Сводная таблица по дефициту и методам реконструкции типового проекта 65-426/1 при двух вариантах наполняемости учебных групп - на 16 учащихся (вариант А) и на 24 учащихся (вариант Б).

Наименование

показателей

Вид и тип УЗ (количество классов)

НО

НОС

НОСП

ОСП

Г

Л

9кл.

18кл.

11кл.

22кл.

33кл.

11кл.

22кл.

33кл.

20кл.

30кл.

7кл.

14кл.

21кл.

8кл.

12кл.

18кл.

1

2

3

4

5

6

7

8

9

10

11

12

13

14

15

16

17

А) По учебной группе:

 

 

 

 

 

 

 

 

 

 

 

 

 

 

 

 

- дефицит площади помещений

+643

85

0

971

1924

482

1910

3140

1593

2611

+127

680

1672

812

1606

2770

-дефицит количества помещений

+15

+1

0

16

35

9

33

51

24

40

1

12

24

11

28

43

-метод преобразования

М

М

М

Пр

Пр

Н

Пр

Н/Ц

Пр

Пр

М

Н

Пр

Пр

Пр

11р

По общешкольной группе:

 

 

 

 

 

 

 

 

 

 

 

 

 

 

 

 

- дефицит площади по типам залов (табл.8.5.)

0

П

I

III

VII

I

V

VII

V

VII

I

III

V

III

V

V

- дефицит площади остальных общешкольных помещений.

178

597

510

1078

2134

688

2162

2805

2748

3733

1007

1593

2932

1111

2296

2678

По зданию в целом:

М

+465

М

П-597

М

I-510

971

III-1078

1924

VII-2134

Н

I-688

1910

V-2162

Н/Ц

1593

V-2748

Н/Ц

М

I-880

Н

III-1593

1672

V-2932

812

III-1111

1606

V-2296

Н/Ц

Б) По учебной группе:

 

 

 

 

 

 

 

 

 

 

 

 

 

 

 

 

-дефицит площади помещений

+120

1078

897

2287

3631

1522

3466

5154

3228

4383

624

1779

3008

1944

3375

4695

-дефицит количества помещений

+5

9

10

26

45

19

43

61

34

50

11

22

34

21

38

53

- метод преобразования

М

Пр

Пр

Пр

Н/Ц

Пр

Н/Ц

Н/Ц

Н/Ц

Н/Ц

Н

Пр

Пр

Пр

Н/Ц

Н/Ц

По общешкольной группе: - дефицит площади по типам залов (табл.8.5.):

0

III

IV

V

VII

IV

VI

VII

VI

VII

III

IV

VI

III

V

VI

-дефицит площади остальных обще – школьных помещений

299

987

950

1731

2719

1128

2685

4158

2640

3402

1360

1862

3528

1328

2278

3446

По зданию в целом:

М

179

1078

III-867

897

IV-830

2287

V-1611

Н/Ц

1522

IV-1008

Н/Ц

Н/Ц

Н/Ц

Н/Ц

Н

III-1240

1779

IV-1742

Н/Ц

1944

III-1208

Н/Ц

Н/Ц

Примечания. 1. В числителе дана площадь по учебному блоку, в знаменателе - тип (I - VIII) недостающего спортзала и суммарная площадь по недостающим помещениям общешкольной группы (включая залы).

2. М - модернизация, Пр - реконструкция с помощью блока-пристройки, Н - надстройка учебного блока, Н/Ц - целесообразность любых преобразований.

9. ОСНОВНЫЕ НАПРАВЛЕНИЯ ПРЕОБРАЗОВАНИЯ ТИПОВЫХ ПРОЕКТОВ ШКОЛЬНЫХ ЗДАНИЙ.

9.1. Результат проведенного выше анализа (дефицит по каждой группе помещений) позволяет решить, в какой степени существующий объект не соответствует целевым типам зданий и какие методы реконструктивных преобразований необходимы для приведения его в это соответствие.

9.2. С учетом специфики существующего фонда московских школ, состоящей в:

затесненности школьных участков; недопустимости надстройки блока зальных помещений вследствие ограниченности изделий московского строительного каталога;

возможности надстройки учебного блока некоторых школьных зданий не более, чем на один этаж, - могут быть предложены два направления преобразования устаревших школьных зданий:

- модернизация, проводимая без изменения планировочных габаритов здания, путем изменения типа и вида учебного заведения;

- реконструкция, осуществляемая посредством увеличения площади существующего объекта с помощью надстройки или блоков-пристроек.

9.3. Для того, чтобы по величине найденного дефицита установить характер необходимых для конкретного случая реконструктивных преобразований, вводятся следующие общие ограничения для максимальных значений дефицита школьных зданий:

- при модернизации - величина дефицита не должна превышать одноименный показатель нормируемой площади (по соответствующей группе помещений) реконструируемого объекта более, чем на 5-10%;

- при реконструкции с помощью надстройки учебного блока -дефицит не должен превышать площадь этажа учебного блока существующего здания;

- при реконструкции с помощью блоков - пристроек - величина дефицита не должна превышать аналогичный показатель нормируемой площади существующего объекта более, чем в 1,5 раза.

9.4. По указанным ограничениям для каждого типового проекта устанавливаются свои пороговые значения дефицита по каждой группе помещений и зданию в целом.

Например, по учебной группе помещении рассматриваемого проекта: модернизация возможна при дефиците площади равном нулю или больше нуля, но меньше 204 м2; надстройка учебного блока на 1 этаж - при дефиците больше 204 м2, но меньше 648 м2; реконструкция с помощью блока-пристройки - при дефиците больше 648 м2, но меньше 3063 м2 (табл. 9.1.).

9.5. При сопоставлении ранее полученных значений дефицита с соответствующими пороговыми значениями - устанавливается возможность того или иного метода реконструкции здания при его приведении к конкретному целевому типу. В итоге, по каждому типовому проекту были установлены конкретные методы их преобразования в приведенные целевые типы и объемы для формирования необходимых блоков-пристроек (табл. 9.2).

Таблица 9.1

Пороговые значения дефицита по различным группам помещений на примере типового проекта 65-426/1 при различных методах реконструкции здания.

Методы реконструкции

Расчет

Пороговые значения дефицита - Д, м2

1. По учебной группе помещений:

 

 

- модернизация

0,1´2042 ==204

-204<Д<204 (резерв)

- надстройка

648

204<Д<648

- блок-пристройка

1,5´2042=3063

648<Д<3063

2. По общешкольной группе помещений:

 

 

- модернизация

0,1´1191=119

-119<Д<119

- блок-пристройка

1,5´1191=1787

119<Д<1787

3. По зданию в целом

 

 

- модернизация

0,1´3233=323

-323<Д<323

- реконструкция

1,5´3233=4849

3233<Д<4849

Примечания. 1. Все показатели площади даны без учета площади рекреации типового проекта, в виду необходимости сохранения их без изменения для композиционной целостности существующего здания.

2. < - меньше, либо равно.

Таблица 9.2.

Сводная таблица по дефициту и методам реконструкции типовых проектов при двух вариантах наполняемости учебных групп - на 16 учащихся (вариант А) и на 24 учащихся (вариант Б).

Т.п. 

Наименование

показателей 

Вид и тип УЗ (количество классов)

НО

НОС

НОСП

ОСП

Г

Л

9кл.

18кл.

11кл.

22кл.

33кл.

11кл.

22кл.

33кл.

20кл.

30кл.

7кл.

14кл.

21кл.

8кл.

12кл.

18кл.

1

2

3

4

5

6

7

8

9

10

11

12

13

14

15

16

17

18

МЮ

А) - по учебной группе помещений

+551

728

643

1614

2566

1125

2553

Н/Ц

2236

3255

516

1323

2315

1455

2249

3413

 

- по общешкольной группе

I-748

III-1131

II-972

IV-1576

VII-2562

II-1150

V-2588

VII-3232

V-3174

VII-4159

II-1469

IV-2091

V-3358

IV-1609

V-2727

-3104

 

-по зданию в целом

М

I-197

728

III-580

643

II-421

1614

IV-1025

Н/Ц

1125

II-599

Н/Ц

Н/Ц

Н/Ц

Н/Ц

516

II-948

1323

IV-1540

Н/Ц

1455

IV-1058

Н/Ц

Н/Ц

 

Б) - по учебной группе помещений

0

1078

897

2287

Н/Ц

1522

Н/Ц

Н/Ц

Н/Ц

Н/Ц

624

1779

Н/Ц

1944

Н/Ц

Н/Ц

 

-по общешкольной группе

I-869

IV-1482

V-1557

VI-2268

VIII-3251

V-1735

VII-3290

VIII-4694

VII-3244

VIII-3942

IV-1859

V-2469

VII-4135

IV-1827

VI-2813

VII-4053

 

- по зданию в целом

М

I-869

1078

IV-1482

897

V-1557

Н/Ц

Н/Ц

1522

V-1735

Н/Ц

Н/Ц

Н/Ц

Н/Ц

624

IV-1859

Н/Ц

Н/Ц

1944

IV-1827

Н/Ц

Н/Ц

65-426/I

А) - по учебной группе помещений

+643

85

0

971

1924

482

1910

Н/Ц

1593

2611

+127

680

1672

812

1606

2770

 

-по общешкольной группе

178

II-597

I-510

III-1078

VII-2134

I-688

V-2162

VII-2805

V-2748

VII-3733

I-1007

III-1593

V-2932

III-1111

V-2296

V-2678

 

- по зданию в целом

М + 465

М

II-597

М

I-510

971

III-1078

1924

VII-2134

Н

I-688

1910

V-2162

Н/Ц

1593

V-2748

Н/Ц

М

I-880

Н

III-1593

1672

V-2932

812

III-1111

1606

V-2296

Н/Ц

 

Б) - по учебной группе помещений

+120

1078

897

2287

Н/Ц

1522

Н/Ц

Н/Ц

Н/Ц

Н/Ц

624

1779

3008

1944

Н/Ц

Н/Ц

 

-по общешкольной группе

299

III-987

IV-950

V-1731

VII-2719

IV-1128

VI-2685

VII-4158

VI-2640

VII-3402

III-1360

IV-1862

VI-3528

III-1328

V-2278

VI-3446

 

-по зданию в целом

М

179

1078

III-867

897

IV-830

2287

V-1611

Н/Ц

1522

IV-1008

Н/Ц

Н/Ц

Н/Ц

Н/Ц

Н

III-1240

1779

IV-1742

Н/Ц

1944

III-1208

Н/Ц

Н/Ц

У-76

А) - по учебной группе помещений

+ 1614

+886

+971

0

952

+489

939

2169

622

1641

+ 1098

+291

701

+158

635

1799

 

- по общешкольной группе помещений

20

I-403

208

II-812

VI-1798

386

IV-1824

VI-2468

IV-2410

VI-3395

705

II-1327

IV-2594

II-845

IV-1963

IV-2340

 

- по зданию в целом

Н/Ц

М

+627

I-144

Н/Ц

М

II-812

Н

VI-1798

М

+103

Н

IV-1824

2169

VI-2468

Н

ГУ-2410

1641

VI-3395

М

+393

М

II-1036

701

VI-2594

М

II-687

Н

IV-1963

1799

IV-2340

 

Б) -по учебной группе помещений

Н/Ц

182

+400

1390

2734

625

2569

4257

2331

3486

+273

882

2111

1047

2477

3798

 

-по общешкольной группе помещений

141

II-721

III-720

V-1573

VI-2381

III-902

V-2419

VI-3819

V-2374

VI-3073

II-1095

III-1633

V-3263

II-1063

V-2120

V-3181

 

-по зданию в целом

Н/Ц

182

II-321

М

III-320

1390

V-1173

2734

VI-1918

Н

III-504

2569

V-2019

Н/Ц

2331

V-1974

3486

VI-2673

М

II-422

Н

III-1235

2111

V-2863

Н

II-663

2477

V-1720

3798

V-2781

У-77

А) - по учебной группе помещений

+1124

+397

+482

489

1442

+217

1429

2659

1111

2130

+609

198

1191

331

1125

2289

 

- по общешкольной группе помещений

+96

143

92

I-660

V-1574

270

III-1636

V-2244

III-2222

V-3171

589

I-1175

III-2406

I-693

III-1775

III-2152

 

- по зданию в целом

Н/Ц

М

+471

М

+607

489

I-443

1442

V-1357

М

53

1429

III-1419

2659

V-2027

1111

III-2005

2130

V-2954

М

+237

198

I-958

1191

III-2189

331

I-476

1125

III-1558

2289

III-1935

 

Б) -по учебной группе помещений

+627

452

270 +177

1660

3004

895

2839

4527

2601

3756

+177

1152

2381

1317

2748

4068

 

-по общешкольной группе помещений

25

I-569

II-496

IV-1277

VI-2266

II-678

V-2303

VI-3703

V2258

VI-2957

I-943

II-1409

V-3147

I-910

IV-1825

V-3065

 

-по зданию в целом

Н/Ц

452

I-322

270

II-319

1660

IV-1100

3004

VI-2089

895

II-501

2839

V-2126

Н/Ц

2601

V-2081

3756

VI-2780

М

I-766

1152

II-1232

2381

V-2970

1317

I-733

2748

IV-1648

Н/Ц

У-79

А) - по учебной группе помещений

1412

+109

+194

778

1730

288

+207

1717

2947

1399

2418

+320

486

1479

619

1413

2577

 

- по общешкольной группе помещений

+288

+299

+108

+60

+216

+111

313

V-1371

+216

67

I-1289

V-2041

I-1875

V-2968

+216

368

828

I-2059

346

I-1428

I-1805

 

- по зданию в целом

1412

М+ 506

+109

М+ 267

+194

М+ 318

Н

106

1730

V-1164

288

М+ 140

1717

I-1082

2947

V-1834

1399

I-1668

2418

V-2761

+320

179

Н

621

1479

I-1852

Н

139

1413

I-1221

2577

I-1598

 

Б) -по учебной группе помещений

+591

488

306

+380

1696

3040

931

2875

4563

2637

3792

33

1188

2417

1353

2784

4104

 

-по общешкольной группе помещений

+288

+178

219

I-1276

III-1002

V-1954

I-439

IV-1920

V-3392

IV-1874

V-2646

596

1169

IV-2763

563

III-1549

IV-2681

 

-по зданию в целом

Н/Ц

Н

М+ 161

Н

I-826

1696

Ш-622

3040

V-1574

931

I-59

2875

IV-1540

Н/Ц

2637

IV-1494

3792

V-2266

М

216

1188

I-789

2417

IV-2383

1353

183

2784

III-1169

4104

IV-2301

У-92

А) - по учебной группе помещений

+ 1124

+397

+482

489

1442

0

1429

2659

1111

2130

+609

198

1190

330

1125

2289

 

- по общешкольной группе помещений

+144

+79

160

109

I-677

V-1591

287

III-1653

V-2261

III-2239

V-3188

606

I-1192

III-2423

I-710

III-1792

III-2169

 

- по зданию в целом

Н/Ц

М

+237

М

+373

489

I-677

1442

V-1591

М

287

1429

III-1653

2659

V-2261

1111

III-2239

2130

V-3188

М

198

I-1192

1190

III-2423

330

I-710

1125

III-1792

2289

III-2169

 

Б) -по учебной группе помещений

+668

409

228

+211

1618

2962

853

2797

4484

2559

3714

+45

1110

2339

1275

2706

4026

 

-по общешкольной группе помещений

+144

42

I-586

II-513

IV-1293

VI-2282

II-695

V-2320

VI-3720

V-2274

IV-2974

I-960

II-1425

V-3163

I-927

IV-1842

V-3081

 

-по зданию в целом

Н/Ц

409

I-375

228

II-302

1618

IV-1082

2962

VI-2071

853

II-484

2797

V-2109

Н/Ц

2559

V-2063

3714

IV-2763

М

I-704

1110

II-1214

2339

V-2952

1275

I-716

2706

IV-1631

4026

V-2870

Примечания. 1. В числителе дана недостающая площадь по учебной группе помещений здания, в знаменателе - тип недостающего спортзала (I-VIII) и суммарная площадь недостающих общешкольных помещений, включая спортзал.

2. Пр. - реконструкция с помощью блока-пристройки; М - модернизация; Н- надстройка учебного блока, Н/Ц - нецелесообразно любые виды преобразований; +216 - резерв площади, 216 - дефицит площади.

3. 1- для каждого типового проекта отмечен целевой тип УЗ максимально близкий к нему по составу и площадям помещений (с минимальным показателем дефицита).

10. МОДЕРНИЗАЦИЯ ШКОЛЬНЫХ ЗДАНИЙ (БЕЗ ИЗМЕНЕНИЯ ПЛАНИРОВОЧНЫХ ГАБАРИТОВ).

10.1. По представленной методике модернизация школьных зданий путем введения недостающих помещений посредством изменения назначения имеющихся с одновременным изменением типа и вида УЗ возможна в двух вариантах:

- вариант А - без изменения внутренней планировки существующего здания (переноса перегородок);

- вариант Б - с его частичной внутренней перепланировкой (с переносом перегородок, за исключением тех помещений, которые требуют специальных инженерных коммуникаций - специализированных лабораторий физики, химии, биологии, астрономии, мастерских).

10.2. В отобранных для исследования типовых проектах модернизация проводиться по варианту А. Конкретные изменения типа и вида учебного здания по указанным проектам в результате модернизации. представлены в таблице 10.1.

10.3. Вследствие того, что модернизация характеризуется обязательным снижением проектной вместимости зданий, она может быть рекомендована для преобразования существующих школ в специализированные учебные заведения - гимназии и лицеи. В этом случае, дефицит учебных мест, получаемый в результате модернизации, в значительной мере может быть компенсирован за счет использования указанных объектов в качестве «кустовых» - для обучения учащихся старших классов соседних школ.

Рекомендации по преобразованию школьных зданий построенных по устаревшим типовым проектам.

Таблица 10.1.

Модернизация школьных зданий без изменения планировки.

Типовой

проект

Вариант

Вид и тип УЗ (количество классов)

НО

НОС

НОСП

ОСП

Г

Л

9кл.

18кл.

11кл.

22кл.

33кл.

11кл.

22кл.

33кл.

20кл.

30кл.

7кл.

14кл.

21кл.

8кл.

12кл.

18кл.

МЮ

А

 

 

 

 

 

 

 

 

 

 

 

 

 

 

 

 

65-426/1

A

 

 

 

 

 

 

 

 

 

 

 

 

 

 

 

 

У-76

А

 

 

 

 

 

 

 

 

 

 

 

 

 

 

У-77

А

 

 

 

 

 

 

 

 

 

 

 

 

У-79

А

 

 

 

 

 

 

 

 

 

 

 

 

 

 

У-92

А

 

 

 

 

 

 

 

 

 

 

 

 

 

11. РЕКОНСТРУКЦИЯ ШКОЛЬНЫХ ЗДАНИЙ (С ИЗМЕНЕНИЕМ ПЛАНИРОВОЧНЫХ ГАБАРИТОВ).

11.1. Возможны три схемы реконструкции указанных школьных зданий:

- модернизация учебного блока и пристройка блока общешкольных помещений;

- надстройка учебного блока и пристройка блока общешкольных помещений (табл. 11.1.);

- пристройка двух функциональных блоков (учебного и общешкольного) или одного комплексного.

Все они также могут быть выполнены в 2-х вариантах: А- без существенной перепланировки, Б-с внутренней перепланировкой существующего объекта.

Перепланировку и изменение назначения помещений в каждом существующем здании следует проводить, по возможности, с учетом функционального зонирования и взаимосвязи групп помещений согласно требованиям МГСН 4.06-96.

11.2. Реконструкция с помощью надстройки возможна для небольшой части типовых проектов, имеющих этажность ниже допустимой (т.п. 65-426, У-76, У-79), а также при соблюдении специальных условий: наличия достаточного запаса прочности основных несущих конструкций реконструируемого объекта; наличия инсоляционного резерва относительно близлежащей застройки; сохранения архитектурной и композиционной целостности застройки и т.д.

11.3. В Московском территориальном каталоге на 1996 г. имеется 6 действующих типовых проектов блоков-пристроек, разработанных и откорректированных МНИИТЭП в 70-90 гг. В частности:

1. Блок-столовая т.п. У-73, выпуск 1990 г.;

2. Блок-столовая и спортзал (24´12) т.п. У-74, выпуск 1990 г.;

3. Функциональный блок эстетического воспитания т.п. У-80, выпуск 1982 г. (в составе студий изобразительного и прикладного искусства, хореографии, музыки и пения);

4. Блок начальных классов т.п. У-81, выпуск 1990 г. (на 12 групп со спортзалом 9´18);

5. Блок начальных классов т.п. У-82 (на 8 групп со спортзалом 6,6´18);

6. Блок начальных классов со столовой т.п. У-83 (на 8 групп с кружковыми и столовой).

Несмотря на разнообразие типов, вышеуказанные блоки - и функциональные и комплексные - не отвечают задачам новой педагогической технологии - активизации и дифференциации обучения среднего и старшего звена школы. В этом смысле они не соответствуют основным задачам преобразования материальной среды современной школы и нуждаются в дальнейшем расширении номенклатуры блоков-пристроек.

Таблица 11.1.

Реконструкция школьных зданий с учетом перепланировки, надстройки и пристройки.

Типовой

проект

Вариант

Вид и тип УЗ (количество классов)

НО

НОС

НОСП

ОСП

Г

Л

9кл.

18кл.

11кл.

22кл.

33кл.

11кл.

22кл.

33кл.

20кл.

30кл.

7кл.

14кл.

21кл.

8кл.

12кл.

18кл.

МЮ

А

 

 

 

 

 

 

 

 

 

 

 

 

 

 

 

Б

 

 

 

 

 

 

 

 

 

 

 

 

 

 

 

65-426/1

А

 

 

 

 

 

 

 

 

 

 

 

Б

 

 

 

 

 

 

 

 

 

 

 

 

 

 

У-76

А

 

 

 

 

 

 

 

 

Б

 

 

 

 

 

 

 

 

 

 

У-77

А

 

 

 

 

 

 

 

 

 

 

 

 

 

 

 

 

Б

 

 

 

 

 

 

 

 

 

 

 

 

 

 

 

У-79

А

 

 

 

 

 

 

 

 

 

 

Б

 

 

 

 

 

 

 

 

 

 

 

 

 

У-92

А

 

 

 

 

 

 

 

 

 

 

 

 

 

 

 

Б

 

 

 

 

 

 

 

 

 

 

 

 

 

 

 

Примечания. 1. В числителе дан вариант преобразования учебного блока, в знаменателе – блока общешкольных помещений.

2.  - модернизация,  - надстройка,  - пристройка.

12. НОМЕНКЛАТУРА ТИПОВ УНИВЕРСАЛЬНЫХ БЛОКОВ-ПРИСТРОЕК.

12.1. Предлагается 5 типов универсальных функциональных блоков (три учебных и два общешкольных), ориентированных на оптимизацию учебно-воспитательной среды преимущественно средней и старшей школы. Реконструкция типовых проектов посредством универсальных блоков-пристроек приведена в таблице 12.1.

Их номенклатура, примерный состав и площади помещений даны в таблицах 12.2.; 12.3.; 12.4.

12.2. Предлагаемые блоки универсальны:

- по назначению, т.к. могут применяться автономно, в комплексе с другими блоками, а при необходимости - в составе единого комплексного блока;

- по суммарной нормируемой площади, которая унифицирована для всех реконструируемых зданий и представлена в виде следующего числового ряда:

по учебной группе - 600-800, 1000- 1200 и 1000- 1600, но общешкольной группе - 500-600, 800-1000, 1000-1200 и 1200-1400;

- по составу помещений: в учебном блоке - это универсальные учебные помещения и специализированные кабинеты, в общешкольном - 2 спортзала (в сумме или каждый в отдельности заменяющие типы недостающих залов в рассматриваемых проектах), минимальный состав кружковых и лекционная аудитория;

- по вместимости, которая рассчитана на наполняемость учебных групп - 30 учащихся (Согласно п.3.4. МГСН 4.06-96 повышенная наполняемость классных групп до 30 уч. допустима в условиях реконструкции застройки и сложившегося фонда школьных зданий. Это положение новых норм, главным образом, относится к блокам-пристройкам, где можно принять учебные помещения расширенных параметров и тем самым более экономно решать проблему реорганизации сети учебных заведений).

Поэтому предложенные блоки могут быть использованы для реконструкции любого из представленных типовых проектов школьных зданий, и выступать в качестве базовых блоков-пристроек на группу школ, учитывая затесненность московских участков. Это также позволит отчасти компенсировать дефицит ученических мест, возникший в ходе реконструкции устаревшего школьного фонда.

12.3. По сравнению с модернизацией, реконструкция способна более полно удовлетворять новым педагогическим требованиям с сохранением первоначальной вместимости реконструируемого объекта. Поэтому она может быть рекомендована в тех случаях, когда невозможно изменить проектную вместимость и вид учебного здания, а территориальные возможности допускают развитие здания вблизи либо непосредственно в пределах занимаемой территории.

12.4. Рассмотренные варианты преобразования школьных здании, построенных по устаревшим типовым проектам предлагаются в качестве методического материала, на основе которого по заданиям местных планирующих органов могут быть разработаны конкретные проекты, с учетом особенностей местного фонда школьных зданий и без нарушения современной педагогической технологии.

Таблица 12.1.

Реконструкция школьных зданий с помощью универсальных блоков-пристроек.

Типовой

проект

Вари

Ант

 

Вид и тип УЗ (количество классов)

НО

НОС

НОСП

ОСП

Г

Л

9кл.

18кл.

11кл.

22кл.

33кл.

11кл.

22кл.

33кл.

20кл.

30кл.

7кл.

14кл.

21кл.

8кл.

12кл.

18кл.

МЮ

А

_

IV

I

IV

I

IV

III

IV

 

II

IV

 

 

 

 

I

IV

II

IV

 

II

IV

 

 

Б

_

V

II

IV

I

IV

 

 

III

V

 

 

 

 

 

 

 

 

 

 

65-426/1

А

 

_

IV

_

IV

I

IV

III

V

_

IV

 

 

 

 

_

IV

 

 

I

IV

 

 

Б

 

II

IV

I

IV

 

 

III

IV

 

 

 

 

_

IV

 

 

III

IV

 

 

У-76

А

 

_

IV

 

_

IV

_

V

 

_

V

 

 

 

 

_

IV

 

_

IV

_

V

 

Б

 

_

IV

_

IV

II

IV

 

_

IV

 

 

 

 

_

IV

_

IV

 

_

IV

 

 

У-77

А

 

 

 

I

IV

II

IV

 

II

IV

 

II

V

 

 

I

IV

II

V

I

IV

II

IV

 

Б

 

I

IV

I

IV

III

IV

 

I

IV

 

 

 

 

_

IV

II

IV

 

II

V

 

 

У-79

А

II

 

 

 

III

IV

I

III

IV

 

II

V

 

 

_

IV

II

V

 

II

IV

 

Б

 

 

_

IV

III

IV

 

I

V

 

 

 

 

_

V

II

IV

 

II

IV

 

 

У-92

А

 

 

 

I

IV

II

V

_

IV

II

V

 

 

 

 

I

IV

 

I

IV

II

V

 

Б

 

I

IV

I

IV

III

IV

 

I

IV

 

 

 

 

_

IV

II

IV

 

II

IV

 

 

Примечание. В числителе дан тип учебного блока, в знаменателе - тип блока общешкольных помещении из предлагаемой номенклатуры (см. табл. 12.2.).

Таблица 12.2.

Номенклатура типов функциональных блоков для пристроек

к существующим зданиям школ, построенным

по типовым проектам прошлых лет

№ Блока

Тип блока

 

УЧЕБНЫЕ БЛОКИ:

I.

Универсальный на 8 учебных помещений.

II.

Универсальный на 12 учебных помещений.

III.

Универсальный на 16 учебных помещений

 

ОБЩЕШКОЛЬНЫЕ БЛОКИ:

IV.

Универсальный на 2 спортзала (360 и 180м2) и базовый комплект кружковых помещений.

V.

Универсальный на 2 спортзала (648 и 180 м2), зрительный зал и базовый комплект кружковых помещений.

Таблица 12.3.

Примерный состав и площади помещений универсальных учебных блоков.

Наименование помещении

Тип блока, площадь (м2)

п.п

 

I - на 8 учебных помещении

11-на 12 учебных помещений

Ш-на16 учебных помещений

1

Универсальные учебные помещения:

 

 

 

 

- универсальные кабинеты

540(456)/6х90(76)

540(456)/6х90(76)

540(456)/6х90(76)

 

- специализированные кабинеты (по естественным наукам, изучению техники, обработке материалов, технологии, электро – радиотехнологии

270/2´135

810/6´135

1350/10´135

2.

Рабочие комнаты

24*)

2´12

72*)

6´12

120*)

10´12

3.

Ресурсный центр

80

80

80

4.

Инструментальная комната мастера и кладовая для хранения сырья

60/18´2+24

72/18´2+36

72/18´2+36

5.

Гардеробная

24

36

48

6.

Санузлы

38

58

77

7.

Вестибюль с гардеробом

90

134

179

8.

Рекреации

480

720

960

 

Итого нормируемой площади

- для сопоставления

- без учета площади рекреаций

1606(1522)

1126(1042)

2522(2438)

1802(1718)

3426(3342)

2466(2382)

Примечания. 1 В скобках дана площадь с учетом проведения в учебных помещениях только фронтальных работ.

2. *) Количество рабочих комнат определяется проектом.

Таблица 12.4.

Примерный состав и площади помещений универсальных общешкольных блоков.

п.п.

Наименование помещений 

Тип блока, площадь (м2)

IV

V

1.

Спортивно-оздоровительная группа:

540/24´15

828/36´18

 

- спортзалы

12х15

12´15

 

- раздевальные

84/4х21+36/2х18

84/4´21+36/2´18

 

-инвентарная (снарядная)

12+16

12+32

 

-помещения хранения уборочного инвентаря

4

4

 

-помещение инструктора

10

20

2.

Кружковые помещения:

- помещения эстетического воспитания (в составе студий ИЗО, музыки и пения, хореографии)

108/3х36+62+108

108/3´36+62+108

 

- универсальное помещение технического творчества с подсобной

108+12

108+12

 

помещения для биолого-опытнической деятельности ( в составе кружка юннатов, кабинета экологии)

72/2´36+54

72/2´36+54

3.

Помещения зрительного зала:

 

 

 

- зрительный зал с эстрадой

-

212/140+72

 

-артистические с кладовой

-

8+12

 

- киноаппаратная с тамбуром

-

27

 

-технический центр

-

48

 

-лекционная аудитория

100

 

4.

Санузлы

38

53

5.

Вестибюль с гардеробом

134,4

187

6.

Рекреации

488

688

 

Итого нормируемой площади:

1986

2775

 

-для сопоставления - без учета площади рекреаций

1498

2087

Приложение 1

примерный состав и площади помещений общеобразовательных учреждений

№№ и

перечень функциональных групп помещений

Наименование

помещений

Основная школа

Средняя полная школа

Средняя полная школа

с профильным

обучением

Средняя школа

I-III ступени

с профильным

обучением

Гимназия

Лицей

1

2

3

4

5

6

7

8

9

10

11

12

13

14

15

16

17

18

19

20

 

Число учащихся

225

450

275

550

825

275

550

825

550+

550

500

750

1000

140

160

280

320

420

480

160

200

240

300

360

540

 

Орг-пед. структура

1:1:0

2:2:0

1:1:1

2:2:2

3:3:3

1:1:1

2:2:2

3:3:3

222+

222

0:2:4

0:3:6

0:4:8

0:1:1

0:2:2

0:3:3

0:2:2

0:3:3

0:0:9

 

Количество классов

9

18

11

22

33

11

22

33

22+

22

20

30

40

78

14

16

21

24

8

10

12

15

18

27

Площадь м2 и число помещений

1

2

3

4

5

6

7

8

9

10

11

12

13

14

15

16

17

18

19

20

Учебная группа помещений

1.

1-е классы

-Класс, расширенный с учетом организации групповых занятий

76

152

2´76

76

152

2´76

228

3´76

76

152

2´76

228

3´76

304

4´76

 

 

 

 

 

 

 

 

 

-Спальня - игровая

62

124

2´62

62

124

2´62

186

3´62

62

124

2´62

186

3´62

248

4´62

 

 

 

 

 

 

 

 

 

-Рекреация (зального типа)

60

100

60

100

150

60

100

150

200

 

 

 

 

 

 

 

 

 

У – КНШ

2.

Начальные

(2-4) классы

- Класс с возможностью организации групповых, индивидуальных и игровых занятий

228

3´76

456

6´76

228

3´76

456

6´76

684

9´76

228

3´76

456

6´76

684

9´76

912

12´76

 

 

 

 

 

 

 

 

 

- Универсальные помещения в т ч для организации продленного дня

60

120

2´60

60

120

2´60

180

3´60

60

120

2х60

180

3´60

240

4´60

 

 

 

 

 

 

 

 

 

- Комнаты тихих игр и уединения

 

 

 

 

 

30

60

90

120

 

 

 

 

 

 

 

 

 

- Комната труда, моделирования и технической игрушки, изобразительного искусства, природы

108

108

108

108

108

120

120

120

240

2´120

 

 

 

 

 

 

 

 

 

- Рекреация (зального типа)

144

288

144

288

342

144

288

342

576

 

 

 

 

 

 

 

 

 

- Учительская – методический кабинет

30

60

30

60

90

30

60

90

120

 

 

 

 

 

 

 

 

 

У – КОШ

1

2

3

4

5

6

7

8

9

10

11

12

13

14

15

16

17

18

19

20

3.

классы кабинеты

(5-9) основной школы

- Класс - учебный кабинет, рассчитанный на организацию фронтальных, групповых и индивидуальных форм работы

380

5´76

760

10´76

380

5´76

760

10´76

1140

15´76

380

5´76

760

10´76

1140

15´76

1520

20´76

760

10´76

1140

15´76

1520

20´76

360

5´76

760

10´76

1140

15´76

304

4х76

456

6´76

 

- Ресурсный центр

 

 

 

 

 

60

120

180

240

120

180

240

60

120

180

48

72

 

- Рабочие комнаты для занятий по интересам

 

 

 

 

 

50

100

150

200

2´100

100

150

200

50

100

150

100

150

 

-Рекреация (зального типа)

250

500

250

500

750

250

500

750

1000

500

750

1000

250

500

750

500

750

 

У – КСШ

1

2

3

4

5

6

7

8

9

10

11

12

13

14

15

16

17

18

19

20

4.

учебные кабинеты

(10-11) старшей

школы

- Кабинеты универсального назначения (оснащенные в зависимости от профиля обучения)

 

 

152

2´76

304

4´76

456

6´76

152

2´76

304

4´76

456

6´76

608

8´76

608

8´76

912

12´76

1216

16´76

152

2´76/228

´76

304

4´76/456

6´76

456

6´76/684

9´76

304

4´76/456

6´76

456

6´76/684

9´76

1368

18´76/2052

27´76

- Комнаты индивидуальных занятий

 

 

 

 

 

30

60

90

120

120

180

240

30/45

60/90

90/

135

60/90

90/ 135

270 /415

- Ресурсный центр

 

 

 

 

 

20

40

60

80

80

120

160

20/30

40/60

60/90

40/60

60/

90

180/270

- Рекреации

 

 

100

200

300

100

200

300

400

400

600

800

100/ 200

200/ 300

300/ 400

200/ 300

300 /400

720/

1080

У – СК

1

2

3

4

5

6

7

8

9

10

11

12

13

14

15

16

17

18

19

20

5.

специализированные кабинеты основной  старшей школы

Учебные кабинеты по естественным наукам (физика химия, биология) в составе:

 

 

 

 

 

 

 

 

 

 

 

 

 

 

 

 

 

 

- лаборатория

 

 

228

3´76

228

3´76

228

3´76

228

3´76

228

3´76

228

3´76

228

3´76

228

3´76

228

3´76

228

3´76

228

3х76

228

3х76

228

3х76

228

3х76

228

3х76

228

3х76

-практикум

 

 

 

150

3´50

150

3´50

150

3´50

300

6´50

300

6´50

600

12х50

300

6х50

300

6х50

600

12х50

 

 

 

150

3х50

300

6х50

450

9х50

- лаборантская – практикум

108

3´36

108

3´36

108

3´36

 

 

 

 

 

 

 

 

 

 

 

 

108

3х36

216

6х36

324

9х36

- лаборантская

 

 

 

 

54

3´18

 

54

3´18

54

3´18

108

6´18

54

3´18

54

3´18

54

3´18

54

3х18

54

3х18

54

3х18

 

 

 

- кабинет естествознания

76

76

 

 

 

 

 

 

 

 

 

 

 

 

 

 

 

 

Специализированные кабинеты

 

 

 

 

 

 

 

 

 

 

 

 

 

 

 

 

 

 

- иностранного языка

80

2´40

160

4´40

160

4´40

240

6´40

360

9´40

160

4´40

240

6´40

360

9´40

480

12´40

240

6´40

360

9´40

480

12´40

320

8´40

400

10´40

480

12´40

240

6´40

320

8´40

400

10´40

- информатики и вычислительной техники

90

90

90

90

90

90

90

90

180

2х90

90

90

90

90

90

90

90

90

90

- технического черчения и рисования

76

76

76

76

76

76

100

100

100

100

100

100

76

100

100

100

200

2´100

300

3´100

- компьютерный класс

 

 

 

 

 

72

144

2´72

216

3´72

288

4´72

144

2´72

216

3´72

288

4´72

144

2´72

216

3´72

288

4´72

144

2´76

216

3´72

288

4´72

- профильного обучения

 

 

 

 

 

 

 

 

 

 

108

216

2´108

 

108

216

2´108

216

2´108

324

3´108

432

4´108

У – ТМ

6.

Помещения изучения технологий

(трудовое обучение)

- Мастерская по обработке металла и дерева (универсальная)

90

90

 

 

 

 

 

 

 

 

 

 

90

90

90

 

 

 

- Мастерская по обработке металла и технологии

 

 

90

90

90

90

90

90

90

90

90

90

 

 

 

108

108

108

- Инструментальная

18

18

18

18

24

18

18

24

24

18

24

24

18

18

18

36

36

36

-Мастерская по обработке дерева и технологии

 

 

90

90

90

90

90

90

90

90

90

90

 

 

 

90

90

90

- Мастерская по обработке тканей и технологии

90

90

90

90

90

108

108

108

108

108

108

108

90

90

90

108

108

108

- Кулинария

50

50

50

50

50

50

50

50

50

50

50

50

50

50

50

50

50

50

- Домоводство с бытовой техникой

 

 

 

90

90

90

90

90

90

90

90

90

 

 

90

90

90

90

- Кабинет изучения технологии

90

90

90

90

90

90

90

90

90

90

90

90

 

 

 

90

108

108

- Универсальная мастерская по техническим видам труда

 

 

 

 

 

108

108

108

108

108

108

108

 

 

 

 

108

108

- Автодело

 

 

 

 

 

 

108

108

216

2´108

215

2´108

216

2´108

216

2´108

 

 

 

108

216

2´108

216

2´108

- Электрорадиотехнология

 

108

108

108

108

108

108

108

108

108

108

108

 

 

108

108

108

108

- Электротехника

 

 

 

 

 

 

 

108

108

108

108

108

108

108

 

108

108

108

- Радиоэлектроника

 

 

 

 

 

 

108

108

108

108

108

108

 

 

 

108

108

108

- Кабинет машинописи и основ делопроизводства

 

 

 

 

 

80

80

80

80

80

80

80

80

80

80

80

80

80

У – ЦИБ

7.

группа центра

информации

библиотека

 

- Библиотека – справочно-информационный центр с зонами читательских мест*

80

100

115

235

325

115

235

325

440

235

325

440

115

235

325

235

325

440

- Технический центр

72

72

72

72

72

72

72

72

72

72

72

72

72

72

72

72

72

72

Методический

кабинет с учительской и комнатой отдыха (5-11классы)

 

 

60

90

120

60

90

120

180

2´90

90

120

180

60

90

120

60

120

120

У – ВА

8.Вестибюльная

группа учебных помещений,

администрация

- Кабинет директора

25

25

25

25

25

32

32

32

32

32

40

40

32

32

40

32

40

40

-Кабинет замдиректора по учебно-воспитательной работе

10

10

10

10

10

10

10

10

22

2´10

10

20

2´10

20

2´10

10

10

20

10

20

20

- Кабинет организатора внеклассной и внешкольной работы

12

12

12

12

12

12

12

12

24

2´12

12

24

2´12

24

2´12

12

12

24

24

24

24

- Кабинет замдиректора по адм. – хоз. Работе

10

10

10

10

10

10

10

10

10

10

10

10

10

10

10

10

10

10

- Канцелярия

12

12

12

12

12

12

12

12

12

12

12

12

12

12

12

12

12

12

-Комната техперсонала

12

12

12

12

12

12

12

12

24

2´12

12

12

12

12

12

12

12

12

12

- Кл уборочного инвентаря

8

8

8

8

8

8

8

8

18

2´8

8

8

8

8

8

8

8

8

8

- Кабинет врача

21

 

21

21

21

21

21

21

21

21

21

21

21

21

21

21

21

21

- Процедурная

 

 

16

16

16

16

16

16

16

16

16

16

16

16

16

16

16

16

- Кабинет зубного врача

 

 

12

12

12

12

12

12

12

12

12

12

12

12

12

12

12

12

- Санузлы учащихся

34

68

42

83

124

42

83

124

165

75

113

150

21/24

42/48

63/72

24/30

36/45

54/81

- Санузлы персонала

10

10

10

10

20

10

10

20

20

2´10

10

10

20

10

10

20

10

10

20

- Вестибюль-гардероб

79

158

97

193

289

97

193

289

386

2´193

175

263

350

49/56

98 /112

147 /168

56/70

84 /105

126 /189

Общешкольная группа помещений

О-РЦ

9. Рекреационный

центр (центр

досуга)

Рекреационный центр в составе:

 

 

 

 

 

 

 

 

 

 

 

 

 

 

 

 

 

 

- форума

 

 

 

 

 

 

 

 

1650

750

1125

1500

 

 

720

 

450

810

- вестибюля-гардероба

 

 

 

 

 

 

 

 

По расчету

 

 

 

 

 

 

- кабинета директора

 

 

 

 

 

 

 

 

25

25

25

25

 

 

25

 

25

25

- кабинета коменданта

 

 

 

 

 

 

 

 

25

25

25

25

 

 

25

 

25

25

- канцелярия-бухгалтерия

 

 

 

 

 

 

 

 

18

18

18

18

 

 

18

 

18

18

- замдиректора по воспитательной работе

 

 

 

 

 

 

 

 

8

8

8

8

 

 

8

 

8

8

- комната дежурного персонала

 

 

 

 

 

 

 

 

12

12

12

12

 

 

12

 

12

12

- помещение инженера и техсотрудников

 

 

 

 

 

 

 

 

12

12

12

24

2´12

 

 

12

 

12

12

- помещение рабочих с подсобкой

 

 

 

 

 

 

 

 

12

12

12

12

 

 

12

 

12

12

- санузлы

 

 

 

 

 

 

 

 

165

75

113

150

 

 

72

 

45

81

О – ЗЗ

10 Группа зрительного

зала

- Зрительный зал (мест площадь)

153

107

302

211

187

131

374

262

590

413

187

131

374

262

590

413

748

524

340

238

510

357

640

448

98

69/

112

78

196

137/

224

157

294

206

/336

235

112

78

/150

105

168

118

/210

147

252

177

/378

265

- эстрада

72

72

72

72

180

72

180

180

180

180

180

180

180

180

180

180

180

180

 

с учетом использования для хореографии оркестра и театральных представлений

- Лекционная аудитория

 

 

 

 

 

100

100

100

100

100

100

100

100

100

100

100

100

100

- Киноаппаратная

27

27

27

27

27

27

27

27

27

27

27

27

27

27

27

27

27

27

- Кладовая -инвентарная

12

12

12

12

36

12

36

36

36

36

36

36

36

36

36

36

36

36

- артистические

24

24

24

18

30

18

30

30

30

30

30

30

30

60

90

30

30

30

- технический центр

 

 

 

48

48

48

48

48

48

48

48

48

48

48

48

48

48

48

О - ХВ, О - ТТ, О – БЮ

11 Группа свободного

творчества во

внеучебное

время

- Группа студий изобразительного искусства

108

3´36

108

3´36

108

3´36

108

3´36

108

3´36

108

3´36

108

3´36

108

3´36

108

3´36

108

3´36

108

3´36

108

3´36

108

3´36

108

3´36

108

3´36

108

3´36

108

3´36

108

3´36

- Кабинет эстетики

 

 

 

 

 

 

80

80

80

80

80

80

80

80

80

80

80

80

- Хореография и драмкружок

90

90

90

108

108

90

108

108

108

108

108

108

108

108

108

108

108

108

- Раздевальные при студии хореографии

18

18

18

40

40

18

40

40

40

40

40

40

40

40

40

40

40

40

- Музыка и пение

50

50

50

50

50

50

100

100

100

100

100

100

100

100

100

100

100

100

- Помещение хранения музыкальных инструментов

 

 

 

 

 

 

40

40

40

40

40

40

 

 

 

 

 

 

- Студия изобразительного искусства (универсальная)

 

 

 

 

 

 

184

144+ 40

184

144+ 40

368

2´144+80

184

144+ 40

368

2´144 +80

552

3´144 +120

184

144 +40

368

2´144 +80

552

3´144 +120

 

134

144

+ 40

134

144

+ 40

- Кружок тех-творчества

 

 

90

90

90

108

216

216

216

216

216

216

 

 

 

108

216

216

- фото-киностудия

 

 

36

36

54

36

54

54

54

54

54

54

36

54

54

54

54

54

- Группа помещений юннатско-биологической деятельности

72

2´36

72

2´36

72

2´36

90

90

90

180

180

180

180

180

180

90

90

90

40

180

2´90

180

2´90

О – СЗ

12 Группа спортивно-

оздоровительная

- Спортзалы

288

576

2´288

648

828

648+

180

1116

648+

288+

180

648

936

648+

288

1116

648+

288+

180

1764

2х648+288

+180

936

648+288

1116

648

+288

+180

1764

2´648+288

+180

576

2´288

648

936

648+

288

576

2´288

828

648+180

936

648+

288

- Раздевальные

42

2´21

126

6´21

84

4´21

168

8´21

252

12´21

84

4´21

168

8´21

210

10´21

252

12´21

168

8´21

210

10´21

252

12´21

126

6´21

84

4´21

168

8´21

126

6´21

126

6´21

168

8х21

Инвентарная (снарядная)

16

32

2´16

32

48

32+16

64

32+2´16

32

48

32+16

64

32+2´16

80

2´32+16

48

32´16

64

32+2´16

80

2´ (32+16)

48

32´16

48

32´16

48

32´16

48

32´16

48

32´16

48

32´16

- Помещение хранения уборочного инвентаря

4

4

4

4

4

4

4

4

8

2´4

4

4

4

4

4

4

4

4

4

- Комната инструктора

 

 

20

30

20+10

40

2´20

20

40

2´20

30

10´20

40

2´20

30

10´20

40

2´20

40

2´20

30

10´20

30

10´20

30

10´20

30

10´20

30

10´20

30

10´20

О – З

13 Столовая

- Обеденный зал с раздаточной и местами преподавателей

- кухонный блок с подсобными помещениями

122

243

149

297

446

149

297

446

594

295

405

540

84/96

168

/192

252

/288

96

/120

140

/180

216

/324

100

127

127

185

243

127

185

243

370

185

243

370

127

185

243

127

185

243

О – В

14 Вестибюльная группа общественной

- Вестибюль с гардеробом

137

228

168

273

307

132

240

331

409

280

389

477

134 /142

179 /194

250 /272

142 /162

190 /212

269 /349

Итого расчетная площадь

 

3650

5978

5314

8195

11036

6103

10305

13155

20128

10737

12992

18087

5287

5527

7360

7741

1091211432

6866

7259

10274

10794

12370

14005

на 1 уч-ся

16,22

13,28

19,32

14,90

13,37

22,19

18,73

15,94

18,30

21,47

17,32

18,09

37,7634,54

26.2824,19

25.98

23,82

42,92

36,29

42.813598

34,36

2594

О – Б

15 Бассейн

- Бассейн

600

 

 

 

 

 

 

 

 

 

 

 

 

 

 

 

 

 

- Раздевальные со шкафами, душевыми, санузлами

260

4´65

 

 

 

 

 

 

 

 

 

 

 

 

 

 

 

 

 

- Инструкторская- кладовая спортинвентаря

18

12+6

 

 

 

 

 

 

 

 

 

 

 

 

 

 

 

 

 

- Помещение медсестры с лабораторией анализа воды

12

2´6

 

 

 

 

 

 

 

 

 

 

 

 

 

 

 

 

 

- бытовые помещения

9

 

 

 

 

 

 

 

 

 

 

 

 

 

 

 

 

 

- служебные помещения

12

 

 

 

 

 

 

 

 

 

 

 

 

 

 

 

 

 

Итого с учетом бассейна

4561

6889

6225

9106

11947

7014

11216

14066

21039

11648

13903

18998

6198

6438

8271

8732

11823

12343

7777

8170

11185

11705

13281

14916

на 1 уч-ся

20,27

15,31

22,64

16,56

14,48

25,51

20,39

17,05

19,13

23,30

18,54

19,00

44,27

40,24

29,54

27,29

28,15

25,71

48,61

40,85

46,60

39,02

36,89

27,62

Примечания: К общешкольному блоку типа "А" относятся группы общешкольных помещений общеобразовательных школ

К общешкольному блоку типа "Б" относятся группы общешкольных помещений общеобразовательных школ с профильным обучением

К общешкольному блоку типа "В" относятся группы общешкольных помещений, в составе которых имеется рекреационный центр (0-РЦ)

В т ч для учащихся младшего возраста, информационного пункта, мест для работы с каталогами, фонда открытого доступа фонда закрытого хранения общешкольного ресурсного центра (состоящего из зоны комплектования и обработки литературы и специализированного фонда хранения) индивидуальных занятий с ТСО

Приложение 2.

Примерный перечень учебной мебели оборудования классов-кабинетов
(к рис.
1.-6).

1. Стол ученический одноместный с горизонтальной крышкой 700(600)´500´700 (760);

2. Стол учителя в емкостью для ТСО 1200´600´738;

3. Подставка передвижная для телевизора и кинопроектора (подвесное устройство для телевизора) 800´540´1100;

4. Подставка для графопроектора передвижная 510´599´396-812;

5. Подставка для диапроектора складируемая 460´300´1217;

6. Стул ученический 340´380´ 420; 360´400´460;

7. Стул учителя 360´360-440´ 420-450;

8. Шкаф, встроенный для классного помещения 5520 (5980)´580´2740 (3000);

9. Доска классная для мела, основная, односторонняя 1600, 2000´1000, 1200;

10. Экран свертывающийся 2600´1900, 1500´900;

11. Шторы затемнения с электроприводом по габаритам оконных проемов.

Приложение 3.

сокращения и условные обозначения.

УЗ - учебное здание

НО - основная школа I, II ступеней

НОС - полная средняя школа I, II и 1П студеней

НОСП - полная средняя школа I, II и III ступеней с профильным обучением

ОСП - средняя школа II и III ступеней с профильным обучением Г - гимназия в составе II и III ступеней обучения

Л - лицей в составе II и III ступеней обучения

т.п. - типовой проект

х и хх - меньше и больше требуемого по МГСН 4.06-96

Приложение 4.

Структурная карта учебной группы помещений целевых типов учебных зданий при расчетной наполняемости учебной группы - 20 учащихся.

Наименование

показателей 

Вид и тип УЗ (количество классов)

НО

НОС

НОСП

ОСП

Г

Л

9кл.

18кл.

11кл.

22кл.

33кл.

11кл.

22кл.

33кл.

20кл.

30кл.

7кл.

14кл.

21кл.

8кл.

12кл.

18кл.

Основные учебные помещения:

 

 

 

 

 

 

 

 

 

 

 

 

 

 

 

 

- более 70м2

390

5

480

6

555

7

630

8

630

8

735

9

900

11

1080

13

1080

13

1080

13

315

4

390

5

480

6

915

11

1185

14

1260

15

- 70-50 м2

706

12

1352

23

1006

17

1772

30

2538

43

1231

20

1952

33

2723

46

1445

24

2111

35

845

14

1331

22

1877

31

977

16

1343

22

1829

30

- менее 50 м2

115

3

185

5

297

8

381

10

486

13

220

7

525

13

630

16

504

13

630

16

325

9

395

11

465

13

498

13

595

15

1134

29

Вспомогательные

48

2

78

2

48

2

78

2

168

5

238

7

474

10

748

10

492

8

708

8

232

8

392

8

552

8

284

5

408

5

486

3

Библиотека

80

100

115

235

325

115

235

325

235

325

115

235

325

235

325

440

Прочие

226

11

260

11

322

14

393

14

474

14

329

14

400

14

481

14

392

14

490

16

308

14

359

14

450

14

323

14

383

14

441

14

Итого по группе

1565

34

2455

48

2343

49

3489

65

4621

84

2868

58

4486

82

5987

100

4148

73

5344

89

2140

50

3102

61

4149

73

3232

60

4239

77

5590

92

Коэффициенты приведения:

 

 

 

 

 

 

 

 

 

 

 

 

 

 

 

 

- Хп

1,0

1,57

1,49

2,23

2,95

1,8

2,87

3,83

2,65

3,41

1,37

1,98

2,65

2,06

2,7

3,57

- Вп

0

14

15

31

50

24

48

66

39

55

16

27

39

26

43

58

Примечание. 1. Все показателя площади даны без учета рекреаций.

2. В числителе дана суммарная площадь помещений, в знаменателе - количество помещений.




Яндекс цитирования



   Copyright © 2007-2026,  www.tehlit.ru.

[ ѓосты, стандарты, нормативы, инструкции, правила, строительные нормы ]