//
ТехЛит.ру
- крупнейшая бесплатная электронная интернет библиотека для "технически умных" людей.
WWW.TEHLIT.RU - ТЕХНИЧЕСКАЯ ЛИТЕРАТУРА

:: Алготрейдинг::


АЛГОТРЕЙДИНГ
шаг за шагом
с нуля по урокам!

Торговые роботы на PYTHON, BackTrader,
Pandas, Pine Script для TradingView. Связка с брокерами, телеграм и легкими приложениями.


ПРАВИТЕЛЬСТВО МОСКВЫ
МОСКОМАРХИТЕКТУРА

ПОСОБИЕ
к МГСН 4.07-05

ДОШКОЛЬНЫЕ ОБРАЗОВАТЕЛЬНЫЕ
УЧРЕЖДЕНИЯ

2007

ПРЕДИСЛОВИЕ

1. РАЗРАБОТАНО ФГУП «Институт учебно-воспитательных, торгово-бытовых и досуговых зданий» (Институт общественных зданий): руководитель работы, научный редактор - кандидат архитектуры Гарнец А.М; автор - кандидат архитектуры Смывина Л.А.; ответственный исполнитель - кандидат архитектуры Исаева Т.А.; при участии: кандидата технических наук Кротюка В.Ф., инженера Сигачевой Л.В., инженера Чернозубовой Н.И., архитектора Никифорова А.В., а также начальника отдела надзора за условиями воспитания и обучения Синяковой Д.В. (Управление Роспотребнадзора по городу Москве), заведующего отделением гигиены детей и подростков Молдованова В.В. и санитарного врача Шрамковой Н.А. (ФГУЗ «Центр гигиены и эпидемиологии в городе Москве»).

2. ПОДГОТОВЛЕНО к утверждению и изданию Управлением городского заказа разработки документации по территориальному планированию и планировке территорий Москомархитектуры.

3. СОГЛАСОВАНО Департаментом образования города Москвы, Управлением Роспотребнадзора по городу Москве, УГПС МЧС РФ города Москвы, Москомархитектурой.

4. УТВЕРЖДЕНО приказом Москомархитектуры от 08.06.2007 № 116.

СОДЕРЖАНИЕ

ВВЕДЕНИЕ

1. ОСНОВНЫЕ ПОЛОЖЕНИЯ

2. ОРГАНИЗАЦИЯ СЕТИ ДОШКОЛЬНЫХ ОБРАЗОВАТЕЛЬНЫХ УЧРЕЖДЕНИЙ, РАЗМЕЩАЕМЫХ В ЖИЛОЙ ЗАСТРОЙКЕ

3. ОРГАНИЗАЦИЯ ЗЕМЕЛЬНОГО УЧАСТКА

3.1. Общие требовании к земельному участку

3.2. Планировка и оборудование элементов участка

3.3. Благоустройство и озеленение

4 ОБЪЕМНО-ПЛАНИРОВОЧНЫЕ РЕШЕНИЯ ЗДАНИЙ

4.1. Функциональная структура дошкольных учреждений

4.2. Общие требования к функционально-планировочной организации зданий

5. ПОМЕЩЕНИЯ ОСНОВНОГО ПРЕБЫВАНИЯ ДЕТЕЙ

5.1. Универсальные групповые ячейки

5.2. Специальные групповые ячейки

6. СПЕЦИАЛИЗИРОВАННЫЕ ПОМЕЩЕНИЯ ДЛЯ РАБОТЫ С ДЕТЬМИ

6 1. Залы для музыкальных и гимнастических занятий

6.2. Бассейны

7. СОПУТСТВУЮЩИЕ ГРУППЫ ПОМЕЩЕНИЙ

7.1. Медицинские помещения

7.2. Пищеблок

7.3. Постирочная

7.4. Служебно-бытовые помещения

8. СПЕЦИАЛЬНЫЕ ТРЕБОВАНИЯ К ПРОЕКТИРОВАНИЮ ДОШКОЛЬНЫХ ОБРАЗОВАТЕЛЬНЫХ УЧРЕЖДЕНИЙ КОМПЕНСИРУЮЩЕГО ВИДА

9. УСЛОВИЯ РАЗМЕЩЕНИЯ НАЧАЛЬНЫХ КЛАССОВ ОБЩЕОБРАЗОВАТЕЛЬНОЙ ШКОЛЫ В ЗДАНИЯХ ДЕТСКИХ САДОВ

Приложение А Нормативно- методические материалы, использованные в работе над Пособием

Приложение Б Примерный ассортимент зеленых насаждений (для детского сада на 10 групп)

Приложение В Рекомендуемый состав смеси трав (в граммах на I м2)

Приложение Г Наполняемость детских групп с компенсирующей направленностью

Приложение Д Ширина проходов в производственных помещениях пищеблока

ВВЕДЕНИЕ

1. Настоящее пособие разработано в развитие МГСН 4.07-05 «Дошкольные образовательные учреждения» с учетом требований, изложенных в СанПиН 2.4.1.1249-03 «Санитарно-эпидемиологические требования к устройству, содержанию и организации режима работы дошкольных образовательных учреждений». Оно распространяется на проектирование, в первую очередь, массовых типов государственных дошкольных образовательных учреждений, предназначенных для практически здоровых детей и детей с недостатками развития, подлежащих коррекции и компенсации в развитии и в процессе подготовки к школе.

Требования к государственным дошкольным образовательным учреждениям являются обязательными. Для негосударственных дошкольных учреждений габариты и количество помещений, и другие требования, изложенные в настоящем документе и в МГСН 4.07-05, являются основополагающими и могут быть развиты в сторону увеличения количества помещений и их габаритов и улучшения качества внутренней среды.

Положения настоящего пособия не распространяются на проектирование детских домов для детей с нарушением психического и физического развития, а также дошкольных отделений в школах-интернатах для детей с нарушением развития.

2. Пособие разработано в помощь проектировщикам - архитекторам, технологам, инженерам, работникам дошкольного воспитания - с целью практического использования при проектировании зданий, их участков, а также дать рекомендации по функциональной структуре и планировочному решению различных детских садов, повышению качества архитектуры зданий.

3. При проектировании дошкольных учреждений следует учитывать требования нормативно-методических документов, приведенных в приложении А.

1. ОСНОВНЫЕ ПОЛОЖЕНИЯ

1.1. Система дошкольных учреждений формируется различными видами дошкольных образовательных учреждений в соответствии с направленностью их деятельности.

Дополнительно к государственной системе ДОУ могут предусматриваться негосударственные образовательные учреждения, реализующие программы дошкольного образования.

1.2. Дошкольное общеобразовательное учреждение реализует общеобразовательные программы дошкольного образования различной направленности, обеспечивает присмотр, уход и оздоровление детей в возрасте от 2-х месяцев до 7-и лет.

1.3. Одной из важнейших задач дошкольного воспитания является правильное психическое развитие ребенка, создание в дошкольном учреждении благоприятного психологического климата. Этому способствуют гуманизация среды ДОУ, создание интерьеров, фасадов, фрагментов участка, по характеру напоминающих жилую среду.

Основным принципом создания соответствующей среды для детей является выделение ее развивающего начала. Среда детского учреждения должна содержать пространственные и предметные стимулы творческого и эмоционального развития ребенка и, кроме того, быть динамичной, не допуская привыкания к однообразию.

1.4. Дошкольные образовательные учреждения могут избрать одно или несколько направлений в своей основной деятельности в качестве приоритетных, которые определяют вид учреждения.

Здания для дошкольных учреждений различных видов, как правило, следует проектировать универсальными. Целесообразность проектирования универсальных зданий обосновывается возможностью, предусмотренной в Уставе ДОУ, менять приоритетные направления обслуживания детей в соответствии с изменением спроса потребителей (пожелания родителей). Московскими городскими строительными нормами заложены принципы проектирования универсальных детских садов, которые в равной степени могут работать как развивающие, оздоровительные, компенсирующие для детей с легкой степенью нарушений развития, а также комбинированные. Специализация ДОУ определяется наличием в их составе дополнительных помещений, имеющих специальное оборудование. Это позволяет обеспечить условия полноценного функционирования здания при изменении вида образовательного дошкольного учреждения, которое достигается заменой оборудования дополнительных помещений.

1.5. Особого внимания требует проектирование ДОУ компенсирующего вида. Компенсирующие ДОУ для детей с нарушениями слуха (глухих и слабослышащих), с нарушением зрения (слабовидящих, с косоглазием и амблиопией), с нарушением опорно-двигательного аппарата и интеллекта следует проектировать в виде специальных зданий с сокращенными площадями основных помещений групповой ячейки (т.к. практически вдвое сокращается нормативная наполняемость детских групп). Состав и площади дополнительных помещений определяются заказчиком на стадии разработки задания на проектирование.

При некоторых видах компенсирующей деятельности для организации таких учреждений вполне могут подойти универсальные здания ДОУ, например, логопедический детский сад. Отдельные компенсирующие услуги могут быть оказаны не всем, а лишь части детей (или части детских групп) в комбинированном дошкольном учреждении, для размещения которого также подойдет универсальное здание.

1.6. ДОУ компенсирующего вида, в свою очередь, могут проектироваться как специализированные: для детей с нарушениями слуха, зрения, опорно-двигательного аппарата, психического развития, или как универсальные, когда в одном здании могут функционировать учреждения с любой из указанных здесь компенсирующих направленностей.

1.7. Примерное соотношение числа мест в дошкольных образовательных учреждениях различных видов в пределах жилого района ориентировочно можно принять следующим:

общеразвивающих - 40%;

оздоровительных - 30%;

компенсирующих - 30%.

Данные о конкретной потребности мест в ДОУ должны быть уточнены в местных органах образования или в соответствии с результатами социологических обследований.

1.8. В качестве дополнительных услуг в ДОУ любого типа могут предусматриваться такие мероприятия как родительские семинары, консультации родителям по уходу и воспитанию, психологическая помощь семье, а также детские кружки и секции, в том числе для дошкольников, не являющихся постоянными воспитанниками данного ДОУ. К дополнительным услугам и мероприятиям могут также относиться организация детских утренников и спектаклей, посещение бассейна, консультации специалистов по части компенсирующих мероприятий.

При организации дополнительных услуг в ДОУ (детские кружки и секции, детские утренники и спектакли, посещение бассейна) для детей, не являющихся постоянными воспитанниками данного ДОУ, необходимо согласование с органами Роспотребнадзора в каждом конкретном случае

2. ОРГАНИЗАЦИЯ СЕТИ ДОШКОЛЬНЫХ ОБРАЗОВАТЕЛЬНЫХ УЧРЕЖДЕНИЙ, РАЗМЕЩАЕМЫХ В ЖИЛОЙ ЗАСТРОЙКЕ

2.1. Архитектурная типология ДОУ определяется главным образом градостроительными условиями применения и размещения в жилой застройке. Система зданий и комплексов ДОУ и их отделений в жилых образованиях может решаться как самостоятельная, или в сочетании с учреждениями общего образования (школами).

2.2. Выбор архитектурных типов зданий и комплексов ДОУ в конкретных градостроительных условиях рекомендуется осуществлять с учетом показателя селитебной плотности (средневзвешенной этажности жилых зданий). Малые ДОУ вместимостью от 0,5 до 3 детских групп нормативной наполняемости рекомендуются в малоэтажной жилой застройке (усадебная, коттеджная с постоянно проживающим населением, коттеджная дачная для сезонно организуемых негосударственных детских садов с режимом кратковременного пребывания детей, малоэтажная блокируемая и т.п.).

При средней этажности жилой застройки 3-7 этажей рекомендуется применение отдельно стоящих ДОУ общего типа вместимостью от 4 до 10 детских групп с условием обеспечения радиуса охвата не более 300 м. Если здания ДОУ проектируются как специализированные, желательно вместимость оздоровительных ДОУ предусматривать не более 6 групп.

Группы кратковременного пребывания весьма экономичны, не содержат спален и кухонь, и при размещении в первых этажах жилых зданий способствуют экономии занимаемой территории микрорайона.

2.3. При повышенной селитебной плотности (при средневзвешенной этажности жилой застройки более 7-9 этажей) целесообразно применять здания ДОУ на 8-10 групп, а при применении ранее разработанных типовых проектов или при реконструкции - до 12 групп.

ДОУ вместимостью до 8 групп (до 150 мест) могут встраиваться в первые (нижние два) этажи жилых зданий, а вместимостью до 10 групп - встроенно-пристроенными.

При средней и повышенной селитебной плотности в системе ДОУ возможно предусматривать по согласованию с органами образования и Управления Роспотребнадзора по городу Москве Комплексы дошкольного воспитания. Этот архитектурный тип ДОУ состоит из Центра развития ребенка и групповых отделений. Функциональной основой Комплекса дошкольного воспитания является централизация хозяйственных процессов - приготовление и доставка готовой пищи, стирка белья, некоторые другие. При этом групповые отделения комплекса могут иметь меньшую вместимость и быть встроенными в первые этажи жилых зданий. Центр развития ребенка может осуществлять обслуживание детских групп из различных групповых отделений при использовании общих помещений: бассейн, детские кружки и секции, помещения для проведения праздничных утренников, детских спектаклей и др. Центр развития ребенка может содержать консультационные пункты для родителей, обеспечивать методическое помощь руководителям и воспитателям ДОУ.

2.4. Определение числа мест в группах кратковременного пребывания (дневных и круглосуточных) осуществляется на основе социологических обследований или по МГСН 4.07-05.Соотношение возрастных групп детей в ДОУ, а также приоритетные направления обслуживания в отдельных группах или ДОУ в целом определяются заданием на проектирование или проектом по согласованию с органами образования.

2.5. Градостроительные системы комплексов и зданий ДОУ или их элементов могут иметь место при застройке или реконструкции больших жилых образований от 5 до 15-20 тыс. жителей. При этом функциональная организация этой системы должна обеспечивать ее органичное вхождение в архитектурно-градостроительный ансамбль застройки.

При низкоплотной жилой застройке здания ДОУ (особенно объединенные со школой) могут представлять собой градостроительные акценты, более крупные по объему и этажности, чем индивидуальные или блокируемые 1-2х-этажные жилые дома. В условиях многоэтажной жилой застройки, как правило, двухэтажные здания ДОУ имеют подчиненный характер и могут контрастировать своим архитектурным решением с мелкоячеистой фактурой фасадов жилых домов укрупненными деталями и укрупненным ритмом.

2.6. В функциональном отношении системы ДОУ могут формироваться универсальными зданиями ДОУ одинаковой или разной вместимости. Когда применяются учреждения разной вместимости - этот прием можно эффективно использовать для предпочтительного размещения в более крупных зданиях общеразвивающих ДОУ, в зданиях меньшей вместимости - оздоровительных ДОУ. При этом компенсирующие дошкольные учреждения, как правило, лучше предусматривать крупными (на 6-10 детских групп) - для эффективного использования особой планировочной структуры здания, специального оборудования, квалифицированного персонала.

2.7. Здания ДОУ могут размещаться во внутридворовом пространстве жилых групп в виде отдельно стоящих зданий, играть роль торцевого элемента, элемента рядовой или поворотной вставки в блокируемой жилой застройке, быть встроенно-пристроенными с выступающими компактными или протяженными объемами вдоль фасадных сторон многоквартирных жилых зданий. Блокируемые элементы-вставки могут быть одно-, двух или трехэтажными, встроенные (встроенно-пристроенные) объемы - одно- или двухэтажными.

2.8. При проектировании комплексов дошкольного воспитания здание Центра развития ребенка следует предусматривать в центре жилого комплекса (микрорайона). В соответствии с СанПиН 2.4.1.1249-03 расстояние от здания Центра до обслуживаемых им групповых отделений не должно превышать 300 м.

Отдельные небольшие по вместимости групповые отделения целесообразно предусматривать специализированными - в соответствии с приоритетными направлениями развития детей (общеразвивающего, оздоровительного или компенсирующего вида).

2.9. В качестве градостроительной системы могут проектироваться объединенные комплексы дошкольных учреждений (отделений) и общеобразовательных школ (школьных отделений) как в виде раздельных зданий этих учреждений, так и единых учебно-воспитательных комплексов. Например, при повышенных селитебных плотностях, могут проектироваться комплексы зданий школ, имеющих по 2-3 филиала «Начальная школа - детский сад», в которых находятся дошкольники преимущественно старших возрастных групп, а более младшие возрастные группы дошкольников могут размещаться в небольших по вместимости отдельно стоящих или встроенных ДОУ.

2.10. Здания детских образовательных учреждении следует размещать на территории жилой застройки в благоустроенной, озелененной части города, отвечающей санитарно-гигиеническим требованиям инсоляции, аэрации территории согласно СНиП 2.07.01.

Радиус доступности для детских дошкольных учреждений принимается 300 м, а для специализированных дошкольных учреждений радиус доступности не нормируется, но не должен превышать 30-минутной транспортной доступности.

3. ОРГАНИЗАЦИЯ ЗЕМЕЛЬНОГО УЧАСТКА

3.1. Общие требовании к земельному участку

3.1.1. Планировочную структуру участка рекомендуется разрабатывать в увязке с планировочным решением здания ДОУ и с учетом требований к составу и площадям элементов участка, озеленению и благоустройству.

3.1.2. Площадь земельного участка для вновь строящихся ДОУ с отдельно стоящим зданием принимается из расчета 40 кв. м на 1 место, а при вместимости до 100 мест - 35 кв. м на 1 место. Для встроенных ДОУ площадь принимается из расчета не менее 29 кв. м на 1 место.

Площадь участков для вновь строящихся ДОУ компенсирующего вида следует принимать по МГСН 4.07-05 пункт 5.18.

3.1.3. В состав земельного участка ДОУ общего типа входят две основные зоны: игровая - зона пребывания детей, и хозяйственная.

Зона игровой территории включает в себя групповые площадки, индивидуальные для каждой группы, и общую физкультурную площадку.

В соответствии с СанПиН 2.4.1.1249-03 (п. 2.1.10) площадь групповых площадок проектируется из расчета - 7,2 кв. м на 1 ребенка ясельного возраста (при наполняемости группы 15 детей -108 кв. м) и 9,0 кв. м на 1 ребенка дошкольного возраста.

Количество физкультурных площадок и их площади определены СанПиН 2.4.1.1249-03 (п. 2.1.15): в ДОУ вместимостью до 150 мест оборудуется одна физкультурная площадка размером не менее 250 кв. м, при вместимости свыше 150 мест - две площадки размером 150 и 250 кв. м.

В площадь озеленения включаются защитные полосы, обеспечивающие санитарные разрывы между отдельными площадками и элементами игровой территории.

3.1.4 Наибольшее расстояние, с которого взрослый человек (воспитатель) с нормальным зрением различает действия детей, приблизительно равно 135 м, а с которого различает лицо ребенка - 20-25 м. Размеры участка ДОУ, а также групповых и общих площадок рекомендуется устанавливать, исходя из этих данных.

3.1.5. При планировке участка следует учитывать его природное окружение, а также характер архитектуры как самого здания ДОУ, так и окружающей застройки. При благоустройстве территории ДОУ не следует перегружать ее малыми архитектурными формами.

Следует учитывать эстетическое воздействие на детей красивого здания и элементов благоустройства, а также аккуратно стриженного газона с организованными группами деревьев и кустарников.

3.1.6. Уровень шума на участке ДОУ не должен превышать 60 дБА. Здание детского сада может проектироваться как «шумозащищенное» (групповые обращены в сторону, противоположную от источника шума). В этом случае игровую территорию следует располагать со стороны групповых, в «шумовой» тени.

3.1.7. Здания должны размещаться в зоне пониженных скоростей преобладающих ветровых потоков, в аэродинамической (ветровой) тени, образуемой жилой застройкой. Зоной аэродинамической тени считается территория за экранирующим объектом на расстоянии пяти его высот, где происходит снижение скорости ветра не менее чем в два раза.

Размещение здания на участке определяет его градостроительная маневренность (ориентация окон групповых по сторонам горизонта), исходя из условий обеспечения не менее трехчасовой непрерывной инсоляции групповых площадок.

3.1.8. Для снижения площади занимаемой территории по согласованию с органами Роспотребнадзора могут применяться следующие планировочные приемы:

а) применение встроенных или встроенно-пристроенных ДОУ в жилые здания (сокращение территории до 25%);

б) применение комплексов дошкольного воспитания со встроенными или встроенно-пристроенными в жилые здания групповыми отделениями (сокращение территории до 20%);

в) использование в отдельно стоящих зданиях ДОУ цокольного этажа и площадки эксплуатируемой кровли. По согласованию с органами Роспотребнадзора в цокольном этаже здания ДОУ могут размещаться бассейн, отдельные помещения пищеблока (кроме производственных и складских помещений для хранения сухих и сыпучих продуктов), технические помещения по инженерному обслуживанию здания (кроме электрощитовой).

3.1.9. В условиях затесненной застройки при реконструкции, а также в жилых комплексах с повышенной интенсивностью использования территории (в центральной части Москвы) допускается, по согласованию с органами Роспотребнадзора, сокращение нормируемой площади участка при сохранении санитарных разрывов между площадками:

не менее 3 м между групповыми площадками, между групповой и общей спортивной площадками;

не менее 6 м между групповой и хозяйственной площадками;

не менее 2 м между ограждением участка и групповыми или общей физкультурной площадками.

3.1.10. В состав хозяйственной зоны входит хозплощадка, с местом разгрузки и площадкой для мусоросборников, площадью 100 м2 для ДОУ общего типа, 75 м2 - для малых ДОУ, 120 м2 - для ВДВ на 10 и более детских групп. Хозяйственная площадка должна быть расположена у входа в загрузочную пищеблока. Мусоросборники могут размещаться на асфальтированной площадке при въезде на участок со стороны хозяйственного автомобильного проезда.

На территории участка дошкольного учреждения подъезд к хозяйственной площадке рекомендуется делать минимальной длины и таким образом, чтобы он не пересекал пешеходные дорожки к групповым площадкам.

3.1.11. На площади участка ДОУ необходимо предусматривать круговой автомобильный проезд (или место, позволяющее проехать на автомобиле вокруг здания). При ДОУ, пристроенном к торцу жилого дома, вокруг пристройки должен предусматриваться полукольцевой объезд.

3.1.12. В составе игровой зоны дополнительно можно предусматривать солярий, парк крупноразмерных игрушек, лыжню, зимний каток, велосипедную дорожку, площадку для изучения правил дорожного движения.

3.1.13. В состав хозяйственной зоны дополнительно разрешается включать овощехранилище (площадью не более 50 м2), огород, ягодник, фруктовый сад, площадку для содержания домашних животных и птиц.

Устройство в составе хозяйственной зоны площадки для содержания домашних животных и чтиц должно быть согласовано с органами осуществляющими государственный санитарно-эпидемиологический надзор.

3.1.14. В отдельных случаях (напр. встроенное ДОУ, недостаточная или не инсолируемая территория у здания ДОУ и т.п.) по согласованию с органами Роспотребнадзора часть или всю игровую территорию допускается размещать в отрыве от здания (участка) ДОУ к нему примыкающего. Расстояние от входов в здание (участка) до участка, размещаемого в отрыве от здания, не должно превышать 50 м. В отрыве может решаться вся или часть игровой территории: групповые и общие площадки с соответствующей площадью озеленения, необходимыми отступами и санитарными разрывами между площадками.

3.1.15. При традиционном решении участка ДОУ общего типа на каждой групповой площадке следует предусматривать теневые навесы с деревянным (дощатым) полом, огороженные от ветра с трех сторон. По согласованию с органами Роснотребнадзора могут быть приняты иные решения солнцезащиты на групповых площадках: легко возводимые пляжные тенты, зонты, декоративные перголы, стойки и стенки с маркизами, постройки из облегченных сборных конструкций комплектной поставки, а также небольшие капитальные постройки, в том числе, решаемые в едином ансамбле с оградой и малыми формами участка.

3.1.16. В соответствии с образовательной программой каждого ДОУ, могут вноситься уточнения в решение элементов групповых площадок. Например, теневые навесы могут оборудоваться скамьями (и столиками) для занятий и игр на открытом воздухе, групповые площадки могут оборудоваться выполняемыми по индивидуальному заказу или серийно выпускаемыми комплектами физкультурно-игрового оборудования и т.п.

3.1.17. Общая физкультурная площадка площадью 250 м2 используется для занятий с двумя группами одновременно.

Планировка, организация и оборудование физкультурной площадки должны обеспечивать условия проведения с детьми утренней зарядки, подвижных игр с элементами спорта, физкультурных занятий, спортивных и игровых праздников.

На общей физкультурной площадке рекомендуется предусматривать зеленую лужайку для подвижных игр, кольцевую или прямую беговую дорожку, ямы для прыжков в длину и высоту, площадку для командных спортивных игр, зону с физкультурно-игровым оборудованием, гимнастическими и спортивными снарядами, а также «полосу препятствий».

3.1.18. На участках зданий Центров дошкольного воспитания, содержащих 8 и более детских групп детей 3-6(7) лет, следует размещать две физкультурные площадки общей площадью не более 400 м2 и дифференцировать их по видам игровой деятельности: одна - для подвижных игр с мячом (волейбола, футбола, баскетбола, а также городков или хоккея); другая - со стационарным физкультурно-игровым оборудованием, спортивными и игровыми снарядами для лазания, прыжков, равновесия и пр.

3.1.19. Применение стационарного физкультурно-игрового оборудования, выполняемого по индивидуальному заказу, а также трансформируемых бассейнов необходимо согласовывать с органами Госсанэпиднадзора.

3.1.20. Предметно-пространственная среда групповых площадок ясельных и младших дошкольных групп должна обеспечивать различные виды деятельности детей, в связи с чем рекомендуется выделять зоны, оборудованные для игр с песком и водой, занятий по развитию речи, для сюжетных, дидактических и подвижных игр.

3.1.21. Групповые площадки детей дошкольного возраста допускается проектировать специализированными и тематическими. К специализированным относятся площадки:

для игр с песком и водой;

для игр со строительным материалом;

для сюжетно-ролевых игр;

для подвижных игр;

для тихих творческих игр и занятий;

с крупноразмерными подвижными игрушками.

К тематическим: «Транспортная», «Театральная», «Строительная», «Приключенческая», «Зоологическая», «Сказочная», «Усадьба» и т.п.

Набор специализированных и тематических площадок на участке определяется заданием на проектирование или проектом.

3.1.22. Специализированные и тематические площадки закрепляются за соответствующими группами, но используются разными группами детей поочередно. Это разнообразил игровую деятельность детей, обеспечивает дополнительные стимулы физического и эмоционального развития.

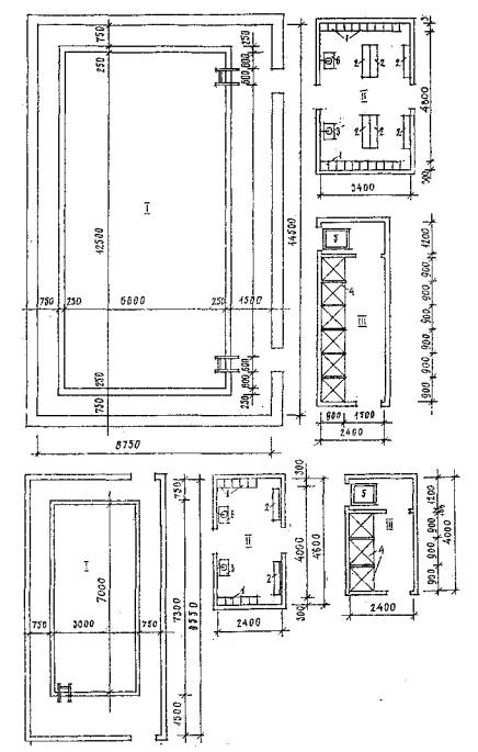
3.1.23. Принципиальные схемы участков ДОУ в обычных и особых условиях их размещения показаны на рис. 1.

Примеры планировочных решений земельных участков различных типов ДОУ в нетрадиционных условиях представлены на рис. 2.

3.2. Планировка и оборудование элементов участка

3.2.1. Организация полноценных условий для воспитания и оздоровления детей па участке ДОУ зависит от качества и количества размещаемого игрового оборудования, способствующего физическому развитию детей и соответствующего их возрастным особенностям.

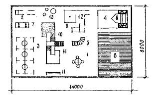
Каждая групповая площадка оборудуется в соответствии с возрастом детей. Примеры планировки и оборудования групповых площадок для различных возрастных групп детей показаны на рис. 3-8.

3.2.2. Каждый вид оборудования может иметь различное проектное решение, отличающееся материалом, технологией изготовления, габаритами, дизайном. Вместо единичных элементов оборудования на каждой групповой или общей площадках могут применяться единые объемно-пространственные физкультурно-игровые комплексы.

3.2.3. Размещать оборудование на групповых площадках следует в соответствии с эргонометрическими данными и функциональными рабочими зонами элементов оборудования.

3.2.4. Теневой навес, предусматриваемый в составе каждой групповой площадки, не должен мешать двигательной активности детей, а также создавать «визуальную тень» для воспитателя, наблюдающего за детьми. Их ставят на границе групповой площадки, желательно, с ее северной стороны.

Навесы могут быть «сдвоенными» - на две смежные группы, а также могут быть сблокированы на 3-4 детские группы, но с условием сохранения групповой изоляции площадок.

Навесы для ясельных групп рекомендуется пристраивать к зданию.

3.2.5. Внутри теневого навеса может находиться различная переносная встроенная мебель и оборудование: детские стульчики и столики, стол и стул для воспитательницы, встроенная или пристроенная низкая и длинная скамейка вдоль стены для детей, встроенные или пристроенные шкафы для игрушек.

3.2.6. На групповой площадке для детей 0-1 года непосредственно у теневого навеса устанавливается барьер для овладения ходьбой из четырех секций, столик-барьер, манежи в рассеянной тени от зелени.

3.2.7. На групповой площадке для детей 1-2 лет размещается оборудование, на котором дети упражняются в ходьбе, беге, лазаний и других движениях. Для детей, только овладевающих ходьбой, необходим барьер из четырех секций. Кроме того, на участке рекомендуется предусмотреть горку-манеж, состоящую из лестницы с ограждением, площадки и ската с боковыми бортиками, оборудования для профилактики плоскостопия.

Оборудование расславляется по периметру площадки и среди зелени таким образом, чтобы воспитатель хорошо видел всех детей. Утрамбованная площадка должна оставаться свободной для подвижных и индивидуальных игр с колясками, каталками, машинами.

3.2.8. Обязательным элементом групповой площадки для детей 1-2 лет является песочница или песочный столик, с откидными бортиками для песочных изделий. Песочницы лучше делать приподнятыми от земли для игры стоя. В этом случае предусматриваются переносные скамеечки для игр с песком. Лучше применять песочницы из небольших секций, что удобно для смены загрязненного песка. Песочницы и песочные столики размещаются у деревьев или кустарника, дающих рассеянную тень.

3.2.9. На групповых площадках для детей 2-3 и 3-4 лет устанавливается оборудование, стимулирующее детей к упражнениям в основных движениях. Для упражнения в лазании младших детей рекомендуется лесенка-стремянка высотой 1 м, для более старших - вертикальная лесенка (гимнастическая лестница) высотой 2 м.

Для упражнения в равновесии устанавливаются столбики одинаковой высоты, балансиры. Для забрасывания мяча в горизонтальную цель можно использовать корзину, а в вертикальную - обруч, прикрепленный к гимнастической стенке.

Для упражнения в пролезании используются дуги, арки, тоннели.

В оборудование площадок входят разнообразные качалки и качели, позволяющие развивать вестибулярный аппарат и чувство равновесия. Качалки могут быть одно-, двухместные, простые и фигурные. Качели должны соответствовать росту детей: при росте 80, 90, 100 см сидение качелей устанавливается на расстоянии 0,17; 0,20; 0,24 м от земли.

3.2.10. На групповых площадках для детей 2-3 и 3-4 лет необходимо создавать условия для спокойных игр: строительных, игр с песком, куклами, мелкосборными конструкторами, крупными игрушками. Следует устраивать песочные дворики, которые могут быть разнообразной формы и легко вписываться в планировку участка. Песочный дворик располагают таким образом, чтобы он обязательно частично освещался солнцем. Желательно иметь тент-зонт. (Рисунок 11)

Для игр с водой удобны надувные чаши из пластика (переносные); из строительных и гидроизоляционных материалов можно выполнить небольшие ванны-корытца и канальчики - для игры с корабликами и пр.

3.2.11. Для сюжетно-ролевых игр требуется легкое переносное оборудование: ажурные домики, строительный конструктор, декоративные объемные фрагменты ситуаций («Джунгли», «Замок», «Ковбойская деревня», «Полицейская станция», «Аэродром», «Логово пиратов» и пр.).

В зимнее время на участке создаются снежные горки или используются горки высотой 1,2 - 1,5 м. Наверху горки должна быть ровная площадка 1,2×1,2 м, чтобы установить санки и сесть на них. Скат для малышей должен быть пологий, расширенный книзу.

3.2.12. На групповых площадках для детей 4-6 (7) лет должны быть созданы условия для разнообразной деятельности детей: совершенствования основных движений, закрепления конструктивных навыков, развития трудовых навыков; для сюжетно-ролевых игр.

Необходимо не только правильно подобрать оборудование и рационально разместить его на участке, но и определить места для игр, которые требуют специальных условий.

При применении на групповой площадке физкультурно-игрового оборудования, предполагающего возможность залезания (перелезания) ребенком на высоту более 1 м, под таким оборудованием внизу натягивается защитная, подстраховывающая от удара при падении, сетка.

3.2.13. Старшим дошкольникам доступны игры спортивного характера (городки, кегли, серсо, бадминтон). Для игр в городки выбирается площадка длиной 4-5 м. В кегли можно играть на площадке для городков. На групповой площадке детей 6-7 лет можно создать условия для игры в настольный теннис.

Укреплению вестибулярного аппарата детей и совершенствованию чувства равновесия помогают разные движущиеся устройства: качели, балансиры, бумы-балансиры. Для строительных игр необходим крупный строительный материал: кубы, бруски, цилиндры, призмы, дуги. Для спокойных игр устанавливается песочный дворик. Для игр с водой устраиваются короткие бетонированные ручейки, каналы. Могут устанавливаться специальные фирменные столики для мелкосборных конструкторов - LEGO и т.п., напольные и настольные трассы для механических и радиоуправляемых машинок и др.

3.2.14. Физкультурная площадка по своей организации и оборудованию является наиболее сложным и дорогостоящим элементом участка дошкольного учреждения. На ней должны быть: беговая дорожка, яма для прыжков, травяное поле для подвижных игр, спортивная площадка для командных игр, зона для размещения стационарного физкультурно-игрового, гимнастического и спортивного оборудования.

Беговая дорожка может быть замкнутой и проходить по периметру площадки или отрезком примой. Длина кольцевой беговой дорожки может быть 100 м, а отрезка прямой - 30 м, ширина - 1,5-2 м. Для покрытия беговой дорожки используются специальные смеси или современные синтетические покрытия. Применение асфальтового покрытия не допускается. Рисунки 3-11.

3.2.15. Около ямы для прыжков в длину и в высоту, размеры которой 2-4×1,5-2 м и глубина 0,3-0,4 м, должна быть дорожка для разбега длиной 8-14 м. По краям ямы устанавливается деревянный бортик, который для безопасности опускают ниже уровня земли на 0,01-0,02 м. Заполняется яма мелкозернистым песком, сметанным с опилками. На расстоянии 0,2-0,3 м от ямы на уровне земли укладывается деревянная планка для отталкивания шириной 0,2 м. Для прыжков в высоту на расстоянии 0,1-0,2 м от края ямы (в сторону заполнения) вкапываются две вертикальные стойки, на которые кладется рейка.

3.2.16. Спортивная площадка для командных игр имеет размеры 10×8-9 м; зеленая лужайка для подвижных игр с элементами спорта от 60 до 160 м2.

Площадка может иметь покрытие из естественного грунта или спецсмеси. По коротким сторонам площадки для игры в баскетбол устанавливаются деревянные щиты 1,0×0,8 м на металлических стойках. К щитам на высоте 1,8-2 м от земли закрепляются баскетбольные кольца с сетками.

Для игры в волейбол и бадминтон на расстоянии 0,5 м от боковых линий площадки устанавливаются металлические стойки, на которые натягивается сетка на 0,2 м выше поднятой вверх руки ребенка.

В спортивном ядре можно организовать площадку для игр в городки, кегли, серсо. На городошной площадке, размеры которой 7×10 м или 8×12 м, расчерчиваются: площадка «города», линии «кон» и «полукон». Площадка «города» может иметь грунтовое, бетонное или блочное покрытие. На расстоянии 2-3 м от нижней линии «города» наносится линия «полукон», на расстоянии 4-6 м - линия «кон». В 1,5-2м от верхней линии «города» устанавливается заборчик или сетка для перехвата бит.

3.2.17. Зеленая лужайка может быть произвольной конфигурации. На лужайке можно установить переносные воротца - 1,9×0,7 м для игр в футбол, хоккей; теннисный стол размерами 2,5×1,3 м и высотой 0,7 м; по краям лужайки - скамеечки для отдыха и болельщиков.

3.2.18. Зону с гимнастическим оборудованием и спортивными снарядами желательно размещать рядом с зеленой лужайкой. Рекомендуется устанавливать пространственно-стержневые конструкции и игровые гимнастические комплексы, в структуру которых входят стойки, перекладины, канат, гимнастическая стенка, сетка, наклонный бум, горизонтальные площадки и наклонные спуски.

Может применяться иное оборудование, способствующее укреплению костно-мышечной системы ребенка, предназначенное для лазания, балансирования, подлезания, пролезания, подтягивания, отжимания, развития меткости. Оборудование должно иметь сертификаты - гигиенический и соответствия.

Из отдельно стоящих элементов оборудования рекомендуются: горки и столбики для спрыгивания из отрезков бревен разной высоты; горки-ступеньки из досок, уложенных на металлические стойки высотой 0,2-1,0 м; гимнастические стенки из 5-6 пролетов шириной по 0,7 м каждый и высотой 1,5-2,5 м; бревна-балансиры, которые укладываются непосредственно на землю или металлические опоры высотой 0,35-0,5 м, параллельно, по два в ряд, в «цепочку»; разновысокие перекладины и др.

3.2.19. Для упражнений в подлезании на площадке устанавливаются прямоугольные или арочные воротца разной высоты - 0,6-1,0 м, выполненные из гнутых металлических стержней или железобетонных элементов. Они размещаются в ряд или группами, образуя тоннели, лабиринты.

Для развития меткости используются стенки для игры в мяч и экраны для метания в цель, которые дополняются кольцами, корзинами, сетками для забрасывания мяча.

3.2.20. Над физкультурной площадкой желательно предусматривать тентовое покрытие для полного или частичного ее затенения от солнца. Для этого по краям зеленой лужайки или спортивного ядра устанавливаются металлические штанги, на которых крепят тентовое покрытие. У физкультурной площадки можно предусмотреть устройство душа.

3.2.21. Конструктивное решение монтируемого оборудования должно обеспечивать безопасность: снаряды следует устанавливать на прочном железобетонном фундаменте, под снарядами высотой до 1 м - укладывать песчаную подушку слоем 0,3 м, у снарядов выше 1 м предусматривать подстраховывающее устройство в виде натянутой горизонтальной сетки. Сетка натягивается на раму, по типу батута, охватывая площадь под снарядом радиусом (расстоянием от конфигурации снаряда до края сетки) не менее 1,2 м. Высота установки сетки - 0,6 м, при ее натяжении, не позволяющем, в случае падения ребенка с высоты 2 м, коснуться поверхности земли.

3.2.22. Площадка по обучению правилам поведения пешеходов на улице в своем составе может иметь имитируемые улицы, тротуары, перекрестки, сложные развязки. Для развития у детей зрительного восприятия кодовых элементов города, на улицах устанавливаются светофоры, дорожные знаки и указатели, в местах перехода наносятся «зебры», обозначения «переход», «стоп», «стоянка». Ширина проезжей части «улицы» - две встречные «машины» - 2,0 м, ширина тротуаров - 0,6 -1,0 м. В составе автострады можно предусмотреть «гаражи», «автостоянки», «автозаправочную станцию», «Пост ГАИ» и пр.

Пример планировки и оборудования площадки для обучения детей правилам дорожного движения показан на рис. 10.

3.2.23. Покрытие «улиц» и «тротуаров» автогородка допускается выполнять из асфальта или бетона с цветным заполнителем. На серое асфальтовое покрытие можно нанести слой цветной полимерной мастики. Цветом можно выделить важные моменты игры, используя для этого локальные пятна красного, желтого, зеленого цвета.

3.2.24. Хозяйственная площадка оборудуется мусоросборниками, может иметь хозяйственный сарай с местом для хранения садового и уборочного инвентаря. Однако, последнее является принадлежностью в большей степени загородных территорий. В городских условиях хозяйственную кладовую и кладовую садового инвентаря следует предусматривать в здании.

Хозяйственная площадка одновременно используется как разворотная площадка для грузового автомобиля, поэтому в габаритах разворота не следует размещать хозяйственное оборудование или хозяйственные постройки.

3.2.25. Примеры планировки и оборудования групповых и общих специализированных (лечебно-гимнастических) площадок для детей с нарушениями развития (компенсирующих детских групп) представлены на рисунках 11-16.

3.2.26. Для более эффективного использования территории комплексы детских образовательных учреждений должны проектироваться с более рациональной компактной планировкой зданий и при новой организации воспитательных и административно-хозяйственных функций в учреждении, и получения разнообразных архитектурно-планировочных решений зданий и жилой застройки.

Использование централизованных пищеблока и постирочной в ЦДВ позволяет сэкономить территорию.

3.2.27. В условиях крайне ограниченной площади участка дошкольные учреждения возможно проектировать с использованием цокольного этажа в отдельно стоящих зданиях и в пристраиваемых. В цокольном этаже, по согласованию с органами Роспотребнадзора по городу Москве, допускается размещать пищеблок (кроме производственных помещений и кладовых для сухих и сыпучих продуктов), постирочную, бассейн, а также кладовые инвентаря, столярную мастерскую и технические помещения для обслуживания здания, кроме электрощитовой.

3.3. Благоустройство и озеленение

3.3.1. По периметру участка, как правило, устраивается зеленая защитная полоса, способствующая улучшению воздушной среды снижению уровня шума и скорости ветра. Ширина полосы - не менее 1,5 м, а со стороны улицы - не менее 6 м.

Ветрозащитные полосы могут быть в виде одно-, двухрядной или групповой посадки деревьев с расстоянием между деревьями не менее 4 м.

Посадку деревьев и кустарников следует производить на расстоянии не менее 15 и 5 м соответственно от здания ДОУ.

3.3.2. При озеленении допускается посадка фруктового сада. Не разрешается применять деревья и кустарники с ядовитыми плодами, колючками или засоряющие территорию при цветении, а также привлекающие большое количество насекомых.

3.3.3. Группы деревьев и кустарника рекомендуется располагать на открытом газоне, в местах пересечения дорожек, у групповых площадок, возле общей физкультурной площадки и в других местах, требующих затенения.

В зависимости от общего архитектурного решения всего ансамбля здания ДОУ, характера окружающей архитектуры и организации благоустройства, высадка деревьев и кустарника, их оформление (рисунок, силуэт кроны) могут носить свободный или регулярный характер. Однако в любом случае следует стремиться к созданию рассеянной тени от деревьев над игровым пространством для детей.

Декоративную обрезку (подстрижку) деревьев и кустарников следует проводить регулярно, т.е. ежегодно

3.3.4. В рекомендуемый ассортимент зеленых насаждений входят деревья: липа, береза, клен, сосна, ель, лиственница, ясень, вяз, рябина; кустарник: кизильник, сирень, жасмин, вяз кустовой, клен татарский. Пример ассортимента зеленых насаждений для ДОУ на 10 групп представлен в Приложении Б. Рисунки 17-20.

3.3.5. Для обеспечения необходимых условий инсоляции и солнцезащиты на групповых площадках рекомендуется создавать две контрастные по режиму радиационные зоны - открытую и затененную.

Ширина зеленой изгороди для изоляции групповых площадок должна быть не менее 3 м. Расстояние между кустами в зеленой изгороди зависит от породы растений и величины их кроны. Рекомендуемая высота зеленой изгороди - 1,0-1,25 м; при изоляции хозяйственного двора она может быть увеличена до 2,5 м.

3.3.6. Важнейшим элементом озеленения является газон. Для его устройства применяется смесь трав, наиболее устойчивая к вытаптыванию: мятник, тимофеевка, клевер. Соотношение смеси трав для газонов приведены в Приложении В.

3.3.7. На групповых площадках детей до 2 лет должно быть сплошное травяное покрытие, за исключением подходов к теневым навесам и утрамбованного грунта вокруг песочниц.

Физкультурная площадка может быть полностью засажена травой (кроме беговой дорожки и площадки для прыжков).

3.3.8. На групповых площадках для детей старше трех лет кроме травяного применяется покрытие из утрамбованного грунта площадью не более 60 м2

3.3.9. Обязательным условием благоустройства является покрытие подъездов к участку, а также мощение дорожек. Для устройства твердого покрытия на дорожках можно использовать природные или близкие к ним материалы: кирпичную крошку, бетонную плитку, изоловые покрытия, цветной бетон с добавками или нанесенным слоем цветной мастики, которая дает яркую однотонную поверхность.

3.3.10. Применять асфальтовое покрытие для групповых площадок, общей физкультурной площадки, специализированных площадок для игр и занятий с детьми (кроме площадки для изучения правил дорожного движения) - не допускается.

Допускается применение асфальтового покрытия для пешеходных дорожек, велосипедной дорожки.

Хозяйственная площадка, площадка для мусоросборников, грузовой автомобильный проезд к зданию должны иметь асфальтовое покрытие.

3.3.11. В огороде-ягоднике высаживают овощи и ягоды. Ширина грядок должна быть 0,6-0,7 м, рабочие дорожки между грядками - 0,4 м, направление грядок - широтное. Маршрутная дорожка при подходе к огороду-ягоднику - шириной 1 м.

3.3.12. При благоустройстве участка требуются мероприятия по отводу дождевых и вешних вод с территории, а также подводка воды к плескательному или плавательному бассейну. Прокладка труб должна предусматриваться под землей.

3.3.13. На участках ДОУ устраивается электрическое освещение. Групповые площадки, вход на участок и входы в здание должны быть освещены. Рекомендуется освещать лыжню, зимний каток, другие площадки, которыми пользуются зимой в темное время суток.

Столбы с осветительной арматурой ставятся у площадок и возле пешеходных дорожек. Для освещения входов в ДОУ применяется наружная осветительная арматура, крепящаяся к стенам или элементам крылец у входов в здание.

Может быть применено декоративное освещение - фасадов здания или пейзажных фрагментов участка.

3.3.14. Возможные технические решения разных типов твердых покрытий на участках показаны на рисунках 18 и 19, примеры посадки кустарников и решений живой изгороди - на рис. 20; рекомендуемые приемы посадки деревьев на рис. 21.

4 ОБЪЕМНО-ПЛАНИРОВОЧНЫЕ РЕШЕНИЯ ЗДАНИЙ

4.1. Функциональная структура дошкольных учреждений

4.1.1. Проектирование ДОУ следует вести в соответствии с требованиями со СНиП 2.08.02-89*, СНиП 2.04.01-81, СНиП 21-01-97*, а также МГСН 4.07-05 и СанПиН 2.2.1/2.1.1.1076-01.

4.1.2. Объемно-планировочное решение дошкольного образовательного учреждения принимается в соответствии с функциональной структурой каждого вида учреждения и его архитектурного типа - ДОУ общеразвивающего, оздоровительного или компенсирующего вида, комплекса дошкольного воспитания, ДОУ типа «Домашний детский сад», «Начальная школа - детский сад» и т.п. Планировочные решения ДОУ представлены на рисунках 21-23 и 50-53.

4.1.3. Функциональную структуру ДОУ определяет контингент учреждения и соотношение возрастных групп в соответствии с существующей демографической ситуацией района. Примеры объемно-планировочных решений разных типов ДОУ показаны на рисунках 48, 51-54.

4.1.4. Здания ДОУ проектируются не выше 3 этажей, оптимальная этажность 2 этажа.

4.1.5. Классическая функциональная модель ДОУ общего типа состоит из набора групповых ячеек, одного или двух залов музыкальных и гимнастических занятий, возможно, иных специализированных помещений для работы с детьми, а также сопутствующих групп помещений (медицинские, пищеблок, постирочная) и служебно-бытовых помещений (администрации, персонала, туалеты, кладовые).

4.1.6. Принципиальная модель функциональной структуры ДОУ заключается в том, что групповые ячейки распределяются по периферии здания, имея хороший фронт естественного освещения, а специализированные и сопутствующие помещения, для удобства пользования, размещаются в центре здания, при сохранении удобных и коротких связей с каждой групповой ячейкой.

4.1.7. В ДОУ степень групповой изоляции должна быть достаточно высокой. В функциональном отношении каждая групповая ячейка в здании автономна. Детские группы поочередно и организованно выводятся в залы для музыкальных и гимнастических занятий, иные специализированные помещения или на участок для прогулок или занятий на общей физкультурной площадке. Готовую пищу из пищеблока персонал поставляет непосредственно в групповую ячейку (в буфетную), где происходит порционирование с использованием комплекта столовой посуды. Каждая группа имеет собственный комплект столовой посуды, мытье и хранение которой осуществляется в буфетной.

4.1.8. Компенсирующие ДОУ следует проектировать с учетом создания необходимых условий для:

обучения и воспитания детей с аномалиями развития по специальным программам и учебным планам;

коррекции недостатков физического, психического и интеллектуального развития в процессе специальных занятий по исправлению дефектов развития, а также лечебно-профилактических мероприятий.

4.1.9 Следует иметь в виду, что в компенсирующих ДОУ или в компенсирующих группах специальные занятия проводятся с каждым ребенком по очереди непрерывно в течение дня и независимо от остальных мероприятий в группе: ребенка на занятия могут пригласить с обеда или с прогулки. Это обстоятельство обусловливает определенные требования к размещению и планировочному решению компенсирующих групповых ячеек: их целесообразно проектировать в одном уровне, компактными, с удобной связью с комнатой коррекции и с групповой площадкой на участке.

Если комната коррекции предусматривается не в составе групповой ячейки, при комнате коррекции следует предусматривать детскую раздевальную верхней одежды на 4-6 мест.

4.1.10. В разновозрастных группах или в группах детей младшего возраста (до 3-4 лет) дневной сон детей может быть двухразовым (дети от 1 года до 1,5 лет) или одноразовым (дети от 1,5 до 3 лет). В разновозрастных или ясельных группах спальни целесообразно разделять остекленной перегородкой на 2 зоны в виде двух сообщающихся пространств.

4.1.11. При разных режимах дня занятия могут проходить по подгруппам детей. При этом, если в составе групповой ячейки не предусматривается специальное помещение для занятий по подгруппам, следует организовать соответствующее зонирование площади групповой, чтобы с помощью столиков с защитными экранами, ширм, барьеров-перегородок, стульев с высокими спинками и т.п. выделить автономные зоны, предназначенные для занятий по подгруппам.

4.1.12. В ДОУ общего типа независимо от вместимости следует предусматривать медицинский блок, состоящий из медицинского кабинета, процедурной и изолятора, туалета с местом для приготовления дезинфицирующих средств. Площади медицинских помещений должны приниматься согласно приложения 4 к СанПиН 2.4.1.1249-03. Приемная изолятора оборудуется 2-х гнездной мойкой и навесным шкафом для хранения посуды. Палаты в изоляторе проектируются на две инфекции.

4.1.13. Пищеблоки в ДОУ общего типа предполагаются работающими на сырье, могут предусматриваться также пищеблоки, работающие на полуфабрикатах. Состав помещений следует принимать по СанПиН 2.4.1.1249-03 пункты 2.2.25 и 2.2.27 соответственно.

Постирочная в ДОУ работает из расчета стирки 1/3 общего объема стираемого белья, при стирке остального белья в городских прачечных.

4.1.14. Укрупнение зданий (увеличение числа детских групп) в определенной степени повышает эффективность использования его специализированных и сопутствующих помещений.

4.1.15. В группах кратковременного пребывания, прогулочных группах и семейных детских садах составы и площади специализированных и сопутствующих помещений могут быть сведены к минимуму: медицинская комната используется для временного размещения заболевшего ребенка, комната персонала (общая), кабинет-офис для заведующего (как правило, совмещающего обязанности воспитателя) и приема посетителей, кладовая. См. приложение 12 МГСН 4.07-05.

4.1.16. Комплексы дошкольного воспитания преследуют цель сохранить психологический комфорт малых ДОУ одновременно с эффективностью централизованного использования помещений для работы с детьми, бассейна, зала-арены, и пр. а также сопутствующих помещений - пищеблока, прачечной, медицинского блока, помещений коррекции, которые, могут быть лучше оснащены и иметь более развитый состав.

4.1.17. По части компенсирующей деятельности, коррекции и медицинского обслуживания в групповых отделениях КДВ - медперсонал и узкие специалисты осуществляют работу с детьми непосредственно в групповых отделениях - в медицинской комнате и комнате коррекции.

4.1.18. Непосредственно в здании Центра развития ребенка по статусу может быть размещено ДОУ общего типа с одним или несколькими приоритетными направлениями развития детей, а также Центр развития ребенка с оказанием педагогических, медицинских услуг, услуг по коррекции и психологической помощи в развитии, поддержке и оздоровлении всех воспитанников.

4.1.19. Достаточно эффективными в экономическом отношении являются группы кратковременного пребывания, не содержащие пище блока, постирочной, не имеющих спален в групповых ячейках. В их составе предусматривается помещение для подстирки и функциональная зона кухни, где можно разогреть чай. Если для размещения этих групп используется специально выделенная незаселенная жилая квартира, для этих целей используются санитарный узел и кухня жилой квартиры.

4.1.20. Организация питания в группах кратковременного пребывания должна строиться на основе договоров с предприятиями общественного питания или продовольственных торговых предприятий по поставкам полуфабрикатов или готовых блюд. Эти условия на стадии разработки задания на проектирование должны быть предварительно согласованы с органами Роспотребнадзора по г. Москве.

4.2. Общие требования к функционально-планировочной организации зданий

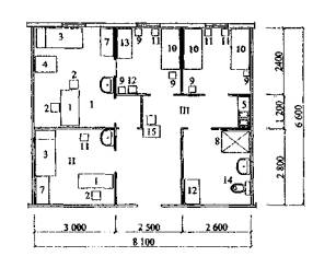
4.2.1. Все групповые ячейки (набор помещений основного пребывания детей, принадлежащей только одной детской группе) в ДОУ должны проектироваться универсальными. Для этого необходимо в составе групповой ячейки иметь пять помещении (раздевальная, групповая, спальня, буфетная и туалетная) с соответствующими площадями, определяемыми МГСН 4.07-05

Соответствие антропометрическим и возрастным особенностям детей, программным требованиям к детским группам разного возраста и с различными принципами комплектации по возрастам (одно-, двух- или трехвозрастные) в универсальных групповых ячейках достигаются, главным образом, подбором и установкой санитарно-технических приборов, мебели и оборудования.

Целесообразность иметь групповые ячейки в зданиях ДОУ универсальными определяется динамикой соотношения детских групп детей разного возраста в процессе эксплуатации здания, а также возможностью, определяемой Типовым положением о дошкольном образовательном учреждении, по желанию родителей, в соответствии с конъюнктурой спроса, менять приоритетные направления работы с детьми как в отдельных группах, так и во всем дошкольном учреждении в целом.

4.2.2. По условиям комплектации детских групп (Типовое положение о государственном дошкольном образовательном учреждении), они могут быть одновозрастными, с детьми, диапазон возраста которых не превышает одного года, и разновозрастными с возрастным диапазоном в 2 и 3 года, т.е. двух- и трехвозрастные группы. При принятии решения о создании в проектируемом детском саду разновозрастных групп, требуются специальные предварительные разработки по режиму, уходу за детьми, оснащению мебелью и санитарно-техническим оборудованием групповых ячеек, при соответствующем согласовании с Управлением Роспотребнадзора по г. Москве.

4.2.3. Детские группы для детей до 3-х лет традиционно называются ясельными. В крупных ДОУ общего типа могут предусматриваться по 1-2 ясельные группы для детей, как правило, от 1,5-2 до 3 лет.

В составе Комплексов дошкольного воспитания могут предусматриваться отдельные ясельные отделения (групповые отделения на 2-4 ясельные группы). В жилых комплексах при повышенной селитебной плотности детские ясли могут предусматриваться как самостоятельные учреждения.

Групповые ячейки по составу и площадям помещений рекомендуется проектировать универсальными способными вместить как ясельную группу, так и группы детей от 3-х лет.

4.2.4 Специализация групповых ячеек в соответствии с приоритетными направлениями педагогических программ может достигаться включением при проектировании в их состав дополнительных помещений.

Компенсирующие групповые ячейки также могут использоваться в качестве специализированных: для детей с нарушениями слуха, зрения, опорно-двигательного аппарата, интеллектуального развития. Наполняемость групп компенсирующей направленности определена типовым положением о ДОУ в зависимости от возраста и патологии.

4.2.5 Группы детей могут быть полнокомплектными (соответствующими нормативам наполняемости детских групп) и малокомплектными (ниже нормативной наполняемости детских групп). Приложение Г.

В государственных ДОУ общего типа (не специализированной компенсирующей направленности) не допускается проектирование групповых ячеек с площадями помещений ниже нормируемых в МГСН 4.07-05 «Дошкольные образовательные учреждения». Эти здания должны предусматриваться для размещения полнокомплектных детских групп.

4.2.6. Здания ДОУ со специализированной компенсирующей направленностью:

для детей с нарушением слуха (глухих и слабослышащих);

для детей с нарушением зрения (слабовидящих; с косоглазием и амблиопией);

для детей с нарушением опорно-двигательного аппарата;

для детей с нарушением интеллекта;

для детей с задержкой психического развития;

для детей со сложными дефектами (2 и более дефекта) - имеют наполняемость детских групп в соответствии с Приложением Г.

В соответствии с этим определяется количество единиц индивидуальной детской мебели, оборудования, санитарно-технических приборов.

4.2.7. Компенсирующее ДОУ для детей:

с нарушениями речи;

с туберкулезной интоксикацией;

часто болеющих;

а также для детей с иными отклонениями в развитии имеют наполняемость детских групп данных патологий от 6 до 15 детей, но групповые ячейки в таких зданиях по составу и площадям помещений возможно проектировать как для полнокомплектной детской группы (на 20 мест).

4.2.8. Здания ДОУ компенсирующей направленности, проектируемые с малокомплектными групповыми ячейками, в свою очередь, целесообразно делать универсальными способными разместить ДОУ с разными направлениями компенсирующей деятельности, указанными в п. 4.2.6. При изменении компенсирующей направленности в здании ДОУ компенсирующего типа, меняется назначение и оборудование комнаты коррекции, входящей в состав каждой групповой ячейки, а также общих помещений в здании, предназначенных для компенсирующей и коррекционной работы с детьми всех детских групп.

4.2.9. Функциональная модель ДОУ общего типа представляет собой набор групповых ячеек (от 4 до 10) и общих для всех детей специализированных (специально оборудованных) помещений. Это, прежде всего, универсальный зал для музыкальных и гимнастических занятий с кладовой, а также кружковые помещения с кладовыми и комнатой воспитателей, бассейн со вспомогательными и техническими помещениями. Ванна плавательного бассейна в ДОУ проектируется с размерами 3×6 (7) м и 6×10 (12,5) м.

4.2.10. Помещения для музыкальных и гимнастических занятий являются обязательным элементом ДОУ общего типа. Количество залов нормируется из расчета один зал в ДОУ вместимостью до 100 мест включительно и два зала в ДОУ вместимостью свыше 100 мест.

Когда в здании предусматривается два зала, они могут проектироваться как универсальные для музыкальных и гимнастических занятий (каждый площадью не менее 75 м2), или как специализированные для музыкальных занятий (не менее 75 м2) и для физкультурных занятий (не менее 75 м2). Целесообразность иметь два одинаковых универсальных зала в ДОУ иногда определяется удобством пользования при поэтажном их размещении. Два одинаковых зала удобно иметь также в случае, если здание проектируется двумя автономными блоками (например, соединяемыми протяженным переходом).

4.2.11 Зал для музыкальных и гимнастических занятий, кроме основного назначения, используется еще для проведения праздничных утренников, детских спектаклей. По желанию заказчика в залах, в связи с этим, можно предусматривать стационарно оборудуемые места для зрителей и приподнятую над уровнем пола эстраду, (площадью не более 25-30 м). Следует иметь в виду, что в зале могут находиться единовременно не более двух детских групп и гости родители. Число стационарных мест для зрителей рекомендуется в пределах 80.

4.2.12 В ДОУ общего типа целесообразно предусматривать универсальное кружковое помещение площадью 35-55 м2 В разных ситуациях оно может использоваться как универсальное классное помещение, помещение для занятий изобразительным творчеством (рисунок, лепка, аппликация, ручной труд), включенным в программу дошкольного воспитания. Это помещение может также использоваться для занятий детских кружков и секций - иностранного языка, подготовки детей к школе, ИЗО, ритмики и т.п., а также для просмотра диафильмов, видео- и телепрограмм, для компьютерных игр.

4.2.13. Бассейн в ДОУ является эффективным оздоровительным фактором. Целесообразность включения бассейна в состав помещений ДОУ возрастает в зданиях крупной вместимости.

Норматив площади зеркала воды в бассейне на 1 ребенка до 7 лет составляет не менее 3 кв. м. В ванне бассейна с зеркалом воды 20-30 м2 одновременно может заниматься группа детей не более 7-10 человек (с одним тренером-инструктором по плаванию), что в государственных ДОУ соответствует 0,5 стандартной группы детей. Как правило, занятия в бассейне проводятся с детьми старше 3-х лет. При бассейне может предусматриваться дополнительное помещение (или площадка в зале с ванной бассейна) площадью 36-54 м2 для разминки и подготовительных занятий (сухого плавания).

4.2.14. Бассейн с ванной 60-75 м2 в здании ДОУ общего типа может использоваться для одновременных занятии с двумя подгруппами детей по 10-12 человек каждая (с двумя тренерами). Применение в ДОУ общего типа бассейна с ванной площадью 60-75 м2 должно согласовываться на стадии разработки задания на проектирование с местными органами образования.

4.2.15. Бассейн в ДОУ может использоваться также для обучения плаванию детей прилегающих жилых территорий по согласованию с органами образования и Роспотребнадзора, при условии обеспечения автономного доступа в бассейн.

4.2.16. В малых ДОУ вместимостью 1-3 детские группы допускается раздевальные всех групп размещать при входной части здания, т.е. выходящими в холл, вестибюль или коридор. Для каждой группы раздевальная должна размещаться в отдельном помещении.

4.2.17. Общими для всех групп в малых ДОУ целесообразно предусматривать дополнительные помещения групповой ячейки: комнату персонала с туалетом (может быть увеличена до 10-12 м2), помещение для занятий по подгруппам (или класс для занятий), помещение для индивидуальной работы с ребенком (или комната коррекции). Общими могут также проектироваться комната психологической разгрузки для детей («Домашний уголок» или комната сказок), ванна-бассейн, остекленная веранда, открытая терраса или терраса-солярий.

4.2.18. В качестве общего для всех групп помещения в малых ДОУ может предусматриваться универсальная комната площадью от 18 до 75 м2, используемая для просмотра диафильмов, теле- и видеопрограмм, ручного груда или зал для музыкальных и гимнастических занятий площадью 75 м2, используемый также для занятий детских кружков и секций. Наличие этого помещения в малом ДОУ весьма эффективно: включение его в состав помещений при наличии дополнительных средств, рекомендуется в первую очередь.

4.2.19. В малых ДОУ, по желанию заказчика, может предусматриваться бассейн с ванной площадью 20-30 м2 или ванна-бассейн площадью 6-12 м2. При применении ванны-бассейна на согласование органов Роспотребнадзора должны быть представлены предложения по режиму и организации его использования, а также сертификаты гигиенический и соответствия на конструкцию и материал ванны.

4.2.20. В Комплексах дошкольного воспитания в здании Центра развития ребенка рекомендуется предусматривать развитый состав специализированных помещений для работы с детьми: в зависимости от общего числа детских групп - бассейн (с ванной площадью 60-75 м2; с двумя ваннами по 20-30 м2; с двумя ваннами 60-75 и 20-30 м2), зал-арену для организации детских праздничных утренников и спектаклей с местами для зрителей (на 4 детские группы), а также помещения детских кружков и секций и т.д.

Использование специализированных помещений в здании Центра развития ребенка для детей, приходящих из групповых отделений Комплекса дошкольного воспитания, возможно при согласовании с органами Роспотребнадзора.

4.2.21. В здании центра развития ребенка групповые ячейки решаются, как и в ДОУ общего типа. Целесообразно в здании Центра развития ребенка размещать группы детей дошкольного возраста 4-6 (7) лет, при наличии развитого состава специализированных помещении и увеличении вместимости этого здания.

4.2.22. Во встроенных групповых отделениях на 4 группы зал для музыкальных и гимнастических занятий может не предусматриваться, а если предусматривается, его площадь может не превышать 54 м2. Вместо зала может предусматриваться универсальное кружковое помещение площадью порядка 36 м2.

4.2.23. Групповые ячейки дошкольных отделений образовательных учреждений «Начальная школа - детский сад» проектируются как в ДОУ общего типа, с той разницей, что групповые должны иметь площадь 62,5 м2 (по 2,5 м2 на каждого обучаемого), а спальни - не менее 50 м2. Это необходимо в связи с тем, что это учреждение должно иметь возможность гибко менять соотношение детских групп и ученических классов, чтобы, в случае необходимости, в групповой ячейке смог разместиться ученический класс школьного отделения. В этом случае групповая используется как классное помещение, а спальня - как спальня для первого класса или рекреация для других классов.

4.2.24. Наиболее распространенная схема традиционных ДОУ общего типа строится на основе объемных (двухэтажных) блоков групповых ячеек и блока (как правило, также двухэтажного), объединяющего специализированные, сопутствующие и служебно-бытовые помещения.

4.2.25. Блок специализированных, сопутствующих и служебно-бытовых помещений располагается в центре здания с целью достижения наиболее коротких и удобных связей этих помещений с групповыми ячейками.

4.2.26. Блоки групповых ячеек целесообразно делать с идентичным планировочным решением поэтажных планов, тогда легче решаются вертикальные коммуникации, а также инженерные коммуникации систем ОВ и ВК. При этом, если на первом этаже располагается ясельная групповая ячейка (для детей до 3-х лет) ее площадь принимается аналогичной старшим группам.

4.2.27. Блок групповых ячеек может формироваться из двух ячеек (поэтажно размещаемых друг над другом) или из четырех по две групповые ячейки на каждом этаже. Помещения, предназначенные для работы с детьми, не должны использоваться одновременно для занятий двух и более групп. Рисунки 48, 51-54.

4.2.28. При традиционном составе блока общих помещении баланс площадей поэтажных планов складываются таким образом, что при двухэтажном решении на первом этаже предусматривается пищеблок, построчная и медицинские помещения с изолятором, на втором этаже залы для музыкальных и гимнастических занятий, методический кабинет, комната ручного труда (изобразительных видов деятельности), помещения детских кружков и секций.

4.2.29. Если в двухэтажном здании ДОУ предусматривается два универсальных зала (каждый из них и для музыкальных, и для гимнастических занятий) имеет смысл в этом случае предусматривать по одному залу на каждом этаже. Короткие связи с залом в этом случае обеспечивают детям дополнительные удобства, например, возможность поочередно каждой группе проводить в зале утреннюю зарядку. При этом для сохранения поэтажного баланса площадей, на втором этаже могут быть расположены медицинские помещения и общие помещения компенсирующего назначения (комната коррекции, физиотерапевтический кабинет и др.).

Размещение медицинских помещений и помещений компенсирующего назначения на 2-ом этаже должно быть согласовано с органами Роспотребнадзора в каждом конкретном случае.

4.2.30. Зал с ванной бассейна в ДОУ целесообразно размещать таким образом, чтобы под днищем ванны предусматривалось техническое помещение для контроля его состояния. Такое решение обеспечивает и более благоприятные условия для канализования.

В планировочном отношении зал с ванной бассейна целесообразно размещать рядом с залом для физкультурных занятий, который может использоваться как зал разминки.

4.2.31. В планировочной структуре здания ДОУ залы для музыкальных и гимнастических занятий, зал с ванной бассейна, холл перед залом для музыкальных и гимнастических занятий, зал разминки при зале бассейна и т.п. не должны быть проходными. Применение освещения фонарями верхнего света позволит преодолеть в интерьерах общих помещений ДОУ ощущение затесненного замкнутого пространства.

4.2.32. Малые ДОУ на 1-2 группы целесообразно проектировать одноэтажными. ДОУ на 3 группы могут иметь весьма чистую схему в двухэтажном решении, когда хозяйственные и служебно-бытовые помещения, плюс одна групповая ячейка (желательно детей младшего возраста) размещаются на первом этаже, а две другие групповые ячейки на втором. При этом окна кухни не должны располагаться под окнами групповой или спальни.

4.2.33. Групповые отделения, встроенные в жилые дома, могут быть одно- или двухэтажными. В планировочном отношении их лучше решать симметрично, размещая групповые ячейки справа и слева от блока общих помещений. Групповые отделения целесообразно проектировать на четное число групповых ячеек (2 или 4). В этом случае в секционных многоквартирных жилых зданиях одноэтажные встроенные групповые отделения на 2 группы и двухэтажные на 4 группы хорошо решаются в пространстве между двумя лестнично-лифтовыми узлами двух смежных секций. Одноэтажное групповое отделение на 4 группы может быть решено во встроенно-пристроенном объеме между двумя лестнично-лифтовыми узлами двух смежных секций жилого дома.

4.2.34. Основная проблема проектирования ДОУ встроенных в жилые здания - мелкоячеистая конструктивная структура жилой секции, частое расположение лестнично-лифтовых узлов, сантехнических шахт и т.п. Пример пристроенного ДОУ к жилому панельному дому приведен на рисунке 24.

4.2.35. Одной из проблем встроенных ДОУ является организация принудительной вытяжки вентиляции пищеблока. Этот вопрос решается просто, когда ДОУ с глухого торца жилого здания имеет выступающий за пределы жилого дома объем. Вытяжка организуется через кровлю выступающего объема.

Важным принципом проектирования встроенных ДОУ является обеспечение их необходимой изоляции от жилых секций: автономные входы, желательно, с противоположной от входов в жилую часть стороны.

5. ПОМЕЩЕНИЯ ОСНОВНОГО ПРЕБЫВАНИЯ ДЕТЕЙ

5.1. Универсальные групповые ячейки

5.1.1. В ДОУ общего типа групповые ячейки следует проектировать универсальными, т.е. имеющими обязательные (в соответствии с МГСН 4.07-05) состав и площади помещений. Это позволяет размещать в них полнокомплектные (в соответствии с нормативной наполняемостью) детские группы и обеспечивать программную деятельность учреждений:

с приоритетным направлением одного или нескольких направлений развития (интеллектуальное, художественно-эстетическое, физическое);

с приоритетным направлением укрепления здоровья детей;

с приоритетным направлением компенсирующей деятельности.

5.1.2. В универсальной групповой ячейке предусматриваются:

групповая (игровая) - для игр, занятий, приема пищи, отдыха;

спальня - для дневного (в круглосуточных группах - и ночного) сна детей;

раздевальная - для переодевания детей, хранения и сушки верхней одежды;

туалетная - для гигиены и проведения закаливающих и оздоровительных процедур;

буфетная - для хранения и мытья столовой посуды, принадлежащей данной группе детей.

Эти помещения обеспечивают оптимальные условия для интеллектуального, физического и психического развития детей, занятий, отдыха, игр, приема пищи, гигиены, мероприятий по уходу за детьми, их оздоровлению.

5.1.3. С целью создания благоприятных условий для физического и эмоционального развития детей, в составе групповой ячейки в качестве дополнительной площади для двигательной активности детей целесообразно предусматривать открытую террасу (террасу-манеж или террасу- солярий) и остекленную отапливаемую в зимнее время веранду.

Их площади ориентировочно составляют: терраса - от 10 до 25-40 м2, веранда (веранда-оранжерея) - от 1 до 6-12 м2.

5.1.4. Взаимосвязь всех помещений групповой ячейки осуществляется через групповую (игровую), которая функционально должна быть связана с раздевальной, спальней, туалетной и буфетной.

Целесообразно предусматривать также функциональную связь спальни с туалетной, туалетной с раздевальной, а также раздевальной ясельной группы с открытой террасой (через входные тамбуры).

5.1.5. Остекленные веранды и открытые террасы следует размещать под окнами групповой (игровой) для обеспечения визуальной связи с ними.

5.1.6. Все помещения групповой ячейки следует размещать, как правило, на одном этаже.

5.1.7. Если игровое пространство для детей в групповой ячейке решается не одним помещением, а с подключением помещений для занятий по подгруппам, психологической разгрузки («Домашний уголок»), остекленной веранды или открытой террасы, необходимо обеспечить возможность визуальной связи групповой (игровой) с этими помещениями, используя применение светопрозрачных перегородок и т.д.

5.1.8. Раздевальные групповых ячеек для детей от 3-х лет, расположенных на втором и третьем этажах, допускается размещать на первом этаже здания в отдельных помещениях для каждой группы. Это позволит детям в теплой одежде и грязной обуви не подниматься на второй-, третий этаж.

5.1.9. Для правильной организации учебно-воспитательных и рабочих процессов в групповой ячейке каждое помещение делится в соответствии с назначением и видом деятельности на функциональные зоны, оснащенные соответствующей мебелью и оборудованием.

Площади и параметры функциональных зон определяются условиями размещения соответствующих комплектов мебели и оборудования с учетом рабочих зон на основе антропометрических параметров детей.

5.1.10. В универсальных малокомплектных групповых ячейках для ДОУ компенсирующей направленности, для детей ясельного и дошкольного возраста от 1 года и старше, площади помещений следует принимать согласно приложения 14 МГСН 4.07-05

Раздевальные

5.1.11. Раздевальные должны быть просторными и хорошо освещенными, учитывая то, что дети дважды в день выходя на прогулку, приходя утром и уходя вечером, одеваются и раздеваются практически одновременно всей группой. Кроме того, для младших детей процесс переодевания одновременно является учебным (освоением бытовых навыков).

Проекты планировок раздевальных и размещение мебели представлены на рисунках 25-27.

5.1.12. Раздевальные для детей от (1,5) 2-7 лет, как правило, оборудуются одноярусными пятиместными шкафами для верхней одежды, в комплекте со скамьями для переодевания. Помещения делятся на зону хранения одежды и зону переодевания.

5.1.13. Если в составе групповой ячейки не предусматривается специального помещения для сушки детской одежды, шкафы для детской одежды, в раздевальных следует предусматривать оборудованными подогревом (от системы горячего водоснабжения) и вентиляцией (вытяжными коробами).

Вентиляционный короб должен находиться на расстоянии от пола не менее 1,3 м.

5.1.14. Шкафы для верхней одежды в раздевальных желательно размещать по периметру помещений для удобства наблюдения за переодеванием детей и организации вентиляционной вытяжки из шкафа.

Следует предусматривать свободные проходы к шкафам, достаточное пространство для открывания дверок и хорошую освещенность мест для переодевания и распознавания опознавательных знаков на дверках шкафа.

Шкафы для верхней одежды детей должны быть надежно стационарно закреплены.

Блок-модуль из 5-ти шкафов имеет размер 1,35 м, длина 4-х сблокированных модулей (для 20 детей) - 5,4 м. Минимальная ширина раздевальной, необходимая для размещения двух рядов шкафов и скамей между ними составляет 2,9 м.

Групповая (игровая)

5.1.15. Помещение групповой (игровой) должно обеспечивать условия для игр, занятий детей и приема пищи, а также возможность для детей самостоятельно регулировать психологическую дистанцию с воспитателем или сверстниками, вплоть до относительного уединения. Фрагменты групповой (игровой) могут решаться как полузамкнутые пространства (по типу алькова, с верхним светом) или пространства, частично попадающие в визуальную тень (например, при расстановке игрового оборудования в шахматном порядке). Примеры размещения мебели в групповых (игровых) представлены на рисунках 28, 36-37.

5.1.16. Пространство, отводимое для фронтальных и самостоятельных занятий детей, а также их питания - «Зона столиков». Каждый ребенок в группе должен иметь индивидуальное место за детским столом. Для детей в возрасте от 1 года до 4 лет применяются четырехместные столы, для детей от 4 до 6-7 лет - используются двухместные столы, которые размещаются во время занятий аналогично ученическим столам в школе. В группах детей от 3-х лет целесообразно предусматривать пространство, позволяющее разместить столы для занятий веерообразно.

При размещении детских столов необходимо обеспечить свободный доступ к каждому ребенку, а также достаточный проход между рядами. Во время занятий расстояние между рядами столов должно быть не менее 0,5 м, а во время питания - не менее 1,2 м для свободного продвижения раздаточного стола.

5.1.17. Для обеспечения нормальной зрительной работы детей во время занятий, особенно в группах более старшего возраста, должна быть предусмотрена возможность симметричного размещения столов относительно грифельной доски. Расстояние от первого ряда столов до грифельной доски должно быть не менее 2,5 м, наибольшее расстояние от доски не должно превышать 9 м.

5.1.18. «Зона столиков» должна иметь нормируемое естественное освещение: слева, КЕО = 1,5. Рабочее место ребенка должно находиться вне ослепляющей зоны окна. Расстояние от детского стола до стены с окном должно быть не менее 1 м.

5.1.19. Зона приема пищи должна располагаться вблизи буфетной.

5.1.20. Стол и стул воспитателя размещаются в углу помещения для удобства его обзора, вблизи грифельной доски, у «зоны столиков», рядом со шкафом для учебных материалов и пособий.

5.1.21. Для разнохарактерных или тематических игр («стройка», «конструктор», «дом», «зоопарк», настольные игры и пр.) целесообразно выделить с помощью оборудования 2, 3 или 4 полузамкнутых пространства по 3-4 м2 каждое. Хранение игрового и учебного материала лучше организовать вблизи «зоны столиков», используемых в свободное от еды или организованных занятий время для самостоятельных игр и занятий.

5.1.22. Для игр может использоваться также подоконный ленточный стол. В этом случае вблизи от ленточного стола следует разместить емкости для детской литературы, настольных игр, мелкого строительного материала.

5.1.23. Помещение для занятий по подгруппам (из расчета на 10-12 мест) оборудуются детскими двух или одноместными столами, стульями, грифельной (маркерной) доской, стеллажом для игр и пособий. Помещение имеет многоцелевое назначение - групповые и индивидуальные занятия с детьми, с учетом их индивидуальных наклонностей или особенностей развития. Помещение может использоваться для занятий коррекцией (например, речи), как помещение для тихих игр, показа теле - и видео - программ, а также психологической разгрузки.

5.1.24. «Домашний уголок» оборудуется как фрагмент гостиной с мебелью, озеленением, аквариумом, аудио- и видеоаппаратурой и т.д.

5.1.25. Зона уголка живой природы должна иметь естественное освещение. При этом размещение аквариума, цветов не должно сокращать уровень естественной освещенности в помещении.

5.1.26. В групповых для детей 4-7 лет целесообразно предусматривать зону ручного труда: она может совмещаться с «зоной столиков» или, если позволяет площадь групповой.

5.1.27. Игральная детей от 1 до 2 лет делится на 6 функциональных зон: зону игр и занятий детей, зону переодевания детей, зону кормления, зону уголка живой природы, а также рабочую зону воспитательницы. Рабочее место воспитательницы должно располагаться с учетом удобного обзора всего помещения групповой, а также спальни.

5.1.29. «Зона столиков» - зона кормления детей 1-2 лет должна находиться в непосредственной близости от буфетного помещения.

Для кормления детей в возрасте от 1 до 2 лет используются детские двухместные столы и детские кресла с подножкой.

5.1.30. Значительная часть помещения групповой (игровой) детей 1-2 лет должна быть отведена для игр. В зоне подвижных игр необходимо не менее 3,55×1,2 м площади пола для катальной горки.

Спальни

5.1.31. Спальни групповых ячеек детей оборудуются индивидуальными детскими кроватями. Для детей до 2-х лет в конструкции кровати должны быть предусмотрены защитные сетки (рисунки 33 и 34).

5.1.32. Расположение детских кроваток должно обеспечивать удобство подхода и переодевания детей. Минимальное расстояние между кроватями, с учетом безопасности инфекционных заболеваний, принимать равными 0,3 м между изголовьями кроватей и 0,65 м между длинными сторонами кроватей.

Одежду в спальнях дети складывают на детские стульчики.

5.1.33. Для разнорежимного сна или незапланированного отдыха детей в спальнях целесообразно выделять отдельные 2-3 зоны расстановкой кроватей или с применением перегородок-барьеров. В группах детей от 4-х лет рекомендуется разделение спальни на две зоны для мальчиков и девочек.

Туалетные

5.1.34. Туалетные делятся на умывальную зону и зону санитарных узлов.

5.1.35. В умывальных детских групп должно быть по 3 детских умывальника в ясельной группе и по 4 детских умывальника в дошкольной группе, вешалка для полотенец, душевой поддон, как правило, имеющий доступ с трех сторон для проведения закаливающих процедур с детьми, и одна умывальная раковина для персонала (рисунок 35).

Основное санитарно-техническое оборудование приведено в приложении Д.

5.2. Специальные групповые ячейки

Групповые ячейки детских групп с приоритетом одного или нескольких направлений развития (интеллектуальное, художественно-эстетическое, физическое)

5.2.1. В каждой групповой ячейке для детей дошкольного возраста с приоритетным направлением интеллектуального развития должно быть свое классное помещение для занятий детей подгруппами, площадью 25 м2 или классное помещение площадью для занятий группы площадью 50 м2, с кладовой для пособий и оборудования. Классное помещение должно быть изолировано от групповых помещений.

5.2.2. Помещение для занятий детей по подгруппам и классное помещение оборудуется по аналогии со школьным классом индивидуальными одноместными или двухместными столами. Характер оборудования определяется конкретной образовательной программой и указывается в задании на проектирование.

5.2.3. В составе групповой ячейки с приоритетным направлением интеллектуального развития или на две размещаемые рядом такие групповые ячейки, желательно иметь комнату персонала, используемую для хранения методического материала, аудио- видеоаппаратуры, а также в качестве комнаты для приходящих преподавателей. При классном помещении целесообразно предусматривать комнату преподавателей. Комната преподавателей должна быть оборудована шкафом для верхней одежды, стеллажом или шкафом для пособий и оборудования, рабочим столом, стульями.

5.2.4. В групповой ячейке с художественно-эстетическим направлением развития могут предусматриваться те же помещения или планировочные приемы размещения оборудования, что и в универсальной групповой ячейке, не имеющей дополнительных помещений. Классное помещение, или комната занятий по подгруппам в составе такой групповой ячейки оборудуются как изостудия: детскими мольбертами, тумбами для постановочных композиций, гончарными кругами и т.п. Для освещения постановок используются трансформируемые светильники на стойках, для освещения ученических мест - подвесные светильники, с направленным освещением вниз, фиксируемые на высоте 2 м от уровня пола.

5.2.5. В групповой ячейке с художественно-эстетическим направлением рекомендуется в помещении групповой или рядом с ним при наличии визуальной связи предусматривается пространство площадью от 4 до 12 м2, для организации самостоятельного творчества детей.

5.2.6. В помещении групповой детской группы с художественно- эстетическим направлением развития в зависимости от педагогической программы, могут быть рекомендованы различные планировочные элементы, разрабатываемые по специальному заданию:

- сцена площадью от 6 до 12-15 м2, высотой 0,2-0,5 м, с занавесом и сменными декорациями.

- подиум в форме сцены, с аудио-центром. Аудио-центр должен устанавливаться так, чтобы ребенок мог принимать участие в работе с пультом во время занятий и быть защищенным от поломок в остальное время. По внешнему периметру планировочный элемент (сцена, подиум и др.) может оборудоваться фиксируемыми простыми музыкальными инструментами или звучащими предметами - цимбалы, бубны, колокольчики, треугольник, дудки, барабан и т.д.

5.2.7. В интерьере групповой с направленностью художественно-эстетического развития выделяются места (фрагменты) самостоятельного эстетического освоения детьми окружающего пространства подставки или нити для икебаны, тумбы для скульптур, пустые рамки или паспарту для картин, в которые дети вставляют собственные рисунки.

5.2.8. Для воспитания у детей представления о цветовом дизайне, в составе интерьера групповой, на стенах или перегородках полезно иметь съемные заменяемые рамы-панели, имеющие разные цвет, декоративный рисунок, фактуру.

Для развития представления о световом дизайне, в зоне игрового пространства групповой рекомендуется предусмотреть варианты разнохарактерного освещения («мерцающие светлячки», «камин» для чтения сказок или прослушивания музыки, «светящийся каскад» или «бегущая дорожка» - для праздников, игр и т.д.).

Групповые ячейки детских групп с приоритетным направлением укрепления здоровья детей

5.2.9. Для детей с ослабленным здоровьем устанавливается щадящий режим: в неблагоприятную погоду дети не гуляют, с ними проводят ряд лечебных, закаливающих и оздоровительных процедур - ингаляции, водные процедуры, физиотерапия и т.п. Немаловажным является укрепление психического здоровья, для чего в групповой ячейке должны быть предусмотрены помещения или отдельные зоны для релаксации, отдыха, а также обеспечена ребенку возможность регулирования психологической дистанции с окружающими детьми и персоналом.

5.2.10. Щадящий режим для детей с ослабленным здоровьем, в связи с сокращением времени пребывания детей на воздухе в плохую погоду, предполагает создание открытых и полуоткрытых пространств в составе групповой ячейки: открытые террасы (площадью до 40-60 м2), оборудуемые трансформируемыми солнцезащитными устройствами, и остекленные веранды (площадью до 20 м2). Террасы должны оборудоваться как солярий и иметь ветрозащитное ограждение на уровне 1 м от пола, а также иметь трансформируемые солнцезащитные устройства. В качестве солнцезащитных устройств можно предусмотреть маркизы, пляжные зонты, тенты и другое оборудование комплектной поставки.

Наличие веранды и террасы в групповой ячейке увеличивает зону двигательной активности у детей, создает удобные условия для проведения утренней зарядки, увеличивает общее время пребывания на свежем воздухе. Связи основных помещений компенсирующей групповой ячейки на рисунке 36.

5.2.11. Ванна-бассейн может предусматриваться в отдельном помещении с трансформируемым съемным или раздвижным светопрозрачным ограждением.

5.2.12. Ванна-бассейн в групповой ячейке оздоровительной группы располагается в отдельном помещении при соблюдении требований, предъявляемых к бассейнам. При ванне-бассейне следует предусматривать душевую кабину и кабину для переодевания детей.

5.2.13. При применении ванны-бассейна необходимо предварительно разработать и представить на согласование органам Роспотребнадзора по г. Москве режим и порядок ее эксплуатации в детской группе, а также иметь сертификаты - гигиенический и соответствия - на конструкцию и материалы ванны.

5.2.14. Целесообразно предусматривать непосредственную связь веранды с открытой террасой.

Веранду следует проектировать с расчетной температурой внутреннего воздуха +10-12 °С.

Веранда может быть с элементами озеленения, декоративными композициями из растений и элементов благоустройства. Температура и влажность воздуха в этом случае должны предусматриваться в зависимости от выбранных растений - районированных сезонных, растений прерий или тропических.

5.2.15. Если в составе групповой ячейки веранда не предусматривается, на террасе желательно предусмотреть ветрозащитные ограждения.

5.2.16. Веранда и терраса должны органично входить в состав групповой (общего игрового пространства групповой ячейки). При этом следует сохранять визуальную связь между всеми открытыми, полуоткрытыми и закрытыми помещениями игрового пространства, т.к. дети единовременно, по собственному выбору могут находиться в любой из этих зон. Такая связь обеспечивается, например, если терраса и веранда примыкают со стороны групповой, имеющей в наружной стене витраж или оконные проемы с балконной дверью.

Остекленная веранда может быть проходной, выполняющей роль тамбура при выходе на террасу.

5.2.17. В составе помещений групповой ячейки оздоровительной группы желательно иметь комнату психологической разгрузки для детей - «Домашний уголок», а также комнату коррекции.

Комната коррекции предназначается для работы специалиста с одним или несколькими детьми единовременно.

5.2.18. Часть оздоровительных и закаливающих мероприятий могут осуществляться с использованием душевого поддона в умывальной зоне. Для процедур с водой предусматривается душевая сетка с гибким шлангом, с регулируемым креплением этого шланга по высоте. Доступ к душевому поддону должен быть обеспечен с трех сторон.

5.2.19. В составе оздоровительной групповой ячейки должны предусматриваться места для установки физкультурно-игрового оборудования или физкультурно-оздоровительных тренажеров: в групповой, на веранде или в рекреационном пространстве групповой ячейки, входящем в общее игровое пространство групповой ячейки при соответствующем увеличении площадей.

6. СПЕЦИАЛИЗИРОВАННЫЕ ПОМЕЩЕНИЯ ДЛЯ РАБОТЫ С ДЕТЬМИ

6 1. Залы для музыкальных и гимнастических занятий

6.1.1. Зал для музыкальных и гимнастических занятий предназначается для детей в возрасте от 1,5 до 7 лет.

В соответствии с функциональным использованием помещение зала делится на следующие зоны: гимнастических и музыкальных занятий, хранения предметов и игрушек, используемых во время занятий (мячи, обручи и пр.), просмотра теле-, видео- и диапрограмм, прослушивания музыкального воспроизведения.

6.1.2. Залы для музыкальных и гимнастических занятий рекомендуется проектировать с соотношением сторон 1:1,5, но не более 1:2.

Наилучшая форма зала - квадратная.

6.1.3. Окна в зале рекомендуется размещать с одной стороны. Дополнительно могут быть предусмотрены с противоположной стороны высоко расположенные окна для подсвета или верхний свет.

6.1.4. В залах (зонах) для гимнастических занятий должны быть предусмотрены устройства для крепления спортивного оборудования: в потолке - крюк для каната; стационарные или трансформируемые детские баскетбольные щиты, стойки или крюки в стенах - для командных игр (пионербол, бадминтон, детский теннис). Вдоль степ зала общей длиной 15-20 м может предусматриваться стационарный балетный станок с зеркалом (за станком) на высоту не менее 1,6 м. Может предусматриваться другое стационарное оборудование по заданию на проектирование при согласовании с органами образования и Роспотребнадзора.

6.1.5. Расстановка мебели и оборудования должна обеспечивать оптимальные условия для двигательной активности детей. Наиболее целесообразно предметы оборудования, особенно стационарные, располагать по периметру зала.

При организации зоны просмотра теле- и видеопрограмм необходимо учитывать, что наилучшее восприятие изображения обеспечивается в том случае, когда изображение перпендикулярно лучу зрения. При рассмотрении сбоку допустимый угол обзора без искажения равен 45 градусам к оси изображения. В вертикальной плоскости оптимальный угол обзора равен 0-30 градусов (т.е. от линии взора и до 30 градусов вверх), допустимый - 30 градусов вверх и 40 градусов вниз от линии взора.

6.1.6. Место для проведения праздничных выступлений меняется в зависимости от характера праздника.

Для проведения новогодних торжеств зону праздничных выступлений целесообразно располагать па центральном месте в помещении. Места для зрителей (детские стульчики) размещаются по периметру зала. Во время проведения других праздников или во время детских (кукольных) спектаклей зона выступлений обычно располагается у одной из стен помещения, с учетом удобного обзора.

6.1.7. Для оформления детских утренников и спектаклей рекомендуется одну торцевую стену зала оставлять свободной от крупногабаритного стационарного оборудования, без оконных и, желательно, дверных проемов, чтобы обеспечить возможность создания импровизированной или стационарной сцены, которая может быть трансформируемой (выкатной, поворотной), может выдвигаться из помещения артистической и т.п.

6.1.8. При залах (зонах) музыкальных занятий следует предусматривать кладовые (зоны хранения оборудования), т.к. во время занятий часто меняются предметы, с которыми занимаются дети (флажки, обручи и т.п.). Стационарное оборудование (пианино и т.п.) следует располагать по периметру зала (зоны), высвобождая основное пространство для двигательной активности детей, поскольку музыкальные занятия нередко сопровождаются танцами, ритмикой.

6.1.9. Многофункциональное использование помещении залов для музыкальных и гимнастических занятии требует предусматривать возможность трансформации внутреннего пространства этих помещений с целью наилучшего их соответствия одной или другой функциям, а также с целью привнесения дополнительной возможности разнообразить интерьер, характер окружающей ребенка среды, создавая дополнительные стимулы эмоционального развития. Возможность изменения пространственной среды должна быть заложена прежде всего в оборудовании помещения зала.

6.1.10. Трансформация зальных помещений может также осуществляться с изменением планировочной структуры - объединением смежных помещений. Могут объединяться рядом расположенные залы для музыкальных и гимнастических занятий.

При этом недопустимо проектировать залы проходными в другие помещения.

6.1.11. Эффективно применение раздвижных перегородок, при большой площади зала отгораживающих сцену, стационарное оборудование и пр. Наиболее целесообразны раздвижные или складчатые перегородки.

Раздвижные перегородки могут иметь жесткую обшивку или мягкое покрытие из пластиков.

Все вновь применяемые материалы (пластики) должны иметь сертификаты гигиенический и соответствия.

6.1.12. В зале физкультурных занятий для детей с нарушением опорно-двигательного аппарата следует предусматривать стационарное оборудование по периметру стен, чтобы освободить середину зала для ковра, на котором проводится большая часть занятий.

6.1.13. Залы для музыкальных занятий в ДОУ для групп детей с нарушением слуха следует располагать вдали от помещений пищеблока и построчной, работающих на электрооборудовании.

6.1.14. В залах музыкальных и физкультурных занятий в ДОУ для детей с нарушением интеллекта полы следует предусматривать с покрытием, образующим геометрический рисунок, облегчающий детям процесс построения.

6.1.15. Для залов музыкальных и гимнастических занятий наиболее рациональными являются 9- или 12-метровые пролеты. Возможны другие конструктивные решения залов, но без промежуточных опор с пропорциями помещения не более двух квадратов.

6.1.16. Зал-арену следует проектировать в 12-метровом пролете, двухсветным, желательно решаемым в единстве с коммуникационно-рекреационным пространством, холлом, входной группой помещений.

6.1.17. Габариты отдельных функциональных, зон и расстановка оборудования в залах для музыкальных и гимнастических занятий в универсальных и специализированных ДОУ показаны на рисунках 39-41.

6.2. Бассейны

6.2.1. Планировочная структура плавательных бассейнов для дошкольников должна определяться функциональными требованиями процесса обучения детей плаванию.

6.2.2. Бассейн с ванной размером 10-12,5×6 м проектируется на единовременную пропускную способность 20-24 человека (две подгруппы по 10-12 детей); бассейн с ванной 6-7×3 м рассчитан на единовременную пропускную способность 6-7 человек (на одну подгруппу детей).

6.2.3. В ДОУ общего типа, как правило, применяются бассейны с ванной размером 6-7×3 м. Ванны с размерами 10-12×6 м рекомендуется предусматривать в Центрах развития ребенка, в учебно-воспитательных комплексах, а также в отдельно стоящих крытых бассейнах, предназначенных для обслуживания приходящих групп детей из нескольких рядом расположенных детских садов.

6.2.4. В состав бассейна в ДОУ общего типа должны входить: зал с ванной, две раздевальные с душевой и туалетом в каждой, комната тренера, комната медсестры, лаборатория анализа воды, узел управления бассейном, кладовая инвентаря и технические помещения, связанные с обслуживанием бассейна.

6.2.5. Раздевальные при бассейне в ДОУ общего типа проектируются отдельно для мальчиков и для девочек из расчета по 10-12 мест каждая. В зданиях Центров развития ребенка или в отдельных зданиях бассейнов, обслуживающих детские группы из разных ДОУ, в гигиенических целях следует не увеличивать число мест в раздевальных, а предусмотреть увеличенное количество их комплектов: при ванне бассейна с зеркалом воды от 60 м2 следует иметь два комплекта раздевальных для мальчиков и девочек (т.е. всего - четыре), каждая на 10-12 мест, с душевой и туалетом.

6.2.6. Площадь раздевальных при бассейне следует принимать не менее 1,0 м2 на 1 место единовременной пропускной способности, т.е. в общем случае каждая раздевальная для мальчиков и девочек в ДОУ общего типа должна быть не менее 12 м2 При бассейнах в ДОУ небольшой вместимости при меньшей, чем стандартная, наполняемости групп, раздевальные могут предусматриваться на 5-8 мест, с соответствующей площадью по 6-8 м2.

6.2.7. При каждой раздевальной следует предусматривать душевые: по 3 душевые сетки при каждой раздевальной. Душевые сетки предусматриваются из расчета 1 душевая сетка на 3-х человек. При каждой раздевальной следует предусматривать также туалет на один унитаз и один умывальник.

В местах выхода из душевой на обходную дорожку должно предусматриваться устройство проходного ножного душа. Площадь поддона ножного душа должна быть не менее 0,8×0,8 м, глубина - 0,1 м.

Путь следования детей из раздевальной к залу с ванной бассейна обязательно должен проходить через душ и ножную ванну.

Туалетные следует устраивать до входа в душевые.

6.2.8. В зале с ванной бассейна желательно иметь место для разминки площадью 25-35 м2 или иметь для этой цели непосредственную связь с залом для музыкальных и гимнастических занятий.

6.2.9. В бассейне с ванной 10 (12,5)×6 м целесообразно предусмотреть зал для разминки площадью 54 м, т.к. бассейн с такой ванной используется для обучения детей плаванию. Кладовая инвентаря при таком зале должна составлять не менее 12 м2. При таком бассейне комната тренера должна проектироваться с кабиной для переодевания, туалетом и душем общей площадью не менее 9 м2.

6.2.10. Комната медсестры, лаборатория анализа воды и узел управления бассейном должны размещаться смежно, суммарная площадь их должна быть не менее 18 м2

6.2.11. Ванна бассейна для дошкольников должна проектироваться переменной глубиной от 0,6 до 0,8 м. По периметру ванны следует предусматривать обходные дорожки шириной не менее 0,75 и 1,5 м - со стороны выхода из душевых.

6.2.12. Внутренняя поверхность ванн должна быть облицована керамической плиткой, дно - шероховатой керамической плиткой.

В ваннах должны быть устроены пенные корытца, переливные желоба, лестницы в боковых стенах, отверстия для подачи и спуска воды.

В ваннах без бортика необходимо увеличить глубину ванны на 0,3-0,35 м с устройством пенных корытец ниже обходной дорожки на это расстояние, сохраняя глубину воды 0,6-0,8 м.

6.2.13. Лаборатория анализа воды должна располагаться недалеко от места взятия контрольных проб в ванне; это помещение предусматривается с естественным освещением. Использование этого помещения для приготовления обеззараживающих растворов не допустимо.

6.2.14. Схема функциональных связей, планировка и оборудование помещений бассейна приведены на рисунках 42 и 43.

6.2.15. В ДОУ компенсирующего вида для спуска в ванну бассейна предусматривается лестница шириной не менее 1,2 м с размерами проступи и подступенка соответственно 0,32 и 0,14 м. Ступени не должны иметь выступающих краев и должны выполняться из материала, не вызывающего скольжения. С двух сторон лестница огораживается перилами высотой 0,6 м. У боковых стен бассейна, по его периметру, следует предусматривать поручни на высоте 0,6 м от отметки днища ванны и на высоте 0,05 м от поверхности воды.

6.2.16. В плавательном бассейне для детей с нарушением зрения необходимо края ванны бассейна обтянуть резиной, для спуска в ванну предусмотреть две лестницы с перилами, вокруг ванны и вдоль стен.

7. СОПУТСТВУЮЩИЕ ГРУППЫ ПОМЕЩЕНИЙ

7.1. Медицинские помещения

7.1.1. В ДОУ независимо от типа и приоритетных направлений развития детей должны предусматриваться помещения общего медицинского обслуживания.

7.1.2. В ДОУ независимо от вместимости проектируется медицинская комната площадью не менее 12 м2, процедурный кабинет площадью 8 м2 и прививочная площадью 4 м2, размещаемые в отдельных помещениях, а также изолятор.

7.1.3. Число мест в изоляторе определяется из расчета 1,5% от вместимости ДОУ. Перечень помещений изолятора и их площади принимаются по приложению 4 СанПиН 2.4.1.1249-03. В изоляторе предусматриваются: две палаты, приемная, используемая для регистрации состояния больных, а также для хранения и мытья посуды; туалет, который кроме прямого назначения используется для приготовления дезинфицирующих средств.

Приемная изолятора оборудуется двухгнездной мойкой посуды, навесным шкафом для храпения столовой посуды и столом или тумбочкой стулом. Туалет оборудуется детским унитазом, детской раковиной, душевым поддоном и сливом-видуаром (рисунок 44).

7.1.4. Медицинская комната должна иметь самостоятельный вход из рекреационно-коммуникационного пространства здания и размещаться смежно с палатой (одной из палат) изолятора. Между ними следует предусматривать устройство остекленного проема на 1,2 м от уровня пола - для наблюдения со стороны медицинского персонала за больными.

Палаты не должны быть проходными.

7.1.5. Медицинские помещения рекомендуется располагать на первом этаже вблизи входа в здание (если не предусматривается самостоятельный наружный выход из изолятора).

7.1.6. В ДОУ общего типа и в здании Центра развития ребенка наряду с медицинскими помещениями следует предусматривать комнату коррекции площадью 12-18 м2.

В ДОУ компенсирующего назначения комната коррекции выполняет роль кабинета врача-специалиста. При этом в здании ДОУ компенсирующего назначения, не имеющего отдельного кабинета врача-окулиста, комнату коррекции следует проектировать длиной не менее 6 м.

При комнате коррекции целесообразно предусматривать место, где могут переодеться 2-4 ребенка, приглашенные на занятия с прогулки.

7.1.7. Коррекционно-восстановительная работа включает коррекцию двигательных, слуховых, речевых, зрительных нарушений, а также коррекцию интеллектуального развития. Коррекция двигательных нарушений предполагает комплексное, системное воздействие, включающее медикаментозное, физиотерапевтическое и ортопедическое лечение, различные виды массажа, лечебную физкультуру.

При этом лечебная физкультура тесно связана с проведением физкультурных занятий и ручного труда. Коррекция речевых нарушений основывается на тесном единстве с мероприятиями, направленными на развитие двигательных функций.

7.1.8. В компенсирующих ДОУ следует дополнительно предусматривать: кабинет врача-специалиста площадью 9 м2, физиотерапевтический кабинет площадью 18 м2, кабинет массажа площадью 9 м2.

Комнату коррекции, физиотерапевтический кабинет и кабинет массажа следует располагать в непосредственной близости друг от друга.

7.1.9. В компенсирующих ДОУ следует предусматривать логопедический кабинет (за исключением специализированных ДОУ для детей с нарушением речи, в которых логопедическая комната входит в состав каждой групповой ячейки), а также класс предметно-практического обучения.

Логопедический кабинет площадью 12 м2 предусматривается из расчета один на четыре группы. Класс предметно-практического обучения площадью 24 м2 - один на учреждение.

7.1.10. При логопедическом кабинете целесообразно предусматривать место для раздевания на 4-5 детей, т.к. дети приглашаются на занятия прямо с прогулки.

7.1.11. Физиотерапевтический кабинет с проведением процедур светолечения предусматривается площадью 18 м2 и предназначен для ДОУ компенсирующего назначения всех профилей. В ДОУ для детей с нарушением зрения, последствиями полиомиелита и церебральных параличей предусматриваются кабинеты свето- и теплолечения площадью 18+18 м2.

7.2. Пищеблок

7.2.1. В проектах ДОУ (кроме групп кратковременного пребывания) следует предусматривать пищеблок, как правило, работающий на сырье. Иная организация приготовления пищи должна определяться заданием на проектирование или проектом по согласованию с органами Роспотребнадзора.

7.2.2. В состав пищеблока, работающего па сырье должны входить горячий цех с раздаточной, холодный цех, мясорыбный цех, цех первичной обработки овощей, овощной цех, моечная кухонной посуды, кладовая овощей, кладовая сухих продуктов, помещение с холодильными камерами, загрузочная, моечная обменной тары, комната персонала, раздевальная, душевая и уборная для персонала.

7.2.3. В состав пищеблока, работающего на полуфабрикатах должны входить горячий цех с раздаточной, холодный цех, моечная кухонной посуды, помещение для хранения сыпучих продуктов, холодильные камеры для хранения продуктов, моечная обменной тары, загрузочная, комната персонала, раздевальная, душевая и уборная для персонала.

Производственные цеха, работающие на полуфабрикатах, допускается размещать в одном помещении, разделяя их перегородками на высоту 1,5-1,8 м

7.2.4. В кухнях следует предусматривать установку оборудования, работающего на электричестве.

7.2.5. Из пищеблока следует предусматривать самостоятельный выход наружу. Не допускаются проходные кладовые и проход в кладовую через кухню.

Кладовые продуктов и охлаждаемые камеры не следует размещать под моечными, душевыми и санитарными узлами, а также под производственными помещениями с трапами.

7.2.6. В группах кратковременного пребывания, согласно МГСН 4.07-05, приложение 12 предусматривается кухня (буфетная - ниша) для приготовления чая, компотов. Площадь кухни принимается равной 4 м2

7.2.7. В ДОУ или его филиалах (групповом отделении) в системе Центра развития ребенка может предусматриваться доставка готовой пищи. В этом случае в них вместо пищеблока предусматривается загрузочная и помещение мойки и хранения тары готового питания (термоконтейнеров), в централизованном пищеблоке - помещения хранения тары и экспедиции.

7.2.8. Пищеблок рекомендуется размещать на первом этаже, обеспечивая наиболее удобную связь с остальными группами помещений.

7.2.9. Примеры планировки и расстановки оборудования пищеблоков приведены на рисунках 45 и 46.

Ширину проходов в производственных помещениях следует принимать по Приложению Д.

7.3. Постирочная

7.3.1. В целях улучшения условий внутренней среды в зданиях ДОУ не рекомендуется предусматривать постирочные, рассчитанные на стирку более чем 0,26 кг белья в день на одно место в ДОУ, что составляет 1/3 общего объема стираемого белья. Стирку остального белья следует производить в специализированных городских предприятиях коммунально-бытового обслуживания.

7.3.2. В малых ДОУ на 1-3 детские группы и групповых отделениях Комплекса дошкольного воспитания с числом групп не более 3-х или в ДОУ с числом детей не более 60 стиральную и гладильную допускается размещать в одном помещении.

В ДОУ с числом групп 4 (60 мест) и более постирочная должна состоять из двух помещений: стиральной и гладильной. Вход в стиральную и гладильную следует проектировать раздельными. Вход в стиральную должен проектироваться с тамбуром.

7.3.3. В зданиях ДОУ с числом детей до 160 и групповых отделений комплекса дошкольного воспитания, полностью обслуживаемых фабрикой-прачечной или централизованной прачечной в составе Комплекса дошкольного воспитания, следует предусматривать помещение для сдачи и сортировки грязного белья площадью 6 м2 с отдельным наружным входом и площадью 10 м2 - при числе мест в ДОУ более 160.

7.3.4 Примеры планировочных решений и расстановки оборудования постирочных показаны на рисунке 47.

7.4. Служебно-бытовые помещения

7.4.1. В состав служебно-бытовых помещений ДОУ должны входить: кабинет заведующего (директора), комната завхоза, методический кабинет, комната персонала, комната кастелянши, кладовая чистого белья, хозяйственная кладовая, туалет для персонала и комната личной гигиены женщин, помещение охраны.

7.4.2. В малых ДОУ и групповых отделениях Комплексов дошкольного воспитания в качестве служебно-бытовых помещений предусматриваются кабинет-офис для заведующего или директора (роль которого может выполнять по совместительству один из воспитателей), комната персонала, а также туалет, хозяйственная кладовая и кладовая чистого белья.

7.4.3. Уборные для персонала должны проектироваться на один унитаз и один умывальник. Необходимо, чтобы уборные для персонала предусматривались на каждом этаже.

7.4.4. При входах с участка в здание ДОУ рекомендуется предусматривать туалеты для детей, которыми дети могут пользоваться во время прогулки. Туалеты могут предусматриваться на 1-2 кабинки с детскими унитазами и одним детским умывальником.

7.4.5. В ДОУ общего типа, здании центра развития ребенка в составе Комплексов дошкольного воспитания рекомендуется выделять главный вход с холлом площадью порядка 12-18 м2.

Холл предназначен для организации информационных стендов, выставок детского творчества, мест ожидания посетителей.

7.4.6. В ДОУ компенсирующего назначения следует предусматривать холл минимальной площадью 12 м2 на 4 группы детей и 18 м2 - на 8 групп.

В компенсирующих ДОУ для детей с нарушением слуха следует предусматривать комнату радиотехника площадью 10 м2 и аудилогический кабинет площадью 4 м2.

8. СПЕЦИАЛЬНЫЕ ТРЕБОВАНИЯ К ПРОЕКТИРОВАНИЮ ДОШКОЛЬНЫХ ОБРАЗОВАТЕЛЬНЫХ УЧРЕЖДЕНИЙ КОМПЕНСИРУЮЩЕГО ВИДА

8.1. В ДОУ компенсирующего вида (компенсирующих группах в ДОУ общего типа) программы общеразвивающие и общеоздоровительные сочетаются с лечебно-восстановительными мероприятиями, корректирующими основной дефект развития или компенсирующими утраченные способности.

ДОУ компенсирующего вида следует проектировать с учетом создания необходимых условий для:

- обучения и воспитания детей с аномалиями развития по специальным программам и учебным планам;

- коррекции недостатков физического, психического и интеллектуального развития в процессе специальных занятий по исправлению дефектов развития, а также лечебно- профилактических мероприятий.

8.2. ДОУ компенсирующего вида для детей с нарушениями слуха (глухих и слабослышащих) с нарушением зрения (слабовидящих; с косоглазием и амблиопией), с нарушением опорно-двигательного аппарата и интеллекта - следует проектировать в виде специальных зданий с сокращенными площадями основных помещений групповой ячейки (т.к. практически вдвое сокращается нормативная наполняемость детских групп) и составом дополнительных помещений, согласуемых с заказчиком на стадии разработки задания на проектирование.

Схемы взаимосвязей основных помещений компенсирующей жилой ячейки для детей с нарушением зрения представлены на рисунках 36 и 37.

При некоторых видах компенсирующей деятельности для организации таких учреждений вполне могут подойти универсальные здания ДОУ. например, для логопедического детского сада.

8.3. Компенсирующие дошкольные учреждения могут проектироваться как специализированные: для детей с нарушениями слуха, зрения, опорно-двигательного аппарата, психического развития, или как универсальные компенсирующие, когда одно здание может предназначаться для использования одного из нескольких видов нарушений развития. Например, может проектироваться одно универсальное здание с едиными планировочными показателями для использования его ДОУ компенсирующего вида для детей с одним из нарушений развития: с нарушением речи; с нарушением зрения; с нарушением интеллекта или с задержкой психического развития.

8.4. Здания ДОУ компенсирующей направленности, проектируемые с малокомплектными групповыми ячейками целесообразно делать универсальными - способными разместить ДОУ одного из направлений компенсирующей деятельности. При изменении компенсирующей направленности в здании ДОУ компенсирующего типа, меняется назначение и оборудование комнаты коррекции, входящей в состав каждой групповой ячейки, а также помещения, предназначенные для компенсирующей и коррекционной работы с детьми.

8.5. Следует иметь ввиду, что в компенсирующих ДОУ (компенсирующих группах) специальные занятия проводятся с каждым ребенком по очереди непрерывно в течение дня и независимо от остальных мероприятий в группе: ребенка на занятия могут пригласить с обеда или прогулки. Это обстоятельство обуславливает определенные требования к размещению и планировочному решению компенсирующих групповых ячеек: их целесообразно проектировать в одном уровне, компактными, с удобной связью с комнатой коррекции и с групповой площадкой на участке.

Если комната коррекции предусматривается не в составе групповой ячейки, при комнате коррекции следует предусматривать детскую раздевальную верхней одежды на 4-6 мест

8.6. Групповые ячейки с компенсирующей направленностью в соответствующих ДОУ и в ДОУ общего типа следует проектировать изолированными от других групповых ячеек.

Медицинские, процедурные и физиотерапевтические кабинеты, помещения для определенных видов компенсирующей деятельности допускается проектировать общими на 2 или более групповых ячеек.

8.7. Для ряда направлений компенсирующей деятельности могут быть использованы универсальные групповые ячейки ДОУ общего типа. В универсальных групповых ячейках могут также размещаться группы детей с фонетико-фонематическими нарушениями речи, которые организуются только для детей старше 3-х лет и имеют наполняемость до 12 детей, а также для детей с туберкулезной интоксикацией, часто болеющих, с иными отклонениями, не указанными в Приложении Г (наполняемость 10 мест в ясельных и 15 мест - для детей 3 и более лет).

8.8. Групповая ячейка дошкольного учреждения компенсирующего назначения имеет расширенный состав помещений. Планировочная структура компенсирующей групповой ячейки должна быть основана на центральном расположении групповой и комнаты коррекции (для специальных занятий), которые, в свою очередь, функционально связаны с раздевальной, спальней, туалетной и буфетной.

8.9. Групповые ячейки компенсирующей направленности для детей с нарушениями развития могут проектироваться универсальными. В такую групповую ячейку должно входить помещение для специальных занятий площадью не менее 24 м2, которое, в зависимости от вида нарушения у детей может использоваться как:

класс занятий для детей с нарушением слуха, интеллекта, с последствиями полиомиелита и церебральных параличей;

кабинет тифлопедагога для слепых и слабовидящих детей;

плеопто-ортоптическая комната для детей с косоглазием и амблиопией;

кабинет логопеда для детей с нарушением речи.

8.10. Комната коррекции может предусматриваться на 2 или более групповые ячейки по согласованию с органами образования.

8.11. В составе групповой ячейки компенсирующей направленности целесообразно также предусматривать террасу, остекленную веранду, зону психологической разгрузки - «Домашний уголок».

8.12. В дошкольном учреждении для детей с нарушениями развития с круглосуточным пребыванием детей в течение рабочей недели или более длительного времени в составе групповой ячейки дополнительно следует предусматривать помещение столовой (площадью не менее 16 м2) в комплексе с буфетной.

8.13. В групповых ячейках для детей с нарушением слуха (слабослышащих) в классе для занятий наряду с основным естественным освещением слева следует предусматривать дополнительное верхнее освещение сзади сидящих (на высоте не ниже 1,5 м от уровня пола) для лучшего рассмотрения детьми жестов и мимики преподавателя.

Входы в класс для занятий и групповую следует оборудовать двухстворчатыми дверями.

Следует предусматривать изоляцию труб и металлических деталей в помещениях, где находятся дети.

Следует предусматривать непосредственную связь между туалетной, групповой и спальней в групповой ячейке.

8.14. Класс для занятий детей с нарушением слуха предусматривается для систематических занятий с использованием сурдотехнической аппаратуры, по сохранению и развитию остаточного слуха, а также формированию словесной речи (зрительному, тактильно-вибрационному).

В этом классе стены и потолок должны иметь акустическую отделку. Хозяйственные помещения с электрооборудованием (кухня, построчная) должны быть удалены от классов для занятий.

8.15. В групповых ячейках для детей с нарушением зрения (с косоглазием и амблиопией) следует предусматривать плеопто-ортоптическую комнату длиной не менее 6 м и ориентировать ее на север (с отклонением до 22,5 градусов в обе стороны) или применять солнцезащитные устройства. В этом помещении осуществляется корректировка и лечение зрения на специальной аппаратуре.

Функциональная зона длиной 6 м в плеопто-ортоптической комнате нужна как линейная дистанция, вдоль которой ребенок передвигается при работе с аппаратами или при проверке зрения; ширина этой зоны может составлять не более 1,5 м.

В плеопто-ортоптической комнате следует выделигь темное помещение площадью 6 м2 (для работы на большом безрефлексном офтальмоскопе) с окраской стен в темно-зеленый цвет.

Плеопто-ортоптическую комнату не следует располагать смежно с помещениями, имеющими электрооборудование.

Плеопто-ортоптическая комната и помещения обслуживаемой групповой ячейки должны быть расположены на одном этаже и вблизи друг от друга, детям после процедур требуется отдых, так как первые 3-5 минут после процедуры они плохо видят

Плеопто-ортоптическая комната предусматривается одна на две групповые ячейки детей дошкольного возраста с косоглазием и амблиопией.

8.16. В состав групповой ячейки дня слепых и слабовидящих детей входит кабинет тифлопедагога для занятий одновременно с двумя-тремя детьми. При оборудовании кабинета необходимо выделять свободное пространство для развития у детей двигательных навыков.

8.17. Кабинет тифлопедагога и классы для занятий не следует располагать в непосредственной близости от залов для музыкальных и гимнастических занятий.

8.18. Ограждающие поверхности и оборудование в групповых ячейках для детей с нарушением зрения должны быть окрашены матовыми красками светлых тонов, коэффициенты отражения которых должны быть не ниже: потолка - 70%, стен - 50-60%, пола - 25-30%, столов - 45%.

8.19. В групповых ячейках для детей с нарушением зрения в перегородках между групповой и спальней, между групповой и туалетной целесообразно предусматривать остекленные двери, проемы.

8.20. В групповых ячейках для детей с нарушением зрения целесообразно:

между помещениями групповой (игровой) и спальни (спален), в отдельных случаях между этими помещениями и соответственно - буфетной и туалетной (умывальная зона) предусматривать раздвижные двери, а также двери с фиксированными в распахнутом состоянии створками. Можно вообще не предусматривать заполнения дверных проемов, чтобы не представлять препятствий при движении детей;

избегать выступов, внешних углов или скруглять их (радиус 0,05-0,1 м);

предусматривать контрастную окраску дверей, границ ступеней, мебели и оборудования по отношению к окраске стен.

8.21. В групповой для детей с нарушениями интеллекта, отличающихся повышенной возбудимостью, «зона столиков» оборудуется одноместными столиками для возможно более полного восстановления их нервно-психической деятельности и по подготовке к обучению в школе. В том числе для проведения коррекционно-воспитательных занятий по формированию у детей элементарных математических представлений, развитию речи, изобразительной деятельности, восприятия и мышления.

Если в составе групповой ячейки предусматривается класс - занятия проводятся в классе, который также оборудуется одноместными столиками.

8.22. В логопедической комнате для детей с нарушением интеллекта проводятся индивидуальные занятия с ребенком. Логопедическая комната должна быть связана с групповой или раздевальной.

8.23. В групповой ячейке для детей с нарушениями интеллекта должны соблюдаться следующие требования:

входы в туалетную должны быть предусмотрены и из групповой и из спальни;

в спальне следует предусматривать двери с уплотнителями притворов;

в помещениях, где находятся дети, выступающие углы должны быть закруглены (радиус не менее 0,05 м).

8.24. В групповых (классах) групповых ячеек детей с нарушениями опорно-двигательного аппарата (с последствиями полиомиелита и церебральных параличей) проводятся занятия по развитию речи, внимания, памяти, слуха, пространственно-временных представлений.

«Зона столиков» в групповой (классе) оборудуется ученическими столами и шкафом для пособий. Для передвижения детей по периметру «зоны столиков» следует предусматривать свободные проходы, оборудованные опорным поручнем на высоте 0,5 м от уровня пола. Диаметр поручня - 0,05 м. Столы и стулья должны жестко крепиться к полу. При размещении столов необходимо обеспечить свободный доступ к каждому ребенку, проходы шириной не менее 0,75 м между столами, между рядами столов и стеной или иным оборудованием, сохраняя возможность самостоятельного передвижения детей с нарушенной моторикой.

8.25. В раздевальных для детей с нарушением опорно-двигательного аппарата зоны переодевания и хранения одежды следует располагать рядом.

Кровати и скамьи для переодевания в спальнях для этих детей следует дополнительно жестко фиксировать, не допуская возможности их перемещения при пользовании детьми, а скамьи для переодевания оснастить дополнительными жесткими поручнями.

8.26. Пример планировочного решения групповой ячейки детской группы с компенсирующей направленностью приведен на рисунке 37; пример расстановки оборудования в комнатах коррекции для детей с нарушением зрения дан на рисунке 38.

9. УСЛОВИЯ РАЗМЕЩЕНИЯ НАЧАЛЬНЫХ КЛАССОВ ОБЩЕОБРАЗОВАТЕЛЬНОЙ ШКОЛЫ В ЗДАНИЯХ ДЕТСКИХ САДОВ

9.1. В ДОУ (кроме ДОУ компенсирующего вида) допускается размещать ученические классы I ступени общеобразовательной школы (начальные классы). При этом каждый ученический класс размещается в отдельной групповой ячейке детей дошкольного возраста. Одно из помещений групповой или спальни используется для организации в нем универсального классного помещения, второе - для размещения в нем рекреации (игровой), при условии, что площадь каждого помещения не менее 50 м2.

В классном помещении следует обеспечить размещение грифельной доски и левостороннее естественное освещение.

9.2. Требования к оборудованию и размещению класса следует принимать в соответствии с МГСН 4.06-03 и СанПиН 2.4.2.1178-02.

При площади групповой или спальни, равной 50 м2, в которых размешается ученический класс, вместимость ученического класса принимается 20 мест. В общем случае площадь класса принимается 2,5 м2/место. Рисунки 49 и 50.

При новом проектировании расчетную вместимость класса принимается равной 25 мест.

9.3. При необходимости организации дневного сна детей первого класса, вместо рекреации предусматривается спальня, которая после сна детей преобразуется в игровую. В этом случае спальню целесообразно оборудовать трансформируемыми или облегченными кроватями. Перечень оборудования приведен в таблице 9.1.

9.4. Питание школьников допускается решать по аналогии с дошкольными группами, т.е. с доставкой готовой пищи в групповую ячейку. В этом случае мойка и хранение столовой посуды осуществляется в буфетной.

Допускается предусматривать общую столовую для школьников, организуемую на площади одной из групповых ячеек, изолированно от групповых ячеек, занимаемых ученическими классами. Пропускная способность такой столовой в две посадки - 8 ученических классов.

9.5. Раздевальная и туалетная используются по прямому назначению. Туалетная должна быть раздельной: для девочек и для мальчиков, при общей умывальной, как это предусматривается настоящими нормами для групповых ячеек для детей от 4-х лет.

9.6. Занятия физкультурой осуществляются в зале для физкультурных занятий и на общей физкультурной площадке на участке ДОУ.

Примечания:

1. Состав помещений и площади пищеблока и постирочной принимаются как для ДОУ общего типа в зависимости от вместимости здания

2. Во всех типах ДОУ компенсирующей направленности предусматривается комната охраны площадью 8 м2.

Таблица 9.1

Номенклатура оборудования групповой ячейки с классной комнатой в ДОУ общего типа

Наименование оборудования

Примерные габариты (мм)

Длина

Ширина

Высота

1. Стол

700

500

460-760

2. Стул

430

507

Регулируемая высота от 260 до 460

3. Стол преподавателя

1200

600

700

4. Стул для взрослого

460

500

460

5. Шкаф

1050

600

2000

6. Стеллаж

1700

600

2000

7. Классная доска

3000

1200

Высота нижнего края доски от пола h

Для 1 кл. - 60-70 см

Для 2 кл. - 80-90 см

8. Кровать

1400

600

600

9. Шкаф для комплектов детской одежды

1050

450

1400

10. Стеллаж для постельных принадлежностей

2250

750

2300

11. Хозяйственный шкаф

600

450

1400

12. Вешалка для полотенец (навесная)

600

100

750

13. Буфет-мойка

1800

600

1750

14. Шкаф для одежды

1350

300

1300

15. Скамья дня одевания

1200

250

380

16. Шкаф для одежды персонала

1500

300

1950

17. Шкаф для пособий

1050

4500

1400

Приложение А

Нормативно- методические материалы, использованные в работе над Пособием

1. Проектирование детских дошкольных учреждений. Справочное пособие к СНиП М., ЦНИИЭП учебных зданий, 1992 г.

2. Рекомендации по размещению, планировке и оборудованию участков дошкольных учреждений, 1984 г.

3. Пособие по проектированию интерьера детских яслей-садов. М., Стройиздат, 1982г.

4. Пособие по проектированию детских дошкольных учреждений. (к CНиП II-64-80). М., Стройиздат, 1985 г.

5. Инструкции по проектированию дошкольных учреждений для детей с нарушениями физического и умственного развития. М.; Стройиздат, 1983 г.

6. Петровский В.А., Кларина Л.М., Смырина Л.А., Стрелкова Л.Л. Построение развивающей Среды в дошкольном учреждении. М., Научно-методическое объединение «ТВОРЧЕСКАЯ ПЕДАГОГИКА», Малое предприятие «НОВАЯ ШКОЛА».

7. СанПиН 2.4.1.1249-03 «Санитарно-эпидемиологические требования к устройству, содержанию и организации режима работы дошкольных образовательных учреждений».

8. СанПнН 2.4.2.1178-02 «Гигиенические требования к условиям обучения в общеобразовательных учреждениях»

Приложение Б

Примерный ассортимент зеленых насаждений (для детского сада на 10 групп)

Растения

Количество, шт.

Возраст, лет

Деревья

1. Липа мелколистная

15

12-16

2. Клен остролистный

26

12-16

3. Вяз шершавый

4

12-16

4. Рябина обыкновенная

6

8-10

5. Рябина черноплодная

9

6-8

6. Ива белая плакучая

1

6

7. Иль колючая (Н = 15)

4

 

Итого:

65

 

 

 

 

Кустарники

8. Спирея японская

385/77

2-3

9. Сирень обыкновенная

18/6

3-4

10. Спирея иволистная

400/8

3-4

11. Клен Гиннала

310/100

4-5

Итого:

1113/266 шт/м2

 

 

 

 

12. Цветы однолетние

900/18 шт/м2

Однолетние

13. Газон обыкновенный

2451 м2

То же

Состав травосмеси:

 

-/-

Мятник луговой

9,8 кг

-/-

Полевица обыкновенная

14,71 кг

-/-

Райграс пастбищный

24,5 кг

-/-

14. Газон обыкновенный на грyпповых и общей физкультурной площадках

2215 м2

-/-

Состав травосмеси:

 

 

Овсяница красная

33,22 кг

-/-

Райграс пастбищный

8,86 кг

, -/-

Клевер белый

2,22 кг

-/-

Приложение В

Рекомендуемый состав смеси трав

(в граммах на 1 м2)

 

Сорта трав

Менее плодородные, сухие почвы

Влажные, увлажненные почвы

1.

Овсяница (овечья или красавка)

15

8

2.

Райграс пастбищный

4

 

3.

Мятлик (луговой, сплюснутый)

 

10

4.

Клевер белый

1

 

5.

Полевица (белая, обыкновенная)

 

2

 

Всего

20

20

Приложение Г

Наполняемость детских групп с компенсирующей направленностью

Вид нарушений развития детей

В группах детей до 3-х лет

В группах детей старше 3-х лет

1.

Для детей с тяжелыми нарушениями речи

6

10

2.

Для детей с фонетико-фонематическими нарушениями речи

-

12

3.

Для глухих детей

6

6

4.

Для слабослышащих детей

6

8

5.

Для слепых детей

6

6

6.

Для слабовидящих детей, для детей с косоглазием и амблиопией

6

10

7.

Для детей с нарушением опорно-двигательного аппарата

6

8

8.

Для детей с нарушением интеллекта (умственной отсталостью)

6

10

9.

Для детей с задержкой психического развития

6

10

10.

Для детей с глубокой умственной отсталостью

-

8

11.

Для детей с туберкулезной интоксикацией

10

15

12.

Для детей, часто болеющих

10

15

13.

Для детей со сложными дефектами (2 и более дефектов)

5

5

14.

Для детей с иными отклонениями в развитии

10

15

Приложение Д

Ширина проходов в производственных помещениях пищеблока

Проходы

Ширина, м

1.

Между технологическими линиями оборудования (столами, моечными ваннами и т.п.) при расположении рабочих мест в проходе в два ряда при длине линии оборудования, м:

 

 

до 3

1,2

 

3 и более

1,3

2.

Между стеной и технологической линией оборудования (со стороны рабочих мест)

1,0

3.

Между технологическими линиями оборудования (столы, моечные ванны и т.п.) и линиями оборудования, выделяющими тепло

1,3

4.

Между технологическими линиями оборудования, выделяющими тепло

1,5

Рис. 1 Принципиальные схемы решения участков ДУ

а - в обычных условиях; б - при примыкании участка к зданию; в - в отрыве от здания

1 - здание ДУ; 2 - групповые площадки ясельных групп; 3 - групповые площадки детей 3-6 (7) лет; 4 - теневой навес; 5 - общая физкультурная площадка; 6 - специализированные площадки; 7 - плескательный бассейн; 8 - огород-ягодник; 9 - площадка для домашних животных и птиц; 10 - хозплощадка (мусоросборники); 11 - место для стоянки личных автомобилей персонала; 12 - место ожидания родителями детей; 13 - кольцевая велосипедная дорожка; 14 - кольцевой автомобильный проезд; 15 - озеленение

Рис. 2 Примеры решения участков в нестандартной ситуации

а - при примыкании к зданию ДОУ:

1 - здание (площадь застройки); 2 - групповые площадки; 3 - теневые навесы; 4 - пешеходные дорожки; 5 - озеленение; 6 - хозплощадка; 7 - мусоросборники; 8 - общая физкультурная площадка;

б - при УВК:

1А - школьное отделение; 1Б - дошкольное отделение; 2 - теневой навес; 3 - групповая площадка; 4 - физкультурная площадка дошкольного отделения; 5 - площадка для животных и птиц; 6 - огород-ягодник; 7 - хозплощадка; 8 - площадка для двухкомандных игр; 9 - гимнастическая площадка; 10 - беговая дорожка; 11 - площадка для отдыха; 12 - участок плодового сада; 13 - участок овощных и плодовых культур; 14 - метеорологическая и геологическая площадка;

в - в отрыве от зданий ДОУ, пристроенных к жилым домам:

1 - здания ДОУ; 2 - участки игровой территории.

Рис. 3 Размещение оборудования на групповых площадках

а - детей 0-1 года; б - детей 1-2 лет

2.1 (здесь и далее цифровые обозначения даны в соответствии с Приложением 3 к Рекомендациям по размещению, планировке и оборудованию участков дошкольных учреждений, М., ЦНИИЭП учебных зданий, 1984 г.) - столик для игр; 2.2 - скамья со спинкой для детей; 2.3 - манеж; 2.4 - столик-барьер; 2.5 - барьер; 2.6 - песочница-столик; 3.1 - горка-манеж; 3.5 - оборудование для профилактики плоскостопия; 3.10 - лесенки-ступеньки; 3.19 - корзина для забрасывания мяча; 4.4 - пароход; 6.1 - скамья для взрослых; 6.2 - цветочница

Рис. 4 Размещение оборудования на площадке дяя детей 2-3 лет

2.1 - столик для игр; 2.2 - скамья со спинкой для детей; 2.7 - песочница; 3.3 - качели; 3.5 - оборудование для профилактики плоскостопия; 3.6 - столбики; 3.7 - балансир; 3.10 - лесенки-ступеньки; 3.11 - лестница наклонная; 3.13 - гимнастическая лестница; 3.14 - оборудование для лазания и игр с мячом; 3.17 - игровая стенка; 4.3 - автомобиль; 5.1 - чаша с водой; 6.1 - скамья для взрослых; 6.2 - цветочница.

Рис. 5 Размещение оборудования на площадке для детей 3-4 лет

2.1 - столик для игр; 2.2 - скамья со спинкой для детей; 2.7 - песочница; 3.2 - горка-скат; 3.3 - качалка; 3.4 - качели; 3.5 - оборудование для профилактики плоскостопия; 3.7 - балансир; 3.8 - бум; 3.11 - лестница наклонная; 3.12 - лесенки-перекладины; 3.14 - оборудование для пролезания; 3.17 - игровая стенка; 3.19 - корзина для забрасывания мяча; 4.1 - домик; 4.3 - автомобиль; 5.1 - чаша с водой; 6.1 - скамья для взрослых; 6.2 - цветочница

Рис. 6 Размещение оборудования на площадке для детей 4-5 лет

2.1 - столик для игр; 2,2 - скамья для детей; 2.8 - песочный дворик; 3.2 - горка-скат; 3.4 - качели; 3.8 - бум; 3.12 - лесенки-перекладины; 3.13 - гимнастическая лестница; 3.14 - оборудование для лазания и игр с мячом; 3.15 - лиана для лазания; 3.17 - игровая стенка; 3.19 - корзина для забрасывания мяча; 4.1 - домик; 4.3 - автомобиль; 5,7 - короба для пускания корабликов; 6.2 - цветочница

Рис. 7 Размещение оборудования на площадке для детей 5-6 лет

2.1 - столик для игр; 2.2 - скамья со спинкой для детей; 2.3 - песочный дворик; 3.2 - горка-скат для съезжания; 3.4 - качели; 3.5 - оборудование для профилактики плоскостопия; 3.7 - балансир; 3.8 - бум-лесенка; 3.12 - лесенки-перекладины; 3.13 - гимнастическая лестница; 3.14 - оборудование для лазания и игр с мячом; 3.15 - лиана для лазания; 3.17 - игровая стенка; 3.18 - стол для тенниса; 4.1 - домик; 5.2 - канал для пускания корабликов; 6.1 - скамья для взрослых; 62 - цветочница

Рис. 8 Размещение оборудования на площадке для детей 6-7 лет

2.1 - столик для игр; 2.2 - скамья со спинкой для детей; 2.8 - песочный дворик; 3.2 - горка-скат, 3.4 - качели; 3.5 - оборудование для профилактики плоскостопия; 3.8 - бум-лесенка; 3.9 - бум-балансир; 3.13 - гимнастическая лестница; 3.17 - игровая стенка; 3,18 -теннисный стол; 4.1 - домик; 4.2 - ракета; 5.2 - канал для пускания корабликов; 6.1 - скамья для взрослых; 6.2 - цветочница

Рис. 9. Размещение оборудования на физкультурной площадке:

I - беговая дорожка; II - спортивная площадка для игр в волейбол, бадминтон, баскетбол, городки; III - зеленая лужайка для подвижных игр с элементами соревнования; IV - зона с гимнастическим оборудованием и спортивными снарядами; V - яма для прыжков в длину и в высоту VI - полоса препятствий

1 - щит для игры в баскетбол; 2 - сетка волейбольная; 3 - ворота хоккейные или футбольные; 4 - теннисный стол; 5 - игровой гимнастический комплекс: а - разновысокие перекладины; б - канат для лазания; в - сетки; г - перекладина; д - шест и веревочная лестница; е - бум; 6 - гимнастическая стенка; 7 - фигурное вонтанирующее устройство; 8 - арка для подлезания; 9 - лиана; 10 - душ; 11 - скамьи без спинок для детей; 12 - цветочница; 13 - урна

Рис. 10 Пример планировки и оборудования площадки для обучения детей правилам дорожного движения

1 - пешеходный переход; 2 - осторожно, дети; 3 - перекресток; 4 - главная дорога; 5 - конец главной дорога; 6 - STOP; 7 - движение запрещено; 8 - место стоянки; 9 - движение направо; 10 - движение налево; 11 - указатель пешеходного перехода; 12 - светофор; 13 - металлическое ограждение; 14 - информационный стенд; 15 - физкультурная площадка; 16 - групповая площадка; 17 - бассейн; 18 - гимнастическая вышка - мост

Рис. 11 Пример решения песочного дворика (опыт Болгарии)

а - план; б - разрез

1 - бетонный модульный элемент; 2 - деревянный элемент, 3 - планка 4 - песок (30 см); 5 - кирпич; 6 - песок, глина; 7 - бетон

Рис. 12 Групповая площадка для детей с нарушением слуха

1 - карусель; 2 - кольцеброс; 3 - качели шинные; 4 - песочница; 5 - система обручей для пролезания; 6 - макет корабля; 7 - качалки на пружинах; 8 - теневой навес; 9 - доска с планочками; 10 - односкатная горка; 11 - скамья; 12 - одноярусный лабиринт алфавитный; 13 - вкопанные шины; 14 - наклонная лестниц

Рис. 13 Лечебно-гимнастическая площадка для детей с нарушением зрения

1 - бревно на грунте; 2 - бревно на стойках; 3 - доска на грунте; 4 - циклотренажер; 5 - наклонная лестница; 6 - наклонная доска; 7 - шагоход; 8 - следоступ; 9 - волнистая доска; 10 - доска "елечка"; 11 - ребристая доска; 12 - велотренажер; 13 - дорожки из различных покрытий; 14 - дорожки из щитов; 15 - дорожки из дощечек; 16 - звуковые ориентиры; 17 - вертикальные гимнастические лестницы

Рис. 14 Лечебно-гимнастическая площадка для детей с последствиями полиомиелита и церебральных параличей

1 - вертикальные гимнастические лестницы; 2 - дорожка для дифференцирования движений; 3 - шведская стенка; 4 - скамья; 5 - наклонная лестница; 6 - наклонная доска; 7 - циклотренажер; 8 - наклонная плоскость; 9 - батут; 10 - разные виды подъемников; 11 - ориентиры на грунте для построения детей; 12 - дорожки с различными покрытиями; 13 - валиковые дорожки; 14 - волнистая доска; 15 - доска "елочка"; 16 - следоступы; 17 - дорожка с разделителем; 18 - велотренажер

Рис. 15 Гимнастическая площадка для детей с нарушением слуха

1 - бревно на стойках; 2 - скамья; 3 - наклонная лестница; 4 - наклонная доска; 5 - бум; 6 - брусья; 7 - перекладина; 8 - рукоход; 9 - подъемник со страховкой; 10 - доска для укрепления пресса; 11 - шесты; 12 - кольца; 13 - ориентиры на грунте для построения детей; 14 - шведские стенки; 15 - различные виды подъемов; 16 - фиксированная штанга; 17 - силовой балансир ножной; 18 - силовой балансир ручной

Рис. 16 Гимнастическая площадка для детей с последствиями полиомиелита и церебральных параличей

1 - бревно на грунте; 2 - бревно на стойках; 3 - доска на грунте; 4 - скамья; 5 - наклонная лестница; 6 - наклонная доска; 7 - брусья; 8 - перекладина; 9 - рукоход; 10 - шесты; 11 - кольца; 12 - ориентиры на грунте для построения детей; 13 - шведские стенки; 14 - вертикальные гимнастические лестницы; 15 - доска с планками

Рис. 17. Твердые покрытия на групповых площадках ДОУ.

Рис. 18 Твердые покрытия для пешеходных дорожек

а - асфальтовое; б - настил из гравия

Рис. 19 Посадка кустарников и организация живой изгороди

а - однорядная; б - двухрядная

Рис. 20 Посадка деревьев

а - плотная рядовая широтного направления; б - меридионального направления; в - гармоническая группа; г - контрастная группа

Рис. 21 Функциональная структура дошкольных образовательных учреждений (состав и взаимосвязь функциональных элементов):

а - малые ДОУ; б - ДОУ общего типа; в - ДОУ компенсирующего вида; г - КДВ; д - детский сад - начальная школа.

Рис. 22 . Связи основных и дополнительных помещений в групповых ячейках;

а - оздоровительной группы детей возраста до 3-х лет; б - разновозрастной группы детей возраста до 3-х лет; в - одновозрастной группы детей возраста 3-6 (7) лет, г - разновозрастной группы детей возраста 3-6 (7) лет; д - групповой ячейки группы "шестилеток" (с классным помещением); е - малокомплектной группы "семейный детский сад";

Условные обозначения:

основные помещения

дополнительные помещения

Р - раздевальная; ГР - групповая; СП - спальня; Б - буфетная; Т - туалетная; КП - комната персонала; ПР - комната психологической разгрузки ("домашний уголок"); РП - помещение для занятий (работы) по подгруппам; ОВ - остекленная веранда; ОТ - открытая терраса; ВБ - ванна-бассейн; КЛ - классное помещение; ИР - помещение для индивидуальной работы с ребенком.

Рисунок 23. (продолж.) Связи основных и дополнительных помещений в групповых ячейках:

ж - прогулочных групп; и - дневной группы кратковременного присмотра; к - круглосуточной дежурной группы кратковременного присмотра.

Рис. 24. Встроенно-пристроенные групповые отделения на 2 и 4 детские группы, размещаемые в межлестничном пространстве двух смежных жилых секций. Арх. Л. Смывина. Институт общественных зданий.

а) на 2 группы; б) на 4 группы.

1 - раздевальная; 2 - групповая; 3 - спальня; 4 - туалетная; 5 - открытая терраса; 6 - колясочная; 7 - кладовая; 8 - комната персонала; 9 - медицинская комната; 10 - туалет; 11 - комната персонала; 12 - холл; 13 - зал для гимнастических и музыкальных занятий; 14 - лестнично-лифтовые площадки жилых зданий; 15 - жилые и нежилые помещения первых этажей жилых зданий оставшиеся незанятыми групповым отделением в пределах секции.

Рис. 25 Функциональные зоны в раздевальных

а - ясельных групп детей; б - в группах детей 3-6 (7) лет

1 - шкаф для верхней одежды детей; 2 - пеленальный стол; 3 - скамья для переодевания детская

Рис. 26 Примеры размещения мебели в раздевальных:

а - группы детей 0-1 года; б - детей 1-2лет;

1 - стол туалетно-пеленальный; 2 - стол воспитателя; 3 - стол для кормящих матерей; 4 - шкаф для одежды грудников; 5 - шкаф для одежды детей 1-2 лет; 6 - отделения для хранения комплектов белья; 7 - шкаф для одежды персонала; 8 - шкаф для одежды матерей; 9 - стул; 10 - табурет для ног; 11 - раковина; 12 - табурет; 13 - скамья для переодевания, детская; 14 - шкаф для детской одежды

Рис. 27 Примеры размещения мебели в раздевальных:

а - группы детей 2-3 лет, б - детей 3-6 (7) лет

1 - шкаф для одежды персонала; 2 - табурет; 3 - скамья для переодевания, детская; 4 - шкаф для детской одежды

Рис. 28 Различные схемы размещения мебели в функциональных зонах групповой детей 1-2 лет

а - размещение столов для кормления детей; б - шкафы для игр и пособий; в - горка-манеж; г - стол уголка живой природы; д - зона воспитателя; е - варианты размещения детских четырехместных столов

1 - стол воспитателя; 2 - стул; 3 - стол для кормления детей 1-2 лет; 4 - кресло детское с подножкой; 5 - табурет для персонала; 6 - шкаф для игрушек и пособий; 7 - стол четырехместный; 8 - стул детский; 9 - горка-манеж; 10 - стол для уголка живой природы

Рис. 29 Различные схемы размещения мебели в групповой детей 0-1 года

1 - стол туалетно-пеленальный; 2 - стол туалетно-масажный; 3 - выдвижная секция для детской одежды и весов; 4 - стол для кормления; 5 - стул воспитателя; 6 - стол детский четырехместный; 7 - стул детский; 8 - манеж общий; 9 - барьер; 10 - бревно для перелезания; 11 - каталка; 12 - шкаф для белья; 13 - шкаф для игрушек и пособий; 14 - стол воспитателя

Рис. 30 Примеры размещения мебели в групповой детей 1-2 лет

1 - стол туалетно-пеленальный; 2 - стол для кормления; 3 - стол детский четырехместный; 4 - стол воспитателя; 5 - стол для уголка живой природы; 6 - кресло детское с подножкой; 7 - стул воспитателя; 8 - детское сиденье для кормления детей; 9 - шкаф для комплектов детской одежды; 10 - шкаф для игрушек и пособий

Рис. 31 Разные приемы организации "зоны столиков" в групповых детей 3-6 (7) лет во время еды и занятий, для которых данная организация пространства является желательной

Рис. 32 Примеры размещения мебели в групповых

а - детей 2-3 лет; б - детей 3-4 лет; в - детей 4-6 (7) лет

1 - стол детский четырехместный; 2 - стол детский двухместный; 3 - стол воспитателя; 4 -стол для уголка живой природы; 5 - стол-верстак; 6 - стол ленточный подоконный; 7 - стул детский; 8 - стул воспитателя; 9 - шкаф для пособий; 10 - шкаф для игрушек; 11 - шкаф для строительного материала; 12 - доска; 13 - горка; 14 - гимнастическая стенка

Рис. 33 Функциональные зоны при размещении детских кроваток в спальнях

а - размещение индивидуальных кроваток; б - размещение встроенных откидных кроваток

Рис. 34 Приемы размещения мебели в спальнях

а - размещение в помещениях площадью 46-50 м2 с индивидуальными кроватками; б - со встроенными откидными кроватками; в - размещение в одном помещении площадью 36-40 м2; г - размещение с двумя подзонами по 18-20 м2

Рис. 35 Функционально-габаритные схемы туалетных

а - детей 0-1 года; б - детей от 1 до 3 лет; в - детей от 3 до 5 лет; г, д, е - для детей 5-6 (7) лет

Рис. 36 Связи основных помещений компенсирующей групповой ячейки

а - с преимущественно дневным пребыванием детей; б - с преимущественно круглосуточным пребыванием детей

Р - раздевальная; ГР - групповая; СП - спальня; Б - буфетная; Т - туалетная; КК - комната коррекции; КП - комната персонала; СТ - столовая; КЛ - кладовая личных вещей детей

Рис. 37 Пример планировочного решения групповой ячейки детской группы с компенсирующей направленностью

1 - раздевальная; 2 - игровая; 3 - комната воспитателя; 4 - столовая; 5 - класс; 6 - сушильная; 7 - кладовая; 8 - туалетная; 9 - буфетная; 10 - спальня; 11 - веранда

Рис. 38 Оборудование комнат коррекции для детей с нарушением зрения

а - кабинет тифлопедагога; б - плеопто-ортоптическая комната; в - плеопто-ортоптическая комната, совмещенная с кабинетом окулиста

1 - стол педагога; 2 - стол детский; 3 - стол винтовой для оборудования; 4 - шкаф для пособий; 5 - шкаф для медикаментов; 6 - шкаф для одежды; 7 - стул винтовой

Рис. 39 Габариты отдельных функциональных зон в зале для музыкальных и гимнастических занятий

а - организация зоны просмотра теле - и видеопрограмм; б - площадь для проведения физзарядки

Рис. 40 Расстановка оборудования в запах для музыкальных и физкультурных занятий

а - для физкультурных занятий площадью 100 м2; б - то же, площадью 75 м2; в - для музыкальных занятий

1 - стенка гимнастическая; 2 - канат; 3 - кольцо для пролезания; 4 - мостик-качалка; 5 - скамья гимнастическая; 6 - стойка для игровых пособий; 7 - стойка для прыжков; 8 - бревно гимнастическое; 9 - бревно круглое; 10 - шкаф для спортинвентаря; 11 - стул детский; 12 - пианино; 13 - табурет для пианино; 14 - шкаф для пособий

Рис. 41 Расстановка оборудования в залах для музыкальных и физкультурных занятий компенсирующих дошкольных учреждений

а - для физкультурных занятий детей без нарушения функции движения; б - то же, для детей с нарушением опорно-двигательного аппарата; в - для музыкальных занятий

1 - стенка гимнастическая; 2 - канат; 3 - кольцо для пролезания; 4 - мостик-качалка; 5 - скамья гимнастическая; 6 - стойка для игровых пособий; 7 - стойка для прыжков; 8 - зеркало; 9 - ковер; 10 - шкаф для спортинвентаря; 11 - стеллаж; 12 - пианино; 13 - табурет для пианино; 14 - стул детский; 15 - стол; 16 - магнитофон (магнитола, музыкальный центр); 17 - геометрический рисунок пола; 18 - шкаф для пособий

______________

Набор помещений бассейна для одного дошкольного учреждения

- - - - - - - - - - - -

Схема объединения помещений при работе по подгруппам

= = = = = = = = =

Дополнительные помещения бассейна для нескольких дошкольных учреждений и детского населения жилого района

Рис. 42 Схема функциональной взаимосвязи помещений бассейна

1 - зал с ванной бассейна; 2 - место для разминки; 3 - душевая; 4 - туалетная; 5 - раздевальная; 6 - комната тренера с душем и туалетом; 7 - инвентарная; 8 - комната медсестры; 9 - лаборатория анализа воды; 10 - зал "сухого" плавания; 11 - вестибюль с гардеробом; 12 - служебные помещения

Рис. 43 Примеры планировки и оборудования помещений бассейна с ванной размером:

а - 7×3 м; б - 12,5×6 м

I - зал с ванной; II - раздевальная; III - душевая

1 - шкафы дм одежды детей; 2 - скамья детская для переодевания; 3 - сушильный барабан; 4 - душевая кабина; 5 - ножная ванна; 6 - фен для суша волос

Перечень оборудования:

1 - стол письменный; 2 - стул воспитателя; 3 - кушетка медицинская; 4 - стол туалетно-пеленальный; 5 - стол сервировочный; 6 - стул детский; 7 - шкаф медицинский; 8 - душ; 9 - стул детский; 10 - кровать детская; 11 - тумбочка прикроватная; 12 - шкаф для хранения дезинфицирующих средств; 13 - кровать детская с ограждением; 14 - унитаз.

Рисунок 44. Пример планировки медицинских помещений ДОУ

I - медицинский кабинет; II - процедурная; III - изолятор (приемная, палата, туалет с местом для приготовления дезинфицирующих средств)

Экспликация помещений пищеблока:

1. Горячий цех - 22 м2; 2. Раздаточная - 4 м2; 3. Моечная кухонной посуды - 4 м2; 4. Холодный цех - 9 м2; 5. Мясо-рыбный цех - 9 м2; 6. Цех первичной обработки овощей - 7 м2; 7. Овощной цех - 8 м2; 8. Кладовая сухих продуктов - 4 м2; 9. Кладовая овощей - 4 м2; 10. Помещение для хранения скоро- и особо скоропортящихся продуктов с холодильными камерами - 4,5 м2; 11 Загрузочная - 4,5 м2; 12. Кладовая и моечная обменной тары - 4.5 м2; Помещения для персонала: 13. Туалет - 2 м2; 14. Раздевальная, душ - 6,5 м2; 15. Кладовая уборочного инвентаря - 2 м2; 16. Кабинет зав. производством - 5,5 м2; Полезная площадь - 100 м2; Общая площадь - 120 м2

Ширину проходов между оборудованием в производственных помещениях принимать по приложению Д.

Рис. 45. Пример планировки пищеблока для ДОУ на 80 мест.

Перечень оборудования:

1 - плита электрическая; 2 - котел пищеварочный электрический; 3 - электрокипятильник; 4 - холодильный шкаф; 5 - стол производственный; 6 - шкаф для хлеба; 7 - универсальный привод на тележке; 8 - стеллаж производственный: 9 - ванна моечная; 10 - картофелечистка; 11 - песколовка с одной воронкой; 12 - стол для дочистки картофеля; 13 - стол со встроенной моечной ванной; 14 - ларь для овощей; 15 - раковина производственная; 16 - подтоварник металлический; 17 - стеллаж.

Рисунок 46. Пример планировки пищеблока на 7-14 групп для ДОУ:

I - горячий цех; II - раздаточная; Ш - холодный цех; IV - мясо-рыбный цех; V ex первичной обработки овощей; VI - овощной цех; VII - моечная кухонной посуды; VIII - кладовая сухих продуктов; IХ - кладовая овощей; Х - помещение скоропортящихся продуктов; XI - помещение зав. производством; ХП - загрузочная; ХШ - мойка оборотной тары; XIV - кладовая уборочного инвентаря; XV - гардероб, душ, туалет персонала.

Условные обозначения оборудования:

1 - стиральная машина; 2 - центрифуга для отжима; 3 - электрическое варочное устройство; 4 - сушильный барабан 5 - стол гладильный; 6 - шкаф для белья; 7 - ларь для грязного белья; 8 - ванна для замачивания.

Рис. 47 Пример планировки постирочной для детского образовательного учреждения общего типа:

а) на 4-6 групп; б) на 7-14 групп.

I - помещение для приемки и сортировки грязного белья; II - стиральная; III - гладильная.

Рис. 48 Пример планировочного решения детского сада компенсирующего типа на 4 группы

1 - раздевальная; 2 - групповая; 3 - спальня; 4 - туалетная; 5 - класс; 6 - логопедический кабинет; 7 - кабинет врача-специалиста; 8 - массажный кабинет; 9 - физиотерапевтический кабинет; 10 - процедурная; 11 - изолятор; 12 - хозпомещения; 13 - пищеблок; 14 - постирочная; 15 - универсальный зал; 16 - кабинет заведующего

Рис. 49 Пример планировки и оборудования учебного класса начальной школы.

1 - стол ученический; 2 - стол учителя (воспитателя); 3 - стул ученический; 4 - стул учителя; 5 - классная доска; 6 - экраны; 7 - шкаф; 8 - подставка для ТСО4; 9 - экспозиционные доски; 10 - подставка для ТСО.

Рис 50 Спальня-игровая (комната отдыха):

1 - стол ученический; 2 - стул ученический; 3 - телевизор; 4 - шкаф с откидной кроватью; 5 - шкаф; 6 - шторы; 7 - переносное оборудование; 8 - доска; 9 - место для физкультурных занятий.

Рис 51 Детское дошкольное учреждение на 6 групп со встроенным бассейном (МНИИТЭП).

а) - план I-го этажа; б) - план II этажа.

1 - ясельная групповая ячейка, 2 - бассейн; 3 - административно-хозяйственные помещения; 4 - дошкольная групповая ячейка; 5 - медицинские и служебно-бытовые помещения.

Рис 52 Детское дошкольное учреждение на 12 групп с плавательным бассейном (МНИИТЭП).

а) - план I-го этажа, б) - план II этажа

1 - ясельная групповая ячейка, 2 - бассейн, 3 - административно-хозяйственные помещения; 4 - дошкольная групповая ячейка, 5 - медицинские и служебно-бытовые помещения

Рис. 53 ЦДВ на 6 групп. Арх. Л. Смывина, Б. Гранцев.

План II этажа. 1 - групповая; 2 - спальня; 3 - раздевальная 4 - туалетная; 5 - буфетная; 6 - зал-арена; 7 - спортивный зал; 8 - бассейн; 9 - служебно-бытовые помещения

Рис. 54 ЦДВ на 12 групп. Арх. Л. Смывина, Б. Гранцев. Институт общественных зданий

План I этажа

1 - групповая; 2 - спальня; 3 - туалетная; 4 - раздевальная; 5 - терраса; 6 - зал для музыкальных занятий; 7 - зал для физкультурных занятий; 8 - классные помещения для специализированных занятий; 9 - зал-арена; 10 - бассейн; 11 - сопутствующие помещения

 




Яндекс цитирования



   Copyright © 2007-2026,  www.tehlit.ru.

[ ѓосты, стандарты, нормативы, инструкции, правила, строительные нормы ]