//
ТехЛит.ру
- крупнейшая бесплатная электронная интернет библиотека для "технически умных" людей.
WWW.TEHLIT.RU - ТЕХНИЧЕСКАЯ ЛИТЕРАТУРА

:: Алготрейдинг::


АЛГОТРЕЙДИНГ
шаг за шагом
с нуля по урокам!

Торговые роботы на PYTHON, BackTrader,
Pandas, Pine Script для TradingView. Связка с брокерами, телеграм и легкими приложениями.


ПРАВИТЕЛЬСТВО МОСКВЫ
МОСКОМАРХИТЕКТУРА

РЕКОМЕНДАЦИИ
по реконструкции зданий школ и дошкольных учреждений
в районах комплексной реконструкции пятиэтажных жилых домов
первого периода индустриального домостроения

2001

1. Рекомендации разработаны Московским научно-исследовательским и проектным институтом типологии, экспериментального проектирования (автор, руководитель разработки арх. Скобелева Т.С.; канд. технических наук Максименко В.А.). В подготовке материалов для разработки Рекомендаций принимали участие специалисты Московского комитета образования (пед. Коровина С.Н., пед. Широкова Г.К.) и Центра Госсанэпиднадзора (сан. врач Синякова Н.В., санврач Пронина Л.И.), архитекторы Кривошеев М.С. и Новикова Е.Е.

2. Рекомендации согласованы с Московским комитетом образования и Москомархитектурой.

3. Рекомендации подготовлены к утверждению и изданию Управлением перспективного проектирования и нормативов Москомархитектуры (арх. Шалов Л.А., инж. Щипанов Ю.Б.).

4. Утверждены Указанием Москомархитектуры от 22.11.2001 г. № 42.

СОДЕРЖАНИЕ

ОБЛАСТЬ ПРИМЕНЕНИЯ

ВВЕДЕНИЕ

1. ТИПОЛОГИЧЕСКАЯ ХАРАКТЕРИСТИКА СОСТОЯНИЯ СУЩЕСТВУЮЩЕЙ СЕТИ И ЗДАНИЙ ШКОЛ И ДОШКОЛЬНЫХ УЧРЕЖДЕНИЙ И ДАННЫХ ЭПЗ ОТДЕЛЬНЫХ РАЙОНОВ КОМПЛЕКСНОЙ РЕКОНСТРУКЦИИ.

1.1. Характеристика сети и зданий школ и дошкольных учреждений первоочередного района комплексной реконструкции Хорошево-Мневники кв. 81.

1.2. Характеристика сети и зданий школ и дошкольных учреждений первоочередного района комплексной реконструкции Западное Дегунино м-н 13.

1.3. Характеристика сети и зданий школ и дошкольных учреждений первоочередного района комплексной реконструкции Коптево кв. 19

1.4. Выводы.

2. ОСНОВНЫЕ ПОЛОЖЕНИЯ РЕКОНСТРУКЦИИ СЕТИ И МАССОВЫХ ТИПОВ ЗДАНИЙ ШКОЛ И ДОШКОЛЬНЫХ УЧРЕЖДЕНИЙ.

2.1. Общие принципы и предложения по реконструкции сети школ и дошкольных учреждений.

2.2. Общие принципы и предложения по реконструкции зданий школ и дошкольных учреждений.

3. ВАРИАНТЫ ОРГАНИЗАЦИИ СЕТИ ОБРАЗОВАТЕЛЬНЫХ УЧРЕЖДЕНИЙ РЕКОНСТРУИРУЕМОГО РАЙОНА НА ПРИМЕРЕ КВАРТАЛА 81 ХОРОШЕВО-МНЕВНИКИ.

4. ВАРИАНТЫ ПЕРЕПЛАНИРОВКИ И ИСПОЛЬЗОВАНИЯ ЗДАНИЙ ШКОЛ ТИПОВ МЮ И 65-426.1, ДОШКОЛЬНЫХ УЧРЕЖДЕНИЙ ТИПОВ VI-13 И 2МГ-04-3, ОПРЕДЕЛЕНИЕ СОСТАВА ПОМЕЩЕНИЙ ДОПОЛНИТЕЛЬНЫХ ОБЪЕМОВ.

5. ОРИЕНТИРОВОЧНЫЕ СОСТАВЫ И ПЛОЩАДИ ПОМЕЩЕНИЙ ОБРАЗОВАТЕЛЬНЫХ УЧРЕЖДЕНИЙ ДЛЯ РЕКОНСТРУКЦИИ ЗДАНИЙ ШКОЛ ТИПОВ МЮ И 65-426 И ДОШКОЛЬНЫХ УЧРЕЖДЕНИЙ ТИПОВ VI-13 И 2МГ-04-3.

6. ПРИМЕРЫ АРХИТЕКТУРНО-ПЛАНИРОВОЧНЫХ РЕШЕНИЙ РЕКОНСТРУКЦИИ ЗДАНИЙ ШКОЛ И ДОШКОЛЬНЫХ УЧРЕЖДЕНИЙ ДЛЯ РАЙОНА ХОРОШЕВО-МНЕВНИКИ, КВАРТАЛ 81

6.1. Реконструкция здания школы типа МЮ для размещения полной средней школы на 33 класса с наполняемостью класса в 30 учащихся - 990 мест (рис. 11, 16 - 19).

6.2. Реконструкция здания школы типа МЮ для размещения полной средней школы на 33 класса с наполняемостью классов в 25 учащихся - 825 мест (рис. 11 - 15).

6.3. Реконструкция здания школы типа 65-426.1 для размещения полной средней школы на 33 класса с наполняемостью классов в 30 учащихия - 990 мест (рис. 20, 25 - 28).

6.4. Реконструкция здания школы типа 65-426.1 для размещения полной средней школы на 33 класса с наполняемостью классов в 25 учащихся - 825 мест (рис. 20 - 24).

6.5. Реконструкция здания дошкольного учреждения типа VI-13 для размещения ДЗВИ на 10 вариативных ячеек - 200 мест (рис. 29, 30).

6.6. Реконструкция здания дошкольного учреждения типа VI-13 для размещения дошкольного образовательного учреждения на 10 групп - 200 мест. Вариант в 2 этажа (рис. 29, 31).

6.7. Реконструкция здания дошкольного учреждения, типа УI-13 для размещения дошкольного образовательного учреждения на 10 групп - 200 мест. Вариант в 3 этажа (рис. 29, 32).

6.8. Реконструкция здания дошкольного учреждения типа 2МГ-04-3 для размещения дошкольного образовательного учреждения комбинированного вида на 6 групп общеразвивающих и 4 группы развития - 200 мест (рис. 29, 33).

ТЕХНИКО - ЭКОНОМИЧЕСКИЕ ПОКАЗАТЕЛИ АРХИТЕКТУРНО-ПЛАНИРОВОЧНЫХ РЕШЕНИЙ РЕКОНСТРУКЦИИ ЗДАНИЙ ШКОЛ НА ПРИМЕРЕ РАЙОНА ХОРОШЕВО - МНЕВНИКИ КВ. 81

ТЕХНИКО - ЭКОНОМИЧЕСКИЕ ПОКАЗАТЕЛИ АРХИТЕКТУРНО-ПЛАНИРОВОЧНЫХ РЕШЕНИЙ РЕКОНСТРУКЦИИ ЗДАНИЙ ДОШКОЛЬНЫХ УЧРЕЖДЕНИЙ НА ПРИМЕРЕ РАЙОНА ХОРОШЕВО-МНЕВНИКИ КВ. 81

9. СОКРАЩЕНИЯ И УСЛОВНЫЕ ОБОЗНАЧЕНИЯ

ОБЛАСТЬ ПРИМЕНЕНИЯ

Настоящие Рекомендации разработаны для научно-методического обеспечения проектирования комплексной реконструкции районов пятиэтажной жилой застройки первого периода индустриального домостроения и распространяются на проектирование реконструкции сети и наиболее массовых типов зданий школ и дошкольных учреждений.

Рекомендации основаны на Законе об образовании и Типовых положениях об общеобразовательном учреждении, о дошкольном образовательном учреждении и об образовательном учреждении для детей дошкольного и младшего школьного возраста, Положении о группах развития. Рекомендации выполнены с учетом МГСН 4.06-96 «Общеобразовательные учреждения» и Дополнения № 1, МГСН 4.07-96 «Дошкольные учреждения», Рекомендаций по реконструкции фонда зданий школ и дошкольных учреждений, Эскизных проектов застройки реконструируемых районов, а также Санитарных Правил и Норм.

Рекомендации содержат материалы, позволяющие разработать наиболее эффективные и экономичные решения по реконструкции зданий школ и дошкольных учреждений в целях значительного увеличения их вместимости в соответствии с действующими нормами и потребностями реконструируемых районов. В Рекомендациях разработана методика проектирования реконструкции сети и зданий школ и дошкольных учреждений с примерами типологической характеристики трех первоочередных районов реконструкции и вариантами типологических и архитектурно-планировочных решений на примере одного из них. Материалы рекомендаций могут использовать проектные организации, органы образования, префектуры и инвесторы.

ВВЕДЕНИЕ

С начала пятидесятых годов в Москве строительство зданий школ и дошкольных учреждений ведется параллельно с жилищным строительством. Характерным примером одновременного возведения жилых и общественных зданий являются районы комплексной застройки пятиэтажных жилых домов первого периода индустриального домостроения (на современном этапе - районы комплексной реконструкции).

В качестве основного градостроительного элемента в этих районах принят микрорайон. Микрорайоны и кварталы, застроенные пятиэтажными домами, занимают территории в 20-40 га с населением в 6-14 тыс. человек. Для этих территорий разрабатывались специальные проекты общественных зданий с учетом обеспечения населения основными видами повседневного обслуживания. Особенностью размещения зданий школ и дошкольных учреждений в этих районах явилось их расположение на изолированных участках внутри территории квартала и размещение дошкольных учреждений в отдельно стоящих зданиях в отличие от ранее распространенного их встраивания в первые этажи жилых домов. В этот период утвердилась тенденция на укрупнение зданий школ и дошкольных учреждений.

Среди зданий школ наибольшее распространение имели пятиэтажные крупноблочные здания школ на 22 класса типа МЮ. С начала шестидесятых годов начали активно применять типовое крупноблочное здание школы на 25 классов типа 65-426,1. Этот тип по числу зданий занимает второе место после зданий типа МЮ (см. табл. 1).

В период возникновения пятиэтажной жилой застройки резко возрос спрос на места в дошкольных учреждениях. Это и обусловило необходимость разработки проектов крупных яслей-садов и возведения большего числа этих зданий в районах новостроек. В связи с развитием индустриального домостроения появилась возможность использовать принцип типизации конструктивных элементов и унификации объемно-планировочных параметров зданий дошкольных учреждений.

Наибольшее распространение получили кирпичные здания яслей-садов на 8 групп типа VI-12 и на 12 групп типа VI-13 (см. табл. 1). Применение в них элементов жилых домов снизило высоту этажа до 2.8 м (при увеличении площади помещений для обеспечения необходимой кубатуры воздуха).

Эти здания проектировались с минимальным составом помещений, не соответствующим требуемому по современным действующим нормам.

Районы комплексной застройки пятиэтажных жилых домов являлись своеобразным полигоном для отработки новых принципов проектирования, организации обслуживания, новых типов жилых и общественных зданий, планировочных и конструктивных систем.

В 1958-60 годах МНИИТЭП совместно с НИИ Академии строительства и архитектуры провел научные исследования и экспериментальные работы по созданию оптимальных решений школ и дошкольных учреждений на основе каркасно-панельной системы с унифицированными объемно-планировочными параметрами. Эксперимент осуществлялся на базе района пятиэтажной застройки в квартале № 10 Новых Черемушек. В этом и ряде других районов пятиэтажной застройки было осуществлено применение панельных конструкций жилых домов для зданий дошкольных учреждений. Наиболее перспективным явилось использование изделий жилых домов серии 1-515 в зданиях яслей-сада, запроектированного в три этажа. Впервые такое здание было построено в квартале № 10 Новых Черемушек, в дальнейшем оно получило массовое применение и в других жилых районах столицы.

В соответствии с проектными проработками комплексной реконструкции застройки пятиэтажных жилых домов в подавляющем большинстве случаев сохраняется фонд зданий школ и дошкольных учреждений.

Увеличение численности населения при проведении реконструкции жилых домов в разных районах различно, соответственно различно и увеличение числа необходимых школьных и дошкольных мест. В ряде районов увеличение числа мест в школах происходит за счет строительства новых зданий школ, например в Западном Дегунино. В большинстве районов потребность в новых школьных местах предполагается удовлетворить за счет пристраивания дополнительных объемов к зданиям существующих школ. Такое же решение предлагается и в отношении зданий дошкольных учреждений.

Вместе с тем, в проектах реконструкции застройки районов пятиэтажек при расчете требуемых школьных и дошкольных мест в качестве исходной расчетной вместимости учреждений закладывается либо проектная вместимость, либо пересчитанная по нормам 70-80-х годов. И в том и в другом случае исходные цифры значительно превышают расчетную вместимость существующих зданий, определенную в соответствии с действующими сегодня нормами. Это приводит к тому, что проектами реконструкции не предусматривается расширение участков, необходимое для размещения дополнительных объемов, пристраиваемых к реконструируемым школьным и дошкольным зданиям. Увеличение количества мест в школах и дошкольных учреждениях учитывает увеличение числа жителей районов, а общее увеличение площади зданий, кроме того, должно учитывать и увеличение норматива площади на одного учащегося и воспитанника, принятого действующими в настоящее время нормами проектирования.

В целях выявления специфических условий реконструкции сети и зданий школ и дошкольных учреждений и определения общих проблем для всех реконструируемых районов, в настоящих Рекомендациях рассматриваются три характерных района: Хорошево-Мневники (квартал 81), Западное Дегунино (микр. 13) и Коптево (квартал 19).

Варианты возможных типологических и архитектурно-планировочных решений представлены на примере наиболее типичного по своим параметрам района: квартал 81 Хорошево - Мневники.

ТАБЛИЦА 1

ПРИМЕНЯЕМОСТЬ МАССОВЫХ ТИПОВ ЗДАНИЙ ШКОЛ И ДУ В ПЕРВООЧЕРЕДНЫХ РАЙОНАХ КОМПЛЕКСНОЙ РЕКОНСТРУКЦИИ 5-ЭТАЖНЫХ ЖИЛЫХ ДОМОВ ПЕРВОГО ПЕРИОДА ИНДУСТРИАЛЬНОГО ДОМОСТРОЕНИЯ

№ п/п

Район

Число школ в районе

Число ДУ в районе

МЮ

65-426

VI-13

VI-12

2МГ-04-3

1

Хорошево-Мневники кв. 81

1

1

2

-

1

2

Коптево кв. 19

1

-

-

2

-

3

Зап. Дегунино м. 13

-

1

-

-

1

4

Зап. Дегунино м. 11

-

-

-

-

-

5

Шереметьевская кв. 13-17

-

-

-

-

-

6

Сев. Медведкого м. 10,10А

-

2

-

-

2

7

Свиблово кв. 20-21

1

-

1

-

-

8

Свиблово кв. 23

2

-

3

-

-

9

Бутырский хутор кв. 78

2

-

1

-

-

10

Перово кв. 6

1

-

-

-

1

11

Перово кв. 15-18

1

-

2

1

-

12

Сев. Измайлово кв. 51-52

2

-

1

2

-

13

Новые Кузьминки кв. 114

3

-

4

-

-

14

Новые Кузьминки кв. 117

1

-

-

3

-

15

Люблино кв .28

1

-

-

-

2

16

Юго-Запад кв. 37-38

4

-

1

-

1

17

Новые Черемушки кв. 10

-

1

1

-

1

18

Зюзино кв. 14Б

1

-

-

-

1

19

Волхинка-Зил кв. 27-32

2

1

-

-

1

20

Пойма р. Сходня м. 4

-

-

-

-

-

21

Хорошево-Мневники кв. 76

1

-

-

-

-

22

Бескудниково м. 1

2

-

2

-

-

23

Бескудниково м. 2-3

-

1

-

-

3

ИТОГО

26

7

18

8

17

1. ТИПОЛОГИЧЕСКАЯ ХАРАКТЕРИСТИКА СОСТОЯНИЯ СУЩЕСТВУЮЩЕЙ СЕТИ И ЗДАНИЙ ШКОЛ И ДОШКОЛЬНЫХ УЧРЕЖДЕНИЙ И ДАННЫХ ЭПЗ ОТДЕЛЬНЫХ РАЙОНОВ КОМПЛЕКСНОЙ РЕКОНСТРУКЦИИ.

1.1. Характеристика сети и зданий школ и дошкольных учреждений первоочередного района комплексной реконструкции Хорошево-Мневники кв. 81.

1.1.1. Исходное число жителей района 13.9 тысяч человек,

1.1.2. На период, предшествовавший разработке эскизного проекта застройки (ЭПЗ), сеть образовательных учреждений: района состояла из двух общеобразовательных учреждений полной средней школы, и гимназии, и трех дошкольных образовательных учреждений: детских садов общеразвивающего и компенсирующего видов. Имеющиеся в районе четвертое дошкольное учреждение последние годы не используется по назначению.

1.1.3. Полная средняя школа расположена в здании школы типа МЮ. В школе 31 класс с наполняемостью каждого класса 25-26 учащихся. Общее число учащихся 800 человек. Школа работает в две смены.

Здание школы типа МЮ было запроектировано по нормам 50-х годов на 22 класса с наполняемостью классов 40 учащихся с общим числом мест - 880. Компактный объем "линейного типа" решен в 5 этажей. Суммарная нормируемая площадь в зависимости от модификации в пределах 3200 м2. Проектное число классных помещений - 15. Общее число классных помещений и учебных кабинетов - 26, из них 23 площадью от 48 до 51 м2 и 3 площадью от 63 до 70 м2. Как правило, здание имеет одноэтажную пристройку блока спортзала, в зависимости от ситуации расположенную в правой или левой части объема. В данном случае блок размещен слева.

"Рекомендациями по реконструкции и модернизации существующего фонда школьных зданий в соответствии с современными педагогическими требованиями" вместимость зданий школ типа МЮ в пересчете на МГСН 4.06-96 определена в 15 классов /240 мест/ с наполняемостью классов в 16 учащихся. При условии модернизации существующего объема и пристраивания дополнительного объема с нормируемой площадью не менее 869 м2 такие здания рекомендованы для школы на 9 классов /216 - 225 мест/ с наполняемостью классов 24-25 учащихся.

1.1.4. Гимназия размещена в здании школы типа 65-426.1. В гимназии 24 класса с наполняемостью в 25 учащихся. Общее число учащихся- 600 человек.

Здание школы типа 65-426.1 было запроектировано по нормам 60-70 годов на 25 классов с наполняемостью классов 40 учащихся и общим числом учащихся - 1000 человек. Суммарная нормируемая площадь в пределах 4100 м2. Проектное число классных помещений - 16. Общее число классных помещений и учебных кабинетов 27, из них 24 площадью от 48 до 53 м2 и 3 площадью 63 м2. Здание состоит из двух линейных корпусов, трехэтажного учебного и двухэтажного блока общих помещений, соединенных одноэтажным переходом.

"Рекомендациями по реконструкции и модернизации существующего фонда школьных зданий в соответствии с современными педагогическими требованиями" вместимость зданий школ типа 65-426.1 в пересчете на МГСН 4.06-96 определена в 16 классов /256 мест/ с наполняемостью классов в 16 учащихся. При условии модернизации существующего и пристраивании дополнительного объема с нормируемой площадью не менее 179 м2 такие здания рекомендованы для школы на 9 классов /216-225 мест/ с наполняемостью классов 24-25 учащихся.

1.1.5. По ЭПЗ района численность населения должна возрасти до 15.3 тысяч человек. Вместимость общеобразовательных учреждений запланировано повысить до 1965 мест за счет пристроек к существующим зданиям школ типов МЮ и 65-426.1 с общим числом дополнительных мест для 500 учащихся. При этом за исходное общее число мест в существующих зданиях школ принимается условное - 1495 мест, не соответствующее истинной вместимости этих школ в пересчете на действующие нормы, и превышающее ее в 3 раза, основанное на данных обследований и близкое к фактически существующему числу учащихся в данном районе. Это означает, что за исходное число мест принимается число требуемых, но не обеспеченных, мест для исходного числа жителей района, поскольку в соответствии с МГСН 4.06-96 существующие здания школ района способны предоставить только 496 мест (см. табл. 2).

1.1.6. В результате, для обеспечения запланированных по ЭПЗ 1965 мест в общеобразовательных учреждениях района существующие здания должны быть увеличены в объеме в 4 раза, а дополнительные объемы должны быть рассчитаны не на 500 мест, как запроектировано в ЭПЗ, а на 1500 мест. При этом площади участков школ не увеличиваются, т.к. дополнительные территории для увеличения объемов существующих зданий школ ЭПЗ не предусматриваются.

1.1.7. В районе два дошкольных образовательных учреждения, детский сад общеразвивающего вида и детский сад компенсирующего вида, размещены в зданиях яслей-садов типа VI-13. Фактическое число дошкольников них - 79 и 150.

Здание яслей-сада типа VI-13 запроектировано по нормам 60-х годов на 12 групп /280 мест/ с наполняемостью групп детского сада в 25 и яслей в 20 детей. В здании 8 ячеек детского сада и 4 ячейки яслей. В ячейках отсутствуют спальни. Суммарная нормируемая площадь около 1300 м2. Здание состоит из трех двухэтажных блоков с ячейками детских помещений, объединенных одноэтажным блоком общих помещений. В пересчете на МГСН 4.07-96 вместимость здания должна составить 120 мест. "Рекомендациями по реконструкции и модернизации зданий дошкольных учреждений" предлагается повысить вместимость, до 10 групп /200 мест/ за счет увеличения объема здания. Предлагается реконструировать такие здания для размещения не только дошкольных, но и дошкольно-школьных учреждений.

1.1.8. 3дание яслей-сада типа 2МГ-04-3 в этом районе для дошкольного учреждения не используется, но учитывается при расчете исходного числа мест в дошкольных зданиях.

Здание яслей-сада типа 2МГ-04-3 запроектировано по нормам 60-х годов на 12 групп /280 мест/ с наполняемостью групп детского сада в 25 детей и групп яслей в 20 детей. В здании 8 ячеек детского сада и 4 ясельные ячейки. В ячейках детского сада отсутствуют спальни. В ячейках яслей предусмотрены спальни-веранды. Суммарная нормируемая площадь около 1800 м2. Здание запроектировано в 2 - 3 этажа, секционного типа, на третьем этаже предусмотрен сквозной коридор и размещены помещения общего назначения. В пересчете на МГСН 4.07-96 вместимость здания должна составить 140 мест. "Рекомендациями по реконструкции и модернизации зданий дошкольных учреждений" предлагается довести вместимость здания до 160 мест с надстраиванием двухэтажной части до трех этажей.

1.1.9. Еще одно дошкольное образовательное учреждение района расположено в здании дошкольного учреждения, построенном по индивидуальному проекту не относящемся к числу массовых. Фактическое число дошкольников в нем - 94. Здание запроектировано во нормам 60-х годов на 6 групп /140 мест/ с наполняемостью групп детского сада в 25 и групп яслей в 20 детей. В пересчете на МГСН 4.07-96 его вместимость должна составлять 70 мест.

1.1.10. По ЭПЗ района суммарное число мест в дошкольных учреждениях должно составить 714 мест. При этом все четыре здания дошкольных учреждений должны использоваться по назначению. За исходное число мест в дошкольных учреждениях района, как и в случае с школами, принимается условное число, близкое' к фактически существующему числу дошкольников, посещающих дошкольные учреждения района, то есть востребованное число мест на период проводимых для разработки ЭПЗ обследований - 525 мест. В соответствии с МГСН 4.07-96 все четыре здания дошкольных учреждений района могут обеспечить лишь 430 мест. Очевидно, что для обеспечения запланированных по ЭПЗ района 714 мест потребуется увеличение объема существующих зданий почти в два раза. При этом площади участков дошкольных учреждений остаются без изменений (см. табл. 2.).

ТАБЛИЦА 2

СРАВНИТЕЛЬНЫЕ ДАННЫЕ ПО СОСТОЯНИЮ СЕТИ И ЗДАНИЙ ШКОЛ И ДОШКОЛЬНЫХ УЧРЕЖДЕНИЙ РАЙОНА ХОРОШЕВО-МНЕВНИКИ кв. 81

Показатели

ед. изм.

Существующее состояние на июнь 1998

По проекту

По МГСН

По ЭПЗ

1

2

3

4

5

6

Население

тыс. чел

13.9

-

-

153

Территория

га

375

-

-

375

Расчетная

 

 

 

 

 

территория

га

35.9

-

-

35.9

в т.ч. участки

 

 

 

 

 

школ

га

3.35

-

-

3.35

Участки ДУ

га

256

-

-

256

Вместимость

 

 

 

 

 

школ

мест

1400

1880

496

1965

Вместимость

 

 

 

 

 

ДОУ

мест

323

980

310

714

1.2. Характеристика сети и зданий школ и дошкольных учреждений первоочередного района комплексной реконструкции Западное Дегунино м-н 13.

1.2.1. Исходное число жителей района 6.16 тысяч человек.

1.2.2. На период, предшествовавший разработке ЭПЗ, сеть общеобразовательных учреждений района состояла из одной общеобразовательной школы, одного дошкольного образовательного учреждения - детский сад комбинированного вида, одного образовательного учреждения для детей дошкольного и младшего школьного возраста - "начальная школа-детский сад".

1.2.3. Общеобразовательная полная средняя школа расположена в здании школы типа 65-426.1 и фактическое число учащихся в ней доходило до 1282 человек при работе школы в две смены.

1.2.4. ЭПЗ района предусматривает увеличение населения до 9.13 тысяч человек. Число мест в общеобразовательных учреждениях должно повыситься до 1684 мест. Намечено строительство новой школы по проекту V-92 и пристройка к существующему зданию школы типа 65-426.1. За исходное число мест в существующем здании школы, так же как и при разработке ЭПЗ Хорошево-Мневники кв. 81, принято условное число - 840 мест, основанное на данных обследований, но не соответствующее вместимости существующего здания в пересчете на МГСН4.06-96, что привело к переоценке возможностей здания и недооценке величины требуемых дополнительных объемов для обеспечения запланированного по ЭПЗ числа мест. Кроме того, учитывая необходимость пересмотра вместимости здания школы V-92 впоследствии понадобиться увеличение и его объема (см. табл. 3.).

1.2.5. Детский сад комбинированного вида и детский сад-начальная школа размещены в зданиях яслей-садов типа 2МГ-04-3. Фактическое число детей в детском саду - 202 ребенка, в дошкольно-школьном учреждении 94 дошкольника и 61 учащийся.

1.2.6. ЭПЗ района планирует 440 мест в дошкольных учреждениях, для чего предусматривается использование двух существующих зданий по их прямому назначению. Так же, как и при разработке ЭПЗ района Хорошево-Мневники кв. 81, не учитывается вместимость существующих зданий в пересчете на действующие МГСН 4.07-96. и в качестве исходной вместимости существующих зданий принимается вместимость каждого здания в 220, а общая в 440 мест. Вследствие этого участки дошкольных учреждений по ЭПЗ остаются без изменений, территорий для строительства новых зданий дошкольных учреждений не предусматривается (см. табл. 3).

ТАБЛИЦА 3

СРАВНИТЕЛЬНЫЕ ДАННЫЕ ПО СОСТОЯНИЮ СЕТИ И ЗДАНИЙ ШКОЛ И ДОШКОЛЬНЫХ УЧРЕЖДЕНИЙ РАЙОНА ЗАПАДНОЕ ДЕГУНИНО м-н. 13.

Показатели

ед. изм.

Существующее состояние на июнь 1998

По проекту

По МГСН

По ЭПЗ

1

2

3

4

5

6

Население

тыс. чел

6.16

-

-

9.13

Территория

га

30.4

-

-

230.4

Расчетная

 

 

 

 

 

территория

га

24.2

-

-

24.2

в т.ч. участки

 

 

 

 

 

школ

га

1.8

-

-

1.8

участки ДУ

га

1.9

-

-

1.9

Вместимость

 

 

 

 

 

школ

мест

1282

880

256

1684

Вместимость

 

 

 

 

 

ДОУ

мест

387

560

280

440

1.3. Характеристика сети и зданий школ и дошкольных учреждений первоочередного района комплексной реконструкции Коптево кв. 19

1.3.1. Исходное число жителей района 2.6 тысяч человек.

1.3.2. На период, предшествовавший разработке ЭПЗ, сеть образовательных учреждений района состояла из одной полной средней школы и двух дошкольных учреждений - детских садов общеразвивающего вида. В квартале находится еще одно здание дошкольного учреждения, переоборудованного под частную школу.

1.3.3. Полная средняя школа расположена в здании школы типа МС, являющейся модификацией школы типа МЮ. Фактическое число учащихся в ней составляет 640 человек.

1.3.4. ЭПЗ района предусматривает увеличение вместимости существующей школы до 1105 мест за счет пристраивания дополнительных блоков. За исходную вместимость существующего здания так же, как и в двух предыдущих районах, принимается расчетное число мест - 625 , без учета требований ныне действующих норм. Но поскольку, в данном случае предусматривается расширение участка школы для размещения дополнительных объемов, то при правильном подходе к реконструкции существующего здания это позволит обеспечить запланированное по ЭПЗ 1105 мест и необходимые по нормам площади.

1.3.5. Дошкольное образовательное учреждение, расположенное в здании ясли-сада типа VI-12, обслуживает 75 детей, а расположенное в здании, построенном по индивидуальному проекту, обслуживает 102 ребенка.

1.3.6. По ЭПЗ района численность населения возрастает до 4.3 тысяч человек, а число мест в дошкольных учреждениях до 340, хотя два используемых для дошкольных учреждений здания района в пересчете по МГСН 4.07-96 обеспечивают всего 160 мест (см. табл. 4).

В данном районе проектируемое по ЭПЗ число мест в образовательных учреждениях, как в школе, так и детских садах, выше нормативного в связи с необходимостью обслуживания части детей, проживающих на прилегающих к району территориях.

ТАБЛИЦА 4

СРАВНИТЕЛЬНЫЕ ДАННЫЕ ПО СОСТОЯНИЮ СЕТИ И ЗДАНИЙ ШКОЛ И ДОШКОЛЬНЫХ УЧРЕЖДЕНИЙ РАЙОНА КОПТЕВО КВ. 19.

Показатели

ед. изм.

Существующее состояние на июнь 1998

по проекту

По МГСН

По ЭПЗ

1

2

3

4

5

6

Население

тыс. чел

2.6

-

-

4.3

Территория

га

11.6

-

-

11.6

Расчетная

 

 

 

 

 

территория

га

103

-

-

103

в т.ч. участки

 

 

 

 

 

школ

га

1.0

-

-

1.0

Участки ДУ

га

1.8

-

-

1.8

Вместимость

 

 

 

 

 

школ

мест

640

880

240

1105

Вместимость

 

 

 

 

 

ДОУ

мест

177

320

160

340

1.4. Выводы.

1.4.1. В трех рассматриваемых в данных Рекомендациях первоочередных районах реконструкции пятиэтажных жилых домов первого периода индустриального домостроения выявляются ряд общих проблем, связанных с реконструкцией зданий школ и дошкольных учреждений.

1.4.2. В районах наличествуют наиболее массовые типы школ и дошкольных учреждений, имеющие широкое распространение в реконструируемых районах: школы типа МЮ и 65-426.1, дошкольные учреждения типа VI-13 и 2МГ-04-3 (см. табл. 1).

1.4.3. Только в одном районе предполагается строительство новой школы для получения дополнительного числа школьных мест, в двух районах дополнительные места в школах и дошкольных учреждениях запланировано получить за счет реконструкции существующих зданий и пристроек к ним.

1.4.4. Во всех трех районах полностью сохраняется фонд школьных и дошкольных зданий.

1.4.5. При расчете мест в школах и дошкольных учреждениях ЭПЗ районов ориентируются на вместимость существующих зданий по первоначальному проекту или в пересчете на нормы 70-80 годов, без учета действующих МГСН и Рекомендаций по реконструкции фонда зданий школ и дошкольных учреждений. Это приводит к переоценке вместимости существующих зданий и недооценке необходимых дополнительных объемов, а также к отсутствию необходимых дополнительных территорий для расширения реконструируемых зданий, что усложняет задачу увеличения объема существующих зданий особенно в тех случаях, когда надстраивание невозможно. Например, в школах типа МЮ, запроектированных в пять этажей. В этих случаях увеличение объема существующих зданий будет происходить преимущественно за счет пристроек. Вместе с тем, увеличение участков существующих зданий школ не предусматривается в большинстве районов. Это обуславливает необходимость поиска оптимальных типологических решений, направленных на эффективность использования существующих объемов зданий и минимизацию площади застройки дополнительных объемов.

1.4.6. При разработке ЭПЗ районов расчет числа мест в сети образовательных учреждений производится зачастую по верхней границе нормы, что при условии дефицита, как объемов, так и территорий, усложняет проблему обеспечения требуемых мест. ЭПЗ районов, как правило, предусматривает использование всех имеющихся в районе зданий образовательных учреждений в качестве общеобразовательных школ и детских садов традиционного общеразвивающего типа, тогда как часть существующих зданий уже используется или будет использоваться для лицеев, гимназий, компенсирующих типов дошкольных учреждений, которые имеют пониженную наполняемость классов и групп и обслуживают детей из других районов города. Это требует перераспределения мест в сети образовательных учреждений района, которое может быть решено правильно, если реконструкция зданий образовательных учреждений будет проводиться на основе проекта реконструкции сети образовательных учреждений района, учитывающего особенности использования каждого здания, место каждого учреждения в сети и взаимосвязь всех учреждений.

1.4.7. Расчет числа мест в общеобразовательных учреждениях по верхней границе нормы может компенсировать потерю мест для детей данного района в гимназиях и лицеях, расположенных на территории района. Расчет мест в дошкольных образовательных учреждениях по верхней границе нормы может привести к периодически возникающему переизбытку мест в этих учреждениях из-за волновых демографических процессов (спад-подъем). Данная проблема требует нетрадиционных типологических решений, обеспечивающих постоянное эффективное использование дошкольных зданий независимо от демографических колебаний и изменения спроса на те или иные виды дошкольного обслуживания.

1.4.8. Одним из возможных типологических решений является новый тип образовательного учреждения, совмещающий дошкольное учреждение с начальной школой. Организацию таких дошкольно-школьных учреждений и реконструкцию зданий для их размещения следует проводить на основе проекта реконструкции сети образовательных учреждений, учитывающего отвлечение части школьников из зданий школ и правильно распределяющих общее число мест в сети образовательных учреждениях по трем направлениям: дошкольному, школьному и дошкольно-школьному.

1.4.9. Анализ существующего состояния сети и зданий районов комплексной реконструкции пятиэтажных жилых домов первого периода индустриального домостроения и данных эскизных проектов застройки этих районов показывает наличие общих для всех этих районов проблем , возникающих при реконструкции существующих зданий школ и дошкольных учреждений, а также при организации сбалансированной и универсальной сети образовательных учреждений: обеспечение требуемого числа мест, запланированных ЭПЗ районов, соответствие действующим сегодня нормам и номенклатуре образовательных учреждений, учет дефицита площадей и территорий, колебаний в заполняемости учреждений и новых форм обслуживания населения.

2. ОСНОВНЫЕ ПОЛОЖЕНИЯ РЕКОНСТРУКЦИИ СЕТИ И МАССОВЫХ ТИПОВ ЗДАНИЙ ШКОЛ И ДОШКОЛЬНЫХ УЧРЕЖДЕНИЙ.

2.1. Общие принципы и предложения по реконструкции сети школ и дошкольных учреждений.

2.1.1. Для разработки научно-обоснованных решений по реконструкции зданий школ и дошкольных учреждений в первую очередь необходимо решить задачу организации сети образовательных учреждений района и определения необходимых типов учреждений для реконструкции конкретных зданий школ и дошкольных учреждений, как элементов этой сети.

2.1.2. При разработке проекта реконструкции сети образовательных учреждений района необходимо учитывать:

- специфические условия использования существующих зданий школ и дошкольных учреждений рассматриваемого района (например, использование здания школы под гимназию или использование здания дошкольного учреждения под дошкольно-школьное учреждение "начальная школа-детский сад");

- фактическую потребность в местах в образовательных учреждениях и использование их для детей не только данного района, но и для города (например гимназий, колледжей, прогимназий, и т.д.);

- запланированное число мест в образовательных учреждениях проектом реконструкции данного района, исходя из проектного числа жителей района.

2.1.3. При разработке проекта реконструкции сети образовательных учреждений возможно снижение требуемого по проекту реконструкции района числа мест в школах и дошкольных учреждениях в соответствии с установленным нормами диапазоном обеспеченности и на основании данных фактической потребности по согласованию с Московским комитетом образования.

2.1.4. При организации сети образовательных учреждений реконструируемого района необходимо учитывать периодически возникающие перегруженность и незагруженность школьных и дошкольных образовательных учреждений, связанные с социальными, демографическими и экономическими факторами. Для компенсации возникающих дисбалансов потребности в школьных и дошкольных местах следует разрабатывать проекты универсальных зданий образовательных учреждений и здания образовательных учреждений вариативного использования, позволяющих в зависимости от потребности и ситуации предоставлять необходимое число либо школьных, либо дошкольных мест.

2.1.5. При реконструкции сети образовательных учреждений может возникать необходимость использования существующих зданий действующих школ для организации новых типов образовательных учреждений, например гимназий и колледжей, а существующих зданий действующих детских садов - для организации новых типов дошкольных и дошкольно-школьных учреждений, например прогимназий или образовательных учреждений для детей дошкольного и младшего школьного возраста "начальная школа - детский сад".

2.1.6. Учитывая отсутствие в реконструируемых районах территорий для строительства новых школ и ДУ и, как правило, необходимость значительного увеличения числа школьных мест в них, целесообразно разрабатывать проекты реконструкции этих зданий школ и ДУ на максимально возможную вместимость за счет пристроек и надстроек.

2.1.7. В этой связи оптимальной вместимостью реконструируемых школ является вместимость в 33 класса. Наполняемость классов устанавливается в 25 или 30 учащихся по согласованию с Московским комитетом образования. Меньшая вместимость может допускаться в тех случаях, когда это позволяет запланированная проектом реконструкции района обеспеченность, или когда в районе расположено несколько школ и дополнительное число мест предусматривается за счет увеличения вместимости только одной из существующих школ.

2.1.8. Оптимальной вместимостью реконструируемых дошкольных зданий является вместимость в 10 групп /200 мест/, или 10 ячеек /200 мест/ при реформировании дошкольного здания в здание вариативного использования.

2.2. Общие принципы и предложения по реконструкции зданий школ и дошкольных учреждений.

2.2.1. Оптимальной вместимостью наиболее массовых типов зданий реконструируемых школ МЮ и 65-426.1 является вместимость в 33 класса, как правило, обеспечивающая дополнительное число мест, требуемое по проекту реконструкции района. Перспективная возможность перехода на 12-тилетнее обучение обеспечивается изменением организационно-педагогической структуры школы на 33 класса, т.е. заменой схемы 3-3-3 на схему 3-3-2 с уменьшенным числом классов старшей школы. Это соответствует положению 4.5 МГСН 4.06-96 , требующего 100 % мест для детей младшего возраста, 100 % мест для детей среднего возраста и только 75 % мест для детей старшего возраста.

2.2.2. Наполняемость классов рекомендуется в 25 или 30 учащихся и устанавливается по согласованию с Московским комитетом образования.

2.2.3. При разработке проектов реконструкции зданий школ типов МЮ и 65-426.1 на новую вместимость - 33 класса с наполняемостью классов в 25 учащихся габариты учебных помещений сохраняются. При реконструкции зданий школ указанных типов на вместимость 33 класса с наполняемостью классов в 30 учащихся - необходима радикальная перепланировка существующего здания с увеличением площади учебных помещений.

2.2.4. Реконструкция зданий школ типов МЮ и 65-426.1 на новую вместимость - 33 класса с наполняемостью классов 30 учащихся требует значительно большего объема дополнительных пристроек и надстроек. Выбор того или иного варианта наполняемости классов (25 или 30 учащихся) необходимо увязывать с возможностью застройки существующего участка школы или его расширения.

2.2.5. Для зданий школ с высотой в пять этажей (типа МЮ) надстраивание исключено и увеличение вместимости здания возможно только за счет пристраиваемых объемов, оптимальная зона примыкания -лестничные клетки. Для зданий школ высотой в два - три этажа (типа 65-426.1) при условии соответствующего технического состояния, возможно надстраивание до 4-х этажей. Если по тем или иным причинам надстраивание существующего объема невозможно, увеличение вместимости осуществляется за счет пристраиваемых объемов. Зоны примыкания определяются проектом.

2.2.6. В существующих зданиях реконструируемых школ рекомендуется размещать помещения основной школы и, по возможности, старшей школы. В надстраиваемых зданиях школ (типа 65-426.1) классы начальной школы могут размещаться либо на 1 и 2 этажах, либо в обособленной секции с лестничной клеткой на 1, 2 и 3 этажах. В дополнительные объемы рекомендуется выносить классы начальной школы, в случае необходимости, учебные помещения старшей школы и, как правило, помещения общего назначения.

2.2.7. Пристраиваемый к существующему зданию блок начальных классов должен иметь непосредственную связь с блоком общешкольных помещений. С основным реконструируемым зданием блок начальных классов может быть связан только по первому этажу. Блок общешкольных помещений должен иметь непосредственную связь с основным зданием.

2.2.8. При реконструкции зданий яслей-садов (типа VI-13) возможно надстраивание до трех этажей и пристраивание дополнительных объемов. При реконструкции зданий яслей-садов типа 2МГ-04-3 возможно надстраивание двухэтажной части здания до трех этажей. Пристраивание дополнительных объемов нецелесообразно в связи со специфической секционной планировочной структурой здания, затрудняющей переход дошкольников из одной части здания в другую.

2.2.9. Функциональная гибкость учреждений обеспечивается за счет универсализации помещений, в т.ч. блоков начальных классов, пристраиваемых к существующим зданиям школ. При необходимости эти блоки могут использоваться для размещения классов средней и старшей школы, например, при переносе начальных классов в помещения дошкольных зданий вариативного использования.

2.2.10. При реконструкции зданий с жесткой конструктивной схемой несущих стен, как правило, происходит вынужденное увеличение площади отдельных помещений и ее суммарной величины в связи с необходимостью приспособления планировочных решений к конструктивной схеме. Во избежание значительного перерасхода площади целесообразно при разработке задания на проектирование устанавливать лимит общей площади на здание.

Для зданий школ лимит удельной общей площади в 11 м2 на 1 учащегося установлен Дополнением № 1 к МГСН 4.06-96.

Для зданий дошкольных учреждений с пониженной высотой этажей в 2.8 м эмпирически выведен и рекомендуется лимит в 13 м2, учитывающий компенсацию пониженной высоты помещений за счет увеличения их площади.

2.2.11. Состав и площади помещений в реконструируемых школах рекомендуется принимать с учетом Приложения 27 к МГСН 4.06-96 , предусматривающего норму площади на одного учащегося в помещениях спортзалов - 06-07 м2, в рекреациях - 1.6 м2, в актовом зале - 0,8 м2 , в обеденном зале - 0,7 м2.

2.2.12. Учитывая планировочные особенности и высоту этажей в 3.9 м в зданиях школ типа МЮ и 65-426.1. существующие помещения классов площадью 48.5 - 53.0 м2 можно использовать для учебных групп с наполняемостью в 25 учащихся из расчета 2.0 м2 на 1 ученика аналогично норме, принятой в Приложении 27 к МГСН 4.06-96 для школ из крупнопанельных конструкций.

Такое решение обеспечивает снижение наполняемости классов в соответствии с Законом об образовании до 25 учащихся вместо 40 учащихся по первоначальному проекту (МЮ и 65-426.1) и 30 учащихся по факту и увеличение площади на 1 учащегося в классе до 2.0 м2 вместо 1.2 м2 по проекту и 1.6 м2 по факту.

2.2.13.В зданиях типа МЮ на пятом этаже взамен учебных помещений целесообразно размещать помещения иного назначения или учебные помещения эпизодического пользования.

2.2.14. Реконструкция существующих зданий школ и дошкольных учреждений должна проектироваться и осуществляться в соответствии с требованиями МГСН и других нормативных документов, действующих на территории Москвы. Реконструкция ДУ в дошкольное здание вариативного использования следует осуществлять еще и в соответствии с "Рекомендациями по формированию сети, типов и функционально-планировочной структуры дошкольных зданий вариативного использования".

3. ВАРИАНТЫ ОРГАНИЗАЦИИ СЕТИ ОБРАЗОВАТЕЛЬНЫХ УЧРЕЖДЕНИЙ РЕКОНСТРУИРУЕМОГО РАЙОНА НА ПРИМЕРЕ КВАРТАЛА 81 ХОРОШЕВО-МНЕВНИКИ.

3.1. Квартал 81 Хорошево-Мневники типичен по условиям реконструкции сети и зданий школ и дошкольных учреждений для районов комплексной реконструкции пятиэтажных жилых домов. В данном квартале представлены наиболее массовые типы зданий школ и дошкольных учреждений, распространенных в реконструируемых районах: школы типов МЮ и 65-426.1 и ясли-сады типов VI-13 и 2МГ-04-3.

Исходное население района - 13.9 тыс. человек. По ЭПЗ района предусматривается увеличение населения до 15.3 тыс. человек. Существующие здания школ в соответствии с МГСН 4.06-96 могут обеспечить не более 500 школьных мест. По ЭПЗ района предусматривается 1965 школьных мест, т.е. по 130 мест на 1 тыс. жителей. Существующие здания дошкольных учреждений в соответствии с МГСН 4.07-96 могут обеспечить не более 450 дошкольных мест. По ЭПЗ района предусматривается 714 дошкольных мест, т.е. по 46 мест на 1 тыс. жителей. Одно из школьных зданий используется как гимназия, одно из дошкольных зданий не используется по назначению. В соответствии с ЭПЗ реконструируемого района с учетом МГСН 4.06-96 , МГСН 4.07-96 , Рекомендаций по реконструкции зданий школ и дошкольных учреждений /дополнения к МГСН/ необходимо увеличить число школьных мест на 300 %, число дошкольных мест на 100 %.

3.2. Варианты организации сети образовательных учреждений квартала 81 Хорошево-Мневники (Модель 1 и Модель 2) предусматривают разные подходы к выбору номенклатуры типов учреждений для реконструкции конкретных зданий школ и дошкольных учреждений как элементов предлагаемых вариантов (Моделей).

3.3. Модель 1 основывается на предполагаемых ЭПЗ района типах учреждений и будучи универсальной применима в других реконструируемых районах. В структуру сети образовательных зданий включается новый тип дошкольного здания - здание вариативною использования как "буферный" элемент сети, обеспечивающий дополнительные школьные или дошкольные места в зависимости от потребности в периоды демографических "перекосов" и колебаний наполняемости школ и дошкольных учреждений. В данной Модели здание ясли-сада типа 2МГ-04-3, фактически не используемое по назначению, задействуется как дошкольное учреждение в связи с принятым ЭПЗ района увеличением числа мест дошкольных учреждений.

3.4. Модель 2 основывается на учете специфических условий использования зданий школ и дошкольных учреждений в данном районе, т.е. школы как гимназии и яслей-сада, не используемого по назначению. В Модели использованы предусмотренные МГСН 4.06-96, но нетрадиционные для Москвы, типы общеобразовательных учреждений: сблокированная школа на 22+22 класса, гимназия, а также прогимназия. Здание яслей-сада типа 2МГ-04-3, не используемое в районе по назначению, в соответствии с характером Модели, учитывающим специфические особенности района, в Модель не включено. Здание дошкольного учреждения, построенное по индивидуальному проекту учитывается при подсчете мест в дошкольных учреждениях.

3.5. Обе Модели основываются на уточнении принятого по ЭПЗ района числа мест в образовательных учреждениях в соответствии с действующими нормами и на основании фактической потребности (см. табл. 5 и 6).

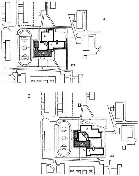
Рис. 1 Существующие здания школ и дошкольных учреждений в эскизном проекте застройки квартала 81 Хорошево-Мневники:

1 - детский сад типа VI-13; 2 - детский сад типа 2МГ-04-3;
3 - школа типа 65-426.1; 4 - детский сад немассового типа;
5 - школа типа МЮ; 6 - детский сад типа VI-13

Рис. 2 Модель 1 организации сети образовательных учреждений в квартале 81 Хорошево-Мневники (см. табл. 5).

Схема распределения мест по типам школьных и дошкольных образовательных учреждений, проектируемых на основе реконструкции существующих зданий школ и детских садов.

ТАБЛИЦА 5

ОРГАНИЗАЦИЯ СЕТИ И РАСЧЕТ ВМЕСТИМОСТИ ОБРАЗОВАТЕЛЬНЫХ УЧРЕЖДЕНИИ В КВАРТАЛЕ 81 ХОРОШЕВО-МНЕВНИКИ ПО МОДЕЛИ 1.

исходный тип ОУ типовой проект

вместимость ОУ, количество мест

Тип ОУ по Модели

фактическая

по типовому проекту

расчетная

По ЭПЗ

По МГСН

по МОДЕЛИ

Школа МЮ

800

880

1140

240

825/990

полная средняя школа на 33 класса

Школа 65-426.1

600
используется как гимназия

1000

825

256

825/990

полная средняя школа на 33 класса

Ясли-сад VI-13

150

280

200

120

200

ДЗВИ на 10 ячеек /10 групп или 5 групп+4 класса или 8 классов/

Ясли-сад VI-13

79

280

200

120

200

ДОУ на 10 групп

Ясли-сад 2МГ-04-3

не используется

280

200

140

200

ДОУ на 10 групп

Ясли-сад (индивидуальный проект)

94

140

115

70

110

ДОУ на 6 групп

Итого школьных

1400

1880

1965

496

1650-1980

 

Итого дошкольных

323

980

715

450

710 в т.ч. 200 вариативных

 

Рис. 3 Модель 2 организации сети образовательных учреждений в квартале 81 Хорошево-Мневники (см. табл. 6).

Схема распределения мест по типам школьных и дошкольных образовательных учреждений, проектируемых на основе реконструкции существующих зданий школ и детских садов.

ТАБЛИЦА 6

ОРГАНИЗАЦИЯ СЕТИ И РАСЧЕТ ВМЕСТИМОСТИ ОБРАЗОВАТЕЛЬНЫХ УЧРЕЖДЕНИЙ В КВАРТАЛЕ 81 ХОРОШЕВО-МНЕВНИКИ ПО МОДЕЛИ 2

исходный тип ОУ типовой проект

вместимость ОУ, количество мест

тип ОУ по Модели

фактическая

по типовому проекту

расчетная

По ЭПЗ

по МГСН

по Модели

Школа МЮ

800

880

1140

240

1210/550+660/

полная средняя школа сблокированная на 22+22 класса

школа 65-426.1

600
используется как гимназия

1000

825

256

725 школьных
120 дошкольных

гимназия на 21 класс и прогимназия на 8 классов и 6 групп

ясли-сад VI-13

150

280

200

120

240

ДОУна 12 групп

ясли-сад VI-13

79

280

200

120

240

ДОУ на 12 групп

ясли-сад 2МГ-04-3

не используется

280

200

140

-

-

ясли-сад (индивидуальный проект)

94

140

115

70

110

ДОУ на 6 групп

Итого школьных

1400

1880

1965

496

1935

 

Итого дошкольных

323

980

715

450

710

 

4. ВАРИАНТЫ ПЕРЕПЛАНИРОВКИ И ИСПОЛЬЗОВАНИЯ ЗДАНИЙ ШКОЛ ТИПОВ МЮ И 65-426.1, ДОШКОЛЬНЫХ УЧРЕЖДЕНИЙ ТИПОВ VI-13 И 2МГ-04-3, ОПРЕДЕЛЕНИЕ СОСТАВА ПОМЕЩЕНИЙ ДОПОЛНИТЕЛЬНЫХ ОБЪЕМОВ.

4.1. В целях определения характера перепланировки существующего здания и выявления ориентировочного состава помещений и расчетных площадей помещений, выносимых в дополнительные объемы, целесообразно разрабатывать типологические схемы перепланировки и использования помещений существующего объема. Вне зависимости от последующих объемно-планировочных решений, надстраивания или пристраивания дополнительных объемов, существующие объемы предполагают определенную расчетную площадь размещаемых в них функциональных групп помещений. Состав существующих и дополнительных объемов может варьироваться. Типологические схемы следует разрабатывать на определенный вариант перепланировки, чтобы до разработки проекта и архитектурно-планировочных решений сформировать типы дополнительных блоков, определить их расчетные и общие площади.

4.2. В качестве примера в данных рекомендациях предлагается один из возможных вариантов перепланировки зданий образовательных учреждений в соответствии с МОДЕЛЬЮ 1 (рис. 4 - 9).

4.3. Для реконструкции зданий школ типов МЮ и 65-426.1 под полные средние школы на 33 класса с наполняемостью классов в 30 учащихся /990 мест/ требуется демонтаж части перегородок при организации учебных помещений площадью 70 м2 (рис. 5 и 7). Типологические схемы позволяют определить назначение образующихся при этом незапланированных помещений нестандартной площади.

4.4. Предлагаемые варианты типологических схем предусматривают размещение в существующих объемах зданий школ учебных групп помещений преимущественно основной и старшей школ. Начальная школа в данных вариантах выносится в дополнительные объемы.

4.5. При осуществлении надстройки учебного блока в здании школы типа 65-426.1 до 4-х этажей начальная школа может размещаться в основном надстроенном здании, однако, для простоты расчетов в типологической схеме помещения начальной школы методически обосновано отнести к дополнительным помещениям. Это не исключает возможности разработки варианта типологических схем с непосредственным размещением начальной школы в существующем здании, поскольку в любом случае эти помещения располагаются в пределах трех существующих этажей.

4.6. Выбор той или иной схемы зависит от принятой типологической методики. Вариант схемы с вынесением начальной школы в дополнительные объемы ориентирован на те случаи, когда надстраивание учебного блока реконструируемого здания школы типа 65-426.1 исключено.

4.7. В зданиях школ типа МЮ буфеты, актовые и спортивные залы не соответствуют требованиям МГСН к данным помещениям в школах на 33 класса. Предлагается проектирование спортивных, зрительных залов и столовых в дополнительных объемах (с отдельным входом) и изменение назначения аналогичных существующих помещений.

4.8. В зданиях школ типа 65-426.1 гимнастические и актовые залы по габаритам и площадям несколько отличаются от требуемых сегодня для школ на 33 класса, но в целях минимизации площадей дополнительных объемов с некоторыми дополнениями могут использоваться по своему назначению. Предлагаются решения с различными комбинациями залов:

- на площади гимнастического - зала располагается спортивный зал в 180 м2 с раздевальными, актовый зал используется как зрительный, в дополнительные объемы выносится спортивный зал в 288-270 м с сопутствующими помещениями;

- зрительный зал переносится на площадь гимнастического. На площади актового зала размещается спортивный зал в 180 м с раздевальными. В дополнительные объемы выносится спортивный зал в 288-270 м2. При этом зал с габаритами 15´18 м может размещаться между учебным и зальным блоками, объединяясь с другими залами в единый комплекс;

- в дополнительные объемы выносится зрительный зал, в этом случае в существующих залах располагаются спортивные залы.

4.9. Площадь столовой в здании типа 65-426.1 позволяет разместить только обеденный зал или только кухню, недостающая часть помещений выносится в дополнительные объемы.

4.10. В дополнительные объемы рекомендуется выносить кружковые, информационный центр, мастерские и т. д., в зависимости от конкретной функционально-типологической схемы.

4.11. В зданиях школ типа МЮ информационный центр может располагаться на пятом этаже как помещение эпизодического пребывания учащихся, как правило, основной и старшей школ.

4.12. Для дошкольного здания типа VI-13 предлагаются типологические схемы, предусматривающие два варианта реконструкции зданий: для ДЗВИ /Дошкольного здания вариативного использования/ и для ДОУ /Дошкольного образовательного учреждения/.

4.13. Варианты реконструкции могут предусматривать как пристройку, так и надстройку существующего объема до трех этажей. Двухэтажное решение возможно при наличии свободных участков для расширения существующего здания за счет пристраивания дополнительных объемов или при технических сложностях осуществления надстройки здания. Трехэтажное решение применимо на затесненных участках.

4.14. Типологические схемы позволяют определить возможность объединения двух существующих ячеек в одну полноценную, а также соблюдения требуемых санитарно-гигиенических условий при размещении в такого типа зданиях ДУ классов начальных школ; определить количество ячеек, организуемых за счет существующих помещений и количество ячеек, выносимых в дополнительные объемы; показывают целесообразность проектирования залов в дополнительных объемах.

4.15. Для зданий дошкольных учреждений типа 2МГ-04-3 предлагается типологическая схема реконструкции под ДОУ комбинированного вида. Схемой определяется оптимальное число организуемых ячеек и их типы. Часть ячеек формируется за счет объединения двух соседних в одну полноценную. Освободившиеся при этом площади используются по иному назначению. Дополнительные объемы рекомендуются только в виде надстройки двухэтажной части здания до трех этажей с размещением в них залов.

4.16. Типологическими схемами определяются составы помещений дополнительных объемов и их технико-экономические показатели для каждого здания и каждого варианта перепланировки и использования существующих объемов реконструируемых зданий школ и дошкольных учреждений.

Разработка типологических схем позволяет на предпроектном уровне выяснить общий суммарный объем дополнительных площадей, необходимых для реконструкции зданий школ и дошкольных учреждений.

план 5 этажа

Пятый этаж

1 - лаборатория 70-80 кв. м

2 - лаборантская 30-31 кв. м

3 - спецкабинет 69 кв. м

4 - библиотека 101 кв. м

5 - санузел 12 кв. м

6 -рекреация 189 кв. м

план 4 этажа

Четвертый этаж

1 - кабинет ОШ 49-51 кв. м

2 - спецкабинет 50-51 кв. м

3 - спецкабинет 31 кв. м

4 - санузел 12 кв. м

5 - рекреация 189 кв. м

план 3 этажа

Третий этаж

1 - кабинет ОШ 49-51 кв. м

2 - спецкабинет 50-51 кв. м

3 - спецкабинет 31 кв. м

4 - санузел 12 кв. м

5 -рекреация 189 кв. м

план 2 этажа

Второй этаж

1 -кабинет ОШ 49-51 кв. м

2 - лаборатория 70 кв. м

3 - лаборантская 31 кв. м

4 - ресурсная 25 кв. м

5 - санузел 12 кв. м

6 - рекреация 189 кв. м

план 1 этажа

Первый этаж

1 - мастерская 70 кв. м

2 - мастерская 90 кв. м

3 - мастерская 64 кв. м

4 - адм. помещение 31 кв. м

5 - мед. помещение 51 кв. м

6 - адм. помещение 50 кв. м

7 - санузел 8-12 кв. м

8 - вестибюль 207 кв. м

Рис. 4 Типологические схемы перепланировки и использования помещений существующего здания школы типа МЮ для проектируемой школы на 33 класса (825 учащихся)

план 5 этажа

Пятый этаж

1 - кабинет ОШ 70 кв. м

2 - лаборатория 70 кв. м

3 - лаборантская 29 кв. м

4 - спецкабинет 90 кв. м

5 - библиотека 101 кв. м

6 - информ. центр 49 кв. м

7 - учительская 31 кв. м

8 - санузел 12 кв. м

9 - рекреация 139 кв. м

план 4 этажа

Четвертый этаж

1 - кабинет ОШ 70 кв. м

2 - спецкабинет 31 кв. м

3 - ресурсная 18 кв. м

4 - адм. помещение 10 кв. м

5 - санузел 12 кв. м

6 - рекреация 189 кв. м

план 3 этажа

Третий этаж

1 - кабинет ОШ 170 кв. м

2, 3 - спецкабинеты 31-70 кв. м

4, 5 - ресурсные 10-18 кв. м

6 - санузел 12 кв. м

7 - рекреация 189 кв. м

план 2 этажа

Второй этаж

1 - кабинет ОШ 70 кв. м

2 - лаборатория 70 кв. м

3 - лаборантская 31 кв. м

4 - ресурсная 18 кв. м

5 - адм. помещения 10 кв. м

6 - санузел 12 кв. м

7 - рекреация 189 кв. м

план 1 этажа

Первый этаж

1 - лаборатория 70 кв. м

2 - лаборантская 31 кв. м

3, 4 - спецкабинеты 64-90 кв. м

5 - мед. помещения 51 кв. м

6 - адм. помещения 50 кв. м

7 - санузел 8-12 кв. м

8 - вестибюль 207 кв. м

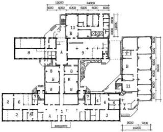
Рис. 5 Типологические схемы перепланировки и использования помещений существующего здания школы типа МЮ для проектируемой школы на 33 класса (990 учащихся)

4.17. В школе типа МЮ, реконструируемой на 33 класса (825 учащихся), в существующем объеме по схеме запланированы помещения расчетной площадью 2939 кв. м. В дополнительные объемы выносятся помещения расчетной площадью в 3392 кв. м:

- начальная школа 1845 кв. м, в т.ч. классы и игровые -1035 кв. м, учебный кабинет - 60 кв. м, рекреации - 300 кв. м, физкультурный зал - 180 кв. м, прочие помещения - 210 кв. м;

- общешкольные помещения 1597 кв. м, в т.ч. кружковые - 120 КВ.М, спортзал - 670 кв. м, актовый зал - 372 кв. м, столовая - 435 кв. м.

4.18. В школе типа МЮ, реконструируемой на 33 класса (990 учащихся), в существующем объеме по схеме запланированы помещения расчетной площадью 2955 кв. м. В дополнительные объемы выносятся помещения расчетной площадью 4988 кв. м:

- начальная школа 2122 кв. м, в т.ч. классы и игровые - 1200 кв. м, учебный кабинет - 70 кв. м, рекреации - 432 кв. м, физкультурный зал - 180 кв. м, прочие помещения - 240 кв. м;

- старшая школа 595 кв. м, в т. ч. учебные кабинеты - 280 кв. м, рекреации - 288 кв. м, санузлы - 27 кв. м;

- общешкольные помещения 1857 кв. м, в т.ч. спортзал - 670 кв. м, зрительный зал - 416 кв. м, столовая - 511 кв. м, кружковые - 270 кв. м;

- мастерские 414 кв. м.

4.19. Существующая пристройка к школам типа МЮ в расчетах учитывается как дополнительный объем.

4.20. В школе типа 65 - 426.1, реконструируемой на 33 класса (825 учащихся), в существующем объеме по схеме запланированы помещения расчетной площадью 4052 кв. м. В дополнительные объемы выносятся помещения расчетной площадью 2597 кв. м:

- начальная школа 1845 кв. м, в т.ч. классы и игровые - 1035 кв. м, учебный кабинет - 60 кв. м, рекреации - 360 кв. м, физкультурный зал - 210 кв. м, прочие помещения - 180 кв. м;

- общешкольные помещения 752 кв. м, в т.ч. спортзал -290 кв. м, кружковые - 270 кв. м, столовая - 192 кв. м.

4.21. В школе типа 65 - 426.1, реконструируемой на 33 класса (990 учащихся), в существующем объеме по схеме запланированы помещения расчетной площадью 4042 кв. м. В дополнительные объемы выносятся помещения расчетной площадью 3705 кв. м:

- начальная школа 2122 кв. м, в т.ч. классы и игровые - 1200 кв. м, учебный кабинет - 70 кв. м, физкультурный зал - 180 кв. м, рекреации - 432 кв. м, прочие помещения - 240 кв. м;

- старшая школа 595 кв. м, в т.ч. учебные кабинеты - 280 кв. м, рекреации - 288 кв. м, санузлы - 27 кв. м;

- общешкольные помещения 988 кв. м, в т.ч. спортзал - 298 кв. м, столовая - 280 кв. м, библиотека - 140 кв. м, кружковые - 27 кв. м.

Третий этаж

1 - кабинет СШ 49-53 кв. м

2 - спецкабинеты 48-53 кв. м

3 - спецкабинет 100 кв. м

4 - библиотека 100 кв. м

5 - адм. помещение 14 кв. м

6 - санузел 16 кв. м

7 - рекреация 285 кв. м

8 - техцентр 76 кв. м

Второй этаж

1 - класс ОШ 48-53 кв. м

2 - лаборатория и лаборантская 100 кв. м

3 - адм. помещение 14 кв. м

4 - санузел 16 кв. м

5 - рекреация 285 кв. м

6 - спортзал и раздевальни 372 кв. м

7 - актовый зал 247 кв. м

8 - холл 35 кв. м

Первый этаж

1 - лаборатория и лаборантская 100 кв. м

2 - мастерская 70 кв. м

3 - спецкабинет 70 кв. м

4 - методкабинет 50 кв. м

5 - мед. и адм. помещения 35-50 кв. м

6 - санузел 16 кв. м

7 - вестибюль 185 кв. м

8 - рекреация 103 кв. м

9 - рекреация 91 кв. м

10 - мастерские 313 кв. м

11 - столовая 247 кв. м

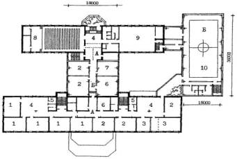
Рис. 6 Типологические схемы перепланировки и использования помещений существующего здания школы типа 65-426.1 для проектируемой школы на 33 класса (825 учащихся)

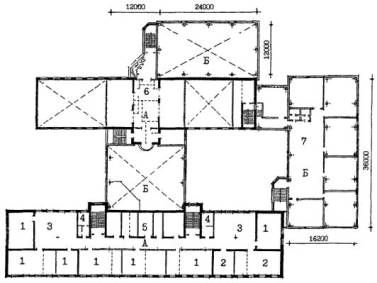
Третий этаж

1 - класс ОШ 70 кв. м

2 - спецкабинеты 28-30 кв. м

3 - спецкабинет 53 кв. м

4 - лаборатория и лаборантская 100 кв. м

5 - адм. помещение 16 кв. м

6 - методкабинет 53 кв. м

7 - санузел 16 кв. м

8 - рекреация 285 кв. м

9 - техцентр 76 кв. м

Второй этаж

1 - класс ОШ 70 кв. м

2 - спецкабинеты 28-30 кв. м

3 - спецкабинет 70 кв. м

4 - спецкабинет 100 кв. м

5 - спецкабинет 53 кв. м

6 - адм. помещение 30 кв. м

7 - санузел 16 кв. м

8 - рекреация 258 кв. м

9 - зрительный зал 267 кв. м

10 - спортзал 302 кв. м

Первый этаж

1 - класс ОШ 70 кв. м

2 - лаборатория и лаборантская 100 кв. м

3 - мастерская 70 кв. м

4 - мастерские 243 кв. м

5 - мед. помещение 70 кв. м

6 - вестибюль 211 кв. м

7 - санузел 16 кв. м

8 - рекреация 110 кв. м

9 - рекреация 91 кв. м

10 - столовая 247 кв. м

Рис. 7 Типологические схемы перепланировки и использования помещений существующего здания школы типа 65-426.1 для проектируемой школы на 33 класса (990 учащихся)

план 2 этажа

Второй этаж

1 - вариативное помещение спальная-рекреация - 63 кв. м;

2 - вариативное помещение групповая-класс - 63 кв. м;

3 - туалетная - 16 кв. м;

4 - раздевальная - 18 кв. м;

5 - универсальный зал - 75 кв. м;

6 - универсальные помещения - 18 кв. м.

план 1 этажа

Первый этаж

1 - вариативное помещение спальная-рекреация - 63 кв. м;

2 - вариативное помещение групповая-класс - 63 кв. м;

3 - туалетная - 16 кв. м;

4 - раздевальная - 18 кв. м;

5 - универсальный зал - 75 кв. м;

6 - универсальные помещения -18 кв. м;

7 - пищеблок 88 кв. м;

8 - помещения общего назначения - 70 кв. м.

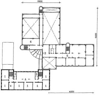
Рис. 8 Типологические схемы перепланировки и использования помещений существующего здания детского сада типа VI-13 для проектируемого дошкольного или дошкольно-школьного учреждения на 10 ячеек (200 мест).

план 3 этажа

Третий этаж

1 - универсальный зал - 70 кв. м;

2, 3, 4 - помещения пищеблока - 12, 18, 36 кв. м;

5 - помещения медблока - 12, 18 кв. м;

6 - помещения прачечной - 12, 18 кв. м;

7 - служебно-бытовые или административные помещения - 12, 18 кв. м.

план 2 этажа

Второй этаж

1 - универсальная групповая - 95 кв. м;

2 - групповая - 70 кв. м;

3 - спальная - 70 кв. м;

4 - раздевальная - 18.5 кв. м;

5 - туалетная - 16 кв. м;

6 - консультационно-методический кабинет - 18.5 кв. м.

план 1 этажа

Первый этаж

1 - универсальная групповая - 95 кв. м;

2 - помещение групп развития - 70 кв. м;

3 - раздевальная - 18.5 кв. м;

4 - туалетная - 16 кв. м.

Рис. 9 Типологические схемы перепланировки и использования помещений существующего здания детского сада типа 2МГ-04-3 для проектируемого дошкольного учреждения на 10 групп (200 мест).

4.22. В детском саду типа VI-13, реконструируемом на 10 групповых ячеек (200 мест) (рис. 8), в существующем объеме могут быть предусмотрены помещения расчетной площадью 1361 кв. м. В дополнительные объемы выносятся помещения расчетной площадью 837 кв. м для ДЗВИ или 648 кв. м для ДОУ, в т. ч. четыре ячейки для групп или классов, универсальный зал, часть административных и служебно-бытовых помещений.

4.23. В детском саду типа 2МГ-04-3, реконструируемом на 10 групповых ячеек (200 мест) (рис. 9), в существующем объеме по схеме запланированы помещения расчетной площадью 1779 кв. м. В дополнительных объемах могут размещаться залы по 95 кв. м.

4.24. Для проверки соответствия реконструируемых помещений требованиям учебно-воспитательного процесса и санитарно-гигиенических норм целесообразно выполнять предварительные схемы расстановки мебели в основных учебных помещениях. Примеры схем классов различной конфигурации, организуемых в соответствии с данными рекомендациями в существующих объемах реконструируемых зданий школ и дошкольных учреждений (рис. 10), показывают, что, несмотря на нестандартные габариты или заниженные площади помещений, расстановка мебели в них может быть осуществлена в соответствии с действующими нормами. В групповых детских садов типа VI-13 с глубиной помещений 5.6 м при организации классов рекомендуется один из рядов формировать из одноместных учебных столов. В существующих школьных классах площадью 48 - 53 кв. м размещаются 12 - 13 двухместных учебных столов для 25 учащихся, а классах площадью 70 кв. м, организуемых при перепланировке существующих зданий школ, размещаются 15 двухместных учебных столов для 30 учащихся.

1

2

3

Рис. 10 Примеры расстановки мебели в учебных классах реконструируемых зданий школ и дошкольных учреждений:

1 - класс на 25 учащихся в здании детского сада типа VI-13, реконструируемого для ДЗВИ; 2 - класс на 25 учащихся в зданиях школ типа МЮ и 65-426.1, реконструируемых для школ на 33 класса; 3 - класс на 30 учащихся в зданиях школ типа МЮ и 65-426.1, реконструируемых для школ на 33 класса.

5. ОРИЕНТИРОВОЧНЫЕ СОСТАВЫ И ПЛОЩАДИ ПОМЕЩЕНИЙ ОБРАЗОВАТЕЛЬНЫХ УЧРЕЖДЕНИЙ ДЛЯ РЕКОНСТРУКЦИИ ЗДАНИЙ ШКОЛ ТИПОВ МЮ И 65-426 И ДОШКОЛЬНЫХ УЧРЕЖДЕНИЙ ТИПОВ VI-13 И 2МГ-04-3.

5.1. Ориентировочные составы и площади помещений для реконструкции зданий школ МЮ и 65-426.1 и дошкольных учреждений VI-13 и 2МГ-04-3 (табл. 7, 8 и 9) разработаны по Модели 1 на примере типологических решений реконструкции сети и зданий школ и ДУ в кв. 81 Хорошево-Мневники.

5.2. Составы и площади помещений разработаны с учетом типологических схем перепланировки и использования существующих зданий указанных выше типов школ и ДУ (рис. 4 - 9).

5.3. Состав и площади помещений школы на 33 класса разработаны для вместимости 825 учащихся /по 25 учащихся в классе/ и для вместимости 990 учащихся /по 30 учащихся в классе/ и предусматривают возможность использования ряда помещений с пониженной площадью в их исходном проектном назначении (табл. 7). Для вместимости 825 учащихся даны два варианта площадей помещений: 1 - с выносом начальной школы в дополнительные объемы; 2 - с выносом учебных кабинетов основной и старшей школы в дополнительные объемы. Площади учебных помещений, расположенных в существующем здании принимаются пониженными в соответствии с существующей планировкой классов, площади учебных помещений в дополнительных объемах принимаются аналогично Приложению 27 к МГСН 4.06-96. Для вместимости 990 учащихся дан один вариант площадей учебных помещений в соответствии с нормами вне зависимости, от их расположения.

ТАБЛИЦА 7

ОРИЕНТИРОВОЧНЫЙ СОСТАВ И ПЛОЩАДИ ПОМЕЩЕНИЙ ДЛЯ РЕКОНСТРУКЦИИ ЗДАНИЙ ШКОЛ ТИПОВ МЮ И 65-426.1 (ПОЛНАЯ СРЕДНЯЯ ШКОЛА НА 33 КЛАССА - 825 И 990 УЧ-СЯ)

№ №

Функциональные группы помещений

Наименование помещений

Вместимость школы (33 кл)

825 уч.

990 уч.

Наполняемость классов

25 уч.

30 уч.

Площадь помещений, кв. м.

1

2

3

4

5

 

 

 

Вариант 1

Вариант 2

 

1

Начальная школа

 

 

 

 

 

1-е классы

Классы - игровые

 

 

Спальня - игровая

60

50

60

 

 

Рекреация зальная

75

75

90

 

 

 

 

 

 

 

2-4 классы

Классы

 

 

Универсальные помещения для продленных групп

 

 

Универсальный кабинет для занятий

60

50

70

 

 

Рекреация зальная

360

360

432

 

Зал

Зал для физкультуры и хореографии

180

180

180

 

 

Раздевальные

42

42

42

 

 

Инвентарная

6

6

6

 

 

 

 

 

 

 

Административно-хозяйственные помещения

 

 

 

 

 

 

Учительская

40

40

40

 

 

Кабинет завуча

10

10

10

 

 

Кладовая

4

4

4

 

 

Санузлы учащихся

45

45

54

 

 

Санузлы персонала

6

6

6

 

 

Вестибюль, гардероб

105

105

126

 

 

 

 

 

 

2

Основная школа

Класс-кабинет

 

 

 

 

 

 

3

Старшая школа

Учебные кабинеты универсального назначения

 

 

 

 

 

 

4

Специализированные кабинеты

Лаборатории физики, химии, биологии

 

 

Лаборантские практикумы

 

 

Кабинеты иностранного языка

 

 

Кабинет информатики и вычислительной техники

 

 

Кабинет черчения

50

50

70

 

 

 

 

 

 

5

Рекреации

Рекреации

840

840

1008

 

 

 

 

 

 

6

Помещения изучения технологий

Мастерские

 

 

 

 

- обработки металла

70

70

90

 

- обработки дерева

70

70

90

 

- обработки ткани

70

70

90

 

Инструментальная

18

18

24

 

Кулинария

50

50

50

 

 

Электротехнология

70

70

70

 

 

 

 

 

 

7

Центр информации

Библиотека, справочно-информационный центр

100

100

140

 

 

Методкабинет, учительская

50

50

50

 

 

 

 

 

 

8

Спортивно-оздоровительная группа

Учебно-спортивный зал

288-270

288-270

288-270

 

Малый зал

180

180

180

 

Раздевальные

 

Инвентарные

 

Комната инструктора

 

 

 

 

 

 

9

Администрация, медпомещения, вестибюльная гр.

Кабинет директора

25

25

25

 

 

Кабинет зам. директора

10

10

10

 

 

Кабинет организатора внеклассной работы

12

12

12

 

 

Кабинет зам директора по хозработе

10

10

10

 

 

Канцелярия

12

12

12

 

 

Комната техперсонала

12

12

12

 

 

Кладовая инвентаря

8

8

8

 

 

Кабинет врача

21

21

21

 

 

Процедурная

16

16

16

 

 

Кабинет зубного врача

12

12

12

 

 

Санузлы учащихся

79

79

95

 

 

Санузлы персонала

20

20

20

 

 

Вестибюль, гардероб

184

184

220

 

 

 

 

 

 

10

Группа зрительного зала

Зрительный зал

275 мест

275 мест

330 мест

 

 

- аудитория

220

220

264

 

 

- эстрада

20-40

20-40

20-40

 

 

- кладовая

12

12

12

 

 

- артистические

30

30

30

 

 

Техцентр

70

70

70

 

 

 

 

 

 

11

Группа помещений художественного воспитания и творчества

Студия изоискусств

70

70

70

 

Кабинет пения

50

50

50

 

Кабинет технического творчества

50

50

50

 

Универсальные кружковые

100

100

100

 

 

 

 

 

 

12

Столовая

 

275 мест

275 мест

330 мест

 

 

Обеденный зал

192

192

231

 

 

Кухня

243

243

280

Итого расчетная площадь

6653-6623

7794

Расчетная площадь на 1 ученика

8,0

7,9

Общая площадь

8316-8278

9768

Общая площадь на 1 ученика

10,0

9,9

Примечания:

1. Площадь классов, классов-игровых, спален-игровых, помещений продленных групп и кабинетов НШ, классов и учебных кабинетов ОШ и СШ в новых пристраиваемых к зданию объемах для классов в 25 учащихся увеличивается до 60 м2.

2. Суммарное число учебных помещений дано для 33 классных групп + дополнительные помещения в расчете на перспективу 12-летнего обучения в школе.

3. Переходный коэффициент отношения общей площади к расчетной принят 1,25 на основе приложения 27 к МГСН 4.06-96.

ТАБЛИЦА 8

ОРИЕНТИРОВОЧНЫЙ СОСТАВ И ПЛОЩАДИ ПОМЕЩЕНИЙ ДЛЯ РЕКОНСТРУИРУЕМОГО ЗДАНИЯ ДЕТСКОГО САДА ТИПА VI-13 (ДОШКОЛЬНОЕ ЗДАНИЕ ВАРИАТИВНОГО ИСПОЛЬЗОВАНИЯ НА 10 ЯЧЕЕК - 200 МЕСТ)

№ п/п

Функциональные группы помещений

Наименования помещений

Площади помещений кв. м

1

2

3

4

1

Помещения вариативных Ячеек

Вариативная ячейка:

 

- групповая-класс

60´8

- спальная-рекреация

60´8

- раздевальная

18´8

- туалетная

16´8

- буфетная

3´8

Вариативная ячейка:

 

- групповая - помещение отдыха

60´2

- спальная - помещение отдыха

50´2

- раздевальная - универсальное помещение

18´2

- туалетная

16´2

- буфетная

3´2

2

Помещения общего назначения

Специализированные помещения

 

для занятий:

 

- зал физкультурных занятий

162 (18´9)

- помещения при залах

32 (16´2)

Универсальный зал или обеденный зал для школьников

50

Методкабинет

18

Медицинские помещения:

 

- кабинет врача

14

- процедурная

14

- комната коррекции

16

- изолятор

14

Пищеблок:

 

- кухня с раздаточной

28

- заготовочный цех

12

- моечная столовой посуды

10

- моечная кухонной посуды

5

- охлаждаемая камера

6

- охлаждаемая камера отходов

6

- кладовая сухих продуктов

8

- кладовая овощей

4

- загрузочная-тарная

8

- комната персонала

13

Прачечная:

 

- стиральная

16

- гладильная

12

Служебно-бытовые помещения:

 

- кабинет директора

10

- кабинет завуча

8

- кабинет завхоза

6

- комната персонала

10

- хозкладовая

4

- кладовая чистого белья

8

- кладовая грязного белья

6

-санузлы

9

- гардероб преподавателей и воспитателей

3

Итого расчетная площадь

2124

Расчетная площадь на 1 место

10.0

Общая площадь

2592

Общая площадь на 1 место

12.9

Примечания:

1. Увеличенные площади помещений приняты с учетом компенсации пониженной высоты этажей существующего здания.

2. Переходный коэффициент отношения общей площади к расчетной площади принят 1.22 на основе показателей типового проекта VI-13.

3. ДЗВИ в зависимости от условий может использоваться как ДОУ на десять групп, или дошкольно-школьное ОУ на пять групп и четыре класса, или начальная школа на восемь классов.

ТАБЛИЦА 9

ОРИЕНТИРОВОЧНЫЙ СОСТАВ И ПЛОЩАДИ ПОМЕЩЕНИЙ ДЛЯ РЕКОНСТРУИРУКЦИИ ЗДАНИЯ ДЕТСКОГО САДА ТИПА 2МГ-04-3 (ДОШКОЛЬНОЕ ОБРАЗОВАТЕЛЬНОЕ УЧРЕЖДЕНИЕ КОМБИНИРОВАННОГО ВИДА НА 10 ГРУПП - 200 МЕСТ)

№ № п/п

Функциональные группы помещений

Наименование помещений

Площадь помещений, кв. м

1

2

3

4

1

Групповые ячейки

Ячейки общеразвивающей группы:

 

- групповая

70´2

- спальная

70´2

- раздевальная

18,5´2

- туалетная

16´2

- буфетная

3´2

Ячейка универсальная:

 

- универсальное помещение

95´4

- раздевальная

18,5´4

- туалетная

16´4

- буфетная

3´4

Ячейка групп развития:

 

- универсальная групповая

70´4

- раздевальная

18,5´4

- туалетная

16´4

- буфетная

3´4

2

Помещения общего назначения

Зал универсальный

95´2

Зал универсальный

83

Инвентарная

12´2

Методкабинет

18,5

Комната психоразгрузки

18,5

Медицинская комната

12

Процедурная

12

Изолятор

12

Комната коррекции

16´2

Кабинет логопеда

24

Кухня с раздаточной

36

Заготовочный цех

18

Моечная кухонной посуды

10

Охлаждаемая камера

12

Кладовая сухих продуктов

12

Загрузочная

6

Комната персонала

12

Прачечная:

 

- стиральная

16

- гладильная

12

Служебно-бытовые, административно-хозяйственные помещения:

 

- кабинет заведующего

18,5

- кабинет завхоза

12

- хозкладовая

12

- бельевая, комната кастелянши

12

- санузлы персонала

9

Консультационный кабинет

18,5

 

 

Итого расчетная площадь

1969

 

 

Расчетная площадь на 1 место

9,8

 

 

Общая площадь

2540

 

 

Общая площадь на 1 место

12,7

Примечания:

1. Площади помещений приняты с учетом сохранения планировочной и конструктивной структуры здания и пониженной высоты этажей в 2,8 м, требующей компенсации за счет увеличения площади помещений.

2. Переходный коэффициент отношения общей площади к расчетной принят 1,29 на основе показателей типового проекта 2МГ-04-3.

6. ПРИМЕРЫ АРХИТЕКТУРНО-ПЛАНИРОВОЧНЫХ РЕШЕНИЙ РЕКОНСТРУКЦИИ ЗДАНИЙ ШКОЛ И ДОШКОЛЬНЫХ УЧРЕЖДЕНИЙ ДЛЯ РАЙОНА ХОРОШЕВО-МНЕВНИКИ, КВАРТАЛ 81

Примеры архитектурно-планировочных решений, представленные в данных Рекомендациях являются одним из возможных, вариантов реконструкции зданий школ и дошкольных учреждений и приведены в качестве иллюстративного материала к основным положениям Рекомендаций. Примеры решений демонстрируют объемы реконструкции существующих зданий, дополнительных пристроек к ним, а также возможности их размещения на существующих участках. Решения выполнены в соответствии с положениями данных Рекомендаций и действующими нормами и правилами, на основе ориентировочных составов и площадей помещений (табл. 7, 8 и 9), с учетом рекомендуемых типологических схем перепланировки и использования существующих зданий реконструируемых школ и дошкольных учреждений (рис. 4 - 9).

Во всех вариантах предусмотрена возможность автономного использования клубно-спортивных помещений.

6.1. Реконструкция здания школы типа МЮ для размещения полной средней школы на 33 класса с наполняемостью класса в 30 учащихся - 990 мест (рис. 11, 16 - 19).

6.1.1. В существующем 5-ти этажном здании школы размещаются учебные кабинеты и лаборатории 5 - 11 классов с перепланировкой основных помещений. На первом этаже размещены вестибюль, административные помещения и часть мастерских.

6.1.2. В существующем зальном блоке-пристройке предусматриваются мастерские, в новом 3-х этажном блоке-пристройке с габаритами 1870´46.2 м размещаются классы начальной школы. Связь блоков осуществляется по первому этажу.

6.1.3. Новый клубно-спортивный блок-пристройка с габаритами 33.0´54.0 м объединяется с учебным блоком остекленной галереей и рекреацией по первому этажу. На 1-ом этаже размещены столовая библиотека, клубные помещения. На 2-ом этаже - двухсветные актовый и спортивный залы.

6.2. Реконструкция здания школы типа МЮ для размещения полной средней школы на 33 класса с наполняемостью классов в 25 учащихся - 825 мест (рис. 11 - 15).

6.2.1. В существующем 5-ти этажном корпусе школы полностью размещаются все учебные помещения 5-11 классов с минимальной перепланировкой по этажам. В существующем зальном блоке-пристройке запроектированы мастерские.

6.2.2. Клубно-спортивный и учебный блоки начальной школы связаны с основным зданием по первому этажу и рекреацией с зимним садом.

6.3. Реконструкция здания школы типа 65-426.1 для размещения полной средней школы на 33 класса с наполняемостью классов в 30 учащихия - 990 мест (рис. 20, 25 - 28).

6.3.1. К существующему зданию школы пристраиваются три блока, и надстраивается учебный корпус до 4-х этажей. В учебном корпусе располагаются все учебные кабинеты 5 - 11 классов, административные помещения. Осуществляется перепланировка основных помещений. Существующие актовый и спортивный зал используются как малый зал хореографии и физкультурный зал для начальных классов.

6.3.2. Актовый зал предусматривается в блоке-пристройке на месте перехода. Спортивный зал (24´12 м) пристраивается к существующему зальному блоку. Под актовым залом размещаются мастерские, под спортивным залом - недостающие помещения столовой.

6.3.3. Пристроенный 3-х этажный блок начальных классов с габаритами 16.2´36.0 м связан лестницей со столовой и физкультурным залом, а по первому этажу - с существующим учебным блоком.

6.4. Реконструкция здания школы типа 65-426.1 для размещения полной средней школы на 33 класса с наполняемостью классов в 25 учащихся - 825 мест (рис. 20 - 24).

6.4.1. К существующему зданию школы пристраивается 2 блока (один на месте существующего перехода) и надстраивается существующий учебный корпус до 4-х этажей.

6.4.2. В надстроенном учебном корпусе размещаются все учебные помещения с 1 по 11 классы.

6.4.3. Начальные классы размещаются в изолированном отсеке корпуса с непроходными рекреациями на 3-х этажах. Вместимость актового зала позволяет разместить его на месте бывшего спортзала школы, во втором существующем зале предусматривается физкультурный зал начальных классов.

6.4.4. В пристроенном блоке на месте перехода размещаются административные и клубные помещения, в блоке-пристройке с габаритами 36.0´15.0 м на 1-м этаже размещается столовая, на 2-м - двухсветный спортивный зал. Связь осуществляется через рекреацию по 1,2 и 3-ему этажам. Вариант позволяет полностью сохранить существующую внутреннюю планировку школы.

6.5. Реконструкция здания дошкольного учреждения типа VI-13 для размещения ДЗВИ на 10 вариативных ячеек - 200 мест (рис. 29, 30).

6.5.1. Основным принципом формирования функционально-планировочной структуры здания ДЗВИ является обеспечение возможности его использования для трех различных детских образовательных учреждений:

ДОУ на 10 групп дошкольников, или ОУ на 4 класса начальной школы и 5 групп дошкольников, или начальной школы на 8 классов.

6.5.2. В существующих блок-секциях предусмотрено объединение двух предусмотренных проектом VI-I3 смежных ячеек в одну новую, отвечающую требованиям действующих норм, что позволяет получить 6 вариативных ячеек. Дополнительные 4 ячейки размещаются в пристраиваемых к торцам здания двухэтажных объемах, по две ячейки с каждой стороны. В центральной блок-секции за счет освободившейся площади организуются универсальные залы, которые могут использоваться как обеденный и музыкальный.

6.5.3. Одноэтажная часть здания перестраивается и надстраивается. В ней размещаются помещения общего назначения. На 2-м этаже проектируется зал.

6.5.4 На втором этаже в месте примыкания пристраиваемых объемов, имеющих высоту 3,3 м, к основному зданию, имеющему высоту 2,8 м, в коридорах и рекреациях предусматриваются ступени.

6.6. Реконструкция здания дошкольного учреждения типа VI-13 для размещения дошкольного образовательного учреждения на 10 групп - 200 мест. Вариант в 2 этажа (рис. 29, 31).

6.6.1. Реконструкция здания как и в предыдущем решении (6.5) осуществляется пристраиванием двухэтажных блоков по торцам и надстраиванием одноэтажной части здания до двух этажей. Высота первого этажа пристраиваемых объектов принята равной высоте этажей существующего здания - 2,8 м. Для компенсации понижения высоты площадь групповых в этих объемах принята повышенной и равной площади групповых в существующем здании.

6.6.2. В существующем объеме ячейки формируются путем объединения двух смежных (предусмотренных проектом VI-13) в одну новую, соответствующую действующим нормам, что позволяет получить 6 полноценных универсальных ячеек. Дополнительные 4 универсальные ячейки проектируются в пристраиваемых блоках.

В надстраиваемой одноэтажной части здания осуществляется перепланировка с размещением помещений общего назначения, на втором этаже в надстройке - зал.

6.7. Реконструкция здания дошкольного учреждения, типа УI-13 для размещения дошкольного образовательного учреждения на 10 групп - 200 мест. Вариант в 3 этажа (рис. 29, 32).

6.7.1. Реконструкция здания осуществляется за счет надстроек. Этот вариант наиболее целесообразен для затесненных участков. В блок-секциях существующего здания две смежные групповые ячейки объединяются в одну новую, соответствующую действующим нормам, что обеспечивает наличие 6 полноценных универсальных универсальных ячеек. Для получения 4-х дополнительных ячеек двухэтажные блоки надстраиваются до 3-х этажей и объединяются дополнительными объемами на уровне третьего этажа. Планировка третьего этажа обеспечивает доступ из каждой ячейки к двум противоположным лестничным клеткам. Суммарная высота первого и второго этажей позволяет обеспечить проезд во внутренний дворик.

6.7.2. В центральной блок-секции предусматриваются универсальные залы. На первом этаже блока общих помещений осуществляется перепланировка.

6.8. Реконструкция здания дошкольного учреждения типа 2МГ-04-3 для размещения дошкольного образовательного учреждения комбинированного вида на 6 групп общеразвивающих и 4 группы развития - 200 мест (рис. 29, 33).

6.8.1. Реконструкция не предусматривает радикального реформирования здания в связи с его жесткой объемно-планировочной и конструктивной структурой, исключающей пристройку дополнительных объемов.

6.8.2. Предлагаемое решение направлено на обеспечение максимальной вместимости здания исключительно за счет его функционального использования с включением в состав учреждения 4-х групп развития, не нуждающихся в спальных, и организацией универсальных ячеек с многофункциональным назначением.

6.8.3. Универсальные групповые ячейки с помещением площадью 95.0 м2 располагаются в торцах здания на первом и втором этажах. На первом этаже центральной части здания проектируются ячейки групп развития, а на втором этаже - формируются полноценные универсальные ячейки со спальнями для общеразвивающих групп. На освободившейся площади размещаются административные помещения.

6.8.4. В надстраиваемой двухэтажной части здания на третьем этаже располагаются универсальные залы. Организация трех залов позволяет обеспечить их посещение всеми воспитанниками без перемещения по третьему этажу, где расположена хозяйственная зона учреждения. При необходимости в залах могут размещаться дополнительные группы развития.

Рис. 11 Примеры генпланов участков с размещением пристраиваемых объемов к реконструируемым зданиям школ типа МЮ в квартале 81 Хорошево-Мневники.

А - реконструкция для школы на 33 класса 825 учащихся
Б - реконструкция для школы на 33 класса 990 учащихся
1 - существующее здание; 2 - пристраиваемые объемы

Рис. 12 Пример архитектурно-планировочного решения реконструкции здания школы типа МЮ для школы на 33 класса 825 учащихся План 1 этажа

А - существующее здание; Б - пристраиваемые объемы
1 - вестибюль с гардеробом; 2 - мастерские; 3 - административные помещения;
4 - медицинские помещения; 5 - санузлы; 6 - блок начальных классов; 7 - рекреация;
8 - библиотека; 9 - кружковая; 10 - столовая.

Рис. 13 Пример архитектурно-планировочного решения реконструкции здания школы типа МЮ для школы на 33 класса 825 учащихся. План 2 этажа

А - существующее здание; Б - пристраиваемые объемы
1 - учебный кабинет; 2 - рекреация; 3 - санузел; 4 - блок начальных классов;
5 - рекреации; 6 - актовый зал; 7 – спортзал

Рис. 14 Пример архитектурно-планировочного решения реконструкции здания школы типа МЮ для школы на 33 класса 825 учащихся. План 3 этажа

А - существующее здание; Б - пристраиваемые объемы
1 - учебный кабинет; 2 - рекреация; 3 - санузел; 4 - ресурсная;
5 - блок начальных классов; 6 -технический центр

Рис. 15 Пример архитектурно-планировочного решения реконструкции здания школы типа МЮ для школы на 33 класса 825 учащихся. Планы 4 и 5 этажей.

А - существующее здание; Б - пристраиваемые объемы.
1 - лаборатория; 2 - универсальный кабинет; 3 - рекреация;
4 - санузел; 5 - учебный кабинет; 6 - ресурсная

Рис. 16 Пример архитектурно-планировочного решения реконструкции здания школы типа МЮ для школы на 33 класса 990 учащихся. План I этажа

А - существующее здание; Б - пристраиваемые объемы.
1 - вестибюль с гардеробом; 2 - универсальный кабинет; 3 -мастерская;
4 - административные помещения; 5 - медицинские помещения;
6 - санузел; 7 - блок начальных классов; 8 - рекреация;
9 - универсальный кабинет; 10 - библиотека; 11 - столовая

Рис. 17 Пример архитектурно-планировочного решения реконструкции здания школы типа МЮ для школы на 33 класса 990 учащихся. План 2 этажа

А - существующее здание; Б - пристраиваемые объемы.
1 - учебный кабинет; 2 - рекреация; 3 - санузел;
4 - блок начальных классов; 5 - изостудия; 6 - актовый зал;
7 - универсальный кабинет; 8 - спортзал

Рис. 18 Пример архитектурно-планировочного решения реконструкции здания школы типа МЮ для школы на 33 класса 990 учащихся. План 3 этажа

А - существующее здание; Б - пристраиваемые объемы
1 - учебный кабинет; 2 - рекреация; 3 - санузел;
4 - блок начальных классов; 5 - техцентр;
6 - кружковая; 7 - раздевальная

Рис. 19 Пример архитектурно-планировочного решения реконструкции здания школы типа МЮ для школы на 33 класса 990 учащихся. Планы 4 и 5 этажей.

А - существующее здание; Б - пристраиваемые объемы
1 - лаборатория; 2 - универсальный кабинет; 3 - ресурсная;
4 - санузел; 5 - учебный кабинет

Рис. 20 Примеры генпланов участков с размещением пристраиваемых объемов к реконструируемым зданиям школ типа 65-426.1 в квартале 81 Хорошево-Мневники.

А - реконструкция для школы на 33 класса 825 учащихся
Б - реконструкция для школы на 33 класса 990 учащихся
1 - существующее здание; 2 - пристраиваемые объемы

Рис. 21 Пример архитектурно-планировочного решения реконструкции здания школы типа 65-426.1 для школы на 33 класса 825 учащихся. План 1 этажа.

А - существующее здание; Б - пристраиваемые объемы
1 - вестибюль с гардеробом; 2 - класс начальной школы;
3 - рекреация; 4 - санузел; 5 - помещение продленного дня;
6 -административное помещение; 7 - медицинское помещение;
8 -мастерские; 9 - столовая

Рис. 22 Пример архитектурно-планировочного решения реконструкции здания школы типа 65-426.1 для школы на 33 класса 825 учащихся. План 2 этажа.

А - существующее здание; Б - пристраиваемые объемы 1 - класс начальной школы;
2 - учебный кабинет; 3 -лаборатория; 4 - рекреация;
5 - санузел; 6 - библиотека; 7 - методкабинет; 8 - актовый зал;
9 - физкультурный зал; 10 - спортзал

Рис. 23 Пример архитектурно-планировочного решения реконструкции здания школы типа 65-426.1 для школы на 33 класса 825 учащихся. План 3 этажа.

А - существующее здание; Б - пристраиваемые объемы
1 - класс начальной школы; 2 - учебный кабинет;
3 - лаборатория; 4 - рекреация; 5 - санузел;
6 - техцентр; 7 - кружковая; 8 - раздевальная

Рис. 24 Пример архитектурно-планировочного решения реконструкции здания школы типа 65-426.1 для школы на 33 класса 825 учащихся. План 4 этажа.

А - существующее здание; Б - пристраиваемые объемы; В - надстройка.
1 - учебный кабинет; 2 - лаборатория; 3 - рекреация;
4 - санузел; 5 - изостудия

Рис. 25 Пример архитектурно-планировочного решения реконструкции здания школы типа 65-426.1 для школы на 33 класса 990 учащихся. План 1 этажа.

А - существующее здание; Б - пристраиваемые объемы
1 - вестибюль с гардеробом; 2 - учебный кабинет;
3 -лаборатория; 4 - административное помещение;
5 - медицинские помещения; 6 - рекреация;
7 - санузел; 8 - мастерская; 9 - столовая (обеденный зал);
10 - столовая (кухня); 11 - блок начальных классов.

Рис. 26 Пример архитектурно-планировочного решения реконструкции здания школы типа 65-426.1 для школы на 33 класса 990 учащихся. План 2 этажа.

А - существующее здание; Б - пристраиваемые объемы
1 - учебный кабинет; 2 - лаборатория; 3 - кружковая;
4 -рекреация; 5 - санузел; 6 - учительская; 7 - актовый зал;
8 - зал хореографии; 9 - физкультурный зал; 10 - спортзал;
11 - блок начальных классов.

Рис. 27 Пример архитектурно-планировочного решения реконструкции здания школы типа 65-426.1 для школы на 33 класса 990 учащихся. План 3 этажа.

А - существующее здание; Б - пристраиваемые объемы
1 - учебный кабинет; 2 - лаборатория; 3 - рекреация;
4 - санузел; 5 - техцентр; 6 - библиотека; 7 - блок начальных классов

Рис. 28 Пример архитектурно-планировочного решения реконструкции здания школы типа 65-426.1 для школы на 33 класса 990 учащихся. План 4 этажа.

А - существующее здание; Б - пристраиваемые объемы; В – надстройка;
1 - учебный кабинет; 2 - лаборатория; 3 - рекреация; 4 -санузел.

Рис. 29 Примеры генпланов участков с размещением пристраиваемых объемов к реконструируемым зданиям детских садов типа УI-13 в квартале 81 Хорошево-Мневники

А - реконструкция для ДЗВИ или ДОУ на 10 групп 200 мест
Б - реконструкция для ДОУ на 10 групп 200 мест
1 - существующее здание; 2 - пристраиваемые объемы.

план 2 этажа.

план 1 этажа

Рис. 30 Пример архитектурно-планировочного решения реконструкции здания детского сада типа VI-13 для ДЗВИ на 10 ячеек 200 мест Планы 1 и 2 этажей

А - существующее здание; Б - пристраиваемые объемы; В - надстройка;
1 - вариативное помещение групповая-класс; 2 - вариативное помещение спальная-класс;
3 - раздевальная; 4 - туалетная; 5 - вариативное помещение групповая-помещение отдыха;
6 - вариативное помещение спальная-помещение отдыха; 7 - универсальный зал;
8 - пищеблок; 9 - административные, медицинские, служебные помещения;
10 - физкультурный зал

план 2 этажа

план 1 этажа

Рис. 31 Пример архитектурно-планировочного решения реконструкции здания детского сада типа УI-13 для ДОУ на 10 групп 200 мест. Планы 1 и 2 этажей.

А - существующее здание; Б - пристраиваемые объемы; В – надстройка;
1 - групповая; 2 - спальная; 3 - раздевальная; 4 - туалетная;
5 - универсальный кабинет; 6 - административные, медицинские, служебные помещения;

7 - универсальный зал.

план 3 этажа

план 2 этажа

план 1 этажа

Рис 32 Пример архитектурно-планировочного решения реконструкции здания детского сада типа УI-13 для ДОУ на 10 групп 200 мест (для затесненных участков). Планы 1, 2 и 3 этажей.

А - существующее здание; Б - пристраиваемые объемы; В – надстройка;
1 - групповая; 2 - спальная; 3 - раздевальная, 4 - туалетная;
5 - универсальное помещение; 6 - универсальный зал;
7 - пищеблок; 8 - административные, медицинские, служебные помещения

план 3 этажа

план 2 этажа

план 1 этажа

Рис. 33 Пример архитектурно-планировочного решения реконструкции здания детского сада типа 2МГ-04-3 для ДОУ на 10 групп 200 мест Планы 1, 2 и 3 этажей.

А - существующее здание; Б – надстройка;
1 - универсальная групповая; 2 - групповая;
3 - спальная; 4 - раздевальная; 5 - туалетная;
6 - кабинет методцентра; 7 - универсальный зал;
8 - помещение пищеблока; 9 - прачечная;
10 – медпомещение.

ТАБЛИЦА 10

ТЕХНИКО - ЭКОНОМИЧЕСКИЕ ПОКАЗАТЕЛИ АРХИТЕКТУРНО-ПЛАНИРОВОЧНЫХ РЕШЕНИЙ РЕКОНСТРУКЦИИ ЗДАНИЙ ШКОЛ НА ПРИМЕРЕ РАЙОНА ХОРОШЕВО - МНЕВНИКИ КВ. 81

№ № п/п

Показатели

Реконструкция школы типа МЮ

Реконструкция школы типа 65-426

Проектируемый тип учреждения: полная средняя школа

33 кл. - 825 уч.

33 кл. - 990 уч.

33 кл. - 825 уч.

33 кл. - 990 уч.

1

Строительный объем в т.ч.:

38241

41550

34531

38637

- существующего здания

16851

16851

20023

20023

- пристраиваемых блоков

21390

24699

11045

15151

- надстроенной части

-

-

3463

3463

2

Расчетная площадь в т.ч.:

7266

7890

6804

7912

- существующего здания

3063

3063

3688

3688

- пристраиваемых блоков

4203

4827

2255

3363

-надстроенной части

-

-

861

861

3

Общая площадь в т.ч.:

8878

9746

8491

9598

- существующего здания

3642

3642

4635

4635

- пристраиваемых блоков

5236

6104

2858

3965

- надстроенной части

-

-

998

998

4

Расчетная площадь на 1 уч.

8,8

8,0

8,25

8,0

5

Общая площадь на 1 уч.

10,76

9,85

10,29

9,7

6

К = Sобщ. / Sрас.

1,22

1,235

1,25

1,213

ТАБЛИЦА 11

ТЕХНИКО - ЭКОНОМИЧЕСКИЕ ПОКАЗАТЕЛИ АРХИТЕКТУРНО-ПЛАНИРОВОЧНЫХ РЕШЕНИЙ РЕКОНСТРУКЦИИ ЗДАНИЙ ДОШКОЛЬНЫХ УЧРЕЖДЕНИЙ НА ПРИМЕРЕ РАЙОНА ХОРОШЕВО-МНЕВНИКИ КВ. 81

№ п/п

Показатели

Реконструируемое здание ДУ типa VI-13

Реконструируемое здание ДУ типа 2МГ-04-3

Проектируемый тип учреждения:

ДОУ
Вариант 2 эт.

ДОУ
Вариант 3 эт.

ДЗВИ

ДОУ

200 мест

200 мест

200 мест

200 мест

1

Строительный объем в т.ч.:

8362

8402

8898

8286

существующего здания

5439

5439

5439

7600

дополнительных объемов

2723

2963

3459

686

2

Расчетная площадь в т.ч.:

1961

1909

2040

1969

существующего здания

1313

1313

1313

1779

дополнительных объемов

648

606

727

190

3

Общая площадь в т.ч.:

2449

2352

2506

2523

существующего здания

1622

1622

1622

2333

дополнительных объемов

827

730

884

190

4

Расчетная площадь на 1 место

9,8

9,5

10,2

9,8

5

Общая площадь на 1 место

12,2

11,7

12,5

12,6

6

К = Sобщ. / Sрас.

1,25

1,23

1,22

1,28

Примечание:

Удельные показатели определены с учетом пониженной высоты этажей существующих зданий и лимита 13.0 м2 общей площади на 1 место.

9. СОКРАЩЕНИЯ И УСЛОВНЫЕ ОБОЗНАЧЕНИЯ

ЭПЗ

- эскизный проект застройки

ОУ

- образовательное учреждение

ДУ

- дошкольное учреждение

ДОУ

- дошкольное образовательное учреждение

ДЗВИ

- дошкольное здание вариативного использования

НШ

- начальная школа

ОШ

- основная школа

СШ

- старшая школа

- стены существующего здания

- стены дополнительных объемов

- демонтируемые перегородки

 




Яндекс цитирования



   Copyright © 2007-2026,  www.tehlit.ru.

[ ѓосты, стандарты, нормативы, инструкции, правила, строительные нормы ]