//
|
|
ВРЕМЕННАЯ МЕТОДИКА огневых испытаний наружных ненесущих (в том числе навесных) стен со
Москва, 2008 г. Пояснительная запискаНастоящая «Временная методика» разработана для определения огнестойкости и пожарной опасности (далее по тексту пожарно-технических характеристик) наружных ненесущих навесных стен на основе стоечно-ригельных систем, а также других видов наружных ненесущих стен каркасного типа со светопрозрачными элементами. Необходимость и актуальность разработки предлагаемой методики обусловлена следующим. В действующих противопожарных нормах к наружным ненесущим (в том числе навесным) стенам предъявляются требования к их пределам огнестойкости по признаку Е (целостности) и классу пожарной опасности. При этом предел огнестойкости этих конструкций устанавливается испытаниями по ГОСТ 30247.1. Однако, в области применения этого стандарта указано, что огневые испытания должны проводиться с применением образцов конструкций без проемов. Для традиционных наружных ненесущих стен зданий, выполненных из традиционных материалов с достаточно массивными поперечными сечениями, применение ГОСТ 30247.1 в известной степени можно считать допустимым, поскольку, в этих конструкциях применяются, как правило, негорючие материалы с достаточно высокими термомеханическими характеристиками, в том числе с внешней стороны стен. Для этих конструкций характерно наличие достаточно высоких простенков между смежными по высоте оконными проемами. Однако, для широко применяемых в настоящее время в строительстве наружных ненесущих стен, выполненных на основе стоечно-ригельных систем из тонкостенных стальных или алюминиевых профилей, схема испытаний конструкций (без проемов) по ГОСТ 30247.1 становится не корректной. Это объясняется конструктивной особенностью таких стен и номенклатурой применяемых в них материалов и изделий. Конструктивной особенностью этих стен является то, что все элементы каркаса (стойки и ригели) с внешней (фасадной) стороны являются открытыми. Элементы заполнения каркаса, образующие собственно сами стены, тоже расположены с внешней стороны и их крепление к каркасу также осуществляется с внешней стороны. Существуют конструкции стен с отнесенными от плоскости стен дополнительными экранами из стекла (т.н. двойные светопрозрачные фасадные системы), а также их комбинация с классическими навесными фасадными системами с воздушным зазором. В качестве элементов заполнения каркаса этих конструкций широко применяются стекло и изделия из него, облицовки из стали, алюминия и их сочетание, трехслойные композитные изделия, листовые неметаллические материалы и т.п. Для крепления элементов заполнения в этих стенах применяются как механические, так и клеевые соединения. Таким образом, эти конструкции характеризуются большим разнообразием как конструктивных решений, так и разнообразием применяемых в них материалов и изделий с различными физико-механическими, термомеханическими и пожарно-техническими свойствами. В случае пожара эти конструкции после разрушения остекления (светопрозрачного участка) и выхода факела пламени на фасад здания будут испытывать в пределах этажа пожара трехстороннее огневое воздействие (со стороны помещения с очагом пожара, с торца и с наружной стороны) и одностороннее огневое воздействие с наружной стороны в пределах этажа, расположенного над очагом пожара. Учитывая незащищенность металлического каркаса стен с наружной стороны в условиях трехстороннего огневого (теплового) воздействия следует ожидать сначала высокую деформативность каркаса, которая может привести к разрушению и выпадению элементов его заполнения, а в дальнейшем возможное последующее разрушение самого каркаса стены. Кроме того, также вызывает трудности определение класса пожарной опасности этих конструкций в рамках действующих стандартных методов испытаний. Класс пожарной опасности наружных стен с внешней стороны определяется в соответствие с ГОСТ 31251 «Конструкции строительные. Методы определения пожарной опасности. Стены наружные с внешней стороны». Методикой испытаний по этому ГОСТ предусматривается монтаж образцов конструкций навесных фасадных систем на фрагменте стены из негорючих материалов толщиной не менее 200 мм, имеющей оконные проемы. Таким образом, схема испытаний по этому ГОСТ предполагает наличие капитальных стен, которые защищают испытываемые конструкции со стороны очага пожара. На основании изложенного следует, что оценить огнестойкость по ГОСТ 30247.1 и класс пожарной опасности по ГОСТ 31251 наружных ненесущих (в т.ч. навесных) стен стоечно-ригельной конструкции не представляется возможным. В предлагаемой «Временной методике» определение пожарно-технических характеристик наружных ненесущих стен на основе стоечно-ригельных систем и других типов каркасных стен из легких эффективных материалов предлагается определять двумя методами испытаний, которые последовательно реализуют две схемы огневого воздействия на эти конструкции в процессе пожара в здании. Первая схема огневого воздействия на конструкцию реализует одностороннее тепловое воздействие на конструкцию в очаге пожара, вторая схема - тепловое воздействие на конструкцию после разрушения остекления и выхода факела на фасад здания. Для реализации первой схемы теплового воздействия на конструкцию предлагается использование ГОСТ 30247.1. Целью испытания по этому методу является определение времени разрушения остекления (светопрозрачного заполнения) стены и выхода факела пламени на фасад здания. Для реализации второй схемы огневого воздействия на конструкцию предлагается метод испытания, основанный на использовании двухэтажной установки, имитирующей два этажа здания - этаж пожара и этаж над этажом пожара. Целью испытаний по второму методу является определение времени, в течение которого конструкция сопротивляется распространению пожара на вышерасположенный этаж, т.е. времени проявления предельных состояний по огнестойкости любого элемента стены в пределах второго этажа. Таким образом, огнестойкость конструкции по данной «Временной методике» предлагается определять как сумму времени до разрушения светопрозрачного заполнения стены в очаге пожара, определяемому по ГОСТ 30247.1, и времени проявления предельных состояний по огнестойкости любого элемента стены в пределах этажа, расположенного над этажом пожара при испытании по второму методу. В тексте «Временной методики» этим методам испытаний присвоены наименования метод I и метод II соответственно. Для обеспечения объективности получаемых результатов огневых испытаний и по методу I и по методу II «Временной методики» принципиально важен выбор теплового режима испытаний в этих методах испытаний. В методе I, который практически идентичен методу испытаний ограждающих конструкций по ГОСТ 30247.1 (отличие заключается в том, что конструкции испытываются с проемом и с заполнением проема), используется температурно-временной режим, применяемый при огневых испытаниях строительных конструкций по ГОСТ 30247.0. В методе II, по мнению авторов, следует применять температурный режим испытаний практически идентичный температурному режиму, принятому в ГОСТ 31251, а в качестве пожарной нагрузки для создания огневого воздействия следует принять древесину. Выбор этого вида пожарной нагрузки и теплового воздействия в методе II и, соответственно, температурного режима испытаний обусловлен результатами и накопленным опытом натурных огневых испытаний систем наружного утепления фасадов зданий на трехэтажном фрагменте здания в рамках отработки ГОСТ 31251 в соответствии с «Временной методикой огневых испытаний систем наружного утепления», согласованной Госстроем России и ГУГПС МЧС России в 1996 г. Результаты этих исследований, по мнению авторов, позволяют миновать стадию натурных огневых испытаний наружных ненесущих стен, предусмотренных п. 5.20* СНиП 21-01-97* (и в соответствие с НПБ 233), и непосредственно перейти к испытаниям наружных стен по предлагаемому методу II. Кроме того, в данном методе испытания предлагается использование образцов конструкций в натуральную величину (размеры образцов не менее 3600*4200 мм (высота * ширина)) и тепловое воздействии, соответствующее тепловому воздействию при натурных огневых испытаниях наружных стен. Практически это означает, что метод II можно рассматривать как натурный метод огневых испытаний наружных ненесущих стен в условиях «реального» огневого воздействия. Продолжительность теплового воздействия при испытаниях наружных стен по методу II во «Временной методике» предлагается определять исходя из принципа соблюдения равной огнестойкости субъектов системы «стена-перекрытие», т.е. исходя из результатов испытаний конструкции стены по методу I и будущей области применения стены (в конечном итоге пределами огнестойкости перекрытий). Это позволит при нормировании пределов огнестойкости этих конструкций соотнести их огнестойкость, определяемую по настоящей «Временной методике», с нормируемыми пределами огнестойкости междуэтажных перекрытий, устанавливаемыми в зависимости от степени огнестойкости зданий. По мнению авторов «Временной методики», максимальная огнестойкость наружных ненесущих стен, определяемая по методам I и II, должна ограничиваться значением 60 минут, т.к. продолжительность пожаров в зданиях при величинах пожарной нагрузки до 1000 МДж/м2 и типовых значениях проемности помещений, не превышает этой величины. Вследствие того, что схема теплового (огневого) воздействия на конструкцию наружной стены и температурный режим по методу II практически полностью аналогичны применяемым в ГОСТ 31251, то в процессе проведения огневых испытаний по этому методу возможно определение и параметров конструкции, которые определяют ее пожарную опасность: - наличие/отсутствие вторичных источников зажигания; - наличие/отсутствие падающих элементов фасада и значение их массы; - наличие/отсутствие повреждения горючих элементов конструкции и его размеры. Во «Временную методику» в качестве методов идентификационного контроля материалов, применяемых в испытываемых конструкциях, наряду с методом контроля по приложению А ГОСТ 31251 вводится новый метод - определение низшей теплоты сгорания материалов по методу определения теплотворной способности материалов согласно EN ISO 1716: 2002. «Reaction to fire test for building products - Determinations of the heat of combustion». Введение этого метода позволит получить численные значения физических величин материалов, что в конечном итоге даст не только новый объем важной информации, но и повысит качество и надежность идентификации применяемых в конструкциях материалов. Таким образом, по мнению авторов, разработанная «Временная методика» огневых испытаний позволяет достаточно объективно определить огнестойкость и класс пожарной опасности наружных ненесущих (в том числе навесных) стен. Вместе с тем существует ряд вопросов методологии проведения огневых испытаний этих конструкций, ответы на которые могут быть даны только после проведения огневых испытаний по данной методике. Поэтому на первом этапе освоения этой методики предполагается участие в испытаниях комиссии из представителей Росстроя, ГУГПС МЧС России, УГПС МЧС г. Москвы, ЦНИИСК им. В.А. Кучеренко и ВНИИПО МЧС России с целью обсуждения полученных результатов испытаний и выработки решений по вопросам проведения и оценке результатов испытаний. А.В. Пестрицкий В.Г. Зигерн-Корн И.С. МолчадскийА.А. Гусев Содержание1 Область применения1.1 Настоящий документ устанавливает временную методику определения показателей огнестойкости и пожарной опасности (далее - пожарно-технических характеристик) наружных ненесущих (в т.ч. навесных) стен с проемами (светопрозрачными участками любых размеров) при воздействии пожара, как со стороны внутреннего объема здания, так и с внешней стороны здания. Испытаниям по данной временной методике подлежат все виды наружных ненесущих (в т.ч. навесных) стен выполненных на каркасе из тонкостенных профилированных элементов из стали или алюминиевых сплавов, дерева, пластмасс и их комбинаций; с любыми видами облицовки или заполнения каркаса стен с внешней стороны, со светопрозрачными участками любых размеров; конструкции стен смешанного типа: стены каркасного типа в комбинации с навесными фасадными системами с воздушным зазором или системами наружного утепления фасадов зданий; все виды стен с отнесенными от основной плоскости фасада экранами из стекла (т.н. двойные светопрозрачные фасадные системы). Настоящая временная методика при согласовании в установленном порядке может быть использована для определения пожарно-технических характеристик и других видов наружных ограждающих конструкций или иных, в том числе декоративных, конструкций и элементов, технические решения которых или применяемые в них материалы и изделия, а также варианты и способы их применения могут способствовать распространению пожара с наружной стороны здания. 1.2 Настоящая временная методика распространяется на наружные ненесущие вертикальные и наклонные (с углом наклона не более 45 ° от вертикали наружу) стены. 1.3 Установленные по данной временной методике пожарно-технические характеристики наружных ненесущих (в т.ч. навесных) стен могут использоваться проектными, строительными и надзорными органами при применении этих конструкций в строительстве. 1.4 Настоящая временная методика не распространяется: - на оценку нормируемых пожарно-технических характеристик светопрозрачных противопожарных преград, перегородок и на заполнения светопрозрачных проемов в противопожарных преградах. 2 Нормативные ссылкиВ настоящей временной методике использованы ссылки на следующие нормативные документы: ГОСТ 12.1.033-81 ССБТ. «Пожарная безопасность. Термины и определения» ГОСТ 30247.1-94 «Конструкции строительные. Методы испытаний на огнестойкость. Несущие и ограждающие конструкции» ГОСТ 30403-96 «Конструкции строительные. Метод определения пожарной опасности» ГОСТ 31251-2003 «Конструкции строительные. Методы определения пожарной опасности. Наружные стены с внешней стороны» СТ СЭВ 383-87 «Пожарная безопасность в строительстве. Термины и определения» СНиП 21-01-97* «Пожарная безопасность зданий и сооружений». EN ISO 1716: 2002. «Reaction to fire test for building products - Determinations of the heat of combustion». 3 ОпределенияВ настоящем документе приняты термины и определения, приведенные в СТ СЭВ 383, ГОСТ 12.1.033, а также следующие термины и их определения. 3.1 Наружная ненесущая (в т.ч. навесная) стена - ограждающая конструкция здания воспринимающая нагрузку от собственного веса и ветровую нагрузку и передающая эту нагрузку на несущие конструкции здания. 3.2 Светопрозрачное заполнение стены - участок (часть) стены с коэффициентом светопропускания более 0. 3.3 Междуэтажный пояс наружной ненесущей (в т.ч. навесной) стены - «глухая» часть наружной ненесущей (в т.ч. навесной) стены проектной высоты, непосредственно примыкающая к перекрытию здания и расположенная между смежным по высоте светопрозрачными участками стены. 3.4 Огнестойкость наружных ненесущих стен (в минутах) - сумма предела огнестойкости стены при испытании по методу I и минимального времени наступления любого признака предельного состояния по огнестойкости, регламентируемого данной временной методикой и определяемого по методу II. 3.5 Класс пожарной опасности наружной ненесущей стены - показатель пожарной опасности конструкции, устанавливаемый по критериям ГОСТ 31251, за исключением критерия, регламентируемого им по п. 10.1 а). 4 Основные положения4.1 Сущность метода заключается в определении показателей пожарно-технических характеристик наружных ненесущих (в т.ч. навесных) стен (огнестойкости и класса пожарной опасности) при испытании в условиях, установленных настоящей методикой в течение времени, определяемого нормативными требованиями к пределу огнестойкости перекрытий зданий, но не более 60 минут. 4.2. Временная методика включает два метода огневых испытаний - метод испытания I и метод испытания II. 4.3. Огнестойкость наружных ненесущих (в т.ч. навесных) стен устанавливается последовательно при испытаниях по методу I и методу II. 4.3.1. Испытания по методу I проводятся в соответствие с требованиями ГОСТ 30247.1. со следующими изменениями и дополнениями: - наружные стены испытываются со светопрозрачным заполнением стены; - наружные стены испытываются на железобетонной раме с узлами крепления согласно технической документации; - испытанию подлежит один образец; - в качестве предельного состояния конструкции по огнестойкости принимается время разрушения светопрозрачного заполнения испытываемой конструкции и выхода факела пламени на фасад здания. Размер разрушения светопрозрачного заполнения конструкций не регламентируется*. __________ *Подлежит уточнению 4.3.2. Испытания по методу II проводятся в соответствии с разделами 4-9 настоящей методики в части, относящейся к методу II. Испытания по методу II имитируют тепловое воздействие на наружные ненесущие стены здания с внешней стороны от факела пламени из проема помещения с очагом пожара после разрушения его светопрозрачного участка и выхода факела пламени на фасад здания. Испытания конструкций по методу II проводятся в условиях теплового воздействия, соответствующего требованиям калибровки установки по разделу 7. В качестве предельных состояний конструкции по огнестойкости принимаются: - потеря теплоизолирующей способности (I) и целостности (Е) по ГОСТ 30247.0 любого элемента или участка стены в пределах междуэтажного пояса, в том числе узла сопряжения стены с перекрытием здания; - потеря теплоизолирующей способности (I) элементов каркаса светопрозрачного заполнения стены, время разрушения светопрозрачного заполнения или превышение критических значений теплового излучения Wкр., проходящего сквозь светопрозрачного заполнения стены над этажом пожара (на первом этапе исследований критические значения теплового излучения Wкр. определяются загоранием занавесей-пробников из синтетических и натуральных тканей, установленных в одной плоскости с приемной). 4.3.3. Конструкции должны испытываться с узлами сопряжения с внутренними стенами и перекрытиями. 4.3.4. Огнестойкость наружной ненесущей стены определяется суммой времени разрушения светопрозрачного заполнения испытываемой конструкции, установленному при испытании по методу I (по 4.3.1), и минимального времени наступления любого признака предельного состояния конструкции по огнестойкости, устанавливаемого по методу II (по 4.3.2).
Рисунок 1a - Схема установки с образцом стены при испытании по методу I (ГОСТ 30247.1)
Рисунок 1б - Схема установки с образцом стены при испытании по методу I (ГОСТ 30247.1), разрез I-I.
Рисунок 1в - Схема установки с образцом стены при испытании по методу I (ГОСТ 30247.1), разрез II-II.
Рисунок 2а - Схема установки с образцом стены при испытании по методу II Н - высота этажа; А - высота междуэтажного пояса, В - высота светопрозрачного участка стены; С - свес междуэтажного пояса стены относительно нижней поверхности перекрытия; D - высота междуэтажного пояса над перекрытием. Е - толщина перекрытия (ригеля)
Рисунок 2б - Схема размещения средств измерения и контроля на установке с образцом конструкции стены при испытании по методу II
Рисунок 2в - Примерная схема размещения термопар и тепломеров с необогреваемой стороны образца
□ - тепломеры
Рис. 2г - Схема сопряжения образца конструкции с внутренней стеной здания (стойкой рамы) при испытании по методу I (ГОСТ 30247.1)
Рисунок 3а - Схема установки с калибровочным образцом 1 1...8 - факельные термопары Д1, Д2 - тепломеры
Рисунок 3б - Схема установки с калибровочным образцом и размещением термопар и тепломеров при калибровке установки для испытаний по методу II 4.4. Пожарная опасность конструкций определятся по методу II одновременно с определением характеристик ее огнестойкости по этому методу. В качестве показателей пожарной опасности стены принимаются показатели пожарной опасности систем наружного утепления наружных стен зданий с внешней стороны, принятые по ГОСТ 31251: - наличие/отсутствие вторичных источников зажигания; - наличие/отсутствие обрушения элементов конструкции массой более 1 кг; - наличие/отсутствие повреждения горючих материалов конструкции не выше уровней, указанных на рисунке 6. Показатель пожарной опасности конструкции, регламентируемый п. 10.1 а) ГОСТ 31251, не применяется. 4.5. Полученные по настоящей методике пожарно-технические характеристики наружных стен относятся к зданиям, для которых продолжительность пожара не превышает 60 минут. В случае несоответствия зданий этому требованию, испытательная лаборатория, руководствуясь п. 5.20* СНиП 21-01, согласовывает в установленном порядке вопрос о необходимости проведения натурных огневых испытаний фрагмента здания по НПБ 233 с вышеуказанными конструкциями для определения области их применения. 4.6. Пожарно-технические характеристики вышеуказанных наружных стен определяются на основании результатов огневых испытаний образцов их конструкций, смонтированных на фрагменте каркаса здания, выполненного из материалов, соответствующих физико-механическим характеристикам материалов конструкций зданий, для которых они будут применяться. 4.7. Испытательная лаборатория не несет ответственности за неизменность во времени показателей огнестойкости и пожарной опасности конструкций, испытанных по данной методике. 5 Оборудование для испытаний5.1. Для огневых испытаний по методу I используется стендовое оборудование по ГОСТ 30247.0. Размеры образца и схема монтажа образца испытываемой конструкции для испытаний по методу I должны соответствовать рисункам 1а и 1б. Температурный режим испытаний должен соответствовать ГОСТ 30247.0. 5.2. Для испытаний по методу II используется следующее оборудование: - установка, состоящая из печи с открытым проемом, конструкций для монтажа образца ненесущей стены, имитирующих несущие конструкции здания (перекрытия или ригели) и торцы внутренних стен 1-го и 2-го этажа; - система измерения и регистрации контролируемых параметров, включая оборудование для регистрации визуальных наблюдений - фото- или видеоаппаратуру. 5.3. Размеры установки для испытаний образцов наружных стен по методу II, схема монтажа образца испытываемой конструкции и примерные схемы размещения средств измерения должны соответствовать рисункам 2а, 2б и 2в. 5.4. Для калибровки установки при испытании по методу II следует использовать образец стены без проемов, толщиной не менее 100 мм (калибровочный образец), выполненный из негорючих материалов (бетона, железобетона, кирпича). Габаритные размеры калибровочного образца, схема его размещения на установке и схема расстановки датчиков для измерения регистрируемых параметров при калибровке показаны на рисунках 3а и 3б. 5.5. Установка должна быть выполнена таким образом, чтобы обеспечить режим теплового воздействия на калибровочный образец по требованиям раздела 7. 5.6. Перед калибровочным образцом и образцом конструкции стены на основании из негорючих материалов, кроме металлов, вплотную к передней стенке печи и на всю ширину образца следует расположить лист рубероида марки РПЭ 300 или РПП 300 (по ГОСТ 10923) шириной не менее 1,2 м. 5.7. Тепловое воздействие на калибровочный/испытываемый образец стены следует обеспечивать сжиганием древесины. Рекомендуется использование древесины хвойных пород в виде брусков длиной по размерам печи, с поперечным сечением 50*50 (±5 мм) и весовой влажностью 12-15 %. Бруски древесины должны быть уложены в штабель послойно, с взаимно перпендикулярным расположением брусков в смежных по высоте слоях. Расстояние между брусками в слое должно составлять примерно 40-60 мм. Более точное расположение брусков в слое устанавливается при калибровках установки. 5.8. Требования к системам измерения. 5.8.1 Для измерения температур факела пламени при калибровке и испытаниях образцов конструкций, а также температур на поверхности и по сечению испытываемого образца конструкции следует применять термоэлектрические преобразователи (далее - термопары), отвечающие требованиям ГОСТ 30247.0. 5.8.2 Для измерения тепловых потоков следует использовать неселективные датчики поглощенного теплового потока (далее - тепломеры) с точностью измерения не менее 20%. 5.8.3 Требования к приборам для регистрации измеряемых характеристик - по ГОСТ 31251. Интервал регистрации показаний тепломеров не должен превышать 10 с. 5.8.4 Способы и приспособления для крепления тепломеров и термопар не должны влиять на их показания. 5.9. Для накопления экспериментальных данных о влиянии лучистого теплового потока на воспламеняемость материалов различной химической природы с необогреваемой стороны испытываемого образца конструкции стены на расстоянии 100 ± 5 мм от его внутренней поверхности устанавливаются занавеси из различных по химической природе материалов (синтетические и хлопчатобумажные ткани). 6 Образцы для испытаний6.1 Испытанию по методу I подлежит один образец. Образцы испытывают при воздействии тепла со стороны, обращенной при эксплуатации к помещению. Габаритные размеры образца должны соответствовать ГОСТ 30247.1. Конструкция образца должна обеспечивать возможность размещения в огневом проеме печи не менее одного светопрозрачного элемента стены проектных размеров. В случае невозможности обеспечения этого требования, габаритные размеры светопрозрачного элемента стены устанавливаются решением испытательной лаборатории, но не менее 1,0 * 2,0 (ширина * высота) м. 6.2 Испытаниям по методу II подлежат один или два образца конструкций стен с учетом возможных вариантов технических решений (см. 6.5.1). 6.3 Вертикальные размеры образцов конструкций стен определяются высотой светопрозрачного заполнения и двойной высотой междуэтажного пояса, но не менее 3600 мм, горизонтальные - не менее 4200 мм. 6.4 Образцы испытываемых конструкций монтируются на установке в соответствии с рисунками 2 и в соответствии с технической документацией на конструкцию. 6.5.1 Один из образцов должен испытываться при минимально возможном расстоянии (свесе) нижнего горизонтального торца междуэтажного пояса образца относительно нижней поверхности имитации плиты перекрытия, другой - при максимальном. Значения этих расстояний определяет Заказчик испытаний. 6.5.2 У испытываемых образцов каркасных стен нижний горизонтальный торец, обращенный к огневому проему печи, должен быть конструктивно выполнен для варианта его сопряжения со светопрозрачным заполнением. Верхний торец образца должен быть открытым, а вертикальные торцы образца должны быть закрытыми. 6.5.3 При испытании образцов наружных стен стоечно-ригельной конструкции нижний и верхний горизонтальные торцы образца должны выполняться в конструктивном варианте исполнения сопряжения ригеля со светопрозрачным заполнением; вертикальные (боковые) торцы образца должны заканчиваться стойками. В пределах ширины открытого проема печи, над его верхним откосом должно располагаться не менее двух вертикальных стоек (несущих элементов стены стоечно-ригельной конструкции). Испытательная лаборатория с учетом технических решений конструкции стен может потребовать установку стоек в пределах площади огневого проема. 6.6 Узлы сопряжения образцов ненесущих стен с перекрытиями и имитацией торцов внутренних стен здания должны быть выполнены в соответствии с технической документацией. 6.7 Монтаж образцов испытываемой стены выполняется Заказчиком испытания. 6.8 При использовании в конструкции стены горючих (по ГОСТ 30244) материалов следует производить в процессе изготовления образцов для испытаний отбор проб этих материалов для проведения идентификационного контроля в соответствии с приложением А к ГОСТ 31251 и с приложением 1 к настоящему документу. Испытательная лаборатория в необходимых случаях имеет право проводить указанный контроль и для негорючих материалов. Отбор проб производится совместно представителями испытательной лаборатории и представителя Заказчика с составлением двустороннего акта отбора образцов. 6.9 В процессе монтажа средств измерения, предусмотренных разделом 7, по решению испытательной лаборатории на образцах могут устанавливаются дополнительные средства измерения для контроля температуры на их поверхности и по сечению, тепловых потоков, а также иных характеристик. Дополнительные средства измерения и контроля не должны влиять на пожарно-технические свойства испытываемых конструкций. 6.10 Комплект поставки образцов на испытания должен включать: - полный комплект технической документации на испытываемую конструкцию, включая чертежи примыкания стен к перекрытиям и внутренним стенам здания, чертежи открывающихся проемов светопрозрачного заполнения конструкции (системы), внутреннего и наружного угла стены, узла примыкания к карнизу кровли и цоколю здания; - спецификацию используемых материалов и изделий с указанием их пожарно-технических характеристик и соответствующих документов, а также сопроводительные документы, идентифицирующие конструкцию, материалы и изделия на стадии их изготовления и поставки; - чертеж образца испытываемой конструкции на установке для огневых испытаний (Заказчик испытаний при разработке чертежа образца должен их согласовывать с испытательной лабораторией); - инструкцию по монтажу испытываемой конструкции; - протокол огневых испытаний конструкции по методу I (для испытаний по методу II). 6.11 При передаче представителем Заказчика образцов смонтированных для проведения испытаний конструкций испытательной лаборатории обеими сторонами составляются акт о соответствии образца требованиям технической документации на испытываемую конструкцию и согласие представителя Заказчика на проведение испытаний, а также акт об отборе проб материалов для проведения идентификационного контроля материалов. 7 Калибровка установки для испытаний по методу II7.1 Цель калибровки установки по методу II - по 7.1 ГОСТ 30403. 7.2. В качестве калибровочного образца следует использовать фрагмент стены, отвечающий требованиям 5.4. Калибровку установки производят со смонтированным на ней в соответствии с рисунками 3 тепломерами Д1, Д2 и термопарами 1-8. 7.3 Тепловой режим, обеспечиваемый сжиганием пожарной нагрузки по 5.7, контролируют тепломером Д1 и термопарами 1 и 2. 7.4 Тепловой режим при калибровке для последующих испытаний конструкций наружных ненесущих стен зданий должен соответствовать следующим требованиям: 7.4.1 Температура, регистрируемая термопарой 1, должна быть в пределах, приведенных в таблице 1, а температура, регистрируемая термопарой 2, должна быть не менее 700°С в период с 10 по 60 минуты калибровки*. 7.4.2 Факел пламени из огневого проема печи установки должен выходить на фасад фрагмента стены не позднее 6 минуты калибровки и уходить внутрь печи не ранее 60 минуты. Высота светящейся части факела пламени при калибровке в период с 10 по 60 минуты должна составлять не менее 1,2* м, считая от уровня нижнего торца калибровочного образца. 7.4.3 Калибровку прекращают после снижения температуры в точке 1 до 450 °С, но не ранее чем через 75 минут после ее начала. Таблица 1
7.5 При калибровке по 7.4 среднее значение показаний плотности поглощенного теплового потока, регистрируемого тепломером Д1 в непрерывном интервале времени от 7 до 40 минуты калибровки должно составлять 12,5±2,5* кВт/м2 и ни в какой момент времени не должно превышать 20 кВт/м *. ____________ * - значение будет уточнено при калибровке установки 7.6 В процессе калибровки регистрируют условия сжигания топлива, а также показания термопар 1... 8 и тепломеров Д1 и Д2. Регистрация показаний термопар и тепломеров при калибровке должна осуществляться не реже, чем через 60 и 10 с (1 и 0,167 минут) соответственно. 7.7 При признании калибровок установки удовлетворительной составляется акт калибровок, рекомендуемая форма которого приведена в приложении В. 7.8 Частота калибровки - по 7.7 ГОСТ 30403. 8 Подготовка испытаний8.1 Подготовка испытаний по методу I включает монтаж образца испытываемой конструкции на печь, проверку приборов и оборудования, монтаж термопар и тепломеров в соответствии с разработанной схемой их расстановки. Конструкции стен по методу I испытываются только в вертикальном положении. Схема проведения испытания по методу I приведена на рисунке 1. 8.2 Подготовка к проведению испытаний по методу II включает монтаж образца испытываемой конструкции на несущие элементы установки, размещение в печи топлива в соответствие с актом калибровки, проверку приборов и оборудования, монтаж термопар и тепломеров в соответствии с разработанной схемой их расстановки. 8.3 Образец конструкции на установке монтируется таким образом, чтобы его вертикальная ось симметрии совпадала с вертикальной осью симметрии открытого проема печи, а расстояние между нижним горизонтальным торцом образца и нижним откосом огневого проема печи соответствовало высоте огневого проема, приведенного на рисунке 2. 8.4 Образцы, изготавливаемые с использованием «мокрых» процессов, к моменту испытаний должны быть выдержаны в течение времени, необходимого для достижения требуемых эксплуатационных свойств согласно технической документации на испытываемую конструкцию. 8.5 В случае применения стены с уклоном от вертикали наружу (см. 1.3), образец конструкции стены должен испытываться с конкретным значением этого уклона. В случае применения стены с уклоном от вертикали в сторону внутреннего объема здания, испытания проводят при вертикальном расположении образца стены. 8.6 Монтаж термопар и тепломеров производится в соответствии с разработанной схемой их расстановки, в том числе: - факельные термопары по 7.2; - термопары на обогреваемой поверхности (см. рис. 2а) и внутри образца испытываемой конструкции (места установки термопар определяются решением испытательной лаборатории); - термопары для измерения температуры необогреваемой горизонтальной поверхности узла сопряжения образца испытываемой конструкции с перекрытием огневой камеры печи (места установки термопар определяются решением испытательной лаборатории); - термопары для измерения температуры необогреваемой поверхности междуэтажного пояса образца испытываемой конструкции над перекрытием огневой камеры печи (см. рис. 2в; конкретные места установки термопар определяются решением испытательной лаборатории); - тепломер в нижнем уровне светопрозрачного участка испытываемого образца конструкции. Плоскость приемной поверхности тепломера В1 должна находиться на расстоянии 100 ± 5 мм от плоскости необогреваемой поверхности светопрозрачного элемента испытываемого образца конструкции (рис. 2б). Кроме того, в уровне 2-го этажа установки на расстоянии 100 ± 5 мм от плоскости необогреваемой поверхности светопрозрачного заполнения испытываемого образца конструкции должны навешиваться два полотна занавесей из синтетической и хлопчатобумажной ткани шириной 500 ± 50 мм (рис. 2б). Занавеси не должны закрывать плоскость приемной поверхности тепломера. - тепломер в уровне верхнего торца испытываемого образца конструкции. Плоскость приемной поверхности тепломера В2 должна находиться в плоскости наружной поверхности испытываемого образца конструкции. 8.7 При проведении испытаний при согласовании с Заказчиком допускается отсутствие представителя Заказчика. 9 Проведение испытаний9.1 Испытания образцов по методу I проводят в соответствие с ГОСТ 31247.1 и п. 5.1. В процессе проведения испытаний следует регистрировать параметры, указанные в п 8.2 ГОСТ 30247.0, а также время и размер разрушения светопрозрачного участка стены. Испытания по методу I прекращаются после разрушения светопрозрачного заполнения испытываемой конструкции и выхода факела пламени на фасад здания. Размер разрушения светопрозрачного заполнения конструкций не регламентируется *. ___________ *- уточняется в процессе испытаний 9.2 Испытания образцов по методу II проводят при температуре окружающего воздуха от +1 до +30 °С, скорости его движения не более 0,5 м/с и относительной влажности (60±15)%, измеренных на расстоянии от 1 до 1,5 м от поверхности образца. 9.3 Испытания проводят при использовании того топлива, его количества, расположения, способа разжигания, и при той же площади вентиляционных отверстий в печи, которые были определены при калибровке установки по разделу 7. Длительность испытания определяется по 7.4. 9.4 В процессе испытания следует регистрировать следующие параметры, события и время их реализации, которые характеризуют пожарно-технические показатели системы: а) показания факельных термопар и термопар, установленных на образце (в том числе установленных по 6.9), а также показания тепломеров В1и В2; показания термопар и тепломеров следует регистрировать с тем же интервалом времени, что и при калибровке; б) распространение горения по поверхности и/или по сечению образца; в) воспламенение газов, выделяющихся при термическом разложении материалов образца по его торцам; г) образование горящего расплава и/или частиц, приводящее к воспламенению рубероида, расположенного на основании печи; д) высоту факела пламени; е) обрушение элементов образца и их размеры; ж) потерю целостности светопрозрачного заполнения; з) загорание занавесей, установленных по 5.9. 9.5 События по 9.4а) и время их реализации фиксируются по показаниям регистрирующей аппаратуры; события 9.4б)...9.4з) - визуально и с помощью видео- или фотосъемки. 9.6 Кроме определения параметров, указанных в 9.4, в процессе испытания регистрируют: время появления и характер развития в образце трещин, отверстий, отслоений; появление, изменение цвета газообразных продуктов термического разложения материалов; появление и изменение интенсивности запахов, характерных для термического разложения органических материалов; появление пламени; изменение цвета и состояния поверхностей, а также другие особенности реакции образца на тепловое воздействие. Эти явления регистрируют визуально, органолептически и с помощью видео- или фотосъемки, а также с помощью системы измерения и регистрации параметров. 9.7 После окончания испытания образец оставляют на печи для остывания (вместе с печью) до температуры окружающей среды для последующего вскрытия конструкции и обследования. 9.8 После остывания образца проводится его обследование с целью определения и регистрации размеров и характера повреждения материалов образца. При измерении размеров повреждения необходимо обследовать все слои и элементы путем последовательного вскрытия слоев образца. 9.9 Размеры повреждения измеряются в миллиметрах в плоскости образца от нижнего горизонтального торца образца конструкции, перпендикулярно к ней, до наиболее удаленной точки повреждения образца. 9.10 Повреждением считается обугливание материалов, из которых выполнена конструкция, на глубину более 2 мм, их оплавление с признаками горения - обугливанием или образованием расплава черного цвета при светлых тонах окраски исходного материала. 9.11 Повреждением не считается изменение цвета и оплавление материалов при отсутствии признаков горения, указанных в 9.10. Не учитывается повреждение материалов толщиной менее 2 мм. 9.12 Испытания прекращаются (регистрация параметров прекращается) после снижения температуры в точке 1 ниже 450°С, но не ранее, чем через 60 минут после начала испытаний и при условии устойчивого снижения температур, измеряемых термопарами, установленными внутри и на поверхности образца. 9.13 Техника безопасности при проведении испытаний - по ГОСТ 31251. 10 Оценка результатов испытанияКонструкция стены по результатам огневых испытаний характеризуется двумя показателями: огнестойкостью (по п. 3.4) и классом пожарной опасности (по 3.5). 10.1 Огнестойкость наружных ненесущих стен (в минутах) определяется суммой предела огнестойкости стены при испытании по методу I (временем разрушения светопрозрачного заполнения испытываемой конструкции по 10.1а) и минимального времени наступления любого признака предельного состояния по огнестойкости стены при испытании по методу II (по 10.1б)…..10.1е), в том числе: а) пределом огнестойкости по признаку разрушения светопрозрачного заполнения испытываемой конструкции стены (в минутах) на этаже пожара при испытании по методу I - Е1; б) потерей теплоизолирующей способности I2 или целостности Е2 (по ГОСТ 30247.1) необогреваемой поверхности узла сопряжения образца конструкции с имитацией перекрытия; в) потерей теплоизолирующей способности I3 или целостности Е3 (по ГОСТ 30247.1) необогреваемой поверхности междуэтажного пояса образца конструкции в пределах 2-го этажа установки; г) потерей теплоизолирующей способности I4 или целостности Е4 элементов каркаса светопрозрачного заполнения образца конструкции в пределах 2-го этажа установки; д) потерей целостности Е5 элементов светопрозрачного заполнения образца конструкции в пределах 2-го этажа установки; е) временем загорания занавесей, установленных по 5.8 (или превышение значений теплового излучения W* светопрозрачного заполнения стены над этажом пожара) - tw. Условное обозначение предела огнестойкости наружной ненесущей (навесной) стены, установленное по данной временной методике обозначается как П0 = Е1 + MIN [Е2, I2, Е3, I3, E4, I4, E5, tw], где П0 - предел огнестойкости наружной ненесущей стены. 10.2 Пожарная опасность конструкции определяется: а) вторичными источниками зажигания, которые устанавливаются по реализации события 9.4 г) непрерывно в течение не менее 5 сек; б) временем обрушения хотя бы одного элемента конструкции или его части массой 1,0 кг и более; в) повреждением материалов образца по 9.9 и 9.10, 10.3 Конструкции подразделяются на классы пожарной опасности в соответствии с таблицей 2 по наименее благоприятному показателю. 10.4 Результаты испытания вертикально расположенных образцов стен распространяются на стены с уклоном от вертикали в сторону внутреннего объема здания и не распространяются на стены с уклоном от вертикали наружу. Таблица 2
11 Протокол испытаний11.1 Протокол испытаний оформляется по разделу 11 ГОСТ 30403. При этом допускается не включать в протокол данные о воспламеняемости и дымообразующей способности материалов. 11.2 К протоколу испытаний должны быть приложены протоколы идентификационного контроля материалов, применяемых при изготовлении образцов (по приложениям А ГОСТ 31251 и настоящего документа). «ПРИЛОЖЕНИЕ А»
| |||||||||||||||||||||||||||||||||||||||||||||||||||||||||||||||||||||||||||||||||||||||||||||||||||||
Образец оформления протокола определения низшей теплоты сгорания материала по методу EN ISO 1716:2002. «Reaction to fire test for building products -Determinations of the heat of combustion».______________________________________________________________________________ (Наименование организации, выполняющей испытания) ПРОТОКОЛ № _____определения низшей теплоты сгорания материала ___________________________________________ (наименование материала) 1. Заказчик: Наименование организации, адрес: 2. Полное наименование материала (ГОСТ, ТУ, № экспериментальной партии, паспорт и т.д.): __________________________________________________________________________ Испытаниям подверглись 3 образца. 3. Дата поступления образца на испытания: 4. Дата проведения испытаний: 5. Тип аппаратуры: Калориметр сгорания. 6. Наименование методики испытаний: «Материалы строительные. Метод испытания на определение теплоты сгорания». 7. Условия проведения испытаний: Таблица 1
8. Результаты проведения испытаний: Таблица 2
Qн = ΣQнi/i = 2,0028 МДж/кг. Вывод: Низшая теплота сгорания материала _____________составляет 2,0028 МДж/кг.» |
В акте калибровки должны быть приведены следующие сведения:
- дата калибровки;
- место калибровки;
- идентификационный номер установки;
- температура и влажность окружающей среды, скорость движения воздуха, измеренная на расстоянии 1-1,5 м от поверхности образца;
- вид древесины;
- масса древесины (масса пожарной нагрузки);
- весовая влажность древесины и способ ее определения (в том числе наименование прибора для измерения влажности древесины, его идентификационный номер, погрешность, время следующей аттестации);
- геометрические характеристики древесины (поперечное сечение и характерная длина);
- способ укладки древесины;
- наличие, вид, масса, расположение и способ воспламенения топлива для розжига пожарной нагрузки в печи установки;
- расположение и размеры вентиляционных отверстий печи;
- моменты времени регулирования вентиляционных отверстий и их геометрические размеры;
- фото - или видеосъемка калибровки установки, в которых должны присутствовать: съемка всех вентиляционных отверстий печи; взвешивания пожарной нагрузки (древесины), измерение ее геометрических характеристик, ее укладка, расположение топлива для разжигания пожарной нагрузки в печи установки и способ ее воспламенения.
- графики изменения температур, регистрируемые термопарами 1-7, и графики изменения плотности теплового потока, регистрируемые тепломерами Д1 и Д2.
Акт калибровки установки вместе с видео-фотоматериалами калибровки должен быть заверен руководителем испытательной лаборатории и предъявляться по первому требованию Заказчика испытаний».

Рис. 4. Пример наружной ненесущей (навесной) стены стоечно-ригельной конструкции с междуэтажным поясом

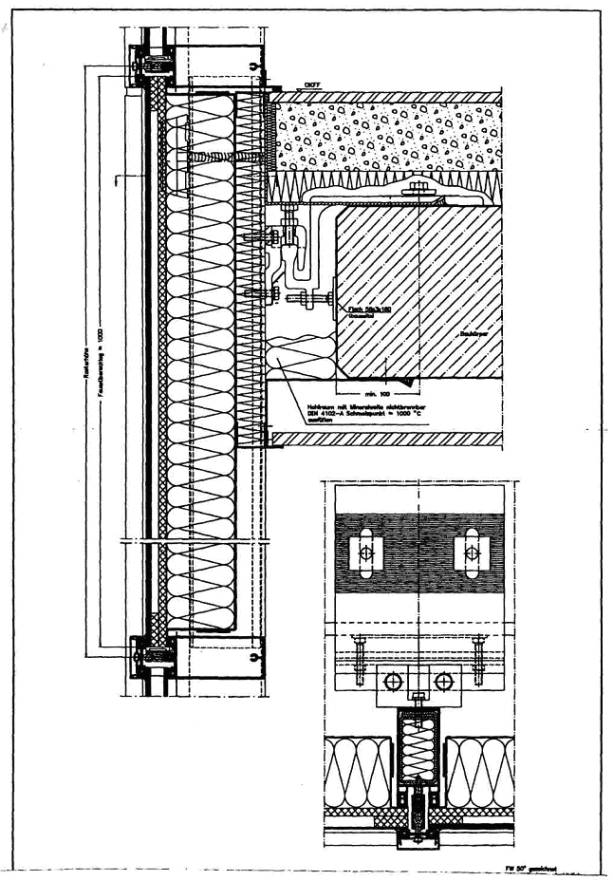
Рис. 5. Пример типового междуэтажного пояса наружной ненесущей (навесной) стены стоечно-ригельной конструкции

Рис. 6. Принципиальная схема т.н. "двойных фасадов" стоечно-ригельной конструкции
|
|
ОТКРЫТОЕ АКЦИОНЕРНОЕ ОБЩЕСТВОЦЕНТР МЕТОДОЛОГИИ
НОРМИРОВАНИЯ |
125057, г. Москва, а/я 63, Ленинградский пр-т, 63. Телефон/Факс 8-(499)-157-45-19 E-mail: gpcns_stand@mail.ru
|
29 февраля 2008 г. № 175/4 |
ДиректоруЦНИИСК им. В.А. КучеренкоЮ.П. Назарову109428, г. Москва, 2-я Институтская, 6 |
ОАО «Центр методологии нормирования и стандартизации в строительстве» рассмотрел «Временную методику огневых испытаний наружных ненесущих (в т.ч. навесных) стен со светопрозрачными элементами по определению их огнестойкости и пожарной опасности» (в редакции от февраля 2008 г.), разработанную Лабораторией противопожарных исследований института совместно со специалистами ВНИИПО МЧС России и ООО «ЦПИТЗС» и, учитывая положительные отзывы ВНИИПО МЧС России и УГПС МЧС России по г. Москве, считает целесообразным рекомендовать ее применение для оценки огнестойкости и пожарной опасности наружных ненесущих стен со светопрозрачными элементами
Огневые испытания наружных ненесущих стен по этой методике, основанной на результатах натурных испытаний, проведенных ЦНИИСК при участии ВНИИПО МЧС России в 1997-2003 г.г. в рамках «Программы натурных огневых испытаний фрагментов фасадов зданий с дополнительной наружной теплоизоляцией» (согласованной Управлением стандартизации, технического нормирования и сертификации Госстроя России 28.07.1997 г. и ГУГПС МВД России письмом № 20/2.2/1612 от 28.07.1997 г.), позволят проектным и строительным организациям, разрабатывающим и применяющим в строительстве этот вид строительной продукции, объективно оценить их огнестойкость и пожарную опасность.
Учитывая актуальность проблемы, по мере накопления опыта и результатов огневых испытаний наиболее представительных систем ограждающих конструкций этого типа, Центр считает необходимым в дальнейшем внесение соответствующих изменений или дополнений в указанную методику, а также предложений по нормированию этих конструкций.
Заместитель генерального директора В.И. Иванов
|
|
|
|