//
|
|
Методическая документация в строительстве ЗАО «ЦНИИОМТП» РЕКОМЕНДАЦИИ МДС 12-39.2008 Москва 2008 В документе содержатся рекомендации и методический пример по составлению проекта производства работ на монтаж панельного жилого высотного дома башенного типа. Документ разработан в развитие и дополнение МДС 12-81.2007. Документ разработан сотрудниками ЗАО «ЦНИИОМТП» (кандидаты техн. наук В.П. Володин, Ю.А. Корытов). Документ предназначен для проектных и строительно-монтажных организаций, разрабатывающих проекты производства работ на монтаж панельных жилых высотных домов. СодержаниеВВЕДЕНИЕВ городах России отмечается рост объемов возведения панельных высотных домов. В Москве, например, возведение таких домов в возрастающих объемах выполняют домостроительные комбинаты № 2, № 3 и другие строительные организации. Проекты производства работ являются основными организационно-технологическими документами при возведении таких домов. Проекты производства работ составляют на работы нулевого цикла и монтаж надземной части дома. В настоящем документе приводится методический пример разработки проекта производства работ на монтаж надземной части дома. Проект производства работ состоит из общего раздела и технологических карт на монтаж типового этажа, второго этажа на монолитном перекрытии, чердака и машинного помещения. Технологическая карта на монтаж типового этажа содержит полный состав и объем сведений, необходимых для производства работ. Остальные технологические карты с целью исключения повторов содержат только особенности, присущие данным этапам работ. Настоящий документ содержит рекомендации по разработке проекта производства работ в виде методического примера, в котором даны требования к составу и содержанию разделов, а также к их изложению и оформлению. Проект производства работ состоит из текстовой и графической частей. Графическая часть представлена схемами строповок, расположения ограждения опасной зоны и страховочных приспособлений, расстановки контейнеров и инвентаря на перекрытии, последовательности монтажа перекрытия, панелей на перекрытии и временного крепления сборных элементов. Настоящий методический документ предназначен для того, чтобы оказать проектной, проектно-технологической и строительной организациям помощь в разработке проекта производства работ на монтаж панельного высотного жилого дома. В основу методического документа положены результаты работ ЦНИИОМТП и других проектно-технологических институтов, а также обобщение практического опыта монтажа панельных высотных жилых домов московскими строительными организациями. 1 ПОЯСНИТЕЛЬНАЯ ЗАПИСКАПроект производства работ разработан на монтаж надземной части индивидуального жилого высотного панельного дома башенного типа. Такой дом проектируется, как правило, с первым нежилым этажом и перекрытием - из монолитного железобетона. План дома - прямоугольник,
близкий к квадрату, площадью, как правило, от 750 до Сборные элементы дома, в основном, - плиты перекрытий и покрытий, панели наружных и внутренних стен и перегородок. Панели стен и перегородок без проемов и с проемами. Внутренние панели, как правило, несущие, наружные панели - самонесущие или навесные. Панели - укрупненные (размером на одну или несколько комнат), комплексные (с установленными оконными и дверными блоками, с утеплением и кровлей на панелях покрытий). Основной материал панелей - различные виды железобетона. Панели наружных стен - однослойные или многослойные. Несущие панели внутренних стен и перегородок выполнены из тяжелого армированного бетона, а ненесущие - из легкого бетона. Плиты перекрытий изготовлены из предварительно напряженного железобетона в виде плоских сплошных или пустотелых, с каналами для электропроводки, с монтажными отверстиями для временного крепления плит и страховочных приспособлений. Размеры панелей обычно не превышают
Проект производства работ предусматривает монтаж сборных элементов типового этажа, чердака и машинного помещения, а также рассматриваются особенности монтажных работ на монолитном перекрытии. Монтажные работы производят с применением свободностоящих и приставных башенных кранов типа КБ-473 производства ОАО «Высота» (г. Ржев), КБ-581 производства ОАО «Механический завод» (г. Санкт-Петербург) и других. Проект производства работ составлен в соответствии с рекомендациями МДС 12-81.2007 и МДС 12-29.2006 и содержит общие типовые решения монтажа надземной части жилого дома. Проект разработан с учетом современных требований, предъявляемых к производству монтажных работ, а именно, к монтажу сборных элементов преимущественно с транспортных средств, и с максимальным совмещением монтажных работ с внутренними общестроительными и специальными работами, включая сборку лифтов и отделочные работы. Такие необходимые разделы проекта производства работ, как строительный генеральный план и календарный план строительства, здесь не приводятся в связи с тем, что их разработка не имеет особенностей для данного объекта и не представляет трудностей. При разработке методического примера использованы материалы организационно-технологических и опытно-конструкторских разработок ЦНИИОМТП и других институтов в области строительства, а также нормативные, методические и справочные документы. 2 ВЕДОМОСТЬ ИСПОЛЬЗОВАННЫХ ДОКУМЕНТОВ
Продолжение
3 ПОДГОТОВКА К ПРОИЗВОДСТВУ РАБОТ3.1 До начала монтажных работ
производят планировку прилегающей территории, устраивают временные дороги и площадки
для проезда и стоянки панелевозов во время разгрузки. В местах разгрузки
панелевозов у возводимого дома при сквозном проезде необходимо устраивать из
сборных железобетонных плит уширение дороги до 3.2 До начала работ по монтажу надземной части жилого дома должны быть полностью закончены все работы подготовительного периода, нулевого цикла и возведен первый нежилой этаж дома. 3.3 Для подъема и спуска рабочих в период монтажа дома и для подачи отдельных строительных материалов устанавливают грузовые или грузопассажирские подъемники, наращиваемые по ходу возведения здания. Места установки подъемников указывают на стройгенплане. Площадки вокруг установленных подъемников ограждают инвентарными ограждениями. 3.4 По проекту кранового пути согласно требованиям ГОСТ Р 51248 устраивается рельсовый путь башенного крана. После заземления, ограждения инвентарным ограждением, установки на рельсовом пути инвентарных тупиковых упоров монтируется и сдается в эксплуатацию башенный кран. 3.5 В зоне действия крана с учетом монтажа сборных элементов дома с транспортных средств организуют складскую площадку для размещения: - контейнеров с малогабаритными изделиями, сборными элементами и материалами; - контейнеров с монтажными приспособлениями, ларей с инструментом, закладными деталями и вяжущими материалами, емкостей для воды и сухой смеси и инвентаря; - складов-пирамид для хранения, в случае надобности, запаса стеновых панелей и перегородок до 10 % сменной потребности; - площадок для приготовления раствора из сухих смесей, приема раствора и бетона и хранения изделий, грузозахватных приспособлений. Площадка должна быть спланирована с учетом отвода поверхностных вод, уплотнена, а зимой - очищена от льда и снега. 3.6 Строительная площадка оснащается монтажной оснасткой, съемными грузозахватными приспособлениями, тарой и инвентарем, предусмотренными проектом производства работ и испытанными в соответствии с действующими правилами. Техническое освидетельствование съемных грузозахватных приспособлений и тары производится до ввода их в эксплуатацию и в процессе эксплуатации согласно ПБ 10-382 и МДС 12-31. 3.7 Производится геодезическая проверка точности устройства конструкций первого нежилого этажа с выполнением поэтажной схемы. 3.8 Проверяется наличие проектной документации, проектов производства работ, инструкций и нормативных документов, журналов работ с разделами по контролю качества работ и технике безопасности, комплектов актов на скрытые работы и поэтажной приемки. Должны быть оформлены приказы на ответственных лиц за безопасное производство работ кранами, за исправное состояние съемных грузозахватных приспособлений и тары, энергетических установок. 3.9 В монтажной зоне на перекрытиях каждого этажа устраивают временные ограждения опасной зоны и закрепляют страховочные приспособления (см. раздел 11.4). В монтажной зоне на перекрытиях каждого этажа с помощью башенного крана размешаются поэтажная прорабская, будка герметчика, контейнеры для монтажной оснастки и общестроительных материалов и необходимый инвентарь (см. раздел 11.5). Освещение рабочих мест обеспечивается прожекторами, установленными на поэтажных прожекторных вышках. 4 ОБЩИЕ ПОЛОЖЕНИЯ ПО ОРГАНИЗАЦИИ И ТЕХНОЛОГИИ МОНТАЖНЫХ РАБОТ. ПРОИЗВОДСТВО РАБОТ В ЗИМНЕЕ ВРЕМЯ4.1 До начала монтажных работ на каждом этаже должны быть: - завершены и приняты монтажные и сопутствующие им работы по предыдущему этажу с оформлением актов поэтажной приемки скрытых работ; - проведена геодезическая проверка точности смонтированных конструкций нижележащего этажа; - определены высотные отметки маяков для установки сборных элементов в соответствии с проектом производства геодезических работ и нанесены на перекрытия установочные риски для монтажа конструкций; - на монтажной захватке организованы рабочие места монтажников, размещены монтажные приспособления, установлены контейнеры для хранения оснастки, закладных деталей, общестроительных материалов, инвентаря, инструмента согласно Перечню (см. раздел 5); - временно ограждена опасная зона и установлены страховочные приспособления. 4.2 Растворная постель под
монтируемые сборные элементы выполняется по маякам в процессе монтажа. Маяки из
цементного раствора устанавливают по нивелиру в соответствии с отметками
монтажного горизонта. Поверхность растворной постели должна на Постель следует укладывать на опорные поверхности сплошным слоем непосредственно перед монтажом элементов и уплотнять в горизонтальных стыках давлением устанавливаемых элементов. При монтаже сборных элементов не следует допускать пустых или частично не заполненных швов. При наличии таких швов на небольших участках их необходимо подчеканить свежим раствором в процессе монтажа элемента. После окончания монтажа элементов выдавливаемые из горизонтальных швов излишки раствора следует зачищать заподлицо с лицевыми поверхностями монтируемых элементов. 4.3 Перед подъемом каждого монтажного элемента необходимо: - проверить соответствие его проектной марке; - очистить монтажный элемент от грязи, зимой - от снега и наледи, а металлические закладные детали - от наплыва бетона и ржавчины; - проверить наличие на рабочем месте необходимых соединительных деталей и вспомогательных материалов; - проверить правильность и надежность закрепления грузозахватных устройств; - поправить погнутые монтажные петли. 4.4 При монтаже сборных элементов необходимо: - поднимать и перемещать монтируемые элементы плавно, без рывков, раскачивания и вращения; - подъем
конструкций осуществлять в два приема: сначала на высоту 20- - не допускать толчков и ударов монтируемого элемента по другим ранее установленным конструкциям; - поданные к месту
установки сборные элементы опускать и принимать на высоте не более - устанавливать элементы непосредственно на опорные места по принятым ориентирам (рискам и др.) в соответствии с допусками, принятыми в проекте; - освобождать от крюка монтажного крана элемент после его надежного постоянного или временного закрепления; - до окончательного закрепления проверить правильность установки элемента и привести его в проектное положение; - освобождать установленные элементы от временных креплений только после постоянного их закрепления, предусмотренного проектом; - не допускать смещения установленных элементов после выверки их положения и снятия стропов. 4.5 Устройство постоянных на электросварке соединений сборных элементов, осуществляемых при помощи монтажных металлических накладок (связей), должно выполняться сразу после их монтажа. 4.6 Выступающие подъемные петли после проектного закрепления срезают заподлицо. Подъемные петли, находящиеся в лунках, не срезают, лунки заделывают цементным раствором. 4.7 Плиты перекрытий
следует укладывать с контролем горизонтальности по уровнемеру длиной не менее 4.8 Контроль качества монтажа сборных элементов производится в соответствии с требованиями проектной документации и СНиП 3.03.01. 4.9 Производство работ при температуре воздуха ниже -20°С не рекомендуется. Монтаж сборных элементов дома в зимнее время (при среднесуточной температуре ниже +5°С и минимальной суточной температуре ниже 0°С) должен производиться в соответствии с указаниями проекта, требований ВСН 159, ВСН 202. 4.10 В зимнее время монтаж сборных элементов выполняется с введением в раствор противоморозных химических добавок (безобогревным способом). Монтаж последующих этажей может быть разрешен после достижения раствором в горизонтальных и вертикальных стыках нижних этажей прочности, указанной в проекте. 4.11 При температуре наружного воздуха ниже -20°С следует повышать марку раствора с противоморозными добавками на одну ступень. 4.12 Раствор с противоморозными добавками при укладке в стыки сборных элементов должен иметь температуру не ниже +5°С. Для поддержания этой температуры ящики для раствора должны быть утепленные. Не допускается укладка раствора на стыкуемые поверхности сборных элементов при наличии снега и наледи на поверхностях. Для предохранения поверхностей элементов от снега и наледи стыки панелей должны быть защищены, например, переносными щитами или рулонными материалами. При образовании наледи и снега в стыках поверхности панелей следует очищать металлическими щетками или скребками, продувать сжатым воздухом. Запрещается отогревать и очищать поверхности панелей паром или горячей водой. 4.13 Следует проверять прочность раствора в зимнее время. Прочность раствора определяется по результатам испытаний на сжатие контрольных кубиков из раствора. Контрольные кубики хранятся на открытом воздухе в тех же условиях, что и раствор для монтажа дома, а эталонные - в нормальных температурно-влажностных условиях (18-20°С). 4.14 Контрольные кубики, хранящиеся на открытом воздухе испытывают сразу после их оттаивания, для чего они перед испытаниями должны находиться до 2-4 ч в нормальных условиях. 4.15 Сварку связей и закладных деталей из малоуглеродистых сталей (Ст. 3) допускается производить при температуре -30°С, среднеуглеродистых и низколегированных - не ниже -20°С. Свариваемые поверхности сборных элементов и рабочее место сварщика должны быть защищены от снега и ветра. 4.16 При температуре окружающего воздуха до -30°С необходимо: увеличивать сварочный ток на 1 % при понижении температуры воздуха от 0°С на каждые 3°С, производить предварительный подогрев свариваемых стержней арматуры и деталей до 200-250°С. Удаление дефектов в сварочных швах при соединении стержней и закладных деталей (накладками или внахлестку) следует выполнять после подогрева прилегающего участка сварного соединения до 200-250°С. Заварку участка с дефектом следует производить также после подогрева металла. 5 ПЕРЕЧЕНЬ МОНТАЖНОЙ ОСНАСТКИ, ГРУЗОЗАХВАТНЫХ ПРИСПОСОБЛЕНИЙ И ИНВЕНТАРЯ
6 СХЕМЫ СТРОПОВКИ СБОРНЫХ ЭЛЕМЕНТОВ ДОМАСхемы строповки разрабатываются на сборные элементы дома (наружные и внутренние панели и перегородки, плиты перекрытий и покрытий, блоки инженерных коммуникаций, детали шахты лифтов и т.д.) и на непроизводственные грузы (поэтажная прорабская, будка герметчика, контейнеры с монтажной оснасткой и т.д.). Схемы строповки разрабатывают по рабочим чертежам сборных элементов, с учетом их конструкции, габаритов и масс, расположения монтажных петель. Схемы строповки применяют, как правило, типовые, то есть одна схема применяется для строповки ряда однотипных элементов. Если в спецификации сборных элементов дома указывается несколько их десятков, то необходимое число схем их строповки и строповки непроизводственных грузов не превышает обычно 25. Схемы строповки нумеруют и приводят в проекте производства работ на трех-четырех листах формата А2 или A3. На рис. 1 приведены в качестве примера первые четыре (в кружках) схемы строповки, номерами 1 и 2 обозначены грузозахватные приспособления, указанные в разделе 5.
Рис. 1. Схемы строповки 7 ТАБЛИЦА МАСС И НОМЕРА СХЕМ СТРОПОВКИ НЕПРОИЗВОДСТВЕННЫХ ГРУЗОВ, ПЕРЕМЕЩАЕМЫХ БАШЕННЫМ КРАНОМ
Масса сборных элементов и номера схем их строповок указаны в соответствующих разделах технологических карт. 8 ВРЕМЕННОЕ КРЕПЛЕНИЕ МОНТИРУЕМЫХ СБОРНЫХ ЭЛЕМЕНТОВУстойчивость сборных элементов дома в процессе монтажа обеспечивается за счет временного крепления. Схемы временного крепления разрабатывают на наружные и внутренние панели, на перегородки, плиты перекрытий и покрытий, блоки инженерных коммуникаций, детали шахты лифтов и т.д. Схемы временного крепления разрабатывают по рабочим чертежам дома и сборных элементов, с учетом их конструкции, габаритов и масс, расположения монтажных петель. Схемы временного крепления применяют, как правило, типовые, то есть одна схема применяется для крепления ряда однотипных элементов. Если дом монтируется из сборных элементов нескольких десятков наименований, то схемы временного крепления разрабатывают на типовые элементы, число которых составляет не более полутора десятков. Схемы временного крепления приводят в проекте производства работ на листах формата А2 или A3. На рис. 2 приведены в качестве примера типовые схемы временного крепления наружных и внутренних панелей. Цифрами в скобках обозначены монтажные приспособления, указанные в разделе 5. Временное крепление наружных панелей осуществляется с помощью отверстий в плитах перекрытия (схема 1а) или фундаментных блоков (схема 1б). Для крепления внутренних панелей без проемов применяются подкосы с захватами и струбцинами и монтажные связи со струбцинами (схема 2). Для крепления внутренних панелей с проемами применяются опоры и монтажные связи со струбцинами (схема 3). Если временное крепление в двух точках осуществить невозможно, то в одной из точек выполняют на подвесе крюка крана постоянное крепление по проекту. Фризовые панели чердака временно закрепляют двумя подкосами (9). Внутренние панели чердака временно закрепляют с двух сторон опорами (20). Перегородки временно закрепляют стойками (21). 9 КАЧЕСТВО МОНТАЖНЫХ РАБОТ9.1 Качество монтажных работ оценивают степенью соответствия фактических и проектных (нормативных по СНиП 3.03.01, ВСН 202) показателей и параметров монтажа дома из сборных железобетонных элементов. Качество монтажных работ обеспечивается входным, операционным и приемочным контролем подготовительных и монтажных работ. 9.2 Контролируемые показатели и параметры, способы их измерения и оценки приведены ниже.
Крепление наружных панелей
Крепление внутренних панелей
Рис. 2 Типовое крепление сборных элементов 10 БЕЗОПАСНОСТЬ СТРОИТЕЛЬСТВА И ОХРАНА ОКРУЖАЮЩЕЙ СРЕДЫ10.1 При организации и проведении монтажных работ должны выполняться требования СНиП 12-03, СНиП 12-04 и ГОСТ 12.4.011. Пожарная безопасность на рабочих местах обеспечивается при соблюдении требований ППБ-01 и ГОСТ 12.1.004. Электробезопасность на рабочих местах обеспечивается в соответствии с требованиями ПОТ РМ-016. 10.2 Расположение и конструкция ограждений участков производства работ должны соответствовать требованиям ГОСТ 23407. При организации строительной площадки, размещении участков работ, рабочих мест, проездов строительных машин и транспортных средств, проходов для людей следует установить опасные зоны. 10.3 Опасные зоны должны быть обозначены знаками безопасности и надписями установленной формы в соответствии с требованиями ГОСТ 12.4.026. На границе опасных зон ставятся временные защитные ограждения в соответствии с требованиями ГОСТ 12.4.059. Схемы расположения на перекрытиях временных ограждений опасной зоны и страховочных приспособлений представлены в соответствующих разделах технологических карт. Рабочие должны быть обеспечены предохранительными поясами по ГОСТ Р 50849 и канатами страховочными по ГОСТ 12.4.107. Рабочие места и подходы к ним должны быть освещены согласно требованиям ГОСТ 12.1.046. Освещенность должна быть равномерной, без слепящего действия осветительных приборов. 10.4 Складирование материалов и изделий на приобъектном складе осуществляется в соответствии с СНиП 12-03. 10.5 Эксплуатация строительных машин, механизмов, средств малой механизации осуществляется в соответствии с инструкциями заводов-изготовителей, ГОСТ 12.3.033, СНиП 12-03. 10.6 Погрузочно-разгрузочные работы производятся согласно ГОСТ 12.3.009, СНиП 12-03, ПБ-10-382, правил ПОТ РМ-007. При выполнении погрузочно-разгрузочных работ, связанных с использованием автомобильного транспорта, должны дополнительно соблюдаться требования ПОТ Р 0-200-01. 10.7 Грузовые крюки (стропов, траверс, применяемых при производстве работ) должны быть снабжены предохранительными замками, предотвращающими самопроизвольное выпадение груза. Грузоподъемность съемных грузозахватных приспособлений, стропов и траверс должна соответствовать массе поднимаемых грузов. 10.8 Разгрузка панелевозов производится на горизонтальной ровной площадке. При работе крана машинист крана и монтажник (стропальщик) должны быть обеспечены радиопереговорными устройствами. При доставке панелей перекрытий в вертикальном положении перевод их в горизонтальное положение производится только с помощью специального грузозахватного устройства с автоматическим кантователем. 10.9 При
выполнении монтажных и других работ рабочие места и проходы к ним на высоте 10.10 Проемы в перекрытии, в том числе шахты лифтов, вентшахт и блоков, остающиеся временно незакрытыми по ходу монтажа, закрывают инвентарными сплошными щитами или ставят по периметру временные ограждения (см. раздел 5). 10.11 Работы, одновременные с монтажом, производят на разных захватках, расположенных не на одной вертикали, или в разные смены. 10.12 При монтаже сборных элементов дома следует выполнять следующие правила:
- очистку сборных элементов и их монтажных петель от грязи, ржавчины, наледи следует производить на земле до их подъема; - строповка сборных элементов производится инвентарными стропами, траверсами и грузозахватными приспособлениями заводского изготовления, указанными в разделе 5; - после строповки
груз поднимают на высоту 20- - при подъеме
сборных элементов расстояние между ними и выступающими частями смонтированных
конструкций должно быть по горизонтали не менее - сборные элементы подводят краном к месту монтажа с внешней стороны дома; - монтажники
принимают подаваемый сборный элемент тогда, когда он не доходит до места
установки на 20- - освобождать установленные сборные элементы от стропов разрешается лишь после прочного и устойчивого их закрепления (постоянного или временного) не менее чем в двух точках; - снимать временные крепления с установленных и выверенных сборных элементов можно только после их постоянного закрепления в соответствии с проектом; - монтаж сборных элементов, расстроповка, устройство креплений и заделка стыков производятся с использованием инвентарных площадок для сварщиков и монтажников; - вслед за временным закреплением сборных элементов должно быть произведено постоянное их закрепление связями, предусмотренными в проекте. 10.13 При временном закреплении панелей: подкосами за монтажные петли наружных панелей - необходимо, чтобы крюк верхнего захвата был закрыт предохранительной втулкой, а натяжная гайка должна ее плотно прижимать; с помощью монтажных опор - необходимо, чтобы оба опорных башмака опоры стояли на панелях перекрытия, установка подкладок под опорные башмаки не допускается; монтажными связями, имеющими струбцины с винтовыми зажимами, - необходимо, чтобы винты зажимов, зажимающие конструкцию, были плотно затянуты. 10.14 Электросварочные работы выполняют с учетом требований СНиП 12-03, СНиП 12-04, ГОСТ 12.3.003. Электросварочные работы на открытом воздухе во время дождя и снегопада должны быть прекращены. 10.15 При производстве монтажных работ должны быть соблюдены условия по охране окружающей среды. Выезды автотранспорта со строительной площадки должны быть оборудованы пунктами мойки колес на базе моечной установки типа М217. В Москве пункты мойки колес должны быть с замкнутым циклом водоснабжения и утилизацией стоков типа установки «Автосток». Зеленые насаждения, на которые не имеется порубочного билета, огораживаются щитами и сохраняются. Строительные отходы собирают в контейнеры и отвозят на пункты переработки. Строительные отходы от строительства в Москве должны утилизировать согласно требованиям «Технологического регламента процесса обращения с отходами строительства и сноса объекта» (см. постановление Правительства Москвы от 25.06.2002 № 469-ПП). Не допускается при уборке строительных отходов и мусора сбрасывать их с этажей без применения закрытых мусоропроводов - полиэтиленовых рукавов (лотков, желобов) и бункеров накопителей типа ООО «Метакон». Монтажные работы в ночное время суток (с 22.00 до 6.00 ч) выполняют при соблюдении ряда условий и после соответствующего разрешения органов местной власти. 11 ТЕХНОЛОГИЧЕСКАЯ КАРТА
№ 1.
| ||||||||||||||||||||||||||||||||||||||||||||||||||||||||||||||||||||||||||||||||||||||||||||||||||||||||||||||||||||||||||||||||||||||||||||||||||||||||||||||||||||||||||||||||||||||||||||||||||||||||||||||||||||||||||||||||||||||||||||||||||||||||||||||||||||||||||||||||||||||||||||||||||||||||||||||||||||||||||||||||||||||||||||||||||||||||||||||||||||||||||||||||||||||||||||||||||||||||||||||||||||||||||||||||||||||||||||||||||||||||||||||||||||||||||||||||||||||||||||||||||||||||||||||||||||||||||||||||||||||||||||||||||||||||||||||||||||||||||||||||||||||||||||||||||||||
|
Наименование сборных элементов |
Кол-во на этаж |
Масса, кг |
Номера схем |
Номера последовательности |
|
Наружные стеновые панели: |
|
|
|
|
|
ЭНТ-1л |
4 |
2520 |
1 |
1, 15, 34, 45 |
|
ЭНТ-2л |
2 |
510 |
11 |
2, 20 |
|
Ограждения балконов и лоджий: |
|
|
|
|
|
ОБ-50 |
2 |
3150 |
1 |
77, 96 |
|
... |
|
|
|
|
|
Внутренние стеновые панели: |
|
|
|
|
|
В 1840 |
4 |
4350 |
2 |
65, 114, 129, 158 |
|
В 1855 |
4 |
6500 |
1 |
66, 115, 130, 159 |
|
... |
|
|
|
|
|
Перегородки: |
|
|
|
|
|
ВП 3 |
2 |
1460 |
2 |
146, 166 |
|
... |
|
|
|
|
|
Блоки инженерных коммуникаций: |
|
|
|
|
|
ВБ-1 |
5 |
910 |
2 |
94, 101, 107, 124, 140 |
|
ШЛ 63 |
2 |
7200 |
6 |
58, 59 |
|
... |
|
|
|
|
Схему временного крепления сборных элементов разрабатывают на основе рабочих чертежей панелей и других сборных элементов, схемы последовательности их монтажа (см. раздел 11.6). При разработке схемы используют данные о крепежных приспособлениях (см. раздел 5) и типовых способах их применения (см. раздел 8). Необходимы также данные о расположении отверстий в плитах перекрытия, так как наружные панели и большинство внутренних панелей крепятся подкосами с использованием этих отверстий.
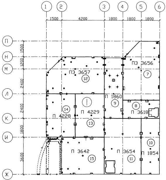
Схему составляют на плане этажа, на листе формата A3 или А2. На плане показаны сборные элементы в проектном положении. На схеме показано условное изображение и номер крепежного приспособления для каждого сборного элемента.
На рис. 8 показан фрагмент схемы на первой захватке (I). Из рис. 8 видно, как следует временно крепить наружные и внутренние панели. Так, крепление, например, наружной панели Н42 осуществляется в двух точках с помощью двух подкосов 9. Один конец подкоса вставляют в петлю панели, а другой закрепляют в плите перекрытия с помощью захвата 14 (см. схему la, рис. 2). Внутренняя панель, например, панель В1852 крепится в одной точке упомянутым подкосом 9, а в другой - опорой 19.

Рис. 8. Схема временного крепления сборных элементов
Особенность монтажа второго этажа на монолитном перекрытии возникает в том случае, если в монолитном перекрытии не предусмотрены отверстия, используемые для крепления защитного ограждения, страховочных приспособлений и временного крепления монтируемых сборных элементов этажа. В этом случае в составе подготовительных работ выполняют работы по установке на монолитном перекрытии фундаментных блоков типа ФБС-12-3-3т для устройства страховочного приспособления и блоков типа БЦС 200-1 для установки защитного ограждения, а для устройства временного крепления монтируемых сборных элементов - фундаментных блоков типа ФБС-24-4-6т и ФБС-24-5-6т по ГОСТ 13579.
Основной трос длиной
На основной трос надевают как
обычно карабины индивидуальных тросов монтажников. Вместо защитного ограждения
на базе блоков типа БЦС 200-1 в ряде случаев может быть применено обычное
сигнальное ограждение. Сигнальное ограждение ставится по периметру на
расстоянии до опасной зоны не менее
Временное крепление наружных панелей осуществляют с помощью подкосов 9 и 10 (см. раздел 5). Нижние концы подкосов при этом закрепляют за строповочные петли фундаментных блоков типа ФБС-24-4-6т и ФБС-24-5-6т (см. схему 1б, рис. 2).
В остальном состав разделов и их содержание этой технологической карты такой же, как и технологической карты № 1.
Технологическую карту разрабатывают на монтаж чердака из сборных элементов: наружных фризовых панелей, чердачных рам и кровельных плит.
Состав разделов и их содержание этой технологической карты в целом такой же, как и технологической карты № 1. Некоторые особенности имеют место при монтаже наружных фризовых панелей, чердачных рам и кровельных плит.
Монтаж чердака производят по захваткам в следующей последовательности:
- монтаж наружных фризовых панелей;
- монтаж чердачных рам, панелей стен лестнично-лифтовых узлов;
- монтаж кровельных плит.
Монтаж наружных фризовых панелей выполняют в основном аналогично монтажу панелей наружных стен жилых этажей.
Панели устанавливают по
фасаду в одной плоскости, по вертикали, не допуская перепадов наружных
поверхностей. Положение панели при монтаже определяют по шаблону, по
контрольным рискам. Панель устанавливают на опорную часть перекрытия на слой
цементного раствора М 200 толщиной до
Монтаж чердачных рам, панелей лестнично-лифтовых узлов выполняют в целом аналогично монтажу панелей внутренних стен.
Для временного в одной (торцевая рама) или в двух точках крепления чердачной рамы используют монтажные опоры 20, устанавливаемые со стороны свободных торцов панели, и монтажные связи 13, указанные в разделе 5.
Монтаж кровельных плит производят после установки, выверки и постоянного закрепления других сборных элементов на захватке. Подъем и подачу к месту укладки плит выполняют при помощи траверсы с автоматическим кантователем.
Монтаж плит начинают с укладки лотковых плит, затем укладывают остальные плиты в направлении от середины к краям, соблюдая при этом принцип монтажа «на кран». Установку водосточных воронок, устройство примыканий, заделку стыков производят в соответствии с рабочими чертежами узлов.
Состав разделов и их содержание этой технологической карты в целом такой же, как и технологической карты № 1. Некоторые особенности могут быть при монтаже машин и оборудования лифтов, при монтаже плит покрытия машинного отделения.
Отверстия в плитах перекрытия машинного отделения перекрывают инвентарными щитами сразу после монтажа.
Монтаж плит покрытия машинного отделения выполняют в основном аналогично монтажу кровельных плит здания.
|
|
|
|