//
|
|
Система нормативных документов в строительстве СВОД ПРАВИЛ ПО ПРОЕКТИРОВАНИЮ И СТРОИТЕЛЬСТВУ ОТДЕЛЕНИЯ ГЕРИАТРИЧЕСКОГО ОБСЛУЖИВАНИЯ СП 35-110-2004 Москва ПРЕДИСЛОВИЕ 1 РАЗРАБОТАН ГУП «Научно-проектный институт учебно-воспитательных, торгово-бытовых и досуговых зданий» (Институт общественных зданий) Госстроя России и ЗАО «Архитектурное проектно-исследовательское объединение - Центр» (АПИО-Центр) 2 ВНЕСЕН Министерством труда и социального развития Российской Федерации, Государственным комитетом Российской Федерации по строительству и жилищно-коммунальному комплексу 3 ПРЕДСТАВЛЕН Управлением архитектуры и проектных работ, Управлением стандартизации, технического нормирования и сертификации Госстроя России 4 УТВЕРЖДЕН приказом директора ГУП «Научно-проектный институт учебно-воспитательных, торгово-бытовых и досуговых зданий» (Институт общественных зданий) от 24 декабря 2007 года № 22 5 ВВЕДЕН ВПЕРВЫЕ Содержание ВВЕДЕНИЕОдной из менее решенных проблем современного общества является проблема создания системы оказания медико-социальной помощи пожилым людям. В настоящее время в России отсутствует сеть гериатрических учреждений как целостной системы, обеспечивающей осуществление профилактических, консультационных и реабилитационных мероприятий. Существующие гериатрические учреждения (подразделения) располагаются, как правило, в плохо приспособленных и не имеющих соответствующего оборудования зданиях. В настоящее время не определена номенклатура гериатрических учреждений (подразделений, кабинетов) различной мощности и различной специализации, нет четкого представления об их функционально-планировочной структуре, наборе и площадях помещений. Свод правил СП 35-110-2004 «Отделения гериатрического обслуживания населения по месту жительства» разработан в развитие контракта № 24-03-05/00 от 17.09.2000 г. между Минтрудом России и Госстроем России о сотрудничестве по выполнению мероприятий федеральной целевой программы «Старшее поколение», утвержденной постановлением Правительства Российской Федерации от 21 сентября 2000 № 706. Свод правил разрабатывается в составе базового блока нормативных документов 35 комплекса, развивает и дополняет требования СНиП 35-01-2001 «Доступность зданий и сооружений для маломобильных групп населения». Свод правил содержит рекомендательные нормы и правила в соответствии с требованиями СНиП 10-01-94 «Система нормативных документов в строительстве. Основные положения» и является документом федерального уровня. В данной разработке учтен опыт отечественных и зарубежных специалистов в освещаемой области, а также новые разработки различных авторов и творческих коллективов. Согласован Государственной противопожарной службой МВД России, Госсанэпиднадзором Минздрава России, Главэкспертизой России. В тексте и графической части Свода правил частично использованы следующие материалы: МГСН 4.12-97 «Лечебно-профилактические учреждения» «Пособие по проектированию учреждений здравоохранения» (к СНиП 2.08.02-89). (М.: ГипроНИИздрав, 1990) «Жилая среда для инвалида» (М.: Стройиздат, 1990; архитектор Х.Ю. Калмет) Работа выполнена авторским коллективом в следующем составе: Руководитель работ по разделу III федеральной целевой программы «Старшее поколение» - канд. архитектуры A.M. Гарнец, отв. исполнители: канд. архитектуры Л.А. Смывина (рук. темы), архитектор Т.В. Серикова, при участии канд. архитектуры Л.Ф. Сидорковой (ЗАО «Гипроздрав - НПЦ по объектам здравоохранения и отдыха»). Компьютерная графика - архитектор Т.В. Серикова. Свод правил по проектированию и строительству
1. Область применения1. Настоящий Свод правил устанавливает основные положения и требования к размещению, участку, функциональной организации и архитектурно-планировочным решениям гериатрических учреждений для пожилых людей. 2. Свод правил является обязательным документом в области строительной нормативной документации - при проведении проектных и предпроектных работ по созданию новых объектов, реконструкции и модернизации существующего фонда, при обустройстве помещений гериатрических учреждений, при их экспертизе, приемке приемочной комиссией. 3. Документ предназначен для применения органами архитектуры и градостроительства, органами социальной поддержки населения, общественными фондами и независимыми собственниками объектов. 2. Нормативные ссылкиВ настоящем своде правил приведены ссылки на следующие нормативные документы: СНиП 35-01-2001 «Доступность зданий и сооружений для маломобильных групп населения» СНиП 2.07.01-89* «Градостроительство. Планировка и застройка городских и сельских поселений». СНиП 2.08.02-89* «Общественные здания и сооружения». ВСН 62-91* Проектирование среды жизнедеятельности с учетом потребностей инвалидов и маломобильных групп населения». Пособие по проектированию отдельно стоящих и встроенных офисов врача общей практики. Пособие по проектированию учреждений здравоохранения (к СНиП 2.08.02-89*). МГСН 4.12-97 «Лечебно-профилактические учреждения». 3. Основные положения3.1 Гериатрическая помощь может иметь амбулаторный и стационарный характер и оказываться как специализирующимися на этом медицинскими учреждениями (гериатрические центры), так и структурными подразделениями многопрофильных и специализированных лечебных учреждений (гериатрические кабинеты, отделения медико-социальной помощи). Кроме того, гериатрическая помощь может оказываться в учреждениях социальной защиты. 3.2 Весь контингент пожилых людей по отношению к формам проживания, степени обслуживания, состоянию здоровья и потребности в медицинском и социальном уходе может быть разделен на ряд категорий (рис. 1).
Рис. 1. Категории лиц пожилого возраста и типы медико-социальных учреждений 3.3 При местах постоянного проживания пожилых людей должны быть условия для оказания первичной амбулаторной медицинской помощи, а также должен быть организован медицинский и бытовой уход за лицами старших возрастов, нуждающимися в таком уходе. С этой целью рекомендуется создавать гериатрические консультативные кабинеты при территориальных поликлиниках и медико-социальных центрах. Гериатрический кабинет является организационным, методическим и консультативным центром медико-социальной помощи, активно участвует в работе различных комиссий по делам пожилых людей, организованных в обслуживаемом районе. 3.4 При амбулаторно-поликлинических учреждениях рекомендуется организовывать отделения медико-социальной помощи для проведения больным старших возрастных групп, инвалидам лечебно-реабилитационных мероприятий, в том числе на дому. 3.5 Отделение медико-социальной помощи ОМСП - структурное подразделение амбулаторно-поликлинического учреждения или поликлинического отделения, специализированного диспансера и медико-социальной части, независимо от их организационно-правовой формы и ведомственной принадлежности. 3.6 ОМСП, размещенные за пределами территориальных поликлиник, могут организовываться для населения, удаленного от территориальных поликлиник более чем на 500 м, при медико-социальных центрах, а также при специализированных домах для пожилых. 3.7 Основные функции ОМСП: - наблюдение за состоянием здоровья пожилых людей с проведением необходимого обследования и раннего выявления заболеваний с использованием современных методов диагностики; - проведение комплекса лечебно-реабилитационных мероприятий, используя медикаментозные, физиотерапевтические и другие методы лечения, а также с элементами оториноларингологии, офтальмологии, гинекологии, неврологии и хирургии; - организация медико-социальной и бытовой помощи совместно с органами социальной защиты одиноким, инвалидам, хронически больным пожилым людям. 3.8 Отделение медико-социальной помощи на дому (ОМСП на дому) организуется для оказания долговременной медицинской (диагностической, лечебной и реабилитационной) и медико-социальной помощи на дому больным старших возрастных групп и инвалидам, частично или полностью утратившим способность к передвижению и самообслуживанию. 3.9 Мощность отделения медико-социальной помощи на дому определяется главным врачом поликлиники, исходя из потребности населения старших возрастных групп, проживающих в ее зоне обслуживания, из расчета не менее 250 обслуживаемых больных в течение года. 3.10 Основной целью такого отделения является обеспечение доступности медицинской и медико-социальной помощи больным старших возрастных групп и инвалидам, частично или полностью утратившим способность к передвижению и самообслуживанию. 3.11 Гериатрический центр (ГЦ) - учреждение здравоохранения, организуемое в субъекте Федерации с целью повышения объемов и качества оказания медицинской и медико-социальной помощи лицам старших возрастов, профилактики преждевременного старения. 3.12 Гериатрический центр предназначен для оказания квалифицированной специализированной стационарной и консультационно-диагностической медицинской помощи населению пожилого и старческого возрастов и лицам с признаками преждевременного старения организма, а также обеспечения организационно-методического руководства деятельностью медицинских, медико-социальных учреждений и специалистов по вопросам оказания гериатрической помощи. 3.13 Основной целью деятельности ГЦ является организация и оказание специализированной гериатрической медицинской помощи населению старших возрастных групп и лицам с преждевременными признаками старения организма. 3.14 Мощность ГЦ и профиль его стационарных отделений определяются органом управления здравоохранения субъекта федерации или муниципального образования с учетом демографической структуры и заболеваемости населения в административной территории. 3.15 В структуру гериатрического центра могут включаться: - лечебно-консультативное отделение; - отделение восстановительного лечения; - отделение диагностики и лаборатории; - стационарные отделения различного профиля; - организационно-методический отдел; - вспомогательные подразделения и службы. В гериатрическом центре необходимо предусмотреть помещения для консультативного приема специалистов по социально-правовым вопросам и медицинской психологии. 4. Требование к размещению, участку и территории4.1 Размещение гериатрических учреждений (подразделений), благоустройство их территорий, строительные и санитарно-гигиенические требования к участку и территории следует принимать в соответствии с Пособием по проектированию учреждений здравоохранения (к СНиП 2.08.02, СНиП 2.07.01, МГСН 4.01, МГСН 1.01, СанПиН 5179) и требованиями настоящего раздела. 4.2 Размеры земельных участков медико-социальных и лечебно-консультативных центров без стационаров следует принимать с учетом подъездных и пешеходных путей из расчета 0,1 га на 100 посещений в смену, но не менее 0,5 га на 1 объект. 4.3 Размеры земельных участков гериатрических центров, в структуре которых есть стационар и лечебно-консультативное отделение, следует принимать: - при расположении стационара и лечебно-консультативного отделения в одном здании - 150 м2 на 1 койку; - при расположении лечебно-консультативного отделения в отдельно стоящем здании - из расчета 0,1 га на 100 посещений в смену, но менее 0,3 га на 1 объект. 4.4 Расположенные на земельном участке гериатрического комплекса отдельно стоящие здания лечебно-консультативных отделений изолируются от территории стационара с удобным доступом для посетителей, собственного и больничного персонала. 4.5 Перед главным входом в гериатрический центр следует предусматривать площадки для посетителей из расчета 0,2 м2 на одну койку или одно посещение в смену, но не менее 50 м2. Перед въездом на территорию следует запроектировать стоянки для служебного и личного автотранспорта, но не ближе 100 м от палатных корпусов. 4.6. Расстояние до жилых зданий следует принимать не менее: - для гериатрических центров - 30 м; - для лечебно-консультативных отделений и отделений медико-социальной помощи - 15 м. 4.7. Расстояние между зданиями и красными линиями застройки следует принимать не менее: - для зданий гериатрических центров - 30 м; - для лечебно-консультативного отделения и отделений медико-социальной помощи - 15 м. 4.8 На земельных участках гериатрических центров следует размещать только функционально связанные с ними здания и сооружения. 4.9 На территории гериатрических центров допускается размещение гостиниц для родственников госпитализированных больных, а также медицинских учебных заведений. 4.10 Службу приготовления пищи (пищеблоки) следует размещать в отдельно стоящем здании. 4.11 В хозяйственной зоне гериатрического центра следует предусматривать обособленные места для временного складирования бытовых и медицинских отходов (раздельно). Складирование бытовых отходов может осуществляться на специально выделенных площадках в стандартных контейнерах. Объем и количество контейнеров определяются расчетом по показателю мощности учреждения. Складирование медицинских отходов до их вывоза или уничтожения следует осуществлять на специально оборудованных площадках, исключающих возможность затопления ливневыми стоками. Складирование медицинских отходов должно осуществляться в герметических контейнерах (баках) раздельно по видам отходов. 4.12. Вокруг зданий со стационарами независимо от этажности следует предусматривать круговой проезд для пожарных автомашин шириной не менее 3,5 м при этажности до 5-ти включительно и шириной не менее 4,2 м при высоте зданий 6-9 этажей. 4.13 К зданиям без палатных отделений подъезды следует проектировать с двух продольных сторон. 4.14 Площадь зеленых насаждений и газонов планируется не менее 60 % площади участков центров со стационарным лечением. 5. Требования к функционально-планировочным решениям5.1. Функционально-планировочные решения рассматриваемых учреждений (подразделений) должны основываться на современных требованиях к их медико-организационной структуре, определяемых функциями и объемом оказываемой помощи. Отделения медико-социальной помощи 5.2. В структуру отделения медико-социальной помощи (ОМСП) могут включаться следующие основные группы помещений: - группа кабинетов врачебного приема, включая процедурную и ожидальную, - группа помещений диагностического отделения, включая элементы клинико-диагностической лаборатории и кабинет функциональной диагностики, - группа помещений оздоровительно-реабилитационного отделения, состоящая из кабинетов электролечения, теплолечения и водолечения, лечебной физкультуры, а также комнаты отдыха и ожидальной, - входная группа помещений, состоящая из вестибюлей с гардеробами, санузлов, регистратуры, - группа хозяйственно-бытовых помещений, в которую включаются кладовые, комната персонала и помещение личной гигиены персонала. 5.3 Число и состав кабинетов врачебного приема определяются заданием на проектирование для каждого конкретного случая. 5.4 Для осуществления отоларингологического и офтальмологического приема при кабинете врача-гериатра может включаться специальная звуконепроницаемая комната. А для гинекологического приема необходимо иметь специально оборудованное помещение, площадью не менее 9 м2, которое может быть использовано и для других манипуляций. 5.6. Диагностическая группа помещений должна быть оснащена аппаратурой для проведения экспресс-диагностики или выделяется помещение приема материалов на анализы с последующей передачей их в лабораторию территориальной поликлиники. Кроме того, должна быть аппаратура для некоторых функциональных тестов (ЭКГ, приборы для определения остроты зрения и слуха). При этом часть этих приборов размещается в специальном диагностическом помещении, а часть может находиться в кабинете врача-гериатра, за счет чего размеры кабинета могут быть увеличены до 18 м2. 5.7 Для реабилитации и профилактики заболеваний и преждевременного старения организма в состав ОМСП необходимо включать оздоровительно-восстановительные помещения, набор которых также определяется заданием на проектирование. 5.8 Взаимосвязи отдельных помещений и функциональных групп помещений приведены на рис. 2.
Рис. 2. Функциональные связи групп помещений отделения медико-социальной помощи 5.9 Приведенный на схемах набор помещений в каждом конкретном случае может варьироваться в зависимости от принятого конкретными органами здравоохранения решения. 5.10 Рекомендуемый состав и площади различных групп помещений ОМСП даны в таблице 1. Таблица 1
Отделения медико-социальной помощи на дому 5.11. Помещения отделения медико-социальной помощи на дому предназначены для персонала выездных бригад, оказывающих помощь по проведению лечения и ухода за больными старших возрастных групп, инвалидами, частично или полностью утратившими способность к самообслуживанию. В их состав следует включать кабинет заведующего, комнату старшей медицинской сестры с местом хранения медикаментов, комнату персонала, диспетчерскую, комнату шоферов, уборную для персонала. Примерный состав помещений отделения медико-социальной помощи на дому приведен в таблице 2. Таблица 2
Гериатрический центр 5.12 Схема функциональных связей групп помещений ГЦ представлена на рис. 3.
Рис. 3. Функциональные связи групп помещений гериатрического центра 5.13 Функциональная структура лечебно-консультативного отделения (ЛКО) гериатрического центра может включать следующие основные группы помещений: - вестибюльную группу помещений; - отделение врачебного приема; - дневной стационар; - помещения МСЭК; - административно-хозяйственное отделение. 5.14 Состав помещений ЛКО определяется преимущественным характером заболеваемости лиц старшего поколения и соответствует соотношению обращаемости пожилых людей к врачам разной специальности. 5.15 В структуру лечебно-консультативного отделения могут входить стоматологические отделения, аптеки, оптики. Стоматологическое отделение может включать кабинеты терапевтической, хирургической, ортопедической стоматологии, зуботехническую лабораторию, стерилизационную. Минимальную площадь помещений стоматологических отделений, аптек следует принимать в соответствии с Пособием по проектированию учреждений здравоохранения (к СНиП 2.08.02). 5.16 Врачебные кабинеты общего профиля (гериатра, невропатолога, психиатра) должны иметь площадь не менее 15 м2, а специализированные - 18 м2, офтальмологический кабинет должен иметь длину не менее 5 м для определения остроты зрения. При специализированных кабинетах (уролога, дерматолога) необходимо предусматривать кабину или уборную со сливом. 5.17 Ширина лечебно-консультативных помещений принимается не менее, м: - для кабинетов врачей - 2,4 м, - для процедурных с урологическим креслом, кабинетов гинекологических, урологических, ортопедических - 3,2 м. 5.18 При лечебно-консультативных отделениях гериатрических центров целесообразно предусмотреть отдельно стоящие пансионаты для приезжих пациентов для их пребывания в течение консультации, обследования и лечения. В состав помещений пансионатов включаются отдельные помещения медицинского назначения (пост медсестры, процедурная, клизменная). 5.19 Глубина лечебно-диагностических помещений не должна превышать 6 м. Отношение глубины и ширины лечебно-диагностических помещений должно быть не менее 2. 5.20 Лечебно-диагностические помещения должны иметь естественное освещение. 5.21 Во всех кабинетах необходимо предусмотреть установку умывальников. 5.22 Площадь ожидальных и вестибюлей-гардеробных рассчитывается с учетом числа посетителей и сопровождающих, одновременно находящихся в учреждении по таблице 1. 5.23 Состав и площадь помещений ЛКО определяются заданием на проектирование в соответствии со структурой и спецификой учреждения с учетом приложения А. 5.24 Состав и рекомендуемая площадь служебных и бытовых помещений разной мощности следует принимать в соответствии с Пособием по проектированию учреждений здравоохранения (к СНиП 2.08.02). 5.25 Дневной стационар предназначен для пребывания в течение нескольких часов больных, которым последовательно проводится несколько диагностических исследований или лечебных процедур. В его составе организуются палаты с постом дежурной медсестры, кабинет врача, процедурная, санитарно-гигиенические помещения, помещение дневного пребывания пациентов и приема пищи, кладовые для грязного и чистого белья. Рекомендуемая площадь помещений дневного стационара представлены в таблице А.3 приложения А. 5.26 Помещения диагностического отделения (ДО) включают: рентгеновское отделение, помещения гастроскопии, кабинет электроэнцефалографии и реовазографии, кабинет электрокардиографии и векторокардиографии. 5.27 Состав и площади кабинетов ДО определяются заданием на проектирование. Рекомендуемая площадь помещений диагностического отделения приведена в таблице А.4 приложения А. 5.28. Ширина коридоров принимается не менее, м: - коридоров - 2 м, - коридоров, используемых под ожидальные с односторонним расположением кабинетов - 2,8 м, - коридоров, используемых под ожидальные с двухсторонним расположением кабинетов - 3,2 м. 5.29. Коридоры и ожидальные должны иметь естественное освещение. При этом они могут освещаться как за счет окон в торцах здания и в световых карманах, так и за счет световых фонарей. Освещение вторым светом допускается в помещениях душевых для персонала предоперационных. 5.30 Размеры кабин уборных для посетителей должны быть не менее 1,65×1,8 м при обязательном открывании дверей наружу. 5.31 Рекомендуемая высота помещений 3,0 м. Высота залов лечебно-плавательных бассейнов более чем на 10 человек принимается не менее 4,2 м. 5.32 Лечебно-восстановительное отделение (ЛВО) является структурным подразделением гериатрического центра и предназначено для оказания помощи пожилым людям, приходящим в лечебно-консультативное отделение, и тем, кто находится на стационарном лечении данного учреждения. 5.33 В гериатрических центрах, имеющих ЛКО, это отделение может быть централизованным и размещаться между ЛКО и стационарными отделениями. При организации централизованного ЛВО входы в него предусматриваются раздельными для больных стационара и ЛКО. 5.34 ЛВО планировочно подразделяется на три группы: - помещения физиотерапии, - помещения водолечения и грязелечения, - помещения ЛФК и массажа. Это связано с различными требованиями к уровню влажности, электробезопасности и отделке помещений. 5.35. Состав и площади кабинетов ЛВО определяются заданием на проектирование. Рекомендуемая площадь помещений лечебно-восстановительного отделения приведена в таблице А.5 приложения А. 5.36 Площадь комнаты отдыха при ЛВО принимается из расчета 4 м2 на кушетку. Количество мест в комнате отдыха больных следует принимать из расчета 40 % процедурных мест для ЛКО и 20 % для стационара. 5.37 Для предотвращения травматизма пожилых людей с ограниченной подвижностью ванны и кушетки должны устанавливаться с учетом возможного наблюдения за ними. Также необходимо обеспечить возможность доступности персонала в помещения, предназначенные для уединенного пребывания пациентов. 5.38 Для улучшения обзора персоналом за состоянием лиц старших возрастов лечебные ванны должны размещаться в общем зале. 5.39 В целях обеспечения наблюдения за состоянием больных лечебные ванны устанавливаются так, чтобы дневной свет падал на их лица. 5.40 При гидромассажной ванне целесообразно устанавливать подъемник для помещения в ванну больных с ограниченной подвижностью суставов и ослаблением мышечного тонуса. 5.41 Лечебные ванны следует устанавливать так, чтобы к каждой ванне был обеспечен подход с трех сторон. 5.42 Вокруг ванны лечебного бассейна следует предусматривать подогреваемые обходные дорожки шириной 1,5 м по продольным сторонам и 3 м по торцевым сторонам с уклоном 0,01-0,15 к трапам или решеткам. Дно ванны должно быть с уклоном, обеспечивающим глубину ванны от 0,9 до 1,2 м. Начальная глубина 0,9 м позволяет сидеть на откидных сиденьях, прикрепленных к стенке бассейна на расстоянии 40 см от дна. 5.43 Глубина ванны для лечения движением в воде должна быть более 0,7 м. 5.44 В гериатрических центрах могут использоваться бассейны Т-образной или П-образной формы с различной глубиной отсеков, что позволяет одновременное занятие трех (двух) групп лиц с различным состоянием здоровья. 5.45 Стационарные отделения являются основным функциональным структурным элементом гериатрического центра. 5.46 Мощность и состав стационарных отделений определяется расчетом, исходя из показателя потребности медико-социальной помощи и численности пожилого населения, проживающего в районе их обслуживания. 5.47 В состав стационаров могут входить следующие структурные подразделения: - вестибюльная группа помещений, - приемное отделение и помещения выписки, - палатные отделения, - специализированные лечебные помещения, - служебно-бытовые помещения, - помещения службы приготовления пищи, - помещения хозяйственных служб. 5.48. Вестибюльная группа помещений состоит из гардероба уличной одежды посетителей и персонала, помещений для встреч с лечащими врачами и приема передач больным. Площадь вестибюля-гардеробной для посетителей рекомендуется принимать из расчета не менее 0,5 м2 на одного посетителя. Число посетителей стационара принимается равным 70 % количества коек. Примерный состав и площади помещений вестибюльной группы стационара приведены в таблице 3. Таблица 3
5.49 Приемное отделение осуществляет прием, регистрацию и распределение больных, устанавливает предварительный медицинский диагноз, оказывает необходимую медицинскую помощь, проводит санитарную обработку. Приемное отделение включает вестибюль-ожидальню, регистратуру, смотровые, санитарные пропускники, процедурную, уборные, вспомогательные помещения. 5.50 Отделение приема и выписки следует размещать на первом этаже, в изолированной части здания, и по возможности вблизи главного въезда на территорию больницы или центра. Для подъезда санитарных машин к отделению следует предусматривать пандус с навесом для стоянки 1-2-х машин. Поток поступающих больных рекомендуется разделять на два: мужской и женский. Примерный состав помещений приемного отделения приведен в таблице 4. Таблица 4
5.51. Примерный состав помещений выписки приведен в таблице 5. Таблица 5
5.52. Мощность палатных отделений устанавливается с учетом оптимальной нагрузки на одного лечащего врача, равной 15 больным. 5.53 Палатные отделения, как правило, состоят из палатных секций и общих помещений, расположенных между секциями. К общим помещениям отделения относятся лечебные и диагностические кабинеты, столовая с буфетной, служебные помещения. 5.54 Палатная секция представляет собой изолированный комплекс палат и лечебно-вспомогательных помещений, предназначенных для больных с однородными заболеваниями. Вместимость палатных секций рекомендуется принимать 25 коек. 5.55 В палатных отделениях следует предусматривать устройство поручней в палатах, санузлах, лечебных кабинетах, непрерывного поручня по пути следования пациентов, устанавливать оборудование с учетом возможности использования пожилыми людьми, передвигающимися на креслах-колясках. 5.56 Вместимость палат рекомендуется не более 3-х коек. Соотношение палат различной коечной вместимости определяется заданием на проектирование. Площадь однокоечных палат следует принимать 14 м2. Минимальную площадь на 1 койку в палатах от 2-х коек и более следует принимать из расчета 9 м2 на койку. 5.57 Санузлы должны быть максимально приближены к палатам. 5.58 Посты дежурных медицинских сестер следует принимать не менее 6 м2 каждый из расчета на один пост не более 25 больных. 5.59 Площадь помещения для дневного пребывания больных следует принимать из расчета 1 м2 на 1 койку палатной секции. 5.60 Площадь столовой для больных следует принимать не более 50 % количества коек в палатном отделении. 5.61 Ширина коридоров в палатных отделениях должна быть не менее 2,4 м. Коридоры палатных отделений должны иметь естественное освещение через окна в торцах коридоров или световые карманы. При освещении коридора с торца длина его не должна превышать 24 м, при освещении с двух торцов - 48 м. Расстояние между световыми карманами не должно превышать 24 м, а между первым световым карманом и окном в торце коридора - 36 м. 5.62 Ширина лестничных площадок и маршей эвакуационных лестничных клеток в палатных корпусах должна быть не менее 1,35 м, наружных дверей - не менее ширины маршей лестниц. 5.63 Расстояние от дверей наиболее удаленных помещений (за исключением вспомогательных помещений) до выхода наружу или на лестничную клетку должно быть не более: - 35 м при расположении помещений между лестничными клетками, - 15 м в случае выхода из помещений в тупиковый коридор или холл. 5.64 Устройство открытых лестниц в палатных корпусах на всю высоту не допускается. 5.65 Примерный состав и площади помещений палатных отделений приведены в таблице А.6 приложения А. 5.66 Специализированные и вспомогательные кабинеты и помещения используются больными всех палатных отделений и персоналом больницы или центра. В их состав входят: - физиотерапевтическое отделение (кабинеты), - отделение (кабинеты) функциональной диагностики, - кабинеты врачей-консультантов, - кабинет психотерапевта, - социального работника. 5.67. Служебно-бытовые помещения предназначены для персонала гериатрической больницы или центра. Состав служебно-бытовых помещений определяется заданием на проектирование и должен обеспечить работу администрации, бухгалтерии, службы медицинской статистики и медицинского архива. Состав и рекомендуемые площади служебно-бытовых помещений приведены в таблице А.7 приложения А. 5.68 Состав помещений службы приготовления пищи определяется заданием на проектирование в соответствии с общепринятыми принципами организации их работы и требованиями действующих норм проектирования в зависимости от мощности учреждения (Пособие по проектированию учреждений здравоохранения к СНиП 2.08.02). 5.69 По заданию на проектирование в состав помещений хозяйственных служб могут включаться помещения службы эксплуатации, прачечная, дезкамерный блок, складские помещения и др., состав и площадь этих помещений следует определять заданием на проектирование по расчету, исходя из мощности учреждения и местных условий. 6. Требования к инженерному оборудованию6.1 Инженерное оборудование гериатрических учреждений (лифты и подъемники, отопление, вентиляция, кондиционирование воздуха, водоснабжение, канализация, газоснабжение, снабжение медицинскими газами, трубопроводы вакуумной сети и сжатого воздуха, электротехнические устройства и искусственное освещение, противопожарная и охранная сигнализация) следует проектировать в соответствии с требованиями действующих нормативных документов в строительстве и Пособия по проектированию учреждений здравоохранения (к СНиП 2.08.02). 6.2 В палатах следует предусматривать приточно-вытяжную вентиляцию с обменом воздуха на одного человека 40 м3/час. Размещать приток и вытяжку следует так, чтобы свежий воздух промывал помещение (по диагонали). 6.3 Краны в умывальниках и душах должны быть с термостатическими регуляторами, исключающими подачу воды температурой более 50°С. 6.4 Нагревательные приборы систем центрального отопления, трубы отопительной, газовой, водопроводной или канализационной системы, а также любые заземленные предметы в помещениях должны быть закрыты щитами из электроизолирующих материалов по всему протяжению и до высоты, недоступной прикосновению больных и персонала во время проведения процедур. 6.5 Давление горячей и холодной воды должно быть одинаковым (2-2,5 атмосферы). 6.6 Электрическая проводка и пусковые устройства в помещениях, связанных с проведением водных процедур, должны быть выполнены в герметическом исполнении. 6.7 При организации углекислых, кислородных, азотных, жемчужных ванн для баллонов с углекислотой и азотом следует предусматривать место вне помещения для ванн на расстоянии не менее 0,5 м от труб центрального отопления и горячего водоснабжения так, чтобы на баллоны не падали прямые солнечные лучи. В отдельных случаях по разрешению органов здравоохранения баллоны допускается размещать в ванной комнате. 6.8 В помещении для сероводородных ванн следует предусматривать самостоятельную приточно-вытяжную вентиляцию. Вытяжная труба для выброса воздуха должна быть выведена выше конька кровли здания не менее чем на 0,5 м. Трубы, подводящие сероводородную воду, должны быть из полимерных или других материалов, устойчивых к влиянию агрессивных вод и газов. Канализационные трубы должны быть асбестоцементные или чугунные, покрытые изнутри и снаружи битумным или бакелитовым лаком, или же винилитовые. Вся арматура (краны, ручки и т.д.) должна быть из коррозионно-устойчивых материалов (пластмассы и др.). В помещении для приготовления растворов следует предусматривать вытяжной шкаф. Скорость движения воздуха в рабочем проеме вытяжного шкафа должна быть не менее 0,7 м/сек. 6.9 В помещении радоновых ванн следует предусматривать вытяжной шкаф для хранения порционных склянок с раствором радона. Место забора воздуха для вентиляции должно находиться на расстоянии не менее 20 м по горизонтали от места выброса. Приборы управления вентиляцией должны устанавливаться вне вентилируемых помещений. 6.10. Помещение подготовки прокладок при кабинетах электросветолечения и помещение для подогрева парафина и озокерита при кабинетах теплолечения должны быть изолированы и иметь свою вентиляцию (вытяжной шкаф). Приложение А
| ||||||||||||||||||||||||||||||||||||||||||||||||||||||||||||||||||||||||||||||||||||||||||||||||||||||||||||||||||||||||||||||||||||||||||||||||||||||||||||||||||||||||||||||||||||||||||||||||||||||||||||||||||||||||||||||||||||||||||||||||||||||||||||||||||||||||||||||||||||||||||||||||||||||||||||||||||||||||||||||||||||||||||||||||||||||||||||||||||||||||||||||||||||||||||||||||||||||||||||||||||||||||||||||||||||||||||||||||||||||||||||||||||||||||||||||||||||||||||||||||||||||||||||||||||||||||||||||||||||||||||||||||||||||||||||||||||||||||||||||||||||||||||||||||||||||||||||||||||||||||||||||||||||||||||||||||||||||||||||||||||||||||||||||||||||||||||||||||||||||||||||||||||||||||||||||||||||||||||||||||||||||||||||||||||||||||||||||||||||||||||||||||||||||||||||||||||||||||||||||||||||||||||||||||||||||||||||||||||||||||||||||||||||||||||||||||||||||||||||||||||||||||||||||||||||||||||||||||||||||||||||||||||||||||||||||||||||||||||||||||||||||||||||||||||||||||||||||||||||||
|
№ п.п. |
Наименование помещений |
Мощность отделения - число посещений в смену |
|
|
до 200 |
200 и более |
||
|
1 |
Вестибюль с аптечным киоском |
21 |
34 |
|
2 |
Гардероб для посетителей и персонала |
11 |
16 |
|
3 |
Регистратура с картохранилищем и медицинским архивом |
10+12 |
10+12 |
|
4 |
Уборная для посетителей (3 м2) |
3+3 |
3+3 |
|
|
Итого: |
60 |
78 |
Отделения врачебного приема
Таблица А.2
|
№ |
Перечень помещений по структурным подразделениям |
Площадь помещений, м2 |
Примечания |
|
1. Терапевтическое отделение (кабинет) |
|||
|
1.1 |
Кабинет врача-гериатра |
15 |
|
|
1.2 |
Кабинет ревматолога |
15 |
|
|
1.3 |
Кабинет кардиолога |
15 |
|
|
1.4 |
Кабинет эндокринолога |
15 |
|
|
1.5 |
Кабинет гастроэнтеролога: |
|
|
|
- помещение для гастроскопии с подготовительной |
18+10 |
|
|
|
- помещение для электрогастрографии |
18 |
|
|
|
1.6 |
Процедурная внутримышечных инъекций |
18 |
|
|
1.7 |
Процедурная внутривенных вливаний |
18 |
|
|
1.8 |
Кабинет пульмонолога |
18 |
|
|
1.9 |
Кабинет логопеда |
18 |
|
|
1.10 |
Ожидальная |
не менее 10 |
1,2 м2 на каждого из посетителей, одновременно находящихся в отделении |
|
2. Хирургическое отделение (кабинет) |
|||
|
2.1 |
Кабинет врача-хирурга |
18 |
|
|
2.2 |
Предоперационная-стерилизационная |
10 |
|
|
2.3 |
Операционная со шлюзом для переодевания больных |
24+4 |
|
|
2.4 |
Перевязочная чистая |
22 |
|
|
2.5 |
Перевязочная гнойная |
22 |
|
|
2.6 |
Кабинет врача травматолога-ортопеда |
18 |
|
|
2.7 |
Комната временного пребывания больных после операции |
Не менее 12 |
6 м2 на одну кушетку |
|
2.8 |
Кабинет врача-уролога (со шлюзом) |
18+2 |
|
|
2.9 |
Процедурная врача-уролога (со сливом) |
20 |
|
|
2.10 |
Кабинет врача-нейрохирурга |
18 |
Наличие определяется заданием на проектирование |
|
2.11 |
Кабинет проктолога (со шлюзом): |
|
|
|
процедурная для ректороманоскопии со сливом |
18+2 |
|
|
|
кабина для раздевания |
4 |
|
|
|
2.12 |
Кабинет хирурга-онколога с картотекой |
18 |
|
|
процедурная при кабинете хирурга-онколога |
20 |
|
|
|
2.13 |
Ожидальная |
Не менее 10 |
1,2 м2 на каждого из посетителей, одновременно находящихся в отделении |
|
3. Отделение оториноларингологическое (кабинет) |
|||
|
3.1 |
Кабинет врача-оториноларинголога со звукоизолированной кабиной |
18+8 |
|
|
3.2 |
Кабинет для исследования вестибулярного аппарата |
18 |
Наличие определяется заданием на проектирование |
|
3.3 |
Операционная с предоперационной |
14+8 |
Может быть общей с офтальмологическим отделением |
|
3.4 |
Комната временного пребывания больных после операции |
Не менее 12 |
6 м2 на одну кушетку |
|
3.4 |
Ожидальная |
Не менее 10 |
1,2 м2 на каждого из посетителей, одновременно находящихся в отделении |
|
4. Офтальмологическое отделение (кабинет) |
|||
|
4.1 |
Кабинет врача-офтальмолога с темной комнатой |
18+8 |
|
|
4.2 |
Операционная с предоперационной |
14+8 |
Устанавливается заданием на проектирование |
|
4.3 |
Комната временного пребывания больных после операции |
12 |
|
|
4.4 |
Ожидальная |
Не менее 10 |
1,2 м2 на каждого из посетителей, одновременно находящихся в отделении |
|
4.5 |
Лаборатория глазного протезирования: |
|
Устанавливается заданием на проектирование |
|
ожидальная |
15 |
|
|
|
комнаты для подбора протезов |
12 |
|
|
|
мастерская |
25 |
|
|
|
комната для хранения материалов и инструментов |
10 |
|
|
|
кабинет врача |
12 |
|
|
|
кабинет заведующего лабораторией |
12 |
|
|
|
5. Неврологическое отделение |
|||
|
5.1 |
Кабинет врача-невропатолога |
15 |
|
|
5.2 |
Кабинет врача-психотерапевта |
15 |
|
|
Кабинет психотерапии со шлюзом |
24+2 |
|
|
|
5.3 |
Процедурная иглорефлексотерапии со стерилизационной |
20+6 |
|
|
Кабинет врача |
15 |
|
|
|
5.4 |
Ожидальная |
Не менее 10 |
1,2 м2 на каждого из посетителей, одновременно находящихся в отделении |
|
6. Дерматологическое отделение |
|||
|
6.1 |
Кабинет врача-дерматолога со шлюзом |
18+2 |
|
|
6.2 |
Процедурная со сливом |
20 |
|
|
6.3 |
Кабина для люминесцентной диагностики |
6 |
|
|
6.4 |
Ожидальная |
Не менее 10 |
1,2 м2 на каждого из посетителей, одновременно находящихся в отделении |
|
6.5 |
Кабинет врача-гинеколога (с двумя кабинами для раздевания) |
18+3+3 |
|
|
6.6 |
Процедурный кабинет с гинекологическим креслом (с двумя кабинами для раздевания) |
18+3+3 |
|
|
6.7 |
Ожидальная |
Не менее 10 |
1,2 м2 на каждого из посетителей, одновременно находящихся в отделении |
|
7. Онкологическое отделение (кабинет) |
|||
|
7.1 |
Кабинет онколога |
18 |
|
|
7.2 |
Процедурная при кабинете онколога со сливом |
20 |
|
|
7.3 |
Ожидальная |
Не менее 10 |
1,2 м2 на каждого из посетителей, одновременно находящихся в отделении |
|
8. МСЭК |
|||
|
8.1 |
Ожидальная |
24 |
|
|
8.2 |
Регистратура с архивом |
20 |
|
|
8.3 |
Кабинет врачей-экспертов |
30 |
|
Рекомендуемые состав и площадь помещений дневного стационара гериатрического центра
Таблица А.3
|
№ |
Наименование помещений |
Площадь м2 (не менее) |
||
|
на 10 мест |
на 20 мест |
на 30 мест |
||
|
1 |
Палата на 1 койку |
9 |
9 |
9 |
|
2 |
Палата на 2 койки |
- |
18 |
18 |
|
3 |
Помещения дневного пребывания |
36 |
36×2 |
36×3 |
|
4 |
Уборная(3+3) |
6 |
6 |
6 |
|
5 |
Буфетная с оборудованием для мытья и стерилизации посуды |
18 |
25 |
25 |
|
6 |
Столовая |
16 |
25 |
50 |
|
7 |
Кабинет заведующего отделением |
16 |
16 |
16 |
|
8 |
Кабинет врача-гериатра |
12 |
12 |
12 |
|
9 |
Кабинет психолога |
- |
12 |
12 |
|
10 |
Кабинет социального работника |
- |
12 |
12 |
|
11 |
Комната старшей медицинской сестры |
12 |
12 |
12 |
|
12 |
Комната сестры-хозяйки |
- |
10 |
10 |
|
13 |
Комната персонала |
10 |
10 |
10 |
|
14 |
Гардероб персонала с душевыми кабинами, комнатой личной гигиены и уборной |
12 |
16 |
18 |
|
15 |
Душевые кабины для больных |
3 |
6 |
6 |
|
16 |
Комнаты личной гигиены |
3 |
5 |
5+5 |
|
17 |
Умывальная |
4 (на 2 умывальника с ножной ванной) |
6 (на 3 умывальника с ножной ванной) |
10 (на 5 умывальников с ножной ванной) |
|
|
Итого: |
238 |
461 |
641 |
Рекомендуемые состав и площадь помещений диагностического отделения гериатрического центра (не менее, м2)
Таблица А.4
|
№ |
Наименование помещений |
Мощность стационара (койки) |
||
|
до 200 |
до 300 |
300-500 |
||
|
мощность консультативного отделения (посещений в смену) |
||||
|
до 100 |
от 100 до 200 |
свыше 200 |
||
|
1. Отделение функциональной диагностики |
||||
|
1.1 |
Кабинет зав. отделения |
- |
12 |
12 |
|
1.2 |
Кабинет функциональной диагностики, в том числе: |
|
- |
- |
|
кабинет врача |
12 |
|
|
|
|
диагностический кабинет |
20 |
|
|
|
|
кабина для переодевания |
4 |
|
|
|
|
1.3 |
Кабинет электроэнцефалографии, реоэлектроэнцефалографии, миографии, полиэлектрокардиографии, в том числе: |
|
|
|
|
|
диагностический кабинет |
18 |
18 |
18 |
|
|
экранированная кабина |
8 |
8 |
8 |
|
|
кабина для переодевания |
4 |
4 |
4 |
|
1.4 |
Кабинет исслед. внешнего дыхания |
- |
- |
20 |
|
1.5 |
Кабинет исследования нарушений регионарного кровообращения и функциональных исследований желудка, в том числе: |
- |
- |
|
|
диагностический кабинет |
|
|
24 |
|
|
кабина для переодевания |
|
|
4 |
|
|
1.6 |
Кабинет ультразвуковых исследований, в том числе: |
- |
|
- |
|
диагностический кабинет |
|
18×2 |
|
|
|
кабина для переодевания |
|
4×2 |
|
|
|
1.7 |
Кабинет тепловидения, в том числе: |
- |
|
- |
|
диагностический кабинет |
|
18 |
|
|
|
кабина для переодевания и адаптации |
|
4 |
|
|
|
помещение кондиционера |
|
6 |
|
|
|
фотокомната |
|
6 |
|
|
|
помещение для хранения жидкого азота |
|
4 |
|
|
|
кабинет врача |
|
10 |
|
|
|
архив |
|
6 |
|
|
|
1.8 |
Кабинет длительного ЭКГ-контроля |
- |
12 |
- |
|
1.9 |
Кабинет психологических исследований |
16 |
16 |
- |
|
1.10 |
Кладовая переносной аппаратуры |
10 |
10 |
10 |
|
1.11 |
Ожидальня |
6 |
10 |
14 |
|
1.12 |
Кабинет социальной помощи |
- |
- |
16 |
|
1.13 |
Кабинет заведующего отделением |
- |
12 |
- |
|
1.14 |
Ординаторская |
- |
12 |
- |
|
1.15 |
Комната старшей медсестры |
- |
12 |
- |
|
1.16 |
Кабинет инженера, в том числе: |
- |
|
- |
|
кабинет |
|
12 |
|
|
|
мастерская для текущего ремонта и профилактики оборудования |
|
18 |
|
|
|
1.17 |
Помещение хранения предметов уборки с трапом, краном, сушкой |
- |
4 |
4 |
|
1.18 |
Уборные |
3+3 |
3+3 |
3+3 |
|
2. Клинико-диагностические лаборатории |
||||
|
2.1 |
Кабинет заведующего лабораторией |
- |
- |
10 |
|
2.2 |
Помещение приема, регистрации, сортировки проб |
- |
- |
4+6 |
|
2.3 |
Помещение взятия проб крови |
- |
- |
9 |
|
2.4 |
Ожидальная |
- |
- |
1,2 м2 на каждого из посетителей |
|
Клинико-диагностическая группа |
||||
|
2.5 |
Общеклиническая лаборантская |
- |
- |
12 |
|
2.6 |
Гематологическая лаборантская |
- |
- |
12 |
|
2.7 |
Микроскопическая |
- |
- |
14 |
|
2.8 |
Помещение для окраски мазков |
- |
- |
12 |
|
Биохимическая группа |
||||
|
2.9 |
Лаборантская биохимическая |
- |
- |
12 |
|
2.10 |
Лаборантская для гормональных исследований |
- |
- |
12 |
|
2.11 |
Помещение для работы с пламенным фотометром |
- |
- |
8 |
|
2.12 |
Помещение для работы с автоанализаторами |
- |
- |
13 |
|
Бактериологическая группа |
||||
|
2.13 |
Помещение приема и регистрации анализов |
- |
- |
6 |
|
2.14 |
Лаборантская для санитарно-бактериологических исследований |
|
|
12+12 |
|
2.15 |
Бокс с предбоксом |
- |
- |
8 |
|
2.16 |
Лаборантская для серологических исследований |
- |
- |
12 |
|
2.17 |
Автоклавная |
- |
- |
10+10 |
|
2.18 |
Моечная |
- |
- |
12 |
|
2.19 |
Средоварочная |
- |
- |
8 |
|
2.20 |
Помещение хранения сред |
- |
- |
4 |
|
Общие помещения |
||||
|
2.21 |
Центрифужная |
- |
- |
21 |
|
2.22 |
Моечная |
|
|
12 |
|
2.23 |
Весовая |
- |
- |
12 |
|
2.24 |
Дистилляционная |
- |
- |
6 |
|
2.25 |
Материальная: |
- |
- |
|
|
- хранение запасных частей, посуды |
|
|
8 |
|
|
- бельевая |
|
|
4 |
|
|
2.26 |
Помещения хранения: |
|
|
|
|
- ядовитых веществ |
|
|
6 |
|
|
- легковоспламеняющихся и горючих жидкостей |
|
|
6 |
|
|
- кислот и щелочей |
|
|
4+4 |
|
|
2.27 |
Помещение приготовления реактивов |
- |
- |
12 |
|
2.28 |
Комната контроля качества (для клинико-гематологической и биохимической групп) |
- |
- |
12 |
|
2.29 |
Гардероб домашней и рабочей одежды |
- |
- |
12 |
|
2.30 |
Душевая с кабиной личной гигиены |
- |
- |
3+3 |
|
2.31 |
Уборная |
- |
- |
3 |
|
2.32 |
Кладовая дезинфицирующих средств |
- |
- |
3 |
|
2.33 |
Комната персонала |
- |
- |
12 |
|
2.34 |
Кладовая предметов уборки |
- |
- |
4 |
|
3. Патопсихологическая лаборатория |
||||
|
3.1 |
Кабинет заведующего |
- |
- |
15 |
|
3.2 |
Кабинет психолога |
- |
- |
12 |
|
3.3 |
Смотровой кабинет |
- |
- |
10+10 |
|
3.4 |
Кабинет инструментальных методов исследования |
- |
- |
20 |
|
3.5 |
Помещение для хранения документации и материалов |
- |
- |
12 |
|
3.6 |
Ожидальная |
- |
- |
10 |
|
3.7 |
Уборная для больных |
- |
- |
3+3 |
|
3.8 |
Уборная для персонала |
- |
- |
3 |
Рекомендуемая площадь помещений лечебно-восстановительного отделения
Таблица А.5
|
№ |
Наименование помещений |
Площадь, м2 (не менее) |
Примечания |
|
1. Отделение физиотерапии |
|||
|
|
Электро- и светолечение, рефлексотерапия |
|
|
|
1.1 |
Кабинет (кабинеты) электро- и светолечения (дополнительно предусматривается помещение для обработки прокладок площадью 8 м2) |
12 |
6 м2 на одну кушетку |
|
1.2 |
Кабинет ультравысокочастотной терапии |
12 |
То же |
|
1.3 |
Помещение для четырехкамерных ванн |
12 |
8 м2 на одну ванну |
|
1.4 |
Кабинет лечения электросном (с аппаратной и шлюзом при входе 6+2 м2) |
12 |
6 м2 на одну кушетку |
|
1.5 |
Кабинет для внутриполостных процедур, в том числе: |
|
|
|
кабинет для гинекологических процедур (с гинекологическим креслом) |
18 |
9 м2 на кресло |
|
|
кабина для раздевания |
2 |
|
|
|
кабинет для ректальных процедур (с мойкой для инструментов) |
18 |
6 м2 на одну кушетку |
|
|
уборная при кабинете |
3 |
|
|
|
1.6 |
Фотарий, в том числе: |
|
|
|
помещение для облучения |
16 |
2 м2 на одно место |
|
|
раздевальная |
10 |
|
|
|
пультовая |
4 |
|
|
|
1.7 |
Кабинет рефлексотерапии, в том числе: |
|
|
|
кабинет врача |
12 |
|
|
|
процедурная |
18 |
15 м2 на одно место |
|
|
1.8 |
Кабинет индивидуальных ингаляций (аэрозоли и электроаэрозоли), в том числе: |
12 |
|
|
помещение медицинской сестры и стерилизации наконечников |
8 |
4 м2 на одно место |
|
|
компрессорная |
4 |
1,5 м2 на одно процедурное место |
|
|
1.9 |
Кабинет грунтовых ингаляций (аэрозоли и электроаэрозоли): |
24 |
4 м2 на одно место |
|
пультовая |
4 |
|
|
|
компрессорная |
8 |
|
|
|
1.10 |
Кабинет индивидуальной аэроионотерапии |
12 |
4 м2 на одно место |
|
1.11 |
Кабинет групповой аэроионотерапии Помещение медицинской сестры |
12+8 |
|
|
1.12 |
Кабинет кислородной терапии |
12 |
4 м2 на одно место |
|
1.13 |
Кабинет теплолечения |
12 |
6 м2 на одну кушетку |
|
Помещение для подогревания парафина и озокерита |
8 |
|
|
|
2. Отделение водолечения |
|||
|
2.1 |
Душевой зал с кафедрой на 4 душевые установки |
25 |
|
|
Раздевальная |
10 |
|
|
|
2.2 |
Ванный зал: |
|
|
|
зал с ваннами без кабин |
По расчету |
8 м2 на одну ванну |
|
|
раздевальная |
6 |
2
м2 на 1 |
|
|
2.3 |
Комната персонала при ванном зале |
8 |
|
|
2.4 |
Кабинет укутывания (с комнатой сушки простыней) |
12+8 |
6 м2 на одну кушетку |
|
2.5 |
Кабинет для кишечных промываний и орошений, в том числе: |
|
|
|
помещение для промывания на кушетке или унитазе с кабиной для раздевания |
12+2 |
6
м2 на одно |
|
|
подсобное помещение |
6 |
|
|
|
уборная при кабинете для промывания на кушетке |
3 |
|
|
|
2.6 |
Помещение сероводородных ванн, в том числе: |
|
|
|
ванная комната |
12 |
8 м2 на одну ванну |
|
|
шлюз между ванной комнатой и кабиной для раздевания |
2 |
|
|
|
кабина для раздевания |
2 |
|
|
|
лаборатория для приготовления раствора |
10 |
|
|
|
кладовая для реактивов |
4 |
|
|
|
2.7 |
Помещение радоновых ванн, в том числе: |
|
|
|
ванный зал с ваннами и кабинами для раздевания по 2 м2 при каждой ванне |
По расчету |
8
м2 + (2×2) |
|
|
помещение для хранения и разлива растворов |
|
10 м2 на 1 резервуар и 6 м2 на каждый последующий |
|
|
2.8 |
Комната для персонала сероводородных и радоновых ванн с душевой кабиной |
Не менее 8 |
1,5 м2 на одну ванну |
|
Грязелечение |
|||
|
2.9 |
Грязелечебный зал, в том числе: |
|
|
|
кабины на 1 кушетку |
12 |
8 м2 на одну кушетку |
|
|
кабины для раздевания (две на 1 кушетку) |
2 |
|
|
|
душевая кабина (на каждую кушетку) |
3 |
|
|
|
2.10 |
Грязевая кухня |
- |
Площадь
опреде- |
|
2.11 |
Комната персонала с душевой кабиной |
8 |
2 м2 на одну кушетку |
|
2.12 |
Помещение мойки, сушки простыней, холстов, брезентов |
По расчету |
18
м2 на одну кушетку, на каждую последу- |
|
2.13 |
Помещение для хранения и регенерации грязи |
|
Площадь
помещений и объема бассейнов определяется по |
|
3. Отделение лечебной физкультуры |
|||
|
3.1 |
Кабинет лечебной физкультуры для индивидуальных занятий |
12 |
|
|
3.2 |
Зал лечебной физкультуры для групповых занятий: |
50 |
5 м2 на одно место |
|
душевые кабины |
|
|
|
|
раздевальная |
3+3 |
1,3 м2 на одно место |
|
|
кладовая инвентаря |
6 |
|
|
|
3.3 |
Зал для обучения ходьбе |
36 |
|
|
3.4 |
Зал лечебной физкультуры для занятий малых групп (до 4-х человек) |
20 |
|
|
3.5 |
Зал для занятий на тренажерах |
20 |
5 м2 на одно место |
|
3.6 |
Кабинет механотерапии |
20 |
4 м2 на одно место |
|
3.7 |
Кабинет массажа |
12 |
8 м2 на одну кушетку |
|
3.8 |
Душевая персонала (при количестве массажных кушеток 4 и более) |
3 |
|
|
3.9 |
Лечебно-плавательный бассейн |
135 (15×9) |
|
|
3.10 |
Лечебно-плавательный бассейн (малый) |
54 (9×6) |
|
|
3.11 |
Бассейн для обучения ходьбе |
72 (12×6) |
|
|
4. Общие помещения отделений |
|||
|
4.1 |
Кабинет заведующего отделением |
15 |
|
|
4.2 |
Кабинет врача |
12 |
|
|
4.3 |
Кабинет методиста |
10 |
|
|
4.4 |
Кладовая чистого белья |
4 |
|
|
4.5 |
Кладовая предметов уборки и грязного белья |
6 |
|
|
4.6 |
Уборные для больных и персонала |
3 |
Количество приборов определяется по расчету |
|
4.7 |
Ожидальная |
|
1,2 м2 на посетителя |
|
4.8 |
Помещение текущего ремонта аппаратуры |
18 |
|
|
4.9 |
Кладовая переносной аппаратуры |
12 |
|
|
4.10 |
Помещение хранения баллонов с углекислотой |
10 |
|
|
4.11 |
Кабина личной гигиены персонала |
3 |
|
|
4.12 |
Комната отдыха больных |
|
3,6
м2 на |
Рекомендуемая минимальная площадь помещений палатных отделений
Таблица А.6
|
№ |
Наименование помещения |
Площадь, м2 |
|
Палатная секция |
||
|
1. |
Палата на 1 койку: |
|
|
без шлюза |
14 |
|
|
со шлюзом |
17 |
|
|
со шлюзом и уборной |
20 |
|
|
со шлюзом, уборной и душевой |
22 |
|
|
2. |
Палата на 2 койки: |
|
|
без шлюза |
18 |
|
|
со шлюзом |
21 |
|
|
со шлюзом и уборной |
24 |
|
|
со шлюзом, уборной и душевой |
26 |
|
|
3. |
Палата на 3 койки: |
|
|
без шлюза |
27 |
|
|
со шлюзом |
30 |
|
|
со шлюзом и уборной |
33 |
|
|
со шлюзом, уборной и душевой |
35 |
|
|
4. |
Полубокс или бокс на 1 койку |
22 |
|
5. |
Кабинет врача |
12 |
|
6. |
Пост дежурной медицинской сестры |
6 |
|
7. |
Процедурные: |
|
|
с гинекологическим креслом (со сливом) и шлюзом |
22 |
|
|
без гинекологического кресла (одна на отделение) |
18 |
|
|
8. |
Клизменная (со шлюзом) |
10 |
|
9. |
Уборная для больных (со шлюзом и умывальником) I |
3 на один унитаз |
|
10. |
Санузел для инвалидов на креслах-колясках (уборная, душевая) |
6 |
|
11. |
Комната личной гигиены |
5 |
|
12. |
Умывальник с мойками для ног (1 умывальник на 6 коек в секции) |
|
|
13. |
Ванная с душем: |
|
|
без подъемника |
12 |
|
|
с подъемником |
14 |
|
|
14. |
Помещения (следует отделять друг от друга перегородками высотой 1,6 м) для: |
|
|
мытья и стерилизации суден, горшков, мытья и сушки клеенок |
8 |
|
|
сортировки и временного хранения грязного белья |
4 |
|
|
хранения предметов уборки с трапом, краном и сушкой; хранения дезсредств |
4 |
|
|
15. |
Помещение временного хранения инфицированного белья и постельных принадлежностей (с наружным выходом) |
4 |
|
16. |
Помещение дневного пребывания больных (на одну койку отделения) |
10 |
|
17. |
Веранда отапливаемая (по заданию на проектирование) |
3,5 на одну 1 койку на веранде |
|
18. |
Кладовая теплых вещей при веранде |
0,3 на одну койку на
веранде, но |
|
19. |
Кладовая для сбора и хранения материала для анализов (с вентиляцией) |
3 |
|
Помещения, общие на отделение |
||
|
20. |
Кабинет заведующего |
12 |
|
21. |
Перевязочная (для отделений хирургического профиля) |
22 |
|
22. |
Комната старшей медицинской сестры с местом для хранения медикаментов |
12 |
|
23. |
Комната сестры-хозяйки с помещением для временного хранения грязного белья |
10+6 |
|
24. |
Помещение хранения переносной физиотерапевтической и рентгеновской аппаратуры (в отделениях, состоящих из боксов, помещение должно иметь выход наружу) |
12 |
|
25. |
То же, в кардиологических отделениях с палатами интенсивной терапии |
20 |
|
26. |
Буфетная: |
|
|
|
для одной секции |
18 |
|
27. |
для 2 секций |
22 |
|
28. |
Столовая |
2,5 на 1 посадочное место |
|
29. |
Помещение сортировки и временного хранения грязного белья |
4 |
|
|
Кладовые: |
|
|
30. |
а) чистого белья |
4 |
|
31. |
б) хранения мягкого инвентаря |
10 |
|
32. |
в) временного хранения списанного инвентаря |
4 |
|
33. |
Помещение для хранения каталок (допускается за счет местного расширения коридора) |
6 |
|
34. |
Комната для сушки верхней одежды и обуви больных |
15 |
|
35. |
Комната персонала |
10 |
|
36. |
Кабина личной гигиены персонала |
3 |
|
37. |
Уборная для персонала (со шлюзом и умывальником). |
3 на 1 унитаз |
Состав и рекомендуемая площадь (м2) служебных и бытовых помещений гериатрического центра
Таблица А.7
|
№ |
Наименование помещений |
Мощность стационарных отделений центра – число посещений в смену |
||
|
150 |
300 |
450 |
||
|
1 |
Кабинет директора центра |
18 |
24 |
30 |
|
2 |
Приемная директора центра |
10 |
10 |
12 |
|
3 |
Кабинет заместителя директора центра по лечебной части |
- |
18 |
18 |
|
4 |
Кабинет заместителя директора центра по лечебно-консультативному отделению с приемной |
15+8 |
18+8 |
18+8 |
|
5 |
Кабинет заместителя главного врача по административно-хозяйственной части |
10 |
10 |
10 |
|
6 |
Комната главной медицинской сестры |
10 |
10 |
12 |
|
7 |
Комната инженерно-технического персонала |
10 |
10+10 |
12+12 |
|
8 |
Кабинет по охране труда и технике безопасности |
12 |
15 |
24 |
|
9 |
Статистический кабинет |
- |
- |
10 |
|
10 |
Организационно-методический кабинет |
- |
- |
12 |
|
11 |
Отдел кадров |
- |
- |
10 |
|
13 |
Комната общественных организаций |
10 |
16 |
16+12 |
|
14 |
Канцелярия, бухгалтерия |
10 |
15 |
20 |
|
15 |
Касса |
8 |
8 |
8 |
|
16 |
Медицинская канцелярия |
8 |
12 |
15 |
|
17 |
Медицинский архив |
12 |
12 |
12 |
|
19 |
Медицинская библиотека |
12 |
15 |
24 |
|
20 |
Библиотека для больных |
10 |
12 |
15 |
|
21 |
Диктофонный центр, в том числе: |
- |
|
|
|
- аппаратная |
|
8 |
12 |
|
|
- круглосуточный пост |
|
8 |
10 |
|
|
- зал обработки информации |
|
16 |
24 |
|
|
22 |
Центральная диспетчерская инженерных служб |
- |
- |
12 |
|
23 |
Помещение пожарного поста |
15 |
15 |
15 |
|
24 |
АТС |
- |
- |
- |
|
25 |
Радиоузел |
12 |
12 |
12 |
|
26 |
Комната психологической и психоэмоциональной разгрузки (со шлюзом) |
- |
16+2 |
24+2 |
|
27 |
Конференц-зал |
0,9 на 1 место |
||
|
28 |
Фойе при конференц-зале |
0,3
на 1 |
||
|
29 |
Кинопроекционная с перемоточной |
По нормам проектирования кинозалов |
||
|
30 |
Буфет для персонала: |
|
|
|
|
зал с раздаточной |
24 |
42 |
60 |
|
|
подсобное помещение |
6 |
8 |
12 |
|
|
моечная столовой посуды |
8 |
8 |
12 |
|
|
31 |
Закрытая душевая кабина персонала |
3 |
3 |
3 |
|
32 |
Парикмахерская для больных |
12+6 |
12+6 |
12+6 |
|
33 |
Комната личной гигиены |
3 |
3 |
3 |
|
34 |
Уборные для персонала |
3 |
3 |
3 |
|
35 |
Центральная бельевая |
12 |
15 |
30 |
|
36 |
Кладовая вещей больных и гладильная |
8 |
10 |
12 |
|
37 |
Кладовая предметов уборки с поливочным краном, трапом и сушкой |
6 |
6 |
6 |
|
38 |
Кладовая санитарно-гигиенической одежды, специальной обуви и защитных приспособлений |
15 |
18 |
30 |
|
39 |
Кладовая инвентаря |
18 |
24 |
30 |
|
40 |
Мастерская по текущему ремонту медицинского оборудования |
18 |
24 |
30 |
|
41 |
Кладовая ремонтного оборудования |
4 |
8 |
12 |
|
42 |
Ремонтно-эксплуатационная служба, в том числе: |
|
|
|
|
- столярная мастерская |
- |
28 |
36 |
|
|
- сантехническая мастерская |
18 |
24 |
24 |
|
|
- электротехническая мастерская |
- |
12 |
24 |
|
|
- гардеробные |
6 |
12 |
18 |
|
|
- душевые |
3 |
6 |
6 |
|
|
- уборные |
3 |
6 |
6 |
|
|
- складские помещения |
8 |
24 |
48 |
|
|
43 |
Вестибюль-гардеробная для посетителей стационара |
0,5 на одного посетителя |
||
|
44 |
Для бесед посетителей с лечащими врачами (помещение предусматривается в каждом корпусе) |
10 |
10 |
12 |
|
45 |
Для приема передач больным (в каждом корпусе) |
10 |
10+4 |
14+4 |
|
46 |
Справочная |
4 |
4 |
4 |
|
47 |
Уборные для посетителей в вестибюле* |
|
|
|
|
48 |
Гардеробная уличной одежды для персонала* |
|
|
|
|
49 |
Гардеробная домашней и рабочей одежды* |
|
|
|
*Площадь определяется расчетом по СНиП 2.09.04-87*.
Гериатрический центр
Общие положения
1.1 Гериатрический центр - учреждение здравоохранения, организуемое в субъекте Российской Федерации или муниципальном образовании с численностью населения от 300 тысяч человек.
1.2 Функции Центра могут быть возложены на госпиталь ветеранов войн, гериатрическую больницу либо на многопрофильную больницу, в структуре которой есть гериатрические отделения.
1.3 Центр может являться клинической базой медицинских образовательных и научно-исследовательских учреждений.
Цели и задачи Центра
2.1 Основной целью деятельности Центра является организация и оказание специализированной гериатрической медицинской помощи населению старших возрастных групп и лицам с признаками преждевременного старения организма.
2.2 Для выполнения этой Цели центр решает следующие задачи:
- мониторинг состояния здоровья лиц старших возрастных групп и потребности их в медицинской и медико-социальной помощи;
- оказание консультативной, лечебно-диагностической и реабилитационной помощи населению старших возрастных групп и лицам с преждевременными признаками старения организма;
- подбор адекватных лекарственных и немедикаментозных методик лечения в различных возрастных группах;
- проведение санитарно-просветительной работы, содействие в социально-психологической адаптации пожилым и обучение навыкам ухода за ними;
- оказание организационно-методической и практической помощи учреждениям и специалистам общей лечебной сети по вопросам гериатрии; проведение совещаний, конференций и семинаров по актуальным вопросам геронтологии и гериатрии;
- обеспечение взаимодействия с органами и учреждениями социальной защиты населения при решении медико-социальных вопросов;
- внедрение в практику современных методов диагностики, лечения и реабилитации, адаптированных к применению у пожилых больных и лиц с преждевременными признаками старения организма;
- анализ деятельности лечебной сети, гериатрических и медико-социальных учреждений и подразделений по оказанию лечебно-диагностической и реабилитационной помощи населению старших возрастных групп и лицам с признаками преждевременного старения организма;
- мониторинг выполнения государственных гарантий, в том числе льгот по медицинскому и лекарственному обеспечению, отдельным видам протезирования;
- участие в разработке региональных и территориальных программ по совершенствованию медицинской помощи и лекарственного обеспечения указанным категориям граждан.
Отделение медико-социальной помощи
Основные положения
1.1 Отделение медико-социальной помощи (ОМСП) - структурное подразделение амбулаторно-поликлинического учреждения или поликлинического отделения, специализированного диспансера и медико-социальной части, независимо от их организационно-правовой формы и ведомственной принадлежности.
1.2 Отделение организуется для оказания долговременной медицинской и медико-социальной помощи, преимущественно на дому больным старших возрастных групп и инвалидам, частично или полностью утратившим способность к передвижению и самообслуживанию.
1.3 Руководство Отделением осуществляет врач-гериатр или медицинская сестра с высшим медицинским образованием и дополнительной подготовкой по гериатрии.
Цели и задачи Отделения
2.1 Основной целью Отделения является обеспечение доступности медицинской и медико-социальной помощи больным старших возрастных групп и инвалидам, частично или полностью утратившим способность к передвижению и самообслуживанию.
2.2 С этой целью Отделение выполняет следующие функции:
- в соответствии с назначением лечащего врача организует и обеспечивает проведение диагностических, лечебных и реабилитационных мероприятий;
- проводит санитарно-просветительную работу, оказывает содействие в социально-психологической адаптации лицам пожилого возраста, осуществляет обучение правилам пользования средствами реабилитации, реабилитационной техникой и приспособлениями, навыками ухода за пациентами;
- обеспечивает в пределах своей компетенции взаимодействие с территориальными органами и учреждениями социальной защиты населения, медико-социальными экспертными комиссиями, организациями, осуществляющими продажу и прокат средств инвалидной техники, и другими государственными и общественными организациями и учреждениями.
Приложение к приказу Минздрава России
от 28.07.1999 г. №257
Положение о враче-гериатре
Общие положения
1.1 Врач-гериатр - специалист с высшим медицинским образованием по специальности - «лечебное дело», владеющий различными методами диагностики и терапии заболеваний лиц пожилого и старческого возраста, теоретическими и практическими знаниями в области геронтологии и гериатрии.
1.2 Обязанности врача-гериатра:
- Назначение и контроль необходимого лечения.
- Составление клинической оценки состояния больного с учетом наступающих возрастных изменений.
- Организация и самостоятельное проведение необходимых диагностических исследований с интерпретацией их результатов.
- Выполнение практической работы по амбулаторному (стационарному) ведению пациентов старших возрастных групп в гериатрических и других медицинских учреждениях.
- Внедрение в практику современных специфических геронтологических методов лечения и профилактики преждевременного и ускоренного старения, а также последние достижения фармакологии.
- Координация и планирование работы по медико-социальному обслуживанию престарелых людей с центром социальной помощи, обществом инвалидов и т.д.
Приложение 4 к приказу
Минздравмедпрома России
от 16.02.1995 г. № 33
Раздел 1. Планировочные решения отделений медико-социальной помощи
Блок врачебных кабинетов с темной звуконепроницаемой комнатой для офтальмологического и оториноларингического приема врачом-гериатром

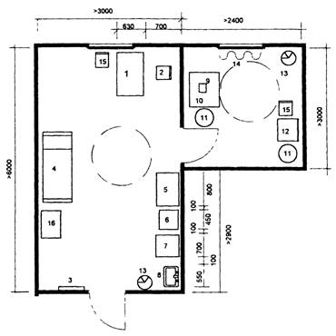
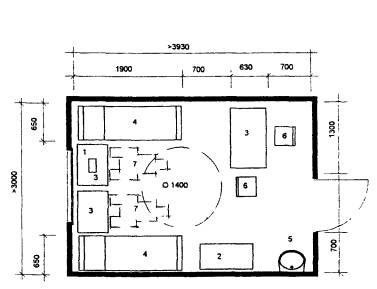
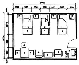
1. Вестибюль-гардеробная для посетителей; 2. Ожидальная для посетителей; 3. Уборная; 4. Кладовая; 5. Кабинет врача-гериатра с темной комнатой; 6. Кабинет медицинской сестры; 7. Процедурная; 8. Кабинет физиотерапии.
Рис. 1 Отделение медико-социальной помощи
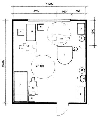
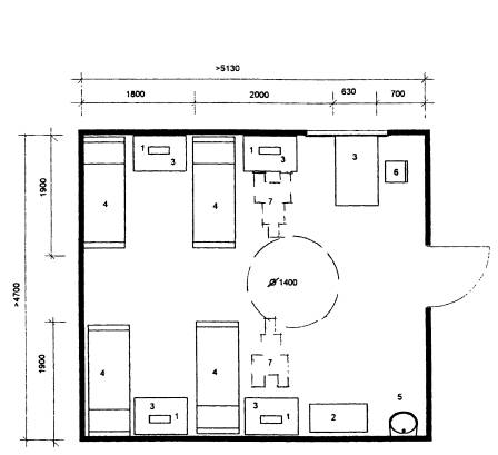
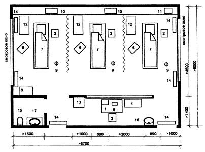
Блок врачебных кабинетов с расширенным набором услуг
План 1-го этажа

1. Вестибюль-гардеробная для посетителей; 2. Регистратура; 3. Уборная для посетителей; 4. Ожидальная для посетителей; 5. Кабинет врача-гериатра; 6. Кабинет медицинской сестры; 7. Манипуляционная; 8. Процедурная; 9. Диагностический кабинет (взятие проб на анализы, ЭКГ, УЗИ); 10. Кабинет врача-стоматолога; 11. Стерилизационная; 12. Кабинет социального работника.
Рис. 2 Отделение медико-социальной помощи

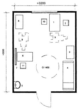
13. Кабинет физиотерапии; 14. Массажный кабинет; 15. Ингаляторий с компрессорной; 16. Кабинет методиста с кладовой инвентаря; 17. Мужская и женские раздевалки с душевыми; 18. Тренажерный зал; 19. Зал ЛФК; 20. Комната сестры-хозяйки; 21. Кладовая грязного белья; 22. Кладовая уборочного инвентаря; 23. Кладовая персонала с уборной.
Рис. 3
Отделение медико-социальной помощи
Раздел 2. Кабинеты лечебно-консультативного отделения
Блокировка стола врача со столом для персонального компьютера

ЭКСПЛИКАЦИЯ ОБОРУДОВАНИЯ
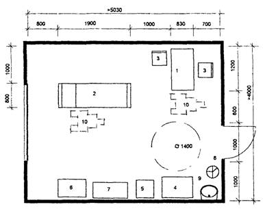
1. Стол врача; 2. Стол компьютерный; 3. Коляска инвалидная; 4. Шкаф врача; 5. Кресло рабочее; 6. Умывальник; 7. Весы медицинские; 8. Ростомер; 9. Стул с подлокотниками; 10. Столик инструментальный.
Рис. 4 Кабинет врача-гериатра

ЭКСПЛИКАЦИЯ ОБОРУДОВАНИЯ
1. Стол врача; 2. Стул офисный; 3. Таблица; 4. Кушетка смотровая; 5. Столик инструментальный 6. Шкаф медицинский; 7. Холодильник бытовой; 8. Умывальник керамический; 9. Стол палатный; 10. Офтальмоскоп; 11. Табурет винтовой; 12. Периметр настольный с регистрирующим устройством; 13. Бачок для отходов; 14. Светозащитный занавес; 15. Стул с подлокотниками; 16. Столик манипуляционный.
Рис. 5 Кабинет консультативного приема

ЭКСПЛИКАЦИЯ ОБОРУДОВАНИЯ
1. Кресло гинекологическое; 2. Столик инструментальный; 3. Светильник однорефлекторный передвижной; 4. Стул винтовой; 5, 6. Стул; 7. Кушетка; 8. Умывальник керамический; 9. Шкаф медицинский; 10. Инвалидная коляска; 11. Стол врача; 12. Бачок для мусора.
Рис. 6
Кабинет гинеколога, уролога

ЭКСПЛИКАЦИЯ ОБОРУДОВАНИЯ
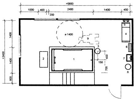
1. Стол врача; 2. Стул офисный; 3. Шкаф медицинский; 4. Кушетка смотровая; 5. Умывальник керамический; 6. Стол палатный; 7. Зеркало; 8. Стеллаж библиотечный; 9. Инвалидная коляска; 10. Стул с подлокотниками; 11. Стул медицинский.
Рис. 7 ![]()
![]()
Кабинет логопеда

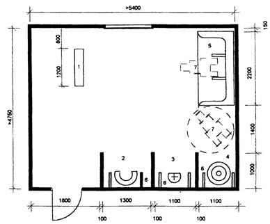
ЭКСПЛИКАЦИЯ ОБОРУДОВАНИЯ
1. Кресло стоматологическое; 2. Установка стоматологическая универсальная; 3. Столик стоматологический; 4. Стул стоматологический; 5. Стол врача; 6. Шкаф медицинский одностворчатый; 7. Столик инструментальный; 8. Стул; 9. Плевательница; 10. Бачок для отходов; 11. Инвалидная коляска.
Рис. 8 Кабинет ортопедической стоматологии

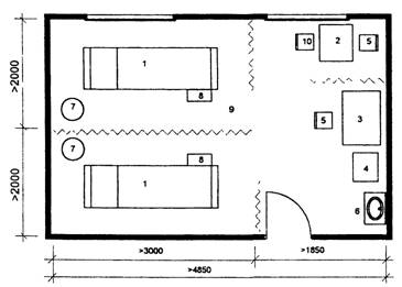
ЭКСПЛИКАЦИЯ ОБОРУДОВАНИЯ
1. Стол медсестры; 2. Кушетка смотровая; 3. Стул; 4. Стол палатный; 5. Холодильник бытовой; 6. Шкаф медицинский; 7. Столик инструментальный; 8. Бачок для отходов; 9. Умывальник керамический; 10. Инвалидная коляска.
Рис. 9 Процедурная
Раздел 3. Кабинеты лечебно-восстановительного отделения

ЭКСПЛИКАЦИЯ ОБОРУДОВАНИЯ
1. Кушетка процедурная; 2. Стол для переносной аппаратуры; 3. Стул с подлокотниками; 4. Инвалидная коляска.
Рис. 10 Кабинеты электросветолечения

ЭКСПЛИКАЦИЯ ОБОРУДОВАНИЯ
1. Стационарная ингаляционная установка; 2. Стул с подлокотниками; 3. Умывальник; 4. Экран; 5. Инвалидная коляска; 6. Стол врача; 7. Стул полумягкий; 8. Шкаф медицинский; 9. Столик инструментальный.
Рис. 11. ![]()
![]()
Ингаляторий на 3
места
А. На 2 кушетки

ЭКСПЛИКАЦИЯ ОБОРУДОВАНИЯ
1. Аппарат для проведения электросна; 2. Шкаф медицинский; 3. Стол; 4. Кровать для сна; 5. Умывальник керамический; 6. Стул; 7. Инвалидная коляска.
Рис. 12 Кабинет лечения электросном
Б. На 4 кушетки

ЭКСПЛИКАЦИЯ ОБОРУДОВАНИЯ
1. Аппарат для проведения электросна; 2. Шкаф медицинский; 3. Стол; 4. Кровать для сна; 5. Умывальник керамический; 6. Стул; 7. Инвалидная коляска.
Рис. 13 Кабинет лечения электросном

ЭКСПЛИКАЦИЯ ОБОРУДОВАНИЯ
1. Кушетка смотровая; 2. Тумбочка прикроватная; 3. Стол медсестры; 4. Стул медицинский полумягкий; 5. Инвалидная коляска.
Рис. 14 Кабинет озокерито- и парофинолечения

ЭКСПЛИКАЦИЯ ОБОРУДОВАНИЯ
1. Ванна керамическая ангобированная; 2. Душ; 3. Поворотное кресло; 4. Подъемник для помещения больного в ванну; 5. Инвалидная коляска.
Рис. 15 Фрагмент кабинета водолечения

ЭКСПЛИКАЦИЯ ОБОРУДОВАНИЯ
1. Ванна; 2. Подвесное кресло; 3. Трос или балка; 4. Инвалидная коляска.
Рис. 16 Планировочные схемы ванных залов

ЭКСПЛИКАЦИЯ ОБОРУДОВАНИЯ
1. Ванна подводного массажа; 2. Аппарат для подводного массажа; 3. Подъемник для помещения больного в ванну; 4. Банкетка; 5. Вешалка на два крючка; 6. Полотенцесушитель; 7. Умывальник керамический; 8. Ведро педальное; 9. Инвалидная коляска.
Рис. 17 Кабинет подводного массажа

ЭКСПЛИКАЦИЯ ОБОРУДОВАНИЯ
1. Пульт управления; 2. Душ циркулярный; 3. Душ дождевой; 4. Душ восходящий; 5. Душ шарко; 6. Откидные поручни; 7. Инвалидная коляска.
Рис.
18 Кабинет гидропатии

ЭКСПЛИКАЦИЯ ОБОРУДОВАНИЯ
1. Стол палатный; 2. Стул медицинский; 3. Кушетка смотровая.
Рис. 19 Бассейн для группы 5 человек

ЭКСПЛИКАЦИЯ ОБОРУДОВАНИЯ
1. Кушетка для массажа; 2. Стол для массажа; 3. Стол врача; 4. Шкаф медицинский; 5. Стул; 6. Умывальник; 7. Табурет винтовой; 8. Скамейка-подставка для ног; 9. Ширма трехстворчатая; 10. Стул с подлокотниками.
Рис. 20
Кабинет массажа

ЭКСПЛИКАЦИЯ ОБОРУДОВАНИЯ
1. Место для тренажера; 2. Стол медицинской сестры; 3. Стул; 4. Шкаф; 5. Инвалидная коляска; 6. Умывальник.
Рис. 21 Кабинет механотерапии

ЭКСПЛИКАЦИЯ ОБОРУДОВАНИЯ
1. Кушетка смотровая; 2. Скамья универсальная; 3. Скамья гимнастическая; 4. Стол врача; 5. Стул медицинский; 6. Весы медицинские; 7. Ростомер; 8. Гимнастическая стенка; 9. Умывальник; 10. Место для тренажера; 11. Снаряды подвесные гимнастические; 12. Ковер гимнастический; 13. Столик передвижной; 14. Стеллаж деревянный; 15. Комплект аппаратов для механотерапии.
Рис. 22 Зал ЛФК
Раздел 4. Помещения стационарных отделений
Схема взаимосязи помещений

ЭКСПЛИКАЦИЯ ОБОРУДОВАНИЯ
1. Диван; 2. Кресло для отдыха; 3. Журнальный стол.
Рис. 23 Приемное отделение

ЭКСПЛИКАЦИЯ ОБОРУДОВАНИЯ
1. Столик инструментальный; 2. Шкаф медицинский; 3. Стол врача; 4. Стул медицинский полумягкий; 5. Стул с подлокотниками; 6. Кушетка смотровая; 7. Умывальник.
Рис. 24 ![]()
![]()
Смотровая

ЭКСПЛИКАЦИЯ ОБОРУДОВАНИЯ
1. Кровать функциональная; 2. Тумбочка прикроватная; 3. Инвалидное кресло-коляска; 4. Стол; 5. Стол журнальный; 6. Кресло-кровать; 7. Кресло для отдыха; 8. Стул с подлокотниками; 9. Умывальник; 10. Холодильник; 11. Столик надкроватный; 12. Кресло-судно передвижное.
Рис. 25 ![]()
Палата на 1
койку

ЭКСПЛИКАЦИЯ ОБОРУДОВАНИЯ
1. Кровать функциональная; 2. Тумбочка прикроватная; 3. Инвалидное кресло-каталка; 4. Стол; 5. Стол журнальный; 6. Кресло-кровать; 7. Кресло для отдыха; 8. Стул с подлокотниками; 9. Умывальник;
10. Холодильник; 11. Столик надкроватный; 12. Кресло-судно передвижное.
Рис. 26 ![]()
![]()
Палата на 2
койки

ЭКСПЛИКАЦИЯ ОБОРУДОВАНИЯ
1. Кровать функциональная; 2. Тумбочка прикроватная; 3. Инвалидное кресло-каталка; 4. Стол; 5. Стол журнальный; 6. Кресло-кровать; 7. Кресло для отдыха; 8. Стул с подлокотниками; 9. Умывальник; 10. Холодильник; 11. Столик надкроватный; 12. Кресло-судно передвижное.
Рис. 27 ![]()
![]()
Палата на 3
койки

ЭКСПЛИКАЦИЯ ОБОРУДОВАНИЯ
1. Стол медсестры; 2. Тумбочка прикроватная; 3. Стул полумягкий; 4. Шкаф для поста дежурной медсестры; 5. Система наблюдения; 6. Прикроватное устройство; 7. Кровать функциональная; 8. Столик инструментальный; 9. Штатив для длительных вливаний; 10. Отсасыватель хирургический; 11. Дефибрилятор импульсный; 12. Аппарат иск. вент. легких; 13. Холодильник бытовой; 14. Облучатель бактерицидный; 15. Слив больничный; 16. Умывальник; 17. Мойка чугунная.
Рис. 28 Палата интенсивной терапии

ЭКСПЛИКАЦИЯ ОБОРУДОВАНИЯ
1. Кушетка медицинская; 2. Ванна прямобортная; 3. Тумба прикроватная; 4. Табурет; 5. Умывальник; 6. Шкаф для медико-хозяйственных принадлежностей; 7. Полотенцесушитель; 8. Вешалка на два крючка; 9. Подъемник для перемещения больного в ванну; 10. Каталка; 11. Душ.
Рис. 29 Планировочные схемы санитарно-гигиенических зон
|
Ключевые слова: функционально-планировочные решения, медико-социальная помощь, гериатрический центр, врач-гериатр |
|
|
|
|