//
ТехЛит.ру
- крупнейшая бесплатная электронная интернет библиотека для "технически умных" людей.
WWW.TEHLIT.RU - ТЕХНИЧЕСКАЯ ЛИТЕРАТУРА

:: Алготрейдинг::


АЛГОТРЕЙДИНГ
шаг за шагом
с нуля по урокам!

Торговые роботы на PYTHON, BackTrader,
Pandas, Pine Script для TradingView. Связка с брокерами, телеграм и легкими приложениями.


Вопросы отопления современных кинотеатров

А.Н. Сканави, В.М. Иванов, В.И. Сасин

Страницы истории специальности

1962 год

В современных построенных в больших городах отдельно стоящих кинотеатрах; рассчитанных на 800-1100 и более мест, ночной перерыв в работе обычно составляет 9 часов. При работе этих кинотеатров зимой тепловыделения в фойе и особенно в зрительных залах с избытком превышают теплопотери даже при температурах наружного воздуха, близких к расчетной для отопления (для Москвы равной -26 °С): Для поддержания комфортных условий в фойе и зрительных залах кинотеатры оборудуют мощной вентиляцией, а в ряде случаев - устройствами для; кондиционирования воздуха. По действующим нормам в фойе и подвальных помещениях, устанавливают радиаторы центральной системы отопления, а в зрительном зале предусматривают устройство дежурного отопления.

Дежурное отопление проектируется с таким расчетом, чтобы поддерживать в зрительном зале температуру воздуха, равную 14 °С в нерабочее время кинотеатра, когда нет теплопоступлений от зрителей. При расчетах не учитывается теплоаккумуляция ограждающих конструкций. Систему дежурного отопления в обычных условиях эксплуатации во время сеанса не отключают, что заставляет понижать температуру приточного воздуха во избежание перегрева зала. В связи с этим возникают местные переохлаждения, воздуха в зоне пребывания людей и увеличивается подвижность воздуха, неприятная для зрителей.

Предварительные расчеты, проведенные по методике проф. Л.А. Семенова [1], показали, что в отдельно стоящих кинотеатрах, типа «Прогресс», - «Ленинград» и «Рассвет» (построенных за последнее время в Москве) за время ночного перерыва при отключенных отопительных приборах и даже их отсутствии температура воздуха в фойе и зрительном зале не должна опускаться ниже минимально допустимой.

Для проверки этого положения в течение трех отопительных периодов - с 1959 по 1961 год - проводились исследования температурно-влажностного режима воздушной среды в основных помещениях кинотеатра «Прогресс».

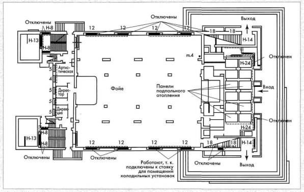
Кинотеатр «Прогресс» представляет собой отдельно стоящее здание на 1060 мест с кирпичными стенами толщиной 640 мм, не считая внутренней штукатурки и наружного облицовочного кирпича толщиной 60 мм. Кинотеатр построен на Ломоносовском проспекте в Москве по проекту института Моспроект. Зрительный зал кинотеатра имеет 4 наружных ограждения - стены и потолок. Коэффициенты теплопередачи наружных стен и покрытия зрительного зала соответственно равны 0,82 и 0,55 ккал/м2·ч·град. Под зрительным залом на первом этаже расположено фойе, имеющее две наружные стены с двойными окнами в деревянных переплетах. Остекленность наружных стен в фойе равна 25,2 %.

В кинотеатре принята двухтрубная система отопления с нижней разводкой магистралей в подвале, с попутным движением воды.

В зрительном зале предусмотрено дежурное отопление от двух рециркуляционных гравитационных водонагревателей, поверхность нагрева которых выполнена из калориферов КФБ-9, установленных в вертикальных шахтах. Шахты расположены по обе стороны экрана над выходами из зрительного зала. В заэкранной части и в нишах у выходов из зрительного зала установлены радиаторы типа «Нерис» (число секций указано на планах - рис. 1 и 2 - с индексом Н). В фойе в нишах под окнами установлены радиаторы типа Н-136 (число секций указано на планах без индекса). Радиаторы установлены также во всех помещениях административной части, на внутренних лестницах, в вестибюле и в помещениях подвала, В полу вестибюля размещены панели лучистого отопления, нагреваемые обратной водой системы отопления.

Рис. 1. План первого этажа кинотеатра «Прогресс»

Рис. 2. План второго этажа кинотеатра «Прогресс»

Для нагревания поступающего в вестибюль наружного воздуха в пространство между двойными входными дверями подается подогретый воздух воздушно-тепловой завесы. В зрительном зале предусмотрено кондиционирование воздуха, в фойе - приточно-вытяжная вентиляция.

Конечной целью проводившихся исследований было выявить, возможность отказа от отопления фойе и зала в кинотеатрах типа «Прогресс». Кроме того, выявлялась также возможность применять формулы проф. Л.А. Семенова [1] и проф. В.Д. Мачинского [2] для определения снижения температуры воздуха при квазистационарном тепловом режиме в зрительных залах подобных кинотеатров.

При проведении исследований отключались калориферы дежурного отопления зрительного зала и радиаторы в заэкранной его части, а также все радиаторы в фойе, вестибюле, на внутренних лестницах и в подвале (за исключением радиаторов, установленных в подземном помещении холодильной станции).

Непрерывные замеры температуры воздуха проводились недельными термографами в течение 5 недель в 1959 году, 12 недель в 1960 году и 3 недель в 1961 году.

Расположение точек замеров показано на планах, а также на разрезе кинотеатра «Прогресс» (рис. 1, 2 и 3). Термографы были установлены в зрительном зале на эстраде перед (т. 1) и за (т. 2) экраном, в смотровом окне проекционной (т. 3) и в фойе на высоте двух метров от пола (т. 4). В этих же точках были установлены недельные гигрографы для непрерывных замеров относительной влажности воздуха. В то же время при помощи недельного термографа непрерывно фиксировалась температура наружного воздуха.

Рис. 3. Разрез I-I второго этажа кинотеатра

Несколько раз при помощи термопар и потенциометра проводились также наблюдения за изменением в течение нерабочего времени температуры внутренней поверхности наружной стены.

Замеры проводились у пола на эстраде и в заэкранной части (т. 5), где в меньшей степени сказывалась инфильтрация наружного воздуха в зрительный зал через неплотно закрытые вытяжные отверстия над выходными дверями. Термопара была также установлена на расстоянии двух метров от 5-й точки в щели той же наружной стены (т. 6). Одновременно в точках 1, 2, и 3 и на высоте 30 см над полом у первого ряда кресел зала (т. 7) определяли температуру и относительную влажность воздуха при помощи психрометра Асмана.

На основании термограмм за периоды, в течение которых проводились наблюдения, построен график (рис. 4) зависимости снижения температуры воздуха в зрительном зале Аt за 8 часов ночного перерыва от средней наружной температуры воздуха tcн. При построении графика для каждого значения наружной температуры от 0 °С и ниже записывались соответствующие величины падения температуры воздуха в помещении Аt, которые затем усреднялись. Необходимо отметить, что величина Аt зависит не только от наружной температуры, но и (в связи с возможностью перетекания наружного воздуха через выходные двери, расположенные с наветренной и заветренной сторон зрительного зала) от скорости ветра и его направления. Поэтому построенный график характеризует лишь средние величины Аt в зависимости от tcн.

Рис. 4. График зависимости снижения температуры воздуха в зрительном зале за 8 часов ночного перерыва от температуры наружного воздуха

В фойе снижение температуры воздуха относилось не к 8, а к 9 часам нерабочего времени, т.к. приточный вентиляционный агрегат фойе выключался одновременно с началом последнего сеанса.

За время наблюдений термографы, установленные на эстраде перед экраном (т. 1), т.е. на уровне 1,5 м от пола в пределах зоны пребывания зрителей (рабочая зона) в средних рядах зала, не записали снижения температуры в помещении более чем на 4 °С, при температуре tрв = 16-20 °С (где tрв - температура воздуха в рабочей зоне средних рядов зрительного зала в момент окончания сеанса). Самые низкие показания термографов, установленных на эстраде перед экраном, были при этом равны 14 °С (три раза за три отопительных периода). В фойе максимальное снижение температуры воздуха за 9 часов перерыва составило 5 °С при температуре tфв = 18-25 °С. Наиболее интенсивное снижение температуры в зрительном зале наблюдалось в течение первых 3-х часов, а в фойе - в течение первого часа после ухода зрителей. В зрительном зале температура воздуха в рабочей зоне средних рядов поддерживалась, как правило, равной 18 °С, а в фойе - равной 20 °С.

График зависимости Аt = f(tcн) показывает довольно устойчивую связь между Аt и tcн. Большее снижение температуры воздуха в зрительном зале на уровне кинопроекционной и в фойе по сравнению с рабочей зоной зрительного зала объясняется более высокими начальными температурами воздуха на уровне проекторов tпрв и в фойе tфв, чем в рабочей зоне.

При построении графика (рис. 4) не учитывалось кратковременное повышение температуры воздуха в помещениях («пики» температуры), обусловленное отключением вентиляции до окончания последнего сеанса:

Соотношение температур воздуха в помещениях в момент окончания последнего сеанса следующее:

tрв < tфв < tпрв.

На рис. 5 представлен характерный график изменения температуры воздуха в зрительном зале и температуры внутренней поверхности наружной стены в заэкранной части. Замеры производились ночью и утром 3-го марта 1960 года при tcн = -16,5 °С. На графике видны характерные «пики» температуры воздуха, относящиеся к последнему сеансу. Однако это кратковременное повышение температуры воздуха не сопровождалось значительным ростом температуры внутренней поверхности стен (т. 5).

Рис. 5. График колебаний температуры воздуха в зрительном зале и температуры внутренней поверхности наружной стены заэкранной части за время ночного перерыва при tсн = -16,5 °С и отключенных дежурном отоплении и радиаторах в заэкранной части

Некоторый период после ухода зрителей температура воздуха в зрительном зале (т. 2, т. 3) интенсивно падала. В это время теплосодержание, полученное воздухом в течение последнего сеанса при отсутствии вентиляции, использовалось для покрытия дополнительных теплопотерь. Затем снижение температуры воздуха замедлялось.

Вследствие значительной инфильтрации наружного воздуха температура воздуха в отдельных местах зрительного зала, особенно перед первым рядом (т. 7), где ночью наблюдалась наибольшая подвижность воздуха, становилась ниже температуры внутренней поверхности наружной стены. Поэтому тепло, аккумулированное массивом наружных стен, расходовалось и на подогрев воздуха, инфильтрующегося в зрительный зал.

К началу утреннего сеанса температура внутренней поверхности наружных стен оказывалась близкой к температуре воздуха в помещении. Из графика (рис. 4) видно, что абсолютная величина снижения температуры воздуха помещения незначительна даже при температуре наружного воздуха, близкой к расчетной температуре для отопления. Температура точки росы при этом не достигается.

На основании проведенных наблюдений можно утверждать, что для кинотеатров типа «Прогресс» с массивными ограждениями следует отказаться как от дежурного отопления зрительного зала, так и от отопления фойе. Как показали натурные наблюдения и соответствующие расчеты, для поддержания необходимой температуры воздуха в помещениях подвала вполне достаточно теплопоступлений от проложенных в них магистральных трубопроводов системы отопления, а также теплопоступлений через междуэтажное перекрытие над подвалом.

На основании экспериментальных данных была проверена возможность применения формул В.Д. Мачинского и Л.А. Семенова для расчетов падения температуры воздуха в нерабочее время в зрительных залах крупных отдельно стоящих кинотеатров.

Проф. В.Д. Мачинским [2] приведена следующая формула для расчета температуры воздуха в помещении при нестационарном тепловом режиме:

                                                                              (1)

где

                                                                                                               (2)

                                                                                                       (3)

tсн - средняя температура наружного воздуха за рассматриваемый период в град;

tв - начальная температура воздуха помещения в град;

q - теплопотери помещения при разности температур внутреннего и наружного воздуха в 1 °С в ккал/ч;

t'0 - начальная избыточная температура отопительной системы (начальная разность между средней температурой нагревательного прибора и температурой воздуха помещения) в град;

f1 и k1 - поверхность нагрева и коэффициент теплоотдачи отопительной системы соответственно в м2 и ккал/(м2·ч·град);

с - эквивалент (общая теплоемкость) содержания воды и металла в отопительной системе;

W - тепловыделения ограждениями и мебелью при снижении их поверхностной температуры на 1 °С в ккал/(ч·град);

W' - постоянные тепловыделения зрителями за 1 ч в ккал/ч;

μ - коэффициент, учитывающий отставание температуры внутренних ограждений от температуры воздуха в помещении; для первого периода μ = 0,5 при At > Aτ (здесь Aτ -снижение температуры внутренней поверхности ограждений за то же время, что и для At); для второго и третьего периодов μ = 1 при At » Aτ;

z - время в часах;

е - основание натурального логарифма.

В кинотеатре «Прогресс» в течение трех отопительных периодов система отопления в зрительном зале была выключена, т.е. В = 0. Во время ночных перерывов в зрительном зале людей не было, поэтому в выражении (2) А = tcн. В результате, преобразования формула (1) принимает следующий вид:

                                                                                           (4)

где

                                                                                         (5)

                                                                  (6)

где ki - коэффициенты теплопередачи конструкций (наружные стены и потолок) в ккал/(м2·ч·град);

Fi - соответствующие площади конструкций в м2;

ωi - тепловыделения 1 м2 ограждения при падении поверхностной температуры на один градус за z часов в ккал/(м2·град);

Gi - вес мебели, занавеса и т.п. в кг;

сi - теплоемкость мебели занавеса и т.п. в ккал/(кг·град).

В.Д. Мачинский [2] рассматривает три периода остывания помещения при нестационарном тепловом режиме после отключения нагревательных приборов. В первый период температура воздуха в помещении быстро падает, в то время как температура поверхностей внутренних и, особенно, наружных ограждений снижается незначительно. Во второй период темп падения температуры примерно одинаковый для всех ограждений и воздуха. В третий период охлаждается вся толща ограждений, даже начинает падать температура наружных поверхностей.

Определение продолжительности первого периода, для которого в формуле (1) μ = 0,5, производится путем подбора. При определении температуры воздуха в помещении в первый период, согласно указаниям В.Д. Мачинского, при подсчете величины W не учитывались тепловыделения наружными ограждениями из-за малого снижения их поверхностной температуры по сравнению со снижением температуры воздуха в помещении. При подсчете величины W для внутренних ограждений значения ωi определяли подбором по скорости падения температуры воздуха [2, табл. на с. 158]. Тепловыделения мебелью принимаются из расчета равномерного снижения температуры, т.е. на основании, формулы (6) Wмеб = Gc.

Сравнение теоретических и экспериментальных данных о снижении температуры воздуха в зрительном зале производилось только для первого периода. Продолжительность этого периода по экспериментальным данным составила более 8 часов (рис. 5 и термограммы на рис. 6), т.е. первый период охлаждения соответствует всему ночному перерыву.

Рис. 6. Графики суточного изменения температур наружного tн и внутреннего tв воздуха в кинотеатре «Прогресс»

В частности, при tсн = -5,7 °С и tнв = 16,5 °С (28/II - 1959 г.); tсн = -16,5 °С и tнв = 16,7 °С (3/III - 1960 г.), а также tсн = -19 °С и tнв = 19 °С (25/I - 1961 г.) были подсчитаны отношения теоретических снижений температуры воздуха в зрительном зале АТt, найденных по формулам, к действительным Аt, записанным термографами без учета временного повышения «пик» температуры.

АТt определялось по разности:

АТt = tнв - t8,                                                                                                                (7)

где tнв - температура воздуха в зрительном зале в момент окончания последнего сеанса, принятая в расчетах за начальную, в град;

t8 - температура воздуха в зрительном зале после 8 часов нерабочего времени (в 8 часов 30 минут).

В 8 - 8:30 утра в кинотеатр приходит обслуживающий персонал, открывающий внутренние двери. Более теплый воздух из подвала в фойе попадает в зрительный зал, и температура воздуха в зрительном зале начинает повышаться (примерно с 8 - 8:30, а не со времени начала первого сеанса). Поэтому нерабочим (8 часов) принято считать время с момента окончания последнего сеанса до прихода обслуживающего персонала (рис. 6).

При определении АТt значения ωi принимались в зависимости от темпа охлаждения по таблице [2, с. 172], примерно соответствующего найденному с помощью формулы (4).

Для примера найдем температуру воздуха в зрительном зале после 8 часов ночного перерыва при tсн = -19 °С и tнв = 19 °С (по замерам в ночь на 25/I - 1961 г.).

Задавшись предварительным темпом охлаждения 1 °С за 1 час и найдя соответствующие значения ωi по таблице [2, с. 158], по формуле (6) определяем W:

W = 15,6×146,5 + 10,0×1075,0 + 9,6×985,0 + 10×1000×0,65 = 28990 ккал/град,

где первое слагаемое - тепловыделения внутренней кирпичной стеной, второе - потолком и двумя сторонами внутренних перегородок, третье - полом и четвертое - 1000 креслами весом по 10 кг каждое.

По теплотехническому расчету (формула 5), для зрительного зала q = 1155 ккал/(ч·град). При z = 8 часам по формуле (4)

и по формуле (7)

АТt = 19 - 0,08 = 18,92 °С.

Очевидно, что принятый темп охлаждения (1 °С за 1 час) не соответствует полученному (1 °С за 8/18,92 = 0,42 ч).

Задавшись другими темпами охлаждения, 1 °С за 2, 3, 4 и 5 часов при соответствующих значениях ωi по формуле (4) найдем, что снижение температуры воздуха после 8-часового перерыва соответственно равно 16,29; 14,97; 14,07 и 13,80 °С, откуда расчетный темп охлаждения соответственно равен 1 °С за 0,5; 0,54; 0,57 и 0,58 часа. Как видно, эти значения еще более расходятся с предварительно принятыми темпами охлаждения и значительно отличаются от Аt = 2,8 °С (см. табл.).

Результаты обследования систем с комбинированными вытяжными каналами

Дата замеров

tсн в град

tнв в град

t*8 в град

tс*в град

Qсред в ккал/ч

АТt в град

В зоне пребывания людей, в средних рядах зала

На уровне проекционных отверстий зала

А**t в град

АТt/Аt

А**t в град

АТt/Аt

28/II-1959 г.

-5,7

16,5

14,5

15,5

24 500

2,11

1,50

1,40

2,60

0,81

3/III-1960 г.

-16,5

16,7

13,5

15,1

36 500

3,14

1,70

1,85

2,80

1,14***

25/I-1961 г.

-19

19

15,4

17,0

41 860

3,60

2,80

1,28

-

-

*t8 - температура воздуха в зрительном зале после 8 часов нерабочего времени и tcв - средняя температура воздуха за рассматриваемый период охлаждения (8 часов) - найдены путем расчета.

**Аt - найдена без учета кратковременного повышения температуры.

***В т.ч. 7 3,14/4,1 = 0,77 (получено в условиях влияния инфильтрующегося воздуха).

Расчеты, приведенные для других условий (tсн = -5,7 °С и tнв = 16,5 °С; tсн = -16,5 °С и tнв = 16,7 °С), по формуле (4) показали значительное расхождение между АТt и Аt.

На основе сравнения теоретического и действительного снижения температуры воздуха в зрительном зале следует прийти к выводу о нецелесообразности применения формулы (1) В.Д. Мачинского для определения снижения температуры воздуха при нестационарном режиме в зрительных залах крупных отдельно стоящих кинотеатров.

Были произведены также подсчеты по формуле Л.А. Семенова [1]:

                                                                                                           (8)

где М - коэффициент неравномерности теплового потока;

где т - время отопления;

п - время перерыва;

m + n - длительность теплового цикла

Qсред - средние теплопотери помещения в ккал/ч;

а - поправочный коэффициент (при воздушном отоплении а = 0,93);

В - коэффициент теплопоглощения в ккал/(м2·ч·град), равный

                                                                                                                     (9)

Fo - общая площадь поверхности в м2.

Значения В приняты по табл. 17 «Справочника по теплоснабжению и вентиляции в гражданском строительстве» [3]. По расчету для зрительного зала (с учетом поверхности кресел) ΣBFо = 10800 ккал/(ч·град) и по формуле (5) q = 1155 ккал/(ч·град). Все расчеты сведены в таблицу.

Как видно из таблицы, формула Л.А. Семенова при подсчетах АТt для зоны пребывания людей в зрительных залах рассматриваемых кинотеатров дает завышенные в среднем в 1,5 раза результаты (при выбранном коэффициенте а = 0,93).

Как уже отмечалось, в приведенных соотношениях значения АТt принимались без учета временных повышений температуры, которые получаются в результате отключения вентиляции одновременно с началом последнего сезона. Повышение температуры воздуха в зрительном зале в течение последнего сеанса достигало 2 °С. За это же время, т.е. примерно за 2 часа, температура внутренних поверхностей ограждений повышалась только на 0,25 - 0,5 °С (рис. 5, 6). Поэтому, как подтвердили наблюдения, значения At во всех точках замеров при отключенной вентиляции на последнем сеансе были на 0,5 - 1 °С больше значений At при вентиляции, работающей до конца последнего сеанса.

Выключение вентиляции привело, как показали гигрограммы, к резкому повышению относительной влажности («пикам» относительной влажности), чего не наблюдалось при непрерывной работе вентиляции. Кондиционер, обслуживающий зрительный зал, работал без увлажнения воздуха. Относительная влажность в зрительном зале в дневное время была равна примерно 25-30 % и лишь при отключении вентиляции на последнем сеансе повысилась до 40-50 % (рис. 7), т.е. до расчетной влажности при кондиционировании воздуха. Отсюда следует, что проведенные исследования верны и для того случая, когда в зале постоянно будет поддерживаться подобная относительная влажность воздуха. Однако, если в этом случае кондиционер не будет работать в течение последнего сеанса, то перед, его отключением необходимо последние 20-30 минут вентилировать зал без увлажнения воздуха.

Рис. 7. График суточного изменения относительной влажности воздуха в зрительном зале

Параллельно с наблюдениями в кинотеатре «Прогресс» были, проведены наладочные работы (диаметр сопла элеватора был уменьшен с 6,5 до 3 мм), что позволило уменьшить расход тепла в здании за счет отключения радиаторов, имеющих поверхность 234,4 м2 (из общего количества 325,2 м2) в фойе, на внутренних лестницах и в подвале, а также системы дежурного отопления зрительного зала. Эти мероприятия привели к значительному снижению стоимости теплоснабжения кинотеатра.

На основании проведенных исследований, можно сделать следующие выводы:

1. В зрительных залах отдельно стоящих крупных кинотеатров, расположенных в климатических условиях Москвы, характерных для средней полосы европейской части СССР, имеющих массивные наружные ограждения и работающих с 9 - 10-часовым перерывом в ночное время, устройства систем дежурного отопления не требуются.

При проектировании систем вентиляции и отопления кинотеатров необходимо производить расчет снижения температуры воздуха в зрительных залах. При расчете рекомендуется пользоваться формулой (8), причем для зоны пребывания людей в зрительном зале следует принимать а = 0,7, как для помещений с печным или центральным отоплением [1].

2. В фойе крупных кинотеатров, оборудованных приточно-вытяжной вентиляцией, при условиях, указанных выше, следует отказаться от установки нагревательных приборов центрального отопления. В этом случае расчет источников теплоснабжения - вентиляционных агрегатов - необходимо производить при расчетной наружной температуре для систем отопления.

При длительных перерывах в работе кинотеатров залы и фойе следует отапливать с помощью калориферов вентиляционных установок, работающих на рециркуляцию,

3. В подвальных помещениях, в которых прокладываются теплопроводы, должны учитываться теплопоступления от магистральных горячих труб (с отказом в случае необходимости от изоляции последних).

4. При строительстве новых кинотеатров типа кинотеатра «Прогресс» в климатических условиях, близких к московским, осуществление указанных выше мероприятий может дать, экономию капиталовложений с учетом стоимости разводки трубопроводов и арматуры в сумме около 3000 руб. (в том числе 1500 руб. за счет отказа от устройства дежурного отопления в зрительном зале) при общей стоимости системы отопления по проекту 6080 руб.

5. В дальнейшем представляет определенный интерес проведение подобных исследований, посвященных работе систем отопления, в фойе крупных кинотеатров, вертикальные ограждения которых выполнены в виде, немассивных стеклянных витражей (как, например, в кинотеатрах «Ракета» и «Россия», в Москве).

Литература.

1. Семенов Л.А. Печное отопление. - М.: Госстройиздат, 1960.

2. Мачинский В.Д. Теплотехнические основы строительства. - М.: Госстройиздат, 1949.

3. Щекин Р.В. и др. Справочник по теплоснабжению и вентиляции в гражданском строительстве. Государственное издательство литературы по строительству и архитектуре. - Киев, 1959.

Ежемесячный научно-технический и производственный журнал «Водоснабжение и санитарная техника», май, 1962, № 5.

Журнал «АВОК» № 7 2007 г.

 




Яндекс цитирования



   Copyright © 2007-2026,  www.tehlit.ru.

[ ѓосты, стандарты, нормативы, инструкции, правила, строительные нормы ]