//
ТехЛит.ру
- крупнейшая бесплатная электронная интернет библиотека для "технически умных" людей.
WWW.TEHLIT.RU - ТЕХНИЧЕСКАЯ ЛИТЕРАТУРА

:: Алготрейдинг::


АЛГОТРЕЙДИНГ
шаг за шагом
с нуля по урокам!

Торговые роботы на PYTHON, BackTrader,
Pandas, Pine Script для TradingView. Связка с брокерами, телеграм и легкими приложениями.


Методическая документация в строительстве

ЗАО «ЦНИИОМТП»

РЕКОМЕНДАЦИИ

ПО СОСТАВЛЕНИЮ ПРОЕКТА ПРОИЗВОДСТВА РАБОТ
НА УСТАНОВКУ И ЭКСПЛУАТАЦИЮ БАШЕННОГО КРАНА

МДС 12-45.2008

Москва 2008

В документе содержатся рекомендации и методический пример по составлению проекта производства работ на установку и эксплуатацию башенного крана.

Документ разработан в развитие и дополнение РД 11-06-2007 и МДС 12-81.2007.

Документ разработали сотрудники ЗАО «ЦНИИОМТП» (кандидаты техн. наук В.П. Володин и Ю.А. Корытов).

Документ предназначен для проектных организаций, разрабатывающих проекты производства работ, и строительно-монтажных организаций.

СОДЕРЖАНИЕ

ВВЕДЕНИЕ

Ежегодно увеличиваются объемы строительства зданий и сооружений, а также реконструкции, модернизации и разборки ветхих зданий. Строительно-монтажные работы при этом производятся в основном с применением башенных кранов. Работы выполняются, как правило, в стесненных условиях плотной городской застройки.

Строительно-монтажные работы с применением башенных кранов производятся согласно ПБ 10-382 по специально разработанным проектам производства работ на установку и эксплуатацию башенного крана (ППРк).

ППРк относится к основным организационно-технологическим документам строительства. От того, как выполнен ППРк, во многом зависит безопасность эксплуатации башенного крана и производства основных строительно-монтажных работ. Работа крана оказывает влияние на качество и производительность строительно-монтажных работ.

ППРк должен удовлетворять требованиям ПБ 10-382 и РД 11-06 и содержать полный состав и объем сведений, необходимых для безопасного производства строительно-монтажных работ. В ППРк должны предусматриваться:

- соответствие устанавливаемого башенного крана условиям строительно-монтажных работ по грузоподъемности, высоте подъема и вылету крюка;

- соответствие применяемых грузозахватных приспособлений перемещаемым строительным грузам (строительные конструкции, детали, материалы);

- схемы строповки грузов;

- организация участка производства работ (ограждение и знаки безопасности, места складирования строительных и других грузов, расстановка временных зданий и сооружений, подъездные пути и т.п.);

- мероприятия по обеспечению безопасной эксплуатации крана (вблизи от сетей и воздушных линий электропередачи, откосов и котлованов, мест движения городского транспорта и пешеходов, существующих зданий и сооружений, складов, при работе нескольких кранов на одном пути и на параллельных путях и т.п.).

ППРк согласовывают и утверждают в установленном порядке.

ППРк входит в состав организационно-технологических документов на подготовительный период строительства и является востребованным местными органами государственного надзора при подготовке разрешительных документов на строительные работы.

Настоящий документ содержит рекомендации по разработке ППРк и методический пример, из которого видно, как следует выполнять требования упомянутых документов к составу и содержанию ППРк. Методический пример ППРк составлен для башенного крана типа КБ-503. Рассматриваются работы подготовительного периода строительства, относящиеся к организации работы крана. В связи с тем что кран эксплуатируется в стесненных условиях, он оборудуется системой ограничения зоны работы (СОЗР).

Рельсовый путь спроектирован и устроен для нормальных (неспецифических по СП 12-103) условий эксплуатации крана.

Изложение и оформление разделов ППРк выполнены с учетом требований РД 11-06 и рекомендаций МДС 12-81.

ППРк состоит из текстовой и графической частей.

Текстовая часть содержит основные положения по организации и технологии работ крана, сведения об обеспечении качества монтажных работ, перечень необходимых грузозахватных приспособлений, решения по обеспечению безопасности работ, выполняемых краном.

Графическая часть представлена схемами вертикальной и горизонтальной привязок крана к объекту монтажных работ.

Настоящий методический документ предназначен для оказания помощи инженерно-техническим работникам проектных, проектно-технологических и строительных организаций в разработке ППРк.

В основу методического документа положены результаты работ ЗАО «ЦНИИОМТП» и других проектно-технологических институтов, а также обобщение опыта разработки ППРк московскими строительными организациями.

1. ПОЯСНИТЕЛЬНАЯ ЗАПИСКА

ППРк разработан на основании договора, технического задания и представленных исходных данных. В составе исходных данных представлены: проект организации строительства, проект производства монтажных работ по возведению объекта, проект рельсового пути. В исходных данных содержатся сведения о строящемся объекте, о существующих зданиях и сооружениях на территории стройплощадки и вблизи нее, о надземных и подземных сетях и коммуникациях, об условиях строительства и безопасного производства работ, об основных строительных грузах, о применяемом башенном кране, о грунтах и рельсовом пути.

ППРк разработан на монтаж надземной части индивидуального жилого четырнадцатиэтажного панельного здания с первым нежилым этажом. План здания - прямоугольник с размером 39,1 и 14,1 м, высота 41,3 м.

Сборные элементы дома в основном железобетонные панели - перекрытий, наружных и внутренних стен, перегородок, покрытий. Несущие панели наружных и внутренних стен, перегородок выполнены из тяжелого армированного бетона, а ненесущие - из легкого бетона. Панели перекрытий изготовлены из предварительно напряженного железобетона с каналами для электропроводки, с монтажными отверстиями для временного крепления панелей и страховочных приспособлений, толщина панелей до 300 мм, а масса - до 8 т.

В составе работ краном предусматривается монтаж этажей, чердака и машинного помещения.

Подбор башенного крана выполнен по параметрам грузоподъемности, вылета и высоты подъема крюка. Данный ППРк разработан для башенного крана типа КБ-503 (ОАО «Механический завод», Санкт-Петербург), при помощи которого производится монтаж стеновых панелей, плит перекрытия, лестничных маршей и площадок и т.д.

Требуемая грузоподъемность крана определена по массе наиболее тяжелого сборного железобетонного элемента здания вместе со съемным грузозахватным приспособлением (траверсой).

Вылет определен расстоянием по горизонтали от оси вращения башни до вертикальной оси грузозахватного приспособления (стропа, траверсы).

Требуемая высота подъема определена от нулевой отметки здания до монтажной высоты с учетом запаса высоты и расстояния от крюка до груза.

Башенный кран КБ-503, монтируемый из секций по высоте, с грузовым моментом до 280 тс-м характеризуется следующими параметрами:

- высота подъема крюка при горизонтальном положении стрелы - 53 м;

- максимальный вылет крюка - 35 м.

При вылете крюка от 7,5 до 28 м кран перемещает сборные элементы здания массой не более 10 т, при вылете от 29 до 35 м - не более 7,5 т. График грузоподъемности крана, который приводят, как правило, в ППРк, здесь не приводится.

Кран работает в стесненных условиях: зона действия крана превышает размеры стройплощадки. Для уменьшения опасной зоны на кране устанавливается СОЗР. Система ограничивает вылет (до 18 м) и высоту подъема крюка (до 6 м) при строповке и подъеме панелей с площадки их временного складирования (или с панелевоза) и вылет (до 24 м) и необходимую высоту подъема крюка при монтаже наружных панелей в проектное положение.

Рельсовый крановый путь с колеей 7,5 м и протяженностью 31,25 м устроен на земляном полотне из естественного грунта с подсыпкой. Балластные призмы отсыпаны из крупнозернистого песка. Рельсы типа Р65 уложены на железобетонные балки БРП-62.8-3 (конструкции ЗАО «ЦНИИОМТП»).

Балки, изготовленные по проекту № 1977.10.100, предусмотрены для нагрузки от колеса на рельс до 331 кН (32,5 тс). Габаритные размеры балки 6230×820×330 мм, масса 3450 кг.

На рельсовом пути установлены тупиковые упоры безударного типа конструкции ЗАО «ЦНИИОМТП» (проект 29-4.00.000).

Для крепления рельсов к балкам и скрепления рельсов между собой использованы стандартные железнодорожные детали (прижимы, накладки, болты, гайки, шайбы).

Для устройства заземления использован комплект инвентарных деталей, состоящий из заземлителей, проводников, перемычек и т.д.

Рельсовый путь сооружен в соответствии с проектом и по проекту производства работ, подлежит обкатке и испытаниям, принимается в эксплуатацию согласно акту сдачи-приемки.

Для монтажа-демонтажа крана типа КБ-503 предусмотрена указанная на стройгенплане свободная площадка размером 50×20 м. Кран монтируется на рельсовом пути согласно технологической карте, должен быть испытан и принят в эксплуатацию согласно акту сдачи-приемки.

Отступления от решений, принятых в проекте организации строительства, при разработке ППРк не предусматриваются.

При разработке ППРк использованы нормативные, методические и справочные документы, основные из которых указаны в разделе 2.

2. НОРМАТИВНЫЕ И МЕТОДИЧЕСКИЕ ДОКУМЕНТЫ

СНиП 3.03.01-87*. Несущие и ограждающие конструкции

СНиП 12-03-2001. Безопасность труда в строительстве. Часть 1. Общие требования

СНиП 12-04-2002. Безопасность труда в строительстве. Часть 2. Строительное производство

ГОСТ 12.1.019-79. ССБТ. Электробезопасность. Общие требования

ГОСТ 12.1.030-81. ССБТ. Электробезопасность. Защитное заземление, зануление

ГОСТ 12.1.046-85. ССБТ. Строительство. Нормы освещения строительных площадок

ГОСТ 12.3.009-76. ССБТ. Работы погрузочно-разгрузочные. Общие требования безопасности

ГОСТ 12.4.059-89. ССБТ. Строительство. Ограждения предохранительные инвентарные. Общие технические условия

ГОСТ 7502-98. Рулетки измерительные металлические. Технические условия

ГОСТ 23407-78. Ограждения инвентарные строительных площадок и участков производства строительно-монтажных работ. Технические условия

ГОСТ 25546-82*. Краны грузоподъемные. Режим работы

ГОСТ 25573-82. Стропы грузовые канатные для строительства. Технические условия

ГОСТ Р 12.4.026-2001. ССБТ. Цвета сигнальные, знаки безопасности и разметка сигнальная. Назначение и правила применения. Общие технические требования и характеристики. Методы испытаний

ГОСТ Р 51248-99. Наземные рельсовые крановые пути. Общие технические требования

ПБ 10-382-00. Правила устройства и безопасной эксплуатации грузоподъемных кранов

ППБ 01-03. Правила пожарной безопасности в Российской Федерации

РД 11-06-2007. Методические рекомендации о порядке разработки проектов производства работ грузоподъемными машинами и технологических карт погрузочно-разгрузочных работ

СП 12-103-2002. Пути наземные рельсовые крановые. Проектирование, устройство и эксплуатация

МДС 12-19.2004. Механизация строительства. Эксплуатация башенных кранов в стесненных условиях

МДС 12-31.2007. Методические рекомендации по техническому освидетельствованию съемных грузозахватных приспособлений

МДС 12-44.2008. Рекомендации по составлению проекта производства работ на устройство рельсового пути башенного крана

МДС 12-81.2007 Методические рекомендации по разработке и оформлению проекта организации строительства и проекта производства работ

ПОТ РМ-007-98. Правила по охране труда при погрузочно-разгрузочных работах и размещении грузов

ПОТ РМ-016-2001. Межотраслевые правила по охране труда (правила безопасности) при эксплуатации электроустановок.

3. ОРГАНИЗАЦИЯ И ТЕХНОЛОГИЯ ВЫПОЛНЕНИЯ РАБОТ

3.1. Подготовительные работы

3.1.1. До начала основных работ производится планировка строительной площадки, устраиваются временные дороги и проезды, стоянки строительных машин и автотранспорта, выполняются другие работы согласно проекту организации строительства.

До начала работ краном должны быть закончены работы подготовительного периода, нулевого цикла и возведен первый нежилой этаж здания.

3.1.2. Подготавливается площадка для устройства кранового пути размером 36x17 м. По проекту кранового пути и проекту производства работ, составленному согласно требованиям ГОСТ Р 51248 и рекомендациям МДС 12-44, сооружается рельсовый путь для башенного крана.

Крановый путь подлежит обкатке не менее 10 раз краном без груза и не менее 5 раз с максимальным рабочим грузом.

После обкатки пути проводят нивелировку (планово-высотную съемку) положения рельсовых нитей по головкам рельсов. В случае превышения предельно допустимых значений планово-высотного положения рельсовых нитей или упругой просадки проводятся подбивочные и рихтовочные работы.

3.1.3 Подготавливается площадка для монтажа крана размером 50×20 м. По технологической карте, составленной на основе заводской инструкции, осуществляется монтаж крана, на кране устанавливается Система ограничения зоны действия крана, затем производятся его полное техническое освидетельствование (включая крановый путь) и пуск в работу.

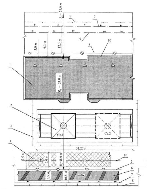
3.1.4 Привязка кранового пути производится к оси здания с использованием буквенных обозначений размером по РД 11-06 (рисунок 1).

Кран установлен на рельсовый путь колеи K = 7,5 м, отметка головки рельса минус 0,6 м от нулевой отметки здания. При расстоянии согласно проекту на крановый путь от стены до ближней к ней головки рельса Б = 4,5 м и при наибольшем радиусе поворотной части крана Rп = 5,5 м габарит приближения п* составляет

п* = (Б + 0,5K) - Rп = (4,5 + 0,5-7,5) - 5,5 = 2,7 м.

При расстоянии от стены здания до его выступающей части а = 1,0 м (балконов, начинающихся с шестого этажа) габарит приближения к тросам грузового полиспаста составляет п** = 1,8 м. Отсюда видно, что фактические значения габаритов приближения удовлетворяют нормативным значениям - 0,8 м.

Рисунок 1 - Привязка башенного крана к зданию

Расстояние от оси крана до стены здания

S = Б+0,5K = 4,5 + 0,5 · 7,5 = 8,25 м.

При подъеме груз перемешается на высоте не менее чем на 500 мм выше встречающихся препятствий.

3.1.5. Высота подъема крюка hп определена:

hп = (hз + п) + hгр + hгр.пр + 2,3 = (41,3 + 0,6) + 3,0 + 5,0 + 2,3 = 52,2 м,

где hз = 41,3 м- высота здания;

п = 0,6 м - разность отметок головки рельса и нулевой отметки здания;

hгр = 3 м - высота поднимаемого груза;

hгр.пр = 5 м - длина грузозахватного приспособления;

2,3 - нормативный запас высоты из условий безопасного производства работ на верхней отметке здания, м.

3.1.6. Зона работы крана определена по значениям параметров (перемещения, вылета и высоты подъема крюка, поворота стрелы), при которых обеспечиваются монтажные работы при возведении здания и погрузочно-разгрузочные работы.

Зоны ограничения высоты подъема крюковой подвески 52,2 м и 6 м и ограничения вылета 24 м и 18 м установлены по максимальным значениям высоты и вылета для соответствующих зон.

Зона предупреждения устанавливается согласно нормам с учетом скорости и массы перемещаемого груза на расстоянии 3 м перед зоной запрета.

3.1.7. На рисунке 2 приведен фрагмент стройгенплана с зонами, образующимися при работе башенного крана.

Здание 1 возводится с применением башенного крана 2, перемещающегося на крановом пути длиной 31,25 м.

Зона работы крана при максимальном вылете R = 35 м проходит над временной автомобильной дорогой по постоянной трассе 6, выходит за линию ограждения строительной площадки 8, поэтому на кране устанавливаются приборы СОЗР. Система ограничивает вылет с R = 35 м до Rp = 24 м и Rp =18 м по линиям 5 ограничения зоны действия крана. Знаки 10 предупреждения об ограничении зоны действия крана устанавливаются на расстоянии 3 м перед линиями ограничения 5 зоны действия крана.

Опасные зоны определены по установленной и общепринятой методике.

Опасная зона 9 от возможного падения предмета с наибольшим габаритом 3,7 м с высоты возводимого здания находится на расстоянии 9,3 м от стены.

Опасная зона от возможного падения груза (плита перекрытия с размером 6,6×3,7 м), перемещаемого краном над площадкой 4 на высоте, ограниченной 6 м, принята 10,8 м.

Опасная зона от возможного падения груза, перемещаемого краном с применением страховочных приспособлений, составляет 12,3 м. Опасные зоны от возможного падения груза обозначены линиями 7 (см. рисунок 2).

Рисунок 2 - Стройгенплан с зонами, образующимися при работе башенного крана (фрагмент)

3.1.8. Ограждение кранового пути 3 высотой 1,2 м, конструкция которого приведена в проекте пути, устанавливается на расстоянии 4,5 м от оси головки рельса и торцов рельсовых нитей. В торцах пути ограждение примыкает к зданию.

Согласно проекту рельсового пути устанавливают следующие знаки безопасности, изготовленные в соответствии с требованиями ГОСТ Р 12.4.026:

«Вход на крановый путь запрещен»;

«Место стоянки крана».

3.1.9. Крайние стоянки крана, обозначенные на рисунке 3 Ст.1 и Ст.2, расположены на расстоянии 1,5 м от тупиковых упоров. Место стоянки крана в нерабочем положении совмещается с крайней стоянкой Ст. 1.

3.1.10. Подготовка к работе Системы ограничения зоны работы крана включает следующие основные работы:

- составление плана работы и запрет движений крана;

- установку Системы (датчиков, микропроцессорного устройства, электрошкафа) согласно схеме рисунка 3;

- электротехнические работы по включению Системы в электросхему крана;

- наладку, тарировку датчиков, испытание и пуск Системы.

План работы и запрет движений крана составляется для введения его в программное устройство Системы. План составляется на основе данного ППРк на листе формата А4, как правило, организацией, специализирующейся на установке на кранах Системы, и здесь не приводится.

Установка датчиков и микропроцессорного устройства производится до монтажа крана. Наладочные работы и испытания выполняются на строительной площадке.

3.1.11. В кабине крановщика размещают план (дисплей) с изображением зон: работы крана, предупреждения и запрета.

При вхождении в зону предупреждения груза (крюковой подвески) Система должна выдавать предупреждающий звуковой сигнал, приводы механизмов крана должны при этом переключаться крановщиком (или автоматически) на пониженные скорости.

Рисунок 3 - Установка на кране Системы ограничения зоны работы крана

При вхождении в зону запрета груза (крюковой подвески) Система должна выдавать запрещающий сигнал (загорается красная лампочка) и автоматически отключать соответствующие приводы крана.

3.1.12. Программа работы Системы составляется по плану работы и запрета движений крана путем установки крюковой подвески (груза) в заданных точках на границе зоны запрета и соответствующей тарировки датчиков.

3.1.13. Для разгрузки и временного складирования сборных элементов здания предназначена площадка 4 шириной 6 м (см. рисунок 2).

Длина площадки установлена с учетом размещения не менее трех автомашин, одновременно стоящих под разгрузкой, и принята 38 м.

Площадки для приема раствора и бетонной смеси, складирования строительных материалов и другого назначения (для хранения съемных грузозахватных приспособлений, для нахождения контрольного груза, для стенда со схемами строповки и таблицами масс грузов, санитарно-бытовых помещений и т.п.) и другие обязательные составляющие строй генплана здесь условно не показаны.

3.1.14 Ширина временной автомобильной дороги по постоянной трассе 6 при сквозном однополостном движении в направлении, указанном стрелкой, принята 3,5 м (см. рисунок 2).

Шкаф электропитания башенного крана, закрывающийся на замок, установлен с наружной стороны ограждения кранового пути. К шкафу электропитания предусмотрен свободный подход.

Административно-бытовые помещения и другие временные здания и сооружения, где находятся люди, размещены за пределами опасных зон.

3.1.17. Схемы строповки разработаны на сборные элементы здания (наружные и внутренние панели и перегородки, плиты перекрытий и покрытий, блоки инженерных коммуникаций, детали шахты лифтов и т.д.) и на непроизводственные грузы (поэтажная прорабская, будка герметчика, контейнеры с монтажной оснасткой и т.д.).

Схемы строповки разработаны по рабочим чертежам сборных элементов с учетом их конструкции, габаритов и масс, расположения монтажных петель.

Схемы строповки пронумерованы в проекте производства монтажных работ.

Таблица масс грузов составлена по спецификациям сборных элементов здания и по расчету для других строительных грузов.

Место расположения на строительной площадке стенда со схемами строповки и с таблицей масс грузов указывается на стройгенплане.

3.1.18. Основные и дополнительные знаки безопасности, показанные на стройгенплане, должны быть установлены на местности по правилам РД 11-06.

3.1.19. Техническое освидетельствование съемных грузозахватных приспособлений и тары производится до ввода их в эксплуатацию и в процессе эксплуатации согласно ПБ 10-382 и МДС 12-31.

3.1.20. Готовность к эксплуатации крана, оснащенного Системой ограничения зоны работы, кранового пути и съемных грузозахватных приспособлений, подтверждается соответствующими актами сдачи-приемки.

3.2. Основные работы

3.2.1. Монтаж сборных элементов здания производится преимущественно с транспортных средств и с максимальным совмещением монтажных работ с внутренними общестроительными и специальными работами, включая сборку лифтов и отделочные работы.

3.2.2. В связи с тем, что временная автомобильная дорога 6 для технологического автотранспорта попадает в опасную зону, ограниченную линией 7, необходимо выставить сигнальщиков. Сигнальщики должны не допускать проезда по этой дороге автотранспорта во время работы крана на площадке 4 (см. рисунок 2).

3.2.3. Для уменьшения величины опасной зоны монтаж длинномерных элементов (панелей, плит и т.п.) производится с использованием страховочных приспособлений (оттяжек) длиной 6 м, диаметром 12 мм.

До подъема элемента с панелевоза или со склада площадки 4 к монтажным петлям элемента крепят по два страховочных приспособления. Подъем, перемещение и монтаж элемента производятся с закрепленными страховочными приспособлениями.

3.2.4. Перед началом работ на монтажной захватке здания должны быть с помощью крана установлены контейнеры с монтажной оснасткой, закладными деталями и необходимыми материалами, поэтажная прорабская, будка герметчика, необходимый инвентарь.

Цикл работы крана по монтажу сборного железобетонного элемента здания состоит, как правило, из следующих операций:

- подъем элемента с панелевоза (или другого автотранспортного средства) или временного склада на высоту до 6 м;

- перемещение элемента грузовой кареткой крана из зоны запрета подъема груза на высоту 6 м (над площадкой 4);

- подъем элемента на высоту, соответствующую монтажному горизонту;

- горизонтальное перемещение поворотом стрелы элемента и установка его над проектным положением;

- вертикальное перемещение (спуск) и установка элемента в проектное положение.

3.2.5. Монтаж сборных элементов производится в последовательности и по правилам, установленным в технологическом проекте производства работ.

При монтаже сборных элементов придерживаются принципа монтажа «на кран» (на себя), т.е. монтируют элементы, наиболее удаленные от крана.

Для предотвращения падения предметов с монтажного горизонта прежде всего производят установку наружных панелей по всему периметру. Для устойчивости каждая панель временно до расстроповки закрепляется инвентарными подкосами.

3.2.6. До начала монтажа последующего этажа должны быть закончены все работы по монтажу предыдущего этажа. При перемещении сборных элементов на монтажном горизонте монтажники должны находиться вне контура устанавливаемого элемента, со стороны, противоположной направлению его перемещения.

3.2.7. Строповка сборных элементов производится инвентарными грузозахватными приспособлениями (стропами, траверсами) заводского изготовления (см. раздел 5).

Строповка сборного элемента производится после проверки его проектной марки с применением соответствующего грузозахватного приспособления и согласно схеме строповки, указанной в технологической карте монтажа.

Перед подъемом сборного элемента необходимо:

- очистить подъемные петли от грязи, зимой - от снега и наледи, а металлические закладные детали - от наплыва бетона и ржавчины;

- проверить правильность и надежность закрепления грузозахватного устройства.

3.2.8. При монтаже сборного элемента необходимо:

- поднимать и перемещать монтируемые элементы плавно, без рывков, раскачивания и вращения;

- осуществлять подъем элемента в два приема: сначала на высоту 20-30 см, а дальнейший подъем - после проверки надежности строповки;

- не допускать толчков и ударов монтируемого элемента по другим ранее установленным конструкциям;

- опускать и принимать поданные к месту установки сборные элементы на высоте не более 1 м, а наводить - на высоте 30 см от уровня их установки в проектное положение;

- устанавливать сборные элементы непосредственно на опорные места по ориентирам (рискам и др.) в соответствии с допусками, принятыми в проекте;

- освобождать от крюка сборные элементы после их надежного постоянного или временного закрепления.

3.2.9. Монтаж типового этажа производится захватками в направлении «на себя», в следующей последовательности:

- монтаж плит перекрытия, балконов и лоджий;

- монтаж панелей наружных и внутренних стен, ограждений балконов и лоджий;

- монтаж блоков инженерных коммуникаций и элементов лестнично-лифтового узла;

- монтаж санитарно-технических кабин, вентиляционных блоков и перегородок.

На перекрытии устанавливаются временное ограждение опасной зоны (от падения с высоты) и страховочное приспособление, производится расстановка краном прорабской, контейнеров с монтажной оснасткой и инвентарем. Монтажные работы ведутся по схемам последовательности монтажа и временного крепления сборных элементов. Сборные элементы стропуют с учетом их масс согласно «Таблице масс» и «Схем строповки».

3.2.10. Подъем и подача к месту монтажа плит перекрытия с панелевоза выполняются при помощи грузозахватного устройства-траверсы с автоматическим кантователем, обеспечивающим поворот плиты из вертикального положения в горизонтальное.

Монтаж перекрытия начинается с укладки лестничных плит и панелей, примыкающих к лестнично-лифтовому узлу. Монтаж производится в направлении от середины к краям с соблюдением следующих принципов монтажа: «на кран» и «с колес».

3.2.11. Блоки инженерных коммуникаций монтируют поэтажно, с опиранием железобетонного поддона блока по трем сторонам на смежные панели стен лестничной клетки. Блоки инженерных коммуникаций устанавливают по проектным отметкам опорных поверхностей так, чтобы совместить соответствующие каналы смежных блоков.

Шахты лифтов монтируют из объемных элементов с установленными в них кронштейнами для закрепления направляющих кабин и противовеса. Шахты лифтов устанавливают с соблюдением соосности дверных проемов.

3.2.12. Монтаж лестниц производят до начала укладки панелей перекрытия на данной захватке. Монтаж лестницы начинают с установки междуэтажной лестничной площадки, которую укладывают на опорные элементы.

При этом соблюдают проектные отметки опорных поверхностей и расположение площадок в плане. Лестничные марши монтируют после выверки и постоянного закрепления площадок. Марши подают к месту установки вилочными захватами. На опорную поверхность опускают вначале нижнюю, а затем - верхнюю части марша. После окончания монтажа лестниц устанавливают временные ограждения площадок и маршей.

3.2.13. Монтаж санитарно-технических кабин, вентиляционных блоков и перегородок производится с выполнением тех же операций, что и других сборных элементов здания. Санитарно-технические кабины устанавливают на упругие звукоизолирующие прокладки, уложенные по перекрытию. При установке кабин водопроводный и канализационный стояки выверяют и совмещают с соответствующими стояками, расположенными ниже.

Монтаж вентиляционных блоков ведется поэтажно, с установкой их на опорные полки.

3.2.14. Монтаж чердака производится по захваткам в следующей последовательности:

- монтаж наружных фризовых панелей;

- монтаж чердачных рам, панелей стен лестнично-лифтовых узлов;

- монтаж кровельных плит.

Монтаж наружных фризовых панелей выполняется аналогично монтажу панелей наружных стен жилых этажей. Панели устанавливают по фасаду в одной плоскости, по вертикали, не допуская перепадов наружных поверхностей.

Монтаж чердачных рам, панелей лестнично-лифтовых узлов выполняется аналогично монтажу панелей внутренних стен.

3.2.15. Монтаж кровельных плит производят после установки, выверки и постоянного закрепления других сборных элементов на захватке. Подъем и подача к месту укладки плит выполняются при помощи траверсы с автоматическим кантователем. Монтаж плит начинают с укладки лотковых плит, затем укладывают остальные плиты в направлении от середины к краям, соблюдая при этом принцип монтажа «на кран».

4. КОНТРОЛЬ КАЧЕСТВА РАБОТ

4.1. Контролю подлежат работы по устройству кранового пути, монтажу крана и привязке крана к зданию.

4.2. Качество работ по устройству кранового пути обеспечивается текущим контролем технологических операций подготовительных и основных работ, а также при приемке работ.

Основные контролируемые параметры и характеристики, способы их измерения и оценки приведены в таблице 1.

По результатам текущего контроля технологических операций составляются акты освидетельствования скрытых работ по установленной форме (на сооружение земляного полотна и балластной призмы, на устройство заземления).

Приемка рельсового пути оформляется актом сдачи-приемки работ по установленной форме. К акту сдачи-приемки работ прилагаются акты скрытых работ.

4.3. Качество работ по монтажу крана определяется по параметрам и правилам, изложенным в заводской эксплуатационной документации, и оценивается в результате его технического освидетельствования.

Таблица 1

Контролируемый параметр, характеристика

Предельная величина, отклонение

Способ контроля, инструмент

Продольный и поперечный уклоны рельсового пути

Не более 0,003°

Измерение, нивелир

Упругая просадка рельсового пути при обкатке

Не более 5 мм

Прямолинейность рельсового пути на участке 10 м

Отклонение не более 15 мм

Измерение, лазерный уровень

Колея рельсового пути

7500 ± 10,0 мм

Измерение, механическая рулетка

Зазор в стыке рельсов при температуре 0 °С и длине звена 12,5 м

Не более 6 мм

Шаблон

Смещение торцов рельсов в плане и по высоте

Не более 1 мм

Измерение, штангенциркуль

Сопротивление растеканию тока в заземлении

Не более 4,0 Ом

Измерение, тестор

4.4. Разрешение на пуск башенного крана в работу выдается в порядке, установленном Правилами устройства и безопасной эксплуатации грузоподъемных кранов (ПБ 10-382).

4.5. Качество работ, выполненных по привязке башенного крана к зданию, оценивается по соответствию фактических размеров привязки проектным размерам.

4.6. С помощью башенного крана должно быть обеспечено требуемое качество монтажных работ по возведению здания.

Качество монтажных работ оценивается степенью соответствия фактических и проектных (нормативных по СНиП 3.03.01) показателей и параметров монтажа здания.

Основные контролируемые показатели и параметры качества монтажных работ, способы их измерения и оценки приведены в таблице 2.

Таблица 2

Основные технологические операции

Контролируемые показатели и параметры

Допускаемое значение, требование

Способ контроля и инструмент

Монтаж плит перекрытия:

 

 

 

этажей

Ширина шва между плитами

15-20 мм

Линейка измерительная

балконов и лоджий

Установочные размеры

Отклонения ± 5,0 мм

Теодолит, нивелир, отвес, уровень, рулетка

Монтаж наружных и внутренних панелей, перегородок, блоков инженерных коммуникаций

То же

То же

То же

5. ПОТРЕБНОСТЬ В ГРУЗОЗАХВАТНЫХ ПРИСПОСОБЛЕНИЯХ,
ПРИБОРАХ КОНТРОЛЯ И ДИАГНОСТИКИ

5.1. Работа крана обеспечивается инвентарными грузозахватными приспособлениями заводского изготовления.

Для оценки технического состояния крана и крановых путей предусмотрены средства контроля и диагностики быстроизнашивающихся элементов крана и приборов безопасности, параметров кранового пути.

5.2. Перечень основных грузозахватных приспособлений приведен в таблице 3.

5.3. Для контроля и диагностики быстроизнашивающихся элементов крана (ходовых колес и тележки, блоков, барабанов, крюка, шкивов тормозов, тормозных накладок, тросов) предусмотрены приборы и инструмент выявления усталостных трещин в металле и измерения износа трущихся поверхностей. При этом используются стандартные средства измерений (штангенциркули, линейки, лупы и т.п.) и приборы ультразвукового, магнитного, вихретокового и других методов диагностирования.

5.4. Перечень основных приборов контроля и диагностики рельсового пути приведен в таблице 4.

Таблица 3

Наименование и назначение грузозахватного приспособления

Марка, ГОСТ, разработчик, изготовитель, номер чертежа

Основной параметр, техническая характеристика

Траверса универсальная

ЗАО «Ржевский ЭРМЗ», 4047Н

Грузоподъемность 10 т

Универсальное грузозахватное устройство

Трест Мосоргстрой, 6461

Грузоподъемность 9 т

Траверса для монтажа лифтовых шахт

ООО «Кранмонтаж», 24-00033 СБ

Грузоподъемность 9 т

Универсальная траверса

СПКТБ «Кассетдеталь», ТФ 13262

Грузоподъемность 7 т

Укороченная траверса

Трест Мосоргстрой, 4047НУ

Длина 3,7 м

Гидрокантователь

ДСК-3, № 12340

Длина 9,0 м

Вилочный захват для монтажа лестничных маршей

ЗАО «Ржевский ЭРМЗ», ОР 52.32.00

Грузоподъемность 2,1 т

Строп кольцевой СКК1-5,5

ГОСТ 25573

Грузоподъемность 5 т, длина 5 м

Таблица 4

Наименование и назначение

Тип, марка, ГОСТ, разработчик

Основной параметр, техническая характеристика

Нивелир для измерения высот, продольных и поперечных уклонов рельсового пути

BL 40 VHR, СКБ «Строй-прибор»

Лазерный, пределы измерений до 0,006. Точность измерений 0,5 мм/м

Уровень для измерения прямолинейности пути

BL 20 VHR, СКБ «Строй-прибор»

Лазерный, пределы измерений до 25 мм. Точность измерений 0,5 мм/м

Тестор для измерения сопротивления растеканию тока в заземлении

Типа Щ 4313

Пределы измерений 1-6 Ом

Механическая рулетка для измерения линейных параметров пути

ГОСТ 7502

Пределы измерений до 50 м. Класс точности не ниже 3

6. ОБЕСПЕЧЕНИЕ БЕЗОПАСНОСТИ ПРОИЗВОДСТВА РАБОТ КРАНОМ

6.1. Безопасность работ краном обеспечивается:

- диагностикой и поддержанием крана, крановых путей и съемных грузозахватных приспособлений в исправном техническом состоянии;

- выполнением правил безопасности при производстве работ.

6.2. Исправное техническое состояние крана поддерживается за счет выполнения мероприятий технического обслуживания и ремонта по ГОСТ 25546, которые изложены в эксплуатационной и ремонтной документации завода-изготовителя.

Предельные нормы браковки канатов и других быстроизнашивающихся элементов крана приведены в приложениях 13 и 14 ПБ 10-382.

6.3. Точность и надежность функционирования СОЗР проверяется инженерно-техническими работниками при выполнении технического обслуживания крана. Перечень работ по техническому обслуживанию указан в эксплуатационной документации на Систему.

Крановщик обязан в начале смены проверять работу Системы согласно инструкции в эксплуатационной документации. В случае отказа Системы работа крана должна быть прекращена до выявления причины и устранения отказа. Эксплуатационная документация на Систему должна храниться в составе документов постоянного пользования на кран.

6.4. Исправное техническое состояние кранового пути поддерживается за счет контроля его параметров и соответствующего технического обслуживания по ГОСТ Р 51248.

Отклонения параметров кранового пути, при появлении которых работа крана должна быть прекращена, следующие:

- продольный и поперечный уклоны пути - более 0,01;

- колея кранового пути отличается от 7500 ± 15 мм;

- отклонение от прямолинейности пути на участке длиной 10 м - более 20 мм.

Другие отклонения параметров кранового пути не должны превышать значений, указанных в таблице 1.

Дефекты кранового пути, при появлении которых работа крана должна быть прекращена, следующие:

- на рабочих поверхностях рельсов имеются вмятины, лыски и волнистость более 5 мм;

- в болтовых соединениях пути отсутствуют исправные детали (гайки, шайбы, шплинты и т.п.) или они затянуты с меньшим моментом затяжки, чем требуется;

- в рельсах и тупиковых упорах (в сварных швах) появились трещины;

- коррозия в глубину деталей пути более 4 мм;

- площадь опоры нижней поверхности балок пути уменьшилась более 10 %. В балках имеются обнажения и обрывы арматуры, сплошные опоясывающие и продольные трещины длиной более 300 мм с раскрытием более 0,3 мм, сколы бетона более 250 мм.

6.5. Исправное техническое состояние съемных грузозахватных приспособлений поддерживается путем их технического освидетельствования и обслуживания. Неисправные съемные грузозахватные приспособления подлежат выбраковке и изъятию из эксплуатации.

Грузовые крюки стропов, траверс, применяемых при производстве работ, должны быть снабжены предохранительными замками, предотвращающими самопроизвольное выпадение груза.

Основные контролируемые параметры и характеристики съемных грузозахватных приспособлений, способы их измерения и оценки приведены в МДС 12-31.

6.6. Приказом по строительной организации назначаются инженерно-технические работники, ответственные за безопасное производство работ краном, за исправное техническое состояние крана и его приборов безопасности, съемных грузозахватных приспособлений и тары, кранового пути.

Машинист крана, стропальщики, сигнальщики и монтажники должны быть проинструктированы под расписку об условиях (стесненности работ крана, совмещении строительно-монтажных работ, монтажных работ «с колес» и т.д.) и правилах безопасного производства работ.

6.7. Обеспечение безопасности при складировании строительных материалов и изделий на площадке 4 (см. рисунок 2) осуществляется в соответствии со СНиП 12-03.

Безопасность погрузочно-разгрузочных работ должна быть обеспечена согласно требованиям ГОСТ 12.3.009, СНиП 12-03, ПБ 10-382, правил ПОТ РМ-007.

При доставке панелей перекрытий в вертикальном положении перевод их в горизонтальное положение производится только с помощью специального грузозахватного устройства с автоматическим кантователем.

6.8. Пожарная безопасность на рабочих местах обеспечивается в соответствии с правилами ППБ-01.

Электробезопасность на рабочих местах обеспечивается в соответствии с требованиями ГОСТ 12.1.019, ГОСТ 12.1.030, ПОТ РМ-016.

6.9 При работе в темное время суток строительная площадка, проезды и подходы должны быть освещены в соответствии с ГОСТ 12.1.046. Освещенность должна быть равномерной, без слепящего действия осветительных приборов.

6.10. Монтажные работы в ночное время суток (с 22.00 до 6.00 ч) выполняются при соблюдении ряда условий и после соответствующего разрешения органов муниципальной власти.

Во время грозы, снегопада и при ветре более 6 баллов работы краном не производятся.

6.11. Пребывание людей в зоне работы крана, за исключением лиц, ответственных за безопасное производство работ, стропальщиков и монтажников на захватке, на которой производятся монтажные работы, должно быть исключено. Смежные работы производятся согласно проекту производства работ на свободной от монтажа захватке. Правила безопасного выполнения видов работ изложены в соответствующих технологических картах.

6.12. Перед началом каждого вида работ должны быть установлены на границах опасных зон сигнальные ограждения и знаки безопасности.

Знаки безопасности устанавливают так (на подставках или иным способом), чтобы крановщик мог видеть границы опасных зон. На монтажном горизонте знаки необходимо навесить на конструкции или на натянутом канате.

6.13. Лица, ответственные за безопасное производство работ, обязаны организовать работы в соответствии с требованиями ППРк и нормативных документов, указанных в разделе 2.

 




Яндекс цитирования



   Copyright © 2007-2026,  www.tehlit.ru.

[ ѓосты, стандарты, нормативы, инструкции, правила, строительные нормы ]