//
|
|
МИНИСТЕРСТВО ГРАЖДАНСКОЙ АВИАЦИИ Государственный проектно-изыскательский
и научно-исследовательский институт ПОСОБИЕ Москва 1986 Настоящее пособие разработано в соответствии с требованиями СНиП 1.01.01-82* в развитие «Норм технологического проектирования грузовых комплексов
аэропортов» Пособие разработали канд. эконом. наук Воронин Н.Н. , инженеры Гавриленкова Л.А., Маркова C.Ф. Пособие утверждено начальником ГПИ и НИИ ГА Аэропроект 27 мая 1986 г. Содержание 1. ОБЩИЕ ПОЛОЖЕНИЯ1.1. Настоящее Пособие имеет своей целью повысить качество проектирования, облегчить проектировщикам проведение расчетов и понимание отдельных положений и показателей Норм. 1.2. Проектирование расширения и реконструкции грузовых комплексов должно осуществляться применительно к 2.
ОСНОВНЫЕ РАСЧЕТНЫЕ ПОКАЗАТЕЛИ (к разделу
2
| ||||||||||||||||||||||||||||||||||||||||||||||||||||||||||||||||||||||||||||||||||||||||||||||||||||||||||||||||||||||||||||||||||||||||||||||||||||||||||||||||||||||||||||||||||||||||||||||||||||||||||||||||||||||||||||||||||||||||||||||||||||||||||||||||||||||||||||||||||||||||||||||||||||||||||||||||||||||||||||||||||||||||||||||||||||||||||||||||||||||||||||||||||||||||||||||||||||||||||||||||||||||||||||||||||||||||||||||||||||||||||||||||||||||||||||||||||||||||||||||||||||||||||||||||||||||||||||||||||||||||||||||||||||||||||||||||||||||||||||||||||||||||||||||||||||||||||||||||||||||||||||||||||||||||||||||||||||||||||||||||||||||||||||||||||||||||||||||||||||||||||||||||||||||||||||||||||||||||||||||||||||||||||||||||||||||||||||||||||||||||||||||||||||||||||||||||||||||||||||||||||||||||||||||||||||||||||||||||||||||||||||||||||||||||||||||||||||||||||||||||||||||||||||||||||||||||||||||||||||||||||||||||||||||||||||||||||||||||||||||||||||||||||||||||||||||||||||||||||||||
|
Класс аэропорта |
Годовой объем грузовых перевозок, тыс. т |
|
|
II, III, IV климатические районы |
I климатический район |
|
|
I |
150-100 |
- |
|
II |
100-65 |
- |
|
III |
65-25 |
65-25 |
|
IV |
25-6 |
25-6 |
|
V |
6-3 |
6-3 |
|
Неклассифицированные |
- |
3-1 |
2.3. Значения коэффициентов суточной и часовой неравномерности грузовых потоков в грузовых комплексах, расположенных в различных климатических районах, следует принимать по табл. 2.
Таблица 2
|
Класс аэропорта |
Значения коэффициентов суточной и часовой неравномерности грузовых потоков в грузовых комплексах по климатическим районам |
||||
|
II, III, IV районы |
I район |
||||
|
Kc |
|
|
Кc |
|
|
|
I |
1,4* |
2,1* |
2,0* |
- |
- |
|
II |
1,4-1,45 |
2,1-2,15 |
2,0-2,05 |
- |
- |
|
III |
1,45-1,65 |
2,15-2,3 |
2,05-2,2 |
1,6-1,8 |
2,0-2,2 |
|
IV |
1,65-2,6 |
2,3-3,0 |
2,2-2,9 |
1,8-2,7 |
2,2-2,9 |
|
V |
2,6-3,0 |
2,9-3,0 |
2,9-3,0 |
2,7-3,9 |
2,9-3,9 |
|
Неклассифицированные |
- |
- |
- |
3,9-4,5 |
3,9-4,5 |
|
* Коэффициенты неравномерности соответствуют максимальному годовому объему грузовых перевозок. |
|||||
3.1. При проектировании грузовых комплексов аэропортов необходимо различать следующие основные потоки грузов;
завозимые из города в аэропорт;
отправляемые пассажирскими и грузовыми воздушными судами;
прибывшие пассажирскими и грузовыми воздушными судами;
вывозимые в город;
трансферные грузы.
Схема основных входящих-выходящих грузопотоков в грузовом комплексе аэропорта приведена на рис. 1.
3.2. Годовой грузооборот со стороны перрона
состоит из объемов трех грузовых потоков: первоначальные отправки, прибывшие и трансферные грузы, а со стороны города
- из двух грузовых потоков: завозимые из города и вывозимые в город, объемы которых определяется по формулам
|
|
(1) |
|
|
(2) |
где
- годовой объем первоначальных отправок, тыс. т;
- годовой объем прибывших грузов, тыс. т;
- годовой объем трансферта грузов, тыс. т.
3.3. Расчетные суточные объемы грузопотоков со стороны перрона отправляемых
и прибывших
грузов следует определять по формулам
|
|
(3) |
|
|
(4) |
где
- коэффициент суточной неравномерности грузовых
потоков со стороны перрона;
Т - число дней в году работы грузового комплекса аэропорта, сут.

Рис. 1. Схемы грузовых потоков в грузовых комплексах аэропортов:
1 - поток грузов, завозимых из города в аэропорт: 1.1 - поток грузов, завозимых из города в аэропорт централизовано; 1.2. - поток грузов, завозимых в аэропорт децентрализовано городскими предприятиями; 1.3 - поток грузов, завозимых в аэропорт децентрализовано предприятиями районных центров; 1.4 - поток грузов, отправляемых пассажирскими самолетами в порядке догрузки в бесконтейнерном варианте; 1.5 - поток грузов, отправляемых пассажирскими самолетами в контейнерах; 1.6 - поток грузов, отправляемых грузовыми самолетами в контейнерах и на поддонах; 1.7 - поток грузов, отправляемых в грузовых самолетах в бесконтейнерном варианте; 2 - поток грузов, прибывших на всех типах самолетов; 2.1 - поток грузов, прибывших пассажирскими самолетами в бесконтейнерном варианте; 2.2 - поток грузов, прибывших пассажирскими самолетами в контейнерах и на поддонах; 2.3. - поток грузов, прибывших грузовыми самолетами в контейнерах и на поддонах; 2.4 - поток грузов, прибывших грузовыми самолетами в бесконтейнерном варианте; 2.5 - поток грузов, вывозимых в город централизовано; 2.6 - поток грузов, вывозимых в город децентрализовано предприятиями города; 2.7 - поток грузов, вывозимых в город децентрализовано предприятиями районных центров; 3 - поток трансферных грузов
3.4. Суммарный грузооборот со стороны перрона
следует определять по формуле
|
|
(5) |
3.5. Расчетные суточные объемы грузопотоков со стороны города отправляемых
и прибывших
грузов следует определять по формулам
|
|
(6) |
|
|
(7) |
где
- число дней в году работы грузового комплекса по
завозу-вывозу грузов, сут.;
-
коэффициент суточной неравномерности грузовых
потоков со стороны города.
3.6. Суммарный суточный грузооборот со стороны города следует определять по формуле
|
|
(8) |
3.7. Расчетные часовые грузопотоки со стороны перрона
отправляемых
и прибывших
грузов следует
определять по формулам
|
|
(9) |
|
|
(10) |
где
- коэффициент
суточной неравномерности грузовых потоков со стороны перрона;
Тч - продолжительность периода работы по приему-выдаче грузов на воздушные суда.
3.8. Суммарный
часовой грузооборот со стороны перрона
следует
определять как сумму объемов грузопотоков
отправляемых и прибывших грузов по формуле
|
|
(11) |
3.9. Расчетные часовые объемы грузопотоков со стороны города отправляемых
и прибывших
грузов следует определять по формулам
|
|
(12) |
|
|
(13) |
где
- коэффициент часовой неравномерности грузовых потоков со стороны города;
Тч - продолжительность наиболее напряженного периода по приему-выдаче грузов грузополучателям, грузоотправителям.
3.10. Расчетный часовой грузооборот со стороны города
следует определять как
сумму грузопотоков, завозимых из города и выводимых в город, по формуле
|
|
(14) |
В крупных городах (авиатранспортных узлах), имеющих два и более аэропорта, расчетный суточный и часовой объем каждого грузопотока в грузовом комплексе аэропорта на участке город-склад следует рассматривать как сумму грузовых потоков:
грузы, завозимые из города и вывозимые в город;
грузы, завозимые и вывозимые из других аэропортов;
грузы, завозимые и вывозимые из областных центров (периферийные).
3.11. При проектировании грузовых комплексов аэропортов суточные объемы грузов, перевозимых в контейнерах пассажирских и грузовых воздушных судов, следует определять на основании анализа фактических данных за ряд лет, а также в соответствии с перспективным планом развития аэропорта.
3.12. Суточный объем грузов, перевозимых в
контейнерах и на поддонах пассажирскими и грузовыми воздушными судами
, следует определять по
формуле
|
|
(15) |
где
- суммарный суточный грузооборот со стороны перрона, т;
ψ1 - доля в общем грузообороте грузов, хранящихся в многоярусных складских стеллажах, %;
ψ2 и ψ3 - доли грузов, перевозимых в контейнерах соответственно грузовыми и пассажирскими воздушными судами.
3.13. Часовые объемы грузов, перевозимых в контейнерах и на поддонах грузовыми пассажирскими воздушными судами, определяются по формулам
|
|
(16) |
|
|
(17) |
где
и
- продолжительность периода работы грузового комплекса по приему-выдаче грузов соответственно на грузовые и пассажирские воздушные суда.
4.1. При проектировании грузовых комплексов одним из основных показателей для определения суточного расчетного грузооборота, а, следовательно, площадей и объемов зданий и сооружений является коэффициент суточной неравномерности, отражающий неравномерность грузовых объемов по суткам в течение года. Суточная неравномерность грузовых потоков со стороны города и перрона характерна для всех аэропортов гражданской авиации, она вызвана следующими причинами:
несовершенной организацией и технологией обработки грузов в аэропортах;
метеоусловиями и технической неисправностью самолетов;
загруженностью определенных направлений в различные периоды года и т.д.
Наблюдаемая неравномерность завоза-вывоза грузов из города в аэропорт и из аэропорта в город является следствием неритмичности работы предприятий, удаленности аэропорта от города и ряда других причин.
Процессы, происходящие в грузовом комплексе аэропорта, зависят от ряда случайных факторов. Это определяет вероятностный характер функционирования грузового комплекса.
Если в качестве одного из основных требований к грузовому комплексу принять обеспеченность его достаточной пропускной способностью с любой заданной вероятностью любых суток максимального месяца, то расчет коэффициента суточной неравномерности должен строиться на изучении статистических закономерностей распределения фактических размеров отправляемых-прибывающих грузов по суткам в течение года.
4.2. Гистограммы и кривые плотности распределения для аэропортов I, II и III классов описываются функцией нормального распределения:
для аэропортов I класса
|
|
(18) |
для аэропортов II класса
|
|
(19) |
для аэропортов III класса
|
|
(20) |
Гистограммы и кривые плотности распределения в аэропортах IV класса имеют вид гамма-распределения:
|
|
(21) |
В аэропортах V класса гистограммы описываются функцией экспоненциального распределения
|
|
(22) |
Гистограммы и кривые плотности распределения, рассчитанные по усредненным плотностям для аэропортов всех классов, приведены на рис. 2, 3 и 4.
4.3. Для определения меры расхождения между предполагаемыми распределениями и имеющимися статистическими данными использовались критерии согласия (Пирсона, В. М. Романовского, А. Н. Колмогорова) для всех классов аэропортов. Значения критериев согласия приведены в табл. 3.

Рис. 2. Кривые плотности распределения суточных объемов отправляемых грузов в аэропортах I, II и III классов

Рис. 3. Гистограмма и кривая плотности распределения суточных объемов отправляемых грузов в аэропортах V класса

Рис. 4. Гистограмма и кривая плотности распределения суточных объемов отправляемых грузов в аэропортах V класса
Таблица 3
|
Критерии согласия |
Значения критериев согласия по классам аэропортов |
||||
|
I |
II |
III |
IV |
V |
|
|
Пирсона χ2 > 0,05 |
0,909 |
0,300 |
0,348 |
0,052 |
0,731 |
|
Романовского R ≤ 3 |
1,141 |
0,349 |
0,231 |
1,817 |
0,693 |
|
Колмогорова λ > 0,05 |
1,000 |
0,763 |
0,951 |
0,433 |
0,829 |
4.4. Разный характер гистограмм и плотности распределения в аэропортах различных классов обусловливается следующими причинами:
суточный объем грузовых перевозок аэропортов V класса значительно отличается от суточного объема перевозок аэропортов I класса, он изменяется в зависимости от промышленного потенциала экономического района, обслуживаемого аэропортом;
по мере возрастания объема грузовых перевозок при переходе от V к I классу аэропортов изменяются типы самолетов, интенсивность их движения и повышается регулярность полетов;
в аэропортах I, II и III классов перевозки грузов осуществляются, в основном, по союзным линиям.
В аэропортах IV класса количество рейсов на союзных линиях значительно уменьшается, а в аэропортах V класса преобладают рейсы на местных линиях. В связи с этим уменьшаются объемно-весовые характеристики перевозимых партий грузов, а, следовательно, и их суточные объемы.
4.5. Для расчета коэффициентов суточной неравномерности грузовых потоков К следует пользоваться формулой профессора Г. Поттгоффа, рекомендованной К.Ю. Скаловым в работе «Транспортные узлы» (М., «Транспорт», 1966):
|
|
(23) |
где λs - нормированные отклонения объемов перевозимых грузов от их математического ожидания (принимается по таблицам интегралов вероятностей);
V - коэффициент вариации признака;
r - число, показывающее, во сколько раз увеличивается исходный расчетный период.
4.6. При отсутствии исходных данных для определения коэффициентов суточной неравномерности рекомендуется пользоваться графиком корреляционной зависимости между коэффициентом суточной неравномерности и годовым грузооборотом грузового комплекса, приведенным на рис. 5, и следующим уравнением корреляционной связи:
|
|
(24) |

Рис. 5. Корреляционная зависимость между коэффициентом суточной неравномерности и годовым грузооборотом грузового комплекса
4.7. При определении коэффициентов часовой неравномерности следует пользоваться графиками, приведенными на рис. 6 и 7, и следующими уравнениями:
|
|
(25) |
|
|
(26) |

Рис. 6. Графическое изображение корреляционной зависимости между коэффициентом часовой неравномерности грузовых потоков и годовым грузооборотом в аэропортах I-V классов (со стороны перрона)

Рис. 7. Графическое изображение корреляционной зависимости между коэффициентом часовой неравномерности грузовых потоков и годовым грузооборотом в аэропортах I-V классов (со стороны города)
5.1. В грузовых комплексах I климатического района *неравномерность грузовых потоков еще более резко выражена, чем в других климатических районах. Грузовые потоки на воздушном транспорте имеют одностороннее направление (ввоз в северные районы значительно преобладает над вывозом).
*Далее по тексту именуются «грузовые комплексы в северном варианте».
Виды распределения величин суточных объемов грузовых потоков не отличаются от типичных, видов распределения, характерных для аэропортов средней полосы (II, III, IV климатических районов и. подрайона IВ).
При величине годового грузооборота до 5 тыс.т распределение величины суточных грузопотоков описывается функцией экспоненциального распределения, при величине от 5 до 20 тыс. т - функцией гамма-распределения, свыше 20 тыс. т - функцией нормального распределения.
Значения функций для трех видов распределения трех групп грузовых комплексов, рассчитанных по усредненным и аппроксимированным данным, приведены в формулах
|
|
(27) |
|
|
(28) |
|
|
(29) |
Гистограммы и кривые плотности распределений по группам грузовых комплексов аэропортов приведены на рис. 8, 9, 10.

Рис. 8. Гистограмма и кривая плотности распределения суточных объемов грузов в грузовых комплексах в северном варианте с объемом перевозок до 5 тыс. т в год

Рис. 9. Гистограмма и кривая плотности распределения суточных объемов в грузовых комплексах в северном варианте с объемом перевозок от 5 до 20 тыс. т в год

Рис. 10. Гистограмма и кривая плотности распределения суточных объемов в грузовых комплексах в северном варианте с объемом перевозок свыше 20 тыс. т в год
5.2. Для группы грузовых комплексов, имеющих нормальное и гамма-распределение суточных грузопотоков, рекомендуется использовать формулу Поттгоффа (23) для определения коэффициентов суточной неравномерности.
В случае экспоненциального распределения рекомендуется пользоваться формулой (34), полученной путем преобразования интегральной функции экспоненциального распределения
|
|
(30) |
где α - средняя величина суточного грузооборота;
t - расчетная величина суточного грузооборота.
Путем логарифмирования получим формулу следующего вида:
|
|
(31) |
или
|
|
(32) |
Коэффициент суточной неравномерности Кс определяется отношением расчетного суточного объема грузов к среднесуточному за расчетный период, т.е.
|
|
(33) |
где t - расчетный суточный объем грузов;
α - среднесуточный объем грузов за расчетный период.
Таким образом,
|
|
(34) |
5.3. Коэффициент суточной неравномерности определяется в стационарный период работы грузового комплекса
, т.е. в период, в течение которого объемы суточных грузопотоков остаются примерно постоянными.
При определении Кс за расчетный период следует пользоваться формулой
|
|
(35) |
где ∆К - поправочный коэффициент, определяемый отношением календарного количества дней в году к количеству рабочих дней грузового комплекса в году.
5.4. Для практических расчетов коэффициентов суточной неравномерности грузопотоков рекомендуется пользоваться формулой, выражающей корреляционную зависимость между коэффициентом неравномерности и годовым грузооборотом или графиком на рис. 11:
|
|
(36) |

Рис. 11. Корреляционная зависимость коэффициента суточной неравномерности от объема годового грузооборота грузовых комплексов в северном варианте
6.1. При проектировании грузовых комплексов административно-служебные помещения, помещения инженерно-технического обслуживания, а также складские помещения для некоторых видов грузов, как правило, блокируются в одно здание.
6.2. Планировка складских и административно-служебных помещений должна соответствовать принятому технологическому процессу обработки грузов и документации, а также организации грузовых потоков и клиентуры.
6.3. Административно-служебные помещения грузовых комплексов I группы следует размещать в двух или трех уровнях: на первом этаже следует располагать операционный зал, помещения столовой, помещения представителей транспортно-экспедиционных предприятий и другие помещения, имеющие непосредственное отношение к обслуживанию грузоотправителей и оформлению документов; на втором этаже следует располагать служебные и бытовые помещения, не имеющие прямого отношения к грузоотправителям и грузополучателям; на третьем этаже следует располагать помещения вычислительного центра.
Административно-служебные помещения грузовых комплексов II группы следует размещать в двух уровнях, а грузовые комплексы III группы в уровне первого этажа. Состав складских, административно-служебных помещений и инженерно-технического обеспечения следует принимать по табл. 4.
6.4. Потребные площади для размещения комплекса технических средств автоматизированной системы управления перевозками следует определять в соответствии с указаниями Госстроя СССР «О проектировании зданий и помещений для электронно-вычислительных машин» от 4 июля 1975 г. № HK-3094-1. Помещения вычислительного центра в грузовых комплексах I группы следует располагать согласно принципиальной схеме оптимального расположения ВЦ по зональному уровню, приведенному на рис. 12.

Рис. 12. Принципиальная схема оптимального расположения помещений ВЦ по зональному уровню:
первый уровень: 1 - машинный зал; 1а - оперативный архив; 1б - помещение для инженеров-эксплуатационников; второй уровень: 2 - помещение подготовки и обработки данных; 2а - помещение программного контроля; 2б - помещение приема и выдачи результатов; третий уровень: 3 - помещения для программистов, склады документации и архивов; четвертый уровень: 4 - различного рода административные и служебно-бытовые помещения
6.5. При проектировании помещений для электронно-вычислительных машин следует руководствоваться СН 512-78 Госстроя СССР.
6.6. Расчет площадей административно-служебных и бытовых помещений следует осуществлять в соответствии с главой СНиП II-92-76, СНиП 275-71 и «Типовыми нормами численности работников служб организации перевозок эксплуатационного предприятия», утвержденными МГА 04.01.81, № 4/У.
Таблица 4
|
Здания и помещения |
Группы грузовых |
|
|
I и II |
III |
|
|
1 |
2 |
3 |
|
СКЛАДСКИЕ ПОМЕЩЕНИЯ |
|
|
|
Стеллажный склад: |
+ |
+ |
|
радиоактивных грузов |
+ |
+ |
|
животных, птиц, мальков |
+ |
+ |
|
скоропортящихся грузов: |
|
|
|
требующих охлаждения |
+ |
|
|
не требующих охлаждения |
|
|
|
вакцин, биопрепаратов, сывороток |
|
|
|
растений, цветов |
+ |
+ |
|
особых грузов |
+ |
- |
|
приемосдатчиков |
+ |
+ |
|
Склад опасных грузов: |
|
|
|
инвентаря и складского имущества |
+ |
- |
|
приемосдатчиков |
+ |
+ |
|
Контейнерный склад |
+ |
- |
|
Эстакады, крытые площадки для тяжеловесных, длинномерных грузов и контейнеров: |
+ |
+ |
|
хранение балласта |
+ |
- |
|
приемосдатчиков |
+ |
- |
|
АДМИНИСТРАТИВНО-СЛУЖЕБНЫЕ ПОМЕЩЕНИЯ |
|
|
|
Начальника службы организации почтово-грузовых перевозок и его секретаря: |
+ |
- |
|
зам. начальника службы |
+ |
- |
|
начальников складов |
+ |
+ |
|
техников по учету |
+ |
- |
|
начальника смены и старшего диспетчера |
+ |
- |
|
операторов по оформлению грузовой документации |
+ |
- |
|
диспетчера автотранспорта |
+ |
- |
|
диспетчеров по претензиям |
+ |
- |
|
информаторов, тарификаторов, кассиров |
+ |
+ |
|
для хранения документов строгой отчетности |
+ |
+ |
|
представителей транспортно-экспедиционных контор |
+ |
- |
|
плотников, слесарей, аккумуляторщиков, техников по механизации |
+ |
+ |
|
грузчиков, водителей механизмов |
+ |
+ |
|
табельщика-нормировщика |
+ |
- |
|
Операционный зал для клиентуры |
+ |
+ |
|
Аппаратная телеграфной связи |
+ |
- |
|
Радиоузел |
+ |
- |
|
Информационно-вычислительный центр |
+* |
- |
|
архив документации |
+ |
- |
|
Буфет и столовая |
+ |
+ |
|
Комната отдыха грузчиков |
+ |
+ |
|
Комната технической учебы |
+ |
- |
|
Ветеринарно-карантинная служба |
+ |
- |
|
Медпункт |
+ |
- |
|
Бытовые |
+ |
+ |
|
ПОМЕЩЕНИЯ ИНЖЕНЕРНО-ТЕХНИЧЕСКОГО ОБЕСПЕЧЕНИЯ |
|
|
|
Машинного отделения холодильных камер |
+ |
+ |
|
Трансформаторной подстанции |
+ |
- |
|
Насосной станции пожаротушения и оборотного водоснабжения |
+ |
+ |
|
Вентиляционных камер |
+ |
+ |
|
Щитовой автоматики, сантехсистемы и газоанализаторов |
+ |
- |
|
ПОМЕЩЕНИЯ ДЛЯ ПРОФИЛАКТИЧЕСКОГО ОСМОТРА СРЕДСТВ МЕХАНИЗАЦИИ И ПОДЗАРЯДКИ МЕХАНИЗМОВ С ДВИГАТЕЛЯМИ НА АККУМУЛЯТОРНОМ ПИТАНИИ |
+ |
+ |
|
*Предусматривается в грузовых комплексах только I группы. Примечание. Помещения информаторов, тарификаторов, кассиров и представителей транспортных предприятий по обслуживанию клиентуры должны примыкать к операционному залу или непосредственно располагаться в нем. |
||
6.7. В грузовых комплексах аэропортов должны предусматриваться помещения для профилактического осмотра средств механизации и подзарядки механизмов с двигателями на аккумуляторном питании.
Состав помещений и площади мастерских для технического обслуживания средств механизации следует принимать по табл. 5.
Таблица 5
|
Мастерские |
Площадь мастерских по группам грузовых комплексов, м2 |
||
|
I |
II |
III |
|
|
Слесарная |
24 |
24 |
24 |
|
Механическая |
12 |
12 |
- |
|
Сварочная |
8 |
- |
- |
|
Столярная |
12 |
12 |
12 |
|
Электрооборудования |
9 |
9 |
6 |
|
Растворная |
9 |
9 |
6 |
|
ВСЕГО |
74 |
66 |
48 |
6.8. Состав основного оборудования мастерских технического обслуживания грузовых комплексов следует принимать по табл. 6.
Таблица 6
|
Оборудование |
Количество оборудования по группам грузовых комплексов, шт. |
||
|
I |
II |
III |
|
|
1 |
2 |
3 |
4 |
|
Слесарная мастерская |
|
|
|
|
Верстак слесарный одноместный |
1 |
1 |
1 |
|
Настольно-сверлильный станок типа 2М112 |
1 |
1 |
1 |
|
Точильно-шлифовальный станок типа 3Б631 |
1 |
1 |
1 |
|
Шкаф инструментальный |
1 |
1 |
1 |
|
Стеллаж |
1 |
1 |
1 |
|
Яма (эстакада или гидроподъемник) |
1 |
1 |
1 |
|
Механическая мастерская |
|
|
|
|
Токарно-винторезный станок типа 1A61B (максимальный диаметр обрабатываемого изделия 320 мм, длина 710 мм) |
1 |
1 |
- |
|
Вертикально-сверлильный станок типа 2H-125 (максимальный диаметр сверления 25 мм) |
1 |
1 |
- |
|
Точильно-шлифовальный станок типа 3Б634 (диаметр шлифовального круга 400 мм) |
1 |
1 |
1 |
|
Шкаф инструментальный |
1 |
1 |
- |
|
Тумбочка |
1 |
1 |
- |
|
Стеллаж полочный |
1 |
1 |
- |
|
Сварочная мастерская |
|
|
|
|
Стол для сварки CCM-1 |
1 |
- |
- |
|
Выпрямитель передвижной аварийный ВДГ-301 (номинальный сварочный ток 315A) |
1 |
- |
- |
|
Ящик с песком |
1 |
- |
- |
|
Стеллаж полочный |
1 |
- |
- |
|
Столярная мастерская |
|
|
|
|
Станок комбинированный типа К-25 |
1 |
1 |
1 |
|
Верстак столярный |
1 |
1 |
1 |
|
Шкаф инструментальный |
1 |
1 |
1 |
|
Стеллаж |
1 |
1 |
1 |
|
Мастерская электрооборудования |
|
|
|
|
Верстак столярный |
1 |
1 |
1 |
|
Настольно-сверлильный станок типа 2М112 |
1 |
1 |
1 |
|
Стеллаж |
1 |
1 |
1 |
|
Шкаф инструментальный |
1 |
1 |
1 |
|
Комплектовочный вращающийся шкаф КВШ |
1 |
1 |
1 |
|
Шкаф для документации |
1 |
1 |
1 |
|
Контрольный щит |
1 |
1 |
1 |
|
Точильно-шлифовальный станок типа 3Б631 |
1 |
1 |
1 |
|
Выпрямитель для подзарядки аккумуляторов* |
|
|
|
|
Растворная |
|
|
|
|
Шкаф электролитный |
1 |
1 |
1 |
|
Дистиллятор |
1 |
1 |
1 |
|
*Устанавливается один на два механизма с аккумуляторным питанием. |
|||
7.1. Величина общей площади грузового комплекса
представляет собой сумму площадей стеллажного и контейнерного складов, а также складских помещений для временного хранения тяжеловесных и длинномерных грузов, скоропортящихся, опасных, ценных, радиоактивных, особых и может быть выражена формулой
|
|
(37) |
где S1 - общая площадь стеллажного склада;
S2 - общая площадь контейнерного склада;
S3 - площадь зоны хранения тяжеловесных и длинномерных грузов;
S4 - площадь зоны хранения опасных грузов;
S5 - площадь зоны хранения скоропортящихся грузов;
S6 - площадь зоны хранения ценных грузов;
S7 - площадь зоны хранения радиоактивных грузов;
S8 - площадь зоны хранения особых грузов;
S9 - площадь зоны хранения животных, птиц, мальков, растений и др. грузов.
7.2. Объем хранения грузов на поддонах в стеллажах следует определять по формуле
|
|
(38) |
где
- суммарный суточный грузооборот со стороны перрона, т;
ψ1 - доля грузов в общем грузообороте, хранящихся в многоярусных стеллажах, %;
ψ2, ψ3 - доли грузов в общем грузообороте, перевозимые в контейнерах и на авиационных поддонах соответственно грузовыми и пассажирскими воздушными судами, %;
- нормативный усредненный срок хранения прибывших, отправляемых и трансферных грузов, сут.;
- срок хранения грузовых авиаконтейнеров (принимается равным 0,5 сут.);
- срок хранения пассажирских авиаконтейнеров (принимается равным 0,25 сут.).
7.3. Потребное количество ячеек стеллажного склада Nобщ определяется как сумма ячеек для обычных технических и мелких партий тарно-штучных грузов по формуле
|
Nобщ = N1 + N2, |
(39) |
где N1 - количество ячеек для обычных технических тарно-штучных грузов;
N2 - количество ячеек для мелких партий тарно-штучных грузов.
7.4. Общее количество ячеек для технических и мелких партий тарно-штучных грузов Nобщ следует определять по формуле
|
|
(40) |
где Ес.ск - объем грузов, хранящихся на складских поддонах в стеллажах;
ψ4 - доля технических тарно-штучных грузов, %;
ψ5 - доля грузов мелких отправок, %;
g1 - нормативная нагрузка технических грузов на 1 м2 или поддон размером 800´1200 мм при высоте укладки груза 0,8 м, т/м2
g2 - нормативная нагрузка мелких партий грузов на 1 м2 или поддон размером 800´1200 мм при высоте укладки груза на поддоне 0,4 м, т/м2.
7.5. Количество стеллажных рядов для технических тарно-штучных грузов n и мелких партий грузов n1 рекомендуется определять по формулам
Кп-в - коэффициент использования площади зоны приема-выдачи, комплектовки-раскомплектовки складских поддонов (отношение площади зоны, занимаемой под оборудованием приемных мест разгрузки, к общей площади зоны).
7.10. При проектировании грузовых комплексов коэффициенты использования площади Кхр, Кк-р и Кп-в рекомендуется принимать по табл. 7.
Таблица 7
|
Механизмы |
Расстояние между стеллажами, м |
Значения коэффициентов использования стеллажного склада Кхр |
|
Электропогрузчики с фронтальным выдвижением вил |
3,2 |
0,27 |
|
Электропогрузчики с поворотно-выдвижными вилами |
2,6 |
0,32 |
|
Краны-штабелеры автоматические |
1,0 |
0,42-0,45 |
|
Примечание. Коэффициенты использования Кк-р, Кп-в площади в зонах приема-выдачи, комплектовки-раскомплектовки складских поддонов следует принимать равными 0,16-0,20. |
||
7.11. Объем хранения грузов в контейнерах и на авиационных поддонах в зоне контейнерного склада Ек.ск, определяется по формуле
|
|
(47) |
где
- суммарный суточный
грузооборот со стороны перрона, т;
ψ1
- доля в общем грузообороте грузов, хранящихся
в складских стеллажах (принимается по
), %;
ψ2, ψ3 - доля грузов,
перевозимых в контейнерах соответственно
грузовыми и пассажирскими воздушными судами (принимается по
), %;
- срок хранения грузов в контейнерах грузовых воздушных судов (принимается равным 0,5 сут.);
- срок хранения грузов в контейнерах пассажирских воздушных судов (принимается равным 0,25 сут.).
7.12. Расчет ориентировочного количества мест хранения (стеллажных ячеек)* для грузовых и багажных контейнеров Nк.г. следует осуществлять по формуле
|
|
(48) |
где n - количество грузовых контейнеров УАК-5, размещаемых в ячейке, шт.;
n1 - количество багажных контейнеров АК-1,5, размещаемых в одной ячейке, шт.;
Куак, Кбак - коэффициенты использования грузоподъемности соответственно грузового и багажного контейнеров;
Пуак, Пбак - грузоподъемность грузового и багажного контейнеров.
*Одна ячейка, предназначенная для авиационных контейнеров грузоподъемностью 5 т, может разместить один УАК-5 (ПАВ-5) ПАВ-2,5 или два багажных контейнера АК-1,5.
7.13. Значения коэффициентов использования авиационных контейнеров и поддонов приведены в табл. 8.
Таблица 8
|
Типы авиационных контейнеров и поддонов |
Коэффициент использования грузоподъемности |
|
1 |
2 |
|
УАК-5 |
0,8 |
|
ПАВ-5,6 |
0,8 |
|
ПАВ-3,0 |
0,57 |
|
УАК-2,5 |
0,8 |
|
ПАВ-2,5 |
0,6 |
|
AK-1,5 |
0,4 |
7.14.
Общая площадь контейнерного склада
определяется как сумма площадей по формуле
|
|
(49) |
где
- площадь зоны комплектовки-раскомплектовки грузовых и багажных контейнеров, м2;
- площадь зоны хранения грузовых и багажных контейнеров в стеллажах, м2;
- площадь зоны погрузки-выгрузки грузовых и багажных контейнеров с перегрузочных средств на перронные средства механизации.
Зоны комплектовки-раскомплектовки и хранения грузовых и багажных контейнеров рекомендуется размещать в отапливаемой части здания, а зону погрузки-выгрузки грузовых и багажных контейнеров с перегрузочных средств на перронные средства механизации в неотапливаемой части контейнерного склада и сооружать ее с пониженной степенью капитальности из легких ограждающих конструкций.
7.15. Площади отапливаемой Sкр.хр и неотапливаемой Sпер.ср зон контейнерного склада следует определять по формулам
|
|
(50) |
|
|
(51) |
где n1, n2 - количество подъемно-комплектовочных столов или мест комплектовки соответственно для грузовых и багажных контейнеров, шт.;
n3 и n4 - количество перегрузочных средств механизации и накопителей соответственно для грузовых и багажных контейнеров, шт.;
,
- площадь, занятая под оборудованием одного места комплектовки соответственно грузового или багажного контейнера (подъемно-комплектовочный стол, роликовая дорожка и т.п.), м2;
Sхр - площадь, занятая под хранением грузовых и багажных контейнеров (площадь под стеллажами, зона работы штабелера, зона работы штабелера контейнерного, площадь под накопителями), м2;
- площадь, занятая под оборудованием одного места перегрузки грузовых контейнеров на перронные средства механизации (грузовая рампа или ПКС-5), м2;
- площадь, занятая под оборудованием одного места перегрузки багажных контейнеров на перронные средства механизации (роликовые дорожки, ПКС-2), м2;
Кк-р.хр - коэффициент использования площади отапливаемой части здания контейнерного склада в зонах комплектовки-раскомплектовки и хранения авиационных грузовых и багажных контейнеров (определяется как отношение площади, занятой под оборудованием для комплектовки-раскомплектовки контейнеров и стеллажами, к общей площади всей зоны);
Кпер.ср - коэффициент использования площади неотапливаемой части здания в зонах перегрузки грузовых и багажных контейнеров на перронные средства механизации (определяется как отношение площади, занятой под перегрузочными средствами, к общей площади зоны).
7.16. Ориентировочные значения коэффициентов использования площади отапливаемой и неотапливаемой частей зданий контейнерного склада следует принимать по табл. 9.
Таблица 9
|
Зона контейнерного склада |
Значения коэффициентов использования площадей контейнерного склада по группам грузовых комплексов |
|
|
II |
III |
|
|
Отапливаемая часть здания (зона комплектовки-раскомплектовки, хранения грузовых и багажных контейнеров) |
0,20 |
0,32 |
|
Неотапливаемая часть здания (зона погрузки-выгрузки контейнеров с перегрузочных средств на перронные средства механизации) |
0,12 |
0,12 |
7.17. Общую площадь специализированных зон хранения для различных категорий грузов S рекомендуется определять по формуле
|
|
(52) |
где
- суточный грузооборот грузового комплекса со стороны перрона, т;
Тхр - нормативный срок хранения рассчитываемой категории груза, сут.;
q - доля рассчитываемой категории груза в суточном грузообороте грузового комплекса, %;
g - усредненная нормативная нагрузка рассчитываемой категории груза на 1 м2 площади складирования при высоте укладки 1 м, т;
Кр.з. - коэффициент использования площади зоны хранения рассчитываемой категории груза.
7.18. Ориентировочные значения коэффициентов использования площади зоны хранения для различных категорий грузов следует принимать по табл. 10 и 11, а усредненные нагрузки различных категорий грузов на 1 м2 по
![]()
Таблица 10
|
Механизмы |
Расстояние между стеллажами, штабелями, м |
Значения коэффициентов использования площади |
||
|
склад опасных грузов |
склад
скоропортя- |
склад для тяжеловесных и длинно- |
||
|
Электропогрузчики с фронтальным выдвижением вил |
3,2 |
0,27* |
0,27 |
- |
|
Электропогрузчики с поворотно-выдвижными вилами |
2,6 |
- |
0,32 |
- |
|
Краны мостовые |
- |
- |
- |
0,38 |
|
*Рекомендуется электропогрузчик типа ЭЛВ-1021 во взрывобезопасном исполнении. |
||||
Таблица 11
|
Механизмы |
Расстояние между стеллажами, штабелями, м |
Значения коэффициентов использования площади |
|||
|
склад вакцин, биопре- |
склад живых грузов |
склад растений |
склад особых грузов |
||
|
Электротележки |
2 |
0,33 |
0,33 |
- |
0,32 |
|
Ручные тележки |
1,2 |
0,50 |
0,50 |
0,50 |
- |
8.1. Технология обработки грузов, перевозимых россыпью и скомплектованными в авиаконтейнерах и на авиаподдонах воздушными судами, основанная на применении серийно выпускаемых средств механизации и оборудования, приведена в табл. 12.
8.2. Определение потребного количества новых средств механизации N может быть произведено по формуле, приведенной в «Методике определения потребного количества средств механизации и автоматизации основных производственных процессов в аэропортах ГА», утвержденной МГА 30.06.82:
|
|
(53) |
где λi - интенсивность в час «пик» взлетов и посадок воздушных судов i-того типа, обслуживаемых данным средством, рейс/ч;
Тцi - продолжительность цикла обслуживания воздушного судна i-го типа, мин;
KГ - коэффициент технической готовности средства;
60 - переводной коэффициент.
Таблица 12
|
Операции |
Типы механизмов и оборудования по группам грузовых комплексов |
||
|
III |
II |
I |
|
|
1 |
2 |
3 |
4 |
|
Обработка груза, отправляемого россыпью пассажирскими самолетами |
|||
|
Прием груза |
|
|
|
|
Выдача разрешения на прием груза |
- |
- |
- |
|
Разгрузка груза с автомобиля отправителя на складские поддоны, маркировка груза |
Складские поддоны, маркиратор |
Складские поддоны, маркиратор |
Складские поддоны, маркиратор |
|
Доставка поддонов с грузом к весам, взвешивание |
Складские поддоны, аккумуляторный погрузчик, весы циферблатные |
Складские поддоны, аккумуляторный погрузчик, весы циферблатные |
Складские поддоны, аккумуляторный погрузчик, весы циферблатные |
|
Оформление документов в кассе, регистрация груза, принятого к отправке и выбор адреса хранения |
Дисплейный модуль, электронно-вычислительная машина |
Дисплейный модуль, электронно-вычислительная машина |
Дисплейный модуль, электронно-вычислительная машина |
|
Транспортировка груза на складских поддонах от весов к месту хранения, установка в ячейки стеллажей |
Аккумуляторный погрузчик, складские поддоны, стеллажи |
Аккумуляторный погрузчик, складские поддоны, стеллажи Для грузооборота 300 т/сут.: аккумуляторный погрузчик, складские поддоны, кран-штабелер, стеллажи |
Аккумуляторный погрузчик, кран-штабелер, складские поддоны, стеллажи |
|
Комплектация грузов на рейс, оформление ведомости комплектации |
Пишущая машинка |
Дисплейный модуль, алфавитно-цифровое печатающее устройство, электронно-вычислительная машина |
Дисплейный модуль, алфавитно-цифровое печатающее устройство, электронно-вычислительная машина |
|
Доставка складских поддонов с грузом из зоны хранения в зону комплектации |
Стеллажи, складские поддоны, аккумуляторный погрузчик |
Стеллажи, складские поддоны, аккумуляторный погрузчик Для грузооборота 300 т/сут.: стеллажи, складские поддоны, кран-штабелер, аккумуляторный погрузчик |
Стеллажи, складские поддоны, кран-штабелер, аккумуляторный погрузчик |
|
Загрузка груза на транспортные средства для самолетов Ил-62, Ту-154, Ту-134, Як-40, Ан-24, Ан-2, Л-410: |
|
Поддоны складские, автомобиль с подъемной платформой АПК-12 или АПК-10 |
Поддоны складские, автомобиль с подъемной платформой АПК-12 или АПК-10 |
|
способ 1 |
Грузовые автомобили различных марок |
|
Грузовые автомобили различных марок |
|
способ 2 |
|
Модернизированные прицепные грузовые тележки ТЛ-9, аккумуляторный тягач типа АТБ-250 или автомобиль типа УАЗ-469 в качестве тягача |
Модернизированные прицепные грузовые тележки ТЛ-9, аккумуляторный тягач типа АТБ-250 или автомобиль типа УАЗ-469 в качестве тягача |
|
Обработка груза на перроне |
|
|
|
|
Транспортировка груза к самолетам Ил-62, Ту-154, Ту-134, Як-40, Ан-24, Ан-2: |
- |
Автомобиль с подъемной платформой АПК-12 или АПК-10 |
Автомобиль с подъемной платформой АПК-12 или АПК-10 |
|
способ 1 |
Грузовые автомобили различных марок |
Грузовые автомобили различных марок |
Грузовые автомобили различных марок |
|
способ 2 |
|
Модернизированные прицепные грузовые тележки ТЛ-9, аккумуляторный тягач типа АТБ-250 или автомобиль УАЗ-469 в качестве тягача |
Модернизированные прицепные грузовые тележки ТЛ-9, аккумуляторный тягач типа АТБ-250 или автомобиль типа УАЗ-469 в качестве тягача |
|
Списание отправленного груза |
|
|
|
|
Регистрация отправленного груза и оформление ведомости отправленного груза |
Пишущая машинка |
Дисплейный модуль, электронно-вычислительная машина, алфавитно-цифровое печатающее устройство |
Дисплейный модуль, электронно-вычислительная машина, алфавитно-цифровое печатающее устройство |
|
Обработка груза, отправляемого в авиаконтейнерах и на авиаподдонах грузовыми воздушными судами |
|||
|
Оформление ведомости комплектации грузов |
Пишущая машинка |
Дисплейный модуль, электронно-вычислительная машина, алфавитно-цифровое печатающее устройство |
Дисплейный модуль, электронно-вычислительная машина, алфавитно-цифровое печатающее устройство |
|
Доставка и установка порожних авиаконтейнеров и авиаподдонов в зоне комплектации для самолетов: |
|
|
|
|
Ан-26Б |
Авиаподдон ПАВ-25, автопогрузчик, роликовые дорожки РД-2, подъемно-комплектовочный стол ПКС-5 |
Авиаподдоны ПАВ-2,5, мостовой кран, роликовые дорожки РД-2 ; или РД-5, подъемно-комплектовочный стол |
Авиаподдоны ПАВ-2,5, рольганговые стеллажи, контейнерный штабелер ШК-5, роликовые дорожки РД-2, подъемно-комплектовочный стол ПКС-5 |
|
Ил-76Т, Ту-154С |
|
Авиаподдоны ПАВ-2,5, ПАВ-5,6, авиаконтейнеры УАК-5, УАК-2,5, мостовой кран, роликовые дорожки РД-2 или РД-5, подъемно-комплектовочный стол ПКС-5 |
Авиаподдоны ПАВ-5,6, ПАВ-2,5, ПАВ-3,0, авиаконтейнеры УАК-5, УАК-2,5, рольганговые стеллажи, контейнерный штабелер ШК-5, роликовые дорожки РД-2, подъемно-комплектовочный i стол ПКС-5 |
|
Доставка складских поддонов с грузом из зоны хранения в зону комплектации |
Стеллажи, складские поддоны, аккумуляторный погрузчик |
Стеллажи, складские поддоны, аккумуляторный погрузчик Для грузооборота 300 т/сут.: стеллажи, складские поддоны, кран-штабелер, аккумуляторный погрузчик |
Стеллажи, складские поддоны, кран-штабелер, аккумуляторный погрузчик |
|
Укладка груза в авиаконтейнеры и на авиаподдоны для самолетов: |
|
|
|
|
Ан-26Б |
Роликовые дорожки РД-2, подъемно-комплектовочный стол ПКС-5, авиаподдоны ПАВ-2,5 |
Подъемно-комплектовочный стол ПКС-5. авиаподдоны ПАВ-2,5 |
Подъемно-комплектовочный стол ПКС-5. авиаподдоны ПАВ-2,5 |
|
Ил-76Т |
|
Подъемно-комплектовочный стол ПКС-5, авиаконтейнеры УАК-5, УАК-2,5 или авиаподдоны ПАВ-2,5, ПАВ-5,6, ПАВ-5 |
Подъемно-комплектовочный стол ПКС-5, авиаконтейнеры УАК-5, УАК-2,5 или авиаподдоны ПАВ-2,5, ПАВ-5,6 |
|
Ту-154С |
|
Авиаподдоны ПАВ-5,6 |
Подъемно-комплектовочный стол ПКС-5. авиаподдоны ПАВ-3,0 |
|
Оформление ярлыка и пломбирование скомплектованных авиаконтейнеров и авиаподдонов Установка скомплектованного авиаконтейнера или авиаподдона на весы, взвешивание для самолета |
|
|
|
|
Ан-26Б |
Мостовой кран или автопогрузчик, весы автомобильные |
Мостовой кран или автопогрузчик, весы автомобильные |
Мостовой кран или автопогрузчик, весы автомобильные |
|
Установка скомплектованного авиаконтейнера или авиаподдона в зоне хранения для самолетов: |
|
|
|
|
Ан-26Б |
Мостовой кран иди кран-балка, автопогрузчик, роликовые дорожки РД-2. авиаподдоны ПАВ-2,5 |
Мостовой кран или автопогрузчик, роликовые дорожки РД-5 иди РД-2, авиаподдоны ПАВ-2,5 |
Мостовой кран или автопогрузчик, роликовые дорожки РД-2, контейнерный штабелер ШК-5, рольганговые стеллажи, авиаподдоны ПАВ-2,5 |
|
Ил-76Т |
|
Мостовой кран, роликовые дорожки РД-2 или РД-5. авиаконтейнеры УАК-5, УАК-2,5 или авиаподдоны ПАВ-2,5, ПАВ-5,6 |
Мостовой кран, роликовые дорожки РД-2, контейнерный штабелер ШК-5, рольганговые стеллажи, авиаконтейнеры УАК-5, УАК-2,5 или авиаподдоны ПАВ-2,5, ПАВ-5,6 |
|
Ty-I54C |
- |
Подъемно-комплектовочный стол ПКС-5, роликовые дорожки РД-2 или РД-5 |
Подъемно-комплектовочный стол ПКС-5, роликовые дорожки РД-2, контейнерный штабелер ШК-5, рольганговые стеллажи, авиаподдоны ПАВ-3,0 |
|
Формирование отправляемого рейса |
- |
- |
Рольганговые стеллажи, контейнерный штабелер ШК-5, грузовая рампа, авиаконтейнеры УАК-2,5, УАК-5 или авиаподдоны ПАВ-2,5, ПАВ-3,0, ПАВ-5,6 |
|
Загрузка авиаконтейнеров и авиаподдонов на транспортное средство для самолетов: |
|
|
|
|
Ан-26Б |
Роликовые дорожки РД-2, подъемно-комплектовочный стол ПКС-5, автопоезд-контейнеровоз АК-6, авиаподдоны ПАВ-2,5 |
Авиаподдоны ПАВ-2,5, роликовые дорожки РД-2 или РД-5, подъемно-комплектовочный стол ПКС-5, автопоезд-контейнеровоз АК-6 |
Авиаподдоны ПАВ-2,5, грузовая рампа, автопоезд-контейнеровоз АК-6 |
|
Ил-76Т: |
|
|
|
|
способ 1 |
- |
Роликовые дорожки РД-2 иди РД-5, подъемно-комплектовочный стол ПКС-5, тележки упрощенные ТКУ-2А и трактор, авиаконтейнеры УАК-2,5, УАК-5 или авиаподдоны ПАВ-2,5, ПАВ-5,6 |
Грузовая рампа, тележки контейнерные упрощенные ТКУ-2А и трактор, авиаконтейнеры УАК-2,5, УАК-5 или авиаподдоны ПАВ-2,5, ПАВ-5,6 |
|
способ 2 |
- |
Роликовые дорожки РД-2 или РД-5, подъемно-комплектовочный стол ПКС-5, автопоезд-контейнеровоз АК-6, авиаподдоны ПАВ-2,5 или ПАВ-5,6, авиаконтейнеры УАК-2,5, УАК-5 |
Грузовая рампа, автопоезд-контейнеровоз АК-6, авиаконтейнеры УАК-2 или УАК-5, авиаподдоны ПАВ-2,5 или ПАВ-5,6 |
|
ТУ-154С |
- |
Роликовые дорожки РД-2 или РД-5, подъемно-комплектовочный стол ПКС-5, автомобиль с подъемной платформой АПК-К, авиаподдоны ПАН-3,0 |
Грузовая рампа, автомобиль с подъемной платформой АПК-К, авиаподдоны ПАН-3,0 |
|
Транспортировка авиаконтейнеров и авиаподдонов к самолетам: |
|
|
|
|
Ан-26Б |
Автопоезд-контейнеровоз АК-6, авиаподдоны ПАВ-2,5 |
Автопоезд-контейнеровоз АК-6, авиаподдоны ПАВ-2,5 |
Автопоезд-контейнеровоз АК-6, авиаподдоны ПАВ-2,5 |
|
Ил-76Т: |
|
|
|
|
способ 1 |
- |
Тележки контейнерные упрощенные ТКУ-2А, трактор, авиаконтейнеры УАК-2,5, УАК-5 или авиаподдоны ПАВ-2,5, ПАВ-5,6 |
Тележки контейнерные упрощенные ТКУ-2А, трактор, прицепной погрузчик контейнеров ППК-5, авиаконтейнеры УАК-2,5, УАК-5 или авиаподдоны ПАВ-2,5, ПАВ-5,6 |
|
способ 2 |
- |
Автопоезд-контейнеровоз АК-6, авиаконтейнеры УАК-2,5, УАК-5 или авиаподдоны ПАВ-2,5, ПАВ-5,6 |
Автопоезд-контейнеровоз АК-6, авиаконтейнеры УАК-2,5, УАК-5,0 или авиаподдоны ПАВ-2,5, ПАВ-5,6 |
|
Ту-154С |
- |
Автомобиль с подъемной платформой АПК-К, авиаподдоны ПАВ-3,0 |
Автомобиль с подъемной платформой АПК-К, авиаподдоны ПАВ-3,0 |
|
Обработка грузов, отправляемых в авиаконтейнерах на авиаподдонах пассажирскими воздушными судами |
|||
|
Оформление ведомости комплектации груза |
Пишущая машинка |
Дисплейный модуль, электронно-вычислительная машина, алфавитно-цифровое печатающее устройство |
Дисплейный модуль, электронно-вычислительная машина, алфавитно-цифровое печатающее устройство |
|
Доставка и установка порожних авиаподдонов и авиаконтейнеров в зоне комплектации для самолетов: |
|
|
|
|
Як-42 |
Кран мостовой (кран-балка), роликовые дорожки РД-2, подъемно-комплектовочный стол ПКС-2А, авиаконтейнеры АК-0,7 |
Кран мостовой, роликовые дорожки, подъемно-комплектовочный стол ПКС-2А, авиаконтейнеры АК-0,7 |
Рольганговые стеллажи, контейнерный штабелер ШК-5, роликовые дорожки РД-2, подъемно-комплектовочный стол ПКС-2А, авиаконтейнеры АК-0,7 |
|
Ил-86 |
- |
Авиаконтейнеры АК-1,5 или пакет авиаподдонов ПАН-1,5, кран мостовой, роликовые дорожки РД-2, подъемно-комплектовочный стол ПКС-2А |
Авиаконтейнеры АК-1,5 или пакет авиаподдонов ПАН-1,5, рольганговые стеллажи, контейнерный штабелер ШК-5, роликовые дорожки РД-2, подъемно-комплектовочный стол ПКС-2А |
|
Пакет авиаподдонов ПАН-3,0, кран мостовой, роликовые дорожки РД-2, подъемно-комплектовочный стол ПКС-5 |
Пакет авиаподдонов ПАН-3,0, рольганговые стеллажи, контейнерный штабелер ШК-5, роликовые дорожки РД-2, подъемно-комплектовочный стол ПКС-5 |
||
|
Доставка складских поддонов с грузом из зоны хранения в зону комплектации авиаконтейнеров и авиаподдонов |
Стеллажи, складские поддоны, аккумуляторный погрузчик |
Стеллажи, складские поддоны, аккумуляторный погрузчик Для грузооборота 300 т/сут.: стеллажи, складские поддоны, кран-штабелер, аккумуляторный погрузчик |
Стеллажи, складские поддоны, кран-штабелер, аккумуляторный погрузчик |
|
Укладка груза в авиаконтейнеры и на авиаподдоны, пломбирование, оформление ярлыка, определение массы груза по накладным, установка на хранение для самолетов: |
|
|
|
|
Як-42 |
Авиаконтейнеры АК-0,7, подъемно-комплектовочный стол ПКС-2А, роликовые дорожки РД-2 |
Авиаконтейнеры АК-0,7, подъемно-комплектовочный стол ПКС-2А, роликовые дорожки РД-2 |
Авиаконтейнеры AK-0,7, подъемно-комплектовочный стол ПКС-2А, роликовые дорожки РД-2, контейнерный штабелер ШК-5, рольганговые стеллажи |
|
Ил-86 |
- |
Авиаконтейнеры АК-1,5 или авиаподдоны ПАН-1,5, подъемно-комплектовочный стол ПКС-2А, роликовые дорожки РД-2 Авиаподдоны ПАН-3,0, подъемно-комплектовочный стол ПКС-2А, роликовые дорожки РД-2 |
Авиаконтейнеры АК-1,5 или авиаподдоны ПАН-1,5, подъемно-комплектовочный стол ПКС-2А, роликовые дорожки РД-2, контейнерный штабелер ШК-5, рольганговые стеллажи, авиаподдоны ПАН-3,0, подъемно-комплектовочный стол ПКС-5, роликовые дорожки РД-2, контейнерный штабелер ШК-5, рольганговые стеллажи |
|
Установка авиаконтейнеров и авиаподдонов в зоне загрузки на транспортное средство для самолетов: |
|
|
|
|
Як-42 |
- |
- |
Рольганговые стеллажи, контейнерный штабелер ШК-5, роликовые дорожки РД-2, подъемно-комплектовочный стол ПКС-2А |
|
Ил-86 |
- |
- |
Авиаконтейнеры АК-1,5 или авиаподдоны ПАН-1,5, рольганговые стеллажи, контейнерный штабелер ШК-5, грузовая рампа |
|
|
|
|
Авиаподдоны ПАН-3,0, рольганговые стеллажи, контейнерный штабелер ШК-5, грузовая рампа |
|
Загрузка авиаконтейнеров и авиаподдонов на транспортные средства для самолетов: |
|
|
|
|
Як-42 |
Авиаконтейнеры АК-07, роликовые дорожки РД-2, подъемно-комплектовочный стол ПКС-2А, тележки контейнерные ТК-2А, тягач аккумуляторный типа АТБ-250 или автомобиль УАЗ-469 в качестве тягача |
Авиаконтейнеры АК-0,7, роликовые дорожки РД-2, подъемно-комплектовочный стол ПКС-2А, тележки контейнерные ТК-2А, тягач аккумуляторный типа АТБ-250 или автомобиль УАЗ-469 в качестве тягача |
Авиаконтейнеры АК-0,7, роликовые дорожки РД-2, подъемно-комплектовочный стол ПКС-2А, тележки контейнерные ТК-2А, тягач аккумуляторный типа АТБ-250 или автомобиль УАЗ-469 в качестве тягача |
|
Ил-86 |
|
Авиаконтейнеры АК-1,5 или авиаподдоны ПАН-1,5, роликовые дорожки РД-2, подъемно-комплектовочный стол ПКС-2А, автомобиль с подъемной платформой АПК-К Авиаподдоны ПАН-3,0, роликовые дорожки РД-2, подъемно-комплектовочный стол ПКС-5, автомобиль с подъемной платформой АПК-К |
Авиаконтейнеры АК-1,5 или авиаподдоны ПАН-1,5 и грузовая рампа, автомобиль с подъемной платформой АПК-К Авиаподдоны ПАН-3,0, грузовая рампа, автомобиль с подъемной платформой АПК-К |
|
Транспортировка авиаконтейнеров и авиаподдонов с грузом к самолетам: |
|
|
|
|
Як-42 |
Авиаконтейнеры АК-0,7, тележки контейнерные ТК-2А, тягач аккумуляторный типа АТБ-250 или автомобиль УАЗ-469 в качестве тягача |
Авиаконтейнеры АК-0,7, роликовые дорожки РД-2, подъемно-комплектовочный стол ПКС-2А, тележки контейнерные ТК-2А, тягач аккумуляторный типа АТБ-250 или автомобиль УАЗ-469 в качестве тягача |
Авиаконтейнеры АК-0,7, тележки контейнерные ТК-2А, тягач аккумуляторный типа АТБ-250 или автомобиль УАЗ-469 в качестве тягача |
|
Ил-86 |
|
Авиаконтейнеры АК-1,5 или авиаподдоны ПАН-1,5, автомобиль с подъемной платформой АПК-К |
Авиаконтейнеры АК-1,5 или авиаподдоны ПАН-1,5, автомобиль с подъемной платформой АПК-К |
|
Загрузка авиаконтейнеров и авиаподдонов с грузом в самолеты: |
|
|
|
|
Як-42 |
Авиаконтейнеры АК-0,7, тележки контейнерные ТК-2А, тягач аккумуляторный типа АТБ-250 или автомобиль УАЗ-469 в качестве тягача, прицепной погрузчик контейнеров ППК-2 |
Авиаконтейнеры АК-0,7, тележки контейнерные ТК-2А, тягач аккумуляторный типа АТБ-250 или автомобиль УАЗ-469 в качестве тягача, прицепной погрузчик контейнеров ППК-2 |
Авиаконтейнеры AK-0,7, тележки контейнерные ТК-2А, тягач аккумуляторный типа АТБ-250 или автомобиль УАЗ-469 в качестве тягача, прицепной погрузчик контейнеров ППК-2 |
|
Ил-86 |
- |
Авиаконтейнеры АК-1,5 или авиаподдоны ПАН-1,5 и ПАН-3,0, автомобиль с подъемной платформой АПК-К |
Авиаконтейнеры АК-1,5 или авиаподдоны ПАН-1,5 и ПАН-3,0, автомобиль с подъемной платформой АПК-К |
|
Обработка груза, прибывающего россыпью пассажирскими воздушными судами |
|||
|
Обработка груза на перроне |
|
|
|
|
Разгрузка груза на транспортные средства из самолетов: |
|
|
|
|
Ил-62, ТУ-154, Ту-134 |
- |
Автомобиль с подъемной платформой АПК-12 или АПК-10 |
Автомобиль с подъемной платформой АПК-12 или АПК-10 |
|
Як-40, Ан-24, Ан-2, Л-410: |
|
|
|
|
способ 1 |
Грузовые автомобили различных марок |
Грузовые автомобили различных марок |
Грузовые автомобиля различных марок |
|
способ 2 |
Модернизированные прицепные грузовые тележки ТЛ-9, аккумуляторный тягач типа АТБ-250 или автомобиль типа УАЗ-469 в качестве тягача |
Модернизированные прицепные грузовые тележки ТЛ-9, аккумуляторный тягач типа АТБ-250 или автомобиль типа УАЗ-469 в качестве тягача |
Модернизированные прицепные грузовые тележки ТЛ-9, аккумуляторный тягач типа АТБ-250 или автомобиль типа УАЗ-469 в качестве тягача |
|
Транспортировка груза на склад от самолетов Ил-62, Ту-154, Ту-134, Як-40, Ан-24: |
- |
Автомобиль с подъемной платформой AПK-I2 или АПК-10 |
Автомобиль с подъемной платформой АПК-12 или апк-10 |
|
способ 1 |
Грузовые автомобили различных марок |
Грузовые автомобили различных марок |
Грузовые автомобили различных марок |
|
способ 2 |
Модернизированные прицепные грузовые тележки ТЛ-9, аккумуляторный тягач типа АТБ-250 или автомобиль УАЗ-469 в качестве тягача |
Модернизированные прицепные грузовые тележки ТЛ-9, аккумуляторный тягач типа АТБ-250 или автомобиль УАЗ-469 в качестве тягача |
Модернизированные прицепные грузовые тележки ТЛ-9, аккумуляторный тягач типа АТБ-250 или автомобиль УАЗ-469 в качестве тягача |
|
Обработка груза на складе |
|
|
|
|
Разгрузка груза с транспортных средств на складе для самолетов: |
|
|
|
|
Ил-62, Ту-154, Ту-134 |
- |
Автомобиль с подъемной платформой АПК-12 или АПК-10, поддоны складские, аккумуляторный погрузчик |
Автомобиль с подъемной платформой АПК-12 или АПК-10, поддоны складские, аккумуляторный погрузчик |
|
Як-40, Ан-24: |
|
|
|
|
способ 1 |
Грузовые автомобили различных марок, поддоны складские, аккумуляторный погрузчик |
Грузовые автомобили различных марок, поддоны складские, аккумуляторный погрузчик |
Грузовые автомобили различных марок, поддоны складские, аккумуляторный погрузчик |
|
способ 2 |
Модернизированные прицепные грузовые тележки ТЛ-9, складские поддоны, аккумуляторный погрузчик |
Модернизированные прицепные грузовые тележки ТЛ-9, складские поддоны, аккумуляторный погрузчик |
Модернизированные прицепные грузовые тележки ТЛ-9, складские поддоны, аккумуляторный погрузчик |
|
Выбор адреса хранения, доставка складских поддонов с грузом в зону хранения и установка в стеллажи |
Складские поддоны, аккумуляторный погрузчик, стеллажи |
Складские поддоны, аккумуляторный погрузчик, стеллажи Для грузооборота 300 т/сут.: дисплейный модуль, электронно-вычислительная машина, складские поддоны, аккумуляторный погрузчик кран-штабелер, стеллажи |
Дисплейный модуль, электронно-вычислительная машина, складские поддоны, аккумуляторный погрузчик, кран-штабелер, стеллажи |
|
Доставка груза из зоны хранения и выдача получателю |
Стеллажи, складские поддоны, аккумуляторный погрузчик |
Стеллажи, складские поддоны, аккумуляторный погрузчик Для грузооборота 300 т/сут.: стеллажи, складские поддоны, кран-штабелер, аккумуляторный погрузчик |
Стеллажи, складские поддоны, кран-штабелер, аккумуляторный погрузчик |
|
Оформление ведомости прибывшего груза и списание груза со склада |
Пишущая машинка |
Дисплейный модуль, электронно-вычислительная машина, алфавитно-цифровое устройство |
Дисплейный модуль, электронно-вычислительная машина, алфавитно-цифровое устройство |
|
Обработка грузов, прибывающих в авиаконтейнерах и на авиаподдонах грузовыми воздушными судами |
|||
|
Разгрузка авиаконтейнеров и авиаподдонов на транспортные средства из самолетов: |
|
|
|
|
Ан-26Б |
Автопоезд-контейнеровоз АК-6, авиаподдоны ПАВ-2,5 |
Автопоезд-контейнеровоз АК-6, авиаподдоны ПАВ-2,5 |
Автопоезд-контейнеровоз АК-6, авиаподдоны ПАВ-2,5 |
|
Ил-76Т: |
|
|
|
|
способ 1 |
- |
Прицепной погрузчик контейнеров ППК-5, тележки контейнерные упрощенные ТКУ-2А, трактор, авиаподдоны ПАВ-2,5, ПАВ-5,6 или авиаконтейнеры УАК-2,5, УАК-5,6 |
Прицепной погрузчик контейнеров ППК-5, тележки контейнерные упрощенные ТКУ-2А, трактор, авиаподдоны ПАВ-2,5, ПАВ-5,6 или авиаконтейнеры УАК-2,5, УАК-5,6 |
|
способ 2 |
- |
Автопоезд-контейнеровоз АК-6. авиаподдоны ПАВ-2,5, ПАВ-5,6 или авиаконтейнеры УАК-2,5, УАК-5 |
Автопоезд-контейнеровоз АК-6. авиаподдоны ПАВ-2,5, ПАВ-5,6 или авиаконтейнеры УАК-2,5, УАК-5 |
|
Tу-I54C |
- |
Автомобиль с подъемной платформой АПК-К, авиаподдоны ПАВ-3,0 |
Автомобиль с подъемной платформой АПК-К, авиаподдоны ПАВ-3,0 |
|
Транспортировка авиаконтейнеров и авиаподдонов с грузом на склад от самолетов: |
|
|
|
|
Ан-26Б |
Автопоезд-контейнеровоз АК-6, авиаподдоны ПАВ-2,5 |
Автопоезд-контейнеровоз АК-6, авиаподдоны ПАВ-2,5 |
Автопоезд-контейнеровоз АК-6, авиаподдоны ПАВ-2,5 |
|
ИЛ-76Т |
|
|
|
|
способ 1 |
- |
Тележки контейнерные упрощенные ТКУ-2А, авиаконтейнеры УАК-2,5, УАК-5 или авиаподдоны ПАВ-2,5, ПАВ-5,6 |
Тележки контейнерные упрощенные ТКУ-2А, трактор, авиаконтейнеры УАК-2,5, УАК-5 или авиаподдоны ПАВ-2,5, ПАВ-5,6 |
|
способ 2 |
- |
Автопоезд-контейнеровоз АК-6, авиаконтейнеры УАК-2,5, УАК-5 или авиаподдоны ПАВ-2,5, ПАВ-5,6 |
Автопоезд-контейнеровоз АК-6, авиаконтейнеры УАК-2,5, УАК-5 или авиаподдоны ПАВ-2,5, ПАВ-5,6 |
|
Ty-I54C |
- |
Автомобиль с подъемной платформой АПК-К, авиаподдоны ПАВ-3,0 |
Автомобиль с подъемной платформой АПК-К, авиаподдоны ПАВ-3,0 |
|
Разгрузка авиаконтейнеров и авиаподдонов с транспортного средства на складе и установка на хранение с самолетов: |
|
|
|
|
Ан-26Б |
Автопоезд-контейнеровоз АК-6, подъемно-комплектовочный стол ПКС-5, роликовые дорожки РД-2 или РД-5 |
Автопоезд-контейнеровоз АК-6, подъемно-комплектовочный стол ПКС-5, роликовые дорожки РД-2 или РД-5 |
Автопоезд-контейнеровоз АК-6, грузовая рампа, контейнерный штабелер ШК-5, рольганговые стеллажи, авиаподдоны ПАВ-2,5 |
|
Ил-76Т: |
|
|
|
|
способ 1 |
- |
Тележки контейнерные упрощенные ТКУ-2А, трактор, подъемно-комплектовочный стол ПКС-5, роликовые дорожки РД-2 или РД-5, авиаконтейнеры УАК-2,5, УАК-5 или авиаподдоны ПАВ-2,5, ПАВ-5,6 |
Тележки контейнерные -упрощенные ТКУ-2А, трактор, грузовая рампа, контейнерный штабелер ШК-5, рольганговые стеллажи, авиаконтейнеры УАК-2,5, УАК-5 или авиаподдоны ПАВ-2,5, ПАВ-5,6 |
|
способ 2 |
- |
Автопоезд-контейнеровоз АК-6, подъемно-комплектовочный стол ПКС-5, роликовые дорожки РД-2 или РД-5, авиаконтейнеры УАК-2,5, УАК-5,6 или авиаподдоны ПАВ-2,5, ПАВ-5,6 |
Автопоезд-контейнеровоз АК-6, грузовая рампа, контейнерный штабелер ШК-5, рольганговые стеллажи, авиаконтейнеры УАК-2,5, УАК-5 или авиаподдоны ПАВ-2,5, ПАВ-5,6 |
|
Ty-I54C |
- |
Автомобиль с подъемной платформой АПК-К, подъемно-комплектовочный стол ПКС-5, роликовые дорожки РД-2 или РД-5, авиаподдоны ПАВ-3,0 |
Автомобиль с подъемной платформой АПК-К, грузовая рампа, контейнерный штабелер ШК-5, рольганговые стеллажи, авиаподдоны ПАВ-3,0 |
|
Доставка авиаконтейнеров или авиаподдонов с грузом и порожних складских поддонов в зону раскомплектации и укладка груза на складские поддоны |
Складские поддоны, аккумуляторный погрузчик, авиаконтейнеры УАК-2,5 или авиаконтейнеры УАК-2,5 или авиаподдоны ПАВ-2,5 |
Складские поддоны, аккумуляторный погрузчик, авиаконтейнеры УАК-2,5, УАК-5 или авиаподдоны ПАВ-2,5, ПАВ-3,0, ПАВ-5,6 |
Складские поддоны, аккумуляторный погрузчик, авиаконтейнеры УАК-2,5, УАК-5 или авиаподдоны ПАВ-2,5, ПАВ-3,0, ПАВ-5,6, рольганговые стеллажи, контейнерный штабелер ШК-5, роликовые дорожки РД-2 или РД-5, подъемно-комплектовочный стол ПКС-5 |
|
Доставка складских поддонов с грузом в зону хранения и установка на стеллажи |
Аккумуляторный погрузчик, складские поддоны, стеллажи |
Аккумуляторный погрузчик , складские поддоны, стеллажи Для грузооборота 300 т/сут.: аккумуляторный погрузчик, кран-штабелер, складские поддоны, стеллажи |
Аккумуляторный погрузчик, кран-штабелер, складские поддоны, стеллажи |
|
Доставка складских поддонов с грузом из зоны хранения и выдача получателю |
Стеллажи, аккумуляторный погрузчик, складские поддоны |
Стеллажи, складские поддоны, аккумуляторный погрузчик Для грузооборота 300 т/сут.: стеллажи, складские поддоны, кран штабелер, аккумуляторный погрузчик |
Стеллажи, складские поддоны, кран-штабелер, аккумуляторный погрузчик |
|
Оформление ведомости прибывшего груза |
Пишущая машинка |
Дисплейный модуль, электронно-вычислительная машина, алфавитно-цифровое печатающее устройство |
Дисплейный модуль, электронно-вычислительная машина, алфавитно-цифровое печатающее устройство |
|
Обработка грузов, прибывающих в авиаконтейнерах и на авиаподдонах пассажирскими воздушными судами |
|||
|
Разгрузка авиаконтейнеров и авиаподдонов с грузом на транспортные средства из самолетов: |
|
|
|
|
Як-42 |
Прицепной погрузчик контейнеров ППК-2, тележки контейнерные ТК-2А, тягач аккумуляторный типа АТБ-250 или автомобиль УАЗ-469 в качестве тягача, авиаконтейнеры АК-0,7 |
Прицепной погрузчик контейнеров ППК-2, тележки контейнерные ТК-2А, тягач аккумуляторный типа АТБ-150 или автомобиль УАЗ-469 в качестве тягача, авиаконтейнеры АК-0,7 |
Прицепной погрузчик контейнеров ППК-2, тележки контейнерные ТК-2А, тягач аккумуляторный типа АТБ-250 или автомобиль УАЗ-469 в качестве тягача, авиаконтейнеры АК-0,7 |
|
Ил-86 |
|
Автомобиль с подъемной платформой АПК-К, авиаконтейнеры АК-1,5 или авиаподдоны ПАН-1,5, ПАН-3,0 |
Автомобиль с подъемной платформой АПК-К, авиаконтейнеры АК-1,5 или авиаподдоны ПАН-1,5, ПАН-3,0 |
|
Транспортировка авиаконтейнеров и авиаподдонов с грузом на склад от самолетов: |
|
|
|
|
Як-42 |
Тележки контейнерные ТК-2А, тягач аккумуляторный типа АТБ-250 или автомобиль УАЗ-469 в качестве тягача, авиаконтейнер АК-0,7 |
Тележки контейнерные ТК-2А, тягач аккумуляторный типа АТБ-250 или автомобиль УАЗ-469 в качестве тягача, авиаконтейнер АК-0,7 |
Тележки контейнерные ТК-2А, тягач аккумуляторный типа АТБ-250 или автомобиль УАЗ-469 в качестве тягача, авиаконтейнер АК-0,7 |
|
Ил-86 |
- |
Автомобиль с подъемной платформой АПК-К, авиаконтейнеры АК-1,5 или поддоны ПАН-1,5, ПАН-3,0 |
Автомобиль с подъемной платформой АПК-К, авиаконтейнеры АК-1,5 или поддоны ПАН-1,5, ПАН-3,0 |
|
Разгрузка авиаконтейнеров и авиаподдонов с грузом на складе, доставка и установка их зоне хранения с самолетов: |
|
|
|
|
Як-42 |
Тягач аккумуляторный типа АТБ-250 или автомобиль УАЗ-469 в качестве тягача, тележки контейнерные ТК-2А, подъемно-комплектовочный стол ПКС-2А, роликовые дорожки РД-2, авиаконтейнеры АК-0,7 |
Тягач аккумуляторный типа АТБ-250 или автомобиль УАЗ-469 в качестве тягача, тележки контейнерные ТК-2А, подъемно-комплектовочный стол ПКС-2А, роликовые дорожки РД-2, авиаконтейнеры АК-0,7 |
Тягач аккумуляторный типа АТБ-250 или автомобиль УАЗ-469 в качестве тягача, тележки контейнерные ТК-2А, подъемно-комплектовочный стол ПКС-2А. роликовые дорожки РД-2, контейнерный штабелер ШК-5, рольганговые стеллажи, авиаконтейнеры АК-0,7 |
|
Ил-86 |
- |
Авиаконтейнеры АК-1,5 или авиаподдоны ПАН-1,5, автомобиль с подъемным кузовом АПК-К, подъемно-комплектовочный стол ПKC-2A, роликовые дорожки РД-2, авиаподдоны ПАВ-3,0, автомобиль с подъемной платформой АПК-К, подъемно-комплектовочный стол ПКС-5, роликовые дорожки РД-2 |
Авиаконтейнеры АК-1,5 или авиаподдоны ПАН-1,5, ПАН-3,0, автомобиль с подъемной платформой АПК-К, грузовая рампа, контейнерный штабелер ШК-5, рольганговые стеллажи |
|
Доставка авиаконтейнеров, авиаподдонов с грузом и порожних складских поддонов из зоны хранения в зону раскомплектации и укладка груза на складские поддоны |
Складские поддоны, аккумуляторный погрузчик |
Складские поддоны, аккумуляторный погрузчик |
Авиаконтейнеры АК-0,7, AK-1.5 или авиаподдоны ПАН-1,5, рольганговые стеллажи, контейнерный штабелер ШК-5, роликовые дорожки РД-2, подъемно-комплектовочный стол ПКС-2А, складские поддоны, аккумуляторный погрузчик Авиаподдоны ПАН-3,0, рольганговые стеллажи, контейнерный штабелер ШК-5, роликовые дорожки РД-2, подъемно-комплектовочный стол ПКС-5, складские поддоны, аккумуляторный погрузчик |
|
Выбор адреса хранения, доставка складских поддонов с грузом в зону хранения и установка в стеллажи |
Аккумуляторный погрузчик, складские поддоны, стеллажи |
Аккумуляторный погрузчик, складские поддоны, стеллажи Для грузооборота 300 т/сут.: дисплейный модуль, электронно-вычислительная машина, аккумуляторный погрузчик, кран-штабелер, складские поддоны, стеллажи |
Дисплейный модуль, электронно-вычислительная машина, аккумуляторный погрузчик, кран-штабелер, складские поддоны, стеллажи |
|
Доставка складских поддонов с грузом из зоны хранения и выдача получателю |
Стеллажи, складские поддоны, аккумуляторный погрузчик |
Стеллажи, складские поддоны, аккумуляторный погрузчик Для грузооборота 300 т/сут.: стеллажи, складские поддоны, аккумуляторный погрузчик |
Стеллажи, складские поддоны, кран-штабелер, аккумуляторный погрузчик |
|
Оформление ведомости прибывшего груза и списание груза со склада |
Пишущая машинка |
Дисплейный модуль, электронно-вычислительная машина, алфавитно-цифровое печатающее устройство |
Дисплейный модуль, электронно-вычислительная машина, алфавитно-цифровое печатающее устройство |
|
1 |
2 |
3 |
4 |
5 |
|
Электропогрузчики |
|
4 |
36(2´18) |
192 |
9.7. Принципиальные схемы грузовых потоков, размещения оборудования, средств механизации и складских помещений по группам грузовых комплексов приведены на рис. 13-19.

Рис. 13. Принципиальная схема грузовых потоков, размещения оборудования, средств механизации и складских помещений в грузовых комплексах с суточным грузооборотом 400 т с использованием электропогрузчиков (вариант 1):
А - стеллажный склад; Б - контейнерный склад; В - эстакада для длинномерных и тяжеловесных грузов; Г - помещение для грузов, требующих охлаждения; Д - помещение для грузов, не требующих охлаждения; Е - помещение для хранения скоропортящихся грузов (вакцин, биопрепаратов); 1 - весы циферблатные; 2 - стеллаж; 3 - мостовой кран; 4 - рольганговые стеллажи; 5 - подъемно-комплектовочный стол ПКС-5; 6 - подъемно-комплектовочный стол ПКС-2А; 7 - грузовая рампа; 8 - аккумуляторный погрузчик.

Рис. 14. Принципиальная схема грузовых потоков, размещения оборудования, средств механизации и складских помещений в грузовых комплексах с суточным грузооборотом 400 т с использованием электропогрузчиков (вариант 2):
А - стеллажный склад, Б - контейнерный склад; В - эстакада для длинномерных и тяжеловесных грузов; Г - помещение для грузов, требующих охлаждения; Д - помещение для грузов, не требующих охлаждения; Е - помещение для хранения скоропортящихся грузов (вакцин, биопрепаратов); 1 - весы циферблатные; 2 - стеллаж; 3 - мостовой кран; 4 - рольганговые стеллажи; 5 - подъемно-комплектовочный стол; 6 - рольганговые стеллажи; 7 - грузовая рампа; 8 - электропогрузчик аккумуляторный

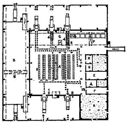
Рис. 15. Принципиальная схема грузовых потоков, размещения оборудования, средств механизации и складских помещений в грузовых комплексах с суточным грузооборотом 400 т с использованием автоматических кранов-штабелеров:
А - стеллажный склад; Б - контейнерный склад; В - эстакада для длинномерных и тяжеловесных грузов; Г - помещение для грузов, требующих охлаждения ;Д - помещение для грузов, не требующих охлаждения; Е - помещение для хранения скоропортящихся грузов (вакцин, биопрепаратов): 1 - весы циферблатные; 2 - стеллаж; 3 - мостовой кран; 4 - рольганговые стеллажи; 5 - подъемно-комплектовочный стол ПКС-5; 6 - подъемно-комплектовочный стол ПKC-2A; 7 - грузовая рампа; 8 - кран-штабелер контейнерный; 9 - кран-штабелер с автоматическим управлением

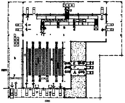
Рис. 16. Принципиальная схема грузовых потоков, размещения оборудования, средств механизации и складских помещений в грузовых комплексах с суточным грузооборотом 300 т с использованием электропогрузчиков:
А - стеллажный склад; Б - контейнерный склад; В - эстакада для длинномерных и тяжеловесных грузов; Г - помещение для грузов, не требующих охлаждения; Д - помещение для грузов, требующих охлаждения; Е - помещение для хранения скоропортящихся грузов; Ж - склад ценных грузов; И - административно-служебные помещения; 1 - веса циферблатные; 2 - стеллаж: 3 - аккумуляторный погрузчик; 4 - роликовые дорожки РД-2; 5 - весы автомобильные передвижные; 6 - подъемно-комплектовочный стол ПКС-5; 7 - подъемно-комплектовочный стол ПKC-2A; 8 - мостовой кран грузоподъемностью 10 т; 9 - мостовой кран грузоподъемностью 5 т

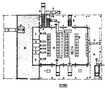
Рис. 17. Принципиальная схема грузовых потоков, размещения оборудования, средств механизации и складских помещений в грузовых комплексах с суточным грузооборотом 70 т:
А - стеллажный склад; Б - помещение для грузов, требующих охлаждения; В - помещение для грузов, не требующих охлаждения; Г - помещение для хранения живых грузов, растений; Д - склад опасных грузов; Ж - эстакада для хранения длинномерных и тяжеловесных грузов; И - административно-служебные помещения; 1 - весы циферблатные; 2 - аккумуляторный погрузчик; 3 - стеллаж; 4 - роликовая дорожка РД-2; 5 - подъемно-комплектовочный стол ПКС-2А; 6 - автопоезд-контейнеровоз АК-6; 7 - поезд грузовых тележек ТК-2А; 8 - мостовой кран грузоподъемностью 5 т

Рис. 18. Принципиальная схема грузовых потоков, размещения оборудования, средств механизации и складских помещений в грузовых комплексах с суточным грузооборотом 30 т;
А - стеллажный склад; Б - помещение для грузов, требующих охлаждения; В - помещение для грузов, не требующих охлаждения; Г - помещение для хранения живых грузов; Г - помещение для хранения скоропортящихся грузов (вакцин, биопрепаратов); Д - склад ценных грузов; Ж - административно-служебные помещения; 1 - весы циферблатные; 2 - аккумуляторный погрузчик; 3 - стеллаж; 4 - роликовая дорожка РД-2; 5 - подъемно-комплектовочный стол ПКС-2А; 6 - автопоезд-контейнеровоз АК-6; 7 - поезд грузовых тележек ТК-2А; 8 - автомобиль с подъемной платформой АПК-10, АПК-12; 9 - мостовой кран грузоподъемностью 5 т

Рис. 19. Принципиальная схема грузовых потоков, размещения оборудования, средств механизации и складских помещений в грузовых комплексах северной климатической зоны:
А - стеллажный склад; Б - контейнерный склад: В - эстакада для длинномерных и тяжеловесных грузов; Г - склад ценных грузов; Д - склад радиоактивных грузов; Е - помещение для хранения скоропортящихся грузов; Ж - помещение для хранения вакцин и биопрепаратов; И - помещение для хранения живых грузов; К - административно-служебные помещения; 1 - весы передвижные рычажные; 2 - стеллаж; 3 - подъемно-комплектовочный стол ПКС-5; 4 - роликовая дорожка РД-5; 5 - подъемно-комплектовочный стол ПКС-2А; 6 - роликовая дорожка РД-2; 7 - мостовой кран грузоподъемностью 10 т; 8 - мостовой кран грузоподъемностью 16 т
10.1. На размеры грузового двора оказывают влияние следующие факторы:
грузооборот грузового комплекса;
количество погрузочно-разгрузочных мест (постов) со стороны города и перрона;
габаритные размеры автомашины расчетной грузоподъемности;
нормативные расстояния между стоящими и движущимися автомашинами;
коэффициенты, учитывающие режимно-охранное обеспечение, благоустройство и озеленение.
10.2. Ориентировочное количество мест погрузки-разгрузки для соответствующих групп грузовых комплексов, зависящее от расчетной грузоподъемности автомашины, нормы времени погрузочно-разгрузочных работ и интенсивности потока автотранспорта приведены в табл. 14.
Нормы времени на выполнение погрузочно-разгрузочных работ приведены в табл. 15.
10.3. Под термином «погрузочно-разгрузочный фронт» понимается общая длина всех погрузочно-разгрузочных мест (постов).
Величина погрузочно-разгрузочного фронта зависит от способа расстановки автотранспорта.
Наиболее распространенными способами являются поточная и торцовая расстановка автотранспорта по погрузочно-разгрузочному фронту.
|
Группа грузового комплекса |
Нормативный суточный грузооборот грузового комплекса, т |
Расчетный часовой грузопоток стеллажного склада, т |
Тип автомашины |
Доля перевозимых грузов, % |
Средняя загрузка автомашины, т |
Интенсивность потока автотранспорта, ед./ч |
|
ГОРОД |
|
|
|
|
|
|
|
I |
30 |
10,0 |
ГАЗ-53А |
100 |
2,0 |
5 |
|
70 |
20,0 |
ГАЗ-53А |
100 |
2,0 |
10 |
|
|
II |
150 |
32,0 |
ГАЗ-53А |
50,0 |
2,0 |
8 |
|
ЗИЛ-130 |
50,0 |
4,0 |
4 |
|||
|
300 |
54,0 |
ГАЗ-53А |
50,0 |
2,0 |
13 |
|
|
ЗИЛ-130 |
50,0 |
4,0 |
7 |
|||
|
III |
400 |
70,0 |
ГАЗ-53А |
40,0 |
2,0 |
14 |
|
ЗИЛ-130 |
40,0 |
4,0 |
7 |
|||
|
ЗИЛ-130В-1 с ОДАЗ-885 |
20,0 |
8,0 |
1,7 |
|||
|
ПЕРРОН |
|
|
|
|
|
|
|
I |
30 |
8,1 |
АПК-12 |
100 |
1,0 |
8,1 |
|
70 |
16,3 |
АПК-12 |
100 |
1,5 |
12,0 |
|
|
II |
150 |
23,4 |
АПК-12 |
50,0 |
2 |
5,8 |
|
АПК-10 к |
50,0 |
3 |
3,9 |
|||
|
300 |
37 |
АПК-12 |
25 |
2 |
4,6 |
|
|
АПК-10 к |
50 |
3 |
6,2 |
|||
|
Тягач с тележками |
25 |
15 |
1,0 |
|||
|
III |
400 |
38 |
АПК-12 |
20 |
2 |
3,8 |
|
АПК-10 к |
40 |
3 |
5,0 |
|||
|
Тягач с тележками |
40 |
15 |
1,04 |
Таблица 14
|
Норма времени погрузки-разгрузки ч |
Интенсивность обслуживания места разгрузки за 1 ч, шт./ч |
Коэффициент вариации времени обслуживания |
Оптимальный коэффициент использования системы (места разгрузки) |
Потребное количество мест разгрузки-погрузки, шт. |
Округленное количество мест погрузки- разгрузки, шт. |
Фактический коэффициент использования места разгрузки |
|
0,33 |
3 |
0,86 |
0,60 |
2,78 |
2 |
0,83 |
|
0,33 |
3 |
0,86 |
0,60 |
5,5 |
5 |
0,67 |
|
0,33 |
3 |
0,81 |
0,61 |
4,3 |
4 |
0,67 |
|
0,40 |
2,5 |
0,81 |
0,59 |
2,7 |
2 |
0,80 |
|
0,33 |
3 |
0,81 |
0,61 |
7,1 |
7 |
0,62 |
|
0,40 |
2,5 |
0,81 |
0,59 |
4,7 |
4 |
0,70 |
|
0,33 |
3 |
|
0,60 |
7,7 |
8 |
0,62 |
|
0,40 |
2,5 |
0,85 |
0,59 |
5,0 |
5 |
0,59 |
|
0,50 |
2 |
|
0,63 |
0,8 |
1,0 |
0,85 |
|
0,32 |
3.1 |
0,80 |
0,65 |
4,02 |
4 |
0,65 |
|
0,32 |
3,1 |
0,80 |
0,65 |
5,95 |
6 |
0,65 |
|
0,32 |
3,1 |
0,84 |
0,64 |
2,88 |
3 |
0,62 |
|
0,33 |
3,0 |
|
0,62 |
2,09 |
2 |
0,65 |
|
0,32 |
3,1 |
|
0,64 |
2,3 |
3 |
0,49 |
|
0,33 |
3,0 |
0,84 |
0,62 |
2,33 |
4 |
0,52 |
|
0,33 |
3,0 |
|
0,54 |
1,01 |
1 |
0,60 |
|
0,32 |
3,1 |
0,91 |
0,63 |
1,9 |
2 |
0,61 |
|
0,33 |
3 |
|
0,62 |
2,6 |
3 |
0,55 |
|
0,33 |
3 |
|
0,54 |
0,64 |
1 |
0,35 |
Таблица 15
|
Грузоподъемность автомобиля (автопоезда), т |
Основные нормы времени при механизированном способе погрузки-разгрузки, мин |
Дополнительное время при механизированном способе погрузки-разгрузки, мин |
|
|
Навалочные грузы, включая вязкие и полувязкие |
Прочие грузы |
||
|
В пунктах погрузки: |
|
|
|
|
до 1,5 т включительно |
4 |
9 |
10 |
|
свыше 1,5 до 2,5 включительно |
5 |
10 |
10 |
|
свыше 2,5 до 4 включительно |
6 |
12 |
12 |
|
свыше 4 до 7 включительно |
7 |
15 |
14 |
|
свыше 7 до 10 включительно |
8 |
20 |
17 |
|
свыше 10 до 15 включительно |
10 |
25 |
50 |
|
свыше 15 т |
15 |
30 |
22 |
|
В пунктах разгрузки (кроме автосамосвалов): |
|
|
|
|
до 1,5 т включительно |
4 |
9 |
4 |
|
свыше 1,5 до 2,5 включительно |
5 |
10 |
5 |
|
свыше 2,5 до 4 включительно |
6 |
12 |
6 |
|
свыше 4 до 7 включительно |
7 |
15 |
7 |
|
свыше 7 до 10 включительно |
8 |
20 |
8 |
|
свыше 10 до 15 включительно |
10 |
25 |
9 |
|
свыше 15 т |
15 |
30 |
10 |
|
Примечания: 1. Нормы времени на выполнение погрузочно-разгрузочных работ установлены 24.05.67 управлением Мострансэкспедиции, N МГЭ (9) 11. 2. Нормы времени на выполнение погрузочно-разгрузочных работ в пунктах погрузки и разгрузки автомобиля типа фургон устанавливаются с повышением на 10%. 3. При немеханизированном способе производства погрузочно-разгрузочных работ общие нормы времени на их выполнение в пунктах погрузки и разгрузки определяются как сумма основных норм и дополнительного времени. 4. Нормы времени на взвешивание или перевеску груза на десятичных и сотенных весах: 9 мин для автомобиля (автопоезда) грузоподъемностью до 4 т включительно, 13 мин - для автомобиля (автопоезда) грузоподъемностью свыше 4 до 7 т включительно и 16 мин - для автомобиля грузоподъемностью свыше 7 т. |
|||
Величина погрузочно-разгрузочного фронта при поточной Lфп и торцовой расстановке Lфт определяется по формулам
|
Lфп = n (l + Aп) + Aп; |
(54) |
|
Lфт = n (в + Aт) + Ат, |
(55) |
где l - габаритная длина автомашины или автопоезда, м;
в - габаритная ширина автомашины, м;
n - число погрузочно-разгрузочных мест;
Aп; Aт - расстояния между соседними автомашинами при поточном и торцовом способах расстановки автотранспорта, м,
10.4. Расстановка, при которой один из боковых бортов автомобиля обращен в сторону склада, является удобной при эксплуатации автомашин с прицепами, а также при погрузке-выгрузке длинномерных грузов.
Торцовая расстановка автомашин, при которой в сторону склада обращен задний борт, предпочтительна для эксплуатации автомашины без прицепа и менее удобна с прицепами.
Схема торцовой расстановки и проездов автотранспорта у грузового склада приведена на рис. 20.
10.5. Длина расчетного типа автомашины определяется по формуле
|
|
(56) |
где
- расстояние от оси заднего колеса до заднего борта автомашины, м;
- расстояние от оси заднего колеса до переднего
бампера, м.

Рис. 20. Схема расстановки и проездов автотранспорта у здания грузового склада:
Вт - расчетная ширина покрытия грузового двора со стороны города или перлона; в - ширина расчетного типа автомашины; l -длина расчетного типа автомашины; С - нормативное расстояние от автомашины до рампы склада (С =
10.6. Основные параметры грузового двора определяются следующим образом: расстояние между соседними автомашинами при торцовом способе расстановки у здания склада Ат рассчитывается по формуле
|
|
(57) |
где Rв - внутренний радиус поворота автомашины, м;
в - ширина расчетного типа автомашины, м.
При необходимости уменьшения величины Ат расстояние, на которое нужно подать вперед выезжающую автомашину С∆, увеличивается и может быть больше С (нормативного расстояния от автомашины до рампы склада), оно определяется по формуле
|
|
(58) |
где
- расстояние от оси заднего колеса до переднего
бампера, м;
С1 - нормативное расстояние от движущейся автомашины до стоящей у рампы, м.
Наименьший габаритный коридор автомашины Шр определяется по формуле
|
Шр = Rн - Rв, |
(59) |
где Rн - наружный радиус поворота автомашины, м;
Rв - внутренний радиус поворота автомашины, м.
Минимальная ширина покрытия территории грузового двора у здания склада Вт определяется по формуле
|
Вт = С + l + 2C1 + Шр, |
(60) |
где С - минимальное расстояние от автомашины до рампы склада, м.
При увеличении количества проездов к минимальной ширине покрытия Вт прибавляется величина в + C1 на каждый проезд.
10.7. Территория грузового двора включает в себя три зоны:
зону А - территорию, расположенную со стороны летного поля и предназначенную для движения специализированного автотранспорта, обеспечивающего погрузку-разгрузку и транспортировку грузов от склада до самолета;
зону В - территорию, расположенную со стороны города и предназначенную для движения и расстановки автотранспорта, обеспечивающего погрузку-разгрузку грузов, вывозимых в город и завозимых из города;
зону С - территорию, расположенную с торцов основного здания грузового комплекса, предназначенную для проезда автотранспорта, размещения специализированных складов и сооружений.
Площадь покрытия со стороны города и перрона зависит от геометрических параметров склада (его длины и ширины), расчетного типа автомашин и способа расстановки автотранспорта у склада.
10.8. Общая площадь территории грузового двора Sтк определяется по формуле
|
|
(61) |
где L - длина грузового склада или сблокированных складских зданий и сооружений, м;
Ва - ширина зоны А, м;
Вв - ширина зоны В, м;
Вс - ширина зоны С, м;
Вр - ширина рампы, м;
В - ширина склада или сблокированных складских зданий и сооружений, м;
Коз - коэффициент, учитывающий озеленение и благоустройство территории грузового комплекса;
Кр - коэффициент, учитывающий режимно-охранное обеспечение.
Ширина зоны С
в случае, когда на ее территории не располагается никаких специализированных складов и сооружений, определяется по формуле
|
|
(62) |
В случае, когда на территории зоны С располагаются склады и сооружения, площадь территории грузового двора определяется аналогичным образом с учетом размещенных на ней специализированных складов и сооружений.
10.9. Рекомендуемая ширина зон ВА, BВ и BС, а также нормативные расстояния между стоящими у рампы склада автомобилями принимаются по табл. 16.
Таблица 16
|
Группа грузового комплекса |
Зона В |
Зона А |
Зона С |
||
|
Ат |
Вт |
Ат |
Вт |
Вт |
|
|
1 |
2 |
3 |
4 |
5 |
6 |
|
I |
4,43 |
18,5 |
4,2 |
16,0 |
10,0 |
|
II |
4,25 |
18,5 |
4,30 |
21,0 |
10,0 |
|
III |
4,25 |
18,5 |
4,30 |
21,0 |
10,0 |
10.10. Принципиальная схема грузового двора приведена на рис. 21.

Рис. 21. Принципиальная схема грузового комплекса:
1 - административно-служебное здание; 2 - помещение для хранения радиоактивных грузов; 3 - контейнерный склад; 4 - стеллажный склад; (4а - склад отправления, 4б - склад прибытия); 5 - склад опасных грузов; 6 - стоянки автотранспорта; 9 - ограждение; 10 - озеленение; А - зона служебно-технической территории со стороны перрона; В - зона расстановки и маневрирования автотранспорта со стороны города; С - зона проезда служебного транспорта
11.1. Электроснабжение и электрооборудование грузовых комплексов должно соответствовать требованиям «Правил устройства электроустановок» (ПУЭ), «Правил технической эксплуатации электроустановок потребителей и правил техники безопасности при эксплуатации электроустановок потребителей» (ПТЭ и ПТБ).
11.2. Электроснабжение грузовых комплексов I и II групп должно осуществляться от двух внешних источников централизованного электроснабжения по двум кабельным линиям.
Электроснабжение грузовых комплексов III группы, а также групп А и Б - от одного.
11.3. Электроснабжение электроприемников в грузовых комплексах аэропортов производится по трем категориям надежности:
первая категория - противопожарные насосные установки, автоматическая пожарная и охранная сигнализация, аварийное, охранное освещение и светоограждение, средства связи и ЭВМ;
вторая категория - холодильные установки, средства механизации погрузочно-разгрузочных работ, технологическое оборудование мастерских, выпрямители для подзарядки аккумуляторов, оборудование для пищеблоков, внутреннее и наружное рабочее освещение и промышленное телевидение;
третья категория - электроприемники во вспомогательных и подсобных помещениях, не связанных с технологией производства.
11.4. При электроснабжении грузового комплекса от одного внешнего источника электроприемники первой категории должны обеспечиваться также электропитанием от аварийного (резервного) источника. При этом степень надежности электроснабжения электроприемников второй категории может быть снижена до третьей категории.
11.5. В качестве источников аварийного (резервного) электроснабжения могут использоваться:
дизель-электрические агрегаты, устанавливаемые в помещениях на территории грузового комплекса;
дизель-электрические агрегаты, устанавливаемые на ближайших к складу объектах аэропорта;
аккумуляторные батареи (на грузовых складах, где не предусматриваются средства пожаротушения с электроприводом, рассчитанным на питание от промышленной электроэнергии).
11.6. Трансформаторные подстанции (ТП) грузовых комплексов I и II групп должны размещаться в их зданиях или пристраиваться к ним. Электроснабжение грузовых комплексов III группы допускается обеспечивать от ТП других объектов. Размещение трансформаторов в подвальных и заглубленных помещениях не допускается. Уровень пола над фундаментом должен исключать попадание в ТП талых, паводковых и грунтовых вод.
11.7. Кабели и провода, прокладываемые к электроприемникам средств механизации погрузочно-разгрузочных работ, должны быть защищены от механических повреждений.
11.8. В трансформаторных подстанциях грузовых комплексов, кроме силового и распределительного оборудования, следует предусматривать приборы учета расходуемой электроэнергии силовыми и осветительными потребителями.
11.9. Качество электрической энергии, подводимой к электроприемникам грузового комплекса, должно соответствовать требованиям ГОСТ 13109-80 «Электрическая энергия. Нормы качества электрической энергии у ее приемников, присоединяемых к электрическим сетям общего назначения».
11.10. В грузовых комплексах I, II и III групп следует предусматривать пункты (участки) для подзарядки аккумуляторов без съемки со средств механизации (электропогрузчиков, электрокар и т.п.). В пунктах подзарядки следует предусматривать:
помещение для зарядно-разрядных щитов и выпрямителей; количество и мощность выпрямителей должны обеспечивать в смену подзарядку аккумуляторов не менее 50 передвижных средств механизации склада;
помещения растворных для кислоты и щелочи площадью
по 4-
утепленное помещение гаражного типа (в северных и средней климатических зонах с длительными периодами температур воздуха ниже -20°С), рассчитанное на размещение до 60 % приписных средств механизации с аккумуляторным питанием для их подзарядки в течение смены.
В южных климатических зонах следует предусматривать навесы от солнечного перегрева аккумуляторов, рассчитываемые на размещение в них 50 % средств механизации в смену для подзарядки аккумуляторов.
11.11. Помещения пунктов (участков) для подзарядки
аккумуляторов на средствах механизации грузовых комплексов могут блокироваться с помещениями мастерских грузового
комплекса для технического обслуживания и текущего ремонта средств механизации, а также с пунктом (участком) для
подзарядки аккумуляторов средств перронной механизации
(посадочные трапы, электропогрузчики, электробуксировщики
и т.п.) в единый пункт при его расположении не далее
11.12. Формовку, сезонное техническое обслуживание, контрольные разряд-зарядки и профилактический ремонт аккумуляторов, снятых со средств механизации грузового комплекса, а также с перронных средств механизации, следует производить в общепортовой аккумуляторно-зарядной станции (АЗС) отдела главного механика аэропорта.
11.13. В грузовых комплексах III группы, с учетом местных условий их размещения, допускается подзарядка аккумуляторов без съемки их со средств механизации. Формовку, сезонное техническое обслуживание, контрольные разряд-зарядки и профилактические ремонты аккумуляторов, снимаемых со средств механизации, следует выполнять в общепортовой АЗС отдела главного механика аэропорта.
11.14. Проектирование искусственного освещения в складских, производственных, административных, бытовых помещениях и на территории грузовых комплексов должно осуществляться в соответствии с «Правилами устройства электроустановок» (ПУЭ), СНиП II-4-79 «Естественное и искусственное освещение. Нормы проектирования» и требованиями ОСТ 5472003-82 «Искусственное освещение в эксплуатационных предприятиях ГА. Нормы и требования безопасности».
11.15. Светоограждение зданий и сооружений грузовых комплексов следует предусматривать в соответствии с требованиями «Воздушного кодекса Союза ССР», «Наставления по аэродромной службе в гражданской авиации. СССР» (НАС ГА-86).
Питание заградительных огней должно обеспечиваться по отдельным фидерам, присоединенным не менее, чем к двум фазам. Каждый огонь должен питаться от разных фаз. Для защиты от токов короткого замыкания должны предусматриваться предохранители или однополюсные автоматы.
11.16. Удельный расход электроэнергии на 1 т перерабатываемого груза и энерговооруженность на одного производственного работника следует принимать по табл. 17.
Таблица 17
|
Группы грузовых комплексов |
Удельный расход электроэнергии на 1 т перерабатываемого груза, кВт. ч/т |
Энерговооруженность на одного производственного работника в максимально загруженную смену, кВт/чел. |
|
I |
5,5-6,1 |
11,6-12,1 |
|
II |
3,6-4,6 |
9,9-12,8 |
|
III |
3,1-5,6 |
4,8 |
12.1. В дополнение к
при проектировании грузовых
комплексов необходимо руководствоваться правилами производства и приемки работ по автоматике, пожаротушению, пожарной и охранной сигнализации (ВСН-25, 67-85 и ВСН-25.09.68-85).
12.2. Помещение складской части здания должно отделяться от вспомогательных помещений, размещаемых в пристройках, противопожарной стеной второго типа по табл. 2 СНиП 2.01.02-85 «Противопожарные нормы».
12.3. Для освещения складов необходимо предусматривать пакетное остекление по периметру складской части здания или светоаэрационные фонари.
Ленточные светоаэрационные фонари и остекление могут быть использованы для дымоудаления, при этом должно обеспечиваться автоматическое открывание створок при срабатывании противопожарных систем.
12.4. Для складских помещений с высотным стеллажным хранением вытяжные шахты (люки) дымоудаления следует располагать над проходами между стеллажами.
12.5. Виды огнегасящего вещества для тушения необходимо выбирать с учетом обращаемых веществ и материалов на складе, а также согласно справочнику Н. В. Рябова «Пожарная опасность веществ и материалов, применяемых в химической промышленности» (М., «Химия», 1976).
12.6. Выбор видов пожарной сигнализации и огнетушащего состава систем автоматического пожаротушения производит технолог с учетом обращаемых веществ и материалов в данном производстве или помещении.
Автоматические пожарные извещатели делятся на следующие виды:
тепловые, реагирующие на повышение температуры;
дымовые, реагирующие на появление дыма;
извещатели пламени, реагирующие на оптическое излучение открытого пламени;
комбинированные, реагирующие не менее чем на два параметра пожара, чаще всего на тепло и дым.
При выборе технических средств автоматической пожарной сигнализации необходимо учитывать особенности объекта: степень пожароопасности, категорию производств, специфику технологического процесса, ценность оборудования, материалов, классификацию горючих материалов, а также технические характеристики аппаратуры и условия ее эксплуатации.
12.8. Станции пожарной сигнализации предназначены для приема сигналов от пожарных извещателей о возникновении пожара, контроля исправности линий связи и извещателей, включения установок автоматического пожаротушения, отключения вентиляции, передачи сигналов тревоги о пожаре в АСС аэропорта.
Кроме станций пожарной сигнализации, могут применяться также объектовые приемно-контрольные приборы, концентраторы и пульты систем централизованного наблюдения. При использовании для приема сигналов о пожаре концентраторов пожарные извещатели включаются в отдельный луч (номер) концентратора.
12.9. Станция пожарной сигнализации, как правило, должна обеспечивать электропитание пожарных извещателей.
12.10. Объектовые приемно-контрольные приборы, концентраторы, пульты систем централизованного наблюдения устанавливаются в контрольно-пропускном пункте (КПП) склада у дежурного вахтера.
12.11. Технические средства охранной и пожарной сигнализации необходимо выбирать в соответствии с номенклатурой, рекомендованной МГА 24 февраля
12.12. Оборудование объектов техническими средствами
пожарной сигнализации производится с учетом особенностей
каждого объекта, организации и режима работы, наличия
систем автоматического пожаротушения. Необходимость оборудования определяется согласно приложению 8
.
В помещениях, оборудованных установками автоматического пожаротушения, автоматическая пожарная сигнализация не устанавливается.
12.13. Применение, размещение и установка пожарных извещателей производится в соответствии с проектом или типовыми проектными решениями и технологическими картами. Необходимость круглосуточной работы пожарной сигнализации определяется проектом или актом обследования.
12.14. Количество и размещение извещателей зависит от величины, формы, условий работы и назначения помещения, конструкций перекрытий и высоты потолка, наличия и рода вентиляции, загруженности помещения материалами, а также от вида, типа и чувствительности извещателей.
12.15. Извещатели обычного исполнения нельзя устанавливать в помещениях, в воздухе которых содержатся пары кислот и щелочей. В местах, где возможно механическое повреждение извещателей при эксплуатации, они снабжаются защитными устройствами.
12.16. На складах со
сложными потолочными и стеклянными перекрытиями, где много световых фонарей, допускается установка извещателей на троссах. Трос должен проходить параллельно
плоскости потолочного перекрытия на расстоянии не более
12.17. В складах, где
имеются высокие стеллажи или штабели различных предметов, верхние края которых отстоят от потолка не более чем на
12.18. Извещатели, в зависимости от их типа и вида, должны устанавливаться в зоне наиболее вероятного загорания и в местах возможного скопления горячего воздуха и дыма, на пути следования конвективных потоков продуктов горения.
12.19. Во взрывоопасных помещениях возможна установка обычных тепловых извещателей, включаемых в шлейф искробезопасного прибора ИУС, который размещается вне взрывоопасных помещений.
12.20. Автоматические пожарные извещатели устанавливаются в закрытых помещениях, извещатели ручного действия как внутри, так и вне их.
12.21. Кнопочные извещатели ручного действия устанавливаются на
высоте
12.22. Вне помещений извещатели устанавливаются на стенах зданий и
в хорошо заметных местах на расстоянии не более
12.23. Помещения, в которых устанавливаются станции пожарной сигнализации, должны быть сухими, хорошо вентилируемыми, защищенными от проникновения пыли и газа, с достаточным естественным или искусственным освещением (не менее 75 лк). Кроме нормального рабочего освещения, необходимо иметь аварийное, которое должно обеспечивать освещенность на рабочих поверхностях не менее 10 % от соответствующих норм рабочего освещения.
Помещения станций пожарной сигнализации не должны подвергаться вибрации и толчкам от работающего оборудования и проезжающего транспорта.
13.1. Оценку эффективности проектных решений грузового комплекса и входящих в него основных складских зданий и сооружений следует определять по следующим основным технико-экономическим показателям:
удельная общая площадь зданий грузового комплекса, на 1 т суточного грузооборота, м3/т;
удельный строительный объем зданий грузового комплекса на 1 т суточного грузооборота, м3/т;
электровооруженность труда одного работника грузового комплекса, занятого обработкой грузов, кВт/чел.;
уровень механизации процессов обработки грузов по грузовому комплексу, %;
степень автоматизации процессов обработки грузов по грузовому комплексу, %;
удельные капитальные вложения на 1 т годового грузооборота грузового комплекса, руб./т;
удельные эксплуатационные расходы на 1 т годового грузооборота грузового комплекса, руб./т;
производительность труда выработки на одного производственного рабочего, т/чел.;
стоимость строительства
13.2. Удельная общая площадь зданий грузового комплекса на 1 т к суточному грузообороту
определяется по
формуле
|
|
(63) |
где Sобщ - общая площадь зданий грузового комплекса, м2;
Гс - расчетный суточный грузооборот (емкость) зданий грузового комплекса, т.
13.3. Удельный строительный объем на 1 т суточного
грузооборота
определяется как отношение общего строительного объема к суточному грузообороту складских зданий
грузового комплекса:
|
|
(64) |
где Vстр - общий строительный объем всех зданий грузового комплекса, м3.
13.4. Электровооруженность труда одного работника грузового комплекса, занятого обработкой грузов Рэ, определяется как отношение суммарной установленной электрической мощности и осветительных установок грузового комплекса к количеству работающих в максимальную смену
|
|
(65) |
где
- суммарная установленная электрическая мощность
силовых и осветительных установок грузового
комплекса, кВт;
N - количество работающих в максимальную смену, занятых основными технологическими процессами обработки грузов, чел.
13.5. Уровень механизации для процесса обработки в целом по грузовому комплексу Ум определяется как сумма уровней механизации процессов обработки штучного и контейнеризированного груза
|
|
(66) |
где Кшт, Кк - коэффициенты, учитывающие соответственно долю штучного и контейнеризированного груза, в общем грузообороте грузового комплекса;
,
Рмк - количество механизированных операций в процессе обработки соответственно штучного и
контейнеризированного груза;
,
- общее количество операций в процессе обработки соответственно штучного и контейнеризированного груза.
13.6. Уровень автоматизации процессов обработки грузов по грузовому комплексу УА определяется как отношение количества автоматизированных операций к общему количеству операций по обработке грузов
|
|
(67) |
где Ра - количество автоматизированных операций;
Ро - общее количество операций в процессе обработки грузов.
13.7. Удельные капитальные вложены в строительство грузового комплекса на 1 т годового грузооборота УГ определяются отношением общих капитальных вложений к годовому грузообороту с выделением удельных капитальных вложений на строительно-монтажные работы (СМР) и оборудование
|
|
(68) |
где К - капитальные вложения, тыс. руб.;
WГ - годовой грузооборот, т/год.
13.8. Удельные эксплуатационные расходы по грузовому комплексу на 1 т годового грузооборота СГ определяются отношением годовых эксплуатационных расходов к годовому грузообороту
|
|
(69) |
где ЭГ - годовая сумма эксплуатационных расходов, руб.
Удельные эксплуатационные расходы определяются по следующим элементам затрат:
заработная плата работников грузового комплекса с отчислениями на социальное страхование в размере 14 % от фонда заработной платы;
амортизация зданий и оборудования грузового комплекса;
текущий ремонт зданий и оборудования;
расход электроэнергии.
13.9. Угольная заработная плата работников Зп рассчитывается с учетом производительности труда:
|
|
(70) |
где Зн нормативная заработная плата с отчислениями на социальное страхование, руб.;
0,8 - коэффициент, учитывающий опережающий рост производительности труда по сравнению с заработной платой;
Пп - производительность труда по проекту на одного работника, т;
Пн - нормативная производительность труда на одного работника., т.
13.10. Удельные амортизационные отчисления Ап и расходы на текущий ремонт по проекту Ак рассчитываются по формуле
|
|
(71) |
где Уквп - удельные капитальные вложения на 1 т годового грузооборота по проекту, руб.;
Уквн - нормативные удельные капитальные вложения на 1 т годового грузооборота, руб.
13.11. Производительность труда Пт (выработка на одного производственного рабочего) определяется как отношение годового объема перегрузочных работ WГ к расчетной численности производственных рабочих по грузовому комплексу
|
|
(72) |
13.12. Объем перегрузочных работ следует определять по основным положениям «Методики определения состояния и эффективности механизации погрузочно-разгрузочных и подъемно-транспортных работ в народном хозяйстве» (М., ВНИИПТМАШ, 1964).
|
|
|
|