//
ТехЛит.ру
- крупнейшая бесплатная электронная интернет библиотека для "технически умных" людей.
WWW.TEHLIT.RU - ТЕХНИЧЕСКАЯ ЛИТЕРАТУРА

:: Алготрейдинг::


АЛГОТРЕЙДИНГ
шаг за шагом
с нуля по урокам!

Торговые роботы на PYTHON, BackTrader,
Pandas, Pine Script для TradingView. Связка с брокерами, телеграм и легкими приложениями.


МИНИСТЕРСТВО ВНУТРЕННИХ ДЕЛ РОССИЙСКОЙ ФЕДЕРАЦИИ

ГЛАВНОЕ УПРАВЛЕНИЕ ВНЕВЕДОМСТВЕННОЙ ОХРАНЫ

ВЫБОР И ПРИМЕНЕНИЕ
ТЕЛЕВИЗИОННЫХ СИСТЕМ ВИДЕОКОНТРОЛЯ

Рекомендации

Р78.36.002-99

МОСКВА 1999

Данные Рекомендации разработаны сотрудниками НИЦ «Охрана» ГУВО МВД России Ю. П. Арлащенковым, В. Г. Синиловым, начальником отдела УВО при УВД Тульской области В. Н. Дурнобраговым и утверждены ГУВО МВД России 4 октября 1996 г.

Рассмотрены характеристики компонентов телевизионных систем видеоконтроля, приведена классификация этих систем, освещены вопросы обследования объектов и выбора средств видеоконтроля для усиления их охраны.

Рекомендации предназначены для инженерно-технических работников вневедомственной охраны, занимающихся вопросами оборудования объектов телевизионными системами видеоконтроля и их эксплуатацией.

НИЦ «Охрана» выражает признательность НПП «Альфа-Прибор», АО «АСТЭК», компаниям «Иста» и «Формула безопасности», фирме «Безопасность», АО «Солинг», АО «Терна» за предоставленные материалы.

1. ВВЕДЕНИЕ

В последние годы наряду с ростом количества преступлений наметились тенденция к изменению качественных характеристик преступных посягательств. Преступления стали более дерзкими, вырос процент вооруженных разбойных нападений и ограблений. Нынешние преступники, как правило, хорошо технически оснащены и подготовлены.

Повышенный интерес криминальных сообществ к объектам, характеризующимся наличием значительных денежных средств, материальных или культурных ценностей (особенно это касается банков, офисов, музеев, складов, баз, крупных универмагов и т.п.) вызвал необходимость комплексного подхода к решению проблемы обеспечения их безопасности, который, в частности, подразумевает применение интегрированных средств охраны (ИСО), которые включают в себя средства видеоконтроля, охранно-пожарной сигнализации и контроля доступа, инженерные средства защиты и т.п., объединенные общей системой управления и предназначенные для совместной работы.

Телевизионные системы видеоконтроля (ТСВ) можно назвать основным звеном ИСО, так как они возводят систему охраны объекта на качественно более высокий уровень и позволяют решать в данной области практически любые задачи. Однако ТСВ относятся к разряду довольно сложной и, соответственно, дорогостоящей техники, поэтому потребителю нужно иметь четкое представление о тактико-технических и функциональных возможностях этой аппаратуры. Ценность телевизионных систем состоит в том, что они позволяют получить визуальную картину состояния охраняемого объекта, обладающую такой высокой информативностью, какую не могут дать никакие другие технические средства охраны. При этом человек выводится из зоны наблюдения в безопасную зону, что создает ему условия для анализа получаемой информации и принятия обдуманного решения.

Неоспоримые достоинства ТСВ определили быстро растущий спрос на них, что привело к появлению на рынке разнообразной специальной телевизионной техники. Однако зачастую поставщики и продавцы во имя прибыли предлагают заказчику аппаратуру низкого качества и неквалифицированные услуги. Нередко и покупатели не имеют достаточного опыта В результате на важных объектах можно встретить непрофессионально спроектированные системы.

Целью настоящих рекомендаций является оказание помощи подразделениям вневедомственной охраны и специалистам служб бсзопасности различных организаций в правильном выборе компонентов и структур ТСВ для конкретных объектов.

2. ОСНОВНЫЕ КОМПОНЕНТЫ ТСВ

2.1. Телевизионные камеры и устройства для их оснащения

2.1.1. Телевизионные камеры

Телевизионная камера - это устройство, которое преобразует оптическое изображение; наблюдаемого объекта в электрический видеосигнал. Телевизионная камера является важнейшим элементом системы, так как именно с нее в систему поступает первичная информация об объекте и именно ее характеристиками определяется качество изображения в целом. Камера представляет собой электронную плату, на которой размещены чувствительный элемент - матрица, выполненная на приборах с зарядовой связью (ПЗС - матрица), и объектив. Дешевые камеры оснащаются, как правило, простейшими встроенными объективами, более дорогие - сменными объективами с улучшенными характеристиками и функциями. Различают камеры:

корпусные и бескорпусные; черно-белого и цветного изображения;

обычной и повышенной чувствительности;

обычного и высокого разрешения;

для внутреннего и наружного наблюдения;

для скрытого наблюдения;

Качество телевизионной камеры определяется целым рядом показателей, однако в большинстве случаев при выборе камеры для конкретной системы достаточно ориентироваться на следующие ее характеристики.

Оптический формат - размер фоточувствительной области ПЗС матрицы в дюймах. Основными форматами являются:. 1/3", 1/2", 2/3" и 1". Чем больше оптический формат*, тем меньше (при прочих равных условиях) геометрические искажения изображения. В особенности это сказывается при больших углах зрения. В ТСВ среднего и высокого классов обычно используются камеры формата 1/2", 2/3" и I". Камеры с оптическим форматом 1/3" имеют небольшие габариты и стоимость и используются, в основном, для ведения скрытого наблюдения, а также в системах с невысокими требованиями к качеству изображения. В последнее время на рынке появились миниатюрные камеры с ПЗС-матрицей формата 1/4".

* - следует отметить, что камеры меньшего формата, как правило, более позднего выпуска, т.е. по всем параметрам превосходят старые большие камеры.

Разрешающая способность (разрешение) - максимальное количество телевизионных линий (ТВЛ), различаемых в выходном сигнале камеры при минимально допустимой глубине модуляции 10%. Разрешение по горизонтали определяет максимальное количество градаций от черного к белому или обратно, которые могут быть получены от камеры в центральной области экрана. На краях экрана допускается некоторое ухудшение качества изображения. Чем выше разрешение камеры, тем более мелкие детали можно различить на изображении. Обычным разрешением считается 380 - 420 линий для черно-белых и 300 - 320 линий для цветных камер. В системах высокого класса используются, как правило, камеры с повышенным разрешением (500 - 600 линий для черно-белых и 375 - 450 линий для цветных камер).

Пороговая чувствительность (чувствительность) - минимальная освещенность на ПЗС-матрице, при которой камера сохраняет работоспособность. Обычной чувствительностью считается 0.1 - 0.5 лк для черно-белых и 1 - 3 лк для цветных камер,

В системах, предназначенных для наблюдения слабо освещенных объектов, имеющих малую отражательную способность, используются камеры высокой чувствительности (порядка 0,01 лк).

ПЗС-матрицы обладают очень важным свойством - они позволяют получать четкое изображение (особенно "теплых" объектов, например, человека) в условиях полной темноты при подсветке инфракрасными лучами. С этой целью некоторые камеры оснащаются встроенной ИК-подсветкой.

Синхронизация - привязка видеосигнала к фазе сетевого напряжения или внешнего источника синхроимпульсов или другого видеосигнала. Как правило, в реальных ТСВ видеосигналы нескольких камер с помощью специальных устройств по заданной программе коммутируются на один монитор, поэтому необходимо, чтобы переключение камер происходило в начале кадра. Камеры, питающиеся от сета переменного тока (220В/50 Гц или 24В/50 Гц), синхронизируются от питающей сети. Камеры, питающиеся от источника постоянного тока (12В) должны иметь вход внешней синхронизации, сигнал на который подается от специального устройства - синхронизатора. Отсутствие внешней синхронизации телевизионных камер от единого источника синхросигнала в значительной степени повышает утомляемость оператора ТСВ, а при использовании в системе более 8 камер приводит к постоянным срывам изображения, потерям многих кадров, что делает наблюдение и видеозапись практически невозможными.

Электронный затвор - элемент конструкции ПЗС-матрицы, обеспечивающий возможность изменения времени накопления электрического заряда (выдержки). Электронный затвор позволяет получить приемлемое качество изображения быстродвижущихся объектов и обеспечивает работоспособность камеры в условиях высокой освещенности. Обычные электронные затворы обеспечивают регулировку выдержки в диапазоне от 1/50 до 1/10000 - 1/15000. «Суперзатворы» позволяют получить выдержки порядка l/100000.

Электронная диафрагма (автоматический электронный затвор, электронный ирис) - элемент конструкции ПЗС-матрицы, обеспечивающий автоматическую регулировку выдержки, в зависимости от уровня освещенности. Принцип действия электронной диафрагмы аналогичен принципу действия электронного затвора. Как правило, в камерах с электронной диафрагмой имеется возможность ее отключения.

Автоирис - способность камеры управлять объективами с электрически регулируемой диафрагмой и встроенным усилителем (при управлении объективом без встроенного усилителя используется термин «прямое управление»). Наличие автоириса является существенным достоинством камеры, так как регулировка глубины резкости без изменения диафрагмы принципиально невозможна. Это означает, что при электронном управлении затвором в ПЗС-матрице (без управления диафрагмой объектива) изображение объекта, находящегося на расстоянии, отличном от фокусного, будет недостаточно резким. Кроме этого отсутствие регулировки диафрагмы приводит к резкому уменьшению диапазона управления световым потоком. Не следует использовать автоирис совместно с электронной диафрагмой, особенно если камера не синхронизирована частотой сети переменного тока, так как в этом случае возможно появление эффекта «плавания» яркости или баланса белого на экране видеомонитора, что в значительной степени затрудняет работу оператора. Для подключения объектива с электрически управляемой диафрагмой в камере должны быть предусмотрены разъемы AI (автоирис) и/или DD/DC (прямое управление) и потенциометр регулировки уровня сигнала прямого управления.

Автоматическая регулировка усиления (АРУ) - свойство камеры изменять коэффициент усиления видеотракта в зависимости от уровня видеосигнала. АРУ сглаживает изменения уровня сигнала и позволяет получить приемлемую картинку на мониторе при: недостаточной освещенности объекта. Весь диапазон регулировки усиления ограничивается 12-20 дБ (4-10 pаз), так как большее увеличение усиления приводит к значительному заглушению видеосигнала и, как следствие, ухудшению изображении.

Отношение «сигнал/шум» учитывают, когда требуется высокое качество телевизионного сигнала - чем оно выше, тем выше качество изображения. Обычным считается отношение "сигнал/шум" 40 дБ. У камер высокого класса это отношение достигает 58 дБ, что позволяет доводить АРУ до 45 дБ и выше.

Гамма- коррекция видеосигнала (γ - коррекция) - нелинейное искажение видеосигнала для лучшего воспроизведения. Гамма - коррекция заключается в предискажении видеосигнала с целью увеличения контрастности изображения на мониторе. Камеры с гамма-коррекцией сигнала имеют либо постоянный коэффициент γ - 0,45 (иногда 0,25), либо изменяемый вручную (например, γ=0,25/0,45/1).

Компенсация «света сзади» (компенсация засветки) - способность камеры автоматически устанавливать выдержку и параметры усиления по выбранному фрагменту изображения. В достаточно дорогих камерах применяется система «Back Light Compensation», обеспечивающая автоматическое управление диафрагмой, выдержкой, усилением и т.д. и ориентирующаяся на центральную часть экрана.

Канал звука - обеспечивает акустический контроль охраняемого (контролируемого) помещения с помощью встроенного в камеру микрофона. Для организации двунаправленного аудиоканала в камеру кроме микрофона встраивается динамик.

Конструкция узла присоединения объектива - если камера не имеет встроенного объектива, в ее конструкции предусмотрен узел присоединения для установки сменных объективов. При выборе объектива для камеры следует учитывать, что применяются два типа стандартных конструкций узлов присоединения:

тип «С» («C-mount») - резьба 2,54×0,8 и расстояние до опорной плоскости ПЗС-матрицы 17,5 мм;

тип «CS» («СS-mount») - резьба 2,54×0,8 и расстояние до опорной плоскости матрицы 12,5 мм. Этот тип крепления находит большее распространение в связи с тенденцией .камер к миниатюризации. Миниатюрные камеры для скрытого наблюдения имеют специальную насадку с оптоволоконным кабелем, на конце которого крепится специальный объектив «pin-hole» с диаметром зрачка от 0,9 до 2 мм.

Напряжение питания. Большинство телекамер питаются либо от сети переменного тока 220В/50 Гц, либо от источников постоянного тока напряжением 12 В. Реже используется переменное напряжение 24 В и постоянное напряжение 9 В. Для питания нескольких камер в системе могут использоваться индивидуальные для каждой камеры источники, либо общий источник. В последнем случае, необходимо учитывать общее потребление камер. Необходимо иметь в виду, что цветные камеры очень чувствительны к перепадам напряжения в сети. Поэтому для их питания следует использовать специальные стабилизированные источники.

Для установки камеры в кожухе, на кронштейне и т.п. в ее конструкции должен быть предусмотрен узел крепления к несущим деталям.

Для камер цветного изображения, важны такие характеристики, как автоматический баланс белого т.е. способность камеры обеспечивать правильную цветопередачу при изменении условий освещения наблюдаемых объектов и стандарт кодирования цветового сигнала.

В ТСВ, в основном, применяются камеры черно-белого изображения. Это объясняется тем, что они значительно дешевле цветных и работают с более дешевым оборудованием, имеют более высокие разрешение и чувствительность, не предъявляют жестких требований к источнику питания. Цветные камеры устанавливаются, главным образом, там, где требуется знать цвет объекта (например, автомобиля), т.е. на автостоянках, автозаправочных станциях и т.п.

В зависимости от требований, предъявляемых к системе, камеры могут оснащаться различными устройствами: объективами, защитными или декоративными кожухами, термостатами, кронштейнами, поворотными устройствами и т.п.

2.1.2. Объективы

Объектив - это устройство, формирующее изображение объекта в плоскости ПЗС-матрицы. Очевидно, что без объектива телевизионная камера работать не может. Объектив, как отмечалось выше, может быть встроенным в камеру или сменным. Для камер с присоединительным узлом «С» подходят только объективы типа «С». Если камера имеет узел «CS», то к ней подходят объективы «CS» и «С» со специальным переходным кольцом. Подбирая объективы к камере, надо иметь в виду, что обычно они рассчитываются па ПЗС-матрицу определенного формата.

Правильный выбор объектива можно осуществить, руководствуясь следующими характеристиками.

Фокусное расстояние f (мм) - характеризует величину угла зрения при определенном оптическом формате камеры. Чем меньше фокусное расстояние, тем больший угол зрения наблюдаемого пространства можно получить и наоборот. Однако при очень больших углах зрения (порядка 90 - 120° и более) довольно сложно, а порой и невозможно рассмотреть детали картины. Наиболее приемлемым для оператора является угол зрения 60 - 70°, так как получаемое при этом изображение хорошо согласуется с характеристиками человеческого зрения. Объективы с большим фокусным расстоянием используются, когда требуется получить четкое изображение мелких деталей.

Трансфокатор - устройство, позволяющее изменять фокусное расстояние в широких пределах (ZOOM - функция). Объективы, снабженные трансфокаторами, называются вариообъективами. Фокусное расстояние может изменяться вручную либо путем сервоуправления. Вариообъективы, ввиду их большой стоимости применяются только в тех случаях, когда необходимо быстро увеличить изображение мелкой детали (например, идентификации личности).

Относительное отверстие F - определяет освещенность на ПЗС-матрице. В технической документации на телекамеру иногда указывается ее чувствительность при относительном отверстии объектива, с которым она используется (по умолчанию F=1,4).

Возможность регулирования диафрагмы. Различают объективы с ручным управлением диафрагмой и с автодиафрагмой. Объективы с автодиафрагмой позволяют получить качественное изображение как при ярком солнце, так и при низкой освещенности и применяются в тех случаях, когда освещенность объекта в течение периода наблюдения может меняться в широких пределах либо не исключены полностью прямые засветки камеры. В системах обычного класса удовлетворительный результат можно получить, применяя объективы с постоянной диафрагмой и камеры с электронным затвором, что значительно дешевле.

2.1.3. Кожухи для внутренних и внешних применений

По конструктивному признаку телевизионные камеры можно подразделить на корпусные и бескорпусные. Бескорпусные, камеры имеют значительно меньшие габариты и стоимость по сравнению с камерами в корпусе и предназначены для систем скрытого наблюдения. Камеры для открытого внутреннего наблюдения размещаются в защитных корпусах (кожухах), которые имеют разную форму (сфера, полусфера и т.д.), габариты, конструкцию крепления (потолочная, настенная, угловая) и позволяют выбрать оформление, наиболее подходящее к конкретному интерьеру. Камеры для использования на открытом воздухе помещаются в защитные кожухи, оборудованные подогревом - гермокожухи. Гермокожухи предназначены для работы в широком диапазоне климатических условий и позволяют использовать различные комбинации телевизионных камер и объективов. Кожух снабжен солнцезащитным козырьком (либо фильтром), платой для установки камеры, термостатом и коммутационной панелью. Некоторые гермокожухи имеют дополнительное оборудование - вентиляторы, дворники, омыватели стекла. Следует отметить, что импортные нагреватели не всегда отвечают нашим климатическим условиям и не рассчитаны на сильные морозы.

2.1.4. Поворотные устройства

Поворотные устройства предназначены для телекамер с дистанционным управлением. Они обеспечивают поворот в горизонтальной (до ±365°) и в вертикальной (до ±183°) плоскостях либо только в горизонтальной. Различают поворотные устройства с постоянной и с регулируемой угловой скоростью перемещения. Сигналы управления камерами преобразуются в заданные механические перемещения с помощью приемников телеметрических сигналов управления.

Как правило, вместе с поворотными устройствами поставляются пульты управления, с которых можно манипулировать также трансфокаторами объективов, если требуется получить укрупненное изображение.

2.1.5. Устройства инфракрасной подсветки

Для обеспечения работоспособности камеры в полной темноте используются устройства местной ИК-подсветкой и ИК-прожекторы, осуществляющие облучение наблюдаемого объекта инфракрасными лучами. Однако эти устройства дают небольшой угол подсветки, что не позволяет качественно контролировать всю зону. Кроме этого, ИК-прожекторы достаточно дороги.

2.1.6. Кронштейны

Кронштейны служат для крепления камер к стенам, панелям и другим несущим конструкциям и позволяют точно ориентировать поле зрения камеры в нужном направлении. Различают кронштейны для горизонтальной поверхности, для вертикальной поверхности, телескопические и т.п. Исполнение кронштейнов определяется, главным образом, эстетическими требованиями и нагрузкой: на кронштейнах для внутреннего применения крепятся камеры весом в несколько сот граммов, на кронштейнах для уличного применения - в несколько килограммов.

2.2. Устройства обработки и коммутации видеосигналов

2.2.1. Видеомониторы

Видеомониторы - это устройства, преобразующие видеосигналы в двухмерное изображение. Видеомониторы являются изделиями, специально предназначенными для использования в ТСВ (высокая надежность при круглосуточной работе, частом переключении кадров и т.п.), поэтому замена их обычными приемниками телевизионного изображения недопустима. Кроме этого многие видеомониторы снабжены встроенными устройствами для приема сигналов от нескольких камер - видеокоммутаторами. Мониторы делятся на два класса - мониторы черно-белого и мониторы цветного изображения. Основными характеристиками мониторов являются размер экрана по диагонали и разрешающая способность по горизонтали. В ТСВ наиболее часто применяются мониторы с размером экрана 9" и 12". При использовании устройств совмещения изображения (квадраторов) применяются, как правило, мониторы с большим размером экрана: 15", 17" или 20". Выбирать монитор по разрешающей способности следует таким образом, чтобы она была выше, чем у применяемых телекамер - монитор не должен ухудшать общее разрешение системы. При использовании в системе камер с обычным разрешением целесообразно выбрать монитор с обычным разрешением (600 - 800 ТВ-линий для черно-белых и 350 - 400 - для цветных). В системах высокого класса, как правило, используются мониторы с разрешением 900 - 1000 ТВ-линий (черно-белые) и 450 - 500 ТВ-линий (цветные). При наличии в системе нескольких мониторов они, как правило, размещаются в специальных стойках.

2.2.2. Видеокоммутаторы последовательного действия

Видеокоммутаторы - это устройства, обеспечивающие последовательное переключение видеосигналов от нескольких телекамер на один или несколько выходов (мониторов). Видеокоммутаторы последовательного действия - имеют автоматический («листающий») и ручной режимы переключения камер, позволяющие просматривать сигналы от всех камер либо выборочно от некоторых из них. Число входных видеоканалов может быть от 4 до 16, а при использовании нескольких блоков коммутации - до 64. Однако на практике обычно используются коммутаторы на 4 или 8 входов, так как в системах с большим числом камер целесообразно использовать более сложную аппаратуру, имеющую расширенные функции, возможность программирования и т.п. При выборе коммутатора, следует обратить внимание на то, чтобы он имел регулировку времени просмотра камер (желательно для каждой камеры раздельную), дополнительные - по количеству телекамер или более - входы тревоги для подключения приборов охранной сигнализации и один или несколько выходов тревоги*. При срабатывании охранной сигнализации система из режима «листания» переходит в режим просмотра той камеры, в поле зрения которой произошло нарушение, что позволяет оператору получить исчерпывающую информацию о нарушении и принять соответствующие меры. Некоторые видеокоммутаторы имеют так называемый «залповый» режим работы, в котором изображения на мониторах формируются как связанные, синхронно переключающиеся между собой группы. Эта функция позволяет оператору увидеть охраняемый участок целиком перед тем, как перейти к следующему. Видеокоммутаторы последовательного действия являются сравнительно простыми устройствами и применяются, как правило, в небольших и недорогих системах.

* - здесь и далее следует учитывать, что отечественные и многие зарубежные средства сигнализации выдают извещение «Проникновение» размыканием контактов исполнительных реле, тогда как некоторые предлагаемые на рынке телевизионных компонентов устройства обработки видеосигналов реагируют на замыкание контактов «тревожных» входов. Очевидно, что применять такие устройства в системах видеоохраны совместно с указанными средствами сигнализации нельзя.

2.2.3. Видеоквадраторы

Видеоквадраторы - это цифровые устройства, обеспечивающие размещение изображений от 4-х видеоисточников на одном экране, который в этом случае делится на 4 части (квадранты), и позволяющие уменьшить количество мониторов в системе. Квадраторы высокого разрешения позволяют работать на одном мониторе с 8 камерами: они формируют две группы по 4 камеры и дают возможность по очереди выводить их на экран. Различают видеоквадраторы «реального времени», обеспечивающие одновременную смену изображений во всех 4-х квадрантах, и видеоквадраторы последовательного типа, обеспечивающие скорость смены изображений в каждом квадранте с частотой в 4 раза ниже номинальной частоты полей. Большинство квадраторов могут работать как коммутатор последовательного действия, т.е. подключать любую из работающих камер к монитору. Квадраторы для ТСВ должны иметь дополнительные (по количеству камер) треножные входы для подключения средств сигнализации и обеспечивать вывод камеры на полный экран при срабатывании в ее зоне наблюдения средств сигнализации, режим «заморозки» кадра, т.е. возможность зафиксировать изображение в одном из сегментов, передачу сигнала тревоги прочим потребителям и, при необходимости, запись на видеомагнитофон. Видеоквадраторы, как и видеокоммутаторы последовательного действия являются сравнительно простыми устройствами и применяются, как правило, в небольших и недорогих системах.

2.2.4. Видеодетекторы движения

Видеодетектор движения представляет собой электронный блок, который хранит в памяти текущее изображение с телекамеры и подает сигнал тревоги при возникновении изменений в охраняемой зоне. Видеодетекторы движения применяются, главным образом, и системах охраны крупных объектов, где оператору приходится контролировать большое количество камер. Различают аналоговые и цифровые детекторы движения. Наиболее простыми и дешевыми являются аналоговые детекторы, действие которых можно, при некоторых допущениях, сравнить с действием охранных извещателей, подключаемых к тревожным входам коммутаторов, квадраторов и т.п. Цифровые видеодетекторы движения - это многоканальные устройства, которые позволяют разбивать каждую охраняемую зону на отдельные блоки для каждого из которых устанавливается свой порог срабатывания - чем выше этот порог, тем большие изменения должны произойти на «картинке». Кроме этого, характеристики движения (начало движения, направление, скорость и т. п.) можно задавать программным путем. Что позволяет, например, не воспринимать человека, движущегося в направлении от охраняемого объекта либо параллельно ему на некотором безопасном расстоянии, как нарушителя. Настройка системы с цифровыми детекторами на оптимальный режим должна производиться с учетом особенностей места установки телекамеры и характеристик охраняемого объекта (вероятных путей перемещения нарушителя, наличия уязвимых мест и т.п.), иначе трудно избежать большого количества ложных срабатываний или, наоборот, пропуска нарушителя. Цифровые видеодетекторы движения применяются в сложных ТСВ высокого класса.

2.2.5. Видеомультиплексоры

Видеомультиплексоры представляют собой высокотехнологичные системы видеозаписи и управления, обладающие широкими функциональными возможностями, и предназначены для записи видеосигналов от нескольких (до 16) камер на одну видеокассету (кодирование), воспроизведение кодированных кассет и обработку сигналов тревоги. Мультиплексоры позволяют осуществлять переключение между различными методами записи, что дает возможность либо записывать то, что появляется на экране, либо просматривать на экране изображения от одних камер, записывая в это же время изображения от других камер. Благодаря наличию нескольких режимов вывода изображений на экран, записанные изображения могут просматриваться на одном мониторе в полноэкранном режиме, режимах квадрированного экрана и «картинка в картинке» либо в мультиэкранном режиме (8+2, 9, 4+3, 12+1 или 16 сегментов на одном экране). Для более подробного анализа полноэкранных изображений многие мультиплексоры имеют функцию 2-кратного цифрового увеличения изображения. Некоторые мультиплексоры имеют встроенные видеодетекторы движения, генераторы титров, даты и времени, а также могут работать в дуплексном режиме, т.е. позволяют просматривать ранее сделанные записи одновременно с текущей записью изображений с работающих телекамер. Широкий набор встроенных функций, развитая логика обработки сигналов тревоги, а также возможность программирования видеомультиплексоров с помощью функциональных клавиш или с персонального компьютера позволяют создавать на их базе средние и большие (с обслуживанием до 128 или 256 камер) телевизионные системы видеоконтроля, для чего ведущими фирмами разработан целый спектр дополнительной аппаратуры: адаптеры удаленной клавиатуры, многопортовые контроллеры, системы телеметрического управления камерами и т.п.

2.2.6. Матричные видеокоммутаторы

Матричные коммутаторы имеют встроенный процессор и обеспечивают независимую коммутацию видеосигналов с большого количества входов на любой из мониторов. При наличии детектора движения коммутатор самостоятельно отслеживает ситуацию и в случае тревоги выводит изображение именно того помещения, где сработала сигнализация, а также выдает звуковой сигнал для привлечения внимания оператора. Матричные коммутаторы позволяют формировать несколько последовательностей изображений от камер в любом порядке с управлением их поворотными устройствами и вариообъективами, а также выводить номера камер и названия помещений, в которых они установлены, сообщения о сигналах тревоги, текущее время, дату, инструкции оператору и т.п. Матричные коммутаторы являются основными элементами многих ТСВ, так как позволяют создавать гибкие и наращиваемые системы безопасности, в которые могут входить не только телевизионные компоненты, но и системы сигнализации и контроля доступа.

2.2.7. Персональные компьютеры

Применение компьютерной техники в ТСВ выводит последние на совершенно новый качественный и технический уровень. Компьютерные устройства управления, так называемые видеоменеджеры позволяют удовлетворить практически любые требования заказчика. Перечислить все возможные функции видео-менеджеров практически невозможно, поэтому в качестве примера приведем лишь некоторые из них.

Система обеспечивает несколько режимов работы. В режиме «подготовка» оператор заносит в память машины необходимую служебную информацию: номера телефонов, по которым производится автоматическое дозванивание в случае тревоги и передача информации на удаленный пост через модем, шифры кодовых замков, данные об операторе, заступившем на дежурство, временные окна нахождения объекта под охраной либо свободного доступа на него, номера охраняемых автомобилей и т.п. В режиме «тестирование» проверяется работоспособность средств охранной сигнализации. В режиме «охрана» при срабатывании охранного извещателя на экран монитора выводится план контролируемой зоны и сработавший извещатель, изображение от установленной в этой зоне телекамеры с необходимым увеличением. Система может выполнять функции цифрового видеодетектора движения с программированием данных нарушителя (направление движения, скорость, размеры и т.п.), управлять режимами записи, воспроизведения и вывода изображения на экран, программировать алгоритмы наблюдения, охраны и видеорегистрации в ежедневном и еженедельном циклах, производить обработку видеоинформации цифровыми методами, автоматически фиксировать повреждения камер, коммуникаций и другого периферийного оборудования, реализовать смешанный режим охраны-наблюдения, вести диалог с оператором речевым способом и т.п. Функциональные возможности и эффективность компьютерных TСB наилучшим образом проявляются при организации с их помощью интегрированных систем охраны

2.3. Устройства регистрации

2.3.1. Специализированные видеомагнитофоны

Специализированные видеомагнитофоны предназначены для регистрации и документирования в течение длительного времени событий, происходящих в охраняемых зонах. Видеомагнитофоны могут работать в двух режимах: непрерывном (время записи на стандартную видеокассету (180 мин.) - 3 часа) и прерывистом (время записи 24, 480 или 960 часов). В прерывистом режиме записываются не все кадры, а только определенные (табл. 1).

Таблица 1

Режимы записи на одну кассету

Часы

Кадры

Кол-во кадров /за N секунд

3

все кадры

25/1

24

каждый 8-й кадр

3/1

480

каждый 160-й кадр

1/7

960

каждый 320-й кадр

l/14

При документировании видеозаписи должен использоваться генератор даты-времени, с помощью которого отмечается текущее время суток и дата. Важными характеристиками видеомагнитофона являются его разрешающая способность и надежность. Высокое разрешение позволяет зафиксировать даже мелкие детали, а надежность важна потому, что такие видеомагнитофоны предназначены для непрерывной работы в течение нескольких лет.

2.3.2. Видеопринтеры

Видеопринтеры предназначены для оперативной распечатки выбранного кадра от источника видеосигнала. Основными характеристиками видеопринтеров являются разрешающая способность, размер снимка и возможность многокадровой печати.

2.4. Устройства передачи телевизионного сигнала

2.4.1. Каналы передачи телевизионного сигнала

Для передачи телевизионного сигнала в ТСВ могут использоваться как проводные, каналы связи (коаксиальные кабели, телефонные линии, волоконно-оптические линии), так и беспроводные каналы - радиоканал или ИК-канал. Наиболее стабильная и качественная работа системы возможна только при использовании коаксиальных кабелей. Основными характеристиками кабеля являются его волновое сопротивление, диаметр и погонное затухание. Как правило, входные и выходные сопротивления основных компонентов ТСВ имеют значение 75 Ом; т.е. рассчитаны на применение кабелей с волновым сопротивлением 75 Ом, поэтому применять для передачи видеосигнала кабели с волновым сопротивлением 50 Ом не следует. Максимальное расстояние от видеокамеры до приемника видеосигнала зависит от типа используемого кабеля: для РК-75-4 оно не превышает 200 м, для РК-75-7 - 500 м. Особое внимание следует уделять выбору коаксиального кабелей для внешнего, использования (на улице, в неотапливаемых помещениях, в помещениях с агрессивной средой и т.п.), Эти кабели должны работать в широком диапазоне температур (±50°С), быть устойчивыми к воздействиям солнечного света, радиации, агрессивных сред (в том числе земли), иметь броневую оплетку для защиты от механических повреждений. Кроме этого, необходимо учесть, что разводка таких кабелей должна производиться в специально выпускаемых для наружного применения клеммных или распределительных коробках. Удобным является применение специальных кабелей, в которых коаксиальный кабель совмещен с проводами питания, или камер, в которых по одному коаксиальному кабелю передаются питание, видеосигнал и синхроимпульсы. При необходимости передачи сигнала на большие расстояния применяют видеоусилители и модемы (передатчики-модуляторы и приемники-демодуляторы). При этом видеосигнал с помощью специальной аппаратуры преобразуется, запоминается и передается с использованием модема. Время передачи может составлять от долей секунды до минуты, в зависимости от требований к качеству «картинки». В настоящее время наиболее широко используются три системы передачи изображений по цифровым и обычным телефонным линиям:

системы с компрессией изображений по принципу «условного обновления» (CR), предназначенные для передачи только информации об изменении изображения от кадра к кадру;

системы с MPEG-компрессией, в которых используют специальные алгоритмы компрессии изображений движущихся объектов;

системы с GPEG-компрсссией, которые обеспечивают независимое сжатие кадра изображения.

В специальных ТСВ, когда требуется повышенная Помехозащищенность, конфиденциальность информации и высокая разрешающая способность, применяются волоконно-оптические линии связи. Дальность действия таких систем (как и при передаче по телефонным линиям) практически неограничена. Относительная дороговизна таких систем обусловлена тем, что видеокамеры не имеют выхода для подключения оптоволоконного кабеля, поэтому требуется вводить в систему преобразователи электрического сигнала в оптический и обратно. Кроме этого, прокладка, сращивание и подключение достаточно сложны. Однако развитию волоконно-оптических систем в последнее время уделяется повышенное внимание, особенно со стороны банковских структур. При создании мобильных и переносных систем, а также, если прокладка кабельных линий невозможна или нецелесообразна, используется радио - или инфракрасный каналы связи. Дальность передачи при этом составляет от нескольких сотен метров до нескольких километров. В простейшем случае камера подключается к радиопередатчику дециметрового диапазона, а сигнал принимается на обычный телевизор. Однако такие системы имеют существенные недостатки: могут создавать помехи бытовому телевещанию, а сигнал в зоне действия передатчика может принимать преступник. Этих недостатков лишены радиосистемы, работающие в сантиметровом диапазоне, а также инфракрасные системы. Последние не требуют разрешения на применение системы от Государственного комитета по радиочастотам России, однако, они работают только в зоне прямой видимости, а их дальность действия в значительной мере зависит от оптической плотности среды (снег, дождь, туман, пыль и г. п.).

2.4.2. Видеоусилители и видеораспределители

Видеоусилители применяются для компенсации затухания видеосигнала в линиях при передаче его на большие расстояния. При выборе видеоусилителя необходимо знать его входное и выходное сопротивления, а также коэффициент усиления, так как их значениями определяется тип линии передачи и максимальное расстояние, на которое можно передать видеосигнал. Видеораспределители используются при необходимости трансляции видеосигнала нескольким потребителям. Основными характеристиками видеораспределителей являются входное и выходное сопротивления, а также количество выходов (количество возможных потребителей).

2.5. Электропитание ТСВ

Основными напряжениями питания компонентов систем телевизионного видеоконтроля являются 220В переменного тока частотой 50 Гц и 12 В постоянного тока. От сети переменного тока напряжением 220 В питаются практически все мониторы, коммутаторы, квадраторы, мультиплексоры, видеомагнитофоны, видеопринтеры, поворотные устройства, гермокожухи, а также некоторые камеры. Напряжением 12 В постоянного тока питаются практически все камеры, а также некоторые устройства обработки видеосигнала (квадраторы, коммутаторы и т.п.) и поворотные устройства. В редких случаях питание компонентов ТСВ осуществляется напряжением 24 В постоянного и переменного тока, а также 9 В постоянного тока. Для питания отдельных компонентов ТСВ на рынке телевизионной техники предлагается широкий выбор сетевых адаптеров: 220/12 В и 220/9 В. Электропитание всей ТСВ должно быть организовано таким образом, чтобы обеспечивать работоспособность системы в автономном режиме, т.е. при пропадании напряжения сети переменного тока. С этой целью питание компонентов осуществляют от источников бесперебойного питания UPS или специализированные, снабженные аккумуляторами блоки питания. Для питания мониторов, видеомагнитофонов и т.п. также часто используют инверторы - приборы, преобразующие постоянный ток напряжением 12 В в переменный ток напряжением 220 В и частотой 50 Гц. При построении ТСВ ее компоненты следует выбирать таким образом, чтобы номенклатура питающих напряжений и потребляемая мощность (ток) были минимальными. Организация питания телекамер является одной из проблем в системах с беспроводными каналами связи. С одной стороны можно подавать питание камер по проводам, но тогда проблема проводов остается. С другой - можно питать камеры от аккумуляторов, однако, из-за большого потребления даже у современных камер (200 - 400 мА) приходится производить частую замену элементов питания.

3. КЛАССИФИКАЦИЯ ТСВ

3.1. Критерии оценки системы

По показателям значимости системы подразделяются на классы в соответствии с категориями значимости охраняемых объектов (табл. 2).

Таблица 2

Класс системы

Категория значимости объекта

Характеристика значимости объекта

Производственное или другое назначение объекта

Высший

А

Объекты, зоны объектов (здания, помещения, территории), несанкционированное проникновение на которые может принести особо крупный или невосполнимый материальный и финансовый ущерб, создать угрозу здоровью и жизни большого количества людей, находящихся на объекте и вне его, привести к другим тяжелым потерям

Хранилища и депозитарии банков, места хранения вредных и радиоактивных веществ и отходов, места хранения оружия, боеприпасов, наркотических веществ и т.п.

Средний

Б

Объекты, зоны объектов, несанкционированное проникновение нa которые может принести значительный материальный и финансовый ущерб, создать угрозу здоровью и жизни людей, находящихся на объекте

Кассовые залы банков, подъезды инкассаторских машин, пути переноса денег, автостоянки, склады и помещения с ценными материалами, оргтехникой и т.п.

Общего применения

В

Прочие объекты

Торговые залы магазинов, служебные помещения учреждений и т.п.

По условиям эксплуатации различают системы (части систем) для работы:

в закрытых отапливаемых помещениях;

в закрытых неотапливаемых помещениях;

под навесом на улице в условиях умеренно-холодного климата;

на улице в условиях умеренно-холодного климата;

в особых условиях (повышенная влажность, запыленность, вибрации и т.п.).

В зависимости от назначения, характера решаемых задач и выполняемых функций различают следующие режимы работы системы (части системы):

режим 1 - видеонаблюдение;

режим 2 - видеонаблюдение с видеозаписью;

режим 3 - одновременное видеонаблюдение и видеоохрана;

режим 4 - видеонаблюдение и видеоохрана с видеозаписью и приоритетным выбором (выделением) для видеонаблюдения и видеозаписи камеры (камер), с которых приходит сигнал тревоги;

режим 5 - видеозащита, т.е. видеонаблюдение и видеоохрана, с видеозаписью и приоритетным выбором (выделением) для видеонаблюдения и видеозаписи камер, из зон наблюдения с которых приходит сигнал тревоги от средств охранно-пожарной сигнализации, устройств контроля доступа или других систем, входящих вместе с системой видеоконтроля в комплекс ИСО.

С помощью системы (части системы) видеоконтроля на объекте могут создаваться:

зоны видеонаблюдения - зоны объекта, в которых осуществляется наблюдение телевизионными камерами;

зоны видеоохраны - зоны объекта, в которых осуществляется наблюдение телевизионными камерами и при изменении ситуации выдается сигнал тревоги с помощью сигналов, генерируемых средствами видеоохраны;

зоны защиты - зоны объекта, которые оборудованы интегрированными системами охраны (включая средства сигнализации, устройства контроля доступа и т.п.) и в которых видеонаблюдение может производиться по сигналам тревоги от средств сигнализации, устройств контроля доступа и т.п.

3.2. Модули ТСВ

Телевизионные системы видеоконтроля должны формироваться по модульному принципу. Модулем ТСВ называется совокупность технических средств, приборов и устройств, объединенных линиями связи, решающая конкретную функциональную задачу.

В зависимости от параметров функционирования используемых технических средств, приборов, устройств и линий связи различают:

модули общего применения;

модули среднего класса;

модули высшего класса.

Модули общего применения содержат простейшие технические средства (телевизионные камеры и средства их оснащения, коммутаторы, мониторы и т.п.). Рекомендуется применять для систем обычного применения, не входящих в состав ИСО, на объектах категорий значимости Б и В.

Модули среднего класса содержат технические средства с обычными и улучшенными характеристиками, имеющие входы и выходы тревоги (телевизионные камеры и средства их оснащения, коммутаторы, квадраторы, мониторы, видеомультиплексоры с ограниченными возможностями, простейшие видеодетекторы движения и видеомагнитофоны и т. п.). Рекомендуется применять для систем среднего класса на объектах категории значимости Б.

Модули высшего класса содержат технические средства с наилучшими характеристиками, имеющие входы и выходы тревоги (телевизионные камеры и средства их оснащения, профессиональные видеодетекторы движения, мониторы и охранные видеомагнитофоны повышенного разрешения (S-VHS класса), многофункциональные мультиплексоры, матричные коммутаторы и т.п.) Рекомендуется применять в составе систем высшего и среднего класса (в том числе входящих в ИСО) на объектах, категорий значимости А и Б.

По выполняемым функциям модули ТСВ подразделяются на:

модули видеонаблюдения;

модули видеозаписи;

модули видеоохраны;

модули видеопередачи.

Возможный состав модулей, в зависимости от их класса и функционального назначения, приведен в табл. 3.


Таблица 3

Наименование

Возможный состав модуля

Модули общего применения

Модули среднего класса

Модули высшего класса

Модули видео-наблюдения

¨ камеры черно-белые или цветные обычного или повышенного разрешения;

¨ простейшие объективы;

¨ поворотные устройства и блоки прямого сервоуправления;

¨ кожухи, кронштейны и т. п.

¨ видеомониторы обычные и комбинированные:

¨ видеокоммутаторы и видеоквадраторы;

¨ то же, что и в модулях общего применения, но с входами тревог для синхронизации с системами сигнализации и управления доступом;

¨ детекторы движения разных классов;

¨ простейшие матричные коммутаторы

¨ синхронизированные по частоте и фазе полей и кадров камеры с высокими разрешением, чувствительностью, цветопередачей и т.п.

¨ объективы с ручным, автоматическим и дистанционным управлением

¨ блоки телеметрического управления камерами и объективами:

¨ видеомониторы высокого разрешения;

¨ видеомультиплексоры повышенного разрешения с развитой логикой обработки тревог, контролем состояния линий связи и работоспособности камер, имеющие... возможности компьютерного управления и т. п.;

¨ матричные коммутаторы с возможностью многопользовательского управления, с авторизованными ключами и приоритетами в управлении, возможностью наращивания, развитой логикой обработки тревог, каналом телеметрии для управления камерами и т.п.

Модули видеозаписи

¨ камеры черно-белые или цветные обычного или повышенного разрешения (в том числе синхронизированные по фазе и частоте полей и кадров); .

¨ простейшие объективы;

¨ поворотные устройства и блоки прямого сервоуправления,

¨ кожухи, кронштейны и т.п.;

¨ видеокоммутаторы и видео-квадраторы;

¨ бытовые видеомагнитофоны класса VHS;

¨ простейшие охранные видеомагнитофоны

¨ то же, что и в модулях общего применения;

¨ охранные видеомагнитофоны класса VHS или повышенного разрешения;

¨ синхронизированные по частоте и фазе полей и кадров камеры с высокими разрешением, чувствительностью, цветопередачей и т. п.;

¨ объективы с ручным, автоматическим и дистанционным управлением;

¨ блоки телеметрического управления камерами и объективами;

¨ высококачественные видеомультиплексоры с высоким разрешением;

¨ охранные видеомагнитофоны класса S-VHS или повышенного разрешения;

¨ устройства цифровой записи (в том числе цифровые аудиомагнитофоны);

¨ видеопринтеры

Модули видеоохраны

¨ камеры черно-белые или цветные обычного или повышенного разрешения (в том числе синхронизированные по фазе и частоте полей и кадров);

¨ простейшие объективы;

¨ поворотные устройства и блоки прямого сервоуправления;

¨ кожухи, кронштейны и т.п.;

¨ видеокоммутаторы и видеоквадраторы;

¨ детекторы движения аналогового типа

¨ то же, что и в модулях общего применения;

- одноканальные аналоговые и цифровые видеодетекторы движения;

¨ многоканальные цифровые видеодетекторы движения;

¨ видеокоммутаторы, видеоквадраторы, видеомультиплексоры

¨ синхронизированные по частоте и фазе полей и кадров камеры с высокими разрешением, чувствительностью, цветопередачей и т.п.;

¨ объективы с ручным, автоматическим и дистанционным управлением;

¨ блоки телеметрического управления камерами и объективами;

¨ высококачественные видеомультиплексоры с высоким разрешением;

¨ матричные видеокоммутаторы;

¨ профессиональные цифровые многоканальные видеодетекторы движения;

¨ блоки цифровой видеопамяти

Модули видеопередачи по кабельным и проводным сетям

¨ видеоусилители;

¨ видеоусилители-распределители;

¨ развязывающие трансформаторы;

¨ согласующие усилители для работы с линиями типа "витая пара", телефонными линиями, кабелями с нестандартным волновым сопротивлением;

¨ видеомультиплексоры

Модули видеопередачи по беспроводным каналам связи

¨ модуляторы и демодуляторы;

¨ радиопередатчики и радиоприемники;

¨ передатчики и приемники сигналов ИК-диапазона;

¨ антенные устройства;

¨ видеомультиплексоры

Модули видеопередачи по цифровым каналам и комму тируемым линиям общего пользования

¨ одноканальные передающие и приемные устройства, обеспечивающие компрессию данных по методу условного обновления (CR) с малым и средним разрешением (видеотелефония)

¨ многокамерные передающие устройства и приемные устройства, обеспечивающие запоминание тревожных изображений имеющие возможность дистанционного управления камерами

¨ многокамерные передающие и приемопередающие устройства с GPEG или MPEG компрессией, развитой логикой обработки тревог, способностью к эффективному интерактивному управлению, имеющие средства для подключения к компьютеру


4. ВЫБОР СРЕДСТВ ВИДЕОКОНТРОЛЯ ДЛЯ ОБОРУДОВАНИЯ ОБЪЕКТА

4.1. Обследование объекта

Выбор варианта оборудования, объекта средствами видеоконтроля (СВ) следует начинать с его обследования*. При обследовании определяются характеристики значимости объекта, его строительные и архитектурно-планировочные решения, условия эксплуатации СВ, параметры установленных (или предполагаемых к установке на данном объекте) систем сигнализации и управления доступом (при организации ИСО). По результатам обследования определяются тактические характеристики и структура телевизионной системы видеоконтроля, а также технические характеристики ее компонентов.

* - в связи с тем, что СВ не являются самостоятельными средствами охраны, а применяются лишь для ее усиления, при обследовании объекта определяются также те его характеристики, которые важны для выбора систем сигнализации, управления доступом и т.п.

4.1.1. Характеристики значимости

Для определения, категории значимости объекта или его частей (зон) принимаются во внимание:

производственное назначение объекта в целом и его отдельных зон (помещений, открытых площадок и т.п.);

характер размещения и средоточения предметов преступных посягательств (денежных средств и ценностей, оружия и боеприпасов, наркотических веществ и т.п.);

степень тяжести возможных финансовых, политических либо социальных последствий несанкционированного проникновения или разбойного нападения на объект.

4.1.2. Архитектурно-планировочные и строительные решения

Путем изучения чертежей, обхода и осмотра объекта, а также проведения необходимых измерений определяются:

конфигурация границ (периметра) объекта;

количество отдельно стоящих зданий, их этажность;

количество открытых площадок;

количество отапливаемых и неотапливаемых помещений;

геометрические размеры (площадь, линейные размеры, высота потолков и т.п.) помещений, открытых площадок, территорий, сторон периметра

4.1.3. Условия эксплуатации

Учитывать воздействие внешних факторов следует лишь для передающей части ТСВ, предназначенной для работы вне отапливаемых закрытых помещений либо в особых условиях (запыленность, повышенная влажность, электромагнитные помехи и т.п.). Кроме этого, необходимо знать местоположение зон объекта на местности (ориентация в осях «север-юг» - «запад-восток»), чтобы избежать прямых засветок камер, солнечным светом.

4.1.4. Параметры систем сигнализации и управления доступом

При интегрировании СВ с системами сигнализации и управления доступом следует учитывать:

возможность их совместной синхронизации;

возможность интеграции на релейном, а также программно-аппаратном уровнях;

возможность организации интерфейсов RS 232 и RS 485 (при значительной удаленности панелей систем сигнализации и управления доступом);

состояние выходов тревоги средств сигнализации и управления доступом в различных режимах. Отечественные и большинство зарубежных средств охранной сигнализации имеют в дежурном режиме замкнутые контакты, которые размыкаются при тревоге.

4.2. Общие требования к системе

4.2.1. Класс системы

Трудно найти объект, все или почти все зоны которого имели бы одинаковую категорию значимости. Даже на объектах категории А всегда можно выделить зоны категорий Б и В. Как правило, зоны низших категорий удалены от «ответственных» зон и проникновение на них не связано с ущербом, который может быть нанесен при проникновении на зоны более высокой категории значимости. Заказчик определяет категорию значимости объекта и в соответствии с ней может выбрать класс системы в целом. Однако более рациональным и экономичным является выбор для каждой зоны (группы зон) объекта модулей такого класса, который соответствует их категориям значимости.

4.2.2. Режим работы системы

На основании полученных характеристик значимости объекта (зон, групп зон) выбираются показатели их защиты. Одни из этих зон определяют как зоны видеонаблюдения, другие - как зоны видеоохраны, третьи - как зоны видеозащиты. В соответствии с этим устанавливается режим работы системы. В табл. 4 приведены рекомендуемые режимы работы системы и типы защиты объекта (зоны) в зависимости от категории значимости объекта (зоны).

Таблица 4

Категория значимости объекта (зоны)

Тип защиты объекта (зоны)

Режим работы системы

А

Видеозащита

4,5

Б

Видеозащита, видеоохрана

4,5

В

Видеоохрана, видеонаблюдение

1-4

От режима работы системы зависит состав и стоимость оборудования, нагрузка на оператора, сложность программного обеспечения. Наиболее сложным и дорогостоящим является аппаратно-программное обеспечение режимов 4 и 5.

4.2.3. Первичная оценка состава системы

Перед тем, как приступить к закупке аппаратуры и оборудованию объекта желательно хотя бы ориентировочно оценить сложность будущей системы. Для этого вначале определяют необходимое количество камер, а затем систему условно относят к соответствующей группе:

1 группа - системы, содержащие до 8 камер;

2 группа - системы, содержащие от 9 до 16 камер;

3 группа - системы, содержащие более 16 камер.

В большинстве систем 1 группы в качестве аппаратуры обработки и коммутации видеосигнала используются достаточно простые и дешевые устройства: квадраторы и видеокоммутаторы последовательного действия (желательно имеющие входы и выходы тревоги, а также встроенный генератор даты/времени). Для отображения информации о состоянии зон обычно достаточно одного или двух мониторов. Если необходима запись, используется видеомагнитофон бытового класса или простейший охранный видеомагнитофон. Системами 1 группы оборудуются, в основном, объекты категории В (иногда объекты категории Б). Эти системы не требуют высокой квалификации операторов и сравнительно дешевы. Стоимость черно-белых систем для внутреннего наблюдения определяется количеством камер и, как правило, не превышает 4000 $. Стоимость систем для наружного наблюдения значительно выше за счет использования дорогостоящего оборудования (устройств наведения с пультами управления, объективов с трансфокаторами и автодиафрагмой, гермокожухов, специальных кронштейнов, кабелей и т.п.) и может превышать стоимость аналогичных по количеству камер систем для внутреннего наблюдения в несколько раз. Телевизионные камеры цветного изображения в таких системах практически не применяются, так как их стоимость более, чем в два раза превышает стоимость черно-белых камер такого же класса.

Для систем 2 и 3 групп оправданно, несмотря на высокую стоимость, применение аппаратуры серьезных специализированных фирм черно-белых и цветных камер повышенного разрешения, простых и сложных мультиплексоров, матричных коммутаторов, профессиональных видеодетекторов движения, специальных охранных видеомагнитофонов (в том числе класса S-VHS), персональных компьютеров, обеспечивающих возможность организации нескольких постов управления, включая удаленные на значительное расстояние, программирование режимов работы (в том числе для различного времени суток, выходных и т.п.), гибкую логику обработки сигналов треноги. Кроме этого, для систем 3 группы характерно применение аппаратуры, позволяющей объединять несколько однотипных устройств обработки и коммутации видеосигнала (последовательных и матричных коммутаторов, мультиплексоров и т.д.) в блоки с большим числом входов\выходов и единым управлением, обеспечивающие возможность обработки несколько сотен видеокамер, приборов сигнализации и управления доступом). Если информацию требуется выводить в пункт централизованной охраны (ПЦО), в территориальный орган внутренних дел или на другой удаленный пост по телефонной линии, используют устройства цифровой обработки и сжатия изображения, модемы и т.п., позволяющие передавать по одной линии не только видеосигнал, но и тревожную, графическую программную информацию, а также сигналы управления. Эти системы достаточно сложны, имеют высокую стоимость и предназначены, в основном, для. организации ИСО объектов категорий А и Б. Поэтому их проектирование, монтаж, программирование и наладку рекомендуется (в особенности для систем группы 3) производить при непосредственном участии профессиональных фирм, специализирующихся в этой области техники. Стоимость систем, относящихся ко 2 и 3 группам, может превышать стоимость систем 1 группы во много раз и составлять десятки тысяч долларов.

Следует отметить, что данный подход весьма упрощен и не может распространяться на все случаи жизни - наверняка найдутся объекты, где при малом количестве камер требуется; система с повышенным разрешением, возможностью изменения режимов записи и наблюдения и т.п. Однако он позволяет получить хотя бы первоначальное представление о составе, стоимости и возможностях системы.

4.3. Выбор телевизионной камеры

Правильный выбор телевизионных камер является принципиально самым важным моментом в проектировании системы, так как именно характеристиками камер определяются, в конечном счете, характеристики других компонентов системы и в целом ее стоимость-

При выборе телекамеры и места се установки учитываются:

категория значимости зоны;

геометрические размеры зоны;

необходимость идентификации наблюдаемого предмета;

ориентация зоны на местности;

освещенность объекта наблюдения;

расположение уязвимых мест (окон, дверей, люков и т.п.);

условия эксплуатации;

вид наблюдения - скрытое или открытое.

Для того, чтобы определить основные параметры камер, целесообразно сгруппировать зоны объекта таким образом, чтобы требования к камерам oт группы к группе были различными.

4.3.1. Категория значимости объекта

Выше уже отмечалось, что класс ТСВ выбирается в зависимости от категории значимости объекта. Это в полной мере относится и к телекамерам. Для наблюдения объектов (зон) категории А следует применять (несмотря на их высокую стоимость) высококачественные камеры черно-белого и цветного изображения ведущих специализированных фирм.

На объектах (в зонах) категории, Б применяют, в основном, камеры среднего класса, а для категории В вполне оправданно применение дешевых камер южно-корейского или тайваньского производства. В некоторых случаях, когда преследуются цели, нехарактерные для данной категории объекта, могут приниматься другие решения.

4.3.2. Геометрические, размеры зоны

Геометрическими размерами зоны определяется угол зрения камеры. В охране входной двери, помещений, открытых площадок применяются широкоугольные камеры с углом зрения 60 - 90° либо камеры с меньшими углами зрения, устанавливаемые на поворотных платформах. В охране периметров используются камеры с малыми углами зрения. Угол зрения камеры можно определить по формуле:

,

где  - угол зрения по горизонтали;

h - размер матрицы по горизонтали, мм;

f - фокусное расстояние объектива, мм.

В табл. 5 приведены усредненные значения углов зрения камер с различными форматами ПЗС-матриц и объективами с разными фокусными расстояниями. (Следует заметить, что углы зрения изделий разных фирм могут несколько отличаться от приведенных в таблице).

Таблица 5

Фокусное расстояние, мм

1/3"

1/2"

2/3

1

2,8

98°

 

 

 

4

64°

86°

 

 

6

42°

58°

 

 

8

33°

42°

55°

 

12

22°

30°

 

 

16

17°

23°

30°

43°

25

11°

14°

19°

28°

50

5,5°

10°

15°

75

3,6°

6,6°

10°

100

 

 

 

150

 

 

 

4,9°

235

 

 

 

3,1°

350

 

 

 

2,1°

4.3.3. Идентификация наблюдаемого предмета

На объектах категорий А и Б, как правило, требуется идентификация личности или номера автомобиля при входе или несанкционированном проникновении в «важные» зоны, такие, например, как банковские хранилища, помещения для хранения оружия либо наркотиков, боксы для инкасаторских машин, стоянки служебного автотранспорта и т.п.

С этой целью применяют камеры с повышенным разрешениемдокументации на камеру и в прайс-листах указывается какого разрешения камера - обычного или повышенного) либо камеры, оснащенные длиннофокусными объективами и имеющие малые углы зрения. Для получения более полной информации об объекте наблюдения (например, идентификации цвета автомобиля, глаз, волос, одежды и т.п.) используются камеры цветного изображения. Основное требование, предъявляемое к цветным камерам - правильная передача цветов. Для компенсации искажений цветопередачи при изменении источников света в камерах применяются специальные схемы «баланса белого». В хороших камерах регулировка осуществляется автоматически и, как правило, имеются регулировки для адаптации к разным источникам света.

Если в соответствии с геометрическими размерами зоны уже выбран требуемый угол зрения камеры, то минимальный размер объекта (детали объекта) можно определить как:

,

где L - расстояние от камеры до наблюдаемого объекта, м;

S - минимальный размер объекта (детали объекта), который требуется различать, мм;

R - разрешение камеры, ТВ-линий.

На практике может оказаться, что камера с выбранным углом зрения не позволяет получить требуемую для идентификации объекта наблюдения детализацию даже при использовании камеры с повышенным разрешением, а применение камеры с меньшими углами зрения может оставить часть зоны без наблюдения. Это характерно для больших помещений и открытых площадок (например, автостоянок), а также периметров большой протяженности. В таких случаях применяют камеры с вариообъективами, позволяющими изменять фокусное расстояние и угол зрения. В, нормальном режиме, когда в зоне нет нарушения, установлено малое фокусное, расстояние объектива, камера имеет широкий угол зрения и под наблюдением находится вся зона. При возникновении тревожной ситуации в зоне (либо по желанию оператора) фокусное расстояние объектива увеличивается, позволяя «приближать» интересующий предмет (ZOOM-функция) настолько, чтобы можно было его идентифицировать. Для правильного выбора вариообъектива необходимо определить границы изменения его фокусного расстояния. Нижняя граница fmin выбирается, исходя из требуемого угла зрения камеры в нормальных условиях. Верхнюю границу фокусного расстояния fmax можно определить как

.

Следующей важной для идентификации объекта характеристикой камеры является наличие компенсации заднего света (Back Light Compensation), которая позволяет получить, например, качественное изображение лица человека, стоящего спиной к солнцу, в то время как обычная камера даст только темный силуэт. Вся автоматика в. таких камерах ориентируется не на среднюю освещенность, а на центральную часть экрана (в очень дорогих камерах размер и положение этой области программируется специальным образом). Развитие этой идеи привело к понятию дифференциального усиления. Этот метод позволяет получить одинаково хорошее изображение даже в резко отличающихся ярких И темных областях кадра (например, различить лицо человека на переднем плане и лица или фигуры людей на заднем плане).

В последние годы все чаще вместе с видеонаблюдением используется и аудионаблюдение, что позволяет идентифицировать объект по голосу. Многие современные камеры имеют встроенный микрофон либо микрофон и динамик, чем обеспечивается организация соответственно симплексного или дуплексного канала аудиосвязи. Наличие аудиоканала, кроме этого, прослушивать охраняемую зону, что может оказаться важным при возникновении в ней тревожной ситуации. При организации совместного канала аудио- видеонаблюдения необходимо использовать специальные кабели.

4.3.4. Освещенность на объекте

Освещенность наблюдаемого объекта может быть различной и, кроме этого, может изменяться произвольным образом. Она зависит от времени суток, погоды, прозрачности воздуха. Поэтому при выборе камеры важно знать такие параметры объекта, как минимальная освещенность и диапазон изменения освещенностей. Исходя из значения минимальной освещенности, выбирают камеру с соответствующей чувствительностью. Однако здесь могут возникнуть сложности, вызванные тем, что приводимая в паспорте на камеру характеристика «чувствительность» трактуется неоднозначно. Во-первых может быть приведена освещенность, при которой камера даст «приемлемое» изображение либо нормальное изображение. Эти значения могут отличаться в 2 - 4 раза. Во-вторых ряд фирм проводят измерения без специального фильтра ИК-отсечки, что завышает чувствительность камеры. И, наконец, в одних случаях приводится освещенность на объекте (Еоб), а в других - на ПЗС-матрице (Ематр) Эти величины связаны между собой выражением:

,

где R - коэффициент отражения объекта;

F - относительное отверстие объектива;

 - 3,14159... .

Разница между этими величинами существенная; первая может превышать вторую в 10 раз.

Такая неоднозначность может привести к серьезной ошибке при выборе камеры, поэтому перед приобретением камеры необходимо выяснить, какая из величин указана в документации на неё, а более правильное решение - получить подробную консультацию у специалиста.

Следует отметить, что освещенность объекта сильно влияет на разрешение, поэтому для объектов с очень низкой освещенностью следует выбирать камеры с повышенными чувствительностью и разрешающей способностью. Кроме этого, камеры, устанавливаемые на таких объектах, должны иметь АРУ, которая обеспечивает работоспособность камеры при малой освещенности. Применять сверхвысокочувствительные камеры, представляющие собой комбинацию обычной камеры и прибора ночного видения и имеющие чувствительность в 100-10000 раз выше обычных, следует с большой осторожностью (а лучше отказаться от них) из-за высокой цены, низкой надежности и очень сложной и неудобной эксплуатации. В частности, их нельзя применять днем (и рекомендуется даже закрывать их объектив дневное, время), регулярно чуть-чуть поворачивать во избежание «вжигания» изображения, для чего необходимо применять специальные двухкоординатные устройства управления и т. п.

В табл. 6 и 7 приведены примерные значения освещенности на объекте для средней полосы России и отражательная способность некоторых объектов.

Таблица 6

Освещённость в помещении, лк

Освещённость на улице, лк

Склад

20 - 75

Яркий солнечный полдень

100000 - 1000000

Коридор, лестница

30 - 200

Пасмурный день

100 - 10000

Магазин

75 - 300

Сумерки

1 - 10

Офис

200 - 500

Полная луна

0,1 - 1

Светлая комната у окна

100 - 1000

Безлунная ночь

0,0001 - 0.001

Таблица 7

Объект

Коэффициент отражения, %

Пустой чистый асфальт

5 - 10

Трава, кусты, деревья

20 - 25

Красный кирпич

35 - 40

Автомобиль

40 - 50

Стекло

70 - 80

Белая краска

55 - 75

Снежный покров

65 - 85

Еще одним способом обеспечить работоспособность камеры в условиях недостаточной освещенности на объекте является организация дежурного освещения. Самым простым и доступным является обычное освещение, которое при оснащении специальными устройствами (реле времени, фотоэлементами, охранными извещателями, реагирующими на перемещение) может включаться и выключаться по расписанию, по уровню освещенности или при приближении человека. Кроме обычного освещения для подсветки объектов используют устройства местной ИК-подсветки и ИК-прожекторы. Однако применение последних, несмотря на ряд несомненных достоинств* (высокая надежность и большой КПД, полное отсутствие видимого света, обеспечение подсветки объектов, удаленных на значительное расстояние), ограничено рядом факторов. Во-первых, они очень дороги. Во-вторых, должны давать такой же угол засветки, что и угол зрения камеры, дня чего прожектор приходится устанавливать на то же поворотное устройство, что и камеру, а, например, 500-ваттный прожектор для наружной установки весит около 10 кг! Кроме этого, его нельзя устанавливать в один кожух с камерой.

*- имеются в виду ЙК-прожекторы на основе полупроводниковых излучателей.

Диапазон изменения освещенностей необходимо учитывать, как правило, при выборе камер для наружного наблюдения. Для этих целей в системах обычного применения выбирают камеры с электронным затвором или электронной диафрагмой, позволяющими компенсировать 1000 - или даже 2000-кратные превышения освещенности (диапазон регулирования 1/50 - 1/50000 или 1/50 - 1/100000), а в системах высшего и среднего классов используют объективы с автодиафрагмой* и встроенным фильтром с центральным пятном (так называемым Spot-фильтром). В закрытых помещениях освещенность меняется несильно - обычно она не превышает 500 лк, поэтому здесь, в основном, используются камеры с электронным затвором, обеспечивающим диапазон регулирования выдержки 1/50-1/10000 (200-кратное перекрытие). Только в особых случаях в камерах для внутреннего применения используются объективы с автодиафрагмой.

* - современные объективы, в связи с уменьшением их габаритов, имеют, как правило, прямоприводное управление (direct drive), поэтому камера должна иметь встроенную электронику для управления объективом. Кроме этого, не рекомендуется использовать электронную диафрагму совместно с объективами с автодиафрагмой, т.е. камера должна иметь возможность отключения электронной диафрагмы.

4.3.6. Размещение камеры в наблюдаемой зоне

Важную роль в обеспечении нормальной работы камеры играет выбор места установки камеры на объекте. При этом нужно обратить внимание на два момента. Во-первых, следует, по возможности, исключить засветки объектива прямым или отраженным солнечным светом либо мощными источниками искусственного освещения, например, прожекторами. И, во-вторых, нужно ориентировать камеру таким образом, чтобы в поле зрения попадали все уязвимые места (окна, двери, люки и т.п.), а размеры непросматриваемой зоны не позволяли нарушителю проникнуть через нее.

Для того, чтобы избежать засветок, рекомендуется:

не ориентировать камеру в южную сторону;

устанавливать камеру на потолке либо на стене или в углу с наклоном её вниз;

использовать корпус или кожух с защитными козырьком и фильтром;

не направлять камеру на блестящие, хорошо отражающие свет предметы (зеркала, лужи и т.п.), окна и наружные двери.

Размер непросматриваемой камерой зоны L можно определить как:

где h - высота установки камеры;

 - угол между оптической осью камеры и вертикалью;

 - угол зрения камеры в вертикальной плоскости

Если не удается уменьшить размеры непросматриваемой зоны до такой степени, чтобы в ней не мог перемещаться человек, камеру следует устанавливать в таком месте, чтобы в эту зону не попадали уязвимые места - окна, двери и т. п. (рис. 1). Кроме этого, при размещении камеры нужно стремиться к тому, чтобы длина питающих и сигнальных кабелей была минимальной.

Рис. 1

4.3.7. Скрытое наблюдение

В некоторых случаях требуется организовать на объекте скрытое наблюдение (например, за сотрудником, подозреваемым в нелояльности).

Для этих целей выпускаются специальные малогабаритные камеры (как правило, бескорпусные). Такие камеры оснащаются миниатюрными объективами с микрозрачком (типа «Pinhole»). При недостаточной освещенности объекта наблюдения в этих случаях используют устройства ИК-подсветки, так как обычное, освещение здесь, очевидно, не годится. Сама камера устанавливается в стене или на внешней стороне стены помещения, а объектив вводится в маленькую дырочку в стене, К недостаткам объективов «pinhole» можно отнести их небольшую светосилу. Кроме малогабаритных камер, иногда для скрытого наблюдения, когда требуется сравнительно высокое качество изображения используют обычные (конечно, не очень большие по габаритам) камеры с достаточно хорошими объективами. Камеры тщательно камуфлируются под различные предметы, которые не вызывают подозрений (например, громкоговорители, плафоны и т. п.) и не привлекают внимания*. Место установки камеры выбирается таким образом, чтобы оно не находилось постоянно или в течение длительного времени в поле зрения человека, за которым ведется наблюдение.

* - для этих целей некоторыми фирмами выпускаются специальные кожухи.

4.3.8. Условия эксплуатации

Как уже отмечалось, по условиям эксплуатации камеры можно разделить на камеры:

для внутреннего применения;

для внешнего применения;

для применения в особых условиях.

Камеры для внутреннего применения эксплуатируются в сравнительно хороших условиях: температура и влажность в помещении, если и изменяется, то в весьма небольших пределах, поэтому каких-то особых требований к камерам с этой точки зрения не предъявляется. Если требуется (например, в помещениях зданий, являющихся архитектурными памятниками), применяются декоративные кожухи, которые могут изготавливаться по спецзаказу. Кожухи применяются также в тех случаях, когда необходимо скрыть или хотя бы не афишировать наличие камер. Выбор кронштейнов и поворотных устройств также не представляет сложности, так как для них не требуется специального антикоррозионного покрытия, а сами камеры имеют небольшой (как правило, порядка 500 г) вес. Цены на устройства оснащение камер для внутреннего применения невысоки и примерно одинаковы для всех фирм-производителей. Единственно на что необходимо обратить внимание - это соответствие конструктивных характеристик этих устройств (размеров свободного пространства кожухов, способов крепления камеры, углов поворота, допустимой весовой нагрузки и т.п.) конструкции камеры.

Камеры для наружного наблюдения работают в более сложных условиях. Широкий диапазон изменения освещенности, температуры и влажности окружающего воздуха, дождь, снег, туман, ветер оказывают чрезвычайно неблагоприятное воздействие на работу камеры, аппаратуры телеметрии, поворотных устройств и кронштейнов. Поэтому уличная камера всегда размещается в герметичном кожухе, имеющем термостат и солнцезащитный козырек, иногда - вентилятор, очистители стекла и т.п. Кронштейны имеют усиленную конструкцию, так как вес камеры в гермокожухе вместе с поворотным устройством и, иногда, ИК-прожектором достигает 20 - 30 кг, и, кроме этого, должны выдерживать ветровые нагрузки, обледенение и т.п. Все устройства оснащения камер для наружного наблюдения имеют антикоррозионное покрытие, устойчивое к воздействию солнечной радиации. Жесткие требования к конструктивному исполнению этих устройств определяют их весьма высокую стоимость.

К особым условиям работы камеры могут относиться различные факторы: возможность умышленного повреждения камеры, запыленность, пожаро- и взрывоопасность помещения, наличие паров или конденсата агрессивных веществ, повышенный уровень радиации и т.п. Поэтому выбор оснащения камер, работающих в особых условиях, производится строго индивидуально.

В зависимости от условий применения камеры выбирается также тип кабелей и проводов, распределительных и коммутационных коробок.

4.4. Требования к аппаратуре постов управления и каналам передачи видеосигнала

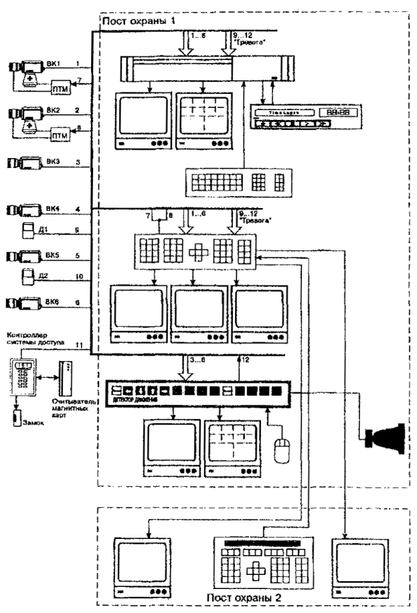
Информация от телекамер по каналам передачи видеосигнала поступает на пост управления, где она коммутируется, обрабатывается, отображается и регистрируется с помощью специальных аппаратных и программных средств. Таких постов в системах высшего и среднего классов может быть несколько включая и удаленные, на значительные расстояния (в системах общего применения, как правило этого не требуется). Точные параметры аппаратуры, поста управления (АПУ) - аппаратный состав, функциональные возможности, электрические характеристики и т.п. - можно определить, только учитывая требования заказчика и результаты обследования объекта. Однако на три момента при выборе аппаратуры следует обратить особое внимание, а именно;

вся аппаратура должна соответствовать одним и тем же стандартам черно-белого и цветного телевидения;

разрешающая способность АПУ должна быть выше, чем у самой высокоразрешающей камеры, используемой в системе;

если в системе есть хотя бы одна цветная камера, вся аппаратура должна обеспечивать обработку и передачу цветного изображения.

Ранее уже рассматривались вопросы построения ТСВ различного класса, приводился их примерный состав и способ первичной оценки сложности. Ниже приводятся основные показатели АПУ и каналов передачи видеосигнала*, которые могут задаваться заказчиком и которые, в конечном счете, определяют структуру системы, ее состав и функциональные возможности (табл. 8).

* - с развитием ТСВ состав показателей их работы, функциональные возможности и другие характеристики могут изменяться.


Таблица 8

Функция, показатель

обнаружение, наблюдение

управление; контроль

отображение, регистрация

передача изображения

Защищённость сохранность

энергообеспечение

в режиме Наблюдение - четкое изображение в пределах установленных зон при заданных уровнях освещенности и ожидаемых производственны» помех; в режиме Охрана - требуемая различимость (идентификация) при появления человека или посторонних предметов в пределах установленных зон при заданных уровнях освещенности и ожидаемых производственных помех; электронное сканирование в пределах поля зрения ТВ-камер; автоматическое управление диафрагмой, трансфокатором; синхронность работы видеокамер и извещателей охранной сигнализации.

требуемый режим работы; планирование временных окон; ручное управление; автоматическое управление, в том числе программируемое; переход с. одного на другой вид управления; постоянный или циклический просмотр зон; просмотр зон по заданной программе; разделение управления между ответственными лицами и охраной; автоматический вывод видеоинформации при получении сигнала тревоги от средств охранно-пожарной сигнализации или видеокамеры; звуковая и световая сигнализация; возможность подключения к техническим средствам охраны; просмотр службой охраны оперативной обстановки; автономное наблюдение; наблюдение с записью на регистратор; контроль целостности кабельных линий связи и состояния ТВ-камер, в том числе с выводом последнего кадра.

запись и воспроизведение видеоинформации от телекамер в соответствии с программой или в другом режиме; программная видеорегистрация по зонам с указанием времени и даты при покадровой записи, протоколирование событий; оперативный просмотр видеорегистрации; документирование видеозаписи по кадрам с указанием даты, времени и места события; автоматическая регистрация несанкционированных изменений в режиме Охрана синхронно с сигналом тревоги от извещателей охранной сигнализации и выдача светового, звукового или речевого оповещений; создание и хранение видеоархива; адресное распределение видеоинформации; вывод текстовой информации на русском языке.

передача изображения или изменения состояния в зоне по линиям связи через периферийные приборы, устройства на установленное расстояние и необходимое количество регистрирующих приборов; контроль наличия ТВ-камер и целостности линий связи: управление ТВ-камерами; подключение средств охранной сигнализации.

работоспособность или выдача сигнала при возникновении помех электрического происхождения, радиопомех; работоспособность при появлении нарушителя в режиме работы Охрана как извещателя охранной сигнализации; работоспособность и сохранение информации при изменении или пропаданий напряжения основного питания и переходе на резерв; сохранение ключа и невозможность изменения программы и режима работы; защита от неквалифицированного управления; защита от умышленных действий охраны по нарушению работы системы; недоступность устройств хранения видеоинформации и основных управляющих программ.

напряжение и ток основного (централизованного) питания; потребляемая мощность в разных режимах работы; автоматический переход на резервное питание; контроль состояния питания.


5. ТИПОВЫЕ ВАРИАНТЫ ТСВ

5.1. Системы общего применения

Системы общего применения предназначены для осуществления ви-деонаблюдения или видеоохраны объектов категории В: квартир, коттеджей небольших офисов, магазинов, аптек и т.п. и иногда - для контроля мало значимых зон на объектах категорий А и Б. В последнем случае они используются как дополнение к основной системе, что позволяет рационально уменьшить число каналов, обслуживаемых дорогостоящей АПУ высшего и среднего классов. Это небольшие и недорогие системы, содержащие, как правило, до 8-ми ТВ-камер.

5.1.1. Видеодомофоны

Видеодомофоны относятся к самым простым и дешевым системам общего применения. Они используются, в основном, для наблюдения подходов к входной двери квартиры или офиса и содержат, как правило, одну или две ТВ-камеры. Прослушивание зоны осуществляется с помощью миниатюрного выносного микрофона. Передача видеосигнала от камеры производится по коаксиальному кабелю или радиоканалу. Для отображения информации могут использоваться видеомонитор или телевизор.

На рис. 2 - 4 приведены типовые варианты видеонаблюдения входной двери с помощью видеодомофонов с одной ТВ-камерой типа «телевизионный дверной глазок», различающихся устройством отображения и каналом передачи изображения.

Рис. 2

Рис. 3

Рис. 4

5.1.2. Системы с несколькими камерами

Для подключения нескольких ТВ-камер к одному монитору в системах общего применения используются видеокоммутаторы и видеоквадраторы. Коммутатор поочередно выводит изображение с каждой камеры на полный экран, причем время удержания картинки может регулироваться. Входы коммутатора могут отключаться оператором, если необходимо контролировать не все зоны, а лишь некоторые из них. Видеоквадраторы позволяют выводить на один монитор сигналы от четырех камер. Все камеры наводятся одновременно, занимая каждая по 1/4 экрана, причем любая из камер может быть выведена на полный экран. Такой режим работы системы позволяет избежать несколько утомительного для оператора «листания» изображения, обеспечивая полноэкранное изображение из зоны, где произошло нарушение. Для использования телевизионной системы совместно с охранными извещателями коммутаторы и квадраторы снабжаются входами (по количеству камер) и выходом тревоги. На рис. 5 приведена структурная схема системы видеонаблюдения с коммутатором, а на рис. 6 - структурная схема системы с квадратором, имеющим входы для подключения охранных извещателей.

Рис 5

Рис. 6

5.2. Системы среднего и высшего классов

ИСО является наиболее действенным вариантом решения проблем безопасности объекта, поэтому системы среднего и высшего классов, используемые для усиления охраны объектов категорий А и Б, как правило, интегрируются с системами охранно-пожарной сигнализации и контроля доступа. Несомненным достоинством этих систем является возможность практически неограниченного расширения.

В относительно небольших и недорогих системах среднего класса для обслуживания нескольких ТВ-камер используются последовательные видеокоммутаторы и видеоквадраторы. На рис. 7 приведена структурная схема такой системы на семь камер, которая может применяться для организации видеоконтроля на объектах (офисах, магазинах и т.п.) средних размеров, а также филиалах небольших банков. Система имеет два поста наблюдения: в комнате охраны и в кабинете заведующего. Система позволяет вести наблюдение, брать под охрану и документировать на видеокассету обстановку в помещениях объекта, а также на подходах к входной двери. В системе имеется видеомагнитофон, запись на который производится автоматически в течение 24 часов на одну кассету с документированием времени. Включение видеомагнитофона может осуществляться от четырехзонного аналогового видеодетектора движения либо от средств охранно-пожарной- сигнализации.

Более дорогие системы, как правило высшего класса, строятся на мультиплексорах, матричных коммутаторах и цифровых детекторах движения. Они имеют широкий набор функций, а также возможность программирования режимов работы. На рис. 8 приведена структурная схема системы на шесть ТВ-камер. Две камеры установлены на двухкоординатных поворотных платформах и оснащены дистанционно управляемыми вариообъективами. Профессиональный охранный видеомагнитофон обеспечивает запись на 3-х часовую видеокассету в течение времени от 3 до 960 часов. Ядром системы является матричный коммутатор, обеспечивающий коммутацию видеосигналов с любой камеры на любой из мониторов, управление поворотными платформами и вариообъективами, формирование последовательностей изображений в любом порядке, вывод на экран номера камеры и названия помещения, сообщения о сигналах тревоги, времени/даты и инструкций оператору, обработку сигналов тревоги, поступающих с систем сигнализации и контроля доступа.

Рис. 7

Видсомультиплексор позволяет вести запись со всех или только выбранных камер. Если используется дуплексный вариант мультиплексора, то имеется возможность, не приостанавливая записи, осуществлять просмотр ранее записанных кадров. Несколько мультиэкранных режимов позволяют выбрать наиболее удобный режим просмотра для оператора. Дополнительными возможностями мультиплексора являются «замораживание» кадра и его увеличение в 2 раза, подключение компьютера и удаленной клавиатуры, управление поворотными платформами и вариообъективами. Видеодетектор движения с независимыми зонами обнаружения позволяет игнорировать небольшие изменения в поле зрения камер (например, снегопад, перемещения мелких животных, качание деревьев на ветру и т.п.), что повышает помехоустойчивость системы охраны в целом.

На рис. 9 приведена структурная схема комплекса ИСО территориально рассредоточенного объекта. Связь с периферийными объектами осуществляется по телефонным линиям с помощью приемопередатчиков и модемов.

Наиболее широкие функции позволяют получить компьютерные ТСВ, системные блоки (видеоменеджеры) которых создаются на базе серийно выпускаемых компьютеров и чьи вычислительные возможности определяются типом материнской Платы. Компьютерные системы применяют в составе ИСО, что позволяет решить практически все задачи, возлагаемые на аппаратуру подобного назначения. Представить типовую Структурную схему компьютерной ТСВ весьма затруднительно, так как у каждого разработчика к проектировщика этих систем имеется свой оригинальный подход к решению задачи, связанный с чем, что компьютерные ТСВ используются на достаточно сложных и по-своему уникальных объектах.

В заключение хотелось бы отметить, что приведенные типовые варианты ТСВ не охватывают, конечно, весь круг существующих систем, однако позволяют заказчику сориентироваться в выборе подходящей из них для оборудования конкретного объекта.

Рис. 8


Рис 9


СОДЕРЖАНИЕ

1. Введение. 1

2. Основные компоненты ТСВ.. 2

2.1. Телевизионные камеры и устройства для их оснащения. 2

2.1.1. Телевизионные камеры.. 2

2.1.2. Объективы.. 4

2.1.3. Кожухи для внутренних и внешних применений. 5

2.1.4. Поворотные устройства. 5

2.1.5. Устройства инфракрасной подсветки. 5

2.1.6. Кронштейны.. 5

2.2. Устройства обработки и коммутации видеосигналов. 5

2.2.1. Видеомониторы.. 5

2.2.2. Видеокоммутаторы последовательного действия. 6

2.2.3. Видеоквадраторы.. 6

2.2.4. Видеодетекторы движения. 6

2.2.5. Видеомультиплексоры.. 7

2.2.6. Матричные видеокоммутаторы.. 7

2.2.7. Персональные компьютеры.. 7

2.3. Устройства регистрации. 8

2.3.1. Специализированные видеомагнитофоны.. 8

2.3.2. Видеопринтеры.. 8

2.4. Устройства передачи телевизионного сигнала. 8

2.4.1. Каналы передачи телевизионного сигнала. 8

2.4.2. Видеоусилители и видеораспределители. 9

2.5. Электропитание ТСВ. 9

3. Классификация ТСВ.. 10

3.1. Критерии оценки системы.. 10

3.2. Модули ТСВ.. 11

4. Выбор средств видеоконтроля для оборудования объекта. 13

4.1. Обследование объекта. 13

4.1.1. Характеристики значимости. 13

4.1.2. Архитектурно-планировочные и строительные решения. 13

4.1.3. Условия эксплуатации. 13

4.1.4. Параметры систем сигнализации и управления доступом.. 13

4.2. Общие требования к системе. 13

4.2.1. Класс системы.. 13

4.2.2. Режим работы системы.. 14

4.2.3. Первичная оценка состава системы.. 14

4.3. Выбор телевизионной камеры.. 15

4.3.1. Категория значимости объекта. 15

4.3.2. Геометрические, размеры зоны.. 15

4.3.3. Идентификация наблюдаемого предмета. 16

4.3.4. Освещенность на объекте. 17

4.3.6. Размещение камеры в наблюдаемой зоне. 18

4.3.7. Скрытое наблюдение. 19

4.3.8. Условия эксплуатации. 19

4.4. Требования к аппаратуре постов управления и каналам передачи видеосигнала. 20

5. Типовые варианты ТСВ.. 22

5.1. Системы общего применения. 22

5.1.1. Видеодомофоны.. 22

5.1.2. Системы с несколькими камерами. 23

5.2. Системы среднего и высшего классов. 23

 




Яндекс цитирования



   Copyright © 2007-2026,  www.tehlit.ru.

[ ѓосты, стандарты, нормативы, инструкции, правила, строительные нормы ]