//
ТехЛит.ру
- крупнейшая бесплатная электронная интернет библиотека для "технически умных" людей.
WWW.TEHLIT.RU - ТЕХНИЧЕСКАЯ ЛИТЕРАТУРА

:: Алготрейдинг::


АЛГОТРЕЙДИНГ
шаг за шагом
с нуля по урокам!

Торговые роботы на PYTHON, BackTrader,
Pandas, Pine Script для TradingView. Связка с брокерами, телеграм и легкими приложениями.


Таблица 9

ВТОРЫЕ ЭВАКУАЦИОННЫЕ ВЫХОДЫ В СЕКЦИОННЫХ ЖИЛЫХ ЗДАНИЯХ

Второй эвакуационный выход

обычная лестничная клетка

незадымляемая лестничная клетка

 

1-го типа

2-го типа

1-го типа

2-го типа

3-го типа

а)

выход из каждой квартиры на балкон (или лоджии) с глу­хим простенком > 1,2 м

+

+

+

-

-

б)

поэтажный переход по балконам (лод­жиям) шириной 0,6 м из каждой квар­тиры в смежную секцию через воз­душную зону

+

-

+

+

+

в)

выход из квартиры на лестницу 3-го - типа со спуском до 15,3 м (до 4,1 м при лестничной клетке 2-го типа)

+

+

-

+

+

г)

выход из коридора на лестницу 3-го типа (спуск до 4,1 м)

+

-

-

-

-

д)

выход из лифтового холла на лестницу 3-го типа (спуск до 4,1 м)

-

-

-

+

вместе с а)

+

вместе с а)

е)

выход на незадым­ляемую лестничную клетку 2-го типа (в том числе без есте­ственного освеще­ния)

+

-

+

+

+

Примечания. 1. Варианты вторых эвакуационных выходов даны для секций с суммарной площадью квартир на этаже не более 550 м2, в том числе для секций с обычной лестничной клеткой 2-го типа для квартир с отметкой пола этажа 4,1 м и более, для секций с другими типами лестничных клеток - для квартир с отметкой пола этажа 15,3 м и более Применение типа лестничной клетки см. таблицу 6 настоящего Пособия и п. 3.21 МГСН 3 01-96.

2. Вариант е) допускается для квартир с отметкой пола верхнего этажа не более 46,1 м вместо а), б), в), г).

3. Варианты в), г), д), е) для специализированных квартирных жилых домов (групп квартир, размещенных выше 5-го этажа) для престарелых и для семей с инвалидами не допускается.

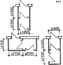
Рис. 20. Примеры решений вторых путей эвакуации в секциях с незадымляемыми лестничными клетками:

I - в секциях с незадымляемой лестничной клеткой 1-го типа - летние помещения с глухими участками наружных стен: а - между двумя проемами в одной квартире; б - между торцом лоджии и проемом; в - между торцом балкона и проемом.

II - в секциях с незадымляемой лестничной клеткой 2-го типа: г - лестница 3-го типа при лестнично-лифтовом холле и летние помещения с глухими участками наружных стен в квартирах (серия Пд4); д - поэтажные переходы по балконам и лоджиям из квартир в смежную секцию через воздушную зону (серия П44); е - спуски по лестницам 3-го типа из квартир в торцах секции (серия П3О).


Таблица 10

ПУТИ ЭВАКУАЦИИ В КОРИДОРНЫХ ЖИЛЫХ ЗДАНИЯХ

 

Отметка пола верхнего этажа, м

 

до 26,5 м

от 26,5 м до 46,1 м

26,5 м и более

Суммарная площадь квар­тир на этаже

до 550 м2

Лестницы с естествен­ным освещением

 

 

Лестницы с естествен­ным освещением и без естественного освеще­ния

 

 

550 м2 и более

Лестницы с естествен­ным освещением

 

 

Лестницы с естествен­ным освещением и без естественного освеще­ния

 

Примечание.

Настоящей таблицей пользоваться с учетом требований п. 3.5 и табл. 1 МГСН 3.01-96.

Условные обозначения:

Н1 - незадымляемая лестничная клетка 1-го типа

Н2 - незадымляемая лестничная клетка 2-го типа

Н3 - незадымляемая лестничная клетка 3-го типа

Л1 - обычная лестничная клетка

Л2 - обычная лестничная клетка с верхним естественным освещением

Л3 - наружная лестница


Рис. 21. Пути эвакуации в многоуровневых квартирах.

I - пути эвакуации из двухуровневых квартир (а, б);

II - пути эвакуации из трехуровневых квартир (в);

III - пример решения квартиры в двух уровнях (МНИИТЭП. М2. Проектное предложение. Архитектор: Калашникова И.); г - план верхнего уровня; д - план нижнего уровня.

Условные обозначения:

 - многоуровневые квартиры;

 - основной путь эвакуации через лестницу (или лестничную клетку) на этаже согласно п. 3.20 МГСН 3.01-96;

 - второй путь эвакуации с каждого этажа с отметкой пола 15,3 м и более согласно п. 3.21 МГСН 3.01-96.

Рис .22. Типы внутриквартирных лестниц.

I - одномаршевые лестницы (а, б, в, г, д, е, ж, и, к);

II - двухмаршевые лестницы (л, м, н);

III - винтовая лестница (п);

IV - трехмаршевая лестница;

V - минимальные параметры лестниц:

высота прохода - d,

высота подступенка - h,

длина проступи - a.

Рис.23. Примеры решения саун:

а - схема плана трехкомнатной квартиры с сауной в многоэтажном жилом доме;

б - схема плана цокольного этажа с сауной в одноквартирном жилом доме.

Условные обозначения:

 - квартира с камином

 - чердак

Рис .24. Решение каминов в одноквартирных домах или квартирах многоквартирных домов.

I - схемы размещения каминов в квартирах верхних этажей многоквартирных жилых домов:

а - в одноуровневой квартире; б, в - в двухуровневой квартире; г - в трехуровневой квартире.

II - схемы решения камина.

III - варианты размещения камина в помещении.

IV - таблица 11 "Основные размеры каминов (см) в зависимости от площадей помещений".

Примечания. 1. Схема II и таблица 11 по материалам: Агаянц Л., Масютина В. и др. Жилой дом для индивидуального застройщика. 2. Схема III по материалам Бутусова X.

Условные обозначения:

1 - дымосборник; 2 - каминная доска; 3 - портал камина; 4 - топливник; 5 - под камина; 6 - предтопочная площадка; 7 - предтопочный лист; А - ширина портала; Б - высота портала; В - глубина топливника; Г - высота горловины; а - глубина сечения трубы; б - ширина сечения трубы.

IV

Таблица 11

ОСНОВНЬЕ РАЗМЕРЫ КАМИНОВ (см) В ЗАВИСИМОСТИ ОТ ПЛОЩАДЕЙ ПОМЕЩЕНИЙ

Площадь помещения, м2

А

Б

В

Г

аб

14 - 16

55

50

35

12

1427

16 - 18

60

53

36

12

1427

18 - 20

65

56

37

12

1427

20 - 21

70

60

38

13

2727

24 - 30

75

65

40

13

2727

НЕЖИЛЫЕ ЭТАЖИ (ПОМЕЩЕНИЯ)

3.32. Современные требования к размещению и планировочным решениям нежилых этажей (помещений), встроенных и встроенно-пристроенных в жилые здания, позволяют достигать разнообразия объемно-пространственных решений этих зданий.

Такие возможности при разработке проектов представляются в результате расширения номенклатуры встроенно-пристроенных и встроенных в жилые здания учреждений и предприятий общественного обслуживания при размещении этих предприятий и учреждений в надземных (в том числе нижних, верхних и промежуточных), подземном и цокольном этажах с учетом допустимо максимальной площади. (или других нормируемых показателей) этих учреждений и предприятий.

Ограничения по размещению встроенных и встроенно-пристроенных предприятий и учреждений общественного обслуживания по типологическим группам приведены в таблице 12.

3.33. В жилых зданиях могут размещаться встроенно-пристроенными и встроенными следующие типологические группы предприятий и учреждений общественного назначения - детские дошкольные и общеобразовательные, здравоохранения и социального обеспечения, торгово-бытового обслуживания, досугового и физкультурно-оздоровительного назначения, управления, информации, проектирования, связи и коммунального хозяйства.

Примеры размещения встроенных в нижние этажи жилых зданий учреждений общественного назначения приведены на рис.25.

Предприятия и учреждения общественного назначения могут располагаться не только на первым этаже. Число этажей (подземных и надземных) встроенных и встроенно-пристроенных в жилые здания предприятий и учреждений общественного назначения определяется технологическими и градостроительными требованиями.

3.34. При проектировании встроенных и встроенно-пристроенных в жилые здания нежилых этажей (помещений) следует учитывать ограничения нормируемых показателей для каждой из указанных выше типологических групп предприятий и учреждений обслуживания, в том числе: количество посещений в смену в учреждениях здравоохранения, количество посещений или мест в учреждениях досугового назначения, высоту этажа помещений физкультурно-оздоровительного назначения, число групп в детских дошкольных учреждениях, количество сотрудников в учреждениях управления, информации, проектирования, связи - согласно приложению 5 МГСН 3.01-96.

3.35. Включение в структуру жилища таких типологических групп предприятий и учреждений общественного обслуживания, как учреждения управления, проектирования, информации и связи, физкультурно-оздоровительных, ряда учреждений торгово-бытового обслуживания, а также зальных помещений учреждений здравоохранения и социального обеспечения, детских дошкольных и общеобразовательных, досугового назначения - требует специальных объемно-планировочных, конструктивных и инженерно-технологических решений. Это позволяет, в частности, максимально увеличить площадь встроенных (встроенно-пристроенных) в жилые здания учреждений и предприятий обслуживания.

К числу таких специальных конструктивных решений может быть отнесено, например, изменение конструктивной системы по высоте здания: использование каркасных конструкций в нижних этажах и монолитного (или сборно-монолитного) технического этажа для перехода к узкому шагу поперечных несущих стен в вышележащих этажах жилой части здания.

3.36. По типологической группе предприятий торгово-бытового обслуживания ограничение торговой площади продовольственных и непродовольственных магазинов, общей площади предприятий бытового обслуживания, а также числа мест предприятий питания (согласно приложению 5 МГСН 3.01-96) связано с применением в жилых зданиях определенных конструктивных систем - ячеистых с узким или широким шагом несущих стен, а также каркасных.

На рис. 26 приведены схемы разрезов жилых зданий различных конструктивных систем с помещениями общественного назначения.

3.37. В верхнем этаже (в том числе мансардном) жилого здания могут размещаться конторские (офисные) помещения с числом работающих не более 5 человек, а также мастерские для художников и архитекторов (рис. 27).

Проектируя данные помещения, следует иметь в виду, что выход из них на лестничную клетку жилой части здания может быть выполнен только через тамбур с противопожарными дверями.

3.38. На эксплуатируемой кровле жилого здания могут размещаться спортивные, детские и другие площадки, а также солярии, предназначенные для пользования только жителями дома. Примеры решений эксплуатируемых кровель приведены на рисунках 9 и 29.

Если на верхних этажах жилых зданий есть помещения общественного назначения, то не следует проектировать на кровлях этих зданий перечисленные выше площадки и помещения, предназначенные для жителей дома.

3.39. В промежуточных этажах жилых домов могут размещаться:

дополнительные помещения для семейных детских садов вместимостью на 0,5 группы;

кабинеты приема для одного и двух врачей;

необходимые по технологическим требованиям помещения общественного назначения в общежитиях и специализированных квартирных жилых домах для престарелых и для семей с инвалидами.

При этом, квартиры, в составе которых проектируются помещения семейных детских садов, должны располагаться не выше 5 этажа и иметь двухстороннюю ориентацию.

Квартиры с кабинетами приема для одного и двух врачей могут располагаться на любых этажах.

К помещениям общественного назначения, которые могут размещаться на любом этаже по высоте жилого здания относятся, например, комнаты социальных работников или гостиные - в специализированном квартирном жилище для престарелых и для семей с инвалидами, а также комнаты отдыха, помещения для занятий и постирочные - в общежитиях.

При проектировании помещений общественного назначения в общежитиях и специализированных квартирных жилых домах для престарелых или семей с инвалидами эвакуационные выходы из них можно объединять с эвакуационными выходами жилой части здания.

Схемы размещения в структуре квартиры кабинета для приема врача, комнаты отдыха и помещения для занятий в общежитии, а также гостиной в специализированном квартирном жилом доме для престарелых показаны на рис. 28.

3.40. Гаражи-стоянки для проживающих могут быть встроенными и встроенно-пристроенными в первый, подземный и цокольный этажи:

в одноквартирных и блокированных жилых домах (рис. 1);

в многоквартирных жилых домах других типов (рис. 30).

В этих гаражах-стоянках не должно быть помещений для ремонта и мойки автомобилей.

3.41. Особое внимание следует обращать на ограничения по организации загрузки встроенно-пристроенных и встроенных в жилые здания предприятий торгово-бытового обслуживания согласно п. 3.39 МГСН 3.01-96, а также расположению уровня кровли встроенно-пристроенных и пристроенных учреждений общественного назначения в местах их примыкания к жилой части здания согласно п. 3:38 МГСН 3.01-96.

Примеры организации загрузки приведены на рис. 31, примеры решений примыкания к жилой части здания кровли встроенно-пристроенных и пристроенных учреждений общественного назначения приведены на рис. 32.

Таблица 12

ОГРАНИЧЕНИЯ ПО РАЗМЕЩЕНИЮ УЧРЕЖДЕНИЙ И ПРЕДПРИЯТИЙ ОБСЛУЖИВАНИЯ В ЖИЛЫХ ЗДАНИЯХ

Типологическая группа предпри­ятий

Не допускается встраивать в надземные этажи

Дополнительные ограничения

Не допускается встраивать в цоколь­ный и подземные этажи

Дошкольные и об­щеобразователь­ные учреждения

При количестве групп, классов, человек более указанных в приложении 5 МГСН 3.01-96

Помещения для пребывания детей

Учреждения здравоохранения и социального обеспечения

Специализированные поликлиники или диспансеры с инфицированным материа­лом (противотуберкулезного, онкологиче­ского. кожно-венерологического профиля и др.): психдиспансеры, травматологиче­ские пункты, кабинеты с рентгеновскими аппаратами, физиотерапевтической аппа­ратурой, магнито-резонансными томогра­фами, зуботехнические лаборатории.

По номенклатуре учреждений здраво­охранения и социального обеспечения со­гласно приложению 5 МСГН 3.01-96 при площади, числе посещений в смену или мест более указанных в данном приложе­нии.

Помещения для пребывания детей

Помещения для хранения, перера­ботки и использования в различных установках и устройствах легковос­пламеняющихся и горючих жидко­стей и газов, взрывчатых веществ, го­рючих материалов

Помещения с пребыванием в од­ном противопожарном отсеке с само­стоятельными эвакуационными выхо­дами более 100 человек.

С учетом требований МГСН 4.09-97, МГСН 4.12-97.

Предприятия тор­гово-бытового об­служивания

Специализированные магазины моска­тельно-химических товаров, эксплуатация которых может вести к загрязнению воз­духа и территории жилой застройки, рыб­ные магазины, магазины с режимом функ­ционирования после 23 часов.

Предприятия бытового обслуживания, эксплуатация которых может вести к за­грязнению воздуха и территории жилой застройки, а также с наличием взрывопо­жароопасных веществ и материалов, пра­чечные и химчистки1).

По номенклатуре учреждений торгово-бытового обслуживания согласно прило­жению 5 МГСН 3 01-96 при торговой пло­щади, числе мест, общей торговой пло­щади более указанных в данном приложе­нии

Помещения для хранения, перера­ботки и использования в различных установках и устройствах легковос­пламеняющихся и горючих жидко­стей и газов, взрывчатых веществ, го­рючих материалов

Помещения с пребыванием в од­ном противопожарном отсеке с само­стоятельными эвакуационными выхо­дами более 100 человек.

Помещения для пребывания детей

С учетом требований МГСН 4.13-98, СНиП 2.08.02-89

Учреждения досу­гового назначения

Клубы, кафе. бары. рестораны - с ре­жимом функционирования после 23 часов и с оркестровым сопровождением: казино, дискотеки.

По номенклатуре учреждений досуго­вого назначения согласно приложению 5 МГСН 3 01-96 при площади, числе посе­щений или мест более указанных в данном приложении.

Клубы, кафе. бары. рестораны - с режимом функционирования после 23 часов и с оркестровым сопровожде­нием: казино, дискотеки.

Помещения для пребывания детей.

Зальные помещения с числом мест более 300.

С учетом требований СНиП 2.08.02-89.

Физкультурно-оз­доровительные учреждения

Бани и сауны2).

По номенклатуре учреждений физкуль­турно-оздоровительных учреждений по приложению 5 МСГН 3.01-96 при площади более указанных в данном приложении.

Помещения для пребывания детей.

С учетом требований СНиП 2.08.02-89.

Учреждения управления, про­ектирования, ин­формации, связи и коммунального хозяйства

Похоронные бюро; общественные убор­ные; автоматические телефонные станции площадью более 100 м2.

Похоронные бюро; общественные уборные; автоматические телефонные станции площадью более 100 м2.

С учетом требований СНиП 2.08.02-89 и МГСН 4.10-97.

 

По номенклатуре учреждений управления, проектирования, информации, связи и коммунального хозяйства согласно приложению 5 МГСН 3.01-96 при количестве сотрудников, площади и количестве залов более указанных в данном приложении.

Производственно-складские поме­щения

Производственные помещения3).

Склады оптовой и мелкооптовой торговли.

1) Кроме приемных пунктов прачечных самообслуживания и домовых прачечных.

2) Кроме индивидуальных саун в квартирах и одноквартирных домах.

3) Кроме помещений для труда инвалидов и престарелых - пунктов выдачи работы на дом, мастер­ских сборочных, монтажных, декоративных работ и других с экологически чистыми технологиями

Рис. 25. Примеры планировочных решений нежилых помещений, встроенных в нижние этажи жилых зданий.

I - блок-секция дома серии П44 с узким шагом поперечных несущих стен со встроенными предприятиями общественного обслуживания без конкретной технологии. План первого этажа (МНИИТЭП, М1. Архитекторы Надысев А. и Орлеанская О.).

II - кирпичный жилой дом с двумя нежилыми этажами (ул. Тверская, д. 37. Архитекторы Розенфельд З., Орлов В. и Алексеев Д.): а - план первого этажа; б - план второго этажа. 1 - парикмахерская, 2 - торговый зал, 3 - складские помещения, 4 -административно-бытовые помещения, 5 - торговый зал кафетерия, 6 - производственные помещения кафетерия, 7 - подсобные помещения кафетерия, 8 - подсобные помещения, 9 - диспетчерская.

III - жилой дом И-1279 в сборно-монолитных конструкциях с двумя нежилыми этажами. План первого этажа (МНИИТЭП, М2. Архитектор Калашникова И.): 10 - распределительный вестибюль, 11 - торговый зал мастерской по ремонту радиотелеаппаратуры, 12 - приемочная, 13 - мастерские, 14 - подсобные помещения, 15 - административно-бытовые, 16 - вестибюль спортивно-оздоровительного комплекса, 17 - спортзал, 18 - раздевалка с душевой, 19 - массажная, 20 - кабинет врача, 21 - камера сухого жара, 22 - ЦТП.

Рис. 26. Разрезы жилых зданий различных конструктивных систем со встроенными и встроенно-пристроенными нежилыми помещениями.

I - жилой комплекс "Лебедь" в каркасных конструкциях (Архитекторы Меерсон А., Подольская Е., Федоров И. и другие).

II - схема фрагмента разреза жилого дома в панельных конструкциях со встроенными нежилыми помещениями.

III - схема фрагмента жилого здания смешанной конструктивной системы - переход от каркасной системы к панельной через сборно-монолитную коробчатую плиту с поперечными ребрами (Авторы Аншин Л., Львов Г., Дыховичный Ю. и другие). а - жилой этаж, б - технический этаж, в - первый этаж, г - подземный этаж.

Рис. 27. Примеры решения нежилых помещений в верхних этажах жилых зданий.

Размещение мастерских для художников в жилом доме на изделиях серии II-68. План этажа на отметке 46,800. (МНИИТЭП, М4. Архитекторы Датюк В., Богуславский Р. и другие): 1 - тамбур-шлюз, 2 - мастерская художника.

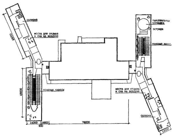
Рис. 28. Эксплуатируемая кровля жилого комплекса "Дом нового быта" (МНИИТЭП, проектное предложение. Архитекторы Остерман Н., Петрушкова А., Канаева И. и другие).

Условные обозначения:

1 - кухня; 2 - общая комната; 3 - жилая комната в общежитии.

Рис. 29. Примеры размещения нежилых помещений в промежуточных этажах жилых зданий.

I - гостиная (а) в специализированном квартирном жилом доме для одиноких престарелых и супружеских пар. План типового этажа (МНИИТЭП, М4. Архитекторы Датюк В., Суслина Е., Ландиховская В.).

II - комната отдыха (б) и комната для занятий (в) в общежитии для студентов и аспирантов. Схема плана типового этажа.

III - квартира с кабинетом (г) и приемной (д) врача-терапевта в жилом доме. Схема плана.

Рис. 30. Примеры подземных этажей под жилыми домами.

I - гараж-стоянка под жилым домом серии Пд4 (МНИИТЭП, М4. Архитекторы Горчаков Г., Староносова Е.): а - разрез, б - план.

II - гараж-стоянка под 24-этажным каркасно-панельным жилым домом Кантемировская ул., к. 8 (АО Моспроект. Архитектор Скулимовский М.): в - план.

III - гараж-стоянка под 3-секционным жилым домом серии П44/17 (МНИИТЭП): г - разрез, д - план.

IV - гараж-стоянка жилой дом 1-й Колобовский пер., д.18-24  (Управление Моспроект 2, М18, стадия проект. Руководитель авторского коллектива Посохин М., архитекторы Плеханов М. и Левитина А.): е - разрез, ж - план.

Условные обозначения:

1 - торговый зал; 2 - загрузочное помещение; 3 - административные помещения; 4 - кладовые; 5 - тоннель; 6 - дебаркадер.

Рис 31. Варианты загрузки встроенных и встроенно-пристроенных в жилые здания предприятий торговли.

I - загрузка с торца здания: а - план первого этажа блок-секции серии П44 со встроенно-пристроенным промтоварным магазином (МНИИТЭП, М1)

II - загрузка с улицы: б - схема плана магазина "Семена" общей площадью 130 м2.

III - загрузка через подземный тоннель: в - план первого этажа магазина, г - план подземного этажа магазина.

Рис 32 Варианты примыкания нежилых помещений к жилому дому:

а - с устройством "лотка"; б - с размещением технического этажа между жилой частью и нежилыми помещениями.

ЛИФТЫ

3.42. Существенное значение для планировочного решения жилого здания имеет расположение в его структуре лифтового узла (см. рис. 5-8).

Минимальное число лифтов, их грузоподъемность и скорость для конкретного жилого здания определяется в зависимости от его типа, этажности и суммарной площади квартир на этаже по приложению 6 МГСН 3.01-96.

Минимальная граница этажности многоквартирных жилых домов, при которой следует устанавливать не менее одного лифта грузоподъемностью 630 кг - 4 этажа (отметка пола верхнего этажа 11,2 м). Применение данного типа лифта позволяет значительно повысить уровень комфорта жилища, обеспечивая возможность транспортировки крупногабаритных предметов.

Компоновка групп лифтов может быть как однорядной, так и двухрядной. При этом минимально нормируемая ширина лифтового холла зависит от компоновки групп лифтов и их грузоподъемности (таблица 13).

В одноквартирных или блокированных жилых домах лифты могут быть установлены, если это предусматривается заданием на проектирование.

3.43. Планировочные решения мансардного (или верхнего) этажа в значительной степени зависят от остановки лифта на уровне пола этажа или на другом уровне, от места размещения машинного помещения, а также от применяемых типов квартир (одноуровневых или многоуровневых).

В структуре жилого дома машинное помещение лифтов может размещаться: на уровне чердака (или выше его); в техническом подполье; на уровне последнего (в том числе мансардного) этажа.

При расположении машинного помещения в техническом подполье особое внимание следует обращать на мероприятия, обеспечивавшие исключение доступа в него влаги.

Устройство машинного помещения лифтов на уровне чердака требует дополнительных конструктивно-планировочных мероприятий, обеспечивающих акустический комфорт в квартирах. К их числу относятся - отделение машинного помещения от квартир техническими коридорами или примыкание к нему подсобных или дополнительных помещений квартир, таких как кухня, внутриквартирные коридоры, гардеробные, тренажерный зал и другие.

В жилом доме секционного типа (или коридорного) с одноуровневыми квартирами остановки лифтов выполняются на уровне пола каждого этажа или на уровне пола промежуточной лестничной площадки между этажами.

Исключение может составлять мансардный этаж с одноуровневыми квартирами, в котором остановка лифтов на этом этаже может не предусматриваться. При этом высота подъема от последней остановки лифтов до входа в квартиры не должна превышать 3,0 м, то есть последняя остановка лифта располагается на промежуточной лестничной площадке, или в уровне пола нижележащего этажа.

В секционных и коридорных жилых домах с многоэтажными (многоуровневыми) квартирами остановки лифтов могут выполняться как через этаж, так и на каждом этаже. При этом уровень остановки лифтов может совпадать с полом этажей входов в квартиры или быть смещенным по высоте.

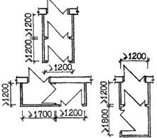
3.44. Габариты платформ подъемников определяются с учетом возможности размещения ни них кресла-коляски для перемещения инвалидов-колясочников вертикально или наклонно вдоль лестничного марша (рис. 33).

Таблица 13

ШИРИНА ЛИФТОВОГО ХОЛЛА В ЗАВИСИМОСТИ ОТ РАЗМЕЩЕНИЯ ЛИФТОВ И ИХ ГРУЗОПОДЪЕМНОСТИ

 

схема плана

Разме­щение лиф­тов

однорядное

 

двухрядное

Рис. 33. Примеры размещения и габариты платформы подъемника для перемещения инвалидов-колясочников.

а - габариты платформы подъемника; б - схема размещения подъемника в вестибюле жилого дома; в - размещение подъемника в квартире для семьи с инвалидом-колясочником в первом этаже секции серии П44; г - схема размещения подъемника для наклонного перемещения вдоль лестничного марша; 1 - подъемник, 2 - пандус.

МУСОРОУДАЛЕНИЕ

3.45. При проектировании мусороудаления особое внимание следует обращать на особенности его устройства в различных типах жилых зданий в зависимости от отметок пола верхнего этажа, размещения мусоропровода в планировочной структуре жилого здания, нормируемых габаритов мусоросборной камеры (по п. 3.49), а также ширины коридора для вывоза мусора из данной камеры.

3.46. Размещение мусоропровода в планировочной структуре жилого здания возможно как в специальных поэтажных помещениях, так и в коммуникационных узлах жилого здания, например, рядом с лифтовым холлом, на промежуточной площадке лестницы или смежно с внеквартирным коридором (таблица 14).

Если мусоропровод располагается в пределах обычных лестничных клеток 1-го типа с естественным освещением (в жилых зданиях с отметкой пола верхнего этажа менее 26,5 м), то загрузочные клапаны допускается выполнять на промежуточной площадке лестницы. Размещение ствола мусоропровода с загрузочными клапанами в незадымляемой лестничной клетке не допускается.

3.47. В специализированных жилых домах, а также в домах с группами квартир (кроме располагаемых на первом этаже) для престарелых и семей с инвалидами-колясочниками, отметки пола этажа, с которого требуется устройство мусоропровода , принимаются соответственно не менее 8,0 и 3,0 м.

Таблица 14

СХЕМЫ РАЗМЕЩЕНИЯ МУСОРОПРОВОДА В ЖИЛЫХ ЗДАНИЯХ

Размещение мусоропровода

Загрузка

Мусоропровод

типовой этаж

первый этаж

 

1/2 этажа

на лестничной площадке1)

 

с этажа

смежно с коридором

 

с этажа

в тамбуре

 

1/2 этажа

рядом с лифтовым холлом

 

с этажа

 

 

с этажа

в отдельном помещении

1) В обычных лестничных клетках

Условные обозначения:

 - входы в квартиры

4. ТРЕБОВАНИЯ К ОСНОВНЬМ ЭЛЕМЕНТАМ ЖИЛЫХ ЗДАНИЙ

4.1. Общим требованием для всех типов жилых зданий (как многоквартирных, так и одноквартирных жилых домов и общежитий) является недопустимость проектирования жилых помещений - спален, гостиных и жилых комнат общежитий - в подземных или цокольном этажах.

4.2. Специфическими для климатических условий Москвы являются планировочные требования к решению тамбуров жилых зданий (таблица 15).

Таблица 15

ТАМБУРЫ В ЖИЛЫХ ЗДАНИЯХ РАЗЛИЧНОЙ ЭТАЖНОСТИ

Этажность жилого здания

1-9 этажей

10 этажей и более

*) Для одноквартирных и блокированных жилых домов.

**) При наличии квартир для инвалидов-колясочников.

КВАРТИРЫ И ОДНОКВАРТИРНЫЕ ДОМА

4.3. Особое внимание следует обращать на нормирование площадей квартир и одноквартирных домов, минимально допустимые площади и габариты отдельных помещений квартир и одноквартирных домов, определение понятия "дополнительные помещения", возможности размещения санитарно-гигиенических помещений и организацию входов в них. Перечисленные положения, а также, как уже упоминалось выше, введенная категорийность жилища, определяют широкие возможности проектирования жилых зданий различного уровня комфорта для условий Москвы;

4.4. Нормирование площадей квартир и одноквартирных домов основывается на определении нижнего предела площадей квартир каждого типа жилища как I категории комфорта, так и II категории.

Квартиры жилища II категории с учетом специфики социально-демографического состава населения Москвы следует проектировать с количеством жилых комнат от одной до шести.

В жилище I категории количество комнат в квартирах или одноквартирных домах не ограничивается, но площади жилых и подсобных помещений должны быть не менее минимально нормируемых.

Верхний предел площади квартиры каждого типа нормируется только для квартир жилища II категории. При этом суммируются площадь квартиры данного типа по нижнему пределу и величина, составляющая 5 % от этой площади. Процент увеличения площади квартир по отдельным типам может быть и выше, но суммарные показатели площадей квартир по дому в целом по сравнению с суммой их площадей по нижним пределам не должна превышать 5 %.

При проектировании квартир или одноквартирных домов жилища I категории архитектор не связан с ограничениями по верхнему пределу площади, что позволяет более гибко решать различные функционально-планировочные и композиционные задачи.

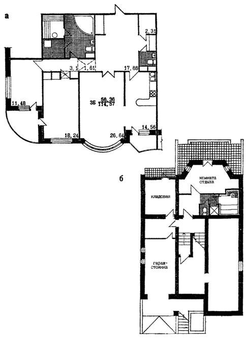
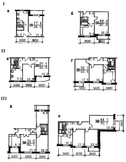
Примеры решения квартир жилища II категории комфорта и квартир и одноквартирных домов жилища I категории комфорта приведены на рис. 34 и 35.

4.5. Жилыми комнатами в жилище I и II категорий являются: общая комната (или гостиная) и спальни (таблица 16).

Общая комната (или гостиная) предназначается, в основном,, для дневного пребывания семьи и приема гостей и состоит, как правило, из следующих функциональных зон: общения, отдыха, в том числе потребление аудио- и видеоинформации, размещения вещей бытового назначения общего пользования. Возможно также размещение зоны эпизодического приема пищи (при отсутствии в квартире кухни-столовой, а в отдельных случаях и при наличии указанного помещения), зоны индивидуальных, профессиональных или любительских занятий членов семьи, а также зоны для некоторых хозяйственных работ. Кроме того, в квартирах жилища II категории в общей комнате допускается размещение спального места.

Площади общих комнат (или гостиных), проектируемых в составе квартир различных типов, и их минимальные размеры определены с учетом возможности размещения вышеперечисленных зон, в том числе с обеспечением размещения минимальной номенклатуры мебели и устройство минимальных подходов: не менее 15 м2 - в квартирах типа 1М и 2М; не менее 17 м2 - в квартирах типа 1Б и 2Б, а также в трехкомнатных квартирах и в квартирах с большим числом комнат.

Спальни проектируются на одного или на двух человек.

Номенклатура функциональных зон современных спален достаточно широка. Так, кроме размещения зон для сна, хранения одежды и белья, вещей бытового назначения, как правило, в спальнях в жилище II категории возможно размещение и зоны индивидуальных, профессиональных и любительских занятий членов семьи, зон для индивидуального отдыха, в том числе с потреблением аудио- или видеоинформации.

Минимальные площади спален, предназначенных для одного или для двух членов семьи (соответственно 9 м2 и 12 м2), и их минимальные размеры определены с учетом размещения вышеперечисленных зон-

В спальне для молодых супругов целесообразно размещение дополнительного спального места для ребенка, так как непосредственная связь между спальными местами матери и ребенка до трех лет необходима для ухода за ним в ночное время. В этом случае площадь спальни рекомендуется принимать не менее 14 м2.

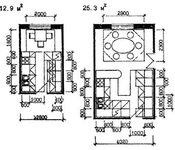
4.6. Кухни в зависимости от размера и степени их оснащенности могут проектироваться трех основных типов (таблица 17);

кухня - помещение с полным составом оборудования зоны приготовления пищи и с зоной, предназначенной для эпизодического приема пищи членами семьи;

кухня-ниша - помещение или его часть без обеденной зоны с сокращенным составом оборудования зоны для приготовления пищи (с электроплитой), обеспеченная приточно-вытяжной вентиляцией с механическим побуждением;

кухня-столовая - помещение с полным составом оборудования зоны приготовления пищи и с обеденной зоной, предназначенной для приема пищи всеми членами семьи одновременно.

Сокращенный состав оборудования для кухни-ниши включает, кроме электроплиты, мойку, холодильник, рабочий стол и навесной шкаф.

Полный состав оборудования зоны приготовления пищи включает плиту (электрическую или газовую), кухонную мебель (в том числе один или несколько рабочих столов, навесные и напольные шкафы и другие элементы), мойку, холодильник и другие электробытовые приборы и машины, а также светильники. Оборудование зоны приготовления пищи компонуется, как правило, в единый рабочий фронт.

Перед фронтом кухонного оборудования должно быть свободное пространство шириной не менее 100 см, что определяется эргономическими требованиями к пространственным условиям работы перед элементами оборудования (рис. 36).

Кухни-столовые с обеденной зоной для всех членов семьи могут иметь различную площадь. Как правило, для семьи из двух человек или для одного кухней-столовой является помещение площадью от 8 м2. а на семью от 3 до 5 человек - от 10 м2.

В зависимости от планировочной организации кухни (ее размеров и пропорций), а также состава и габаритов оборудования рабочий фронт приготовления пищи может размещаться: у одной из стен (однорядное размещение); у двух смежных стен (угловое размещение); у двух противоположных стен (двухрядное размещение). Допускается также П-образное размещение оборудования.

4.7. Санитарно-гигиенические помещения в квартирах жилища I и II категорий, а также в одноквартирных домах I категории могут предусматриваться следующих типов при минимальной оснащенности санитарно-гигиеническими приборами (таблица 18):

ванная комната, оборудованная ванной и умывальником;

уборная, оборудованная унитазом (или унитазом и умывальником);

совмещенный санитарный узел, оборудованный ванной, умывальником и унитазом;

раздельный санузел, состоящий из помещений ванной комнаты и уборной, с соответствующим оборудованием.

В ванной комнате или в совмещенном санитарном узле следует предусматривать место для размещения стиральной машины. Установка отдельных типов стиральных машин допускается под умывальником. При этом вынос умывальника от стены должен быть не менее 0,6 м.

4.8. В жилище I категории уровень оснащенности санитарно-гигиеническими приборами может быть значительно повышен по сравнению с приведенным перечнем. Так, в составе дополнительного оборудования санузлов при соответствующих инженерно-технических решениях коммуникаций могут размещаться: биде, сушильные машины и устройства, гидромассажные ванны, а также мебельные изделия различного назначения и другие элементы.

При этом появляется возможность выделения зон гигиены для детей или пожилых членов семьи, увеличения площадей помещений при наличии в них дополнительных функций и расширения состава оборудования.

Кроме того в квартире или одноквартирном доне жилища I категории может проектироваться и душевая - помещение, имеющее в составе оборудования душевой поддон или душевую кабину, но в этом случае должна быть предусмотрена еще и ванная комната или совмещенный санузел.

Примеры решений санитарно-гигиенических помещений повышенной комфортности приведены на рис. 37.

4.9. В жилище I категории ванную комнату, уборную, совмещенный санузел или душевую, а также постирочную допускается размещать над кухней, гостиной, спальней, кабинетом, столовой, библиотекой и другими помещениями, перечисленными в пп. 4.4 и 4.5 МГСН 3.01-96. При этом следует обеспечивать требования СНиП 2.04.05-85, выполняя тщательную гидроизоляцию полов санитарно-технических помещений.

4.10. Увеличению вариантности функционально-планировочных и композиционных решений квартир и одноквартирных домов жилища I категории и повышению уровня комфорта проживания способствует устройство входа в ванную комнату, совмещенный санузел или душевую непосредственно из спален (рис. 37). в том числе без шлюза. Но если в квартире проектируется такой санузел (или несколько санузлов) необходимо иметь еще и совмещенный санузел (или уборную), вход в который выполнен из коридора, передней или холла.

4.11. При проектировании жилища особое внимание следует обратить на возможности и ограничения по устройству совмещенных санузлов.

Они могут проектироваться в однокомнатных квартирах жилища I и II категорий. Совмещенный санузел может быть выполнен также в квартире (или в одноквартирном доме), если в квартире предусмотрено еще одно помещение, оборудованное унитазом: в квартирах с числом жилых комнат три и более жилища II, а также в квартирах и одноквартирных домах жилища I категории с числом жилых комнат - две и более (рис. 34, 37).

4.12. В одноквартирных домах и квартирах блокированных жилых домов могут быть запроектированы бассейны (рис. 2), однако их планировочные решения должны быть технически обоснованы расчетом водопотребления бассейнов при их заполнении, а также спуске воды.

4.13. Кроме традиционных жилых и подсобных помещений в квартирах и одноквартирных домах жилища I категории могут проектироваться и дополнительные помещения, в том числе игровая, детская, столовая, кабинет, студия, библиотека, помещения для хозяйственных работ (постирочная, гардеробная), помещения физкультурно-оздоровительного назначения (сауна, тренажерный зал. биллиардная) и другие (рис. 2, 35, 37. 38).

Постирочная проектируется при необходимости вынесения ряда хозяйственных работ из кухни и санузлов (глажение, стирка и сушка белья и другие). В постирочной рекомендуется размещать следующие виды оборудования: стиральные и сушильные машины, обеспечивающие стирку, отжим и сушку белья; гладильные и другие устройства; емкости для хранения грязного белья; емкости для хранения средств для стирки.

Постирочную рекомендуется проектировать вблизи санитарно-гигиенических помещений или кухни и оборудовать мойкой (рис. 39).

Сауна проектируется в жилище I категории как дополнительное помещение. Устройство сауны требует специальных инженерно-технических решений в связи с необходимостью установки в ней электрокаменки, решения вопросов вентиляции и устройства систем противопожарной безопасности.

Сауна может проектироваться как в одноквартирных домах и квартирах блокированных жилых домов, так и в многоквартирных домах любой этажности (рис. 23).

При этом ее размещение в одноквартирной доме (или квартире блокированного дома) может быть различным как по этажам (преимущественно в цокольной или первом этажах), так и в плане здания (у наружной стены или в помещении, не связанном с наружной стеной). Расположение сауны у наружной стены, как правило, предпочтительно в связи с целесообразностью решения ее вентиляции через каналы в наружной стене. При иных вариантах размещения сауны ее вентиляция осуществляется отдельным вертикальным каналом.

Как правило, рядом с сауной предусматривается помещение, оборудованное душем, - душевая или совмещенный санузел, а иногда бассейн.

Непосредственного выхода наружу из сауны, в том числе расположенной в цокольном или подземном этаже, не требуется Однако для обеспечения дополнительного уровня комфорта выход на участок одноквартирного или блокированного дома может осуществляться из комнаты отдыха, располагаемой рядом с сауной.

Рис. 34. Планировочные решения квартир жилища II категории комфорта.

I - 1-комнатные квартиры: а - серия ЭКО; б - серия П44.

II - 2-комнатные квартиры; в - серия ЭКО; г - серия П22.

III - 3-комнатные квартиры: д - серия ПЗО; е - серия П22.

Рис. 35. Планировочные решения квартир и одноквартирных домов жилища I категории комфорта.

I - 3-комнатная квартира жилого дома по 1-му Колобовскому пер., д. 18-24 (Управление Моспроект 2, М18, стадия проект. Руководитель авторского коллектива Посохин М., архитекторы Плеханов М. и Левитина А.).

II - 5-комнатная квартира жилой блок-секции на безригельном каркасе (МНИИТЭП, М1, стадия проект. Архитекторы Надысев А. и Шаморгин Ю.).

III - 2-комнатная квартира жилого дома серии П44М-АН (МНИИТЭП, М1. Архитекторы Надысев А. и Шаморгин Ю.).

IV - одноквартирный жилой дом (Архитекторы Панченко А.): а - план 1-го этажа, б - план 2-го этажа, в - план мансарды.

Таблица 16

ПРИМЕРЫ ПЛАНИРОВОЧНЫХ РЕШЕНИЙ ЖИЛЫХ КОМНАТ

 

Общая комната

Спальня на 2 чел.

Спальня на 1 чел

Размеще­ние эле­ментов мебели и функцио­нальных зон

 

Мини­мальные площади и размеры

Для квартир типов: 1М, 2М, - 152, 1Б, 2Б и с большим чи­слом комнат - 172.

12 м2

9 м2

Таблица 17

ПРИМЕРЫ ПЛАНИРОВОЧНЫХ РЕШЕНИЙ КУХОНЬ


 

Кухня-ниша

Кухня

Кухня-столовая

Размеще­ние обо­рудования и функ­циональ­ных зон

Мини­мальные размеры

 

Минимально нормируемые:

Для квартир типов 1М и 2М, а также при наличии столовой или второй кухни для квартир других типов и одноквартир­ных домов - 5 м2.

Минимально нормируемые:

Для квартир типа 1Б - 8 м2; для квартир и одноквартирных до­мов с числом жилых комнат 2 и более - 9 м2.

Рекомендуемые:

Для квартир и одноквартирных домов на семью из 2 че­ловек и для одиноких - 8 м2, на семью 3-5 человек - 10 м2.


Рис. 36. Эргономические требования к размещению кухонного оборудования в рабочей зоне.




Яндекс цитирования



   Copyright © 2007-2026,  www.tehlit.ru.

[ ѓосты, стандарты, нормативы, инструкции, правила, строительные нормы ]