//
ТехЛит.ру
- крупнейшая бесплатная электронная интернет библиотека для "технически умных" людей.
WWW.TEHLIT.RU - ТЕХНИЧЕСКАЯ ЛИТЕРАТУРА

:: Алготрейдинг::


АЛГОТРЕЙДИНГ
шаг за шагом
с нуля по урокам!

Торговые роботы на PYTHON, BackTrader,
Pandas, Pine Script для TradingView. Связка с брокерами, телеграм и легкими приложениями.


Государственный научно-проектный институт учебно-воспитательных, торгово-бытовых и досуговых зданий (Институт общественных зданий) Минстрой России

Справочное пособие к СНиП 2.08.02-89

Серия основана в 1989 году

Проектирование

высших

учебных

заведений

и институтов

повышения

квалификации

Москва Стройиздат 1992

Рекомендовано к изданию решением Научно-технического совета института общественных зданий Минстроя России (бывший ЦНИИЭП учебных зданий Госкомартитектуры).

Редактор - З.С.Шестопалова.

Проектирование высших учебных заведений и институтов повышения квалификации / Государственный научно-проектный институт учебно-воспитательных, торгово-бытовых и досуговых зданий. - М.:Стройиздат, 1992. - 315 с.: ил. - (Справ, пособие к СНиП). 1SBN 5=274=01570=0.

Разработано к СНиП 2.08.02-89 "Общественные здания и сооружения". Изложены основные планировочные и объемно-планировочные требования и положения по проектированию высших учебных заведений и институтов повышения квалификации. Даны примеры архитектурного решения.

Для инженерно-технических работников проектных и строительно-монтажных организаций.

Предисловие

Справочное Пособие разработано к СНиП 2.08.02-89 "Общественные здания и сооружения". Изложены основные планировочные и объемно-планировочные решения по проектированию высших учебных заведений и институтов повышения квалификации. Пособие подготовлено отделом вузов и учебных комплексов ЦНИИЭП учебных зданий.

Общее редактирование выполнено: кандидатами архит. Г.Н. Цытовичем (руководитель Пособия), А.М. Гарнецом, архит. В.П. Бондаренко, инж. Л.В. Сигачевой.

Руководители и ответственные исполнители разделов Пособия: кандидаты архит. Г.Н. Цытович (высшие учебные заведения), А.М. Гарнец (институты повышения квалификации), В.И. Дядик (вузы здравоохранения), Д.А. Рождественский (педагогические вузы), архит. Н.К. Царева (раздел 2), инж. Л.В. Сигачева.

Участники работы раздела "Высшие учебные заведения": архитекторы А.Н. Алексеева (лекционные аудитории), Е.Н. Зайченко (научные подразделения, помещения двойного назначения), М.О. Гарсиа (хозяйственная зона вуза), О.Е. Калмыков (жилая зона), Е.А.Любимов (вертикальная планировка, озеленение, благоустройство), Г.Г. Лебедев (спортивные комплексы), В.А. Чирухин (универсальные спортивные залы), О.П. Протопопова (система обслуживания), М.Я. Тумасян (заочные вузы); инженеры В.А.Гельтищева (гигиенические требования к дисплейным аудиториям), В.А. Ищедко (стрелковый тир), Е.Н.Ковалева (библиотеки), Л.П. Асмарцев (ВЦ), Н.И. Чернозубова (библиотеки), Г.Л. Якубович (предприятия питания).

Участники работы раздела "Институты повышения квалификации": архитекторы Н.П. Малиночка, В.П. Мощанецкий.

В Пособии использованы материалы Гипровуза Гособразования СССР. В оформлении участвовали: архит. О.П. Одинцова, Л.В. Савинова, инж. Д.С. Хомутова.

ВЫСШИЕ УЧЕБНЫЕ ЗАВЕДЕНИЯ

1. ОБЩИЕ ПОЛОЖЕНИЯ

1.1. Высшие учебные заведения должны представлять среду, оптимальную для сложных процессов формирования молодых специалистов: воспитания, учебы, быта, общественной деятельности, творчества, физического развития, культурного совершенствования.

1.2. Прогрессивными направлениями в проектировании и строительстве высших учебных заведений являются:

укрупнение вузов и созданий крупных вузовских, комплексов, кооперирование вузов с небольшим контингентом студентов в вуз городки;

создание системы зданий и корпусов, учитывающих динамику учебного процесса и позволяющих развивать вуз путем внедрения универсальных архитектурно-планировочных решений, менять технологию и оборудование в процессе эксплуатации;

кооперирование высших учебных заведений с объектами приложения труда - создание единых комплексов, включавших учебу - науку - производство: вузов-НИИ, совхозов - вузов, учебно - научно - лечебных комплексов и вузов - культурных центров городов и др.;

развитие научных подразделений в вузах (здания, корпуса) на базе внедрения научных исследований в учебный процесс и становление учебно-научного процесса;

совершенствование технической оснащенности лабораторий и аудиторий - применение ЭВМ, технических средств обучения (ТСО), телевидения, кинофикации и др.;

совершенствование типов общежитий (в том числе для семейных студентов) и комплексов жилых городков с учетом увеличивающегося объема самостоятельной работы студентов и аспирантов, улучшения быта и досуга студентов;

комплексность размещения и возведения учебных, научных, спортивных, жилых, культурно-зрелищных и обслуживающих зданий и сооружений вузов;

широкое использование подземных пространств в вузовских комплексах с целью экономии земли и средств;

учет экологических проблем жизненной среды вузов в окружающей территории;

создание современных выразительных градостроительных архитектурных ансамблей и гармоничного развития существующих комплексов.

1.3. Высшие учебные заведения классифицируются по типам вузов, группами и подгруппами в соответствии с их архитектурно - планировочной, организационной структурой и профилем, табл.1.

Таблица 1

Группы и подгруппы вузов

Тип вузов

1

2

Университеты

 

Технические

-

Политехнические (многоотраслевые)

Политехнические: индустриальные

Отраслевые:

 

разведки и разработки полезных ископаемых

Геологоразведочные, горные, нефтяные, нефти и газа, металлургические, стали и сплавов, цветных металлов, горнорудные и др.

энергетические

Энергетические, электротехнические, радиотехнические, физико-технические, радиоэлектроники, инженерно-физические, связи и др.

машиностроительные и приборостроительные

Машиностроительные и приборостроительные, станкоинструментальные, механические и автомеханические, кораблестроительные, полиграфические, киноинженеров и др.

химические

Химико-технологические, тонкой химической технологии, целлюлозно-бумажной промышленности, лесотехнические и др.

легкой и пищевой промышленности

Легкой промышленности, текстильные, мясной и молочной промышленности, пищевые, рыбной промышленности, холодильной промышленности и др.

инженерно-строительные

Инженерно-строительные, инженеров городского хозяйства, строительно-дорожные, автодорожные, геодезические, инженеров землеустройства и др.

транспортные

Инженеров железнодорожного транспорта, инженеров водного транспорта, инженеров гражданской авиации, гидрометеорологические и др.

Сельскохозяйственные

Зональные (многоотраслевые)

Сельскохозяйственные

Отраслевые:

 

технические

сельскохозяйственные

Механизации и электрификации сельского хозяйства, гидромелиорации и ирригации и др.

растениеводческие

Агрономические, зерновые, плодоовощные, хлопководства и др.

животноводческие

Зооветеринарные, мясо молочные в др.

Педагогические

 

Многопрофильные

Педагогические

Специализированные

Иностранных языков и др.

Экономические

 

Многопрофильные

Институты управления, народного хозяйства, кооперативные и др.

Специализированные

Финансовые, планово-экономические финансово-экономические, инженерно-экономические, экономико-статистические, советской торговли и др.

Здравоохранения

 

Многопрофильные

Медицинские, медико-фармацевтические (или институты здравоохранения)

Специализированные

Медицинские педиатрические, фармацевтические

Культуры, искусства и архитектуры Многопрофильные

Академии художеств, институты культуры, институты искусства

Специализированные

Архитектурные, высшие художественно-промышленные училища, художественные, театральные, музыкальные (консерватории).литературные и др.

Физической культуры

Физической культуры и спорта

Примечание. В табл. 1 приведены основные функционально закрепленные группы и типы вузов и не приведены отдельные наименования и типы, имеющиеся в практике.

1.4. Университеты являются крупнейшими многоотраслевыми вузами страны. Основные группы факультетов: естественные (физические, химические, биологические, геологические, географические, математические) и гуманитарные (юридические, философские, исторические, филологические, психологии, иностранных языков, журналистики и др.).

В состав некоторых университетов входят сельскохозяйственные, художественные, медицинские и ряд других факультетов, но эти факультеты в университетах не являются профилирующими.

1.5. Характерной особенностью политехнических (многоотраслевых) вузов является широкий набор специальностей, соответствующий потребностям различных отраслей промышленности. Поэтому в состав вуза могут входить факультеты, относящиеся к различным группам специальностей и отраслей народного хозяйства, например, механический и радиотехнический факультеты, строительный.

В отраслевых технических вузах большинство специальностей относится лишь к одной ведущей отрасли промышленности.

1.6. Зональные (многоотраслевые) сельскохозяйственные вузы готовят специалистов по всем основным сельскохозяйственным специальностям для своей административно-экономической зоны. Основой вуза служат факультеты: агрономический, зооветеринарный, механизации сельского хозяйства и экономический.

Отраслевые сельскохозяйственные вузы готовят специалистов по отдельным отраслям: техническим (механизации и электрификации), растениеводства и животноводства и др.

1.7. Педагогические вузы (многопрофильные) имеют основные факультеты (специальности): историко-филологический, физико-математический, естественно-географический и иностранных языков, факультеты педагогики, начального обучения, физвоспитания, индустриально-педагогический. В крупных вузах появляются также дополнительные факультеты: художественно-графический, музыкально-педагогический и дефектологический. Педагоги этих специальностей готовятся также и в специализированных вузах.

1.8. Экономические вузы готовят специалистов для всех отраслей народного хозяйства: промышленности, науки, сельского хозяйства, сферы обслуживания и имеют специфические особенности. Многопрофильные экономические вузы (вузы управления, народного хозяйства и др.) имеют в своем составе большинство экономических специальностей, а специализированные - одну или несколько: финансово-экономические, инженерно-экономические, торгово-экономические и др.

1.9. Вузы здравоохранения дифференцируются по составу факультетов (специальностей). Медицинские институты имеют в своем составе, как правило, большинство из следующих медицинских факультетов: лечебный, педиатрический, санитарно-гигиенический и стоматологический. Фармацевтические институты формируются на базе специальности "фармация". Структура медико-фармацевтических институтов включает все специальности здравоохранения.

1.10. Вузы культуры и искусства, как обслуживайте единую сферу жизни и быта, имеют много общих изучаемых дисциплин и сходную архитектурно-планировочную структуру, характеризующуюся необходимостью постоянной индивидуальной работы в стенах института.

1.11. Вузы физической культуры имеют, как правило, два основных факультета - педагогический и тренерский.

1.12. Контингент обучающихся в высших учебных заведениях устанавливается заданием на проектирование, и, как правило, формируется из:

студентов дневной, вечерней и заочной форм обучения;

учащихся подготовительного отделения;

слушателей факультета (курса, института) повышения квалификации ФПК.

1.13. Расчетное количество студентов высших учебных заведений принимается по количеству студентов дневной формы обучения (по плану приема по специальностям, умноженному на срок обучения), и 10% количества студентов заочной формы обучения. Для медицинских институтов - по количеству студентов дневной формы обучения и 50 количества студентов вечерней формы обучения, для заочных высших учебных заведений - по наибольшему количеству студентов всех форм обучения, единовременно занимающихся в здании.

Для сельскохозяйственных высших учебных заведений и для всех вузов в Узбекской ССР, Азербайджанской ССР, Таджикской ССР, Киргизской ССР и Туркменской ССР в расчетный контингент включается 20% студентов заочной формы обучения.

Студенты вечерней формы обучения высших учебных заведений, кроме медицинских институтов, в расчетный контингент не включаются.

1.14. Для различных групп вузов характерны различные величины рациональных контингентов студентов:

Университеты ................................. 4000 - 12.000

Технические вузы:

политехнические . ........................ 4000 - 15.000

отраслевые ..................................... 2000 - 8000

Сельскохозяйственные вузы:

многоотраслевые .......................... 4000 - 6000

отраслевые .................................... 2000 - 3000

Педагогические вузы:

многопрофильные ........................ 3000 - 4000

специализированные .................... 2000 - 3000

Экономические вузы:

многопрофильные .......................... 4000 - 6000

специализированные ...................... 2000 - 3000

Вузы здравоохранения:

медицинские ................................... 2000 - 6000

фармацевтические .......................... 2000 - 4000

медико-фармацевтические

(институты здравоохранения)........ 4000 - 8000

Вузы культуры и искусства:

многопрофильные .......................... 1000 - 3000

культуры ......................................... 1000 - 2000

театральные .................................... 500 - 1500

консерватории ................................ 500 - 1000

изобразительного искусства ......... 1000 - 2000

архитектуры ................................... 1000 - 2000

Вузы физической культуры ............ 1000 - 2000

Примечание: 1. Среди функционирующих высших учебных заведений имеются вузы с меньшим, чем указано выше, контингентом (исторически сложившиеся, вновь образуемые), а также крупнейшие уникальные головные вузы страны, контингент которых превышает указанные границы.

2. Рекомендуемые величины расчетных контингентов студентов медицинских вузов (институтов и факультетов) зависят также от численности населения городов, обеспеченности их коечным фондом, наличия в них институтов и факультетов усовершенствования врачей и НИИ медицинского профиля. Укрупнено рациональную величину расчетного контингента студентов медицинских вузов можно определить по монограмме (прил.2). Конкретный расчет проводится по специальной методике и должен быть увязан с сетью мед. вузов регионов.

1.15. Функционально-планировочная структура вузов, объемно-планировочное решение, размещение в городе, принципы построения генерального плана в значительной степени определяются величиной контингентов высшего учебного заведения, в зависимости от которого вузы подразделяются на:

малые - с контингентом дневного обучения до 2 тыс. студентов;

средние - более 2 до 5 тыс. студентов;

крупные - более 5 до 10 тыс. студентов;

крупнейшие - более 10 тыс. студентов.

1.16. Для урегулирования территориального размещения заочных вузов, а также устранения ряда недостатков заочной формы обучения функционируют и развиваются территориальные системы дислокации вузов применительно к заочным вузам.

В зависимости от величины города целесообразно устанавливать:

в городах до 250 тыс. жителей города - заочные общетехнические факультеты (ОТФ);

в городах свыше 250 до 1000 тыс. жителей - заочные филиалы и ОТФ;

в городах свыше 1000 тыс. жителей - заочные институты и филиалы с полным курсом обучения.

Для заочных высших учебных заведений только с заочной формой обучения расчетное количество студентов следует принимать из расчета. 50% количества студентов заочной формы обучения я 10% всего количества иногородних студентов.

1.17. Количество учащихся подготовительных отделений должно составлять не более 20% принимаемых на первый курс дневной формы обучения, но не менее 100% учащихся.

1.18. Характеристика филиалов, факультетов, общетехнических факультетов подготовительных отделений и учебно-консультационных пунктов высших учебных заведений приведена в табл. 2.

1.19. Численность профессорско-преподавательского состава, аспирантов, слушателей факультета повышения квалификации, научных сотрудников кафедр, проблемных и отраслевых лабораторий, учебно-вспомогательного и обслуживающего состава, требуемая для определения состава и площадей помещений, устанавливается заданием на проектирование.

Таблица 2

Наименование подразделения

Форма

обучения

Численность студентов, при которой организуется подразделение

Курсы студентов

Виды занятий

Примечания

1

2

3

4

5

6

Филиал

Дневная

Не менее 1000

1-6

Все виды  занятий

Распространено размещение вечерних и заочных факультетов и филиалов при предприятиях

Факультет

Дневная

200

1-6

 

 

 

.Вечерняя

400

1-6

 

 

 

Заочная

500-

1-6

 

 

Общетехнический

факультет (ОТФ)

Вечерняя

400

1-3

 

При наличии материально-технической базы и достаточного контингента допускается обучение студентов 4-6 курсов

 

Заочная

500

1-6

 

 

Учебно-консультационный пункт (УКП)

Заочная

От 200 до 1000

1-6

Консультации, лабораторные и практические занятия, обзорные и тематические лекции

Допускается использование всеми вузами региона

Подготовительные отделения (ПО)

Дневная

Не менее 100 при вузе

-

Занятия по дисциплинам, по которым предусматриваются экзамены

 

 

Вечерняя

Не менее 25 при предприятиях

-

 

 

 

Заочная

Не менее 25 при предприятиях

 

 

 

2. ТРЕБОВАНИЯ К УЧАСТКАМ ВЫСШИХ УЧЕБНЫХ ЗАВЕДЕНИЙ

Величина участка и общие требования к проектированию генерального плана

2.1. Размещение высших учебных заведений, принцип выбора земельного участка, его размер и состав зон следует принимать в соответствии со СНиП 2.07.01-89. Принципиальная схема размещения вузов в городе приведена на рис.1.

Участок, отводимый для строительства высшего учебного заведения, как правило, должен обеспечивать размещение полного комплекта учебно-научных, хилых и хозяйственно-бытовых зданий и сооружений вуза с учетом функциональной взаимосвязи с другими учреждениями города.

Для обоснования строительства нового вуза, перебазирования или расширения материальной базы существующего необходимо учитывать перспективные изменения контингента студентов и объема научных исследований, а также возможности использования существующих корпусов.

При корректировке генерального плана города следует зарезервировать территорию для строительства (расширения) вузов и отвода участков для намеченных расчетом вузгородков.

2.2. На генеральном плане высшего учебного заведения рекомендуется предусмотреть функциональное зонирование территории в целях создания гармоничной развивающейся структуры вузовского комплекса.

Для большинства высших учебных заведений характерно деление территории на четыре основные функциональные зоны;

учебную (или учебно-научную) с научными подразделениями;

жилую со зданиями культурно-бытового назначения

Рис. 1. Принципиальная схема размещения вузов в города. Архитекторы Г.Цытович, Г.Кретова

1 - университет; институты; 2 - сельскохозяйственный; 3 - технический; 4 - экономический; 5 - медицинский; 6 - политехнический; 7 - физической культуры; 8 - институт культуры и искусства; 9 - крупный вузовский комплекс; 10 - центр города; 11 - жилая застройка; 12 - промышленная зова; 13 - парковая зова; 14 - зона больниц и клиник города; 15 - академгородок; 16 - совхозные земли спортивную, включая зону отдыха; хозяйственную.

Кроме того, часто в составе комплексов высших учебных заведений выделяются специальные участки для научно-опытных производств (и отдельных зон), если они не могут войти в состав учебно-научной зоны по требованиям к своему размещению или по величине.

Размер участка вуза следует принимать как сумму площадей функциональных зон в соответствии со СНиП 2.07.01-89.

Особые требования предъявляются к созданию укрупненных вузовских комплексов с контингентом студентов 12-15 тыс. чел., расположенных на периферии городов на свободных территориях в качестве городов-спутников, а также сельскохозяйственных вузов.

Создание самостоятельных вузовских городков обусловливает необходимость строительства: общежитии для студентов почти на полный их контингент, зоны жилых домов преподавателей и служащих, развитого подсобного хозяйства, развитой сети медицинского обслуживания и культурно-воспитательных учреждений.

Для крупных вузовских комплексов, решенных как самостоятельный городок, рекомендуется создавать развитые планировочные зоны;

учебная зона факультетов института с учебными корпусами кафедр, аудиториями, лабораториями;

зона научно-исследовательских учреждений (часто совмещается с учебной зоной);

зона учебно-производственных подразделений;

зона административно-общественного центра института (ректорат, библиотека, общественные организации, актовый зал с клубом, технический центр с телевизионными и вычислительными центрами, музеи, пункты питания);

жилая зона студенческих общежитий с культурно-бытовыми центрами и группами жилых домов семейных студентов;

физкультурно-спортивная зона, которая может делиться на спортивно-зрелищную и физкультурно-тренировочную;

жилая зона для профессорско-преподавательского состава, научных работников и обслуживающего персонала с общественно-торговым центром;

оздоровительно-парковая зона, в которую могут включаться ботанические сады, дома отдыха студентов, профилактории, водно-физкультурные сооружения и т.д.;

зона инженерно-технического и хозяйственного обслуживания вузовского комплекса с мастерскими, складами, прачечными, городскими инженерно-техническими сооружениями, эксплуатационно-хозяйственными подразделениями.

2.3. Для высшего учебного заведения с дневной формой обучения размеры учебной, спортивной и хозяйственной зон определяются по расчетному контингенту студентов по табл. 3.

Таблица 3.

Зоны

Размеры зон (на 1000 студентов) при контингенте, тыс.чел.

до 2

4

7

более 10

1

2

3

4

5

Учебная

 

 

 

 

Университеты

-

6

5,5

5

Технические, политехнические

-

6

5

4

Сельскохозяйственные

7

6

5

-

Медицинские*), фармацевтические*)

5

4

3

-

Экономические, педагогические

3

2,5

2

-

Культуры, искусства, архитектуры

4

3,5

3

-

Физической культуры**)

20

-

-

-

Спортивная

2

1,6

1,2

1

Хозяйственная

1

1

1

1

*) С учетом площади, относящейся к научным подразделениям (ЦНИЛ с виварием - неотъемлемой части учебной зоны).

**) В площадь учебной зоны включена площадь спортивной зоны.

Примечания: 1. Для вузов с контингентом промежуточной величины удельные показатели зон определяются интерполяцией.

2. При наличии в педагогических вузах факультетов физической культуры размер учебной зоны факультета принимать то размерам учебной зоны институтов физической культуры.

3. При размещении нескольких вузов на одной территории с частичной кооперацией их подразделений допускается сокращение суммарной площади участка, но не более чем на 20%.

4. При расширении вузов, ранее построенных в условиях тесной городской застройки, показатель площади учебной зоны может уменьшаться не более чем на 30%. при этом плотность застройки не должна превышать 60%.

5. В северной строительно-климатической зоне размеры земельных участков учебной зоны вузов допускается уменьшать, но не более чем на 40%.

2.4. Для заочных высших учебных заведений размеры участка учебной зоны определяются из расчета 2,5 - 3 га на одну тысячу расчетного контингента студентов, хозяйственной зоны - 0,5 га на одну тысячу расчетного контингента студентов. Спортивная зона в заочных вузах не предусматривается.

2.5. Площадь участка жилой зоны рассчитывается на общую численность проживающих в общежитиях студентов, аспирантов и слушателей подготовительного отделения (с учетом предполагаемого приема иногородних). Удельный показатель площади на одну тысячу проживающих принимается в зависимости от этажности застройки: в 5 этажей - 3 га; в 9 этажей - 2 га; в 12 этажей - 1,5 га.

2.6. Размер участков научно-опытных производств при соответствующем обосновании могут составлять от площади участка учебной зоны:

в университетах, политехнических и сельскохозяйственных институтах (для размещения НИИ, ботанических садов, опытно-экспериментальных мастерских и производств, опытных полей, ветеринарных лечебниц, вивариев и др.) - до 60%;

в технических отраслевых институтах (для размещения НИИ проблемных лабораторий, опытно-экспериментальных производств, мастерских и полигонов) - до 100;

в медицинских и фармацевтических институтах (для размещения НИИ, ботанических садов, опытно-экспериментального производства, клинических больниц и других медико-санитарных учреждений здравоохранения) - 100. Основная составляющая клинико-поликлинической зоны медицинских вузов - клинические больницы - должны быть объединены не менее чем на 50 с учебной базой вуза. В связи с этим показатель площади территории объединенных зон (учебной с клинико-поликлинической ) будет составлять 13,0 - 13,1 га на 1000 студентов; а клинико-поликлинической, расположенной вне вузовского комплекса, 9,0 - 10,5 га на 1000 студентов.

2.7. На рис. 2 - 19 показаны наиболее характерные примеры решений генеральных планов вузов различного профиля с рациональным зонированием территории.

При разработке генеральных планов рекомендуется предусматривать:

кратчайшие связи зон и минимальные разрывы между ними;

компактное планировочное решение комплекса вуза при соблюдении оптимального процента его застройки (конкретно для каждой из зон) в зависимости от природных условий и климата;

поэтапное (для каждой очереди строительства) гармоничное развитие всех компонентов вузовского комплекса (учебных и хилых корпусов, сооружений спортивного, хозяйственного и культурно-бытового назначения);

резервирование части площади участка до 20 - 30 для перспективного развития комплекса.

2.8. Приемы построения развивающегося генерального плана вузовского комплекса, взаимосвязь и расположение отдельных зон могут быть суммированы в нескольких основных принципиальных схемах.

Для комплексов вузов, размещаемых на периферии крупных городов, характерно смещение композиционного центра к городским магистралям - веерное построение (рис.20, 20а). Спортивная зона располагается, как правило, между учебной и жилой зоной студентов. Жилой городок преподавателей вследствие близости городской застройки обычно отсутствует.

Другой прием решения генерального плана характерен для крупных комплексов, расположенных в отдалении от города, - центричное расположение и развитие всех зон (рис. 20,б). При таком решении в институтском комплексе проектируется четко выраженный административно-общественный и культурный центр.

Еще большее развитие получает структура генерального плана крупнейших университетов с контингентом студентов дневного отделения 10 тыс. и более. В таких комплексах территория каждой зоны делится дополнительно на составные элементы (обусловленные крупными этапами строительства или специализацией подзон). Центры крупных зон должны быть рационально расположены в общей структуре университетского городка и хорошо связаны с общеинститутским центром (рис. 20,в - многоцентровое построение).

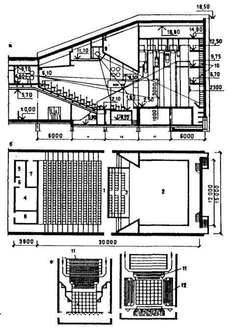
Рис. 2. Ленинградский государственный университет на 12000 студентов. Архитекторы И.Фомин, В.Маслов, С.Михайлов и др.

1 - факультетские корпуса; 2 - научный корпус; 3 - спортивные сооружения; 4 - общежития студентов; 5 - ректорат; 6 - библиотека; 7 - культурный центр; 8 - жилой городок университета; 9 - торгово-бытовой центр; 10 - перспективное развитие факультетов; 11 - зона развития общежитий; 12 - ботанический сад; 13 - хозяйственная зона; 14 - производственная зона

Рис. 3 Казахский государственный университет на 10.000 студентов. Архитекторы В.Бондаренко, Ю.Зимин

1 - факультетские корпуса; 2 - общежития; 3 - стадион; 4 - научный центр; 5 - учебно-производственные корпуса; 6 - хозяйственные блоки; 7 - общественный центр

Рис. 4. Горьковский политехнический институт на 10.500 студентов. Архитекторы Л.Афанасьев, В.Воронков, Л.Дхиванян и др.

1 - главный учебный корпус; 2 - актовый зал; 3 - библиотека; 4 - факультетские корпуса; 5 - НИИ; 6 - столовая; 7 - крытые спортивные сооружения; 8 - студенческие общежития; 9 - стадион; 10 - автостоянка; 11 - хозяйственная зона; 12 - общественный центр жилого района.

Рис. 5 Челябинский государственный университет на 5700 студентов. Архитекторы Н.Устинович, Д.Ульяницкий, О.Чернышев и др.

1 - физико-математический факультет; 2 - экономический факультет; 3 - историко-филологический факультет; 4 - химико-биологический факультет; 5 - ректорат; 6 - библиотека; 7 - вычислительный центр; 8 - аудиторный блок; 9 - спортивный корпус; 10 - столовая; 11 - НИИ физики; 12 - научно-исследовательский корпус; 13 - хозяйственный корпус; 14 - ботанический сад; 15 - оранжерея; 16 - общественный центр; 17 - дворец культуры; 18 - планетарий; 19 - дом политпросвещения; 20 - общежитие студентов; 21 - блок обслуживания; 22 - спортивный манеж; 23 - спорт ядро; 24 - спортплощадки

Рис. 6. Волгоградский государственный университет на 6000 студентов. Архитекторы В.Бондаренко, Ю.Зимин. И.Каравайкина

1 - учебные корпуса; 2 - здания студенческих общежитий; 3 - библиотека; 4 - актовый зал; 5 - ректорат; 6 - общественно-торговый центр со столовой 7 - спортивный корпус, 8 - спортивные площадки

Рис. 7. Генеральный план (вариант) Ульяновского государственного университета на 3000 студентов, Архитекторы В.Бондареико, В.Липковский, В Никанорова, А.Гуляева

1 - главный учебный корпус; 2 - факультетские корпуса, 3 - зона студенческих общежитии; 4 - спортивная зона; 5 - хозяйственная зона; 6 - резервная зона научно-производственных корпусов

Рис. 8 Генеральный план Кемеровского государственного университета. Архитекторы Г.Цитович, О.Одинцова

1 - учебные корпуса и аудитории; 2 - научно-исследовательские корпуса, 3 - актовый зал и клуб; 4- ректора и библиотека; 5 - открытые и закрытые спортсооружения; 6 - хозяйственная зона, 7 - общежития

Рис. 9. Генеральный план учебно-научно-производственного комплекса МПУ им. Баумана (конкурсный проект ЦНИИЭП учебных зданий). Архитекторы Г. Цитович, А. Гарнец, Д.Рохдественскхй, Э. Путинцев, О. Куляоова, Н. Точкин, А.. Ляхович

1 - общественный центр о ректоратом, аудиториями; актовым залом, библиотекой; 2 - учебные корпуса факультетов; 3 - научно-исследовательские институты соответствующих факультетам профилей; 4 - перспективы развития учебно-научной зоны; 5 - институт повышения квалификации, спецшкола; 6 - комплекс профтехучилищ; 7 - спортзалы; бассейн и стадион; 8 - жилой городок студентов на 12 тыс., чел. четыре комплекса по 3000 студентов и общественный центр); 9 - жилой городок преподавателей и служащих 20 тыс. чел . ( с торговым центром, школами и детскими садами ); 10 - учебно-опытный завод ; 11 - зона больниц

Рис. 10. Владимирский политехнический институт на 12 тыс. студентов. Архитекторы Г. Лапир, Ю. Мухина, В. Кормишин

1 - главный учебный корпус; 2 - факультетские корпуса; 3 - учебный корпус (строительство 50-х годов), 4 - стадион; 5 - спорт зона; 6 - спортплощадки; 7 - общежития студентов; 8 - хилые дома; 9, 10 - административные здания

Рис. 11. Генеральный план Московского инженерно-строительного института им. Куйбышева, Архитекторы В.Степанов, Р. Мелкудян, Д. Ольбинский, Я. Студвеков

1 - корпус младших курсов; 2 - столовая; 3 - библиотека; 4 - актовый зал; 5 - ректорат; 6 - аудиторные блок; 7 - факультеты; 8 - хозяйственные корпуса; 9 - дворец спорта, бассейн, манеж. стадион; 10 - культурно-битовой центр; 11 - профилакторий; 12 - общежития

Рис. 12. Московский институт электроники и автоматики. Архитекторы В. Опрапко, Д. Солопов

1 - главный учебный корпус; 2 - актовый зал и библиотека; 3 - факультетские корпуса; 4,5 - научно-исследовательские подразделения; 6 - стадион, спортплощадки и спорт корпус; 7,8 - корпуса административно-производственного назначения

Рис. 13. Обнинский институт атомной энергетики на 3500 студентов Архитекторы Н. Урутчьян, А. Патронов, А. Рябцева

1 - административный корпус; 2 - учебные корпуса; 3 - хозяйственные сооружения; 4 - научные корпуса; 5 - культурно-бытовой и общественный центры; 6 - поликлиника с профилакторием; 7 - спортивные сооружения; 8 - общежития с блоками первичного обслуживания

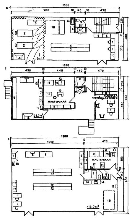
Рис. 14. Московский институт электронной техники, фрагмент фасада (а) и план (6) первого этажа, Архитекторы Ф.Новиков, Г.Саевич

1 - главный учебный корпус; 2 - библиотека; 3 - аудитории; 4 - факультетские корпуса; 5 - актовый зал со столовой;6 - спортивный комплекс

Рис. 15. Ситуационный план Ташкентского медицинского института на 7000 студентов. Архитекторы А. Голощапов, Г. Собельман, Т. Десятников и др.

1 - учебные корпуса; 2 - студенческие общежития; 3- жилые дома преподавателей; 4 - спортивные сооружения; 5 - общественный центр; 6 - клиническая больница

Рис. 16. Генеральный план учебно-научно-лечебного комплекса Второго Московского ордена Ленина государственного медицинского института им. Н.И. Пирогова на 8000 студентов. Архитекторы В. Фурсов, Е. Баспалова, И. Ядров, И. Самойлова

1 - учебно-лабораторный комплекс зданий о библиотекой и столовой; 2 - центральная научно-исследовательская лаборатория ( ЦНИЛ); 3 - радиологический корпус; 4 - многопрофильная клиническая больница на 3000 коек, 5 - детская клиническая больница на 1000 коек; 6 - спортивные залы; 7 - открытые спортивные сооружения; 8 -общежития для студентов; 9 - гостиница для профессорско-преподавательского состава, научных сотрудников и аспирантов

Рис. 17. Орловский сельскохозяйственный институт на 2280 студентов. Архитекторы И. Клешко, Л. Меншутина, Д. Крейнес и др.

1 - учебно-научная зона ( с крытыми спортивными сооружениями); 2 - спортивная зона (плоскостные сооружения); 3 - зона общежитии с учреждениями культурно-бытового обслуживания; 4 - хозяйственная зона; 5 - спецзона

Рис. 18. Сельскохозяйственный институт в г. Уральске. Архитектор М. Сафонова

1 - учебная зона; 2 - студенческие общежития; 3 - жилые дома преподавателей; 4 - спортивная зона; 5 - хозяйственная зона

Рис. 19. Генеральный план Свердловского юридического института. Архитектор Г. Цытович

1 - блок столовой; 2 - учебный корпус; 3 - актовый зал

Возможно также применение линейной схемы зонирования вуза, удовлетворяющей динамизму современной учебной технологии (рис. 20,г). Вузы, построенные по линейной схеме зонирования, имеют больше возможностей развития путем параллельного строительства основных зон. Так, линейная схема зонирования может перерасти при укрупнении функционального ядра зоны общественного центра в крестообразную схему.

2.9. Большое значение имеют принципы взаимного размещения двух основных зон вузовского комплекса: учебно-научной и жилой зоны студентов (если они решаются совместно). В современной практике проектирования и строительства университетов и крупных технических институтов наблюдаются две тенденции развития: дифференциации. двух основных зон или их взаимопроникновение (рис. 21).

Наиболее распространенные планировочные приемы - линейное развитие и центричное построение. Линейный или центричный типы вузовского комплекса обусловлены многочисленными факторами: величиной комплекса, структурой участка, типа высшего учебного заведения, места в композиционной структуре города. Для более крупных комплексов (более 12 - 15 тыс. чел.) характерно, как правило, линейное решение, так как в таких комплексах центричная структура может служить препятствием развития многофункционального центра.

При центричном построении может быть создан либо общий цент вуза, либо взаимосвязанная система центров: административно-общественный при учебно-научной зоне, культурно-бытовой - при жилой зоне, а также спортивной.

Все вышеприведенные принципы зонирования и взаиморазмещения учебно-научных и жилых зон можно проследить на приведенных рисунках (см. рис. 2 - 18). Здесь же видна взаимосвязь учебных и научных зон, которая будет рассмотрена в п.2.12.

Рис. 20. Принципиальные схемы зонирования и развития территории вузов. Архитектор Г. Цытович

а - веерная, б - центричная, в - многоцентровая, г - линейная, 1 - учебно-научная зона, 2 - спортивная зона, 3 - жилая зона студентов, 4 - жилая зона преподавателей, 5 - административно-общественный центр, 6 - культурно-бытовой центр, 7 - общественно - торговый центр, 8 - границы поэтапного роста вуза, 9 - медицинский центр, 10 - научный центр.

Рис. 21. Принципы зонирования территория крупного развивающегося комплекса высшего учебного заведения. Архитектор Г.Цытович

а - линейная обособленная схема развития; б - центричаая обособленная система; в - центричная система с взаимопрониканием жилой и учебной зон; г - линейная система с взаимопрониканием зон; 1 - общественные центр института; 2 - массовые общеинститутские учебные и административно-воспитательные подразделения; 3 - учебно-научные корпуса факультетов; 4 - научно-производственные подразделения; 5 - спортивная зона; б - спортивный центр; 7 - жилая зона студенческих общежитий; 8 - культурно-бытовой центр и клубные подразделения.

Рис. 22. Генеральный план развития Московского государственного университета. Архитекторы Г. Цытович, А. Гарнец, О. Суслова, инж. А. Ляхович

1 - главное высотное здания; 2 - существующая учебно-научная зона; 3 - существующий спортивный комплекс; 4 - новые учебные и научные корпуса; 5 - центральный студенческий форум о универсальной библиотекой; 6 - Дворец культуры МГУ; 7 - культурно-спортивный центр; 8 - новая спортивная зона МГУ; 9 - существующая историческая застройка; 10 - существующие общественные здания; 11 - новая застройка

Рис. 23. Генеральный план развития Казанского государственного университета в структуре исторического города. Архитектор В.Бондаренко

1 - историческое главное здание университета; 2 - новые учебные корпуса; 3 - существующие учебные корпуса; 4 - новые корпуса библиотеки, столовой; 5 - жилая застройка города

Рис. 24. Генеральный план поэтапного развития комплекса Ставропольского политехнического института. Архитекторы Г.Цытович, Э.Путинцев, О.Одинцова, Н.Царева (проектное предложение)

1 - учебные корпуса первой очереди строительства; 2 - общежития для студентов (первая очередь). 3 - перспективное строительство общежитии; 4 - главный корпус (вторая очередь строительства); 5 - зона учебных полигонов; 6 - учебные корпуса (завершение строительства комплекса); 7 - существующее здание института

Рис. 25. Генеральный план развития Львовского государственного медико-фармацевтического института на 5300 студентов. Архитекторы В.Дядак, Н.Царева

1 - участок вуза; 11- участок клинической областной больницы; Ш - участок клинической инфекционной больницы; 1V -ботанический сад; 1 - учебные корпуса; 2 - библиотека; 3 - аудиторный блок; 4 - центральная научно-исследовательская лаборатория (ЦнИЛ); 5 - виварий; 6 - спортивный комплекс; 7 - музей; 8 - общежития; 9 - блок культурно-бытового обслуживания; 10 - хозяйственные сооружения; 11 - новые корпуса

Рис. 26. Генеральный план развития института народного хозяйства им. Плеханова. Архитекторы Е. Рыбицкий, В. Зобков, Г. Мартемьянова, Г. Одинцов, В. Куракин

1 - существующие здания института; 2 - новый главный учебный корпус; 3 - актовый зал; 4 - существующая застройка; 5 - общежития студентов; 6 - перспективное строительство

Рис. 27. Примерная схема создания кооперированного вузовского комплекса в Москве (Тропарево)

1 - институт международных отношений; 2 - институт радиоэлектроники; 3 - институт управления; 4 - экономический институт; 5 - химико-технологический институт; 6 - педагогический институт; 7 - общежития; 8 - спортивный комплекс; 9 - административное здание

Рис. 28. Примерная схема кооперирования вузовских комплексов в Ташкенте. Архитекторы Е.Калашникова, В.Ивашкин и др.

1 - Ташкентский государственный университет; 2 - политехнический институт; 3 - институт физкультуры, превращенный в дальнейшем в межвузовскую спортивную зону; 4 - библиотека; 5 - общежития студентов; 6 - торговый центр; б - в г. Харькове (архитекторы В.Лхалиц, А.Антропов, В.Усик и др.), 1 - комплексы институтов; 2 - студенческие общежития; 3 - межвузовский культурный центр; 4 - торгово-бытовой центр; 5 - административный центр; 6 - спортивные сооружения

Рис. 29. Примерная схема кооперирования Джамбульского гидромелиоративного института о техникум и профтехучилищем. Архитекторы Г.Цытович, Д.Ерофеева

1 - главный учебный корпус в учебные корпуса факультетов института; 2 - техникум; 3 - профтехучилище, 4 - жилая зона студентов и преподавателей; 5 - спортивная зона; 6 - хозяйственная зона

Рис. 30. Примерная схема кооперирования учебного комплекса в г. Тобольске. Архитекторы Э. Путинцев, Г. Цытович

1 - здание института; 2 - техникумы; 3 - профтехучилища; 4 - спорткомплекс; 5 - учебно-производственные мастерские и лаборатории; 6 - общежития

2.10. Одним из главных принципов в долголетии функционирования вуза является его постоянное развитие. Количественно контингент студентов вузов в стране не растет и не должен расти, но материальная база сейчас обеспечена меньше, чем наполовину, особенно с учетом новых расширенных функций вуза (воспитание, переподготовки, повышение квалификации, наука, прикладное производство).

Поэтому, как правило, большинство вузовских комплексов развивается. Важнейший вопрос - сочетание новой застройки и новых требований с уже существующими комплексами. Основными требованиями кроме функционально-технологических здесь являются:

создание единого ансамбля старого и нового;

художественная преемственность в архитектурном облике (масштаб, членение, ритм особенности пространственной структуры) с учетом современной трактовки новых корпусов;

единство отдельных материалов и гармония цветового решения;

завершение ансамблей в структуре городской застройки. Примеры развития вузов как поэтапные, так и в исторической застройке городов, приведены на рис. 22-26.

2.11. При размещении в одном городе нескольких новых высших учебных заведений или строительстве для существующих вузов новых комплексов целесообразно территориально объединять их, создавая укрупненные вузовские комплексы, а также кооперировать вузы с соответствующими научно-исследовательскими институтами, средними учебными заведениями, институтами повышения квалификации, опытным производством и создавать учебно-научные, учебно-научно-производственные, культурно-зрелищные, спортивные центры в городе или вне его.

При создании крупных вузовских комплексов кооперирование может быть следующих видов:

территориальное кооперирование различных по профилю самостоятельных крупных вузов (университетов, технических и др.) с созданием зоны вузгородка в городе (рис.27);

объединение нескольких вузов в один вуз городок (рис.28) и кооперирование их хилых и спортивных зон;

кооперирование с научными подразделениями и цветами приложения труда (см. рис.8 и 22);

кооперирование со средними учебными заведениями аналогичного профиля (рис.29 и 30).

Планировочные решения основных зон вузовского комплекса

2.12. Учебно-научная зона является главной в вузовском комплексе. Ее композиционное решение предопределяет размещение и функциональную планировку остальных зон.

Приемы взаимного размещения учебных и научных подразделений приведены на рис.31. Многоцентровое и линейное построение (схемы б и г) характерны более для университетов и гуманитарных вузов, а центричное и обособленное - для технических, медицинских и сельскохозяйственных (схемы а и в).

Учебная зона крупных и крупнейших вузов часто подразделяется в соответствии с организацией учебного процесса на следующие подзоны:

общеинститутского цикла с административно-общественным центром (корпуса общеинститутских кафедр, аудиторий, ректорат, библиотека, актовый зал с клубом, технический центр с телевизионными и вычислительными центрами, музей и др.);

специализированного цикла (корпус факультетов с научно-исследовательскими и научно-производственными подразделениями).

2.13. Здания и сооружения, размещаемые в подзоне специализированного цикла можно разделить на научно-исследовательские подразделения института и учебно-производственную (или научно-производственную) базу.

Рис. 31. Приемы решения учебно-научных зон в вузах Архитектор Г.Цытович

а- построение центричное; б - то же, линейное, в - то же, обособленное; г - то же, многоцентровое; 1 - административно-общественный центр; 2 - учебные здания; 3 - научно-исследовательские подразделения; 4 - направления развития зон

При разработке генерального плана вуза научно-исследовательские подразделения желательно приближать к соответствующим кафедрам и факультетам, а подразделения вспомогательного производственного назначения - к хозяйственной зоне и предприятиям соответствующего профиля.

Специализированные научно-исследовательские учреждения вузов рекомендуется размещать на периферии учебной зоны, чтобы не препятствовать развитию учебного комплекса. Учебно-научные проблемные и отраслевые лаборатории, клинические больницы и крупные научные подразделения, выделяемые по специфике тематики и объему исследований в отдельные здания и крупные комплексы научно-опытных производств, желательно размещать смежно с территорией факультетских корпусов.

Ветеринарные лечебницы, виварии, научно-исследовательские лаборатории и другие учреждения, требующие при размещении санитарно-защитной зоны, проектируются в соответствии с требованиями "Санитарных норм проектирования промышленных предприятий" СН 245-71.

2.14. В вузах с расчетным количеством студентов до 10 тыс. чел. протяженность территории учебной зоны не должна превышать 600 м, что обеспечит 10 - 2 - минутную пешеходную доступность до любого корпуса ( в течение перерыва между лекциями).

В крупных и крупнейших вузах протяженность территории учебной зоны может составлять более 2км, поэтому пешеходная доступность (800 м) может быть ограничена одним - двумя факультетами.

2.15. Административно-общественный центр с общеинститутскими сооружениями имеет пешеходное сообщение со всеми учебными корпусами, а также с остановками, городского транспорта. В крупном вузовском комплексе все важнейшие общественные учреждения рекомендуется размещать вокруг общеинститутского форума - места массовых торжественных мероприятий. Принципиальные схемы построения системы общественных центров в вузах различной величины приведены на рис. 32.

2.16. Спортивная зона вуза, как правило, размещается смежно с учебной и жилой зонами. Все спортивные сооружения в вузах с численностью до 10 тыс. студентов рекомендуется объединить, чтобы создать благоприятные условия для проведения учебных и секционных занятий, спортивных соревнований среди студентов, сотрудников и городского населения.

2.17. При проектировании вуза с расчетным числом студентов до 2 тыс. спортивную зону рекомендуется кооперировать со спортзонами других высших и средних специальных учебных заведений города с соблюдением радиуса пешеходной доступности от учебной зон.

2.18. В крупных и крупнейших вузовских комплексах возможно разделение спортивной зоны на спортивно-зрелищную (включающую бассейн, крупные спортивные залы) и физкультурно-тренировочную подзону (спортивные площадки и небольшие залы, используемые для секционных и досуговых занятий).

Для обеспечения условий проведения учебного процесса спортивно-зрелищную подзону не рекомендуется размещать от учебной зоны на расстоянии, превышающем 1000 - 1400м, что составляет 15 - 20 мин. ходьбы. Физкультурно-тренировочную подзону можно размещать приближенно к жилой зоне студентов в составе оздоровительно-парковой территории вуза и города.

2.19. Спортивные сооружения институтов физической культуры (крытые и открытые) размещаются на основной территории вуза в едином комплексе о учебными корпусами, а также на загородной спортивной базе, которая рассчитывается на контингент до 30% численности студентов.

Рис. 32. Построение системы общественных центров высших учебных заведений. Архитекторы К.Мурашов, Г.Цытович

а - до 5000 студентов; б - от 5000 до 10.000 студентов; в - свыше 10.000 студентов; 1 - учебная зона; 2 - жилая зона; 3 - спортивная зона; 4 - общественный центр (общий); 5 - общественно-административный центр; 6 - культурно-бытовой центр жилой зоны; 7 - факультетский общественный центр.

2.20. Кроме основной спортивной зоны дополнительно рекомендуется предусматривать возможность размещения студенческих спортивных баз в городской или природной парковой зоне на расстояния, не превышающем 1,5 ч транспортной доступности от вуза.

2.21. Следует стремиться к формированию единой жилой зоны общежитии для студентов, аспирантов, слушателей подготовительных курсов и факультетов повышения квалификации.

На территории жилой зоны вуза рекомендуется размещать жилые корпуса, здания культурно-просветительного, бытового и коммунального назначения, медицинского обслуживания, а также площадки для игр и физической культуры.

Состав учреждений культурно-бытового обслуживания и композиционные приемы застройки зоны выбираются в зависимости от планируемого количества проживающих и размещения в городе.

2.22. Для нового строительства можно рекомендовать следующие варианты размещения зоны общежитий относительно учебной:

на одном участке с учебными корпусами (как правило, в периферийных районах городов или за городом на свободных территориях, а также в реконструируемых районах для вузов с расчетным числом студентов до 2 тыс. (см. рис.21);

изолированно, как часть городской застройки (для вузов, размещенных в центральных районах городов, при недостаточной территории для комплексного строительства. На расстоянии, не превышающем 40 мин транспортно-пешеходной доступности от учебной зоны (рис.33));

в комплексе с общежитиями других вузов, в составе студгородка (при проектировании нескольких учебных заведений в одном районе). При вынужденном изолированном их размещении от учебной зоны - на расстоянии, не превышающем 40мин транспортно-пешеходной доступности от учебной зоны (см. рис.28).

Рис. 33. Размещение студенческих общежития со спортивное зоной отделано от учебных корпусов (комплекс общежитии Ленинградского института инженеров железнодорожного транспорта в г. Пушкине)

1 - здания общежитий для несемейных студентов; 2 - здания для семейных студентов; 3 - спортивный корпус; 4 - спортплощадки.

Вариант совместного размещения жилой и учебной зоны в едином вузовском комплексе является наиболее рациональным, так как позволяет экономить время студентов, территорию и средства, а также избежать дублирования технических сооружений и предприятий культурно-бытового назначения, исключить ежедневные нагрузки на транспорт.

2.23. В крупнейших вузах, размещаемых на обособленной территории за городом, жилая зона планировочно дифференцируется на функциональные подзоны; общежития, в том числе для семейных студентов и аспирантов; дома педагогического и обслуживающего персонала; спортивно-тренировочная зона; культурно-бытовой и торговый центры. Для размещения домов сотрудников вуза и центров обслуживания величину необходимой территории следует определять по норме микрорайонов в соответствии со СНиП 2.07.01-89.

2.24. Зона хозяйственных и вспомогательных сооружений вуза располагается обычно на периферии комплекса на участках, менее пригодных для проведения учебного процесса, проживания и занятий спортом (шумных, загрязненных, транзитных, см. прил.3). Следует учитывать необходимость создания хорошей транспортной связи с учебно-научными и производственными сооружениями вузовского комплекса, с городскими магистралями. При этом должна исключаться возможность создания помех для проведения учебно-научного процесса и перспективного развития учебного комплекса на участке.

На территории хозяйственной зоны следует компактно размещать все инженерно-технические и хозяйственные сооружения вуза.

В вузах сельскохозяйственного, медицинского и технического профиля и в университетах следует предусматривать кооперирование хозяйственной зоны с учебно-опытными участками, размещая там

дополнительно опытно-экспериментальные производства, крупное автохозяйство, склады кормов, кормокухню и прочее, предусмотренное в здании на проектирование. При этом площадь территории уточняется по специальному расчету.

При территориальном объединении нескольких учебных заведений, объединении вуза с опытным производством или медицинского вуза с клиниками следует проектировать для них общую хозяйственную зону.

2.25. При инженерном обеспечении территории (строительстве котельных и т.п.) следует учитывать направление господствующих ветров, обязательное строительство очистных сооружений, расчет экологической обстановки в районе.

Организации обслуживания студентов

2.26. Организацию обслуживания студентов следует рассматривать как часть городской системы. Размещение учреждений обслуживания целесообразно решать совместно со всей планировочной структурой вуза на стадии разработки генерального плана.

В зависимости от величины расчетного количества студентов, плотности застройки территории в вузах рекомендуется проектировать:

единый административно-общественный центр на границе учебной и жилой зон;

административно-общественный центр в учебной зоне вуза и торгово-бытовой либо культурно-бытовой - в жилой (см. рис.32);

единый культурно-просветительный центр и систему факультетских или вузовских подцентров культурно-бытового назначения (преимущественно при формировании крупнейших вузов и вузовских - комплексов, а также студенческих городков;

отдельные объекты общественного назначения, встроенно-пристроенные к учебным и жилым корпусам (преимущественно при размещении вуза в центральных районах города).

Целесообразность объединения отдельных учреждений и предприятий обслуживания в комплексе общественного назначения предопределяется удобством потребления и реализации услуг и расширением возможностей для создания выразительных архитектурных объемов. Объединение должно осуществляться при сохранении нормируемого радиуса доступности по каждому из видов обслуживания.

2.27. Принципиальная схема планировочной организации обслуживания в зоне студенческих общежитий в зависимости от величины и профиля вуза приведена на рис.34. Ориентировочный состав и мощность учреждений обслуживания, размещаемых на территории жилой зоны вуза, приведены в табл.4.

При размещении комплекса общежитии в непосредственной близости к центру жилого района состав учреждений периодического и эпизодического обслуживания может быть значительно сокращен за счет использования студентами городских учреждений.

2.28 .При объединении общежитий нескольких учебных заведений в межвузовский студгородок следует проектировать для него единую систему культурно-бытового обслуживания. Увеличение контингента студгородка создает предпосылки для эффективного использования спортивных сооружений. Дома культуры, складов, гаражей, мастерских, детских и культурно-бытовых учреждений, межвузовских профилакториев и поликлиник.

Состав помещений в предприятиях общественного питания, спортивных сооружениях, лечебно-профилактических учреждениях, магазинах в межвузовских студгородках может быть принят по соответствующим СНиПам.

Инженерное решение территории

2.29. При разработке генерального плана необходимо решать две основные транспортные задачи:

создание подъездных путей, изоляцию территории от транспортных городских и междугородних магистралей;

организацию транспортного движения на территории комплекса при разделении с пешеходными потоками, обеспечивающими оптимальные связи между отдельными элементами вуза.

Основным условием организации подъездов к вузовским комплексам является изоляция их территории от транзитных потоков городского транспорта, от шума транзитных магистралей и возможность перспективного развития территории (рис.35).

Имеется примеры, когда транзитная магистраль пересекает территорию студенческого городка, разделяя ее на две крупные зоны: учебно-научную и жилую. Такое решение встречается, как правило, в крупных комплексах университетов и технических вузов и не должно нарушать целостности учебно-научной зоны.

Основные транспортные подъезды желательно проектировать по периферийной территории комплекса с организацией глубоких тупиковых заездов и стоянок. Площадки для стоянки автомобилей следует предусматривать из расчета 20 автомобилей на 1000 студентов дневного отделения (показатель учитывает полную потребность вуза).

В крупных вузах с контингентом до 10 тыс. студентов для доступа к каждой группе факультетов рекомендуется предусматривать кольцевую автодорогу, охватывающую учебно-наглядную и хозяйственную зоны института. При этом дорожная сеть жилой и спортивной зон, как правило, решается самостоятельно.

В крупнейших вузах с расчетным числом студентов более 10 - 15 тыс. на территории, превышающей пешеходную доступность: возникает необходимость создания внутривузовского транспорта. При этом дорожная сеть жилой и спортивной зон, как правило, решается самостоятельно.

В крупнейших вузах с расчетным числом студентов более 10 - 15 тыс. на территории, превышающей пешеходную доступность, возникает необходимость создания внутривузовского транспорта. При работе над генпланом такого комплекса следует стремиться к сохранению целостности зон и организации безопасных переходов (оптимальная развязка транспортного и пешеходного потоков в разных уровнях).

2.30. При проектировании местных проездов, остановок общественного транспорта, тротуаров и дорожек на территории высшего учебного заведения следует руководствоваться СНиП 2.07.02-89 и Пособием к нему.

Рекомендации по проектированию средств защиты от городского шума даны в приложении 3.

2.31. Вертикальную планировку территорий высших учебных заведений следует выполнять методом проектных горизонталей с сечениями через 0,1; 0,2; 0,25; 0,5 м (в зависимости от крутизны рельефа).

Рис. 35. Принципиальные схемы организации движения транспорта и прокладка инженерных коммуникаций на территории вузовского комплекса. Архитектор Г.Цытович, инженер Л. Сигачева

а, б, в - приемы организации подъездов к территории вуза; г, д., е. - кольцевой и линейный приемы организации движения транспорта; ж, и, к - схемы прокладки инженерных коммуникаций, 1 -зона вузовского комплекса; 2 - зона естественного центра; 3 - стоянки транспортные; 4 - пешеходные зоны; 5 - магистральные коммуникации; 6 - местные подводки

В основу проектного решения должен быть положен принцип формирования пластики земли, отвечающей требованиям архитектурно-планировочного решения, озеленения, поверхностного водоотвода, требований дорожного строительства и конструктивных особенностей зданий.

2.32. Отметку пола первого этажа (условно - отметка главного входа) следует определять, исходя из наибольшей планировочной отметки по углам здания, конструкций перекрытий пола и подпольного пространства, но не менее 0,3 м от отмостки.

При посадке зданий предельная ширина выравниваемой полосы от стены здания до откоса может достигать 5м от фасада и 2м от торца без окон.

Высота откосов или террасе должна обеспечивать взрослому человеку обзор прилегающих к зданию территорий, инсоляцию и проветривание прилегающих пространств, а также сохранение естественных благоприятных гидрогеологических условий. Минимальный уклон газона - 9, максимальный - 12.

Таблица 4.

Объекты культурно-массового назначения

Единица измерения

При размещении жилой зоны в сос­таве вузовского комплекса

При размещении жилой зоны более чем в 30 мин

транспортно-пешеходной доступности от учебной

Примечания

при величине расчетного контингента вуза, студентов

при количестве

проживающих в комплексе общежитий, студентов

3000-5000

3001-10000

10.00 и более

1501-3000

3001-5000

5001-10000

1

2

3

4

5

6

7

8

9

Библиотека

Единица книжного фонда на одного посетителя

Число мест в читальном зале на одного посетителя

10

10

10

20

20

20

 

0,02

0,02

0,03

0,83

0,03

0,03

 

Клуб

Число мест в зале

-

601-800

801-900

-

301-600

301-800

Отношение вместимости зрительного зала к вместимости клубной части принимать 1:1 - 1:2

Молодежное кафе

Объект и число посадочных мест

2´36

2´50

3´75

2´50

3´50

5´50

Часть норматива общественного питания по СНиП 2.08.01-89

Столовая

Число посадочных мест

-

-

-

-

50

100

Часть норматива общественного питания, вузов по СНиП 2,08,02-89

Специализированное предприятие общественного питания

То же

-

75

100

50

75

150

То же

Универсальный средний спортзал 38Х18

Объект

 

1

1-2

 

1

1-2

Часть норматива, предусмотренного в СНиП 2.08.01-89на группу помещений для культурно-массовых мероприятий, отдыха

Специализирован­ный спортзал 24Х15 м

объект

1

-

1

1

1

2

Учебных и спортивных занятий

Площадка для волейбола

сооружения

3

3

6

3

3

3

 

Площадка для баскетбола

2

2

4

2

2

4

 

Сауна

мест

7

13

25

5

10

20

Включается по задании на проектирование

Здравпункт

м2

90

114

114

90

90

114

При наличии поликлиники в жилой зоне предусматривать не следует

Поликлиника

Число посещений в день

300

500

-

 -

300

В составе предусмотреть детское отделение

Профилакторий

Число койко-мест на 1000 чел.

10

10

10

10

10

1:0

Стажеров и слушателей факультета повышения квалификации проживающих в общежитиях, в расчетный контингент включать не следует

Аптечный киоск

Объект

1

1

-

1

1

-

 

Аптека

Объект

 

 

1

 

-

1

 

Почта

-

1

1

 

2

1

Предусматривается за счет градостроительных нормативов с учетом совместного использования городским населением

Магазин продтоваров

м2 торговой площади

650

1000

-

-

400

650

Специализированный промтоварный магазин

Объект

-

-

1

-

-

1

''

Комплексный приемный пункт с мастерскими и парикмахерской

Число рабочих мест на 1000 чел.

1,7

1,7

1,7

2,1

2,1

2,1

Предусматривается за счет градостроительных нормативов с учетом совместного использования городским населением

Детский сад - ясли

Число мест

По заданию на проектирование с учетом 100% численности

То же

Молочная кухня

Объект

-

1

1

-

-

1

²

2.33. Для проектов аллей, дорожек и площадок на территории вузов рекомендуется широко использовать бетонные монолитные и штучные покрытия различной конфигурации и размеров террацевого типа.

Асфальтовое покрытие рекомендуется применять только для хозяйственных проездов из-за токсичных веществ, выделяющихся в жаркое время.

2.34. Проект озеленения территории вуза следует выполнять, учитывая все элементы природного ландшафта, а также размещение взрослых деревьев (если они имеются), их породы и возраста.

При разработке схем генерального плана комплекса или проекта благоустройства необходимо сочетание различных типов планировки и озеленения.

Для учебно-научной зоны вуза наиболее характерно сочетание парадного озеленения с регулярной или террасной планировкой. Такой прием еще более выявит и подчеркнет композиционно важные элементы общего архитектурно-планировочного решения. Следует применять наиболее ценные в декоративном отношении породы деревьев.

В жилой зоне рекомендуется пейзажная планировка с живописным приемом озеленения. Следует максимально сохранять и использовать естественный ландшафт либо искусственно создавать ландшафтные композиции с чередованием открытых и закрытых пространств.

Зеленые насаждения должны занимать 35-50% площади участка жилой зоны.

2.35. В спортивных зонах зеленые насаждения выполняют также санитарно-гигиеническую функцию, защищая от ветра, шума и пыли. Эту же функцию выполняют озеленение хозяйственных зон ветеринарно-клинических комплексов, сельскохозяйственных вузов и защитные полосы

В защитных полосах, обрамляющих спортплощадки, применяются.

быстрорастущие, легко переносящие поломку ветвей породы кустарника с плотной крупной листвой без колючек и летучих семян.

Для большего эффекта при озеленении площадок применяют вьющиеся растения (лианы). Под насаждения в спортивной зоне отводится не менее 30% площади участка.

Для ботанических садов, дендрариев, опытных участков, различных полигонов, а также защитных зеленых насаждений следует разрабатывать отдельные проекты, соответствующие схеме генерального плана комплекса.

2.36. При проектировании озеленения следует руководствоваться Нормативными показателями озеленения городов в различных природных зонах.

3. ОБЪЕМНО-ПЛАНИРОВОЧНЫЕ РЕШЕНИЯ

Общее решение зданий и комплексов

3.1. В состав высшего учебного заведения в соответствии с их архитектурно-планировочной структурой входят следующие подразделения:

общеинститутские и факультетские кафедры с кабинетами и лабораториями;

аудиторный фонд (общеинститутский и факультетский);

научно-исследовательские подразделения, учебные клиники, оранжереи, теплицы, виварии, инсектарий, ботанические сада, учебно-опытные хозяйства;

спортивные сооружения и отрытые спортплощадки, кафедры физического воспитания и спорта;

учебно-производственные здания и сооружения, в том числе для медицинских вузов - медико-санитарные учреждения, для педагогических - базовые школы, для театральных и консерваторий - театры, концертные залы;

библиотеки (библиотека - центральная, факультетская, филиалы), технический центр, вычислительный центр, кино фотолаборатория, телецентр;

музеи (общеинститутские и факультетские);

административно-хозяйственные (ректорат, администрация, хозяйственные);

экспериментальные производства;

предприятия культурно-бытового назначения, включая столовые, поликлиники, санатории - профилактории, оздоровительно - спортлагеря, торговые центры, ясли и т.д.);

обслуживающие подразделения, включая ремонтные мастерские, оклады, типографию, котельные, компрессорные, трансформаторные подстанции и т.д.;

3.2. В высших учебных заведениях выделяется группа общеинститутских помещений, которые образуют либо административно-учебный корпус, либо специальную зону обще институтских зданий, включающих: крупные общеинститутские аудитории, кафедры, с лабораториями и учебными кабинетами, библиотеку, ректорат с администрацией, общественные организации, клубно-зрелищные помещения, межфакультетские лаборатории, вспомогательные и обслуживающие помещения, технический центр, спортивные залы.

3.3. В соответствии со спецификой для университетов характерна факультетская структура: студенты с первых же курсов обучаются на соответствующих факультетах. В университетах в отличие от других вузов функционально отсутствуют главные учебные корпуса для обучения всех первых курсов. Университетский общеинститутский блок включает ректорат, библиотеку с музеем и группу актового зала.

Характерной особенностью функциональной и планировочной структуры университетов является наличие в их составе развитых научно-исследовательских подразделений, соответствующих профилю факультетов, непосредственно связанных с учебным процессом (рис.36,а).

3.4. В технических и сельскохозяйственных вузах обучение разделено на два этапа на первом изучаются, главным образом, общеинститутские дисциплины, на втором - профилирующие. В технических вузах первый этап соответствует двум с половиной - трем годам, в сельскохозяйственных - двум годам обучения. В соответствии с этим в практике проектирования и строительства этих вузов выделяются в самостоятельную группу общеинститутские кафедры и помещения, составлявшие главный учебный корпус - обще технический факультет (рис. 36,б, 37).

Кроме того, в технических и сельскохозяйственных вузах наличие большого количества крупных лабораторий с тяжелым оборудованием и крупными пролетами обуславливает необходимость создания специальных блоков и корпусов промышленного типа (низкая этажность, связь с территорией, крановое хозяйство), а также развитую производственную базу, что отражается на планировочной структуре всего комплекса зданий высшего учебного заведения.

В крупных технических и политехнических вузах, как правило, каждый факультет целесообразно размещать в отдельном корпусе.

3.5. Главной особенностью функционально-планировочной структуры медицинских институтов является наличие вузовских клиник и центральных научно-исследовательских лабораторий (ЦНИЛ), где студенты старших курсов учатся и работают.

Клиники при медицинских институтах являются непосредственной лабораторно-практической базой для студентов (рис. 38), кафедры медицинского института имеют, как правило, свою клиническую (лечебно-профилактическую) базу. Кафедры и клиники могут быть объединены также в одном клиническом корпусе.

Корпус центральных научно-исследовательских лабораторий (ЦНИД) часто формируется, как правило, с виварием.

Рис. 36. Принципиальная схема функционально-планировочной организации

а - университета; б - технического вуза (архит. Г.Цытович); 1 - ректорат; 2 -общеинститутские кафедры; 3 - крупные лекционные аудитории; 4 - актовый зал; 5 - библиотека; 6 - спортивный корпус; 7 - технический центр института; 8 - естественнонаучные факультеты; 9 - гуманитарные факультеты; 10 - научно-исследовательские подразделения; 11 - факультеты технических специальностей

Рис. 37. Принципиальная схема функционально-планировочной организации сельскохозяйственного института. Архитектор О.Путинцева

1 - ректора; 2 - общеинститутские кафедры; 3 - крупные лекционные аудитории; 4 - актовый зал; 5 - библиотека; 6 - спортивный корпус; 7 - технический центр института, 8, 10 - научно-исследовательские подразделения; 12 - спецлаборатории; 13 - агрономический факультет; 14 - зооинженерный факультет; 15 - экономический факультет; 16 - факультет механизации электрификации сельского хозяйства

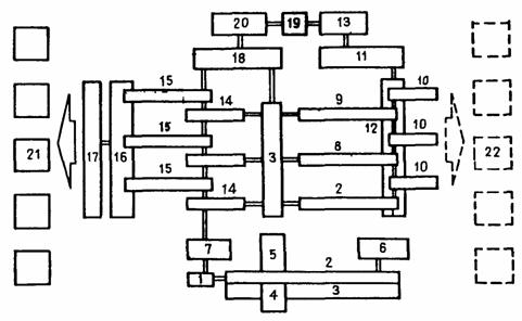
Рис. 38. Принципиальная схема функционально-планировочной организации медицинского института. Архитектор В.Дядек

1 - ректорат; 2 - общеинститутские кафедры; 3 - крупные лекционные аудитории; 4 - актовый зад; 5 - библиотека, 6 - спортивный корпус; 7 - технический медико-диагностический центр; 8 - гигиенические кафедры; 9 - фармацевтические кафедры; 10 - подразделения вузовской науки и СНО, 11 - центральная научно-исследовательская лаборатория; 12 - спецлаборатории; 13 - виварий; 14 - клинические кафедры; 15 - профильные клинические стационары; 16 - лечебно-диагностический блок; 17 - учебно-консультативные поликлиники; 18 - патологоанатомический блок, 19 - радиологический блок, 20 - инженерно-хозяйственный корпус; 21 - клинические лечебно-профилактические учреждения в городе; 22 - научно-исследовательские институты города

3.6. Функционально-планировочная структура педагогических и экономических вузов обусловлена в значительной степени относительно небольшим контингентом студентов, что влияет на тесную взаимосвязь всех групп помещений. Все учебные помещения, как правило, размещаются в едином корпусе с выделением в блоки актового зала, библиотеки, спортзала и крупных лекционных аудиторий.

Для педагогических вузов характерным является наличие развитого факультета общественных профессий. Площадь и состав помещений его зависят от наличия музыкально-педагогического факультета (прил.4).

3.7. Структура вузов культуры и искусства очень разнообразна. Весь контингент вузов культуры состоит из двух больших отделений (факультетов): библиотечного и культпросвет работы, часто подразделяемый на музыкальный, клубный и театральный факультеты. В вузах культуры большое развитие получают библиотеки как учебное помещение и студенческий театр с развитым составом клубно-кружковых помещений.

В консерваториях главной особенностью является необходимость создания универсального концертного зала, оперных студий, а также большого количества классов индивидуальных занятий с мелкими звукоизолированными помещениями.

Специфика театрального института - наличие трансформируемого универсального студенческого учебного театра-студии, развитой спортивной группы помещений, телецентра, кино-фотолаборатории, студии, театральных и танцевальных залов.

Вузы изобразительного искусства, в том числе архитектурные, как и все группы вузов культуры и искусства, имеют большое количество классов для индивидуальных и групповых занятий, где каждый студент имеет свое рабочее место, причем в вузах изобразительного искусства создается также группа выставок и библиотек.

3.8. Особенностью вузов физической культуры является наличие развитого комплекса спортивных сооружений - главной учебной площади вуза для всех курсов.

3.9. Функционально-планировочная структура заочного вуза включает в себя практически все группы помещений, несмотря на небольшие (приведенные к единовременному пребыванию в вузе) контингенты студентов. Особо здесь надо отметить развитую группу общеинститутских кафедр и лабораторий - основу заочного вуза (рис.39).

3.10. Здания высших учебных заведений проектируются с учетом объединения помещений в планировочные группы (блоки): факультетские, библиотечные корпуса, корпуса общеинститутских кафедр и подразделений, научные корпуса и мастерские и т.д.

Основным структурным элементом вуза является факультет. Факультетские помещения включают, как правило, следующие группы: факультетский аудиторный фонд, деканат, специализированные кафедры, обслуживающие и вспомогательные помещения, помещения общественных организаций.

Факультеты формируются, как правило, в соответствии со специализацией.

Такие крупные элементы вузов, как блоки больших лекционных аудиторий, библиотечные корпуса и спортивные залы, обычно размещаются в обособленных блоках или в отдельно стоящих корпусах.

3.11. Компактные блочные композиции характерны для малых вузов с контингентом до 2 тыс. студентов (институты культуры, искусства, физической культуры).

Здания высших учебных заведений с расчетным количеством до 3000 студентов, как правило, проектируются также компактными либо блочными, соединенными отапливаемыми переходами.

Высшее учебные заведения с расчетным контингентом более 3000 студентов следует, как правило, проектировать из отдельных зданий.

Рис. 39. Схема функционального построения здания заочного вуза. Архитектор М.Тучасян

1 - вестибюль; гардероб; 2 - ректорат; 3 - учебная часть; 4 - общественные организации; 5 - административно-хозяйственные подразделения; 6 - столовая; 7 - библиотека; 8 - актовый зал; 9 - общеинститутские кафедры; 10 - крупные лекционные аудитории; 11 - аудиторный фонд; 12 - технические факультеты; 13 - технический центр; 14 - научно-исследовательские подразделения; 15 - санитарно-бытовые помещения.

Рис. 40. Ленинградский университет в Петродворце. Планы этажей учебно-научных корпусов. Архитекторы И.Фомин, В.Уаслов, В.Орлов

а - физический факультет; б - химический факультет; 1 - учебные помещения кафедр; 2 - блоки научных подразделений, 3 - аудиторные блоки; 4 - библиотека

Рис. 41. Казанский государственный университет им. В.И. Ульянова-Ленина (общий вид (а) и план второго этажа; (б) Архитекторы В.Бондаренко, О.Кашенцева

1 - большие лекционные аудитории, 2 - учебные помещения, 3 - библиотека; 4 - рекреационный дворик

Рис. 42. Минский архитектурный институт. Архитекторы В.Аникин, И.Есьман

а - общий вид; б- разрез; в - план 2-го этажа; 1 - главный учебный корпус; 2 - актовый зал; 3 - крупные лекционные аудитории

Рис. 43. Архитектурный факультет Киевского инженерно-строительного института. Архитекторы Л.Филенко, В.Коробка, М.Гершензон, инж. Л.Липович

а - общий вид; б - разрез; в - план 1-го этажа; 1 - вестибюль - рекреация - выставочный зал; 2 - поточная аудитория; 3 - служебные помещения; 4 - кладовые проектов, архивы; 5 - чертежные аудитории; 6 - аудитории рисунка и живописи.

Рис. 44. Московский геологоразведочный институт. Архитекторы А.Беляев, Г.Горлышков, А.Алешичев

а - общий вид; б - план; 1 - вестибюль, 2 - актовый зал; 3 -блок крупных лекционных аудиторий, 4 - снарядная; 5 - спортзал, 6 - учебные помещения кафедр

Рис.45. Генеральный план Московского текстильного института. Архитекторы Г.Цытович, Н.Новоиирская

а - общий вид; б - план; 1 - восьмиэтажный блок учебных помещений кафедр; 2 - актовый зад; 3 - большие лекционные аудитории

Рис. 46. Московский институт тонкой химической технологии. Архитекторы И.Кляшко, М.Менчинская

а - общий вид; б - план 1-го этажа; в - план 3-го этажа; 1 - вестибюль; 2 - учебные корпуса - блоки кафедр; 3 - крупные лекционные аудитории; 4 - актовый зал; 5 - библиотека

Рис. 47. Минский медицинский институт. Архитекторы Э.Гольштейн, Ю.Бичан, инженер В.Ермак

а - общий вид; б - план 2-го этажа; 1 - главный учебный корпус повышенной этажности; 2 - библиотека; 3 - блок крупных лекционных аудиторий; 4 - актовый зал; 5 - столовая; 6 - учебные корпуса факультетов

Рис. 48. Педагогическхй институт в Бухаре, Архитектор А.Беляев

1 - учебный корпус; 2 - крупные лекционные аудитории; 3 - актовый зал; 4 - спортзал; 5 - внутренний двор - рекреация

3.12. В технических, сельскохозяйственных, педагогических, фармацевтических и экономических вузах с расчетным контингентом до 4 тыс. студентов наиболее оправданной является блочная система построения корпусов. Используются как центричные решения с двориками-форумами, так и линейной композиции с системой учебных корпусов, соединенных крупными аудиторными блоками.

3.13. Специфика объемно-планировочных решений высших учебных заведений и особенно отдельных корпусов, очень велика и зависит от: композиционной структуры города, особенностей местности и участка, творческих концепций мастера - автора проекта (см. рис.2 - 19). Поэтому целесообразно лишь дать общие рекомендации и проиллюстрировать на конкретных примерах возможности и разнообразие объемно-планировочных и композиционных решений различных корпусов высших учебных заведений: компактные с развитой системой корпусов, линейные с широким внутренним пространством, с внутренним двориком, вертикально-точечных, создание единых объединенных подкупов - первых этажей и других решений (рис. 40-51).

Рис. 50. Минский институт культуры, общий вид и план 2-го этажа. Архитекторы Ю.Григорьев, П.Моокалевич

1 - вестибюль; 2 - библиотека (библиотечный факультет); 3 - крупные лекционные аудитории; 4 - танцевально-постановочные классы

Рис. 51. Проект консерватории в Алма-Ате. Архитектор А.Великанов

а - фасад; б - план 2-го этажа, 1 - концертный и театральный залы; 2- большие лекционные аудитории; 3- хоровые классы; 4 - блок репетиториев - классов индивидуальных занятий; 5 - учебные помещения кафедр, классы, артистические; администрация

Состав и общие площади основных групп помещений вузов

3.14. Требуемый состав и величина площади помещений различных групп, учитывая их функциональное назначение, определяются различными путями.

Количество основных учебных помещений вуза определяется технологическим расчетом по учебным планам по каждой специальности, исходя из односменных занятий, на основании данных о контингенте, годового фонда загрузки учебных помещений, величины учебной группы. Кроме того, количество учебных лабораторий определяется также и тематикой лабораторных работ, спецификой лабораторных исследований и характеристикой оборудования.

Количество лаборантских, препараторских и других кафедральных помещений определяется технологической потребностью, а кабинетов преподавателей - в соответствии со штатами.

Спортивные помещения вузов рассчитывается по учебным планам и бюджету времени, занимаемому секционной работой.

Состав помещений библиотек определяются по потребности индивидуальной работы студентов, аспирантов, преподавателей и научных работников.

Состав помещений актовых завов рассчитываются по бюджетному времени, развития культурно-массовых мероприятий и политико-воспитательной работы в институте, требованиями художественного творчества коллектива вуза.

3.15. Площади отдельных учебных помещений вузов принимаются в зависимости от набора технологического оборудования и мебели, из размещения, условий эксплуатации в соответствии с технологическими санитарно-гигиеническими и эвакуационным требованиями.

3.16. При расчете площадей помещений, кроме расчетного контингента студентов высшего учебного заведения, следует учитывать следующий состав работающих: профессорско-преподавательский; учебно-научно-вспомогательный; административно-управленческий и обслуживающий персонал, аспиранты и научные сотрудники, слушатели повышения квалификации и подготовительных курсов.

3.17. Площади помещений вузов в зависимости от их функционального назначения составляют следующие категории:

учебно-производственную;

учебно-вспомогательную;

нормируемую (рекомендуемую) по СНиП 2.08.02-89;

нормируемую сверх показателей СНиП 2.08.02-89;

подсобную площадь;

общую площадь.

Классификация и структура с дифференциацией площадей приведена в табл. 5.

Таблица 5

Общая площадь

Полезная площадь

Нормируемая площадь

Подсобная площадь

Техническое

пространство и площадь конструкций

нормируемая площадь по СНиП 2.08.02-89

учебно-производственные площади

учебно-вспомогательные площади

нормируемая площадь сверх показателей СНиП 2.08.02-89

1

2

3

4

5

Аудиторный Фонд: крупные лекционные аудитории (100-350 мест), малые аудитории (50 и менее мест), кабинеты программирован­ного обучения, залы курсового и дипломного проектирования; чертежные залы

Помещения кафедр: (общеин­ститутские и факультетские):

учебные кабинеты и лаборантские, лаборатории

Межфакультетские лаборатории

Межкафедральные лаборатории Сооружения кафедр физкультуры и спорта (закрытые и открытые) Учебно-производственные мастерские

Библиотеки: центральная факультетская, филиалы.

Сооружения кафедры физвоспитания и спорта: открытые и закрытые

Зрелищный комплекс: актовый с подсобными помещениями, клубный зал

Административно-хозяйственные помещения: ректорат, админист­рация, деканаты, хозяйственная часть, архивы, кладовые, общественные организа­ции

Музеи: общеинститутские, факультетские, кафедральные

Технический центр: телецентр, кино - фотолаборатории

Столовые

Обслуживающие помещения: санитарные узлы, буфеты, здравпункты.

Рекреационные помещения: вестибюль, гардероб рекреации, холлы

Хозяйственные помещения: комендантские, хозяйственно-бытовые помещения, склады, ремонтные мастерские

Научно-исследовательские помещения при кафедрах: преподавательские, аспирантские, лаборатории НИЧ.

Спецлаборатории: отраслевые, проблемные

Опытно-конструкторские бюро

Вычислительный центр:

Студенческие научные организации студенческие проектные и конструктор­ские бюро студенческие научные общества и др.

Учебно-производственные мастерские

Межвузовские научные центры

Учебно-производственные подразделения: ветеринарные лечебницы, базовые медико-санитарные учреждения, теплицы, полигоны и др.

Коммуникационные помещения: - коридоры, тамбуры, переходы

Технические помещения: электрощитовые, душевые, вентиляционные камеры, бойлерные, камеры кондиционирования, газорегуляторные, щитовые компрессорные (неучебные) автоклавные, криогенные

Площадь стен, перегородок несущих конструкций шахты, лифты, лестницы, мусоропроводы, стенные встроенные шкафы

3.18. Основными показателями зданий высшего учебного заведения являются строительный объем, нормируемая и общая площадь.

Для ориентировочного расчета можно принять коэффициент перевода нормируемой площади по СНиП 2.08.0,2-89: в общую 1,6-1,7; в полезную 1,3-1,4; в учебно-производственую 0,8-0,85.

3.19. Для укрупненного расчета площадей дифференцирование по типам дневных высших учебных заведений и их величине рекомендуется пользоваться удельными показателями площадей, приведенными в табл.6.

Таблица 6

Наименование высших учебных заведений и расчетное количество студентов

Учебно-производственная площадь, м2

Нормируемая площадь, м2

Полезная площадь, м2

Общая площадь, м2

Строительный объем, м3

1

2

3

4

3

6

Университеты:

 

 

 

 

 

от 4000до 6000

8,4

10,6

14

17,5

71

св. 6000 до 8000

8,2

10,3

13,7

17,1

69

" 8000 до 10000

8,0

10,0

13,3

16,6

67

" 10000 " 12000

7.7

9,7

12,9

16,1

65

Политехнические:

 

 

 

 

 

от 4000 до 6000

8,7

10,9

14,4

18,8

75

св.6000 до 8000

8,5

10,6

14,1

18,3

73

" 8000 " 10000

8,2

10,3

13,7

17,8

71

" 10000 " 15000

8,0

10,0

13,3

17,2

69

Технические и инженерно-экономические:

 

 

 

 

 

от 2000 до 4000

8,9

11,2

14,9

19,4

77

св. 4000 до 6000

8,7

10,9

14,5

18,8

75

" 6000 " 8000

8,5

10,6

14,1

18,4

73

Педагогические:

 

 

 

 

 

св. 2000 до 4000

6,7

8,7

11,6

14,5

58

Фармацевтические:

 

 

 

 

 

от 2000 до 4000

8,9

11,2

14,9

19,4

77

Экономические:

 

 

 

 

 

от 2000 до 4000

6,0

7,9

10,5

13,1

52

ов.4000 до 6000

 

7,5

10

12,5

50

Медицинские:

 

 

 

 

 

от 2000 до 4000

9,8

12,3

16,3

22,0

88

св.4000 до 6000

9,7

12,1

16,1

21,7

87

Сельскохозяйственные

 

 

 

 

 

от 2000 до 4000

8,9

11,2

14,9

19.4

77

св. 4000 до 5000

8,7

10,9

14,5

18,8

75

Зооветеринарные:

 

 

 

 

 

до 2000

9,1

11,4

14.9

20,5

82

Культуры:

 

 

 

 

 

от 1000 до 2000'

11,6

15,0

20

26,0

104

Искусства и архитектуры:

 

 

 

 

 

от 500 до 1500

15,1

20,0

26

33,8

135

Примечание: 1. В удельные показатели не включены подразделения, являющиеся специфическими для каждого вуза - нормируемая площадь сверх показателей СНиП 2.08.02-89, площадь которых определяется дополнительно специальным расчетом:

подготовительные отделения и факультеты (институты) повышения квалификации;

кафедра гражданской обороны с тиром;

павильон сельскохозяйственных машин, высоковольтных и машинных залов стендовых испытаний, фитотранных и климатических испытаний;

учебные клиники, оранжереи, теплицы, виварии, инсектории, сооружения при учебных полигонах, ботанических садах, учебно-опытных хозяйств, учебные музеи;

научно-исследовательские подразделения, телевизионные центры;

вычислительные центры и помещения для устройства АСУ;

студенческие проектные, конструкторские, технологические экономические бюро;

межвузовские фундаментальные библиотеки и филиалы библиотек при научных подразделениях, в клубах и общежитиях;

студенческие клубы;

редакционно-издательские отделы с типографиями;

учебно-производственные помещения и ремонтные мастерские, службы эксплуатации зданий и оборудования;

учреждения культурно-бытового назначения (столовые, магазины, санатории - профилактории, поликлиники, комплексные пункты бытового обслуживания и т.д.);

учреждения связи;

сооружения инженерного обеспечения высших учебных заведений (котельные, компрессорные, криогенные, автоклавные, трансформаторные подстанции, гаражи и др.);

отдельно стоящие склады.

Общая суммарная площадь перечисленных выше помещений не должна, как правило, превышать удельные показатели нормируемой площади для университетов и медицинских вузов - на 80%, для технических, фармацевтических и сельскохозяйственных вузов - на 50%, для остальных высших учебных заведений - на 30%.

2. Общая площадь медицинских вузов включает теоретическую учебно-научную базу, равную соответственно 16,3 и 16,1 м2 и площадь клинических кафедр, равную неответственно 5,7 и 5,6 м2 размещаемых в структуре лечебно-профилактических учреждений.

3. Удельные показатели институтов и факультетов физической культуры устанавливаются заданием на проектирование о учетом соблюдения соответствующих пунктов.

4. При проектировании факультетов в составе высшего учебного заведения другого профиля следует пользоваться удельными показателями вуза, соответствующего профилю данного факультета.

5. Для высших учебных заведений с расчетным контингентом менее и более величин, указанных в табл.6, площади определяются заданием на проектирование.

3.20. Для ориентировочного расчета площадей заочных высших учебных заведений разработаны удельные, показатели нормируемой, общей площади и строительного объема на одного студента, приведенные в табл.7

Таблица 7

Наименование заочных вузов и контингент

Нормируемая площадь, м2

Общая площадь м2

Строительный объем, м2

1

2

3

4

Политехнические, технические, сельскохозяйственные: институты:

 

 

 

10 - 20

1,7

2,8

11,2

св. 20

1,4

2,4

9,6

ОТФ и филиалы

 

 

 

0,5 - 1,0

4,2

7,0

28,0

1,0 - 2,0

3,6

6,7

24,0

2,0 - 3,0

3,0

5,0

20,0

Экономические, педагогические:

 

 

 

институты

 

 

 

10 - 20

1,3

2,1

8,4

св. 20

1,2

2,0

8,0

ОТФ и филиалы

 

 

 

0,5 - 1,0

4,0

6,6

26,4

1,0 - 1,5

3,3

5,5

22,0

1,5 - 2.0

2,6

4,4

17,0

Юридические: институты

 

 

 

10 - 20

1,3

2,1

8,4

ОТФ и филиалы

 

 

 

6.5 - 1,0

3,6

6,0

24,0

1,0 - 2,0

2,4

4,0

16,0

3.21. Для расчета площадей подготовительного отделения можно принять следующие показатели на одного учащегося:

общую площадь - 6,2

полезную - 4,9

нормируемую - 3,8

учебно-производственную - 3,4 м2

3.22. Рассмотрение и анализ основных семи групп помещений вузов, их состав и функциональное назначение позволили установить удельные показатели нормируемой площади этих групп на одного студента (без научно-исследовательских подразделений) для высших учебных заведений различного профиля, общие расчетные показатели нормируемой площади вузов на одного студента (табл.8), а также перечень подразделений вузов, площади которых рассчитываются конкретно для данного вуза и не входят в расчетные показатели. Удельные показатели отдельных групп помещений уточняются расчетом при составлении заданий и в процессе проектирования.

Таблица 8

Группы высших

учебных заведений, с расчетным контингентом студентов, тыс. чел.

Удельная рабочая площадь по группам помещений, кг

Расчетный

показатель рабочей площади вуза, м2

учебные помещения кафедр

аудиторный фонд

спортивная группа

библиотека

группа актового зала

административно-хозяйственная

вспомогательная

1

2

3

4

5

6

7

8

9

Университеты:

 

 

 

 

 

 

 

 

2-4

5,1

1,2

0,8

1,3

0,5

0,7

1,3

10,9

4-6

4,9

1,2

0,8

1,3

0,5

0,6

1,3

10,6

6-8

4,7

1,2

0,7

1,3

0,5

0,5

1,3

10,3

8-10

4,5

1,2

0,7

1,3

0,5

0,5

1,3

10,0

10-12

4,3

1,2

0,7

1,3

0,5

0,4

1,3

9,7

Политехнические технические, инженерно-экономические и фармацевтические:

 

 

 

 

 

 

 

 

2-4

5,8

1

0,8

1,0

0,5

0,7

1,3

11,2

4-6

5,6

1

0,8

1,0

0,5

0,6

1,3

10,9

6-8

5,4

1

0,7

1,1

0,5

0,5

1,3

10,6

8-10

5,2

1

0,7

1,1

0,5

0,5

1,3

10,3

10-12

5,0

1

0,7

1,1

0,5

0,4

1,3

10,0

Сельскохозяйственные и ветеринарные:

 

 

 

 

 

 

 

 

менее 2

6

1

0,8

1

0,6

0,8

1,3

11,5

2-4

5,9

1

0,8

1

0,5

0,7

1,3

11,2

4-6

5,7

1

0,8

1

0,5

0,6

1,3

10,9

Педагогические:

 

 

 

 

 

 

 

 

1-2

3

1,2

0,8

1,3

0,6

0,8

1,3

9,0

2-4

2,9

1,2

0,8

1,3

0,5

0,7

1,3

8,7

Медицинские:

 

 

 

 

 

 

 

 

2-4

6,7

1

0,8

1,3

0,5

0,7

1,3

12,3

4-6

6,6

1,1

0,8

1,3

0,5

0,6

1,3

12,1

Экономические:

 

 

 

 

 

 

 

 

2-4

2,4

1,2

0,8

1

0,5

0,7

1,3

7,9

более 4

2,1

1,2

0,8

1

0,5

0,6

1,3

7,5

Культуры:

 

 

 

 

 

 

 

 

1-2

6,9

1,2

1,2

2,3

1,1

0,8

1,5

15,0

Изобразительного искусства и архитектуры:

 

 

 

 

 

 

 

 

1-2

8,2

5,5

1,2

1,5

0,7

0,8

2,1

20,0

Театральные:

 

 

 

 

 

 

 

 

0,5-1,5

6,7

1,5

2,2

1,3

5,6

1

1,7

20,0

Консерватории:

 

 

 

 

 

 

 

 

0,5-1,0

6,5

2,2

1,2

1,5

6

1

1,5

20,0

Физической культуры:

 

 

 

 

 

 

 

 

1-2

13,6

1,2

-

1

0,7

0,8

1,7

19,0

Примечание: В институтах физической культуры спортивная группа включена в группу помещений кафедр

Учебно-научные корпуса и блоки

3.23. Массовыми зданиями высших учебных заведений всех профилей являются учебно-научные корпуса.

Структура учебно-научных корпусов, в которых размещаются, как правило, кафедры, лаборатории, аудитории, административные и другие помещения, характеризуется сочетанием корпусов или блоков со стандартным пролетом высотой 4-9 этажей, корпусов-блоков с крупными специальными лабораториями и блоков крупных лекционных аудиторий, обычно пристраиваемых или соединяемых переходами с главным объемом.

В данном разделе не рассматриваются в целом учебные корпуса, малых вузов и главные учебные корпуса политехнических и сельскохозяйственных вузов, в состав которых обычно включаются библиотеки, актовые залы и спортивные блоки, а характеризуются некоторые прогрессивные принципы структурного построения корпусов и блоков со стандартным пролетом (6 - 7,5 м).

3.24. В массовые типы учебно-научных корпусов кафедр с пролетами (5 - 7,5 м) включаются, как правило, следующие группы помещений:

кафедры с учебными кабинетами и лабораториями, не гребущие укрупненных пролетов и повышенной высоты, кабинеты преподавателей, вспомогательные помещения;

малые лекционные аудитории (до 75 мест) и специализированные аудитории с ТСО;

научно-исследовательские лаборатории кафедр, также не гребущие особых габаритов;

залы индивидуальных занятий, курсового и дипломного проектирования;

административные помещения факультетов.

3.25. Разнообразие решений учебных корпусов массовых назначений в вузах (учебные корпуса кафедр) очень велико. Главным композиционным ядром корпусов являются (кроме учета общих архитектурно-художественных требований конкретного вузовского комплекса в целом) местоположение и взаимосвязь крупно структурных элементов (крупные лекционные аудитории, чертежные залы, мастерские и лаборатории с крупногабаритным и тяжелым оборудованием, спортзалы) и элементов массовых мелкоячеистых с глубиной помещения до 6 - 7,5 м. Применяются схемы с внутренним двором, вертикальным расположением аудиторий, их сосредоточение на нижних этажах, создание широких учебных корпусов с верхним светом и расположение крупных залов в центральной зоне. Примеры решений учебных корпусов разного типа были приведены на рисунках 40 - 51.

Динамика учебного процесса, периодическое, изменение учебных программ, постоянный рост контингента студентов, развитие научных исследований, отличие разных групп вузов по структуре и величине контингента, значительное место в городе и конкретность градостроительных ситуаций определили нецелесообразность разработки типовых проектов учебных корпусов вузов.

3.26. Здания высших учебных заведений в зависимости от их назначения рекомендуется проектировать:

учебные здания, предназначенные для размещения кафедр и мелких аудиторий, не более 9 этажей;

научно-исследовательские подразделения, как правило, - не выше 16 этажей;

крупные блоки лекционных аудиторий, библиотеки, актовые и спортивные залы, лабораторные, столовые, как правило, - не более 4 этажей;

административные корпуса крупных университетов проектируются

по специальным заданиям исходя из градостроительных требований.

Корпуса факультетов рационально проектировать не более 5 этажей. В учебных корпусах до 9 этажей следует предусматривать в верхних этажах учебные помещения с меньшей загрузкой, в нижних - наиболее посещаемые.

Структура учебно-научных корпусов, в которых размещаются, как правило, кафедры, лаборатории, аудитории, административные и другие помещения, характеризуется сочетанием корпусов или блоков с пролетом 6 - 7,5 м высотой 4 - 9 этажей, корпусов-блоков с крупными специальными лабораториями и блоков крупных лекционных аудиторий, обычно соединенных переходами.

3.27. Допускается размещать в едином корпусе учебные и научно-исследовательские подразделения с соответствующим им размещением по этажам.

В отдельные блоки высотой 1 - 2 этажа выделяются кафедры со специальными учебными и научно-исследовательскими лабораториями с крупногабаритным и тяжелым оборудованием.

3.28. Учебные помещения вместимостью на 100 мест и более следует размещать, как правило, до третьего этажа включительно.

3.29. В вузах с расчетным числом студентов до 5000 актовые залы с клубными помещениями, библиотеки, спортзалы, как правило, проектируются как отдельные блоки, включенные в структуру основного учебного корпуса или связанные с ним переходом.

В вузах численностью более 5000 студентов библиотеки и спортзалы проектируются обычно как самостоятельные здания. Рекомендуется при возможности соединять корпуса переходом с главным учебным корпусом вуза либо с административным корпусом.

3.30. Клубные корпуса вузов рекомендуется проектировать отдельно стоящими с созданием хорошей технологической и композиционной связи с жилой зоной общежитий.

Актовые залы в клубные корпуса рекомендуется объединять в единые блоки с кафе-столовыми, танцевальными залами, крупными лекционными аудиториями, а также создавать единые двухзальные (зрелищно-клубные) центры вузов.

3.31 Высоту надземных этажей зданий от пола до потолка следует принимать не менее 3.0 м.

Высоту аудиторий на 50 мест, оборудованных аудиовизуальными средствами обучения, аудиторий на 75 мест и более, кабинетов, оборудованных средствами вычислительной (компьютерной) техники, главных вестибюлей, книгохранилищ с двухъярусными стеллажами и учебно-производственных помещений необходимо принимать 3,6 и 4,2 м и более кратно укрупненному модулю 600мм в соответствии с технологическими требованиями.

В корпусах кафедр с аудиториями, кабинетами и лабораториями, решенных в едином конструктивно-планировочном модуле, высоту надземных этажей рекомендуется унифицировать; высоту актовых залов - в соответствии с Пособием по проектированию клубных и спортивных залов.

3.32. Все учебно-производственные и учебно-вспомогательные помещения следует размещать в надземных этажах. При этом - лаборатории с тяжелым и крупногабаритным оборудованием, силовыми установками, учебно-производственные мастерские и т.п. следует •размещать на грунте или на усиленном перекрытии; скульптурные классы рекомендуется размещать на первых этажах с выходом наружу, так как это связано с технологическим процессом и хранением подсобных материалов.

3.33. Спортивные и актовые залы, библиотеки и столовые следует размещать с учетом возможного использования независимо от учебных помещений.

Спортивные залы и помещения не допускается размещать над учебными помещениями.

При реконструкции допускается размещение спортивных залов над учебными при обеспечении мер защиты от шума.

3.34. В цокольных этажах допускается размещать все помещения, размещение которых допускается в подвалах; бассейны; помещения копировально-множительной техники. Перечень помещений, размещаемых в цокольных и подвальных этажах, приведен в прил.4 к СНиП 2.08.02-89 .

3.35. В подвальных этажах допускается размещать: лаборатории для изучения спецпредметов со спецоборудованием; телестудии; кинофото-лаборатории; радиоузлы; книгохранилище; стрелковые тиры; ремонтные мастерские; предприятия общественного питания; кладовые и складские помещения (кроме помещений для хранения легковоспламеняющихся и горючих жидкостей); вестибюль при устройстве выхода из него наружу через первый этаж; гардеробные, уборные, умывальные; душевые; раздевальные; бойлерные; насосные водопровода и канализации; вентиляционные камеры; для кондиционирования воздуха; машинные отделения лифтов.

При проектировании помещений, размещение которых допускается в подвальных и цокольных этажах зданий высших учебных заведений, рекомендуется учитывать возможность их использования по второму назначению для нужд гражданской обороны под помещение основного назначения убежищ, а в комплексах вузов, размещаемых в малых и средних городах, - убежищ и противорадиационных укрытий, - в соответствии с нормами.

Необходимость использования помещений по двойному назначению определяется в специальном разделе задания на проектирование "Мероприятия по гражданской обороне", где назначаются класс убежищ или группа укрытий, состав и площадь помещений.

Рекомендации по размещению помещений двойного назначения приведены в прил.5.

3.36. Для технических помещений и удобства разводки инженерных коммуникаций в зданиях вузов необходимо предусматривать техническое подполье и неотапливаемый чердак.

Техническое подполье, как правило, должно быть заглублено в грунт минимально возможно, а при наличии грунтовых вод пол технического подполья целесообразно выполнять выше отметки уровня поднятия грунтовых вод минимально на 0,5 м.

Высота технического подполья и технического коридора от пола до низа выступающих конструкций перекрытия должна быть не менее 1,8м.

При размещении в техническом подполье и техническом коридоре вентиляционных установок, вводов и т.д. высота помещений для них принимается в зависимости от оборудования, но не менее 2,2 м,

3.37. В зданиях высших учебных заведений исключить пороги. Допускается при обосновании установка в зданиях резиновых порогов.

3.38. Планировка помещений в зданиях высших учебных заведений должна обеспечивать разворот инвалидной коляски, имеющий в плане окружность диаметром 1,5 м.

3.39. При проектировании высших учебных заведений защиту от шума следует предусматривать в соответствии со СНиП II-12-77,а защиту от вибрации в лабораториях - в соответствии с требованиями СН 245-71.

3.40. Помещения высших учебных заведений должны иметь непосредственное естественное освещение.

Естественное и искусственное освещение помещений высших учебных заведений следует проектировать в соответствии со СНиП II-4-79 и СНиП 2.08.02-89.

Допускается проектировать без естественного освещения (только с искусственным): помещения, размещение которых допускается в подвальных этажах, актовые залы; лекционные аудитории на 100 мест и более и кулуары.

Освещенность в аудитории должна быть достаточной и равномерной как при естественном, так и при искусственном освещении (рекреационные помещения при этом должны иметь уровень освещенности не ниже, чем в аудитории).

3.41. Планировка учебных и лабораторных помещений и размещение в них оборудования должны обеспечивать боковое освещение учебных мест естественным светом с левой стороны или смешанное (верхнее с боковым). Возможно применение наклонных светопроемов: промежуточное положение между вертикальным окном и зенитным фонарем. Смешанное освещение рекомендуется применять в учебных помещениях с большой глубиной (более 8 м). Сочетание бокового и верхнего света создает в помещении нормируемые уровни освещенности: с равномерностью освещения не менее 0,6 лк.

Для освещения дневным светом аудиторий, читальных и спортивных залов, плавательных бассейнов и других помещений целесообразно применение зенитных фонарей. Это позволяет значительно увеличить ширину зданий, вузов, что уменьшит затраты на отопление и создаст компактные архитектурно-планировочные решения.

3.42. Прогрессивным направлением в создании вузовских комплексов является формирование их на основе унифицированных для данного комплекса учебно-лабораторных корпусов и блоков кафедр различного назначения.

По инженерному обеспечению лабораторий и кабинетов можно выделить три основных типа кафедр.

Тип 1 - кафедра, для которой не нужны особые технологические подводки. Они обеспечиваются обычными инженерными коммуникациями. К этому типу относятся общетеоретические кафедры всех вузов, университетские кафедры гуманитарных факультетов, педагогических и экономических вузов, а также ряд математических электротехнических кафедр.

Тип 2 - кафедры, для которых требуются специальные инженерно-технологические подводки (вода, газ, сжатый воздух, кислород, технологические вытяжки и приток и т.п.), но без тяжелого оборудования на фундаментах. Они должны быть размещены так, чтобы к лабораториям и кабинетам при необходимости можно было бы организовать дополнительную подводку всех инженерных сетей. К таким кафедрам относятся химические, физические, биологические, геологические и геолого-физические, радиофизические и многие другие специализированные кафедры университетов, технических, сельскохозяйственных и медицинских вузов.

Тип. 3 - кафедры с крупногабаритным и тяжелым оборудованием, требующим размещения на земле. При этом необходимы крупные пролеты конструкций и специальные фундаменты. В основном они распространены в технических и сельскохозяйственных вузах.

С учетом типов кафедр рекомендуется создавать для их размещения унифицированные учебно-лабораторные корпуса или блоки, стандартные для данного комплекса.

На рис. 52-55 приводятся схемы блоков универсального типа, учитывающие современные планировочные и конструктивные требования, удобство размещения технологического оборудования.

3.43.Рекомендуемыми модульными сетками при проектировании массовых корпусов и блоков кафедр можно считать следующие:

1. -для учебно-лабораторных корпусов технических вузов - (7,2+3+7,2)´6м; (7,2+3+7,2)´7,2м; (7,5+3+7,5)´6м; (9+9)´6м;

2. для учебно-лабораторных корпусов гуманитарных вузов - (3+6)´6м; (7,5+7,5)´6м; а также (6+4,5+6)´6м;

3. для специализированных и мастерских: (9+3+9)´6м; (12+3+12)´3м и другие крупные пролеты более 9м.

3.44. Вертикальные трубопроводы (стояки) внутренних инженерно-технических систем (кроме газа), как правило, следует прокладывать в коммуникационных шахтах, которые могут быть; продольные - вдоль коридора (односторонние или двухсторонние), поперечные и центральные в соответствии с конструктивно-планировочной структурой здания и технологическими требованиями. Ширина коммуникационных шахт должна обеспечить доступ к инженерным коммуникациям для их ремонта и дополнительной прокладки без нарушения учебного процесса и эвакуационных путей из здания. Шахты должны быть выполнены из несгораемых материалов с пределом огнестойкости 0,5 ч.

Рекомендуется ширина вертикальных коммуникационных шахт:

непроходные продольные двухсторонние с доступом со стороны коридора - 0,4 - 0,8 м;

проходные продольные односторонние - 1,2 - 2 м;

поперечные проходные - 2,0 - 2,8 м;

центральные - по расчету.

Допускается устройство наружных коммуникационных шахт при соответствующем климатическом и технологическом обосновании.

3.45. Для вузов, имеющих технологию с вредными выбросами, взрывопожароопасными, радиоактивными веществами, необходимо предусматривать с двух сторон коридора проходные коммуникационные шахты с возможностью замены в них инженерных коммуникаций, а также их обслуживания. При устройстве проходной коммуникационной шахты с одной стороны коридоре необходимо предусматривать подносный потолки в коридоре и обеспечивать взрывопожарную безопасность воздуховодов, пересекающих коридор.

3.46. Здания и сооружения высших учебных заведений вследствие их разнохарактерного функционального назначения, различных объемно-планировочных решений, габаритных размеров и нагрузок требуют разнообразных конструктивных проектных решений и, как правило, выполняются по индивидуальным проектам.

Рис. 52. Примеры линейных блок секций и варианты компоновки учебных корпусов из них:

а - блоки общетеоретических кафедр с системой коммуникаций вдоль коридоров; б - блоки кафедр естественных и точных наук с шахматной системой коммуникаций; в - блоки кафедр с крупногабаритным и тяжелым оборудованием; 1- учебные помещения; 2 - туалеты; 3 - рекреации и коридоры; 4 - коммуникационные шахты

Рис. 53 Крестообразные блок секции

а - д. - примеры планировки; е. - принцип компоновки учебного корпуса

Рис. 54. Блок-секции точечного типа

а, б, в - примеры планировки; г-е - варианты компоновки учебных корпусов

Рис. 55. Примеры планировки системы учебно-научных корпусов из унифицированных блоков - секций с шахматной системой у коммуникаций при модуле (7,5+7,5)´6 м. Архитектор Г.Цытович

а - система учебных и научных корпусов в проекте МГГУ им. Н.Э.Баумана; б - то же; в проекте новых учебных корпусов МГУ им. М.В.Ломоносова (вариант)

Конструкции зданий вузов проектируются с учетом СНиП 2.02.01-83 "Основания зданий и сооружений”, СНиП 2.02.03-85 "Свайные фундаменты", СНиП .01.07-85 "Нагрузки и воздействия", СНиП II-3-79 «Строительная теплотехника»

3.17. Технологический расчет состава и площадей помещений высших учебных заведений, их назначение, оснащение технологическим оборудованием и мебелью, техническими средствами обучения, требования к условиям эксплуатации и размещению подробно рассмотрены в "Пособии по проектировании технологического и инженерного обеспечения зданий вузов и институтов повышения квалификации".

УЧЕБНЫЕ КАБИНЕТЫ И ЛАБОРАТОРИИ

3.18. Площадь учебных кабинетов и лабораторий ориентировочно принимается по удельным показателям на одно место: в учебных кабинетах - не менее 2,2 м2, в лабораториях общеобразовательского профиля - 4,6 м2 в лабораториях и кабинетах технического профиля - 6-8 м2.

На рис. 56, 57, 58, 59 приведены планировки учебных кабинетов и лабораторий. Величины регламентируемых параметров приведены в табл.9 (к рис. 56).

3.19. Площади учебных помещений с техническими средствами программированного обучения, вычислительной техники и для занятий иностранным языком принимается из расчета на одно место: в учебных кабинетах с обучающими и контролирующими машинами - 2,4 м2 , то же с устройством обратной связи - 3 м2, в учебных кабинетах вычислительной техники - 4,5 м2.

Для обработки данных по вычислительным работам следует предусматривать помещение площадью 54 м2, для проведения консультаций по вычислительной технике - 35 м. При кабинетах и лабораториях вычислительной техники, при лингафонном кабинете и фонозале следует предусматривать лаборантские площадью - 18 м2. При кабинетах для занятий языком следует предусматривать студию и аппаратную звукозаписи площадью 36 м2.

Рис. 56. Регламентируемые параметры планировки учебных помещений

а - лаборатории; б - аудитории

Рис 57. Функционально-габаритные схемы планировки лабораторий. Инженеры Л. Сигачева, Д. Хомутова

а - лаборатории физики с двухместными столами; б - лаборатории физики с одноместными столами; в, г - варианты организации лаборатории химии; в зависимости от размещения вытяжных шкафов

Рис. 58. Планировочная организация архитектурно-проектных кабинетов. Архитектор В.Королев

а - планировка внутренней мастерской; б - планировка кабинетов проектирования на 10 рабочих мест ; - пример блокировки аудиторий; г - планировка ячейки рабочего места, 1 - стол (1350 ´ 800 ) с выдвижным ящиком и выкатной тумбочкой с подъемной чертежной доской 1350 ´ 800; 2 - табурет 300 ´ 300, 3 - стол 1350 ´ 450; 4 - информационные стенда в виде поворотных страниц; 5 - прибор "Вертикальная струна" для резки пенопласта; 6 - малогабаритный станок - фреза; 7 - стол-тумба с выдвижной емкостью для мусора; 8 - боковая вспомогательная доска (на уровне столов); 9 - встроенный шкаф для хранения учебной литературы и вспомогательных материалов; 10 - экран высотой 1350 м от поверхности стола

Рис. 59. Расстановка оборудования лингафонных кабинетов. Архитетор Ф.Грачев

1 - полукабина для лингафонного кабинета 850 ´ 920 ´ 750; 2 - стол преподавателя 1500 ´ 750 ´ 900, 3 - стул рабочий 420 ´ 415 ´ 450; 4 - доска меловая 3000 ´ 177 ´ 1500; 5 - шкаф для учебно - наглядных пособий 1140 ´ 500 ´ 2590; 6 - экран 2000 ´ 1500

Таблица 9

Головные обозначения (рис. 56)

Наименование параметров

Нормируемая величина, см

1

2

3

У1

Расстояние между столами, в аудитории; в ряду

70

У2

при парном расположении столов в ряду

70

У3

от задних рядов аудитории до стены

80

У4

между лабораторными столами при одном ряде работающих

80

У5

от задних рядов лабораторных столов до стены (или шкафов)

100

У6

между лабораторными столами при двух рядах работающих

140

У7

от передних рядов аудиторных столов до меловой доски шириной 2 м

190

 

от передних рядов аудиторных столов до меловой доски шириной 3 м

220

П1

Расстояние между рядами столов я в аудитории при парном их размещении

10

 

 

 

П2

Расстояние от аудиторных столов до окна

50

П3

Расстояние от лабораторных столов до окна

50

П4

Расстояние от аудиторных столов до стены, боковых встроенных шкафов или наглядных пособий

50

П5

Расстояние между рядами аудиторных столов

70

П6

Расстояние от лабораторных столов (от раковины) до стены. до шкафов или до оборудования

140

Примечание: 1. При расположении входа в учебное помещение со стороны задних рядов аудиторных столов У3 или П4 увеличивается на 60 см.

2. Угол оптимальной видимости применяется 30-35°.

3.50. Оптимальные расчетные вместимости кабинетов с мини-микро ЭВМ - 8-16 рабочих мест. Площадь определяется из расчета 4 - 6 м2 на одно рабочее место с дисплеем, персонального ЭВМ в зависимости от организации учебного процесса, условий размещения оборудования и его эксплуатации. Функционально-габаритные схемы кабинетов (на примере персонального компьютера ДВК с различной расстановкой оборудования приведены на рис. 60.

Рис. 60. Расстановка оборудования в учебных помещениях с техническими средствами обучения

а - дисплейная аудитория на 25 рабочих мест; б - дисплейная аудитория на 16 рабочих мест; 1 - стол двухместный ученический 130 (120)´50; 2 - стол двухместный с ПЭВМ; 3 - стол преподавателя с ПЭВМ 130(120)´75; 4 - стол - подставка под графопроектор; 5 - стол - подставка под принтер; 6 - телевизор; 7 - подставка под проекты; 8 - шкаф пристроенный 90´45; 9 - доска меловая; 10 - огнетушители; 11 - сигнализация; 12 - электрощитовая; 13 - шторы; 14 - стол рабочий 130(120)´75; 15 - стол радиомонтажный с местным отсосом; 16 - тумба для инструмента; 17 - сейф-шкаф; 18 - настенный стенд; 19 -умывальник

При дисплейной аудитории следует предусматривать лаборантскую площадью 18 - 20 м2, в которой размещаются электромонтажный стол, канцелярский стол, сейф, шкафы и стеллажи для хранения инструментов, приборов, дисплейных средств.

3.51. Для обеспечения учебных помещений техническими средствами, учебной и методической литературой и организации ремонта и наладки ТСО в структуре вуза следует предусматривать лаборатория технических средств обучения. Необходимость создания лабораторий ТСО, ее состав и площади помещений определяются заданием на проектирование.

Ориентировочный состав и площади помещений лаборатории ТСО следует принимать по табл. 10. Состав и площади помещений корректируются в зависимости от объема технического обеспечения учебного процесса.

Таблица 10

Помещения

Площадь, м2

1

2

Помещения центральной лаборатории ТСО:

 

комната заведующего лабораторией

18

лаборатория технического обеспечения мастерская (в составе мастерских института)

18

Студия звукозаписи:

 

дикторская

9

аппаратная звукозаписи

18

аппаратная воспроизведения

18

Институтская кинофотолаборатория:

 

кинофотопроявочная

27

кладовая химикатов

9

монтажная

29

зарядная

9

Лаборатория программирования

Студия телекиносъемки:

18

помещение для съемки

54

режиссерская

9

аппаратная кино

36

аппаратная видеозаписи

9

комната художников и мультипликации

кладовая

18

18

Телекино трансляционная при ней:

2,7

кинопроекционная

перемоточная

18

9

комната лектора

9

комната техперсонала

9

коммуникационно-распределительная

18

аппаратная

 

Комната хранения учебных материалов ТСО

36

Кабинет для просмотра и выбора материалов ТСО

Лаборантская

36

18

Фондовое хранение материалов ТСО (в составе помещений библиотеки)

18

ВСЕГО:

863

З.52. В педагогических институтах, в отличие от других вузов, технические средства имеют двойное назначения. С одной стороны, как и везде, ТСО являются средствами интенсификации учебного процесса, с другой - предметом изучения студентами в соответствии с учебными программами, т.е. техническими средствами преподавания. В связи с этим в педагогических вузах, помимо лаборатории ТСО (см. табл. 9), следует предусматривать кафедру технических средств обучения с полным набором учебных помещений, определяемых по учебным планам и программам. Примерный состав и площади помещений кафедры ТСО приведены в табл. 11.

Таблица 11

Помещения

Площадь, м2

Кабинет кафедры

36

Учебная фотолаборатория с лаборантской

54+18

Учебная лаборатория статической проекции с лаборантской

54+18

Учебная фотолаборатория:

 

кладовая

9

проявочная

36

Лаборатория учебного кино и телевидения с лаборантской

54+18

3.53. Для остальных вузов площадь лаборатории учебного телевидения (учебного телецентра) принимается по специальному расчету в зависимости от объема телепередач в соответствии с заданием на проектирование.

Для бесстудийных систем учебного телевидения в высших учебных заведениях рекомендуется следующий состав помещений:

телекинопроекционная - 54 м2;

фонд информации - 18 м2;

аппаратная видеомагнитной записи - 36 м2;

просмотровый зал - 18 м2.

АУДИТОРИИ

3.54. Аудитории классифицируются по вместимости и по функциональному назначению. По вместимости аудитории делятся на групповые на 25 чел., полугрупповые - 12 - 13 чел., лекционные - 50 и более человек. Лекционные аудитории делятся на малые с числом 50 и 75 мест, и большие - вместимостью от 100 до 400 мест.

По функциональному назначению лекционные аудитории делятся на две группы: на неспециализированные общего назначения без проведения опытов и специализированные для проведения лекций с демонстрацией опытов - физические и химические, а также театральные. Площадь аудиторий следует принимать по табл. 12.

Таблица 12

Вместимость аудитории, мест

Норма площади на одно место (не менее) м2

1

2

12-15х)

2,5

25

2,2

60 - 75

1,5

св. 75 до 100

1,3

св. 100 до 150

1,2

" 150 " 350

1,1

" 350

1,0

" 12 - 15 (с обучающими и контролирующими машинами)

3,0

св. 50-100 (с обратной связью)

1,8

Театральная аудитория на 200 - 300 мест

1,8

х) При меньшей вместимости аудитории показатель площади может быть увеличен.

3.55. Малые лекционные аудитории могут быть размерены в структуре учебного корпуса с высотой этажа 3,6 м. Их желательно приближать к кафедральным подразделениям.

Для больших лекционных аудиторий (наиболее часто встречавшихся) на 100, 150, 200, 250 и 300 мест нужны отличающиеся от общей структуры учебных корпусов решения. Для нормальных условий видимости в них необходимы амфитеатры. Освещение обычно додается двухсторонним, иногда большие - лекционные аудитории проектируют без естественного освещения либо с верхний светом. Высота аудиторий и их конструктивных решений также является специфическими (большие пролеты, не всегда прямоугольная форма).

3.56. Основные функциональные требования к проектированию крупных лекционных аудиторий следующие:

беспрепятственная и быстрая эвакуация людей уз аудитории;

создание оптимальных условий видимости проводимых опытов,

записей на лекциях;

решение акустических вопросов и звукоизоляции;

создание оптимальных параметров воздушной среды;

обеспечение необходимого светового режима для студентов

как при естественном освещении, так и при искусственном;

оснащение удобной и красивой мебелью;

технологическое оснащение, необходимое для демонстрации и

проведение опытов во время лекций (меловые доски, кинофикации, применение технических средств обучения);

решение вопросов эксплуатации ливнестоков, светильников,

меловых досок и других устройств.

3.57. При определении площади аудиторий необходимо учитывать постоянно совершенствующиеся технические средства обучения. К ним относятся автоматизированные обучающие системы, основанные на комплексном использовании следующих технических средств:

телевизионных средств (учебная демонстрационная телеустановка с камерой, видеомагнитофонами и видеомониторами);

дисплейных средств (автоматизированная обучающая система на базе ЕС ЭВМ и стандартных дисплеев);

электротехнических средств (многопультовая автоматизированная система контроля знаний).

.При использовании оптических средств проекции (полиэкранная система) ширина аудитории должна быть не менее 9 м.

3.58. В аудиториях до 75 мест (включительно) допускается устройство горизонтального пола и до 100 мест включительно при соблюдении требований к условие видимости.

В аудиториях с амфитеатром при наличии демонстрационного стола пол дедово от меловой доски до второго ряда мест должен быть горизонтальным.

Подъем рядов амфитеатра при подъеме со второго или третьего ряда можно принимать по табл. 13.

В лекционных аудиториях без амфитеатра уровень пола перед меловой доской при отсутствии демонстрационного стола может быть повышен до 25 см против уровня пола первого ряда мест. Ширина повышенной части уровня пола перед меловой доской должна быть не менее 150см, а ширина прохода между нею и первым рядом в чистоте - не менее 110 см.

В лекционных аудиториях следует предусматривать 2% мест с учетом требований для размещения инвалидов на колясках.

3.59. При устройстве амфитеатра в аудитории, в которой первый и последний ряды мест расположены на уровнях полов двух разных этажей количество эвакуирующихся следует принимать из расчета 2-3 общего количества в нижний этаж и 1 - 3 - в верхний этаж

Суммарная ширина проходов принимается из расчета 60 см на каждые 100 чел. Ширина проходов должна быть не менее 90см.

В аудиториях допускается расширение проходов по направлению к выходу. Количество мест, непрерывно установленных в ряду, следует принимать: при односторонней эвакуации - не более 6 мест, при двухсторонней эвакуации - не более 12. При оборудовании аудиторий откидными сидениями допускается принимать: при односторонней эвакуации - не более 12 мест, при двусторонней эвакуации - не более 24.

Перед дверными проемами в аудиториях вместимостью более 100 мест необходима, горизонтальная площадка, свободная от оборудования в одном уровне с дальнейшим участком пути эвакуации или имеющая разность высот в ней не менее трех ступеней. Площадь этой площадки определяется из расчета 0,1 м2 на каждого эвакуированного через этот выход.

Таблица 13

Подъем

мест

Тип аудиторий

Подъем ступеней амфитеатра

Ряды

1

2

3

4

5

6

7

8

9

10

11

12

13

14

15

16

17

1

2

3

4

5

6

7

8

9

10

11

12

13

14

15

13

17

18

19

Подъем со второго ряда

Специализированные на 100 и более мест

0

0

25

25

25

30

30

80

30

110

35

145

35

180

35

215

35

250

35

285

40

365

40

365

40

405

40

445

40

485

45

530

45

575

То же

Неспециализированные на 100 м и более мест

0

0

20

20

20

40

20

60

25

85

25

110

25

135

25

160

30

190

30

220

30

280

30

280

30

310

30

340

35

375

35

410

35

440

Подъем с третьего ряда

Специализированные на 100 м и более мест

0

0

0

0

20

20

25

45

35

70

30

100

30

130

30

160

35

195

35

230

35

300

35

300

35

335

35

375

35

415

40

455

-

То же

Неспециализированные на 75 м и более мест

0

0

0

0

20

20

20

40

20

60

25

85

25

110

25

135

30

165

30

195

30

225

30

255

30

285

30

315

35

350

35

385

-

Примечание: В числителе дан подъем каждого ряда над предыдущим, а в знаменателе подъем ряда относительно первого ряда.

3.60. Размеры скамей с пюпитрами в лекционных аудиториях на одно место должны приниматься следующими: ширина на менее 55 см в осях, высота сидений 45 см, глубина пюпитра 35 см, высота нижней кромки пюпитра 75 см. Наиболее рациональная величина расстояния между спинками кресел - 90 см.

3.61. Для достижения оптимальной акустики в больших лекционных аудиториях целесообразно создание звукоотражающего потолка, каждая плоскость которого отражает звуковую энергию в задние ряды аудитории, а также звуковых экранов у меловой доски, которые в сумме создают четыре - пять полезных отражений. Заднюю стенку аудитории и боковые стены целесообразно отделывать звукопоглощающими материалами.

Между отдельными звеньями подвесного потолка могут размещаться светильники, которые, снижаясь к первым рядам, создают равномерную освещенность всей аудитории, а за подвесным потолком располагаются короба вытяжки и рециркуляции, механизм зашторивания окон и линия ливнестока, ведущая к вертикальным шахтам.

3.62. Внутренний объем лекционных аудиторий без учета конструкций при отсутствии кондиционирования воздуха должен составлять не менее 4 м3 на человека.

3.63. Схема размещения технических средств обучения и технологического оснащения и большой лекционной аудитории приведены на рис.61. Кроме того, имеются большие лекционные аудитории с проекцией "на просвет" (когда все оборудование сосредотачивается в препараторской - проекционной, расположенной за демонстрационной стеной аудитории), специальные просмотровые аудитории с телевидением, с обратной связью и другие решения.

Принципиальная схема большой лекционной аудитории на 300 мест с учетом всех необходимых требований дана на рис.62.

Рис. 61 Схема размещения технических средств обучения в крупной лекционной аудитории

1 - киноэкран подвижной; 2 - электропривод киноэкрана; 3 - боковые стационарные киноэкраны; 4 - диапроекторы на тумбах-шкафах для хранения; 5 - телевизоры подвесные; 6 - механическая меловая доска; 7 - кодоскоп, 8-динамики; 9 - система вертикального зашторивания; 10 - пульт управления ТСО с обратной связью; 11 - кинопроекторы 36 мм; 12 - кинопроекторы 16 мм; 13 - магнитофоны; 14 - усилитель; 15 - электропровод; 16 - кафедра - демонстрационный физический стол; 17 - двигатель зашторивания; 18 - умывальник; 19 - эпидиоскоп; 20 - электропривод доcки; 21- фильмостат для хранения пленки; 22 - стол для перемотки пленки; 23 - стол лабораторный физический; 24 - шкаф лабораторный; 25 - шкаф для хранения таблиц, 26 - рейка для подвески таблиц; 27 - дистанционное управление ТСО; 28 - стол письменный однотумбовый; 29 - подводки газа, водопровода и сжатого воздуха; 30 - шкаф для хранения проектов

Рис. 62. Принципиальное планировочное решение крупной специализированной лекционной аудитории вуза на 300 мест Архитектор Г.Цытович

а - продольный разрез; б - план аудитории; в - вид на демонстрационную часть; 1 - кинопроекционная; 2- кинопроекторы, 3 - перемоточная; 4 - загрузка аудитории; 5 - зашторивание вертикальное; 6 - окно (нормируемый коэффициент естественного освещения, КЕО =1,5); 7 - вход в препараторскую, 8 - клапаны пылеудаления; 9 - эвакуация через запасной выход, 10 - настенный телевизор; 11- подвесной телевизор, 12 - ливнесток; 13 - демонстрационный стол; 14 - пульт управления преподавателя; 15 - киноэкран; 16 - зашторивание киноэкрана; 17 - механическая меловая доска; 18 - подводки к демонстрационному столу; 19 - приточная вентиляция; 20 - лестница; ведущая за подшивной потолок; 21- акустические экраны; 22 - вентиляционные короба вытяжки; 23 - звукопоглощающая поверхность; 24 - камера кондиционирования, 25 - подшивной потолок; 26 - люминесцентные светильники, 27 - стол для демонстрации опытов; 28 - линия беспрепятственной видимости; 29 - граница оптимальной разборчивости речи Ир = 0,4; 30 - границы допустимой разборчивости речи Ир=0,31; 31 - дополнительные киноэкраны; 32 - графики освещенности

Рис. 63. Кинотехнологические требования к проектированию лекционных аудиторий

а - план аудиторий; б - разрез

3.64. Особое внимание необходимо уделять архитектурному решению демонстрационной зоны и всей демонстрационной плоскости аудитории (см. рис.61). В центральной части следует располагать киноэкран с зашториванием (желательно - жесткие шторы с механическим приводом) и перед ним - механическую меловую доску (наилучшей считается стеклянная). Одна плоскость доски размером 5 ´ 1,2 м2 стационарная, а другая - подъемная с электроприводом, расположенная перед первой, размером 5 ´ 1,8 м2.

Перед меловой доской на расстоянии 1,2 м следует располагать большой демонстрационный стол для опытов со всеми инженерными подводками (вода, газ, сжатый воздух) для специализированных аудитории, пультом преподавателя и щитком электропитания. Поэтому важна хорошая связь между препараторской и аудиторией, наилучшее ее расположение - за демонстрационной стеной.

3.65. Расчет видимости в аудиториях ведется: в неспециализированных - на нижнюю кромку меловой доски, в специализированных на переднюю кромку поверхности демонстрационного стола. Рекомендуемые параметры размещения оборудования и мебели в лекционных аудиториях приведены на рис.63 в табл.14

Таблица 14.

Условные обозначения (рис.63)

Наименование параметров

Нормируемая величина

1

2

3

 

Расстояние между:

 

F

столом преподавателя и меловой доской

не менее 90см

В

демонстрационным столом и меловой доской

100см

В

меловой доской и первым рядом ряда аудиторных мест (при отсутствии демонстрационных столов)

не менее .200 см

Р

экраном и спинкой первого ряда

не менее 300 см

B

Горизонтальный угол между лучом зрения, направленным на удаленную вертикальную кромку меловой доски, и горизонтальной линией на плоскости доски на уровне глаз учащегося

не менее 30°

С

Минимальное превышение луча зрения сзади сидящего над лучом зрения впереди сидящего, направленными на ближнюю кромку поверхности демонстрационного стола (в аудиториях на 100 мест и более)

12 см

С

На нижнюю кромку доски (в аудиториях без демонстрации опытов)

6 см

Высота от пола последнего ряда амфитеатра до низа конструкций перекрытий

Не менее 250 см

А

Ширина меловой доски для аудиторий

 

 

до 100 мест включительно

Не менее 400 см

 

свыше 100 мест

Не менее 500 см

Д

Расстояния между демонстрационным столом и пюпитрами первого ряда в аудиториях:

 

 

до 100 мест включительно

110 см

 

св. 100 мест

250 см

К

От меловой доски до последнего ряда мест

Не более 2000 см

E

От нижней кромки меловой доски до пола аудитории

90 см

Н

От верхней кромки рабочей поверхности меловой доски до пола аудитории

Площадь рабочей поверхности меловой доски:

Не более 230 см

 

для аудиторий до 75 мест

Не менее 5 м2

 

“ “ “ 100 - 150

Не менее 7 м2

 

" " 200 и более мест

Не менее 10 м2

 

Расстояние между спинками сидений

90 см

3.66. Площадь препараторских при лекционных аудиториях принимается согласно табл. 15

Таблица 15.

Помещения

Площадь, м2

1

2

Препараторская при неспециализированных лекционных аудиториях с количеством мест:

 

до 100

18

от 100 до 150

33

на 200 и более

72

Препараторская при физической и химической аудитории на 100 - 150 мест

33

Препараторская при химической аудитории на 200 - 300 мест

72

Препараторская при физической аудитории с количеством мест:

 

до 300 включительно

106

на 330 и более

144

Рис. 64. Функционально-габаритные схемы препараторских при аудиториях физики и химии на 100 - 200 мест. инж. Д.Хомутова

а - при аудитории химии; б - при аудитории физики; 1 - стол письменный однотумбовый; 2 - стол демонстрационный для химических аудиторий, 3 - стол демонстрационный для физических аудиторий; 4 - стол для весов; 5 - стол лабораторный химический (островной) пристенный; 6 - стол лабораторный физический; 7 - стол для фоторабот; 8 - шкаф вытяжной, 9 - шкаф вытяжной демонстрационный; 10 - шкаф для лабораторной посуды, 11 - шкаф для учебных пособий; 12 - шкаф-витрина для физического кабинета; 13 - стеллаж; 14 - мойка лабораторная; 15 - шкаф сушильный; 16 - термостат; 17 -раковина; 18 - электрощиток; 19 - холодильник

Рис. 65. Функционально-габаритные схемы планировки препараторских при аудиториях химии, инж. Д.Хомутова

препараторская при аудитории на 200 - 250 мест:

а - план 1-го этажа; б - то же 2-го этажа, препараторская при аудитории на 300 - 350 мест, в - план 1-го этажа; г - то же 2-го этажа; 1 - стол письменный однотумбовый; 2 - стол демонстрационный для химических аудиторий; 3 - шкаф для учебных пособий

4 - стол для весов; 5 - стол лабораторный химический (островной) пристенный; 6 - стол лабораторный физический; 7 - стол для фоторабот; 8 - шкаф вытяжной; 9 - шкаф вытяжной демонстрационный; 10 - шкаф лабораторный; 11 -стеллаж; 12 - мойка лабораторная; 13 - раковина; 14 -термостат, 15 - шкаф сушильный; 16 - электрощит; 17 - холодильник

Рис.66. Функционально-габаритные схемы планировки препараторских при аудиториях физики на 200 - 300 мест. Инж. Д.Хомутова

Вариант двухэтажной планировки:

а - план 1-го этажа; б - план 2-го этажа; 1 - стол письменный однотумбовый; 2 - отол демонстрационный химический; 3 - стол демонстрационный физический; 4 - шкаф вытяжной, 5 - шкаф для учебных пособий; 6 - стол лабораторный физический; 7 - стол для фоторабот; 8 - стеллаж; 9 - раковина; 10 - шкаф лабораторный; 11 - верстак слесарный; 12 - станок настольно-сверлильный; 13 - станок точильный двухсторонний; 14 - мойка лабораторная; 15 - станок токарный повышенной точности; 16 - место установки крупногабаритного оборудования; в - вариант одноэтажной планировки (экопликацию 1-18 см. рис.64), 19 - верстак слесарный, 20 - станок настольно-сверлильный; 21- станок точильный двухсторонний; 22 - станок токарный повышенной точности

Рис. 67. Кинофикация лекционных аудиторий. Аудитория с кинопроекционной для использования аппаратуры с 16-35 мм пленкой

а - план; б - разрез; в - аудитория без кинопроекционной (для использования аппаратуры с 16 мм пленкой); г - схема организации стационарного экрана; д  - схема размещения убирающегося экрана.

3.67. Препараторские должны иметь естественное освещение и удобную связь с лекционными аудиториями. При специализированных аудиториях физического и химического профиля выход должен быть организовал непосредственно к демонстрационному столу в аудитории, в других случаях допускается размещение препараторской у любой стены аудитории или под амфитеатром.

Пол препараторской и демонстрационной зоны должен быть на одной отметке.

При двухэтажной планировке препараторских при аудиториях физики и химии площадь их может быть увеличена за счет размещения лабораторий для преподавателей и преподавательской (рис.64-63).

При использовании препараторских для проекции "на просвет" их площадь и глубина (по оси аудитории) принимаются по расчету в зависимости от применяемой аппаратуры. При аудиториях аппаратура располагается в помещении препараторской, которая находится за демонстрационной стеной или рядом с аудиторией.

Препараторская при лекционной аудитории должна иметь не менее двух выходов: один непосредственно в аудиторию, другой - в коридор.

3.68. Требования к размещению кинооборудования и условиям видимости в лекционных аудиториях приведены в табл.15 и на рис. 67, а регламентируемые параметры размещения кинооборудования - в табл. 17. Требования к размещению в аудиториях телевизионных приемников приведены на рис.38.

Таблица 16

Условные обозначения (рис.67)

Измеритель

Размеры

1

2

3

Д

ш

Длина аудитории

Ширина "

Согласуется с условиями видимости с учетом приближенности к доске

Шэ

Ширина рабочего поля экрана:

 

 

широкого

0,43 Д

 

каше тированного

0,34 Д

 

обычного

0,25 Д

В

Высота рабочего поля экрана:

 

 

широкого

Шэ:2,35

 

кашетированного

Шэ:1,85

 

обычного

Шэ: 1,37

И

Расстояние от верхней кромки рабочего поля экрана до потолка

0,5 м

Вертикальный угол между лучом зрения учащегося, направленным к верхней горизонтальной кромке экрана и вертикальной образующей плоскости экрана

45°

Допустимые углы отклонения оптической оси кинопроектора от нормали в центре экрана в:

 

 

горизонтальной плоскости вертикальной плоскости;

 

при проекции сверху вниз

10°

 

при проекции снизу вверх

 

Угол с нормалью в центре экрана; ограничивающий зону размещения учащихся:

 

в горизонтальной плоскости

 

 

при в не более 6

45°

 

при в более 6°

45°

 

в вертикальной плоскости:

 

выше нормали в центре экрана.

30°

ниже нормали в центре экрана

20°

С

превышение луча зрения, поправленного на нижнюю кромку экрана над глазом впереди сидящего

120

h

р

Расчетная высота сидящего

Расстояние от экрана до спинки первого ряда

3,0 м

Ц

Расстояние от нижнего проекционного луча до пола в зоне зрительских мест

1,9 м

Высота от пола верхнего ряда амфитеатра до низа конструкции перекрытий

2,5 м

Таблица 17

Измеритель

Размеры при проекторах

До 35-мм фильмов

Для 35-мм с лампами накаливания и 13-мм фильмов, м

1

2

3

От оборудования до стены:

при необходимости доступа со стороны стены

0,8

-

без необходимости доступа со стороны стены

0,1

0,1

От оптической оси левого кинопроектора до оборудования или левой стены

Между оптическими осями соседних кинопроекторов, а также от оптической оси правого проекторов, а также от оптической оси правого кинопроектора до оборудования или правой стены

1,2

1,0

От передней стены до кинопроектора

0,35

0,35

От кинопроектора до задней стены или оборудования

1,2

1,2

Между центрами проекционного и смотрового окон

0,5

0,5

От оптической оси кинопроектора до пола кинопроекционной

1,25

1,25

Высота кинопроекционной от пола до потолка в чистоте (не менее)

2,3

2,6

3.69. Требования и приемы создания рационального естественного освещения крупных лекционных аудиторий (боковой верхний свет) приведены на рис.69.

3.70. Оптимальные параметры и площади крупных лекционных аудиторий с учетом сборных конструкций следующие: на 100 мест (9 ´ 12) - 108 м2; на 150 мест (12 ´ 15) - 100 м2; на 200 мест (12 ´ 18) - 216 м2; на 300 мест (18 ´ 18) - 324 м2.

Перспективны решения крупного аудиторного блока на основе укрупненной сетки опор 12 ´ 12 м с применением свободного плана, аудиторий секторной формы, трансформации крупных аудитории на более мелкие, включение в состав аудиторного блоке, телевизионного центра.

Распространенным видом трансформации является объединение нескольких (двух или трех) аудиторий средней величины в одну большую. Другой вид трансформации - объединение нескольких больших лекционных аудиторий в студенческий зал собраний, функционирующий в вечернее время.

Номенклатура крупных лекционных аудиторий, выполненных в прямоугольных габаритах, приведена на рис.70, примеры планировочной организации аудиторий вместимостью от 100 до 200 мест на рис. 71-73.

3.71. Рекомендуемый габарит трансформируемой театральной аудитории на 300 мест с глубинной сценой - 30 ´ 15 (размеры сцены 12 ´ 15 ´ 15 м). Рекомендуемый габарит трансформируемой театральной аудитории на 250 мест - 21 ´ 21 м (или 24 ´ 21 м) с общей высотой 12 м (рис. 74).

При театральных аудиториях (с глубинной сценой на 300 мест и трансформируемых на 250 мест) следует предусматривать следующие помещения: учебную сцену (для аудитории с глубинной сценой - 180 м2, звукоаппаратную - 12 м2, кинопроекционную с перемоточной - 30 м2, микшерскую - 18 м2, светопроекционную - 18 м2, помещение оркестра на площади аудитории (в аудитории глубинной сценой) - 24 м2, раздевальные с душевыми и туалетами - 36 м2, гримерные (2 помещения по 9 м2) - 18 м2 и помещение для реквизита - 90 м2,

Эти специализированные аудитории могут предусматриваться по специальным заданиям в вузах культуры и искусства, а также педагогических институтах, университетах (филологические, исторические факультеты) и других гуманитарных вузах.

3.72. Значительное развитие получило в последние годы блочное - размещение аудиторных и учебных корпусов: полное раскрытие и свободное решение первого этажа учебного корпуса, к которому примыкают лекционные аудитории.

Наиболее распространенный прием, позволяющий хорошо решить аудиторные блоки, - их изолированное расположение по отношению к учебному корпусу факультета (связь переходом).

Прием размещения аудиторий непосредственно в корпусе (в верхних этажах или торцах) не является оптимальным.

Примеры планировочных решений приведены на рис. 75 и 73.

Рис. 68. Схема размещения в аудиториях телевизионных приемников. Архитектор Д.Манукян

а - план аудитории; б - регламентируемые параметры размещения телеприемников; в - ширина экрана телевизора, Н - максимальное расстояние от нижней кромки экрана до уровня пола 1-го расчетного ряда для данного телевизора; h- расстояние от нижней кромки экрана до уровня глаз зрителей; l - расстояние от уровня глаз сидящего зрителя до уровня пола - 120 см; d -- расстояние между спинками смежных рядов;  - вертикальный угол зрения, образуемый горизонтальной линией на уровне глад и лучом, проходящим от глаз зрителей первого расчетного ряда к верхней кромке экрана; S - площадь, обслуживаемая телевизором;  - наиболее допустимое удаление зрителя от телевизора;  - наименьшее допустимое удаления зрителя от телевизора с -расчетное превышение луча зрения для последнего ряда - не менее 12 см.

Рис. 69. Предпочтительные варианты организации естественного освещения аудиторий. Архитектор А.Алексеев

а - ширина аудиторий от 9 до 12 м; б - то же, от 9 до 18 м; в - то же; от 15 до 18 м

Рис. 70. Номенклатура крупных лекционных аудиторий высших учебных заведений, выполненных в прямоугольных габаритах

Рис. 71. Планировочная организация аудиторий на 100 мест

1 - стол преподавателя; 2 - cтол-пюпитр; 3 - кресло с откидным сидением; 4 - кресло с пюпитром; 5 - стол для графопроектора; 6 - кресло преподавателя; 7 - доска меловая двухпольная раздвижная; 8 - доска меловая; 9 - экран (для проекции на просвет); 10 - экран для графопроектора (встроенный в меловую доску); 11 - кожух для проекционной аппаратуры, 12 - кинопроектор; 13 - диапроектор "Лектор - б00"; 14 - автоматический проектор "Пеленг - 500 а"; 15 - графопроектор "Лектор - 2000"; 16 звуковая колонка; 17 - пульт управления техническими средствами; 18-кафедра-трибуна; 19 - магнитофон - приставка "Эльфа-332-стерео"; 20 - электропроигрыватель "Вега"; 21- доска меловая с встроенным экраном для графопроектора и клешами подвески плакатов; 22 - дополнительные технические средства

Рис. 72. Планировочная организация аудиторий на 150 мест

а - с кинопроекционной, 6 - без кинопроекционной (фрагмент); Экспликацию см. рис. 71.

Рис. 73 Планировочная организация аудиторий на 200 мест

Экспликацию с 1-32 см. рис. 71, 23 - кинопроектор

Рис. 74. Театральные аудитории

а, б - разрез и план аудитории на 300 мест с глубинной сценой; в - трансформируемая аудитория на 250 мест с выносной сценой; 1 - зал аудитории; 2 - сцена; 3 - первые ряды партера, трансформируемые в оркестр; 4 - кинопроекционная, 5 - перемоточная; 6 - тамбур;7 - микшерская ложа; 8 - звукорегуляторная; 9 - кабина освещения; 10 - галерея; 11 - стационарные зрительские места; 12 - места; устанавливаемые при организации сцены-арены

Рис. 75. Примеры компактных аудиторных блоков вузов

а, б - аудиторные блоки с проекцией "на просвет" (архитекторы М. Магидина, Г.Цытович); в - аудиторный блок гуманитарного факультета МГУ им. М.В. Ломоносова (архитекторы М. Чесаков, Д. Золотницкая. Г.Цытович); г - блок аудиторий МИСИ им. В.В. Куйбышева (архит. В.Степанов, Р.Мелкумян, Л. Ольбинский, Я. Студннков); д - аудиторный блок на 160 мест (архитекторы К. Мурашов, Г.Цытович); е - аудиторный блок Ташкентского политехнического института, 1 - аудитория на 300 мест; 2- аудитории по 200 мест; 3 - аудитория на 150 мест; 4 - аудитория на 100 мест; 5 - аудитория на 150 мест; 6 - проекционная - препараторская; 7 - препараторская; 8 - буфет; 9 - рекреация

Рис. 76. Примеры линейных аудиторных блоков в учебных корпусах вузов

а - в главном учебном корпусе Киевского политехнического института (архитекторы. В Лиховодов, В. Давганхк, Р.Козицкая, В.Безыконный, Г.Цытович); б - в новом корпусе МВТУ им. Н.Э. Баумана (архитекторы Ю. Шевердяев, Н. Маслов, Л. Круковская); в, г - типовой аудиторный блок на 800 мест (архитекторы Н. Дурново, С. Зимина); экспликацию см. рис. 75.

Неодинаковая планировочная структура аудиторных блоков обеспечивает разнообразие компоновки зданий и позволяет проектировать блоки отдельно стоящими, соединенными переходами и размещенными между корпусами, пристроенными к учебным корпусам.

В аудиторных блоках предусмотрены специальные аудитории на 150, 200 и 300 мест с высоким подъемом амфитеатра и беспрепятственной видимостью рабочей плоскости демонстрационного стола, а также аудитории общего типа (неспециализированные) на 100, 150 и 200 мест с минимально необходимым подъемом амфитеатра.

3.73. Для высших учебных заведений площадь чертежных залов курсового и дипломного проектирования, а также вспомогательных помещений при них следует принимать по табл. 18.

Таблица 18

Помещения

Измеритель

Площадь, м2

1

2

3

Чертежные залы и залы курсового и дипломного проектирования (см. СНиП 2.08.02-89)

1 место

3,5

То же, для архитектурных и художественных высших учебных заведений, а также залы рисунка, живописи, скульптуры, театральные, музыкальные и репетиционные классы

то же

6

Архивы при чертежных залах курсового и дипломного проектирования.

Помещение

18

То же, для архитектурных, художественных высших учебных заведений

Помещение

36

Модельные при чертежных залах для технических высших учебных заведений

-“-

36

То же, для архитектурных, строительных, художественных высших учебных заведений

-“-

72

Примечание: Для студентов 1 и 11 курсов архитектурных вузов норма площади может быть снижена до 4 м2, для дипломного проектирования увеличена до 8 м2.

3.74. Залы дипломного проектирования рассчитывается на одновременное обслуживание 50% всего количества дипломников.

Для заочных вузов залы дипломного проектирования рассчитываются на 30% всего количества дипломников. Каждый зал следует проектировать не менее чем на 12 и не более чем на 50 дипломников, а для специальности "архитектура" на 1/2 учебной группы.

Научные и учебно-производственные подразделения

3.75. Наиболее распространенными группами, помещений научно-исследовательских подразделений являются:

научно-исследовательские помещения и лаборатории кафедр;

отраслевые научно-исследовательские лаборатории;

проблемные научно-исследовательские лаборатории;

научно-исследовательские институты и центральные научно-исследовательские лаборатории;

помещения научно-исследовательской работы студентов (студенческие научно-исследовательские лаборатории, проектные, конструкторские, технологические бюро);

вычислительные центры;

опытно-экспериментальные мастерские;

межвузовские центры обслуживания научных исследований.

3.76. В составе помещений каждой кафедры следует предусматривать кабинет заведующего кафедрой площадью 18 м2 (при числе преподавателей более 15 чел. - 24 м2), учебно-методический кабинет площадью 54 м2, кабинеты преподавателей кафедры и помещения для аспирантов 1-2 года обучения из расчета 4 м2 на одного человека, а для аспирантов третьего года обучения из расчета 8 - 12 м2 на одного аспиранта, учебные кабинеты и лаборатории (в соответствии с технологическим расчетом, тематикой и спецификой лабораторных работ), а также научно-исследовательские лаборатории.

3.77. В составе профилирующих кафедр рекомендуется предусматривать дополнительно помещения для теоретических научных работ дифференцированно в зависимости от числа, квалификации преподавательских кадров и сотрудников научно-исследовательской части, аспирантов и студентов. Ориентировочные площади помещений для научных (теоретических) работ кафедр приведены в табл.19.

Таблица 19.

Помещения

Измеритель

Площадь, м2

1

2

3

Кабинет руководителей

На 1 чел.

18

Кабинет главного научного сотрудника (по числу д-ров наук, проф.)

То же

9-18

Кабинет ведущего научного сотрудника (по числу док-ров наук, проф.)

-“-

9

Комната старших научных сотрудников, доцентов, старших преподавателей

На 1 чел.

6

Комната научных сотрудников, младших научных сотрудников, преподавателей и ассистентов:

 

 

кафедр естественного и технического профиля

-“-

4

гуманитарного профиля

-“-

2

кафедр спортивного профиля

-“-

5

Комната работы аспирантов 1-2 года обучения, стажеров

-“-

4

Комната работы аспирантов третьего года обучения

-“-

8-12

Комнат старших инженеров, инженеров-сотрудников НИИ

-“-

2,0

Учебно-научный музей при кафедрах в зависимости от профиля и оборудования

м2

По специальному заданию

Комната хранения научных пособий и контрольно-измерительных приборов:

 

 

кафедр естественного и технического профиля

Помещение

9

спортивного профиля

То же

18

Примечание 1. При размещении рабочих мест сотрудников НИИ в лабораториях кафедры в составе помещений и кафедр рекомендуется предусматривать рабочую комнату сотрудников НИИ на 25% их общего числа.

2 Комнаты для научной работы аспирантов размещаются в составе кафедр института, а также в составе проблемных и отраслевых лабораторий, если эти лаборатории размещены обособленно от кафедр.

3. Рабочие комнаты студенческих исследовательских бюро и лабораторий при кафедре определяются заданием на проектирование.

3.78. В составе профилирующих кафедр следует, как правило, предусматривать кабинет персональных ЭВМ, дисплейной техники (терминальных устройств) на 8 или 16 рабочих мест (состав и количество кабинетов определяются гаданием на проектирование).

3.79. Профилирующие кафедры (выпускающие или базовые) и их филиалы рекомендуется размещать на предприятиях и в научных организациях соответствующих отраслей. Состав и площади кафедр или их филиалов, размещаемых на производстве, определяются технологическим расчетом по учебным планам и программам аналогично кафедрам, размещаемым в вузе.

Допускается для проведения учебных занятий студентов использовать помещения предприятия или НИИ, библиотеки, актового зала, общественных организаций и пр.

3.80. Состав и площади научно-исследовательских подразделений зависят от тематики и специфики научных исследований, профиля высшего учебного заведения и численности штатных научных сотрудников.

Для укрупненных расчетов площадей научно-исследовательских подразделений следует пользоваться удельными показателями нормируемой площади на одного студента для вузов различного профиля в зависимости от соотношения численности преподавателей и штатных научных сотрудников, приведенного в табл. 20. Отклонение от рекомендуемых расчетных показателей при конкретном проектировании может составлять 30%.

Таблица 20.

Высшие учебные заведения

Ориентировочная потребность в нормируемой площади м2 на одного студента сверх показателей табл.7 (при соотношении численности преподавателей и штатных научных сотрудников)

 

1:2 и более

1:1.5

1:1

1:0,5

Университеты

3,25

5,5

2,65

-

Технические

5,0

4

2,3

1,25

Педагогические

-

2,85

2,0

1,15

Медицинские

3,25

4,5

2,65

2,65

Сельскохозяйственные

-

3,45

2,5

1,35

Архитектурные

-

-

2,43

1,53

Состав и площади научно-исследовательских подразделений определяются и уточняются при составлении задания и в процессе проектирования.

3.81. Состав помещений научно-исследовательской части (НИЧ) вуза, предназначенных для управления, организации, планирования, внедрения и материально-технического снабжения, зависит от числа штатных сотрудников научно-исследовательской части. Ориентировочно площадь помещений, административно-хозяйственного назначения следует принимать соответственно: при числе штатных сотрудников до 200 чел - 320 м2; от 201 до 600 - 500 м3; от 601 до 1000 - 700 м2; более 1000 - 1100 м2.

3.82. Научно-исследовательские лаборатории вузов (тематические, отраслевые, проблемные) следует, как правило, размещать при соответствующих кафедрах института.

Возможно размещение отраслевых и проблемных лабораторий в структуре промышленных предприятий и организаций и НИИ, с которыми сотрудничает вуз.

Для укрупненных расчетов площадей производственных (лабораторных) помещений проблемных и отраслевых лабораторий, научно-исследовательских институтов при вузах (факультетах) принимается усредненный показатель нормируемой площади, м2, на одного человека:

кабинеты гуманитарного профиля - 4 - 6;

теоретические лаборатории естественнонаучного и технического профиля с рабочими столами - 8 - 12;

экспериментальные естественнонаучного и технического профиля с настольной аппаратурой - 20 - 25;

экспериментальные технического профиля с допустимыми нагрузками на перекрытие, с обычной сеткой колонн и высотой - 28 - 33;

экспериментальные, технического профиля с тяжелым оборудованием и повышенной высотой, в том числе залы - принимаются по расчету.

3.83. Рациональной величиной числа сотрудников для проблемных и отраслевых лабораторий следует считать:

для проведения преимущественно теоретических исследований - до 15 чел,

для преимущественно прикладных исследований, связанных с экспериментом - 25 чел.

Площадь помещений для камеральных работ проблемных отраслевых лабораторий следует принимать согласно табл.21.

Таблица 21.

Помещения

Площадь помещений, м2, при числе сотрудников

до 15 чел.

до 25 чел.

1

2

3

Кабинет заведующего лабораторией

18

18

Кабинет научных сотрудников

36 (3 места)

72 (6 мест)

Рабочее помещение инженерно-технических сотрудников (лаборантская)

18

24

Рабочее помещение аспирантов, стажеров и совместителей

18

18

Помещение для семинаров и дискуссий (студенческая)

54

54

Примечание: Комната хранения приборов и научного оборудования, вычислительный центр (зал периферийных устройств вычислительной техники - дисплейный класс), проектный зал, архив, кладовые и т.п. определяются по заданию на проектирование.

3.84. Студенческие проектные, конструкторские, технологические бюро следует, как правило, размещать в составе профилирующих кафедр. Допускается размещение бюро в составе проблемных и отраслевых лабораторий. Ориентировочно площадь помещений студенческих бюро следует принимать по табл. 22.

Таблица 22

Помещения

площадь помещений, м2 числе мест в бюро, до:

6

12

25

50

Проектный зал

30

60

125

250

Кабинет начальника студенческого бюро и приемная

9

18

18

36

Выставочный зал

9

9

18

18

Проектный кабинет

-

-

18

24

Технический архив

9

18

18

36

Макетная мастерская

-

-

18

36

Кладовые

9

9

12

18

Примечание. Площадь помещений проектных залов для авиационных, кораблестроительных вузов, архитектурных вузов и факультетов, факультетов геодезии и картографии следует принимать 6 м2 на одно место.

3.85. Вычислительный центр (ВЦ) или информационно-вычислительный является структурным подразделением высшего учебного заведения. Организуется в составе учебных подразделений вуза или в составе научных учреждений вуза (научно-исследовательского института, научно-исследовательской части и др.).

Проектирование вычислительных центров должно осуществляться в соответствии со СНиП 2.09.08-89 по специальному заданию.

В учебно-лабораторных корпусах ВЦ следует размещать на отдельном этаже или торце здания с соблюдением правил эвакуации и безопасности при эксплуатации.

Вычислительные центры должны размещаться с учетом обеспечения максимально сокращенных информационных связей с терминальным оборудованием, располагаемым в различных подразделениях вуза.

ЗИЛ факультетских и кафедральных вычислительных лабораторий (ВЛ), дисплейные кабинеты, кабинеты микроЭВМ располагаются в учебных, учебно-производственных корпусах, а одиночные терминальные устройства - в административных помещениях, библиотеке и других подразделениях.

Состав и площади ВЦ (ВЛ) определяются заданием на проектирование. Ориентировочно площади вычислительного центра и вычислительной лаборатории приведены соответственно в табл. 23 и 24.

Таблица 23

Помещения

Площадь, м2

1

2

Машинный зал

240

Машинный зал с УЭВМ

72

Класс дисплеев

54 (количество помещений определяется расчетом)

Класс персональных ЭВМ

72 (количество помещений определяется расчетом)

Помещение подготовки данных

54

Помещение сервисной аппаратуры

54 (18х3)

Архивы бумажных и магнитных носителей

36 (18х2)

Комната приема и выдачи заказов

36

Комната инженеров

72

Диспетчерская

18

Склад КиП и ЗиП

36

Библиотека

18

Комната системных программистов-технологов

72 (36х2, уточняется расчетом в зависимости от объема переработанной информации)

Комната начальника ВЦ

18

Механическая мастерская

18

Склад

72

Таблица 24

Помещения

Площадь, м2

1

2

Машинный зал мини-ЭВМ

36-54

Сервисная ЭВМ

18

Зал подготовки данных

18

Комната обслуживающего персонала

18

Класс дисплеев

54

Класс ПЭВМ

72

Вспомогательные помещения при ВЦ в лабораториях определяются заданием на проектирование.

Высота помещения машинного зала в чистоте в соответствии с требованиями по объему воздуха в помещении должна быть не менее 3,3 м, высота фальшпола (технологического пола) в пределах 0,15-0,6 м.

3.86. В помещениях ВЦ используется общее и комбинированное освещение, концентрирующее световой поток непосредственно на рабочих местах. В машинном зале освещение общее. Светильники люминесцентные встроенные устанавливают заподлицо или выступающими не более чем на 50 мм от поверхности потолка, чтобы уменьшить запыление.

3.87. Как правило, помещения вычислительного центра и вычислительных лабораторий, оборудуются установками кондиционирования воздуха.

3.88. В помещениях ВЦ должно быть минимальное количество оконных проемов, с ориентацией, как правило, на северную или северо-восточную сторону. Для защиты от перегрева при другой ориентации следует предусматривать матовые и светозащитные стекла, солнце защитные устройства, жалюзи и шторы. Окна первых этажей помещения ВЦ должны быть оборудованы решетками.

Двери, ведущие из машинного зала в другие помещения, выполняются гладкими самозакрывающимися с уплотнителем, двери должны открываться в сторону машинного зала.

Вход в зал ЭВМ рекомендуется осуществлять через тамбуры-шлюзы. Все двери должны запираться автоматическими замками поваленной надежности, а остальные двери - электромагнитными замками.

3.89. Для снижения уровня шума потолки и стены помещений ВЦ должны быть обработаны звукопоглощающими материалами, т.е. декоративными перфорированными покрытиями с звукопоглощающим заполнителем (пористые синтетические материалы).

3.90. В межфакультетские центры вузов рекомендуется включать помещения НИС, выпускающих кафедр, студенческих бюро, проблемные и отраслевые лаборатории (если позволяет их габариты и особенности технологических процессов), их помещения для камеральных работ, кафедральные учебно-научные лаборатории, опытно-экспериментальные мастерские.

Для информационного обслуживания в составе межфакультетского центра следует включать филиал научной библиотеки, вычислительный центр. В центре рекомендуется размещать выставочный зал, музей, конференц-зал и часть залов курсового и дипломного проектирования.

В межфакультетском центре возможна организация помещений факультета повышения квалификации, конструкторского бюро, типографии, полигонов, залов испытаний, столовой и пр. (рис. 77).

3.91. Для сосредоточения усилий учебных заведений на координации комплексных межотраслевых и междисциплинарных исследований, а также для более полного обеспечения исследований материально-технической базой следует, создавать в научно-исследовательских частях крупных вузов межкафедральные и межфакультетские научно-исследовательские лаборатории. Для вузов города или региона рекомендуется создавать межвузовские центры обслуживания научных исследований (рис. 78).

Рис. 77. Научно-учебный комплекс университета в г. Ростов-на-Дону. Архитектор М.Красников

а - учебная зона; б - научная зона; в - административная зона; г - университетский форум; актовый зал; библиотека; д - спортивная зона; в - хозяйственная зона; ж - комплексный научно-учебный блок-модель; 1 - функциональные связи (потоки) преподавателей и студентов с НИИ ж помещениями универсального использования; 11 - функциональные связи научных сотрудников с факультетами и помещениями универсального использования; 1 - лабораторный корпус НИИ; 2 - помещения общего назначения НИИ; 3 - корпус специальных лабораторий НИИ; 4 - учебный корпус факультета; 5 - лекционные аудитории; 6 - вестибюли; библиотека; выставочные валы; буфеты и другие помещения кооперированного использования.

Рис.78. Межвузовский научный центр технического вуза. Архитектор Е.Зайченко

1 - вестибюль, гардероб; санузлы; 2 - НИЧ (1-й и 4-й этажи); 3 - конференц-зал; 4 - выставочный зал; 5 - научная библиотека; 6 - ВЦ; 7 - музей; 8 - выпускающие кафедры;9 -СПКБ, залы курсового и дипломного проектирования; 10 - 11- ПНИЛ и ОНИЛ, 12- типография; множительные службы; фото-кино лаборатории; 13 - мастерские

Межвузовский центр рекомендуется формировать из подразделений обслуживающего и вспомогательного назначения вузов с целью исключения их дублирования в вузах разного профиля.

В состав межвузовского центра обслуживания может быть включен ряд межвузовских кооперированных подразделений, подведомственных совету ректоров: межвузовские комплексные лаборатории с уникальным оборудованием, обеспечивающим исследования по программно-целевой тематике; испытательные и измерительные лаборатории; вычислительный центр с методологическими лабораториями программирования и библиотекой программ; база проката с единой ремонтной базой приборов и точного оборудования, с метрологическим центром и центральной контрольно-измерительной лабораторией; конструкторско-технологическое бюро; опытный завод; группа помещений межвузовского редакционно-издательского совета с типографией; база фильмопроката; ремонтные мастерские средств вычислительной техники, станков с числовым программным управлением и пр.; группа помещений Совета НИР и управления ОНО экономического района или корпусов НИЧ; межвузовский методический кабинет технического оборудования; факультет повышения квалификации специалистов.

3.92. Место для межвузовского центра обслуживания в городе - центре региона выбирается с учетом обеспечения удобной взаимосвязи со всеми учебно-научно-производственными подразделениями вузов данного города и научными подразделениями вузов, размещаемых в других городах этого региона (рис. 79).

Организация подобного центра рекомендуется на базе подразделений вузовской науки политехнического института или университета.

Размещение межвузовского центра обслуживания научных исследований на базе университета приведено на примере Казахского университета (рис. 80), в состав которого включены следующие подразделения:

подразделения конструкторско-технологического назначения;

экспериментально-технические лаборатории по современным методам измерения и анализа;

подразделения научно-информационного и издательского назначения с конференц-залом на 500 мест;

научно-вычислительный центр;

факультет повышения квалификации специалистов;

подразделения метрологической службы и бюро проката;

опытно-экспериментальное производство.

Рис. 79. Схема функциональных связей научных подразделений и учреждений вуза и города. Архитекторы А.Гарнец, Л.Нуркушева

Рис. 80. Межвузовский центр обслуживания научных исследований при КазГУ (проектное предложение). Архитекторы А.Гарнец, Л.Нуркушева

1 - факультетские корпуса; 2 - лоточные аудитории; 3 -НИИ, 4 - ИПК и ФПК; 5 - актовый зал; 6 - лабораторно-производственный корпус ОКБ; 7 - корпус научно-исследовательских лабораторий; 8 - конференц-зал; 9-опытно-экспериментальный завод

3.93. Высшие учебные заведения в зависимости от профиля и величины, а также развития научных исследований должны иметь в своем составе учебно-производственные и опытно-экспериментальные мастерские, а также мастерские ремонта средств вычислительной техники и механического оборудования, мастерские ремонта зданий и инженерных систем:

учебно-производственные мастерские по вместимости и составу рассчитываются по учебным планам и объемам учебной практики;

опытно-экспериментальные мастерские по вместимости и составу, оснащению станочным оборудованием рассчитываются с учетом потребностей научных исследований в металлообработке;

мастерские ремонта средств вычислительной техники и механического оборудования по вместимости и составу рассчитываются с учетом количества и структуры парка вычислительной техники, видов механического оборудования;

мастерские ремонта зданий и инженерных систем по вместимости и составу рассчитываются в зависимости от потребностей текущего ремонта зданий и сооружений, обеспечения и поддержания рабочего состояния водоснабжения, отопления и вентиляции, электроснабжения и электротехнических устройств и пр.

Допускается объединение перечисленных мастерских для организации экспериментально-производственной и ремонтной базы, использование некоторых участков и оборудования опытно-экспериментальных мастерских для целей учебного процесса и ремонта.

Проектирование мастерских осуществляется в соответствии с требованиями на проектирование производственных зданий СНиП 2.09.02-85.

3.94. Опытно-экспериментальные мастерские следует проектировать на группу вузов города. Организация мастерских с числом станков в механическом отделении менее 20 не рекомендуется.

Опытно-экспериментальные производства (мастерские) размещаются, как правило, на обособленном участке территории вуза. Допускается соединять здания мастерских крытыми переходами с учебно-лабораторными корпусами.

3.95. Здания учебно-производственных и опытно-экспериментальных мастерских, как правило, подразделяются на производственные участки. Площади участков следует принимать по нормам технологического проектировании предприятий соответствующих отраслей промышленности и народного хозяйства. Ориентировочные нормы площади участков мастерских вузов приведены в табл. 25.

Таблица 25

Участки

Площадь на одного рабочего, м2

1

2

Механический

10-20

Механический с роботизированным комплектом

20-30

обработки деталей и узлов

 

Заготовительный

20-22

Порошковой металлургии

20-30

Кузнечный

24-26

Прессовый (по безотходной технологии штамповки деталей заготовок)

20-30

Сварочный

15-20

Шлифовальный

10-20

Жестяницкий

10-12

Термический

24-26

Пластмассового литья

30-40

Лакокрасочный с сушильной

20-30

Слесарно-сборочный

10-12

Электрорадиомонтажный

8-9

Столярный

20-25

Примечания: 1. Площади других участков, необходимых по профилю научной работы вузов, следует принимать по заданию.

2. При оборудовании и оснащении участков мастерских рекомендуется выбирать широко универсальное оборудование и станки повышенной точности. Состав и площади участков мастерских определяются при составлении задания и уточняются в процессе проектирования.

3.96. Площадь складских помещений и кладовых не должна превышать 30% производственных площадей мастерских.

Состав административных и бытовых помещений мастерских следует принимать в соответствии с нормами СНиП 2.09.04-97. Площадь бытовых помещений не должна превышать 12% производственных площадей мастерских. Площадь административных помещений не должна превышать 15% производственной площади мастерских.

БИБЛИОТЕКИ

3.97. Библиотеки высшего учебного заведения проектируются на расчётное число читателей, которое определяется суммой (для дневных высших учебных заведений) 100% расчетного количества студентов дневного обучения, 30% количества студентов вечерней формы обучения, 100% аспирантов очного отделения, профессорско-преподавательского состава и научных работников, для заочных высших учебных заведений - 50% всего количества студентов.

3.98. В библиотеках вузов устанавливается два основных показателя: фонд книгохранения и число читательских мест.

3.99. Объем общего фонда библиотеки принимается из расчета на одного обслуживаемого библиотекой читателя:

а) в университетах, медицинских, культуры и искусства, педагогических высших учебных заведений - 125 единиц книжного фонда;

б) в технических, экономических и сельскохозяйственных высших учебных заведениях - 100 единиц книжного фонда;

Комплектное хранение редко опрашиваемого и резервного книжного фонда составляет не более 20% объема общего фонда библиотеки.

При проектировании библиотек существующих вузов возможны изменения расчетного общего фонда с учетом существующего фонда.

3.100. Кроме центральной научной библиотеки в вузе предусматриваются филиалы: межфакультетские, факультетские, кафедральные, а также филиалы при научных и других подразделениях высшего учебного заведения, в том числе при общежитиях и клубах.

Максимальный объем книжного фонда всех филиалов не превышает 20% объема общего фонда библиотеки.

3.101. Фонд факультетской библиотеки составляет до 20% фонда, необходимого для обслуживания всего контингента факультета, но не более 30 тыс. единиц хранения.

3.102. Число мест в читальных залах библиотеки принимается в процентах от общего числа читателей:

а) университетов, медицинских высших учебных заведений, искусства, педагогических - 15%, в том числе факультетских библиотек - 3%;

б) технических, сельскохозяйственных, экономических и фармацевтических высших учебных заведений - 12, в том числе факультетских библиотек - 2%;

в) высших учебных заведений культуры - 20%.

3.103. В составе библиотек высших учебных заведений предусматривается лекционный зал вместимостью: для контингента 2500 студентов - 50 мест, для контингента 7500 и более студентов - 150 мест, в остальных высших учебных заведениях - из расчета 20 мест на 1000 студентов.

3.104. Библиотеки высших учебных заведений должны иметь служебные входы. При размещении библиотеки высшего учебного заведения в одном здании с учебными помещениями устройство прохода через помещения библиотеки в другие помещения учебного заведения не допускается.

3.105. Библиотеки высших учебных заведений (или центральные научные библиотеки) в зависимости от величины книжного фонда имеют различные варианты размещения в структуре вуза.

Библиотека с числом читательских мест до 200 и фондом до 200 - 250 тыс. единиц хранения, как правило, размещается на одном из нижних этажей учебного корпуса.

Библиотека с числом читательских мест от 250 до 500 и фондом от 300 до 600 тыс. единиц хранения, как правило, на одном - двух нижних этажах общего здания учебного заведения или в специальном блоке.

Библиотека с числом мест от 600 - 1000 и фондом от 700 до 1,2 млн. единиц хранения, как правило, размещается в изолированном крыле или самостоятельном 2 этажном корпусе, связанном теплым переходом со зданием учебного заведения или примыкающем к нему.

Библиотеки с числом читательских мест более 1000 и фондом более 1,2 млн. единиц хранения располагаются, как правило, в отдельно стоящем здании.

3.106. В библиотеках помещения для читателей делятся на 2 отделения;

а) учебное, состоящее из читальных залов для студентов младших (1,11,111), а также подготовительных курсов, кабин аудиовизуального обслуживания, кабинетов для групповых занятий и абонемент учебной литературы;

б) научное, состоящее из читальных залов для студентов старших (IV, V) и дипломных курсов, читальных залов-аспирантов, профессорско-преподавательского состава и научных сотрудников, читального зала справочно-реферативной литературы, читальных залов по специализации, отраслям и видам знаний, видам изданий, индивидуальных читательских кабин, абонементов научной и художественной литературы, а также помещений информационного и справочно-библиографического аппарата (читательские и сводные каталоги, справочно-библиографические указатели, разного рода информационные картотеки, выставки книг и других печатных изделий) (рис. 81).

Учебное отделение рекомендуется располагать ближе к выходу в библиотеку. Желательна удобная связь читального зала для профессорско-преподавательского состава с учебным отделением библиотеки.

В кабинеты групповых занятий, рассчитываемые на половину или целую академическую группу студентов, входы должны быть из аванзалов.

3.107. Читальные залы желательно оснащать средствами аудиовизуального обслуживания - замкнутой системой телевидения, световыми табло и указателями, аппаратурой для просмотра микрофильмов и прослушивания магнитофонных записей, средствами автоматизированного поиска на базе центральных (вузовских) ЭВМ или компьютерной техники.

3.108. В структуре библиотек вуза, как правило, выделяются две зоны: до контроля и после контроля.

В доконтрольной зоне целесообразно располагать абонементы (научной, учебной и художественной литературы). В читательском и входном холле - справочное бюро, пункт записи читателей, книжный киоск, книжные выставки, бюро технического обслуживания (репрография, переводы), музей, помещения дирекции, лекционный зал.

В зоне за контролем находятся помещения информационного и справочно-библиографического аппарата с читательскими каталогами и различными картотеками, все читательные залы с аванзалами выдачи книг, фондами открытого доступа, выставками новых поступлений.

Внутри зоны располагаются все необходимые битовые помещения для читателей; столовая или буфеты, курительные комнаты, зоны отдыха, санитарные узлы.

Рис. 81. Структура помещений вузовской библиотеки (инженер Н.Чернозубова)

3.109. В производственную зону входят помещения администрации, отделов комплектования, технической и научной обработки литературы, а также информационный и справочно-библиографический отделы со служебными каталогами и картотеками, производственно-лабораторные помещения. Предусматриваются помещения психологической разгрузки для сотрудников.

Служебные и служебно-бытовые помещения, лаборатории, мастерские рекомендуется размещать не выше третьего этажа,

Для сотрудников библиотеки должен быть отдельный служебный вход с гардеробом.

3.110. Основное книгохранилище библиотеки занимает серединные объемы зданий или цокольные и подземные этажи. В цокольном этаже целесообразно располагать также производственные мастерские и лаборатории по размножению и копированию печатных материалов, лабораторию гигиены и реставрации книг с переплетной, отдел обменного фонда и межбиблиотечный абонемент.

3.111. Высота помещений выбирается с учетом габаритов оборудования и нормальной естественной освещенности читальных залов и служебных помещений. Высота стационарных стеллажей - хранилищ - одноярусных и компактных - 2,0 - 2,1 м, двухярусных - 4,0 - 4,20 м.

При двухярусной расстановке стеллажей высота читальных помещений, примыкающих к хранилищу, должна быть равной высоте хранилища.

3.112. Предельная вместимость читального зала рекомендуется не более 100 читателей, а при индивидуальных кабинах - не ограничивается.

Все помещения для чтения желательно решать по принципу свободной планировки, позволяющей трансформировать эти помещения и изменять их размеры.

3.113. Пункты выдачи могут находиться на площади читальных залов, при размещении пунктов выдачи за их пределами в читальном зале предусматривается пункт дежурного сотрудника.

Фонды с открытым доступом, обслуживающие читальные залы учебного отделения, целесообразно располагать в одном помещении с пунктом выдачи.

Выдача всех видов изданий в читальные залы профессорско-преподавательского, аспирантского состава и студентов старших курсов, а также студентов - членов НСО - отделена от пунктов выдачи и студенческих читальных залов учебного отделения.

3.114. При проектировании библиотек используются следующие функциональные схемы, отличающиеся размещением книгохранилища и читательских помещений: центральную, горизонтальную, вертикальную и асимметричную.

Центральная схема предполагает центрально-расположенный ствол книгохранилища с читательскими помещениями по периметру здания. Схема статична и не учитывает перспективное развитие библиотеки, поэтому она наиболее употребительна для небольших библиотек отраслевых вузов.

В горизонтальной схеме книгохранилище располагается внизу здания, а читательские помещения на вышележащих этажах. Схему рекомендуется использовать для средних и крупных библиотек в климатических зонах с неблагоприятными условиями для хранения литературы и в надземных этажах, а также при трансформации для универсального использования.

Вертикальную схему необходимо использовать в условиях малых, затесненных участков или в сложных условиях объемно-планировочного решения комплекса вуза. При этой схеме здание проектируется многоэтажным с нижним или верхним расположением книгохранилища.

Асимметричная функциональная схема пригодна для проектирования как крупных, так и небольших библиотек. В ней книгохранилище размещается в едином (часто многоэтажном) объеме, смещенном в плане и окруженном с трех сторон читательскими помещениями. Эта схема сокращает путь книги, наиболее просто решает проблемы зонирования дифференцированного (по отраслям зданий) обслуживания читателей. В ней заложена возможность перспективного развития библиотеки.

Примеры компоновок библиотечных блоков (корпусов) приведены на рис. 82, 83.

Примеры решений отдельных помещений библиотеки даны в нормалях библиотек НП 2,4.1-74.

3.115. Дифференцированный состав помещений библиотек дневных высших учебных заведений и заочных вузов и дифференцированные нормы площади представлены в табл.26.

3.116. Наиболее рациональной ориентацией по сторонам света является для читательских помещений - В, С, ЮВ, СВ для книгохранения - С.

3.117. Все читальные залы должны иметь специальную обработку стен и потолков акустическим материалом.

Пол целесообразно устраивать из линолеума на мягкой основе; в проходах на полу необходимо иметь ковер. Нижнюю часть стен рационально облицевать панелью из фанеры, пластика и т.д.; верхнюю часть стен и потолок обработать более эффективным звукопоглотителем в области средних и высоких частот с коэффициентом звукопоглощения 0,6 и более, если на стенах читального зала имеются информационные доски, то их лучше делать с относом от стены на 5 см реечного или перфорированного типа.

Рис. 82. Библиотека высшего учебного заведения на 2500 - 3000 студентов. Архитекторы Ю.Мухина, А.Кормишви.

а - фасад; б - разрез; в - план 1-го этажа; г - план второго этажа; 1- вестибюль; 2 - каталоги и выдача книг в читальном зале; 3 - выдача книг на дом; 4 - читальные залы младших курсов; 5 - зал текущей периодики; 6 - информационно-справочное обслуживание; 7 - администрация; 8 - читальные залы старших курсов

Рис. 83. Библиотека Тимирязевской сельскохозяйственной академии. Архитекторы Н. Устинович, С. Бедунков, С. Герасимов, С. Осипов

а - план 2-го этажа; б - план 2-го этажа; 1 - вестибюль с гардеробом; 2 - административно-хозяйственные помещения; 3 - служебно-производственные помещения; 4 - справочно-информационный отдел и выставочный зал; 5 -книгохранилище; 6 - читательский каталог; 7 - выдача книг в читальные залы; 8 - читальные залы; 9 - отдел библиографии

Таблица 26.

Помещения

расчетный показатель

Измеритель

Площадь, м2

1

2

3

4

Абонемент:

 

 

 

площадь для читателей

На 1 читательское место

До 20% количества читательских мест

1,8

площадь для сотрудников

На 1 сотрудника

1 сотрудника 300 читательских мест

5

Аванзал:

 

 

 

площадь для читателей

На 1 читательское место

До 15% количества читательских мест

1,5

площадь для сотрудников

На 1 сотрудника

1 сотрудник на 200 читательских мест

5

Читательские каталоги:

 

 

 

площадь для каталогов

На 1 каталожный шкаф

100% общего фонда

3,5

 

(20 тыс. ед.)

 

 

Площадь для сотрудников

На 1 сотрудника

1 сотрудник не более чем на 1 млн. единиц хранения

4

Справочно-библиографический отдел Читальные залы учебного отделения:

На 1 читательское место

100 читательских мест

0,1

для читателей

На 1 читательское место

40 количества читательских мест

2,4

Помещения для групповых занятий

На 1 место

20% читательских мест

2,2 должна быть не менее 36

Читальные залы научного отделения

На 1 читательское место

50% количества читательских мест

3

Залы аудиовизуального обслуживания крупногабаритной литературы и редких книг

На 1 читательское место

10% количества читательских мест

5

Книгохранилище:

 

 

 

основное хранение

На 1000 единиц хранения

60% общего фонда

2,5

компактное хранение

то же

20% общего фонда

1,25

Открытый доступ

То же, на

20% общего фонда

5

Площадь для сотрудника

1 сотрудника

1 сотрудник на 140 тыс. единиц

4

Межбиблиотечный абонемент

На 1 сотрудника

1 сотрудник на 140 тыс. единиц

6

Отделы комплектования, обработки и служебный каталог:

На 1 сотрудника

1 сотрудник на 140 тыс. единиц

6

площадь для сотрудника

 

 

 

площадь для каталога

На 1 каталожный шкаф (40 тыс. ед.)

100% общего фонда

2,5

Лаборатории микрофотокопирования, репродуцирования, множительные, гигиены и реставрации, переплетно-брошюровочная

На 10,000 единиц

То же

2

Служебно-производственные помещения

На 10,000 едини

-“-

3

Помещения хранения портфелей

На 1 читательское место

100% читательских мест

0,05

ФИЗКУЛЬТУРНО-СПОРТИВНЫЕ СООРУЖЕНИЯ

3.118. Спортивные сооружения высших учебных заведений являются учебно-лабораторной базой кафедры физического воспитания и предназначены для проведения учебных и факультативных занятий (по учебным программам), специальных медицинских, подготовительных групп, групп спортивного совершенствования, работы секций, а также для проведения соревнований и показательных выступлений.

Спортивные залы, бассейны и вспомогательные помещения при них следует проектировать с учетом использования их инвалидами на колясках.

3.119. Спортивные сооружения разделяются не закрытые (валы, манежи и бассейны) и открытые (стадионы, площадки и др.). Основными являются закрытые, что определяется сезонной спецификой учебной работы вузов, а также тем, что все большее количество видов спорта переходит в закрытые помещения.

3.120. Виды, размеры и количество закрытых залов и бассейнов принимать по табл. 27. Состав залов может дифференцироваться в зависимости от местных условий.

Таблица 27.

Крытые учебные сооружения

Размеры

Количество сооружений при контингенте студентов дневного отделения, тыс. чел.

 

Длина

Ширина

до 2

до 4

до 6

до 8

до 10

Свыше 10

 

1

2

3

4

5

6

7

8

9

 

Универсальный большой спортивный зал (для спортивных игр) с местами для зрителей

42

24

-

1

1

2

2

2

 

Универсальный средний спортивный зал (для гимнастики и спортивных игр)

36

18

2

2

4

4

4

4

 

Специализированный спортивный зал (для борьбы, бокса, фехтования и др.)

24

15

1

2

3

4

4

4

 

Зал для занятий специальных подготовительных групп

19

12

1

2

3

3

3

3

 

Легкоатлетический манеж Плавательный бассейн

126

50

30

21

-

-

-

-

1

1

1

1

 

То же

25

16

 

1

2

1

 

 

 

Большой спортивный зал размером 42 ´ 24 м рекомендуется предусматривать для вузов как универсальный зал спортивных игр, для занятий и соревнований: по ручному мячу, теннису, баскетболу, волейболу, бадминтону. Зал может быть разделен раздвижными перегородками или занавесами на три части: 24 ´ 18, 24 ´ 12 и 24 ´ 12 м, где могут одновременно заниматься шесть групп студентов по 15 чел.

Средний спортивный зал размером 36 ´ 10 м рекомендуется проектировать с постоянной расстановкой снарядов и использовать для спортивной, художественной гимнастики и акробатики. При наличии двух залов один целесообразно использовать для занятий мужчин, другой - женщин. Его одновременная пропускная способность в вузах 78 чел. Возможно использование зала этого типа в качестве игрового (при количестве залов 3 или 4).

Спортивный зал размером 24 ´ 15 предназначается для занятий борьбой, боксом, штангой, фехтованием. Единовременная пропускная способность 38 чел.

Зал для занятий специальных учебных групп (медицинской и подготовительной) имеет размер 18 ´ 12 м и одновременную пропускную способность 25 чел.

3.121. При объединении спортивных залов и трансформируемый зал-манеж рекомендуется проектировать его шириной 36 и длиной, кратной 18 м с трансформацией на секции 36 ´ 18 м, что позволяет добиться многовариантного использования при нормируемой площади, возможности расширения зала при развитии вуза. Так, для вуза с контингентом студентов 2 тыс. чел, возможно, создать зал размером 36 ´ 33 м, для вузов на 4 тыс. студентов - 36 ´ 72 м (четыре модуля 36 ´ 18 м), для вузов на 6 тыс. студентов -36 ´ 108 м, для контингента 8 тыс. студентов - манеж размером 125 ´ 33 м.

Рекомендуется также объединять крытые спортивные залы разного назначения и бассейны в единые спортивные корпуса с кооперированием вспомогательных помещений и помещении для зрителей.

3.122. Взаимосвязь помещений спортивного корпуса (рис.84) строится так, чтобы потоки вошедших в корпус с улицы не пересекались с прошедшими раздевальные, а идущие в спортивные залы - с идущими в плавательный бассейн.

3.123. Учебно-спортивные корпуса вузов не являются зрелищными сооружениями, однако при каждом зале возможно и целесообразно предусматривать от 100 до 200 мест для зрителей, а в универсальном зале 42 ´ 24 м - до 1000 зрителей.

Рис.84. Схема взаимосвязи помещении спортивного комплекса вуза и межвузовского спортивного комплекса. Архитектор Г.Лебедев.

Примеры планировочных решений показывают различные вариации организаций самих залов и подсобных помещений, к которым относятся: раздевальни с душевыми, снарядная, тренерская, радиоузел, а также технические помещении сантехнического и электротехнического назначения (рис.85, 86, 87, 88).

3.124. Необходимо создание хорошей равномерной освещенности на уровне пола спортивных залов. Учитывая большие пролеты (ширину 18 и 24 м) залов, наиболее эффективным принципом создания оптимального естественного освещения может быть рекомендовано освещение с помощью боковых окон и верхних фонарей, равномерно распределенных по покрытию залов.

3.125. В едином комплексе со спортивными сооружениями следует, как правило, располагать помещения кафедры физического воспитания и спорта с медпунктом и спортклубом, площади которых рекомендуется принимать следующие м2.

Кабинет заведующего кафедрой ......................... 18

Кабинет преподавателей......................……........ 36-54

Методический кабинет кафедры......................... 54

Лаборантская ....................................………….... 18

Спортклуб с музеем ...........................………...... 36

Кабинет спортивного врача .....................……... 10

Ожидальня........................................……………. 10

Кабинет дежурной медсестры .....…................... 10

Процедурная медпункта .......................……....... 36

Состав и площади помещений кафедры уточняются при разработке задания на проектирование.

В вузах с контингентом до 4000 студентов, размещаемых в единых корпусах, медицинские помещения кафедры не предусматриваются и используется общеинститутский медицинский пункт.

Рис. 85. Учебно-спортивный комплекс КИСИ. Архитектор Н. Гусев.

а - план 1-го этажа; б - план 2-го этажа; 1 - вестибюль, 2-раздевалки для спортсменов; 3 - зал тяжелой атлетики; 4 - зал фехтования; 5 - комната администрации; 6 - комната заведующего кафедрой физического воспитания ; 7 - комната преподавателей с раздевалкой; 8 - методический кабинет; 9 - спортивный клуб; 10 - медпункт; 11 - технические помещения бассейна; 12 - буфет, 13 - раздевалки и душ; 14 - гимнастический зал; 15 - игровой зал; 16 - зал для подготовительных занятий при бассейне; 17 - зал бассейна с ванной

Рис. 86. Зонирование площади спортивных залов комплексного назначения. Архитектор В. Чирухин

а - для вузов на 4000 студентов; б, в - для вузов до 6000 студентов; г-д - для вузов на 2000 студентов; 1 - трибуны; 2 - зона для проведения занятий по гимнастике; 3 - то же, боксом; борьбой; тяжелой атлетикой; 4- то же, спортивными играми и общей физической подготовкой; 5 - то же, легкой атлетикой

Рис. 87. Пример универсального спортивного зала вуза из блок модулей 36 ´ 18 м

а - схема развития спортивного корпуса при разной величине вуза; б - спортивный зал вуза на 2000 студентов; в - спортивный зал вуза на 4000 студентов; г - спортивный манеж

Рис. 88. Схемы многозальных спортивных корпусов вузов. Архитектор Г. Лебедев.

а, б, в - линейный корпус-манеж 36 х 102 м, (Планы 2-го и 3-го этажа и разрез); г, д - комплексный двухзальный спорт-корпус (план и разрез), е, ж, з, и - многоэтажный корпус спортзалов и размещением их по вертикали (план и разрез)

3.126. В высших учебных заведениях состав вспомогательных помещений при спортивных залах следует принимать в соответствии с пособиями по проектированию физкультурно-оздоровительных сооружений, а их площади определять из расчета использования спортивных сооружений для учебных занятий по расписанию. Ориентировочные потребности в площадях спортивных залов вузов разного типа и вспомогательных помещений при них о учетом пропускной способности для вузов представлены в табл.28.

Таблица 28.

Помещения

Площади помещений, м2, для залов разного типа, размерами, м

Большой, 42 ´ 24

Средний, 36´18

Малый,

24 ´ 12

Специализированный

18 ´ 12

Специализированный медицинский, 18 ´ 12

1

2

3

4

5

6

Спортивный зал

1008

648

360

216

216

Раздевальные

88

88

50

30

30

Душевые

20

20

12

8

8

Санузлы

14

14

8

6

6

Баня сухого жара

 

 

10

10

 

Кабинет медицинских измерений

-

-

 

 

10

Инвентарная

20

20

20

20

20

Инструкторские, 2 ´  10 м2

20

20

20

20

10

Примечание: Площади вспомогательных помещений корректируются расчетом в зависимости от конкретного назначения каждого зала.

3.127. Площадь раздевальных и гардеробов определяется из расчета двойной загрузки зала, т.е. с учетом занимающихся и пришедших их на смену на следующее занятие.

В отдельно стоящих спортивных комплексах следует предусматривать также вестибюль с гардеробом и входные помещения в залы.

3.128. Для заочных высших учебных заведений учебно-спортивные помещения не предусматриваются. Однако для организации и проведения физкультурно-оздоровительных и спортивных мероприятий в составе заочных высших учебных заведений рекомендуется предусматривать спортивные залы. Виды, размеры и количество залов следует принимать по табл. 29.

Таблица 29.

Структурные подразделения

заочного вуза, заочный вуз

Численность

студентов, тыс. чел.

Размеры зала

длина

ширина

Общетехнический факультет (ОТФ)

0,5-1,0

18

12

Филиал

св. 1,0-2,0

24

25

-"-

" 2,0-3,0

36

18

Институт

" 10

36

18

3.129. Отделка внутренних поверхностей стен спортзалов, бассейнов и манежей, конструкций полов и покрытий залов, акустическая обработка поверхностей, а также применяемые отделочные материалы должны проектироваться по требованиям пособий по проектированию спортивных сооружений.

3.130. При проектировании открытых спортивных сооружений вузов рекомендуется учитывать: сезонную специфику учебного процесса, местоположение вуза и его спортивного комплекса в городе (в жилой застройке или за городом), а также возможность кооперирования с городскими спортивными центрами и универсальное использование (рис. 89).

3.131. При открытых спортивных площадках следует предусматривать раздевальные и души по пособию по проектированию спортсооружений. При проектировании следует учитывать возможность использования вестибюля в зимнее время.

Рис. 89. Универсальная трансформируемая открытая спортивная площадка высшего учебного заведения. Архитектор Г.Цытович

а, б, в - варианты использования спортивной площадки; 1 - баскетбол; 2 - волейбол; 3 - ручной мяч; 4 - теннис; 5 - хоккей с шайбой и фигурное катание в зимний период

3.132. Количество открытых спортивных сооружений следует принимать по табл.30.

Таблица 30.

Наименование открытых спортивных сооружений

Количество сооружений при количестве студентов дневного отделения, тыс. чел, до

4

6

8

10

12

Спортивное ядро с полем для футбола и беговой

 

 

 

 

 

дорожкой длиной 400м

1

1

1

1

1

Площадка для волейбола

3

4

6

7

9

Площадка для баскетбола

2

3

4

5

6

Площадка для тенниса

2

2

4

4

4

Примечания: 1. Площадки для волейбола и баскетбола допускается объединять в единые универсальные трансформируемые площадки ручных игр размером 60 ´ 45м (2 баскетбольные и 3 волейбольные) с учетом возможности их использования как площадок для ручного мяча, а в зимнее время - хоккея.

2. В составе спортивных сооружений допускается строительство спортивных баз для кроссовой, лыжной и велокроссовой подготовки студентов из расчета обеспечения 10% студентов дневной формы обучения, допускается строительство лыжероллерной, велосипедной и лыжной трасс.

3. Перечень и количество открытых спортивных сооружений институтов и факультетов физической культуры устанавливаются по специальному заданию в соответствии с учебной программой.

3.133. Размеры спортивных сооружений, их устройство, конструкцию покрытий площадок, состав вспомогательных помещений при бассейнах и открытых площадках для учебных заведений следует принимать по пособиям по проектированию спортивных и физкультурно-оздоровительных учреждений.

3.134. Рекомендуется объединять спортсооружения и создавать межвузовские спортивные центры при крупнейших вузах, где проводят занятия на отделениях спортивного совершенствования студенты-спортсмены высших разрядов (1 разряд и мастера) независимо от ведомственной подчиненности.

3.135. На группу вузов малой и средней величины рекомендуется предусматривать межвузовскую спортивную базу (или спортивные базы), размещаемую на расстоянии получасовой транспортной доступности от вузов, вблизи парковых, лесопарковых массивов или городской зоны отдыха. В них размещаются часть полагающихся вузам по нормам спортивных залов, спортивное ядро, игровые площадки, дорожки для различных видов бега, велосипедно-мотороллерные, зимой лыжные, освещенные трассы, помещения выдачи, хранения и ремонта спортивного и туристского инвентаря, вспомогательные помещения.

3.136. Для профессионально-прикладной подготовки могут быть предусмотрены: водно-моторная, конноспортивная базы, автомотоклуб, в соответствии с профилем вуза, развитием специальных видов спорта в них.

3.137. Состав спортивных сооружений институтов физической культуры, каждый из которых проектируется по специальному заданию в соответствии с учебными планами и спецификой развития различных видов спорта в данном регионе, определяется заданием на проектирование.

Спортивные сооружения институтов физической культуры (крытые и открытые) размещаются на основной территории.

3.138. При крупных вузах или на группу вузов в загородной зоне или курортной зоне создаются загородные оздоровительно - спортивные базы.

В полный комплекс сооружений спортивной базы могут входить:

спортивный корпус и плоскостные спортивные сооружения, в том числе беговые дорожки, велосипедные (зимой лыжные) трассы, обустроенные туристские маршруты и другие виды спортсооружений.

Спортивный корпус базы может располагать необходимыми вспомогательными помещениями, вестибюлем, гардеробом, раздевальными, душевыми, помещениями выдачи и подгонки спортивного и туристского инвентаря, кладовыми хранения несезонного инвентаря, мастерскими по ремонту, комнатами: отдыха, врача, тренеров, администрации, обслуживающего персонала. Кроме того, спортивный корпус может включать спортивные залы, бассейн, легкоатлетический манеж, не разместившиеся в спортивных комплексах.

Плоскостные спортивные сооружения базы могут включать не разместившееся в спорткомплексах спортивное ядро с секторами легкой атлетики и метания, площадками для игры, а также иметь гимнастический городок, полосу препятствий ГГО.

3.139. При использовании спортивной базы как однодневного дома отдыха увеличиваются: помещения буфета, количество комнат отдыха. Проведение на спортивной базе соревнований может потребовать увеличения площади помещение тренеров и судей, организации мест для зрителей.

3.140. Стрелковый тир, должен, включен в состав кафедры гражданской обороны для занятий по учебным планам.

В крупных вузах с расчетным количеством студентов свыше 8 тыс. чел, количество отдельно оборудуемых тиров для стрельбы из малокалиберного и пневматического оружия может быть принято следующим:

тир для стрельбы на 50м из малокалиберного оружия по мишеням с черным кругом - на 20 стрелковых мест;

тир для скоростной стрельбы на 25 м из пистолета, по поворачивающимся фигурным мишеням - на 4 мишенных установки;

тир для стрельбы на 50 м по движущейся мишени "Бегущий кабан" на 1 стрелковое место (и 2 боковых для прицеливания без выстрела);

тир для стрельбы на 10 м из пневматического оружия - на 20 стрелковых мест.

Все перечисленные тиры могут попеременно функционировать в одном и том же помещении огневой зоны, имеющей необходимые для этого размеры. В такой огневой зоне соответственно потребуется оборудовать несколько попеременно используемых огневых рубежей. Назначение оборудованного таким образом тира становится универсальным многоцелевым.

Рекомендуемый состав помещений тира и схема взаимосвязей между ними, и планировка тира приведены на рис. 90, 91.

Рис. 90. Взаимосвязь помещений крытого типа вуза. Инженер И. Ищенко

1 - вестибюль, 2- гардеробная верхней одежды; 3 - комната ожидания; 4 - основные помещения тира; 5 - помещение (место) охраны (дежурный вахтер); 6 - кабинет начальника тира; 7 - общее служебное помещение административного персонала; 8 - бытовое помещение обслуживающего персонала; 9 - кладовая хозяйственного инвентаря и материалов; 10 - учебный класс; 11 - стрелковый кабинет; 12 - комната инструкторов и тренеров; 13 - оружейная мастерская; 14 - склад оружия; 15 - склад боеприпасов; 16 - комната чистки оружия; 17 - раздевальная; 18 - душевая; 19 - туалет; 20 - кладовая инвентаря; 21 - помещения для судей КОР; 22 - кладовая для оборудования и инвентаря блиндажа

Рис. 91. Схема функционально-планировочной организации учебного стрелкового тира вуза. Инженер А. Ищенко

ЗРЕЛИЩНО-КЛУБНЫЕ ПОМЕЩЕНИЯ

3.141. В высших учебных заведениях значительное место занимает воспитательная работа среди студентов. В большинстве институтов имеются университеты культуры, проводятся научные конференции, демонстрируются и снимаются научные фильмы, имеются драматические коллективы, функционируют эстрадные оркестры, танцевальные коллективы и хоры; работают факультеты, общественных профессий, эстетического воспитания, политические и творческие клубы, факультеты, героических биографий и др. Все эти мероприятия проводятся в актовых залах и клубных корпусах вуза. Структура помещений группы актового зала приведена на рис.92.

Рис. 92. Схема функциональной связи помещений группы актового зала. Архитектор Г.Цытович.

3.142. Для проводимых в вузах политико-воспитательных и культурно-массовых мероприятий рекомендуется предусматривать следующие актовые залы:

для вузов с контингентом до 5000 студентов - один актовый зал универсального типа с эстрадой типа Б;

для вузов с контингентом более 5000 студентов - два зала разного типа, причем актовый зал может иметь эстраду типа А, а клубный зал (меньший) должен иметь сцену типа А (см.п.3.145).

3.143. Количество мест в актовых залах и залах клубных корпусов принимать в зависимости от расчетного контингента студентов по табл. 31. Унифицированные габариты актовых залов в табл. 31а.

Таблица 31

Помещения

Расчетное количество студентов

До 2000

До 4000

До 6000

До 8000

До 10.000

1200 и более

Актовый зал дневных высших учебных заведений

700

900

1100

1300

1500

1800

То же, заочных

400

500

600

700

-

 

Зрительный зал клуба

-

-

600

700

800

900

Примечания: 1. В малых вузах с контингентом до 700 студентов вместимость зала не должна превышать численности студентов дневного отделения высших учебных заведений.

2. При проектировании актовых залов следует предусмотреть не менее 3% мест с учетом требований для размещения инвалидов на колясках.

3. Для заочных филиалов и факультетов с расчетным контингентом до 2000 студентов актовые залы не предусматривать, а предусматривать крупные лекционные аудитории не менее чем на 200 мест.

3.144. Площадь актового зала и помещений при нем, а также площадь клубных помещений следует принимать по табл. 32. ч табл. 18 СНиП 2.08.02-89.

3.145. Эстрада типа А - возвышение в зрительном зале, отделенное занавесом, которое пространственно и архитектурно является его составной частью.

Эстрада типа Б - это помещение, отделенное от зала постоянным порталом. Она имеет небольшую авансцену и хорошую связь со зрительным залом. Покрытие малой сцены совпадает с покрытием зрительного зала, а высота сцены может быть увеличена за счет открытой снизу конструкции покрытия.

Сцена типа А (учебная сцена ) предназначена для постоянных профессиональных и любительских групп и по своим габаритам и специфическому оборудованию устраивается по нормам для клубов.

Ориентировочные показатели площади эстрад и сцен (на одно зрительное место в зале) должны составлять (не более):

для эстрад типа Б (актовые залы на 700 и 900 мест) - 0,3 м2;

для эстрад типа А (актовые залы на 1000-1800 мест) - 0,2 м2;

для сцен типа А (клубы вместимостью 600-900 мест) - 0,4 м2.

Таблица 31 а

Тип зала

 

Вместимость зала

 

Унифицированные габариты актовых залов при уплотненном планировочном модуле, равном 6 м

30 ´ 30

24 ´ 36 х)

24 ´ 30

18 ´ 36 х)

Универсальные залы

900

Эскиз 1

Эскиз 2

-

-

 

700

-

-

Эскиз 3

Эскиз 4

Клубные валы

800

Эскиз 5

Эскиз 6

-

-

 

600

-

-

Эскиз 7

Эскиз 8

х) Габариты актовых залов, дающие оптимальные планировочные решения.

Таблица 32

Помещения

Единица измерения

Площадь, м2

1

2

3

Актовый зал заочных высших учебных заведений

На 1 место в зале

0,8

Фойе - танцевальный зал

То же

0,6

Клубные помещения

На 100 студентов расчетного контингента

5

Комнаты президиума при числе мест в зале (артистические):

 

 

до 1300 включительно

1 помещение

36

свыше 1300

То же

54

Костюмерная

-”-

10

Склады при эстраде (мебели, декораций, инвентаря, аппаратуры)

% площади эстрада

25

Кладовая мебели (при фойе)

1 одно место в зале

0,02 (но не менее 10)

Санитарные узлы при эстраде

Общее количество

2 - 4 унитаза

Душевые при эстраде

То же

2 - 4 душевые сетки

Пожарный пост

1 помещение

10

Эстрада при актовом зале должна быть глубиной 6 м при вместимости зала до 500 мест (включительно); 12 м при вместимости зала до 1300 мест (включительно); 15 м при вместимости зала более 1300 мест.

3.146. При расчете клубных помещений, исходя из общей нормы, рекомендуется ориентировочный состав и расчетные показатели принимать в соответствии с табл. 33.

Таблица 33.

Помещения

Единица измерения

Расчетный показатель

Репетиционный зал:

 

 

при актовых залах

% площади эстрады (сцены)

30

При клубных залах

 

70

Кружковые помещения (количество - исходя из общей нормы)

м2

18, 36, 54

Кладовая при кружковых помещениях

% площади кружковых помещений

10

Кинолаборатория

м2

20

Зал настольного теннис (из расчета. 1 зал на 5000 студентов)

36 (5 х 7,2 м)

Гостиная

м2 на одно место в зале

0,07

Буфет с подсобным помещением

Число мест в буфете

8 % числа мест в зале

Правление клуба

м2

24

Администрация, дежурный и обслуживающий персонал

-“-

18

Хозяйственная кладовая

10

Примечания: 1. Кинофотолаборатория, правление клуба, гостиная и помещение администрации предусматривается .в составе клуба.

2. При проектировании отдельно стоящих актовых залов и клубных корпусов следует предусматривать вестибюль, с гардеробом на всех посетителей.

3.147. Рациональные архитектурно-планировочные, решения различных типов актовых и клубных залов высших учебных заведений следующие:

для актовых залов с эстрадой типа А вместимостью 1100 - 1800 мест наилучшие результаты дает секторная и близкая к ней форма плана (трапецеидальная, сложная); хорошими являются также прямоугольные и овальные формы при наличии акустических устройств,

для универсальных актовых залов о эстрадой типа Б вместимостью 700 - 800 мест наиболее приемлемыми формами являются прямоугольная и секторная;

для клубных залов со сценой типа А вместимостью 600 - 900 мест наилучшие формы прямоугольная и секторные.

Особенности оснащения актовых залов показаны на рис. 93, 94. Примеры планировки залов приводятся на рис. 95, 96, 97.

Рис. 93. Принципиальная схема размещения инженерно-технологического оборудования в актовых залах вузов. Архитектор Г.Цытович

1 - заэкранные громкоговорители; 2 - экран (широкий); 3 - предэкранный занавес, 4 - занавес заднего плана (задник); 5 - кулисы (падуги, штанкетные подъемы, арлекины); 6 - занавес сцены; 7 - вентиляция (кондиционирование воздуха, приток, вытяжка); 8 - выносное боковое освещение, 9 - подключение микрофона; 10 - зашторивание естественного света; 11 - искусственное освещение зала (предусматривается устройство постепенного затухания света); 12 - подвесной шкаф регулятора громкости; 13 - места подключения телевизионной аппаратуры; 14 - радиоузел, 15 - кинопроекционная с перемоточной; 16 - места для кабин синхронного перевода; 17 - кресла полумягкие с выдвижными пюпитрами; 18 - громкоговорители звуковых эффектов, 19 - громкоговорители; 20 - звуковые колонки; 21 - выносные софиты; 22 - освещение рампы; 23 - трибуна лектора (передвижная); 24 -сигнальные лампы "Выход"; 25 - меловая доска (выкатная); 26 - попланные софиты; 27 - щиток режиссерской сигнализации; 28 - коробки включения микрофонов, звука и другой аппаратуры, 29 - шкаф для одежды; 30 - вешалки для платьев; 31 - кушетки для отдыха, 32 - гримировочный стол вдоль стены; 33 - зеркала с лампами; 34 - трюмо; 35 - умывальники; 36 - душевые кабины; 37 - раковины для мытья ног; 38 -кладовая; 39 - душевая комната; 40 - туалетная 41 - артистическая

Рис. 94. Требования к расстановке зрительских мест в актовых залах

1 - красная линия сцены; 2 - расстояние (по оси зрительного зала) от красной линии до спинки зрительского места первого ряда, 2,5 м для аудиториума и универсального вала и 4,5 м для залов клубного типа; 3 - расстояние от наиболее выступающих частей кресел первого ряда до эстрады или барьера оркестровой ямы - не менее 1 м; 4 - ширина прохода в зрительном зале - не менее 1 м и не более 2,4 м; 5 - расстояние от самого удаленного зрительского места до выхода из зрительного зала - не более 32 м; 6 - максимальная удаленность последнего ряда зрительских мест (спинки кресел) от красной линии сцены или эстрады ( по оси зала) при вместимости зала более 600 мест, 45 м для аудиториума и 27 м для залов универсального и клубного типов; 7 - расстояние между креслами соседних рядов; 8 - число непрерывно установленных мест в ряду; 9 - ширина дверей на путях эвакуации - не менее 1,2 м и не более 2,4м, 10 - наибольший уклон пола в проходах зрительного зала - не более 1, 7, 11 - эвакуационные выходы из зрительного зала (не менее 2)

3.148. Актовые залы и клубные корпуса допускается объединять в единые блоки с кафе - столовыми и крупными лекционными аудиториями, а также создавать единые двухзальные (зрелищно-клубные) центры вузов.

3.149. Для актовых залов всех типов оптимальным являются от 20 до 40 непрерывно установленных мест в ряду с расстоянием 90 см (с учетом установленных в них полумягких или жестких кресел с откидными сиденьями и неподвижным прикреплением к полу).

3.150. Для обеспечения хорошей видимости рекомендуется во всех актовых залах располагать зрительные места амфитеатром по расчетной кривой видимости. Условия видимости в актовых залах показаны на рис. 98.

Размещение кинооборудования и регламентирующие параметры их расстановки в актовых залах и кинопроекционных, обеспечивающих хорошую видимость, следует проектировать в соответствии СНиП 2.08.02-89.

3.151. Количество кинопроекторов принимается; при вместимости зрительного зала до 700 мест - два, при вместимости более 700 мест - три.

Рис. 95 Примеры планировки актовых залов высших учебных заведений

а - актовый зал на 700 мест Джамбульского гидромелиоративного строительного института (архитекторы Г.Цытович, Л. Ерофеева); б - актовый зал на 950 мест универсального типа о малой бесколосниковой сценой Иркутского политехнического института (архитекторы В. Попов, А. Мочалов); в -универсальный актовый зал на 800 мест Московского института нефтехимической и газовой промышленности (архитекторы Л. Афанасьев, С. Михайлов); г - универсальный актовый зал на 1200 мест Киевского института гражданской авиации (архитекторы П. Кузнецов, И. Клешко, М. Виноградская)

Рис. 96. План универсального зала на 900 мест (функционально-габаритная схема)

а - разрез; б - план

Рис. 97. План зала клубного типа на 800 мест (функционально-габаритная схема)

а - разрез, 6 - план

А

Подъем ряда

20

20

20

25

25

25

30

30

30

30

35

35

35

35

35

35

35

40

40

40

40

40

40

40

40

40

40

40

А

 

Общий подъем

20

40

60

95

110

135

165

195

225

225

290

325

360

395

430

465

500

540

580

620

660

700

740

780

820

860

900

940

 

Б

Подъем ряда

10

10

10

15

15

15

15

15

11

20

20

20

20

20

20

20

20

20

20

20

20

20

20

20

25

25

25

25

Б

 

Общий подъем

10

20

30

45

60

75

90

105

120

140

160

180

200

220

240

260

280

300

320

340

360

380

400

420

445

470

495

520

 

Рис. 98. Профили подъема рядов амфитеатра в актовых залах вузов

а - разрез; б - план

А - линия оптимального подъема рядов амфитеатра по кривой беспрепятственней видимости точки ;F1 превышение линии зрения сзади сидящего над линией зрения предыдущего 12 см; Б - линия допустимого подъема мест амфитеатра по кривой максимально ограниченной видимости точки F1 у превышение линии зрения сзади сидящего над линией зрения предыдущего 6 см.; 1 - линия занавеса; 2 - лини планшета сцены (эстрады); 3 - край сцены (эстрады)

3.152. В высших учебных заведениях культуры и искусства актовые залы и крупные специализированные аудитории со сценическими площадками необходимо объединять в учебно-демонстрационные комплексы. Типы и вместимость залов и аудиторий учебно-демонстрационных комплексов следует принимать по табл.34.

Таблица 34

Типы залов

Вместимость залов высших учебных заведений различного типа, 1место

культуры

театральные

консерваторий

Универсальный актовый зал

70

 

 

Учебный театр

-

600

-

Концертный зал

-

-

500

Оперная студия

-

-

300

Театральная аудитория с глубинной сценой

 

300

 

Трансформируемая театральная аудитория

250

250

-

Состав и площади помещений зрелищных комплексов культуры и искусства отличаются от состава и площадей помещений театральных залов в силу их небольшой вместимости и учебно-зрелищной специфики их организации. Состав помещений и их площади в зрелищных комплексах вузов культуры и искусства следует принимать по специальному заданию.

3.153. Универсальные актовые залы и учебные театры вузов культуры следует проектировать в качестве трансформируемых, обеспечивающих изменение типа игровой площадки: панорамная, глубинная, беспортальная, трехсторонняя, центральная. Ограждающие конструкции трансформируемых помещений должны быть несгораемыми с пределом огнестойкости не менее 0,75 ч.

3.154. Трансформируемые актовые залы универсального типа, как правило, проектируют квадратными или круглыми при центральном положении сценической площадки и секторными при торцовом размещении сцены (рис.99).

Трансформируемые актовые залы высших учебных заведений, кроме функции удовлетворения требований разнообразного художественного творчества студентов, служат учебной площадкой в вузах гуманитарного профиля (филологические, исторические факультеты), а также необходимы в развитых студенческих коллективах крупных вузов с их богатыми формами организации досуга. В крупных и крупнейших вузах рекомендуется объединять крупные актовые залы с эстрадой и клубные залы со сценой в клубно-театральные комплексы (рис.100).

Рис. 99. Примеры трансформации актовых залов

а - актовый зал на 700 мест Андижанского института хлопководства (архитектор Б.Кляшко); б - актовый зал на 800 мест Московского текстильного института (архитектор Г.Цытович); в - трансформация актовых залов в несколько лекционных аудиторий

Рис. 100. Пример двухзального клубного корпуса Тимирязевской сельскохозяйственной академии. Архитектор Б. Гравдев

а - разрез; б - план второго этажа; в - план первого этажа;

1 - вестибюль; 2 - клубный зал с колосниковой сценой на 600 мест; 3 - актовый зал на 1200 мест; 4 - фойе

3.155. Для эвакуации людей из актовых залов необходимы следующие условия:

наличие необходимого количества эвакуационных входов (0,6 м на 100 мест для залов вместимостью до 500 мест, свыше - по расчету эвакуации);

четкая организация потоков (по расчету), которая исключает создание заторов и обеспечивает нормируемое время эвакуации из зала и скорость движения 16 м/мин.

3.156. Для создания нормальных акустических свойств актовых и клубных залов вузов необходимо обеспечить;

достаточный уровень громкости источника звука и его соотношение с уровнем громкости мешающего шума;

требуемое время реверберации в зависимости от величины и типа вала;

рациональную форму зала, позволяющую создать оптимальную разборчивость речи: ликвидацию возможного образования эхо, фокусировку звука, обеспечение дополнительных отражений звука в задние ряды зала.

Помещения административно-хозяйственного назначения

3. 157. Для ориентировочного расчета состав и площади помещений ректората, учебной части и общественных организаций рекомендуется принимать по табл. 35.

Таблица 35

Группы помещений

Площадь м2, при расчетном контингенте студентов

до 2000

до 4000

до 6000

до 8000

до 10.000 и более

Ректорат

246

332

454

589

558

Учебная часть

162

180

216

270

342

Общественные организации

172

190

270

342

396

3.158. Состав и площади помещений административно-хозяйственного управления, деканатов и отделов высших учебных заведений для ориентировочного расчета принимать согласно табл.36.

Таблица 36.

Группы помещений

Площадь, м2, при расчетном контингенте студентов

до 5000

свыше 5000

Административно-хозяйственное управление

252

54г

Отдел множительной техники

190

342

Деканаты заочного (вечернего) обучения

234

252

Деканат по работе с иностранцами

99

144

Отдел по зарубежным связям

72

90

Отдел производственной практики

36

54

Факультет (курсы) повышения квалификации (по спец. заданию)

126

162

Подготовительное отдаление

90

90

Примечания: 1. В высших учебных заведениях с контингентом более 1200 студентов возможно в создание типографии.

2. Помещения групп 3, 4, 7, 8 - уточняются в зависимости от конкретной численности обучающихся на данном отделении, факультете.

3.159. Состав и площади административных помещений факультетов рекомендуется принимать по табл. 37.

Таблица 37.

Помещения

Площадь, м2, при числе студентов на факультете

до 1000

свыше 1000

1

2

3

Кабинет декана

36

54

Кабинет заместителя декана

-

18

Декан факультета

18

36

Студенческий методический отдел

36

54

Архив

18

18

Кабинет работы преподавателей с техническими средствами

36

54

Эксплуатационные мастерские

18

18

Помещение дежурного персонала

18

18

Помещение партбюро

18

18

Помещение общественных организаций бюро ВЛКСМ

18

 36

3.160. Зал ученого совета должен быть оборудован аппаратурой для усиления речи с каждого места членов совета, системой магнитной записи и синхронного перевода, системой тайного голосования. Техническое оснащение и оборудование зала ученого совета должно предусматривать возможность демонстрации слайдов, диафильмов, кинофрагментов, видеозаписей; зал оборудуется механизмом автоматизированной системой зашторивания окон, экранами для всех видов проекций, устройствами для крепления таблиц и плакатов, системой дистанционного управления аппаратурой ТСО, оборудованием и электроосвещением. При зале ученого совета предусматривается киноаппаратная.

3.161. В составе подразделений административно-хозяйственного назначения предусматривается отдел научной и учебной кинематографии (кинофотолаборатория).

Состав помещений отдела научной и учебной кинематографии (кинофотолаборатория) устанавливается заданием на проектирование в зависимости от профиля высшего учебного заведения.

Ориентировочно площадь помещений кинофотолаборатории рекомендуется принимать по табл. 38.

Таблица 38.

Помещения

Площади помещений, м2 при числе студентов

до 5000

свыше 5000

1

2

3

Съемочная

18

172

Мультсъемочная

9

18

Фильмостатная

9

18

Зарядная, фотохранилище

9

18

Монтажная

18

18

Киноаппаратная

18

18

Просмотровый зал - тренажер

36

36

Чертежная

-

18

Склад аппаратуры

18

36

Репродукционная

-

36

Кинопроявочная

18

36

Помещение контактной печати

-

18

Помещение хранения химикатов

 -

9

Предприятия общественного питания

3.162. Общее количество посадочных мест в расположенных на территории высшего учебного заведения предприятий питания для студентов, профессорско-преподавательского состава, аспирантов, научных сотрудников, обслуживающего персонала определяется по табл..39.

Таблица 39.

Тип предприятия питания

Количество мест на 1000 человек для контингентов потребителей

студенты

профессорско-преподавательский состав

научные сотрудники, аспиранты, обслуживающий персонал и др.

1

2

3

4

Столовая

140

-

120

Диетическая столовая

20

20

20

Кафе

 -

140

-

Специализированные предприятия

20

-

20

Буфеты

20

40

40

3.163. В заочных вузах и факультетах только с вечерней формой обучения следует предусматривать буфеты вместимостью, равной 5% расчетного контингента.

3.164. Диетическая столовая проектируется единой для всех групп потребителей.

Целесообразно объединение мест в специализированных предприятиях общественного питания. Необходимость специализированных предприятий определяется в каждом конкретном случае, и, если нет в них необходимости, то число мест, приходящихся на них, добавляется к числу мест в столовой.

3.165. Для создания комфортных условий число мест в зале столовой целесообразно принимать не более 300.

В крупных столовых (250 мест и более) применяются механизированные линии комплектации и отпуска комплексных обедов в другие прогрессивные формы обслуживания посетителей: кафе - автоматы, буфеты - автоматы, буфеты саморасчета и др.

3.166. Предприятия общественного питания обычно размещаются в отдельных зданиях, как правило, связанных отапливаемыми переходами с основными учебными корпусами высшего учебного заведения.

Наибольшее удаление столовых от учебных и учебно-производственных корпусов не должно превышать 500м.

При реконструкции или расширении существующих корпусов, столовые допускается проектировать встроенными или пристроенными.

При размещении учебных корпусов вуза на единой территории, размеры которой не превышают 500 м , все рекомендуемые типы предприятий общественного питания целесообразно проектировать в одном здании.

3.167. Зависимость принципов размещения предприятий общественного питания от вариантов организации генерального плана показана на рис. 101.

3.168. Столовые высших учебных заведений желательно проектировать не выше трех этажей в зависимости от вместимости столовых, местоположения их в системе вуза, условий участка строительства и других факторов. При этом особое внимание следует уделять размещению на одном уровне обеденных залов и помещений горячего цеха с раздаточными.

3.169. В архитектурно-планировочном решении зданий столовых следует придерживаться следующих принципов:

хорошо обозреваемый фронт раздачи;

простейший доступ к раздаче как со стороны учебной зоны, так и со стороны вестибюля для внешних посетителей;

по возможности исключение пересечения путей движения новых посетителей с путями движения посетителей, сдающих использованную посуду.

3.170. При решении внутреннего пространства предприятий общественного питания следует стремиться к раскрытию помещений обеденных залов студентов и преподавателей во внутренние дворики, а также на интересные внешние пространства в целях обеспечения наиболее комфортных условий для посетителей.

3.171. При размещении столовой в зоне студенческих общежитий возможно кооперирование ее с блоком обслуживания. Компоновка таких образований возможна и в виде пристроек к зданиям общежитии, и в виде отдельно стоящих сооружений, самостоятельных по своему архитектурному решению.

Рис. 101. Построение сети предприятий общественного питания. Инженер Г. Якубович

а - при компактной организации генерального плана; б - г-при разрозненном размещении корпусов вуза; 1- буфет; 2-столовая, 3 - жилые корпуса; 4 - учебные корпуса;

Вспомогательные и подсобные помещения

3.172. Состав и площади помещений здравпункта принимать по табл. 40.

Таблица 40

Помещение

Площадь при расчетном количестве студентов, м

до 4000

свыше 4000

Кабинет заведующего здравпунктом и дежурной сестры

18

18

Терапевтический кабинет с приемной

18

36 (18 ´ 2)

Процедурная

18

36

Кабинет стоматолога

18

18

Физиотерапевтический кабинет

35

36

Примечание. В консерваториях и музыкальных факультетах в состав здравпункта должен входить фониатрический кабинет площадью 54 м2.

3.173. 3 заочном высшем учебном заведении при расчетном количестве студентов свыше 2 тыс. чел. следует предусматривать здравпункт со следующим составом помещений: кабинет дежурной медсестры с процедурной (18 м2), зубной кабинет площадью 12 м2.

3.174. Для высших учебных заведений рекомендуется предусматривать санаторий-профилакторий, а при 8000 студентов и более - поликлинику, рассчитанную на всех студентов, аспирантов, преподавателей, работников научно-исследовательских подразделений.

3.175. Площади вестибюлей; гардеробов, рекреационных и хозяйственных помещений, а также количество приборов в уборных и душевых принимать по табл. 41.

Таблица 41

№ группы помещений

Расчетный показатель

Площадь, м2 или количество приборов

1. Вестибюль и гардероб

1 место

0,25

2. Рекреационные помещения по институту в целом

1 студент

0,5

3. Рекреационные помещения при аудиториях на 100 мест и более

1 место в аудитории

0,5

4. Уборные

-

1 унитаз на 30 женщин; 1 унитаз и 1 писсуар на 40 мужчин; 1 умывальник на 3 унитаза

5. Складские помещения в учебных корпусах для учебного и хозяйственного оборудования

100 студентов

3,0

6. Хозяйственные кладовые

То же

1,0

7. Помещения уборочного инвентаря

То же

1,5

Примечания: 1. Вестибюль и гардероб в высших учебных заведениях следует предусматривать на количество студентов, находящихся в данном здании, с коэффициентом 1,4, учитывающим количество профессорского и обслуживающего персонала, слушателей подготовительного отделения, факультета повышения квалификации, научных сотрудников и аспирантов.

2. Хозяйственные кладовые и помещения уборочного инвентаря предусматривать в каждом здании.

3. Складские помещения и кладовые размещать с выходом непосредственно в вестибюль не допускается.

4. Площадь помещений приведенных в п.п. 5 - 7 дается для укрупненного предварительного расчета.

5. В уборных предусмотреть кабинки для инвалидов (мужскую и женскую). Количество кабинок устанавливается заданием на проектирование. Кабинки для инвалидов должны быть оборудованы специальными откидывающимися поручнями около унитаза и поручнями, жестко укрепленными на стенах кабины. Желательно наличие подвесной ручки над унитазом. Подход к унитазу инвалида на коляске должен быть свободным спереди и с обоих боков унитаза. Туалетная кабина должна быть снабжена гибким шлангом со смесителем горячей и холодной воды, а также душевой насадкой. На стенке кабины, на высоте не более 1,2 м необходима установка крючков для одежды и костылей.

3.176. Ширину коридоров и переходов в учебных корпусах следует принимать в соответствии с расчетами коммуникационных потоков. Ширину коридоров в зданиях с учебными помещениями и переход между зданиями желательно принимать от 2,2 до 2,6 м, остальных коридоров - не менее 1,4 м.

В зависимости от назначения и местоположения в системе учебного корпуса коридоры и переходы проектируются:

магистральными от 2,8 до 6 м;

распределительными от 2,2 до 3,6 м;

тупиковыми от 1,4 до 2,6 м.

Рекреации перед группой крупных лекционных аудиторий на 100 мест и более допускается использовать как эвакуационные пути.

Магистральные коридоры могут служить рекреациями перед крупными лекционными аудиториями.

Транспортные коридоры, предназначенные для перемещения грузов и формирования грузовых потоков, не должны пересекаться и совпадать с потоками студентов.

3.177. Лестницы в учебных корпусах следует принимать в соответствии с расчетными требованиями эвакуации, требованиями СНиП 2.08.02-89.

Ширину лестничного марша рекомендуется принимать не менее ширины выхода в лестничную клетку с наибольшим количеством людей на этаже, но не менее:

1,5 м - у основных лестниц учебно-лабораторных корпусов, блоков лекционных аудиторий, актовых залов, предприятий общественного питания, спортивных корпусов и библиотек (отдельно стоящих);

1,35 м - для остальных зданий, а также лестниц, не являющихся основными, независимо от назначения здания и количества людей на этаже;

0,9 м - для лестниц, ведущих в помещения, которые расположены в подвальных или цокольных этажах, с числом одновременно пребывающих в них людей до 5 чел.

3.178. Лестницы, связывающие рабочие этажи с вестибюлем или основными коридорами, должны обеспечивать не только эвакуацию при пожаре, но и нормальное прохождение встречных потоков в перерыве между занятиями.

При этом время перехода из одной кафедры на другую или в лекционную аудиторию не должно превышать 10 мин.

3.179. При проектировании высших учебных заведений количество женщин для расчета санитарных узлов определяется в зависимости от полового состава студентов (средний процент женщин для расчета санитарных узлов ориентировочно принимается 35% в университетах, технических и сельскохозяйственных высших учебных заведениях, 65% в педагогических, экономических, медицинских, культуры и искусства).

3.180. При проектировании учебно-научных корпусов внутренние инженерно-технические системы (кроме газа и отопления) рекомендуется прокладывать в вертикальных коммуникационных шахтах, габариты которых должны обеспечивать доступ к инженерным коммуникациям без нарушения учебного процесса и эвакуационных путей.

При определении габаритов пространств для технологических коммуникаций и шахт следует обеспечивать место для резервных прокладок в связи с изменением назначения и оборудования: лабораторий и кабинетов.

Схемы размещения вертикальных коммуникационных шахт в учебных корпусах могут быть следующих видов (рис. 102):

коридорная с расположением коммуникационных шахт о двух сторон;

коридорная с расположением коммуникационных шахт с одной стороны;

коридорная с расположением коммуникационных шахт в центре здания (возможно объединение с горизонтальными коммуникациями и техническими помещениями);

коридорная с расположением шахт по поперечным осям здания;

коридорная или секционная с расположением шахт снаружи;

коридорная или секционная с расположением коммуникационных шахт в подшивном потолке или технических этажах.

Одним из существенных моментов в организации планировочной структуры учебных корпусов является размещение рекреаций - световых карманов (при коридорной системе через каждые 24 - 30 м), лестниц (расстояние не более 80 м между ними, но не менее двух) и санитарных узлов (рис. 103).

Рис. 102. Схема размещения коммуникационных шахт в учебно-лабораторных корпусах

а - коридорные двухсторонние шахты; б - коридорные односторонние и продольные шахты; в - коридорные поперечные; г - центральные (возможно объединение с горизонтальными коммуникациями и техподпольем); д - наружные приборолабораторные; е - наружные секционные односторонние с техническими этажами; 1 - шахты инженерных коммуникаций, 2 - подвесной потолок; 3 - технический этаж; 4 - техподполье

В учебных корпусах вузов с их большими потоками студентов рекомендуется отказываться от коридорной системы с размещением рекреаций в световых карманах одного из модулей, а решать планировочную структуру всего корпуса с композиционным выделением зоны рекреации в изоляции от основных эвакуационных потоков, что важно для полноценного отдыха между занятиями.

3.181. При компоновке оборудования и инженерных коммуникаций в подвале и вытяжных венткамерах следует предусматривать проходы для людей, связанные с эвакуационными лестницами, высотой не менее 1,8 м в соответствии с СНиП 2.08.02 - 89 и шириной в зависимости от размеров монтируемого оборудования, но не менее 1,2 м.

3.182. Вид пандуса следует проектировать:

а - прямолинейный, исходя из расчета ширины автомобиля, плюс 0,8 м, но не менее 2,5 м;

б - криволинейный, исходя из расчета ширины полосы, образуемой в клане проекций движения автомобиля, плюс 1м, но не менее 3,5 м.

Максимальные продольные уклоны по въездным пандусам приведены в табл. 42.

Таблица 42

Вид пандуса

Максимальный уклон пандуса, %

защищенного от атмосферных осадков

открытого

Прямолинейный

180

100

Криволинейный

130

80

Барьеры на пандусе должны иметь высоту - 0,1 м, ширину 0,2 м,

средний барьер, разделяющий двухпутный пандус, ширину - 0,3 м.

Рис. 103. Принципиальные схемы размещения в учебных корпусах лестниц, рекреаций, коммуникационных шахт, туалетов

а - размещение лестниц; б - размещение рекреаций, световых карманов и холлов; в - размещение туалетов; г - размещение инженерных шахт

На пандусе с пешеходным движением вместо одного из барьеров колесоотбоев устанавливается тротуар шириной 0,75 м.

Институты повышения квалификации

4. ОБЦИЕ ПОЛОЖЕНИЯ

4.1. Подсистема учебных заведений последипломного обучения, предназначенных для повышения квалификации и переподготовки руководящих работников и специалистов народного хозяйства, в настоящее время превратилась в самостоятельное завершающее звено единой системы непрерывного образования.

Функциональную структуру учебных заведений определяет ряд факторов:

высокие требования к качеству подготовки, короткие сроки обучения, периодическая изменяемость содержания обучения под влиянием научно-технического прогресса;

специфические формы и методы обучения, высокий уровень (по сравнению с другими учебными заведениями), оснащенности учебных помещений техническими средствами обучения и современной вычислительной техникой;

повышенные требования к организации внеучебного времени, культурно - бытовому обслуживанию, условиям проживания и отдыха слушателей;

высокий уровень подготовки и социального положения контингента.

4.2. По специализации и составу слушателей учебные заведения последипломного образования разделяются на три группы, рис. 104.

Рис. 104. Состав основных групп помещений заведений после дипломного обучения

а - институт повышения квалификации; б - факультет повышения квалификации вуза; в - научно-учебный центр; А - помещения педагогов и администрации; Х - жилые помещения; ОБ - помещения обслуживания; ОУ - помещения обеспечения учебного процесса; У - учебные помещения; 1 - граница учебного заведения; 2 - граница вуза; 3 - граница научно-производственной зоны учебного заведения

В учебных заведениях первой группы осуществляются должностная подготовка и повышение квалификации специалистов и руководителей высшего и среднего звена: руководителей объединений, предприятий, организация, их заместителей, главных специалистов, руководителе подразделений, их заместителей. К этой группе относятся: отраслевые, межотраслевые специализированные и региональные институты повышения квалификации, институты и высшие школы управления народным хозяйством; учебные заведения (подразделения) организаторов промышленного производства и строительства, а также институты усовершенствования работников просвещения и здравоохранения; учебные полигоны и др.

В учебных заведениях второй группы осуществляется повышение квалификации специалистов и руководителей среднего и начального звена: руководителей бюро, секторов, групп, участков, мастеров, инженеров и техников. В эту группу входят филиалы институтов повышения квалификации и институтов усовершенствования врачей и учителей, школу управления, курсы повышения квалификации предприятий и объединений сельского хозяйства, факультеты повышения квалификации и школы руководящих кадров при высших учебных заведениях, техникумах и т.п.

К третьей группе относятся специализированные учебные заведения, где обучение, как правило, сопровождается тренингом и контролем навыков по конкретным специальностям с использованием контролирующих приборов, ЭВМ, тренажеров, учебных стендов. В первую очередь это учебно-тренировочные центры, научно-учебные центры, а также специальные факультеты при вузах и самостоятельные учебные заведения, в которых осуществляются переподготовка специалистов по новым, перспективным направлениям науки и техники, например по электронно-вычислительной технике, робототехнике и т.п.

4.3. Материалы Пособия могут быть использованы при проектировании всех неспециализированных учебных помещений и вспомогательных помещений к ним, групп обслуживающих помещений и общежитии гостиничного типа, учебных заведениях третьего типа.

4.4. При проектировании учебных заведений последипломного обучения наряду с данным разделом следует пользоваться также частью 1 настоящего Пособия.

4.5. За расчетную величину учебных заведений повышения квалификации следует принимать среднегодовое число слушателей, которое определяется средней единовременной пропускной способностью учебного заведения. Расчетная величина здания учебного заведения повышения квалификации должна быть кратна численности учащихся в учебной группе, т.е. 25 чел.

При отсутствии необходимых исходных данных расчетная величина учебного задания может быть принята равной 1:5 годового выпуска специалистов.

4.6. Институты повышения квалификации и их филиалы организуются при наличии не менее 300 чел. среднегодового контингента слушателей. При проектировании новых учебных заведений применять при отсутствии специального расчета следующие расчетные величины учебных зданий: 300, 450, 600, 900 и 1200 слушателей.

Контингент слушателей курсов повышения квалификации предприятий и факультета повышения квалификации при высших учебных заведениях должен быть не менее 100 чел. среднегодового контингента слушателей. Оптимальные вместимости 150 и 300 слушателей.

5. ТРЕБОВАНИЯ К УЧАСТКАМ

5.1. Учебные заведения повышения квалификации могут размещаться как в пределах городской черты, так и за городом.

После вузовское обучение целесообразно, по мнению медиков и психологов, проходить в условиях природной среды, способствующей психофизиологической адаптации слушателей и повышающей активный интерес к учебе, поэтому рекомендуется загородное размещение.

При загородном размещении необходимо располагать участок в удобной связи с транспортной магистралью так, чтобы суммарное время передвижения до центральной зоны города не превышало одного часа для крупнейшего города более 1 млн. чел, и 45 - 50 мин. для других городов.

При размещении зданий в городской застройке, учитывая высокую социальную значимость и градостроительную представительность институтов повышения квалификации, их целесообразно включать в состав центров планировочных районов в качестве одного из элементов архитектурного ансамбля.

5.2. Филиалы институтов и курсы повышения квалификации желательно размещать взаимосвязано с предприятиями и научными учреждениями соответствующей отрасли в составе их административно-общественных центров или в составе учебных комплексов.

Факультеты повышения квалификации и переподготовки высших учебных заведений следует размещать; как правило, на территории высших учебных заведений или научно-исследовательских институтов соответствующего профиля. Факультеты организаторов производства размещать по аналогии с институтами повышения квалификации и соответствующей отрасли. Факультеты усовершенствования врачей•неклинического профиля размещать при медицинских вузах.

5.3. Размеры земельного участка устанавливаются заданием на проектирование, исходя из того что;

площадь учебной зоны ориентировочно равна для ИПК на 300 слушателей - 0,7 га; на 600 слушателей - 1 га; на 1200 слушателей - 1.5 га;

площадь жилой зоны при числе проживающих 500 и более - 1,5 га на 1 тыс. чел;

Площадь застройки должна быть в пределах 20-30% участка, зеленые насаждения должны занимать не менее 30% площади участка, в стесненных условиях их площадь может быть уменьшена до 20%.

Необходимо предусматривать территорию для будущего развития учебных и жилых зданий.

5.4. Одним из основных условий по организации участка является функциональное зонирование с учетом взаимосвязи отдельных зон. Территория участка учебных заведений должна, как правило, состоять из трех основных зон: учебной (учебно-научной), жилой и хозяйственной.

Расположение и взаимосвязь отдельных зон необходимо увязывать с объемно-пространственным решением учебного заведения и размещением соответствующих групп помещений в комплексе зданий.

5.5. Для научно-учебных и учебно-тренировочных центров при наличии учебных полигонов учебная зона должна формироваться в качестве учебно-практической, а экспериментально-производственные и тренировочные помещения (подразделения) должны выделяться в самостоятельную подзону или объединяться с хозяйственной.

Зоны учебную, жилую и отдыха необходимо размещать смежно и связывать между собой системой пешеходных дорожек. В производственно-хозяйственную зону следует предусматривать самостоятельный въезд. При этом производственно-хозяйственную зону следует решать изолированно.

5.6. Если величина выделенного под строительство участка не позволяет разместить все подразделения учебного заведения совместно, то следует жилую зону слушателей и подзону экспериментально-производственных подразделений располагать на отдельных участках. При этом общежитие гостиничного типа рекомендуется размещать на расстоянии от основного здания не превышающем радиус пешеходной доступности 500-800 м или 30 мин. транспортной доступности.

5.7. Площади участка экспериментальной и тренировочной подзон определяются заданием на проектирование в дополнение к территории учебной зоны. Желательно эти площади, куда также могут входить площадки для демонстрации техники, учебных полигонов, хозяйств и, использовать и другими учебными заведениями с учетом загрузки.

5.8. Жилая зона включает сектор входа в общежитие гостиничного типа (если входы предусматриваются раздельными) и сектор зеленых насаждений с площадками для отдыха (скамьи, беседки) и открытыми спортивными площадками для физических упражнений слушателей.

5.9. Площадь спортивных площадок и площадок для гимнастических упражнений следует предусматривать из расчета не менее 1 м2 на одного слушателя расчетного контингента. Размещать спортивные площадки следует на границе между учебной и жилой зонами

5.10. В состав хозяйственной зоны включаются хозяйственный двор, стоянка автотранспорта с разгрузочными площадками, а также складские помещения и гараж. Хозяйственная зона должна размещаться в удобной связи со служебным входом в столовую и общежитие гостиничного типа, а также с эксперментально-производственными корпусами и подзонами.

5.11. При расположении здания института повышения квалификации вблизи скоростных дорог и магистральных улиц следует, как правило, предусматривать отступ от границы проезжей части не менее 50 м, причем общежитие гостиничного типа рекомендуется размещать в глубине территории.

5.12. Относительная краткосрочность обучения в сочетании с интенсивностью обучения и продолжительным учебным днем требуют создания эмоционального комфорта для слушателей. Поэтому при размещении учебных заведений следует предусматривать возможность создания условий зрительной и шумовой (см. раздел по вузам) изоляции учебных зданий от окружающей среды, но в удобной связи с остановками общественного транспорта.

5.13. В составе учебной зоны следует выделять участок главного входа, а также стоянки личного и служебного автотранспорта.

Стоянки для легковых автомобилей следует принимать в количестве 5-10 мест на каждые 100 чел. сотрудников центра и слушателей, проживающих в городе, из расчета 25 м2 на одну машину.

Для организационного выхода и посадки слушателей на автотранспорт, следующий на объекты выездных занятий, на экскурсии и т.д., в секторе главного входа вблизи вестибюля необходимо предусматривать также место для подъезда и кратковременной стоянки автобусов.

6. ОБЪЕМНО-ПЛАНИРОВОЧНЫЕ РЕШЕНИЯ

6.1. В состав учебных заведений после дипломного обучения, исходя из функционального назначения, включаются следующие основные группы помещений: учебные кабинеты и лаборатории, аудитории, чертежные залы, библиотека, научные подразделения, административно-хозяйственные помещения, предприятия общественного питания, помещения медицинского обслуживания, помещения культурно-бытового обслуживания, общежитие гостиничного типа. Кроме того, в состав института повышения квалификации может входить информационно-технический центр, включающий вычислительный центр, кино фотолабораторию, теле лабораторию, рис. 105.

6.2. Состав и площади учебных помещений следует определять по расчетному числу слушателей, кратному величине учебной группы с учетом учебных планов. Состав и площади обслуживающей группы помещений следует рассчитывать по суммарному количеству слушателей, преподавателей, научных сотрудников и обслуживающего персонала.

6.3. Для ориентировочного расчета площадей института повышения квалификации следует применять удельные показатели строительного объема, нормируемой и общей площади на одного слушателя, приведенных в табл. 43.

Таблица 43

Расчетное количество слушателей

Нормируемая площадь, м2

Общая площадь, м2

Строительный объем, м2

Св. 200 до 300

8,0

13,3

53,3

" 300 " 500

7,7

12,8

51,3

" 500 " 800

7,5

12,5

50,0

" 800 1200

7,3

12,2

48,7

1200

7,2

12,0

48,0

Рис. 105. Взаимосвязь функционально-планировочных групп помещений

1 - потолки слушателей; 2 - то же, сотрудников; 3 - потоки грузов и материалов; 4 - центральная ЭВМ; 5 - выносливые дисплеи; 6 - линяй связи и информации

6.4. Для зданий средней и большой вместимости и в качестве основного варианта желательно использовать компактные объемно-планировочные решения. Композиция здания в этом случае строится на сопоставлении объемов учебного (учебно-научного) корпуса и жилого корпуса предельной этажности соответственно 9 и 16 этажей, объединенных двух - трех этажным блоком обслуживающего корпуса, рис. 106-107.

6.5. Учебные заведения вместимостью от 500 до 900 слушателей желательно проектировать в составе двух корпусов - учебного и жилого.

В зданиях учебных заведений вместимостью более 900 слушателей в отдельный корпус (блок) желательно выделять, кроме того, обслуживающие помещения, общие для слушателей и сотрудников - столовую, библиотеку, информационно-вычислительный центр (рис.108)

6.6. В зависимости от места размещения зданий в структуре города его объемно-планировочное решение меняется.

При размещении здания в центральном или прилегающем к центру районе целесообразны компактные решения (рис. 109).

При размещении здания на периферии города более приемлемыми являются замкнутые или блочные объемно-планировочные решения. В этом случае этажность учебно-научного корпуса целесообразно снизить до 2 - 4 этажей, а жилого - оставить, как и в предыдущем случае, 12 - 16 этажным. Обслуживающие помещения в этом случае можно решить в виде корпуса-вставки, связывающего блоки учебно-научного и жилого корпусов (см. рис. 106-107).

При размещении здания за городом целесообразны разветвленные, блочные или павильонные объемно-планировочные решения (рис. 110-112). Этажность здания в этом случае можно ограничить двумя - четырьмя этажами. Здания, размещаемые за городом в IV климатической зоне, могут проектироваться в виде отдельных павильонов, связанных между собой теневыми навесами.

Рис. 106. Вертикальное размещение функциональных групп помещений (Япония). Разрез.

1 - административные помещения и помещения обслуживания; 2 - учебные помещения; 3 - жилые помещения

Рис. 107. Московский институт повышения квалификации руководящих работников и специалистов химической промышленности (архитекторы Н. Устинович, О. Чернышев, Ю. Кошелев и др.). Пример выделения функциональных блоков

а - план 1 - го этажа; б - план 2-го этажа; 1 - вестибюль; 2 - столовая; 3 - библиотека; 4 - учебный кабинет; 5 - выставочный зал, 6 - административные помещения

Рис. 108. Пример компактного размещения с выделением функциональных блоков. Институт повышения квалификации специалистов профтехобразования РСФСР в г. Горьком

а - вариант высотного решения жилого блока (архит. О.П. Одинцова) ; б - вариант высотного решения учебного блока (архит. А.М. Гарнец); 1 - учебные помещения; 2 - административно-хозяйственные помещения; 3 - библиотека; 4- информационно-технический центр; 5 - общежитие гостиничного типа; 6 - конференц-зал; 7 - столовая; 8 - автостоянки; 9 - перспективное развитие; 10 - хозяйственные постройки

Рис.109. Пример компактного решения с использованием существующего здания (США)

а - общий вид; б - план 2-го этажа; 1 - учебные помещения; 2 - библиотека (существующее здание)

Рис. 110. Пример ступенчатого решения учебной зоны (ФРГ)

а - план 1-го этажа; б - план подвального этажа; 1-вестибюль; 2 - коммуникационный холл; 3- места для встреч и бесед; 4 - регистрация прибывших; 5 - администрация; 6 - кухня; 7 - обеденный зал; 8 - холл; 9 - библиотека; 10 - помещение доцента, 11 - учебные помещения; 12 - гардероб; 13 - конференц-зал; 14 - одноместные жилые комнаты; 15 - бассейн; 16 - гимнастический зал; 17 - раздевалка; 18 - бар; 19 - клубное помещение; 20 - кегельбан; 21 - настольный теннис; 22 - типография

Рис. 111. Линейно-блочное решение комплекса зданий (Италия)

а - фасад; б - генплан; 1 - жилые ячейки; 2 - учебная зона 3 - блоки с помещениями общего назначения

Рис. 112. Веерно-павильонное решение с центральным двором (ФРГ). План 1-го этажа

1 - учебный и административный корпус с конференц-залом и библиотекой; 2 - столовая; 3 - жилые корпуса; 4 - проектируемый спортзал

6.7. Загородное размещение учебного заведения предопределяет выбор неординарного места, например:

- на территории отарой усадьбы (памятника архитектуры) с необходимым расширением существующих построек (рис.113);

- на базе отдыха с сезонным использованием помещений (рис. 114).

6.8. При проектировании факультетов повышения квалификации особое внимание необходимо уделять функционально-планировочной, композиционной и образной увязке нового здания, (корпуса, блока), с существующими зданиями, а также учитывать:

исключение транзитных потоков сотрудников других учреждений через корпус учебного заведения;

возможность автономного функционирования корпуса (независимый вход в корпус);

соответствие масштаба, пропорций и пластического решения корпуса архитектуре существующих корпусов высшего учебного заведения;

единство приемов организации и элементов благоустройства участка.

В зависимости от конкретной градостроительной ситуации возможны решения, основанные на контрасте композиции корпуса учебного заведения с другими зданиями вуза, за счет этажности, ритмического, пластического и цветового решения объема.

6.9. Допускается для учебных зданий 1 -111 степени огнестойкости высотой не более 4 этажей принимать вместимость помещений, выходящих в тупиковый коридор, до 125 чел., при этом расстояние от дверей наиболее удаленных помещений этого коридора до выхода дальнюю лестничную клетку должно быть не более 100 м.

Рис. 113 Использование памятника архитектуры для института повышения квалификации (Швейцария). Генеральный план. Старые постройки

1 - бывший старый замок (гостиница); 2 - бывшая усадьба (столовая); 3 - бывшая капелла (библиотека); 4 - бывшая конюшня (кафе); новые постройки; 5 - центральный вход; 6 - учебные помещения; 7 - жилые помещения

Рис. 114. Базе курсов и отдыха Литпотребсоюза на озере Дригис в Литовской ССР. Архитектор Паталаускас

6.10. При проектировании учебных зданий необходимо уделять особое внимание обеспечению гибкости и универсальности планировочных решений учебных аудиторий и лабораторий, научно-учебных лабораторий. Гибкость планировочных решений этих помещений должна обеспечиваться за счет конструктивно-планировочных мероприятий, а также за счет использования прогрессивных приемов размещения линий инженерно-технических коммуникаций, связи и информации. К конструктивно-планировочным мероприятия относится отказ от капитальных внутренних стен при применении в качестве трансформируемых элементов зонирования пространства - сборно-разборных, переставных, подвесных, раздвигающихся перегородок, стен и других элементов. При этом следует учитывать требования обеспечения звукоизоляции учебных помещений.

Учебные кабинеты и лаборатории

6.11. Площадь учебных кабинетов и лабораторий принимается из расчета площади на одно место, указанного в табл. 44.

Таблица 44

Помещения

Площадь на одно место, м2

Учебные кабинеты

2,2 х)

Лаборатории общетеоретического профиля

4 - 6

Лаборатории и кабинеты технического профиля

6 - 8

х) Площади кабинетов могут быть увеличены в зависимости от набора, габаритов технологического оборудования и величины учебной группы.

Примеры планировок учебных кабинетов и лабораторий с техническими средствами обучения приведены на рис. 115-116.

6.12. Площадь учебных помещений с техническими средствами программированного обучения вычислительной техники и для занятий языком следует принимать из расчета на одно место по табл.45.

Рис. 115. Кабинет автоматизированного рабочего места проектировщика (АРМ САПР ОС) на базе СМ-3

1 - управляющий вычислительный комплекс "Электроника - 100 - 25"; 2- управляющий вычислительный комплекс "СМ - 3"; 3 - устройство преобразователя графической информация (графический дисплей со световым пером ЭПГ - 400 - УПГИ; 4 - накопитель на магнитной ленте - НМЛ; 5 - устройство ввода алфавитно-цифровой информации - "Консул"; 6 - алфавитно-цифровой дисплей; 7 - устройство ввода алфавитно-цифровой информации АЦПУ; 8 - устройство ввода информации с перфокарт; 9 - полуавтомат кодирования графической информации - ПКГИ; 10 - графопостроитель планшетного типа - ПГИ, 11 - устройство сопряжения вычислительной машины - УСМ; 12 - устройство расширения комплекса - УРК АЖ; 13 - силовой щит (10 - 12 кВт); 14 - магнитный пускатель,. 15 -стулья; 16 - стол канцелярский двутумбовый

Рис. 116. Лаборатория моделирования восприятия с реальных видовых точек (телемакетоскоп)

1 - стенд для установки макета; 2 - координатограф с макетоскопом; 3 - прожектор "искусственное солнце" на поворотной штанге; 4 - пульт управления движением телемакетоскопа; 5 - локальный экран подсветки фона; 6 - батареи светильников подсветки фона, 7 - система зашторивания окна; 8 - стереодиапроектор "экран стерео" из 2 диапроекторов "Экран"; 9 - плоскость учебного полиэкрана; 10 -диапроектор "Альфа - 35 - 50 - авто фокус" или "Диана-204" - 5 шт.; 11- диапроекторы "Экран" для экспонирования панорам – З шт.; 12 - стол канцелярский 2-х тумбовый; 13 - шкафы подвесные для хранения материала; 14 - стулья; 15 - дверки, оборудованные системой планшетов "поворотные страницы"

Таблица 45.

Помещения

Площадь на одно место, м2

Учебный кабинет с обучающими и контролирующими машинами

2,4

То же, с устройством обратной связи

3

Учебные кабинеты вычислительной техники и информатики

4,5

Лингафонный кабинет

3

6.13. Лаборатория экономического образования может быть создана в институтах повышения квалификации, осуществляющих методическое руководство системой экономического оборудования отрасли.

6.14. Во внеучебное время самоподготовка и самоконтроль знаний осуществляются слушателями в помещениях для занятий в общежитии гостиничного типа, в библиотеке и непосредственно в жилой комнате. Общее количество ученических мест в помещениях для занятий должно приниматься в интервале от 10 до 25% его вместимости. Вместимость одного помещения рекомендуется принимать 10 - 12 чел., оборудование - одноместные столы с устройством теледоступа к ЭВМ (дисплеи).

Аудитории

6.15. Аудитории являются основным типом учебных помещений в учебных заведениях последипломного обучения. Групповые аудитории на 25 чел. аналогичны по планировке и оборудованию аудиториям вузов (см. соответствующий раздел по вузам). В соответствии с методами обучения в рассматриваемых учебных заведениях значительная часть занятий проходит малыми группами в 6 - 12 слушателей - в мини-аудиториях, рис.117,а, б.

Рис. 117. Регламентируемые параметры аудиторий

а - на 6 мест; б - на 8 мест; в - на 12 мест Y1 - 70 см между аудиторными столами в ряду Y2 - 70 см - между аудиторными столами при парнем расположении в ряду; Yз - 80 см - от задних рядов аудиторных столов до стены; Y7 - 190 см от передних рядов аудиторных столов до меловой доски шириной 200 см, 220 см - от передних рядов аудиторных отелов до меловой доски шириной 300 см; П1 - 10 см - между рядами аудиторных столов при парном размещении; П4 - б0 см от аудиторных столов до стены, боковых встроенных шкафов или наглядных пособий; П5 - 70 см - между рядами аудиторных столов; =30=35° - угол рассматривания. При расположении входа в учебное помещение со стороны задних рядов аудиторных столов Y3 и Y4 увеличивается на 60 см

Наиболее перспективным направлением является разработка универсальных учебных помещений, позволяющих путем трансформации проводить занятий в составе 5 - 10, 20 - 25 и 50 - 60 чел. Создание таких помещений позволяет достигнуть значительной экономии нормируемой площади (рис.118, а, б,).

Приемы планировочного решения аудиторий и варианты их компоновки в учебном здании приведены на рис. 119.

6.16. Площадь аудиторий принимается ориентировочно из расчета на одно место по табл.46.

Таблица 46

Вместимость аудитории

Площадь на одно место, м2

На 12 - 15 местx)

2,5

На 25

2,2

от 50 до 75

1,5

Свыше 75 до 100

1,5

Свыше 100 до 150

1,2

На 12 - 25 мест с обучающими и контролирующими машинами

3

На 50 - 100 мест с обратной связью (с двухместными столами)

1,8

х) При меньшей вместимости аудитории показатель площади может быть увеличен.

Рис. 118.Примеры трансформация

а - учебных помещений; б – оборудования

Рис. 119 Примеры планировок и размещения аудиторий

а - школа управления при технологическом институте (Великобритания); план 2-го этажа; 1- административные помещения; 2- комната для совещаний; 3 - вал собрании; 4 - малые аудитории; 5 - рекреации; 6 - большие аудитории; 7- помещения для дискуссий; 8 - библиотека; 9 -зона аспирантов; б - институт управления (США); новый учебный блок План 2-го этажа; 1 - лекционная аудитория; 2- административные и учебные помещения; в - Европейский институт по подготовке руководящих работников (Франция, учебный (блок, план 2-го этажа; 1 - лекционные аудитории; 2 - малые учебные помещения; 3 - уборные; 4 - двусветные пространства; г - институт повышения квалификации банковских служащих фирмы Wolfs berg (Швейцария, учебный блок), 1 - конференц-зал; 2 - аудитории; 3 - фойе; 4 - помещения для учебного материала; 5 - склад мебели телевизионной системы для передачи изображения и воспроизведения видеозаписи (учебная демонстрационная телевизионная установка с камерой, видеомагнитофон и видеомониторы);

6.17. С целью рационального использования учебной площади необходимо предусматривать универсальное использование групповых аудиторий, учитывать развивающиеся и совершенствующиеся системы средств обучения. Современные системы обучения направлены на комплексное использование в учебном процессе следующих технических средств:

автоматизированной телевизионной обучающей системе на базе ЕС ЭВМ и стандартных дисплеев;

оптических средств статической и динамической проекции (графо -, диа -, кадропроектор, кинопроектор 8 и 16 мм).

При размещении ТСО в учебном помещении должны быть учтены педагогические и гигиенические требования к их расстановке (рис.120).

6.18. Количество лекционных аудиторий, предназначенных для проведения лекционной работы со слушателями (вводные лекции, общественно-политические и т.п.), принимается в соответствии с технологическим расчетом. Величину аудиторий рекомендуется принимать разной вместимости в пределах от 50 до 100 мест (рис.121)

Все лекционные аудитории обычно оснащаются техническими средствами обучения статической проекции (графо -, диа -, кадропроекторы) и системой учебного телевидения (видеомагнитофон, видеомониторы).

Рис. 120. Педагогические и гигиенические требования по размещению ТСО в учебном помещении

а - непосредственно; б - с выделением специальной зоны

Рис. 121. Лекционная аудитория на 48 мест

а - планировка с размещением ТСО непосредственна в учебном помещении; б - планировка с выделением специальной зоны; 1 - стол для программированного обучения (одноместный); 2 - стол для программированного обучения (двухместный); 3 - стол преподавателя; 4 - стул ученический; 5 - кресло преподавателя; 6 - секционный шкаф для учебных пособий (ТСО); 7 - секционный шкаф для учебных пособий (ТСО); 8 - киноустановка; 9 - диапроектор; 10 - графопроектор; 11 - видеомагнитофон, 12 - магнитофон; 13 - усилительное коммуникационное устройство; 14 - камера телевизионная портативная, 15 - телевизор транзисторный переносной; 16 - пульт автоматизированной системы контроля знаний; 17 - пульт автоматизированной системы преподавателя; 18 - экран; 19 - алфавитно-цифровой дисплей; 20 - модуль секция для ТСО; 21 - пульт управления ЭВМ; 22 - алфавитно-цифровое печатающее устройство; 23 - групповой коммутатор дисплеев; 24 - накопитель информации; 25 -стол с пюпитрами; 26 - кресло с пюпитром

6.19. Примеры планировочных решений с использованием телевидения и средств вычислительной техники для аудиторий вместимостью 25 и 12 мест приведены на рис. 122 и 123.

6.20. Эффективное применение аудиовизуальных средств обучения достигается их использованием в системе так называемого "полиэкранного" комплекта оборудования. Применение этой системы позволяет сократить сроки обучения на 30% . Для этой системы средств обучения должны предусматривать аудитории вместимостью 25 чел. с соотношением сторон в плане 1:2. Индивидуальные рабочие столы желательно располагать "веером" по отношению к плоскому или вогнутому секционному шкафу с экранами на просвет и с отступом от него, позволяющему с крайних мест первого ряда воспринимать изображение на самом дальнем экране под углом не менее 300. Пол в аудитории под задними рядами столов должен быть повыше на 30 - 45 см (рис.124).

Площадь аудитории с полиэкранной системой рекомендуется принимать из расчета не менее 3 м2 на одно учебное место. Для каждой аудитории с полиэкранной системой оборудования должна предусматриваться препараторская площадь 18 м2, в которой устанавливаются оптические средства, дающие изображение "на просвет".

Рис. 122. Примеры планировочных решений

а - планировка о размещением проекционной аппаратуры на площади телевизионной аудитории; б - планировка с проекцией "на просвет" (дисплейная аудитория); в - планировка с размещением аппаратуры на площади аудитории; г - планировка с проекцией "на просвет" (экспликация см. рис.12)

Рис. 123. Помещение аудитории с терминальными устройствами

1 - экран сворачивающийся 1,5 х 1,5 м для фронтальной проекции; 2 - меловая доска 1,5 х 1,5 (сдвигающаяся); 3 - экран - тир проекции 1,5 х 3,0 м. 4 - рабочий стол преподавателя из набора специализированных секций 600 х 600 мм со встроенной различной аппаратурой; кафедра с микрофоном и таймером, пульт управления аппаратами аудитории, подсобный стол, видеомагнитофон "Электроника ВМ - 12" с телекамерой "Взор" и монитором "Юность", графопроекторов "Лектор - 2000" или "Полилюкс" (ГДР), 5 - телевизор, работающий от видеомагнитофона; 6 -проектор "Лектор - 600"; 7 - диапроектор; 8 - специализированные места с терминалами (алфавитно-цифровым и графическим); 9 - секции подвесных шкафов для хранения материалов и инструментов; 10 - стулья; 11 - боковые приставки для монтажа кабеля подводки; 12 - кинопроектор 35 мм; 13 - кинопроектор 16 мм; 14 - секция светового стола для подборки диапозитивов; 15 - секция подвесной полки для хранения диапозитивов; 16 - отражающее зеркало проекции фильмов; 17 - шкаф для подсобных материалов; 18 - стол канцелярский 2-х тумбовый; 19 - устройство зашторивания окна.

Рис. 124. Полиэкранная аудитория

6.21. Требования к расстановке оборудования и условиям видимости в лекционных аудиториях принимать в соответствии с требованиями к лекционным аудиториям высших учебных заведений.

6.22. В составе учебных помещений может быть предусмотрен для учебных целей телецентр. Состав и площади помещений телецентра следует принимать по специальному расчету.

Для бесстудийных систем учебного телевидения рекомендуется следующий состав помещений: телекинопроекционная - 54 м, фонд информации - 18 кг аппаратная видеомагнитной записи - 36 м, просмотровый зал - 18 м.

6.23. Состав, площади и оборудование кинофотолаборатории должны определяться организационно-технологическим проектом в соответствии с планируемым объемом работ. В простейшем виде она должна включать следующие функциональные элементы: рабочие комнаты сотрудников (площадь на одно рабочее место - 4 м2), помещение для съемки, просмотровый зал (с кинопроекционной на два аппарата, перемоточной и тамбуром), используемый одновременно как студия звукозаписи, аппаратную звукозаписи, звукомонтажную, фото - и кинопроявочную, зарядную, фотохранилище, помещение постановки света, помещение копирования фильмов и контактной печати, помещение для хранения фильмов, кладовые для химреактивов.

6.24. Подразделения оперативной полиграфии во главе с заведующим создаются при условии, если годовой объем их работы (сумма реализованной продукции и объем ассигнований на содержание подразделения) свыше 10 тыс. руб.

6.25. При проектировании в учебных заведениях последипломного обучения вычислительных центров желательно предусматривать их совместное использование для учебных, научных и практических целей.

Информационно-вычислительный центр создается в институтах, имеющих годовой объем работы не менее 75 тыс. руб. в год.

6.26. Помещения научно-учебного вычислительного центра рекомендуется размещать в одном уровне и группировать по следующим основным зонам:

машинный зал, оперативный архив, помещение инженеров - эксплуатационников;

помещение подготовки и обработки данных, программного контроля, приема и выдачи результатов;

помещения программистов (аналитические лаборатории), склады документации и архив;

административные и служебно-бытовые помещения.

В соответствии с принятым технологическим процессом обработки данных функциональные связи между отдельными помещениями основаны на принципе так называемого замкнутого процесса, заключающегося в том, что все технологические процессы по обработке, начиная с приема и кончая выдачей результатов, осуществляются в одном или нескольких помещениях, без обращения к посторонним службам. Кроме этого, при решении вопроса об их взаимном расположении следует учитывать, что маршруты прохождения документов, материалов и передвижения обслуживающего персонала должны быть кратчайшими.

6.27. В составе помещений каждой кафедры институтов повышения квалификации следует предусматривать кабинет заведующей кафедрой 18 м (при числе преподавателей более 10 чел. - 24 м2), учебно-методический кабинет площадью 45 м2, кабинеты преподавателей кафедры.

Библиотеки

6.28. Библиотеки учебных заведений проектируются из расчета количества читателей, равного: 100% расчетного количества слушателей и 100% количества профессорско-преподавательского состава. При наличии научных, проектных и медико-санитарных подразделений следует учитывать дополнительно 100 специалистов этих подразделений.

6.29. Общий фонд библиотеки принимается из расчета 75 единиц книжного фонда на одного обслуживаемого библиотекой читателя.

6.30. Ориентировочно при отсутствии других требований общий фонд библиотеки следует распределить исходя из следующего:

а) соотношение фонда, необходимого для слушателей, к фонду для сотрудников - 3:1;

б) примерное распределение общего фонда по видам носителей принимается, %, печатные носители (книги, журналы и т.п.) .......... 70;

микрополосы и афиши .....................………........ 20;

видеосредства (память ЭВМ)..........……............. 10;

в) примерное распределение общего фонда по видам источников принимается, %;

научная литература .............…………................. 40;

справочная литература ...............………......….... 20;

периодика.......................................……………… 20;

политико-экономическая литература .............…. 10;

художественная литература .................…………. 10;

г) фонд художественной литературы размещается в филиале при общежитии гостиничного типа.

6.31. Количество мест в читательских залах библиотеки следует принимать из расчета 20% общего количества читателей.

6.32. Площади помещений библиотек следует принимать по табл. 47.

Таблица 47

Помещения

Расчетный показатель

Измеритель

Площадь, м2

1

2

3

4

Аванзал с выставками и каталогами:

 

 

 

Площадь для читателей

На 1 читательское место

20% количества читательских мест

1,5

площадь для сотрудников

На 1 сотрудника

1 сотрудник на 200 читательских мест

5

Читальные залы:

 

 

 

учебного отделения

На 1 читательское место

60% количества читательских мест

2,4

научного отделения

То же

20% количества читательских мест

3

Залы аудиовизуального обслуживания

-“-

То же

5

Книгохранилище:

 

 

основное хранение

На 1000 единиц хранения

40% общего фонда

2,5

открытый доступ

То же

То же

5

Площадь для сотрудников

На 1 сотрудника

1 сотрудник на 140 тыс. единиц

1

6.33. Читальные залы библиотеки для слушателей и сотрудников рекомендуется проектировать раздельно, связывая их между собой помещением выдачи литературы и фондом открытого доступа. Читальные залы должны оборудоваться одноместными читательскими столами,

При наличии средств индивидуального обслуживания читателей их следует размещать в отдельном специализированном зале, специализированный зал должен оборудоваться кабинетами для индивидуальной работы площадью 2 м2. Площади специализированного зала следует определять исходя из количества мест с кабинами, равного 40% общего количества читательских мест. Соотношение видов оборудования индивидуальных кабин - видеомагнитофоны, читательские аппараты, дисплеи 1:2:1.

6.34. При размещении общежития гостиничного типа на отдельном участке в составе помещений культурно-бытового назначения следует предусматривать филиал библиотеки без читального зала и располагать при одном из холлов общежития, оборудованном креслами, столом для газет и журнальными столиками. Книгохранилище с открытым доступом оборудовать стеллажами с двухсторонним и односторонним хранением книг, выставочным стендом и рабочим местом библиотекаря. Площадь книгохранилища - 18 - 28 м2.

Площадь радиоузла рекомендуется принимать 12 - 16 м2.

Физкультурно-спортивные сооружения

6.35. В учебных заведениях последипломного обучения спортивные занятия не включаются в учебные планы. Вместе с тем дли физических упражнений слушателей можно предусмотреть площадь помещений из расчета не более 0,2 м2 на 1 слушателя. Перечень помещений для физических упражнений и их размещение устанавливаются заданием на проектирование.

6.36. Помещения для физических упражнений могут быть использованы для игры в настольный теннис. Для этого необходимо предусматривать помещение площадью 72 м2 на два игровых стола. Кроме вышеназванных помещений, при соответствующем обосновании, можно включать в состав помещений бильярдную (или кегельбан) и плавательный бассейн с сауной. При проектировании этих помещений необходимо руководствоваться СНиП 2.08.02 - 89.

6.37. Для спортивных мероприятий на территории должны предусматриваться следующие спортивные площадки: одна для баскетбола и по две для волейбола и тенниса (на 500 - 600 слушателей), возможны городошные площадки.

Желательна кооперация спортивных помещений и площадок со спортивными сооружениями организаций, предприятий или других учебных заведений.

Зрелищно-клубные помещения

6.38. К помещениям культурно-массового назначения, которые должны, как правило, размещаться в жилой зоне, относятся: универсальный зал (красный утолок) с подсобным помещением, библиотека (филиал научно-учебной библиотеки с фондом общественно-политической и художественной литературы), радиоузел и спортивный зал.

6.39. Площадь универсального зала рекомендуется принимать в зависимости от расчетного числа проживающих по суммарной норме площади помещений для культурно-массовых мероприятий в общежитиях. При зале необходимо предусматривать помещение для складирования мебели и оборудования эпизодического использования, реквизита и т.п. площадью 9 - 12 м2. В универсальном зале, совмещающем функции красного уголка, помещения для настольных игр, просмотра телепередач и танцевального зала, целесообразно применение раздвижных или трансформируемых перегородок, при помощи которых можно изменять количество помещений, их габариты и вместимость в соответствии с изменяющимися потребностями.

6.40. В учебных заведениях повышения квалификации следует предусматривать конференц-залы.

Количество мест в конференц-залах учебных заведений повышения квалификации следует принимать равным 1/2 расчетного количества слушателей, но не более 500.

6.41. Конференц-зал следует проектировать универсальным, он должен служить для учебных, научно-информационных и зрелищных целей. Он может использоваться как для совместных мероприятий всего контингента центра, так и раздельно слушателями и сотрудниками.

6.42. Планировка и оборудование помещений конференц-зала должны приниматься по аналогии с высшими учебными заведениями и обеспечивать возможность проведения конференций, в том числе международных заседаний, собраний, концертов, самодеятельных спектаклей, показа кинофильмов на широком экране, а также культурно-просветительной работы (лекции, беседы, диспуты).

6.43. Конференц-зал рекомендуется оборудовать следующими техническими средствами:

аппаратная звукозаписи: аппаратура стерео - 600/ - 800 вт, система звукозаписи - пульт 12 каналов, магнитофоны (2 - 4 шт.), проигрыватель (1 шт.), система перевода речей, видеомагнитофоны бытовые (1 - 2 шт.);

кинопроекционная: кинопроектор 35 мм (2 поста КПШ), кинопроектор 16 мм (1 пост "Черноморец", 1 кВт);

зрительный зал: диапроекторы (2 шт.), графопроектор (1 - 2шт.), система трансляции перевода речей с наушниками на 50 мест, пульт управления освещением и лимитер времени для докладчика.

Служебные помещения

6.44. В учебных заведениях последипломного обучения состав и площади служебных помещении определяются расчетом на основании утвержденного штатного расписания, их суммарная площадь для ориентировочного расчета должна составлять на 1 слушателя расчетного контингента в учебных заведениях (не более, м2):

до 300 слушателей .............….....1,2

св. 300 до 400 -“- ……......…......1,0

" 400 " 600 -"- ...............………...0,9

" 600 " 1000 -"- ..............……......0,8

1000 -"- ....…………….................0,7

6.45. При определении административно-управленческого персонала следует исходить из типовой структуры институтов повышения квалификации руководящих работников и специалистов народного хозяйства: дирекция, канцелярия, отдел кадров, бухгалтерия, хозяйственный отдел, эксплуатационно-технический отдел, плановы1 отдел, учебный (учебно-методический отдел), редакционно-издательский отдел (группа) с подразделением оперативной полиграфии, отдел технических средств обучения, информационно-вычислительный центр, факультеты, кафедры, библиотека. Примерные наборы помещений для разной вместимости учебных заведений приведены в табл.48

Таблица 48

Помещения

 

Институт повышения квалификации (слуш.), чел

1500 - 300

301 - 900

901 - 1500

1

2

3

4

Дирекция:

 

 

 

кабинет директора

+

+

+

кабинет зам. директора по учебно-научной работе

+

+

+

приемная

+

+

+

зал заседаний (ученого совета)

+

+

+

плановый отдел

-

+

+

бухгалтерия с кассой

+

+

+

Отдел кадров:

 

 

 

кабинет начальника отдела кадров

-

+

+

Рабочее помещение отдела кадров

-

+

+

Спец. часть

-

+

+

Помещения материально-технического снабжения:

 

 

 

технический отдел

+

+

+

рабочее помещение технического отдела

+

+

+

Отдел научно-технической информации

-

+

+

Административно-хозяйственные помещения:

 

 

 

кабинет начальника хозяйственного отдела

-

+

+

Рабочее помещение хозяйственного отдела

-

+

+

Машбюро

-

+

+

Экспедиция

-

+

+

Архив

-

+

+

Учебный отдел:

 

 

 

кабинет заведующего учебным отделом

+

+

+

Рабочее помещение методистов канцелярия

+

+

+

диспетчерская

+

+

+

Общественные организации

+

+

+

6.46. Численность профессорско-преподавательского, учебно-вспомогательного, административно-хозяйственного персонала факультета повышения квалификации определяется по нормам, установленным для данного вуза.

Помещения обслуживания

6.47. Большие учебные нагрузки слушателей требуют особого внимания к организации системы их отдыха, быта и досуга. Для этих целей в составе учебного заведения последипломного обучения должны предусматриваться помещения культурно-массового назначения, общественного питания, бытового и медицинского обслуживания, а также помещения отделения связи, переговорного узла и сберкассы. Предпочтительное размещение обслуживающих помещений в учебных заведениях последипломного обучения отражено в табл.49.

6.48. Расчет состава помещений предприятий общественного питания и медицинского обслуживания производится исходя из суммарного контингента слушателей и сотрудников, культурно-массового назначения и бытового обслуживания - только на слушателей, проживающих в общежитии.

3.49. Общим требованием при проектировании этих помещений является удовлетворение повседневных и периодических культурно-бытовых потребностей слушателей при максимальной экономии их времени. Этому требованию в полной мере отвечает размещение общежития гостиничного типа непосредственно с учебным корпусом. Помещения общественного питания и медицинского обслуживания необходимо размещать с учетом равной доступности для всего контингента центра, другие помещения - непосредственно при жилом корпусе.

Таблица. 49

Помещения

Все здания в комплексе

Здания на отдельных участках

учебный корпус

жилой корпус

учебный корпус

Жилой корпус

 

1

2

3

4

5

 

Универсальный зал

-

+

-

+

 

Библиотека

+

-

+

-

Культурно-массовые помещения

Филиал библиотеки (художественная и общественно-политическая литература)

-

-

-

+

 

Радиоузел

+

-

-

+

 

Спортивное помещение

-

+

-

+

Помещения

Столовая (кафе)

+

-

+

-

общественного

Буфеты для сотрудников

+

-

+

-

питания

Буфеты для слушателей

+

-

+

+

 

Стол заказов

+

-

+

-

 

Отдел кулинарии

+

-

-

+

 

Кафе (ресторан)

-

-

-

+

Помещения

Парикмахерская

-

+

-

+

бытового обслуживания

Приемный пункт бытового обслуживания

-

+

-

+

Помещения медицинского

Здравпункт

-

+

-

+

обслуживания

Медпункт

+

-

-

-

Помещения

Почтовое отделение

+

-

+

-

связи

Сберкасса

+

-

+

-

 

Междугородный переговорный пункт

+

-

-

+

Предприятия общественного питания

6.50. Общее количество посадочных мест в предприятиях общественного питания должно составлять 25% суммарного контингента учащихся и сотрудников учебного заведения, в том числе:

в буфетах для слушателей - 3%;

в буфетах для сотрудников - 2%.

В зависимости от соотношения слушателей и сотрудников количество посадочных мест в буфетах может корректироваться в пределах рекомендуемых 5%. При предприятии общественного питания необходимо предусматривать помещение стола заказов и продажи полуфабрикатов и кондитерских изделий.

При размещении общежития гостиничного типа для слушателей отдельно от учебного корпуса в здании общежитий следует предусматривать буфет по нормам общежитии - 6 мест на 100 чел.

6.51. Обеденный зал столовой рекомендуется предусматривать общим для слушателей и сотрудников, который будет использоваться, ими поочередно. В столовых вместимостью до 100 посадочных мест буфет может предусматриваться общим для слушателей и сотрудников и объединяться с обеденным залом, выделяясь в десертную зону с кафетерийной стойкой. Обеденные залы вместимостью 150 и более мест для создания спокойной обстановки рекомендуется расчленять на "отсеки" экранами, декоративными растениями, озеленением.

Кроме этого, в обеденных залах следует выделить зону диетического питания, количество посадочных мест которой рекомендуется принимать не менее 15% их общего числа.

6.52. Предприятия общественного питания при учебных заведениях рекомендуется проектировать "полузакрытыми" и предусматривать их использование в вечернее время в качестве кафе для населения. При этом необходимо предусматривать отдельный вход в столовую - кафе, а также дополнительные помещения в соответствии с нормами на проектирование кафе общего типа.

Помещения медицинского обслуживания

6.53. В учебных заведениях по еле дипломного обучения следует предусматривать при расчетном количестве слушателей до 1000 слушателей - терапевтический кабинет с приемной - 14 м2, свыше - 1000 слушателей - терапевтический кабинет 14 м2 процедурный - 18 м2.

6.54. При размещении жилого корпуса на отдельном участке в учебном корпусе следует предусмотреть дополнительно медицинскую комнату площадью 12 - 18 м2

Вспомогательные и подсобные помещения

6.55. Состав и площади вспомогательных помещений принимаются дифференцирование по основным элементам функциональной структуры учебного заведения с учетом пространственной организации и интенсивности маршрутов слушателей и сотрудников, а также с учетом использования отдельных обслуживавших помещений жителями города.

6.56. В составе вспомогательных помещений предусматриваются следующие вестибюльные группы помещений:

1. Вестибюльная группа главного входа, которая принимается в соответствии с нормами на проектирование научно-исследовательских учреждений.

При этом в расчетный контингент (администрация и сотрудники научно-исследовательских лабораторий включается количество слушателей, проживающих в городе (7 - 10 их общего числа). При размещении общежития на отдельном участке площадь этой группы должна рассчитываться на суммарный контингент слушателей и сотрудников.

2. Вестибюльная группа общежития гостиничного типа, которая принимается в соответствии с нормами на проектирование гостиниц, Для приема слушателей рекомендуется дополнительно предусматривать отдельный зал ожидания (или зону вестибюля) и комнату для собеседования. Зал ожидания предназначен для кратковременного пребывания слушателей до их оформления в общежитии и должен оборудоваться креслами или стульями и журнальными столиками.

6.57. Если предприятия общественного питания (столовая, кафе или ресторан) и бытового обслуживания (парикмахерская) рассчитываются на обслуживание жителей города, рекомендуется предусматривать дополнительные вестибюли с гардеробами и санитарными узлами, площади которых следует принимать в соответствии с нормами на соответствующие предприятия открытой сети.

6.58. В комплексе помещений учебного заведения после дипломного обучения предусматриваются помещения бытового обслуживания слушателей. В составе помещений бытового обслуживания, которые должны размещаться при общежитии гостиничного типа, рекомендуется предусматривать парикмахерскую и приемный пункт бытового обслуживания.

6.59. Парикмахерскую следует располагать вблизи вестибюля или так, чтобы она имела с ним удобную связь. Количество рабочих мест в парикмахерской и соответствующая им площадь определяются для каждого общежития индивидуально с учетом близко расположенных городских парикмахерских.

При проектировании парикмахерской следует руководствоваться исходными данными и габаритными схемами в соответствии с выпусом нормалей планировочных элементов "Помещение жилой части гостиниц".

6.60. Приемный пункт бытового обслуживания - это предприятие, которое рассчитано на прием заказов и выполнение на месте мелкого и срочного ремонта. Приемный пункт рекомендуется предусматривать в общежитиях вместимостью 200 мест и более. В его состав должны входить:

мастерская мелкого ремонта одежды,

мастерская мелкого ремонта обуви,

приемный пункт химчистки и стирки личного белья слушателей,

пункт проката предметов культурно-бытового назначения. В общежитиях гостиничного типа менее 200 мест может быть предусмотрено универсальное помещение для приема заказов.

Все эти помещен должны быть удойно расположены для пользования, а также хорошо связаны со служебным входов в жилой корпус.

Площадь приемного пункта должна приниматься в соответствии со СНиП 2.08.01 - 89 по разделу "Общежития".

Жилые помещения в общежитии гостиничного типа

6.61. Для кратковременного проживания слушателей (от двух недель до четырех месяцев) предусматриваются жилые помещения гостиничного типа. Вместимость общежития должна приниматься исходя из необходимости обеспечения жильем всех иногородних слушателей, количество которых, при отсутствии конкретных данных, можно принять равным 90% общего их числа.

6.62. В общежитии гостиничного типа рекомендуется предусматривать однокомнатные номера на одного или двух проживающих

Соотношение одно - двухместных номеров определяется заданием на проектирование.

6.63. Жилую площадь номеров рекомендуется принимать для одноместных - 9, двухместных - 12 м2. Планировку номера следует предусматривать в составе трех основных зон: жилой комнаты, перед ней, санитарного узла. Из общей площади номера жилая в основном занимает 60 - 70%; передняя - 12 - 13% , санузел - 13 - 22%.

6.64. Следует предусматривать функциональное зонирование жилой комнаты посредством определенного размещения мебели. В комнате необходимо выделять зону для сна, рабочую зону, зону дневного отдыха. В связи с тем, что в среднем 25% самостоятельных занятий слушатели проводят непосредственно в жилой комнате, предпочтение следует отдавать организации зоны для работы (рис.125, 126).

6.65. Для меблировки жилой комнаты рекомендуется использовать специальную гостиничную мебель, соответствующую современным функциональным, эксплуатационным и эстетическим качеством.

В передней номера допускается устанавливать небольшой кухонный агрегат (можно кухню-шкаф), предназначенный в основном для подогрева пищи.

Санузел номеров оборудуется умывальником, унитазом, душем. Минимальная площадь санузла должна быть - 2,4 - 2,7 м2.

6.66. Жилые комнаты следует группировать, предусматривая на каждую группу комнат помещение для занятий и комнату отдыха (холл), предназначенную для просмотра телепередач, чтения газет и журналов и т.п. Исходя из оптимальной вместимости комнаты для занятий "населенность" группы жилых комнат рекомендуется принимать в интервале от 50 до 100 чел., количество номеров в группе - в зависимости от их вместимости.

Рис. 125. Жилая ячейка Московского института повышения квалификации руководящих работников и специалистов химической промышленности

Рис. 126. Блок жилых помещений института повышения квалификации банковских служащих

а - план 1-го этажа; б - то же 2-го этажа

6.67. Проектирование жилой части общежития гостиничного типа следует вести в соответствии с Пособием по проектированию гостиниц и нормалями планировочных элементов "Помещение жилой части гостиниц".

Следует по возможности избегать размещения общежития гостиничного типа на отдельном участке, что приводит к увеличению площади и повтору состава обслуживающих помещений, а также отрицательно оказывается на организации обучения специалистов.

Приложение 1

ТЕРМИНОЛОГИЯ

комплекс зданий вуза - взаимосвязанные здания и сооружения (учебные, жилые, спортивные, хозяйственные) высшего учебного заведения, размещенные на единой территории.

учебный комплекс вуза - взаимосвязанная группа зданий и сооружений учебно-производственного назначения вуза на единой территории (без жилой зоны).

учебно-научный комплекс вуза - взаимосвязанное размещение учебных и научных учреждений или подразделений в составе вуза.

учебно-научно-производственный комплекс вуза - взаимосвязанная группа учебных зданий, научных учреждений и производственных предприятий, представляющих единое целое, в составе вуза.

учебная зона вуза - территория для размещения группы зданий и сооружений учебно-производственного назначения, выделяемая в самостоятельный участок.

жилая зона вуза - территории для размещения группы зданий и сооружений жилого назначения (студенты, преподаватели, служащие) в составе вуза, выделяемая в самостоятельный участок.

вузовский жилой комплекс - взаимосвязанная группа зданий и сооружений жилого назначения высшего учебного заведения, включенных в состав вуза или существующая самостоятельно (студенты, преподаватели, служащие).

студгородок - взаимосвязанная группа зданий и сооружений жилого и культурно-бытового назначения для студентов одного или нескольких высших учебных заведений на единой территории, находящейся вне учебной зоны вуза.

вузгородок - общее градостроительно-территориальное название одного или нескольких вузов на единой территории.

комплекс вузов - совместное размещение нескольких вузов на общей территории, создающей учебную зону города. Возможна кооперация отдельных функциональных зон.

учебно-научный комплекс - кооперация отраслевого или академического НИИ на базе высшего учебного заведения.

научно-учебный комплекс - включение высшего учебного заведения или комплекса учебных заведений в состав научного городка, академгородка.

учебно-лечебный комплекс - кооперация медицинского вуза с лечебным учреждением на базе функционального единства.

учебно-педагогический комплекс - кооперация педагогического вуза с местом педагогической практики - базовыми школами, ПТУ и детсадом.

учебный корпус - отдельно стоящее здание или здание, соединенное переходом, предназначенное для учебных целей (например, аудиторный корпус, корпус мастерских, спортивный корпус, библиотечный корпус; корпус кафедры и т.д.).

факультетский корпус - отдельно стоящее здание, предназначенное для размещения одного или нескольких факультетов (кроме общетехнического факультета).

главный учебный корпус - главное здание учебного назначения, предназначенного для размещения либо всех основных подразделений вуза, либо общеинститутских кафедр и администрации.

блок - часть учебного корпуса соответствующего назначения (аудиторный блок, блок кафедр, спортивный блок, библиотечный блок и т.д.).

блок-секция - стандартно повторяющаяся по своей планировочной. структуре часть учебного корпуса вуза.

универсальные корпуса и блоки (блоки-секции) - корпуса, блоки или блоки-секции, обеспечивающие возможность изменения назначения-лаборатории, их габаритов и оборудования без изменения конструкции зданий.

расчетный контингент - исходный показатель числа студентов для расчета учебно-материальной базы учебного заведения.

Приложение 2

Номограмма определения величины контингента студентов медицинских вузов в зависимости от величины коечного фонда больниц города (арх. В. Дядюк).

Приложение 3

Допустимые уровни шума

Таблица 1

зоны вузовского комплекса

Дифференциация зон крупного вузовского комплекса

Уровень звука дБА

1

2

3

учебно-научная

Административно-общественный центр

60

 

Учебная зона факультетов

50

 

Зона научных учреждений

55

 

Экспериментальное производство

80

Жилая для студентов и преподавателей

Культурно-бытовой центр

65

 

Студенческие общежития

55/45X

 

Спортплощадки

55

 

Зона медицинского обслуживания

45/35X

 

Зона отдыха

45

Спортивная

Спортивно-зрелищные сооружения

65

 

Спортивно-тренировочная

60

Бытового обслуживания

Торговый центр и центр общественного питания

65

 

 

 

 

Комбинат бытового обслуживания

65

 

Транспортно-хозяйственная зона

65

х) до черты - дневной, после черти - ночной

При ориентация окон на неблагоприятную в шумовом отношении сторону необходимо применять специальные шумозащитные оконные блоки.

Снижение уровня шума конструкций окна приводится в табл. 2.

Таблица 2

Конструкция окна

Толщина

стекла, мм

Размер

воздушного

промежутка между стеклами, мм

Величина шума, дБА

при условии прилегания по периметру

без уплотняющих прокладок

с уплотняющими прокладками из пенополиуретана

Окно с открывающейся форточкой, узкой створкой или фрамугой

-

-

10

-

Одинарное окно

3

-

18

20

 

6

-

21

23

Спаренное окно

3 и 3

47

22

24

 

6 и 3

57

26

28

 

6 и 4

57

27

29

Раздельно-сближенное окно

3 и 3

90

24

26

 

6 и 4

90

28

30

Раздельное окно

6 и 3

120

30

32

Приложение 4

Состав и площади помещений факультета общественных профессий (в пединститутах)

Помещения

Площадь, м2

для педагогических вузов

для педагогических вузов с музыкально-педагогическим факультетом

1

2

3

Помещения отделения методики пионерской и комсомольской работы в школе:

 

 

Пионерская комната школьного типа

Помещения драматического отдаления:

40

40

Репетиционный зад (9х15)

135

135

Костюмерная

18

18

Артистическая Помещения музыкального отделения:

36

36

Зал хора

72

-

Зал оркестра с помещением хранения инструментов

72+18

-

Помещения для индивидуальных музыкальных занятий

9+4

-

Искусства

 

 

Комнаты рисунка с помещением гранения реквизита

2х54+18

-

Комнаты живописи с помещением хранения реквизита

2х54+18

-

Комната прикладного (оформительского) искусства с помещением хранения

54+18

54+18

Помещения хореографического отделения: Зал хореография (12х12)

144

144

Раздевальные с душевыми и туалетами Помещения военно-патриотического отделения:

36

36

Военный кабинет окольного типа с комнатой хранения оружия

60+12

60+12

Помещения отдела краеведения:

 

 

Кладовая хранения туристического инвентаря

18

18

Мастерская для одного из не основных отделений (домоводства, народных ремесел, детского технического творчества и др.) с помещением хранения

54+18

54+18

Приложение 5

Вместимость защитных сооружений гражданской обороны

Вместимость защитных сооружений гражданской обороны комплекса зданий вузов, следует приникать по расчету численности студентов, преподавателей, научных сотрудников и аспирантов, учебно-вспомогательный и административно-хозяйственный персонал, одновременно находящихся в зданиях.

Допускается с учетом данных местного штаба гражданской обороны предусматривать дополнительную вместимость для обеспечения вблизи проживающего и работающего населения.

Перечень помещений двойного назначения, размещаемый в подвальных и цокольных этажах комплекса зданий вузов, рекомендуется принимать из групп помещений временного пребывания (до 1 ч) и средней продолжительности пребывания (от 1,5 до 3 ч), студентов, преподавателей, сотрудников и персонала в соответствии с прил. 2 СНиП 2.08.02 - 89, в том числе:

лаборатории и аудитории (на 90 мест и менее) с плоским полом для изучения спецпредметов (гражданская оборона, военная подготовка, техника безопасности и т.д.);

спецлаборатории с убираемым оборудованием;

книгохранилища, архивохранилища, архивы;

спортивные залы для тренировочных занятий (штанга, борьба, бокс, фехтование, ритмика, гимнастика, теннис и т.д.);

стрелковые тиры, плавательные бассейны;

помещения студенческого клуба, в том числа залы вместимостью до 300 мест с плоским полом без эстрады, дискотеки;

фойе - танцевальный зал;

обеденные залы, буфеты;

гардероб с вестибюлем, туалеты, душевые, курительные;

радиоузлы, кинофотолаборатории со съемочной, просмотровым залом;

отдел размножения документации;

телестудии;

ремонтные мастерские;

службы ремонта здания;

складские помещения, кладовые, инвентарные, хранилища:

стоянки для автомобилей, гаражи.

Для укрытия студентов и персонала за пределами радиусов сбора рекомендуется предусматривать заглубленные помещения двойного назначения под имеющимися на участке зданиями и сооружениями либо предусматривать дополнительную вместимость в близлежащих спецсооружениях (транспортные тоннели, метро, подвальные помещения городских объектов культурно-бытового обслуживания).

При невозможности предусмотреть группы помещений под вновь строящимися зданиями, а также в условиях расширения и реконструкции сложившихся вузовских комплексов, где ранее не предусматривались группы помещений с двойным назначением, рекомендуется устройство отдельно стоящих заглубленных или подземных сооружений двойного назначения.

Для укрупненных расчетов общей площади в зависимости от вместимости и состава инженерного оборудования, при двухярусных нарах, рекомендуется принимать площадь: для убежищ - от 0,74 до 1,12 м2 на 1 укрываемого; для противорадиационных укрытий - от 0,55 до 0,65 м2 на 1 укрываемого.

СОДЕРЖАНИЕ

 




Яндекс цитирования



   Copyright © 2007-2026,  www.tehlit.ru.

[ ѓосты, стандарты, нормативы, инструкции, правила, строительные нормы ]