//
|
|
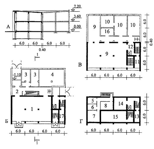
ПРАВИТЕЛЬСТВО МОСКВЫ РЕКОМЕНДАЦИИ 2000 ПРЕДИСЛОВИЕ 1. РАЗРАБОТАНЫ Московским научно-исследовательским и проектным институтом типологии, экспериментального проектирования (МНИИТЭП ) Авторы: - канд. арх. К.Л. Красильникова (руководитель темы)., канд. техн. наук В.А. Максименко, при участии канд. арх. К.М. Амбарцумян. 2. СОГЛАСОВАНЫ с Департаментом потребительского рынка и услуг, Москомархитектурой. 3. ПОДГОТОВЛЕНЫ к утверждению и изданию Управлением перспективного проектирования и нормативов Москомархитектуры ( архитектор Л.А. Шалов, инженер Ю.Б. Щипанов). 4. УТВЕРЖДЕНЫ Указанием Москомархитектуры от 01.06.00 №22 1. ОБЛАСТЬ ПРИМЕНЕНИЯНастоящие Рекомендации разработаны в дополнение к нормативно-методическим документам в строительстве, действующим на территории г. Москвы, и распространяются на проектирование реконструкции и модернизации сети и зданий предприятий торговли, общественного питания, бытового обслуживания при комплексной реконструкции районов пятиэтажной застройки первых этапов индустриального домостроения. Рекомендации представляют собой методическое пособие, позволяющее выбрать оптимальный вариант модернизации сети торгово-бытового обслуживания для различных приемов комплексной реконструкции жилых районов (микрорайонов) пятиэтажной застройки, а также оптимальные варианты реконструкции зданий предприятий торговли, общественного питания и бытового обслуживания в этих районах. Рекомендации содержат предложения по номенклатуре предприятий и вариантам их размещения во встроенных, встроенно-пристроенных или отдельно стоящих зданиях. 2. ВВЕДЕНИЕПроблема комплексной реконструкции пятиэтажной жилой застройки первых этапов индустриального домостроения находится сейчас в ряду главных задач отечественного градостроительства. Научно-исследовательские и проектно-экспериментальные работы в области массовой застройки жилых районов и микрорайонов, где параллельно с жилищным строительством предусматривалось строительство общественных зданий, широко развернулись уже в послевоенный период. Академией строительства и архитектуры СССР в это время была разработана градостроительная концепция формирования жилой застройки и системы культурно-бытового обслуживания населения, в соответствии с которой каждому градостроительному образованию должна была соответствовать ступень обслуживания: жилому району - периодическое обслуживание, микрорайону - повседневное и приближенное. В дальнейшем, эти положения были закреплены в нормативных документах: Строительных нормах и правилах (СНиП) «Планировка и застройка городских и сельских поселений» 2.07.01-89, «Нормах и правилах проектирования планировки и застройки Москвы» МГСН 1.01-99. С конца 50-х - начала 60-х годов в Москве и других городах Советского Союза, в соответствии с названной выше градостроительной концепцией, разворачивается комплексная застройка жилых районов пятиэтажными домами первого периода индустриального домостроения и общественными зданиями. Эти районы явились полигоном для отработки основных принципов формирования жилой застройки системы культурно-бытового обслуживания и типов жилых и общественных зданий. За прошедшие десятилетия произошло физическое и моральное старение жилых и общественных зданий, что перестало соответствовать достижениям научно-технического прогресса, новым технологиям, современным требованиям к комфорту и архитектурно-пространственному решению жилой среды. Все это привело к необходимости комплексной реконструкции жилой застройки прошедшего периода. Постановлением Правительства Москвы от 24.10.95 года № 876 «О ходе реализации программы комплексной реконструкции массовой жилой застройки первого периода индустриального домостроения на период до 2000 года» определены районы пятиэтажной застройки, подлежащие комплексной реконструкции в период 1997-2000 годов. В связи с этим московскими организациями (НИИиПИ Генплана, ОАО Моспроект, Моспроект 2, ГУЛ МНИИТЭПом) был разработан ряд проектных предложений и проектов застройки по комплексной реконструкции районов: Новые Черемушки, Хорошево-Мневники, Квартал 32-33 на Проспекте Вернадского, Волхонка-Зил и др. Многие из них воплощаются в жизнь. Как правило, основное внимание в этих проектах сосредоточено на реконструкции жилых домов, тогда как предложения по модернизации сети и зданий предприятий торгово-бытового обслуживания практически отсутствуют. Анализ существующего положения сетей обслуживания показывает, что потребность в предприятиях торговли, общественного питания и бытового обслуживания при комплексной реконструкции возрастает в среднем в 1,5-2 раза, что объясняется увеличением как населения в районах, так и самих нормативов обеспеченности предприятиями обслуживания, по сравнению с 60-ми годами. Реконструкция сети и зданий торгово-бытового обслуживания решает задачу не только обеспечения потребности населения в предприятиях, но и создания полноценной архитектурно-пространственной среды. 3. ХАРАКТЕРИСТИКА СЛОЖИВШЕЙСЯ СЕТИ И ЗДАНИЙ ПРЕДПРИЯТИЙ ТОРГОВЛИ, ОБЩЕСТВЕННОГО ПИТАНИЯ И БЫТОВОГО ОБСЛУЖИВАНИЯ В ПЯТИЭТАЖНОЙ ЗАСТРОЙКЕВ качестве основного градостроительного элемента в районах пятиэтажной застройки первого этапа индустриального домостроения был принят микрорайон, территория которого составляла от 20 до 40-45 га с населением от 6-8 до 12-14 тыс. человек. Для таких микрорайонов в САКБ (позднее МНИИТЭП) с середины 50-х годов началась разработка типовых проектов блоков обслуживания, включающих предприятия торговли, общественного питания, бытового обслуживания, отделения связи и пр., предназначенных для обеспечения населения основными видами повседневного обслуживания в пределах пешеходной доступности. Из сочетания этих блоков составлялись микрорайонные центры обслуживания. Однако строительство микрорайонных центров в московской практике не получило широкого применения. Несколько подобных центров построено в Новых Черемушках - 10й экспериментальный квартал, 24-25 кварталы, квартал 32-33 на Проспекте Вернадского и др. В дальнейшем осуществлялось в основном строительство отдельных блоков обслуживания. Организация системы торгово-бытового обслуживания в районах комплексной пятиэтажной застройки первого периода индустриального домостроения почти повсеместно представляет картину, характерную для конца 50-х начала 60-х годов. Это отдельно стоящие двухэтажные блоки обслуживания, расположенные вдоль магистралей между 5 этажными жилыми домами, обращенными торцами или фасадами к улице ( Кузьминки, Хорошево-Мневники, Волхонка-Зил и др.) Блоки обслуживания, существующие сегодня в районах реконструкции пятиэтажной застройки - это 2-х этажные кирпичные здания с внутренним железобетонным каркасом (с шагом 6´6 м) или продольной кирпичной стеной, различных конфигураций. Их можно условно подразделить на 4 основные группы (см. таблицу 1): 1 группа - серии IХ-01-18, IХ-01-19, IХ-01-21 (размеры в плане 48´12 м, с подвалом); 2 группа - серии IХ-01-14, IХ-01-22, IХ-01-25, IХ-01-27, IХ-01-28 (размеры в плане 24´12 м, с подвалом и IX-01-11, без подвала); 3 группа - серии IХ-01-12А и IХ-01-29А (размеры в плане 36´18 м и 42´18 м, с подвалом); 4 группа - с продольной кирпичной стеной серии IХ-01-10 (размер в плане 26,40´12 м), IХ-01-24, IХ-01-07, IХ-01-26, IХ-01-23 (размеры в плане 24´12 м, с подвалом и без подвала). Блоки обслуживания различаются составом и мощностью предприятий. Блоки обслуживания 1 группы - типовые проекты IХ-01-18 и IХ-01-19, включают продовольственные и промтоварные магазины, торговой площадью около 400 м2 (на 1 этаже) и предприятия бытового обслуживания: комбинат бытового обслуживания (КБО), или ателье пошива верхнего платья (на 2 этаже), а типовой проект IХ-01-21 - двухэтажный универмаг, торговой площадью около 800 м2.(рис. 1, 2). Блоки обслуживания 2 группы (типовые проекты IХ-01-14, IХ-01-15) включают продовольственный и промтоварный магазины, торговой площадью порядка 200 м2 - на 1 этаже, комбинат бытового обслуживания, или мастерские ремонта белья и вязки трикотажа, или мастерские ремонта обуви - на 2 этаже (рис. 5). В других блоках обслуживания запроектированы магазин книги (на двух этажах), булочная и галантерея (на 2-ом этаже), столовая на 80 мест и комбинат бытового обслуживания (на 2-ом этаже), продовольственный магазин и пирожковая (на 2-ом этаже), отделение связи. Блоки обслуживания 3 группы (трехпролетные) включают достаточно крупные предприятия общественного питания. В типовом проекте IХ-01-12А запроектирована в 2-х этажах столовая с 3 залами на 194 места и закусочная на 76 мест общей вместимостью 270 мест (рис. 3, 4); В другом проекте - столовая-заготовочная с обеденными залами на 80 мест и магазином кулинария. Блоки обслуживания 4 группы (с продольной кирпичной стеной) - включают в основном предприятия бытового и административно-хозяйственного назначения: домоуправление, аптека, парикмахерская, отделение милиции, комбинат бытового обслуживания и др. (рис. 6).
Рис. 1 ТИПОВОЙ ПРОЕКТ IХ-01-21 Универсальный магазин (непродовольственный) торговой площадью 800 м2 А - фасад, Б - план первого этажа, В - план второго этажа, Г - план подвала. 1 - торговый зал, 2 - приемочные, 3 - подготовка товаров, 4 – административные помещения, 5 - кладовые, 6 - бытовые помещения, 7 - хозяйственный двор Рабочая площадь 1397 м2. Полезная площадь 1529 м2.
Рис. 2. ТИПОВОЙ ПРОЕКТ IX-01-18 Продовольственный магазин, торговой площадью 404 м2 (1 этаж, подвал), комбинат бытового обслуживания (2 этаж). А – фасад, Б - план 1 этажа, Г - план подвала. 1 - торговый зал, 2 - стол заказов, 3 - приемочные, 4 - контора, 5 - кладовые продуктов, 6 - холодильные камеры, 7 - бытовые и подсобные помещения, 8 - кладовая стола заказов, 9 - хозяйственный двор. В - план второго этажа. 10 - зал приема заказов, 11 - производственные цеха, 12 - примерочные, 13 - кладовые, 14 - кладовая химчистки, 15 - административно-бытовые помещения. Рабочая площадь магазина - 883 м2. Полезная площадь – 963 м2 Рабочая площадь КБО - 408 м2. Полезная площадь КБО - 497 м2.
Рис. 3 ТИПОВОЙ ПРОЕКТ IХ-01-12А Столовая и закусочная на 270 мест. А - фасад, Б - план первого этажа. 1 - вестибюль с гардеробом, 2 - закусочная, 3 - обеденный зал, 4 - горячий цех, 6 - производственные цеха, 7 - холодильные камеры, 8 - моечная посуды, 9 - хозяйственный двор, 10 - склад тары, 11 - летнее кафе /терраса/. Рабочая площадь - 1570 м2. Полезная площадь - 1830 м2.
Рис. 4 ТИПОВОЙ ПРОЕКТ IХ-01-12А Столовая закусочная на 270 мест. А - разрез 1-1, Б - план 2 этажа, В - план подвала. 1 - обеденные залы, 2 - горячие цеха, 3 - холодные цеха, 4 - производственные цеха, 5 - моечные посуды, 6 - холодильные камеры, 7 - кладовые продуктов, 8 - административно-бытовые помещения.
Рис. 5. ТИПОВОЙ ПРОЕКТ IХ-01-15 Промтоварный магазин торговой площадью 200 м2 (1 этаж и подвал) мастерская ремонта обуви,(2 этаж) А - фасад, Б - разрез, В - план 1 этажа, Г - план 2 этажа, Д - план подвала 1 - торговый зал, 2 - загрузочные, 3 - контора, 4 - кладовые, 5 – бытовые помещения, 6 - технические помещения, 7 - хозяйственный двор, 8 - прием и выдача заказов, 9 – производственный цех, 10 - починка резиновой обуви, 11 - заготовочная, 12 - кладовая, 13 - окраска обуви, 14 - административно-бытовые помещения Рабочая площадь магазина - 451 м2, полезная площадь - 463 м2. Рабочая площадь мастерской - 195 м2, полезная площадь - 218 м2. Вариант - типовой проект IХ-01-14. Продовольственный магазин торговой площадью 200 м2 (1 этаж и подвал), мастерская ремонта белья и вязки трикотажных изделий (2 этаж).
Рис. 6. ТИПОВОЙ ПРОЕКТ IХ-01-24 Комбинат бытового обслуживания А - фасад, Б - разрез, В - план 1 этажа, Г - план 2 этажа, Д - план подвала. 1 - салоны, 2 - ремонт верхнего платья, 3 - ремонт трикотажа, 4 - ремонт легкого платья, 5 - кладовые, 6 - комната персонала, 7 - ремонт обуви, 8 - ремонт кукол, 9 - ремонт кожгалантереи, 10 - ремонт головных уборов, 11 - ремонт часов, 12 - гардероб, 13 - контора Рабочая площадь - 378,8 м2, Полезная площадь - 463 м2. Большинство блоков обслуживания имеют хозяйственный двор с заднего фасада, предназначенный для размещения подсобных помещений, складирования и загрузки товаров. Почти все блоки обслуживания имеют подвалы, где размещаются кладовые и другие подсобные помещения. В середине 60-х годов в МНИИТЭПе были запроектированы 9 и 12 этажные жилые дома со встроенными целиком в габариты здания и встроенно-пристроенными предприятиями обслуживания. Включение в пятиэтажную застройку 9 и 12 этажных жилых домов предназначалось для увеличения плотности жилого фонда и архитектурного оформления магистралей. Таковы типовые проекты 9 этажных крупнопанельных домов серии 1-515-4/9 М со встроенными продовольственными или промтоварными магазинами. Магазины значительной вместимости (торговой площадью 900 м2) занимают весь первый этаж и подвал, с загрузкой с 2-х торцов здания (рис. 7). Встроенно-пристроенные к жилым домам блоки обслуживания - одноэтажные, с внутренним железобетонным каркасом, включают продовольственные и непродовольственные магазины, различающиеся площадями и конфигурацией. Все они с подвалами и загрузкой с торцов магазинов. Это достаточно крупные предприятия. Таковы встроенно-пристроенные к 12 этажным домам продовольственный магазин, торговой площадью 730 м2, (типовой проект серии 11-18-31-12), продовольственный и промтоварный магазины, торговой площадью соответственно 620 м2 и 640 м2 (типовые проекты П-18-31/12А). Два других магазина меньшей вместимости (продовольственный, торговой площадью 415 м2, и промтоварный, торговой площадью 430 м2) также встроенно-пристроенные к 12 этажным домам (типовые проекты П-18-21/12 и П-18-21/12А), рис. 8. Начиная с 70-х годов МНИИТЭПом были разработаны типовые проекты 1-2-х этажных зданий в каркасно-панельных конструкциях (серии IХ-16, IХ-17 - унифицированные объемы). Они включают магазины продовольственные и непродовольственные (на 20, 30, 50 рабочих мест), кафе-столовые на 150, 200 посадочных мест, мастерские бытового обслуживания, отделения связи - в расчете на обслуживание более крупных микрорайонов на 10-12, 15 и 18 тыс. жителей. Однако в пятиэтажной застройке первого этапа индустриального домостроения они применения практически не имели. В более поздний период, с началом строительства 16-17 этажных жилых домов типовых серий П-44, П-3 и др., система обслуживания дополняется встроенными и встроенно-пристроенными предприятиями торговли и бытового обслуживания в первых этажах этих зданий.
Рис. 7. 9 ЭТАЖНЫЙ КРУПНОПАНЕЛЬНЫЙ ДОМ СЕРИИ 1-515- 4/9 М с продовольственным магазином торговой площадью - 890 м2 А - фасад, Б - план 1 этажа, В - план подвала. 1 - торговый зал, 2 - кафетерий и стол заказов, 3 - разгрузочные, 4 - административно-бытовые помещения, 5 - кладовые продуктов, 6 - холодильные камеры, 7 - кладовые тары.
Рис. 8. 12 ЭТАЖНЫЙ ЖИЛОЙ ДОМ СЕРИИ П-18-21/12 со встроенно-пристроенным продовольственным магазином торговой площадью 414 м2 А - разрез, Б - план 1 этажа, В - план подвала. 1 - торговый зал, 2 - стол заказов, 3 - загрузочные, 4 - административно-бытовые помещения, 5 - кладовые продуктов, 6 - охлаждаемые камеры, 7 - кладовые тары, 8 - техническое подполье жилого дома. Рабочая площадь - 950 м2. Полезная площадь - 1060 м2. В результате к середине 90-х годов - началу периода комплексной реконструкции, система обслуживания районов пятиэтажной застройки слагается из отдельно стоящих двухэтажных зданий торгово-бытового обслуживания (реже центров ), разработанных в 50-х годах, в сочетании с предприятиями обслуживания встроенными, встроенно-пристроенными и пристроенными к 9-12-17 этажным жилым домам разного периода строительства, расположенными по периметру микрорайонов вдоль магистралей. Предприятия обслуживания, встроенные в габариты пятиэтажных домов встречаются значительно реже. Это в основном небольшие предприятия бытового обслуживания (приемные пункты прачечных и химчисток) иди мелкие магазины (булочные, продукты). Пятиэтажные жилые дома со встроенными предприятиями обслуживания располагаются чаще всего внутри жилой застройки вдоль пешеходных улиц. 4. ОСНОВНЫЕ НАПРАВЛЕНИЯ МОДЕРНИЗАЦИИ СЕТИ ПРЕДПРИЯТИЙ ТОРГОВО-БЫТОВОГО ОБСЛУЖИВАНИЯ ПРИ КОМПЛЕКСНОЙ РЕКОНСТРУКЦИИ ПЯТИЭТАЖНОЙ ЗАСТРОЙКИ4.1. При проведении модернизации сети предприятий необходимо соблюдать основные принципы организации системы торгово-бытового обслуживания - обеспечения проживающего населения товарами и услугами повседневной необходимости в пределах пешеходной доступности (500 м). Реконструктивные мероприятия должны быть направлены на сохранение и восполнение сети социально значимыми объектами приближенного, повседневного и периодического обслуживания в жилых районах (микрорайонах) и на формирование из них торгово-бытовых комплексов (центров). Основными предприятиями повседневной необходимости должны явиться: универсальный продовольственный магазин умеренных цен, типа «Универсам», магазины «продукты», «диетические продукты»; непродовольственные магазины с полным ассортиментом: хозтовары, бытовая химия, галантерея-парфюмерия, товары для детей и др.; предприятия общественного питания: кафе, закусочные, столовые, диетические столовые, магазины кулинарии; предприятия бытового обслуживания: приемные пункты прачечных и химчисток, прачечные самообслуживания, мини-прачечные и мини-химчистки, мастерские мелкого ремонта обуви, металлоизделий, кожгалантереи и др., ателье по пошиву и ремонту одежды, головных уборов и трикотажных изделий, парикмахерские, фотографии, бюро услуг и пр. Они должны рассчитываться и назначаться в соответствии с нормативными показателями МГСН 1-01-99 «Нормы и правила проектирования планировки и застройки Москвы», МГСН 4-13-97 «Предприятия розничной торговли», МГСН 4-14-98 «Предприятия общественного питания», МГСН 4-18-99 «Предприятия бытового обслуживания населения». 4.2. Модернизацию сети предприятий торгово-бытового обслуживания рекомендуется проводить в следующих направлениях; - модернизация существующих центров и блоков обслуживания без изменения функционального назначения предприятий; - реконструкция существующих центров и блоков обслуживания, возможно с расширением объема предприятий, а при необходимости перепрофилированием в другие по функциональному назначению предприятия; - дополнение существующей сети новыми предприятиями повседневного и приближенного обслуживания, размещаемыми в нижних этажах жилых домов или в пристроенных объемах к новым и реконструируемым домам; - строительство многофункциональных зданий и общественных центров с предприятиями городского значения - преимущественно вдоль крупных магистралей или в общественных зонах. 4.3. Вышеперечисленные направления модернизации сети предприятий торгово-бытового обслуживания должны корреспондироваться с приемами комплексной реконструкции районов (микрорайонов), которые можно подразделить на три основных варианта. Вариант 1. Преобладание реконструкции жилого фонда с сохранением части опорных зданий и с незначительным новым строительством. Примером может служить проект застройки квартала 82 Хорошево-Мневники, разработанный проектной территориальной мастерской Северо-Западного Административного Округа НИиПИ Генплана. Здесь предусматривается в основном реконструкция пятиэтажных домов: надстраиваемый жилой фонд составляет 72%, тогда как новое строительство: надстройка -14,6%, а новые жилые дома - 7,0% (два 17 этажных здания вдоль проспекта Маршала Жукова). В таком варианте существующие центры и блоки обслуживания, соответствующие сегодняшним требованиям, целесообразно сохранять и модернизировать без изменения функционального назначения предприятий. Общественные здания, менее сохранившиеся и морально устаревшие, следует реконструировать возможно с перепрофилированием предприятий. При необходимости возможно увеличение объема - посредством пристраивания и надстраивания существующих зданий. Для дополнения сети можно рекомендовать размещение предприятий во встроенных, встроенно-пристроенных и пристроенных объемах к реконструируемым и новым жилым домам. Номенклатура встроенных предприятий в соответствии с требованиями МГСН 3.01-96 «Жилые здания» и МГСН 4.18-99 «Предприятия бытового обслуживания населения», должна включать предприятия бытового обслуживания небольшой вместимости (приемные пункты прачечных и химчисток, прачечные самообслуживания, мастерские мелкого ремонта, бюро обслуживания, парикмахерские, ателье проката и др.) продовольственные и непродовольственные магазины торговой площадью до 250 м2 (встроенные) и до 400 м2 (встроенно-пристроенные), кафе и закусочные до 50 мест. Вариант 2. Преобладание в микрорайонах (кварталах) нового строительства многоэтажных жилых домов со сносом основного жилого фонда - пятиэтажных домов «неперспективных» типовых серий, (кроме 9-12 этажных зданий более позднего периода строительства). Например в проекте застройки квартала 24-25 Новых Черемушках, разработанном мастерской 12 ОАО Моспроект предусматривается сохранение как опорных только 9 и 16 этажные жилые дома (что составляет приблизительно 13% от общего жилого фонда), тогда как почти все пятиэтажные здания сносятся, кроме четырех жилых домов, подлежащих реконструкции. Квартал застраивается 16-17 этажными зданиями по типовым проектам. В проекте застройки квартала 27-32 Волхонки-Зил, выполненном мастерской 13 ОАО Моспроект, предусматривается также сохранение только 12-14 этажных жилых домов при полной замене пятиэтажных на 16-17 этажные здания серии П-44 (рис. 10). В этих микрорайонах, значительно увеличивается население (почти в 2 раза), в связи с чем возрастает доля строительства новых предприятий торговли, общественного питания, бытового обслуживания. Здесь наиболее экономически целесообразным решением явится размещение дополнительных предприятий повседневного и приближенного обслуживания в нижних этажах новых многоэтажных домов и пристройках к ним. Учитывая более широкие конструктивные возможности новых жилых зданий, номенклатура встроенных и встроенно-пристроенных предприятий может быть расширена и дополнена более крупными магазинами (универсамы, диетические продукты, специализированные продовольственные и непродовольственные), а также крупными предприятиями бытового обслуживания. Во вновь строящихся многофункциональных зданиях и общественных центрах, расположенных вдоль крупных магистралей и на примыкающих к кварталам общественных территориях, возможно размещение разнообразных предприятий торгово-бытового обслуживания городского значения. Существующие в микрорайонах блоки обслуживания целесообразно модернизировать и реконструировать. Для создания масштабного архитектурного комплекса, их можно объединять с жилыми домами переходами, формируя стилобаты вновь строящихся многоэтажных зданий. Вариант 3. Сочетание нового строительства многоэтажных жилых домов в микрорайоне с реконструкцией жилых зданий и сохранением опорного жилого фонда в разных пропорциях. Пропорциональные соотношения нового, реконструируемого и опорного жилого фонда могут быть равными или с преобладанием объемов реконструируемого и сохраняемого жилого фонда до 80% по отношению к новому строительству. В этом варианте рекомендуется применять все вышеуказанные приемы модернизации сети: капитальный ремонт существующих центров и блоков обслуживания с сохранением функционального назначения предприятий; реконструкция с увеличением объема здания, а при необходимости с перепрофилированием предприятий блоков обслуживания. Для дополнения сети рекомендуется, как в первом варианте комплексной реконструкции, размещение небольших по вместимости предприятий торговли, общественного питания и особенно, бытового обслуживания в нижних этажах новых и реконструируемых жилых домов, или пристройках к ним. Подобное решение сети предприятий торгово-бытового обслуживания предлагается в проекте реконструкции района Новые Черемушки (квартал 22-23), разработанном в мастерской 12 ОАО Моспроект. Здесь сохраняются и модернизируются двухэтажные общественные здания - вдоль ул. Гарибальди; реконструируются (расширяются и надстраиваются) существующие Дом Моды и ресторан - вдоль бульвара (ул. Новочеремушкинская), встраиваются и пристраиваются во вновь строящиеся 17 этажные жилые дома вдоль бульвара и в многофункциональный комплекс (по Профсоюзной ул.) новые предприятия торговли, общественного питания и бытового обслуживания. 5. МЕТОДИКА ОПРЕДЕЛЕНИЯ ТИПОВ ПРЕДПРИЯТИЙ ТОРГОВЛИ, ОБЩЕСТВЕННОГО ПИТАНИЯ И БЫТОВОГО ОБСЛУЖИВАНИЯ ДЛЯ МОДЕРНИЗАЦИИ, РЕКОНСТРУКЦИИ И НОВОГО СТРОИТЕЛЬСТВА5.1. Необходимым условием модернизации сети при комплексной реконструкции пятиэтажной застройки является определение номенклатуры и типов предприятий торговли, общественного питания, бытового обслуживания в дополнение к существующим предприятиям в соответствии с сегодняшними требованиями. В настоящее время в проектах застройки технико-экономические характеристики ограничиваются расчетом сетей с приведением лишь количества объектов, без указания их назначения и специализации. В существующих условиях это предоставляет возможность местным властям обойти интересы и потребности населения в товарах и предметах первой необходимости и размещать предприятия по принципу их доходности. 5.2. Расчет сети и определение типов предприятий торговли, общественного питания и бытового обслуживания должен учитывать: вариант сложившейся системы торгово-бытового обслуживания, наличие существующего фонда общественных зданий в реконструируемом жилом районе (микрорайоне, квартале) и соседних прилегающих территориях; объем реконструктивных мероприятий, численность и демографию населения (до и после реконструкции) в каждом конкретном районе. 5.3. Выбор целесообразного размещения предприятий торговли, общественного питания, бытового обслуживания - в отдельно стоящих зданиях, во встроенных или встроенно-пристроенных объемах к жилым домам, зависит от ряда факторов: варианта комплексной реконструкции, состояния и наличия блоков обслуживания, а также конструктивных и объемно-планировочных решений вновь строящихся и существующих жилых домов. Рекомендуемые варианты размещения предприятий приводятся в приложении № 1. 5.4. Методика определения типов предприятий включает: определение потребности населения в различных видах торгово-бытового обслуживания приближенного, повседневного и периодического назначения, которое производится из расчета сети, основанного на проектируемой численности населения (при норме 20 м2 на человека) и расчетных показателях, в соответствии с нормативами, приведенными в МГСН 1-01-99. «Нормы и правила проектирования планировки и застройки Москвы»; - выявление состава и мощностей (вместимости) существующих предприятий (по результатам натурных обследований и данным администрации района); - обследование существующих предприятий с целью определения возможности сохранения их или сноса; - вычисление необходимых мощностей (вместимости) предприятий торговли, общественного питания бытового обслуживания как разницы между расчетными и существующими (сохраняемыми) предприятиями; - определение номенклатуры дополнительных предприятий торговли, общественного питания и бытового обслуживания и количества объектов; - определение типов предприятий, предназначенных для модернизации реконструкции или нового строительства и рекомендации по их объемно-пространственному решению во взаимосвязи с вариантом комплексной реконструкции микрорайона (квартала). 5.5. Расчет сети и определение типов предприятий торговли, общественного питания и бытового обслуживания для нового строительства, реконструкции и модернизации существующих объектов обслуживания для конкретных районов приводится в Приложении 1 и 2. Для детального анализа выбраны два диаметрально противоположные варианта комплексной реконструкции: это проект застройки квартала 81 Хорошево-Мневники, разработанный мастерской 18 ОАО Моспроект (рис. 9). Здесь преобладает реконструируемый и сохраняемый жилой фонд, при незначительном новом строительстве (порядка 23%). В проекте застройки квартала 27-32 Волхонка-Зил, наоборот преобладает новое строительство (до 88% от объема всего жилого фонда) без реконструкции (рис. 10). 5.6. В результате проведенного расчета сети предприятий торгово-бытового обслуживания и в соответствии с вышеизложенными приемами модернизации сети в квартале 81 Хорошево-Мневники рекомендуется: - Реконструировать с увеличением объема здания 2 этажный блок обслуживания, расположенный на углу главной магистрали - проспекта Маршала Жукова и бульвара генерала Карбышева, и перепрофилировать предприятия. На 1 этаже вместо магазина «Диета» разместить продовольственный магазин с универсальным ассортиментом (типа Универсам). На 2-ом этаже частично перепрофилировать имеющиеся специализированные непродовольственные магазины и дополнить их более полным ассортиментом товаров. - Разместить во встроенно-пристроенных объемах к новым 17 этажным жилым домам (на проспекте Маршала Жукова) дополнительные предприятия общественного питания и предприятия бытового обслуживания: салон красоты, вынесенный из блока обслуживания, а также фото-ателье. Реконструированный 2 этажный блок обслуживания в сочетании с новыми встроенно-пристроенными объемами составит местный линейный торгово-бытовой центр, имеющий продолжение в квартале 82 по проспекту Маршала Жукова. Предприятия приближенного обслуживания (магазины «продукты», кафе, мастерские мелкого ремонта, приемные пункты прачечных и химчисток) целесообразно разместить в первых этажах вновь построенных 17 этажных жилых домов (серии П-44). Предприятия городского значения, размещенные в первых этажах 9 этажных жилых домов, построенных в 60 годы вдоль городской магистрали Народного Ополчения, следует сохранить, а при необходимости - модернизировать.
Рис 9 СХЕМА РАЗМЕЩЕНИЯ ПРЕДПРИЯТИЙ ТОРГОВО-БЫТОВОГО ОБСЛУЖИВАНИЯ В КВАРТАЛЕ 81 ХОРОШЕВО-МНЕВНИКИ
Рис. 10 СХЕМА РАЗМЕЩЕНИЯ ПРЕДПРИЯТИЙ ТОРГОВО-БЫТОВОГО ОБСЛУЖИВАНИЯ В КВАРТАЛЕ 27-32 «ВОЛХОНКА-ЗИЛ» 5.7. Модернизация сети и типов зданий предприятий торгово-бытового обслуживания в квартале 27-32 Волхонка-Зил ориентированы на значительное увеличение количества и мощностей предприятий, ввиду роста населения почти в 2 раза (в следствии большого объема нового строительства) Рис. 10. В соответствии с разработанными приемами модернизации сети предлагается: - сохранить и модернизировать без перепрофилирования два 2 этажных блока обслуживания на Симферопольском бульваре. - реконструировать с увеличением объема здания 2 этажный блок обслуживания, расположенный на углу Симферопольского и Чонгарского бульваров, разместив в нем магазины самообслуживания - продовольственный на 1 этаже, непродовольственный на 2 этаже. Наряду с реконструкцией существующих блоков обслуживания предусматривается строительство новых дополнительных предприятий обслуживания. Их рекомендуется размещать во встроенно-пристроенных объемах к 17 этажным жилым домам. Продовольственный магазин самообслуживания, торговой площадью 400 м2 предлагается (как и в проекте застройки) разместить во встроенно-пристроенном объеме к жилому дому П-44/17, расположенному на углу Ялтинской улицы и Чонгарского бульвара. Недостающие по расчету непродовольственные магазины, предприятия общественного питания и бытового обслуживания целесообразно разместить во встроенных и встроенно-пристроенных объемах к 17 этажным жилым домам, выходящим на магистрали. 6. ПРЕДЛОЖЕНИЯ ПО РЕКОНСТРУКЦИИ ЗДАНИЙ
| ||||||||||||||||||||||||||||||||||||||||||||||||||||||||||||||||||||||||||||||||||||||||||||||||||||||||||||||||||||||||||||||||||||||||||||||||||||||||||||||||||||||||||||||||||||||||||||||||||||||||||||||||||||||||||||||||||||||||||||||||||||||||||||||||||||||||||||||||||||||||||||||||||||||||||||||||||||||||||||||||||||||||||||||||||||||||||||||||||||||||||||||||||||||||||||||||||||||||||||||||||||||||||||||||||||||||||||||||||||||||||||||||||||||||||||||||||||||||||||||||||||||||||||||||||||||||||||||||||||||||||||||||||||||||||||||||||||||||||||||||||||||||||||||||||||||||||||||||||||||||||||||||||||||||||||||||||||||||||||||||||||||||||||||||||||||||||||||||||||||||||||||||||||||||||||||||||||||||||||||||||||||||||||||||||||||||||||||||||||||||||||||||||||||||||||||||||||||||||||||||||||||||||||||||||||||||||||||||||||||||||||||||||||||||||||||||||||||||||||||||||||||||||||||||||||||||||||||||||||||||||||||||||||||||||||||||||||||||||||||||||||||||||||||||||||||||||||||||||||||
|
Типовые проекты 2-х этажных блоков обслуживания |
Состав помещений |
Вариант модернизации или реконструкции |
|
|
1 |
2 |
3 |
|
|
ГРУППА 1
|
IХ-01-18 · продовольственный магазин торговой площадью 404 м2 (1 этаж) комбинат бытового обслуживания, ателье пошива верхнего платья (2 этаж) IХ-01-19 · промтоварный магазин торговой площадью 404 м2 (1 этаж) · ателье пошива верхнего платья или комбинат бытового обслуживания (2 этаж) IХ-01-21 · универсальный непродовольственный магазин торговой площадью 800 м2 |
|
|
|
ГРУППА 2
|
IХ-01-14 · продовольственный магазин торговой площадью 190 м2 (1 этаж) · мастерская починки белья и вязки (2 этаж) IХ-01-15 · промтоварный магазин торговой площадью 190 м2 (1 этаж) · мастерская починки обуви (2 этаж) IХ-01-22 · продовольственный магазин торговой площадью 200 м2 (1 этаж) · пирожковая на 42 места IХ-01-25 · столовая на 80 мест (1 этаж) · комбинат бытового обслуживания (2 этаж) IХ-01-27 · книжный магазин торговой площадью 404 м2 IХ-01-28 · булочная торговой площадью 113 м2 (1 этаж) · галантерея торговой площадью 203 м2 (2 этаж) IХ-01-11 · отделение связи |
|
|
|
3 ГРУППА
|
IХ-01-12А (36.0´18.0) · столовая на 194 места и закусочная на 76 мест IХ-01-29А (42.0´18.0) · столовая-заготовочная с обеденными залами на 180 мест и магазином кулинарии на 5 рабочих мест |
|
|
|
4 ГРУППА
|
IХ-01-07 · аптека · парикмахерская
IХ-01-23 · комбинат ремонта мебели
IХ-01-24 · комбинат бытового обслуживания
IХ-01-26 · отделение милиции |
|
|
|
|
IХ-01-10 · административно-хозяйственный блок |
|
|
|
УСЛОВНЫЕ ОБОЗНАЧЕНИЯ
|
|
|
|
На 2-ом этаже в результате перепланировки помещений (изъятия перегородок) запроектирован торговый зал непродовольственного магазина с доставкой товаров из подвала, где размещаются его складские помещения. Загрузочное помещение располагается, также как и для продовольственного магазина, в объеме одноэтажной пристройки, в строгом соответствии с нормативными требованиями.
Конструкция пристройки может быть достаточно проста: перекрытие в виде сборной железобетонной большепролетной плиты, опирающейся на железобетонные колонны, поставленные по поперечным осям здания с шагом 6 м, и вновь возведенную наружную стену из кирпича.
Аналогичная планировка предлагается для типового проекта IХ-01-19 2 этажного здания, где на 1-ом этаже располагается промтоварный магазин, а на 2-ом этаже - ателье пошива верхнего платья.
Типовой проект IХ-01-15 2-х этажного здания промтоварного магазина, торговой площадью 200 м2 (на 1-ом этаже) и мастерской ремонта обуви (на 2-ом этаже) рекомендуется реконструировать посредством двухэтажной пристройки с заднего фасада на месте хозяйственного двора (рис. 13).
Это позволит запроектировать в обоих этажах современные магазины:
на 1-ом этаже - продовольственный магазин «Продукты»;
на 2-ом этаже - непродовольственный магазин с товарами повседневной необходимости (галантерея-парфюмерия, хозтовары и пр.).
В обоих магазинах помещения приема, хранения, подготовки товаров и подсобные помещения размещаются в одном уровне с торговыми залами, служебно-бытовые помещения - в подвале.
Загрузочные помещения проектируются в соответствии с нормативными требованиями: в закрытом (частично) помещении и с перепадом уровней пола на 1,10 м. Административно-бытовые и технические помещения обоих магазинов размещаются в подвале.
Конструктивное решение двухэтажной пристройки может быть аналогично конструкции существующего здания - с внутренним железобетонным каркасом и наружными кирпичными стенами, перекрытие - железобетонные плиты, кровля плоская с внутренним водостоком.
Подобное решение может быть предложено для типового проекта IХ-01-14, где на первом этаже располагается продовольственный магазин, торговой площадью 200 м2, а на 2-ом этаже мастерская ремонта белья и вязки трикотажных изделий.
6.2.3. Реконструкция блоков обслуживания, посредством надстройки (вариант Г) наиболее целесообразна для трехпролетных зданий. Это типовые проекты IХ-01-12А и IХ-01-29А с предприятиями общественного питания.
Например, типовой проект IХ-01-29А (столовая-заготовочная с магазином кулинарии) можно преобразовать в торговый центр:

Рис. 11 ПРИМЕР РЕКОНСТРУКЦИИ ТИПОВОГО ПРОЕКТА IХ-01-18
А - фасад, Б - план первого этажа,
1 - торговый зал продовольственного магазина типа «Универсам» (404 м2), 2 - загрузочная, 3 - контора, 4 - складские помещения, 5 - холодильные камеры, 6 - кладовая тары, 7 - стол заказов, 8 - подсобная стола заказов, 9 - комната персонала, 10 - гардероб, 11 - театральная касса.
Рабочая площадь - 796 м2. Полезная площадь - 870 м2.
- Существующее здание
- пристройка.

Рис. 12 ПРИМЕР РЕКОНСТРУКЦИИ ТИПОВОГО ПРОЕКТА IХ-01-18
А - разрез 1-1, Б - план подвала. 1 - торговый зал непродовольственного магазина (404 м2), 2 - приемочная, 3 - подготовка товаров, 4 - контора, 5 - складские помещения, 6 - комната персонала, 7 - гардероб, 8 - кладовая тары, 9 - технические помещения, 10 - подсобная стола заказов.
Рабочая площадь - 872 м2. Полезная площадь - 976 м2.
![]()

Рис. 13. ПРИМЕР РЕКОНСТРУКЦИИ ТИПОВОГО ПРОЕКТА IХ-01-15
А - разрез 1-1, Б - план первого этажа.
1 - торговый зал продовольственного магазина (200 м2), 2 - загрузочная, 3 - охлаждаемые камеры, 4 - складские помещения в подвале, 5 - контора, 6 - комната персонала, 7 - гардероб, 8 - кладовая тары.
Рабочая площадь - 418 м2. Полезная площадь - 480 м2.
В - план второго этажа, Г - план подвала.
9 - торговый зал непродовольственного магазина (260 м2), 10 - складские помещения, 11 - контора, 12 - приемочная, 13 - комната персонала, 14 - гардероб, 15 - технические помещения, 16 - подготовка товаров, 17 - театральная касса.
Рабочая площадь - 499 м2. Полезная площадь - 558 м2.
![]()
Например, типовой проект IХ-01-29А (столовая-заготовочная с магазином кулинарии) можно преобразовать в торговый центр:
на 1-ом этаже запроектировать универсам, торговой площадью 430 м2, 2-ой и 3-ий этажи отвести для современных небольших предприятий общественного питания: кафе общего типа и закусочные специализированные, магазин кулинарии - на 2-ом этаже; бары (пивной, молочный) с помещениями досуга - на 3-ем этаже (рис. 15).
Надстройка здания может быть выполнена в тех же конструкциях, что и само здание: железобетонный каркас и наружные кирпичные стены, покрытие - аналогично перекрытиям этажей. Возможно перекрытие фермой.
Решение о надстройке зданий должно приниматься по результатам технического обследования здания. При надстраивании этажей необходимо исследовать несущую способность конструкций и фундаментов здания, а также возможность соответствия плит перекрытия характеру новых нагрузок на него.
6.2.4. Задания на проектирование реконструкции и модернизации зданий предприятий торговли, общественного питания и бытового обслуживания необходимо согласовывать с Департаментом потребительских товаров и услуг и органами Госсанэпидемнадзора.
Инженерное и технологическое оборудование реконструируемых и модернизируемых зданий следует проектировать в соответствии с требованиями нормативных документов, действующих на территории г. Москвы.

Рис. 14 ПРИМЕР РЕШЕНИЯ ЗАГРУЗКИ
ТОВАРОВ
СУЩЕСТВУЮЩЕГО
УНИВЕРМАГА
1. Торговый зал 2. Приемочная 3. Загрузочная рампа

Рис. 15 ПРИМЕР РЕШЕНИЯ
НАДСТРОЙКИ ОБСЛУЖИВАНИЯ
/ТИПОВОЙ ПРОЕКТ
IХ-01-29А/
1. Продовольственный магазин типа «Универсам»
2. Кафе общего типа, закусочные специализированные, магазин кулинарии
3. Бары, помещения досуга
![]()
|
№№ |
|
Вместимость |
Рекомендуемые варианты размещения |
|||
|
п/п |
Наименования предприятий |
(мощность) |
встроенные |
встроенно-пристроенные |
отдельно стоящие |
|
|
1 |
2 |
3 |
4 |
5 |
6 |
|
|
|
ПРЕДПРИЯТИЯ ТОРГОВЛИ |
м2 общей площади |
|
|
|
|
|
|
Продовольственные магазины |
|
|
|
|
|
|
|
Магазины с универсальным ассортиментом |
|
|
|
|
|
|
1 |
«универсам (супермаркет) |
250 |
+ |
+ |
+*) |
|
|
|
гастроном |
от 400 до 650 |
- |
+ |
+ |
|
|
|
|
более 650 |
- |
- |
+ |
|
|
2 |
диетические продукты, продукты |
до 200 |
+ |
+ |
+*) |
|
|
|
|
200-400 |
- |
+ |
+ |
|
|
|
|
более 400 |
- |
- |
+ |
|
|
|
Специализированные магазины с широким ассортиментом |
|
|
|
|
|
|
3 |
хлеб, кондитерский |
100-200 |
+ |
+ |
- |
|
|
|
|
200-400 |
- |
+ |
+*) |
|
|
|
|
более 400 |
- |
- |
+ |
|
|
4 |
рыба, мясо |
100-200 |
+ |
+ |
- |
|
|
|
|
более 200 |
- |
+ |
+ |
|
|
5 |
овощи-фрукты |
100-200 |
+ |
+ |
- |
|
|
|
|
более 200 |
- |
+ |
+ |
|
|
|
Специализированные магазины с узким или ограниченным ассортиментом |
|
|
|
|
|
|
6 |
мини-продукты (минимаркет) |
100-200 |
+ |
+ |
+*) |
|
|
7 |
соки-джемы, напитки |
100-200 |
+ |
+ |
- |
|
|
|
Непродовольственные магазины |
|
|
|
|
|
|
|
Магазины с универсальным ассортиментом |
|
|
|
|
|
|
8 |
универмаг, детский мир, |
до 400 |
+ |
+ |
+*) |
|
|
|
дом торговли |
400-650 |
+ |
+ |
+ |
|
|
|
|
650-1300 |
- |
+ |
+ |
|
|
|
|
более 1300 |
|
|
|
|
|
|
Специализированные магазины с широким ассортиментом |
м общей площади |
|
|
|
|
|
9 |
товары для новобрачных, |
до 400 |
+ |
+ |
+*) |
|
|
|
для женщин, для мужчин |
400-650 |
- |
+ |
+ |
|
|
|
для молодежи, для детей, |
более 650 |
- |
- |
+ |
|
|
|
для ветеранов одежда, обувь, малыш |
|
|
|
|
|
|
|
Специализированные магазины с полным ассортиментом |
|
|
|
|
|
|
10 |
галантерея-парфюмерия, |
100-200 |
+ |
+ |
- |
|
|
|
радио-аудио-видео, |
|
|
|
|
|
|
|
оргтехника, часы, |
200-400 |
+ |
+ |
+*) |
|
|
|
ювелирные изделия |
более 400 |
- |
- |
+ |
|
|
|
Специализированные магазины с узким или ограниченным ассортиментом |
|
|
|
|
|
|
11 |
книги, цветы, природа, семена, |
100-200 |
+ |
+ |
- |
|
|
|
охотник |
200-400 |
+ |
+ |
+*) |
|
|
|
|
более 400 |
|
|
|
|
|
12 |
комиссионный, антикварный |
100 и менее |
+ |
+ |
- |
|
|
|
|
200-400 |
+ |
+ |
+*) |
|
|
|
|
более 400 |
- |
+ |
+ |
|
|
|
ПРЕДПРИЯТИЯ ОБЩЕСТВЕННОГО ПИТАНИЯ |
места |
|
|
|
|
|
1 |
ресторан |
до 50 |
+ |
+ |
+*) |
|
|
|
|
более 50 |
- |
+ |
+ |
|
|
2 |
бар винный, пивной, молочный, |
до 50 |
+ |
+ |
+*) |
|
|
|
гриль |
более 50 |
- |
- |
+ |
|
|
3 |
кафе общего типа |
до 50 |
+ |
+ |
+*) |
|
|
|
|
более 50 |
- |
|
+ |
|
|
4 |
кафе специализированное |
до 50 |
+ |
+ |
+*) |
|
|
|
(мороженое, детское, кондитерская, молочное) |
более 50 |
- |
- |
+ |
|
|
5 |
столовая общедоступная, |
до 50 |
+ |
+ |
+*) |
|
|
|
диетическая |
более 50 |
- |
- |
+ |
|
|
6 |
закусочная общего типа специализированная |
до 50 |
+ |
+ |
+*) |
|
|
|
(шашлычная, котлетная, сосисочная, пельменная, блинная, пирожковая, пончиковая, чебуречная, чайная и пр.) |
более 50 |
|
|
+ |
|
|
7 |
магазин кулинарии |
м2 торговой площади |
|
|
|
|
|
|
|
до 150 |
+ |
+ |
- |
|
|
|
|
более 150 |
- |
- |
+*) |
|
|
|
ПРЕДПРИЯТИЯ БЫТОВОГО ОБСЛУЖИВАНИЯ |
м общей площади |
|
|
|
|
|
1 |
Многоотраслевое комплексное |
до 500 |
- |
+ |
+*) |
|
|
|
предприятие |
более 500 |
- |
- |
+ |
|
|
2 |
Дом Моды |
до 300 |
+ |
+ |
- |
|
|
|
|
до 500 |
- |
+ |
+ |
|
|
|
|
более 500 |
- |
- |
+ |
|
|
3 |
Ателье по пошиву и ремонту одежды, |
до 300 |
+ |
+ |
- |
|
|
|
головных уборов и трикотажных |
до 500 |
- |
+ |
+*) |
|
|
|
изделий (с различным набором видов услуг) |
более 500 |
- |
- |
+ |
|
|
4 |
Мастерские по ремонту обуви |
до 100 |
+ |
+ |
- |
|
|
|
(срочный, мелкий, средний) |
более 100 |
- |
- |
+*) |
|
|
5 |
Мастерские по изготовлению и |
до 100 |
+ |
+ |
- |
|
|
|
ремонту металлоизделий и |
до 150 |
- |
+ |
+*) |
|
|
|
кожгалантереи (с различным набором видов услуг) |
более 150 |
- |
- |
+ |
|
|
6 |
Мастерские по ремонту бытовых |
до 100 |
+ |
+ |
- |
|
|
|
машин и приборов |
более 100 |
- |
- |
+ |
|
|
7 |
Мастерские по ремонту часов и |
до 100 |
+ |
+ |
- |
|
|
|
ювелирных изделий |
до 150 |
- |
+ |
+*) |
|
|
|
Мастерские по изготовлению ювелирных изделий |
более 150 |
- |
- |
+ |
|
|
8 |
Парикмахерские (с различным |
до 100 |
+ |
+ |
- |
|
|
|
набором видов услуг) |
до 150 |
- |
+ |
+*) |
|
|
|
|
более 150 |
- |
- |
+ |
|
|
9 |
Фотографии |
до 100 |
+ |
+ |
- |
|
|
|
|
до 150 |
- |
+ |
+*) |
|
|
|
|
более 150 |
- |
- |
+ |
|
|
10 |
Многоотраслевые комплексные |
до 200 |
+ |
+ |
- |
|
|
|
приемные пункты типа |
до 300 |
- |
+ |
+*) |
|
|
|
«Мультисервис» |
более 300 |
- |
- |
+ |
|
|
11 |
Бюро посреднических услуг |
до 100 |
+ |
+ |
- |
|
|
|
|
более 100 |
+ |
+ |
+*) |
|
|
12 |
Ателье проката |
до 200 |
+ |
+ |
- |
|
|
|
|
до 300 |
- |
+ |
+*) |
|
|
|
|
более 300 |
- |
- |
+ |
|
|
13 |
Приемные пункты прачечной |
до 100 |
+ |
+ |
- |
|
|
|
|
более 100 |
- |
- |
+*) |
|
|
14 |
Прачечная самообслуживания |
до 150 |
+ |
+ |
- |
|
|
|
|
более 150 |
- |
- |
+*) |
|
|
15 |
Мини-прачечная |
до 350-400 |
- |
- |
+*) |
|
|
16 |
Приемные пункты |
до 100 |
+ |
+ |
- |
|
|
|
химчистки |
более 100 |
- |
- |
+*) |
|
|
17 |
Мини-химчистки |
до 200-250 |
- |
- |
+*) |
|
Знаком * отмечены предприятия, рекомендуемые для размещения в составе торгово-бытовых центров и кооперированных зданий.
Примечание:
1) В графе 4 указаны максимальные площади для зданий с широким шагом поперечных несущих стен и каркасных.
2) При специальных объемно-планировочных, конструктивных и инженерно-технологических решениях жилых домов допускается встроенные и встроенно-пристроенные предприятия свыше указанных мощностей - при условии их согласования с органами санитарного и пожарного надзора.
3) Предприятия общественного питания вместимостью не более 50 мест допускается размещать во встроенных и встроенно-пристроенных помещениях жилых домов при режиме функционирования до 23 часов без оркестрового сопровождения.
4) Магазины кулинарии площадью не более 150 м2 допускается размещать в жилых домах при условии отсутствия технологических процессов.
1. Расчет нормативной обеспеченности населения квартала предприятиями торговли, общественного питания, бытового обслуживания (расчетная численность населения 15 тыс. человек) см. таблицу 1.
Таблица 1
|
№№ п/п |
Наименование предприятий |
Норма на 1000 чел. |
Всего по норме |
|
1. |
Продовольственные магазины, м2 торг. площ. |
80 |
1200 |
|
2. |
Непродовольственные магазины, м2 торг. площ. |
40 |
600 |
|
3. |
Предприятия общественного питания, мест |
11 |
165 |
|
4. |
Предприятия бытового обслуживания, раб. мест |
1,5 повседн. услуги 1,64 периодич. услуги |
22 25Г7 |
|
5. |
Приемный пункт прачечной, химчистки объект на жилую группу |
1 |
- |
2. Перечень существующих предприятий культурно-бытового обслуживания в квартале № 81, их тип и мощность по данным на 1998 г. приведены в таблице 2.
Таблица 2
|
№ № п/п |
Наименование предприятия |
Адрес |
Мощность (вместимость) |
Характеристика строения |
|
1 |
2 |
3 |
4 |
5 |
|
1. |
Продовольственный магазин № 10 «Диета» |
пр-т Жукова д. 4 |
439 м2 торг. площ. |
Отдельно стоящее двухэтажное каменное здание (1 этаж) |
|
2. |
Магазины - мебель, кухни для дома. Парикмахерская - салон красоты |
пр-т Жукова д. 4 |
495 м2 общей площ. |
Отдельно стоящее двухэтажное каменное здание (2 этаж) |
|
3. |
Булочная № 445 |
ул. Народного Ополчения, 27 |
78,1 м2 торг. площ. |
Встроенно-пристроенный к жилому дому |
|
4. |
Магазин «Детские товары» фирмы «Детский мир» |
ул. Народного Ополчения, 21 |
170 м2 торг. площ. |
Встроенный в 1-й этаж жилого дома |
|
5. |
Магазин «Медицинские инструменты» |
ул. Народного Ополчения, 29 |
964,4 м2 торг. площ. |
Встроенный в 1-й этаж жилого дома |
|
6. |
Магазин «Цветные камни» «Экспорт-самоцветы» Министерства геологии |
ул. Народного Ополчения, 29 |
396,8 м2 торг. площ. |
Встроенный в 1-й этаж жилого дома |
|
7. |
Магазин № 45 «Союзпечать» |
ул. Народного Ополчения д. 23 к. 1 |
151 м2 торг. площ. |
Встроенный в 1-й этаж жилого дома |
|
8. |
Столовая от ресторана «Серебряный бор» (Областное Управление связи) |
ул. Народного Ополчения д. 29к. |
32 места |
На территории Областного управления связи |
|
9. |
Ателье № 2 пошива верхней мужской и женской одежды |
ул. Народного Ополчения д. 23 к. 1 |
72 раб. места |
Встроено в 1-й этаж жилого дома |
3. Результат обследования состояния зданий и помещений показал, что все предприятия могут быть сохранены, модернизированы и реконструированы.
4. Расчет необходимых для модернизации сети дополнительных мощностей (вместимостей) предприятий торговли, общественного питания и бытового обслуживания приведен в таблице 3.
Таблица 3
|
№№ |
Наименование предприятий |
Требуется |
Обеспечиваются |
||
|
п/п |
|
по норме |
Всего |
из них |
|
|
|
|
|
|
сохраняются |
дополняются |
|
1 |
2 |
3 |
4 |
5 |
6 |
|
1. |
Продовольственные магазины (м2 торг. площ.) |
1200 |
1117 |
517 |
600 |
|
2. |
Непродовольственные магазины (м2 торг. площ.) |
600 |
400 |
3317* |
400 |
|
3. |
Предприятия общественного питания (мест) |
165 |
157 |
32 |
125 |
|
4. |
Предприятия бытового обслуживания (раб. места) |
47 |
45 |
72** |
45 |
|
5. |
Приемные пункты прачечной, химчистки (объект) |
2 |
2 |
- |
2 |
Примечание.
* Сохраняемые непродовольственные магазины в расчёты не включены как предприятия городского значения.
** Ателье на 72 раб. места как предприятие городского значения в расчёт не включено.
5. Рекомендуемая номенклатура дополнительных предприятий торговли, общественного питания, бытового обслуживания для модернизации сети предприятий обслуживания населения квартала дана в таблице 4.
Таблица 4
|
№№ п/п |
Наименование предприятий |
Мощность (вместимость) |
Характеристика объемно-планировочного решения |
||
|
1 |
2 |
3 |
4 |
||
|
|
I. ПРЕДПРИЯТИЯ ТОРГОВЛИ |
м2 торг. площ. |
|
||
|
1. |
Продовольственный магазин типа «Универсам» Непродовольственный магазин, специализированный с полным ассортиментом |
|
двухэтажное отдельно стоящее здание (реконструкция) |
||
|
2. |
Магазин «Продукты» |
150 |
встроенный |
||
|
3. |
Магазин «Продукты» |
200 |
встроенный |
||
|
4. |
Магазин «Диетические продукты» |
250 |
встроенный |
||
|
|
II. ПРЕДПРИЯТИЯ ОБЩЕСТВЕННОГО ПИТАНИЯ |
мест |
|
||
|
5. |
Кафе общего типа |
50 |
встроенно-пристроенное |
||
|
6. |
Кафе специализированное |
50 |
встроенно-пристроенное |
||
|
7. |
Закусочная специализированная |
25 |
встроенное |
||
|
|
III. ПРЕДПРИЯТИЯ БЫТОВОГО ОБСЛУЖИВАНИЯ |
раб. мест |
|
||
|
8. |
Салон красоты |
10 |
встроенно-пристроенный |
||
|
9. |
Фотоателье |
10 |
встроенно-пристроенное |
||
|
|
Мастерские мелкого ремонта: |
раб. мест |
|
||
|
10. |
- обуви |
5 |
встроенные |
||
|
11. |
- часы и ювелирные изделия |
5 |
встроенные |
||
|
12. |
- металлоремонт |
5 |
встроенные |
||
|
13. |
Парикмахерская |
5 |
встроенные |
||
|
14. |
Многоотраслевой комплексный приемный пункт типа «Мультисервис» |
5 |
встроенные |
||
|
|
|
объект |
|
||
|
15. |
Приемный пункт прачечной |
1 |
встроенный |
||
|
16. |
Приемный пункт химчистки |
1 |
встроенный |
||
Примечание:
Нумерацию предприятий обслуживания (графа 1) см. на рис. 9
1. Расчет нормативной обеспеченности населения квартала предприятиями торговли, общественного питания, бытового обслуживания см. таблицу 1 (расчетная численность населения -12,5 тыс. чел.).
Таблица 1
|
№№ п/п |
Наименование предприятий |
Норма на 1000 чел. |
Всего по норме |
|
1. |
Продовольственные магазины, м торг. площ. |
80 |
1000 |
|
2. |
Непродовольственные магазины, м торг. площ. |
40 |
500 |
|
3. |
Предприятия общественного питания, мест |
11 |
138 |
|
4. |
Предприятия бытового обслуживания, раб.мест |
1,5 (повседн. услуги) 1,64 (периодич. услуги) |
40 |
|
5. |
Приемные пункты химчистки, прачечной, объект на жилую группу |
1 |
2 |
Перечень существующих предприятий культурно-бытового обслуживания в квартале 27-32, их тип и мощность по данным на 1998 г. приведены в таблице 2.
Таблица 2
|
№№ |
Наименование предприятия |
Адрес |
Мощность |
Характеристика, |
|
п/п |
|
|
(вместимость) |
этажность |
|
1 |
2 |
3 |
4 |
5 |
|
1. |
Продовольственный магазин |
Симферопольский бульвар, д.17А |
300 м2 торг. площ., 600 м2 общ. площ. |
отдельно стоящее двухэтажное каменное |
|
2 |
Булочная-кондитерская |
|
124 м2 торг. площ. |
здание |
|
|
|
|
227 м2 общ. площ. |
|
|
3. |
Магазин «Продукты» |
Симферопольский бульвар, д. 25 |
465 м2 торг. площ. 1270 м2 общ. площ. |
отдельно стоящее двухэтажное каменное |
|
4. |
Ремонт радиоаппаратуры «Былина-Сервис» |
|
25 раб. мест 495 м2 общ. площ. |
здание |
|
5. |
Магазин «Мебель» |
Чонгарский бульвар, д. 19 |
620 м2 торг. площ. |
отдельно стоящее двухэтажное каменное |
|
6. |
«Ателье» пошива и ремонта женской и мужской одежды |
|
24 раб. м. 480 м2 общ. площ. |
здание |
|
7 |
Магазин «Овощи-Фрукты» |
Черноморский бульвар, д.12А |
210 м2 торг. площ. 575 м2 общ. площ. |
отдельно стоящее двухэтажное каменное |
|
8. |
Ремонт мебели, пошив драпировок |
|
6 раб.мест 130 м2общ. площ. |
здание |
|
9. |
Магазин «Диета» |
Ялтинская ул. д. 1 |
545 м2 общ. площ. |
встроенные в 5-ти |
|
10. |
Магазин «Культтовары» |
|
550 м2 общ. площ. |
этажный жилой дом (сносятся) |
3. Результат обследования состояния блоков обслуживания показал, что все здания могут быть сохранены, модернизированы и реконструированы кроме предприятий, встроенных в жилые дома.
4. Расчет необходимых для модернизации сети дополнительных мощностей (вместимостей) предприятий торговли, общественного питания и бытового обслуживания приведен в таблице 3.
Таблица 3
|
№№ |
|
Требуются |
Обеспечиваются |
||
|
п/п |
Наименование предприятий |
по норме |
Всего |
из них |
|
|
|
|
|
|
сохраняются |
дополняются |
|
1 |
2 |
3 |
4 |
5 |
6 |
|
1 |
Продовольственные магазины (м2 торг. площ.) |
1000 |
1514 |
889 |
625 |
|
2. |
Непродовольственные магазины (м2 торг. площ.) |
500 |
500 |
620* |
500 |
|
3. |
Предприятия общественного питания (мест) |
138 |
140 |
- |
140 |
|
4. |
Предприятия бытового обслуживания раб. мест |
40 |
30 |
55** |
30 |
|
5. |
Приемные пункты прачечных, химчисток (объекты) |
2 |
2 |
- |
2 |
Примечание:
* Сохраняемый специализированный магазин «Мебель» в расчет не включен, как предприятие городского значения.
** Предприятия бытового обслуживания «Ателье», ремонт радиоаппаратуры «Былина-Сервис», ремонт мебели в расчет не включены, как предприятия городского значения.
5. Рекомендуемая номенклатура дополнительных предприятии торговли, общественного питания и бытового обслуживания для модернизации сети предприятий обслуживания населения квартала дана в таблице 4.
Таблица 4
|
№№ п/п |
Наименование предприятий |
Мощность (вместимость) |
Характеристика объемно-планировочного решения |
|
1 |
2 |
3 |
4 |
|
|
I. ПРЕДПРИЯТИЯ ТОРГОВЛИ |
м2 торг. площ. |
|
|
1. |
Продовольственный магазин типа «Универсам» |
625 |
Встроенно-пристр. к 17-эт. жилому дому П-44 |
|
2. |
Продовольственный магазин: Продукты, овощи-фрукты |
200 |
двухэтажное отдельно стоящее здание |
|
3. |
Непродовольственный магазин |
200 |
(реконструкция) |
|
4. |
Магазин «Хозтовары» |
150 |
встроенный |
|
5. |
Магазин «Галантерея-парфюмерия» |
150 |
встроенный |
|
|
II. ПРЕДПРИЯТИЯ ОБЩЕСТВЕННОГО ПИТАНИЯ |
мест |
|
|
6. |
Кафе общего типа |
50 |
встроенное |
|
7. |
Кафе специализированное |
50 |
встроенное |
|
8. |
Закусочная |
25 |
встроенная |
|
9. |
Пирожковая |
15 |
встроенная |
|
|
III. ПРЕДПРИЯТИЯ БЫТОВОГО ОБСЛУЖИВАНИЯ |
раб. мест |
|
|
1. |
Парикмахерская |
5 |
встроенные |
|
2. |
Фотография |
3 |
встроенные |
|
|
Мастерские мелкого ремонта: |
|
|
|
3. |
обуви |
5 |
встроенные |
|
4. |
часов и ювелирных изделий |
4 |
встроенные |
|
5. |
металлоизделий и кожгалантереи |
5 |
встроенные |
|
6. |
бытовых машин и приборов |
5 |
встроенные |
|
7. |
Многоотраслевые комплексные приемные пункты типа «Мультисервис» |
3 |
встроенные |
|
|
|
объект |
|
|
8. |
Приемный пункт прачечной и прачечная самообслуживания |
1 |
встроенный |
|
9. |
Приемный пункт химчистки |
1 |
встроенный |
|
10. |
Ремонт мебели, пошив драпировок |
|
пристройка к магазину мебель (реконструкция) |
Примечание:
Нумерацию предприятий обслуживания (графа 1) см. на рис. 10
ПРЕДПРИЯТИЯ ТОРГОВЛИ
(извлечение из МГСН 4.13-97)
|
|
Удельные показатели в м2 минимальной площади групп помещений на 10 м2 торговой площади |
||||
|
Наименование предприятий и классификационные группы |
торговая площадь |
помещения приема, хранения и подготовки товаров к продаже |
подсобные помещения |
служебно-бытовые помещения |
|
|
1 |
2 |
3 |
4 |
5 |
|
|
А. ПРОДОВОЛЬСТВЕННЫЕ МАГАЗИНЫ |
|||||
|
Магазины с универсальным ассортиментом - универсам, гастроном, диета и пр. (IП) торговой площадью 400 м2 |
10,0 |
3,0 |
0,9 |
1,1 |
|
|
дополнительно на каждые 10 м2 торговой площади |
|
2,0 |
0,8 |
0,6 |
|
|
Специализированные магазины с широким ассортиментом – «Хлеб», «Кондитерский» (IIП) торговой площадью 250 м2 |
10,0 |
2,0 |
0,7 |
0,9 |
|
|
дополнительно на каждые 10 м2 торговой площади |
|
1,5 |
0,5 |
0,5 |
|
|
Специализированные магазины - «Рыба», «Мясо» (IIIП) торговой площадью 250 м2 |
10,0 |
2,5 |
0,9 |
1,0 |
|
|
дополнительно на каждые 10 м2 торговой площади |
|
1,8 |
0,6 |
0,6 |
|
|
Специализированные магазины - «Овощи-фрукты» (IVП) торговой площадью 250 м2 |
10,0 |
2,2 |
1,0 |
1,0 |
|
|
дополнительно на каждые 10 м2 торговой площади |
|
1,8 |
0,7 |
0,6 |
|
|
Б. НЕПРОДОВОЛЬСТВЕННЫЕ МАГАЗИНЫ |
|||||
|
Специализированные магазины с полным ассортиментом - Хозтовары, Бытовая химия. Бытовая техника и пр. (IIIН) торговой площадью 250 м2 |
10,0 |
3,5 |
1,0 |
1,0 |
|
|
дополнительно на каждые 10 м2 торговой площади |
|
2,8 |
0,3 |
0,6 |
|
|
Специализированные магазины - «Галантерея-парфюмерия», «Радио-аудио-видео-фототовары», «Ювелирные изделия», «Часы» и пр. (IVН) торговой площадью 250 м2 |
10,0 |
2,0 |
0,6 |
0,8 |
|
|
дополнительно на каждые 10 м2 торговой площади |
|
1,5 |
0,3 |
0,6 |
|
ПРЕДПРИЯТИЯ ОБЩЕСТВЕННОГО ПИТАНИЯ
(на основе МГСН 4.14-98)
|
|
|
Удельные показатели минимальной площади (в м2) групп помещений на 1 место |
|||
|
№№ п/п |
Предприятия |
для посетителей (в т ч. зал) |
производственные |
приема и хранения продуктов |
служебно-бытовые |
|
1. |
Кафе, закусочные общего типа, кафе специализированные (молодежное, молочное, детское) |
1,9-1,8* |
1,1-1,5* |
0,44-0,48* |
0,6-0,7* |
|
|
- на 50 мест |
(1,2-1,4*) |
|
|
|
|
|
- на последующее место |
1,96-1,75* |
0,5-0,72* |
0,26-0,3 |
0,28-0,32 |
|
2. |
Кафе - кондитерское |
2,0 |
1,58 |
0,4 |
0,52 |
|
|
- на 50 мест |
(1,6) |
|
|
|
|
|
- на последующее место |
1,84 |
0,84 |
0,2 |
0,48 |
|
3. |
Кафе-мороженое |
1,9 |
0,8 |
0,36 |
0,4 |
|
|
- на 50 мест |
(1,4) |
|
|
|
|
|
- на последующее место |
1,68 |
0,26 |
0,16 |
0,8 |
|
4. |
Закусочные специализированные |
2,0 |
0,52 |
0,2 |
0,6-0,7* |
|
|
- на 50 мест |
(1,2) |
|
|
|
|
|
- на последующее место |
1,8 |
0,32 |
0,2 |
0,28-0,32* |
|
5 |
Столовые общедоступные |
2,3 |
1,5 |
0,8 |
0,56 |
|
|
- на 50 мест |
(1,8) |
|
|
|
|
|
- на последующее место |
2,12 |
0,6 |
0,3 |
0,28 |
|
6. |
Пивные бары |
2,15 |
0,45-0,58* |
0,92-0,86 |
0,46 |
|
|
- на 50 мест |
|
|
|
|
|
|
- на последующее место |
1,88 |
0,4-0,48 |
0,4 |
0,4 |
ПРЕДПРИЯТИЯ БЫТОВОГО ОБСЛУЖИВАНИЯ
(извлечение из МГСН 4.18-99)
|
№№ п/п |
Предприятия |
Удельные показатели минимальной площади групп помещений в м2 на 1 раб место |
||
|
|
|
для посетителей |
производственные |
складские и подсобные |
|
1 |
2 |
3 |
4 |
5 |
|
1 |
Ателье пошива и ремонта одежды, головных уборов и трикотажных изделий |
1,5-2,0 |
6,0 |
1,0 |
|
2 |
Мастерские ремонта обуви |
1,5 |
8,0 |
2,0 |
|
3 |
Мастерские ремонта металлоизделий и кожгалантереи |
1,5 |
6,0 |
2,0 |
|
4 |
Мастерские ремонта бытовых машин и приборов |
2,0 |
6,0 |
2,0 |
|
5 |
Мастерские ремонта часов и ювелирных изделий |
1,5 |
4,5 |
1,0 |
|
6 |
Мастерские ремонта радиоэлектронной аппаратуры |
1,5 |
8,0 |
2,0 |
|
7 |
Мастерские ремонта мебели |
2,0 |
12,0 |
3,0 |
|
8 |
Парикмахерская |
1,5 |
6,0 |
1,0 |
|
9 |
Фотография |
2,5 |
18,0 (зал) 10,0 (лаборатории) |
1,0 |
|
10 |
Многоотраслевой комплексный приемный пункт типа «Мультисервис» |
6,0 |
- |
10,0 |
|
11 |
Приемный пункт химчистки |
6,0 |
- |
16,0 |
|
12 |
Приемный пункт прачечной |
6,0 |
- |
20,0 |
Примечания
1 В предприятиях торговли приводятся площади групп неторговых помещений в зависимости от классификационной группы магазинов (см. МГСН 4.13-97).
2 В предприятиях общественного питания со значком (*) приводятся площади помещений при обслуживании официантами.
3 Показатели производственных помещений приняты при форме производства на полуфабрикатах.
4 В предприятиях бытового обслуживания площади служебно-бытовых помещений следует принимать для всех предприятий одинаково, в зависимости от количества рабочих мест (см МГСН 4 18-99).
|
|
|
|