//
ТехЛит.ру
- крупнейшая бесплатная электронная интернет библиотека для "технически умных" людей.
WWW.TEHLIT.RU - ТЕХНИЧЕСКАЯ ЛИТЕРАТУРА

:: Алготрейдинг::


АЛГОТРЕЙДИНГ
шаг за шагом
с нуля по урокам!

Торговые роботы на PYTHON, BackTrader,
Pandas, Pine Script для TradingView. Связка с брокерами, телеграм и легкими приложениями.


Госстрой России

Минсоцзащиты России

АО ЦНИИЭП им. Б.С. Мезенцева

РЕКОМЕНДАЦИИ
ПО ПРОЕКТИРОВАНИЮ ОКРУЖАЮЩЕЙ СРЕДЫ, ЗДАНИЙ И СООРУЖЕНИЙ С УЧЕТОМ ПОТРЕБНОСТЕЙ ИНВАЛИДОВ И ДРУГИХ МАЛОМОБИЛЬНЫХ ГРУПП НАСЕЛЕНИЯ

 

Выпуск 19

Общественные здания и сооружения.
Здания и сооружения транспортного назначения

МОСКВА 1997

Рекомендации по проектированию окружающей среды, зданий и сооружений с учетом потребностей инвалидов и других маломобильных групп населения: Вып. 19. Общественные здания и сооружения. Здания и сооружения транспортного назначения/Госстрой России, Минсоцзащиты России, АО ЦНИИЭП им. Б. С. Мезенцева.

СОДЕРЖАТ рекомендации по проектированию железнодорожных вокзалов, аэровокзалов, автовокзалов, метрополитена, пересадочных узлов вокзальных комплексов с учетом потребностей инвалидов, приведены планировочные решения вокзалов, метрополитена, перронов, основных функциональных зон, детали и элементы архитектурно-конструктивных решений.

РАЗРАБОТАНЫ АО ЦНИИЭП им. Б. С. Мезенцева (кандидаты архитектуры Н. Б. Мезенцева, Е. М. Лось, И. И. Маркова, архитекторы Н. А. Клементьев, Е .В. Рязанова) при участии канд. архит. Г. И. Быковой.

ПРЕДНАЗНАЧЕНЫ для инженерно-технических работников проектных и строительных организаций, органов социальной защиты, обществ инвалидов.

Предисловие

· Инвалиды, престарелые, а также граждане с малолетними детьми чаще всего пользуются различными видами городского и магистрального транспорта. При дальних передвижениях этих пассажиров необходимыми объектами для их обслуживания становятся вокзалы различного назначения (железнодорожные, речные, морские, автобусные, аэровокзалы). Встречающиеся на практике недостатки планировки, организации пешеходных путей, обслуживания в вокзальных комплексах затрудняют передвижение этой категории лиц на большие расстояния.

· Проблема транспортного обслуживания инвалидов обусловлена отсутствием специального оборудования общественного транспорта, а также связана с недостатками строительных норм и правил, ориентированных на здоровых людей. В общественных зданиях транспортного назначения и на прилегающих к ним территориях имеются так называемые строительные барьеры (бортовые камни, лестницы, недостаточные по ширине проемы и проходы и т. д.), делающие недоступными эти сооружения для инвалидов в креслах-колясках.

· В пространственно развитых городах отмечается увеличение дальности поездок населения, включая лиц с ограниченными физическими возможностями, с использованием нескольких видов транспорта. Пересадки при поездках (от одной и более пересадок) особенно утомительны для ослабленных людей.

· В Рекомендациях рассматриваются вопросы улучшения обслуживания инвалидов, престарелых и пассажиров с детьми в вокзальных комплексах различного назначения, на пересадочных узлах, в метрополитене.

· Настоящие Рекомендации распространяются на проектирование зданий транспортного назначения с учетом потребностей инвалидов и являются дополнением положений ВСН 62-91*.

· Положения настоящего документа имеют рекомендательный характер, но становятся обязательными при включении их в архитектурно-планировочное задание и задание на проектирование для возможности использования сооружений транспортного назначения инвалидами.

· Рекомендации применимы к новым объектам транспортного назначения, а также могут быть использованы при реконструкции существующих сооружений.

· В Рекомендациях рассматриваются только специальные строительные требования к транспортным сооружениям с учетом потребности инвалидов. Все общестроительные требования, которыми следует руководствоваться при проектировании сооружений транспортного назначения, приведены в «Рекомендациях по проектированию окружающей среды, зданий и сооружений с учетом потребностей инвалидов и других маломобильных групп населения».

· В Рекомендациях также рассматриваются вопросы обслуживания инвалидов, престарелых и пассажиров с детьми в вокзальных комплексах различного назначения, на пересадочных узлах, в метрополитене.

· Вокзальные комплексы различного назначения (железнодорожные, речные, морские, автобусные, воздушные) включают все функционально и композиционно взаимосвязанные между собой здания, сооружения и устройства, предназначенные для обслуживания пассажиров и проведения билетных, багажных, почтовых и других операций.

· В Рекомендациях последовательно представлены:

общие требования к вокзалам (привокзальная площадь; основные функциональные зоны; информационные средства);

специальные требования к основным пассажирским, служебно-техническим и вспомогательным зданиям и сооружениям; к архитектурно-пространственной композиции, решению малых форм архитектуры, перронам (приемоотправочные железнодорожные пути и пассажирские платформы, причалы и пирсы морских и речных портов, внутренняя транспортная территория автовокзалов, авиаперрон аэропорта).

· Организация пешеходных переходов, приемы разделения пешеходных и транспортных потоков на привокзальных площадях, организация мест для стоянок инвалидного автотранспорта, площадок для отдыха даны в «Рекомендациях по проектированию окружающей среды, зданий и сооружений с учетом потребностей инвалидов и других маломобильных групп населения» (Вып. 2. Градостроительные требования. - М., 1995).

· Организация входов в здания вокзалов, пандусов, санузлов дана в «Рекомендациях по проектированию окружающей среды, зданий и сооружений с учетом потребностей инвалидов и других маломобильных групп населения» (Вып. 1. Общие положения. - М., 1995).

· Рекомендации основаны на изучении опыта проектирования, строительства и эксплуатации зарубежных и отечественных объектов, результатах исследований, проведенных в АО ЦНИИЭП им. Б.С. Мезенцева, ЦНИИП градостроительства. Они рассчитаны на проектирование сооружений транспортного назначения с учетом потребностей инвалидов различных категорий:

с поражением опорно-двигательного аппарата (ПОДА), использующих различные приспособления для ходьбы или кресла-коляски;

с дефектами зрения (ДЗ);

с дефектами слуха (ДС).

1. Вокзалы. Общие требования

ПРИВОКЗАЛЬНЫЕ ПЛОЩАДИ

· Привокзальные площади обеспечивают условия взаимодействия магистрального, пригородного и других видов городского транспорта. Они связаны с основными функциональными зонами и планировочными районами городов общественным транспортом и системой магистральных улиц и автомобильных дорог.

· На привокзальных площадях должно быть обеспечено беспрепятственное движение специального и индивидуального транспорта для обслуживания инвалидов, а также минимальное количество конфликтных точек в пунктах пересечения путей движения пешеходов-инвалидов и транспортных средств.

· Размеры привокзальных площадей и их конфигурация зависят от конкретной градостроительной ситуации, организации движения транспорта на площади и других факторов. В любом случае длина пешеходного пути от остановочных пунктов городского общественного транспорта до зданий вокзалов не должна превышать для маломобильных пассажиров 100-150 м на крупных вокзальных комплексах.

· На привокзальных площадях выделяют участки, предназначенные для посадки-высадки пассажиров-инвалидов (при помощи специального знака-пиктограммы), а также места для стоянки личных транспортных средств инвалидов. Длина пешеходного пути от стоянок инвалидов до входов в здание вокзалов не должна превышать 50 м.

· Вокзальные комплексы различного назначения (железнодорожные, автобусные, воздушные) включают все функционально и композиционно взаимосвязанные между собой здания, сооружения и устройства, предназначенные для обслуживания пассажиров и проведения билетных, багажных, почтовых и других операций.

· В предвокзальной зоне с точки зрения удобства для инвалидов желательно размещать общественные здания, предназначенные для обслуживания пассажиров в непосредственной близости от вокзалов. Рекомендуется кооперировать здания вокзалов с гостиницами, торговыми зданиями, транспортными агентствами, ресторанами, туристическими бюро и т.д., планировочные и технологические требования каждого из которых должны соответствовать требованиям инвалидов.

· При отдельно стоящих гостиницах необходимы остановки подвозящего транспорта, приспособленного для инвалидов, а также стоянки личного автотранспорта инвалидов.

· При размещении инвалидов в гостинице желательно отдавать предпочтение номерам, расположенным на первых этажах, ближайших к зданию вокзала, порта, аэровокзала, автобусной станции и обеспечить около них остановки подвозящего транспорта. При отдельно стоящих зданиях гостиниц необходимо предусмотреть стоянки личного автотранспорта инвалидов.

· Необходимость разделения путей пешеходов и транспорта на привокзальных площадях определяется, главным образом, количеством единиц городского транспорта (автобусы, троллейбусы, трамваи, автомобили) и условиями их движения.

Организацию движения пешеходов на привокзальных площадях решают с использованием преимущественно следующих приемов:

устройства пешеходной зоны полуостровного типа в центральной части привокзальной площади, разделяемой, таким образом, на площадь прибытия и площадь отправления;

устройства пешеходной зоны по периметру привокзальной площади;

организации движения пешеходов и транспорта в двух или нескольких уровнях с использованием тоннелей, эстакад и других сооружений для развязки потоков пешеходов и транспорта.

· На главных пешеходных путях при удобной возможности обхода здоровыми пешеходами остановившегося инвалида не потребуется изменения предлагаемого нормами метода расчетной проектной ширины тротуаров.

· Ширина участков эвакуации или накопления на остановочных пунктах, где инвалиды могут находиться достаточное время, а также пешеходных путей второстепенного значения, например, у отдельных учреждений «попутного» обслуживания, информационных стендов, киосков, павильонов должна быть увеличена с учетом возможности подъезда и разворота кресла-коляски (черт. 1). На основных пешеходных путях не допускается установка киосков и т. п., препятствующих движению маломобильных пассажиров.

Черт. 1. Габариты маломобильных пассажиров и багажных тележек

· Для организации движения пассажиров с ПОДА, а также с ДЗ на привокзальных площадях следует предусматривать комплекс планировочных, конструктивных и технических мер:

избегать по возможности перепадов уровней и препятствий на путях движения;

при перепадах уровней устраивать пандусы и ступени лестниц с поручнями (число ступеней должно быть не менее трех);

у вертикальных препятствий необходимо устанавливать ограждения, поверхность пути которых должна быть ровная, нескользкая;

на тротуарах устраиваются рельефные полосы, предупреждающие инвалидов с ДЗ о возможных опасностях, а вблизи входов в здание вокзала предусматриваются стоянки для машин инвалидов (черт. 2).

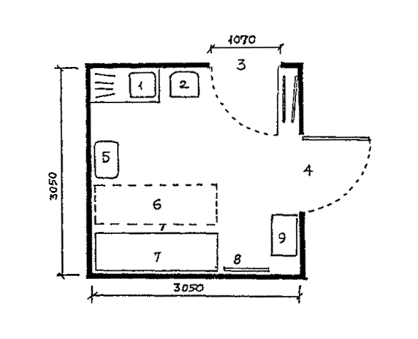
Черт. 2. Схема пешеходной зоны

1 - пешеходные пути; 2 - элементы благоустройства; 3 - пандусы; 4 - лестница; 5 - ограждения; 6 - площадки для отдыха; 7 - специальные стоянки; 8 - здание вокзала; 9 - рельефные полосы на тротуаре

ЗДАНИЯ ВОКЗАЛОВ

· Здание вокзала предназначено для проведения всех операций, связанных с отправлением, прибытием или пересадкой пассажиров.

Состав помещений в вокзалах отвечает основным видам обслуживания в них пассажиров, а именно: билетные кассы, справочное бюро, зал ожидания (судна, автобуса, самолета), а также дополнительного обслуживания: помещения общественного питания (буфет, ресторан), медицинского пункта, отделения связи (почта, телеграф, телефон), киоски Роспечати, парикмахерские, уборные, курительные.

· Для удобства ориентации пассажиров-инвалидов, а также соблюдения лимитируемой протяженности коммуникаций (с учетом состояния их здоровья) расположение операционных помещений и устройств, доступных для инвалидов, необходимо приблизить к главным путям движения основных потоков пассажиров.

· Зоны ожидания пассажиров-инвалидов следует располагать приближенно к перрону отдельно от главных путей движения.

Эти зоны должны быть изолированы от наиболее шумных помещений и иметь специальные выходы на перрон.

· В целях сокращения затрат времени пассажиров-инвалидов на любые операции площади отдельных помещений и габариты свободных проходов в них должны обеспечивать возможность беспрепятственного подъезда инвалидов в креслах-колясках с исключением так называемых узких мест и опасности образования скоплений, заторов и очередей.

· Для повышения уровня удобств, предоставляемых маломобильным пассажирам, предусматривается строгое функциональное зонирование основных участков и помещений вокзальных комплексов с выделением зон для инвалидов как в отдельных помещениях, так и в общих залах ожидания.

· Необходимые пассажирам и посетителям помещения и устройства в здании вокзала и на перроне должны быть расположены с учетом их последовательной обозреваемости, исключающей возвратное движение. Важным элементом при этом являются специальные информационные средства для инвалидов.

· Для пассажиров отправления, включая маломобильные категории, особенно важно последовательное расположение наиболее необходимых им помещений: касс, справочных бюро, камер хранения, зала ожидания. Именно в этом порядке - от входов в вокзал и основных операционных помещений - рассматриваются основные приспособления в этих помещениях для инвалидов.

· Для пассажиров прибытия основная задача - обеспечить наиболее короткие и удобные пути выхода к остановкам городского транспорта, исключив столкновение с пассажирами отправления и, как правило, минуя помещение вокзала. При большой протяженности пассажирских зданий для удобства выхода с перрона на привокзальную площадь могут быть применены открытые проемы, исключающие необходимость обхода здания по его периметру (арки, разрывы, тоннели).

· Привокзальные площади вокзалов, как правило, отделены от перрона ограждениями, препятствующими входу посторонних лиц на перрон, минуя здание вокзала. В этих ограждениях должны быть предусмотрены ворота для проезда необходимых средств транспорта, которые могут использоваться и для проезда инвалидов в креслах-колясках.

· Рекомендуется принимать наиболее прогрессивные оптимальные решения, которые могут обеспечить возможность для инвалидов передвигаться с наименьшими затратами времени в вокзальных комплексах.

· Для организации рациональных графиков движения пассажиров к поезду широко используются крытые галереи-конкорсы над путями, ведущими к островным платформам. В конкорсе пассажир быстрее ориентируется и располагается ближе к нужной ему платформе. В опорах устраиваются как грузовые подъемники, так и лифты для маломобильных пассажиров.

ОСНОВНЫЕ ФУНКЦИОНАЛЬНЫЕ ЗОНЫ

· Для удобства обслуживания маломобильных пассажиров, в том числе инвалидов, операционные помещения-вестибюли, кассовые залы, багажные отделения рекомендуется группировать преимущественно со стороны города. Эти помещения должны иметь достаточный фронт устройств для проведения соответствующих операций, а также удобные взаимосвязи с залами ожидания, привокзальной площадью и перронами. Почтовые отделения с телеграфом, междугородными и внутригородскими телефонами, торговые прилавки и киоски следует располагать вблизи пассажирских помещений. Торговые плоскости должны быть на доступной высоте (0,8 м).

· Билетные кассы следует располагать группами, объединяя их по категориям пассажиров, включая обслуживание инвалидов, престарелых, а также ослабленных лиц, требующих внимания. Перед билетными кассами должна быть свободная зона глубиной не менее 3-4 м для накопления пассажиров.

· Автоматы для продажи билетов, как правило, следует размещать на пути следования пассажиров отправления. Багажные кассы и автоматы для оплаты за хранение ручного багажа размещаются вблизи от мест хранения. Камеры хранения ручной клади рекомендуется располагать вблизи путей следования пассажиров прибытия и в местах, удобных для использования пассажирами. В малых и средних вокзалах хранение ручной клади обеспечивается преимущественно в автоматических камерах хранения. Около 3 % мест в автоматических камерах хранения, расположенных в нижнем ряду, должны резервироваться для пассажиров-инвалидов.

· В зоне операционных помещений для инвалидов необходимо предусмотреть ряд планировочных мер и приспособлений:

обеспечение свободного пространства перед билетными кассами, автоматами для их продажи и т. д., достаточного для маневрирования инвалида в кресле-коляске в условиях скопления в этих зонах пассажиров;

расположение окошек касс, камер хранения ручной клади и т. д. на пониженном уровне (0,8 м) (черт. 3);

расположение автоматических камер хранения на доступной для инвалида высоте.

Черт. 3. Схема решения багажной кассы

А - план; Б - разрез

· Зоны перед кассами, справочными бюро надо отделять стойками с поручнями и с проходом, в который пассажиры могут попасть лишь после окончания обслуживания кассиром предыдущего клиента (черт. 4).

Такое решение исключает скопление у касс пассажиров и облетает работу кассиров. Проход в ограждении должен обеспечивать возможность проезда инвалида в кресле-коляске. Зона ожидания непосредственно примыкает к кассовой зоне.

Черт. 4. Схема решения билетных касс

А - план; Б - разрез

1 - поворотное устройство для передачи денег; 2 - мембрана для переговоров; 3 - билетный аппарат

· В существующих вокзалах следует рассмотреть возможность использования и приспособления к потребностям маломобильного населения в каждом отдельном случае существующих подъездов, пандусов, подъемных устройств при багажных отделениях для пассажиров-инвалидов в креслах-колясках (с минимально необходимым уровнем изменений).

· На контрольных постах в зонах таможенного досмотра ширину одного из проходов следует увеличить до 0,9 м, чтобы обеспечить возможность проезда кресла-коляски (черт. 5).

Черт. 5. Схема контрольных постов (план)

1 - контрольный пост, адаптированный для инвалидов; 2 - обычный контрольный пост

· Камеры для хранения багажа пассажиров-инвалидов рекомендуется располагать на первом этаже.

Прилавки обычных камер хранения должны размещаться на доступной для инвалидов высоте (не более 0,7 м). Перед ними, равно как и перед ячейками автоматических камер хранения, должно предусматриваться свободное пространство, достаточное для маневрирования кресла-коляски (черт. 6). Расстояние между рядами ячеек автоматических камер хранения должно быть не менее 2,1 м. Места расположения ячеек, предназначенных для инвалидов, должны маркироваться специальной символикой.

Черт. 6. Камеры хранения

А - вариант решения стойки камеры хранения; Б - расстановка ячеек в автоматических камерах хранения

· В кассовых залах расположение и конструктивное решение части окошек касс должны соответствовать антропометрическим параметрам инвалидов на колясках (черт. 7). Часть подвесного или напольного оборудования (кассовые автоматы, телефоны, справочные автоматы и т. п.) должна располагаться на высоте, доступной для инвалида, и размещаться в плане, не создавая помех и опасных препятствий на путях движения, т. е. обеспечить свободный доступ к нему. Расстояние между кассовыми окошками должно составлять не менее 1,6 м.

Черт. 7. Кассовые залы

А - размещение кассовых кабин; Б - решение кассового окна

1 - окно кассы; 2 - предельно допустимая высота; 3 - зона для подъезда кресла-коляски

· На главных пешеходных путях вокзальных комплексов с пассажиропотоками 25 чел/мин и более и протяженностью более 100 м в целях облегчения передвижения физически ослабленных лиц, включая маломобильных пассажиров, необходимо предусматривать движущиеся дорожки, тротуары.

· Для облегчения перемещения багажа, особенно в зонах таможенного досмотра вокзалов, как правило, используются транспортеры и другие движущиеся устройства (черт. 8).

Черт. 8. Схема транспортера

· Залы ожидания должны иметь удобную связь с вестибюлем, рестораном (кафе-буфетом) и выходами на перрон, располагаясь, как правило, в одном с ними уровне. Расположение залов в подземном уровне или на втором (антресольном) этаже должно быть оправдано расчетными объемами движения, рельефом или композиционными соображениями. Такое решение требует устройства специальных тоннелей для пассажиров или галерей, балконов, мостиков и трапов для обеспечения удобного перехода на платформу железнодорожного вокзала без неоправданных перемещений пассажиров по вертикали. Для маломобильных пассажиров требуется устройство лифтов (черт. 9).

Черт. 9. Схема лифта для маломобильных пассажиров

1, 2 - пассажирский лифт; 3 - свободная зона; 4 - зона оптимальной доступности; 5 - поручни; 6 - откидное сидение; 7 - зеркало; 8 - вариант решения панели управления

· В залах ожидания необходимо выделить зоны, где могли бы разместиться инвалиды, пользующиеся креслами-колясками. Площадь таких зон определяется исходя из показателя - 2,1 м2 на одно место. Часть оборудования залов ожидания (киоски, телефоны, игровые автоматы и др.) должна быть доступна для инвалидов.

· Часть диванов или скамей для сидения в залах ожидания следует располагать на расстоянии не менее 2,7 м друг от друга.

· В случае объединенного решения кассового зала и зала ожидания следует соблюдать четкое зонирование помещения с обеспечением проходов достаточной ширины в зоне пребывания инвалидов (черт. 10).

Черт. 10. Вариант совмещенного решения зала ожидания и кассового зала

1 - зона касс; 2 - зона для ожидающих пассажиров; 3 - зона для размещения инвалидов на креслах-колясках; 4 - информационный стенд

· Перспективным с точки зрения обслуживания маломобильного населения представляется объединение в едином пространстве (зоне) операционных помещений и помещений для ожидания. Функциональное зонирование в этом случае обеспечивается при помощи стационарных и передвижных рекламных щитов и стендов, секционной мебели, декоративного озеленения и других приемов, что позволит не только избежать строительных барьеров при перемещении инвалидов по горизонтали, но и исключить, передвижение по вертикали. Важным элементом в этом случае становится система пространственных ориентиров, помогающая инвалидам различных категорий находить наиболее рациональные пути перемещения.

· При наличии небольших перепадов уровня между залами для перемещения пассажиров-инвалидов следует устраивать пандусы или устанавливать на лестницах подъемники (черт. 11).

Черт. 11. Подъемник на внутренней лестнице

· Комнаты длительного отдыха пассажиров, комнаты матери и ребенка, а также помещения для отдыха эксплуатационного персонала следует размещать изолированно от основных потоков пассажиров и, как правило, на втором и третьем этажах. Комнаты отдыха пассажиров, размещаемые в вокзале, проектируют в соответствии со СНиП 2.08.02-89*. Эти комнаты по своим параметрам не удовлетворяют особенностям параметров для инвалидов в креслах-колясках.

· В данном блоке помещений для обслуживания инвалидов необходимо предусматривать устройство пассажирского лифта. Согласно ВСН 62-91*, в комнатах для отдыха пассажиров следует предусматривать не менее 3 % мест (но не менее 1) для инвалидов (черт. 12).

Черт. 12. Схема решения номера для инвалидов в гостинице при вокзале

А - на 2 места (для инвалида с сопровождающим); Б - на 1 место; В - на 2 места (для 2 инвалидов); Г - санитарный узел с прихожей при номере гостиницы

· Вспомогательные помещения для обслуживания пассажиров, такие, как парикмахерские, отделения связи, помещения общественного питания, комнаты для отдыха и развлечений, следует проектировать с учетом потребностей инвалидов (черт. 13).

Черт. 13. Вспомогательные помещения для обслуживания пассажиров

· В помещениях общественного питания расстановка мебели и оборудования должна обеспечивать беспрепятственное движение инвалидов. В буфетах и закусочных должно быть не менее одного стола высотой 0,65-0,7 м.

Высота прилавков в помещениях общественного питания, а также стоек в отделениях связи должна соответствовать требованиям инвалидов.

· Проблема обслуживания инвалидов в торговых залах ресторана, кафе-закусочной или буфетах сводится к обеспечению инвалидов удобными проходами к раздаточным (ширина прохода между ограждением и раздаточными стойками не менее 1,2 м), а также к устройству столиков и кафетерийных стоек на доступной для инвалида высоте (0,8 м). К столикам должны вести проходы, доступные для инвалидов в креслах-колясках.

В торговых залах следует предусматривать не менее 3 % мест для инвалидов (но не менее 4, черт. 14).

Черт. 14. Торговые залы

А - варианты размещения мест для инвалидов в торговых залах; Б - устройство кафетерийной стойки

· В крупных вокзалах, обслуживающих транзитных пассажиров, устраивают согласно заданиям на проектирование залы для просмотра кинофильмов и телепередач, лекционные и читательские залы. Эти помещения должны быть приближены к зоне ожидания. В залах согласно ВСН 62-91* следует предусматривать места для инвалидов в креслах-колясках из расчета 1 на каждые 300 мест, но не менее 4 мест (черт. 15).

Черт. 15. Примеры расположения мест для инвалидов в зрительных залах

А - в последнем ряду зрительских мест; Б - в поперечном проходе на горизонтальном участке пола

· Парикмахерские с подсобными помещениями, курительные и другие помещения бытового обслуживания пассажиров размещаются вблизи пассажирских залов и имеют с ними удобную связь. Курительные комнаты (одна или несколько) располагаются рядом с санитарными узлами и являются непроходными. В больших и крупных вокзалах имеются помещения для срочного ремонта обуви, одежды, часов, заправки авторучек и других услуг.

· В больших и крупных вокзалах предусматривают медицинский пункт с удобными входами в него со стороны перрона (черт. 16). При проектировании следует предусмотреть удобную связь медпункта с пассажирскими залами, учитывая маломобильное население.

Черт. 16. Медицинский пункт

1 - раковина; 2 - стул; 3 - выход в зал ожидания; 4 - запасной выход на перрон; 5 - перевязочный столик; 6, 8 - положение носилок; 7 - медицинская кушетка; 9 - медицинский шкаф

· Места общего пользования должны быть отмечены знаками или символами: приспособленные для инвалидов входы в здание и помещения, переходы через транспортные коммуникации, общественные уборные и т.д. (черт. 17).

Черт. 17. Примеры применения информационных средств

А - изменение фактуры и цвета ориентационной полосы перед дверным проемом; Б - изменение фактуры и цвета поручня перед дверным проемом; В - установка звуковых маяков; Г - указание направления открывания двери

· Для инвалидов с дефектами зрения большую роль играет звуковое оповещение, как централизованное, так и локальное. В вокзалах должна быть обеспечена хорошая обозреваемость всех помещений и устройств, в которых нуждаются пассажиры и посетители, включая инвалидов и престарелых, в том числе видимость операционных и кассовых залов с привокзальной площади и видимость перронов из залов ожидания с устройством светопрозрачных ограждений. Светопрозрачные ограждения вокзалов проектируют с учетом того, чтобы шум не превышал установленных норм.

2. Железнодорожные вокзалы

ПЕРРОНЫ ВОКЗАЛЬНЫХ КОМПЛЕКСОВ

· Размеры и конфигурация перронов железнодорожных вокзалов зависят от типа станций и расположения пассажирского здания по отношению к железнодорожным путям. Различают следующие типы перронов: боковой или береговой (здание вокзала располагается сбоку от приемоотправочных путей); островной (здание вокзала располагается между приемоотправочными путями); тупиковый (здание вокзала располагается перпендикулярно к приемоотправочным путям тупикового типа); комбинированный, сочетающий в себе черты двух или трех указанных типов.

Выбор того или иного типа перрона влияет на возможность передвижения маломобильных пассажиров и способы решения проблемы их попадания из здания вокзала к поезду.

При боковом (береговом) и островном типах перронов дальность передвижения по платформе пассажиров, включая престарелых и инвалидов, сокращается за счет удобного расположения вокзала: посередине относительно платформы или другим разделением ее длины. В этом отношении неудачным является тупиковый тип перрона, когда пассажиру необходимо пройти всю платформу или большую часть ее, чтобы подойти к «своему» вагону. В этом случае, как правило, предусматриваются дополнительные входы-выходы на платформу, например, непосредственно из метрополитена или с перрона автовокзала и др.

· Одноуровневые решения перрона допускается в существующих нормах принимать на перронах бокового или островного типов только в малых вокзалах, а также на перронах тупикового типа. Такие решения заставляют пассажиров-инвалидов преодолевать большие расстояния, и при этом возникает проблема подъема-спуска.

· Для вокзалов берегового типа, наиболее распространенных в современных условиях, характерно наличие основных пассажирских платформ, безопасных выходов, к которым можно попасть только по пешеходным тоннелям или мостикам.

Решение задачи организации подъема-спуска маломобильных пассажиров, причем не только инвалидов, но и пассажиров с детьми в колясках, пассажиров с грузом на тележках и т. д. становится основной при проектировании новых и адаптации существующих вокзалов. Для доставки почты и багажа к поездам в условиях интенсивного движения, препятствующего устройству переездов в конце платформ, могут быть предусмотрены багажные тоннели с выжимными муфтами. Эти же выжимные устройства могут быть использованы для подъема инвалидов, разумеется, при соответствующем их оборудовании.

· При расчете ширины перронов необходимо учитывать возможности движения маломобильных пассажиров при движении багажных тележек, объезде выходов из тоннелей, опор навесов и осветительных мачт.

· Наиболее целесообразными являются решения, при которых опоры навесов размещаются в междупутье.

· Обустройство пешеходных путей при подъемах-спусках на входах-выходах перрона для инвалидов и престарелых аналогично описанному в подразделе «Здания вокзалов».

· Визуальная информация для инвалидов должна располагаться на контрастном фоне на высоте не менее 1,5 м и не более 4,5 м от уровня пола или поверхности пешеходного пути.

· Для самостоятельного попадания инвалидов в вагон поезда необходимо применение вспомогательных средств (черт. 18):

разновидностей пандусов, подъемников и других технических приспособлений;

пониженного уровня входа в вагоны (понижение до уровня платформы);

универсального подъемно-спускного устройства, вмонтированного в мини-автобус, действующий на территории вокзала.

Черт. 18. Виды специальных приспособлений для инвалидов на перронах вокзалов

А - пандусное устройство между поверхностью перрона и полом вагона; Б - гидравлический подъемник для посадки инвалидов в вагон

· При проектировании перронов необходимо уделять внимание вопросам передвижения пассажиров с дефектами зрения. Мачты осветительной аппаратуры, опоры навесов над перронами и т. д. следует удалять от пешеходного пути слепых не менее чем на 0,3 м. Информационные витрины, щиты и другое оборудование снабжается цоколем, осязаемым тростью слепого пассажира.

· На перронах следует применять информационные маркировочные полосы разного цвета вдоль краев платформы, а также тактильные предупредительные полосы для слепых пассажиров (черт. 19). Для информации о расположении вагонов отрезки перрона рекомендуется обозначать крупными буквами и хорошо видимыми табло.

· На перронах необходимо предусматривать возможность дублирования визуальной и звуковой информации.

Черт. 19. Тактильная информация

1 - обозначение предметов, подвешенных на высоте менее 2,1 м; 2 - обозначение препятствий, стоящих на земле; 3 - маркировка на столбе

· Для спуска с железнодорожных платформ и подъема на них маломобильных пассажиров и инвалидов следует предусматривать пандусы (черт. 20). Уклон пандуса должен быть не более 1:12, высота подъема каждого марша пандуса не должна превышать 0,8 м, поперечный уклон пандуса не должен превышать 1:50.

Черт. 20. Схема решения пандуса при перроне

А - общий вид; Б - план

Ширина пандуса должна быть не менее 1,2 м (при движении кресел-колясок в одном направлении). В начале и конце каждого подъема пандуса следует устраивать горизонтальные площадки длиной не менее 1,5 м и шириной не менее ширины пандуса.

· Для переезда через железнодорожные пути при расположении вокзала в одном уровне с перроном следует устраивать пандусы (черт. 21). Уклон пандуса должен быть не более 1:12, а при подъеме на высоту до 0,2 м - не более 1:10.

Черт. 21. Схема устройства перехода через железнодорожные пути для инвалидов

А - план; Б - разрез

3. Вокзалы водного транспорта

ТРЕБОВАНИЯ К УЧАСТКУ

· При проектировании вокзалов морского и речного видов транспорта следует учитывать, что для инвалидов этот вид транспорта имеет не столько утилитарное значение (переезд из одного пункта в другой), сколько развлекательное (отдых, туризм, путешествие). Желательно предусматривать возможность как индивидуальных путешествий инвалидов (в одиночку или с сопровождающим), так и в составе специальных групп инвалидов.

· Поскольку практически все вокзалы водного транспорта являются пунктами пересадки на сухопутные виды транспорта, их рекомендуется считать элементом транспортного узла. Необходимо обеспечить доступ инвалидов в пассажирскую часть всех элементов транспортного узла.

· Морские и речные вокзалы входят в одну группу с пассажирскими зданиями других видов транспорта, поэтому общие планировочные требования к обеспечению доступности для инвалидов и технологическому оборудованию вокзалов водного транспорта аналогичны соответствующим требованиям к вокзалам других видов транспорта.

· В составе территории речного порта следует различать следующие территориальные зоны:

прикордонную зону (набережную), в которой размещаются причальные сооружения, перегрузочное оборудование, склады, грузовые железные дороги, крановые пути;

тыловую зону, примыкающую непосредственно к прикордонной и включающую в себя железнодорожные парки, склады, здания производственно-вспомогательного и бытового назначения;

предпортовую зону, где находятся портоуправление, пожарное депо, столовая, магазин, здание самого вокзала, площадки для стоянки грузового, общественного и личного автотранспорта.

· В наибольшей степени вопросы доступности для инвалидов касаются прикордонной и предпортовой зон. Планировочные решения каждой из них должны максимально облегчить и сократить инвалидам переходы из одной зоны в другую.

· В предпортовой зоне особое внимание с точки зрения использования инвалидами следует уделять зданию вокзала и его помещениям, а в прикордонной зоне - обеспечению кратчайшего, безопасного и удобного доступа на борт судна. Подъездные дороги должны быть оборудованы специальными указателями, содержащими информацию о местах парковки личного транспорта инвалидов. Внутрипортовые дороги должны учитывать возможность проезда по ним личного транспорта.

ПРИЧАЛЫ

· Причальный пассажирский фронт должен обеспечивать безопасную и удобную посадку и высадку всех пассажиров, в том числе инвалидов на коляске, а также погрузку и выгрузку багажа при любых уровнях воды - от минимального навигационного (в речных вокзалах) до расчетного уровня, принятого при определении отметки территории пассажирского района.

· Размеры и формы причалов морских и речных вокзалов определяются количеством и расчетными типами судов. В зависимости от характера акватории, суточных и сезонных колебаний горизонта воды и особенностей рельефа для посадки и высадки пассажиров допускается предусматривать:

пешеходные мосты и трапы, в том числе передвижные и подъемно-поворотные;

посадочные площадки, расположенные на разных уровнях и соответствующие различным отметкам горизонта акватории и различным типам судов;

плавучие баржи-дебаркадеры (для малых и средних вокзалов);

подъемно-выжимные устройства.

· Возможность использования этих устройств для пассажиров-инвалидов следует рассматривать в каждом конкретном случае с позиции обеспечения полной безопасности.

ДЕТАЛИ И ЭЛЕМЕНТЫ ОБОРУДОВАНИЯ

· Посадка и высадка пассажиров (в том числе инвалидов) обычно осуществляется путем использования лестничных трапов, мостиков, сходней, передвижных или стационарных траппорталов. Самостоятельная (без сопровождающих лиц) посадка инвалидов возможна только в случаях отсутствия в посадочных устройствах ступеней при уклоне не более 1:10. Во всех остальных случаях для посадки и высадки инвалидов необходима помощь сопровождающего лица.

· В случаях посадки инвалидов с уровня причала необходимо предусмотреть возможность подъезда инвалида к месту посадки или на личном автотранспорте, или используя средства малой механизации от выхода из здания вокзала на причал (при необходимости предварительного прохождения таможенного досмотра, черт. 22).

· При использовании обычных трапов-сходней для посадки и высадки инвалидов ширину их рекомендуется принимать не менее 1,2 м. В случаях невозможности соблюдения рекомендуемого для инвалидов уклона не более 1:12 при протяженности наклона не более 10 для посадки инвалидов необходима помощь сопровождающего лица.

· При необходимости размещения причалов на открытых водоемах, подверженных постоянному воздействию волн, рекомендуется устройство оградительных сооружений на причалах.

· На пассажирских набережных швартовые устройства (тумбы и рымы) на каждом причале должны быть окрашены в яркие цвета. При наличии на причалах лестниц, спускающихся к тумбовым нишам, необходимо устройство полосы безопасности около них или ограждения.

Черт. 22. Схема вертикального разделения пассажирских и грузовых операций

· Посадку и высадку инвалидов рекомендуется производить с помощью передвижных поворотных устройств из основных помещений вокзала непосредственно на борт судна (черт. 23). В некоторых случаях при большой разнице отметок причала и борта судна для посадки (погрузки) инвалидов возможно использование погрузочных крановых механизмов или пневматических выжимных платформ непосредственно с причала.

Черт. 23. Фрагменты передвижного поворотного устройства для перехода пассажиров через железнодорожную платформу в морском вокзале в г. Адроссане (Шотландия)

4. Аэровокзалы

ЗДАНИЯ АЭРОВОКЗАЛОВ

· При одноэтажном решении здания аэровокзалов зонируются по горизонтали, имеют вытянутую форму и достигают в длину до 200-300 м, что значительно увеличивает пути передвижения инвалидов и маломобильных пассажиров и одновременно удобно для безбарьерного передвижения в одном уровне (черт. 24).

Условные обозначения

Потоки пассажиров                                                  Потоки багажа

 вылет                                                          вылет

 прилет                                                          прилет

 транзит                                                      трансфер

 трансфер

Черт. 24. Схема горизонтального зонирования здания аэровокзала и размещения основных групп помещений

1 - вход для вылетающих пассажиров; 2 - общий зал; 3 - зона регистрации и сдачи багажа; 4 - багажное помещение вылета; 5 - зона спецдосмотра; 6 - зал-накопитель вылета; 7 - перрон вылета; 8 - перрон прибытия; 9 - багажное помещение прилета; 10 - зал ожидания прилетевших пассажиров; 11 - зона выдачи багажа; 12 - выход; 13 - зал транзитных и трансферных пассажиров; 14 - зона в общем зале для маломобильных пассажиров

· Для перемещения инвалидов и маломобильных пассажиров в зданиях аэровокзалов большой протяженности следует использовать движущиеся тротуары или другие механизированные средства передвижения. Второй вариант - в центральной части здания для пассажиров этой группы следует предусмотреть специальный выход на перрон.

· В многоэтажных зданиях аэровокзалов зона для пассажиров, как правило, занимает два уровня. Наиболее часто верхний уровень (уровень входа в самолет) предназначается для вылетающих пассажиров, нижний (уровень земли) - для прибывающих и перемещения багажа (черт. 25-28).

· Для передвижения между уровнями инвалидов и маломобильных пассажиров следует устраивать лифты, пандусы, эскалаторы и специальное оборудование лестничных маршей. При их отсутствии следует предусматривать для инвалидов на колясках и маломобильных пассажиров специальный выход на перрон в уровне первого этажа.

Условные обозначения

 поток пассажиров

 поток багажа

Черт. 25. Основные схемы зонирования зданий аэровокзалов по вертикали (А – Е)

1 - вылет; 2 - прилет; 3 - обработка багажа; 4 - паркинг; 5 - будущий паркинг; 6 - второй уровень; 7 - размещение самолетов в двух уровнях

Условные обозначения

 - поток пассажиров

 - поток багажа

Черт. 26. Фрагмент плана стойки регистрации

1 - стойка регистрации; 2 - весы-транспортеры; 3 - проходы для пассажиров; 4 - специальный проход для инвалидов на колясках шириной не менее 90 см

Черт. 27. Схема размещения оборудования в зонах паспортного и таможенного контроля

Черт. 28. Фрагмент плана зоны выдачи багажа при подаче с нижележащего этажа

1 - зал выдачи багажа; 2, 3 - транспортеры; 4 - общие входы и выходы для пассажиров; 5 - проходы для инвалидов на колясках шириной 90 см

ПЕРРОНЫ

· Посадка в самолет и высадка производятся на ближнем или дальнем перроне.

На ближнем перроне при посадке (высадке) с уровня 2-го этажа используются галереи и телетрапы, с уровня земли - приставные лестницы-трапы.

· Уклон телетрапа или галереи для самостоятельно передвигающихся пассажиров на колясках и маломобильных пассажиров не должен превышать 1:12, при передвижении инвалидов с сопровождающими допускается уклон большей величины. В галерее через каждые 10 м следует предусмотреть горизонтальную площадку для отдыха размером не менее 1,5 ´ 1,5 м.

· При посадке в самолет с уровня земли (высадке) для подъема или спуска инвалидов и маломобильных пассажиров следует предусмотреть специальное устройство - приставной механизированный трап-эскалатор или автолифт.

· При доставке пассажиров к самолетам (и от них), размещенным на дальнем перроне, специальными автобусами или автопоездами с пониженным уровнем пола для посадки и высадки из них инвалидов и маломобильных пассажиров следует использовать откидной пандус.

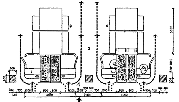
· На аэровокзалах рекомендуется предусмотреть помещение для специальной службы сопровождения и помощи инвалидам и маломобильным пассажирам и зону для хранения специальных малогабаритных колясок, используемых для обслуживания инвалидов при прохождении регистрации, контроля, досмотра и в полете. Регистрацию билетов маломобильных пассажиров и оформление их багажа к перевозке, при необходимости, рекомендуется проводить за специально выделенной для этой категории пассажиров стойкой регистрации, высотой от пола до рабочего уровня 0,67-0,80 м, глубиной подъезда коляски 0,4-0,6 м (рис. 29).

Черт. 29. Варианты размещения стойки регистрации и кассы доплаты

· Над стойкой регистрации рекомендуется размещать рекламный короб, свисающий с потолка или опирающийся на стойку, содержащий информацию и освещение. Необходимо размещение на нем пиктограммы, обозначающей преимущественно обслуживание инвалидов.

· В аэровокзалах (секторах) международных авиалиний в зонах для заполнения декларации необходимо предусматривать возможность установки столов для пассажиров на креслах-колясках.

5. Автовокзалы

ТРЕБОВАНИЯ К ПЕРРОНАМ

· Для обслуживания инвалидов не рекомендуется применение перронов островного расположения. Другие варианты размещения перронов относительно здания вокзала (береговое, полуостровное, пирсовое) могут свободно использоваться инвалидами (черт. 30).

Черт. 30. Перроны автовокзалов

А. Расположение перронов относительно здания вокзалов:

1 - береговое; 2 - полуостровное; 3 - пирсовое; 4 - островное;

Б. Уступообразное решение кромки перрона:

1 - зона посадки в автобус; 2 - зона подхода к багажному отсеку автобуса

· Оптимальное решение конфигурации кромки перрона - уступообразное. Перроны автовокзалов междугородных перевозок должны иметь стационарное или передвижное оборудование для помощи при посадке инвалидам с поражениями опорно-двигательного аппарата в автобусы, не оборудованные специальными подъемниками.

ОСТАНОВКИ АВТОБУСОВ ВНУТРИГОРОДСКОГО сообщениЯ

· Остановки автобусов должны обеспечивать возможность посадки и высадки пассажиров, пользующихся креслами-колясками (черт. 31).

Для этого на остановке предусматривается специальное оборудование, представляющее собой возвышение с откидным пандусом.

Черт. 31. Пример оборудования автобусной остановки

1 - автобус с пониженным полом; 2 - отметка поверхности улицы; 3 - отметка тротуара; 4 - вход в автобус; 5 - вход для инвалидов на колясках, с откидным пандусом; 6 - отметка пола автобуса, 7 - знак остановки с хорошо различимыми символами; 8 - расписание движения и другая информация; 9 - место для инвалида на коляске

6. Метрополитен

ОБЩИЕ ТРЕБОВАНИЯ

· При входах в вестибюли станций не должно быть больших перепадов уровней. Следует избегать ступеней и лестниц. Там, где невозможно обойтись без лестниц, должны оборудоваться пандусы.

Входы на существующие станции метро, расположенные на отметках, отличных от отметки земли, должны переоборудоваться с устройством пандусов и специальных подъемников для инвалидов.

· Применяемые повсеместно на метрополитене качающиеся стеклянные двери недопустимы для инвалидов. Не менее чем одна дверь в ряду должна соответствовать требованиям инвалидов. Глубина тамбуров должна обеспечивать свободу маневрирования кресла-коляски при открывании дверей.

· Все помещения метрополитена, предназначенные для пассажиров, должны оснащаться четкой системой, хорошо различимой информацией (визуальной, акустической и тактильной).

· Сложные или опасные участки движения пассажиров следует оборудовать горизонтальными опорными поручнями, размещаемыми на стенах или стойках, надежно закрепленных в полу (входы на эскалаторы, подходы к турникетам и т. п.). Помещения медицинской помощи, размещаемые на станциях метро, должны быть спроектированы и оборудованы, исходя из потребностей инвалидов.

ТРЕБОВАНИЯ К ПОМЕЩЕНИЯМ. КАССОВЫЕ ЗАЛЫ

· Кассовые залы станций метро следует проектировать так, чтобы свести к минимуму возможность пересечения потоков пассажиров различного направления.

· Окошки касс должны располагаться на высоте, доступной для инвалида на коляске (черт. 32). На стене под окошками касс может быть установлен горизонтальный опорный поручень.

Черт. 32. Кассовые залы метро

1 - вход; 2 - кассы; 3 - турникеты; 4 - выход

ОБОРУДОВАНИЕ

· В каждом ряду турникетов, размещаемых на входах или выходах в метро, следует предусматривать не менее одного расширенного прохода, позволяющего проезд кресла-коляски (черт. 33). Такой проход должен располагаться как можно дальше от мест концентрации пассажиропотока (например, пропускной пункт для пассажиров с проездными билетами) и обозначаться специальной символикой, хорошо различимой издали, а также оборудоваться горизонтальными поручнями, выделяющими зону перед проходом на расстоянии 1,2 м.

Черт. 33. Пропускной пункт

1 - проход для инвалидов на колясках; 2 - горизонтальный опорный поручень; 3 - проход для пассажиров с проездными документами

ПЕРРОНЫ СТАНЦИЙ МЕТРО

· На перронах станций метро следует выделять специальные места для посадки и высадки пассажиров, пользующихся креслами-колясками. Такие места должны располагаться в начале и в конце каждой платформы и соответствовать входам в вагон поездов, предназначенный для инвалидов (черт. 34). Места посадки-высадки инвалидов должны обозначаться специальной маркировкой и оборудоваться откидными или передвижными пандусами, аналогично оборудованию платформ железнодорожных вокзалов (см. разд. 2).

Черт. 34. Перроны

1 - пути; 2 - платформа; 3 - остановка головного вагона поезда; 4 - зона посадки для инвалидов на колясках

ОБОРУДОВАНИЕ

· Лестницы на путях движения пассажиров могут дублироваться пандусами (если это позволяет ситуация) и должны оборудоваться специальными подъемниками для инвалидов в виде кресла или горизонтальной платформы, перемещающихся вдоль лестничных маршей.

· В качестве средства вертикального транспорта для инвалидов должны применяться лифты, особенно на станциях глубокого заложения, где имеются значительные перепады высот.

· На существующих станциях оборудование лифта - крайне сложная и дорогостоящая задача, поэтому в качестве компромиссного варианта могут быть приняты специальные пересадочные кресла, приспособленные для размещения на эскалаторе (черт. 35). Такие кресла должны входить в комплект обязательного инвентаря на каждой станции и храниться в верхних и нижних эскалаторных вестибюлях.

Черт. 35. Специальное пересадочное кресло для эскалатора

7. Пересадочные узлы. Вокзальные комплексы

ТРЕБОВАНИЯ К ЭЛЕМЕНТАМ

· Проблема большой протяженности пешеходных путей может решаться за счет оборудования горизонтальных или наклонных (под небольшим углом) движущихся дорожек. Вдоль стен подземных переходов или надземных ограждений рекомендуется устанавливать горизонтальные опорные поручни для ориентации слепых и передвижения людей, испытывающих трудности при ходьбе.

· В местах перепадов уровней (например, между платформой и пешеходным переходом) следует оборудовать пандусы и (или) механические подъемники, дублирующие лестницы или эскалаторы. Механические подъемники могут решаться в виде лифтов или передвижных платформ, двигающихся вдоль лестничного марша. Следует учитывать, что входы-выходы в лифты или на платформы подъемников должны быть максимально изолированы от основного пассажиропотока. Места их расположения необходимо обозначать специальными указателями. В случае когда подъемник для инвалида необходимо установить в точке концентрации пассажиропотока, оптимальным решением может стать платформа или кабина, передвигающаяся в зоне, отдельной от лестницы.

ОБОРУДОВАНИЕ

· Для пересадочных узлов вокзальных комплексов могут использоваться следующие типы подъемников: лестничные (наклонные, вертикальные), переносные (съемные), которые могут быть с платформой или кабиной (черт. 36). Данные виды подъемников разрабатываются предприятием медицинского оборудования «Белка» (г. Брянск).

Черт. 36. Лестничные и переносные подъемники

1 - кабина подъемника; 2 - тактильная предупредительная полоса

8. Планировочные решения

ЖЕЛЕЗНОДОРОЖНЫЕ ВОКЗАЛЫ

· С целью облегчения проектировщикам задачи выбора оптимального решения при создании новых или реконструкции существующих зданий вокзалов с учетом потребностей инвалидов в данном разделе приводятся варианты композиционных решений вокзалов, а также конкретные примеры из отечественной и зарубежной практики. На каждом чертеже раздела показано, как данный вариант вокзала может быть использован инвалидами, каковы его недостатки и преимущества.

· Одноярусные решения - наиболее распространенный прием для всех вокзалов, связанный с наличием пересечения путей пешеходов и транспорта на привокзальной площади и перроне (черт. 37). Наиболее предпочтительный вариант для маломобильных пассажиров - соблюдение требований разд. 1.

Черт. 37 Схема организации движения для инвалидов

Варианты одноярусных композиционных решений

· Вокзал расположен на уровне путей, сбоку от них (черт. 38). Движения пассажиров и багажа пересекают пути (допустимо лишь на небольших вокзалах без транзитного движения).

Черт. 38. Схема расположения вокзалов

А - сбоку от вокзалов; Б - в торце пути

1 - здание вокзала; 2 - пути; 3 - вход в здание вокзала

· Вокзал тупиковой станции по возможности располагают на одном уровне с путями, но такое решение применимо только для конечных станций, иначе требуется большая территория для путей. Однако данное решение удобно для инвалидов, так как не существует сложности для попадания их на перрон как из здания вокзала, так и минуя его.

· Пример композиционного варианта 1 - проект железнодорожного вокзала в г. Тольятти (черт. 39).

Черт. 39. План вокзала

1 - зал ожидания; 2 - туалет; 3 - буфет; 4-6 - служебные помещения; 7 - выход на перрон для инвалидов; 8 - касса

· По проекту инвалиды могут проехать непосредственно на перрон по пандусу, минуя здание вокзала.

Многоярусные решения

· Вариант А устройства путей пешеходов в тоннелях под перроном, а иногда и под привокзальной площадью (черт. 40, А). Данный прием оправдан главным образом в железнодорожных вокзалах. Высота вынужденных спусков и подъемов составляет 7,0-7,5 м.

· Вариант Б устройства путей пешеходов над перроном (черт. 40, Б). Данный прием оправдан в железнодорожных вокзалах. Высота вынужденных спусков и подъемов составляет 3,5-4,5 м.

· При многоярусных решениях требуется устройство лифтов для инвалидов.

· Вариант обеспечивает наиболее полное разделение путей движения различных видов транспорта и пассажиров, а также компактность пересадочного узла, прием оправдан в многофункциональных комплексах, особенно в условиях значительных перепадов рельефа (см. черт. 40, Б).

Для инвалидов необходимо устройство лифтов.

Черт. 40. Варианты многоярусных решений

Вокзал ниже уровня путей

· 1. Вокзал ниже уровня путей, сбоку от них. Предусмотрен тоннель для пассажиров и багажа. Оптимальное решение. Достоинство - сокращение перемещения пассажиров по вертикали.

· 2. Вокзал расположен ниже путей, сбоку от них. Зал ожидания находится между путями, в остальном - аналогично п. 1.

· 3. Вокзал под путями, с короткими переходами, хорошим освещением зала ожидания в остальном аналогично пп. 1 и 2.

· 4. Вокзал ниже путей, между ними, что дает возможность устройства просторной привокзальной площади, в остальном - аналогично пп. 1-3.

· 5. Вокзал расположен на уровне путей, сбоку от них. Тоннель для пассажиров со спуском и подъемом. Путь багажа пересекают рельсовые пути - допустимо лишь для вокзалов средней величины.

· 6. Вокзал над путями. Переходные мостики для движения пассажиров и перемещения багажа.

Черт. 41. Расположение вокзала

А - вход пассажиров; Б - направление движения поездов

Примеры многоярусных решений

· Перпендикулярное по отношению к перрону расположение помещений вокзала облегчает связь с островными платформами и превращает корпус вокзала или его часть в своеобразный мост-переход (черт. 42).

Черт. 42. Железнодорожный вокзал в г. Харлоу

А - поперечный разрез; Б - план; 1 - операционный зал; 2 - кассы; 3, 4 - багажное отделение; 5, 6 - вывоз багажа; 7 - пандус; 8 - багажный двор; 9, 10 - служебно-технические помещения; 11 - киоски; 12 - лифты; 13 - хранение велосипедов; 14 - подъезд автомобилей; 15 - подъезд автобусов; 16 - автостоянки; 17 - пассажирские павильоны на платформах

· Для связи с островными платформами вокзала в Броксберне сооружен крытый мост-переход над путями (черт. 43). В центральной части перехода запроектированы зал ожидания (1), туалетные (2), служебные комнаты (3). На первом этаже основного здания находятся операционный зал (4) с кассами (5) и справочным бюро (6), багажное отделение.

· Маломобильные пассажиры используют лифты (7). Небольшие залы ожидания, доступные для инвалидов, имеются непосредственно на перронах (8).

Черт. 43. Вокзал в г. Броксберне

А - план 2-го этажа; Б - план 1-го этажа

ВОКЗАЛЫ ВОДНОГО ТРАНСПОРТА

· В случаях примыкания к зданию вокзала водного транспорта железнодорожных путей пассажирских линий (более одного пути) и устройства стационарной переходной галереи, кроме лестницы и пандусов, для попадания инвалидов на ее уровень рекомендуется устройство лифтов (преимущественно в объеме здания) или специальных выжимных устройств - платформ (при наружном размещении галереи) (черт. 44).

Черт. 44. Морской порт в г. Гавре (Франция). План в уровне основного этажа

1 - вестибюль; 2 - служебные помещения; 3 - досмотровые залы; 4 - переходные мостики на железнодорожные платформы; 5 - залы-салоны; 6 - галерея; 7 - открытый балкон; 8 - передвижные трап-порталы; 9-11 - служебные помещения; 12 - автостоянки; 13 - автомобильный мост; 14 - железнодорожные платформы; 15 - площадка для грузового транспорта; 16 - технические помещения

· Морской вокзал в г. Адроссане (Шотландия) является положительным примером решения пересадочного узла (железная дорога - водный транспорт), а также обеспечения одноуровневого перехода из здания морского вокзала на борт судна посредством оригинальной галерейной конструкции передвижного поворотного устройства. Однако для подъема инвалидов с платформы на галерею необходимы либо применение выжимного устройства, либо помощь сопровождающего лица для въезда по пандусу, не обеспечивающему нормируемого для инвалидной коляски уклона (черт. 45).

Черт. 45. Морской вокзал в г. Адроссане (Шотландия)

А - генеральный план; Б - здание вокзала; В - фрагмент передвижного поворотного средства; 1 - зал ожидания; 2 - вестибюль; 3 - кафетерий; 4 - административные помещения; 5 - комната отдыха; 6 - санузлы

АЭРОВОКЗАЛЫ

· Для аэровокзалов нашей страны наиболее характерно одноуровневое решение привокзальной площади и одно-, двухуровневое - зоны для пассажиров здания аэровокзала. Так выполнены крупные аэровокзалы Москвы - Шереметьево-1, Внуково-1, Домодедово, центральный городской.

· Для инвалидов и маломобильных пассажиров при таких решениях возникает множество барьеров: на привокзальной площади, имеющей форму сильно вытянутого прямоугольника или трапеции и рассчитанной на пешеходное движение пассажиров, движение транспорта и размещение автостоянок, - пересечение потоков, большие расстояния, а в здании аэровокзала и на перроне - отсутствие механизированных средств для преодоления уровней.

· Вертикальное зонирование аэровокзальных комплексов значительно сокращает расстояния и упорядочивает движение, а при оснащении комплексов механизированными средствами передвижения (лифтами, эскалаторами, движущимися тротуарами и др.), пандусами, посадочными галереями, телетрапами делает аэровокзалы доступными для инвалидов. Примерами такого решения являются аэропорт Шереметьево-2 и множество крупных зарубежных аэропортов.

Многоуровневое решение аэровокзального комплекса

· Вертикальное и горизонтальное зонирование комплекса выполнено в известном аэропорте Фиумичино (Леонардо да Винчи) в Риме.

· При больших габаритах здания аэровокзала (180 ´ 90 м) и привокзальной площади (примерно 400 ´ 400 м) подвоз пассажиров производится преимущественно индивидуальным транспортом непосредственно к соответствующему входу на основном пассажирском уровне (1-й этаж) или городским рельсовым и автотранспортом на уровень цокольного этажа.

· На верхнем и цокольном этажах размещены учреждения обслуживания. Сообщение между уровнями для пассажиров - эскалаторами, пандусами (черт. 46).

Черт. 46. Аэровокзальный комплекс

А. Схема генерального плана:

1 - привокзальная площадь; 2 - здание аэровокзала; 3 - башня управления полетами; 4 - крытая галерея ближнего перрона; 5 - стоянки самолетов

Б. Разрез:

1 - привокзальная площадь; 2 - основной пассажирский уровень (1-й этаж) здания аэровокзала; 3 - 2-й этаж с залом транзитных пассажиров, баром, рестораном и отелем; 4 - цокольный этаж; 5 - ввод рельсового транспорта под привокзальную площадь; 6 - ввод автотранспорта; 7 - эскалаторы; 8 - пандус

В. План 1-го этажа:

1 - главный зал; 2 - таможня прибытия; 3 - таможня отправления; 4 - банк; 5 - служебные помещения; 6 - иммиграционная служба; 7 - полиция; 8 - почта-телеграф; 9 - багажный конвейер; 10 - эскалаторы; 11 - зал ожидания; 12 - крытая галерея

Г. План цокольного этажа:

1 - почта-телеграф; 2 - вход персонала; 3 - телефонные кабины; 4, 5, 7, 9-11, 14 - служебные и технические помещения; 6 - бюро наземных служб; 8 - киоски; 12 - буфет; 13 - санузлы; 15 - багажный конвейер; 16 - ветровые ограждения от реактивных струй; 17 - пандусы; 18 - башня управления полетами

· Многоуровневое решение второго аэровокзала в аэропорту Париж-Шарль де Голль позволяет разместить все транспортные службы (автостоянки, станцию транзитного транспорта) на нижних подземных этажах.

· Прибытие пассажиров по подъездной рампе, полное пред- и послеполетное обслуживание, посадка в самолет производятся на верхнем уровне (2-й этаж здания аэровокзала).

· Перемещение пассажиров между этажами производится лифтами.

· Четкое горизонтальное и вертикальное зонирование исключает пересечение потоков пассажиров и сокращает пути их передвижения, что создает безбарьерную среду для инвалидов и маломобильных пассажиров (черт. 47).

Черт. 47. Типовой аэровокзал

А. Разрез типового аэровокзала:

1 - паркинг; 2 - подъездная рампа; 3 - технические помещения; 4 - станция транзитного транспорта; 5 - общий зал пассажиров; 6 - багажное помещение; 7 - лифтовая шахта; 8 - посадочный трап; 9 - ввод скоростного транспорта в здание аэровокзала

Б. План 2-го этажа типового аэровокзала:

1 - подъездная рампа; 2 - зал регистрации пассажиров; 3 - зал ожидания; 4 - выдача багажа; 5 - распределительная галерея; 6 - помещения дополнительного обслуживания

Рассредоточенное решение аэровокзального комплекса

· Комплекс аэропорта Мюнхен-2 (ФРГ, 70-е гг., 2000 пас/ч) имеет четкое функциональное решение. Аэровокзал занимает островное положение в комплексе аэропорта.

· Службы оформления полета, посадки и высадки из самолета рассредоточены в двух зданиях, состоящих из одинаковых секций и соединенных корпусом общих помещений.

· Одноуровневая привокзальная площадь, разделенная главным корпусом на две части и занятая автостоянками, расположена в центре аэровокзального комплекса и опоясана эстакадой с односторонним движением, по которой пассажиры подвозятся к соответствующей секции.

· Исключается пересечение потоков, пешеходные передвижения пассажиров сведены к минимуму, все основные операции, включая посадки, в самолет, производятся в одном уровне (черт. 48).

Черт. 48. Генеральный план аэропорта и общий вид аэровокзального комплекса

1 - здание общих помещений; 2 - технологические здания аэровокзала; 3 - привокзальная площадь; 4 - перроны; 5 - подъездная автодорога; 6 - взлетно-посадочные полосы

МЕТРОПОЛИТЕН

· Пример полностью приспособленной станции метро надземного расположения - станция «Шенефельд» в Берлине показан на черт. 49.

· Железнодорожные пути подняты над уровнем земли, загрузка пассажиров на платформы осуществляется через пешеходный переход, проходящий под путями. Отметка пола перехода соответствует отметке земли. Выходы на платформы оборудованы лестницами и пандусами.

· Платформы противоположных направлений движения объединены и занимают центральное положение между путями. На платформах оборудованы навесы для защиты от атмосферных осадков.

Черт. 49. Метро надземного расположения

1 - платформа метро; 2 - платформы пригородных поездов; 3 - пандусы; 4 - лестницы; 5 - переход под путями и платформами

ПЕРЕСАДОЧНЫЕ УЗЛЫ. ВОКЗАЛЬНЫЕ КОМПЛЕКСЫ

· Удачный пример крупного пересадочного узла, где учтены потребности инвалидов, - вокзал «Хуптбанхоф» в Берлине показан на черт. 50.

· Комплекс решен в нескольких уровнях и включает в себя платформы станций поездов дальнего следования, пригородных поездов, метро, остановки наземного общественного транспорта, а также широкий набор вокзальных помещений для обслуживания пассажиров.

· Пути коммуникаций проходят в пешеходных переходах, расположенных под железнодорожными путями, на отметке земли. Выходы на платформы оборудованы лестницами, пандусами, эскалаторами и лифтами.

· Основные помещения для обслуживания пассажиров (кассовый зал, информация, отделение связи, банк, камеры хранения, зал ожидания) расположены на одной отметке - первого этажа. Связь между этажами здания осуществляется лестницами и лифтами.

· Все двери имеют ширину, достаточную для проезда кресла-коляски. Входные двери в здание вокзала - автоматические.

· Остановки общественного транспорта расположены в непосредственной близости от здания вокзала - на привокзальной площади. Подходы к ним решены без перепадов уровней.

Черт. 50. Пересадочный узел

1 - платформы метро; 2 - платформы поездов дальнего и пригородного сообщения; 3 - здание вокзала; 4 - подземные переходы; 5 - привокзальная площадь

Список литературы

1. СНиП II-85-80. Вокзалы. Нормы проектирования. - М.: Стройиздат, 1982 (отменен постановлением Госстроя № 78 от 16 мая 1989 г.).

2. Пособие по проектированию вокзалов (к СНиП II-85-80). - М.: Стройиздат, 1987.

3. Рекомендации по разработке комплексных транспортных схем для крупных городов. - М.: Стройиздат, 1984.

4. Рекомендации по проектированию элементов путей сообщения, удобных для передвижения инвалидов, людей с физическими недостатками и престарелых, в различных градостроительных условиях городов и населенных пунктов РСФСР. - М.: ЦНИИП градостроительства, 1990.

5. Руководство по проектированию городских улиц и дорог. - М.: Стройиздат, 1980.

6. Руководство по составлению схем комплексного использования подземного пространства крупных и крупнейших городов. - М.: Стройиздат, 1978.

7. Проектирование пассажирских зданий без барьеров: Межвуз. сб. научн. тр. Вып. 787. - М.: МИИ, 1988.

8. Азаренкова З. В. Градостроительные условия формирования пассажирских высокоскоростных пригородно-городских сообщений: Дис. на соиск. уч. ст. канд. техн. наук. - М., 1989.

9. Батырев В. М. Вокзалы. - М.: Стройиздат, 1988.

10. Бещева Н. И. Пригородное движение на электрифицированных линиях/Тр. ВНИИЖТА. Вып. 223. - М.: Трансжелдориздат, 1961.

11. Сигаев А. В. Пешеходные пути и транспорт для инвалидов и престарелых /Архитектурная среда обитания инвалидов и престарелых. - М.: Стройиздат, 1989.

12. Голубев Г. Е. Подземная урбанистика. - М.: Стройиздат, 1979.

13. Голубев Г. Е., Анджелини Г. М., Модоров А. Ф. Современные вокзалы. - М.: Стройиздат, 1967.

14. Каграмов И. С. Исследование условий безопасности движения транспортных средств и пешеходов на перекрестках городских улиц: Автореф. на ссиск. уч. ст. канд. техн. наук. - М., 1989.

15. Калмет Х. Ю. Жилая среда для инвалидов. - М.: Стройиздат, 1990.

16. Комский М. В., Писков М. Г. Аэровокзалы. - М.: Стройиздат, 1987.

17. Писков М. Г. Аэровокзальные комплексы аэровокзалов. - М.: Воздушный транспорт, 1983.

18. Рагон М. Города будущего. - М.: Мир, 1969.

19. Тер-Восканян О. Щ. Система общественно-транспортных узлов крупнейшего города: Дис. на соиск. уч. ст. канд. архит. - М., 1987.

20. Фокина Н. М. Организация планирования взаимодействия городского и пригородного пассажирского транспорта: Автореф. дис. на соиск. уч. ст. канд. экон. наук. - М., 1978.

21. Федутинов Ю. А. (научн. рук. темы). Обобщение отечественного и зарубежного опыта проектирования и строительства путей сообщения, удобных для передвижения инвалидов, престарелых и лиц с физическими недостатками в различных градостроительных условиях /НИР ЦНИИПградостроительства. - М., 1988.

22. Rehabilitation record, 1972.

23. Architectural a transportation barriers complian fourd. - Washington, 1977.

24. Traffic end and control, 1987, ¹ 3.

25. Uniform Federal Accessibility Standards, U. S. goverment Printing office, Washington D. C., 1985.

26. Architektonicke bariery jejich odstranovani. - Союз инвалидов ЧСФР, 1987.

27. Deutscue arhitektenblatt, 1988, ¹ 9.

28. Progressive Architecture, 1980, vol. 6.1. ¹ 9.

29. Building Economist, 1978, ¹ 3.

30. Report by the Federal Minister of transport on the Progress Achiwed in the Organization of Public Transport in Linie with Needs of the Disabled Bonn, 1990.

31. Manual Traffic provisions for people with a handicap/Ministry of Transport and Public Works. - The Hague, 1986.

32. Школяренко И. А. Исследование некоторых закономерностей безопасности пешеходов на участках автомобильных дорог в населенных пунктах: Автореф. на соиск. уч. ст. канд. техн. наук. - Харьков, 1980.

33. Yoldsmith H. Z. Designing for the disabled, London, 1976.

34. Dallmeyer K., Turf V. Transportation mobility analysis of the handicaped//Transp. Rec. Rec., 1976, ¹ 578.

35. Yutachter entwickein Losung sverchlage fur Linienbusverkehr Behinderter. - Nahverkehrs Prax, 1988.

36. Yakob Liber. A mazgaskorttak Kazlehedesenke-losegitese Kazlekedestud szemle. - 1987, ¹ 11.

37. Ashkord N., Bell W. Transport for the Elderly fnd Handicaped//Transport, Eplanning and Tehnologiy, 1979, ¹ 5.

38. Light rail Yearsahead. - Mod. Tramway, 1988, ¹ 51, ¹ 605.

39. Dorman D. Z., Middendorf D. P., Steinmanm R. P. Cost effective date collection to support planning and marketing of transportation services for transportation handicaped people // Transp. Res. Rec., 1986, ¹ 1098.

40. Banoszu K. Y. Comment faciliter les deplacements des personnes handicapies dans les transports parisiens//Review general chemins fer, 1985.

41. Folcocchis Cantilli E. Transportation and Disabled. - London, 1974.

42. Barrier Free Desing.//The Law. ¹ 4, 1989.

43. European Manual for an Accessible Built Environment. ССРТ. - Netherlands, 1990.

44. Ballard C. K. Transportation Dependents Traffic Quarterly, January, 1967.

СОДЕРЖАНИЕ

Предисловие. 1

1. Вокзалы. Общие требования. 3

Привокзальные площади. 3

Здания вокзалов. 5

Основные функциональные зоны.. 6

2. Железнодорожные вокзалы.. 14

Перроны вокзальных комплексов. 14

3. Вокзалы водного транспорта. 17

Требования к участку. 17

Причалы.. 17

Детали и элементы оборудования. 18

4. Аэровокзалы.. 19

Здания аэровокзалов. 19

Перроны.. 21

5. Автовокзалы.. 22

Требования к перронам.. 22

Остановки автобусов внутригородского сообщения. 23

6. Метрополитен. 23

Общие требования. 23

Требования к помещениям. Кассовые залы.. 24

Оборудование. 24

Перроны станций метро. 25

Оборудование. 25

7. Пересадочные узлы. Вокзальные комплексы.. 25

Требования к элементам.. 25

Оборудование. 26

8. Планировочные решения. 26

Железнодорожные вокзалы.. 26

Вокзалы водного транспорта. 30

Аэровокзалы.. 31

Метрополитен. 34

Пересадочные узлы. Вокзальные комплексы.. 35

Список литературы.. 35

 




Яндекс цитирования



   Copyright © 2007-2026,  www.tehlit.ru.

[ ѓосты, стандарты, нормативы, инструкции, правила, строительные нормы ]