//
ТехЛит.ру
- крупнейшая бесплатная электронная интернет библиотека для "технически умных" людей.
WWW.TEHLIT.RU - ТЕХНИЧЕСКАЯ ЛИТЕРАТУРА

:: Алготрейдинг::


АЛГОТРЕЙДИНГ
шаг за шагом
с нуля по урокам!

Торговые роботы на PYTHON, BackTrader,
Pandas, Pine Script для TradingView. Связка с брокерами, телеграм и легкими приложениями.


Система нормативных документов в строительстве

СВОД ПРАВИЛ
ПО ПРОЕКТИРОВАНИЮ И СТРОИТЕЛЬСТВУ

ПРОЕКТИРОВАНИЕ ЗДАНИЙ И СООРУЖЕНИЙ
С УЧЕТОМ ДОСТУПНОСТИ
ДЛЯ МАЛОМОБИЛЬНЫХ ГРУПП НАСЕЛЕНИЯ.
ОБЩИЕ ПОЛОЖЕНИЯ

СП 35-101-2001

ГОСУДАРСТВЕННЫЙ КОМИТЕТ РОССИЙСКОЙ ФЕДЕРАЦИИ
ПО СТРОИТЕЛЬСТВУ И ЖИЛИЩНО-КОММУНАЛЬНОМУ КОМПЛЕКСУ
(ГОССТРОЙ РОССИИ)

Москва 2001

ПРЕДИСЛОВИЕ

1 РАЗРАБОТАН ГУП «Научно-проектный институт учебно-воспитательных, торгово-бытовых и досуговых зданий» (Институт общественных зданий) Госстроя России - ведущая организация, ЗАО «Архитектурное проектно-исследовательское объединение - Центр» (АПИО-Центр)

2 ВНЕСЕН Министерством труда и социального развития Российской Федерации

3 ПРЕДСТАВЛЕН Управлением архитектуры и проектных работ, Управлением стандартизации, технического нормирования и сертификации Госстроя России

4 УТВЕРЖДЕН приказом директора ГУП «Научно-проектный институт учебно-воспитательных, торгово-бытовых и досуговых зданий» (Институт общественных зданий) от 20 июня 2001 г. № 5а

5 ОДОБРЕН И РЕКОМЕНДОВАН к применению в качестве нормативного документа Системы нормативных документов в строительстве постановлением Госстроя России от 16 июля 2001 г. № 70

6 ВВЕДЕН впервые

СОДЕРЖАНИЕ

Введение. 1

Часть 1 общие требования к архитектурной среде зданий и сооружений. 3

1 общие положения. 3

2 нормативные ссылки. 5

3 требования к участку. 6

4 пути движения. 10

5 помещения и их группы.. 15

Помещения и зоны обслуживания. 15

Санитарно-гигиенические помещения. 21

6 инженерные устройства и оборудование. 23

7 информационные устройства, средства и их системы.. 24

Визуальные устройства и средства информации. 25

Акустические устройства и средства информации. 27

Тактильные средства информации. 28

Часть 2 параметры архитектурной среды, доступной инвалидам.. 28

Часть 3 эргономические параметры.. 52

Приложение а Федеральный закон «о социальной защите инвалидов в российской федерации» от 24 ноября 1995 г. № 181-фз. 64

Приложение б Термины и определения, применяемые в текстах сводов правил комплекса 35. 65

ВВЕДЕНИЕ

Свод правил СП 35-101-2001 «Проектирование зданий и сооружений с учетом доступности для маломобильных групп населения. Общие положения» разработан в рамках федеральной целевой программы «Социальная поддержка инвалидов на 2000-2005 годы» в соответствии с Государственным контрактом № 5.1.1/227 юр-98 от 25 июня 1999 г. с Министерством труда и социального развития Российской Федерации по теме: «Создание единой системы отраслевых требований по проектированию доступной для инвалидов среды жизнедеятельности»

Согласно части второй статьи 15 Федерального закона «О социальной защите инвалидов в Российской Федерации» от 24 ноября 1995 г. № 181-ФЗ (Собрание законодательства Российской Федерации, 1995, № 48, ст. 2069): «Планировка и застройка городов, других населенных пунктов, формирование жилых и рекреационных зон, разработка проектных решений, новое строительство и реконструкция зданий, сооружений и их комплексов без приспособления объектов для доступа к ним инвалидов и использования их инвалидами не допускаются».

В основу разработки Свода правил положены принципы создания равных возможностей, сформулированные во «Всемирной программе действий в отношении инвалидов», принятой Генеральной Ассамблеей Организации Объединенных Наций в резолюции № 37/52* от 3 декабря 1982 г. Нормативной базой, регламентирующей мероприятия по адаптации среды жизнедеятельности в соответствии с потребностями инвалидов и других маломобильных групп населения, является комплекс 35 отраслевых нормативных документов в области проектирования и строительства. Основным документом федерального уровня для данного комплекса является СНиП 35-01-2001 «Доступность зданий и сооружений для маломобильных групп населения».

В развитие требований СНиП в составе комплекса 35 нормативных документов разработан настоящий Свод правил, который следует применять как основополагающий в блоке следующих сводов правил:

СП 35-102-2001 «Жилая среда с планировочными элементами, доступными инвалидам»;

СП 35-103-2001 «Общественные здания и сооружения, доступные маломобильным посетителям»;

СП 35-104-2001 «Здания и помещения с местами труда для инвалидов».

Свод правил содержит рекомендательные нормы и правила в соответствии с требованиями СНиП 10-01-94 «Система нормативных документов в строительстве. Основные положения» и является документом федерального уровня. В данной разработке учтены опыт отечественных и зарубежных специалистов в освещаемой области, а также новые разработки различных авторов и творческих коллективов.

Свод правил 35-101-2001:

разработан авторским коллективом в следующем составе:

научный руководитель темы, ответственный исполнитель и научный редактор нормативного документа - канд. архит. A.M. Гарнец, исполнители: арх. Н.П. Малиночка, арх. Ю.В. Колосов при участии канд. архит. Б.П. Анисимова, канд. архит. Л.А. Смывиной, инж. Л.В. Сигачевой и инж. Н.И. Чернозубовой, компьютерная графика - инж. А.И. Цыганов и инж. М.М. Миловидов при участии арх. К.В. Карпача;

внесен Департаментом по вопросам реабилитации и социальной интеграции инвалидов Минтруда России (И.В. Лебедев, А.Е. Лысенко);

представлен к утверждению Управлением стандартизации, технического нормирования и сертификации Госстроя России (В.В. Тишенко, Н.Н. Поляков, Л.А. Викторова), Управлением архитектуры и проектных работ Госстроя России (Э.А. Шевченко, Н.Н. Якимова, В.Г. Хахулин);

согласован Государственной противопожарной службой МВД России, Госсанэпиднадзором Минздрава России, Главгосэкспертизой России, Всероссийским обществом инвалидов, Всероссийским обществом слепых и Всероссийским обществом глухих.

В тексте и графической части Свода правил частично использованы следующие материалы:

СП 31-102-99. Общие положения по проектированию доступной для инвалидов среды жизнедеятельности. - М.: ГУП ИОЗ, ГУП ЦПП, 2001 (авторский коллектив под руководством канд. архит. A.M. Гарнеца);

ВСН 62-91*/Госкомархитектуры. Проектирование среды жизнедеятельности с учетом потребности инвалидов и маломобильных групп населения/Госстрой России. - М.: ГУП ЦПП, 1994 (ЦНИИЭП им. Б.С.Мезенцева, ЦНИИЭП жилища, ЦНИИЭП учебных зданий и ЦНИИЭП курортно-туристических зданий и комплексов Госкомархитектуры);

Рекомендации по проектированию окружающей среды, зданий и сооружений с учетом потребностей инвалидов и других маломобильных групп населения: Выпуск 1. Общие положения/Минстрой России, Минсоцзащиты России, АО ЦНИИЭП им. Б.С. Мезенцева. - М.: ГП ЦПП, 1995 (канд. архит. Н.Б. Мезенцева и Е.М. Лось, арх. Н.А. Клементьев при участии д-ра архит. В.К. Степанова);

Жилая среда для инвалида. - М.: Стройиздат, 1990 (арх. Х.Ю. Калмет, научный редактор Ю.В. Колосов);

Пособие по комплексному проектированию окружающей среды для людей с физическими ограничениями: Выпуск 2. Элементы зданий/Москомархитектура. - М.: ГУП НИАЦ, 1997 (канд. архит. А.А. Архангельская).

СВОД ПРАВИЛ ПО ПРОЕКТИРОВАНИЮ И СТРОИТЕЛЬСТВУ

ПРОЕКТИРОВАНИЕ ЗДАНИЙ И СООРУЖЕНИЙ С УЧЕТОМ ДОСТУПНОСТИ ДЛЯ МАЛОМОБИЛЬНЫХ ГРУПП НАСЕЛЕНИЯ. ОБЩИЕ ПОЛОЖЕНИЯ

DESIGN OF BUILDINGS AND STRUCTURES ACCESSIBLE FOR PHYSICALLY HANDICAPPED PERSONNS. COMMON REGULATIONS

Часть 1 ОБЩИЕ ТРЕБОВАНИЯ К АРХИТЕКТУРНОЙ СРЕДЕ ЗДАНИЙ И СООРУЖЕНИЙ

1 ОБЩИЕ ПОЛОЖЕНИЯ

1.1 Требования и рекомендации Свода правил направлены на создание полноценной архитектурной среды, обеспечивающей необходимый уровень доступности зданий и сооружений для всех категорий маломобильных групп населения (в дальнейшем - МГН) и беспрепятственное пользование ими. Требования распространяются на все элементы зданий и сооружений или их части (в дальнейшем - здания), а также на участки.

Положения настоящего документа следует учитывать при проектировании и реконструкции зданий различных форм собственности и различных организационно-правовых форм.

1.2 Требования Свода правил распространяются на доступные для маломобильных групп населения элементы архитектурной среды и системы, ими образуемые: элементы участка, части зданий, группы помещений, помещения, функциональные зоны (в том числе пути движения), устройство мест основных процессов жизнедеятельности, обслуживания, приложения труда и отдыха. К этим объектам также относятся конструктивные элементы и малые формы.

Требования настоящего документа не распространяются на части зданий, сооружений и участки, куда не предусмотрен доступ инвалидов.

Для зданий специализированных учреждений Свод правил используется как справочный документ при проектировании аналогичных элементов, планировочных узлов здания и территории.

1.3 В Своде правил дан относительно полный набор требований, проектных мероприятий и элементов архитектурного решения. Конкретизация требований, выбор состава мероприятий и определение этапов их реализации устанавливается заданием на проектирование, а также в процессе проектирования.

1.4 Выполнение требований доступности объектов общественного и жилищного назначения для МГН, а также промышленных зданий с местами труда для инвалидов регламентируется РДС 35-201 при разработке, согласовании и утверждении проектной документации.

1.5 В настоящем Своде правил устанавливаются общие требования для всех объектов проектирования, доступных для маломобильных групп населения.

Развитие или расширение этих требований по функциональному назначению различных зданий дано в соответствующих разделах других сводов правил: СП 35-102, СП 35-103 и СП 35-104.

1.6 Положения нормативного документа допускают возможность выбора вариантов проектных решений исходя из комплекса требований, предъявляемых к проектируемому или реконструируемому объекту с целью обеспечения доступа к нему и использования его маломобильными гражданами.

В зависимости от расчетного числа инвалидов, от финансовых возможностей заказчика и функциональной структуры здания, сооружения рекомендуется предусматривать один из двух вариантов организации доступности (не учитывая обслуживания на дому):

вариант «А» - доступность для инвалидов любой жилой ячейки в жилище, любого места обслуживания в общественном здании, любого (допускаемого социальными органами) места приложения труда. При этом должно предусматриваться устройство: общих универсальных путей движения, доступных для всех категорий населения, в том числе инвалидов; приспособленных для нужд инвалидов всех или специально выделенных из их общего числа жилых ячеек и мест обслуживания; специально приспособленных мест приложения труда;

вариант «Б» - выделение в уровне входной площадки специальных помещений, зон или блоков, приспособленных и оборудованных для инвалидов. Следует предусматривать устройство специальных входов, специально обустроенных параллельных путей движения и мест обслуживания для лиц с нарушениями здоровья.

Представленные в частях 2 и 3 графические схемы рекомендуется использовать при любом варианте организации доступности зданий и сооружений для маломобильных групп населения.

1.7 Повышение качества архитектурной среды достигается при соблюдении доступности, безопасности, удобства и информативности зданий для нужд инвалидов и других маломобильных групп населения без ущемления соответствующих прав и возможностей других людей, находящихся в этих зданиях.

По степени значимости эти критерии имеют следующий порядок приоритетов:

1) доступность, 2) безопасность, 3) информативность, 4) комфортность (удобство).

1.7.1 Критерий доступности содержит требования:

· беспрепятственного движения по коммуникационным путям, помещениям и пространствам;

· достижения места целевого назначения или обслуживания и пользования предоставленными возможностями;

· возможности воспользоваться местами отдыха, ожидания и сопутствующего обслуживания.

1.7.2 Под безопасностью понимается создание условий проживания, посещения места обслуживания или труда без риска быть травмированным каким-либо образом или причинить вред своему имуществу, а также нанести вред другим людям, зданию или оборудованию.

Основными требованиями критерия безопасности являются:

· возможность избежать травм, ранений, увечий, излишней усталости и т.п. из-за свойств архитектурной среды зданий (в том числе используемых отделочных материалов);

· возможность своевременного опознавания и реагирования на места и зоны риска;

· отсутствие плохо воспринимаемых мест пересечения путей движения;

· предупреждение потребителей о зонах, представляющих потенциальную опасность;

· пожарная безопасность.

1.7.3 Информативность обеспечивает разностороннюю возможность своевременного получения, осознания информации и соответствующего реагирования на нее.

Требования критерия информативности включают в себя:

· использование средств информирования, соответствующих особенностям различных групп потребителей;

· своевременное распознавание ориентиров в архитектурной среде общественных зданий;

· точную идентификацию своего места нахождения и мест, являющихся целью посещения;

· возможность эффективной ориентации как в светлое, так и в темное время суток;

· возможность иметь непрерывную информационную поддержку на всем пути следования по зданию.

Размещение и характер исполнения элементов информационного обеспечения должны учитывать:

· расстояние, с которого сообщение может быть эффективно воспринято;

· углы поля наблюдения, удобные для восприятия зрительной информации;

· ясное начертание и контрастность, а при необходимости - рельефность изображения;

· соответствие применяемых символов или пластических приемов общепринятому значению;

· исключение помех восприятию информационных средств (бликование указателей, слепящее освещение, совмещение зон действия различных акустических источников, акустическая тень).

1.7.4 Уровень комфортности архитектурной среды в проекте оценивается как с физической, так и с психологической позиций.

Критерий комфортности (удобства) содержит следующие основные требования:

· создание условий для минимальных затрат и усилий МГН на удовлетворение своих нужд;

· обеспечение своевременной возможности отдыха, ожидания и дополнительного обслуживания, обеспечение условий для компенсации усилий, затраченных на движение и получение услуги;

· сокращение времени и усилий на получение необходимой информации.

Нижним пределом комфортности (удобства) следует считать уровень условий, при которых получение или предоставление необходимой информации не может быть признано дискомфортным (неудобным).

Повышение комфортности рекомендуется осуществлять путем: сокращения необходимого пути и времени для получения на одном месте нескольких услуг, увеличения числа мест отдыха, получения заблаговременно нужной информации, применения необходимого и эргономичного оборудования и др.

1.8 Если при реконструкции зданий и сооружений исторических и культурных памятников, а также прилегающих к ним территорий требования доступности не могут быть выполнены в полном объеме, по согласованию с местным органом социальной защиты населения и с учетом мнения общественного объединения инвалидов должны быть приняты решения, обеспечивающие условия жизнедеятельности инвалидов в степени, необходимой и достаточной для конкретной ситуации. При этом степень (уровень) и способы адаптации зданий и сооружений, имеющих особую архитектурную, художественную или историческую ценность, должны определяться с обязательным участием соответствующих органов по охране памятников истории, культуры и архитектуры.

1.9 Для обеспечения доступности МГН к местам обслуживания в зданиях и сооружениях рекомендуется соблюдать следующий порядок приоритетов проектирования:

объемно-пространственное решение здания, его силуэт и внешний облик, детали декора фасадов, в том числе элементы входов;

функциональные зоны, группы помещений, помещения;

места обслуживания;

коммуникационные, рекреационные пространства и помещения, в том числе зоны и места отдыха и ожидания, санитарно-гигиенические помещения;

элементы инженерного оборудования, в том числе специального, для лиц с нарушениями здоровья;

системы информационного обеспечения, в том числе наружная реклама;

решения интерьеров и мебели;

световое и цветовое решение участка, фасада, интерьеров.

1.10 Архитектурное решение объекта должно помогать маломобильному посетителю:

идентифицировать зоны здания, сооружения, помещения;

находить и использовать коммуникационные пространства, определять направления своего пути, в том числе при эвакуации;

своевременно определять и уверенно избегать зоны риска.

1.11 Планировочные решения зданий и сооружений должны учитывать параметры инвалидного кресла-коляски (ГОСТ Р 50602, часть 2, рисунки 2.1-2.4).

2 НОРМАТИВНЫЕ ССЫЛКИ

2.1 В Своде правил использованы ссылки на следующие документы:

СНиП 35-01-2001 «Доступность зданий и сооружений для маломобильных групп населения»;

СП 35-102-2001 «Жилая среда с планировочными элементами, доступными инвалидам»;

СП 35-103-2001 «Общественные здания и сооружения, доступные маломобильным посетителям»;

СП 35-104-2001 «Здания и помещения с местами труда для инвалидов»;

РДС 35-201-99 «Порядок реализации требований доступности для инвалидов к объектам социальной инфраструктуры»;

ГОСТ Р 50602-93 «Кресла-коляски. Максимальные габаритные размеры»;

ГОСТ Р 50918-96 «Устройства отображения информации по системе шрифта Брайля. Общие технические условия»;

ГОСТ Р 51261-99 «Устройства опорные стационарные реабилитационные. Типы и технические требования»;

ГОСТ Р 51630-2000 «Платформы подъемные с вертикальным и наклонным перемещением для инвалидов. Технические требования доступности»;

ГОСТ Р 51672-2000 «Средства связи и информации технические общего пользования, доступные для инвалидов. Классификация. Требования доступности и безопасности»;

ГОСТ 10807-78 «Знаки дорожные. Общие технические условия»;

ГОСТ 21786-76 «Система «человек-машина». Сигнализаторы звуковые неречевых сообщений. Общие эргономические требования»;

ГОСТ 24214-80 «Связь громкоговорящая. Термины и определения»;

ГОСТ 12.1.004-91 «ССБТ. Пожарная безопасность. Общие требования»;

«Правила дорожного движения Российской Федерации». Утверждены Постановлением Совета Министров - Правительства Российской Федерации от 23 октября 1993 г. № 1090 (Собрание актов Президента и Правительства Российской Федерации, 1993, №47, ст.4531).

3 ТРЕБОВАНИЯ К УЧАСТКУ

3.1 При проектировании участка здания или комплекса следует соблюдать непрерывность пешеходных и транспортных путей, обеспечивающих доступ инвалидов и маломобильных лиц в здания. Эти пути должны стыковаться с внешними по отношению к участку коммуникациями и остановками городского транспорта.

Ограждения участков должны обеспечивать возможность опорного движения МГН через проходы и вдоль них.

При расположении зданий, сооружений и комплексов в глубине участка следует стремиться к сокращению пути от наиболее вероятного входа на участок до входа в здание или сооружение, доступного для маломобильных посетителей.

При адаптации существующих зданий к потребностям МГН в первую очередь следует создавать доступные пешеходные пути в пределах земельных участков, прилегающих к зданиям. Эти работы следует совмещать с мероприятиями по ремонту покрытий путей движения, что практически не потребует дополнительных материальных затрат.

3.2 Требования к элементам участков зданий, доступных для маломобильных людей, приведены в таблице 3.1.

3.3 При размещении зданий и сооружений на участке, как правило, следует:

· разделять по возможности пешеходные и транспортные потоки на участке;

· обеспечивать удобные пути движения ко всем функциональным зонам и площадкам участка, а также входам, элементам благоустройства и внешнего инженерного оборудования, доступные МГН;

· обеспечивать, по возможности, крытыми кратчайшими переходами связь между входами в здания комплекса, образованного отдельно стоящими на едином участке объектами.

3.4 При пересечении пешеходных путей транспортными средствами у входных узлов зданий или входов на участок следует проектировать элементы заблаговременного предупреждения мест пересечения с соблюдением мер безопасности движения, вплоть до его регулирования.

Тактильные средства предупреждающей информации и сигнализации следует размещать не ближе 0,8 м от зоны изменения пути.

3.5 При совмещении на участке путей движения посетителей с проездами для транспорта рекомендуется делать ограничительную (латеральную) разметку пешеходных путей на дорогах в соответствии с требованиями Правил дорожного движения. Ширина полос движения должна обеспечивать безопасное расхождение людей, в том числе использующих технические средства реабилитации, с автотранспортом. Полосу движения инвалидов на креслах-колясках и механических колясках рекомендуется выделять с левой стороны на полосе пешеходного движения на участке, пешеходных дорогах, аллеях.

Линии разметки путей для лиц с нарушениями зрения следует выполнять с использованием рифленой поверхности и с дублированием цветом и в соответствии с приложением 2 Правил дорожного движения Российской Федерации.


Таблица 3.1 - Требования к участкам и их элементам

Объект

Требования по критериям

доступности

безопасности

информативности

комфортности

1

2

3

4

5

1 Ограждения участка

 

3.1 Отсутствие выступающих элементов у ограждений на опасной высоте.

3.2 В качестве живой изгороди следует использовать нетравмирующие древесно-кустарниковые породы

4.1 Обеспечение возможности ориентироваться через ограждение.

4.2 Включение в ограждения (заграждения) элементов опознавания и заблаговременного оповещения

5.1 Устройство встроенных или пристроенных мест отдыха.

 5.2 Устройство поручней вдоль живой изгороди

2 Входы и въезды на участок

 

 

4.3 Архитектурное и световое (в темное время суток) выявление проходов

5.3 Наличие маркировки, разметки проходов

3 Пешеходные пути движения

2.1 Устройство поворотных и разворотных площадок, в том числе в тупиковых элементах путей пешеходного движения

3.3 Съезды не должны выступать на проезжую часть.

3.4 Использование ограждения, парапетов, бортиков (в том числе из зелени) для выявления безопасных путей движения на участке.

3.5 Обеспечение обзора путей движения при их пересечении

4.4 Выделение пешеходных путей на покрытии с помощью знаков и указателей, предупредительных надписей с размером символа по высоте не менее 0,5 м, рифления, изменения фактуры покрытия.

4.5 Обеспечение информации о месте и удаленности входов, мест обслуживания и отдыха

5.4 Наличие мест отдыха вблизи пересечений путей движения, перед входом в здание и выходом с участка.

5.5 Оборудование путей движения инвалидов средствами ориентации

4 Стоянки личного автотранспорта инвалидов

 

3.6 Приближение к пешеходным коммуникациям без пересечения с транспортным движением.

3.7 Ограждение мест риска и устройство средств заблаговременной информации о них

4.6 Устройство средств местной связи между стоянкой и администрацией общественных зданий для вызова обслуживающего персонала

5.6 Создание на автостоянке мест хранения для проката различных видов средств передвижения, а также технических средств реабилитации для инвалидов и маломобильных лиц.

5.7 Устройство для лиц с нарушениями здоровья крытых путей прохода в здание

5 Озеленение

2.2 Граница озелененных эксплуатируемых площадок, примыкающая к путям пешеходного движения не должна иметь перепада высот, бордюров, бортовых камней высотой более 4 см.

2.3 Устройство грунтовых дорожек (троп) со свойствами и параметрами путей пешеходного движения

3.8 Отсутствие озеленения, закрывающего обзор для оценки ситуации на перекрестках, опасных участках.

3.9 Отсутствие элементов фитодизайна, создающих иллюзию падающих растений, затененность проходов и проездов, а также выступающих крон, стволов, корней.

3.10 Для озеленения участка следует применять нетравмирующие древесно-кустарниковые породы

4.7 Использование приемов ландшафтной архитектуры для выявления путей пешеходного движения, мест отдыха, мест сопутствующего обслуживания.

4.8 Применение линейных посадок

деревьев и кустарников для формирования кромок путей пешеходного движения.

4.9 Отсутствие затенения озеленением сигналов, информационных устройств, ограждений опасных мест

5.8 Создание озелененных зон отдыха с применением пород, обеспечивающих оздоровительный эффект.

5.9 Применение цветочных ковров для дублирования информационных указателей

6 Элементы благоустройства, малые формы, реклама

2.4 Применение элементов благоустройства, позволяющих использовать их с высоты кресла-коляски.

2.5 Элементы рекламы и знаки не должны закрывать полностью входы, площадки на путях движения

3.11 Отсутствие в информации для инвалидов надписей и символов, которые могут быть истолкованы неоднозначно и создавать угрозу стресса.

3.12 Отсутствие помех для восприятия информации, в том числе, ослепления средствами рекламы

4.10 Подсветка или световая маркировка мест размещения элементов благоустройства, входов в беседки, павильоны, парковые сооружения в темное время суток.

4.11 Асинхронность (разновременность) предоставления информации различными средствами для исключения помех

5.10 Расположение элементов благоустройства смежно с путями пешеходного движения.

5.11 Размещение элементов благоустройства с учетом наименьшего числа поворотов для их использования.

5.12 Устройство опор (поручней и т.п.) для отдыха у мест пользования элементами благоустройства

7 Специализированные площадки (с местами обслуживания)

 

3.13 Размещение и оборудование мест обслуживания на участке аналогичны по требованиям безопасности местам обслуживания в зданиях и сооружениях

4.12 Применение архитектурных, в том числе ландшафтно-архитектурных, приемов для выявления назначения и входов на площадки, а также зоны обслуживания

5.13 Соединение подходов к площадкам кратчайшими путями движения.

5.14 При наличии площадок для собак-поводырей, минимальные размеры клеток - 1,5 м2

8 Площадки и места отдыха

2.6 Размещение смежно вне габаритов путей движения мест отдыха и ожидания

 

4.13 Информационное обеспечение мест отдыха

5.15 Применение теневых навесов, тентов для защиты от перегрева и осадков.

5.16 Защита от посторонних шумов мест тихого отдыха.

5.17 Обеспечение визуального восприятия панорам с мест отдыха, а также декоративных объектов ландшафтной архитектуры


3.6 При организации на участке подъезда транспортных средств непосредственно к входу на входных площадках и в портиках рекомендуется предусматривать:

а) в учреждениях с формой обслуживания по варианту «А»:

· возможность одновременных прохода пешеходов и посадки или высадки пассажиров;

· места на горизонтальной части входной площадки или портика, достаточные для остановки транспортного средства, пропускающего пешеходные потоки;

· разметку пешеходных и транспортных путей на пандусах и площадке;

б) в учреждениях с формой организации обслуживания по варианту «Б» (дополнительно к указанным для варианта «А»):

· создание оборудованного подхода для инвалидов, не пересекающегося с транспортными путями;

· при наличии нескольких лестниц (или лестниц, охватывающих площадку с нескольких сторон) как минимум одна оборудуется для МГН.

3.7 В портиках и на крытых площадках высота проходов от поверхности пешеходного пути до низа конструкции или низа любых подвесных элементов в свету должна быть не менее 2,5 м, а проездов - 4,5 м. При этом транспортные пандусы и проезды должны иметь сквозной проезд или разворотные площадки для эвакуации транспортных средств.

3.8 На участках перед входами в общественные здания районного или муниципального значения рекомендуется создавать озелененные и благоустроенные площадки для отдыха, оборудованные навесами, скамьями, телефонами-автоматами, указателями, светильниками, сигнализацией и т.п.

На земельных участках предприятий питания и торговли целесообразно организовать зону общего пользования с местами кратковременного отдыха МГН, оборудуя эти зоны информационными и рекламными устройствами.

Интерьерный характер таких зон может быть усилен разнообразными видами мощения, системой освещения, указателями, элементами озеленения: вазонами, цветочными выгородками, являющимися одновременно ориентирами для людей с недостатками зрения.

3.9 В зоне стоянок личного автотранспорта посетителей общественных зданий следует выделять места для парковки автотранспортных средств инвалидов, которые не должны загораживаться другими паркуемыми автомашинами.

При наличии на стоянке мест для парковки автомашин, салоны которых приспособлены для перевозки инвалидов на креслах-колясках, ширина боковых подходов к местам стоянки таких машин должна быть не менее 2,5 м.

Высота свободного пространства до низа конструкций, перекрывающих место стоянки и посадочных зон, должна быть не менее 2,9 м.

3.10 К информационным средствам на участках, используемых МГН, следует относить:

· рельефные, фактурные и иные виды тактильных поверхностей путей движения на участках, дорогах и пешеходных трассах;

· ограждение опасных зон;

· разметку путей движения на участках, знаки дорожного движения и указатели;

· информационные сооружения (стенды, щиты и объемные рекламные устройства);

· светофоры и световые указатели; устройства звукового дублирования сигналов движения.

3.11 В пределах участков зданий и сооружений рекомендуется обеспечивать непрерывность информации на путях движения к местам обслуживания и отдыха.

При проектировании на приобъектных участках информационных узлов рекомендуется в зоне ожидания таких узлов визуальную информацию дублировать тактильной.

3.12 Тактильные указатели следует устанавливать на следующих элементах путей движения:

на внешних, выпуклых углах зданий и сооружений;

на столбах и ограждениях;

на рычагах автоматов для продажи товаров и напитков;

на кабинах таксофонов.

Продольный уклон подъема не должен превышать разрешенный для пандусов.

3.13 Информирующие искусственные плавные подъемы поверхностей пути рекомендуется устраивать:

· на пешеходных путях перед входами в здания и сооружения;

· на пересечении пешеходных переходов с проезжей частью;

· на путях движения инвалидов на мотоколясках для выделения пересечения с пешеходным переходом.

3.14 Предупреждающую сигнализацию о приближении к препятствиям (лестницам, пешеходному переходу, окончанию островка безопасности, краю платформы и др.) для людей с недостатками зрения следует также обеспечивать изменением фактуры поверхностного слоя покрытия дорожек и тротуаров, применением информирующего рельефа (покрытия) и яркой контрастной окраски.

Опасные для инвалидов объекты и пространства на участке следует огораживать бортовым камнем высотой не менее 0,05 м. Ограждения опасных участков на пути движения инвалидов с недостатками зрения располагают в зоне досягаемости тактильной трости.

3.15 При обустройстве тротуаров на участке следует по возможности применять единое установленное для данного населенного пункта стандартное расположение осветительных столбов и посадок деревьев по отношению к краю тротуарного бордюра, что позволит создать оптимальные условия ориентирования для слабовидящих людей.

3.16 Ландшафтные и фитодизайнерские композиции на участке должны выполнять функции архитектурных акцентов, входящих в общую информационную систему объекта обслуживания. При этом рекомендуется использовать сходные или единые приемы обозначения, выявления зон или мест со сходным функциональным назначением.

3.17 В темное время суток рекомендуется применение световых или подсвеченных знаков и указателей, в том числе рекламных, светофоров на пешеходных путях, разметки из светоотражающих знаков, вмонтированных в покрытие (типа «кошачьи глаза») и применение световых нитей.

Светильники (осветительную арматуру) при входах на участок и в здание следует крепить непосредственно к воротам или элементам зданий или ограждений.

3.18 Светильники на стойках в общей пешеходной зоне следует ограждать защитными декоративными барьерами высотой не менее 0,75 м или размещать их в составе малых архитектурных форм (ограждений, на тумбах) на высоте не менее 0,75 м.

Светильники в зоне интенсивного пешеходного движения или специальной полосы пешеходного движения следует устанавливать не ниже 2,1 м от уровня пешеходной горизонтальной или наклонной площадки.

Светильники рекомендуется заделывать заподлицо в вертикальные, горизонтальные или наклонные поверхности стационарных конструкций зданий и сооружений или в элементы стационарного оборудования: в поручни или участок стены за поручнем, в подступенки лестниц, в плоскость стен или покрытия горизонтального или наклонного пола.

3.19 Световой поток осветительных приборов и рекламных огней на путях движения должен обеспечивать освещенность в уровне полос движения 20 лк при лампах накаливания и 40 лк при люминесцентных лампах. При этом он не должен ослеплять пешеходов и засвечивать знаки, указатели, светофоры и световые маячки.

Не рекомендуется направлять световые маячки импульсных ламп-вспышек навстречу движения пешеходов и водителей.

3.20 Элементы обустройства территории (участков) приведены в части 2, на рисунках 2.31- 2.34.

4 ПУТИ ДВИЖЕНИЯ

4.1 К коммуникационным путям и пространствам относятся:

· входы и выходы;

· вестибюльные группы;

· зоны и помещения, предназначенные главным образом для пешеходного движения;

· части функциональных и рекреационных зон, содержащие пути движения пешеходов;

· вертикальные средства передвижения с помещениями и площадками перед ними;

· лестницы и пандусы с поворотными и разворотными площадками.

Коммуникационные пути и пространства, обеспечивающие непрерывность связей между входами, местами обслуживания и отдыха и выходами, должны быть:

доступными для различных категорий пользователей;

безопасными для движения и отдыха в процессе движения;

оборудованы для облегчения движения, получения своевременной информации, попутного отдыха или ожидания;

по возможности короткими, геометрически простыми.

Графическое выражение требований к коммуникациям и их элементам дано в части 2 на рисунках 2.5-2.30 данного Свода правил.

4.2 При проектировании входных узлов следует учитывать требования таблицы 4.1.

4.3 При отсутствии (в условиях сложившейся застройки) реальных возможностей для достижения нормативных параметров ширины пешеходных путей на участке следует предусматривать устройство через каждые 60-100 м такого пути горизонтальные площадки размером не менее 1,6´1,6 м для обеспечения возможности разъезда инвалидов на креслах-колясках.

4.4 При перепаде высот на путях движения и при входе в здание следует создавать равные условия доступности и комфорта для всех групп людей. При этом необходимо принимать во внимание, что для людей на креслах-колясках, с детскими колясками и ручными тележками удобно пользоваться пандусами, для людей с недостатками зрения и некоторых групп МГН предпочтительна лестница, а для немощных, беременных, людей с костылями наиболее удобны подъемники.

4.5 Подъемники для лиц с нарушением здоровья рекомендуется устраивать параллельно маршам сбоку или в промежутках между маршами.

4.6 В местах примыкания горизонтальных путей движения к открытым лестницам и пандусам рекомендуется устраивать площадки, аналогичные по размерам поворотным площадкам лестниц и пандусов.

4.7 Габариты внутренних тамбуров (тамбур-шлюзов) должны соответствовать требованиям к входным тамбурам (см. таблицу 4.1).

4.8 При реконструкции зданий допускается проектировать винтовые пандусы, внутренний минимальный радиус которых с учетом полного поворота кресла-коляски рассчитывается согласно графику на рисунке 1.


Таблица 4.1 -Требования к входным узлам

Объект

Требования по критериям

доступности

безопасности

информативности

комфортности

1

2

3

4

5

1 Входы в целом

2.1 «Б» - устройство входов в одном уровне с подходами.

2.2 «Б» - оборудование входа автоматически открывающимися дверьми, а также лифтами или подъемниками (при входе на разных уровнях)

3.1 «Б» - подсветка лестниц и пандусов в темное время суток.

3.2 Размещение тактильных указателей на неподвижных элементах

4.1 Выделение архитектурными средствами иерархии входов, если это не противоречит концепции проекта.

4.2 Подсветка входов в темное время суток.

4.3 Устройство маркировки входов, включение в архитектуру входов знаков, пиктограмм или указателей

5.1 Устройство мест отдыха перед входом и после него.

5.2 «Б» - устройство у полос движения опор, удобных для всех лиц с нарушениями здоровья.

5.3 Применение универсальной фурнитуры (ручек и т.п.), удобной для пользования как здоровым, так и лицам с нарушениями здоровья

2 Входные площадки и портики

2.3 Выделение и оборудование полос движения пешеходов и инвалидов на креслах-колясках на транспортно-пешеходных пандусах.

2.4 Обеспечение габаритов входных площадок, достаточных для расхождения встречных потоков посетителей, а также потоков пешеходов и автотранспортных средств.

2.5 Ширина полосы транспортного въезда (проезда) у входа должна быть не менее 3 м.

2.6 «Б» - разметка автостоянок должна учитывать, что расстояние от открытых дверей транспортного средства до баз колонн портиков, балюстрад, парапетов должно быть не менее 0,5 м

2.7 Диаметр поворотных зон наружных входных площадок - не менее 2,2 м

3.3 Разделение в зонах входов, на пандусах, площадках, в портиках потоков движущихся пешеходов и инвалидов на креслах-колясках и механических колясках.

3.4 На криволинейных пандусах минимальный радиус с внутренней стороны кривизны должен быть не менее 2 м при пешеходном движении и 5 м при автотранспортном движении.

3.5 На площадках и портиках с возможностью проезда автотранспорта расстояние от входов до марша пандуса должно обеспечивать остановку транспортного средства на горизонтальном участке пути не ближе 1 м от ближайшего дверного проема с учетом открытых дверей.

3.6 Лестницы с двух-, трехсторонним спуском следует оборудовать поручнями, крепящимися к фасадной поверхности или на самостоятельных опорах

4.4 Устройство перед входом на расстоянии 0,9 м предупредительных знаков или разметки, тактильных и акустических указателей (в том числе рифленых покрытий площадок и полов).

4.5 Разметка зон и путей движения на входе с выделением зон ожидания (расхождения) и поворотных площадок.

4.6 Размещение на площадках и в портиках информационных устройств, табло, щитов с информацией о назначении, планировке и режиме работы объекта обслуживания

5.4 Размещение при входах элементов благоустройства и средств связи с администрацией.

5.5 Защита движущихся элементов (эскалаторов и транспортеров) от атмосферных осадков.

5.6 Устройство подогрева в холодное время года покрытия полов на площадках, пандусах и лестницах.

5.7 Устройство козырьков над входными площадками и лестницами

3 Тамбуры

2.8 Ширина тамбура должна быть не менее ширины полосы пешеходного движения.

2.9 Наличие мест расхождения (ожидания) с карманами шириной не менее 0,9 м и глубиной не менее 1,5 м.

2.10 Глубину тамбура следует увеличивать на ширину дверного полотна, открывающегося внутрь тамбура

3.7 Отсутствие в тамбурах, а также на расстоянии не менее 1,5м от них ступеней.

3.8 Исключение в отделке тамбуров зеркал

4.7 Применение прозрачных панелей из противоударного стекла в дверях. Низ панели не выше 0,9 м от пола.

4.8 Выделение фактурой, цветом, иными средствами распознавания входных дверей

5.8 Осевая организация движения.

5.9 Применение дренажей (устранение избытка атмосферной влаги - по климатическим показателям) и подогрев пола


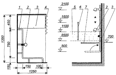
Рисунок 1 - Зависимость величины уклона винтового пандуса от его внутреннего радиуса

4.9 Допускается объединение коммуникационных путей с зонами обслуживания и отдыха в общих пространствах, в том числе пассажах, атриумах. В этих случаях рекомендуется места обслуживания МГН размещать не выше второго уровня (этажа).

4.10 Коммуникационные пути рекомендуется совмещать с эвакуационными путями. Необходимость создания дополнительных путей и устройств, облегчающих и ускоряющих эвакуацию, особенно для лиц с нарушением здоровья, определяется расчетом.

Расчет путей эвакуации следует производить с учетом площади, занимаемой инвалидами и другими маломобильными посетителями, по таблице 4.2.

Таблица 4.2 - Максимальные размеры площади, занимаемой инвалидами в плане

Здоровые; с дефектами слуха

С недостатками зрения

С поражением ОДА, передвигающиеся без дополнительных опор

С поражением ОДА, передвигающиеся с одной дополнительной опорой

С поражением ОДА, передвигающиеся с двумя дополнительными опорами

С поражением ОДА, передвигающиеся на креслах-колясках

Транспортируемые на носилках, каталках

а = 0,28 м

b = 0,46 м

а = 0,72 м

b = 0,82 м

а = 0,40 м

b = 0,75 м

а = 0,50 м

b = 0,65 м

а = 0,50 м

b = 0,90м

а = 0,80м

b = 1,2 м

а = 0,55 м

b = 2,15м

F=0,1 м2

F= 0,40м2

F= 0,25 м2

F= 0,20м2

F= 0,30м2

F= 0,96 м2

F= 1,18 м2

Примечание - а - длина проекции, b - ширина проекции и F - площадь проекции инвалида.

4.11 На путях движения пользователей по зданию следует стремиться к уменьшению количества выступающих углов, пилястр, избегать острых кромок оборудования.

Рекомендуется скруглять внешние углы выступающих в сторону путей движения частей оборудования в местах ожидания и отдыха (радиус - не менее 5 см).

4.12 Поэтажные лифтовые холлы для облегчения ориентации посетителей должны иметь на каждом этаже различные декоративные, пространственные или цветовые решения интерьеров.

4.13 В коммуникационных помещениях и пространствах для предупреждения о пересечениях путей рекомендуется использовать формы архитектурной пластики порталов, активную пластику декора пути.

4.14 На путях движения маломобильных посетителей в здании следует предусматривать смежные с ними зоны отдыха и ожидания не реже чем через 25 м пути, в том числе хотя бы одну на каждый этаж, доступный для МГН.

Места отдыха (ожидания) рекомендуется размещать в тихом месте вдали от витрин, стендов, элементов помещений, где возможно возникновение сквозняков, перегрева, яркого освещения. В местах отдыха или ожидания следует предусматривать возможность размещения не менее одного места для инвалида на кресле-коляске или пользующегося костылями и тростью, а также его сопровождающего.

При размещении мест отдыха или ожидания в нишах рекомендуется обеспечивать их подсветку, выявлять цветом и фактурой материала места сидения маломобильных посетителей. При этом важно, чтобы поверхность мест сидения контрастировала с покрытием пола. Рекомендуется наличие и разметка на покрытии пола границ резервной зоны (места возможного размещения) кресла-коляски.

4.15 Рекомендуется, если это не противоречит концепции проекта и если по специфике требований для жилого, общественного или производственного здания не требуется иная окраска, выделять:

красным цветом - зоны риска или зоны, куда вход запрещен, в частности, служебные входы, места проведения ремонтных работ, места с перепадами уровня пола;

желтым цветом - зону поворота и место, занимаемое открытой дверью, ограничительные бортики, пересечение пути, первую и последнюю ступени лестницы.

Применение этих приемов не должно разрушать общее художественное решение интерьеров и фасадов.

4.16 Декоративные изделия и скульптура в интерьере не должны выступать в полосу движения на высоту 2,1 м и не должны в пределах этой высоты иметь детали, способные зацепить или поранить при столкновении с ними.

При размещении растений в интерьерах следует избегать попадания их частей в зоны движения и места отдыха (ожидания) в пределах их габаритов. Места установки емкостей с растениями рекомендуется ограждать бортиками высотой не менее 0,1 м.

4.17 Декор полов и площадок, независимо оттого, какой материал применен, рекомендуется сочетать с рисунком, совмещающим в себе разметку путей движения, зон ожидания и декоративные свойства.

4.18 Ковровые покрытия пола должны быть прочно закреплены, особенно по краям.

Применяемые в качестве покрытий пола ковры должны иметь ровные или текстурные петли либо ровно подрезанный ворс высотой не более 0,013 м. Высота коврового покрытия вместе с ворсом на границе с поверхностью не закрываемого ковром пола не должна превышать 0,013 м.

4.19 Ребра решеток, находящихся на путях движения МГН, должны располагаться на расстоянии друг от друга не более 0,013 м. Протяженные отверстия таких решеток следует располагать перпендикулярно движению людей.

4.20 Требования к коммуникациям и их элементам в графическом выражении даны в части 2 на рисунках 2.5-2.30.

5 ПОМЕЩЕНИЯ И ИХ ГРУППЫ

5.1 Помещения, доступные маломобильным посетителям и взаимосвязанные функциональным процессом, для удобства рекомендуется размещать компактно, на минимальном количестве уровней (желательна одноуровневая организация процессов проживания, обслуживания, трудовой деятельности).

При проектировании рекомендуется учитывать требования, представленные в таблице 5.1.

ПОМЕЩЕНИЯ И ЗОНЫ ОБСЛУЖИВАНИЯ

5.2 При проектировании помещений и зон, предназначенных для обслуживания посетителей, в том числе маломобильных, следует учитывать специфику их функциональной организации и эргономические параметры инвалидов и пожилых людей (часть 3, рисунки 3.1-3.9 данного Свода правил).

5.3 Помещения индивидуального обслуживания предусматривают организацию пространства, включающего одно место индивидуального обслуживания и коммуникационную зону (зону движения/перемещения). Частным случаем являются кабины для индивидуального обслуживания (самообслуживания).

Место индивидуального обслуживания - это пространство, которое предназначается (в зависимости от вида учреждения) для: маломобильного посетителя с возможным сопровождением; обслуживающего персонала (при его наличии); функционального оборудования и мебели для осуществления обслуживания (самообслуживания); дополнительной зоны (с резервной площадью для временного хранения кресла-коляски, дополнительного оборудования и мебели, элементов декора, рекламы и т.п.).

По заданию на проектирование место обслуживания маломобильного посетителя может быть оборудовано как универсальное для всех групп посетителей «А» или как специализированное для людей, имеющих определенные нарушения здоровья «Б».

5.4 В помещениях (кабинах) индивидуального обслуживания, предназначенных для маломобильных посетителей (телефонных переговорных пунктов, лингафонных залов, экспресс-фото и т.п.), рекомендуется обеспечивать достаточное пространство для пользователя и сопровождающего его лица, но не менее, м: ширина - 1,6, глубина - 1,8.

В кабинах, предназначенных в том числе для обслуживания лиц на креслах-колясках, все реабилитационные приспособления для других категорий маломобильных посетителей (откидные места для сидения, опоры для костылей и тростей, зонтов, поручни для стояния и вставания, крюки и полочки для ручной клади, телефонных справочников и т.д.) не должны снижать доступности и безопасности данного места обслуживания, а также не должны затруднять или снижать комфортность процесса обслуживания для других категорий посетителей.

5.5 Помещения коллективного обслуживания, как правило, состоят из специализированных зон с одним/несколькими местами обслуживания маломобильных посетителей (по варианту «А» или «Б») и адаптированных коммуникаций (проходов, подходов, выходов). В ряде учреждений помещения коллективного обслуживания могут не иметь специализированных зон, в таком случае часть мест обслуживания проектируется универсальными для всех категорий населения.


Таблица 5.1 - Требования к основным функциональным помещениям

Объект

Требования по критериям

доступности

безопасности

информативности

комфортности

1

2

3

4

5

1 Входы

 

3.1 Обозначение зоны «возможной опасности» с учетом проекции движения дверного полотна

4.1 Наличие предупреждающей информации о размещении входа в искомое помещение на подходе к нему.

4.2 Выделение дверного проема за счет пластических, графических и световых средств информации.

4.3 Предупредительная световая и (или) звуковая информация о возможности войти в помещение (при индивидуальном обслуживании по очереди)

5.1 Устройство автоматического открывания и блокировки дверей

2 Зоны движения в функциональных помещениях

 

 

4.4 Выявление информационными средствами, в том числе архитектурными, ориентиров движения к месту обслуживания в зальных помещениях

5.2 Автоматическое включение, отключение и регулирование осветительных приборов, гарантирующих достаточный уровень освещенности

3 Зоны и места обслуживания

2.1 Размеры зоны круговой досягаемости диаметром не более 2 м при использовании стационарных вращающихся стульев (кресел)

3.2 Размещение опорных поручней в кабинах с учетом удобства пользования (самими поручнями и другими устройствами и приспособлениями), при наличии стационарных элементов - их совмещение с поручнями (встраивание).

3.3 Предупреждающая контрастная маркировка консольно выступающих ручек, рычагов, крючков, горизонтальных панелей и т.п., размещение, исключающее их случайное задевание.

3.4 Устойчивость к сдвигу и опрокидыванию стационарного оборудования и мебели.

3.5 Отсутствие травмоопасных элементов (фурнитуры, выступов и фактуры контактных поверхностей) мебели и стационарного оборудования

4.5 Наличие функциональной маркировки зон и мест обслуживания.

4.6 Контрастная маркировка контактных деталей функционального оборудования.

4.7 Информация о наличии и размещении адаптационных устройств и приспособлениях.

4.8 Размещение тактильной информации в зоне оптимальной досягаемости от рабочих поверхностей мест обслуживания

5.3 Наличие переговорных устройств, таксофонов с возможным усилением звука и синхронной визуальной информацией (табло) в адаптированных функциональных кабинах.

5.4 Использование посетителями у рабочих столов персонала выдвижных консолей или переносных приспособлений для письма, устойчивых к сдвигу и опрокидыванию.

5.5 «Б» - использование столов для индивидуальной работы со специальными приспособлениями (в том числе для захвата и удержания предметов).

5.6 Размещение мест для лиц, сопровождающих инвалидов на креслах-колясках в непосредственной близости от них

4 Вестибюли и атриумы

2.2 Размещение в уровне входа.

2.3 Разделение зон движения и ожидания у регистратур, столов справок, киосков; выделение достаточной площади для максимального расчетного числа пользователей

3.6 При организации кольцевой развязки движения разметку и информационные ориентиры размещать по периметру против часовой стрелки.

3.7 «Б» - выделение части помещения, адаптированного для инвалидов и маломобильных лиц.

3.8 Закрепление турникетов, барьеров, мест сидения, подвижных опор, исключающее их опрокидывание или сдвиг

4.9 Установка информации о планировке путей движения по зданию, сооружению или комплексу и о размещении мест обслуживания и отдыха.

4.10 Размещение подвесных и настенных указателей, табло, знаков с учетом оптимального угла зрения.

4.11 Выделение полос движения инвалидов на креслах-колясках.

5.7 Оборудование зон отдыха (ожидания) телемониторами, сатураторами, торговыми автоматами.

5.8 При открывании дверей наружу - заглубление дверных проемов вглубь окружающих помещений

5 Помещения приема, справочные, бюро пропусков, КПП

2.4 При организации входа в разных уровнях допускается размещение бюро пропусков на нижнем уровне

3.9 Аналогично требованиям к вестибюлям

4.12 Аналогично требованиям к вестибюлям.

4.13 Устройство специальной линии пропуска в здание инвалидов и маломобильных лиц с необходимым обустройством маркировкой, информационными устройствами

5.9 Организация мест ожидания с местами для инвалидов или маломобильных лиц.

5.10 Устройство обменных пунктов кресел-колясок для посещения объекта обслуживания по пропуску через КПП

6 Гардеробы

2.5 Расстояние между вешалками или стеной и вешалкой должно быть не менее 1,5 м, высота крючков - не более 1,6 м.

2.6 Выделение у прилавка гардероба зоны, оборудованной поручнями для лиц с нарушениями здоровья

3.10 Округление выступающих деталей и углов прилавка с радиусом не менее 0,05 м

4.14 Дополнительная подсветка указателей и вешалок гардероба, доступного для инвалидов

5.11 В зданиях с регламентированным посещением предусмотреть возможность смены обуви и кресел-колясок с организацией мест их хранения (в музеях, медицинских и детских учреждениях).

5.12 Устройство скамей шириной не менее 0,6 м для одевания инвалидов, проходы между скамьями - не менее 1,2 м.

5.13 Для самостоятельного пользования лицами на креслах-колясках гардеробных рекомендуются вешалки с ленточной автоматизированной системой передвижения крючков

7 Уборные, умывальные и гигиенические кабины

2.7 Нижний край зеркала, электрополотенца и держателя туалетной бумаги на высоте не выше 0,8 м от пола, а крючка или вешалки - не выше 1,3 м от пола.

2.8 Оборудование поручнями (подвесными трапециями) уборных и умывальных, используемых инвалидами

3.11 Двери туалетных кабин должны открываться наружу.

3.12 Применение нескользких при намокании материалов полов.

3.13 Размещение трапов и сливов - вне зоны движения

4.15 Установка сигнальных устройств у кабины (занято/свободно).

4.16 Применение контрастного цветового решения в интерьере кабины и умывальной зоны для лиц с нарушениями зрения

5.14 Визуальное обособление зон, предназначенных для лиц с ярко выраженными физическими дефектами (ширмы, занавеси и шторы).

5.15 Применение торговых автоматов для продажи индивидуальных гигиенических изделий.

5.16 Устройство вешалки и места для временного размещения кресел-колясок, костылей, протезов и т.п.

8 Душевые и ванные

2.9 Габариты кабины не менее чем 2,1´1,8 м при оборудовании биде и унитазом.

2.10 Площадь душевых (включая преддушевую) для инвалидов - не менее 5 м2.

2.11 Оборудование поручнями и подвесными трапециями душевых, ванных и раздевальных, используемых инвалидами

3.14 То же, что и для уборных.

3.15 Каменка должна быть защищена съемной защитной решеткой

4.17 То же, что и для уборных

5.17 Оснащение душевой кабины горизонтальными (на высоте 0,6 и 0,9 м) и вертикальными опорными поручнями (низ на высоте 0,75 м), а также скамьей размером 0,5´0,5 м на высоте 0,5 м от пола. Желательно устройство откидной скамьи

9 Сауны и бани

2.12 Между входной дверью и полками в помывочной бани необходимо свободное пространство площадью не менее круга диаметром 1,5 м.

2.13 Полки в парильной оборудуются опорными поручнями.

2.14 Краны в душевых должны располагаться на высоте не более 1,3 м

 

 

5.18 Устройство в раздевальных и на обходных дорожках в моечных помещениях специальных мест для хранения кресел-колясок и других индивидуальных средств вспоможения при передвижении.

5.19 Устройство на двери парильной наклонной ручки из дерева, расположенной по диагонали двери

10 Комнаты (кабины) матери и ребенка

2.15 Оборудование кабин, используемых маломобильными женщинами, поручнями и подвесными трапециями

3.16 То же, что и для уборных.

3.17 Применение пеленальных столиков и подвесных кресел с фиксирующими устройствами для ребенка

4.18 То же, что и для уборных

5.20 То же, что и для уборных


Коммуникационные зоны помещений обслуживания должны соответствовать требованиям раздела 4 данного Свода правил.

5.6 В помещениях при совмещении функционального обслуживания с перемещением (например, в музеях, спортзалах, супермаркетах и т.д.) рекомендуется выделять зоны безопасности, буферные и информационные полосы у стен и по периметру стационарного напольного оборудования или экспонатов.

5.7 В полифункциональных помещениях, объединяющих несколько функций, рекомендуется для маломобильных граждан проектировать пути целевого движения и подходы к каждой зоне обслуживания с минимальным количеством пересечений различных потоков в одном уровне.

5.8 В универсальных помещениях с трансформируемым оборудованием доступность зон и мест обслуживания рекомендуется обеспечивать при всех вариантах трансформации.

Рекомендуется обеспечивать средствами информационной поддержки каждый вариант трансформации помещений в соответствии с требованиями раздела 7 данного Свода правил.

5.9 В помещениях с местами обслуживания, имеющими стационарное специализированное оборудование (в том числе медицинские кушетки, парикмахерские и стоматологические кресла и т.п.), рекомендуется предусматривать резервную площадь для временного хранения индивидуальных реабилитационных средств в целом на помещение или непосредственно при месте обслуживания.

5.10 Рекомендуется предусматривать в местах обслуживания инвалидов на креслах-колясках использование приставных (откидных, выдвижных) рабочих поверхностей к столу персонала с высотой рабочей поверхности от пола не менее 0,6 м (без использования пространства под поверхностью) и не более 0,9 м, в том числе с возможностью въехать под поверхность частью кресла-коляски.

5.11 Места обслуживания для маломобильных категорий пользователей рекомендуется предусматривать в минимальной удаленности от специализированного (адаптированного) входа.

5.12 Проектировать оборудование индивидуальных мест обслуживания следует с учетом размеров зоны досягаемости на рабочей поверхности стола для обеих рук в диапазоне от 0,25 м (от контактной кромки) по глубине и 0,7 м по фронту до 0,7 м по глубине и 1,7 м по фронту в зависимости от удаленности и наклона туловища.

5.13 Для маломобильных посетителей, использующих дополнительные опоры при ходьбе (костыли и трости), в месте обслуживания предусматривается увеличение габаритов зоны сидения ориентировочно в продольном направлении (с учетом мебели) не менее: 1,2 м - при островном размещении, в зрительском ряду или боком к столу; 0,8 м - при сидении за столом.

5.14 В помещениях с обслуживанием через прилавок (гардероб, портье, операционно-кассовые залы, регистратуры, справочные, отделы и киоски продаж и т.п.) место обслуживания допускается не оборудовать местом для сидения маломобильных посетителей (кроме барной стойки).

5.15 Ширину прилавка при размещении на рабочей поверхности предметов, в том числе при необходимости их осмотра, рекомендуется принимать:

· 0,3-0,45 м - для гардероба, регистратуры (справочной), КПП, операционной и кассовой стойки при высоте от 0,8 до 1,2 м;

· 0,55-0,6 м - для прилавков магазинов, пунктов приема (ремонта и чистки изделий) при высоте от 0,7 до 0,9 м.

5.16 Длину прилавка (совокупного фронта обслуживания) на 1 место персонала (с учетом обслуживания и ожидания) рекомендуется принимать по функциональным производственным нормативам удельной площади рабочего места, но не менее 0,9 м - для прилавков всех видов и 1,2м - для стола приемщика.

5.17 В помещении (зоне) обслуживания при наличии перед местом операциониста сплошных разделяющих конструкций следует обеспечивать не только визуальный, но и звуковой контакты посетителя с персоналом, в том числе и для посетителей с дефектами слуха (не менее одного места).

САНИТАРНО-ГИГИЕНИЧЕСКИЕ ПОМЕЩЕНИЯ

5.18 Расстояние от мест обслуживания до уборных на участках спортивных, зрелищных, мемориальных, культовых комплексов и объектов погребения не должно превышать 200 м, при этом размещение санитарно-гигиенических помещений (зданий) рекомендуется в непосредственной близости от основных входов, въездов, коммуникационных узлов.

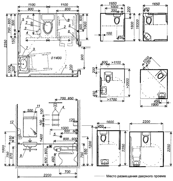
5.19 Санитарно-гигиенические помещения рекомендуется размещать на каждом уровне (этаже), где находятся посетители общественных зданий, а также в помещениях для матери и ребенка. Требования к их проектированию приведены в таблице 5.1 и в части 3 (рисунки 3.10-3.15) данного Свода правил.

5.20 В санитарно-гигиенических помещениях рекомендуется для маломобильных лиц предусматривать: кабины уборных, гигиенические комнаты и кабины для женщин, душевые, умывальные, а также комнаты и кабины матери и ребенка.

5.21 Помещения санузлов и туалетные комнаты для матерей с детьми (если это предусмотрено заданием на проектирование) следует предусматривать в зданиях торгово-бытовых учреждений, музеях и выставочных залах, предприятиях общественного питания, в зданиях для гражданских и культовых обрядов или при них, в гостиничных зданиях, административных зданиях, где предусмотрен прием посетителей.

5.22 При определении количества санитарных приборов для инвалидов в санитарно-гигиенических помещениях рекомендуется исходить из расчета (не менее 1 на здание):

для детских учреждений:

· 5 % общего количества унитазов для девочек;

· 2 % общего количества унитазов и писсуаров для мальчиков;

· не менее 1 комнаты гигиены для маломобильных девочек на 360 девочек в возрасте от 12 лет и более;

для зданий (учреждений) обслуживания, учебных и административных зданий:

· 5 % общего числа унитазов для женщин;

· 2 % общего числа количества унитазов и писсуаров для мужчин;

· каждая четвертая гигиеническая комната или кабина должна быть приспособлена для инвалидов.

Не менее одной комнаты или кабины матери и ребенка, адаптированной для маломобильных лиц, рекомендуется предусматривать в зданиях вокзалов.

5.23 В одном помещении не рекомендуется размещать более 16 приборов или кабин в уборных.

Если по расчету в здании требуется одно место в уборной, душевой или умывальной, то его рекомендуется проектировать по размерам и оборудованию универсальным для всех категорий посетителей.

5.24 При наличии в санитарно-гигиенических помещениях тамбур-шлюзов расстояние между открытыми дверьми внутри тамбур-шлюза рекомендуется делать не более 1,5 м. Допускается использовать в качестве тамбур-шлюзов помещения умывальных.

5.25 Душевая кабина для лиц с дефектами зрения должна быть закрытой, с дверью, открывающейся вовнутрь. Размер кабины, включая место для переодевания, - 2´0,9 м.

5.26 Расстояние между осями одиночных умывальников принимается не менее 0,65 м, ручных и ножных ванн, писсуаров - не менее 0,7 м.

5.27 Один из писсуаров в уборных размещается на высоте не более 0,4 м от пола. Расстояние между осями писсуаров - не менее 0,8 м.

5.28 Не менее одной из раковин в умывальной при общественном туалете устанавливается на высоте не более 0,8 м от уровня пола и на расстоянии от боковой стены не менее 0,2 м.

Нижний край зеркала и электрического прибора для сушки рук, предназначенных для пользования инвалидами, следует располагать на высоте не более 0,8 м от уровня пола.

5.29 При наличии в санитарно-гигиенических помещениях тамбур-шлюзов расстояние между открытыми дверьми внутри тамбур-шлюза рекомендуется делать не менее 1,5 м. Допускается использовать в качестве тамбур-шлюзов помещения умывальных.

5.30 Рекомендуется гигиенические комнаты и кабины для женщин, комнаты матери и ребенка размещать смежно с уборными и умывальными для женщин.

В комнатах матери и ребенка с количеством мест более двух допускается устраивать индивидуальные места для ухода за ребенком в виде кабин (полукабин). В состав комнат матери и ребенка рекомендуется включать помещения для кормления и ухода за ребенком, санузлы и умывальники. При комнатах матери и ребенка с числом индивидуальных мест более 5 рекомендуется устраивать игровые зоны (комнаты).

5.31 Для маломобильных посетителей следует применять унитазы с высотой от уровня пола до верха сидения не ниже 450 мм и не выше 600 мм.

5.32 В здании учреждений, рассчитанных на посещение маломобильных посетителей с детьми, в составе уборных рекомендуется предусматривать полукабины для детей, оборудованные детскими унитазами.

6 ИНЖЕНЕРНЫЕ УСТРОЙСТВА И ОБОРУДОВАНИЕ

6.1 К системам жизнеобеспечения и инженерного оборудования зданий, облегчающим всем категориям обслуживаемых пользование зданиями и помещениями, относятся:

· лифты;

· подъемники, траверсы и транспортеры для инвалидов;

· системы и устройства водоснабжения и канализации;

· системы и устройства отопления и вентиляции;

· системы и устройства энергоснабжения;

· системы оповещения о пожаре;

· устройства связи и сигнализации;

· элементы и устройства для сбора мусора;

· устройства для звукоусиления и звуковоспроизведения, теле-, видео- и кинопросмотра;

· штатные устройства реабилитации посетителей.

К штатным устройствам реабилитации следует относить: стационарные опоры для движения, стояния и сидения; специально оборудованные места для лиц с нарушениями здоровья; устройства специальной связи; откидную мебель (сиденья, лежанки, специальную мебель); инвентарные (передвижные) пандусы.

6.2 Все элементы стационарного оборудования, предназначенные для пользования инвалидами и маломобильными гражданами, должны быть прочно и надежно закреплены. Крепежные детали оборудования, выключателей, иных закрепляемых в конструкциях устройств не должны выступать за плоскость стен или закрепленного элемента.

6.3 В многоэтажных зданиях, где могут находиться лица с нарушениями здоровья, рекомендуется предусматривать не менее одного лифта с глубиной кабины не менее чем 2,1 м для обеспечения эвакуации указанных лиц в чрезвычайных ситуациях.

При использовании подъемных платформ для инвалидов на креслах-колясках (ГОСТ Р 51630) в габаритах этих устройств по длине следует учитывать и сопровождающего.

Подъемные платформы для инвалидов рекомендуется размещать так, чтобы не перекрывать движение по лестницам и пандусам.

6.4 Инвентарные (выдвижные, сборно-разборные и откидные) пандусы следует рассчитывать на нагрузку не менее 350 кгс. Они должны удовлетворять требованиям к стационарным пандусам.

6.5 При наличии в зоне массовых посещений фиксированных сидячих мест свободные места (пространства) для кресел-колясок желательно располагать рассредоточенными по всему пространству. Откидные стулья, скамьи, лежанки не должны выступать в сложенном положении за плоскость стены, неоткидные - рекомендуется делать в нишах.

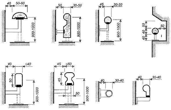
6.6 Поручни, стойки и другие опорные устройства в соответствии с ГОСТ Р 51261 рекомендуется делать, как правило, округлого сечения диаметром не менее 30 мм и не более 60 мм. Расстояние между стеной и поручнями, в том числе поручнями перил, в свету должно быть не менее 5 см. Поверхность захвата не должна прерываться стойками перил или иными конструктивными элементами. Выступающие окончания поручней на 30 см должны быть горизонтальными с нетравмирующим завершением (например, закругленные, с поворотом вниз или к стене и т.п.) (см. рисунок 2.25).

6.7 Зазоры между дверным полотном и коробкой со стороны навески рекомендуется закрывать во избежание травм полосой эластичного материала. Дверные скобы и ручки должны иметь форму, удобную для открывания одной рукой, и располагаться на высоте 0,8-0,9 м от уровня пола.

6.8 Санитарно-гигиенические помещения, доступные инвалидам, должны иметь горячее и холодное водоснабжение, канализацию, средства мусороудаления. В случаях, когда присоединение к централизованным или местным сетям затруднено или невозможно, допускается применение автономных систем водоснабжения и канализации.

В санузлах, где в кабинах применен комплекс приборов, рекомендуется учитывать возможность пользования раковиной, сидя на унитазе.

6.9 Решетки ливнестоков и трапов не должны иметь отверстия более 0,01 м, а также продольное и диагональное (30° и менее) расположение щелей относительно направления движения людей.

6.10 Электрические и тепловые устройства и приборы, размещаемые в зоне доступности маломобильных посетителей, должны иметь защиту от возможных поражений электротоком и ожогов лиц с нарушениями здоровья (в том числе слепых).

6.11 Устройства связи для лиц с недостатками зрения должны иметь цветовые и тактильные средства опознавания, а для лиц с дефектами слуха - регулируемое звукоусиление.

6.12 Таксофоны, доступные для инвалидов, следует устанавливать на высоте не выше 0,8 м от пола до оси номеронабирателя. Наружные углы кабин и полукабин должны быть закруглены.

6.13 Под поверхностью столов индивидуального пользования (штатных устройств) и других мест обслуживания, предназначенных для посетителей на креслах-колясках, рекомендуется предусматривать свободное пространство высотой (от пола до низа ограничивающей поверхности) не менее 0,65 м, шириной не менее 0,8 м и глубиной не менее 0,5 м.

6.14 Для лиц с дефектами слуха рекомендуется делать дополнительно к штатным индивидуальные встроенные устройства для звукоусиления и звуковоспроизведения в места обслуживания, отдыха, ожидания.

6.15 В помещениях с регулярной программой обслуживания групп лиц с дефектами слуха рекомендуется предусматривать оборудованные подсветкой посты для переводчиков жестового языка, хорошо видимые с мест.

6.16 В помещениях рекомендуется применять неопрокидываемые урны и мусоросборники закрытого типа с расположением приемных отверстий не ниже 0,6 м и не выше 1,2 м от уровня пола.

6.17 В местах с регулярной программой обслуживания групп лиц с дефектами слуха рекомендуется предусматривать оборудованные подсветкой посты для переводчиков жестового языка, хорошо видимые с мест.

6.18 Дверные ручки, запоры, задвижки и другие приборы и механизмы открывания и закрывания дверей должны иметь форму, которая позволяет управлять ими одной рукой без применения слишком больших усилий или значительных поворотов руки в запястье. Рекомендуется применение П-образных дверных ручек. На полотнах раздвижных дверей ручки должны устанавливаться таким образом, чтобы при полностью открытых дверях эти ручки были легко доступными с обеих сторон.

Должны применяться механизмы, ручки, краны и другие устройства управления или регулирования, позволяющие действовать одной рукой без применения излишних усилий, а также крутых поворотов или изгибов руки в запястье.

Следует применять дверные устройства, рассчитанные на максимальное усилие при открывании вручную не более 2,5 кгс.

7 ИНФОРМАЦИОННЫЕ УСТРОЙСТВА, СРЕДСТВА И ИХ СИСТЕМЫ

7.1 Информационные устройства, средства и их системы в общественных зданиях и сооружениях предназначены для облегчения пользователям ориентации в архитектурной среде зданий и сооружений. Целесообразность применения и набор конкретных средств информации устанавливаются проектом или в задании на проектирование.

Наименование групп, подгрупп и видов информационных сигнальных устройств и средств связи, доступных для инвалидов, представлено в таблице 7.1 по ГОСТ Р 51671.

Следует стремиться к использованию, в первую очередь, естественных свойств архитектурных компонентов среды. Целесообразность применения и набор конкретных средств информации устанавливаются в проекте.

7.2 Элементы информационной системы для маломобильных посетителей рекомендуется формировать в виде:

· точечных (локальных) информационных средств или устройств, устраиваемых у входов в помещения, на ответственных участках путей движения, в зонах нерегулируемого движения;

· линейных, состоящих из одного или нескольких средств и (или) устройств, размещаемых на протяженных участках путей движения, в крупномасштабных пространствах и помещениях с регулируемыми потоками движения; в планировочно невыраженных зонах участков;

· информационных узлов, размещаемых у входов в здания, сооружения, комплексы, в вестибюлях, в холлах, на пересекающихся путях движения, в специально отведенных зонах и помещениях зданий и сооружений, а также на участках. Это комплексные ориентиры и хранители информации, сочетающие множественные средства и устройства, размещенные компактно или связанно в ограниченном пространстве.

Таблица 7.1

Группа

Подгруппа

Вид

1 Технические средства информации общего пользования, доступные для инвалидов

1.1 Визуальные средства отображения информации

1.1.1 Печатные носители статической информации (указатели, таблички, вывески, щиты, стенды, аппликации и т.п.)

1.1.2 Электронные носители статической и динамической информации (табло, большие экраны, дисплеи и т.п.), в том числе средства, дублирующие звуковую информацию и устройства сурдоперевода (для людей с дефектами слуха)

1.2 Звуковые средства воспроизведения информации

1.2.1 Акустические средства (речевые синтезаторы, речевые оповещатели, громкоговорители, репродукторы и т.п.), в том числе устройства звукового дублирования визуальной информации (для людей с недостатками зрения)

1.2.2 Вспомогательные аудиосистемы с индукционными контурами и их элементы (устройства звукового дублирования, наушники и др.)

1.3 Тактильные средства отображения информации

1.3.1 Печатные носители статической информации, выполненной рельефным шрифтом (указатели, таблички и т.п.)

1.3.2 Печатные носители статической информации, выполненной шрифтом Брайля (указатели, таблички и т.п.)

2 Технические средства сигнализации общего пользования, доступные для инвалидов

2.1 Визуальные средства сигнализации

2.1.1 Графические средства сигнализации, в том числе знаки безопасности (предупреждающие знаки)

2.1.2 Световые сигнальные устройства, в том числе световые сигнализаторы, световые маячки, светофоры

2.1.3 Цветографические сигнальные устройства, в том числе сигнальные цвета, цветовая разметка, контрастные цветовые полосы

2.2 Звуковые средства сигнализации

2.2.1 Звуковые сигнальные устройства уведомляющей сигнализации, в том числе речевые оповещатели, звуковые маяки

2.2.2 Звуковые сигнальные устройства аварийной и предупреждающей сигнализации, в том числе предупреждающие оповещатели, аварийные звуковые оповещатели, а также звуковые сигнальные устройства, дублирующие световые сигнальные устройства аварийной и предупреждающей сигнализации (для людей с недостатками зрения)

2.3 Тактильные средства сигнализации

2.3.1 Статические тактильные устройства, в том числе тактильные разметки, тактильные полосы, тактильные покрытия (плитки, рельефные или фактурные средства), искусственные плавные подъемы, уклоны и обочины (бордюрные камни)

2.3.2 Динамические тактильные устройства, в том числе вибрационные сигнализаторы, тактильные вибраторы

3 Технические средства связи общего пользования, доступные для инвалидов

3.1 Средства односторонней связи

3.1.1 Громкоговорители

3.1.2 Акустические системы громкоговорящей связи

3.1.3 Микрофоны

3.1.4 Ларингофоны

3.1.5 Наушники

3.2 Средства двусторонней связи

3.2.1 Громкоговорящие средства связи

3.2.2 Средства связи с усилителями приема

3.2.3 Текстовые средства связи, в том числе с «бегущей строкой», факсимильные аппараты

3.2.4 Таксофоны

Информационные устройства могут быть визуальными, акустическими (звуковыми) и тактильными. Наименование групп, подгрупп и видов информационных сигнальных устройств и средств связи, доступных для инвалидов, приведены в таблице 7.1 (ГОСТ Р 51671).

ВИЗУАЛЬНЫЕ УСТРОЙСТВА И СРЕДСТВА ИНФОРМАЦИИ

7.3 К визуальным устройствам и средствам информации, используемым для вспомогательного управления движением и поведением посетителей, относятся:

· указатели и знаки, в том числе цветовые;

· разметка и цвет элементов оборудования;

· щиты, стенды, табло;

· тактильные табло;

· световые маяки.

См. часть 3, рисунки 3.16-3.18.

7.4 Для создания визуальной информации рекомендуется использовать общеупотребительные символы и пиктограммы. Шрифт и начертание символов рекомендуется принимать по ГОСТ 10807, а также принимать по нему и указатели.

7.5 На путях движения рекомендуется применять направляющие символы и ограничительную (латеральную) разметку:

а) по ходу внутрь здания или сооружения:

справа: на белом или светлом фоне - темные символы, разметка на темном фоне - белая (светлая), на светлом - черная или темная;

слева: на темном фоне - белые символы, разметка - темная. Контрастность тонов - не менее 1:8;

б) по оси движения: белая или черная (контрастная к фону пунктирная полоса) - прерывистая разметка.

Рекомендуемая высота разметки на стенах на уровне глаз пользователя - от 1,2 до 1,6 м.

7.6 Разметку на стенах рекомендуется выполнять шириной не менее 150 мм и иметь на путях, ведущих к выходу, слева - светлый фон с темными буквами и символами, а справа - темный фон со светлыми буквами и символами. Контраст разметки тонов и фона должен быть не менее 1:4. Высота размещения полос разметки - от 0,9 до 1,6 м.

7.7 Желательно графически выделять на полу и на стенах зоны риска (например, открывания полотна двери).

7.8 Применяемые текстовые табло с переменным содержанием (матричные, бегущая строка и т.п.) должны иметь символы по ГОСТ 10807.

Экраны телемониторов и проекторов следует располагать в затененных местах для обеспечения необходимой контрастности изображения. Не следует размещать экраны со стороны оконных проемов.

7.9 Знаки и символы должны быть контрастными по отношению к фону: светлые знаки - на темном фоне или темные знаки - на светлом. Они должны иметь размеры, соответствующие расчетному расстоянию распознавания: на расстояниях до 20 м - высота и ширина знака должны быть не менее 0,3 м, на расстоянии 100 м - не менее 1,5 м. Размеры знаков, которые могут восприниматься с расстояний, имеющих промежуточные значения, следует определять по интерполяции.

7.10 Буквы и цифры, изображаемые на знаках, должны иметь пропорции в пределах отношения ширины к высоте от 3:5 до 1:1, а отношение ширины штрихов к их высоте от 1:5 до 1:10.

Высота прописных букв надписей на указателях, размещенных под потолком помещения на высоте более 2 м, измеренной от пола до нижней кромки указателя, должна быть не менее 0,075 м.

7.11 Освещенность поверхности надписей, знаков, символов и пиктограмм должна быть одинаковой на всей поверхности средств отображения информации. Ее значение должно составлять от 100 до 300 лк.

Цветографическое решение визуальных средств отображения информации должно соответствовать общему интерьеру зданий, сооружений и обеспечивать четкость и выразительность подачи информации.

7.12 Следует применять приборы и устройства яркости и цветности световых сигналов, продолжительность и частота вспышек которых соответствуют требованиям ГОСТ Р 51671.

7.13 Малые формы благоустройства рекомендуется применять контрастных цветов и тонов по отношению к фону.

Рекомендуется окрашивать опоры, поручни, стойки и другие опорные устройства в контрастные по отношению к фону цвета и тона.

7.14 Рекомендуется световые маяки выполнять в виде небольших светофоров или сигнальных светильников с цветными фильтрами, излучающими импульсы света небольшой яркости.

Допускается применять маяки с постоянным светом. Цвет маяков должен быть на путях безопасного движения - зеленым, в зонах повышенного внимания - желтым, а в зонах опасных или с ограниченной доступностью - красным.

Рекомендуется размещать световые маяки по оси полосы движения в помещениях на высоте не менее 2,0 м или сбоку от пути на стенах на высоте от 1,5 до 2,1 м, или на расстоянии 0,15 м от потолка любой высоты.

7.15 Рекомендуется визуальную информацию размещать:

- вне здания - на высоте не менее 1,5 м и не более 4,5 м от поверхности движения; при этом знаки и указатели для тактильного контакта допускается размещать в зоне видимого горизонта путей движения на высоте от 1,2 до 1,6 м;

- внутри здания - информация о назначении помещения - рядом с дверью на высоте от 1,4 до 1,6 м со стороны дверной ручки; знаки и указатели визуальные - на высоте до 2,5 м в зонах движения по путям в зальных помещениях.

7.16 Ширину полос разметки на полах помещений рекомендуется выполнять не уже 150 мм, если она не является элементом орнаментального фриза.

7.17 Внутренние знаки и указатели (в том числе тактильные) следует размещать у дверных проемов со стороны ручки.

АКУСТИЧЕСКИЕ УСТРОЙСТВА И СРЕДСТВА ИНФОРМАЦИИ

7.18 Акустические устройства и средства предназначены для оказания помощи лицам с недостатками зрения, а также для дублирования визуальной информации в наиболее ответственных местах. К ним относятся: звуковые маячки;

шумовые индикаторы; средства звуковоспроизведения, речевые синтезаторы; индукционная петля в зрительном зале и другие электроакустические (звукоусиливающие) приспособления.

7.19 Звуковые маячки (электрические, механические или электронные, с приводами в виде выключателей, фотоэлементов, сенсорных выключателей, концевых электровыключателей и т.п.) должны удовлетворять требованиям ГОСТ 21786. Аппаратура привода их в действие должна находиться не менее чем за 0,8 м до предупреждаемого участка пути.

7.20 Шумовые индикаторы рекомендуется использовать в помещениях с хорошей звукоизоляцией или в помещениях при значительных уровнях шумов субъективного происхождения.

Рекомендуется использовать шумовые индикаторы, воспроизводящие звуки: метронома; колокольчиков или ксилофонных пластин; звуков ударных инструментов.

Рекомендуется размещать шумовые индикаторы вне полосы движения, но с приводами, реагирующими на движение по этим полосам.

7.21 Применяемая звуковоспроизводящая техника должна соответствовать требованиям ГОСТ 24214 и воспроизводить в автоматизированном режиме музыкальные, шумовые и речевые сообщения. Приводы рекомендуется устраивать аналогично требованиям раздела 6 данного Свода правил.

7.22 Следует применять приборы и устройства уровня звука, частота, длительность и интервал звукового сигнала которых соответствуют требованиям ГОСТ Р 51671.

7.23 Не рекомендуется размещать акустические устройства так, чтобы зоны их действия перекрывали друг друга, создавая звуковые помехи. Ограничение зон действия может выполняться путем помещения устройств в ниши или за экраны, препятствующие распространению воспроизводимых звуков в нежелательном направлении.

7.24 В зрительных залах (театров, цирков и т.п.) следует предусматривать не менее трех зрительных мест, связанных с акустическими устройствами, работающими на основе индукционного контура или инфракрасного излучения.

7.25 Доступные для инвалидов средства телефонной связи (СТС) общего применения должны быть оснащены регуляторами громкости.

Кроме того, 25 % всех СТС общего применения, предусмотренных в здании или сооружении, но не менее одного должны быть со встроенными усилителями приема (приема и передачи) и рассредоточены по всему зданию среди всех типов средств телефонной связи общего применения. При наличии в здании одного специализированного аппарата телефонной связи его следует размещать в вестибюле или на наиболее людном этаже.

При этом СТС, доступные для инвалидов, должны быть обозначены в соответствии с ГОСТ Р.

7.26 Если в здании или на прилегающей к нему территории предусмотрены несколько таксофонов общего пользования, то как минимум один таксофон из каждых четырех должен иметь текстовой телефонный аппарат.

Если внутри зданий или сооружений, предназначенных для проведения культурно-массовых мероприятий, в том числе на стадионах и спортивных аренах, в общественных центрах, в местах развлечений и отдыха, установлены таксофоны общего применения, то как минимум один из них должен быть текстовым телефонным аппаратом.

ТАКТИЛЬНЫЕ СРЕДСТВА ИНФОРМАЦИИ

7.27 Тактильные поверхности покрытий полов должны обеспечивать возможность их быстрого распознавания, а также уборки (очистки). Они не должны самопроизвольно сдвигаться, зацепляться и задираться обувью или средствами реабилитации.

Не рекомендуется применять ребристое покрытие на путях движения в помещениях, за исключением мозаичных или плиточных полов в вестибюлях, на площадках лифтов, лестниц и пандусов.

7.28 Тактильные информирующие поверхности должны быть безопасны для рук, а размещенные в плоскости пола - также для средств реабилитации инвалидов. Эти поверхности не должны усложнять условия движения людей, которые в них не нуждаются.

Оптимальная высота размещения тактильной информации - 0,6-1,1 м, а в зоне путей движения - на высоте 1,2-1,6 м.

7.29 Рекомендуется применение ручек дверей, рычагов управления, выключателей различных пластических форм и фактур, позволяющих легко различать их на ощупь.

В инженерном оборудовании рекомендуется применять рельефные кнопочные выключатели и клавиши выключателей или регулировочных устройств с различной фактурой и рельефными цифрами, буквами или символами. Размер символов - не менее 5 мм, а глубина - 0,8 мм. Поля клавиш и кнопок - не менее чем 20´20 мм.

Рычаги и вентили для холодной и горячей воды должны иметь одинаковую форму, но при этом следует сделать рельефную, различительную пометку на цветовой поверхности, обозначающей температуру воды (холодная, горячая).

7.30 На поручнях вдоль путей движения и на их концах следует устанавливать тактильные указатели с рельефным шрифтом высотой не менее 15 мм или знаками шрифта Брайля (ГОСТ Р 50918).

Часть 2 ПАРАМЕТРЫ АРХИТЕКТУРНОЙ СРЕДЫ, ДОСТУПНОЙ ИНВАЛИДАМ

РАЗМЕРЫ ИНВАЛИДНОГО КРЕСЛА КОЛЯСКИ

Кресло-коляска для взрослых

2.1

 Площадка для размещения инвалида в кресле-коляске

 

Габариты кресла-коляски

2.2

 

Кресло-коляска для мужчин

Кресло-коляска для женщин

 

Габариты кресла-коляски школьника

2.3

 Площадка для размещения инвалида на кресле-коляске

 

Габариты при повороте и развороте кресла-коляски

2.4

Габариты занимаемой зоны при вращении кресла-коляски вокруг вертикальной оси

А - поворот на 90°; Б - разворот на 180°; В - разворот на 360°
(В скобках даны размеры для кресла-коляски школьников.)

 

ПАРАМЕТРЫ ПУТЕЙ ДВИЖЕНИЯ

Оптимальные габариты полосы движения

2.5

*Минимальные габариты полосы движения для детей-инвалидов.

 

 

Пропускная способность коридоров

2.6

 

Ниши в коридорах

2.7

 

 

Габариты поворотов и разворотов

2.8

 

Преграды в коридорах

2.9

А, Б - сохранение пропускной способности коридоров;

В - безопасное размещение смонтированных на стене объектов;

Г - заглубление объектов в нишу

 

 

Вертикальные преграды

2.10

А, Б - допустимые параметры вертикальных преград, размещаемых параллельно стене;

В - параметры опознавательного бортика;

Г - допустимые параметры предмета, закрепленного на опорах

 

 

ДВЕРНЫЕ ПРОЕМЫ

Дверные проемы

2.11

Ширина дверного просвета при различных видах дверей: А - однопольная дверь; Б - двухпольная дверь, В - складная дверь; Г - раздвижная дверь; Д - полуторопольная

Варианты дверных порогов

 

Дверные проемы

2.12

Минимальные габариты свободных площадок с обеих сторон дверного проема раздвижных однодольных (А) и двупольных (Б) дверей, распашных однопольных (В) и двупольных (Г) дверей

 

ПРИДВЕРНЫЕ ПЛОЩАДКИ, ЗОНЫ;

ВХОДНЫЕ ТАМБУРЫ

Габариты придверных зон

2.13

Распашные двери

А, Б, Г - двери без запора; В - дверь с закрывателем; Д, Е - двери, имеющие ручку и закрыватель

Раздвижные двери

 

Площадки перед дверью

2.14

А и Б - параметры свободной площадки перед распашной дверью со стороны ее открывания

а

б

250

1700

300

1650

350

1600

400

1550

450

1500

500

1450

550

1400

Зависимость ширины и глубины входной площадки.

Минимальные параметры свободного пространства у входа при боковом (В) и фронтальном (Г) подъезде к двери

*Дверь с запором или замком

 

Входные тамбуры

2.15

 

Двойной тамбур, портик

2.16

 

Варианты перепланировки входного тамбура

2.17

 

Входы в здания

2.18

РАСШИРЕНИЕ ДВЕРНОГО ПРОЕМА

1 - расширяемая часть проема;

2 - усиливающие пилоны (при необходимости усиления несущей способности стены);

3 - усиленная перемычка

ПРИМЕРЫ РЕКОНСТРУКЦИИ ВХОДНЫХ ПЛОЩАДОК

 

ВЕРТИКАЛЬНЫЕ КОММУНИКАЦИИ.
ЛЕСТНИЦЫ И ПАНДУСЫ

Лестницы

2.19

Подъем на высоту менее 1,6 м

Подъем на высоту более 1,6 м

Предохранение от непроизвольного попадания в подлестничное пространство

Цветник или поручни в зоне опасности

Предохранительная защита или поручни в зоне опасности

 

Лестницы

2.20

В общественных зданиях

А - минимальные параметры лестничной клетки;

Б - максимальные параметры ступени;

В - принцип устройства поручня в общественных местах;

Г - допустимые параметры внутренней лестницы в жилой ячейке;

Д - правило определения соотношения ширины проступи и высоты подступенка

 

Лестничные марши. Предохранительные мероприятия

2.21

 

Пандусы

2.22

Основные параметры пандусов

 

Пандусы

2.23

 

Примеры пристройки пандусной клетки

2.24

 

Формы и габариты поручней и перил

2.25

Оптимальные габариты поперечного сечения поручней и перил

Элементы, фиксирующие окончание поручня

 

ПОДЪЕМНЫЕ УСТРОЙСТВА

Лифты

2.26

Минимальные внутренние размеры кабины лифта и площадки перед лифтом.

Для транспортировки больного на каталке (А), для передвигающегося в кресле-коляске при различном расположении и открывании дверей (Б, Г, Д).

Размеры кабины лифта - минимальные (Б, В), оптимальные (Г, Д).

1 - блок управления лифтом; 2 - откидное сиденье

 

Лифты

2.27

 

Параметры наклонных подъемников

2.28

Подъемник для инвалида с сопровождающим

а - перемещение подъемника параллельно лестнице; б - перемещение лестничного подъемника (над ступенями);

1 - панель управления; 2 - откидное сиденье; 3 - тактильная полоса предупреждения; 4 - откидное ограждение

Подъемник для самостоятельного перемещения инвалида

* Даны размеры площадки для подъема без сопровождающего лица - в числителе, в знаменателе - с сопровождающим лицом.

 

Вертикальные подъемники

2.29

Вертикальные подъемники

Габариты зоны для установки домашнего лифта и подъемника

 

Индивидуальные подъемные устройства

2.30

А. Лестничные подъемные устройства

Б. Подвесные подъемные устройства

А. Лестничное подъемное устройство:

- размеры платформы, мм: 680´750, 800´1000, 900´1200

- угол подъема - 0-90°

- грузоподъемность, кг: 150, 200, 250-300

- габариты в сложенном виде, мм: ширина - 300, длина 500-1800, высота - 900.

Б. Подвесное подъемное устройство:

- габаритные размеры грузонесущей части, мм - 400´200´300

- угол подъема (max) - 90°

- радиус поворота направляющей (min), м - 0,3

- грузоподъемность, кг- 150, 200, 250, 300

 

ОБОРУДОВАНИЕ ПРИДОМОВЫХ ТЕРРИТОРИЙ

Площадки для отдыха на пешеходных путях

2.31


Преграды на путях движения около зданий

2.32


Автостоянки

2.33

Габариты зоны стоянки автомашин инвалидов

Обозначение мест стоянки автомашин, управляемых инвалидами

Организация места для транспорта инвалидов вдоль тротуара (в кармане)

 

Пути движения у здания

2.34

Съезд с тротуара на проезжую часть улицы

Часть 3 ЭРГОНОМИЧЕСКИЕ ПАРАМЕТРЫ

ЗОНЫ ДОСЯГАЕМОСТИ И ЭРГОНОМИЧЕСКИЕ ПАРАМЕТРЫ ИНВАЛИДОВ И ПРЕСТАРЕЛЫХ

Зоны досягаемости инвалидов на кресле-коляске

3.1

Параметры для мужчин

 

Зоны досягаемости инвалидов на кресле-коляске

3.2

Параметры для женщин

 

Параметры досягаемости при боковом доступе

3.3

А - торговые залы; Б - примерочные кабины, гардероб; В - библиотека; Г, Д - раздаточные, столовая

 

Параметры досягаемости при фронтальном доступе

3.4

 

Параметры зон инвалида с дефектами зрения

3.5

 

Габариты зоны у места обслуживания

3.6

 

Параметры функциональных зон

3.7

 

МЕСТА САМООБСЛУЖИВАНИЯ ДЛЯ ИНВАЛИДОВ И МАЛОМОБИЛЬНЫХ ПОСЕТИТЕЛЕЙ

Кассы; вешалки: автоматы

3.8

1 - салфетки; 2 - стаканы; 3 - кнопки управления; 4 - автомат по продаже бутербродов, напитков, товаров

 

Телефон-автомат

3.9

1 - телефонный аппарат; 2 - телефонная будка; 3 - зоны для подъезда кресла-коляски; 4 - список телефонов экстренного вызова и другая информация; 5 - полка или место для размещения телефонного справочника; 6 - откидное сиденье; 7 - крючок для костыля или трости; 8 - рельефная полоса или смена цвета в покрытии пола

 

САНИТАРНО-ГИГИЕНИЧЕСКИЕ ПОМЕЩЕНИЯ, ДОСТУПНЫЕ ИНВАЛИДАМ

Кабины общественного туалета

3.10

1 - унитаз; 2 - откидывающаяся опора для рук; 3 - бумагодержатель; 4 - штанга с навесными рукоятками; 5 - кнопка слива воды; 6 - кнопка сигнализации; 7 - горизонтальный поручень; 8 - крючок для одежды; 9 - раковина с туалетной полкой; 10 - рычаговый удлинитель крана; 11 - зеркало; 12 - фен

 

Пример реконструкции санузлов

3.11

УСТРОЙСТВО ОДНОЙ СПЕЦИАЛЬНОЙ КАБИНЫ НА МЕСТЕ ДВУХ ОБЫЧНЫХ

ВЫДЕЛЕНИЕ МЕСТ ОТДЫХА И РАСШИРЕНИЕ ПЛОЩАДИ ПОМЕЩЕНИЙ ОБСЛУЖИВАНИЯ С МЕСТАМИ ОБСЛУЖИВАНИЯ ИНВАЛИДОВ И МАЛОМОБИЛЬНЫХ ЛИЦ

 

Умывальники; писсуары

3.12

1 - раковина умывальника; 2 - рычаги управления кранами (вариант); 3 - зона кресла-коляски; 4 - зеркало (при наклоне середина зеркала - на высоте 1250 мм); 5 - горизонтальная опора; 6 - откидывающаяся опора-кронштейн; 7 - кнопка управления крышкой бачка; 8 - мусорный бачок; 9 - полотенце (фен); 10 - полка

1 - поручни опоры; 2 - смывной кран (ручной); 3 - смывной кран (ножной); 4 - кнопка управления смывом; 5 - опора вертикальная

 

Функциональные зоны и планировка ванных комнат

3.13

1 - поручень; 2 - съемное сиденье; 3 - сиденье откидное; 4 - зона маневрирования кресла-коляски; 5 - зона маневрирования каталки

 

Габариты душевых кабин

3.14

1 - поручень; 2 - душевая сетка; 3 - откидное или стационарное сиденье; 4 - занавес или раздвижная дверь; 5 - зона оптимальной доступности для размещения кранов; 6 - вертикальный поручень; 7 - горизонтальный поручень

Функциональные зоны перед душевыми кабинами разных габаритов со стационарным оборудованием (А) и откидными сиденьями (Б)

 

Совмещенный санитарный узел

3.15

 

ИНФОРМАЦИОННОЕ ОБЕСПЕЧЕНИЕ МЕСТ И ЗОН, ДОСТУПНЫХ ИНВАЛИДАМ

Международные символы и знаки

3.16

А - пропорции символа доступности для инвалидов;

Б - пропорции символа доступности для людей с нарушением слуха;

В - пропорции символа «Телекоммуникационные устройства для людей с нарушением слуха»;

1,2 - символы доступности для инвалидов; 3 - место для инвалидов, пожилых с детьми; 4 - эскалатор (подъемник); 5, 6 - туалеты для инвалидов; 7 - лифт для инвалидов; 8 - пути эвакуации; 9, 10 - вход и выход из помещения; 11 - направление движения (поворот); 12 - информационный центр (справочная)

 

Обеспечение фронта видимости

3.17

 

Размещение информации

3.18

А - изменение фактуры и цвета полосы ориентации перед дверным проемом;

Б - указание направления открывания дверей;

В - выделение контрастной фактурной полосой дверного проема

ПРИЛОЖЕНИЕ А

(справочное)

ФЕДЕРАЛЬНЫЙ ЗАКОН «О СОЦИАЛЬНОЙ ЗАЩИТЕ ИНВАЛИДОВ В РОССИЙСКОЙ ФЕДЕРАЦИИ» ОТ 24 НОЯБРЯ 1995 Г. № 181-ФЗ

(извлечения)

Статья 15. Обеспечение беспрепятственного доступа инвалидов к объектам социальной инфраструктуры

Правительство Российской Федерации, органы исполнительной власти субъектов Российской Федерации, органы местного самоуправления и организации независимо от организационно-правовой формы создают условия инвалидам (включая инвалидов, использующих кресла-коляски и собак-проводников) для беспрепятственного доступа к объектам социальной инфраструктуры (жилым, общественным и производственным зданиям, строениям и сооружениям, спортивным сооружениям, местам отдыха, культурно-зрелищным и другим учреждениям), а также для беспрепятственного пользования железнодорожным, воздушным, водным, междугородным автомобильным транспортом и всеми видами городского и пригородного пассажирского транспорта, средствами связи и информации (включая средства, обеспечивающие дублирование звуковыми сигналами световых сигналов светофоров и устройств, регулирующих движение пешеходов через транспортные коммуникации). Планировка и застройка городов, других населенных пунктов, формирование жилых и рекреационных зон, разработка проектных решений на новое строительство и реконструкцию зданий, сооружений и их комплексов без приспособления указанных объектов для доступа к ним инвалидов и использования их инвалидами не допускается. Проектирование и производство транспортных средств общего пользования, телефонных аппаратов, других абонентских устройств связи и средств информации, приспособленных для использования их инвалидами, осуществляются в пределах ассигнований, ежегодно предусматриваемых на эти цели в бюджетах всех уровней, и за счет других источников, не запрещенных законодательством Российской Федерации.

Третий абзац не приводится.

Разработка проектных решений на новое строительство зданий, сооружений и их комплексов без согласования с соответствующими органами исполнительной власти субъектов Российской Федерации и учета мнения общественных объединений инвалидов не допускается.

В случаях, когда действующие объекты невозможно полностью приспособить для нужд инвалидов, собственниками этих объектов должны осуществляться по согласованию с общественными объединениями инвалидов меры, обеспечивающие удовлетворение минимальных потребностей инвалидов.

Шестой абзац не приводится.

Места для строительства гаража или стоянки технических и других средств передвижения предоставляются инвалидам вне очереди вблизи места жительства с учетом градостроительных норм.

Восьмой абзац не приводится.

На каждой стоянке (остановке) автотранспортных средств, в том числе около предприятий торговли, сферы услуг, медицинских, спортивных и культурно-зрелищных учреждений, выделяется не менее 10 % мест (но не менее одного места) для парковки специальных автотранспортных средств инвалидов, которые не должны занимать иные транспортные средства. Инвалиды пользуются местами для парковки специальных автотранспортных средств бесплатно.

Статья 16. Ответственность за уклонение от исполнения требований к созданию условий инвалидам для беспрепятственного доступа к объектам инженерной, транспортной и социальной инфраструктур

Юридические и должностные лица за уклонение от исполнения предусмотренных настоящим Федеральным законом, другими федеральными законами и иными нормативными правовыми актами требований к созданию условий инвалидам для беспрепятственного доступа к объектам инженерной, транспортной и социальной инфраструктур, а также для беспрепятственного пользования железнодорожным, воздушным, водным, междугородным автомобильным транспортом и всеми видами городского и пригородного пассажирского транспорта, средствами связи и информации несут административную ответственность в соответствии с законодательством Российской Федерации.

Абзац второй не приводится.

Примечание - Здесь жирным шрифтом выделены требования к зданиям и сооружениям.

ПРИЛОЖЕНИЕ Б

(справочное)

ТЕРМИНЫ И ОПРЕДЕЛЕНИЯ, ПРИМЕНЯЕМЫЕ В ТЕКСТАХ СВОДОВ ПРАВИЛ КОМПЛЕКСА 35

Аванвестибюль - дополнительный предвестибюль, как правило, перед зоной контроля, для ожидания, получения справок, решения вопросов входа (допуска) в здание.

Адаптация - приспосабливание к новым условиям. Здесь: изменения архитектурной среды зданий, учитывающие потребности маломобильных пользователей.

Акцент - здесь: контрастный ориентир, элемент архитектурной среды, информационно значимый для посетителей (потребителей), в том числе маломобильных.

Анфилада - группа последовательно расположенных помещений, имеющих общие соосно расположенные проемы, двери. Здесь: вариант организации пространства, облегчающий доступность для инвалидов на креслах-колясках.

Архитектурная среда - здесь: совокупность внешнего облика и внутреннего пространства зданий и сооружений, предназначенных для определенных функций и наделенных необходимой и достаточной для потребителя информативностью, в том числе с помощью архитектурной пластики.

Благоустройство участка - здесь: комплекс мероприятий, обеспечивающих доступность маломобильных посетителей и включающий: создание искусственного ландшафта (озеленение), мощение дорожек для пешеходов и проезжей части, устройство наружного освещения, создание зон отдыха, спорта и развлечений на участке, а также информационное обеспечение посетителей.

Бордюр - ограждение путей движения и пространств однородными элементами малой высоты, совмещающее функции по критериям безопасности и информативности.

Вход адаптированный - здесь: вход, приспособленный для прохода маломобильных посетителей, в том числе на креслах-колясках.

Габариты - здесь: внутренние («в свету») и наружные («в чистоте») размеры элементов архитектурной среды (предметов и пространств) по их крайним выступающим частям.

Доступность (безбарьерность) - свойство здания, помещения, места обслуживания, позволяющее беспрепятственно достичь места и воспользоваться услугой.

Досягаемость - свойство мест обслуживания, имеющих параметры, обеспечивающие возможность воспользоваться, дотянуться до предмета, объекта пользования.

Зона - здесь: параметры и конфигурация функционально организованного пространства, не полностью выделенного ограждающими конструкциями.

Зона безопасности - здесь: зона (полоса) у края функционального элемента (площадки), предназначенная для предотвращения травмоопасных ситуаций.

Зона предоставления услуг (обслуживания) - совокупность мест обслуживания в помещении или на участке.

Идентификация - здесь: однозначное опознавание функционального назначения объекта или зоны риска.

Инвалид - человек, имеющий нарушения здоровья со стойким расстройством функции организма, приводящие к ограничению жизнедеятельности и вызывающие необходимость его социальной защиты.

Информативность - одно из свойств архитектуры, характеризуемое объемом информации, полученным с единицы носителя в единицу времени. Здесь: один из основных критериев приспособления (адаптации) окружающей среды для маломобильных пользователей.

Карман - здесь: ниша, пространство, примыкающее к границе помещения или коммуникационного пути вне их пределов

Катафоты - светоотражающие панели, предназначенные для разметки и маркировки поверхностей.

Коммуникационные пространства - здесь: зоны и помещения зданий, сооружений или участков, предназначенные главным образом для движения по ним людских потоков.

Коммуникационные пути - части коммуникационных пространств, предназначенных исключительно для движения.

Латеральный - кромочный, ограничивающий края.

Маломобильные группы населения - люди, испытывающие затруднения при самостоятельном передвижении, получении услуги, необходимой информации или при ориентировании в пространстве. К маломобильным группам населения здесь отнесены: инвалиды, люди с временным нарушением здоровья, беременные женщины, люди преклонного возраста, люди с детскими колясками и т.п.

Маршрут доступный (беспрепятственный) - 1) непрерывный маршрут, связывающий все элементы и пространства зданий или сооружений, в которых осуществляется обслуживание маломобильных посетителей; 2) перечень пунктов движения.

Маячок - здесь: световой или звуковой пульсирующий ориентир.

Места обслуживания - здесь: части зданий, сооружений, помещений, зон, организованные и оборудованные для оказания услуг посетителю. Включают в себя рабочее место, место обслуживаемого, возможно - место ожидания.

Объекты социальной инфраструктуры - здания, сооружения, их комплексы и входящие в их состав помещения многоквартирных домов, учреждений социального, медицинского, бытового, культурно-зрелищного, торгового, кредитно-финансового, банковского, гостиничного, туристического, санаторно-курортного и пассажирского обслуживания населения, воспитания, образования, отдыха, туризма, спорта и трудовой деятельности, по представлению услуг связи и информационных услуг, иных учреждений и организаций, связанных с обеспечением жизнедеятельности и обслуживанием населения, а также участки и элементы застройки территорий указанных учреждений.

Пандус - сооружение, имеющее наклонную по направлению движения поверхность и предназначенное для перемещения с одного уровня горизонтальной поверхности пути на другой.

Парапет - как правило, глухое ограждение перепада высот. Здесь; конструктивный элемент, ограждающий пути движения и функциональные пространства, совмещающий функции по критериям безопасности и информативности.

Переводчик жестового языка (сурдопереводчик) - специалист, осуществляющий перевод звуковой информации на язык жестов (для глухонемых).

Пиктограмма - символический рисунок, чаще всего стилизованный.

Подъем - разность уровней (вертикальный размер) между ближайшими горизонтальными плоскостями наклонного пути движения.

Подъемное устройство (платформа) - стационарная грузоподъемная машина периодического действия для подъема и спуска пользователей, размещающихся на платформе. Платформы с вертикальным перемещением - под углом не более 15°, платформы с наклонным перемещением - под углом не более 75°.

Помещение индивидуального обслуживания (функциональное) - кабина или кабинет, где осуществляется самообслуживание или обслуживание маломобильного посетителя персоналом учреждения (предприятия). Габариты кабины (кабинета) должны учитывать, как правило, возможность размещения также сопровождающего лица.

Помещение универсальное - здесь: помещение здания, где благодаря организационным мероприятиям, а также сменяемому или трансформируемому оборудованию возможна организация различных видов деятельности.

Поперечный уклон - уклон поверхности, перпендикулярный направлению движения.

Посетительская зона-совокупность помещений и пространств в зданиях и сооружениях, предназначенных для посетителей.

Продольный уклон - уклон поверхности, параллельный направлению движения.

Проход - пешеходное пространство между функциональными и (или) конструктивными элементами (оборудованием).

Сигнализаторы (оповещатели) опасности - специальные элементы, встроенные или прикладываемые к поверхности пешеходной дорожки или другим элементам для предупреждения людей с нарушением зрения об опасностях на их пути.

Символика - здесь: знаковая информация для посетителей, воспроизводимая графическим или тактильным способом для условного представления объекта (понятия).

Среда жизнедеятельности - материальная среда, окружающая человека, в которой или при помощи которой он осуществляет все свои жизненные потребности, в том числе здания и сооружения, их оборудование, оснащение и прилегающая территория.

Табло - указатели с механическим, электронным или иным приводом изменения символов на их рабочей поверхности.

Тактильный - свойство объекта, воспринимаемое путем осязания, т.е. прикосновения к нему.

Техническое средство реабилитации человека с ограничениями жизнедеятельности - любая продукция, инструмент, оборудование или технологическая система, используемые человеком с ограничением жизнедеятельности и обладающие специальными свойствами, которые позволяют предотвратить, компенсировать, ослабить или нейтрализовать ограничение жизнедеятельности.

Участок - здесь: территория, функционально связанная со зданием.

Функциональная группа помещений - совокупность связанных пространственно помещений и коммуникационных пространств, предназначенных для выполнения определенной цели.

Шрифт Брайля - специальный рельефный шрифт для лиц с полной потерей зрения (незрячих) и слабовидящих. Здесь: одно из основных средств адаптации среды для данной категории маломобильных лиц.

Ключевые слова: проектные мероприятия, элементы архитектурного решения, критерии доступности, безопасности, информативности, комфортности




Яндекс цитирования



   Copyright © 2007-2026,  www.tehlit.ru.

[ ѓосты, стандарты, нормативы, инструкции, правила, строительные нормы ]