//
|
|
ПРАВИТЕЛЬСТВО МОСКВЫ НАУЧНО-ИССЛЕДОВАТЕЛЬСКИЙ И ПРОЕКТНЫЙ РЕКОМЕНДАЦИИ
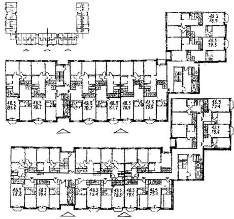
1999 ПРЕДИСЛОВИЕ 1. РАЗРАБОТАНЫ - МНИИТЭП (согласно договору № Н22-81 с Государственным унитарным предприятием «Управления экономических исследований, информатизации и координации проектных работ»). Авторы - канд. Архитектуры С.И. Яхкинд (руководитель темы), проф. Ю.П. Григорьев, канд. техн. наук В.А. Максименко, канд. архитектуры И.С. Генкина, канд. т.н. М.С. Любимова, канд. Архитектуры, ст. науч. сотр. Б.Ю. Брандербург, канд. архитектуры, ст. науч. сотр. Л.В. Петрова, канд. геогр. наук, ст. науч. сотр. Л.И. Конова, инженер Н.Н. Федоров, к. т. н. А.С. Прохода, инженер Э.М. Лалаев. 2. ВНЕСЕНЫ МНИИТЭП. 3. СОГЛАСОВАНЫ ГЦСЭН по г. Москве (письмо № 9-15-1-40-160 от 08.04. 99 г.) 4. УТВЕРЖДЕНЫ Указанием № 20 по Москомархитектуре от 19.05.99 г. СОДЕРЖАНИЕ 1. ВВЕДЕНИЕ1.1. Акустический дискомфорт, возникающий в различных районах Москвы, является одним из серьезнейших факторов, отрицательно влияющих на здоровье человека. В настоящее время в Москве на территории зон акустического дискомфорта проживает более 3 млн. человек (более 36 % населения). Его исключение способствует повышению качества городского жилища, сокращению заболеваемости и утомляемости от воздействия повышенного уровня шума. Для Москвы актуальность защиты жилища и примагистральных территорий от шума возрастает в связи со сложившейся радиально-кольцевой системой улиц. наличием рассредоточенных промышленных предприятий, общественно-зрелищных и административных комплексов, ростом парка автомобилей и, вследствие этого, ростом автомобильных потоков на улицах и магистралях. Сложившаяся улично-дорожная сеть не всегда дает возможность скоростных сообщений из-за недостаточной ширины проезжей части и ее состояния, частых перекрестков, различных типов потоков и наличия разнородных видов транспорта. Особенно неблагоприятны условия движения в центре Москвы, где наибольшая плотность пиковых транспортных потоков накладывается на наименьшую пропускную способность проезжих частей. Все это способствует значительному повышению уровней транспортных шумов. При этом длительность их дискомфортного воздействия может достигать 15-18 часов в сутки. По статистическим данным уровни городских шумов возрастают в среднем на 1 дБА в год при сохранении этой тенденции на ближайшие годы. Повышающаяся численность автомашин в Москве определяет постоянный рост доминирующих в городе уровней транспортных шумов. С 1990 г. по 1991 г. количество автомобилей в городе увеличилось примерно на 18,9 %, с 1991 г. по 1992 - на 11,7 %, составив, уже в 1992 году около одного миллиона автомашин [1]. По состоянию на 1997 г. в Москве насчитывалось уже более полутора миллионов автомобилей. 1.2. Основные направления снижения транспортных шумов в Москве включают: - снижение шума в его источнике; - снижение шума на пути его распространения в городской среде; - снижение шума на объекте защиты. 1.3. В настоящих рекомендациях рассматриваются приемы снижения шума на объектах защиты - в жилых и общественно-жилых зданиях - за счет формирования специальных планировочно шумозащищенных структур. 1.4. При проектировании шумозащищенных жилых домов (или общественно-жилых зданий) снижение шума на объекте защиты может быть осуществлено путем применения: - планировочных приемов формирования жилых домов (или общественно-жилых зданий), обеспечивающих преимущественную ориентацию на магистральную улицу подсобных и дополнительных помещений квартир, внеквартирных коммуникаций домов и встроенных (встроенно-пристроенных) нежилых помещений, а также ограничивающих ориентацию на сторону транспортного шума жилых помещений (в зависимости от типов квартир); - конструктивных средств шумозащиты с повышенными звукоизолирующими свойствами наружных ограждающих конструкций, в особенности окон и балконных дверей; - технических средств шумозащиты. в том числе клапанов-глушителей и других инженерно-технических устройств для снижения уровней шума при обеспечении нормативного воздухообмена в квартире. 2. ОБЩИЕ ПОЛОЖЕНИЯ2.1. Рекомендации предназначены для разработки и экспертизы проектов планировочно шумозащищенных жилых домов (общественно-жилых зданий) и секций, а также для использования при составлении проекта детальной планировки и застройки. Они должны способствовать повышению акустического комфорта в московском жилище и на территории за счет расширения практики применения планировочно шумозащищенных жилых домов. 2.2. Рекомендации распространяются на проектирование жилых домов, общественно-жилых зданий и застройки, располагаемых в Москве на территориях с уровнями транспортного шума превышающими показатели, нормируемые МГСН 2.04-97 [2] и СН 2.2.4/2.1.8.562-96 [3]. 2.3. Шумозащищенные жилые дома и шумозащищенные общественно-жилые здания следует проектировать согласно требований МГСН 3.01-96 [4], МГСН 4.04-94* [5], МГСН 2.04-97 [2], СНиП 11-12-77 [6] и положений настоящих «Рекомендаций». 2.4. Шумозащищенными жилыми домами (шумозащищенными общественно-жилыми зданиями) являются дома (здания), обеспечивающие акустический комфорт для проживающих в самом жилище, а также, вследствие экранирующего эффекта, защищающие от транспортного шума территорию и застройку. Шумозащищенные жилые здания в зависимости от способов обеспечения акустического комфорта подразделяются на: - планировочно шумозащищенные жилые дома (или общественно-жилые здания) со специальной объемно-планировочной структурой: - жилые дома (или общественно-жилые здания) с обычной объемно-планировочной структурой*) и конструктивно-техническими средствами шумозащиты. ____________ *) В том числе в жилой части планировочно шумозащищенных общественно-жилых зданий. Возможно также сочетание в шумозащищенном доме (или общественно жилом здании) обоих указанных способов обеспечения акустического комфорта. 2.5. Рекомендации разработаны для применения при проектировании шумозащищенных жилых домов с целью обеспечения в них нормируемого акустического режима. В жилых помещениях квартир требуется обеспечить следующие показатели (уровень звука LА и эквивалентный уровень звука LАэкв в дБА), определяемые МГСН 2.04-97 [2] для категорий жилища в различное время суток: - в домах категории А - с 7 до 23 ч. - 35 дБА; с 23 до 7 ч. - 25 дБА; - в домах категории Б и В - с 7 до 23 ч. - 40 дБА; с 23 до 7 ч. - 30 дБА. В жилище I категории комфорта, согласно классификации МГСН 3.01-96 [3] следует обеспечивать уровень акустического комфорта, принятый в МГСН 2.04-97 [2] для домов категории А*). Для жилища II категории следует обеспечивать уровень акустического комфорта не ниже предельно допустимого, принятого МГСН 2.04-97 [2] для домов категории Б и В*). ___________ *) Категория А - высококомфортные условия; категория Б - комфортные условия; категория В - предельно допустимые условия. Приведенные выше нормируемые показатели в каждой квартире должны быть обеспечены в жилых комнатах - в спальнях и в общей комнате или гостиной (кроме общей комнаты квартир с числом жилых комнат 3 и более). Из номенклатуры дополнительных помещений квартир жилища I категории (определенной МГСН 3.01-96) [3] уровень проникающего шума не более 50 дБА рекомендуется обеспечивать - в помещении кабинета. Для остальных дополнительных помещений квартир, а также подсобных помещений в виду отсутствия в них спальных мест, акустические показатели проникающего уровня транспортного шума не нормируются. 2.6. Рекомендации содержат предложения по планировочным и конструктивно-техническим мероприятиям, применяемым в шумозащищенных жилых домах (и общественно-жилых зданиях), а также экономическую оценку планировочных решений этих домов с учетом их размещения в застройке. 3. ОБЪЕМНО-ПЛАНИРОВОЧНЫЕ РЕШЕНИЯ ПЛАНИРОВОЧНО ШУМОЗАЩИЩЕННЫХ ЖИЛЫХ ДОМОВ И ПЛАНИРОВОЧНО ШУМОЗАЩИЩЕННЫХ ОБЩЕСТВЕННО-ЖИЛЫХ ЗДАНИЙ3.1. Объемно-планировочная структура планировочно шумозащищенных жилых зданий формируется в зависимости от условий их размещения по сторонам магистральных улиц и может включать секции или фрагменты*) различных типов (см. Приложения 1, 2, 3). __________ * Термин «фрагмент» здесь и далее используется для обозначения этажа или часта жилого дома коридорной структуры в жилых зданиях коридорно-секционного типа. По характеру размещения планировочно шумозащищенные жилые здания (секции или фрагменты) могут быть: - ограниченной ориентации, предназначенные для застройки южной, восточной и западной сторон магистральных улиц; - универсальной ориентации, предназначенные для застройки любой из сторон магистральных улиц, в том числе северной стороны. Для магистральных улиц, имеющих отклонение от меридиана (или параллели), выбор типа шумозащищенного дома (секции или фрагмента) по условиям его постановки - для застройки южной, западной, восточной и северной сторон - следует производить с учетом обеспечения квартир нормативной инсоляцией согласно МГСН 2.05-99 [15]. 3.2. Для застройки любой из сторон магистральных улиц, в том числе северной стороны, могут использоваться следующие типы шумозащищенных планировочных структур универсальной ориентации с квартирами двухсторонней ориентации (с учетом требований пп. 3.4, 3.11 и 3.12): - секционные (многосекционные с одноуровневыми квартирами в 2-квартирных секциях, а также многоквартирные с двухуровневыми квартирами); - коридорные (с двухуровневыми квартирами); - коридорно-секционные (с одноуровневыми 2-квартарыми секциями и двухуровневыми квартирами в коридорном этаже или фрагментах). 3.3. Для застройки южной, восточной и западной сторон магистральных улиц (кроме указанных в п. 3.3) могут также использоваться следующие шумозащищенные планировочные структуры (с учетом требований пп. 3.4, 3.11 и 3.12): - секционные (многосекционные с одноуровневыми квартирами в 4-квартирных секциях, а также в 6-, 8-квартирных секциях, имеющих Т-образную конфигурацию); - коридорные (с одноуровневыми квартирами)*); _____________ *) В «Рекомендациях» не рассматривались жилые дома с одноуровневыми квартирами, располагаемыми с одной стороны внеквартирного коридора, в виду высокой стоимости их строительства и значительных затрат при эксплуатации таких домов в условиях Москвы. - коридорно-секционные (с одноуровневыми квартирами в секциях и коридорных этажах или фрагментах). При этом планировочные структуры коридорного (коридорно-секционного) типа с квартирами односторонней ориентации, располагаемыми с одной или с двух сторон внеквартирного коридора, имеют ограниченную ориентацию и. могут быть использованы только при застройке восточной и западной сторон магистральных улиц. - с полной планировочной шумозащитой жилых помещений - окна всех жилых комнат (спален, общих комнат или гостиных) ориентированы в сторону акустической тени; - с неполной планировочной шумозащитой жилых помещений - на магистральную улицу с повышенным уровнем шума ориентированы окна общей комнаты 3-комнатных квартир и квартир с большим числом жилых комнат; окна всех спален и общих комнат 1-й 2-комнатных квартир ориентированы в сторону акустической тени. - конфигурация плана - П-, С-образная, а также близкая к ней, в том числе усложненная; - протяженность - длина фронта жилого дома (или общественно-жилого здания) от 100 м и более, вдоль магистральной улицы, боковых объемов - от 30 м и более; - высота - не менее 20 м*). ____________ *) При соответствующих акустических расчетах допускается высота шумозащищенных зданий менее 20 м. Указанную высоту следует принимать при застройке на территории с обычным рельефом и распространении транспортного шума с магистральной улицы, располагаемой не выше защищаемой территории. При распространении транспортного шума с магистральной улицы, расположенной выше территории застройки, высоту шумозащищенного здания следует уточнять, исходя из условий распространения звука. При соответствующих акустических расчетах планировочно шумозащищенные жилые дома (или общественно-жилые здания) могут проектироваться из секций или фрагментов, располагаемых по кругу. 3.6. По характеру размещения нежилых помещений в структуре планировочно шумозащищенного общественно-жилого здания различаются объекты, имеющие (см. Приложение 4): - вертикальное зонирование; - горизонтальное зонирование*). ____________ *) Возможно также сочетание вертикального и горизонтального зонирования в объеме одного здания. При вертикальном зонировании нежилые помещения, располагаемые в нижних этажах здания, могут выступать по отношению к вышележащим жилым этажам и служить для них шумозащитным экраном или же располагаться без выноса по отношению к вышележащим жилыми этажами. При горизонтальном зонировании объем здания с нежилыми помещениями ориентируется на магистральную улицу, а жилая часть здания ориентирована во двор в сторону звуковой тени. 3.7. В жилой части общественно-жилого планировочно шумозащищенного здания с вертикальным зонированием в секционной или коридорной структурах (с квартирами, располагаемыми вдоль внеквартирного коридора с двух сторон) обеспечивается, как правило, неполная шумозащита жилых помещений квартиры. Полная планировочная шумозащита жилых помещений квартир в общественно-жилом здании с вертикальным зонированием может быть обеспечена только при использовании планировочной структуры жилой части с односторонними квартирами (с учетом требований пп. 3.4, 3.11 и 3.12). Однако данная планировочная схема, как уже отмечалось в п. 3.3, является экономически не выгодной. 3.8. При использовании в общественно-жилых зданиях (с вертикальными зонированием) встроенно-пристроенных объемов нежилых помещений указанные объемы, как правило, обеспечивают защиту нескольких нижних жилых этажей. В связи с тем. что вышележащие жилые этажи оказываются под воздействием транспортного шума в них следует применять конструктивно-технические или планировочные средства шумозащита. 3.9. В жилой части общественно-жилого планировочно шумозащищенного здания с горизонтальным зонированием полная шумозащита помещений квартир от транспортного шума может обеспечиваться за счет использования односторонне ориентированных квартир с учетом требований пп. 3.4, 3.11 и 3.12. 3.10. Общественно-жилые планировочно шумозащищенные здания рекомендуется размещать: - с вертикальным зонированием зданий - на любой из сторон магистральных улиц; - с горизонтальным зонированием зданий - на южной, восточной и западной сторонах магистральных улиц. 3.11. В планировочно шумозащищенных жилых домах, а также в жилой части планировочно шумозащищенных общественно-жилых зданий, на сторону магистральных улиц с повышенным уровнем транспортного шума в квартирах жилища I категории могут быть ориентированы окна: - жилых помещений - одной общей комнаты (или гостиной) в квартирах с числом жилых комнат 3 и более*); ___________ *) По заданию на проектирование в жилище I категории комфорта допускается установка конструктивно-технических средств шумозащиты в общих комнатах, обращенных на сторону шума. - подсобных помещений (кухни, передней, внутриквартирных коридоров или холлов, санитарно-гигиенических помещений); - дополнительных помещений, в том числе столовой, гардеробной, бильярдной, тренажерного зала, постирочной, сауны, игровой, кабинета, а также второй гостиной (общей комнаты) без спального места и других. 3.12. В планировочно шумозащищенных жилых домах, а также в планировочно шумозащищенной жилой части общественно-жилых зданий, на сторону магистральной улицы с повышенным уровнем транспортного шума в квартирах жилища II категории могут быть ориентированы окна: - жилых помещений - общей комнаты (или гостиной) в квартирах с числом жилых комнат 3 и более*); _____________ *) В обращенных на сторону шума общих комнатах жилища II категории комфорта следует, как правило, устанавливать шумозащитные окна и балконные двери, а также технические средства шумозащиты (с учетом требований п. 4.6). - подсобных помещений - кухни, передней, внутриквартирных коридоров или холлов, а также санитарно-гигиенических помещений. 3.13. В жилище I и II категории комфорта во всех типах планировочно шумозащищенных зданий на сторону шума в квартирах могут быть ориентированы летние помещения (лоджии, балконы или террасы), в том числе остекленные. 3.14. В планировочно шумозащищенных жилых домах, а также в планировочно шумозащищенной жилой части общественно-жилых зданий, на сторону магистральной улицы с повышенным уровнем транспортного шума рекомендуется ориентировать внеквартирные коммуникации - коридоры, холлы, лестницы, лифтовые холлы, а также помещения системы мусороудаления, хозяйственные кладовые и внеквартирные летние помещения (лоджии, балконы или террасы). 3.15. Входы в планировочно шумозащищенные жилые дома, а также жилую часть планировочно шумозащищенных общественно-жилых зданий допускается проектировать как со стороны магистральной улицы, так и со стороны двора. 3.16. Следует предусматривать раздельными входы (эвакуационные выходы) в нежилые помещения, проектируемые в структуре шумозащищенных общественно-жилых зданий, и входы (эвакуационные выходы) в жилую часть данных зданий. Учреждения и предприятия обслуживания, располагаемые во встроенных (встроенно-пристроенных) нежилых помещениях следует проектировать согласно требованиям региональных нормативных документов и рекомендаций - МГСН 3.01-96, МГСН 4.04-94*, МГСН 4.06-96, МГСН 4.07-96, МГСН 4.08-97, МГСН 4.09-97, МГСН 4.10-97, МГСН 4.13-97, МГСН 4.14-98 [4, 5, 7-13] и других, а при отсутствии региональных норм на проектирование каких-либо учреждений и предприятий обслуживания - согласно требованиям федеральных нормативных документов (СНиП 2.08.02-89*) [14]. Встраиваемые нежилые помещения следует изолировать от жилища противопожарными перекрытиями и стенами (или перегородками), обеспечивая в квартирах уровни проникающего шума и допустимые значения вибраций не выше нормируемых МГСН 2.04-97 [2]. 3.17. Места загрузки товаров в нежилые помещения следует изолировать от жилой застройки, исключая распространение шума на территории застройки и его проникновение через окна в жилые помещения. Рекомендуется проектировать загрузку, как правило, в закрытых надземных или подземных помещениях с учетом действующих нормативных документов, в том числе МГСН 4.13-97 и МГСН 2.04-97 [12, 2]. 4. КОНСТРУКТИВНЫЕ И ТЕХНИЧЕСКИЕ СРЕДСТВА ШУМОЗАЩИТЫ, ПРИМЕНЯЕМЫЕ В ШУМОЗАЩИЩЕННЫХ ЖИЛЫХ ЗДАНИЯХ4.1. Шумозащищенные жилые дома и общественно-жилые здания следует проектировать, применяя конструкции наружных стен с индексами звукоизоляции не ниже нормируемых МГСН 2.04-97 [2]. Конструкции наружных стен, применяемые в настоящее время в массовом строительстве Москвы, обладают, как правило, достаточно высокой звукоизоляцией*) по сравнению со звукоизоляцией окон. ___________ *) Например, в домах серий П44 и Пд4 значение индекса звукоизоляции Rw для наружных стен по данным ЛАК МНИИТЭП составило 47 дБ. 4.2. Наиболее эффективными являются: окна с двойным остеклением - раздельные; окна с тройным остеклением - раздельно-спаренные со стеклопакетом и стеклом или с двухкамерным стеклопакетом. Перечисленные конструкции окон в закрытом положении обеспечивают снижение транспортного шума на 28-39 дБА (см. Приложение 5). 4.3. При использовании домов с обычной планировочной структурой для застройки магистральных улиц в целях обеспечения нормативных требований по защите жилища от транспортного шума (согласно СН 2.4/2.1.8.562-96, МГСН 2.04-97 и СНиП 11-12-77) [3, 2, 6] следует применять конструктивные средства (шумозащитные окна и балконные двери), а также технические устройства (вентиляционные клапаны-глушители и другие). Применяемые технические устройства должны обеспечивать снижение проникающего шума в жилых помещениях до нормативных значений при работе данных устройств в режиме проветривания (или других режимах подачи воздуха в помещения) с целью достижения нормативного воздухообмена (согласно МГСН 3.01-96) [4]. 4.4. В шумозащищенных жилых домах с обычной планировочной структурой с конструктивно-техническими средствами шумозащиты, в жилых помещениях, ориентированных на сторону транспортного шума, недопустимо применение конструкций окон, рассчитанных на обеспечение режима проветривания через открытые форточки, узкие створки, фрамуги и другие аналогичные элементы. Шумозащитные свойства окон при открывании перечисленных устройств снижаются до величины не превышающей ..L = 15 дБА при меблированном жилом помещении (см. Приложение 5), что не позволяет обеспечивать нормируемые МГСН 2.04-97 [2] значения уровня проникающего шума в жилых помещениях при транспортном шуме, составляющем 55 дБА и более в дневное время суток, на расстоянии 2 м у фасадов здания. 4.5. При использовании специальных конструкций окон и балконных дверей в качестве конструктивных средств шумозащиты в жилых зданиях с обычной планировочной структурой (жилых домах или жилой части общественно-жилых зданий с вертикальным зонированием) в квартирах следует обеспечивать нормативный воздухообмен и микроклиматические параметры (температура и влажность) за счет применения вентиляционных клапанов-глушителей и других технических средств шумозащиты*). Применяя технические устройства, следует также обеспечивать требования акустического комфорта в жилище, в том числе в ночное время. ___________ *) Например, специальные элементы конструкций окон, системы приточно-вытяжной механической вентиляции для жилой части здания, системы кондиционирования воздуха или другие. Выбор технических средств следует производить с учетом экономической целесообразности их применения. Использование вентиляционных клапанов-глушителей (см. Приложение 5) обеспечивает снижение уровней звука в режиме проветривания на величину до 30 дБА. 4.6. В планировочно шумозащищенных жилых домах (и жилой части общественно-жилых зданий) с неполной планировочной шумозащитой в жилище I категории комфорта допускается по заданию на проектирование установка конструктивно-технических средств шумозащиты в общих комнатах, обращенных на сторону шума. В обращенных на сторону шума общих комнатах планировочно шумозащищенных жилых домов (и жилой части общественно-жилых зданий) с неполной планировочной шумозащитой в жилище II категории комфорта следует, как правило, устанавливать шумозащитные окна и балконные двери, а также предусматривать технические средства шумозащиты. При постановке планировочно шумозащищенных зданий по красным линиям на магистральных улицах с шумовой характеристикой 70-75 дБА в указанных помещениях следует устанавливать конструктивно-технические средства шумозащиты, обеспечивающие в режиме проветривания снижение уровня проникающего шума не менее чем на 23 дБА*). _____________ *) При величине более 75 дБА следует устанавливать конструктивно-технические средства шумозащиты, снижающие уровень проникающего шума на величину, более 23 дБА в зависимости от шумовой характеристики магистральной улицы. 4.7. В качестве конструктивных средств шумозащиты также рекомендуется, как правило, использовать остекление балконов и лоджий*), обеспечивающее дополнительное снижение транспортного шума на величину от 7 дБА в режиме проветривания и до 17 дБА при закрытом витраже**). _____________ *) При учете нормативных требований к инсоляции и естественному освещению помещений квартир [15, 16]. **) По расчетам ЛАК МНИИТЭП для домов серии П44. 4.8. Использование в планировочно шумозащищенных общественно-жилых зданиях со стороны транспортного шума нежилых помещений, как правило, офисных, позволяет применять окна менее эффективные по шумозащитным показателям, чем в жилище. Например, для офисных помещений согласно МГСН 2.04-97 [2] уровни проникающего шума для интервала с 7 до 23 часов*) в зданиях категории А составляют 45 дБА, категории Б и категории В - 50 дБА, что значительно ниже нормативных требований для жилых помещений. ____________ *) Для времени суток с 23 до 7 часов нормативные уровни проникающего шума в офисных помещениях МГСН 2.04-97 [2] не регламентируются. При проектировании со стороны транспортного шума других типов помещений, нормативные уровни проникающего шума, определяющие требования к конструкциям окон и применяемым техническим средствам, следует определять по таблице 1 МГСН 2.04-97 [2]. 5. ПРИЕМЫ РАЗМЕЩЕНИЯ ШУМОЗАЩИЩЕННЫХ ЖИЛЫХ ЗДАНИЙ В ЗАСТРОЙКЕ5.1. Для защиты территории от воздействия транспортного шума, превышающего нормативные значения, предпочтительной является сплошная периметральная застройка шумозащищенными жилыми домами, или общественно-жилыми зданиями, или общественными зданиями с пониженными по сравнению с жилищем требованиями к шумозащите (в том числе гостиницы, административные здания и другие). 5.2. При необходимости защиты от транспортного шума территории со сложившейся застройкой (со зданиями, располагаемыми вдоль красных линий или приближенно к ним) новые шумозащищенные жилые здания должны примыкать к домам опорного фонда, обеспечивая формирование сплошной периметральной застройки. При невозможности формирования сплошной периметральной застройки, размещение отдельно стоящих шумозащищенных жилых зданий вдоль магистральной улицы с повышенным уровнем транспортного шума следует предусматривать с минимальными разрывами по отношению к существующим домам опорного фонда. 5.3. При застройке территории вдоль магистральной улицы с повышенным уровнем шума и невозможности формирования периметральной застройки, защита жилища и территории от шума осуществляется за счет размещения вдоль фронта магистрали шумозащищенных жилых домов (или общественно-жилых зданий), имеющих определенную конфигурацию (согласно требованиям п. 3.5). При воздействии дума от двух или трех магистральных улиц, конфигурация шумозащищенных домов должна определяться с учетом максимального снижения дискомфортного воздействия шума от этих улиц (см. Приложение 1). Шумозащищенные жилые дома (общественно-жилые здания) рекомендуется размещать на красных линиях застройки вдоль магистральных улиц, максимально приближая к проезжей части. 5.4. В шумозащищенных жилых домах и общественно-жилых зданиях рекомендуется максимальное сокращение числа проездов и открытых сквозных проходов. Проезды и открытые сквозные проходы рекомендуется предусматривать в боковых (или поворотных) объёмах. 5.5. При наличии в застройке вдоль магистральных улиц разрывов, через которые шум проникает вглубь квартала, рекомендуется свободная внутриквартальная планировка с применением небольших по протяженности зданий без четко выраженного второго эшелона застройки, параллельного первому (для исключения отражения шума). 5.6. Застройку, расположенную непосредственно за разрывами между шумозащищенными зданиями, следует защищать от шума или располагать ее на расстоянии, позволяющем обеспечить в ней нормативный акустический комфорт по всей высоте зданий в соответствии с нормативными и рекомендательными документами [17, 2, 6]. 5.7. Выбор типа шумозащищенных жилых домов (с конструктивно-техническими или планировочными средствами шумозащиты) для застройки магистральных улиц с повышенным уровнем транспортного шума следует осуществлять в зависимости от уровней транспортного шума на этих улицах, возможностей снижения уровня проникающего шума шумозащитными окнами и балконными дверями в комплексе с техническими средствами шумозащиты, а также с учетом экономической целесообразности применения перечисленных типов зданий. 5.8. Возможность постановки шумозащищенного дома (или общественно-жилого здания) определенного типа зависит от величины допустимого эквивалентного уровня звука (LфАэкв.доп., дБА) в дневное время у фасада, обращенного в сторону источника шума (транспортного потока). Величина допустимого в дневное время эквивалентного уровня звука у фасада LфАэкв.доп. должна быть больше ожидаемого эквивалентного уровня звука*) у фасада проектируемых зданий LфАэкв. в дневное время, то есть LфАэкв.доп. > LфАэкв. ___________ *) Определяется в соответствии с «Руководством по расчету и проектированию средств защиты в застройке от транспортного шума» и «Временными указаниями по расчету шума городского транспорта в застройке проектируемых новых и реконструируемых жилых районов Москвы» [18, 19]. При этом LфАэкв. учитывает снижение шума, достигаемое за счет удаления от источника шума размещения зеленых насаждений и экранов (в том числе подпорные, ограждающие и специальные защитные стенки и др.). 5.9. Допустимый эквивалентный уровень звука LфАэкв.доп. дБА в дневное время у фасада, обращенного в сторону источника шума (транспортного потока), рекомендуется определять для домов с конструктивно-техническими средствами шумозащиты по формуле LфАэкв.доп. = LПАэкв.доп. + D LАок. + D П, (I) а для домов с планировочными средствами шумозащиты LфАэкв.доп. = LПАэкв.доп. + D LАок. + D П + D LАэкр., (II) где LфАэкв.доп. - опустимый эквивалентный уровень звука в дБА в дневное время у фасада, обращенного в сторону магистральной улицы; LПАэкв.доп. - эквивалентный уровень звука, допускаемый в жилых помещениях в дневное время, который составляет для жилища 1 категории комфорта - 35 дБА, для жилища 2 категории комфорта - 40 дБА; D LАок. - снижение эквивалентного уровня звука окном*) в дБА; _____________ *) При применении окна с клапаном-глушителем D LАок. принимается по меньшей из возможных величин снижения эквивалентных уровней звука окном или клапаном-глушителем. D П - поправка «+5 дБА» согласно примечания 1 таблицы 1 МГСН 2.04-97; D LАэкр. - снижение эквивалентного уровня звука на противоположном источнику шума фасаде рассматриваемого здания в результате его экранирующего действия в дБА. Величину снижения эквивалентного уровня звука окном принимают для планировочно шумозащищенных домов D LАок. = 10 дБА (при открытых форточках, фрамугах или узких створках окон). Величину снижения эквивалентного уровня звука окном для домов с конструктивно-техническими средствами шумозащиты определяют по Приложению 5 (или по данным акустических изменений) при закрытых окнах и работе клапанов-глушителей или других аналогичных устройств в режиме проветривания. Величину D LАэкр. определяют расчетом в соответствии с «Руководством по расчету и проектированию средств защиты застройки от транспортного шума» [18]. 5.10. При проектировании в планировочно шумозащищенных жилых домах 1 категории комфорта помещения кабинета, обращенного в сторону источника шума (транспортного потока), допустимый эквивалентный уровню звука в дневное время у фасада LфАэкв.доп. в дБА, следует определять по формуле LфАэкв.доп. = LкАэкв.доп. + D LАок. + D П, (III) где, LкАэкв.доп. - эквивалентный уровень звука в дБА, допускаемый в кабинете, составляет 45 дБА. При использовании в этом помещении не шумозащитных окон величина снижения эквивалентного уровня звука (при открытых форточках, фрамугах или узких створках) окном D LАок. = 10 дБА. При этом допустимый эквивалентный уровень звука LфАэкв.доп. на расстоянии 2 м у фасада, обращенного в сторону источника шума, по формуле III составит 60 дБА. При размещении планировочно шумозащищенных жилых домов 1 категории комфорта с дополнительными помещениями квартир, включающими кабинет, по красным линиям магистральных улиц с шумовыми характеристиками 60 дБА и более в этих помещениях следует устанавливать шумозащитные окна. Величина снижения эквивалентного уровня звука такими окнами (D LАок.) должна составить величину, которая при подстановке в формулу III, определит значение LфАэкв.доп. не менее шумовой характеристики магистральной улицы*). ___________ *) Например, при использовании в помещениях кабинета шумозащитных окон типа «Евро» и клапанов-глушителей типа «Аэромат-80» (с D LАок. = 28 дБА), такой планировочно шумозащищенный жилой дом можно размещать по красным линиям магистральной улицы с шумовой характеристикой у фасада до 78 дБА включительно. 5.11. Существующие конструкции шумозащитных окон и балконных дверей, клапанов-глушителей [20]*), а также другие технические средства для проветривания, дают возможность снижения проникающего шума в основном на 25-28 дБА, что определяет возможность применения шумозащищенных жилых домов (или общественно-жилых зданий) с данными средствами шумозащиты при постановке их по красным линиям на магистральных улицах с уровнем транспортного шума: ___________ *) Для запроектированного МНИИТЭП вентиляционного клапана-глушителя КГ-9 величина снижения уровня шума в режиме проветривания составляет 35 дБА. - при размещении по фронту застройки жилища 2 категории комфорта - до 70 (73) дБА; - при размещении по фронту застройки жилища 1 категории комфорта - до 65 (68) дБА. Постановка шумозащищенных жилых зданий с конструктивно-техническими средствами шумозащиты*) по красным линиям магистральных улиц с уровнями транспортного шума выше рекомендуемых соответственно для жилища 1 и 2 категорий комфорта не допускается в связи с невозможностью обеспечения нормируемых акустических требований. Размещение таких зданий на расстоянии от красной линии, позволяющем обеспечить нормируемый акустический комфорт в жилище, допускается лишь при обосновании экономической эффективности использования свободной территории. ____________ *) С указанными выше звукоизолирующими свойствами окон, дверей, а также вентиляционных устройств с глушителями шума. При необходимости выполнения застройки вдоль красных линий магистральных улиц с уровнем транспортного шума, превышающем рекомендуемые выше значения соответственно для жилища I или II категории комфорта, следует использовать планировочно шумозащищенные жилые дома (или общественно-жилые здания). 6. ЭКОНОМИЧЕСКАЯ ОЦЕНКА ИСПОЛЬЗОВАНИЯ ПЛАНИРОВОЧНО ШУМОЗАЩИЩЕННЫХ ЖИЛЫХ ЗДАНИЙ6.1. Выбор типа шумозащищенного жилого дома (общественно-жилого здания) и применение его в застройке должен определяться требованиями к его шумозащите и экономичностью применяемых решений, а также эффективностью использования территории. 6.2. Экономически эффективной является постановка шумозащищенных жилых домов (общественно-жилых зданий) по красной линии застройки (требования к размещению см. раздел 5 настоящих «Рекомендаций»). При этом шумозащитные качества жилого дома (общественно-жилого здания) могут быть сформированы за счет использования конструктивно-технических средств шумозащиты или специальных планировочно шумозащищенных решений (соответственно с учетом требований разделов 3 и 4 настоящих «Рекомендаций»). 6.3. Повышение экономической эффективности применения шумозащищенных зданий может быть достигнуто за счет: - увеличения суммарной площади квартир, приходящейся на один лестнично-лифтовой узел; - уменьшения удельной площади наружных стен, приходящейся на 1 м2 площади квартир [21]; - снижения площади остекления, приходящейся на 1 м2 площади квартир; - увеличения средней ширины корпуса жилого здания. Повышение экономической эффективности применения шумозащищенных зданий с конструктивно-техническими средствами шумозащиты в значительной степени зависит от повышения звукоизолирующих свойств и снижения стоимости шумозащитных окон, балконных дверей и вентиляционных устройств с глушителями шума. 6.4. На экономичность решений шумозащищенных жилых зданий при постановке их на различных сторонах магистральных улиц влияет также и выбор типа планировочной структура этого здания (или его жилой части), а также категории комфорта проектируемого жилища (см. табл.1). В таблице 1 приведены сравнительные данные по стоимостным показателям и экономии тепла по шумозащищенным жилым домам по проектным предложениям (Приложение 2) и данным проектно-строительной практики (Приложение 3), а также домам серий П44 и П30 при применении конструктивно-технических средств шумозащиты. 6.5. При постановке на магистральных улицах с повышенным уровнем транспортного шума планировочно шумозащищенных жилых домов более эффективным является применение жилища с квартирами 1 категории комфорта с увеличенным выходом суммарной площади квартир в расчете на лестнично-лифтовой узел, что определяется возможностью увеличения площадей квартир и выполнения в них дополнительных помещений, в том числе ориентированных на сторон шума. 6.6. При застройке северной стороны магистральной улицы экономически целесообразно применять планировочно шумозащищенные жилые дома универсальной ориентации коридорно-секционной, коридорной или секционной структур с центральным коридором и квартирами в двух уровнях (1 или 2 категория комфорта) или секционной - с размещенными на этаже секции 2-мя одноуровневыми квартирами увеличенной площади (1 категория комфорта). 6.7. При застройке южной, восточной и западной сторон магистральных улиц планировочно шумозащищенными жилыми домами экономически эффективны коридорно-секционные, коридорные или секционные структуры с центрально расположенным коридором и квартирами в двух уровнях. Целесообразно также применение секционных планировочно шумозащищенных структур с числом квартир на этапе секции 4 и более, в том числе - Т-образных секций. Таблица 1 СРАВНИТЕЛЬНЫЕ ЭКОНОМИЧЕСКИЕ ПОКАЗАТЕЛИ ПО ПРОЕКТАМ ЖИЛЫХ ДОМОВ
_________ *) А также шумозащитные балконные двери. Приложение 1.
| ||||||||||||||||||||||||||||||||||||||||||||||||||||||||||||||||||||||||||||||||||||||||||||||||||||||||||||||||||||||||||||||||||||||||||||||||||||||||||||||||||||||||||||||||||||||||||||||||||||||||||||||||||||||||||||||||||||||||||||||||||||||||||||||||||||||||||||||||||||||||||||||||||||||||||||||||||||||||||||||||||||||||||||||||||||||||||||||||||||||||||||||||||||||||||||||||||||||||||||||||||||||||||||||||||||||||||||||||||||||||||||||||||||||||||||||||||||||||||||||||||||||||
|
№ п/п |
Примеры застройки |
Типы шумозащищенных жилых домов и секций |
|
|
|
1 |
2 |
3 |
|
|
|
I |
|
|
с планировочными средствами шумозащиты |
|
|
II |
|
|||
|
|
||||
|
III |
|
|
||
|
IV |
|
|
с конструктивно-техническими средствами шумозащиты |
|
|
Условные обозначения:
фасад, подверженный шуму внеквартирные коридоры, холлы внеквартирные лестницы, лифтовые шахты и лифтовые холлы Застройка планировочно шумозащищенными домами, в том числе: А - любой стороны магистральной улицы секциями или коридорными (коридорно-секционными) домами универсальной ориентации; Б - южной, восточной и западной сторон магистральной улицы секциями ограниченной ориентации. Застройка домами с конструктивно-техническими средствами шумозащиты, в том числе: В - многосекционными и другими типами домов. Планировочные схемы: 1 - коридорная с квартирами в двух уровнях и центральным коридором через этаж по высоте здания; 2 - коридорно-секционная с квартирами в двух уровнях и центральным коридором через этаж по высоте здания; 3 - секционная с 2 квартирами на этаже секции универсальной ориентации; 4 - секционная с 6-8 квартирами на этаже широтной Т-образной секции; 5 - секционная с 4 квартирами на этаже широтной секции; 6 - секционная с обычной планировочной структурой. *) С квартирами I категории комфорта **) С квартирами I и II категорий комфорта ***) С квартирами II категории комфорта |
|
|||
|
№ вар. |
Ориентация |
Схема дома, планы секции или фрагмента этажа коридорного дома |
|
1 |
2 |
3 |
|
4 |
Ю В З |
|
|
5 |
С Ю В З |
|
|
7 |
С Ю В З |
|
|
9 |
С Ю В З |
|
|
11 |
Ю В З |
|
|
13 |
Ю В З |
|
|
УСЛОВНЫЕ ОБОЗНАЧЕНИЯ Стороны магистральных улиц: С - северная; Ю - южная; В - восточная; З - западная; D - шум |
||
|
№ вар. |
Ориентация |
Схема дома, планы секции или фрагмента этажа коридорного дома |
|
1 |
2 |
3 |
|
6 |
С Ю В З |
|
|
8 |
С Ю В З |
|
|
10 |
С Ю В З |
|
|
12 |
Ю В З |
|
|
14 |
Ю В З |
|
|
УСЛОВНЫЕ ОБОЗНАЧЕНИЯ Стороны магистральных улиц: С - северная; Ю - южная; В - восточная; 3 - западная; D - шум |
||

Рис. 1 Схема разреза общественно-жилого здания с вертикальным зонированием

Рис. 2. Схема разреза общественно-жилого здания с горизонтальным зонированием
Условные обозначения:
|
|
- жилье |
|
- нежилые помещения |
|
ТИП КОНСТРУКЦИИ ОКНА СХЕМА ОСТЕКЛЕНИЯ |
Формула остекления мм |
Снижение транспортного шума DL, дБА |
|||
|
В закр. положении |
В режиме проветрив. |
||||
|
1 |
2 |
3 |
4 |
5 |
|
|
1. |
Спаренная по ГОСТ 11214-86 |
|
6 + 57 + 1 |
28 |
15 |
|
2. |
Спаренная по ГОСТ 11214-86 |
|
3 + 57 + 3 |
24 |
15 |
|
3. |
Раздельная по ГОСТ 11214-86 |
|
3 + 95 + 3 |
28 |
15 |
|
4. |
Раздельная по ГОСТ 11214-86 |
|
6 + 95 + 4 |
31 |
15 |
|
5. |
Раздельная со стеклопакетом и стеклом по ГОСТ 24699-81 |
|
(3 + 21 + 3) + 56 + 3 |
33 |
15 |
|
6. |
Раздельная со стеклопакетом и стеклом ДОК-1, ДОК-6 ОАО МПСМ |
|
(4 + 9 + 4) + 114 + 4 |
341) |
15 |
|
7. |
Раздельно-спаренная по ГОСТ 11289-86 |
|
3 + 57 + 3 + 46 + 3 |
33 |
15 |
|
8. |
Раздельное 2РШ по альбому РМ-1372 доп. 1 с клапаном-глушителем КГ-9 (МНИИТЭП) |
|
6 + 128 + 4 |
39 |
30 |
|
9. |
Со стеклом и стеклопакетом в одинарном переплете («Барановичидрев») |
|
(3 + 12 + 3) + 44 + 3 |
33 |
15 |
|
10. |
С двухкамерным стеклопакетом с вентклапаном «Аэромат-80» |
|
(4 + 12 + 4 + 12 + 4) |
31 |
28 |
|
11. |
С двухкамерным стеклопакетом «Евроокно» (ДОК-3, ОАО МПСМ) |
|
(4 + 8 + 4 + 8 + 4) |
30 |
15 |
|
12. |
Со стеклопакетом (ОАО МПСМ) |
|
(4 + 20 + 4) |
251) |
15 |
|
13. |
Дерево-алюминиевое со стеклопакетом и стеклом (ОАО «Заречье») |
|
(5 + 15 + 5) + 46 + 5 |
33 |
15 |
|
14. |
Со стеклом и стеклопакетом ОРТШВ (АООТ ДСК-1) |
|
(4 + 9 + 4) + 114 + 4 |
33-35 |
23-25 |
|
15. |
Остекление балконов и лоджий |
|
3 |
+ 172) |
+ 72) |
Примечания:
1) По данным изготовителей.
2) При расчетах суммируется со значениями снижения транспортного шума DL (дБА) окон.
1. Что волнует на пороге XXI века. Ресин В. - Строительная газета. № 10. 6 марта 1998 г.
3. СН 2.2.4/2.1.8.562-96. Шум на рабочих местах, в помещениях жилых, общественных зданий и на территории жилой застройки.
4. МГСН 3.01-96 Жилые здания.
5. МГСН 4.04-94* Многофункциональные здания.
6. СНиП II-12-77 Защита от шума.
7. МГСН 4.06-96 Общеобразовательные учреждения.
8. МГСН 4.07-96 Дошкольные учреждения.
9. МГСН 4.08-97 Массовые типы физкультурно-оздоровительных учреждений.
10. МГСН 4.09-97 Здания органов социальной защиты населения.
11. МГСН 4.10-97 Здания банковских учреждений.
12. МГСН 4.13-97 Предприятия розничной торговли.
13. МГСН 4.14-98 Предприятия общественного питания.
14. СНиП 2.08.02-89* Общественные здания.
15. МГСН 2.05-99 Инсоляция и солнцезащита.
16. МГСН 2.06-97 Естественное и искусственное освещение.
17. Защита от шума в градостроительстве. Справочник проектировщика. - М., 1993.
18. Руководство по расчету и проектированию средств защиты в застройке от транспортного шума. - М.: Стройиздат, 1982.
21. МГСН 2.01-98 Энергоснабжение в зданиях. Нормативы по теплозащите и тепловодоэлектроснабжению.
|
|
|
|