//
ТехЛит.ру
- крупнейшая бесплатная электронная интернет библиотека для "технически умных" людей.
WWW.TEHLIT.RU - ТЕХНИЧЕСКАЯ ЛИТЕРАТУРА

:: Алготрейдинг::


АЛГОТРЕЙДИНГ
шаг за шагом
с нуля по урокам!

Торговые роботы на PYTHON, BackTrader,
Pandas, Pine Script для TradingView. Связка с брокерами, телеграм и легкими приложениями.


ГОСУДАРСТВЕННАЯ СЛУЖБА ДОРОЖНОГО ХОЗЯЙСТВА
МИНТРАНСА РОССИИ
(РОСАВТОДОР)

ГОСУДАРСТВЕННАЯ ИНСПЕКЦИЯ БЕЗОПАСНОСТИ
ДОРОЖНОГО ДВИЖЕНИЯ МВД РОССИИ

РЕКОМЕНДАЦИИ
ПО ПРИМЕНЕНИЮ ОГРАЖДАЮЩИХ
УСТРОЙСТВ НА МОСТОВЫХ СООРУЖЕНИЯХ
АВТОМОБИЛЬНЫХ ДОРОГ

Согласовано                                                                           Утверждены

Зам начальника ГИБДД МВД России                              первым заместителем

___________ В.А. Федоров                                                Минтранса России

5.05.2001 г.                                                                         В.Г. Артюховым

(Распоряжение № 114-р

от 7 05 2001 г)

Москва 2001

СОДЕРЖАНИЕ

Введение. 2

1. Классификация конструкций. 2

2. Классификация условий движения. 3

3. Требования к конструкциям ограждений. 4

4. Рекомендуемые для применения парапетные железобетонные ограждения. 5

5. Рекомендуемые для применения барьерные ограждения на базе ГОСТ 26804-86. 8

5.1. Конструкции по ГОСТ 26804-86. 8

5.2. Конструкции по ГОСТ 26804-86 на бордюре. 9

5.3. Конструкции по ГОСТ 26804-86 с трубой усиления (поручнем) 9

5.4. Конструкции по ГОСТ 26804-86 в сооружениях без тротуаров и служебных проходов. 9

6. Рекомендуемые для применения другие барьерные ограждения. 12

6.1. Стандартные ограждения с изменениями. 12

6.2. Ограждения с двумя W-образными направляющими элементами. 13

6.3. Ограждения фирмы «Фракассо» 14

6.4. Ограждения фирм «ТрансЭкоСтрой» и «Южуралавтобан». 16

7. Рекомендации по установке и расчету. 17

7.1. Сопряжение барьерных ограждений мостовой группы с ограждениями на подходах. 17

7.2. Сопряжение барьерных ограждений с парапетными. 19

7.3. Деформационные швы в ограждениях. 20

7.4. Расчет узлов крепления ограждений. 22

8. Итоговая область применения ограждений. 25

Список литературы.. 27

Приложение Анализ возможностей применяемых конструкций ограждений. 27

1. Типовые и стандартные конструкции. 28

1.1. Бордюрные ограждения. 28

1.2. Парапетные ограждения. 29

1.3. Барьерные ограждения по ГОСТ 26804-86. 30

2. Барьерные ограждения по ГОСТ 26804-86 с улучшенными параметрами. 34

3. Конструкции барьерных ограждений, имеющие многолетний опыт эксплуатации. 35

4. Новые отечественные и зарубежные конструкции, имеющие разрешение на применение. 42

4.1. Отечественные конструкции мостовой группы, имеющие сертификат соответствия. 42

4.2. Импортные конструкции ограждений, разрешенные к применению на автомобильных дорогах общей сети. 42

ВВЕДЕНИЕ

С выходом отраслевых дорожных норм «ОДН 218.012-99». Общие технические требования к ограждающим устройствам на мостовых сооружениях, расположенных на магистральных автомобильных дорогах» [1] остро встал вопрос о конструкциях ограждений, удовлетворяющих требованиям норм. В настоящее время ни одно из применяемых на мостовых сооружениях ограждений не имеет официально утвержденных показателей их функциональных свойств, согласно которым можно осуществить выбор конструкций. Это касается и стандартных конструкций по ГОСТ 26804-86. «Ограждения дорожные металлические барьерного типа» [2], и конструкций по типовым проектам (серия 3.503.1-81; инв.№ 1318/6, СДП или [3]), и конструкций, близких к типовым или стандартным, нашедших широкое применение. Отсутствие технических требований к ограждениям не только усложняет выбор конструкций под ОДН 218.012-99, но и заставляет сомневаться в пригодности типовых и стандартных конструкций.

В качестве основных характеристик мостовых ограждений (пока только для дорог I технической категории) па сегодня официально приняты:

· удерживающая способность (кДж) - максимальное значение энергии движения автомобиля в момент контакта с ограждением, которая может быть воспринята (энергоемкость);

· высота ограждения, назначаемая из условия устойчивости против опрокидывания расчетного (для дороги той или иной категории) автомобиля;

· прогиб ограждения - максимальная величина смещения продольного направляющего элемента (балки) в поперечном направлении при расчетном воздействии в момент наезда;

· реакция ограждения - предельная допустимая величина поперечной перегрузки на водителя (пассажира) и перевозимый груз при столкновении автомобиля с ограждением.

Из указанных параметров лишь требования по высоте ограждений содержатся в нормах на проектирование и типовых проектах, в соответствии с которыми в России устраивали барьерные и парапетные ограждения в течение многих лет [4].

В настоящих Рекомендациях авторы постарались устранить указанный пробел: для всех ограждений, которые рекомендованы к применению на мостовых сооружениях, даны характеристики, достаточные для принятия решения о возможности установки той или иной конструкции ограждений в определенных условиях.

Целью Рекомендаций является определение области применения стандартных, разработанных на базе стандартных и типовых конструкций ограждений, а также выявление возможности реализации этими конструкциями требований, предъявляемых к ограждениям, устанавливаемым на мостовых сооружениях.

В основу определения параметров различных конструкций, и в первую очередь удерживающей способности, положены методики их расчета, разработанные по результатам экспериментальных работ 1976-1979 гг. (Союздорнии [5], [6], [7], [8], [9]), 1982, 1995 и 1999 гг., Росдорнии [1], [10], [11]) с учетом материалов натурных испытаний различных конструкций в нашей стране и за рубежом.

Рекомендации разработаны творческим коллективом в составе: к.т.н. В.И.Шестерикова (руководитель работ, ГП Росдорнии), к.т.н. И.Д Сахаровой (Союздорнии), к.т.н. Е.П.Коншина (НИЦ ГИБДД), к.т.н., с.н.с. Б.Н.Баварова (Росавтодор), С.А.Соболева (ГУ ГИБДД МВД России), инж. С.А.Заворотного (Волгоградский ПТЦ Росдорнии).

Рекомендации могут быть использованы при выборе конструкций для мостовых сооружений не только на общей сети автомобильных дорог, но и в городах.

1. КЛАССИФИКАЦИЯ КОНСТРУКЦИЙ

1.1. В зависимости от расположения в пределах мостового полотна конструкции ограждений подразделяются на установленные:

·       между проезжей частью и тротуаром (служебным проходом);

·       на краю стороны сооружения без тротуаров (служебных проходов);

·       на разделительной полосе.

По классификации ГОСТ 26804-86 указанные конструкции являются односторонними (наезд возможен только с одной стороны). Конструкции, устанавливаемые на разделительной полосе, могут быть двусторонние.

1.2. По внешнему виду конструкции ограждений подразделяют на ограждения бордюрного, парапетного и барьерного типов*) (в дальнейшем - бордюрные, парапетные и барьерные ограждения - формулировка СНиП 2.05.03-84).

*) Формулировка ГОСТ 26804-86.

Бордюрные ограждения (бордюр) - элемент мостового полотна, обозначающий границу проезжей части и препятствующий выезду транспортных средств за ее пределы. К бордюрам относятся элементы (например, бордюрные камни) высотой до 50 см с вертикальной стенкой либо иной конфигурации, при которой сохраняется условие взаимодействия колеса с бордюром, характерное для вертикальной поверхности (см. Приложение).

Парапетное ограждение - элемент мостового полотна в виде стенки высотой более 50 см, устанавливаемой на границе проезжей части. В СНиП 2.03.05-84 первоначально высота парапетных ограждений была принята равной 60 см. Появление новых транспортных средств (по сравнению с периодом конца 70-х годов) с иными геометрическими и весовыми параметрами, новыми характеристиками системы подрессоривания автомобиля привело к увеличению минимальной высоты парапетных ограждений до 75 см - редакция СНиП 2.05.03-84* 1996г.

Барьерное ограждение - элемент мостового полотна, устанавливаемый по границам проезжей части и имеющий непрерывную направляющую балку (планку), прикрепленную к стойкам, т.е. для барьерных ограждений обязательно наличие стоек и продольных балок. По степени податливости барьерные ограждения могут быть жесткими с железобетонными стойками и продольными брусьями, полужесткими с деформирующимися стойками и гибкими балками и гибкими с тросовыми направляющими элементами. В настоящей работе из барьерных ограждений рассмотрены только наиболее эффективные для мостовых сооружений - полужесткие ограждения. Причем акцент сделан на отечественные барьерные ограждения, в основном разработанные на базе стандартных конструкций, прошедших всесторонние исследования.

2. КЛАССИФИКАЦИЯ УСЛОВИЙ ДВИЖЕНИЯ

Характеристики участков дороги с мостовым сооружением с различными условиями движения фактически являются расшифровкой требований табл. 10 и 46 СНиП 2.05.02-85 (табл. 1).

Таблица 1

Категория дороги

Условия движения на мостовом сооружении

легкие

затрудненные

опасные

α

Rм

N

α

Rм

N

α

Rм

N

I (шесть полос и более)

≤30

≥3000

≤0,3

≤30

≥1000

≤0,5

>30

<1000

>0,5

I (четыре полосы)

≤30

≥2500

≤0,3

≤30

≥1000

≤0,5

>30

<1000

>0,5

II

≤30

≥2500

≤0,3

≤30

≥900

≤0,5

>30

<900

>0,5

III

≤30

≥2000

≤0,3

≤40

≥800

≤0,5

>40

<800

>0,5

IV

≤30

≥1500

≤0,3

≤50

≥700

≤0,5

>50

<700

>0,5

Изменение одного из трех параметров ведет к изменению условий движения.

В табл. 1 обозначено:

α - продольный уклон на мосту и подходах;

R - радиус кривой в плане мостового сооружения,

N - уровень загрузки участка дороги.

Для мостовых сооружений (МС) длиной свыше 200 м класс условий движения повышается, для малых мостов (длина до 25 м) - понижается.

Например:

1. Условия движения на МС длиной свыше 200 м, располагающемся на участке дороги с легкими или затрудненными условиями движения, следует принимать как затрудненные или тяжелые соответственно.

2. Условия движения на МС длиной до 25 м, располагающемся па участке дороги с затрудненными или опасными условиями движения, следует принимать как легкие или затрудненные соответственно.

3. ТРЕБОВАНИЯ К КОНСТРУКЦИЯМ ОГРАЖДЕНИЙ

В настоящее время основные общие требования имеются только для ограждений применительно к мостовым сооружениям на дорогах I технической категории (четыре полосы движения и более), которые приведены в ОДН 218.012-99. Часть этих требований справедлива для ограждений, устанавливаемых на мостовых сооружениях дорог всех категорий: общие требования, требования назначения, требования надежности, допустимые прогибы, требования по установке и защите от коррозии. Однако для мостов с двумя полосами движения некоторые требования отличаются. Требования для мостовых ограждений, устанавливаемых на сооружениях с двумя и более полосами движения (категория дороги I-IV), приведены ниже.

Высоту ограждений принимают в соответствии с требованиями табл. 2

Таблица 2

Категория дороги (габарит моста)

Условия движения на дороге

Высота ограждения, м

тротуары или служебные проходы имеются

тротуары или служебные проходы отсутствуют

I (Г-19 и более)

Опасные

1,1

1,5

Затрудненные

1,1

1,3

Легкие

0,9

1,1

II (Г-11,5)

Опасные

0,90

1,3

Затрудненные

0,75

1,1

Легкие

0,75

1,1

III (Г-10 м)

Опасные

0,75

1,1

Затрудненные

0,75

1,1

Легкие

0,75

1,1

IV (Г- 8 м)

Опасные

0,75

1,1

Затрудненные

0,60

1,0

Легкие

0,60

1,0

При расчетном наезде автомобиля на барьерное ограждение [9] склонение верха стоек, а следовательно сужение габарита служебного прохода или тротуара шириной 1,0 м, не должно превышать 0,5 м. При ширине тротуара более 1,0 м сужение пешеходного габарита не должно превышать 0,75 м. Указанные ограничения вызваны необходимостью обеспечения безопасности прохода пешеходов. Исходя из условия минимального повреждения автомобиля, конструктивно должно быть обеспечено требование ограничения смещения колеса за лицевую плоскость стойки величиной "в" (в - ширина ската). В частности, при расчетном наезде на стандартное ограждение с шагом стоек 2 м (Е = 150 кДж) переднее колесо грузового автомобиля смещается поперек оси ограждения после контакта со стойкой еще на величину около 0,3 м.

Удерживающая способность ограждений должна соответствовать требованиям табл. 3.

Таблица 3

Категория дороги

(число полос движения)

Удерживающая способность в кДж при условиях движения на дороге

легкие

затрудненные

опасные

I (шесть полос и более)

300

400

500 (700*))

I (четыре полосы), Г-19¸21

200

300

400 (600*))

II (две полосы). Г-10¸11,5

150

200

300

III (две полосы), Г-9¸10

125

175

250

IV (две полосы), Г-7,5¸8

100

150

200

*) Указано значение энергии для автопоезда общим весом Q = 36 т.

Исходя из обеспечения надежности, следует дополнительно обеспечить требования по закреплению конструкций в плите проезжей части или других элементах мостового полотна (карнизе, цоколе, тротуаре и т.д.). При выборе ограждений для мостовых сооружений необходимо иметь в виду следующее:

а) конструкция ограждения не должна вызывать изменение закладных деталей балок, устанавливаемых при их бетонировании (закладная деталь и ее анкера рассчитаны на крутящий момент 4,0 тс.м);

б) конструкция ограждения не должна вызывать изменение типовых размеров железобетонной плиты или ее армирование; применяемые типовые железобетонные балки имеют такое сечение и армирование плиты, при которых на плиту можно передать крутящий момент (на длине 1 м) 4 тс.м на консольной части и 5 тс.м в средней части;

в) при закреплении конструкций болтами, пропускаемыми через всю толщину железобетонной плиты, в бетоне плиты не должно появляться напряжений, превышающих расчетные сопротивления на изгиб с коэффициентом условия работ 0,9 (усилие на отдельный болт не должно превышать 10 тс при толщине плиты 20 см и 6 тс при толщине плиты 15 см, включая усилие натяжения).

В 1995 г. ГП Росдорнии выпустило "Альбом технических решений по усилению (установке) ограждений на эксплуатируемых мостах", утвержденный Росавтодором и МВД РФ [11]. "Альбом" предусматривает в том числе использование барьерных ограждений для наращивания низких парапетов, т.е. допускает применение комбинированных ограждений. Расчетный наезд на подобные комбинированные ограждения не должен приводить к разрушению парапетов и повреждению слоев одежды у них.

К дополнительным требованиям, предъявляемым к барьерным ограждениям, следует отнести и требование «единообразия условий движения» на дороге и мостовом сооружении. То есть, если на дороге в качестве направляющего элемента бокового ограждения применен волновой профиль, то и на мостовом сооружении желательно использовать такой же профиль.

Исходя из особенностей конструкций пролетных строений, можно сформулировать и специальные конструктивные требования к ограждениям, устанавливаемым на мостовых сооружениях общей сети.

А. Парапетные ограждения

·       Форма лицевой поверхности парапетного ограждения должна быть такой, чтобы горизонтальное расчетное усилие от наезда расчетного автомобиля не превышало 200 kN (с учетом коэффициента надежности n=1,5 по [4]) для типовых конструкций.

·       В пролетных строениях индивидуального проектирования могут быть установлены парапетные ограждения с формой лицевой поверхности, вызывающей большее (до 250 kN) горизонтальное усилие.

·       Парапетное ограждение должно быть армировано продольной рабочей арматурой (предпочтительно Æ14¸18 клАIII) и хомутами, причем число промежуточных рядов продольной арматуры должно быть не менее двух при высоте парапетного блока до 60 см и не менее трех - при высоте до 80 см.

·       Длину блоков парапетных ограждений, прикрепляемых к закладным деталям с помощью сварки или болтами, целесообразно назначать равной 3 и 4 м с количеством мест крепления соответственно 4 и 5 (шаг 0,8 м).

Б. Барьерные ограждения

·       Сечение стоек барьерных ограждений, устанавливаемых на типовых пролетных строениях мостовых сооружений общей сети, следует назначать таким, чтобы момент сопротивления не превышал W=100 см3, а в пролетных строениях индивидуального проектирования - W£150 см3. Стойки крепят болтами к закладным деталям или подставкам (столикам), которые приваривают к закладным деталям в балках. При этом плоскость крепления стоек должна быть не ниже верха покрытия проезжей части.

·       В барьерных ограждениях в качестве направляющею элемента наиболее целесообразно использовать балки волнового профиля, стыкуемые на подходах с аналогичными профилями дорожного ограждения.

·       Барьерные ограждения с двухволновой балкой с целью увеличения удерживающей способности могут быть установлены на цоколь, бордюр или парапет. При этом расстояние от верха покрытия до низа продольной балки не должно быть больше 80 см, а лицевая плоскость балки должна располагаться к оси мостового сооружения ближе, чем верх парапета (бордюра, цоколя) с целью удержания легковых автомобилей весом менее 10 kN от опрокидывания и снижения вертикального ускорения.

4. РЕКОМЕНДУЕМЫЕ ДЛЯ ПРИМЕНЕНИЯ ПАРАПЕТНЫЕ ЖЕЛЕЗОБЕТОННЫЕ ОГРАЖДЕНИЯ

4.1. Парапет высотой H=60 см, наклон лицевой поверхности 7:1¸6,5:1 (рис. 1, б, удерживающая способность 200 кДж).

Применяют на мостовых сооружениях дорог IV категории с легкими и затрудненными условиями движения на дороге при наличии тротуаров или служебных проходов. Парапеты могут быть выполнены в монолитном и сборном вариантах. При монолитном исполнении парапет объединяют с пролетным строением арматурой, устанавливаемой при изготовлении балок (оставляют выпуски хомутов диаметром 6-8 мм с шагом 120-150 мм из стали кл. A-I) или перед бетонированием (устанавливают анкера Æ 12-14 из арматуры кл. A-II с шагом 200 мм в просверленные в бетоне отверстия). На вертикальной и наклонной поверхностях устраивают козырьки для заведения гидроизоляции со стороны проезжей части и со стороны тротуара (рис. 2а).

Рис. 1. Размеры бордюров (а) и парапетов (б), использованных в рекомендуемых конструкциях ограждений

При сборном исполнении парапета (рис. 2б) блоки изготавливают в заводских условиях и устанавливают на свежий цементно-песчаный раствор, уложенный поверх гидроизоляции. В блоках имеются окна для крепления с помощью сварки к закладным деталям, находящимся в балках под гидроизоляцией.

4.2. Парапет высотой Н=75 см, наклон лицевой поверхности 7:1¸6,5:1 (удерживающая способность 300 кДж, рис. 1, б).

Применяют на мостовых сооружениях с тротуарами на дорогах II, III и IV технических категорий при следующих условиях движения на дороге:

а) IV категории - опасные;

б) III категории - легкие и затрудненные;

в) II категории - легкие и затрудненные.

Рис. 2. Варианты устройства парапетных ограждений:

а - монолитное исполнение; б - сборное исполнение, 1 - покрытие на тротуаре; 2 - сборный железобетонный блок парапета; 3 - закладная деталь в парапете; 4 - бетон в пределах полосы безопасности; 5 - гидроизоляция; 6 -раствор под блоком; 7 - стыковочная полоса (пластина); 8 -закладная деталь в балке (гидроизоляция над закладной деталью вырезана); 9 - пропитанный бетону границы с закладной деталью

Как и в предыдущем случае, возможно сборное и монолитное исполнение железобетонных блоков.

Область применения парапетных ограждений с иной формой лицевой поверхности определяется дополнительными расчетами или испытаниями.

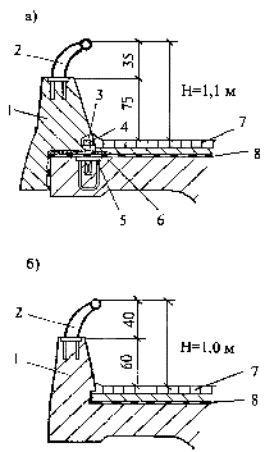
4.3. Парапетное ограждение на мостовых сооружениях без тротуаров

Типовая конструкция (Н=75 см; i=7 (6,5):1) может быть применена по краям пролетных строений без тротуаров при условии установки на парапет поручня в виде жесткой балки на стойках (рис. 3). Балки могут быть выполнены из коробчатого профиля, двутавра или трубы с сечением, имеющим момент сопротивления W»100 см3 (предпочтительней использование трубы диаметром не менее 120 мм). Момент сопротивления стоек должен находиться в пределах 50≤Wст≤100 см3. Крепление стойки к парапету осуществляют с помощью болтов М-20 с "глухой" гайкой, прижимающих фланец к закладной детали. На один сборный блок парапета устанавливают не менее двух стоек, шаг стоек не должен превышать 3 м.

Указанную конструкцию ограждения общей высотой 1,1 м с удерживающей способностью E=300*) кДж устраивают при следующих условиях движения на дороге:

а) IV категории - опасные;

б) III категории - любые,

в) II категории - легкие и затрудненные;

г) I категории - легкие.

*) При изменении сечения и крепления парапета с поручнем из расчета по прочности на усилие N = 25 тс удерживающая способность составляет 400 кДж (ширина парапета по низу ³0,5 м).

Парапет высотой 60 см (см. п. 4.1) с поручнем на стойке высотой 40 см (общая высота 1,0 м) может быть установлен на сооружениях без тротуаров или служебных проходов на дорогах IV категории с легкими и затрудненными условиями движения (рис. 3 б).

Парапетные ограждения с поручнем общей высотой 1,1 м могут быть применены на сооружениях с тротуарами на дорогах II категории (при опасных условиях движения) и I категории при четырех полосах движения с легкими и затрудненными, а при изменении сечения - с опасными условиями движения.

Рис. 3. Рекомендуемые типовые парапетные ограждения с поручнем (для сооружений без тротуаров):

1 - парапет; 2 - дополнительный поручень; 3 - ниша для болта; 4 - болт М-24¸М27; 5 - закладная деталь; 6 - цементно-песчаный раствор; 7 - асфальтобетонное покрытие; 8 - гидроизоляция с защитным слоем

5. РЕКОМЕНДУЕМЫЕ ДЛЯ ПРИМЕНЕНИЯ БАРЬЕРНЫЕ ОГРАЖДЕНИЯ НА БАЗЕ ГОСТ 26804-86

5.1. Конструкции по ГОСТ 26804-86 (рис. 4)

Применяют с шагом стоек от 1,0 до 3,0 м (1,0; 1,33; 1,5; 2,0; 3,0 м) стойки высотой 75 см из двутавра № 12, энергоемкость от 110 до 200 кДж (рис 5, а)

Устанавливают на мостовых сооружениях при следующих условиях движения на дорогах

·       IV категории - опасные - шаг стоек 1,33 м (Етр = 200 кДж);

·       III категории - легкие и затрудненные - шаг стоек соответственно 2,0 и 1,5 м (Етр = 125 кДж и Етр = 175 кДж);

Рис. 4. Ограждения по ГОСТ 26804-86:

а - в обычном исполнении; б - на цоколе

·        II категории - легкие и затрудненные - шаг стоек соответственно 2,0 и 1,33 м (Етр = 150 кДж и Eтр, = 200 кДж); (Етр - требуемая энергоемкость, табл. 3).

Шаг стоек, м

Значение энергоемкости, кДж

а = 1,33

200

220

275

300

а = 1,5

190

200

250

280

а = 2

150

150

200

250

а = 3

110

120

150

200

Высота бордюра h, см

-

15

30

40

схема

а

б

в

г

Рис. 5. Конструкция барьерных ограждений по ГОСТ 26804-86

Аналогичные области применения имеют и стандартные ограждения на цоколе (бордюре) высотой 15 см (рис. 5, б). Ограждения с шагом стоек 3 м (Е = 110 кДж) могут быть устроены на сооружениях дорог IV категории с легкими условиями движения. В остальных случаях применение шага стоек 3,0 м недопустимо.

5.2. Конструкции по ГОСТ 26804-86 на бордюре*

Используют стойки высотой 60 см.

а) Бордюр высотой 30 см. Устраивают в случаях, когда требуется высота ограждения 90 см, в частности (рис. 5 в):

·       дорога I категории (четыре полосы) с легкими условиями движения (Е = 200 кДж, шаг стоек 2,0 м).

б) Бордюр высотой 35 см. Применяют в случаях, когда требуется высота ограждения 90 см (как и при бордюре 30 см), именно при условиях:

·        дорога II категории, опасные условия - шаг стоек 1,33 м;

·        дорога I категории, шесть полос, легкие условия - шаг стоек 1,33 м.

в) Бордюр высотой 40 см. Устраивают в случаях, когда требуется высота ограждения не менее 90 см, а энергоемкость 300 кДж, в частности (рис. 5 г):

·        дорога II категории, опасные условия движения (Етр = 300 кДж), шаг стоек 1,5 м (H = 100 см);

·        дорога I категории (4 полосы), затрудненные условия движения (Етр = 300 кДж), шаг стоек 1,5 м.

*  Бордюры, как и парапеты, устраиваются без разрывов.

5.3. Конструкции по ГОСТ 26804-86 с трубой усиления (поручнем)

В целях увеличения числа стоек, включаемых в работу при наезде на барьерное ограждение, и повышения таким образом энергоемкости, конструкция, предложенная Союздорнии в 1990 г., была детально рассчитана в Росдорнии в 1999 г. и с уточненными размерами установлена на нескольких сооружениях, в том числе и на автомагистрали М-4 "Дон" (участок "МКАД-Кашира", рис. 6).

Стандартные конструкции с установленной на стойки трубой усиления диаметром ~120 мм на уровне 1,0 м (полная высота Н -= 1,1 м, рис. 7 а) рекомендуется применять на мостовых сооружениях с тротуарами или служебными проходами, расположенных на дорогах I технической категории:

а) магистральные дороги с числом полос шесть и более - при легких условиях движения и шаге стандартной стойки не более 1,5 м;

б) дороги с четырьмя полосами движения - при легких и затрудненных условиях движения с шагом стандартной стойки 3,0 и 1,5 м соответственно.

Кроме того, их использование возможно на мостовых сооружениях с опасными условиями движения на дорогах II технической категории (Н = 1,1 м; шаг стоек 1,5 м; Е = 300 кДж).

5.4. Конструкции по ГОСТ 26804-86 в сооружениях без тротуаров и служебных проходов

Стандартные ограждения могут быть установлены на краю пролетного строения в сооружениях без тротуаров и служебных проходов в следующих случаях:

Дороги IV категории:

·       на бордюре высотой 40 см со стойкой высотой 60 см (общая высота 1 м) с шагом стоек 3,0 или 2,0 м соответственно для легких и затрудненных условий движения (рис. 5 г).

·       на бордюре высотой 25 см со стойкой высотой 75 см (общая высота 1,0 м) с шагом стоек 3,0 и 2,0 м соответственно для легких и затрудненных условий движения;

·       с трубой усиления (общая высота 1,1 м) с шагом стоек 3 м (рис. 7 а).

Дороги III категории

·        требуются ограждения высотой 1,1 м с удерживающей способностью 125, 175 и 250 кДж. Рекомендуется применение стандартного ограждения с трубой усиления (поручнем) с шагом стоек 3,0¸2,0 м (рис. 7 а). Допускается устройство ограждения со стандартной стойкой h=60 см на парапете высотой ≥ 50 см, имеющем наклонную лицевую поверхность - рис. 8 (шаг стоек 3 м для легких и затрудненных и 2 м - для опасных условий движения на дороге) после проведения соответствующих испытаний.

Дороги II категории

·        для легких и затрудненных условий движения на мостовых сооружениях рекомендуется устанавливать ограждения по ГОСТ 26804-86 с трубой усиления (поручнем) и шагом стоек 3 м (рис. 7 а) или стандартное ограждение со стойкой высотой 60 см на парапете высотой 50 см при шаге стоек 3 м (рис. 8);

Рис. 6. Стандартное барьерное ограждение с трубой усиления:

а - на разделительной полосе моста через р. Оку (М-4 «Дон»); б - на путепроводе через МКАД

Шаг стоек, м

Значение энергоемкости, кДж

а =1,5

300

325

350

а=2

250

275

300

а=3

200

230

250

Полная высота Н, см

110

130

130

схема

а

б

в

Рис. 7. Барьерные ограждения на базе ГОСТ 26804-86 с трубой усиления D 120 мм

·        для опасных условий движения рекомендуется устройство стандартного ограждения с поручнем при шаге стоек 1,5 м, установленных на цоколе высотой 20 см (Е = 325 кДж) Общая высота ограждения оставляет 1,3 м (рис. 7 б).

Дороги I категории

·        рекомендуется применять стандартные барьерные ограждения с поручнем (трубой усиления) и шагом стоек 3,0 м для мостовых сооружений с четырьмя полосами движения и шагом 1,5 м - при шести и более полосах движения на дорогах с легкими условиями движения. На участках с затрудненными условиями движения на мостовых сооружениях с четырьмя полосами движения рекомендуется устраивать стандартные ограждения с поручнем и со стойками h=75 см, установленными на цоколе высотой 20 см, шаг стоек 1,5 м. Общая высота ограждения 1,3 м (рис. 7 б или рис. 7 в)

Рис. 8. Комбинированное ограждение стандартной конструкции с парапетом высотой h = 50 см (факультативно)

Таким образом, учитывая ограничения по энергоемкости, высоте, деформации стоек, расстоянию до низа направляющей балки и высоте бордюра (парапета), отечественные стандартные барьерные ограждения с шагом стоек от 1,33 до 3,0 м обеспечивают большую часть потребности для мостовых сооружений. Указанное поле реализации представлено в табл. 4, из которой следует:

·        ограждения на базе стандартных (стойка + амортизатор + балка) не могут применяться в мостовых сооружениях дорог I категории с затрудненными и опасными условиями движения при шести и более полосах движения и с опасными условиями движения на четырехполосных дорогах;

·        практически все конструкции имеют альтернативное решение на бордюре и без бордюра, со стойками из двутавра № 12, двутавра № 14 или из гнутого профиля (см. Приложение);

·        на дорогах IV категории при наличии на сооружении тротуаров или служебных проходов, на участках, куда не распространяется область применения стандартных барьерных ограждений, устанавливают упрощенные конструкции (например, без амортизаторов) как на цоколе или бордюре, так и без них.

Таблица 4

Область применения конструкций на базе стандартных барьерных ограждении мостовой группы

Категория дороги

Число полос движения

Условия движения на дороге

легкие

затрудненные

опасные

A. Сооружения с тротуарами или служебными проходами

I

≥ 6

 

 

 

I

4

 

 

 

II

2

 

 

 

III

2

 

 

 

IV

2

 

 

 

Б. Сооружения без тротуаров и служебных проходов

I

≥ 6

 

 

 

I

4

 

 

 

II

2

 

 

 

III

2

 

 

 

IV

2

 

 

 

 

 

- по ГОСТ 26804 86;

 

 

- по ГОСТ 206804-86 на бордюре (парапете);

 

 

- по ГОСТ 206804-86 с трубой усиления (поручнем).

6. РЕКОМЕНДУЕМЫЕ ДЛЯ ПРИМЕНЕНИЯ ДРУГИЕ БАРЬЕРНЫЕ ОГРАЖДЕНИЯ

6.1. Стандартные ограждения с изменениями

Допускается использовать применявшиеся в течение нескольких лет ограждения с незначительными изменениями в конструкции по сравнению с ГОСТ 26804-86, повышающими их удерживающую способность. К таким изменениям относятся (см Приложение):

·       упрощение фланцевого узла;

·       увеличение сечения стойки;

·       уменьшение шага стоек,

·       установка стоек на бордюр;

·        увеличение сечения направляющей балки.

а) Е = 325 кДж шаг стоек а = 2,0 м

б) Е = 400 кДж шаг стоек а = 1,33 м

в) Е = 300 кДж шаг стоек а = 2,0м

Рис. 9. Ограждения по типу стандартных со стойками из № 14 и направляющей балкой обычной (а, б) и типа Е (в)

При этом могут быть применены две разновидности конструкций (рис. 9):

а) с обычной направляющей балкой, но с трубой усиления на стойках из двутавра № 14 (или двух швеллеров № 12), устанавливаемых на цоколе высотой 20 см (полная высота Н = 1,3 м);

б) с направляющей балкой в виде профиля «Е» и стойками из двутавра № 14 (или двух швеллеров № 12) высотой 75 см на цоколе высотой 35 см (полная высота Н = 1,1 м).

Ограждения общей высотой 1,3 м с трубой усиления и стойками па цоколе hб = 20 см (рис. 9 а) рекомендуется устраивать на пролетных строениях без тротуаров:

-       шаг стоек 2 м (Е = 325 кДж):

·       на дорогах II категории с опасными условиями движения;

·       на дорогах I категории (четыре полосы) с затрудненными условиями движения;

-        шаг стоек 1,33 м (Е = 400 кДж):

·        на дорогах I категории (шесть полос и более) с затрудненными условиями движения.

При этом в нижней части стойки имеется фланцевая плита толщиной 20 мм, размерами в плане 300´300 мм с креплением болтами М-20, расставленными на расстояние 200´200 мм. Стойку крепят к фланцу сваркой по контуру вместе с ребрами жесткости (по две с каждой стороны) высотой 80 мм.

В случае изменения одновременно и сечения стойки (с W>80 см3), и диаметра трубы (с W>100 см3 или W<70 см3) величина удерживающей способности должна быть откорректирована по результатам стендовых или натурных испытаний.

Ограждение общей высотой 1,1 м с направляющей балкой типа «Е» (рис. 9 б) рекомендуется устраивать в мостовых сооружениях с тротуарами (служебными проходами) при опасных условиях движения па дороге II категории (Е = 300 кДж, шаг стоек 2 м) и при затрудненных условиях движения на дорогах с четырьмя полосами движения. Кроме того, они могут быть установлены на сооружениях без тротуаров и служебных проходов дорог I категории с шестью полосами при легких условиях движения.

В случае изменения высоты стойки (например, 60 см) с одновременным увеличением высоты бордюра и изменения шага стоек по сравнению с а=2 м величина удерживающей способности для конструкции по рис. 9 б должна быть откорректирована по результатам стендовых или натурных испытаний.

6.2. Ограждения с двумя W-образными направляющими элементами

Ограждения с двумя направляющими балками, со стойками из двутавра № 14 на бордюре и без бордюра рекомендуется устраивать па мостовых сооружениях дорог I и II технической категории при следующих условиях:

·       общая высота 1,1 м (без цоколя, рис. 10 а) - применяют при отсутствии тротуаров на мостах дорог I категории с легкими условиями движения и мостах дорог II категории с затрудненными условиями движения;

·       общая высота 1,3 м (стойка 110 см, шаг 2 м, цоколь 20 см) - при отсутствии тротуаров и служебных проходов, на сооружениях дорог (рис. 10 б):

а) II категории - опасные условия движения;

б) I категории (4 полосы) - затрудненные условия движения;

·        общая высота 1,5 м (стойка 110 см, шаг 1,5 м, плюс цоколь 40 см) - в сооружениях без тротуаров на дорогах с четырьмя полосами при опасных условиях движения (Е = 400 кДж, рис. 10 б).

Ограждающие устройства по п.п. 6.1. и 6.2. дополнительно обеспечивают значительную часть потребности в конструкциях (табл. 5).

Таблица 5

Область применения ограждений по п.п. 6.1. и 6.4.2. (рис. 9 и 11) для мостов без тротуаров

Категория дороги

Число полос движения

Условия движения на дороге

легкие

затрудненные

опасные

I

≥ 6

 

 

 

I

4

 

 

 

II

2

 

 

 

III

2

 

 

 

IV

2

 

 

 

 

 

 - с трубой усиления

 

 

 - с двумя направляющими балками

Рис. 10. Рекомендуемые конструкции ограждений с двумя направляющими балками и разной высотой цоколя

6.3. Ограждения фирмы «Фракассо» (рис. 11)

Ограждения «Фpaкacco-3N» высотой 1,1 м с трехволновой направляющей балкой рекомендуется применять в сооружениях с тротуарами на дорогах с затрудненными условиями движения (шесть и более полос) или опасными условиями движения (четыре полосы) при шаге стоек 3,0 м (см. рис. 12 а). При опасных условиях движения на дорогах с шестью полосами шаг стоек принимают равным 1,5 м и ограждения устанавливают на парапете высотой 20 см. В этом случае полная высота ограждения 1,3 м. Ограждение с Н = 1,3 м (т.е. на бордюре высотой 20 см) может быть устроено на мостовых сооружениях с шестью и более полосами движения при опасных условиях движения на автомобильной дороге.

Ограждение "Фракассо-3N-1500" высотой 1,5 м (см. рис. 12 б) рекомендуется устраивать в сооружениях без тротуаров и служебных проходов при опасных условиях движения с шагом стоек:

- а = 1,5 м - при шести полосах и более;

- а = 3,0 м - при четырех полосах движения, а также при затрудненных условиях движения на дорогах с шестью полосами и более.

Рис. 11. Ограждение «Фракассо-3N-1500». Фрагмент участка над деформационным швом

а) Е = 375 кДж, а = 3,0 м                                                    б) Е = 600 кДж, а = 3,0м

Е = 450 кДж, а= 1,5 м                                                          Е= 700 кДж, а = 1,5м

Рис. 12. Барьерные ограждения фирмы «Фракассо»

6.4. Ограждения фирм «ТрансЭкоСтрой» и «Южуралавтобан»

Ограждение «ТрансЭкоСтрой» (рис. 13) высотой 1,1 м с тремя направляющими элементами в виде гнутых коробчатых профилей (на уровне 0,3 м 0,55 м и 1,05 м от верха покрытия) целесообразно применять в сооружениях на дорогах I технической категории при:

·       наличии тротуаров или служебных проходов при опасных условиях движения на дороге;

·       наличии тротуаров или служебных проходов при затрудненных условиях на дороге с шестью и более полосами движения;

·       специальном армировании плиты пролетных строений и бетонном приливе в месте крепления стоек.

Ограждения «ТрансЭкоСтрой» лучше всего устраивать на мостовых сооружениях в случаях, если на участке автомобильной дороги применены аналогичные конструкции или если на участке дороги за пределами сооружения ограждения не требуются. Наиболее целесообразно их использовать в городских условиях, на сооружениях без тротуаров и служебных проходов с легкими условиями движения при шести и более полосах движения, а также на сооружениях с тротуарами и служебными проходами с затрудненными и опасными условиями движения при числе полос, большем или равном шести.

Рис. 13. Ограждения с тремя направляющими профилями и жесткой стойкой («ТрансЭкоСтрой») КА - консоль-амортизатор

Ограждения «Южуралавтобан» используют балку в виде волнового профиля Е с увеличенной жесткостью и недеформируемую консоль на высоте 0,55 м по центру балки. Частое расположение стоек (а = 1,0) и достаточно жесткая верхняя балка дали возможность поднять энергоемкость до 400 кДж при Н = 1,1 м и 520 кДж при Н = 1,05 м. Ограждения фирмы «Южуралавтобан» с одним направляющим элементом (Е = 350 кДж) целесообразно устанавливать на цоколь с тем, чтобы общая высота ограждения не была меньше 0,75 м.

Рис. 14. Ограждения фирмы «Южуралавтобан»

7. РЕКОМЕНДАЦИИ ПО УСТАНОВКЕ И РАСЧЕТУ

7.1. Сопряжение барьерных ограждений мостовой группы с ограждениями на подходах

7.1.1. Сопряжение в плане.

Различают два случая их установки:

·       когда на сопрягающемся с мостом участке дороги имеются ограждения;

·       когда на сопрягающемся с мостом участке дороги отсутствуют ограждения.

В первом случае между ограждениями на дороге и мостовом сооружении располагается переходной участок перед мостом и за мостом. Во втором случае роль переходного участка выполняет начальный участок ограждения. В обоих случаях ограждение мостовой группы устанавливают в пределах длины сооружения и в пределах длины переходных плит, а переходной участок располагается за границей мостовых ограждений и состоит из ограждений дорожной группы с изменяющейся поперечной жесткостью, в том числе и за счет шага стоек [2].

На дорогах IV категории не требуется выравнивание ограждения в плане. На дорогах I-III категорий необходимо выравнивать ограждения в плане, поскольку расстояния от кромки проезжей части до ограждений на мосту и дороге различные. В частности, на дорогах I и II категорий требуется отгон мостовых ограждений на переходном участке в сторону обочины либо на 0,5 м, либо на 1,5 м для мостов с уменьшенной полосой безопасности (при ремонте сооружений), рис. 15.

На дорогах III категории размер отгона незначительный и составляет 0,25 м либо в сторону обочины при ширине полосы безопасности 1,5 м, либо в сторону проезжей части при уменьшенной полосе безопасности (случай ремонта), рис. 16.

Длину отгона от принимают равной

с - величина смещения мостового ограждения по отношению к дорожному).

Если подсчитанная длина не увязывается с длиной направляющей балки (например, от ≥ 5 м), то принимают от по длине балки (6 или 8 м). На участке сопряжения за мостовым сооружением по ходу движения величина от может приниматься меньше чем 20 ∙ вс, но не менее 10 ∙ вс. Рекомендуемые значения длины переходных участков приведены в табл. 6.

Рис. 15. Расположение ограждения на дороге I-II категории:

а - ограждение на обочине; б - ограждение на мостовом сооружении при ширине полосы безопасности 2 м; в - ограждение на мостовом сооружении при ширине полосы безопасности 1 м (ремонт)

Таблица 6

Категория дороги

от при ширине полосы безопасности (м)

нормальной

уменьшенной

I и II

12 (6 или 8)

32(16)

III

6 или 8

6 или 8

IV

0

0

Примечание. В скобках - для участка за мостом.

Рис. 16. Расположение ограждения на дороге III категории:

а - ограждение на обочине; б - ограждение на мостовом сооружении при ширине полосы безопасности 1,5 м; в - ограждение на мостовом сооружении при ширине полосы безопасности 1 м

При отсутствии ограждений на дороге мостовые ограждения заканчиваются начальным (перед мостом по ходу движения) и конечным (за мостом) участками. В пределах указанных участков торец направляющей балки смещается к бровке земляного полотна дороги с уклоном не более 1:10 (до 1:20).

Общая длина одной нитки ограждения в зоне мостового перехода должна определяться требованиями табл. 6 и приниматься не менее следующих величин (табл. 7).

Таблица 7

Категория дороги

Длина участков ограждений

перед мостом

в пределах Lм

за мостом

I

≥ 25

Lм

≥ 15

II-III

≥ 18

Lм

≥ 12

IV

≥ 12

Lм

≥ 12

7.2.1 Сопряжение по высоте.

Рекомендации даны для ограждений с направляющей балкой (балками) в виде W-образного профиля высотой 312 мм. Сопрягаются мостовые ограждения, в которых уровень верха балки может меняться от 750 до 1100 мм, с дорожным ограждением высотой 700-750 мм.

Высотное сопряжение ограждений осуществляется в пределах переходного участка (п), на длине которого постепенно выравниваются и жесткости конструкций (рис. 17). В качестве переходного участка может быть использован участок отгона. Причем выравнивание высот может быть осуществлено в пределах одной или нескольких направляющих балок в зависимости от разницы в высотах. Разница в высотах сопрягаемых W-образных профилей указана в табл. 8.

Таблица 8

Конструкция по рис.

Разница в высотах, м

Длина сопряжения, м

Рис 5 а, б

0,05

4*)

Рис 5 в

0,2

4

Рис. 5 г

0,3

6

Рис.7 а

0,05

4

Рис. 7 б, в

0,25

6

Рис. 11 а, б

0,1

4

Рис. 11 в

0,3

6

*) 4 м - минимальная длина направляющей балки.

Рис. 17. Высотное сопряжение барьерных ограждений на мосту и обочине

При выравнивании высоты по нижнему уровню верхняя планка может заканчиваться концевым элементом не ближе, чем за переходной плитой (рис. 17, в), либо отводиться к краю обочины на участке большей длины.

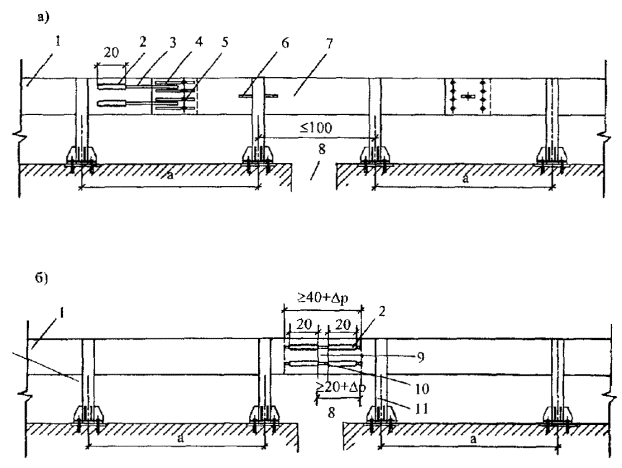
7.2. Сопряжение барьерных ограждений с парапетными

Парапетное ограждение находится в пределах длины моста Lм (без переходных плит). Барьерное ограждение расположено над переходными плитами и на примыкающих участках подходов. Линия ограждения в пределах длины переходных плит находится в плоскости мостовых ограждений, и лишь за пределами переходных плит начинается отгон конструкций. Причем над переходными плитами устраивают ограждения дорожной группы со стойками, либо приваренными к закладным деталям плит, либо пропущенными через окна плит в насыпь. Ближайшую стойку перед парапетом располагают на расстоянии не более 0,5 м от оси деформационного шва (или от границы шва при длине мостового сооружения ≥ 500 м), а остальные стойки в пределах переходной плиты размещают с шагом 1,0 м.

Схема сопряжения барьерных и парапетных ограждений с каждой стороны сооружения различна. Перед мостом по ходу движения направляющая W-образная балка касается лицевой поверхности парапета на длине не менее 1 м с двумя точками фиксации болтами через центральное отверстие профиля (см. фото в приложении 2) За мостом по ходу движения лицевая плоскость балки должна отстоять от лицевой плоскости парапета на 50 мм, а балка не должна быть соединена с парапетом (рис. 18).

7.3. Деформационные швы в ограждениях

Требования к устройству деформационных швов в ограждениях при различных комбинациях конструкций сопрягаемых ограждений и величинах расчетных перемещениях Δр в швах пролетных строений приводятся ниже.

А. Барьерные ограждения.

При величине перемещения Δр ≤ 50 мм в направляющей балке над деформационным швом в пролетном строении (далее ДШ), которая принимается укороченной - длиной не более 3 м, или в специальной вставке между ближайшими к шву стойками все стыковые отверстия (9 шт. в каждом стыке, если стык устроен напротив стойки) устраивают овальными по ГОСТ 26804-86.

Рис. 18. Схема сопряжения парапетного ограждения на мосту с барьерным ограждением на подходах применительно к габариту Г-11,5 (размеры в сантиметрах)

Рис. 19. Схема сопряжения балок над ДШ при Δ ≤ 500 мм (а) и Δ> 500 мм (б), вид со стороны тротуара (размеры в сантиметрах):

1 - направляющая балка; 2 - направляющая труба; 3 - односторонний шток; 4 -удлиненная прорезь в месте стыка; 5 - болт стыка; 6 - удлиненная прорезь напротив стойки; 7 - отрезок балки над швом; 8 - ДШ в пролетном строении; 9 - лицевая накладка; 10 - двусторонний шток; 11 - ближайшая к ДШ стойка

При перемещениях Δр≤100 мм длина овальных отверстий в стыках перекрывающей направляющей балки или вставки должна составлять 110 мм.

При перемещениях Δр≤500 мм с обратной стороны, перекрывающей шов балки или вставки, в зоне стыков устраивают направляющие телескопические трубы диаметром 40-75 мм. При этом все стыковочные отверстия с одной стороны вставки выполняют с увеличенными прорезями. Деформационный шов в ограждении может быть устроен как с двух сторон, так и с одной стороны вставки (балки), рис. 19 а. Допускается стык устраивать между ближайшими к оси ДШ стойками.

При перемещениях свыше 500 мм стык направляющих балок устраивают между ближайшими к оси ДШ стойками. При этом направляющие балки сопрягаемых участков соединены двусторонними телескопическими устройствами, а зазор между ними закрыт лицевой накладкой, приваренной с одной стороны по периметру к балке (рис.19 б).

Для исключения заклинивания штока в направляющих элементах (трубах) из-за трения целесообразно в трубу помещать втулки из полиэтилена или фторопласта.

Б. Парапетные ограждения.

При перемещении Δр ≤ 250 мм зазор между сопрягаемыми парапетными блоками над деформационным швом ничем не перекрывают. Если расчетные перемещения превышают 250 мм, то зазор перекрывают стальным кожухом, одеваемым на железобетонную стенку Толщину листа кожуха принимают равной 5-6 мм при перемещениях до 500 мм и 10 мм при Δр ≤ 500 мм.

В Сопряжение барьерных и парапетных ограждений.

Если в начале (по ходу движения) мостового сооружения к парапетному мостовому ограждению примыкает барьерное ограждение подхода, деформации ДШ компенсируются за счет прорезей в балке в месте ее крепления к парапету (см. рис. 18 б) при Δр ≤. 100 мм. При перемещениях до 500 мм в балке делают дополнительный стык с прорезями, который располагают между 1-й и 2-й стойками над переходной плитой (по аналогии с рис. 19 а).

При перемещениях более 500 мм перед деформационным швом устраивают дополнительный парапетный блок, который сопрягают с барьерным ограждением по схеме рис. 18 б, а с парапетным с другой стороны шва - с помощью стального кожуха.

Над ДШ в конце (по ходу движения) мостового сооружения не делают специальных швов в ограждении при Δр ≤ 250 мм. При больших перемещениях до Δр ≤ 500 мм последний блок парапета наращивают консолью из W-образного профиля, к которому крепят балку со стыком так, как показано на рис. 19 а. Консольный участок профиля приварен к фланцу, который прикреплен к парапету с помощью шпилек (рис. 20).

Рис. 20. Схема сопряжения парапетного и барьерного ограждения в конце мостового сооружения при Ар <500 мм:

1 - W-образная балка над переходной плитой; 2 - первая стойка; 3 - стык по типу рис. 19 а; 4 - фланец на шпильках; 5 - парапет; 6 - приваренный к фланцу отрезок направляющей балки; 7 - деформационный шов

При Δр > 500 мм сопряжения осуществляют с помощью консоли и стыка по типу, представленному на рис. 19 б либо с помощью дополнительного парапетного блока со стальным кожухом.

7.4. Расчет узлов крепления ограждений

Бордюрные ограждения (бордюр) проверяют расчетом на срез при действии горизонтальной силы N, определенной с учетом требований СНиП 2.05.03-84* (рис. 21).

Парапетные ограждения (парапеты с наклонной лицевой поверхностью 7:1¸6:1) проверяют расчетом по прочности горизонтального бетонного сечения на расчетные усилия N и М, определяемые с учетом требований СНиП 2.05.03-84* (рис. 22 а).

Надежность закрепления рассчитывают на воздействие горизонтальной силы N и моментов в плоскости Н (рис. 22 б). При этом проверяют:

а) сечение и количество болтов (воздействия N и М);

б) местное смятие под болтом (на площади f см) и скалывание в зоне крепления;

в) сжатие в бетоне несущих конструкций под внешней гранью парапета (σ при воздействии V).

Допускается при расчетном воздействии появление в болтах напряжений, равных нормативному сопротивлению материала болтов. Напряжения в бетоне σ не должны превышать расчетных сопротивлений Rв, ser. Проверку по местному смятию следует проводить от усиления затяжки болта, не допуская при этом напряжений в бетоне выше значений Rв, mc2. Проверку по скалыванию бетона в зоне крепления выполняют на воздействие V, допуская при этом появление напряжений скалывания в пределах нормативных сопротивлений

,

то есть допускается появление трещин в бетоне. При этом напряжения в арматуре могут достигать нормативных сопротивлений на растяжение.

Расчет узлов крепления стоек барьерных ограждений предусматривает две основные проверки:

-       по прочности болтов;

-       по прочности анкеровки закладных деталей.

Рис. 21. Расчетные горизонтальные воздействия на бордюры

Рис. 22. Схемы к расчету парапетных ограждений по прочности сечений (а) и по креплению (б)

*) При энергии воздействия 400 кДж горизонтальное усилие N = 25 т (вариант парапета с поручнем).

Прочность болтов проверяют от действия пластического изгибающего момента в стойке при ее пластическом изгибе от усилия N, действующего на стойку. Пластический момент в корне стойки определяют в плоскости 0-0 (рис. 23 а), т.е. по высоте hpa6 до ребер жесткости по формуле

,

где Run - нормативное сопротивление материала стойки по показателю «временное сопротивление» (табл. 50 СНиП 2.05.03-84*);

γm - коэффициент надежности по материалу (табл. 49 СНиП 2.05.03-84*);

Wст - момент сопротивления сечения стойки.

Рис. 23. Схемы к проверке прочности крепления стоек барьерных ограждений

Горизонтальное усилие на стойку

,

где а - расстояние от расчетного уровня приложения силы до начала ребер жесткости в нижней части стойки.

Усилие в болтах одного ряда (рис. 23 б)

.

Напряжения в болтах не должны превышать нормативных сопротивлений (по показателю «текучесть») на растяжение.

Прочность анкеровки проверяют на усилия от разрыва болтов одного ряда крепления фланца к закладной детали (т.е. по нормативному сопротивления Run). При этом напряжения в анкерах закладной детали и в бетоне от усилия выдергивания анкера не должны превышать расчетных сопротивлений.

При установке стоек барьерного ограждения на сборные железобетонные блоки проверку устойчивости последних выполняют с учетом величины их заглубления (учет трения по одной из боковых стенок и сопротивления смятию по другой). При этом на блок передаются усилия N и Мпл одновременно с числа стоек:

n = 2 - при шаге стоек а = 3 м;

n = 3 - при шаге стоек а = 2 м;

n = 4 - при шаге стоек а ≤ 1,33 м.

8. ИТОГОВАЯ ОБЛАСТЬ ПРИМЕНЕНИЯ ОГРАЖДЕНИЙ

Итоговая реализация потребности в ограждениях мостовой группы показана в табл. 9, из которой видно, что пятью типами применявшихся и двумя типами новых конструкций ограждений имеется сегодня возможность реализовать всю потребность отрасли в ограждениях для мостовых сооружений. При этом речь идет об использовании следующих конструкций:

1)

 

- парапетных ограждений, в том числе с дополнительным поручнем;

 

2)

 

- барьерных ограждений по ГОСТ 26804-86, в том числе со стойками и направляющими балками иного сечения, чем предусмотрено стандартом;

 

 

3)

 

- то же, с установкой стоек на бордюр или парапет;

 

4)

 

- то же, с трубой усиления;

 

5)

 

- барьерных ограждений с двумя направляющими балками двухволнового профиля;

 

 

6)

 

- барьерных ограждений «Фракассо»;

 

7)

 

- барьерных ограждений «ТрансЭкоСтрой» и «Южуралавтобан».


Таблица 9

Область применения рекомендуемых ограждений

Характеристика дороги и сооружения

Наличие тротуаров (служебных проходов)

Без тротуаров (служебных проходов)

Условия движения

Условия движения

Категория

Число полос

Габарит сооружения, м

легкие

затрудненные

опасные

легкие

затрудненные

опасные

I

≥ 6

≥ 28

300; 0,9*)

400; 1,1

500; 1,1

300; 1,1

400; 1,3

500; 1,5

 

 

 

 

 

 

 

 

 

 

 

 

 

 

 

 

 

 

 

 

 

 

 

 

I

4

19¸21

200; 0,9

300; 1,1

400; 1,1

200; 1,1

300; 1,3

400; 1,5

 

 

 

 

 

 

 

 

 

 

 

 

 

 

 

 

 

 

 

 

 

 

 

 

II

2

10¸11,5

150; 0,75

200; 0,75

300; 0,9

150; 1,1

200; 1,1

300; 1,3

 

 

 

 

 

 

 

 

 

 

 

 

 

 

 

 

 

 

 

 

 

 

 

 

III

2

9¸10

120; 0,75

175; 0,75

250; 0,75

125; 1,1

175; 1,1

250; 1,1

 

 

 

 

 

 

 

 

 

 

 

 

 

 

 

 

 

 

 

 

 

 

 

 

IV

2

7,5¸8

100; 0,6

150; 0,6

200; 0,75

100; 1,0

150; 1,0

200; 1,1

 

 

 

 

 

 

 

 

 

 

 

 

 

 

 

 

 

 

 

 

 

 

 

 

*) Указаны требуемые показатели удерживающей способности и высот.


Из 30-ти случаев применения конструкций ограждений на мостовых сооружениях в 21-ом случае возможно использование конструкций 2-х типов, а в 4-х случаях - конструкций 3-х типов. Выбор конструкций для упомянутых 25-ти случаев осуществляется Заказчиком из сопоставления стоимости, расхода материалов, транспортных расходов и времени изготовления альтернативных конструкций.

СПИСОК ЛИТЕРАТУРЫ

1. ОДН 218.012-99. Общие технические требования к ограждающим устройствам на мостовых сооружениях, расположенных на магистральных автомобильных дорогах. - М.: Информавтодор, 1999.

2. ГОСТ 26804-86. Ограждения дорожные металлические барьерного типа. Техн. условия / Госстрой СССР. - М., 1986.

3. Типовые конструкции. Изделия и узлы зданий и сооружений. Сер. 3.503.1-81. Вып. 0-4. Материалы для проектирования пролетных строений. Инв.№ 100/1. СДП, 1994.

4. СНиП 2.05.03-84*. Мосты и трубы / Минстрой России. - М., 1996.

5. Шестериков В.И. Испытание парапетных ограждений проезжей части мостов и путепроводов / Сб. тр. Союздорнии. - М., 1982.

6. Шестериков В.И., Фролов В.В. Испытания ограждающих устройств барьерного типа для мостов / Сб. трудов Союздорнии. - М., 1982.

7. Экспериментальные исследования безопасных конструкций ограждений и стоек дорожных знаков с разработкой технического задания на опытные конструкции / Союздорнии, 1980.

8. Исследование влияния на безопасность движения высоты бордюров на искусственных сооружениях (мостах и путепроводах) с уточнением рекомендаций по их проектированию / Союздорнии, 1979.

9. Сахарова И.Д., Буйленко В.Я. Расчетные параметры воздействия автомобилей на ограждающие устройства автомобильных дорог и мостов / Тр. Союздорнии, 1982.

10. Шестериков В.И. Влияние элементов мостового полотна на безопасность движения / Научн. тр. НПО Росдорнии. - М., 1990.

11. Временные нормали устройства ограждений проезжей части эксплуатируемых автодорожных мостовых сооружений / ФДД Минтранса РФ. - М., 1995.

12. Проспект ЗАО «Южуралавтобан». Магнитогорск: Дом печати, 1998.

13. Сахарова И. Д. Предложения по применению барьерных ограждений с двумя направляющими элементами на Крымской эстакаде / Союздорнии. - М.,1996.

14. Сахарова И. Д. Рекомендации по применению барьерных ограждений повышенной удерживающей способности на мостовых сооружениях III транспортного кольца в г. Москве / Союздорнии. - М., 1998.

15. ТУ 5216-002-18601734-2000. Ограждение дорожное, удерживающее, для автомобилей, боковое, первого типа, одностороннего исполнения, металлическое / ГП Союздорнии, ООО «ТрансЭко-Строй», ФГУП Союздорпроект, 2000.

16. А.Фракассо и др. Спасительное ограждение // Автомоб. дороги.-2000. -№ 5.

17. А.Фракассо и др. Дорожные ограждения XXI века // Автомоб. дороги. - 2000. - № 5.

18. ТУ 5216-067-36910961-97. Ограждения дорожные, удерживающие, для автомобилей, боковые, первого типа в одностороннем и двустороннем исполнении / ЗАО ПФК.

19. Road restraint systems - Part 2: Safety barriers - Performance classes, impact test acceptance criteria and test methods. EN 1317-2/95.

ПРИЛОЖЕНИЕ

АНАЛИЗ ВОЗМОЖНОСТЕЙ ПРИМЕНЯЕМЫХ КОНСТРУКЦИЙ ОГРАЖДЕНИЙ

Настоящее приложение приведено с целью пояснить работу конструкций боковых ограждающих устройств мостовой группы (далее - ограждений) и возможное изменение их параметров при введении в них тех или иных изменений. Из сопоставления всех возможных комбинаций и разновидностей конструкций, сопоставления их характеристик с требованиями представилось возможным выбрать наиболее рациональные решения, которые и вошли в основной текст «Рекомендаций».

В настоящем приложении дана оценка возможностей конструкций, которые разделены на четыре группы:

первая - типовые и стандартные конструкции;

вторая - конструкции, выполненные по аналогии с типовыми и стандартными (максимально приближенные к ним, но имеющие незначительные отличия, улучшающие их характеристики);

третья - конструкции, применявшиеся в течение многих лет на дорогах общей сети, работоспособность которых подтверждена опытом эксплуатации;

четвертая - новые отечественные и зарубежные конструкции, не зафиксированные ни в типовых проектах, ни в стандартах, но имеющие сертификаты на применение в России.

1. Типовые и стандартные конструкции

1.1. Бордюрные ограждения.

В различные годы нормативные документы предусматривали применение бордюров высотой 35 см, 40 см (для городов), 50 см. Тенденция постепенного увеличения высоты ограждений явилась следствием изменения парка автомобилей и скоростей их движения. Работоспособность бордюра определяется его способностью корректировать траекторию движения автомобиля в случае его наезда на бордюр (рис. 1). Достаточно объективным показателем корректирующей способности ограждения для конкретных типов автомобилей является предельно допустимая величина поперечной составляющей скорости движения автомобиля в момент его контакта с ограждением. Эта скорость (предел коррекции [Vп]) установлена экспериментально по моменту переезда ограждения колесом или поломки колеса.

Экспериментальными исследованиями [5] установлено, что предел коррекции зависит от отношения высоты бордюра hб к высоте профиля шины hпш. Увеличение hпш приводит к снижению [Vп], так как автомобилю становится легче преодолеть препятствие. Введя показатель hб/hпш, можно рассматривать и сопоставлять наезды автомобилей с различными типами шин.

Представленный на рис. 2 экспериментальный график для определения корректирующей способности бордюров (коррекции траектории) позволяет установить предельные величины поперечных составляющих скоростей движения [Vп] - для современных транспортных средств с имеющимися значениями hпш колес. Значение предельной величины коррекции может быть определено по формуле

.                                                    (1)

Рис. 1. Конфигурация бордюрных ограждений и схема их взаимодействия с колесом автомобиля:

а, в- бордюр с вертикальной поверхностью; б - бордюр с криволинейной поверхностью

Рис. 2. График определения предела коррекции траектории движения автомобиля ограждением с вертикальной стенкой (бордюр)

Удерживающую способность бордюров (энергоемкость Е) определяют по величине предела коррекции, исходя из расчетных скоростей, углов наезда и допустимых величин поперечной перегрузки. Максимальные значения энергоемкости бордюров приведены в табл. 1.

Таблица 1

Энергоемкость бордюров (бордюрных ограждений)

Условия наезда

Е, кДж при hб (в см)

Автомобиль

Вес, т

V, км/ч

20

30

35

40

50

Легковой

1,0

90

25

301)

401)

401)

401)

1,5

80

Грузовой

10¸15

до 70

20

50

75

100

170

1)Предел Е по критерию поперечной перегрузки (в остальных случаях - по моменту переезда автомобиля через бордюр).

1.2. Парапетные ограждения.

В различные годы применяли парапетные ограждения высотой 55 и 60 см. Высота парапетных ограждений в современных типовых проектах составляет 75 см [4]. Все эти конструкции имеют наклон лицевой поверхности в пределах 6:1¸7:1. При наезде грузового автомобиля на ограждение с наклонной стенкой поперечная энергия движения автомобиля расходуется на смятие шины, разворот и подъем колеса, смещение кузова вследствие сопротивления подвески и трения шины о покрытие дороги и парапет.

Экспериментально установлено, что работа, затраченная на подъем колеса по наклонной поверхности ограждения, равна примерно половине энергии движения автомобиля Е в момент контакта. С уменьшением крутизны наклона колесо сможет подняться на большую высоту, а с увеличением - на меньшую; при этом уменьшается и работа, затрачиваемая на подъем колеса. Установленная испытаниями зависимость величины подъема колеса от угла наклона стенки ограждения представлена графически на рис 3. По оси абсцисс дан коэффициент расхода энергии К

,                                                                   (2)

где Qn - вес автомобиля, приходящийся на переднюю ось;

h - высота подъема колеса.

По оси ординат указан показатель наклона стенки tgα. Полученный график используют для определения безопасной высоты ограждения с различным наклоном лицевой поверхности.

При определении параметров парапетных ограждений помимо корректирующего действия учитывалась устойчивость против опрокидывания автомобиля: устойчивость против опрокидывания грузового автомобиля в сторону ограждения определила высоту, а против опрокидывания легкового автомобиля в сторону проезжей части - угол наклона лицевой поверхности. Соблюдение допустимых перегрузок позволило принять оптимальный угол наклона и установить удерживающую способность.

Рис. 3. Графики к определению высоты подъема колеса автомобиля, а следовательно, и энергоемкости парапетов с наклонной стенкой

Таким образом, при наезде на парапетное ограждение с наклоном стенки 7:1 (6,5:1) выдерживаются требования по устойчивости автомобиля и перегрузкам при условии, что энергия воздействия Е не превышает величин, указанных в табл. 2. Парапетное ограждение может быть применено при энергии воздействия до 400 кДж. Однако при этом оно должно быть наращено (например, барьером) до высоты 1,1 м, исходя из условия устойчивости, а сечение парапета изменено.

Таблица 2

Предельные параметры наезда на парапетные ограждения разной высоты

Параметры

Ед. изм.

При высоте парапета, см

50

60

75

Скорость наезда автомобиля:

 

грузового

км/ч

60

70

70

легкового

км/ч

90

100

100

Вес автомобиля:

 

грузового

т

15

15

18

легкового

т

1,0

1,5

1,5

Предельные перегрузки (легковые автомобили)

ед. "q"

5

5

5

Энергия наезда, Е (кДж) (воздействие поперек оси моста)

кДж

130

200

300

1.3. Барьерные ограждения по ГОСТ 26804-86

В действующих типовых проектах применены ограждения мостовой группы по ГОСТ 26804-86 - односторонние и двусторонние (рис. 4). Одностороннее ограждение состоит из стоек, прикрепляемых к закладным деталям четырьмя болтами, направляющей двухволновой балки толщиной 4 мм и амортизаторов консолей между стойкой и балкой толщиной 4 мм.

Рис. 4. Барьерные ограждения по ГОСТ 26804-86

Сечения всех элементов и их размеры установлены на основании стендовых испытаний узлов, деталей и фрагментов ограждения [6], а также натурных испытаний на полигоне НАМИ. При наезде автомобиля на ограждение гашение энергии происходит за счет пластических деформаций всех элементов барьерного ограждения (стоек, балок, амортизаторов) и натяжения балки направляющей части как нити. Причем в пределах допустимых энергий воздействия направляющая часть ограждения остается практически вертикальной и на одном уровне от земли (рис. 5).

Рис. 5. Последствия расчетного наезда автобуса «ЛИАЗ-677» на стандартное ограждение

Экспериментальные и теоретические исследования работоспособности барьерных ограждений с принятой схемой деформаций дали возможность установить зависимость между энергией воздействия и прогибом балки [6]. В частности, для стандартных ограждений с шагом стоек 1,5¸3,0 м (сечение стоек I № 12) эти зависимости представлены графически на рис. 6.

При этом следует иметь в виду два обстоятельства:

1) Образование пластического шарнира на расстоянии 16 см от места крепления стойки к фланцу из-за имеющихся у стойки ребер жесткости высотой 16 см уменьшает примерно на 15 см рабочую высоту стойки (hраб = 60 см), то есть + расчетное перемещение верха стойки (уст) составляет 45 см, или 0,75 от hраб, при общем прогибе ограждения f= 75 см.

2) Если допустить опускание балки на 5 см, то есть до уровня h = 70 см, то предельный прогиб стойки может быть увеличен до 0,85 - hраб, то есть до 50 см (максимальное смещение балки составит 85 см).

Существующим стандартом [2] предусматривается установка стоек на цоколь высотой 15 см. При этом используются укороченные стойки высотой 60 см (hраб = 45 см). Уменьшение рабочей высоты при сохранении сечения элементов конструкции приводит к уменьшению допустимого прогиба (yст = 0,85·45 = 38 см), то есть к увеличению поперечной жесткости ограждения. С другой стороны, уменьшение прогиба снижает энергоемкость по сравнению- с той, которая могла бы быть при большем прогибе, в результате чего общая удерживающая способность ограждения с цоколем 15 см оказывается аналогичной удерживающей способности ограждения без цоколя, то есть со стойкой высотой 75 см.

Рис. 6. Зависимость прогибов/от энергии наезда Е на стандартные ограждения с шагом стоек L = 3 м (1); 2 м (2); 1,5 м (3)

Расчетные параметры стандартных ограждений приведены в табл. 3. Данные указанной таблицы, а также результаты сопоставления стендовых и натурных испытаний конструкций позволили разработать методику расчета ограждений с кинематикой стандартных конструкций, на основании которой рассчитаны все последующие конструкции.

Учитывая тот факт, что действующий ГОСТ [2] фактически допускает увеличение жесткости стойки до 25% (применение стойки высотой 60 см вместо 75 см без изменения сечения), эта возможность может быть использована и для стойки высотой 75 см. То есть можно увеличить жесткость стойки без уменьшения ее высоты путем увеличения на величину до 25% момента сопротивления стойки. Такому изменению соответствует применение стоек из двух швеллеров № 12 (или двутавра № 14) вместо двутавра № 12, что практикуется в течение продолжительного времени, не противореча требованиям ГОСТ 26804-86.

Таблица 3

Расчетные параметры стандартных ограждений

Параметры конструкции

Шаг стоек, м

2,0

3,0

2,0

3,0

Расчетная удерживающая способность Е, кДж

150

110

150

100

Предельный прогиб f при мах Е, м

0,75

0,75

0,65

0,65

Рабочая высота стойки hpa6, м

0,60

0,60

0,45

0,45

Предельное смещение верха стойки уст (м), (yст/hp)

0,45

(0,75)

0,40

(0,70)

0,38

(0,85)

0,35

(0,80)

Количество смятых амортизаторов, шт

7

5

6

4

Количество погнутых стоек, шт

5

4

5

3

Длина волны прогиба, м

17

18

17

15

Скорость наезда автомобиля, км/ч:

 

а)легкового

90

80

90

80

б)грузового

45

45

45

45

Вес автомобиля,:

 

а)легкового

1,5

1,5

1,5

1,5

б)грузового

15,0

15,0

15,0

15,0

Поперечная перегрузка, g:

 

а)легковой автомобиль (в центре масс)

5,0

4,5

5,0

5,0

б)грузовой автомобиль (в центре масс)

1,0

0,8

1,2

1,0

Параметры ограждения с такими стойками высотой 75 см приведены в табл. 4

Таблица 4

Параметры ограждения со стойками из двутавра № 14

Параметры ограждения

Ед. изм.

Шаг стоек из двутавра № 14 (двух швеллеров № 12), м

1,5

2,0

3,0

Рабочая высота стойки, hpa6

м

0,65

0,65

0,65

Удерживающая способность, Е

кДж

220

190

150

Предельный прогиб ограждения, f

м

0,80

0,75

0,75

Предельное смещение верха стойки yст (yст/hраб)

м

0,50

(0,75)

0,45

(0,70)

0,40

(0,60)

Число смятых амортизаторов

шт.

10

8

6

Число погнутых стоек

шт.

6

5

4

Используя стандартные ограждения, можно увеличить их удерживающую способность путем увеличения высоты цоколя или применения бордюров различной высоты в качестве цоколя, на которые устанавливают стойки. При использовании цоколя высотой от 30 до 40 см, получим значения параметров ограждения, приведенные в табл. 5.

Таблица 5

Параметры стандартных ограждений со стойками на цоколе

Параметры ограждения

Высота цоколя hц, см

30

35

40

А. Стойки из двутавра № 12

Высота стойки, м (рабочая высота, hраб)

0,75

(0,60)

0,60

(0,45)

0,75

(0,60)

0,60

(0,45)

0,60

(0,45)

Общая высота ограждения, м

1,05

0,90

1,10

0,95

1,00

Удерживающая способность Е, кДж, при шаге стоек:

 

1,33 м

265

270

290

305

340

1,50 м

250

250

275

290

320

2,0 м

210

210

235

235

265

3,0 м

165

155

190

180

210

Максимальный поперечный прогиб ограждения f, м, при шаге стоек 2,0 м

0,75

0,65

0,70

0,65

0,65

Максимальное смещение верха стойки yст, м, при шаге стоек 2,0 м (yст/hраб)

0,45

(0,75)

0,40

(0,80)

0,45

(0,75)

0,40

(0,80)

0,40

(0,80)

Б. Стойки из двутавра № 14 (2 швеллера № 12)

Высота стойки, м (рабочая высота, hраб)

0,75

(0,60)

-

0,75

(0,60)

-

-

Общая высота ограждения, м

1,05

-

1,10

-

-

Удерживающая способность Е, кДж, при шаге стоек:

 

1,33 м

290

 

315

 

 

1,50 м

270

 

300

 

 

2,0 м

250

 

275

 

 

3,0 м

210

 

240

 

 

Максимальный поперечный прогиб ограждения f, м, при шаге стоек 2,0 м

0,75

-

0,70

-

-

Максимальное смещение верха стойки yст, м, при шаге стоек 2,0 м (yст/hраб)

0,45

(0,75)

-

0,45

(0,75)

-

-

Энергоемкость ограждений на цоколе с учетом появления обратной составляющей поперечной силы, вызванной наклоном автомобиля в сторону проезжей части, складывается из энергоемкости цоколя (бордюра) и самого барьерного ограждения. Например, если для ограждения без цоколя удерживающая способность составляет Ео, а энергоемкость цоколя - Ец, то общая удерживающая способность ограждения на цоколе равна

,                                                              (3)

где К - коэффициент разгрузки, равный:

К = 1,0 при высоте цоколя до 15 см;

К = 1,05 при высоте цоколя 30 см;

К = 1,07 при высоте цоколя 35 см;

К = 1,10 при высоте цоколя 40 см.

Таким образом, возможная номенклатура мостовых стандартных барьерных ограждений, относящихся к классу «боковые», к группе «односторонние», включает в себя три конструкции:

со стойкой из двутавра № 12 высотой 75 см;

со стойкой из двутавра № 14 (или из двух швеллеров № 12) высотой 75 см,

со стойкой из двутавра № 12 высотой 60 см.

Эти конструкции могут устанавливаться на железобетонные цоколи высотой 15, 30, 35 и 40 см в зависимости от конструктивных особенностей пролетных строений (особенностей водоотвода, наличия или отсутствия тротуаров) или условий содержания объекта (механизированной или ручной очистки, особенностей уборки снега).

На разделительной полосе устанавливают ограждения такого же типа, как ограждение на участке дороги, где расположено мостовое сооружение, - либо парапетное, либо барьерное. При установке на разделительной полосе барьерных ограждений последние могут выполняться двусторонними или состоять из двух линий односторонних ограждений, что определяется конструкцией мостового сооружения и шириной разделительной полосы.

2. Барьерные ограждения по ГОСТ 26804-86 с улучшенными параметрами

Настоящие Рекомендации допускают применение стандартных барьерных ограждений с незначительными конструктивными изменениями, не меняющими принцип работы конструкции. К указанным изменениям относятся:

-       возможность установки стоек с шагом 1; 1,33 и 1,5 м;

-       упрощение узла крепления стойки к фланцу;

-       применение стоек из гнутого профиля.

Установка стоек с меньшим шагом, чем в стандартных конструкциях, дает возможность увеличить удерживающую способность или, при сохранении удерживающей способности, уменьшить прогиб ограждения. Такой прием может быть выходом из положения, когда альтернативой является иная, более материалоемкая конструкция. При изменении шага стоек в применяемых секциях балок длиной 4, 6, 8 и 9 м отверстия перфорируют следующим образом:

-       балка СБ-1, l = 4320 мм - расчетный пролет балки делят на 2, 3 и 4 части (шаг стоек соответственно 2; 1,33; 1,0 м);

-       балка СБ-2, l = 6320 мм - расчетный пролет делят на 2, 3, 4, 6 частей (шаг стоек соответственно 3, 2; 1,5 и 1,0 м);

-       балка СБ-3, l = 8320 мм - расчетный пролет делят на 4 и 6 частей (шаг стоек соответственно 2 и 1,33 м);

-       балка СБ-4, l = 9320 мм - расчетный пролет делят на 3 и 6 частей (шаг стоек соответственно 3 и 1,5 м).

То есть при шаге стоек 1,0 м применяют балки длиной 4 и 6 м, при шаге 1,33 м - 4 и 8 м, при шаге 1,5 м - 6 и 9 м.

Упрощение узла крепления стоек к фланцу сводится к исключению по одному ребру жесткости внизу двутавра № 12 (с каждой стороны), что объясняется необходимостью упрощения технологии заводского изготовления стоек.

Высота ребра жесткости связана с рабочей высотой стойки и, как следствие, - с ее предельной деформацией (а следовательно, и с энергоемкостью), поэтому целесообразно уменьшение высоты ребер жесткости Эксперименты, проводимые в Росдорнии перед подготовкой Рекомендаций, со стойками с разными узлами крепления показали, что для двутавра № 12 достаточно иметь по одному боковому ребру жесткости высотой 80 мм вместо двух ребер высотой 140 мм. Уменьшение числа ребер жесткости позволяет уменьшить и толщину фланца до 16 мм (вместо 20 мм). Исключение ребер жесткости недопустимо, поскольку резко уменьшается площадь сварных швов крепления стойки к фланцу, из-за чего снижается энергоемкость и возрастает прогиб ограждения (рис. 7).

В целях более эффективного использования металла стоек целесообразно применение: а) стойки из гнутого швеллера 160х80х6 мм. масса которого соответствует массе двутавра № 12, а момент сопротивления на 20% больше (W = 85 см3); б) стойки из гнутого швеллера 140х80х5 мм, момент сопротивления которого соответствует моменту сопротивления стойки из двутавра № 12, а масса на 20% меньше.

Рис. 7. Результат испытания ограждения с недостаточной площадью сварных швов в месте крепления стойки к фланцу (сравнить с рис. 6 а)

В последние годы в дорожных ограждениях используются балки иного сечения, чем по ГОСТу. В частности, применяют профиль неволнового очертания (например, профиль Е), имеющий увеличенный момент сопротивления W = 50 см3 при толщине 4 мм [12]. В случае, если такой профиль использован на дороге и на подходах к мостовому сооружению, то и на мостовом сооружении логично использовать его же. Из этих же соображений может быть допущено устройство балки толщиной 3 мм (в ГОСТ 26804-86 - 4 мм), если уменьшение жесткости балки компенсировать уменьшением шага стоек.

Характеристики

Профиль А

Профиль Е

δ=3 мм

δ= 4 мм

δ=3 мм

δ=4 мм

Момент сопротивления W, см3

25

35

35

50

Вес, кг/м

12

16

16

21

Рис. 8. Различные профили направляющих балок, применяемые в дорожных ограждениях

Стандартные ограждения с улучшенными параметрами есть не что иное, как ограждения:

а) с шагом стоек, начиная от 1,0 м (1,0; 1,33; 1,5; 2,0; 3,0 м);

б) с увеличенной рабочей высотой стойки за счет уменьшения высоты ребер жесткости (для стоек из двутавра № 12 - с уменьшенным числом ребер);

в) с направляющими элементами толщиной 3 мм или иного профиля, например высотой 350 мм и толщиной 3 и 4 мм (рис. 8). Основные характеристики ограждений с измененным фланцевым узлом приведены в табл. 6;

г) со стойками из гнутого профиля.

3. Конструкции барьерных ограждений, имеющие многолетний опыт эксплуатации

В процессе разработки конструкций ограждений для ГОСТ 26804-86 разработчиками были предложены конструкции для опытного применения и дальнейших исследований. Из ограждений мостовой группы к подобным конструкциям были отнесены [7]:

-       односторонние барьерные ограждения с двумя уровнями направляющего элемента (балки) в виде двухволнового профиля [13];

-       односторонние барьерные ограждения с дополнительным усиливающим продольным элементом в виде трубы на уровне ≈ 1¸1,1 м.

Указанные конструкции применяли после 1980 г. в единичных случаях, когда было необходимо увеличить удерживающую способность в особо сложных условиях. Опыт их использования показал целесообразность и правильность принятого решения, по которому за 20-летний период не было получено отрицательных результатов. В частности, конструкции с двумя W-образными профилями были устроены:

- на некоторых мостах дороги Ростов-Баку (1982 г.); рис. 9, а;

- на мостах промысловых дорог Западной Сибири (1985-1990 гг.);

- на Крымской, Савеловской и Рижской эстакадах в Москве (1991-1996 гг., рис. 9 б);

- на развязках при реконструкции МКАД (1996-1999 гг.);

- на одном из участков III транспортного кольца в Москве (1998-1999 гг.) [14];

- на сооружениях магистральных дорог (1999-2000 гг., рис 9 в, а/м М-2 «Крым»).

В последние 10 лет конструкции с двумя направляющими балками двухволнового профиля применяются на мостовых сооружениях автомагистралей и за рубежом (рис. 10).

Таблица 6

Характеристики измененных стандартных ограждений

Параметры (характеристики)

Ед. измер.

Шаг стоек 2 м

Шаг стоек 3 м

профиль W

профиль Е

профиль W

профиль Е

δ=4 мм

δ =3 мм

δ =4 мм

δ =3 мм

δ =4 мм

δ =3 мм

δ =4 мм

δ =3 мм

1

Стойки из двутавра № 12 (или гнутый швеллер - 140х80х5 мм). Ребра жесткости высотой 80 мм

 

 

Энергоемкость

кДж

170

150

185

170

125

110

140

125

Высота h (hраб)

м

0,75

(0,65)

0,75

(0,65)

0,75

(0,65)

0,75

(0,65)

0,75

(0,65)

0,75

(0,65)

0,75

(0,65)

0,75

(0,65)

Максимальный прогиб:

м

 

ограждения

 

0,85

0,85

0,85

0,85

0,85

0,85

0,85

0,85

верха стоек, yст

 

0,55

0,55

0,55

0,55

0,55

0,55

0,55

0,55

Длина волны прогиба

м

18,0

14,0

19,0

16,0

18,5

16,0

20,0

17,0

2.

Стойки из двутавра № 14 (2 швеллера № 121 или гнутый швеллер - 160х80х6. Ребра жесткости высотой 80 мм

 

 

Энергоемкость

кДж

200

175

225

200

175

150

200

175

Высота h (hраб)

м

0,75

(0,65)

0,75

(0,65)

0,75

(0,65)

075

(0,65)

0,75

(0,65)

0,75

(0,65)

0,75

(0,65)

0,75

(0,65)

Максимальный прогиб:

 

 

Ограждения, f

м

0,80

0.80

0,80

0,80

0,80

0,80

0,80

0,80

верха стоек, yст/hраб

 

0,50

(0,8)

0,50

(0,8)

0,50

(0,8)

0,50

(0,8)

0,45

(0,8)

0,45

(0,8)

0,45

(0,8)

0,45

(0,8)

Длина волны прогиба

м

16,0

13,0

17,0

14,0

15,0

12,5

16,0

13,0

Рис. 9. Примеры применения ограждений с двумя направляющими планками

Рис. 10. Пример применения барьерных ограждений с двумя направляющими балками: во Франции (магистраль Е-80)

 

Рис. 11. Примеры применения стандартных ограждений с усиливающей трубой на мостах с четырьмя (а) и шестью (б) полосами движения

Рис. 12. Стадии взаимодействия колеса автомобиля диаметром 0,85 м с ограждением с двумя направляющими балками

Ограждения с усиливающим элементом в виде трубы были установлены на некоторых мостах дороги М-20 С.Петербург - Киев - Одесса, сооружениях магистрали М-4 «Дон» и М-6 «Балтия» в 1990-1995 гг., а также на сооружениях автомагистрали М-4 участка МКАД-Кашира в 1999г.

Ограждение с двумя двухволновыми профилями обеспечивает безопасность наезда легковых автомобилей, которые удерживаются нижним стандартным профилем на стандартном амортизаторе.1 Наезд грузовых автомобилей малой грузоподъемности (15-25% от общего числа наездов) воспринимается уже двумя рядами профиля без существенных отклонений стойки. И только наезд грузовых автомобилей средней и большой массы (до 10% от общего числа наездов) гасится деформацией двух рядов балки с амортизаторами и стойками. При этом допустимое отклонение стойки меньше, чем в случае с одним направляющим элементом, поскольку кинематика деформации ограждения в данном случае иная. В частности, на первой стадии деформируются только амортизаторы (рис. 12 а), после этого отклоняются стойки и колесо грузового автомобиля поднимается на нижний ряд планки и воздействует на стойку с повышенного уровня (рис. 12 б). Предельное отклонение верха стойки в этом случае составляет 0,6-hpa6, где hpa6 - рабочая высота стойки, равная при высоте ребер жесткости 100 мм hpa6 = 1,1 м - 0,1 м = 1,0 м (уст = 1,0·0,6 = 0,60 м). Максимальное возможное отклонение верхней балки при этом составляет 0,90-0,95 м при шаге стоек 2,0 м и до 1,0 м при шаге стоек 3 м. Указанное отклонение складывается примерно из следующих перемещений элементов:

-       стойки - 0,65 м (0,65 м);

-       амортизатора - до 0,2 м (0,2 м);

-       верхней балки между стойками-0,05-0,1 м ( до 0,15 м).

Примечание. В скобках приведены данные при шаге стойки 3 м. Характеристики (параметры) ограждения с двумя рядами балок приведены в табл. 7.

 1 Под амортизатором понимают деформируемую консоль.

Таблица 7

Параметры ограждения с двумя направляющими балками

Схема

Шаг стоек, м

Параметры при стойке из двутавра № 14 или гнутого швеллера 160х80х6 мм

Е, кДж

f, м

y, м

1,33

325

0,80

0,60

1,50

300

0,85

0,65

2,0

250

0,90

0,65

3,0

225

0,95

0,65

1,33

375

0,75

0,55

1,50

350

0,80

0,55

2,0

300

0,85

0,60

3,0

275

0,90

0,60

*) Конструкции, проверенные опытом эксплуатации (см. п. 2).

**) Вариант конструкции с большей энергоемкостью.

Ограждение с дополнительной трубой усиления имеет увеличенную в несколько раз поперечную жесткость, за счет чего число стоек, включающихся в работу, возрастает в 1,5¸2 раза. Это увеличивает энергоемкость ограждения и расширяет область применения стандартных конструкций. Могут быть применены стойки из двутавра № 12, № 14 (2 швеллера № 12) или гнутого швеллера 160х80х6 мм Параметры конструкций с указанными сечениями стоек приведены в табл. 8. Параметры даны также для случая установки стоек на железобетонный цоколь, что проверено опытом эксплуатации.

Таблица 8

Параметры ограждения с трубой усиления

Схема

Диаметр трубы, мм (толщина)

Шаг

стоек, м

Стойки из двутавра № 12

Стойки из двутавра № 14 или гнутого швеллера 160х80х6

Е, кДж

f, м

yст, м

Е, кДж

f, м

yст, м

Д=150мм

(толщина δ=10 мм)

1,33

325

0,70

0,65

400

0,65

0,6

1,50

300

0,70

0,65

375

0,65

0,6

2,00

275

0,75

0,65

325

0,70

0,6

3,00

240

0,75

0,65

300

0,70

0,6

Д= 120¸130

(δ=8¸10)

1,33

300

0,70

0,65

375

0,65

0,6

1,50

280

0,70

0,65

350

0,65

0,6

2,0

250

0,75

0,65

300

0,70

0,6

3,0

220

0,75

0,65

270

0,70

0,6

Схема

Диаметр трубы, мм

Шаг стоек, м

Стойки из двутавра № 12

Стойки из двутавра № 14 или гнутого швеллера 160х80х6

Е, кДж

f, м

yст, м

Е, кДж

f, м

yст, м

Д=150

δ=10

1,33

350

0,70

0,65

425

0,65

0,6

1,50

325

0,70

0,65

400

0,65

0,6

2,00

300

0,75

0,65

350

0,60

0,7

3,00

265

0,75

0,65

325

0,70

0,6

Д= 120¸130

(δ=8¸10)

1,33

325

0,70

0,65

400

0,65

0,6

1,50

305

0,70

0,65

375

0,65

0,6

2,0

275

0,75

0,65

325

0,70

0,6

3,0

245

0,75

0,65

295

0,70

0,6

Таким образом, применявшиеся ограждения с двумя нитками двухволновой планки могут иметь энергоемкость в зависимости от шага и сечения стоек от 225 до 325 кДж при установке без цоколя (общая высота ограждения до 1,1 м) и от 275 до 375 кДж при установке на цоколь высотой 0,3 м (общая высота ограждения 1,5 м). Ограждения с трубой усиления имеют энергоемкость в зависимости от шага и сечения стоек, а также сечения трубы усиления от 220 до 400 кДж при установке без цоколя (высота ограждения 1,1 м) и от 245 до 425 кДж при установке на цоколь высотой 0,2 м (общая высота ограждения 1,3 м).

За рубежом широко используется прием повышения удерживающей способности ограждения за счет дополнительного продольного элемента, увеличивающего в 1,5-2,5 раза число стоек, деформируемых в случае наезда грузового автомобиля. При этом чаще используют квадратный профиль или профиль, составленный из двух швеллеров. Такие конструкции встречаются в Словакии, Австрии, Италии, Германии, Франции, Испании (рис. 13).

В ограждениях с двумя направляющими элементами в виде дополнительной W-образной балки или трубы сохраняется кинематика взаимодействия с наехавшими легковыми автомобилями, характерная для стандартных ограждений. В соответствии с так называемой «стандартной» кинематикой при наезде легкового автомобиля деформируются лишь амортизаторы на смятие и один блок нижней направляющей балки на изгиб на участке между стойками. Причем форма амортизатора принята такой, что сопротивление его смятию остается постоянным при любой величине деформации (рис. 14).

Рис. 13. Пример применения барьерных ограждений с дополнительной балкой усиления:

а - во Франции (магистраль Е-80); б - в Испании (магистраль Е-15)

Рис. 14. Деформация амортизатора при наезде легкового автомобиля на стандартное ограждение

Рис. 15. Конструкция «ТрансЭкострой» с удерживающей способностью Е=520 км на автомагистрали М-3

Рис. 16. Пример применения жестких барьерных ограждении на виадуках во Франции:

а -магистраль Е-15. Высота ограждения 1,0 м,- цоколь h=20 см, Е≈500 кДж; б - сопряжение жесткого барьерного ограждения с полужестким (магистраль Е-60)

Конструкции «ТрансЭкоСтрой» (рис. 15) разработаны на базе французского варианта (рис. 16), но отличаются от них наличием амортизаторов, обеспечивающих смещение до 10 см. Из-за жестких стоек (W>150 см3) указанное ограждение относится ближе к жестким, чем к полужестким. Отличие имеется и в расположении продольных элементов: за рубежом они размещены на расстоянии, обеспечивающем стыковку с обычным профилем (рис. 15).

Высокую удерживающую способность обеспечивают и конструкции «Южуралавтобан». Это достигается за счет частого расположения стоек (а=1,0 м и реже а=2,0 м) и значительной жесткости верхнего направляющего элемента. В отличие от предыдущей конструкции, в ней в качестве нижнего направляющего элемента используется обычная двухволновая балка, крепящаяся к недеформируемой консоли (рис. 17).

4. Новые отечественные и зарубежные конструкции, имеющие разрешение на применение

4.1. Отечественные конструкции мостовой группы, имеющие сертификат соответствия

Из новых отечественных конструкций ограждений на мостовых сооружениях общей сети автомобильных дорог находят применение ограждения, разработанные фирмой ООО «ТрансЭкоСтрой» с тремя направляющими элементами и мощной стойкой из гнутого профиля (рис. 15), сертификат соответствия № 0092420 [15]. Ограждение прошло натурные испытания на полигоне и имеет следующие характеристики при шаге стоек 2 м:

Энергоемкость, кДж .............................................................................. 500

Прогиб ограждения на высоте 0,55 м при расчетном наезде, м ....... 0,45

Прогиб стойки при расчетном наезде, м ............................................. 0,3

Вес 1 пог. м конструкции, кг................................................................. 90

Рис. 17. Конструкция фирмы «Южуралавтобан»

4.2. Импортные конструкции ограждений, разрешенные к применению на автомобильных дорогах общей сети

Из импортных конструкций ограждений, прошедших сертификацию в России, на мостовых сооружениях дорог общей сети могут быть использованы следующие конструкции.

4.2.1. Конструкция «Фракассо-3N» (Италия) с трехволновой балкой высотой 500 мм Податливые консоли длиной 600 мм расположены на стойках из гнутого швеллера 120х80х5 мм (рис 18), [16]. Шаг стоек может быть принят 3,0 м и 1,5 м (сертификат OOROSS.1T.MT18.C0003).

Рис. 18. Ограждение «Фракассо-3N» перед испытанием на полигоне (энергоемкость ≈500 кДж)

Консоль - составная из двух частей, имеет вырез и перфорацию в верхней и нижней частях для увеличения энергоемкости за счет облегчения ее деформации. Принцип работы конструкции:

автомобиль контактирует с трехволновой балкой, и на начальной стадии деформации консоли происходит прорезание нижней перфорации, консоль разворачивается и частично деформируется;

начальная стадия деформации стойки сопровождается значительным смятием консоли и прорезанием верхней перфорации, в результате чего балка остается на том же уровне;

стойки значительно отклонены, деформированная консоль развернута, балка поднята вверх и на стойку передается вертикальное усилие.

То есть энергия наехавшего автомобиля гасится за счет пластического изгиба стоек, прорезания перфорации, смятия консоли и ее разворота. Конструкция приспособлена к установке на отечественные закладные пластины – может изготавливаться с фланцем по ГОСТ 26804-86.

4.2.2. Конструкция «Фракассо-3N-1500» [17] состоит из направляющей трехволновой балки высотой 500 мм, укороченных консолей длиной 340 мм на стойках из гнутого швеллера 160х80х6 мм. Высота стойки 1,5 м, на верху стойки имеется дополнительный продольный гнутый профиль (рис. 19), предназначенный для обеспечения устойчивости наехавшего автомобиля с высоким расположением центра масс (выше 2,0 м). Ограждения могут устанавливаться с шагом стоек 1,5 м и 3,0 м.

Рис. 19. Ограждение "Фракассо" повышенной энергоемкости для мостов без тротуаров и служебных проходов (Е » 700¸750 кДж)

Характеристики сертифицированных в России конструкций фирмы «Фракассо» приведены в табл. 9 (сертификат OOROSS.1Т.МТ18.С0008).

Таблица 9

Характеристики ограждений «Фракассо»

Конструкция ограждения

Характеристики при шаге стоек, м

3,0

1,5

Е, кДж

f, м

Расход стали, кг/м

Е, кДж

f, м

Расход стали, кг/м

Фpaкacco-3N

Рис.18

375

(420)

1,1

58

(50)

450

(500)

0,9

65

(58)

Фракассо-3N-1500

Рис. 19

600

(650)

1,3

80

(72)

700

(750)

1,0

90

[п. 821

Примечание. В скобках - расчетные (теоретические) показатели при установке на цоколь высотой 20 см.

Как и российские конструкции, ограждения «Фракассо-3N» имеют существенные резервы за счет установки стоек через 1,33 или в отдельных случаях до 1,0 м. Увеличение удерживающей способности возможно и за счет установки этих конструкций на бордюр (до Е≈800 кДж), если такое увеличение параметров будет востребовано. Однако подобные изменения параметров по сравнению с сертифицированными конструкциями должны быть подтверждены дополнительными испытаниями.

В настоящее время фирма «Фракассо» создает совместное производство конструкций для России на Домодедовском заводе «Метако». которое будет осуществлять выпуск как итальянских конструкций, так и конструкций, представляющих комбинацию с отечественными, то есть имеющих:

-       стойки из гнутого профиля

-       направляющую балку из трехволнового профиля (высота 0,5 м)

-       амортизаторы по аналогии с ГОСТ 26804-86.

Таким образом, в России в настоящее время имеется рынок конструкций ограждений, обеспечивающий большую часть потребности в них, а его развитие позволит удовлетворить потребность полностью уже в ближайшее время.




Яндекс цитирования



   Copyright © 2007-2026,  www.tehlit.ru.

[ ѓосты, стандарты, нормативы, инструкции, правила, строительные нормы ]