//
ТехЛит.ру
- крупнейшая бесплатная электронная интернет библиотека для "технически умных" людей.
WWW.TEHLIT.RU - ТЕХНИЧЕСКАЯ ЛИТЕРАТУРА

:: Алготрейдинг::


АЛГОТРЕЙДИНГ
шаг за шагом
с нуля по урокам!

Торговые роботы на PYTHON, BackTrader,
Pandas, Pine Script для TradingView. Связка с брокерами, телеграм и легкими приложениями.


ПРАВИТЕЛЬСТВО МОСКВЫ

МОСКОМАРХИТЕКТУРА

ТИПОЛОГИЧЕСКИЕ ОСНОВЫ
ПРОЕКТИРОВАНИЯ СООРУЖЕНИЙ
РАЗВИВАЮЩИХСЯ И НЕТРАДИЦИОННЫХ
ВИДОВ СПОРТА

МЕТОДИЧЕСКИЕ УКАЗАНИЯ

2001

Предисловие

1. Разработаны ГУП МНИИП «Моспроект- Москомархитектуры (арх. Емельянова И.А., Шабайдаш А.А.)

2. Подготовлены к изданию Управлением перспективного проектирования и нормативов Москомархитектуры (архитектор Шалов Л.А., инженер Щипанов Ю.Б.).

3. Согласованы с Комитетом физической культуры и спорта г. Москвы и Москомархитектурой.

4. Утверждены указанием Москомархитектуры от 09.06.2001 г., № 28.

СОДЕРЖАНИЕ

Введение. 2

1. Область применения. 3

2. Основные положения. 3

3. Общие требования к сооружениям развивающихся и новых видов спорта. 5

3.1. Требования к размещению учреждений для развивающихся и новых видов спорта административных округов г. Москвы.. 5

3.2. Требования к участкам и территориям учреждений. 7

3.3. Требования к архитектурно-планировочным решениям учреждений. 9

4. Требования к архитектурно-планировочной организации учреждений для развивающихся и новых видов спорта административных округов г. Москвы.. 11

4.1. Центры восточных единоборств. 11

4.2. Центры спортивного танца. 13

4.3. Центры флорбола. 14

4.4. Крытые роликодромы.. 14

4.5. Комплексы велоспорта ВMX (кроссового велоспорта) 16

4.6. Комплексы зимних видов спорта: горнолыжного спорта, сноуборда, натурбана. 17

4.7. Центры кинологического спорта. 18

4.8. Открытые плоскостные физкультурно-рекреационные сооружения в составе городских парков и зон отдыха. 21

4.8.1. Сооружения для пейнтбола. 21

4.8.2. Площадки пляжного волейбола. 22

5. Ссылки на нормативно-методические документы.. 23

Приложение 1 Краткое описание новых, нетрадиционных видов спорта. 23

Приложение 2 Рекомендуемые габариты и площади инвентарных крытых спортивных сооружений учреждений для развивающихся и нетрадиционных видов спорта. 25

Приложение 3 Ориентировочный состав и площади помещений методического центра. 26

Приложение 4 Ориентировочный состав и площади помещений медико-восстановительного центра. 26

Приложение 5 Ориентировочный состав и площади помещений для отдыха и развлечений. 27

Приложение 6 Рекомендуемые параметры трассы хальфпайп. 27

Приложение 7 Рекомендуемые параметры трасс натурбана. 28

Приложение 8 Требования к спортивным снарядам для кинологического спорта по дисциплинам летнего и зимнего кинологического многоборья. 28

Приложение 9 Требования к спортивным снарядам для кинологического спорта по дисциплинам аджилити и джампинг. 28

Введение

Развитие области физической культуры и спорта связано с постоянным увеличением ее видового разнообразия, появлением новых видов физкультурно-спортивной деятельности, возрастанием популярности традиционных видов спорта, обновлением перечня видов спорта и дисциплин, включаемых в программы зимних и летних Олимпийских игр.

Задача совершенствования системы физкультурно-спортивного обслуживания населения г. Москвы обуславливает необходимость расширения номенклатуры физкультурно-спортивных учреждений города за счет включения новых типов учреждений, в т.ч. рассчитанных на реализацию нетрадиционных видов спорта.

Сеть учреждений для новых, нетрадиционных и развивающихся видов спорта г. Москвы представлена:

·       учреждениями окружного уровня обслуживания, рассчитанными на обслуживание населения административного округа - центрами и комплексами сооружений массового спорта и физкультурно-оздоровительных занятий, в т.ч. по видам спорта, зависящим от природных условий;

·       учреждениями общегородского уровня обслуживания, рассчитанными на обслуживание населения всего города, в т.ч.: общегородскими детско-юношескими спортивными школами; крытыми и открытыми демонстрационными аренами, специализированными сооружениями по видам спорта, зависящим от природных условий.

Положения Методических указаний распространяются на проектирование новых и реконструкцию зданий и комплексов учреждений нетрадиционных и развивающихся видов спорта окружного уровня обслуживания. Положения Методических указаний охватывают:

·     центры восточных единоборств,

·     центры спортивного танца,

·     центры флорбола, стритбола,

·     крытые роликодромы,

·     комплексы кроссового велоспорта (велоспорта ВМХ),

·     комплексы зимних видов спорта (горнолыжного спорта, сноуборда, натурбана),

·     центры кинологического спорта,

·     открытые плоскостные физкультурно-спортивные сооружения в составе юродских парков и зон отдыха (комплексы пейнтбола и пляжного волейбола)

Методические указания должны способствовать сбалансированному развитию сети физкультурно-спортивных сооружений в административных округах г. Москвы, учитывающему структуру физкультурно-спортивных интересов населения столицы, градостроительную и социально-демографическую ситуацию складывающуюся на территории административных округов.

Методические указания разработаны на основе результатов научно-исследовательских работ ГУП МНИИП «Моспроект-, в т.ч. анализа передового отечественного и зарубежного опыта проектирования и строительства новых типов физкультурно-спортивных сооружений, анализа утвержденных правил соревнований по развивающимся и нетрадиционным видам спорта и требований соответствующих спортивных Федераций к местам их реализации.

В Методических указаниях приведены развернутые рекомендации по организации сети, вариантам размещения и архитектурно-планировочной организации участков учреждений развивающихся и нетрадиционных видов спорта административных районов г. Москвы. Приведены функциональные схемы зданий учреждений, рекомендации по их функционально-пространственной организации и планировочным схемам отдельных функциональных элементов зданий. Даны ориентировочные составы спортивных сооружений, составы и площади вспомогательных помещений различных функциональных групп учреждений, не регламентируемые в действующих нормативных документах.

В Методических указаниях содержатся положения специфических градостроительных или функционально-технических требований к размещению и архитектурно-планировочной организации сооружений нетрадиционных и развивающихся видов спорта в условиях г. Москвы.

1. Область применения

1.1. Настоящие методические указания разработаны в дополнение и развитие основных положений территориального градостроительного нормативного документа МГСН 1.01-99 «Нормы и правила проектирования планировки и застройки г. Москвы», а так же как уточнение к другим нормативным документам в строительстве, действующим на территории г. Москвы

1.2. Методические указания «Типологические основы проектирования сооружений развивающихся и нетрадиционных видов спорта» являются документом, регламентирующим проектирование учреждений развивающихся и нетрадиционных видов спорта, размещаемых в административных округах г. Москвы, предназначенных для занятий детско-юношеских физкультурно-спортивных школ, спортивных секций и физкультурно-оздоровительных занятий населения по развивающимся и новым видам спорта.

1.3. Методические указания предназначены для использования при разработке и экспертизе предпроектной и проектной градостроительной документации и проектировании отдельных спортивных сооружений, включенных в регламентируемую настоящим документом номенклатуру.

1.4. Положения Методических указаний следует использовать на различных стадиях градостроительного и архитектурно-строительного проектирования при определении структуры сет, вариантов размещения учреждений, составов спортивных сооружений и вспомогательных помещений учреждений, а также разработке их функциональных и архитектурно-планировочных решений.

1.5. Методические указания устанавливают номенклатуру, требования к участкам, размещению, объемно-планировочной организации, ориентировочные составы основных и вспомогательных помещений учреждений городского уровня обслуживания для новых нетрадиционных и развивающихся видов спорта.

2. Основные положения

2.1. Проектирование сети учреждений городского уровня обслуживания для развивающихся и нетрадиционных видов спорта осуществляется на различных стадиях градостроительного проектирования, в увязке с общей концепцией развития сети спортсооружений г. Москвы с учетом существующей социально-градостроительной ситуации, состояния имеющейся материальной базы, оптимальных вариантов размещения специализированных сооружений.

2.2. Учреждения окружного уровня обслуживания для развивающихся и нетрадиционных видов спорта представлены учреждениями, рассчитанными на обслуживание населения административных округов г. Москвы: центрами и комплексами сооружений массового спорта, т.ч. по видам спорта, зависящим от природных условий.

2.3. Учреждения предназначены для учебно-тренировочных спортивных занятий в системе начальной спортивной подготовки и подготовки спортивных резервов, осуществляемых в детско-юношеских спортивных школах и спортивных секциях, для местных и районных соревнований. Наряда с этим данные учреждения являются методическими центрами административных округов г. Москвы по массовым занятиям населения развивающимся и нетрадиционным видами спорта.

2.4. Рекомендуемая номенклатура учреждений для новых, нетрадиционных и развивающихся видов спорта окружного уровня обслуживания, тип осуществляемой в учреждениях деятельности, их вместимость представлены в таблице 2.1.

2.5. Ориентировочные составы основных и вспомогательных помещений учреждений, единовременные пропускные способности спортивных сооружений учреждений, включенных в номенклатуру, при проектировании конкретных объектов следует уточнять на основании заданий на проектирование с учетом градостроительной ситуации и конкретных программ физкультурно-спортивной деятельности.

2.6. Рекомендуемые в Методических указаниях расчетные показатели площадей вспомогательных помещений учреждений определяют необходимый минимум, обусловленный функционально-технологическими требованиями и могут быть увеличены в соответствии с заданием на проектирование.

2.7. В целях повышения уровня комфортности и достижения коммерческой эффективности функционирования учреждений составы вспомогательных и сопутствующих помещений различных типов учреждений, рекомендуемые в настоящих Методических указаниях, могут быть расширены за счет включения дополнительных помещений досугового обслуживания - гостиных, видеозалов, кинозалов, игротек, дискотек; предприятий питания - кафе, баров, ресторанов; предприятий бытового обслуживания - пунктов проката и ремонта спортинвентаря, парикмахерских, косметических салонов; предприятий розничной торговли; медико-восстановительных центров и отдельных помещений медицинского и оздоровительно-реабилитационного назначения; помещений методического назначения: конференцзалов, библиотек, видеотек и т.д.

2.8. В соответствующих градостроительных ситуациях, при наличии достаточных по площади участков, рекомендуется объединение специализированных сооружений учреждений развивающихся и нетрадиционных видов спорта в многофункциональные комплексы.

Расчетные показатели, составы физкультурно-спортивных сооружений и вспомогательных помещений многофункциональных комплексов определяются заданием на проектирование с учетом требований к каждому из объединяемых учреждений. При кооперировании учреждений развивающихся и нетрадиционных видов спорта с учреждениями иного назначения следует учитывать также требования соответствующих МГСН.

2.9. Допускается сокращение суммарной площади территорий участков, площади пола спортивных залов и помещений, кооперируемых учреждении при условии обеспечения функционально-технологических требований к составам основных и вспомогательных помещений и требований к режиму проведения занятий в каждом из кооперируемых учреждений.

2.10. Требования к наличию, устройству и вместимости зрительских мест на спортивных сооружениях учреждений для развивающихся и нетрадиционных видов спорта административных округов определяется заданием на проектирование.

2.11. Проектирование учреждений развивающихся и нетрадиционных видов спорта следует осуществлять с учетом требований ВСН-62-91* «Проектирование среды жизнедеятельности с учетом потребностей инвалидов и маломобильных групп населения» по обеспечению доступа инвалидам в учреждения общественного назначения.

2.12. Краткое описание новых, нетрадиционных видов спорта, реализуемых на рекомендуемых спортсооружениях административных округов приведено в Приложении 1.

Таблица 2.1.

Номенклатура учреждений для новых, нетрадиционных и развивающихся видов спорта административного округа

(окружной уровень обслуживания)

№ п/п

Наименование учреждения

Тип осуществляемой физкультурно-спортивной деятельности

Диапазон численности обслуживаемого населения

(тыс. чел.)

Единовременная пропускная способность сооружений

(чел.)

Удельная площадь участка*

2/чел.)

Примечание

1

2

3

4

5

6

7

1.

Центр восточных единоборств

Тренировки отделений ДЮСШ, спортивных секций

800 - 900

220 - 280

36,4 - 28,6

Для занятий групп дзюдо, карате, айкидо, тхэквондо, других видов восточных единоборств

2.

Центр спортивного танца

Тренировки отделений ДЮСШ, спортивных секций

800 - 900

120

58,3

 

3.

Центр флорбола

Тренировки отделений ДЮСШ, спортивных секций, массовые физкультурно-оздоровительные занятия

800 - 900

100

80,0

Описание данного вида спорта приведено в Приложении 1

4.

Крытый роликодром

Тренировки отделений ДЮСШ, спортивных секций, массовые физкультурно-оздоровительные занятия

800 - 900

60 - 100

150 - 111,1

Для занятий по различным дисциплинам скейтбординга и катания на роликовых коньках

5.

Комплекс велоспорта ВМХ (кроссового велоспорта)

Тренировки отделений ДЮСШ, спортивных секций, массовые физкультурно-оздоровительные занятия

800 - 900

79

126,5

Описание данного вида спорта приведено в Приложении 1

6.

Комплекс зимних видов спорта: горнолыжного спорта, сноуборда, натурбана

Тренировки отделений ДЮСШ, спортивных секций, массовые физкультурно-оздоровительные занятия

700 - 1000

340 - 400

8,8 - 7,7**

В летний период трассы используются для велоспорта маутинбайк (горного велоспорта)

7.

Центр кинологического спорта

Занятия спортивных секций, массовые физкультурно-оздоровительные занятия

800 - 900

150

166,7

Описание данного вида спорта приведено в Приложении 1

8.

Открытые плоскостные физкультурно-спортивные сооружения в составе городских парков и зон отдыха, в т.ч.:

 

800 - 900

120 - 150

66,7 - 53,3

 

·        комплекс площадок пейнтбола;

Тренировки отделений ДЮСШ, спортивных секций

 

 

 

Описание пейнтбола и пляжного волейбола приведены в Приложении 1

·        площадки пляжного волейбола

Массовые физкультурно-оздоровительные занятия

* Удельная площадь участка - площадь участка учреждения, деленная на 1 место его единовременной пропускной способности.

** Дан показатель площади участка здания базы зимних видов спорта на 1 место единовременной вместимости, без учета площади трасс

3. Общие требования к сооружениям развивающихся и новых видов спорта

3.1. Требования к размещению учреждений для развивающихся и новых видов спорта административных округов г. Москвы

3.1.1. Размещение учреждений для развивающихся и нетрадиционных видов спорта административных округов г. Москвы следует производить на основании общих требований МГСН 1.01-99 к размещению общественных учреждений городского уровня обслуживания, а также специфических требований и рекомендаций к размещению отдельных типов учреждений, изложенных в настоящем документе.

3.1.2. Размещение учреждений для развивающихся и нетрадиционных видов спорта административных округов г. Москвы следует производить с учетом

·       зависимости видов спорта от природных условий;

·       специфических требований, предъявляемых отдельными видами спорта, зависящими от природных условий, к характеристикам ландшафта;

·       градостроительных условий складывающихся на территории административного округа;

·       характеристик существующей сети физкультурно-спортивных сооружений;

·       площади участков, отводимых для строительства спортсооружений;

·       возможности объединения специализированных сооружений в многофункциональные комплексы;

·       возможности кооперирования учреждений для развивающихся и новых видов спорта с учреждениями других сфер обслуживания и жилыми зданиями.

3.1.3. В соответствии с требованиями МГСН 1.01-99, учреждения для развивающихся и нетрадиционных видов спорта административных округов г. Москвы, в зависимости от типа учреждения и градостроительной ситуации, могут размещаться:

·       на обособленных участках общественных зон;

·       в составе многофункциональных и специализированных центров;

·       в составе рекреационных территорий системы общегородского центра.

В соответствующих градостроительных условиях, характеризующихся высокой интенсивностью использования территорий, допускается размещение отдельных типов сооружений:

а) в структуре жилой застройки во встроенно-пристроенных к жилью помещениях;

б) на участках общеобразовательных школ;

в) в составе зданий многофункциональных общественных центров;

г) в составе многофункциональных спортивных и физкультурно-оздоровительных комплексов.

3.1.4. На обособленных участках общественных зон, в составе многофункциональных и специализированных центров рекомендуется размещать учреждения по видам спорта, не зависящим от природных условий, в т.ч.:

·       центры восточных единоборств;

·       центры спортивного танца;

·       центры флорбола, стритбола;

·       крытые роликодромы;

·       комплексы кроссового велоспорта (велоспорта ВМХ);

·       центры кинологического спорта.

3.1.5. Не допускается размещение учреждений для развивающихся и нетрадиционных видов спорта на территории природного комплекса с режимами регулирования градостроительной деятельности 1, 2, 3.

3.1.6. В составе рекреационных территорий рекомендуется размещать учреждения для развивающихся и нетрадиционных видов спорта, зависящих от природных условий, в т.ч.:

·       центры зимних видов спорта с оборудованными естественными и искусственными трассами для слалома, сноуборда, натурбана

·       открытые плоскостные физкультурно-спортивные сооружения в составе многофункциональных парков, в т.ч. площадки пляжного волейбола, комплекс пейнтбола.

3.1.7. В составе рекреационных территорий при соответствующих обоснованиях допускается также размещение открытых спорткомплексов велоспорта ВМХ (кроссового велоспорта), центров кинологического спорта, роликодромов.

3.1.8. Размещение крытых спортивных сооружений и зданий вспомогательных помещений на территории многофункциональных парков следует производить с учетом требования п. 7.3.1 МГСН 1.01-99, ограничивающего высоту зданий.

3.1.9. При проектировании сооружений в составе многофункциональных парков следует также учитывать требования п.п. 7.3.2. - 7.3.4. МГСН 1.01-99.

3.1.10. В районах центра и в районах сложившейся застройки допускается рассредоточенное размещение сооружений учреждений административного округа - тренировочных залов центров спортивного танца, восточных единоборств, флорбола - при соблюдении требований МГСН 3.01-96 «Жилые здания», в том числе при следующих условиях:

·       обеспечения санитарных требований по защите от шума;

·       ограничения вместимости обеденных залов, включаемых в состав встроенно-пристроенных к жилью учреждений для развивающихся и новых видов спорта, до 50 мест;

·       ограничения номенклатуры предприятий торговли и бытового обслуживания, помещений культурно-зрелищных мероприятий в соответствии с требованиями МГСН 3.01-96;

·       исключение из состава учреждений помещений медико-оздоровительных центров с физиотерапевтической аппаратурой;

·       исключения из состава учреждений бань сухого жара;

·       регламентируемого режима функционирования учреждения с 7-00 до 23-00 часов.

3.1.11. В районах центра и на примагистральных территориях районов сложившейся и новой застройки допускается размещение функциональных блоков тренировочных залов восточных единоборств, спортивного танца, флорбола на участках общеобразовательных школ при условии согласования размещения с Московским комитетом образования и некоммерческом характере использования сооружений.

3.1.12. Размещение учреждений для развивающихся и нетрадиционных видов спорта на территориях многофункциональных парков, следует производить с учетом общей планировки парков и его ландшафтных характеристик. В зависимости от специфических требований отдельных видов спорта к ландшафту, они могут быть размещены в структуре парка компактно или рассредоточено.

3.1.13. При размещении на рекреационной территории трасс комплексов зимних видов спорта следует учитывать следующие требования:

·       отсутствие пересечений трасс горнолыжного слалома, сноуборда, натурбана с туристическими и прогулочными маршрутами, проходящими по рекреационной территории;

·       обособленное размещение тренировочных трасс комплексов зимних видов спорта административных районов и специализированных спортивных общегородских трасс горнолыжного спорта, сноуборда, фристайла, натурбана, бобслея-скилетона; отсутствие их пересечений;

·       размещение трасс от зданий вспомогательных помещений (баз) комплексов зимних видов спорта на расстоянии не более 300 и до склона.

3.1.14. Трассы горнолыжного слалома, сноуборда, натурбана и массового катания с гор, рекомендуется прокладывать на северных и северо-восточных склонах.

3.1.15. При размещении центров кинологического спорта следует учитывать направление господствующих ветров.

3.2. Требования к участкам и территориям учреждений.

3.2.1. Участки учреждений для развивающихся и нетрадиционных видов спорта административных округов г. Москвы следует проектировать с учетом общих требований СНиП 2.08.02-89*, требований и рекомендаций настоящего раздела Методических указаний.

3.2.2. В зависимости от типа учреждения и градостроительной ситуации комплексы сооружений учреждения для развивающихся и нетрадиционных видов спорта административных округов г. Москвы могут быть запроектированы на одном или нескольких обособленных участках общественных зон, в составе жилых территорий, в составе территорий природного комплекса, в составе участков общеобразовательных школ и многофункциональных спортивных и общественных центров.

3.2.3. Ориентировочная площадь обособленных участков учреждений для развивающихся и нетрадиционных видов спорта административных округов г. Москвы представлена в таблице 3.1.

3.2.4. При размещении учреждений или отдельных функциональных блоков учреждений во встроенно-пристроенных помещениях к жилым зданиям на участках общеобразовательных школ, в составе многофункциональных общественных центров, а так же итерированных центров развивающихся и нетрадиционных видов спорта административных районов допускается сокращение расчетной площади участка учреждения, приведенной в таблице 3.2.1., на 5 - 20 %. При этом показатель площади следует уточнять заданием на проектирование или проектом с учетом конкретной ситуации.

3.2.5. Общими принципами проектирования земельных участков и территорий учреждений для развивающихся и нетрадиционных видов спорта административных округов г. Москвы являются:

·       организация функционального зонирования участков с учетом основных потоков посетителей и специфических требований, предъявляемых к размещению отдельных функциональных элементов комплексов;

·       организация удобной взаимосвязи открытых плоскостных сооружений; размещаемых на участке комплекса, с вспомогательными помещениями;

·       размещение открытых плоскостных сооружений с учетом необходимой ориентации, требуемых разрывов между жилыми и общественными зданиями и плоскостными сооружениями;

·       проектирование необходимых ветрозащитных и шумозащитных насаждений и устройств;

·       организация возможной блокировки открытых плоскостных сооружений с учетом их зимнего использования;

·       организация оптимальной взаимосвязи зоны открытых сооружений и раздевальных.

3.2.6. При наличии в составе учреждения стационарных мест для зрителей - трибун открытых плоскостных сооружений, трибун спортивных залов, планировку участка учреждения следует производить, исключая пересечение путей следования потоков зрителей и спортсменов.

3.2.7. При проектировании учреждений для развивающихся и нетрадиционных видов спорта на обособленных участках рекомендуется в зависимости от состава сооружений выделять следующие основные зоны:

·       зону крытых сооружений;

·       зону открытых плоскостных сооружений;

·       хозяйственную зону;

·       зону отдыха;

·       открытые плоскостные сооружения с трибунами для зрителей.

3.2.8. На участках центров кинологического спорта и комплексов пейнтбола, имеющих в своем составе поля с газонным покрытием, рекомендуется предусматривать также зону питомника газона.

3.2.9. На участках центров кинологического спорта в отдельные зоны следует также выделять участок с вольерами для собак и места привязи собак.

3.2.10. При интеграции учреждений для развивающихся и нетрадиционных видов спорта административных округов г. Москвы с учреждениями иного функционального назначения, в т.ч. с общеобразовательными школами, следует предусматривать зонирование интегрируемых сооружений.

3.2.11. На обособленных участках учреждений развивающихся и нетрадиционных видов спорта административных округов, размещаемых в городской застройке, следует предусматривать периметральные ветрозащитные полосы озеленения, шириной 5 - 10 м. Ширина периметральной полосы озеленения определяется в соответствии со значением магистрали с которой граничит участок.

3.2.12. Для учреждений, размещаемых на территории природного комплекса, могут не предусматриваться собственные ветрозащитные полосы. В этих случаях проектируются технологически необходимые древесные и кустарниковые насаждения, разделяющие зоны и сооружения, или формирующие полосы безопасности пешеходных путей и визуальные ориентиры.

3.2.13. Расстояние от зданий центров до других зданий и сооружений следует принимать с учетом требований СНиП 2.07.01.-89* а также Временных гигиенических нормативов по размещению отдельных производственных объектов на территории г. Москвы (дополнение и корректировка СанПиН 2.2.1/2.1.1.567-96 «Санитарно- защитные зоны и санитарная классификация предприятий, сооружений и иных объектов»).

3.2.14. При наличии трибун у открытых плоскостных сооружений учреждений, на участке должны быть запроектированы туалеты из расчета один унитаз на 100 женщин, один унитаз и 5 писсуаров на 330 мужчин.

3.2.15. Перед входом на трибуны открытых плоскостных сооружений, должны быть предусмотрены свободные площадки из расчета 0,5 м2 на 1 зрительское место.

3.2.16. Открытые плоскостные сооружения учреждений развивающихся и нетрадиционных видов спорта должны размещаться с учетом следующей ориентации:

·       направление продольной оси круговой беговой дорожки центра кинологического спорта - север-юг;

·       направление продольной оси площадок пляжного волейбола - север-юг.

3.2.17. Обособленные участки учреждений, размещенные в общественных зонах, должны быть огорожены и иметь не менее двух въездов с устройством дорог с твердым покрытием. Подъезды и проезды следует проектировать с учетом требований СНиП 2.07.01.89* и МГСН 1.01-99.

3.2.18. Открытые плоскостные сооружения учреждений должны быть обеспечены поливочным водопроводом. Радиус обслуживания поливочного крана - 30 м.

Таблица 3.1.

Ориентировочные площади участков спорткомплексов учреждений административных округов г. Москвы для развивающихся и новых видов спорта.

№ п/п

Наименование комплекса, сооружения

Ориентировочная площадь участка спорткомплекса (га)

Примечание

1

2

3

4

1.

Центр восточных единоборств

0,8

 

2.

Центр спортивного танца

0,7

 

3.

Центр флорбола

0,8

 

4.

Крытый роликодром

0,9

 

5.

Комплекс велоспорта ВМХ

1,0

Дается показатель площади территории без учета трибун открытых сооружений

6.

Комплекс зимних видов спорта: горнолыжного спорта, сноуборда, натурбана

0,3

Дан показатель площади участка здания базы зимних видов спорта на 1 место единовременной вместимости, без учета площади трасс, параметры которых определяются по месту заданием на проектирование

7.

Центр кинологического спорта

2,5

Дается показатель площади территории без учета трибун открытых сооружений

8.

Открытые плоскостные физкультурно-спортивные сооружения в составе городских парков и зон отдыха, в т.ч. комплекса пейнтбола, площадок пляжного волейбола

0,8

Дается показатель площади территории без учета трибун открытых сооружений комплекса пейнтбола

3.3. Требования к архитектурно-планировочным решениям учреждений.

3.3.1. Архитектурно-планировочные решения учреждений для развивающихся и нетрадиционных видов спорта административных округов г. Москвы определяются функционально-технологическими требованиями к осуществлению различных видов физкультурнопортивной деятельности; реализации сопутствующих видов деятельности различных групп посетителей; градостроительными условиями размещения комплексов; требованиями к интеграции физкультурно-оздоровительных учреждений с общественными учреждениями и жилыми зданиями.

3.3.2. Здания учреждений для развивающихся и нетрадиционных видов спорта должны содержать следующие группы помещений:

- основные помещения, предназначенные для непосредственного проведения спортивных учебно-тренировочных и физкультурно-оздоровительных занятий и соревнований различных уровней - специализированные и многофункциональные спортивные и тренировочные залы, помещения тренажерной техники;

- вспомогательные помещения для осуществления вспомогательных и сопутствующих видов деятельности и технического обслуживания учреждений.

3.3.3. Строительные размеры, площади и пропускные способности основных помещений - специализированных и многофункциональных спортивных и тренировочных залов, помещений физкультурно-спортивного назначения, а так же открытых плоскостных спортивных сооружений учреждений для развивающихся и нетрадиционных видов спорта следует принимать с учетом требований и рекомендаций, изложенных в разделах 4.1 - 4.8 настоящих Методических указаний.

3.3.4. Состав и площади вспомогательных помещений учреждений следует определять на основании заданий на проектирование с учетом:

а) единовременной пропускной способности спортивных сооружений;

б) требований к составу, расчетным показателям и методике расчета площадей вспомогательных помещений, регламентируемых в Справочном пособии «Проектирование спортивных залов, помещений для физкультурно-оздоровительных занятий и крытых катков с искусственным льдом» СНиП 2.08.89*);

в) требований настоящих Методических указаний, изложенных в настоящем разделе и разделах 4.1 - 4.8.

3.3.5. К вспомогательным помещениям учреждений относятся следующие группы помещений:

·       помещения вестибюля (гардероб, вестибюль, санузлы вестибюля);

·       помещения санитарно-гигиенического назначения и отдыха спортсменов;

·       помещения питания;

·       инструкторские;

·       помещения методического назначения;

·       помещения медицинского назначения;

·       помещения сопутствующих видов обслуживания (культурно-спортивных игр, клубные комнаты, помещения культурно-досугового назначения, бытового обслуживания);

·       помещения административно-хозяйственного назначения и бытового обслуживания персонала;

·       технические помещения.

3.3.6. Состав и площади групп помещений вестибюля, помещений санитарно-гигиенического назначения и отдыха спортсменов, инструкторских центров восточных единоборств, спортивных танцев, флорбола, крытых роликодромов следует определять заданием на проектирование с учетом требований Справочного пособия к СНиП 2.08.89* «Проектирование спортивных залов, помещений для физкультурно-оздоровительных занятий и крытых катков с искусственным льдом».

Состав и площади групп помещений вестибюля, помещений санитарно-гигиенического назначения и отдыха спортсменов, инструкторских комплексов зимних видов спорта, комплексов велоспорта ВМХ (кроссового велоспорта), центра кинологического спорта, открытых плоскостных сооружений пейнтбола, пляжного волейбола следует определять заданием на проектирование с учетом требований настоящих Методических указаний, изложенных в настоящем разделе и разделах 4.1 - 4.8.

3.3.7. Площадь инвентарных различных типов спортивных залов учреждений следует определять заданием на проектирование с учетом рекомендаций Приложения 2.

3.3.8. Состав и площади помещений методического назначения следует определять заданием на проектирование с учетом рекомендаций Приложения 3.

3.3.9. Состав и площади помещений медицинского назначения следует определять заданием на проектирование с учетом рекомендаций Приложения 4.

3.3.10. Число посадочных мест в обеденных залах помещений питания следует определять заданием на проектирование или проектом с учетом расчетных показателей, приводимых в справочном пособии к СНиП 2.08.02-89*. Площади и состав помещений питания определяются в зависимости от типа предприятия питания, устанавливаемым заданием на проектирование, с учетом требований МГСН 4.14-98.

3.3.11. Состав и площади служебных помещений административного и инженерно-технического персонала и бытовых помещений рабочих рекомендуется определять заданием на проектирование или проектом с учетом численности и состава служащих и рабочих.

3.3.12. Состав технических помещений определяется заданием на проектирование или проектом с учетом инженерного оснащения и действующих норм расчета.

3.3.13. Здания крытых спортивных сооружений учреждений развивающихся и нетрадиционных видов спорта рекомендуется проектировать, основываясь на принципах функционального зонирования, в соответствии с технологическими требованиями к проведению различных видов физкультурно-спортивных занятий и сопутствующих видов деятельности.

Рекомендуется выделять следующие основные функциональные зоны:

- группу помещений вестибюля с примыкающими к ней пунктами питания;

- группу специализированного спортивного зала (нескольких залов) с инвентарными, помещениями санитарно-гигиенического назначения, отдыха спортсменов, техническими службами;

- раздевальные открытых сооружений;

- помещения методического назначения, помещения досуга;

- медико-оздоровительный центр;

- административные помещения, инструкторские, бытовые помещения.

3.3.14. Примеры функциональноехнологических схем зданий учреждений для развивающихся и нетрадиционных видов спорта, в т.ч. центра флорбола, центра кинологического спорта, комплекса площадок пейнтбола приведены на рисунках 1 - 3.

3.3.15. Наряду с размещением основных и вспомогательных помещений учреждений в едином здании, крытые сооружения и вспомогательные помещения учреждений могут быть запроектированы:

- в двух или нескольких зданиях, включающих функционально взаимосвязанные группы помещений;

- в функциональных блоках, включающих функционально взаимосвязанные группы помещений, размещаемые компактно или рассредоточено в структуре жилых зданий, в качестве встроенных, встроенно-пристроенных и пристроенных помещений нижних жилых этажей;

- в блоках-пристройках к общеобразовательным школам;

- в функциональных блоках помещений в структуре кооперированных общественных зданий и зданий интегрированных центров развивающихся и нетрадиционных видов спорта.

Вариант проектного решения определяется типом учреждения, и градостроительными условиями формирования комплекса.

3.3.16. Рассредоточенное размещение групп помещений физкультурно-оздоровительных учреждения в отдельных зданиях и функциональных блоках допускается при обеспечении функциональной целостности группы. В отдельное здание или функциональный блок объединяются все помещения (основные и вспомогательные) необходимые для осуществления физкультурно-оздоровительного занятия и процесса подготовки к нему.

3.3.17. Встроенные и встроенно-пристроенные к жилью функциональные блоки специализированных сооружений для развивающихся и нетрадиционных видов спорта должны быть изолированы от жилых помещений, иметь собственные входы, эвакуационные выходы и вестибюльные группы помещений и быть запроектированными в соответствии с требованиями МГСН 3.01-96.

3.3.18. Рекомендуемые приемы архитектурно-планировочных решений встроенных и встроенно-пристроенных функциональных блоков специализированных сооружений для развивающихся и нетрадиционных видов спорта физкультурно-оздоровительных учреждений допускается принимать в соответствии с рекомендациями раздела 3.3 Пособия к МГСН 4.08-97.

3.3.19. Перечень помещений, используемых инвалидами в различных физкультурно-оздоровительных учреждениях, определяется заданием на проектирование или проектом.

3.3.20. Устройство стационарных трибун для зрителей рекомендуется при открытых плоскостных сооружениях, в т.ч. открытых велодромах велоспорта ВМХ (кроссового велоспорта), комплексе круговой беговой дорожки и комплексной площадки кинологического спорта.

В специализированных спортивных залах учреждений рекомендуется предусматривать нестационарные зрительские места, в т.ч. на бличерах, балконах, зрительских галереях.

3.3.21. Необходимость наличия судейских помещений и их площадь определяется заданием на проектирование в соответствии с заданным уровнем проводимых на сооружениях соревнований.

3.3.22. В состав вспомогательных помещений учреждений, допускается также включать помещения культурно-спортивных игр, клубные комнаты, помещения для отдыха, развлечений, бытового обслуживания. Состав и площади помещений для отдыха, развлечений, бытового обслуживания определяются заданием на проектирование с учетом рекомендаций Приложения 5.

3.3.23. В зданиях учреждений, включающих залы и помещения, используемые для занятий платных секций и групп, проведения культурно-зрелищных мероприятий, танцев, оказания других платных услуг, а также в зданиях и павильонах вспомогательных помещений открытых сооружений, работающих на коммерческой основе, рекомендуется предусматривать кассовую кабину площадью от 3-х м2.

4. Требования к архитектурно-планировочной организации учреждений для развивающихся и новых видов спорта административных округов г. Москвы

4.1. Центры восточных единоборств

4.1.1. Центры восточных единоборств предназначены для осуществления занятий отделений детско-юношеских спортивных школ и физкультурно-спортивных секций по видам спорта, включенным в настоящее время в программы физического воспитания населения: айкидо; дзюдо; различные версии каратэ, в т.ч.: ден-то карате до-фудокан; карате до; контактное карате; тхэквондо. Состав отделений ДЮСШ и секций устанавливается заданием на проектирование с учетом сложившейся в округе ситуации и распределения физкультурно-спортивных интересов населения.

4.1.2. В соответствии с заданием на проектирование допускается также использование сооружений центров восточных единоборств для греко-римской борьбы, самбо, а также видов восточных единоборств, не включенных в настоящее время в программы физического воспитания населения, в т.ч. кэндо, джиу-джитсу, сумо.

4.1.3. Спортивные залы восточных единоборств используются в попеременном режиме для занятий по видам спорта, определяемым перечнем, регламентируемым заданием на проектирование.

4.1.4. Ориентировочный состав спортивных сооружений центра восточных единоборств представлен в таблице 4.1.

Таблица 4.1.

Ориентировочный состав спортивных сооружений центра восточных единоборств.

(Основные помещения)

Наименование сооружения

Кол-во /Размеры в плане

Высота помещения, (м)

Пропускная способность сооружения, (чел.)

Примечание

1.

Залы восточных единоборств: в т.ч.

 

 

 

Пропускная способность залов восточных единоборств уточняется с учетом перечня видов занятий, проводимых в зале и количества размещаемых комплектов оборудования

1.1.

- специализированный спортивный зал, шт./м

1/36×18

4,5

40 - 60

1.2.

- тренировочные залы, шт./м

2/30×18

4,0

80 - 120

2.

Зал ОФП, шт./м

1/24×12

6,0

20

3.

Залы силовой подготовки, шт./м2

2/200

3,0

80

4.1.5. При расстановке оборудования в спортивных залах восточных единоборств следует учитывать требования к габаритам основных мест занятий и зон безопасности для различных видов восточных единоборств, представленных в таблице 4.2.

4.1.6. Пол в спортивных залах восточных единоборств должен быть деревянным. Площадка учебно-тренировочных занятий и соревнований должны быть закрыты упругим покрытием - ковром, образуемым секционными матами - татами.

4.1.7. При состязаниях по различным видам восточных единоборств площадки также оборудуются:

·       айкидо - столом для судей и официальных лиц, размещенным за линией безопасности,

·       дзюдо - стульями для 2-х боковых судей,

·       каратэ - стола официальных лиц, скамьи участников соревнований, стульями для 4-х боковых судей,

·       тхэквондо - столом для официальных лиц, столом для врача.

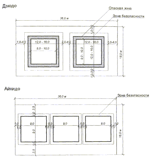
4.1.8. Габаритные схемы размещения площадок при учебно-тренировочных занятиях по дзюдо, айкидо, каратэ, тхэквондо в спортивном зале восточных единоборств 36×18 м представлены на рис. 4 - 5.

4.1.9. В состав дополнительного оборудования, размещаемого в тренировочных залах восточных единоборств включаются подушки на стенах (макивара), боксерские мешки, боксерские груши набивные и пневматические на платформе. Перечень оборудования залов следует уточнять заданием на проектирование с учетом видов проводимых в зале занятий. Заданием на проектирование определяется также состав тренажерной техники залов силовой подготовки.

4.1.10. Состав и площади вспомогательных помещений центров восточных единоборств следует определять заданием на проектирование с учетом требований раздела 3.3 настоящих Методических указаний.

Таблица 4.2

Рекомендуемые габариты основных мест занятий и зон безопасности для различных видов восточных единоборств

Наименование вида восточных единоборств

Габариты основного места занятий (м)

Габариты площадки с учетом зон безопасности (м)

Количество комплектов оборудования, размещаемых в зале

Учебно-тренировочные занятия

Местные и региональные соревнования

Учебно-тренировочные занятия

Местные и региональные соревнования

36×18 м

30×18 м

Учебно-тренировочные занятия

Местные и региональные соревнования

Учебно-тренировочные занятия

1.

Дзюдо

9,0 - 10,0×9,0 - 10,0*

9,0 - 10,0×9,0 - 10,0*

12,0 - 16,0×12,0 - 16,0

14,0 - 16,0×4,0 - 16,0

2 - 3

2

2

2.

Айкидо

9,0×9,0

9,0×9,0

11,0×11,0

12,0×11,0**

3

3

2

3.

Каратэ

6,0×6,0

10,0×10,0

9,0×9,0

15,0×13,0***

3

2

3

4.

Тхэквондо

8,0×8,0

8,0×8,0

12,0×12,0

16,0×15,0****

3

2

2

Примечания.* С учетом опасной зоны, шириной 1 м

** С учетом установки стола официальных лиц, положений боковых судей

*** С учетом установки стола официальных лиц, положений боковых судей, скамьи участников соревнований

****С учетом установки стола официальных лиц, стола врача, положений боковых судей, положений секундантов (тренеров), положений участников соревнований

4.2. Центры спортивного танца

4.2.1. Центры спортивного танца предназначены для осуществления занятий отделений детско-юношеских спортивных школ, клубов и групп спортивного танца.

4.2.2. Ориентировочный состав спортивных сооружений центра спортивного танца представлен в таблице 4.3.

Таблица 4.3.

Ориентировочный состав спортивных сооружений центра спортивного танца

(Основные помещения)

Наименование сооружения

Кол-во (шт.)/Размеры в плане, (м)

Высота помещения, (м)

Единовременная пропускная способность сооружения (чел.)

1.

Специализированный зал спортивного танца

1/42×24

6,0

40

2.

Малый тренировочный зал

1/24×18

4,8

40

3.

Залы хореографии

2/15×15

4,8

40

4.2.3. Габариты основной площадки для учебно-тренировочных занятий и соревнований по спортивному танцу - паркета - равны:

·       в специализированном зале спортивного танца - 30×20 м,

·       в малом тренировочном зале - 20×15 м

4.2.4. Требуемое покрытие пола специализированного зала спортивного танца и малого тренировочного зала - высококачественный паркет.

4.2.5. Состав и площади вспомогательных помещений следует определять заданием на проектирование с учетом требований раздела 3.3 настоящих методических указаний.

В состав помещений, обслуживающих спортсменов центра, следует также включать дежурную гримерно-парикмахерскую (мужскую и женскую).

Площадь дежурной гримерно-парикмахерской следует определять заданием на проектирование из расчета 2 м2 на одно место единовременной пропускной способности.

4.2.6. В соответствии с заданием на проектирование при специализированном зале спортивного танца допускается проектировать раздевальные спортсменов по типу артистических уборных.

При единовременной пропускной способности зала, равной 40 человекам, рекомендуется проектировать 4 уборных (2 мужских и 2 женских), вместимостью 10 человек каждая, площадью от 25 м2. На каждую артистическую уборную рекомендуется предусматривать 1 санитарный узел площадью 5,0 - 6,0 м2, в составе 1 умывальник, 1 унитаз, 1 душ.

4.2.7. Дежурные гримерно-парикмахерские (мужские и женские) следует размещать в непосредственной близости от раздевальных (уборных) спортсменов.

В специализированном зале спортивного танца с габаритами в плане 42×24 м допускается устройство нестационарных зрительских мест, в т.ч. на трансформируемых нестационарных трибунах (бличерах), на балконах и зрительских галереях.

4.2.8. В соответствии с п. 3.3.19 настоящих методических указаний, в залах спортивного танца рекомендуется устройство нестационарных зрительских мест, в т.ч. на трансформируемых нестационарных трибунах (бличерах), на балконах и зрительских галереях.

В соответствии с заданием на проектирование, при соответствующих обоснованиях, в специализированном зале спортивного танца с габаритами в плане 42×24 м, допускается устройство стационарных трибун для зрителей.

Состав помещений зрительского комплекса, их площади, требования к другим параметрам и функциональным взаимосвязям помещений следует определять заданием на проектирование на основании Справочного пособия к СНиП 2.08.89* «Проектирование спортивных залов, помещений для физкультурно-оздоровительных занятий и крытых катков с искусственным льдом».

4.2.9. В свободное от основных занятий время допускается использование центров спортивного танца для проведения массовых мероприятий, проведения вечеров, танцев.

4.2.10. Освещенность специализированного и малого тренировочного залов спортивных ганцев рекомендуется принимать не менее 300 люкс*.

* Показатель принят равным показателю освещенности для фигурного катания в соответствии с таблицей 15 Справочного пособия «Проектирование спортивных залов, помещений для физкультурно-оздоровительных занятий и крытых катков с искусственным льдом» (к СНиП 2.08.89*).

4.3. Центры флорбола

4.3.1. Центры флорбола предназначены для осуществления занятий отделений детско-юношеских спортивных школ и спортивных секций по флорболу, а также массовых физкультурно-оздоровительных занятий.

4.3.2. Ориентировочный состав спортивных сооружений центра флорбола представлен в таблице 4.4.

Таблица 4.4

Ориентировочный состав спортивных сооружений центра флорбола

(Основные помещения)

№ п/п

Наименование сооружения

Размеры в плане

Высота помещения, (м)

Единовременная пропускная способность сооружения, (чел.)

Примечания

1.

Зал флорбола, м

42×24

6,0

24

Габариты игровой площадки флорбола - 40×20 м

2.

Зал спортивных игр, м

36×18

7,2

16

 

3.

Зал ОФП, м

24×12

6,0

20

 

4.

Тренажерный зал, м2

от 200

3,0

40

 

4.3.3. Схема разметки игровой площадки флорбола 40×20 м представлена на рис. 6. Габаритная схема вратарской площадки и габариты ворот флорбола представлены на рис. 7.

4.3.4. В соответствии с заданием на проектирование, при условии сокращения количества полевых игроков в командах, допускается использование площадки флорбола с уменьшенными габаритами, (но не менее, чем 20×10 м).

4.3.5. Площадка флорбола должна быть со всех сторон огорожена бортами высотой 0,5 м. На бортах должна быть отчетливо выделена зона замены игроков, длиной 10 м.

4.3.6. В специализированном зале флорбола, предназначенном для тренировок и соревнований, с одной из сторон следует предусмотреть скамейки для игроков и официальных лиц команды. Секретариат и скамейки для удаленных игроков следует предусмотреть с противоположной стороны, напротив скамеек для игроков команды.

4.3.7. Поверхность пола зала должна быть ровной, гладкой, не скользкой, обеспечивающей хорошее сцепление пола с обувью игрока. Рекомендуемый тип покрытия пола зала флорбола - деревянный (палуба).

4.3.8. Допускается использование зала флорбола 42×24 м для занятий по футзалу, ручному мячу, теннису, баскетболу и другим спортивным играм, перечень которых определяется по заданию на проектирование. При многофункциональном использовании зала флорбола, его высоту следует увеличить до 7,2 м.

4.3.9. Состав и площади вспомогательных помещений центров флорбола следует определять заданием на проектирование с учетом требований раздела 3.3 настоящих Методических указаний.

4.4. Крытые роликодромы

4.4.1. Крытые роликодромы предназначены для проведения учебно-тренировочного процесса и соревнований в секциях и отделениях ДЮСШ по скейтбордингу и катанию на роликовых коньках, а также для самостоятельных физкультурно-оздоровительных занятий населения административных округов.

4.4.2. Крытые роликодромы предназначены для следующих дисциплин роллерс-порта:

·       массовое катание на роликовых коньках и досках,

·       фристайл,

·       стритстайл,

·       прыжки,

·       скоростной бег на роликовых коньках,

·       слалом (в т.ч. параллельный) на роликовых коньках и досках,

·       хоккей на роликовых коньках (роллерхоккей),

·       фигурное катание на роликовых коньках.

Конкретный перечень дисциплин, реализуемых на роликодроме, определяется заданием на проектирование.

4.4.3. Рекомендуемый тип основного спортивного сооружения крытого роликодрома - многофункциональный спортивный зал роллерспорта. Площадь спортивного зала - от 2000 м2.

4.4.4. В составе многофункционального спортивного зала роллерспорта следует выделять зону «экстрим», площадью от 50 до 200 м2 (с учетом зон безопасности) в зависимости от состава оборудования, определяемого заданием на проектирование.

В состав оборудования, размещаемого в экстримзоне, рекомендуется включать:

·       рампу (полутрубу с плоским дном) с радиусом закруглений 1,5 - 3,0 м,

·       трамплины, высотой от 0,35 до 2,0 м,

·       горки, высотой от 0,35 до 2,0 м,

·       ступени, высотой 0,5 м,

·       «ремешок» (две параллельные металлические трубы), высотой 0,3 м

4.4.5. В соответствии с заданным перечнем дисциплин роллерспорта, реализуемых в учреждении, в многофункциональном зале могут быть также размещены, используемые одновременно или в попеременном режиме площадки массового катания на роликовых коньках и досках, фристайлу, стритстайлу, прыжкам в высоту, слалома, скоростного бега на роликовых коньках, роллерхоккея, фигурного катания на коньках. Требования к габаритам площадок приведены в п.п. 4.4.6. - 4.4.11.

4.4.6. Для массового катания на роликовых коньках и досках следует предусматривать площадку до 1000 м2 с использованием гладкого пола*.

* В специализированных залах для массового катания на роликовых коньках и досках могут быть запроектированы площадки, как с использованием гладкого, так и с использованием волнистого пола.

4.4.7. Рекомендуемые габариты площадки для тренировок и соревнований по фристайлу, стритстайлу - 15×15 м.

4.4.8. Рекомендуемые минимальные габариты площадки для тренировок и соревнований по прыжкам в высоту на роликовых коньках 24×4 м. Длина дорожки разбега - 20 м. Расстояние между стойками планки - 2 м.

4.4.8. Для скоростного бега на роликовых коньках на различные расстояния на ровном полу рекомендуется круговая беговая дорожка со следующими параметрами:

·       прямые участки - 40 м,

·       внутренние радиусы закруглений - 20 м,

·       ширина дорожки, в зависимости от числа участников забега:

а) при 2-х участниках - 2,44 м,

б) при 3-х участниках - 3,66 м,

в) при 4-х участниках - 4,57 м,

г) при 5-ти участниках - 5,49 м,

д) при 6-ти участниках - 6,10 м.

Разметка дорожки представлена на рис. 8.

4.4.9. Рекомендуемые габариты трассы слалома на ровном полу - 50×7 м. Трассу рекомендуется проектировать с учетом параметров следующих отрезков:

горы разгона**, высотой 1,0 - 2,0 и уклоном 20 - 30 градусов,

дистанции слалома на ровном полу с длиной 40 - 45 м, со слаломными стойками.

** В многофункциональном зале рекомендуется устройство нестационарной горы разгона.

Расстояние между слаломными стойками при слаломе - 1,5 - 2,0 м, параллельном слаломе - 2,0 - 4,0 м.

Расстояние от окончания горы разгона до первой стойки 3 м, от последней стойки до линии финиша 2 - 3 м.

4.4.10. Рекомендуемые габариты площадки для хоккея на роликах 36,5×18,3 м. Площадку следует ограничивать барьером, высотой 0,23 м. Разметка площадки представлена на рис. 9.

Площадку для хоккея на роликовых коньках допускается так же использовать для тренировок и соревнований по фигурному катанию на роликовых коньках.

4.4.11. Пол в многофункциональном спортивном зале роллерспорта должен быть гладкий и твердый. Рекомендуемые типы покрытия пола - деревянный настил, бетон, синтетическое или пластиковое покрытие.

4.4.12. На участке роликодрома, при достаточной его площади, рекомендуется разместить наклонные спуски для произвольного катания, выполненные из бетона и имеющие навес от дождя.

4.4.13. Состав и площади вспомогательных помещений следует определять заданием на проектирование с учетом требований раздела 3.3 настоящих Методических указаний.

4.5. Комплексы велоспорта ВMX (кроссового велоспорта)

4.5.1. Комплексы велоспорта ВМХ (кроссового велоспорта) административных районов города предназначены для проведения учебно-тренировочного процесса и соревнований в секциях и отделениях ДЮСШ по велоспорту ВМХ, а также для самостоятельных физкультурно-оздоровительных занятий населения административных округов (в основном - детей и подростков).

4.5.2. Основное место проведения занятий и соревнований велокросса ВМХ - специально устроенная трасса. Для комплекса уровня обслуживания административного района рекомендуется устройство открытой трассы. В соответствии с заданием на проектирование допускается строительство крытой трассы ВМХ.

4.5.3. Ориентировочный состав спортивных сооружений комплекса велоспорта ВМХ (кроссового велоспорта) представлен в таблице 4.5.

Таблица 4.5.

Ориентировочный состав спортивных сооружений комплекса велоспорта ВМХ.

(Основные помещения)

Наименование сооружения

Размеры в плане

Высота помещения, (м)

Пропускная способность сооружения (чел.)

Примечание

1.

Трасса велоспорта ВМХ (трек), м2

От 4000

-

24

Рекомендуемая длина трассы L = 300 м

2.

Площадка велотриала, м

20×20

-

10

3.

Зал ОФП, м

24×12

6,0

20

4.

Тренажерный зал, м2

120

3,0

25

4.5.4. Трасса велоспорта ВМХ - трек - включает в себя:

- закольцованную трассу произвольной конфигурации;

- предстартовую зону;

- финишную зону.

Предстартовая и финишная зоны должны размещаться на смежных участках.

4.5.5. Параметры трассы должны отвечать следующим условиям:

- длина трассы от 300 до 400 м (рекомендуемая длина трассы для комплекса административного округа - 300 м);

- ширина трассы на стартовой горке - не менее 10 м;

- по ходу трассы - не менее 5 м;

- ширина трассы на поворотах - не менее 6 м;

- минимальная длина начального уклона стартовой горки - 12 м от стартовых ворот;

- минимальное превышение горки от поверхности первого прямого участка трассы - 1,5 м.

4.5.6. Стартовая прямая трассы должна иметь длину - не менее 40 м. Первое препятствие следует располагать не ближе 35 м от начала стартовой прямой.

4.5.7. Трасса должна иметь не менее 3-х поворотов. Первый поворот может быть, как левый, так и правый.

4.5.8. Препятствия на трассе - трамплины и выступы - следует проектировать двух видов:

- препятствия с передним наклоном;

- препятствия с задним наклоном.

4.5.9. Препятствия на трассе следует располагать одиночно, парами, тройками, и в более сложных сочетаниях (4 - 5 трамплинов и выступов).

4.5.10. Для начального обучения элементам велокросса, в качестве филиалов комплекса административного района, допускается строительство площадок ВМХ с укороченными трассами, которые могут включаться в систему микрорайонных сооружений и пришкольных спортплощадок.

4.5.11. По периметру трасса должна иметь ограждение, располагаемое не ближе 2 м от ее границ. Ограждение проектируется, как правило, из сетчатого материала, выдерживающего нагрузку от падения гонщика, и должно быть травмобезопасным.

4.5.12. Покрытие трассы может быть деревянным, бетонным или из спецсмеси.

4.5.13. В состав вспомогательных помещений комплекса велоспорта ВМХ наряду с группами помещений, перечисленными в разделе 3.3., следует включать велохранилище и веломастерскую, площадь которых следует определять заданием на проектирование.

4.5.14. Примеры планировочных решеток велодрома велоспорта ВМХ (кроссового велоспорта) представлены на рис. 10.

4.6. Комплексы зимних видов спорта: горнолыжного спорта, сноуборда, натурбана

4.6.1. Комплексы зимних видов спорта предназначены для занятий отделений детско-юношеских спортивных школ и физкультурно-спортивных секций по горнолыжному спорту, сноуборду, натурбану, а также массового катания на горных лыжах и сноубордах.

4.6.2. Состав и параметры трасс комплексов зимних видов спорта следует определять заданием на проектирование, с учетом местных природных условий.

4.6.3. В состав трасс для учебно-тренировочных занятий комплексов зимних видов спорта административных районов рекомендуется включать трассы для дисциплин горнолыжного спорта и сноуборда, не требующих склонов значительной протяженности, в т.ч.:

·       по горнолыжному спорту - трассы для слалома и параллельного слалома,

·       сноуборду - трассы для слалома и параллельного слалома.

Допускается также устройство трассы для дисциплины сноуборда «хальфпайп».

4.6.4. Насыпные и естественные склоны, используемые для прокладки трасс зимних видов спорта в летнее время рекомендуется использовать для прокладки трасс маунтинбайка (слалома, параллельного слалома и даунхилла).

Базы со вспомогательными помещениями комплексов зимних видов спорта рекомендуется проектировать с учетом летнего использования для велоспорта маунтинбайк.

4.6.5. Склоны для прокладки трасс зимних видов спорта не должны иметь препятствий в виде пней, камней, ям. Препятствия, расположенные по границам участка, должны ограждаться наклонными стенками (сетками) для создания приподнятых виражей, снежными валами и т.п.

Следует предусматривать ограждение опасных мест трассы натурбана (острых углов, резких перепадов склонов и обрывов, естественных препятствий).

Требования к устройству и параметрам ограждений определяется по месту заданием на проектирование.

При наличии сложных геологических условий следует предусматривать специальные противооползневые и противолавинные мероприятия (защитные и отбойные стенки, направляющие контрфорсы и т.п.).

4.6.6. Для горнолыжного слалома и дисциплин сноуборда - слалома, параллельного слалома, осуществляемых на естественном ландшафте, рельеф трассы должен быть разнообразным, иметь бугры, перепады уклонов, контруклоны.

4.6.7. Ширина трассы для горнолыжного спорта (слалома, тренировочных занятий по скоростному спуску), сноуборда (слалома), массового катания с гор - не менее 20 м* для каждой из указанных дисциплин.

* На участках с препятствиями, по внешнему периметру поворотов трассы, проложенной на выпуклых участках, ширина участка увеличивается для обеспечения безопасности лыжников и определяется по заданию на проектирование

Участки склона для параллельного слалома должны иметь ширину, достаточную для размещения двух трасс.

Допускается размещение трасс для дисциплин горнолыжного спорта и сноуборда на одном склоне, имеющем достаточную ширину. При этом трассы должны быть разделены ограждениями или посадками между трассами.

4.6.8. Рекомендуемые параметры трассы хальфпайп сноуборда представлены в Приложении 6. Габаритная схема трассы хальфпайп представлена на рис. 11.

4.6.9. Для массового катания на горных лыжах длина трасс и перепад высот не лимитируется. Уклон участков склонов, предназначенных для массового катания на отдельных участках не должен превышать 25 %.

4.6.10. Для массовых занятий сноубордом длина трасс и перепад высот не лимитируется.

4.6.11. Трассы для массовых занятий сноубордом допускается проектировать совмещенными с трассами для массового катания на горных лыжах. При этом средний уклон трассы должен составлять не более 5 - 7 %.

4.6.12. Рекомендуемые параметры трассы для учебно-тренировочных занятий по натурбану комплексов зимних видов спорта административных районов представлены в Приложении 7.

4.6.13. В начале трасс горнолыжного слалома, слалома и параллельного слалома сноуборда, натурбана комплексов зимних видов спорта административных районов, используемых для проведения соревнований, предусматриваются стартовые эстакады, а на финише - финишные площадки. Габариты стартовых эстакад и финишных площадок, необходимость устройства ограждения устанавливаются заданием на проектирование.

4.6.14. При необходимости устройства ограждения, оно может быть запроектировано съемным или стационарным. В ограждении следует предусматривать проемы для путей, соединяющих линии старта и финиша, а также боковые проемы.

4.6.15. Необходимость оборудования подъемных устройств и их тип на тренировочных трассах горнолыжного слалома, сноуборда и склонах для массового катания определяется заданием на проектирование.

4.6.16. Трассы натурбана должны быть обеспечены зимним поливочным водопроводом или снабжены системой искусственного намораживания льда.

4.6.17. Для занятий групп начальной подготовки по натурбану допускается устройство снежноедяной трассы (трассы по снежному насту).

4.6.18. Спортивные залы и помещения для дополнительных видов физкультурно-спортивной деятельности, а также вспомогательные помещения комплексов зимних видов спорта административных районов рекомендуется проектировать в едином здании (базе), размещаемом в непосредственной близости от трасс.

4.6.19. Для осуществления дополнительных видов физкультурно-спортивной деятельности рекомендуется включать в состав комплексов зимних видов спорта залы ОФП и тренажерные залы (помещения).

Количество и габариты залов определяется заданием на проектирование с учетом общей единовременной пропускной способности трасс.

Для комплексов с общей единовременной пропускной способностью трасс 180 и более человек рекомендуется 2 зала ОФП 24×12 м и 2 зала тренажерной техники площадью от 200 м2.

4.6.20. Состав и площади вспомогательных помещений комплексов зимних видов спорта следует определять заданием на проектирование с учетом заданной совокупной единовременной пропускной способности трасс, залов ОФП и тренажерных залов, требований ВСН 3-71 «Указания по проектированию лыжных баз (трасс, трамплинов и зданий)», а также требований раздела 3.3 настоящих Методических указаний.

4.7. Центры кинологического спорта

4.7.1. Центры кинологического спорта предназначены для комплексного и прикладного кинологического спорта, в т.ч. учебно-тренировочных занятий ДЮСШ, спортивных секций и физкультурно-оздоровительных групп, проведения соревнований различных уровней и массовых мероприятий кинологического спорта, методической работы со спортивными кадрами, кинологическими клубами и населением административных округов.

4.7.2. Спортивные сооружения центров кинологического спорта предназначены для реализации занятий и соревнований по следующим дисциплинам кинологического спорта:

1) Кинологические прикладные многоборья, в т.ч.:

·       академическое двоеборье;

·       современное многоборье;

·       летнее многоборье;

·       зимнее многоборье.

2) Ездовой спорт (на лыжах, санях, нардах, тележках, повозках), гонки на собаках (буксировка).

3) Аджилити, в т.ч.:

·       преодоление собакой трассы с препятствиями на время и чистоту;

·       преодоление собакой трассы джампинга на время и чистоту.

4) Трайэл

В центрах кинологического спорта осуществляются также занятия по общему курсу дрессуры.

4.7.3. Ориентировочный состав спортивных сооружений центра кинологического спорта представлен в таблице 4.6.

4.7.4. Рекомендуемая схема планировки круговой беговой дорожки кинологического многоборья, комплексной спортивной площадки кинологического спорта, тренировочных площадок представлена на рис. 12.

4.7.5. Круговая дорожка, длиной 400 м, предназначена для проведения учебно-тренировочных занятий и соревнований:

·       по летнему кинологическому многоборью, в т.ч., осуществляемым в попеременном режиме бегу на 100 м и преодолению полосы препятствий длиной 300 м;

·       по зимнему кинологическому многоборью,

·       различным видам ездового спорта.

4.7.6. Для обеспечения многофункционального характера использования круговой беговой дорожки основным требованием к оборудованию различных трасс является нестационарный характер используемых снарядов и устройств.

4.7.7. Полоса препятствий длиной 300 м с участками переползания и гранатометания летнего кинологического многоборья оборудуется следующими снарядами:

·       легкоатлетическими барьерами для собаки и спортсмена;

·       глухим забором;

·       сквозной лестницей;

·       бумом;

·       «окопом», состоящим из двух помостов - разбега и приземления;

·       каркасом с натянутой сеткой на участке переползания;

·       мишенью прицельного гранатометания.

Требования к снарядам полосы препятствий зимнего кинологического многоборья представлены в Приложении 8.

4.7.8. Участок переползания, размером в плане 10×2 м, рекомендуется застилать брезентом.

Таблица 4.6.

Ориентировочный состав спортивных сооружений центра кинологического спорта

(Основные помещения)

Наименование сооружения

Размеры в плане, (м)

Кол-во сооружений, (шт.)

Высота помещения, (м)

Единовременная пропускная способность сооружений (чел.)

Примечание

1.

Открытые плоскостные сооружения

-

1

-

20

Ширина дорожки - не менее 3 м

1.1

Круговая дорожка L = 400 м

1.2.

Комплексная спортивная площадка кинологического спорта

50×40

2

-

60

Многофункциональная площадка аджилити, курса общей дрессуры

1.3.

Тренировочная площадка

40×20

2

-

40

Площадка отработки элементов аджилити и курса общей дрессуры

1.4.

Тренировочная площадка задержания

80×5

1

-

10

 

2.

Крытые сооружения

 

 

 

 

 

2.1.

Спортзал трайэла и аджилити

42×24

1

6

20

Габариты основной площадки - 40×20 м

4.7.9. Мишень прицельного гранатометания на участке гранатометания размещается на расстоянии 25 м от линии гранатометания - для мужчин, - 15 м - для женщин.

4.7.10. Схема размещения снарядов полосы препятствий летнего многоборья на круговой беговой дорожке представлена на рис. 13.

4.7.11. Трассу зимнего кинологического многоборья рекомендуется размещать на круговой дорожке 400 м. Вираж трассы оборудуется препятствиями, состоящим из трех ворот, образуемых стойками, высотой 1,5 м. Смежно с трассой располагается участок прицельного гранатометания (см. п. 4.7.9.). В зимний период рекомендуется оборудовать участок гранатометания нестационарным устройством для улавливания гранат, размещаемым за мишенью прицельного гранатометания.

4.7.12. Схема размещения трассы зимнего кинологического многоборья на круговой дорожке 400 м представлена на рис. 14.

4.7.13. Допускается по отдельному заданию на проектирование, согласованному с органами МВД, включать в состав сооружений центра крытый тренировочный тир для стрельбы из пневматического оружия. Количество мишеней тира и требования к его проектированию устанавливаются заданием на проектирование.

4.7.14. Комплексная спортивная площадка кинологического спорта предназначена для учебно-тренировочных занятий и соревнований по аджилити и джампингу, занятий по общему курсу дрессуры. Рекомендуемые габариты площадки - 50×40 м. Минимальные допускаемые размеры площадки аджилити - 40×20 м.

4.7.15. При занятиях и соревнованиях по аджилити и джампингу комплексная спортивная площадка кинологического спорта оборудуется нестационарными препятствиями. Трасса аджилити и джампинга, длиной 100 - 150 м, формируются из 16 - 25 снарядов (тренерами - во время тренировок, или судьями - во время соревнований). В состав снарядов включаются:

·       бум;

·       барьеры;

·       виадук или стенка;

·       стол;

·       качели;

·       горка (наклонная стенка);

·       стойки для слалома;

·       жесткий тоннель;

·       мягкий тоннель;

·       колесо на стойках;

·       комплект элементов для прыжков в длину.

Требования к снарядам аджилити представлены в Приложении 9.

4.7.16. Тренировочная площадка кинологического спорта предназначена для отработки элементов многоборья, аджилити и курса общей дрессуры. Рекомендуемые минимальные размеры площадки 40×20 м.

4.7.17. Открытые плоскостные сооружения кинологического спорта должны иметь ровное, гладкое, нескользкое покрытие, не обжигающее лапы собак в летнее время и не травмирующее когти собак.

Рекомендуемый тип покрытия комплексной спортивной площадки кинологического спорта - газон.

Для тренировочных площадок кинологического спорта, комплексной площадки задержания и стрельбы из пневматического оружия, а также круговой беговой дорожки - рекомендуется грунтово-песчаная смесь. Для покрытия круговой беговой дорожки может быть также использовано синтетическое покрытие - тартан, рекортан.

4.7.18. Трассы зимнего кинологического многоборья и ездового спорта следует прокладывать по хорошо утрамбованному снегу.

4.7.19. Места для зрителей рекомендуется проектировать в комплексе с круговой беговой дорожкой, располагая их вдоль одной из ее продольных сторон. Количество мест и тип трибуны следует определять заданием на проектирование или проектом. Места для зрителей должны иметь ограждение со стороны беговой дорожки в виде сетки высотой 1,5 м.

4.7.20. Спортивный зал для аджилити и трайэла - предназначен для занятий и соревнований по аджилити в зимнее время и круглогодичных занятий и соревнований по трайэлу (выполнению обязательных и произвольных программ упражнений под музыку со служебными и декоративными породами собак). Размер основной спортивной площадки - не менее 40×20 м.

4.7.21. В спортивных залах центров кинологического спорта административных районов допускается устройство нестационарных зрительских мест (в т.ч. на переносных скамейках, бличерах, балконах, зрительских галереях).

4.7.22. Рекомендуемый тип покрытия пола спортивного зала для аджилити и трайэла - синтетическое покрытие - тартан, рекортан. Поверх него при тренировках и соревнованиях по трайэлу основную спортивную площадку следует застилать ковром из синтетического коврового покрытия.

4.7.23. Состав вспомогательных помещений центра кинологического спорта следует определять на основании задания на проектирование, с учетом требований раздела 3.3. и настоящего раздела Методических указаний.

4.7.24. Для спортсменов кинологического спорта рекомендуется проектировать следующие помещения санитарно-гигиенического назначения:

·       для открытых сооружений центра - общие раздевальные (с учетом суммарной пропускной способности открытых сооружений);

·       для спортивного зала аджилити и трайэла - кабины, в расчете 1 кабина на 3-х человек единовременной пропускной способности зала, и индивидуальные запирающиеся шкафы для хранения одежды.

4.7.25. Индивидуальную кабину, площадью 4,0 - 4,5 м2, включая место для собаки, следует оборудовать скамьей для переодевания с крючками для одежды, умывальником, и душевым поддоном.

4.7.26. В состав вспомогательных помещений центра кинологического спорта наряду с медпунктом, следует включать ветеринарный пункт в составе ожидальной, площадью 12 - 15 м2, кабинета врача, площадью 15 - 20 м2, процедурной, площадью 12 - 15 м2 кладовой, площадью 4 - 6 м2.

4.7.27. На территории комплекса сооружений кинологического спорта, используемых для проведения соревнований, следует предусматривать обособленные зоны:

- зону вольеров для собак (6 - 10 вольеров, площадью 2,5 - 3,0 м2 каждый);

- зону открытой передержки собак, оборудуемую поручнями для привязи собак и скамейками для спортсменов.

Суммарная длина поручней для привязи собак определяется заданием на проектирование с учетом численности участников соревнований, из расчета 2,0 погонных м поручня на собаку.

4.7.28. Схема зонирования участка центра кинологического спорта приведена на рис. 15.

4.8. Открытые плоскостные физкультурно-рекреационные сооружения в составе городских парков и зон отдыха

4.8.1. Сооружения для пейнтбола

4.8.1.1. Комплекс сооружений для пейнтбола предназначен для занятий и соревнований отделений детско-юношеских школ и спортивных секций по пейнтболу.

4.8.1.2. Комплекс сооружений для пейнтбола включает открытые спортивные поля пейнтбола, зал тренажерной техники и вспомогательные помещения. В соответствии с заданием на проектирование допускается включение в состав спортивных сооружений комплекса пейнтбола спортивного зала габаритами 36×18 м или 42×24 м.

4.8.1.3. Состав полей пейнтбола определяется заданием на проектирование, с учетом программы физкультурно-спортивной деятельности, конкретной ситуации, в т.ч. емкости рекреационной территории и величины выделяемого участка.

Рекомендуются следующие габариты игрового поля в зависимости от количества игроков в команде:

· при числе игроков в команде 3 человека - 30×50 м,

· при числе игроков в команде 5 человек - 30×60 м,

· при числе игроков в команде 7 человек - 40×70 м,

· при числе игроков в команде 10 человек - 40×80 м.

Рекомендуемые габариты игровых полей следует уточнять заданием на проектирование с учетом требований к расстановке принятого типа оборудования.

4.8.1.4. Игровое поле должно иметь ровное покрытие (газонное, гаревое, глиняно-песчаное, синтетическое).

4.8.1.5. Поле для игры в пейнтбол должно иметь ограждение по всему периметру, в виде сетки высотой не менее 3-х м. Размеры ячеек защитной сетки - не более 10×10 мм. Расстояние от границ игрового поля до защитной сетки - не менее 1,5 м, со стороны зоны пораженных игроков - не менее 2,5 м.

4.8.1.6. Отсутствие защитной сетки допускается при размещении поля для игры в пейнтбол в специально отведенных местах рекреационных территорий, с организацией зоны безопасности, шириной не менее 50 м, расположенной по периметру площадки.

4.8.1.7. Поля пейнтбола рекомендуется блокировать. Расстояние между сооружениями в блоке, состоящем 2-х или нескольких полей должно быть не менее 10 м. Смежное размещение полей допускается при наличии между ними защитной сетки, (требования к сетке приведены в п. 4.8.1.5. настоящего документа).

4.8.1.8. Устанавливаемые на поле защитные укрытия различной конфигурации должны быть устойчивы и травматически безопасны. Допускаемые материалы изготовления укрытий - пластик, дерево, надувные конструкции.

4.8.1.9. Организация стационарных или нестационарных трибун на открытых сооружениях пейнтбола допускается только при наличии ограждения со стороны трибун в виде сетки. Превышение последнего ряда трибун над уровнем игрового поля не должно быть выше высоты сетки ограждения. При высоте сетки 3 м, превышение последнего ряда трибун над уровнем игрового поля допускается принимать равным 1,2 м. Расстояние первого ряда от сетки ограждения высотой 3 м - не менее 1,5 м.

4.8.1.11. Зона хронографирования, габаритами не менее 2×3 м должна быть расположена на игровом поле (или в непосредственной близости от него) таким образом, чтобы стрельба производилась вдоль границы поля. Зона хронофграфирования должна быть оборудована одним или более радарным хронографом.

4.8.1.12. Место технического персонала оборудуется в 10-ти м от сетки ограждения. Место технического персонала должно иметь стационарный или нестационарный навес.

4.8.1.13. Состав вспомогательных помещений комплекса сооружений пейнтбола следует определять на основании задания на проектирование с учетом единовременной пропускной способности комплекса и требований раздела 3.3. настоящих методических указаний.

В состав вспомогательных помещений хозяйственного назначения следует также включать:

·       складское помещение для хранения для оборудования сооружений и маркеров, площадью от 30 м2;

·       мастерскую для ремонта инвентаря открытых сооружений, смежную со складским помещением, площадью от 15 м2;

·       изолированное помещение для хранения сосудов с рабочим газом от 10 м2;

·       помещение для хранения желатиновых шариков 2×2 м.

4.8.1.14. Помещение для хранения сосудов с рабочим газом должны соответствовать требованиям Госкотланадзора, устанавливаемым заданием на проектирование.

4.8.1.15. В помещении для хранения желатиновых шариков должна поддерживаться постоянная температура - не ниже 18 градусов, и минимальная влажность воздуха.

4.8.1.16. На рис. 16 представлены габаритные схемы площадок пейнтбола и варианты их блокировки. На рис. 17 дается пример стандартного пневматического оборудования площадок пейнтбола для игры пятерками и семерками.

4.8.2. Площадки пляжного волейбола

4.8.2.1. Площадки пляжного волейбола, размещаемые в структуре многофункциональных парков и зонах отдыха населения административных округов предназначены для массовых самостоятельных физкультурно-оздоровительных занятий населения, осуществляемых в режиме активного отдыха.

4.8.2.2. Размещение площадок пляжного волейбола для массовых физкультурно-оздоровительных занятий рекомендуется производить в прибрежных зонах водоемов парков и озелененных территорий, в составе городских пляжей.

4.8.2.3. Размещение площадок пляжного волейбола в прибрежных зонах парков и озелененных территорий, не относящихся к городским пляжам, допускается при согласовании с Москомприродой.

4.8.2.4. Габариты площадки пляжного волейбола - 24×15 м, при единовременной пропускной способности 8 человек.

4.8.2.5. Количество площадок пляжного волейбола для массовых физкультурно-оздоровительных занятий следует определять по месту, с учетом площади и вместимости пляжа, или емкости рекреационной территории. Рекомендуемое минимальное количество площадок две.

4.8.2.6. Основным требованием к природным характеристикам ландшафта для размещения площадок пляжного волейбола, используемых для спортивных тренировок - наличие естественного или насыпного слоя песка толщиной не менее 30 см, определенного цвета и чистоты.

4.8.2.7. Площадки для массовых самостоятельных физкультурно-оздоровительных занятий пляжным волейболом допускается размещать без формирования отдельных вспомогательных помещений. При этом рекомендуется использовать предусмотренные для посетителей пляжа буфеты и санитарно-гигиенические устройства, в т.ч. туалеты, душевые кабины, кабины для переодевания.

5. Ссылки на нормативно-методические документы

5.1. СНиП 10-01-94 «Система нормативных документов в строительстве. Основные положения»

5.2. СНиП 2.07.01-89* «Планировка и застройка городских и сельских поселений».

5.3. СНиП 2.08.02-89* «Общественные здания и сооружения»

5.4. СНиП 2.01,02.-89Противопожарные нормы»

5.5. МГСН 1.01-99 «Нормы и правила проектирования планировки и застройки г. Москвы».

5.6. МГСН 3.01-96 Жилые здания.

5.7. МГСН 3.01-96 Жилые здания. Дополнение № 1

5.8. МГСН 4.08-97 «Массовые типы физкультурно-оздоровительных сооружений».

5.9. МГСН 4.04-94 «Многофункциональные здания и комплексы».

5.10. МГСН 4.06-96 «Общеобразовательные учреждения».

5.11. МГСН 4.17-98 «Культурно-зрелищные учреждения»

5.12. МГСН 4.14-98 «Предприятия общественного питания»

5.13. ВСН 62-91* «Проектирование среды жизнедеятельности с учетом потребностей инвалидов и маломобильных групп населения».

5.14. ВСН 3-71 «Указания по проектированию лыжных баз (трасс, трамплинов и зданий

5.15. СанПиН 2.2.1./2.1.1.567-96. «Санитарно-защитные зоны и санитарная классификация предприятий, сооружений и иных объектов».

5.16. Временные гигиенические нормативы по размещению отдельных производственных объектов на территории г. Москвы (дополнение и корректировка)

5.17. СанПиН 2.2.1/2.1.1.567-96 «Санитарно-защитные зоны и санитарная классификация предприятий, сооружений и иных объектов»), Москва, 1998.

5.18. Справочное пособие «Проектирование спортивных залов, помещений для физкультурно-оздоровительных занятий и крытых катков с искусственным льдом» (к СНиП 2.08.02-89*).

5.19. Справочное пособие «Проектирование бассейнов» (к СНиП 2.08.02-89*).

5.20. Пособие к МГСН 4.08-97 «Массовые типы физкультурно-оздоровительных учреждений. Выпуск 1. Общие положения. Сооружения, приближенные к жилью. Физкультурно-оздоровительные клубы микрорайонов. Детско-юношеские спортивные школы».

5.21. «Рекомендации по проектированию окружающей среды, зданий и сооружений с учетом потребностей инвалидов и других маломобильных групп населения». Москва, 1995 г.

5.22. «Рекомендации по проектированию зон физкультурно-спортивных сооружений парков культуры и отдыха». Москва, 1984 г.

Приложение 1

Краткое описание новых, нетрадиционных видов спорта *

* Приложение не содержит описание широко известных традиционных, развивающихся видов спорта, включенных в рекомендованную общую номенклатуру новых, нетрадиционных и развивающихся видов спорта - бильярда, водного поло, гольфа, массового катания на горных лыжах.

Велоспорт ВМХ - кроссовый велоспорт - разновидность велокросса, осуществляемого на велосипедах специального класса (кроссовых велосипедах ВМХ). Проводится на специализированных спортивных сооружениях - крытых и открытых велодромах ВМХ. Трасса велоспорта ВМХ с комбинацией препятствий и поворотов имеет длину от 270 до 400 м. Для международных соревнований длина трассы равна 300 - 400 м.

Велоспорт маунтинбайк (горный велосипед) - разновидность велоспорта, осуществляемого на велосипедах специального класса - горных велосипедах. Маунтинбайк включает следующие дисциплины: кросскантри (кросс по пересеченной местности), слалом, параллельный слалом; даун хилл (скоростной спуск). Олимпийской дисциплиной является - кросскантри. Трасса кросскантри прокладывается на пересеченной местности. Максимальная длина дистанции кросскантри - 40 км. Трассы слалома, параллельного слалома; даун хилла прокладываются по естественным склонам. Ландшафтные характеристики пересеченной местности, уклоны и длина склонов, должны соответствовать заданным требованиям к проведению соревнований различных уровней.

Восточные единоборства - виды единоборств, зародившиеся на Востоке. Включают виды, направленные на овладение приемами самообороны и боевых искусств. В перечне видов спорта, включенных в настоящее время в Российские государственные программы физического воспитания, имеются следующие виды восточных единоборств: айкидо; дзюдо; различные версии каратэ, в т.ч.: ден-то карате до - фудокан; карате до; контактное карате; тхэквондо по различным версиям **. Айкидо - боевое спортивное единоборство, основанное на древней системе самообороны, суть которой состоит в применении против нападающего уклоняющихся приемов, дающих возможность воспользоваться, образовавшимся временным преимуществом. Соревнования проводятся по обязательной программе и трем видам боевых состязаний. Дзюдо - Олимпийский вид спорта, - самооборона, основанная на комбинации силы и равновесия. В соревнованиях побеждает спортсмен, продемонстрировавший наилучшую технику захватов и бросков. Каратэ единоборство без оружия, формальный метод физического и духовного совершенствования и состязательный боевой вид спорта. Соревнования по спортивному каратэ проводятся в виде спарринг-матчей, во время которых боевое искусство, единоборство без оружия. С 1994 года тхэквондо ВТФ является Олимпийским видом спорта. Различные соревнования осуществляются как в личном, так и в командном первенстве. На Олимпийских играх соревнования проводятся в личном первенстве. Основным местом тренировок и соревнований по различным видам восточных единоборств является зал борьбы. Габариты зала определяются размером основной площадки - ковра для борьбы - и количеством площадок, размещаемых в зале. Размеры ковра для борьбы (татами) различны для отдельных видов восточных единоборств.

* Существуют следующие основные версии тхэквондо: версия Всемирной Федерации Тхэквондо (ВТФ), Глобальной Федерации Тхэквондо (ГТФ), версия Интернациональной Федерации Тхэквондо (ИТФ).

Кинологический спорт. Виды спорта, объединенные Российской лигой кинологов включают комплексные и прикладные виды кинологического спорта, в т.ч.: аджилити («А» - преодоление собакой трассы с препятствиями на время и чистоту «Б» - преодоление собакой трассы джампинга - серии прыжков через барьеры на время и чистоту); трейэл - обязательные и произвольные программы упражнений под музыку со служебными и декоративными породами собак; кинологические прикладные многоборья в т.ч.: академическое двоеборье, современное двоеборье, летнее многоборье, зимнее многоборье; ездовой спорт (на лыжах, санях, нардах; тележках (повозках), гонки на собаках (буксировка). Преодоление трассы с препятствиями на время и чистоту собаками малых пород с высотой холки до 40 см называется миниджилити. Соревнования по кинологическому спорту проводятся как в личном, так и в командном первенстве. Сооружения для кинологического спорта включают открытые сооружения (круговые беговые дорожки, спортивные и тренировочные площадки кинологического спорта) и крытые сооружения (спортивные залы), используемые комплексно для различных видов и дисциплин кинологического спорта.

Натурбан - скоростной спуск на санях (одноместных - для женщин и мужчин, двухместных - для мужчин) по естественному склону с намораживаемой ледяной трассой. Длина трассы, уклоны, количество виражей определяется по месту.

Пляжный волейбол - спортивная игра, аналогичная волейболу, осуществляемая на открытой песчаной площадке. Количество игроков - 2×2 или 4×4 человека. Специфическое требование к сооружению - наличие слоя песка толщиной не менее 30 см с регламентируемыми цветом и степенью чистоты.

Пейнтбол - прикладной вид спорта, командная игра, со стрельбой из специальных маркеров пневматического действия, стреляющих желатиновыми шариками с минеральным красителем. Команды игроков (три, пять, семь или десять человек в команде в зависимости от вида соревнования), стартующие со своих баз, стремятся захватить флаг противника и поразить при этом как можно больше игроков команды противника. Место проведения игры - открытая площадка с системой установленных искусственных укрытий (пластиковых, пневматических, деревянных). При упрощенных правилах игры осуществляется так же, как физкультурно-рекреационное занятие.

Роллерспорт и скэйтбординг - катание на роликовых коньках и роликовых досках. Роллерспорт включает, как массовые физкультурно-оздоровительные занятия, так и спортивные дисциплины, в т.ч.: хоккей на роликовых коньках; фристайл на роликовых коньках и роликовых досках; фигурное катание на роликовых коньках; скоростной бег на роликовых коньках. Для фристайла используются специальные устройства: рампы, трамплины, раскатные горки и пр. Комплексы сооружений для роликовых коньков и скейтбординга включают, в основном, сооружения двух типов: роликодромы, строящиеся в настоящее время в Москве, и скейтпарки, получившие большое распространение за рубежом. Скейтпарк - комплекс с развитым составом спортивных сооружений для роликовых коньков и скейтбординга, включающий как крытые так и открытые сооружения, в т.ч. площадки различных видов, дорожки, прямые наклонные трассы, наклонные изогнутые трассы, чаши, бассейны с полуцилиндрами. Составы сооружений различных скейтпарков, их габариты определяются по месту и варьируются в большом диапазоне.

Сноуборд - скольжение по естественному заснеженному склону на специальной доске (зимний Олимпийский вид спорта). Сноуборд включает следующие дисциплины: параллельный слалом, слалом-гагант, супергигант, хальфпайп (полу труба), бордеркросс (кросс на сноуборде). Трассы сноуборда оборудуются на естественных и искусственных склонах. Параметры трасс определяются на основании требований правил соревнований с учетом местных условий.

Для дисциплин хальфпайп и бордеркросс предусматриваются стационарные трассы. Для бордеркросса рекомендуется оборудовать постоянный городок бордеркросса, включающий комбинацию препятствий: трамплинов, ванн, ям с водой, развязок, виражей с повышением трассы на поворотах по типу санно-бобслейной трассы.

Танцевальный спорт (спортивное танцевание) - вид спорта, основанный на исполнении определенных Европейских и Латиноамериканских танцев. Владение школой хореографии оценивается при исполнении танцевальными парами фигур, перечень которых определяется для каждого танца и класса спортсменов. Соревнования различных уровней проводятся между спортивными танцевальными парами различных классов по программам Европейских, Латиноамериканских танцев или программе 10 танцев. Тренировки и соревнования осуществляются в танцевальном зале. Основная площадка для тренировок и соревнований - паркет, площадью 20×30 м (15×20 м - для малого тренировочного зала). Соревнования высших уровней осуществляются в демонстрационном зале со стационарными зрительскими местами.

Флорбол - спортивная игра, аналогичная хоккею, где вместо шайбы используется специальный мяч. Основное место проведения - спортивный зал. В команде играют 5 полевых игроков и вратарь. Рекомендуемый размер игрового поля 40×20 м. Допускается игра в залах меньших габаритов с уменьшением числа полевых игроков. Возможно проведение игры на открытых плоскостных сооружениях.

Приложение 2

Рекомендуемые габариты и площади инвентарных крытых спортивных сооружений учреждений для развивающихся и нетрадиционных видов спорта

№ п/п

Наименование сооружения, площадь зала

Габариты инвентарной, м

Площадь инвентарной, м2

1.

Игровые залы:

 

 

- флорбола, 1002,0 м2;

6,0×6,0

36,0

- зал спортивных игр, 648,0 м2

6,0×4,0

24,0

2.

Залы восточных единоборств:

 

 

- 648,0 м2

3,0×2,0*)

6,0)*

- 360,0 м2

3,0×2,0*)

6,0)*

3.

Залы спортивного танца:

 

 

- 1002,0 м2

-

12,0 - 18,0**)

- 648,0 м2

-

12,0 - 18,0**)

4.

Зал хореографии, 144,0 м2

3,0×2,0

6,0

5.

Зал трайэла, аджилити, 1002,0 м2

-

24,0 - 36,0**)

6.

Зал крытого роликодрома, 2000 м2

-

24,0 - 36,0**)

*) На 1 ковер и на 1 комплект табельного оборудования

**) Площадь уточняется заданием на проектирование.

Приложение 3

Ориентировочный состав и площади помещений методического центра

№ п/п

Наименование помещения

Площадь помещения, м2

Примечание

1.

2.

3.

4.

1.

Методический кабинет

30,0 - 40,0

 

2.

Комната хранения методических пособий

10,0

 

3.

Аудитория - лекционный зал на 80 - 120 мест*)

64,0 - 96,0

Оборудуется съемными креслами, киноэкраном и эстрадой, в зале выделяется место для киноустановки

4.

Кулуары аудитории*)

32,0 - 48,0

С учетом организации выставок

5.

Читальный зал на 20 - 30 мест*) с подсобными помещениями

48,0 - 52,0

Состав подсобных помещений следует определять с учетом табл. 29 МГСН 4.17-98

5,

Компьютерный зал

20,0 - 40,0**)

 

6.

Подсобные помещения центра

20 и более

С учетом хранения экспозиционного оборудования и подготовительных работ

*) Вместимость уточняется заданием на проектирование

**) Площадь уточняется заданием на проектирование с учетом габаритов оборудования

Приложение 4

Ориентировочный состав и площади помещений медико-восстановительного центра

№ п/п

Наименование помещения

Площадь помещения, м2

Примечание

1

2

3

4

1

Блок помещений фотария и залов лечебной физкультуры

 

 

1.1.

Кабинет врача

12,0

 

1.2.

Приемная

12,0

 

1.3.

Процедурная

15,0

 

1.4.

Кабинет механотерапии

35,0 - 40,0

 

1.5.

Кабинет лечебной гимнастики

15,0

Для индивидуальных занятий

1.6.

Зал лечебной гимнастики

30,0

На группу из 5 человек

1.7.

Кабинет тестирования с физической нагрузкой

20,0

 

1.8.

Кабинет аутотренинга

40,0

 

1.9.

Кабинет электро- и светолечения, в т.ч.:

 

Состав оборудования и количество кушеток устанавливается заданием на проектирование

- Индивидуальные кабины с кушетками;

4,5 - 5,0 на кушетку

- Помещение для обработки прокладок

5,0

1.10.

Санузел (мужской, женский)

5,0×2

 

1.11.

Комната персонала

9,0 - 15,0

Площадь уточняется заданием на проектирование с учетом штатного расписания

1.12.

Кладовая грязного и чистого белья

4,0 + 4,0

 

1.13.

Кладовая уборочного инвентаря

4,0

 

2.

Блок массажных, сауны, кабинетов гидропатии**

 

 

2.1.

Массажная***, в т.ч.:

 

Количество массажных устанавливается заданием на проектирование, не менее одной массажной проектируется с учетом обслуживания инвалидов-опорников

- помещение массажной;

12,0 - 16,0*

 

- раздевальная;

6,0

 

- душевая на 2 сетки

5,0

 

2.2.

Сауна ***в т.ч.:

 

 

2.2.1.

- камера сухого жара на 6 человек;

12,0

Количество камер сухого жара устанавливается заданием на проектирование

2.2.2.

- комната отдыха;

15,0

 

2.2.3

- пульт управления;

2,0

 

2.2.4.

- микробассейн;

16,0

 

2.2.5.

- раздевальная сауны, в т.ч.:

 

 

- места для переодевания;

12,0

 

- душевые при раздевальных на 3 сетки;

5,0

 

- туалет (с умывальником в шлюзе);

6,0

 

2.2.6.

- кладовая грязного и чистого белья;

9,0

 

2.2.7.

- комната персонала сауны с кладовой

10,0 + 2,0

 

2.3.

Кабинет гидропатии в т.ч.:

 

Состав душевых установок: душ циркулярный, душ дождевой, душ восходящий, душ «шарко»

- кафедра на 4 душевых установки;

30,0

 

- раздевальные душевого зала

10,0

 

2.4.

Кабинет подводного массажа

24,0

 

* Большее значение показателя - для массажной, запроектированной с учетом обслуживания инвалидов-опорников.

** Помещения массажных, сауны, помещений гидропатии рекомендуется выделять в отдельный функциональный блок помещений и изолировать от кабинетов электро-, светолечения (с учетом ограничения п. 3.1.10 настоящих Методических указаний).

*** Помещения сауны и массажной рекомендуется также предусматривать при раздевальных крытых физкультурно-оздоровительных сооружений (с учетом ограничения п. 3.1.10 настоящих Методических указаний).

Примечание. Вестибюльная группа помещений проектируется общей для функционального блока медико-восстановительного центра и блоков физкультурно-оздоровительных сооружений с учетом их суммарной пропускной способности.

Приложение 5

Ориентировочный состав и площади помещений для отдыха и развлечений

№ п/п

Наименование помещения

Минимальная площадь помещения, м2

Примечание

1.

Клубная комната

30

Кол-во клубных комнат определяется заданием на проектирование

2.

Гостиная

30

 

3.

Зал игровых автоматов

24,0

 

4.

Помещение настольных игр

24,0

 

5.

Бильярдная

36,0

 

6.

Зимний сад

50,0

 

7.

Танцевальный зал*)

1,1 /на 1 место

Включая танцплощадку, зону ожидания, эстраду

Вариант: дискотека

1,2/на 1 место

Включая танцплощадку, с пультом диск жокея или эстраду, зону ожидания, буфет (бар)

8.

Бар

24,0

 

*) Вместимость танцевального зала или дискотеки определяется заданием на проектирование

Приложение 6

Рекомендуемые параметры трассы хальфпайп

Обозначение параметра на рис. 11

Наименование параметра

Минимум

Оптимум

Максимум

 

Угол наклона, градусы

14

17

22

L

Длина трассы, м

80,0

110,0

150,0

W

Ширина трассы (от вала до вала), м

10,0

15,0

18,0

Н

Внутренняя высота вала, м

2,0

3,0

4,0

В

Горизонтальный отрезок профиля трассы, м

Не менее 5,0

Т

Переходный радиус, м

1,5

2,0

3,0

V

Вертикальный отрезок профиля трассы, м

0,1

0,3

0,5

F

Расстояние до ограничительного флага, м

1,0

2,0

2,5

D

Перепад высот, м

1,5

2,0

2,5

Приложение 7

Рекомендуемые параметры трасс натурбана

Наименование параметра

Значение параметра

Примечание

Минимальная длина трассы, м

80,0

 

Минимальный перепад высот, м

20,0

 

Рекомендуемая ширина трассы, м

5,0 - 7,0

 

Минимальная ширина трассы, м

3,0 - 4,0

 

Минимальный радиус поворотов, м

5,0

 

Приложение 8

Требования к спортивным снарядам для кинологического спорта по дисциплинам летнего и зимнего кинологического многоборья

Наименование снаряда

Требования к общим габаритам

Другие требования

Длина (м)

Ширина (м)

Высота (м)

1.

Легкоатлетические барьеры для собаки и спортсмена

 

 

 

 

·        для команд юношей, девушек и женщин

-

*)

0,762

 

·        для мужских команд

-

*)

0,914

 

2.

Глухой забор

-

2,0

1,8

Толщина поперечных досок 4 см. Опорные стойки забора выполняются заподлицо с верхней доской

3.

Сквозная лестница, в т.ч.

7,0**)

1,0

3,0***)

Лестничный марш расположен под углом 45 градусов к плоскости беговой дорожки. Ширина ступеней 16 - 26 см, высота между ступенями - 25 см. Лестница оборудуется перилами с правой стороны по ходу спортсмена на высоте 1,0 м

·        верхняя площадка

1,0

1,0

-

4.

Окоп, в т.ч.:

9,0**)

*)

*)

Каждый помост состоит из наклонного и горизонтального щита длиной по 2 м каждый. Разрыв между помостами 1,5 м выстилается матами

·        помост разбега,

3,75**)

1,0

1,0****)

·        помост приземления

3,75**)

1,0

0,75****)

5.

Участок переползания, образованный каркасом с натянутой сеткой

10,0

2,0

0,6

Вертикальные стойки каркаса крепятся между собой по верху поперечными планками. Участок переползания застилается брезентом. По верху каркаса натягивается сетка.

6.

Мишень прицельного гранатометания

-

D = 2,0

0,5 - 0,7*****)

Мишенью служит круглый щит с концентрическими черными и белыми кругами

7.

Бум, в т.ч.

8.5**)

0,17 - 0,18

1,0

Трапы, длиной 2 м, с планками 1,5×3,0 см, размещенными на расстоянии 25 см друг от друга

·        горизонтальная доска,

5,0

0,17 - 0,18

1,0

·        трапы

1,75**)

0,17 - 0,18

-

8.

Стойки ворот для зимнего многоборья

-

2,0

1,5

Переносные стойки. Ширина ворот, образуемых двумя стойками - не менее 2,0 м

*) Параметр не регламентируется

**) Приведена длина в плане

***) Приведено превышение уровня верхней площадки над уровнем беговой дорожки

****) Приведено превышение уровня помоста над уровнем беговой дорожки

*****) Приведены высоты установки переднего и заднего края щита

Приложение 9

Требования к спортивным снарядам для кинологического спорта по дисциплинам аджилити и джампинг

Наименование снаряда

Требования к общим габаритам

Другие требования

Длина (м)

Ширина (м)

Высота (м)

1

2

3

4

5

6

1.

Барьеры

 

 

 

Высота ограничительных стоек барьеров не менее 1 м**). На верхней отметке барьера устанавливается незакрепленная планка диаметром 4 см

·        одиночные барьеры,

*)

1,2

0,65

·        одиночные барьеры для мини-аджилити

*)

1,2

0,35 - 0,40

·        двойные барьеры, в т.ч.

 

 

 

Глубина препятствия (расстояние между барьерами) - не более 0,7 м

- 1-й барьер,

*)

1,2

0,30 - 0,35

- 2-й барьер,

*)

1,2

0,55

·        двойные барьеры для мини-аджилити

 

 

 

- 1-й барьер,

 

1,2

0,10 - 0,15

- 2-й барьер

*)

1,2

0,35

2.

·        Виадук или стенка

*)

1,2

0,65***)

Толщина препятствия 0,2 м. По бокам препятствия устанавливаются две тумбы 0,3×0,3×1,0 м

·        Виадук или стенка для миниджилити

*)

1,2

0,35 - 0,40***)

3.

·        Стол

0,9 - 1,2

0,9 - 1,2

0,65

 

·        Стол для миниджилити

 

 

0,40

 

4.

Бум

3,6 - 4,2****)

0,3 - 0,4

1,2 - 1,35

Трапы с планками 2×3,5 см, размещенными на расстоянии 0,2-0,3 м друг от друга

5.

Качели

3,65 - 4,25

0,3 - 0,4

0,6 - 0,7*****)

 

6.

Горка (наклонная стенка)*****

 

0,9

1,7 - 1,9

Препятствие состоит из двух прямоугольных или трапециевидных элементов, расположенных под углом 90 градусов друг к другу. Наклонные поверхности снабжены поперечными планками 2×3,5 см, размещенными на расстоянии 0,5 м друг от друга (0,3 м - для миниджилити)

7.

Стойки для слалома

*)

*)

1,0

Круглые в сечении стойки

8.

Жесткий тоннель

3,6 - 6,0

D = 0,6

*)

Конструкция жесткого туннеля должна позволять сделать хотя бы один поворот

9.

Мягкий тоннель, в т.ч.

3,5

*)

*)

Мягкий тоннель, за исключением жесткой части, - матерчатый

·        жесткая часть

0,9

D = 0,6 - 0,65

*)

10.

Колесо на стойках, в т.ч.

 

 

 

Препятствие состоит из рамы и колеса (обруча), закрепленного на ней с помощью четырех растяжек. Не допускается жесткий крепеж колеса к раме

·        колесо,

-

D = 0,38 - 0,6

0,8******)

·        колесо для миниджилити

-

D = 0,38 - 0,6

0,55******)

11.

Препятствия для прыжков в длину

0,15

1,2

0,15 - 0,28

4 - 5 элементов, расположенных друг за другом, (3 - 4 - для миниджилити) образуют зону прыжка длиной 1,2 - 1,5 (0,7 для миниджилити). Зона прыжка отмечается стойками, высотой, 1,2 м, имеющими сверху защиту, во избежание травмирования собаки.

*) Параметр не регламентируется

**) Между ограничительными стойками (высотой не менее 1 м) могут быть установлены горизонтальные планки, две диагональные планки (крест на крест), щит без отверстий, щит со сквозными отверстиями различных размеров и форм, щетка.

***) Включая высоту верхних съемных полукруглых элементов.

****) Приведена длина трапов и горизонтальной доски

*****) Приведена высота средней оси, равная 1/6 от длины качелей.

******) Приведена высота от центра отверстия до основания рамы

Экспликация помещений

1. Вестибюль, гардероб. 2. Зал флорбола 42×24 м. 3. Зал спортивных игр 36×18 м. 4. Инвентарная. 5. Зал ОФП 24×15 м. 6. Тренажерный зал. 8. Комната хранения учебных пособий. 9. Тренерская. 10 Администрация. 11. Хозяйственная кладовая. 12. Бытовые помещения. 13. Медкабинет. 14. Туалет. 15. Буфет. 16. Раздевальные спортивных залов. 17. Технические помещения. 18. Холл/комната отдыха.

Рис. 1. Функциональная схема центра флорбола

Экспликация

1. Вестибюль, гардероб. 2. Индивидуальные кабины для переодевания при зале аджилити. 3. Зал аджилити 42×24 м. 4. Инвентарная. 5. Тренажерный зал. 6. Методический кабинет. 7. Комната хранения учебных пособий. 8. Тренерская. 9. Администрация. 10. Хозяйственная кладовая. 11. Бытовые помещения. 12. Медкабинет. 13. Туалет. 14. Буфет. 15. Комната отдыха. 16. Раздевальные открытых сооружений. 17. Технические помещения. 18. Ветеринарный кабинет.

Рис. 2. Функциональная схема центра кинологического спорта

Экспликация помещений

1. Вестибюль, гардероб. 2. Раздевальные открытых сооружений. 2а. Раздевальные зала. 3. Тренировочный зал 36×18 м. 4. Инвентарная. 5. Тренажерный зал. 6. Инвентарная открытых сооружений. 7. Склад хранения сосудов с рабочим газом. 8. Методический кабинет. 9. Комната хранения учебных пособий. 10. Буфет. 11. Туалет. 12. Администрация. 13. Инструкторская. 14. Бытовые помещения. 15. Хозяйственная кладовая. 16. Медицинский кабинет. 17. Технические помещения. 18. Ремонтная мастерская. 19. Помещение для хранения пейнтбольных шаров.

Рис. 3. Функциональная схема вспомогательных помещений открытых плоскостных физкультурно-спортивных сооружений пейнтбола

Рис. 4. Схемы размещения площадок для учебно-тренировочных занятий восточными единоборствами (дзюдо, айкидо) в спортивном зале 36×18 м

Рис. 5. Схемы размещения площадок для учебно-тренировочных занятий восточными единоборствами (каратэ, тхэквондо) в спортивном зале 36×18 м

Рис. 6. Схема разметки площадки флорбола

Рис. 7. А. Разметка вратарской площадки флорбола. Б. Габаритная схема флорбольных ворот

1. Вид спереди. 2. Вид сбоку. 3. Вид сверху. 4. Общий вид.

Рис. 8. А. Круговая дорожка для скоростного бега на роликовых коньках (для закрытых помещений). Б. Площадка для фигурного и массового произвольного катания на роликовых коньках

Рис. 9. Площадка для хоккея на роликовых коньках

Рис. 10. Примеры планировки трасс ВМХ. А. Трасса L = 370 м. Б. Трасса L = 270 м.

Рис. 11. Схема трассы сноуборда «хальфпайп» (полутруба).

1. Поперечный Профиль. 2 Аксонометрия. (Параметры трассы см. Приложение 6.).

Экспликация

1. Круговая беговая дорожка L = 400 м. 2. Комплексные спортивные площадки кинологического спорта. 3. Тренировочные площадки кинологического спорта. 4. Зрительские трибуны.

Рис. 12. Схема планировки комплекса открытых сооружений кинологического центра

Экспликация

1. Круговая беговая дорожка L = 400 м. 2. Спортивные площадки аджилити. 3. Тренировочные площадки аджилити. 4. Участок слалома. 5. Участок прицельного гранатометания.

Примечания.

1. Расстояние от старта до начала слаломной трассы - 210 м

2. Длина трассы слалома - 80 м

3. Расстояние от конца слаломной трассы до участка гранатометания - 110 м

Условные обозначения

- - трасса зимнего многоборья

Рис. 13. Схема разметки трассы и расстановки оборудования для зимнего кинологического многоборья на круговой беговой дорожке кинологического центра

Экспликация

1. Круговая беговая дорожка L = 400 м. 2. Спортивные площадки аджилити. 3. Тренировочные площадки аджилити. 4. Участок прицельного гранатометания.

Условные обозначения

- - трасса полосы препятствий L = 300 м.

Рис. 14. Схема разметки трассы и расстановки оборудования полосы препятствий летнего кинологического многоборья на круговой беговой дорожке кинологического центра

Экспликация

1. Круговая дорожка летнего и зимнего многоборья L = 400 м. 2. Комплексная спортивная площадки кинологического спорта. 3. Тренировочные площадки кинологического спорта. 4. Тренировочная площадка задержания. 5. Зрительские трибуны. 6. Спортивный корпус зала аджилити и вспомогательных помещений открытых сооружений. 7. Вольеры для собак. 8. Поручни для привязи собак. 9. Хозяйственная зона. 10. Питомник газона.

Рис. 15. Схема зонирования участка центра кинологического спорта

Рис. 16. А - Б. Габаритная схема площадок пейнтбола на 7 и 10 игроков. В.1. Вариант блокировки площадок с разделительной сеткой. В.2. Вариант блокировки площадок без разделительной сетки

Состав элементов

Часть А - длина 50 м. Часть В - длина 24 м. Часть С - уголок. Часть С* чехол вентилятора. Часть D - длина 24 м. Часть Е - длина 6 м. Часть F - длина 2 м. Часть G - длина 1 м. Часть I - длина 0,3 м. Часть J - длина 0,3 м. Часть L - длина 16 м. Часть М - длина 16 м. Часть N - длина 20 м.

Рис. 17. Пример оборудования площадок пейнтбола. Комплект стандартных пневматических элементов для игры пятерками (1) и семерками (2)




Яндекс цитирования



   Copyright © 2007-2026,  www.tehlit.ru.

[ ѓосты, стандарты, нормативы, инструкции, правила, строительные нормы ]