//
ТехЛит.ру
- крупнейшая бесплатная электронная интернет библиотека для "технически умных" людей.
WWW.TEHLIT.RU - ТЕХНИЧЕСКАЯ ЛИТЕРАТУРА

:: Алготрейдинг::


АЛГОТРЕЙДИНГ
шаг за шагом
с нуля по урокам!

Торговые роботы на PYTHON, BackTrader,
Pandas, Pine Script для TradingView. Связка с брокерами, телеграм и легкими приложениями.


ГОСУДАРСТВЕННЫЙ СТАНДАРТ СОЮЗА ССР

ОКНА И БАЛКОННЫЕ ДВЕРИ ДЕРЕВЯННЫЕ

ДЛЯ МАЛОЭТАЖНЫХ

ЖИЛЫХ ДОМОВ

Типы, конструкция и размеры

ГОСТ 26601-85

Государственный строительный комитет СССР

Москва

ГОСУДАРСТВЕННЫЙ СТАНДАРТ СОЮЗА ССР

ОКНА И БАЛКОННЫЕ ДВЕРИ ДЕРЕВЯННЫЕ

ДЛЯ МАЛОЭТАЖНЫХ ЖИЛЫХ ДОМОВ

Типы, конструкция и размеры

Wooden windows and balcony doors for

one-two storey dwelling houses.

Types, structure and dimensions

ГОСТ

26601-85

Постановлением Государственного комитета СССР по делам строительства от 7 мая 1985г. № 64 срок введения установлен

с 01.01.86

Настоящий стандарт распространяется на деревянные окна и балконные двери с двойным и тройным остеклением, предназначаемые для жилых домов высотой не более двух этажей.

Окна и балконные двери с двойным и тройным остеклением соответственно должны изготовляться со следующими показателями: приведенное сопротивление теплопередаче Ro - 0,42 и 0,56 м2°С/Вт, сопротивление воздухопроницанию Ru - 0,5 м2×ч×Па/кг при 10 Па, общий коэффициент светопропускания t - 0,52 и 0,38, индекс звукоизоляции воздушного шума Iн - 28 и 32 дБ.

1. ТИПЫ, РАЗМЕРЫ И МАРКИ

1.1. Окна и балконные двери по настоящему стандарту подразделяют на серии:

РМ – с раздельными переплетами и дверными полотнами с двойным остеклением;

РСМ – с раздельно-спаренными переплетами и дверными полотнами с тройным остеклением.

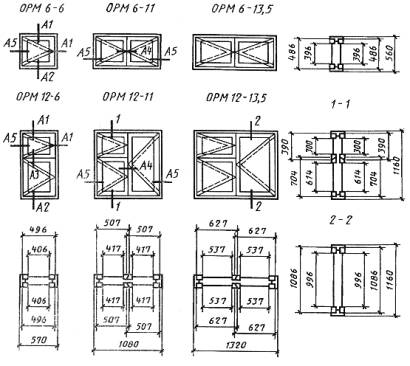
1.2. Типы и габаритные размеры окон и балконных дверей должны соответствовать указанным на черт.1.

1.3. По требованию потребителей одно-створные окна и балконные двери, в т.ч. с форточными створками, должны изготовляться также и левыми, а окна много створные с несимметричным рисунком – в негативном (зеркальном) изображении.

1.4. Устанавливают следующую структуру условного обозначения (марки) окон и балконных дверей:

В конце марки окон и балконных дверей с одинарным остеклением перед обозначением стандарта добавляют цифру 1 через тире.

Примеры условных обозначений

Окно правое серии РМ высотой 15 и шириной 6 дм (вариант А):

ОРМ15-6А ГОСТ 26601-85

То же, левое:

ОРМ15-6АЛ ГОСТ 26601-85

Дверь балконная серии РСМ высотой 22 и шириной 7,5 дм:

БРСМ22-7,5 ГОСТ 26601-85

Окно серии РМ высотой 12 и шириной 11 дм, с несимметричным рисунком окна:

ОРМ12-11 ГОСТ 26601-85

То же, в негативном исполнении:

ОРМ12-11Н ГОСТ 26601-85

2. ТРЕБОВАНИЯ К КОНСТРУКЦИИ

2.1. Окна и балконные двери должны изготовляться в соответствии с требованиями ГОСТ 23166 и настоящего стандарта по рабочим чертежам, утвержденным в установленном порядке.

2.2. Конструкция, форма, основные размеры и марки окон и балконных дверей серии РМ должны соответствовать указанным на черт.2-4, а размеры сечений деталей и притворов – на черт.5-12.

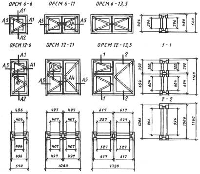
2.3. Конструкция, форма, основные размеры и марки окон и балконных дверей серии РСМ должны соответствовать указанным на черт.13-15, а размеры сечений деталей и притворов – на черт.16-23.

2.4. Размеры на общих видах окон и балконных дверей даны в свету, по наружным сторонам створок, форточек и полотен дверей и по наружным сторонам коробок.

На чертежах, приведенных в настоящем стандарте, указаны в миллиметрах размеры неокрашенных деталей и изделий.

2.5. Для остекления окон и балконных дверей следует применять стекло толщиной 2,0-2,5 мм по ГОСТ 111.

2.6. Места установки уплотняющих прокладок в притворах окон и балконных дверей указаны на чертежах сечений.

2.7. По периметру оконных и дверных коробок на боковых поверхностях допускается по требованию потребителей выборка четверти для уплотнения стыка при соединении блоков друг с другом.

2.8. Бруски коробок допускается изготовлять клееными по ширине или соединять гвоздями после антисептирования или окраски сопрягаемых поверхностей, при этом соединение не должно иметь зазоров и провесов.

2.9. В зданиях для климатических районов, где по теплотехническим расчетам не требуются окна и балконные двери с двойным остеклением, а также в неотапливаемых зданиях и помещениях должны применяться окна и балконные двери серии РМ без внутренних створок, при этом ширина сечения коробки может быть уменьшена до 74 мм.

2.10. Для остекления веранд должны применяться наружные створки окон марок ОРМ 15-6 и ОРМ 15-6А.

2.11. Примеры расположения приборов в окнах и балконных дверях приведены в приложении 1.

2.12. Спецификации стекол для окон и балконных дверей серий РМ и РСМ приведены в приложениях 2 и 3.

Типы и габаритные размеры окон и балконных дверей

Черт.1

Примечания:

1. Схемы изделия изображены со стороны фасада.

2. Цифры над схемами изделий означают размеры изделий в модулях (М - модуль, равный 100 мм).

3. Окна шириной 1080 мм предназначены для деревянных домов заводского изготовления, выпускаемых по типовым проектам с панелями шириной 1200 мм.

Серия РМ

Конструкция, форма, основные размеры и марки окон и балконных дверей с двойным остеклением

Черт.2

Черт.3

 

Черт.4

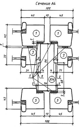
Сечения по притворам окон и балконных дверей с двойным остеклением

Сечения

a

б

Детали

А1

45

82

1

3

Б1

55

92

2

4

Черт.5

Черт.6

Черт.7

Черт.8

1 - твердая ДВП марки Т группы А толщиной 3,2-4 мм по ГОСТ 4598; 2 - мягкая ДВП толщиной 8 мм по ГОСТ 4598; 3 -пергамин по ГОСТ 2697; 4 - обшивка типа 2 по

ГОСТ 8242; 5 - раскладка; 6 уплотняющие прокладки по ГОСТ 10174

Черт.9

Черт.10

1 - уплотняющая прокладка; 2 - раскладка

Черт.11

Сечения

a

б

Детали

А5

45

82

1

3

Б5

55

92

2

4

Черт.12

СЕРИЯ РСМ

Конструкция, форма, основные размеры и марки окон и балконных дверей с тройным остеклением

Черт.13

Черт.14

Черт.15

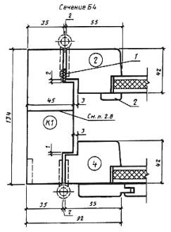
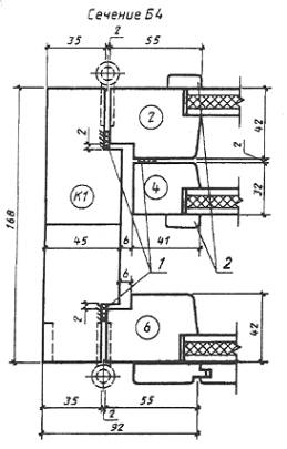
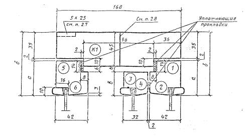
Сечения по притворам окон и балконных дверей с тройным остеклением

Ё          1

Сечения

а

б

в

Детали

А1

45

82

31

1

3

5

Б1

55

92

41

2

4

6

Черт.16

Черт.17

1 - уплотняющие прокладки

Черт.18

Черт.19

1 - твердая ДВП марки Т группы А толщиной 3,2-4 мм по ГОСТ 4598-86; 2 - мягкая ДВП толщиной 8 мм по ГОСТ 4598-86; 3 - пергамин по ГОСТ 2697-83;; 4 - обшивка типа 2 по ГОСТ 8242-75; 5 - раскладки; 6 уплотняющие прокладки по ГОСТ 10174-72.

Черт.20

1- уплотняющая прокладка; 2 - раскладки

Черт.21

1 - уплотняющие прокладки; 2 - раскладки

Черт.22

1 - уплотняющие прокладки

Сечения

а

б

в

Детали

А5

45

82

31

1

3

5

Б5

55

92

41

2

4

6

Черт.23

ПРИЛОЖЕНИЕ 1

Рекомендуемое

ПРИМЕРЫ РАСПОЛОЖЕНИЯ ПРИБОРОВ В ОКНАХ И БАЛКОННЫХ ДВЕРЯХ

1 - ПН1-85Л; 2 - завертка накладная ЗФ2П для наружной форточки; 3 - задвижка накладная ЗТ; 4 - ручка РС80; 5 - ПН5-60; 6 - стяжка СТ; 7 - ПН7; 8 - ПН1-110П

Примечания:

1. Приборы для окон и дверей должны соответствовать ГОСТ 538-78, ГОСТ 5087-80, ГОСТ 5088-78, ГОСТ 5090-86 и ГОСТ 5091-78.

2. Ручки-скобы устанавливают на наружных и внутренних створках и полотнах.

3. Наружные створки должны оснащаться ветровыми крючками.

ПРИЛОЖЕНИЕ 2

Справочное

СПЕЦИФИКАЦИЯ СТЕКОЛ ДЛЯ ОКОН И БАЛКОННЫХ ДВЕРЕЙ СЕРИИ РМ

Марка

Размер, мм

Количество

Высота

Ширина

ОРМ 6-6

410

420

2

ОРМ 6-11

410

430

4

ОРМ 6-13,5

410

550

4

ОРМ 12-6

315

630

420

420

2

2

ОРМ 12-11

315

630

1010

430

430

430

2

2

2

ОРМ 12-13,5

315

630

1010

550

550

550

2

2

2

ОРМ 15-6

315

930

420

420

2

2

ОРМ 15-11

315

630

1310

430

430

430

2

2

2

ОРМ 15-13,5

315

930

1310

550

550

550

2

2

2

ОРМ 15-6

1310

420

2

БРМ 22-7,5

1310

550

2

ПРИЛОЖЕНИЕ 3

Справочное

СПЕЦИФИКАЦИЯ СТЕКОЛ ДЛЯ ОКОН И БАЛКОННЫХ ДВЕРЕЙ СЕРИИ РСМ

Марка

Размер, мм

Количество

Высота

Ширина

ОРСМ 6-6

410

420

3

ОРСМ 6-11

410

420

6

ОРСМ 6-13,5

410

540

6

ОРСМ 12-6

315

620

420

420

3

3

ОРСМ 12-11

315

620

1010

420

420

420

3

3

3

ОРСМ 12-13,5

315

620

1010

540

540

540

3

3

3

ОРСМ 15-6

315

920

420

420

3

3

ОРСМ 15-11

315

920

1310

420

420

420

3

3

3

ОРСМ 15-13,5

315

920

1310

540

540

540

3

3

3

ОРСМ 15-6А

1310

420

3

БРСМ 22-7,5

1310

550

3

СОДЕРЖАНИЕ

 




Яндекс цитирования



   Copyright © 2007-2026,  www.tehlit.ru.

[ ѓосты, стандарты, нормативы, инструкции, правила, строительные нормы ]