//
ТехЛит.ру
- крупнейшая бесплатная электронная интернет библиотека для "технически умных" людей.
WWW.TEHLIT.RU - ТЕХНИЧЕСКАЯ ЛИТЕРАТУРА

:: Алготрейдинг::


АЛГОТРЕЙДИНГ
шаг за шагом
с нуля по урокам!

Торговые роботы на PYTHON, BackTrader,
Pandas, Pine Script для TradingView. Связка с брокерами, телеграм и легкими приложениями.


 

ГОСТ Р 21.1701-97

ГОСУДАРСТВЕННЫЙ СТАНДАРТ РОССИЙСКОЙ ФЕДЕРАЦИИ

 

 

СИСТЕМА ПРОЕКТНОЙ ДОКУМЕНТАЦИИ ДЛЯ СТРОИТЕЛЬСТВА

 

ПРАВИЛА ВЫПОЛНЕНИЯ РАБОЧЕЙ ДОКУМЕНТАЦИИ

АВТОМОБИЛЬНЫХ ДОРОГ

 

 

Предисловие

 

1 РАЗРАБОТАН:  Государственным предприятием — Центром методологии, нормирования и стандартизации в строительстве (ГП ЦНС) совместно с институтами — ГПИ «Союздорпроект» и АО «Промтрансниипроект»

ВНЕСЕН:  Департаментом развития научно-технической политики и проектно-изыскательских работ Минстроя России

2 ПРИНЯТ И ВВЕДЕН В ДЕЙСТВИЕ: постановлением Минстроя России от 23 января 1997 г. № 18-2

3 ВВЕДЕН:  на территории Российской Федерации с 1 июня 1997 г.

4 ВВЕДЕН ВПЕРВЫЕ

 

 

ГОСТ Р 21.1701-97

 

ГОСУДАРСТВЕННЫЙ СТАНДАРТ РОССИЙСКОЙ ФЕДЕРАЦИИ

 

Система проектной документации для строительства

ПРАВИЛА ВЫПОЛНЕНИЯ РАБОЧЕЙ ДОКУМЕНТАЦИИ АВТОМОБИЛЬНЫХ ДОРОГ

 

System of building design documents

RULES OF EXECUTING OF WORKING DOCUMENTATION

FOR MOTOR-WAYS

 

Дата введения 1997-06-01

 

1 Область применения

 

Настоящий стандарт устанавливает состав и правила оформления рабочей документа­ции на строительство новых и реконструируемых автомобильных дорог различного назна­чения.

Стандарт содержит правила, учитывающие выполнение чертежей с применением средств автоматизации.

 

2 Нормативные ссылки

 

В настоящем стандарте использованы ссылки на следующие стандарты:

ГОСТ 2.302-68* ЕСКД. Масштабы

ГОСТ 2.303-68* ЕСКД. Линии

ГОСТ 21.101-93 СПДС. Основные требования к рабочей документации

ГОСТ 21.110-95 СПДС. Правила выполнения спецификации оборудования, изделий и материалов

ГОСТ 21.114-95 СПДС. Правила выполнения эскизных чертежей общих видов нети­повых изделий

ГОСТ 21.204-93 СПДС. Условные графические обозначения и изображения элемен­тов генеральных планов и сооружений транспорта

ГОСТ 21.302-96 СПДС. Условные графические обозначения в документации по ин­женерно-геологическим изысканиям

ГОСТ 21.508-93 СПДС. Правила выполнения рабочей документации генеральных планов предприятий, сооружений и жилищно-гражданских объектов

ГОСТ 21.604-82 СПДС. Водоснабжение и канализация. Наружные сети. Рабочие чер­тежи

ГОСТ Р 21.1207-97 СПДС. Условные графические обозначения на чертежах автомо­бильных дорог

ГОСТ 10807-78 Знаки дорожные. Общие технические условия

ГОСТ 13508-74 Разметка дорожная

ГОСТ 23457-86 Технические средства организации дорожного движения. Правила при­менения.

 

3 Общие положения

 

3.1 Рабочую документацию автомобильных дорог выполняют в соответствии с требова­ниями настоящего стандарта и других взаимосвязанных стандартов Системы проектной документации для строительства (СПДС).

3.2. В состав рабочей документации автомобильных дорог включают:

- рабочие чертежи, предназначенные для производства строительных и монтажных работ (основной комплект рабочих чертежей марки АД);

- эскизные чертежи общих видов нетиповых изделий и устройств *;

- спецификацию оборудования, изделий и материалов.

3.3. В состав основного комплекта рабочих чертежей марки АД в общем случае включа­ют:

- общие данные по рабочим чертежам;

-план автомобильной дороги;

- план организации рельефа;

- план земляных масс *;

- продольный профиль автомобильной дороги;

- продольные профили водоотводных и нагорных канав;

- поперечные профили автомобильной дороги;

- схему расположения технических средств организации дорожного движения;

- план благоустройства дороги *.

3.4 Планы организации рельефа и земляных масс выполняют для автомобильных дорог на застроенной территории. **.

План земляных масс разрабатывают для участков дорог, на которых не предусмотрено выполнение поперечных профилей земляного полотна.

Для участков автомобильных дорог, план организации рельефа которых не выполняют, разрабатывают, как правило, продольные и поперечные профили земляного полотна этих участков.

Планы организации рельефа, земляных масс и благоустройства, автомобильных дорог выполняют по ГОСТ 21.508.

3.5 Условные графические изображения и обозначения, применяемые на чертежах ав­томобильных дорог, принимают в соответствии с ГОСТ Р 21.1207 и ГОСТ 21.204.

3.6 Условные графические обозначения грунтов, особенностей их залегания, консис­тенции и степени влажности, используемые на продольных и поперечных профилях авто­мобильных дорог, принимают по ГОСТ 21.302.

3.7 План и продольный профиль автомобильной дороги, разрабатываемые с примене­нием средств автоматизации, выполняют на совмещенном чертеже и располагают по учас­ткам на одном листе. В этом случае участки плана и профиля должны совпадать.

3.8 Расстояния от пикетов до элементов плана и продольного профиля (например, до указателей километров, уклоно указателей) наносят с одной стороны линии ординат. При совпадении линии ординат с пикетом привязку до указанных элементов на линии ординат не указывают.

3.9 Система координат и высотных отметок, принимаемая в рабочих чертежах автомо­бильных дорог на застроенной территории, должна соответствовать системе координат и высотных отметок, принятой на разбивочном плане в рабочих чертежах генерального пла­на предприятия или жилищно-гражданского объекта.

3.10 Чертежи выполняют в масштабах по ГОСТ 2.302 с учетом сложности и насыщен­ности их информацией.

Масштабы изображений приведены в таблице 1.

3.11 Масштаб изображения указывают в основной надписи после наименования изо­бражения.

Если на листе помещено несколько изображений, выполненных в разных масштабах, то масштабы указывают на поле чертежа под наименованием каждого изображения.

Масштабы изображения продольного профиля указывают над боковиком таблицы.

 

* Выполняют при необходимости.

** К автомобильным дорогам на застроенной территории здесь и далее относят автомобильные дороги, расположенные на территории городских и сельских поселений, промышленных и агропромышленных пред­приятий, электростанций, портов, складских баз и на других застроенных территориях.

 

Таблица 1

 

Наименование изображения

Масштаб изображения

основной

допускаемый

 

План автомобильных дорог на застроенной тер­ритории

 

 

1:1000

 

1:2000; 1:500

План других автомобильных дорог

 

1:2000

1:5000; 1:1000

План организации рельефа и земляных масс

 

1:1000

1:2000; 1:500

Продольный профиль автомобильных дорог на застроенной территории

 

По горизонтали 1:2000, по вертикали 1:200

По горизонтали 1:5000, по вертикали 1:500

Продольный профиль других автомобильных дорог

 

По горизонтали 1:5000, по вертикали 1:500

По горизонтали 1:2000, по вертикали 1:200

Изображение грунтов на продольном профиле

 

По вертикали 1:100

По вертикали 1:200; 1:50

Поперечный профиль земляного полотна авто­мобильных дорог на застроенной территории

 

1:100

1:200; 1:50

Поперечный профиль земляного полотна других автомобильных дорог

 

1:200

1:100

Конструкция дорожной одежды

 

1:100

1:200; 1:50

Продольный профиль водоотводной и нагорной канав

 

По горизонтали 1:5000, по вертикали 1:500

По горизонтали 1:2000, по вертикали 1:200

Продольный профиль водосброса

 

1:200

1:500; 1:100

Фрагмент плана автомобильной дороги

 

1:200

1:500

Узел

 

1:20

1:10

Схема расположения технических средств орга­низации дорожного движения на автомобильной дороге на застроенной территории

 

1:1000

1:500

Схема расположения технических средств орга­низации дорожного движения на других автомобильных дорогах

 

Продольное

направле­ние 1:2000, поперечное

направле­ние 1:1000

Продольное направление 1:5000; 1:1000, поперечное направление 1:2000; 1:1000

 

3.12 Размеры на изображениях, как правило, указывают в метрах. Высоту и отметки уровней указывают с точностью до сантиметра. Величину углов поворота дороги указыва­ют в градусах с точностью до одной минуты, а при необходимости — до одной секунды. Величину уклонов указывают в промилле без обозначения единицы измерения. Крутизну откосов указывают в виде отношения высоты к горизонтальной проекции откоса.

Пример - 1:1,5; 1:1,75.

3.13 Изображения на рабочих чертежах основного комплекта марки АД выполняют линиями по ГОСТ 2.303.

При этом сплошной толстой основной линией показывают:

-на плане - контуры кромок проезжей части проектируемых автомобильных дорог, контуры проектируемых зданий и сооружений, проектируемые инженерные сети, уклоно - указатели, проектные горизонтали, кратные 0,5 м (на застроенной территории);

-на продольном профиле - проектную линию, линии ординат от точек сопряжения элементов проектной линии, элементы плана;

- на поперечном профиле - проектные контуры дороги и водоотводных сооружений, линии ординат от точек их переломов;

- на схеме расположения технических средств организации дорожного движения - линии разметки проезжей части, ограждения.

Сплошной тонкой линией показывают:

- на плане - контуры поперечного профиля, горизонтали фактической поверхности земли и проектные горизонтали, кроме кратных 0,5 м (на застроенной территории), конту­ры существующих зданий, сооружений, коммуникаций, дорог, строительную геодезическую и координатную сетки;

- на продольном и поперечном профилях - линию фактической поверхности земли и линии ординат от точек ее переломов, границы слоев грунта;

- на схеме расположения технических средств организации дорожного движения - линии бровки земляного полотна, проектируемые искусственные сооружения.

Толстой штриховой линией на плане показывают контуры проектируемых подземных сооружений.

Тонкой штриховой линией показывают:

- на плане - границы типов дорожной одежды, границы откосов выемки;

- на продольном профиле - линию интерполированной поверх­нос­ти земли на рекон­струируемых участках автомобильных дорог;

- на поперечном профиле - линию проектируемой поверхности дорожного покрытия.

Штрих тонкой пунктирной линией показывают ось проектируемой автомобильной дороги.

Пунктирной линией изображают границу откоса насыпи.

 

4 Общие данные по рабочим чертежам

 

Общие данные по рабочим чертежам выполняют по ГОСТ 21.101 с учетом следующих изменений:

на листе общих данных дополнительно приводят ведомость зданий и сооружений и сведения о принятой при топографической съемке системе высот, а также указывают обоз­начение, отметку и местоположение исходного репера.

 

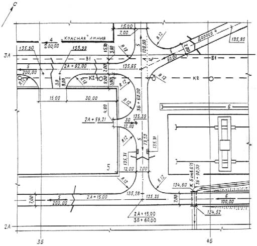
5 Планы автомобильных дорог

5.1 Планы автомобильных дорог общего пользования

 

5.1.1. Для разработки планов автомобильных дорог общего пользования и подъездных дорог в качестве подосновы используют инженерно-топографический план, на котором показывают и приводят:

- ситуацию и, при необходимости, рельеф местности;

- «красные» линии (при необходимости);

- координатную сетку;

- геодезические знаки (например, реперы, пункты геодезических сетей местного зна­чения);

- линии бровок земляного полотна и линии кромок проезжей части автомобильной дороги;

- станции магистрального геодезического хода (вершины углов поворота);

- пикеты и указатели километров;

- начало и конец переходных и круговых кривых;

- числовые значения элементов кривых: углы поворота, радиусы, тангенсы, суммар­ные длины круговых и переходных кривых *;

- водоотводные сооружения (например, кюветы, лотки, водосбросы, быстротоки, ка­навы) с уклоноуказателями и отметками дна в местах перелома продольного профиля;

- откосы насыпей и выемок *;

- границы типов дорожной одежды;

- контуры существующих и проектируемых зданий и сооружений (без координацион­ных осей), примыкающих к автомобильной дороге, и их порядковые номера (внутри кон­тура - в правом нижнем углу);

- существующие и проектируемые инженерные коммуникации с указанием высоты надземных и глубины подземных коммуникаций и их обозначения;

- переезды через железнодорожные пути;

- искусственные сооружения;

- транспортные развязки;

- радиусы кривых по кромке проезжей части дорог в местах их взаимного пересечения;

- снего - и/или пескозадерживающие защитные устройства *;

- защитные лесонасаждения* учетом требований ГОСТ 21.508 (9.4);

- порядковые номера (на полках линий-выносок) переездов, искусственных сооруже­ний, транспортных развязок, снегозадер­жи­вающих и других сооружений;

- привязки к указателям километров или пикетам пересекаемых автомобильных до­рог, железнодорожных путей и инженерных коммуникаций в местах их пересечений с проектируемой автомобильной дорогой;

- границу полосы отвода земель;

- наименование конечных пунктов проектируемых и существу­ю­щих автомобильных и железных дорог (направление на конечные пункты указывают стрелками);

- указатель направления на север стрелкой с буквой «С» у острия (в левом верхнем углу листа).

5.1.2 Привязанные к дороге здания и сооружения (например, жилые дома, здания до­рожной службы, искусственные сооружения, переезды) включают в ведомость зданий и сооружений, выполняемую по форме 1 в составе общих данных. Графы формы 1 заполня­ют в соответствии с их наименованиями.

 

5.2 Планы автомобильных дорог на застроенной территории

 

5.2.1 Ориентация плана автомобильных дорог на застроенной территории, как прави­ло, должна соответствовать ориентации, принятой в рабочих чертежах генерального пла­на.

Допускается план таких дорог изображать с поворотом до 90° по отношению к их расположению на разбивочном плане.

5.2.2 План автомобильных дорог на застроенной территории совмещают с разбивочным планом и планом организации рельефа, выполняемыми в рабочих чертежах гене­рального плана предприятия. При этом допускается план выполнять поэтапно, с выпус­ком разработок в соответствии с 3.10 и 3.11 ГОСТ 21.508.

5.2.3. На планах автомобильных дорог дорожное оборудование изображают контурны­ми линиями и обозначают маркой ДО с добавлением порядкового номера в пределах марки.

_____________

* Показывают при необходимости.

 

Форма 1

 

 

Форма 2

 

 

 

Пример ДО 1, Д02.

Обозначение (марку) оборудования проставляют внутри контура или на полке линии-выноски.

5.2.4. На плане автомобильных дорог на застроенной территории дополнительно к 5.1.1 наносят и показывают:

- строительную геодезическую сетку;

- проектные горизонтали через 0,10 - 0,20 м или проектные отметки в характерных точках рельефа в соответствии с планом организации рельефа;

- опорные точки с проектными отметками. В качестве опорных точек принимают точки пересечения осей автомобильных дорог и перелома продольного профиля;

- уклоно указатели по оси проезжей части автомобильных дорог;

- контуры поперечного профиля автомобильных дорог (при выполнении плана орга­низации рельефа в проектных отметках);

- номера или координаты осей автомобильных дорог и подъездов;

- ширину автомобильных дорог;

- местные и боковые проезды, площадки, газоны и тротуары с указанием их ширины *.;

- водостоки *.. При совмещении плана автомобильных дорог с планом ливневой кана­лизации рабочие чертежи ливневой канализации выполняют по ГОСТ 21.604;

- дожде  приемные решетки в пониженных точках планировки *.

5.2.5. На плане автомобильных дорог на застроенной территории приводят:

- экспликацию зданий и сооружений по форме 3 ГОСТ 21.508;

- ведомость автомобильных дорог, подъездов и проездов по форме 2.

Графы формы 2  заполняют в соответствии с их наименованиями.

Примеры оформления плана автомобильных дорог на застроенной территории (в про­ектных горизонталях и проектных отметках) приведены в приложении А.

Пример заполнения ведомости автомобильных дорог, подъездов и проездов приведен в приложении Б.

5.3 Табличные формы на планах дорог

5.3.1 При насыщенном плане автомобильных дорог приводят ведомость элементов плана трассы по форме 3 или ведомость углов поворота, прямых и кривых по форме 4 в зависи­мости от способа проектирования плана трассы.

Графы форм 3 и 4 заполняют в соответствии с их наименованиями.

Пример заполнения ведомости углов поворота, прямых и кривых приведен в приложении Б..

Пример оформления плана автомобильной дороги общего пользования приведен в приложении В.

5.3.2. На планах автомобильных дорог приводят спецификации элементов сборных кон­струкций, примененных для дорожной одежды, водоотводных, укрепительных, защитных и других устройств по форме 7 или 8 ГОСТ 21.101.

 

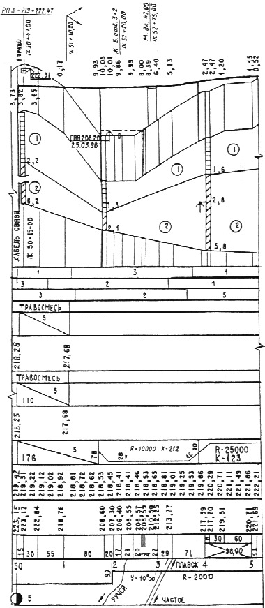
6 Продольные профили автомобильных дорог

 

6.1 Продольный профиль автомобильной дороги выполняют с учетом данных, приве­денных в таблице-сетке, помещаемой под продольным профилем и выполняемой (в зави­симости от назначения дороги) с различной формой боковика:

- для дорог на застроенной территории - по форме 5;

- для других дорог - по форме 6;

-для совмещенного чертежа плана и продольного профиля - по форме 7.

 

_____________

* Показывают при необходимости.

 

Форма 3

 

 

Форма 4

 

 

 

В боковиках, выполняемых по формам 5 и 6, показывают:

- в графе «Тип местности по увлажнению» - номер типа местности по признакам увлажнения верхнего слоя земли *;

- в графе «Тип поперечного профиля» - номер типа поперечного профиля конструк­ции земляного полотна;

- в графе «Уклон, , вертикальная кривая, м» - элементы проектной линии: верти­кальные кривые, прямые, привязки к пикетам в местах переломов проектной линии и нулевых точек вертикальных кривых; числовые значения радиусов и уклонов касательных в точках сопряжения элементов проектной линии; длины прямых и кривых;

- в графе «Расстояние, м» - расстояния между точками перелома фактической повер­хности земли и неправильные пикеты;

- в графе «Пикет, элементы плана, километры» - прямые и кривые по оси дороги, числовые значения радиусов и виражей; развернутый план дороги (при необходимости).

Остальные графы заполняют в соответствии с их наименованиями.

При размещении продольного профиля на нескольких листах боковик таблицы допус­кается выполнять только на первом листе.

6.2 Рабочие отметки относительно интерполированного уровня поверхности земли (при реконструкции дорог) приводят в скобках.

Проектные отметки указывают на пикетах и в точках перелома фактической повер­хности земли или через 20 м. Фактические отметки земли указывают по оси дороги.

6.3 Ориентация продольного профиля должна соответствовать ориентации автомобиль­ных дорог, принятой на плане.

6.4 На продольном профиле автомобильной дороги показывают:

- линию фактической поверхности земли по оси дороги и линию проектируемой по­верхности дорожного покрытия по оси дороги или кромке проезжей части с соответству­ющими пояснениями на поле чертежа;

- линии ординат от точек переломов фактической поверхности земли и точек сопря­жения элементов проектной линии продольного профиля;

- разведочные геологические выработки с обозначением влажности и консистенции грунтов по ГОСТ 21.302 и отметками уровня (горизонта) грунтовых вод с датой их замера; обозначения грунтов по ГОСТ 21.302 или их наименования, обозначения группы грунтов по трудности их разработки и границы слоев грунтов.

При автоматизированном проектировании допускается данные по слоям грунтов на профиле указывать условно. Условные номера слоев грунтов на профиле показывают в кружках диаметром 5—7 мм в соответствии с данными таблицы, приводимой по форме 8 над боковиком продольного профиля.

В графах таблицы указывают:

- «Номер грунта» - условный номер, принятый для обозначения грунта соответству­ющего наименования и группы;

-«Группа грунта» - обозначение группы грунта в соответствии с классификацией по трудности разработки.

 

_____________

* Графу приводят при необходимости

 

Форма 5

 

 

Форма 6

 

 

Форма 7

 

 

Форма 8

 

 

Выше проектной линии показывают:

- реперы;

- наземные и надземные инженерные коммуникации;

- наименования проектируемых искусственных сооружений;

- транспортные развязки, пересечения и примыкания;

- переезды через железнодорожные пути;

- нагорные и водоотводные канавы, сбросы воды;

- водораздельные дамбы;

- рабочие отметки насыпи в точках перелома продольного профиля *;

-рабочие отметки насыпи относительно интерполированной поверхности земли на автомобильных дорогах при реконструкции *.

Ниже проектной линии показывают:

- рабочие отметки выемки в точках перелома продольного профиля *;

- рабочие отметки выемки относительно интерполированной поверхности земли на автомобильных дорогах при реконструкции *;

- проектируемые искусственные сооружения с указанием отметок уровня (горизон­тов) воды;

-наименования существующих искусственных сооружений;

- подземные инженерные коммуникации;

-линии ординат от точек переломов продольного профиля;

-номера пикетов, элементы плана, указатели километров.

6.5. На совмещенном чертеже плана и продольного профиля автомобильной дороги на продольном профиле показывают:

- линии фактической поверхности земли и проектируемой поверхности дорожного покрытия по оси дороги;

- разведочные геологические выработки с учетом требований 6.4;

- проектируемые искусственные сооружения с указанием отметок уровня (горизон­тов) воды.

Выше проектной линии показывают:

- линии ординат от точек сопряжения элементов проектной линии с указанием рас­стояний до ближайших пикетов, величин уклонов, проектных отметок в этих точках и радиусов вертикальных кривых;

- величину уклонов на участках с постоянным уклоном и длину этих участков;

- линии ординат от точек с нулевым значением кривизны с указанием расстояний до ближайших пикетов и проектных отметок в этих точках.

Ниже проектной линии показывают:

- пикеты;

- фактические и проектные отметки продольного профиля по оси проезжей части.

Пример оформления совмещенного чертежа плана и продольного профиля автомо­бильной дороги общего пользования приведен в приложении Г.

6.6. При большом числе плюсовых точек между отдельными пикетами на продольном профиле помещают таблицу выноски отметок и расстояний по форме 9. Графы таблицы заполняют в соответствии с их наименованиями.

Пример оформления продольного профиля автомобильной дороги общего пользова­ния, выполненного без совмещения с планом, приведен в приложении Д.

 

7 Продольные профили водоотводных и нагорных канав

 

7.1. На продольном профиле водоотводных и нагорных канав показывают:

- линию фактической поверхности земли и проектную линию дна по оси канавы с ординатами от точек переломов;

- проектируемые искусственные сооружения;

- дамбы;

- инженерные сети и коммуникации;

- места выпусков канав на поверхность;

- рабочие отметки канав;

-пикеты.

7.2. Под продольным профилем водоотводных и нагорных канав помещают таблицу-сетку с боковиком по форме 10.

 

 

* Приводят при необходимости.

 

Форма 9

 

 

Форма 10

 

 

Форма 11

 

 

Графу «Тип местности по увлажнению» приводят при необходимости.

Графы таблицы заполняют в соответствии с их наименованиями.

7.3 Продольный профиль водоотводных и нагорных канав при необходимости допол­няют схемой дороги с нанесенными водоотводными сооружениями. Схему приводят в графе «Схема канавы и расстояние от оси дороги до оси канавы», высота графы — 20 мм.

Пример оформления продольного профиля водоотводной канавы приведен в прило­жении Е.

8 Поперечные профили автомобильных дорог

8.1 Поперечные профили земляного полотна

8.1.1 Поперечный профиль земляного полотна автомобильной дороги выполняют с учетом данных, приведенных в таблице-сетке, помещаемой под профилем. Боковик таб­лицы выполняют по форме 11.

При размещении на листе двух поперечных профилей и более боковик таблицы допус­кается наносить только у первого поперечного профиля.

8.1.2 Поперечные профили автомобильных дорог выполняют по направлению возрас­тания указателей километров, для дорог на застроенной территории (при отсутствии ука­зателей километров) — слева направо в соответствии с планом.

8.1.3 На поперечном профиле земляного полотна автомобильной дороги общего поль­зования и подъездных дорог показывают:

- ось проектируемого земляного полотна (при реконструкции, кроме того, — ось су­ществующего земляного полотна);

- линию фактической поверхности земли и линии ординат от точек ее переломов;

- контуры проектируемого земляного полотна и водоотводных сооружений, линии ординат от точек их переломов (при реконструкции, кроме того, - контур существующего земляного полотна);

- контур проектируемой поверхности дорожного покрытия и отметки уровней (высо­ты, глубины) в точках ее переломов;

- контур срезки плодородного слоя, удаления торфа, непригодного грунта;

- инженерные коммуникации, их обозначение, наименование и отметки уровней, на которых они проложены;

- разведочные геологические выработки* с учетом требований 6.4;

- границу полосы отвода земель *;

- привязку поперечного профиля к пикету.

8.1.4 Пример оформления поперечного профиля земляного полотна автомобильной дороги общего пользования приведен в приложении Ж.

Пример оформления поперечного профиля автомобильной дороги на застроенной тер­ритории приведен в приложении И.

8.1.5. На поперечном профиле земляного полотна на застроенной территории, кроме перечисленного в 8.1.3, показывают:

- «красную» линию;

-рабочие отметки земляного полотна *.

8.1.6. Над боковиком поперечных профилей, привязанных к конкретному пикетаж­ному положению, приводят числовые значения площадей поперечных сечений: насы­пей Fн, выемок Fв, канав Fкан, кюветов Fк, срезки грунта Fср, банкетов Fб с указанием обозначений групп слоев грунта в соответствии с классификацией по трудности разра­ботки.

 

 

* Показывают при необходимости.

 

8.2 Поперечные профили конструкций земляного полотна

и дорожной одежды

 

8.2.1 Поперечные профили конструкций земляного полотна и дорожной одежды вы­полняют без боковика.

8.2.2. На поперечном профиле конструкции земляного полотна показывают:

— ось проектируемой автомобильной дороги;

— линию фактической поверхности земли (условно);

— контур проектируемого земляного полотна с указанием крутизны откосов, а при реконструкции, кроме того, контур существующего земляного полотна;

— ширину земляного полотна и его элементов;

— ширину проезжей части, разделительной полосы, обочин и укрепительных полос;

— направление и величину уклонов верха земляного полотна и поверхности дорожной одежды;

— конструкцию дорожной одежды (схематично);

— элементы укрепления обочин, откосов и водоотводных сооружений (схематично) с указанием обозначения документации, необходимой для его выполнения;

— контур и величину срезки плодородного слоя, удаления торфа и замены непригод­ного грунта;

— дренажные устройства и их обозначения (схематично);

— выносные элементы (узлы, фрагменты);

— границу полосы отвода земель (при необходимости).

8.2.3 Поперечные профили конструкций земляного полотна, различающиеся конфигу­рацией, высотой насыпи или глубиной выемки, крутизной откосов или другими показате­лями, обозначают: Тип 1, Тип 2 и т.д.

8.2.4 Номер типа поперечного профиля конструкции земляного полотна указывают в таблице-сетке под продольным профилем автомобильной дороги.                    

При выполнении совмещенного чертежа плана и продольного профиля дороги на по­перечных профилях соответствующего типа указывают условия применения данного типа или границы участков дороги, на которых применен этот тип конструкции.

 

 

Пример — Тип 1 (насыпь до 2м)    или   

 

ГКО-ГК25

     ГК40-ГК50

 

8.2.5 Конструкцию дорожной одежды показывают, как правило, на выносном элемен­те, на изображении которого дополнительно к 8.2.2, показывают:

- элементы конструкции дорожной одежды проезжей части, обочин, укрепительных полос соответствующими условными графическими обозначениями. Выносные надписи к многослойной конструкции дорожной одежды выполняют по ГОСТ 21.101;

- границы участков автомобильной дороги, на которых применены различные типы дорожной одежды.

На застроенной территории типы конструкций дорожной одежды указывают в ведо­мости автомобильных дорог, подъездов и проездов по форме 2.

8.2.6. При наличии нескольких типов конструкций дорожной одежды (различающихся между собой материалами слоев или другими характеристиками) им присваивают обозна­чения: Тип А, Тип Б и т.д., а при необходимости приводят условия их применения.

 

Пример — Тип А (на застроенной территории).

 

8.2.7 Симметричные поперечные профили конструкций земляного полотна и доро­жной одежды изображают до оси симметрии.

8.2.8 Примеры оформления поперечного профиля конструкций земляного полотна приведены в приложении К.

Пример оформления поперечного профиля конструкции земляного полотна и доро­жной одежды автомобильной дороги с нежестким покрытием приведен в приложении Л.

Пример оформления узла конструкции земляного полотна и дорожной одежды авто­мобильной дороги приведен в приложении М.

 

9 Схема расположения технических средств организации

дорожного движения

 

9.1 На схеме расположения технических средств организации дорожного движения (далее — схема расположения) показывают:

-контуры плана (в бровках) проектируемой автомобильной дороги;

- линии дорожной разметки и их обозначения по ГОСТ 13508;

- дорожные и сигнальные знаки по ГОСТ 10807 и ГОСТ 23457;

- дорожные ограждения и обозначения документации, необходимой для их выполне­ния;

- направляющие устройства;

-дорожные светофоры;

- искусственные сооружения;

- проектируемые и существующие здания и сооружения (без координационных осей);

- водоемы (при необходимости).

9.2 Продольное и поперечное направления схемы расположения, как правило, выпол­няют в разных масштабах в соответствии с таблицей 1.

9.3. К схеме расположения выполняют спецификацию элементов технических средств организации дорожного движения по форме 7 или 8 ГОСТ 21.101.

9.4 Пример оформления схемы расположения технических средств организации доро­жного движения приведен в приложении Н.

 

10 Эскизные чертежи общих видов нетиповых

изделий и устройств

 

10.1 Эскизные чертежи общих видов нетиповых изделий и устройств (далее — эскиз­ные чертежи) выполняют по ГОСТ 21.114 с учетом дополнительных требований настоя­щего стандарта.

10.2 Эскизные чертежи разрабатывают на несложные в изготовлении нетиповые изде­лия и устройства (кроме дорожного оборудования индивидуального изготовления), преду­смотренные основным комплектом рабочих чертежей марки АД, при отсутствии соответствующей проектной документации массового или повторного применения, стандартов или других документов на их изготовление.

10.3 В наименовании нетипового изделия (устройства) указывают буквенно-цифровое обозначение (в пределах каждого вида изделия или устройства).

 

11 Спецификация оборудования, изделий и материалов

 

11.1 Спецификацию оборудования, изделий и материалов (далее — Спецификация) к основному комплекту рабочих чертежей марки АД выполняют по ГОСТ 21.110  с учетом требований настоящего стандарта.

Спецификацию составляют по разделам:

1) Устройства дорожные;

2) Устройства водоотводные, укрепительные (поддерживающие) и защитные;

3) Элементы благоустройства: озеленение, малые архитектурные формы (при необхо­димости).

Наименование каждого раздела записывают в виде заголовка в графе 1 Спецификации и подчеркивают.

При необходимости выделения ресурсов по отдельным видам устройств второй раздел делят соответственно на подразделы.

11.2 Предусмотренные рабочими чертежами дорожные устройства записывают в пер­вый раздел по группам в такой последовательности:

— оборудование дорожное (при необходимости);

— элементы (изделия) дорожной одежды (например, дорожные и тротуарные плиты, бортовые камни, арматурные изделия монолитных железобетонных покрытий);

— элементы (изделия) технических средств организации дорож­ного движения (напри­мер, дорожные и сигнальные знаки, направля­ю­щие устройства, парапеты, перила, барьер­ные конструкции);

— другие изделия;

— материалы (например, тепло - и/или гидроизоляционные, асфальтобетон, щебень, песок, гравий, бетон, краска).

11.3 Элементы водоотводных, укрепительных (поддерживающих), защитных устройств записывают во второй раздел по группам в такой последовательности:

— элементы (изделия) водоотводных сооружений;

— трубопроводы дренажные (по каждому диаметру с указанием в графе 2 наименова­ния труб, обозначения документа на трубы);

— элементы (изделия) укрепления откосов земляного полотна и водоотводных соору­жений;

снего- и/или пескозадерживающие элементы защиты автомо­биль­ной дороги;

— другие изделия;

— материалы.

11.4. В Спецификации принимают следующие единицы измерений:

— оборудование, изделия, малые архитектурные формы, элементы озеленения и лесо­посадок — шт.;

— трубопроводы дренажные — м;

— щебень, песок, гравий, бетон — м3;

— другие материалы, семена, удобрения — кг;

— теплоизоляционные плиточные материалы (например, пенопласт) — м3 или шт.;

— дренирующие и гидроизоляционные материалы — м2.

 

 

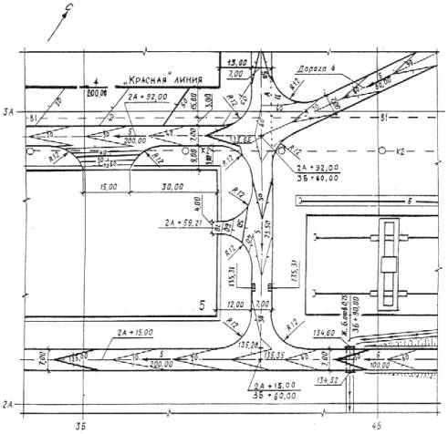
ПРИЛОЖЕНИЕ А

(справочное)

 

Примеры оформления плана автомобильных дорог

на застроенной территории

 

Рисунок А1 В проектных горизонталях

 

Рисунок А2 В проектных отметках

 


ПРИЛОЖЕНИЕ Б

(справочное)

 

Пример заполнения ведомости автомобильных дорог, подъездов и проездов

 

 

Пример заполнения ведомости углов поворота, прямых и кривых

 

 

Положение

Величина

 

Элементы кривой, м

Положение переходных кривых

Расстояние

Длина

Точка

вершины угла

угла поворота

Радиус,

тангенс

тангенс

переходные

круговая

биссектриса

начало

конец

конец

начало

между

прямой,

 

км

+

влево

впра­во

м

 

 

кривые

кривая

 

гк

+

гк

+

гк

+

гк

+

верши­нами, м

м

НТ

5

48

98,55

 

 

 

 

 

 

 

 

 

 

 

 

 

 

 

 

 

 

 

 

 

 

 

 

 

 

 

 

 

 

 

 

 

 

 

 

 

 

512,33

294,62

ВУ1

6

64

10,88

9°18

2000

217,71

217,71

110,0

110,0

214,67

6,86

51

93,17

53

3,17

55

17,84

56

27,84

 

 

 

 

 

 

 

 

 

 

 

 

 

 

 

 

 

 

 

 

 

 

 

217,71

0,00

КТ

6

56

27,84

 

 

 

 

 

 

 

 

 

 

 

 

 

 

 

 

 

 

 

 

 

 

 

 

 

 

 

 

 

 

 

 

 

 

 

 

 

 

 

 

 

 

ПРИЛОЖЕНИЕ В

 

Пример оформления плана автомобильной дороги общего пользования

 

 

ВЕДОМОСТЬ ЭЛЕМЕНТОВ ПЛАНА ТРАССЫ

 

Наименование

Положение элемента

Радиус начала

Радиус конца

Длина элемента,

Величина угла поворота

элемента

Пикет

+

элемента, м

элемента, м

м

влево

вправо

Прямая

48

98,55

 

 

194,62

 

 

Клотоида

51

93,17

 

2000

110,00

 

1°54'

Круговая

53

3,17

2000

2000

214,67

 

6°09'

Клотоида

55

17,84

2000

 

110,00

 

1°55'

 

 

ПРИЛОЖЕНИЕ Г

 

Пример оформления совмещенного чертежа плана и продольного профиля

автомобильной дороги общего пользования

 


 

 

ПРИЛОЖЕНИЕ Д

(справочное)

 

Пример оформления продольного профиля автомобильной дороги общего пользования

 

Номер грунта

 

Группа грунта

Наименование грунта

1

33а

суглинок легкий

2

33б

суглинок тяже­лый

 

 

М 1:5000 — по горизонтали

М 1:500   — по вертикали

М 1:100   — по вертикали — грунты

 

Тип местности по увлажнению

 

Тип поперечного

слева

 

профиля

справа

 

 

Укрепление

 

Левый

Уклон, , длина, м

 

Проектные

кювет

 

Отметка дна, м

данные

 

Укрепление

 

Правый

Уклон, , длина, м

 

кювет

 

Отметка дна, м

 

Уклон, , вертикальная кривая, м

 

Отметка оси дороги, м

 

 

Фактические

Отметка земли, м

данные

 

Расстояние, м

 

Пикет

Элементы плана

Километры

 

 

 

ПРИЛОЖЕНИЕ Е

(справочное)

 

Пример оформления продольного профиля

водоотводной канавы

 

 

 

М 1:5000 — по горизонтали

М 1:500   — по вертикали

 

 

Расстояние от оси дороги до оси канавы, м

 

Укрепление

Проектные

данные

Уклон, , длина, м

 

 

Отметка дна, м

 

 

Фактические

Отметка земли, м

 

данные

Расстояние, м

 

Пикет по оси канавы

 

 

ПРИЛОЖЕНИЕ Ж

(справочное)

 

Пример оформления поперечного профиля земляного полотна автомобильной дороги общего пользования

 

Номер грунта

Группа грунта

 

Наименование грунта

1

33а

суглинок легкий

2

33б

суглинок тяже­лый

 

 

Fв (33а) 68,6 м2

Fв (33б) 9,3 м2

Fср (9а) 5,8 м2

Fк (33б) 1,1 м2         М 1:200

 

 

Проектные

Уклон, , длина, м

 

данные

Отметка земляного полотна, м

 

 

Фактические

Отметка земли, м

 

данные

Расстояние, м

 

 

 

ПРИЛОЖЕНИЕ И

(справочное)

 

Пример оформления поперечного профиля

автомобильной дороги на застроенной территории

 

Номер грунта

Группа грунта

 

Наименование грунта

1

Плодородный слой (срезка)

2

Суглинок тугопластичный

 

 

Fн (7а) 72,8 м2

Fср (9а) 34,5 м2

 

 

М 1:200

 

 

Проектные

Уклон, , длина, м

 

данные

Отметка земляного полотна, м

 

 

Фактические

Отметка земли, м

 

данные

Расстояние, м

 

 

 

 

ПРИЛОЖЕНИЕ К

(справочное)

 

Примеры оформления поперечного профиля конструкций земляного полотна автомобильной дороги

 

Тип 2 (насыпь до 2 м)               Тип 1 (насыпь до 1 м)

 

 

Тип 3 (насыпь до 6 м)

 

 

Тип 4 (выемка до 5 м)

 


ПРИЛОЖЕНИЕ Л

(справочное)

 

Пример оформления поперечного профиля конструкции земляного

полотна и дорожной одежды автомобильной дороги с нежестким покрытием

 

Тип А

 


 

 

ПРИЛОЖЕНИЕ М

(справочное)

 

Пример оформления узла элементов конструкции

земляного полотна и дорожной одежды

автомобильной дороги

 

Тип Б (на застроенной территории)

 

 

 


ПРИЛОЖЕНИЕ Н

(справочное)

 

Пример оформления схемы расположения технических средств организации

дорожного движения на автомобильной дороге

 

 

Ключевые слова : рабочие чертежи, автомобильная дорога, план, трасса, продольный профиль, поперечный профиль, конструкция дорожной одежды, технические средства организации дорожного движения.

 

содержание

                                                                                                                                                                                 

1 Область применения. 1

2 Нормативные ссылки. 1

3 Общие положения. 2

4 Общие данные по рабочим чертежам.. 3

5 Планы автомобильных дорог. 3

5.1 Планы автомобильных дорог общего пользования. 3

5.2 Планы автомобильных дорог на застроенной территории. 4

5.3 Табличные формы на планах дорог. 5

6 Продольные профили автомобильных дорог. 5

7 Продольные профили водоотводных и нагорных канав. 7

8 Поперечные профили автомобильных дорог. 9

8.1 Поперечные профили земляного полотна. 9

8.2 Поперечные профили конструкций земляного полотна. 9

и дорожной одежды.. 9

9 Схема расположения технических средств организации. 10

дорожного движения. 10

10 Эскизные чертежи общих видов нетиповых. 10

изделий и устройств. 10

11 Спецификация оборудования, изделий и материалов. 10

ПРИЛОЖЕНИЕ А.. 11

ПРИЛОЖЕНИЕ Б. 13

ПРИЛОЖЕНИЕ В.. 13

ПРИЛОЖЕНИЕ Г. 14

ПРИЛОЖЕНИЕ Д.. 15

ПРИЛОЖЕНИЕ Е. 16

ПРИЛОЖЕНИЕ Ж... 16

ПРИЛОЖЕНИЕ И.. 17

ПРИЛОЖЕНИЕ К.. 18

ПРИЛОЖЕНИЕ Л.. 19

ПРИЛОЖЕНИЕ М... 20

ПРИЛОЖЕНИЕ Н.. 21

                                                                                                                                                                                 




Яндекс цитирования



   Copyright © 2007-2026,  www.tehlit.ru.

[ ѓосты, стандарты, нормативы, инструкции, правила, строительные нормы ]