//
ТехЛит.ру
- крупнейшая бесплатная электронная интернет библиотека для "технически умных" людей.
WWW.TEHLIT.RU - ТЕХНИЧЕСКАЯ ЛИТЕРАТУРА

:: Алготрейдинг::


АЛГОТРЕЙДИНГ
шаг за шагом
с нуля по урокам!

Торговые роботы на PYTHON, BackTrader,
Pandas, Pine Script для TradingView. Связка с брокерами, телеграм и легкими приложениями.


ПРАВИТЕЛЬСТВО МОСКВЫ

МОСКОМАРХИТЕКТУРА

РЕКОМЕНДАЦИИ
по пр
оектированию государственных
учреждений по ведению
социально
-воспитательной
и до
суговой работы с детьми,
подростками и молодежью
по месту жительства

2003

ПРЕДИСЛОВИЕ

1. РАЗРАБОТАНЫ: ГУП МНИИП «Моспроект-4» (архитекторы Любомудрова К.И., Кряжевских М.А., инженер Тихомирова И.Б.).

2. ПОДГОТОВЛЕНЫ К УТВЕРЖДЕНИЮ И ИЗДАНИЮ Управлением перспективного проектирования, нормативов и координации проектно-изыскательских работ Москомархитектуры

3. СОГЛАСОВАНЫ: Комитетом по делам семьи и молодежи г. Москвы, Москомархитектурой.

4 УТВЕРЖДЕНЫ И ВВЕДЕНЫ В ДЕЙСТВИЕ указанием Москомархитектуры от 17.09.03 № 37

СОДЕРЖАНИЕ

ВВЕДЕНИЕ

Государственные учреждения по ведению социально-воспитательной и досуговой работы с детьми, подростками и молодежью по месту жительства (далее ГУВСВиДР) являются профилактическими воспитательно-досуговыми учреждениями, обеспечивающими оказание социальной, психологической, психолого-педагогической и досуговой помощи детям, подросткам и молодежи.

Задачей ГУВСВиДР является организация занятости детей, подростков и молодежи во внеучебное время.

ГУВСВиДР следует предусматривать в каждом муниципальном районе.

ГУВСВиДР обеспечивает комплексный подход к решению проблемы профилактики асоциальных проявлений в поведении детей, подростков и молодежи на основе раскрытия творческого потенциала личности, психического и физического оздоровления, социально-правовой адаптации в обществе.

ГУВСВиДР относится к тем учреждениям, в которых социально-воспитательная и досуговая работа с детьми, подростками и молодежью ведется в непосредственном приближении к их месту проживания.

1. ОБЛАСТЬ ПРИМЕНЕНИЯ

1.1. Настоящие Рекомендации разработаны для г. Москвы как дополнение к действующим на ее территории нормативным документам по проектированию и строительству и распространяются на проектирование новых и реконструкцию существующих ГУВСВиДР.

1.2. Настоящие Рекомендации устанавливают основные положения по размещению, участку, территории, архитектурно-планировочным решениям и инженерному оборудованию ГУВСВиДР.

1.3. Проектирование ГУВСВиДР должно вестись в соответствии с положениями настоящих Рекомендаций, а также требованиями нормативно-методических документов в строительстве, действующих на территории г. Москвы.

2. НОРМАТИВНЫЕ ССЫЛКИ

В настоящих Рекомендациях приведены ссылки на следующие нормативно-методические документы:

СНиП 10.01-94. «Система нормативных документов в строительстве. Основные положения»;

СНиП 2.08.02-89* «Общественные здания и сооружения»;

СНиП 21-01-97* «Пожарная безопасность зданий и сооружений»;

СНиП 2.07.01-89* «Градостроительство. Планировка и застройка городских и сельских поселений»;

СНиП 35-01-2001 «Доступность зданий и сооружений для маломобильных групп населения»;

НПБ 88-2001 «Установка пожаротушения и сигнализации. Нормы и правила проектирования»;

СНиП 2.04.05-91* «Отопление, вентиляция и кондиционирование воздуха»;

СНиП 2.04.01-85* «Внутренний водопровод и канализация зданий»;

СП 2.2.1/2.1.1.1076-01 «Гигиенические требования к инсоляции и солнцезащите помещений жилых и общественных зданий и территорий»;

СП 2.4.2.1178-02 «Гигиенические требования к условиям обучения в общеобразовательных учреждениях»;

СП 2.2.1/2.1.1.1278-03 «Гигиенические требования к естественному, искусственному и совмещенному освещению в жилых и общественных зданиях»;

СН 441-72* «Указания по проектированию ограждений площадок и участков предприятий, зданий и сооружений»;

МГСН 4.05-95 «Школы-интернаты для детей-инвалидов»;

МГСН 4.06-96 «Общеобразовательные учреждения»;

МГСН 1.01-99 «Нормы и правила проектирования планировки и застройки г. Москвы»;

МГСН 2.01-99 «Энергосбережение в зданиях»;

«Рекомендации по проектированию образовательных учреждений для детей, нуждающихся в психолого-педагогической и медико-социальной помощи», М., 2000 г.;

«Рекомендации по проектированию сети и зданий детских внешкольных учреждений для г. Москвы», М., Выпуск 1, 1996 г., Выпуск 2, 1997 г., Выпуск 3, 1998 г.;

«Проектирование бассейнов». Справочное пособие к СНиП 2.08.02-89*, М., Стройиздат, 1991 г.

«Пособия по проектированию окружающей среды для людей с физическими ограничениями», М, 1997 г., Выпуск 2.

3. ОБЩИЕ ПОЛОЖЕНИЯ

3.1. Основное назначение ГУВСВиДР - создание оптимальных условий для раскрытия природного творческого потенциала личности детей, подростков и молодежи на основе удовлетворения и развития их интересов, психического и физического оздоровления, приобщения к социальным и культурным ценностям, организации общественно-полезной деятельности, социально-правовой адаптации в обществе.

3.2. Основные задачи ГУВСВиДР:

- нравственное и социальное оздоровление среды обитания, обеспечение педагогической целесообразности системы социальных взаимодействий в интересах детей, подростков и молодежи;

- социальная поддержка в культурно-досуговой сфере, в профессиональном и личностном самоопределении, в развитии познавательной мотивации и творческих способностей, в адаптации к жизни в обществе;

- создание всем категориям обратившихся условий для проведения содержательного досуга, получения полезных знаний, умений и навыков, формирования общей культуры и здорового образа жизни;

- оказание помощи в профилактике правонарушений в среде несовершеннолетних учреждениям образования, внутренних дел, здравоохранения, социальной защиты и занятости независимо от их ведомственной принадлежности;

- информационно-методическое обеспечение социально-педагогической деятельности по месту жительства любых учреждений на территории деятельности ГУВСВиДР.

3.3. Осуществлению поставленных задач способствуют следующие направления деятельности ГУВСВиДР:

- организация и развитие сети творческих групп, кружков, секций и других коллективов различного направления,

- организация и проведение различных культурно-досуговых программ и мероприятий;

- организация среди детей, подростков и молодежи работы по пропаганде здорового образа жизни;

- организация мероприятий по социально-педагогической реабилитации несовершеннолетних, т.е. осуществление профилактических мероприятий по возникновению педагогической дезадаптации;

- осуществление психолого-коррекционной работы с несовершеннолетними;

- организация каникулярных лагерей для несовершеннолетних, проживающих или обучающихся на территории действия ГУВСВиДР;

- организация справочно-библиографической и информационно-методической деятельности.

3.4. Контингент, с которым осуществляет работу ГУВСВиДР, составляют дети, подростки и молодежь в возрасте от 7 до 25 лет, проживающие на территории, обслуживаемой учреждением. Контингент каникулярного лагеря для несовершеннолетних составляют подростки в возрасте от 10 до 18 лет, проживающие или обучающиеся на территории, обслуживаемой учреждением.

3.5. ГУВСВиДР может проектироваться как отдельностоящий с расширенной номенклатурой помещений (ГУВСВиДР-1), так и встроенный (пристроенный) с минимально необходимой для функционирования номенклатурой помещений ГУВСВиДР-2. Общая площадь помещений, выделяемая для организации ГУВСВиДР-2, не должна быть менее 300 м2.

3.6. Каникулярный лагерь предусматривается только в ГУВСВиДР-1.

3.7. Оптимальная единовременная вместимость ГУВСВиДР-1 - 100 чел., оптимальная единовременная вместимость ГУВСВиДР-2 - не более 50 чел. На базе ГУВСВиДР-1 может организовываться в каникулярное время лагерь на 50 чел.

3.8. Состав и площади/всех функциональных блоков различных типов ГУВСВиДР определяются в каждом конкретном случае заданием на проектирование с учетом данных Раздела 5 настоящих Рекомендаций.

4. ТРЕБОВАНИЯ К РАЗМЕЩЕНИЮ, УЧАСТКУ И ТЕРРИТОРИИ

4.1. ГУВСВиДР следует размещать в селитебной зоне, в 10 - 15-ти минутной доступности до общественного транспорта. (ГУВСВиДР-1 - в административных округах; ГУВСВиДР-2 - в муниципальных районах).

4.2. Размеры и составы зон участков ГУВСВиДР-1 определяются заданием на проектирование или конкретным проектом, с учетом положений настоящего раздела.

4.3. Здания ГУВСВиДР-1 следует размещать на обособленных земельных участках, при этом размеры и составы зон участков определяются заданием на проектирование или конкретным проектом, с учетом положений настоящего раздела.

4.4. ГУВСВиДР-2, в силу специфики выполняемых функций, располагаются, как правило, на 1 этажах жилых зданий и не нуждаются в выделении участка.

4.5. Площадь участка ГУВСВиДР-1 принимается из расчета 80 - 120 м2 на 1 место единовременной вместимости с учетом размещения на участке площадок и сооружений оздоровительного и досугового характера.

4.6. В составе территории участка ГУВСВиДР-1 предусматриваются следующие зоны:

- общественная;

- физкультурно-оздоровительная;

- хозяйственная.

4.7. В общественной зоне у главного входа рекомендуется предусматривать мощеную площадку для массовых сборов детей и подростков.

4.8. В физкультурно-оздоровительной зоне рекомендуется предусматривать: площадку для метания мяча и прыжков (60 × 40 м); гимнастическую площадку (15 × 16 м); легкоатлетическое спортядро с круговой беговой дорожкой длиной 250 м; дорожки с твердым покрытием для нетрадиционных видов спорта (катания на роликах, скейтборде т.п.).

4.9. Физкультурно-оздоровительная зона также используется для проведения психолого-коррекционных мероприятий.

4.10. Площадь озеленения должна составлять 40 - 50 % от общей площади участка в соответствии с СП 2.4.2.1178-02. На этой площади рекомендуется предусматривать газоны, цветники, зеленые насаждения.

4.11. Хозяйственная зона ГУВСВиДР-1 должна размещаться со стороны административно-бытовых помещений. На ее территории допускается размещать навесы для инвентаря и оборудования, мусоросборники и т.п.

4.12. В хозяйственной зоне рекомендуется размещать гараж с мастерскими, который может быть использован как для хозяйственных нужд учреждения, так и для обучения автоделу. Гараж рекомендуется предусматривать на 2 служебных машины (автобус и легковую машину.)

4.13. Земельный участок ГУВСВиДР-1 должен иметь ограждение высотой не менее 1,5 - 2 м в соответствии с требованиями СН 441-72*.

4.14. Участок должен быть освещен в соответствии с требованиями СНиП 23-05-95.

4.15. На участке должно быть предусмотрено не менее двух въездов (один хозяйственный); проезды должны иметь твердое покрытие и ширину не менее 3 м; планировка участка должна обеспечивать подъезды пожарных машин ко всем зданиям, а также объезды вокруг них (СНиП 21-01-97*).

4.16. Для автомашин сотрудников следует предусматривать открытую стоянку в соответствии с требованиями МГСН 1.01-99.

5. ТРЕБОВАНИЯ К АРХИТЕКТУРНО-ПЛАНИРОВОЧНЫМ РЕШЕНИЯМ И ИНЖЕНЕРНОМУ ОБОРУДОВАНИЮ

Общие требования.

5.1. В состав ГУВСВиДР входят следующие функциональные группы помещений:

- вестибюльная (ГУВСВиДР-1, ГУВСВиДР-2);

- специализированная (психолого-терапевтической и психолого-педагогической коррекции) (ГУВСВиДР-1, ГУВСВиДР-2);

- начальной профессиональной подготовки, художественно-эстетического воспитания и познавательной деятельности (ГУВСВиДР-1, ГУВСВиДР-2);

- досугово-физкультурно-оздоровительная (ГУВСВиДР-1, ГУВСВиДР-2);

- городского каникулярного лагеря (ГУВСВиДР-1);

- питания (ГУВСВиДР-1);

- административно-хозяйственная (ГУВСВиДР-1, ГУВСВиДР-2).

Состав функциональных групп помещений в учреждении определяется типом ГУВСВиДР.

Архитектурно-планировочные решения ГУВСВиДР должны учитывать требования функционального зонирования помещений с учетом осуществляемой в них деятельности.

Функциональные группы помещений, рассчитанные на работу с несовершеннолетними, помимо своих основных функций, несут также и коррекционную, что и определяет состав и площади их помещений.

5.2. При проектировании помещений ГУВСВиДР рекомендуется пользоваться схемами планировок, приведенными в Приложениях к настоящим Рекомендациям. Рекомендуемые площади отдельных помещений в зависимости от конкретных планировочных и конструктивных решений могут быть изменены (уменьшены или увеличены) не более чем на 15 %.

5.3. Функциональные группы помещений ГУВСВиДР-1 могут размещаться либо в одном здании, либо в отдельных корпусах или блоках, соединенных отапливаемыми переходами. При этом должны предусматриваться пожарные отсеки площадью не более 5000 м2, разделяемые противопожарными стенами 1-го типа (в соответствии с требованиями СНиП 21-01-97*). Из каждого пожарного отсека должно быть предусмотрено не менее двух эвакуационных выходов, один из выходов допускается предусматривать в соседний отсек.

5.4. Функциональная схема планировки ГУВСВиДР-1 представлена на Рис. 1.

5.5. Функциональная схема планировки ГУВСВиДР-2 представлена на Рис. 2.

5.6. Здание ГУВСВиДР-1 следует проектировать, как правило, высотой 3 этажа. Для затесненных участков застройки допускается увеличивать высоту до 4 этажей. (СП 2.4.2.1178-02).

5.7. Объемно-планировочная структура здания должна обеспечивать удобство функционирования учреждения, учитывать его специфику и обеспечивать комфортные условия эксплуатации, включая удобную связь с участком.

5.8. Все помещения ГУВСВиДР должны быть рассчитаны на использование инвалидами-колясочниками. Входы в здания ГУВСВиДР, пандусы и лестницы, лифты и подъемники, вспомогательные средства и приспособления (поручни, ручки, рычаги и т.д.) следует проектировать в соответствии с требованиями СНиП 35-01-2001 и Пособий по проектированию окружающей среды для людей с физическими ограничениями (Выпуски 1 и 2).

5.9. Ширина лестничных маршей ГУВСВиДР-1 должна быть не менее 1,35 м.

Ширину дверей основных помещений следует принимать не менее 1 м, учитывая потребности инвалидов, пользующихся креслами-колясками.

Ширину коридоров в помещениях административно-бытового, методического и хозяйственного назначения следует принимать не менее 1,4 м; во всех остальных помещениях - не менее 2,2 м.

Ширину лестничных маршей и ширину коридоров в ГУВСВиДР-2 допускается принимать равной ширине лестничных маршей и ширине коридоров существующего материального фонда, но не менее 1,2 м.

5.10. Высота наземных этажей здания ГУВСВиДР-1 предусматривается не менее 3,3 м (от пола до пола вышележащего этажа), высота помещений бассейна и спортзала - 6 м (до низа несущих конструкций), зрительного зала - по технологическим требованиям.

Высоту помещений ГУВСВиДР-2 допускается принимать равной высоте жилых помещений.

5.11 Внутренняя отделка помещений ГУВСВиДР должна быть выполнена из материалов, разрешенных для применения органами Госсанэпиднадзора Минздрава РФ и допускающих влажную уборку, а также применение дезинфицирующих средств.

УСЛОВНЫЕ ОБОЗНАЧЕНИЯ

  - Коммуникационное пространство

Функциональные связи:

    - Основных групп помещений ГУВСВиДР-1

    - Городского каникулярного лагеря с основными группами помещений ГУВСВиДР-1

  - Служебные

Рис. 1. Функциональная схема планировки ГУВСВиДР-1.

УСЛОВНЫЕ ОБОЗНАЧЕНИЯ

       - Коммуникационное пространство

Функциональные связи:

   - Основных групп помещений ГУВСВиДР-2

   - Служебные

Рис. 2. Функциональная схема планировки ГУВСВиДР-2.

5.12. Все помещения ГУВСВиДР, рассчитанные на пребывание несовершеннолетних, должны быть оборудованы умывальниками.

5.13. В помещениях фойе и холлах ГУВСВиДР рекомендуется организовывать уголки релаксации с зелеными насаждениями, фонтанчиками, аквариумами и т.п.

5.14. Естественное освещение в помещениях следует проектировать в соответствии с СП 2.2.1/2.1.1.1278-03.

5.15. Все помещения кружковых и мастерских должны иметь КЕО не менее 1,5 на поверхности столов и освещаться боковым светом слева. Для организации мобильных форм ведения занятий необходимо предусматривать равномерное освещение по всей рабочей плоскости в помещении за счет дополнительного верхнего света или дополнительного искусственного освещения в глубине помещения.

5.16. Допускается не предусматривать естественного освещения:

- в зрительном зале;

- в умывальных, душевых и уборных при спортивном зале и бассейне, санитарных узлах для персонала, комнатах личной гигиены женщин (при соблюдении необходимой кратности обмена воздуха);

- в радиоузле, книгохранилище;

- в буфете для персонала;

- в раздевальных персонала, бытовых комнатах, моечных кухонной посуды, буфетной, кладовых инвентаря, комнатах хранения предметов уборки;

- в помещениях технических служб.

5.17. Санитарные узлы и туалетные комнаты проектируются в соответствии с СП 2.4.2.1178-02 и СНиП 35-01-2001.

Общее количество санитарных приборов принимается из расчета: на каждые 20 мест по два унитаза для мальчиков и для девочек, 2 писсуара в уборной для мальчиков; 1 умывальник на каждые 30 мальчиков и 30 девочек.

В состав оборудования кабин личной гигиены для девочек входят умывальник и биде. Количество кабин личной гигиены определяется из расчета: 1 кабина на 50 девочек (количество девочек принимается 50 % от единовременной вместимости учреждения).

5.18. В комнатах хранения уборочного инвентаря следует предусматривать умывальник и слив.

5.19. Требования к инсоляции помещений, в которых находятся дети, должны быть учтены в соответствии с СП 2.2.1/2.1.1.1076-01.

5.20. Отопление и вентиляцию зданий ГУВСВиДР следует проектировать в соответствии с требованиями СНиП 2.04.05-91*, МГСН 4.06-96, МГСН 2.01-99. Канализацию, горячее и холодное водоснабжение следует проектировать в соответствии с требованиями СНиП 2.04.01-85*.

5.21. Энергоснабжение, электрооборудование, электрическое освещение зданий и наружное освещение территории следует предусматривать в соответствии с требованиями СП 2.2.1/2.1.1.1278-03, МГСН 4.06-96, МГСН 2.01-99.

5.22. Здания проектируются с учетом максимального энергосбережения в соответствии с требованиями МГСН 2.01-99.

5.23. Здания следует проектировать не менее II степени огнестойкости (СНиП 21-01-97*).

5.24. В здании ГУВСВиДР-1 и помещениях ГУВСВиДР-2 должна предусматриваться автоматическая пожарная сигнализация в соответствии с требованиями НПБ 88-2001. Перечень помещений, в которых необходимо предусматривать автоматическую пожарную сигнализацию, следует определять в соответствии с МГСН 4.06-96.

Сигнал о срабатывании системы АПС (автоматической пожарной сигнализации) выводится в помещение с круглосуточным пребыванием персонала.

5.25. На путях эвакуации из здания должно быть предусмотрено аварийное и эвакуационное освещение в соответствии с требованиями СНиП 21-01-97* и СНиП 23-05-95.

5.26. Рекомендуемые состав и площади помещений вестибюльных групп ГУВСВиДР-1 и ГУВСВиДР-2 приведены в таблице 5.1.

5.27. Гардеробы для несовершеннолетних в ГУВСВиДР-1 и ГУВСВиДР-2 рекомендуется оборудовать вешалками консольного типа.

5.28. В ГУВСВиДР-1 и ГУВСВиДР-2 следует предусматривать гардероб для сотрудников в отдельном помещении при вестибюле.

5.29. В вестибюльной группе ГУВСВиДР-1 рекомендуется предусматривать помещение информационного отдела.

5.30. При входах в здание ГУВСВиДР следует предусматривать тамбуры.

5.31. В состав вестибюльных групп помещений ГУВСВиДР-1 и ГУВСВиДР-2 следует включать пост дежурного вахтера. В ГУВСВиДР-1 при вестибюле предусматривается помещение для отдыха вахтера.

Таблица 5.1

Рекомендуемые состав и площади помещений вестибюльной группы

№ п/п

Наименование помещений

Площадь помещений, м2

Примечания

На 1 место

Всего

1

2

3

4

5

ГУВСВиДР-1

1.

Вестибюль

0,38

-

С учетом численности персонала

2.

Гардероб для верхней одежды несовершеннолетних

0,15

-

 

3.

Гардероб для верхней одежды персонала

0,1

-

 

4.

Информационный отдел

-

10

 

5.

Помещение дежурного администратора (охраны)

-

6

В ночное время используется для отдыха вахтера

6.

Комната хранения предметов уборки

-

4

 

7.

Санузел с умывальником в шлюзе

-

3

 

ГУВСВиДР-2

1.

Вестибюль с местом для охраны

0,38

Не менее 15

 

2.

Гардероб для верхней одежды несовершеннолетних

0,1

Не менее 10

 

3.

Гардероб для верхней одежды персонала

0,1

Не менее 6

 

4.

Санузел с умывальником в шлюзе

-

3

 

5.

Комната хранения предметов уборки

-

4

 

Группа специализированных помещений (психолого-терапевтической и психолого-педагогической коррекции).

5.32. Рекомендуемые состав и площади специализированных помещений ГУВСВиДР-1 и ГУВСВиДР-2 приведены в таблице 5.2.

Площади помещений данной группы определены в соответствии с «Рекомендациями по проектированию образовательных учреждений для детей, нуждающихся в психолого-педагогической и медико-социальной помощи». Во всех помещениях, рассчитанных на работу с группой несовершеннолетних, 1 место предусмотрено для инвалида-колясочника.

Состав и площади специализированных помещений ГУВСВиДР в каждом конкретном случае уточняются заданием на проектирование.

5.33. Группа помещений психолого-терапевтической коррекции предназначена для проведения профилактической работы среди несовершеннолетних, с использованием следующих методов:

- индивидуальной психологической коррекции;

- преодоления социальной дезадаптации с привитием навыков здорового образа жизни и правильного сексуального поведения.

5.34. Кабинет психолога рассчитан на проведение индивидуальной работы с несовершеннолетним (Приложение, Рис. П.1.).

5.35. Кабинеты групповой психотерапии и зал ситуационных игр предназначены для социальноредовой адаптации несовершеннолетних.

В состав оборудования кабинета групповой психотерапии рекомендуется включать кресла, стол специалиста, столы для индивидуальной работы и шкаф-стеллаж. Пример его планировки с оборудованием приведен в Приложении на Рис. П.2.

В состав оборудования зала ситуационных игр включаются: рабочий стол, стеллаж с пособиями, компьютерный стол специалиста (Приложение, Рис. П.3.). Данное помещение рекомендуется предусматривать только в ГУВСВиДР-1.

5.36. Кабинет сексуального воспитания представляет собой лекционную аудиторию со столом социального педагога и креслами с откидными столиками для слушателей, расстановка которых может быть произвольной. Данное помещение рекомендуется предусматривать только в ГУВСВиДР-1.

5.37. Помещения групповой психотерапии, кабинета сексуального воспитания, зала ситуационных игр рассчитаны на работу с группой из 9 чел.

5.38. Кабинет релаксации рассчитан на проведение индивидуальной психолого-терапевтической коррекции. В состав оборудования его рекомендуется включать техническое оснащение сенсорного назначения и психолого-терапевтической коррекции: виброкресло, виброкушетку, стул специалиста, столик для специальной аппаратуры и установку с водяным каскадом. (Приложение, Рис. П.4.).

5.39. В состав группы помещений психолого-терапевтической коррекции входит лекционная аудитория, рассчитанная на проведение лекций для несовершеннолетних. Оптимальная вместимость аудитории составляет 30 чел. Данная аудитория может быть использована для проведения конференций сотрудников и предусматривается только в ГУВСВиДР-1.

5.40. Группа помещений психолого-педагогической коррекции предназначена для проведения мероприятий, направленных на профилактику школьной дезадаптации.

5.41. Кабинет социального педагога рассчитан на проведение индивидуальных занятий с несовершеннолетними. В состав его оборудования входят: стол специалиста, компьютерный стол, стеллаж, стол для несовершеннолетнего.

5.42. Кабинет психолого-педагогической коррекции представляет собой классное помещение на 9 чел. (Приложение, Рис. П.5.). Данное помещение рекомендуется предусматривать только в ГУВСВиДР-1.

5.43. В состав оборудования кабинета коррекционных игр «лего», рассчитанного на проведение занятий в группе из 9 чел., рекомендуется включать одноместные столы, стеллаж с пособиями, стол специалиста.

5.44. В состав оборудования кабинета коррекционных игр «компьютер», рассчитанного на проведение занятий с группой 9 чел., рекомендуется включать ученические столы для теоретических занятий, ученические столы с компьютерами, компьютерный стол специалиста, и комбинированный шкаф (Приложение, Рис. П.6.).

Таблица 5.2

Рекомендуемые состав и площади группы специализированных помещений (психолого-терапевтической и психолого-педагогической коррекции)

№ пп.

Наименование помещений

Площадь помещений, м2

Примечания

1

2

3

4

 

Группа психолого-терапевтической коррекции

1.*

Кабинет психолога

22

Приложение, Рис. П.1.

2.*

Кабинет групповой психотерапии

44

Приложение, Рис. П.2.

3.

Кабинет сексуального воспитания

26

 

4.

Зал ситуационных игр

38

Приложение, Рис. П.3.

5.*

Кабинет релаксации

12

Приложение, Рис. П.4.

6.

Лекционная аудитория

42

 

 

Группа психолого-педагогической коррекции

3.*

Кабинет социального педагога

14

 

4.

Кабинет психолого-педагогической коррекции

32

Приложение, Рис. П.3.

5.*

Кабинеты коррекционных игр:

 

 

- «лего»

50

 

- «компьютер»

50

Приложение, Рис. П.6.

6.*

Санитарные узлы для мальчиков и для девочек с умывальниками в шлюзе

16 × 2

 

7.*

Комната гигиены для девочек

3

Разместить при санузле для девочек

8.*

Санузел с умывальником для персонала

3

 

9.*

Помещение уборочного инвентаря

4

 

Примечание: помещения, отмеченные в таблице значком (*) могут быть организованы в ГУВСВиДР-2; не отмеченные значком - только в ГУВСВиДР-1.

Помещения начальной профессиональной подготовки, художественно-эстетического воспитания и познавательной деятельности.

5.45. Рекомендуемые состав и площади помещений начальной профессиональной подготовки, художественно-эстетического воспитания и познавательной деятельности ГУВСВиДР-1 и ГУВСВиДР-2 приведены в таблице 5.3.

Площади помещений данной группы определены в соответствии с «Рекомендациями по проектированию сети и зданий детских внешкольных учреждений для г. Москвы» и МГСН 4.06-96. Во всех помещениях 1 место предусмотрено для инвалида-колясочника.

5.46. Данная группа помещений обеспечивает реализацию следующих функции:

- предоставление несовершеннолетним возможности получения начальной профессиональной подготовки;

- формирование у детей и подростков потребности в групповом и межличностном общении;

- раскрытие врожденных склонностей несовершеннолетнего, формирование круга его культурных интересов;

- расширение кругозора несовершеннолетнего с помощью познавательных кружков;

- обеспечение занятости несовершеннолетних в свободное время.

5.47. Состав, количество и профиль кружковых помещений и мастерских технического творчества в каждом конкретном случае уточняется заданием на проектирование в зависимости от инфраструктуры обслуживаемой территории, сложившегося спроса, экономических и кадровых возможностей.

Предусматриваемые в ГУВСВиДР виды кружковой деятельности должны предоставлять возможность каждому несовершеннолетнему подобрать занятия, соответствующие его склонностям и интересам.

При организации мастерских следует предусмотреть возможность их перепрофилирования с учетом изменяющихся условий, что позволяют осуществить рекомендуемые унифицированные площади мастерски. Показатели площади унифицированной мастерской определены в соответствии с учетом единовременной наполняемости 9 чел. В зависимости от задания на проектирование единовременная вместимость данных кружковых помещений может колебаться от 6 чел. до 18 чел. при соответственном изменении площадей.

5.48. Мастерские технического творчества, в которых учебные и технологические процессы связаны с повышенным уровнем шума и с выделением химических веществ и пыли, в том числе мастерскую автодела, рекомендуется организовывать только в ГУВСВиДР-1.

5.49. Рекомендуемый профиль мастерских технического творчества: моделирования (авто, судо, радио и т.п.); по обработке металла и технологии; по обработке дерева и технологии; бытовая техника; автодело (теория и практика); электротехника; радиоэлектроника и т.п. (Приложения, Рис. П.7. - Рис. П.11.).

В данной группе помещений рекомендуется организовывать интернет-кафе, в состав оборудования которого входят: стойка бара, буфетный стеллаж, музыкальная установка, 9 компьютерных столов на 1 человека и мягкая мебель (Приложение, Рис. П.12.).

5.50. В ГУВСВиДР-1 рекомендуется организовывать не менее 5 различных мастерских технического творчества.

Количество мастерских в ГУВСВиДР-2, в виду ограниченности площади, может быть уменьшено до 2-х.

5.51. Мастерские технического творчества, в которых учебные и технологические процессы связаны с выделением химических веществ и пыли, следует оборудовать эффективной вентиляционной системой согласно СНиП 2.04.05-91*.

Мастерские оборудуются шкафами для хранения спецодежды и умывальниками с подачей горячей и холодной воды.

5.52. При помещениях мастерских следует предусматривать кладовые для хранения материалов и готовых изделий.

5.53. Рекомендуемая номенклатура мастерских прикладного искусства приведена в таблице 5.3. (Приложения, Рис. П.13. - Рис. П.16.).

5.54. Учитывая возможность наличия в контингенте ГУВСВиДР подростков «группы риска», архитектурно-планировочная организация помещений для занятий с использованием ценного оборудования, должна предусматривать выделение двух зон доступности:

- зону занятий с руководителем;

- зону ограниченной доступности (хранения ценного оборудования, сырья, изделий).

5.55. Входящие в группу помещений эстетического воспитания кружки: тематические театральные (драмы, фольклорные и т.п.), циркового искусства, музыкальные (ансамбли, оркестры, хор), как правило, организуются в помещениях актового зала. (Приложения, Рис. П.17., Рис. П.18).

Деятельность кружков различных видов танцев рекомендуется организовывать в фойе при актовом зале.

5.56. В рассматриваемую группу помещений всех типов ГУВСВиДР следует включать блок кружков познавательной деятельности, рекомендуемый профиль которых: кружок по проведению занятий по культорология, этнография, краеведение и туризму (Приложение, Рис. П.19) и кружок по журналистике с видеофотомастерской (Приложение, Рис. П.20). В состав оборудования кружковых помещений следует включать: стол специалиста, произвольно расставленные столы для слушателей, которые могут быть в случае необходимости объединены в единый стол в центральной части помещения; шкафы-витрины, стенды, стеллажи для хранения материалов.

Таблица 5.3

Рекомендуемые состав и площади помещений начальной профессиональной подготовки, художественно-эстетического воспитания и познавательной деятельности

№ пп.

Наименование помещений

Площадь помещений, м2

Примечания

1

2

3

4

Мастерские технического творчества

1.

Универсальная мастерская технического творчества с кладовой

60 + 12

 

2.*

Мастерская технического моделирования с кладовой

54 + 18

Приложение, Рис. П.7.

3.*

Мастерская судомоделирования с кладовой

71 + 17

Приложение, Рис. П.8.

4.

Мастерская по обработке дерева

42

Приложение, Рис. П.9.

5.

Мастерская по обработке металла

42

Приложение, Рис. П.10.

4.*

Мастерская по выжиганию по дереву

42

Приложение, Рис. П.11.

2.*

Интернет-кафе

50

Приложение, Рис. П.12.

Мастерские прикладного искусства

1.*

Театрально-художественная (изготовление костюма) с кладовой

49 + 14

Приложение, Рис. П.13.

2.*

Кукольного театра (изготовление кукол) с кладовой

40 + 14

Приложение, Рис. П.14.

3.

Лепки с печью для обжига, кладовой хранения инвентаря и готовых изделий

52 + 12

Наличие местной вытяжки

Приложение, Рис. П.15.

4.*

Рукоделия (вышивания, плетения, оригами и т.п.)

24

 

5.*

Визажа, косметологии, парикмахерского искусства

24

 

6.*

Дизайна (оформительского искусства)

24

 

7.*

Кройки, шитья и вязания

42

Приложение, Рис. П.16.

Эстетического воспитания

1.*

Изостудия с кладовой

38 + 14

Приложение, Рис. П.17.

2.

Комната музыкальных занятий с кладовой инструментов

32 + 14

Приложение, Рис. П.18.

Кружки познавательной деятельности

1.*

Кружок для проведения занятий по культорологии, этнографии, экологии, туризму и краеведению с кладовой

54 + 15

Приложение, Рис. П.19.

2.*

Кружок журналистики с видеофотомастерской с подсобными помещениями

53 + 17 + 17 + 11 + 6

Приложение, Рис. П.20.

Общие помещения

1.*

Помещение для руководителей мастерских и кружков

36

 

2.*

Кладовые помещения

12 × 3

 

3.*

Санитарные узлы для мальчиков и для девочек с умывальниками в шлюзе

16 × 2

 

4.*

Комната гигиены для девочек

3

Разместить при санузле для девочек

5.*

Санузел с умывальником для персонала

3

 

6.*

Помещение уборочного инвентаря

4

 

Примечание: помещения, отмеченные в таблице значком (*) могут быть организованы в ГУВСВиДР-2; не отмеченные значком - только в ГУВСВиДР-1.

Досугово-физкультурно-оздоровительные помещения.

5.57. Рекомендуемые состав и площади досугово-физкультурно-оздоровительных помещений приведены в табл. 5.4. Состав, количество помещений и их площади должны уточняться заданием на проектирование в каждом конкретном случае.

5.58. Основная задача данной группы помещений - роль первичного звена профилактики асоциального поведения несовершеннолетних. В основе ее деятельности лежит идея отвлечения ребенка от привычного агрессивно настроенного окружения, т.е. группа помещений предусматривается для проведения мероприятий, направленных на:

- физическое развитие, предоставление позитивной возможности дать выход своей энергии;

- формирование у детей и подростков потребности в групповом и межличностном общении.

5.59. Зрительный зал рекомендуется проектировать на 120 % от единовременной вместимости ГУВСВиДР-1 (в расчете на гостей). 5 % мест в зале рекомендуется организовывать для инвалидов-колясочников.

5.60. Фойе при актовом зале рекомендуется использовать для занятий кружков, перечисленных в п. 5.55., а также для организации музея детских поделок.

5.61. В состав досуговых помещений рекомендуется включать библиотеку площадью 120 м2 с книгохранилищем и читальным залом.

5.62. Связь спортивного зала с раздевальными предусматривается непосредственно или через коридор. При спортивном зале предусматривается кладовая спортинвентаря, смежная с ним. (Приложение, Рис. П.21.).

5.63. Проектирование бассейна следует осуществлять в соответствии с положениями справочного пособия «Проектирование бассейнов» к СНиП 2.08.02-89* и СП 2.1.2.568-96. Рекомендуемый размер ванны бассейна 25 × 11,5 м; глубина воды в мелкой части - 1,2 м, в глубокой части - 1,8 м. Одновременная загрузка бассейна - 18 чел.

5.64. Площадь раздевалок при бассейне следует рассчитывать исходя из нормы 2,5 м2 на 1 подростка.

5.65. Размер ножных ванн при бассейне необходимо предусмотреть 1,8 м (по направлению движения от душевой к чаше бассейна) во всю ширину прохода.

5.66. В ГУВСВиДР-1 рекомендуется дополнительно предусматривать помещения для хранения спортивного инвентаря (лыж, роликовых коньков, велосипедов и т.п.), площади которых определяются заданием на проектирование.

Таблица 5.4

Рекомендуемые состав и площади досуговоизкультурно-оздоровительных помещений

№ пп.

Наименование помещений

Площадь помещений, м2

Примечания

1

2

3

4

Досуговые помещения

1.

Актовый зал на 120 мест

84

 

2.

Эстрада при зале

Не менее 36

Глубина эстрады - 3,5 - 4 м

3.

Кинопроекционная с перемоточной и радиоузлом

26

 

4.

Фойе

84

 

5.

Санитарные узлы для мальчиков и для девочек с умывальниками в шлюзе при фойе

16

 

6.

Помещение для артистов

15 × 2

 

7.

Фильмовидеотека

8

 

8.

Помещение пожарного поста

10

 

9.

Кладовая мебели и реквизита

20

 

10.

Кладовая аппаратуры

10

 

11.

Библиотека с читальным залом и книгохранилищем

120

 

Физкультурно-оздоровительные помещения

1.

Спортивный зал 12 × 24 м

288

Приложение, Рис. П.21.

2.

Раздевальные для подростков с душевыми и санитарными узлами при спортзале

18 × 2

По 2 душевые, 1 унитазу и умывальнику на раздевальную

3.

Снарядная

16

Смежно со спортивным залом

4.

Бассейн 25 × 11,5 м

362,3

С учетом обходной дорожки

5.

Инвентарная при бассейне

10

 

6.

Раздевальные на 9 чел.

16 × 2

 

7.

Душевая при раздевальной включая ножную ванну

6

2 душевые сетки

8.

Уборные при раздевальных с умывальником

3 × 2

 

9.

Комната инструктора с санузлом

10 + 3

В состав оборудования санузла входят: унитаз, умывальник, душ

10.

Комната медсестры

10
8
6

Должны располагаться смежно и иметь выход на обходную дорожку

11.

Лаборатория анализ воды

12.

Узел управления

13.

Помещение хранения химических реактивов

4

 

14.

Реагентная

4

 

15.*

Зал гимнастических занятий (гимнастика оздоровительная, атлетическая, силовая)

80

 

- раздевальные

12 × 2

 

16.*

Кладовая спортинвентаря

10

 

17.*

Тренажерный зал

36

 

- раздевальные

12 × 2

 

18.*

Универсальный спортивный зал для занятий легкой атлетикой, акробатикой, фехтованием

72

 

- раздевальные

12 × 2

 

19.*

Универсальный спортивный зал для различных видов борьбы, единоборства

80

 

- раздевальные

12 × 2

 

20.*

Зал для занятий боксом

64

 

- раздевальная

12

 

21.*

Зал для занятий настольным теннисом

24

 

22.*

Комната инструкторов- методистов с санузлом в шлюзе

10 + 3

С состав санузла входят: унитаз, умывальник, душ

23.*

Санитарные узлы для мальчиков и для девочек с умывальниками в шлюзе

16 × 2

 

24.*

Комната гигиены для девочек

3

Разместить при санузле для девочек

25.*

Санузел с умывальником для персонала

3

 

26.*

Помещение уборочного инвентаря

4

 

27.*

Комната хранения предметов уборки

4

 

Примечание: помещения, отмеченные в таблице значком (*) могут быть организованы в ГУВСВиДР-2; не отмеченные значком только в ГУВСВиДР-1.

Помещения городского каникулярного лагеря.

5.67. Рекомендуемый состав и площади помещений городского каникулярного лагеря приведены в табл. 5.5. Данные помещения предусматриваются в ГУВСВиДР-1. Состав, количество помещений и их площади должны уточняться заданием на проектирование в каждом конкретном случае в зависимости от численности несовершеннолетних в лагере.

5.68. В состав данной группы помещений рекомендуется включать комнаты тихого отдыха, в оборудование которых входят: мягкая мебель, журнальные столики, подставка для телевизора с видеомагнитофоном, стеллажи для настольных игр и кассет с видеофильмами-фильмами (Приложение, Рис. П.22.). Необходимость и количество комнат определяется заданием на проектирование.

5.69. В состав помещений следует включать также дискуссионный холл, который рекомендуется оборудовать мягкой мебелью и живым уголком (Приложение, Рис. П.23.).

Таблица 5.5

Рекомендуемые состав и площади помещений городского каникулярного лагеря

№ пп.

Наименование помещений

Площадь помещений, м2

Примечания

1

2

3

4

1.

Комната тихого отдыха

36

Приложение, Рис. П.22.

2.

Дискуссионный холл

60

Приложение, Рис. П.23.

3.

Комната социальных педагогов

22

 

4.

Санитарные узлы для мальчиков и для девочек с умывальниками в шлюзе

16 × 2

 

5.

Комната гигиены для девочек

3

Разместить при санузле для девочек

6.

Санузел с умывальником для персонала

3

 

7.

Помещение уборочного инвентаря

4

 

Помещения питания.

5.70. Рекомендуемый состав и площади помещений питания приведены в таблице 5.6. Данную группу помещений рекомендуется предусматривать в ГУВСВиДР-1 и размещать в непосредственной близости от группы помещений городского каникулярного лагеря.

Помещения питания рассчитаны на обслуживание несовершеннолетних, посещающих городской каникулярный лагерь. На время, когда лагерь не функционирует, помещения питания обслуживают всех посетителей.

Площади помещений данной группы определены в соответствии с МГСН 4.06-96.

5.71. Питание организуется в одну смену в общей столовой.

5.72. Площадь обеденного зала принимается из расчета 1,2 м2 на 1 посадочное место. 2 % мест в обеденном зале рассчитаны на использование инвалидами-колясочниками. При зале предусматривается умывальная из расчета 3 м2 (1 умывальник) на каждые 18 - 20 мест.

5.73. Для питания персонала предусматривается буфет из расчета 1,8 м2 на 1 посадочное место. Его следует располагать в составе помещений столовой или администрации. Количество мест определяется заданием на проектирование исходя из числа персонала, питающегося в учреждении, продолжительности обеденного времени и количества смен. При зале предусматривается подсобное помещение, предназначенное для раздачи пищи, хранения и мойки посуды площадью 8 м2.

5.74. Кухонный блок в ГУВСВиДР-1 рекомендуется проектировать из расчета работы только на полуфабрикатах на основе связи со школьно-базовой столовой муниципального района.

В производственные помещения столовой должен предусматриваться отдельный вход.

Производственные помещения столовой проектируются с учетом размещения в них комплекта электро-технологического оборудования.

Таблица 5.6

Рекомендуемый состав и площади производственных помещений кухни

№ пп.

Наименование помещений

Площадь помещений, м2

Примечания

1

2

3

4

1.

Горячий цех

35*

 

2.

Холодный цех

 

3.

Помещение для резки хлеба

 

4.

Рыбный цех

9

 

5.

Мясной цех

 

6.

Овощной цех

6

 

7.

Моечная кухонной посуды

10

 

8.

Моечная полуфабрикатной посуды

 

9.

Моечная столовой посуды

12

 

10.

Охлаждаемая камера для хранения:

 

 

- молочных продуктов

6

 

- рыбы, мяса

6

 

11.

Кладовая сухих продуктов

6

 

12.

Кладовая овощей

6

 

13.

Комната заведующего производством

8

 

14.

Загрузочная - тарная

8

 

15.

Бельевая, гардеробная персонала, душевая, уборная

12

 

Примечание: площади помещений отмеченных значком (*) уточняются с учетом технологического оборудования.

Административно-хозяйственные помещения.

5.75. Рекомендуемый состав и площади группы административно-хозяйственных помещений приведены в таблице 5.7. для ГУВСВиДР-1 и в ГУВСВиДР-2.

5.76. В составе административно-хозяйственной группы помещений предусматривается помещение службы занятости, основная функция которой - создание банка данных по рабочим вакансиям для несовершеннолетних на каникулярное время. В состав оборудования кабинета службы занятости входят: стол социального работника, компьютерный стол с компьютером, стеллажи, журнальный столик с тремя креслами.

Таблица 5.7

Рекомендуемые состав и площади помещений административно-бытового обслуживания

№ пп.

Наименование помещений

Площадь помещений, м2

Примечания

1

2

3

4

ГУВСВиДР-1

1.

Кабинет директора

12

 

2.

Канцелярия

12

 

3.

Кабинет заместителя директора по хозяйственной части

10

 

4.

Кабинет заместителя директора по воспитательной части

10

 

5.

Помещение дежурного персонала технического обслуживания

8

 

6.

Бухгалтерия с кассой

8 + 3

 

7.

Методический кабинет с библиотекой методической литературы

18

 

8.

Кабинет службы занятости

16

 

9.

Комната психологической разгрузки персонала

16

 

10.

Комната отдыха персонала

22

 

11.

Помещение пожарного поста

6

 

12.

Кладовые, инвентарные

40

Могут располагаться в подвале

13.

Санитарные узлы для мужчин и женщин с умывальниками в шлюзе

3 × 2

 

14.

Кабины личной гигиены для женщин

3

Разместить при санузле

15.

Комната хранения уборочного инвентаря

4

 

ГУВСВиДР-2

1.

Кабинет директора

12

 

2.

Канцелярия

6

 

3.

Кабинет заместителя директора по хозяйственной части

8

 

4.

Помещение дежурного персонала технического обслуживания

8

 

5.

Бухгалтерия с кассой

8 + 3

 

6.

Помещение пожарного поста

6

 

7.

Комната психологической разгрузки персонала

10

 

8.

Комната отдыха персонала

12

 

9.

Санитарные узлы для мужчин и женщин с умывальниками в шлюзе

3 × 2

 

10.

Кабины личной гигиены для женщин

2

Разместить при санузле

11.

Комната хранения уборочного инвентаря

4

 

12.

Инвентарные

20

 

ПРИЛОЖЕНИЯ

ЭКСПЛИКАЦИЯ ОБОРУДОВАНИЯ

1. Стол специалиста; 2. Стул; 3. Компьютерный стол специалиста с компьютером; 4. Шкаф - стеллаж; 5. Журнальный стол; 6. Мягкая мебель; 7. Умывальник; 8. Вешалка для полотенца; 9. Место для инвалидной коляски

Рис. П.1. Кабинет психолога.

ЭКСПЛИКАЦИЯ ОБОРУДОВАНИЯ

1. Стол; 2. Стул; 3. Стол специалиста; 4. Кресло; 5. Шкаф-стеллаж; 6. Умывальник; 7. Вешалка для полотенца; 8. Место для инвалидной коляски

Рис. П.2. Кабинет групповой психотерапии.

ЭКСПЛИКАЦИЯ ОБОРУДОВАНИЯ

1. Рабочий стол; 2. Стул; 3. Стол специалиста; 4. Компьютерный стол специалиста с компьютером; 5. Стеллаж; 6. Ученическая доска; 7. Умывальник; 8. Вешалка для полотенца; 9. Место для инвалидной коляски

Рис. П.3. Зал ситуационных игр.

ЭКСПЛИКАЦИЯ ОБОРУДОВАНИЯ

1. Виброкушетка; 2. Виброкресло; 3. Столик для специальной аппаратуры; 4. Установка с водяным каскадом; 5. Стул специалиста; 6. Штора; 7. Место для инвалидной коляски

Рис. П.4. Кабинет релаксации.

ЭКСПЛИКАЦИЯ ОБОРУДОВАНИЯ

1. Стол; 2. Стул; 3. Стол специалиста; 4. Классная доска; 5. Комбинированный шкаф; 6. Место для инвалидной коляски; 7. Умывальник; 8. Вешалка для полотенца

Рис. П.5. Кабинет психолого-педагогической коррекции.

ЭКСПЛИКАЦИЯ ОБОРУДОВАНИЯ

1. Стол; 2. Стул; 3. Стол специалиста; 4. Компьютерный стол специалиста; 5. Классная доска; 6. Компьютер; 7. Вешалка для полотенца; 8. Умывальник; 9. Ученический компьютерный стол; 10. Комбинированный шкаф; 11. Место для инвалидной коляски

Рис. П.6. Кабинет коррекционных игр «Компьютер».

ЭКСПЛИКАЦИЯ ОБОРУДОВАНИЯ

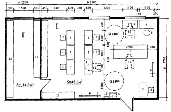
I - мастерская

1. Стол рабочий; 2. Стол мастера; 3. Стул; 4. Табурет; 5. Доска меловая настенная; 6. Экран свертывающийся; 7. Стенд настенный; 8. Раковина; 9. Шкаф для спецодежды; 10. Стеллаж; 11. Подставка для проекционной аппаратуры; 12. Стенд для инструментов; 13. Верстак слесарный; 14. Верстак столярный; 15. Место для инвалидной коляски

II - кладовая

16. Стеллаж; 17. Станок фуговально-распиловочный передвижной; 18. Шкаф вытяжной; 19. Электроточило; 20. Станок настольный сверлильный; 21. Стол - подставка под оборудование; 22. Электрокипятильник; 23. Шкаф для приборов и инвентаря; 24. Электроклееварка

Рис. П.7. Планировочная схема мастерской технического моделирования с кладовой.

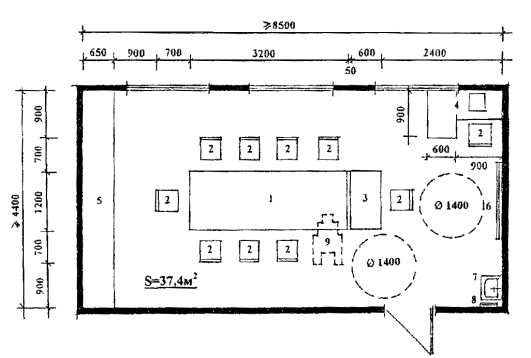
ЭКСПЛИКАЦИЯ ОБОРУДОВАНИЯ

I - зальное помещение, II - кладовая.

1. Бассейн для моделей; 2. Стол рабочий; 3. Стол учителя; 4. Стул (табуретка); 5. Доска классная; 6 Шкаф застекленный; 7. Шкаф для одежды; 8. Секция стеллажей с тисками; 9. Ящик для мусора; 10. Верстак столярный; 11. Электроточило; 12. Верстак слесарный; 13. Станок сверлильный; 14. Станок фрезерный; 15. Станок токарный; 16. Комбинированный настольный токарно-фрезерный станок; 17. Кульман; 18. Местный отсос; 19. Шторы затемнения; 20. Место для инвалидной коляски

Рис. П.8. Планировочная схема помещений мастерской судомоделирования с кладовой.

ЭКСПЛИКАЦИЯ ОБОРУДОВАНИЯ

1. Верстак руководителя; 2. Табурет; 3. Верстак столярный; 4. Станок сверлильный настольный; 5. Точило наждачное; 6. Станок фуговально-распиловочный; 7. Клееварка; 8. Урна для мусора; 9. Встроенный шкаф для спецодежды; 10. Шкаф - стеллаж для инструментов и материалов; 11. Раковина; 12. Место для инвалидной коляски

Рис. П.9. Планировочная схема мастерской по обработке дерева.

ЭКСПЛИКАЦИЯ ОБОРУДОВАНИЯ

1. Шкаф для книг и пособий; 2. Муфельная печь; 3. Доска классная; 4. Верстак руководителя; 5. Табурет; 6. Верстак слесарный; 7. Точило наждачное; 8. Наковальня; 9. Станок токарный; 10. Станок сверлильный; 11. Встроенный шкаф для спецодежды; 12. Шкаф - стеллаж для инструментов и материалов; 13. Урна для мусора; 14. Раковина; 15. Место для инвалидной коляски

Рис. П.10. Планировочная схема мастерской по обработке металла.

ЭКСПЛИКАЦИЯ ОБОРУДОВАНИЯ

1. Рабочий стол с прибором для выжигания; 2. Табурет; 3. Стол мастера; 4. Стул; 5. Рабочий стол для рисования; 6. Стеллаж; 7. Урна для мусора; 8. Умывальник; 9. Место для инвалидной коляски

Рис. П.11. Планировочная схема мастерской по выжиганию по дереву.

ЭКСПЛИКАЦИЯ ОБОРУДОВАНИЯ

1. Компьютерный стол с компьютером; 2. Стул; 3. Мягкая мебель; 4. Журнальный стол; 5. Музыкальная установка; 6. Высокий табурет; 7. Барная стойка; 8. Холодильник; 9. Микроволновая печь; 10. Мойка; 11. Стол-шкаф; 12. Подвесной шкаф-буфет; 13. Место для инвалидной коляски; 14. Умывальник; 15. Вешалка для полотенца

Рис. П.12. Интернет-кафе.

ЭКСПЛИКАЦИЯ ОБОРУДОВАНИЯ

I. МАСТЕРСКАЯ

1. Стол ученический для индивидуальной работы; 2. Стул; 3. Рабочий стол; 4. Швейная машина; 5 Табурет регулируемый; 6. Мольберт; 7. Стол мастера; 8. Стул мастера; 9. Умывальник; 10. Вешалка для полотенца; 11. Шкаф для экспозиций; 12. Место для инвалидной коляски

II. КЛАДОВАЯ

13. Комбинированный шкаф

Рис. П.13. Театрально-художественная мастерская (изготовление костюма), с кладовой.

ЭКСПЛИКАЦИЯ ОБОРУДОВАНИЯ

I. Мастерская

1. Стол мастера; 2. Стул мастера; 3. Рабочий стол; 4. Столы с оборудованием; 5. Табурет регулируемый; 6. Ширма для представлений; 7. Шкаф для экспозиций; 8. Умывальник; 9. Вешалка для полотенца; 10. Место для инвалидной коляски

II. Кладовая

11. Шкаф комбинированный

Рис. П.14. Мастерская кукольного театра (изготовление кукол) с кладовой.

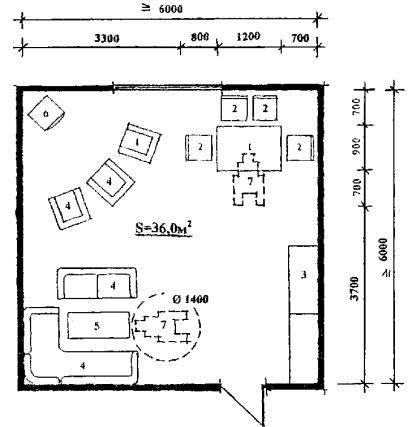
ЭКСПЛИКАЦИЯ ОБОРУДОВАНИЯ

1. Рабочий стол; 2. Стол для индивидуальной работы; 3. Табурет; 4. Печь для обжига; 5. Гончарный круг; 6. Стол специалиста; 7. Стул; 8. Умывальник с вешалкой для полотенца; 9. Место для инвалидной коляски

Рис. П.15. Мастерская лепки с печью для обжига, кладовой хранения инвентаря и готовых изделий.

ЭКСПЛИКАЦИЯ ОБОРУДОВАНИЯ

1. Стол рабочий; 2. Стул складируемый; 3. Стол педагога; 4. Доска меловая; 5. Швейная машина; 6. Вязальная машина; 7. Гладильная доска; 8. Стеллаж с отделением для выставки; 9. Манекен; 10. Зеркало; 11. Стенд; 12. Умывальник; 13. Место для инвалидной коляски

Рис. П.16. Планировочная схема мастерской кройки, шитья и вязания.

ЭКСПЛИКАЦИЯ ОБОРУДОВАНИЯ

I. ИЗОСТУДИЯ

1. Мольберт; 2. Помост для моделей; 3. Стенд для рисунков и картин; 4. Стол преподавателя; 5. Стул преподавателя; 6. Умывальник; 7. Вешалка для полотенца; 8. Место для инвалидной коляски

II. КЛАДОВАЯ

9. Комбинированный шкаф

Рис. П.17. Изостудия с кладовой

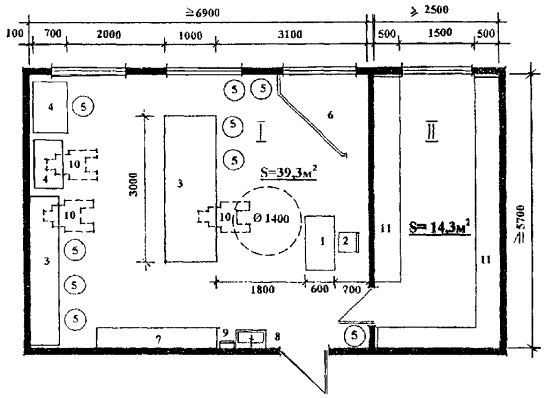
ЭКСПЛИКАЦИЯ ОБОРУДОВАНИЯ

I. КОМНАТА

1. Стул; 2. Пюпитр; 3. Помост для преподавателя; 4. Пианино; 5. Табурет винтовой; 6. Стол преподавателя; 7. Классная доска; 8. Умывальник; 9. Вешалка для полотенца; 10. Место для инвалидной коляски

II. КЛАДОВАЯ

11. Комбинированный шкаф

Рис. П.18. Комната музыкальных занятий с кладовой инструментов.

ЭКСПЛИКАЦИЯ ОБОРУДОВАНИЯ

I - кабинет, II - кладовая

1. Стол офисный с компьютером для руководителя; 2. Стул; 3. Стол для заседаний; 4. Стул складируемый; 5. Передвижной столик с проекционной аппаратурой; 6. Стол-витрина; 7. Стенд настенный; 8. Экран свертывающийся; 9. Книжный шкаф для специальной аппаратуры; 10. Умывальник; 11. Место для инвалидной коляски; 12. Стеллажи для инвентаря и пособий

Рис. П.19. Планировочная схема помещения кружка для проведения занятий по туризму, краеведению, экологии с кладовой.

ЭКСПЛИКАЦИЯ ОБОРУДОВАНИЯ

I - печатная, II - проявочная, III - видеофотомастерская, IV - видеомонтажная, V - кладовая.

1. Стол для фотоувеличителя; 2. Контактный станок, установленный на тумбу для хранения подсобных материалов; 3. Стол рабочий двухместный; 4. Стол рабочий одноместный; 5. АПСО; 6. Сушильный шкаф для пленок; 7. Зарядный ящик; 8. Промывочная ванна; 9. Стол или тумба для работы; 10. Шкаф для хранения химикатов; 11. Шкаф для хранения инвентаря; 12. Шторы затемнения; 13. Установка фона; 14. Экран для показа слайдов и кинофильмов; 15. Подставка для кинопроекционной аппаратуры - передвижная; 6. Осветительные приборы на штативах; 17. Телевизор с большим экраном; 18. Видеомагнитофон; 19. Стол передвижной; 20. Стул складируемый; 21. Стеллаж передвижной; 22. Звуковой пульт; 23. Видеомонтажный пульт; 24. Монитор; 25. Магнитофон; 26. Кресло или стул поворотный; 27. Стол руководители студии; 28. Сейф; 29. Место для инвалидной коляски; 30. Шкаф для видеотеки, фонотеки, библиотеки и подсобного оборудования; 31. Видеокамера на штативе

Рис. П.20. Кружок журналистики с видеофотомастерской с подсобными помещениями.

ЭКСПЛИКАЦИЯ ОБОРУДОВАНИЯ

1. Стенка гимнастическая; 2. Щит баскетбольный основной; 3. Щит баскетбольный тренировочный; 4. Съемная баскетбольная сетка; 5. Тренажер «Лидер»; 6. Тренажер «Стенка здоровья»; 7. Ворота для минифутбола

Рис. П.21. Планировочная схема спортивного зала.

ЭКСПЛИКАЦИЯ ОБОРУДОВАНИЯ

1. Игровой стол; 2. Стул; 3. Стеллаж для хранения настольных игр и кассет с видеофильмами; 4. Мягкая мебель; 5. Журнальный столик; 6. Телевизор с видеомагнитофоном; 7. Место для инвалидной коляски

Рис. П.22. Комната тихого отдыха.

ЭКСПЛИКАЦИЯ ОБОРУДОВАНИЯ

1. Мягкая мебель; 2. Журнальный столик; 3. Живой уголок; 4. Складные стулья; 5. Место для инвалидной коляски; 6. Умывальник; 7. Вешалка для полотенца

Рис. П.23. Дискуссионный холл.




Яндекс цитирования



   Copyright © 2007-2026,  www.tehlit.ru.

[ ѓосты, стандарты, нормативы, инструкции, правила, строительные нормы ]