//
ТехЛит.ру
- крупнейшая бесплатная электронная интернет библиотека для "технически умных" людей.
WWW.TEHLIT.RU - ТЕХНИЧЕСКАЯ ЛИТЕРАТУРА

:: Алготрейдинг::


АЛГОТРЕЙДИНГ
шаг за шагом
с нуля по урокам!

Торговые роботы на PYTHON, BackTrader,
Pandas, Pine Script для TradingView. Связка с брокерами, телеграм и легкими приложениями.


Система нормативных документов в строительстве

СВОД ПРАВИЛ ПО ПРОЕКТИРОВАНИЮ И СТРОИТЕЛЬСТВУ

ДОМА-ИНТЕРНАТЫ

СП 35-112-2005

Москва 2006

Предисловие

1 РАЗРАБОТАН ФГУП «Научно-проектный институт учебно-воспитательных, торгово-бытовых и досуговых зданий» («Институт общественных зданий»); ЗАО «Центральный научно-исследовательский и проектный институт типового и экспериментального проектирования зрелищных, спортивных и административных зданий и сооружений им. Б.С. Мезенцева» («ЦНИИЭП им. Б.С. Мезенцева»)

ВНЕСЕН Департаментом по делам ветеранов России, пожилых людей и приема населения Минтруда России

2 ОДОБРЕН И РЕКОМЕНДОВАН в качестве нормативного документа добровольного применения Системы нормативных документов в строительстве Госстроем России (письмо от 30 апреля 2004 г. № ЛБ-323/9)

3 УТВЕРЖДЕН приказом ФГУП ИОЗ № 12 от 10 октября 2003 г.

4 ВВЕДЕН ВПЕРВЫЕ

 

Содержание

Предисловие

Введение

1 Область применения

2 Нормативные ссылки

3 Термины и определения

4 Основные положения

5 Участки домов-интернатов

6 Объемно-планировочные решения

7 Функциональные требования к проектированию основных групп помещений

Жилое отделение

Жилая группа

Жилые ячейки и жилые комнаты

Помещения культурно-массового обслуживания

Помещения медицинского обслуживания

Лечебно-трудовые мастерские

Учебно-производственные мастерские

Помещения питания

Помещения для гимнастики и физкультуры

Административные и служебно-бытовые помещения

Помещения охраны и безопасности

8 Инженерно-техническое обеспечение и оборудование

Приложение А (справочное)

Перечень документов, на которые даны ссылки в настоящем СП

Приложение Б (справочное)

Термины и определения

Приложение В (рекомендуемое)

Состав и площади основных групп помещений домов-интернатов

Приложение Г

Иллюстрации

Введение

Настоящий Свод правил разработан в развитие СНиП 35-01-2001 «Доступность зданий и сооружений для маломобильных групп населения» и устанавливает положения по проектированию и строительству домов-интернатов для людей старшего возраста и инвалидов с минимально допустимым уровнем комфортности проживания, а также по проектированию домов-интернатов с улучшенным, оптимальным уровнем комфортности проживания.

В разработке настоящего Свода правил приняли участие: руководитель темы и научный редактор - канд. архит. A.M. Гарнец; ответственный исполнитель - канд. архит. Т.А. Исаева, канд. архит. Л.А. Смывина, арх. П.В. Козейкин (ФГУП «ИОЗ»); ответственный исполнитель - канд. архит. Н.Б. Мезенцева, канд. архит. Г.И. Быкова (ЗАО «ЦНИИЭП им. Б.С. Мезенцева»), д-р мед. наук Н.Ф. Дементьева (ФНП «Центр медико-социальной экспертизы и реабилитации инвалидов» Минтруда России); компьютерная графика - инж. А.И. Цыганов.

СВОД ПРАВИЛ ПО ПРОЕКТИРОВАНИЮ И СТРОИТЕЛЬСТВУ

ДОМА-ИНТЕРНАТЫ

Boarding houses

Дата введения 2005-01-01

1 Область применения

Настоящий Свод правил распространяется на здания домов-интернатов для постоянного проживания ограничено трудоспособных и нетрудоспособных лиц старшего возраста и инвалидов, нуждающихся в периодической или постоянной посторонней помощи.

Положения Свода правил рекомендуется учитывать при проектировании новых объектов, реконструкции и модернизации существующего фонда, при решении функциональных зон помещений домов-интернатов различного назначения.

При реконструкции или приспособлении зданий для домов-интернатов следует учитывать также требования СП 35-114.

2 Нормативные ссылки

Перечень нормативных документов, на которые даны ссылки в настоящем Своде правил, приведен в приложении А.

3 Термины и определения

В настоящем Своде правил использованы термины, определения которых приведены в приложении Б.

4 Основные положения

4.1 Виды домов-интернатов и контингент проживающих представлены в таблице 4.1.

4.2. В домах-интернатах, в том числе специальных, для лиц старшего возраста и инвалидов предусматривается следующее:

- проживание;

- санитарно-гигиеническое обслуживание;

- питание;

- лечебно-трудовая терапия;

- культурно-массовое обслуживание;

- медицинское обслуживание, включая реабилитацию;

- административно-бытовое обслуживание;

- охрана безопасности проживания.

Функциональные схемы размещения отделений, различных групп помещений в домах-интернатах представлены в приложении Г (рисунки Г.1 и Г.2).

Таблица 4.1

Дома-интернаты

Контингент проживающих в доме-интернате

Общего типа

Лица старшего возраста и инвалиды I и II групп (старше 18 лет):
- свободно передвигающиеся, практически здоровые;
- передвигающиеся с трудом;
- нуждающиеся в посторонней помощи, передвигающиеся на креслах-колясках

Психоневрологические

Люди-психохроники с легкой и средней имбециальностью от 19 лет и старше различных категорий по своему физическому состоянию:
- способные к частичному самообслуживанию, нуждающиеся в реабилитации;
- нуждающиеся в посторонней помощи, постельном режиме, передвигающиеся на креслах-колясках

Специальные (специальные отделения)

Лица старшего возраста и инвалиды I и II групп (старше 18 лет):
- вышедшие из мест заключения; систематически и грубо нарушающие внутренней порядок дома-интерната общего типа.

По своему физическому состоянию они подразделяются на:
- свободно передвигающихся, нуждающихся в реабилитации;
- передвигающихся с трудом;
- нуждающихся в посторонней помощи; передвигающихся на креслах-колясках

4.3 Вместимость домов-интернатов принимается:

- общего типа - от 50 до 200 мест;

- психоневрологических - от 100 до 200 мест;

- специальных - от 50 до 100 мест;

- специального отделения при домах-интернатах общего типа - до 50 мест.

4.4. В домах-интернатах противопожарную защиту зданий следует обеспечивать в соответствии с требованиями СНиП 21-01. По функциональной пожарной опасности дома-интернаты общего типа и специальные (специальные отделения) относятся к классу Ф1, дома-интернаты психоневрологические - к классу Ф1.1.

4.5 Численность инвалидов, передвигающихся на креслах-колясках, от общей вместимости дома-интерната составляет 12 %.

При каждом доме-интернате следует предусматривать дополнительное помещение или место для хранения уличных кресел-колясок площадью в зависимости от вместимости учреждения, но не менее 4 м2.

4.6 Высоту жилых помещений от пола до потолка следует принимать не менее 2,7 м, общественных помещений - не менее 3 м.

4.7 В домах-интернатах должна обеспечиваться инсоляция помещений согласно СанПиН 2.1.2.1002. Длительность инсоляции в весенне-осенний период года в жилых помещениях должна быть (в период с 22 февраля по 22 октября):

- в центральной зоне (58-48° с. ш.) - не менее 2,5 ч в день;

- в северной зоне (севернее 58° с. ш.) - не менее 3 ч в день;

- в южной зоне (южнее 48° с. ш.) - не менее 2 ч в день.

4.8 Нормируемые показатели естественного и искусственного освещения различных помещений следует устанавливать в соответствии с СанПиН 2.1.2.1002 (пп.5.2, 5.4). Коэффициент естественного освещения (КЕО) в жилых комнатах и кухнях должен быть не менее 0,5 % в середине помещения.

В случае прерываемого режима инсоляции суммарная длительность инсоляции должна быть увеличена на 0,5 ч.

4.9. При проектировании домов-интернатов следует предусматривать обязательный минимальный уровень комфортности проживания класса «М» (минимальный уровень), при котором минимально допустимые параметры обеспечивают благоприятную среду жизнедеятельности, а также безопасность и здоровье людей, проживающих в домах-интернатах.

Состав и площади помещений, требования к проектированию зданий класса «М» представлены в таблицах В.1-В.11 приложения В, на рисунках Г.4-Г.8 приложения Г.

При повышенном оптимальном уровне комфортности проживания класса «О» (оптимальный уровень) состав помещений дома-интерната может быть увеличен по условиям заказчика при составлении задания на проектирование.

5 Участки домов-интернатов

5.1 Дома-интернаты размещают на селитебной территории городов и поселков городского типа на обособленных участках, наиболее благоприятных по санитарно-гигиеническим условиям.

При выборе места строительства рекомендуется предусматривать близость к больницам, социальным центрам адаптации и культовым сооружениям, а также доступность проезда к учреждениям родственников проживающих.

5.2. На территории домов-интернатов рекомендуется предусматривать зоны с площадками для отдыха, физкультуры и хозяйственного назначения, а также площадку перед входом с приближенной автостоянкой. Минимальные параметры площадей участков для условий городской застройки следует принимать согласно таблице 5.1.

При расстановке приборов и устройств технологического и другого оборудования следует исходить из того, что зона досягаемости для лиц в кресле-коляске должна находиться в пределах: при расположении сбоку от проживающего - не выше 1,4 м и не ниже 0,3 м от пола; при фронтальном подходе - не выше 1,2 м и не ниже 0,4 м от пола согласно 4.15 СНиП 35-01-2001.

Таблица 5.1

Дом-интернат

Вместимость, место

Площадь земельного участка м2 на 1 место

Состав и площади планировочных элементов земельного участка на 1 место учреждения, м2

Площадка для отдыха

Площадка для физкультурных занятий

Хозплощадка (с местом для мусоросборника и пожарным стендом)

Площадки садово-парковой зоны с дорожками и проездами

Общего типа

50

38

9

3

8

18

100

27

7

3

6

11

200

20

5

2

4

9

Психоневрологический

100

27

7

3

5,4

11

200

20

5

2

4

9

Специальный (специальное отделение)

50

38

9

3

8

18

100

27

7

3

6

11

Примечания:
1 Зона проживания персонала не включена в общую расчетную площадь участка дома-интерната.
2 Площадь участка, площадки перед входом в учреждение и приближенной к ней автостоянки входят в общую площадь.
3 Площадку для лечебной физкультуры следует определять исходя из конкретного существующего состава проживающих инвалидов и необходимых для них видов занятий при составлении задания на проектирование.

5.3 Площади участков домов-интернатов следует определять заданием на проектирование с учетом рекомендуемых показателей, приведенных в таблице 5.1.

5.4. При строительстве нового здания дома-интерната на вновь осваиваемом участке в районах с затесненной застройкой площадь земельного участка при соответствующем обосновании может быть уменьшена, исходя из условий застройки и указаний задания на проектирование, но не более чем на 20-25 %.

5.5 Территория, предназначенная для домов-интернатов, должна иметь ограждение высотой не менее 1,6 м.

5.6. На территории земельного участка дома-интерната транспортные проезды на участке и пешеходные дороги на пути к учреждению и объектам, посещаемым инвалидами, должны иметь удобные подъезды и подходы. Остановки общественного транспорта следует увязывать с местом размещения здания дома-интерната со стороны главного входа.

5.7 Площадки для физкультуры и гимнастики необходимо предусматривать с зоной для занятий корригирующей гимнастикой из расчета 2 м2/чел., площадку тихого отдыха - из расчета 1,5 м2/чел. Указанные площадки входят в площадь участка, размеры их зависят от типа учреждения и вместимости в соответствии с таблицей 5.1.

5.8. В составе садово-парковой зоны предусматривают дорожки для лечебной ходьбы и бега трусцой.

5.9. В психоневрологических домах-интернатах для лиц, самостоятельно передвигающихся, для занятий лечебной физкультурой следует предусматривать площадку площадью до 100 м2 в расчете на 50-70 чел.

5.10. В хозяйственной зоне предусматриваются: гараж, стоянка для автомобилей, разгрузочная площадка, площадка для сушки белья и при необходимости - котельная, овощехранилище, прачечная, склады и другие помещения.

5.11. На участке рекомендуется предусматривать зону огорода и сада с фруктово-ягодными насаждениями для проживающего контингента, площадь которой следует определять сверх нормативной площади, указанной в таблице 5.1, ориентировочно не более чем на 15 % площади участка.

6 Объемно-планировочные решения

6.1. При проектировании зданий домов-интернатов предусматривают жилые и общественные помещения учреждений рассредоточенной (павильонной) композиции плана, которые могут располагаться в одном или нескольких зданиях.

6.2 Дома-интернаты следует проектировать, как правило, 2-3-этажными. Этажность выше 3 этажей устанавливают заданием на проектирование при соответствующих обоснованиях в соответствии с СНиП 2.08.02, СНиП 31-01-2003, СНиП 2.07.01.

В домах-интернатах высотой 2 этажа и выше следует предусматривать лифты или подъемник в соответствии с требованиями ГОСТ Р 51630 и ГОСТ Р 51631, а также НПБ 250-97.

6.3 Общая площадь домов-интернатов принимается в зависимости от типа зданий, вместимости, уровня комфортности согласно таблицам В.1-В.12 приложения В и указывается в задании на проектирование.

Схемы взаимосвязей жилых групп и отделений приведены на рисунках Г.1 и Г.2 приложения Г.

6.4 Жилая площадь в домах-интернатах для людей старшего возраста и инвалидов принимается из расчета не менее 7 м2/чел.

6.5 Этажи зданий должны иметь не менее двух эвакуационных выходов в соответствии с 6.12 * и 6.13 * СНиП 21-01.

Лестницы, пандусы и лифты, подъемники, вспомогательные средства и приспособления для передвижения людей по зданию, использование их в помещениях следует проектировать в соответствии с требованиями СНиП 35-01-2001 и СП 35-101.

6.6 Объемно-планировочные решения домов-интернатов следует проектировать с учетом следующих требований к путям эвакуации:

- на путях эвакуации не следует применять вращающиеся двери и турникеты, винтовые лестницы;

- в жилых ячейках комнату дежурного персонала следует размещать рядом со спальными комнатами и комнатами для занятий. Такое расположение обусловлено в случае необходимости скорейшей эвакуации контингента из этих помещений с помощью дежурного персонала. В этих помещениях предусматриваются устройства автоматической пожарной сигнализации;

- на путях эвакуации дверные проемы не должны иметь порогов и перепадов высот пола. При необходимости устройства порогов их высота или перепад высот не должен превышать 0,025 м в соответствии с требованиями СНиП 35-01-2001;

- вдоль обеих сторон лестниц и пандусов, а также у всех переходов высотой более 0,45 м необходимо устраивать ограждения с поручнями из негорючих материалов на высоте 0,9 м.

6.7 При проектировании лестниц поручень перил с внутренней стороны должен быть непрерывным. По всей высоте лестницы на верхней поверхности поручня перил следует предусматривать рельефные обозначения этажей. Размеры цифр должны быть не менее, м: ширина 0,01, высота 0,015, высота рельефа цифры - не менее 0,002 м в соответствии с требованиями СНиП 35-01-2001 к лестницам и пандусам.

6.8 На путях движения людей старшего возраста и инвалидов в здании следует предусматривать смежные с ними зоны отдыха и ожидания не реже чем через каждые 25 м, не менее одной на каждом этаже.

6.9 При всех наружных входах в здания домов-интернатов следует предусматривать тамбуры глубиной не менее 1,5 м и шириной 2,2 м.

Двойные тамбуры при входе следует проектировать в I и II климатических районах строительства. Если в I климатическом районе при входе в дом имеется веранда, то ее наличие учитывается как один из тамбуров в соответствии с требованиями 4.19 СП 35-102.

6.10 В жилой части здания допускается размещать обслуживающие помещения (библиотеку-читальню, комнаты для кружковых занятий, комнату медпункта) при высоте помещений, равной высоте жилых помещений.

Высоту помещений зрительного зала, лечебно-трудовых и учебно-производственных мастерских, а также помещений столовой следует принимать не менее 3 м в соответствии с СНиП 2.08.02.

При вместимости дома-интерната до 40 мест высоту обеденного и зрительного залов допускается принимать равной высоте жилых помещений.

6.11 В домах-интернатах специальных, общего типа со специальными отделениями при входе в здание в вестибюльной группе помещений следует предусматривать комнаты вахтера-охранника и пост милиции, рисунок Г.3 приложения Г.

6.12 Состав и площади помещений домов-интернатов следует принимать согласно приложению В настоящего СП.

6.13 Глубина жилых комнат не должна превышать 6 м. Ширина жилых помещений для нуждающихся в посторонней помощи и инвалидов, передвигающихся на креслах-колясках, а также процедурных помещений должна быть не менее 3,4 м. Пропорции сторон глубины к ширине в жилых комнатах рекомендуется принимать при соотношении сторон комнаты 2:1.

6.14 Ширина пути движения внутри здания (в коридорах, помещениях, галереях) в чистоте должна быть не менее:

- при движении кресла-коляски в одном направлении - 1,5 м;

- при встречном движении - 1,8 м.

Ширину прохода в помещении с оборудованием и мебелью следует принимать не менее 1,2 м.

Ширина балконов и лоджий должна быть, как правило, не менее 1,4 м в свету.

Ширину коридора или перехода в другое здание следует принимать не менее 2 м.

Подходы к различному оборудованию и мебели должны быть не менее 0,9 м, а при необходимости поворота кресла-коляски на 90° - не менее 1,2 м в соответствии с требованиями 3.18 СНиП 35-01-2001.

6.15 В I и II климатических районах рекомендуется предусматривать в домах-интернатах при жилых комнатах лоджии и балконы глубиной не менее 1,4 м. При этом разница отметок пола жилого помещения и балкона (лоджии) не должна превышать 0,02 м в соответствии с требованиями 5.38 СП 35-102.

При решении балконов и лоджий следует учитывать местные условия и при необходимости предусматривать на летних помещениях ветрозащитные (возможно - трансформируемые) стенки-экраны и солнцезащиту в виде штор, козырьков и др.

Примечание - В психоневрологических домах-интернатах допускается проектировать остекленную лоджию общего пользования на жилую группу из расчета 0,5 м2/чел.

6.16 Столовую, лечебно-трудовые мастерские (далее - ЛТМ) и учебно-производственные мастерские (далее - УПМ) рекомендуется размещать в отдельных блоках.

6.17 В помещении мастерской при размещении оборудования рядом со столом мастера следует предусматривать стол медсестры для наблюдения и оказания в случае необходимости медицинской помощи занимающимся трудотерапией людям старшего возраста или инвалидам.

6.18 При учебно-производственных мастерских следует предусматривать кладовые для хранения материалов и кладовые готовых изделий. Состав и площади помещений УПМ представлены в таблице В.9 приложения В и на рисунке Г.14 приложения Г.

6.19 Учебно-производственные мастерские, их вместимость и количество следует определять в соответствии с заданием на проектирование с учетом требований к условиям организации труда на рабочих местах СП 35-104, приложение В.

6.20 Санитарные узлы для людей старшего возраста и инвалидов рекомендуется проектировать совмещенными либо раздельными. Для инвалидов с поражением опорно-двигательного аппарата, как правило, применяются совмещенные санузлы, оборудованные унитазом, умывальником и ванной или душем. Рекомендуются к применению сидячие ванны или полибаны с местом для сидения, ванны с открывающимися боковыми дверцами и т.п.

Для того, чтобы уменьшить число перемещений, рекомендуется в уборных на стене рядом с унитазом помещать гибкий шланг с душевой сеткой.

Площади санитарных узлов приведены в таблицах В.3-В.5 приложения В данного документа и СП 35-102.

6.21 Для психоневрологических больных, не способных к передвижению, предусматриваются санузлы с местом для каталки, со встроенным шкафом для суден. Набор оборудования санузлов следует принимать в соответствии с таблицей В.5 приложения В.

6.22 В уборных общего пользования необходимо предусматривать не менее одной универсальной кабины, доступной для всех. Размеры универсальной кабины в плане принимаются не менее: ширина - 1,65 м, глубина - 1,8 м. В кабине рядом с унитазом следует предусматривать пространство для размещения кресла-коляски, а также крючки для одежды, костылей и других принадлежностей в соответствии с 3.67 СНиП 35-01-2001.

7 Функциональные требования к проектированию основных групп помещений

7.1 Дома-интернаты включают отделения, группы помещений жилого, обслуживающего и хозяйственного назначения.

Состав и площади основных групп помещений домов-интернатов приведены в таблицах В.1-В.12 приложения В.

7.2 В домах-интернатах состав помещений вестибюльной группы помещений следует проектировать в соответствии с таблицей В.1 приложения В.

7.3 Для зданий любой вместимости предусматриваются приемно-карантинные отделения, состав, площади и количество помещений которых принимаются по заданию на проектирование в соответствии с таблицей В.2 приложения В. Приемное и карантинное отделения рекомендуется размещать на первом этаже здания дома-интерната.

Необходимость устройства централизованных приемно-карантинных отделений определяется заданием на проектирование.

Жилое отделение

7.4 Жилые отделения домов-интернатов общего типа со специальными отделениями формируются из жилых групп помещений, однородных жилых ячеек, помещений охраны и безопасности, коммуникационных и общественных помещений. Жилые отделения и жилые группы проектируются непроходными. Специальные отделения должны быть разграничены с общими отделениями коммуникационным пространством - коридорами.

Жилая группа

7.5 Жилые группы помещений должны быть специализированными по физическому состоянию проживающих: для лиц, свободно передвигающихся, передвигающихся с трудом, способных к частичному самообслуживанию, нуждающихся в посторонней помощи, передвигающихся на креслах-колясках и нуждающихся в постельном режиме. Жилые группы проектируются в соответствии с таблицами В.3-В.5 приложения В.

7.6 Из вспомогательных помещений в жилой группе следует предусматривать: помещения для хранения носилок (каталки), санитарную комнату и помещение для хранения чистого белья, кухню самообслуживания, буфетную комнату, комнату отдыха, помещение для уборочного инвентаря, кладовую грязного белья с местом для разборки, комнату для персонала, комнату бытового обслуживания, площади которых приведены в таблицах В.3-В.5 приложения В.

Примечание - В составе персонала предусмотрен дежурный, в обязанности которого входит также организация скорейшей эвакуации проживающих при пожаре.

7.7 Набор жилых комнат по вместимости, а также их соотношение в жилых группах и отделениях уточняются при составлении задания на проектирование.

Жилые ячейки и жилые комнаты

7.8 Типы жилых ячеек представлены на рисунках Г.4-Г.8 приложения Г, состав и площади помещен-ий жилых ячеек приведены в таблицах В.3-В.5 приложения В.

При проектировании жилых комнат и жилых ячеек следует учитывать функциональные требования, обусловленные потребностями однородного (по возрасту и физическому состоянию) контингента. В домах-интернатах общего типа и специальных отделениях (специальных домах-интернатах) жилые ячейки ЖЯ-1, ЖЯ-2, ЖЯ-3 предусматриваются с жилыми комнатами на 1-2 чел., рассчитанными для свободно передвигающихся, способных к самообслуживанию. Эта категория лиц питается в основном в столовой. Для контингента, передвигающегося с трудом и на креслах-колясках, проектируют жилые ячейки ЖЯ-4 с жилыми комнатами на 2-3 места. При жилых ячейках предусматриваются буфетная и кухня-раздаточная, в которую из столовой доставляется готовая пища для лиц, передвигающихся с трудом.

7.9 В психоневрологических домах-интернатах для жилых групп предусматривают жилые ячейки ЖЯ-5 с жилыми комнатами на 4 места, рассчитанными на лиц, способных к частичному самообслуживанию и нуждающихся в реабилитации, лица этой категории в основном питаются в столовой.

Жилые ячейки ЖЯ-6 проектируют с жилыми комнатами на 4-6 мест, рассчитанными на лиц, нуждающихся в посторонней помощи и постельном режиме. Эта категория лиц питается в жилых комнатах. Состав и площадь помещений жилой ячейки ЖЯ-6 представлены в таблице В.5 приложения В.

При ванной комнате в жилой группе с жилыми ячейками для нуждающихся в постельном режиме и колясочников (ЖЯ-6) рекомендуется размещать хозяйственную кладовую для грязного белья.

7.10 Площадь жилых комнат для проживающих, способных к частичному самообслуживанию или нуждающихся в посторонней помощи, следует принимать по таблице В.4 приложения В независимо от их физического состояния.

7.11 Жилые комнаты для людей старшего возраста, передвигающихся на креслах-колясках, следует проектировать с учетом функциональных зон, обеспечивающих свободный подъезд человека в кресле-коляске к любой точке помещения, к оборудованию помещения при минимальной ширине зоны маневрирования кресла-коляски не менее 1,3 м согласно СП 35-102.

7.12 Жилые комнаты рекомендуется оборудовать встроенными шкафами для одежды, обуви, белья и личных вещей, а передние - вешалками для уличной одежды. Встроенные шкафы возможно размещать в передних при наличии индивидуальных замков согласно таблицам В.3-В.5 приложения В.

7.13 Для лиц, свободно передвигающихся и способных к частичному самообслуживанию, предусматривают жилые ячейки ЖЯ-1 и ЖЯ-3 с совмещенными санузлами в соответствии с 5.30 СП 35-102. Для лиц, передвигающихся с трудом, предусматривают жилые ячейки ЖЯ-4. В жилых ячейках этого типа проживающие пользуются санузлом с помощью младшего медицинского персонала. Для удобства наблюдения за проживающими шлюз-передняя не предусматривается.

7.14 Для лиц с психоневрологическими заболеваниями предусматривают жилые ячейки ЖЯ-5 и ЖЯ-6. Санитарные узлы в этих жилых ячейках по сравнению с ячейками ЖЯ-1 и ЖЯ-4 проектируют большей площади и с расширенным составом оборудования, приведенным в таблице В.5 приложения В.

Передние в жилых ячейках следует принимать площадью не менее 4 м2 при минимальной ширине 1,5 м.

Помещения культурно-массового обслуживания

7.15 Состав и площади помещений культурно-массового назначения представлены в таблице В.6 приложения В и на рисунках Г.9-Г.13 приложения Г.

7.16 Зрительный зал проектируют, как правило, с амфитеатром. Уклон амфитеатра устанавливается исходя из условий видимости сцены.

Требования к проектированию параметров зрительного зала и киноэкранов должны соответствовать требованиям СНиП 2.08.02-89* (приложение 6).

7.17 В зрительном зале предусматривают места для инвалидов на креслах-колясках из расчета 10-12 % и для лиц с психоневрологическими заболеваниями 5-10 %. Состав и площади зрительного зала представлены в таблице В.6 приложения В и на рисунке Г.10 приложения Г.

7.18 Число мест в зрительном зале необходимо принимать в процентном соотношении от вместимости учреждения:

- в домах-интернатах общего типа со специальными отделениями или без них - в расчете на 80 % лиц, способных к самостоятельному передвижению, и на 20 % лиц, передвигающихся с трудом, а также передвигающихся на креслах-колясках;

- в психоневрологических домах-интернатах - в расчете на 100 % лиц, способных к частичному самообслуживанию. Площадь зала принимается, как правило, из расчета 1,2 м2/место, а для лиц, использующих кресла-коляски, - 1,8 м2/место.

7.19 В зрительных залах должны быть установлены неподвижно прикрепленные к полу полумягкие кресла с неоткидными сиденьями. Для людей с физическими недостатками число мест в ряду должно быть: при односторонней эвакуации из ряда - не более 12, при двусторонней эвакуации - не более 25, ширина прохода между рядами - не менее 0,55 м.

Для лиц, передвигающихся в креслах-колясках, следует предусматривать свободные площадки перед эстрадой или в конце зала и дополнительный проем - выезд из зала - шириной не менее 1,6 м.

7.20 Артистические комнаты при зрительном зале допускается проектировать без естественного освещения.

7.21 Зрительный зал можно объединять с фойе в единое пространство (при проведении крупных мероприятий). Тип трансформируемой перегородки между зрительным залом и фойе устанавливается заданием на проектирование.

7.22 Зал религиозных обрядов следует проектировать единым на здание в соответствии с таблицей В.6 приложения В и рисунком Г.13 приложения Г (см. СП 31-103).

7.23 При оптимальном уровне комфортности проживания класса «О» в составе помещений для культурно-массового обслуживания можно дополнительно предусматривать картинную галерею, зимний сад и др.

Помещения медицинского обслуживания

7.24 В зданиях домов-интернатов вместимостью 50 мест и более в составе медицинских помещений предусматривают кабинет фельдшера, в зданиях вместимостью 100-200 мест - кабинет врача вместо кабинета фельдшера в соответствии с таблицей В.7 приложения В.

Лечебно-трудовые мастерские

7.25 Число и профиль ЛТМ определяют заданием на проектирование в соответствии с таблицей В.8 приложения В и рисунком Г.15 приложения Г. Комнату мастера следует размещать вблизи мастерской соответствующего профиля.

Лечебно-трудовые мастерские и учебно-производственные мастерские следует размещать на одном этаже, соблюдая требования СНиП 21-01-97*, или размещать в отдельных корпусах, соединенных с основным зданием теплым переходом. В мастерских, которыми могут пользоваться инвалиды на креслах-колясках, ширину основного прохода, а также расстояние между рабочими местами следует принимать 1,5-2 м.

7.26 В психоневрологическом доме-интернате помещения лечебно-трудовых мастерских необходимо проектировать в соответствии с требованиями СП 35-104. Состав, площади и профиль таких мастерских и помещений для них следует определять заданием на проектирование.

7.27 Проектировать оборудование индивидуальных рабочих мест или мест обслуживания следует с учетом размеров зоны досягаемости на рабочей поверхности стола для обеих рук в диапазоне от 0,25 м (от контактной кромки) по глубине и 0,7 м по фронту до 0,7 м по глубине и 1,7 м по фронту в зависимости от удаленности и наклона туловища в соответствии с требованиями 5.12 СП 35-101.

Учебно-производственные мастерские

7.28 Учебно-производственные мастерские в учреждениях рассчитываются на лиц, находящихся под наблюдением врача, свободно-передвигающихся и колясочников, способных к трудовому и профессиональному обучению и желающих заняться посильной работой по своей профессии или приобрести новую профессию. Ориентировочный состав и площади помещений УПМ представлены в таблице В.9 приложения В. Планировочная схема картонажной мастерской приведена на рисунке Г.14 приложения Г.

Помещения питания

7.29 В домах-интернатах проектируют столовые, рассчитанные в целом на учреждение. Для учреждений вместимостью до 100 мест рекомендуется подвоз пищи в термосах в жилые комнаты или буфетные. Буфетные с кухней-раздаточной рассчитывают на жилые группы, в которые из кухни-столовой в буфетные доставляют готовые обеды.

Столовая работает на сырье и полуфабрикатах. Состав и площади помещений столовой представлены в таблице В.10 приложения В. Обеденный зал столовой предусматривается для свободно передвигающихся лиц, передвигающихся с трудом и контингента, передвигающегося на креслах-колясках (рисунок Г.17 приложения Г, см. также СанПиН 2.3.6.1079).

Состав и площади помещений столовой рекомендуется принимать по таблице В.10 приложения В.

7.30 Число мест в обеденном зале следует принимать из расчета односменного обслуживания лиц, свободно передвигающихся и передвигающихся на креслах-колясках:

- в домах-интернатах общего типа - 90 % списочного состава;

- в психоневрологических домах-интернатах - 80 % списочного состава.

Обслуживание должно осуществляться официантами.

7.31 Число мест в буфетных для лиц, передвигающихся с трудом, временно заболевших, следует принимать из расчета одновременного обслуживания ориентировочно:

- в домах-интернатах общего типа со специальными отделениями (специальные дома-интернаты) для лиц, не способных к частичному самообслуживанию, - 10%;

- в психоневрологических домах-интернатах для лиц, не способных к частичному самообслуживанию, нуждающихся в постельном режиме, - 20 %.

Доставка пищи из кухни-столовой на этажи, где расположены буфетные жилых отделений, производится с помощью подъемников.

7.32 При размещении столовой отдельно от здания дома-интерната при входе в столовую следует предусматривать вестибюль с гардеробом, уборной и умывальником (для мужчин и женщин).

7.33 Площадь обеденного зала следует принимать на одно место в зале не менее, м2: при самообслуживании - 1,8 м2 и 1,4 м2 - при обслуживании официантами в соответствии с 2.29 СНиП 2.08.02.

В специализированных учреждениях площадь залов принимается по заданию на проектирование.

Помещения для гимнастики и физкультуры

7.34 В домах-интернатах для людей старшего возраста и инвалидов следует предусматривать гимнастические помещения для корригирующих упражнений и физкультурных занятий. Для лиц, практически здоровых и свободно передвигающихся, рекомендуется проектировать многоцелевой спортзал.

В интернатах вместимостью до 200 мест помещение для гимнастики устраивается с посменными занятиями. Состав и площади помещений представлены в таблице В.1 приложения В и на рисунке Г.16 приложения Г.

Физкультурный зал проектируют в соответствии с таблицей В.1 приложения В по заданию на проектирование.

Административные и служебно-бытовые помещения

7.35 Административные и служебно-бытовые, а также хозяйственные помещения рекомендуется проектировать согласно таблицам В.1, В.11, В.12 приложения В.

7.36 Прачечная, стирально-разборочная, прачечная для самообслуживания при доме-интернате допускаются в том случае, когда отсутствует возможность стирки белья в прачечной населенного пункта.

Производительность прачечной при доме-интернате следует принимать из расчета стирки 1,0 кг сухого белья в сутки на одного проживающего, передвигающегося с трудом и нуждающегося в посторонней помощи, пользующегося креслом-коляской, и 0,5 кг - для остальных категорий проживающих.

Площадь прачечных, а также площадь кладовых для чистого и грязного белья следует принимать согласно таблицам В.1 и В.12 приложения В.

7.37 Хозяйственные помещения (центральная бельевая, кладовая, складские помещения, блок дезинфекционных камер, прачечная, кладовые инвентаря) следует определять в соответствии с таблицами В.1, В.12 приложения В и заданием на проектирование по расчету, исходя из общей вместимости учреждения и местных условий.

Помещения охраны и безопасности

7.38 Пост милиции следует функционально связывать с изолятором для нарушителей порядка, с вестибюльной группой помещений. Число мест в изоляторе устанавливают по заданию на проектирование в соответствии с таблицей В.1 приложения В.

8 Инженерно-техническое обеспечение и оборудование

8.1 Регулирование инженерно-технического обеспечения и инженерного оборудования следует осуществлять из единого диспетчерского пункта. Диспетчерское инженерное регулирование предусматривается при вместимости учреждения 200 мест и более.

8.2 Внутренний водопровод и канализацию домов-интернатов следует проектировать в соответствии с требованиями СНиП 2.04.01. В жилых ячейках при установке кранов умывальников и душевых необходимо предусматривать термостатические регуляторы, исключающие подачу горячей воды температурой более 50 °С.

8.3 В домах-интернатах следует предусматривать вентиляцию с естественным побуждением в соответствии со СНиП 41-01. Расход наружного воздуха в жилых помещениях и помещениях общественного и административного назначения следует принимать согласно СНиП 41-01, таблица М.1.

8.4 При использовании звуковой сигнализации места для инвалидов с дефектами слуха в общественных помещениях, аудиториях, зрительном зале следует размещать на расстоянии не более 10 м от источника звука или оборудовать специальными переносными приборами усиления звука.

Требования к необходимой звуковой, световой, тактильной информации, устанавливаемой в помещениях, следует предусматривать в соответствии с 3.51, 3.57 СНиП 35-01.

8.5 Надежность электроснабжения электроприемников (кроме устройств противопожарной защиты) должна соответствовать II степени в соответствии с требованиями СП 31-110.

8.6 Жилые комнаты, помещения отдыха и общественные помещения с постоянным пребыванием людей, а также пост милиции, мастерские учебно-производственные, лечебно-трудовые и помещения администрации следует радиофицировать.

8.7 Телефоны устанавливают в кабинетах врачей, старшей медсестры, на посту старшей медсестры, в кабинете директора и заместителя директора по хозяйственной части, в помещении поста милиции, бухгалтерии. Телефоны-автоматы следует устанавливать в вестибюле и на каждом этаже учреждения.

8.8 В домах-интернатах на 100 мест и более следует предусматривать внутреннее устройство телефонной связи в зависимости от возможности местной телефонной сети. Телефоны с выходом в городскую сеть должны размещаться в кабинете директора и в вестибюле. Перечень других помещений, в которых устанавливают телефоны, определяется заданием на проектирование.

8.9 Коллективный прием телевидения следует предусматривать в жилых комнатах, комнатах отдыха, зрительном зале, фойе в домах-интернатах общего типа и специальных домах-интернатах. В специальных домах-интернатах и домах-интернатах общего типа со специальными отделениями устанавливают телевизоры в помещении поста милиции.

В психоневрологических домах-интернатах установку телевизоров следует предусматривать в комнатах отдыха, в одной из комнат кружковых занятий и в зрительном зале.

8.10 Аварийное (безопасности и эвакуационное) освещение устраивают в соответствии с требованиями СП 31-110-2003.

Для аварийной звуковой сигнализации следует применять приборы, обеспечивающие уровень звука не менее 15 дБА в течение 30 с, при превышении максимального уровня звука в помещении на 5 дБА - согласно 3.55 СНиП 35-01, НПБ 88-2001*.

Аварийное освещение должно выполняться в помещениях вестибюля, гардероба, постов охраны, пожарного поста, аппаратной управления, звукоаппаратной, телефонной станции (СНиП 23-05).

8.11 Эвакуационное освещение должно быть предусмотрено во всех помещениях, где возможно пребывание не менее 50 чел., а также на всех лестницах, проходах и других путях эвакуации согласно СП 31-110.

8.12 Для вызова дежурного персонала следует предусматривать сигнализацию (звуковую или световую). Одну кнопку вызова устанавливают у изголовья каждой кровати в жилой комнате, а также в комнатах отдыха, обеденном и зрительном залах, лечебно-трудовых и учебно-производственных мастерских, уборных и ванных комнатах. В психоневрологических домах-интернатах одна кнопка вызова предусматривается на каждую жилую комнату, обеденный и зрительный залы, лечебно-трудовую мастерскую, общие санузлы и вестибюли. Сигналы вызова должны поступать в помещение дежурного персонала.

Приложение А (справочное)

Перечень документов, на которые даны ссылки в настоящем СП

СНиП 2.04.01-85*

Внутренний водопровод и канализация здании

СНиП 2.07.01-89*

Градостроительство. Планировка и застройка городских и сельских поселений

СНиП 2.08.02-89*

Общественные здания и сооружения

СНиП 21-01-97*

Пожарная безопасность зданий и сооружений

СНиП 23-05-95*

Естественное и искусственное освещение

СНиП 31-01-2003

Здания жилые многоквартирные

СНиП 35-01-2001

Доступность зданий и сооружений для маломобильных групп населения

СНиП 41-01-2003

Отопление, вентиляция и кондиционирование

СП 31-103-99

Здания, сооружения и комплексы православных храмов

СП 31-110-2003

Проектирование и монтаж электроустановок жилых и общественных зданий

СП 35-101-2001

Проектирование зданий и сооружений с учетом доступности для маломобильных групп населения. Общие положения

СП 35-102-2001

Жилая среда с планировочными элементами, доступными инвалидам

СП 35-104-2001

Здания и помещения с местами труда для инвалидов

СП 35-114-2003

Реконструкция и приспособление зданий для учреждений социального обслуживания пожилых людей

НПБ 88-2001*

Установки пожаротушения и сигнализации. Нормы и правила проектирования

НПБ 250-97

Лифты для транспортирования пожарных подразделений в зданиях и сооружениях. Общие технические требования

ГОСТ Р 51630-2000

Платформы подъемные с вертикальным и наклонным перемещением для инвалидов. Технические требования доступности

ГОСТ Р 51631-2000

Лифты пассажирские. Технические требования доступности для инвалидов

СанПиН 2.1.2.1002-00

Санитарно-эпидемиологические требования к жилым зданиям и помещениям

СанПиН 2.3.6.1079-01

Санитарно-эпидемиологические требования к организациям общественного питания, изготовлению и оборотоспособности в них пищевых продуктов и продовольственного сырья

Приложение Б (справочное)

Термины и определения

Дом-интернат общего типа - учреждение, предназначенное для стационарного проживания лиц старшего возраста и инвалидов, нуждающихся в социальной и медицинской помощи.

Дом-интернат психоневрологический - учреждение, предназначенное для стационарного проживания лиц старшего возраста и инвалидов, нуждающихся в социальной и психологической поддержке, психиатрической помощи и в соответствующем медицинском уходе.

Дом-интернат специальный (специальное отделение) - учреждение, предназначенное для лиц старшего возраста и инвалидов 18 лет и старше, вышедших из мест заключения и нарушителей общественного порядка из общих отделений. Учреждение включает помещения, аналогичные интернату общего типа, также помещения охраны и безопасности, изолятор для нарушителей порядка, кабинеты нарколога и психолога.

Жилое отделение - функциональный элемент, состоящий из жилых групп (от 2 до 4) и общественных помещений в составе отделения.

Жилая группа - элемент жилого отделения, включающий в свой состав однородные жилые ячейки, коммуникационные и общественные помещения внутригруппового пользования (вместимость жилой группы до 20 чел.). Жилые группы, рассчитанные для различных категорий проживающих, называются комплексными (в отличие от однородных жилых групп).

Жилая ячейка - функциональный элемент дома-интерната, состоящий из жилых и подсобных комнат для заселения определенного числа проживающих (от 2 до 6 чел.) в зависимости от типа учреждений.

Комната социально-бытовой адаптации - помещение для оказания психологической помощи лицам, оказавшимся в затрудненных жизненных ситуациях с полной или частичной потерей трудоспособности, и возвращение их к обычным социальным условиям общества.

Лица старшего возраста - женщины 55 лет и старше и мужчины 60 лет и старше.

Функциональная зона - пространство, характеризующееся определенными общими признаками, связанными с какой-либо деятельностью, например зона у стола, зона проезда на кресле-коляске по коридору и т.д.

Приложение В (рекомендуемое)

Состав и площади основных групп помещений домов-интернатов

Таблица В.1 - Общая группа помещений для домов-интернатов

Помещения

Площадь помещений, м2, класса

«М»

«О»

при вместимости учреждения, место

50

100

200

50

100

200

Вестибюль, гардероб для посетителей, пост дежурного

30,0

40,0

70,0

40,0

80,0

100,0

Пост охранника

9,0

9,0

9,0

9,0

9,0

9,0

Пост милиции*

14,0

14,0

14,0

14,0

14,0

14,0

Изолятор для нарушителей порядка

4,5 м2/место

-

Торговый киоск

-

4,0

4,0

4,0

4,0

4,0

Комната приема гостей

12,0

12,0

20,0

12,0

12,0

24,0

Телефоны-автоматы

1,5

1,5

1,5

1,5

1,5

1,5

Уборные при вестибюле

3,0

6,0

8,0

3,0

6,0

8,0

Комната социально-бытовой адаптации

16

20

40

18

30

60

Кабинет заведующего при комнате социально-бытовой адаптации

16

16

16

18

18

18

Прачечная:

 

 

 

 

 

 

стиральная-разборочная

12

18

20

12

18

20

сушильно-гладильная

10

12

12

10

12

12

хозяйственная кладовая (помещение)

(7x2) 14

(9x2) 18

(9x2) 18

(7x2) 14

(9x2) 18

(9x2) 18

Помещения:

 

для занятий гимнастикой и физкультурой**

81, одно помещение на здание

раздевалка

14,5

14,5x2

14,5x2

14,5

14,5x2

14,5x2

санузел

3,2

3,2x2

3,2x2

3,2

3,2x2

3,2x2

комната для хранения спортинвентаря**

6,5

6,5

6,5

6,5

6,5

6,5

санузел для инвалидов на креслах-колясках

4

4x2

4x2

4

4x2

4x2

душевая

6,5

6,5

6,5

6,5

6,5

6,5

Комната тренера

- 8

8

8

8

8

8

Отапливаемые стоянки для кресел-колясок

0,8 на каждого передвигающегося на кресле-коляске, но не менее 10

Мастерская ремонта

7

7

7

7

7

7

Кладовая запчастей

7

7

7

7

7

7

Многоцелевой спортзал размером 12x24 м

-

288

288

По заданию на проектирование

Кладовая для хранения спортивного инвентаря

-

16

16

То же

Раздевальные для мужчин и женщин с душевыми и санитарными узлами

-

По 2 рожка и одному унитазу на каждую раздевалку

То же

Комната методиста

-

12

12

То же

* Помещения предусматривают в специальных домах-интернатах (специальных отделениях).

** Для зданий с промежуточной вместимостью. Число помещений и площади устанавливают по заданию на проектирование.

Таблица В.2 - Приемно-карантинное отделение*

Помещения

Площадь, м2, не менее

Число помещений

1. Вестибюль-ожидальная с уборной

12

1

2. Смотровая-ожидальная (с санузлом)

10+10

1

3. Санитарное помещение

6

1

раздевальная

14

1

ванная с душем и подъемником

6

1

одевальная

6

1

4. Палата-изолятор одноместная со шлюзом и санузлом

14

2

5. Палата на 4 койки со шлюзом и санузлом (9x4+3+3)

42

2

6. Процедурная

12

1

7. Комната персонала

10

1

8. Помещение для хранения предметов уборки с поливочным краном и сушкой

4

1

9. Уборная для пациентов

3

1

10. Уборная для персонала

3

1

11. Место для хранения каталок

2

1

12. Буфет-пост

4

1

* Использованы данные МГСН 4.03, таблица 5.4.

Таблица В.3 - Состав и площади помещений жилых ячеек для лиц, свободно передвигающихся, практически здоровых, в домах-интернатах общего типа, специальных домах-интернатах (специальных отделениях)*

Помещения

Число помещений

Площадь, м2

Оборудование

1. Жилая ячейка типа ЖЯ-1:

По заданию на проектирование

 

 

жилая комната на 1 чел.

14,6

Деревянная кровать, прикроватная тумбочка, стол, 2 стула, кресло, торшер

то же, на 2 чел.

16,0

2 деревянные кровати, 2 прикроватные тумбочки, стол, 3 стула, торшер

прихожая

Не менее 4

Вешалка для одежды, зеркало, электрохолодильник

совмещенный санузел

4,5

Унитаз, умывальник, душевой поддон или напольный душ, откидная скамейка, полотенцесушитель, зеркало с полочкой, поручни, кронштейн для одежды и полотенец, корзина для мусора. Обеспечить возможность установки ванны

встроенный шкаф для одежды, белья, обуви и личных вещей с двумя отделениями

0,6

Одно отделение оборудуется полкой для головных уборов и штангой для одежды, другое - полками для белья. Размер шкафа 60x100 см

лоджия

 

Раскладушка, навесной столик, крючки для натягивания веревки для сушки мелких личных вещей (на уровне перил)

2. Жилая ячейка типа ЖЯ-2:

По заданию на проектирование

 

 

жилая комната на 2 чел.

16,0

Две деревянные кровати с прикроватными тумбочками, стол, 3 стула, 2 кресла, торшер

прихожая

Не менее 4

Вешалка для одежды, зеркало, электрохолодильник

совмещенный санузел

4,5

Унитаз, умывальник, душевой поддон или напольный душ, откидная скамейка, полотенцесушитель, зеркало с полочкой, поручни, кронштейн для одежды и полотенец, корзина для мусора

3. Жилая ячейка типа ЖЯ-3:

По заданию на проектирование

 

 

жилая комната на 2 чел.

16,0

2 кровати с прикроватными тумбочками, стол, 2 стула, кресло, торшер

то же, на 3 чел.

18,0

3 кровати с прикроватными тумбочками, стол, 3 стула, кресло, торшер

прихожая

1

Не менее 4

Вешалка для одежды, зеркало, столик для телефона, холодильник

совмещенный санузел

1

4,5

Унитаз, умывальник, душ, оборудование, аналогичное оборудованию ЖЯ-2

встроенный шкаф для одежды, белья, обуви

1

0,6 м2/чел.

По заданию на проектирование

лоджия

 

1 м2/чел.

То же

Общие помещения на 3-4 жилые ячейки

4. Комната дежурной медсестры (процедурная)

1

12

Кушетка, стол медсестры, шкаф для хранения медикаментов

5. Комната сестры-хозяйки

1

10

Стол, стул, шкаф для хранения белья

6. Гостиная - комната отдыха

1

8-12

Кресла с высокими сиденьями и подлокотниками, подставки для ног, стол, журнальный столик, телевизор, стол-подставка под телевизор

7. Кухня-буфетная

Одна на жилую группу

Не менее 12

Электроплита, мойка, рабочий стол, навесной шкаф-полка, холодильник, электросамовар, ведро для отходов, обеденный стол, 4 стула

8. Моечная с местами для:

Одна на 2-3 жилые группы

 

 

а) мытья и стерилизации суден, мытья и сушки клеенок

8

Установка для мойки суден, слив больничный, мойка для клеенок, стол производственный, ванна керамическая, умывальник, зеркало с полочкой, вешалка для полотенец, шкаф для суден, тележка

б) хранения предметов уборки

3

в) сортировки, заполаскивания особо грязного белья, сушки и временного хранения грязного белья

5

9. Кладовая чистого белья

Одна на 2-3 жилые группы

4

Стеллаж, полки или шкаф

10. Комната для персонала с прихожей и санузлом

На жилую группу

8,0

Кресла, стол, диван, шкаф, вешалка, зеркало, унитаз, умывальник, душевой поддон, зеркало с полочкой, вешалка для полотенца

11. Постирочная для мелких личных вещей с местами для сушки и глажения

Одна на жилое отделение

8,0

Небольшая стиральная машина с отжимом, большая мойка с двумя камерами, шкаф для сушки, гладильные приборы

12. Помещение для сушки одежды и обуви, хранение уборочного инвентаря

Одно на 2-3 жилые ячейки

12,0

По заданию на проектирование

13. Комната персонала

На отделение

8,0

То же

* Использованы данные МГСН 4.03, таблица 5.2, а также данные «Программы задания на разработку типовых и индивидуальных проектов домов-интернатов для людей старшего возраста, инвалидов, ветеранов труда производственных объединений, психоневрологических интернатов», таблицы 6 и 7.

Таблица В.4 - Состав и площади помещений жилых ячеек для лиц, передвигающихся с трудом, нуждающихся в посторонней помощи, пользующихся креслами-колясками, в домах-интернатах общего типа, специальных домах-интернатах (специальных отделениях)*

Помещения

Площадь помещений жилых групп, м2

для свободно передвигающихся

для передвигающихся с трудом

для нуждающихся в посторонней помощи, передвигающихся на креслах-колясках

1. Жилья ячейка типа ЖЯ-4:

 

 

 

жилые комнаты на 2 чел.

16,0

16,0

-

то же, на 3 чел.

20,0

20,0

24,0

 прихожая

Не менее 4

совмещенный санузел

5,5

5,5

5,5

 раздельный санузел (вариант)

7,5

7,5

7,5

встроенный шкаф для хранения белья, одежды и личных вещей (на 1 чел.)

0,6

0,6

0,6

Общие помещения на 3-4 жилые ячейки

2. Комната дежурной медсестры (процедурная)

12

12

12

3. Комната персонала

8

8

8

4. Комната сестры-хозяйки

10

10

10

5. Гостиная

8-12

8-12

8-12

6. Буфетная

0,6

0,6

0,8

7. Кухня-раздаточная

14

14

14

8. Ванная с раздевальной

12

12

12

9. Душевые кабины с местами для раздевания

3,0

6,0

6,0

10. Санитарная комната с местами для мойки суден и клеенок, временного хранения грязного белья, заполаскивания и сушки особо грязного белья, хранения уборочного инвентаря

15

16

16

11. Помещение для бытовых нужд с местами для стирки и сушки мелких вещей, сушки одежды и обуви, хранения уборочного инвентаря

12

12

12

12. Кладовая чистого белья

2

4

2

13. Санитарный узел для персонала:

 

 

 

 уборная, с умывальником

3

3

3

 душ

2,5

2,5

2,5

14. Комната для глажения белья и одежды

6

6

8

15. Кабина гигиенического душа с местом для раздевания

7

7

7

16. Клизменная

8

8

8

17. Место для каталок и кресел-колясок

4

4

4

Итого:

184,7

190,7

178,9

* Использованы данные «Программы задания на разработку типовых и индивидуальных проектов домов-интернатов для людей старшего возраста, инвалидов, ветеранов труда производственных объединений, психоневрологических интернатов», таблицы 6, 7, а также Постановления Правительства Российской Федерации от 15.04.98 г. № 338 (в ред. Постановления Правительства РФ от 6.07.99 г. № 750), пп. 1, 2, 3.

Таблица В.5 - Состав и площади помещений жилых ячеек для лиц, свободно передвигающихся, нуждающихся в реабилитации, передвигающихся с трудом, нуждающихся в посторонней помощи, передвигающихся на креслах-колясках, в психоневрологических домах-интернатах*

Помещения

Площадь помещений, м2

для лиц, свободно передвигающихся

для лиц, передвигающихся с трудом

для лиц, нуждающихся в посторонней помощи, передвигающихся на креслах-колясках

1. Жилая ячейка типа ЖЯ-5:

 

 

 

жилые комнаты на 4 чел.

34,0

34,0

34,0

прихожая

 

Не менее 4

раздельный санузел (унитаз, биде или писсуар), душевой поддон (или ванна), умывальник

6,0

6,0

-

совмещенный санузел, унитаз, биде (или писсуар), слив, ванна, два умывальника, стеллаж для суден, ванна для дезобработки и мытья клеенок

-

-

18

встроенный шкаф для хранения белья, одежды, личных вещей (м2/чел)

0,6

0,6

0,6

буфетная

-

4

4

кухня-раздаточная

-

8

8

2. Жилая ячейка типа ЖЯ-6:

 

 

 

жилые комнаты на 4 чел.

-

34,0

34,0

то же, на 6 чел.

-

42,0

42,0

прихожая

-

6,0

6,0

совмещенный санузел, унитаз, биде (или писсуар), слив, ванна, два умывальника, стеллаж для суден, ванна для дезобработки и мытья клеенок

-

18,0

18,0

встроенный шкаф для хранения белья, одежды, личных вещей (м2/чел)

-

0,6

0,6

буфетная

-

4,0

4,0

кухня-раздаточная

-

8,0

12,0

Общие помещения на 4-6 жилых групп

3. Кабинет врача-психиатра

12,0

12,0

12,0

4. Комната дежурной медсестры (процедурная)

12,0

12,0

12,0

5. Гостиная

18

18

18

6. Процедурная аминозиновая с подготовительной

18

18

18

7. Комната персонала

10

10

10

8. Комната для кружковых занятий

18

18

-

9. Комнаты для занятий трудом ориентировочно на 8-10 чел. и для инструктора

-

38+12

-

10. Комната сестры-хозяйки

10

10

10

11. Помещения для глажения белья и одежды

6

6

6

12. Санитарные узлы (мужской и женский) для персонала: уборная (1 кабина), душ (1 кабина)

12

12

12

13. Клизменная

8

8

8

14. Место для хранения каталок и кресел-колясок

4

4

4

15. Помещения для бытовых нужд с местом для стирки и сушки мелких вещей, сушки одежды и обуви, хранения уборочного инвентаря

12,0

12,0

6,0

16. Санитарная комната с местами для мойки суден и клеенок, заполаскивания особо грязного белья, хра- нения уборочного инвентаря

-

16,0

16,0

17. Кладовая чистого белья

2,0

2,0

4,0

18. Ванная комната

6,0

12,0

12,0

19. Комната санитарки (круглосуточный пост)

10,0

10,0

10,0

20. Кабина гигиенического душа с местом для раздевания

7,0

7,0

7,0

Итого:

209,6

406,2

350,2

* Использованы данные «Программы задания на разработку типовых и индивидуальных проектов домов-интернатов для людей старшего возраста, инвалидов, ветеранов труда производственных объединений, психоневрологических интернатов», таблицы 6, 7, а также 3.67 СНиП 35-01-2001.

Таблица В.6 - Состав и площади помещений культурно-массового обслуживания*

Помещения

Дом-интернат общего типа, специальный дом-интернат (специальное отделение)

Дом-интернат психоневрологический

площадь помещений, м2, при вместимости учреждения, место**

50

100

200

50

100

200

Зрительный зал

40

60

70

30

40

60

Эстрада при зале

-

30

30

-

30

30

Фойе

15

30

38

15

30

30

Комнаты с уборной (унитаз, умывальник) для артистов

20

12+12

12+12

20

12+12

12+12

Кладовая инвентаря

4

8

8

4

8

8

Кинопроекционная

10

10

10

10

10

10

Радиоузел

-

8

8

-

8

8

Библиотека-читальня с книгохранилищем

18+24

30+18

30+18

24+18

36+18

30+18

Комната для кружковых занятий

18

24

24

18

24

24

Комната для музыкальных занятий

18

24

24

18

24

24

Уборные при фойе

2

3

3

2

3

3

Помещение религиозных обрядов для христианских конфессий:

 

 

 

 

 

 

зал для молитвенного собрания

40

60

120

40

60

120

Подсобные помещения:

 

 

 

 

 

 

комната (келья) для священнослужителя

7,5

7,5

7,5

7,5

7,5

7,5

санузел

3

3

3

3

3

3

передняя

2,1

2,1

2,1

2,1

2,1

2,1

кладовая

3,3

3,3

3,3

3,3

3,3

3,3

Итого:

224,9

344,9

422,9

214,9

330,9

404,9

* Использованы данные МГСН 4.03, приложение 2 (справочное), а также данные «Программы задания на разработку типовых и индивидуальных проектов домов-интернатов для людей старшего возраста, инвалидов, ветеранов труда производственных объединений, психоневрологических интернатов», приложение 2 (обязательное).

** Для зданий с промежуточной вместимостью число помещений и площади устанавливают заданием на проектирование с учетом требований данного СП.

Таблица В.7 - Состав и площади помещений медицинского обслуживания* (дом-интернат общего типа; специальный дом-интернат (специальное отделение); дом-интернат психоневрологический)

Помещения

Площадь помещений, м2, при вместимости учреждения, место

 

50

100

200

1. Кабинеты врачей и медсестер

 

 

 

Кабинет заведующего медпунктом, главного врача

16

16

18

Кабинет зам. главврача, врача-терапевта

-

12

12

Кабинет старшей медсестры и врачей-консультантов (ло-

-

12+8

12+8

ринголога, офтальмолога)

-

18

18

Стоматологический кабинет

-

-

14

Кабинет медсестры или фельдшера

12

-

-

Итого:

28

66

82

2. Процедурная и перевязочная

 

 

 

Процедурная с местом для гинекологического кресла

18

18

18

Перевязочная

-

-

12+6

Итого:

18

18

36

3. Кабинеты физиотерапии

 

 

 

Кабинет электро-светолечения с помещением для обработки прокладок

12+8

12+8

12+8

Кабинет теплолечения с вспомогательными помещениями

-

-

12+8

Сенсорная комната

-

12

18

Итого:

20,0

32,0

58,0

4. Изолятор

 

 

 

Палаты с санузлом

14

2x14

2x14

Буфет-пост

-

4

4

Итого:

14

32

32

5. Помещение ритуального назначения

 

 

 

Траурный зал

-

36

48

Уборная для персонала

-

1,8

1,8

Итого:

-

37,8

49,8

6. Аптечные помещения

 

 

 

Помещение для хранения и выдачи лекарственных средств

4

6

10

Ассистентская

8

8

10

Кладовая для хранения легковоспламеняющихся жидкостей

-

-

2

Итого:

12

14

22

7. Лаборатория

 

 

 

Помещение с кабиной для приема проб на анализ

-

-

4+6

Кабина для взятия на анализ проб крови (лаборантская)

-

10

10

Препараторская

12

14

14

Автоклавная-стерилизационная

-

10

12

Итого:

12

34

46

8. Помещение медицинского персонала

 

 

 

Комната отдыха

-

8

10

Уборные

1,8

1,8

1,8

Итого:

1,8

9,8

11,8

9. Помещения ЛФК

 

 

 

Зал ЛФК

16

20

35

Раздевальная с санузлами

-

6

10

Кабинет массажа

-

-

-

Помещение для примерки и подгонки протезов

-

-

-

Итого:

16

26

45

Всего:

121,8

269,6

382,6

* Использованы данные МГСН 4.03, приложение 3 (справочное).

Примечание - Помещения для проведения водных процедур, сауна, душ «шарко», ванны дополняются по заданию на проектирование для повышенных условий комфортности проживания класса «О». Для зданий с промежуточной вместимостью число помещений и площади устанавливают заданием на проектирование.

Таблица В.8 - Состав и площади лечебно-трудовых мастерских*

Помещения

Расчетная площадь, м2/место

Площадь помещений, м2

в учреждениях вместимостью до 100 мест

в учреждениях вместимостью до 101 место и более

1. Лечебно-трудовые мастерские (1-3 вида из нижеприведенных):

 

 

 

 швейные

4,5

45

60

 ремонт аппаратуры

4,5

45

60

 домоводства

4,5

45

60

 живописи**

6,0

60

60-70

2. Кладовые готовой продукции

-

12-18

18-20

3. Кладовые материалов и готовой продукции

-

28

30

4. Комната персонала (с умывальником в шлюзе)

-

8

10

5. Уборная с умывальником (для мужчин и женщин)

-

3x2

3x2

6. Кабинет инструктора

-

12

12

7. Комната медсестры

-

10

10

* Использованы данные «Программы задания на разработку типовых и индивидуальных проектов домов-интернатов для людей старшего возраста, инвалидов, ветеранов труда производственных объединений, психоневрологических интернатов», приложение 6 (рекомендуемое).

** При каждой из перечисленных мастерских предусматривают подсобные помещения, комнату мастера и другие помещения, перечисленные в данной таблице.

Таблица В.9 - Состав и площади учебно-производственных помещений*

Помещения

Расчетная площадь, м2/место

Площадь помещений, м2

в учреждениях вместимостью до 100 мест

в учреждениях вместимостью свыше 100 мест

1. Учебно-производственная мастерская (1-3 вида, как пример):

 

 

 

швейная, электромонтажная, обувная

4,5

45,0

60,0

мастерские ручных ремесел, механической сборки, ремонта аппаратуры и бытовой техники

4,5

45,0

60,0

картонажно-переплетная, столярная, ткацкая, токарно-фрезерная, гончарная)*

6,0

60,0

72,0

2. Кладовая материалов

-

8,0

16,0

3. Кладовая готовой продукции

-

8,0

16,0

4. Инструментальная

-

12

25

5. Помещение для персонала (умывальник в шлюзе)

-

8

10

6. Общий санузел

-

3x2

3x2

7. Комната мастера

-

12

12

8. Методический кабинет

-

20

25

* Использованы данные «Программы задания на разработку типовых и индивидуальных проектов домов-интернатов для людей старшего возраста, инвалидов, ветеранов труда производственных объединений, психоневрологических интернатов», приложение 6 (рекомендуемое).

Таблица В.10 - Площади столовой домов-интернатов*

Помещения

Площадь помещений, м2

в учреждениях вместимостью до 100 мест

в учреждениях вместимостью 101 место и выше

Обеденный зал при загрузке зала 60 % вместимости дома-интерната с холлом, в котором предусматривается умывальник

2,4 м2/место

Раздаточная

16

20

Цех заготовки овощей

16

12

Цех заготовки мяса и птицы

16

18

Цех заготовки рыбы

18

24

Горячий цех

54

70

Холодная заготовочная

8

1 0

Кондитерский цех

8

10

Моечные кухонной и столовой посуды

6

12

Кладовая суточного запаса продуктов

8

10

Экспедиция пищи в жилые группы

6

8

Складские помещения

12

14

Охлаждаемые камеры для хранения:

 

 

мяса, рыбы

4

6

молочных продуктов, фруктов и зелени, консервов и квашений

6

8

отходов (с отдельным наружным выходом)

4

6

Помещение для холодильной установки

6

8

Кладовая для сухих продуктов

4

6

Помещение для хранения и резки хлеба

10

14

Кладовая для овощей

10

12

Кладовая для хранения белья и инвентаря

6

8

Загрузочная

7

10

Тарная

4

6

Административно-бытовые помещения

32

40

Комната заведующего производством

8

10

Комната медицинской сестры диетического питания

14

14

Помещение приема пищи для персонала с подсобными помещениями

16+6

18+8

Гардеробные, душевые и уборные для персонала

10

16

Место для хранения предметов уборки помещений

2

4

Помещения для хранения и мытья мармитных тележек и тары, применяемых для транспортировки пищи

6

8

* Использованы данные справочного пособия «Проектирование общественного питания», приложение 12.

Таблица В.11 - Состав административных и служебно-бытовых помещений домов-интернатов*

Помещения

Площадь помещений, м2, при вместимости учреждения, место

50

100

200

1. Помещения администрации

 

 

 

Кабинет директора

12

12

18

Приемная директора

 

10

10

Кабинет заместителя директора

 

12

12

Кабинет инженерно-технического персонала

12

14

14

Канцелярия, отдел кадров, бухгалтерия, касса

12

18

24

Архив медицинский

4

6

6

Комната общественных организаций

 

 

12

Гардеробные, уборные и душевые персонала

12

16

18

Итого:

52

88

114

2. Комнаты для ночлега гостей с передней и санузлами (унитаз, умывальник, душ)

14

14

16

3. Парикмахерская с местом или помещением для педикюра

-

14

16

4. Комната и кладовая сестры-хозяйки

8+7

10+10

10+12

5. Уборная при вестибюле для посетителей на один унитаз с умывальником в шлюзе

3

3

6

Всего:

84

139

174

* Использованы данные «Программы задания на разработку типовых и индивидуальных проектов домов-интернатов для людей старшего возраста, инвалидов, ветеранов труда производственных объединений, психоневрологических интернатов», приложение 4 (обязательное) и МГСН 4.03, приложение 5 (справочное).

Таблица В.12 - Состав и площади хозяйственных помещений домов-интернатов*

Помещения

Площадь помещений, м2, при вместимости учреждения, место

50

100

200

Центральные кладовые

 

 

 

Кладовая чистого белья с местом для починки

12

16

16

Швейная мастерская

12

12

12

Кладовая грязного белья

6

8

10

Кладовая сезонной одежды и обуви

18

24

28

Кладовая личных вещей

18

24

32

Кладовая инвентаря и мебели

18

24

26

Склад хозяйственный

18

24

36

Кладовая садово-огородного инвентаря

8

10

12

Итого:

110

142

172

Помещение дезинфекционных камер

16

19

19

Кладовая грязного белья с местом для разборки

7

9

12

Помещение дежурного персонала

8

8

8

Общий санузел, раздельный для мужчин и женщин

6

6

6

Комната бытового обслуживания

8

10

12

Итого:

45

52

57

Мастерские по ремонту оборудования и инвентаря

12+12

18+12

18+12

Помещение для пожарного поста

4

4

6

Итого:

28

34

36

Всего:

183

228

265

* Использованы данные «Программы задания на разработку типовых и индивидуальных проектов домов-интернатов для людей старшего возраста, инвалидов, ветеранов труда производственных объединений, психоневрологических интернатов», приложение 5 (обязательное).

Приложение Г

Иллюстрации

Схема взаимосвязей жилых групп и отделений

1 - жилая группа для свободно передвигающихся лиц, практически здоровых; 2 - жилая группа для лиц, передвигающихся с трудом; 3 - жилая группа для лиц, передвигающихся на креслах-колясках

Рисунок Г.1

Схема взаимосвязей жилых групп и отделений

Психоневрологический дом-интернат

1 - жилая группа для лиц, передвигающихся с трудом, способных к частичному самообслуживанию; 2 -жилая группа для лиц, нуждающихся в посторонней помощи и постельном режиме, передвигающихся на креслах-колясках

Рисунок Г.2

Помещение охраны и безопасности

I. Пост охранника-вахтера:

1 - стойка; 2 - стол с телефоном и настольной сигнализацией; 3 - пожарная сигнализация; 4 - топчан для отдыха дежурного; 5 - стул; 6 - шкаф;

II. Пост милиции:

1 - стол с телефоном и настольной сигнализацией; 2 - стул; 3 - топчан; 4 - тумбочка; -^ 5 - решетчатая перегородка с дверью

Рисунок Г.3

Жилая комната

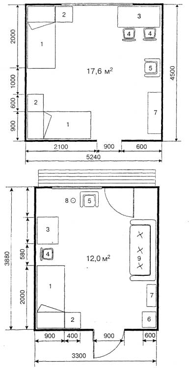
Планировочные схемы комнат жилых ячеек ЖЯ-1 и ЖЯ-3 для лиц, свободно передвигающихся

 

1 - кровать; 2 - тумбочка; 3 - стол; 4 - стул; 5 - кресло; 6 - тумбочка для телевизора; 7 - подвесной шкаф; 8 - торшер; 9 - диван

Рисунок Г.4

Жилая комната

Планировочные схемы комнат жилых ячеек ЖЯ-4 для 2- и 3-местных жилых комнат

1 - кровать; 2 - тумбочка; 3, 6 - стол; 4 - стул; 5 - шкаф для одежды; 7 - кресло-коляска; 8 - диван

Рисунок Г.5

Помещения жилой ячейки

Планировочная схема жилой ячейки ЖЯ-5

1 - кровать общебольничная; 2 - столик надкроватный; 3 - тумбочка прикроватная; 4 - кресло для отдыха; 5- кресло-судно передвижное; 6 - кресло-коляска; 7 - стул; 8 - стол; 9 - шкаф для одежды; 10 - вешалка для одежды

Рисунок Г.6

Жилая комната

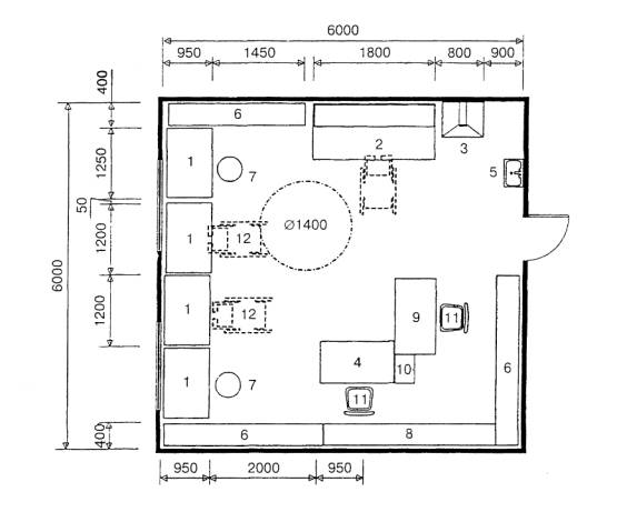
Планировочная схема жилых комнат на 4 и 6 человек в жилых ячейках ЖЯ-6 для психотроников

1 - кровать; 2 -тумбочка; 3 - стол; 4 - стул; 5 - комбинированный шкаф

А - четырехместная жилая комната; Б - шестиместная жилая комната; В - зона размещения кровати для лиц, способных к частичному самообслуживанию и передвигающихся по дому и прилегающему участку; Г - зона размещения кровати для немощных лиц, передвигающихся в пределах жилой комнаты

Рисунок Г.7

Жилые ячейки

Дома-интернаты общего типа, в том числе со специальными отделениями

Дома-интернаты психоневрологические

Категория проживающих

Свободно передвигающиеся, практически здоровые

Передвигающиеся с трудом, нуждающиеся в посторонней помощи

Нуждающиеся в посторонней помощи, передвигающиеся на кресле-коляске

Нуждающиеся в реабилитации, способные к частичному самообслуживанию

Нуждающиеся в посторонней помощи и постельном режиме

Функционально-планировочные типы жилых ячеек в домах-интернатах

ЖЯ-1 на 1-2 места

ЖЯ-3 на 2 места

ЖЯ-4 на 2-3 места

ЖЯ-5 на 4 места

ЖЯ-6 на 4-6 мест

Рисунок Г.8

Помещения для клубных занятий

Помещение библиотеки с открытым доступом к книгам и питательным залам

1 - шкаф для открытого хранения книг; 2 - стол для занятий; - стол для занятий инвалида-колясочника; 3 - стул; 4 - стол библиотекаря; 5 - стол журнальный; б - стенд-витрина настенная; 7 - кресло-коляска; 8 - шкаф для закрытого хранения книг; 9 - закрытое книгохранилище (на 2 тыс. книг); 10 - стол с каталожным шкафом

Рисунок Г.9

Зрительные залы

Варианты размещения мест в зрительном зале

1 - сцена; 2 - места для ходячих зрителей; 3 - места размещения инвалидов на кресле-коляске; 4 - пандус

Рисунок Г.10

Помещения для клубных занятий

Помещение для приема гостей на 10 и 20 посадочных мест

1 - стол обеденный; - стол резервный; 2 - стул; 3 - кресло-коляска; 4 - комбинированная стенка; 5 - холодильник; 6 - мойка; 7 - плита; 8 - буфет кухонный; 9 - сервировочная стойка; 10 - разделочный стол; 11 - табурет

* Место для танцев может быть использовано для дополнительного размещения 10 посадочных мест.

Рисунок Г.11

Помещения для клубных занятий

Помещения для музыкальных занятий

1 - стул; 2 - пюпитр; 2а - специальный пюпитр для инвалида на кресле-коляске; 3 - подиум для руководителя; 4 - пианино; 5 - табурет винтовой; 6 - шкаф для музыкальных инструментов и нот; 7 - инвалидное кресло-коляска; 8 - запасной эвакуационный выход

Рисунок Г.12

Помещение для религиозных обрядов

Пример планировки зала для молитвенных собраний с подсобными помещениями

1 - помещение для религиозных обрядов; 2- зона священнослужителя; 3 - служебная ниша; 4 - сейф; 5- комната (келья) для священнослужителя; 6 - санузел при комнате отдыха священнослужителя (рукомойник, унитаз, душевой поддон); 7 - кладовая; 8 - прихожая с вешалкой

Рисунок Г.13

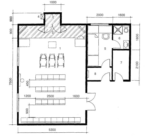
Учебно-производственные мастерские

Планировочная схема картонажной мастерской

1 - стол рабочий; 2 - табурет с регулируемым сиденьем; 3 - проволочно-швейный аппарат; 4 - клееварка; 5 - стол мастера; 6 - стул; 7 - мойка; 8 - инвалидная коляска; 9 - эвакуационный выход; 10 - стеллаж мастера

А - мастерская; Б- комната мастера; В - уборная для инвалида; Г- кладовая материалов; Д - кладовая готовой продукции; Е- общая уборная; Ж- коридор

Примечание - Рабочие помещения оборудуются в зависимости от вида производства; кладовые оборудуются стеллажами; комната мастера оборудуется столом, стульями, стеллажами.

Рисунок Г.14

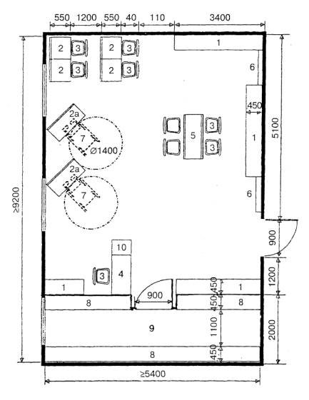
Помещения для лечебно-трудовых мастерских

Планировочная схема мастерской по ремонту аппаратуры и бытовой техники

1 - стол монтажный; 2- стенд испытательный; 3 - стол с вытяжкой; 4 - стол мастера; 5 - мойка; 6 - стеллаж для материалов; 7 - табурет с регулируемым сиденьем; 8 - стеллаж мастера; 9 - стол медсестры; 10 - шкаф медицинский одностворчатый; 11 - стул; 12-кресло-коляска

Рисунок Г.15

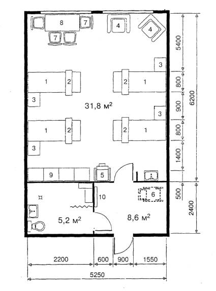
Помещения для занятий гимнастикой и физкультурой

1 - гимнастическая стенка; 2 - гимнастический станок-поручень с зеркалом; 3 - место для тренера; 4 - пианино; 5 - скамья; 6 - вешалка

А - раздевальная; Б - санузел; 6 - санузел с учетом пользования инвалидом на кресле-коляске; Г-душевая с учетом пользования инвалидом на кресле-коляске; Л - спортивный зал; E- комната тренера; Ж - комната для хранения спортинвентаря

Рисунок Г.16

Места для питания

1 - стол обеденный 160x90; 2 - стул; 3 - инвалидное кресло-коляска

Рисунок Г.17

Ключевые слова: дома-интернаты общего типа, специальные, психоневрологические, жилая ячейка, жилая группа, жилое отделение, обслуживающие помещения, функциональные зоны




Яндекс цитирования



   Copyright © 2007-2026,  www.tehlit.ru.

[ ѓосты, стандарты, нормативы, инструкции, правила, строительные нормы ]