//
ТехЛит.ру
- крупнейшая бесплатная электронная интернет библиотека для "технически умных" людей.
WWW.TEHLIT.RU - ТЕХНИЧЕСКАЯ ЛИТЕРАТУРА

:: Алготрейдинг::


АЛГОТРЕЙДИНГ
шаг за шагом
с нуля по урокам!

Торговые роботы на PYTHON, BackTrader,
Pandas, Pine Script для TradingView. Связка с брокерами, телеграм и легкими приложениями.


ПРАВИТЕЛЬСТВО МОСКВЫ
МОСКОМАРХИТЕКТУРА

РЕКОМЕНДАЦИИ
по проектированию
физкультурно-спортивных сооружений
социально-гарантированного обслуживания
населения г. Москвы

2004

Предисловие

1. Разработано ГУП МНИИП объектов культуры, отдыха, спорта и здравоохранения «Моспроект-4» Москомархитектуры (архитектор Емельянова И.А. при участии архитектора Кошевого И.А.).

2. Подготовлено к изданию Управлением перспективного проектирования, нормативов и координации проектно-изыскательских работ Москомархитектуры.

3. Согласовано с Комитетом физической культуры и спорта города Москвы, Москомархитектурой.

4. Утверждено приказом Москомархитектуры от 14.07.04 г., № 107.

СОДЕРЖАНИЕ

1. Область применения. 2

2. Концептуальные положения социально-гарантированного обслуживания населения Москвы физкультурно-спортивными сооружениями. 2

3. Номенклатура и основные расчетные показатели учреждений. 4

4. Требования к размещению и участкам комплексов сооружений приближенного и повседневного социально-гарантированного обслуживания. 7

5. Рекомендуемые составы, габариты и площади физкультурно-спортивных сооружений и вспомогательных помещений учреждений приближенного и повседневного социально-гарантированного обслуживания. 9

5.1. Спортивные сооружения и физкультурно-оздоровительные помещения. 9

5.2. Вспомогательные помещения. 21

6. Требования к объемно-планировочным решениям сооружений социально-гарантированного обслуживания. 22

Приложение 1. Сводные градостроительные расчетные показатели комплексов физкультурно-оздоровительных сооружений приближенного и повседневного социально-гарантированного обслуживания. 26

Приложение 2. Рекомендуемые составы и площади открытых плоскостных физкультурно-спортивных сооружений для кварталов и микрорайонов с затесненной застройкой (для районов центра и примагистральных территорий районов сложившейся застройки) 27

Приложение 3. Рекомендуемые составы и площади физкультурно-оздоровительных и вспомогательных помещений приближенного обслуживания в составе центра обслуживания инвалидов и пенсионеров. 28

Приложение 4. Рекомендуемые составы физкультурно-оздоровительных и вспомогательных помещений блоков молодежного фитнес-центра в составе молодежного клуба приближенного обслуживания. 29

Приложение 5. Рекомендуемый состав физкультурно-спортивных сооружений геронтологического физкультурно-оздоровительного центра в составе клуба обслуживания инвалидов и пенсионеров (для жилых групп, включающих специализированные жилые дома с квартирами для инвалидов и пенсионеров) 30

Приложение 6. Рекомендуемый состав и площади помещений физкультурно-оздоровительных клубов микрорайонов. 31

Приложение 7. Рекомендуемый состав и площади помещений бассейнов оздоровительного и спортивно-оздоровительного плавания микрорайонов. 34

Приложение 8. Предложения по вариантам размещения и планировочным решениям открытых плоскостных физкультурно-спортивных сооружений массового использования. 35

Приложение 9. Иллюстрации. 38

1. Область применения

1.1. «Рекомендации по проектированию физкультурно-спортивных сооружений социально-гарантированного обслуживания населения г. Москвы» разработаны в дополнение и развитие положений МГСН 1.01-99 и МГСН 4.08-97 распространяются на проектирование новых зданий и комплексов этих сооружений, соответствующих современной номенклатуре физкультурно-спортивных занятий различных социально-возрастных контингентов населения Москвы, осуществляющих физкультурно-спортивную деятельность на местном уровне в рамках системы социально-гарантированного обслуживания, и реконструкцию существующих сооружений социально-гарантированного обслуживания.

1.2. Рекомендации распространяются на проектирование социально-гарантированных объектов приближенного и повседневного обслуживания, размещаемых в кварталах и микрорайонах города в пределах радиуса пешеходной доступности до 500 м.

1.3. Рекомендации не распространяются на объекты периодического обслуживания, размещаемые в жилых районах города.

1.4. Рекомендации предназначаются для использования при разработке и экспертизе предпроектной и проектной градостроительной документации и проектировании зданий и комплексов физкультурно-спортивных учреждений, включенных в регламентируемую настоящим документом номенклатуру (табл. 3.1.).

1.5. Рекомендации предназначаются для использования проектными организациями, инвесторами, заказчиками (независимо от организационно-правовых форм и форм собственности), а также специалистами по организации и эксплуатации спортсооружений.

1.6. Положения рекомендаций следует использовать на различных стадиях градостроительного и архитектурно-строительного проектирования при определении структуры сети физкультурно-оздоровительных учреждений повседневного социально-гарантированного обслуживания, потребности в сооружениях, относящихся к данным учреждениям, вариантов их размещения, а также при разработке функциональных, объемно-пространственных и архитектурно-планировочных решений рассматриваемых учреждений.

2. Концептуальные положения социально-гарантированного обслуживания населения Москвы физкультурно-спортивными сооружениями.

2.1. Социально-гарантированное обслуживание населения города Москвы физкультурно-спортивными сооружениями обеспечивает возможности реализации на спортсооружениях, размещаемых по месту жительства, необходимый минимум двигательной активности, а также организацию содержательного досуга населения средствами физической культуры.

2.2. Физкультурно-спортивные сооружения социально-гарантированного обслуживания являются неотъемлемой частью комплекса учреждений физкультурно-спортивного обслуживания городского населения.

Проектирование физкультурно-спортивных сооружений социально-гарантированного обслуживания осуществляется на различных стадиях градостроительного проектирования, в увязке с общей концепцией развития сети спортсооружений города Москвы.

2.3. Социально-гарантированное обслуживание населения г. Москвы физкультурно-спортивными сооружениями, осуществляемое на местном, микрорайонном уровне ориентировано на физкультурно-оздоровительные занятия различных групп населения: детей, молодежи; лиц трудоспособного возраста; пожилых, престарелых и инвалидов. В системе социально-гарантированного обслуживания предоставляется возможность для занятий наименее социально-защищенных слоев населения; детско-подростковым группам, пенсионерам и инвалидам.

2.4. Общая номенклатура типов физкультурно-спортивных учреждений социально-гарантированного обслуживания определяется в соответствии с требованиями различных контингентов социально-гарантированного обслуживания к форме организации занятий, их видовой структуре и технологии их проведения.

2.5. Сооружения физкультурно-спортивных учреждений социально-гарантированного повседневного обслуживания рассчитаны как на самостоятельные, так и на организованные физкультурно-оздоровительные занятия. Организованные физкультурно-оздоровительные занятия осуществляются в структуре физкультурно-оздоровительных клубов различной направленности - детско-подростковых, молодежных, семейных, геронтологических.

2.6 Физкультурно-спортивные учреждения социально-гарантированного обслуживания местного уровня, включают социально-значимые объекты двух типов: сооружения приближенного обслуживания, размещаемые в группах жилой и смешанной жилой застройки и сооружения повседневного обслуживания, размещаемые в микрорайонах города. При этом социально-значимые объекты приближенного обслуживания следует проектировать с учетом требований детско-подростковых контингентов и маломобильных категорий населения: инвалидов, престарелых.

2.7. Архитектурно-планировочная организация физкультурно-спортивных учреждений социально-гарантированного обслуживания должна отвечать условиям размещения в различных градостроительных ситуациях, в т.ч. в жилой застройке различных районов города, включая встроенно-пристроенные, встроенные и пристроенные к жилью учреждения.

2.8. Параметры основных и вспомогательных помещений физкультурно-спортивных учреждений социально-гарантированного обслуживания, их оборудование и архитектурно-планировочная организация должны соответствовать современным технологическим требованиям к проведению массовых видов физкультурно-спортивной деятельности в системе социально-гарантированного обслуживания населения Москвы.

2.9. Архитектурно-планировочная организация зданий физкультурно-спортивных учреждений социально-гарантированного обслуживания должна отвечать требованиям доступности инвалидов и маломобильных групп населения, регламентированных СНиП 35-01-2001.

2.10. Показатели единовременных пропускных способностей спортсооружений и требования к режимам их эксплуатации следует принимать на основании планово-расчетных показателей, утвержденных Государственным Комитетом Российской федерации по физической культуре и туризму (Приложение к приказу ГКФТ России № 44 от 4 февраля 1998 г.)

2.11. Допускается кооперирование учреждений социально-гарантированного обслуживания местного уровня с учреждениями иных сфер обслуживания - культуры, социального обеспечения, образования, размещаемых в микрорайонах. Расчетные показатели, составы физкультурно-спортивных сооружений и вспомогательных помещений многофункциональных комплексов определяются заданием на проектирование с учетом требований к каждому из объединяемых учреждений. При кооперировании с учреждениями иного назначения следует учитывать также требования соответствующих отраслевых московских городских строительных норм и других материалов, действующих на территории города Москвы.

3. Номенклатура и основные расчетные показатели учреждений

3.1. Номенклатура комплексов физкультурно-спортивных сооружений местного уровня обслуживания, относимых к учреждениям повседневного спроса представлена социально-значимыми объектами двух уровней обслуживания:

1) сооружениями приближенного обслуживания, размещаемыми в группах жилой и смешанной жилой застройки, включающими:

- физкультурно-оздоровительные сооружения жилой группы, состоящие из физкультурно-оздоровительных помещений и открытых физкультурно-оздоровительных площадок для детей, инвалидов и престарелых;

- молодежный фитнесс-центр в составе молодежного клуба;

- блок геронтологического оздоровительного клуба с расширенным составом помещений в составе центра обслуживания пенсионеров и инвалидов:

2) сооружениями повседневного обслуживания, размещаемыми в микрорайонах города, включающими:

- физкультурно-оздоровительный клуб микрорайона, состоящий из спортивных залов, физкультурно-оздоровительных помещений; открытых плоскостных спортивных сооружений, рассчитанных как на самостоятельные, так и на организованные занятия населения микрорайона;

- бассейны оздоровительного и спортивно-оздоровительного плавания.

3.2. Основные сводные градостроительные расчетные показатели комплексов - общая площадь крытых спортивных сооружений, площадь спортивных залов и зеркала воды плавательных бассейнов на 1000 жителей, а также площадь территории участков комплексов на 1 жителя приведены в Приложении 1

3.3. Рекомендуемая номенклатура, вместимости и основные показатели различных типов комплексов физкультурно-оздоровительных сооружений приближенного и повседневного социально-гарантированного обслуживания представлены в таблице 3.1.

3.4. Сооружения приближенного обслуживания, рассчитаны на обслуживание изолированных групп жилой и смешанной жилой застройки с численностью населения 5,0 - 8,0 тыс. чел.

3.5. Физкультурно-оздоровительные помещения приближенного обслуживания (табл. 3.1, п. 1.) рекомендуется предусматривать в изолированных группах жилой и смешанной жилой застройки, размещаемой вне территории микрорайона в окружении территории иного функционального назначения. Рекомендуется размещать физкультурно-оздоровительные помещения приближенного обслуживания во встроенных помещениях жилых зданий.

3.6. Блок молодежного фитнес-центра (табл. 3.1, п. 1.2) рекомендуется предусматривать в изолированных группах жилой и смешанной жилой застройки, размещаемой вне территории микрорайона в окружении территории иного функционального назначения. В целях повышения качества обслуживания этот блок рекомендуется включать в состав молодежного клуба.

Таблица 3.1

Рекомендуемая номенклатура и основные показатели комплексов физкультурно-оздоровительных сооружений приближенного и повседневного социально-гарантированного обслуживания.

№№ п/п

Уровень обслуживания. Наименование учреждения

Численность обслуживаемого населения (тыс. чел.)

Вместимость (единовременная пропускная способность сооружений) (чел.)

Общая площадь крытых спортсооружений, (м кв. на 1 человека единовременной пропускной способности)

Площадь крытых спортсооружений (м кв. на 1 человека единовременной пропускной способности)

Площадь открытых сооружений (м кв. на 1 человека единовременной пропускной способности)

Спортзалов и ф.-о. помещений

Зеркала воды плавательных бассейнов

 

1.

Приближенное обслуживание

 

 

 

 

 

 

 

1.1

Физкультурно-оздоровительные сооружения жилой группы

 

 

 

 

 

 

 

 

- тип 1, всего;

5,0

32 (21)*

6,2 (9,5)*

-

-

-

 

 

- в т.ч.: открытые площадки;

 

22 (15)*

-

-

-

12,3 (18,0)*

 

 

- физкультурно-оздоровительные помещения;

 

10 (6)*

-

6,0 (10,0)*

-

-

 

 

- тип 2, всего;

8,0

51 (33)*

5,1 (7,9)*

-

-

12,8 (19,2)*

 

 

- в т.ч.: открытые площадки;

 

36 (24)*

-

-

-

-

 

 

- физкультурно-оздоровительные помещения;

 

15 (9)*

-

6,0 (10,0)*

-

-

 

1.2.

Блок молодежного фитнес-центра в составе молодежного клуба

 

 

 

 

 

 

 

 

- тип 1;

5,0

22

15,5

6,6

-

-

 

 

- тип 2

8,0

36

13,9

6,8

-

-

 

1.3.

Блок геронтологического оздоровительного в составе центра обслуживания инвалидов и пенсионеров

 

 

 

 

 

 

 

 

- всего, в.ч.:

8,0

114,0 (82,0)*

5,3 (7,3)*

7,8

-

41,4 (67,8)*

 

- крытые сооружения;

 

32,0

5,3 (7,3)*

7,8

-

-

 

- открытые площадки

 

82,0 (50,0)*

-

-

-

41,4 (67,8)*

2.

Повседневное обслуживание

 

 

 

 

 

 

 

2.1.

Физкультурно-оздоровительный клуб микрорайона

 

 

 

 

 

 

 

 

- тип 1, всего;

10,0 - 16,9

198

6,1/6,9**

9,5

-

40,9

 

 

- в т.ч.: открытые площадки;

 

141

-

-

-

40,9

 

 

- физкультурно-оздоровительные помещения;

 

57

6,1/6,9**

9,5

-

-

 

 

- тип 2, всего;

17,0 - 23,9

309

5,1/6,0**

9,0

-

34,9

 

 

- в т.ч.: открытые площадки;

 

227

-

-

-

34,9

 

 

- физкультурно-оздоровительные помещения;

 

82

5,1/6,0**

9,0

-

-

 

 

тип 3, всего;

24,0 - 30,0

428

5,1/6,0**

9,1

-

38,9

 

 

- в т.ч.: открытые площадки;

 

308

-

-

-

-

 

 

- физкультурно-оздоровительные помещения;

 

120

5,1/6,0**

9,1

-

-

 

2.2

Бассейны

 

 

 

 

 

 

 

2.2.1.

Бассейн оздоровительного плавания:

 

 

 

 

 

 

 

 

- тип 1;

10,0 - 16,9

18

38,4

-

5,5

-

 

 

- тип 2

17,0 - 23,9

24

35,4

-

5,5

-

 

2.2.2.

Бассейн спортивно-оздоровительного плавания

24,0 - 30,0

40

30,3

-

7,5

-

 

* В скобках приводятся показатели спортивных сооружений при использовании их инвалидами-опорниками, передвигающимися на колясках.

** В числителе дроби показатель при отсутствии в комплексе раздевальных открытых сооружений, в знаменателе - при включении в комплекс раздевальных открытых сооружений.

3.7. Встроенный блок геронтологического оздоровительного клуба с расширенным составом помещений (табл. 3.1, п. 1.3) рекомендуется размещать в группах жилой и смешанной застройки, включающих специализированные жилые дома с квартирами для престарелых и семей с инвалидами.

3.8. Физкультурно-оздоровительные клубы микрорайона - многофункциональные комплексы, в зависимости от типа (табл. 3.1, п. 2.1) рассчитанные на повседневное обслуживание населения жилых микрорайонов с численностью 10 - 30 тыс. чел., осуществляющего физкультурно-спортивную деятельность как в режиме клубной деятельности оздоровительной направленности, так и в режиме самостоятельных индивидуальных занятий и занятий самодеятельных групп. Физкультурно-оздоровительные клубы рассчитаны на обслуживание всех категорий населения микрорайонов. Расчетные показатели клубов микрорайонов определены, исходя из суммарных нормативных показателей сооружений приближенного и повседневного обслуживания. Физкультурно-оздоровительные клубы включают спортивные залы, физкультурно-оздоровительные помещения, открытые плоскостные спортивные сооружения, площадки активного отдыха.

3.9. Бассейны оздоровительного и спортивно-оздоровительного плавания (табл. 3.1, п. 2.2), рассчитаны на повседневное обслуживание населения микрорайонов с численностью 17,0 - 23,9 тыс. чел. - бассейны оздоровительного плавания - и 24,0 - 30,0 тыс. чел. - бассейны спортивно-оздоровительного плавания. Бассейны рассчитаны также на проведение учебных занятий по плаванию общеобразовательных школ, размещаемых в микрорайоне.

3.10. В конкретных градостроительных условиях допускается объединение физкультурно-оздоровительного клуба микрорайона и бассейна в комплекс повседневного обслуживания.

3.11. Для новых районов по согласованию с Департаментом образования и Центром Госсанэпиднадзора города Москвы рекомендуется объединение физкультурно-оздоровительного клуба микрорайона с общеобразовательной школой с организацией комплекса взаимосвязанного обслуживания школьников и населения микрорайонов.

3.12. В конкретных градостроительных условиях, для новых районов и районов сложившейся застройки, при достаточной величине участка школ, рекомендуется по согласованию с Департаментом образования города Москвы размещение микрорайонных бассейнов на участках общеобразовательных школ с организацией обслуживания школьников и населения микрорайонов.

4. Требования к размещению и участкам комплексов сооружений приближенного и повседневного социально-гарантированного обслуживания

4.1. Размещение физкультурно-спортивных сооружений приближенного и повседневного социально-гарантированного обслуживания следует производить на основании требований МГСН 1.01-99, МГСН 4.08-97 и других нормативных документов, действующих на территории города Москвы.

4.2. Физкультурно-спортивные сооружения приближенного и повседневного обслуживания следует размещать с учетом типа застройки и радиуса пешеходной доступности.

4.3. Сооружения приближенного обслуживания следует формировать в изолированных группах жилой и смешанной жилой застройки, размещаемых в окружении территорий иного функционального назначения. Регламентируемый радиус пешеходной доступности для сооружений приближенного обслуживания - 300 м.

4.4. Сооружения повседневного обслуживания, следует размещать в микрорайонах города с радиусом пешеходной доступности 500 м.

4.5. Крытые физкультурно-оздоровительные сооружения приближенного обслуживания следует размещать во встроенно-пристроенных помещениях жилых домов.

Открытые плоскостные физкультурно-оздоровительные сооружения приближенного обслуживания размещаются, как правило, на придомовых территориях.

4.6. Открытые плоскостные физкультурно-оздоровительные сооружения микрорайона, относимые к объектам повседневного обслуживания, также рекомендуется размещать на придомовых территориях.

4.7. Размещение крытых спортивных сооружений физкультурно-оздоровительных клубов микрорайонов, относящихся к повседневному обслуживанию в зависимости от типа комплекса и градостроительной ситуации может производиться:

i во встроенно-пристроенных к жилью помещениях;

i в составе кооперированного учреждения обслуживания повседневного спроса.

4.8. Допускается предусматривать отдельностоящие крытые спортивные сооружения (преимущественно, бассейны) при условии соблюдения суммарного нормативного показателя территорий участков объектов микрорайонного обслуживания в общем балансе территорий микрорайона.

4.9. Номенклатура и площади помещений встроенно-пристроенных учреждений определяются заданием на проектирование с учетом Приложения 5 МГСН 3.01-01.

4.10. Встроенно-пристроенные физкультурно-оздоровительные помещения и встроенно-пристроенные клубы рекомендуется размещать в жилых домах формирующих фронт застройки жилых улиц. Не допускается размещение подъездов и подходов к встроенно-пристроенным объектам на придомовой территории.

4.11. Общими принципами размещения открытых плоскостных сооружений на территории микрорайона являются:

·    организация функционального зонирования территории с учетом специфических требований, предъявляемых к размещению отдельных функциональных элементов;

·    размещение открытых плоскостных сооружений с учетом необходимой ориентации, требуемых разрывов между жилыми и общественными зданиями и плоскостными сооружениями;

·    проектирование необходимых ветрозащитных и шумозащитных насаждений и устройств;

·    организация возможной блокировки открытых плоскостных сооружений с учетом их зимнего использования;

·    организация оптимальной взаимосвязи зоны открытых сооружений и раздевальных.

4.12. Размещение отдельных открытых плоскостных физкультурно-оздоровительных сооружений и сблокированных плоскостных сооружений следует производить с учетом нормативных разрывов от жилых домов, регламентируемых требованиями п. 5.11 МГСН 1.01-99, равных 20 - 40 м. Рекомендуются следующие величины разрывов:

·    для сооружений для спортивных игр и роллерспорта, в зависимости от их шумовых характеристик, - 30 - 40 м;

·    для сооружений для инвалидов, сооружений для индивидуальных гимнастических упражнений, физкультурно-рекреационных площадок для детей - 20 м.

Для сооружений приближенного обслуживания, размещаемых в жилых группах и используемых, преимущественно, детьми и инвалидами допускается сокращение нормативного разрыва между жилыми зданиями и открытыми плоскостными сооружениями, размещенными со стороны глухих торцов жилых зданий до 10 м.

4.13. Рекомендуемая ориентация открытых площадок для спортивных игр - С-Ю. В условиях затесненной застройки ориентация для крупногабаритных сооружений не лимитируется.

4.14. При реконструкции и развитии сети существующих спортсооружений микрорайонов при отсутствии участков для компактного размещения всех открытых сооружений, рекомендуется формирование двух - трех блоков открытых площадок, достаточных по площади для организации их зимнего использования.

В районах центра и на примагистральных территориях с высокой плотностью застройки допускается рассредоточенное размещение открытых плоскостных сооружений.

4.15. При определении вариантов планировочных решений комплексов открытых сооружений микрорайона на придомовых территориях рекомендуется группировать сооружения в функциональные блоки в соответствии с их преимущественным использованием теми или иными контингентами: детьми, молодежью и взрослым населением, инвалидами, пожилыми и престарелыми.

4.16. Дорожку здоровья рекомендуется прокладывать в структуре озелененных территорий микрорайона. Допускается ее совмещение с пешеходными тропинками.

4.17. При проектировании физкультурно-оздоровительных сооружений микрорайонов (преимущественно бассейнов) на обособленных участках, или в составе кооперированных комплексов с учреждениями обслуживания повседневного спроса (в т.ч. общеобразовательными школами и молодежными клубами), размещаемыми на обособленных участках, рекомендуется в зависимости от состава сооружений выделять следующие зоны:

·    зону крытых сооружений;

·    зону открытых плоскостных сооружений;

·    хозяйственную зону;

·    зону отдыха.

4.18. При проектировании кооперированных комплексов физкультурно-оздоровительных клубов микрорайонов и спортивных сооружений общеобразовательных школ (п. 3.11) рекомендуется зону открытых плоскостных сооружений размещать вблизи блока общешкольных помещений или специализированного блока крытых физкультурно-спортивных сооружений.

При этом площадки для младших школьников должны размещаться обособленно.

Зону открытых плоскостных физкультурно-спортивных сооружений на участке общеобразовательной школы рекомендуется размещать смежно с зоной отдыха.

Хозяйственную зону комплекса рекомендуется совмещать с хозяйственной зоной общеобразовательной школы.

4.19. Размещение открытых плоскостных физкультурно-спортивных сооружений комплексов для обслуживания школьников и населения жилых районов на участках общеобразовательных школ следует осуществлять с учетом требования МГСН 4.06-03, согласно которому не допускается размещение открытых сооружений со стороны окон классных помещений. Рекомендуемое минимальное расстояние от окон других школьных помещений до площадок для игр с мячом и метания спортивных снарядов - 25 м (при наличии ограждения высотой 3 м - 15 м). Для других видов спорта это расстояние может быть сокращено до 10 м.

4.20. При объединении физкультурно-оздоровительных клубов микрорайонов с учреждениями иных видов обслуживания допускается сокращение показателя площади территории на 10 - 20 %.

4.21. Подъезды, проезды и ограждения обособленных участков следует проектировать с учетом требований п. 3.2.17 Пособия к МГСН 4.08-97. Выпуск 1. «Общие положения. Сооружения, приближенные к жилью. Физкультурно-оздоровительные клубы микрорайонов. Детско-юношеские спортивные школы».

4.22. В зимнее время рекомендуется использование площадки мини-футбола для хоккея и фигурного катания.

Рекомендуется также предусматривать зимнее использование сблокированных открытых плоскостных сооружений (за исключением площадок и полей с синтетическим и газонным покрытием) для заливки катка массового катания.

4.23. Открытые плоскостные сооружения учреждений должны быть обеспечены поливочным водопроводом. Радиус обслуживания поливочного крана 30 м.

4.24. Пример размещения физкультурно-оздоровительных помещений приближенного и повседневного социально-гарантированного обслуживания в сложившейся жилой застройке района «Аэропорт» представлен в Приложении 9, рис. 1.

4.24. Пример включения в структуру существующей застройки физкультурно-спортивных площадок приближенного обслуживания представлен в Приложении 9, рис. 2.

4.25. Варианты размещения открытых плоскостных спортивных сооружений повседневного обслуживания в застройке кварталов и микрорайонов различных типов представлены в Приложении 9, рис. 3 - 6.

4.26. Пример размещения открытых плоскостных спортивных сооружений повседневного обслуживания на участке общеобразовательной школы приведен в Приложении 9, рис. 7.

5. Рекомендуемые составы, габариты и площади физкультурно-спортивных сооружений и вспомогательных помещений учреждений приближенного и повседневного социально-гарантированного обслуживания

5.1. Спортивные сооружения и физкультурно-оздоровительные помещения.

Общие требования

5.1.1. Физкультурно-спортивные учреждения социально-гарантированного приближенного и повседневного обслуживания различных типов включают открытые плоскостные физкультурно-спортивные и физкультурно-рекреационные сооружения, помещения физкультурно-оздоровительного назначения, многофункциональные и специализированные спортивные залы и бассейны с ваннами различного назначения.

5.1.2. При проектировании учреждений приближенного и повседневного социально-гарантированного обслуживания составы и параметры спортивных сооружений и физкультурно-оздоровительных помещений определяются заданием на проектирование с учетом рекомендаций, приведенных в таблицах 5.1 - 5.7.

5.1.3. Рекомендуемые ориентировочные составы и параметры физкультурно-оздоровительных помещений и открытых плоскостных сооружений приближенного обслуживания для изолированных жилых групп с численностью населения 5,0 и 8,0 тыс. чел., представлены в таблице 5.1.

5.1.4. Рекомендуемые ориентировочные составы и параметры физкультурно-оздоровительных помещений молодежного фитнес-центра приближенного обслуживания для изолированных групп жилой и смешанной застройки с численностью населения 5,0 и 8,0 тыс. чел. представлены в таблице 5.2.

5.1.5. Рекомендуемый ориентировочный состав и параметры физкультурно-оздоровительных сооружений геронтологического оздоровительного клуба с расширенным составом помещений для жилой группы со специализированными жилыми домами для престарелых и семей с инвалидами приведены в таблице 5.3.

5.1.6. Ориентировочные составы крытых физкультурно-оздоровительных сооружений и помещений физкультурно-оздоровительных клубов микрорайонов с различными диапазонами обслуживаемого населения приводятся в таблице 5.4.

5.1.7. В таблице 5.5 приводятся ориентировочные рекомендуемые составы открытых плоскостных сооружений микрорайонов, размещаемых в районах новой застройки. Для условий затесненной застройки в кварталах центра и на примагистральных территориях сложившихся районов допускается формирование клубов с сокращенным составом открытых сооружений, в соответствии с рекомендациями Приложения 2

5.1.8. В таблице 5.6 приводятся составы и параметры микрорайонных бассейнов оздоровительного и спортивного плавания.

Таблица 5.1

Рекомендуемые ориентировочные составы и параметры физкультурно-оздоровительных сооружений приближенного обслуживания

№№ п/п

Наименование и габариты сооружения

Показатели сооружений при численности жилой группы (тыс. чел.)

Примечание

5,0

8,0

Кол-во

Площадь (шт./м. кв.)

Е. П. С. спортсооружений (чел)*

Кол-во

Площадь (шт./м кв.)

Е. П. С. спортсооружений (чел)*

1

2

3

4

5

6

7

1.

Физкультурно-оздоровительные помещения

 

 

 

 

 

1.1.

Многофункциональное помещение физкультурно-оздоровительных занятий

1/60,0

10 (6)**

1/90,0

15 (9)**

Помещение произвольных габаритов при минимальных размерах сетки колонн 6,0×6,0 м

2.

Открытые площадки

 

 

 

 

 

2.1.

Комплексная площадка для игр детей и общефизической подготовки

 

 

 

 

На площадке устанавливаются простейшие гимнастические устройства

 

- 10,0×8,0 м

1/80,0

8

-

-

 

 

- 12,0×10,0 м

-

-

1/120,0

12

 

2.2.

Комплексная площадка для спортивных игр

 

 

 

 

В т.ч. для спортигр инвалидов

 

- 15,0×10,0 м

1/150,0

10 (5)**

 

-

 

 

- 20,0×3,0 м

-

-

1/260,0

16 (8)**

 

2.3.

Площадка настольного тенниса

 

 

 

 

В т.ч. для использования инвалидами

 

·  4,5×9,0 м

1/40,5

4 (2)**

2/81,0

8 (4)**

 

 

Итого:

270,5

22 (15)**

461,0

36 (24)*

 

 

Всего:

 

32 (21)*

 

51 (33)*

 

*) Е. П. С. - единовременная пропускная способность спортсооружений

**) В скобках дана пропускная способность сооружений при их использовании инвалидами-колясочниками

Таблица 5.2

Рекомендуемые ориентировочные составы и параметры физкультурно-оздоровительных помещений молодежного фитнес-центра приближенного обслуживания в составе молодежного клуба

№№ п/п

Наименование и габариты сооружения

Показатели сооружений при численности жилой группы (тыс. чел.)

Примечание

5,0

8,0

Кол-во

площадь (шт./м кв.)

Е. П. С.* (чел.)

Кол-во

площадь (шт./м кв.)

Е. П. С.* (чел.)

1

2

3

4

5

6

7

 

Помещение фитнеса (для групповых занятий)

 

 

 

 

 

 

- 9,0×9,0 м

1/81,0

10

-

-

 

 

- 12,0×12,0 м

-

-

1/144,0

18

 

2-

Помещение бодибилдинга

1/40,0

6

1/60,0

10

Помещение произвольных габаритов, при минимальных размерах сетки колонн 6×6 м

3.

Помещение индивидуальных фитнес-занятий с использованием тренажеров

1/24,0

6

1/40,0

8

Помещение произвольных габаритов, при минимальных размерах сетки колонн 6×6 м

 

Итого:

145,0

22

244,0

36

 

*) Е. П. С. - единовременная пропускная способность спортсооружений

Таблица 5.3

Рекомендуемый ориентировочный состав и параметры физкультурно-спортивных сооружений геронтологического физкультурно-оздоровительного центра в составе центра обслуживания инвалидов и пенсионеров (для жилых групп, включающих специализированные жилые дома с квартирами для инвалидов и пенсионеров)

№№ п/п

Наименование и габариты сооружения

Показатели сооружений различных типов центров

Примечание

Кол-во

Площадь (шт./м кв.)

Е. П. С.* (чел.)

1

2

3

4

5

1.

Крытые залы и помещения

 

 

 

1.1.

Помещение физкультурно-оздоровительных занятий, ОФП

 

 

Высота помещения 4,8 м

 

- 12,0×9,0 м

1/108,0

10

 

1.2.

Зал лечебной гимнастики

1/60,0

10

Зал произвольных размеров при минимальных размерах сетки колонн 6,0×6,0 м

1.3.

Зал механотерапии

1/60,0

10

Зал произвольных размеров при минимальных размерах сетки колонн 6,0×6,0 м

1.4.

Помещение индивидуальных занятий лечебной гимнастикой

1/20,0

2

 

 

Итого:

248,0

32

 

2.

Специализированные открытые физкультурно-спортивные сооружения дм инвалидов

 

 

 

2.1.

Площадки для спортивных игр инвалидов

 

 

 

2.1.1.

Комплексная площадка для:

 

 

Для инвалидов с поражением опорно-двигательного аппарата

 

- гандбола, баскетбола на колясках, тенниса, квадрегби 42,0×21,0 м;

1/882,0

24 (10)**

 

- волейбола, ринго, бадминтона 28,0×16,0 м

1/448,0

24 (10)**

2.1.2.

Площадка настольного тенниса

 

 

Для инвалидов с поражением опорно-двигательного аппарата

- 4,5×9,0 м

2/81,0

8 (4)**

2.2.

Площадки для легкой атлетики

 

 

 

2.2.1.

Площадка для слалома на инвалидных колясках

 

 

Для инвалидов с поражением опорно-двигательного аппарата

27,0×15,0 м

1/405,0

(10)**

2.2.2.

Полоса препятствий

 

 

Для инвалидов с поражением опорно-двигательного аппарата

- 20,0×5,0 м

1/100,0

(4)**

2.4.

Места для легкой атлетики для инвалидов с дефектами зрения:

 

 

Для инвалидов с дефектами зрения

 

прямая беговая дорожка

 

 

 

- 60×12,0 м;

1/720,0

6

 

места для прыжков в длину

 

 

 

- 35,0×8,0 м;

1/280,0

3

 

места для прыжков в высоту

 

 

 

- 19,0×25,0

1/475,0

3

 

Итого:

4231,0

82 (50)**

 

 

Всего:

 

114 (82)**

 

*) Е. П. С. - Единовременная пропускная способность спортсооружений

**) В скобках дана пропускная способность сооружений при их использовании инвалидами-колясочниками

Таблица 5.4

Рекомендуемые ориентировочные составы и параметры крытых спортивных сооружений физкультурно-оздоровительных клубов микрорайонов

№№ п/п

Наименование и габариты сооружения

Показатели сооружений при численности обслуживаемого населения

Примечание

10,0 - 16,9 тыс. чел.

17,0 - 23,9 тыс. чел.

24,0 - 30,0 тыс. чел.

Кол-во

площадь (шт./м кв.)

Е. П. С.* (чел.)

Кол-во

площадь (шт./м кв.)

Е. П. С.* (чел.)

Кол-во

площадь (шт./м кв.)

Е. П. С.* (чел.)

 

1

2

3

4

5

6

7

8

9

1.

Зал спортигр, ОФП

 

 

 

 

 

 

 

 

- 18×15 м;

1/270,0

25

-

-

-

-

Высота зала 4,8 м

 

- 24×15 м;

-

-

1/360,0

35

-

-

Высота зала 6,0 м

 

- 30×18 м

-

-

-

-

1/540,0

50

Высота зала 6,0 м

2.

Зал фитнеса (Групповые занятия аэробикой, хореография)

 

 

 

 

 

 

 

 

- 9,0×9,0 м;

1/81,0

10

-

-

-

-

Высота зала 3,9 м

 

- 12,0×12,0 м;

-

-

1/144,0

18

-

-

Высота зала 3,9 м

 

- 15,0×15,0 м

-

-

-

 

1/225,0

28

Высота зала 4,8 м

3.

Зал единоборств

 

 

 

 

 

 

 

 

- 12,0×9,0 м;

1/108,0

12

-

-

-

-

Высота зала 3,9 м

 

- 15,0×90 м:

-

-

1/135,0

15

-

-

Высота зала 3,9 м

 

- 15,0×12,0 м

 

-

-

-

1/180,0

20

Высота зала 3,9 м

4.

Помещение индивидуальных занятий с использованием тренажерной техники

1/40,0

6

1/60,0

10

1/80,0

14

Помещение произвольных размеров при минимальной сетке колонн 6×6 м. Высота помещения - не менее 2,7 м

5.

Помещение настольного тенниса

 

 

 

 

 

 

Высота помещения - не менее 2,7 м

 

- на 1 стол;

1/40,0

4

1/40,0

4

-

-

 

 

- на 2 стола

-

 

-

-

172,0

8

 

 

Итого:

539,0

57

739,0

82

1097,0

120

 

*) Е. П. С. - единовременная пропускная способность спортсооружений

Таблица 5.5

Рекомендуемые ориентировочные составы и параметры открытых плоскостных физкультурно-спортивных сооружений физкультурно-оздоровительных клубов микрорайонов

№№ п/п

Наименование и габариты сооружения

Показатели сооружений при численности обслуживаемого населения

Примечание

10,0 - 16,9 тыс. чел.

17,0 - 23,9 тыс. чел.

24,0 - 30,0 тыс. чел.

Кол-во

площадь (шт./м кв.)

Е. П. С.* (чел.)

Кол-во

площадь (шт./м кв.)

Е. П. С.* (чел.)

Кол-во

площадь (шт./м кв.)

Е. П. С.* (чел.)

1

2

3

4

5

6

7

8

9

1.

Сектор «Спорт для всех»

 

 

 

 

 

 

 

1.1.

Площадки спортивных игр

 

 

 

 

 

 

 

1.1.1.

Бадминтона

 

 

 

 

 

 

 

- 15,0×8,0 м;

2/240,0

16

2/240,0

16

3/360,0

24

1.1.2.

Тенниса

 

 

 

 

 

 

 

- 36,0×18,0 м

1/648,0

6

2/1296,0

12

3/1944,0

18

1.2.

Комплексные площадки спортивных игр

 

 

 

 

 

 

 

1.2.1.

Тип 1 - баскетбола/волейбола

 

 

 

 

 

 

 

- 28,0×16,0 м;

1/448,0

24

2/996,0

48

3/1344,0

72

1.2.2.

Тип 2 - ручного мяча/мини-футбола

 

 

 

 

 

 

 

- 40,0×20,0 м;

1/800,0

22

1/800,0

22

1/800,0

22

1.2.3.

Тип 3 - мини-футбола/хоккея

 

 

 

 

 

 

 

- 61,0×30,0 м

1/1830,0

18

1/1830,0

18

2/3660,0

36

2.

Сектор «детского спорта»

 

 

 

 

 

 

 

2.1.

Площадки нетрадиционных видов спорта

 

 

 

 

 

 

 

2.1.1.

Флорбола

 

 

 

 

 

 

 

- 40,0×20,0 м;

1/800,0

10

1/800,0

10

1/800,0

10

2.1.2.

Стритбола

 

 

 

 

 

 

 

- 16,0×14,0 м

1/224,0

8

2/448,0

16

3/672,0

24

2.2.

Роллерплощадки

 

 

 

 

 

 

 

2.2.1.

Комплексна» площадка для массового катания на роликовых коньках

 

 

 

 

 

 

 

- 20,0×15,0 м;

1/300,0

15

-

-

-

-

2.2.2.

Комплексная площадка для массового катания на роликовых коньках с зкстрим-зоной

 

 

 

 

 

 

 

- 30,0×15,0 м;

-

-

1/450,0

30

1/450,0

30

2.2.3.

Дорожки для слалома: Горизонтальная

 

 

 

 

 

 

 

- 7,0×40,0 м;

-

-

1/450,0

30

1/450,0

30

 

Наклонная

 

 

 

 

 

 

 

- 7,0×70,0 м

-

-

1/280,0

8

1/280,0

8

2.3.

Площадки физкультурно-развлекательных занятий

 

 

 

 

 

 

 

2.3.1.

Крокета

 

 

 

 

 

 

 

- 11,0×5,0 м;

1/55,0

6

2/110,0

12

2/110,0

12

2.3.2.

Ринго

 

 

 

 

 

 

 

- 14,0×7,0 м;

1/98,0

4

2/196,0

8

2/196,0×2

8

2.3.3.

Стенбола

 

 

 

 

 

 

 

- 10,0×10,0 м;

-

-

1/100,0

4

2200,0

4

2.3.4.

Спиральбола

 

 

 

 

 

 

 

- 6,0×6,0 м;

-

-

1/36,0

2

2/72,0

2

2.3.5.

Кеглей

 

 

 

 

 

 

Приводятся габариты площадки для игры в кегли на 2, 3 и 4 дорожки

- 22,0×4,0 м;

1/88,0

4

-

-

-

-

 

- 22,0×6,0 м;

-

-

1/132,0

6

-

-

 

- 22,0×8,0 м

-

-

-

-

1/176,0

8

2.4.

Площадки комбинированные для подвижных игр и занятий на простейших снарядах:

 

 

 

 

 

 

 

 

- 15,0×10,0 м

1/150,0

8

-

-

-

-

 

 

- 20,0×15,0 м

-

-

1/300,0

15

-

-

 

 

- 30,0×15,0 м

 

 

 

 

1/450,0

22

 

3.

Трасса оздоровительного бега

 

 

 

 

 

 

Параметры трассы оздоровительного бега определяются с учетом конкретной ситуации

 

Итого:

5769,0

141

7914,0

227

12004,0

308

 

*) Е. П. С. - единовременная пропускная способность спортсооружений

Таблица 5.6

Рекомендуемые составы и параметры сооружений крытых бассейнов повседневного обслуживания, размещаемых в микрорайонах

№№ п/п

Наименование и габариты сооружения

Показатели сооружений при численности обслуживаемого населения

Примечание

10,0 - 16,9 тыс. чел.

17,0 - 23,9 тыс. чел.

24,0 - 30,0 тыс. чел.

Кол-во

площадь (шт./м кв.)

Е. П. С.* (чел.)

Кол-во

площадь (шт./м кв.)

Е. П. С.* (чел.)

Кол-во

Площадь (шт./м кв.)

Е. П. С.* (чел.)

1

2

3

4

5

6

7

8

9

1.

Бассейн оздоровительного плавания

 

 

 

 

 

 

 

1.1.

Зал ванны оздоровительного плавания

 

 

 

 

 

 

Площадь зеркала воды 99,6 м

16,6×6,0 м

 

 

 

 

 

 

- 12,0×24,0 м

1/288,0

18

-

-

-

-

1.2.

Зал ванны оздоровительного плавания

 

 

 

 

 

 

Площадь зеркала воды 132,8 м

16,6×8 м

 

 

 

 

 

 

- 15,0×24,0 м

-

-

1/360,0

24

-

-

2.

Бассейн спортивно-оздоровительного плавания

 

 

 

 

 

 

 

2.1.

Зал ванны спортивно-оздоровительного плавания

 

 

 

 

 

 

Площадь зеркала воды 300,0 м

25,0×12,0 м

 

 

 

 

 

 

- 30,0×18,0 м

-

-

-

-

1/540,0

40

 

ИТОГО

288,0

18

360,0

24

756,0

40

 

*) Е. П. С. - единовременная пропускная способность спортсооружений

5.1.9. Специфические требования к проектированию спортивных сооружений и физкультурно-оздоровительных помещений различных типов, включаемых в составы учреждений приближенного и повседневного социально-гарантированного обслуживания приведены ниже в п.п. 5.1.10 - 5.1.38.

Физкультурно-оздоровительные сооружения, приближенные к жилью

5.1.10. Помещения физкультурно-оздоровительного назначения, приближенные к жилью рассчитаны на многофункциональное использование. Занятия в помещениях могут проводиться индивидуально и малыми группами до 10 человек (до 5 - 6 человек - для инвалидов). Контингенты занимающихся, тип занятий, их видовая структура, состав оборудования определяются заданием на проектирование или проектом.

В помещениях физкультурно-оздоровительного назначения рекомендуется проводить следующие виды занятий: основная гимнастика; общефизическая подготовка, в т.ч. с использованием тренажерной техники, настольный теннис; элементы спортивных игр; аэробика. Наряду с физкультурно-оздоровительными занятиями, помещения могут быть использованы для проведения танцев.

Для инвалидов рекомендуется следующая номенклатура занятий: основная гимнастика; общефизическая подготовка, в т.ч. с использованием тренажеров; настольный теннис, подвижные игры; занятия по ритмике для лиц с дефектами зрения.

Для занятий общефизической подготовкой с использованием тренажерной техники в помещениях физкультурно-оздоровительного назначения рекомендуется устанавливать следующие типы тренажеров: велотренажер «Здоровье», гребные тренажеры; тренажеры вращения, тренажер многоцелевой «Стенка», тренажер «Ритм», тренажеры для бега.

Для занятий общефизической подготовкой инвалидов наряду с перечисленными типами тренажеров рекомендуются тренажеры для тренировки в ходьбе, станок хореографический с зеркалом для отработки движений, специализированные аппараты механотерапии (при организованных занятиях специализированных терапевтических групп).

Высоту помещения допускается принимать равной высоте жилого этажа.

Схемы размещения оборудования в помещениях физкультурно-оздоровительного назначения при различных вариантах их использования представлены в Приложении 9, рис. 8 - 9.

5.1.11. Комплексная площадка проектируется из двух частей: из площадки для игр и основной гимнастики и площадки с устройствами для гимнастических упражнений. Площадка проектируется с учетом зон безопасности и обеспечивает занятия как инвалидов с поражением опорно-двигательного аппарата (основную гимнастику и игры с мячом), так и занятия остального населения (спортивные игры: в 1-ом варианте - бадминтон, во 2-ом - бадминтон и волейбол). Площадка для волейбола имеет уменьшенные размеры за счет допустимого сокращения ширины забегов. Площадка с устройствами для гимнастических упражнений предназначена в основном для игр и гимнастических занятий детей средних и старших возрастов.

Площадки настольного тенниса рекомендуется использовать всеми категориями населения, в т.ч. инвалидами с поражением опорно-двигательного аппарата.

Блок открытых физкультурно-оздоровительных сооружений, приближенных к жилью, представлен в Приложении 9, рис. 10.

Молодежный фитнес-центр в составе молодежного клуба приближенного обслуживания.

5.1.12. Физкультурно-оздоровительные помещения молодежного фитнес-центра приближенного обслуживания, рассчитанного на обслуживание подростков и молодежи, проживающих в изолированных группах жилой, смешанной жилой застройки с численностью населения 5,0 - 8,0 тыс. чел., включают: помещение фитнеса (для групповых занятий различными видами оздоровительной аэробики, основной гимнастикой, хореографией, спортивными танцами), помещение бодибилдинга (атлетической гимнастики), помещение индивидуальных фитнес-занятий с использованием тренажеров. Длину и ширину помещений следует принимать в соответствии с таблицей 5.2.

Рекомендуемая высота помещений:

iпомещение фитнеса (для групповых занятий) - 3,9 м;

i помещение бодибилдинга - 3,0 м;

i помещение индивидуальных фитнес-занятий с использованием тренажеров - 3,0 м.

В соответствии с заданием на проектирование, высоту встроенных помещений фитнес-центра допускается сокращать до высоты жилого этажа.

5.1.13. С целью повышения уровня комфортности обслуживания рекомендуется проектировать молодежный фитнес-центр в составе молодежного клуба приближенного обслуживания.

5.1.14. В состав оборудования помещений молодежного фитнес-центра, определяемого заданием на проектирование рекомендуется включать:

i для помещений групповых занятий фитнесом - хореографический станок, зеркала (по фронту групповых занятий), шведскую стенку, устройства для музыкального сопровождения, стеллажи для переносного оборудования. Размер свободной площадки для групповых занятий (в т.ч. занятий в партере*) следует определять с учетом численности группы из расчета не менее 4,5 м кв. на человека;

* Занятия в партере - занятия лежа или сидя на коврике.

i для помещений бодибилдинга - тренажеры для развития различных групп мышц, оборудование для поднятия тяжестей, в т.ч. гантели, гири, штанги, помосты для поднятия тяжестей, скамьи со стойками для жима лежа, стойки для приседания со штангой;

iдля помещений индивидуальных фитнес-занятий с использованием тренажеров - тренажеры различных типов, в т.ч. «бегущие дорожки», «степ»-тренажеры, велотренажеры, гребные тренажеры.

Физкультурно-оздоровительные сооружения геронтологического физкультурно-оздоровительного клуба в составе центра обслуживания инвалидов и пенсионеров.

5.1.15. В состав физкультурно-оздоровительных сооружений геронтологического оздоровительного клуба, приближенного к жилью, для изолированной жилой группы, включающей специализированные жилые дома с квартирами для престарелых и семей с инвалидами входят крытые залы и помещения, а также специализированные открытые плоскостные физкультурно-спортивные сооружения для занятий инвалидов.

В состав крытых залов и помещений включаются: помещение физкультурно-оздоровительных занятий, предназначенное для общефизической подготовки, основной гимнастики, элементов спортивных игр инвалидов и престарелых; зал лечебной гимнастики для занятий групп инвалидов и престарелых; зал механотерапии; помещение индивидуальных занятий лечебной гимнастики. Параметры помещений следует принимать в соответствии с таблицей 5.3.

5.1.16. Помещение физкультурно-оздоровительных занятий, следует оборудовать шведской стенкой, гимнастическими скамьями, стеллажами для переносного оборудования, оборудованием для проведения спортивных игр.

Зал механотерапии оборудуется аппаратами механотерапии различной направленности (определяется заданием на проектирование).

Зал групповых и индивидуальных занятий лечебной гимнастики следует оборудовать гимнастическими матами или ковриками для занятий лежа.

В Приложении 9, рис. 11 приведены схемы размещения оборудования в залах механотерапии и групповых занятий лечебной гимнастикой.

5.1.17. Рекомендуемая высота помещения физкультурно-оздоровительных занятий - 4,8 м. Для остальных помещений - 3,0 м. Допускается сокращение их высоты до высоты жилого этажа.

5.1.18. Специализированные открытые физкультурно-спортивные сооружения геронтологического оздоровительного клуба предназначены для занятий инвалидов различных нозологических категорий, в. т.ч. для инвалидов с поражением опорно-двигательного аппарата (площадки спортивных игр, площадка слалома на инвалидных колясках, полоса препятствий), для инвалидов с поражением зрения (места для занятий легкой атлетикой).

Площадки спортивных игр могут также использоваться другими группами населения.

Схемы разметки специализированных открытых сооружений для занятий инвалидов различных нозологических категорий приведены в Приложении 9, рис. 12 - 14.

Физкультурно-оздоровительные клубы микрорайонов.

5.1.19. В состав физкультурно-оздоровительных клубов микрорайонов включаются спортивные залы, физкультурно-оздоровительные помещения и открытые плоскостные физкультурно-спортивные сооружения и сооружения для активного отдыха.

5.1.20. Залы спортигр, ОФП являются многофункциональными сооружениями. В зависимости от габаритов и расстановки оборудования в залах могут осуществляться следующие виды занятий: общефизическая подготовка (в т.ч. общефизическая подготовка инвалидов различных категорий), спортивные игры (волейбол, бадминтон, баскетбол), отработка элементов баскетбола, тенниса, ручного мяча, подвижные игры.

Зал фитнеса предназначен для групповых занятий аэробикой, хореографии, основной гимнастики.

Залы единоборств в зависимости от их габаритов могут быть использованы для различных видов борьбы, в т.ч. греко-римской борьбы, восточных единоборств - дзюдо, айкидо, тхэквондо, каратэ, или отработки элементов борьбы.

Помещения индивидуальных занятий с использованием тренажерной техники предназначены как для индивидуальных занятий фитнес-аэробикой, так и для индивидуальных занятий атлетической гимнастикой (бодибилдингом) и упражнений борцов различных направлений.

Помещение настольного тенниса может быть использовано также и для занятий настольным теннисом инвалидов-опорников.

5.1.21. Длину, ширину и высоту спортивных залов и физкультурно-оздоровительных помещений клубов микрорайонов следует принимать с учетом показателей, приведенных в таблице 5.4.

5.1.22. Состав оборудования физкультурно-оздоровительных залов и помещений физкультурно-оздоровительных клубов микрорайонов определяются заданием на проектирование с учетом следующих рекомендаций:

i для зала спортигр, ОФП - в зависимости от программы занятий и состава занимающихся в комплект оборудования может входить оборудование для спортивных игр, гимнастическое оборудование; шведские стенки, гимнастические скамейки, нестационарное оборудование, в т.ч. различного рода тренажеры;

i для помещения групповых занятий аэробикой, хореографией - в состав оборудования входит: хореографический станок, зеркала (по фронту групповых занятий), устройства для музыкального сопровождения, стеллажи для переносного оборудования;

i для залов единоборств - в зависимости от программы занятий, в состав оборудования входят: борцовские ковры или татами, маты, дополнительное оборудование;

i в помещениях индивидуальных занятий с использованием тренажерной техники - в зависимости от программы занятий клубов, в состав оборудования входят: различного рода тренажеры для занятий фитнесом, в т.ч. «бегущие дорожки», «степ»-тренажеры, велотренажеры, гребные тренажеры; силовые тренажеры для индивидуальных занятий бодибилдингом и силовых тренировок борцов тренажерами для развития различных групп мышц, оборудованием для поднятия тяжестей, в т.ч. гантелями, гирями, штангами, помостами для поднятия тяжестей, скамьями со стойками для жима лежа, стойками для приседания со штангой;

i в помещениях настольного тенниса - 1 - 2 стола настольного тенниса.

5.1.23. Вариант расстановки оборудования в зале ОФП 18×9 м с учетом занятий инвалидов-опорников представлен в Приложении 9, рис 15.

5.1.24. Состав дополнительного оборудования зала аэробики следует определять в задании на проектирование с учетом перечня видов занятий, осуществляемых в зале.

В комплекты переносного оборудования залов аэробики включаются: слайд-доски для слайд-аэробики; мячи для занятий памп-аэробикой; комплекты амортизаторов (терасет) для тераэробики; степ-платформы для степ-аэробики. Количество единиц переносного оборудования каждого типа должно соответствовать численности единовременно занимающихся.

Схема расстановки оборудования в помещении для групповых занятий аэробикой приводится в Приложении 9, рис. 16.

5.1.25. Расстановка оборудования в залах борьбы для занятий, осуществляемых в попеременном режиме, производится с учетом габаритов основных мест занятий - борцовских ковров или татами. Состав оборудования определяется заданием на проектирование с учетом программ занятий посетителей клуба. В комплекты дополнительного оборудования для тренировочных занятий борьбой (отработки элементов борьбы и восточных единоборств) входят: подушки на стенах (макивара), боксерские мешки, боксерские груши) набивные и пневматические на платформе.

5.1.26. Схема расстановки оборудования в помещении настольного тенниса приведена в Приложении 9, рис. 17.

5.1.27. Открытые плоскостные сооружения физкультурно-оздоровительных клубов микрорайонов предназначены для самостоятельных и организованных физкультурно-оздоровительных занятий всех категорий населения микрорайона. Габаритные схемы открытых плоскостных сооружений микрорайонов в соответствии с рекомендуемыми составами открытых плоскостных представлены в Приложении 9, рис. 18 - 23.

Габаритные схемы различных устройств для роллерспорта даны в Приложении 9, рис. 24.

5.1.28. Трассы оздоровительного бега, дорожки здоровья, проектируются кольцевыми, с расположением старта - финиша вблизи вспомогательных помещений клуба.

Трассы оздоровительного бега рекомендуется прокладывать с учетом обеспечения различных по протяженности дистанций. Рекомендуемая ширина трасс не менее 1,5 м. Допускается совмещать трассы с пешеходными дорожками. В Приложении 9, рис. 25 представлена схема планировки дорожки здоровья.

5.1.29. В условиях затесненной застройки допускается размещение спортивных сооружений сокращенных габаритов в соответствии с Приложением 2 к настоящим рекомендациям. В соответствии с заданием на проектирование допускается также изменение рекомендованных в таблице 5.5. и Приложении 2 составов сооружений с увеличением доли малогабаритных площадок, при условии сохранения суммарной пропускной способности комплексов и функциональной ориентации отдельных групп сооружений на различные категории населения: детей, молодежь, инвалидов и престарелых и т.д.

5.1.30. Покрытия открытых плоскостных сооружений и состав их оборудования следует определять в задании на проектирование с учетом применяемых современных материалов, изделий и устройств.

5.1.31. В зимнее время рекомендуется использование площадки мини-футбола и сблокированных открытых плоскостных сооружений (за исключением площадок и полей с синтетическим и газонным покрытием) для заливки площадок хоккея, фигурного катания, керлинга, катка массового катания.

Рекомендуемые габариты площадки для хоккея и фигурного катания - 61×30 м; площадки керлинга - 40×20 м.

Габариты катка массового катания не регламентируются. Площадь катка массового катания определяется из расчета 20 м кв. на 1-го занимающегося.

Микрорайонные бассейны оздоровительного и спортивно-оздоровительного плавания.

5.1.32. Крытые бассейны оздоровительного плавания повседневного обслуживания предназначены для осуществления физкультурно-оздоровительных занятий по плаванию и купания различных категорий населения, в т.ч. инвалидов различных нозологических групп. Состав обслуживаемых контингентов уточняется заданием на проектирование или проектом.

Крытые бассейны спортивно-оздоровительного плавания предназначаются также для учебных занятий школьников общеобразовательных школ, размещенных в микрорайоне.

Рекомендуемые параметры ванн и залов бассейнов с учетом требований к проведению физкультурно-оздоровительных занятий инвалидов, в т.ч. требований к минимальной ширине обходных дорожек, приведены в таблице 5.6.

5.1.33. Рекомендуемая глубина ванн оздоровительного плавания с учетом их использования инвалидами-опорниками - 1,2 - 1,45 м.

Рекомендуемая глубина ванны спортивно-оздоровительного плавания - 1,2 - 1,8 м. Использование ванны спортивно-оздоровительного плавания инвалидами-опорниками допускается при глубине ванны в мелкой части - 1,2 - 1,45 м. Для занятий инвалидов-опорников в ванне спортивно-оздоровительного плавания должна быть выделена зона с минимальной глубиной 1,2 м и уклоном дна не более 10 %. Площадь зоны определяется численностью одновременно занимающихся инвалидов из расчета 5 м кв. на человека.

5.1.34. Зону занятий инвалидов в ванне спортивно-оздоровительного плавания рекомендуется выделять поплавками или флажками. Для крепления поплавков следует предусмотреть дополнительные закладные устройства, не выступающие из плоскости стенок ванны. Для крепления стоек для шнуров с флажками предусматриваются гнезда на обходной дорожке.

5.1.35. В зоне занятий инвалидов вдоль бортов ванн бассейнов рекомендуется предусматривать поручень.

5.1.36. Ванны оздоровительного плавания рекомендуется проектировать с «пенным корытцем» - бортом, выступающим над уровнем воды на 0,30 - 0,35 м.

5.1.37. Вариант планировочной схемы ванны оздоровительного плавания 16,6×6 и с учетом физкультурно-оздоровительных занятий инвалидов-опорников представлен в Приложении 9, рис. 26. В мелкой части ванны предусмотрен стационарный спуск - пологая лестница с поручнями с двух сторон на высоте 0,9 м, запроектированная вне основных контуров ванны. Рекомендуемая минимальная ширина проступей - 0,3 м. Высота подступенков - 0,14 м. В глубокой части ванны - заглубленные вертикальные лестницы. Для спуска инвалидов с поражением опорно-двигательного аппарата предусматриваются подъемники. Со стороны входов в зал бассейна из раздевальных, используемых инвалидами, ширина обходной дорожки должна быть не менее 4-х м. Увеличение ширины обходной дорожки с одного из торцов бассейна до 5,4 м позволяет разместить стационарные места для зрителей и отдыхающих с подогревом и площадку для разминки 6×4 м. В зале бассейна предусматриваются места для хранения колясок, поручни вдоль стен зала на высоте 0,9 м. В ванне также предусматриваются поручни.

5.1.38. Вариант спуска определяется заданием на проектирование или проектом с учетом типа ванны и средств передвижения инвалидов к ванне бассейна. При использовании инвалидной коляски желоб для спуска в оздоровительную ванну рекомендуется устанавливать на уровне сиденья коляски - 0,5 м. При использовании тележки - желоб устанавливается на уровне обходной дорожки. Наряду с желобами для спуска в воду инвалидов с поражением опорно-двигательного аппарата рекомендуется использовать подъемники различных типов (механические, гидравлические, пневматические).

Спуски в ванну бассейна следует определять с учетом «Рекомендаций по проектированию окружающей среды, зданий и сооружений с учетом потребностей инвалидов и других маломобильных групп населения. Выпуск 13. Общественные здания и сооружения. Физкультурно-оздоровительные сооружения», М., 1998 г.

5.2. Вспомогательные помещения.

5.2.1. Вспомогательные помещения, предназначаются для осуществления вспомогательных и сопутствующих видов деятельности и технического обслуживания учреждений приближенного и повседневного социально-гарантированного физкультурно-спортивного обслуживания.

5.2.2. К вспомогательным относятся следующие группы помещений:

i вестибюльная (гардероб, вестибюль, санузлы вестибюля);

i санитарно-гигиенического назначения и отдыха занимающихся;

i инструкторские;

i раздевальные открытых сооружений;

i методического назначения; клубные комнаты;

i медицинского назначения;

i административно-хозяйственного назначения и бытового обслуживания персонала;

i технические помещения.

5.2.3. Рекомендуемые составы и площади вспомогательных помещений различных типов учреждений приближенного и повседневного социально-гарантированного физкультурно-спортивного обслуживания следует определять заданием на проектирование с учетом рекомендаций Приложений 3 - 7.

5.2.4. Составы и площади основных и вспомогательных помещений блоков физкультурно-оздоровительных помещений для изолированных жилых групп с численностью населения 5,0 и 8,0 тыс. чел. приведены в Приложении 3.

5.2.5. Рекомендуемые составы и площади вспомогательных помещений блоков молодежных фитнес-центров изолированных жилых групп с численностью населения 5,0 и 8,0 тыс. чел. приведены в Приложении 4.

5.2.6. Рекомендуемые состав и площади вспомогательных помещений геронтологического физкультурно-оздоровительного клуба, предусматриваемого в составе центра обслуживания инвалидов и пенсионеров для жилых групп, включающих специализированные дома с квартирами для престарелых и семей с инвалидами, представлены в Приложении 5. В состав вспомогательных помещений клуба входят помещения медицинского назначения, в т.ч. кабинет врача, процедурная, массажная.

Схемы планировки массажной и кабинета тестирования с физической нагрузкой представлены в Приложении 9, рис. 27.

5.2.7. Доступ инвалидов предусматривается во все группы помещений приближенного обслуживания, за исключением помещений хозяйственного назначения.

5.2.8. Общие раздевальные рекомендуется проектировать с оборудованием, приспособленным для использования инвалидами, в соответствии с «Рекомендациями по проектированию окружающей среды, зданий и сооружений с учетом потребностей инвалидов и других маломобильных групп населения. Выпуск 13. Общественные здания и сооружения. Физкультурно-оздоровительные сооружения».

Допускается проектировать раздевальные с хранением одежды на крючках.

5.2.9. При проведении индивидуальных и самоорганизуемых занятий в Учреждениях приближенного обслуживания допускается не предусматривать отдельного помещения инструктора.

5.2.10. В учреждениях приближенного обслуживания допускается хранение верхней одежды открытым способом на вешалке, размещенной в вестибюле, или непосредственно, в раздевальных.

Зона хранения верхней одежды проектируется с учетом доступа инвалидов к вешалке. Ширина зоны не менее 1,5 м.

В вестибюле рекомендуется предусматривать место дежурного администратора и площадь для родителей сопровождающих детей и лиц, сопровождающих инвалидов.

5.2.11. В случае размещения молодежного фитнес-центра в составе молодежного клуба допускается объединять их вестибюльные группы помещений.

5.2.12. Рекомендуемые составы и площади вспомогательных помещений физкультурно-оздоровительных клубов микрорайонов с различной численностью обслуживаемого населения представлены в Приложении 6.

5.2.13. Вспомогательные помещения физкультурно-оздоровительного клуба микрорайона, используемые инвалидами, рекомендуется проектировать с учетом требований «Рекомендаций по проектированию окружающей среды, зданий и сооружений с учетом потребностей инвалидов и других маломобильных групп населения. Выпуск 13. Общественные здания и сооружения. Физкультурно-оздоровительные сооружения».

Примеры планировочных решений раздевальных спортивных сооружений с учетом их использования инвалидами-опорниками представлены в Приложении 9, рис. 28.

5.2.14. При наличии в микрорайоне открытых плоскостных сооружений, используемых в зимнее время для устройства катка массового катания, вестибюльную группу помещений физкультурно-оздоровительного клуба микрорайона рекомендуется проектировать с учетом организации грелки катка.

Вместимость раздевальных открытых сооружений определяются заданием на проектирование.

5.2.15. В соответствии с заданием на проектирование в состав физкультурно-оздоровительных клубов микрорайонов могут быть дополнительно включены помещения культурно-спортивных игр, детские игровые помещения, помещения досуга и т.д.

5.2.16. Рекомендуемые состав и площади вспомогательных помещений бассейнов оздоровительного и физкультурно-оздоровительного плавания приводятся в Приложении 7.

5.2.17. Все вспомогательные помещения бассейнов, за исключением хозяйственных и технических помещений и эксплуатационных служб проектируются с учетом доступа инвалидов в соответствии с «Рекомендациями по проектированию окружающей среды, зданий и сооружений с учетом потребностей инвалидов и других маломобильных групп населения. Выпуск 13. Общественные здания и сооружения. Физкультурно-оздоровительные сооружения».

5.2.18. Площади технических помещений и эксплуатационных служб определяются заданием на проектирование.

6. Требования к объемно-планировочным решениям сооружений социально-гарантированного обслуживания.

6.1. Архитектурно-планировочные решения учреждений социально-гарантированного приближенного и повседневного обслуживания различных типов определяются функционально-технологическими требованиями к осуществлению различных видов физкультурно-спортивной деятельности и реализации сопутствующих видов деятельности различных групп посетителей; градостроительными условиями размещения комплексов; требованиями к интеграции физкультурно-оздоровительных учреждений с общественными учреждениями и жилыми зданиями.

6.2. Крытые физкультурно-оздоровительные сооружения и помещения, вспомогательные помещения учреждений социально-гарантированного приближенного и повседневного обслуживания различных типов в зависимости от типа учреждения и градостроительных условий размещения могут проектироваться как:

i встроенные, встроенно-пристроенные помещения в нижних этажах жилых зданий;

i функциональные блоки в структуре кооперированных общественных зданий;

i отдельно стоящие здания (преимущественно микрорайонные бассейны, при условии соблюдения требования п. 4.8 настоящих рекомендаций).

6.4. Размещение крытых сооружений учреждений социально-гарантированного приближенного и повседневного обслуживания во встроенно-пристроенных помещениях к жилым домам, в том числе реконструируемым и модернизируемым, допускается при соблюдении требований МГСН 3.01-01 и Дополнения № 1 к ним к обеспечению санитарных правил по защите от шума, режиму функционирования, составу и вместимости объектов социального и общественного назначения, размещаемым на первых этажах жилых зданий.

Примеры архитектурно-планировочных решений встроенных и встроенно-пристроенных физкультурно-оздоровительных учреждений социально-гарантированного обслуживания представлены в Приложении 9, рис. 29.

6.5. Встроенные и встроенно-пристроенные к жилью функциональные блоки крытых физкультурно-спортивных сооружений учреждений социально-гарантированного обслуживания должны быть изолированы от жилых помещений и встроенных помещений предприятий других сфер обслуживания, не связанных с ними функционально, иметь собственные входы, эвакуационные выходы и вестибюльные группы помещений.

6.6. Основные и вспомогательные помещения физкультурно-оздоровительного назначения учреждения, в соответствии с требованиями МГСН 4.08-97, следует размещать в одном уровне во встроенных помещениях 1-го нежилого этажа жилого здания. Размещение помещений физкультурно-оздоровительного назначения в цокольных этажах допускается при ограничении на использование помещений детьми, соблюдении требований к освещенности, кратности обмена воздуха, принимаемых в соответствии с пособием к СНиП 2.08.02-89 и определяется заданием на проектирование или проектом.

Допускается размещение складских помещений, помещений технических служб, технических помещений и бытовых помещений в цокольном и подвальных этажах встроенной части здания.

Не допускается размещение этих учреждений на промежуточных и последних этажах жилых зданий.

6.7. Во встроенных помещениях жилых домов с каркасной системой рекомендуется размещать физкультурно-оздоровительные помещения учреждений приближенного обслуживания с физкультурно-оздоровительными помещениями малой площади или помещениями, допускающими размещение промежуточных опор.

В жилых домах с каркасной системой во встроенной части встроенно-пристроенных молодежных фитнес-центров, клубов микрорайонов рекомендуется размещать залы индивидуальных занятий с использованием тренажерной техники, помещения индивидуальной силовой подготовки, залы малой площади, а также вспомогательные помещения, при условии соблюдения требовании п. 6.4 настоящих Рекомендаций.

6.7. Залы групповых занятий аэробикой, залы борьбы и восточных единоборств, залы спортивных игр, многофункциональные залы клубов и молодежных фитнес-центров с пролетом более 9 м, рекомендуется размещать в пристраиваемой к жилым домам части клубов.

6.9. Рекомендуются следующие приемы архитектурно-планировочных решений пристроенных частей встроенно-пристроенных клубов, включающих залы спортивных игр, многофункциональные залы фитнес-центров, залы борьбы (при необходимости сохранения их нормативной высоты, равной 4 м), бассейны аквааэробики:

i пристройка с выносом объемов залов со стороны торца здания, не имеющего световых проемов;

i пристройка с выносом объемов залов при условии размещения жилых квартир выше 2-го этажа здания;

i пристройка с заглублением залов.

Варианты примыкания объемов пристроенной к жилому зданию части клубов приведены в Приложении 9, рис. 30.

6.10. Функциональные группы крытых физкультурно-спортивных сооружений комплексов, предназначенных для обслуживания школьников и населения жилых районов, запроектированные в структуре общеобразовательной школы, а также блоки-пристройки к общеобразовательным школам должны обеспечивать автономную эксплуатацию: иметь собственный вход, самостоятельные эвакуационные выходы, вестибюльную группу помещений и блокирующие двери и т.п.

6.11. Для комплексов, объединяющих спортсооружения общеобразовательных школ и физкультурно-оздоровительных клубов микрорайонов, рекомендуется объединение в одном блоке крытых спортивных сооружений и общешкольных помещений иного функционального назначения.

6.12. Допускается объединение блока физкультурно-оздоровительных помещений приближенного обслуживания с центром обслуживания инвалидов и пенсионеров с организацией общей вестибюльной группы.

6.13. Требования к отоплению, вентиляции, кондиционированию воздуха в физкультурно-оздоровительных учреждениях социально-гарантированного обслуживания, следует принимать в соответствии со СНиП 41-01-2003. При определении требований к кратности обмена воздуха, температурно-влажностному режиму помещений следует также учитывать п.п. 5.1 - 5.3 справочного пособия к СНиП 2.08.02-89* «Проектирование спортивных залов, помещений для физкультурно-оздоровительных занятий и крытых катков с искусственным льдом» и п.п. 5.1 - 5.3 справочного пособия к СНиП 2.08.02-89* «Проектирование бассейнов».

6.14. Требования к пожарной безопасности учреждений социально-гарантированного обслуживания следует принимать на основании СНиП 21-01-97 и п.п. 6.1 - 6.10 МГСН 4.08-97. В залах и помещениях учреждений рекомендуется предусматривать светоуказатели выходов.

6.15. Требования к водопроводу и канализации в учреждениях социально-гарантированного обслуживания следует определять с учетом п.п. 4.1 - 4.6, 4.8 - 4.14 справочного пособия к СНиП 2.08.02-89* «Проектирование спортивных залов, помещений для физкультурно-оздоровительных занятий и крытых катков с искусственным льдом» и п.п. 4.1 - 4.24 справочного пособия к СНиП 2.08.02-89* «Проектирование бассейнов».

6.16. Требования к естественному и искусственному освещению помещений физкультурно-оздоровительных учреждений социально-гарантированного обслуживания следует определять с учетом п.п. 3.98 - 3.100, 6.1 - 6.3, 6.5 справочного пособия к СНиП 2.08.02-89* «Проектирование спортивных залов, помещений для физкультурно-оздоровительных занятий и крытых катков с искусственным льдом» и п.п. 3.79 - 3.80, 3.84, 6.1 - 6.2, 6.4 справочного пособия к СНиП 2.08.02-89* «Проектирование бассейнов».

7. Функционально-технологические схемы основных типов учреждений, примеры архитектурно-планировочных решений учреждений.

7.1. Проектирование зданий учреждений физкультурно-спортивного социально-гарантированного обслуживания и функциональных блоков учреждений, встроенно-пристроенных к жилым зданиям или включенным в здания кооперированных общественных учреждений, следует осуществлять с учетом функционального зонирования, выделяя, в зависимости от состава помещений различных типов учреждений, следующие основные функциональные группы:

i помещения вестибюля;

i группы помещений спортивных залов и физкультурно-оздоровительных помещений с примыкающими к ним вспомогательными помещениями санитарно-гигиенического назначения (раздевальными и душевыми), инвентарными;

iгруппу плавательного бассейна с ваннами различного назначения, вспомогательными санитарно-гигиеническими помещениями (раздевальными, душевыми), комнатами дежурных инструкторов и медсестер (при ваннах спортивного и оздоровительного плавания), лабораторию химического и бактериологического анализа воды;

i раздевальные открытых сооружений;

i клубные комнаты;

i помещения медицинского назначения;

i клубные помещения, помещения отдыха;

i помещения питания;

i инструкторские, помещения административно-хозяйственного назначения и бытового обслуживания персонала;

i технические помещения и эксплуатационные службы.

7.2. В Приложении 9, рис. 31 - 35 приводятся функционально-технологические схемы основных типов учреждений социально-гарантированного физкультурно-спортивного обслуживания.

7.3. Схема функционально-пространственной организации физкультурно-оздоровительных помещений, приближенных к жилью, дается на рис. 31.

7.4. Схема функционально-пространственной организации молодежного фитнес-центра приводится в Приложении 9, рис. 32.

7.5. Функциональная схема блока встроенно-пристроенного геронтологического оздоровительного клуба с расширенным составом помещений, для жилой группы, включающей специализированные жилые дома с квартирами для инвалидов и престарелых граждан представлена в Приложении 9, рис. 33.

7.6. Функциональная схема физкультурно-оздоровительного клуба микрорайона дана в Приложении 9, рис. 34.

7.7. Функционально-технологическая схема помещений бассейна оздоровительного плавания приведена в Приложении 9, рис. 35.

7.8. Схемы функциональных блоков физкультурно-оздоровительного клуба при их рассредоточенном размещении представлены в Приложении 9, рис. 36.

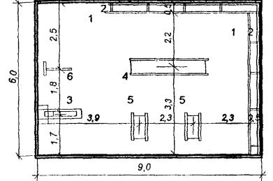
7.9. Пример планировочного решения встроенного блока физкультурно-оздоровительного помещения приближенного обслуживания приведен в Приложении 9, рис. 37.

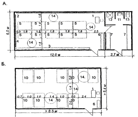
7.10. Пример планировочного решения встроенного блока молодежного фитнес-центра в составе молодежного клуба приближенного обслуживания дан в Приложении 9, рис. 38.

7.11. Пример планировочного решения встроенно-пристроенного физкультурно-оздоровительного клуба микрорайона приведен в Приложении 9, рис. 39.

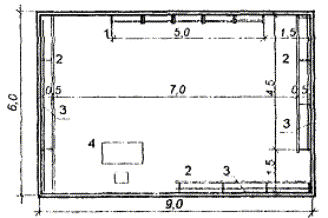
7.12. В Приложении 9, рис. 40 - 43 даются примеры проектных предложений планировочных решений комплексов и блоков открытых плоскостных спортивных сооружений микрорайонов, размещенных в конкретных градостроительных ситуациях. В Приложении 8 приводятся краткие характеристики указанных планировочных решений.

8. Ссылки на нормативно-методические документы

8.1. СНиП 2.07.01-89* «Планировка и застройка городских и сельских поселений».

8.2. СНиП 35-01-2001 «Доступность зданий и сооружений для маломобильных групп населения».

8.3. СНиП 2.08.02-89* «Общественные здания и сооружения».

8.4. СНиП 21-01-97* «Пожарная безопасность зданий и сооружений».

8.5. СНиП 41-01-2003 «Отопление, вентиляция, кондиционирование воздуха».

8.6. СНиП 23-05-95 «Естественное и искусственное освещение».

8.7. СанПиН 2.2.1/2.1.1.1031-01 «Санитарно-защитные зоны и санитарная классификация предприятий, сооружений и иных объектов», Москва, 2001.

8.8. МГСН 1.01-99 «Нормы и правила проектирования планировки и застройки г. Москвы».

8.9. МГСН 3.01-01 «Жилые здания» с Дополнением № 1 к МГСН 3.01-01.

8.10. МГСН 4.08-97 «Массовые типы физкультурно-оздоровительных сооружений».

8.11. МГСН 4.17-98 «Культурно-зрелищные учреждения».

8.12. МГСН 4.14-98 «Предприятия общественного питания».

8.13. МГСН 1.02-02 «Нормы и правила проектирования комплексного благоустройства на территории города Москвы».

8.14. Справочное пособие к СНиП 2.08-02.89* «Проектирование спортивных залов, помещений для физкультурно-оздоровительных занятий и крытых катков с искусственным льдом».

8.15. Справочное пособие к СНиП 2.08-02.89* «Проектирование бассейнов».

8.16. «Рекомендации по проектированию окружающей среды, зданий и сооружений с учетом потребностей инвалидов и других маломобильных групп населения. Выпуск 12. Общественные здания и сооружения. Спортивные сооружения». Москва, 1998 г.

8.17. «Рекомендации по проектированию окружающей среды, зданий и сооружений с учетом потребностей инвалидов и других маломобильных групп населения. Выпуск 13. Общественные здания и сооружения, физкультурно-оздоровительные сооружения». Москва, 1998 г.

8.18. «Рекомендации по проектированию зон физкультурно-спортивных сооружений парков культуры и отдыха». Москва, 1984 г.

8.19. Планово-расчетные показатели количества занимающихся и режимы эксплуатации физкультурно-оздоровительных и спортивных сооружений. Приложение к приказу Государственного комитета Российской федерации по физической культуре и туризму № 44 от 4 февраля 1998 г.

8.20. Пособие к МГСН 4.08-97 «Массовые типы физкультурно-оздоровительных учреждений. Выпуск 1. Общие положения. Сооружения, приближенные к жилью. Физкультурно-оздоровительные клубы микрорайонов. Детско-юношеские спортивные школы».

8.21. Пособие к МГСН 4.08-97 «Массовые типы физкультурно-оздоровительных учреждений. Выпуск 2. «Физкультурно-оздоровительные центры муниципальных районов. Комплексы физкультурно-рекреационных сооружений».

Приложение 1

Сводные градостроительные расчетные показатели комплексов физкультурно-оздоровительных сооружений приближенного и повседневного социально-гарантированного обслуживания

№№ п/п

Уровень обслуживания, тип комплекса

Численность обслуживаемого населения (тыс. чел.)

Общая площадь учреждения (крытые спортсооружения, вспомогательные помещения) (м кв./1000 жит.)

Площадь крытых спортсооружений (м кв./1000 чел.)

Площадь территории (м кв./1 жит)

Пола спортзалов и оздоровительных помещений

Зеркала воды плавательных бассейнов

1

2

3.

5

6

7

8

1.

Комплекс физкультурно-оздоровительных сооружений приближенного обслуживания (для изолированной жилой группы)

5,0 - 8,0

90,0

38,3

-

0,05 - 0,08

2.

Комплекс физкультурно-оздоровительных сооружений повседневного обслуживания

10,0 - 30,0

120,0

38,9

8,7

0,3 - 0,7

Приложение 2

Рекомендуемые составы и площади открытых плоскостных физкультурно-спортивных сооружений для кварталов и микрорайонов с затесненной застройкой (для районов центра и примагистральных территорий районов сложившейся застройки)

№№ п/п

Наименование и габариты сооружения

Показатели сооружений при различной численности обслуживаемого населения

Примечание

10,0 - 16,9 тыс. чел.

17,0 - 24,0 тыс. чел

Кол-во

площадь (шт./м кв.)

Е. П. С.* (чел.)

Кол-во

площадь (шт./м кв.)

Е. П. С.* (чел.)

1

2

3

4

5

6

7

1.

Сектор «Спорт для всех»

 

 

 

 

 

1.1.

Площадки спортивных игр

 

 

 

 

 

1.1.1.

Настольного тенниса

 

 

 

 

 

- 4,5×9,0 м

2/81,0

8

3/121,5

12

1.1.2.

Мини-тенниса

 

 

 

 

 

- 20,0×10,0

1/200,0

4

2/400,0

8

1.2.

Комплексные площадки спортивных игр

 

 

 

 

 

1.2.1.

Тип 1

Бадминтона/волейбола/ринго

 

 

 

 

 

- 20,0×11,0

1/220,0

12

2/440,0

24

1.2.2.

Тип 2

Ручного мяча/мини-футбола

 

 

 

 

 

- 30,0×18,0 м

1/540,0

18

1/540,0

18

2.

Сектор «детского спорта»

 

 

 

 

 

2.1.

Площадки нетрадиционных видов спорта:

 

 

 

 

 

2.1.1.

Флорбола

 

 

 

 

 

- 25,0×12,0 м

1/300,0

10

1/300,0

10

2.1.2.

Стритбола

 

 

 

 

 

- 16,0×14,0 м

1/224,0

8

1/224,0

8

2.2.

Комплексная площадка для массового катания на роликовых коньках

 

 

 

 

 

- 20,0×15,0 м

1/300,0

25

1300,0

25

2.3.

Площадки физкультурно-развлекательных занятий

 

 

 

 

 

2.3.1.

Крокета

 

 

 

 

 

- 11,0×5,0 м

1/55,0

6

1/55,0

6

2.3.2.

Кеглей

 

 

 

 

Приводятся габариты площадки для игры в кегли на 2 и 3 дорожки

- 22,0×4,0 м;

1/88,0

4

-

-

- 22,0×3,4 м

-

-

1/132,0

6

2.3.3.

Стенбола

 

 

 

 

 

- 10,0×10,0 м

1/100,0

4

1/100,0

4

2.3.4.

Спиральбола

 

 

 

 

 

- 6,0×6,0 м

1/36,0

2

1/36,0

2

2.4.

Площадки комбинированные для подвижных игр и занятий на простейших снарядах

 

 

 

 

 

 

- 15,0×10,0 м

1/150,0

10

-

-

 

 

- 20,0×15,0 м

-

-

1/300,0

20

 

 

Итого:

2294,04

 

2948,5

 

 

*) Е. П. С. - единовременная пропускная способность спортсооружений.

Приложение 3

Рекомендуемые составы и площади физкультурно-оздоровительных и вспомогательных помещений приближенного обслуживания в составе центра обслуживания инвалидов и пенсионеров

№№ п/п

Наименование помещений

Площади помещений в комплексах различных типов (м2)

Примечание

Тип 11

Тип 21

1

2

3

4

5

1.

Группа помещений вестибюля

 

 

 

1.1.

- Вестибюль, в т.ч.:

25,0

28,0

Проектируется с учетом использования инвалидами

- вешалка для хранения одежды открытым способом;

4,0

6,0

- место дежурного администратора;

3,0

3,0

- зона отдыха лиц, сопровождающих инвалидов

5,0

8,0

1.2.

Туалет (мужской и женский)

10,0

5,0 + 5,0

10,0

5,0 + 5,0

 

Итого

33,0

36,0

 

2.

Группа помещений физкультурно-оздоровительного назначения

 

 

 

2.1.

Помещения физкультурно-оздоровительного назначения

60,0

90,0

Проектируется с учетом использования инвалидами

2.2.

Инвентарная

8,0

8,0

 

 

Итого:

68,0

98,0

 

2.3.

Раздевальные общие (мужские и женские) в т.ч.

 

 

Проектируются с учетом использования инвалидами

2.3.1.

Места для переодевания

 

 

Хранение одежды на крючках

 

- на 5 мест

20,0

10,0×2

-

В раздевальных устанавливается 1 ножная ванна, 1 сушилка для волос

 

- на 8 мест

 

32,0

16,0

2.3.2.

Душевые

10,0

-

 

 

- на 2 сетки

5,0×2

 

 

 

- на 3 сетки

-

16,0

8,0×2

 

2.3.3.

Санузел (с умывальником в шлюзе)

10,0

5,0×2

10,0

5,0×2

Устанавливается 1 унитаз, 1 умывальник

2.3.4.

Места для хранения колясок

3,0

5,0

 

 

Итого:

43,0

63,0

 

3.

Группа административно-хозяйственных помещений

 

 

 

3.1.

Административное помещение

9,0

9,0

 

3.2.

Хозяйственная кладовая

4,0

4,0

 

3.3.

Инструкторская

9,0

9,0

 

 

Итого:

22,0

22,0

 

 

Всего:

166,0

219,0

 

1 См. табл. 3.1

Приложение 4

Рекомендуемые составы физкультурно-оздоровительных и вспомогательных помещений блоков молодежного фитнес-центра в составе молодежного клуба приближенного обслуживания

№№ п/п

Наименование помещений

Площади помещений в комплексах различных типов (м2)

Примечание

Тип 11

Тип 21

1

2

3

4

5

1.

Группа помещений вестибюля

 

 

Проектируется с учетом доступа инвалидов

1.1.

- Вестибюль, всего, в т.ч.:

26,0

28,0

 

 

- вешалка для хранения одежды открытым способом;

4,0

6,0

 

 

- место дежурного администратора;

3,0

3,0

 

 

- зона отдыха родителей, сопровождающих детей

6,0

8,0

 

1.2.

Туалет (мужской и женский)

10,0

5,0 + 5,0

10,0

5,0 + 5,0

 

 

Итого:

36,0

38,0

 

2.

Группа помещений физкультурно-оздоровительного назначения

 

 

Проектируется с учетом доступа инвалидов

2.1.

Помещение фитнеса (для групповых занятий)

 

 

 

9,0×9,0 м

81,0

-

 

12,0×12,0 м

-

144,0

2.2.

Инвентарная

8,0

8,0

2.3.

Помещение бодибилдинга

40,0

60,0

Проектируется с учетом доступа инвалидов

2.4.

Инвентарная

6,0

6,0

2.5.

Помещение индивидуальных фитнес-занятий с использованием тренажеров

20,0

40,0

Проектируется с учетом доступа инвалидов

 

Итого:

156,0

258,0

 

2.6.

Раздевальные общие (мужские и женские) в т.ч.

 

 

Хранение одежда на крючках

В раздевальных устанавливается 1 умывальник, 1 ножная ванна, 1 сушилка для волос в мужской, 2 - в женской раздевальной

2.6.1.

Места для переодевания:

 

 

 

- на 11 мест;

42,0

21,0×2

-

 

- на 18 места

-

68,00

34,0×2

2.6.2.

Душевые:

 

 

 

 

- на 3 сетки;

16,0

8,0×2

-

 

 

- на 4 сеток

-

20,0

10,0×2

 

2.6.3.

Санузел (с умывальником в шлюзе)

10,0

5,0×2

10,0

5,0×2

В санузлах устанавливается 1 унитаз, 1 умывальник

 

Итого:

68,0

98,0

 

3.

Группа административно-хозяйственных помещений

 

 

 

3.1.

Административное помещение

9,0

9,0

3.2.

Хозяйственная кладовая

4,0

4,0

3.3.

Инструкторская

9,0

9,0

 

Итого:

22,0

22,0

 

 

Всего:

282,0

416,0

 

1 См. табл. 3.1

Приложение 5

Рекомендуемый состав физкультурно-спортивных сооружений геронтологического физкультурно-оздоровительного центра в составе клуба обслуживания инвалидов и пенсионеров (для жилых групп, включающих специализированные жилые дома с квартирами для инвалидов и пенсионеров)

№№ п/п

Наименование помещений

Площадь помещения, (м кв.)

Примечание

1

2

3

5

1.

Группа помещений вестибюля

 

 

1.1.

- Вестибюль, всего, в т.ч.

20,0

Проектируется с учетом использования инвалидами

 

- Зона отдыха лиц, сопровождающих инвалидов

6,0

 

1.2.

Гардероб

10,0

 

1.3.

Регистратура

5,0

 

1.5.

Туалет (мужской и женский)

10,0

5,0 + 5,0

 

 

Итого:

32,5

 

2.

Группа помещений физкультурно-оздоровительного назначения

 

 

2.1.

Помещение физкультурно-оздоровительных занятий, ОФП 12,0×9,0

108,0

 

2.2.

Инвентарная

8,0

 

 

Итого:

116,0

 

2.3.

Раздевальные общие (мужские и женские) в т.ч.

 

Проектируются с учетом использования инвалидами

2.3.1.

Места для переодевания

- на 5 мест

20,0

10,0×2

Хранение одежды в одноярусных шкафах. В раздевальных устанавливается 1 ножная ванна, 1 сушилка для волос

2.3.2.

Душевые

- на 1 сетку;

6,0

3,0×2

2.3.3.

Санузел (с умывальником в шлюзе)

10,0

5,0×2

Устанавливается 1 унитаз, 1 умывальник

2.3.4.

Места для хранения колясок

3,0

 

 

Итого:

39,0

 

2.4.

Зал лечебной гимнастики

60,0

Проектируются с учетом использования инвалидами

2.5.

Инвентарная

6,0

 

 

Итого:

66,0

 

2.6.

Раздевальные общие (мужские и женские) в т.ч.

 

Проектируются с учетом использования инвалидами

2.6.1.

Места для переодевания

- на 5 мест

20,0

10,0×2

Хранение одежды в одноярусных шкафах. В раздевальных устанавливается 1 ножная ванна, 1 сушилка для волос

2.6.2.

Душевые

- на 1 сетку;

6,0

3,0×2

 

2.6.3.

Санузел (с умывальником в шлюзе)

10,0

5,0×2

Устанавливается 1 унитаз, 1 умывальник

2.6.4.

Места для хранения колясок

3,0

 

 

Итого:

39,0

 

2.7.

Зал механотерапии

60,0

Проектируются с учетом использования инвалидами

2.8.

Инвентарная

6,0

 

 

Итого:

66,0

 

2.9.

Раздевальные общие (мужские и женские) в т.ч.

 

Проектируются с учетом использования инвалидами

2.9.1.

Места для переодевания

- на 5 мест

20,0

10,0×2

Хранение одежды в одноярусных шкафах. В раздевальных устанавливается 1 ножная ванна, 1 сушилка для волос

2.9.2.

Душевые

- на 1 сетку;

6,0

3,0×2

 

2.9.3.

Санузел (с умывальником в шлюзе)

10,0

5,0×2

Устанавливается 1 унитаз, 1 умывальник

2.9.4.

Места для хранения колясок

3,0

 

 

Итого:

39,0

 

2.10.

Помещение индивидуальных занятий лечебной гимнастикой

20,0

Проектируются с учетом использования инвалидами

3.

Помещения медицинского назначения

 

Проектируются с учетом использования инвалидами

3.1.

Кабинет врача

12,0

 

3.4.

Процедурная

12,0

 

3.5.

Массажная на 4 кушетки

16,0

 

 

Итого:

40,0

 

4.

Группа административно-хозяйственных помещений

 

 

4.1.

Административное помещение

9,0

 

4.2.

Хозяйственная кладовая

4,0

 

4.3.

Кладовая чистого и грязного белья

4,0 + 4,0

 

4.4.

Инструкторская

9,0

 

4.5.

Комната персонала

9,0

 

 

Итого:

39,0

 

 

Всего:

496,6

 

Приложение 6

Рекомендуемый состав и площади помещений физкультурно-оздоровительных клубов микрорайонов

№№ п/п

Наименование помещения

Площади помещения (м2)

Примечание

Тип 11

Тип 21

Тип 31

1

2

3

4

5

6

1.

Группа помещений вестибюля*)

 

 

 

Все помещения для посетителей проектируется с учетом использования инвалидами

 

 

1.1.

Вестибюль,

35,0**)

61,0

50,0**)

85,0

65,0**)

106,0

 

 

в т.ч. зона отдыха для родителей, сопровождающих детей, и лиц, сопровождающих инвалидов

7,0

9,0

12,0

 

1.2.

Гардероб верхней одежды

10,0**)

11,0

10,0**)

15,0

12,0**)

22,0

 

1.3.

Туалет общий (мужской и женский)

5,0×2

10,0

5,0×2

10,0

5,0×2

10,0

 

1.4.

Регистратура

5,0

5,0

5,0

 

 

Итого:

60,0**)

77,0

75,0**)

11,5

92,0**)

143,0

 

2.

Группа помещений физкультурно-оздоровительных залов

 

 

 

 

2.1.

Зал спортигр, ОФП

 

 

 

 

 

- 18,0×15,0 м;

270,0

-

-

Высота залов 6,0 м.

 

- 24,0×15,0 м;

-

360,0

-

 

- 30,0×18,0 м

-

-

540,0

2.2.

Инвентарная зала спортигр

18,0

18,

24,0

Минимальная высота помещения - 2,7 м

2.3.

Зал фитнеса (Групповые занятия аэробикой, хореография)

 

 

 

Высота залов 4,8 м.

 

- 9,0×9,0 м;

81,0

-

-

 

- 12,0×12,0 м;

-

144,0

-

 

 

- 15,0×15,0 м

-

-

225,0

 

2.4.

Инвентарная зала фитнеса

6,0

8,0

8,0

Минимальная высота помещения - 2,7 м

2.5.

Зал единоборств

 

 

 

Высота залов 4,8 м.

 

- 12,0×9,0 м;

108,0

-

-

 

- 15,0×9,0 м;

-

135,0

-

 

 

- 15,0×12,0 м

-

-

180,0

 

2.6.

Инвентарная зала единоборств

6,0

8,0

8,0

Минимальная высота помещения - 2,7 м

2.7.

Помещение индивидуальных занятий с использованием тренажерной техники

40,0

60,0

80,0

Минимальная высота помещения - 2,7 м

2.8.

Помещение настольного тенниса

 

 

 

Минимальная высота помещения - 2,7 м

 

- на 1 стол

40,0

40,0

-

 

 

- на 2 стола

-

-

72,0

 

 

Итого:

569,0

773,0

1137,0

 

2.9.

Раздевальные залов общие (мужские и женские) в т.ч.:

 

 

 

Не менее 50 % приборов предусматриваются для инвалидов.

2.9.1.

Места для переодевания:

 

 

 

В раздевальных устанавливаются:

 

- на 28 мест (при занятиях инвалидов в зале ОФП);

90,0

45,0×2

-

-

1 умывальник, 2 ножные ванны; 3 сушилки для волос в женской, 2 - в мужской раздевальной;

 

- на 41 места (при занятиях инвалидов в зале ОФП);

-

124,0

62,0×2

-

2 умывальника, 3 ножные ванны; 5 сушилок для волос в женской, 2 - в мужской раздевальной;

 

- на 60 мест (при занятиях инвалидов в зале ОФП)

-

-

156

78,0×2

2 умывальника, 3 ножные ванны; 6 сушилок для волос в женской, 3 - в мужской раздевальной

2.9.2.

Душевые:

 

 

 

3 душевых кабины проектируются с учетом использования инвалидами колясочниками

 

- на 6 сеток;

30,0

15,0×2

-

-

 

- на 9 сеток;

-

42,0

21,0×2

-

4 душевых кабины проектируются с учетом использования инвалидами колясочниками

 

- на 12 сеток

-

-

60,0

30,0×2

6 душевых кабин проектируются с учетом использования инвалидами колясочниками

2.9.3.

Санузлы (с умывальником в шлюзе)

10,0

5,0×2

-

-

В санузлах устанавливаются:

1 унитаз в женском санузле; 1 унитаз, 1 писсуар в мужском санузле.

 

 

-

12,0

5,0 + 7,0

-

2 унитаза в женском санузле; 1 унитаз, 1 писсуар в мужском санузле.

 

 

-

-

14,0

7,0×2

2 унитаза в женском санузле; 1 унитаз, 2 писсуара в мужском санузле.

 

Итого:

130,0

178,0

230,0

 

3.

Раздевальные открытых сооружений общие (мужские и женские) в т.ч.:

 

 

 

Раздевальные предусматриваются по заданию на проектирование на 50 % единовременной пропускной способности площадок спортивных игр, в т.ч. 15 % мест предусматриваются для инвалидов-опорников. Не менее 50 % приборов предусматривается для инвалидов

3.1.

Места для переодевания

 

 

 

В раздевальных устанавливаются

 

- на 26 мест;

90,0

45,0×2

-

-

1 умывальник, 1 ножная ванна, 2 сушилка для волос в мужской, 3 - в женской раздевальной

 

- на 35 мест;

-

104

52,0×2

-

2 ножные ванны, 2 сушилки для волос в мужской, 4 - в женской раздевальной

 

- на 51 место

-

-

132,0

66,0×2

3 ножные ванны; 3 сушилки для волос в мужской, 6 - в женской раздевальной

3.2.

Душевые:

 

 

 

 

 

- на 6 сеток;

30,0

15,0×2

-

-

3 душевых кабины проектируются с учетом использования инвалидами - колясочниками

 

- на 7 сеток;

-

32,0

16,0×2

-

4 душевых кабины проектируются с учетом использования инвалидами колясочниками

 

- на 11 сеток

-

-

56,0

28,0×2

6 душевых кабин проектируются с учетом использования инвалидами - колясочниками

3.3.

Санузлы (с умывальник в шлюзах) мужские и женские

10,0

5,0×2

-

-

В санузлах устанавливаются:

1 унитаз в женском санузле; 1 унитаз, 1 писсуар в мужском санузле.

 

 

-

12,0

5,0 + 7,0

-

2 унитаза в женском санузле; 1 унитаз, 1 писсуар в мужском санузле.

 

 

 

 

14,0

7,0×2

2 унитаза в женском санузле; 1 унитаз, 2 писсуара в мужском санузле.

 

Итого:

130,0

148,0

200,0

 

4.

Буфет

18,0

25,0

40,0

Предусматривается по заданию на проектирование, как предприятие быстрого питания, в расчете на 15 % вместимости крытых сооружений.

5.

Группа клубных помещений, помещений досуга

 

 

 

 

5.1.

Помещение клуба

40,0

40,0

40,0

 

5.2.

Вспомогательное помещение клуба

20,0

20,0

20,0

 

5.3.

Места отдыха занимающихся

24,0

32,0

54,0

На 15 % вместимости крытых сооружений.

5.4.

Игротека

20,0

20,0

20,0

Предусматривается по заданию на проектирование.

 

Итого:

104,0

110,0

118,0

 

6.

Административно-хозяйственные помещения и инструкторские

 

 

 

 

6.1.

Административное помещение

12,0

12,0

12,0

 

6.2.

Инструкторская

9,0

9,0

9,0

 

6.3.

Комната персонала

9,0

9,0

9,0

 

6.4.

Хозяйственная кладовая

4,0

8,0

8,0

 

 

Итого

34,0

34,0

38,0

 

7.

Технические службы, технические помещения

90,0

100,0

160,0

 

 

Всего:

995,0**

1142,0

1297,0**

1515,0

1831,0**

2113,0

 

1 См. табл. 3.1.

*) Вестибюльная группа помещений в зимнее время используется как грелка катка массового катания.

**) В числителе дроби показатель площади помещений клуба без раздевальных открытых сооружений; в знаменателе дроби показатель площади помещений клуба, включающего раздевалки открытых сооружений на 50 % единовременной пропускной способности площадок спортивных игр.

Приложение 7

Рекомендуемый состав и площади помещений бассейнов оздоровительного и спортивно-оздоровительного плавания микрорайонов

№№ п/п

Наименование помещения

Площади помещений (м кв.)

Примечание

Тип 11

Тип 21

Тип 31

1

2

3

4

5

6

1.

Группа помещений вестибюля

 

 

 

Все помещения для посетителей проектируется с учетом использования инвалидами

1.1.

Вестибюль, в т.ч. площадь для родителей, сопровождающих детей, и лиц, сопровождающих инвалидов

20,0

20,0

24,0

Площадь вестибюля рассчитана на 100 % вместимости бассейнов

1.2.

Гардероб верхней одежды

10,0

10,0

10,0

Площадь гардероба рассчитана на 200 % вместимости бассейнов.

1.3.

Туалет общий (мужской и женский)

5,0×2

10,0

5,0×2

10,0

5,0×2

10,0

 

1,4.

Касса

3,0

3,0

3,0

 

1.5.

Регистратура

5,0

5,0

5,0

 

 

Итого:

48,0

48,0

52,0

 

2.

Группа помещений бассейна оздоровительного и спортивно-оздоровительного плавания

 

 

 

Залы оздоровительного и спортивно-оздоровительного плавания проектируются с учетом использования инвалидами-опорниками

2.1.

Зал оздоровительного плавания

 

 

 

Минимальная, высота зала ванны 4,8 м

 

- с ванной 16,6×6 м - зал 24×12 м;

288,0

-

-

 

 

- с ванной 16,6×8 м - зал 24×15 м

-

360,0

-

 

2.2.

Зал спортивно-оздоровительного плавания

 

 

 

Минимальная высота зала ванны 5,4 м

 

- с ванной 25×12 м - зал 30×18 м

-

-

540,0

 

2.3.

Инвентарная ванны

6,0

6,0

6,0

 

2.4.

Комната дежурного инструктора

8,0

8,0

8,0

Для комнат дежурного инструктора и дежурной медсестры предусматривается выход непосредственно на обходную дорожку

2.5.

Комната дежурной медсестры

12,0

12,0

12,0

2.6.

Лаборатория химического и бактериологического анализа воды

8,0

8,0

8,0

 

 

Итого:

314,0

394,0

574,0

 

3.

Раздевальные бассейна общие (мужские и женские), в т.ч.

 

 

 

Предусматривается хранение одежды в двухъярусных шкафах; в раздевальных устанавливаются:

3.1.

Места для переодевания:

 

 

 

 

 

- на 9 мест (в т.ч. 50 % для инвалидов, использующих кресла-коляски);

66,0

33,0×2

-

-

- 1 ножная ванна, 1 сушилка для волос;

 

- на 12 мест (в т.ч. 50 % для инвалидов, использующих кресла-коляски):

-

84,0

42,0×2

-

- 1 ножная ванна, 1 сушилка для волос в мужской раздевальной, 2 - в женской.

 

- на 24 места (в т.ч. 50 % для инвалидов, использующих кресла-коляски);

-

-

140,0

70,0×2

- 2 ножных ванны, 2 сушилки для волос в мужской раздевальной, 3 - в женской

4.6.2.

Душевые:

 

 

 

 

 

- на 3 сетки;

16,0

8,0×2

-

-

2 душевые кабины проектируются с учетом использования инвалидами - колясочниками.

 

- на 4 сетки;

-

20,0

10,0×2

-

2 душевые кабины проектируются с учетом использования инвалидами - колясочниками.

 

- на 8 сеток

-

-

40,0

20,0×2

4 душевые кабины проектируются с учетом использования инвалидами - колясочниками.

4.6.3.

Санузлы (с умывальником в шлюзе)

10,0

5,0×2

10,0

5,0×2

10,0

5,0×2

В санузлах устанавливаются: 1 унитаз - в женском санузле; 1 унитаз, 1 писсуар - в мужском

(С учетом их использования инвалидами-опорниками)

4.6.4.

Места для хранения кресел-колясок

4,0

6,0

8,0

 

 

Итого:

96,0

120,0

198,0

 

5.

Административно-хозяйственные помещения, инструкторские

 

 

 

 

5.1.

Кабинет директора

12,0

12,0

12,0

 

5.2.

Помещение администрации

20,0

20,0

20,0

 

5.3.

Инструкторская

9,0

9,0

9,0

 

5.4.

Бытовые помещения

9,0

9,0

9,0

 

5.5.

Хозяйственная кладовая

4,0

8,0

8,0

 

 

Итого

54,0

54,0

58,0

 

6.

Технические помещения и технические службы

75,0

90,0

120,0

 

 

Всего:

587,0

706,0

1002,0

 

1 См. табл. 3.1.

Приложение 8

Предложения по вариантам размещения и планировочным решениям открытых плоскостных физкультурно-спортивных сооружений массового использования.

Для разработки предложений по вариантам размещения открытых плоскостных физкультурно-спортивных сооружений массового использования в жилой застройке города Москвы отобраны характерные градостроительные ситуации, отражающие различие условий формирования комплексов открытых плоскостных спортивных сооружений в микрорайонах города.

Задачами разработки предложений по составам открытых спортивных сооружений и планировочных решений их блоков и комплексов, размещенных в различных градостроительных ситуациях являлись:

i обеспечить спрос различных социально-возрастных категорий населения, в т.ч. детей, молодежи, взрослого населения, инвалидов и лиц пожилого возраста в различных видах двигательной активности вблизи дома;

i обеспечить многофункциональность использования спортсооружений с максимально-широким диапазоном вариантов выбора физкультурно-спортивных и физкультурно-оздоровительных занятий;

i учесть при определении состава сооружений, размещаемых в различных ситуациях, как традиционные, так и новые, популярные среди детей и молодежи виды спорта;

i создать предпосылки для эффективного использования выделенных территорий за счет высокой пропускной способности комплексов;

i обеспечить разнообразный выбор физкультурно-спортивных занятий в условиях затесненной застройки, используя участки малой площади;

i предусмотреть возможность зимней эксплуатации спортсооружений;

i разработать планировочные решения комплексов, органично включенные в общую планировку микрорайонов и обогащающие решения их благоустройства.

Ниже приводятся краткие характеристики проектных решений.

Участок, выделенный под строительство открытых плоскостных физкультурно-спортивных сооружений в жилом районе Кузьминки (ЮВАО) по адресу Волгоградский проспект, вл. 96, размещен в жилом массиве смежно с участком общеобразовательной школы. Площадь участка 6777 м кв. (рис. 40).

Размещение участка в непосредственной близости от школы ориентирует на формирование комплекса открытых плоскостных сооружений, используемых как школьниками, так и населением микрорайона. Площадь участка позволяет запроектировать комплекс, включающий крупногабаритные площадки и сооружения, рассчитанные на разные контингенты занимающихся.

Планировочное решение комплекса базируется на принципе зонирования территории с группировкой в отдельных зонах площадок, используемых различными категориями населения.

Сектор А - сектор «Спорт для всех» включает блок летних спортивных площадок, в т.ч.: место для прыжков; 2 площадки для волейбола; площадку для ручного мяча, площадку для баскетбола. Площадки блокируются в границах используемой в зимнее время хоккейной площадки.

Сектор Б - сектор «Молодежный спорт», представлен наклонной дорожкой для скейтбординга и скоростного спуска на роликовых коньках, общей протяженностью 70 м, уклоном 10 % и виражом, а также комплексной площадкой для роллерхоккея и произвольного катания на роликовых коньках. Площадка может также использоваться для флорбола и других спортигр. По продольным сторонам площадки предусмотрены скамьи для зрителей. В зимнее время предполагается использование наклонной дорожки в качестве трассы для массового катания на горных лыжах, санях, сноубордах, комплексной площадки - в качестве катка массового катания.

Сектор В - блок площадок настольного тенниса, включающий 5 площадок, используемый всеми категориями населения, в т.ч. лицами пожилого возраста.

Сектор Г - Д - сектор «Легкая атлетика для маломобильных граждан» представлен полосой препятствий для инвалидов-опорников, не использующих коляски, и беговой дорожкой, длиной 40 м для инвалидов с дефектами зрения.

Зоны разделены зелеными насаждениями и связаны пешеходными дорожками с площадками для отдыха. Дорожки для занятий легкой атлетикой инвалидов имеют собственные дорожки возврата, что позволяет им не пересекаться с другими потоками занимающихся.

Блок физкультурно-спортивных площадок в жилом массиве Выхино-Жулебино (ЮВАО, Ташкентский переулок, вл. 1), размещенный на участке площадью 2640 м2, представляет собой группу сооружений, приближенных к жилью и предназначен для обслуживания детей, инвалидов и лиц пожилого возраста непосредственно в жилой группе (рис. 41).

Блок представлен:

i А - комбинированной площадкой для гандбола, баскетбола на колясках для инвалидов с поражением опорно-двигательного аппарата;

i Б - комплексной площадкой для игр детей и общефизической подготовки.

Комбинированную площадку для гандбола, баскетбола на колясках для инвалидов с поражением опорно-двигательного аппарата рекомендуется также использовать для спортивных игр других категорий населения.

Комплексная площадка для игр детей и общефизической подготовки включает площадку общефизической подготовки и подвижных игр, мини-площадку для катания детей на роликовых коньках и досках, площадку спиральбола. Площадка также оборудуется простейшими гимнастическими снарядами и устройствами для физических занятий и игр детей: структурами для лазания; качелями; шведской стенкой; рукоходом; разновысокими перекладинами; простейшими тренажерами.

Блок физкультурно-спортивных площадок в жилом районе Раменки (ЗАО), по ул. Удальцова, вл. 89, размещен на участке, площадью 3770 м кв., расположенном в центре жилой группы. Блок сформирован как комплекс открытых спортсооружений местного уровня обслуживания и предназначен для использования всеми категориями населения микрорайона.

Состав сооружений и планировочное решение блока определялись с учетом задачи обеспечить максимально широкий выбор занятий и пропускную способность комплекса, размещенного на сравнительно небольшом участке территории. В состав сооружений вошли:

i А - площадка для малого тенниса;

i Б - комбинированная площадка для флорбола и ручного мяча;

i В - блок площадок для настольного тенниса;

i Г - площадка комбинированная для баскетбола и волейбола;

i Д - площадка общефизической подготовки и подвижных игр;

i Е - дорожка здоровья.

Дорожка здоровья, протяженностью 150 м, связывает площадку общефизической подготовки с полосой простейших гимнастических снарядов и устройств, дополняющих площадку. Полоса оборудуется гимнастическим бумом, шведской стенкой, рукоходом, разновысокими перекладинами, простейшими тренажерами. На данном комплексе можно реализовать 10 различных видов физкультурно-спортивных занятий. В зимнее время предлагается использование площадок для заливки катка массового катания.

Блок физкультурно-спортивных площадок, расположенный в жилом районе Очаково-Матвеевское (ЗАО), по Очаковскому шоссе, вл. 11, размещен на участке площадью 1530 м кв. (рис. 43). За счет применения малогабаритных площадок в условиях ограниченной площади участка достигается разнообразие номенклатуры осуществляемых физкультурно-спортивных занятий, в т.ч. по новым видам спорта и физической рекреации (стритбол, ринго, стенбол). Предоставляется возможность занятий как детям и молодежи, так и взрослому населению. Планировочное решение комбинированной площадки волейбола, ринго, мини тенниса, обеспечивает возможность занятий инвалидов с поражением опорно-двигательного аппарата, а также других категорий населения.

Площадки связаны прогулочными тропинками, общей протяженностью 150 м, которые можно использовать также для оздоровительного бега. Предусмотрено озеленение участка и место отдыха.

Приложение 9

Иллюстрации

Экспликация

1. Общеобразовательные школы.

2. Встроенно-пристроенные к жилым домам блоки физкультурно-оздоровительных помещений приближенного и повседневного обслуживания.

3 - 4. Блок пристройки спортивных залов физкультурно-оздоровительного клуба микрорайона.

5. Блок-пристройка крытого бассейна оздоровительного плавания.

Рис. 1. Пример размещения физкультурно-оздоровительных помещений приближенного и повседневного социально-гарантированного обслуживания в сложившейся жилой застройке жилого района «Аэропорт»

Экспликация

1 - комплексная физкультурно-оздоровительная площадка 10,0×15,0 м; 2 - площадка для настольного тенниса 9,0×4,5 м; 3 - площадка с устройствами для гимнастических упражнений 9,0×8,0 м

Рис. 2. Фрагмент застройки мкрн. Ясенево (до 7,5 тыс. жителей). Пример включения в структуру существующей застройки плоскостных физкультурно-спортивных сооружений


Экспликация

1 - IV тип площадки мини-футбола/хоккея 61,0×30,0 м; 2 - III тип площадки ручного мяча/тенниса 40×20 м; 3 - II тип площадки волейбола/баскетбола 28,0×16,0 м; 4 - I тип площадки волейбола/бадминтона 24,0×15,0 м; 5 - площадка флорбола 40,0×20,0 м; 6 - комплексная площадка для массового катания на роликовых коньках с экстрим-зоной 30,0×15,0 м; 7 - площадка для стритбола 16,0×14,0 м; 8 - площадка для кеглей 22,0×6,0 м; 9 - площадка для ринго 14,0×7,0 м; 10 - площадка для крокета 10,0×5,0 м; 11 - комбинированная площадка для подвижных игр 15,0×10,0 м

Рис. 3. Элемент застройки мкрн. Н. Черемушки (до 15 тыс. жителей). Пример включения в структуру существующей застройки плоскостных физкультурно-спортивных сооружений

Экспликация

1 - IV тип площадки мини-футбола/хоккея 61,0×30,0 м; 2 - III тип площадки ручного мяча/тенниса 40,0×20,0 м; 3 - II тип площадки волейбола/баскетбола 28,0×16,0 м; 4 - I тип площадки волейбола/бадминтона 24,0×15,0 м; 5 - комплексная площадка для массового катания на роликовых коньках с экстрим-зоной 30,0×15,0 м; 6 - площадка для кеглей 22,0×6,0 м; 7 - площадка для крокета 10,0×5,0 м; 8 - площадка для стенбола 10,0×10,0 м; 9 - площадка для ринго 14,0×7,0 м; 10 - площадка для спиральбола 6,0×6,0 м; 11 - комбинированная площадка для подвижных игр 15,0×10,0 м

Рис. 4. Элемент застройки мкрн. Тропарево (до 20 тыс. жителей). Пример включения в структуру существующей застройки плоскостных физкультурно-спортивных сооружений

Экспликация

1 - IV тип площадки мини-футбола/хоккея 61,0×30,0 м; 2 - III тип площадки ручного мяча/тенниса 40,0×20,0 м; 3 - II тип площадки волейбола/баскетбола 28,0×16,0 м; 4 - I тип площадки волейбола/бадминтона 24,0×15,0 м; 5 - комплексная площадка для массового катания на роликовых коньках с экстрим-зоной 30,0×15,0 м; 6 - площадка для кеглей 22,0×6,0 м; 7 - площадка для крокета 14,0×7,0 м; 8 - площадка для стенбола 10,0×10,0 м; 9 - площадка для ринго 14,0×7,0 м; 10 - площадка для спиральбола 6,0×6,0 м; 11 - площадка комбинированная для подвижных игр 15,0×10,0 м

Рис. 5. Элемент застройки мкрн. Крылатское (до 20 тыс. жителей). Пример включения в структуру существующей застройки плоскостных физкультурно-спортивных сооружений


Экспликация

1 - площадка настольного тенниса 9,0×4,5 м; 2 - площадка мини-тенниса 20,0×10,0 м; 3 - комбинированная площадка бадминтона/волейбола/ринго 20,0×11,0 м; 4 - площадка для кеглей 22,0×4,0 м; 5 - площадка для крокета 10,0×5,0 м; 6 - площадка для стенбола 10,0×10,0 м; 7 - площадка для спиральбола 6,0×6,0 м; 8 - комбинированная площадка для подвижных игр и занятий на простейших снарядах 15,0×10,0 м

Рис. 6. Фрагмент застройки района Садово-Сухаревской ул. (до 7,5 тыс. жителей). Пример включения в структуру кварталов с затесненной застройкой плоскостных физкультурно-спортивных сооружений

Экспликация

1 - спортядро

2 - площадка для баскетбола

3 - площадка для гимнастики

4 - площадка для волейбола

5 - комбинированная площадка

6 - площадка для прыжков в длину

7 - полоса препятствий

 - спортзона

Рис. 7. Пример размещения открытых плоскостных спортивных сооружений микрорайона на участке общеобразовательной школы (с соответствующим увеличением площади участка).

Вариант 1. Физкультурно-оздоровительные занятия инвалидов-опорников с использованием тренажерной техники.

Экспликация

1. Станок пристенный для упражнений в ходьбе. 2. Зеркало. 3. Тренажер «Стенка». 4. Станок напольный для упражнений в ходьбе. 5. Дорожка для бега. 6. Велотренажер «Здоровье»

Вариант 2. Физкультурно-оздоровительные занятия с использованием тренажерной техники.

Экспликация

1. Гимнастическая стенка. 2. Тренажер «Стенка». 3. Тренажер «Гребля». 4. Тренажер «Ритм». 5. Дорожка для бега. 6. Велотренажер «Здоровье». 7. Тренажер вращения.

Рис. 8. Варианты оборудования физкультурно-оздоровительного помещения, приближенного к жилью.

Вариант 3. Групповые занятия по ритмической гимнастике, хореографии.

Экспликация

1. Гимнастическая стенка. 2. Станок хореографический. 3. Зеркало. 4. Место инструктора

Вариант 4. Настольный теннис для инвалидов-опорников.

Экспликация

1. Стол для настольного тенниса. 2. Гимнастическая стенка. 3. Поручни. 4. Зоны безопасности.

Рис. 9. Варианты оборудования в физкультурно-оздоровительном помещении, приближенном к жилью.

Экспликация

А/ Комплексная физкультурно-оздоровительная площадка:

1. Разметка площадки для бадминтона (15×8 м).

2. Разметка площадки для волейбола с уменьшенными габаритами (20×11 м)

3. Площадка для основной гимнастики и игры в мяч инвалидов-опорников (15×8 м).

4. Зоны безопасности.

Б/ Площадки для настольного тенниса.

В/ Устройства для гимнастических упражнений:

а/ структуры для лазания;

б/ рукоход;

в/ разновысокие перекладины;

г/ шведская стенка;

д/ бревна-балансиры.

Рис. 10. Блок открытых физкультурно-оздоровительных сооружений, приближенных к жилью, для жилой группы с численностью населения 8 тыс. чел.

Экспликация

1. Стол инструктора. 2. Шведская стенка. 3. Скамейка гимнастическая. 4. Зеркало. 5. Коврики (маты) для выполнения упражнений в положении лежа. 6. Шкаф для гимнастического оборудования. 7. Скамейки с крючками для переодевания. 8. Туалет. 9. Душевая кабина. 10. Места установки аппаратов механотерапии. 11. Умывальник. 12. Душевая кабина. 13. Уборная. 14. Зона разворота инвалидной коляски.

Рис. 11. Схемы планировок помещений геронтологического оздоровительного центра. А. Зал лечебной физкультуры с помещением для переодевания. Б. Помещение механотерапии.

Рис. 12. Схемы специализированных открытых физкультурно-спортивных сооружений для инвалидов различных групп. Места для прыжков инвалидов с дефектами зрения.

Рис. 13. Схемы специализированных открытых физкультурно-спортивных сооружений для инвалидов различных групп. Места для занятий легкой атлетикой.

Рис. 14. Схемы специализированных открытых физкультурно-спортивных сооружений для спортивных и рекреационных игр инвалидов различных групп.

Экспликация

1. Гимнастическая стенка. 2. Тренажер «Стенка». 3. Тренажер «Гребля». 4. Тренажер «Ритм». 5. Место инструктора. 6. Дорожка для бега. 7. Велотренажер «Здоровье». 8. Станок напольный для упражнений в ходьбе. 9. Ковер. 10. Снаряды гимнастические подвесные. 11. Рукоход. 12. Гимнастическая стенка. 13. Гимнастическая скамейка. 14. Зеркало. 15. Станок пристенный.

Рис. 15. Пример расстановки оборудования зала общефизической подготовки (18×9 м) физкультурно-оздоровительного клуба микрорайона с учетом занятий инвалидов-опорников.

Экспликация

1. Гимнастическая стенка. 2. Станок хореографический. 3. Зеркало. 4. Место инструктора. 5. Стеллажи для переносного оборудования. 6. Коврики для занятий в партере.

Рис. 16. Пример расстановки оборудования при групповых занятиях оздоровительной аэробикой в зале фитнеса физкультурно-оздоровительного клуба микрорайона.

Экспликация

1. Игровая площадка. 2. Стол для настольного тенниса. 3. Стеллаж. 4. Гимнастическая стенка.

Рис 17. Пример расстановки оборудования в помещении настольного тенниса.

Рис. 18. Открытые плоскостные физкультурно-спортивные сооружения для спортивных игр: площадка комбинированная для баскетбола, площадки для тенниса, волейбола.

Рис. 19. Схемы открытых плоскостных физкультурно-спортивных сооружений для спортивных игр: гандбола, бадминтона, настольного тенниса.

Рис. 20. Открытые плоскостные спортивные сооружения. Площадки флорбола и хоккея.

Рис. 21. Рекреационные сооружения. Площадки подвижных игр.

Рис. 22. Схемы сооружений для роллерспорта и скейтбординга.

Рис. 23. Рекреационные сооружения. Сооружения для роллерспорта: скоростного бега, фигурного и массового катания на роликовых коньках, роллерхоккея.

Рис. 24. Габаритные схемы различных устройств для роллерспорта.

Экспликация

1. Гимнастический бум. 2. Гимнастический снаряд с кольцами. 3. Разновысокие брусья. 4. Снаряд для тренировки пресса. 5. Рукоход. 6. Перекладина. 7. Гимнастические столбики. 8. Барьеры. 9. Бревно-балансир.

Рис. 25. Рекреационные сооружения. Дорожка «здоровья»

Экспликация

1. Ванна оздоровительного плавания 16,6×6,0 м. 2. Стационарные сиденья с подогревом. 3. Места хранения колясок. 4. Площадка для гимнастики. 5. Подъемник.

6. Поручни. 7. Входы из раздевальных с местами для инвалидов. Б.1. Лестница в мелкой части бассейна. Б.2. Лестница в глубокой части бассейна.

Рис. 26. Пример планировки зала бассейна с ванной оздоровительного плавания размером 16,6×6 м (с учетом обеспечения занятий инвалидов-опорников).

Рис. 27. Примеры планировочных решений раздевальных спортивных сооружений с учетом их использования инвалидами-опорниками.

А. Общая раздевальная с местами для переодевания инвалидов. Б. Индивидуальная кабина для переодевания инвалидов с двумя входами - в грязной и чистой обуви. В. Индивидуальная кабина для переодевания инвалидов.

Экспликация

1. Массажная кушетка. 2. Душевая кабина. 3. Унитаз. 4. Умывальник. 5. Бельевой шкаф. 6. Скамейка для переодевания. 7. Шкаф для верхней одежды. 8. Стол врача. 9. Стул. 10. Смотровая кушетка. 11. Электрокардиограф. 12. Спирограф. 13. Велоэргометр. 14. Фонограф. 15. Шкаф медицинский.

Рис. 28. Примеры планировки массажной на две кушетки с помещением переодевания. (А) и кабинета тестирования с физической нагрузкой (Б).

ВСТРОЕННЫЕ УЧРЕЖДЕНИЯ

ВСТРОЕННО-ПРИСТРОЕННЫЕ УЧРЕЖДЕНИЯ

Условные обозначения

* - физкультурно-оздоровительные помещения

* - подсобные помещения

* - жилые помещения

* - вход в жилые помещения

Рис. 29. Приемы архитектурно-планировочных решений встроенных и встроенно-пристроенных физкультурно-оздоровительных учреждений.

Экспликация.

1. Спортивный зал пристроенной части клуба. 2. Встроенная часть клуба. 3. Вспомогательные помещения пристроенной части клуба. 4. Технический этаж. 5. Жилые этажи.

Рис. 30. Варианты примыканий пристроенных объемов спортивных сооружений к жилому дому. А) Вариант с устройством «лотка». Б). Вариант с размещением технического этажа между жилыми и нежилыми помещениями

Условные обозначения

* - помещения физкультурно-оздоровительного блока

* - помещения клуба обслуживания инвалидов и пенсионеров (при проектировании кооперированного учреждения)

Экспликация помещений

1. Вестибюль, гардероб. 2. Раздевальные, душевые. 3. Помещение физкультурно-оздоровительных занятий. 4. Инвентарная. 5. Административное помещение. 6. Инструкторская. 7. Хозяйственная кладовая. 8. Туалет.

Рис. 31. Функциональная схема блока физкультурно-оздоровительных помещений, приближенных к жилью.

Условные обозначения

* - помещения блока молодежного клуба

* - помещения молодежного клуба приближенного обслуживания (при проектировании кооперированного учреждения)

Экспликация помещений

1. Вестибюль, гардероб. 2. Раздевальные, душевые. 3. Помещение фитнеса. 4. Инвентарная. 5. Помещение бодибилдинга. 6. Тренажерный зал. 7. Административное помещение. 8. Инструкторская. 9. Хозяйственная кладовая. 10. Туалет.

Рис. 32. Функциональная схема блока молодежного фитнес-центра.

Условные обозначения

 - помещения блока геронтологического оздоровительного клуба.

 - помещения центра обслуживания инвалидов и пенсионеров, (при проектировании кооперированного учреждения).

Экспликация помещений

1. Вестибюль, гардероб. 2. Раздевальные, душевые. 3. Помещение физкультурно-оздоровительных занятий. 4. Инвентарная. 5. Зал лечебной гимнастики. 6. Зал механотерапии. 7. Помещение индивидуальных занятий лечебной гимнастикой. 8. Кабинет врача. 9. Процедурная. 10. Массажная 11. Администрация. 12. Инструкторская. 13. Хозяйственная кладовая. 14. Туалет.

Рис. 33. Функциональная схема блока геронтологического оздоровительного клуба с расширенным составом помещений.

Экспликация помещений

1. Вестибюль, гардероб. 2. Раздевальные, душевые залов. 3. Зал спортигр, ОФП. 4. Инвентарная. 5. Зал фитнеса. 6. Помещение единоборств. 7. Помещение настольного тенниса. 8. Помещение индивидуальных занятий на тренажерах. 9. Раздевальные открытых сооружений. 10. Клубное помещение. 11. Подсобное помещение. 12. Холл. 13. Игротека. 14. Администрация. 15. Инструкторская. 16. Бытовые помещения. 17. Хозяйственная кладовая. 18. Буфет. 19. Туалет. 20. Технические помещения.

Рис. 34. Функциональная схема физкультурно-оздоровительного клуба микрорайона.

Экспликация помещений

1. Вестибюль, гардероб. 2. Раздевальные. 3. Душевые. 4. Зал подготовительных занятий. 5. Учебно-тренировочная ванна 25×16 м. 6. Инвентарная. 7. Комната дежурной медсестры. 8. Комната дежурного инструктора. 9. Лаборатория. 10. Технические помещения. 11. Эксплуатационные службы. 12. Буфет. 13. Туалет. 14. Тренерская. 15. Администрация. 16. Бытовые помещения. 17. Хозяйственная кладовая. 18. Кабинет врача. 20. Холл/комната отдыха.

Рис. 35. Функциональная схема микрорайонного бассейна оздоровительного плавания.

Экспликация помещений

1. Вестибюль, гардероб. 2. Раздевальные, душевые залов. 3. Зал физкультурно-оздоровительных занятий. 4. Инвентарная. 5. Тренажерный зал. 6. Помещение настольного тенниса. 7. Раздевальные бассейна. 8. Душевые бассейна. 9. Семейные раздевальные инвалидов. 10. Ванна оздоровительного плавания. 11. Комната дежурного инструктора. 12. Комната дежурной медсестры. 13. Эксплуатационные службы. 14. Клубная комната. 15. Детская игровая. 16. Холл-комната отдыха. 17. Администрация. 18. Тренерская. 19. Бытовые помещения. 20. Хозяйственная кладовая. 21. Туалет. 22. Буфет. 23. Пункт проката спортинвентаря. 24. Регистратура, касса. 25. Раздевальные открытых сооружений. 26. Инвентарная открытых спортсооружений. 27. Технические помещения. 28. Лаборатория.

Рис. 36. Функциональные схемы встроенно-пристроенных блоков учреждений повседневного социально-гарантированного обслуживания.

А. Блок встроенно-пристроенного к жилью физкультурно-оздоровительного зала. Б. Блок плавательного бассейна, пристроенного к школе. В. Блок раздевальных открытых сооружений.

Экспликация помещений

1. Группа помещений вестибюля. 2. Помещение физкультурно-оздоровительного назначения. 3. Помещения санитарно-гигиенического назначения.

Условные обозначения:

* - группа помещений входа в жилой дом;

* - помещения центра инвалидов и пенсионеров.

Рис. 37. Пример планировочного решения встроенных физкультурно-оздоровительных вспомогательных помещений приближенного обслуживания в составе центра обслуживания инвалидов и пенсионеров на 1-ом этаже жилого дома.

Экспликация помещений

1. Группа помещений вестибюля. 2. Помещение фитнеса. 3. Помещение бодибилдинга. 4. Помещение индивидуальных фитнес-занятий с использованием тренажеров. 5. Помещение санитарно-гигиенического назначения. 6. Административно-хозяйственные помещения. 7. Технические помещения.

Условные обозначения

 - группа помещений входа в жилой дом.

Рис. 38. Пример планировочного решения встроенного физкультурно-оздоровительного блока молодежного фитнес-центра в составе молодежного клуба приближенного обслуживания на 1-ом этаже жилого дома.

Экспликация помещений

1. Группа помещений вестибюля. 2. Регистратура. 3. Зал спортигр ОФП. 4. Зал единоборств. 5. Зал фитнеса. 6. Помещение индивидуальных занятий с использованием тренажерной техники. 7. Помещение настольного тенниса. 8. Инвентарная. 9. Помещение санитарно-гигиенического назначения. 10. Помещение клуба. 11. Вспомогательное помещение клуба. 12. Буфет. 13. Холл. 14. Игротека. 15. Места отдыха занимающихся. 16. Административно-хозяйственные помещения и инструкторские. 17. Технические службы и технические помещения.

Условные обозначения

 - помещения общественного обслуживания

 - вход в жилой дом (жилые помещения начинаются со 2-го этажа)

Рис. 39. Пример планировочного решения физкультурно-оздоровительного клуба микрорайонов, размещенного во встроенно-пристроенных помещениях жилого дома.

Экспликация

А. Площадка для летних спортивных игр и хоккея

1. Место для прыжков. 2. Площадка для волейбола. 3. Площадка для ручного мяча. 4. Площадка для баскетбола.

Б. Площадка комбинированная для роллерспорта и спортигр.

1. Въезд на дорожку скейтбординга. 2. Дорожка скейтбординга. 3. Вираж. 4. Выезд. 5. Площадка для роллерхоккея и произвольного катания на роликовых коньках. 6. Скамьи для зрителей.

В. Блок площадок настольного тенниса.

Г. Полоса препятствий для инвалидов-опорников.

Д. Беговая дорожка для инвалидов с поражением зрения

Рис. 40. Пример размещения открытых плоскостных физкультурно-спортивных сооружений социально-гарантированного обслуживания в градостроительной ситуации Кузьминки, Волгоградский пр., вл. 96.

Экспликация

А. Площадка комбинированная для ручного мяча, баскетбола на колясках для инвалидов с поражением опорно-двигательного аппарата.

Б. Комплексная площадка дли игр детей и общефизической подготовки

Рис. 41. Пример размещения открытых плоскостных физкультурно-спортивных сооружений учреждений социально-гарантированного обслуживания в градостроительной ситуации Выхино-Жулебино, Ташкентский пер., вл. 1.1.

Экспликация

А. Площадка для малого тенниса.

Б. Площадка комбинированная для флорбола и ручного мяча.

В. Блок площадок настольного тенниса.

Г. Площадка комбинированная для баскетбола и волейбола.

Д. Комплексная площадка для общефизической подготовки

и подвижных игр.

1. Гимнастический бум. 2. Шведская стенка. 3. Рукоход.

4. Разновысокие перекладины. 5. Простейшие тренажеры.

Е. Дорожка здоровья.

Рис. 42. Пример размещения открытых плоскостных физкультурно-спортивных сооружений учреждений социально-гарантированного обслуживания в градостроительной ситуации Раменки, ул. Удальцова, вл. 89.

Экспликация

1. Площадка комбинированная для волейбола, ринго, мини-тенниса для инвалидов с поражением опорно-двигательного аппарата.

2. Площадка ринго.

3. Площадка малого тенниса.

4. Блок площадок настольного тенниса.

Рис. 43. Пример размещения открытых плоскостных физкультурно-спортивных сооружений учреждений социально-гарантированного обслуживания в градостроительной ситуации Очаково-Матвеевское, Очаковское шоссе, вл. 11.




Яндекс цитирования



   Copyright © 2007-2026,  www.tehlit.ru.

[ ѓосты, стандарты, нормативы, инструкции, правила, строительные нормы ]