//
ТехЛит.ру
- крупнейшая бесплатная электронная интернет библиотека для "технически умных" людей.
WWW.TEHLIT.RU - ТЕХНИЧЕСКАЯ ЛИТЕРАТУРА

:: Алготрейдинг::


АЛГОТРЕЙДИНГ
шаг за шагом
с нуля по урокам!

Торговые роботы на PYTHON, BackTrader,
Pandas, Pine Script для TradingView. Связка с брокерами, телеграм и легкими приложениями.


Правительство Москвы

Система нормативных документов в строительстве
Московские городские строительные нормы

ЖИЛЫЕ ЗДАНИЯ

МГСН 3.01-01

Москва - 2001

Правительство Москвы

Московские городские строительные нормы

МГСН 3.01-01

взамен МГСН 3.01-96 и
дополнений № 1, № 2, № 3, № 4.

ЖИЛЫЕ ЗДАНИЯ

ВНЕСЕНЫ
Москомархитектурой МНИИТЭП

Утверждены
Правительством Москвы постановлением
от 02.10.2001 г. № 894-ПП

Срок введения
в действие
с 02.10.2001 г.

ПРЕДИСЛОВИЕ

1. Разработаны МНИИТЭП.

Авторы - канд. архитектуры С.И. Яхкинд (руководитель темы), академик, архит. Ю.П. Григорьев, канд. техн. наук, ст. науч. сотр. В.А. Максименко, канд. архитектуры И.С. Генкина, канд. архитектуры, ст. научн. сотр. Б.Ю. Бранденбург, канд. архитектуры Л.В. Петрова, канд. географ. наук Л.И. Конова, инженеры Г.И. Шапиро, В.И. Лаговер, А.В. Кузилин, В.Ф. Савинкин и А.Н. Добровольский (МНИИТЭП); канд. техн. наук Ю.М. Стругацкий (ЗАО "СтаДио"); архитекторы А.П. Зобнин, Л.П. Ревкевич и С.С. Горин, инж. В.А. Ионин (Москомархитектура), инженеры Е.Н. Чернышев, В.Н. Карпов и В.П. Федоров (АО Моспроект); инженеры С.Л. Горюнов, С.Е. Борисов и Е.Б. Цветков (ГУГПС ГУВД г. Москвы); канд. техн. наук Е.Е. Кирюханцев (НПО Мосспецавтоматика»); инженеры Е.Г. Антипова и Т.Г. Кожушко (Мосгосэкспертиза); сан. врачи С.Г. Фокин, Н.Д. Сенина., канд. мед. наук Т.Е. Бобкова (ЦГСЭН в г. Москве);

при участии инженера-экономиста Т.Л. Винокуровой, инженера А.Г. Солопова (МНИИТЭП), канд. архитектуры Л.В. Смывиной (ИОЗ), кандидатов архитектуры И.А. Шулики, Е.М. Лось и Н.Б. Мезенцевой (АО ЦНИИЭП им. Б.С. Мезенцева), канд. архитектуры Л.В. Сидорковой (ГИПРОНИИздрав), кандидатов архитектуры И.П. Васильевой и Е.Г. Кругликовой.

2. ВНЕСЕНЫ Москомархитектурой, МНИИТЭП.

3. ПОДГОТОВЛЕНЫ к утверждению и изданию Управлением перспективного проектирования и нормативов Москомархитектуры.

4. СОГЛАСОВАНЫ с Госстроем России, ГУГПС МВД РФ, УГПС ГУВД г. Москвы, ЦГСЭН в г. Москве, Департаментом муниципального жилья и жилищной политики, Мосгосэкспертизой.

5. ПРИНЯТЫ И ВВЕДЕНЫ в действие постановлением Правительства Москвы от 02.10.2001 г. № 894

С введением в действие МГСН 3.01-01 «Жилые здания» утрачивают силу МГСН 3.01-96 «Жилые здания» и Дополнения № 1, № 2, № 3 и № 4 к данным нормам.

СОДЕРЖАНИЕ

1. Область применения. 2

2. Нормативные ссылки. 2

3. Основные положения. 2

Санитарно-гигиенические требования. 4

Противопожарные требования. 6

Нежилые этажи (помещения) 11

Лифты.. 14

Мусороудаление. 14

4. Требования к основным элементам жилых зданий. 15

Квартиры и одноквартирные дома (коттеджи) 15

Дополнительные требования к квартирам для инвалидов и престарелых. 18

Жилые ячейки общежитий. 20

Помещения общественного назначения в специализированных квартирных жилых домах. 20

Помещения общественного назначения в общежитиях. 21

Хозяйственные и технические помещения. 21

5. Инженерное оборудование. 22

Водоснабжение и канализация. 22

Отопление, вентиляция и кондиционирование воздуха. 24

Теплоснабжение. 26

Газоснабжение. 27

Электротехнические устройства. 28

6. Дополнительные требования к конструкциям реконструируемых и модернизируемых жилых домов первого периода индустриального домостроения. 33

Приложение 1 Список ссылочных и нормативных документов. 34

Приложение 2 Термины и определения. 35

Приложение 3 Требования к расчету нагрузок на стилобат (или пристроенный объем) от пожарных автомобилей. 37

Приложение 4 Требования к устройству приемной площадки транспортно-спасательной кабины вертолета на покрытии жилого здания. 37

Приложение 5 Номенклатура учреждений и предприятий общественного назначения встроенных (встроенно-пристроенных) в жилые здания. 38

Приложение 6 Минимальное число лифтов, их грузоподъемность и скорость. 42

Приложение 7 Расчетные параметры воздуха и кратность воздухообмена в помещениях жилых зданий. 43

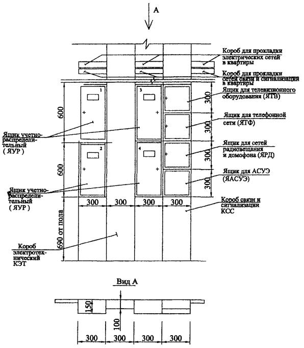
Приложение 8 Размещение электроаппаратуры и элементов сетей связи, информатизации и диспетчеризации в УЭРМ.. 44

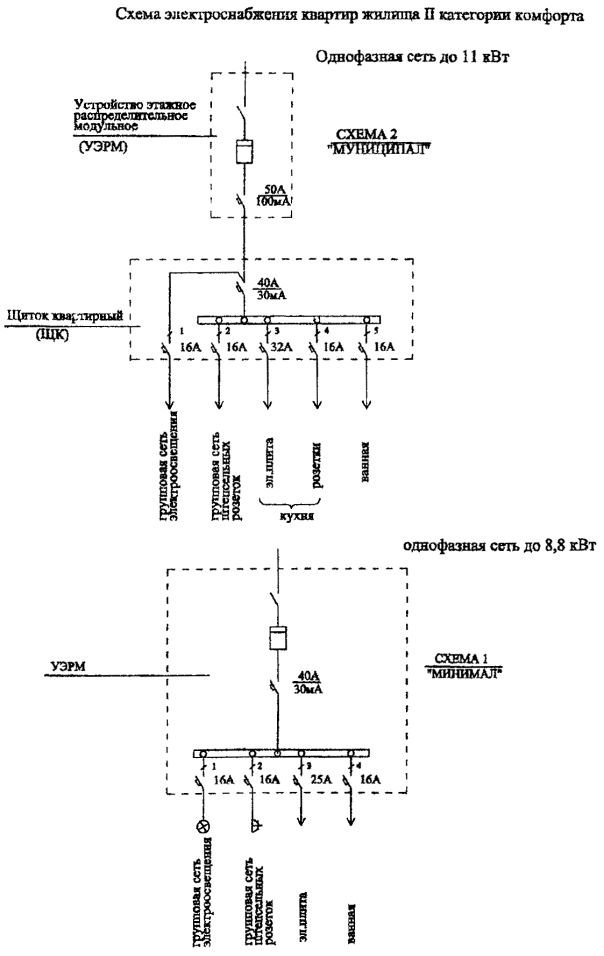
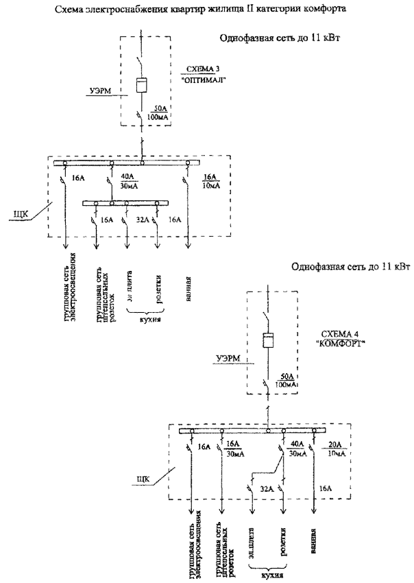
Приложение 9 Схема электроснабжения квартир жилища II категории комфорта. 45

Приложение 10 Схема электроснабжения квартир жилища I категории комфорта. 46

1. ОБЛАСТЬ ПРИМЕНЕНИЯ

1.1. Настоящие нормы и правила разработаны в соответствии с требованиями СНиП 10-01-94 для г. Москвы, как дополнение к СНиП 2.08.01-89* и другим федеральным нормативным документам в строительстве, действующим на территории Москвы, и предназначены для разработки и экспертизы проектов жилых зданий.

1.2. Настоящие нормы распространяются на проектирование жилых зданий до 25 этажей включительно с высотой расположения верхнего этажа не более 75,0 м (одноквартирные и многоквартирные, в том числе специализированные квартирные жилые дома для престарелых и семей с инвалидами, общежития для студентов высших учебных заведений и аспирантов), а также на проектирование реконструкции или модернизации четырех- и пятиэтажных жилых домов первого периода индустриального домостроения (далее в тексте - реконструируемые и модернизируемые жилые дома). Другие типы общежитий следует проектировать по специальным программам-заданиям.

Настоящие нормы и правила не распространяются на проектирование инвентарных и мобильных жилых зданий, а также зданий с временным проживанием (мотели и ночлежные жилые дома).

Нормы не регламентируют условия заселения жилища различных форм собственности и владения, а также формы владения нежилыми помещениями, размещаемыми в жилом доме. Данные положения обеспечиваются правовыми, нормативными и методическими документами, действующими на территории Москвы.

Нормы не распространяются на мероприятия по капитальному ремонту жилых домов, их реконструкцию и модернизацию (кроме указанных выше).

При необходимости проектирования жилых зданий с высотой расположения верхнего этажа более 75,0 м следует разрабатывать технические условия, отражающие специфику их эксплуатации и противопожарной защиты, включая комплекс дополнительных инженерно-технических мероприятий к тем требованиям, которые изложены в настоящих нормах и правилах. Для этих зданий, а также же жилой части многофункциональных комплексов настоящими нормами следует руководствоваться при проектировании квартир.

Примечание. Высота расположения этажа и высота здания здесь и далее определяется согласно п. 1.11* СНиП 2.08.01-89*.

При наличии перепада высот в поперечном разрезе здания высота расположения верхнего этажа определяется от наиболее низкого уровня проезжей части.

1.3. Нормы обязательны для применения всеми организациями, частными лицами и объединениями (включая совместные предприятия с участием зарубежных партнеров, зарубежные юридические и физические лица), осуществляющими проектирование зданий, указанных в п. 1.2, для строительства в г. Москве.

2. НОРМАТИВНЫЕ ССЫЛКИ

2.1. Список действующих нормативных и других документов, на которые дается ссылка в настоящих нормах приведен в приложении 1.

2.2. При исключении из числа действующих документов, на которые дается ссылка в настоящих нормах, следует руководствоваться нормами, введенными взамен исключенных.

3. ОСНОВНЫЕ ПОЛОЖЕНИЯ

3.1. Проектируемое жилище следует подразделять на категории по уровню комфорта:

I категория - жилище с нормируемыми нижними и неограниченными верхними пределами площадей квартир и одноквартирных домов (или коттеджей);

II категория - жилище с нормируемыми нижними и верхними пределами площадей квартир и жилых комнат общежитии.

Жилище I категории включает одноквартирные и многоквартирные жилые дома, в том числе блокированные (термин «блокированный жилой дом» здесь и далее см. СНиП 2.08.01-89*).

Жилище II категории включает:

многоквартирные жилые дома;

специализированные многоквартирные жилые дома или группы квартир для одиноких инвалидов и семей с инвалидами-колясочниками или неколясочниками (далее в тексте - для семей с инвалидами), а также для одиноких престарелых и семей из двух престарелых (далее в тексте - для престарелых);

общежития для студентов высших учебных заведений и аспирантов (далее в тексте - общежития).

Допускается объединение жилища I и II категорий комфорта в структуре жилого дома.

3.2. Термины и определения даны в приложении 2 настоящих норм и приложении 1 СНиП 2.08.01-89*.

При подсчете площадей квартир, одноквартирных домов, блокированных и других типов многоквартирных жилых домов, а также других технико-экономических показателей следует руководствоваться приложением 2 СНиП 2.08.01-89*.

При этом в площадь одноквартирного дома (квартиры блокированного жилого дома) включается площадь встроенного, пристроенного и встроенно-пристроенного гаража-стоянки, а также площадь дополнительных помещений, проектируемых согласно п.4.4.

Площадь помещений под антресолями и в частях двухсветных помещений, проектируемых согласно п.3.7, следует подсчитывать с коэффициентом 1.

Площадь внутриквартирной лестницы (в том числе в одноквартирном доме) учитывается однократно и определяется как площадь проекции маршей и междуэтажных площадок, если эти площадки не являются одновременно внутренними коридорами, частью холла или передней.

В площадь помещения не включается площадь, занимаемая подъемником, а также камином (кроме работающего на электроэнергии).

Первые этажи в жилых домах (кроме одноквартирных и блокированных жилых домов) следует предусматривать, как правило, нежилыми для размещения объектов социального и общественного обслуживания, малого предпринимательства (с учетом приложения 5 МГСН 3.01-01), гаражей-стоянок закрытого типа (с учетом требований МГСН 5.01-94*) и т.п.

Допускается размещение в первых этажах (с учетом требований разд. 4 МГСН 3.01-01): специализированных квартир для инвалидов и престарелых; квартир в жилых домах, располагаемых во внутри квартальной застройке.

Измененная редакция. Дополнение № 1.

3.3. При реконструкции или модернизации жилого дома (определения см. приложение 2) следует учитывать:

соответствие планировочных решений квартир нормативным положениям раздела 4;

соответствие несущих и ограждающих конструкций требованиям МГСН 2.01-99, а также требованиям огнестойкости и пожарной опасности, в том числе с учетом настоящих норм;

соответствие конструкций (в том числе несущих и ограждающих, а также заполнения светопроемов) требованиям МГСН 2.04-97;

данные о гидрогеологической обстановке.

3.4. В качестве основных направлений модернизации жилых домов без изменения объема здания следует предусматривать:

восстановление и изменение несущей способности конструкций, а также обеспечение инженерно-технических мероприятий, предусмотренных п.3.3;

изменение площадей квартир (и их помещений) в существующих габаритах жилого дома, в том числе с изменением количества и типов квартир на этаже, а также проектирование смежно-изолированных квартир (см. приложение 2) для семей, состоящих из нескольких поколений;

изменение (при необходимости) функционального назначения нежилых помещений.

3.5. В качестве основных направлений реконструкции жилых домов следует предусматривать указанные в п.3.4 мероприятия, сопровождаемые изменением объема здания при осуществлении:

пристройки новых объемно-планировочных элементов, в том числе квартир или их помещений, лестнично-лифтовых узлов, помещений нежилого назначения;

надстройки жилых домов (в том числе мансардным этажом) или разборку частей жилого дома.

3.6. При проектировании жилых зданий, кроме нагрузок и воздействий, определенных требованиями СНиП 2.01.07-85*, необходимо учитывать воздействия, не предусмотренные условиями их нормальной эксплуатации и приводящие к локальным разрушениям несущих конструкций этих зданий (в случаях пожара, взрыва и т.п.). Локальные разрушения не должны приводить к прогрессирующему обрушению конструкций. Для этого следует предусматривать условия, облегчающие развитие в элементах конструкций и их соединений пластических деформаций, обеспечивающие при локальных повреждениях устойчивость конструктивной системы жилого здания.

При проектировании следует руководствоваться соответствующими документами по защите жилых зданий при чрезвычайных ситуациях («Рекомендациями по защите жилых зданий стеновых конструктивных систем при чрезвычайных ситуациях» и другими).

САНИТАРНО-ГИГИЕНИЧЕСКИЕ ТРЕБОВАНИЯ

3.7. Высота помещений квартиры (одноквартирного дома) от пола до потолка должна быть не менее 2,5 м, а во внутриквартирных коридорах и частях двухсветных помещений (в том числе под балконами или галереями для прохода) - не менее 2,1 м.

В помещениях квартир (одноквартирного дома), расположенных в мансардном этаже (или верхних этажах), с наклонными ограждающими конструкциями допускается высота менее 2,5 м на площади, не превышающей 50 % площади помещения.

3.8. Продолжительность инсоляции в квартирах и одноквартирных жилых домах следует принимать согласно СанПиН 2.1.2.1002-00.

Измененная редакция. Дополнение № 1.

3.9. Естественное освещение должны иметь жилые комнаты, кухни, входные тамбуры в здания, лестничные клетки и общие коридоры в жилых зданиях коридорного типа и другие помещения согласно табл. 1 МГСН 2.06-99, а также помещения общественного назначения в общежитиях, в специализированных квартирных жилых домах для престарелых и семей с инвалидами.

Измененная редакция. Дополнение № 1.

Нормативные показатели по естественному, искусственному и совмещенному освещению жилых и других помещений следует принимать согласно МГСН 2.06-99.

Отношение площади световых проемов помещений к площади пола этих помещений допускается принимать, как правило, не более 1:5,5. Минимальное отношение должно быть не менее 1:8; для мансардных (или верхних) этажей со световыми проемами в плоскости наклонных ограждающих конструкций - не менее 1:10. Принятая площадь световых проемов обосновывается расчетом.

Длина общих коридоров не должна быть более, м: при освещении с одного торца - 24, с двух торцов - 48. При большей длине коридоров необходимо предусматривать дополнительное естественное освещение через световые карманы. Расстояние между световым карманом и световым проемом в торце коридора должно быть не более 30 м, а между двумя световыми карманами - не более 24 м. Ширина светового кармана должна быть не менее 1,5 м.

Внеквартирные коридоры длиной до 12 м, расположенные по обе стороны от светового кармана, допускается освещать вторым светом через этот световой карман, которым может служить лестничная клетка (или лифтовой холл).

Допускается проектировать без естественного освещения:

внеквартирные поэтажные коридоры - в односекционных жилых домах, располагаемые по периметру лифтового узла (лифта или лифтов с лифтовым холлом) в центре плана;

тамбуры в одноквартирных и блокированных жилых домах, а также ведущие непосредственно в квартиры.

При этом наибольшее расстояние от дверей квартир (жилых ячеек общежитий) до выхода в лестничную клетку следует предусматривать согласно п. 3.27.

Примечания. 1. Допускается проектировать без естественного освещения кухни или кухни-ниши в жилище II категории комфорта - в квартирах типов 1М, 2М (см. табл.1) и в жилых ячейках общежитий; в жилище I категории комфорта - в одноквартирных домах и всех типах квартир. При этом указанные кухни или кухни-ниши следует оборудовать электроплитами и предусматривать вентиляцию согласно требованиям п. 5.27

2. Допускается в соответствии с проектом остекление летних помещений при кухнях и других комнатах при обеспечении в них нормируемых КЕО, а в квартирах - нормируемой величины инсоляции. При этом инсоляция рассчитывается в плоскости остекления летних помещений. Допускается также остекление балконов, лоджий и террас при помещениях, в которых КЕО не нормируется.

3.10. При пристройке к обычной лестничной клетке лифтовых шахт в реконструируемых и модернизируемых жилых домах, указанные лифтовые шахты не должны полностью перекрывать световой проем.

В таких лестничных клетках: коэффициент естественного освещения не нормируется; проветривание следует обеспечивать через располагаемые в верхней зоне открывающееся окно площадью не менее 0,5 м2.

3.11. Внутриквартирные лестницы и лестничные клетки одноквартирных и блокированных жилых домов допускается выполнять без естественного освещения (с искусственным освещением) или предусматривать совмещенное освещение, включающее искусственное и естественное (верхнее или боковое).

3.12. Помещения (кроме обеспеченных системами кондиционирования воздуха и т.п.), имеющие естественное освещение, должны быть обеспечены проветриванием через фрамуги, форточки или другие устройства (кроме лестничных клеток типа Н2 и Н3).

3.13. Допустимые уровни внешнего шума в квартирах следует принимать согласно МГСН 2.04-97.

На улицах с уровнем шума выше допустимого следует предусматривать шумозащищенные жилые дома с конструктивными и (или) планировочными средствами шумозащиты с учетом «Рекомендаций по проектированию экономичных планировочно шумозащищенных жилых домов», а также «Пособия к МГСН 2.04-97 проектирование защиты от транспортного шума и вибраций жилых и общественных зданий».

В планировочно шумозащищенных жилых домах допускается ориентация на сторону шума одной общей комнаты в квартирах с числом жилых комнат три и более (согласно СНиП II-12-77), а также дополнительных и подсобных помещений квартир. При постановке таких жилых домов по красным линиям на улицах с шумовой характеристикой 70-75 дБА в указанных общих комнатах следует предусматривать конструктивно-технические средства шумозащиты, обеспечивающие в режиме проветривания снижение уровня проникающего шума не менее чем на 23 дБА.

Уровни шума от инженерного оборудования и других внутридомовых источников не должны превышать установленные МГСН 2.04-97 допустимые уровни и не более чем на 2 дБ (дБА) превышать фоновые значения (в том числе в ночное время), определяемые при выключенном (неработающем) источнике шума.

3.14. При реконструкции или модернизации жилого дома, расположенного в зонах влияния источников шума: автотранспорта, железных дорог, промпредприятий - создающих эквивалентные уровни звука более 75 дБА в дневное время или более 65 дБА в ночное время, следует предусматривать конструктивные и (или) планировочные средства шумозащиты, а при необходимости - градостроительные мероприятия согласно МГСН 1.01-99.

3.15. При изменении габаритов реконструируемого жилого дома следует обеспечивать соблюдение требований действующих нормативных документов по инсоляции, естественному освещению, виброизоляции и защите от шума, а также нормативные величины разрывов между этим домом и другими (окружающими) объектами. При этом в результате реконструкции не должны ухудшаться инсоляция, естественное освещение, виброизоляция и звукоизоляция в окружающих зданиях.

3.16. При размещении в одноквартирном или блокированном жилом доме помещений генератора теплоты (теплогенератора), а также устройстве лифтов следует обеспечивать в жилых помещениях уровни звука не более нормативно допустимых МГСН 2.04-97, исключая проникновение в эти помещения структурных, а также воздушных шумов.

3.17. При проектировании элементов конструкций, узлов их соединения, а также вентиляционных решеток следует учитывать требования по защите жилища от проникновения паразитирующих животных и насекомых. В том числе следует предусматривать комплекс специальной электротехнической аппаратуры, предназначенной для осуществления инженерно-технических мероприятий по защите от грызунов зданий согласно инструкции РМ-2776.

3.18. Для обеспечения экологических требований в жилище следует применять строительные и отделочные материалы (в том числе материалы для изготовления встроенной мебели), разрешенные к применению органами и учреждениями государственной санитарно-эпидемиологической службы.

3.19. При проектировании, строительстве и реконструкции жилых зданий среднегодовая эквивалентная равновесная объемная активность радона и тория в воздухе помещений ЭРОАRn + 4,6 ЭРОАTh не должна превышать 100 Бк/м3 а мощность эффективной дозы гамма-излучения - мощность дозы на открытой местности более чем на 0,2 мкЗв/ч.

Измененная редакция. Дополнение № 1.

Эффективная удельная активность (Аэфф.) природных радионуклидов в строительных материалах, используемых в строящихся и реконструируемых жилых зданиях (I класс), не должна превышать:

,

где АRa и ATh - удельные активности 226Ra и 232Th, находящихся в равновесии с остальными членами уранового и ториевого рядов, Ак - удельная активность К-40 (Бк/кг).

3.20. При наличии, в жилом здании горизонтальных участков бесчердачной кровли с выходом на них из квартир следует предусматривать специальные конструктивные решения с применением мероприятий по гидроизоляции, исключающие попадание влаги в расположенные ниже квартиры.

Крыши жилых зданий до 4 этажей включительно следует проектировать с наружным или внутренним организованным водостоком, при большей этажности - с организованным внутренним водостоком.

Допускается неорганизованный водосток с крыш 1-2-этажных жилых зданий при устройстве козырьков над входами.

При реконструкции жилых домов, в том числе с надстройкой до высоты здания не более 19,6 м (до 7 этажей включительно), при специальных обоснованиях допускается устройство организованного наружного водостока.

Выпуски водостоков следует предусматривать согласно п. 5.18.

ПРОТИВОПОЖАРНЫЕ ТРЕБОВАНИЯ

3.21. Противопожарную защиту жилых зданий следует обеспечивать в соответствии с действующими нормативными требованиями, за исключением случаев, оговоренных в данных нормах.

3.22. Проезды пожарных автомашин к жилым зданиям следует проектировать согласно СНиП 2.07.01-89* и МГСН 1.01-99.

С учетом п.12.3 МГСН 1.01-99 или при ориентации не менее одного окна каждой из квартир на проезд допускается предусматривать проезд пожарных автомашин только к одной стороне (продольному фасаду) жилого здания, а при угловых решениях - к двум сторонам.

Допускается предусматривать проезды пожарных автомашин к фасадам жилых зданий по эксплуатируемым кровлям стилобатов и пристроек. Требования к расчету нагрузки на эксплуатируемые кровли стилобатов (или пристроенного объема) следует принимать с учетом приложения 3 и СНиП 2.05.03-84.

Вынос стилобата (или пристроенного объема) без возможности проезда по нему пожарных машин допускается принимать не более 18,0 м (при высоте его не более 3,6 м) в жилых зданиях высотой не более 48,0 м при наличии переходов по балконам (или лоджиям) из односторонних квартир, ориентированных в сторону стилобата, в двухсторонние квартиры. При этом расстояние от внутреннего края проезда автолестницы или автоподъемника до стены стилобата (или пристройки) допускается принимать равным 5,0 м.

Примечание. Типы лестниц и лестничных клеток здесь и далее см. п.5.15 СНиП 21-01-97*.

3.23. На покрытии жилых зданий с высотой расположения верхнего этажа более 65,0 м следует проектировать приемные площадки для транспортно-спасательной кабины вертолета, требования к их устройству - см. приложение 4. При этом следует предусматривать дополнительный выход на кровлю.

3.24. При обеспечении общей устойчивости жилых зданий специальными мероприятиями по защите от прогрессирующего обрушения в случае локального повреждения несущих конструкций зданий при пожаре (согласно п. 3.6), предел огнестойкости междуэтажных перекрытий (в том числе чердачных и над подвалами) может приниматься для зданий I степени огнестойкости не менее REI 60, для зданий II степени огнестойкости - REI 45, для остальных конструкций предел огнестойкости принимается в соответствии с требованиями табл.4* СНиП 21-01-97*.

Примечание. Пожарно-технические характеристики конструкций и зданий, а также классы функциональной опасности см. СНиП 21-01-97*.

3.25. В обычных лестничных клетках допускается устанавливать приборы отопления, мусоропроводы, этажные совмещенные электрощиты и почтовые ящики, не уменьшая нормативной ширины прохода (в свету) по лестничным площадкам и маршам с учетом п. 3.29 настоящих норм и пп.6.32-6.33 СНиП 21-01-97*.

3.26. Ширину и уклон маршей пандуса следует принимать согласно СНиП 35-01-2001.

Измененная редакция. Дополнение № 1.

3.27. Наибольшее расстояние от дверей квартир, а также дверей жилых ячеек и поэтажных помещений общественного назначения общежитий до ближайшей лестничной клетки или выхода наружу следует принимать по табл.2* СНиП 2.08.01-89*.

Допускается в секции жилого здания принимать длину пути эвакуации от двери квартиры (жилой ячейки) в тупиковом внеквартирном поэтажном коридоре без естественного освещения (или с освещением вторым светом с учетом п.3.9) до двери обычной лестничной клетки или до двери тамбура перед незадымляемой лестничной клеткой, не более 12м.

В односекционном жилом доме лифт (лифты) с лифтовым холлом (согласно п. 3.63) в центре плана следует выделять противопожарными стенами 2-го типа, а двери лифтового холла и лестничной клетки предусматривать противопожарными с пределом огнестойкости не менее EI 30.

3.28. В жилых домах следует предусматривать пандусы (или подъемники для перемещения инвалидов-колясочников) на перепадах уровней при входе в здание или в квартиру, подходе к лифту, мусоропроводу и в коридорах. Конструкции таких подъемников (с учетом требований п. 3.67) не должны уменьшать расчетную (минимальную) ширину и высоту путей эвакуации.

3.29. Ширину маршей лестниц, ведущих на жилые этажи домов коридорного (или галерейного) типа, допускается принимать равной 1,05 м при заложенном в проекте числе заселяемых на этаже менее 100 человек. Для домов других типов следует руководствоваться табл.3 СНиП 2.08.01-89*.

3.30. В жилых зданиях секционного типа при площади квартир (или жилых ячеек общежитий) на этаже секции не более 500 м2 в жилище I и II категорий комфорта следует предусматривать эвакуационной выход с этажа секции на одну лестничную клетку согласно СНиП 2.08.01-89* при высоте расположения верхнего этажа не более:

28,0 м (до 10 этажей включительно) - на лестничную клетку типа Л1;

75,0 м (до 25 этажей включительно) - на лестничную клетку типа Н1.

Допускается для указанных типов жилых зданий проектировать выход на одну эвакуационную лестничную клетку при высоте расположения верхнего этажа не более:

9,0 м (до 3 этажей включительно) - на лестничную клетку типа Л2 с учетом п.6.35 и п.6.39* СНиП 21-01-97*;

28,0 м, (до 10 этажей, включительно; кроме общежитии и специализированных квартирных жилых домов для престарелых и семей с инвалидами) - на лестничную клетку типа Л2 с проемами в покрытии и защитными сетками, при обеспечении следующих мероприятий: площадь светопроемов не менее 11,5 м2; световой шахты на всю высоту лестничной клетки площадью горизонтального сечения не менее 4,0 м2; выходов из квартир через внеквартирный поэтажный коридор (холл) или тамбур; установке дверей лестничных клеток с пределом огнестойкости не менее ЕI 30; оборудование квартир автоматической пожарной сигнализацией согласно п. 5.61;

50,0 м (до 17 этажей включительно) - на. лестничные клетки типа Н2 или НЗ при обеспечении предела огнестойкости дверей лифтовых холлов и лестничных клеток не менее ЕI 30.

Примечания. 1. На путях эвакуации от двери квартиры до лестничной клетки типа Н2 следует предусматривать не менее двух (не считая двери квартиры) последовательно расположенных дверей. При этом при лестничной клетке типа Н2 следует предусматривать: тамбур (которым может являться лифтовой холл), а двери шахт лифтов - противопожарными с пределом огнестойкости не менее Е 30.

2. При проектировании лестничной клетки, типа Л2 с верхним естественным освещением через светопроемы в покрытии следует предусматривать в качестве аварийных выходов в квартирах 2-го и выше этажей при высоте расположения верхнего этажа:

до 8,4 м - балконы или лоджии согласно п.6.20*а) СНиП 21-01-97*;

до 28,0 м - балконы или лоджии с выходом на наружную лестницу, поэтажно соединяющую их до 2-го этажа с высотой расположения не более 5,6м.

При этом следует предусматривать открывание створок (фрамуг) в светопроемах лестничной клетки типа Л2 дистанционными устройствам и вручную.

3.31. Каждая квартира, жилая ячейка и поэтажные помещения общественного назначения общежитий в секционных жилых домах должны иметь аварийный выход при высоте расположения этажа 15,0 м и более в соответствии с п.6.20* а), б) или в) СНиП 21-01-97*.

Примечание. Из квартир для престарелых и семей с инвалидами в специализированных квартирных жилых домах не допускается проектировать аварийный выход по п.6.20* в) СНиП 21-01-97*.

3.32. В жилых зданиях коридорного (галерейного) типа при площади квартир (или жилых ячеек общежитий) на этаже не более 500 м2 в жилище I и II категорий комфорта внеквартирные поэтажные коридоры (галереи) должны иметь эвакуационной выход при высоте расположения верхнего этажа:

не более 28,0 м (до 10 этажей включительно) - на одну лестничную клетку типа Л1;

более 28,0 м - на одну лестничную клетку типа Н1.

При этом следует предусматривать выход на наружную лестницу 3-го типа с учетом табл. 2* СНиП 2.08.01-89*, а при наличии специализированных квартир для престарелых и семей с инвалидами - лестничную клетку, идентичную основному эвакуационному выходу.

Примечание. В жилых зданиях с высотой расположения верхнего этажа не более 50,0 м допускается вместо лестницы 3-го типа проектировать лестничную клетку типа Н2, при этом при высоте расположения верхнего этажа более 28,0 м выход из внеквартирных поэтажных коридоров (галерей) в указанную лестничную клетку следует предусматривать через тамбур (или лифтовой холл с противопожарными дверями с пределом огнестойкости не менее EI 30).

3.33. В жилых зданиях коридорного (галерейного) типа при площади квартир (жилых ячеек общежития) на этаже свыше 500 м2 до 800 м2 (при условии проектирования дверей квартир, лифтовых холлов, тамбуров внеквартирных холлов и лестничных клеток противопожарными с пределом огнестойкости не менее ЕI 30) в жилище I и II категорий внеквартирные поэтажные коридоры (галереи) должны иметь эвакуационной выходы не менее, чем на две лестничные клетки (с учетом требований табл.2* СНиП 2.08.01-89*), при высоте расположения верхнего этажа:

не более 28,0 м (до 10 этажей включительно) - на лестничные клетки типа Л1;

более 28,0 м - на незадымляемые лестничные клетки, из них не менее 50% должны быть типа Н1, а остальные типа Н2.

3.34. В жилых зданиях (кроме общежитии и специализированных квартирных жилых домов для престарелых и семей с инвалидами) допускается при площади квартир на этаже секции (или этаже коридорного, галерейного дома) свыше 500 м2 и до 800 м2 проектировать эвакуационные выходы в соответствии с п. 3.30 (с учетом п. 3.31) или п. 3.33 при высоте расположения верхнего этажа:

не более 28,0 м (до 10 этажей включительно) - с выходами из квартир в обычные лестничные клетки через внеквартирные поэтажные коридоры (галереи, холлы или тамбуры) и оборудование квартир автоматической пожарной сигнализацией согласно п. 5.61;

более 28,0 м - с выходами из квартир в незадымляемые лестничные клетки через внеквартирные поэтажные коридоры (холлы или тамбуры) и оборудовании всех помещений квартир (кроме санузлов, ванных комнат, душевых, постирочных и саун) адресной сигнализацией или автоматическим пожаротушением.

При этом для всех перечисленных в настоящем пункте жилых зданий следует предусматривать устройство противопожарных дверей лестничных клеток и лифтовых холлов с пределом огнестойкости не менее ЕI 30.

3.35. В секционных и коридорных (галерейных) жилых домах допускается в пределах первого этажа выход наружу из лестничной клетки типа Н2 (или Н3) через вестибюль согласно п. 6.34* СНиП 21-01-97* при условии выделения вестибюля от примыкающих помещений противопожарными перегородками и противопожарными дверями с пределом огнестойкости не менее ЕI 30 и отсутствии выходов в него из подземных этажей, а также при учете требований п. 3.50.

3.36. В жилых зданиях, проектируемых по п.1.2, допускается устройство квартир в двух и более этажах (уровнях).

Допускается устройство выходов на лестничную клетку через один этаж квартиры, при этом первый из выходов может быть организован как на первом (нижнем), так и на втором этаже квартиры.

При этом следует обеспечивать аварийным выходом в соответствии с п. 3.31 этаж квартиры, не имеющий непосредственный выход в лестничную клетку - при высоте его расположения не более 15,0 м и каждый этаж квартиры - при высоте, его расположения более 15,0 м.

Ширину внутриквартирной открытой лестницы следует предусматривать по табл.3 СНиП 2.08.01-89*.

При высоте расположения этажа квартиры более 18,0 м внутриквартирные открытые лестницы следует предусматривать согласно требованиям п.6.28 СНиП 21-01-97*, а менее 18,0 м - допускается предусматривать их деревянными, винтовыми или с забежными ступенями (с шириной проступи в середине не менее 18 см).

Требования по огнестойкости и классу пожарной опасности к конструкциям помещений многоуровневой квартиры, располагаемой в мансардном этаже (в том числе надстраиваемом) следует предусматривать согласно п.1.13* СНиП 2.08.01-89*.

3.37. Многоуровневую квартиру с цокольным или подвальным этажами (число надземных этажей должно быть не более двух) в зданиях класса Ф1.3 необходимо обеспечивать выходом непосредственно наружу и отделять ее от остальных помещений глухими противопожарными стенами и перекрытиями с пределом огнестойкости не менее REI 45. При этом все помещения данной квартиры (кроме санузлов, ванных комнат, душевых, постирочных и саун) должны быть оборудованы адресной пожарной сигнализацией и автономными дымовыми пожарными извещателями.

В цокольном или подвальном этажах секционного, коридорного и галерейного жилых домов класса Ф1.3 допускается в многоуровневой квартире размещение подсобных и дополнительных помещений (согласно номенклатуре п. 4.5, кроме сауны). При этом указанные помещения в пределах одной квартиры (расположенной в цокольном или подземном этаже, заглубленном более чем на 0,5 м) должны иметь согласно п.6.13* СНиП 21-01-97* не менее двух люков или окон (с приямками) размером не менее 0,9 х 1,2 м.

В многоуровневой квартире (с двумя надземными этажами и одним цокольным или подвальным) с самостоятельным входом с приквартирного участка в первом или цокольном этажах секционного, коридорного и галерейного жилых домов класса Ф1.3 допускается размещение гаража-стоянки на 1-2 машино-места для легковых автомашин (с учетом п.4.5 СНиП 21-02-99).

При этом гараж-стоянка должна:

иметь козырек из негорючих материалов шириной не менее 1 м над проемами ворот;

выделяться противопожарными стенами и перекрытиями 1-го типа;

сообщаться с квартирой через тамбур с двумя самозакрывающимися противопожарными дверями ЕI 60;

иметь автономную вытяжную вентиляцию самостоятельным каналом с пределом огнестойкости не менее REI 150.

3.38. Не нормируется размещение дополнительных помещений одноквартирных жилых домов и квартир блокированных жилых домов класса Ф1.4, в том числе в цокольном и подвальном этажах (кроме указанных в пп. 3.42, 3.46 и 5.48). Непосредственные выходы наружу из дополнительных помещений одноквартирного или блокированного жилого дома, размещенных в цокольном или подвальном этажах (кроме указанных в пп.3.42 и 5.48) не требуются.

3.39. При размещении в жилых зданиях специализированных групп квартир для семей с инвалидами-колясочниками (с учетом п. 4.15) выше первого этажа следует предусматривать не менее одного лифта для пожарных подразделений согласно требованиям НПБ 250-97.

3.40. При проходе к незадымляемым лестничным клеткам через лифтовые холлы двери шахт лифтов (кроме лифтов для пожарных подразделений) следует выполнять не менее Е30, а шахты лифтов не менее REI 45 в соответствии с требованиями к противопожарным преградам 2-го типа.

Двери шахт лифтов для пожарных подразделений следует выполнять согласно НПБ 250-97.

3.41. При высоте расположения верхнего этажа более 28,0 м в жилых зданиях следует предусматривать системы дымоудаления и подпора воздуха согласно требований пп.1.32-1.34* СНиП 2.08.01-89* и СНиП 2.04.05-91 *.

3.42. При проектировании хозяйственных кладовых (внеквартирных) в первом, цокольном и подвальном этажах многоквартирных жилых домов класса Ф1.3 (а также блокированных класса Ф1.4), указанные этажи должны быть отделены от жилых этажей противопожарными перекрытиями 2-го типа, оборудованы самостоятельным дымоудалением, системой спринклерного пожаротушения (согласно п. 5.10) и должны иметь эвакуационные выходы, ведущие непосредственно наружу, а также неоткрываемые окна (с приямками) размером не менее 0,9 ´ 1,2 м с пределом огнестойкости ЕI 30. При этом помещения этажа должны быть разделены противопожарными стенами с противопожарными дверями на отсеки по секциям, а в коридорных жилых домах - площадью не более 500 м2.

Тип противопожарной преграды следует определять в зависимости от степени огнестойкости здания и класса его конструктивной пожарной опасности.

В одноквартирных домах и квартирах блокированных жилых домов класса Ф1.4 кладовые допускается проектировать в первом, цокольном и подвальном этажах без учета вышеизложенных требований в части организации выходов, отделения их противопожарными перекрытиями от вышележащих этажей и оборудования их системами дымоудаления и спринклерного пожаротушения.

3.43. Камин на твердом топливе допускается проектировать:

в квартирах на верхнем этаже жилого дома или на любом уровне многоуровневой квартиры, размещенной последней по высоте, в жилом доме с этажностью равной или выше существующей застройки, а для другой этажности по согласованию с ЦГСЭН г. Москвы (в зданиях класса Ф1.3);

в одноквартирном или блокированном жилом доме на любом уровне при соблюдении требований СаНПиН 2.2.1/2.1.1.984-00 (в зданиях класса Ф 1.4).

Дымоход камина должен выполняться автономным и проходить через помещения данной квартиры.

В одноквартирных и блокированных жилых домах допускается проектировать также камины на газообразном топливе.

Дымоходные каналы следует проектировать из керамического полнотелого кирпича, допускается их выполнение из гончарных труб, закладываемых в кладку.

Внутренние поверхности дымоходных каналов должны быть гладкими и плотными. Следует обеспечивать защиту: от возникновения конденсата на внутренней поверхности стен дымоходов (в том числе от каминов и теплогенераторов) за счет выполнения стенок дымохода выше перекрытия верхнего этажа из пустотного кирпича толщиной не менее 120 мм; от атмосферных осадков - оголовка трубы и мест ее примыкания к кровле; от возгорания - мест примыкания дымоходов и трубы к перекрытию и кровле.

Конструкция дымоходов и каминов должна соответствовать требованиям СНиП 2.04.05-91* и СНиП 2.04.08-87* и обеспечивать доступность для очистки и ремонта.

3.44. На покрытии многоквартирных жилых домов допускается размещать крышные котельные с учетом требований СНиП II-35-76 и «Руководства по проектированию автономных источников теплоснабжения»

3.45. Не ограничивается этажность одноквартирных и блокированных жилых домов I и II степени огнестойкости и класса конструктивной пожарной опасности С0. Требования к одноквартирным жилым домам (и аналогично к блокированным) по степени огнестойкости, классу конструктивной пожарной опасности и решению путей эвакуации следует принимать согласно СНиП 31-02-2001.

3.46. В одноквартирном жилом доме (или квартире блокированного жилого дома) класса Ф1.4 допускается предусматривать размещение в первом, цокольном и подвальном этажах встроенного, встроенно-пристроенного или пристроенного гаража-стоянки (без ремонта и мойки) для проживающих в данном доме на одно и более машино-место.

Допускается помещение гаража-стоянки не отделять нежилым этажом от других помещений одноквартирного дома (квартиры блокированного дома), а также устраивать вход в них из других помещений, отделяя их противопожарной перегородкой ЕI 45 с установкой одинарной противопожарной двери с пределом огнестойкости ЕI 30 с доводчиком и уплотнителем в притворе.

В одноквартирных и блокированных жилых домах с учетом требований МГСН 5.01-94*: не нормируется предел огнестойкости перекрытий и стен, отделяющих встроенную (встроенно-пристроенную или пристроенную) гараж-стоянку; допускается не предусматривать козырек над проемами въездных (выездных) ворот в гараж-стоянку.

3.47. При проектировании саун в жилище I класса Ф1.3 и Ф1.4 (квартирах и одноквартирных жилых домах) следует предусматривать:

объем парильной из расчета не менее 8 м3 и не более 24 м3

установку под потолком парильной дренчера или перфорированного сухотруба, присоединенного к внутреннему водопроводу (за пределами парильной);

специальную печь заводского изготовления для нагрева с автоматическим отключением до полного остывания при достижении температуры 130°С, а также через 8 часов непрерывной работы;

автономную для каждой парильной вентиляцию с естественным побуждением (с притоком из смежного помещения под печь и вытяжкой из нижней зоны).

В многоуровневой квартире, проектируемой согласно п. 3.40 размещение сауны в цокольном или подвальном этаже не допускается.

Примечание. Диаметр сухотруба следует определять по расчету при интенсивности орошения не менее 0,06 л/с на м2 боковой поверхности стены, предусматривая при этом отверстия диаметром 3-5 мм с шагом 150-200 мм в трубе сухотруба и угол наклона струи воды 20°-30° к поверхности стен (перегородок).

3.48. Допускается согласно проекту остекление летних помещений (балконов или лоджий, в том числе проектируемых с учетом требований п.6.20* СНиП 21-01-97*) при квартирах с учетом требований прим.2 к п. 3.9. Конструктивные элементы остекления летних помещений должны располагаться: от уровня пола летнего помещения на расстоянии, как правило, 1,0 м и более, а выше - не менее чем через 1,2 м; по ширине - на расстоянии не менее 0,7 м. При этом остекленные створки балконов и лоджий, в том числе используемых в качестве эвакуационных путей, должны быть открывающимися.

3.49. Помещения для дежурного по подъезду (консьержки) следует располагать на первом этаже вне лестничных клеток, предусматривая при этом следующие требования: применение ограждающих конструкции группы НГ; установку автономных пожарных извещателей, а в зданиях высотой более 28,0 м - автоматическую пожарную сигнализацию. Размещение спальных мест в помещениях для дежурного по подъезду не допускается.

НЕЖИЛЫЕ ЭТАЖИ (ПОМЕЩЕНИЯ)

3.50. Градостроительными и технологическими требованиями по заданию на проектирование определяется наличие подвального этажа и количество нежилых надземных этажей встроенно-пристроенных и встроенных в жилые здания (в том числе реконструируемые или модернизируемые) учреждений общественного назначения.

Перечень учреждений общественного назначения и их размещение в жилых зданиях следует принимать согласно приложению 5.

Учреждения общественного назначения (кроме размещаемых в одноквартирных и блокированных жилых домах) следует отделять от жилой части противопожарными перегородками 1-го типа и противопожарными перекрытиями 2-го типа без проемов в зданиях I и II степени огнестойкости (в остальных случаях - 3-го типа) при соблюдении в жилой части нормативных параметров воздушной среды, шума и вибрации. Указанные учреждения (кроме перечисленных в п. 3.53) должны иметь входы и эвакуационные выходы, изолированные от жилой части здания, и быть обеспечены расчетным количеством машино-мест на автостоянках для сотрудников и посетителей.

На первом этаже по заданию на проектирование допускается проектировать помещения для работы с населением и помещения для присмотра за детьми (проживающими в этом доме) площадью не более 50 м2 со входом в него из внеквартирного коридора.

В составе встроенных (встроенно-пристроенных) в жилое здание ЛПУ допускается размещение рентгенстоматологических кабинетов (при обеспечении в их пределах требований НРБ-99) с дентальными рентгеновскими аппаратами, работающими с высокочувствительными приемниками изображения (без фотолабораторий) и дентальными аппаратами с цифровой обработкой изображения с рабочей нагрузкой не более 40 мА мин./нед.

Измененная редакция. Дополнение № 1.

3.51. В коттеджной застройке согласно градостроительным нормативным требованиям с учетом потребностей в объектах повседневного и периодического обслуживания по МГСН 1.01-99 допускается проектировать следующие нежилые помещения встроенными (встроенно-пристроенными) в первый, цокольный и подвальные этажи одноквартирных и блокированных жилых домов, а также пристроенные к ним:

аптечные киоски; магазины не более 150 м2 торговой площади по номенклатуре приложения 5; предприятия питания не более 20 мест;

предприятия бытового обслуживания не более 100 м2 общей площади;

клубы и залы компьютерных игр не более 100 м2; выставочные залы; творческие мастерские (художников, архитекторов и скульпторов, реставрационные) и народных промыслов с учетом п. 3.56 - не более 80 м2; музеи-квартиры; залы спортивные, аэробики, хореографии, ритмической гимнастики, ЛФК, борьбы и элементов борьбы не более 108 м2; сквош до 65 м2; биллиардные не более 2 столов; помещения для настольного тенниса, шашек и шахмат не более 72 м2;

проектно-изыскательские и конструкторские бюро, юридические консультации, нотариальные и адвокатские конторы с количеством сотрудников не более 10 человек.

Размещение в подземном этаже перечисленных помещений допускается с учетом требований п. 3.52 и приложения 5.

Допускается размещение на первом этаже одноквартирного и блокированного жилого дома малых дошкольных учреждений и прогулочных групп не более 2 групп, дежурных дневных групп кратковременного присмотра и круглосуточных при обеспечении изолированных игровых площадок необходимой вместимости.

Измененная редакция. Дополнение № 1.

3.52. Проектирование учреждений общественного назначения, размещаемых полностью или преимущественно в подземном пространстве, следует осуществлять с учетом требований действующих нормативных документов, а при их отсутствии по специально разрабатываемым техническим условиям, согласованным с УГПС ГУВД г. Москвы и ЦГСЭН в г. Москве.

3.53. На последнем (в том числе мансардном) этаже жилых зданий с высотой расположения верхнего этажа 75,0 м включительно допускается проектировать мастерские для художников и архитекторов, при этом выход на лестничную клетку жилой части здания следует предусматривать через тамбур с противопожарными дверями, а в остальных случаях согласно п. 1.38* СНиП 2.08.01-89*.

В составе квартир допускается проектировать дополнительные помещения - музеи-квартиры.

Измененная редакция. Дополнение № 1.

3.54. На эксплуатируемых кровлях жилых зданий (кроме жилых зданий с помещениями общественного назначения на верхних этажах), кровлях встроенно-пристроенных и пристроенных предприятий общественного назначения, а также при входной зоне, на летних внеквартирных помещениях, в соединительных элементах между жилыми зданиями (в том числе открытых переходах) и открытых нежилых этажах (первом и промежуточных) жилых и многофункциональных зданий допускается предусматривать для жителей дома: площадки спортивные, для отдыха взрослых с озеленением, для; сушки белья, для чистки вещей, мебели и одежды, солярии. При этом следует обеспечивать необходимые технологические, санитарно-гигиенические требования, меры безопасности (устройство ограждений и применение мероприятий по защите вентиляционных выпусков), а в части противопожарных требований - без устройства дополнительного перекрытия или покрытия над эксплуатируемыми кровлями. Перечень дополнительных элементов благоустройства для размещения в указанных рекреационных зонах следует принимать по специальному заданию на проектирование.

3.55. Устройство встроенных или встроенно-пристроенных гаражей-стоянок в подвальном, цокольном и надземном этажах жилых домов класса Ф1.3 следует предусматривать с соблюдением требований МГСН 5.01-94*.

В первом, цокольном и подвальном этажах одноквартирных и блокированных жилых домов класса Ф1.4 встроенные (встроенно-пристроенные) и пристроенные гаражи-стоянки для проживающих следует проектировать с учетом требований п. 3.45.

Допускается предусматривать под жилым домом открытые одноуровневые автостоянки для жителей данного дома (без технического обслуживания, без устройства боксов и т.п.) при условии выполнения:

технического этажа над автостоянкой с пределом огнестойкости нижнего перекрытия и несущих опор не менее REI 150;

козырька шириной не менее 1 м по периметру здания.

Примечание. Расстояние от периметра жилого здания с открытой автостоянкой в первом этаже до детских площадок, площадок отдыха, территорий детских, общеобразовательных и лечебных учреждений следует предусматривать согласно МГСН 1.01-99.

3.56. Не допускается размещать встроенными и встроенно-пристроенными в жилые здания (в том числе одноквартирные и блокированные жилые дома): специализированные магазины москательно-химических и других товаров, эксплуатация которых может вести к загрязнению территории и воздуха жилой застройки; магазины и другие помещения с наличием в них взрывопожароопасных веществ и материалов (легковоспламеняющихся и горючих жидкостей в аэрозольной упаковке), а также твердых пожароопасных материалов; магазины по продаже ковровых изделий, автозапчастей, шин и автомобильных масел; специализированные рыбные; магазины с режимом функционирования после 23 часов; предприятия бытового обслуживания, в которых применяются легковоспламеняющиеся вещества (кроме парикмахерских и мастерских по ремонту часов общей площадью до 300 м2); бани и сауны (кроме индивидуальных саун в квартирах и одноквартирных домах); казино; дискотеки; танцевальные кружки и студии; театры; предприятия питания и досуга с числом мест более 50 и общей площадью более 250 м2 с режимом функционирования после 23 часов и с музыкальным сопровождением - рестораны, бары, кафе, столовые, закусочные, а также клубы; прачечные и химчистки (кроме приемных пунктов и прачечных самообслуживания производительностью до 75 кг в смену); автоматические телефонные станции, предназначенные для телефонизации жилых зданий, общей площадью более 100 м2; общественные уборные; похоронные бюро; склады оптовой (или мелкооптовой) торговли; производственные помещения (кроме мастерских реставрационных и народных промыслов, помещений для труда инвалидов и престарелых, размещаемых в специализированных квартирных жилых домах, в их числе пункты выдачи работы на дом, мастерские сборочные, монтажные и декоративных работ); зуботехнические лаборатории, клинико-диагностические и бактериологические лаборатории; стационары, в том числе диспансеры, дневные стационары и стационары частных клиник, диспансеры всех типов; диспансеры без стационаров всех типов, травмпункты, подстанции скорой и неотложной медицинской помощи; дерматовенерологические, психиатрические, инфекционные и фтизиатрические кабинеты врачебного приема; отделения (кабинеты) магнитно-резонансной томографии; рентгеновские кабинеты в смежных с жилыми помещениями и под ними, а также помещения с лечебной или диагностической аппаратурой и установками, являющимися источником ионизирующего излучения.

Измененная редакция. Дополнение № 1.

Под жилыми зданиями (в том числе одноквартирными домами) в цокольном и подземных этажах не допускается размещать: помещения для хранения, переработки и использования в различных установках и устройствах легковоспламеняющихся и горючих жидкостей и газов, взрывчатых веществ (кроме помещений генераторов теплоты в цокольных этажах одноквартирных домов класса Ф1.4), горючих материалов; помещения для пребывания детей; кинотеатры, конференц-залы и другие зальные помещения с числом мест более 50, а также лечебно-профилактические учреждения.

Магазины по продаже ковровых изделий и изделий из твердых пожароопасных материалов допускается располагать пристроенными к глухим участкам стен жилых зданий с REI 150.

3.57. Допускается сохранять в реконструируемых и модернизируемых жилых домах встроенные (встроенно-пристроенные) предприятия и учреждения общественного назначения без изменения их функционального назначения, увеличения площади, числа рабочих мест и производительности (мощности) или с их увеличением, а также с изменением их функционального назначения.

3.58. Допускается устройство одного эвакуационного выхода из помещений учреждений общественного назначения с 1-го, со 2-го и цокольного этажей при общей площади не более 300 м2 и числе работающих не более 15 человек.

3.59. Загрузку помещений учреждений общественного назначения встроенно-пристроенных и встроенных в жилых зданиях следует предусматривать согласно п. 1.38* СНиП 2.08.01-89*.

В реконструируемых и модернизируемых жилых домах по согласованию с ЦГСЭН допускается сохранение существующей загрузки помещений встроенных (встроенно-пристроенных) предприятий торговли, питания, бытового обслуживания, аптек, столовых, детских учреждений со стороны дворового, торцового или других фасадов. При этом следует проектировать козырек или навес над загрузочными площадками вне помещений.

Установка транспортеров под окнами жилых помещений квартир не допускается.

3.60. Высоту помещений учреждений общественного назначения, встроенно-пристроенных и встроенных в жилые здания, допускается принимать равной высоте жилых помещений (в том числе для размещения во встраиваемых в реконструируемые жилые здания предприятий малого предпринимательства - с высотой помещений не менее 2,5 м), кроме помещений, в которых высота должна быть увеличена согласно технологическим требованиям с учетом СНиП 2.08.02-89*.

Измененная редакция. Дополнение № 1.

Уровень кровли встроенно-пристроенных (пристроенных) учреждений общественного назначения в местах примыкания к жилой части здания не должен превышать отметки пола жилых помещений.

3.61. Технические, подвальные и цокольные этажи, а также чердаки жилых зданий следует проектировать с учетом требований пп.1.42-1.45*, пп. 1.47-1.48 СНиП 2.08.01-89* и СНиП 21-01-97*.

ЛИФТЫ

3.62. Минимальное число пассажирских лифтов, их грузоподъемность и скорость в жилище I и II категорий в многоквартирных жилых зданиях (в том числе реконструируемых и модернизируемых) различной этажности следует принимать в соответствии с приложением 6. В жилище I категории по заданию на проектирование допускается увеличение числа лифтов и изменение их параметров с соблюдением всех нормативных требований соответственно этажности зданий.

В модернизируемых жилых домах при пристройке лифтовых шахт допускается изменение грузоподъемности лифтов и габаритов их кабин.

В модернизируемых или реконструируемых жилых домах уровень первой остановки лифта должен быть не выше уровня промежуточной площадки лестницы между первым и вторым этажом.

В одноквартирных и блокированных жилых домах допускается установка лифтов с учетом требований п. 3.39. Заданием на проектирование определяется их грузоподъемность, а также при необходимости их нестандартные габариты.

Примечание. Число лифтов в жилых домах с многоуровневыми квартирами в верхних этажах следует определять по этажу последней остановки лифтов.

3.63. При однорядном расположении лифтов ширина лифтового холла должна быть не менее, м: 1,2 - при грузоподъемности 400 кг; 1,5 (глубина кабины 1420 мм или ширина кабины 2100 мм) - 630 (500) кг; 2,1 (глубина кабины 2100 мм) - 1000, 630 (500) кг.

При двухрядном расположении лифтов ширина лифтового холла должна быть не менее, м: 1,8 - при установке лифтов с глубиной кабины менее 2100 мм; 2,5 - при установке лифтов с глубиной кабины 2100 мм и более.

3.64. Машинное помещение лифтов не должно быть расположено непосредственно над жилыми комнатами, под ними, а также смежно с ними. Шахты лифтов не должны быть размещены смежно с жилыми комнатами.

При многоуровневых квартирах, а также одноуровневых, проектируемых в мансардном этаже, допускается размещение машинного помещения лифтов на этаже квартиры при условии исключения проникновения в нее структурных шумов, а также воздушных шумов, превышающих допустимые санитарно-гигиенические уровни.

3.65. При проектировании многоуровневых (многоэтажных) квартир допускается остановка лифтов на одном из этажей квартиры.

При проектировании в мансардном этаже одноуровневых квартир допускается не предусматривать остановку лифтов на этом этаже, при этом подъем от последней остановки лифтов до входов в квартиры не должен превышать 3,0 м.

3.66. Для общежитий, а также для нежилых помещений, размещаемых в надземных этажах (с учетом приложения 6), число лифтов, их грузоподъемность и скорость следует определять по расчету.

3.67. При устройстве в жилых зданиях подъемников (для инвалидов-колясочников) в виде платформы, перемещаемой вертикально или вдоль лестничного марша, ее размеры в плане должны быть, м, не менее: 0,9 х 1,2 (ширина х глубину). Площадь для установки подъемника определяется заданием на проектирование.

МУСОРОУДАЛЕНИЕ

3.68. Мусоропроводы следует предусматривать: в жилище I и II категории в многоквартирных жилых зданиях (в том числе реконструируемых и модернизируемых) с отметкой пола квартир (жилых ячеек общежитий) 11,2 м и более; при проектировании квартир для престарелых с отметкой пола 8,0 м и более, для семей с инвалидами-колясочниками - 3,0 м и более.

Расстояние от двери квартиры (жилой ячейки общежитий) до ближайшего загрузочного клапана мусоропровода не должно превышать 25м.

Примечание. При расположении в верхних этажах здания многоуровневых квартир за расчетную отметку, определяющую оборудование домов мусоропроводами, следует принимать отметку входа в квартиру.

3.69. Ствол мусоропровода должен быть воздухонепроницаемым, звукоизолированным от строительных конструкций, иметь предел огнестойкости не менее Е 45 и конструктивную пожарную опасность К0, оканчиваться шибером в мусорной камере и не должен примыкать к жилым комнатам.

Мусоропровод должен быть оборудован устройствами для периодической промывки и дезинфекции стволов с системой пожаротушения в соответствии с требованиями п. 3.71 настоящего документа и п.1.53* СНиП 2.08.01-89*.

3.70. Мусоросборную камеру следует размешать непосредственно под стволом мусоропровода с подводкой к ней горячей и холодной воды, с трапом в полу, присоединяемым к системе канализации. Мусоросборную камеру не допускается располагать под жилыми комнатами или смежно с ними. Высота мусоросборной камеры в свету должна быть не менее 1,95 м, а ее размеры в плане - не менее 2,0 х 1,5 м с удобным подходом к шиберу и обеспечением возможности размещения тележки с бачками для вывоза мусора, а также инвентарного инструмента. Коридор, ведущий к мусоросборной камере, должен иметь, как правило, ширину не менее 1,3 м.

Мусоросборная камера должна иметь самостоятельный выход с открывающейся наружу дверью, изолированный от входа в здание глухой стеной (экраном), и выделяться противопожарными перегородками и перекрытием с пределами огнестойкости не менее REI 60 и классом пожарной опасности К0 (предел огнестойкости двери мусорокамеры не нормируется, ее обшивку с внутренней стороны следует выполнять из материалов типа НГ).

В мусоросборных камерах жилых зданий (независимо от их этажности) следует предусматривать установку спринклеров из условия орошения по всей площади мусоросборной камеры.

При размещении мусоросборных камер под маршами (площадками) лестничных клеток, перекрытие над мусоросборной камерой необходимо выполнять противопожарным 1-го типа.

3.71. Устройство прочистки, промывки и дезинфекции стволов с системой пожаротушения должно, как правило, располагаться на техническом этаже или чердаке. При отсутствии в жилом здании технического этажа или чердака это устройство следует предусматривать на верхнем этаже, а в жилых зданиях этажностью до 10 этажей включительно допускается на лестничной площадке лестничных клеток типа Л1.

3.72. Допускаются другие системы мусороудаления (в том числе вакуумное) по заданию на проектирование.

В одноквартирных и блокированных жилых домах допускается централизованное мусороудаление. Его тип, максимальная отметка пола этажа, с которого оно предусматривается, и другие параметры уточняются заданием на проектирование. При отсутствии централизованного мусороудаления сбор мусора осуществляется согласно требованиям п.1.1.7 Дополнения №1 к МГСН 1.01-98.

4. ТРЕБОВАНИЯ К ОСНОВНЫМ ЭЛЕМЕНТАМ ЖИЛЫХ ЗДАНИЙ

4.1. Размещение жилых помещений (общих комнат, гостиных и спален) в подземном или цокольном этажах жилых зданий не допускается.

4.2. При входах в жилые здания следует предусматривать тамбуры глубиной не менее 1,2 м, а в специализированных квартирных жилых домах (группах квартир) для престарелых и инвалидов-колясочников с габаритами не менее 1,5 м на 2,2 м.

При входах в жилые здания высотой 10 и более этажей следует предусматривать двойные тамбуры.

Вместо тамбура при входе в одноквартирные дома и квартиры блокированных жилых домов допускается предусматривать двойные входные двери при обеспечении требований МГСН 2.01-99.

КВАРТИРЫ И ОДНОКВАРТИРНЫЕ ДОМА (КОТТЕДЖИ)

4.3. Квартиры и одноквартирные дома следует проектировать, исходя из условия заселения их одной семьей.

В одноквартирном доме допускается размещение помещений для проживания обслуживающего персонала, в том числе их семей.

4.4. В одноквартирных домах и квартирах (в том числе реконструируемых и модернизируемых жилых домов) жилища I и II категории следует предусматривать жилые комнаты (в число которых входят одна гостиная, или общая комната, одна или несколько спален) и подсобные помещения: кухню, санитарно-гигиенические помещения (уборная, ванная комната или совмещенный санузел), кладовую (или встроенный шкаф), переднюю и, как правило, внутриквартирный коридор или холл.

В квартирах и одноквартирных домах допускается устройство летних помещений (балконов, лоджий, террас и веранд). Летние помещения в квартирах следует проектировать в соответствии с требованиями п. 3.31.

4.5. В составе квартир и одноквартирных домов жилища I категории допускается предусматривать дополнительные помещения: вторую гостиную (или общую комнату), игровую, столовую, кабинет, библиотеку, помещения санитарно-гигиенического назначения (душевая и ванная комната, санузел), помещения физкультурно-оздоровительного назначения (сауна, тренажерный и спортивный зал, раздевалка и биллиардная) помещения для хозяйственных работ (постирочная, гардеробная и кладовые) и другие по заданию на проектирование (в том числе гараж-стоянка), а также бассейны - в одноквартирных и блокированных жилых домах.

Номенклатура помещений для проживания обслуживающего персонала в одноквартирном доме определяется заданием на проектирование.

В цокольном и подземном этажах одноквартирных домов и квартирах многоквартирных жилых домов (в том числе блокированных) допускается размещать помещения санитарно-гигиенического (душевая и ванные комната, санузлы) и физкультурно-оздоровительного назначения (тренажерный и спортивный залы, раздевалка, биллиардная), помещения хозяйственного назначения (постирочную, гардеробную и кладовые), гараж-стоянку, а в одноквартирных и блокированных жилых домах также бассейн, сауну.

Габариты и емкость бассейна определяются заданием на проектирование с учетом п. 5.9.

4.6. В жилище I и II категорий (кроме специализированных квартир для семей с инвалидами и для престарелых) типы квартир по числу комнат и их площади (без учета площадей балконов, лоджий, террас веранд, холодных кладовых и приквартирных тамбуров) следует принимать:

в жилище I категории комфорта - по табл. 1;

в жилище II категории комфорта - (кроме проектируемых согласно табл. 3 специализированных квартир для семей с инвалидами и для престарелых) - по табл. 2.

Таблица 1

Характеристика площадей жилища I категории комфорта

Число жилых комнат

1

2

3

4

5

6

Типы квартир

Нижние пределы площади квартир, м2

33

38

44

54

62

68

74

83

89

96

103

109

Примечание. Верхние пределы площадей квартир (в том числе в реконструируемых и модернизируемых жилых домах) и одноквартирных домов не ограничиваются; нижние пределы площадей квартир (одноквартирных домов) допускается уменьшать не более чем на 5%; при числе жилых комнат более 6 нижние пределы площадей квартир (одноквартирных домов) следует определять по заданию на проектирование с учетом п. 4.7.

Таблица 2

Характеристика площадей жилища II категории комфорта

Число жилых комнат

1

2

3

4

5

6

Типы квартир

Верхние пределы площади квартир, м2

33

38

44

54

62

68

74

83

89

96

103

109

Нижние пределы площади квартир, м2

24

36

36

51

54

65

70

77

84

94

101

108

Примечания. 1. Заданием на проектирование определяется выбор типов квартир по комнатности, а также принципы проектирования квартир, в том числе по нижним пределам площадей квартир (далее в тексте - по нижним пределам).

2. При числе жилых комнат более 6 нижние пределы площадей квартир следует определять по заданию на проектирование (в том числе в реконструируемых и модернизируемых жилых домах) с учетом п. 4.7.

3. С целью унификации конструктивно-планировочных решений допускается увеличивать площадь квартир отдельных типов не более чем на 5%.

4. В квартирах реконструируемых или модернизируемых под жилище II категории жилых домов верхние пределы площадей квартир следует принимать с увеличением не более чем на 5% от нижних пределов площадей квартир соответствующего типа; при превышении указанной величины по отдельным типам квартир с целью унификации конструктивно-планировочных решений увеличение суммарных показателей площадей квартир по дому не должно быть более 5%.

5. Площадь смежно-изолированных квартир определяется как сумма площадей квартир с соответствующим числом жилых комнат

4.7. Площадь помещений жилища I и II категорий комфорта - квартир и одноквартирных домов, в том числе в реконструируемых и модернизируемых жилых домах, - должна быть не менее, м2: гостиной (общей комнаты) для квартир типов 1М и 2М - 15, типов 1Б, 2Б и большим числом жилых комнат - 17 (а в реконструируемых и модернизируемых жилых домах - 16); спальни для двух человек - 12, для одного человека - 9; кухни в 1-комнатных квартирах - 8, в квартирах с числом жилых комнат 2 и более - 9. В квартирах типов 1М и 2М допускается проектировать кухню не менее 7 м2.

Допускается проектировать кухню-нишу (или кухню) с учетом п.3.9 площадью не менее 5 м2 (в том числе в реконструируемых и модернизируемых жилых домах): в жилище I категории комфорта - во всех типах квартир и одноквартирных домах: в жилище II категории комфорта - в квартирах типов 1М и 2М.

Допускается для проектируемых по нижним пределам квартир жилища II категории комфорта площадь помещений, м2: гостиной (общей комнаты) в квартирах типов 1М и 2М - 12 (в том числе смежной с кухней-нишей), квартирах типов 3М - 15, в квартирах типов 1Б, 2Б, 3Б и с большим числом жилых комнат - 16; спальни для двух человек - 12, для одного человека - 8; кухни в квартирах типов 1М и 2М - 5 (в том числе без естественного освещения), типов 1Б, 2Б и 3М - 7, в остальных типах квартир - 8.

Допускается проектировать кухню-нишу без естественного освещения или с естественным освещением площадью не менее 4,5 м2: в жилище I категории комфорта во всех типах квартир и в одноквартирных домах; в жилище II категории комфорта - в квартирах типов 1М и 2М, в том числе проектируемых по нижним пределам.

4.8. Площади помещений квартир в реконструируемых или модернизируемых жилых домах допускается принимать не менее, м2: гостиной (общей комнаты) в квартирах типа 1М - 15, для других типов квартир -16; спальни для двух человек - 12; спальни для одного человека - 9; кухни - 8 (кроме кухонь площадью 7 м2 в квартирах типов 1М и 2М).

4.9. Для квартир жилища II категории комфорта площадь кладовых (или встроенных шкафов) определяется заданием на проектирование, а для квартир, проектируемых по нижним пределам, допускается предусматривать встроенные шкафы площадью не менее: в 1- и 2-комнатных квартирах - 0,6 м2, в 3-, 4-, 5-комнатных - 1,0 м2, в 6-комнатных - 1,5 м2.

4.10. Ширина жилых комнат в квартирах и одноквартирных домах должна быть не менее, м; гостиной (общей комнаты) - 3,2; спальни - 2,4.

В квартирах реконструируемых и модернизируемых жилых домов ширина жилых комнат допускается не менее, м: гостиной (общей комнаты) - 2,8; одной из спален - 2,25.

4.11. Ширина подсобных помещений квартир и одноквартирных домов должна быть не менее, м; кухни - 1,9 при однорядном размещении оборудования, 2,3 - при двухрядном (или угловом); внутриквартирных коридоров, ведущих в жилые комнаты - 1,0, остальных коридоров - 0,85; передней - 1,4; ванной - 1,5; совмещенного санузла - 1,7; уборной - 0,8 (глубина при открывании дверей наружу не менее - 1,2, внутрь - 1,5).

Для квартир жилища II категории комфорта, проектируемых по нижним пределам, допускается ширина кухни (или кухни-ниши) - 1,7 м, передней 1,3 м.

В квартирах типов 1М и 2М, проектируемых по нижним пределам, допускается ширина ванной комнаты или совмещенного санузла 1,52 м.

В ванных комнатах и совмещенных санузлах в квартирах реконструируемых и модернизируемых жилых домов следует предусматривать установку ванных длиной не менее 1,5 м (кроме устройства душевой согласно п.4.14 в квартирах жилища I категории комфорта).

Допускается открывание дверей внутрь ванной комнаты и совмещенного санузла при глубине помещений не менее 1,2 м (в чистоте) или обеспечении данного расстояния от дверного проема до санитарно-технического оборудования, расположенного напротив него.

В квартире и одноквартирном доме следует предусматривать одно место для установки стиральной машины - в ванной комнате, совмещенном санузле или постирочной.

4.12. Спальни следует проектировать непроходными.

Гостиные (общие комнаты) в 2-, 3- и 4- комнатных квартирах жилища II категории комфорта не допускается проектировать проходными.

В реконструируемых и модернизируемых под жилище II категории комфорта квартирах следует исключать проход через гостиную (общую комнату) в кухню - в квартирах всех типов (кроме квартир для семей с инвалидами-колясочниками), в также в спальни 2- и 3-комнатных квартир.

Гостиные (или общие комнаты) в квартирах жилища I категории комфорта допускается проектировать проходными при условии отсутствия в них спальных мест.

4.13. В квартирах жилища I и II категории комфорта, расположенных в нескольких уровнях, допускается размещение уборной и ванной (или душевой) непосредственно над кухней при обеспечении мероприятий по соблюдению санитарно-технических и нормативных требований по звукоизоляции и виброизоляции.

Не допускается в квартирах жилища II категории комфорта вход в помещение, оборудованное унитазом, непосредственно из кухни и жилых комнат (кроме указанных в п. 4.18).

В жилище I категории комфорта допускается вход: из спальни в ванную комнату; из спальни в совмещенный санузел при устройстве в квартире второго помещения, оборудованного унитазом, со входом в него из коридора или холла; из кухни и жилых комнат в помещение, оборудованное унитазом для квартир, проектируемых согласно п. 4.24.

Не допускается крепление приборов и трубопроводов санитарных узлов непосредственно к ограждающим жилые комнаты межквартирным стенам и перегородкам.

Перечисленные требования следует учитывать при реконструкции и модернизации жилых домов. При этом допускается крепление приборов и трубопроводов санитарно-гигиенических помещений к ограждающим жилые комнаты межквартирным стенам и к их продолжениям вне пределов комнат, если указанные стены выполнены из кирпича и имеют толщину не менее 0,38 м при соблюдении нормативных требований по звукоизоляции и виброизоляции.

4.14. Устройство совмещенных одного или нескольких санузлов допускается (в том числе в реконструируемых и модернизируемых жилых домах): в 1-комнатных квартирах в жилище I и II категорий комфорта; при наличии второго помещения, оборудованного унитазом, - в квартирах с 3 более жилыми комнатами в жилище II категории комфорта; по заданию на проектирование - в квартирах (или одноквартирных домах) с 2 и более жилыми комнатами жилища I категории комфорта; в проектируемых по нижним пределам квартира типа 2М жилища II категории комфорта.

Допускается устройство душевой в жилище I категории комфорта. В квартирах типов 1М и 2М жилища II категории комфорта, проектируемых по нижним пределам, в совмещенном санузле или ванной комнате допускается установка ванны длиной 1,5 м или душевого поддона.

ДОПОЛНИТЕЛЬНЫЕ ТРЕБОВАНИЯ К КВАРТИРАМ ДЛЯ ИНВАЛИДОВ И ПРЕСТАРЕЛЫХ

4.15. Специализированные квартирные жилые дома для престарелых и для семей с инвалидами, способными самостоятельно передвигаться без технических средств (не колясочниками) следует проектировать не выше 9 этажей, для семей с инвалидами-колясочниками - не выше 5 этажей.

Допускается проектировать специализированные группы квартир (или отдельные квартиры) для семей с инвалидами (не колясочниками) не выше 9 этажа, для семей с инвалидами колясочниками - не выше 5 этажа.

Допускается проектировать специализированные грунт,) квартир (или отдельные квартиры) для инвалидов-колясочников и престарелых на первых этажах жилых домов, в том числе без устройства входа с придомовой территории, со входом в квартиры через вестибюль жилого здания с подъемником (или пандусом) на перепадах уровней.

При проектировании квартир для семей с инвалидами-колясочниками следует учитывать требования п. 3.39 МГСН 3.01-01, СНиП 35-01-2001 и СП 35-102-2001.

Измененная редакция. Дополнение № 1.

4.16. Для семей с инвалидами и для престарелых типы квартир по числу комнат и их площади (без учета площади балконов, лоджий, террас, веранд, холодных кладовых и приквартирных тамбуров) в составе специализированных квартирных жилых домов (или специализированных групп квартир) жилища II категории комфорта следует принимать согласно табл.3.

4.17. Площадь кухни в квартирах для семей с инвалидами-колясочниками вне зависимости от числа жилых комнат в квартире следует принимать не менее 9 м2.

4.18. В квартирах для семей с инвалидами-колясочниками допускается вход из кухни или жилой комнаты в помещение, оборудованное унитазом.

4.19. В квартирах для семей с инвалидами-колясочниками ширина подсобных помещений должна быть не менее, м: кухни - 2,3 при одностороннем размещении оборудования, 2,9 - при двухстороннем (или угловом); передней - 1,6 (с возможностью хранения кресла - коляски); внутриквартирных коридоров - 1,15; размеры в плане ванной комнаты или совмещенного санузла - 2,3 ´ 2,3; уборной с умывальником - 1,6 ´ 2,2, уборной без умывальника - 1,2 ´ 1,6.

Примечания. 1. При настольном двухстороннем (или угловом кухонном оборудовании (электроплите, жарочном шкафе и др.) допускается уменьшение ширины кухни до 2,8 м.

2. В квартирах для инвалидов-колясочников рабочая плоскость в кухне должна быть на высоте 75 см от уровня пола.

Таблица 3

Характеристика площадей

Число жилых комнат

1

2

3

4

5

6

ТИПЫ КВАРТИР

Нижние пределы площади квартир, м2:

 

 

 

 

 

 

 

 

 

 

 

 

для семей с инвалидами-колясочниками;

-

47

 

63

-

74

-

87

-

96

-

109

для семей с инвалидами (неколясочниками);

-

38

-

54

-

68

-

83

-

96

-

109

для престарелых

-

38

44

-

-

-

-

-

-

-

-

-

Примечания. 1. Верхние пределы, площадей квартир следует принимать с увеличением не более чем на 5% от нижнего предела площади квартир соответствующего типа; при превышении указанной величины по отдельным типам квартир с целью унификации конструктивно-планировочных решений увеличение суммарных показателей площадей квартир по дому не должно быть более 5%; нижние пределы площадей квартир допускается уменьшать не более чем на 5%.

2. Для семей с инвалидами-колясочниками при размещении в первых этажах квартир с отдельным входом через приквартирный тамбур и устройством подъемников допускается увеличение площадей квартир не более чем на 12 м2.

4.20. В квартирах для престарелых и для семей с инвалидами-колясочниками двери (в том числе для выхода на летние помещения) следует проектировать шириной не менее 0,9 м без порогов или с порогами (со скругленными краями) высотой не более 2,5 см.

4.21. В санитарно-гигиенических помещениях квартир для престарелых, а также в одном из санузлов квартир для инвалидов-колясочников следует предусматривать установку поручней, штанг, поворотных или откидных сидений согласно СНиП 35-01-2001. Верх унитаза следует располагать на высоте 50 см от уровня пола.

Измененная редакция. Дополнение № 1.

4.22. В квартирах для семей с инвалидами и для престарелых устройство балконов, лоджий или террас обязательно. Глубина летних помещений в квартирах для семей с инвалидами-колясочниками должна быть не менее 1,4 м.

4.23. В реконструируемых или модернизируемых жилых домах специализированные квартиры для семей с инвалидами и престарелых следует проектировать согласно пп. 4.15 - 4.22 МГСН 3.01-01, СНиП 35-01-2001 и СП 35-102-2001.

При этом квартиры для инвалидов-колясочников следует, как правило, проектировать на первом этаже со входом с придомового участка. Допускается размещение данных квартир выше первого этажа при учете требований п. 4.15 МГСН 3.01-01 и устройстве в домах пандусов при входах, лифтов с уровня пола первого этажа, а также подъемников при наличии перепадов уровней при подходе к лифту.

Измененная редакция. Дополнение № 1.

4.24. При проектировании в составе одноквартирного дома (квартиры блокированного жилого дома) жилища I категории комфорта помещений для проживания инвалидов (в том числе передвигающихся на кресло-колясках) нижние пределы площадей квартир (одноквартирных домов) должны быть не менее указанных в табл. 3, верхние пределы - не ограничиваются.

При этом следует учитывать требования пп. 4.17-4.22.

Вход в одноквартирный дом (квартиру блокированного жилого дома) с помещениями для проживания инвалида-колясочника следует выполнять без порогов, устраивая пандус или устанавливая подъемник.

Помещения для проживания инвалида-колясочника следует размешать, как правило, не выше первого этажа. При размещении помещений для проживания инвалида-колясочника выше первого этажа следует обеспечивать их доступность, предусматривая выполнение лифтов с учетом требований СНиП 35-01-2001 или подъемников, перемещаемых вертикально вверх или вдоль лестничного марша, с учетом требований п. 3.67.

Измененная редакция. Дополнение № 1.

ЖИЛЫЕ ЯЧЕЙКИ ОБЩЕЖИТИЙ

4.25. В жилой ячейке общежитий следует предусматривать не более двух жилых комнат, а также подсобные помещения (санитарно-гигиенические, передние, встроенные шкафы) и, как правило, кухни или кухни-ниши. При этом вместимость жилых ячеек должна быть не более 6 чел. - для одиночек и не более 3 чел. - для семейных.

4.26. Жилые комнаты в общежитиях для студентов высших учебных заведений и аспирантов следует проектировать из расчета не более трех человек при площади не менее 7,5 м2 на каждого проживающего. При проектировании жилых комнат для заселения одним проживающим их площадь следует принимать не менее 10м2.

Жилые комнаты должны быть непроходными шириной не менее 2,4 м.

4.27. Кухни или кухни-ниши следует проектировать на одну жилую ячейку при норме площади 1,2 м2 на 1 чел., но не менее 5 м2; допускается кухня на несколько жилых ячеек для одиночек, но не более чем на 12 чел. - при норме площади 1,0 м2 на чел.

4.28. Оборудование санитарно-гигиенических помещений в жилых ячейках общежитий следует проектировать из расчета 1 душ или ванна, 1 умывальник и 1 унитаз не более чем на 6 чел. Санитарные узлы должны быть раздельными.

4.29. Встроенные шкафы следует проектировать площадью не менее 0,5 м2 на одного проживающего. Их площадь в нормируемую площадь жилых комнат не включается.

Примечание. В общежитиях для студентов архитектурных, художественных и музыкальных ВУЗов, а также консерваторий площадь встроенных шкафов следует принимать не менее 1,5 м2.

4.30. Процентное соотношение жилых ячеек с различным числом жилых комнат следует принимать по заданию на проектирование.

ПОМЕЩЕНИЯ ОБЩЕСТВЕННОГО НАЗНАЧЕНИЯ В СПЕЦИАЛИЗИРОВАННЫХ КВАРТИРНЫХ ЖИЛЫХ ДОМАХ

4.31. В специализированных квартирных жилых домах для одиноких престарелых и семей из двух престарелых следует проектировать центры социального обслуживания с отделениями: дневного пребывания (помещения культурно-массовой работы, в том числе предприятие питания, административно-хозяйственного назначения, медицинского, бытового обслуживания, труда, занятий лечебной физкультурой); социальной помощи на дому; срочной социальной помощи.

Состав и площади помещений общественного назначения следует принимать по заданию на проектирование (с учетом «Пособия к МГСН «Жилые здания») и в зависимости от формы работы центров социального обслуживания.

Площадь помещений общественного назначения специализированных квартирных жилых домов должна быть не менее указанной в табл. 4.

4.32. В специализированных квартирных жилых домах для семей с инвалидами следует проектировать помещения административно-хозяйственного назначения, для культурно-массовой работы (в том числе блока питания), труда, медицинского и бытового обслуживания, а также размещать в них центры медико-социальной реабилитации.

Состав и площадь помещений общественного назначения следует принимать по заданию на проектирование (с учетом «Пособия к МГСН «Жилые здания») и в зависимости от формы работы центров медико-социальной реабилитации.

Площадь помещений общественного назначения специализированных квартирных жилых домов для семей с инвалидами должна быть не менее указанной в табл. 4.

Таблица 4

Типы специализированных квартирных жилых домов

Число проживающих

50

100

150

200

площадь помещений общественного назначения на 1 чел., м2

для престарелых

4,9

4,6

4,4

4,2

для семей с инвалидами

5,6

5,2

4,9

4,6

Примечание. Площадь дана без учета площади центра медико-социальной реабилитации.

ПОМЕЩЕНИЯ ОБЩЕСТВЕННОГО НАЗНАЧЕНИЯ В ОБЩЕЖИТИЯХ

4.33. В общежитиях в соответствии с их вместимостью следует предусматривать помещения общественного назначения: для учебных и спортивных занятий, отдыха и культурно-массового назначения, в том числе предприятие питания, медицинского и бытового обслуживания, административного и хозяйственного назначения.

При наличии в общежитиях жилых ячеек для семейных следует предусматривать в составе помещений общественного назначения колясочные и помещения для кратковременного пребывания детей.

Примечание. В общежитиях для студентов архитектурных и художественных ВУЗов следует предусматривать помещения мастерских, площадь определяется заданием на проектирование.

4.34. Состав и площади помещений общественного назначения следует принимать по заданию на проектирование (с учетом «Пособия к МГСН «Жилые здания») в зависимости от профиля учебного заведения, его вместимости, а также наличия вблизи общежития соответствующих предприятий общественного обслуживания.

Площадь помещений общественного назначения должна быть не менее указанной в табл. 5.

Таблица 5

Тип общежития

Число проживающих

25

50

100

200

400

600

800

1000

1200

площадь помещений общественного назначения на 1 чел., м2

для студентов высших учебных заведений и аспирантов

3,0

2,6

2,5

2,5

2,5

2,4

2,4

2,3

2,3

Примечание. Для общежитий-комплексов на 1500 чел. площадь помещений общественного назначения на одного проживающего следует принимать по заданию на проектирование.

ХОЗЯЙСТВЕННЫЕ И ТЕХНИЧЕСКИЕ ПОМЕЩЕНИЯ

4.35. В многоквартирных жилых домах (кроме блокированных) следует предусматривать: кладовую для хранения уборочного инвентаря, оборудованную раковиной, - в первом, цокольном или подземном этажах; помещения для дежурного по подъезду (консьержки) - при входе в дом (с учетом п. 3.49); место для установки подъемника для перемещения инвалидов-колясочников с учетом п. 3.67 - в вестибюле; помещения колясочной для хранения кресел-колясок - на первом этаже в специализированных квартирных домах с квартирами для семей с инвалидами-колясочниками.

По заданию на проектирование допускается устройство хозяйственных кладовых (не менее числа квартир) в первом, цокольном или подземном этажах для жильцов дома с учетом п. 3.42, а на первом этаже - помещений колясочных для хранения детских колясок.

4.36. В составе помещений для дежурного по подъезду (консьержки) следует предусматривать рабочее помещение площадью не менее 3,5 м2, а также санузел, оборудованный раковиной и унитазом. Вход в санузел допускается, в том числе, из рабочего помещения.

4.37. В реконструируемых и модернизируемых жилых домах следует проектировать хозяйственные помещения с учетом требований п. 4.36.

При пристройке лифтовой шахты (со входом в лифт с промежуточной площадки согласно п. 3.62) место для установки подъемника в вестибюле реконструируемого или модернизируемого жилого дома допускается не предусматривать.

4.38. В многоквартирных жилых домах (кроме блокированных) по расчету следует предусматривать на первом этаже помещение электрощитовой (в том числе для оборудования связи, АСУЭ, диспетчеризации и телевидения) с выходом из него непосредственно на улицу или в поэтажный внеквартирный коридор (или холл) с учетом требований ПУЭ, и, как правило, со стороны ввода питающих кабелей.

Допускается предусматривать электрощитовую в подземном этаже при исключении ее затопления и расположения ее в непосредственной близости от входа с улицы в подземную часть.

При размещении помещения электрощитовой смежно или под жилой комнатой следует предусматривать мероприятия по шумовиброизоляции оборудования.

4.39. В соответствии с техническими условиями эксплуатирующих организаций на первом этаже жилого дома следует предусматривать помещения для головных станций (ГС), технических центров (ТЦ) кабельного телевидения, звуковых трансформаторных подстанций (ЗТП) и место для установки телефонных распределительных шкафов (ШРП) с учетом требований ПУЭ, РМ-2798 и таблицы 5 настоящих норм. Вход в данные помещения следует осуществлять с выходом непосредственно на улицу, а к месту для установки ШРП - из поэтажного внеквартирного коридора (или холла).

Допускается размещение помещений ГС и ТЦ на чердаке.

4.40. Помещения ГС, ТЦ и ЗТП, а также места для установки ШРП не следует располагать под санузлами, ванными комнатами, душевыми и другими помещениями, связанными с мокрыми технологическими процессами, кроме вариантов решений с применением мероприятий по гидроизоляции, исключающих попадание влаги в указанные помещения и место установки ШРП.

5. ИНЖЕНЕРНОЕ ОБОРУДОВАНИЕ

ВОДОСНАБЖЕНИЕ И КАНАЛИЗАЦИЯ

5.1. В жилых зданиях жилища I и II категорий комфорта следует предусматривать: хозяйственно-питьевой водопровод холодной и горячей воды; бытовую канализацию; водостоки; внутренний противопожарный водопровод, проектируемые в соответствии со СНиП 2.04.01-85*, СНиП 2.08.01-89* и МГСН 2.01-99.

5.2. Проектирование систем водоснабжения и канализации встроенно-пристроенных или встроенных в жилые здания учреждений общественного назначения следует предусматривать в соответствии со СНиП 2.08.02-89*, МГСН 4.13-97, МГСН 4.14-98, МГСН 4.18-99 и другими региональными нормативными документами.

5.3. Гидростатический напор в системе. хозяйственно-питьевого и хозяйственно-противопожарного водопровода на отметке наиболее низко расположенного санитарно-технического прибора должен быть не более 40 м вод.ст. В системе хозяйственно-противопожарного водопровода на время тушения пожара допускается повышать напор не более чем до 60 м вод.ст. на отметке наиболее низко расположенного санитарно-технического прибора.

Гидростатический напор на отметке наиболее низко расположенного пожарного крана в системе раздельного противопожарного водопровода, а также в схемах, где пожарные стояки используются для подачи транзитных хозяйственно-питьевых расходов воды на верхний этаж (в схемах с верхней разводкой), не должен превышать 90 м вод.ст. для двухзонных схем в режиме пожаротушения.

5.4. Для обеспечения нормативных требований в части допустимых давлений воды у санитарно-технических приборов рационального использования воды и энергетических ресурсов необходимо предусматривать:

насосные агрегаты с регулируемым приводом (числом оборотов двигателя), что позволяет поддерживать требуемое расчетное давление воды после насосов независимо от колебаний давления в городском водопроводе;

однозонную схему водоснабжения с установкой квартирных регуляторов давления (КРД) в жилых домах до 17 этажей включительно для поэтажного (поквартирного) регулирования напоров воды в системах холодного и горячего водоснабжения у санитарно-технических приборов;

зонное водоснабжение, как правило, в жилых домах выше 17 этажей, в том числе с установкой в нижних этажах зон КРД;

установку современной энергосберегающей водоразборной и наполнительной арматуры, в том числе с керамическим запорным узлом.

Примечание. Применение КРД устанавливает практически одинаковое для всех этажей оптимальное расчетное давление воды, улучшает потокораспределение по этажам, исключает вероятность сбоев в подаче холодной и горячей воды на верхние этажи в часы максимального водоразбора.

С целью улучшения эксплуатации систем водоснабжения рекомендуется применять комплектные изделия, включающие КРД, фильтр и запорное устройство в одном корпусе.

5.5. Зонирование систем водоснабжения следует предусматривать путем установки насосного и другого оборудования, обеспечивающего выход раздельных трубопроводов для каждой зоны водоснабжения. При обосновании допускается установка регуляторов давления.

5.6. В жилых домах с квартирами I категории комфорта с двухзонным водоснабжением в целях исключения прокладки в квартирах горизонтальных трубопроводов, объединяющих стояки в секционные узлы (в месте раздела зон водоснабжения), целесообразно выполнять следующее:

циркуляционные стояки 1-ой зоны прокладывать рядом с водоразборными, при этом их объединение в секционные узлы осуществлять в техническом подполье, подвальном или промежуточном техническом этаже между жилой и нежилой частью здания;

циркуляционные стояки 2-ой зоны также могут быть проложены рядом со стояками 1-ой зоны с последующим их объединением в секционные узлы в тех же помещениях, что и секционные узлы первой зоны.

В жилых домах с однозонным водоснабжением при отсутствии чердака или невозможности объединения стояков горячей воды в мансардных помещениях, объединение стояков в секционные узлы следует выполнять по аналогии с решениями, указанными выше для двухзонных систем водоснабжения.

В зависимости от конкретных объемно-планировочных решений могут предусматриваться другие схемы горячего водоснабжения.

5.7. В целях улучшения гидравлических характеристик системы горячего водоснабжения и возможности замены полотенцесушителей в период эксплуатации жилых зданий (без отключения стояков горячей воды) полотенцесушители, как правило, необходимо подсоединять к сплошному по вертикали водоразборному стояку с установкой запорной арматуры в местах подключения.

Для затекания горячей воды в полотенцесушители диаметр стояка (патрубка) между подсоединениями к полотенцесушителю целесообразно уменьшать на один диаметр или предусматривать «сжим». Принятые конструктивные решения должны быть проверены гидравлическим расчетом.

В отдельных случаях, при обосновании, допускается подсоединение полотенцесушителей к циркулярным стоякам горячей воды.

5.8. Водосчетчики холодной и горячей воды, устанавливаемые на вводах водопровода в жилые дома и квартиры, должны предусматриваться с импульсным выходом.

Допускается по заданию на проектирование предусматривать импульсный выход у водосчетчиков, устанавливаемых во встроенно-пристроенных помещениях общественного назначения.

Перед домовыми и квартирными водосчетчиками следует устанавливать механические или магнитно-механические фильтры.

5.9. В одноквартирных и блокированных жилых домах жилища I категории комфорта (с учетом п. 4.5) при устройстве бассейна выбор технологической схемы его водоснабжения (прямоточной или оборотной с очисткой) следует производить в соответствии с объемами водопотребления и водоотведения, согласованными со службами ММП «Мосводоканал».

5.10. При размещении хозяйственных кладовых в первом, подземном или цокольном этажах многоквартирных жилых домов согласно п. 3.42 следует проектировать систему спринклерного пожаротушения (при гарантированном нормативном давлении воды), предусматривая при этом:

подсоединение трубопроводов спринклерных систем к хозяйственно-питьевому водопроводу без установки контрольно-сигнального клапана;

установку спринклерных головок в каждой хозяйственной кладовой; расход воды для расчета спринклерных систем 1,8 л/с; установку в местах подключения спринклерной системы к хозяйственно-питьевому водопроводу запорного устройства, опломбированного в открытом положении. В отсеках подвального этажа для размещения хозяйственных кладовых следует устанавливать датчики пожарной сигнализации для подачи сигнала на ОДС, при этом следует предусматривать между потолком подвального этажа и ограждениями хозяйственных кладовых зазор размером 50-100 мм.

Допускается проектировать другие варианты спринклерной системы по заданию на проектирование.

В помещениях хозяйственных кладовых следует предусматривать отвод воды при срабатывании системы спринклерного пожаротушения.

5.11. Расчетные расходы воды в одноквартирных и блокированных жилых домах следует определять по СНиП 2.04.01-85*.

5.12. В одноквартирных и блокированных жилых домах расчетный общий суточный расход воды в системах водоснабжения с автономными водоподогревателями горячей воды (без учета расхода на заполнение и подпитку бассейна) следует принимать - 250 л/чел.сут., а с централизованным горячим водоснабжением - 300 л/чел.сут.

5.13. В одноквартирных и блокированных жилых домах при децентрализованной схеме водоснабжения из шахтного колодца или индивидуальной скважины (применяемых при обосновании) следует предусматривать установку водонапорного бака, располагаемого на чердаке или емкости мембранного типа, устанавливаемой в специальном помещении. В этом случае работа насоса (включение и отключение) должна быть автоматизирована в зависимости от уровней воды в водонапорном баке или давления в емкости мембранного типа.

5.14. Внутреннюю канализацию, как правило, следует прокладывать из полипропиленовых и других полимерных труб с температурой транспортируемых стоков до 80° С в соответствии с п.17.9 СНиП 2.04.01-85* и п.7.22 СНиП 21-01-97*.

При обосновании или по заданию на проектирование допускается применение чугунных труб.

5.15. Системы канализации нежилых помещений с учреждениями общественного назначения, встроенных, встроенно-пристроенных в жилые здания (в том числе одноквартирные дома) и пристроенных к ним следует предусматривать отдельными от систем канализации жилых домов с самостоятельными выпусками в наружную сеть (допускается в один колодец).

5.16. Стояки бытовой канализации, проходящей через нежилые помещения должны прокладываться в оштукатуренных коробах, пилонах или штрабах без установки ревизий в соответствии с п.17.9 СНиП 2.04.01-85* и п.7.22 СНиП 21-01-97*.

5.17. Прокладка стояков через производственные помещения предприятий общественного питания, а также складские помещения предприятий общественного питания, торговли и другие, встроенных (встроенно-пристроенных) учреждений общественного назначения не допускается.

5.18. Выпуски внутренних водостоков с кровли жилых зданий, как правило, следует предусматривать закрытыми. Отказ от закрытых выпусков должен быть обоснован.

5.19. В одноквартирных и блокированных жилых домах суточное количество сточных вод принимается равным расходу водопотребления без учета воды на полив.

5.20. В одноквартирных и блокированных жилых домах высотное расположение санитарно-технических приборов и другого оборудования, от которых стоки направляются в канализацию, должны иметь отметку, обеспечивающую самотечное удаление стоков в наружную сеть.

В отдельных случаях при невозможности самотечного удаления стоков от одного или нескольких санитарно-технических приборов или бассейна следует предусматривать малогабаритные герметичные насосные установки, располагаемые в подвальном или цокольном этажах.

ОТОПЛЕНИЕ, ВЕНТИЛЯЦИЯ И КОНДИЦИОНИРОВАНИЕ ВОЗДУХА

5.21. В жилых зданиях (в том числе реконструируемых и модернизируемых, в одноквартирных и блокированных жилых домах) следует предусматривать системы отопления и вентиляцию, проектируемые согласно СНиП 2.04.05-91*, СНиП 2.08.01-89* за исключением случаев, специально оговоренных в данных нормах. При проектировании необходимо соблюдать требования к системам по экономичному расходованию тепловой энергии, предусматриваемые согласно МГСН 2.01-99.

Проектирование систем отопления и вентиляции встроенных и встроенно-пристроенных нежилых помещений общественного назначения следует осуществлять по соответствующим нормам с учетом технологического задания.

Расчетные параметры воздуха и кратность воздухообмена в помещениях квартир жилых зданий, в том числе одноквартирных домах, следует принимать согласно обязательному приложению 7.

5.22. Вентиляцию помещений, как правило, следует проектировать естественной.

По заданию на проектирование допускается предусматривать вентиляцию с механическим побуждением, а в жилище I категории комфорта - кондиционирование воздуха.

При проектировании следует исключить возможность перетекания воздуха между квартирами.

5.23. Для помещений с нормируемой вытяжкой компенсацию удаляемого воздуха следует предусматривать как за счет поступления наружного воздуха, так и из расчета перетекания его из других помещений данной квартиры.

Вытяжную вентиляцию помещений квартир и одноквартирных жилых домов (спален, гостиной или общей комнаты, столовой, библиотеки, кабинетов), а также жилых комнат общежитий допускается предусматривать через вытяжные каналы кухонь, уборных, ванных или душевых, совмещенных санузлов.

5.24. Для организации притока в оконных блоках должны предусматриваться форточки, приточные клапаны или открывающиеся фрамуги, подающие воздух в верхнюю зону помещения. Приточные устройства должны давать возможность регулирования расхода приточного воздуха.

5.25. В системах с естественным побуждением местные вентиляционные каналы одной квартиры (одноквартирного дома) допускается объединять в сборный вентиляционный канал с подсоединением их к сборному каналу на одном уровне выше обслуживаемых помещений не менее чем на 2 м.

Воздуховоды для кухонь и санитарных узлов с унитазами следует проектировать раздельными.

Не допускается объединение вентиляционных каналов из помещений поквартирных генераторов теплоты, гаражей с вентиляционными каналами из кухонь, уборных, ванных, душевых, совмещенных санузлов, кладовых, из сауны и других помещений.

При установке поквартирных генераторов теплоты газоход от водонагревателя следует проектировать как дополнительный вытяжной канал.

Вентиляцию саун следует проектировать с учетом требований п. 3.47.

5.26. Вентиляцию встроенных (встроенно-пристроенных) нежилых помещений общественного назначения следует предусматривать автономной от вентиляционных систем жилого здания с учетом требований приложения 5.

Вытяжную вентиляцию помещений общественного назначения, размещаемых в габаритах одной квартиры (при площади до 108 м2), - нотариальных контор, юридических консультаций, контор жилищно-эксплуатационных организаций, банков и других офисных помещений, где отсутствуют пожаровзрывоопасные вещества и вредные выделения не превышают нормируемых значений, допускается присоединять к общей вытяжной системе жилого здания.

Измененная редакция. Дополнение № 1.

5.27. Кухни или кухни-ниши в помещениях без естественного освещения должны быть оборудованы вытяжной вентиляцией с механическим побуждением. Кухни-ниши в квартирах, проектируемых по нижним пределам площадей жилища II категории комфорта, допускается оборудовать вытяжной вентиляцией с естественным побуждением.

5.28. В жилых зданиях, вентилируемых по схеме «теплый чердак», удаление воздуха из чердака следует предусматривать через вытяжные шахты (с высотой не менее 4,5 м от перекрытия над последним этажом) по одной на каждую секцию дома или выгороженный объем чердака секции.

5.29. В реконструируемых и модернизируемых жилых домах допускается использование существующих вентиляционных каналов при их удовлетворительном состоянии. Неиспользуемые вентиляционные каналы в конструкциях стен должны быть заглушены в местах их соединения со сборным вентиляционным коллектором.

5.30. Установку вентиляционных агрегатов следует производить с учетом требований МГСН 2.04-97 и Пособий к данным нормам по «Проектированию защиты от шума и вибрации инженерного оборудования в жилых и общественных зданиях», а также по «Проектированию звукоизоляции ограждающих конструкций жилых и общественных зданий», обеспечивая нормативные уровни шумов в жилых помещениях.

5.31. В целях повышения эффективности вентиляции в кухнях и санитарно-гигиенических помещениях двух верхних этажей, а также для вентиляции кухонь-ниш допускается установка вентиляторов индивидуального пользования с соблюдением требований, изложенных в п. 5.22.

5.32. В наружных стенах технических подполий и подвального этажа следует предусматривать продухи площадью не менее 0,04 м2 каждый с устройствами для регулирования их площади (вплоть до полного закрытия). Общая площадь продухов должна обеспечивать не менее чем 0,5-кратный обмен воздуха в час.

5.33. Для поддержания в помещениях температур воздуха, указанных в приложении 7, следует проектировать вертикальные или горизонтальные одно- или двухтрубные системы отопления с искусственной циркуляцией. В одноквартирных и блокированных жилых домах допускается применение систем отопления с естественной циркуляцией.

5.34. Допускается по заданию на проектирование предусматривать в помещениях температуры воздуха, превышающие приведенные в приложении 7, при этом следует проектировать поквартирные системы отопления с установкой приборов, учитывающих расход тепловой энергии на квартиру.

5.35. При отсутствии проживающих в одноквартирных жилых домах система отопления должна обеспечивать поддержание температуры воздуха в помещениях не ниже +5°С в целях исключения замораживания трубопроводов и оборудования систем водопровода и канализации. При длительном отсутствии проживающих в холодное время года необходимо полное опорожнение систем водоснабжения канализации и отопления.

5.36. В системах водяного отопления жилых зданий следует предусматривать автоматическое регулирование теплового потока отопительных приборов с помощью термостатических клапанов, устанавливаемых у нагревательных приборов. Отсутствие термостатов допускается в однотрубных системах у нагревательных приборов лестниц и лестничных клеток, лифтовых холлов, поэтажных внеквартирных коридоров (холлов и др.); в двухтрубных системах установка термостатов у нагревательных приборов этих помещений обязательна, но допустима с ручным управлением (без термостатических головок).

5.37. Допускается не отапливать лестничные клетки типа Н1 при обеспечении нормируемого термического сопротивления наружных ограждений для стен, отделяющих эти лестничные клетки от других отапливаемых помещений жилого дома.

5.38. Расчет расходов тепла на подогрев инфильтрующегося воздуха в лестничных клетках типа Н1 следует выполнять согласно «Рекомендациям по определению теплопотерь жилых зданий».

5.39. Применение тонкостенных стальных нагревательных приборов допускается только с учетом качества воды (по данным теплоснабжающей организации) при независимом присоединении систем отопления к городским тепловым сетям и при закрытом расширительном баке.

5.40. Поквартирные генераторы теплоты на газовом или жидком топливе допускается предусматривать в жилых зданиях до 5 этажей включительно.

5.41. Каждое здание, присоединяемое к городским тепловым сетям, должно быть оборудовано пунктом контроля и учета тепловой энергии, расходуемой на нужды отопления и вентиляции. При наличии в жилом доме (в том числе, реконструируемом и модернизируемом) встроенных или встроенно-пристроенных помещений нежилого назначения необходимо предусматривать учет расхода тепла отдельно по каждому учреждению (предприятию), размещаемому в этих помещениях. По согласованию с заказчиком допускается проектировать совместный пункт контроля и учета теплоты для жилых и нежилых помещений.

5.42. Не допускается установка варочных печей на твердом топливе во встроенных в жилые здания предприятиях питания, а также газового оборудования с учетом требований п.3.13 СНиП 2.08.01-89*.

ТЕПЛОСНАБЖЕНИЕ

5.43. Теплоснабжение жилых зданий допускается осуществлять:

от централизованных систем согласно положений по подключению жилых зданий к этим системам, указанным в МГСН 2.01-99;

от автономных источников теплоснабжения, в том числе в крышном исполнении, в соответствии с положениями СП 41-104-2000, «Руководства по проектированию автономных источников теплоснабжения» и СНиП II-35-76.

5.44. Для условий г. Москвы допускается применение автономных источников теплоснабжения (АИТ), подразделяемых на: отдельно стоящие; пристроенные к жилым зданиям; встроенные в жилые здания; в крышном исполнении, располагаемые на крышах многоэтажных жилых зданий.

Тепловая мощность АИТ должна быть не более 5 МВт.

В качестве топлива АИТ следует предусматривать использование природного газа.

5.45. В качестве источников теплоснабжения для систем отопления одноквартирных и блокированных жилых домов рекомендуется преимущественное применение автономных тепловых агрегатов (теплогенераторов), использующих в качестве топлива природный газ по ГОСТ 5542-87.

Теплогенераторы могут применяться как однофункциональные (только для систем отопления), так и двухфункциональные (для отопления и горячего водоснабжения). Выбор типа теплогенератора определяется проектом с учетом необходимости его сервисного обслуживания.

В качестве источников тепловой энергии должны приниматься автоматизированные теплогенераторы полной заводской готовности с температурой теплоносителя-воды до +115°С и давлением теплоносителя до 1,0 Мпа отечественного или зарубежного производства, имеющие разрешение на их применение в установленном порядке.

5.46. Размещение теплогенераторов предусматривается:

на кухне при мощности теплового агрегата для отопления до 60 кВт включительно, независимо от наличия газовой плиты и газового нагревателя;

в отдельном помещении на любом этаже, в том числе в цокольном и подвальном при их суммарной мощности для систем отопления и горячего водоснабжения до 150 кВт включительно;

в отдельном помещении первого, цокольного и подвального этажа, а также в помещении, пристроенном к жилому дому при их суммарной мощности для систем отопления и горячего водоснабжения до 350 кВт включительно.

Помещения, в которых предусматривается установка теплогенераторов, должны отвечать требованиям «Инструкции по размещению тепловых агрегатов, предназначенных для отопления и горячего водоснабжения одноквартирных и блокированных жилых домов».

5.47. Индивидуальные тепловые пункты (ИТП) многоквартирных жилых зданий, оснащенные приборами управления и учета с малошумными насосами, следует размещать в отдельных помещениях, изолированных от квартир жилища II категории комфорта. В жилище I категории комфорта допускается размещение ИТП в отдельных помещениях, изолированных от жилых комнат квартир.

Помещения ИТП должны иметь самостоятельный вход снаружи или из лестничной клетки, вестибюля. Высота помещений ИТП должна быть не менее 1,8 м.

В полу помещений ИТП следует предусматривать водосборный приямок и установку насоса для откачки воды. Пол следует проектировать с уклоном 0,005 в сторону водосборного приямка.

При проектировании ИТП следует предусматривать комплекс шумовиброзащитных мероприятий для насосов, трубопроводов и вводов труб в жилое здание.

5.48. При размещении в одноквартирных и блокированных жилых домах теплогенератора в отдельном помещении на первом, в цокольном этаже или подвальном оно должно иметь выход непосредственно наружу. Допускается предусматривать второй выход в помещение подсобного назначения, дверь при этом должна быть противопожарной 3-го типа.

ГАЗОСНАБЖЕНИЕ

5.49. При разработке проектов внутреннего газоснабжения жилых домов следует руководствоваться СНиП 2.04.08-87*, «Правилами безопасности в газовом хозяйстве» и СНиП 31-02-2001.

5.50. В коттеджной застройке природный газ рекомендуется использовать в качестве единого энергоносителя для отопления, горячего водоснабжения и приготовления пищи, используя для этого децентрализованные автономные теплогенераторы в жилом секторе, а при соответствующем обосновании и в коммунально-бытовых объектах.

При использовании природного газа децентрализованными автономными теплогенераторами для теплоснабжения (отопления и горячего водоснабжения) коттеджей и квартир блокированных жилых домов подача к ним газа должна осуществляться от газопровода низкого давления до 0,003 Мпа (0,03 кгс/см2).

5.51. Ввод газопровода со счетчиком расхода газа следует, как правило, предусматривать непосредственно в помещении, где устанавливаются тепловые агрегаты. До счетчика расхода газа обязательна установка запорного крана. Обязательна также установка счетчика газа и запорного крана у газовой плиты.

Проводящий газопровод непосредственно у здания должен оборудоваться цокольным вводом с установкой на нем на высоте от 1,3 до 1,5 м от отмостки отключающего устройства с изолирующим фланцем.

5.52. Отведение дымовых газов следует предусматривать в соответствии с требованиями СНиП 2.04.05-91* и СНиП 2.04.08-87*.

Допускается предусматривать удаление дымовых газов от теплогенераторов, оборудованных встроенной установкой принудительного удаления дымовых газов через наружную стену помещения.

ЭЛЕКТРОТЕХНИЧЕСКИЕ УСТРОЙСТВА

ЭЛЕКТРООБОРУДОВАНИЕ

5.53. Надежность электроснабжения жилых зданий (в том числе реконструируемых и модернизируемых) жилища I и II категории комфорта должна соответствовать требованиям ВСН 59-88.

Для жилища I категории комфорта допускается повышение категории надежности электроснабжения по согласованию с органами Энергонадзора.

Расчет нагрузок внутридомовых сетей следует выполнять по РМ-2696-01. Расчет нагрузок на внешние сети следует выполнять по Дополнению к разделу 2 РД.34.20.185-94.

При расчетной нагрузке на вводе в квартиру до 11 кВт рекомендуется применять однофазный ввод, а при нагрузке более 11 кВт, как правило, - трехфазный ввод.

5.54. По оснащению бытовыми электроприборами жилые здания подразделяют на четыре уровня электрификации быта согласно МГСН 2.01-99.

Для жилища I категории комфорта верхний уровень оснащения бытовыми электроприборами определяется заданием на проектирование.

5.55. В жилых зданиях этажностью до 10 этажей допускается предусматривать оснащение квартир (жилых ячеек общежитий): в жилище I категории комфорта - по любому уровню электрификации быта согласно МГСН 2.01-99; в жилище II категории комфорта - газовыми или электрическими плитами (без электронагревателей и электроотопления).

В жилых зданиях этажностью более 10 этажей, а также в жилых зданиях любой этажности с квартирами для престарелых и семей с инвалидами следует предусматривать оснащение квартир (жилых ячеек общежитий) электроплитами.

5.56. В жилых зданиях жилища I и II категории комфорта следует предусматривать:

установку в поэтажных внеквартирных коридорах устройств этажных распределительных модульных (УЭРМ) для размещения в них приборов учета электроэнергии; устройств защитного отключения (УЗО), имеющих защиту от сверхтоков; элементов систем связи, информатизации и диспетчеризации (см. Приложение 8);

установку, как правило, в передних квартир распределительных щитков;

установку в ванных комнатах и совмещенных санузлах розетки на ток 10 (16)А, включенной через разделительный трансформатор или УЗО;

самостоятельную питающую линию для подъемников для перемещения инвалидов-колясочиков с учетом требований п. 3.67;

в квартирном распределительном щитке не менее пяти групповых линий для питания общего освещения, штепсельных розеток комнат, кухни для подключения приборов до 2,2 кВт, ванной комнаты, электроплиты (линию питания электроплиты при трехфазном вводе 380/220 В рекомендуется выполнять трехфазной).

Допускается смешанное питание освещения и штепсельных розеток комнат.

В жилище II категории комфорта с квартирами, проектируемыми по нижним пределам допускается выполнять четыре групповых линии без самостоятельной групповой линии на штепсельные розетки кухни, а также не устанавливать в квартирах распределительные щитки, размещая защитные аппараты в этажных УРЭМ.

Схемы электроснабжения квартир даны в приложениях 9 и 10.

5.57. В специализированных квартирах для престарелых и семей с инвалидами установку выключателей и розеток следует предусматривать на высоте не более 0,8 м от уровня пола.

АВТОМАТИКА, СВЯЗЬ И СИГНАЛИЗАЦИЯ

5.58. В жилище I и II категорий комфорта следует предусматривать:

городскую телефонную связь; городскую радиотрансляцию; городское кабельное телевидение; систему охраны входов (домофоны, аудио- или видео); автоматизированную систему диспетчеризации (АСУД) и автоматизированную систему учёта контроля энергопотребления (АСУЭ).

Прокладку линий связи систем диспетчеризации следует выполнять в коллекторах кабельной канализации или воздушно-стоечным способом.

Для жилища I категории верхний уровень оснащения сетями связи, автоматики, сигнализации и другими определяется заданием на проектирование.

5.59. Установку наружных технических средств связи, информатизации и диспетчеризации следует осуществлять согласно РМ-2798.

5.60. В жилых зданиях и помещениях встроенных (встроенно-пристроенных) учреждений общественного назначения следует предусматривать автоматическую пожарную сигнализацию и системы оповещения людей о пожаре в соответствии с действующими нормами.

5.61. В жилых домах жилые комнаты и кухни квартир следует оборудовать автономными дымовыми пожарными извещателями, а передние (прихожие) квартир - тепловыми и ручными пожарными извещателями, подключенными к адресной системе противодымной защиты, указывающей номер секции или подъезда дома коридорного или галерейного типа, а также этаж возгорания.

Указанные датчики и извещатели допускается не применять в квартирах (одноквартирных домах), оборудованных автоматическим пожаротушением.

Формирование сигнала о пожаре на ОДС и на опускание лифтов в жилых зданиях до 10 этажей включительно должно осуществляться самостоятельным прибором пожарной сигнализации в соответствии с требованиями ГОСТ 22011-95.

В кладовых, а также дополнительных помещениях с кратковременным пребыванием людей, располагаемых в цокольном или подземном этажах квартир, проектируемых согласно п. 3.37, следует предусматривать автономные дымовые датчики пожарной сигнализации.

5.62. Запуск пожарных насосов должен осуществляться автоматически от датчиков положения пожарного крана - при открывании одного из пожарных кранов не менее чем на половину. При этом должен обеспечиваться контроль целостности линий питания датчиков.

5.63. Сигналы о включении (срабатывании) систем дымоудаления и подпора воздуха, расположенные в домах повышенной этажности, должны передаваться в объединенную диспетчерскую службу (ОДС) или в помещение дежурной службы объекта. Формирование вышеуказанных сигналов должно осуществляться путем контроля открытого положения каждого приемного клапана системы подпора воздуха и срабатывания пускателя вентилятора системы дымоудаления.

5.64. Рекомендуется передавать на ОДС сигнал открытия шкафов пожарных кранов с указанием номера подъезда и этажа.

ЭЛЕКТРООБОРУДОВАНИЕ ОДНОКВАРТИРНЫХ И БЛОКИРОВАННЫХ ЖИЛЫХ ДОМОВ

5.65. Схемы электрических сетей должны определяться, исходя из требований заказчика, предъявляемых к надежности электроснабжения.

5.66. В одноквартирных домах или квартирах блокированных жилых домов должен устанавливаться вводно-распределительный щиток (ВРЩ), предназначенный для приема, учета и распределения электроэнергии по потребителям дома (квартиры).

5.67. Количество групповых линий от ВРЩ определяется требованиями надежности электроснабжения и удобством эксплуатации. Допускается применение кроме ВРЩ этажных квартирных распределительных щитков.

5.68. Питание противопожарной и охранной систем должно выполняться при двух вводах в одноквартирный дом (квартиру блокированного жилого дома) от разных вводов с устройством АВР, а при одном вводе двумя самостоятельными линиями от ввода с устройством АВР.

5.69. ВРЩ должен устанавливаться в соответствии с п.4.4.7 Дополнения №1 к МГСН 1.01-98.

5.70. Вводы в одноквартирные дома (квартиры блокированных жилых домов) могут быть как однофазными, так и трехфазными.

Трехфазные вводы следует выполнять при наличии трехфазных электроприемников, а также при нагрузке на вводе более 11 кВт.

При нагрузке на вводе до 11 кВт вводы могут выполняться как однофазными, так и трехфазными в соответствии с заданием на проектирование.

5.71. Групповые линии освещения и розеточной сети должны выполняться однофазными трехпроводными (фаза, нуль рабочий, нуль защитный) и иметь расцветку в соответствии с гл.2.1. ПУЭ.

5.72. В квартирах блокированных жилых домов и одноквартирных домах минимальное количество групповых линий должно быть:

для домов с газовыми плитами - четыре группы (освещение, розеточная сеть жилых помещений, розеточная сеть к элетроприемникам мощностью более 2 кВт и ванная комната);

для домов с электроплитами - пять групп (освещение, розеточная сеть жилых помещений, розеточная сеть к электроприемникам мощностью более 2 кВт, ванная комната и электроплита).

5.73. Распределение нагрузок между фазами должно быть, как правило, равномерным. Разница в токах между наиболее и наименее нагруженными фазами не должна превышать 30% в пределах нагрузки вводно-распределительного щитка.

5.74. Управление освещением спален, коридоров и т.п. помещений рекомендуется выполнять по схемам управления из нескольких мест или с применением приборов плавного дистанционного управления освещением.

5.75. На вводе в одноквартирный жилой дом или квартиру блокированного дома должен быть установлен отключающий аппарат с защитой от сверхтоков и установкой расцепителя соответствующей разрешенной мощности на присоединение, а также расчетной нагрузке.

5.76. Выключатели освещения помещений взрыво- и пожароопасных, сырых, влажных и других помещений с тяжелыми условиями среды должны устанавливаться, как правило, вблизи расположенных помещений с нормальной средой.

5.77. Защита электрических сетей должна выполняться в соответствии с гл. 3.1. и гл. 6 ПУЭ от перегрузки и коротких замыканий.

5.78. Номинальные токи плавких вставок предохранителей и расцепителей автоматических выключателей должны выбираться согласно ВСН 59-88.

5.79. Номинальные токи тепловых и комбинированных расцепителей автоматических выключателей (или плавких вставок предохранителей) для групповых однофазных линий должны быть, как правило, равными 16 А - для сети освещения розеток. Для линий, питающих другие электроприемники, установки расцепителей определяются по их номинальным мощностям.

5.80. Сечение проводов и кабелей выбирается в соответствии с гл. 1.3 ПУЭ по условию нагрева длительным расчетным током и проверяется по потере напряжения, соответствию току выбранного аппарата защиты, условиям окружающей среды.

5.81. Сечение нулевых защитных и нулевых рабочих проводников должно определяться в соответствии с гл. 1.7 ПУЭ.

5.82. Воздушные и кабельные вводы в здание следует выполнять в соответствии с требованиями ПУЭ и других нормативных документов.

5.83. Внутренние электрические сети должны выполняться, как правило, медными проводами и кабелями в соответствии с гл.7.1 ПУЭ.

Электропроводку в чердачных помещениях следует выполнять кабелями или проводами с медными жилами.

Электропроводку в помещениях саун, бань следует выполнять проводами с нагревостойкой изоляцией и медными жилами.

Сеть в пределах участка между отдельными постройками и для освещения участка следует выполнять кабелями или 3-5-жильными проводами в защитной оболочке. Сеть может быть выполнена воздушной (на тросе) или самонесущими проводами, а также кабелями, проложенными в земле. Кабели в земле должны прокладываться в асбестоцементных трубах предпочтительно в местах, где не проводятся раскопки (по периметру участка, под дорожками и тротуарами).

Не допускается прокладка кабелей под постройками.

5.84. Прокладку групповой сети следует, как правило, выполнять скрытой сменяемой в каналах, пустотах строительных конструкций, пластмассовых или стальных труб.

Допускается выполнять проводку скрытой без труб в бороздах стен, под штукатуркой, в подготовке пола проводами с защитной оболочкой или кабелями.

Открытую прокладку проводки следует осуществлять проводами только в защитной оболочке или кабелями.

Не допускается прокладка проводов без защитной оболочки в металлических рукавах.

5.85. Электропроводки в полостях над непроходными подвесными потолками и внутри сборных перегородок рассматриваются как скрытые и их следует выполнять: при перегородках и подвесных потолках из сгораемых материалов - в стальных трубах; при перегородках и подвесных потолках из несгораемых и трудносгораемых материалов - в ПВХ трубах, а также проводами с защитной оболочкой или кабелями.

5.86. Способы прокладки электропроводки должны выбираться в соответствии с гл. 2.1 и 7.1 ПУЭ и ВСН 59-88.

5.87. В одноквартирных домах и квартирах блокированных жилых домов должно быть предусмотрено следующее минимальное количество розеток:

в жилых комнатах одна розетка на каждые полные или неполные 6 м2 площади комнат;

в коридорах, передних (прихожих), холлах одна розетка на каждые полные или неполные 10 м2 площади помещений;

в кухнях четыре розетки на ток 16 А и одна не менее, чем на 25 А для подключения электроплиты;

в ванной комнате или совмещенном санузле одна розетка, включенная через УЗО; допускается применение разделительных трансформаторов для подключения маломощных приборов (электробритв, фенов и т.п.).

5.88. Размещение розеток должно быть, как правило, равномерным по периметру помещения в местах удобных для подключения бытовых электроприемников.

Высота установки розеток и выключателей должна отвечать требованиям ПУЭ и определяется заданием на проектирование.

Выключатели и розетки при открытой проводке по сгораемым конструкциям должны устанавливаться на прокладках из негорючего материала толщиной не менее 10 мм.

5.89. Вход в одноквартирный дом (квартиру блокированного жилого дома) должен быть оборудован домофоном или другим аналогичным устройством. Допускается установка звонка.

5.90. Розетки в жилых помещениях должны быть оборудованы защитными устройствами (шторками), закрывающими гнезда при вынутой вилке.

5.91. Установка розеток в кладовых запрещается.

5.92. В помещениях с повышенной опасностью для использования переносных светильников должно быть предусмотрено напряжение до 42В.

5.93. Учет электроэнергии следует выполнять в соответствии с требованиями глав 1.5 и 7.1 ПУЭ, ВСН 59-88, РМ-2559 и настоящими нормами.

5.94. Расчетные счетчики электроэнергии следует устанавливать на вводно-распределительном щитке одноквартирного дома (квартиры блокированного жилого дома) или на вводном щитке, устанавливаемом на границе участка.

5.95. Счетчики электроэнергии следует применять, как правило, прямоточные.

При подключении счетчика через трансформаторы тока под счетчиком должна устанавливаться испытательная колодка. При этом должно быть предусмотрено ограждение с устройством опломбирования, предотвращающем доступ к токовым цепям учета посторонним лицам.

5.96. Электробезопасность и пожароопасность здания должны быть обеспечены следующими мероприятиями с учетом требований ПУЭ:

повторное заземление нулевого провода при воздушном вводе;

зануление металлических нетоковедущих частей путем соединения их с нулевым защитным проводником, который прокладывается самостоятельно от вводного щита;

установка устройств защитного отключения (УЗО).

Повторное заземление нулевого провода допускается не выполнять при применении на питающей воздушной линии четырехжильных кабелей или самонесущих проводов.

При токе утечки до 10 мА допускается установка УЗО только на вводе в одноквартирный жилой дом или квартиру блокированного жилого дома с установкой по току утечки 30 мА.

При токе утечки более 10 мА установка УЗО с установкой по току утечки до 30 мА должна производиться на линиях, питающих розеточную сеть, а также на линиях, питающих электроплиты, электронагреватели, электронасосы и приборы электроотопления. В этом случае на вводе в дом рекомендуется установка УЗО с установкой по току утечки 100-300 мА для защиты от пожара.

Величина тока утечки должна определяться согласно ПУЭ, при этом:

в бетонном полу саун должна прокладываться металлическая сетка для выравнивания потенциала, соединяемая с нулевым защитным проводником;

на вводе в дом для уравнивания потенциала трубы отопления, водоснабжения и газоснабжения должны соединяться между собой и с нулевым защитным проводником;

здание (при необходимости) должно иметь устройство молниезащиты, выполненное в соответствии с РД 34.21.122-87.

5.97. Типы светильников и их месторасположение для освещения жилых помещений определяются заданием на проектирование или дизайн-проектом.

Для освещения подвалов, кладовых, чердаков и т.п. светильники должны быть в соответствующем исполнении.

Для помещений, где устанавливаются газовые приборы для отопления, следует применять светильники во взрывозащищенном исполнении.

5.98. Нормы освещенности для различных помещений и территории следует принимать не менее, указанных в ВСН 59-88.

5.99. В жилых комнатах и дополнительных помещениях площадью 10 м2 и более следует предусматривать возможность установки многоламповых светильников с включением ламп частями.

5.100. В проектах следует предусматривать установку в места размещения светильников клеммных колодок для их подключения.

5.101. Определение расчетной нагрузки на вводе в одноквартирный дом или квартиру блокированного жилого дома следует принимать с учетом коэффициента спроса по РМ-2696-01, как для жилища I категории комфорта.

АВТОМАТИКА, СВЯЗЬ И СИГНАЛИЗАЦИЯ В ОДНОКВАРТИРНЫХ И БЛОКИРОВАННЫХ ЖИЛЫХ ДОМАХ

5.102. При разработке проектов внутренних сетей, систем связи и сигнализации в одноквартирном жилом доме (квартире блокированного жилого дома) следует предусматривать системы городской телефонной связи, радиотрансляции и городского кабельного телевидения, пожарной и охранной сигнализации, а также автоматизированные системы управления и диспетчерского контроля (АСУД), учета и контроля энергопотребления Расширение функций, указанных выше систем, а также необходимость дополнительных систем связи и сигнализации определяется заданием на проектирование.

5.103. Городская телефонная связь в одноквартирном жилом доме и квартире блокированного жилого дома должна обеспечиваться подключением не менее двух городских телефонных номеров для установки телефонного аппарата, факса или других устройств, связанных с передачей данных или выделения прямого провода. Места установки телефонных точек или устройств определяются заказчиком и оговариваются заданием на проектирование.

5.104. Радиотрансляция в одноквартирном доме и квартире блокированного жилого дома должна обеспечиваться не менее, чем одной радиоточкой. Количество радиоточек и места их установки определяются в задании на проектирование.

5.105 Городское кабельное телевидение в одноквартирном доме и квартире блокированного жилого дома должно иметь точки подключения телевизионных приемников в каждой жилой комнате, а в других помещениях - в случаях, оговорённых заданием на проектирование. Сеть должна обеспечивать распределение телевизионного сигнала в диапазоне 5-862 МГц, с обратным каналом. По заданию на проектирование система может обеспечивать распределение программ УКВ ЧМ радиовещания с установкой самостоятельных розеток УКВ ЧМ радио. Количество и места установки телевизионных и УКВ ЧМ розеток определяются заданием на проектирование.

5.106. Для обеспечения пожарной безопасности одноквартирных домов и квартир блокированных жилых домов следует предусматривать установку автономных пожарных дымовых извещателей, размещенных под потолком, по одному в каждой жилой комнате и кухне.

5.107. Система охранной сигнализации в коттедже и квартире блокированного жилого дома должна обеспечивать охранные мероприятия установкой контрольного прибора с выходом на помещение охраны или пункт диспетчера. Объем охранных мероприятий (установка датчиков охранной сигнализации, домофона, видеодомофона и др.) определяется заданием на проектирование.

5.108. Автоматизированные системы управления и диспетчерского контроля (АСУД) и контроля энергопотребления в одноквартирном жилом доме и квартире блокированного дома должны обеспечивать, как правило, учет расхода холодной и горячей воды, тепла, газа и электроэнергии, переключение тарифов оплаты за энергопотребление, громкоговорящую связь одноквартирного жилого дома (квартиры) с пунктом диспетчера, а также передачу сигналов охранной сигнализации в пункт диспетчера или помещение охраны. Объем мероприятий определяется заказчиком и оговаривается заданием на проектирование.

6. ДОПОЛНИТЕЛЬНЫЕ ТРЕБОВАНИЯ К КОНСТРУКЦИЯМ РЕКОНСТРУИРУЕМЫХ И МОДЕРНИЗИРУЕМЫХ ЖИЛЫХ ДОМОВ ПЕРВОГО ПЕРИОДА ИНДУСТРИАЛЬНОГО ДОМОСТРОЕНИЯ

6.1. Требования настоящего раздела относятся к конструкциям, остающимся после реконструкции или модернизации жилого дома, а также к новым конструкциям, их дополняющим.

6.2. Конструктивный раздел проекта следует разрабатывать на основе Технического заключения о состоянии несущих и ограждающих конструкций, данных о гидрогеологической обстановке, имеющейся проектной документации подлежащего реконструкции или модернизации жилого дома или заменяющей ее документации, а также исполнительных схем.

6.3. Несущие и ограждающие конструкции реконструируемого или модернизируемого жилого дома должны удовлетворять требованиям действующих нормативных документов (СНиП), в том числе по прочности, устойчивости, деформативности, трещиностойкости, морозостойкости и огнестойкости, кроме случаев, указанных п. 6.5.

6.4. Наружные ограждающие конструкции, кроме требований п. 6.3, должны удовлетворять требованиям МГСН 2.01-99.

6.5. Допускается при учете требований п. 3.3 сохранение несущих конструкций остающейся части реконструируемого или модернизируемого жилого дома, не подвергающихся дополнительным нагрузкам (по отношению к действующим до проведения реконструкции или модернизации), если эти конструкции были запроектированы по более низким нормативным требованиям, чем действующие в настоящее время, а физический износ конструкций составляет не более 20%.

6.6. В случае возникновения при проведении реконструкции или модернизации дополнительных нагрузок и воздействий на остающуюся часть жилого дома его несущие и ограждающие конструкции, а также грунты основания должны быть проверены на эти нагрузки и воздействия в соответствии с действующими нормативами вне зависимости от физического износа конструкций.

При этом следует учитывать возможное повышение несущей способности грунтов основания в результате их уплотнения в период эксплуатации, а также повышение со временем прочности бетона бетонных и железобетонных конструкций.

6.7. При реконструкции или модернизации жилого дома следует учитывать изменения в его конструктивной схеме, возникшие в процессе эксплуатации этого дома (в том числе появления новых проемов, дополнительных к первоначальному проектному решению, а также влияние проведенного ремонта конструкций или их усиления).

6.8. Возможность частичной разборки несущих и ограждающих конструкций реконструируемого или модернизируемого жилого дома определяется расчетом, при этом в технической документации должны быть отражены связанные с указанной разборкой конструктивные и технические мероприятия.

6.9. При реконструкции жилых домов совмещенные невентилируемые и вентилируемые крыши с непроходным чердаком следует, как правило, заменять крышами с проходным (или полупроходным) чердаком и организованным внутренним или наружным водостоком. Допускается проектировать бесчердачные крыши мансардных помещений.

6.10. При реконструкции или модернизации жилых домов с изменением местоположения санитарно-технических узлов следует выполнять соответствующие мероприятия по гидроизоляции и виброизоляции, а также при необходимости - усиление перекрытий, на которых предусматривается установка этих санитарно-технических узлов.

6.11. Конструкции стыков между пристраиваемыми и существующим объемами реконструируемого жилого дома должны обеспечивать возможность взаимного смещения объемов, возникающего вследствие разности осадок, температурных и других воздействий. При этом не должны быть снижены эксплуатационные качества жилого здания.

Приложение 1

Справочное

СПИСОК ССЫЛОЧНЫХ И НОРМАТИВНЫХ ДОКУМЕНТОВ

1. Нормативные документы министерств и ведомств Российской Федерации

1.1. СНиП 2.08.01-89* Жилые здания (с изменениями №1-4)

1.2. СНиП 2.08.02-89* Общественные здания и сооружения (с изменениями №1-4)

1.3. СНиП 2.07.01-89* Градостроительство. Планировка и застройка городских и сельских поселений

1.4. СНиП 21-01-97* Противопожарная безопасность зданий и сооружений

1.5. СНиП 21-02-99 Стоянки автомашин

1.6. СНиП 31-02-2001 Одноквартирные дома

1.7. СНиП 2.04.08-87* Газоснабжение (переиздание с изменениями)

1.8. СНиП 2.04.05-91* Отопление, вентиляция и кондиционирование

1.9. СНиП 2.04.01-85* Внутренний водопровод и канализация зданий

1.10. СНиП 2.04.09-84 Пожарная автоматика зданий и сооружений

1.11. СНиП 2.01.07-85* Нагрузки и воздействия

1.12. СНиП 2.05.03-84 Мосты и трубы

1.13. СНиП II-12-77 Защита от шума

1.14. СНиП II-35-76 (с изменением №1) Котельные установки

1.15. ВСН 59-88 Электрооборудование жилых и общественных зданий. Нормы проектирования

1.16. СНиП 35-01-2001 Доступность зданий и сооружений для маломобильных групп населения

1.17. ВНП 001-95 Здания учреждений Центрального банка Российской Федерации / ЦБ РФ. - М., 1996

1.18. ГОСТ 5542-87 Газы горючие природные для промышленного и коммунально-бытового назначения. Технические условия

1.19. ГОСТ 22011-95 Лифты пассажирские и грузовые

1.20. СП 2.6.1.758-99 Нормы радиационной безопасности (НРБ-99)

1.21. СаНПиН 2.2.1/2.1.1.984-00 Санитарно-защитная зона и санитарная классификация предприятий, сооружений и иных объектов

1.22. НПБ 104-95 Проектирование систем оповещения людей при пожаре в зданиях и сооружениях

1.23. НПБ 250-97 Требования к лифтам для пожарных подразделений

1.24. НПБ 188-2000 Автолестницы пожарные. Основные технические требования. Методы испытаний

1.25. СП 41-101-95 Проектирование тепловых пунктов / Минстрой РФ.-М., 1996

1.26. СП 40-101-96 Проектирование и монтаж трубопроводов из полипропилена «Рандом сополимер» / Минстрой РФ. - М., 1997

1.27. СП 41-104-2000 Проектирование автономных источников теплоснабжения / Госстрой РФ. - М., 2000

1.28. Инструкция по проектированию крышных котельных / Минстрой РФ. - М., 1996

1.29. Инструкция по проектированию городских электрических сетей. РД.34.20.185-94. Раздел 2 Нормативы для определения расчетных электрических нагрузок зданий (квартир), коттеджей, микрорайонов (кварталов) застройки и элементов распределительной сети

1.30. Инструкция по устройству молниезащиты зданий и сооружений. РД 34.21.122-87

1.31. Инструкция по размещению тепловых агрегатов, предназначенных для отопления и горячего водоснабжения одноквартирных и блокированных жилых домов / Минстрой РФ

1.32. Правила устройства электроустановок (ПУЭ)

1.33. Правила безопасности в газовом хозяйстве / Госгортехнадзор России

1.34. СанПиН 2.1.2.1002-00 Санитарно-эпидемиологические требования к жилым зданиям и помещениям

1.35. СП 35-102-2001 Жилая среда с планировочными элементами, доступными инвалидам

Измененная редакция. Дополнение № 1.

2. Правовые акты города Москвы

2.1. МГСН 1.01-99 Нормы и правила проектирования планировки и застройки Москвы (взамен МГСН 1.01-98)

2.2. Нормы и правила проектирования коттеджной застройки (Дополнение №1 к МГСН 1.01-98)

2.3. МГСН 2.01-99 Энергоснабжение в зданиях. Нормативы по теплозащите и тепловодоэлектроснабжению

2.4. МГСН 2.04-97 Допустимые уровни шума, вибрации и требования к звукоизоляции в жилых и общественных зданиях

2.5. Исключен. Дополнение № 1.

2.6. МГСН 2.06-99 Естественное, искусственное и совмещенное освещение

2.7. МГСН 4.06-96 Общеобразовательные учреждения

2.8. МГСН 4.07-96 Дошкольные учреждения

2.9. МГСН 4.08-97 Массовые типы физкультурно-оздоровительных учреждений

2.10. МГСН 4.09-97 Здания органов социальной защиты населения

2.11. МГСН 4.10-97 Здания банковских учреждений

2.12. МГСН 4.12-97 Лечебно-профилактические учреждения

2.13. МГСН 4.13-97 Предприятия торговли

2.14. МГСН 4.14-98 Предприятия общественного питания

2.15. МГСН 4.18-99 Предприятия бытового обслуживания населения

2.16. МГСН 5.01-94* Стоянки легковых автомобилей.

2.17. Временная инструкция по расчету электрических нагрузок жилых зданий. РМ-2696-01 / Москомархитектура. - М., 2001

2.18. Инструкция по проектированию учета электропотребления в жилых и общественных зданиях. РМ-2559 / Москомархитектура. - М., 2000

2.19. Инструкция по проектированию, монтажу и приемке в эксплуатацию охранно-защитных дератизационных систем (ОЗДС). РМ-2776 / МНИИТЭП - М.: ГУП "НИАЦ", 2000

2.20. Инструкции по проектированию систем связи, информатизации и диспетчеризации объектов жилищного строительства. РМ-2798 / Москомархитектура. - М., 2000

2.21. Пособие к МГСН 3.01-96 Жилые здания / МНИИТЭП. -М.:ГУП «НИАЦ», 1997

2.22. Пособие к МГСН 2.04-97 проектирование защиты от транспортного шума и вибраций жилых и общественных зданий / НИИСФ, МНИИТЭП. - М.:ГУП «НИАЦ», 1997

2.23. Пособие к МГСН 2.04-97 проектирование защиты от шума и вибрации инженерного оборудования в жилых и общественных зданиях / НИИСФ, МНИИТЭП. - М.:ГУП «НИАЦ», 1997

2.24. Пособие к МГСН 2.04-97 проектирование звукоизоляции ограждающих конструкций зданий / НИИСФ, МНИИТЭП. - М.:ГУП «НИАЦ», 1997

3. Рекомендации и руководства

3.1 Методические рекомендации по проектированию зданий прокуратур / АОЦНИИЭП им. Мезенцева. - М., 1995

3.2 Рекомендации по защите жилых зданий стеновых конструктивных систем при чрезвычайных ситуациях / МНИИТЭП, ЗАО СтаДио. - М., 2000

3.3. Рекомендации по определению теплопотерь жилых зданий / ЦНИИЭП инженерного оборудования. - М.,1991

3.4. Рекомендации по проектированию экономичных планировочно шумозащищенных жилых домов / МНИИТЭП. - М.: ГУП «НИАЦ», 1997

3.5. Рекомендации по проектированию зданий и помещений инспекций и управлений Госстраха / АО ЦНИИЭП им. Мезенцева. - М., 1990

3.6. Руководство по проектированию автономных источников теплоснабжения / Москомархитектура. - М., 2001

3.7. Программа-задание на проектирование зданий народных судов, нотариальных контор и юридических консультаций / ЦНИИЭП им. Б.С.Мезенцева. - М., 1990

3.8. Технические решения по крышным котельным на природном газе с гелиоустановкой горячего водоснабжения для децентрализованного теплоснабжения зданий / Минстрой РФ, АКХ им. К.Д.Панфилова - М.: ВИНИ, 1996

3.9. Технические условия по устройству и эксплуатации крышных котельных на природном газе / Минстрой РФ, АКХ им. К.Д.Панфилова - М.: ВИНИ, 1996

Приложение 2

Обязательное

ТЕРМИНЫ И ОПРЕДЕЛЕНИЯ

Бизнес-центр - помещения развитого состава и служб, связанные с обеспечением деловой деятельности и высоким уровнем предоставляемых услуг.

Выносные опоры - устройства, обеспечивающие устойчивость автолестницы (автоподъемника) при работе.

Жилое здание галерейного типа - здание, в котором квартиры (жилые ячейки общежитий) имеют выходы через общую галерею не менее чем на две лестницы.

Жилое здание коридорного типа - здание, в котором квартиры (жилые ячейки общежитий) имеют выходы через общий коридор не менее чем на две лестницы.

Жилая ячейка общежития - жилые комнаты (комната), объединенные подсобными помещениями в составе передней, встроенных шкафов, санитарно-гигиенических помещений и, как правило, кухни или кухни-ниши.

Локальное разрушение - это разрушение (потеря несущей способности) конструктивных элементов здания на площади до 40 м2 в пределах одного этажа (в том числе нижележащее перекрытие).

Модернизация жилого дома - приведение к современным требованиям его объемно-планировочных решений и архитектурных качеств (в результате частичной перестройки с осуществлением перепланировки квартир, секций, этажей или нежилых помещений, в том числе с изменением их функционального назначения), а также конструктивно-технических и инженерно-технических решений без изменения объема жилого дома (кроме, как правило, увеличения объема за счет пристройки лифтов, мусоропроводов и мусорокамер).

Одноквартирный жилой дом (коттедж) - индивидуальный жилой дом, предназначенный для проживания одной семьи и имеющий придомовой участок.

Первый период индустриального домостроения - период индустриального строительства в Москве 4-5-этажных жилых домов, в основном возведенных в 1957-1968 гг., в том числе крупнопанельных домов (серии I-515, 1605АМ, 1МГ-300, К-7, II-32, II-35), домов с неполным каркасом (серия I-335), крупноблочных домов (серия I-510), домов с кирпичными несущими стенами (серий I-511, I-513, II-34) и домов из объемных блоков. Квартиры в этих домах, как правило, имеют заниженные площади, в том числе площади жилых комнат и подсобных помещений, а также проходы через гостиную в кухню или в спальни.

Прогрессирующее обрушение - это обрушение конструкций здания (или его части высотой два и более этажей), потерявших опору в результате локального разрушения какого-либо этажа.

Реконструкция жилого дома - переоборудование жилого дома с целью совершенствования его объемно-планировочных решений и архитектурных качеств (с осуществлением перепланировки квартир, секций, этажей или нежилых помещений, в том числе с изменением их функционального назначения), а также конструктивно-технических и инженерно-технических решений с учетом современных требований при изменении объема жилого дома путем пристройки новых объемно-планировочных элементов, в том числе квартир или их помещений, лестнично-лифтовых узлов, помещений нежилого назначения, а также надстройки (в том числе мансардным этажом) или разборки частей жилого дома.

Секция жилого дома - здание или часть жилого здания (отделенная от других частей глухой стеной) с квартирами (жилыми ячейками общежитий), имеющими выход на одну лестничную клетку непосредственно или через коридор. Длина общих коридоров, не имеющих естественного освещения в торцах и примыкающих к лестничной клетке, не должна превышать 12 м. Площадь квартир на этаже секции должна быть, как правило, не более 500 м2.

Смежно-изолированные квартиры для семей из нескольких поколений - квартиры, каждая из которых обеспечена необходимым набором основных и подсобных (а при необходимости также вспомогательных) помещений, объединяемых через проем (или проемы). При этом данные квартиры могут иметь общие помещения (переднюю, холл, коридор, столовую, постирочную и другие).

Совмещенный санузел - помещение, оборудованное унитазом, ванной (или душем) и умывальником.

Специализированный квартирный жилой дом - жилой дом с обслуживанием с квартирами для престарелых или для семей с инвалидами.

Хозяйственные кладовые (внеквартирные) - помещения, предназначенные для хранения предметов быта, располагаемые вне квартиры в первом, цокольном или подвальном этаже жилого здания.

Ширина опорного контура - расстояние между центрами двух противоположных относительно продольной оси автолестницы (автоподъемника) выносных опор.

Измененная редакция. Дополнение № 1.

Приложение 3

Справочное

ТРЕБОВАНИЯ К РАСЧЕТУ НАГРУЗОК НА СТИЛОБАТ (ИЛИ ПРИСТРОЕННЫЙ ОБЪЕМ) ОТ ПОЖАРНЫХ АВТОМОБИЛЕЙ

1. Количество машин на стилобате принимается из расчета расположения пожарных автомобилей (типы автомобилей согласно НПБ 188-2000) в несколько рядов, исходя из предпосылок:

расстояние от здания до первого ряда автомашин - 10 м;

количество машин в каждом ряду определяется из расчета одна автомашина на каждые 30 м фасада жилого здания;

количество рядов автомашин принимается на основе данных о ширине стилобата (пристроенный объем) из расчета 15 м между рядами автомашин (но не менее двух рядов).

2. При расчете нагрузок от каждого пожарного автомобиля принимается:

масса автомобиля - 46 т;

количество осей автомобиля - 4;

расстояние между двумя передними осями - 1,5 м;

расстояние между 2 и 3 осью - 3,52 м;

расстояние между 3 и 4 осью - 1,38 м;

расстояние между колесами - 1,856 м.

Нагрузка на оси автомобиля принимается:

на две передние оси - по 75 кН (7,5 тс);

на 3 и 4 оси - по 155 кН (15,5 тс).

Размеры площадки соприкасания колес по 3 и 4 осям с покрытием проезжей части, м; по длине 0,2 м, по ширине - 0,6 м.

3. При расчете нагрузок от установленного на выносные опоры пожарного автомобиля и давления на поверхность стилобата (пристроенный объем) принимается:

количество опор - 4;

ширина опорного контура - 6м;

длина опорного контура - 7м;

размеры основания опоры или специальной подкладки - 0,5 х 0,5 м;

наибольшая нагрузка на опору при перемещении гидроподъемника принимается 1,75 средней нагрузки на опору.

Приложение 4

Справочное

ТРЕБОВАНИЯ К УСТРОЙСТВУ ПРИЕМНОЙ ПЛОЩАДКИ ТРАНСПОРТНО-СПАСАТЕЛЬНОЙ КАБИНЫ ВЕРТОЛЕТА НА ПОКРЫТИИ ЖИЛОГО ЗДАНИЯ

1. Площадки для транспортно-спасательной кабины следует размещать на каждые полные и неполные 1000 м2 площади кровли жилого здания, как правило, в центре каждого участка.

Ограждение кровли должно быть высотой не менее 1,5 м.

2. Размеры приемной площадки транспортно-спасательной кабины должны быть не менее 5 х 5 м. Форма площадки должна быть правильной (круг или квадрат). Максимально допустимый наклон площадки к горизонту должен составлять не более 8°, поверхность площадки должна быть ровной. Периметр площадки должен быть выделен желтой полосой шириной 0,3 м.

3. Антенны, электрооборудование, кабели и т.п. должны находиться за пределами площадки. Максимальная высота препятствий относительно поверхности площадки в радиусе 10 м от ее центра не должна превышать 3 м.

При расчете прочности препятствий следует учитывать скорость индуктивного потока воздуха от несущих винтов вертолета 20 м/с.

4. Нагрузку на покрытие от транспортно-спасательной кабины следует принимать равной 2500 кг. Нагрузка передается на 4 опоры, расположенные по углам кабины, площадки передачи нагрузки не более 200 х 125 мм каждая, давление на поверхность покрытия под опорами, составляет не более 2,5 кг/см2.

Размеры кабины составляют в плане не более 3,5 х 1,5 м. Высота кабины - 2 м.

Приложение 5

Обязательное

НОМЕНКЛАТУРА УЧРЕЖДЕНИЙ И ПРЕДПРИЯТИЙ ОБЩЕСТВЕННОГО НАЗНАЧЕНИЯ ВСТРОЕННЫХ (ВСТРОЕННО-ПРИСТРОЕННЫХ) В ЖИЛЫЕ ЗДАНИЯ

Наименование учреждения

Един. изм.

Встроенно-пристроенные

Встроенные

нижние этажи

Нижние этажи

Верхние

1

2

3

1

2

3

1

2

3

4

5

6

7

8

9

5.1. Дошкольные учреждения 1)

Малые дошкольные учреждения

Группы

1; 2; 3

 

1; 2; 3

 

 

Комплекс дошкольного воспитания (групповые отделения)

-«-

1; 2; 3; 4

 

1; 2; 3; 4

 

 

 

Прогулочная группа, дежурная дневная группа кратковременного присмотра ( в т.ч. при квартире)

-«-

1; 2

 

 

1; 2

 

 

 

Дежурная круглосуточная группа кратковременного присмотра

-«-

1; 2

 

 

1; 2

 

 

 

5.2. Учреждение здравоохранения и социального обеспечения 2; 3)

Поликлиника, посещ. В смену: 50; 100, 200

м2 (не более)

1300

1300

 

 

Микрополиклиника, посещ. В смену:

 

 

 

 

 

 

с бригадой врачей разных специальностей 100

-«-

540

 

540

 

 

80

-«-

500

 

500

 

 

с семейным центром здоровья 100

-«-

600

 

600

 

 

Микрополиклиника, посещ. в смену:

на 1 семейного врача; 2 врачей (семейного и стоматолога), бригаду из 2 семейных врачей

-«-

 

 

 

1804)

 

 

на одного врача (общего профиля, терапевта, педиатора, гомеопата, мануального терапевта, окулиста, логопеда, стоматолога);

м2 (не более)

 

 

 

1444)

 

 

144

кабинет массажа на двух врачей (в т.ч. стоматологов)

-«-

 

 

 

1804)

 

 

180

Стоматологическая поликлиника, посещ. в смену для взрослых 150

-«-

800

 

800

 

 

для детей 50

-«-

140

 

 

140

 

 

 

100; 200

-«-

290

 

290

 

 

Стоматологическая поликлиника на двух врачей с кабинетом протезирования

-«-

 

 

 

804)

 

 

 

Женская консультация, посещ. в смену: 70;120

-«-

 

 

 

3004)

 

 

 

Аптека (в том числе хозрасчетная):

м2 площ. (не более)

 

 

 

 

 

 

 

8,7 группы

 

 

 

2554)

 

 

 

6, 5 группы

-«-

600

 

 

600

 

 

4-2, 3-2, 1 группы

-«-

1500

 

1500

 

 

Аптечный киоск

-«-

 

 

 

124)

 

 

 

Оздоровительный центр

-«-

600

 

600

 

 

Раздаточный центр молочной кухни

-«-

100

 

 

100

 

 

 

Подразделения управления социальной защиты населения

-«-

600

 

 

600

 

 

 

Центры медико-социальной реабилитации инвалидов

-«-

1200

 

1200

 

 

Центр социального обслуживания населения с отделением дневного пребывания (ЦСО)

 

 

 

 

 

 

 

 

на 25 мест

-«-

300

 

 

300

 

 

 

на 50,100 мест

-«-

1600

 

1600

 

 

без отделения дневного пребывания

-«-

300

 

 

300

 

Отделение дневного пребывания ЦСО

-«-

300

 

 

300

 

Учреждения платных социальных услуг (без проживания)

м2 площ. (не более)

100

 

 

100

 

 

 

5.3. Предприятия торговли 6; 7; 8; 9)

Магазины с универсальным ассортиментом:

Универсам;

Гастроном

Продовольственные товары

м2 торг. площ. (не более)

650
(1300) 10)

400; 650
(1000) 10)

 

Диетические продукты

-«-

400
(1000) 10)

 

200; 250
(650) 10)

 

 

Специализированные магазины с широким ассортиментом:

 

 

 

 

 

 

Хлеб, кондитерский

-«-

200
(400) 10)

 

100; 250
(400) 10)

 

 

Мясо (без разруба мяса)

-«-

20010)

 

 

 

 

Овощи, фрукты

-«-

200

(400)10)

 

100; 250

(400)10)

 

 

Специализированные магазины с узким или ограниченным ассортиментом:

 

 

 

 

 

 

«Мини-продукты» (минимаркет)

-«-

150

 

100

 

 

«Вино-водочный»

-«-

150

 

100

 

 

«Соки-джемы» «Напитки»

-«-

150

 

100

 

 

Магазины специализированные с широким ассортиментом: «Товары для новобрачных», «Товары для мужчин», «Товары для женщин», «Товары для молодежи», «Товары для ветеранов», «Одежда», «Обувь», «Малыш»

Непродовольственные товары

м2

торг. площ. (не более)

1300

(2000)10)

400; 650

(1500)10)

 

Магазины специализированные с полным ассортиментом: «Спорт и туризм», «Хозтовары» (без бытовой химии)

-«-

650

(1000)10)

200; 400

(650)10)

 

«Галантерея-парфюмерия», «Радио-аудио-видео-фототовары», «Оргтехника», «Часы» «Ювелирные изделия»

-«-

400

(650)10)

100; 250

(400)10)

 

Специализированные магазины с узким или ограниченным ассортиментом: «Книги», «Цветы», «Природа», «Семена», «Охотник»

м2 торг площ. (не более)

150

(400)10)

 

 

100; 200

(250)10)

 

 

 

Интернет-магазин
(без складских помещений)

м2
площ. (не более)

100

 

 

100

 

 

 

Магазин заказов

м2
торг. площ.
общ. площ. (не более)

 

 

 

5.4. Предприятия питания 7; 8; 12)

Ресторан, бар

мест. м2 общ.пл. (не более)

 

 

 

Кафе, столовая (в т.ч. диетическая и раздаточная), Закусочная

-«-

 

 

 

Магазины кулинарии (до 300 кг полуфабрикатов и кулинарных изделий в сутки) 11)

м3 торг. площ (не более)

15010)

 

15010)

 

 

5.5. Предприятия бытового обслуживания 13)

Ателье по пошиву и ремонту одежды, головных уборов и трикотажных изделий (с различным набором видов услуг), Дом моды

м2 площ (не более)

50010)

 

50010)

 

Мастерские по ремонту обуви (срочный, мелкий, средний) 11)

-«-

10010)

 

10010)

 

 

 

Мастерские по ремонту бытовых машин и приборов

-«-

10010)

 

10010)

 

 

 

Мастерские по ремонту часов и ювелирных изделий

-«-

10010)

 

10010)

 

 

 

Парикмахерская

-«-

100

(250)10)

 

100

25010)

 

 

 

Салон красоты (без сауны) 7)

-«-

50010)

 

50010)

 

 

Прачечные самообслуживания (до 75 кг в смену) 7)

-«-

15010)

 

15010)

 

 

Приемные пункты прачечной, химчистки7)

-«-

100

 

100

 

 

Фотографии7)

-«-

150 10)

 

15010)

 

 

Бюро посреднических услуг7)

-«-

200

 

200

 

 

Многоотраслевые комплексные приемные пункты типа «Мультисервис»

м2 площ. (не более)

300

 

 

300

 

 

 

Ателье проката7)

-«-

300

 

 

300

 

 

 

5.6. Учреждения досугового назначения 15)

с универсальной гостиной7)

-«-

 

 

 

помещения для собраний жителей и досуговых занятий

м2 (не более)

50-180

 

50-180

 

 

игротека для детей

-«-

50

 

 

50-180

 

 

помещения игровых автоматов для детей

-«-

50

 

 

50

 

 

Видеосалон7; 8)

мест

40-60

 

40-60

 

 

Зал компьютерных игр7; 8)

м2 (не более)

100-150

 

100-150

 

 

Выставочный зал, художественная галерея7)

-«-

30

 

 

30

 

 

7)

Творческая мастерская художника;
архитектора;

-«-

30

 

 

30

 

 

30

скульптора (без гипса):

-«-

80

 

80

 

 

 

реставрационная

-«-

80

 

80

 

 

 

Мастерские народных промыслов

-«-

80

 

80

 

 

 

Музей-квартира

квартира

 

 

 

1

 

 

1

Библиотека, тыс. ед. хранения:
центральная 160,220

м2

1780-2420

1780-2420

 

филиал-50; 80; 120

-«-

500-1200

 

500-1200

 

 

10; 16)Залы, в т.ч. специализированные для инвалидов: ОФП и спортивные (с элементами игр)

м2

м

 

 

 

 

Аэробики,хореографии, ритмической гимнастики

-«-

 

 

 

ЛФК

-«-

 

 

 

борьбы и элементов борьбы (ушу, айкидо)

-«-

 

 

 

 

 

силовой подготовки

-«-

5017)

3,0-4,0

 

 

50 17)

3,0

 

 

 

для занятий на общеразвивающих тренажерах

-«-

 

 

 

 

 

Сквош16)

-«-

 

 

 

 

 

Биллиардная 1 (2) стол7; 16)

м2

м

 

 

 

 

 

Помещения: настольного тенниса

-«-

 

 

 

шахмат и шашек7; 16)

-«-

 

 

 

7; 8; 10; 11)

Помещения для работы с населением

м2
(не более)

50 - 180

 

50 - 180

 

 

11, 14)

Помещения для кружковых занятий взрослых

- « -

50 - 180

 

50 - 180

 

 

Помещения для присмотра за детьми

- « -

50 - 180

 

50 - 180

 

 

5.7. Учреждения управления, проектирования, информации, связи,
коммунального хозяйства, конторские (офисные) помещения
для других типов коммерческой деятельности

10; 18; 19)

Административные учреждения:

министерства-комитеты, управления

Колич. сотр. (не более)

30020)

10020)

 

префектуры, муниципальные центры

-«-

20020)

10020)

 

учреждения службы занятости

-«-

20020; 21

10020; 22; 23)

 

налоговая инспекция

-«-

10020)

5020)

 

управления, офисы, представительства

-«-

30020; 21)

10020; 24)

 

10; 19; 25; 26)

Проектные и конструкторские организации:

проектные организации

-«-

30020; 21)

10020)

 

проектно-изыскательские27)

-«-

30020; 21)

10020; 23)

 

конструкторские бюро27; 28)

-«-

30020; 21)

10020; 23)

 

Общественные организации10; 25; 26)

-«-

30020; 21)

10020; 23)

 

10; 32; 33)

Кредитно-финансовые учреждения:

отделения сбербанка

колич. сотр.

(не более)

20020)

10020)

 

филиалы Сбербанка

-«-

3020; 31)

3020; 31)

 

отделения коммерческого банка

-«-

30020)

10020)

 

филиалы коммерческого банка

-«-

5020)

5020)

 

10; 32; 33)

Кредитно-финансовые учреждения:

расчетно-кассовые центры32)

колич. сотр. (не более)

10020)

 

 

10; 18; 26; 33)

Учреждения страхования:

Управления Госстраха

-«-

20020; 21)

500

 

Инспекции Госстраха

-«-

10020; 21)

100 20; 23)

 

страховые компании

-«-

10020; 21)

100 20; 23)

 

10; 18)

Судебные и юридические учреждения:

Суды36)

колич. залов

820; 34)

3 20; 34)

 

прокуратуры первичного звена36)

колич. сотр. (не более)

30

30

 

Юридические консультации, нотариальные и адвокатские кон торы

-«-

10020; 21)

100 20; 23)

 

10; 18; 19; 26; 33)

Центры научно-технической информации; научно-технические библиотеки, издательства, редакции, рекламные и информационные агентства

-«-

100 20; 21)

100 20; 24)

 

10; 18; 19; 26; 33)

Теле- и радиоцентры

-«-

300 20)

100 23)

 

3АГС19)

м2

(не более)

600

 

600

 

 

Отделения диспетчерской связи19)

-«-

500

 

500

 

 

Отделения связи19)

-«-

700

 

700

 

 

ДЭЗ (без мастерских) 19)

-«-

500

 

500

 

 

Конторские (офисные) помещения для других типов коммерческой деятельности, бизнес-центры, помещения для обучения предпринимательской деятельности

колич.
сотр.
м2
(не более)

 

5.8. Внешкольное обучение детей и подростков

8; 38)

Курсы, группы, студии по углубленному изучению предметов школьной программы и специальным предметам

Колич.
мест.
м2
(не более)

 

 

 

5.9. Учебные учреждения и курсы

7; 8; 11)

Курсы репетиторские, иностранного языка, компьютерные курсы

Колич.
мест.
м2
(не более)

 

 

 

7)

Курсы, группы по повышению квалификации, профессиональной переподготовке и подготовке к поступлению в ВУЗы

- « -

 

 

 

Примечания. 1. С учетом требований МГСН 4.07-96, в том числе размещения помещений а цокольном и подвальном этажах.

2. С учетом требований МГСН 4.12-97, в том числе размещения помещений в цокольном и подвальном этажах.

3. С учетом требований МГСН 4.09-97, в том числе размещения помещений в цокольном и подвальном этажах.

4. Допускается встроенно-пристроенным.

5 Допускается размещение в промежуточных этажах.

6. С учетом требований МГСН 4.13-97.

7. Допускаются цокольный и подвальный этажи.

8. При режиме функционирования до 23 часов.

9. В графах 6-8 без скобок указаны максимальные площади для зданий соответственно - с широким шагом поперечных несущих стен и каркасных.

10. При специальных объемно планировочных, конструктивных, инженерно-технологических решениях с учетом градостроительных требований.

11. При дополнительных акустических мероприятиях по усилению звукоизоляции плит перекрытий над помещениями.

12. С учетом требований МГСН 4.14-98, в том числе размещения помещений в цокольном и подвальном этажах.

13. С учетом требований МГСН 4.17-99, в том числе размещения помещений в цокольном и подвальном этажах.

14. Только для нового строительства.

15. С учетом требований МГСН 4.08-97, в том числе размещения помещений в цокольном и подвальном этажах.

16. В числителе - нормируемая площадь помещений без учета площади подсобных и вспомогательных, определяемых по заданию на проектирование, в знаменателе - нормируемая высота помещений.

17. Из расчета не менее 4,5 м2 на единицу оборудования.

18. С учетом строгого режима работы, схем движения потоков посетителей и характера деятельности организации.

19. С учетом требований СНиП 2.08.02-89* по размещению помещений в цокольном и подвальном этажах.

20. Допускается та же численность работающих на 5-6 этажах.

21. Допускается численность работающих до 10 сотрудников (на 4-10 этажах).

22. Без центров переподготовки.

23. Допускается численность работающих до 50 сотрудников (на 4-10 этажах).

24. Допускается численность работающих до 100 сотрудников (на 4-10 этажах).

25. С учетом характера деятельности организации и схем движения потоков посетителей.

26. В том числе структурные подразделения.

27. Без технической базы.

28. Без экспериментальной базы.

29. С учетом требований МГСН 4.10-97, в том числе размещения помещений в цокольном и подвальном этажах.

30. С учетом строгого охранного режима работы.

31. Без кладовой ценностей.

32. См. ВСН-001-95.

33. См. Рекомендации по проектированию зданий и помещений инспекций и управлений Госстраха.

34. Без залов для рассмотрения уголовных дел.

35. См. Программу-задание на проектирование зданий народных судов, нотариальных контор и юридических консультаций.

36. См. Методические рекомендации по проектированию зданий прокуратур.

37. Для следующих видов предпринимательской деятельности: транспортно-экспедиционных услуг; туристические агентства и бюро путешествий; курьерские услуги; услуги электронной связи; операций по недвижимому имуществу, в том числе вспомогательных; другая деятельность, связанная с компьютерами, деятельность техническая прочая, в том числе аудиторская; деятельность по исследованию конъюнктуры рынка, а также выявлению общественного мнения; деятельность по расследованию и обеспечению безопасности частных лиц и имущества (при наличии условий для хранения оружия); консультации по вопросам управления коммерческой деятельностью; распространение билетов и организация представлений; для услуг по ведению домашнего хозяйства; финансовое посредничество (при наличии условий для хранения оружия).

38. Кроме музыкальных и танцевальных.

Измененная редакция. Дополнение № 1.

Приложение 6

Обязательное

МИНИМАЛЬНОЕ ЧИСЛО ЛИФТОВ, ИХ ГРУЗОПОДЪЕМНОСТЬ И СКОРОСТЬ

№№ п/п

Тип жилища

Этажность

Число лифтов

Грузо-подъемность,

кг*)

Скорость,

м/с

Наибольшая поэтажная площадь квартир,

м2**0

1

Многоквартирные жилые дома жилища I и II категорий***)

4

1

630

1,0

800

5-8

1

630

1,0

550

9

1

630

1,0

400

9-17

2

400

630

1,0

500

18-191; 2)

2

400

630

1,6

450

20-251; 2)

3

400

630

630

1,6

350

20-251; 2)

4

400

400

630

630

1,6

450

2

Специализированные дома для престарелых, специализированные дома и группы квартир для семей с инвалидами (в жилище II категории)

2-31; 4)

1

630

1,0

800

4-51; 4)

2

6303)

630

1,0

550

3-51; 5)

1

630

1,0

800

6-91; 5)

2

400

600

1,0

550

*) Лифты грузоподъемностью 630 (500) кг должны иметь габариты кабины (ширина х глубину) 2100 х 1100 или 1100 х 2100 мм.

**) Для зданий секционного типа - площадь квартир на этаже секции, для зданий коридорного или галерейного - площадь квартир на этаже. При большей площади квартир на этаже секции (на этаже коридорного или галерейного типа), а также при высоте этажа более 3,0 м - число, грузоподъемность и скорость лифтов определяется расчетом.

***) Минимальное число лифтов, их грузоподъемность и скорость в многоквартирных домах жилища II категории дано для варианта без размещения в них квартир для семей с инвалидами; при проектировании в многоквартирных домах квартир для семей с инвалидами следует учитывать требования к параметрам лифтов для указанных категорий проживающих.

Примечания. 1. В жилых зданиях высотой более 17 этажей (при высоте этажа не более 2,8 м), а также в специализированных квартирных жилых домах с квартирами для престарелых и семей с инвалидами-колясочниками лифт грузоподъемностью 630 (500) кг должен обеспечивать транспортировку пожарных подразделений согласно НПБ 250-97.

2. Применение лифтов грузоподъемностью 320 кг к 500 кг со скоростью движения 1,4 м/с равнозначно применению лифтов грузоподъемностью 400 кг и 600 кг соответственно со скоростью движения 1,6 м/с, при соответствии лифтов грузоподъемностью 320 кг и 500 кг требованиям, предъявляемым к лифтам, устанавливаемым в жилых зданиях указанной этажности

3. Один из лифтов грузоподъемностью 630 кг может быть с габаритами кабины (ширина на глубину) 1100 х 1400 мм с шириной двери 800 мм

4. С квартирами для семей с инвалидами-колясочниками.

5. С квартирами для престарелых и для семей с инвалидами.

Приложение 7

Обязательное

РАСЧЕТНЫЕ ПАРАМЕТРЫ ВОЗДУХА И КРАТНОСТЬ ВОЗДУХООБМЕНА В ПОМЕЩЕНИЯХ ЖИЛЫХ ЗДАНИЙ

№№ п/п

Помещения

Расчетная температура воздуха в холодный период года, °С

Кратность воздухообмена или количество удаляемого воздуха из помещения

приток

вытяжка

1

2

3

4

5

1

Общая комната (гостиная), спальня, жилая комната общежития1)

20 (22) 2)

не менее 30 м3/ч на человека

 

2

Кухня квартиры и общежития

 

 

 

 

с электроплитами

16(18) 2)

-

Не менее 60 м3

 

с газовыми плитами

16(18) 2)

-

Не менее 60 м3/ч при 2-конфорочных плитах; не менее 75 м3/ч при 3-конфорочных плитах, не менее 90 м3/ч при 4-конфорочных плитах

3

Кухня-ниша

16(18) 2)

Механическая приточно-вытяжная по расчету

4

Ванная комната

25

-

25 м3

5

Уборная

18

-

25 м3

6

Совмещенный санузел

25

-

50 м3

7

Совмещенный санузел с индивидуальным подогревом

18

-

50 м3

8

Душевая

25

-

5-кратн.

9

Гардеробная комната для чистки и глажения одежды

18

-

1,5-кратн.

10

Вестибюль, общий коридор, передняя, лестничная клетка в квартирном доме

16

-

-

11

Вестибюль, общий коридор, передняя, лестничная клетка в общежитии

16

-

 

12

Постирочная

15

по расчету, но не менее 4-кратн.

7-кратн.

13

Гладильная, сушильная в общежитии

15

по расчету, но не менее 2-кратн.

3-кратн.

14

Кладовые в квартирах (одноквартирных домах), хозяйственные и бельевые в общежитиях

12

-

1,5-кратн

15

Машинное помещение лифтов3)

5

-

по расчету, но не менее 0,5-кратн.

16

Мусоросборная камера

5

-

1-кратн (через ствол мусоропровода)

17

Сауна5)

164)

-

по расчету

18

Тренажерный зал5)

16

-

80 м3/ч на человека

19

Биллиардная5)

18

-

0,5-кратн.

20

Библиотека, кабинет5)

20

-

0,5-кратн.

21

Гараж - стоянка5)

5

-

по расчету

22

Бассейн5)

25

Механическая приточно-вытяжная по расчету

Примечания. 1. В одной из спален следует предусматривать расчетную температуру воздуха 22°С.

2. Значение в скобках относится к квартирам для престарелых и семей с инвалидами (в составе специализированных жилых домов и групп квартир) в соответствии с заданием на проектирование.

3. Температура воздуха в машинном помещении лифтов в теплый период года не должна превышать 40°С.

4. Температура для расчета дежурного отопления.

5. Расчетные параметры воздуха и кратность воздухообмена указанны для квартир и одноквартирных домов жилища I категории.

6. В угловых помещениях квартир, одноквартирных домов и общежитии расчетную температуру воздуха следует принимать на 2°С выше указанной в таблице (но не выше 22°С).

7. В помещениях общественного назначения общежитий и специализированных квартирных жилых домов для престарелых и семей с инвалидами расчетные параметры воздуха и кратность воздухообмена следует принимать по соответствующим нормативным документам или техническому заданию в зависимости от назначения этих помещений

Приложение 8

Обязательное

Размещение электроаппаратуры и элементов сетей связи, информатизации и диспетчеризации в УЭРМ

Приложение 9

Обязательное

Приложение 10

Рекомендуемое




Яндекс цитирования



   Copyright © 2007-2026,  www.tehlit.ru.

[ ѓосты, стандарты, нормативы, инструкции, правила, строительные нормы ]