//
|
|
Система нормативных документов в строительстве ТЕРРИТОРИАЛЬНЫЕ СТРОИТЕЛЬНЫЕ НОРМЫ ПРЕДПРИЯТИЯ
ТСН 31-329-2004 Ивановской области г. Иваново, 2004 ПРЕДИСЛОВИЕ 1. РАЗРАБОТАНЫ: Управлением архитектуры и градостроительства Ивановской области при участии ГУП Ивановской области «Ивановогражданпроект». 2. ВНЕСЕНЫ впервые управлением архитектуры и градостроительства Ивановской области. Согласованы: с УГПН ГО и ЧС Ивановской области, центром государственного санитарно-эпидемиологического надзора в Ивановской области, Ивановским филиалом ФГУ «Управление государственного энергетического надзора по Верхне-Волжскому региону». 3. УТВЕРЖДЕНЫ постановлением Администрации Ивановской области от 21.10.2004 № 100-па («Собрание законодательства Ивановской области», № 21 (255), 18.11.2004, стр. 63). 4. ЗАРЕГИСТРИРОВАНЫ Департаментом строительства и ЖКХ Минпромэнерго России, письмо от 22.11.2004 № 10-1065/5. СОДЕРЖАНИЕ Система нормативных документов в строительстве Территориальные строительные нормы
Дата введения: 2005-01-01 1. ОБЛАСТЬ ПРИМЕНЕНИЯ1.1. Настоящие нормы и правила распространяются на проектирование вновь строящихся, реконструируемых, расширяемых зданий (или помещений), торговых центров, отдельно стоящих, встроенных, встроенно-пристроенных в жилые дома и другие здания (в том числе существующие) предприятий розничной торговли (далее в тексте магазинов) независимо от их форм собственности. Настоящие нормы не распространяются на проектирование рынков, зданий предприятий оптовой торговли, магазинов по продаже автомобилей, специализированных магазинов оружия, магазинов-складов стройматериалов, магазинов производственных фирм, а также магазинов временного функционирования. 1.2. Нормы обязательны для применения всеми юридическими и физическими лицами (включая зарубежные, а также совместные предприятия с участием зарубежных партнеров), осуществляющими проектирование зданий, указанных в п. 1.1, в Ивановской области. 2. НОРМАТИВНЫЕ ССЫЛКИВ настоящих нормах использованы ссылки на нормативные документы в соответствии с Приложением А. 3. ТЕРМИНЫ И ОПРЕДЕЛЕНИЯДля целей настоящих норм применены термины с соответствующими определениями в соответствии с Приложением Б. 4. ОБЩИЕ ТРЕБОВАНИЯ4.1. Настоящие нормы устанавливают основные требования к объемно-планировочным решениям магазинов, торговых центров, генеральным планам, размещению рекламы и их инженерно-техническому оборудованию. 4.2. Не допускаются изменения фасадов существующего здания в пределах встраиваемых помещений магазинов без увязки с фасадами всего здания и общего цветового решения. 4.3. На фасадах проектируемых, реконструируемых или встраиваемых магазинов следует предусматривать места для установки вывески в увязке с архитектурой здания. 4.4. Размещение стационарных средств наружной рекламы и информации, являющихся источником шума, вибрации, мощных световых, электромагнитных и иных излучений и полей, не должны превышать допустимых уровней и величин, установленных в СанПиН 2.1.2.1002. Не допускается средствами наружной рекламы закрывать существующие оконные проемы. 4.5. Выносные рекламные щитовые конструкции (штендеры) размещаются в часы работы магазина в пешеходных зонах и на тротуарах. Штендеры должны быть двухсторонними, не должны иметь собственного подсвета, площадь одной стороны не должна превышать 1,5 м2. Запрещается установка штендеров на тротуарах при их ширине менее 2 м. 4.6. В магазинах следует предусматривать устройства и мероприятия, обеспечивающие возможность для инвалидов и маломобильных групп населения пользоваться торговыми помещениями и помещениями дополнительного обслуживания согласно требованиям СНиП 35-01, СП 35-101 и СП 35-103. 5. ГЕНЕРАЛЬНЫЕ ПЛАНЫ5.1. Отдельно стоящее здание магазина торговой площадью более 1000 м2 (гипермаркеты, супермаркеты, торговые комплексы и центры) следует размещать на расстоянии не менее 50 м от окон жилых зданий, границ территорий детских дошкольных и общеобразовательных учреждений, а также лечебных учреждений стационарного типа. При соответствующем обосновании и по согласованию с органами Госсанэпиднадзора допускается сокращение данного расстояния. Расстояние до приобъектных автостоянок от окон жилых зданий, границ территорий детских дошкольных и общеобразовательных учреждений, а также лечебных учреждений стационарного типа следует проектировать в соответствии с СанПиН 2.2.1/2.1.1.1200. 5.2. Генеральный план участка, а также объемно-планировочная структура магазина должны предусматривать функциональное зонирование территории, отведенной для строительства, с разделением потоков движения покупателей и товаров, а также пешеходных и транспортных потоков, в том числе в зоне подвоза и разгрузки товаров. На земельном участке и (или) в структуре магазина допускается предусматривать зоны отдыха покупателей с элементами дополнительного обслуживания (приведены в Приложении Г). 5.3. Размещение магазинов на дворовой территории жилых домов не допускается. Главный фасад магазинов и входы для покупателей должны быть ориентированы непосредственно на улицы. 5.4. Загрузку магазинов, встроенных в жилые здания, следует выполнять: с торцов жилых зданий, не имеющих окон; из подземных туннелей; со стороны магистралей, при наличии специальных загрузочных помещений. Допускается сохранять загрузку магазинов, встроенных в жилые дома, со стороны главных и торцовых фасадов, имеющих окна, при условии сохранения существующего магазина без изменений или при его переоборудовании, перепланировке без нарушения несущей способности капитальных конструкций здания. При этом над загрузкой следует предусматривать козырек, выступающий от плоскости стены не менее чем на 1,5 м. Загрузочные площадки, пандусы и крыльца входов в магазины не должны перегораживать пешеходные тротуары. 5.5. Уклон пандуса для въезда автомобилей в подземные разгрузочные помещения и к разгрузочным платформам должен быть не более 16 % при размещении пандуса в здании и под навесами и не более 8 % - на открытой территории. 5.6. На земельном участке магазина и торгового центра или в их структуре, в том числе на подземных уровнях, следует размещать автостоянку. Расчетное количество машино-мест на автостоянке следует определять согласно СНиП 2.07.01. При этом для универсамов (супермаркетов) с площадью торговых залов более 1000 м2, а также гипермаркетов - 1 машино-место на 15 - 25 м2 торговой площади. 5.7. При проектировании магазинов, размещаемых в центральной части исторических городов, или при реконструкции существующих магазинов допускается сокращение расчетного количества машино-мест автостоянок на 10 %. 5.8. При организации автостоянок на участке торгового центра, объединяющего различные магазины и другие предприятия обслуживания, имеющие максимально пиковые нагрузки в разные дневные часы, допускается сокращение суммарного требуемого количества машино-мест с учетом требований СНиП 2.07.01. 6. ОБЪЕМНО-ПЛАНИРОВОЧНЫЕ РЕШЕНИЯ6.1. ОБЩИЕ ПОЛОЖЕНИЯ6.1.1. Классификация типов магазинов приведена в Приложении В. 6.1.2. Номенклатуру магазинов, размещенных в жилых зданиях, следует определять в соответствии с Приложением У. 6.1.3. Магазины, встраиваемые в существующие жилые дома, могут размещаться в первом, цокольном и подвальном этажах. Указанные магазины должны иметь обособленные входы и эвакуационные выходы, изолированные от жилой части здания, выходящей на дворовую территорию. При этом не допускается размещать в жилых зданиях: специализированные магазины москательно-химических и других товаров, эксплуатация которых может привести к загрязнению территории и воздуха жилой застройки; магазины с наличием в них взрывопожароопасных веществ и материалов; магазины по продаже синтетических ковровых изделий, автозапчастей, шин и автомобильных масел; специализированные рыбные и овощные магазины. Магазины по продаже синтетических ковровых изделий допускается располагать пристроенными к глухим участкам стен жилых зданий с пределом огнестойкости REI 150. 6.1.4. Величина магазина характеризуется размером его торговой площади, в состав которой включается площадь для дополнительного обслуживания покупателей приведенных в Приложении Г. При объединении магазинов в торговые центры помещения дополнительного обслуживания допускается предусматривать единым блоком для всего комплекса в целом. 6.1.5. Площадь неторговых помещений следует предусматривать не ниже расчетной, определяемой по удельным показателям, в соответствии с Приложениями Д и Е в зависимости от размера торговой площади и специализации магазина. Верхний предел площади неторговых помещений не нормируется. В торговых центрах часть неторговых помещений магазинов (разгрузочные помещения и хозяйственные дворы) рекомендуется объединять, при этом допускается уменьшение суммарной площади этих помещений на величину до 10 %. 6.1.6. Функциональное зонирование магазинов и торговых центров, как правило, должно обеспечивать наиболее короткие пути товародвижения по горизонтали и вертикали, а также кратчайшие связи между разгрузочными платформами, приемочной, грузовыми лифтами, помещениями для хранения товаров и соответствующими отделами торговых залов. При этом вспомогательные, подсобные и служебно-бытовые помещения следует располагать в стороне от основных направлений движения товаров. 6.1.7. Этажность магазинов (в том числе количество надземных и подземных этажей) определяется градостроительными, технологическими и противопожарными требованиями по заданию на проектирование. Число надземных этажей отдельно стоящих магазинов должно быть не более 5, подземных - не более одного. Допускается использование подземных этажей для размещения разгрузочных, складских и других подсобных, служебно-бытовых и инженерно-технических помещений, а также торговых залов магазинов (с помещениями дополнительного обслуживания) продовольственных и непродовольственных товаров торговой площадью не более 1500 м2. При этом инженерно-техническое оснащение перечисленных помещений следует проектировать согласно разделу 9 настоящих норм. 6.1.8. Высота торговых залов должна быть не менее 3,0 м от пола до потолка. В подсобных, служебных и бытовых помещениях, а также помещениях для приемки, хранения и подготовки товаров к продаже допускается уменьшение высоты от пола до потолка до 2,5 м с учетом технологических требований. Высоту помещений магазинов, размещаемых в жилых зданиях, при площади торгового зала не более 250 м2, допускается принимать равной высоте жилых помещений, кроме помещений, в которых по условиям размещения оборудования должна быть высота не менее 3 м. Уровень кровли встроенно-пристроенных (пристроенных) магазинов в местах примыкания к жилой части здания не должен превышать отметки пола жилых помещений. 6.1.9. Помещения кладовых и подготовки товаров к продаже следует предусматривать, как правило, на одном уровне с соответствующим по специализации торговым залом. При размещении складских помещений на других этажах следует предусматривать грузовой лифт для транспортировки контейнеров и средств их перемещения. 6.1.10. Не допускается устройство порогов на путях перемещения товаров и людей. 6.1.11. Наружные лестницы и пандусы, а также площадки, расположенные на высоте от уровня тротуара более 0,45 м, при входах в магазин должны иметь ограждения высотой не менее 0,8 м. 6.2. ТОРГОВЫЕ ПОМЕЩЕНИЯ6.2.1. В торговую площадь магазинов в соответствии с Приложением К входит площадь торговых залов и помещений для дополнительного обслуживания, а также площадь экспозиционных витрин со стороны улицы при условии размещения их пола в одном уровне с полом зала. Перечень элементов дополнительного обслуживания, приведенных в Приложении Г, не регламентируется и определяется заданием на проектирование. Минимальный коэффициент установочной площади в торговом зале (отношение площади, занятой торгово-технологическим оборудованием, к площади торгового зала) следует принимать равным 0,25. 6.2.2. При проектировании торговых залов магазинов самообслуживания следует предусматривать возможность размещения централизованных (поэтажных или на здание в целом) расчетных узлов и прилавков для хранения личных вещей покупателей. 6.2.3. В магазинах самообслуживания количество рабочих мест контролеров-кассиров следует принимать в зависимости от площади торгового зала на одно рабочее место контролера-кассира: до 100 м2 включительно - в продовольственных магазинах; до 160 м2 включительно - в непродовольственных магазинах. Площадь расчетного узла следует принимать равной не более 15 % площади торгового зала. Не учитываются в расчете количества рабочих мест контролеров-кассиров площадь торгового зала, предназначенная для дополнительного обслуживания, а также площадь помещений соответствующего назначения. 6.2.4. Ширину проходов между оборудованием в торговых залах магазинов следует определять в соответствии с Приложением Л. 6.2.5. Площадь отделов заказов (или комплектации подарочных наборов) следует принимать не менее расчетной, определяемой по удельным показателям минимальной площади, приведенным в Приложении М. 6.2.6. Площадь кафетериев следует принимать не менее расчетной, определяемой по удельным показателям минимальной площади, приведенным в Приложении Н. Площади сок-баров, отделов кулинарии и других предприятий питания, предусмотренных в составе магазинов, следует принимать согласно СНиП 2.08.02. 6.2.7. Площади прочих помещений дополнительного обслуживания, приведенных в Приложении П, следует определять заданием на проектирование. При продовольственном магазине по заданию на проектирование допускается предусматривать кулинарный цех по изготовлению пищевой продукции с реализацией ее в соответствующем отделе (или отделах) магазина, а также в предприятии быстрого питания. 6.3. ПОМЕЩЕНИЯ ДЛЯ ПРИЕМА И ХРАНЕНИЯ ТОВАРОВ И ДЛЯ ПОДГОТОВКИ ТОВАРОВ К ПРОДАЖЕ6.3.1. Площадь помещений для приема и хранения товаров и для подготовки товаров к продаже в продовольственных и непродовольственных магазинах следует принимать не менее расчетной, определяемой по удельным показателям площади для данной группы неторговых помещений в соответствии с Приложениями Д и Е. При разгрузке товаров в отапливаемом помещении его площадь следует включать в площадь для приема, хранения и подготовки товаров к продаже. Состав помещений для приема и хранения товаров и для подготовки товаров к продаже следует принимать в соответствии с Приложениями Р и С. 6.3.2. Расчетное количество разгрузочных мест следует принимать по таблице 1. В торговых центрах общее количество разгрузочных мест принимается как сумма расчетных величин по каждому торговому предприятию. Допускается сокращение их общего количества на величину до 15 %. Таблица 1
6.3.3. Помещения для хранения и подготовки товаров к продаже не допускается размещать под туалетами, душевыми и трапами для выпуска воды в канализацию. При наличии технического этажа над магазинами (встроенно-пристроенными или встроенными в жилые здания или в здания иного функционального назначения) размещение помещений для хранения и подготовки товаров к продаже не ограничивается при прокладке канализационных стояков вне пределов этих помещений. В моечных, туалетах и душевых следует предусматривать трапы для выпуска воды в канализацию, а отметка пола должна быть на 2 см ниже отметки пола соседних помещений. 6.3.4. Уровень разгрузочных платформ должен быть выше уровня площадки для автомобилей, как правило, на 1,1 - 1,2 м. Допускается предусматривать уровень разгрузочной платформы: выше уровня площадки для автомобилей на 0,6 - 0,8 м - при использовании для доставки товаров малотоннажных и легковых автомобилей; на одном уровне с площадкой для автомобилей - при наличии по заданию на проектирование разгрузочно-подъемных средств. Минимальная глубина платформы прямоугольной формы должна быть равной 4,0 м, пилообразной формы - 2,5 м в наиболее узком месте. 6.3.5. Разгрузочные платформы допускается размещать под навесом (перекрывающим всю платформу и 1 м кузова машины) в продовольственных магазинах торговой площадью не более 1500 м2 и в непродовольственных магазинах торговой площадью не более 3000 м2. В магазинах большей торговой площади следует предусматривать разгрузочные помещения (в соответствии с заданием на проектирование отапливаемые или неотапливаемые), в том числе с загрузкой через подземные туннели или специальные хозяйственные дворы. Допускается предусматривать подземную загрузку во вновь строящихся продовольственных магазинах с торговой площадью 1500 м2 и менее, а в непродовольственных - с торговой площадью 3000 м2 и менее. Для магазинов, встроенно-пристроенных или встроенных в жилые здания, допускается не проектировать загрузочные помещения при площади магазинов до 150 м2. При реконструкции магазинов торговой площадью не более 1500 м2 допускается сохранять существующий способ разгрузки товаров без разгрузочной площадки непосредственно в приемочное помещение. В реконструируемых магазинах торговой площадью более 1500 м2, как правило, следует проектировать подземную загрузку, а площадью 1500 м2 и менее допускается проектировать наземную загрузку. Не допускается установка дебаркадеров под окнами квартир. 6.3.6. Открытые разгрузочные площадки следует размещать, как правило, в изолированных хозяйственных дворах магазинов. При невозможности организации таких дворов открытые разгрузочные площадки следует ориентировать в сторону общественных зданий, общественных зон микрорайонов или на глухие торцы жилых зданий. При размещении на территории магазинов хозяйственных площадок для контейнеров с мусором расстояние от этих площадок следует предусматривать не менее 20 м до окон жилых зданий, границ территорий детских дошкольных и общеобразовательных учреждений, а также лечебных учреждений стационарного типа. 6.3.7. В магазинах, в которых разгрузка товаров производится под навесом, следует предусматривать помещения приемочных из расчета не менее 12 м2 на одно разгрузочное место. 6.3.8. Закрытое разгрузочное помещение при тупиковом расположении машин следует проектировать глубиной не менее 8 м (от ворот до разгрузочной платформы) для малотоннажных (или легковых) автомашин и не менее 12 м - для большегрузных автомашин (рефрижераторов, автомашин с прицепом). Высота разгрузочного помещения или пространства под навесом от уровня проезжей части до выступающих конструкций должна быть не менее 4,2 м при ширине въездных ворот не менее 3,6 м и высоте - не менее 4,2 м. Допускается принимать высоту разгрузочного помещения равной 3,6 м, а также ширину и высоту въездных ворот - не менее 3,6 м, если заданием на проектирование не предусматривается использование большегрузных автомашин. На путях проезда автомобилей и других транспортных средств колонны, стены и откосы проемов в стенах должны быть защищены от механических повреждений ударостойкими материалами на высоту не менее 1,6 м. 6.3.9. Ширину коридоров в группе помещений для хранения и подготовки товаров к продаже в зависимости от величины магазина и применяемых транспортных средств следует принимать не менее 1,6 м при площади торгового зала до 250 м2; не менее 1,8 м - при площади более 250 м2 и не менее 2,3 м - при любой площади торгового зала при использовании электрифицированного транспорта. В помещениях для хранения товаров и кладовых площадью более 10 м2 двери должны быть двухстворчатыми шириной не менее 1,3 м и высотой не менее 2,3 м, при меньшей площади кладовых допускаются одностворчатые двери шириной не менее 0,9 м и высотой не менее 2,3 м. Двери между разгрузочной платформой, располагаемой под навесом, и помещениями магазина должны быть двухстворчатыми или раздвижными шириной не менее 1,6 м и высотой - не менее 2,3 м. 6.3.10. Допускается складирование товаров в общей кладовой: в продовольственных магазинах при площади торгового зала не более 100 м2 и при соблюдении правил товарного соседства; в непродовольственных магазинах при любых площадях торговых залов, исключая складирование целлулоидных, парфюмерных и аэрозольных пахучих товаров, а также горючих жидкостей. На площади кладовых допускается предусматривать подготовку товаров к продаже. Охлаждаемые камеры допускается объединять по признакам расчетной температуры и с учетом характеристики продуктов. 6.3.11. Охлаждаемые камеры следует проектировать, как правило, единым блоком с входом в него через шлюз шириной не менее 1,3 м. Вне единого блока охлаждаемых камер допускается располагать не более двух камер с входом в них через соответствующую кладовую. Допускается не предусматривать шлюз при входе в охлаждаемую камеру при расчетной температуре в ней плюс 2 С° и выше. Вход в низкотемпературную камеру (или блок камер) следует предусматривать через отдельный шлюз. 6.3.12. Охлаждаемые камеры не допускается размещать рядом с котельными, бойлерными, душевыми и другими помещениями с повышенной температурой, влажностью, а также над или под этими помещениями. Размещать охлаждаемые камеры магазинов под жилыми комнатами и под другими помещениями, где постоянно находятся люди, допускается при условии устройства над камерами перекрытия, отделенного от междуэтажного перекрытия здания; пространство между этими перекрытиями должно проветриваться. 6.3.13. Теплоизоляцию ограждающих конструкций охлаждаемых камер следует проектировать в соответствии с расчетной внутренней температурой в камерах, но не ниже минус 18 С° в низкотемпературных камерах для хранения замороженных продуктов, а также мороженого и не выше плюс 4 С° - в остальных камерах. В ограждающих конструкциях охлаждаемых камер не допускается прокладка трубопроводов водопровода и канализации, коробов вентиляции и электрокабелей. 6.3.14. В машинных отделениях охлаждаемых камер необходимо предусматривать централизованную систему охлаждения прилавков в торговом зале с установкой агрегатов в специальном помещении рядом с торговым залом или под ним. Машинное отделение охлаждаемых камер не допускается размещать под жилыми помещениями. Хладоновые агрегаты следует устанавливать в машинном отделении рядом с камерой или на выделенной площадке около камеры, отгороженной от коридора металлической решеткой высотой не менее 1,5 м (с двустворчатыми дверями). 6.4. ПОДСОБНЫЕ, СЛУЖЕБНЫЕ И БЫТОВЫЕ ПОМЕЩЕНИЯ6.4.1. Площадь подсобных, служебных и бытовых помещений в продовольственных и непродовольственных магазинах следует принимать не менее расчетной, определяемой по удельным показателям площади для данных групп неторговых помещений в соответствии с Приложениями Д и Е. 6.4.2. Состав подсобных, служебных и бытовых помещений продовольственных и непродовольственных магазинов следует принимать в соответствии с Приложениями Р и С. Количество санитарно-гигиенических приборов в бытовых помещениях магазинов следует определять в соответствии с требованиями СНиП 2.09.04. 7. САНИТАРНО-ГИГИЕНИЧЕСКИЕ ТРЕБОВАНИЯ7.1. В помещениях магазинов, в том числе в торговых залах, а также подсобных и служебно-бытовых помещениях предусматривается естественное, искусственное или совмещенное освещение согласно СНиП 23-05 с учетом требований энергосбережения по ТСН 23-307-2000 ИО по согласованию с органами санэпиднадзора. В торговых залах магазинов с искусственным освещением следует предусматривать применение отделочных материалов с высокими коэффициентами отражения, высокоэффективных разрядных ламп и систем автоматического управления. 7.2. При размещении магазина в подземных этажах следует предусматривать инженерно-технические мероприятия, обеспечивающие безопасность и комфортный температурно-влажностный и световой режим в помещениях. В торговых залах и служебно-бытовых помещениях магазинов (с КЕО менее 0,1 %) следует предусматривать профилактическое ультрафиолетовое облучение с применением искусственных источников ультрафиолетового излучения согласно указаниям Министерства здравоохранения и социального развития РФ. 7.3. Используемые при строительстве материалы и изделия, подлежащие гигиенической оценке в соответствии с утвержденными Министерством здравоохранения и социального развития России Перечнями видов продукции и товаров, должны иметь гигиенические заключения, выданные органами и учреждениями государственной санитарно-эпидемиологической службы. 7.4. Стены и перегородки в помещениях с влажным режимом должны иметь влагостойкую отделку на высоту не менее 1,6 м, а в охлаждаемых камерах - облицовку на всю высоту помещения. 7.5. Отметка пола помещений у входа в магазин должна быть выше отметки тротуара перед входом на 0,15 м и более. Допускается принимать отметку пола у входа в магазин в одном уровне с тротуаром или с заглублением ниже его отметки при условии защиты входных проемов от попадания поверхностных вод и осадков. 7.6. При проектировании элементов конструкций, узлов их соединений, а также вентиляционных решеток следует учитывать требование по защите помещений от проникновения паразитирующих животных и насекомых. 7.7. При размещении магазинов в жилых многоквартирных домах следует соблюдать в жилой части здания нормативные параметры шума, вибрации, электрических и электромагнитных полей согласно СанПиН 2.1.2.1002. Звукоизоляция и виброизоляция строительных конструкций в помещениях с постоянным пребыванием людей (работающих и/или проживающих) должны соответствовать требованиям СНиП 23-03 и СН 2.2.4/2.1.8.566. 7.8. Общественные туалеты для посетителей следует проектировать в магазинах: 1Н классификационной группы из расчета один санитарный прибор на 600 м2 торговой площади, но не менее двух санитарных приборов; 1П классификационной группы из расчета один санитарный прибор на 400 м2 торговой площади, но не менее двух санитарных приборов. В магазинах других типов допускается проектировать общественные туалеты из расчета один санитарный прибор на каждые 600 м2 торговой площади в непродовольственных магазинах и на каждые 400 м2 торговой площади - в продовольственных магазинах, но не менее двух санитарных приборов. Вход в помещение общественных туалетов следует предусматривать через шлюз. При этом его следует располагать не смежно с прилавками для отпуска продовольственных товаров. Площадь помещений общественных туалетов для посетителей учитывается в площади помещений дополнительного обслуживания. 7.9. Общественные туалеты для посетителей в торговых центрах следует проектировать для всего комплекса магазинов из расчета их суммарной торговой площади. Допускается поэтажное размещение общественных туалетов. 7.10. Туалеты следует проектировать раздельными для персонала и посетителей. В общественных туалетах следует предусматривать: ширину кабины - не менее 0,8 м, глубину - не менее 1,2 м; не менее одной кабины с шириной не менее 1,65 м и глубиной - не менее 1,8 м для инвалидов-колясочников; не менее одной кабины с поручнями, расположенными по боковым сторонам, для инвалидов, использующих при передвижении костыли или другие приспособления; не менее одного писсуара на высоте не более 0,4 м с вертикальными опорными поручнями с двух сторон - для инвалидов; не менее одной раковины в умывальных на высоте не более 0,8 м от уровня пола, на расстоянии от боковой стены не менее 0,2 м с опорными поручнями. 8. ПРОТИВОПОЖАРНЫЕ ТРЕБОВАНИЯ8.1. Наибольшую площадь этажа между противопожарными стенами в зависимости от степени огнестойкости и этажности зданий магазинов следует принимать по таблице 2. Таблица 2
8.2. Магазины, встроенно-пристроенные или встроенные в жилые здания, следует отделять от жилой части глухими противопожарными перегородками 1-го типа и противопожарными перекрытиями 2-го типа. Максимальную торговую площадь и размещение магазинов в структуре жилых зданий следует принимать в соответствии с Приложениями У и Б. Магазины торговой площадью более 100 м2, встроенные в здания иного назначения, следует отделять от других предприятий и помещений противопожарными стенами 2-го типа и противопожарными перекрытиями 2-го типа. 8.3. При размещении магазинов в зданиях иного назначения (общественные центры и другие многофункциональные здания) допускается предусматривать входы с самозакрывающимися дверями в торговый зал из общего вестибюля при условии обеспечения самостоятельных эвакуационных выходов из торгового зала без учета выходов через общий вестибюль. 8.4. Из торгового зала магазина должны быть предусмотрены эвакуационные выходы непосредственно наружу или в лестничную клетку (изолированную от здания иного назначения при размещении магазина во встроенно-пристроенных или встроенных помещениях) по расчету, но не менее двух. Эвакуационные выходы следует располагать рассредоточенно. Устройство эвакуационных выходов через разгрузочные помещения не допускается. В магазинах торговой площадью до 150 м2 - одноэтажных отдельно стоящих, встроенно-пристроенных, пристроенных или встроенных в здания иного назначения - допускается проектировать один эвакуационный выход из зала, предусматривая в качестве второго эвакуационного - выход из торгового зала через группу неторговых помещений. При расчете эвакуационных выходов в магазинах (размещенных в отдельно стоящих зданиях, встроенно-пристроенных, пристроенных или встроенных в здания иного назначения) допускается учитывать служебные лестничные клетки и выходы из магазинов, связанные с залом непосредственно или с коридором, при условии, что расстояние от наиболее удаленной точки торгового зала до ближайшей служебной лестницы или выхода из магазина не более указанного в таблице 3. 8.5. Максимальное расстояние от наиболее удаленной точки торгового зала до ближайшего эвакуационного выхода следует принимать по таблице 3. Таблица 3
8.6. В расчете путей эвакуации эскалаторы не учитываются. 8.7. Для расчета путей эвакуации количество покупателей, одновременно находящихся в торговом зале магазина, следует принимать из расчета один человек на 3,0 м2 торговой площади. Если по заданию на проектирование предусматривается последующее увеличение площади торговых залов магазинов, то это увеличение следует учитывать в расчете путей эвакуации. 8.8. Ширину основных эвакуационных проходов в торговом зале следует принимать по расчету, но не менее: 1,4 м - при торговой площади до 100 м2 (включительно); 1,6 м - при торговой площади от 100 м2 до 150м2; 2,0 м - при торговой площади от 150 м2 до 400 м2; 2,5 м - при торговой площади от 400 м2. Площадь проходов между турникетами, кабинами контролеров-кассиров и проходов с наружной стороны от торгового зала вдоль расчетного узла в площадь основных эвакуационных проходов не включается. 8.9. Ширину эвакуационных выходов (дверей) из торгового зала, а также проходов (коридоров), соединяющих торговый зал со служебной лестницей, следует определять по расчету согласно таблице 4, но не менее 1,2 м. Ширину марша лестницы (или пандуса) следует принимать не менее наибольшей ширины эвакуационного выхода на лестницу (или пандус). Таблица 4
8.10. В магазинах I и II степеней огнестойкости допускаются открытые лестницы или пандусы из цокольного (или первого подземного этажа) до первого этажа или с первого до второго этажа. При этом такие лестницы или пандусы могут иметь выход, как в вестибюль, так и в другие помещения. До пятого этажа включительно допускаются открытые лестницы в магазинах I и II степеней огнестойкости, но при этом помещение с открытой лестницей выше второго этажа должно быть отделено от примыкающих к нему коридоров и других помещений противопожарными перегородками 2-го типа. При устройстве автоматического пожаротушения во всем здании допускается не отделять помещения с открытой лестницей противопожарными перегородками от коридоров и других помещений. Открытые лестницы или пандусы допускается учитывать в расчете путей эвакуации только для половины количества покупателей, находящихся в соответствующем торговом зале, а для эвакуации остальных покупателей следует предусматривать не менее двух лестничных клеток. Длину открытой лестницы или пандуса следует включать в расстояние от наиболее удаленной точки пола торгового зала до эвакуационного выхода (по таблице 3). Площадь этих лестницы или пандуса не следует учитывать в составе площади основных эвакуационных проходов. При наличии открытых лестниц, выходящих в вестибюль первого этажа, в магазинах, размещенных в подземных или цокольном этажах общественных и торговых центров, а также других многофункциональных зданий, остальные эвакуационные лестницы надземной части магазина, кроме выхода в этот вестибюль, должны иметь выход непосредственно наружу. 8.11. Из лестничных клеток, предназначенных для эвакуации людей из торговых залов и служебных помещений магазинов, размещенных в надземных, цокольном или первом подземном этажах, следует предусматривать обособленные эвакуационные выходы наружу из первого подземного или цокольного этажа. При этом указанные выходы должны быть отделены от других помещений глухой противопожарной перегородкой 1-го типа на высоту одного этажа. 8.12. Лестницы для сообщения между подземным (или цокольным) этажом и первым этажом, ведущие в коридор, холл или вестибюль первого этажа, в расчете эвакуации людей из подземного или цокольного этажа не учитываются. Если лестница из подземного или цокольного этажа выходит в вестибюль первого этажа, то все лестницы надземной части здания, кроме выхода в этот вестибюль, должны иметь выход непосредственно наружу. 8.13. На путях движения маломобильных посетителей не допускается применять двери на качающихся петлях, турникеты и двери-вертушки. Для полотна двери рекомендуется применять фиксаторы в положениях «открыто» и «закрыто». Автоматические двери с силовым приводом для закрывания следует применять с задержкой закрывания не менее 5 секунд. При устройстве на путях эвакуации автоматической или полуавтоматической двери ее следует дублировать проемами с распашными полотнами. Прозрачные ограждения и двери следует выполнять из ударопрочного материала. Нижнюю часть двери на высоту 0,3 м следует защищать противоударной полосой. На поверхностях прозрачных ограждений и дверей следует наносить контрастную маркировку, низ которой должен быть на уровне 1,5 м от плоскости пола. 8.14. Лестницы для обслуживающего персонала следует отделять от входов и лестниц для покупателей. Входы в кладовые и другие неторговые помещения следует, как правило, располагать со стороны приемочной или служебных коридоров. В магазинах торговой площадью не более 1200 м2 допускается предусматривать дополнительные выходы в торговый зал для подачи товаров из кладовых, смежных с торговыми залами. 8.15. Один из эвакуационных выходов из торгового зала магазина допускается предусматривать непосредственно в вестибюль или поэтажный холл, примыкающие к открытой лестнице. 8.16. Допускается использовать наружные открытые лестницы с уклоном не более 60° в качестве второго эвакуационного выхода со второго этажа магазина. При этом указанные лестницы должны быть рассчитаны на число эвакуируемых не более: 70 чел. - для зданий I и II степеней огнестойкости; 50 чел. - для зданий III степени огнестойкости; 30 чел. - для зданий IV и V степеней огнестойкости. Ширину наружных лестниц следует принимать не менее 0,8 м, а ширину сплошных проступей - не менее 0,2 м. При устройстве прохода к наружным открытым лестницам по плоским кровлям (в том числе неэксплуатируемым) или через наружные открытые галереи несущие конструкции покрытий и галерей следует проектировать с пределом огнестойкости не менее REI 45. 8.17. В магазинах допускается устройство криволинейных лестниц: главных парадных - в торговых залах в двух и более этажах, а также при наличии в этих залах антресолей, служебных - ведущих из помещений с числом постоянно пребывающих в них людей не более 5 чел. При этом ширину ступеней в узкой части указанных лестниц следует предусматривать не менее 0,22 м, а служебных лестниц - не менее 0,12 м. 8.18. Лестничные клетки, как правило, следует проектировать с естественным освещением через проемы в наружных стенах. Допускается устройство верхнего освещения не более чем в 50 % лестничных клеток магазинов в 2-этажных зданиях, а в 3-этажных - при устройстве просвета между маршами лестниц, равного не менее 1,5 м. Допускается проектировать без естественного освещения не более 50 % лестничных клеток, предназначенных для эвакуации людей. При этом указанные лестничные клетки должны быть незадымляемыми, 2-го или 3-го типа. 8.19. В торговых залах без естественного освещения следует предусматривать дымоудаление. 8.20. Магазины по продаже легковоспламеняющихся товаров, а также горючих жидкостей (масел, красок, растворителей и т.п.) следует размещать в отдельно стоящих зданиях с огнестойкостью не ниже II степени. Допускается размещать в этих зданиях другие типы магазинов, а также предприятия бытового обслуживания, отделяя их противопожарными стенами 1-го типа от магазинов по продаже легковоспламеняющихся товаров и горючих жидкостей. Продажу пиротехнических изделий разрешается проводить в специализированных отделах (секциях). При этом отделы (секции) по продаже боеприпасов и пиротехнических изделий должны располагаться на верхних этажах магазинов и не примыкать к эвакуационным выходам. Пиротехнические изделия должны храниться в металлических шкафах, установленных в помещениях, выгороженных противопожарными перегородками 1-го типа (EI 45). Не допускается размещение указанных шкафов в подвальных помещениях. 8.21. Кладовые легковоспламеняющихся товаров и горючих жидкостей следует располагать у наружных стен с оконными проемами и отделять их противопожарными перегородками 1-го типа (EI 45) и перекрытиями 3-го типа (EI 45), предусматривая вход в эти кладовые через тамбур-шлюз с подпором воздуха при пожаре. 8.22. Кладовые горючих товаров и товаров в горючей упаковке следует, как правило, размещать у наружных стен, отделяя их противопожарными перегородками 1-го типа от торгового зала площадью 250 м2 и более. Указанные кладовые следует разделять на отсеки площадью не более 700 м2. В пределах каждого отсека допускается установка сетчатых или не доходящих до потолка перегородок. Дымоудаление при этом предусматривается на отсек в целом. Дымоудаление из указанных выше кладовых следует предусматривать согласно СНиП 41-01, а при размещении таких кладовых в подземном этаже - через люки или окна, расположенные в приямке, с учетом п. 8.33 настоящего ТСН. Допускается проектировать дымоудаление из этих кладовых площадью до 50 м2 через окна, расположенные в конце коридоров, при наличии выходов из кладовых в коридоры. Не требуется дымоудаление из кладовых, соединенных дверными и оконными проемами с разгрузочными помещениями и платформами. 8.23. Двери электрощитовых, вентиляционных камер, кладовых для хранения горючих материалов и других пожароопасных технических помещений должны иметь предел огнестойкости не менее EI 45. 8.24. Кладовые слабогорючих товаров следует отделять противопожарными перегородками 2-го типа EI 15 от торгового зала (за исключением кладовых слабогорючих товаров без упаковки, размещаемых на площади, предназначенной согласно заданию на проектирование для последующего увеличения торгового зала). 8.25. Автоматической пожарной сигнализацией следует оборудовать помещения: - непродовольственных магазинов при отсутствии в них установок автоматического пожаротушения; - продовольственных магазинов при оборудовании их охранной сигнализацией. Автоматическую пожарную сигнализацию не следует предусматривать в помещениях, оборудованных автоматическим пожаротушением, а также в помещениях для хранения и подготовки к продаже мяса, рыбы, фруктов и овощей (в негорючей упаковке), металлической посуды, негорючих строительных материалов, в туалетах, в охлаждаемых камерах, моечных, душевых и вентиляционных камерах, насосных, бойлерных и других помещениях для инженерного оборудования, в которых отсутствуют сильногорючие материалы. 8.26. Торговые залы, помещения для приема, хранения и подготовки товаров к продаже, для хранения тары, упаковочных материалов и инвентаря следует оборудовать установками автоматического пожаротушения в магазинах: - торговой площадью более 3500 м2, размещенных в двух надземных этажах или в первом надземном и цокольном (или подземном) этаже с торговыми залами в цокольном (или подземном) этаже - в отдельно стоящих зданиях или встроенно-пристроенных и пристроенных к жилым зданиям (или зданиям иного назначения); - при любой торговой площади, размещенных в трех и более надземных этажах либо в двух надземных этажах и цокольном (или подземном) этаже с торговыми залами в цокольном (или подземном) этаже - в отдельно стоящих зданиях или встроенно-пристроенных и пристроенных к жилым зданиям (или зданиям иного назначения); - торговой площадью 500 м2 и более, размещенных в надземных этажах, встроенных в здания иного назначения; - торговой площадью более 200 м2 при размещении торгового зала и подсобных помещений в цокольном и подвальном этажах. 8.27. В специализированных магазинах по продаже оружия (а также при наличии отделов по продаже оружия в других магазинах) следует проектировать комнату для хранения оружия со входом в нее через тамбур. При этом следует предусматривать ограждающие кирпичные стены толщиной не менее 38 см и обивку входной двери листовой сталью с устройством замков. Оконные проемы в комнате для хранения оружия не допускаются. 8.28. Для четырех или пятиэтажных магазинов в качестве светопрозрачного заполнения дверей, фрамуг (в дверях и перегородках, включая внутренние стены лестничных клеток) и перегородок следует применять закаленное или армированное стекло и стеклоблоки. В магазинах высотой менее четырех этажей виды светопрозрачного заполнения не ограничиваются. 8.29. Раздвижные перегородки должны быть защищены с обеих сторон негорючими материалами, обеспечивающими предел огнестойкости не менее EI 45. 8.30. В зданиях всех степеней огнестойкости и классов конструктивной пожарной опасности, кроме зданий V степени огнестойкости и зданий класса С3 (СНиП 21-01-97*), на путях эвакуации не допускается применять материалы с более высокой пожарной опасностью чем: Г1, В1, Д2, Т2 - для отделки стен, потолков и заполнения подвесных потолков в вестибюлях, лестничных клетках, лифтовых холлах; Г2, В2, Д3, Т3 или Г2, В3, Д2, Т2 - для отделки стен, потолков и заполнения подвесных потолков в общих коридорах, холлах и фойе; Г2, РП2, Д2, Т2 - для покрытий пола в вестибюлях, лестничных клетках, лифтовых холлах; В2, РП2, Д3, Т2 - для покрытий пола в общих коридорах, холлах и фойе. Каркасы подвесных потолков в помещениях и на путях эвакуации следует выполнять из негорючих материалов. 8.31. Высота технического этажа определяется в зависимости от габаритов размещаемых в нем инженерного оборудования и инженерных коммуникаций, а также условий их эксплуатации. В местах прохода обслуживающего персонала расстояние от пола до низа выступающих конструкций должна быть не менее 1,8 м. В техническом этаже (техническом подполье), предназначенном для размещения только инженерных коммуникаций с трубопроводами и изоляцией трубопроводов из негорючих материалов, допускается уменьшение его высоты от пола до потолка, но не менее 1,6 м. 8.32. Техническое подполье, в котором проложены инженерные сети, должно иметь выходы наружу (через двери или люки размером не менее 0,6´0,6 м). 8.33. В каждом отсеке подземного или цокольного этажей (заглубленных более чем на 0,5 м) должно быть не менее двух люков или окон шириной 0,9 м и высотой 1,2 м, кроме случаев, оговоренных в задании на проектирование для размещения сооружений гражданской обороны и СНиП II-11. Площадь отсека должна быть не более 700 м2. 8.34. Число подъемов в одном марше между площадками (за исключением криволинейных лестниц) должно быть не менее 3 и не более 16. В одномаршевых лестницах, а также в одном марше двух- и трехмаршевых лестниц в пределах первого этажа допускается не более 18 подъемов. 8.35. Марши и площадки лестниц (пандусов) должны иметь ограждения с поручнями. Устройства и мероприятия для обеспечения перемещения инвалидов по лестницам или пандусам (в том числе наружным) следует предусматривать согласно СП-35-101. 8.36. Уклон маршей лестниц в надземных этажах следует принимать не более 1:2. Уклон маршей лестниц, ведущих в подземные и цокольный этажи, а также лестниц в надземных этажах, не предназначенных для эвакуации людей, допускается 1:1,5. Уклон пандусов в торговых залах и при входе в магазин следует принимать не более 1:6, а на путях передвижения маломобильных групп населения - 1:12. 9. ИНЖЕНЕРНОЕ ОБОРУДОВАНИЕ9.1. ОБЩИЕ ПОЛОЖЕНИЯ9.1.1. Тепло-, водоснабжение магазинов, размещаемых в отдельно стоящих зданиях, в многофункциональных комплексах, общественных зданиях и центрах, следует предусматривать, как правило, от индивидуальных тепловых пунктов (ИТП). В остальных случаях выбор типа теплового пункта для тепло-, водоснабжения предприятия торговли следует осуществлять, руководствуясь СП 41-101. Транзитные коммуникации общего пользования жилых домов или зданий иного назначения должны быть изолированы от встраиваемых общественных помещений. 9.1.2. Вентиляционные камеры, насосные, машинные отделения холодильных установок, тепловые пункты и другие помещения с оборудованием, являющимся источником шума и вибрации не следует располагать смежно, над и под рабочими помещениями с постоянным пребыванием людей, жилыми помещениями. 9.2. ВОДОСНАБЖЕНИЕ И КАНАЛИЗАЦИЯ9.2.1. В магазинах следует предусматривать: хозяйственно-питьевой водопровод холодной и горячей воды, бытовую канализацию, водостоки, внутренний противопожарный водопровод, проектируемые в соответствии со СНиП 2.04.01, СНиП 2.08.02 и требованиями настоящего раздела. 9.2.2. В магазинах необходимо предусматривать установку водосчетчиков холодной и горячей воды. Водомерные узлы следует устанавливать на вводах трубопроводов в магазины. В магазинах, встроенно-пристроенных и встроенных в жилые дома и пристроенных к ним, а также зданиям иного назначения, при наличии общих вводов водопровода холодной и горячей воды следует устанавливать дополнительные водосчетчики на каждом из ответвлений трубопроводов. 9.2.3. Системы канализации магазинов, встроенно-пристроенных, пристроенных или встроенных в жилые здания или здания иного назначения, следует, как правило, предусматривать отдельными от систем канализации этих зданий. 9.2.4. Установка санитарно-технических приборов в подземных и цокольных этажах магазинов должна выполняться согласно п. 17.27 СНиП 2.04.01. 9.2.5. В ИТП отдельно стоящих магазинов (при недостатке напоров в городской водопроводной сети) следует предусматривать установку хозяйственных и противопожарных насосов. 9.2.6. Для холодильных агрегатов в продовольственных магазинах, как правило, следует предусматривать воздушное охлаждение. При невозможности его устройства необходимо предусматривать систему оборотного водоснабжения. Расходы воды оборотного водоснабжения на подпитку системы следует согласовывать с соответствующими службами. 9.2.7. В помещениях для хранения уборочного инвентаря следует предусматривать раковины, трапы, а также краны холодной и горячей воды. Помещения для подготовки продовольственных товаров к продаже следует оборудовать раковинами и моечными ваннами. Подсобные помещения предприятий питания для персонала магазинов и для посетителей следует оборудовать согласно нормативным требованиям к предприятиям общественного питания. 9.2.8. В универмагах торговой площадью 8500 м2 и более, а также в продовольственных магазинах торговой площадью 1000 м2 и более в торговых залах следует предусматривать трапы и поливочные краны для мокрой уборки полов. 9.2.9. Шлюз при камере пищевых отходов следует оборудовать раковиной и мойкой для мытья бачков. 9.2.10. В торговых залах магазинов по продаже рыбы, а также магазинов с зоотоварами по заданию на проектирование допускается проектировать аквариумы для продажи живой рыбы. 9.2.11. Перечень зданий, сооружений, помещений и оборудования, подлежащих защите автоматическими установками пожаротушения и автоматической пожарной сигнализацией, следует определять согласно НПБ 110-03. 9.3. ОТОПЛЕНИЕ И ВЕНТИЛЯЦИЯ9.3.1. Отопление, вентиляцию, кондиционирование воздуха и аварийную противодымную вентиляцию магазинов следует проектировать в соответствии со СНиП 41-01, СНиП 2.08.02 и требованиями настоящего раздела. 9.3.2. Тепловую защиту зданий следует проектировать в соответствии со СНиП 23-02. 9.3.3. Для торговых залов площадью 400 м2 и более, а также для разгрузочных помещений следует предусматривать отдельные ветви систем водяного отопления. 9.3.4. Дежурное отопление в торговых залах магазинов должно быть рассчитано на температуру воздуха плюс 10 С°. 9.3.5. В магазине следует предусматривать установку приборов учета потребления тепловой энергии и теплоносителя. Узлы учета должны соответствовать требованиям «Правил учета тепловой энергии и теплоносителя». 9.3.6. Систему отопления магазина, встроенного или встроенно-пристроенного в жилое здание, не допускается объединять с системой отопления жилой части здания. 9.3.7. При размещении в здании нескольких магазинов для каждого из них следует проектировать отдельные ветви систем водяного отопления и вентиляции, а также предусматривать автономный приборный учет тепловой энергии и теплоносителя. 9.3.8. Воздушно-тепловую завесу у входа в торговый зал магазина следует проектировать: при количестве проходящих через вход в течение одного часа более 250 человек; при наличии рабочих мест, расположенных смежно со входом или против входа, вне зависимости от количества человек, проходящих через вход в течение одного часа. В других случаях по заданию на проектирование допускается предусматривать воздушно-тепловую завесу у входа (как правило, электрическую) или установку у входа тепловентилятора, обеспечивающего частичное отопление помещения. 9.3.9. Воздушно-тепловые завесы ворот разгрузочных помещений следует проектировать в продовольственных магазинах торговой площадью 1500 м2 и более, а также в непродовольственных магазинах торговой площадью 2500 м2 и более. 9.3.10. Расчетную температуру и кратность воздухообмена в помещениях следует принимать в соответствии с Приложением Т. 9.3.11. В продовольственных и непродовольственных магазинах торговой площадью до 400 м2 допускается проектировать вентиляцию с естественным побуждением. 9.3.12. В помещениях магазинов торговой площадью 400 м2 и более, оборудованных вентиляцией с механическим побуждением, объем вытяжки должен быть полностью компенсирован. 9.3.13. При расчете систем вентиляции и кондиционирования количество людей, находящихся в торговых залах, следует определять исходя из площади торгового зала на одного человека (или по технологическому заданию): 6 м2 - для магазинов мебели, музыкальных, аудио-, видео-, бытовой и оргтехники, книжных, спортивных, ювелирных; 5 м2 - для других непродовольственных магазинов, а также для продовольственных магазинов. 9.3.14. При ориентации на юг, восток и юго-восток остекленных проемов торговых залов и служебных помещений магазинов допускается предусматривать установку оконных или комнатных кондиционеров. 9.3.15. В торговых залах магазинов, кроме торговых залов с химическими, синтетическими или пахучими веществами и горючими жидкостями, допускается применять рециркуляцию воздуха, при этом наружный воздух следует подавать в объеме не менее 20 м3/ч на одного человека. 9.3.16. Системы вентиляции магазинов, встроенно-пристроенных, встроенных в жилые здания, а также в здания иного назначения или пристроенных к ним, не допускается объединять с системами вентиляции этих зданий. 9.3.17. В помещениях кладовых следует, как правило, предусматривать естественную систему вентиляции с самостоятельными каналами. 9.3.18. Допускается подсоединение системы вытяжной вентиляции кладовых к общеобменной системе механической вентиляции подсобных помещений при условии установки огнезадерживающих клапанов в соответствии со СНиП 41-01. 9.3.19. При расположении витрин с экспозиционными площадками со стороны улицы следует предусматривать защиту охлаждаемых поверхностей витрин от запотевания и обледенения, а при необходимости - устройства для защиты от прямых солнечных лучей. 9.4. ЭЛЕКТРОТЕХНИЧЕСКИЕ УСТРОЙСТВА9.4.1. Проектирование электротехнических устройств в магазинах следует выполнять согласно требованиям правил установки электроустановок (ПУЭ). Схемы электрических сетей должны проектироваться исходя из требований, предъявляемых к надежности электроснабжения электроприемников магазинов. Категория электроприемников магазинов определяется согласно табл. 5.1 СП 31-110. При наличии котельных их электроснабжение следует предусматривать с учетом СНиП II-35 «Котельные установки» с изменениями 1. 9.4.2. Расчет нагрузок для электросетей магазинов следует выполнять согласно СП 31-110 и РД 34.20.185. 9.4.3. На вводе в здание должно быть установлено ВУ или ВРУ. В здании может устанавливаться одно или несколько ВУ или ВРУ. При наличии в здании нескольких обособленных в хозяйственном отношении потребителей у каждого из них рекомендуется устанавливать самостоятельное ВУ или ВРУ. От ВРУ допускается также питание потребителей, расположенных в других зданиях, при условии, что эти потребители связаны функционально. При ответвлениях от ВЛ с расчетным током до 25А ВУ или ВРУ на вводах в здание могут не устанавливаться, если расстояние от ответвления до группового щитка, выполняющего в этом случае функции ВУ, не более 3 м. Данный участок сети должен выполняться гибким медным кабелем с сечением жил не менее 4 мм2, не распространяющим горение, проложенным в стальной трубе, при этом должны быть выполнены требования по обеспечению надежного контактного соединения с проводами ответвления. При воздушном вводе должны устанавливаться ограничители импульсных перенапряжений. 9.4.4. ВУ, ВРУ или ГРЩ, как правило, следует устанавливать в электрощитовых помещениях, доступных только для обслуживающего персонала. ВУ, ВРУ, ГРЩ могут размещаться в помещениях, выделенных в эксплуатируемых сухих подвалах, при условии, что эти помещения доступны для обслуживающего персонала, и отделены от других помещений перегородками с пределом огнестойкости не менее 0,75 ч. При размещении ВУ, ВРУ, ГРЩ, распределительных пунктов и групповых щитков вне электрощитовых помещений они должны устанавливаться в удобных и доступных для обслуживания местах, в шкафах со степенью защиты оболочки не ниже IР31. Расстояние от трубопроводов (водопровод, отопление, канализация, внутренние водостоки), газопроводов и газовых счетчиков до места установки должно быть не менее 1 м. 9.4.5. Электрощитовые не допускается располагать непосредственно под помещениями с мокрыми процессами (кроме кухонь квартир). В электрощитовых следует предусматривать электрическое освещение, вентиляцию и температуру не ниже плюс 5 С°. Двери электрощитовых помещений должны открываться наружу. 9.4.6. Допускается в соответствии с заданием на проектирование установка непосредственно в торговых залах распределительных пунктов, щитов и щитков. При этом их, как правило, следует размещать в нишах строительных конструкций с запирающимися дверцами. 9.4.7. В зданиях следует применять кабели и провода с медными жилами. 9.4.8. Питающие и распределительные сети, как правило, должны выполняться кабелями и проводами с алюминиевыми жилами, если их расчетное сечение равно 16 мм2 и более. 9.4.9. Питание отдельных электроприемников, относящихся к инженерному оборудованию зданий (насосы, вентиляторы, калориферы, установки кондиционирования воздуха и т.п.) может выполняться проводами или кабелем с алюминиевыми жилами сечением не менее 2,5 мм2. 9.4.10. Во всех зданиях линии групповой сети, прокладываемые от групповых, этажных и квартирных щитков до светильников общего освещения, штепсельных розеток и стационарных электроприемников, должны выполняться трехпроводными (фазный - L, нулевой - N и нулевой защитный - РЕ проводники). 9.4.11. Электропроводку в помещениях следует выполнять сменяемой: скрыто в каналах строительных конструкций, замоноличенных трубах; открыто - в электротехнических плинтусах, коробах и т.п. 9.4.12. В технических этажах, подпольях, неотапливаемых подвалах, чердаках, вентиляционных камерах, сырых и особо сырых помещениях электропроводку рекомендуется выполнять открыто. 9.4.13. В зданиях со строительными конструкциями, выполненными из негорючих материалов, допускается несменяемая, замоноличенная прокладка групповых сетей в бороздах стен, перегородок, перекрытий, под штукатуркой, в слое подготовки пола или в пустотах строительных конструкций, выполняемая кабелем или изолированными проводами в защитной оболочке. Применение несменяемой замоноличенной прокладки проводов в панелях стен, перегородок и перекрытий, выполненной при их изготовлении на заводах стройиндустрии или выполняемой в монтажных стыках панелей при монтаже зданий, не допускается. 9.4.14. Открытая прокладка транзитных кабелей и проводов через кладовые и складские помещения не допускается. 9.4.15. Над каждым входом в здание должен быть установлен светильник. 9.4.16. От ВРУ и ГРЩ питающие линии холодильного оборудования, рабочего и аварийного освещения, освещения витрин, рекламы и иллюминации следует проектировать самостоятельными. Для линии должна предусматриваться защита от сверхтока и токов утечки (УЗО). 9.4.17. Питание электроприемников противопожарных устройств и охранной сигнализации независимо от категории надежности электроснабжения необходимо предусматривать от разных вводов, а при одном вводе - двумя линиями от этого ввода с устройством автоматического включения резерва (АВР). 9.4.18. Распределение электроэнергии к силовым распределительным щитам, пунктам и групповым щиткам сети электрического освещения следует, как правило, осуществлять по магистральной схеме. Радиальные схемы следует, как правило, выполнять для присоединения одиночных электродвигателей, групп электроприемников общего технологического назначения и электроприемников I категории надежности. 9.4.19. Силовые распределительные пункты, щиты и щитки следует располагать, как правило, на этажах, где размещены присоединенные к ним электроприемники. 9.4.20. В силовых распределительных сетях по магистральной схеме следует соединять не более четырех электроприемников мощностью до 3 кВт каждый, а также не более двух мощностью до 5 кВт каждый. Единичная мощность электроприемников, питаемых по магистральной схеме, не должна различаться более чем на 25 %. При наличии в торговом зале более двух кассовых аппаратов их питание следует осуществлять от двух линий. Количество кассовых аппаратов, питаемых одной линией, не ограничивается. 9.4.21. В торговых залах магазинов необходимо устанавливать включаемые через устройство защитного отключения (УЗО) розетки с защитными шторками, предназначенные для подключения уборочных машин, а также для проверки электро- и радиотоваров. 9.4.22. Управление рабочим освещением в торговых залах площадью 800 м2 и более, а также в отдельных случаях по заданию на проектирование следует проектировать, как правило, централизованным дистанционным. 9.4.23. Для помещений с зонами различной естественной освещенностью управление рабочим освещением должно обеспечиваться ручным или автоматическим включением и отключением светильников группами или рядами по мере изменения естественной освещенности помещений. 9.4.24. Управление освещением складских помещений для подготовки товаров к продаже следует проектировать местным для каждого помещения с возможностью централизованного дистанционного отключения. Выключатели местного управления освещением необходимо располагать вне помещений на несгораемых конструкциях и размещать в шкафах или нишах строительных конструкций. 9.4.25. В торговых залах, а также над кассовыми аппаратами следует устанавливать светильники аварийного освещения. 9.4.26. В магазинах следует предусматривать: городскую телефонную связь и радиотрансляцию, автоматическую пожарную сигнализацию, системы оповещения людей о пожаре (в соответствии с НПБ 104-03). Другие системы связи и информации, а также охранную сигнализацию допускается предусматривать согласно заданию на проектирование. 9.5. ЛИФТЫ9.5.1. Грузоподъемность грузовых лифтов и габариты кабин устанавливаются заданием на проектирование с учетом классификационных групп магазинов (в соответствии с Приложением В) и средств механизации предусматриваемых для разгрузки и загрузки лифтов. Минимально необходимое число грузовых лифтов следует определять с учетом расчета грузопотоков. 9.5.2. Перед входами в грузовые лифты на каждом этаже следует предусматривать площадки для разгрузки (далее - разгрузочные зоны) в соответствии с Приложением И. Разгрузочные зоны не включаются в состав минимальной нормируемой площади группы помещений для приема, хранения и подготовки товаров к продаже. 9.5.3. Выходы из лифтов в подземном и цокольном этажах должны быть предусмотрены через тамбур-шлюзы с устройством подпора воздуха при пожаре. Тамбур-шлюзы следует ограждать противопожарными перегородками, а их двери следует предусматривать противопожарными, с уплотнениями в притворах. Внутреннюю поверхность двери тамбур-шлюза (со стороны лифтовой шахты) допускается выполнять из горючих материалов. 9.5.4. Для вертикальной технологической связи между помещениями магазина допускается применение малых грузовых лифтов грузоподъемностью от 100 до 250 кг, при этом в глухой шахте допускается не более 14 остановок. При установке малого грузового лифта с 2 остановками в металлокаркасной шахте (поставляемой в комплекте с лифтом) на высоту подъема не более 5,2 м на надземных этажах устройство ограждающих противопожарных перегородок и перекрытий не требуется. При расположении первой остановки малого грузового лифта в металлокаркасной шахте в подземном или цокольном этажах выход из лифта следует предусматривать через тамбур-шлюз. 9.5.5. При расположении торговых залов на трех и более этажах следует предусматривать установку пассажирских лифтов. Число и грузоподъемность пассажирских лифтов следует определять с учетом расчета пассажиропотоков. При размещении торгового зала площадью 1000 м2 и более на четвертом этаже и выше следует, как правило, устанавливать эскалаторы. Допускается по заданию на проектирование установка пассажирских лифтов или эскалаторов в магазинах меньшей этажности, а также при площади торговых залов менее 1000 м2. 9.5.6. В магазинах с торговыми залами, расположенными в двух и более уровнях, следует устанавливать не менее одного пассажирского лифта с глубиной кабины не менее 2,1 м, предназначенного для перемещения инвалидов, в том числе колясочников (согласно требованиям СП 35-101). 9.5.7. При необходимости остановок пассажирских лифтов в подземном или цокольном этажах двери шахт лифтов должны выходить в тамбур-шлюзы (с габаритами, не менее нормируемых для площадок перед пассажирскими лифтами), огражденные противопожарными перегородками. Двери тамбур-шлюзов следует предусматривать противопожарными с уплотнениями в притворах. 9.5.8. При наличии перепадов уровней (отметок) торговых залов магазинов менее высоты этажа и невозможности устройства пандусов следует предусматривать специальные подъемники для инвалидов (в том числе колясочников), перемещающиеся вертикально или наклонно вдоль лестничного марша. При этом ширина платформы подъемника должна быть не менее 0,9 м, а глубина - не менее 1,2 м. 9.5.9. Машинные отделения лифтов и грузоподъемники магазинов не допускается располагать непосредственно под жилыми помещениями. 9.6. МУСОРОУДАЛЕНИЕ И ПЫЛЕУБОРКА9.6.1. Для контейнеров с мусором следует предусматривать на территории магазина хозяйственную площадку с твердым покрытием, располагаемую в пределах хозяйственного двора или в габаритах здания. Мусоропроводы (при отсутствии пневматической или вакуумной системы мусороудаления) следует предусматривать в пятиэтажных магазинах. Необходимость устройства мусоропроводов в магазинах меньшей этажности определяется заданием на проектирование. Для магазинов, не оборудованных мусоропроводами, по заданию на проектирование и в соответствии с Приложениями Р и С следует предусматривать: мусоросборную камеру, помещение для прессования бумажных отходов, камеру для хранения пищевых отходов. Требования к инженерному обеспечению данных помещений следует предусмотреть с учетом раздела 9. 9.6.2. Ствол мусоропровода: должен быть воздухонепроницаемым и звукоизолированным от строительных конструкций, выполняться из труб, изготовленных из экологически чистых материалов, отвечающих противопожарным требованиям и подтвержденных сертификатами завода-изготовителя; должен иметь кроме основного набора комплектующих (клапанов, шибера, хомутов, дефлекторов) зачистное устройство, систему промывки, отсекающее устройство; не должен примыкать к жилым помещениям и к служебным помещениям с постоянным пребыванием людей. 9.6.3. Мусоросборная камера должна размещаться непосредственно под стволом мусоропровода, иметь самостоятельный выход с открывающейся наружу дверью, изолированный от входа в здание глухой стеной (экраном), и должна быть ограждена противопожарными перегородками 1-го типа (EI 45) и перекрытиями 2-го типа (EI 60). Размеры мусоросборной камеры в плане следует принимать не менее 2,0´1,5 м, а высоту камеры в свету - не менее 1,95 м. При наличии коридора, ведущего к мусоросборной камере, его ширина, как правило, должна быть не менее 1,3 м. В мусоросборной камере необходимо предусматривать установку спринклерного оросителя. Отметка пола мусоросборной камеры должна быть выше уровня тротуара или прилегающей проезжей части дороги в пределах от 0,05 до 0,1 м. Допускается размещение мусоросборной камеры на другом уровне при механизации мусороудаления. Мусоросборную камеру во встроенных (встроенно-пристроенных) магазинах не допускается располагать под жилыми комнатами или смежно с ними, а также под помещениями иного назначения с постоянным пребыванием людей. 9.6.4. Централизованную или комбинированную систему вакуумной пылеуборки следует предусматривать в магазинах торговой площадью 6500 м2 и более. Необходимость систем пылеуборки в магазинах меньшей торговой площади устанавливается заданием на проектирование. 9.6.5. При проектировании комбинированной системы вакуумной пылеуборки радиус обслуживания одним приемным клапаном должен быть не более 50 м. 9.6.6. При отсутствии централизованной или комбинированной пылеуборки устройство камеры чистки фильтров пылесосов определяется заданием на проектирование. ПРИЛОЖЕНИЕ А
| ||||||||||||||||||||||||||||||||||||||||||||||||||||||||||||||||||||||||||||||||||||||||||||||||||||||||||||||||||||||||||||||||||||||||||||||||||||||||||||||||||||||||||||||||||||||||||||||||||||||||||||||||||||||||||||||||||||||||||||||||||||||||||||||||||||||||||||||||||||||||||||||||||||||||||||||||||||||||||||||||||||||||||||||||||||||||||||||||||||||||||||||||||||||||||||||||||||||||||||||||||||||||||||||||||||||||||||||||||||||||||||||||||||||||||||||||||||||||||||||||||||||||||||||||||||||||||||||||||||||||||||||||||||||||||||||||||||||||||||||||||||||||||||||||||||||||||||||||||||||||||||||||||||||||||||||||||||||||||||||||||||||||||||||||||||||||||||||||||||||||||||||||||||||||||||||||||||||||||||||||||||||||||||||||||||||||||||||||||||||||||||||||||||||||||||||||||||||||||||||||||||||||||||||||||||||||||||||||||||||||||||||||||||||||||||||||||||||||||||||||||||||||||||||||||||||||||||||||||||||||||||||||||||||||||||||||||||||||||||||||||||||||||||||||||||||||||||||||||||||
|
Общая характеристика предприятия |
Классификационная группа |
Типы магазинов с одинаковым соотношением торговых и неторговых площадей |
|
1 |
2 |
3 |
|
ПРОДОВОЛЬСТВЕННЫЕ |
||
|
Магазины с универсальным ассортиментом |
1 П |
универсам (супермаркет), гипермаркет, гастроном, диетические продукты, продукты |
|
Специализированные магазины с широким ассортиментом |
2 П |
хлеб, кондитерский |
|
3 П |
рыба, мясо |
|
|
4 П |
овощи-фрукты |
|
|
Специализированные магазины с узким или ограниченным ассортиментом |
5 П |
мини-продукты (минимаркет), соки-джемы, напитки |
|
НЕПРОДОВОЛЬСТВЕННЫЕ |
||
|
Магазины с универсальным ассортиментом |
1 Н |
универмаг, детский мир, дом торговли |
|
Специализированные магазины с широким ассортиментом |
2 Н |
товары для новобрачных, товары для женщин, товары для мужчин, товары для молодежи, товары для детей, одежда, обувь, книги, товары для садовода, музыкальные товары, радиотовары |
|
Специализированные магазины с полным ассортиментом |
3 Н |
хозтовары, бытовая химия, спортивные товары, бытовая техника |
|
4 Н |
мебель, стройматериалы |
|
|
5 Н |
галантерея-парфюмерия, фототовары, часы, ювелирные изделия, товары для ветеранов, охотник |
|
|
Специализированные магазины с узким или ограниченным ассортиментом |
6 Н |
книги, цветы, природа, семена |
|
7 Н |
комиссионный, антикварный |
|
Таблица Г.1
|
Виды услуг |
Виды услуг, допускаемые в продовольственных и непродовольственных магазинах (с учетом Приложения П) |
Виды услуг, допускаемые в продовольственных магазинах с реализацией продукции на площади торгового зала или предприятия питания в данных магазинах |
Виды услуг, допускаемые в торговых центрах |
|
1 |
2 |
3 |
4 |
|
Отдел заказов, в том числе комплектация подарочных наборов |
+ |
|
+ |
|
Предприятия питания |
+ |
|
+ |
|
Раскрой тканей и подшив штор |
|
|
+ |
|
Мелкая переделка швейных изделий, купленных в магазине |
|
|
+ |
|
Демонстрация новых товаров |
+ |
|
+ |
|
Гравировка изделий |
|
|
+ |
|
Растяжка обуви и головных уборов |
|
|
+ |
|
Организация мест отдыха покупателей |
+ |
|
+ |
|
Организация досуга детей |
+ |
|
+ |
|
Игровые автоматы |
+ |
|
+ |
|
Аптечный киоск |
|
|
+ |
|
Хранение детских колясок |
+ |
|
+ |
|
Аудио-, видеозаписи, их прослушивание и просмотр |
+ |
|
+ |
|
Пункт приема заказов на изготовление кино- и фотопродукции |
+ |
|
+ |
|
Выполнение заказов на изготовление кино- и фотопродукции |
|
|
+ |
|
Бюро обслуживания покупателей: доставка товаров на дом; прием на хранение вещей и продуктов; упаковка товаров, приобретенных в различных отделах магазина; заказ такси; справочное бюро |
+ |
|
+ |
|
Ксерокопирование; изготовление визиток, брошюровочные работы |
+ |
|
+ |
|
Пункты обмена валюты |
+ |
|
+ |
|
Туристические агентства |
|
|
+ |
|
Транспортные агентства |
|
|
+ |
|
Телефонные услуги, салон сотовой связи, факсимильная связь, почтовые услуги |
|
|
+ |
|
Демонстрация и продажа сопутствующих товаров |
+ |
|
|
|
Прием заказов на выполнение ремонтно-строительных или монтажных работ с использованием товаров, приобретенных в различных отделах магазина |
+ |
|
+ |
|
Кулинарный цех по изготовлению пищевой продукции с ее реализацией* |
+ |
+ |
+ |
|
Мелкий ремонт металлоизделий, ювелирные работы, ремонт часов |
|
|
+ |
|
Парикмахерская |
|
|
+ |
|
Общественные туалеты |
+ |
|
+ |
|
Примечание. * В непродовольственных магазинах не допускаются |
|||
Таблица Д.1
|
Характеристика группы помещений |
Удельные показатели в м минимальной площади групп неторговых помещений магазинов классификационных групп |
|||||||||||
|
1 П |
2 П |
3 П |
4 П |
5 П |
||||||||
|
на 10 м2 торговой площади 400м2 |
дополнительно на каждые 10 м2 торговой площади более 400 м2 |
на 10 м2 торговой площади 1000 м2 |
дополнительно на каждые 10 м2 торговой площади более 1000 м2 |
на 10 м2 торговой площади 250 м2 |
дополнительно на каждые 10 м2 торговой площади более 250 м2 |
на 10 м2 торговой площади 250 м2 |
дополнительно на каждые 10 м2 торговой площади более 250 м2 |
на 10 м2 торговой площади 250 м2 |
дополнительно на каждые 10 м2 торговой площади более 250 м2 |
на 10 м2 торговой площади 250 м2 |
дополнительно на каждые 10 м2 торговой площади более 250 м2 |
|
|
1 |
2 |
3 |
4 |
5 |
6 |
7 |
8 |
9 |
10 |
11 |
12 |
13 |
|
Приема, хранения и подготовки товаров к продаже |
3,0 |
2,0 |
2,8 |
2,2 |
2,0 |
1,5 |
2,5 |
1,8 |
2,2 |
1,8 |
1,8 |
1,3 |
|
Подсобных |
0,9 |
0,8 |
0,8 |
0,7 |
0,7 |
0,5 |
0,9 |
0,6 |
1,0 |
0,7 |
1,0 |
0,7 |
|
Служебно-бытовых |
1,1 |
0,6 |
1,1 |
0,7 |
0,9 |
0,5 |
1,0 |
0,6 |
1,0 |
0,6 |
0,8 |
0,6 |
|
ИТОГО |
5,0 |
3,4 |
4,7 |
3,6 |
3,6 |
2,5 |
4,4 |
3,0 |
4,2 |
3,1 |
3,6 |
2,6 |
|
Примечания. 1. Удельные показатели минимальных площадей групп неторговых помещений по графам № 3, 5, 7, 9, 11, 13 следует применять и при расчете для магазинов с торговыми площадями менее указанных в графах № 2, 4, 6, 8, 10, 12. Полученные при расчете площади (по графам № 3, 5, 7, 9, 11, 13) следует соответственно вычитать из площадей, рассчитанных по графам № 2, 4, 6, 8, 10, 12. 2. Площади для приема, хранения и подготовки товаров к продаже в продовольственных магазинах приняты исходя из однодневного товарного запаса (кроме магазина «Овощи-фрукты» с максимальным товарным запасом, на 3 дня). |
||||||||||||
Таблица Е.1
|
Удельные показатели в м2 минимальной площади групп неторговых помещений магазинов классификационных групп |
||||||||
|
1 Н классификационная группа предприятий |
2 Н классификационная группа предприятий |
|||||||
|
на 10 м2 торговой площади 2500 м2 |
дополнительно на каждые 10 м2 торговой площади свыше 2500 м2 |
на 10 м2 торговой площади 8500 м2 |
дополнительно на каждые 10 м2 торговой площади свыше 8500 м2 |
на 10 м2 торговой площади 250 м2 |
дополнительно на каждые 10 м2 торговой площади свыше 250 м2 |
на 10 м2 торговой площади 1000 м2 |
дополнительно на каждые 10 м2 торговой площади свыше 1000 м2 |
|
|
1 |
2 |
3 |
4 |
5 |
6 |
7 |
8 |
9 |
|
Приема, хранения и подготовки товаров к продаже |
2,4 |
2,0 |
2,0 |
1,8 |
2,5 |
1,7 |
2,1 |
1,8 |
|
Подсобных |
0,3 |
0,2 |
0,25 |
0,2 |
0,7 |
0,2 |
0,3 |
0,2 |
|
Служебно-бытовых |
1,1 |
0,6 |
1,0 |
0,6 |
0,8 |
0,6 |
0,8 |
0,6 |
|
ИТОГО |
3,8 |
2,8 |
3,25 |
2,6 |
4,0 |
2,5 |
3,2 |
2,6 |
(продолжение таблицы Е.1)
|
Характеристика группы помещений |
Удельные показатели в м2 минимальной площади групп неторговых помещений магазинов классификационных групп |
|||||
|
3 Н классификационная группа предприятий |
4 Н классификационная группа предприятий |
|||||
|
на 10 м2 торговой площади 250 м2 |
дополнительно на каждые 10 м2 торговой площади свыше 250 м2 |
на 10 м2 торговой площади 1000 м2 |
дополнительно на каждые 10м2 торговой площади свыше 1000 м2 |
на 10 м2 торговой площади 1000 м2 |
дополнительно на каждые 10м2 торговой площади свыше 1000 м2 |
|
|
1 |
10 |
11 |
12 |
13 |
14 |
15 |
|
Приема, хранения и подготовки товаров к продаже |
3,5 |
2,8 |
2,9 |
2,2 |
3,0* |
2,5 |
|
Подсобных |
1,0 |
0,3 |
0,4 |
0,3 |
0,9 |
0,7 |
|
Служебно-бытовых |
1 |
0,6 |
1,0 |
0,6 |
1,0 |
0,6 |
|
ИТОГО |
5,5 |
3,7 |
4,3 |
3,1 |
4,9 |
3,8 |
(продолжение таблицы Е.1)
|
Характеристика группы помещений |
Удельные показатели в м2 минимальной площади групп неторговых помещений магазинов классификационных групп |
|||||||
|
5 Н классификационная группа предприятий |
6 Н классификационная группа предприятий |
7 Н классификационная группа предприятий |
||||||
|
на 10 м2 торговой площади 250 м2 |
дополнительно на каждые 10 м2 торговой площади свыше 250 м2 |
на 10 м2 торговой площади 1000 м2 |
дополнительно на каждые 10 м2 торговой площади свыше 1000 м2 |
на 10 м2 торговой площади 250 м2 |
дополнительно на каждые 10 м2 торговой площади свыше 250 м2 |
на 10 м2 торговой площади 250 м2 |
дополнительно на каждые 10 м2 торговой площади свыше 250 м2 |
|
|
1 |
16 |
17 |
18 |
19 |
20 |
21 |
22 |
23 |
|
Приема, хранения и подготовки товаров к продаже |
2,0 |
1,5 |
1,8 |
1,5 |
2,2 |
1,8 |
1,0 |
0,4 |
|
Подсобных |
0,6 |
0,3 |
0,5 |
0,3 |
0,7 |
0,2 |
0,5 |
0,1 |
|
Служебно-бытовых |
0,8 |
0,6 |
0,8 |
0,6 |
0,8 |
0,6 |
0,8 |
0,6 |
|
ИТОГО |
3,4 |
2,4 |
3,1 |
2,4 |
3,7 |
2,6 |
2,3 |
1,1 |
|
Примечания. 1. Удельные показатели минимальных площадей групп неторговых помещений по графам № 3, 5, 7, 9, 11, 13, 15, 17, 19, 21, 23 следует применять и при расчете для магазинов с торговыми площадями менее указанных в графах № 2, 4, 6, 8, 10, 12, 14, 16, 18, 20, 22. Полученные в расчете площади (по графам № 3, 5, 7, 9, 11, 13, 15, 17, 19, 21, 23) следует соответственно вычитать из площадей, рассчитанных по графам № 2, 4, 6, 8, 10, 12, 14, 16, 18, 20, 22. 2. Площади помещений для хранения и для подготовки товаров к продаже магазина «Мебель» приняты с учетом традиционной формы торговли. 3. При торговле мебелью по образцам помещения для приема, хранения и подготовки товаров к продаже не требуются. При этом в группе неторговых помещений магазина следует предусматривать служебно-бытовые помещения из расчета 50 м2 на 1000 м2 площади выставочного зала. 4. Площади для приема, хранения и подготовки товаров к продаже в непродовольственных магазинах приняты исходя из максимальных товарных запасов на 2 дня. |
||||||||

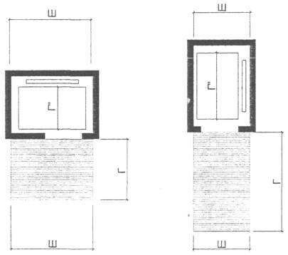
Рисунок И.1
Ш´Г - разгрузочная зона,
где Ш - размер, равный внутреннему размеру ширины шахты,
Г - размер, увеличенный на 0,5 м по сравнению с внутренним размером глубины кабины,
Г² - внутренний размер глубины кабины.
Размер Г принимается без учета ширины коридоров, примыкающих к разгрузочным зонам.
1. При подсчете площадей предприятий розничной торговли следует руководствоваться СНиП 2.08.02-89*.
2. Площадь витрин со стороны улицы, выступающих в сторону торгового зала или из плоскости стены магазина, следует учитывать в площади торгового зала, если отметка пола витрины не выше пола торгового зала. При этом не учитывается площадь витрины в пределах конструкции наружной стены.
3. Площадь разгрузочных площадок перед грузовыми лифтами (или подъемниками) в площади помещений для приемки, хранения и подготовки товаров не учитывается.
Таблица Л.1
|
Расположение проходов |
Ширина, м |
|
Между кассовыми кабинами и торцами островных горок |
2 - 2,5 |
|
Между прилавками для хранения личных вещей покупателей и стеной (проход для посетителей в торговый зал) |
1,7 - 2,5 |
|
Между параллельно расположенными островными горками |
1,4 - 1,8 |
|
Между островными горками и пристенным охлаждаемым оборудованием |
1,6 - 2,0 |
|
Между кассовыми кабинами или прилавками обслуживания и установленными параллельно им горками |
2,0 - 3,0 |
|
Между прилавком и оборудованием за прилавком |
0,9 |
|
Между кабинами контролеров-кассиров |
0,6 |
|
Между прилавками |
2,8 - 3,0 |
|
Между прилавками и стеной |
1,2 - 1,5 |
|
Примечания. 1. Ширина проходов, по которым предусматривается перемещение товаров с помощью подъемно-транспортных средств, должна быть в пределах 2,2 - 2,7 м. 2. В магазине следует проектировать не менее одного прохода между кабинами, контролеров-кассиров шириной не менее 0,9 м для инвалидов, передвигающихся на креслах-колясках. |
|
Таблица М.1
На каждые 10 м2 торговой площади
|
Наименование помещений |
Удельные показатели минимальной площади отдела заказов в м2 |
|
|
При величине магазина 400 м2 и менее |
При величине магазина свыше 400 м2 |
|
|
Прием и выдача заказов |
0,3 |
0,26 |
|
Комплектовочная |
0,4 |
0,2 |
|
Примечания. 1. Площадь каждого помещения - не менее 6 м2. 2. На площади комплектовочной в продовольственных магазинах следует предусматривать места для размещения холодильных шкафов. |
||
Таблица Н.1
На каждые 10 м2 торговой площади
|
Наименование помещений |
Удельные показатели минимальной площади кафетерия в м2 |
|
|
При величине магазина 400 м2 и менее |
При величине магазина свыше 400 м2 |
|
|
Торговый зал |
0,3 |
0,1 |
|
Подсобные помещения |
0,15 |
0,1 |
Таблица П.1
|
Наименование магазина или отдела магазина |
Вид услуг |
Площадь, м2 |
|
1 |
2 |
3 |
|
Ткани |
Раскрой ткани и подшивка штор |
12 |
|
Одежда |
Мелкая переделка швейных изделий |
8 |
|
Головные уборы Обувь |
Растяжка обуви и головных уборов |
6 |
|
Товары для детей Универмаг Универсам (супермаркет) Гипермаркет Торговый центр |
Организация досуга детей |
15 |
|
Хранение детских колясок |
10 |
|
|
Универмаг Универсам (супермаркет) Гипермаркет Торговый центр |
* Аудио-, видеозаписи, их прослушивание и просмотр |
6 |
|
* Туристические агентства |
6 |
|
|
* Транспортные агентства |
6 |
|
|
Организация мест отдыха покупателей |
10 |
|
|
Универсам (супермаркет) Гипермаркет Торговый центр |
Кулинарный цех по изготовлению пищевой продукции с ее реализацией |
в зависимости от ассортимента |
|
Универмаг Хозяйственные товары Строительные материалы Мебель Торговый центр |
* Прием заказов на выполнение ремонтно-строительных и монтажных работ с использованием различных товаров, приобретенных в различных отделах магазина |
6 |
|
Все типы непродовольственных магазинов Торговый центр |
* Демонстрация новых товаров |
18 |
|
* Демонстрация и продажа сопутствующих товаров |
8 |
|
|
* Гравировка изделий |
3 |
|
|
* Бюро обслуживания покупателей |
7 |
|
|
* Пункт приема заказов на изготовление кино- и фотопродукции |
3 |
|
|
Выполнение заказов на изготовление кино- и фотопродукции |
6 |
|
|
* Ксерокопирование |
8 |
|
|
Пункт обмена валюты |
6 |
|
|
Общественные туалеты для покупателей |
см. п. 7.8 |
|
|
Все типы продовольственных магазинов |
* Транспортные агентства |
6 |
|
* Демонстрация новых товаров |
18 |
|
|
* Демонстрация и продажа сопутствующих товаров |
8 |
|
|
* Бюро обслуживания покупателей |
7 |
|
|
* Прием заказов на изготовление кино- и фотопродукции |
3 |
|
|
Пункт обмена валюты |
6 |
|
|
Общественные туалеты для покупателей |
см. п. 7.8 |
|
|
Примечания. 1. Виды услуг, отмеченные «*», допускаются в изолированных помещениях или на площади торговых залов, остальные виды услуг - только в изолированных помещениях. 2. Требования к пунктам обмена валюты см. ГОСТ Р 51110-97 «Средства защитные банковские. Общие технические требования». |
||
Таблица Р.1
|
ПОМЕЩЕНИЯ |
Состав магазинов классификационных групп |
||||
|
1 П |
2 П |
3 П |
4 П |
5 П |
|
|
ТОРГОВЫЕ ПОМЕЩЕНИЯ |
|
|
|
|
|
|
Торговые залы |
* |
* |
* |
* |
* |
|
Площади в торговых залах или помещения для дополнительного обслуживания, в том числе: |
|
|
|
|
|
|
общественные туалеты для посетителей |
* |
+ |
+ |
+ |
+ |
|
отдел заказов, предприятия питания и другие по приложению 3 |
+ |
+ |
+ |
+ |
+ |
|
ПОМЕЩЕНИЯ ДЛЯ ПРИЕМА И ХРАНЕНИЯ ТОВАРОВ И ДЛЯ ПОДГОТОВКИ ТОВАРОВ К ПРОДАЖЕ |
|
|
|
|
|
|
Помещения хранения товаров |
* |
* |
* |
* |
* |
|
в том числе охлаждаемые камеры |
* |
+ |
* |
* |
+ |
|
Приемочная |
* |
* |
* |
* |
* |
|
ПОДСОБНЫЕ ПОМЕЩЕНИЯ |
|
|
|
|
|
|
Хранение контейнеров обменного фонда, тары |
* |
* |
* |
* |
* |
|
Хранение упаковочных материалов, инвентаря, спецодежды, бельевая |
* |
* |
* |
* |
* |
|
Хранение уборочного инвентаря, моющих средств |
* |
* |
* |
* |
* |
|
Моечная (или моечные ванны в помещениях подготовки товаров) |
* |
* |
* |
* |
* |
|
Охлаждаемая камера пищевых отходов |
+ |
|
|
+ |
+ |
|
Подсобные помещения для дополнительного обслуживания |
* |
+ |
+ |
+ |
+ |
|
Подсобные помещения предприятия питания для персонала |
* |
|
|
|
|
|
СЛУЖЕБНЫЕ И БЫТОВЫЕ ПОМЕЩЕНИЯ |
|
|
|
|
|
|
Конторские помещения |
* |
* |
* |
* |
* |
|
Комната персонала |
+ |
+ |
+ |
+ |
+ |
|
Предприятие питания для персонала |
* |
|
|
|
|
|
Помещение для приема пищи |
|
* |
* |
* |
* |
|
Главная касса |
+ |
+ |
+ |
+ |
+ |
|
Помещение охраны |
+ |
+ |
+ |
+ |
+ |
|
Опорный пункт АСУ |
+ |
+ |
+ |
|
|
|
Гардеробные |
* |
* |
* |
* |
* |
|
Туалеты для персонала |
* |
* |
* |
* |
* |
|
Душевые |
* |
* |
* |
* |
* |
|
Помещение (помещения) профилактория (при размещении магазина в подземном этаже) |
* |
* |
* |
* |
* |
|
Примечания. 1. Помещения, отмеченные знаком «*», - обязательные, «+» - рекомендуемые. 2. Для магазинов 2 П и 5 П охлаждаемые камеры являются обязательными при наличии в ассортименте кремокондитерских изделий. |
|||||
Таблица С.1
|
ПОМЕЩЕНИЯ |
Состав магазинов классификационных групп |
||||||
|
1 Н |
2 Н |
3 Н |
4 Н |
5 Н |
6 Н |
7 Н |
|
|
ТОРГОВЫЕ ПОМЕЩЕНИЯ |
|
|
|
|
|
|
|
|
Торговые залы |
* |
* |
* |
* |
* |
* |
* |
|
Площади в торговых залах или помещения для дополнительного обслуживания |
+ |
+ |
+ |
+ |
+ |
+ |
+ |
|
в том числе: |
|
|
|
|
|
|
|
|
общественные туалеты для посетителей |
* |
* |
* |
* |
* |
+ |
+ |
|
отдел заказов, предприятия питания и другие по приложению 3 |
+ |
+ |
+ |
+ |
+ |
+ |
+ |
|
ПОМЕЩЕНИЯ ДЛЯ ПРИЕМА И ХРАНЕНИЯ ТОВАРОВ И ДЛЯ ПОДГОТОВКИ ТОВАРОВ К ПРОДАЖЕ |
|
|
|
|
|
|
|
|
Помещения хранения товаров |
* |
* |
* |
* |
* |
* |
* |
|
Приемочная |
* |
* |
* |
* |
* |
* |
|
|
ПОДСОБНЫЕ ПОМЕЩЕНИЯ |
|
|
|
|
|
|
|
|
Хранение контейнеров обменного фонда, тары |
* |
* |
* |
* |
* |
* |
|
|
Хранение упаковочных материалов, инвентаря, спецодежды, бельевая |
* |
* |
* |
* |
* |
* |
* |
|
Хранение уборочного инвентаря, моющих средств |
* |
* |
* |
* |
* |
* |
* |
|
Помещение для механизированного прессования бумажных отходов |
* |
|
|
* |
|
|
|
|
Подсобные помещения для дополнительного обслуживания |
+ |
+ |
+ |
+ |
+ |
+ |
+ |
|
Подсобная предприятия питания для персонала |
* |
* |
|
|
|
|
|
|
СЛУЖЕБНЫЕ И БЫТОВЫЕ ПОМЕЩЕНИЯ |
|
|
|
|
|
|
|
|
Конторские помещения |
* |
* |
* |
* |
* |
* |
* |
|
Комната персонала |
|
|
+ |
+ |
+ |
+ |
+ |
|
Предприятие питания для персонала |
* |
* |
|
|
|
|
|
|
Помещение для приема пищи |
|
|
* |
* |
* |
* |
* |
|
Главная касса |
+ |
+ |
+ |
+ |
+ |
+ |
+ |
|
Помещение охраны |
* |
* |
* |
* |
* |
* |
* |
|
Опорный пункт АСУ |
+ |
|
|
+ |
|
|
|
|
Гардеробные |
* |
* |
* |
* |
* |
* |
* |
|
Туалеты для персонала |
* |
* |
* |
* |
* |
* |
* |
|
Душевые |
+ |
+ |
+ |
+ |
+ |
|
|
|
Помещение (помещения) профилактория (при размещении магазина в подземном этаже) |
* |
* |
* |
* |
* |
* |
* |
|
Примечания. 1. Помещения, отмеченные знаком «*», - обязательные, «+» - рекомендуемые. 2. Помещения для прессования бумажных отходов следует предусматривать в магазинах 1 Н - при торговой площади 3500 м2 и более, а в магазинах 4 Н - при торговой площади 1000 м2 и более. |
|||||||
Таблица Т.1
|
№ п/п |
ПОМЕЩЕНИЯ |
Расчетная температура воздуха для холодного периода года, °С |
Кратность воздухообмена или количество воздуха, удаляемого из помещений |
|
|
приток |
вытяжка |
|||
|
1 |
2 |
3 |
4 |
5 |
|
1 |
Торговые залы магазинов площадью 400 м2 и менее: |
|
|
|
|
продовольственных; |
16 |
- |
1-кратн. |
|
|
непродовольственных |
16 |
- |
1-кратн. |
|
|
2 |
Торговые залы магазинов площадью более 400 м2: |
|
|
|
|
продовольственных; |
16 |
По расчету |
||
|
непродовольственных |
16 |
По расчету |
||
|
3 |
Разрубочная |
10 |
3-кратн. |
4-кратн. |
|
4 |
Разгрузочные помещения |
10 |
По расчету |
|
|
5 |
Помещения для подготовки товаров к продаже (при размещении в отдельном помещении), комплектовочные, приемочные |
16 |
2-кратн. |
1-кратн. |
|
6 |
Кладовые (неохлаждаемые): хлеб, кондитерские изделия; |
16 |
- |
0,5-кратн. |
|
Гастрономия, рыба, молоко, фрукты, овощи, соления, вина, пиво, напитки; |
8 |
- |
1-кратн. |
|
|
обувь, парфюмерия, товары бытовой химии, химикаты; |
16 |
- |
2-кратн. |
|
|
прочие товары |
16 |
- |
0,5-кратн. |
|
|
7 |
Помещения демонстрации новых товаров (при размещении в отдельном помещении) |
16 |
2-кратн. |
2-кратн. |
|
8 |
Гладильные |
16 |
По расчету |
|
|
9 |
Камеры для мусора (неотапливаемые) |
- |
- |
1-кратн. |
|
10 |
Помещение для механизированного прессования бумажных отходов |
16 |
|
1,5-кратн. |
|
11 |
Помещения для хранения упаковочных материалов и инвентаря |
16 |
- |
1-кратн. |
|
12 |
Хранение контейнеров обменного типа |
- |
- |
1-кратн. |
|
13 |
Хранение тары |
8 |
- |
1-кратн. |
|
14 |
Хранение уборочного инвентаря, моющих средств |
16 |
- |
1,5-кратн. |
|
15 |
Бельевая |
18 |
- |
0,5-кратн. |
|
16 |
Мастерские, лаборатории |
18 |
2-кратн. |
3-кратн. |
|
17 |
Охлаждаемые камеры: |
|
|
|
|
мясо, полуфабрикаты, гастрономия |
0 |
- |
- |
|
|
рыба |
-2 |
- |
- |
|
|
фрукты, овощи, кондитерские изделия, напитки |
4 |
4-кратн. |
4-кратн. |
|
|
(Периодически) |
||||
|
мороженое, пельмени |
-15 |
- |
- |
|
|
пищевые отходы |
2 |
- |
10-кратн. |
|
|
18 |
Машинные отделения охлаждаемых камер с воздушным охлаждением |
5 |
По расчету |
|
|
19 |
Машинные отделения охлаждаемых камер с водяным охлаждением |
5 |
2-кратн. |
3-кратн. |
|
20 |
Конторские помещения, комната персонала, главная касса, помещение охраны, опорный пункт АСУ |
18 |
- |
1-кратн. |
|
21 |
Гардеробные, подсобная, предприятия питания для персонала, комната для приема пищи |
16 |
- |
1-кратн. |
|
22 |
Общественные туалеты для покупателей и туалеты для персонала |
16 |
- |
50 м3/ч на 1 унитаз |
|
23 |
Душевые |
25 |
- |
5-кратн. |
|
24 |
Комната-профилакторий (при размещении магазина в подземных этажах) |
20 |
- |
60 м3/ч на чел. |
|
25 |
Помещения приема и выдачи заказов |
16 |
- |
1-кратн. |
|
Примечания. 1. Расчетная температура для охлаждаемых камер принята на все периоды года. 2. В кладовых с химическими, синтетическими или иными пахучими веществами, а также при размещении подготовки товаров к продаже на площади кладовых и наличии постоянных рабочих мест следует предусматривать подачу приточного воздуха (для постоянно работающих - из расчета 60 м3/ч на 1 рабочее место). 3. При размещении площадей для дополнительного обслуживания в торговом зале расчетную температуру воздуха и кратность воздухообмена следует принимать не ниже указанных для торговых залов. Для помещений дополнительного обслуживания - кафетериев, сок-баров и других согласно приложению В (кроме помещений приема и выдачи заказов), в том числе и для их подсобных помещений, - расчетную температуру воздуха и кратность воздухообмена следует принимать согласно действующим нормативным документам. 4. Расчетную температуру воздуха и кратность воздухообмена для предприятий питания следует принимать согласно действующим нормативным документам. 5. При размещении помещений магазинов в подземных этажах следует предусматривать системы механической приточно-вытяжной вентиляции с воздухообменом в торговых залах не менее 30 м3/ч на человека, а в служебно-бытовых помещениях - не менее 60 м3/ч на человека. 6. В помещениях № 1, 2, 5, 7, 11,14 - 16, 20 - 22, 25 по заданию на проектирование допускается принимать расчетную температуру воздуха и кратность воздухообмена выше указанных в таблице |
||||
Таблица У.1
|
Наименование предприятия |
Ед. изм. |
Встроенно-пристроенные |
Встроенные |
||||
|
этажи |
этажи |
||||||
|
1 |
2 |
3 |
1 |
2 |
3 |
||
|
1 |
2 |
3 |
4 |
5 |
6 |
7 |
8 |
|
Предприятия розничной торговли * |
|||||||
|
Продовольственные 1); 3) магазины: |
|
|
|
|
|
|
|
|
диетические продукты |
м2 торг, площ. |
400 (650)2) |
|
150; 200 (650)2) |
|
||
|
хлеб |
-«- |
200 (400)2) |
|
100; 200 (400)2) |
|||
|
кондитерский |
-«- |
200 (400)2) |
|
100; 200 (400)2) |
|||
|
овощи-фрукты |
-«- |
200 (400)2) |
|
100; 200 (400)21 |
|||
|
молоко |
-«- |
200 (400)2) |
|
100; 200 (400)2) |
|||
|
мясо |
-«- |
200 (400)2) |
|
100; 200 (400)2) |
|||
|
винно-водочный |
-«- |
200 (400)2) |
|
100; 200 (400)2) |
|||
|
универсам |
-«- |
650 (1300)2) |
400; 650 (1300)2) |
||||
|
Непродовольственные 1); 3) магазины: |
|
|
|
||||
|
специализированные (обувь, ткани, радио, спорттовары и др.) |
-«- |
650 (1300)2 |
100; 400 (1300)2) |
||||
|
по товарным комплексам (для детей, молодежи, новобрачных, женщин, мужчин, одежда и др.) |
-«- |
1300 (2000)2) |
200; 1300 (2000)2) |
||||
|
галантерея, парфюмерия |
-«- |
400 (650)2) |
100; 400 (650)2) |
||||
|
мелкой розничной торговли (цветы, книги и др.) |
-«- |
200 (200)2) |
|
|
100; 200 (200)2) |
|
|
|
* В графах 6 - 8 без скобок указаны максимальные площади для зданий с широким шагом поперечных несущих стен и каркасных. Примечания. 1) Допускается цокольный, подземный этажи. 2) При специальных объемно-планировочных, конструктивных, инженерно-технологических решениях с учетом градостроительных требований. 3) При режиме функционирования до 23 часов. |
|||||||
Ключевые слова: предприятия розничной торговли, проектирование, общие требования, генеральные планы, объемно-планировочные решения, торговые помещения, помещения для приема и хранения товаров и для подготовки товаров к продаже, подсобные, служебные и бытовые помещения, санитарно-гигиенические требования.
|
|
|
|