//
ТехЛит.ру
- крупнейшая бесплатная электронная интернет библиотека для "технически умных" людей.
WWW.TEHLIT.RU - ТЕХНИЧЕСКАЯ ЛИТЕРАТУРА

:: Алготрейдинг::


АЛГОТРЕЙДИНГ
шаг за шагом
с нуля по урокам!

Торговые роботы на PYTHON, BackTrader,
Pandas, Pine Script для TradingView. Связка с брокерами, телеграм и легкими приложениями.


Документы по стандартизации

Конструкции металлические

 «ЦНИИПСК им. Мельникова»

СТАНДАРТ ОРГАНИЗАЦИИ

СТАЛЕЖЕЛЕЗОБЕТОННЫЕ ПРОЛЕТНЫЕ СТРОЕНИЯ
АВТОДОРОЖНЫХ МОСТОВ

РЕКОНСТРУКЦИЯ И РЕМОНТ

СТО 002494680-0032-2004

Москва

2004

ЦЕНТРАЛЬНЫЙ ОРДЕНА ТРУДОВОГО КРАСНОГО ЗНАМЕНИ НАУЧНО-
ИССЛЕДОВАТЕЛЬСКИЙ И ПРОЕКТНЫЙ ИНСТИТУТ СТРОИТЕЛЬНЫХ МЕТАЛЛОКОНСТРУКЦИЙ ИМ. Н.П. МЕЛЬНИКОВА

ЦНИИПСК
им. МЕЛЬНИКОВА

(Основан в 1880 г.)

СТАНДАРТ ОРГАНИЗАЦИИ

СТАЛЕЖЕЛЕЗОБЕТОННЫЕ ПРОЛЕТНЫЕ СТРОЕНИЯ
АВТОДОРОЖНЫХ МОСТОВ

РЕКОНСТРУКЦИЯ И РЕМОНТ

СТО 02494680-0032-2004

Москва

2004

Предисловие

1 РАЗРАБОТАН ЗАО Центральный ордена Трудового Красного Знамени научно-исследовательский и проектный институт строительных металлоконструкций им. Мельникова» (ЗАО «ЦНИИПСК им. Мельникова).

2 ВНЕСЕН организацией - разработчиком стандарта.

3 ПРИНЯТ на научно-техническом совете ЦНИИПСК им. Мельникова от 1 апреля 2004 г.

4 ВВЕДЕН впервые.

5 Разработка, согласование, утверждение, издание (тиражирование), обновление (изменение или пересмотр) и отмена настоящего стандарта производится организацией - разработчиком.

СОДЕРЖАНИЕ

1 Область применения. 3

2 Нормативные ссылки. 3

3 Термины и определения, сокращения. 4

4 Общие положения. 4

5 Специфические требования обследований и испытаний. 5

5.1 Особенности проведения обследований. 5

5.2 Критерии расстройств и повреждений. 8

5.3 Особенности проведения испытаний сталежелезобетонных пролетных строений. 8

6 Оценка качества стали несущих конструкций. 11

7 Проверка и обеспечение хладостойкости стальных конструкций. 15

8 Определение грузоподъемности пролетных строений. 17

8.1 Основные понятия грузоподъёмности сталежелезобетонных пролетных строений. 17

8.2. Основные требования к расчётам по определению грузоподъемности. 18

8.3 Методика расчёта грузоподъемности. 20

9 Конструктивно-технологические решения по реконструкции и ремонту сталежелезобетонных пролетных строений. 23

Приложение А. Наиболее распространенные проекты сталежелезобетонных пролетных строений. 36

Приложение Б. Перечень характерных дефектов железобетонных плит проезжей части. 52

Приложение В. Перечень характерных дефектов металлических конструкций. 53

Лист регистрации изменений. 54

Введение

Настоящий стандарт разработан в соответствии с Федеральным законом «О техническом регулировании» № 184-ФЗ и предназначен для разработчиков стандарта, организаций, разрабатывающих проектную и иную документацию на реконструкцию и ремонт сталежелезобетонных пролетных строений автодорожных мостов, а также организаций, эксплуатирующих автодорожные мосты или являющихся заказчиками работ по их техническому диагностированию, реконструкции и ремонту.

Стандарт может применяться организациями, выполняющими работы в области установленной стандартом, если эти организации имеют сертификаты соответствия, выданные Органом по сертификации в системе добровольной сертификации, созданной организациями - разработчиками стандарта. Организации - разработчики не несут никакой ответственности за использование данного стандарта организациями, не имеющими сертификатов соответствия.

Одними из наиболее распространенных типов пролетных строений автодорожных мостов являются сталежелезобетонные. Эта конструктивная форма технически и экономически предпочтительна для массового строительства автодорожных мостов с диапазоном пролетов от 42 до 84 м.

В России накоплен богатый опыт строительства и длительной эксплуатации этих конструкций. На автодорогах РФ имеется большое число мостов со сталежелезобетонными пролетными строениями, некоторые из которых эксплуатируются в течение длительного срока.

Вместе с тем, по результатам многочисленных обследований отмечено, что физический износ сталежелезобетонных пролетных строений во многих случаях развивается значительно раньше проектного срока службы. Это проявляется, прежде всего, в наличии многочисленных дефектов железобетонных плит проезда и расстройств узлов их соединений с металлическими конструкциями. Причин возникновения этих дефектов много, но главные из них, в недостатках применявшихся конструктивных решений и низком качестве их реализации. При этом, как правило, резко снижались основные эксплуатационные характеристики мостов в целом: грузоподъемность, пропускная способность, скорость движения автотранспорта, возникала необходимость установления ограничений в расположении проектных полос движения автотранспорта по ширине проезда и др.

При разработке настоящего стандарта использовались материалы ранее выполненных работ по заказу бывшего Федерального Дорожного Департамента Минтранса РФ, в которых принимали участие д.т.н. Н.Н. Стрелецкий, инж. М.М. Кравцов, к.т.н. В.И. Шестериков и др.

СТАНДАРТ ОРГАНИЗАЦИИ

СТАЛЕЖЕЛЕЗОБЕТОННЫЕ ПРОЛЕТНЫЕ СТРОЕНИЯ
АВТОДОРОЖНЫХ МОСТОВ

РЕКОНСТРУКЦИЯ И РЕМОНТ

Утвержден и введен в действие Приказом ЗАО «ЦНИИПСК им. Мельникова» от 2 апреля 2004 № 45

Дата введения 2004-04-15

1 Область применения

Настоящий стандарт организации (далее - СТО) устанавливает требования, необходимые для принятия решений по реконструкции и ремонту сталежелезобетонных пролетных строений капитальных мостов на автомобильных дорогах, в том числе:

- специфические требования обследований и испытаний;

- критерии расстройств и повреждений конструкций;

- оценка качества материалов конструкций;

- проверка хладостойкости стальных конструкций;

- определение грузоподъемности;

- конструктивно-технологические решения по реконструкции и ремонту.

2 Нормативные ссылки

В настоящем СТО использованы ссылки на следующие нормативные документы:

Федеральный закон «О техническом регулировании» от 27 декабря 2002 г № 184-ФЗ

СНиП 2.05.03-84* Мосты и трубы. Москва. 1996

СНиП II-23-81* Стальные конструкции. Москва. 1991

СНиП 3.06.07-86 Мосты и трубы. Правила обследований и испытаний. Москва. 1988

СНиП 23-01-99 Строительная климатология, 2000

Рекомендации по реконструкции и ремонту сталежелезобетонных мостов. Выпуск ОПРИС-10/95. ЦНИИПСК им. Мельникова. Москва. 1995

ОДН 218.00-00 Определение грузоподъемности мостовых сооружений на автомобильных дорогах. 2-ая редакция. Федеральная дорожная служба. Москва. 2003

ГОСТ 1497-84* Металлы. Методы испытания на растяжение

ГОСТ 1778-70* Сталь. Металлографические методы определения неметаллических включений

ГОСТ 4543-71* Прокат из легированной конструкционной стали. Технические условия

ГОСТ 5058-57 Прокат низколегированный конструкционный для мостостроения. Технические условия

ГОСТ 5639-82 Сталь и сплавы. Методы выявления и определения величины зерна

ГОСТ 5640-68 Сталь. Металлографический метод оценки микроструктуры листов и лент

ГОСТ 5781-82* Сталь горячекатаная для армирования железобетонных конструкций. Технические условия

ГОСТ 6713-91 Прокат низколегированный конструкционный для мостостроения. Технические условия

ГОСТ 7564-97 Прокат. Общие правила отбора проб, заготовок и образцов для механических и технологических испытаний

ГОСТ 7565-81* Чугун, сталь и сплавы. Метод отбора проб для определения химического состава

ГОСТ 9454-78* Металлы. Метод испытаний на ударный изгиб при пониженных, комнатной и повышенной температурах

ГОСТ 10243-75* Сталь. Метод испытаний и оценка макроструктуры

ГОСТ 18895-97 Сталь. Метод фотоэлектрического и спектрального анализа

ГОСТ 22536.1-88 Сталь углеродистая и чугун нелегированный. Методы определения общего углерода и графита

ГОСТ 22536.6-88 Сталь углеродистая и чугун нелегированный. Методы определения мышьяка

3 Термины и определения, сокращения

В настоящем СТО применены следующие термины и сокращения:

3.1 стандарт организации; СТО: Стандарт, утвержденный и применяемый организацией для разработки проектной и иной документации на реконструкцию и ремонт сталежелезобетонных пролетных строений автодорожных мостов;

3.2 сталежелезобетонные конструкции: Пролетные строения со стальными и железобетонными элементами, совместно работающими в составе единой конструкции. Применительно к сталежелезобетонным пролетным строениям автодорожных мостов конструктивным железобетонным элементом является железобетонная плита проезжей части, объединяемая с металлическими несущими элементами: главными балками (фермами), продольными и поперечными балками, при уровне проезда поверху, понизу, по середине;

3.3 дефект конструкции: Каждое отдельное ее несоответствие установленным требованиям. Практически к дефектам относятся отклонения от проектных решений и применявшихся норм проектирования, изготовления и монтажа, допущенные на стадиях разработки проектной документации и возведения сооружения;

3.4 повреждение конструкции: Событие, заключающееся в нарушении исправного состояния сооружения при сохранении работоспособного состояния. Как правило, повреждения возникают в процессе эксплуатации, в результате естественного износа, коррозии или усталости стальных конструкций, а также другим причинам, связанным с несовершенством или нарушением принятых правил и процессов проектирования, возведения, эксплуатации и ремонта;

3.5 ремонт: Комплекс работ на сооружении, направленный на восстановление и сохранение начальных (проектных) эксплуатационных характеристик. Основное содержание ремонтных работ - устранение или локализация влияния дефектов и повреждений на сооружение;

3.6 реконструкция: Комплекс работ по приведению сооружения в соответствие с изменившимися со временем эксплуатационными характеристиками, прежде всего, по ширине проезжей части и грузоподъемности;

3.7 хладостойкость стальных конструкций: Исключение опасности хрупких разрушений как отдельных элементов и деталей, так и всей конструкции в целом, в условиях действия низких температур наружного воздуха.

4 Общие положения

Настоящий СТО распространяется преимущественно на сталежелезобетонные пролетные строения с ездой поверху, со сплошностенчатыми разрезными или неразрезными металлическими главными балками.

Наиболее распространенные проекты сталежелезобетонных пролетных строений приведены в приложении А.

К основным эксплуатационным характеристикам сталежелезобетонных пролетных строений автодорожных мостов относят:

- габарит проезжей части, ширина тротуаров либо служебных проходов;

- грузоподъемность;

- допускаемая скорость движения автотранспортных средств;

- наличие ограничений в расположении полос движения автотранспортных средств по ширине проезжей части и др.

Эксплуатационные характеристики классифицируются как проектные (начальные), фактические (на момент проведения плановых осмотров, обследований и/или испытаний) и прогнозируемые.

С течением времени некоторые из эксплуатационных характеристик, прежде всего, грузоподъемность могут снижаться из-за возникновения либо развития дефектов и повреждений в результате агрессивного воздействия внешней среды, из-за недостатков проектных решений, погрешностей при изготовлении и монтаже, организации службы эксплуатации и ремонта и т.д.

5 Специфические требования обследований и испытаний

5.1 Особенности проведения обследований

5.1.1 Сталежелезобетонные пролетные строения имеют ряд особенностей, которые отличают их по характеру работы от других видов конструкций.

Эти особенности должны учитываться при подготовке и проведении обследований (специальных осмотров) и испытаний, являющихся основой для оценки фактического состояния конструкций, определении реальной грузоподъемности. Необходимо также учитывать, что в период с 1959 по 1975 годы сталежелезобетонные пролетные строения возводились по многочисленным проектам различных организаций. Причем иногда, эти проекты мало отличались по внешним признакам, по основным (габаритным) параметрам конструкций, но предусматривали заметные отличия сечений элементов конструкций. Кроме того, в процессе заводского изготовления производились замены сечений по условиям комплектации, в результате чего, фактически осуществленная конструкция может заметно отличаться от исходного проекта. Особенно большие изменения вносились в проекты в процессе привязки к конкретным объектам в части конструкций железобетонной плиты проезда. Иногда это относится не только к размерам сечений бетона и арматуры, но и к полной перекомпоновке плиты и элементов проезжей части по сравнению с проектом.

5.1.2 Перед началом работ по обследованию сталежелезобетонных пролетных строений должна быть отобрана и тщательно проанализирована имеющаяся техническая документация, а именно:

- проектная документация: (чертежи КМ, КМД, АР, КЖ, Р) конструкций пролетных строений, проекты организации строительства, производства работ и сложных вспомогательных устройств, использованных при строительстве;

- исполнительная документация: исполнительные чертежи моста в целом и пролетных строений с данными исполнительной геодезической съемки завершенного строительством сооружения, журналы работ авторского надзора, акты приемки скрытых работ, документы согласований отступлений от проекта, заводские паспорта (сертификаты) на пролетные строения, опорные части и металлопрокат, документы о качестве других примененных материалов, акты приемки в эксплуатацию государственной (рабочей) комиссией, материалы обследований и испытаний при сдаче сооружения в эксплуатацию;

- эксплуатационная документация: книга искусственного сооружения, карточка на мост, материалы предшествующих осмотров, обследований, инструментальных съемок, испытаний (технические отчеты и заключения), сведения о произошедших серьезных повреждениях и авариях на мосту, проектная документация по выполненным ремонтам (реконструкции), данные о режиме эксплуатации моста (интенсивность и величина подвижных нагрузок), о пропуске сверхтяжелых нагрузок.

5.1.3 Измерения и инструментальная съемка в процессе обследований (специальных осмотров):

5.1.3.1 Независимо от наличия и полноты документации, в ходе специального осмотра, проводящегося с целью определения грузоподъемности, необходимо произвести измерения и фиксацию следующих основных геометрических параметров сталежелезобетонных пролетных строений:

- расчетных пролетов (по осям опорных ребер) и полных длин между торцами главных балок;

- ширину проезжей части между бордюрными камнями, парапетными или барьерными ограждениями, ширину каждого из тротуаров или служебных проходов, полную ширину плиты проезда;

- расстояния между осями главных балок, между поперечными связями, расположение продольных и поперечных ребер по вертикальным стенкам балок;

- сечения поясов и стенок главных балок, места изменения сечений и монтажных стыков;

- схему и сечения продольных и поперечных связей, домкратных балок, среднего прогона (при его наличии);

- число, диаметр и расположение заклепок или высокопрочных болтов в стыках и прикреплениях элементов;

- компоновку и геометрию плиты проезжей части, включая тротуарные плиты и карнизные балки.

На основании анализа документации и обмеров конструкции должно быть сделано заключение о соответствии фактической стальной конструкции и плиты проезжей части типовому или индивидуальному проекту определенного шифра и года проектирования, а также об имеющихся отклонениях от этого проекта. При наличии чертежей КМ и КМД вместо съемки чертежей металлоконструкции с натуры по результатам измерений может производиться сверка имеющихся чертежей с натурой, с внесением соответствующих необходимых поправок в исполнительские чертежи. Сверку или съемку чертежей следует производить для всех главных балок (ферм) по всей длине каждого пролетного строения, для всех элементов связей, прогона, опорных частей, стыков и соединений. Эти измерения могут производиться в сокращенном объеме в тех случаях, когда имеются достоверные и подробные данные соответствующих измерений, выполненных в ходе предшествующих специальных осмотров.

5.1.3.2 В рамках специального осмотра необходимо выполнить инструментальную геодезическую съемку для получения:

- продольных вертикальных профилей по оси проезжей части и по сопряжениям проезжей части с бордюрами, а также по каждой из главных балок (желательно в уровне верха или низа вертикальной стенки);

- поперечных профилей в характерных сечениях (над опорами, в серединах пролетов, в местах изменения сечения);

- плана расположения осей главных балок.

5.1.3.3 Результаты инструментальной геодезической съемки необходимо сравнить с аналогичными данными, полученными при сдаче сооружения в эксплуатацию (при их наличии) и при предыдущих обследованиях.

Выявившееся при этом уменьшение строительного подъема (рост прогибов от постоянной нагрузки) может явиться следствием следующих причин:

- ползучести бетона плиты проезжей части;

- наращивания толщины слоя дорожной одежды в процессе эксплуатации;

- неупругих деформаций стальной конструкции, возникшие при пропуске тяжелых (сверхнормативных) нагрузок;

- расстройстве плиты проезда и ее объединения со стальными конструкциями.

Первый из названных факторов характерен преимущественно для городских мостов с пролетами более 84 м и с большими расстояниями между главными балками (5 - 6 м и более), т.е. при высоких уровнях сжимающих напряжений в железобетонной плите от действия постоянных нагрузок.

Возможность влияния 2-го и 3-го факторов должна быть определена совместно с эксплуатирующими организациями. Если эти причины не подтверждаются, то весьма высока вероятность проявления повреждений конструкций, на выявление которых должно быть обращено особое внимание при последующем осмотре.

5.1.3.4 Инструментальной геодезической съемкой может быть выявлена недостаточная величина строительного подъема (вплоть до провисания пролетного строения), характер изменения которого во времени иногда бывает невозможно установить из-за отсутствия материалов исполнительной съемки и предшествующих осмотров. В таких случаях не исключена возможность возникновения дефекта еще в ходе строительства.

5.1.4 Особенности осмотра проезжей части, железобетонной плиты и ее соединений со стальными балками.

При осмотре элементов проезжей части особое внимание следует обратить на выявление фактической толщины дорожного покрытия. С этой целью необходимо пробурить в покрытии скважины диаметром не менее 5 - 8 см до верхней поверхности плиты по оси проезжей части и у бордюров, рядом с деформационными швами, в четвертях и серединах пролетов, а также над промежуточными опорами в неразрезных пролетных строениях. Важнейшее значение для оценки грузоподъемности сталежелезобетонных пролетных строений имеет тщательный и квалифицированный осмотр плиты проезжей части и ее соединений со стальными главными балками. Если по результатам осмотра проезжей части будет установлена необходимость полной замены покрытия, то целесообразно осуществить полное удаление дефектного покрытия, после чего произвести осмотр как верхних, так и нижних поверхностей железобетонной плиты. В остальных случаях приходится ограничиваться осмотром нижних поверхностей плиты, как между главными балками, так и на консольных свесах.

5.1.5 В результате анализа документации и осмотра (обследования) железобетонной плиты, помимо основных геометрических параметров, дефектов и повреждений, должны быть также выявлены:

- класс (марка) бетона, который определяют по технической документации; если документация отсутствует, то по характеристикам плиты по типовым проектам или нормам, соответствующим году проектирования обследуемого пролетного строения; при отсутствии проектных и других косвенных данных расчётные сопротивления бетона плиты определяют на основании изучения прочностных свойств неразрушающими методами (молотка Шмидта, Кашкарова, методом вырыва и др.) по стандартам, действующим на период обследования.

Расчетные сопротивления бетона разных классов для расчетных проверок плиты и значение модулей упругости бетона при сжатии и растяжении принимают по СНиП 2.05.03-84* для определенной марки бетона;

- положение арматуры, ее класс и количество в различных сечениях железобетонной плиты, в т.ч. класс, диаметры и вид соединения в монтажных стыках продольной арматуры в надопорных участках неразрезных пролетных строений;

- степень поражения арматуры коррозией устанавливают: при ширине раскрытия трещин 0,5 мм и более прямым измерением со вскрытием защитного слоя выборочно в местах расчётных сечений; при ширине раскрытия трещин менее 0,5 мм косвенным методом по известным графикам с экстраполяцией в необходимых случаях, принимая при этом за момент образования трещины год постройки моста;

- фактическая толщина защитного слоя, водонепроницаемости, данные по содержанию хлорид - ионов и глубине карбонизации;

- соответствие плиты типовому или индивидуальному проекту.

5.1.6 В ходе обследования стальных конструкций, помимо выполнения (при необходимости) обмеров элементов и инструментальной съемки, должны быть выявлены и зафиксированы имеющиеся дефекты и повреждения элементов конструкций, оценено их влияние на работу как отдельного конструктивного элемента, так и сталежелезобетонного пролетного строения в целом.

5.2 Критерии расстройств и повреждений

5.2.1 В приложении Б приведены некоторые характерные дефекты и повреждения железобетонной плиты и ее объединения со стальными конструкциями, категории этих дефектов и повреждений, способы учета дефектов и повреждений при выполнении расчетов грузоподъемности, а также характер их влияния на работу рассматриваемого конструктивного элемента (пролетного строения в целом). Приведенные в приложении Б количественные оценки снижения грузоподъемности являются ориентировочными и не могут быть использованы в качестве результатов обследования при расчете фактической грузоподъемности.

5.2.2 Дефекты и повреждения, связанные с общим снижением прочности или с расстройством поперечных швов сборной плиты, следует не только фиксировать с точной привязкой мест расположения, но и оценивать количественно величиной:

Ка = Еb, f×Ab, f / Еb, t× Ab, t,

где

Еb, f и Еb, t - соответственно, фактический (с учетом реальной прочности) и теоретический (отвечающий проектной марке бетона) модули упругости бетона, МПа,

Ab, f, Ab, t - соответственно, фактическая и теоретическая (проектная) площади поперечного сечения плиты.

При оценке фактической прочности плиты в целом коэффициент Ка является редукционным коэффициентом осевой жесткости плиты. Для поперечного стыка этот коэффициент отвечает доле приведенного поперечного сечения плиты, фактически воспринимающей продольное усилие в монтажном стыке плиты. Аналогичным образом коэффициент Ка используется для оценки условий передачи продольных усилий в монтажном стыке с взаимным перепадом смежных плит по высоте. Здесь в качестве величины может быть принято отношение общей части вертикальных проекций поперечных сечений смежных плит к теоретической площади сечения плиты.

5.2.3 В приложении В приведены некоторые характерные дефекты и повреждения стальных конструкций, категории этих дефектов и повреждений, характер их влияния на работу сталежелезобетонного пролетного строения и его грузоподъемность, способы учета дефектов и повреждений при поверочном расчете.

5.3 Особенности проведения испытаний сталежелезобетонных пролетных строений

5.3.1 Усилия (силы, моменты), возникающие в любых элементах сталежелезобетонного пролетного строения от испытательной нагрузки, не должны быть выше:

- при испытаниях сооружений, рассчитанных по предельным состояниям, усилий от подвижной временной вертикальной нагрузки, принятой в проекте. При этом значение коэффициента надежности по нагрузке (коэффициент перегрузки) равно 1,0 и полном динамическом коэффициенте;

- при испытаниях сооружений, рассчитанных по допускаемым напряжениям (по нормам, действовавшим до 1962 г), - 120 % усилий от временной вертикальной нагрузки, принятой в проекте, с полным динамическим коэффициентом;

- при испытаниях сооружений, имеющих элементы с пониженной несущей способностью, и сооружений, на которые нет технической документации, усилий от временной вертикальной нагрузки, соответствующей расчетной грузоподъемности сталежелезобетонного пролетного строения.

В связи с этим величину статической испытательной нагрузки следует назначать только после осмотра конструкции и расчетной оценки грузоподъемности (в первом приближении) с учетом физического состояния конструкций, в том числе выявленных при осмотре повреждений и дефектов.

5.3.2 При разработке схем загружений испытательными нагрузками, следует стремиться к тому, чтобы возможно большие усилия (в пределах, установленных п. 5.3.1) возникали в серединах пролетов, в опорных сечениях неразрезных балок, в местах изменения сечений главных балок, в местах расположения выявленных дефектов (в частности, расстройств плиты и ее соединений с главными балками). При испытаниях неразрезных балочных пролетных строений следует предусматривать загружения каждого из пролетов по одному, а также одновременные загружения двух смежных пролетов, примыкающих к промежуточной опоре. Для повышения точности результатов и исключения случайных ошибок полезны контрольные загружения симметрично расположенных пролетов неразрезной конструкции. По крайней мере, часть из установок временной нагрузки по длине моста следует выполнять при различных положениях в поперечном сечении - с максимально возможным смещением к одной из боковых кромок проезжей части, строго по оси моста и с максимально возможным смещением к второй боковой кромке. Благодаря этому обеспечивается возможность контроля измерений и исключения случайных ошибок. Кроме того, каждое последующее загружение для одной из балок приводит к увеличению приходящейся на нее нагрузки, что создает возможность проверки линейности характера зависимостей «нагрузка - прогиб» и «нагрузка - продольная относительная деформация».

В процессе статических испытаний производятся измерения характерных перемещений и относительных деформаций:

- вертикальные перемещения (прогибы) измеряются в серединах пролетов по двум главным балкам с помощью прогибомеров или других приборов аналогичного назначения;

- продольные относительные деформации (для последующего пересчета в нормальные напряжения) фиксируется по верхним и нижним поясам стальных балок и в железобетонной плите в наиболее загруженных сечениях; при этом могут быть использованы механические тензометры различных типов, деформометры, тензорезисторы и т.д.;

- взаимные относительные смещения плиты и верхнего пояса стальной балки следует измерять в местах выявленных визуально расстройств плиты и ее соединений с балками, как правило, ближе к концам пролетных строений (до 0,25 пролета от концевых опор); при этом могут быть использованы устройства типа мессур (индикаторы часового типа).

5.3.3 При анализе результатов статических испытаний должны быть подвергнуты тщательному анализу величины упругих и остаточных прогибов и относительных деформаций, вызванных испытательными нагрузками; в характерных сечениях балок по относительным деформациям поясов следует определить фактическое положение центров тяжести объединенных сечений балок. По результатам статических испытаний уточняются величины «коэффициентов поперечной установки» временной нагрузки применительно к величинам прогибов и нормальных напряжений. Результаты испытаний используются при диагностике дефектов и повреждений железобетонной плиты и ее объединения с главными балками. Величина конструктивной поправки по прогибам и по напряжениям в середине пролета при загружениях без смещения с оси моста, большая 0,9 - 1,0, может указывать на серьезные ухудшения прочностных свойств плиты, уменьшение ее эффективной ширины (или толщины), расстройство объединения со стальной частью конструкции на большей части длины пролета. Если фактические коэффициенты поперечной установки при загружениях со смещением нагрузки с оси моста для наиболее нагруженной балки близки к расчетным значениям, определенным по «правилу рычага», то также весьма вероятны общие расстройства плиты и ее соединений с балками либо дефекты большого числа элементов продольных связей. Смешение экспериментально определенного положения нейтральной оси сечения вниз по отношению к теоретическому положению нейтральной оси сталежелезобетонного сечения на величину, превышающую 10 - 15 % полной высоты стенки балки, может свидетельствовать о расстройстве плиты и ее соединения с балками в непосредственной близости к рассматриваемому сечению. Признаками аналогичных расстройств являются измеренные полные смещения плиты по верхнему поясу, превышающие 0,5 - 1,0 мм, и остаточные смещения, превышающие 0,1 - 0,2 мм; эти величины являются приближенными и нуждаются в дальнейшем уточнении.

5.3.4 Динамические испытания следует проводить в обоснованных случаях и результаты этих испытаний (в сравнении с данными, проведенных ранее испытаний) следует использовать при диагностике состояния сооружения. Так, увеличение периода собственных колебаний по первым формам может быть результатом увеличения постоянной нагрузки либо уменьшения изгибной жесткости. Если наращивание слоя покрытия в период между испытаниями не производилось, то весьма вероятно расстройство плиты и ее объединения с балками. О том же может свидетельствовать увеличение логарифмического декремента по сравнению с предыдущими испытаниями. Как правило, декремент сталежелезобетонных пролетных строений при удовлетворительном состоянии конструкций находится в пределах от 0,02 до 0,12; большая величина декремента может быть признаком возможных повреждений плиты и ее соединений с балками. Нельзя считать характеристикой низких динамических свойств конструкции, выявленные при испытаниях (с пропуском одиночных автомобилей) значительные динамические коэффициенты, превышающие нормативные значения. Как правило, при этом уровень напряжений в элементах невысок, и большие динамические коэффициенты свидетельствуют, чаще всего, о неудовлетворительном состоянии дорожной одежды - наличии выбоин, порожков и т.д. Низкие величины параметров затухания также не являются признаком неудовлетворительного состояния конструкции.

5.3.5 При обследовании неразрезных пролетных строений особое внимание следует уделять осмотру железобетонной плиты и ее соединений со стальными балками в зонах промежуточных опор на расстоянии (0,2 - 0,3) L от оси опоры в каждый смежный пролет, где L - величины пролетов, м. Это вызвано следующими причинами:

- практически все рассматриваемые в настоящем СТО неразрезные пролетные строения в зонах промежуточных опор, где растягивающие напряжения в плите от нагрузок 2-ой стадии (постоянной и временной) расчетные сопротивления на растяжение бетона плиты, предполагают полное выключение плиты из совместной работы с металлическими балками. В этих, местах в состав расчетного сечения включаются только металлическая часть и продольная арматура плиты в случае ее монтажного стыкования по длине пролета. Сечения растянутой в этой зоне плиты проверяются расчетом по трещиностойкости на расчетную ширину раскрытия трещин, что определяет долговечность всей конструкции пролетного строения;

- наличием наибольших сдвигающих усилий между плитой и стальными балками в зоне сжимающих напряжений в плите, примыкающем к границе выключения плиты из совместной работы, состояние которых во многом определяет грузоподъемность сталежелезобетонного пролетного строения.

6 Оценка качества стали несущих конструкций

6.1 Оценку качества сталей, фактически использованных в конструкциях сталежелезобетонных пролетных строений, выполняют с целью получения достоверных данных для назначения расчетных сопротивлений и определения важнейших служебных свойств - прочностных характеристик, параметров пластичности и свариваемости. Если металлоконструкции обследуемого сварного пролетного строения изготовлены до 1968 г и минимальная температура воздуха в месте расположения моста может быть ниже минус 25°, то помимо проверок, рекомендуемых в настоящем разделе, необходима дополнительная проверка, хладостойкости стали с отбором специальных образцов и проб.

6.2 Оценку качества сталей следует производить по рабочим чертежам КМ и КМД, данным заводских сертификатов либо по результатам испытаний образцов. В результате оценки должны быть установлены: фактическая марка стали, фактические свойства стали и их соответствие требованиям стандарта на сталь этой марки, действовавшим в период изготовления конструкций. В первую очередь необходимо использовать имеющиеся сертификаты на стальной прокат, из которого изготовлены конструкции. Однако на практике заводы - изготовители сопровождают мостовые металлоконструкции лишь паспортами (сертификатами) общего характера на весь объем поставки данного пролетного строения, с указанием фактически использованных марок сталей, но без приложения сертификатов металлургических заводов на конкретные виды и партии проката. Как правило, эти сертификаты хранятся в архивах завода металлоконструкций и их копии могут быть выданы по специальному запросу.

6.3 Необходимые исходные данные для оценки качества материалов в ряде случаев получают путем лабораторных исследований и испытании образцов, которые готовят из проб, отобранных из элементов обследуемых металлоконструкций.

Лабораторные исследования и испытания проводятся:

- при отсутствии сертификатов либо при недостаточности или противоречивости содержащихся в них сведений;

- при обнаружении в конструкциях повреждений, которые могли быть вызваны низким качеством материала конструкций и соединений;

- при изыскании дополнительных резервов фактической несущей способности конструкций.

6.4 При лабораторных исследованиях стали производят:

- химический анализ с определением содержания углерода, кремния, марганца, серы, фосфора, азота, хрома, никеля, и меди;

- испытания образцов на растяжение с определением временного сопротивления, предела текучести, относительного удлинения и относительного сужения (рекомендуется проводить испытания с построением диаграммы работы стали);

- испытания образцов на ударный изгиб с получением величин ударной вязкости для температур, регламентированных государственными стандартами для предполагаемой марки стали, а также с определением доли волокна (%) в изломе;

- выявление распределения сернистых включений способом отпечатка по Бауману, если есть основания предполагать возможность изготовления конструкций из кипящей стали;

- металлографическое исследование с выявлением микроструктуры, ее сортового состава, размеров зерна, характеристик не металлических включений, дефектов типа расслоя, закатов, обезуглероживания (необходимость проведения этого исследования устанавливается в каждом конкретном случае);

- определения значений критической температуры хрупкости T50 (50 %) волокнистой составляющей в изломе стандартных образцов.

6.5 Механические свойства стали допускается определять и другими методами, обеспечивающими достоверность результатов не ниже, чем при испытаниях образцов на растяжение. При оценке прочностных свойств стали без отбора образцов (по твердости, по срезу резьбы и т.п.) для каждого вида профиля (лист, уголок, балка и т.д.) проводятся контрольные испытания не менее трех образцов с определением предела текучести и временного сопротивления по стандартной методике. По результатам контрольных испытаний выполняется корректировка зависимостей между пределом текучести (временным сопротивлением) и параметрами, получаемыми при испытаниях для отбора образцов (глубиной или диаметром отпечатка, сопротивлением срезу резьбы и т.д.).

6.6 Отбор проб для выполнения химического анализа и заготовки образцов производят из элементов металлоконструкций пролетного строения отдельно для каждой партии металла. К партии металла относятся в данном случае элементы одного вида (типоразмера) проката по номерам профилей либо толщинам листа и по маркам стали, входящие в состав однотипных элементов (поясов, стенки главных балок, связи и т.д.) одного или нескольких однотипных пролетных строений данного моста, одной очереди поставки и строительства. Партия должна относиться не более чем к 50 однотипным отправочным маркам общей массой не более 60 т; если отправочные марки представляют собой простые элементы из прокатных профилей (прогоны, балки, диагонали связей и т.п.), то к партии должны быть отнесены до 250 отправочных марок.

6.7 Число проб и образцов от каждой партии металла должно быть не меньше, чем указано в таблице 1:

Таблица 1

Вид испытаний

Количество элементов, проверенных в партии

Количество проб и образцов

от элемента

всего в партии

Химический анализ

3

1

3

Испытания на растяжение

2 (10)*

1

2 (10)*

Испытания на ударную вязкость

2**

3**

6**

Отпечаток по Бауману

2

1

2

* При определении предела текучести стали и временного сопротивления по результатам статистической обработки данных испытаний образцов;

** Для каждой проверяемой температуры и для испытаний после механического старения.

6.8 Вычисление предела текучести Ryn или временного сопротивления Run по результатам статической обработки данных испытаний производится по формуле:

Rn = σn - αS,

где  - среднее арифметическое значение предела текучести или временного сопротивления испытанных образцов;

 - коэффициент, учитывающий объем выборки;

 - среднее квадратичное отклонение результатов испытаний;

σi - предел текучести или временное сопротивление i-го образца;

n - число испытанных образцов (не менее 10).

При значении S / σn > 0,1 использование результатов, полученных по имеющимся данным испытаний образцов, не допускается.

6.9 Отбор проб для проведения химического анализа и механических испытаний производится отдельно для каждой партии металла.

6.10 Вырезка проб металла из металлоконструкций, изготовление и испытание образцов стали с целью определения их характеристик производится, как правило, предприятием - заказчиком (при необходимости, с привлечением специализированных организаций) в соответствии с заданием, разработанным организацией, проводящей работы по обследованию.

Задание на отбор проб металла должно включать:

- схемы металлоконструкций, из элементов которых должны отбираться пробы, с маркировкой этих элементов и выделением их на схемах толстыми линиями;

- чертежи элементов металлоконструкций, из которых производит отбор проб, с указанием мест вырезки и всех необходимых размеров; при этом размеры, ограничивающие величину выреза (расстояние до сварных швов, расстояние до кромок элементов и др.), должны являться обязательными, а размеры заготовок проб - ориентировочными;

- чертежи вырезанных проб с показом размещения всех видов образцов, изготовляемых из данной пробы, с указанием допускаемых приближений образцов к кромкам реза;

- чертежи всех видов образцов, подлежащих изготовлению и испытанию;

- формы ведомостей проб и образцов, в которой указываются все металлоконструкции, из элементов которых отбираются пробы, приводятся наименования этих элементов с указанием их сечений, вид и количество образцов каждого вида, изготовленных из каждой пробы.

6.11 Каждая из отобранных проб (заготовок) должна иметь размеры и ориентацию, допускающие изготовление из нее необходимого количества образцов, с учетом их требуемого расположения по отношению к направлению прокатки или к направлению действующих в элементах конструкций усилий.

6.12 При вырезке проб для изготовления образцов для механических испытаний и металлографического исследования должны быть обеспечены условия, предохраняющие образцы от влияния нагрева и наклепа. При вырезке проб огневым способом, припуск от линии реза до края готового образца должен быть не менее 15 мм при толщине проката до 40 мм и не менее 20 мм при большей толщине. При использовании для вырезки проб ножниц, прессов и штампов припуск должен быть не менее: 5 мм - при толщине проката до 10 мм; 10 мм - при толщине проката от 10 до 20 мм; 15 мм - при толщине проката свыше 20 мм. При вырезке проб способом холодной механической обработки (сверлением, абразивным кругом, фрезерованием и т.п.) припуск может составлять 1 - 3 мм. На отобранные пробы должны наноситься клейма (керном) или марки (краской) в виде буквенно-цифрового кода, обозначающего название сооружения, характеристику элемента конструкции, тип профиля, место вырезки, назначение заготовки и т.п. Из элементов конструкций пробы отбираются в местах с наименьшим напряжением - из неприкрепленных полок уголков, полок на концевых участках балок и т.п. При отборе пробы должна быть обеспечена прочность данного элемента конструкции, в необходимых случаях ослабленное место должно быть усилено или устроены страхующие приспособления.

6.13 Отбор проб (стружки) для определения химического состава производится в соответствии с ГОСТ 7565. Стружка отбирается, как правило, сверлением по всей толщине проката, и, по возможности, равномерно по всему поперечному сечению элемента в количестве не менее 50 г для одного анализа. Если взять стружку по всему поперечному сечению элемента невозможно, допускается отбор стружки в средней трети ширины элемента или полки профиля. Перед отбором стружки поверхность должна быть тщательно очищена от окалины, краски, грязи, ржавчины, масла и влаги до металлического блеска. Отобранная стружка должна быть упакована и замаркирована. Упаковка стружки производится в пакет, склеенный из плотной бумаги, маркированный несмываемой надписью и помещаемый в пластиковый мешочек. Химический анализ стали производится по ГОСТ 22536.1 и ГОСТ 22536.6. Допускается определение химического состава стали методом фотоэлектрического спектрального анализа по ГОСТ 18895. В этом случае пробами (образцами) для анализа служат темплеты с механически обработанной (шлифованной) поверхностью, отбираемые из проката в соответствии с требованиями ГОСТ 7565.

6.14 Отбор проб для механических испытаний образцов производится в соответствии с ГОСТ 7564. В элементах конструкций из сортового и фасонного проката образцы ориентируются вдоль направления прокатки, из листового и широкополочного - поперек направления прокатки. В листовых элементах, направление прокатки которых не установлено, образцы ориентируются по направлению действия наибольших растягивающих напряжений. Изготовление образцов и их испытание на растяжение производится по ГОСТ 1497. Для проката толщиной до 25 мм включительно рекомендуются плоские образцы типа I и II короткие. В случае, если вырезка проб - заготовок плоских образцов необходимых размеров невозможна, а также для проката толщиной более 25 мм, производится изготовление и испытание пропорциональных цилиндрических образцов (гагаринских) типа I и II коротких.

6.15 Изготовление образцов и их испытание на динамический изгиб при комнатной и отрицательной температурах производится по ГОСТ 9454. Долю волокна в изломе определяют в соответствии с ГОСТ 4543. При этом используются образцы с U - образным надрезом типа I из проката толщиной более 10 мм и типа 3 из проката менее 10 мм, но не менее 5 мм.

6.16 Отбор проб (темплетов), обработка шлифов и снятие отпечатков по Бауману для выявления распределения сернистых включений производится в соответствии с ГОСТ 10243. Темплеты вырезаются из листовой и широкополосной стали вдоль направления прокатки или, если это направление неизвестно, - по направлению главных растягивающих напряжений, из сортового и фасонного проката - поперек направления прокатки. Рабочая поверхность шлифа должна быть перпендикулярной плоскости проката. Для листовой и широкополосной стали шлиф должен иметь поверхность 150×t мм (где t - толщина проката), для сортовых и фасонных профилей поверхность шлифа должна соответствовать поперечному сечению профиля или половине профиля от кромки до оси симметрии.

6.17 Отбор проб (темплетов) для металлического исследования производят в соответствии с ГОСТ 5639 и ГОСТ 1778. Темплеты для шлифов вырезаются вдоль направления прокатки (или основного силового потока). Рабочая поверхность шлифов должна иметь размеры 30×t мм и лежать в плоскости, перпендикулярной плоскости проката. Подготовка и обработка шлифов, выявление и оценка микроструктуры, определение величины зерна и характеристик неметаллических включений должны осуществляться в соответствии с ГОСТ 5640, ГОСТ 5639 и ГОСТ 1778.

6.18 О качестве стали элементов металлоконструкций обследуемых сталежелезобетонных пролетных строений судят на основании сопоставления имеющихся сертификатных данных и результатов проведенных испытаний с нормами химического состава и механических свойств стандартов на сталь по каждому компоненту химического состава и по каждому показателю механических свойств, с учетом (при необходимости) результатов металлографического анализа микроструктуры, неметаллических включений и распределения сернистых включений на отпечатках по Бауману. Сопоставлением с нормами действующих стандартов устанавливают марку стали, к которой полностью или частично можно отнести рассматриваемый материал. Для мостов старой постройки марки стали устанавливаются в соответствии с действовавшими во время ее выплавки ОСТ, ГОСТ или ТУ на ее поставку.

6.19 При необходимости усиления конструкций с помощью электросварки следует определить свариваемость стали усиливаемых элементов путем определения эквивалентного содержания углерода по формуле:

Cэ = C + Mn / 6 + (Cr + Mо + V) / 5 + (Ni + Cv)

где

С, Мn, Сr, Мo, V, Ni, Сv - содержание соответствующих химических элементов в стали в % по массе.

При Сэ < 0,35 - 0,4 % сварка не вызывает затруднений и может выполняться любыми способами в соответствии с действующими нормативными документами; при 0,4 ≤ Сэ < 0,55 сварка возможна, но требует мер, предупреждающих образование трещин - тщательный подбор и контроль тепловых режимов сварки и сварочных материалов, технологии наложения швов, контроль чистоты кромок и присадочной проволоки, контроль отсутствия влаги в электродных покрытиях и флюсе, предварительный и сопутствующий подогрев и др. При Сэ > 0,55 вероятность появления трещин опасно увеличивается. Оценивать свариваемость не надо, если сталь по химическому составу и способу выплавки полностью удовлетворяет требованиям ГОСТ для одной из марок стали, предусмотренной СНиП 2.05.03-84* для изготовления сварных мостовых конструкций.

Результаты определения свойств стали оформляются в виде справки, содержащей таблицы данных механических испытаний, химического анализа и определения свариваемости.

7 Проверка и обеспечение хладостойкости стальных конструкций

7.1 Проверка хладостойкости стальных конструкций является обязательным элементом обследований сталежелезобетонных пролетных строений со сварными заводскими и/или монтажными соединениями на мостах, расположенных в зонах с расчетной минимальной температурой ниже минус 20 °С.

7.2 Практикуемая методика проверки хладостойкости низколегированной стали для мостостроения изложена в ГОСТ 9454 и ГОСТ 6713 и предусматривает контроль ударной вязкости стали при испытаниях на ударный изгиб стандартных образцов (с концентраторами вида U), охлажденных до температур минус 40 °С и минус 70 °С.

7.3 Достаточной хладостойкостью должны обладать конструкции, запроектированные и выполненные с учетом требований к стали и конструктивных требований, выпущенных в 1968 году нормативных документов, при наличии заводских сертификатов или положительных результатов соответствующих испытаний образцов металла. Качество стали в этих случаях должно отвечать климатическим условиям зоны расположения моста и соответствующему типу исполнения (обычное, северное А или Б). Для конструкций более раннего периода изготовления обязательной является проверка химического состава и ударной вязкости при отрицательной температуре и микроструктуры стали, а для конструкций из стали 3-й степени раскисления.

7.4 Конструкции с клепанными заводскими и монтажными соединениями при полном отсутствии приваренных дополнительных деталей обычно обладают достаточной хладостойкостью. Она может быть снижена при наличии дефектов различного, в т.ч. и усталостного происхождения (трещин у заклепочных отверстий, «колотых» заклепочных отверстий, расстроенных соединений и т.д.), что должно быть оценено при проведении обследований, а затем - при комплексной оценке хладостойкости. Хладостойкость клепанных конструкций (особенно при выполнении их из кипящей стали) может быть нарушена при практиковавшемся ранее усилении отдельных элементов с применением сварки, часто - с прерывистыми швами, с резкими обрывами приваренных элементов, при низком качестве сварочных электродов и т.д. Все эти дефекты должны выявляться в ходе обследований. Не отвечают требованиям хладостойкости конструкции из кипящей стали со сварными соединениями или с усилениями отдельных элементов клепаных несущих конструкций при использовании монтажной сварки. Особую тщательность следует проявлять при оценке хладостойкости сварных конструкций из низколегированной стали по ГОСТ 5058 постройки 50-х - 60-х годов (прежде всего, 14Г2 и 10Г2СД).

7.5 При обследованиях сварных конструкций пролетных строений необходимо обращать особое внимание с позиций хладостойкости на ряд особенностей элементов, узлов и соединений, к которым относятся:

- качество сварных швов: плоская, вогнутая или выпуклая форма, размеры катетов угловых соединений; наличие механической обработки (или снятия усиления) в стыковых соединениях для устранения резких переходов от шва к основному металлу;

- качество переходов от приваренных второстепенных деталей к основным элементам главных балок (отсутствие или наличие резких уступов механической обработки узлов и соединений) и т.д.;

- наличие не удаленных деталей, введенных на сварке при монтаже, либо отсутствие зачистки после их срезки (строповочные детали, выравнивающие планки на нижних поясах для упрощения продольной надвижки, элементы крепления временных подмостей площадок, лестниц и т.д.);

- наличие деталей аналогичного характера, приваренных к основным конструкциям в процессе эксплуатации.

7.6 Соединения на высокопрочных болтах обладают достаточной хладостойкостью при соблюдении ряда условий:

- соответствие крепежных изделий (болтов, гаек, шайб) нормативным требованиям; известны, в частности случаи разрушения болтов с малыми радиусами перехода от головки к стержню, с отступлениями от норм по химическому составу и механическим свойствам (особенно при избыточном пределе прочности) и т.д.;

- соответствие уровня натяжения болтов нормативным требованиям;

- герметизация и антикоррозионная защита соединений.

7.7 В отечественных нормах отсутствует методика проверки хладостойкости металлических конструкций автодорожных мостов, непосредственно отражающая вязкостные свойства материала.

Как возможный вариант оценки работоспособности металлоконструкций сталежелезобетонных пролетных строений может быть использован расчет по ударной вязкости, предлагаемый Евронормами (Eurocode № 3. Design of steel Structures, Part 1. Volume 2. Annexc: Design against Brittle Fracture, Adited 1992).

Для выполнения этого расчета, основанного на представлениях механики разрушения, требуется располагать определенными данными, а именно: минимальный гарантируемый предел текучести исследуемого металлопроката, толщина проката, скорость нагружения, тип конструкций, минимальные температуры в месте эксплуатации сооружения, степень ответственности конструкций и их отдельных элементов.

Кроме того, необходимо знать температуру испытаний металлопроката Tcv, при которой для рассматриваемой стали обеспечивается нормированная ударная вязкость на образцах типа V - Шарпи с острым надрезом (тип II по ГОСТ 9454).

Некоторая проблема возникает с результатами выполненных испытаний на ударный изгиб, которые представляются, как правило, в виде температурных зависимостей ударной вязкости образцов с U-образным полукруглым надрезом типа Менаже (тип I по ГОСТ 9454). Для решения поставленной задачи именно по этим зависимостям первоначально определяется температура испытаний Tcu34, при которой ударная вязкость KCU достигает величины 34 Дж/см2. Переход к необходимой для расчетной проверки температуре испытаний Tcu34 для образцов V - Шарпи можно осуществлять путем повышения температуры испытаний Tcu34 на величину смещения ΔТ = 41 °С, установленную в специальном статистическом исследовании:

Tcu34 = Tcu34 + 41 °C

Следует отметить, что в связи с тем, что использованные в упомянутом статистическом исследовании данные имеют известное рассеивание, указанные значения температуры испытания Tcu34 носят вероятностный характер.

7.8 Проверка хладостойкости стальных конструкций обязательна для сталежелезобетонных пролетных строений с расчетной климатической температурой ниже минус 20 °С (по самым холодным суткам), в первую очередь - для тех пролетных строений, металлоконструкции которых изготовлены ранее 1968 года. Проверка хладостойкости осуществляется в составе обследования пролетного строения, с привлечением для испытаний образцов металла, расчетов хрупкой прочности и решения принципиальных вопросов специализированной организацией.

7.9 Пролетные строения недостаточной хладостойкости, как правило, подлежат замене новыми хладостойкими конструкциями. Для пролетных строений недостаточной хладостойкости (впредь до их замены) вычисляются уровни безопасных временных вертикальных нагрузок в периоды низких температур. В периоды низких температур для этих пролетных строений вводится жесткий режим ограниченной эксплуатации.

7.10 В отдельных случаях возможно придание пролетному строению требуемой хладостойкости путем ремонта путем удаления выявленных дефектов, отрицательно влияющих на хладостойкость, путем механической обработки зон концентрации напряжений, удаления приваренных не по проекту монтажных деталей с тщательной зачисткой зон их крепления и т.д. В некоторых случаях в качестве мер безопасности возможно заблаговременное подведение временных опор, используемых в дальнейшем при замене пролетных строений.

8 Определение грузоподъемности пролетных строений

8.1 Основные понятия грузоподъёмности сталежелезобетонных пролетных строений

8.1.1 Грузоподъёмность как характеристика сталежелезобетонного пролетного строения определяется максимальной полезной нагрузкой, которую может воспринять сооружение при расчётах по 1-ой группе предельного состояния. Основным показателем грузоподъёмности пролетного строения капитального мостового сооружения является класс нагрузки. Грузоподъёмность устанавливают по классу нагрузки для неконтролируемого и контролируемого режимов движения транспортных средств, а также по общей массе эталонных транспортных средств для неконтролируемого движения. Требуемым уровнем грузоподъёмности является класс нагрузки, соответствующий проектной величине временной подвижной нагрузке. Снижение грузоподъёмности считается понижение уровня грузоподъёмности относительно проектной величины более чем на 10 %.

8.1.2 Для неконтролируемого пропуска (потока) транспортных средств, класс нагрузки назначается в виде класса «К» по схеме загружения нагрузки «АК» вдоль и по ширине ездового полотна для 1-го и 2-го случаев загружения, принятых в СНиП 2.05.03-84*. Нагрузка по схеме «АК» на пролётное строение принимается в виде равномерно-распределённой нагрузки с интенсивностью «К» кн/м (или 0,1 Кт/м) и одной двухосной тележки с нагрузкой на ось 10 К кН (или 1 К тс) для каждой полосы движения. При этом тележка устанавливается в наиболее невыгодное положение по длине пролёта. Коэффициенты надёжности, динамический, полосности и другие коэффициенты принимаются согласно указаний СНиП 2.05.03-84*.

8.1.3 Грузоподъёмность сталежелезобетонного пролетного строения определяется несущей способностью наиболее ослабленных дефектами его частей (элементов) - плиты проезжей части, металлоконструкций, элементов их объединения. Расчёт несущей способности элементов конструкций производят с учётом фактических геометрических размеров элементов, влияния дефектов и повреждений на распределение усилий от постоянных и временных нагрузок, на несущую способность элементов, с учётом прочностных и деформативных свойств материалов (бетона, арматуры, стали) на рассматриваемый период времени.

8.2. Основные требования к расчётам по определению грузоподъемности

8.2.1 При определении грузоподъёмности сталежелезобетонных пролетных строений следует учитывать ряд особенностей конструкций к которым относятся следующие:

- совместная статическая работа элементов конструкций, выполненных из различных материалов (стали и железобетона), которая зависит как от состояния этих элементов, так и от объединительных деталей (упоров и др.), реально обеспечивающих силовое взаимодействие;

- многостадийный характер статической работы с последовательным включением различных элементов при возведении, и с частичным их выключением - по мере механического и коррозионного износа в процессе эксплуатации.

8.2.2 Определение грузоподъемности главных балок сталежелезобетонных пролетных строений производят с использованием основных положений СНиП 2.05.03-84* и указаний настоящего СТО.

8.2.3 Расчетные сопротивления бетона плиты при оценке грузоподъемности принимают в соответствии с фактическим классом бетона по прочности на сжатие на момент обследования, который определяется по реальной марке бетона, с использованием техдокументации и с применением неразрушающих методов контроля.

8.2.4 Расчетные сопротивления стержневой арматуры принимают по СНиП 2.05.03-84*. Если на момент строительства моста браковочный минимум предела текучести стержневой арматуры по соответствующему стандарту был принят ниже чем по СНиП 2.05.03-84*, то расчетное сопротивление этой арматуры растяжению определяют этой для предельных состояний первой и второй групп по формуле:

Rа = Rsn / γs,

где

Rsn - нормативное сопротивление арматуры, принимаемое по указаниям п. 8.2.5, МПа;

γs - коэффициент надёжности по арматуре принимаемый для предельных состояний по первой группе для класса арматуры АI, АII, АIII (при Ø 6 - 8 мм) - 1,16; для класса арматуры АIII (при Ø 10 - 40 мм) - 1,13; для класса арматуры А-IV и Ат - IV - 1,26; для предельных состояний по второй группе 1,0.

8.2.5 За нормативные сопротивления Rsn стержневой арматуры, высокопрочной проволоки и арматурных канатов принимают минимальные гарантируемые (с надёжностью 0,95) значения предела текучести (физического или условного, равного значению напряжений, соответствующих остаточному относительному удлинению 0,2 %). Указанные минимальные гарантируемые значения предела текучести определяют по стандартам, приведённым в технической документации, а при отсутствии её - по стандартам, соответствующим году проектирования, соответствии с отменёнными ГОСТ 5781 и ГОСТ 4578. Арматурная сталь периодического профиля марки Ст5 (в настоящее время класс А-II) имеет браковочный минимум предела текучести Rsn = 274 МПа (2800 кгс/см2), а с 1961 г. - 294 МПа (3000 кгс/см2).

Значения допускаемого напряжения или расчётного сопротивления арматуры определяют также по нормам, соответствующим году проектирования.

8.2.6 Расчетные сопротивления проката для различных видов напряженных состояний принимают в соответствии с СНиП 2.05.03-84*. При этом значение предела текучести Ryn и временного сопротивления Run принимают:

- для сталей, у которых приведенные в сертификатах или полученные при испытаниях значения предела текучести и временного сопротивления соответствуют требованиям действовавших на момент строительства моста государственных стандартов или технических условий на сталь - по минимальному значению, указанному в этих документах;

- для сталей, у которых приведенные в сертификатах или полученные при испытаниях значения предела текучести и временного сопротивления ниже предусмотренных государственными стандартами или техническими условиями на сталь, действовавшими на момент строительства моста, - по минимальному значению предела текучести из приведенных в сертификатах или полученных при испытаниях.

8.2.7 При необходимости более точного учета фактических (повышенных) механических свойств стали в рамках оценки грузоподъемности назначают расчетные сопротивления по значениям Ryn и Run, определенным в результате статистической обработки данных испытаний не менее чем 10 образцов от партии. Вычисление предела текучести Ryn или временного сопротивления Run по результатам статистической обработки производится по формуле (180) приложения 8а СНиП II-23-81 (издание 1991 г.).

8.2.8 Коэффициент надежности по материалу принимают:

- для конструкций, изготовленных после 1984 г - по СНиП 2.05.03-84*;

- для конструкций, изготовленных до 1984 г из углеродистой стали по ГОСТ 6713 γm = 1,15, из низколегированной стали 15ХСНД по ГОСТ 6713 γm = 1,228, из низколегированной стали 10ХСНД по ГОСТ 6713 γm = 1,18, из низколегированной стали с пределом текучести до 39 кг/см2 по ГОСТ 19281, 19282 и 5058 γm = 1,10, свыше 39 кг/см2 - γm = 1,15 (к данным СНиП введен дополнительный понижающий коэффициент γm, i = 1,05, учитывающий «возраст» стали, аналогично п. 20.1. и таблицы 2 СНиП II-23-81 издания 1991 г). Если проектом допускалось применение в несущих конструкциях разных марок стали (например, 15ХСНД по ГОСТ 6713 и 10Г2С1 по ГОСТ 19281), то в расчетах используют меньшие из соответствующих возможных значения расчетных сопротивлений γmRyn.

8.2.9 Расчетные сопротивления стыков и соединений, методы расчета, включая учет пластических деформаций, принимают в соответствии с требованиями СНиП 2.05.03-84*.

8.2.10 Постоянные нагрузки и воздействия определяют в соответствии с СНиП 2.05.03-84*. Для величины постоянной нагрузки от собственного веса металлических конструкций, определенной по чертежам КМД с учетом наплавленного металла и крепежных изделий, допускается принимать γf = 1,05. Коэффициенты надежности к проектной величине нагрузки от веса покрытия ездового полотна и тротуаров принимают по СНиП 2.05.03-84*, если фактическая толщина покрытия не превышает проектную более чем на 50 %. Если получены действительные данные по собственному весу и размерам конструкции пролётного строения, то в зависимости от точности и числа замеров этих данных коэффициент надёжности γm по нагрузке от собственного веса принимают следующим:

- от веса несущих элементов при числе замеров 6 и более γm = 1,05 (0,9), при числе замеров менее 6 γm = 1,1 (0,9);

- от веса слоев одежды ездового полотна (изоляция, защитный и выравнивающий слой) при числе замеров 6 и более γm = 1,15 (0,95), при числе замеров менее 6 γm = 1,2 (0,95).

Вес покрытия ездового полотна и тротуаров γm = 1,2. Во всех случаях величину постоянной нагрузки принимают не менее чем значения нормативной нагрузки по проекту.

8.2.11 Нагрузки от собственного веса железобетонной плиты и дорожного покрытия вводят в расчет с учетом фактической последовательности возведения сооружения (т.е. по стадийной работе), регулирования усилий и ремонтов, что устанавливается в результате анализа проектной, исполнительной и эксплуатационной документации.

8.2.12 Воздействия ползучести и усадки бетона, а также неравномерные температурные воздействия не учитываются при поверочном расчете главных балок с полным расстройством объединения с железобетонной плитой на участках от свободных концов до мест, где «окна» под упоры и плита находятся в работоспособном состоянии.

8.2.13 При расчете главных балок на основании данных обследований и испытаний учитывают все выявленные дефекты, влияющие на грузоподъемность. В случае значительной разницы дефектов и повреждений для двух главных балок пролетного строения каждая из них рассчитывается раздельно, а при незначительной разнице используют условную расчетную модель, в которой охватываются дефекты каждой из балок.

8.3 Методика расчёта грузоподъемности

8.3.1 Определение грузоподъемности железобетонной плиты следует производить с использованием метода последовательных приближений расчетного аппарата СНиП 2.05.03-84* подбором величины класса нагрузки АК, которой соответствуют предельные усилия с учетом имеющихся дефектов. При этом горизонтальные (продольные и поперечные) нагрузки принимаются по СНиП 2.05.03-84* применительно к классу К, определенному расчетом на прочность и общую устойчивость основных конструкций. Временная нагрузка на тротуарах не учитывается в тех случаях, когда фактическое состояние сооружения исключает нахождение людей на тротуарах (тротуарные плиты отсутствуют или сильно разрушены и т.д.).

8.3.2 Точное воспроизведение деталей механизма статической работы сталежелезобетонного пролетного строения с расстраивающейся железобетонной плитой и с развитием расстройств соединений между плитой и металлическими балками в расчетной модели весьма затруднительно, поэтому предлагается использовать приближенную расчетную модель работы соединений, которая дает с заметным запасом реальную возможность фактической оценки работы конструкций с учетом данных обследований и испытаний. Для расчетов с использованием стержневой модели конструкции предлагается использовать гипотезу о диаграмме работы упоров, сходной с диаграммой Прандтля. До достижения предельной величины сдвигающего усилия, приходящегося на упор, равной Sh = 1,6RbAb, dr где Sh - сдвигающее усилие, приходящееся на один упор, соответственно при расчёте по прочности или выносливости; Ab, dr - площадь поверхности смятия бетона упора, действует прямо пропорциональная зависимость между сдвигающим усилием и смещением оси плиты относительно верхнего пояса в месте расположения упора. После достижения предельного значения величина усилия остается постоянной и происходит перераспределение с дополнительной нагрузкой на соседние упоры.

8.3.3 С учетом приближенного характера поверочных расчетов допускается определять суммарные напряжения от расчетных нагрузок и воздействий (с учетом коэффициентов сочетаний) при работе в упругой стадии и сравнивать их с величиной расчетного сопротивления m Rу, к которой вводится единый поправочный коэффициент по таблице 2, учитывающий упругопластический характер работы конструкции и другие факторы:

Таблица 2

Пояс балки

Единый поправочный коэффициент при изгибающем моменте

Положительном

Отрицательном

Расчетный случай по таблице 93 СНиП 2.05.03-84*

Расчетный случай по таблице 95 СНиП 2.05.03-84*

А

Б

В

Г

Д

Верхний

1,2

1,05

1,05

1,2

1,0

Нижний

1,05

1,05

1,05

1,0

1,0

При наличии расстройств плиты и ее соединений с металлическими балками не может быть реализовано разгружающее влияние сжатого бетона плиты проезжей части на несущую способность верхних поясов металлических балок и поправочный коэффициент для верхнего пояса принимают, равным 1,0.

8.3.4 Остальные расчетные проверки стальных конструкций (по прочности при сложном напряженном состоянии, по общей и местной устойчивости) производят по усилиям, определенным в соответствии с рекомендациями для принятого класса нагрузки К, соответствующего условиям прочности по нормальным напряжениям.

8.3.5 При определении грузоподъемности в ряде случаев следует учитывать крутильную жесткость пространственной конструкции в виде двух главных балок, связанных между собой поперечными связями, железобетонной плитой проезда и нижними продольными связями. Это проявляется в существенно более равномерном распределении между балками эксцентрично расположенной в сечении моста временной нагрузки по сравнению с традиционным методом расчета по «внецентренному сжатию» или (при двух главных балках) - по «правилу рычага». Учитывать крутильную жесткость не следует при отсутствии нижних продольных связей или при значительных деформациях большого числа диагоналей связей, вызванных, например, воздействием карчехода при сверхнормативном горизонте весеннего паводка (такие случаи известны в практике эксплуатации мостов), а также при значительном расстройстве железобетонной плиты проезда и ее соединений со стальными балками.

8.3.6 Для достаточно точного расчета поперечного распределения временной нагрузки могут быть использованы различные методики. Возможно представление пролетного строения в целом в виде пространственной модели, образованной из стержней и пластинчатых элементов, либо только из стержней; в последнем случае стенки балок и плита моделируются энергетически эквивалентными рамными или ферменными конструкциями. Расчет производится с помощью достаточно широко распространенных программ или программных комплексов, реализующих задачу статического анализа пространственных систем, как правило, на базе метода конечного элемента. Возможен вариант моделирования пространственной системы пролетного строения тонкостенным стержнем замкнутого переменного сечения. Программы, реализующие этот метод (с определением секториальных геометрических характеристик), также достаточно известны.

8.3.7 В большинстве случаев для практических целей при определении «коэффициента поперечной установки» достаточна точность приближенного метода, основанного на анализе результата большого числа более точных методов расчетов. Формула для определения «коэффициента поперечной установки» при двух главных балках представляется в виде:

η = 1 / 2 ± Θeр / a,

где

Θ - меньше (равно) единицы, зависит от определяемого фактора, положения рассматриваемого сечения, величины пролета;

eр - эксцентриситет нагрузки;

а - расстояние между главными балками.

С достаточной точностью для сечений в средних половинах пролетов от 42 до 84 м можно принимать Θ от 0,5 до 0,6, одинаковыми для изгибающих моментов и прогибов, с уменьшением по мере роста величины пролета. Для изгибающих моментов в зонах неразрезных балок в сечениях, близких к опорным, для поперечных сил и опорных реакций Θ = 0,9 - 1,0, т.е. эти величины следует определять по «правилу рычага». В зонах, где выявлено расстройство плиты или ее соединений с главными балками, усилия в балках от временных нагрузок также следует определять без учета пространственной работы, по «правилу рычага».

8.3.8 На первом этапе производится расчет балочной сталежелезобетонной конструкции на действие постоянных и временных нагрузок, усадки и ползучести бетона, температурных воздействий. При наличии коррозионных повреждений стальных конструкций (как постоянных по длине, так и локальных) может быть выполнен их учет как при статических расчетах (путем уменьшения расчетной толщины элементов), так и при проверках прочности. В расчетной модели могут быть учтены выявленные дефекты и повреждения плиты, количественная оценка которых постоянна по длине (уменьшение прочности, расчетной толщины или ширины плиты), что производится с помощью введения вышеприведенного коэффициента Ка ≤ 1 к осевой жесткости плиты. На втором этапе расчета может быть смоделирована расчетная схема одной из сталежелезобетонных главных балок, в которой учитываются как локальные, так и общие дефекты и повреждения железобетонной плиты проезжей части. В этой расчетной схеме могут воспроизводиться выявленные при обследованиях и испытаниях дефекты и расстройства. Так для элементов расчетной схемы, моделирующих упоры, вводятся жесткостные и силовые характеристики, которые отвечают выявленному в конкретном упоре этапу работы (линейно-упругая характеристика - для 1-го этапа, возможное исключение из работы - для 2-го этапа, безусловное исключение из работы - для 3-го этапа работы). При наличии разрушений поперечных швов плиты в расчетную схему могут быть введены элементы, длина которых отвечает ширине шва, со сниженной осевой жесткостью. Если обнаруженная трещина проходит через сечение плиты с сохранением передачи усилий только над балками (включая зону вутов), то понижающий коэффициент Ка для зоны шва может составлять 0,5 - 0,7.

8.3.9 Производится расчет расчетной схемы на одновременное действие 2-й части постоянной нагрузки и временной нагрузки, отвечающей классу К с рассчитанным «коэффициентом поперечной установки». При этом временная нагрузка устанавливается в наиболее невыгодные положения для расчетных сечений главных балок. Так, при расчете разрезной балки, имеющей расстройства соединений на концевых участках, следует загружать равномерно распределенной нагрузкой всю длину балки, а двухосную тележку устанавливать в месте расположения первых (от опоры) сохранивших работоспособность упоров и над местами изменений сечений нижних поясов. Для неразрезных балок следует выполнять аналогичные проверки концевых боковых пролетов, а также зон расстройства соединений ближе к промежуточным опорам. Для каждой установки временной нагрузки производят итерационный расчет и получают величины расчетных напряжений в поясах главных балок от 2-й части постоянной и временной нагрузок, а затем - и суммарные напряжения с учетом результатов расчетов I этапа. После сравнения суммарных напряжений с расчетными сопротивлениями может быть сделан вывод о соответствии или несоответствии несущей способности сталежелезобетонной конструкции и введенного в расчет класса К временной нагрузки. Методом последовательных приближений уточняется предельная величина К, которая определяет грузоподъемность сталежелезобетонного пролетного строения по нормальным напряжениям.

8.3.10 Полученная величина К далее используется при проверках расчетных сечений балки на действие касательных напряжений, совместное действие нормальных и касательных напряжений, при проверках общей устойчивости металлических балок (на участках действия сжимающих напряжений в нижних поясах), местной устойчивости вертикальных стенок и свесов сжатых полок поясов балок.

8.3.11 С использованием того же класса нагрузки К производится проверка прочности среднего прогона (при его наличии), прочности и устойчивости элементов поперечных и продольных связей, а также их прикреплений.

9 Конструктивно-технологические решения по реконструкции и ремонту сталежелезобетонных пролетных строений

9.1 Общепризнаны следующие методы реконструкции и ремонта сталежелезобетонных пролетных строений:

- полная замена существующего пролетного строения на новое (сталежелезобетонное либо металлическое с ортотропной плитой проезжей части);

- замена старой железобетонной плиты проезжей части на новую железобетонную плиту (сборную либо монолитную) с сохранением существующих несущих металлоконструкций (при необходимости, с выполнением усиления, замены либо ремонта отдельных элементов);

- замена железобетонной плиты проезжей части на новую стальную ортотропную плиту с сохранением существующих несущих металлоконструкций (при необходимости, с выполнением усиления, замены либо ремонта отдельных элементов);

- ремонт (при необходимости, уширение) существующей железобетонной плиты проезжей части с сохранением существующих несущих металлоконструкций пролетного строения (при необходимости, с выполнением ремонта либо замены отдельных элементов).

9.2 Первый метод при полной замене существующего пролетного строения на новое является наиболее радикальным поскольку при его реализации могут быть в полной мере обеспечены все необходимые эксплуатационные характеристики пролетного строения согласно требований современных норм.

Однако финансовые и материальные затраты на реконструкцию с полной заменой существующего пролетного строения во всех случаях значительно выше, чем при любом другом из перечисленных выше методов.

9.3 Практически все сталежелезобетонные пролетные строения постройки 60 - 70 годов имели габарит проезжей части Г-7 под две полосы автодвижения и были рассчитаны на временные нагрузки Н-18, Н-30 и НК-80. С позиции действующих в настоящее время норм эти пролетные строения не обеспечивают требуемой пропускной способности и, в большинстве случаев, грузоподъемности моста.

Замена старой железобетонной плиты проезжей части на новую железобетонную с сохранением существующих несущих металлоконструкций пролетного строения максимально решает задачу реконструкции сталежелезобетонного пролетного строения. Основное достоинство метода это сравнительно низкая металлоемкость.

В обоснованных случаях выполняется полная либо частичная замена дефектных железобетонных плит в рамках ремонтных работ (плановых либо вынужденных). Это целесообразно, когда повышение грузоподъемности или увеличение пропускной способности сталежелезобетонного пролетного строения требует значительного дополнительного расхода металла на усиление несущих металлических конструкций и связано с определенными техническими сложностями его реализации либо, когда основные характеристики металла существующих стальных конструкций по большинству параметров не удовлетворяют требований, предъявляемых современными нормами к материалу стальных конструкций автодорожных мостов.

9.4 Уширение железобетонной плиты проезжей части (вместо замены на новую) рекомендуется производить в тех случаях, когда состояние существующей плиты и элементов ее объединения со стальными конструкциями не требует значительных затрат труда и материалов для устранения имеющихся дефектов и расстройств.

9.5 Основным недостатком методов реконструкции с заменой старой железобетонной плиты на новую железобетонную либо ремонта путем уширения существующей плиты является значительное увеличение постоянной нагрузки на несущие металлические конструкции и, как следствие, необходимости их усиления, что трудоемко и требует высокой квалификации исполнителей работ. Также, к недостаткам следует отнести необходимость выполнения так называемых «мокрых» работ по устройству новой железобетонной плиты (в сборном варианте - по обетонированию монтажных швов) непосредственно на мосту, что определяет «сезонность» проведения работ либо устройство дорогостоящих тепляков.

9.6 Эти недостатки могут быть исключены при методе замены железобетонной плиты проезжей части на новую стальную ортотропную плиту. Монтажные работы по замене плиты могут выполняться в любое время года, усиление же несущих стальных конструкций, как правило, не требуется либо сводится к минимуму. К недостаткам этого решения следует отнести высокий расход дополнительного металла (порядка 200 кг/м2) и необходимость высокой квалификации исполнителей работ.

9.7 Описанные выше методы по реконструкции и ремонту сталежелезобетонных пролетных строений носят общий рекомендательный характер.

В каждом конкретном случае при принятии окончательного решения по методу реконструкции и ремонта должны приниматься во внимание множество привходящих факторов, что позволит найти наиболее оптимальное техническое и экономическое решение.

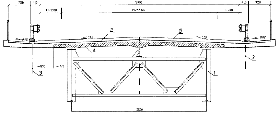
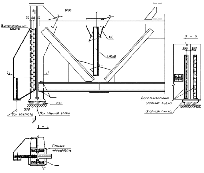
9.8. На нижеприведенных рисунках показаны некоторые конструктивные решения по реконструкции (ремонту) сталежелезобетонных пролетных строений, а именно:

- на рисунке 1 показано принципиальное решение по реконструкции пролетных строений с габаритом проезжей части Г-7 при расстоянии между главными балками, равным 5,8 м, путем устройства новой монолитной железобетонной плиты проезжей части поверх существующей;

- на рисунке 2 показано принципиальное решение по реконструкции пролетных строений с габаритом проезжей части Г-8 при расстоянии между главными балками, равным 6,4 м, путем устройства новой сборной (монолитной) железобетонной плиты проезжей части;

- на рисунке 3 показано принципиальное решение по реконструкции пролетных строений разработки Киевского филиала института Союздорпроект путем устройства рядом с существующим нового пролетного строения, объединяемого со старым единой сборной (монолитной) железобетонной плитой проезжей части;

- на рисунке 4 показано принципиальное решение по реконструкции пролетных строений с габаритом проезжей части Г-7 при расстоянии между главными балками, равным 5,8 м, путем замены старой железобетонной плиты проезжей части на новую ярусную стальную ортотропную плиту;

- на рисунке 5 показано принципиальное решение по реконструкции пролетного строения городского моста под четыре полосы движения путем устройства новой монолитной железобетонной плиты проезжей части поверх существующей;

- на рисунке 6 показано принципиальное решение по реконструкции пролетного строения городского моста под четыре полосы движения путем замены старой железобетонной плиты проезжей части на новую ярусную стальную ортотропную плиту;

- на рисунке 7 показано принципиальное решение по реконструкции пролетного строения городского моста под четыре полосы движения путем устройства новой сборной (монолитной) железобетонной плиты проезжей части;

- на рисунке 8 показана возможная последовательность проведения работ по реконструкции пролетного строения городского моста под четыре полосы движения без перерыва движения по мосту;

- на рисунках 9 и  10 показаны некоторые конструктивные решения по усилению несущих металлоконструкций пролетных строений.


1 - главная балка; 2 - новая накладная железобетонная плита; 3 - ось водоотводных воронок и дренажа; 4 - старая железобетонная плита; 5 - дорожная одежда, П - ширина полосы безопасности; nb - ширина проезжей части

Рисунок 1

1 - главная балка; 2 - новая железобетонная плита; 3 - ось водоотводных воронок и дренажа; 4 - дорожная одежда; П - ширина полосы безопасности, nb - ширина проезжей части.

Рисунок 2

1 - старая главная балка; 2 - новая главная балка; 3 - новая железобетонная плита; 4 - ось водоотводных воронок и дренажа; 5 - дорожная одежда; П - ширина полосы безопасности; nb - ширина проезжей части

Рисунок 3

1 - главная балка; 2 - новая стальная плита; 3 - водоотводной лоток; 4 - дорожная одежда; П - ширина полосы безопасности; nb - ширина проезжей части

Рисунок 4

1 - главная балка; 2 - новая накладная железобетонная плита; 3 - ось водоотводных воронок и дренажа; 4 - водоотводной лоток; 5 - старая железобетонная плита; 6 - дорожная одежда; П - ширина полосы безопасности; nb - ширина проезжей части

Рисунок 5

1 - главная балка; 2 - новая стальная плита; 3 - ось водоотводных воронок и дренажа; 4 - водоотводной лоток; 5 - дорожная одежда; П - ширина полосы безопасности; nb - ширина проезжей части

Рисунок 6

1 - главная балка; 2 - новая железобетонная плита; 3 - ось водоотводных воронок и дренажа; 4 - водоотводной лоток; 5 - дорожная одежда; П - ширина полосы безопасности; nb - ширина проезжей части

рисунок 7

Стадия 1

Стадия 1.

Старая плита пролетного строения разбирается в среднем отсеке балок. По одной стороне организуется проезд 7 м, огражденный с внутренней стороны временным колесоотбоем из ж.б. блоков. Краном снимаются старые плиты, одновременно демонтируются продольные и поперечные связи в среднем отсеке между главными балками - устанавливаются служебные ходы. Отдельную сплатку из трех балок поворачивают, обеспечив поперечный уклон 2 %, что позволит упростить конструкцию плиты. Устанавливают опалубку и бетонируют новую плиту. После набора бетоном прочности устанавливаются элементы проезжей части и укладывается дорожная одежда.

Стадия 2

Стадия 2.

Движение транспорта переключается на вновь собранную часть поперечного сечения с габаритом 7 м, огражденную с внутренней стороны временным колесоотбоем из ж.б. блоков. На другой стороне краном снимаются старые плиты, одновременно ремонтируя металлоконструкции и устанавливая служебные ходы. Отдельную сплатку из трех балок поворачивают, обеспечив поперечный уклон 2 %. Устанавливают опалубку и бетонируют; новую плиту. После набора бетоном прочности устанавливаются элементы проезжей части и укладывается дорожная одежда.

Стадия 3

Стадия 3.

Устанавливают поперечные связи между двумя сплатками. В «окно» бетонируют продольный шов между плитами двух сплаток в поперечнике и укладывают над швом дорожную одежду. Убирают временный колесоотбой и движение автотранспорта осуществляется по всему поперечнику. Повторяют эти операции последовательно для каждого пролета.

рисунок 8

Рисунок 9 - Усиление опорного сечения

Рисунок 10 - Усиление главной балки

Приложение А

(справочное)

Таблица А.1 Наиболее распространенные проекты сталежелезобетонных пролетных строений

№№ п/п

Место расположение моста и/или шифр проекта, №№ Рисунков

Организация - разработчик, год выпуска проекта

Расчетный пролет, схема, м

Габарит проезда и тротуаров, м

Нормы проектирования

Временные нагрузки

Марка стали и бетона плиты (по проекту)

Высота стенки балки, мм

Соединения

1

2

3

4

5

6

7

8

9

10

1

Через р. Сож в г. Чернигове. 4776КМ

Рисунок А.1

Проектсталь-конструкция, 1958 г

42,5

Г-7 + 2×1,5 (2×0,75)

ПиУ Гушосдора, 1948 г

Н-13, НГ-60

15ХСНД по ГОСТ 5058-57; бетон М300

2400

Заводские - сварные, монтажные - клепаные

2

Через р. Бира в г. Биробиджане. 4793КМ

Рисунок А.2

Проектсталь-конструкция, 1958 г

32,4

Г-7 + 2×1,5 (2×0,75)

ПиУ Гушосдора, 1948 г

Н-13, НГ-60

15ХСНД по ГОСТ 5058-57; бетон М300

1800

Заводские - сварные, монтажные - клепаные

3

Типовой проект. Выпуск 115

Рисунок А.3

Киевский филиал ин-та Союздорпроект, 1958 г

42,5

Г-7 + 2×1,5 (2×0,75)

ПиУ Гушосдора, 1948 г

Н-13, НГ-60

15ХСНД по ГОСТ 5058-57; бетон М300

2400

Заводские - сварные, монтажные - клепаные

4

Типовой проект. Выпуск 102

Киевский филиал ин-та Союздорпроект, 1959 г

3×42,5

4×42,5

5×42,5

Г-7 + 2×1,5 (2×0,75)

ПиУ Гушосдора, 1948 г

Н-13, НГ-60

15ХСНД по ГОСТ 5058-57; бетон М300

2400

Заводские - сварные, монтажные - клепаные

5

Типовой проект. 4801КМ

Рисунок А.4

Проектсталь-конструкция, 1959 г

42,5

Г-7 + 2×1,5 (2×0,75)

ПиУ Гушосдора, 1948 г

Н-13, НГ-60

14Г2 по ГОСТ 5058-57; бетон М300

2400

Заводские - сварные, монтажные - клепаные

6

Пролетное строение автодорожного моста 43019КМ

Рисунок А.5

Проектсталь-конструкция, 1960 г

42,5

Г-7 + 2×1,5 (2×0,75)

ПиУ Гушосдора, 1948 г

Н-18, НК-80

14Г2 по ГОСТ 5058-57; бетон М300

2420

Заводские - сварные, монтажные - клепаные

7

Через р. Кубань у ст. Пашковская. 43044КМ

Рисунок А.6

Рисунок А.7

Проектсталь-конструкция, 1961 г

3×63,0

Г-7 + 2×1,5 (2×0,75)

ТУ Гушосдора, 1958 г

Н-18, НК-80

15ХСНД по ГОСТ 5058-57; бетон М300

3200

Заводские - сварные, монтажные - на высокопрочных болтах М22

8

Клепанное пролетное строение автодорожного моста 43100КМ

Рисунок А.8

Проектсталь-конструкция, 1963 г

42,5

Г-7 + 2×1,0

СН 200-62

Н-30, НК-80

15ХСНД по ГОСТ 5058-57; бетон М300

2510

Заводские - сварные и клепаные, монтажные - клепаные

9

Через р. Ловать. 43182КМ

Рисунок А.9

Проектсталь-конструкция, 1964 г

42,5

Г-7 + 2×1,5 (2×1,0)

СН 200-62

Н-30, НК-80

15ХСНД по ГОСТ 5058-57; бетон М300

2400

Заводские - сварные, монтажные - на высокопрочных болтах М22

10

43282КМ

Рисунок А.10

Проектсталь-конструкция. Вариант 1966 г, Вариант 1972 г

42,5

Г-8 + 2×1,5 (2×1,0)

СН 200-62

Н-30, НК-80

15ХСНД по ГОСТ 5058-57; бетон М300

2400

Заводские - сварные, монтажные - на высокопрочных болтах М22 и заклепках

11

6706КМ

Рисунок А.11

Республиканский Мостотрест. 1967 г

42,5

Г-7 + 2×1,5 (2×1,0)

Г-8 + 2×1,5 (2×1,0)

СН 200-62

Н-30, НК-80

15ХСНД по ГОСТ 5058-57; бетон М300

2400

Заводские - сварные, монтажные - на высокопрочных болтах М22 и заклепках

12

Типовой проект. Инв. № 608/1

Рисунок А.12

Ленгипротрансмост, 1968 - 69 гг

42,0

Г-8 + 2×1,5 (2×1,0)

СН 200-62

Н-30, НК-80

10Г2С1Д по ГОСТ 5058-65, бетон М400

2480

Заводские - сварные, монтажные - на высокопрочных болтах М22

13

Инв. № 608/2

"

3×42,0

"

"

"

"

"

"

14

Инв. № 608/3

"

42 + 63 + 42

"

"

"

"

"

"

15

Инв. № 608/4

"

63,0

"

"

"

"

3160

"

16

Типовой проект. Инв. № 608/5

Ленгипротрансмост, 1968 - 69 гг

3×63,0

Г-8 + 2×1,5 (2×1,0)

СН 200-62

Н-30, НК-80

10Г2С1Д по ГОСТ 5058-65; бетон М400

3160

Заводские - сварные, монтажные - на высокопрочных болтах М22

17

Инв. № 608/6

"

63 + 84 + 63

"

"

"

"

3600

"

18

Типовой проект. Инв. № 767/1

Ленгипротрансмост, 1969 г

42,0

Г-8 + 2×1,5 (2×1,0)

СН 200-62

Н-30, НК-80

15ХСНД по ГОСТ 5058-65; бетон М400

2480

Заводские - сварные, монтажные - на высокопрочных болтах М22

19

Инв. № 767/2

"

63,0

"

"

"

"

3160

"

20

Инв. № 767/3

"

42 + 63 + 42

"

"

"

"

2480

"

21

Типовой проект. Инв. №1180/1

Ленгипротрансмост, 1979 - 80 гг.

42,0

Г-10 + 2×1,5 (2×1,0)

Г-11,5 + 2×1,5 (2×1,0)

СН 200-62

Н-30, НК-80

15ХСНД по ГОСТ 5058-65; бетон М400

2480

"

22

Инв. №1180/2

"

3×42,0

"

"

"

"

"

"

23

Инв. № 1180/3

"

42 + 63 + 42

"

"

"

"

"

"

24

Инв. №1180/4

"

3×63

"

"

"

"

3160

"

25

Инв. № 1180/5

"

63 + 84 + 63

"

"

"

"

3600

"

26

Инв. № 1180/6

"

63 + 2×84 + 63

"

"

"

"

"

"

27

Типовой проект. Выпуск 1

Ленгипротрансмост, 1984 - 85 гг.

42,0

Г-8 + 2×1,5 (2×1,0)

"

"

"

2480

"

28

Выпуск 2

"

3×42,0

"

"

"

"

"

"

29

Выпуск 3

"

42 + 63 + 42

"

"

"

"

"

"

30

Выпуск 6

"

63,0

"

"

"

"

3160

"

31

Выпуск 7

"

3×63

"

"

"

"

"

"

32

Выпуск 8

"

63 + 84 + 63

"

"

"

"

3600

"

33

6-Т48-97, Выпуски 0, 1 и 2

ЦНИИПСК им. Мельникова, 1997 г

42,0

Г-11 + 2×1,5

СНиП 2.05.03-84*

А11, НК-80

15ХСНД-2 15НХСНД по ГОСТ 6713-91, бетон В 30

2480

Заводские - сварные, монтажные - на высокопрочных болтах М22

34

"

"

3×42,0

"

"

"

"

"

"

35

"

"

42 + 63 + 42

"

"

"

"

"

"

Рисунок А.1

Рисунок А.2

Рисунок А.3

Рисунок А.4

Рисунок А.5

Рассматривать совместно с рисунком А.7

Рисунок А.6

Рассматривать совместно с рисунком А.6

Рисунок А.7

Рисунок А.8

Рисунок А.9

Рисунок А.10

Рисунок А.11.

Рисунок А.12


Приложение Б

(справочное)

Таблица Б.1 Перечень характерных дефектов железобетонных плит проезжей части

Вид дефекта (повреждения)

Характер влияния на работу конструкции (элемента)

Способ учета при оценке грузоподъемности

1

2

3

1. Расстройство объединения железобетонной плиты с главными балками:

 

 

1.1 Трещины в плите у углов «окон» под упоры, как правило, косые в плане. При количестве - не более одной с каждой поперечной стороны «окна»;

Опасность дальнейшего развития расстройств;

 

1.2 Аналогично п. 1.1 при количестве трещин более 2-х с каждой поперечной стороны «окна»;

Уменьшение несущей способности главных балок на участках расстройств соединений плит с балками, приводящими к снижению грузоподъемности до 30 %;

При расчетном моделировании исключение из работы элементов, моделирующих упоры в местах расстройства соединений;

1.3 Видимое разрушение (с вывалом), разрыхление или неполное заполнение бетоном омоноличивания «окон» под упоры;

 

 

1.4 Отсутствие или разрушение подливки между сборными плитами и верхними поясами главных балок в пределах расстояний между «окнами» - при наличии указанных повреждений не более чем в 2-х плитах на полупролете, расположенных подряд (либо в монолитном участке и смежной сборной плите), или не более чем в 3-х плитах в пределах полупролета, разделенных плитами с сохранившимся объединением;

 

 

1.5 Аналогично п.п. 1.2 - 1.4 при наличии повреждений в большем числе плит на полупролете;

Уменьшение несущей способности, приводящее к снижению грузоподъемности более чем на 30 %, «цепная реакция» дальнейшего развития расстройств при каждом проходе тяжелых подвижных нагрузок

 

1.6 Заметные «на глаз» вертикальные перемещения сборных плит при проходе временной подвижной нагрузки;

 

 

2. Расстройства поперечных стыков сборной плиты проезда

 

 

2.1 Разрушение бетона заполнения «шпоночных» поперечных стыков либо бетона омоноличивания поперечных стыков со сваркой арматурных выпусков при Ка > 0,5, при числе поврежденных стыков не более 3-х на полупролете;

Снижение грузоподъемности до 5 - 10 %;

При расчетном моделировании введение участков, моделирующих плиту с уменьшенной осевой жесткостью;

2.2 Тоже, при 0,1 ≤ Ка ≤ 0,5;

Снижение грузоподъемности до 20 - 30 %, опасность «цепной реакции» дальнейшего развития расстройств соединений;

 

2.3 Расположение торцов смежных плит со смещением по высоте при Ка > 0,5;

 

 

3. Расстройство болтовых креплений упоров к балкам:

 

 

3.1 Ослабление затяжки либо отсутствие высокопрочных болтов, крепящих стальные детали упоров к верхним поясам балок (как правило, в конструкциях «северного» исполнения);

 

 

4. Дефекты и повреждения концевых монолитных участков:

 

 

4.1 Трещины с раскрытием до 0,2 мм в бетоне монолитных участков, в швах объединения с балкой деформационного шва и смежной сборной плитой;

 

 

4.2 Отсутствие бетона или его разрушение на значительной части монолитного участка, полное его отделение от балки деформационного шва и от смежной сборной плиты;

Снижение грузоподъемности до 5 - 10 %, опасность «цепной реакции» дальнейшего развития расстройств соединений;

При расчетном моделировании введение участков, моделирующих плиту с уменьшенной осевой жесткостью, исключение из работы элементов, моделирующих концевые упоры;

5. Общие дефекты и повреждения:

 

 

5.1 Многочисленные трещины с раскрытием до 0,2 мм;

 

 

5.2 Сколы защитного слоя с оголением арматуры в отдельных деталях;

 

 

5.3 Одиночные зоны выщелачивания и потеки на поверхности;

 

 

5.4 Отдельные трещины раскрытием более 0,2 мм, в том числе сквозные, продольные над средним прогоном, а также поперечные хаотически ориентированные;

Снижение долговечности и несущей способности плиты, приводящее к снижению грузоподъемности до 10 %;

При расчетном моделировании введение участков, моделирующих плиту с уменьшенной осевой жесткостью;

5.5 Значительное разрушение защитного слоя и коррозия арматуры до 10 %;

 

 

5.6 Значительное повреждение бетона и в отдельных местах выщелачивание и размораживание;

 

 

5.7 Снижение прочности бетона до 20 % по сравнению с проектной, многочисленные трещины раскрытием более 0,3 мм, коррозия арматуры с потерей более 10 % сечения, значительные повреждения бетона от выщелачивания и размораживания на большей части плиты с уменьшением защитного слоя

Уменьшение несущей способности плиты как при работе на местные нагрузки, так и при общем изгибе сталежелезобетонной конструкции, что ведет к уменьшению грузоподъемности, соответственно, до 30 и 20 %

 

Приложение В

(справочное)

Таблица В. 1 Перечень характерных дефектов металлических конструкций

Вид дефекта (повреждения)

Характер влияния на работу конструкции (элемента)

Способ учета при оценке грузоподъемности

1. Коррозия поясов, стенок главных балок, элементов и фасонок связей с уменьшением толщины элементов;

 

Учет ослаблений сечений при поверочном расчете;

2. Ослабление или повреждение заклёпок, высокопрочных болтов, дефекты сварных швов;

 

То же;

3. Усталостные трещины в элементе или швах;

 

То же или восстановление элемента;

4. Местные погнутости отдельных элементов связей, ребер жесткости (преимущественно, возникшие при перевозке элементов и монтаже);

 

То же;

5. Местные погнутости большого числа элементов связей

Ухудшение условий пространственной работы, концентрация напряжений в поясах;

Расчет коэффициента поперечной установки подвижной нагрузки без учета работы связей, учет погибей элементов при поверочном расчете;

6. Общие деформации отдельных элементов связей, погиби нижних поясов и стенок из-за повреждений (ледоходом или карчеходом)

 

То же

Лист регистрации изменений

Номер изменения

Номера разделов, пунктов (подпунктов)

Срок введения изменения

Подпись

измененных

замененных

новых

аннулированных

 

 

 

 

 

 

 

 

 

 

 

 

 

 

 

 

Ключевые слова: сталежелезобетонные пролетные строения автодорожных мостов, реконструкция, ремонт, грузоподъемность, дефект, повреждение




Яндекс цитирования



   Copyright © 2007-2026,  www.tehlit.ru.

[ ѓосты, стандарты, нормативы, инструкции, правила, строительные нормы ]